Крупнейшая бесплатная информационно-справочная система онлайн доступа к полному собранию технических нормативно-правовых актов РФ. Огромная база технических нормативов (более 150 тысяч документов) и полное собрание национальных стандартов, аутентичное официальной базе Госстандарта. GOSTRF.com - это более 1 Терабайта бесплатной технической информации для всех пользователей интернета. Все электронные копии представленных здесь документов могут распространяться без каких-либо ограничений. Поощряется распространение информации с этого сайта на любых других ресурсах. Каждый человек имеет право на неограниченный доступ к этим документам! Каждый человек имеет право на знание требований, изложенных в данных нормативно-правовых актах!

  


 

ГОСУДАРСТВЕННЫЙ СТАНДАРТ СОЮЗА ССР

УСТАНОВКИ СУШИЛЬНЫЕ
ДЛЯ ЛАКОКРАСОЧНЫХ ПОКРЫТИЙ

ТИПЫ И ОСНОВНЫЕ РАЗМЕРЫ

ГОСТ 23093-78

ГОСУДАРСТВЕННЫЙ КОМИТЕТ СССР ПО СТАНДАРТАМ

Москва

ГОСУДАРСТВЕННЫЙ СТАНДАРТ СОЮЗА ССР

УСТАНОВКИ СУШИЛЬНЫЕ
ДЛЯ ЛАКОКРАСОЧНЫХ ПОКРЫТИЙ

Типы и основные размеры

Drying installations for varnish-and-paint
coatings. Types and basic dimensions

ГОСТ
23093-78

Срок действия                         с 01.07.79
 до 01.07.94

Несоблюдение стандарта преследуется по закону

Настоящий стандарт распространяется на конвективные, терморадиационные и терморадиационно-конвективные сушильные установки с подвесным и напольным конвейером, предназначенные для сушки лакокрасочных покрытий и покрытий на основе порошковых материалов.

(Измененная редакция, Изм. № 2).

1. ТИПЫ

1.1. Типы сушильных установок в зависимости от способа передачи энергии и ее вида указаны в табл. 1.

Таблица 1

Способ передачи энергии

Обозначение

Вид потребляемой энергии

Обозначение

Конвективный

К

Газ

Г

Электроэнергия

Э

Пар

П

Горячая вода

В

Терморадиационный

Т

Газ

Г

Электроэнергия

Э

Терморадиационно-конвективный

Т/К

Газ

Электроэнергия

Г

Э

1.2. Сушильные установки могут иметь любое конструктивное исполнение, указанное в табл. 2.

Таблица 2

Конструктивное исполнение

Обозначение

Проходные с подвесным непрерывно движущимся конвейером с одним или более числом ходов

ПП-1, ПП-2 и т.п.

Проходные с подвесным циклически движущимся конвейером с одним или более числом ходов

ППЦ-1, ППЦ-2 и т.п.

Проходные с напольным непрерывно движущимся конвейером с одним или более числом ходов

ПН-1, ПН-2 и т.п.

Проходные с напольным циклически движущимся конвейером с одним или более числом ходов

ПНЦ-1, ПНЦ-2 и т.п.

Тупиковые с подвесным конвейером с одной или большим числом секций

СП-1, СП-2 и т.п.

Тупиковые с напольным конвейером с одной или большим числом секций

СН-1, СН-2 и т.п.

Проходные с подвесным непрерывно движущимся конвейером с тепловым подпором воздуха с одним или более числом ходов

ППВ-1, ППВ-2 и т.п.

Проходные с подвесным толкающим непрерывно движущимся конвейером с тепловым подпором воздуха с одним или более числом ходов

ПТВ-1, ПТВ-2 и т.п.

Проходные с подвесным толкающим непрерывно движущимся конвейером с одним или более числом ходов

ПТ-1, ПТ-2 и т.п.

Проходные с подвесным толкающим циклически движущимся конвейером с одним или более числом ходов

ПТЦ-1, ПТЦ-2 и т.п.

Примечания:

1. Число ходов указывает, сколько раз изделие перемещается в проходной сушильной установке в прямом и обратном направлении.

2. Циклическими называют установки, у которых движение конвейера осуществляется по определенной программе периодически (циклами).

3. Число секций - количество параллельно движущихся зон сушки в тупиковой установке.

4. Тепловой подпор воздуха означает расположение проема зоны сушки выше уровня входных и выходных проемов.

(Измененная редакция, Изм. № 2).

1.2а. Обозначение размерных рядов изделий, обрабатываемых в сушильных установках проходных с подвесным толкающим непрерывно движущимся конвейером с одним ходом, указаны в табл. 2а.

Таблица 2а

Размеры обрабатываемого изделия

B´h, м

Шифр

0,4´1,0

01

0,4´1,6

02

0,4´2,0

03

0,63´1,0

04

0,63´1,6

05

0,63´2,0

06

1,0´1,6

07

1,0´2,0

08

1,0´2,5

09

1,6´1,6

10

1,6´2,0

11

1,6´2,5

12

2,0´1,6

13

2,0´2,0

14

2,0´2,5

15

(Введен дополнительно, Изм. № 2).

1.3. Устанавливают следующую структуру обозначения сушильных установок:

Примечание. Размеры обрабатываемого изделия указывают следующим образом: для установок проходных с подвесным толкающим непрерывно движущимся конвейером с одним ходом приводится шифр;

для установок проходных с напольным непрерывно движущимся конвейером с одним ходом - ширина и высота изделия в метрах, для остальных установок - длина, длина, ширина и высота в метрах.

Пример условного обозначения терморадиационно-конвективной (Т/К) сушильной установки с электрообогревом (Э) проходной (П) с подвесным толкающим (Т) непрерывно движущимся конвейером с тепловым подпором воздуха (В), одноходовой (1), в которой обрабатываются изделия шириной 0,63 м и высотой 1,6 м (05);

Сушильная установка Т/К-ЭПТВ-1-05 ГОСТ 23093-78

Пример условного обозначения терморадиационной (Т) сушильной установки с электрообогревом (Э) проходной (П) с напольным (Н) непрерывно движущимся конвейером, однопроходной (1), в которой обрабатываются изделия шириной 0,4 м и высотой 1,0 м;

Сушильная установка Т-ЭПН-1-0,4×1,0 ГОСТ 23093-78

Пример условного обозначения конвективной (К) сушильной установки с газовым обогревом (Г) проходной (П) с напольным циклически движущимся конвейером (НЦ), двухходовой (2), в которой обрабатываются изделия длиной 1,5 м, шириной 0,63 м и высотой 1,0 м;

Сушильная установка К-ГПНЦ-2-1,5×0,63×1,0 ГОСТ 23093-78

(Измененная редакция, Изм. № 2).

1.4. Выбор типов сушильных установок приведен в рекомендуемом приложении.

2. ОСНОВНЫЕ РАЗМЕРЫ

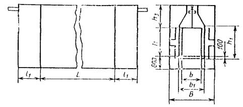
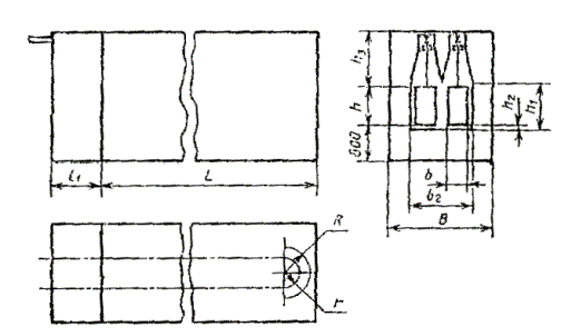
2.1. Основные размеры сушильных установок конвективных проходных с подвесным конвейером одноходовых (черт. 1) должны соответствовать табл. 3.

Черт. 1

Таблица 3

мм

Ширина изделия b

Высота изделия h

Ширина проема b1

Высота проема h1

Внутренняя ширина установки В, не более

Расстояние от низа изделия до проема h2

630

1000

900

1120

2500

100

1600

1700

2000

2120

1000

1600

1320

1700

3000

2000

2120

2500

2650

1600

1600

2000

1900

3550

200

2000

2360

2500

2800

2000

1600

2360

1900

4000

2000

2360

2500

2800

(Измененная редакция, Изм. № 2).

2.2. Размеры конвективных проходных с подвесным конвейером двухходовых (черт. 2) и трехходовых (черт. 3) сушильных установок должны соответствовать табл. 4.

Черт. 2

Черт. 3

Таблица 4

мм

Ширина изделия b

Высота изделия h

Ширина проема b1

Высота проема h1

Расстояние от низа изделия до проема h2

630

1000

900

1120

100

1600

1700

2000

2120

1000

1600

1320

1700

2000

2120

2500

2650

1600

1600

2000

1900

200

2000

2360

2500

2800

2000

1600

2360

1900

2000

2360

2500

2800

Примечания:

1. Внутренняя ширина установки В определяется числом ходов конвейера в установке и радиусом разворота изделия R с учетом необходимых зазоров; минимальное расстояние от изделия до стенки - 700 мм.

2. Двухходовые установки могут иметь два самостоятельных проема, каждый шириной b1, или один проем шириной b2.

При развороте изделий в установке на одной звездочке:

b2 = b1 + 1000´2r, мм.

Радиус звездочки r выбирают по ГОСТ 593-75.

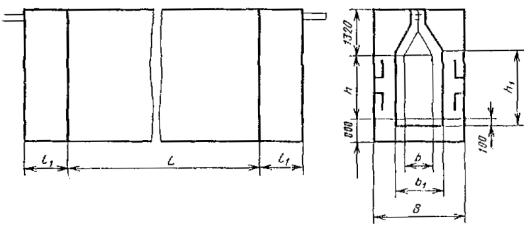
2.3. Размеры сушильных установок конвективных проходных с подвесным конвейером циклических (черт. 4) должны соответствовать табл. 5.

Черт. 4

Таблица 5

мм

Ширина изделия b

Высота изделия h

Ширина проема b1

Высота проема h1

Внутренняя ширина установки В, не более

630

1000

900

2500

2500

1600

3150

2000

3550

1000

1600

1320

3150

3000

2000

3550

2500

4000

1600

1600

2000

3150

3550

2000

3550

2500

4000

2000

1600

2360

3150

4000

2000

3550

2500

4000

2.4. Размеры сушильных установок конвективных проходных с напольным конвейером циклических (черт. 5) должны соответствовать табл. 6.

Черт. 5

Таблица 6

мм

Ширина изделия b

Высота изделия h

Ширина проема b1

Высота проема h1

Внутренняя ширина уста попки В, не более

Внутренняя высота установки H, не более

2000

2000

2500

2240

4000

3000

3550

3750

4500

2500

2000

3000

2240

4500

3000

3550

3750

4500

3000

3550

5000

4000

4250

5000

3550

4500

4000

4750

5600

5600

5000

5300

6000

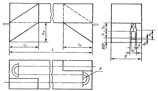
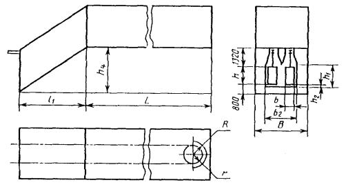
2.5. Размеры конвективных тупиковых односекционных сушильных установок (черт. 6) должны соответствовать табл. 7.

Черт. 6

Таблица 7

мм

Длина изделия l

Ширина изделия b

Высота изделия h

Ширина проема b1

Высота проема h1

Внутренняя длина установки L, не более

Внутренняя ширина установки В, не более

Внутренняя высота установки Н, не более

 

2000

1000

2000

1400

2240

3750

3000

3000

 

2500

1600

2000

4250

3500

 

3000

2000

3550

2500

3750

4750

4000

4500

 

3550

2000

2240

5300

3000

 

3550

3750

4500

 

4000

2000

2240

6000

3000

 

3550

3750

4500

 

5000

2500

2000

3000

2240

7100

4500

3000

 

3000

3550

3550

3750

5000

4500

 

6000

2500

3000

8000

4500

 

3000

4000

3550

4250

5000

5000

 

7500

2500

3550

3000

3750

9500

4500

4500

 

3000

4000

3550

4250

5000

5000

11200

9000

3550

4500

4000

4750

5600

5600

 

10000

3000

4000

3550

4250

12500

5000

5000

 

3550

4500

4000

4750

5600

5600

12000

14000

 

15000

17000

 

18000

20000

 

20000

5000

5300

22400

6000

 

25000

28000

 

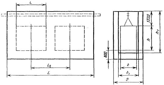
2.6. Размеры сушильных установок терморадиационных и терморадиационно-конвективных, проходных с подвесным непрерывно движущимся конвейером одноходовых (черт. 7) должны соответствовать табл. 8.

Черт. 7

Таблица 8

Ширина изделия b

Высота изделия h

Ширина проема b1

Высота проема h1

Внутренняя ширина установки В, не более

400

1000

710

1120

1900

1600

1700

2000

2120

630

1000

900

1120

2000

1600

1700

2000

2120

1000

1600

1320

1700

2500

2000

2120

2500

2650

2.3-2.6. (Измененная редакция, Изм. № 2).

2.7. Основные размеры сушильных конвективных установок проходных с подвесным толкающим непрерывно движущимся конвейером одноходовых (черт. 8) должны соответствовать табл. 9.

Черт. 8

Таблица 9

мм

Ширина изделия b

Высота изделия h

Ширина проема b1

Высота проема h1

Внутренняя ширина установки В, не более

Расстояние от низа изделия до проема h2

Расстояние от верха изделия до потолка установки h3

630

1000

900

1120

2500

100

1600;

2000*

1600

1700

2000

2120

1000

1600

1320

1700

3000

2000

2120

2500

2650

1600

1600

2000

1900

3550

200

2000

2000

2360

2500

2800

2000

1600

2360

1900

4000

2000

2360

2500

2800

* Размер допускается принимать только при шаге цепи конвейера 160 мм для подвесок сложной конфигурации.

2.8. Основные размеры конвективных сушильных установок проходных с подвесным непрерывно движущимся конвейером с тепловым подпором одноходовых (черт. 9) должны соответствовать табл. 10.

Таблица 10

мм

Ширина изделия b

Высота изделия h

Ширина проема b1

Высота проема h1

Внутренняя ширина установки В, не более

Расстояние от низа изделия до проема h2

Высота подъема h1, не менее

630

1000

900

1120

2500

100

2500

1600

1700

3150

2000

2120

3550

1000

1600

1320

1700

3000

3150

2000

2120

3550

2500

2650

4000

1600

1600

2000

1900

3550

200

3150

2000

2360

3550

2500

2800

4250

2000

1600

2360

1900

4000

3150

2000

2360

3550

2500

2800

4250

Примечание. h3 - расстояние от верха изделия до потолка установки величина постоянная (1320 мм) и указана на черт. 9.

Черт. 9

2.9. Основные размеры конвективных сушильных установок проходных с подвесным толкающим непрерывно движущимся конвейером с тепловым подпором воздуха одноходовых (черт. 10) должны соответствовать табл. 11.

Таблица 11

мм

Ширина изделия b

Высота изделия h

Ширина проема b1

Высота проема h1

Внутренняя ширина установки В, не более

Расстояние от низа изделия до проема h2

Расстояние от верха изделия до потолка установки h3

Высота подъема h4, не менее

630

1000

900

1120

2500

100

1600;

2000*

2800; 3150*

1600

1700

3350; 3750*

2000

2120

3750; 4250*

1000

1600

1320

1700

3000

3350; 3750*

2000

2120

3750; 4250*

2500

2650

4250; 4750*

1600

1600

2000

1900

3550

200

3350; 4000*

2000

2360

4000; 4250*

2500

2800

4500; 4750*

2000

1600

2360

1900

4000

2000

4000

2000

2360

4250

2500

2800

4750

* Размеры допускается принимать только при шаге цепи конвейера 160 мм для подвесок сложной конфигурации.

2.10. Размеры конвективных сушильных установок проходных с подвесным толкающим непрерывно движущимся конвейером двухходовых (черт. 11) и трехходовых (черт. 12) должны соответствовать табл. 12.

Черт. 10

Черт. 11

Черт. 12

Таблица 12

мм

Ширина изделия b

Высота изделия h

Ширина проема b1

Высота проема h1

Расстояние от низа изделия до проема h2

Расстояние от верха изделия до потолка установки h3

630

1000

900

1120

100

1600;

2000*

1600

1700

2000

2120

1000

1600

1320

1700

2000

2120

2500

2650

1600

1600

2000

1900

200

2000

2360

2500

2800

2000

1600

2360

1900

2000

2000

2360

2500

2800

* Размеры допускается принимать только при шаге цепи конвейера 160 мм для подвесок сложной конфигурации.

2.11. Размеры конвективных сушильных установок проходных с подвесным непрерывно движущимся конвейером с тепловым подпором воздуха двухходовых (черт. 13) и трехходовых (черт. 14) должны соответствовать табл. 13.

Черт. 13

Черт. 14

Таблица 13

мм

Ширина изделия b

Высота изделия h

Ширина проема b1

Высота проема h1

Расстояние от низа изделия до проема h2

Высота подъема, h4, не менее

630

1000

900

1120

100

2500

1600

1700

3150

2000

2120

3550

1000

1600

1320

1700

100

3150

2000

2120

3550

2500

2650

4000

1600

1600

2000

1900

200

3150

2000

2360

3550

2500

2800

4250

2000

1600

2300

1900

3150

2000

2360

3550

2500

2800

4250

Примечание. h3 - расстояние от верха изделия до потолка установки величина постоянная (1320 мм) и указана на черт. 13 и 14.

2.12. Размеры конвективных сушильных установок проходных с подвесным толкающим непрерывно движущимся конвейером с тепловым подпором воздуха двухходовых (черт. 15) и трехходовых (черт. 16) должны соответствовать табл. 14.

Черт. 15

Черт. 16

Таблица 14

мм

Ширина изделия b

Высота изделия h

Ширина проема b1

Высота проема h1

Расстояние от низа изделия до проема h2

Расстояние от верха изделия до потолка установки h3

Высота подъема, h4, не менее

630

1000

900

1120

100

1600;

2000

2800; 3150*

1600

1700

3350; 3750*

2000

2120

3750; 4250*

1000

1600

1320

1700

3350; 3750*

2000

2120

3750; 4250*

2500

2650

4250; 4750*

1600

1600

2000

1900

200

3550; 4000*

2000

2360

4050; 4250*

2500

2800

4500; 4750*

2000

1600

2360

1900

2000

4000

2000

2360

4250

2500

2800

4750

* Размеры допускается принимать только при шаге цепи конвейера 100 мм для подвесок сложной конфигурации.

2.13. Размеры конвективных сушильных установок проходных с подвесным толкающим конвейером циклических одноходовых (черт. 17) должны соответствовать табл. 15.

Черт. 17

Таблица 15

мм

Ширина изделия b

Высота изделия h

Ширина проема b1

Высота проема h1

Внутренняя ширина установки В, не более

Расстояние от верха изделия до потолка установки h3

630

1000

900

2800; 3155*

2500

1600;

2000*

1600

3350; 3750*

2000

3750; 4250*

1000

1600

1320

3350; 3750*

3000

2000

3750; 4250*

2500

4250; 4750*

1600

1600

2000

3350; 3750*

3550

2000

2000

3750; 4250*

2500

4250; 4750*

2000

1600

2360

3750

4000

2000

4250

2500

4750

* Размеры допускается принимать только при шаге цепи конвейера 100 мм для подвесок сложной конфигурации.

Примечание. h2 = h1 - (h + h3) зависит от размера двери.

2.14. Размеры терморадиационных и терморадиационно-конвективных сушильных установок проходных с подвесным непрерывно движущимся толкающим конвейером одноходовых (черт. 18) должны соответствовать табл. 16.

Черт. 18

Таблица 16

мм

Ширина изделия b

высота изделия h

Ширина проема b1

Высота проема h1

Внутренняя ширина установки В, не более

Расстояние от верха изделия до потолка установки h3

400

1000

710

1120

1900

1600;

2000*

1600

1700

2000

2120

630

1000

900

1120

2000

1600

1700

2000

2120

1000

1600

1320

1700

2500

2000

2120

2500

2650

* Размер допускается принимать только при шаге цепи конвейера 160 мм для подвесок сложной конфигурации.

2.15. Размеры длины зоны сушки и тамбура.

2.15.1. Длину зоны сушки проходной установки (L), мм, определяют по формуле:

L = 1000 V×t,

где V - скорость конвейера, м/мин;

t - продолжительность сушки, мин.

2.15.2. Длину двухходовой и трехходовой установок (L), мм, определяют по формулам:

для двухходовой:

,

где V и t по п. 2.15.1;

r - радиус звездочки, м;

R - радиус разворота изделия, м;

для трехходовой:

;

для трехходовой с тепловым подпором:

.

2.15.3. Длину зоны сушки установки с циклическим перемещением конвейера (L), мм, определяют по формуле:

L = l + l2 (n-1) + (1600 + 2000),

где l - размер изделия, включая приспособления для навески в направлении оси движения конвейера, мм;

l2 - расстояние (шаг) между изделиями, мм;

п - количество изделий в установке.

2.15.4. Длину тамбура l1 определяют размерами изделий и конструкций воздушных завес у проемов; минимальная длина тамбура 1320 мм, для многоходовых - 1500 мм.

2.15.5. Длину тамбура l1 в установках с тепловым подпором воздуха определяют по стандартным элементам вертикальных поворотов трассы в зависимости от высоты подъема, h4.

2.7-2.15.5. (Введены дополнительно, Изм. № 2).

ПРИЛОЖЕНИЕ

Рекомендуемое

Выбор сушильных установок

1. Сушильные установки выбирают в зависимости от характера производства и конструктивных особенностей окрашиваемых изделий по табл. 1 настоящего приложения.

Таблица 1

Тип производства

Характеристика окрашиваемых изделий

Тип установки

Массовое и крупносерийное, средне-серийное

Различных размеров I и II групп сложности

Терморадиационные и терморадиационно-конвективные с подвесным или напольным непрерывно движущимся конвейером.

Различных размеров любой группы сложности

Конвективные с подвесным или напольным непрерывно движущимся конвейером.

Мелкосерийное

Различных размеров любой группы сложности

Конвективные тупиковые с подвесным или напольным конвейером

(Измененная редакция, Изм. № 2).

1а. Установки сушильные с тепловым подпором воздуха целесообразны при температуре сушки более 150 °С.

(Введен дополнительно, Изм. № 2).

2. Вид энергии выбирают в зависимости от температуры сушки лакокрасочного материала по табл. 2 настоящего приложения.

Таблица 2

Температура сушки, °С

Вид потребляемой энергии

До 90°

Электроэнергия, газ, пар, горячая вода

Более 90°

Электроэнергия, газ

(Измененная редакция, Изм. № 2).

3. Нагрев окрашенной поверхности непосредственно топочными газами используют только в тех случаях, когда продукты сгорания химически не взаимодействуют с лакокрасочным покрытием и если в них не содержится веществ, влияющих на его декоративные свойства. В противном случае применяют воздух, нагреваемый в теплообменниках топочными газами.

4. В полевых условиях применяют сушку терморадиационным методом

ИНФОРМАЦИОННЫЕ ДАННЫЕ

1. РАЗРАБОТАН И ВНЕСЕН Министерством химической промышленности СССР

ИСПОЛНИТЕЛИ

А.М. Елисаветский, канд. хим. наук; Г.К. Козловцева; Л.Л. Павловский, канд. техн. наук (руководитель темы); Л.В. Таршиц; А.Т. Щеголева; О.А. Барышева

2. УТВЕРЖДЕН И ВВЕДЕН В ДЕЙСТВИЕ Постановлением Государственного комитета СССР по стандартам от 28.04.78 № 1168

3. Срок проверки - 1992 г.,

периодичность проверки - 5 лет

4. ВВЕДЕН ВПЕРВЫЕ

5. ССЫЛОЧНЫЕ НОРМАТИВНО-ТЕХНИЧЕСКИЕ ДОКУМЕНТЫ

Обозначение НТД, на который дана ссылка

Номер пункта

ГОСТ 593-75

2.2

6. ПЕРЕИЗДАНИЕ (февраль 1989 г.) с Изменениями № 1, 2, утвержденными в феврале 1984 г., октябре 1988 г. (ИУС 5-84, 1-89).

7. Срок действия продлен до 01.07.94 (Постановление Госстандарта СССР от 14.10.88 № 3446)

СОДЕРЖАНИЕ

 

 




ГОСТЫ, СТРОИТЕЛЬНЫЕ и ТЕХНИЧЕСКИЕ НОРМАТИВЫ.
Некоммерческая онлайн система, содержащая все Российские Госты, национальные Стандарты и нормативы.
В Системе содержится более 150000 файлов нормативно-технической документации, действующей на территории РФ.
Система предназначена для широкого круга инженерно-технических специалистов.

Рейтинг@Mail.ru Яндекс цитирования

Copyright © www.gostrf.com, 2008 - 2026