Крупнейшая бесплатная информационно-справочная система онлайн доступа к полному собранию технических нормативно-правовых актов РФ. Огромная база технических нормативов (более 150 тысяч документов) и полное собрание национальных стандартов, аутентичное официальной базе Госстандарта. GOSTRF.com - это более 1 Терабайта бесплатной технической информации для всех пользователей интернета. Все электронные копии представленных здесь документов могут распространяться без каких-либо ограничений. Поощряется распространение информации с этого сайта на любых других ресурсах. Каждый человек имеет право на неограниченный доступ к этим документам! Каждый человек имеет право на знание требований, изложенных в данных нормативно-правовых актах!

  


 

ГОСТ Р 51863-2002

ГОСУДАРСТВЕННЫЙ СТАНДАРТ РОССИЙСКОЙ ФЕДЕРАЦИИ

МАШИНЫ ЛЕСОЗАГОТОВИТЕЛЬНЫЕ,
ТРАКТОРЫ ЛЕСОПРОМЫШЛЕННЫЕ
И ЛЕСОХОЗЯЙСТВЕННЫЕ

ТРЕБОВАНИЯ БЕЗОПАСНОСТИ

ГОССТАНДАРТ РОССИИ

Москва

Предисловие

1. РАЗРАБОТАН И ВНЕСЕН Техническим комитетом по стандартизации ТК 361 «Лесные машины»

2. ПРИНЯТ И ВВЕДЕН В ДЕЙСТВИЕ Постановлением Госстандарта России от 22 января 2002 г. № 27-ст

3. ВВЕДЕН ВПЕРВЫЕ

ГОСУДАРСТВЕННЫЙ СТАНДАРТ РОССИЙСКОЙ ФЕДЕРАЦИИ

МАШИНЫ ЛЕСОЗАГОТОВИТЕЛЬНЫЕ, ТРАКТОРЫ
ЛЕСОПРОМЫШЛЕННЫЕ И ЛЕСОХОЗЯЙСТВЕННЫЕ

Требования безопасности

Machines and tractors for forestry.
Safety requirements

Дата введения 2003-01-01

1. Область применения

Настоящий стандарт распространяется на лесопромышленные и лесохозяйственные тракторы, лесозаготовительные машины и лесовозные автопоезда (далее - машины) и устанавливает требования их безопасности.

2. Нормативные ссылки

В настоящем стандарте использованы ссылки на следующие стандарты:

ГОСТ 2.601-95 Единая система конструкторской документации. Эксплуатационные документы.

ГОСТ 12.1.003-83 Система стандартов безопасности труда. Шум. Общие требования безопасности.

ГОСТ 12.1.004-91 Пожарная безопасность. Общие требования.

ГОСТ 12.1.005-88 Система стандартов безопасности труда. Общие санитарно-гигиенические требования к воздуху рабочей зоны.

ГОСТ 12.1.012-90 Система стандартов безопасности труда. Вибрационная безопасность. Общие требования.

ГОСТ 12.2.040-79 Система стандартов безопасности труда. Гидроприводы объемные и системы смазочные. Общие требования безопасности конструкции.

ГОСТ 12.2.120-88 (ИСО 3411-82, ИСО 3449-80, ИСО 3457-79, ИСО 3471-80, ИСО 3789-1-81, ИСО 3789-2-82, ИСО 4253-77, ИСО 4552-82, ИСО 5353-79, ИСО 5700-84, ИСО 6011-78, ИСО 6405-82, ИСО 6682-86, ИСО 6683-81) Кабины и рабочие места операторов тракторов, самоходных строительно-дорожных машин, одноосных тягачей, карьерных самосвалов и самоходных сельскохозяйственных машин.

ГОСТ 14782-86 Контроль неразрушающий. Соединения сварные. Методы ультразвуковые.

ГОСТ 15150-69 Машины, приборы и другие технические изделия. Исполнения для различных климатических районов. Категории, условия эксплуатации, хранения и транспортирования в части воздействия климатических факторов внешней среды.

ГОСТ 22613-77 Система «человек - машина». Выключатели и переключатели поворотные. Общие эргономические требования.

ГОСТ 22614-77 Система «человек - машина». Выключатели и переключатели клавишные и кнопочные. Общие эргономические требования.

ГОСТ 22615-77 Система «человек-машина». Выключатели и переключатели типа «Тумблер». Общие эргономические требования.

ГОСТ 26336-84 (ИСО 3767-1-82, ИСО 3767-2-82, ИСО 3767-3-88) Тракторы и сельскохозяйственные машины, механизированное газонное и садовое оборудование. Система символов для обозначения органов управления и средств отображения информации. Символы.

ГОСТ 26879-88 Тракторы сельскохозяйственные. Ремни безопасности. Технические требования и методы испытаний.

ГОСТ 27254-87 (ИСО 5010-84) Машины землеройные. Система рулевого управления колесных машин.

ГОСТ 27258-87 (ИСО 6682-86) Машины землеройные. Зоны комфорта и досягаемости органов управления.

ГОСТ 27715-88 (ИСО 5353-78) Машины землеройные, тракторы и машины для сельскохозяйственных работ и лесоводства. Контрольная точка сиденья.

ГОСТ Р 12.4.026-2001 Система стандартов безопасности труда. Цвета сигнальные, знаки безопасности и разметка сигнальная. Назначение и правила применения. Общие технические требования и характеристики. Методы испытаний.

ГОСТ Р 41.86-99 (Правила ЕЭК ООН № 86) Единообразные предписания, касающиеся официального утверждения сельскохозяйственных и лесных тракторов в отношении установки устройств освещения и световой сигнализации.

ГОСТ Р ИСО 3164-99 Машины землеройные. Защитные устройства. Характеристика объема ограничения деформации при лабораторных испытаниях.

ГОСТ Р ИСО 8082-99 Машины лесозаготовительные, тракторы лесопромышленные и лесохозяйственные. Устройство защиты при опрокидывании. Требования безопасности и методы испытаний.

ГОСТ Р ИСО 8083-99 Машины лесозаготовительные, тракторы лесопромышленные и лесохозяйственные. Устройство защиты от падающих предметов. Требования безопасности и методы испытаний.

ГОСТ Р ИСО 8084-99 Машины лесозаготовительные, тракторы лесопромышленные и лесохозяйственные. Устройство защиты оператора. Требования безопасности и методы испытаний.

ГОСТ Р ИСО 11169-2000 Машины лесозаготовительные и лесохозяйственные колесные. Тракторы лесопромышленные и лесохозяйственные колесные. Требования к эффективности и методы испытаний тормозных систем.

ГОСТ Р ИСО 11512-2000 Машины лесозаготовительные и лесохозяйственные гусеничные. Тракторы лесопромышленные и лесохозяйственные гусеничные. Требования к эффективности и методы испытаний тормозных систем.

3. Требования к системе доступа и прохода

3.1. К рабочим местам и местам технического обслуживания машин должны быть обеспечены безопасные доступ и проход.

3.2. Для доступа на рабочее место, находящееся на высоте более 650 мм над опорной поверхностью машины, должны быть предусмотрены подножки, лесенки с поручнями, а также другие конструктивные устройства. В качестве опорной поверхности для ног допускается использовать верхнюю ветвь гусеничной ленты и другие конструктивные элементы машины.

3.3. Размеры лесенок и подножек должны соответствовать указанным в таблице 1.

Таблица 1

В миллиметрах

Наименование параметра

Значение

для лесенок

для подножек

Ширина опорной поверхности, не менее

300

150 (300)*

Глубина опорной поверхности, не менее

20 (180)**

20

Свободная глубина, не менее

150

150

Свободная высота, не менее

-

120

Высота первой опорной поверхности лесенки или подножки над опорной поверхностью машины, не более

650

650

Интервал между опорными поверхностями подножек или ступеней, не более

250

350

* При опоре на поверхность двумя ногами.

** Глубина опорной поверхности лесенки, стоя на которой персонал может выполнять работы.

3.4. Подножка не должна перемещаться под действием массы оператора в горизонтальном и вертикальном направлениях более чем на 20 мм.

3.5. Опорные поверхности подножек и лесенок не должны иметь остаточной деформации при приложении к ним вертикальной сосредоточенной силы, равной 2·103 Н.

3.6. Высота мест обслуживания должна быть не более 1600 мм от опоры для ног персонала. В качестве опоры для ног допускается использовать поверхности или элементы конструкции машин, имеющие противоскользящее исполнение и размеры не менее 300×180 мм.

3.7. Рабочая поверхность металлических поручней должна быть покрыта материалом низкой теплопроводности толщиной не менее 0,5 мм.

3.8. Поручни должны быть установлены так, чтобы вокруг их поверхности было свободное пространство не менее 60 мм.

Длина поверхности поручня должна быть не менее 120 мм, диаметр - 15 - 38 мм. Если поручень имеет некруглое сечение, то радиус скругления кромок должен быть не менее 3 мм.

3.9. Поверхность поручня должна быть на высоте не более 1,7 м над опорной поверхностью.

4. Требования к кабине и рабочему месту

4.1. Машины должны быть оснащены кабинами и оборудованы устройствами защиты от опрокидывания по ГОСТ Р ИСО 8082, падающих предметов по ГОСТ Р ИСО 8083 и проникающих предметов по ГОСТ Р ИСО 8084.

Размеры зоны ограничения деформации - по ГОСТ Р ИСО 3164.

4.2. Для одноместных кабин и кабин с дополнительным сиденьем минимальное рабочее пространство для работы оператора в положении сидя - по ГОСТ 12.2.120.

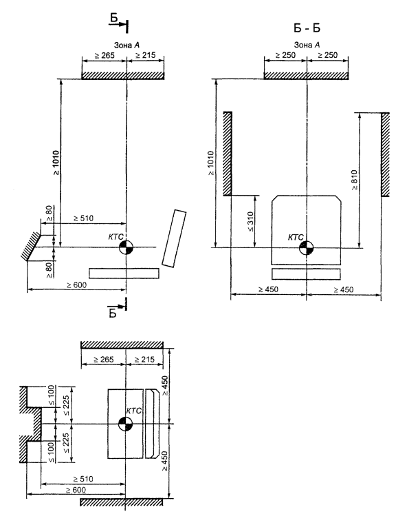
Для машин с реверсивным постом управления минимальное рабочее пространство, ограниченное элементами кабины и ее оборудованием при среднем отрегулированном положении сиденья, - согласно рисунку 1.

Допустимая минимальная ширина двухместной кабины без реверсивного поста управления на высоте от 310 до 810 мм над контрольной точкой сиденья (КТС) - не менее 1400 мм.

4.3. Боковые двери кабины навешиваются на петлях, расположенных с задней части дверного проема по ходу движения машины, и должны открываться наружу с рабочего места при повороте ручки вверх или на себя.

Для машины с реверсивным постом управления допускается навешивать двери на петли, расположенные на передней части дверного проема.

4.4. Кабины должны запираться на ключ. Двери кабины должны фиксироваться в закрытом и полностью открытом положениях.

4.5. Кабины должны иметь не менее трех аварийных выходов, которыми могут служить двери, окна, люки.

Аварийные выходы должны быть расположены на разных стенках и крыше кабины.

Минимальные размеры аварийных люков должны быть такими, чтобы в их поперечное сечение вписывался эллипс с главными осями 640×440 мм.

Аварийные выходы должны открываться без помощи инструментов.

Для кабин, установленных на поворотной платформе, допускается наличие двух аварийных выходов.

4.6. Кабины должны защищать оператора от атмосферных осадков.

4.7. Кабины должны быть оборудованы устройствами нормализации микроклимата.

4.8. При установке кондиционера в теплый период года температура воздуха в кабине не должна превышать 28 °С, а относительная влажность - 60 %.

При установке воздухоохладителей температура воздуха в кабине не должна превышать:

28 °С - при температуре наружного воздуха до 25 °С;

31 °С - при температуре наружного воздуха 25 - 30 °С;

33 °С - при температуре наружного воздуха свыше 30 °С.

При остановке вентилятора в теплый период года температура воздуха в кабине не должна превышать температуру наружного воздуха более чем на 5 °С.

4.9. В холодный период года температура воздуха в кабине машины должна быть не ниже 14 °С при температуре наружного воздуха минус 20 °С.

4.10. Перепад температур воздуха на уровнях головы и ног оператора в теплый и холодный периоды года не должен превышать 4 °С.

4.11. Направление и скорость движения воздуха в кабинах должны быть регулируемыми. Скорость движения воздуха в зоне дыхания оператора должна быть не более 1,5 м/с.

Рисунок 1 - Размеры минимального рабочего пространства для машин с реверсивным постом управления.

Примечания

1. Размеры от КТС до элементов кабины и (или) ее оборудования указаны при развороте сиденья как к основному, так и реверсивному посту управления.

2. Чертеж не определяет конструкцию кабины.

3. КТС - по ГОСТ 27715.

4.12. В кабинах должно быть предусмотрено место для установки радиоприемника и антенны.

4.13. Стекла кабины со стороны технологического оборудования (направления проведения работ) и направления движения машины должны быть снабжены стеклоочистителями. Поверхности стекол, очищаемые стеклоочистителями и контактирующие с щетками, должны быть устойчивы к износу и царапинам.

4.14. Машины, используемые на дорогах общего пользования, должны быть оборудованы смывателями передних стекол.

Установка смывателей передних стекол на гусеничных машинах - по требованию заказчика.

4.15. В кабинах машин должны быть предусмотрены устройства, устраняющие запотевание и обледенение стекол в зонах, очищаемых стеклоочистителями. Для кабин, установленных на поворотной платформе, допускается установка таких устройств только для передних стекол.

4.16. Открываемые окна кабины должны открываться изнутри и быть оборудованы устройствами для их фиксации в открытом и закрытом положениях.

4.17. Рабочее место оператора должно быть оборудовано подрессоренным сиденьем со спинкой. Сиденье должно иметь размеры: длина основания подушки сиденья от КТС до кромки - 215 - 265 мм; ширина основания сиденья подушки - 430 - 500 мм; угол наклона основания подушки сиденья - 5° - 15°; высота спинки подушки сиденья над КТС - 150 - 400 мм; ширина спинки сиденья по верху - не менее 300 мм; ширина спинки сиденья по низу - не менее 300 мм; угол наклона спинки сиденья - 5° - 15°.

При наличии подлокотников их размеры должны быть: длина подлокотников - 90 - 190 мм; ширина подлокотников - 50 - 75 мм; ширина подлокотников по вертикали - 50 - 100 мм; высота подлокотников над КТС - 95 - 160 мм.

Для рабочих мест с реверсивным постом управления должен быть обеспечен поворот сиденья на 180° с фиксацией в рабочих положениях.

Размеры дополнительного сиденья (при его наличии) должны соответствовать техническим условиям на машины конкретных моделей.

4.18. Положение посадочного места сиденья должно допускать регулирование в пределах не менее 80 мм (число фиксированных положений должно быть не менее трех) и 150 мм (число фиксированных положений должно быть не менее пяти) соответственно в вертикальном и продольном направлениях.

Положение спинки сиденья по углу ее наклона должно регулироваться в диапазоне ± 5° по отношению к вертикали. Число фиксированных положений - не менее четырех.

Конструкция подвески сиденья должна обеспечивать возможность регулирования в зависимости от массы оператора от 60 до 120 кг.

4.19. Усилия, необходимые для регулирования сиденья, должны быть не более 100 Н.

4.20. Кабины должны быть оборудованы: подвижными устройствами, защищающими лицо оператора от прямых солнечных лучей, местом для хранения аптечки первой медицинской помощи, устройствами для крепления огнетушителя, термоизолированного бачка и верхней одежды, а также местом для хранения эксплуатационной документации.

Извлечение огнетушителя, аптечки и термоизолированного бачка должно осуществляться без применения инструмента.

4.21. Пол кабины должен быть покрыт рифленым ковриком.

Потолок кабины должен иметь мягкую обивку в зоне расположения головы оператора.

4.22. Параметры вибрации на сиденье оператора - по ГОСТ 12.1.012.

4.23. Уровень шума на рабочем месте оператора - по ГОСТ 12.1.003.

4.24. Концентрация оксида углерода в кабине при работе машины в технологическом режиме не должна превышать значений, установленных ГОСТ 12.1.005.

4.25. Конструкция кабины и ее расположение на машине должны обеспечивать обзор с рабочего места оператора рабочих органов и зон наблюдения, необходимых для выполнения технологических операций в зависимости от назначения машины.

4.26. Углы обзора рабочих зон и технологического оборудования через стекла кабины с рабочего места оператора машин, предназначенных для валки леса, должны быть не менее: в горизонтальной плоскости - 170°, в вертикальной плоскости - 120°; для остальных машин: в горизонтальной плоскости - не менее 170°, в вертикальной плоскости - не менее 30°.

5. Требования к органам управления и средствам отображения информации

5.1. Расположение органов управления - по ГОСТ 27258.

Органы управления электрогидравлической, гидрогидравлической и других аналогичных систем управления должны быть расположены в зонах, указанных на рисунке 2.

Педали двустороннего действия должны быть расположены в зонах, указанных на рисунке 3.

Рисунок 2 - Рекомендуемые зоны расположения органов ручного управления при электрогидравлической, гидрогидравлической и аналогичных системах управления

Рисунок 3 - Зоны расположения педалей двустороннего действия

5.2. При реверсивном посте управления должна быть предусмотрена возможность установки по требованию заказчика дублирующих органов управления.

5.3. Кнопочные выключатели и переключатели должны соответствовать требованиям ГОСТ 22614, поворотные выключатели и переключатели - ГОСТ 22613, выключатели и переключатели типа «Тумблер» - ГОСТ 22615.

5.4. Органы управления машиной и технологическим оборудованием при окончании воздействия на них должны возвращаться из рабочих положений в исходные, если в технических условиях на машину конкретной модели не предусмотрена их фиксация в рабочих положениях.

5.5. Электро- и гидрогидравлическая системы управления технологическим оборудованием должны быть снабжены блокировкой, исключающей возможность его непреднамеренного включения при транспортировании.

5.6. Символы органов управления и средств отображения информации - по ГОСТ 26336.

Допускается использовать символы, не указанные в ГОСТ 26336, а также надписи, отражающие специфику назначения органов управления и средств отображения информации.

5.7. Силы сопротивления перемещению органов управления указаны в приложении А.

5.8. Параметры вибрации на органах управления - по ГОСТ 12.1.012.

5.9. Требование к рулевому управлению колесных машин - по ГОСТ 27254.

6. Требования к электрооборудованию, сигнальным и световым устройствам

6.1. Машины должны быть оборудованы фарами для работы в темное время суток, обеспечивающими освещенность рабочих зон в соответствии с приложениями Б и В.

6.2. В системе электрооборудования должны быть предусмотрены выключатель массы и розетка для подключения переносной лампы мощностью не менее 20 Вт.

6.3. Клеммы электрооборудования, кроме подключаемых к массе, должны быть закрыты защитными колпачками.

6.4. Электропроводка в местах перехода через острые углы и кромки деталей должна иметь дополнительную защиту от механических повреждений.

6.5. Аккумуляторные батареи следует размещать вне кабины в местах, исключающих попадание на них токопроводящих и горючесмазочных материалов, а также в местах скопления газов.

6.6. Колесные машины и тракторы должны быть оборудованы устройствами освещения и световой сигнализации: огнями дальнего и ближнего света, указателями поворота, аварийным сигналом, передним и задним (боковым) габаритными огнями, задним красным светоотражающим приспособлением нетреугольной формы, сигналом торможения, огнем заднего хода, стояночным огнем, габаритным огнем для машин и тракторов шириной более 2,1 м.

Установка устройств освещения и световой сигнализации должна осуществляться в соответствии с требованиями ГОСТ Р 41.86.

6.7. Колесные машины, эксплуатируемые с прицепом или полуприцепом, должны быть снабжены штепсельными разъемами для подключения электрооборудования.

6.8. Контрольно-измерительные приборы должны иметь подсветку, исключающую появление бликов, и должны быть расположены в удобном для обзора месте.

6.9. Машины должны иметь звуковой сигнал с уровнем звука не менее 110 дБА.

6.10. Кабины машин должны быть оборудованы плафонами внутреннего освещения с автономным включением. Освещенность на уровне пульта управления и панели приборов от внутреннего освещения кабины должна быть не менее 5 лк.

7. Требования к средствам защиты

7.1. Конструктивные элементы машин, которые могут быть источником травм при эксплуатации и техническом обслуживании, должны иметь защитные ограждения по ГОСТ 12.2.062.

7.2. Угол поперечной и продольной статической устойчивости для тракторов должен быть не менее 35°, для машин углы должны быть указаны в технических условиях на машины конкретных моделей.

7.3. Колесные машины должны быть оснащены ремнями безопасности по ГОСТ 26879.

7.4. Машины, транспортирующие деревья, хлысты и сортименты в полностью погруженном состоянии, должны быть оборудованы защитной решеткой, способной выдержать нагрузку 3,5·104 Н. Высота и ширина защитной решетки должны соответствовать высоте и ширине кабины машины. Максимальный размер ячейки защитной решетки должен препятствовать проникновению предметов диаметром 100 мм и более.

7.5. Машины должны быть оборудованы блокирующими устройствами, исключающими запуск двигателя при включенной передаче.

7.6. В машинах с автоматизированными системами управления должно быть предусмотрено прекращение технологического процесса или обеспечены звуковая и световая сигнализации в случае, если оператор покинет рабочее место.

7.7. Опасные конструктивные элементы машин, нерабочие поверхности движущихся деталей под защитным ограждением, внутренние поверхности ограждений, открываемые или снимаемые без применения инструмента, кожухи ограждения вращающихся деталей, снимаемые с применением инструмента, должны быть окрашены в сигнальные цвета по ГОСТ Р 12.4.026.

7.8. Оборудование машин сигнализаторами опасного крена - по требованию заказчика.

7.9. Требование пожарной безопасности - по ГОСТ 12.1.004.

8. Требования к узлам и агрегатам

8.1. Гидроприводы машин должны соответствовать требованиям ГОСТ 12.2.040.

8.2. Тормозные системы машин и их эффективность должны соответствовать требованиям ГОСТ Р ИСО 11169, ГОСТ Р ИСО 11512.

8.3. Двигатели машин должны быть оборудованы системой запуска с рабочего места оператора.

8.4. Выпускная система двигателя должна обеспечивать гашение искр.

8.5. Расположение выхлопной трубы и глушителя не должно мешать оператору наблюдать за ходом выполнения основных технологических операций. Струя отработанных газов не должна быть направлена на кабину и транспортируемую древесину.

8.6. Двигатель должен быть оборудован средствами для облегчения его запуска в холодный период года.

8.7. Конструкция системы питания и смазки двигателя должна исключать падение капель топлива и масла. Допускается падение капель из дренажных трубок (отверстий) в предназначенные для этого закрытые заправочные емкости.

8.8. Конструкция топливного, масляного баков и радиатора системы охлаждения двигателя должна предусматривать их механизированную заправку.

Заправочные горловины топливного, масляного баков и радиатора системы охлаждения должны находиться вне кабины и располагаться на высоте не более 1100 мм от опорной поверхности.

8.9. Узлы и детали машин, поднимаемые при проведении ремонта и технического обслуживания, должны быть оборудованы устройствами, исключающими их самопроизвольное возвращение в первоначальное положение.

8.10. Места смазки должны быть приведены в руководстве по эксплуатации на машину конкретной модели.

8.11. Разрывное усилие чокера должно соответствовать требованиям таблицы 2.

Таблица 2

Диаметр каната чокера, мм

Разрывное усилие, кН, не менее

11-13,5

50

13,5-14,0

71

14,0-15,5

80

8.12. Крюк, кольцо и канат чокера не должны иметь острых кромок, заусенцев, трещин и окалины, представляющих опасность для работающих.

8.13. Пильные цепи, предназначенные для пильных аппаратов машин, должны соответствовать требованиям таблицы 3.

Таблица 3

Шаг пильной цепи, мм

Статическое разрывное усилие, кН, не менее

Допускаемая скорость пиления, м/с, не более

10,26

8,0

20,0

19,84

25,0

15,0

30,0

45,0

20,0

8.14. Привод рабочего органа самоходной рубительной машины должен быть оснащен тормозным устройством. Время остановки рабочего органа машины с момента начала торможения - не более 30 с.

8.15. Время открытия смотровых люков и съемных кожухов самоходной рубительной машины должно быть больше времени торможения на 6 с.

8.16. Машины для валки деревьев должны быть оборудованы устройствами, обеспечивающими валку деревьев в заданном направлении.

9. Требования безопасности к лесовозным автопоездам

9.1. Подключение дополнительных приборов электрооборудования технологического оборудования лесовозных автопоездов к электросети базового автомобиля должно осуществляться через устройство защиты.

9.2. Если конструкцией прицепа-роспуска предусмотрено транспортирование его на тягаче, тягач и роспуск должны быть оснащены устройствами, обеспечивающими фиксацию шарнирных соединений переднего и заднего концов дышла роспуска.

9.3. Лесовозные автопоезда, предназначенные для перевозки хлыстов и деревьев, должны быть оснащены приспособлениями для обвязки транспортируемых хлыстов и деревьев между кониками.

Основание коника должно быть оснащено устройством, предотвращающим смещение хлыстов и деревьев при движении.

9.4. Лесовозные автопоезда для перевозки сортиментов должны быть оборудованы устройствами для утяжки пакетов сортиментов, предотвращающими их смещение при движении (не менее одного устройства на каждый пакет сортиментов). На верхней плоскости основания коников должна быть «гребенка».

9.5. Коники с откидывающимися стойками должны быть оснащены фиксирующими приспособлениями с замками.

9.6. Откидывающиеся или выдвижные стойки коников должны быть оборудованы фиксаторами. Замки откидывающихся коников должны открываться со стороны, противоположной разгрузке.

9.7. Раздвижные коники, дышла, рамы прицепов и полуприцепов должны быть оснащены устройствами, обеспечивающими их фиксацию в рабочих положениях, предусмотренных в нормативных документах на них.

9.8. Лесовозные автопоезда, оборудованные манипуляторами, должны быть оснащены аутригерами. Манипулятор в транспортном положении должен быть зафиксирован от самопроизвольного поворота.

9.9. Сигнальные фонари и номерные знаки на лесовозных автопоездах для перевозки хлыстов и деревьев должны быть установлены на верхней части ограждения кабины.

9.10. Оператор манипулятора лесовозного автопоезда должен быть защищен от случайного воздействия хлыстов и сортиментов в процессе выполнения погрузочно-разгрузочных работ.

10. Требования безопасности к погрузчикам леса манипуляторного типа (гидроманипуляторам)

10.1. Гидроманипуляторы, предназначенные для эксплуатации в районах с расчетной температурой ниже минус 40 °С, должны изготовляться в климатическом исполнении ХЛ по ГОСТ 15150.

10.2. Сварка несущих металлоконструкций гидроманипуляторов и контроль качества сварных соединений должны проводиться в соответствии с нормативными документами на гидроманипулятор.

10.3. В сварных соединениях не допускаются следующие дефекты:

- трещины всех видов и направлений, расположенные в сварном шве, по линии сплавления и в околошовной зоне, в том числе микротрещины, выявляемые при микроскопическом исследовании;

- непровары (несплавления), расположенные на поверхности сечения сварного соединения;

- непровары в вершине (корне) угловых и тавровых соединений, выполненных без разделки кромок;

- поры, расположенные в виде сплошной сетки, подрезы и наплывы (натеки), незаваренные кратеры, свищи и прожоги в металле шва;

- смещения кромок выше норм, предусмотренных в нормативных документах.

10.4. Контроль качества сварных соединений, проводимый в процессе изготовления гидроманипуляторов, должен осуществляться внешним осмотром, измерениями и методами неразрушающего контроля, предусмотренными в нормативных документах.

10.5. Контроль качества сварных соединений должен проводиться после термической обработки (если она является обязательной для данного сварного соединения). Результаты контроля сварных соединений должны быть зафиксированы в соответствующих нормативных документах (журналах, картах и т.п.).

10.6. Контроль сварных соединений неразрушающими методами должен проводиться по ГОСТ 14782 и другим нормативным документам.

10.7. Гидрооборудование гидроманипуляторов должно соответствовать требованиям ГОСТ 12.2.040.

10.8. Сборочные единицы гидрооборудования (гидронасосы, гидромоторы, гидрораспределители, клапаны предохранительные, трубопроводы, рукава высокого давления) должны иметь паспорт или другой эксплуатационный документ.

10.9. В гидравлических контурах должны быть установлены предохранительные клапаны, отрегулированные на требуемое давление. Отрегулированные клапаны должны быть опломбированы.

Гидравлические контуры могут иметь один общий предохранительный клапан. Между гидронасосом и предохранительным клапаном не допускается устанавливать запорную арматуру.

10.10. В гидросистеме должна быть предусмотрена возможность удобного и безопасного заполнения, слива рабочей жидкости без попадания ее на землю и удаления воздуха.

10.11. Конструкция гидропривода должна исключать возможность самопроизвольного опускания груза, стрелы, рукояти и раскрытия грейферного или клещевого захвата при падении давления в гидросистеме, разрыве трубопроводов и рукавов высокого давления или повреждений их соединений.

10.12. Сменные грузозахватные органы с гидравлическим приводом (грейферные и клещевые захваты) должны быть оборудованы устройствами для надежного и безопасного подключения (отключения) к гидромагистралям гидроманипулятора.

10.13. Гидросистемы должны быть снабжены приборами контроля давления либо иметь места для их подключения.

10.14. На маломерном стекле гидробака должна быть маркировка с указанием максимального и минимального уровней рабочей жидкости. Применение щупа не допускается.

10.15. К механизмам, гидрооборудованию, электрооборудованию, органам управления и элементам металлоконструкций гидроманипулятора, требующим технического обслуживания, должен быть обеспечен безопасный доступ.

Соединения трубопроводов и рукавов высокого давления гидрооборудования должны быть доступны для наружного осмотра.

10.16. Рукава высокого давления, находящиеся в кабине (при ее наличии) или расположенные в зоне возможных действий оператора, должны быть оснащены предохранительными кожухами или экранами.

10.17. Электрооборудование для стационарных гидроманипуляторов, его монтаж и заземление должны соответствовать требованиям правил [1].

10.18. Подача напряжения на гидроманипулятор от внешней сети должна осуществляться через запирающееся вводное устройство, имеющее ручной привод для снятия напряжения. Вводное устройство должно быть оборудовано индивидуальным ключом.

10.19. У гидроманипуляторов с электроприводом насосной станции (насосной установки) от внешней сети их металлические части (металлоконструкции, корпус электродвигателя, металлические оболочки проводов и кабелей, защитные трубы и т.п.), не входящие в электрическую цепь, но могущие попасть под напряжение вследствие порчи изоляции, должны быть заземлены в соответствии с требованиями правил [1].

10.20. Выносные опоры гидроманипуляторов должны быть снабжены подпятниками. Балки выносных опор должны иметь устройства для их надежного фиксирования в транспортном положении. При выдвижении балок вручную они должны иметь ручки.

10.21. Усилие для поднятия и выдвижения вручную выносных опор гидроманипуляторов или их частей не должно превышать 200 Н. При большем усилии выносные опоры должны иметь механический или гидравлический привод.

10.22. У гидроманипуляторов, грузоподъемность которых меняется с изменением вылета, должна быть установлена табличка грузоподъемности, соответствующая установленному вылету. Табличка должна быть отчетливо видна с рабочего места оператора.

10.23. Гидроманипуляторы должны быть снабжены звуковым сигнальным устройством с уровнем звука не менее 110 дБА.

10.24. Гидроманипуляторы должны выдерживать статическую нагрузку, превышающую в 1,25 раза, и динамическую нагрузку, превышающую в 1,1 раза расчетные значения без остаточных деформаций, трещин и других повреждений в конструкциях и механизмах.

10.25. На гидроманипуляторе должна быть нанесена надпись «Под грузом не стоять» и указана опасная зона (в метрах) в зависимости от рода выполняемых работ (например «Опасная зона 30 м»).

10.26. На грузозахватном органе гидроманипулятора должны быть нанесены сигнальные цвета и знаки безопасности по ГОСТ Р 12.4.026.

10.27. Внутренние полости гидробаков должны быть доступны для осмотра, очистки и промывки.

10.28. Рукава высокого давления должны быть скомпонованы так, чтобы исключалось их взаимное трение, чрезмерные перегибы и скручивания, а также повреждения в результате соприкосновения с металлоконструкциями и предметами лесной среды.

10.29. Сиденье оператора гидроманипулятора должно соответствовать требованиям таблицы 4.

Таблица 4

Наименование параметра

Значение

Ширина подушки сиденья, мм, не менее

400

Глубина подушки сиденья, мм, не менее

380

Угол наклона спинки сиденья по отношению к вертикали

5° ± 2°

Угол наклона подушки сиденья к горизонтальной плоскости, проходящей через КТС, не более

10.30. Положение посадочного места сиденья должно регулироваться в пределах не менее 80 мм (число фиксированных положений не менее трех) и 135 мм (число фиксированных положений не менее четырех) соответственно в вертикальном и продольном направлениях.

10.31. Регулирование сиденья в вертикальном и продольном направлениях должно осуществляться без применения инструмента усилием не более 100 Н.

11. Требования безопасности при монтаже и транспортировании

11.1. Машины должны быть оборудованы устройствами или иметь места для зачаливания при подъеме, а также места для установки домкратов. Схемы строповки машины должны быть приведены в руководстве по эксплуатации.

11.2. Машины должны быть оборудованы устройствами для их буксировки, которые должны располагаться в передней и задней частях машины.

11.3. На сборочных единицах (или около них), снятие которых может привести к опрокидыванию машины, должна быть нанесена предупредительная надпись, например «При снятии поставить упоры», «Опустить аутригеры» и др.

11.4. Каждая машина должна быть снабжена эксплуатационными документами в соответствии с требованиями ГОСТ 2.601.

ПРИЛОЖЕНИЕ А

(обязательное)

Силы сопротивления перемещению органов управления машин

Таблица А.1

Орган управления

Сопротивление, Н

Ножное управление

Ручное управление

рекомендуемое

максимальное

рекомендуемое

максимальное

Муфта главного сцепления

120

250

-

-

Коробка переключения передач:

 

 

 

 

без разрыва потока мощности

-

-

60

-

с разрывом потока мощности

-

-

160

-

Механизм поворота:

 

 

 

 

без усилителя

-

-

50

100

с усилителем:

 

 

 

 

на рулевом колесе

-

-

50

60

на рулевом колесе с гидрообъемным приводом

-

-

-

600

при аварийной ситуации на рычагах

-

-

40

60

Рабочий тормоз

200

250

160

200

Стояночный тормоз

-

-

200

350

Регулятор частоты вращения двигателя

50

90

30

80

Распределитель гидросистемы:

 

 

 

 

механический привод (рычаги)

-

-

60

100

электрогидравлический привод:

 

 

 

 

рукоятка

-

-

15

30

кнопка

-

-

1

5

гидравлический привод

60

75

20

60

механогидравлический привод

-

-

60

100

Вал отбора мощности

-

-

160

200

Другие органы управления

-

250

-

150

ПРИЛОЖЕНИЕ Б

(обязательное)

Нормы и зоны искусственной освещенности при машинной валке леса

Lmax - максимальный вылет манипулятора; Lmin - минимальный вылет манипулятора.

Рисунок Б.1 - Зоны искусственной освещенности при машинной валке леса.

 - зона искусственной освещенности 15 лк;

hст - высота стоек коника;

lст - расстояние между стойками коника

Рисунок Б.2 - Трелевка леса бесчокерная.

ABC - зона искусственной освещенности 10 лк

Рисунок Б.3 - Трелевка леса чокерная.

1, 2, 3, 4; ABCD; A1B1C1D1 - зоны искусственной освещенности 10 лк.

Рисунок Б.4 - Обрезка сучьев машинная.

 - зона искусственной освещенности 20 лк;

Lmax - максимальный вылет манипулятора;

Lmin - минимальный вылет манипулятора

Рисунок Б.5 - Погрузочно-транспортные машины

ABCD; A1B1C1D1 - зоны искусственной освещенности 10 лк

Рисунок Б.6 - Погрузка деревьев (хлыстов).

 - зона искусственной освещенности 8 лк;

 - зона искусственной освещенности 10 лк;

 - зона искусственной освещенности 15 лк

Рисунок Б.7 - Участок лесосеки, волока, дороги при движении машины

ПРИЛОЖЕНИЕ В

Библиография

[1] Правила устройства электроустановок. Минэнерго СССР. 6-е изд., перераб. и доп. М.: Энергоатомиздат, 1985.

СОДЕРЖАНИЕ

1. Область применения. 1

2. Нормативные ссылки. 1

3. Требования к системе доступа и прохода. 2

4. Требования к кабине и рабочему месту. 3

5. Требования к органам управления и средствам отображения информации. 6

6. Требования к электрооборудованию, сигнальным и световым устройствам.. 7

7. Требования к средствам защиты.. 7

8. Требования к узлам и агрегатам.. 8

9. Требования безопасности к лесовозным автопоездам.. 9

10. Требования безопасности к погрузчикам леса манипуляторного типа (гидроманипуляторам) 9

11. Требования безопасности при монтаже и транспортировании. 11

Приложение А Силы сопротивления перемещению органов управления машин. 11

Приложение Б Нормы и зоны искусственной освещенности при машинной валке леса. 12

Приложение В Библиография. 15

Ключевые слова: лесозаготовительные машины, лесопромышленные тракторы, лесохозяйственные тракторы, требования безопасности

 




ГОСТЫ, СТРОИТЕЛЬНЫЕ и ТЕХНИЧЕСКИЕ НОРМАТИВЫ.
Некоммерческая онлайн система, содержащая все Российские Госты, национальные Стандарты и нормативы.
В Системе содержится более 150000 файлов нормативно-технической документации, действующей на территории РФ.
Система предназначена для широкого круга инженерно-технических специалистов.

Рейтинг@Mail.ru Яндекс цитирования

Copyright © www.gostrf.com, 2008 - 2026