Крупнейшая бесплатная информационно-справочная система онлайн доступа к полному собранию технических нормативно-правовых актов РФ. Огромная база технических нормативов (более 150 тысяч документов) и полное собрание национальных стандартов, аутентичное официальной базе Госстандарта. GOSTRF.com - это более 1 Терабайта бесплатной технической информации для всех пользователей интернета. Все электронные копии представленных здесь документов могут распространяться без каких-либо ограничений. Поощряется распространение информации с этого сайта на любых других ресурсах. Каждый человек имеет право на неограниченный доступ к этим документам! Каждый человек имеет право на знание требований, изложенных в данных нормативно-правовых актах!

  


 

ГОСТ 30974-2002

МЕЖГОСУДАРСТВЕННЫЙ СТАНДАРТ

СОЕДИНЕНИЯ УГЛОВЫЕ
ДЕРЕВЯННЫХ БРУСЧАТЫХ
И БРЕВЕНЧАТЫХ МАЛОЭТАЖНЫХ
ЗДАНИЙ

Классификация, конструкции, размеры

МЕЖГОСУДАРСТВЕННАЯ НАУЧНО-ТЕХНИЧЕСКАЯ КОМИССИЯ
ПО СТАНДАРТИЗАЦИИ, ТЕХНИЧЕСКОМУ НОРМИРОВАНИЮ
И СЕРТИФИКАЦИИ В СТРОИТЕЛЬСТВЕ (МНТКС)

Москва

Предисловие

1 РАЗРАБОТАН Центром по сертификации оконной и дверной техники и ООО «ЛЕСКОНТ» с участием фирм «Global Edge», ЗCK «ИНКОН», института «VTT building and transport», ассоциации «Finnish association of construction product industries»

ВНЕСЕН Госстроем России

2 ПРИНЯТ Межгосударственной научно-технической комиссией по стандартизации, техническому нормированию и сертификации в строительстве (МНТКС) 24 апреля 2002 г.

За принятие проголосовали

Наименование государства

Наименование органа государственного управления строительством

Азербайджанская Республика

Госстрой Азербайджанской Республики

Республика Казахстан

Казстройкомитет Республики Казахстан

Кыргызская Республика

Государственная Комиссия по архитектуре и строительству при Правительстве Кыргызской Республики

Республика Молдова

Министерство экологии, строительства и развития территорий Республики Молдова

Российская Федерация

Госстрой России

Республика Таджикистан

Комархстрой Республики Таджикистан

Республика Узбекистан

Госкомархитектстрой Республики Узбекистан

3 ВВЕДЕН ВПЕРВЫЕ

4 ВВЕДЕН В ДЕЙСТВИЕ с 1 марта 2003 г. в качестве государственного стандарта Российской Федерации постановлением Госстроя России от 2 сентября 2002 г. № 120.

СОДЕРЖАНИЕ

ГОСТ 30974-2002

МЕЖГОСУДАРСТВЕННЫЙ СТАНДАРТ

СОЕДИНЕНИЯ УГЛОВЫЕ ДЕРЕВЯННЫХ БРУСЧАТЫХ
И БРЕВЕНЧАТЫХ МАЛОЭТАЖНЫХ ЗДАНИЙ

Классификация, конструкции, размеры

CORNER JOINS OF WOODEN LOW RISE BUILDINGS
OF BARS AND LOGS

Classification, structures, dimensions

Дата введения 2003-03-01

1 Область применения

Настоящий стандарт распространяется на угловые и Т-образные соединения брусчатых и бревенчатых стен малоэтажных зданий различного назначения (далее - угловые соединения).

Требования стандарта распространяются на угловые соединения заводского (например, угловые соединения типовых деревянных домов, бань и др.) и построечного изготовления (в том числе при реставрационных работах). В стандарте приведены также конструкции соединений брусьев и бревен по длине.

Требования стандарта являются рекомендуемыми.

Стандарт может быть использован для целей сертификации.

2 Нормативные ссылки

ГОСТ 2292-88 Лесоматериалы круглые. Маркировка, сортировка, транспортирование, методы измерения и приемка

ГОСТ 6782.1-75 Пилопродукция из древесины хвойных пород. Величина усушки

ГОСТ 6782.2-75 Пилопродукция из древесины лиственных пород. Величина усушки

ГОСТ 9462-88 Лесоматериалы круглые лиственных пород. Технические условия

ГОСТ 9463-88 Лесоматериалы круглые хвойных пород. Технические условия

ГОСТ 11047-90 Детали и изделия деревянные для малоэтажных жилых и общественных зданий. Технические условия

ГОСТ 26433.0-85 Система обеспечения точности геометрических параметров в строительстве. Правила выполнения измерений. Общие положения

ГОСТ 26433.1-89 Система обеспечения точности геометрических параметров в строительстве. Правила выполнения измерений. Элементы заводского изготовления

ГОСТ 26433.2-94 Система обеспечения точности геометрических параметров в строительстве. Правила выполнения измерений параметров зданий и сооружений

3 Классификация и обозначения

3.1 Угловые соединения классифицируют по виду соединяемых стеновых элементов, а также по видам и типам конструктивных решений.

3.2 По виду соединяемых стеновых элементов угловые соединения подразделяют на:

соединения круглых лесоматериалов (окоренных бревен) - К;

соединения оцилиндрованных (профилированных) бревен - Ц;

соединения двухкантных брусьев - Б2;

соединения трехкантных брусьев - Б3;

соединения четырехкантных брусьев - Б4.

3.3 По видам конструктивных решений угловые соединения подразделяют на:

соединения с остатком;

соединения без остатка;

соединения встык;

Т-образные соединения стен и простенков.

3.4 По типам конструкций угловые соединения подразделяют на предназначенные:

для бревенчатых стен с соединением с остатком:

- соединение в «чашку» - Ч;

- соединение в «обло» (с замочным пазом) - О;

для бревенчатых и брусчатых стен с соединением без остатка:

- соединение в «лапу» - Л;

для брусчатых стен с соединением «встык»:

- соединение угла на шпонках - ВШ;

- соединение угла с коренным шипом - ВК;

для брусчатых стен с соединением с остатком:

- соединение в «обло» (с замочным пазом) - О;

для Т-образных соединений стен и простенков:

- соединение в «обло» (с замочным пазом) - ТО;

- соединение в «чашку» - ТЧ;

- соединение симметричным трапециевидным шипом - ТСТШ;

- соединение прямоугольным трапециевидным шипом - ТПТШ;

- соединение прямым пазом - ТПП.

3.5 Примеры условного обозначения:

К-Ч 24 ГОСТ 30974-2002 - угловое соединение круглых лесоматериалов в «чашку», толщина бревна - 24 см.

Б4-О 18 ´ 14 ГОСТ 30974-2002 - угловое соединение четырехкантных брусьев в «обло» с размерами по толщине (высоте) - 180 мм, по ширине - 140 мм.

4 Конструкции и размеры

4.1 Конструкции и размеры угловых соединений устанавливают в проектной документации на строительство, а также в конструкторской и технологической документации. Примеры рекомендуемых типов и размеров угловых соединений приведены в таблице 1.

4.2 Примеры основных типовых профилей брусчатых и бревенчатых элементов приведены в приложении А.

Рекомендуемые размеры по толщине (диаметру) бревен - от 14 см и выше. Рекомендуемые размеры брусьев по толщине (высоте) и ширине - от 100 до 260 мм для стен и 80 - 220 мм для простенков с градацией 10 мм.

Венцовые пазы брусьев и профилированных бревен могут иметь гребни, шпунты и канавки (в том числе под уплотнительные прокладки), предназначенные для повышения плотности и воздухонепроницаемости соединений.

Брусья должны иметь фаски или скругления с наружной стороны для отвода дождевой воды. Размер фасок - 20 ´ 20 мм. Для брусьев толщиной менее 180 мм размер фасок допускается принимать 15 ´ 15 мм.

4.3 При назначении размеров сечений брусьев следует учитывать припуски на величину усушки, определяемые в соответствии с ГОСТ 6782.1, ГОСТ 6782.2, и усадки, вызванной уплотнением материалов для заделки швов.

4.4 Размеры толщины бревен принимают по ГОСТ 9463, ГОСТ 9462 с учетом требований ГОСТ 2292. Припуски на величину усушки бревен допускается принимать по размеру их диаметров (за вычетом размера высоты чашечного паза) с учетом требований ГОСТ 6782.1, ГОСТ 6782.2

4.5 Предельные отклонения размеров сечений фрезерованных клееных брусьев не должны превышать

по высоте........................................................................................... ± 1,0 мм,

по ширине......................................................................................... ± 1,5 мм,

другие размеры................................................................................. ± 1,0 мм.

4.6 Геометрические размеры элементов и их соединений определяют с использованием методов, установленных в ГОСТ 26433.0 и ГОСТ 26433.1.

4.7 Угловые и Т-образные соединения брусьев с коренным шипом и на шпонках укрепляют деревянными шкантами (нагелями) диаметром:

- для элементов шириной до 140 мм - (20 - 25) мм,

- для элементов шириной равной и более 140 мм - 30 мм.

Шкант устанавливают в центр углового соединения. Отверстие под шкант должно быть равным диаметру шканта.

Предельные отклонения диаметра шканта - (-0,5) мм.

Предельные отклонения диаметра отверстия - ± 0,5 мм.

Шканты изготавливают из древесины дуба, ясеня, лиственницы, сосны, березы. Влажность древесины шкантов должна быть на 2 - 3 % ниже влажности древесины элементов стен.

4.8 Отклонения от отвесной линии соединений по высоте стены не должны превышать величин, рекомендованных ГОСТ 26433.2. При измерении отклонения от отвесной линии угловых соединений, а также их угловых размеров следует пользоваться правилами измерений по ГОСТ 26433.2 и ГОСТ 26433.1.

4.9 В местах сопряжения элементов следует предусматривать зазоры для установки изоляционных прокладок, компенсирующих изменения линейных размеров элементов стен от их усадки и усушки. В качестве изоляционных прокладок следует применять ленточные эластомерные и полимерные материалы, паклю, пенные утеплители-герметики, а также силиконовые (и аналогичные им) герметики по стандартам и техническим условиям, утвержденным в установленном порядке.

4.10 Нормы ограничения пороков, порода и влажность древесины, требования к защитной обработке и клеевым соединениям, а также другие характеристики элементов стен должны отвечать требованиям ГОСТ 11047, конструкторской документации и условиям договора на поставку.

4.11 Примеры соединений брусчатых и бревенчатых элементов по длине приведены в приложении Б. Соединения по длине могут быть усилены металлическими шиповыми пластинами, пластинами на гвоздях и др. В Т-образных соединениях брусчатых и бревенчатых элементов допускается производить их соединение по длине в месте замка. Соединение, как правило, должно быть невидимым. Сухие бревна и брусья допускается соединять по длине при помощи зубчатого клеевого соединения, размеры которого приводят в конструкторской документации.

4.12 Элементы стен и простенков могут быть соединены по высоте при помощи винтовых тяг (компенсаторов). При этом конструкции тяг и размеры отверстий должны быть указаны в проектной и конструкторской документации.

Таблица 1 - Рекомендуемые типы и размеры угловых соединений

Тип соединения в «чашку»

Общий вид соединения

Элемент соединения

Соотношение размеров соединения

b ³ 0,5d; L ³ 1,4d; r = d/2

Тип соединения в «лапу»

Общий вид соединения

Элемент соединения

Схема элемента соединения

Размеры соединений

Диаметр, см

Размеры, мм

а

b

c

e

f

14

99

74

49

49

25

16

113

85

57

57

28

18

127

95

64

64

32

20

141

106

71

71

35

22

156

117

78

78

39

24

170

127

85

85

42

26

184

138

92

92

46

28

198

148

99

99

49

30

212

159

106

106

53

32

226

170

113

113

57

34

240

180

120

120

60

36

255

191

127

127

64

Тип соединения на прямоугольных шпонках

Общий вид соединения

Элементы соединения

Соотношение размеров соединения

b = 0,2S; а = 0,8b

Тип соединения на шпонках «ласточкин хвост»

Общий вид соединения

Элементы соединения

Соотношение размеров соединения

b = 0,3S (но не менее 20 мм)

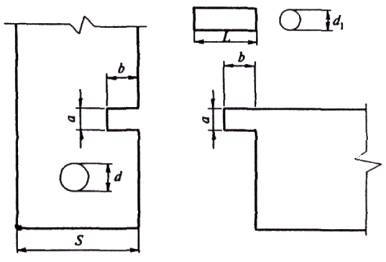
Тип соединения с коренным шипом

Общий вид соединения

Элементы соединения

Соотношение размеров соединения

b = 0,2S; а = 0,8b; d1 = d ¸ (d - 1,0); L = 1,8 толщины бруса

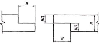
Тип соединения в односторонний замочный паз (в «обло»)

Общий вид соединения

Элемент соединения

Размеры, мм

т = 0,5H; п = 0,7H

Тип соединения в двухсторонний замочный паз (в «обло»)

Общий вид соединения

Элемент соединения

Соотношение размеров соединения

т = 0,5H; п = 0,25H

Тип соединения в четырехсторонний замочный паз (в «обло»)

Общий вид соединения

Элемент соединения

Соотношение размеров соединения

т = 0,5H; п = 0,25H

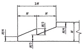
Тип соединения в четырехсторонний замочный паз (в «обло»)

Общий вид соединения

Элемент соединения

Размеры

т = 0,5S; п = 0,1S; R = S/2 - 2n

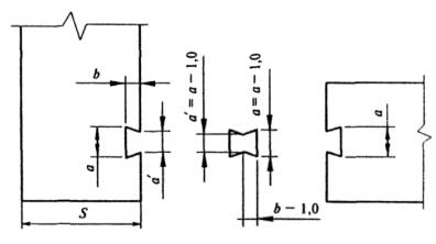
Тип соединения симметричным трапециевидным шипом (открытым «сковороднем»)

Общий вид соединения

Элементы соединения

Соотношение размеров соединения

Тип соединения прямоугольным трапециевидным шипом (открытым «полусковороднем»)

Общий вид соединения

Элементы соединения

Соотношение размеров соединения

Тип соединения симметричным трапециевидным шипом (глухим «сковороднем»)

Общий вид соединения

Элементы соединения

Соотношение размеров соединения

S1 = S - d/4

Тип соединения прямоугольным трапециевидным шипом (глухим «полусковороднем»)

Общий вид соединения

Элементы соединения

Соотношение размеров соединения

S1 = S - d/8

ПРИЛОЖЕНИЕ А
(рекомендуемое)

Типовые профили брусчатых и бревенчатых элементов

а - простой цилиндрический венцовый паз; б - трапецеидальный венцовый паз, в - трапецеидальный венцовый паз с канавкой для плоского уплотнителя; г - простой цилиндрический венцовый паз с канавками для уплотнителя; д - трапецеидальный венцовый паз с канавками для уплотнителя; е, ж - трапецеидальный венцовый паз с соединением «шпунт-гребень»; з - простой цилиндрический венцовый паз для эллиптического бревна из клееной древесины

Рисунок А.1 - Типовые профили бревенчатых элементов с различными вариантами венцовых пазов

а - трапецеидальный венцовый паз, б - трапецеидальный венцовый паз с канавками для уплотнителя, в - соединение «шпунт-гребень» с пазом для плоского уплотнителя, г - трапецеидальный венцовый паз с уплотнителем в виде сминаемых треугольных гребней древесины, д, е - то же, для клееных брусьев

Рисунок А.2 - Типовые профили брусчатых элементов с различными вариантами венцовых пазов

ПРИЛОЖЕНИЕ Б
(справочное)

Соединения брусчатых и бревенчатых элементов по длине

Таблица Б.1

Тип продольного соединения с коренным шипом

Общий вид соединения

Элементы соединения

Соотношение размеров соединения

а = 0,25S, b = 1,2a

Тип продольного соединения на шпонках

Общий вид соединения

Элементы соединения

Соотношение размеров соединения

а = 0,25S; b = 1,2а

Тип продольного соединения «в полдерева»

Общий вид соединения

Элементы соединения

Соотношение размеров соединения

Тип продольного соединения «на косой замок»

Общий вид соединения

Элементы соединения

Соотношение размеров соединения

ПРИЛОЖЕНИЕ В
(справочное)

Сведения о разработчиках стандарта

Настоящий стандарт разработан рабочей группой специалистов в составе:

Г.Д. Кирюхин, ООО «ЛЕСКОНТ» (руководитель);

Н.В. Шведов, Госстрой России;

В.В. Кислый, МП «Дом»;

М.В. Лившиц, «Global Edge»;

М.Ю. Анкирский, «Global Edge»;

А. Раутайнен, «VTT building and transport»;

М.Ю. Опочинский, ЗСК «ИНКОН»;

С.Г. Каратаев, ЗСК «ИНКОН»;

А.В. Ткаченко, ООО «Эколеспром»;

Д.Н. Шведов, Центр по сертификации оконной и дверной техники;

И.Н. Медведев, НИУПЦ «Межрегиональный институт окна»

Ключевые слова: угловые соединения, брусья, бревна, малоэтажные здания

 




ГОСТЫ, СТРОИТЕЛЬНЫЕ и ТЕХНИЧЕСКИЕ НОРМАТИВЫ.
Некоммерческая онлайн система, содержащая все Российские Госты, национальные Стандарты и нормативы.
В Системе содержится более 150000 файлов нормативно-технической документации, действующей на территории РФ.
Система предназначена для широкого круга инженерно-технических специалистов.

Рейтинг@Mail.ru Яндекс цитирования

Copyright © www.gostrf.com, 2008 - 2026