Крупнейшая бесплатная информационно-справочная система онлайн доступа к полному собранию технических нормативно-правовых актов РФ. Огромная база технических нормативов (более 150 тысяч документов) и полное собрание национальных стандартов, аутентичное официальной базе Госстандарта. GOSTRF.com - это более 1 Терабайта бесплатной технической информации для всех пользователей интернета. Все электронные копии представленных здесь документов могут распространяться без каких-либо ограничений. Поощряется распространение информации с этого сайта на любых других ресурсах. Каждый человек имеет право на неограниченный доступ к этим документам! Каждый человек имеет право на знание требований, изложенных в данных нормативно-правовых актах!

  


 

ГОССТРОЙ РОССИИ

АО «ДИАГНОСТИКА АВАРИЙНЫХ СИТУАЦИЙ»

(АО «ДИАС»)

РЕКОМЕНДАЦИИ

О ПОРЯДКЕ ПОХОРОН
И СОДЕРЖАНИИ КЛАДБИЩ
В РОССИЙСКОЙ ФЕДЕРАЦИИ

МДК 11-01.2002

Москва 2002

В Рекомендациях представлены материалы по подготовке, проведению и организации похоронных церемоний, кремационного дела, устройству и содержанию кладбищ.

Необходимы для работников ритуальных служб всех уровней, руководителей субъектов Российской Федерации и органов местного самоуправления, а также рядовых граждан России.

РАЗРАБОТАНЫ Госстроем России (В.П. Ковалевский, Л.Н. Гавриков) и АО «Диагностика аварийных ситуаций» (Н.И. Жуков, М.Ю. Лимонад, А.А. Королев, Л.Н. Щедельская).

РАССМОТРЕНЫ И РЕКОМЕНДОВАНЫ НТС Госстроя России протоколом № 01-НС-22/1 от 25 декабря 2001 г.

ВЗАМЕН «Инструкции о порядке похорон и содержании кладбищ в Российской Федерации», утвержденной приказом Минжилкомхоза РСФСР от 12 января 1979 г. № 25.

СОДЕРЖАНИЕ

Введение. 2

Нормативные ссылки. 2

1. Область применения. 3

2. Основные понятия, термины и определения. 3

3. Документы.. 8

4. Осуществление государственных гарантий по достойному отношению к умершим.. 10

5. Организация похоронного обслуживания

6. Организация и проведение похорон

7. Этикет

8. Требования к размещению, участкам и территориям кладбищ

9. Кладбища

10. Планировочное решение кладбищ, зоны захоронений и устройства могил

11. Благоустройство территории

12. Здания и сооружения похоронного обслуживания. 41

13. Памятники, памятные знаки, надмогильные и мемориальные сооружения. 44

14. Технологическое оборудование зданий. 45

15. Экологические и санитарно-гигиенические требования. 46

16. Инженерное оборудование. 47

17. Озеленение территорий кладбищ и крематориев. 49

18. Обязанности администрации кладбища. 51

19. Правила посещения кладбищ. Права и обязанности граждан. 51

20. Ответственность за нарушение правил посещения кладбищ.. 52

Приложение 1 Форма волеизъявления. 52

Приложение 2 Форма письменного волеизъявления. 53

Приложение 3 Счет-заказ на похороны.. 54

Приложение 4 Удостоверение агента похоронной службы.. 55

Приложение 5 Удостоверение церемониймейстера. 56

Приложение 6 Удостоверение о захоронении. 57

Приложение 7 Справка о кремации. 59

Приложение 8 Документ на получение праха. 59

Приложение 9 Заявление на захоронение. 59

Приложение 10 Удостоверение о захоронении урны с прахом.. 60

Приложение 11 Книга регистрации установки надгробий. 61

Приложение 12 Форма журнала регистрации кремаций. 62

Приложение 13 Регистрационная карточка о кремации. 62

Приложение 14 Сопроводительная карточка кремируемого. 62

Приложение 15 Книга регистрации захоронений. 62

Приложение 16 Книга регистрации захоронения урн с прахом.. 63

Приложение 17 Памятка для комиссии по организации и проведению похорон. 63

Приложение 18 Форма бланка для кратких сведений об умершем(ей) 65

Приложение 19 Состав и площади основных помещений бюро похоронного обслуживания. 66

Приложение 20 Состав и площади помещений Дома траурных обрядов. 66

Приложение 21 Функционально-технологическая схема Дома траурных обрядов. 66

Приложение 22 Состав и площади помещений кремационной части. 67

Приложение 23 Состав и площади крематория (типа 2) 68

Приложение 24 Функционально-технологическая схема крематория (типа 2) 68

Приложение 25 Состав и площади помещений административно-бытового и обрядового зданий. 69

Приложение 26 Функционально-технологическая схема административно-бытовых и обрядовых зданий. 69

Приложение 27 Ассортимент древесно-кустарниковых и цветущих растений для озеленения территорий кладбищ и крематориев. 70

Приложение 28 Рисунки. 73

ВВЕДЕНИЕ

Жизнь человека на Земле сопровождается непрерывной сменой поколений - таков непреложный закон природы. Похоронная культура является одной из древнейших форм социальной культуры, распространенной повсеместно. Места погребения всегда сопутствуют местам проживания человека.

Хотя похоронная культура характеризуется устойчивостью форм, они с течением времени и изменением социальной ситуации видоизменяются и совершенствуются.

Очередной цикл изменений в похоронной культуре связан с введением Федерального закона «О погребении и похоронном деле» от 12.01.96 № 8-ФЗ. Требования этого закона существенно расширили гражданские права в этой деликатной сфере обслуживания населения, что в свою очередь потребовало изменения подзаконных актов. Важнейшим понятием закона стало «достойное отношение» к покойному.

До принятия закона основным документом в течение многих лет была «Инструкция о порядке похорон и содержании кладбищ в Российской Федерации». Значительная часть положений этих документов использована для разработки настоящих Рекомендаций, которые приведены в соответствие с требованиями Федерального закона и конкретизируют их применительно к удовлетворению насущных нужд населения в области похоронной культуры.

При рассмотрении процесса похорон основное внимание уделено гражданскому обряду. Остальные виды обрядовых церемоний рассмотрены в контексте их связи с гражданским обрядом. Приведенные приложения направлены на оказание методической помощи гражданам, органам местного самоуправления, специализированным службам по вопросам похоронного обслуживания населения.

Для облегчения пользования материалами Рекомендаций в них приведены основные понятия, термины и определения, которые сформулированы в соответствии с

- Федеральным законом «О погребении и похоронном деле»;

- «Инструкцией о порядке похорон и содержании кладбищ в Российской Федерации»;

- Большой Советской энциклопедией;

- Советским энциклопедическим словарем;

- справочником «Ритуальное обслуживание».

Помещая в Рекомендациях данный раздел, авторы не претендуют на установление терминологии в области ритуального обслуживания.

Все положения Рекомендаций не носят директивного характера, и их следует рассматривать именно как рекомендательные.

НОРМАТИВНЫЕ ССЫЛКИ

Федеральный закон «О погребении и похоронном деле» от 12.01.96 № 8-ФЗ

Градостроительный кодекс Российской Федерации

Земельный кодекс РСФСР (в редакции Закона РФ от 28.04.1993 г. № 4888-1)

ГОСТ Р 6.30-97. Унифицированная система организационно-распорядительной документации. Требования к оформлению документов

ВСН 62-91*. Проектирование среды жизнедеятельности с учетом потребности инвалидов и маломобильных групп населения

СНиП III-10-75. Благоустройство территорий

СНиП 2.04.01-85*. Внутренний водопровод и канализация зданий

СНиП 2.07.01-89*. Градостроительство. Планировка и застройка городских и сельских поселений

СНиП 2.08.02-89*. Общественные здания и сооружения

СНиП 31-03-2001. Производственные здания

СНиП 2.09.04-87*. Административные и бытовые здания

СанПиН 2.2.1/2.1.1.1031-01. Санитарно-защитные зоны и санитарная классификация предприятий, сооружений и иных объектов

Санитарные правила устройства и содержания кладбищ № 1600-77

Устав гарнизонной и караульной служб Вооруженных сил Российской Федерации. Организация и несение гарнизонной службы, гл. 17. Отдание воинских почестей при погребении

Положение о порядке лицензирования деятельности по оказанию ритуальных услуг (Постановление Правительства РФ от 26 декабря 1995 г. № 1272)

Правила бытового обслуживания населения в Российской Федерации (Постановление Правительства РФ от 15 августа 1997 г. № 1025)

Указ Президента РФ от 29 июня 1996 г. № 1001 «О гарантиях прав граждан на предоставление услуг по погребению умерших»

Большая Советская энциклопедия (издание третье). - М.: Советская энциклопедия, 1979

Советский энциклопедический словарь. - М.: Советская энциклопедия, 1980

Ритуальное обслуживание. Справочник / Под ред. В.И. Малышкова. - М., 243 с.

1. ОБЛАСТЬ ПРИМЕНЕНИЯ

1.1. Настоящие Рекомендации определяют порядок организации похоронного дела, конкретизируют положения Федерального закона «О погребении и похоронном деле», касающиеся похоронного обряда (обряда захоронения останков или праха человека), а также содержания мест захоронения и работы специализированных служб по вопросам похоронного дела в Российской Федерации. Данные Рекомендации будут полезны государственным организациям в области похоронного дела, организациям иных форм собственности, работающим на рынке похоронных услуг в сфере, определяемой федеральным законом, а также лицам, вовлеченным в похоронное обслуживание населения и взявшим на себя соответствующие обязанности, также определенные федеральным законом.

1.2. Требования Рекомендаций могут быть развиты и дополнены территориальными нормативными документами по вопросам похоронного дела, воинскими уставами, документами по проведению религиозных и профессиональных похоронных обрядов. Положения таких документов не должны противоречить требованиям настоящих Рекомендаций.

1.3. Не допускается насильственное склонение к проведению того или иного вида похоронного обряда, а также введение в обряд (в том числе и на основе волеизъявления умершего) элементов, нарушающих гражданские права и свободы, установленные действующим законодательством.

2. ОСНОВНЫЕ ПОНЯТИЯ, ТЕРМИНЫ И ОПРЕДЕЛЕНИЯ

Автокатафалк - транспортное средство, предназначенное для перевозки гроба с телом, родственников и близких умершего на кладбище, к зданию траурных гражданских обрядов или в крематорий и возвращения участников похорон по указанному адресу. Автокатафалк оборудуется приспособлением для облегчения погрузки-выгрузки гроба, его фиксации во время движения и местами для участников похорон.

Агент похоронной службы - штатный сотрудник салона-магазина специализированной службы по вопросам похоронного дела, предоставляющий услуги по организации похорон и обеспечению заказчика похоронными принадлежностями. Функции агента похоронной службы установлены настоящими Рекомендациями.

Административно-хозяйственная зона кладбища (крематория) - часть территории кладбища (крематория), на которой размещаются административно-бытовое здание, гравировальная мастерская, котельная (при значительном удалении кладбища или крематория от сетей ТЭЦ), материальный и инвентарный склады. Для административно-хозяйственной зоны предусматривается отдельный въезд.

Бальзамирование тела - обработка тела умершего специальными составами с целью замедления разложения и дезодорации.

Вероисповедальные кладбища - кладбища, предназначенные для погребения умерших одной веры (религии).

Воинский обряд похорон - похороны военнослужащих в соответствии с обрядом, установленным уставами Вооруженных сил РФ.

Воинские кладбища - кладбища, предназначенные для погребения умерших (погибших) военнослужащих, граждан, призванных на военные сборы, сотрудников органов внутренних дел, участников войн, лиц, уволенных с военной службы (службы), если это не противоречит волеизъявлению указанных лиц, супруга, близких или иных родственников.

Волеизъявление умершего (волеизъявление лица о достойном отношении к его телу после смерти) - пожелание, выраженное в устной форме в присутствии свидетелей или в письменной форме.

Входная зона кладбища (крематория) - часть территории кладбища (крематория), на которой предусмотрены въезд траурных кортежей, вход для посетителей, стоянка транспорта, цветочный киоск, стенд с планом кладбища (крематория) и правилами их содержания, утвержденными в установленном порядке.

Гарантии осуществления погребения - совокупность гарантий, обеспечивающая исполнение волеизъявления умерших, предоставление гарантированного перечня услуг по погребению и других положений Федерального закона «О погребении и похоронном деле», касающихся погребения умерших (погибших) военнослужащих, сотрудников органов внутренних дел, лиц, не имеющих супруга, близких родственников, иных родственников или законного представителя, а также умерших в период отбывания наказания в местах лишения свободы.

Гарантированный перечень услуг по погребению - перечень услуг, предоставляемых на территории Российской Федерации на безвозмездной основе.

Гражданские похороны - обряд похорон гражданских лиц, не включающий элементов военных и религиозных обрядов.

Групповое погребение - погребение группы лиц, смерть которых наступила одновременно в результате аварий, катастроф и в других чрезвычайных ситуациях.

Декор - система украшения сооружения или изделия.

Захоронение - погребенные останки или прах.

Здание траурных гражданских обрядов - здания ритуального назначения, строящиеся по типовым проектам, предусматривающим соответствующее внешнее и внутреннее оформление, и включающие приемную-регистратуру, комнату руководителя обряда и оформления документов, вестибюль, зал ожидания, комнату для родственников, комнату формирования почетного караула, комнаты подготовки к обряду, траурный зал, комнату персонала, гардероб, курительную комнату, реквизит и технические помещения (вентиляционная, электрощитовая, отделение холодильных установок, холодильная камера, помещение для хранения тележек).

Зона захоронений - часть территории кладбища, на которой осуществляется захоронение умерших в гробах или урн с прахом.

Зона «моральной защиты» (моральная зона, зеленая защитная зона) - зона, разделяющая застройку территории общего пользования и объекта похоронного назначения. Она представляет собою часть территории кладбища (крематория) по его периметру с плотной полосой насаждений шириной 10-20 м, состоящей как минимум из двух рядов лиственных (до 30-35 %) и хвойных (до 65-70 %) деревьев и двухъярусной живой изгороди из кустарников.

Зона траурных церемониалов - часть территории кладбища, на которой размещается здание траурных гражданских обрядов (крематорий) или площадка для проведения траурных церемоний.

Исполнение волеизъявления умершего о погребении его тела (останков) или праха - гарантированное выполнение пожелания умершего, выраженное в устной форме в присутствии свидетелей или в письменной форме, быть погребенным на указанном им месте.

Исполнители волеизъявления умершего - лица, указанные в его волеизъявлении, при их согласии взять на себя обязанность исполнить волеизъявление умершего.

Катафалк-носилки для гроба - носилки, на которые устанавливается гроб для перенесения его по кладбищу к могиле в летнее время в случае невозможности использования катафалка-тележки. Несут носилки 8 человек.

Катафалк-носилки для урны - носилки, на которые устанавливается переносной футляр с урной с прахом для перенесения ее к месту захоронения. Носилки несут 4 человека.

Катафалк-постамент - стационарное возвышение в зале прощания для установки на нем гроба во время обряда прощания.

Катафалк-сани - сани, на которых в зимнее время гроб перевозится к месту захоронения.

Кладбища с холмами над могилами - кладбища, на которых после осадки земли на могилах формируются могильные холмы, обкладываемые дерном, и на холмах размещаются надмогильные плиты.

Кладбище - градостроительный комплекс или объект, содержащий места (территории) для погребения умерших или их праха после кремации.

Кладбище газонного типа - кладбище, на котором поверхность могил после осадки земли планируется и после установки памятника и посадки цветов перед ним засевается травосмесью.

Кладбищенский период - время разложения и минерализации тела умершего.

Книга регистрации захоронений - книга, в которой работники конторы кладбища регистрируют каждое захоронение.

Книга регистрации установки надгробий - книга, в которой работники конторы кладбища регистрируют установку надгробий.

Колумбарий - место захоронения (хранилище) урн с прахом. Колумбарий по вертикали делится на ярусы, ярусы делятся на ниши, закрываемые мемориальными плитами.

Крематорий (кремационный комплекс) - ритуальное сооружение, предназначенное для предания тел (останков) умерших (погибших) огню (кремации).

Кремация - предание тела умершего огню (огненное погребение). Кремация выполняется согласно прижизненному волеизъявлению умерших с последующим предоставлением места захоронения урны с прахом.

Культовые здания и сооружения - объекты для проведения религиозных обрядов.

Лицензирование деятельности по оказанию ритуальных услуг (услуг по погребению) - разрешение органов исполнительной власти субъектов Российской Федерации, выдаваемое юридическим и физическим лицам на отдельные виды работ или оказание похоронных услуг.

Лицо, осуществляющее организацию погребения, - конкретное лицо, которому в письменной или в устной форме в присутствии свидетелей умершим при жизни было поручено осуществить его погребение.

Мемориальная плита колумбария - плита, закрывающая нишу колумбария, на которой указаны имя, отчество и фамилия, даты рождения и смерти захороненного.

Места погребения - отведенные в соответствии с этическими, санитарными и экологическими требования участки земли с сооружаемыми на них кладбищами для захоронения тел (останков) умерших, стенами скорби для захоронения урн с прахом умерших, крематориями и другими зданиями и сооружениями, предназначенными для осуществления погребения умерших.

Места погребения могут относится к культурно-историческим объектам.

Место захоронения невостребованных прахов - место на территории крематория, где осуществляется общее захоронение невостребованных прахов.

Место почетных захоронений - место захоронений почетных лиц.

Могила - углубление в земле для захоронения гроба или урн.

Надмогильные сооружения (надгробия) - памятные сооружения, устанавливаемые на могилах: памятники, стелы, обелиски, кресты и т.п.

Невостребованный прах - прах, не полученный лицом, которому выдан документ о кремации, в течение года со дня кремации.

Ниши для захоронения урн с прахом - выемки в стенах скорби (колумбарных стенках), в которых устанавливаются урны с прахом. Ниши закрываются обычно мемориальными плитами.

Нормы землеотвода для захоронения - размеры участков под захоронения, установленные нормативными документами.

Обряд - символическая церемония, выполняемая в строго определенном порядке (по ритуалу).

Общественное кладбище - кладбище, предназначенное для погребения умерших с учетом их волеизъявления либо по решению специализированной службы по вопросам похоронного дела. Общественные кладбища могут находиться в ведении органов исполнительной власти субъектов Российской Федерации или органов местного самоуправления, которые определяют порядок деятельности кладбищ. На общественных кладбищах:

- погребение может осуществляться с учетом вероисповедальных, воинских и иных обычаев и традиций;

- для погребения умерших предоставляется участок земли и могут создаваться воинские участки.

Обряд похорон - обряд, в соответствии с которым осуществляются похороны.

Озеленение кладбищ и крематориев - посадка деревьев, кустарников, цветов и трав на территории кладбищ и крематориев.

Организатор похорон - см. церемониймейстер.

Останки - тело умершего человека.

Памятник - здесь: мемориальное надмогильное сооружение (плита, стела, обелиск, изваяние), на котором могут быть указаны фамилия, имя, отчество захороненного, даты рождения и смерти и могут быть помещены изображения трудовых, боевых и религиозных символов, а также эпитафия.

Перечень услуг по погребению - перечень, включающий услуги, предоставленные на безвозмездной основе или за плату заказчику специализированными службами по вопросам похоронного дела.

Персонал, проводящий погребение, - группа лиц, включающая церемониймейстера, оркестрантов, персонал кладбищ и крематориев.

Погребение - обрядовые действия по захоронению тела (останков) человека после его смерти. Погребение может осуществляться путем предания тела (останков) умершего земле (захоронение в могилу, склеп), огню (кремация с последующим захоронением урны с прахом), воде (захоронение в воду).

Подушечки для наград умершего - подушечки, изготавливаемые из плотных тканей темно-красных тонов размером 300×300 мм, на которых размещаются ордена и медали умершего: один орден или 4 медали на одной подушечке.

Показательный участок захоронений - участок на кладбище с примерами современных способов захоронений и оформления мест захоронения гроба с телом и урны с прахом после кремации.

Поминки - поминальный обед, проводимый в определенном порядке в доме усопшего или других местах (ресторанах, кафе и т.п.).

Похоронное дело - отрасль хозяйства Российской Федерации или ее субъекта, включающая в себя деятельность по оказанию ритуальных, юридических, производственных, обрядовых и иных сопутствующих услуг, связанных с созданием и эксплуатацией объектов похоронного назначения, а также организацией и проведением похорон.

Похоронные принадлежности - деревянные и металлические гробы, урны для праха, венки, ленты (в том числе и с надписями), белые тапочки, покрывала и другие предметы похоронного ритуала.

Похороны - обряд погребения останков или праха.

Похороны по государственному протоколу - церемония похорон государственных лиц по ритуалу, установленному органами государственной власти.

Похороны по деловому протоколу - церемония похорон работников промышленной, банковской, управленческой сфер по ритуалу, установленному руководством этих сфер.

Почетный караул - группа торжественного сопровождения и символической охраны.

Прах - останки тела умершего после кремации, извлечения из них инородных предметов (гвозди от гроба и т.п.) и размола в мельнице-кремуляторе.

Пункт выдачи инвентаря для ухода за могилой - помещение, в котором хранятся и выдаются посетителям кладбищ на безвозмездной основе инвентарь для ухода за могилой, - лопаты, грабли, ведра и т.д.

Развеивание праха - один из способов захоронения праха, заключающийся в его разбрасывании по какой-либо территории.

Регистрационный знак на новой могиле - табличка с указанием фамилии, имени и отчества захороненного, дат его рождения и смерти.

Регистрация захоронения - запись о захоронении умершего в регистрационной книге на основании свидетельства о смерти и счета-заказа на похороны, осуществляемая в конторе кладбища и содержащая фамилию имя и отчество умершего, даты его рождения и смерти, дату захоронения, номера квартала, сектора и могилы, где захоронено тело (останки), фамилию, имя и отчество ответственного за могилу.

Религиозный обряд похорон - обряд похорон, содержание которого устанавливается религиозными организациями, конфессиями. Может включаться составной частью в общегражданский обрядовый церемониал.

Ритуал - порядок проведения обряда, в том числе похоронного. Может включать сценарий обряда, тексты речей и песнопений, описание одежды и атрибутики, репертуар сопровождения, режиссуру и ремарки к ней.

Ритуальное (похоронное) обслуживание населения - предоставление населению определенного перечня похоронных услуг на безвозмездной основе или за плату.

Ритуальные здания и сооружения - здания и сооружения для проведения обрядов, в том числе прощания с умершими.

Ритуальный зал крематория - траурный зал в здании крематория, где проводится обряд прощания.

Родственная могила - могила, в которой уже захоронен родственник умершего.

Салон-магазин (магазин) специализированной службы по вопросам похоронного дела - учреждение, в котором централизовано решаются вопросы, связанные с организацией и проведением похорон, оформляются документы на похороны, заказываются и оплачиваются услуги и похоронные принадлежности, доставляемые по адресу, указанному заказчиком. Салон-магазин производит продажу похоронных принадлежностей по образцам, магазин - непосредственно со склада при магазине.

Обязанности салонов-магазинов, их оборудование и штаты приведены в настоящих Рекомендациях.

Санитарные и экологические требования к размещению мест погребения - требования, определяемые в соответствии с санитарными правилами и нормами с учетом застройки города или иного поселения, гидрологических характеристик, особенностей рельефа местности, состава грунтов, предельно допустимых экологических нагрузок на окружающую природную среду.

Свидетельство о смерти - медицинский, юридический и учетный документ, удостоверяющий факт и причину смерти и являющийся источником информации для государственной статистики причин смерти и основанием для оформления документов на погребение. Свидетельство о смерти может быть медицинским (врачебным) или государственным документом.

Семейные (родовые) захоронения - участки земли на общественных кладбищах, предоставленные в соответствии с законодательством Российской Федерации или субъектов Российской Федерации для семейных (родовых) захоронений.

Склеп - подземное или заглубленное в землю сооружение, часть здания или сооружения, предназначенное для погребения.

Соболезнование - письменное послание или устное обращение со словами скорби, сожаления и сочувствия.

Сопроводительная карточка кремируемого - карточка, содержащая регистрационный номер, номер ритуального зала, фамилию, имя и отчество, возраст и пол кремируемого, подпись диспетчера.

Социальное пособие на погребение - пособие, выплачиваемое для компенсации расходов по погребению умерших лицам, взявшим на себя обязанность осуществить погребение. Размер этого пособия равен стоимости услуг по погребению, предоставляемых на безвозмездной основе согласно гарантированному перечню, определенному Федеральным законом «О погребении и похоронном деле», но не превышающей десяти минимальных размеров оплаты труда.

Специализированные службы по вопросам похоронного дела - службы, создаваемые органами исполнительной власти субъектов Российской Федерации или органами местного самоуправления, на которые возлагается обязанность по осуществлению погребения умерших. Порядок деятельности этих служб определяется создавшими их органами.

Стены скорби - места в виде стен для захоронения урн с прахом умерших.

Счет-заказ на похороны - документ с уголковым штемпелем организации, оформившей заказ, с указанием в правом верхнем углу кода организации, табельного номера агента похоронной службы и телефона для справок.

Траур - вид поведения, связанный с бытовыми ограничениями и психологическими переживаниями по поводу постигшей утраты близкого человека.

Траурная одежда - вид одежды для мужчин и женщин, предписанный траурным этикетом.

Траурная процессия - похоронное или мемориальное шествие, колонны транспортных средств, прощальные и поминальные митинги и манифестации, гражданские панихиды.

Траурное шествие - обрядное шествие участников похорон.

Траурные ленты для венков - ленты, которые прикрепляются к венкам, на лентах указывают, от кого возложен данный венок.

Траурный кортеж - похоронная траурная колонна.

Траурный митинг (гражданская панихида) - один из видов траурных процессий, организуемых в залах зданий или на открытом воздухе по установленному распорядку.

Траурный этикет - нормы и правила поведения, направленные на решение психологических и организационных задач во время церемонии погребения.

Урна с прахом - сосуд, в который помещается запаянный целлофановый пакет с прахом умершего. Урны могут иметь различные внешние оформления.

Участки-кварталы кладбища - участки, на которые разбивается дорожной сетью зона захоронения кладбища. Нумерация кварталов устанавливается согласно чертежу генерального плана кладбища. Номера кварталов указываются на табличках, укрепляемых на столбиках, устанавливаемых на углах кварталов.

Участники погребения - группа лиц, непосредственно участвующая в похоронах и включающая в себя взявших на себя обязанности проведения погребения, близких родственников, друзей, сослуживцев, соседей, священников, певчих и др.

Церемониймейстер - организатор погребения, специалист в области похоронной обрядности, который может быть сотрудником специализированной службы по вопросам похоронного дела, салона-магазина, органа местного самоуправления или протокольной службы места, где работал умерший. Функции церемониймейстера определяются настоящими Рекомендациями.

Церемония похорон - церемония, включающая в себя совокупность обрядов омовения и подготовки к похоронам, траурного кортежа, прощания и панихиды, переноса останков к месту погребения, захоронения останков (или праха после кремации), поминовения.

Шильдик - карточка с фотографией, указанием должности, фамилии, имени и отчества владельца, носимая на левой стороне груди.

Эпитафия - траурная надпись на надмогильном сооружении или мемориальной плите в форме литературного произведения, как правило, символического содержания.

Этикет - традиционные общепринятые правила поведения.

Ярусы колумбариев (стен скорби) - горизонтальные ряды ниш, в которых размещают урны с прахом.

3. ДОКУМЕНТЫ

3.1. Документы в сфере похоронного обслуживания могут:

- относиться к захоронению в землю или кремации;

- удостоверять личность работников похоронных служб.

3.2. Документы в сфере похоронного обслуживания включают в себя (приведены в алфавитном порядке):

Документы для захоронений - набор документов, включающий свидетельство о смерти, счет-заказ на похороны, заявление о захоронении, удостоверение о захоронении (удостоверение о захоронении урны с прахом), книгу регистрации установки надгробий (см. соответствующие статьи данного раздела).

Документ на получение праха - справка, включающая название города и крематория, где выполняются кремация, регистрационный номер кремируемого, его фамилию, имя, отчество, возраст, дату кремации, время когда выдается прах (дни и часы), фамилию, имя, отчество ответственного за получение праха, перечень документов, необходимых для получения праха, срок хранения праха, срок хранения праха в крематории со дня кремации, телефон для справок, фамилию, имя, отчество и подпись представителя администрации крематория.

Документы о кремации - набор документов, включающий справку о кремации, документ на получение праха, журнал регистрации кремации, регистрационную карточку о кремации и сопроводительную карточку - карточку кремируемого (см. соответствующие статьи данного раздела).

Журнал регистрации кремаций - книга формата A3 (297×420 мм), которая имеется в крематории в единственном экземпляре и может дублироваться только в ЭВМ. Листы журнала нумеруются, журнал прошнуровывается и опечатывается. Он возобновляется ежегодно, отработанная книга хранится бессрочно в администрации крематория, регистрационные номера возобновляются с № 1. Каждый лист журнала включает регистрационный номер, фамилию, имя, отчество умершего, сведения о том, кем, где, когда выдано свидетельство о смерти, его номер, время проведения ритуала прощания (дата, часы и минуты), номер ритуального зала крематория, где проходило прощание, фамилию, имя и отчество оформляющего заказ на кремацию.

Заявление о захоронении - бланк, заполняемый лицом, осуществляющим организацию погребения, и включающий фамилию, имя, отчество последнего, место захоронения, дату и подпись заявителя, а также заключение администрации кладбища о возможности захоронения, заверенное подписью администратора с указанием даты.

Книга регистрации захоронений - книга, в которой работники конторы кладбища регистрируют каждое захоронение, с указанием фамилии, имени, отчества захороненного, номера квартала, сектора, могилы даты захоронения.

Книга регистрации установки надгробий - книга, в которой работники конторы кладбища регистрируют установку надгробий. На обложке книги указываются название города и кладбища, дата начала и окончания записей в ней, которые содержат регистрационный номер, фамилию, имя и отчество захороненного, данные о документе изготовителя надгробия, дату установки надгробия, номера квартала, сектора и могилы (колумбария, его яруса и ниши), данные о материале и размерах надгробия, данные о разрешении на установку надгробия, фамилию, имя, отчество и адрес лица, ответственного за могилу (нишу колумбария).

Регистрационная карточка о кремации - карточка, в которой указаны номер кремации, фамилия, имя, отчество умершего, его возраст, пол и национальность, время кремации, фамилия, имя и отчество лица, получающего прах, его адрес и телефон, а также подпись о получении документа на выдачу праха и дата.

Регистрационная книга захоронения урн - книга, в которой записываются сведения о захоронении урн с прахом, содержащие фамилию, имя, отчество умершего, дату смерти, дату и место кремации, дату захоронения, номера квартала, сектора и могилы, куда захоронен прах, или номера яруса и ниши колумбарной стены, фамилию, имя и отчество ответственного за захоронение.

Сопроводительная карточка кремируемого - карточка, содержащая регистрационный номер, номер ритуального зала, фамилию, имя и отчество, возраст и пол кремируемого, подпись диспетчера. Сопроводительная карточка изготавливается из плотной бумаги яркой расцветки. По окончании ритуала прощания после закрытия и опломбирования гроба она прибивается на торец крышки или помещается в специальный карман на обивке гроба (если он предусмотрен). После этого гроб направляется в кремационное отделение и доставляется к кремационной печи, где сопроводительная карточка снимается с крышки гроба (вынимается из кармана) и помещается в карман на той печи, где производится кремация. По завершении кремации прах выгребается из печи в специальный контейнер, в карман которого из кармана печи перекладывается сопроводительная карточка. Затем после окончательной подготовки праха (извлечение гвоздей и других магнитоактивных предметов, размол и т.д.) и засыпки его в урну эта карточка также помещается в урну. Снаружи на урне указывается только регистрационный номер, по которому определяется ее принадлежность. При захоронении урны желательно сопроводительную карточку из нее не вынимать.

Справка о кремации - справка, в которой указывается название города и крематория и записано, что тело умершего (фамилия, имя, отчество) предано кремации (дата, число, минуты), а также, что прах выдан для захоронения (место захоронения). Справка подписывается диспетчером крематория и заверяется печатью специализированной службы по вопросам похоронного дела. В ней указываются дата выдачи и телефон для справок.

Счет-заказ на похороны - документ с уголковым штемпелем организации, оформившей заказ, с указанием в правом верхнем углу кода организации, табельного номера агента похоронной службы и телефона для справок. Счет-заказ включает шесть вертикальных столбцов: номер раздела, код, наименование изделия или услуги (применительно к автотранспортным услугам указываются дата и время подачи, краткое описание маршрута следования автотранспорта), количество изделий, прейскурант (цена), общая стоимость изделий или услуг. В горизонтальных строках вносятся принадлежности (похоронные), надмогильные сооружения, автотранспортные услуги (доставка принадлежностей, услуги катафального и пассажирского транспорта), услуги по подготовке тела к захоронению, услуги работников похоронной службы, услуги оркестра, установка надмогильного сооружения, услуги на кладбище (рытье могилы и захоронение) и в крематории (кремация с выдачей праха, предоставление урны для захоронения праха, организация музыкального сопровождения), услуги агента похоронной службы, прочие услуги. Счет-заказ имеет свой номер и в «шапке» содержит фамилию, имя и отчество умершего, его возраст (полные годы), дату смерти, серию, номер и дату выдачи свидетельства о смерти, наименование отдела ЗАГСа, выдавшего свидетельство. В конце счета-заказа указаны документы, необходимые в день похорон (свидетельство о смерти, паспорт заказчика, оформленный счет-заказ, удостоверение на могилу, квитанция об оплате родственного захоронения, при отправке цинкового гроба - справка СЭС, а также общая стоимость заказа, подтверждение о получении указанной суммы агентом, банковские реквизиты похоронной службы, подписи заказчика и агента похоронной службы.

Удостоверение агента похоронной службы - книжечка формата 90×60 мм с жесткой обложкой, на которой выполнено тиснение «Удостоверение агента похоронной службы». На первой странице указано: «Специальная служба по вопросам похоронного дела», «Удостоверение агента похоронной службы», название города, где эта служба организована. На странице 2 указаны номера салона-магазина, данного удостоверения, кому оно выдано (фамилия, имя, отчество), до какого времени удостоверение действительно. Данные страницы 2 заверяются подписью директора салона-магазина и печатью. На странице 3 приклеивается фотокарточка владельца удостоверения размером 30×40 мм, указываются даты его выдачи и продления сроков действия. В конце приводятся личная подпись агента и телефон салона-магазина.

Удостоверение о захоронении - книжечка формата 90×60 мм с жесткой обложкой, на которой имеется тиснение «Удостоверение о захоронении». На странице 1 указано: «Специализированная служба по вопросам похоронного обслуживания», «Удостоверение о захоронении», название города, где осуществляется захоронение. На странице 2 указаны салон-магазин, выдавший удостоверение, кому оно выдано (фамилия, имя, отчество), регистрация захоронения кого (фамилия, имя, отчество) произведена, дата захоронения, название кладбища, номера квартала, сектора и могилы. Приведенные данные заверяются подписью заведующего кладбищем с указанием его фамилии, имени, отчества и печатью. Внизу страницы 2 указывается дата регистрации. На страницах 3, 4, 5 приводятся данные об установке и регистрации надгробия, о повторных захоронениях в данную могилу гроба или урны с прахом, о дополнительных надписях на надгробии о повторных захоронениях.

Удостоверение о захоронении урны с прахом - книжечка формата 90×60 мм с жесткой обложкой, на которой выполнено тиснение «Удостоверение о захоронении урны с прахом». На странице 1 указано: «Специализированная служба по вопросам похоронного дела», «Удостоверение о захоронении урны с прахом», название города, где осуществлено захоронение. На странице 2 указано, кому (фамилия, имя, отчество) выдано удостоверение о регистрации захоронения урны (с чьим (фамилия, имя, отчество) прахом), на кладбище какого крематория осуществлено захоронение, номера квартала, сектора, могилы, данные о документе о кремации, регистрационный номер кремации. Сведения заверяются подписью заведующего кладбища с указанием его фамилии, имени, отчества и печатью. Внизу страницы 2 указывается дата регистрации. На страницах 3, 4, 5 приводятся данные об установке и регистрации надгробия, в случае помещения урны в колумбарий - о регистрации установки урны с прахом в колумбарий (страница 4) с указанием его номера, номеров яруса и ниши, данные о документе о кремации и регистрационный номер кремации, сведения (страница 5) об установке и регистрации мемориальной плиты (приводятся номера ниши, яруса и колумбария).

Удостоверение церемониймейстера - в точности повторяет «Удостоверение агента похоронной службы», только вместо слов «Удостоверение агента похоронной службы» в нем указано «Удостоверение церемониймейстера».

3.3. К документам, удостоверяющим личность работников похоронных служб, относятся удостоверения агента похоронной службы и церемониймейстера.

4. ОСУЩЕСТВЛЕНИЕ ГОСУДАРСТВЕННЫХ ГАРАНТИЙ ПО ДОСТОЙНОМУ ОТНОШЕНИЮ К УМЕРШИМ

4.1. Захоронение останков тел умерших или их праха проводится в целях обеспечения санитарно-эпидемиологического и социального благополучия населения, сохранения физического и психического здоровья, поддержания нормального функционирования поселений. Процесс захоронения и операции, входящие в него, должны обеспечивать:

защиту населения, в том числе лиц, проводящих захоронения, от вредных воздействий останков или праха на их здоровье, окружающую природную среду, животный мир, застройку поселений;

неопределенно длительное использование мест погребения по своему основному назначению;

органичное сочетание с обрядовыми действиями, образующими погребение;

соответствие высказанному и подтвержденному свидетелями или представленному в письменной форме волеизъявлению лица о достойном отношении к его телу и памяти после смерти.

4.2. Погребение должно осуществляться в специально отведенных и оборудованных с этой целью местах.

Места погребения должны быть досягаемы для всех категорий пользователей, в том числе инвалидов и маломобильных лиц.

Исключение могут составлять случаи:

чрезвычайных ситуаций - катастроф, стихийных бедствий, аварий, когда извлечение останков и праха невозможно;

боевых действий, когда извлечение или уборка останков не поддаются проведению, и по этому поводу органами государственной власти приняты соответствующие решения;

когда смерть произошла на судне, находящемся в открытом море, и доставка тела на берег или его сохранение на судне в соответствии с нормами санитарной безопасности невозможны или чрезвычайно затруднены.

Самовольное погребение в не отведенных для этого местах не допускается. К лицам, совершившим такие действия, применяются меры действующего административного или уголовного законодательства как за действия, наносящие ущерб природе и обществу.

4.3. При выражении волеизъявления о достойном отношении после смерти к своему телу и памяти о себе следует учитывать:

реальность выполнения высказанной воли;

соблюдение интересов других граждан в части выполнения их воли или воли лиц, которых они представляют;

требования, предъявляемые к вопросам похоронного дела законодательными, нормативными документами и международными соглашениями.

4.4. Погребение рядом с ранее умершими при наличии на этом месте свободного участка земли или могилы ранее умершего близкого родственника либо ранее умершего супруга оговаривается в волеизъявлении умершего. В случае пожелания умершего быть погребенным на другом указанном им месте (не рядом с ранее умершими) выполнение волеизъявления умершего определяется специализированной службой по вопросам похоронного дела с учетом места смерти, наличия на указанном месте погребения свободного участка земли, возможности соблюдения санитарно-эпидемиологических норм, а также с учетом заслуг умершего перед обществом и государством.

В случаях, когда волеизъявление предусматривает погребение в форме развеивания праха, в том числе с воздушных судов, космических аппаратов или затопления тела в море и иных водоемах, то такие действия должны быть согласованы лицами и организациями, проводящими погребение, с органами Госсанэпиднадзора и охраны окружающей природной среды.

Погребение вне специально оборудованных мест погребения допускается только при положительном решении этих органов.

4.5. При рассмотрении вопросов погребения органами санэпиднадзора и охраны окружающей природной среды решение выдается не позднее чем через 1 сутки после подачи официального запроса по этому поводу.

4.6. Воля может быть изложена в письменном волеизъявлении или в письменном извещении родных, законных представителей умершего, иных лиц, взявших на себя обязанность погребения умершего. Форма волеизъявления приведена в приложении 1.

4.7. Свидетели устного волеизъявления умершего должны письменно подтвердить волю своего доверителя представителю специализированной службы по вопросам похоронного дела. Рекомендуемая форма письменного извещения приведена в приложении 2.

4.8. В случае, когда волеизъявление излагают лица, указанные в пункте 3 статьи 5 Федерального закона «О погребении и похоронном деле», приоритет между ними устанавливается в следующей последовательности:

оставшийся в живых супруг, дети;

родители (если они сохраняют родительские права), усыновленные;

усыновители, родные братья и сестры (по взаимному уговору);

внуки (по взаимному уговору), дедушка и бабушка;

иные родственники или законный представитель умершего, лицо, взявшее на себя обязанность осуществить погребение.

4.9. При наличии свидетельского извещения о волеизъявлении оно обладает приоритетом по отношению к волеизъявлению родственников. В случае существенного расхождения показаний о волеизъявлении в извещениях свидетелей и родственников умершего или иных его представителей специализированная служба по вопросам похоронного дела вправе обратиться в орган местного самоуправления, а по его указанию - в суд для скорейшего разрешения возникшего противоречия. Рассмотрение дела и выдача ответа должны быть проведены не более чем за двое суток с момента обращения в специализированную службу.

4.10. Если в волеизъявлении умершего не оговорено конкретное лицо, которому поручается осуществить погребение, или в случаях отказа вышеуказанного лица от исполнения порученных функций лицами, осуществляющими организацию погребения, могут быть в порядке очередности: супруг умершего, его ближайшие родственники первой и второй степени родства либо другие родственники, законный представитель умершего либо любое другое лицо, личность которого удостоверена в установленном порядке.

В случае отсутствия лиц, взявших на себя обязанности по организации похорон, они осуществляются специализированными службами по вопросам похоронного дела.

Лицо, осуществляющее организацию погребения, должно выполнить весь процесс организации погребения от оформления документов до принятия на себя ответственности за место захоронения.

4.11. Лицу, осуществляющему погребение, предоставляется право быть ответственным за могилу, нишу, иное место захоронения останков или праха с выдачей соответствующего удостоверения. Данное право включает в себя возможность быть в дальнейшем похороненным в этой могиле как в родственной, а также разрешать через установленный нормативными документами период времени захоронение в эту могилу родственников или близких умершего.

Ответственное лицо может передать по своему заявлению право ответственности за могилу иному лицу, готовому принять на себя такую ответственность в порядке, установленном органами местного самоуправления или региональными (территориальными) органами исполнительной власти.

Ответственное за могилу или нишу лицо обязано поддерживать чистоту и порядок на месте захоронения, проводить своевременно ремонт надмогильных сооружений и уход за могилой.

4.12. Лицу, осуществляющему погребение, а при его отсутствии - специализированной службе по вопросам похоронного дела предоставляется возможность:

произвести погребение на кладбище поселения, в котором наступила смерть умершего или в котором проживал или постоянно работал умерший;

произвести перевозку умершего для погребения в любое иное поселение для погребения при условии, что лицо, проводящее погребение, подтвердит возможность проведения там погребения.

4.13. Погребение на участках кладбищ почетных или военных захоронений может быть осуществлено специализированной службой по вопросам похоронного дела на основании ходатайства министерств, ведомств, других организаций при обосновании и подтверждении заслуг умершего, при отсутствии противоречий с волеизъявлением, предоставленным официально умершим, его супругом или близким родственником.

Решение о погребении на таких участках принимается органами исполнительной власти Российской Федерации, субъектов Федерации, местного самоуправления по предъявлении ходатайства непосредственно или через специализированную службу по вопросам похоронного дела.

4.14. В сельских поселениях, где отсутствуют специализированные службы по вопросам похоронного дела, такие функции исполняет лицо или группа лиц, назначаемые органом местного самоуправления или сходом жителей.

4.15. Лицам, проводящим погребение, предоставляется бесплатно участок для устройства могилы и надмогильных сооружений на кладбище любого вида. На общественных кладбищах в соответствии со статьей 21 Федерального закона «О погребении и похоронном деле» по просьбе лиц, проводящих погребение, могут предоставляться участки для родовых или семейных захоронений в порядке, определяемом органами региональной исполнительной власти или местного самоуправления.

4.16. Участки для захоронений на кладбищах предоставляются гражданам на правах бессрочного пользования и могут быть изъяты лишь при наличии на них бесхозных захоронений в порядке, установленном органами региональной исполнительной власти и местного самоуправления.

5. ОРГАНИЗАЦИЯ ПОХОРОННОГО ОБСЛУЖИВАНИЯ

Общие положения

5.1. Организация похоронного обслуживания должна основываться наследующих принципах:

обеспечение оперативного приема заказов на похороны;

внедрение кремации и рациональных способов погребения останков после кремации;

создание материально-технической базы похорон на современном уровне;

подготовка умерших к похоронам и их предпохоронное сохранение преимущественно в специальных стационарных условиях вне жилых зданий и медицинских учреждений;

рациональное размещение объектов похоронного обслуживания в градостроительной структуре города;

сохранение здоровья людей, участвующих в похоронах, навещающих места захоронения, работающих на объектах похоронного назначения, проживающих и работающих за территорией зоны санитарной защиты между кладбищем (крематорием) и объектами городской застройки;

гуманность обслуживания, функциональной организации в создаваемых и восстанавливаемых объектах обслуживания.

5.2. Похоронное обслуживание и содержание кладбищ в городах и регионах возложено на органы исполнительной власти субъектов Российской Федерации, в системе которых создаются специализированные службы по вопросам похоронного дела, в составе которых могут функционировать объединения, комбинаты, тресты, конторы, бюро похоронного обслуживания различных форм собственности.

5.3. Похоронное обслуживание и содержание кладбищ в сельских населенных пунктах возложены на органы местного самоуправления.

5.4. Порядок проведения похорон и захоронений с учетом местных традиций, национальных обычаев и особенностей вероисповедания может быть дополнен и изменен по согласованию с субъектами Российской Федерации и органами местного самоуправления.

5.5. Систему похоронного обслуживания следует ориентировать преимущественно на внедрение кремации, строительство крематориев и экономичные способы захоронения после кремации.

Органы похоронного обслуживания - специализированные службы по вопросам похоронного дела - должны разъяснять населению санитарно-гигиенические, экономические и другие преимущества кремации по сравнению с захоронением гроба в землю, а также проводить работу с представителями религиозных организаций с целью привлечения к этому православной церкви и других религиозных конфессий.

5.6. Похоронное обслуживание должно обеспечивать выполнение следующих процессов:

прием заказов на похороны и оформление соответствующих документов;

предоставление и доставку похоронных принадлежностей по месту нахождения умерших, перевозку умерших из жилых зданий, больниц и военных госпиталей (из последних после патолого-анатомических исследований) в учреждения похоронного обслуживания и на кладбища;

выполнение санитарно-гигиенических, парикмахерских и косметических услуг при подготовке умерших к похоронам;

предпохоронное сохранение умерших;

проведение траурных обрядов прощания и поминальных обедов;

погребение и перезахоронение умерших (традиционное - захоронение гроба в землю или захоронение останков после кремации);

создание архитектурно-ландшафтной среды мест захоронения;

производство и доставку похоронных принадлежностей, памятников, предметов похоронного ритуала.

Непосредственное предоставление гражданам услуг и продажу похоронных принадлежностей производят салоны-магазины (магазины) специализированных служб по вопросам похоронного дела.

На территории Российской Федерации в законодательном порядке гарантирован перечень услуг на безвозмездной основе, включающий: оформление и выдачу в установленном порядке документов, необходимых для погребения; предоставление и доставку гроба и других предметов ритуального обряда; перевозку тела (останков) умерших на кладбище или в крематорий; погребение или кремацию с последующей выдачей урны с прахом.

На территории субъектов Российской Федерации по решению их административных органов приведенный обязательный перечень гарантированных услуг по погребению может быть дополнен. Так, например в Москве дополнительно гарантированы: санитарная подготовка к захоронению и его облачение; обратная доставка участников похорон по указанному адресу; установка регистрационного знака с подписью (фамилия, имя, отчество погребенного, даты рождения и смерти).

Специализированные службы по вопросам похоронного дела

5.7. Специализированные службы по вопросам похоронного дела действуют на основе Федерального закона «О погребении и похоронном деле» (от 12 января 1996 г. № 8-ФЗ) и Правил бытового обслуживания населения в Российской Федерации (утверждены Постановлением Правительства Российской Федерации от 15 августа 1997 г. № 1025).

5.8. Специализированные службы по вопросам похоронного дела создаются органами исполнительной власти субъектов Российской Федерации и органами местного самоуправления.

5.9. Специализированные службы по вопросам похоронного дела осуществляют погребение умерших и оказывают услуги по погребению. Порядок их деятельности определяется органами исполнительной власти субъектов Российской Федерации и органами местного самоуправления.

5.10. Специализированные службы по вопросам похоронного дела несут юридическую ответственность за устройство и содержание мест погребений, осуществление гарантий погребений, исполнение волеизъявления умершего о погребении, предоставление гарантированных Федеральным законом «О погребении и похоронном деле» и аналогичными законами субъектов Российской Федерации перечня услуг по погребению, а также погребение умерших (погибших) не имеющих супруга, близких родственников, иных родственников или законного представителя умершего.

5.11. Специализированные службы по вопросам похоронного дела обеспечивают в соответствии с законодательными актами Российской Федерации и субъектов Российской Федерации формирование и сохранность архивного фонда документов по приему и исполнению заказов на услуги по погребению.

5.12. Специализированные службы по вопросам похоронного дела могут наделяться органами исполнительной власти субъектов Российской Федерации или органами местного самоуправления возвратными оборотными средствами в размере, необходимом для оказания услуг на безвозмездной основе, в течение месяца за счет средств бюджетов субъектов Российской Федерации и средств местных бюджетов. Компенсация затрат специализированных служб на выполнение на безвозмездной для потребителей основе работ осуществляется Пенсионным фондом, Фондом социального страхования и Фондом занятости, с которыми специализированные службы должны иметь соответствующие договоры.

Выплаты социального пособия осуществляются, если обращение за ним последовало не позднее шести месяцев со дня смерти, и производятся в день обращения органом, в котором умерший получал пенсию, организацией, в которой работал умерший (или работает один из родителей либо друзей, член семьи умершего несовершеннолетнего), органом социальной защиты населения по месту жительства в случаях, если умерший не работал и не являлся пенсионером, а также в случае рождения мертвого ребенка по истечении 196 дней беременности.

5.13. Специализированные службы по вопросам похоронного дела создаются в предусмотренных российским гражданским законодательством организационно-правовых формах и в зависимости от этого действуют на основании уставов или положений, которые не противоречат законодательным актам Российской Федерации и ее субъектов, а также зарегистрированы в установленном порядке.

5.14. Специализированные службы по вопросам похоронного дела могут заключать договоры с юридическими и физическими лицами на проведение отдельных работ как по погребению умерших, так и по устройству и содержанию мест погребений.

5.15. Специализированные службы по вопросам похоронного дела обязаны отслеживать случаи недобросовестного исполнения ритуальных услуг юридическими и физическими лицами и сообщать о них в органы местного самоуправления или в администрацию субъектов Российской Федерации.

5.16. Отказ специализированных служб по вопросам похоронного дела в оказании ритуальных услуг в связи с отсутствием у них необходимых средств или по другим основаниям недопустим (Указ Президента Российской Федераций от 29.06.1996 г. № 1001 «О гарантиях прав граждан на предоставление услуг по погребению умерших», пункт 1).

Салон-магазин (магазин) специализированной службы по вопросам похоронного дела

5.17. Салон-магазин (магазин) специализированной службы по вопросам похоронного дела - учреждение, в котором централизованно решаются вопросы, связанные с организацией похорон, оформляются документы на похороны, заказываются и оплачиваются услуги и похоронные принадлежности, доставляемые по адресу, указанному заказчиком.

Салон-магазин производит продажу похоронных принадлежностей по каталогам и образцам, магазин - непосредственно со склада при магазине.

5.18. Салон-магазин специализированной службы по вопросам похоронного дела:

предоставляет услуги агента похоронной службы или церемониймейстера - организатора похорон, обязанности которых по решению органов местного самоуправления может выполнять одно лицо;

оформляет государственное свидетельство о смерти на основании врачебного свидетельства о смерти или фельдшерской справки о смерти, полученных близкими умершего или агентом похоронной службы в медицинском учреждении (по согласованию с органом ЗАГСа);

оформляет документы на отвод участка для захоронения гроба с телом, урны с прахом или на нишу для установки урны с прахом в колумбарии;

оформляет документы на повторное захоронение на основании письменного согласия лица, на имя которого зарегистрирована могила или ниша в колумбарии (при предъявлении заявителем паспорта и удостоверения о захоронении), и письменного разрешения администрации кладбища или крематория.

Повторное захоронение - захоронение гроба с телом в могилу, в которой в данный момент уже находится захоронение, разрешается только при истечении полного периода минерализации, устанавливаемого местными организациями санитарно-эпидемиологического надзора, но не ранее чем через 13-15 лет;

продает похоронные принадлежности по каталогам и образцам (деревянные и металлические гробы, урны для праха, венки, ленты с надписями и т.п.);

доставляет похоронные принадлежности по адресу, указанному заказчиком;

предоставляет зал для торжественно-траурной церемонии прощания в здании траурных гражданских обрядов или в крематории;

перевозит умершего (в гробе) из дома или больницы в здание траурных гражданских обрядов, в крематорий или на кладбище;

предоставляет автокатафалк для перевозки гроба с телом и пассажирский транспорт для следования процессии на кладбище, к зданию траурных гражданских обрядов или в крематорий и возвращения участников похорон по указанному адресу;

предоставляет автокатафалк для перевозки гроба с телом в культовое здание, а затем на кладбище или в крематорий;

проводит траурную церемонию прощания в здании траурных гражданских обрядов, на площадке кладбища, в ритуальных залах крематория, в том числе обеспечивает музыкальное сопровождение похорон;

оформляет заказ на изготовление и установку памятника на могиле или плиты, закрывающей нишу колумбария;

предоставляет автокатафалк для перевозки гроба с телом на железнодорожную станцию, в аэропорт, в речной или морской порт данного города для последующей перевозки его в другой населенный пункт железнодорожным, воздушным или водным транспортом, а также предоставляет автокатафалк для перевозки гроба с телом из аэропорта, с железнодорожной станции, из речного или морского портов данного города в морг, в здание траурных гражданских обрядов, на кладбище или в крематорий;

предоставляет автокатафалк для междугородней перевозки гроба с телом на предельное расстояние, устанавливаемое решением органа исполнительной власти субъекта Федерации или местного самоуправления по письменному разрешению органа государственного санитарно-эпидемиологического надзора;

консультирует предприятия, организации, учреждения по вопросам организации и проведения похорон, а также снабжает их памятками для комиссий по организации и проведению похорон (см. приложение 17);

разъясняет гражданам преимущества кремации;

оформляет счет-заказ на похороны и получает плату за услуги и товары по наличному или безналичному расчету (приложение 3).

5.19. Должностное лицо, ответственное за прием заказов на похороны по телефону, должно записать фамилию, имя и отчество заказчика (или наименование организации-заказчика), его адрес и номер телефона, проверить правильность заказа по телефону, снабдить соответствующими бланками агента похоронной службы или церемониймейстера и направить одного из них к заказчику, куда он должен прибыть не позже точно назначенного времени.

Оборудование салона-магазина (магазина) специализированной службы по вопросам похоронного дела

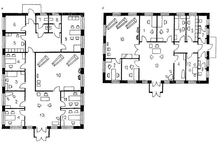
5.20. Салоны-магазины (магазины) специализированной службы по вопросам похоронного дела (типовая планировка которых представлена на рис. 1 а, б) должны иметь рабочие места для работы с документами, с принадлежностями для обряда, места для обслуживания посетителей, для их ожидания и отдыха, демонстрационные помещения или функциональные зоны. Они должны быть оборудованы:

письменными столами, стульями (креслами), шкафами, кассовыми сейфами, сейфами для хранения документов, кассовыми аппаратами, столами для разглаживания траурных лент и выполнения надписей на этих лентах, телефонной связью;

стендами с необходимым перечнем предоставляемых похоронных принадлежностей и услуг (в том числе на безвозмездной основе), а также утвержденным в установленном порядке прейскурантом цен на эти принадлежности и услуги, предусмотренным законодательством Российской Федерации по вопросам ценообразования;

стендами, содержащими лицензию на право предоставления ритуальных услуг, правила пользования кладбищами и крематориями, правила работы муниципальных кладбищ и крематориев и порядок их содержания и т.п.;

вывеской с указанием фирменного наименования (если оно имеется), вида деятельности, юридического адреса и режима работы;

стендами и витринами (в салоне-магазине) для размещения образцов похоронных принадлежностей (гирлянд, лент, урн для праха, шрифтов для надписей, надписей на лентах и т.д.) и памятников или их цветных фотографий с указанием наименования и стоимости изделия;

настенными часами и календарем.

5.21. В салонах-магазинах (магазинах) специализированных служб по вопросам похоронного дела должны находиться:

цветные фотографии транспортных средств (в том числе катафалков), образцов оформления мест захоронения в гробах и после кремаций;

цветные фотографии зданий траурных гражданских обрядов, крематориев, ритуальных залов крематориев и ритуальных залов прощания (в городах);

памятки с рекомендациями по организации и проведению похорон, разъяснениями преимуществ кремации, номерами телефонов салонов-магазинов и магазинов;

аптечки первой доврачебной помощи;

книги отзывов и предложений по работе салонов-магазинов и магазинов;

справочная литература для заказчиков.

Агент похоронной службы

5.22. Агент похоронной службы (далее - агент) является штатным сотрудником похоронной организации или предприятия, в том числе салона-магазина специализированной службы по вопросам похоронного дела.

5.23. Функциями агента являются предоставление услуг (в том числе на дому) по организации похорон и обеспечению заказчика похоронными принадлежностями.

Агент обязан обслуживать заказчика независимо от места нахождения умершего дома или в морге больницы.

5.24. Агент во время исполнения служебных обязанностей должен иметь при себе:

служебное удостоверение (приложение 4) и шильдик, одеваемый на левую сторону груди;

каталог с цветными фотографиями похоронных принадлежностей;

прейскурант цен на услуги и товары, утвержденный в установленном порядке, цветные фотографии залов здания траурных гражданских обрядов, ритуальных залов крематория, урн для праха, памятников, образцов оформления мест захоронений;

перечень музыкальных произведений (репертуар) для сопровождения похорон;

бланки счетов-заказов на похороны (см. приложение 3).

5.25. Агент должен быть детально осведомлен о порядке проведения похорон, о времени работы кладбищ, зданий траурных гражданских обрядов, крематориев и моргов, находящихся в обслуживаемом им населенном пункте. Он должен знать и уметь доходчиво объяснять преимущества кремации, отношение к кремации умерших православной церкви и иных концессий, рассказать о способах захоронения праха и оформления мест захоронения, а также правила оформления документов.

5.26. Агент должен знать ритуалы обрядов похорон с учетом национальных особенностей и особенностей вероисповедания.

5.27. Войдя в дом, агент должен представиться близким умершего, предъявить служебное удостоверение и выразить им соболезнование. Разговор агента с родственниками должен протекать в форме благожелательной неторопливой беседы. По мере возможности агент должен учитывать пожелания близких умершего по организации похорон и проведению обряда, в том числе декору похоронных принадлежностей.

5.28. Для определения размеров гроба агент должен узнать у близких умершего рост покойного. Агент может дать совет, в какую одежду и обувь облачить покойного.

5.29. Агент должен:

узнать у родственников умершего предполагаемое число участников похорон, фамилии, имена и отчества лиц, которые будут выступать на траурной церемонии прощания;

установить с близкими родственниками или лицом, взявшим на себя ответственность за проведение похорон, способ захоронения в соответствии с волеизъявлением умершего или в случае отсутствия волеизъявления по согласованию с супругом, близкими родственниками (дети, родители, родные братья и сестры, внуки, дедушка, бабушка), иными родственниками, законным представителем умершего или (при отсутствии вышеперечисленных лиц) лицом, взявшим на себя ответственность осуществлять погребение умершего;

подготовить тексты на лентах для венков, учитывая при заказе что текст от родных и близких обычно пишется на лентах белого цвета, от друзей и сотрудников - на лентах красного и черного цветов;

согласовать программу музыкального сопровождения с лицами, проводящими погребение;

внести запись о жизненном пути покойного в специальную форму «Краткие сведения о умершем (ей)» (приложение 18) (оформляется в трех экземплярах).

5.30. Агент должен принять заказ на похороны и обеспечить:

получение по паспорту умершего или свидетельству о рождении медицинского свидетельства о смерти или фельдшерской справки о смерти в медицинском учреждении;

оформление свидетельства о смерти в отделе ЗАГСа, в салоне-магазине (магазине) специализированной службы по вопросам похоронного дела и сдачу в этих организациях паспорта и военного билета;

приобретение в магазине специализированной службы по вопросам похоронного дела похоронных принадлежностей и доставку их по адресу, указанному заказчиком;

получение на кладбище разрешения на погребение и подготовку могилы к захоронению;

предоставление зала в здании траурных гражданских обрядов или в ритуальном зале крематория для проведения ритуала прощания;

перевозку гроба с телом в здание траурных гражданских обрядов, ритуальный зал крематория, культовое здание, на кладбище или предоставление автокатафалка для перевозки гроба с телом и пассажирского транспорта для следования процессии в здание траурных гражданских обрядов, крематорий, культовое здание или на кладбище и возвращение процессии по указанному адресу;

изготовление фотопортрета умершего - репродукции фотографии с увеличением;

организацию музыкального сопровождения похорон;

вызов церемониймейстера из салона-магазина (магазина) специализированной службы по вопросам похоронного дела.

5.31. Агент обязан до начала похорон доставить семье умершего свидетельство о смерти.

5.32. Агент обязан внести стоимость заказанных услуг и похоронных принадлежностей в счет-заказ на похороны (в четырех экземплярах), который должен подписать заказчик, и получить от заказчика деньги. На каждом подписанном заказчиком бланке счета-заказа агент ставит штамп «Оплачено» с указанием общей суммы в рублях (прописью) и копейках и свою подпись. Полученные от заказчика деньги и три экземпляра оформленного счета-заказа агент должен сдать в магазин в день оформления заказа, а первый экземпляр счета-заказа оставить заказчику.

5.33. Два экземпляра «Кратких сведений о умершем (ей)», подготовленных агентом вместе с близкими умершего, агент должен сдать в магазин, третий экземпляр оставить близким. Один экземпляр «Кратких сведений об умершем (ей)» из магазина должен быть передан в здание траурных гражданских обрядов или ритуальный зал крематория - эти сведения являются основой для руководителя ритуала - лица, которое проводит церемонию прощания в указанном здании или зале.

5.34. Агент несет ответственность за полное и своевременное исполнение заказа.

Перед уходом из дома умершего агент еще раз выражает соболезнование его родным и близким.

6. ОРГАНИЗАЦИЯ И ПРОВЕДЕНИЕ ПОХОРОН

Общие положения

6.1. В соответствии с Федеральным законом «О погребении и похоронном деле» обряды похорон определяются как погребение. В церемонию похорон входят, как правило, обряды:

омовения и подготовки к похоронам;

траурного кортежа (похоронного поезда);

прощания и панихиды (траурного митинга);

переноса останков к месту погребения;

захоронения останков (праха после кремации);

поминовения.

6.2. Порядок проведения обрядов и обрядовых церемоний (ритуал) определяет:

состав участников и их роли;

облачение участников и их атрибутику;

вид и декор предметов для проведения похорон;

вид, организацию и декор помещений, в которых проводятся обряды;

порядок обрядовых действий, состав ритуальных речей;

порядок движения в процессиях и кортежах, порядок действий во время движения;

музыкальное, иные виды сопровождения обрядовой церемонии.

6.3. Ритуал гражданских похорон в Российской Федерации является рекомендуемым, но может утверждаться органами исполнительной власти в соответствии с их компетенцией в качестве обязательного.

Обязательными обрядами являются воинские, и их ритуалы вводятся уставами Вооруженных сил Российской Федерации. Похороны государственных деятелей проводятся, как правило, по этим же ритуалам.

Религиозные обряды похорон являются рекомендательными. Они могут включаться как составная часть общегражданской обрядовой церемонии по желанию лиц, проводящих похороны. Их содержание устанавливается религиозными организациями, конфессиями.

6.4. В состав ритуалов похоронных обрядов не допускается включать речи и действия, использование символики и атрибутики, способные:

причинить вред жизни и здоровью людей;

усилить психические травмы участников похорон;

создать чрезвычайные ситуации;

оскорбить чувства участников похорон.

6.5. Не рекомендуется включать в состав похоронных обрядов жертвоприношения животных.

6.6. В зависимости от обстоятельств смерти погребение может проводиться индивидуально для каждого умершего или одновременно для группы умерших.

Групповое погребение не должно проводиться, если волеизъявление лиц, имеющих на него право в соответствии с федеральным законом, содержит иное пожелание, для выполнения которого имеется возможность.

При проведении группового погребения захоронение может производиться как в индивидуальные могилы, так и в общую для данной группы умерших. Захоронение прахов в «стенах скорби» открытых и закрытых колумбариев производится в индивидуальные ниши.

6.7. Групповое погребение может проводиться в случаях, повлекших смерть группы лиц одновременно:

при аварии, стихийном бедствии, иной чрезвычайной ситуации;

при гибели транспортного средства;

в результате боевых действий;

при несчастных случаях;

в результате уголовного преступления.

6.8. В случаях, когда групповое погребение проводится для группы лиц, состоящих из военных и гражданских лиц, воинские почести следует отдавать всей группе умерших.

6.9. Если групповое погребение проводится для лиц различного вероисповедания, то исполнение религиозных обрядов погребения следует проводить последовательно, в порядке убывания количества лиц одного вероисповедания.

Представители различных конфессий и священнослужители должны с уважением относиться к представителям как своей, так и иных конфессий, не препятствовать совершению обрядов, посильно содействовать работникам специализированных служб по вопросам похоронного дела в выполнении ими своих функций при проведении церемонии погребения.

6.10. Провоцирование конфликтов на почве религиозных, семейных, национальных, иных социальных, в том числе политических, расхождений во взглядах при проведении погребений является нарушением статьи 29 Конституции Российской Федерации. Специализированные службы по вопросам похоронного дела, организации, проводящие погребение, органы охраны правопорядка должны принимать надлежащие меры по профилактике, предотвращению и своевременному прекращению таких конфликтов.

6.11. В обрядовых церемониях могут принимать участие:

лица, взявшие на себя обязанность провести погребение (в частности, представители организаций, где работал, учился или служил умерший);

близкие родственники;

друзья и близкие, сослуживцы, соседи;

привлеченные лица, в частности священники, певчие и служки.

6.12. Организацию и проведение погребения выполняет персонал специализированных служб по вопросам похоронного дела: церемониймейстеры (организаторы похорон), водители специализированного транспорта, работники кладбищ и крематориев, оркестры и музыкальные ансамбли.

Дополнительные услуги могут оказывать магазины по продаже похоронного инвентаря, продуктов питания, цветов.

Участники погребения

6.13. Для достойного проведения погребения лицо, взявшее на себя ответственность за проведение погребения, должно совместно с церемониймейстером специализированной службы, а при его отсутствии - лично организовать участников погребения, разъяснить им порядок проведения обрядовой церемонии, предупредить их об особенностях ритуала и траурного этикета и дать им необходимые советы.

6.14. Правила и нормы общегражданского траурного этикета являются основополагающими по отношению к этикету национальных и религиозных традиций и установлений. Они опираются на общепринятые международные традиции гражданских и воинских похорон, дополненные традициями народов Российской Федерации, и образуют протокольную церемонию погребения.

Наиболее употребимыми являются этикет траурной одежды, поведения во время прохождения обряда, использования атрибутики, состава речей и музыкального сопровождения.

6.15. В качестве общепринятого траурного вида одежды для мужчин следует считать строгий костюм парадного покроя темных тонов или черного цвета с белой или светлой сорочкой и галстуком, согласующимся с костюмом по цвету и фактуре. Рисунок на галстуке допускается малозаметный. Применение ярких цветов не рекомендуется. Носки не должны быть светлей костюма, а обувь - светлей носков. На похоронах, проводимых по государственному протоколу, обувь может быть лаковой. Головной убор отсутствует или не надевается, за исключением случаев, когда национальные или религиозные требования гласят иное. Прическа - аккуратная, сдержанная. Лицо - чисто выбрито, борода и усы - аккуратно подстрижены.

6.16. В летнее время при жаркой погоде мужчинам допускается быть в рубашке с галстуком без пиджака или соответствующего ему элемента костюма.

В холодное время года поверх траурного костюма надевается плащ или пальто неярких, желательно темных тонов и головной убор, который снимается при входе в здание, а также при церемониях прощания и захоронения.

6.17. Для военнослужащих предусматривается ношение парадной формы одежды в соответствии с Уставом гарнизонной и караульной службы. При участии в гражданских похоронах - форма парадная, в брюках и ботинках. В летнее время допускается ношение белой рубашки с парадными погонами.

Использование повседневной формы не рекомендуется, а камуфляжной - не допускается, (за исключением случаев проведения погребения в боевых и чрезвычайных условиях).

6.18. Траурный наряд для женщин предполагает ношение темного однотонного закрытого платья или костюма с длиной юбки не выше середины колена. Желательно наличие головного убора, который допускается снимать лишь в доме. В качестве убора могут использоваться шляпы темных тонов, в том числе с вуалью, платки, шарфы. Не рекомендуются в качестве головных уборов береты и шляпы ярких или светлых тонов.

Обувь не должна быть светлее тона или цвета платья. Допускается в качестве аксессуаров использовать перчатки, цвет которых не должен быть светлее цвета платья. Украшения не используются, за исключением обручальных колец и украшений из черного агата. Прическа должна быть сдержанной, макияж - дневным, минимальным и неярким.

6.19. Не допускается в женском траурном туалете обнажение рук и ног, исключая кисти рук.

6.20. В холодное время года не рекомендуется одевать плащи и пальто ярких или светлых расцветок и рисунков.

6.21. Участвующие в почетном карауле у гроба носят на левом предплечье повязку с траурным (черного цвета) окаймлением. Рекомендуемый цвет повязки - цветов государственного флага Российской Федерации. Допускается использование повязок красного цвета.

6.22. Допускается использование в траурных церемониях парадных национальных костюмов и платьев. В качестве символов траура могут применяться повязки черного цвета, черные банты, розетки, ленты.

6.23. Священнослужители и их помощники должны быть одеты в соответствии со своими конфессиональными требованиями.

6.24. Используемые в качестве траурных аксессуаров букеты цветов не должны иметь ярких цветных и блестящих оберток. Количество цветов следует принимать четным.

6.25. Участники погребения должны придерживаться норм и правил траурного этикета, которыми не разрешается:

шуметь, громко разговаривать, смеяться;

размахивать руками, динамично двигаться, расталкивать присутствующих, ссориться и спорить;

останавливаться на путях движения почетного караула, траурной процессии, лиц, обслуживающих траурную церемонию;

нарушать порядок движения траурной процессии, порядок размещения в ней, порядок размещения за поминальным столом;

вкладывать в гроб и одежду умершего посторонние предметы, в том числе способные повредить при кремации оборудование крематория;

оскорблять чувства участников похорон и память умершего.

Следует быть особенно предупредительными и почтительными к семье покойного, его близким, священнослужителям, пожилым людям, лицам, проводящим траурную церемонию.

6.26. Близких родственников следует освобождать от необходимости нести гроб и участвовать в почетном карауле.

6.27. Участники погребения, не являющиеся близкими родственниками умершего, должны оказывать содействие и помощь церемониймейстеру или иному лицу, проводящему погребение, в формировании почетного караула, группы выноса гроба с телом умершего, траурной процессии и кортежа, выполнять их указания и следовать их советам.

6.28. Не рекомендуется иметь при себе вещи, обременяющие во время участия в погребении, - портфели, громоздкие сумки, кейсы, рюкзаки. В плохую погоду целесообразно иметь при себе зонты или одежду для защиты от дождя.

6.29. В речах, выступлениях и беседах следует придерживаться принципа «о покойном - либо хорошее, либо ничего». Выступать с критическими соображениями на погребении - неприлично. Целесообразно использовать в выступлениях и поминальных тостах традиционные речевые формулы типа: «вечная тебе (Вам) память», «память о тебе (Вас) сохранится навсегда в наших сердцах», «просим у тебя (Вас) прощения за всякую боль, причиненную вольно или невольно», «пусть земля будет тебе (Вам) пухом», «благодарим тебя (Вас) за твой (Ваш) жизненный путь», «спи спокойно».

6.30. При занятии мест для сидения в помещениях или транспортных средствах наиболее удобные места предоставляют:

близким родственникам умершего - остальные участники погребения;

старшим по возрасту (званию, служебному положению) - младшие по возрасту (званию, служебному положению);

женщинам - мужчины;

священнослужителям - прихожане.

6.31. При организации в доме музыкального сопровождения его громкость должна быть умеренной, а репертуар - отвечающим социокультурным представлениям близких родственников и товарищей по работе (службе). Не рекомендуется использовать музыку, если это усиливает тяжелое психологическое состояние близких родственников.

Персонал, проводящий погребение

6.32. К персоналу, проводящему погребение, относятся церемониймейстеры, оркестранты, персонал кладбищ и крематориев.

6.33. Организаторами погребения являются церемониймейстеры - специалисты в области похоронной обрядности. Они могут быть сотрудниками специализированной службы по вопросам похоронного дела или магазина-салона, представителями протокольных служб мест, где работал или служил умерший, а при их отсутствии эту роль выполняет наиболее компетентный участник погребения или священнослужитель.

Роль церемониймейстера может принимать на себя агент специализированной службы или представитель органа местного самоуправления.

6.34. На многолюдных похоронах церемониймейстеров может быть несколько, и они могут работать в группе, распределяя между собой функциональные обязанности.

6.35. Функциями церемониймейстера являются:

руководство похоронами в день их проведения;

помощь близким родственникам умершего или лицу, взявшему на себя обязанности провести погребение, в оформлении документов;

консультирование участников погребения по обрядовым вопросам;

разъяснение участникам погребения их ролей и распределение обрядовых функций между участниками;

организация интерьеров помещений для обряда прощания, помощь в их декорировании и расстановке мебели;

подбор фонограмм для репертуара оркестра или ансамбля;

подготовка траурного митинга, выступлений на нем;

режиссура обрядовой церемонии;

формирование траурного шествия и кортежа (поезда);

взаимодействие с персоналом кладбища или крематория в момент прибытия туда, проверка готовности могилы;

проведение обряда захоронения, руководство его проведением;

помощь в проведении первого поминовения;

проводы участников похорон домой или в поминальный зал.

6.36. Церемониймейстер специализированной службы по вопросам похоронного дела должен быть одет по одному из предлагаемых вариантов:

мужчина:

на похоронах по государственному протоколу - в черный фрак или смокинг (в зависимости от ранга усопшего);

на похоронах по деловому протоколу - в смокинг или визитку черного или темного цветов;

на похоронах вне протокола допускается одеваться в костюм парадного покроя темного или черного цвета с галстуком или бабочкой;

в специализированную униформу, по образцу, утверждаемому органами региональной власти или местного самоуправления;

женщина:

на похоронах по государственному протоколу - в закрытом темном платье длиной до щиколотки с головным убором в цвет платья и перчатках такого же цвета;

на похоронах по деловому протоколу - то же, что и по государственному, или деловой костюм той же длины с головным убором;

на похоронах вне протокола - темное платье или деловой костюм с головным убором, длина от середины колена до щиколотки;

в специальную униформу по образцу, утвержденному органами региональной власти или местного самоуправления.

Макияж - дневной, повседневный, сдержанный.

На левой стороне груди должна быть розочка черного цвета с шильдиком или шильдик с указанием имени, отчества, фамилии, должности и названия службы или входящего в него предприятия.

Обувь должна быть черной или в цвет костюма с учетом условий прохождения траурной процессии.

6.37. Лица, взявшие на себя обязанность церемониймейстера, но не являющиеся работниками специализированной службы по вопросам похоронного дела, на левой стороне груди носят черный бантик с длинными, свисающими концами (косицами) длиной от 5 до 10 см или розетку черного цвета со свисающими ленточками указанной длины.

6.38. Церемониймейстер (организатор похорон) должен знать порядок проведения похоронного обряда при похоронах из дома, из морга, из организации (предприятия) и т.д., национальные похоронные обычаи, особенности похорон с учетом вероисповедания, правила оформления соответствующих документов, уметь пользоваться магнитофоном и оказывать первую доврачебную помощь.

6.39. Организатор похорон - работник специализированной службы по вопросам похоронного дела во время исполнения служебных обязанностей должен иметь при себе служебное удостоверение (приложение 5).

6.40. В день проведения похорон церемониймейстер в точно назначенное время должен прибыть к месту, откуда начнутся похороны, представиться близким родственникам умершего, предъявить им служебное удостоверение и принять на себя руководство похоронами.

6.41. Церемониймейстер должен проверить наличие у близких свидетельства о смерти и счета-заказа на похороны.

6.42. Организатор похорон назначает из числа участников похорон лиц для несения гроба и атрибутов похорон, определяет состав почетного караула, разводящего и смены, руководит выносом гроба, формирует траурный автомобильный кортеж, руководит построением и шествием траурной процессии, а также траурным митингом.

6.43. Лица, обеспечивающие музыкальное сопровождение, - вокалисты, музыканты, звукооператоры - должны быть одеты в концертную форму или униформу темного или черного цвета, иметь с собой все необходимое для выполнения своих функций, в том числе инструменты, ноты и записи текстов, пюпитры, кассеты с фонограммами (или диски), звуковоспроизводящие устройства (если их не представляет заказчик церемонии).

6.44. Лица, ответственные за музыкальное сопровождение, должны знать похоронные обряды, репертуар траурной и государственной музыки, правила траурного этикета. Они выполняют функции церемониймейстера музыкального сопровождения и руководят этим сопровождением.

При участии оркестра эту функцию выполняет дирижер или администратор, а в военных оркестрах - тамбур-мажор.

6.45. На церемониймейстеров кладбищ и крематориев распространяются те же требования, что и на церемониймейстеров салонов-магазинов.

6.46. Подразделения военного почетного караула выполняют свои функции под руководством своих командиров, а те, в свою очередь, церемониймейстеров в соответствии с главой 17 Устава гарнизонной и караульной служб Вооруженных Сил РФ.

6.47. Персонал кладбищ, выполняющий работы на могиле, должен быть одет в опрятную рабочую форму и соблюдать во время работы правила траурного этикета.

6.48. Делопроизводители кладбищ и крематориев должны быть одеты в костюмы темного цвета или униформу с шильдиками. Они обязаны быть предупредительными и вежливыми. Невнимание, грубость, небрежность при обслуживании клиентов недопустимы.

Подготовка к погребению

6.49. Подготовка к погребению включает в себя:

получение медицинского свидетельства о смерти;

получение государственного свидетельства о смерти в органах ЗАГСа;

перевозку умершего в патолого-анатомическое отделение (если для этого есть основания);

приобретение и доставка похоронных принадлежностей;

оформление счета-заказа на проведение погребения;

омовение, пастижерные операции и облачение с последующим уложением умершего в гроб;

приобретение продуктов для поминальной трапезы или заказ на нее.

При необходимости в этот перечень включается перевозка умершего с места смерти к месту погребения в другой населенный пункт.

6.50. Погребение может производиться только при наличии медицинского и государственного свидетельства о смерти и после идентификации (опознания) личности умершего лицом, взявшим на себя обязанность провести погребение (в том числе родственником или близким умершего), в присутствии работника специализированной службы по вопросам похоронного дела.

6.51. Дача ложных показаний по вопросу идентификации личности умершего преследуется в соответствии с действующим законодательством.

6.52. В случае, когда идентификация личности по внешним признакам затруднена, может быть назначена генетическая экспертиза. Генетическая экспертиза проводится по требованию медицинского учреждения, выдающего свидетельство о смерти, органов внутренних дел, МЧС, Минобороны или по просьбе родственников, а в случае их отсутствия - лица, взявшего на себя обязанности провести погребение. При необходимости, в соответствии с федеральным законом, такие требования могут выдвигать специализированные службы по вопросам похоронного дела. Медицинское свидетельство в этом случае выдается на основании результатов экспертизы.

6.53. В ситуациях, когда смерть наступила в результате взрыва или иной чрезвычайной ситуации, в силу которой останки найдены быть не могут, факт смерти допускается устанавливать по свидетельству очевидцев органами исполнительной власти всех уровней или суду.

6.54. Погребение в ситуациях, изложенных в пункте 6.53, допускается проводить как заочное на основании свидетельства о смерти, выданного по решению органа исполнительной власти или суда.

6.55. Погребение лиц, личность которых не установлена, допускается производить специализированным службам по вопросам похоронного дела на основании решения органов внутренних дел на специализированных участках кладбищ. Кремация при этом не допускается, за исключением случаев, когда она необходима по требованиям санитарных правил и норм или по результатам патолого-анатомических исследований судебно-медицинской экспертизы.

6.56. Органы здравоохранения вправе потребовать проведение погребения в форме кремации в случаях, когда захоронение некремированных останков способно стать источником инфекционной опасности для населения или эпидемии.

Специализированные службы по вопросам похоронного дела должны принять необходимые меры для проведения кремации умерших, представляющих санитарно-эпидемиологическую опасность. Органы исполнительной власти должны при этом оказывать всемерную помощь специализированным службам.

6.57. При погребении останков деформированных или разрушенных тел после судебно-медицинской или генетической экспертизы они должны помещаться в запаянные гробы или капсулы, обеспечивающие санитарно-эпидемиологическую безопасность, и в ходе погребения не вскрываться.

6.58. По соображениям психологической безопасности не рекомендуется проводить погребение с открытием гроба в случаях, когда облик умершего деформирован или обезображен. Для проведения погребения с открытием гроба в таких случаях рекомендуется прибегать к услугам пастижеров-косметологов и бальзамировщиков, проводящих реконструкцию тел.

6.59. Консервацию и бальзамирование останков рекомендуется проводить в ситуациях, когда сохранение останков необходимо для проведения последующих экспертиз - судебно-медицинской, генетической, криминалистической.

Допускается проводить бальзамирование по просьбе осуществляющих погребение и родственников умершего.

6.60. Не допускается погребение в одном гробу, капсуле или урне останков или праха соответственно нескольких умерших.

Приглашение на церемонию погребения

6.61. Для участия в протоколе церемонии погребения следует применять следующие виды документов:

пригласительные письма (сообщения, извещения или билеты);

ответные письма (или сообщения);

протокол;

согласующий протокол документ.

6.62. Письма, протокол и согласующие документы оформляются в соответствии с ГОСТ Р 6.30-97.

6.63. В реквизит 07 «Текст» пригласительного письма следует включить:

обращение;

соболезнование;

собственно приглашение с указанием вида похорон, статуса участников и количества разрешенных для приглашения с ним лиц; состав собственного персонала, место проведения похорон (полный адрес и предпочтительный путь к нему);

время, к которому следует прибыть (дата и время);

предполагаемая программа похорон;

форма одежды и разрешенные аксессуары и принадлежности;

просьба указать на необходимость и сроки изложения протокола (для протокольных похорон), адреса и предпочтительного способа его доставки (электронная, курьер, факс, телефон);

информационное сообщение о дополнительных услугах.

6.64. При заполнении подреквизитов текста письма рекомендуется:

в подреквизите «Обращение» для адресования:

к народным избранникам, высокопоставленным чиновникам обращаются словами: «Глубокоуважаемый», «многоуважаемый», в остальных случаях «уважаемый»;

к титулованным особам следует обращаться в соответствии с правилами их титулования;

в случае, когда адресат хорошо известен, для обращения используется формула, включающая имя и фамилию адресата.

В подреквизите «Соболезнование» следует использовать следующие стандартные выражения:

«Выражаем Вам соболезнования по поводу глубокой утраты»;

«Сочувствуем и сожалеем по поводу постигшего Вас горя»;

«Скорбим вместе с Вами»;

«Глубоко переживаем Ваше горе».

В подреквизите «Приглашение» указываются статус участника, а также допустимый состав и количество лиц, которое этот участник вправе пригласить с собой на похороны. Для почетных участников в подреквизиты следует включить просьбу с указанием количества и состава персонала, сопровождающего и обслуживающего почетного участника и его делегацию или компанию.

Подреквизит «Место проведения похорон» должен содержать сведения о месте, где будут проходить похороны, его полный почтовый адрес, предпочтительные варианты пути к нему.

В подреквизите «Дата и время проведения похорон» указанные позиции обозначаются арабскими цифрами. Если число и месяц обозначаются одной цифрой, то перед ней ставится ноль. Допускается и полное оформление даты - словесно-цифровой способ.

В подреквизите «Предполагаемая программа похорон» может быть дана краткая аннотация похорон или ссылка на приложение к письму с полной развернутой программой предстоящих похорон.

В подреквизитах «Форма одежды и разрешенные аксессуары и принадлежности» указывается предпочтительная (а для похорон государственного протокола - обязательная) форма или вид туалета, дополняющие его аксессуары.

Для почетных участников данный подреквизит может сопровождаться приложением, содержащим требования к внешнему виду и туалету сопровождающего их персонала.

Подреквизит «Протокол» включает в себя:

просьбу указать необходимость обмена и согласования протокольными документами;

сроки и характер обмена;

ссылку на протокольную службу, обеспечивающую такой обмен;

предлагаемые сроки и способы доставки протокольных документов.

В подреквизите «Информационное сообщение» приводятся сведения о дополнительных услугах, платных и благотворительных моментах программы, указываются виды возможностей внесения средств (наличные, чек, банковская карточка).

6.65. Ответные письма содержат реквизиты:

обращение;

соболезнование;

сообщение о принятом приглашении или отказе от него;

ответ-согласие на участие в церемонии похорон, а также могут содержать предложения по поводу необходимости протокольного изложения.

Ответное сообщение по электронной почте, телефону, факсу несет ту же информацию, что и письмо. Рекомендуется, чтобы ответное письмо или сообщение об участии в церемонии похорон было отослано в тот же день, когда получено приглашение.

6.66. Протокол церемонии погребения - это документ о порядке проведения похорон, изложение согласований и времени прибытия участников, программы и ее регламента. Он может быть кратким и полным. Полный протокол - это протокол ритуала, где все его позиции согласованы между организаторами похорон и почетными участниками и отражают регламент проведения данного ритуала.

Протокол содержит следующие сведения:

место проведения;

дата проведения и время (начало и окончание);

участники церемонии: согласование их количества и уточнение списка почетных участников церемонии;

уточнение регламента программы (продолжительность последнего напутственного слова, количество выступлений, порядок);

сведения, приводимые в приглашении, и порядок их осуществления;

регламент внешнего вида: одежды, аксессуаров;

правила этикета, применяемые во время церемонии погребения;

регламент общения с прессой и правила работы журналистов во время церемонии погребения.

6.67. Лицам, приславшим соболезнование, рекомендуется выразить благодарность на это соболезнование ответным письмом.

Подготовка останков к погребению

6.68. При обнаружении факта прекращения жизнедеятельности следует обратиться в медицинское учреждение для установления факта смерти и диагноза кончины.

Работники медицинского учреждения должны достоверно убедиться в наступлении смерти, а не временного прекращения жизнедеятельности по типу летаргии, для чего следует проводить необходимые исследования с привлечением всей доступной аппаратуры. До установления достоверного факта смерти проведение патолого-анатомических исследований не допускается.

6.69. Не рекомендуется сохранение тела до проведения похорон в жилище или рабочих помещениях иных видов зданий, а также на улице.

Исключением могут быть ситуации, когда умерший проживал один, в отдельно стоящем доме, или когда на доступном расстоянии нет медицинского учреждения с помещением, где мог бы сохраняться умерший на период до погребения и где, при необходимости, могло бы быть проведено патолого-анатомическое исследование.

Во всех случаях следует стремиться передать тело в медицинское учреждение.

6.70. При наступлении смерти в транспортных средствах следует принять меры к доставке умершего в ближайший населенный пункт, где тело может быть помещено в надлежащие условия.

На судах, находящихся в открытом море, в этих целях следует использовать морскую авиацию или судовые средства консервации и охлаждения, в том числе запаивание в металлический герметичный гроб или контейнер. Лишь при отсутствии таких возможностей допускается погребение в море.

6.71. Выбор гроба следует проводить, исходя из вида транспортировки останков и вида погребения. Для длительной транспортировки следует использовать металлические герметичные гробы-контейнеры с иллюминатором для идентификации личности умершего. При их отсутствии транспортировку следует проводить после идентификации личности в запаянном оцинкованном гробу.

6.72. Для погребения в землю могут применяться различные типы деревянных гробов или гробов из иных поддающихся минерализации материалов. Для переноса на руках гроб рекомендуется оснащать легко снимающимися поручнями или ручками.

6.73. Для кремации рекомендуется применять деревянные гробы без ножек или с продольными полозьями. В целях сохранности кремационного оборудования не следует использовать для убранства гроба синтетические материалы и легкоплавкие металлические детали, а также делать посторонние вложения в гроб.

В случае отпевания землю вкладывать в гроб не следует, а сохранив ее, вложить в урну вместе с капсулой, содержащей прах.

6.74. При укладывании усопшего в гроб следует облачать его, исходя из требований выполняемого погребального обряда.

Мужчин для гражданского обряда облачают в парадный костюм. Допустимо облачение без пиджака со свежей рубашкой. Праздничное облачение - белый костюм - соответствует древнеславянской традиции.

Религиозные традиции могут требовать облачения обнаженного тела в саван, покрывало и тому подобное.

Военнослужащих обычно хоронят в парадной форме без головного убора. На крышку гроба прикрепляется головной убор и может прикрепляться (если это предусмотрено уставными требованиями) холодное оружие. Перед захоронением и особенно - кремацией их снимают и передают наследникам.

6.75. Женщин облачают в платья или костюмы (блузки и юбки, нередко с кофтой). Для молодых избирают светлые или белые цвета верхней части туалета, для пожилых и глубоковерующих - темные. Допускается полностью белое облачение, а для девушек - подвенечный наряд.

По христианским обычаям и некоторым иным религиозным традициям в облачение включается головной убор - платок, шаль или вуаль (для молодых - белого цвета или светлых тонов, для пожилых - черного или темного цвета).

6.76. Обувь обычно используют специально изготовленную. Допустимо использовать и обычную обувь.

6.77. В облачение следует включать покрывало, которым перед закрытием гроба покрывают лицо. Для кремации покрывало должно быть из натуральных тканей.

6.78. Гроб для лиц, умерших или погибших при исполнении служебных обязанностей, а также лиц, погребение которых проводится по государственному протоколу, накрывают государственным флагом, флагом вида войск или иной службы.

Флаг при открытой крышке закрывает узкую или нижнюю часть гроба. Перед захоронением флаг снимают, складывают и передают наследникам или лицу, осуществляющему погребение.

6.79. Обивку гроба не рекомендуется выполнять из ярких многоцветных материалов. Допускается обивка гроба в цвета государственного флага.

6.80. Технические требования к гробам должны излагаться в специальных нормативных документах и технических условиях.

6.81. Дополнительные аксессуары - ленты, венки, гирлянды - должны выполняться из материалов, допущенных для таких работ органами Госсанэпиднадзора, и не иметь элементов, способных нанести травму или повредить одежду при их использовании.

Надписи на аксессуарах не должны содержать смысла, способного оскорбить чувства участников погребения или нарушающего требования действующего законодательства, в частности, по вопросам провоцирования вражды и розни в силу политических, религиозных и иных убеждений заказчиков.

Траурные процессии

6.82. К траурным процессиям относятся похоронные и мемориальные шествия, колонны транспортных средств, а также прощальные и поминальные митинги и манифестации.

Важнейшими из них являются следующие:

траурные митинги (гражданские панихиды);

вынос умершего из здания для прощания на открытом воздухе;

пешее шествие на кладбище или в крематорий;

траурный кортеж (автопоезд, гужевой поезд);

перенос умершего из автокатафалка в зал ритуального здания.

6.83. Траурные митинги (гражданские панихиды) независимо от того, проходят ли они в залах зданий или на открытом воздухе, следует организовывать следующим образом:

гроб устанавливается в середине зала или площадки на неподвижном катафалке; покойный располагается ногами к зоне движения прощающихся; проход со стороны головы обычно не устраивается;

подушечки с наградами укладываются на подиуме в ногах покойного;

подушечки с наградами размещаются во время траурного ритуала у передней плоскости постамента траурного (ритуального) зала;

в траурной процессии каждую подушечку несет один участник похорон, в порядке старшинства орденов вслед за портретом умершего и перед венками;

портрет покойного в траурной рамке или с траурным бантом, лентой, розеткой вывешивается или выставляется в головах за гробом;

вокруг катафалка оставляется проход для почетного караула и прощающихся;

места для сидения прощающихся родных и близких размещают по правую руку от умершего.

6.84. Венки выставляются по периметру зала (площадки) или перед входом. Венок от родных допускается ставить в ногах перед подушечками с наградами.

6.85. По углам гроба предусматриваются места для участников почетного караула. Их может быть два (в головах слева и справа от гроба) или четыре (в головах и в ногах лицом друг к другу вдоль гроба по обе стороны от него).

6.86. Если выставляются знамена, то их располагают в торце зала или площадки, в головах. По значимости они размещаются справа налево, считая от изголовья гроба к ногам.

6.87. Государственные и религиозные символы, деловые эмблемы вывешиваются в изголовье выше портрета. По значимости их размещают от центра к периферии по обе стороны от центра.

6.88. Если погребение групповое (коллективное), то катафалки устанавливают в один ряд (или несколько рядов) справа налево, считая от изголовья:

от старшего по возрасту к младшему;

от старшего по положению к младшему;

в алфавитном порядке по фамилиям.

6.89. Если умершие - представители разных государств, то их останки выставляют, как и государственные флаги, в следующем порядке: справа налево по русскому алфавиту по названиям стран, последние российские (страна пребывания).

6.90. Места почетных участников погребения на похоронах, выполняемых по государственному или деловому протоколу, располагают слева от катафалка.

6.91. Место для отдания почестей наклоном головы при прибытии организуют в торце катафалка, в ногах.

6.92. Оркестр обычно размещают на балконе зала или в дальнем углу зала (площадки), так чтобы при переходе к шествию он мог выйти и занять новое место первым.

6.93. Развод почетного караула и его смену совершают последовательно по кругу, обходя каждый пост против часовой стрелки непосредственно вдоль катафалка.

6.94. Все пешие траурные шествия (рис. 2) выстраиваются следующим образом (по ходу):

церемониймейстер;

лица, несущие портрет;

знаменосцы (если это предусмотрено протоколом);

лица, несущие подушечки с наградами (по одному на подушечку);

лица, несущие венки (рекомендуются венки от родных и близких с лентами белого цвета, от друзей и сотрудников - с лентами красного цвета);

лица, несущие крышку гроба;

лица, несущие гроб (при катафалке открытого типа, в частности - орудийном лафете, если это предусмотрено протоколом);

близкие родственники;

другие участники похорон;

подразделения почетного караула (если это предусмотрено протоколом);

оркестр.

За процессией, сформированной как траурное шествие, могут двигаться транспортные средства кортежа и пришедшие проводить в последний путь покойного без приглашения.

6.95. Если предусматривается сопровождение гроба почетным караулом, то караульные располагаются в следующих ордерах:

по обе стороны от гроба;

«треугольником» - перед гробом идет офицер с клинком или руководитель караула, а по бокам - участники караула с карабинами (автоматами) и примкнутым штыком или участники караула;

«ромбом» - «треугольник» дополняется караульным позади гроба, перед шеренгами родственников.

6.96. При участии в процессии священнослужителей их ордер (в соответствии с требником или иным религиозным описанием ритуалов) располагают после несущих венки, перед несущими крышку гроба.

6.97. В непогоду, при выпадении осадков не рекомендуется перенос покойного в открытом гробу.

6.98. При проведении многолюдных шествий следует ставить в известность об этом органы ГИБДД и согласовывать с ними организационные вопросы подготовки маршрута движения шествия. Впереди колонны необходимо выставить сигнальщиков с красными флажками и траурными повязками, если не выставлены постовые с жезлами.

6.99. При использовании флагов и знамен траур обозначается:

при подвижном закреплении флага на флаг-фалах флагштоков с блоками - приспусканием флага до середины флагштока (на кораблях - мачты);

при неподвижном закреплении флага или знамени на древке - закреплением черных лент с бантами в верхней части полотнища флага или знамени.

6.100. При погребении нескольких умерших их гробы могут занимать в шествии несколько видов ордеров:

последовательное построение в колонну в порядке, указанном в подпунктах 6.88, 6.89;

построение в шеренгу (если гробов не более 4);

построение в каре (последовательно-параллельное);

почетный караул выставляется по периметру группового ордера.

6.101. При выносе гроба или нескольких гробов из здания порядок выхода следует принимать следующим:

оркестр;

церемониймейстер;

участники погребения;

венки;

портрет перед каждым гробом;

награды за портретами их владельцев;

крышки гробов;

гробы;

близкие родственники.

Венки ставят по обе стороны от автокатафалка, участники образуют коридор, по которому проносят гроб. Гроб выносят узкой частью (ногами) вперед. Родственники и друзья покойного должны провожать его до кладбища, а малознакомые лица по выходе из здания (церкви) могут оставить шествие. При похоронах молодой девушки ее подруги идут в первых рядах погребального шествия и должны ее сопровождать до кладбища. На кладбище родные и близкие должны находиться справа, а все остальные слева, если смотреть со стороны изголовья. Выражая соболезнования, родственники могут молча обнимать других родственников покойного, друзья могут поклониться.

6.102. При значительных расстояниях от места проведения ритуала прощания до места погребения роль шествия выполняют траурные кортежи (поезда). Обычно с этой целью используется автотранспорт. В сельской местности допускается использование гужевых транспортных средств.

6.103. Обычный траурный кортеж состоит из автокатафалка, автобусов или легковых автомашин для участников. Если общее количество автомашин в колонне более 5 и протоколом планируется их безостановочный пропуск, то следует обращаться в органы ГИБДД для выделения спецтранспорта сопровождения колонны. Машины сопровождения (или мотоциклы) должны двигаться спереди и сзади колонны. Маршрут движения кортежа в этом случае согласовывается с местным органом ГИБДД.

6.104. Порядок следования транспортных средств в многочисленном кортеже рекомендуется следующим (рис. 3):

машина (мотоцикл) ГИБДД;

машина для участников - членов почетного караула;

машина для участников, несущих награды, портрет;

открытая (или закрытая) автомашина с венками;

автокатафалк с гробом и близкими родственниками;

автобусы для участников погребения и духовенства;

индивидуальный транспорт участников погребения;

транспорт оркестра;

транспорт присоединившихся участников;

машина (мотоцикл) ГИБДД.

6.105. Портрет покойного может быть установлен на радиаторе первой машины кортежа, следующей за машиной ГИБДД, или на катафалке. Машины кортежа могут быть декорированы траурными лентами, флажками с траурными лентами, гирляндами цветов, перевитыми траурными лентами. После погребения декор следует снимать.

Наличие траурного декора и движение в колонне не освобождает водителей от соблюдения ПДД РФ на общих основаниях, если ГИБДД не указала иное.

6.106. Музыкальное сопровождение процессий может быть оркестровым, колокольным, хоровым (в том числе «а капелла»), фонографическим.

При использовании музыкального сопровождения следует стремиться к обеспечению минимального беспокойства, доставляемого гражданам, не связанным с погребением, особенно лицам, находящимся в лечебных, детских школьных и дошкольных учреждениях.

Порядок проведения похорон

Похороны из дома

6.107. В дом, откуда будут начинаться похороны, церемониймейстер должен прибыть в точно назначенное время, представиться близким родственникам, предъявить им служебное удостоверение.

При необходимости провести похороны из дома он должен дать советы близким умершего по траурному убранству комнаты, где будет находится покойный (рис. 4), в том числе:

как расположить гроб с телом и крышку гроба; обычно гроб с телом ставят на стол, покрытый тканью, узкая часть гроба должна быть обращена к выходу из комнаты, крышку гроба ставят вертикально в прихожей (коридоре) узкой частью на пол (ставить крышку на лестничной площадке не рекомендуется);

где и как разместить портрет покойного, венки, цветы, стулья, подушечки с наградами покойного;

какими тканями закрыть зеркала и картины;

в какой одежде присутствующим быть на похоронах.

6.108. Перед началом церемонии погребения необходимо убедиться в том, что все участники похорон собрались и освобождены проходы для выноса гроба. Церемониймейстер должен посоветовать родственникам взять с собой воду и необходимые медикаменты. Церемониймейстер знакомится с составом почетного караула, организует его деятельность и обеспечивает его участников траурными повязками.

Почетный караул назначается в случае участия в похоронах организации (предприятия, учреждения).

6.109. Церемониймейстер уточняет фамилии, имена и отчества лиц, которые будут выступать на траурном митинге (церемонии прощания), и при необходимости вносит изменения в «Краткие сведения об умершем (ей)», полученные им в салоне-магазине (магазине) специализированной службы по вопросам похоронного дела.

6.110. Церемонию похорон следует начинать по прибытии автокатафалка и пассажирского автобуса. По просьбе церемониймейстера участники похорон выходят из дома и располагаются по пути выноса гроба. Назначенные лица выносят венки, портрет покойного, подушечки с наградами, крышку гроба (ее ставят вертикально узким концом вниз); оркестр располагается в стороне, противоположной автокатафалку (рис. 5). Родные и близкие остаются у гроба на 10-15 минут.

6.111. Назначенные лица выносят гроб (его несут узким концом вперед), устанавливают его на постаменте автокатафалка изголовьем к кабине водителя, закрывают крышкой. Родные и близкие следуют за гробом. Венок от родных и близких кладется на крышку гроба в автокатафалке.

Вынос гроба может сопровождаться хором, траурной мелодией, исполняемой оркестром или воспроизводимой магнитофоном, установленным в автокатафалке.

6.112. Церемониймейстер похорон формирует траурный кортеж в следующем порядке (см. рис. 3):

машина с участниками похорон, которые будут нести портрет и подушечки с наградами умершего;

машина с венками;

автокатафалк с гробом и близкими умершего;

автобус с участниками похорон;

автобус с оркестром;

участники похорон на личном транспорте.

6.113. Церемониймейстер, убедившись в том, что гроб помещен в автокатафалк и что посадка родственников, остальных участников похорон и оркестра завершена, разрешает движение траурного кортежа. Машины с венками, портретом и подушечками с наградами первыми следуют к месту захоронения.

6.114. По прибытии траурного кортежа на кладбище церемониймейстер и лицо, ответственное за проведение похорон (один из родственников или близких умершего), со свидетельством о смерти и счетом-заказом на похороны обращаются в контору кладбища для регистрации захоронения умершего в книге установленной формы, получают удостоверение о захоронении (приложение 6) и регистрационный знак для установки его на могиле после окончания похорон.

Участники похорон выходят из машин и становятся у авто катафалка в том же порядке, как и при выносе гроба из дома (см. рис. 5). Гроб выносят из автокатафалка и устанавливают на катафалк-носилки, или на катафалк-тележку, либо на катафалк-сани. Крышку снимают (по желанию родственников похороны могут проходить с гробом, закрытым крышкой). По желанию родственников гроб могут нести на руках к месту захоронения. Оркестр исполняет траурную мелодию или хор - траурное песнопение.

При организации траурного шествия к месту захоронения следует руководствоваться пунктом 6.94.

6.115. У могилы или оборудованного места для митингов лица, несущие портрет, награды, венки, образуют при наличии свободного места коридор, по которому проносят крышку и гроб. Гроб устанавливают на переносной катафалк. Крышку гроба ставят возле катафалка вертикально, узким концом вниз.

6.116. Траурный митинг обычно открывает церемониймейстер, предоставляя слово желающим выступить. Выступающие говорят о жизненном пути покойного и его заслугах перед обществом (городом, организацией, семьей). После выступления звучит траурная мелодия.

Если нет желающих выступить, церемониймейстер сам произносит траурную речь, используя «Краткие сведения об умершем (ей)».

6.117. После окончания выступлений церемониймейстер приглашает совершить обряд последнего целования и затем закрывает траурный митинг словами прощания: «Гражданин Российской Федерации (называет фамилию, имя и отчество покойного) закончил свой жизненный путь. Пусть добрая, светлая память о нем сохранится в наших сердцах на долгие годы».

Звучит траурная музыка.

Церемониймейстер просит проститься с покойным. Участники похорон проходят у гроба и становятся возле могилы.

После прощания родных и близких организатор закрывает лицо покойного покрывалом (саваном) и с помощью рабочего закрывает гроб крышкой. Если покойного отпевали в храме, то на покрывало или саван посыпают крестообразно освященную в храме землю.

6.118. Не рекомендуется проводить обряд последнего целования, если покойный подвергался радиоактивному заражению или страдал острыми и тяжелыми инфекционными заболеваниями.

6.119. Рабочие кладбища переносят гроб к могиле и опускают его в могилу.

Церемониймейстер предлагает участникам похорон бросить в могилу горсть земли. Первыми это делают родные и близкие. Затем работники кладбища засыпают могилу землей, устраивают холм и устанавливают на нем регистрационный знак с фамилией, именем и отчеством похороненного, датами его рождения и смерти (рис. 6). По желанию родственников на могиле может быть установлен портрет. Участники похорон возлагают на могилу венки и цветы. На этом обряд заканчивается.

6.120. Церемониймейстер сопровождает ближайших родственников к автобусу и, прощаясь, еще раз выражает им соболезнование.

6.121. Церемониймейстер в случае, когда ему передаются награды умершего, несет ответственность за сохранность наград умершего и по окончании похорон возвращает их близким родственникам.

6.122. Ордена и медали умерших или посмертно награжденных граждан с согласия наследников и по решению Президента Российской Федерации, федеральных законодательных органов, законодательных органов субъектов Российской Федерации могут быть переданы музеям для хранения и экспонирования.

Похороны из морга

6.123. Похороны из морга могут проводиться под руководством церемониймейстера или под руководством лица, определяемого родственниками покойного.

6.124. Санитарно-гигиенические и косметические процедуры (бальзамирование и обмывание тела, бритье, стрижка волос и пр.), облачение тела в заранее принесенную одежду и укладывание его в гроб производит персонал морга.

Похороны умерших от острозаразных заболеваний проводятся под непосредственным контролем местных санитарных органов и с выполнением их рекомендаций.

6.125. К назначенному времени персонал морга устанавливает гроб на катафалке в зале прощания при морге.

6.126. Церемониймейстер должен прибыть в морг до приезда участников похорон, встретить их, представиться близким родственникам и проводить их в зал прощания к гробу. Вносить в зал венки, крышку гроба, проводить траурный митинг в зале прощания не рекомендуется.

Через 10-15 минут после входа близких в зал прощания по просьбе организатора назначенные лица выносят гроб, помещают его в автокатафалк и закрывают крышкой.

6.127. В зале прощания морга и при выносе тела из зала исполнять траурные мелодии не разрешается.

6.128. Убедившись в том, что гроб помещен в автокатафалк, а родственники и участники заняли свои места в машинах, организатор разрешает движение траурного кортежа.

6.129. При построении и следовании траурного автомобильного кортежа на кладбище, в здание траурных гражданских обрядов или в крематорий следует соблюдать порядок, указанный в пункте 6.117 (см. рис. 3).

Похороны, организуемые и проводимые предприятиями (учреждениями, организациями)

6.130. Предприятия (учреждения, организации) могут образовывать свою комиссию по организации и проведению похорон.

6.131. Образованная предприятием комиссия в своей деятельности руководствуется «Памяткой для комиссии по организации и проведению похорон» (см. приложение 17), которую распространяют салоны-магазины (магазины) специализированных служб по вопросам похоронного дела, агенты похоронной службы и организаторы похорон.

Траурная церемония прощания в здании траурных гражданских обрядов и ритуальном зале крематория

6.132. После прибытия траурной процессии (кортежа) к крематорию (рис. 7, 8) или к зданию траурных гражданских обрядов (рис. 9, 10) агент приглашает одного из родственников в помещение для оформления документов, где дежурный администратор вносит соответствующую запись в регистрационную книгу установленного образца на основании свидетельства о смерти и счета-заказа на похороны, заполняет и передает близкому родственнику умершего удостоверение о захоронении (в случае последующего захоронения гроба с телом в могилу) или документ о кремации.

6.133. По прибытии процессии (кортежа) к зданию траурных гражданских обрядов или в крематорий агент передает свои обязанности лицу, проводящему обряд прощания в траурном (ритуальном) зале - церемониймейстеру.

6.134. Если гроб с телом находился в охлаждаемом помещении здания траурных гражданских обрядов (крематория), близких родственников приглашают для опознания покойного.

6.135. Церемониймейстер должен уточнить у агента фамилии, имена и отчества лиц, которые будут выступать на траурном митинге, проинструктировать разводящего почетного караула о порядке смены караула и месте салюта.

6.136. Внесение гроба в зал и размещение атрибутов траурного ритуала должно производиться до приглашения в зал участников похорон. Атрибуты траурного ритуала размещают в зале следующим образом:

портрет на постаменте или на подставке - у изголовья гроба;

ордена и медали на траурных подушечках - у переднего края постамента;

венки - справа и слева за постаментом;

крышку гроба - у стены, справа от постамента (ее ставят вертикально, узким концом вниз);

гроб с телом - на катафалке.

6.137. После установки гроба с телом и атрибутов похорон церемониймейстер дает сигнал начинать хору или оркестру исполнение траурной мелодии или включает запись траурной мелодии и под ее негромкое звучание приглашает войти в зал сначала родных и близких, которым он предлагает сесть на места, установленные по правую руку от покойного, а затем и всех участников церемонии прощания.

6.138. Разводящий выставляет к гробу четырех участников почетного караула, которые становятся у изголовья и в ногах попарно, лицом друг к другу (боком к длинной стороне гроба). Перед началом митинга почетный караул снимается.

6.139. После окончания звучания траурной мелодии церемониймейстер, стоя у изголовья гроба, открывает траурную церемонию прощания кратким словом, например: «В этот скорбный час мы собрались в траурном зале, чтобы проводить в последний путь (называет имя, отчество, фамилию покойного).

Открываем траурную церемонию прощания с гражданином России (перечисляет почетные звания, называет фамилию, имя и отчество покойного)».

Церемониймейстер предоставляет слово друзьям и сотрудникам покойного. Выступающие говорят о жизненном пути покойного, его заслугах перед обществом, городом, организацией, семьей, руководствуясь требованиями пункта 6.29.

Если нет лиц, желающих выступить на церемонии прощания, то слово о жизненном пути покойного произносит с согласия родственников церемониймейстер. Сведения о покойном он получает из «Кратких сведений об умершем (ей)», которые дают родственники при оформлении документов.

6.140. В ритуальном зале крематория по окончании траурной церемонии церемониймейстер просит всех проститься с покойным. Участники ритуала поочередно подходят к гробу для обряда последнего целования.

Церемониймейстер закрывает лицо покойного покрывалом и с помощью кого-либо из присутствующих закрывает гроб крышкой.

Церемониймейстер объявляет: «Гражданин Российской Федерации (называет фамилию, имя и отчество) закончил свой жизненный путь. Пусть добрая, светлая память о нем сохранится в наших сердцах на долгие годы».

Звучит траурная мелодия. Все склоняют головы. В крематории гроб с катафалка перемещают на лифт или транспортер. Для военнослужащих дается залп салюта.

Церемониймейстер объявляет: «Траурная церемония окончена». Затем он провожает родственников к автобусу и, прощаясь, еще раз выражает им соболезнование.

Рекомендуемая продолжительность траурной церемонии - до 30 минут.

Если проводится отпевание, то освященную землю в гроб не вкладывают, а сохраняют для последующего вложения в урну.

6.141. Остающиеся после каждого ритуала прощания в зале крематория венки с лентами, вазоны и букеты цветов должны удаляться персоналом крематория на специальную площадку памяти, с которой после истечения 3 дней их перемещают на хозяйственный двор, а затем увозят для утилизации.

6.142. В зале здания траурных гражданских обрядов после окончания выступлений церемониймейстер просит проститься с покойным, затем закрывает лицо покойного покрывалом, а гроб - крышкой.

Процессия выходит из здания траурных обрядов в порядке, указанном в пункте 6.94 и на рис. 2. Гроб несут на катафалке-носилках или везут на катафалке-тележке (катафалке-санях). У могилы гроб открывать не рекомендуется.

Церемониймейстер объявляет у могилы «Минуту молчания».

Все последующие действия должны совершаться в соответствии с пунктом 6.140.

Захоронение урны с прахом

6.143. Захоронение праха может производиться как в урне, так и без урны. Предусмотрены следующие способы захоронения:

захоронение урны с прахом в землю с установкой памятника;

захоронение урны с прахом без установки памятника;

установка урны с прахом в колумбарии (в «стене скорби»);

развеивание праха.

6.144. Захоронение урны с прахом на кладбище при крематории должно производиться на основании предъявленных документов о кремации (приложения 7, 8) и паспорта лица, получающего урну. Для захоронения урны с прахом на другом кладбище данного города кроме указанных выше документов необходима справка администрации этого кладбища о наличии земельного участка (ниши в колумбарии) для захоронения (приложение 9).

Урна с прахом может быть передана на следующий день после кремации. В особых случаях допускается передача урны в день кремации.

6.145. По письменному заявлению лица, на имя которого выписан документ о кремации, захоронение урны с прахом, установка ее в нише колумбария или захоронение праха без урны (развеивание) могут быть выполнены персоналом кладбища без присутствия при этом заявителя с составлением акта о совершенном погребении и записью в «Книге памяти».

6.146. Во время передачи урны с прахом в зале не должно быть других урн, кроме той, которая подлежит передаче, а также не должны присутствовать люди, не имеющие отношения к данной процедуре.

6.147. Урну рекомендуется устанавливать на постаменте с оформлением из живых цветов. Передача урны через окно не допускается. На урне должны быть написаны фамилия, имя, отчество умершего и регистрационный номер кремации. Перед передачей урны служащий выражает родным и близким соболезнование.

Служащий на основании предъявленного ему документа о кремации и свидетельства о смерти заполняет и вручает родным удостоверение о захоронении урны с прахом (приложение 10). При этом вносится соответствующая запись в регистрационную книгу.

6.148. Служащий крематория должен бережно снять урну с прахом с катафалка, переместить ее в переносной футляр и вручить близкому человеку.

В тех случаях, когда урну с прахом хоронит большая группа людей, для переноса урны к месту захоронения (установки) следует применять катафалк-носилки.

6.149. Родных и близких, направляющихся к месту захоронения (установки) урны с прахом, должен сопровождать рабочий кладбища. Захоронение урны с прахом (установка в нишу колумбария) производится рабочим кладбища. На место захоронения родственники возлагают цветы.

На мемориальных плитах, закрывающих нишу, не рекомендуется помещать фотопортреты, рекомендуется помещать изображения трудовых и боевых символов, допускается изображение религиозных символов.

6.150. Ко дню захоронения (установки) урны с прахом должна быть изготовлена мемориальная плита, закрывающая нишу колумбария, или памятник на могилу; на плите или памятнике указывают имя, отчество и фамилию, дату рождения и смерти захороненного.

6.151. Прах кремируемых сохраняется при крематории в течение 1 года со дня кремации.

По истечении срока хранения администрация крематория обязана письменно известить об этом лицо, которому выдан документ о кремации, и далее администрация имеет право захоронить прах (без урны) в месте захоронения «невостребованных прахов».

С этой целью на территории крематория должно быть предусмотрено место общего захоронения «невостребованных прахов». Оно должно иметь удобные подходы, отмечаться общим памятником (обелиском, стелой) без указания фамилий захороненных. Имена и фамилии захороненных следует вносить в «Книгу памяти».

Для озеленения мест захоронения невостребованных прахов рекомендуется применять открытый газон с цветами и цветущими декоративно-лиственными кустарниками.

7. ЭТИКЕТ

7.1. Этикет во время церемонии погребения направлен на решение психологических, а через это - организационных задач.

7.2. Покидая церемонию погребения, следует соблюдать установленные нормы и правила этикета.

7.3. Нормы и правила этикета связаны с:

обеспечением безопасности общения всех лиц;

созданием благоприятного психологического и энергоинформационного климата;

поддержанием и соблюдением стиля галантного обхождения в поступках, жестах, речах.

Поминки

7.4. На поминки без приглашения являться не следует.

7.5. В доме усопшего не говорят громко и возбужденно, тем более - не смеются.

7.6. За столом оставляют не занятым место, где при жизни обычно сидел покойный; на стол ставят один пустой прибор; нож и вилку принято оставлять не рядом с тарелкой, а класть на нее.

7.7. Поминальный обед начинается с подачи первого блюда - щей, супа и т.д. Но это принято не везде, также как и употребление спиртных напитков.

7.8 Обязательны на поминках кутья и блины, которые являются обрядовыми блюдами, связанными с представлением о потустороннем мире, солнце и свете. Первый блин обычно кладут на окно - для покойного.

Траур

7.9. Траур - вид поведения, связанный с бытовыми ограничениями и психологическими переживаниями по поводу постигшей утраты близкого человека. В период траура не рекомендуется:

участвовать в развлекательных мероприятиях;

носить светлую одежду;

организовывать увеселительные мероприятия;

снимать с себя знаки траура или траурный наряд во время бодрствования.

7.10. По степени глубины траур может быть:

«текущий» или повседневный - в течение сорока дней со дня смерти (носится по всем усопшим);

«обыкновенный» - в течение трех месяцев (носится по братьям, сестрам и двоюродным родственникам);

«подтраур» - в течение полугода (носится по дедушкам и бабушкам, жене и мужу);

«глубокий траур» - в течение года и более (носится по матери и отцу).

8. ТРЕБОВАНИЯ К РАЗМЕЩЕНИЮ, УЧАСТКАМ И ТЕРРИТОРИЯМ КЛАДБИЩ

Выбор участков

8.1. Выбор участков и отвод территории под строительство кладбищ (крематория) осуществляются главным архитектором города совместно с представителями органов жилищно-коммунального хозяйства по согласованию с представителями санитарно-эпидемиологической и экологической служб и утверждаются решением органов исполнительной власти субъектов Российской Федерации или местного самоуправления на основании генеральных планов развития поселений.

8.2. Освоение территории кладбища и строительство на нем зданий и сооружений должны осуществляться в соответствии с градостроительным кодексом по утвержденному проекту (рис. 11) и отражать требования действующих нормативных документов.

8.3. При решении градостроительных задач по созданию, развитию и реконструкции кладбищ следует в расчетах принимать кладбищенский период не менее 20 лет для погребения умерших в гробах, а среднее количество погребений на одном месте захоронения - не менее двух, ориентируясь на создание семейных мест захоронения.

8.4. Размеры территории, необходимой для устройства кладбища, следует определять с учетом срока его эксплуатации для погребений не менее чем в два кладбищенских периода - 40 лет. При этом следует отводить участки с площадью не менее 0,5 га и не более 40 га.

На территориях с площадью свыше 40 га следует предусматривать зону моральной защиты (ЗМЗ) между участками площадью до 40 га. Ширину ЗМЗ рекомендуется устанавливать с расчетом прокладки в ней магистральной дороги с комплексом инженерных систем и сетей, а также двухрядных посадок деревьев и кустарников с каждой стороны дороги.

Допускается устройство в ЗМЗ мест тихого отдыха, малых архитектурных форм благоустройства, зданий и сооружений для обслуживания посетителей, а также мемориальных зданий и сооружений, не имеющих в своем составе захоронений.

8.5. Следует размещать кладбища традиционного и смешанного способов захоронения в пригородной зоне или в пределах ландшафтных территорий города с соблюдением требований экологической и санитарной защиты.

Существующие и закрытые кладбища допускается сохранять и использовать в селитебной зоне как кладбища с погребениями после кремации.

8.6. При сохранении и реконструкции кладбища с погребениями после кремации в селитебной зоне вокруг него следует предусматривать в соответствии со СНиП 2.07.01-89*, разд. 4, озелененную зону моральной защиты (ЗМЗ) шириной не менее 20 м. В ней разрешается размещать:

пешеходную дорогу;

инженерные сети;

торговые киоски по продаже цветов и рассады.

8.7. Зоны моральной защиты рекомендуется устраивать при размещении в застройке реконструируемых, восстанавливаемых, в том числе реставрируемых, кладбищ с погребениями, прошедшими кладбищенский период, являющихся закрытыми (без погребений в родственные могилы).

8.8. Не допускается осуществлять новые погребения некремированных останков на сохраняемых в застройке, реконструируемых, реставрируемых кладбищах, в случаях отсутствия вокруг них санитарно-защитных зон (СЗЗ). Размеры СЗЗ должны быть не менее 500 м до селитебной территории.

8.9. Земельные участки для строительства зданий и сооружений похоронного назначения следует размещать на обособленных участках вблизи существующих инженерных коммуникаций и дорог. Эти участки должны иметь удобные подъезды, автостоянки и остановки общественного транспорта.

Допускается размещать Дом траурных обрядов на территории действующих, закрытых или вновь проектируемых кладбищ. На участке Дома траурных обрядов допускается размещение бюро похоронного обслуживания.

Строительство кладбищ, Домов траурных обрядов, крематориев (типа 1), в которых подготовительные, обрядовый и кремационный процессы осуществляются в одном здании, зданий-колумбариев, зданий-кладбищ без мер соответствующей защиты вблизи объектов с повышенным шумовым режимом эксплуатации (аэропорты и т.п.), а также вблизи объектов, распространяющих неприятные запахи, не допускается.

8.10. Автостоянки и остановки общественного транспорта следует располагать на расстоянии не более 150 м от Дома траурных обрядов, крематориев (тип 1), зданий-колумбариев и кладбищ.

8.11. Бюро и бюро-магазины похоронного обслуживания рекомендуется размещать на селитебной территории. Указанные учреждения не разрешается размещать ближе 100 м от жилых зданий, лечебных, детских, спортивных и культурно-просветительских учреждений.

8.12. Крематорий (типа 1) следует размещать, как правило, не на территории кладбища, а на обособленном участке, в том числе смежном с кладбищем.

8.13. Крематорий (типа 2), предназначенный только для кремации, следует размещать на отдельном участке в пригородной зоне, в том числе и на участке производственно-кремационного комплекса.

8.14. Здание-колумбарий рекомендуется размещать как на территории кладбища, так и на обособленном участке.

Стены-колумбарии размещают на территории кладбища. Стены-колумбарии, расположенные по периметру кладбища, могут выполнять функции хранилища урн и ограждения территории кладбища.

8.15. Территория для строительства зданий и сооружений похоронного обслуживания не должна непосредственно примыкать к дорогам с интенсивным транспортным движением.

К каждому из указанных объектов следует предусмотреть самостоятельные подъезды с раздельными полосами движения.

Подъезды не должны проходить через трамвайные пути и неохраняемые железнодорожные переезды.

8.16. Размещение учреждений похоронного обслуживания, имеющих в своем составе залы для прощания, на территории медицинских учреждений не рекомендуется.

9. КЛАДБИЩА

9.1. В соответствии с Законом Российской Федерации «О погребении и похоронном деле» могут устраиваться кладбища следующего назначения:

общественные;

вероисповедальные;

воинские.

Кладбища могут быть:

по принадлежности:

государственными;

муниципальными;

по типам погребений:

традиционными;

с захоронениями после кремации;

смешанных способов погребения;

многоэтажные здания-кладбища;

по историческому и культурному назначению:

историко-мемориальными.

Строительство новых кладбищ и реконструкция существующих осуществляются в соответствии с санитарными и экологическими требованиями к местам погребения, определенными соответствующими законодательными и нормативными актами федерального и регионального уровней.

На территории кладбищ предусматриваются:

дорожная сеть;

поливочный водопровод (в сельских местностях - шахтные колодцы);

наружное освещение.

9.2. Территорию кладбища независимо от способа захоронения следует подразделять на функциональные зоны:

входную;

ритуальную;

административно-хозяйственную;

захоронений;

моральной (зеленой) защиты по периметру кладбища.

9.3. Во входной зоне следует предусматривать раздельные въезд - выезд для автотранспорта и вход - выход для посетителей, отдельный хозяйственный въезд, автостоянку и остановки общественного транспорта. В этой зоне необходимо также предусмотреть справочно-информационный стенд, цветочные киоски и места продажи цветов, общественные туалеты, скамьи, питьевые фонтанчики.

При входе на кладбище рекомендуется устроить показательный участок оформления захоронения.

Расстояние от окончания радиуса поворота с транспортной дороги до ворот въезда - выезда должно быть не менее 30 м.

9.4. Остановки общественного транспорта необходимо размещать не далее 150 м от входа на кладбище.

9.5. Ритуальную зону следует размещать вблизи от главного входа и административно-бытового здания.

В ритуальной зоне рекомендуется предусматривать: здания и сооружения для проведения траурных обрядов и прощания, культовые здания и сооружения, памятники общественного значения, площадки для отдыха с навесами, зал вручения урн, здания или сооружения для поминовения.

9.6. Административно-хозяйственную зону рекомендуется располагать смежно с входной зоной. На кладбищах, площадью до 15 га в этой зоне рекомендуется размещать: административно-бытовое здание, навес для топлива и материалов, общественный туалет.

На кладбищах площадью свыше 15 га целесообразно предусматривать: административно-бытовое здание, материальный и инвентарный склады, теплую стоянку машин и механизмов для обслуживания территории кладбища, трансформаторную подстанцию, котельную (при значительном удалении от источника теплоснабжения).

9.7. В составе административно-бытового здания может быть предусмотрено помещение для хранения и вручения урн.

9.8. Зона захоронений является основной функциональной частью кладбища и делится на кварталы и участки, обозначенные соответствующими буквами и цифрами, указанными на квартальных столбах.

На кладбищах традиционного типа следует предусматривать участки для одиночных захоронений, семейных захоронений, братских могил, захоронений в склепах и мемориальных сооружениях, а также участки для захоронения неопознанных лиц.

На кладбищах может быть предусмотрено место почетных захоронений - участок площадью не менее 5 м2, расположенный на специальной площадке вдоль главной аллеи и имеющий удобные подходы и хороший обзор. Участки для почетных захоронений отводятся на предусмотренных проектом площадках и аллеях решением органов исполнительной власти субъектов Российской Федерации или органов местного самоуправления по представлению государственных и общественных организаций.

На кладбищах с захоронениями после кремации следует предусматривать участки для захоронения:

урн с прахом в землю и в надмогильные колумбарии;

урн с прахом в зданиях-колумбариях и в стенах-колумбариях;

«невостребованных прахов», которые следует отмечать общим памятником.

Для инвалидов и маломобильных групп населения на пешеходных путях кладбищ, на участках кварталов и непосредственно около мест захоронения следует устраивать места отдыха, в том числе скамьи и другие виды оборудования для облегчения движения и защиты от атмосферных осадков.

9.9. На воинских кладбищах или участках общественных кладбищ для воинских захоронений должны предусматриваться площадки для отдания воинских почестей. Ритуальная зона таких кладбищ или участков должна обеспечивать размещение почетного эскорта в строю не менее чем на воинское отделение и оркестра, а также и маршевую дорогу (площадку) для торжественного марша воинского подразделения.

Ширину маршевой дороги (площадки) следует принимать не менее 4,5 м, а длину не менее 30 м.

На воинских кладбищах допускается устройство в ритуальной зоне культовых сооружений и зданий, а также мемориальных сооружений с «Вечным огнем».

9.10. Вероисповедальные кладбища или участки кладбищ следует проектировать с учетом требований и традиций религиозных организаций и конфессий.

9.11. Вероисповедальные участки кладбищ следует отделять зоной моральной защиты шириной не менее 20 м. Территория зоны может использоваться для озеленения и благоустройства с применением малых архитектурных форм.

9.12. На вероисповедальных кладбищах или участках рекомендуется предусматривать ритуальные зоны с культовыми сооружениями или зданиями для проведения обрядов прощания и поминовения. Для размещения на общем участке ритуальной зоны нескольких сооружений или зданий следует руководствоваться требованиями норм по противопожарной безопасности.

10. ПЛАНИРОВОЧНОЕ РЕШЕНИЕ КЛАДБИЩ, ЗОНЫ ЗАХОРОНЕНИЙ И УСТРОЙСТВА МОГИЛ

10.1. Для беспрепятственного проезда траурных процессий ширина ворот на кладбище должна быть не менее 6,9 м. Ширина калитки в свету должна быть не менее 1,2 м.

Перед входом на кладбище следует размещать площадку для ожидания и сбора родственников, сопровождающих траурную процессию, при наличии подъездов городского транспорта - предусмотреть павильон-навес для пассажиров, ожидающих транспорт.

10.2. Территория кладбища, как правило, должна иметь ограду высотой не менее 2,0 м. Кладбища в лесопарковой защитной полосе могут иметь ограду в виде деревянной или живой зеленой изгороди из древесных и кустарниковых пород и рва глубиной 60-80 см.

10.3. Для всех типов кладбищ площадь мест захоронения должна составлять не менее 65 - 75 % общей площади кладбища.

10.4. По периметру кладбищ устраивается кольцевая (объездная) дорога, имеющая хозяйственное значение: вдоль нее размещаются туалеты, мусоросборники и трасса поливочного водопровода.

При необходимости может быть предусмотрена защитная зеленая полоса шириной не менее 6 м по внутреннему периметру кладбища, которая может входить в состав озеленения санитарной защитной зоны (СЗЗ).

10.5. На всех типах кладбищ захоронения некремированных останков могут осуществляться:

а) в землю: в гробах, без гробов;

б) в склепах, аналогично указанному в подпункте а), а также в герметичных саркофагах в нишах стен;

в) в герметичных саркофагах - отдельно стоящих, пристроенных или встроенных в склепы и мемориальные сооружения.

10.6. На всех типах кладбищ, кроме вероисповедательных, независимо от того, являются они общественными, воинскими, иными, а также независимо от форм собственности, для захоронения останков после кремации (прахов) следует предусматривать специальные участки, предназначенные для захоронения погребальных урн с прахом и безурновых захоронений.

10.7. Захоронение останков после кремации (прахов) допускается производить в погребальных урнах, шурфах, методом всыпания в могилу, рассеиванием на специальных участках на кладбищах, а также развеиванием над водной поверхностью, лесом с разрешения администрации (префектуры) по согласованию с региональным центром Госсанэпидемнадзора. При рассеивании не допускается попадание праха за пределы отведенной для этой территории. Установка памятных знаков на местах рассеивания может осуществляться по решению местных органов власти.

10.8. Захоронение урн с прахом допускается производить:

в землю;

в стены-колумбарии, как в отдельно стоящие, так и находящиеся в составе зданий-колумбариев, или в ограждениях территории кладбища, в подпорных стенах, в составе мемориальных сооружений;

в иные урнохранилища на кладбищах.

10.9. Во исполнение требований Федерального закона «О погребении и похоронном деле» места захоронений рекомендуется предусматривать следующих видов: на одну могилу - для одиноких и малоимущих граждан; на 2-6 могил - семейные, семейные склепы и пантеоны; групповые на 6 и более могил - для жертв аварий, катастроф; братские (общие) или пантеоны - для лиц, чьи останки сохранились не целиком, не могут быть идентифицированы, личность которых не установлена, для одиноких граждан, похороненных за счет государственного или муниципального бюджетов, а также для жертв массовых катастроф и иных чрезвычайных ситуаций.

Места захоронений различного типа целесообразно предусматривать на обособленных участках для каждого из указанных видов захоронений.

10.10. Захоронение родственника в одну и ту же могилу разрешается после истечения полного периода минерализации, установленного местными санитарными органами, как правило, не ранее чем через 15 лет с момента предыдущего захоронения. Захоронение урны с прахом в родственную могилу разрешается независимо от времени предыдущего захоронения в нее гроба.

10.11. Вновь создаваемые места погребения должны размещаться на расстоянии не менее 300 м от границ селитебной территории. Использование территории места погребения разрешается по истечении 20 лет с момента его переноса и только под зеленые насаждения.

Запреты на устройство мест погребения, правила создания новых и реконструкции старых мест погребения, отвода под них земельных участков, а также санитарные и экологические требования к их содержанию определяются нормативными и законодательными актами Российской Федерации и субъектов Российской Федерации.

10.12. При прокладке проездов и внутриквартальных дорог на кладбище следует принимать расстояние от наиболее удаленной могилы на участке до проезда или дороги не более 25 м. При этом каждое место захоронения должно выходить одной из сторон к пешеходной дороге, обеспечивающей проезд хозяйственного моторизованного транспорта.

10.13. На участках дорог, предназначенных для движения инвалидов и маломобильных лиц, уклоны, горизонтальные участки, разметку, рельефные элементы следует принимать по ВСН 62-91*.

10.14. Размеры мест захоронения рекомендуется принимать не менее указанных в таблице 1.

10.15. При захоронении гроба с телом или тела без гроба глубину могилы следует устанавливать в зависимости от местных условий (характера грунтов и уровня стояния грунтовых вод); при этом глубина должна составлять не менее 1,5 м (от поверхности земли до крышки гроба). Во всех случаях отметка дна могилы должна быть на 0,5 м выше уровня стояния грунтовых вод.

Таблица 1

Количество погребений в одном уровне на одном месте

Размеры, м

ширина

длина (в глубину)

1

1,0

2,00

2

1,8

2,00

3

2,6

2,00

4

3,6/1,8

2,00/4,00

5

2,6

4,00

6

2,6

4,00

Глубину могил следует делать не более 2 - 2,2 м.

Надмогильную насыпь следует устраивать высотой 0,3-0,5 м от поверхности земли.

При захоронении тела умершего в сидячем положении слой земли над трупом, включая надмогильную насыпь, должен быть не менее 1 м.

10.16. Не допускается устройство захоронений в разрывах между могилами на участке, на обочинах дорог и в пределах защитных зон, в том числе моральной зоны.

10.17. Каждое захоронение регистрируется работником конторы кладбища в книге установленной формы.

Кроме записи в книгу работник делает соответствующую отметку на разбивочном чертеже квартала кладбища. Родственнику, ответственному за могилу, выдается удостоверение о захоронении с указанием фамилии, имени и отчества захороненного, номера квартала, сектора, могилы и даты захоронения. В удостоверение вносят данные об установке надгробия, которые отмечаются также и в «Книге регистрации установки надгробий» (приложение 11).

Оборудование и эксплуатация территории

10.18. На кладбищах следует предусматривать:

а) стенд с планом кладбища. На плане должны быть обозначены основные зоны кладбища, здания и сооружения, кварталы и секторы захоронений и дана их нумерация. Стенд с планом следует устанавливать на территории кладбища у главного входа;

б) указатели расположения зданий и сооружений, пункта выдачи инвентаря, общественных туалетов;

в) стенд для помещения объявлений и распоряжений администрации, правил посещения кладбищ, прав и обязанностей граждан;

г) показательный участок с примерами современных способов захоронений и оформления мест захоронений гроба с телом и праха после кремации;

д) общественное место захоронения «невостребованного праха», которое отмечают стелой или обелиском без указания фамилий похороненных;

е) стационарные скамьи, садовые диваны, которые устанавливают у основных зданий, на аллеях, кварталах захоронений и на площадках для отдыха;

ж) переносные стулья, которые должны находиться в секторах захоронений (6-8 на один сектор);

з) теневые навесы и перголы для отдыха посетителей;

и) телефоны-автоматы;

к) автоматы газированной воды;

л) чаши с кранами для полива зеленых насаждений;

м) общественные туалеты;

н) домики для птиц;

о) мусоросборники и урны для мусора.

10.19. Для перевозки и переноса гробов по территории на каждом кладбище должны иметься катафалки-тележки, катафалки-сани, катафалки-носилки; для переноса урн - катафалки-носилки.

10.20. На каждом кладбище должны быть деревянные крышки для защиты могилы, подготовленной к захоронению, от дождя и снега.

11. БЛАГОУСТРОЙСТВО ТЕРРИТОРИИ

11.1. В зависимости от рельефа участка, имеющегося озеленения и других природных факторов кладбища могут предусматриваться:

регулярного типа - на участках со спокойным рельефом;

ландшафтные (мемориальные парки) - на участках со сложным рельефом, дающим возможность использовать различные приемы ландшафтной архитектуры;

смешанного типа - с выделением одной части территории для ландшафтных решений и организацией остальной части по регулярной схеме.

11.2. При выделении под кладбища территорий, занятых лесом, следует производить выборочные вырубки деревьев с тем, чтобы использовать естественные лесные угодья в качестве СЗЗ, ЗМЗ и озеленения территории кладбища.

11.3. Озеленение и благоустройство территорий объектов похоронного обслуживания должно проектироваться в соответствии с требованиями 4-й главы «Ландшафтно-рекреационная территория» СНиП 2.07.01-89*.

11.4. Все работы по застройке и благоустройству территорий объектов похоронного обслуживания должны выполняться с максимальным сохранением существующих деревьев, кустарников и растительного грунта.

На участках зданий и сооружений похоронного назначения рекомендуется предусматривать озелененную зону «моральной защиты» шириной не менее 20 м, стоянку автокатафалков и автотранспорта, благоустроенные места встречи участников похорон, урны для сбора мусора, площадки для мусоросборников с подъездами к ним.

11.5. Дорожная сеть по всей территории кладбищ, на отдельных участках, в том числе участках зданий и сооружений, в частности от их значения и размеров, расчетной интенсивности движения, подразделяется на следующие категории:

магистральные дороги, центральные площади и главные аллеи;

межквартальные дороги;

внутриквартальные дороги;

дорожки и тротуары.

11.6. Магистральные дороги предназначены для транспортного обслуживания центральных площадей, главных аллей, хозяйственной зоны, имеющих наибольшую нагрузку и интенсивность движения, а также для подъезда пожарных автомобилей или техники.

11.7. Межквартальные дороги предназначены для проезда автомашин с целью подвоза памятников и уборки территории.

11.8. Внутриквартальные дороги, дорожки и тротуары предназначены для пешеходной связи в секторах, а внутриквартальные дороги - и для проезда местного моторизованного хозяйственного транспорта.

11.9. Основные элементы поперечного профиля дорог следует принимать по таблице 2.

Таблица 2

№ п. п.

Наименование элементов дороги

Значение показателей категорий дорог

магистральные

межквартальные

внутриквартальные

пешеходные дорожки

1

Число полос движения, шт.

2-4

2

2

По расчету

2

Ширина проезжей части, м

3,5-7,0

3,0

2,75

1,0

3

Ширина обочины, м

2,0

1,5

1,0

0,5

4

Ширина пешеходной части тротуара, м

2,25

1,5

1,0-1,5

1,0

11.10. При проектировании дорожной сети с укрепленными обочинами и открытой системой водоотвода поперечный профиль следует принимать двухскатным с уклоном 2-3 % в зависимости от типа покрытия.

11.11. Тип покрытия и конструкции дорожных одежд рекомендуется принимать по таблице 3 исходя из транспортно-эксплуатационных требований и категорий дорог с учетом интенсивности движения транспортных средств, климатических и грунтово-гидрологических условий, а также использования местных строительных материалов.

Таблица 3

Категория дороги

Тип покрытия

Магистральные дороги, главные аллеи и площадки, хоздворы и межквартальные дороги

Мелкозернистый асфальтобетон или сборные железобетонные плиты

Внутриквартальные дороги

Щебеночные улучшенные цементно-грунтовые смеси

Дорожки по секторам

Грунт, улучшенный цементом или песчано-гравийной смесью

Тротуары

Песчаный асфальт, сборные железобетонные плиты

11.12. Проезжая часть дорог, предназначенная для проезда пожарных автомобилей, должна воспринимать нагрузку на ось не менее 20 т.

Проезжую часть дорог с асфальтобетонным покрытием необходимо ограничивать бетонным бортовым камнем сечением не менее 15×30 см или устраивать укрепление щебнем обочины шириной 1,0-1,5 м.

11.13. На участках, не имеющих естественного стока или с уклонами, превышающими максимально допустимые, необходимо проводить мероприятия по инженерной подготовке территории.

11.14. Водоотвод атмосферных и талых вод с территории объектов похоронного назначения необходимо предусматривать, как правило, поверхностный по лоткам проезжей части дорожной сети. При применении открытой сети водоотвода размеры кюветов и канав трапецеидального сечения следует принимать не менее: ширина по дну - 0,4 м, глубина - 0,4 м.

11.15. Водоотводы с участков кладбищ с традиционным способом захоронения в пониженные места прилегающих территорий предусматриваются только по согласованию с санитарно-эпидемиологической службой. При размещении кладбищ на склонах в целях защиты территории от подтопления водами с верховой стороны должны устраиваться нагорные канавы. Допускается террасирование склонов.

11.16. Ширину разрывов между могилами следует принимать не менее 0,5 м.

Ширину пешеходных дорожек между могилами или их сдвоенными рядами на участке следует принимать не менее 1 м.

Вдоль пешеходных дорожек следует предусматривать урны для сбора мелкого мусора.

12. ЗДАНИЯ И СООРУЖЕНИЯ ПОХОРОННОГО ОБСЛУЖИВАНИЯ

12.1. При проектировании зданий и сооружений похоронного обслуживания следует учитывать требования ВСН 62-91* по обеспечению доступности их для инвалидов и маломобильных групп населения.

Рекомендуется устраивать приспособления в туалетах для инвалидов, пользующихся креслами-колясками, закругление углов стен, мебели, оборудования, пандусы на путях движения, дополнительные поручни.

При проектировании путей движения инвалидов на объектах похоронного назначения рекомендуется обозначать пути слепых и инвалидов с нарушениями опорно-двигательного аппарата.

12.2. Учитывая то, что в России правостороннее автомобильное движение, а в Москве для перевозки гроба с телом и людей, участвующих в похоронах, используются катафалки-автобусы, подъездная дорога к главному входу здания должна подходить с правой стороны.

12.3. Над входом и выходом из ритуального здания следует устраивать укрытия от непогоды. При устройстве портика с колоннами расстояние от колонн до входа или выхода должно обеспечивать свободное открывание дверей автотранспорта и здания.

В ритуальных залах не рекомендуется демонстрировать перемещение гроба, а также не следует устраивать лестницы на путях движения процессий с гробом при входе в здания похоронного назначения.

При отсутствии пандусов уровень пола при входах и выходах из зданий не должен превышать уровня дороги у зданий более чем на высоту одной ступени.

12.4. Состав и площади основных помещений бюро похоронного обслуживания рекомендуется принимать по приложению 19.

12.5. Состав и площади помещений бюро-магазина похоронного обслуживания рекомендуется принимать по приложению 19 с дополнением следующими помещениями:

демонстрационно-торговый зал;

комната продавцов;

хозяйственно-складские помещения.

12.6. В здании бюро-магазина похоронного обслуживания допускается объединение вестибюля и демонстрационно-торгового зала.

12.7. Дома траурных обрядов и крематории (типа 1) допускается проектировать с одним или несколькими ритуальными залами (см. пункт 12.9).

12.8. Рекомендуемые состав и площади основных помещений Дома траурных обрядов приведены в приложении 20. Функционально-технологическая схема Дома траурных обрядов с расширенным составом помещений дана в приложении 21.

12.9. Состав обрядовой и обслуживающей частей крематория (типа 1) идентичен составу группы помещений Дома траурных обрядов (см. приложение 20). При этом состав помещений крематория (типа 1) дополняется помещениями кремационной части здания по приложению 22.

12.10. При Доме траурных обрядов и крематории (типа 1) может предусматриваться хозяйственный двор с неотапливаемыми складскими помещениями для похоронных принадлежностей, предметов похоронного ритуала, одежды, обуви и материально-технических средств и отапливаемыми помещениями мастерских и гаражей.

12.11. Рекомендуемые состав основных групп и площадок помещений крематория (типа 2) приведены в приложении 23.

Функционально-технологическая схема крематория (типа 2) дана в приложении 24.

В состав крематория входят здания и сооружения административно-хозяйственного, ритуального и технологического назначения для подготовки и выполнения кремации, учета, хранения и выдачи урн с прахом. Технологические цеха крематориев оснащаются кремационными установками (печами).

12.12. В однозальных крематориях рекомендуется устанавливать не менее двух кремационных печей, в двухзальных - трех. В крематориях (типа 2) количество кремационных печей определяется расчетом, исходя из количества обслуживаемых Домов траурных обрядов.

12.13. Пропускную способность одного ритуального зала Дома траурных обрядов или крематория (типа 1) определяют из расчета 15-30 мин на проведение одного обряда прощания при ежедневной односменной работе, кроме праздничных и санитарных дней.

Пропускную способность крематория (кремационной печи) определяют в среднем из расчета одного часа на одну кремацию.

Порядок деятельности крематориев определяется органами исполнительной власти субъектов Российской Федерации или органами местного самоуправления.

12.14. Архитектурно-планировочные решения зданий и сооружений похоронного обслуживания следует принимать, соблюдая следующие основные требования:

помещения для людей, участвующих в похоронах, должны быть изолированы от помещений, предназначенных для работы обслуживающего персонала, и обеспечивать звукоизоляцию от санузлов и вентиляционных установок;

все помещения для посетителей рекомендуется размещать на одном уровне пола;

помещения для санитарно-гигиенической и парикмахерской подготовки умерших, помещения для одевания, укладывания в гроб и косметической подготовки умерших, охлаждаемые помещения для предпохоронного сохранения умерших и технические помещения допускается размещать в цокольном этаже;

входная и обрядовая группы помещений должны планировочно обеспечить одновременное пребывание в них двух процессий в одно-зальном, а в двухзальном здании - четырех процессий при полной визуальной изоляции и недопущении их пересечений и встреч на протяжении всех подготовительных и обрядовых этапов процесса.

12.15. В двухзальных Домах траурных обрядов и крематориях (типа 1) следует предусматривать отдельные вестибюли при каждом траурном зале.

12.16. Помещение для ведущих ритуал, комнаты родственников, оказания медицинской помощи, комната священнослужителя должны иметь удобную связь с вестибюлем и траурным залом.

12.17. Для отдания воинских почестей при погребении умерших (погибших) военнослужащих (салют тремя ружейными залпами) рядом со входом в здание или витражом ритуального зала следует предусматривать площадку с твердым покрытием для построения на ней воинского подразделения - почетного эскорта.

12.18. В траурных залах Домов траурных обрядов и крематориев следует предусматривать:

катафалк для установки гроба;

место для установки крышки гроба;

место для установки венков и вазонов;

государственные символы: герб России, герб города и т.п. (на стене рядом с катафалком);

места для съемных (переносных) религиозных символов;

кафедру для выступающих;

места для сидения родных и близких (переносные).

12.19. В залах вручения урн следует предусматривать постамент для установки погребальной урны и размещения на нем подсвечников или декоративных светильников, цветов, катафалк-носилки для переноса погребальной урны к месту захоронения, а также звуковоспроизводящую установку.

12.20. Рекомендуемый состав групп и площади основных помещений административно-бытового и обрядового здания кладбища приведены в приложении 25, а функционально-технологическая схема здания - в приложении 26.

12.21. В зданиях колумбариев в три и более этажей следует предусматривать лифты для посетителей и инвалидов, пользующихся колясками, а в двухэтажных зданиях - пандусы.

12.22. В здании колумбария целесообразно предусматривать вестибюль, залы захоронений, комнату для молений, комнату персонала, подсобные помещения, кладовые уборочного инвентаря, радиоузел, а также помещения инженерных служб. В здании, имеющем несколько входов, вестибюль следует предусматривать при каждом входе. Допускается предусматривать гардероб верхней одежды и комнаты для поминовений (поминальных трапез).

12.23. Высоту залов захоронений рекомендуется принимать не менее 2,5 м при 5-ярусном размещении ниш (ячеек) для установки в них погребальных урн. Вместимость здания-колумбария определяется заданием на проектирование. Размеры ниш зависят от формы, объема и заданной вместимости погребальных урн, но не должны быть менее 400×400×300 мм.

12.24. В вестибюлях и залах захоронений следует предусмотреть места отдыха посетителей и цветочное оформление (фитодизайн).

12.25. Кремационный зал рекомендуется размещать в одном уровне с траурным залом. Допускается размещение кремационного зала и технологически связанных с ним помещений на уровень ниже траурного зала.

В исключительных случаях, обусловленных рельефом участка, допускается зал прощания размещать над помещением для санитарно-гигиенической, парикмахерской, косметической подготовки умерших, их одевания и укладывания в гробы. При этом не допускается связывать указанное помещение с залом прощания лифтовой шахтой (шахта завершается катафалком для гроба) для исключения проникновения неприятных запахов и шума в зал прощания. Лифт для подъема гроба с телом (или опускания после завершения обряда прощания) в зал прощания необходимо установить в смежном помещении, а перед залом прощания предусмотреть шлюз и оборудовать его вытяжной вентиляцией.

12.26. Комнату почетного караула рекомендуется располагать рядом с ритуальным залом или входом в этот зал.

12.27. Вместимость холодильных камер определяется из условия двух-трехсуточного в среднем сохранения умерших и должна соответствовать пропускной способности траурных залов и кремационных печей. При этом следует 10 % вместимости предусмотреть для длительного (7-14 дней) сохранения умерших.

12.28. Между траурным залом и предпечечным пространством в крематории следует предусмотреть шлюзовую камеру шириной не менее 2,4 м и глубиной не менее 4 м.

Между помещениями санитарно-гигиенической, парикмахерской, косметической подготовки умерших к обряду прощания, их одевания и укладывания в гробы и комнатой для родственников также следует предусмотреть шлюз, оборудованный вытяжной вентиляцией.

12.29. Высоту ритуальных залов рекомендуется принимать не менее 4,2 м, а в сельской местности - не менее 3,3 м.

12.30. Высоту кремационного зала следует принимать в зависимости от устанавливаемого оборудования и условий его эксплуатации, но не менее 3,6 м.

12.31. Не допускается устройство порогов в дверных проемах на пути перемещения тележек с гробами. Ширина проемов должна быть не менее 2,4 м.

12.32. Высота коридоров в группе технических помещений должна быть не менее 2,5 м от пола до низа выступающих конструкций перекрытия.

12.33. Ширину коридоров следует принимать не менее, м:

в обрядовой группе помещение - 2,4;

в группе кремирования, обработки и хранения останков - 1,8.

Ширина помещений и коридоров на пути передвижения людей с гробом должна быть не менее 2,4 м.

12.34. Объемно-планировочное решение и архитектурная отделка ритуальных залов и залов для вручения урн по своим акустическим свойствам должны обеспечивать оптимальные условия восприятия речи и музыки.

12.35. В вестибюле, помещении для родственников, распределительных кулуарах, предпечечном пространстве и венткамерах следует предусматривать звукоизоляцию.

12.36. В холодильных камерах, комнатах подготовки умерших к обряду и в кремационных залах для отделки стен следует применять моющиеся материалы, обеспечивающие защиту стен при влажной уборке.

12.37. Полы в вестибюлях, траурных залах и залах для вручения урн, в приемных, холодильных камерах, в комнатах подготовки умерших к обряду, предпечечных пространствах и кремационных залах следует выполнять из хорошо моющихся и устойчивых к истиранию материалов.

12.38. Допускается реконструкция существующих зданий траурной обрядности путем пристройки к залам прощания помещений для временного сохранения гробов, централизованно направляемых в крематорий после обряда прощания. Для переустройства указанных выше зданий в крематориях допускается пристройка к ним помещений для кремации, обработки кремированных останков и других необходимых помещений.

12.39. Дома траурных обрядов и крематории (типа 1), учитывая местные условия, могут быть дополнены помещениями для патолого-анатомических исследований и судебно-медицинских экспертиз.

12.40. При проектировании зданий и сооружений похоронного назначения следует ориентироваться на рекомендуемые составы помещений в таблицах и приложениях. Уменьшение состава помещений не должно производиться за счет технологических и санитарно-гигиенических помещений, функции которых направлены на обеспечение безопасности людей.

12.41. При проектировании зданий-кладбищ следует руководствоваться требованиями к зданиям-колумбариям. При включении в состав зданий-кладбищ групп помещений общественного, производственного или иного назначения следует руководствоваться требованиями соответствующих нормативных документов по проектированию зданий аналогичного назначения.

12.42. В структуре зданий-кладбищ могут быть предусмотрены встроенные, пристроенные или отдельно стоящие культовые здания. При устройстве культовых зданий различных конфессий рекомендуется размещать их в разных зонах, дворах или частях здания-кладбища.

12.43. Погребения в зданиях-кладбищах могут размещаться как в наземной, так и подземной части. В пределах этажа не рекомендуется устраивать ниши для захоронения некремированных останков в несколько уровней одну над другой, целесообразно предусмотреть ступенчато-террасное решение, но не более 3 уровней на одном этаже.

13. ПАМЯТНИКИ, ПАМЯТНЫЕ ЗНАКИ, НАДМОГИЛЬНЫЕ И МЕМОРИАЛЬНЫЕ СООРУЖЕНИЯ

13.1. Памятниками считаются объемные и плоские архитектурные формы, в том числе скульптура, стелы, обелиски, лежащие и стоящие плиты, содержащие информацию о лицах, в честь которых они установлены (мемориальную информацию). Объекты, не содержащие такой информации, следует считать парковыми архитектурными формами.

13.2. Памятными знаками считаются плоские или объемные малые формы, в том числе транспаранты, содержащие мемориальную информацию, для установки которых, требуется участок менее 0,5 м2.

13.3. К надмогильным и мемориальным сооружениям относятся сооружения, которые содержат мемориальную информацию и имеют внутренние пространства или помещения. К таким сооружениям относятся склепы, пантеоны, мавзолеи.

К надмогильным относятся сооружения, имеющие в своем составе захоронения, независимо от того находятся ли они в надземном пространстве или под полом сооружения. Мемориальными считаются сооружения, не имеющие захоронения, но установленные в память какого-либо лица и содержащие мемориальную информацию.

13.4. Установка памятников, надмогильных и мемориальных сооружений на кладбищах допускается только в границах участков захоронений.

Устанавливаемые памятники и сооружения не должны иметь частей, выступающих за границы участка или нависающих над ними.

Надмогильные сооружения устанавливаются по согласованию с администрацией кладбищ и регистрируются в «Книге регистрации установки надгробий». Ответственному за могилу выдается установленной формы удостоверение о сооружении надгробия. Установка памятников зимой не допускается.

В книге регистрации указываются квартал, сектор и номер могилы; фамилия, имя и отчество захороненного, дата установки, габаритные размеры и материал памятника, адрес и фамилия лица, ответственного за могилу, и документ от изготовителя памятника.

13.5. Склепы и мавзолеи следует относить к категории надмогильных сооружений с распространением на них соответствующих требований.

В склепах и мавзолеях могут устраиваться захоронения: в гробах в землю, в герметичные саркофаги, в урнах - в ниши, в землю или открыто, а также сочетания таких захоронений.

13.6. Для захоронения в склепах и мавзолеях некремированных останков в гробах следует устанавливать герметичные саркофаги, если захоронение не производится в землю, под полом здания или сооружения.

При захоронении в нишах плита, закрывающая захоронение, должна устанавливаться так, чтобы обеспечить герметичность захоронения.

13.7. При захоронении тела с гробом в склепе или мавзолее в землю глубина заложения могилы должна быть не менее 2 м от уровня пола сооружения, независимо от того, находится он в уровне земли или опущен ниже этого уровня.

13.8. Не допускается строительство зданий для погребения ниже 1-й степени долговечности и 2-й степени огнестойкости.

13.9. Надмогильные здания должны иметь естественную вентиляцию, могут иметь естественное и искусственное освещение.

13.10. При установке памятников, надмогильных и мемориальных сооружений на местах захоронений следует предусмотреть возможность последующих захоронений.

Архитектурное решение, а также размеры внутренних пространств и помещений должны обеспечивать возможность последующих захоронений, посещения и ухода за надгробиями и помещениями.

13.11. При устройстве пола в зданиях и сооружениях для погребений ниже уровня земли или на отметке уровня земли следует предусматривать меры, предотвращающие затопление внутренних пространств ливневыми и грунтовыми водами.

13.12. В склепах, надмогильных и мемориальных сооружениях входные проемы и внутренняя организация эксплуатируемых пространств должны соответствовать требованиям действующих противопожарных норм и правил.

14. ТЕХНОЛОГИЧЕСКОЕ ОБОРУДОВАНИЕ ЗДАНИЙ

14.1. Кремационные залы оборудуются, как правило, однокамерными или двухкамерными печами.

14.2. Для работы кремационных печей в качестве топлива применяются природный газ, дизельное топливо и электроэнергия. Печи должны быть оборудованы эффективными системами дымососов и газоочистки.

Допускается применение печей только серийного производства (как отечественного, так и зарубежного) и прошедших экологическую экспертизу в соответствии с действующими положениями нормативных документов по охране окружающей среды.

14.3. Предпечечное пространство кремационного зала оборудуется специальными загрузочными механизмами, грузоподъемностью не менее 350 кг для перемещения гроба к загрузочным проемам кремационных печей. Ширину предпечечной зоны следует принимать не менее 5 м.

14.4. В кремационном зале следует предусматривать стеллажи для размещения вспомогательного оборудования, емкостей для праха, захваты для перемещения емкостей с прахом, вытяжные шкафы для охлаждения праха и место для инструментов оператора кремационной печи.

14.5. В домах траурных обрядов и крематориях следует предусматривать необходимое (по расчету) количество транспортных тележек с подъемной платформой, снабженной рольгангами.

14.6. В крематориях, в которых ритуальная и кремационная части располагаются на разных уровнях, необходимо предусматривать грузовые подъемники грузоподъемностью не менее 350 кг для вертикального перемещения гроба с телом (из ритуального зала вниз для кремации или вверх после хранения в холодильной камере для проведения траурного обряда).

В целях безопасности следует предусматривать автоматическое зашторивание проема шахты после опускания платформы подъемника.

Размер платформы подъемника - не менее 2,0×0,8 м, проема шахты - не менее 2,10×0,9 м.

Предел огнестойкости шахты подъемника должен быть не менее 0,75 ч, дверей шахты - 0,6 ч.

14.7. При размещении ритуальных и кремационного залов на одном уровне (рис. 13) следует предусматривать устройство горизонтального транспорта для перемещения гроба из ритуального зала в предпечечное пространство через шлюз длиной не менее 2,5 м. Размер проема шлюза в свету не должен быть менее 0,8×0,8 м.

Предел огнестойкости шахты шлюза должен быть не менее 0,75 ч, а дверей - 0,6 ч.

14.8. При зданиях крематориев следует предусматривать хозяйственный двор со складскими помещениями для хранения крупногабаритных запчастей, огнеупоров, глины, песка, цемента, а также специальных емкостей и инвентаря для приготовления растворов.

14.9. Помещение для обработки праха оборудуется стеллажами для хранения урн, кремулятором для измельчения праха, электромагнитом для удаления металла из праха, а также специальными емкостями для праха, средствами обнаружения и хранения драгоценных металлов, а также служебным телевидением.

14.10. Помещение для производства косметической подготовки умерших к обряду оборудуется стационарными столами с решетчатыми металлическими крышками, шкафами для инструмента, электрополотенцами.

15. ЭКОЛОГИЧЕСКИЕ И САНИТАРНО-ГИГИЕНИЧЕСКИЕ ТРЕБОВАНИЯ

15.1. Выбор участков для устройства мест погребения должен осуществляться на основе положительных решений экологической и санитарно-гигиенической экспертиз. При выборе участков для устройства кладбищ следует учитывать свойства грунтов. Грунты не менее чем на глубину 2 м должны быть сухими, легкими, воздухопроницаемыми. Уровень стояния грунтовых вод не должен быть выше 2,5 м от поверхности земли.

При отсутствии необходимых гидрогеологических условий рекомендуется проводить инженерную подготовку территории будущего кладбища, включающую осушение территорий, устройство дренажей, засыпку на поверхность мелкозернистых сухих грунтов.

15.2. Санитарно-защитные зоны кладбищ следует назначать исходя из преимущественных направлений распространения вредностей и с учетом: розы ветров, направлений сброса грунтовых вод, наличия геологических разломов и неоднородности грунтов, рельефа и направлений сброса ливневых вод, зон распространения электромагнитных, энергоинформационных и других видов опасных для жизни и здоровья излучений, но не менее 500 м для кладбищ традиционного и смешанного способов захоронения, а для крематориев - 1000 м от жилой застройки.

15.3. В санитарно-защитных зонах кладбищ не допускается устройство зданий и сооружений с длительным пребыванием (свыше 50 ч в месяц) людей, гаражей и хозпостроек, водозаборов и колодцев для хозяйственно-питьевых нужд, детских игровых и спортивных площадок и сооружений.

15.4. Не рекомендуется после истечения кладбищенского периода сокращать размеры санитарно-защитных зон и использовать эти территории для строительства жилых, детских дошкольных, учебных и лечебно-оздоровительных зданий и сооружений.

15.5. Не допускается размещать в зданиях и сооружениях рабочие места длительного пребывания (более 50 ч в месяц), а также места отдыха посетителей, помещения медицинского обслуживания на территориях, где проявляются вредные энергоинформационные воздействия (патогенные зоны) природного, техногенного, биогенного или смешанного происхождения.

Примечание - К патогенным зонам следует относить, в частности, места, где отличие характеристик естественного импульсного электромагнитного поля Земли (ЕИЭМПЗ) от фонового составляет 5 и более раз (свыше 500 %).

15.6. В случаях, предусмотренных законом, при ликвидации кладбищ и захоронений, а также их частей, обнаруженных при проведении строительных работ, необходимо проводить рекультивацию территорий и участков. Использование грунтов с ликвидируемых мест захоронения для строительства, в том числе полотна дорог в селитебных зонах поселений, не допускается.

Не разрешается использовать территории ликвидированных кладбищ для строительства зданий и сооружений жилой и производственной среды, транспортных магистралей и дорог.

15.7. В зданиях и помещениях для хранения и обработки тел умерших следует предусматривать меры по защите от проникновения хищников и грызунов.

15.8. Водозаборы и колодцы для питьевых нужд рекомендуется устраивать за пределами санитарно-защитных зон со стороны более высокого водонесущего горизонта по отношению к кладбищу или сверху по направлению стока подземных вод.

15.9. Производственные стоки патолого-анатомических служб, а также служб, связанных с хранением тел, их омовением и подготовкой к обряду прощания, рекомендуется считать токсичными и подвергать очистке. С этой целью в зданиях, где размещаются такие службы, или на их участках рекомендуется предусматривать пункты очистки стоков или соответствующие очистные сооружения.

Спуск в канализацию, на открытые площадки, в канавы, кюветы, траншеи неочищенных стоков не допускается.

15.10. Крематории и кладбища традиционного захоронения следует располагать с подветренной стороны (для ветров преобладающего направления) по отношению к селитебной территории.

15.11 Участки кладбища с высоким уровнем стояния грунтовых вод (выше 1,9 м от поверхности земли) следует использовать только для захоронений после кремации.

15.12. Технологические стоки, содержащие токсичные компоненты, перед сбросом в канализацию должны дезинфицироваться с последующим разбавлением сточными водами до допустимой концентрации.

15.13. Расстояние от границ кладбища традиционного захоронения до водозабора должно быть не менее 1000 м.

15.14. Грунты участков для размещения кладбищ традиционного захоронения должны иметь водоупорный слой над водоносным горизонтом, из которого производится водозабор вне границ, установленных в пунктах 15.2, 15.13.

15.15. При проектировании кладбищ следует максимально сохранять зеленые насаждения. При этом минимальное расстояние от дерева до могилы рекомендуется принимать не менее 5 м.

15.16. Кремационные печи должны обеспечивать нормативную чистоту отходящих газов или быть оборудованы системой очистки отходящих газов. Степень очистки определяется в каждом конкретном случае по согласованию с органами государственного санитарного надзора.

16. ИНЖЕНЕРНОЕ ОБОРУДОВАНИЕ

Водоснабжение и канализация

16.1. Здания похоронного назначения должны оборудоваться системами хозяйственно-питьевого и противопожарного водопровода, внутренней системой канализации и водостоками в соответствии с требованиями СНиП 2.04.01-85*.

Расчетный расход воды на наружное пожаротушение следует принимать не менее 100 л/сек, расход воды и количество струй для внутреннего пожаротушения принимаются на основе СНиП 2.04.01-85*.

16.2. Подводку горячей воды следует предусматривать к умывальникам, раковинам, душевым сеткам и секционным столам.

16.3. Водоразборные краны и трапы следует предусматривать в следующих помещениях:

приемной;

холодильных камерах;

помещениях для подготовки умерших к обряду;

кремационном зале;

предпечном пространстве.

16.4. Здания крематориев и Домов траурных обрядов, как правило, оборудуются системой внутренних водостоков с отводом воды в наружную ливневую канализацию, а при отсутствии последней - на отмостку у здания.

16.5. Отвод стоков от помещений холодильных камер, кремационного зала, помещений подготовки к обряду и мытья тележек производится в отстойник, где осуществляется их обеззараживание. Отвод бытовых стоков производится системой канализации в городскую канализационную сеть.

16.6. Для полива прилегающей территории предусматривается устройство поливочных кранов с подключением к сети производственного или хозяйственно-питьевого водопровода.

16.7. Для питьевых и хозяйственных нужд на кладбище следует предусматривать сеть хозяйственно-питьевого водопровода от сетей города, поселка или от резервуаров, наполняемых привозной водой.

16.8. На территории кладбища магистральная прокладка сети хозяйственно-питьевого водопровода не допускается.

16.9. На территории кладбища предусматривается поливочный водопровод с подключением к сетям хозяйственно-питьевого или производственного водопровода.

16.10. Сеть поливочного водопровода прокладывается вдоль магистральных проездов на глубину не менее 0,6 м до верха трубы с уклоном в сторону колодца, предусматриваемого для опорожнения сети на зиму.

16.11. Расходы воды на полив принимаются в соответствии с действующими нормами.

16.12. Отвод бытовых стоков от сооружений и общественных туалетов производится в городскую или поселковую сеть канализации.

При отсутствии канализационных сетей на территории кладбища в административно-хозяйственной зоне для посетителей при необходимости могут предусматриваться туалеты с выгребом.

16.13. Наружное освещение территории кладбищ должно предусматриваться в следующих зонах:

входной;

ритуальной;

административно-хозяйственной, включая въезд на территорию кладбища;

на основных аллеях зоны захоронений.

Освещенность должна быть не менее 0,5 лк/м2.

16.14. Управление сетями наружного освещения должно быть централизованным.

16.15. Прокладка кабелей на участках захоронения не допускается.

Связь и сигнализация

16.16. Здания похоронного назначения рекомендуется оборудовать телефонной связью и дополнительными линиями для формирования компьютерных сетей, сигнализацией - охранной и противопожарной, внутренней селекторной связью.

Следует устанавливать по требованию органов МВД служебное телевидение для контроля за ведением работ.

16.17. Дома траурных обрядов, крематории и административно-бытовые корпуса следует оборудовать радиотрансляцией, телефонизацией и электрочасофикацией, при необходимости - системой служебного телевидения.

16.18. Ритуальные залы, помещения адаптации, площадки и павильоны для прощания рекомендуется оборудовать средствами звуковоспроизведения.

В ритуальных залах следует предусматривать систему звукофикации, обеспечивающую воспроизведение звукозаписи. Следует предусматривать селекторную связь ведущего ритуал с музыкальной ложей, радиоузлом.

16.19. Для связи с работниками на участках кладбищ, диспетчерской связи с ведущими ритуал и водителями рекомендуется применение радиотелефонной местной связи.

16.20. Автоматической пожарной сигнализацией оборудуются: в Домах траурных обрядов и крематориях - все помещения, кроме холодильных камер, санитарных узлов, душевых; в бюро похоронного обслуживания - все помещения, кроме санитарных узлов. Размещение приемных станций автоматической пожарной сигнализации следует располагать в помещении с постоянным пребыванием людей.

16.21. Здания похоронного назначения оборудуются аварийным освещением, обеспечивающим эвакуацию людей.

Рекомендация по механизации трудоемких работ

16.22. Для механизации работ в летний и зимний периоды подготовка могил на свободных площадках кладбищ может осуществляться траншейным способом: экскаватором (за сутки или более - в зависимости от грунта и уровня грунтовых вод) отрывают траншею глубиной 150, шириной 100 см. Затем через каждые 2 м по длине траншеи ставят опалубки-перемычки шириной 50 см, которые засыпают грунтом и утрамбовывают, а образовавшиеся могилы закрывают сверху съемными крышками. Перед захоронением крышки снимают и переставляют на следующую траншею.

16.23. Для уборки территорий кладбищ (подметание дорожек, поливка их водой, уборка снега, посыпание дорожек песком, подстрижка газонов, обрезание деревьев и т.п.) и транспортировки различных грузов (вывоз мусора, подвозка грунта и песка, перевозка цоколей и памятников и т.п.) следует применять подметально-уборочные машины, колесные универсальные трактора, автопогрузчики, электро- и автокары, самоходные шасси.

17. ОЗЕЛЕНЕНИЕ ТЕРРИТОРИЙ КЛАДБИЩ И КРЕМАТОРИЕВ

17.1. Площадь зеленых насаждений должна составлять не менее 20 % площади кладбищ и крематориев. Работы по озеленению или реконструкции существующих насаждений должны осуществляться по проектам, утвержденным в установленном порядке.

17.2. Существующие насаждения должны подлежать строгому учету независимо от возраста и породного состава.

17.3. Озеленение новых кладбищ и крематориев должно входить в общий комплекс строительных работ и заканчиваться ко времени ввода объекта в эксплуатацию или после завершения определенного этапа строительства.

17.4. Озеленение следует выполнять только на участках, где закончено строительство наземных и подземных сооружений и дорог.

17.5. При проведении озеленительных работ следует руководствоваться требованиями СНиП III-10-75 «Благоустройство территорий».

17.6. Для обеспечения инсоляции и проветривания территории плотность посадок деревьев на 1 га не должна превышать 170-250 шт., кустарников - 2000-2500 шт.

17.7. Для озеленения следует использовать посадочный материал повышенных возрастных групп со следующим соотношением к общей потребности посадочного материала, %, не менее:

деревьев-саженцев крупномерных............................... 20

то же, средних размеров............................................... 60

то же, маломерных........................................................ 20

кустарников-саженцев крупномерных........................ 20

кустарников-саженцев средних размеров................... 80

17.8. Подбор ассортимента деревьев и кустарников, цветущих растений и газонных трав определяется почвенно-грунтовыми и климатическими условиями района произрастания. Во всех случаях следует отдавать предпочтение местным породам. Ассортимент растений для озеленения территории кладбищ и крематориев приведен в приложении 27.

17.9. Газон должен составлять не менее 30 % всей площади озеленения. Газон улучшенного качества (партерного типа) следует устраивать только на особо ответственных участках входной зоны и зоны траурных церемониалов. На остальной территории предусматривают газоны садового типа.

17.10. Удельный вес цветников в общем балансе озеленения должен составлять 1,5-3 %. В общей площади цветников 55-60 % занимают многолетние растения.

17.11. Норму посадки цветов на 1 м2 применяют следующую: летников - 55 шт., многолетников - 17 шт., ковровых - 220 шт.

17.12. Входную зону и зону траурных церемониалов следует оформлять парадно. Размещение элементов озеленения может носить как регулярный, так и свободный характер. Средствами зеленых насаждений следует выявлять основные направления движения и распределения посетителей по зонам и обеспечивать заполнение разделительных полос к объектам.

17.13. Озеленение указанных территорий выполняют следующими приемами:

посадкой декоративных групп из особо ценных пород деревьев;

декорированием стоянок общественного и личного транспорта стрижеными живыми изгородями и бордюрами из кустарников;

рядовой посадкой деревьев вдоль основных дорог;

оформлением газоном и цветниками разделительных полос между транспортными и пешеходными дорогами;

созданием больших открытых партеров перед основными зданиями.

17.14. Для озеленения входной зоны и зоны траурных церемониалов нужно применять посадочные материалы многих сортов.

17.15. В цветочное оформление аллей следует включать цветники, рабатки, партеры, бордюры, свободные композиции летников и многолетников на газоне, переносные вазоны.

17.16. Озеленение зоны захоронений, разделенной сетью дорог на кварталы, следует выполнять рядовыми посадками деревьев и кустарников по периметру кварталов в сочетании с групповыми посадками в кварталах.

17.17. Посадка деревьев гражданами на участках захоронения допускается только в соответствии с проектом озеленения.

17.18 Озеленение площадки для захоронения «невостребованного праха» рекомендуется решать открытым газоном с цветами и цветущими декоративно-лиственными кустарниками.

17.19 Озеленение административно-хозяйственной зоны должно изолировать ее от остальной территории и выполняться следующими приемами:

плотными посадками из двух рядов лиственных деревьев и одного ряда живой изгороди из кустарника вокруг пожароопасных сооружений;

устройством газона на свободных от застройки и дорог участках;

устройством газона на всех свободных от застройки и дорог участках;

окружением хозяйственных площадок живыми изгородями из кустарников;

обсадкой пешеходных дорожек и проездов деревьями и кустарниками;

декорированием отдельных построек вьющимися растениями;

посадками из низкорослых форм деревьев во внутренних дворах.

17.20. Озеленение данной зоны хвойными породами не должно превышать 10 % общего объема посадок. Следует применять маломерный посадочный материал. Саженцы средних размеров должны составлять не более 10 % общей потребности.

17.21 Зона зеленой защиты, проходящая вокруг территории кладбища или крематория, должна быть образована плотной полосой насаждений шириной 10-20 м. Минимальная полоса должна состоять из двух рядов деревьев и двухъярусной живой изгороди из кустарников. Хвойные породы в озеленении защитной зоны должны составлять 65-70 %.

17.22. Для ограждения территорий кладбищ или крематориев, расположенных в существующих, достаточно плотных насаждениях, следует использовать живую изгородь из кустарников.

17.23. При проведении озеленительных работ особое внимание следует уделять сохранению или созданию верхнего плодородного слоя земли, а при его отсутствии - привозить грунт. На участках с существующими насаждениями можно ограничиться внесением местного растительного грунта непосредственно под посадку деревьев и кустарников из расчета замены вынутого грунта в объеме до 25 %, для газонов - слоем не менее 10 см; для цветников - не менее 25 см.

В грунтах III и IV категорий растительный грунт вносят под посадку деревьев слоем 50 - 100 см, под газоны - 15 см; под цветники - 25-30 см.

17.24. Для создания газонов улучшенного типа применяют повышенную норму высева семян трав одного злака из расчета 150-180 кг/га. Обыкновенный газон засевают смесью трав со средней нормой высева 60-100 кг/га. Подбор компонентов травосмесей определяется почвенно-климатическими условиями района озеленения. Глубина обработки почвы под цветники для летников 20-30 см, для многолетников - 40-80 см.

17.25. Комплекс агротехнических мероприятий по уходу и содержанию насаждений должен осуществляться в соответствии с «Правилами создания, охраны и содержания зеленых насаждений в городах Российской Федерации», утвержденными Госстроем России от 15.12.99 № 153.

Уход за зелеными насаждениями в течение года до сдачи объекта в эксплуатацию следует осуществлять за счет ассигнований на капитальное строительство.

17.26. Уход за зелеными насаждениями проводят раздельно по каждой группе насаждений, при этом необходимо обязательно распределить территории на участки по интенсивности ухода.

Наиболее интенсивному уходу подлежат:

зеленые насаждения входной зоны, зоны торжественно-траурных церемониалов, основных аллей и почетных захоронений;

древесно-кустарниковые насаждения в первые 2-3 года после посадки и крупномерные деревья в первые 5 лет после посадки;

участки партерной зелени, альпинариев, розариев, сортовых сиреней, вьющихся растений, участки у водоемов.

Дополнительные меры ухода сводятся к дождеванию крон деревьев и хвойных кустарников, внесению повышенных доз удобрений, увеличению частоты полива и рыхления, тщательному соблюдению сроков проведения ухода, кошению газонов.

17.27. Зеленые насаждения должны регулярно поливаться. Оросительные нормы и сроки полива устанавливают в соответствии с климатическими условиями района произрастания.

17.28. При проведении работ по озеленению и уходу за насаждениями необходимо применять машины, механизмы и специальные приспособления для обработки почвы, рыхления, перекопки земли, боронования, культивации, внесения удобрений, посадки деревьев и кустарников, посева семян трав, стрижки живой изгороди и формования крон, кошения газонов и полива.

17.29. В текущий уход за насаждениями входят регулярная стрижка и кошение газонов, которые следует проводить периодически: партерных газонов - 7 раз за вегетацию, садовых - 3-4 раза. Стрижку и формование живых изгородей из кустарников следует проводить 1-2 раза за лето, бордюров - 3-4 раза.

Положения разделов 18, 19, 20 разработаны в соответствии с Федеральным законом «О погребении и похоронном деле» от 12.01.96 № 8-ФЗ и отражают реальную ситуацию, сложившуюся в настоящее время на кладбищах РФ.

18. ОБЯЗАННОСТИ АДМИНИСТРАЦИИ КЛАДБИЩА

Администрация должна содержать кладбище в надлежащем порядке и обеспечивать:

а) своевременную подготовку могил, захоронение умерших, урн с прахом или праха после кремации, подготовку регистрационных знаков, установку памятников и уход за могилами;

б) соблюдение установленной нормы отвода каждого земельного участка для захоронения и правил подготовки могил;

в) содержание в исправном состоянии зданий, инженерного оборудования территории кладбища, ее ограды, дорог, площадок и их ремонт;

г) уход за зелеными насаждениями на всей территории кладбища, их полив и обновление;

д) исправность землеройной техники, транспортных средств, механизмов и инвентаря;

е) удаление с могил и вывоз с территории кладбища засохших цветов и венков;

ж) систематическую уборку всей территории кладбища и своевременный вывоз мусора;

з) предоставление гражданам напрокат инвентаря для ухода за могилами (лопаты, грабли, ведра и т.п.);

и) содержание в надлежащем порядке братских могил, памятников и могил, находящихся под охраной государства;

к) высокую культуру обслуживания;

л) соблюдение правил пожарной безопасности;

м) сохранность машин, механизмов, инвентаря, памятников и пр.

19. ПРАВИЛА ПОСЕЩЕНИЯ КЛАДБИЩ. ПРАВА И ОБЯЗАННОСТИ ГРАЖДАН

19.1. На территории кладбища посетители должны соблюдать общественный порядок и тишину.

19.2. Посетители кладбища имеют право:

а) пользоваться инвентарем, выдаваемым администрацией кладбища для ухода за могилами;

б) устанавливать памятники в соответствии с требованиями к оформлению участка захоронения;

в) поручать работникам кладбища уход за могилой с оплатой по утвержденному прейскуранту;

г) сажать цветы на могильном участке;

д) сажать деревья в соответствии с проектом озеленения кладбища по согласованию с администрацией;

е) беспрепятственно проезжать на территорию кладбища в случаях установки (замены) надмогильных сооружений (памятники, стелы, ограды и т.п.);

ж) посетители - престарелые и инвалиды - могут пользоваться легковым транспортом для проезда по территории кладбища.

19.3. На территории кладбища посетителям запрещается:

а) устанавливать, переделывать и снимать памятники, мемориальные доски и другие надмогильные сооружения без разрешения администрации;

б) портить памятники, оборудование кладбища, засорять территорию;

в) ломать зеленые насаждения, рвать цветы;

г) водить собак, пасти домашних животных, ловить птиц;

д) разводить костры, добывать песок и глину, резать дерн;

е) ездить на велосипедах, мопедах, мотороллерах, мотоциклах, лыжах и санях;

ж) распивать спиртные напитки и находиться в нетрезвом состоянии;

з) находиться на территории кладбища после его закрытия;

и) въезжать на территорию кладбища на автомобильном транспорте, за исключением инвалидов и престарелых.

20. ОТВЕТСТВЕННОСТЬ ЗА НАРУШЕНИЕ ПРАВИЛ ПОСЕЩЕНИЯ КЛАДБИЩ

20.1. Виновные в хищении предметов, находящихся в могиле (гробе, нише колумбария), и ритуальных атрибутов на могиле привлекаются к уголовной ответственности.

20.2. В случае нарушения посетителями положений пункта 19.3 настоящих Рекомендаций они подвергаются административным взысканиям или денежным штрафам в установленном порядке.

ПРИЛОЖЕНИЕ 1

 

Форма ИВ-1

 

В специализированную службу

по вопросам похоронного дела

_____________________________________________

(города, поселка и т.п.)

от_____________________________________________

(фамилия, имя отчество)

паспорт__________№___________________________

(серия)

выдан «____»__________19___г.__________________

адрес:_________________________________________

(индекс, место проживания)

ВОЛЕИЗЪЯВЛЕНИЕ

О ДОСТОЙНОМ ОТНОШЕНИИ К ТЕЛУ И ПАМЯТИ

Я,_____________________________________________________________________,

(фамилия, имя, отчество страна)

гражданин__________________________, находясь в сознании и трезвой памяти,

(страна)

изъявляю волю о погребении ________________________________________________,

(своем, иного лица, родным или доверителем которого я являюсь)

заключающуюся в следующем (ненужное зачеркнуть):

1. Тело может (не может) быть подвергнуто патолого-анатомическому вскрытию при условии___________________________________________________________________

(содержание условия)

и может (не может) быть кремировано.

2. После смерти разрешаю (не разрешаю) взять необходимые органы или ткани из тела для нужд здравоохранения.

3. Желаю быть погребенным по: гражданскому, военному, религиозному (указать вероисповедание)_________________________________________, производственному (указать специальность)____________________________похоронному обряду.

4. Местом погребения избираю (оставить один вариант):

новую могилу на кладбище _________________________________________________;

(указать место расположения и название кладбища)

родственную могилу_______________________________________________________

_________________________________________________________________________

(указать фамилию, имя, отчество умершего и похороненного родственника)

братскую могилу __________________________________________________________;

(указать место расположения)

иное_____________________________________________________________________

(указать адрес места погребения)

Прошу похоронить меня рядом с___________________________________________

(указать лиц, ранее погребенных)

при наличии для этого необходимых возможностей.

5. Формой погребения выбираю (подчеркнуть выбранный вариант): захоронение в гробу в землю;

в склеп (наземный, подземный) (ненужное зачеркнуть);

захоронение кремированного праха:

в урне в нише «стены скорби»;

в могиле (новой, родственной____________________________________________);

(указать лиц, ранее захороненных)

в шурфе на новом участке,

путем развеивания на специальном участке ___________________ кладбища;

в ином месте __________________________________________________________ ;

(указать название места)

указать иные виды погребения ____________________________________________.

В качестве надгробия эпитафией прошу установить __________________________

(указать вид)

Свою волю доверяю исполнить ___________________________________________.

(указать родство, другие отношения, Ф. И. О. доверителя)

Волеизъявление составлено в_____________________________________________

(указать адрес места составления)

«_____»________________200_ г.

Сведения о волеизъявлении приведены полностью и без искажений, с требованиями Федерального закона «О погребении и похоронном деле» ознакомлен(а), в чем и подписываюсь ________________________________________

(подпись)

_______________________________________________________________________

(расшифровка фамилии, имени, отчества, отношения, в которых состоит к умершему)

Свидетельское извещение принял__________________________________________

(должность в специализированной службе

(______________________________________________________________________)

по вопросом похоронного дела, фамилия, имя, отчество)

Дата «____»______________200__г.

М.П.

Отметка о возможности исполнить указанную волю

 

__________________________________________________________

(должность в специализированной службе по вопросам похоронного дела)

__________________

(подпись)

М.П.

«___»________200_ г.

ПРИЛОЖЕНИЕ 2

 

Форма ИВ-2

 

В специализированную службу

по вопросам похоронного дела

_______________________________________________

(города, поселка и т.п.)

от_____________________________________________

(фамилия, имя отчество)

паспорт __________№____________________________

(серия)

выдан «____»__________19___г.___________________

адрес:__________________________________________

(индекс, место проживания)

СВИДЕТЕЛЬСКОЕ ВОЛЕИЗЪЯВЛЕНИЕ

О ДОСТОЙНОМ ОТНОШЕНИИ К ТЕЛУ И ПАМЯТИ после смерти

Я,______________________________________________, гражданин _____________,

(фамилия, имя, отчество)                                                                              (страна)

извещаю, что являюсь доверителем и свидетелем ВОЛЕИЗЪЯВЛЕНИЯ о достойном отношении к телу и памяти___________________________________________________

(фамилия, имя, отчество умершего)

в соответствии со статьей 6 федерального закона «О погребении и похоронном деле».

Мне поручено___________________________________________________________

(фамилия, имя, отчество умершего)

«___»_______________200__ г. выразить его (ее) волю, заключающуюся в следующем (ненужное зачеркнуть):

1. Тело может (не может) быть подвергнуто патолого-анатомическому вскрытию при условии__________________________________________________________________

(содержание условия)

и может (не может) быть кремировано.

2. После смерти разрешаю (не разрешаю) взять необходимые органы или ткани из тела для нужд здравоохранения.

3. Желаю быть погребенным по: гражданскому, военному, религиозному (указать вероисповедание)__________________________________________, производственному (указать специальность)____________________________похоронному обряду.

4. Местом погребения избираю (оставить один вариант):

новую могилу на кладбище ___________________________________________________;

(указать место расположения и название кладбища)

родственную могилу_________________________________________________________

_________________________________________________________________________

(указать фамилию, имя, отчество умершего и похороненного родственника)

братскую могилу ___________________________________________________________;

(указать место расположения)

иное_______________________________________________________________________

(указать адрес места погребения)

Прошу похоронить меня рядом с_____________________________________________

(указать лиц, ранее погребенных)

при наличии для этого необходимых возможностей.

5. Формой погребения выбираю (подчеркнуть выбранный вариант): захоронение в гробу в землю;

в склеп (наземный, подземный) (ненужное зачеркнуть);

захоронение кремированного праха:

в урне в нише «стены скорби»;

в могиле (новой, родственной______________________________________________);

(указать лиц, ранее захороненных)

в шурфе на новом участке,

путем развеивания на специальном участке __________________________ кладбища;

в ином месте ____________________________________________________________ ;

(указать название места)

указать иные виды погребения ________________________________________________.

В качестве надгробия эпитафией прошу установить ____________________________

(указать вид)

Свою волю доверяю исполнить _____________________________________________.

(указать родство, другие отношения, Ф. И. О. доверителя)

Свидетельское извещение составлено в_______________________________________

(указать адрес места составления)

«___»________________200_ г.

Сведения о волеизъявлении приведены полностью и без искажений, с требованиями Федерального закона «О погребении и похоронном деле» ознакомлен(а), в чем и подписываюсь ______________________________________________________________

(подпись)

(_______________________________________________________________________)

(расшифровка фамилии, имени, отчества, отношения, в которых состоит к умершему)

Свидетельское извещение принял____________________________________________

(должность в специализированной службе

_________________________________________________________________________

по вопросом похоронного дела, фамилия, имя, отчество)

Дата «____»______________200__г.

М.П.

Отметка о возможности исполнить указанную волю

 

__________________________________________________________

(должность в специализированной службе по вопросам похоронного дела)

___________________

(подпись)

М.П.

«___»______200_ г.

ПРИЛОЖЕНИЕ 3

Место для штампа организации, оформившей счет-заказ

Код похоронной организации________________

Табельный номер агента_____________________

Телефоны для справок______________________

_________________________________________

_________________________________________

СЧЕТ-ЗАКАЗ №

(к счету-заказу №…………)

«___»_______________200___ г.

(к счету на товар №....)

Заказчик_________________________________________________________________

Адрес ___________________________________________________, тел. ____________

Ф.И.О. умершего___________________________________________________________

Возраст (полных лет) __________________Дата смерти_________________________

Свидетельство о смерти (врачебное или гербовое): серия ______ номер _____ от____

(номер актовой записи)

Наименование отдела ЗАГСа

Раздел

Код

Наименование изделия

Количество, шт.

Прейскурантная цена, руб.

Сумма, руб.

Раздел

Код

Наименование услуги, дата и время подачи, краткое описание маршрута следования автотранспорта

Сумма, руб.

1. Принадлежности

3. Автотранспортные услуги

 

 

Гроб

 

 

 

 

Доставка принадлежностей

 

 

 

 

 

 

 

 

 

 

 

 

 

 

 

 

 

 

 

 

 

 

 

 

 

 

Услуги катафального транспорта

 

 

 

 

 

 

 

 

 

 

 

 

 

 

 

 

 

 

 

 

 

 

 

 

 

 

 

 

 

 

 

 

 

 

 

 

 

 

 

 

 

 

 

 

 

 

 

 

 

 

 

 

 

 

 

 

Услуги пассажирского транспорта

 

 

 

 

 

 

 

 

 

 

 

 

 

 

 

 

 

 

 

 

 

 

 

 

 

 

 

 

 

 

 

 

 

 

 

 

 

 

 

 

 

 

 

 

 

 

 

 

 

 

ИТОГО по разделу:

 

 

 

 

2. Надмогильные сооружения

 

 

 

 

 

 

 

 

 

 

 

 

 

 

 

 

 

 

 

 

Другие транспортные услуги

 

 

 

 

 

 

 

 

 

 

 

 

 

 

 

 

 

 

 

 

ИТОГО по разделу:

 

 

 

 

 

 

 

ИТОГО по разделу:

1. Принадлежности

3. Автотранспортные услуги

 

 

Гроб

 

 

 

 

Доставка принадлежностей

 

 

 

 

 

 

 

 

 

 

 

 

 

 

 

 

 

 

 

 

 

 

 

 

 

 

Услуги катафального транспорта

 

 

 

 

 

 

 

 

 

 

Оборотная сторона приложения 3

Раздел

Код

Наименование изделия

Количество, шт.

Прейскурантная цена, руб.

Сумма, руб.

Раздел

Код

Наименование услуги, дата и время подачи, краткое описание маршрута следования автотранспорта

Сумма, руб.

4. Услуги по подготовке тела к захоронению

8. Услуги агента похоронной службы

 

Табельный номер санитара _____Номер заказа____

 

Вызов агента

 

 

 

 

 

 

 

по указанному адресу для оформления заказа

 

 

 

 

 

 

 

 

на кладбище для оформления захоронения и заказа

 

 

 

 

 

 

 

Услуги агента по оформлению документов

 

 

 

 

 

 

 

оформление врачебного свидетельства о смерти

 

 

 

 

 

 

 

 

оформление гербового свидетельства о смерти

 

 

 

 

 

 

 

 

оформление документов для перевозки в другой город

 

 

 

 

 

 

 

Услуги агента по оформлению заказа на:

ИТОГО по разделу:

 

похоронные принадлежности и предметы ритуала

 

5. Услуги работников похоронной службы

 

автотранспортные услуги по маршруту

 

 

 

 

 

 

 

 

услуги санитара по подготовке тела умершего к захоронению

 

 

 

 

 

 

 

 

музыкальное сопровождение похоронной процессии

 

 

 

 

 

 

 

 

услуги рабочих похоронной службы

 

 

 

 

 

 

 

 

новое захоронение или кремацию

 

 

 

 

 

 

 

 

установку надмогильного сооружения

 

 

 

 

 

 

 

 

сопровождение похорон до места захоронения

 

 

Оркестр на похороны с ........ до ..............

 

ИТОГО по разделу:

 

 

 

9. Прочие услуги

 

Установка надмогильного сооружения

 

 

 

 

ИТОГО по разделу:

 

 

 

6. Кладбище

 

 

Рытье могилы и захоронение

 

 

 

 

 

 

 

 

 

 

 

ИТОГО по разделу:

 

 

 

 

 

10. Дополнительное сервисное обслуживание (по разделам 1-9)

ИТОГО по разделу:

В день похорон необходимо иметь следующие документы

7. Крематорий

 

Свидетельство о смерти

 

 

Кремация с выдачей праха

 

 

 

Паспорт Заказчика

 

 

Урна для захоронения праха

 

 

 

 

Оформленный счет-заказ

 

 

Музыкальное сопровождение в крематорий

 

 

 

 

Удостоверения на могилу Квитанцию об оплате родственного захоронения

ИТОГО по разделу:

 

Справку СЭС (при отправке цинкового гроба)

Общая стоимость заказа ______________руб. Сумма прописью__________________

______________________________________________________________________

Полученную с меня сумму_______________________ руб. подтверждаю__________

Банковские реквизиты похоронной службы___________________________________

_______________________________________________________________________

Заказчик ________________________Агент похоронной службы_______________

ПРИЛОЖЕНИЕ 4

ОБЛОЖКА

Стр. 1

Стр. 2

Стр. 3

ПРИЛОЖЕНИЕ 5

ОБЛОЖКА

Стр. 1

Стр. 2

Стр. 3

ПРИЛОЖЕНИЕ 6

ОБЛОЖКА

Стр. 1

Стр. 2

Стр. 3

Стр. 4

Стр. 5

ПРИЛОЖЕНИЕ 7

СПРАВКА О КРЕМАЦИИ

Комбинат спецобслуживания города___________________

Крематорий города___________________

СПРАВКА

Тело умершего гр.___________________________________________________________

Предано кремации «____»___________________200___г._______ч._______м.

Прах выдан для захоронения в городе___________________________________________

на_________________________________________________________________________

М.П.

Диспетчер крематория_______________________

«_____»____________200___г.

Телефон:___________________________

ПРИЛОЖЕНИЕ 8

Крематорий города_____________________

Документ на получение праха

Регистрационный №________

Принято на кремацию________________«______» лет

________________________дня 200___г.

АДМИНИСТРАЦИЯ КРЕМАТОРИЯ

Выдача праха ежедневно с 9 до 17 ч. без перерыва на обед

Ответственный за получение праха тов. _____________________________________

Прах выдается только ответственному лицу или по его доверенности, имея при себе:

1. Паспорт

2. Свидетельство о смерти

3. Оформленный заказ на захоронение урны на кладбище или в колумбарии. Срок хранения праха год со дня кремации.

Мы выражаем искреннее соболезнование.                   Администрация

Телефон для справок:_______________________________

ПРИЛОЖЕНИЕ 9

ЗАЯВЛЕНИЕ НА ЗАХОРОНЕНИЕ

В контору________________________________________________________кладбища

От кого _________________________________________________________________

(фамилия, имя, отчество)

________________________________________________________________________

________________________________________________________________________

(место жительства)

ЗАЯВЛЕНИЕ

Прошу захоронить умершего родственника____________________________________

(фамилия, имя, отчество)

_______________________________________________________________________

(указать куда, в родственную могилу или в ограду на свободное место)

где ранее захоронен мой умерший родственник в________________ году __________

_______________________________________________________________________

(родственное отношение, фамилия, имя, отчество)

на участке №______________________________________________________кладбища

(наименование)

На могиле имеется ________________________________________________________

(указать вид надгробия или трафарета)

с надписью_______________________________________________________________

(ранее захороненного умершего: фамилия, имя, отчество)

За правильность сведений несу полную ответственность.

«____»__________200__г. Личная подпись_________________________

Примечание - Заявление заполняется только чернилами.

ЗАКЛЮЧЕНИЕ АДМИНИСТРАЦИИ КЛАДБИЩА

                                                                                                                                                                                        

                                                                                                                                                                                        

                                                                                                                                                                                        

                                                                                                                                                                                        

                                                                                                                                                                                        

                                                                                                                                                                                        

 

«____»_________200_ г.

Подпись администратора ______________________________

 

Ограда может быть разрешена размером_________________

ПРИЛОЖЕНИЕ 10

ОБЛОЖКА

Стр. 1

Стр. 2

Стр. 3

Стр. 4

Стр. 5

ПРИЛОЖЕНИЕ 11

КНИГА РЕГИСТРАЦИИ УСТАНОВКИ НАДГРОБИЙ

город ________________________________________________________

(наименование)

_____________________________________________________ кладбище

(наименование)

Начата «___»___________________200___г.

Окончена «___»___________________ 200___г.

№ п/ п

Ф.И.О. захороненного (захороненной)

Документ изготовителя надгробия

Дата установки

Номер квартала

Номер сектора

Номер могилы

Номер колумбария

Номер яруса

Номер ниши

Материал и размеры надгробия

Разрешение на установку надгробия, Ф.И.О. и адрес лица, ответственного за могилу, нишу

1

2

3

4

5

6

7

8

9

10

11

12

 

 

 

 

 

 

 

 

 

 

 

 

 

 

 

 

 

 

 

 

 

 

 

 

 

 

 

 

 

 

 

 

 

 

 

 

 

 

 

 

 

 

 

 

 

 

 

 

 

 

 

 

 

 

 

 

 

 

 

 

ПРИЛОЖЕНИЕ 12

На формате A3

ФОРМА ЖУРНАЛА РЕГИСТРАЦИИ КРЕМАЦИЙ

№ п.п.

Фамилия, имя, отчество умершего

Кем, где, когда выдано свидетельство о смерти, его №

Время проведения ритуала прощания (дата, часы, минуты) № ритуального зала

Ф.И.О. оформляющего заказ

 

 

 

 

 

 

 

 

 

 

 

 

 

 

 

 

 

 

 

 

 

 

 

 

 

 

 

 

 

 

 

 

 

 

 

 

 

 

 

 

ПРИЛОЖЕНИЕ 13

ПРИЛОЖЕНИЕ 14

ПРИЛОЖЕНИЕ 15

КНИГА РЕГИСТРАЦИИ ЗАХОРОНЕНИЙ

№ регистра

Ф.И.О. умершего

Возраст умершего

Дата смерти

Дата захоронения

№ свидетельства о смерти из ЗАГСа

Каким ЗАГСом выдано свидетельство

Фамилия землекопа

№ участка

Ф.И.О. ответственного за похороны

1

2

3

4

5

6

7

8

9

10

 

 

 

 

 

 

 

 

 

 

 

 

 

 

 

 

 

 

 

 

 

 

 

 

 

 

 

 

 

 

 

 

 

 

 

 

 

 

 

 

 

 

 

 

 

 

 

 

 

 

 

 

 

 

 

 

 

 

 

 

 

 

 

 

 

 

 

 

 

 

ПРИЛОЖЕНИЕ 16

КНИГА РЕГИСТРАЦИИ ЗАХОРОНЕНИЯ УРН С ПРАХОМ

№ п/п

Ф.И.О.

Дата кремации

Участок

Ф.И.О. ответственного за могилу или нишу

1

2

3

4

5

 

 

 

 

 

 

 

 

 

 

 

 

 

 

 

 

 

 

 

 

 

 

 

 

 

 

 

 

 

 

 

 

 

 

 

Примечание - Книга регистрации захоронений урн заполняется на основании учетных карточек

УЧЕТНАЯ КАРТОЧКА

Колумбарий №_______Секция №_______Ряд №_______Ниша №_______

Участок №__________Аллея №__________Могила №___________

№ п/п

Ф.И.О.

Дата кремации

Кремационный номер

Примечание

 

 

 

 

 

 

 

 

 

 

 

 

 

 

 

 

 

 

 

 

 

 

 

 

 

 

 

 

 

 

 

 

 

 

 

 

 

 

 

 

 

 

 

 

 

Квитанция №_____от_______Сумма__________Удостоверение № ___

Лицо, имеющее право пользования нишей, могилой_________________

Почтовый адрес                                                                                                                                                    

_____________________________________________Телефон                                                   

Надмогильное сооружение                                                                                                                             

ПРИЛОЖЕНИЕ 17

ПАМЯТКА ДЛЯ КОМИССИИ ПО ОРГАНИЗАЦИИ И ПРОВЕДЕНИЮ ПОХОРОН

Получив извещение о смерти сотрудника, администрация и общественность предприятия, учреждения или организации обязаны проявить заботу о семье умершего, организовать и провести похороны.

Для организации и проведения похорон администрация и общественность предприятия, учреждения или организации могут образовать свою комиссию по организации и проведению похорон либо пригласить агента похоронной службы и организатора похорон.

В период организации похорон комиссия может выполнять свои обязанности совместно с агентом похоронной службы, а в период проведения похорон совместно с организатором похорон.

В состав комиссии входят представители администрации и общественности, возглавляет работу комиссии председатель. В обязанности комиссии входит составление плана организации и проведения похорон, в котором указывают мероприятия, день и время их исполнения, лиц, ответственных за их исполнение и осуществление контроля за выполнением плана. Ниже приведен примерный план организации и проведения похорон.

План организации и проведения похорон тов. _________________________________

(фамилия, имя и отчество умершего)

Похороны состоятся «___»_______________________200___г.

(дата проведения похорон)

Гроб с телом покойного установлен в_________________________________________

(указывается наименование и адрес учреждения, предприятия и т.п.)

Доступ к гробу «___»______________200___г. в___час.

Траурный митинг состоится_________________________________________________

(время начала и окончания траурного митинга)

Похороны на кладбище (крематории) ________________________________________

(название кладбища (крематория), адрес и время прибытия траурного кортежа)

№ п.п.

Мероприятия

Дата и время исполнения

Ф.И.О. ответственного за исполнение

1

Оповещение общественности о смерти сотрудника: а) составление и согласование текста некролога; б) написание текста некролога; в) заказ и получение живых цветов; г) заказ на увеличение фотографии и ее получение; д) помещение некролога в вестибюле

 

 

2

Приглашение агента похоронной службы

 

 

3

Получение врачебного свидетельства о смерти в медицинском учреждении

 

 

4

Получение свидетельства о смерти в отделе ЗАГСа или в салоне-магазине (магазине) специализированной службы по вопросам похоронного дела

 

 

5

Определение способа захоронения (совместно с родными покойного)

 

 

6

Заказ похоронных принадлежностей и предметов похоронного ритуала в салоне-магазине (магазине) специализированной службы по вопросам похоронного дела, заказ оркестра или подбор траурных мелодий в магнитофонной записи. Определение числа участников похорон

 

 

7

Определение количества венков от организации и родственников

 

 

8

Заказ автомобильного катафалка, пассажирских автобусов и грузового автомобиля (для установки венков)

 

 

9

Договоренность с моргом о передаче тела умершего

 

 

10

Доставка в морг одежды умершего

 

 

11

Договоренность с ГИБДД о выделении автомобиля

 

 

12

Определение места проведения траурного митинга (актовый зал предприятия, здания траурных гражданских обрядов, ритуальный зал крематория)

 

 

13

Приглашение организатора похорон

 

 

14

Траурное убранство зала и вестибюля (рисунок 12): а) помещение портрета покойного в траурной рамке с оформлением из живых цветов (в вестибюле); б) установка постамента для гроба; в) завешивание люстр, снятие картин в зале и вестибюле; г) прикрепление орденов и медалей к траурным подушечкам и размещение их на передней плоскости постамента; д) установка стульев для близких родственников слева от постамента; е) установка венка от родных покойного (спереди постамента) и определение места для установки венков от организаций; ж) определение места для оркестра, магнитофона; з) определение комнаты для формирования почетного караула и) определение места в вестибюле для установки крышки гроба; к) организация гардероба для родственников, членов комиссии, почетного караула и оркестрантов

 

 

15

Закрепление людей для: а) переноса гроба с телом из дома или морга в автокатафалк; б) переноса гроба с телом из автокатафалка в зал прощания; в) переноса гроба с телом из зала прощания в автокатафалк (после окончания митинга), из автокатафалка к могиле на кладбище или в зал крематория; г) несения портрета; д) несения подушечек с орденами и медалями; е) несения венков; ж) несения крышки гроба; з) прикрепления траурной ленты к борту автомашины с венками

 

 

16

Назначение почетного караула к гробу (назначение разводящего, первой и последующей смен караула, обеспечение караула траурными повязками (траурная повязка прикрепляется к левому рукаву выше локтя) и булавками для прикрепления)

 

 

17

Доставка гроба с телом покойного в зал прощания

 

 

18

Установка гроба в зале на постаменте. Украшение гроба цветами, размещение подушечек с орденами и медалями

 

 

19

Доставка родных и близких умершего к месту траурного митинга

 

 

20

Доставка сотрудников умершего к месту траурного митинга

 

 

21

Проведение траурного митинга. Митинг проводит председатель комиссии__________________________

Выступают:

1.

2.

3.

 

 

22

Выход участников похорон из зала, вынос портрета, подушечек с орденами и медалями, венков, цветов и размещение их в автомобилях

 

 

23

Прощание родных и близких (время прощания 10-15 мин)

 

 

24

Вынос крышки гроба и гроба с телом покойного

 

 

25

Установка гроба в автокатафалк, закрытие его крышкой и закрепление на постаменте

 

 

26

Посадка родных, близких и остальных участников похорон в автобусы. Посадка оркестрантов в автобус

 

 

27

Построение траурного автомобильного кортежа и следование на кладбище или в крематорий

 

 

28

Прибытие кортежа на кладбище: а) регистрация захоронения в конторе кладбища (вместе с родственниками), получение удостоверения о захоронении и регистрационного знака; б) вынос гроба и атрибутов похорон из автомобилей, построение и шествие процессии к месту захоронения; в) установка гроба на постамент у могилы, объявление «Минуты молчания» (объявляет председатель комиссии или организатор похорон); г) последнее прощание с умершим близких родственников и участников похорон; д) закрывание гроба крышкой, опускание его в могилу, захоронение, устройство надмогильного холма, установка на нем портрета и регистрационного знака, украшение венками и цветами; е) передача близким родственникам орденов умершего; ж) возвращение к автомобилям и отъезд участников похорон

 

 

29

Прибытие траурного автомобильного кортежа в крематорий: а) регистрация кремации в помещении оформления документов (вместе с родственниками) и получение документов о кремации; б) выход участников похорон из автомобилей, вынос гроба и атрибутов похорон, построение процессии и вход в крематорий; в) внесение и размещение гроба и атрибутов похорон в траурном зале (рисунок 13); г) вход родственников и участников похорон в траурный зал; произнесение «Слова прощания» (его произносит председатель комиссии или близкий друг покойного); д) последнее прощание родственников и участников похорон; е) закрытие гроба крышкой и завершение церемониала прощания (горизонтальное перемещение или опускание гроба в кремационный зал); ж) передача близким родственникам орденов умершего, з) выход из зала, посадка в автомобили и отъезд участников похорон

 

 

Председатель комиссии___________________________________________________

Члены комиссии__________________________________________________________

ПРИЛОЖЕНИЕ 18

ФОРМА БЛАНКА ДЛЯ КРАТКИХ СВЕДЕНИЙ ОБ УМЕРШЕМ(ЕЙ)

Специализированная служба по вопросам похоронного дела города

Краткие сведения об умершем(ей)

Фамилия, имя, отчество____________________________________________________

Дата рождения _____________________Место рождения________________________

Трудовая и общественная деятельность ______________________________________

________________________________________________________________________

________________________________________________________________________

_________________________________________________________________________

_________________________________________________________________________

Имена и отчества ближайших родственников (матери, отца, жены, мужа, детей)____

________________________________________________________________________

________________________________________________________________________

________________________________________________________________________

Участие в гражданской, Великой Отечественной и других войнах________________

________________________________________________________________________

________________________________________________________________________

________________________________________________________________________

Правительственные награды, почетные звания_________________________________

________________________________________________________________________

________________________________________________________________________

________________________________________________________________________

Фамилии, имена, отчества лиц, которые будут выступать на похоронах:

1._______________________________________________________________________

2._______________________________________________________________________

3._______________________________________________________________________

4._______________________________________________________________________

____________________                              _______________________________

(подпись родственника)                                            (подпись агента похоронной службы)

«_____»______________________200____г.

ПРИЛОЖЕНИЕ 19

СОСТАВ И ПЛОЩАДИ ОСНОВНЫХ ПОМЕЩЕНИЙ БЮРО ПОХОРОННОГО ОБСЛУЖИВАНИЯ*

Помещение

Площадь, м2

Вестибюль и санузлы

По СНиП 2.08.02-89*

Комната ЗАГСа

14-16

Комната дежурного агента похоронной службы

12-14

Диспетчерская

24

Комната оформления отчетов о принятых заказах на похороны

18-20

Кабинет заведующего бюро похоронного обслуживания

14-16

Комната секретаря-машинистки

10-12

Бухгалтерия и касса

20-22

Архив

8-10

Комната уборщиков с кладовой уборочного инвентаря

6-8

* Площади помещений уточняются в задании на проектирование

ПРИЛОЖЕНИЕ 20

СОСТАВ И ПЛОЩАДИ ПОМЕЩЕНИЙ ДОМА ТРАУРНЫХ ОБРЯДОВ

Группа помещений

Помещение

Площадь, м2

1. Входная

Вестибюль и санузлы**

(при каждом траурном зале)

По нормам СНиП 2.08.02-89*

Комната охраны

10-12

Комната дежурного администратора и оформления заказов*

10-12

Комната ведущего обряд прощания и оказания медицинской помощи*

10-12

Комната уборщиков с кладовой для уборочного инвентаря

6-8

Комната священнослужителя

10-12

2. Обрядовая

Траурный зал

По проекту

Антресоли или место для органа, хора, электрооргана, оркестра

То же

Шлюз (передаточная камера между траурным залом и транспортной группой)

8-10

Комната хранения реквизита

14-16

3. Пребывания родственников у гроба до обряда прощания

Вестибюль**

По расчету исходя из вместимости группы

Комнаты пребывания родственников у гроба до обряда прощания

Две и более по 14-16

4. Выходная

Комната адаптации

По проекту

Холл выхода**

То же

5. Транспортная

Помещение для временного сохранения умерших (в гробах), отправляемых в крематорий после обряда прощания

По расчету исходя из 50 % пропускной способности здания

Помещение для хранения и обивки гробов

То же

Помещение для подготовки умерших к междугородной или международной перевозке

По заданию на проектирование

6. Приема, подготовки к обряду прощания и предпохоронного сохранения умерших

Помещение приема и регистрации поступления умерших

14-16

Кладовая одежды, снятой с умерших

8-10

Помещение санитарно-гигиенической и парикмахерской подготовки умерших

24-36

Холодильные камеры для предпохоронного сохранения умерших

По расчету

7. Инженерно-техническая

Помещение инженерных служб**

По расчету

Помещение хранения и мойки тележек

То же

* При помещении устанавливается санузел.

** Устраивается вход, выход

Примечание - Состав и площади помещений уточняются заданием на проектирование.

ПРИЛОЖЕНИЕ 21

ФУНКЦИОНАЛЬНО-ТЕХНОЛОГИЧЕСКАЯ СХЕМА ДОМА ТРАУРНЫХ ОБРЯДОВ

А - похоронная процессия; Б - отъезд участвовавших в похоронах; В - прибытие траурного кортежа; Г - удаление венков после обряда прощания; Д - централизованная перевозка умерших в крематорий после обряда прощания; Е - подготовка и предпохоронное сохранение тел умерших; Ж - централизованная перевозка умерших из жилья, больниц и военных госпиталей; З - централизованная доставка похоронных принадлежностей и предметов похоронного ритуала

1 - тамбур; 2 - вестибюль; 3 - комната дежурного администратора и оформления документов, 4 - комната отдыха ведущего обряд прощания; 5 - комната родственников; 5-А - комната священника; 6 - комната оказания медицинской помощи; 7 - туалет для мужчин; 8 - туалет для женщин; 9 - шлюз; 10 - курительная; 11 - траурный зал; 12 - комната почетного караула; 13 - лестница на антресоли; 14 - музыкальная ложа; 15 - шлюз; 16 - комната отдыха музыкантов и хранения инструментов; 17 - помещение хранения реквизита; 18 - тамбур; 19 - вестибюль; 20 - туалет для женщин; 21 - курительная; 22 - туалет для мужчин; 23 - комната пребывания родственников у гроба до обряда прощания; 24 - курительная; 25 - шлюз; 26 - холл выхода; 27 - комната адаптации; 28 - помещение для воинского подразделения, назначенного в почетный эскорт; 29 - комната отдыха водителей автокатафалков; 30 - тамбур; 31 - помещение для временного сохранения умерших (в гробах), отправляемых в крематорий после обряда прощания; 32 - помещение для подготовки умерших к междугородной или к международной перевозке умерших; 33, 34 - тамбур рабочий; 35 - помещение приема и регистрации поступления умерших; 36 - шлюз; 37 - кладовая одежды, снятой с умерших; 38 - помещение санитарно-гигиенической и парикмахерской подготовки умерших; 39 - комната приема одежды и обуви для умерших; 40 - склад похоронных принадлежностей, предметов похоронного ритуала, одежды и обуви; 41 - охлаждаемая камера-хранилище венков, вазонов и букетов из живых цветов; 42 - помещение одевания, укладывания в гроб и косметической подготовки умерших, 43 - тамбур; 44 - охлаждаемые камеры для предпохоронного сохранения умерших; 45 - машинное отделение холодильных установок; 46 - помещение проверки и окончательной подготовки умерших перед обрядом прощания; 47 - комната психологической разгрузки персонала; 48 - комната приема пищи; 49 - гардеробный блок для женщин; 50 - гардеробный блок для мужчин; 51 - вентиляционная камера для 1-5 и 7 групп помещений; 52 - вентиляционная камера для рабочих помещений; 53 - тепловой пункт; 54 - ввод водопровода; 55 - электрощитовая; 56 - помещение санитарной обработки подъемно-транспортного оборудования; 57, 58 - крытое пространство; 59 - автостоянка; 60 - площадка для производства салюта

ПРИЛОЖЕНИЕ 22

СОСТАВ И ПЛОЩАДИ ПОМЕЩЕНИЙ КРЕМАЦИОННОЙ ЧАСТИ

Помещение

Площадь, м2

Вестибюль*

По СНиП 31-03-2001

Кремационный зал

Устанавливается типом и количеством устанавливаемых печей, но не менее 40 м2 на одну печь

Помещение для газоочистки

То же

Комната отдыха и психологической разгрузки операторов кремационных печей с душем и санузлами

18-20

Помещение обработки кремированных останков

16-18

Хранилище урн с прахом

18-20

Ремонтная мастерская

18-20

Комната начальника смены

10-12

Комната уборщиков с кладовой уборочного инвентаря

6-8

* Устанавливается вход-выход и проемы для монтажа оборудования.

Примечание - Состав и площади уточняются заданием на проектирование.

ПРИЛОЖЕНИЕ 23

СОСТАВ И ПЛОЩАДИ КРЕМАТОРИЯ (ТИПА 2)

Группа помещений

Помещение

Площадь, м2

1. Приема умерших

Тамбур-вестибюль*

50-60

Прием и регистрация поступления умерших, регистрации и отправки урн с прахом на кладбище

14-16

Холодильная камера и помещение для сохранения умерших до кремации

Из расчета 12 мест на каждую кремационную печь

2 Кремирования останков, обработки и хранения

Кремационный зал

Определяется типом и количеством устанавливаемых кремационных печей, но не менее 40 м2 на одну печь

Помещение для газоочистки (при необходимости)

То же

Комната отдыха и психологической разгрузки операторов кремационных печей с душем и санузлами

18-20

Помещение обработки кремированных останков

16-18

Хранилище урн с прахом

18-20

Ремонтная мастерская

24-30

3 Инженерно-техническая

Помещения инженерных служб

По СНиП 31-03-2001

Помещение хранения и мойки тележек

10 + 2,2 на каждую кремационную печь

Комната уборщиков с кладовой уборочного инвентаря

6-8

* Устанавливаются входы-выходы.

Примечание - Состав и площади помещений уточняются заданием на проектирование.

ПРИЛОЖЕНИЕ 24

ФУНКЦИОНАЛЬНО-ТЕХНОЛОГИЧЕСКАЯ СХЕМА КРЕМАТОРИЯ (ТИПА 2)

1 - тамбур; 2 - вестибюль; 3 - помещение приема, регистрации поступления умерших и отправки урн с прахом кремированных; 4 - туалет для женщин; 5 - туалет для мужчин; 6 - траурный зал; 7 - комната начальника смены; 8 - комната отдыха операторов кремационных печей; 9 - комната приема пищи; 10 - санитарно-бытовые помещения; 11 - помещение обработки кремированных останков; 12 - помещение для пересыпки праха в урны; 13 - хранилище ненаполненных урн; 14 - хранилище урн с прахом; 15 - холодильная камера; 16 - помещение для холодильного агрегата; 17 - склад ремонтных деталей; 18 - помещение для нахождения гробов до кремации; 19 - кремационный зал; 20 - помещение для очистки газов и дымососов; 21 - венткамера; 22 - тепловой пункт; 23 - ввод водопровода; 24 - электрощитовая, 25 - ввод газа; 26 - резервный участок для расширения крематория; 27 - крытое пространство

ПРИЛОЖЕНИЕ 25

СОСТАВ И ПЛОЩАДИ ПОМЕЩЕНИЙ АДМИНИСТРАТИВНО-БЫТОВОГО И ОБРЯДОВОГО ЗДАНИЙ

Группа помещений

Помещение

Площадь, м2

1. Входная

Вестибюль-приемная с санузлами

24-30

2 Административная

Кабинет заведующего кладбищем

12-14

Кабинет секретаря

8

Комната смотрителя и архив

14-16

Комната нормировщика, кладовщика

10-12

3. Обрядовая*

Вестибюль*

В соответствии со СНиП 2.08.02-89*

Комната священнослужителя*

10-12

Зал вручения урн

18-22

Комната отдыха ведущего обряд вручения урн**

8-10

4. Хранения погребальных урн

Хранилище погребальных урн

14-16

Комната гравирования надписей на урнах

8-10

5. Бытовая

Комната землекопов

СНиП 2.09.04-87*

Помещения для сушки одежды и хранения инвентаря

То же

Гардеробные уборщиков территории

По расчету 6-8 м2 на 4 уборщиков

Подсобные помещения

8-10

Душевые, санузлы

4-6

6. Складская

Склад готовых памятников

45-50

Материальный склад

По заданию на проектирование

Склад уборочного инвентаря (прокат)

22-26

Гараж машин и механизмов

По заданию на проектирование

7 Инженерно-техническая

Тепловой пункт

 

Узел ввода

По заданию на проектирование

Электрощитовая

 

* Помещения предусматриваются при наличии крематория

** Устраивается санузел

Примечание - Состав и площади помещений уточняются заданием на проектирование

ПРИЛОЖЕНИЕ 26

ФУНКЦИОНАЛЬНО-ТЕХНОЛОГИЧЕСКАЯ СХЕМА АДМИНИСТРАТИВНО-БЫТОВЫХ И ОБРЯДОВЫХ ЗДАНИЙ

1 - тамбур; 2 - вестибюль-приемная; 3 - магазин (киоск) «Цветы»; 4, 5 - туалеты; 6 - кабинет заведующего; 7 - комната секретаря; 8 - комната смотрителя и архив; 9 - комната нормировщика, кладовщика; 10 - зал собраний: 11 - тамбур (вход); 12 - зал ожидания; 13 - зал вручения урн; 14 - комната отдыха ведущего обряд вручения урн; 15 - тамбур (выход), 16 - мемориальный зал; 17 - комната поминовений; 18 - тамбур (вход-выход); 19 - хранилище реквизита и памятных таблиц; 20 - радиоузел (магнитофон); 21 - тамбур служебный; 22 - хранилище ненаполненных погребальных урн; 23 - комната для хранения и укладывания праха в урны; 24 - хранилище погребальных урн с прахом; 25 - комната для гравирования надписей на урнах; 26 - тамбур служебный; 27 - гардеробные для женщин, гардеробные для мужчин, душевые женские, душевые мужские, туалет женский, туалет мужской; 28 - подсобное помещение; 29 - моечная; 30 - комната приема пищи; 31, 32 - туалеты; 33 - помещение для сушки одежды и инвентаря; 34 - комната землекопов; 35 - склад готовых памятников; 36 - материальный склад; 37 - склад и прокат инвентаря; 38 - гараж машин и механизмов; 39 - тепловой пункт; 40 - ввод водопровода; 41 - ввод газа; 42 - электрощитовая; 43 - тамбур служебный; 44 - крытое пространство; 45 - хозяйственный двор; 46 - хозяйственный въезд

ПРИЛОЖЕНИЕ 27

АССОРТИМЕНТ ДРЕВЕСНО-КУСТАРНИКОВЫХ И ЦВЕТУЩИХ РАСТЕНИЙ ДЛЯ ОЗЕЛЕНЕНИЯ ТЕРРИТОРИЙ КЛАДБИЩ И КРЕМАТОРИЕВ

1. ВХОДНАЯ ЗОНА И ЗОНА ТРАУРНЫХ ЦЕРЕМОНИАЛОВ

Основной ассортимент

Деревья

Рядовые, аллейные и групповые посадки

1. Береза бородавчатая

6. Липа мелколистная

2. Береза пушистая

7. Лиственница сибирская

3. Ель обыкновенная

8. Лиственница европейская

4. Клен остролистный

9. Ясень зеленый

5. Липа крупнолистная

 

Кустарники в живых изгородях

а) высокие

б) средние

1. Боярышник обыкновенный

1. Кизильник блестящий

2. Боярышник кроваво-красный

2. Смородина альпийская

3. Жимолость татарская

3. Жимолость обыкновенна

4. Смородина золотистая

4. Дерен белый

Дополнительный ассортимент

Деревья

Рядовые и аллейные посадки

1. Ель колючая

6. Тополь пирамидальный

2. Ива белая

7. Туя западная

3. Каштан конский

8. Яблоня сибирская

4. Клен серебристый

9. Ясень обыкновенный

5. Пихта сибирская

 

Посадка в декоративные группы

1. Дуб красный

7. Пихта сибирская

2. Ель колючая

8. Рябина обыкновенная

3. Ива белая

9. Сосна обыкновенная

4. Каштан конский

10. Туя западная

5. Клен серебристый

11. Черемуха Маака

6. Орех маньчжурский

12. Яблоня сибирская

Кустарники в живой изгороди

Высокие

1. Боярышник перистонадрезанный

5. Сирень обыкновенная

2. Клен Гиннала

6. Чубушник обыкновенный

3. Сирень венгерская

7. Лох серебристый

4. Клен татарский

8. Шиповник обыкновенный

Кустарники средней высоты и низкие

1. Барбарис Тунберга

5. Снежноягодник кистистый

2. Магония падуболистная

6. Таволга дубровколистная, японская, средняя и др.

3. Можжевельник казацкий

 

4. Можжевельник обыкновенный

 

2. ЗОНА ЗАХОРОНЕНИЙ

Солитеры, деревья в группах

1. Береза бородавчатая (форма плакучая)

8. Орех маньчжурский

2. Бархат амурский

9. Пихта сибирская

3. Дуб красный

10. Рябина обыкновенная (форма плакучая)

4. Ива колючая (форма голубая)

11. Сосна обыкновенная

5. Ива белая (форма плакучая)

12. Тополь пирамидальный

6. Каштан конский

13. Туя западная

7. Лиственница сибирская

14. Черемуха Маака

Кустарники в живой изгороди средней высоты и низкие

1. Барбарис Тунберга

7. Розы парковые

2. Барбарис японский

8. Снежноягодник кистистый

3. Лох серебристый

9. Спирея Вангутта

4. Магония падуболистная

10. Спирея ниппонская

5. Можжевельник казацкий

11. Спирея японская

6. Можжевельник обыкновенный

 

Кустарники красивоцветущие для оформления мест захоронения

1. Барвинок

10. Чубушник Лемуана

2. Вейгела цветущая

11. Калина бульденеж

3. Вейгела корейская

12. Пион древовидный

4. Вейгела садовая

13. Розы сортовые

5. Гортензия древовидная

14. Сирень сортовая

6. Гортензия метельчатая

15. Форзиция пониклая

7. Дейция грациозная

16. Форзиция средняя

8. Дейция городчатая

17. Хеномелес Маулея

9. Дейция Шнейдера

 

Кустарники вьющиеся для декорирования колумбарных стен, ограды территории и других малых архитектурных форм

1. Виноград амурский

4. Лимонник китайский

2. Девичий виноград пятилисточковый

5. Лимононос

3. Жимолость каприфоль

6. Плющ обыкновенный

Цветочное оформление

Цветы-летники для оформления подъездов, зоны торжественно-траурных церемониалов и главных аллей

1. Агератум

12. Лобелия

2. Астры

13. Левкой

3. Алиссум

14. Настурция

4. Антирринум

15. Пиретрум

5. Бегония

16. Петуния

6. Вербена

17. Портулак

7. Гвоздика Шабо

18. Табак

8. Горошек душистый

19. Тагетес

9. Георгины летние

20. Флоксы

10. Календула

21. Циния

11. Канны

 

Цветы-многолетники для оформления аллей вдоль колумбарных стен и мест захоронения

1. Гайлардия

7. Люпин

2. Дельфиниум

8. Пионы

3. Ирисы

9. Поповник

4. Корнопсис

10. Рудбекия

5. Лихнис

11. Спаржа

6. Лилейник

12. Флоксы

Цветы луковичные для оформления партерных цветников главной площади, центральной аллеи и мест почетных захоронений

1. Тюльпаны

4. Крокусы

2. Нарциссы

5. Гладиолусы

3. Лилии разные

 

Ковровые цветы для оформления партерных цветников и мест захоронения

1. Альтернантера

4. Сантолина

2. Гнафалиум

5. Седум

3. Ирезине

 

Растения, сопутствующие ковровым

1. Бегония семперфлоренс

3. Гелиотроп

2. Герань

4. Фукция золотистая

3. АССОРТИМЕНТ ДЛЯ ОФОРМЛЕНИЯ ИНТЕРЬЕРОВ КРЕМАТОРИЕВ И ЗДАНИЙ ТРАУРНЫХ ГРАЖДАНСКИХ ОБРЯДОВ

Горшечные культуры

1. Гортензия

5. Левкой зимний

2. Глоксиния

6. Цинерария гибридная

3. Аспарагус

7. Цикламен

4. Примула обконика

8. Хризантемы

Выгоночные культуры

1. Тюльпаны

5. Сирень

2. Нарциссы

6. Розы

3. Гиацианты

7. Азалии

4. Лилии

8. Амариллисы

Комнатные растения

1. Традесканция

4. Кампанула

2. Плющ

5. Пилея

3 Саксифрага

 


ПРИЛОЖЕНИЕ 28

Рисунки

а - салон-магазин; б - магазин;

1 - кабинет сотрудника отдела ЗАГСа; 2 - комната выбора музыки; 3 - комната оказания медицинской помощи; 4 - комната агентов похоронной службы и организаторов похорон; 5 - гардероб персонала; 6 - кладовая; 7 - женский санузел, 8 - мужской санузел; 9 - комната персонала; 10 - демонстрационно-торговый зал; 11 - кабинет приема и оформления заказов на похороны; 12 - кабинет заведующего (директора), 13 - холл-приемная

Рисунок 1 - Магазины специализированного обслуживания


Рисунок 2 - Схема построения и движения траурной процессии от входа на кладбище (из здания траурных гражданских обрядов) к месту захоронения

а - машина ГИБДД; б - машина с участниками похорон, которые понесут портрет и подушечки с орденами и медалями; в - машина (с открытым кузовом) с венками; г - автомобильный катафалк с гробом и близкими родственниками; д - автобус с участниками похорон; е - автобус с оркестром; ж - участники похорон на легковом транспорте

Рисунок 3 - Схема построения и движения траурного автомобильного кортежа

I - прихожая, II - жилая комната, III - место для участников похорон

1 - гроб с телом покойника на столе (катафалке); 2 - крышка гроба в прихожей; 3 - столик с портретом покойного, цветами и свечой; 4 - подушечки с наградами; 5 - занавешенное зеркало; 6 - занавешенное (драпированное) окно, 7 - места для родных; 8 - шкаф-стенка

Рисунок 4 - Схема размещения гроба, атрибутов похорон и мебели в жилом помещении

1 - автобус с венками, наградами и портретом; 2 - автокатафалк с родственниками; 3 - автобус с оркестром

Рисунок 5 - Схема расположения участников похорон при выносе гроба с телом из дома

а - вид в плане; б - пространственный вид

1 - венки на подставках; 2 - регистрационный знак; 3 - портрет; 4 - венок от родных; 5 - букеты; 6 - вазоны

Рисунок 6 - Оформление могилы после захоронения

1 - козырек-навес главного входа, 2 - тамбур, 3 - зал ожидания, 4 - лестница на антресоль, 5 - комната формирования почетного караула, 6 - траурный зал, 7, 8 - передаточная камера, 9 - кремационный зал, 10 - приемная регистратура, 11 - машинное отделение холодильной установки, 12 - холодильная камера, 13 - комната подготовки умерших к обряду, 14 - комната родственников, 15 - комната руководителя обряда и оформления документов, 16 - курительная, 17 - туалет для мужчин, 18 - туалет для женщин, 19 - комната оказания медицинской помощи, 20 - холл выхода из траурного зала, 21 - электрощитовая, 22 - приточная вентиляционная камера, 23 - комната персонала, 24 - комната обработки кремированных останков, 25 - хранилище погребальных урн, 26 - узел ввода, 27 - хозяйственный двор, 28 - навес

Рисунок 7 - Проект крематория в Ростове-на-Дону

План на отм. 0,000

1 - приемное помещение; 2 - технологический коридор; 3 - холодильное отделение; 4 - кремуляторная; 5 - печной зал; 6 - подсобные помещения; 7 - котельная; 8 - трубы крематория

План на отм. 3,300

1 - большой траурный зал; 2 - малый траурный зал; 3 - оформление документов и администрация; 4 - хранение и выдача урн; 5 - второй свет печного зала

Рисунок 8 - Проект крематория в г. Самаре

1 - реквизит: 2 - вентиляционная камера; 3 - электрощитовая; 4 - помещение для хранения тележек; 5 - комната персонала; 6 - комната родственников; 7 - комната подготовки к обряду; 8 - холодильная камера; 9 - машинное отделение: 10 - приемная - регистратура; 11 - траурный зал; 12 - зал ожидания; 13 - комната формирования почетного караула; 14 - вестибюль; 15 - комната руководителя обряда и оформления документов; 16 - курительная

Рисунок 9 - Здание траурных гражданских обрядов

1 - приемная - регистратура; 2 - машинное отделение холодильной установки; 3 - холодильная камера; 4 - комната подготовки к обряду; 5 - комната родственников; 6 - траурный зал; 7 - зал ожидания; 8 - руководитель обряда и оформление документов; 9 - вестибюль; 10 - курительная; 11 - комната формирования почетного караула; 12 - гардероб; 13 - комната персонала; 14 - вентиляционная камера; 15 - электрощитовая; 16 - помещение хранения тележек; 17 - реквизит

Рисунок 10 - Вариант выполнения здания гражданских траурных обрядов

1 - стоянка автотранспорта; 2 - цветочный киоск и навес; 3 - здание траурных гражданских обрядов; 4 - административно-бытовой корпус; 5 - котельная; 6 - склад материалов и инвентаря; 7 - главный въезд; 8 - главный вход; 9 - хозяйственный въезд; 10 - места почетных захоронений; 11 - площадь для митингов; 12 - теневой навес; 13 - площадка для сбора мусора; 14 - декоративный фонтан; 15 - уборная; 16 - автомат газированной воды; 17 - стенд для объявлений; 18 - телефон-автомат; 19 - главная аллея; 20 - стенд с планом кладбища; 21 - показательный участок захоронений; 22 - пожарный резервуар; 23 - трансформаторная подстанция; 24 - канализационная насосная станция

Рисунок 11 - Проект кладбища для г. Мытищи

I - вестибюль; II - место для участников похорон; III - зал

1 - столик с портретом покойного и цветами; 2 - крышка гроба; 3 - гроб с телом покойного на постаменте; 4 - венок от родных; 5 - стулья для родственников; 6 - подушечки с орденами и медалями; 7 - венки от организации; 8 - резервное место для венков; 9 - караул первой смены; 10 - разводящий и караул сменяющей смены; 11 - трибуна; 12 - место председателя комиссии; 13 - место медсестры

Рисунок 12 - Схема установки гроба, размещения атрибутов похорон, мебели и порядок смены почетного караула при проведении траурного митинга в зале клуба, Дворца культуры (учреждения, предприятия)

I - кремационное отделение; II - передаточная камера; III - зал; IV - место для участников похорон

1 - гроб с телом покойного на постаменте; 2 - крышка гроба; 3 - венок от родных; 4 - стулья для родственников; 5 - подушечки с наградами; 6 - караул первой смены; 7 - разводящий и караул сменяющей смены; 8 - трибуна; 9 - портрет покойного

Рисунок 13 - Схема установки гроба, размещения атрибутов похорон и порядок смены почетного караула в зале крематория (при горизонтальном перемещении гроба из зала в кремационное отделение)

 




ГОСТЫ, СТРОИТЕЛЬНЫЕ и ТЕХНИЧЕСКИЕ НОРМАТИВЫ.
Некоммерческая онлайн система, содержащая все Российские Госты, национальные Стандарты и нормативы.
В Системе содержится более 150000 файлов нормативно-технической документации, действующей на территории РФ.
Система предназначена для широкого круга инженерно-технических специалистов.

Рейтинг@Mail.ru Яндекс цитирования

Copyright © www.gostrf.com, 2008 - 2026