Крупнейшая бесплатная информационно-справочная система онлайн доступа к полному собранию технических нормативно-правовых актов РФ. Огромная база технических нормативов (более 150 тысяч документов) и полное собрание национальных стандартов, аутентичное официальной базе Госстандарта. GOSTRF.com - это более 1 Терабайта бесплатной технической информации для всех пользователей интернета. Все электронные копии представленных здесь документов могут распространяться без каких-либо ограничений. Поощряется распространение информации с этого сайта на любых других ресурсах. Каждый человек имеет право на неограниченный доступ к этим документам! Каждый человек имеет право на знание требований, изложенных в данных нормативно-правовых актах!

  


 

ПРАВИТЕЛЬСТВО МОСКВЫ
МОСКОМАРХИТЕКТУРА

ПОСОБИЕ
К МГСН 4.12-97

ЛЕЧЕБНО-ПРОФИЛАКТИЧЕСКИЕ УЧРЕЖДЕНИЯ

ВЫПУСК 1

ОБЩИЕ ПОЛОЖЕНИЯ. СТАЦИОНАРНЫЕ УЧРЕЖДЕНИЯ:
ОСНОВНЫЕ ПОЛОЖЕНИЯ. ПРИЕМНЫЕ ОТДЕЛЕНИЯ

1998

ПРЕДИСЛОВИЕ

1. РАЗРАБОТАНО МНИИП объектов культуры, отдыха, спорта и здравоохранения (архитекторы Ю.В. Сорокина, Г.И. Рабинович, врачи Г.Н. Ильницкая, С.Л. Полишкис) при участии Центра Госсанэпиднадзора в г. Москве (врачи И.А. Храпунова, Л.И. Федорова).

2. ПОДГОТОВЛЕНО к утверждению и изданию Управлением перспективного проектирования и нормативов Москомархитектуры (архитектор Л.А. Шалов, инженер Ю.Б. Щипанов).

3. СОГЛАСОВАНО Центром Госсанэпиднадзора в г. Москве, Комитетом здравоохранения г. Москвы и УППиН Москомархитектуры.

4. УТВЕРЖДЕНО И ВВЕДЕНО В ДЕЙСТВИЕ Указанием Москомархитектуры от 29.09.1998 г № 32.

СОДЕРЖАНИЕ

Введение. 1

Область применения. 2

Раздел I. Общие положения. 2

Раздел II. Стационарные учреждения. 5

1. Основные положения. 5

2. Приемное отделение. 6

Приложение 1 Схема размещения сети ЛПУ г. Москвы по территориально-планировочным уровням.. 13

Приложение 2 Пропускная способность кабинетов врачебного приема на 1 час работы врачей. 14

Приложение 3 Функционально-планировочные схемы смотровых кабинетов, приемно-смотровых и изоляционно-диагностических боксов. 14

Приложение 4 Схема взаимосвязи основных помещений приемных отделений неинфекционных больниц для взрослых. 21

Приложение 5 Схема взаимосвязи основных помещений приемных отделений детских неинфекционных больниц. 21

ВВЕДЕНИЕ

Настоящее Пособие разрабатывается в развитие действующего МГСН 4.12-97 «Лечебно-профилактические учреждения».

В Пособии изложены принципиальные положения и специфические особенности формирования сети ЛПУ в г. Москве, развернутые положения объемно-пространственных, архитектурно-планировочных и функциональных решений различных типов ЛПУ, их инженерного оборудования, а также необходимые справочные материалы, расчеты, рекомендуемые составы и площади помещений, функциональные схемы ЛПУ их подразделений (отделений) и отдельных помещений.

Пособие состоит из 7 разделов и 9 выпусков:

Раздел I - Общие положения (Выпуск 1);

Раздел II - Стационарные учреждения (Выпуски 1, 2, 3);

Раздел III - Диагностические отделения (Выпуски 4, 5);

Раздел IV - Специализированные и вспомогательные отделения (Выпуск 6);

Раздел V - Амбулаторно-поликлинические учреждения (Выпуск 7);

Раздел VI - Служебно-бытовые помещения. Подстанции скорой и неотложной медицинской помощи. Молочные кухни и раздаточные пункты молочных кухонь (Выпуск 8);

Раздел VII - Инженерное оборудование (Выпуск 9).

Пособие предназначено для проектировщиков, а также для организаторов здравоохранения, работающих в области планирования и проектирования лечебно-профилактических учреждений.

ОБЛАСТЬ ПРИМЕНЕНИЯ

1. Настоящее Пособие распространяется на проектирование новых и реконструируемых лечебно-профилактических учреждений, независимо от их организационно-правовой формы и форм собственности.

2. При проектировании лечебно-профилактических учреждений следует соблюдать требования СНиП 2.08.02-89*, МГСН 4.12-97, МГСН 4.01-94 и других действующих нормативных документов в строительстве.

РАЗДЕЛ I. ОБЩИЕ ПОЛОЖЕНИЯ

1. Сеть лечебно-профилактических учреждений представляет разноуровневую систему функционально и организационно взаимосвязанных и взаимодополняющих учреждений, размещенных на конкретной территории.

2. Совокупность лечебно-профилактических учреждений в зависимости от численности обслуживаемого населения, нормативно-расчетных показателей потребности в различных типах ЛПУ, их оптимальной мощности, объема и вида медицинской помощи определяет территориально-планировочный уровень размещения сети лечебно-профилактических учреждений.

Схема размещения сети ЛПУ г. Москвы по территориально-планировочным уровням приведена в Приложении 1.

3. Расчетными показателями мощности лечебно-профилактических учреждений являются: для стационарных учреждений - количество коек; для амбулаторно-поликлинических учреждений, в том числе диспансеров без стационаров - количество посещений в смену; для лечебно-профилактических учреждений, в структуре которых есть стационар и поликлиника - количество коек и количество посещений в смену; для станции (подстанций, отделений) скорой и неотложной медицинской помощи - количество выездов в год.

4. Проектная мощность больничных учреждений, родильных домов, стационаров диспансеров определяется заданием на проектирование.

Коечную вместимость палатных отделений следует принимать в соответствии с требованиями МГСН 4.12-97.

5. Проектная мощность амбулаторно-поликлинических учреждений, в том числе диспансеров без стационаров, определяется заданием на проектирование и рассчитывается как сумма пропускной способности всех проектируемых кабинетов врачебного приема в смену, за исключением кабинетов функциональной, ультразвуковой, эндоскопической и лучевой диагностики.

Пропускная способность кабинетов врачебного приема в смену определялся, исходя из пропускной способности кабинетов на 1 час работы врачей и продолжительности врачебного приема в кабинете в течение одной смены без учета времени, затрачиваемого на выполнение посещений на дому.

Пропускная способность кабинетов врачебного приема на 1 час работы врачей приведена в Приложении 2.

6. Лечебно-профилактические учреждения следует размещать, как правило, в селитебной зоне на земельных участках, наиболее благоприятных по санитарно-гигиеническим условиям, в соответствии с утвержденным генеральным планом и проектами детальной планировки с учетом административно-территориального деления Москвы.

Психиатрические, психоневрологические и наркологические больницы, больницы восстановительного лечения и долечивания, туберкулезные больницы, хосписы, дома сестринского ухода могут располагаться также в зеленой или пригородной зонах.

7. Размеры земельных участков лечебно-профилактических учреждений следует принимать по МГСН 4.12-97.

8. На земельных участках больниц, родильных домов, диспансеров со стационарами, как правило, выделяются следующие зоны:

- лечебных корпусов для неинфекционных больных, родильных домов (акушерских отделений;

- лечебных корпусов для инфекционных больных;

- психосоматических корпусов;

- педиатрических корпусов;

- туберкулезных корпусов;

- кожно-венерологических корпусов;

- радиологических корпусов;

- садово-парковая;

- поликлиники, женской консультации;

- патологоанатомического корпуса;

- хозяйственная;

- зоны обеззараживания сточных вод;

- зона водозабора.

Расположенные на земельном участке больничного комплекса отдельно стоящие здания инфекционного корпуса и подстанции скорой медицинской помощи изолируются от территории больницы с удобным доступом для посетителей собственного и больничного персонала.

9. Перед главными входами в больницы, поликлиники, диспансеры и родильные дома следует предусматривать площадки для посетителей из расчета 0,2 м2 на одну койку или одно посещение в смену, но не менее 50 м2.

У входов в детские амбулаторно-поликлинические учреждения и раздаточные пункты молочных кухонь следует предусматривать площадки с навесами для детских колясок площадью не менее 20 м2.

10. Перед въездами на территорию стационарных учреждений следует проектировать стоянки для автотранспорта учреждений, сотрудников и посетителей.

По заданию на проектирование стоянки для автотранспорта учреждений и сотрудников могут проектироваться на территории стационарных учреждений, при этом размер земельного участка стационарного учреждения соответственно увеличивается на величину размера земельного участка стоянки для автотранспорта.

Размеры земельных участков стоянок для автотранспорта и расстояние между стоянками автотранспорта и палатными корпусами следует принимать в соответствии с требованиями СНиП 2.07.01-89*, МГСН 1.01-97, Часть 1 и МГСН 1.01-98, Часть 2.

11. Площадь зеленых насаждений и газонов следует принимать, как правило, не менее 60 % площади участков хосписов, больниц восстановительного лечения и долечивания, и не менее 50 % для других больниц и диспансеров со стационарами.

При строительстве новых стационарных учреждений на вновь осваиваемых участках в районах затесненной городской застройки допускается уменьшение площади зеленых насаждений и газонов по согласованию с городским и территориальными Центрами Госсанэпиднадзора.

12. Размеры садово-парковой зоны больницы, родильного дома и диспансера со стационаром рекомендуется принимать из расчета не менее 25 м2 на одну койку, а при строительстве этих учреждений на вновь осваиваемых участках в районах затесненной городской застройки - не менее 20 м2 на одну койку.

При проектировании садово-парковой зоны территорий хосписов, больниц восстановительного лечения и долечивания следует стремиться к достижению эффектов естественного и живописного ландшафта. На территории этих учреждений средствами ландшафтной архитектуры следует предусматривать устройство удобных мест отдыха и прогулочных маршрутов больных с использованием разнообразных малых архитектурных форм: беседок, фонтанчиков, небольших водоемов светильников, скамеек и др. Прогулочные маршруты должны проектироваться с учетом использования колясок.

13. Сооружения и площадки для климатотерапии, трудотерапии и физической культуры следует предусматривать в соответствии с заданием на проектирование.

Открытые сооружения для физической культуры должны быть удалены от корпусов с палатами не менее чем на 25 м2.

14. По свободному от застройки периметру участков больниц, диспансеров со стационарами и родильных домов, следует предусматривать полосы зеленых насаждений шириной не менее 5 м.

Вокруг радиологического и инфекционного корпусов, а также вдоль расположенных на первом этаже рентгеновских кабинетов следует предусматривать полосы насаждений из труднопроходимого кустарника.

15. Участки стационарных учреждений должны быть ограждены. Высота ограждения участков психиатрических больниц должна быть не менее 2,5 м, для других стационаров - 1,6 м.

16. Высоту помещений лечебно-профилактических учреждений от пола до потолка следует принимать не менее 3 м.

Высота кабинетов лучевой терапии, операционных в операционных блоках больниц и рентгенкабинетов с нестандартной аппаратурой устанавливается в зависимости от габаритов оборудования с учетом специальных требований, как к установке оборудования, так и к работе в данном помещении.

Высота залов лечебно-плавательных бассейнов с количеством пациентов 10 и более принимается не менее 4,2 м.

17. Ширину коридоров лечебно-профилактических учреждений, в том числе коридоров, используемых под ожидальню для посетителей, следует принимать по обязательному Приложению 3 МГСН 4.12-97

18. Ширина помещений должна быть не менее:

- малых операционных, перевязочных, процедурных с урологическим креслом, кабинетов гинекологических, урологических, ортопедических - 3,2 м;

- процедурных рентгенофлюорографических и рентгенотерапевтических кабинетов - 4 м;

- операционных, реанимационных и родовых - 5 м;

- процедурных рентгенодиагностических кабинетов, кабинетов дистанционной и внутриполостной лучевой терапии устанавливается в зависимости or размеров оборудования и необходимой ширины проходов, но не менее 5 м;

19. Глубина помещений (кроме палат) должна определяться с учетом медико-технологических требований, размеров используемого оборудования, количества и площади оконных проемов.

Глубину палат при естественном освещении их с одной стороны следует принимать не более 6 м.

Отношение глубины к ширине палат и других помещений лечебного и диагностического назначения должно быть не более 2.

20. В подвальных и цокольных этажах лечебно-профилактических учреждений следует размещать только те помещения, которые предусмотрены Приложением 4* СНиП 2.08.02-89*.

21. Помещения для вентиляционного оборудования, теплоузлов, охлаждаемые камеры с машинными отделениями, электрощитовые, машинные отделения и шахты лифтов и подъемников и другие помещения, являющиеся источником шума и вибрации, а также автоклавные и дезкамеры не допускается размещать смежно с палатами, лечебными и процедурными кабинетами, а также над и под ними.

22. При расположении палатных, реанимационных и родильных отделений, операционных блоков на последних этажах зданий над ними следует предусматривать чердак или технический этаж.

23. Размещение под окнами палат помещений приемных отделений, травмпунктов, подстанций скорой медицинской помощи и других служб, к которым должен быть подъезд автомашин, не допускается.

24. В зданиях подстанций скорой медицинской помощи допускается размещать подземные гаражи для автомобилей скорой медицинской помощи.

25. Размеры кабин уборных для больных должны быть не менее 1,6´1,1 м при обязательном открывании дверей наружу.

Размеры кабин уборных для больных травматологических, ортопедических, неврологических, нейрохирургических отделений, хосписов, домов (отделений) сестринского ухода, а также для больных, использующих при передвижении кресла-коляски, должны быть шириной не менее 1,65 м и глубиной не менее 1,8 м.

26. Установку умывальников следует предусматривать в палатах палатных отделений для взрослых и детей (за исключением палат со шлюзом и санузлом и палат психиатрических и наркологических отделений), в кабинетах врачей стационарных и амбулаторно-поликлинических учреждений, а также во всех кабинетах и помещениях, эксплуатация которых по санитарно-гигиеническим нормам и правилам требует их установки с подводкой горячей и холодной воды.

27. Ширину дверного проема следует принимать не менее:

- в палатах, изоляторах, тамбурах и шлюзах боксов, полубоксах, предродовых, родовых, процедурных, перевязочных, операционных, реанимационных, наркозных, а также в ванных комнатах, уборных для больных и клизменных больниц (отделений) восстановительного лечения, хосписов и домов сестринского ухода - 1,1 м;

- в кабинетах врачей, в лабораторных помещениях, в уборных для больных палатных отделений, клизменных и остальных помещениях - 0,9 м;

- в процедурных рентгенодиагностических кабинетов, кабинетах лучевой терапии и радиоизотопной диагностики с крупногабаритным оборудованием и на путях эвакуации больных - 1,2 м (с установкой двупольной двери);

- в барозалах - 1,4 м (с установкой двупольной двери).

28. Помещения лечебно-профилактических учреждений должны иметь естественное освещение.

Коэффициент естественного освещения в помещениях следует принимать по таблице 2 МГСН 2.06-97.

С освещением вторым светом или без естественного освещения допускается проектировать только те помещения, которые предусмотрены СНиП 2.08.02-89* и МГСН 4.12-97.

Инсоляция и солнцезащита зданий лечебно-профилактических учреждений должна соответствовать требованиям МГСН 2.05-97.

РАЗДЕЛ II. СТАЦИОНАРНЫЕ УЧРЕЖДЕНИЯ

1. Основные положения

1.1. Стационарные учреждения - лечебно-профилактические учреждения (больницы, родильные дома), предназначенные для оказания медицинской помощи населению в условиях круглосуточного их пребывания в данных учреждениях под наблюдением медицинского персонала.

Стационар - структурное подразделение лечебно-профилактического учреждения (медсанчасти, диспансера, хосписа, перинатального центра и пр.), предназначенное для оказания населению стационарной помощи.

В структуре стационарного учреждения могут быть поликлиники, женские консультации, диагностические центры.

1.2. Мощность и структура стационарных учреждений определяется заданием на проектирование с учетом потребности обслуживаемого населения в стационарной помощи.

1.3. Больничные учреждения (больницы), предназначенные для оказания стационарной помощи по различным профилям, являются многопрофильными.

Больницы, предназначенные для оказания стационарной помощи по определенному профилю, являются специализированными.

Родильные дома - специализированные стационарные учреждения, оказывающие медицинскую помощь беременным, роженицам, родильницам, новорожденным, гинекологическим больным (при наличии в структуре родильного дома гинекологического).

1.4. В составе больниц выделяются следующие структурные подразделения:

- приемные отделения;

- палатные отделения, в том числе радиологические;

- операционные блоки;

- отделения реанимации и интенсивной терапии;

- отделения анестезиологии (могут быть объединены с отделениями реанимации или оперблоком);

- отделения гемодиализа;

- отделения детоксикации;

- отделения гипербарической оксигенации;

- отделения литотрипсии;

- отделения (кабинеты) переливания крови;

- отделения физиотерапии и лечебной физкультуры, отделения трудотерапии;

- диагностические отделения - клинико-диагностические лаборатории, отделения функциональной, эндоскопической, лучевой диагностики (рентгенодиагностической, радиоизотопной, ультразвуковой), патологоанатомические отделения;

- вспомогательные отделения - больничные аптеки централизованные стерилизационные отделения, дезинфекционные отделения, прачечные, службы приготовления пищи;

- служебно-бытовые помещения;

- помещения клинических кафедр (для клинических больниц).

1.5. В структуру родильного дома входят:

- приемное отделение;

- родовое физиологическое отделение;

- послеродовое физиологическое отделение;

- обсервационное отделение;

- отделение патологии беременных;

- диагностические, специализированные и вспомогательные отделения (кабинеты);

- служебно-бытовые помещения.

В структуру родильного дома могут входить помещения клинических кафедр.

1.6. Наименование стационарного учреждения определяет городской (окружной) орган здравоохранения с учетом действующей Номенклатуры учреждений здравоохранения (Приказ МЗ РФ от 09.04.98 г. № 110).

1.7. Новое строительство и реконструкция стационарных учреждений должны осуществляться в соответствии с территориально-отраслевой схемой развития и реконструкции сети этих учреждений.

2. Приемное отделение

2.1. Основные задачи и функции приемного отделения:

- прием, регистрация и медицинская сортировка больных, поступающих в приемное отделение;

- установление предварительного медицинского диагноза на основе осмотра, диагностических исследований и, при необходимости, заключения врачей-консультантов;

- организация динамического наблюдения за больными с неясными и сомнительными диагнозами в диагностических палатах или изоляционно-диагностических боксах;

- решение вопроса о необходимости стационарного или амбулаторного лечения;

- оказание необходимой медицинской помощи;

- проведение при необходимости санитарной обработки больных, госпитализируемых в неинфекционные отделения;

- обеспечение мероприятий по предупреждению заноса и распространения инфекционных заболеваний среди больных и персонала;

- организация перевода больных, нуждающихся в лечении в других стационарных учреждениях.

2.2. Централизованные приемные отделения рекомендуется размещать в корпусе больницы с наибольшим количеством коек.

Приемные отделения для детского, акушерского, инфекционного, кожно-венерологического, туберкулезного, психиатрического (психосоматического) отделений должны быть автономными.

2.3. Больные поступают в приемное отделение по скорой медицинской помощи, в плановом порядке и самостоятельно («самотеком»).

Помещения приемного отделения, предназначенные для приема плановых больных, планировочно рекомендуется выделять в самостоятельную группу. В состав этой группы могут входить вестибюль-ожидальная помещение для регистрации и оформления документов, смотровые, комната для переодевания, санпропускник для больных, поступающих в «сомнительном» санитарном состоянии.

2.4. Расчетное количество больных, поступающих в приемные отделения различных типов стационарных учреждений в течение суток, следует принимать в зависимости от количества коек и их профиля:

12 % - в родильных домах;

10 % - в многопрофильных больницах для взрослых, гастроэнтерологической, урологической, офтальмологической, онкологической больницах и больницах медико-социальной помощи (хосписах, домах сестринского ухода);

5 % - в кожно-венерологических и психоневрологических больницах (отделениях) для взрослых и детей;

2,5 % - в детских психиатрических больницах и в детских больницах восстановительного лечения;

2 % - в больницах восстановительного лечения и долечивания, психиатрических и наркологических больницах для взрослых;

1,5 % - в туберкулезных больницах для взрослых;

1 % - в детских туберкулезных больницах (отделениях).

2.5. В приемных отделениях неинфекционных стационарных учреждений для взрослых следует предусматривать смотровые (смотровые кабинеты).

Смотровая (смотровой кабинет) предназначена для осмотра, обследования, установления предварительного диагноза и, при необходимости, оказания экстренной медицинской помощи больным, поступающим в отделения терапевтического (общая терапия, кардиология, пульмонология, и др.), хирургического (чистая хирургия, гнойная хирургия, урология и др.) и специализированного (отоларингология, офтальмология, онкология и др.) профилей. Размеры смотровой должны обеспечивать свободный ввоз каталки. Смотровая может быть рассчитана на установку одной или нескольких кушеток. К каждой кушетке должен быть обеспечен подход медицинского персонала не менее чем с трех сторон.

Количество смотровых следует принимать из расчета:

1 смотровая на 150 коек - в многопрофильных больницах, принимающих больных «по скорой помощи»;

1 смотровая на 600 коек в - психиатрических и наркологических больницах; больницах восстановительного лечения;

1 смотровая на 250 коек - в остальных типах неинфекционных больниц для взрослых.

Назначение смотровых, в том числе специализированных (гинекологических проктологических, урологических и др.), определяется профилями палатных отделений и заданием на проектирование.

В родильных домах следует предусматривать: 1 смотровую для физиологического отделения и отделения патологии беременных; 1 смотровую для обсервационного отделения; 1 смотровую для гинекологического отделения.

В кожно-венерологических больницах (отделениях) следует предусматривать: 1 смотровую с гинекологическим креслом; 1 смотровую без гинекологического кресла; приемно-смотровой бокс для заразных больных.

2.6. Количество санпропускников устанавливается из расчета один санпропускник на 2 смотровые. Кроме того, для приема плановых больных должна предусматриваться комната для переодевания (без установки ванной и душа).

Санитарный пропускник предназначен для гигиенической обработки госпитализируемых больных. Размеры помещения, где установлена ванна, должны позволять беспрепятственно ввозить каталку, удобно подвезти ее к ванне, свободно передвигаться персоналу вокруг ванны.

2.7. В детских больницах всех типов, а также в инфекционных больницах (отделениях) для приема взрослых и детей, следует предусматривать приемно-смотровые боксы и изоляционно-диагностические боксы.

Приемно-смотровой бокс является основным элементом приемных отделений детских и инфекционных больниц. Он предназначен для индивидуального приема больных, что исключает контакт между поступающими больными и способствует их защите от вторичной инфекции. В состав приемно-смотрового бокса входят следующие обязательные помещения входной (наружный) тамбур, смотровое помещение, санузел, предбоксник (шлюз между коридором приемного отделения и смотровым помещением). Предбоксник обеспечивает необходимый санитарно-гигиенический и противоэпидемический режим, как в смотровом помещении, так и в больничном коридоре. В предбокснике персонал надевает специальную одежду и производит санитарную обработку и дезинфекцию рук.

В приемно-смотровых боксах детских больниц осуществляется прием детей всех возрастов (от 0 до 14 лет) с заболеваниями любого медицинского профиля, поэтому каждый приемно-смотровой бокс должен быть универсальным и иметь соответствующий набор мебели и оборудования, включающий кушетку, пеленальный столик и весы.

Универсальность приемно-смотровых боксов обеспечивает возможность маневрирования ими при неравномерном поступлении больных разного возраста.

Изоляционно-диагностический бокс предназначен для изоляции больных с неясными диагнозами или смешанными инфекциями, а также больных, бывших в контакте с инфекционными больными. Изоляционно-диагностический бокс (по типу мельцеровского бокса) характеризуется наличием двух входов: один - для входа больного с улицы через тамбур, второй - для входа персонала со стороны больничного коридора через предбоксник. Изоляционно-диагностический бокс состоит их следующих обязательных помещений: входного (наружного) тамбура, ванной комнаты (с ванной, душем, уборной и умывальником), палаты, предбоксника.

Функционально-планировочные схемы смотровых кабинетов, приемно-смотровых и изоляционно-диагностических боксов приведены в Приложении 3.

2.8. В детских многопрофильных больницах и других типах детских неинфекционных больниц количество приемно-смотровых боксов следует определять в зависимости от количества коек терапевтического и хирургического профилей:

2 % - от количества коек терапевтического профиля;

4 % - от количества коек хирургического профиля.

Количество изоляционно-диагностических боксов в этих больницах должно составлять 5 % от общего количества коек в больнице.

2.9. В инфекционных больницах (отделениях) для взрослых и детей количество приемно-смотровых боксов должно соответствовать количеству основных видов инфекций, представленных в больнице и составлять не менее 3 % от количества инфекционных коек в больнице (отделении).

Количество изоляционно-диагностических боксов в приемных отделениях инфекционных больниц (отделений) для взрослых следует принимать не менее 4 % от количества коек в инфекционной больнице (отделении).

Количество изоляционно-диагностических боксов в приемных отделениях детских инфекционных больниц (отделений) следует принимать не менее 5 % от количества инфекционных коек в больнице (отделении).

Если в инфекционной больнице (отделении) все 100 % коек размещены в боксах, приемное отделение, как функциональное подразделение больницы, может быть исключено.

При приемных отделениях инфекционных больниц для взрослых и детей, а также детских больниц, по заданию на проектирование предусматриваются специализированные боксы (рентгеновский, операционный, реанимационный).

При наличии в структуре инфекционной больницы, кроме боксированных, полубоксированных и палатных отделений входы, лестничные клетки и лифты должны быть раздельными для приема и выписки больных.

При проектировании отделений приема и выписки в инфекционных больницах (отделениях) следует учитывать, что санитарная обработка и выписка больных происходит в палатных, боксированных или полубоксированных секциях, где больные находятся на лечении. Приемное отделение инфекционной больницы (отделения) должно быть изолировано от всех других отделении больницы (помещений отделения) путем организации санпропускников для персонала и архитектурно-планировочными средствами.

Диспетчерская приемного отделения инфекционной больницы должна иметь наружный выход.

При приемных отделениях инфекционных больниц следует выделять помещения для санитарной обработки транспортных средств, на которых доставлен больной, подозреваемый на наличие инфекционного заболевания. С этой целью следует предусматривать помещение для хранения дезинфекционных средств, комнату дежурных дезинфекторов и бокс для обработки транспорта.

2.10. При проектировании приемных отделений родильных домов или акушерских отделений на территории многопрофильных и других больниц смотровые и помещения санитарной обработки рожениц и беременных следует предусматривать общими для физиологического отделения и отделения патологии беременных. Обсервационное отделение и гинекологическое отделение (при его размещении в здании родильного дома) должны иметь свои (раздельные) смотровые и санпропускники.

В состав помещений премного отделения родильного дома (акушерского отделения) следует включать фильтр, предназначенный для осмотра рожениц и беременных, после чего они разделяются на два изолированных потока и направляются: один поток - в акушерское физиологическое отделение и отделение патологии беременных, второй поток - в обсервационное отделение. На каждый поток предусматривается смотровая с гинекологическим креслом и помещение санитарной обработки. Пути движения больных этих отделений, включая лестничные клетки и лифты, должны быть строго изолированы друг от друга.

В составе приемного отделения по заданию на проектирование может предусматриваться родовой бокс для обсервационного отделения.

2.11. Приемное отделение следует размещать на первом или (при наличии пандуса для санитарных машин) втором этажах, в изолированной части здания, по возможности, вблизи главного въезда на территорию больничного участка.

Для подъезда санитарных машин к приемному отделению следует предусматривать навес для стоянки 1-2 машин и отапливаемый тамбур. Подъезд санитарного транспорта не должен быть под окнами палат.

2.12. В составе приемного отделения могут быть выделены следующие функциональные группы помещений вестибюльная группа, помещения для осмотра, сортировки и санитарной обработки больных, группа лечебно-диагностических помещений, помещения для временной изоляции и наблюдения за больными, служебно-бытовые помещения.

Схема взаимосвязи основных помещений приемных отделений неинфекционных больниц для взрослых приведена в Приложении 4, схема взаимосвязи основных помещений приемных отделений детских неинфекционных больниц - в Приложении 5.

2.13. Состав помещений приемного отделения и их количество, наличие в его структуре диагностических коек, лечебных и диагностических кабинетов, специализированных боксов, соотношение количества смотровых для приема плановых и экстренных больных определяется в каждом конкретном случае заданием на проектирование с учетом типа и мощности больницы, профиля палатных отделений и их коечной вместимости, интенсивности лечебного процесса в больнице, а также объема медицинской помощи, оказываемой больным и пострадавшим в приемном отделении.

2.14. Площадь помещений приемных отделений рекомендуется принимать по табл. 1, 2, 3, специализированных боксов - по табл. 4; помещений выписки - по табл. 5.

Таблица 1

Рекомендуемая минимальная площадь помещений приемных отделений неинфекционных больниц для взрослых

№№

Наименование помещений

Площадь, м2

1.

Вестибюль-ожидальная для плановых больных*

1,2 м2 на одного больного, но не менее 12 м2

2.

Санузел со шлюзом при вестибюле

3 + 3

3.

Помещение охраны

8

4.

Справочная

6

5.

Диспетчерская

10

6.

Помещение для регистрации и оформления документов плановых больных

8

7.

Смотровые для приема плановых больных:

 

 

- смотровая для приема больных терапевтического профиля на 1 кушетку

14

 

- смотровая для приема больных хирургического профиля на 1 кушетку

18

 

- смотровая специализированная

18

8.

Комната для переодевания плановых больных

10

9.

Санитарный пропускник для плановых больных, находящихся в «сомнительном» санитарном состоянии

15

10.

Въездной тамбур для машин скорой медицинской помощи на 2 машины

72

11.

Помещение для хранения каталок и кресел-колясок

2 м2 на 1 каталку, но не менее 12 м2

12.

Холл-ожидальная для сопровождающих с санузлом

18 + 3

13.

Помещение для регистрации и оформления документов экстренных больных

8

14.

Смотровые для приема экстренных больных:

 

 

- смотровая на 1 кушетку

14

 

- смотровая на 2 кушетки

20

 

- смотровая на 3 кушетки

30

 

- смотровая специализированная

18

 

- смотровая специализированная на 3 кушетки

36

15.

Санитарный пропускник для экстренных больных с санузлом

18 + 3

16.

Фильтр для приема рожениц и беременных (в приемных отделениях родильных домов и акушерских отделений)

14

17.

Помещение для санитарной обработки рожениц и беременных (в приемных отделениях родильных домов и акушерских отделений)

16

18.

Изоляционно-диагностический бокс на 1 койку

24

19.

Палата на 1 койку со шлюзом и санузлом**

9 + 3 + 3

20.

Палата на 2 койки со шлюзом и санузлом**

14 + 3 + 3

21.

Пост дежурной медицинской сестры

6

22.

Клизменная со шлюзом

8 + 2

23.

Шоковая палата (реанимационная)

36

24.

Буфетная

12

25.

Помещения для:

 

 

- мытья и дезинфекции суден, мытья и сушки клеенок

8

 

- хранения предметов уборки

4

 

- хранения дезсредств и приготовления дезрастворов

4

26.

Помещение для временного хранения грязного белья

4

27.

Процедурная

12

28.

Перевязочная

22

29.

Перевязочная гнойная

22

30.

Перевязочная гипсовая с помещением для хранения гипса и гипсовых бинтов

22 + 6

31.

Операционная для срочных операций:

 

 

- операционная

36

 

- предоперационная с местом для хранения инфузионных растворов

10 + 3

 

- стерилизационная

10

 

- помещение для хранения гипса и гипсовых бинтов

4

 

- шлюз

12

32.

Малая операционная со шлюзом

24 + 2

33.

Лаборатория срочных анализов (может быть общей для приемного отделения и отделения реанимации и интенсивной терапии):

 

 

- лаборантская

10

 

- моечная-центрифужная

12

 

- материальная

4

 

- комната дежурного лаборанта

10

34.

Эндоскопический кабинет

 

 

- кабинет врача

10

 

- процедурная

18

 

- моечная

8

35.

Рентгенодиагностический кабинет:

 

 

- процедурная со столом снимков, штативом снимков и стойкой снимков

34

 

- процедурная с поворотным столом-штативом, стойкой снимков, штативом снимков и рабочим столом врача

45

 

- то же с усилителем рентгеновского изображения

48

 

- комната управления

10

 

- фотолаборатория

10

 

- кабинет врача

10

36.

Кабинет электрокардиографии

18

37.

Помещение для хранения переносной аппаратуры

12

38.

Кабинет заведующего отделением

15

39.

Ординаторская дежурных врачей

4 м2 на одного дежурного врача, но не менее 10 м2

40.

Комната старшей медицинской сестры

10

41.

Комната среднего медицинского персонала

15

42.

Комната сестры-хозяйки с помещением для хранения чистого белья

10 + 4

43.

Комната младшего медицинского персонала

8

44.

Комната водителей

15

45.

Санузел со шлюзом для персонала

3 + 3

46.

Помещение для временного хранения вещей больных

0,3 м2 на одного больного, но не менее 8 м2

* Расчет производится на 60 % одновременно ожидающих плановых больных.

** Количество диагностических коек может составлять 0,5 - 1,5 % от общей коечной мощности больницы.

Таблица 2

Рекомендуемая минимальная площадь помещений приемных отделений детских неинфекционных больниц (отделений)

№№

Наименование помещений

Площадь, м2

1.

Вестибюль-ожидальная для больных, поступающих «самотеком»

1,5 м2 на одного больного, но не менее 12 м2

2.

Санузел со шлюзом при вестибюле-ожидальной

3

3.

Фильтр-бокс для осмотра детей, поступающих «самотеком»

15

4.

Диспетчерская с отдельным входом и наружным тамбуром

10 + 3

5.

Помещение регистрации поступающих больных

8

6.

Справочная

6

7.

Приемно-смотровой бокс

22

8.

Пост дежурной медицинской сестры

6

9.

Изоляционно-диагностический бокс для совместного пребывания матери и ребенка

28

10.

Изоляционно-диагностический бокс

26

11.

Буфетная

12

12.

Процедурная

12

13.

Перевязочная

22

14.

Перевязочная гнойная

22

15.

Перевязочная гипсовая с помещением для хранения гипса и гипсовых бинтов

22 + 6

16.

Малая операционная со шлюзом

24 + 2

17.

Лаборатория срочных анализов (может быть общей для приемного отделения и отделения реанимации и интенсивной терапии):

 

 

- лаборантская

10

 

- моечная-центрифужная

12

 

- материальная

4

 

- комната дежурного лаборанта

10

18.

Эндоскопический кабинет:

 

 

- кабинет врача

10

 

- процедурная

18

 

- моечная

По поз. 35 табл. 1

19.

Рентгенодиагностический кабинет

По поз. 35 табл. 1

20.

Санитарный пропускник для больных

15

21.

Помещение для хранения переносной аппаратуры

12

22.

Помещение для временного хранения вещей больных

0,3 м2 на одного больного, но не менее 6 м2

23.

Место для хранения каталок

4

24.

Помещения для:

 

 

- мытья и дезинфекции горшков, суден, мытья и сушки клеенок

8

 

- хранения предметов уборки

4

 

- временного хранения грязного белья

4

 

- хранения дезсредств и приготовления дезрастворов

4

25.

Кабинет заведующего отделением

15

26.

Кабинет дежурного врача

10

27.

Комната старшей медицинской сестры

10

28.

Комната сестры-хозяйки с помещением для хранения чистого белья

10 + 4

29.

Комната среднего медицинского персонала

10

30.

Комната младшего медицинского персонала

8

31.

Санузел со шлюзом для персонала

3 + 3

32.

Санитарный пропускник для персонала:

 

 

- гардеробная домашней и рабочей одежды (количество шкафов следует принимать равным 100 % списочного состава персонала)

0,55 м2 на 1 шкаф

 

- душеная

3 + 3

Таблица 3

Рекомендуемая минимальная площадь помещений приемных отделений инфекционных больниц (отделений) для взрослых и детей

№№

Наименование помещений

Площадь, м2

1.

Диспетчерская с отдельным наружным входом и тамбуром

10 + 3

2.

Приемно-смотровой бокс:

 

 

- в инфекционных больницах (отделениях) для взрослых

18

 

- в инфекционных больницах (отделениях) для детей

22

3.

Изоляционно-диагностический бокс:

 

 

- в инфекционных больницах (отделениях) для взрослых

24

 

- в детских инфекционных больницах (отделениях)

26

4.

Изоляционно-диагностический бокс для совместного пребывания матери и ребенка

28

5.

Буфетная

12

6.

Помещение для мытья и стерилизации столовой посуды (с отдельным наружным входом)

10

7.

Помещение для мытья кухонной посуды

6

8.

Пост дежурной медицинской сестры

6

9.

Кабинет дежурного врача

10

10.

Процедурная-подготовительная

12

11.

Лаборатория срочных анализов

12

12.

Помещение для хранения переносной аппаратуры

12

13.

Помещение для временного хранения инфицированного белья и постельных принадлежностей (с отдельным наружным входом)

6

14.

Кабинет заведующего отделением

15

15.

Комната старшей медицинской сестры

10

16.

Комната сестры-хозяйки с помещением для хранения чистого белья

10 + 6

17.

Комната персонала

10

18.

Санитарный пропускник для персонала.

 

 

- гардеробная для изолированного хранения домашней и рабочей одежды (количество шкафов для хранения домашней и рабочей одежды следует принимать равным 100 % списочного состава персонала)

0,4 м2 на 1 шкаф для хранения домашней одежды 0,4 м2 на 1 шкаф для хранения рабочей одежды

 

- душевая (количество душевых кабин следует принимать из расчета - 1 душевая кабина на 10 человек)

3 м2 на 1 кабину

19.

Комната персонала

10

20.

Санузел со шлюзом для персонала

3 + 3

21.

Помещение для хранения предметов уборки

4

22.

Помещение для хранения и разведения дезсредств

4

23.

Комната дежурных дезинфекторов для обработки транспортных средств (с отдельным наружным входом)

10

24.

Бокс для обработки транспорта

36

Таблица 4

Рекомендуемая минимальная площадь помещений специализированных боксов при приемных отделениях

№№

Наименование помещений

Площадь, м2

 

Рентгеновский бокс:

 

1.

Наружный тамбур при входе в бокс

4

2.

Внутренний шлюз при входе в бокс из отделения

3

3.

Ожидальная с наружным входом

10

4.

Санузел при ожидальной

3

5.

Процедурная

48

6.

Комната управления

10

7.

Фотолаборатория

10

8.

Кабинет врача

10

9.

Кабина для приготовления бария

4

 

Операционный бокс:

 

1.

Наружный тамбур при входе в бокс

4

2.

Внутренний шлюз при входе в бокс из отделения

3

3.

Ожидальная с наружным входом

10

4.

Санузел при ожидальной

3

5.

Предоперационная

10

6.

Стерилизационная

10

7.

Операционная

36

8.

Перевязочная

22

9.

Санпропускник для персонала

6

 

Реанимационный бокс:

 

1.

Наружный тамбур при входе в бокс

4

2.

Внутренний шлюз при входе в бокс из отделения

3

3.

Предреанимационная

18

4.

Реанимационный зал

36

5.

Палата интенсивной терапии на 1 койку с постом медсестры, сливом и шлюзом

13 + 6 + 2 + 3

 

Родовой бокс:

 

1.

Наружный тамбур при входе в бокс

4

2.

Внутренний шлюз при входе в бокс из отделения

3

3.

Помещение санитарной обработки рожениц

12

4.

Родовая на 1 кровать с туалетом для новорожденного

30

5.

Подготовительная персонала с душем

8 + 3

Таблица 5

Рекомендуемая минимальная площадь помещений выписки

№№

Наименование помещений

Площадь, м2

 

Многопрофильные и специализированные неинфекционные больницы

1.

Помещение ожидания

12

2.

Помещение для одевания верхней одежды и обуви

12

 

Родильные дома и акушерские отделения

1.

Помещение ожидания

30

2.

Помещения выписки:

 

 

- из физиологического отделения и отделения патологии беременных

12

 

- из обсервационного отделения

12

 

- из гинекологического отделения

12

 

Инфекционные больницы (отделения)

1.

Помещение ожидания

12

2.

Помещение выписки из отделений, состоящих из полубоксов (с душевой кабиной)**

8

3.

Помещение выписки из отделений, состоящих из палат (с душевой кабиной)**

8

* Размещается в группе служебно-бытовых помещений рядом с помещением для - хранения верхней одежды больных.

** Размещается в секции

ПРИЛОЖЕНИЕ 1

Схема размещения сети ЛПУ г. Москвы по территориально-планировочным уровням

1-й уровень

5 тысяч населения

Амбулатория врача общей практики (семейного врача)

2-й уровень

50 - 80 тысяч населения

Территориальная поликлиника для взрослых Территориальная поликлиника для детей Женская консультация

3-й уровень

200 - 250 тысяч населения

Консультативно-диагностический центр для взрослых

Стоматологическая поликлиника

Детская стоматологическая поликлиника

Врачебно-физкультурный диспансер

Поликлиника восстановительного лечения Кожно-венерологический диспансер

Многопрофильная больница

Родильный дом

Дом сестринского ухода

Хоспис

4-й уровень

800 - 1200 тысяч населения

Консультативно-диагностический центр для детей

Противотуберкулезный диспансер

Наркологический диспансер

Психоневрологический диспансер

Туберкулезная больница

Наркологическая больница

Психиатрическая больница

Больница долечивания

Детская многопрофильная больница

5-й уровень

8500 тысяч населения

Кардиологический диспансер

Маммологический диспансер

Онкологический диспансер

Эндокринологический диспансер

Центр планирования семьи и репродукции

Гастроэнтерологическая больница

Урологическая больница

Офтальмологическая больница

Онкологическая больница

Инфекционная больница

Кожно-венерологическая больница

Психоневрологическая больница

Больница восстановительного лечения ортопедо-травматологическая

Больница восстановительного лечения неврологическая

Детская хирургическая больница

Детская инфекционная больница

Детская ортопедо-травматологическая больница

Детская психиатрическая больница

Детская психоневрологическая больница

Детская туберкулезная больница

Детская кожно-венерологическая больница

Детская больница восстановительного лечения

ПРИЛОЖЕНИЕ 2

Пропускная способность кабинетов врачебного приема на 1 час работы врачей

Наименование должности врача

Число посещений на 1 час работы врачей

Взрослое население

Детское население

I. На приеме в городских, территориальных и стоматологических поликлиниках для взрослого и детского населения, женских консультациях, диспансерах и медико-санитарных частях:

Акушер-гинеколог

4

2

Аллерголог-иммунолог

4

3,5

Гастроэнтеролог

4

3,5

Гематолог

4

3

Гериатр

2,5

-

Дерматовенеролог

6

5

Диабетолог

4

3,5

Врач кабинета иглорефлексотерапии

2

2

Инфекционист

4

4

Кардиолог

3,5

-

Кардиоревматолог

-

3

Врач по контролю за занимающимися физкультурой и спортом

3

2,5

Врач по лечебной физкультуре

3

2,5

Врач кабинета мануальной терапии

4

4

Невропатолог

3

3

Нефролог

4

3,5

Онколог

4

3,5

Отоларинголог

6

5

Офтальмолог

6

5

Педиатр

-

4

Проктолог (колопроктолог)

4

3,5

Психиатр

3

2

Психиатр-нарколог

5

-

Психоневролог

-

2

Психотерапевт:

 

 

- в кабинете для индивидуальной психотерапии

2,5

-

- в кабинете для групповой психотерапии

8

-

Пульмонолог

3

2,5

Ревматолог

3,5

-

Сексопатолог

2

-

Стоматолог:

 

 

- стоматолог-терапевт

2,5

2,5

- стоматолог-протезист, стоматолог-ортопед

2

2

- стоматолог-хирург

4

4

Терапевт

4

-

Терапевт подростковый

4

-

Травматолог-ортопед

5

4,5

Уролог

4

3,5

Физиотерапевт

4

4

Фтизиатр

4

3,5

Хирург

6

5

Эндокринолог

4

3,5

II. На приеме в консультативных поликлиниках, многопрофильных и специализированных консультативно-диагностических центрах

Врачи всех специальностей

2

1,5

ПРИЛОЖЕНИЕ 3

Функционально-планировочные схемы смотровых кабинетов, приемно-смотровых и изоляционно-диагностических боксов

Экспликация

№ п.п.

Наименование оборудования

Габариты, мм

1.

Стол врача

1100 ´ 630 ´ 740

2.

Кушетка смотровая

1850 ´ 600 ´ 500

3.

Столик инструментальный

616 ´ 420 ´ 805

4.

Стол манипуляционный передвижной

922 ´ 432 ´ 897

5.

Шкаф медицинский

630 ´ 460 ´ 1850

6.

Кресло гинекологическое

1655 ´ 950 ´ 1600

7.

Стол перевязочный складной

1900 ´ 600 ´ 1640

8.

Светильник передвижной

550 ´ 300 ´ 1900

9.

Облучатель бактерицидный

575 ´ 150 ´ 215

10.

Стул

450 ´ 400 ´ 800

11.

Ведро педальное

270 ´ 270 ´ 360

12.

Умывальник

600 ´ 500 ´ 780

13.

Унитаз

450 ´ 670 ´ 730

14.

Вешалка настенная

700 ´ 150 ´ 100

15.

Табурет

390 ´ 760

16.

Стол пеленальный

680 ´ 655 ´ 900

17.

Стол для детских весов

519 ´ 400 ´ 805

18.

Шкаф горшечный

1345 ´ 275 ´ 1500

19.

Умывальник хирургический

650 ´ 590 ´ 850

20.

Кровать функциональная

2010 ´ 900 ´ 1000

21.

Тумбочка прикроватная

475 ´ 400 ´ 740

22.

Стол палатный

850 ´ 630 ´ 740

23.

Ванная

1800 ´ 750 ´ 622

24.

Стол для переносной аппаратуры

640 ´ 800 ´ 800

25.

Ширма

1600 ´ 1700

26.

Подставка для стерилизационных коробок

600 ´ 1104

27.

Подставка для тазов

520 ´ 480 ´ 760

28.

Шкаф передаточный

400 ´ 380 ´ 1700

29.

Кровать

1850 ´ 800 ´ 900

Рис. 3.1. Смотровая на 1 кушетку

Рис. 3.2. Смотровая на 2 кушетки

Рис. 3.3. Смотровая на 3 кушетки

Рис. 3.4. Смотровая специализированная (гинекологическая)

Рис. 3.5. Смотровая специализированная на 3 кушетки

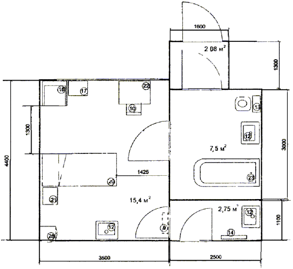
Рис. 3.6. Приемно-смотровой бокс детских неинфекционных и инфекционных больниц.
Площадь - 22,3 м2

Рис. 3.7. Приемно-смотровой бокс инфекционных больниц для взрослых.

Площадь - 17,9 м2

Рис. 3.8. Изоляционно-диагностический бокс детских неинфекционных и инфекционных больниц.

Площадь - 25,65 м2

Рис. 3.9. Изоляционно-диагностический бокс инфекционных больниц для взрослых.

Площадь - 24,05 м2

Рис. 3.10. Изоляционно-диагностический бокс для совместного размещения

матери и ребенка.

Площадь - 27,8 м2



НОРМАТИВНЫЕ ССЫЛКИ

В настоящем выпуске Пособия приведены ссылки на следующие документы:

1. СНиП 2.08.02-89* «Общественные здания и сооружения».

2. СНиП 2.07.01-89* «Градостроительство Планировка и застройка городских и сельских поселений».

3. МГСН 4.12-97 «Лечебно-профилактические учреждения»

4. МГСН 1.01-97, Часть 1, МГСН 1.01-98, Часть 2 «Временные нормы и правила проектирования, планировки и застройки Москвы».

5. МГСН 4.01-94 «Хосписы».

6. МГСН 2.06-97 «Естественное и искусственное освещение».

7. МГСН 2.05-97 «Инсоляция и солнцезащита».

8. Приказ Минздрава РФ от 09.04.98 г. № 110 «Об утверждении номенклатуры учреждений здравоохранения».

 




ГОСТЫ, СТРОИТЕЛЬНЫЕ и ТЕХНИЧЕСКИЕ НОРМАТИВЫ.
Некоммерческая онлайн система, содержащая все Российские Госты, национальные Стандарты и нормативы.
В Системе содержится более 150000 файлов нормативно-технической документации, действующей на территории РФ.
Система предназначена для широкого круга инженерно-технических специалистов.

Рейтинг@Mail.ru Яндекс цитирования

Copyright © www.gostrf.com, 2008 - 2026