Крупнейшая бесплатная информационно-справочная система онлайн доступа к полному собранию технических нормативно-правовых актов РФ. Огромная база технических нормативов (более 150 тысяч документов) и полное собрание национальных стандартов, аутентичное официальной базе Госстандарта. GOSTRF.com - это более 1 Терабайта бесплатной технической информации для всех пользователей интернета. Все электронные копии представленных здесь документов могут распространяться без каких-либо ограничений. Поощряется распространение информации с этого сайта на любых других ресурсах. Каждый человек имеет право на неограниченный доступ к этим документам! Каждый человек имеет право на знание требований, изложенных в данных нормативно-правовых актах!

  


 

ГОСТ Р 51657.4-2002

ГОСУДАРСТВЕННЫЙ СТАНДАРТ РОССИЙСКОЙ ФЕДЕРАЦИИ

Водоучет на гидромелиоративных
и водохозяйственных системах

ИЗМЕРЕНИЕ РАСХОДОВ ВОДЫ
С ИСПОЛЬЗОВАНИЕМ ВОДОСЛИВОВ
С ТРЕУГОЛЬНЫМИ ПОРОГАМИ

Общие технические требования

ГОССТАНДАРТ РОССИИ

Москва

Предисловие

1 РАЗРАБОТАН Техническим комитетом по стандартизации ТК 317 «Измерение расходов жидкости в открытых водотоках и каналах», ВНИИ Гидротехники и мелиорации им. А. Костикова (ГНУ ВНИИГиМ), ВНИИ Расходометрии (ФГУП ВНИИР), НИИ Водоснабжения, канализации, гидротехнических сооружений и инженерной гидрогеологии (НИИ ВОДГЕО), Государственным гидрологическим институтом (ГГИ)

ВНЕСЕН Техническим комитетом по стандартизации ТК 317 «Измерение расходов жидкости в открытых водотоках и каналах» и Департаментом мелиорации земель и сельскохозяйственного водоснабжения Министерства сельского хозяйства РФ

2 ПРИНЯТ И ВВЕДЕН В ДЕЙСТВИЕ Постановлением Госстандарта России от 4 декабря 2002 г. № 452-ст

3 ВВЕДЕН ВПЕРВЫЕ

СОДЕРЖАНИЕ

1 Область применения. 2

2 Нормативные ссылки. 2

3 Определения. 2

4 Место установки водослива. 2

5 Участки канала и водослив. 3

6 Эксплуатация водослива. 4

7 Измерение напора (уровня) 5

8 Типы и конструкции водосливов с треугольными порогами. 5

9 Уравнение расхода. 8

10 Погрешность измерения расхода воды.. 11

Приложение А. Распределение скоростей водного потока в гидрометрическом створе. 14

Приложение Б. Таблицы коэффициентов формы и скорости подхода. 15

Приложение В. Пример определения расхода воды и вычисления его относительной погрешности при однократном измерении. 16

Приложение Г. Библиография. 17

ГОСТ Р 51657.4-2002

ГОСУДАРСТВЕННЫЙ СТАНДАРТ РОССИЙСКОЙ ФЕДЕРАЦИИ

Водоучет на гидромелиоративных и водохозяйственных системах

ИЗМЕРЕНИЕ РАСХОДОВ ВОДЫ С ИСПОЛЬЗОВАНИЕМ ВОДОСЛИВОВ С ТРЕУГОЛЬНЫМИ ПОРОГАМИ

Общие технические требования

Water flow measurement in hydromelioration and water supply systems.

Water discharge measurement in open channels by triangular profile weirs.

General technical requirements

Дата введения 2003-07-01

1 Область применения

Настоящий стандарт устанавливает общие технические требования к водосливам с треугольными порогами трех типов: с острым гребнем, закругленным гребнем, продольным V-образным вырезом; месту установки сооружений; способу измерения объемного расхода воды в открытых каналах с практически установившимся или медленно изменяющимся режимом течения. Такой режим течения ограничен докритическим потоком, при котором глубина воды до сооружения больше критической. Эксплуатация водосливов осуществляется при свободном истечении жидкости, при котором определяемый расход зависит только от напора (уровня) воды перед сооружением.

Настоящий стандарт применяется для водохозяйственных организаций Министерств и ведомств, обеспечивающих контроль и распределение водных ресурсов между потребителями, а также в КБ, НИИ, проектных и промышленных организациях, осуществляющих разработку, исследования, испытания, изготовление и эксплуатацию технических средств водоучета для открытых водотоков и каналов.

2 Нормативные ссылки

В настоящем стандарте использованы ссылки на следующие стандарты:

ГОСТ 15126-80 Средства измерения скорости течения воды. Вертушки гидрометрические речные. Общие технические требования

ГОСТ Р 51657.1-2000 Водоучет на гидромелиоративных и водохозяйственных системах. Термины и определения

ГОСТ Р 51657.2-2000 Водоучет на гидромелиоративных и водохозяйственных системах. Методы измерения расхода и объема воды. Классификация

ГОСТ Р 51657.3-2000 Водоучет на гидромелиоративных и водохозяйственных системах. Гидрометрические устройства. Классификация

3 Определения

В настоящем стандарте применяют термины по ГОСТ Р 51657.1.

4 Место установки водослива

4.1 Для выбора места установки водослива необходимо, чтобы участок канала, на котором предполагается установка водослива, имел следующие характеристики:

- постоянное поперечное сечение;

- докритический уклон дна канала;

- наличие необходимого запаса строительной высоты для возможности повышения уровня воды на длине кривой подпора от сооружения и при пропуске максимальных паводковых расходов воды;

- водонепроницаемость дна и берегов (что при необходимости может быть достигнуто герметизацией русла канала);

- прочность берегов (что при необходимости может быть достигнуто облицовкой русла канала);

- отсутствие в русле канала выступающих выходов скальных пород и валунов (что при необходимости может быть достигнуто очисткой русла канала);

- отсутствие постоянных длительных сильных ветров, повышающих отметки свободной поверхности воды больше допустимых погрешностей измерения уровней;

- допустимое повышение уровня воды в нижнем бьефе сооружения за счет подпора, создаваемого водозаборными узлами, плотинами, регулирующими сооружениями или морскими приливами;

- нормальное распределение скоростей течения в живом сечении водного потока (см. приложение А).

4.2 Распределение скоростей в живом сечении потока определяют путем построения изотах, которые вычерчивают по результатам измерения скоростей в отдельных точках на скоростных вертикалях. Для измерения скоростей рекомендуется использовать поплавки (поверхностные и глубинные), гидрометрические трубки, концентрированные растворы красителей, гидрометрические вертушки, точечные электромагнитные измерители скорости и т.д. Полную количественную оценку при измерении скоростей получают с помощью гидрометрических вертушек (ГОСТ 15126).

4.3 Если участок водотока или канала не отвечает требованиям 4.1 и отсутствует возможность улучшения существующих характеристик, то установку водослива на таком участке проводить не рекомендуется.

5 Участки канала и водослив

5.1 Общие сведения

При эксплуатации водослива на точность определения расходов воды оказывают влияние:

- подходной участок канала верхнего бьефа:

распределение и направление скоростей течения водного потока;

шероховатость русла;

изменение формы поперечного сечения канала, например из-за отложения наносов;

воздействие регулирующих гидротехнических сооружений;

расстояние расположения гидрометрического створа от гребня порога;

- технические средства измерения уровня воды;

- дефекты и шероховатость поверхности порога водослива;

- участок канала нижнего бьефа:

превышение допустимого для свободного истечения уровня воды в результате воздействия нижерасположенных регулирующих гидротехнических сооружений, плотин, водозаборных узлов и т.д.;

изменения отметок дна за счет отложения донных наносов или мусора, а также в результате размыва дна.

5.2 Подходной участок канала

5.2.1 Режим течения должен быть докритическим, спокойным, без локальных возмущений потока, при котором глубины воды в канале больше критических, что обеспечивается за счет подпора воды порогом водослива, если уклон дна канала меньше критического.

5.2.2 Направление и распределение скоростей в живом сечении потока должно быть нормальным, т.е. симметричным по отношению к вертикальной оси канала (допустимая несимметричность распределения скоростей приведена в приложении А). Это требование в каналах удовлетворяется при наличии прямолинейного подходного участка длиной, в пять раз превышающей ширину по урезам воды при максимальном расходе, и симметричном неизменяемом поперечном сечении канала по всей длине подходного участка. Указанную длину подходного участка отмеряют вверх от гидрометрического створа (см. 7.1.2).

5.2.3 Если начало подходного участка находится в месте изгиба русла канала или вода поступает в канал из трубопровода, расположенного под углом к направлению течения и имеющего меньшее поперечное сечение, чем канал, то для получения нормального распределения скоростей может потребоваться большая длина подходного участка, чем указанная в 5.2.2, или установка успокоительных устройств в виде экранов из вертикальных стоек.

Такие экраны должны быть расположены на расстоянии не меньше чем 10hmax от измерительного створа. Нормальность распределения скоростей в этом случае должна быть проверена с использованием средств, указанных в 4.2.

5.2.4 Подходной участок должен иметь прямоугольное поперечное сечение шириной, равной ширине порога, которая определяется гидравлическим расчетом водослива по 9.1 и 9.2. Если русло водотока или канала имеет непрямоугольное поперечное сечение или ширина канала превышает расчетную ширину подходного участка, то необходимо предусматривать установку вертикальных стенок, которые уменьшат ширину подходного участка до заданного значения.

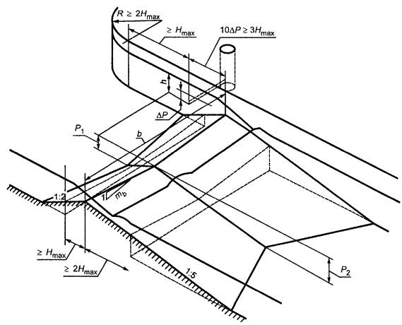
5.2.5 Боковые вертикальные стенки должны располагаться симметрично по отношению к продольной оси канала и плавно сопрягаться с берегами водотока или откосами канала изогнутыми стенками (рисунки 1, 3) с радиусами кривизны R 2Hmax или r 2hmax (hmax - максимальный напор водного потока в гидрометрическом створе; Hmax - максимальный полный напор водного потока в гидрометрическом створе). Точка сопряжения этого радиуса с вертикальными стенками подходного участка должна находиться на расстоянии, равном или большем hmax. Высота стенок должна быть такой, чтобы с заданным запасом обеспечивался пропуск расчетного максимального расхода.

5.2.6 Форма подходного участка канала не должна изменяться в процессе эксплуатации водослива за счет отложения наносов в верхнем бьефе сооружения, поэтому не следует применять водосливы с треугольными порогами в каналах со взвесенесущими потоками.

5.2.7 Гидравлический прыжок в виде стоячей волны, возникающий перед началом кривой подпора в подходном участке канала с большим уклоном дна, не будет влиять на точность измерений, если находится на расстоянии, равном или большем 30hmax, и в гидрометрическом створе обеспечивается нормальное распределение скоростей, которое следует проверить с использованием средств, указанных в 4.2.

5.3 Порог водослива

5.3.1 Порог водослива должен быть прочным, герметичным и способным противостоять течению с паводковым расходом, не деформируясь и не разрушаясь. Он должен быть установлен перпендикулярно к направлению течения воды с соблюдением размеров, установленных в разделе 8.

5.3.2 Для строительства подходного участка и порога водослива рекомендуется использовать бетон и железобетон с гладкой отделкой поверхности или любой гладкий коррозионно-стойкий материал. Наибольшее требование к шероховатости поверхности порога следует предъявлять вблизи его гребня на расстоянии от него 0,5hmax со стороны верхнего и нижнего бьефов, т. к. ниже этой зоны влияние шероховатости на процесс измерений незначительно.

При проведении лабораторных исследований треугольных водосливов шероховатость порогов должна быть эквивалентной шероховатости листового материала или строганой шлифованной и крашеной древесины.

5.3.3 Для обеспечения минимальной погрешности результатов измерения расхода при строительстве или монтаже водослива должны быть соблюдены следующие допуски:

- для ширины гребня не более ±0,20 % ширины с пределом допустимого отклонения 0,01 м;

- для уклонов откосов порога в верхнем и нижнем бьефах водослива не более ±1,0 %;

- для уклонов поперечных откосов V-образного выреза в гребне порога - не более ±1,0 %;

- для точечных отклонений от средней линии гребня порога не более ±0,2 % ширины гребня.

5.4 Участок канала нижнего бьефа

Основные требования к участку нижнего бьефа:

- отсутствие превышения заданной отметки уровня воды, равной предельному значению относительного затопления, ниже которого обеспечивается свободное истечение жидкости через водослив (таблица 2, пункт. 8.3);

- отсутствие размыва дна в нижнем бьефе сооружения для сохранения целостности и устойчивости порога водослива.

6 Эксплуатация водослива

Для нормальной работы водослива необходимо выполнять следующие работы:

- очищать подходной участок канала от отложений наносов, ила и водной растительности;

- содержать в чистоте входное отверстие, соединительный участок трубы или щели для прохода воды из канала в уровнемерный колодец;

- периодически контролировать и очищать уровнемерный колодец от отложений ила и мусора;

- поддерживать чистоту гребня порога, своевременно убирать накапливающийся мусор, не проходящий через гребень в нижний бьеф;

- ликвидировать, если возникают при эксплуатации, дефекты поверхности гребня порога в зоне, указанной в 5.3.2;

- не допускать повышения уровня воды в нижнем бьефе выше отметки предельного относительного затопления, очищая дно от отложения наносов и регулируя подпор от нижерасположенных гидроузлов;

- не допускать понижения отметок дна нижнего бьефа от размыва русла, своевременно укреплять дно и заделывать яму размыва при ее возникновении.

7 Измерение напора (уровня)

7.1 Общие сведения

7.1.1 Наиболее распространенный способ определения действующего напора состоит из измерений отметки гребня порога или совмещения нуля измерительного средства с отметкой порога и уровня свободной поверхности водного потока в гидрометрическом створе. Для измерения уровня воды следует использовать уровнемерную рейку, крючковую или игольчатые рейки, уровнемеры с визуальным отсчетом, автоматической непрерывной регистрацией (самопишущие), передачей данных по линии проводной связи или по радио с автоматической записью на месте приема.

Расчетные данные, получаемые из уравнения расхода, представляют собой объемные расходы; удельная масса жидкости не влияет на результат их определения при данном напоре, если калибровка проводилась с жидкостью, имеющей такую же удельную массу.

7.1.2 У треугольных порогов гидрометрический створ для измерения уровня воды следует располагать на подходном участке канала на расстоянии 2hmax от острого гребня порога, имеющего коэффициенты откосов mP1 = 2; mP2 = 5, а у симметричных порогов (mP1 = mP2 = 2) на расстоянии 4hmax, у порогов с закругленным гребнем и с продольным V-образным вырезом - на расстояниях 3hmax и 10P, но не менее 3Hmax соответственно.

Уровни водного потока в гидрометрическом створе следует измерять с использованием уровнемерного колодца, который уменьшает влияние случайных волнений поверхности воды в подходном канале на процесс измерений.

7.2 Уровнемерный колодец

7.2.1 Уровнемерный колодец предназначен для размещения и функционирования измерительного прибора и контрольной уровнемерной рейки, нуль отсчета которой совмещен с отметкой гребня порога. Колодец с помощью соединительной трубы или щели и входного отверстия в боковой стенке подходного участка канала соединяется с водным потоком в гидрометрическом створе. Колодец должен быть вертикальным, высотой, равной диапазону измеряемых уровней плюс запас 0,6 м. Диаметр колодца назначается таким, чтобы в нем с запасом не меньше 0,075 м свободно перемещался по вертикали и не касался дна при минимальном уровне датчик уровнемера, например поплавок, и обеспечивалась возможность очистки дна колодца от осевшего ила или мусора. Нижняя точка входного отверстия соединительного трубопровода должна находиться не менее чем на 0,06 м ниже минимального регистрируемого уровня воды.

7.2.2 Выбор конструкций и размеров уровнемерных колодцев - по МИ 2406 [1].

7.3 Установка нуля измерения

Для проверки положения нуля измерительного устройства в стенке колодца следует установить контрольный уровень в виде горизонтальной металлической пластинки для нивелирования, соответствующий отметке гребня порога водослива.

Проверку нуля измерения по уровню воды в момент прекращения течения не следует использовать, т.к. она дает большую погрешность, связанную с влиянием поверхностного натяжения.

8 Типы и конструкции водосливов с треугольными порогами

8.1 Водосливы с тремя типами треугольных порогов выполняются в виде восьми различных конструкций.

8.1.1 Водосливы с треугольными порогами с острым гребнем выполняются в виде двух конструкций (рисунок 1):

1. Для более точных измерений и с большим относительным затоплением применяется несимметричный порог, состоящий из откоса верхнего бьефа (верхового) с уклоном 1 (по вертикали) к 2 (по горизонтали) или с коэффициентом откоса mP1 = 2 и откоса нижнего бьефа (низового) с уклоном 1:5 или с коэффициентом откоса mP2 = 5 (рисунок 1а) в соответствии с ИСО 4360 [2];

2. Для менее точных измерений и меньших относительных затоплений применяется симметричный порог, состоящий из верхового и низового откосов с одинаковыми уклонами, равными mP1 = mP2 = 2 (рисунок 1а, длина низового откоса указана в скобках).

Пересечение наклонных откосов порога образует прямолинейный горизонтальный гребень, расположенный перпендикулярно к направлению течения в подходном участке канала.

б - порог укороченной длины

Рисунок 1 - Водослив с треугольным порогом

8.1.2 Водосливы с треугольными порогами с закругленными гребнями рекомендуется выполнять в виде четырех конструкций (рисунок 2а - г) в соответствии с ИСО 9827 [3]. Технические характеристики этих порогов приведены в таблице 1.

д - обозначения размеров продольного профиля порога

mР1 - коэффициент верхового откоса (число по горизонтали); mP2 - коэффициент низового откоса (число по горизонтали); LP - длина продольного профиля порога по основанию; P - высота порога относительно дна канала верхнего бьефа; Р' - высота остроугольного порога по радиусу закругления относительно дна канала верхнего бьефа (рисунок 2д); Rc - радиус закругления гребня порога

Рисунок 2 - Водослив с треугольным порогом с закругленным гребнем

Таблица 1 - Технические характеристики порогов с закругленными гребнями

Номер конструкций порогов

mР1

mP2

L/P

Rc/P

Rc/P'

P/Р'

3

1

3

4,50

0,87

0,77

0,89

4

1

5

6,50

0,98

0,91

0,92

5

2

5

7,50

1,47

1,37

0,93

6

0

2

2,25

0,20

0,18

0,89

8.1.3 Водосливы с треугольным порогом с продольным V-образным вырезом в гребне порога в соответствии с ИСО 4377 [4] применяют в относительно широких (h/b 2,5) водотоках и каналах с прямоугольным поперечным сечением при необходимости измерения больших диапазонов расходов с отношением Qmax/Qmin = 50, …, 300 и более.

Порог состоит из верхового откоса с коэффициентом mP1 = 2 и низового откоса с коэффициентом mP2 = 5. В гребне порога устраивают продольный V-образный вырез с поперечными уклонами гребня порога к центру - mb (рисунок 3).

Рисунок 3 - Водослив с треугольным порогом с продольным V-образным вырезом

Рекомендуются к использованию две конструкции порога: № 7 - с поперечным уклоном mb7 = 10 и № 8 - mb8 = 20, которые выбирают в зависимости от диапазона измеряемых расходов и ширины водослива. Глубину выреза P, м, определяют как разность между самой высокой и самой низкой отметками в гребне порога или по формуле

∆P = b/2mb,                                                                (1)

где b - ширина гребня порога перпендикулярно к направлению течения, м;

mb - коэффициент поперечных откосов гребня.

8.2 Если при эксплуатации водослива не выдвигают требования к уменьшению гидравлических потерь напора и увеличению значения предельного затопления, то продольная длина порога может быть уменьшена до 3Hmax. В этом случае длина верхового откоса принимается равной Hmax, а низового - 2Hmax при сохранении уклонов откосов. Сопряжения откосов с дном канала устраивают в виде вертикальных уступов (рисунок 1б и пунктирные линии на рисунке 3).

8.3 Ограничения применения водосливов с треугольными порогами приведены в таблице 2.

Таблица 2 - Ограничения применения водосливов с треугольными порогами

Наименование параметров, коэффициентов и их погрешностей

Тип треугольного водослива и номер конструкции порогов

с острым гребнем

с закругленным гребнем

с V-образным вырезом

1

2

3

№ 4

5

№ 6

при h/P 1,0

при h/P > 1,0

№ 7

8

№ 7

№ 8

Действующий напор h, м

≥ 0,03*

0,06**

0,03*

0,10**

0,05*

≥ 0,10**

0,03*

0,06**

0,03*

0,06**

Поправка действующего напора Kh, м

-

-

-

-

-

-

0,0005*

0,0008*

0,0005*

0,0008*

Ширина водослива b, м

≥ 0,3

≥ 0,3

≥ 0,3

≥ 0,5

≥ 0,5

Высота порога P, м

≥ 0,06

≥ 0,06

≥ 0,15

≥ 0,15

≥ 0,15

Коэффициент расхода Cd

1,163

1,225

См. рисунки 4 и 5

0,615

0,620

0,620

0,625

Погрешность определения Cd, %

±[0,5 + (10CV - 9)]

±[2,0 + (10CV - 9)]

Случайная ±0,5 Систематическая ±2,5

±2,9

±3,2

±2,3

±2,8

Предельное относительное затопление Sпр

0,75

0,65

0,75

0,8

0,81

0,68

От 0,65 до 0,75

Другие ограничения:

h/P

≤ 3,5

3,5

1,6

1,6

1,6

1,45

2,5

≤ 4,2 для mb = 10

8,2 для mb = 20

b/h

≥ 2,0

P/P

-

-

-

-

-

-

2,5

2,5

* Применять только при проведении экспериментальных лабораторных исследований водосливов из гладкого металла, оргстекла или подобных материалов.

** Применять для натурных водосливов из бетона и железобетона с поверхностной отделкой или подобных материалов.

9 Уравнение расхода

9.1 Уравнение расхода воды Q, м3/с, при свободном истечении потока для водосливов с конструкциями порогов № 1 - № 6 имеет следующий вид:

Q = (2/3)3/2CdCVgbh3/2 = 1,7049 CdCVbh1,5,                                      (2)

где b - ширина водослива, м;

g - ускорение свободного падения, м/с2;

h - измеряемый напор в верхнем бьефе водослива, м;

Cd - безразмерный коэффициент расхода;

CV - безразмерный коэффициент скорости подхода потока, равный (H/h)3//2,

где H - полный напор в верхнем бьефе водослива, м

                                                                 (3)

где α - корректив кинетической энергии;

V - средняя скорость потока в гидрометрическом створе, м/с.

9.1.1 Условия свободного истечения водного потока через порог водослива. Водосливы с порогами, конструкции которых указаны в 8.1 - 8.4, рекомендуется использовать только при свободном истечении водного потока. Свободное истечение характеризуется таким затоплением со стороны нижнего бьефа сооружения, при котором увеличение полного напора нижнего бьефа - Hн.б не вызывает изменения полного напора в гидрометрическом створе верхнего бьефа. При свободном истечении на низовом откосе водослива устанавливаются критическая и сверхкритическая (меньше критической) глубины. Принято, что свободное истечение сохраняется до предельного относительного затопления Sпр = Hн.б/H, при котором дальнейшее увеличение напора нижнего бьефа Hн.б вызывает увеличение полного напора в гидрометрическом створе H на 1 %. Если при эксплуатации относительные затопления меньше или равны предельному, то обеспечивается свободное истечение водного потока через пороги водосливов, и расходы воды однозначно определяются измерением уровня в одном гидрометрическом створе. Значения предельных относительных затоплений для конструкций порогов приведены в таблице 2.

Если относительные затопления больше указанных в таблице 2, то истечение водного потока становится затопленным, и полный напор в гидрометрическом створе зависит не только от расхода, но и от напора в нижнем бьефе водослива. В этом случае необходимо устройство двух уровнемерных колодцев (в верхнем и нижнем бьефах) и введения в уравнение расхода дополнительного коэффициента затопления, зависящего от относительного затопления. Такой режим истечения в настоящем стандарте не рассматривается и не рекомендуется для использования.

9.1.2 Коэффициенты расхода Cd для водосливов с острыми порогами практически не зависят от действующего напора при h 0,1 м и имеют постоянное значение, равное 1,163 для несимметричного порога № 1 и 1,255 для симметричного порога № 2.

При действующем напоре в диапазоне hmin h < 0,1 м коэффициент расхода Cd для порога № 1 вычисляют по формуле

                                                 (4)

Порог № 2 в натурных руслах и каналах не применяется при h < 0,1 м.

9.1.3 Произведения коэффициента расхода и скорости подхода потока CdCV для водосливов с закругленными гребнями, т.е. с порогами № 3 - № 6 определяют по графикам на рисунках 4 и 5 в зависимости от отношения измеренного напора к высоте порога h/P.

9.1.4 Коэффициенты скорости подхода CV для несимметричных порогов № 1 и № 2 определяют по таблице Б.1 или графику на рисунке 6, в котором

                                                              (5)

где Aω - площадь живого сечения в гидрометрическом створе, равная Аω = b(h + P).

9.2 Уравнение расхода воды для водослива с треугольным порогом с продольным V-образным вырезом для свободного истечения потока имеет следующий вид:

Q = 0,8CFCdCVgmbhe2,5,                                                         (6)

где CF - коэффициент формы живого сечения потока над гребнем порога;

mb - коэффициент поперечного уклона гребня порога;

he - эффективный измеряемый напор в гидрометрическом створе верхнего бьефа, м

he = h - Kh,                                                                (7)

где Kh - поправка действующего напора, м.

Поправку Kh для обеих конструкций порога (№ 7 и № 8) берут из таблицы 2 и используют только при проведении лабораторных гидравлических исследований водосливов с продольным V-образным вырезом. Для водосливов, используемых в натурных руслах и каналах, принимается he = h.

Рисунок 4 - Значения коэффициентов расхода с учетом скорости подхода для треугольных порогов с закругленным гребнем

Рисунок 5 - Значения коэффициентов расхода с учетом скорости подхода для треугольных порогов с закругленным гребнем

Рисунок 6 - Коэффициент скорости подхода потока CV

9.2.1 Коэффициенты расхода Cd для обеих конструкций порога приведены в таблице 2.

9.2.2 При h P коэффициент формы CF = 1,0, при h > P вычисляют по формуле

CF = 1,0 - (1,0 - ∆P/h)2,5.                                                (8)

9.2.3 Значения произведений коэффициентов CFCV в зависимости от отношений P/P и h/P приведены в таблице Б.2.

9.3 Погрешность определения расходов воды

9.3.1 Относительная погрешность результата измерения расхода зависит от точности измерения напора и геометрических размеров водослива, а также от погрешности определения коэффициентов, используемых для данной конструкции порога в уравнении расхода водослива.

9.3.2 Минимальные погрешности будут, если при строительстве или монтаже водосливов с треугольными порогами учтены требования 5.3.3. Для конструкций № 1 - № 2 систематические погрешности определения коэффициентов в уравнении расхода (выраженные в процентах), которые включают погрешности CV и Cd, могут быть определены при свободном истечении потока по формуле, приведенной в таблице 2:

δc" = ± (10CV - 9).                                                            (9)

Значения δc" для конструкций порогов № 3 - № 6 приведены в таблице 2.

Случайные погрешности зависят от погрешностей измерений при определении коэффициентов и для конструкций порогов № 1; № 3 - № 6 в соответствии с данными в таблице 2 принимаются равными δc' = ±0,5 % и ±2,0 %.

Для конструкций порогов № 7 и № 8 относительные погрешности коэффициентов расхода зависят еще и от значения действующего напора над нижней точкой V-образного продольного выреза, т.е. δc' принимают по данным таблицы 2 в зависимости от отношения h/∆P, а относительную погрешность определения коэффициента скорости подхода δcV, %, вычисляют по формуле

δcV = 0,5h/P.                                                                (10)

9.3.3 Способ расчета погрешности определения расходов воды, включающей различные составляющие погрешностей результата измерений, приведен в разделе 10.

10 Погрешность измерения расхода воды

10.1 Общие сведения

10.1.1 Погрешность результата однократного измерения по РМГ 29-99 [5] оценивают на основании известных погрешностей метода и технических средств измерений.

10.1.2 В этом разделе приведен расчет, который позволит оценить погрешность определения расхода воды с 95 %-ной доверительной вероятностью, т.е. в диапазоне, в пределах которого действительное значение расхода будет находиться в 19 из 20 измерений.

10.2 Источники погрешности

10.2.1 Источники погрешности можно установить, исходя из уравнений расхода (2) и (6):

В эти уравнения входят числовые константы, погрешность которых равна нулю; g - ускорение свободного падения, значение которого зависит от географических координат, однако его изменения так незначительны, что при измерении расхода ими можно пренебречь.

10.2.2 Необходимо учитывать следующие источники погрешности:

- определение коэффициентов расхода Cd, скорости подхода воды CV и коэффициента формы CF, количественные оценки погрешностей которых даны в таблице 2;

- измерения размеров водослива, например ширины водослива b;

- измерения действующего напора h.

10.2.3 Относительная погрешность измерения размеров b и h зависит от точности, с которой измерялись геометрические характеристики водосливов. На практике эта относительная погрешность по сравнению с другими погрешностями может оказаться незначительной. Относительная погрешность измерения напора зависит от инструментальной погрешности измерительного устройства, погрешности установки его нуля отсчета и используемого метода измерения.

10.3 Типы погрешностей

10.3.1 Погрешности могут быть случайными и систематическими; первые влияют на воспроизводимость (точность воспроизведения), вторые - на точность результата.

10.3.2 Среднеквадратическую погрешность Sh для n единичных измерений переменной h, проведенных в одинаковых условиях, следует вычислять по формуле

                                                     (11)

где  - среднеарифметическое для n измерений.

Среднеквадратическое отклонение среднеарифметического значения результата ряда измерений, вычисляют по формуле

                                                          (12)

предельная погрешность равна удвоенному значению  при доверительной вероятности 95 % (множитель 2 означает, что n велико. При n = 6 множитель равен 2,6; при n = 8 он равен 2,4; при n = 10 - 2,3; при n = 15 - 2,1).

10.3.3 Результат измерения может включать также систематическую погрешность; тогда полученное среднее значение будет отличаться от действительного значения измеряемой величины. Например, погрешность установки нуля измерительного устройства по уровню воды над гребнем порога дает значительную систематическую погрешность получаемого результата. Многократное повторение измерения не позволяет избавиться от систематической погрешности и действительное значение может быть установлено только с использованием более точного независимого метода.

10.4 Погрешности значений коэффициентов расхода Cd и скорости подхода воды CV, установленные в таблице 2 и определяемые по формуле (10), рассчитаны на основании результатов многочисленных тщательно проведенных измерений, количество которых достаточно для получения среднего значения с высокой точностью воспроизведения.

10.5 Относительные погрешности величин, определяемых при проектировании и измеряемых пользователем

10.5.1 Результаты измерений, оцениваемые при проектировании и выполняемые пользователем, имеют случайные и систематические погрешности.

10.5.2 Поскольку способы и технические средства измерений, предусмотренные проектом, могут быть заменены, то в этом случае заранее нельзя указать значения соответствующих погрешностей; они должны быть оценены пользователем. Например, анализ технического средства измерения ширины водослива позволит пользователю определить предельную или относительную погрешность этой величины.

10.5.3 Относительная погрешность измеряемого напора должна быть определена с учетом отдельных погрешностей различной природы, например: инструментальной погрешности средства измерения, зависящей от чувствительности измерительного устройства, люфта индикаторных механизмов (в соответствующих случаях) и т.д., приведенной погрешности установки нуля, среднеквадратической погрешности среднеарифметического значения в ряду измерений.

10.6 Суммирование относительных погрешностей

10.6.1 Суммарные систематическая и случайная погрешности включают несколько относительных и (или) предельных погрешностей, каждая из которых может состоять из нескольких составляющих. Если составляющие относительных погрешностей независимы, малы и многочисленны, то их можно объединить в виде суммарной случайной и систематической погрешностей с доверительной вероятностью 95 %.

10.6.2 Учитывая то, что случайные и систематические составляющие погрешности имеют разную природу, складывать их арифметически нельзя. В то же время, в соответствии с 10.6.1, различные случайные и систематические погрешности можно суммировать в виде квадратов их значений с последующим извлечением квадратного корня из этой суммы.

10.6.3 Случайную погрешность определения расхода δ'Q, %, вычисляют по формуле

                                                       (13)

где δ'с - случайная предельная погрешность коэффициентов CdCVCF, %;

δ'b - случайная предельная погрешность измерения b, %.

δ'b вычисляют по формуле

                                                              (14)

где ∆'b - случайная абсолютная погрешность измерения ширины;

δ'h - случайная относительная погрешность измерения h, %.

δ'h вычисляют по формуле

                                                   (15)

где δ'1h, δ'2h - случайные погрешности измерений напора, % (см. 10.5.3);

 - предельная среднеквадратическая погрешность результата измерения среднеарифметического значения напора при постоянном уровне воды, %.

 можно легко оценить, если для измерения уровня воды использовать водомерную рейку. При использовании прибора с цифровой или непрерывной регистрацией предельная случайная погрешность считываемого уровня воды может быть установлена по результатам лабораторных или натурных испытаний.

10.6.4 Систематическую составляющую погрешность расхода воды δ"Q, %, вычисляют по формуле

                                          (16)

где K - коэффициент зависимости отдельных неисключенных систематических погрешностей от выбранной доверительной вероятности Р при их распределении (при P = 0,95, K = 1,1);

δ"c - систематическая предельная относительная погрешность коэффициентов CdCVCF, %;

δ"b - систематическая предельная относительная погрешность измерения b, %,

δ"b вычисляют по формуле

                                                             (17)

δ"h - систематическая относительная погрешность измерения h, %,

δ"h вычисляют по формуле

                                            (18)

где h"u - систематическая абсолютная погрешность измерения напора (см. 10.5.3);

h"o - систематическая абсолютная погрешность установки нуля отсчета напора;

h"K - ошибка определения поправки к эффективному действующему напору по формуле (7), равная 0,2 мм.

10.7 Представление результатов

10.7.1 Несмотря на то, что желательно и иногда необходимо отдельно указывать полные приведенные случайные и систематические погрешности, результаты следует представлять в более простой форме. С этой целью случайную и систематическую предельные погрешности объединяют, и общая погрешность измерений расхода воды δQ, %, будет равна:

11 Технические требования к средствам измерений уровня воды и к их установке на водосливах с треугольными порогами - по МИ 2406-97[1].

12 Методика поверки расходомеров с использованием водосливов с треугольными порогами - по МИ 2406-97 [1] и МИ 1759-87 [6]. Погрешности поверок и их результаты - по ПР 50.2.006-94 [7].

ПРИЛОЖЕНИЕ А
(справочное)

Распределение скоростей водного потока в гидрометрическом створе

А.1 Для измерения расходов с заданной точностью с использованием водосливов и гидрометрических лотков распределение скоростей водного потока в гидрометрическом створе должно быть нормальным.

А.2 Распределение считают нормальным, если канал имеет прямолинейный подходной участок с заданной или большей длиной с симметричным поперечным сечением. Характерная особенность такого распределения - симметричное распределение скоростей по отношению к вертикальной оси водотока или канала; расположение вектора максимальной скорости в точке, отстоящей от дна потока на 0,6 глубины и средней скорости потока - на 0,4 глубины.

А.3 На рисунке А.1 приведены изотахи различного распределения скоростей в живом сечении гидрометрического створа. Изотахи показывают линии равных скоростей. Показанные примеры распределения скоростей следует признавать удовлетворительными для использования в расчетах предельных погрешностей определения коэффициентов расхода, приведенных в таблице 2 настоящего стандарта.

А.4 Предельным значением несимметричности распределения скоростей следует считать отношение коэффициента Кориолиса левой части сечения канала к правой за вычетом единицы, равной 12,3 %, показанной на рисунке А.1 с).

А.5 Наилучшим распределением скоростей в гидрометрическом створе следует считать указанное в А.4 отношение, равное 0,9 %, показанное на рисунке А.1 f).

Рисунок А.1 - Примеры распределения скоростей в гидрометрическом створе верхнего бьефа сооружения

ПРИЛОЖЕНИЕ Б
(справочное)

Таблицы коэффициентов формы и скорости подхода

Таблица Б.1 - Значения коэффициента скорости подхода жидкости CV соответствии с МИ 2406 [1])

0,00

0,01

0,02

0,03

0,04

0,05

0,06

0,07

0,08

0,09

0,0

1,000

1,000

1,000

1,000

1,001

1,001

1,002

1,002

1,003

1,003

0,1

1,004

1,004

1,005

1,005

1,006

1,006

1,007

1,007

1,008

1,009

0,2

1,010

1,011

1,012

1,012

1,013

1,014

1,015

1,016

1,018

1,019

0,3

1,021

1,022

1,024

1,025

1,027

1,029

1,031

1,033

1,035

1,037

0,4

1,039

1,041

1,043

1,045

1,048

1,050

1,053

1,056

1,059

1,061

0,5

1,063

1,066

1,070

1,073

1,076

1,079

1,082

1,086

1,090

1,093

0,6

1,097

1,101

1,106

1,110

1,115

1,120

1,125

1,130

1,136

1,141

0,7

1,147

1,152

1,158

1,165

1,172

1,179

1,187

1,195

1,203

1,211

Таблица Б.2 - Значения произведения СVCF в зависимости от h/∆P и P/P (в соответствии с ИСО 4377 [4])

h/∆P

P/P

0,2

0,4

0,6

0,8

1,0

1,2

1,4

1,6

1,8

2,0

2,2

2,4

2,6

0,05

1,000

1,000

1,000

1,000

1,000

1,000

1,000

1,000

1,000

1,000

1,000

1,000

1,000

0,10

1,000

1,000

1,000

1,000

1,000

1,000

1,000

1,000

1,000

1,000

1,000

1,000

1,000

0,15

1,000

1,000

1,000

1,000

1,000

1,000

1,000

1,000

1,000

1,000

1,000

1,000

1,000

0,20

1,000

1,000

1,000

1,000

1,000

1,000

1,000

1,000

1,000

1,000

1,000

1,000

1,000

0,25

1,000

1,000

1,000

1,000

1,000

1,000

1,000

1,000

1,000

1,001

1,001

1,001

1,001

0,30

1,000

1,000

1,000

1,000

1,000

1,000

1,001

1,001

1,001

1,001

1,001

1,001

1,001

0,35

1,000

1,000

1,000

1,000

1,001

1,001

1,001

1,001

1,001

1,002

1,002

1,002

1,002

0,40

1,000

1,000

1,000

1,001

1,001

1,001

1,002

1,002

1,002

1,002

1,003

1,003

1,003

0,45

1,000

1,000

1,001

1,001

1,002

1,002

1,003

1,003

1,003

1,004

1,004

1,004

1,005

0,50

1,000

1,001

1,001

1,002

1,002

1,003

1,004

1,004

1,004

1,005

1,005

1,006

1,006

0,55

1,000

1,001

1,001

1,002

1,003

1,004

1,005

1,005

1,006

1,007

1,007

1,008

1,008

0,60

1,000

1,001

1,002

1,003

1,004

1,005

1,006

1,007

1,008

1,009

1,009

1,010

1,011

0,65

1,000

1,001

1,003

1,004

1,005

1,006

1,008

1,009

1,010

1,011

1,012

1,013

1,013

0,70

1,001

1,002

1,003

1,005

1,007

1,008

1,010

1,011

1,012

1,013

1,015

1,016

1,017

0,75

1,001

1,002

1,004

1,006

1,008

1,010

1,012

1,013

1,015

1,016

1,018

1,019

1,020

0,80

1,001

1,003

1,005

1,008

1,010

1,012

1,014

1,016

1,018

1,020

1,021

1,023

1,024

0,85

1,001

1,004

1,007

1,009

1,012

1,015

1,017

1,020

1,022

1,024

1,025

1,027

1,029

0,90

1,001

1,004

1,008

1,011

1,015

1,018

1,021

1,023

1,026

1,028

1,030

1,032

1,034

0,95

1,002

1,005

1,009

1,014

1,017

1,021

1,024

1,027

1,030

1,033

1,035

1,037

1,039

1,00

1,002

1,006

1,011

1,016

1,020

1,025

1,028

1,032

1,035

1,038

1,040

1,043

1,045

1,05

1,002

1,007

1,013

1,018

1,023

1,028

1,032

1,036

1,039

1,042

1,045

1,048

1,050

1,10

1,001

1,006

1,012

1,019

1,024

1,029

1,034

1,038

1,042

1,046

1,049

1,052

1,054

1,15

0,997

1,004

1,011

1,017

1,024

1,029

1,034

1,039

1,043

1,047

1,050

1,053

1,056

1,20

0,993

1,000

1,007

1,015

1,021

1,028

1,033

1,038

1,042

1,047

1,050

1,054

1,057

1,25

0,986

0,994

1,003

1,011

1,018

1,024

1,030

1,036

1,040

1,045

1,049

1,052

1,056

1,30

0,979

0,988

0,997

1,005

1,013

1,020

1,026

1,032

1,037

1,042

1,046

1,050

1,053

1,35

0,971

0,980

0,990

0,999

1,008

1,015

1,022

1,027

1,033

1,038

1,042

1,046

1,050

1,40

0,962

0,972

0,983

0,992

1,001

1,009

1,016

1,022

1,028

1,033

1,037

1,041

1,045

1,45

0,953

0,963

0,974

0,985

0,994

1,002

1,009

1,016

1,022

1,027

1,031

1,036

1,040

1,50

0,943

0,954

0,966

0,976

0,986

0,995

1,002

1,009

1,015

1,020

1,025

1,030

1,034

1,55

0,932

0,944

0,957

0,968

0,978

0,987

0,995

1,001

1,008

1,013

1,018

1,023

1,027

1,60

0,922

0,934

0,947

0,959

0,969

0,978

0,987

0,994

1,000

1,006

1,011

1,016

1,020

1,65

0,911

0,924

0,938

0,950

0,961

0,970

0,978

0,986

0,992

0,998

1,004

1,008

1,013

1,70

0,900

0,914

0,928

0,940

0,952

0,961

0,970

0,977

0,984

0,990

0,996

1,001

1,005

1,75

0,889

0,904

0,918

0,931

0,942

0,952

0,961

0,969

0,976

0,982

0,988

0,993

0,997

1,80

0,878

0,893

0,908

0,922

0,933

0,943

0,953

0,960

0,968

0,974

0,980

0,985

0,989

1,85

0,867

0,883

0,898

0,912

0,924

0,935

0,944

0,952

0,959

0,966

0,971

0,977

0,981

1,90

0,856

0,873

0,889

0,903

0,915

0,926

0,935

0,943

0,951

0,957

0,963

0,968

0,973

1,95

0,845

0,863

0,879

0,893

0,906

0,917

0,926

0,935

0,942

0,949

0,955

0,960

0,965

2,00

0,835

0,852

0,869

0,884

0,896

0,908

0,917

0,926

0,933

0,940

0,946

0,952

0,957

2,05

0,824

0,842

0,859

0,874

0,887

0,899

0,909

0,917

0,925

0,932

0,938

0,944

0,949

2,10

0,814

0,833

0,850

0,865

0,878

0,890

0,900

0,909

0,916

0,923

0,930

0,935

0,940

2,15

0,804

0,823

0,841

0,856

0,869

0,881

0,891

0,900

0,908

0,915

0,921

0,927

0,932

2,20

0,794

0,813

0,831

0,847

0,861

0,872

0,883

0,892

0,900

0,907

0,913

0,919

0,924

2,25

0,784

0,804

0,822

0,838

0,852

0,864

0,874

0,883

0,891

0,899

0,905

0,911

0,916

2,30

0,774

0,795

0,813

0,830

0,843

0,855

0,866

0,875

0,883

0,891

0,897

0,903

0,908

2,35

0,764

0,785

0,804

0,821

0,835

0,847

0,856

0,867

0,875

0,883

0,889

0,895

0,900

2,40

0,755

0,776

0,796

0,812

0,827

0,839

0,850

0,859

0,867

0,875

0,881

0,887

0,893

2,45

0,746

0,768

0,787

0,804

0,819

0,831

0,842

0,851

0,860

0,867

0,874

0,880

0,885

2,50

0,737

0,759

0,779

0,796

0,811

0,823

0,834

0,843

0,852

0,859

0,866

0,872

0,878

2,55

0,728

0,751

0,771

0,788

0,803

0,815

0,826

0,836

0,844

0,852

0,859

0,863

0,870

2,60

0,720

0,742

0,763

0,780

0,795

0,808

0,819

0,828

0,837

0,844

0,851

0,857

0,863

2,65

0,711

0,734

0,755

0,772

0,787

0,800

0,811

0,821

0,829

0,837

0,844

0,850

0,856

2,70

0,703

0,726

0,747

0,765

0,780

0,793

0,804

0,814

0,822

0,830

0,837

0,843

0,849

2,75

0,695

0,719

0,740

0,757

0,772

0,785

0,797

0,806

0,815

0,823

0,830

0,836

0,842

2,80

0,687

0,711

0,732

0,750

0,765

0,778

0,790

0,799

0,805

0,816

0,823

0,829

0,835

2,85

0,679

0,703

0,725

0,743

0,758

0,771

0,783

0,792

0,801

0,809

0,816

0,822

0,828

2,90

0,671

0,696

0,718

0,736

0,751

0,764

0,776

0,786

0,795

0,802

0,809

0,816

0,822

2,95

0,664

0,689

0,711

0,729

0,744

0,758

0,769

0,779

0,788

0,796

0,803

0,809

0,815

3,00

0,657

0,682

0,704

0,722

0,738

0,751

0,762

0,773

0,781

0,789

0,796

0,803

0,809

3,05

0,649

0,675

0,697

0,716

0,731

0,744

0,756

0,766

0,775

0,783

0,790

0,797

0,802

3,10

0,642

0,668

0,690

0,709

0,725

0,738

0,750

0,760

0,769

0,777

0,784

0,790

0,796

3,15

0,636

0,662

0,684

0,703

0,718

0,732

0,743

0,754

0,763

0,771

0,778

0,784

0,790

3,20

0,629

0,655

0,678

0,696

0,712

0,726

0,737

0,748

0,757

0,765

0,772

0,778

0,784

3,25

0,622

0,649

0,671

0,690

0,706

0,720

0,731

0,742

0,751

0,759

0,766

0,773

0,779

3,30

0,616

0,643

0,665

0,684

0,700

0,714

0,725

0,736

0,745

0,753

0,760

0,767

0,773

3,35

0,610

0,637

0,659

0,678

0,694

0,708

0,720

0,730

0,739

0,747

0,755

0,761

0,767

3,40

0,603

0,631

0,653

0,672

0,688

0,702

0,714

0,724

0,733

0,742

0,749

0,756

0,762

3,45

0,597

0,625

0,648

0,667

0,683

0,696

0,708

0,719

0,728

0,736

0,744

0,750

0,756

3,50

0,591

0,619

0,642

0,661

0,677

0,691

0,703

0,713

0,723

0,731

0,738

0,745

0,751

3,55

0,586

0,613

0,637

0,656

0,672

0,686

0,697

0,708

0,717

0,726

0,733

0,740

0,746

3,60

0,580

0,608

0,631

0,650

0,666

0,680

0,692

0,703

0,712

0,720

0,728

0,735

0,741

3,65

0,574

0,602

0,626

0,645

0,661

0,675

0,687

0,698

0,707

0,715

0,723

0,730

0,736

3,70

0,569

0,597

0,620

0,640

0,656

0,670

0,682

0,692

0,702

0,710

0,718

0,725

0,731

3,75

0,563

0,592

0,615

0,635

0,651

0,665

0,677

0,687

0,697

0,705

0,713

0,720

0,726

3,80

0,558

0,587

0,610

0,630

0,646

0,660

0,672

0,683

0,692

0,701

0,708

0,715

0,722

3,85

0,553

0,582

0,605

0,625

0,641

0,655

0,667

0,678

0,687

0,696

0,704

0,711

0,717

3,90

0,548

0,577

0,600

0,620

0,636

0,650

0,662

0,673

0,683

0,691

0,699

0,706

0,712

3,95

0,543

0,572

0,596

0,615

0,632

0,646

0,658

0,668

0,678

0,687

0,694

0,701

0,708

4,00

0,538

0,567

0,591

0,611

0,627

0,641

0,653

0,664

0,674

0,682

0,690

0,697

0,704

ПРИЛОЖЕНИЕ В
(справочное)

Пример определения расхода воды и вычисления его относительной погрешности при однократном измерении

В.1 Исходные данные. Водослив с треугольным порогом 1-й конструкции со свободным истечением; P = 1,0 м; h = 0,67 м; b = 10 м.

В.2 При напоре более 0,1 м коэффициент расхода из таблицы 2 равен Cd = 1,163.

В.3 Коэффициент скорости подхода потока CV определяем из рисунка 6. Для этого вычисляем площадь живого сечения в гидрометрическом створе Aω = B(h + p) = 10(0,67 + 1) = 16,7 м2;

(2/3)1,5Cdbh/Aω = (2/3)1,5×1,163×10×0,67:16,7 = 0,254

Этому значению соответствует CV = 1,054.

В.4 Вычисляем расход воды:

Q = (2/3)3/2CdCVg1/2bh3/2 = (2/3)3/2×1,163×1,054×√9,81×10(0,67)3/2 = 11,46 м3/с.

В.5 Относительные погрешности коэффициентов принимаем из 9.3.2:

δ'с = ±0,5; δ"с = ±(10CV - 9) = 1,54 %.

В.6 Приведенная погрешность измерения ширины водослива будет зависеть от систематической составляющей, которая при используемом средстве измерения равна 0,01 м:

δ"b = 0,01/10 × 100 = ±0,1 %.

Случайная составляющая при выполнении нескольких измерений пренебрежимо мала и ее можно принять δ'b = 0.

В.7 Погрешность измерения напора будет зависеть от погрешностей установки нуля отсчета от случайной и систематической составляющих погрешности измерения уровня воды.

Погрешность установки нуля отсчета для используемого оборудования будет равна ±3 мм. Это значение будет предельной абсолютной систематической погрешностью. Случайной составляющей не будет, т. к. до следующей поверки значение не изменяется.

Следовательно:

δ'1h = 0:1 δ"h = (0,003/0,67) × 100 = 0,45 %.

В случае использованного оборудования среднеквадратическая погрешность составляет ±2,5 мм. Систематические погрешности измерения уровня воды зависят от инструментальных погрешностей уровнемера.

По результатам испытаний была определена остаточная систематическая предельная погрешность, равная ±2,5 мм.

Таким образом,  будет равна:

 = 0,0025/0,67 × 100 = 0,37 %;

δ"2h = ±0,0025/0,67 × 100 = 0,37 %.

Предполагая, что δ'h пренебрежимо мала, погрешности измерения уровня воды равны:

В.8 Случайная относительная погрешность определения расхода воды равна:

В.9 Систематическая относительная погрешность определения расхода воды равна:

В.10 Суммарная относительная погрешность определения расхода воды равна:

δQ = ±(1,212 + 1,772)1/2 = ±2,14 %.

Результаты определения расхода воды следует представлять в следующем виде:

Q = (11,46 ± 0,24) м3/с.

ПРИЛОЖЕНИЕ Г
(справочное)

Библиография

[1] МИ 2406-97 Государственная система обеспечения единства измерений. Расход жидкости в открытых каналах систем водоснабжения и канализации. Методика выполнения измерений при помощи стандартных водосливов и лотков

[2] ИСО 4360-84 Измерение расходов жидкости в открытых руслах и каналах водосливами и лотками. Водосливы треугольного профиля

[3] ИСО 9827-94 Измерение расходов жидкости в открытых руслах и каналах водосливами и лотками. Водосливы с треугольным обтекаемым профилем

[4] ИСО 4377-2000 Измерение расходов жидкости в открытых руслах и каналах с использованием сооружений. Водосливы треугольного профиля с плоским V-образным вырезом

[5] РМГ 29-99 Государственная система обеспечения единства измерений. Метрология. Основные термины и определения

[6] МИ 1759-87 Государственная система обеспечения единства измерений. Расход воды на реках и каналах. Методика выполнения измерений методом «скорость - площадь»

[7] ПР 50.2.006-94 Правила по метрологии. Государственная система обеспечения единства измерений. Порядок проведения поверки средств измерений

Ключевые слова: водоучет, водосливы с треугольными порогами, конструкции водосливов, напор, расход воды

 




ГОСТЫ, СТРОИТЕЛЬНЫЕ и ТЕХНИЧЕСКИЕ НОРМАТИВЫ.
Некоммерческая онлайн система, содержащая все Российские Госты, национальные Стандарты и нормативы.
В Системе содержится более 150000 файлов нормативно-технической документации, действующей на территории РФ.
Система предназначена для широкого круга инженерно-технических специалистов.

Рейтинг@Mail.ru Яндекс цитирования

Copyright © www.gostrf.com, 2008 - 2026