| |
ТИПОВЫЕ ТЕХНОЛОГИЧЕСКИЕ КАРТЫ
НА ПРОИЗВОДСТВО ОТДЕЛЬНЫХ ВИДОВ РАБОТ
РАЗДЕЛ 01
ТИПОВАЯ ТЕХНОЛОГИЧЕСКАЯ КАРТА
НА ЗЕМЛЯНЫЕ И БУРОВЗРЫВНЫЕ РАБОТЫ
1.01.01.70
КОМПЛЕКСНО-МЕХАНИЗИРОВАННЫЙ ПРОЦЕСС
ПО ОБРАТНОЙ ЗАСЫПКЕ КОТЛОВАНА
С ФУНДАМЕНТАМИ ПРОМЫШЛЕННОГО ЦЕХА
ГРУНТОМ II
ГРУППЫ
МОСКВА - 1989
|
РАЗРАБОТАНА
ВНИПИИСТРОМСЫРЬЕ
Главный
инженер института Р.А. Родин
Главный
инженер проекта В.Н. Бауман
|
ОДОБРЕНА
Отделом организации и технологии
строительного производства Госстроя СССР
Письмо от 14.09.1988 г. № 23-532
Введена
в действие с 01.01.1989 г.
|
1. ОБЛАСТЬ ПРИМЕНЕНИЯ
1.1. Типовую технологическую карту
рекомендуется использовать при работах по обратной засыпке котлованов глубиной
до 5 м и объемом работ до 50 тыс. м3 в промышленном и гражданском
строительстве.
1.2. Карта может быть использована для
грунтов I - III групп.
1.3. В данной технологической карте
приведен пример обратной засыпки котлована с параметрами:
глубина 5,0 м; ширина 91,5 м;
длина 84,0 м; заложение откосов 1:0,75.
Объем обратной засыпки грунта 34220 м3.
1.4. Обратная засыпка
котлована осуществляется в средней зоне СССР при положительных температурах
воздуха.
1.5. При привязке технологической карты к
конкретному котловану с фундаментами промышленного цеха необходимо
скорректировать объемы работ, группы грунтов, график производства работ и
калькуляцию затрат труда, средства механизации с учетом наличия парка
землеройных механизмов.
2.1. Настоящий
комплексно-механизированный технологический процесс состоит из подготовительных
и основных операций.
2.2. К подготовительным
операциям относятся:
устройство освещения мест
разработки и укладки грунта;
устройство временных
землевозных дорог;
опытное уплотнение грунта.
2.3. К основным операциям
относятся:
разработка грунта в
карьере;
обратная засыпка
котлована.
2.4. Состав вариантов
комплексов машин, применяемых для выполнения основных процессов
Таблица 1
|
Технологические операции
|
Варианты
комплексов машин
|
|
1
|
2
|
3 (аналог)
|
|
Разработка грунта в карьере
|
Экскаватор ЭО-4121Б прямая лопата.
Автомобиль-самосвал КрАЗ-256Б
Автогрейдер ДЗ-31-1
Виброкаток ДУ-47Б
|
Экскаватор ЭО-5111Е прямая лопата.
Автомобиль-самосвал КрАЗ-256Б
Автогрейдер ДЗ-31-1
Виброкаток ДУ-47Б
|
Экскаватор ЭО-5111Б прямая лопата.
Автомобиль-самосвал КрАЗ-256Б
Автогрейдер ДЗ-31-1
Виброкаток ДУ-47Б
|
|
Обратная засыпка котлована
|
Экскаватор ЭО-4121Б с грейфером.
Экскаватор ЭО-4121Б с гидромолотом СП-62
Бульдозер ДЗ-42.
Электротрамбовки ИЭ-4504
|
Экскаватор ЭО-5111Е с грейфером.
Грунтоуплотняющая машина ДУ-12В
Бульдозер ДЗ-42.
Электротрамбовки
ИЭ-4504
|
Экскаватор ЭО-5111Б с грейфером.
Экскаватор ЭО-5111Б, оснащенный драглайном с
трамбующей плитой массой 3,5 т
Бульдозер ДЗ-42.
Электротрамбовки ИЭ-4504
|
Ведущими машинами в
комплексе машин являются:
в
варианте 1 - экскаватор ЭО-4121Б, оборудованный прямой лопатой. Ковш - 0,65 м3;
в
варианте 2 - экскаватор ЭО-5111Е, оборудованный прямой лопатой. Ковш - 1,0 м3;
в
варианте 3 - экскаватор ЭО-5111Б, оборудованный прямой лопатой. Ковш - 1,0 м3
2.5. Технология
производства работ для варианта 1.
Обратная засыпка котлована производится грунтом II группы, разрабатываемым в карьере
(резерве) экскаватором ЭО-4121Б, оборудованным прямой лопатой. Грунт грузится в
автомобили-самосвалы КрАЗ-256Б, транспортируется к месту укладки и разгружается
на бровке котлована.
В связи со стесненностью производства работ обратная засыпка
котлована выполняется с разбивкой последнего на четыре зоны.
В зоне № 1 - грунт подается в котлован бульдозером ДЗ-42 с
разравниванием вручную слоями 0,35 м и уплотнением электротрамбовками ИЭ-4504.
Расстояние между проходами электротрамбовки должно быть не более 0,45 м.
Минимальное расстояние от электротрамбовки до строительных конструкций (обрез
фундамента) составляет 0,2 м, а над фундаментом 0,5 м.
В зоне № 2 - грунт подается в котлован экскаватором
ЭО-4121Б, оборудованным грейфером, с разравниванием грунта вручную и
уплотнением электротрамбовками ИЭ-4504.
В зоне № 3 - грунт подается в котлован бульдозером ДЗ-42 с
разравниванием грунта им же слоями 0,7 м и уплотнением гидромолотом
СП-62,навешенным на экскаваторе ЭО-4121Б.
В зоне № 4 - грунт подается в котлован экскаватором
ЭО-4121Б, оборудованным грейфером. Разравнивание грунта вручную с уплотнением
гидромолотом СП-62. Минимальное расстояние от трамбовки гидромолота СП-62 до
строительных конструкций (обреза фундамента) составляет 0,6 м, а над
фундаментом 0,9 м.
Количество проходов электротрамбовки ИЭ-4504 и количество
ударов гидромолота СП-62 для достижения проектной плотности грунта должно
устанавливаться опытным путем при оптимальной влажности грунта. При
недостаточной влажности грунта его необходимо увлажнять в местах разработки.
2.6. Обратная засыпка
котлована выполняется (при работе в одну смену) для варианта 1 следующим
составом:
а) При разработке грунта в карьере:
машинист экскаватора 6 разряда - 1;
машинист автогрейдера 6 разряда - 1;
водители автомобилей-самосвалов III класса -
3;
водитель поливочной машины III класса -
1;
машинист виброкатка 5 разряда - 1.
б) При обратной засыпке котлована:
машинисты экскаватора 6 разряда - 3;
машинист бульдозера 6 разряда - 1;
землекопы I разряда -
2;
землекопы III разряда -
4.
2.7. Контроль качества
выполняемых работ
Таблица 2
|
Наименование
операций, подлежащих контролю
|
Контроль
качества выполнения операций
|
|
производителем
работ
|
мастером
|
Состав
|
Инструмент
|
Время
|
Привлекаемые
службы
|
|
Разбивка зон обратной засыпки котлована
|
-
|
Точность выноса
|
Теодолит, стальная рулетка
|
До начала обратной засыпки
|
Геодезическая
|
|
|
Обратная засыпка котлована
|
Качество грунта и его влажность, толщина
отсыпаемых слоев грунта, плотность скелета грунта в соответствии с проектом
|
Плотномер, металлический щуп
|
В процессе обратной засыпки
|
Грунтовая лаборатория
|
3.1. В соответствии с принятыми вариантами
комплексов машин (табл. 1) и на основании калькуляций затрат труда в табл.
3
приведены сравнительные технико-экономические показатели эффективности
вариантов.
Таблица 3
|
Наименование работ
|
Варианты
комплексов механизации работ
|
|
1
|
2
|
3
|
|
Объем работ, м3
|
34220
|
34220
|
34220
|
|
Общая трудоемкость, чел.-дн.
|
933,86
|
1019,56
|
1082,96
|
|
То же, на 1000 м3, чел.-ч
|
223,77
|
244,31
|
259,50
|
|
Затраты машинного времени на весь объем работ,
маш.-смен.
|
883,7
|
888,3
|
885,0
|
|
Продолжительность процесса при двухсменной
работе, день
|
36
|
42
|
42
|
|
Выработка на 1 маш.-ч, м3
|
4,72
|
4,69
|
4,71
|
|
Стоимость затрат труда на весь объем работ,
руб.
|
7358,30
|
8203,06
|
8758,38
|
|
То же, на 1000 м3, руб.
|
215,02
|
239,71
|
255,94
|
|
Приведенные затраты на весь объем работ, руб.
|
46607,64
|
36649,62
|
39113,46
|
|
То же, на 1000 м3, руб.
|
1362,00
|
1071,00
|
1143,00
|
|
Эффективность в сравнении с аналогом на 1000 м3
грунта, руб.
|
-219
|
+72
|
|
|
Прямые затраты на 1000 м3 грунта,
руб.
|
1238,00
|
951,00
|
1014,00
|
4.1. Потребность в
машинах, оборудовании, инструментах и приспособлениях
Таблица 4
|
Наименование машин, оборудования,
инструментов и приспособлений
|
Тип
|
Марка
ГОСТ
|
Количество машин для вариантов механизации,
шт.
|
Техническая характеристика
|
|
1
|
2
|
3
|
|
Экскаватор
универсальный
|
Одноковшовый
гидравлический на гусеничном ходу
|
ЭО-4121Б
22894-77
|
1
|
-
|
-
|
Оборудован
прямой лопатой. Ковш - 1 м3
|
|
Экскаватор
универсальный
|
Одноковшовый
канатный на гусеничном ходу
|
ЭО-5111Е
17343-83
|
-
|
1
|
-
|
Оборудован
прямой лопатой. Ковш - 1 м3
|
|
Экскаватор
универсальный
|
Одноковшовый
канатный на гусеничном ходу
|
ЭО-5111Б
17343-83
|
-
|
-
|
1
|
Оборудован
прямой лопатой. Ковш - 1 м3
|
|
Экскаватор
универсальный
|
Одноковшовый
гидравлический на гусеничном ходу
|
ЭО-4121Б
22894-77
|
1
|
-
|
-
|
Оборудован
грейфером. Ковш - 0,65 м3
|
|
Экскаватор
универсальный
|
Одноковшовый
канатный на гусеничном ходу
|
ЭО-5111Е
17343-83
|
-
|
1
|
-
|
Оборудован
грейфером. Ковш - 1 м3
|
|
Экскаватор
универсальный
|
Одноковшовый канатный
на гусеничном ходу
|
ЭО-5111Е
17343-83
|
-
|
-
|
1
|
Оборудован
грейфером. Ковш - 1 м3
|
|
Экскаватор универсальный
|
Одноковшовый гидравлический на
гусеничном ходу
|
ЭО-4121Б
22894-77
|
2
|
-
|
-
|
Оборудован гидромолотом СП-62
|
|
Экскаватор универсальный
|
Одноковшовый канатный на гусеничном
ходу
|
ЭО-5111Б
17343-83
|
-
|
-
|
1
|
Оборудован трамбовочной плитой массой
3,5 т
|
|
Трамбовочная машина
|
На тракторе класса 10 т
|
ДУ-12В
|
-
|
1
|
-
|
Трактор Т-130. Масса плит 6,3 т
|
|
Электротрамбовка
|
|
ЭИ-4504
20773-75
|
|
|
|
|
|
Поливочная машина на шасси ЗИЛ-130
|
|
ПМ-130Б
|
1
|
1
|
1
|
Вместимость цистерны 6000 л
|
|
Автогрейдер среднего типа
|
Самоходный
|
ДЗ-31-1
9420-79
|
1
|
1
|
1
|
Мощность двигателя 96 кВт, длина отвала
3700 мм
|
|
Бульдозер с неповоротным отвалом,
управление гидравлическое
|
На тракторе класса 10 т
|
ДЗ-42
|
1
|
1
|
1
|
Трактор ДТ-75 ВР-С2
|
|
Каток
|
Вибрационный самоходный двухвальцовый с
гладкими вальцами
|
ДУ-47Б
|
1
|
1
|
1
|
Мощность двигателя 37 кВт, масса 6 - 8
т
|
|
Автомобиль-самосвал
|
Трехосный
|
КрАЗ-256Б
|
3
|
2
|
2
|
Грузоподъемность 12 т
|
|
Теодолит
|
|
Т-15
10529-86
|
1
|
1
|
1
|
|
|
Нивелир
|
|
Н-10
10528-76
|
1
|
1
|
1
|
|
|
Рейка нивелирная
|
|
РН-10
11158-83
|
2
|
2
|
2
|
|
|
Вешка геодезическая
|
Стандартная
|
|
3
|
3
|
3
|
|
|
Рулетка измерительная металлическая
|
Стандартная
|
РС-20
7502-80
|
1
|
1
|
1
|
|
|
Плотномер
|
|
ПГМ-1
|
1
|
1
|
1
|
|
|
Влагомер
|
|
НВУ-1
26375-84
|
1
|
1
|
1
|
|
4.2. Потребность в эксплуатационных материалах приведена в табл.
5.
Таблица 5
|
Наименование механизмов и эксплуатационных материалов
|
Нормы на час работы машины, кг
|
Количество на принятый объем работ по
вариантам, кг
|
|
1
|
2
|
3
|
|
Экскаватор ЭО-4121Б
|
|
|
|
|
|
Дизельное
топливо
|
5,50
|
10681
|
-
|
-
|
|
Бензин
|
0,16
|
311
|
-
|
-
|
|
Моторное
масло
|
0,27
|
524
|
-
|
-
|
|
Трансмиссионное
масло
|
0,03
|
58
|
-
|
-
|
|
Консистентная
смазка
|
0,16
|
311
|
-
|
-
|
|
Экскаватор ЭО-5111Е
|
|
|
|
|
|
Дизельное топливо
|
6,2
|
-
|
4439
|
-
|
|
Бензин
|
0,18
|
-
|
128
|
-
|
|
Моторное
масло
|
0,30
|
-
|
215
|
-
|
|
Трансмиссионное масло
|
0,04
|
-
|
29
|
-
|
|
Консистентная
смазка
|
0,18
|
-
|
128
|
-
|
|
Экскаватор
ЭО-5111Б
|
|
|
|
|
|
Дизельное
топливо
|
6,3
|
-
|
-
|
7957
|
|
Бензин
|
0,19
|
-
|
-
|
240
|
|
Моторное
масло
|
0,30
|
-
|
-
|
379
|
|
Трансмиссионное
масло
|
0,03
|
-
|
-
|
38
|
|
Консистентная
смазка
|
0,18
|
-
|
-
|
227
|
|
Трамбовочная
машина ДУ-12В
|
|
|
|
|
|
Дизельное
топливо
|
7,1
|
-
|
4075
|
-
|
|
Бензин
|
0,2
|
-
|
115
|
-
|
|
Моторное масло
|
0,29
|
-
|
166
|
-
|
|
Трансмиссионное масло
|
0,09
|
-
|
52
|
-
|
|
Консистентная смазка
|
0,07
|
-
|
40
|
-
|
|
Бульдозер
ДЗ-42
|
|
|
|
|
|
Дизельное топливо
|
3,30
|
1782
|
1782
|
1782
|
|
Бензин
|
0,10
|
54
|
54
|
54
|
|
Моторное масло
|
0,16
|
86
|
86
|
86
|
|
Трансмиссионное масло
|
0,04
|
22
|
22
|
22
|
|
Консистентная смазка
|
0,03
|
16
|
16
|
16
|
|
Автогрейдер ДЗ-31-1
|
|
|
|
|
|
Дизельное топливо
|
5,20
|
2668
|
2850
|
2850
|
|
Бензин
|
0,16
|
82
|
88
|
88
|
|
Моторное
масло
|
0,25
|
128
|
137
|
137
|
|
Трансмиссионное
масло
|
0,07
|
36
|
38
|
38
|
|
Консистентная
смазка
|
0,06
|
31
|
33
|
33
|
|
Поливочная
машина ПМ-130Б
|
|
|
|
|
|
Бензин
|
4,90
|
367
|
367
|
367
|
|
Автомобильное
масло
|
0,11
|
8
|
8
|
8
|
|
Автомобиль-самосвал
КрАЗ-256Б
|
|
|
|
|
|
Дизельное
топливо
|
6,06
|
6872
|
6872
|
6872
|
|
Дизельное
масло
|
0,34
|
385
|
385
|
385
|
|
Трансмиссионное
масло
|
0,05
|
57
|
57
|
57
|
|
Консистентная
смазка
|
0,04
|
45
|
45
|
45
|
При выполнении работ по обратной засыпке необходимо
руководствоваться требованиями СНиП-III-4-80 «Техника
безопасности в строительстве».

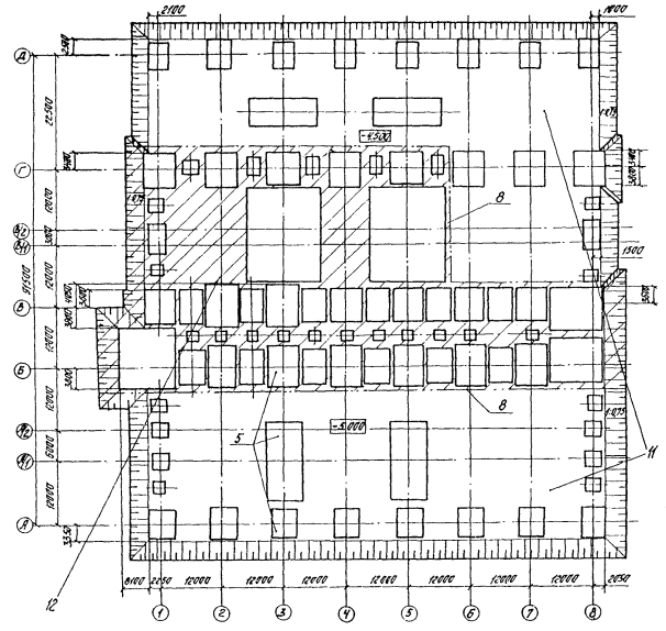
ОБЪЕМЫ РАБОТ
|
№
зоны
|
Наименование работ
|
Количество
|
|
1
|
Обратная засыпка
котлована суглинком с подачей грунта бульдозером, разравниванием вручную и
уплотнением электротрамбовками ИЭ-4504
|
1940
м3
|
|
2
|
Обратная
засыпка котлована суглинком с подачей грунта экскаватором, оборудованным
грейфером, разравниванием вручную и уплотнением электротрамбовками ИЭ-4504
|
9000
м3
|
|
3
|
Обратная
засыпка котлована суглинком с подачей грунта бульдозером, разравниванием
бульдозером и уплотнением гидромолотом СП-62 (навесным на экскаваторе)
|
20260
м3
|
|
4
|
Обратная засыпка
котлована суглинком с подачей грунта экскаватором, разравниванием вручную и
уплотнением гидромолотом СП-62 (навесным на экскаваторе)
|
3020
м3
|
Примечание.
Условные обозначения и схему засыпки котлована см. на листе 7.

1 - экскаватор ЭО-4121А, оборудованный грейфером;
2 -
экскаватор ЭО-4121А с навесным гидромолотом
СП-62;
3 - полосы уплотнения грунта гидромолотом
СП-62;
4 - временный отвал грунта (суглинок);
5 - существующие фундаменты;
6 - места подачи
грунта в котлован бульдозером;
7 - съезд в
котлован;
8 - граница
отсыпок грунта в котлован бульдозером и грейфером;
9 - минимальное расстояние гидромолота
СП-62 от обреза фундамента;
10 - электротрамбовка ИЭ-4504;
11 - участок подачи
грунта в котлован бульдозером ДЗ-42;
12 -
участок подачи грунта в котлован экскаватором,
оборудованным грейфером


Примечание.
Здесь и далее пунктирная линия указывает на неполное использование механизмов в
течение смены.
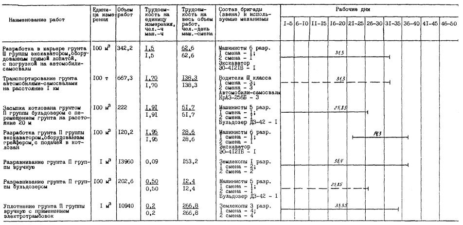
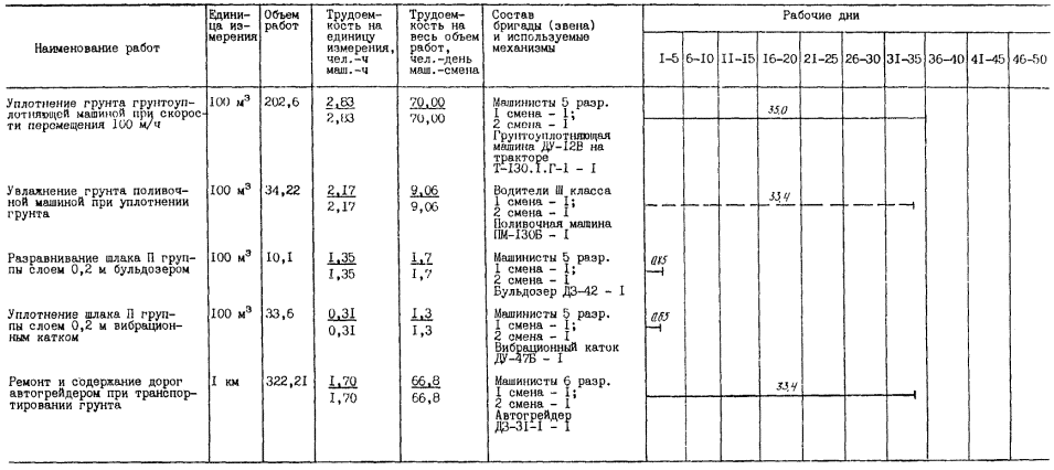
ГРАФИК ПРОИЗВОДСТВА РАБОТ. ВАРИАНТ 1
(продолжение)

|
Наименование работ
|
Обоснование (ЕНиР и др.)
|
Единица измерения
|
Объем работ
|
Норма времени на единицу измерения,
чел.-ч
маш.-ч
|
Затраты труда на весь объем работ,
чел.-день
маш.-смена
|
Время пребывания машины на объекте,
маш.-смена
|
Расценка на единицу измерения, руб.-коп.
|
Стоимость затрат на весь объем работ,
руб.-коп.
|
Стоимость затрат с учетом пребывания машины на
объекте, руб.-коп.
|
|
Разработка в
карьере грунта III группы
экскаватором ЭО-4121Б, оборудованным прямой лопатой, с погрузкой на
автомобили-самосвалы
|
Т. 79** вып.
10
|
100 м3
|
342,2
|
1,5
1,5
|
62,6
62,6
|
62,6
|
1-59
|
544-10
|
544-10
|
|
Транспортирование
грунта автомобилями-самосвалами КрАЗ-256Б на расстояние 1 км
|
ЕНВ*
|
100 т
|
667,3
|
1,70
1,70
|
138,3
138,3
|
187,8
|
1-44
|
960-91
|
1305-93
|
|
Засыпка
котлована грунтом II группы
бульдозером с перемещением грунта на расстояние 20 м
|
ЕНиР
§Е2-1-34, п.
1б, д
|
100 м3
|
222
|
1,91
1,91
|
51,7
51,7
|
51,7
|
1-73,9
|
386-06
|
386-06
|
|
Разработка
грунта II группы экскаватором ЭО-4121Б,
оборудованным грейфером, с подачей в котлован
|
Данные
ЦНИИОМТП
|
100 м3
|
120,2
|
1,95
1,95
|
28,6
28,6
|
28,6
|
2-06,7
|
248-45
|
248-45
|
|
Разравнивание
грунта II группы вручную
|
ЕНиР
§Е2-1-57, Т-1, п. 1б
|
1 м3
|
13960
|
0,09
|
153,2
|
-
|
0-05,3
|
739-88
|
739-88
|
|
Разравнивание
грунта II группы
бульдозером слоем 0,6 м
|
Данные
ЦНИИОМТП
|
100 м3
|
202,6
|
0,50
0,50
|
12,4
12,4
|
51,7
|
0-45,5
|
92-18
|
385-43
|
|
Уплотнение
грунта II группы вручную с применением
электротрамбовок ИЭ-4504
|
Данные
ЦНИИОМТП
|
1 м3
|
10940
|
0,2
0,2
|
266,8
266,8
|
266,8
|
0-14
|
1531-60
|
1531-60
|
|
Уплотнение
грунта II группы гидромолотом СП-62, навешенным
на экскаваторе ЭО-4121Б
|
Данные
ЦНИИОМТП
|
100 м3
|
232,8
|
5,13
5,13
|
145,6
145,6
|
145,6
|
5-43,8
|
1265-97
|
1265-97
|
|
Увлажнение
грунта поливочной машиной ПМ-130Б при уплотнении грунта
|
ЕНиР §Е17-2
|
100 м3
|
34,22
|
2,17
2,17
|
9,06
9,06
|
62,6
|
1-64
|
56-12
|
385-39
|
|
Разравнивание
бульдозером шлака II группы слоем
0,3 м при устройстве покрытия землевозных дорог
|
Данные
ЦНИИОМТП
|
100 м3
|
10,1
|
1,35
1,35
|
1,7
1,7
|
1,7
|
1-22,9
|
12-41
|
12-41
|
|
Уплотнение
шлака III группы слоем 0,3 м вибрационным катком
ДУ-47Б при 5-и проходах по одному следу
|
ЕНиР
§Е17-7-27
|
100 м2
|
33,6
|
0,31
0,31
|
1,3
1,3
|
1,3
|
0-28,2
|
9-48
|
9-48
|
|
Ремонт и содержание
дорог автогрейдером ДЗ-31-1 при транспортировании грунта
|
ЕНиР
§Е17-20-15
|
1 км
|
302,0
|
1,70
1,70
|
62,6
62,6
|
62,6
|
1-80
|
543-60
|
543-60
|
|
ИТОГО:
|
|
|
|
|
933,86
780,66
|
923,0
|
|
6390-76
|
7358-30
|
ЕНВ* - здесь и далее «Единые нормы
времени на перевозку грузов автомобильным транспортом и сдельные расценки
для оплаты труда водителей»
Т. 79** - здесь и далее сборник «Типовые нормы и
расценки...» Минтрансстроя СССР, раздел «Земляные работы»

ГРАФИК ПРОИЗВОДСТВА РАБОТ ВАРИАНТ 2
(продолжение)

|
Наименование работ
|
Обоснование (ЕНиР и др.)
|
Единица измерения
|
Объем работ
|
Норма времени на единицу измерения,
чел.-ч
маш.-ч
|
Затраты труда на весь объем работ,
чел.-день
маш.-смена
|
Время пребывания машины на объекте,
маш.-смена
|
Расценка на единицу измерения, руб.-коп.
|
Стоимость затрат на весь объем работ,
руб.-коп.
|
Стоимость затрат с учетом пребывания машины
на объекте, руб.-коп.
|
|
Разработка в
карьере грунта III группы
экскаватором ЭО-5111Е, оборудованным прямой лопатой, с погрузкой на
автомобили-самосвалы
|
ЕНиР §Е2-1-8,
т. 3. п. 6в
|
100 м3
|
342,2
|
3,2
1,6
|
133,6
66,8
|
66,8
|
3-15
|
1077-93
|
1077-93
|
|
Транспортирование
грунта автомобилями-самосвалами КрАЗ-256Б на расстояние 1 км
|
ЕНВ*
|
100 т
|
667,3
|
1,70
1,70
|
138,3
138,3
|
138,3
|
1-44
|
960-91
|
960-91
|
|
Засыпка
котлована грунтом II группы
бульдозером с перемещением грунта на расстояние 20 м
|
ЕНиР §Е2-1-34, п.
1б, д
|
100 м3
|
222
|
1,91
1,91
|
51,7
51,7
|
51,7
|
1-73,9
|
386-06
|
386-06
|
|
Разработка
грунта II группы
экскаватором ЭО-5111Е, оборудованным грейфером, с погрузкой в котлован
|
ЕНиР §Е2-1-15, т. 3,
п. 4а
|
100 м3
|
120,2
|
2,8
1,4
|
41,0
20,5
|
72,0
|
2-76
|
331-75
|
1163-68
|
|
Разравнивание
грунта II группы вручную
|
ЕНиР §Е2-1-57
|
1 м3
|
13960
|
0,09
|
153,2
|
-
|
0-05,3
|
739-88
|
739-88
|
|
Разравнивание
грунта II группы бульдозером
|
Данные
ЦНИИОМТП
|
100 м3
|
202,6
|
0,50
0,50
|
12,4
12,4
|
51,7
|
0-45,5
|
92-18
|
385-43
|
|
Уплотнение
грунта II группы вручную с применением электротрамбовок
ИЭ-4504
|
Данные
ЦНИИОМТП
|
1 м3
|
13960
|
0,2
0,2
|
340,5
340,5
|
340,5
|
0-14
|
1954-40
|
1954-40
|
|
Уплотнение грунта грунтоуплотняющей
машиной ДУ-12В при скорости перемещения 100 м/ч
|
ЕНиР §Е2-1-33, п. 1а, К=0,6
|
100 м3
|
202,6
|
2,83
2,83
|
70,00
70,00
|
70,0
|
2-57,5
|
521-70
|
521-70
|
|
Увлажнение грунта поливочной машиной
ПМ-130Б при уплотнении грунта
|
ЕНиР §Е17-2
|
100 м3
|
34,22
|
2,17
2,17
|
9,06
9,06
|
66,8
|
1-64
|
56-12
|
411-22
|
|
Разравнивание шлака III группы слоем 0,2 м бульдозером ДЗ-42
|
Данные
ЦНИИОМТП
|
100 м3
|
10,1
|
1,35
1,35
|
1,7
1,7
|
1,7
|
1-22,8
|
12-41
|
12-41
|
|
Уплотнение шлака слоем 0,2 м
вибрационным катком ДУ-47Б
|
ЕНиР §Е17-7-27
|
100 м2
|
33,6
|
0,31
0,31
|
1,3
1,3
|
1,30
|
0-28,2
|
9-48
|
9-48
|
|
Ремонт и содержание дорог автогрейдером
ДЗ-31-1 при транспортировании грунта
|
|
1 км
|
322,2
|
1,70
1,70
|
66,8
66,8
|
66,8
|
1-80
|
579-96
|
579-96
|
|
ИТОГО:
|
|
|
|
|
1019,56
779,06
|
927,6
|
|
6722-78
|
8203-06
|
Примечание. К = 0,6 к норме выработки
грунтоуплотняющей машины ДУ-12В принят в связи со стесненностью работ и
частотой разворотов и
поворотов вокруг существующих фундаментов в котловане.

ГРАФИК ПРОИЗВОДСТВА РАБОТ ВАРИАНТ 3 (продолжение)

|
Наименование работ
|
Обоснование (ЕНиР и др.)
|
Единица измерения
|
Объем работ
|
Норма времени на единицу измерения,
чел.-ч
маш.-ч
|
Затраты труда на весь объем работ,
чел.-день
маш.-смена
|
Время пребывания машины на объекте,
маш.-смена
|
Расценка на единицу измерения, руб.-коп.
|
Стоимость затрат на весь объем работ,
руб.-коп.
|
Стоимость затрат с учетом пребывания машины
на объекте, руб.-коп.
|
|
Разработка в
карьере грунта III группы
экскаватором ЭО-5111Е, оборудованным прямой лопатой, с погрузкой на
автомобили-самосвалы
|
§Е2-1-8, т.
3, п. 6в
|
100 м3
|
342,2
|
3,2
1,6
|
133,6
66,8
|
66,8
|
3-15
|
1077-93
|
1077-93
|
|
Транспортирование
грунта автомобилями-самосвалами КрАЗ-256Б на расстояние 1 км
|
ЕНВ*
|
100 т
|
667,3
|
1,70
1,70
|
138,3
138,3
|
138,3
|
1-44
|
960-91
|
960-91
|
|
Засыпка
котлована грунтом II группы
бульдозером с перемещением грунта на расстояние 20 м
|
ЕНиР
§Е2-1-34, п.
1б, д
|
100 м3
|
222
|
1,91
1,91
|
51,7
51,7
|
51,7
|
1-73,9
|
386-06
|
386-06
|
|
Разработка
грунта II группы экскаватором ЭО-5111Е,
оборудованным грейфером, с подачей в котлован
|
ЕНиР
§Е2-1-15, т. 3, п. 4а
|
100 м3
|
120,2
|
2,8
1,4
|
41,0
20,5
|
72,0
|
2-76
|
331-75
|
1163-68
|
|
Разравнивание
грунта II группы вручную
|
ЕНиР §Е2-1-57
|
1 м3
|
13960
|
0,09
|
153,2
|
-
|
0-05,3
|
739-88
|
739-88
|
|
Разравнивание
грунта II группы бульдозером
|
ЕНиР
§Е2-1-28, п. 1д
|
100 м3
|
202,6
|
0,50
0,50
|
12,4
12,4
|
51,7
|
0-45,5
|
92-18
|
385-43
|
|
Уплотнение
грунта II группы вручную с применением
электротрамбовок ИЭ-4504
|
|
1 м3
|
13960
|
0,2
0,2
|
340,5
340,5
|
340,5
|
0-14
|
1954-40
|
1954-40
|
|
Уплотнение
грунта II группы трамбовочной плитой массой 3,5
т, подвешенной к стреле экскаватора ЭО-5111Е, оборудованного драглайном, при
8-и ударах по одному следу
|
Данные
ЦНИИОМТП
|
100 м3
|
202,6
|
5,4
2,7
|
133,40
66,70
|
66,70
|
5-31,9
|
1077-63
|
1077-63
|
|
Увлажнение
грунта поливочной машиной ПМ-130Б при уплотнении грунта
|
ЕНиР §Е17-2
|
100 м3
|
34,22
|
2,17
2,17
|
9,06
9,06
|
66,8
|
1-64
|
56-12
|
411-22
|
|
Разравнивание
шлака III группы слоем 0,2 м бульдозером ДЗ-42
|
Данные
ЦНИИОМТП
|
100 м3
|
10,1
|
1,35
1,35
|
1,7
1,7
|
1,7
|
1-22,9
|
12-41
|
12-41
|
|
Уплотнение
шлака слоем 0,2 м вибрационным катком ДУ-47Б
|
ЕНиР
§Е17-7-27
|
100 м2
|
33,6
|
0,31
0,31
|
1,3
1,3
|
1,3
|
0-28,2
|
9-48
|
9-48
|
|
Ремонт и
содержание дорог автогрейдером ДЗ-31-1 при транспортировании грунта
|
ЕНиР
§Е17-20-15
|
1 км
|
322,2
|
1,70
1,70
|
66,8
66,8
|
66,8
|
1-80
|
579-96
|
579-96
|
|
ИТОГО:
|
|
|
|
|
1082,96
775,76
|
924,3
|
|
7278,71
|
8758-38
|
|
|