|
|
|
ГОСУДАРСТВЕННЫЙ КОМИТЕТ СССР ПО ДЕЛАМ СТРОИТЕЛЬСТВА (ГОССТРОЙ СССР)
МОСКВА СТРОЙИЗДАТ 1985 СОДЕРЖАНИЕ
СНиП IV-14-84. Приложение. Сборники укрупненных сметных норм. Здания и сооружения транспорта. Сб. № 10-1. Станционные здания железных дорог промышленных предприятий. / Госстрой СССР. - М.: Стройиздат, 1985. - 72 с. Разработан Промтрансниипроектом Госстроя СССР под методическим руководством НИИЭС Госстроя СССР и рассмотрен Отделом сметных норм и ценообразования в строительстве Госстроя СССР. Редакторы - инженеры А.Д. Бобров, И.А. Олоновский, Г.В. Дроздова (Госстрой СССР), канд. эконом. наук А.А. Солин (НИИЭС Госстроя СССР), инж. В.П. Юденич (Промтрансниипроект Госстроя СССР).
ОБЩАЯ ЧАСТЬ1. Укрупненные сметные нормы настоящего Сборника предназначены для составления локальных смет и сметных расчетов при определении сметной стоимости строительства зданий и сооружений железных дорог промышленных предприятий на стадии проекта, рабочего проекта и рабочей документации. Нормы составлены в ценах, введенных в действие с 1 января 1984 г. и применяются при разработке проектно-сметной документации на строительство объектов, осуществляемое в районах применения единых районных единичных расценок, за исключением районов Крайнего Севера и местностей, приравненных к ним. 2. Нормами предусмотрено выполнение полного комплекса работ по возведению зданий и сооружений, в том числе: общестроительных, санитарно-технических и специально-строительных, внутреннего электроосвещения, монтажа технологического и электросилового оборудования, КИП и автоматики, слаботочных устройств и других сопутствующих работ.
Учтены также затраты на гидравлическое испытание систем газоснабжения, отопления и водоснабжения, пуск и регулировку систем вентиляции. 3. В таблицах норм приводятся показатели по следующим видам затрат: А. ПОСТОЯННЫЕ ЗАТРАТЫ В РУБЛЯХВ их состав включены затраты на заработную плату, эксплуатацию строительных машин; стоимость привозных материалов и изделий, включая стоимость накладных и закладных деталей для марочных и немарочных железобетонных изделий; коэффициенты к стоимости арматуры и закладных деталей по нетиповым железобетонным изделиям, а также поправки, учитывающие объем изделий; затраты на антикоррозионную защиту накладных и закладных деталей. Прямые затраты по территориальным районам и подрайонам установлены без учета районных и других коэффициентов к заработной плате. В показателях постоянных затрат, приведенных в виде дроби для I территориального района, над чертой указывается их общая сумма, под чертой - основная заработная плата и заработная плата рабочих, занятых обслуживанием машин (общая заработная плата), исчисленная при районном коэффициенте, равном 1. В графе «в том числе эксплуатация машин» приведена над чертой стоимость эксплуатации машин, а под чертой - заработная плата рабочих, занятых обслуживанием машин. Указанные данные используются при корректировке постоянных затрат с учетом дополнительных расходов на заработную плату рабочих, вызываемых применением районных и других коэффициентов к заработной плате. В этих случаях сумма постоянных затрат, указанная в таблицах, изменяется на величину, исчисленную умножением суммы заработной платы, приведенной в знаменателе показателей постоянных затрат I территориального района, на коэффициент, установленный для данной стройки. Для определения сметной стоимости монтажных работ санитарно-технического оборудования, включаемого в объем строительно-монтажных работ, в таблицах постоянных затрат выделены данные об основной заработной плате. Б. РАСХОД МЕСТНЫХ СТРОИТЕЛЬНЫХ МАТЕРИАЛОВ, ИЗДЕЛИЙ И КОНСТРУКЦИЙ В НАТУРАЛЬНОМ ВЫРАЖЕНИИВ показателях, приведенных в виде дроби, над чертой приведен расход по сокращенной - номенклатуре, предназначенной для определения сметной стоимости, а под чертой - суммарный (неприведенный) расход, являющийся справочным. Стоимость местных материалов, изделий и конструкций определяется по сметным ценам, установленным для соответствующей стройки. Накладные расходы и плановые накопления начисляются непосредственно в сметах. 4. Стоимость монтажных работ приведена в виде дроби: над чертой указываются общие затраты на монтаж (без накладных расходов) и затраты на материалы, не учтенные ценниками, а под чертой - основная заработная плата и заработная плата рабочих, занятых обслуживанием машин (общая заработная плата), исчисленная при районном коэффициенте, равном 1. В графе «в том числе эксплуатация машин» над чертой приведена стоимость эксплуатации машин, а под чертой - заработная плата рабочих, занятых обслуживанием машин. 5. Сметная стоимость монтажных работ определяется сложением затрат на монтаж с учетом коэффициента, установленного для данной стройки, с начислением накладных расходов и плановых накоплений в установленном порядке. 6. В нормах справочно приведена стоимость оборудования, исчисленная по прейскурантам оптовых цен, действующих на 1 января 1984 г., без учета транспортных, заготовительно-складских расходов и затрат на комплектацию оборудования. 7. Нормы на земляные работы приведены для сухих нескальных грунтов. При выполнении земляных работ в мокрых грунтах к показателям постоянных затрат на земляные работы следует применять коэффициенты, приведенные в табл. 1. Затраты на эксплуатацию насосов при производстве земляных работ в мокрых грунтах (с водоотливом) учтены. Затраты на устройство шпунтового ограждения котлованов не учтены. Таблица 1
8. Затраты на земляные работы и устройство фундаментов приведены для грунтов с допустимым давлением 0,2 МПа (2 кгс/см2), при глубине заложения 1,35 м. При устройстве фундаментов, отличающихся от учтенных, к показателям постоянных затрат на эти работы, определенным по табл. А и Б, следует применять коэффициенты, приведенные в табл. 2. Таблица 2
9. В нормах на земляные работы учтены затраты на разработку грунта, с погрузкой в автомобили-самосвалы и перемещение излишнего грунта на расстояние 1 км, исчисленное по 0,29 руб. за 1 т перевозки. Масса грунта принята по прил. 1. 10. При наличии агрессивных грунтовых вод, вызывающих необходимость устройства усиленной боковой обмазочной гидроизоляции, при составлении сметных расчетов к полной стоимости фундаментов следует применять коэффициент, равный 1,6, а при составлении смет, стоимость этих работ определяется дополнительно по проекту. 11. Пример составления смет по УСН приводится в прил. 2. § 1. ОБЪЕДИНЕННЫЕ ЗДАНИЯ ТРАНСПОРТНЫХ УПРАВЛЕНИЙ,
ЗАВОДСКИХ СТАНЦИЙ И ПОСТОВ ЭЛЕКТРИЧЕСКОЙ ЦЕНТРАЛИЗАЦИИ
|
|||||||||||||||||||||||||||||||||||||||||||||||||||||||||||||||||||||||||||||||||||||||||||||||||||||||||||||||||||||||||||||||||||||||||||||||||||||||||||||||||||||||||||||||||||||||||||||||||||||||||||||||||||||||||||||||||||||||||||||||||||||||||||||||||||||||||||||||||||||||||||||||||||||||||||||||||||||||||||||||||||||||||||||||||||||||||||||||||||||||||||||||||||||||||||||||||||||||||||||||||||||||||||||||||||||||||||||||||||||||||||||||||||||||||||||||||||||||||||||||||||||||||||||||||||||||||||||||||||||||||||||||||||||||||||||||||||||||||||||||||||||||||||||||||||||||||||||||||||||||||||||||||||||||||||||||||||||||||||||||||||||||||||||||||||||||||||||||||||||||||||||||||||||||||||||||||||||||||||||||||||||||||||||||||||||||||||||||||||||||||||||||||||||||||||||||||||||||||||||||||||||||||||||||||||||||||||||||||||||||||||||||||||||||||||||||||||||||||||||||||||||||||||||||||||||||||||||||||||||||||||||||||||||||||||||||||||||||||||||||||||||||||||||||||||||||||||||||||||||||
|
№ типового проекта |
501-6-1 |
501-6-2 |
501-6-11 |
501-5-12 |
|
Строительный объем, m3 |
1814 |
2392 |
3035 |
3615 |
|
Площадь застройки, м2 |
242 |
319 |
403 |
327 |

План на отметке 0.000

Рис. 1. Объединенное здание заводской станции и пост электрической централизации (на 25 чел.)

План на отметке 0.000

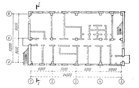
Рис. 2. Объединенное здание заводской станции и поста электрической централизации (на 50 чел.)

План на отметке 0.000

Рис. 3. Объединенное здание транспортного управления, заводской станции и поста ЭЦ (на 75 чел.)

План на отметке 0.000

Рис. 4. Объединенное здание транспортного управления заводской станции и поста ЭЦ (на 100 чел.)
Измеритель - одно здание
Таблица 4
|
№ раздела |
Конструктивные элементы, виды работ и затраты труда |
Территориальные районы |
Прямые затраты, руб., по объединенным зданиям |
№ позиции |
|||||||
|
заводских станции и постов электрической централизации на чел. |
транспортных управлений, заводских станции и постов электрической централизации на чел. |
||||||||||
|
25 |
50 |
75 |
100 |
||||||||
|
всего |
в том числе эксплуатация машин |
всего |
в том числе эксплуатация машин |
всего |
в том числе эксплуатация машин |
всего |
в том числе эксплуатация машин |
||||
|
|
Здания со сборными железобетонными фундаментами |
|
|
|
|
|
|
|
|
|
|
|
|
Подземная часть |
|
|
|
|
|
|
|
|
|
|
|
1 |
Земляные работы без транспортировки грунта |
I-XII |
370 269 |
161 60 |
385 276 |
174 65 |
302 185 |
190 73 |
1720 910 |
1310 504 |
1 |
|
Затраты труда, чел.-ч. |
- |
404 |
- |
408 |
- |
217 |
- |
830 |
- |
2 |
|
|
2 |
Транспортировка грунта |
I |
316 - |
316 - |
347 - |
347 - |
357 - |
357 - |
2460 - |
2460 - |
3 |
|
3 |
Фундаменты сборные железобетонные при расчетной температуре наружного воздуха: |
|
|
|
|
|
|
|
|
|
|
|
-20, -30 °С |
I |
910 221 |
122 42 |
1020 252 |
159 56 |
1150 303 |
195 67 |
1700 411 |
176 60 |
4 |
|
|
II, III, VI, XI ХIIА |
930 |
122 42 |
1210 |
159 56 |
1370 |
195 67 |
1780 |
176 60 |
5 |
||
|
IIА, IV V, XII |
1050 |
122 42 |
1370 |
159 56 |
1550 |
195 67 |
2270 |
176 60 |
6 |
||
|
X |
980 |
122 42 |
1270 |
159 56 |
1440 |
195 67 |
1870 |
176 60 |
7 |
||
|
Затраты труда, чел.-ч. |
- |
318 |
- |
360 |
- |
426 |
- |
630 |
- |
8 |
|
|
-40 °С |
I |
960 252 |
128 44 |
1070 282 |
167 59 |
1290 350 |
218 74 |
1780 441 |
187 63 |
9 |
|
|
II, XI |
980 |
128 44 |
1270 |
167 59 |
1510 |
218 74 |
1870 |
187 .63 |
10 |
||
|
IIА |
1100 |
128 44 |
1440 |
167 59 |
1720 |
218 74 |
2370 |
187 63 |
11 |
||
|
VII, VIII, IX, X |
1030 |
128 44 |
1330 |
167 59 |
1590 |
218 74 |
1970 |
187 63 |
12 |
||
|
VIIIA |
1350 |
128 44 |
1620 |
167 59 |
1830 |
218 74 |
2230 |
187 63 |
13 |
||
|
Затраты труда, чел.-ч |
- |
369 |
- |
410 |
- |
501 |
- |
670 |
- |
14 |
|
|
|
Здания со свайными фундаментами |
|
|
|
|
|
|
|
|
|
|
|
4 |
Подземная часть |
|
|
|
|
|
|
|
|
|
|
|
Фундаменты свайные при расчетной температуре наружного воздуха: |
|
|
|
|
|
|
|
|
|
|
|
|
-20, -30 °С |
I, II, IV-VI, X, XI |
1850 357 |
540 131 |
2080 395 |
620 149 |
2300 462 |
690 170 |
5030 750 |
960 233 |
15 |
|
|
IIА |
2100 |
540 131 |
2350 |
620 149 |
2630 |
690 170 |
5730 |
960 233 |
16 |
||
|
Ш, ХII |
1810 |
540 131 |
2130 |
620 149 |
2360 |
690 170 |
5180 |
960 233 |
17 |
||
|
Затраты труда, чел.-ч. |
- |
384 |
- |
425 |
|
498 |
|
920 |
|
18 |
|
|
-40 °С |
I, II, VII, VIII, IX-XI |
1910 372 |
570 137 |
2220 422 |
690 163 |
2420 533 |
890 209 |
5280 800 |
1060 254 |
19 |
|
|
IIА |
2200 |
570 137 |
2500 |
690 163 |
2750 |
890 209 |
6000 |
1060 254 |
20 |
||
|
VIIIA |
1960 |
570 137 |
2290 |
690 163 |
2480 |
890 209 |
5430 |
1060 254 |
21 |
||
|
Затраты труда, чел.-ч. |
- |
397 |
- |
446 |
- |
548 |
- |
1000 |
- |
22 |
|
|
|
Надземная часть |
|
|
|
|
|
|
|
|
|
|
|
5 |
Каркас |
I-ХII |
3630 280 |
214 77 |
3750 311 |
272 98 |
3860 320 |
281 102 |
5450 497 |
432 156 |
23 |
|
6 |
Затраты труда, чел.-ч. |
|
327 |
- |
346 |
- |
352 |
- |
553 |
|
24 |
|
Стены при расчетной температуре наружного воздуха: |
|
|
|
|
|
|
|
|
|
|
|
|
-20 °С |
I, III-VI, XII |
1460 530 |
344 122 |
1700 700 |
400 140 |
2270 760 |
488 174 |
4120 720 |
475 169 |
25 |
|
|
Затраты труда, чел.-ч. |
- |
563 |
- |
800 |
- |
980 |
- |
750 |
- |
26 |
|
|
-30 °С |
I-VI, XI, XII |
1510 550 |
355 126 |
1750 720 |
411 143 |
2290 770 |
492 175 |
4470 750 |
487 173 |
27 |
|
|
X |
1580 |
355 126 |
1800 |
411 143 |
2380 |
492 175 |
4680 |
487 173 |
28 |
||
|
Затраты труда, чел.-ч. |
- |
580 |
- |
820 |
- |
1000 |
- |
790 |
- |
29 |
|
|
-40 °С |
I, II, VII, VIII, IX-XI |
1530 560 |
360 128 |
1770 730 |
416 145 |
2310 770 |
496 171 |
4520 760 |
493 175 |
30 |
|
|
VIIIA |
1580 |
360 128 |
1810 |
416 145 |
2370 |
496 171 |
4620 |
493 175 |
31 |
||
|
Затраты труда, чел.-ч |
- |
590 |
- |
830 |
- |
1020 |
- |
800 |
- |
32 |
|
|
7 |
Перекрытие и покрытие: |
|
|
|
|
|
|
|
|
|
|
|
а) строительные работы |
I, II, III-VII, VIII, IX-XII |
1170 141 |
94 33 |
1280 154 |
102 36 |
1370 174 |
106 38 |
1550 224 |
134 47 |
33 |
|
|
IIА |
1320 |
94 33 |
1450 |
102 36 |
1550 |
106 38 |
1750 |
134 47 |
34 |
||
|
VIIIA |
1200 |
94 3 |
1340 |
102 36 |
1430 |
106 38 |
1620 |
134 47 |
35 |
||
|
Затраты труда, чел.-ч. |
- |
190 |
- |
200 |
- |
230 |
- |
314 |
- |
36 |
|
|
б) металлоконструкции |
II-IX, XI-XII |
151 5 |
5 2 |
151 5 |
5 2 |
151 5 |
5 2 |
151 5 |
5 2 |
37 |
|
|
|
X |
166 |
5 2 |
166 |
5 2 |
166 |
5 2 |
166 |
5 2 |
38 |
|
|
Затраты труда, чел.-ч. |
- |
5 |
- |
5 |
- |
5 |
- |
5 |
- |
39 |
|
|
8 |
Кровля при расчетной температуре наружного воздуха |
|
|
|
|
|
|
|
|
|
|
|
-20°С |
I; III-VI, XII |
1060 225 |
37 11 |
1320 278 |
48 14 |
1650 352 |
74 22 |
1320 278 |
48 14 |
40 |
|
|
Затраты труда, чел.-ч. |
- |
380 |
- |
469 |
- |
584 |
- |
469 |
- |
41 |
|
|
-30°С |
I |
1110 235 |
39 12 |
1370 291 |
50 15 |
1720 367 |
77 23 |
1370 291 |
50 15 |
42 |
|
|
II |
1200 |
39 12 |
1480 |
50 15 |
1860 |
77 23 |
1480 |
50 15 |
43 |
||
|
III-VI, XI, XII |
1120 |
39 12 |
1440 |
50 15 |
1780 |
77 23 |
1440 |
50 15 |
44 |
||
|
X |
1240 |
39 12 |
1530 |
50 15 |
1930 |
77 23 |
1530 |
50 15 |
45 |
||
|
Затраты труда, чел.-ч. |
- |
396 |
- |
490 |
- |
610 |
- |
490 |
- |
46 |
|
|
-40 °С |
I |
1170 248 |
41 13 |
1420 346 |
53 16 |
1790 446 |
81 25 |
1420 345 |
53 16 |
47 |
|
|
II, IX |
1270 |
41 13 |
1540 |
53 16 |
1940 |
81 25 |
1540 |
53 16 |
48 |
||
|
VII, VIII, XI |
1190 |
41 13 |
1450 |
53 16 |
1830 |
81 25 |
1450 |
53 16 |
49 |
||
|
VIIIA |
1370 |
41 13 |
1660 |
53 16 |
2094 |
81 25 |
1660 |
53 16 |
50 |
||
|
X |
1300 |
41 13 |
1580 |
53 16 |
1990 |
81 25 |
1580 |
53 16 |
51 |
||
|
Затраты труда, чел.-ч. |
- |
416 |
- |
515 |
- |
640 |
- |
515 |
- |
52 |
|
|
9 |
Перегородки |
I |
1290 404 |
39 12 |
1320 424 |
41 13 |
1490 710 |
73 26 |
1440 610 |
62 18 |
53 |
|
II, VII VIII, IX, XII |
1370 |
39 12 |
1400 |
41 13 |
1540 |
73 26 |
1530 |
62 18 |
54 |
||
|
IIА |
1550 |
39 12 |
1600 |
41 13 |
1750 |
73 26 |
1740 |
62 18 |
55 |
||
|
III, IV ХIIА |
1410 |
39 12 |
1440 |
41 13 |
1580 |
73 26 |
1570 |
62 18 |
56 |
||
|
V, VI, XI |
1310 |
39 12 |
1350 |
41 13 |
1490 |
73 26 |
1470 |
62 18 |
57 |
||
|
VIIIA |
1610 |
39 12 |
1650 |
41 13 |
1800 |
73 26 |
1800 |
62 18 |
58 |
||
|
X |
1490 |
39 12 |
1530 |
41 13 |
1680 |
73 26 |
1670 |
62 18 |
59 |
||
|
10 |
Затраты труда, чел.-ч. |
- |
710 |
- |
740 |
- |
1260 |
- |
1090 |
- |
60 |
|
Проемы оконные и дверные |
I |
4660 310 |
48 16 |
5290 335 |
53 18 |
5750 358 |
60 20 |
5920 378 |
62 21 |
61 |
|
|
II, VII, ХIIА |
4890 |
» |
5550 |
» |
6000 |
» |
6200 |
» |
62 |
||
|
IIА |
5900 |
48 16 |
6720 |
53 18 |
7300 |
60 20 |
7500 |
62 21 |
63 |
||
|
III, VI XII |
5780 |
48 16 |
6560 |
53 18 |
7100 |
60 20 |
7300 |
62 21 |
64 |
||
|
IV |
4750 |
48 16 |
5400 |
53 53 |
5870 |
60 60 |
6000 |
62 62 |
65 |
||
|
V, VIII |
5270 |
48 16 |
5980 |
53 18 |
6500 |
60 20 |
6700 |
62 62 |
66 |
||
|
VIIIA |
8400 |
48 16 |
9500 |
53 18 |
10400 |
60 20 |
10700 |
62 21 |
67 |
||
|
IX, XI |
5640 |
48 16 |
6400 |
53 18 |
7000 |
60 20 |
7200 |
62 21 |
68 |
||
|
X |
6000 |
48 16 |
6800 |
53 18 |
7400 |
60 20 |
7600 |
62 21 |
69 |
||
|
Затраты труда, чел.-ч. |
- |
406 |
- |
437 |
- |
466 |
- |
493 |
- |
70 |
|
|
11 |
Полы |
I |
3270 570 |
72 20 |
4200 690 |
87 25 |
4640 790 |
99 27 |
5100 920 |
115 32 |
71 |
|
|
|
72 |
|
87 |
|
99 |
|
115 |
|
||
|
II, III, V, VII, VIII |
3340 |
72 20 |
4280 |
87 25 |
4730 |
99 27 |
5200 |
115 32 |
72 |
||
|
IIА, VI, IX-XII |
3530 |
72 20 72 |
4540 |
87 25 |
5010 |
99 27 |
5510 |
115 32 |
73 |
||
|
VIIIA |
4320 |
72 20 |
5540 |
87 25 |
6100 |
99 27 |
6700 |
115 32 |
74 |
||
|
Затраты труда, чел.-ч. |
- |
980 |
- |
1270 |
- |
1280 |
- |
1590 |
- |
75 |
|
|
12 |
Лестницы и площадки: |
|
|
|
|
|
|
|
|
|
|
|
а) строительные работы |
I, II, III-ХII |
90 49 |
16 6 |
113 52 |
19 7 |
113 52 |
19 7 |
181 87 |
38 14 |
76 |
|
|
IIА |
100 |
16 6 |
123 |
19 7 |
123 |
19 7 |
200 |
38 14 |
77 |
||
|
Затраты труда, чел.-ч |
- |
61 |
- |
78 |
- |
78 |
- |
127 |
- |
78 |
|
|
б) металлоконструкции |
I-XII |
599 37 |
46 17 |
599 37 |
46 17 |
599 37 |
46 17 |
530 28 |
35 13 |
79 |
|
|
Затраты труда, чел.-ч. |
- |
33 |
- |
33 |
- |
33 |
- |
24 |
- |
80 |
|
|
13 |
Отделка наружная и внутренняя |
I, II, III-VIII, IX-XI |
2660 1090 |
70 34 |
4190 1730 |
99 48 |
4330 1780 |
102 50 |
5010 2010 |
119 58 |
81 |
|
IIА |
2810 |
70 34 |
4360 |
99 48 |
4500 |
102 50 |
5300 |
119 58 |
82 |
||
|
VIIIA |
2900 |
70 34 |
4670 |
99 48 |
4920 |
102 50 |
5960 |
119 58 |
83 |
||
|
XII |
3110 |
70 34 |
5060 |
99 48 |
5240 |
102 50 |
6200 |
119 58 |
84 |
||
|
Затраты труда, чел.-ч. |
- |
1800 |
- |
2810 |
- |
2900 |
- |
3370 |
- |
85 |
|
|
14 |
Прочие работы |
I, II, III-VII, VIII, IХ, Х, XII |
231 88 |
28 9 |
243 95 |
31 9 |
249 100 |
33 10 |
163 69 |
21 7 |
86 |
|
IIА |
264 |
28 9 |
278 |
31 9 |
284 |
33 10 |
186 |
21 7 |
87 |
||
|
VIIIA |
245 |
28 9 |
261 |
31 9 |
284 |
33 10 |
176 |
21 7 |
88 |
||
|
XI |
259 |
28 9 |
273 |
31 9 |
280 |
33 10 |
183 |
21 7 |
89 |
||
|
Затраты труда, чел.-ч. |
- |
143 |
- |
167 |
- |
168 |
- |
163 |
- |
90 |
|
|
15 |
Специальные строительные работы: |
|
|
|
|
|
|
|
|
|
|
|
а) строительные работы |
I |
1920 147 |
26 5 |
1920 147 |
26 5 |
1920 147 |
26 5 |
1960 123 |
26 5 |
91 |
|
|
II, III-IХ XI, XII |
1970 |
26 5 |
1970 |
26 5 |
1970 |
26 5 |
2100 |
26 5 |
92 |
||
|
IIА, Х |
2400 |
26 5 |
2400 |
26 5 |
2400 |
26 5 |
2420 |
26 5 |
93 |
||
|
Затраты труда, чел.-ч. |
- |
251 |
|
251 |
|
251 |
|
252 |
» |
94 |
|
|
б) металлоконструкции |
I-VIII, XI, XII |
269 31 |
9 3 |
269 31 |
9 3 |
269 31 |
9 3 |
269 31 |
9 3 |
95 |
|
|
IX |
281 |
9 3 |
281 |
9 3 |
281 |
9 3 |
281 |
9 3 |
96 |
||
|
X |
306 |
9 3 |
306 |
9 3 |
306 |
9 3 |
306 |
9 3 |
97 |
||
|
Затраты труда, чел.-ч. |
- |
45 |
|
45 |
- |
45 |
- |
45 |
- |
98 |
|
|
16 |
Санитарно-технические работы |
|
|
|
|
|
|
|
|
|
|
|
|
Отопление: |
|
|
|
|
|
|
|
|
|
|
Продолжение табл. 4
|
№ раздела |
Конструктивные элементы, виды работ и затраты труда |
Территориальные районы |
Прямые затраты, руб., по объединенным зданиям |
№ позиции |
|||||||
|
заводских станций и постов электрической централизации на чел. |
транспортных управлений, заводских станций и постов электрической централизации на чел. |
||||||||||
|
25 |
50 |
75 |
100 |
|
|||||||
|
всего |
в том числе эксплуатация машин |
всего |
в том числе эксплуатация машин |
всего |
в том числе эксплуатация машин |
всего |
в том числе эксплуатация машин |
|
|||
|
16 |
а) санитарно-технические работы при температуре наружного воздуха |
|
|
|
|
|
|
|
|
|
|
|
-20°С |
I, III-VI, XII |
1190 130 |
7 1 |
1240 132 |
8 1 |
1740 167 |
11 2 |
1950 196 |
11 2 |
99 |
|
|
Затраты труда, чел.-ч. |
- |
201 |
- |
207 |
- |
275 |
- |
290 |
- |
100 |
|
|
-30 °С |
I |
1290 135 |
7 1 |
1330 142 |
8 1 |
1860 179 |
12 2 |
2090 212 |
13 3 |
101 |
|
|
II-IV, Х-ХII |
1330 |
7 1 |
1370 |
8 1 |
1920 |
12 2 |
2150 |
13 3 |
102 |
||
|
Затраты труда, чел.-ч. |
- |
216 |
- |
224 |
- |
286 |
- |
302 |
- |
103 |
|
|
-40°С |
I, II, VII, VIII, IX-XI |
1360 149 |
9 2 |
1410 157 |
10 2 |
1990 186 |
13 2 |
2230 194 |
14 3 |
104 |
|
|
IIА, VIIIA |
1390 |
9 2 |
1470 |
10 2 |
2060 |
13 2 |
2320 |
14 3 |
105 |
||
|
Затраты труда, чел.-ч. |
- |
230 |
- |
236 |
- |
298 |
- |
309 |
- |
106 |
|
|
б) строительные работы |
I-VII, VIII, IX-XII |
130 56 |
1 |
147 62 |
1 |
152 64 |
1 |
157 68 |
1 |
107 |
|
|
VIIIA |
141 |
1 |
161 |
1 |
164 |
1 |
170 |
1 |
108 |
||
|
Затраты труда, чел.-ч |
- |
113 |
- |
127 |
- |
132 |
- |
128 |
- |
109 |
|
|
17 |
Тепловой ввод при теплоносителе- вода: |
|
|
|
|
|
|
|
|
|
|
|
а) санитарно-технические работы |
I-VII, VIII, IX-XII |
1090 55 |
5 1 |
1150 64 |
6 2 |
1150 63 |
4 1 |
1150 64 |
6 2 |
110 |
|
|
VIIIA |
1130 |
5 1 |
1200 |
6 2 |
1200 |
4 1 |
1200 |
6 2 |
111 |
||
|
Затраты труда, чел.-ч. |
- |
109 |
- |
116 |
- |
116 |
- |
116 |
- |
112 |
|
|
б) оборудование |
I-XII |
34 19 |
2 |
34 19 |
2 |
34 19 |
2 |
34 19 |
2 |
113 |
|
|
Затраты труда, чел.-ч. |
- |
30 |
- |
30 |
- |
30 |
- |
30 |
- |
114 |
|
|
в) строительные работы |
I, II, III-VII, VIII, IX, XI, ХII |
314 59 |
2 |
331 60 |
2 |
331 60 |
1 |
331 60 |
1 |
115 |
|
|
IIА, Х |
336 |
2 |
354 |
2 |
354 |
1 |
354 |
1 |
116 |
||
|
VIIIA |
358 |
2 |
377 |
2 |
377 |
1 |
378 |
1 |
117 |
||
|
18 |
Затраты труда, чел.-ч. |
|
104 |
|
110 |
- |
110 |
|
110 |
- |
118 |
|
Тепловой ввод при теплоносителе - пар: |
|
|
|
|
|
|
|
|
|
|
|
|
а) санитарно-технические работы |
I |
- |
- |
- |
- |
1290 141 |
12 4 |
930 91 |
9 3 |
119 |
|
|
II, III-VII, VIII, IX, XI, XII |
- |
- |
- |
- |
1330 |
12 4 |
960 |
9 3 |
120 |
||
|
IIА, Х |
- |
- |
- |
- |
1390 |
12 4 |
1000 |
9 3 |
121 |
||
|
VIIIA |
- |
- |
- |
- |
1480 |
12 4 |
1070 |
9 3 |
122 |
||
|
Затраты труда, чел.-ч. |
- |
- |
- |
- |
- |
193 |
- |
140 |
- |
123 |
|
|
б) оборудование |
I, II, III- -VII, VIII, IX, XI, XII |
- |
- |
- |
- |
206 40 |
4 1 |
1000 63 |
10 3 |
124 |
|
|
IIА, X |
- |
- |
- |
- |
221 |
4 1 |
1080 |
10 3 |
125 |
||
|
VIIIA |
- |
- |
- |
- |
241 |
4 1 |
1170 |
10 3 |
126 |
||
|
Затраты труда, чел.-ч. |
- |
- |
- |
- |
- |
71 |
- |
99 |
- |
127 |
|
|
в) строительные работы |
I, II, III-VII, VIII, IX, XI, XII |
- |
- |
- |
- |
351 69 |
1 |
356 71 |
1 |
128 |
|
|
IIА, X |
- |
- |
- |
- |
376 |
1 |
380 |
1 |
129 |
||
|
VIIIA |
- |
- |
- |
- |
400 |
1 |
405 |
1 |
130 |
||
|
Затраты труда, чел.-ч. |
- |
- |
- |
- |
- |
120 |
- |
120 |
- |
131 |
|
|
19 |
Теплоснабжение приточных и гардеробных шкафов при теплоносителе - вода: |
|
|
|
|
|
|
|
|
|
|
|
а) санитарно-технические работы при расчетной температуре наружного воздуха -20 °С |
I, III-VI, XII |
306 44 |
3 1 |
502 69 |
4 1 |
568 78 |
5 1 |
600 82 |
5 1 |
132 |
|
|
Затраты труда, чел.-ч. |
- |
72 |
- |
103 |
- |
116 |
- |
134 |
- |
133 |
|
|
-30 °С |
I-VI, X-XII |
316 46 |
3 1 |
518 71 |
4 1 |
583 79 |
5 1 |
620 84 |
5 1 |
134 |
|
|
Затраты труда, чел.-ч. |
- |
75 |
- |
104 |
- |
117 |
- |
135 |
- |
135 |
|
|
-40 °С |
I, II, VII, VIII, IX-XI |
325 47 |
3 1 |
534 73 |
4 1 |
600 82 |
5 1 |
640 87 |
5 1 |
136 |
|
|
VIIIA |
335 |
3 1 |
549 |
4 1 |
620 |
5 1 |
660 |
5 1 |
137 |
||
|
Затраты труда, чел.-ч. |
- |
77 |
- |
105 |
- |
122 |
- |
137 |
- |
138 |
|
|
б) строительные работы |
I-VII, VIII, IX-XII |
68 28 |
1 1 |
139 50 |
1 1 |
185 64 |
1 1 |
142 48 |
1 1 |
139 |
|
|
VIIIA |
72 |
1 1 |
153 |
1 1 |
196 |
1 1 |
155 |
1 |
140 |
||
|
20 |
Затраты труда, чел.-ч. |
- |
48 |
- |
88 |
- |
116 |
- |
85 |
- |
141 |
|
Теплоснабжение приточных и гардеробных шкафов при теплоносителе - пар: |
|
|
|
|
|
|
|
|
|
|
|
|
а) санитарно-технические работы при расчетной температуре наружного воздуха |
|
|
|
|
|
|
|
|
|
|
|
|
-20 °С |
I, III-VI, XII |
- |
- |
- |
- |
750 102 |
8 2 |
750 102 |
8 2 |
142 |
|
|
Затраты труда, чел.-ч. |
- |
- |
- |
- |
- |
164 |
- |
164 |
- |
143 |
|
|
-30 °С |
I-VI, X-XII |
- |
- |
- |
- |
760 105 |
8 2 |
760 105 |
8 2 |
144 |
|
|
Затраты труда, чел.-ч. |
- |
- |
- |
- |
- |
165 |
- |
165 |
- |
145 |
|
|
-40 °С |
I, II, VII-XI |
- |
- |
- |
- |
770 110 |
9 2 |
770 110 |
9 2 |
146 |
|
|
Затраты труда, чел.-ч. |
- |
- |
- |
- |
- |
171 |
- |
171 |
- |
147 |
|
|
б) строительные работы |
I-VII, VIII, IX-XII |
- |
- |
- |
- |
245 74 |
1 |
245 74 |
1 |
148 |
|
|
VIIIA |
- |
- |
- |
- |
266 |
1 |
266 |
1 |
149 |
||
|
Затраты труда, чел.-ч. |
- |
- |
- |
- |
- |
132 |
- |
171 |
- |
150 |
|
|
21 |
Вентиляция: |
|
|
|
|
|
|
|
|
|
|
|
а) санитарно-технические работы |
I, II, III-VII, VIII, IX, XI, XII |
3290 292 |
19 6 |
4870 446 |
27 8 |
6700 560 |
38 11 |
4260 388 |
25 8 |
151 |
|
|
IIА, Х |
3380 |
19 6 |
5010 |
27 8 |
6900 |
38 11 |
4370 |
25 8 |
152 |
||
|
VIIIA |
3480 |
19 6 |
5160 |
27 8 |
7100 |
38 11 |
4520 |
25 8 |
153 |
||
|
Затраты труда, чел.-ч. |
- |
458 |
- |
700 |
- |
880 |
- |
610 |
- |
154 |
|
|
б) оборудование |
I, II, III-VII, VIII, IX, XI, XII |
1170 92 |
9 3 |
1170 92 |
9 3 |
1410 110 |
11 3 |
2420 189 |
18 5 |
155 |
|
|
IIА, X |
1210 |
9 3 |
1210 |
9 3 |
1450 |
11 3 |
2500 |
18 5 |
156 |
||
|
VIIIA |
1240 |
9 3 |
1240 |
9 3 |
1500 |
11 3 |
2560 |
18 5 |
157 |
||
|
Затраты труда, чел.-ч. |
- |
162 |
- |
162 |
- |
194 |
- |
335 |
- |
158 |
|
|
в) строительные работы |
I, II, III-VII, VIII, IX, XI, XII |
272 64 |
6 2 |
332 75 |
7 2 |
403 92 |
9 3 |
512 116 |
11 3 |
159 |
|
|
IIА, Х |
280 |
6 2 |
342 |
- |
415 |
- |
527 |
- |
160 |
||
|
VIIIA |
288 |
- |
352 |
- |
428 |
- |
543 |
- |
161 |
||
|
Затраты труда, чел.-ч. |
- |
105 |
- |
124 |
- |
151 |
- |
192 |
- |
162 |
|
|
22 |
Добавляется к разделу № 21 при подвале, покрытом плитами по серии ИИ-04-4, вып. 28 |
|
|
|
|
|
|
|
|
|
|
|
а) санитарно-технические работы |
I, II, III-VII, VIII, IX, XI, XII |
- |
- |
- |
- |
- |
- |
1080 102 |
7 2 |
163 |
|
|
IIА, X |
- |
- |
- |
- |
- |
- |
1110 |
» |
164 |
||
|
VIIIA |
- |
- |
- |
- |
- |
- |
1150 |
» |
165 |
||
|
Затраты труда, чел.-ч. |
- |
- |
- |
- |
- |
- |
- |
160 |
- |
166 |
|
|
б) оборудование |
I-XII |
|
- |
- |
- |
- |
|
49 4 |
- |
167 |
|
|
Затраты труда, чел.-ч. |
- |
- |
- |
- |
- |
- |
- |
10 |
- |
168 |
|
|
в) строительные работы |
I- -XII |
- |
- |
- |
- |
- |
- |
18 5 |
1 |
169 |
|
|
Затраты труда, чел.-ч. |
- |
- |
- |
- |
- |
- |
- |
10 |
- |
169 |
|
|
23 |
Водопровод: |
|
|
|
|
|
|
|
|
|
|
|
а) санитарно-технические работы |
I |
850 62 |
6 2 |
880 64 |
6 2 |
940 84 |
8 2 |
1220 94 |
8 2 |
170 |
|
|
II, III-VII, VIII, IX, XI, XII |
880 |
6 2 |
910 |
6 2 |
970 |
8 2 |
1260 |
8 2 |
171 |
||
|
IIА, X |
900 |
6 2 |
930 |
6 2 |
1000 |
8 2 |
1290 |
2 |
172 |
||
|
VIIIA |
940 |
6 2 |
960 |
6 2 |
1020 |
8 2 |
1240 |
8 2 |
173 |
||
|
Затраты труда, чел.-ч. |
- |
97 |
|
100 |
|
132 |
|
147 |
- |
174 |
|
|
б) строительные работы |
I-VII, VIII, IX, XI, XII |
22 9 |
- |
25 10 |
- |
30 12 |
- |
39 16 |
- |
175 |
|
|
VIIIA, X |
23 |
- |
28 |
- |
32 |
- |
41 |
- |
176 |
||
|
Затраты труда, чел.-ч. |
- |
16 |
- |
18 |
- |
21 |
- |
28 |
- |
177 |
|
|
Горячее водоснабжение: |
|
|
|
|
|
|
|
|
|
|
|
|
24 |
а) санитарно-технические работы |
I-VII, VIII, IX, XI, XII |
211 34 |
1 |
230 37 |
1 |
249 42 |
2 |
340 54 |
2 |
178 |
|
VIIIA, X |
219 |
1 |
239 |
1 |
258 |
2 |
354 |
2 |
179 |
||
|
Затраты труда, чел.-ч. |
- |
51 |
- |
56 |
- |
64 |
- |
82 |
- |
180 |
|
|
б) строительные работы |
I-XII |
30 11 |
- |
34 13 |
- |
42 16 |
- |
34 13 |
- |
181 |
|
|
Затраты труда, чел.-ч. |
- |
23 |
- |
27 |
- |
30 |
- |
27 |
- |
182 |
|
|
25 |
Канализация: |
|
|
|
|
|
|
|
|
|
|
|
а) санитарно-технические работы |
I-VII, VIII, IX-XII |
558 51 |
5 1 |
710 68 |
5 1 |
1020 93 |
5 1 |
1120 103 |
6 2 |
183 |
|
|
VIIIA |
586 |
5 1 |
750 |
5 1 |
1070 |
5 1 |
1180 |
6 2 |
184 |
||
|
Затраты труда, чел.-ч. |
- |
60 |
- |
77 |
- |
135 |
- |
142 |
- |
185 |
|
|
б) строительные работы |
I-XII |
6 2 |
- |
7 3 |
- |
11 4 |
- |
12 4 |
- |
186 |
|
|
Затраты труда, чел.-ч. |
- |
4 |
- |
6 |
- |
8 |
- |
8 |
- |
187 |
|
Б. РАСХОД МЕСТНЫХ СТРОИТЕЛЬНЫХ МАТЕРИАЛОВ, ИЗДЕЛИЙ И КОНСТРУКЦИЙ
Измеритель - одно здание
Таблица 5
|
Позиция по прейскуранту № 06-08 |
Части зданий, виды работ, материалы и конструкции |
Единица измерения |
Количество по зданиям на чел. |
№ позиции |
|||
|
25 |
50 |
75 |
100 |
|
|||
|
|
Здания со сборными железобетонными фундаментами |
|
|
|
|
|
|
|
|
3. Фундаменты при расчетной температуре наружного воздуха -20, -30 °С |
|
|
|
|
|
|
|
7.214 |
Балки фундаментные трапецеидального сечения из бетона марки М200 длиной до 6 м, массой до 5 т |
м3 |
4,7 |
5,3 |
5,2 |
1,2 |
1 |
|
7.11 |
Блоки фундаментные из бетона марки М200, стаканного типа, объемом до 4 м3, массой до 5 т |
» |
23,4 |
31,2 |
34,2 (33,2) |
22,3 (21,8) |
2 |
|
- |
Бетон тяжелый марки M100 с заполнителем крупностью более 40 мм |
» |
61 (60) |
63 (61) |
39,6 (38,8) |
63 (64) |
3 |
|
- |
Раствор цементный М50 |
» |
1 |
1,3 |
- |
0,9 |
4 |
|
- |
Щебень М200 из естественного камня фракции от 20 до 40 мм |
» |
4,6 |
4,7 |
36 (38,7) |
5,1 |
5 |
|
|
3. При расчетной температуре наружноговоздуха-40 °С добавлять к фундаментам (по позициям 1, 3) |
|
|
|
|
|
|
|
7.214 |
Балки фундаментные трапецеидального сечения из бетона марки М200, длиной до 6 м, массой до 5 т |
» |
- |
- |
0,9 |
- |
6 |
|
|
Бетон тяжелый марки M100 с заполнителем крупностью более 40 мм |
» |
15 |
15 |
21,6 (22,5) |
15 |
7 |
|
|
Здания со свайными фундаментами |
|
|
|
|
|
|
|
|
4. Фундаменты при расчетной температуре наружного воздуха -20, -30 °С |
|
|
|
|
|
|
|
7.18 |
Сваи квадратного сечения 25×25 см периметром сторон 801 - 1000 мм, длиной до 8 м, массой до 5 т |
м |
402 |
486 |
606 |
- |
8 |
|
7.19 |
Сваи квадратного сечения 30×30 см, периметром сторон 1000 - 1200 мм, длиной до 8 м, массой до 5 т |
» |
- |
- |
- |
792 |
9 |
|
7.214 |
Балки фундаментные трапецеидального сечения из бетона марки М200, длиной до 8 м, массой до 5 т |
м3 |
4,7 |
4,7 |
5,1 |
1 |
10 |
|
- |
Бетон тяжелый марки М150 с заполнителем крупностью до 40 мм |
» |
56 (54) |
59 (56,6) |
62 (59,6) |
124 (119) |
11 |
|
- |
Песок природный для строительных работ |
» |
11,1 |
11,3 |
11,4 |
13,1 |
12 |
|
|
4. Фундаменты при расчетной температуре наружного воздуха -40 °С |
|
|
|
|
|
|
|
7.18 |
Сваи квадратного сечения 25×25 см периметром сторон 801 - 1000 мм, длиной до 8 м, массой до 5 т |
м |
402 |
486 |
606 |
- |
13 |
|
7.19 |
Сваи квадратного сечения 30×30 см, периметром сторон 1000 - 1200 мм, длиной до 8 м, массой до 5 т |
м |
- |
- |
- |
800 |
14 |
|
7.214 |
Балки фундаментные трапецеидального сечения из бетона марки М200, длиной до 6 м, массой до 5 т |
м3 |
4,7 |
4,8 |
5,9 |
1 |
15 |
|
- |
Бетон тяжелый марки M150 с заполнителем крупностью до 40 мм |
» |
56 (54) |
59,3 (57) |
65 (61,6) |
124 (119) |
16 |
|
- |
Песок природный для строительных работ |
» |
11,1 |
11,3 |
11,8 |
13,1 |
17 |
|
|
5. Каркас |
|
|
|
|
|
|
|
7.2 |
Колонны прямоугольные с консолями в одну сторону из бетона марки М300, объемом до 1 м3, длиной до 12 м, массой до 5 т |
» |
11,3 (10,5) |
13,7 (12,8) |
15,1 (14,3) |
32,3 (29,5) |
18 |
|
7.151 |
Ригели прямоугольные и с четвертью длиной до 6 м, из бетона марки М300, объемом более 1,5 м3, массой до 5 т |
» |
13,3 (12,8) |
17,1 (16,5) |
20,5 (19,8) |
27,3 (26,3) |
19 |
|
1.430 |
Перегородки самонесущие панельные (диафрагмы жесткости) толщиной 8 см, длиной до 3 м, с расходом стали до 3,5 кг/м2 из тяжелого бетона массой до 5 т |
м2 |
83 |
83 |
83 |
178 |
20 |
|
- |
Бетон тяжелый марки М300 с заполнителем крупностью до 40 мм |
м3 |
4,2 |
3,2 |
5 |
9 |
21 |
|
|
6. Стены при расчетной температуре наружного воздуха -20° С |
|
|
|
|
|
|
|
9.58 |
Элементы стен однослойные из легкого бетона при длине от 3 до 3,9 м. толщине 25 см, объемной массой до 1000 кг/м3, массой до 5 т |
м3 |
270 |
317 |
427 |
304 |
22 |
|
1.424 |
Панели наружных стен из легкого бетона марки М50, объемной массой 1000 - 1200 кг/м3, объемом до 0,5 м3, массой до 5 т |
м3 |
12,5 |
16,1 |
19 |
78 |
23 |
|
9.2344 |
Плиты козырьков сплошные плоские длиной и шириной до 3 м, из бетона марки М200 объемной массой 2400 кг/м3, массой до 5 т |
» |
0,5 |
0,5 |
0,5 |
0,5 |
24 |
|
7.6 |
Перемычки прямоугольные из бетона марки М200, объемом до 0,5 м3, длиной до 3 м, массой до 5 т |
» |
1,8 |
2,1 |
2 |
2,3 |
25 |
|
7.202 |
Плиты подоконные железобетонные мозаичные, шлифованные на обычном цементе площадью до 0,22 м2, массой до 0,5 т |
м3 |
19,4 |
19,4 |
23,5 |
7,8 |
26 |
|
- |
Кирпич силикатный М125 |
тыс. шт. |
12,4 |
12,4 |
12,4 |
13,7 |
27 |
|
- |
Раствор цементно-известковый М25 |
м3 |
8,5 |
8,5 |
9,7 |
9,5 |
28 |
|
|
6. Стены при расчетной температуре наружноговоздуха-30оС |
|
|
|
|
|
|
|
9.58 |
Элементы стен однослойные из легкого бетона при длине от 3 до 3,9 м, толщине 25 см, объемной массой до 1000 кг/м3, массой до 5 т |
м2 |
271 |
317 |
427 |
304 |
29 |
|
1.424 |
Панели наружных стен из легкого бетона марки М50, объемной массой 1000 - 1200 кг/м3, объемом до 0,5 м3, массой до 5 т |
м3 |
12,5 |
16,1 |
23 |
78 |
30 |
|
9.2344 |
Плиты козырьков сплошные плоские длиной и шириной до 3 м, из бетона марки М200, объемной массой 2400 кг/м3, массой до 5 т |
» |
0,5 |
0,5 |
0,5 |
0,5 |
31 |
|
7.6 |
Перемычки прямоугольные из бетона марки М200, объемом до 0,5 м3, длиной до 3 м, массой до 5 т |
» |
1,9 |
2,1 |
2,1 |
2,5 |
32 |
|
7.202 |
Плиты подоконные железобетонные мозаичные, шлифованные на обычном цементе, площадью до 0,22 м2, массой до 0,5 т |
м2 |
19,8 |
19,8 |
23,9 |
8,2 |
33 |
|
- |
Кирпич силикатный М125 |
тыс. шт. |
13,5 |
16,5 |
14,1 |
18,2 |
34 |
|
- |
Раствор цементно-известковый М25 |
м3 |
9,1 |
11,8 |
10,7 |
12,5 |
35 |
|
|
6. Стены при расчетной температуре наружного воздуха -40 °С |
|
|
|
|
|
|
|
9.58 |
Элементы стен однослойные из легкого бетона при длине от 3 до 3,9 м, толщине 25 см, объемной массе до 1000 кг/м3, массе до 5 т |
м2 |
323 |
378 |
427 |
334 |
36 |
|
1.424 |
Панели наружных стен из легкого бетона марки М50, объемной массой до 0,5 м3, массой до 5 т |
м3 |
17,5 |
22,3 |
23 |
66 |
37 |
|
9.2344 |
Плиты козырьков сплошные плоские длиной и шириной до 3 м, из бетона марки М200, объемной массой 2400 кг/м3, массой до 5 т |
м3 |
0,5 |
0,5 |
0,5 |
0,5 |
38 |
|
7.6 |
Перемычки прямоугольные из бетона марки М200, объемом до 0,5 м3, длиной до 3 м, массой до 5 т |
» |
2 |
2,2 |
2,2 |
2,6 |
39 |
|
7.202 |
Плиты подоконные железобетонные мозаичные, шлифованные на обычном цементе, площадью до 0,22 м2, массой до 0,5 т |
м3 |
20,2 |
20,2 |
24,3 |
8,6 |
40 |
|
- |
Кирпич силикатный M125 |
тыс. шт. |
15,9 |
15,9 |
15,8 |
24,3 |
41 |
|
- |
Раствор цементно-известковый М25 |
м3 |
10,7 |
10,7 |
11,7 |
14,8 |
42 |
|
|
7. Перекрытие и покрытия |
|
|
|
|
|
|
|
1.441 |
Плиты ребристые из бетона марки М200, длиной до 6 м, шириной до 3 м, толщиной 12 см, массой до 5 т |
м2 |
102 (131) |
102 (131) |
138 (169) |
178 (214) |
43 |
|
1.457 |
Панели с круглыми пустотами из бетона марки М200 длиной до 6 м, шириной до 3 м, толщиной до 14 см, массой до 5 т |
» |
237 - |
278 - |
512 (509) |
637 (640) |
44 |
|
9.2378 |
Плиты карнизные, из бетона марки М200 объемной массой 1900 кг/м3 и более, длиной от 3 до 12 м, шириной до 3 м, массой до 5 т |
м3 |
3,6 |
4,8 |
- |
- |
45 |
|
- |
Бетон легкий, марки М50, с заполнителем крупностью более 10 до 20 мм |
» |
17 |
18,9 |
18,6 |
26,8 (27,1) |
46 |
|
|
8. Кровля при расчетной температуре наружного воздуха -20 °С |
|
|
|
|
|
|
|
7.169 |
Плиты теплоизоляционные неармированные из ячеистых бетонов, марки М25, массой 0,5 т |
м3 |
23,2 |
30,8 |
43 |
32,2 |
47 |
|
- |
Бетон тяжелый марки М50 с заполнителем крупностью до 40 мм |
» |
16,4 |
18 |
18 |
15,5 |
48 |
|
- |
Раствор цементный М75 тяжелый |
» |
4,7 |
6,3 |
6,5 |
4,8 |
49 |
|
|
8. Кровля при расчетной температуре наружного воздуха -30 °С |
|
|
|
|
|
|
|
7.169 |
Плиты теплоизоляционные неармированные из ячеистых бетонов марки М25, массой 0,5 т |
» |
32,5 |
43,1 |
59,7 |
43,7 |
50 |
|
- |
Бетон тяжелый марки М50 с заполнителем крупностью до 40 мм |
» |
16,4 |
18,3 |
18,4 |
15,5 |
51 |
|
- |
Раствор цементный М75 тяжелый |
» |
3,6 |
4,7 |
6,5 |
4,8 |
52 |
|
|
8. Кровля при расчетной температуре наружного воздуха -40 °С |
|
|
|
|
|
|
|
7.169 |
Плиты теплоизоляционные неармированные из ячеистых бетонов марки М25, массой 0,5 т |
» |
37,1 |
49,3 |
68,2 |
49,9 |
53 |
|
- |
Бетон тяжелый марки М50 с заполнителем крупностью до 40 мм |
» |
16,4 |
18 |
18 |
15,5 |
54 |
|
- |
Раствор цементный М75 тяжелый |
» |
41 |
6,3 |
6,5 |
4,8 |
55 |
|
|
9. Перегородки |
|
|
|
|
|
|
|
7.169 |
Плиты пенобетонные неармированные М25, массой 0,5 т |
м3 |
19,4 |
19,9 |
32,5 |
19,9 |
56 |
|
- |
Кирпич глиняный обыкновенный M100 |
тыс. шт. |
10,2 |
11 |
26 |
20,3 |
57 |
|
- |
Бетон тяжелый марки М150 с заполнителем крупностью до 40 мм |
м3 |
5 |
5 |
16,6 |
6,5 |
58 |
|
- |
Раствор цементно-известковый М25 |
» |
4,4 |
4,8 |
11,6 |
8,8 |
59 |
|
- |
Песок природный для строительных работ |
» |
1,1 |
1,1 |
2,1 |
1,3 |
60 |
|
|
11. Полы |
|
|
|
|
|
|
|
- |
Бетон тяжелый марки М100 с заполнителем крупностью до 40 мм |
» |
40 (37,7) |
46,3 (44,2) |
57 (53) |
67 (62) |
61 |
|
- |
Раствор цементный M100 |
» |
4,5 |
6,5 |
6,6 |
6,9 |
62 |
|
- |
Щебень из естественного камня М1000 - 1200, фракции от 10 до 20 мм |
» |
8,7 |
12,8 |
12 |
8,1 |
63 |
|
- |
Плитки кислотоупорные квадратные и прямоугольные толщиной до 20 мм |
м2 |
11,1 |
11,1 |
13 |
16 |
64 |
|
|
12. Лестницы и площадки |
|
|
|
|
|
|
|
9.2333 |
Марши лестничные под облицовку накладными проступями массой до 5 т |
» |
16,1 |
16,1 |
16,1 |
32,2 |
65 |
|
9.2339 |
Проступи лестничные с лицевыми бетонными поверхностями, не требующими дополнительной отделки |
м |
43,6 |
43,6 |
43,6 |
87 |
66 |
|
9.2335 |
Площадки лестничные с бетонным полом, не требующим дополнительной отделки, массой до 5 т |
м2 |
2,3 |
2,3 |
2,3 |
4,6 |
67 |
|
|
13. Отделка наружная и внутренняя |
|
|
|
|
|
|
|
- |
Раствор цементно-известковый 1:1:6 |
м3 |
15,8 |
25 |
24 |
27 |
68 |
|
|
14. Прочие работы |
|
|
|
|
|
|
|
1.356 |
Плиты перекрытия плоские сборные железобетонные М200, массой до 5 т |
» |
0,5 |
0,5 |
0,6 |
0,5 |
69 |
|
- |
Бетон тяжелый марки M150 с заполнителем крупностью до 40 мм |
» |
6 |
6,1 |
6,8 |
2,6 |
70 |
|
- |
Смесь асфальтобетонная (горячая) дорожная плотная мелкозернистая щебеночная типа А, марки I |
т |
4 |
4,8 |
5,3 |
3,5 |
71 |
|
- |
Песок природный для строительных работ |
м3 |
2,9 |
2,9 |
2,9 |
2,9 |
72 |
|
- |
Щебень из естественного камня М200, фракции от 5 до 40 мм |
» |
12,3 |
14,6 |
16,2 |
10,8 |
73 |
А. ПОСТОЯННЫЕ ЗАТРАТЫ
Измеритель - одно здание
Таблица 6
|
№ раздела |
Наименование монтажа и оборудования |
Прямые затраты, руб., по базисному району для объединенных зданий |
||||||||
|
заводских станций и постов электрической централизации на чел. |
транспортных управлений, заводских станций и постов электрической централизации на чел. |
|||||||||
|
25 |
50 |
75 |
||||||||
|
Всего |
В том числе эксплуатация машин |
Затраты труда, чел.-ч. |
Всего |
В том числе эксплуатация машин |
Затраты труда, чел.-ч. |
Всего |
В том числе эксплуатация машин |
Затраты труда, чел.-ч. |
||
|
1 |
2 |
3 |
4 |
5 |
6 |
7 |
8 |
9 |
10 |
11 |
|
1 |
Технологическое |
53 17 |
9 3 |
27 |
53 17 |
9 3 |
27 |
53 17 |
9 3 |
27 |
|
2 |
Электросиловое оборудование, приборы и средства автоматизации при варианте теплоноситель - вода |
1930 464 |
130 43 |
650 |
1930 471 |
149 50 |
650 |
2540 630 |
149 50 |
880 |
Продолжение табл. 6 (правая часть)
|
№ раздела |
Наименование монтажа и оборудования |
Прямые затраты, руб., по базисному району для объединенных зданий |
Территориальные районы |
Прямые затраты, руб., по территориальным районам, по объединенным зданиям |
№ позиции |
|||||
|
транспортных управлений, заводских станций и постов электрической централизации на чел. |
заводских станций и постов электрической централизации начел. |
транспортных управлений, заводских станций и постов электрической централизации на, чел. |
||||||||
|
100 |
||||||||||
|
Всего |
В том числе эксплуатация машин |
Затраты труда, чел.-ч |
25 |
50 |
75 |
100 |
||||
|
1 |
2 |
12 |
13 |
14 |
15 |
16 |
17 |
18 |
19 |
20 |
|
1 |
Технологическое |
133 34 |
18 6 |
53 |
II-XII |
53 |
53 |
53 |
53 |
1 |
|
2 |
Электросиловое оборудование, приборы и средства автоматизации при варианте теплоноситель - вода |
2540 630 |
159 53 |
880 |
II, III-VII, VIII, IX-XII |
1930 |
1930 |
2540 |
2540 |
2 |
|
IIА, VIIIA |
1970 |
1970 |
2590 |
2590 |
3 |
|||||
|
3 |
Электросиловое оборудование, приборы и средства автоматизации при варианте теплоноситель - пар |
1950 710 |
183 61 |
960 |
II, Ш-VII, VIII, IX-XII |
- |
- |
2810 |
1950 |
4 |
|
IIА, VIIIA |
- |
- |
2870 |
1990 |
5 |
|||||
Продолжение табл. 6
|
№ раздела |
Наименование монтажа и оборудования |
Прямые затраты, руб., по базисному району для объединенных зданий |
||||||||
|
заводских станций и постов электрической централизации на чел. |
транспортных управлений, заводских станций и постов электрической централизации на чел. |
|||||||||
|
25 |
50 |
75 |
||||||||
|
Всего |
В том числе эксплуатация машин |
Затраты труда, чел.-ч. |
Всего |
В том числе эксплуатация машин |
Затраты труда, чел.-ч. |
Всего |
В том числе эксплуатация машин |
Затраты труда, чел.-ч. |
||
|
1 |
2 |
3 |
4 |
5 |
6 |
7 |
8 |
9 |
15 |
11 |
|
3 |
Электросиловое оборудование, приборы и средства автоматизации при варианте теплоноситель - пар |
- |
- |
- |
- |
- |
- |
2810 1090 |
318 106 |
1420 |
|
4 |
Электроосвещение |
4030 281 |
144 48 |
352 |
4480 316 |
151 50 |
402 |
4480 316 |
151 50 |
402 |
|
5 |
Слаботочные сети |
750 481 |
18 6 |
670 |
820 512 |
24 8 |
710 |
820 602 |
24 8 |
710 |
|
6 |
Молниезащита |
- |
- |
- |
- |
- |
- |
86 19 |
1 |
30 |
|
7 |
Оборудование буфета |
13 7 |
- |
10 |
13 7 |
- |
10 |
28 14 |
- |
20 |
Продолжение табл. 6 (правая часть)
|
№ раздела |
Наименование монтажа и оборудования |
Прямые затраты, руб., по базисному району для объединенных зданий |
Территориальные районы |
Прямые затраты, руб., по территориальным районам, по объединенным зданиям |
№ позиции |
|||||
|
транспортных управлений, заводских станций и постов электрической централизации на чел. |
заводских станций и постов электрической централизации на чел. |
транспортных управлений, заводских станций и постов электрической централизации на, чел. |
||||||||
|
100 |
||||||||||
|
Всего |
В том числе эксплуатация машин |
Затраты труда, чел.-ч |
25 |
50 |
75 |
100 |
||||
|
1 |
2 |
12 |
13 |
14 |
15 |
16 |
17 |
18 |
19 |
20 |
|
4 |
Электроосвещение |
5690 448 |
228 76 |
560 |
II, III-VII, VIII, IX, XI, XII |
4030 |
4480 |
4480 |
5690 |
6 |
|
IIА, X |
4200 |
4670 |
4670 |
5930 |
7 |
|||||
|
VIIIA |
4530 |
4830 |
4830 |
6100 |
8 |
|||||
|
5 |
Слаботочные сети |
1210 740 |
33 11 |
1120 |
II-VII, VIII, IX-XII |
750 |
820 |
820 |
1210 |
9 |
|
VIIIA |
760 |
830 |
830 |
1220 |
10 |
|||||
|
6 |
Молниезащита |
106 26 |
1 |
36 |
- |
- |
86 |
106 |
- |
11 |
|
7 |
Оборудование |
28 14 |
- |
20 |
- |
13 |
13 |
28 |
28 |
12 |
Измеритель - одно здание
Таблица 7
|
№ раздела |
Вид оборудования |
Стоимость по оптовым ценам, руб., для объединенного здания |
№ позиции |
|||
|
Заводской станции и поста ЭЦ на чел. |
транспортного управления, заводской станции и поста ЭЦ на чел. |
|||||
|
25 |
50 |
75 |
100 |
|||
|
1 |
Технологическое |
2380 |
2380 |
2380 |
2380 |
1 |
|
2 |
Электросиловое оборудование, приборы и средства автоматизации при варианте - теплоноситель - вода |
2010 |
2010 |
3050 |
2550 |
2 |
|
3 |
Электросиловое оборудование, приборы и средства автоматизации при варианте теплоноситель - пар |
- |
- |
4080 |
2760 |
3 |
|
4 |
Электроосвещение |
124 |
124 |
124 |
124 |
4 |
|
5 |
Слаботочные сети |
2150 |
2210 |
2210 |
3970 |
5 |
|
6 |
Хозяйственный инвентарь |
960 |
1280 |
1620 |
1930 |
6 |
|
7 |
Оборудование буфета |
270 |
511 |
1030 |
1080 |
7 |
ТИПОВОЙ ПРОЕКТ ![]()
Строительные работы
А. ПОСТОЯННЫЕ ЗАТРАТЫ
Измеритель - один подвал
Таблица 8
|
№ раздела |
Конструктивные элементы, виды работ и др. |
Территориальные районы |
Прямые затраты |
№ позиции |
|
|
всего |
в том числе эксплуатация машин |
||||
|
1 |
Земляные работы |
I-XII |
38 25 |
20 7 |
1 |
|
2 |
Затраты труда, чел.-ч. |
- |
30 |
- |
2 |
|
3 |
Перекрытие и покрытие |
I-XII |
571 - |
- |
3 |
|
4 |
Вентиляция: |
|
|
|
|
|
а) санитарно-технические работы |
I, II, III-VII, VIII, IX, XI, XII |
1180 62 |
3 1 |
4 |
|
|
IIА, X |
1190 |
3 1 |
5 |
||
|
VIIIA |
1240 |
1 |
6 |
||
|
Затраты труда, чел.-ч. |
- |
107 |
- |
7 |
|
|
б) оборудование |
I-XII |
49 4 |
- |
8 |
|
|
Затраты труда, чел.-ч. |
- |
6 |
- |
9 |
|
|
в) строительные работы |
I-XII |
15 3 |
1 |
10 |
|
|
Затраты труда, чел.-ч. |
- |
6 |
- |
11 |
|
|
№ норм |
Наименование зданий |
Масса грунта, т |
№ позиции |
|
|
отвозимого в отвал |
подвозимого из отвала для обратной засыпки |
|||
|
1 |
Объединенные здания заводских станций и постов электрической централизации на чел.: |
|
|
|
|
25 |
660 |
530 |
1 |
|
|
50 |
730 |
470 |
2 |
|
|
Объединенные здания транспортных управлений, заводских станций и постов электрической централизации на чел.: |
|
|
|
|
|
75 |
730 |
500 |
3 |
|
|
100 |
5350 |
3140 |
4 |
|
Требуется определить по УСН сметную стоимость вновь строящегося объединенного здания заводской станции и поста ЭЦ на 50 чел., со сборными железобетонными фундаментами, для промышленных железных дорог при следующих данных:
1. Место строительства - Моск. обл., I территориальный район. Температура наружного воздуха - 30°С.
2. Отопление - водяное.
3. Работы будут выполняться подрядной организацией Минтрансстроя - Главжелдорстроем Севера и Запада (накладные расходы - 18,8 %).
4. Накладные расходы на металлоконструкции - 8,6 %, санитарно-технические работы - 13,3 %.
5. Транспортные, заготовительно-складские и прочие расходы: для санитарно-технического и технологического оборудования - 8,4 %, для электросилового оборудования, приборов и средств автоматизации - 9,5 %.
6. Затраты на комплектацию оборудования - 0,7 %.
Примеры составления смет на строительные работы, санитарно-технические работы, на приобретение и монтаж оборудования приведены соответственно в сметах № 1, 2, 3. В смете № 1 приведено обоснование стоимости местных строительных материалов по Сборнику сметных цен на местные строительные материалы для Московской обл. (ССЦ).
Смета № 1
на строительные работы по объединенному зданию заводской станции и поста ЭЦ на 50 чел., со сборными железобетонными фундаментами
Сметная стоимость - 69,34 тыс. руб.
Нормативная условно-чистая продукция - 12,74 тыс. руб.
Составлена в ценах 1984 г.
|
№ п.п. |
№ прейскурантов, укрупненных сметных норм, расценок и др. |
Наименование работ и затрат |
Единица измерения |
Количество |
Стоимость единицы, руб. |
Общая стоимость, руб. |
|||||
|
Всего |
в том числе |
Всего |
Нормативная условно-чистая продукция |
в том числе |
|||||||
|
основная заработная плата |
эксплуатация машин |
основная заработная плата |
эксплуатация машин |
||||||||
|
1 |
УСН10-1, табл. 4, п. 1 |
1. Земляные работы |
1 здание |
1 |
385 |
211 |
174 |
385 |
385 |
211 |
174 |
|
2 |
То же, табл. 4, п. 3 |
Транспортировка грунта |
1 здание |
1 |
347 |
- |
347 |
347 |
347 |
- |
347 |
|
3 |
То же, табл. 4, п. 4 |
3. Фундаменты |
то же |
1 |
1020 |
196 |
159 |
1020 |
355 |
196 |
159 |
|
4 |
То же, табл. 5, п. 1, ССЦ, поз. 9-348 |
Балки фундаментные трапецеидального сечения из бетона марки М200, длиной до 6 м, массой до 5 т |
м3 |
5,3 |
67,9 |
- |
- |
360 |
- |
- |
- |
|
5 |
УСН 10-1, табл. 5, п. 2, ССЦ, поз. 9-124 |
Блоки фундаментные из бетона, марки М200, стаканного типа, объемом до 4 м3, массой до 5 т |
» |
31,2 |
52,5 |
- |
- |
1638 |
- |
- |
- |
|
6 |
То же, табл. 5, п. 3, ССЦ, поз. 1-3 |
Бетон тяжелый марки М100 с заполнителем крупностью более 40 мм |
» |
63 |
25,8 |
- |
- |
1625 |
- |
- |
- |
|
7 |
УСН 10-1, табл. 5, п. 4, ССЦ, поз. 2-2 |
Раствор цементный М50 |
» |
1,3 |
21,9 |
- |
- |
28 |
- |
- |
- |
|
8 |
УСН 10-1, табл. 5, п. 5, ССЦ, поз. 4-66 |
Щебень М200 из естественного камня фракции от 20 до 40 мм |
» |
4,7 |
8,69 |
- |
- |
41 |
- |
- |
- |
|
9 |
УСН 10-1, табл. 4, п. 23 |
5. Каркас |
1 здание |
1 |
3750 |
213 |
272 |
3750 |
485 |
213 |
272 |
|
10 |
УСН 10-1, табл. 5, п. 18, ССЦ, поз. 9-29 |
Колонны прямоугольные с консолями в одну сторону из бетона марки М300, длиной до 12 м, объемом до 1 м3, массой до 5 т |
м3 |
13,7 |
84,2 |
- |
- |
1154 |
- |
- |
- |
|
11 |
То же, табл. 5, п. 19, ССЦ, поз. 9-289 |
Ригели прямоугольные и с четвертью длиной до 6 м, из бетона марки М300, объемом более 1,5 м8, массой до 5 т |
» |
17,1 |
67,1 |
- |
- |
1147 |
- |
- |
- |
|
12 |
УСН 10-1, табл. 5, п. 20, ССЦ, поз. 8-409 |
Перегородки самонесущие панельные (диафрагмы жесткости) толщиной 8 см, длиной до 3 м, с расходом стали до 3,5 кг/м2 из тяжелого бетона массой до 5 т |
м2 |
83 |
5,58 |
- |
- |
463 |
- |
- |
- |
|
13 |
УСН 10-1, табл. 5, п. 21, ССЦ, поз. 1-19 |
Бетон тяжелый марки М300 с заполнителем крупностью до 40 мм |
м3 |
3,2 |
32,1 |
- |
- |
103 |
- |
- |
- |
|
14 |
УСН 10-1, табл. 4, п. 27 |
6. Стены |
1 здание |
1 |
1750 |
577 |
411 |
1750 |
988 |
577 |
411 |
|
15 |
То же, табл. 5, п. 29, Прейскурант № 06-08, поз. 9-58 К = 1,14 |
Элементы стен однослойные из легкого бетона при длине от 3 до 3,9 м, толщине 25 см, объемной массе до 1000 кг/м3, массой до 5 т |
м2 |
317 |
19,04 |
- |
- |
6036 |
- |
- |
- |
|
16 |
УСН 10-1, табл. 5, п. 30, ССЦ, поз. 8-398 |
Панели наружных стен из легкого бетона марки М50, объемной массой 1000 - 1200 кг/м3, объемом до 0,5м3, массой до 5 т |
м3 |
16,1 |
51,1 |
- |
- |
823 |
- |
- |
- |
|
17 |
УСН 10-1, табл. 5, п. 31, ССЦ, поз. 11-182 |
Плиты козырьков сплошные плоские длиной и шириной до 3 м, из бетона марки М200, объемной массой до 2400 кг/м3, массой до 5 т |
» |
0,5 |
53,5 |
- |
- |
27 |
- |
- |
- |
|
18 |
УСН 10-1, табл. 5, п. 32, ССЦ, поз. 9-92 |
Перемычки прямоугольные из бетона марки М200, объемом до 3 м, массой до 5 т |
» |
2,1 |
64,4 |
- |
- |
135 |
- |
- |
- |
|
19 |
УСН 10-1, табл.5, п. 33, ССЦ, поз. 9-339 |
Плиты подоконные железобетонные мозаичные шлифованные на обычном цементе площадью до 0,22 м2, массой до 0,5 т |
м2 |
19,8 |
8,54 |
- |
- |
169 |
- |
- |
- |
|
20 |
УСН 10-1, табл. 5, п. 34, ССЦ, поз. 6-14 |
Кирпич силикатный M125 |
тыс. шт. |
16,5 |
61,2 |
- |
- |
1010 |
- |
- |
- |
|
21 |
УСН 10-1, табл. 5, п. 35, ССЦ, поз. 2-11 |
Раствор цементно-известковый М25 |
м3 |
11,8 |
22,4 |
- |
- |
264 |
- |
- |
- |
|
|
|
7. Перекрытие и покрытие |
|
|
|
|
|
|
|
|
|
|
22 |
УСН 10-1, табл. 4, п. 33 |
а)строительные работы |
1 здание |
1 |
1280 |
118 |
102 |
1280 |
220 |
118 |
102 |
|
23 |
То же, табл. 4, п. 37 |
б) металлоконструкции |
1 здание |
1 |
151 |
3 |
5 |
151 |
8 |
3 |
5 |
|
24 |
То же, табл. 5, п. 43, ССЦ, поз. 8-415 |
Плиты ребристые из бетона марки М200, длиной до 6 м, шириной до 3 м, толщиной 12 см, массой до 5 т |
м2 |
102 |
9,17 |
- |
- |
935 |
- |
- |
- |
|
25 |
УСН 10-1, табл. 5, п. 44, ССЦ, поз. 8-479 |
Панели с круглыми пустотами из бетона марки М200 длиной до 6 м, шириной до 3 м, толщиной до 14 см, массой до 5 т |
» |
278 |
9,63 |
- |
- |
2677 |
- |
- |
- |
|
26 |
УСН 10-1, табл. 5, п. 45, ССЦ, поз. 11-239 |
Плиты карнизные, из бетона марки М200, длиной от 3 до 12 м, шириной до 3 м, объемной массой 1900 кг/м3, массой до 5 т |
м3 |
4,8 |
71,1 |
- |
- |
341 |
- |
- |
- |
|
27 |
УСН 10-1, табл. 5, п. 46, ССЦ, поз. 1-72 |
Бетон легкий марки М50 с заполнителем крупностью от 10 до 20 мм |
м3 |
18,9 |
29,7 |
- |
- |
561 |
- |
- |
- |
|
28 |
УСН 10-1, табл. 4, п. 42 |
8. Кровля |
1 здание |
1 |
1370 |
276 |
50 |
1370 |
326 |
276 |
50 |
|
29 |
То же, табл. 5, п. 50, ССЦ, поз. 9-331 |
Плиты теплоизоляционные неармированные из ячеистых бетонов марки М25, массой 0,5 т |
м3 |
43,1 |
30,4 |
- |
- |
1310 |
- |
- |
- |
|
30 |
УСН 10-1, табл. 5, п. 51, ССЦ, поз. 1-13 |
Бетон тяжелый марки М50 с заполнителем крупностью до 40 мм |
» |
18,3 |
25,3 |
- |
- |
463 |
- |
- |
- |
|
31 |
УСН 10-1, табл. 5, п. 52, ССЦ, поз. 2-3 |
Раствор цементный М75 |
» |
4,7 |
23,3 |
- |
- |
110 |
- |
- |
- |
|
32 |
УСН 10-1, табл. 4, п. 53 |
9. Перегородки |
1 здание |
1 |
1320 |
411 |
41 |
1320 |
452 |
411 |
41 |
|
33 |
То же, табл. 5, п. 56, ССЦ, поз. 9-331 |
Плиты пенобетонные неармированные М25, массой 0,5 т |
м3 |
19,9 |
30,4 |
- |
- |
605 |
- |
- |
- |
|
34 |
УСН 10-1, табл. 5, п. 57, ССЦ, поз. 6-1 |
Кирпич глиняный обыкновенный M100 |
тыс. шт. |
11 |
68 |
- |
_ |
748 |
- |
- |
- |
|
35 |
УСН 10-1, табл. 5, п. 58, ССЦ, поз. 1-16 |
Бетон тяжелый марки М150 с заполнителем крупностью до 40 мм |
м3 |
5 |
27,2 |
- |
- |
136 |
- |
- |
- |
|
36 |
УСН 10-1, табл. 5, п. 59, ССЦ, поз. 2-11 |
Раствор цементно-известковый М25 |
» |
4,8 |
22,4 |
- |
- |
108 |
- |
- |
- |
|
37 |
УСН 10-1, табл. 5, п. 60, ССЦ, поз. 4-20 |
Песок природный для строительных работ |
» |
1,1 |
7,79 |
- |
- |
9 |
- |
- |
- |
|
38 |
УСН 10-1, табл. 4, п. 61 |
10. Проемы оконные и дверные |
1 здание |
1 |
5290 |
317 |
53 |
5290 |
370 |
317 |
53 |
|
39 |
То же, табл. 4, п. 71 |
11. Полы |
1 здание |
1 |
4200 |
665 |
87 |
4200 |
752 |
665 |
87 |
|
40 |
То же, табл. 5, п. 61, ССЦ, поз. 1-15 |
Бетон тяжелый марки М100 с заполнителем крупностью до 40 мм |
м3 |
46,3 |
26,3 |
- |
- |
1218 |
- |
- |
- |
|
41 |
УСН 10-1, табл. 5, п. 62, ССЦ, поз. 2-4 |
Раствор цементный М100 |
» |
6,5 |
24,4 |
- |
- |
159 |
- |
- |
- |
|
42 |
УСН 10-1, табл. 5, п. 63, ССЦ, поз. 4-29 |
Щебень из естественного камня М1000 - 1200, фракции от 10 до 20 мм |
» |
12,8 |
12 |
- |
- |
154 |
- |
- |
- |
|
43 |
УСН 10-1, табл. 5 п. 64, Сб. районных сметных цен, ч. 1, поз. 101 |
Плитки кислотоупорные квадратные и прямоугольные толщиной до 20 мм |
м2 |
11,1 |
3,54 |
- |
- |
39 |
- |
- |
- |
|
44 |
УСН 10-1, табл. 4, п. 76 |
12. Лестницы и площадки |
|
|
|
|
|
|
|
|
|
|
а)строительные работы |
1 здание |
1 |
113 |
45 |
19 |
113 |
64 |
45 |
19 |
||
|
45 |
То же, табл. 4, п. 79 |
б)металлоконструкции |
то же |
1 |
599 |
20 |
46 |
599 |
66 |
20 |
46 |
|
46 |
To же, табл. 5, п. 65, ССЦ, поз. 11-167 |
Марши лестничные под облицовку накладными проступями, массой до 5 т |
м2 |
16,1 |
10,8 |
- |
- |
174 |
- |
- |
- |
|
47 |
УСН 10-1, табл. 5, п. 66, ССЦ, поз. 11-173 |
Проступи лестничные с лицевыми бетонными поверхностями, не требующими дополнительной отделки |
м |
43,6 |
2,34 |
- |
- |
102 |
- |
- |
- |
|
48 |
УСН 10-1, табл. 5, п. 67, ССЦ, поз. 11-169 |
Площадки лестничные с бетонным полом, не требующим дополнительной отделки, массой до 5 т |
м2 |
2,3 |
9,94 |
- |
- |
23 |
- |
- |
- |
|
49 |
УСН 10-1, табл. 4, п. 81 |
13. Отделка наружная и внутренняя |
1 здание |
1 |
4190 |
1682 |
99 |
4190 |
1781 |
1682 |
99 |
|
50 |
То же, табл. 5, п. 68, ССЦ, поз. 2-30 |
Раствор цементно-известковый 1:1:6 |
м3 |
25 |
23,7 |
- |
- |
593 |
- |
- |
- |
|
51 |
УСН 10-1, табл. 4, п. 86 |
14. Прочие работы |
1 здание |
1 |
243 |
86 |
31 |
243 |
117 |
86 |
31 |
|
52 |
То же, табл. 5, п. 69, ССЦ, поз. 8-235 |
Плиты перекрытия плоские сборные железобетонные М200, массой до 5 т |
м3 |
0,5 |
74,8 |
- |
- |
37 |
- |
- |
- |
|
53 |
УСН 10-1, табл. 5, п. 70, ССЦ, поз. 1-16 |
Бетон тяжелый марки М150 с заполнителем крупностью до 40 мм |
м3 |
6,1 |
27,2 |
- |
- |
166 |
- |
- |
- |
|
54 |
УСН 10-1, табл. 5, п. 71, ССЦ, поз. 5-1 |
Смесь асфальтобетонная (горячая) плотная дорожная мелкозернистая щебеночная типа Н, марки I |
т |
4,8 |
19,8 |
- |
- |
95 |
- |
- |
- |
|
55 |
УСН 10-1, табл. 5, п. 72, ССЦ, поз. 4-20 |
Песок природный для строительных работ |
м3 |
2,9 |
7,79 |
- |
- |
23 |
- |
- |
- |
|
56 |
УСН 10-1, табл. 5, п. 73, ССЦ, поз. 4-66 |
Щебень из естественного камня М200, фракции от 5 до 40 мм |
» |
14,6 |
8,69 |
|
|
127 |
|
|
|
|
57 |
УСН 10-1, табл. 4, п. 91 |
15. Специально-строительные работы |
|
|
|
|
|
|
|
|
|
|
а)строительные работы |
1 здание |
1 |
1920 |
142 |
26 |
1920 |
168 |
142 |
26 |
||
|
58 |
То же, табл. 4, п. 95 |
б)металлоконструкции |
1 здание |
1 |
269 |
28 |
9 |
269 |
37 |
28 |
9 |
|
итого |
- |
- |
- |
- |
- |
54133 |
6921 |
4990 |
1931 |
||
|
В том числе: |
|
|
|
|
|
|
|
|
|
||
|
Строительных работ по пп. 1-22,24-44; 46-57 |
- |
- |
- |
- |
- |
53114 |
6810 |
- |
- |
||
|
- |
Металлоконструкций по пп. 23, 45, 58 |
- |
- |
- |
- |
- |
1019 |
111 |
- |
- |
|
|
59 |
- |
Накладные расходы на строительные работы 18,8 % |
- |
- |
- |
- |
- |
9985 |
- |
- |
- |
|
60 |
- |
Нормативная условно-чистая продукция 6810×0,4 |
- |
- |
- |
- |
- |
- |
2724 |
- |
- |
|
61 |
- |
Накладные расходы на металлоконструкции 8,6 % |
- |
- |
- |
- |
- |
88 |
- |
- |
- |
|
62 |
- |
Нормативная условно-чистая продукция 111×0,41 |
- |
- |
- |
- |
- |
- |
46 |
- |
- |
|
|
|
Итого с накладными расходами |
- |
- |
- |
- |
- |
64206 |
9691 |
- |
- |
|
63 |
- |
Плановые накопления 8 % |
- |
- |
- |
- |
- |
5137 |
- |
- |
- |
|
64 |
- |
Нормативная условно-чистая продукция 6921×0,44 |
- |
- |
- |
- |
- |
- |
3045 |
- |
- |
|
Всего по смете |
- |
- |
- |
- |
- |
69343 |
12734 |
4990 |
1931 |
||
|
Главный инженер проекта |
Составил |
|
Начальник отдела |
Проверил |
Смета № 2
на санитарно-технические работы объединенного здания заводской станции и поста ЭЦ на 50 чел.
Сметная стоимость - 14,55 тыс. руб.
Нормативная условно-чистая продукция - 2,66 тыс. руб.
Составлена в ценах 1984 г.
|
№ п.п. |
№ прейскурантов, укрупненных сметных норм, расценок и др. |
Наименование работ и затрат |
Единица измерения |
Количество |
Стоимость единицы, руб. |
Общая стоимость, руб. |
|||||
|
всего |
в том числе |
Нормативная условно-чистая продукция |
Нормативная условно-чистая продукция |
В том числе |
|||||||
|
основная заработная плата |
эксплуатация машин |
основная заработная плата |
эксплуатация машин |
||||||||
|
|
|
16. Отопление |
|
|
|
|
|
|
|
|
|
|
1 |
УСН 10-1, табл. 4, п. 101 |
а) санитарно-технические работы |
Здание |
1 |
1330 |
141 |
8 |
1330 |
149 |
141 |
8 |
|
2 |
То же, табл. 4, п. 107 |
б) строительные работы |
то же |
1 |
147 |
62 |
1 |
147 |
63 |
62 |
1 |
|
|
|
17. Тепловой ввод |
|
|
|
|
|
|
|
|
|
|
3 |
То же, табл. 4, п. 110 |
а) санитарно-технические работы |
» |
1 |
1150 |
62 |
6 |
1150 |
68 |
62 |
6 |
|
4 |
То же, табл. 4, п. 113 |
б) оборудование |
» |
1 |
34 |
19 |
2 |
34 |
21 |
19 |
2 |
|
5 |
То же, табл. 4, п. 115 |
в) строительные работы |
» |
1 |
331 |
60 |
2 |
331 |
62 |
60 |
2 |
|
|
|
19. Теплоснабжение приточных и гардеробных шкафов |
|
|
|
|
|
|
|
|
|
|
6 |
То же, табл. 4, п. 134 |
а) санитарно-технические работы |
» |
1 |
518 |
70 |
4 |
518 |
74 |
70 |
4 |
|
7 |
То же, табл. 4, п. 139 |
б) строительные работы |
1 здание |
1 |
139 |
49 |
1 |
139 |
50 |
49 |
1 |
|
|
|
21. Вентиляция |
|
|
|
|
|
|
|
|
|
|
8 |
То же, табл. 4, п. 151 |
а)санитарно-технические работы |
тоже |
1 |
4870 |
438 |
27 |
4870 |
465 |
438 |
27 |
|
9 |
То же, табл. 4, п. 155 |
б) оборудование |
» |
1 |
1170 |
89 |
9 |
1170 |
98 |
89 |
9 |
|
10 |
То же, табл. 4, п. 159 |
в) строительные работы |
» |
1 |
332 |
73 |
7 |
332 |
80 |
73 |
7 |
|
|
|
23. Водопровод |
|
|
|
|
|
|
|
|
|
|
11 |
То же, табл. 4, п. 170 |
а) санитарно-технические работы |
» |
1 |
880 |
62 |
6 |
880 |
68 |
62 |
6 |
|
12 |
То же, табл. 4, п. 175 |
б) строительные работы |
» |
1 |
25 |
10 |
- |
25 |
10 |
10 |
- |
|
|
|
24. Горячее водоснабжение |
|
|
|
|
|
|
|
|
|
|
13 |
То же, табл. 4, п. 178 |
а)санитарно-технические работы |
» |
1 |
230 |
37 |
1 |
230 |
38 |
37 |
1 |
|
14 |
То же, табл. 4, п. 181 |
б) строительные работы |
» |
1 |
34 |
13 |
- |
34 |
13 |
13 |
- |
|
|
|
25. Канализация |
|
|
|
|
|
|
|
|
|
|
15 |
То же, табл. 4, п. 183 |
а)санитарно-технические работы |
» |
1 |
710 |
67 |
5 |
710 |
72 |
67 |
5 |
|
16 |
То же, табл. 4, п. 186 |
б) строительные работы |
» |
1 |
7 |
3 |
- |
7 |
3 |
3 |
- |
|
|
|
Итого |
руб. |
- |
- |
- |
- |
11907 |
1334 |
1255 |
79 |
|
17 |
- |
Накладные расходы 13,3 % по пп. 1, 3, 6, 8, 11, 13,. 15 9688×0,133 |
» |
- |
- |
- |
- |
1289 |
- |
- |
- |
|
18 |
- |
Нормативная условно-чистая продукция 934×0,63 |
» |
- |
- |
- |
- |
|
588 |
- |
- |
|
19 |
- |
Накладные расходы 80 % по пп. 4, 9 108×0,8 |
» |
- |
- |
- |
- |
86 |
- |
- |
- |
|
20 |
- |
Нормативная условно-чистая продукция 119×0,32 |
руб. |
- |
- |
- |
- |
- |
38 |
- |
- |
|
21 |
- |
Накладные расходы 18,8 % по пп. 2, 5, 7, 10, 12, 14, 16 1015×0,188 |
» |
- |
- |
- |
- |
191 |
- |
- |
- |
|
22 |
- |
Нормативная условно-чистая продукция 281×0,4 |
» |
- |
- |
- |
- |
- |
112 |
- |
- |
|
23 |
- |
Итого с накладными расходами |
руб. |
- |
- |
- |
- |
13473 |
2072 |
1255 |
79 |
|
24 |
- |
Плановые накопления 8 % |
» |
- |
- |
- |
- |
1078 |
- |
- |
- |
|
Нормативная условно-чистая продукция 1334×0,44 |
» |
- |
- |
- |
- |
- |
587 |
- |
- |
||
|
Всего по смете |
руб. |
- |
- |
- |
- |
14551 |
2659 |
1255 |
79 |
||
|
Главный инженер проекта |
Составил |
|
Начальник отдела |
Проверил |
Смета № 3
на приобретение и монтаж оборудования объединенного здания заводской станции и поста ЭЦ на 50 чел.
Сметная стоимость 18,38 тыс. руб.
Нормативная условно-чистая продукция - 2,82 тыс. руб.
Составлена в ценах 1984 г.
|
№ п. п. |
№ прейскурантов, укрупненных сметных норм, расценок и др. |
Наименование работ и затрат |
Единица измерения |
Количество |
Стоимость единицы, руб. |
Общая стоимость, руб. |
|||||
|
Всего |
В том числе |
Всего |
Нормативная условно-чистая продукция |
В том числе |
|||||||
|
основная заработная плата |
эксплуатация машин |
основная заработная плата |
эксплуатация машин |
||||||||
|
|
|
1. Технологическое оборудование |
|
|
|
|
|
|
|
|
|
|
1 |
УСН 10-1, табл. 6, разд. 1 |
а) монтажные работы |
1 здание |
1 |
53 |
14 |
9 |
53 |
23 |
14 |
9 |
|
Итого по «а» |
руб. |
- |
- |
- |
- |
53 |
23 |
14 |
9 |
||
|
2 |
- |
Накладные расходы на монтаж оборудования 80 % 14×0,8 |
» |
- |
- |
- |
- |
11 |
- |
- |
- |
|
3 |
- |
Нормативная условно-чистая продукция 23×0,32 |
» |
- |
- |
- |
- |
- |
7 |
- |
- |
|
Итого |
руб. |
- |
- |
- |
- |
64 |
30 |
- |
- |
||
|
4 |
- |
Плановые накопления 8 % |
руб. |
- |
- |
- |
- |
5 |
- |
- |
- |
|
5 |
- |
Нормативная условно-чистая продукция 23×0,44 |
» |
- |
- |
- |
- |
- |
10 |
- |
- |
|
|
Итого монтажных работ |
руб. |
- |
- |
- |
- |
69 |
40 |
14 |
- |
|
|
6 |
То же, табл. 7, разд. 1 |
б) приобретение оборудования |
1 здание |
1 |
2380 |
- |
- |
2380 |
- |
- |
- |
|
7 |
- |
Транспортные, заготовительно-складские и прочие расходы 8,4 % |
руб. |
- |
- |
- |
- |
200 |
- |
- |
- |
|
8 |
- |
Отчисления за комплектацию оборудования 0,7 % |
» |
- |
- |
- |
- |
17 |
- |
- |
- |
|
|
Итого стоимость оборудования по «б» |
руб. |
- |
- |
- |
- |
2597 |
- |
- |
- |
|
|
|
Всего по разд. I |
руб. |
- |
- |
- |
- |
2666 |
40 |
14 |
9 |
|
|
|
|
2. Электромонтажные работы |
|
|
|
|
|
|
|
|
|
|
1 |
УСН 10-1, табл. 6, разд. 2 |
а) монтажные работы |
|
|
|
|
|
|
|
|
|
|
|
|
Электросиловое оборудование, приборы и средства автоматизации |
1 здание |
1 |
1930 |
421 |
149 |
1930 |
570 |
421 |
149 |
|
2 |
То же, табл. 6, разд. 4 |
Электроосвещение |
1 здание |
1 |
4480 |
266 |
151 |
4480 |
417 |
266 |
151 |
|
3 |
То же, табл. 6, разд. 5 |
Слаботочные сети |
то же |
1 |
820 |
504 |
24 |
820 |
528 |
504 |
24 |
|
4 |
То же, табл. 6, разд. 7 |
Оборудование буфета |
» |
1 |
13 |
7 |
- |
13 |
7 |
7 |
- |
|
Итого по «а» |
руб. |
- |
- |
- |
- |
7243 |
1522 |
1198 |
324 |
||
|
5 |
- |
Накладные расходы на электромонтажные работы 87 % по пп. 1, 2, 3 1191×0,87 |
» |
- |
- |
- |
- |
1036 |
- |
- |
- |
|
6 |
- |
Накладные расходы на монтаж оборудования 80 % по п. 4 7×0,8 |
» |
- |
- |
- |
- |
6 |
- |
- |
- |
|
7 |
- |
Нормативная условно-чистая продукция 1522×0,32 |
» |
- |
- |
- |
- |
- |
487 |
- |
- |
|
|
- |
Итого |
руб. |
- |
- |
- |
- |
8285 |
2009 |
1198 |
324 |
|
8 |
- |
Плановые накопления 8 % |
» |
- |
|
|
- |
663 |
- |
- |
- |
|
9 |
- |
Нормативная условно-чистая продукция 1522×0,44 |
» |
- |
- |
- |
- |
|
670 |
- |
- |
|
|
|
Итого монтажных работ |
руб. |
- |
- |
- |
- |
8948 |
2679 |
1198 |
324 |
|
|
|
б) приобретение оборудования |
|
|
|
|
|
|
|
|
|
|
10 |
УСН 10-1, табл. 7, п. 2 |
Электросиловое оборудование, приборы и средства автоматизации |
1 здание |
1 |
2010 |
- |
- |
2010 |
- |
- |
- |
|
11 |
То же, табл. 7, п. 4 |
Электроосвещение |
тоже |
1 |
124 |
- |
- |
124 |
- |
- |
- |
|
12 |
То же, табл. 7, п. 5 |
Слаботочные сети |
» |
1 |
2210 |
- |
- |
2210 |
- |
- |
- |
|
13 |
То же, табл. 7, п. 6 |
Хозяйственный инвентарь |
» |
1 |
1280 |
- |
- |
1280 |
- |
- |
- |
|
14 |
То же, табл. 7, п. 7 |
Оборудование буфета |
1 здание |
1 |
511 |
- |
- |
511 |
- |
- |
- |
|
|
|
Итого по «б» |
руб. |
- |
- |
- |
- |
6135 |
- |
- |
- |
|
15 |
- |
Транспортные, заготовительно-складские и прочие расходы 9,5 % |
руб. |
- |
- |
- |
- |
583 |
- |
- |
- |
|
16 |
- |
Отчисления за комплектацию оборудования 0,7 % |
» |
- |
- |
- |
- |
43 |
- |
- |
- |
|
Итого стоимость оборудования |
руб. |
- |
- |
- |
- |
6761 |
- |
- |
- |
||
|
Всего по разд. II |
руб. |
- |
- |
- |
- |
15709 |
2679 |
1198 |
324 |
||
|
Всего по смете |
руб. |
|
- |
- |
- |
18375 |
2719 |
1212 |
333 |
||
|
Главный инженер проекта |
Составил |
|
Начальник отдела |
Проверил |
|
ГОСТЫ, СТРОИТЕЛЬНЫЕ и ТЕХНИЧЕСКИЕ НОРМАТИВЫ. Некоммерческая онлайн система, содержащая все Российские Госты, национальные Стандарты и нормативы. В Системе содержится более 150000 файлов нормативно-технической документации, действующей на территории РФ. Система предназначена для широкого круга инженерно-технических специалистов. Copyright © www.gostrf.com, 2008 - 2026 |