| |
ГОСУДАРСТВЕННЫЙ СТРОИТЕЛЬНЫЙ КОМИТЕТ СССР
(ГОССТРОЙ СССР)
|
СНиП IV-14-84
|
СТРОИТЕЛЬНЫЕ
НОРМЫ И ПРАВИЛА
|
|
Часть IV
|
СМЕТНЫЕ
НОРМЫ И ПРАВИЛА
|
|
Глава 14
|
Правила
разработки и применения укрупненных сметных норм и расценок
|
|
Приложение
|
Сборники укрупненных сметных норм
Здания и сооружения
жилищно-гражданского назначения
Сборник № 37-3
Предприятия бытового обслуживания
населения
|
|
|
Утвержден
постановлением Государственного строительного комитета СССР от 29 сентября
1988 г. № 197
|
Москва
Стройиздат 1989
СНиП IV-14-84. Приложение. Сборники укрупненных
сметных норм. Здания и сооружения жилищно-гражданского назначения. Сб. № 37-3.
Предприятия бытового обслуживания населения/Госстрой СССР. - М.: Стройиздат,
1989. - 72 с.
Разработан институтом Гипробытпром Минбыта РСФСР под
методическим руководством ЦНИИЭУС Госстроя СССР и рассмотрен Управлением
сметных норм и ценообразования в строительстве Госстроя СССР.
Редакторы - инженеры А.И.
Бобров, В.В. Кобранова (Госстрой СССР), Э.А. Люльчак (ЦНИИЭУС Госстроя СССР), А.И. Савельев, Е.М. Ротенберг (Гипробытпром Минбыта РСФСР).
|
Государственный строительный комитет СССР
(Госстрой СССР)
|
Строительные
нормы и правила
|
СНиП IV-14-84
|
|
Сборники
укрупненных сметных норм
Здания и
сооружения общего назначения
Сборник № 37-3
Предприятия
бытового обслуживания населения
|
-
|
ОБЩАЯ ЧАСТЬ
1. Укрупненные сметные нормы (УСН)
настоящего сборника предназначены для составления смет и сметных расчетов при
определении сметной стоимости строительства предприятий бытового обслуживания
населения на стадии проекта, рабочего проекта и рабочей документации.
Настоящий Сборник предназначен для
обязательного применения всеми проектными и строительными организациями,
независимо от ведомственной подчиненности. Укрупненные сметные нормы составлены
в сметных ценах, введенных в действие с 1 января 1984 г., и применяются при
разработке проектно-сметной документации на строительство, осуществляемое в районах
действия Единых районных единичных расценок на строительные конструкции и
работы (ЕРЕР-84), за исключением местностей, приравненных к районам Крайнего
Севера, высокогорных районов и районов с сейсмичностью выше 6 баллов.
2. Нормами предусмотрено выполнение
полного комплекса работ по строительству предприятий бытового обслуживания
населения, в том числе: общестроительных, санитарно-технических,
электроосвещения, монтажа технического и электросилового оборудования,
слаботочных устройств.
3. Нормы настоящего Сборника
разработаны на здания в целом для расчетных зимних температур наружного
воздуха, °С: -20; -30; -40.
4. Нормы на общестроительные работы состоят из двух таблиц:
|
Внесены
Управлением сметных норм и ценообразования в строительстве Госстроя СССР
|
Утвержден
постановлением Государственного строительного комитета СССР от 29 сентября
1988 г. № 197
|
Срок введения в
действие 1 января 1989 г.
|
А. Постоянные
затраты (в рублях);
Б. Расход местных материалов,
изделий и конструкций (в натуральных измерителях).
Постоянные затраты включают
основную заработную плату рабочих, затраты на эксплуатацию строительных машин,
в том числе заработную плату рабочих, обслуживающих машины; показатели затрат
труда основных рабочих и рабочих, обслуживающих машины, стоимость привозных
материалов и изделий.
Основная заработная плата и
стоимость эксплуатации строительных машин приведены в Сборнике без учета
районных и других коэффициентов, которые следует учитывать при составлении смет
и сметных расчетов.
В таблице Б над чертой приведены
нормы условного расхода материалов, конструкций и изделий по преобладающей в
соответствующих нормах разновидности, под чертой - суммарного (не приведенного)
расхода, являющегося справочным.
5. Общая сметная стоимость
определяется суммированием постоянных затрат таблицы А и стоимости местных
строительных материалов, изделий и конструкций таблицы Б, определенной по
сборникам зональных сметных цен.
Накладные расходы, плановые
накопления и лимитированные затраты в нормах УСН не учтены и начисляются в
сметах в установленном порядке.
6. Укрупненные сметные нормы на
монтажные работы учитывают затраты на монтаж технологического, электросилового
оборудования, электрификации, автоматизации производственных процессов и др.
Затраты на монтажные работы
приведены без учета накладных расходов. В их состав включены основная
заработная плата рабочих, эксплуатация строительных машин, в том числе
заработная плата рабочих, обслуживающих машины и затраты материальных ресурсов,
не учтенных в расценках на монтаж оборудования. Затраты труда основных
строительных рабочих и рабочих, обслуживающих машины, показаны отдельно.
7. В нормах приведена стоимость
(справочная) оборудования, инвентаря, начисленная по прейскурантам оптовых цен,
введенных в действие с 1 января 1982 г., без учета транспортных,
заготовительно-складских расходов и затрат на комплектацию оборудования.
8.
Нормы на земляные работы приведены для сухих нескальных грунтов I-II группы. Нормативное давление на грунт 0,2 МПа (2 кгс/см2).
Объемная масса грунта 1,75 т/м2.
При выполнении земляных работ в
мокрых грунтах к показателям постоянных затрат на эти работы следует применять
коэффициенты, приведенные в табл. 1.
Таблица 1
|
Отношение
высоты слоя мокрого грунта к общей глубине разработки, %
|
Коэффициент при
разработке грунта
|
|
без водоотлива
|
с водоотливом
|
|
До 50
|
1,1
|
1,4
|
|
Св. 50
|
1,2
|
1,75
|
При наличии агрессивных грунтовых вод, вызывающих
необходимость устройства гидроизоляции, при составлении смет и сметных расчетов
стоимость этих работ определяется дополнительно.
9. Глубина заложения
фундаментов приведена в технических частях к каждому параграфу норм.
10. При
выполнении земляных работ и устройстве фундаментов, отличающихся от учтенных в
нормах, к показателям постоянных затрат на эти работы и сметной стоимости
местных строительных материалов следует применять коэффициенты, приведенные в
табл. 2.
Таблица 2
|
Расчетное давление на грунт, МПа
(кгс/см2)
|
Коэффициент
|
|
при глубине заложения фундаментов 1,35
м
|
при увеличении глубины заложения
фундаментов сверх учтенной величины, м
|
|
0,3
|
0,6
|
0,9
|
|
0,15 (1,5)
|
1,03
|
1,2
|
1,37
|
1,54
|
|
0,2 (2)
|
1
|
1,17
|
1,34
|
1,51
|
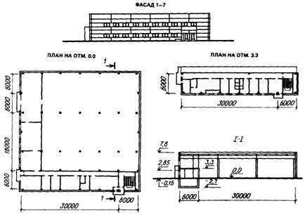
§ 1. ПРАЧЕЧНАЯ-ХИМЧИСТКА СПЕЦОДЕЖДЫ
МОЩНОСТЬЮ 300 КГ/СМЕНУ ДЛЯ РАБОЧИХ СТРОИТЕЛЬНЫХ СПЕЦИАЛЬНОСТЕЙ
ТИПОВОЙ ПРОЕКТ
408-324.87
Нормы
настоящего параграфа предназначены для определения сметной стоимости
строительства прачечной-химчистки спецодежды на объект в целом. Глубина
заложения фундамента принята 1,6 м.

Рис. 1

Рис. 2
ОСНОВНЫЕ
КОНСТРУКТИВНЫЕ ХАРАКТЕРИСТИКИ
|
Фундаменты
|
- монолитные железобетонные
|
|
Фундаментные
балки
|
- сборные железобетонные
|
|
Фундаментные
блоки
|
- сборные бетонные
|
|
Колонны
|
- сборные железобетонные
|
|
Балки-покрытия
|
- сборные железобетонные
|
|
Плиты-покрытия
|
- сборные железобетонные
|
|
Стены
|
- легкобетонные самонесущие
однослойные панели
|
|
Перегородки
|
- сборные железобетонные
|
|
Лестницы
|
- сборные железобетонные
|
|
Кровля
|
- из четырех слоев рубероида с
защитным слоем из гравия на битумной мастике
|
|
Полы
|
- бетонные, асфальтобетонные, из
плитки бетонной, мозаичной, из плитки керамической, из линолеума
|
|
Окна, двери
|
- деревянные по ГОСТ
16289-86, по ГОСТ
24699-81 (6 типоразмеров)
|
|
Ограждения
лестниц
|
- металлические
|
|
Отделочные
работы:
|
|
|
- отделка
наружная
|
- панели окрашиваются полимерной
фасадной краской; кирпичные участки стен оштукатуривают и окрашивают под
панели
|
|
- отделка
внутренняя
|
- штукатурка, окраска, облицовка
глазурованной плиткой
|
|
Водопровод
|
- объединенный,
хозяйственно-производственный и противопожарный
|
|
Канализация
|
- производственно-бытовая в наружную
сеть
|
|
Отопление
|
- водяное
|
|
Вентиляция
|
- приточно-вытяжная с механическим
побуждением и естественная
|
|
Горячее
водоснабжение
|
- от водонагревателей, установленных в
тепловом пункте
|
|
Электроснабжение
|
- от местных городских низковольтных
сетей напряжением 380/220 В
|
|
Слаботочные
устройства
|
- городская телефонная сеть,
охранно-пожарная сигнализация, радиотрансляционная сеть
|
Основные показатели: строительный объем 3332,4 м3;
площадь застройки 704,6 м2; базисная стоимость 87430 тыс. руб.;
затраты труда 17555 чел.-ч.
1-1. СТРОИТЕЛЬНЫЕ РАБОТЫ
А. Постоянные затраты
Измеритель - одно здание
Таблица 3
|
№ раздела
|
Наименование
конструкций и видов работ
|
Прямые затраты
по базисному району, руб.
|
В том числе,
руб.
|
Затраты труда
рабочих, чел.-ч
|
Территориальные
районы и подрайоны
|
Прямые затраты,
руб., по территориальным районам и подрайонам
|
|
основная заработная
плата рабочих
|
эксплуатация
машин
|
|
всего
|
в том числе
заработная плата рабочих, обслуживающих машины
|
основных
|
обслуживающих
машины
|
|
|
|
|
|
|
|
|
|
|
|
|
|
1. Строительные работы
|
|
|
|
|
|
|
|
|
|
1
|
Земляные работы без транспортирования грунта
|
850
|
183
|
495
|
184
|
304
|
266
|
I.2-Х
|
850
|
|
|
Транспортирование грунта
|
230
|
-
|
230
|
-
|
-
|
-
|
I.2-I.4
|
230
|
|
2
|
Фундаменты и стены при расчетной зимней
температуре наружного воздуха, ºС:
|
|
|
|
|
|
|
|
|
|
|
-20
|
1520
|
390
|
390
|
140
|
660
|
180
|
V
|
1560
|
|
|
-30
|
1530
|
390
|
390
|
140
|
660
|
180
|
I.2-I.4, V.I
|
1560
|
|
|
-40
|
1540
|
390
|
390
|
140
|
660
|
180
|
I.2-I.4
|
1580
|
|
3
|
Перекрытия на отм. 10.0
|
140
|
20
|
20
|
10
|
40
|
19
|
I.2-I.4, III.4, V, VII, IX, X
|
140
|
|
|
|
|
|
|
|
|
|
VIII, VIIIА
|
150
|
|
|
|
|
|
|
|
|
|
II, IIА
|
200
|
|
4
|
Перегородки подвала
|
20
|
10
|
-
|
-
|
20
|
-
|
I.2-Х
|
20
|
|
5
|
Двери подвала
|
700
|
10
|
-
|
-
|
20
|
-
|
I.2-I.4, VIII
|
700
|
|
|
|
|
|
|
|
|
|
II.А
|
790
|
|
|
|
|
|
|
|
|
|
II, III.4,
V.I, VII
|
740
|
|
|
|
|
|
|
|
|
|
V.2, IХ
|
760
|
|
|
|
|
|
|
|
|
|
VIII.А
|
820
|
|
|
|
|
|
|
|
|
|
X
|
800
|
|
6
|
Полы подвала
|
220
|
47
|
-
|
-
|
80
|
-
|
I.2-I.4, III.4. V, VII
|
220
|
|
|
|
|
|
|
|
|
|
II, II.А, IХ, Х
|
240
|
|
|
|
|
|
|
|
|
|
VIII, VIII.А
|
260
|
|
7
|
Лестницы
|
120
|
40
|
10
|
10
|
60
|
19
|
I.2-I.4, III.4,
II, V, VII, IX
|
120
|
|
|
|
|
|
|
|
|
|
II.А, Х
|
130
|
|
|
|
|
|
|
|
|
|
VIII.A
|
140
|
|
8
|
Внутренние отделочные работы
|
140
|
100
|
10
|
-
|
160
|
10
|
I.2-Х
|
140
|
|
9
|
Подземное хозяйство:
|
|
|
|
|
|
|
|
|
|
|
а) строительные
|
460
|
110
|
30
|
10
|
150
|
13
|
I.2-I.4
|
460
|
|
|
работы
|
|
|
|
|
|
|
III.4,
V, VII
|
470
|
|
|
|
|
|
|
|
|
|
II
|
520
|
|
|
|
|
|
|
|
|
|
II.А, VIII
|
540
|
|
|
|
|
|
|
|
|
|
VIII.А
|
570
|
|
|
|
|
|
|
|
|
|
IX
|
480
|
|
|
|
|
|
|
|
|
|
X
|
500
|
|
|
б) металлоконструкции
|
190
|
25
|
-
|
-
|
70
|
-
|
I.2-I.4, III.4, V, VII
|
190
|
|
|
|
|
|
|
|
|
|
VIII, VIII.А, II, IIА, IX
|
200
|
|
|
|
|
|
|
|
|
|
X
|
220
|
|
10
|
Каркас:
|
|
|
|
|
|
|
|
|
|
|
а) строительные работы
|
450
|
120
|
180
|
70
|
200
|
90
|
I.2-Х
|
450
|
|
|
б) металлоконструкции
|
410
|
20
|
-
|
-
|
40
|
-
|
I.2-I.4, III.4,
V, VII, II, IIА, VIII, VIIIА
|
410
|
|
|
|
|
|
|
|
|
|
IX
|
440
|
|
|
|
|
|
|
|
|
|
X
|
460
|
|
11
|
Стены при расчетной зимней температуре наружного
воздуха, ºC
|
|
|
|
|
|
|
|
|
|
|
-20
|
2220
|
640
|
580
|
200
|
1080
|
260
|
I.2-I.4, III.4, V, IX
|
2250
|
|
|
-30
|
|
|
|
|
|
|
X
|
2330
|
|
|
-40
|
2260
|
650
|
580
|
200
|
1100
|
260
|
I.2-I.4, VII
|
2260
|
|
|
|
|
|
|
|
|
|
II, IIА
|
2320
|
|
12
|
Покрытие при расчетной зимней температуре
наружного воздуха, ºС:
|
|
|
|
|
|
|
|
|
|
|
-20
|
2700
|
170
|
120
|
40
|
290
|
50
|
V
|
2710
|
|
|
|
|
|
|
|
|
|
X
|
2810
|
|
|
-30
|
3200
|
170
|
120
|
40
|
290
|
50
|
I.2-I.4, III.4, V, IX
|
3200
|
|
|
|
|
|
|
|
|
|
X
|
3290
|
|
|
-40
|
3610
|
170
|
120
|
40
|
290
|
50
|
I.2-I.4, VII, II, IIА, IX
|
3640
|
|
|
|
|
|
|
|
|
|
VIII, VIII.А, X
|
3680
|
|
13
|
Кровля при расчетной зимней температуре наружного
воздуха, °С:
|
|
|
|
|
|
|
|
|
|
|
-20
|
2810
|
550
|
210
|
70
|
910
|
90
|
V
|
2860
|
|
|
|
|
|
|
|
|
|
X
|
3350
|
|
|
-30
|
2950
|
550
|
210
|
70
|
940
|
90
|
I.2-I.4, III.4
|
3000
|
|
|
|
|
|
|
|
|
|
V
|
3050
|
|
|
|
|
|
|
|
|
|
IX
|
3230
|
|
|
|
|
|
|
|
|
|
X
|
3550
|
|
|
-40
|
3080
|
560
|
210
|
70
|
950
|
90
|
I.2-I,4, VII
|
3120
|
|
|
|
|
|
|
|
|
|
II.A
|
3360
|
|
|
|
|
|
|
|
|
|
II, IX
|
3320
|
|
|
|
|
|
|
|
|
|
VIII.А
|
3920
|
|
|
|
|
|
|
|
|
|
VIII, X
|
3660
|
|
14
|
Перегородки
|
6500
|
1210
|
190
|
60
|
2060
|
80
|
I.2-I.4, III.4,
V, VII
|
6500
|
|
|
|
|
|
|
|
|
|
II.А
|
7000
|
|
|
|
|
|
|
|
|
|
II, IX
|
6800
|
|
|
|
|
|
|
|
|
|
VIII,
X
|
7200
|
|
|
|
|
|
|
|
|
|
VIII.А
|
7600
|
|
15
|
Проемы:
|
|
|
|
|
|
|
|
|
|
|
а) окна при расчетной зимней температуре наружного
воздуха, °С:
|
|
|
|
|
|
|
|
|
|
|
-20
|
1040
|
50
|
10
|
-
|
80
|
-
|
V
|
1050
|
|
|
|
|
|
|
|
|
|
X
|
1100
|
|
|
-30
|
1740
|
80
|
10
|
-
|
130
|
-
|
I.2-I.4, III.4, V.1
|
1750
|
|
|
|
|
|
|
|
|
|
V.2, IХ.1, IХ.2, Х.1, Х.3
|
2000
|
|
|
|
|
|
|
|
|
|
IX.3
|
2100
|
|
|
|
|
|
|
|
|
|
Х.2
|
2200
|
|
|
-40
|
1640
|
70
|
10
|
-
|
120
|
-
|
I.2-I.4, II, II.А, VII, IX
|
1660
|
|
|
|
|
|
|
|
|
|
VIII, X
|
1680
|
|
|
|
|
|
|
|
|
|
VIII.А
|
1700
|
|
|
б) двери
|
1870
|
50
|
10
|
-
|
90
|
10
|
I.2, V.1
|
1990
|
|
|
|
|
|
|
|
|
|
I.3, I.4, VII
|
1830
|
|
|
|
|
|
|
|
|
|
II.А
|
2590
|
|
|
|
|
|
|
|
|
|
II, III.4,
VIII, IX.1, IX.2
|
2100
|
|
|
|
|
|
|
|
|
|
V.2, IX3,
Х.1
|
2140
|
|
|
|
|
|
|
|
|
|
VIII.А
|
3150
|
|
|
|
|
|
|
|
|
|
Х.2
|
2520
|
|
|
|
|
|
|
|
|
|
Х.3
|
2380
|
|
16
|
Полы
|
2260
|
700
|
110
|
30
|
1200
|
40
|
I.2-I.4, III.4
|
2260
|
|
|
|
|
|
|
|
|
|
II, II.А
|
2400
|
|
|
|
|
|
|
|
|
|
V, VII
|
2300
|
|
|
|
|
|
|
|
|
|
VIII, VIII.А
|
2890
|
|
|
|
|
|
|
|
|
|
IX
|
2330
|
|
|
|
|
|
|
|
|
|
X
|
2500
|
|
17
|
Отделочные работы
|
5980
|
1830
|
100
|
50
|
3100
|
60
|
I.2-I.4, III.4, V, VII
|
6000
|
|
|
|
|
|
|
|
|
|
II, II.А, X
|
6200
|
|
|
|
|
|
|
|
|
|
VIII, VIII.А
|
6500
|
|
|
|
|
|
|
|
|
|
IX
|
6100
|
|
18
|
Разные работы
|
2360
|
520
|
100
|
30
|
890
|
40
|
I.2-I.4, III.4, VII
|
2360
|
|
|
|
|
|
|
|
|
|
II.A, II, V
|
2730
|
|
|
|
|
|
|
|
|
|
VIII.A
|
2880
|
|
|
|
|
|
|
|
|
|
VIII, IX
|
2500
|
|
|
|
|
|
|
|
|
|
X
|
2650
|
|
|
Итого по общестроительным работам
|
34560
|
6720
|
2795
|
504
|
11584
|
1229
|
|
|
|
|
В том числе:
|
|
|
|
|
|
|
|
|
|
|
а) строительные работы
|
33960
|
6675
|
2795
|
504
|
11474
|
1229
|
|
|
|
|
б) металлоконструкции
|
600
|
45
|
-
|
-
|
110
|
-
|
|
|
|
|
II. Санитарно-технические работы
|
|
|
|
|
|
|
|
|
|
19
|
Водопровод хозяйственно-производственный и
противопожарный:
|
|
|
|
|
|
|
|
|
|
|
а) санитарно-технические работы
|
840
|
70
|
-
|
-
|
120
|
-
|
I.2-I.4, III.4, V, VII
|
850
|
|
|
|
|
|
|
|
|
|
II, II.А, IX, X
|
870
|
|
|
|
|
|
|
|
|
|
VIII, VIII.А
|
910
|
|
|
б) строительные работы
|
150
|
30
|
-
|
-
|
50
|
-
|
I.2-Х
|
150
|
|
20
|
Водопровод горячей воды:
|
|
|
|
|
|
|
|
|
|
|
а) санитарно технические работы
|
170
|
20
|
-
|
-
|
40
|
-
|
I.2-I.4, II, II.A, III.4, V, VII, IX, X
|
170
|
|
|
|
|
|
|
|
|
|
VIII, VIII.А
|
180
|
|
|
б) строительные работы
|
150
|
20
|
-
|
-
|
30
|
-
|
I.2-Х
|
150
|
|
21
|
Оборотное водоснабжение:
|
|
|
|
|
|
|
|
|
|
|
а) санитарно-технические работы
|
1530
|
290
|
30
|
10
|
460
|
13
|
I.2-I.4, II, II.А III.4,
VII, V
|
1530
|
|
|
|
|
|
|
|
|
|
VIII, VIII.А
|
1650
|
|
|
|
|
|
|
|
|
|
IX, X
|
1580
|
|
|
б) строительные работы
|
10
|
-
|
-
|
-
|
10
|
-
|
I.2-Х
|
10
|
|
22
|
Бытовая канализация:
|
|
|
|
|
|
|
|
|
|
|
а) санитарно-технические работы
|
240
|
30
|
-
|
-
|
40
|
-
|
I.2-I.4, VII
|
240
|
|
|
|
|
|
|
|
|
|
II, II.A, V
|
250
|
|
|
|
|
|
|
|
|
|
VIII, VIII.А, IX X
|
260
|
|
|
б) строительные работы
|
10
|
-
|
-
|
-
|
10
|
-
|
I.2-Х
|
10
|
|
|
|
110
|
10
|
-
|
-
|
20
|
-
|
I.2-I.4, III.4,
V
|
110
|
|
23
|
Производственная канализация - санитарно-технические
работы
|
|
|
|
|
|
|
II, II.А, VII, VIII, VIII.А
|
100
|
|
|
|
|
|
|
|
|
|
IX, X
|
120
|
|
24
|
Дождевая канализация:
|
|
|
|
|
|
|
|
|
|
|
а) санитарно-технические работы
|
130
|
10
|
-
|
-
|
20
|
-
|
I.2-I.4, III.4,
У, IX, X
|
130
|
|
|
|
|
|
|
|
|
|
II, II.А, VII, VIII, VIII.А
|
140
|
|
|
б) строительные работы
|
3
|
2
|
-
|
-
|
3
|
-
|
I.2-Х
|
3
|
|
25
|
Отопление:
|
|
|
|
|
|
|
|
|
|
|
а) санитарно-технические работы при расчетной
зимней температуре наружного воздуха, ºC:
|
|
|
|
|
|
|
|
|
|
|
-20
|
1160
|
130
|
10
|
-
|
220
|
13
|
V
|
1200
|
|
|
|
|
|
|
|
|
|
X
|
1150
|
|
|
-30
|
1310
|
150
|
20
|
10
|
250
|
13
|
I.2-I.4, III.4
|
1310
|
|
|
|
|
|
|
|
|
|
V, IX
|
1360
|
|
|
|
|
|
|
|
|
|
X
|
1680
|
|
|
-40
|
1560
|
130
|
10
|
-
|
220
|
13
|
I.2-I.4, II, II.А, IX, VIII, VIII.А, VII
|
1560
|
|
|
|
|
|
|
|
|
|
X
|
1640
|
|
|
б) строительные работы
|
70
|
70
|
-
|
-
|
110
|
-
|
I.2-Х
|
70
|
|
26
|
Теплоснабжение:
|
|
|
|
|
|
|
|
|
|
|
а) санитарно-технические работы
|
300
|
60
|
-
|
-
|
90
|
2
|
I.2-I.4, III.4, V, VII
|
300
|
|
|
|
|
|
|
|
|
|
II, II.А, X
|
310
|
|
|
|
|
|
|
|
|
|
VIII, VIII.А
|
330
|
|
|
б) строительные работы
|
220
|
50
|
-
|
-
|
80
|
-
|
I.2-I.4, III.4, V, VII
|
.220
|
|
|
|
|
|
|
|
|
|
II, II.А, IX
|
230
|
|
|
|
|
|
|
|
|
|
X, VIII
|
240
|
|
|
|
|
|
|
|
|
|
VIII.А
|
250
|
|
27
|
Пароснабжение:
|
|
|
|
|
|
|
|
|
|
|
а) санитарно-технические работы
|
320
|
50
|
-
|
-
|
80
|
-
|
I.2-I.4, III.4, VII
|
320
|
|
|
|
|
|
|
|
|
|
II, II.А, V, IX, X
|
330
|
|
|
|
|
|
|
|
|
|
VIII, VIII.А
|
340
|
|
|
б) строительные работы
|
290
|
60
|
-
|
-
|
100
|
-
|
I.2-I.4, III.4, VII
|
290
|
|
|
|
|
|
|
|
|
|
IX
|
300
|
|
|
|
|
|
|
|
|
|
II, II.A, VII
|
310
|
|
|
|
|
|
|
|
|
|
VIII.А
|
340
|
|
|
|
|
|
|
|
|
|
X
|
320
|
|
28
|
Тепловой пункт:
|
|
|
|
|
|
|
|
|
|
|
а) санитарно-технические работы
|
1730
|
160
|
10
|
-
|
280
|
-
|
I.2-I.4, III.4, VII, V
|
1730
|
|
|
|
|
|
|
|
|
|
II, II,А, IX, X
|
1760
|
|
|
|
|
|
|
|
|
|
VIII, VIII.А
|
1800
|
|
|
б) строительные работы
|
490
|
100
|
-
|
-
|
140
|
-
|
I.2-I.4, III.4, VII
|
490
|
|
|
|
|
|
|
|
|
|
II, II.А
|
520
|
|
|
|
|
|
|
|
|
|
V, IX
|
510
|
|
|
|
|
|
|
|
|
|
VIII.А
|
560
|
|
|
|
|
|
|
|
|
|
VIII,
X
|
530
|
|
29
|
Вентиляция:
|
|
|
|
|
|
|
|
|
|
|
а) санитарно-технические работы
|
4740
|
400
|
30
|
10
|
670
|
13
|
I.2-I.4, III.4, VII, V
|
4740
|
|
|
|
|
|
|
|
|
|
II, II.А, IX, X
|
4940
|
|
|
|
|
|
|
|
|
|
VIII, VIII.А
|
5230
|
|
|
б) строительные работы
|
90
|
20
|
-
|
-
|
30
|
-
|
I.2-I.4, III.4, V, VII, IХ
|
90
|
|
|
|
|
|
|
|
|
|
II, IIА, VIII, VIII.А, X
|
100
|
|
|
Итого по санитарно-техническим работам
|
11900
|
1300
|
90
|
20
|
2630
|
40
|
|
|
|
|
В том числе:
|
|
|
|
|
|
|
|
|
|
|
а) санитарно-технические работы
|
11420
|
1250
|
90
|
20
|
2070
|
40
|
|
|
|
|
б) строительные работы
|
1480
|
350
|
-
|
-
|
560
|
-
|
|
|
Б. РАСХОД
МЕСТНЫХ МАТЕРИАЛОВ, ИЗДЕЛИЙ И КОНСТРУКЦИЙ
Измеритель -
одно здание
Таблица 4
|
№ раздела
|
Номер и позиция
прейскуранта
|
Наименование
материалов, изделий и конструкций
|
Единица
измерения
|
Количество
|
Шифр
|
|
2
|
|
Фундаменты
|
|
|
|
|
|
Прейскурант
№06-14-01, п. 3008
|
Блоки стен
подвала из бетона класса В7,5 (М100),ФБС.9.6, 6-т
|
шт.
|
238
202
|
1
|
|
7
|
|
|
|
|
|
|
|
Прейскурант. №
06-08, п. 7.124
|
Балки
фундаментные трапецеидальные, массой до 5 т из бетона класса В15 (М200)
длиной до 6 м при расчетной зимней температуре наружного воздуха, °С:
|
|
|
|
|
|
|
-20
|
м3
|
15,1
15
|
2
|
|
|
|
-30, -40
|
»
|
16,2
16
|
3
|
|
|
Прейскурант № 06-14-01, п.
1.005
|
Бетон тяжелый
класса B15 (М200) крупностью заполнителя 40-70 мм при расчетной зимней температуре
наружного воздуха, °С:
|
|
|
|
|
|
|
-20
|
»
|
57,4
59,6
|
4
|
|
|
|
-30, -40
|
»
|
59
61,2
|
5
|
|
|
|
Арматура класса
A-I при расчетной зимней температуре наружного воздуха, °С:
|
|
|
|
|
|
|
-20
|
кг
|
372
|
6
|
|
|
|
-30, -40
|
»
|
484
|
7
|
|
|
|
Арматура класса
А-III при расчетной зимней температуре
наружного воздуха, °С:
|
|
|
|
|
|
|
-20
|
кг
|
564
|
8
|
|
|
|
-30, -40
|
»
|
682
|
9
|
|
|
Прейскурант № 06-14-01, п.
1.005, примеч. 1
|
Бетон тяжелый
класса В7 (М100) крупностью заполнителя 40-70 мм
|
м3
|
17,3
15,4
|
10
|
|
|
То же, п. 2.004
|
Раствор
кладочный цементный М100
|
»
|
5
|
11
|
|
|
Прейскурант № 06-12-01, п.
1.076
|
Песок для
строительных работ
|
»
|
6,7
|
12
|
|
3
|
|
Перекрытие на
отметке ± 0,0
|
|
|
|
|
|
Прейскурант № 06-08, п.
9.1056
|
Плиты сборные
железобетонные пустотные пролетом 6, 85 м, приведенной толщиной 12,5 см, нормативной
нагрузкой 1360 кг/м2
|
м2
|
20,4
|
13
|
|
|
То же, п. 9.1056
|
Плиты сборные
железобетонные пустотные пролетом 6,8 м, приведенной толщиной 12,2 см,
нормативной нагрузкой 1328 кг/м2
|
»
|
32,6
|
14
|
|
4
|
|
Перегородки
подвала
|
|
|
|
|
|
Прейскурант № 06-14-01, п.
2.012
|
Раствор
кладочный тяжелый цементно-известковый М50
|
м3
|
0,46
|
15
|
|
|
Прейскурант № 06-13-01, п.
1.01.052
|
Кирпич
керамический одинарный размером 250×120×65 марки 100
|
тыс. шт.
|
1,01
|
16
|
|
6
|
|
Полы подвала
|
|
|
|
|
|
Прейскурант № 06-14-01, п.
1.003
|
Бетон тяжелый
класса В7,5 (М100), крупностью заполнителя 20-40 мм
|
м3
|
7,34
7,27
|
17
|
|
|
То же, п. 2.012
|
Раствор
кладочный цементный М100
|
»
|
0,43
|
18
|
|
|
Прейскурант № 06-12-01, п.
1.030
|
Щебень из
естественного камня для строительных работ марки 400, фракции 40-70 мм
|
»
|
2,98
|
19
|
|
|
Тоже, п. 5.032
|
Асфальтобетонное
покрытие толщиной 40 мм
|
т
|
2,26
|
20
|
|
|
Прейскурант № 06-14-01, п.
3-043
|
Плитка
мозаичная
|
м2
|
18,2
|
21
|
|
7
|
|
Лестница в
подвал
|
|
|
|
|
|
Прейскурант № 06-08, п.
1489. табл. 3.3
|
Лестничные
площадки из бетона класса В25 (М300)
|
м3
|
0,24
|
22
|
|
|
То же, п. 14.88, табл. 3
|
Лестничные
марши из бетона класса В25 (М300)
|
»
|
1,8
|
23
|
|
|
То же, п. 2339
|
Проступи
сборные железобетонные
|
м
|
38
|
24
|
|
|
|
Арматура класса
А-I
|
кг
|
52
|
25
|
|
|
Прейскурант № 06-14-01, п.
1.005, примеч. 1
|
Бетон тяжелый
класса В15 (М200)
|
м3
|
1,04
|
26
|
|
|
То же, п. 2.004
|
Раствор
кладочный тяжелый цементный М100
|
»
|
0,86
|
27
|
|
8
|
|
Внутренние
отделочные работы подвала
|
|
|
|
|
|
» п. 2.030
|
Раствор
отделочный тяжелый цементно-известковой 1:1:6
|
»
|
2,26
|
28
|
|
9
|
|
Подземное
хозяйство
|
|
|
|
|
|
Прейскурант № 06-08, п.
1.490
|
Плиты плоские
железобетонные из бетона класса 22,5 (М300)
|
»
|
0,08
|
29
|
|
|
То же
|
Плиты плоские
железобетонные из бетона класса В15 (М200)
|
»
|
0,12
|
30
|
|
|
» п. 7.6
|
Перемычки
железобетонные марки 1ПР1-10.12.6
|
шт.
|
1,5
|
31
|
|
|
» п. 1.499, Техн. ч., табл.
3-3
|
Лотки
железобетонные из бетона класса В15 (М200) объемом до 0,2 м3
|
м3
|
0,44
|
32
|
|
|
Прейскурант № 06-13-01, п.
1.01.052
|
Кирпич
керамический одинарный размером 250×120×65 марки 100
|
тыс. шт.
|
1,44
|
33
|
|
|
|
Арматура класса
A-III
|
кг
|
36,5
|
34
|
|
|
|
Закладные детали
|
»
|
7
|
35
|
|
|
Прейскурант № 06-14-01, п.
2.004
|
Раствор
кладочный тяжелый цементный М100
|
м3
|
0,8
0,9
|
36
|
|
|
То же, п. 2.035
|
Раствор
отделочный тяжелый цементный 1:3
|
»
|
0,09
|
37
|
|
|
» п. 1.005
|
Бетон тяжелый
класса В15 (М200)
|
»
|
15,9
16
|
38
|
|
|
Прейскурант №06-12-01, п.
1.030
|
Щебень из
естественного камня для строительных работ марки 400, фракции 40-70 мм
|
»
|
2,01
|
39
|
|
10
|
|
Надземная часть
|
|
|
|
|
|
Прейскурант № 06-08, п.
7.1, примеч. 2, табл. 3-3
|
Каркас
Колонны
прямоугольные из бетона класса В15 (М200)
|
»
|
6,1
|
40
|
|
|
То же, примеч. 2
|
Фахверковые
колонны длиной 4,3 м
|
»
|
1,56
|
41
|
|
|
|
Балки
двутаврового сечения длиной 12 м
|
»
|
18
|
42
|
|
|
|
Арматура класса
А-I
|
кг
|
130
|
43
|
|
|
|
» » А-III
|
»
|
1167
|
44
|
|
|
|
Арматура класса
Вр-I
|
кг
|
320
|
45
|
|
|
|
» » Ат-V
|
»
|
1512
|
46
|
|
|
|
Закладные
детали
|
»
|
654
|
47
|
|
|
Прейскурант № 06-07, п.
1.007, Техн. ч., табл. 2-2
|
Бетон тяжелый
класса В25 (М300)
|
м3
|
2,03
|
48
|
|
11
|
|
Стены
|
|
|
|
|
|
Прейскурант № 06-08, п.
1.393
|
Панели стеновые
керамзитобетонные длиной до 3 м, толщиной 25 см при расчетной зимней
температуре наружного воздуха -20 °С
|
м2
|
107
|
49
|
|
|
То же, п. 1.397, прил. 2
|
То же, толщиной
30 см при расчетной зимней температуре наружного воздуха -30 °С
|
»
|
107
|
50
|
|
|
» п. 1.397
|
То же, толщиной
35 см при расчетной зимней температуре наружного воздуха -40 °С
|
»
|
107
|
51
|
|
|
» п. 1.393
|
Панели стеновые
керамзитобетонные длиной 3-12 м, толщиной 25 см при расчетной зимней
температуре наружного воздуха -20 °С
|
»
|
316
|
52
|
|
|
Прейскурант № 06-08, п.
1.397, прил. 1
|
То же, толщиной
30 см при расчетной зимней температуре наружного воздуха -30 ºС
|
м2
|
316
|
53
|
|
|
Тоже, п. 1.397
|
То же, толщиной
35 см при расчетной зимней температуре наружного воздуха -40 ºС
|
»
|
316
|
54
|
|
|
» п. 7-6
|
Перемычки
железобетонные класса В15 (М200) при расчетной зимней температуре наружного
воздуха, ºС:
|
|
|
|
|
|
|
-20, -30
|
шт.
|
49
|
55
|
|
|
|
-40
|
»
|
51
|
56
|
|
|
Прейскурант № 06-14-01, п.
2.012
|
Раствор
кладочный тяжелый цементно-известковый М100
|
м3
|
13
|
57
|
|
|
То же, п. 2.004
|
Раствор
кладочный тяжелый цементный М100
|
»
|
2,5
|
58
|
|
|
Прейскурант № 06-13-01, п.
1.01.052
|
Кирпич
керамический одинарный размером 250×120×65
|
тыс. шт.
|
23,2
|
59
|
|
12
|
|
Покрытие
|
|
|
|
|
|
Прейскурант № 06-08, п.
1.330
|
Плиты покрытий
комплексные ребристые длиной до 6 м, площадью до 20 м2
|
м2
|
596
569,3
|
60
|
|
|
Прейскурант № 06-08, п.
1.359
|
Стаканы
железобетонные опорные объемом более 0,1 м3
|
м3
|
0,64
|
61
|
|
|
|
Арматура класса
А-I
|
кг
|
51
|
62
|
|
|
|
Закладные
детали
|
»
|
102,8
|
63
|
|
|
Прейскурант № 06-14-01, п.
1.004, примеч. 1
|
Бетон тяжелый
класса В10 (М150) крупностью заполнителя 5-10 мм
|
м3
|
4,85
4,9
|
64
|
|
|
То же, п. 2.004
|
Раствор
кладочный тяжелый цементный М100
|
»
|
0,86
0,89
|
65
|
|
|
Прейскурант № 06-13-01, п.
4.01.41
|
Гравий
керамзитовый марки 400, фракции 10-20 мм
|
»
|
6,53
|
66
|
|
|
Прейскурант № 06-08, п.
7.169
|
Теплоизоляция
из монолитного ячеистого бетона толщиной 90, 130, 160 мм соответственно при
расчетное зимней температуре наружного воздуха, ºС:
|
|
|
|
|
|
|
-20
|
м2
|
38,4
|
67
|
|
|
|
-30
|
»
|
55,5
|
68
|
|
|
|
-40
|
»
|
68,3
|
69
|
|
13
|
|
Кровля
|
|
|
|
|
|
То же, п. 9.2378
|
Плиты
парапетные железобетонные класса В15 (М200) длиной до 3 м
|
м3
|
3,2
|
70
|
|
|
Прейскурант № 06-14-01, п.
1.003
|
Бетон тяжелый
класса В7,5 (М100) крупностью заполнителя 40-70 мм
|
м3
|
0,22
|
71
|
|
|
То же, п. 1.077
|
Бетон легкий
В7,5 (М100) при расчетной зимней температуре наружного воздуха, ºС:
|
|
|
|
|
|
|
-20
|
»
|
2,7
|
72
|
|
|
|
-30
|
»
|
3,8
|
73
|
|
|
|
-40
|
»
|
4,3
|
74
|
|
|
» п. 2.003
|
Раствор
кладочный тяжелый цементный М75
|
»
|
3,9
|
75
|
|
|
» п. 2.012
|
Раствор
кладочный тяжелый цементно-известковый М50
|
»
|
1,4
|
76
|
|
|
Прейскурант № 06-12-01, п.
1.072
|
Гравий
керамзитовый марки 400, фракции 10-20 мм
|
»
|
3,2
|
77
|
|
|
Прейскурант № 06-13-01, п.
1.01.052
|
Кирпич
керамический одинарный размером 250×120×65 мм М100
|
тыс. шт.
|
2,26
|
78
|
|
14
|
|
Перегородки
|
|
|
|
|
|
Прейскурант № 06-08, п.
7.1, примеч. 2
|
Колонны
железобетонные прямоугольные из бетона класса В15 (М200) длиной от 3 до 12 м
|
м3
|
3,7
|
79
|
|
|
|
Арматура класса
А-III
|
кг
|
215
|
80
|
|
|
|
Закладные
детали
|
кг
|
370
|
81
|
|
|
Прейскурант № 06-08, п.
1.430
|
Железобетонные
панели перегородок из тяжелого бетона длиной от 3 до 12 м
|
м2
|
271,7
|
82
|
|
|
Прейскурант
№ 06-14-01, п. 1.007, примеч.
1
|
Бетон тяжелый
класса В22,5 (М300) крупностью заполнителя 5-10 мм
|
м3
|
0,92
0,94
|
83
|
|
|
То же, п. 2.002
|
Раствор
кладочный тяжелый цементный М50
|
»
|
0,4
|
84
|
|
|
» п. 2.012
|
Раствор
кладочный тяжелый цементно-известковый
|
»
|
0,07
|
85
|
|
|
Прейскурант № 06-13-01, п.
1.01.052
|
Кирпич
керамический одинарный размером 250×120×65 мм М100
|
тыс. шт.
|
25,4
|
86
|
|
15
|
|
Проемы
|
|
|
|
|
|
Прейскурант № 06-08, п.
7.96
|
Плиты
железобетонные подоконные площадью более 0,22 м2
|
м2
|
6
|
87
|
|
|
Прейскурант
№ 06-14-01, п. 2.026
|
Раствор
отделочный тяжелый цементный 1 : 3
|
м3
|
0,19
|
88
|
|
|
То же, п. 2.030
|
Раствор
отделочный тяжелый цементно-известковый 1 : 1 : 6
|
»
|
0,02
|
89
|
|
16
|
|
Полы
|
|
|
|
|
|
Прейскурант № 06-14-01, п.
1.003
|
Бетон тяжелый
класса В7,5 (М100)
|
м3
|
5,18
|
90
|
|
|
То же, п. 1.004, примеч. 1
|
Бетон тяжелый
класса В10 (М150)
|
»
|
1,76
|
91
|
|
|
» п. 2.004
|
Раствор кладочный
тяжелый цементный М100
|
»
|
7,53
7,92
|
92
|
|
|
Прейскурант № 06-12-01, п.
1.073
|
Гравий
керамзитовый марки 400, фракции 20-40 мм
|
»
|
30,8
|
93
|
|
|
То же, п. 1.030
|
Щебень из
естественного камня для строительства марки 400, фракции 40-70 мм
|
»
|
20,8
|
94
|
|
|
Прейскурант № 06-14-01, п.
3.052
|
Плиты бетонные
мозаичные
|
м2
|
0,4
|
95
|
|
|
Прейскурант № 06-12-01, п.
5.001
|
Асфальтобетонная
смесь
|
т
|
9,4
|
96
|
|
|
Прейскурант № 06-14-01, п.
1.017
|
Бетон легкий
(М100) крупностью заполнителя 10-20 мм
|
м3
|
4
|
97
|
|
17
|
|
Отделочные
работы
|
|
|
|
|
|
То же, п. 2.026
|
Раствор
отделочный тяжелый цементный 1:3
|
»
|
5
|
98
|
|
|
Прейскурант № 06-14-01, п.
2.030
|
Раствор
отделочный тяжелый цементно-известковый 1:1:6
|
м3
|
20,9
|
99
|
|
18
|
|
Разные работы
|
|
|
|
|
|
Прейскурант № 06-08, п.
7.149
|
Прогоны
прямоугольные железобетонные класса В22,5 (М300), длиной до 6 м
|
»
|
4,1
|
100
|
|
|
|
Арматура класса
А-I
|
кг
|
137
|
101
|
|
|
|
» » А-III
|
»
|
355
|
102
|
|
|
То же, п. 1.331
|
Плиты
железобетонные ребристые длиной 5,97 м
|
м2
|
71,2
|
103
|
|
|
» п. 4157
|
Плиты
железобетонные пустотные длиной до 6 м, приведенной толщиной 12 см
|
»
|
6,7
|
104
|
|
|
Прейскурант № 06-12-10, п.
5.001
|
Асфальтобетонная
смесь
|
т
|
3,2
|
105
|
|
|
Прейскурант № 06-08, п.
3.042
|
Плиты и ступени
сборные железобетонные
|
м2
|
78,7
|
106
|
|
|
Прейскурант № 06-14-01, п.
1.003
|
Бетон тяжелый
класса В7,5 (М100)
|
м3
|
5,6
|
107
|
|
|
То же, п. 2.003
|
Раствор
кладочный тяжелый цементный М-75
|
»
|
2,2
|
108
|
|
|
Прейскурант № 06-14-01, п.
2.012
|
Раствор
цементно-известковый М50
|
м3
|
3,3
|
109
|
|
|
То же, п. 2.030
|
Раствор
отделочный тяжелый цементно-известковый 1:1:6
|
»
|
0,5
|
110
|
|
|
Прейскурант №06-13-01, 52
п. 1.01.052
|
Кирпич
керамический одинарный размером 250×120×65 мм
|
тыс. шт.
|
6,6
|
111
|
|
|
То же, разд. 4
|
Щебень из
глиняного кирпича
|
м3
|
8,6
|
112
|
|
|
Прейскурант № 06-12-12, п.
1.076
|
Песок
|
»
|
0,3
|
113
|
|
|
Прейскурант № 06-13-01, п.
4.01.042
|
Гравий керамзитовый
марки 400, фракции 10-20 мм
|
»
|
4,9
|
114
|
|
|
Прейскурант № 06-12-01, п.
1-073
|
Гравий фракции
св. 10 до 20 мм
|
»
|
1,1
|
115
|
1-2. МОНТАЖНЫЕ РАБОТЫ
Таблица 5
|
№ раздела
|
Наименование оборудования
|
Прямые затраты по базисному району, руб.
|
В том числе,
руб.
|
Затраты труда
рабочих, чел.-ч
|
Территориальные
районы и подрайоны
|
Прямые затраты, руб., по
территориальным районам и подрайонам
|
|
основная
|
эксплуатация
машин
|
|
заработная плата рабочих
|
всего
|
в том числе
заработная плата рабочих, обслуживающих машины
|
основных
|
обслуживающих
машины
|
|
1
|
Электросиловое
|
1382
|
579
|
300
|
40
|
1079
|
50
|
II, IX
|
1342
|
|
|
|
|
|
|
|
|
|
IIА, X
|
1372
|
|
|
|
|
|
|
|
|
|
III.4, V, VIII
|
1352
|
|
|
|
|
|
|
|
|
|
VIII.А
|
1432
|
|
2
|
Стандартное и
нестандартизированное технологическое
|
400
|
219
|
25
|
6
|
293
|
8
|
II-Х
|
400
|
|
3
|
Технологических
трубопроводов для подачи перхлорэтилена
|
63
|
21
|
-
|
-
|
3
|
1
|
II-Х
|
63
|
|
4
|
Воздухоснабжение
|
79
|
51
|
4
|
1
|
6
|
1
|
II-Х
|
79
|
|
5
|
Оборудование
комнаты приема пищи
|
3
|
3
|
-
|
2
|
3
|
1
|
II-Х
|
3
|
|
6
|
Внутренние
слаботочные устройства
|
329
|
92
|
15
|
4
|
118
|
6
|
III.4, V, VII,
VIII
|
329
|
|
|
|
|
|
|
|
|
|
II, IX
|
289
|
|
|
|
|
|
|
|
|
|
IIА, Х
|
349
|
|
|
|
|
|
|
|
|
|
VIII.А
|
369
|
|
7
|
Пожарно-охранная
сигнализация
|
624
|
304
|
36
|
8
|
365
|
10
|
II-Х
|
624
|
|
8
|
Автоматизация
производственных процессов
|
573
|
165
|
37
|
3
|
115
|
4
|
II-Х
|
573
|
|
|
Итого
|
3450
|
1438
|
417
|
65
|
1985
|
83
|
|
|
1-3.
СПРАВОЧНЫЕ ДАННЫЕ ПО СТОИМОСТИ ОБОРУДОВАНИЯ
Измеритель -
одно здание
Таблица 6
|
№ раздела
|
Вид
оборудования
|
Стоимость по
оптовым ценам, руб.
|
|
1
|
Электросиловое
|
2440
|
|
2,3
|
Стандартное и
нестандартизированное технологическое
|
24290
|
|
4
|
Воздухоснабжение
|
352
|
|
5
|
Комната приема
пищи
|
603
|
|
6
|
Слаботочные
устройства
|
61
|
|
7
|
Пожарно-охранной
сигнализации
|
363
|
|
8
|
Автоматизации
технологических процессов
|
1367
|
|
9
|
Оборотное
водоснабжение
|
2440
|
|
10
|
Инвентарь и
мебель
|
3273
|
|
|
Итого
|
13603
|
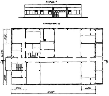
§ 2. ПРАЧЕЧНАЯ-ХИМЧИСТКА СПЕЦОДЕЖДЫ
МОЩНОСТЬЮ 500 КГ/СМЕНУ ДЛЯ РАБОЧИХ МАШИНОСТРОИТЕЛЬНЫХ ПРЕДПРИЯТИЙ
ТИПОВОЙ ПРОЕКТ
408-32-5-86
Нормы настоящего
параграфа предназначены для определения стоимости строительства
прачечной-химчистки спецодежды на объект в целом. Глубина заложения фундамента принята
1,6 м.
Основные
показатели прачечной-химчистки спецодежды мощностью 500 кг/смену: строительный
объем 4817 м3; площадь застройки 1000,5 м2; базисная
стоимость 114480 тыс. руб.; затраты труда 22665 чел.-ч.

Рис. 3
Основные конструктивные
характеристики
|
Фундаменты
|
- монолитные железобетонные
|
|
Фундаментные блоки
|
- сборные бетонные
|
|
Фундаментные балки
|
- сборные железобетонные
|
|
Колонны
|
- сборные железобетонные
|
|
Балки покрытия
|
- сборные
железобетонные
|
|
Плиты покрытия
|
- сборные железобетонные
|
|
Стены
|
- легкобетонные самонесущие однослойные
панели
|
|
Перегородки
|
- сборные железобетонные
|
|
Лестницы
|
- сборные железобетонные
|
|
Кровля
|
- из четырех
слоев рубероида с защитным слоем из гравия на битумной мастике
|
|
Полы
|
- бетонные;
асфальтобетонные, из плитки бетонной, мозаичной, из плитки керамической, из
линолеума
|
|
Окна, двери
|
- деревянные
по ГОСТ
16289-86, по ГОСТ
24699-81, (6
типоразмеров)
|
|
Ограждения
лестниц
|
-
металлические ограждения лестниц
|
|
Отделочные
работы:
|
|
|
- отделка
наружная
|
- панели
окрашиваются полимерной фасадной краской; кирпичные участки стен штукатурятся
и окрашиваются под панели
|
|
- отделка
внутренняя
|
- штукатурка,
окраска, облицовка глазурованной плиткой
|
|
Водопровод
|
-
объединенный; хозяйственно-производственный и противопожарный
|
|
Канализация
|
- производственно-бытовая
в наружную сеть
|
|
Отопление
|
- водяное
|
|
Вентиляция
|
-
приточно-вытяжная с механическим побуждением и естественная
|
|
Горячее
водоснабжение
|
- от
водонагревателей, установленных в тепловом пункте
|
|
Электроснабжение
|
- от местных
городских низковольтовых сетей напряжением 380/220 В
|
|
Слаботочные
устройства
|
- городская
телефонная связь, охранно-пожарная сигнализация, радиотрансляционная сеть
|
2-1. СТРОИТЕЛЬНЫЕ РАБОТЫ
А - ПОСТОЯННЫЕ ЗАТРАТЫ
Измеритель - одно здание
Таблица 7
|
№ раздела
|
Наименование конструкций и видов работ
|
Прямые затраты по базисному району,
руб.
|
В том числе,
руб.
|
Затраты труда
рабочих, чел. ч.
|
Территориальные районы и подрайоны
|
Прямые затраты, руб., по
территориальным районам и подрайонам
|
|
основная
|
эксплуатация
машин
|
|
заработная плата
рабочих
|
всего
|
в том числе
заработная плата рабочих, обслуживающих машины
|
основных
|
обслуживающих
машины
|
|
|
1. Строительные
работы
|
|
|
|
|
|
|
|
|
|
1
|
Земляные работы
без транспортирования грунта
|
1200
|
220
|
770
|
290
|
589
|
134
|
I.2-Х
|
1200
|
|
|
Транспортирование
грунта
|
250
|
-
|
250
|
-
|
-
|
-
|
I.2-Х
|
250
|
|
2
|
Фундаменты и
стены при расчетной зимней температуре наружного воздуха, °С:
|
|
|
|
|
|
|
|
|
|
|
-20
|
1750
|
459
|
399
|
140
|
780
|
178
|
V
|
1750
|
|
|
|
|
|
|
|
|
|
X
|
1960
|
|
|
-30,-40
|
1800
|
460
|
340
|
140
|
782
|
178
|
I.2-I.4, V.1
|
1830
|
|
|
|
|
|
|
|
|
|
III.4, V.2, IX, X
|
1850
|
|
3
|
Перекрытие на
отм. ± 0.0
|
140
|
23
|
15
|
10
|
39
|
13
|
I.2-I.4, III.4, V, VII, IX, X
|
140
|
|
|
|
|
|
|
|
|
|
II, IIА
|
200
|
|
4
|
Перегородки
подвала
|
20
|
10
|
-
|
-
|
20
|
-
|
I.2-Х
|
20
|
|
5
|
Двери подвала
|
700
|
10
|
-
|
-
|
20
|
-
|
I.2-I.4, VIII
|
710
|
|
|
|
|
|
|
|
|
|
II.А
|
790
|
|
|
|
|
|
|
|
|
|
II, III.4, V.1, VII
|
740
|
|
|
|
|
|
|
|
|
|
V.2, IX
|
760
|
|
|
|
|
|
|
|
|
|
VIII.А
|
820
|
|
|
|
|
|
|
|
|
|
X
|
800
|
|
6
|
Полы подвала
|
330
|
50
|
-
|
-
|
80
|
-
|
I.2-I.4, III.4, V, VII
|
330
|
|
|
|
|
|
|
|
|
|
II, II.A, IX, X
|
340
|
|
|
|
|
|
|
|
|
|
VIII, VIII.А
|
360
|
|
7
|
Лестницы
|
130
|
30
|
10
|
10
|
60
|
13
|
I.2-I.4, II, III.4, V, VII, IX
|
130
|
|
|
|
|
|
|
|
|
|
II.А, Х
|
140
|
|
|
|
|
|
|
|
|
|
VIII.А
|
150
|
|
8
|
Внутренние
отделочные работы
|
140
|
100
|
10
|
-
|
160
|
13
|
I.2-Х
|
140
|
|
9
|
Подземное
хозяйство:
|
|
|
|
|
|
|
|
|
|
|
а) строительные
работы
|
610
|
150
|
50
|
20
|
260
|
26
|
I.2-I.4
|
610
|
|
|
|
|
|
|
|
|
|
II.А, VIII.А
|
720
|
|
|
|
|
|
|
|
|
|
II
|
690
|
|
|
|
|
|
|
|
|
|
III.4, V, VII
|
620
|
|
|
|
|
|
|
|
|
|
VIII
|
680
|
|
|
|
|
|
|
|
|
|
IX
|
640
|
|
|
|
|
|
|
|
|
|
X
|
660
|
|
|
б)
металлоконструкции
|
210
|
20
|
10
|
-
|
30
|
-
|
I.2-I.4, II, II.А, III.4, V, VII, VIII.А, VIII, IХ
|
210
|
|
|
|
|
|
|
|
|
|
X
|
220
|
|
10
|
Каркас:
|
|
|
|
|
|
|
|
|
|
|
а) строительные
работы
|
590
|
190
|
220
|
80
|
330
|
110
|
I.2-Х
|
590
|
|
|
б)
металлоконструкции
|
410
|
10
|
10
|
10
|
20
|
13
|
I.2-I.4, II, II.A, III.4, V, VII, VIII, VIII.А
|
410
|
|
|
|
|
|
|
|
|
|
IX
|
420
|
|
|
|
|
|
|
|
|
|
X
|
460
|
|
11
|
Стены при
расчетной зимней температуре наружного воздуха, °С:
|
|
|
|
|
|
|
|
|
|
|
-20,-30
|
2750
|
780
|
730
|
260
|
1320
|
330
|
I.2-I.4, III.4, V, IX, X
|
2800
|
|
|
-40
|
2790
|
790
|
730
|
260
|
1340
|
330
|
I.2-I.4, VII
|
2830
|
|
|
|
|
|
|
|
|
|
II, II.А, IX
|
2880
|
|
|
|
|
|
|
|
|
|
VIII, VIII.А
|
3000
|
|
|
|
|
|
|
|
|
|
X
|
2930
|
|
12
|
Покрытие при
расчетной зимней температуре наружного воздуха, °С:
|
|
|
|
|
|
|
|
|
|
|
-20
|
5160
|
300
|
210
|
70
|
520
|
90
|
V, Х
|
5170
|
|
|
-30
|
6200
|
300
|
210
|
70
|
520
|
90
|
I.2-I.4, III.4, V, IX, X
|
6200
|
|
|
-40
|
6950
|
300
|
210
|
70
|
520
|
90
|
I.2-I.4, VII
|
6950
|
|
|
|
|
|
|
|
|
|
II, II.А, IX
|
7000
|
|
|
|
|
|
|
|
|
|
VIII, VIIIА, Х
|
7100
|
|
13
|
Кровля при
расчетной зимней температуре наружного воздуха, ºС:
|
|
|
|
|
|
|
|
|
|
|
-20
|
4630
|
870
|
310
|
100
|
1470
|
130
|
X
|
5520
|
|
|
|
|
|
|
|
|
|
V
|
4710
|
|
|
-30
|
4940
|
890
|
310
|
100
|
1510
|
130
|
I.2-I.4, III.4, V
|
5000
|
|
|
|
|
|
|
|
|
|
IX
|
5330
|
|
|
|
|
|
|
|
|
|
X
|
5880
|
|
|
-40
|
5100
|
900
|
310
|
100
|
1530
|
130
|
I.2-I.4, VII
|
5100
|
|
|
|
|
|
|
|
|
|
II, IX
|
5500
|
|
|
|
|
|
|
|
|
|
II.А
|
5560
|
|
|
|
|
|
|
|
|
|
VIII, Х
|
6060
|
|
|
|
|
|
|
|
|
|
VIII.А
|
6500
|
|
14
|
Перегородки
|
6600
|
1380
|
210
|
70
|
2350
|
90
|
I.2-I.4, III.4, V, VII
|
6600
|
|
|
|
|
|
|
|
|
|
II, IIА, VIII, IX
|
7000
|
|
|
|
|
|
|
|
|
|
VIII.А
|
7600
|
|
|
|
|
|
|
|
|
|
X
|
7200
|
|
15
|
Проемы:
|
|
|
|
|
|
|
|
|
|
|
а) окна при
расчетной зимней температуре наружного воздуха, °С:
|
|
|
|
|
|
|
|
|
|
|
-20
|
1450
|
70
|
20
|
-
|
120
|
10
|
X
|
1500
|
|
|
|
|
|
|
|
|
|
V
|
1450
|
|
|
-30
|
2400
|
100
|
20
|
-
|
170
|
10
|
I.2-I.4, III.4, V.1
|
2500
|
|
|
|
|
|
|
|
|
|
V.2, IX.1, IX.2, X.1, X.3
|
2700
|
|
|
|
|
|
|
|
|
|
IX.3
|
2860
|
|
|
|
|
|
|
|
|
|
Х.2
|
3040
|
|
|
-40
|
2470
|
100
|
20
|
-
|
150
|
10
|
I.2-I.4, II, II.А, VII, Х
|
2500
|
|
|
|
|
|
|
|
|
|
VIII, Х, VIII.А
|
2600
|
|
|
б) двери
|
2190
|
60
|
20
|
10
|
110
|
13
|
I.2, V.1
|
2300
|
|
|
|
|
|
|
|
|
|
I.3, I.4, VII.1, VII.2
|
2200
|
|
|
|
|
|
|
|
|
|
II.А
|
3040
|
|
|
|
|
|
|
|
|
|
II, III.4, VIII, IХ.1, IX.2
|
2400
|
|
|
|
|
|
|
|
|
|
V.2, IХ.3, Х.1
|
2500
|
|
|
|
|
|
|
|
|
|
VIII.А
|
3600
|
|
|
|
|
|
|
|
|
|
Х.2
|
2900
|
|
|
|
|
|
|
|
|
|
Х.3
|
2700
|
|
16
|
Полы
|
3750
|
1120
|
180
|
50
|
1900
|
60
|
I.2-I.4, III.4
|
3750
|
|
|
|
|
|
|
|
|
|
II, II.А
|
4000
|
|
|
|
|
|
|
|
|
|
V, VII
|
3800
|
|
|
|
|
|
|
|
|
|
VIII.А, VIII
|
4860
|
|
|
|
|
|
|
|
|
|
IX
|
3900
|
|
|
|
|
|
|
|
|
|
X
|
4150
|
|
17
|
Отделочные
работы
|
8100
|
2420
|
130
|
60
|
4120
|
80
|
I.2-I.4, III.4, V, VII
|
8100
|
|
|
|
|
|
|
|
|
|
II, II.А
|
8500
|
|
|
|
|
|
|
|
|
|
VIII, VIII.А
|
8800
|
|
|
|
|
|
|
|
|
|
IX
|
8200
|
|
|
|
|
|
|
|
|
|
X
|
8400
|
|
18
|
Разные работы
|
3800
|
560
|
100
|
30
|
960
|
40
|
I.2-I.4, III.4, VII
|
3800
|
|
|
|
|
|
|
|
|
|
II.А
|
4100
|
|
|
|
|
|
|
|
|
|
II, V
|
3900
|
|
|
|
|
|
|
|
|
|
VIII.А
|
4500
|
|
|
|
|
|
|
|
|
|
VIII
|
4000
|
|
|
|
|
|
|
|
|
|
X
|
4300
|
|
|
Итого по
общестроительным работам
|
47260
|
8883
|
3595
|
1210
|
15350
|
1343
|
|
|
|
|
В том числе:
|
|
|
|
|
|
|
|
|
|
|
а) строительные
работы
|
46640
|
8858
|
3575
|
1200
|
15300
|
1330
|
|
|
|
|
б)
металлоконструкции
|
620
|
30
|
20
|
10
|
50
|
13
|
|
|
|
|
Санитарно-технические
работы
|
|
|
|
|
|
|
|
|
|
19
|
Водопровод
хозяйственно-производственный и противопожарный:
|
|
|
|
|
|
|
|
|
|
|
а)
санитарно-технические работы
|
1000
|
90
|
10
|
-
|
150
|
-
|
I.2-I.4, III.4, V, VII, II, IIА, X, IX
|
1000
|
|
|
|
|
|
|
|
|
|
VIII, VIII.А
|
1100
|
|
|
б) строительные
работы
|
210
|
30
|
-
|
-
|
40
|
-
|
I.2-Х
|
210
|
|
20
|
Водопровод
горячей воды:
|
|
|
|
|
|
|
|
|
|
|
а)
санитарно-технические работы
|
180
|
20
|
-
|
-
|
40
|
-
|
I.2-I.4, III.4, V, VII
|
180
|
|
|
|
|
|
|
|
|
|
II, II.А, IX
|
190
|
|
|
|
|
|
|
|
|
|
VIII, VIII.А, X
|
200
|
|
|
б) строительные
работы
|
100
|
30
|
-
|
-
|
40
|
-
|
I.2-Х
|
100
|
|
21
|
Система
опорожнения баков:
|
|
|
|
|
|
|
|
|
|
|
а)
санитарно-технические работы
|
130
|
20
|
-
|
-
|
40
|
-
|
I.2-Х
|
130
|
|
|
б) строительные
работы
|
10
|
-
|
-
|
-
|
-
|
-
|
I.2-Х
|
10
|
|
22
|
Канализация
бытовая:
|
|
|
|
|
|
|
|
|
|
|
а)
санитарно-технические работы
|
340
|
30
|
-
|
-
|
60
|
-
|
I.2-I.4
|
340
|
|
|
|
|
|
|
|
|
|
II, IIА, VII, VIII, VIII.А, Х
|
360
|
|
|
|
|
|
|
|
|
|
III.4, V, IХ
|
350
|
|
|
б) строительные
работы
|
20
|
10
|
-
|
-
|
10
|
-
|
I.2-I.4, X
|
20
|
|
23
|
Канализация
производственная:
|
|
|
|
|
|
|
|
|
|
|
а)
санитарно-технические работы
|
100
|
10
|
-
|
-
|
20
|
-
|
I.2-Х
|
100
|
|
|
б) строительные
работы
|
10
|
-
|
-
|
-
|
-
|
-
|
I.2-Х
|
10
|
|
24
|
Канализация
дождевая:
|
|
|
|
|
|
|
|
|
|
|
а)
санитарно-технические работы
|
140
|
10
|
-
|
-
|
30
|
-
|
I.2-Х
|
140
|
|
|
б) строительные
работы
|
10
|
-
|
-
|
-
|
-
|
-
|
I.2-Х
|
10
|
|
25
|
Отопление:
|
|
|
|
|
|
|
|
|
|
|
а)
санитарно-технические работы при расчетной зимней температуре наружного
воздуха, ºС
|
|
|
|
|
|
|
|
|
|
|
-20
|
1000
|
140
|
10
|
10
|
240
|
13
|
V
|
1000
|
|
|
|
|
|
|
|
|
|
X
|
950
|
|
|
-30
|
1400
|
170
|
20
|
10
|
290
|
13
|
I.2-I.4, III.4
|
1400
|
|
|
|
|
|
|
|
|
|
V, IX
|
1450
|
|
|
|
|
|
|
|
|
|
X
|
1800
|
|
|
-40
|
2020
|
150
|
10
|
10
|
250
|
13
|
I.2-I.4, II, II.А, VII, VIII, VIII.А, IX
|
2020
|
|
|
|
|
|
|
|
|
|
X
|
2100
|
|
|
б) строительные
работы
|
350
|
120
|
-
|
-
|
200
|
-
|
I.2-I.4, III.4, V
|
350
|
|
|
|
|
|
|
|
|
|
IX
|
360
|
|
|
|
|
|
|
|
|
|
X
|
370
|
|
26
|
Теплоснабжение
вентиляционных установок:
|
|
|
|
|
|
|
|
|
|
|
а)
санитарно-технические работы
|
310
|
30
|
-
|
-
|
60
|
-
|
I.2-I.4, III.4, V, VII, IХ
|
310
|
|
|
|
|
|
|
|
|
|
II, II.А, X
|
320
|
|
|
|
|
|
|
|
|
|
VIII, VIII.А
|
340
|
|
|
б) строительные
работы
|
240
|
50
|
-
|
-
|
80
|
-
|
I.2-I.4, III.4, V, VII
|
240
|
|
|
|
|
|
|
|
|
|
VIII.А
|
270
|
|
|
|
|
|
|
|
|
|
VIII, Х
|
260
|
|
|
|
|
|
|
|
|
|
IX
|
250
|
|
27
|
Пароснабжение:
|
|
|
|
|
|
|
|
|
|
|
а)
санитарно-технические работы
|
430
|
70
|
-
|
-
|
110
|
-
|
I.2-I.4, III.4, V, VII, IХ
|
430
|
|
|
|
|
|
|
|
|
|
II
|
440
|
|
|
|
|
|
|
|
|
|
II.А, VIII, VIII.А, X
|
450
|
|
|
б) строительные
работы
|
460
|
100
|
-
|
-
|
170
|
-
|
I.2-I.4, III,4, VII
|
460
|
|
|
|
|
|
|
|
|
|
II, II.А
|
490
|
|
|
|
|
|
|
|
|
|
V
|
470
|
|
|
|
|
|
|
|
|
|
VIII.А
|
540
|
|
|
|
|
|
|
|
|
|
VIII, X
|
500
|
|
|
|
|
|
|
|
|
|
IX
|
480
|
|
28
|
Тепловой пункт:
|
|
|
|
|
|
|
|
|
|
|
а)
санитарно-технические работы
|
2020
|
190
|
10
|
-
|
310
|
-
|
I.2-I.4, III.4, VII
|
2020
|
|
|
|
|
|
|
|
|
|
II, II.А, VIII, IX
|
2120
|
|
|
|
|
|
|
|
|
|
V
|
2070
|
|
|
|
|
|
|
|
|
|
VIII.А
|
2220
|
|
|
|
|
|
|
|
|
|
X
|
2170
|
|
|
б) строительные
работы
|
520
|
90
|
-
|
-
|
160
|
-
|
I.2-I.4, III.4, V, VII
|
520
|
|
|
|
|
|
|
|
|
|
II, II.А
|
540
|
|
|
|
|
|
|
|
|
|
VIII.А
|
590
|
|
|
|
|
|
|
|
|
|
IX
|
530
|
|
|
|
|
|
|
|
|
|
VIII, Х
|
550
|
|
29
|
Вентиляция:
|
|
|
|
|
|
|
|
|
|
|
а)
санитарно-технические работы
|
5140
|
450
|
30
|
10
|
760
|
13
|
I.2-I.4, III.4, VII
|
5140
|
|
|
|
|
|
|
|
|
|
II, II.А
|
5320
|
|
|
|
|
|
|
|
|
|
V, VII
|
5170
|
|
|
|
|
|
|
|
|
|
VIII, VIII.А
|
5620
|
|
|
|
|
|
|
|
|
|
IX, X
|
5220
|
|
|
б) строительные
работы
|
150
|
30
|
-
|
-
|
40
|
-
|
I.2-I.4
|
150
|
|
|
|
|
|
|
|
|
|
II, II.А, III.4, IХ, X
|
160
|
|
|
|
|
|
|
|
|
|
VII, VIII.А, VIII
|
170
|
|
|
Итого по
санитарно-техническим работам
|
13260
|
2010
|
70
|
20
|
2600
|
26
|
|
|
|
|
В том числе:
|
|
|
|
|
|
|
|
|
|
|
а)
санитарно-технические работы
|
11190
|
1550
|
70
|
20
|
2600
|
26
|
|
|
|
|
б) строительные
работы
|
2070
|
460
|
-
|
-
|
740
|
-
|
|
|
Б. МЕСТНЫЕ
МАТЕРИАЛЫ
Измеритель -
одно здание
Таблица 8
|
№ раздела
|
Номер и позиция
прейскуранта
|
Наименование
материалов, изделий и конструкций
|
Единица
измерения
|
Количество
|
Шифр
|
|
2
|
|
Фундаменты
|
|
|
|
|
|
Прейскурант №
06-14-01, п. 3.008
|
Блоки бетонные
для стоек подвала ФБС Д.6.6-т
|
шт.
|
208
169
|
1
|
|
|
Прейскурант №
06-08, п. 7-214
|
Балки
фундаментные трапецеидальные длиной до 6 м из бетона класса В15 (М200) при
расчетной зимней температуре наружного воздуха, °С:
|
|
|
|
|
|
|
-20
|
м3
|
19,4
19,2
|
2
|
|
|
|
-30, -40
|
»
|
20,8
21,8
|
3
|
|
|
Прейскурант №
06-14-01, п. 1.005
|
Бетон тяжелый
класса В15 (М200) крупностью заполнителя 40-70 мм при расчетной зимней
температуре наружного воздуха, ºС:
|
|
|
|
|
|
|
-20
|
»
|
77,4
79,5
|
4
|
|
|
|
-30, -40
|
»
|
100,2
102
|
5
|
|
|
|
Арматура класса
А-I при расчетной зимней температуре
наружного воздуха, °С:
|
|
|
|
|
|
|
-20
|
кг
|
487
|
6
|
|
|
|
-30, -40
|
»
|
645
|
7
|
|
|
|
Арматура класса
A-III
|
|
|
|
|
|
|
-20
|
кг
|
715
|
8
|
|
|
|
-30, -40
|
»
|
879
|
9
|
|
|
|
Закладные
детали
|
»
|
104
|
10
|
|
|
Прейскурант №
06-14-01, п. 2.004
|
Раствор
кладочный тяжелый цементный М100
|
м3
|
6,6
7,2
|
11
|
|
|
Прейскурант №
06-12-01, п. 1.076
|
Песок для
строительных работ
|
»
|
7,8
|
12
|
|
3
|
|
Перекрытие на
отм. ± 0,0
|
|
|
|
|
|
Прейскурант №
06-08, п. 9.1056
|
Плиты сборные
железобетонные пустотные пролетом 6,85 м, приведенной толщиной 12,5 м,
нормативной нагрузкой 1360 кг/м2
|
м2
|
20,4
|
13
|
|
|
То же, п.
9.1056
|
Плиты сборные
железобетонные, пролетом 6,85 м, приведенной толщиной 12,2 см, нормативной
нагрузкой 1328 кг/см2
|
кг/см2
|
32,6
|
14
|
|
|
Прейскурант №
06-14-01, п. 1.005 примеч. 1
|
Бетон тяжелый
класса В15 (М200) крупностью заполнителя 10-20 мм
|
м3
|
1.8
|
15
|
|
|
Прейскурант
№06-14-01, п. 1.004
|
Бетон тяжелый
класса В10 (М150) крупностью заполнителя 5-10 мм
|
м3
|
0,44
|
16
|
|
|
То же, п. 2.004
|
Раствор
кладочный тяжелый цементный М100
|
»
|
0,02
|
17
|
|
4
|
|
Перегородки
подвала
|
|
|
|
|
|
», п. 2.012
|
Раствор
кладочный тяжелый цементно-известковый М50
|
»
|
0,46
|
18
|
|
|
Прейскурант
№06-13-01, п. 1.01.052
|
Кирпич
керамический одинарный размером 250×120×65 мм марки 100
|
1000 шт.
|
1,01
|
19
|
|
6
|
|
Полы подвала
|
|
|
|
|
|
Прейскурант №
06-14-01, п. 1003
|
Бетон тяжелый
класса В7,5 (М100) крупностью заполнителя 20-40 мм
|
м3
|
7,34
7,27
|
20
|
|
|
То же, п. 2.004
|
Раствор
кладочный тяжелый цементный М100
|
»
|
0,43
|
21
|
|
|
Прейскурант №
06-12-01, п. 1030
|
Щебень из
естественного камня для строительных работ М400 фракции 40-70 мм
|
»
|
2,98
|
22
|
|
|
То же, п. 5.032
|
Асфальтобетонное
покрытие толщиной 40 мм
|
т
|
2,26
|
23
|
|
7
|
|
Лестница в
подвал
|
|
|
|
|
|
Прейскурант №
06-08, п. 1.489, Техн. ч., табл. 3.3
|
Лестничные
площадки из бетона класса В25 (М300)
|
м3
|
0,24
|
24
|
|
|
То же, п.
1.488, Техн. ч., табл. 3.3
|
Лестничные
марши из бетона класса В25 (М300)
|
»
|
1,8
|
25
|
|
|
», п. 9.2339
|
Проступи
сборные железобетонные
|
м
|
38
|
26
|
|
|
|
Арматура класса
А-III
|
кг
|
144
|
27
|
|
|
|
Закладные
детали
|
»
|
26
|
28
|
|
|
Прейскурант №
06-14-01, п. 1.005, примеч. 1
|
Бетон тяжелый
класса В15 (М200) крупностью заполнителя 10-20 мм
|
м3
|
1,04
1,02
|
29
|
|
|
Прейскурант №
06-14-01, п. 2.004
|
Раствор
кладочный тяжелый цементный М100
|
м3
|
0,86
|
30
|
|
8
|
|
Внутренние
отделочные работы
|
|
|
|
|
|
То же, п. 2.030
|
Раствор
отделочный тяжелый цементно-известковый 1:1:6
|
»
|
2,2
|
31
|
|
9
|
|
Подземное
хозяйство
|
|
|
|
|
|
Прейскурант №
06-08, п. 1.490
|
Плиты плоские
железобетонные из бетона класса В22,5 (М300)
|
»
|
0,28
|
32
|
|
|
То же, п. 1.490
Техн. ч., табл. 3.3
|
То же, класса
В15 (М200)
|
»
|
0,48
|
33
|
|
|
», п. 7.6
|
Перемычки
железобетонные марки 1ПРП-10-126
|
шт.
|
15
|
34
|
|
|
», п. 1.499,
Техн. ч., табл. 3.3
|
Лотки
железобетонные из бетона класса В15 (М200), объемом до 0,2 м3
|
м3
|
0,79
|
35
|
|
|
Прейскурант №
06-13-01, п. 1.01.052
|
Кирпич
керамический одинарный размером 250×120×65 мм М100
|
тыс. шт.
|
1,89
|
36
|
|
|
|
Арматура класса
A-III
|
кг
|
67
|
37
|
|
|
|
Закладные
детали
|
»
|
16
|
38
|
|
|
Прейскурант №
06-14-01, п. 2.004
|
Раствор
кладочный тяжелый цементный М100
|
м3
|
1,19
1,17
|
39
|
|
|
То же, п. 2,035
|
Раствор
кладочный отделочный тяжелый цементный 1 : 3
|
»
|
0,16
|
40
|
|
|
», п. 1.005
|
Бетон тяжелый
из бетона класса В15 (М200)
|
»
|
23
27
|
41
|
|
|
|
Щебень из
естественного камня для строительных работ марки 400 фракции 40-70 мм
|
»
|
2,82
|
43
|
|
10
|
|
Каркас
|
|
|
|
|
|
Прейскурант №
06-08, п. 7.1
|
Колонны
прямоугольные из бетона класса В15 (М200)
|
»
|
8,5
|
44
|
|
|
То же, п. 7.1,
примеч. 2, табл. 3.3
|
Фахверковые
колонны длиной 4,3 м
|
»
|
1,6
|
45
|
|
|
|
Балки
двутавровые длиной 12 м
|
»
|
25,2
|
46
|
|
|
|
Арматура класса
A-I
|
кг
|
179
|
47
|
|
|
|
То же, A-III
|
»
|
1610
|
48
|
|
|
|
», Ат-IV
|
»
|
2120
|
49
|
|
|
|
», Вр-I
|
»
|
446
|
50
|
|
|
|
Закладные
детали
|
»
|
1025
|
51
|
|
|
», п. 1.007
|
Бетон тяжелый
класса В25 (М300)
|
м3
|
2,6
|
52
|
|
11
|
|
Стены
|
|
|
|
|
|
Прейскурант №
06-08, п. 1.393
|
Панели стеновые
керамзитобетонные длиной до 3 м, толщиной 25 см при расчетной зимней
температуре наружного воздуха, -20°С
|
м2
|
132
|
53
|
|
|
То же, п.
1.397, прил. 2
|
То же, толщиной
30 см при расчетной зимней температуре наружного воздуха -30° С
|
»
|
132
|
54
|
|
|
То же
|
То же, толщиной
35 см при расчетной зимней температуре наружного воздуха -40° С
|
»
|
132
|
55
|
|
|
», п. 1.393
|
Панели стеновые
керамзитобетонные дли-ной 3-12 м, толщиной 25 см при расчетной зимней
температуре наружного воздуха-20° С
|
»
|
401
|
56
|
|
|
», п. 1.397,
прил. 1
|
То же, толщиной
30 см при расчетной зимней температуре наружного воздуха -30°С
|
»
|
401
|
57
|
|
|
То же
|
То же, толщиной
35 см при расчетной зимней температуре наружного воздуха -40° С
|
»
|
401
|
58
|
|
|
», п. 7-6
|
Перемычки
железобетонные класса В15 (М200) при расчетной зимней температуре наружного
воздуха, °С:
|
|
|
|
|
|
|
-20, -30
|
шт.
|
60
|
59
|
|
|
|
-40
|
»
|
62
|
60
|
|
|
Прейскурант №
06-14-01, п. 2.002
|
Раствор
кладочный тяжелый цементный М50
|
м3
|
3,2
|
61
|
|
|
То же, п. 2.012
|
Раствор
кладочный тяжелый цементно-известковый М50
|
»
|
15,8
|
62
|
|
|
Прейскурант №
06-13-01, п. 1.01.052
|
Кирпич
керамический одинарный размером 250×120×65 мм марки 100
|
тыс. шт.
|
26,2
|
63
|
|
12
|
|
Покрытие
|
|
|
|
|
|
Прейскурант №
06-08, п. 1.330
|
Плиты покрытий
комплексные ребристые длиной до 6 м площадью до 20 м2
|
м2
|
867
836
|
64
|
|
|
То же
|
Плиты
железобетонные ребристые длиной 5,97 класса В22,5 (М300)
|
»
|
178
|
65
|
|
|
»
|
Плиты
железобетонные ребристые с отверстиями диаметром 700 мм
|
»
|
17,8
|
66
|
|
|
», п. 1.359
|
Стаканы
железобетонные опорные объемом более 0,1 м3
|
м3
|
0,12
|
67
|
|
|
»
|
То же, менее
0,1 м3
|
»
|
0,64
|
68
|
|
|
|
Арматура класса
A-I
|
кг
|
64
|
69
|
|
|
|
Закладные
детали
|
»
|
123
|
70
|
|
|
Прейскурант №
06-14-01, п. 1.004, примеч. 1
|
Бетон тяжелый
класса В10 (М150) крупностью заполнителя 5-10 мм
|
м3
|
8,4
8,6
|
71
|
|
|
Прейскурант №
06-14-01, п. 2.004
|
Раствор
кладочный тяжелый цементный М100
|
м3
|
1,43
1,51
|
72
|
|
|
Прейскурант №
06-13-01, п. 4.01.042
|
Гравий
керамзитовый марки 400 фракции 10-20 мм
|
»
|
12,5
|
73
|
|
|
Прейскурант №
06-08, п. 7.169
|
Теплоизоляция
из монолитного ячеистого бетона толщиной 90, 130, 160 мм соответственно при
расчетной зимней температуре наружного воздуха, °С:
|
|
|
|
|
|
|
-20
|
м2
|
75,3
|
74
|
|
|
|
-30
|
»
|
108,8
|
75
|
|
|
|
-40
|
»
|
133,9
|
76
|
|
13
|
|
Кровля
|
|
|
|
|
|
То же, п.
9.2378
|
Плиты
железобетонные парапетные из бетона класса В15 (М200)
|
м3
|
3,77
|
77
|
|
|
|
Арматура класса
Вр-I
|
кг
|
59
|
78
|
|
|
Прейскурант №
06-14-01, п. 1.003
|
Бетон тяжелый
класса В7,5 (М100) крупностью заполнителя 40-70 мм
|
м3
|
0,22
|
79
|
|
|
То же, п. 1.017
|
Бетон легкий
класса В7,5 (М100) крупностью заполнителя 10 мм
|
»
|
0,92
|
80
|
|
|
», п. 2.003
|
Раствор
кладочный тяжелый цементный
М75
|
»
|
5,22
|
81
|
|
|
», п. 2.012
|
Раствор
кладочный тяжелый цементно-известковый М50
|
»
|
1,36
|
82
|
|
|
Прейскурант №
06-13-01, п. 1.01.052
|
Кирпич
керамический одинарный размером 250×120×65 мм марки 100
|
тыс. шт.
|
2,24
|
83
|
|
|
Прейскурант №
06-12-01, п. 1.072
|
Гравий керамзитовый
марки 400 фракции 10-20 мм
|
м3
|
3,96
|
84
|
|
14
|
|
Перегородки
|
|
|
|
|
|
Прейскурант №
06-08, п. 7.1, примеч. 2
|
Колонны
железобетонные прямоугольные из бетона класса В15 (М200) длиной от 3 до 12м
|
»
|
4,16
|
85
|
|
|
|
Арматура класса
А-I
|
кг
|
60
|
86
|
|
|
|
То же
|
»
|
166
|
87
|
|
|
|
Закладные
детали
|
»
|
480
|
88
|
|
|
|
Панели
железобетонные из тяжелого бетона толщиной 80 мм, длиной от 3 до 12 м
|
м2
|
354,1
|
89
|
|
|
Прейскурант №
06-14-01, п. 1.004, примеч. 1
|
Бетон тяжелый
класса В15 (М150) крупностью заполнителя 10-20 мм
|
м3
|
0,15
|
90
|
|
|
То же, п.
1.007, примеч. 1
|
Бетон тяжелый
класса В22,5 (М300) крупностью заполнителя 5-10 мм
|
»
|
0,87
|
91
|
|
|
», п. 2.002,
примеч. 1
|
Раствор
кладочный тяжелый цементный М50
|
»
|
0,31
|
92
|
|
|
», п. 2.011,
примеч. 1
|
Раствор
кладочный тяжелый цементно-известковый М25
|
»
|
12,8
|
93
|
|
|
Прейскурант №
06-13-01, п. 1.01.052
|
Кирпич
керамический одинарный размером 250×120×65 мм марки 100
|
тыс. шт.
|
27,7
|
94
|
|
15
|
|
Проемы
|
|
|
|
|
|
Прейскурант №
06-08, п. 7.196
|
Плиты
железобетонные подоконные
|
м2
|
10
|
95
|
|
|
Прейскурант №
06-14-01, п. 2.026
|
Раствор
отделочный тяжелый цементный 1 : 3
|
м3
|
0,31
|
96
|
|
|
То же, п. 2.030
|
Раствор
отделочный тяжелый цементно-известковый 1:1:6
|
»
|
0,04
|
97
|
|
16
|
|
Полы
|
|
|
|
|
|
», п. 1003
|
Бетон тяжелый
класса В7,5 (М100) крупностью заполнителя 20-40 мм
|
»
|
79,4
|
98
|
|
|
», п. 1.004, примеч.
1
|
Бетон тяжелый
класса В10 (М150) крупностью заполнителя 5-10 мм
|
»
|
1,84
|
99
|
|
|
», п. 1.017,
примеч. 1
|
Бетон легкий
класса В7,5 (М100)
|
»
|
3,7
|
100
|
|
|
», п. 2.004
|
Раствор
кладочный тяжелый цементный М100
|
»
|
12,6
12,4
|
101
|
|
|
Прейскурант №
06-12-01, п. 1.073
|
Гравий
керамзитовый марки 400 фракции 20-40 мм
|
»
|
30,6
|
102
|
|
|
То же, п. 1.030
|
Щебень из
естественного камня для строительных работ марки 100 фракции 40-70 мм
|
»
|
32,4
|
103
|
|
|
Прейскурант №
06-14-01, п. 3.042
|
Плитки бетонные
мозаичные толщиной 30 мм
|
м2
|
36,4
|
104
|
|
|
Прейскурант №
06-12-01, п. 5.001
|
Асфальтобетонная
смесь
|
т
|
14,9
|
105
|
|
17
|
|
Отделочные
работы
|
|
|
|
|
|
Прейскурант №
06-14-01, п. 2.026
|
Раствор
отделочный тяжелый цементный 1 : 3
|
м3
|
3,77
|
106
|
|
|
|
Раствор
отделочный тяжелый цементно-известковый 1:1:6
|
»
|
23,6
|
107
|
|
18
|
|
Разные работы
|
|
|
|
|
|
Прейскурант №
06-08, п. 7.149
|
Прогоны
железобетонные из бетона класса В22,5 (М300) прямоугольные длиной до 6 м
|
»
|
4,1
|
108
|
|
|
|
Арматура класса
А-I
|
кг
|
137
|
109
|
|
|
|
» », А-III
|
»
|
355
|
110
|
|
|
То же, п. 1.331
|
Плиты
железобетонные ребристые длиной 5,97 м
|
м2
|
71,2
|
111
|
|
|
», п.4157
|
Плиты
железобетонные пустотные длиной до 6 м, приведенной толщиной 12 см
|
»
|
6,72
|
112
|
|
|
Прейскурант №
06-14-01, п. 1.004, примеч. 1
|
Бетон тяжелый
класса В7,5 (М100) крупностью заполнителя 20-40 мм
|
м3
|
5,4
5,2
|
113
|
|
|
», п. 2.003
|
Раствор
кладочный тяжелый цементный М75
|
»
|
2,8
2,4
|
114
|
|
|
Прейскурант №
06-14-01, п. 2.012
|
Раствор
кладочный тяжелый цементно-известковый М50
|
м3
|
2,64
|
115
|
|
|
То же, п. 2.030
|
Раствор
отделочный тяжелый цементно-известковый 1:1:6
|
»
|
0,5
|
116
|
|
|
Прейскурант №
06-13-01,п.1.01.052
|
Кирпич
керамический одинарный размером 250×120×65 мм марки 100
|
тыс. шт.
|
4,8
|
117
|
|
|
То же, разд. 4
|
Щебень из
глиняного кирпича
|
м3
|
10,4
|
118
|
|
|
Прейскурант №
06-12-01, п. 1-076
|
Песок для
строительных работ
|
»
|
0,4
|
119
|
|
|
Прейскурант №
06-13-01, п. 4.01.042
|
Гравий
керамзитовый марки 400 фракции 10-20 мм
|
»
|
5
4,8
|
120
|
|
|
Прейскурант №
06-12-01, п. 1.073
|
Гравий фракции
св. 10 до 20 мм
|
»
|
1,12
|
121
|
2-2. МОНТАЖНЫЕ РАБОТЫ
Таблица 9
|
№ раздела
|
Наименование
оборудования
|
Прямые затраты
по базисному району, руб.
|
В том числе,
руб.
|
Затраты труда
рабочих, чел.-ч.
|
Территориальные
районы и подрайоны
|
Прямые затраты, тыс. руб., по
территориальным районам и подрайонам
|
|
основная
заработная плата рабочих
|
эксплуатация
машин
|
|
всего
|
в том числе
заработная плата рабочих, обслуживающих машины
|
основных
|
обслуживающих
машины
|
|
1
|
Электросиловое
|
5450
|
696
|
398
|
48
|
1294
|
48
|
II, VII
|
3360
|
|
|
|
|
|
|
|
|
|
II, IХ
|
3680
|
|
|
|
|
|
|
|
|
|
IIА, Х
|
3580
|
|
|
|
|
|
|
|
|
|
III.4, V, VIII
|
4330
|
|
|
|
|
|
|
|
|
|
VIIIА
|
4880
|
|
2
|
Технологическое
стандартное и нестандартизированное
|
560
|
391
|
42
|
10
|
440
|
13
|
II-Х
|
560
|
|
3
|
Оборотное водоснабжение
|
134
|
7
|
3
|
-
|
8
|
-
|
I-Х
|
44
|
|
4
|
Технологические
трубопроводы подачи перхлорэтилена
|
102
|
28
|
1
|
-
|
4
|
-
|
II-Х
|
70
|
|
5
|
Внутренние слаботочные
устройства
|
477
|
133
|
21
|
6
|
165
|
8
|
II, III.4, V, VII
|
240
|
|
|
|
|
|
|
|
|
|
II, IХ
|
190
|
|
|
|
|
|
|
|
|
|
IIА, Х
|
260
|
|
|
|
|
|
|
|
|
|
VIIIА
|
280
|
|
6
|
Пожарно-охранная
сигнализация
|
835
|
386
|
52
|
10
|
489
|
13
|
II-Х
|
200
|
|
7
|
Автоматизация
производственных процессов
|
454
|
178
|
34
|
3
|
116
|
4
|
II-Х
|
140
|
|
8
|
Воздухоснабжение
|
85
|
5
|
2
|
-
|
4
|
-
|
II-Х
|
20
|
|
|
Итого
|
8097
|
1824
|
553
|
77
|
2520
|
86
|
|
|
2-3.
СПРАВОЧНЫЕ ДАННЫЕ ПО СТОИМОСТИ ОБОРУДОВАНИЯ
Таблица 10
Измеритель - одно здание
|
№ раздела
|
Вид
оборудования
|
Стоимость по
оптовым ценам, руб.
|
|
1
|
Электросиловое
|
1209
|
|
2
|
Технологическое
стандартное и нестандартизированное
|
47799
|
|
3
|
Оборотное
водоснабжение
|
750
|
|
4
|
Производственный
инвентарь и мебель
|
3572
|
|
5
|
Внутренние
слаботочные устройства
|
106
|
|
6
|
Пожарно-охранной
сигнализации
|
357
|
|
7
|
Автоматизации
технологических процессов
|
1310
|
|
8
|
Воздухоснабжение
|
712
|
|
9
|
Оборудование
буфета
|
640
|
|
10
|
Теплоснабжение
вентустановок
|
192
|
|
|
Итого
|
56650
|
§ 3. ЦЕНТРАЛИЗОВАННАЯ БАЗА ТЕХНОЛОГИЧЕСКОЙ
ПОДГОТОВКИ СЕЗОННОГО ХРАНЕНИЯ И РЕМОНТА ПРОКАТНОГО ФОНДА ДЛЯ ГОРОДОВ С
ЧИСЛЕННОСТЬЮ НАСЕЛЕНИЯ 300 ТЫС. ЧЕЛОВЕК
ТИПОВОЙ ПРОЕКТ
408-39-3.86
Нормы настоящего
параграфа предназначены для определения стоимости строительства
централизованной базы технологической подготовки сезонного хранения и ремонта
прокатного фонда на объект в целом. Глубина заложения фундамента принята 1,6 м.
Основные
показатели централизованной базы технологической подготовки сезонного хранения:
строительный объем 10200 м3; площадь застройки 1365 м2;
базисная стоимость 135610 тыс. руб.; затраты труда 27571 чел.-ч.

Рис. 4

Рис. 5
2-3.
ОСНОВНЫЕ КОНСТРУКТИВНЫЕ ХАРАКТЕРИСТИКИ
|
Фундаменты
|
- монолитные железобетонные
|
|
Фундаментные блоки
|
- сборные бетонные
|
|
Фундаментные балки
|
- сборные железобетонные
|
|
Колонны
|
- сборные железобетонные
|
|
Балки покрытия
|
- сборные железобетонные
|
|
Плиты покрытия
|
- сборные железобетонные
|
|
Стены
|
- легкобетонные самонесущие однослойные
панели
|
|
Перегородки
|
- сборные железобетонные
|
|
Лестницы
|
- сборные железобетонные
|
|
Кровля
|
- из четырех слоев рубероида с защитным
слоем из гравия на битумной мастике
|
|
Полы
|
- бетонные, асфальтобетонные, из плитки
керамической, из плитки бетонной, мозаичной, из линолеума
|
|
Окна, двери
|
- деревянные по ГОСТ
16289-86, ГОСТ
24699-81 (6
типоразмеров)
|
|
Ограждения лестниц
|
- металлические
|
|
Отделочные работы:
|
|
|
-отделка
наружная
|
- панели окрашиваются полимерной фасадной
краской; кирпичные участки стен оштукатуривают и окрашивают под панели
|
|
-отделка
внутренняя
|
- штукатурка, окраска, облицовка
глазурованной плиткой
|
|
Водопровод
|
- объединенный,
хозяйственно-производственный и противопожарный
|
|
Канализация
|
- производственно-бытовая в наружную
сеть
|
|
Отопление
|
- водяное
|
|
Вентиляция
|
- приточно-вытяжная с механическим
побуждением и естественная
|
|
Горячее
водоснабжение
|
- от водонагревателей, установленных в
тепловом пункте
|
|
Электроснабжение
|
- от местных городских низковольтных
сетей напряжением 380/220 В
|
|
Слаботочные
устройства
|
- городская телефонная сеть,
охранно-пожарная сигнализация, радиотрансляционная сеть
|
3-1. СТРОИТЕЛЬНЫЕ РАБОТЫ
А. ПОСТОЯННЫЕ ЗАТРАТЫ
Измеритель - одно здание
Таблица 11
|
№ раздела
|
Наименование
конструкций и видов работ
|
Прямые затраты
по базисному району, руб.
|
В том числе,
руб.
|
Затраты труда рабочих, чел.-ч.
|
Территориальные
районы и подрайоны
|
Прямые затраты,
руб. по территориальным районам и подрайонам
|
|
|
основная
заработная плата рабочих
|
эксплуатация
машин
|
|
|
основных
|
обслуживающих
машины
|
|
|
всего
|
в том числе
заработная плата рабочих, обслуживающих машины
|
|
|
1
|
Земляные работы
без транспортирования грунта
|
1178
|
510
|
660
|
280
|
840
|
400
|
I.2-Х
|
1450
|
|
|
|
Транспортирование
грунта
|
210
|
-
|
300
|
-
|
-
|
-
|
I.2-Х
|
210
|
|
|
2
|
Фундаменты и
стены
|
2030
|
520
|
330
|
120
|
880
|
150
|
I.2-I.4, VI
|
2070
|
|
|
|
|
|
|
|
|
|
|
V.2, III.4, VII, IX
|
2110
|
|
|
|
|
|
|
|
|
|
|
II
|
2430
|
|
|
|
|
|
|
|
|
|
|
IIА
|
2640
|
|
|
|
|
|
|
|
|
|
|
VIII; IX
|
2200
|
|
|
|
|
|
|
|
|
|
|
VIIIА
|
2560
|
|
|
|
|
|
|
|
|
|
|
X
|
2240
|
|
|
3
|
Перекрытие на
отм. ±0.0
|
110
|
20
|
10
|
-
|
30
|
10
|
I.2-I.4, IV.4, V, VII
|
110
|
|
|
|
|
|
|
|
|
|
|
IX, X, VIII
|
120
|
|
|
|
|
|
|
|
|
|
|
VIIIА
|
130
|
|
|
|
|
|
|
|
|
|
|
IIА, II
|
160
|
|
|
4
|
Перегородки
|
30
|
20
|
-
|
-
|
40
|
-
|
I.2-Х
|
30
|
|
|
5
|
Проемы
|
340
|
40
|
-
|
-
|
40
|
-
|
I.2-I.4, VII
|
340
|
|
|
|
|
|
|
|
|
|
|
IIА
|
400
|
|
|
|
|
|
|
|
|
|
|
II, X
|
370
|
|
|
|
|
|
|
|
|
|
|
III.4, VI
|
350
|
|
|
|
|
|
|
|
|
|
|
V.2, VIII, IX
|
360
|
|
|
|
|
|
|
|
|
|
|
VIIIА
|
430
|
|
|
6
|
Полы
|
200
|
60
|
-
|
-
|
90
|
-
|
I.2-I.4, III4, УI
|
200
|
|
|
|
|
|
|
|
|
|
|
V.2, IX
|
210
|
|
|
|
|
|
|
|
|
|
|
IIА, II, X
|
220
|
|
|
|
|
|
|
|
|
|
|
VIIIА, VIII
|
230
|
|
|
7
|
Внутренние отделочные
работы
|
190
|
90
|
10
|
-
|
160
|
10
|
I.2-I.4, II, IIА, III4, V, VII, IX, X
|
190
|
|
|
|
|
|
|
|
|
|
|
VIII, VIIIА
|
210
|
|
|
8
|
Подземное хозяйство:
|
|
|
|
|
|
|
|
|
|
|
|
а) строительные работы
|
130
|
30
|
10
|
-
|
60
|
10
|
I.2-I.4, III4, V, VII, VIII, IX, X
|
130
|
|
|
|
|
|
|
|
|
|
|
IIА, II, VIII
|
140
|
|
|
|
б) металлоконструкции
|
20
|
10
|
-
|
-
|
10
|
-
|
I.2-Х
|
20
|
|
|
9
|
Каркас:
|
|
|
|
|
|
|
|
|
|
|
|
а) строительные работы
|
1160
|
340
|
390
|
140
|
570
|
180
|
I.2-I.4, III4, V, VII, IX, X
|
1170
|
|
|
|
|
|
|
|
|
|
|
IIА, II
|
1210
|
|
|
|
б) металлоконструкции
|
870
|
40
|
50
|
20
|
70
|
30
|
1.2-1.4, III4
|
870
|
|
|
|
|
|
|
|
|
|
|
II, IIА, VIIIА, VIII
|
890
|
|
|
|
|
|
|
|
|
|
|
V, VII
|
880
|
|
|
|
|
|
|
|
|
|
|
IX
|
900
|
|
|
|
|
|
|
|
|
|
|
X
|
980
|
|
|
10
|
Стены при расчетной зимней
температуре наружного воздуха, ºС:
|
|
|
|
|
|
|
|
|
|
|
|
-20, -30
|
4880
|
1080
|
1210
|
420
|
1840
|
550
|
I.2-I.4, III.4, V
|
4860
|
|
|
|
|
|
|
|
|
|
|
IX
|
4890
|
|
|
|
|
|
|
|
|
|
|
X
|
5040
|
|
|
|
-40
|
5070
|
1130
|
1220
|
420
|
1910
|
550
|
I.2-I.4, VII
|
5130
|
|
|
|
|
|
|
|
|
|
|
IIА, II
|
5270
|
|
|
|
|
|
|
|
|
|
|
VIII
|
5470
|
|
|
|
|
|
|
|
|
|
|
VIIIА
|
5560
|
|
|
|
|
|
|
|
|
|
|
IX
|
5170
|
|
|
|
|
|
|
|
|
|
|
X
|
5340
|
|
|
11
|
Междуэтажные перекрытия на
отм. 3,3 м
|
330
|
70
|
70
|
20
|
120
|
30
|
I.2-I.4, III4, V, VII
|
330
|
|
|
|
|
|
|
|
|
|
|
IIА
|
400
|
|
|
|
|
|
|
|
|
|
|
II
|
380
|
|
|
|
|
|
|
|
|
|
|
VIIIА
|
370
|
|
|
|
|
|
|
|
|
|
|
VIII, X
|
350
|
|
|
|
|
|
|
|
|
|
|
IX
|
340
|
|
|
12
|
Покрытие:
|
|
|
|
|
|
|
|
|
|
|
|
а) строительные работы
|
420
|
130
|
210
|
70
|
220
|
100
|
I.2-Х
|
420
|
|
|
|
б) металлоконструкции
|
170
|
10
|
10
|
10
|
20
|
13
|
I.2-I.4, III.4, VIII
|
170
|
|
|
|
|
|
|
|
|
|
|
II, IIА, V, VIII, VIIIА, IX
|
180
|
|
|
|
|
|
|
|
|
|
|
X
|
200
|
|
|
13
|
Кровля при расчетной
зимней температуре наружного воздуха, ºС:
|
|
|
|
|
|
|
|
|
|
|
|
-20
|
3940
|
1020
|
390
|
130
|
1740
|
170
|
V
|
4040
|
|
|
|
|
|
|
|
|
|
|
X
|
4740
|
|
|
|
-30
|
4870
|
1200
|
410
|
130
|
2040
|
170
|
I.2-I.4
|
8470
|
|
|
|
|
|
|
|
|
|
|
II, IIА, IX
|
5200
|
|
|
|
|
|
|
|
|
|
|
III.4, V, VII
|
4950
|
|
|
|
|
|
|
|
|
|
|
VIII, VIIIА, X
|
5700
|
|
|
|
-40
|
5340
|
1140
|
410
|
130
|
190
|
170
|
I.2-I.4
|
5340
|
|
|
|
|
|
|
|
|
|
|
II, IIА, IX
|
5700
|
|
|
|
|
|
|
|
|
|
|
VII
|
5600
|
|
|
|
|
|
|
|
|
|
|
VIII, VIIIА, X
|
6000
|
|
|
14
|
Перегородки
|
11000
|
280
|
140
|
40
|
470
|
60
|
I.2-IX
|
11000
|
|
|
15
|
Проемы:
|
|
|
|
|
|
|
|
|
|
|
|
а) окна при расчетной
зимней температуре наружного воздуха, ºС:
|
|
|
|
|
|
|
|
|
|
|
|
-20
|
1600
|
100
|
20
|
10
|
170
|
13
|
V
|
1620
|
|
|
|
|
|
|
|
|
|
|
X
|
1680
|
|
|
|
-30
|
1800
|
100
|
20
|
10
|
170
|
13
|
I.2-I.4, III.4, V, IX
|
1800
|
|
|
|
|
|
|
|
|
|
|
X
|
1900
|
|
|
|
-40
|
2800
|
130
|
20
|
10
|
200
|
13
|
I.2-I.4, VII
|
2800
|
|
|
|
|
|
|
|
|
|
|
II, IIА, VIII, IX, X
|
2900
|
|
|
|
|
|
|
|
|
|
|
VIIIА
|
2950
|
|
|
|
б) двери
|
2360
|
60
|
10
|
-
|
100
|
10
|
I.2-I.4, III.4, VI
|
2500
|
|
|
16
|
Полы:
|
|
|
|
|
|
|
|
|
|
|
|
а) основания
|
620
|
380
|
60
|
20
|
640
|
30
|
I.2-I.4, III.4, V, VII, X
|
620
|
|
|
|
|
|
|
|
|
|
|
VIII, VIIIА, X
|
630
|
|
|
|
|
|
|
|
|
|
|
II, IIА
|
640
|
|
|
|
б) покрытия
|
1930
|
560
|
30
|
10
|
950
|
13
|
I.2-I.4, III.4, V, VII
|
1940
|
|
|
|
|
|
|
|
|
|
|
II, IIА, VIII, VIIIА
|
2200
|
|
|
|
|
|
|
|
|
|
|
X
|
2100
|
|
|
|
|
|
|
|
|
|
|
IX
|
2000
|
|
|
17
|
Лестницы в осях 6-7 и А-Б
|
300
|
60
|
20
|
10
|
110
|
13
|
I.2-I.4, II, IIА, III4, V, VII, VIII, IX
|
300
|
|
|
|
|
|
|
|
|
|
|
VIIIА
|
320
|
|
|
18
|
Отделочные работы:
|
|
|
|
|
|
|
|
|
|
|
|
а) наружные
|
590
|
140
|
10
|
-
|
240
|
13
|
I.2-I.4, III.4, V, VII, IX
|
590
|
|
|
|
|
|
|
|
|
|
|
II, IIА, X
|
610
|
|
|
|
|
|
|
|
|
|
|
VIII, VIIIА
|
650
|
|
|
|
б) внутренние
|
3140
|
1260
|
60
|
30
|
2150
|
40
|
I.2-I.4, III.4, V, VII
|
3140
|
|
|
|
|
|
|
|
|
|
|
II, IIА, X
|
3240
|
|
|
|
|
|
|
|
|
|
|
VIII, VIIIА
|
3400
|
|
|
|
|
|
|
|
|
|
|
IX
|
3180
|
|
|
19
|
Разные работы при
расчетной зимней температуре наружного воздуха, °С:
|
|
|
|
|
|
|
|
|
|
|
|
-20
|
880
|
200
|
100
|
30
|
350
|
40
|
I.2-I.4
|
890
|
|
|
|
|
|
|
|
|
|
|
V
|
900
|
|
|
|
|
|
|
|
|
|
|
X
|
910
|
|
|
|
-30
|
900
|
190
|
80
|
20
|
340
|
30
|
I.2-I.4, III.4, V
|
910
|
|
|
|
|
|
|
|
|
|
|
IX
|
930
|
|
|
|
|
|
|
|
|
|
|
X
|
950
|
|
|
|
-40
|
970
|
210
|
100
|
30
|
350
|
40
|
I.2-I.4, VII, IX, II, IIА, VIII.
|
970
|
|
|
|
|
|
|
|
|
|
|
VIIIА, X
|
1180
|
|
|
|
Металлоконструкция
|
540
|
20
|
20
|
10
|
20
|
13
|
I.2-I.4, III.4, V, VII
|
540
|
|
|
|
|
|
|
|
|
|
|
II, IIА, IX
|
560
|
|
|
|
|
|
|
|
|
|
|
VIII, VIIIА
|
550
|
|
|
|
|
|
|
|
|
|
|
X
|
600
|
|
|
|
Итого по общестроительным
работам
|
40240
|
7220
|
4120
|
1360
|
12220
|
1888
|
|
|
|
|
|
В том числе:
|
|
|
|
|
|
|
|
|
|
|
|
а) строительные работы
|
38640
|
7140
|
4040
|
1320
|
12130
|
1845
|
|
|
|
|
|
б) металлоконструкции
|
1580
|
80
|
80
|
40
|
90
|
43
|
|
|
|
|
20
|
Водопровод
хозяйственно-противопожарный:
|
|
|
|
|
|
|
|
|
|
|
|
а) санитарно-технические
работы
|
1310
|
100
|
10
|
-
|
170
|
-
|
I.2-I.4, III.4, V, VII
|
1310
|
|
|
|
|
|
|
|
|
|
|
II, IIА, IX, X
|
1350
|
|
|
|
|
|
|
|
|
|
|
VIII, VIIIА
|
1430
|
|
|
|
б) строительные работы
|
50
|
10
|
-
|
-
|
20
|
-
|
I.2-Х
|
50
|
|
|
21
|
Водопровод горячей воды:
|
|
|
|
|
|
|
|
|
|
|
|
а) санитарно-технические
работы
|
30
|
10
|
-
|
-
|
10
|
-
|
I.2-Х
|
30
|
|
|
|
б) строительные работы
|
10
|
-
|
-
|
-
|
-
|
-
|
I.2-Х
|
10
|
|
|
22
|
Канализация бытовая:
|
|
|
|
|
|
|
|
|
|
|
|
а) санитарно-технические
работы
|
200
|
20
|
-
|
-
|
-
|
-
|
I.2-Х
|
200
|
|
|
|
б) строительные работы
|
10
|
-
|
-
|
-
|
-
|
-
|
I.2-Х
|
10
|
|
|
23
|
Канализация дождевая:
|
|
|
|
|
|
|
|
|
|
|
|
а) санитарно-технические
работы
|
140
|
20
|
-
|
-
|
30
|
-
|
I.2-I.4, III.4, VII
|
140
|
|
|
|
|
|
|
|
|
|
|
II, IIа, V
|
150
|
|
|
|
|
|
|
|
|
|
|
VIII, VIIIА, IX, X
|
210
|
|
|
|
б) строительные работы
|
10
|
10
|
-
|
-
|
10
|
-
|
I.2-Х
|
10
|
|
|
24
|
Отопление подвала:
|
|
|
|
|
|
|
|
|
|
|
|
а) санитарно-технические
работы
|
310
|
20
|
-
|
-
|
10
|
-
|
I.2-I.4, VI.4. V, VII
|
310
|
|
|
|
|
|
|
|
|
|
|
II, IIА
|
330
|
|
|
|
|
|
|
|
|
|
|
VIII, VIIIА, IX
|
320
|
|
|
|
б) строительные работы
|
10
|
-
|
-
|
-
|
10
|
-
|
I.2-Х
|
10
|
|
|
25
|
Отопление:
|
|
|
|
|
|
|
|
|
|
|
|
а) санитарно-технические
работы при расчетной зимней температуре наружного воздуха, ºС:
|
|
|
|
|
|
|
|
|
|
|
|
-20
|
1200
|
90
|
10
|
-
|
245
|
-
|
V
|
1200
|
|
|
|
-30
|
1750
|
90
|
10
|
-
|
220
|
-
|
I.2-I.4, III, V, IX, X
|
1760
|
|
|
|
-40
|
1800
|
100
|
20
|
-
|
320
|
-
|
I.2-I.4, II, IIА, VII, IX, X
|
1800
|
|
|
|
|
|
|
|
|
|
|
VIII, VIIIА
|
2000
|
|
|
|
б) строительные работы при
расчетной зимней температуре наружного воздуха, ºС:
|
|
|
|
|
|
|
|
|
|
|
|
-20, -30
|
90
|
60
|
-
|
-
|
10
|
-
|
I.2-I.4, III.4, V, X
|
90
|
|
|
|
-40
|
110
|
60
|
-
|
-
|
10
|
-
|
I.2-I.4, II, IIА, VII, VIII, VIIIА, IX, X
|
110
|
|
|
26
|
Тепловой пункт:
|
|
|
|
|
|
|
|
|
|
|
|
а) санитарно-технические
работы
|
1040
|
150
|
10
|
-
|
260
|
10
|
I.2-I.4, III.4, V, VII
|
1050
|
|
|
|
|
|
|
|
|
|
|
VIIIА, VIII
|
1080
|
|
|
|
|
|
|
|
|
|
|
II, IIА, IХ, X
|
1090
|
|
|
|
б) строительные работы
|
430
|
90
|
-
|
-
|
150
|
-
|
I.2-I.4, III.4, V, VII
|
430
|
|
|
|
|
|
|
|
|
|
|
II, IIА, VIII, IX
|
460
|
|
|
|
|
|
|
|
|
|
|
VIIIА
|
500
|
|
|
|
|
|
|
|
|
|
|
X
|
470
|
|
|
27
|
Теплоснабжение калориферов
подвала:
|
|
|
|
|
|
|
|
|
|
|
|
а) санитарно-технические
работы
|
30
|
10
|
-
|
-
|
10
|
-
|
I.2-I.4, II, IIА, III.4, V, VII, VIII, IX, X
|
30
|
|
|
|
|
|
|
|
|
|
|
VIIIА
|
40
|
|
|
|
б) строительные работы
|
30
|
40
|
-
|
-
|
10
|
-
|
I.2-I.4, II, IIА, III.4, V, VII, VIII, IX, X
|
30
|
|
|
|
|
|
|
|
|
|
|
VIIIА
|
40
|
|
|
28
|
Теплоснабжение
калориферов:
|
|
|
|
|
|
|
|
|
|
|
|
а) санитарно-технические
работы
|
250
|
40
|
-
|
-
|
70
|
-
|
I.2-I.4, III.4, V, VII, IХ, X
|
250
|
|
|
|
|
|
|
|
|
|
|
VIII, VIIIА
|
270
|
|
|
|
б) строительные работы
|
280
|
60
|
-
|
-
|
100
|
-
|
I.2-I.4, III.4, V, VII
|
280
|
|
|
|
|
|
|
|
|
|
|
II, IIА, IX
|
290
|
|
|
|
|
|
|
|
|
|
|
VIII, X
|
300
|
|
|
|
|
|
|
|
|
|
|
VIIIА
|
330
|
|
|
29
|
Вентиляция подвала:
|
|
|
|
|
|
|
|
|
|
|
|
а) санитарно-технические
работы
|
680
|
60
|
-
|
-
|
100
|
-
|
I.2-I.4, III.4. V, VII, IХ
|
690
|
|
|
|
|
|
|
|
|
|
|
II, IIА, X
|
700
|
|
|
|
|
|
|
|
|
|
|
VIII, VIIIА
|
720
|
|
|
|
б) строительные работы
|
20
|
10
|
-
|
-
|
10
|
-
|
I.2-Х
|
20
|
|
|
30
|
Вентиляция:
|
|
|
|
|
|
|
|
|
|
|
|
а) строительно-технические
работы
|
2680
|
240
|
10
|
-
|
410
|
-
|
I.2-I.4, III.4, V, VII
|
2700
|
|
|
|
|
|
|
|
|
|
|
II, IIА
|
2830
|
|
|
|
|
|
|
|
|
|
|
X
|
2800
|
|
|
|
|
|
|
|
|
|
|
VIII. VIIIА
|
3060
|
|
|
|
б) строительные работы
|
40
|
10
|
-
|
-
|
20
|
-
|
I.2-I.4, II, IIА, III.4, V, VII, IX, X
|
40
|
|
|
|
|
|
|
|
|
|
|
VIII, VIIIА
|
50
|
|
|
|
Итого по
санитарно-техническим работам
|
9400
|
1040
|
40
|
-
|
1620
|
10
|
|
|
|
|
|
В том числе:
|
|
|
|
|
|
|
|
|
|
|
|
а) санитарно-технические
работы
|
8420
|
760
|
40
|
-
|
1300
|
10
|
|
|
|
|
|
б) строительные работы
|
980
|
280
|
-
|
-
|
340
|
-
|
|
|
|
Б. МЕСТНЫЕ
МАТЕРИАЛЫ
Таблица 12
Измеритель - одно здание
|
№ раздела
|
Номер и позиция
прейскуранта
|
Наименование
материалов, изделий и конструкций
|
Единица
измерения
|
Количество
|
Шифр
|
|
2
|
Прейскурант № 06-08,
п. 7.6
|
Блоки бетонные
для стоек подвала ФБС 24.6.6-т
|
шт.
|
184
176
|
1
|
|
|
То же, п. 7214
|
Балки
железобетонные фундаментные из бетона класса В15 (М200) длиной до 6 м при
расчетной зимней температуре наружного воздуха, °C:
|
|
|
|
|
|
|
-20, -30
|
м3
|
9.1
|
2
|
|
|
|
-40
|
»
|
10,6
|
3
|
|
|
|
Арматура класса
А-I при расчетной зимней температуре
наружного воздуха, °С:
|
|
|
|
|
|
|
-20, -30
|
кг
|
341
|
4
|
|
|
|
-40
|
»
|
397
|
5
|
|
|
|
Арматура класса
А-III при расчетной зимней температуре
наружного воздуха, °С:
|
|
|
|
|
|
|
-20, -30
|
»
|
267
|
6
|
|
|
|
-40
|
»
|
402
|
7
|
|
|
|
Закладные
детали
|
»
|
50
|
8
|
|
|
Тоже, п. 7.11,
примеч. 2
|
Балки
железобетонные фундаментные из бетона класса В15 (М200) объемом до 1 м3
|
м3
|
3,0
|
9
|
|
|
То же, п. 7.6
|
Перемычки
железобетонные серии 1.138-10
|
шт.
|
7,8
8
|
10
|
|
|
Прейскурант №
06-14-01, п. 1.001, примеч. 1
|
Бетон тяжелый
класса В3,5 (М150) крупностью заполнителя 20-40 мм
|
м3
|
15,06
|
11
|
|
|
То же, п.
1.004, примеч. 1
|
Бетон тяжелый
класса В10 (М150) крупностью заполнителя 10-20 мм
|
»
|
1,62
|
12
|
|
|
» п. 1.005
|
Бетон тяжелый
класса В15 (М200) крупностью заполнителя 40-70 мм
|
»
|
72
78
|
13
|
|
|
» п. 2004
|
Раствор
кладочный тяжелый цементный М100
|
»
|
4
4,4
|
14
|
|
|
» п. 2.012
|
Раствор
кладочный тяжелый цементно-известковый М50
|
»
|
2,05
|
15
|
|
|
» п. 2.030
|
Раствор
отделочный тяжелый цементно-известковый 1:1:6
|
»
|
2,04
|
16
|
|
|
Прейскурант №
06-13-01, п. 1.01.052
|
Кирпич
керамический одинарный размером 250×120×65 мм марки 100
|
1000 шт.
|
3,42
|
17
|
|
|
Прейскурант №
06-12-01, п. 1-076
|
Песок для
строительных работ
|
м3
|
5,31
|
18
|
|
3
|
|
Перекрытие на
отметке ±0,0
|
|
|
|
|
|
Прейскурант №
06-08, п. 1.458
|
Плиты сборные
железобетонные пустотные длиной до 6 м, шириной до 3 м, приведенной толщиной
до 14 см, нормативной нагрузкой 1201 кг/м2
|
м2
|
45,4
|
19
|
|
|
Прейскурант №
06-14-01, п. 1.004
|
Бетон тяжелый
класса В10 (М150) крупностью заполнителя 5-10 мм
|
м3
|
0,4
|
20
|
|
|
То же, п.
1.005, примеч. 1
|
Бетон тяжелый
класса В15 (М200) крупностью заполнителя 10-20 мм
|
»
|
2,3
2,4
|
21
|
|
|
|
Перегородки
подвала
|
|
|
|
|
|
То же, п. 2.011
|
Раствор
кладочный тяжелый цементно-известковый М25
|
»
|
0,74
|
22
|
|
|
Прейскурант №
06-13-01, п. 1.01.052
|
Кирпич
керамический одинарный размером 250×120×65 мм марки 100
|
1000 шт.
|
1,61
|
23
|
|
|
|
Проемы подвала
|
|
|
|
|
5
|
Прейскурант №
06-14-01, п. 1.005
|
Бетон тяжелый
класса В15 (М200) крупностью заполнителя 10-20 мм
|
м3
|
1
|
24
|
|
|
То же, п. 2.035
|
Раствор отделочный
тяжелый цементный 1 : 3
|
»
|
0,01
|
25
|
|
|
|
Основания
|
|
|
|
|
6
|
» п. 1.003
|
Бетон тяжелый
класса В7,5 (М100) крупностью заполнителя 20-40 мм
|
»
|
6,24
|
26
|
|
|
» п. 1.017
|
Бетон легкий
класса В7,5 (М100) крупностью заполнителя 10-20 мм
|
»
|
2,24
|
27
|
|
|
» п. 2.005
|
Раствор
кладочный тяжелый цементный М150
|
»
|
0,54
|
28
|
|
|
Прейскурант №
06-12-01, п. 1.030
|
Щебень из
естественного камня для строительных работ марки 400 фракции 40-70 мм
|
»
|
2,94
|
29
|
|
7
|
|
Покрытия
|
|
|
|
|
|
Прейскурант №
06-14-01, п. 2.004
|
Раствор
кладочный тяжелый цементный М100
|
»
|
0,49
|
30
|
|
|
Прейскурант №
06-12-01, п.5.032
|
Асфальтобетонное
покрытие толщиной 40 мм
|
т
|
1,7
|
31
|
|
|
Прейскурант №
06-14-01, п. 3042
|
Плитки
мозаичные бетонные
|
м2
|
21,2
|
32
|
|
8
|
|
Отделочные
работы
|
|
|
|
|
|
То же, п. 2.035
|
Раствор
отделочный тяжелый цементный 1 : 3
|
м3
|
0,15
|
33
|
|
|
» п. 2.030
|
Раствор
отделочный тяжелый цементно-известковый 1:1:6
|
»
|
1,73
|
34
|
|
9
|
|
Подземное
хозяйство
|
|
|
|
|
|
Прейскурант №
06-08, п. 1.490
|
Плиты плоские
железобетонные класса В15 (М200)
|
»
|
0,16
|
35
|
|
|
|
Арматура класса
А-III
|
кг
|
5
|
36
|
|
|
|
Закладные
детали
|
»
|
2
|
37
|
|
|
Прейскурант №
06-14-01, п. 3, примеч. 1
|
Блоки стеновые
ФБС д. 3.6.Т
|
шт.
|
7,8
7
|
38
|
|
|
|
Плиты серии
3.006.1-2 марки П8Д-8
|
»
|
1
|
39
|
|
|
Прейскурант №
06-08, п. 7.6
|
Перемычка
железобетонная класса В15 (М200), серии 1.138-10 в.1
|
»
|
9
|
40
|
|
|
Прейскурант №
06-14-01, п. 1.003
|
Бетон тяжелый
класса В7,5 (М100) крупностью заполнителя 40-70 мм
|
м3
|
2,6
2,53
|
41
|
|
|
То же, п. 2.002
|
Раствор
кладочный тяжелый цементный М50
|
»
|
0,92
0,8
|
42
|
|
|
» п. 2.035
|
Раствор
отделочный тяжелый цементный 1 : 3
|
»
|
0,02
|
43
|
|
|
Прейскурант №
06-13-01, п. 1.01.052
|
Кирпич
керамический одинарный размером 250×120×65 мм марки 100
|
1000 шт.
|
1,20
|
44
|
|
|
Прейскурант №
06-12-01, п. 1.076
|
Песок для
строительных работ
|
м3
|
2,59
|
45
|
|
10
|
|
Каркас
|
|
|
|
|
|
Прейскурант №
06-08, п. 7.1, примеч. 2
|
Колонны
прямоугольные бесконсольные из бетона класса В15 (М200) длиной 6 м
|
»
|
11,4
|
46
|
|
|
То же
|
Фахверковые
колонны серии 1.427.1-3.1
|
»
|
3,6
|
47
|
|
|
» п. 7.2,
примеч. 2
|
Колонны
одноконсольные из бетона класса В25 (М300)
|
»
|
2,28
|
48
|
|
|
Прейскурант №
06-08, п. 7.3, примеч. 2
|
Колонны
двухконсольные из бетона класса В15 (М200)
|
м3
|
11,4
|
49
|
|
|
|
Арматура класса
A-I
|
кг
|
406
|
50
|
|
|
|
А-III
|
»
|
1610
|
51
|
|
|
|
Закладные
детали
|
»
|
1100
|
52
|
|
|
То же, п. 1.67
|
Балки
железобетонные двутаврового сечения, объемом более 1,5 м3 из бетона
М350
|
м3
|
37,8
|
53
|
|
|
|
Арматура класса
А-V
|
кг
|
3010
|
54
|
|
|
|
» » А-III
|
»
|
1230
|
55
|
|
|
|
» » Вр-I
|
»
|
664
|
56
|
|
|
|
Закладные
детали
|
»
|
609
|
57
|
|
|
» п. 7.157
|
Ригели сборные
железобетонные с полками длиной до 6 м
|
м3
|
5,03
|
58
|
|
|
|
Арматура класса
А-V
|
кг
|
213
|
59
|
|
|
|
» » A-I
|
»
|
132
|
60
|
|
|
|
» » А-III
|
»
|
320
|
61
|
|
|
|
Закладные
детали
|
»
|
161
|
62
|
|
11
|
|
Стены
|
|
|
|
|
|
Прейскурант №
06-08, п. 1389
|
Панели стеновые
керамзитобетонные длиной более 6 м при расчетной зимней температуре наружного
воздуха, °С:
|
|
|
|
|
|
|
-20
|
м2
|
926,5
|
63
|
|
|
Тоже, п. 1393
|
-30
|
»
|
927,6
|
64
|
|
|
» п. 1397
|
-40
|
»
|
928,8
|
65
|
|
|
|
Панели стеновые
керамзитобетонные длиной до 3 м при расчетной зимней температуре наружного
воздуха, °С:
|
|
|
|
|
|
» п. 1389
|
-20
|
»
|
48
|
66
|
|
|
» п. 1393
|
-30
|
»
|
48,5
|
67
|
|
|
» п. 1397
|
-40
|
»
|
48,7
|
68
|
|
|
» п. 7.6
|
Перемычки
железобетонные класса В15 (М200) 1ПР.28-20.25.22у
|
шт.
|
26
|
69
|
|
|
|
Закладные
детали
|
кг
|
487
|
70
|
|
|
Прейскурант №
06-14-01, п. 2002
|
Раствор
кладочный тяжелый цементный М50
|
м3
|
4,6
4,3
|
71
|
|
|
Тоже, п. 20012
|
Раствор
кладочный тяжелый цементно-известковый М50
|
»
|
8,4
|
72
|
|
|
|
Кирпич
керамический одинарный размером 250×120×65 мм марки 100
|
1000 шт.
|
15
|
73
|
|
12
|
|
Междуэтажные
перекрытия на отм. 3.3 м
|
|
|
|
|
|
Прейскурант №
06-08, п. 1.458
|
Плиты
железобетонные длиной до 6 м, шириной до 3 м, расчетной нагрузкой 1201 кг/м2,
приведенной толщиной 12 см
|
м2
|
193,4
|
74
|
|
|
То же, п. 1.457
|
То же,
расчетной нагрузкой до 1200 кг/м2, приведенной толщиной до 14 см
|
»
|
14,4
|
75
|
|
|
» п. 1.328
|
То же, плит
ребристых
|
»
|
8,42
|
76
|
|
|
Прейскурант №
06-14-01, п. 1.005
|
Бетон тяжелый
класса В15 (М200) крупностью заполнителя 5-10 мм
|
м3
|
4,8
4,92
|
77
|
|
|
То же. п. 1.021
|
Бетон легкий
класса В15 (М200) крупностью заполнителя 10-20 мм
|
»
|
0,83
|
78
|
|
13
|
|
Покрытия
|
|
|
|
|
|
Прейскурант №
06-08, п. 1.330
|
Плиты
железобетонные ребристые шириной более 2 м, длиной 6 м, расчетной нагрузкой
470 кг/м2
|
м2
|
1317
1281
|
79
|
|
|
То же, п. 1.358
|
Закладные
детали
|
кг
|
206
|
80
|
|
|
|
Стаканы сборные
железобетонные объемом до 0,1 м3
|
м3
|
0,5
|
81
|
|
|
|
Арматура класса
А-I
|
кг
|
53
|
82
|
|
|
Прейскурант №
06-14-01, п. 1.004
|
Бетон тяжелый класса
В10 (М150) крупностью заполнителя 5 - 10 мм
|
м3
|
6,26
|
83
|
|
14
|
|
Кровля
|
|
|
|
|
|
Прейскурант №
06-14-01, п. 4001
|
Плиты
пенобетонные толщиной 100, 140, 160 мм соответственно при расчетной зимней
температуре наружного воздуха, °С:
|
|
|
|
|
|
|
-20
|
м3
|
129,6
|
84
|
|
|
|
-30
|
»
|
187,4
|
85
|
|
|
|
-40
|
»
|
207,4
|
86
|
|
|
Прейскурант №
06-08, п. 9.2378
|
Плиты
парапетные из бетона класса В15 (М200) длиной и шириной до 3 м
|
»
|
4,18
|
87
|
|
|
|
Арматура класса
А-I
|
кг
|
70
|
88
|
|
|
Прейскурант №
06-14-01, п. 2003
|
Раствор
кладочный тяжелый цементный М75
|
м3
|
21
|
89
|
|
|
Прейскурант №
06-12-01, п. 1.072
|
Гравий
керамзитовый марки 400 фракции 10-20 мм
|
|
|
|
|
|
Прейскурант № 06-14-01,
п. 1.017
|
Бетон легкий
керамзитобетон класса В7,5 (М100) крупностью заполнителя 5 - 10 мм
|
»
|
0,9
|
90
|
|
15
|
|
Перегородки
|
|
|
|
|
|
То же. п. 2.012
|
Раствор
кладочный тяжелый цементно-известковый М50
|
»
|
4,7
|
91
|
|
|
Прейскурант №
06-13-01, п. 1.01.052
|
Кирпич
керамический одинарный размером 250×120×65 мм марки 100
|
1000 шт.
|
10,33
|
92
|
|
16
|
|
Окна
|
|
|
|
|
|
|
Плиты
подоконные
|
м2
|
15,3
|
93
|
|
|
Прейскурант №
06-14-01, п. 2.035
|
Раствор отделочный
тяжелый цементный 1 : 3
|
м3
|
0,46
|
94
|
|
|
Прейскурант №
06-14-01, п. 2.030
|
Раствор
отделочный тяжелый цементно-известковый 1:1:6
|
м3
|
0,06
|
95
|
|
17
|
|
Полы
|
|
|
|
|
|
|
а) основания
|
|
|
|
|
|
То же, п. 1.003
|
Бетон тяжелый
класса В7,5 (М100) крупностью заполнителя 10-20 мм
|
»
|
128,1
|
96
|
|
|
» п. 1.004
|
Бетон тяжелый
класса В10 (М150) крупностью заполнителя 5-10 мм
|
»
|
5,9
|
97
|
|
|
» п. 1.018
|
Бетон легкий класса
В10 (М150) крупностью заполнителя 10-20 мм
|
»
|
11
|
98
|
|
|
» п. 2.005
|
Раствор
кладочный тяжелый цементный М150
|
»
|
1,9
|
99
|
|
|
Прейскурант №
06-12-01, п. 1.072
|
Гравий
керамзитовый марки 400 фракции 20-40 мм
|
»
|
36,1
|
100
|
|
|
То же, п. 1.030
|
Щебень из
естественного камня для строительных работ марки 400 фракции 40-70 мм
|
»
|
52
|
101
|
|
|
|
б) покрытия
|
|
|
|
|
|
Прейскурант №
06-14-01, п. 1.003
|
Бетон тяжелый
класса В7,5 (М100) крупностью заполнителя 40-70 мм
|
»
|
20,4
|
102
|
|
|
То же, п. 2.004
|
Раствор
кладочный тяжелый цементный М100
|
»
|
0,58
0,53
|
103
|
|
|
Прейскурант №
06-12-01, п. 1.083
|
Песок кварцевый
|
|
|
|
|
|
Прейскурант №
06-12-01, п. 5.032
|
Асфальтобетонное
покрытие толщиной 40 мм
|
т
|
115
|
104
|
|
18
|
|
Лестница в осях
6-7 и А-Б
|
|
|
|
|
|
Прейскурант №
06-08, п. 1.488
|
Лестничные
марши из бетона класса В25 (М300)
|
м3
|
3,63
|
105
|
|
|
То же, п. 1.489
|
Площадки
сборные железобетонные класса В25 (М300)
|
»
|
0,3
|
106
|
|
|
» п. 9.2339
|
Железобетонные
проступи - сборные
|
м
|
56,4
|
107
|
|
|
» п. 7.6
|
Перемычки
сборные железобетонные класса В15 (М200) серии 1.138-10 в.2
|
шт.
|
1
|
108
|
|
|
|
Арматура класса
А-I
|
кг
|
82
|
109
|
|
|
|
» » А-III
|
»
|
193
|
110
|
|
|
|
» » Вр-I
|
»
|
42
|
111
|
|
|
|
Закладные
детали
|
»
|
44
|
112
|
|
|
Прейскурант №
06-14-01, п. 2004
|
Раствор
кладочный тяжелый цементный класса В7,5 (М100)
|
м3
|
0,03
|
113
|
|
|
То же, п. 1.005
|
Бетон тяжелый класса
В15 (М200) крупностью заполнителя 5 - 10 мм
|
»
|
0,02
|
114
|
|
19
|
|
Отделочные
работы
|
|
|
|
|
|
|
а) наружные
|
|
|
|
|
|
» п. 2.035
|
Раствор
отделочный тяжелый цементный 1 : 3
|
»
|
0,12
|
115
|
|
|
Прейскурант № 06-14-01,
п. 2.030
|
Раствор
отделочный тяжелый цементно-известковый 1:1:6
|
м3
|
2,01
|
116
|
|
|
|
б) внутренние
|
|
|
|
|
|
То же, п. 2.035
|
Раствор
отделочный тяжелый цементный 1 : 3
|
»
|
0,7
|
117
|
|
|
» п. 2.030
|
Раствор отделочный
тяжелый цементно-известковый 1:1:6
|
»
|
11,96
|
118
|
|
20
|
|
Разные работы
при t = 30 °С
|
|
|
|
|
|
Прейскурант №
06-08, п. 1056
|
Плиты пустотные
длиной до 5,65 м, шириной до 3 м, приведенные толщиной 12 см, нормативной нагрузкой
969 кг/м2
|
м2
|
8,42
|
119
|
|
|
То же
|
То же,
приведенной длиной 3,9 м, толщиной 13 см, нормативной нагрузкой 970 кг/м2
|
»
|
14,04
|
120
|
|
|
Прейскурант №
06-08, п. 7.6
|
Перемычки сборные
железобетонные серии 1.138-10 в.3, марки ЗПР32-59-3844
|
шт.
|
1,7
3
|
121
|
|
|
Прейскурант №
06-14-01, п. 4.001
|
Плиты из
пенобетона толщиной 100, 140, 160 соответственно при расчетной зимней
температуре наружного воздуха, °С:
|
|
|
|
|
|
|
-20
|
м3
|
2,32
|
122
|
|
|
|
-30
|
»
|
3,24
|
123
|
|
|
|
-40
|
»
|
3,77
|
124
|
|
|
Прейскурант №
06-14-01, п. 1.003
|
Бетон тяжелый
класса В7,5 (М100) крупностью заполнителя 20-40 мм
|
м3
|
3
3,2
|
125
|
|
|
То же, п. 2.003
|
Раствор кладочный
тяжелый цементный М75
|
»
|
1,3
1,2
|
126
|
|
|
» п. 2.012
|
Раствор
кладочный тяжелый цементно-известковый М50
|
»
|
0,96
|
127
|
|
|
Прейскурант №
06-12-01, п. 5.024
|
Асфальтобетонная
смесь мелкозернистая марки 2.3
|
т
|
5
|
128
|
|
|
Прейскурант №
06-13-01, разд. 4
|
Щебень из
глиняного кирпича
|
м3
|
15,9
|
129
|
|
|
Прейскурант №
06-12-01, п. 1.072
|
Гравий
керамзитовый марки 400 фракции 10-20 мм
|
»
|
1,75
|
130
|
|
|
То же, п. 1.076
|
Песок для
строительных работ
|
»
|
0,5
|
131
|
|
|
Прейскурант №
06-13-01, п. 1.01.052
|
Кирпич
керамический одинарный размером 250×120×65 марки 100
|
1000 шт.
|
1,5
|
132
|
3-2. МОНТАЖНЫЕ РАБОТЫ
Таблица 13
|
№ раздела
|
Наименование
оборудования
|
Прямые затраты
по базисному району, руб.
|
В том числе
|
Затраты труда
рабочих, чел.-ч
|
Территориальные
районы и подрайоны
|
Прямые затраты,
руб., по территориальным районам и подрайонам
|
|
|
основная
заработная плата рабочих
|
эксплуатация
машин
|
|
|
основных
|
обслуживающих
машины
|
|
|
всего
|
в том числе
заработная плата рабочих, обслуживающих машины
|
|
|
1
|
Электросиловое
|
16094
|
3780
|
780
|
-
|
6526
|
-
|
II, VII,
|
9220
|
|
|
|
|
|
|
|
|
|
|
II, IX
|
6015
|
|
|
|
|
|
|
|
|
|
|
IIА, X
|
6080
|
|
|
|
|
|
|
|
|
|
|
III.4, V, VII
|
6050
|
|
|
|
|
|
|
|
|
|
|
VIII, А
|
6210
|
|
|
2
|
Технологическое,
стандартное и нестандартизированное
|
6095
|
2550
|
332
|
-
|
3871
|
-
|
II-Х
|
6095
|
|
|
3
|
Автоматизация
вентиляционных систем
|
418
|
127
|
33
|
-
|
211
|
-
|
II-X
|
140
|
|
|
4
|
Охранно-пожарная
сигнализация
|
2412
|
453
|
12
|
-
|
760
|
-
|
II-X
|
1850
|
|
|
5
|
Внутренние
слаботочные устройства
|
1096
|
251
|
65
|
-
|
435
|
-
|
II, III.4, V, VII, VIII
|
590
|
|
|
|
|
|
|
|
|
|
|
II, IX
|
540
|
|
|
|
|
|
|
|
|
|
|
IIА, X
|
610
|
|
|
|
|
|
|
|
|
|
|
VIIIА
|
630
|
|
|
|
Итого
|
26120
|
7161
|
1222
|
-
|
11803
|
|
|
|
|
3-3.
СПРАВОЧНЫЕ ДАННЫЕ ПО СТОИМОСТИ ОБОРУДОВАНИЯ
Таблица 14
Измеритель - одно здание
|
№ раздела
|
Наименование
оборудования
|
Стоимость по
оптовым ценам, руб.
|
|
1
|
Электросиловое
|
1151
|
|
2
|
Стандартное и
нестандартизированное технологическое
|
212336
|
|
3
|
Автоматизация
вентиляционных систем
|
601
|
|
4
|
Пожарно-охранная
сигнализация
|
17
|
|
5
|
Внутренние слаботочные
устройства
|
532
|
|
6
|
Вентиляция
|
190
|
|
7
|
Теплоснабжение
калориферов
|
150
|
|
8
|
Тепловой пункт
|
350
|
|
9
|
Водопровод
хозяйственный
|
220
|
|
10
|
Инвентарь и
мебель
|
9551
|
|
|
Итого
|
225110
|
|
№ п.п.
|
Наименование
объекта
|
Единица
измерения
|
Разрабатываемый
грунт
|
Грунт,
подлежащий обратной засыпке
|
Транспортирование
излишнего грунта на 1 км
|
Подвозка
недостающего грунта для обратной засыпки на 1 км
|
|
1
|
2
|
3
|
4
|
5
|
6
|
7
|
|
1
|
Прачечная-химчистка
спецодежды мощностью 300 кг/смену для рабочих строительных специальностей
|
м3
|
838
|
1263
|
-
|
425
|
|
2
|
Прачечная-химчистка
спецодежды мощностью 500 кг/смену для рабочих машиностроительных предприятий
|
»
|
1767
|
1293
|
474
|
-
|
|
3
|
Централизованная
база технологической подготовки сезонного хранения и ремонта прокатного фонда
для городов с численностью населения 250-300 тыс. чел.
|
»
|
2170
|
2413
|
-
|
243
|
IV часть СНиП
"Сметные нормы и правила"
|
Шифр глав
|
Наименование
глав
|
|
IV-1
|
Система сметных нормативных документов
и ценообразования в строительстве
|
|
IV-2
|
Правила разработки и применения
элементных сметных норм на строительные конструкции и работы
|
|
IV-3
|
Правила определения сметной стоимости
эксплуатации строительных машин
|
|
IV-4
|
Правила определения сметных цен на
материалы, изделия и конструкции и сметных цен на перевозки грузов для
строительства
|
|
IV-5
|
Правила разработки единых районных
единичных расценок на строительные конструкции и работы
|
|
IV-6
|
Правила разработки расценок на монтаж
оборудования
|
|
IV-7
|
Правила определения дополнительных
затрат при производстве строительно-монтажных работ в зимнее время
|
|
IV-8
|
Правила разработки и применения норм
накладных расходов и плановых накоплений в строительстве
|
|
IV-9
|
Правила разработки и применения сметных
норм затрат на строительство временных зданий и сооружений
|
|
IV-10
|
Правила определения прочих затрат,
включаемых в сметы на строительство
|
|
IV-11
|
Правила определения сметной стоимости
оборудования
|
|
IV-12
|
Правила разработки и применения сметных
норм затрат на инструмент и инвентарь производственных зданий
|
|
IV-13
|
Правила разработки и применения сметных
норм затрат на оборудование и инвентарь общественных и административных
зданий
|
|
IV-14
|
Правила разработки и применения
укрупненных сметных норм и расценок
|
|
IV-15
|
Правила разработки и применения
прейскурантов на строительство зданий и сооружений
|
|
IV-16
|
Правила определения сметной стоимости
строительства
|
Официальное издание Госстрой СССР
СНиП IV-14-84. Приложение
Сборники
укрупненных сметных норм
Здания и
сооружения жилищно-гражданского назначения
СБОРНИК № 37-3
Предприятия бытового обслуживания населения
Редактор И.А.
Баринова
Мл. редактор
И.Л. Литонова
Технический редактор
Р.Я. Лаврентьева
Корректор
С.А. Зудилина
|
|