Крупнейшая бесплатная информационно-справочная система онлайн доступа к полному собранию технических нормативно-правовых актов РФ. Огромная база технических нормативов (более 150 тысяч документов) и полное собрание национальных стандартов, аутентичное официальной базе Госстандарта. GOSTRF.com - это более 1 Терабайта бесплатной технической информации для всех пользователей интернета. Все электронные копии представленных здесь документов могут распространяться без каких-либо ограничений. Поощряется распространение информации с этого сайта на любых других ресурсах. Каждый человек имеет право на неограниченный доступ к этим документам! Каждый человек имеет право на знание требований, изложенных в данных нормативно-правовых актах!

  


 

Центральный научно-исследовательский и проектный институт
типового и экспериментального проектирования комплексов и зданий культуры,
спорта и управления им. Б.С. Мезенцева

(ЦНИИЭП им. Б.С. Мезенцева) Госкомархитектуры

Справочное пособие к СНиП

Серия основана в 1989 году

Проектирование театров

Москва Стройиздат 1990

Рекомендовано к изданию Научно-техническим советом ЦНИИЭП им. Б.С. Мезенцева Госкомархитектуры.

Редактор Н.В. Лосева

Проектирование театров / Центр. н.-и. и проект. ин-т типового и эксперим. Проектирования комплексов и зданий культуры, спорта и упр. им. Б.С Мезенцева. - М. Стройиздат, 1990. - 120 с.: ил. - (Справ. Пособие к СНиП).

Разработано к СНиП 2.08.02-89 «Общественные здания и сооружения». Приведены рекомендации по проектированию однозальных и многозальных (с большим и малым или малыми залами) театральных зданий, составляющих основу государственной сети театров: драматических и музыкально-драматических, музыкальной комедии, оперы и балета.

Для проектировщиков-архитекторов и градостроителей, а также работников архитектурно-планировочных управлений городов.

СОДЕРЖАНИЕ

Предисловие. 2

1. ОБЩИЕ ПОЛОЖЕНИЯ.. 2

2. ЗЕМЕЛЬНЫЕ УЧАСТКИ.. 4

3. ОБЪЕМНО-ПЛАНИРОВОЧНЫЕ РЕШЕНИЯ.. 5

Общие положения. 5

Помещения зрительского комплекса. 6

Многофункциональное использование помещений зрительского комплекса. 12

Помещения большого демонстрационного комплекса. 12

Зрительный зал. 12

Глубинная колосниковая сцена. 13

Разновидности глубинной колосниковой сцены и иные типы сцен. 17

Трансформации демонстративного комплекса. 19

Помещения технологического обеспечения сцены.. 25

Помещения, обслуживающие сцену. 26

Помещения для ожидания выхода на сцену и артистические уборные. 26

Репетиционные помещения. 31

Склады.. 38

Производственные помещения. 41

Административно-хозяйственные помещения. 48

Малый демонстрационный комплекс (малый зал) и обслуживание его помещения. 49

Приложение 1 Примерный состав и минимальные площади помещений, театральных зданий. 53

Приложение 2 Некоторые рекомендации по проектированию особых типов театральных зданий и театров с дополнительными функциями. 55

Гастрольные театры.. 55

Драматические театры с дополнительными функциями приема гастролей или выездов театров музыкальных жанров. 57

Театры юного зрителя (ТЮЗы) 57

Театры кукол. 58

Театры малой вместимости. 59

Театры с общественной функцией общегородского зала. 60

Летние театры.. 61

Балетные театры.. 62

Приложение 3 Рекомендации по обеспечению передвижения инвалидов, пользующихся креслами-колясками. 63

Приложение 4 Примерные состав и площади помещений малого демонстрационного комплекса и помещений, обслуживающих малую сцену. 64

Приложение 5 Примерное расчетное количество артистов в театрах. 64

ЛИТЕРАТУРА.. 64

ПРЕДИСЛОВИЕ

Пособие разработано к СНиП 2.08.02-89 «Общественные здания и сооружения», распространяется на проектирование однозальных и многозальных (с большим и малым или малыми залами) театральных зданий, составляющих основу государственной сети театров: драматических и музыкально-драматических, музыкальной комедии, оперы и балета.

К особым типам зданий отнесены театры: для детской аудитории; кукольные; многожанровые; гастрольные; балетные; камерные, студийные, экспериментальные и другие театры малой вместимости (500 мест и менее); молодежные; пантомимы; эстрады; летние и др.

Проектирование особых типов зданий театров с вместимостью зрительного зала свыше 1500 мест, а также реконструкция театров осуществляются с учетом отдельных рекомендаций данного Пособия.

В Пособии представлены рекомендованные материалы для зданий на разработку технико-экономических расчетов (ТЭР) и задании на проектирование театров драматических и музыкально-драматических, музыкальной комедии, оперы и балета; приводятся сведения о прогрессивных объемно-планировочных решениях; помещены некоторые данные по проектированию театров особых типов.

Настоящее Пособие охватывает разделы: общие положения, земельные участки и объемно-планировочные решения. Разделы и подразделы: акустика залов и защита от шума, конструктивные решения, водоснабжение и канализация, отопление и вентиляция, электроснабжение, технологическое оборудование и устройства; связь и сигнализация; комфортные условия наблюдения и форма в зрительных залах представлены в справочных пособиях. Данные по проектированию кинопроекционной и оборудованию зрительного зала кинопроекцией приведены в справочном пособии «Проектирование кинотеатров». При пользовании Пособием следует также руководствоваться СНиП 2.07.01-89.

При проектировании производственных и складских помещений необходимо помимо данного Пособия руководствоваться СНиП 2.09.02-85, СНиП 2.11.01-85 и СНиП 2.09.04-87.

Материалы Пособия могут применяться для составления заданий на проектирование только при соотнесении их с конкретными ситуациями городов и деятельностью театров. Для выбора рекомендаций, соответствующих этим ситуациям, при проектировании новых зданий театров и реконструкции существующих проводятся предпроектные исследования, предшествующие составлению задания на проектирование.

Настоящее Пособие разработано ЦНИИЭП им. Б.С. Мезенцева Госкомархитектуры [канд. архит. Э.И. Окунева - общая редакция, предисловие, общие положения, объемно-планировочные решения (общая часть, зрительский и демонстрационный комплексы, административно-хозяйственные помещения, функционально-технологические схемы), прил. 1 - 4; канд. архит. В.В. Лазарев - земельные участки, демонстрационный комплекс, прил. 1; архит. Е.И. Сивенков - трансформации демонстрационного комплекса; инж. А.И. Зуйков - помещения технологического обеспечения сцены; канд. архит. О.П. Кравченко - общие положения; канд. архит. М.А. Мосина - летние театры; инж. Т.Л. Пастернак - административные помещения; канд. архит. В.И. Ревякин - музей; инж. Р.К. Толкушкина - подсобные помещения буфета; архит. Н.А. Лясс - гастрольные театры] и Гипротеатром Министерства культуры СССР (инж. Д.Ф. Лазарев - помещения, обслуживающие сцену, производственные помещения, функционально-технологические схемы, прил. 1; канд. архит. С.В. Гнедовский - малый демонстрационный комплекс, прил. 1; инж. Е.А. Крылова - сцена, трансформации зоны оркестровой ямы демонстрационного комплекса; канд. техн. наук В.М. Виноградов - демонстрационный комплекс; канд. архит. В.Д. Красильников - демонстрационный комплекс; архит. Т.М. Трубкин - функционально-технологические схемы; архит. М.В. Борисова - гастрольные театры) при участии д-ра архит. А.В. Анисимова (МНИИПОКОЗ) - балетные театры; канд. архит. Н.Г. Зенькович (КиевЗНИИЭП) - театры с общественной функцией общегородского зала.

1. ОБЩИЕ ПОЛОЖЕНИЯ

1.1. Выбор типа театрального здания определяется особенностями региона, величиной и административной значимостью города, его культурными и историческими традициями, социально-демографическим составом населения, сетью театральных и других зрелищных зданий города, деятельностно-организационными условиями функционирования театров и иными факторами, которые рассматриваются при проведении предпроектных исследований.

1.2. При проектировании в городе первого или единственного театра для взрослых рекомендуется учитывать необходимость его использования также в качестве детского театра и гастрольной площадки. При неполном перечне театральных зданий, составляющих основу государственной сети театров и детских театров, наиболее вероятно строительство недостающего до полноты этого перечня типа здания. Редко применяемые особые типы театральных зданий - балетный, детский музыкальный, пантомимы, эстрады и др. - предположительно возникают в городах при условии полноты государственной сети театров, включая и детские. Наибольшая вероятность появления типа детского музыкального театра - в городах с другими детскими и музыкальными театрами, а балетного - в городах с несколькими музыкальными театрами и хореографическим училищем. Гастрольные театры без собственной труппы рекомендуются для курортной зоны и для городов с насыщенной сетью театров, активно использующих стационар.

1.3. В практике деятельности театров получили распространение многие дополнительные функции: внедрение некоторых форм клубной работы с детьми и со взрослыми, преследующих цель интенсификации обслуживания зрителей (университет театрального искусства, клуб любителей театра, самодеятельные театральные студии, развлечение дошкольников и уход за ними во время просмотра родителями спектакля и др.); праздничные и премьерные формы деятельности (детские каникулы и фестивали с танцами, развлечениями, устройством елки, активным общением и др.).

Дополнительными нетеатральными функциями могут быть - проведение в театре общественных мероприятий, концертов. Необходимость учета дополнительных функций определяется предпроектным исследованием.

1.4. Потребность в клубной работе со взрослыми зрителями возникает в условиях проектирования театров для городов как не имеющих театров, так и с насыщенной сетью театров. В первом случае клубная работа может быть направлена на привлечение к театру малоподготовленных зрителей, а во втором - на любителей театра.

Создание возможности для клубной работы с детьми актуально в ТЮЗах и театрах кукол, а также в театрах для взрослых, особенно там, где нет детских театров и в городах с большим удельным весом детского населения.

Помещения для дошкольников прежде всего целесообразны в театрах для взрослых при строительстве их в городах с большим удельным весом детского населения.

Необходимость создания условий для проведения общественных мероприятий в театре возникает при проектировании его в административных центрах, особенно в тех случаях, когда в них отсутствуют крупные современные клубы, концертные и универсальные залы, другие театры.

Необходимость проектирования театрального здания, пригодного для проведения концертов, может появиться в тех регионах и городах, где театры постоянно много гастролируют, покидая стационар на большую часть года, особенно в тех случаях, когда в этих городах отсутствуют крупные клубы, концертные и универсальные залы.

1.5. К организации внешней среды театра рекомендуется подходить как к особой сфере предпроектной и проектной деятельности по:

выявлению и максимальному использованию сложившихся ресурсов конкретной градостроительной ситуации (застройка, структура коммуникаций, ландшафт, градостроительно-средовые особенности, сложившиеся стереотипы интенсивного использования территории, различные циклы жизнедеятельности города и пр.);

разработке сценариев деятельности в городском пространстве, главной частью которого является театр;

взаимному согласованию сценариев деятельности и ресурсов градостроительной ситуации;

обеспечению новых форм развития функций театра во внешнюю среду (уличные концерты и спектакли, карнавалы, театрализованные праздники и пр.);

дополнению ведущей функции посещения театра сопутствующими функциями (специальная информация и реклама, специализированная торговля, экспресс-питание, любительские клубы и пр.);

использованию помещений первых и подвальных этажей прилегающих зданий, а при возможности и театра для расширения ведущей и сопутствующих функций театра.

1.6. Театральные здания в зависимости от конкретных условий города, места строительства в городе и пр. возможно кооперировать с:

другими театральными зданиями;

другими объектами общественного и культурно-зрелищного назначения (концертным или универсальным залом, художественным музеем или выставочным залом, театральной библиотекой, отделением ВТО, гостиницей для гастролеров и др.);

объектами торговли (магазинами по продаже сувениров, цветов, книжным магазином соответствующей тематики, салоном-магазином ВТО и др.);

объектами общественного питания (кафе, рестораном) и другими досуговыми сооружениями.

1.7. Активизации творческой и коммерческой деятельности театра содействует совместное использование городской территории с другими общественными учреждениями в условиях формирования театрально-культурных центров на базе ведущей функции театра, а также при организации комплексов городских общественных центров с несколькими ведущими функциями.

В условиях организации многофункционального городского пространства, кроме целевого способа его использования, самостоятельную ценность приобретают комплексы услуг, обеспечивающие многообразное использование пространства. Этому способствуют те или иные специальные функционально-пространственные элементы (витрины, единые крупногабаритные структуры, крытые общественные пространства, насыщенные повседневными и праздничными услугами и пр.). Важно, чтобы формируемая ими среда не просто предоставляла дополнительные услуги, но и художественно отвечала образу современного общественного пространства, объединяющего комплекс зданий и элементов в единую архитектурную композицию.

2. ЗЕМЕЛЬНЫЕ УЧАСТКИ

2.1. Размещение театра в городе и выбор земельного участка определяются: планировочной и транспортной структурой города, характером окружающей застройки, наличием зеленых насаждений, количеством театров в городе, составом сооружений и структурой городского центра, назначением проектируемого театра и т.д. Выбор земельного участка рекомендуется осуществлять на основе предпроектного исследования.

2.2. На земельном участке театра предусматриваются:

площадки перед входами и выходами из расчета на одно место в зрительном зале (залах) не менее 0,3 м2;

внутренние проезды, пешеходные дороги и их искусственное освещение.

На земельном участке также, как правило, предусматриваются: зеленые насаждения, площадки для стоянок автомобилей, хозяйственный двор.

2.3. При проектировании театров с малыми залами рекомендуется увеличение площади земельного участка до 10 %. При кооперировании двух и более театров в одном здании площадь участка может составлять 0,8 - 0,85 суммарной площади земельных участков отдельных театров.

В условиях стесненной городской застройки возможно сокращение размеров земельного участка за счет уменьшения площадок перед входами на 15 - 20 % и сокращения состава зон участка за счет хозяйственного двора и площадки для стоянок автомобилей путем перевода их на подземные или наземные уровни.

2.4. При проектировании новых и реконструкции существующих театров в случае невозможности расположения в здании и на участке театра производственных и складских помещений в полном объеме рекомендуется резервировать на территории города участок для их размещения. Площадь этого участка определяется проектом.

2.5. Расположение хозяйственного двора на земельном участке зависит от местоположения производственных помещений и складов.

Разгрузка различных материалов и транспортировка их в склады и мастерские, маневрирование транспортных машин, рабочие процессы, связанные с различными хозяйственными потребностями театра требуют изолированной территории. Площадь хозяйственного двора при размещении производственных помещений в здании театра рекомендуется не менее 400 м2.

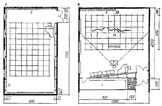
Въезды в хозяйственный двор рекомендуются шириной не менее 4 м и высотой (при устройстве ограждений) - не менее 4,3 м. Если хозяйственный двор имеет один въезд, то в его габариты вписывается круг диаметром не менее 20 м для разворота автомашин (рис. 1).

Рис. 1. Размещение и организация хозяйственного двора

А - монтажный двор; Б - навес для лесоматериалов и труб; В - доставка; 1 - здание театра; 2 - производственные помещения

На площади хозяйственного двора располагаются склады лесоматериалов и труб под навесом, а также, возможно, и монтажный двор. Последнее требует соответствующего увеличения площади хозяйственного двора.

При проектировании рядом с хозяйственным двором гаража для служебных машин или ремонтного бокса для их обслуживания площадь земельного участка театра увеличивается на величину площади гаража или бокса ремонта автомашин.

2.6. Между зданием театра и границами его земельного участка устраиваются внутренние проезды шириной не менее 4 м, соединяющиеся с внешними общественными проездами. Тупиковые проезды имеют в конце площадку для разворота пожарных машин, в которую вписывается круг диаметром 20 м.

К местам загрузки складов декорациями организуются подъезды, а вблизи них устраиваются разгрузочные площадки шириной не менее 4,5 м, длиной - не менее 8 м. При соответствующих объемно-планировочных решениях театрального здания разгрузочные площадки могут быть размещены под стилобатом, внутри здания и т.д.

2.7. При размещении стоянок индивидуального транспорта вне границ земельного участка расстояние от автомобильных стоянок до здания не превышает 300 м.

3. ОБЪЕМНО-ПЛАНИРОВОЧНЫЕ РЕШЕНИЯ

ОБЩИЕ ПОЛОЖЕНИЯ

3.1. Помещения зданий театров подразделяются на:

помещения зрительского комплекса;

помещения демонстрационного комплекса, (зрительный зал, сцена; помещения технологического обеспечения сцены);

помещения, обслуживающие сцену (для творческого и технического персонала; склады);

административно-хозяйственные помещения;

производственные помещения.

Рис. 2. Общая функционально-планировочная схема театра

1 - группа входных помещений; 2 - группа рекреационных помещений; 3 - группа санитарно-гигиенических помещений; 4 - зрительный зал; 5 - помещения технологического обеспечения сцены; 6 - сцена, карманы, арьерсцена, авансцена; 7 - дежурные склады; 8 - склады текущего сезона; 9 - резервные склады; 10 - артистические уборные; 11 - репетиционные помещения; 12 - помещения для административного в художественного руководства и технического персонала; 13 - производственные помещения

3.2. Примерные состав и минимальные площади помещений театральных зданий приведены в прил. 1.

Некоторые рекомендации по проектированию особых типов театральных зданий и театров с дополнительными функциями даны в прил. 2.

Общая функционально-планировочная схема театра приведена на рис. 2.

ПОМЕЩЕНИЯ ЗРИТЕЛЬСКОГО КОМПЛЕКСА

3.3. Помещения зрительского комплекса разделяются на входные, рекреационные и санитарно-гигиенические. Каждая группа включает помещения для непосредственного пребывания зрителей и обслуживающего персонала.

Рис. 3. Общая функционально-планировочная схема связей помещений зрительского комплекса

1 - кассовый вестибюль; 2 - входной вестибюль; 3, 4 - кабины касс и дежурного администратора; 5 - распределительный вестибюль; 6 - комната для переодевания; 7 - гардеробная; 8 - комната гардеробщиков; 9 - кабинет главного администратора и кладовая афиш; 10 - комната распространителей билетов; 11 - детская комната; 12 - фойе, кулуары; 13 - кладовая при фойе; 14 - буфет; 15 - моечная, доготовочная; 16 - кладовая, тарная; 17 - экспозиционное помещение музея; 18 - фондохранилище; 19 - комната (место) работы сотрудника; 20 - санитарные узлы; 21 - курительная; 22 - зрительный зал; 23 - клубные помещения; I - связи; II - варианты связей; III - блоки; IV - вход; V - возможный вход; VI - возможное помещение (связи)

Во входной группе к помещениям для непосредственного пребывания зрителей относятся кассовый вестибюль, входной и распределительный вестибюли, комната для переодевания, а к обслуживающим - гардеробная, место для хранения сумок и портфелей, детская комната, кабинет главного администратора, кабины касс и дежурного администратора, кладовая афиш, комнаты распространителей билетов и обслуживающего персонала.

В рекреационной группе к помещениям для непосредственного пребывания зрителей относятся фойе, кулуары, буфет, курительная, экспозиционное помещение музея, а к обслуживающим - доготовочная, моечная, кладовая и тарная буфета, кладовая при фойе, фондохранилище с комнатой (местом) для работы.

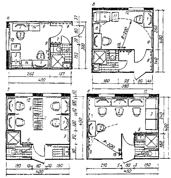
Рис. 4. Примеры схем построения зрительского комплекса

а - фойе без кулуаров; б - фойе с кулуарами и организацией из них входа в зал; в - фойе с кулуарами без входа из них в зал (в кулуарах - зоны отдыха, буфет, музей); г - фойе и вестибюль в разных уровнях; д - фойе (часть фойе) и вестибюль в одном уровне; 1 - зрительный зал; 2 - фойе; 3 - кулуары; 4 - вестибюль

К санитарно-гигиеническим помещениям принадлежат женские и мужские санитарные узлы.

Общая функционально-планировочная схема связей помещений зрительского комплекса приведена на рис. 3. Возможные схемы построения помещений зрительского комплекса приведены на рис. 4.

3.4. Состав и площади на одно место в зрительном зале помещений зрительского комплекса рекомендуется принимать согласно табл. 1.

Таблица 1

Помещения*

Площадь, м2

Дополнительные указания

Кассовый вестибюль

0,05 - 0,06

-

Входной вестибюль

0,1 - 0,12

-

Распределительный вестибюль

0,25 - 0,3*2

-

Гардеробная

0,1

-

Место хранения сумок и портфелей

0,04

-

Фойе

0,6 - 0,7

-

Кулуары

0,25 - 0,3

Площадь кулуаров уточняется расчетом эвакуационных выходов из зрительного зала и здания

Буфет

0.22 - 0,25

-

Доготовочная, моечная, кладовая и тарная

0,08 - 0,09

-

Курительная

0,1 - 0,12

-

Санитарные узлы

В среднем 2,5 м2 на один прибор (унитаз, писсуар, умывальник)

 

Кабины касс и дежурного администратора

(0,01)

На площади кассового вестибюля. Количество кассовых кабин принимается из расчета: одна кабина не более, чем на 500 зрителей большого и малого (малых) залов

Кабинет главного администратора, помещения распространителей билетов и отдыха персонала

0,07 - 0,08

При помещениях рекомендуется предусматривать санитарный узел на 1 унитаз, 1 умывальник

* В зависимости от специфики города, особенностей театра и иных реальных условий, определяющих тот или иной характер деятельности театра со зрителями, состав помещений зрительского комплекса может быть значительно расширен за счет студийных, клубных, досуговых и других помещений вплоть до превращения здания в комплексный театральный центр.

*2 При проектировании театров для строительно-климатических подрайонов IА, IБ и IГ рекомендуется принимать площадь вестибюлей из расчета 0,45 м2 и дополнительно предусматривать комнату для переодевания из расчета 0,06 м2 на одно место в зрительном зале.

3.5. При проектировании в составе помещений зрительского комплекса музея его общую площадь рекомендуется принимать из расчета не менее 0,2 м2 на одно место в зрительном зале, в том числе: экспозиционное помещение - 0,14 м2, фондохранилище с комнатой (местом) для работы - 0,06 м2. Возможно размещение экспозиций музея на площади фойе с увеличением последней на 0,05 м2 на одно место в зрительном зале.

3.6. При проектировании театров с большим и малым (малыми) залами для определения площади фойе, буфета, курительной, санитарных узлов, а также гардеробной, принимается в расчет и вместимость малого зала. При отдельном зрительском комплексе малого зала площадь всех помещений зрительского комплекса определяется исходя из вместимости большого и малого залов.

3.7. Во входных помещениях кассовый, входной и распределительный вестибюли могут проектироваться раздельными или объединенными: кассовый с входным, либо входной с распределительным вестибюлем.

Обособленный входной вестибюль наиболее целесообразен при расчетной зимней температуре наружного воздуха минус 15 °С и ниже.

3.8. Кассовый вестибюль возможно проектировать в виде обособленного помещения с самостоятельным входом. В отдельных случаях в зависимости от градостроительной ситуации кассовый вестибюль располагается и вне здания театра.

При проектировании проходного кассового вестибюля кассовые кабины рекомендуется располагать вне потоков проходящих зрителей.

Площадь кассовой кабины определяется из расчета не менее 3 м2 на одного кассира при отсутствии сейфа и 4,5 м2 при его наличии. Помимо окон из кабины кассовых кабин в кассовом вестибюле предусматривается окно из кабины дежурного администратора, площадь которой рекомендуется не менее 2 м2 (рис. 5).

3.9. Распределительный вестибюль рекомендуется проектировать так, чтобы движение входящей публики осуществлялось без встречных и пересекающихся потоков, особенно потоков зрителей в верхней одежде и без нее.

При расположении распределительного вестибюля смежно и в одном уровне с фойе и кулуарами возможно перераспределение площади этих помещений, при этом не рекомендуется уменьшать площадь распределительного вестибюля более, чем на 30 %.

В распределительном вестибюле желательно предусматривать банкетки и кресла из расчета на одновременное пользование 7 - 10 % зрителей.

Комнату для переодевания при распределительном вестибюле рекомендуется оснащать зеркалами с подзеркальниками и светильниками с индивидуальными банкетками из расчета на единовременное пользование 2 % зрителей.

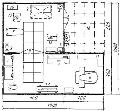
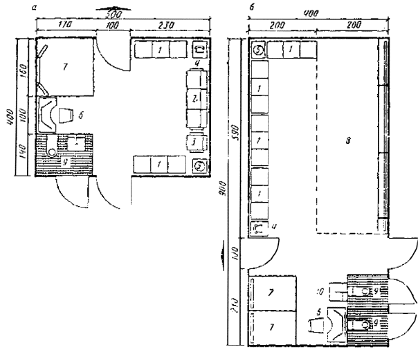
Рис. 5. Примеры планировки административных помещений при зрительском комплексе

а - кабинет главного администратора; б - помещение администратора; в - кабина дежурного администратора; г - комната распространителей билетов; д - кладовая афиш, план; е - кладовая афиш, разрез

Рис. 6. Схемы подсобных помещений буфета и гардеробной

(размеры приведены в метрах)

I - планировка и оборудование подсобных помещений, буфета; а - для артистов (буфет на 24 места); б - для зрителей (зрительный зал 800 мест); е - моечная; г - доготовочная; 1 - буфетная стойка; 2 - прилавок-витрина; 3 - электрокофеварка; 4 - прилавок низкотемпературный; 5 - шкаф; 6 - электротермостат; 7 - электрососисковарка; 8 - стол; 9 - шкаф холодильный; 10 - электрокипятильник; 11 - холодильная камера; 12 - холодильная машина; 13 - электроплита; II - параметры гардеробной в зависимости от системы вешалок

При наличии комнаты для переодевания количество мест для раздевания в распределительном вестибюле может быть соответственно уменьшено.

3.10. Гардеробная в распределительном вестибюле может рассредоточиваться в нескольких местах или размещаться в одном месте, располагаясь у стен или островным способом.

Глубина гардеробной от барьера до стены рекомендуется не более 4 м, высота у стен - не менее 2,1 м, над барьером - не менее 2,4 м. Ширина прохода перед барьером принимается не менее 3 м, между барьерами - не менее 6 м.

Длину барьера гардеробной рекомендуется определять из расчета 1 м не более, чем на 30 зрителей.

Вешалки в гардеробной проектируются консольными, подвесными или стоящими на полу (рис. 6, I).

При проектировании рассредоточенной в нескольких местах гардеробной емкость каждого участка рекомендуется проектировать кратной 100 - 120 крючкам.

Рис. 7. Примеры схем построения зрительского комплекса

а - выделение зоны тихого отдыха зеленью, средствами дизайна; б, в - выделение зоны тихого отдыха уровнем пола

3.11. Детская комната в театрах для взрослых предназначается для пребывания детей дошкольного и младшего школьного возраста на время посещения родителями спектакля. В детской комнате рекомендуется предусматривать места для отдыха и игр, для педагога, а также санитарный узел.

Площадь детской комнаты целесообразно определять из расчета 2,5 м2 на одного ребенка при количестве детей, равном 2 % вместимости зрительного зала.

3.12. Площадь кабинета главного администратора рекомендуется принимать 12 - 25 м2, кладовой афиш – 4 - 6 м2, а комнаты распространителей билетов – 6 - 10 м2 в зависимости от значимости театра (см. рис. 5).

При этом кабинет или комнату рекомендуется проектировать смежно с кабиной дежурного администратора и с входом в нее. Двери из кабинета главного администратора и комнаты распространителей билетов рекомендуется устраивать ведущими в тамбур или отрезок коридора, сообщающийся с одним из вестибюлей.

В театрах большой вместимости возможно проектировать отдельное помещение для второго администратора, рабочее место которого во всех прочих случаях может находиться в комнате распространителей билетов.

3.13. Фойе рекомендуется организовывать по принципу дифференциации пространства, членя его на зоны для тихого и активного отдыха.

Зоны тихого отдыха размещают вне направлений активного движения и выделяют различными архитектурными средствами, создавая интимные пространства. Зоны тихого отдыха рекомендуется оборудовать креслами, диванами, банкетками из расчета на единовременное пользование 8 - 10 % зрителей (рис. 7).

Зону для активного отдыха также рекомендуется расчленять, устраивая залы и протяженные пути перемещения.

Распространенными способами зонирования являются зелень, мебель, дизайнерское решение, перепады уровней потолка и пола, световая и цветовая композиция и пр.

3.14. Кулуары предназначены для рекреации и эвакуационных целей. Их ширина и длина определяются расчетом путей эвакуации по справочному пособию «Общие рекомендации». По расчету уточняется площадь кулуаров.

3.15. Назначение музея в театре - показ истории театра и творческого лица коллектива. Экспозиционное помещение музея располагается изолированно или в общем пространстве с помещениями зрительского комплекса. Рекомендуется отводить для экспозиции место вне путей активного перемещения зрителей вблизи буфетов, санитарных узлов, лестниц и пр. Временные периодические выставки размещаются на площади помещений зрительского комплекса, а фондохранилище - только в изолированном помещении.

В фондохранилище для одного спектакля в хранении требуется 0,1 м2, для места разборки и сортировки - 0,5 м2, для оперативного фонда, которым пользуются посетители – 10 - 12 м2, для работы сотрудника - 4 м2, для читательского места - 3 м2. Оперативный фонд, места для работы сотрудника и читательские могут размещаться в отдельной комнате.

Целесообразно предусматривать пользование музеем и вне посещения спектакля; в отдельных случаях при музее возможно проектировать фотолабораторию и вестибюль с гардеробом.

3.16. Буфет (буфеты) размещаются в отдельном помещении или непосредственно в фойе, кулуарах, вестибюле.

Длина стойки буфета принимается не менее 5 м, а количество посадочных мест - из расчета одно на 12 зрительских мест.

Помимо обслуживания со стойки (только продажа еды) возможно предусматривать обслуживание за столами (по типу ресторана) с передвижных каталок, со стойки по типу барной (продажа еды и еда), автоматами, а также комбинированное.

Расчетное количество мест может быть уменьшено за счет устройства столов без посадочных мест (по типу закусочных).

3.17. При основном буфете рекомендуется предусматривать сообщающиеся с ним без перепадов высот помещения моечной и доготовочной, для которых устраивается выход в служебный коридор. Связь моечной и доготовочной - через окно или дверной проем.

Рядом с доготовочной и моечной могут проектироваться комната для сотрудников буфета и отдельный санитарный узел.

Кладовую и тарную буфета рекомендуется размещать на первом, в цокольном или подвальном этажах с устройством специальных служебных дверей или люков с пандусами либо с подъемными механизмами. Связь между доготовочной, кладовой и тарной при расположении их на разных этажах осуществляется подъемниками грузоподъемностью 100 кг.

Производственные помещения буфета не рекомендуется размещать над вентиляционными камерами, электрощитовыми, зрительными залом, фойе и вестибюлями, помещениями с ценным художественным оформлением. Над помещениями буфета нежелательно расположение санитарных узлов, душей и других помещений с производственными стоками.

Пример планировки моечной, доготовочной, а также оборудования стойки буфета и рабочей зоны буфетчика см. на рис. 6, г.

3.18. Курительную рекомендуется размещать в отдельном помещении, возможно ее расположение на площади вестибюля при условии устройства в нем специальной системы вентиляции. Не рекомендуется проходное (в санитарные узлы) расположение курительной. Оборудуется курительная по типу гостиной.

3.19. Санитарные узлы рекомендуется проектировать из расчета соотношения мужчин и женщин 1:2. Иное соотношение устанавливается исходя из условий и указывается в задании на проектирование. Количество приборов в санитарных узлах принимается из расчета не менее: один умывальник на 60 чел., в мужских - один унитаз и два писсуара на 70 чел., в женских - один унитаз на 30 чел. Санитарные узлы проектируются в составе двух помещений - туалетная и уборная. В каждой туалетной рекомендуется предусматривать шкафы или кладовые для инвентаря площадью 1,5 - 2 м2.

При расположении вестибюлей, фойе и кулуаров более, чем в двух этажах, рекомендуется выделять санитарные узлы для балконов и ярусов, располагая их на соответствующих этажах.

3.20. В реконструируемых театральных зданиях, являющихся памятниками архитектуры, возможно не соблюдать рекомендации данного раздела за исключением пп. 3.10, 3.16, 3.17, 3.19 при условии исчерпанности возможностей проектирования помещений зрительского комплекса под землей, в пристройках или надстройках зданий, малоценных с архитектурной точки зрения. При определении площадей помещений зрительского комплекса в стесненных условиях реконструируемых театров возможно ориентироваться на минимальные рекомендуемые величины по табл. 1.

Многофункциональное использование помещений зрительского комплекса

3.21. Многофункциональное использование зрительского комплекса ориентирует на многообразную трактовку функции одного помещения или группы помещений - их пространственной организации, связей, зонирования, оснащения и пр. - в зависимости от тех функций или их сочетаний, для которых они предназначаются. Эти функции могут быть дополнительными по отношению к театру либо основываться на разных режимах театральной деятельности: будничном, выходного дня, праздничном, фестивальном, премьерном и т.п.

3.22. Фойе (зона, часть фойе) может проектироваться с учетом установки елки, представлений и развлечений вокруг нее. При этом вместимость фойе (зоны, части фойе) может соответствовать вместимости зрительного зала из расчета площади не менее 0,3 м2 на одно место в зале.

3.23. При проектировании фойе (зоны, части фойе), пригодного для показа спектаклей, интермедий и устройства концертных выступлений, рекомендуется предусматривать: стационарные или разборные сценические площадки-эстрады, проходы из комплекса помещений, обслуживающих сцену, с возможностью доставки мебели, реквизита, громоздких музыкальных инструментов, устройства постановочного освещения и озвучивания.

Проектирование кладовой при фойе особенно рекомендуется при осуществлении этой дополнительной функции. Площадь кладовой может определяться из расчета 0,03 м2 на одно место в зрительном зале.

3.24. Возможно проектировать помещения зрительского комплекса с использованием их частей (открытых лестниц, галерей, антресолей, мостиков и пр.) с учетом эпизодического использования их в качестве сценических площадок или мест для зрителей без специальных устройств и с применением переносного оборудования. Это может сказаться на взаимном расположении помещений зрительского комплекса и их частей в плане и по высоте, организации доступа зрителей к ним с учетом их игрового использования.

3.25. Многоцелевое использование помещений зрительского комплекса с их зонированием и пространственной трансформацией на более мелкие помещения может быть необходимо и при организации в театре лекториев, клубов, университетов театрального искусства и пр.

При наличии малого или студийно-репетиционного залов целесообразно предусматривать использование их в качестве аудитории и других помещений для клубных занятий, если такие виды деятельности предусматриваются.

При необходимости периодического увеличения площадей во время многоцелевого использования помещений зрительского комплекса возможно предусматривать функционирование в качестве дополнительных помещений зрительского комплекса зрительские помещения студийно-репетиционного или малого залов.

3.26. Рекомендации по многоцелевому использованию фойе в связи с музейной или выставочной экспозицией см. в пп. 3.5 и 3.15, а в связи с дополнительной общественной функцией общегородского зала - в прил. 2.

ПОМЕЩЕНИЯ БОЛЬШОГО ДЕМОНСТРАЦИОННОГО КОМПЛЕКСА

(с большим залом)

Зрительный зал

3.27. Вместимость зрительного зала в зависимости от назначения театра рекомендуется принимать, мест:

в драматическом театре                                     500 - 800

в музыкально-драматическом театре                500 - 1000

в театре музыкальной комедии                         800 - 1200

в театре оперы и балета                                      1200 - 1500

Иные вместимости театров определяются заданием на проектирование.

3.28. Площадь зрительного зала на одно место принимается по СНиП 2.08.02-89 из расчета 0,7 м2 на одно место. Площадь зрительного зала (включая балконы, ложи и ярусы) определяется в пределах ограждающих конструкций до передней границы сцены, авансцены или барьера оркестровой ямы.

У границы зоны зрительских мест возможно устройство отдельных, огороженных барьерами, лож: служебных - со входом из комплекса помещений, обслуживающих сцену; гостевых - со входом из специальных гостевых помещений.

3.29. При проектировании в зрительном зале ярусов или балконов с количеством рядов не более трех высоту от пола зрительских мест до выступающих конструкций вышерасположенных ярусов, балконов или потолка зрительного зала рекомендуется принимать не менее 2,1 м, при большем количестве рядов - не менее 3 м. На барьерах предусматриваются устройства, предохраняющие от падения предметов с высоты. С внутренней стороны барьеров балконов и лож целесообразно предусматривать углубления для ног зрителей, сидящих в первом ряду.

3.30. Зрительные залы рекомендуется проектировать с учетом установки в них кресел с откидными сиденьями.

В больших зрительных залах рекомендуется применять мягкие или полумягкие кресла. Крайние кресла ряда в проходах возможно оборудовать откидными сиденьями (строфонтенами) с пружинными устройствами, обеспечивающими их самоопрокидывание. В ложах и на балконах глубиной не более двух рядов возможно устанавливать стулья или скамьи со спинками.

Ширина кресел (между осями подлокотников) принимается не менее 0,52 м, ширина стульев и скамей - не менее 0,45 м. Глубина кресел, стульев и скамей проектируется с обеспечением ширины проходов между рядами не менее 0,45 м.

Расстояние между спинками кресел (глубину ряда) рекомендуется принимать не менее 0,9 м, а между спинками стульев и скамей - соответственно не менее 0,85 и 0,8 м.

Количество непрерывно установленных мест в ряду принимается при одностороннем выходе из ряда - не более 26, при двустороннем - не более 50.

3.31. Расстояние между передней границей сцены, авансцены или барьера оркестровой ямы и спинками мест первого ряда зрительских мест рекомендуется принимать не менее 1,5 м.

Высоту уровня планшета сцены (авансцены) над уровнем пола первого ряда зрительских мест рекомендуется принимать не более 1 м.

3.32. В зрительных залах уклон пола (пандуса) возможен не более 1:7. При устройстве в проходах ступеней высота подступенков принимается не более 0,2 м.

При перепаде уровней пола соседних рядов более 0,7 м рекомендуется устанавливать между рядами ограждение, предохраняющее зрителей от падения при проходе на место. Высота ограждения определяется исходя из построения профиля пола зрительного зала.

В креслах, стульях, скамьях или их звеньях в зрительных залах (кроме балконов и лож вместимостью до 12 м) предусматриваются устройства для крепления к полу.

Глубинная колосниковая сцена

3.33. В отечественной и зарубежной практике проектирования театров применяется шесть схем построения глубинной колосниковой сцены, различающихся степенью пространственного развития и объемом возможностей, которые в принципе может предоставить эта сцена:

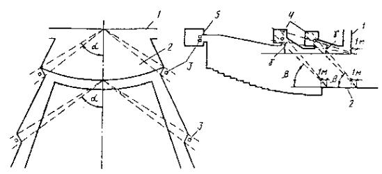
схема 1 - сцена с двумя карманами и арьерсценой (рис. 8);

схема 2 - сцена с одним карманом и арьерсценой (рис. 9, а - г);

схема 3 - сцена с двумя карманами без арьерсцены (рис. 9, ж - и);

схема 4 - сцена с одним карманом (рис. 9, д - е);

схема 5 - сцена с арьерсценой (рис. 9, к - л);

схема 6 - сцена без карманов и арьерсцены (рис. 9, м).

3.34. Наиболее распространенные и апробированные размеры глубинных колосниковых сцен, м2, приведены в табл. 2.

3.35. При глубине арьерсцены, соответствующей рабочей зоне сцены, имеются возможности осуществить механически, движением по направлению оси сцены: единовременное изменение рельефа сцены либо смену объемных декораций по всей рабочей зоне сцены или частично, обеспечить переменное положение круга вплоть до его выдвижения на авансцену, а также распространить действие далеко в глубину зала за пределы сцены.

При уменьшении глубины арьерсцены до величины по табл. 2 сохраняются только возможности некоторого распространения действия в глубину и попланной смены объемных декораций и рельефа на части сцены движением вдоль оси сцены. Отсутствие арьерсцены лишает театр перечисленных возможностей.

При ширине каждого из двух карманов, соответствующей рабочей зоне сцены, имеются возможности осуществить механически, движением перпендикулярно оси сцены: единовременное изменение рельефа сцены или смену объемных декораций по всей рабочей зоне сцены либо частично, а также «челночно» (попеременно в одной плоскости), обеспечить переменное положение круга.

Рис. 8. Примеры основных схем построения глубиной колосниковой сцены с двумя карманами и арьерсценой (варианты механического оборудования показаны условно)

При уменьшении глубины карманов до величины по табл. 2 сохраняется только возможность «челночной» смены объемных декораций или рельефа на части сцены. Отсутствие одного из карманов уменьшает постановочные возможности сцены, не позволяя осуществлять «челночную» смену декораций или рельефа сцены. Отсутствие обоих карманов лишает сцену перечисленных возможностей.

3.36. Схема 1 с увеличенными карманами и арьерсценой предоставляет максимум перечисленных возможностей. Все остальные схемы и варианты в той или иной степени снижают постановочные возможности сцены.

Традиционный вариант схемы 1 (рис. 10) - наиболее отработанная и повсеместно применяемая схема. Все схемы с увеличенными для размещения соответствующего оборудования карманами и (или) арьерсценой дороже, более трудоемки в изготовлении и эксплуатации, нежели традиционный вариант; применяются в отечественной практике редко.

Рис. 9. Примеры основных схем построения глубинной колосниковой сцены, карманов и арьерсцены (варианты механического оборудования показаны условно)

а - г - с одним карманом и арьерсценой; д - е - с одним карманом без арьерсцены; ж - и - с двумя карманами; к - л - с арьерсценой без карманов; м - без карманов и арьерсцены

3.37. Применение сцен рекомендуется осуществлять согласно табл. 3.

Таблица 2

Сцена

Ширина1

Глубина

Высота

Строительный портал (в скобках - игровой портал)

Глубина на авансцене4, не менее

Арьерсцена5

Карман

ширина3

высота3

ширина

глубина

высота

ширина

глубина

высота

С-1

18

12 (15)2

18

8 (7)

5,5 (5)

1,8

12

3

8,5

6

12

6,5

С-2

21

15

20

10 (8)

6,5 (5,5)

1,8

15

6

11

7,5

12

7,5

С-3

24

18

22

12 (10)

7,5 (6,5)

1,8

18

6

12

9

15

8,5

С-4

27

21

24

14 (12)

8,5 (7,5)

1,8

21

9

13,5

12

18

9,5

С-5

30

21

26

16 (14)

9,5 (8,5)

1,8

24

9

15

12

21

10,5

1 Ширину сцены возможно корректировать в зависимости от установки электроприводов подъемов на галереях согласно п. 3.39.

2 Вариант глубины сцены.

3 Ширину строительного портала возможно увеличивать на 1 - 5 м, высоту - на 0,5 - 2,5 м, определяя промежуточные величины допусков в прямой зависимости от размера сцены.

4 При увеличении глубины авансцены возможно соответственно уменьшать глубину сцены, но не более, чем на 0,25 указанной величины.

5 При проектировании откатного круга глубина арьерсцены и размеры кармана определяются проектом.

Примечания: 1. Размеры и состав помещений глубинной колосниковой сцены могут определяться заданием на проектирование, особенно при реконструкции театральных зданий или приспособлении дня театров зданий, являющихся памятниками архитектуры либо историческими сооружениями.

2. Размеры (в плане) сцен, арьерсцен и карманов указаны в осях строительных конструкций, авансцены - от внутреннего кран проема оркестровой ямы или передней кромки авансцены до красной линии сцены.

3. Высота сцен принимается от уровня планшета до верха колосникового настила, высота карманов - от пола до пола вышележащего этажа, высот арьерсцены - от уровня планшета до перекрытия. Указанная высота арьерсцены от уровня планшета до перекрытия принимается при наличии над ней колосникового настила.

Рис. 10. Схема построения глубинной колосниковой сцены в плане и по высоте (традиционный вариант)

1 - дымовые клапаны; 2 - штанкетная площадка; 3 - колосники сцены; 4 - рабочие галереи; 5 - трюм; 6 - вращающиеся круг и кольцо врезного типа; 7 - арьерсцена; 8 - крышка сейфа для скатанных декораций; 9 - сцена; 10 - карман сцены; 11 - авансцена; 12 - проем оркестровой ямы; Ш - ширина сцены; Г - глубина сцены; В - высота сцены; Шк - ширина кармана; Гк - глубина кармана; Вк - высота кармана; Шар - ширина арьерсцены; Гар - глубина арьерсцены; Шс - ширина строительного портала; Ши - ширина игрового портала; Га - глубина авансцены; Шяп - ширина проема оркестровой ямы

Таблица 3

Вместимость большого зрительного зала, мест

Сцена

Ширина игрового портала, м

500 - 600

С-1

7

500 - 800

С-2

8

700 - 1200

С-3

10

1100 - 1500

С-4

17

1500 и более

С-5

14

3.38. Колосниковый настил располагается перпендикулярно порталу сцены с зазорами между колосниками 0,05 м.

Высота над колосниковым настилом в свету принимается, м, не менее: для сцены - 2,4; при наклонном перекрытии в низкой части сцены - 1,8; для арьерсцены - 1,6.

3.39. По боковым и задней стенам сцены предусматриваются ярусы рабочих галерей. Нижнюю галерею рекомендуется располагать на 1 м выше строительного портала, но не ниже верха проема арьерсцены плюс 0,5 м.

Расстояние между ярусами рабочих галерей от пола до пола принимается от 2,5 до 3 м по всей высоте сцены. Ширину (в свету) рабочих галерей, расположенных на боковых стенах, рекомендуется принимать; при установке электроприводов подъемов на галереях - 2,8 м, при установке электроприборов за пределами сценической коробки, при ручном приводе подъемов и на осветительных галереях - 1,5 - 1,8 м. Ширину рабочих галерей (обходных мостиков) на задней стене сцены рекомендуется принимать не менее 0,3 м.

Между боковыми рабочими галереями возможно предусматривать переходные мостики шириной не менее 0,6 м.

Рабочие галереи и переходные мостики проектируются со сплошным настилом из шпунтованных сосновых досок толщиной не менее 0,06 м, ограждением высотой не менее 1,2 м и отбойным брусом высотой не менее 0,15 м.

3.40. Высоту проема из арьерсцены на сцену рекомендуется принимать более высоты строительного портала на 0,5 - 2,5 м, определяя промежуточные величины в прямой зависимости от размера сцены.

Высоту проема из кармана на сцену рекомендуется принимать для сцен С-1 - С-3 на 0,5 м более высоты строительного портала, а сцен С-4 и С-5 - равной его высоте.

3.41. Планшет сцены, авансцены, арьерсцены и пол карманов проектируются в одном уровне.

3.42. Под планшетом сцены предусматривается трюм с размерами в плане, равными размерам сцен по табл. 2.

Высоту трюма до низа выступающих конструкций рекомендуется принимать не менее 2,2 м.

В случае применения накладного планшетного оборудования, врезного вращающегося круга, круга с кольцом (кольцами), а также при отсутствии подобного оборудования трюм проектируется одноэтажным.

При проектировании барабанного круга, подъемно-опускных площадок и иного подобного сценического оборудования количество этажей трюма определяется проектом.

Таблица 4

Театр

Ширина, м, не менее

оркестровой ямы

проема

Драматический и музыкально-драматический

3

2

Музыкальной комедии

4,5

3,5

Оперы и балета

6

4,5

3.43. Авансцена проектируется выпуклой в зал, прямолинейной или огибающей переднюю часть зоны зрительских мест. Боковые крылья авансцены (калиперы) могут быть продолжены до пересечения их с поперечным проходом зрительного зала. Длина авансцены проектируется не менее ширины строительного портала.

С авансцены при отсутствии боковых крыльев на уровень первых рядов зрительских мест предусматриваются не менее двух лестниц-сходов или пандусов, ведущих к проходам зала. Возможно также устройство сплошной лестницы по периметру авансцены. Рекомендуется обеспечивать выходы на авансцену при закрытом занавесе сцены.

3.44. Размеры оркестровой ямы рекомендуется принимать по табл. 4.

Высоту (от уровня пола до низа выступающих конструкций) рекомендуется принимать - 2,1 - 2,4 м.

Площадь на одного артиста оркестра рекомендуется не менее 1,3 м2.

Рекомендуется предусматривать возможность перекрытия проема оркестровой ямы; возможна трансформация ее барьера и пола.

Нависание авансцены над оркестровой ямой составляет 1/3 ширины последней в драматических и музыкально-драматических театрах и 1/4 - в театрах музыкальной комедии, оперы и балета. По сторонам проема оркестровой ямы у боковых стен зрительного зала оставляются участки авансцены шириной не менее 1,2 м. При нависании авансцены над оркестровой ямой возможно устройство ступенчатого пола оркестровой ямы с понижением в сторону сцены. Размеры ступеней - ширина не менее 1,5 м, высота не более 0,2 м.

В том случае, если оркестровая яма находится в пределах сценической коробки, над ней устраивается звукоотражающий козырек, убираемый в случае перекрытия проема оркестровой ямы в уровне планшета.

Трансформации оркестровой ямы, преследующие цель ее многофункционального использования - по назначению, для увеличения авансцены, для увеличения вместимости зрительного зала - см. подраздел "Трансформации демонстрационного комплекса".

3.45. Для обслуживания рабочих галерей и верхней части сцен предусматриваются две колосниковые лестничные клетки от уровня пола трюма до уровня колосникового настила (при вместимости зала менее 800 мест возможно от уровня пола нижней рабочей галереи).

Разновидности глубинной колосниковой сцены и иные типы сцен

3.46. В практике проектирования театров иногда применяются разновидности глубинной колосниковой сцены с дополнительными сценическими площадками. Их устройство связано с изменениями в функционально-технологической организации демонстрационного комплекса, помещений, обслуживающих сцену, а также в оснащении.

3.47. Особенность трехпортальной и панорамной сцен - частичный охват зрительного зала. При трехпортальной сцене по обе стороны обычной глубинной сцены устраиваются дополнительные порталы. Игровое пространство за ними имеет глубину 3 - 6 м. Такие дополнительные площадки образуются на основе карманов, если карманы развернуты под острым углом относительно оси демонстрационного комплекса, или организуются в пространстве зрительного зала у боковых стен.

В панорамной сцене проектируется единое портальное отверстие, расширяющее постановочные возможности, но осложняющее конструктивное и технологическое решения сцены и зала.

При панорамной, как и при трехпортальной сцене, стремятся к достижению видимости боковых участков сцены со всех мест зала на минимальную глубину 2 - 3 м. Упрощенный вариант панорамной сцены - авансцена с боковыми крыльями (калиперами).

Кольцевая сцена - максимальное окружение зрителей действием - может вращаться вокруг амфитеатра или зона мест может поворачиваться к участкам неподвижной кольцевой сцены. В сочетании с глубинной сценой может применяться в виде кольцевых игровых проходов вокруг зрительских мест.

3.48. Сцены, основанные на частичном окружении сценической площадки зрителями - увеличенная авансцена, трехсторонняя сцена - довольно часто сочетаются с глубинной сценой. Центральная сцена - с расположением зрителей вокруг нее - редко встречается в театрах большой вместимости в комплексе с глубинной сценой. Пределом включения действия в среду зрителей является дисперсная сцена с рассредоточением нескольких игровых площадок в зоне зрительских мест. Все сценические площадки подобного типа резко меняют условия обозрения. Это влечет за собой изменения формы зрительного зала.

Рис. 11. Схемы разновидностей глубинной колосниковой сцены

а - с боковыми сценическими площадками; б - с увеличенной авансценой; в - с игровыми окнами в стенах зрительного зала или сцены; г - с игровыми балконами или галереями в зале; д, е - с трансформацией в центральную сцену

3.49 Примеры разновидностей глубинной сцены с дополнительными стационарными сценическими площадками приведены на рис. 11, стационарных иных типов сцен (без сочетания их с глубиной колосниковой сценой) – на рис. 12. Размеры некоторых этих типов сцен см. в табл. 9. Вопросы трансформации см. подраздел «Трансформации демонстрационного комплекса».

3.50 При проектировании разновидностей глубинной сцены претерпевают изменения технологические коммуникации. Помещения для ожидания выхода размещаются вблизи сценических площадок в зале. Частичное приближение к зрительному залу желательно обеспечить и для артистических уборных. Приближение это может быть тем больше, чем глубже входит действие в пространство зрительного зала. Дополнительные сцены с частичной или полной изоляцией от глубинной сцены предполагают свою систему выходов – непосредственно из глубинной сцены (на панорамную, трехпортальную, трехстороннюю сцену или развитую авансцену) через специальные проходы в зале, снизу или из публики (на трехстороннюю и центральную сцены).

Рис. 12. Схемы нетрадиционных типов сцен

а - панорамная; б - кольцевая; в - трехсторонняя; г, д - центральная; е - дисперсная

3.51. Оформление спектакля на вынесенных в зрительный зал сценических площадках состоит в основном из мебели, бутафории, реквизита. Организация подачи оформления зависит от типа, размера и степени связи сценической площадки с глубинной сценой. Оформление спектакля может подаваться непосредственно со сцены на увеличенную авансцену, трехпортальную, панорамную и трехстороннюю сцены, из карманов глубинной сцены на трехпортальную и панорамную сцену, может перемещаться на них в уровне планшета с помощью специального механического оборудования (например, накатной площадки фуры со сцены или из дополнительных карманов; круга, выходящего за пределы глубинной сцены и пр.). Оформление может опускаться сверху на площадку любого типа точечными подъемами либо подаваться снизу на центральную и трехстороннюю сцены с помощью подъемно-опускных площадок. Наличие сценических площадок в зале приводит к целесообразности их противопожарной защиты (например, к размещению противопожарного занавеса по границе увеличенной авансцены).

3.52. Влияние разновидностей глубинной сцены испытывают также акустическое благоустройство зрительного зала из-за меняющегося положения источника звука и условия видимости - из-за появления добавочных точек наблюдения (см. справочное пособие «Общие рекомендации»).

Трансформации демонстративного комплекса

3.53. Для удовлетворения требований, возникающих при проведении в одном зале спектаклей, различных по жанру и сценическим решениям, а также мероприятий другого рода - общественных, кинопоказа, концертов и т.п. применяются трансформации сцены и зрительного зала. Вопрос необходимости трансформации оговаривается заданием на проектирование. Возможны планировочные и пространственные трансформации, а также их различные сочетания.

3.54. Особенностью планировочной трансформации является ее вспомогательный характер. Создавая варианты архитектурно-планировочных решений сцены и зала, она обеспечивает компромиссные условия для проведения различных мероприятий, не затрагивая основные параметры зала - форму и объем. Употребляются три основных вида планировочной трансформации, решающих различные задачи.

3.55. Первый вид - трансформация зоны планшета сцены, авансцены и оркестровой ямы. С помощью этого вида можно изменять рельеф планшета сцены, увеличивать число зрительских мест, а также тип глубинной сцены на другой тип. Этот вид трансформации обеспечивает также возможность проведения общественных мероприятий (собраний, конференций и т.п.), кинопоказа.

Для первого вида применяются различные способы и средства трансформации. Деление планшета сцены на части - как правило, подъемно-опускными площадками, имеющими большие пределы подъема, опускания и наклона, позволяет создавать на сцене любой рельеф. Тем самым придается большая мобильность и гибкость использования планшета сцены. Применяются и передвижные подъемно-опускные площадки, установленные на фурах, а также различной формы простые переставные объемные элементы.

Создание нескольких ступенчатых уровней планшета сцены в ее глубине может использоваться и при установке на ней дополнительных зрительских мест. При этом тип сцены меняется - она превращается в центральную. В этом варианте трансформации сцены необходимо предусмотреть новые безопасные и удобные проходы для зрителей, а для трансформируемых элементов - места хранения и средства доставки.

Перекрытие оркестровой ямы в уровне планшета сцены или в уровне партера (при этом делается трансформируемым барьер оркестровой ямы) осуществляется с помощью подъемно-опускных площадок, являющихся то полом оркестровой ямы (или продолжением пола партера), то (в верхнем положение) продолжением планшета сцены. В первом случае при трансформируемом барьере оркестровой ямы можно установить дополнительное количество зрительских мест, тем самым увеличивая вместимость партера зала, во втором - увеличить размеры авансцены, а также получить площадку для установки мест для президиума при проведении общественных мероприятий.

В практике для перекрытия оркестровой ямы используются также более простые средства - съемные щиты. При их использовании, а также для элементов трансформируемого барьеру, временных зрительских мест и мест для президиума предусматриваются места хранения и средства доставки на сцену и в зал.

Одним из перспективных направлений является комплексное решение всех вариантов трансформации этой части зоны - возможность увеличить авансцену или вместимость партера, создать ступенчатый переход между уровнем планшета сцены и уровнем партера, использовать подъемно-опускной пол оркестровой ямы для доставки из трюма готовых мест для президиума или дополнительных рядов зрительских мест.

3.56. Второй вид - трансформация зоны партера. Этот вид планировочной трансформации позволяет изменять типы сцены (за счет изменения вместимости зала), а также получать зальное пространство для проведения мероприятий другого рода - танцев, выставок, устройства елок, банкетов и т.п.

Для достижения этих целей применяются различные способы и средства трансформации. Замена части партера трехсторонней или центральной сценой позволяет значительно расширить постановочные возможности зала, приблизить большее количество зрителей к месту действия, усилить контакт с актером и обеспечить равноценные условия восприятия. Этот способ трансформации осуществляется с помощью подъемно-опускных секций партера с трансформируемыми зрительскими местами; поворотными секциями (в горизонтальной плоскости) партера со стационарными местами и сценой; совместным использованием трансформируемых зрительских мест (переносных, на станках, платформах, блитчеры) и трансформируемых станков (секций) сцены.

Для получения зального пространства (для проведения танцев, выставок, елок и других мероприятий) используется превращение партера в зал с плоским полом с помощью подъемно-опускных площадок с трансформируемой мебелью или с помощью различных поворотных (в вертикальной плоскости) секций (частей) партера.

3.57. Третий вид - трансформация зоны портала. Этот вид трансформации обеспечивает необходимые величину строительного портала и количество порталов при различных взаимосвязях зала и сцены, а также позволяет изменять тип сцены. Для достижения этого изменяются размеры и пропорции строительного портала глубинной сцены вплоть до создания таким путем панорамной и трехпортальной сцен.

Основными средствами для этого вида трансформации являются: раздвижные занавесы и арлекин, передвижные портальные кулисы и башни, подъемно-опускные осветительные мостики, раздвижные и подъемно-опускные диафрагмы, панели.

Корректировка акустических условий при планировочной трансформации осуществляется над зоной авансцены с помощью подвижного акустического козырька, а в зале - с помощью изменения количества, положения и звукопоглощения поворотных панелей (на потолке я стенах), имеющих акустическую отделку поверхностей.

Для проведения кинопоказа рекомендуется применять подвижные экраны, которые по способу подвижности подразделяются на сворачивающиеся, подъемно-опускные, складные, выжимные.

Примеры с применением видов, средств и способов планировочной трансформации приведены на рис. 13 - 16.

3.58. Пространственная трансформация является радикальным средством, с помощью которого можно изменять как форму и объем, так и количество залов, что обеспечивает соответствующие варианты решения зала для каждого из проводимых мероприятий, повышает эффективность использования всего сооружения.

В отечественной и зарубежной практике применяется пять основных видов пространственной трансформации, решающих различные задачи.

3.59. Первый вид - выгородка из пространства зала его части, необходимой для проводимого вида мероприятий (оставшаяся часть зала не используется). С помощью этого вида сравнительно просто удается получить именно ту форму, объем и вместимость демонстрационного комплекса, которые наилучшим образом соответствуют требованиям жанра, технологии, условий видимости, акустики или вида проводимого мероприятия. Но возможность обеспечения целенаправленных решений, а следовательно, и высокого качества условий проведения различных мероприятий. Сопровождается потерей площади помещений, демонстрационного комплекса.

Рис. 13. Основные виды и способы планировочной трансформации

I - трансформации зоны планшета, сцены, авансцены и оркестровой ямы (а - изменение рельефа сцены; б - изменение размеров сцены в плане; в - увеличение числа зрительских мест и изменение типа сцены, проведение общественных мероприятий; г - превращение сцены в трехпортальную и глубинную); II - трансформации зоны партера (а - изменение типа сцены - фронтальная, трехсторонняя, центральная; б - сцена-арена, фронтальная; в - получение зального пространства с плоским полом для мероприятий другого рода); III - трансформации зоны портала: изменение портала глубинной сцены с образованием трехпортальной и панорамной сцен (1 - сцена; 2 - зрительские места; 3 - оркестровая яма; 4 - место президиума; 5 - плоский пол партера)

Рис. 14. Трансформации оркестровой ямы

I - с одной подъемно-опускной площадкой; II - то же, с двумя; a - устройство оркестровой ямы; б - увеличение глубины авансцены; в - увеличение вместимости зрительного зала; г - устройство ступенчатого спуска с авансцены в зрительный зал; д - увеличение глубины авансцены и устройство оркестровой ямы; е - увеличение глубины авансцены и вместимости зрительного зала; ж - увеличение вместимости зрительного зала и устройство оркестровой ямы; и - устройство авансцены спереди и сзади оркестровой ямы

Достигаются эти цели путем изменения формы и объема зала в вертикальной и горизонтальной плоскости.

В вертикальной плоскости трансформация осуществляется с помощью подъемно-опускных или вращаемых потолков, позволяющих менять не только форму, объем и вместимость зала, но и углы отражения звука, а в горизонтальной плоскости - с помощью различного вида (типа) перегородок, отсекающих ту или иную часть зрительного зала.

Отличительной и общей чертой данной группы средств трансформации является требование зрительной изоляции перегородок с определенной обработкой их поверхностей для решения задач архитектурной акустики, но без такого фундаментального требования, как полная звукоизоляция.

3.60. Второй вид - деление пространства зала на несколько меньших, с одновременной эксплуатацией. Этот вид трансформации является наиболее сложным как в архитектурном (тесное взаимопроникновение композиционных и функциональных задач), так и в технологическом отношении. Основная сложность и специфика технологической задачи - обеспечение полной звукоизоляции больших по площади поверхностей перегородок, а архитектурная - сохранение функционально-композиционного единства на всех стадиях изменения формы и объема пространства зала (залов), когда должна обеспечиваться полноценность архитектурного решения как целого, так и всех составных частей (залов), получаемых в ходе пространственной трансформации.

Рис. 15. Трансформации оркестровой ямы (с тремя подъемно-опускными площадками)

а - и - см. рис. 14; к - увеличение глубины авансцены и вместимости зрительного зала с устройством оркестровой ямы; л - устройство ступенчатого спуска с авансцены в зрительный зал

Этот вид пространственной трансформации рекомендуется применять при необходимости максимально использовать площади зала и стационарные зрительные места при одновременном учете требований разных мероприятий как к масштабу, так и пространственной организации демонстрационного комплекса. При этом могут обеспечиваться высокие качества условий проведения и восприятия каждого мероприятия.

Достигаются эти цели на основе пяти основных способов трансформации: поперечного деления; продольного деления; отделения балконов; экседрального деления; полигонального деления.

Рис. 16. Основные средства планировочной трансформации

а - подъемно-опускные площадки; б - пратикабли; в - подъемно-опускные площадки и трансформируемый барьер; г - поворотная часть сцены и партера (в горизонтальной плоскости); д - поворотные секции партера (в вертикальной плоскости); е - трансформируемые зрительские места; ж - блитчеры; з - станки с местами; и - места на передвижных станках

Средства трансформации - перегородки - бывают в основном сплошными (жесткими в виде перегородок-стен или гибкими) и складными. Складные перегородки более компактны и мобильны, но проблема их звукоизоляции (большое количество стыков в самой плоскости перегородки) более сложная. Используются также поворотные части партера со стенами-перегородками (стационарными). Основные способы установки и съема перегородок характеризуют их как: выдвижные, подъемные, опускные, поворотные (вокруг горизонтальной или вертикальной оси).

Одно из решающих значений для обеспечения звукоизоляции перегородок имеет герметичность соединений и стыков перегородок, для чего используются различные типы уплотнения, основными из которых являются: фрикционные, легкосплавные, а также лабиринтные.

Для хранения перегородок предусматриваются места (ниши, сейфы и т.п.), преимущественно механические средства съема и установки.

Необходимо также учитывать, что после такой трансформации получается многозальный комплекс с вытекающими из этого требованиями ко всем зрительским и обслуживающим помещениям каждого из получаемых залов использовать эффект сообщающихся систем залов.

3.61. Третий вид - объединение пространства зала с другими залами в одно целое. Этот вид трансформации позволяет реализовать преимущества сообщающихся систем залов: обеспечение более равномерной загрузки залов и большой эффективности использования зрительского места, а также изменение пространственных решений зала и типов сцен.

Решается эта задача на основе подключения основному залу других залов: сбоку; сзади; со стороны сцены. Возможно сочетание этих способов. При использовании третьего способа можно изменить глубинный тип сцены на центральную.

Средства трансформации - аналогичны указанным во втором виде пространственной трансформации.

3.62. Четвертый вид - объединение пространства зала с другими помещениями в одно целое. Этот вид трансформации позволяет интенсифицировать использование основных помещений здания (кулуары, фойе, карманы сцены и т.д.), увеличивать размеры и вместимость зала, изменять тип сцены. В отличие от второго и третьего видов пространственной трансформации, помимо аналогичных способов и средств трансформации, здесь добавляются трансформируемые зрительские места и требование организации новых безопасных и удобных проходов дополнительных зрителей. Для трансформируемых зрительских мест предусматриваются места хранения и средства доставки.

Рис. 17. Основные виды и способы пространственной трансформации

I - выгородка из пространства зала его части, рациональной для проводимого вида мероприятия (оставшаяся часть зала не используется); изменение формы и объема зала в вертикальной (а) и в горизонтальной (б) плоскостях; II - деление пространства зала на несколько меньших, с одновременной эксплуатацией (а - поперечное деление; б - продольное деление; в - отделение балконов; г - экседральное деление; д - полигональное деление); III - объединение пространства зала с другими залами в одно целое: подключение к основному залу со стороны сцены (а) сбоку (б) и сзади (в); IV - объединение пространства зала с другими помещениями в одно целое (а - сзади; б - сбоку; в - со стороны сцены); V - объединение пространства зала с экстерьерным пространством (а - со стороны сцены; б - сбоку; в - раскрытие потолка)

3.63. Пятый вид - объединение пространства зала с экстерьерным пространством. Этот вид трансформации применяется для изменения степени замкнутости пространства зала, расширения постановочных возможностей за счет включения ландшафта и использования дополнительных зрительских мест, расположенных под открытым небом.

Рис. 18. Основные средства пространственной трансформации

I - виды перегородок; II - способы установки и съема перегородок; III - звукоизолирующие перегородки (а - гибкие перегородки; б - жесткие перегородки-сцены; в - секционные перегородки)

Осуществляется эта трансформация путем раскрытия задней или боковых стен сцены, потолка, боковых стен зала.

Основные средства трансформации аналогичны применяемым во втором виде пространственной трансформации, кроме трансформируемого покрытия, зала, позволяющего превращать зал в летний (открытый) театр.

Примеры с применением видов, средств и способов пространственной трансформации приведены на рис. 17, 18.

Помещения технологического обеспечения сцены

3.64. Помещения технологического обеспечения обычно размещаются:

осветительные боковые ложи - у боковых стен зала;

помещение выносного софита - над зрительным залом;

светопроекционная, светоаппаратная - за задней стеной зрительного зала;

помещение для фронтального выносного освещения (фронтальная осветительная ложа), звукоаппаратная, кабины дикторов и переводчиков, ложа звукооператора - за задней стеной зрительного зала или у этой стены со стороны зала;

рирпроекционная - за задней стеной сцены или арьерсцены, тиристорная - вблизи сцены.

3.65. Осветительные боковые лодки размещаются в зоне, ограниченной углами (в плане) 55 и 65° к продольной оси зала с вершиной, расположенной на передней границе авансцены. Ширина проема осветительной ложи принимается не менее 1,8 м.

Количество осветительных боковых лож с каждой стороны зрительного зала принимается не менее двух.

Расстояние от уровня пола нижней осветительной ложи до уровня планшета сцены принимается не менее 2,5 м, а расстояние между уровнями полов лож, расположенных одна над другой, - не менее 2,5 м. Глубина лож проектируется не менее 2 м.

3.66. Помещение выносного софита высотой и шириной не менее 2 м размещается над зрительным залом таким образом, чтобы оптические оси осветительных приборов располагались в зоне, ограниченной лучами к горизонтальной плоскости: от 50 до 60° с вершиной на расстоянии 1 м от передней границы авансцены (барьера оркестровой ямы) в сторону сцены; от 9 до 15 - 20° с вершиной на уровне верха игрового портала, состоящей на 1 м от красной линии в глубину сцены.

Рис. 19. Схема размещения помещений технологического обеспечения сцены при увеличенной авансцене

1 - игровой портал; 2 - увеличенная авансцена; 3 - боковая осветительная ложа; 4 - помещение выносного софита; 5 - фронтальная осветительная ложа; a = 55 - 65°; b = 50 - 60° g = 9 - 15 - 20°

3.67. В связи с возможностью устройства сценических площадок в зале изменяются расположение и количество помещений или трехсторонней сцены от линии игрового портала до их обреза более 8 м рекомендуется устраивать по два вертикальных ряда осветительных боковых лож с обеих сторон зала и два ряда помещений выносного софита (рис. 19). При устройстве боковых крыльев авансцены и панорамной или трехсторонней сцен желательно устройство помещений выносного софита, соответственно ориентированных на обращенные к зрителям кромки этих площадок.

3.68. Фронтальная осветительная ложа размещается таким образом, чтобы ось помещения находилась в пределах ширины игрового портала. При невозможности размещения помещения в указанных пределах предусматриваются два помещения размером по фронту ориентировочно 4 м каждое. Уровень пола фронтальной осветительной ложи рекомендуется располагать не ниже верха игрового портала.

3.69. Светопроекционную рекомендуется размещать так, чтобы угол отклонения оптической оси проектора от нормали в геометрическом центре строительного портала по красной линии сцены не превышал:

в горизонтальной плоскости                              

в вертикальной плоскости при проекции:

сверху вниз                                                           

снизу вверх                                                           

Размещение светопроекционной или кинопроекционной в указанных пределах определяется заданием на проектирование.

Длина помещения светопроекционной принимается по проекту и ориентировочно составляет для сцен, м:

С-4 и С-5                          5

С-2 и С-3                          4

С-1                                    3

Уровень пола светопроекционной проектируется выше уровня пола примыкающей к ней части зрительного зала не менее чем на 0,9 м.

3.70. Уровень пола рирпроекционной, как правило, предусматривается на высоте от уровня пола арьерсцены, равной половине высоты строительного портала.

3.71. Светоаппаратная, как правило, размещается в пределах проекции строительного портала на заднюю стену зала. Длина помещения светоаппаратной определяется проектом и ориентировочно составляет для сцен, м:

С-4 и С-5                   5

С-1 и С-3                   4

Уровень пола размещается выше уровня пола примыкающей к ней части зрительного зала не менее чем на 0,9 м.

3.72. Звукоаппаратную, кабину диктора (речевую) и переводчиков, а также ложу звукооператора (звукорежиссера), рекомендуется размещать с обеспечением прямой видимости сцены.

Помещение звукоаппаратной возможно предусматривать без обеспечения прямой видимости сцены в случае, когда видимость обеспечивается из ложи звукооператора.

3.73. В случае, когда из театра предполагается вести телепередачи, предусматривается в его составе телевизионный полустационар, расположенный на первом этаже с отдельным входом и окном для подачи кабелей. При телевизионном полустационаре проектируются два аппаратных помещения площадью не менее 8 м2 каждое и площадка для размещения у здания передвижной телестанции (ПТС) не менее чем на 5 автомашин. Площадка для ПТС непосредственно примыкает к полустационару, обеспечивает разворот, машин станции и имеет выход на проездную часть улицы или дороги. Расстояние от полустационара до места съемок с учетом пути прокладки кабелей не превышает 250 м. На крыше здания устраивается площадка для антенны площадью не менее 5 м2.

ПОМЕЩЕНИЯ, ОБСЛУЖИВАЮЩИЕ СЦЕНУ

Помещения для ожидания выхода на сцену и артистические уборные

3.74. Помещения ожидания выхода на сцену одновременно служат для быстрого переодевания и быстрой перегримировки или поправки грима, для отдыха в перерывах между выходами или последней разминки, для оказания первой помощи, для оперативной связи исполнителей с костюмерами и реквизиторами.

3.75. В практике существует два вида помещений ожидания выхода на сцену. Первый - для драматических и музыкально-драматических театров несколько меньший по размерам, обладает большей степенью комфорта. Второй - для музыкальных театров, имеет дополнительно зону разминки с соответствующим оборудованием. Он рекомендуется также для театров юного зрителя, пантомимы и других, искусство которых связано с интенсивным движением.

3.76. Площадь помещения ожидания выхода на сцену определяется из расчета единовременного количества артистов, м2 на одного артиста в каждое помещении, не менее: для драматического и музыкально-драматического театров - 1,7; театра музыкальной комедии - 1,8; оперы и балета - 1,9.

С учетом расстановки оборудования, каждое из помещений ожидания выхода на сцену обеспечивает возможность пребывания: в драматических и музыкально-драматических театрах от 10 до 15 исполнителей, в театрах музыкальной комедии - от 15 до 20, в театрах оперы и балета до 25 участников спектакля. Примеры планировки помещения ожидания выхода и состав оборудования приведены на рис. 20.

3.77. Предусматривается надежная звукоизоляция помещений ожидания выхода от сцены, что особенно существенно при размещении их в зоне первых планов. Принимаются специальные меры к тому, чтобы свет из помещения не попадал на сцену.

Противопожарная дверь, ведущая на сцену, открывается внутрь помещения, а дверь в комнату ожидания выхода - наружу. Размеры обеих дверей - ширина не менее 1 м и высота не менее 2,2 м.

Для драматических и музыкально-драматических театров покрытие пола рекомендуется выполнять рулонно-ворсовым ковром, возможны линолеум или рулонный пластик. Для балетных театров рекомендуются дощатые полы в зоне разминки и любое из указанных выше покрытий в остальных местах помещения.

Рис. 20. Примеры планировки помещений ожидания выхода на сцену (стрелкой показано направление выхода на сцену)

a - для драматических театров (единовременное пребывание 12 актеров); б - для театров музыкальной комедии, оперы и балета (единовременное пребывание 18-20 актеров); 1 - банкетки; 2 - диван; 3 - кресло; 4 - внутренний телефон; 5 - устройство для питьевой воды; 6 - место для перегримировки с гримировальным столом и трехстворчатым зеркалом; 7 - место зля быстрого переодевания с большим зеркалом; 8 - место для разминки; 9 - санитарный узел

3.78. Артистические уборные предназначены для переодевания в сценический или репетиционный костюм, наложения и снятия грима, гигиенических процедур, отдыха, отдельных этапов репетиционной работы и специального тренинга, работы с текстом и иными материалами.

3.79. В зависимости от числа артистов в помещении артистических уборные подразделяются на индивидуальные, рассчитанные на одного исполнителя, групповые - от 2 до 6 чел. и общие (или массовые), вмещающие более 6 артистов.

Для театральных зданий различного назначения (жанра) выполняются три основных вида артистических уборных: помещения драматических, музыкально-драматических актеров; вокалистов музыкальных театров; уборные балетных артистов.

В практике существует еще несколько разновидностей уборных, выполняемых по специальному заданию заказчика. Это - особые помещения для детей, занятых в спектаклях, уборные с расширенным составом помещений (кабинет, гримоуборная, ванная с санитарным узлом, массажная) для артистов, совмещающих прямые функции с административными и общественными (художественный руководитель, директор, депутат и т.д.), артистические уборные вокалистов, совмещенные с комнатами для занятий, комнаты для артистов ТЮЗов и театров кукол и пр. Все эти помещения значительно отличаются от основных видов по своим размерам и технологическому оборудованию.

3.80. Обычно индивидуальные артистические уборные закрепляются за артистами высшей категории и ведущими артистами труппы. Принято считать, что для драматических и музыкально-драматических трупп их число составляет около 1/3, а для музыкальных театров около 1/4. Возможно размещение ведущих артистов в групповые артистические уборные на 2 и 3 чел.

Артисты вспомогательного состава, мимического ансамбля, кордебалета и, частично, хора музыкальных театров занимают обычно общие уборные (на 12 чел.) и групповые (на 6 чел.). Актеры драмы II штатной категории занимают места в групповых уборных на 4 и 6 чел.

Количество и категория артистов театра в настоящее время и на перспективу предоставляются театром (ориентировочное представление о количестве артистов - дает прил. 5).

3.81. Принцип, положенный в основу рекомендуемого варианта (табл. 5) распределения штатного состава труппы по артистическим уборным носит название «ансамблевого», так как он создает максимально благоприятные условия для основного творческого ядра актерского коллектива. Противоположной структурой распределения является «звездная», широко практикуемая за рубежом, когда для одного - двух исполнителей - «звезд» создаются условия сверхкомфорта, а для остальных - необходимый минимум. В несколько трансформированном виде эта система может быть использована и в наших условиях (реконструкции, для малых сцен или театральных студий, в тех случаях, когда сценическая часть здания резко ограничена).

Таблица 5

Театр

Среднее число артистов в труппе

Количество помещений

Всего артистических уборных

Индивидуальных на 1 чел.

групповых на

общих на 12 чел.

2 чел.

3 чел.

4 чел.

6 чел.

Драматический

30

4

5

2

1

1

-

13

40

4

5

2

5

-

-

16

Музыкально-драматический

50

6

7

2

6

-

-

21

60

8

8

4

6

-

-

26

Музыкальной комедии

80

8

6

8

-

2

2

26

110

10

9

10

4

2

2

37

Оперно-балетный

150

14

11

14

6

4

2

51

190

20

14

14

10

6

2

66

3.82. Площади артистических уборных на одного артиста рекомендуется принимать согласно табл. 6.

Таблица 6

Количество артистов в помещении

Площадь*, м2, не менее

для драматических артистов

для артистов балета

для вокалистов

1

9

11

15

2

6

7,5

7,5

3

4,5

5,5

5

4

3,5

4,5

-

6

3

3,5

-

12**

3

3

-

* Площадь артистических уборных для драматических артистов и вокалистов на 1-3 чел. приведены из расчета: один санитарный узел (унитаз, умывальник, душ) на две артистические уборные. При проектировании подобного санитарного узла для каждой такой артистической уборной ее площадь увеличивается на 10 %. Артистические уборные для артистов балета на 1 - 2 чел. проектируются из расчета индивидуального санитарного узла в каждой.

** При проектировании драматических театров возможно не предусматривать.

3.83. Примеры планировочных решений артистических уборных с расстановкой основного оборудования приведены на рис. 21 - 23.

3.84. В театрах музыкальной комедии, оперы и балета целесообразно объединение артистических уборных вокалистов, рассчитанных на одного человека, с комнатами для занятий. По условиям акустики такое помещение не может быть менее 16 м2. Для него также предусматриваются повышенные требования к звукоизоляции с тем, чтобы работа солиста не мешала окружающим.

Рис. 21. Примеры планировки индивидуальных артистических уборных

а - для актера драматического театра (общая площадь 9 м2, в том числе санитарный узел 2,2 м2); б - для солиста балета (общая площадь 11,2 м2, в том числе санитарный узел 2,2 м2); перечень оборудования (для всех типов артистических уборных): 1 - стол гримировальный с трехстворчатым зеркалом и осветительной системой; 2 - кресло гримировального стола вращающееся; 3 - диван для отдыха; 4 - кресло-шезлонг для отдыха; 5 - стол для реквизита; 6 - вешалка для театральных костюмов; 7 - вешалка для собственного костюма; 8 - шкаф-секретер; 9 - большое зеркало; 10 - санитарный узел; 11 - приставной полужесткий табурет; 12 - штора светозащитная; 13 - манекен; 14 - стол гримировальный малый (вместе с основным гримировальным столом образует стол-панель для сложного грима) для общих артистических уборных; 15 - станок балетный; 16 - пианино; 17 - раздвижная перегородка; 18 - стул полужесткий для общих артистических уборных; 19 - табурет мягкий; 20 - книжный шкаф; 21 - водостойкая занавеска

3.85. При проектировании артистических уборных предлагается использовать систему планировочных модулей (рис. 24). Основой является элемент площадью 12 м2 (3´4 м). В нем могут разместиться индивидуальные артистические уборные балета, вокалистов (при наличии музыкального инструмента, драматических актеров, групповые артистические для 2, 3 и даже 4 чел. Сдвоенный модуль - 24 м2 (6´4 м) может служить артистической уборной для 6, 8, 12 исполнителей или артистической уборной, совмещенной с комнатой для занятий вокалистов оперных театров, или артистической уборной для детей (до 10 чел.), или артистической уборной с расширенным составом посещений (тип «люкс»).

Система планировочных модулей обладает большой эксплуатационной гибкостью, позволяющей оперативно изменять размещение артистов в связи с изменениями в составе творческого ансамбля театра. Общая площадь всех артистических уборных в этом случае определяется как произведение средней площади на одного артиста (около 5 м2) на общую численность труппы.

Рис. 22. Примеры планировки групповых артистических уборных

а - для двух актеров драматического театра (общая площадь 12 м, в том числе санитарный узел 2,1 м2); б - для двух солистов балета (общая площадь 15 м, в том числе санитарный узел 2,2 м2); в - для трех актеров драматического театра (общая площадь 14 м2, в том числе санитарный узел 2,2 м2); г - для трех артистов балета (общая площадь 16 м2, в том числе санитарный узел 2,6 м2); д - для четырех актеров драматического театра (общая площадь 16 м2, в том числе санитарный узел 3,3 м2); г - для четырех артистов балета (общая площадь 18 м2, в том числе санитарный узел 2,4 м2); ж - для шести актеров драматического театра (общая площадь 18 м2, в том числе санитарный узел 1,6 м2); и - для шести артистов балета (общая площадь 18 м2, в том числе санитарный узел 1,6 м2)

3.86. Индивидуальные и большая часть групповых артистических уборных на 2 чел. располагаются на этаже сцены.

Не рекомендуется размещать артистические уборные выше третьего этажа от уровня планшета сцены и ниже этажа, следующего за этой отметкой. Коммуникации из артистических уборных на сцену проектируются обособленными от других технологических коммуникаций.

Ширина лестничных маршей в зоне артистических уборных целесообразна не менее 1,5 м, ширина коридоров при одностороннем расположении уборных - не менее 2 м, при двухстороннем - не менее 3 м. Общая длина пути от наиболее удаленной артистической уборной до сцены - не более 60 м, включая и вертикальные коммуникации.

Артистические уборные рекомендуется проектировать, как правило, с естественным освещением.

Рис. 23. Примеры планировки и оборудования артистических уборных

а - групповая артистическая уборная на двенадцать актеров (общая площадь 33 м2); б - индивидуальная артистическая уборная солиста вокала, объединенная с комнатой для занятий (общая площадь 18 м2, в том числе санитарный узел 2,1 м2); в - стол гримировальный (столы регулируются по высоте стандартным элементом фурнитуры; тумбы и ящик малого стола имеют замки нестандартного типа; поверхность столов полированная моющаяся; конструктивная основа - прямоугольная стальная труба сечением 22 - 25 мм; столы проектируются неразборными и с упором для ног)

3.87. Функционально-планировочные схемы связей артистических уборных и комнат ожидания выхода приведены на рис. 25.

Репетиционные помещения

3.88. Размеры, назначение и примерное количество репетиционных залов для сцен С-1 - С-5 рекомендуется принимать согласно табл. 7.

3.89. Большой репетиционный зал (БРЗ) служит для проведения заключительных этапов репетиционной работы - сборных репетиций, прогонов, просмотра костюмов и грима; реже - для генеральных и корректировочных репетиций (рис. 26 - 28). В отдельных случаях может использоваться в качестве площадки для любого из этапов подготовки спектакля. БРЗ имеет размеры, позволяющие разместить приподнятую сцену, равную по величине рабочей зоне основной сцены с кулисными пространствами, и зрительный зал, имитирующий условия наблюдения основного демонстрационного комплекса. Работа в БРЗ ведется с игровыми элементами декорационного оформления: мебелью, станками, лестницами, бутафорией, реквизитом, сценическим светом и звукошумовым сопровождением.

Рис. 24. Примеры использования стандартных планировочных модулей для проектирования артистических уборных

а - использование модуля 12 м2 для одного (1), двух (2), трех (3) и четырех (4) актеров; б - использование сдвоенного модуля 24 м2 (1 - для шести актеров; 2 - для двенадцати актеров)

Полы БРЗ рекомендуется покрывать рулонным ворсовым ковром на звукоизолирующей основе. При БРЗ желателен тамбур. БРЗ не нуждается в естественном освещении.

3.90. При отсутствии малого зала целесообразно оборудовать на базе большого репетиционного зала студийно-репетиционный зал (СРЗ), совмещающий в себе репетиционные функции с возможностью постановки и показа экспериментальных и камерных спектаклей для сравнительно узкого круга зрителей (см. рис. 27). Увеличение площади в этом случае достигает 15 - 20 % площади БРЗ. Необходимые зрительские помещения - гардероб, фойе, буфет, курительные и санитарные узлы могут быть размещены в смежных репетиционных залах и помещениях. Это одна из причин, по которой выгодно объединять несколько репетиционных помещений в обособленный функциональный блок, имеющий самостоятельный вход.

СРЗ допускает возможность изменения пространственных, отношений в системе «зал - сцена», поэтому целесообразно выполнять сценическую площадку из отдельных элементов-станков, а зрительские места (около половины) в виде подвижных секций-блитчеров. Смотровой мостик выполняется по всему периметру зала и сцены. Механические системы допустимы в виде индивидуальных (точечных) подъемов, расположенных между рабочими мостиками, размещенными над залом-сценой и образующими верхнее техническое пространство. Устройство студийно-репетиционного зала специально оговаривается в задании на проектирование.

Рис. 25. Функционально-планировочные схемы связей артистических уборных и комнат ожидания выхода

1 - сцена; 2 - комната ожидания выхода на сцену; 3 - курительная и санитарные узлы; 4 - артистические уборные; 5 - артистические уборные в уровне планшета сцены; 6 - дежурные костюмерные; 7 - дежурная гримерно-парикмахерская; 8 - режиссерское управление; 9 - к буфету, репетиционным залам, артистическому фойе, примерочным пошивочной мастерской, комнатам для занятий; 10 - к складу костюмов; 11 - связь в уровне трюма; I - примыкание; II - функционально-технологическая связь, предполагающая систему проемов и переходов, к габаритам которых предъявляются определенные требования; III - непосредственная связь, предполагающая отсутствие между помещениями других помещений, кроме предназначенных для связей (коридоры, переходы, лестницы); IV - эпизодическая связь, допускающая значительную пространственную удаленность помещений; V - разрядка технологических потоков в разных уровнях; VI - механизация связи

Таблица 7

Помещения

Размеры (длина´ширина´высота) репетиционных залов, м, театров

драматического и музыкально-драматического

музыкальной комедии

оперы и балета

со сценами

С-1

С-2

С-3

С-3

C-4

С-4

С-5

Репетиционные залы:

 

 

 

 

 

 

 

большой

9´9´5

12´12´6

15´15´6

15´15´6

18´18´7,5

18´18´7,5

21´21´7,5

(9´5)

(12´7)

(15´8)

(15´8)

(18´9)

(18´9)

(21´х10)

малый

9´6´3,6

9´9´3,6

12´12´5

12´12´5

15´12´6

15´12´6

15´15´6

Залы для репетиции:

 

 

 

 

 

 

 

балета

-

-

-

15´9´4,5

18´12´4,5

18´12´4,5

18´15´4,5

 

 

 

 

 

 

18´15´4,5

оркестра

-

-

-

9´6´4,2

12´9´5,1

15´9´5,7

15´12´6

хора

-

-

-

6´6´4,2

9´6´4,2

9´9´4,2

12´9´4,21

 

 

 

 

 

 

9´9´4,2

репетиционно-физкультурный зал

18´9´6

18´9´6

24´12´6

-

-

-

-

универсальное репетиционное помещение

5´6

5´6

5´6

5´6

6´6

6´6

6´6

Примечания: 1. В скобках указаны размеры сцены, которые не учтены в площади зала.

2. При проектировании музыкально-драматического театра для двух трупп (драматической и музыкальной) предусматриваются залы для репетиций: балета, оркестра, хора.

3. Размеры в плане указаны в осях строительных конструкций, высота - от пола до низа выступающих конструкций перекрытий.

4. Количество и назначение репетиционных залов уточняется при предпроектных исследованиях.

Рис. 26. Большой репетиционный зал драматического театра с шириной игрового портала 8 м (пример планировки)

а - план; б - продольный разрез; 1 - стол гримировальный; 2 - кресло рабочее; 3 - диван; 4 - пульт дирижера; 5 - пульт режиссера; 6 - вешалка для костюмов; 7 - ширма репетиционная; 8 - пюпитр для нот; 9 - зеркало большое и зеркала балетных залов; 10 - санитарный узел; 11 - шкаф для музыкальных инструментов; 12 - штора светозащитная; 13 - станок театральный полустационарный (100 - 200 см); 14 - станок театральный репетиционный; 14а - лестница репетиционная; 15 - станок балетный (палка); 15а - станок балетный (палка) переносной; 16 - пианино; 17 - табурет к пианино; 18 - занавес антрактный; 19 - кулисы поплановые; 19а - кулисы портальные, подвижные; 20 - занавес поплановый; 21 - декорационный подъем (ручной); 22 - рояль; 23 - мостик смотровой; 24 - водостойкий занавес; 25 - скамья спортивная; 26 - шкаф для нот; 27 - кресло с пюпитром; 28 - стул складируемый; 29 - световое табло; 30 - магнитофон, видеомагнитофон; 31 - комплект звукозаписи и звуковоспроизведения театральный; 32 - часы настенные электрические; 33 - телефонный аппарат; 34 - софитный подъем (ручной); 35 - сетка защитная для окон; 36 - светильник общего освещения; 37 - вешалка для полотенец; 38 - приспособление для защиты зеркал; 39 - щит осветителя; 40 - регулятор света; 41 - прожектор театральный; 42 - комбинированный прибор рассеянного света (рамка, софит, подсвет); 43 - перекладина гимнастическая; 44 - кольца гимнастические; 45 - конь гимнастический; 46 - ковер борцовский; 47 - маты гимнастические; 48 - мешок боксерский; 49 - груша боксерская; 50 - штанга; 51 - стол для настольного тенниса; 52 - стенка шведская

3.91. При любом взаимном расположении большого демонстрационного комплекса и БРЗ (СРЗ) обеспечивается надежная акустическая изоляция между ними.

Рис. 27. Пример планировки большого репетиционного зала театров музыкальной комедии или оперы и балета с шириной игрового портала 12 м

а - план большого репетиционного зала; б - план в варианте студийно-репетиционного зала; в - продольный разрез в варианте студийно-репетиционного зала; экспликацию оборудования см. на рис. 26

3.92. Площади вспомогательных помещений при БРЗ или СРЗ принимаются:

артистические уборные (не менее двух помещений) площадью 30 - 50 м2 (в эту площадь включаются места ожидания выхода на сцену, примыкающие к ней);

санитарные узлы с умывальными, курительные при артистических уборных - 12 - 14 м2;

постановочные склады декораций, бутафории, мебели и реквизита, осветительной аппаратуры - 40 - 80 м2;

светоаппаратная, аппаратная звуковоспроизведения, светопроекционная - 30 - 60 м2.

Артистические уборные БРЗ оборудуются аналогично групповым артистическим уборным из расчета 2,5 м2/чел.

3.93. Малый репетиционный зал (МРЗ) предназначен для проведения второй стадии репетиционной работы - репетиций мизансцен. В музыкальных театрах, помимо этого, используется для спевок солистов с хором, сдачи вокальных партий и т.д. (см. рис. 28, в). Размеры МРЗ связаны с параметрами главной сцены: ширина зала на 1 - 2 м более ширины игрового портала, глубина игровой зоны принимается не менее двух планов сцены (план - 2 - 3 м), глубина зоны наблюдения позволяет располагать место режиссера таким образом, чтобы горизонтальный угол зрения его был не более 90°. МРЗ музыкальных театров отличаются от драматических акустической обработкой помещения, позволяющей при сравнительно небольших размерах вести репетиции в полный голос.

В музыкальных театрах МРЗ используется в качестве второго репетиционного зала балета или разминочного зала солистов. В соответствии с этими функциями определяется состав технологического оборудования МРЗ; проектируется естественное освещение. Исправление акустических недостатков может достигаться непараллельностью (от 2 до 12°) стен и специальной обработкой отражающих поверхностей. В целях звукоизоляции рекомендуется тамбур с двойными дверями.

При всех малых репетиционных залах проектируются помещения инвентарных, площадь которых зависит от размеров зала и колеблется в пределах 10 - 20 м2.

Если МРЗ отстоят на достаточно большом расстоянии от артистических уборных, при них рекомендуется иметь санитарный узел (один или два) с умывальной. Ширина дверей МРЗ - 2 м, полы - дощатые.

3.94. Зал для репетиций балета служит для репетиционной работы балетной труппы, ежедневных тренировочных занятий, разминки перед спектаклем и самостоятельных работ (см. рис. 28, б). Существенным фактором, влияющим на размеры залов репетиций балета, является численность балетной труппы. Для полноценного занятия у станка на каждого из участников приходится, в среднем, по 2,15 м длины станка.

Помещения залов репетиций балета проектируются с естественным освещением и надежной акустической изоляцией от остальных помещений.

Одну из стен балетного зала занимают зеркала. Эта стена не размещается против фронта окон. В отечественной практике не принято располагать балетные станки на зеркальном поле зала. Исключение составляют театры музыкальной комедии.

Для оперно-балетных театров с числом артистов балета более 70 чел. проектируются не менее двух залов репетиций балета. В театрах музыкальной комедии в качестве дополнительного балетного зала рекомендуется использовать малый репетиционный зал. При зале балета устраиваются инвентарные площадью 8 - 9 м2.

Одним из главных элементов оборудования залов балета является специально выполненный деревянный настил пола. Возможно применение для настила пола современных пластических материалов.

Для помещений универсального назначения (например, МРЗ), используемых в качестве дополнительных залов для репетиций и занятий балетной труппы, возможно применение секций съемных или переносных балетных станков. При входе в зал для репетиций балета устраиваются тамбуры.

Рис. 28. Примеры планировки репетиционных залов

а - зал для репетиций хора в театре оперы и балета; б - зал для репетиций балета и театра музыкальной комедии с шириной игрового портала 10 м; в - малый репетиционный зал театра с шириной игрового портала 10 м; г - инвентарная; экспликацию оборудования см. на рис. 26

3.95. Зал для репетиций оркестра предназначается для всех видов репетиционных работ с полным составом оркестра театра, репетиций отдельных оркестровых групп, подготовки концертных программ и пр. (рис. 29, а).

Одним из основных требований к размещению и оборудованию зала для репетиций оркестра, является его полная акустическая изоляция от остальных помещений театра и, в первую очередь, от демонстрационного комплекса.

Площадь на каждого артиста оркестра принимается не менее 2 м2 и объем - не менее 7 м2. Примерное количество артистов оркестра приведено в прил. 5. Размеры помещения допускают размещение артистов оркестра, аналогичное, их размещению в оркестровой яме. При количестве артистов оркестра более 30 чел. рекомендуется применение одно- и двухступенчатого подиума. Дверные проемы залов делаются шириной не менее 2,5 м для беспрепятственной транспортировки громоздких музыкальных инструментов.

Залы для репетиций оркестра имеют естественное освещение. При входе в зал устраивается тамбур.

3.96. Оркестровая яма, репетиционный зал оркестра, комнаты отдыха и переодевания артистов оркестра (в крупных театрах - дополнительно фойе артистов оркестра), комната отдыха дирижера, комната инспектора оркестра, помещение для занятий артистов оркестра и настройки инструментов, кладовая музыкальных инструментов и библиотека и архив нот составляют комплекс помещений оркестра. Все эти помещения обычно располагаются в едином уровне с оркестровой ямой и трюмом сцены. При них проектируются: курительная, санитарные узлы с умывальными и душевые кабины, из расчета полного состава оркестра и вспомогательного персонала, что составляет, в среднем 60 - 65 чел. В крупных оперно-балетных театрах с оркестром, превышающим 100 музыкантов при 15 - 20 вспомогательных работниках, целесообразно иметь для артистов оркестра отдельный служебный вход с вестибюлем и гардеробом. Ширина коридоров комплекса проектируется не менее 2 м, а ширина дверных проемов - не менее 1,8 м.

3.97. Площадь комнат отдыха и переодевания артистов оркестра (две) определяется на весь штатный состав оркестра (см. прил. 5) исходя из 70 % мужчин и 30 % женщин, средней площади на одного человека 1,8 м2 (на 60 % состава) и на один шкафчик 0,2 м2 (на весь состав).

3.98. Зал для репетиций хора служит для разучивания хоровых партий как полным составом хора, так и по голосам, спевок с солистами и регулярных занятий, подготовки концертных программ (см. рис. 28, а).

Площадь на каждого из артистов хора - не менее 1,5 м2, а объем - не менее 6 м2. Примерное количество артистов хора - см. прил. 5.

Зал для репетиций хора представляет собой прямоугольное помещение с круто поднимающимся амфитеатром мест для артистов. Место для хормейстера и концертмейстера располагается на приподнятой площадке-подиуме высотой 0,15 - 0,2 м. В зале рекомендуется предусматривать средний и боковые проходы, а также обход за последним рядом мест. Для больших залов рекомендуется полукруглый амфитеатр.

Рис. 29. Оборудование репетиционных залов

а - зал для репетиций оркестра театра музыкальной комедии с шириной игрового портала 12 м; б - помещение для хранения инструментов, пюпитров и нот; в - репетиционно-физкультурный зал для драматических и музыкально-драматических театров с труппой менее 50 актеров; г - инвентарная площадь 18 м2; д - станок балетный (палка); е - кресло с пюпитром; ж - пульт дирижера; и - пульт режиссера; к - мостик смотровой; экспликацию оборудования см. на рис. 26

Рис. 30. Функционально-планировочные схемы связей репетиционных помещений

1 - большой репетиционный зал; 2 - артистические уборные с местами выхода на сцену; 3 - постановочные склады; 4 - светоаппаратная, светопроекционная, аппаратная звуковоспроизведения; 5 - к складам сцены; 6 - малый репетиционный зал; 7 - инвентарная; 8 - санитарные узлы (при удалении от артистических уборных); 9 - репетиционно-физкультурный зал; 10 - репетиционный зал балета; 11 - комната для переодевания с санитарными узлами (при удалении от артистических уборных); 12 - репетиционный зал хора; 13 - блок репетиционных залов (кроме репетиционного зала оркестра); 14 - к артистическим уборным; 15 - оркестровая яма; 16 - комната для отдыха и переодевания артистов оркестра; 17 - библиотека нот; 18 - комната отдыха дирижера; 19 - комната инспектора оркестра; 20 - репетиционный зал оркестра; 21 - помещение для занятий артистов оркестра и настройки музыкальных инструментов; 22 - кладовая музыкальных инструментов; 23 - санитарные узлы, душевые, курительная; 24 - к подъездным путям автотранспорта; 25 - вестибюль с гардеробной (в крупных оперно-балетных театрах); 26 - блок помещений оркестра; условные обозначения связей см. рис. 3 и 25.

Зал репетиций хора надежно акустически изолируется от всех других помещений, в том числе и от других залов аналогичного назначения.

Залы нуждаются в естественном освещении. Большие залы для репетиций хора имеют не менее двух выходов.

3.99. Репетиционно-физкультурный зал (РФЗ) является частью репетиционного комплекса драматических и музыкально-драматических театров. РФЗ представляет собой специально оборудованное помещение для регулярных занятий жестом, пластикой, ритмикой, сценическим движением (фехтование, борьба, падения и т.п.), танцем (см. рис. 29, в). В свободное время зал используется для общефизической подготовки и спортивных игр с целью сохранения творческим составом рабочей формы. Для крупных драматических и музыкально-драматических театров с общей численностью труппы 50 чел. и более рекомендуются залы размером (в осях) 24´12 м. Для театров с меньшим составом - 18´9 м, что является достаточным для многих спортивных игр. При зале размещается инвентарная от 10 до 20 м2. В репетиционно-физкультурном зале предусматривается естественное освещение.

Рекомендуемое покрытие пола: рулонно-ворсовый материал на звукоизолирующей основе. Ширина дверных проемов - не менее 2,5 м для транспортировки громоздкого оборудования.

3.100. Комнаты для индивидуальных занятий артистов предназначены для работы с педагогами по сценической речи, вокалу, самостоятельной работы над партией, образом, ежедневных упражнений вокалистов и актеров. В драматических театрах предусматривается не более двух, а в музыкальных трех - четырех комнат для занятий. Их площадь - в драматических театрах 12 - 15 м2, в музыкальных (в соответствии с требованиями акустики) - 16 - 20 м2. Комнаты проектируются с естественным освещением.

3.101. Функционально-планировочные схемы связей репетиционных помещений приведены на рис. 30. Классификацию связей см. на рис. 25.

Склады

3.102. Склады постановочного имущества подразделяются на: дежурные, где предметы оформления хранятся в состоянии готовности к подаче на сцену; текущего, сезона, в которых содержится оформление всего репертуара данного театрального сезона раздельно по спектаклям и резервные, где складируется имущество редко идущих или снятых с репертуара спектаклей для повторного использования.

По принципу раздельного хранения различают восемь основных видов складских помещений: объемных и станковых декораций; мебели, бутафории и реквизита; костюмов; обуви; электроаппаратуры и электрореквизита; звукотехнической аппаратуры; мягких и живописных декораций; париков и иных пастижерских изделий.

Имеется еще восемь подвидов хранения: настоящее оружие, уникальные мебель и реквизит, стандартные станки, одежда сцены и драпировки, ценные костюмы, нестандартное оборудование сцены, головные уборы и белье, транспортная тара.

Размеры складов состоят в прямой зависимости от размеров сцены, назначения и штатной группы театра, определяющих количественный состав труппы, количество спектаклей в репертуаре. В Пособии приводятся только площади дежурных складов и складов текущего сезона.

При определении площадей резервных складов рекомендуется исходить из сложившейся практики театров, обычно принимающей их равными площади дежурных складов по всем видам хранения. Как правило, резервные склады имеют четыре вида хранения: объемных и станковых декораций; мебели, бутафории и реквизита; костюмов, головных уборов, белья и обуви; сейф для мягких и скатанных декораций.

3.103. Помещения складов преимущественно проектируются прямоугольной формы, позволяющей полностью использовать полезное пространство, и с размерами, регламентация которых продиктована расстановкой технологического оборудования, размерами проходов, методами транспортировки и иными параметрами, обусловленными габаритами предметов хранения.

3.104. Дежурные склады декораций наиболее целесообразно проектировать шириной 9 м (в осях с учетом строительного модуля), так как это обеспечивает двухрядное хранение с центральным проходом. Декорации при этом занимают 2/3 площади. Однорядное хранение в помещении шириной 6 м позволяет использовать лишь 1/2 площади. Высота складов принимается равной высоте карманов.

Дежурные склады декораций оборудуются разделительными вертикальными конструкциями - пряслами шириной 2,5 м и высотой, равной высоте склада. Прясла устанавливаются с шагом 3 м, образуя секции, разделяющие оформление спектаклей (актов или картин). Ширина проходов между штабелями декораций - 2,5 - 3 м. Пол в дежурных складах рекомендуется дощатый. Помещение не нуждается в естественном освещении. Проемы, соединяющие склады декораций со сценой и карманами, рекомендуются шириной не менее 2,5 м, а высотой - равной высоте проемов карманов.

3.105. Площадь складов декораций текущего сезона определяется из расчета: декорации одного спектакля в хранении занимают примерно 10 % площади сцены; в складе, хранятся декорации всех спектаклей текущего репертуара за исключением декораций двух (для ТЮЗов трех) спектаклей, хранящихся в дежурных складах декораций. Рекомендуется предусматривать механизированное перемещение предметов из склада в склад в соответствии со взаимным расположением помещений и принятой системой хранения. Для складов декораций текущего сезона рекомендуется горизонтальный способ хранения в стандартных контейнерах размером 6,05´2,43´2,43 м или флетах (полуконтейнерах), специально выполненных с использованием стандартного поддона. Этот склад также не нуждается в естественном освещении.

Рис. 31. Примеры планировки складов

а - дежурный склад мебели, бутафории, реквизита; б - участок размещения; в - участок размещения мебели; г - отделение всходящего реквизита; д - то же, разрез; е - отделение исходящего реквизита, план; ж - склад мебели, бутафории и реквизита текущего сезона; и - дежурная гримерно-парикмахерская; 1 - раковина-мойка; 2 - титан; 3 - закрытые навесные полки для хранения посуды, столового белья, курительных принадлежностей и пр.; 4 - холодильник для пищевых продуктов; 5 - подвижный сервировочный столик; 6 - лифт; 7 - двухъярусные стеллажи для мебели; 8 - пятиярусные полки для бутафории и реквизита; 9 - стандартные секции шкафов для хранения париков; 10 - места для наложения сложного грима со столами длиной 1 и 1,5 м; 11 - столы рабочие пастижерские; 12 - электроплита; 13 - шкафы вытяжные; 14 - секции для хранения простых париков, бород, усов и пр.; 15 - стул (кресло)

3.106. В дежурном складе сценической электроаппаратуры и электрореквизита хранятся переносные осветительные приборы, проекционная и светоэффектная аппаратура, переходные устройства, объективы, маски, светофильтры, источники света и электрореквизит - подлинные и бутафорские люстры, торшеры, бра, подсвечники, настольные лампы, «костры», «камины», «факелы» и т.д. В целях экономии площади громоздкие хрупкие люстры, плафоны, абажуры и пр. подвешиваются на блоках под потолком склада. Поэтому его высота в свету целесообразна не менее 3,6 м. По условиям переноски осветительных приборов на штативах размеры дверного проема на сцену проектируются не менее 1´2,4 м. Полы склада рекомендуется дощатые.

Склад электроаппаратуры и электрореквизита текущего сезона примыкает к дежурному складу - под или над ним. Помещение может не иметь естественного освещения. Полы - линолеум или пластик.

3.107. Основой для определения ширины дежурных складов мебели, бутафории и реквизита (рис. 31) являются размеры стеллажей для мебели (расстояние между полками 1 м, глубина 1 м) и проход между ними (не менее 1,7 м), размеры стеллажей для бутафории и реквизита (глубина 0,6 м) и проход между ними (не менее 0,8 м). При однорядном хранении ширина склада принимается не менее 3,7 м. Полностью изолированной частью склада является специальный участок приготовления исходящего реквизита (еды, напитков, табачных изделий и пр.) и хранения белья с естественным освещением.

Покрытие пола - линолеум или рулонный пластик. Пример планировки склада мебели, бутафории и реквизита, текущего сезона см. на рис. 31. Ширина склада при двухрядном хранении - не менее 4 м. Размеры отсека для грузового лифта - не менее 2,5´1,2´3,1 м.

Полы складов текущего сезона - асфальтобетонные. Склады текущего сезона выполняются без естественного освещения.

3.108. Особое место в группе дежурных складов занимают помещения дежурных костюмерных и дежурных гримерно-парикмахерских (рис. 31 и 32). Они включены в комплекс помещений, обслуживающих сцену, вместе с помещениями для творческого состава. Это сделано потому, что деятельность, протекающая в них связана непосредственно с исполнителями, а не со сценой, как в складах по другим видам хранения.

Рис. 32. Примеры планировки складов

а - дежурная костюмерная; б - отделение централизованной подготовки костюмов; в - белье, головные уборы; г - обувь; д - костюмы; е - участок подстирки; ж - отделение подготовки обуви; и - участок разборки и мелкого ремонта; к - отделение подготовки костюма; л - участок глажения; 1 - одноярусная вешалка для 35-40 сценических костюмов; 2 - открытые стеллажи для головных уборов, белья и обуви; 3 - рабочий стол; 4 - доска гладильная откидная; 5 - раковина-мойка; 6 - табурет рабочий; 7 - стиральные машины; 8 - стол мелкого ремонта; 9 - стол разборки костюмов; 10 - тележки для перевозки костюмов; 11 - шкаф для инструментов; 12 - станок универсальный сапожный; 13 - стол сапожника

В последние годы в драматических театрах и театрах музыкальной комедии с относительно небольшим (до 80 чел.) составом труппы принято использовать одно помещение гримерно-парикмахерской площадью не менее указанной в прил. 1.

3.109. Дежурные костюмерные проектируются с естественным освещением. Для покрытия пола рекомендуется линолеум.

В складах костюмов, головных уборов и белья, а также складах обуви сезона (см. рис. 32) транспортировка из складов в дежурную костюмерную выполняется ручными тележками-вешалками размером 1,3´0,7×1,7 м. Все проходы, проемы, лифтовые кабины проектируются с обеспечением беспрепятственного движения этих тележек.

При разделении артистических уборных на мужскую и женскую половины дежурные костюмерные и склады костюмов текущего сезона соответственно разделяются. В иных случаях дежурные костюмерные могут быть объединены в отделение подготовки костюмов с более высоким уровнем механизации работ.

Ширина помещения склада текущего сезона определяется размещением и шириной рядов - 0,7 м и проходов - 0,8 м (при расположении костюмов в четыре ряда ширина - 4,4 м в чистоте, для шести и восьми рядов, соответственно - 6,6 и 8,8 м). Помещение проектируется без естественного освещения. Пол склада покрывается линолеумом или рулонным пластиком. Отдельно от склада костюмов, головных уборов и белья располагается склад обуви текущего сезона. Глубина полок склада - 0,4 м, ширина проходов между стеллажами - 0,8 м. Ширина склада с четырьмя рядами стеллажей -3,2 м чистоте. Помещение проектируется с естественным освещением.

3.110. Помещения дежурных гримерно-парикмахерских сочетают в себе функции мастерских по изготовлению париков и других пастижерских изделий, их ремонту и периодической чистке с функциями складов этих предметов. Помещение проектируется с естественным освещением и полами, покрытыми линолеумом или пластиком. В крупных театрах производственное помещение может быть отделено от склада париков. Ширина склада определяется из расчета: глубина полок шкафов 0,5 м, проход между шкафами - 0,75 м.

3.111. Склад мягких скатанных декораций - сейф, предназначен для хранения живописных фоновых декораций - панорам, горизонтов, задников, заспинников, тюлей чистых и апплицированных, театральной сетки и пр., свернутых в скатки. Длина сейфа принимается равной 1,5 ширины игрового портала сцены. Ширина сейфа зависит от расположения полок - при одностороннем она складывается из ширины полки 0,9 и ширины прохода 0,9 м, при двухсторонних полках - 0,9´2 и 0,9 м. На уровне пола сейфа в коротких сторонах делаются дверные проемы для выноса скаток и очистки сейфа.

В театрах, часто использующих живописные декорации. Рекомендуется проектировать кассетный сейф, представляющий собой стальную пространственную конструкцию с полками, поднимаемую с помощью лебедки из шахты-сейфа. Преимущество заключается в возможности подавать на уровень сцены любую из полок со скатками декораций. Ширина кассетного сейфа определяется шириной полки. Сейф располагается под сценой или арьерсценой.

3.112. Все склады рекомендуется проектировать сообщающимися с подъездными путями автотранспорта для того, чтобы иметь возможность отправлять сценическое оформление на выездные и гастрольные спектакли, перевозить его в резервные склады или мастерские для ремонта. В связи с большим объемами такого рода работ транспортировка оформления по всем видам механизируется. В месте погрузки декораций целесообразна площадка, приподнятая на 1,4 м и навес, защищающий от атмосферных осадков. В районах с расчетной наружной температурой средней наиболее холодной пятидневки минус 15 °С и ниже рекомендуется устройство закрытой погрузочной площадки. Возможен вариант с заездом автомашин в склад.

Рис. 33. Функционально-планировочные схемы связей складов

1 - сцена, карманы; 2 - дежурный склад объемных и станковых декораций; 3 - склад декораций текущего сезона; 4 - резервный склад объемных и станковых декораций; 5 - сейф; 6 - дежурный склад звукотехнической аппаратуры; 7 - дежурный склад электроаппаратуры и электрореквизита; 8 - склад, электроаппаратуры и электрореквизита текущего сезона; 9 - дежурный склад бутафории, мебели и реквизита; 10 - склад бутафории, мебели и реквизита текущего сезона; 11 - резервный склад бутафории, мебели и реквизита; 12 - кладовая машиниста сцены; 13 - к помещению для монтажа станковых декораций; 14 - к подъездным путям автотранспорта; 15 - склад костюмов, головных уборов и белья текущего сезона; 16 - дежурные костюмерные; 17 - склад обуви текущего сезона; 18 - резервный склад костюмов, головных уборов и белья; 19 - к мастерским пошивочной, головных уборов, трикотажной, обуви, красильной; к артистическим уборным; условные обозначения связей см. рис. 25

3.113. Расположение дежурного склада декораций и карманов сцены, склада звукотехнической аппаратуры и дежурного склада электроаппаратуры и электрореквизита, дежурного склада мебели, бутафории и реквизита и выходов актеров по периметру сцены проектируется так, чтобы исключить пересечение потоков движения актеров и оформления.

Связь дежурных складов с комплексом художественно-производственных мастерских, расположенных в пределах общей территории в подсобном корпусе, рекомендуется осуществлять закрытым переходом с размерами и оборудованием, допускающим транспортировку громоздких декораций. Это особенно рекомендуется для районов с низкими среднегодовыми температурами.

3.114. Для резервных складов рекомендуется горизонтальный способ хранения в контейнерах или полуконтейнерах (флетах) объемных и станковых декораций, мебели и крупной бутафории. Реквизит может храниться на стеллажах в чехлах или ящиках. Костюмы, головные уборы, белье и обувь - в одном помещении. Костюмы на двухъярусных вешалках, головные уборы - в специальных круглых кофрах, белье - в ящиках и корзинах, обувь - в коробках или мешках, сапоги - в подвешенных чехлах. Исходя из принятого способа хранения определяются размеры и пропорции резервных складов. Помещения этой группы проектируются без естественного освещения.

Резервные склады могут быть как в подсобно-производственном корпусе театра, так и отнесены от него на значительное расстояние.

В перспективе возможен вариант централизованного контейнерного хранения оформления в общегородских складах с высокой степенью механизации трудоемких работ.

3.115. Функционально-планировочные схемы связей складов приведены на рис. 33.

ПРОИЗВОДСТВЕННЫЕ ПОМЕЩЕНИЯ

3.116. Особенность театрального производства заключается в том, что при изготовлении многие предметы приходят через несколько производственных помещений (художественно-производственных мастерских). При этом каждая мастерская выполняет свою технологическую функцию - изготовляет определенные элементы оформления.

3.117. При выборе предпочтительного способа размещения производственных помещений (в отдельном корпусе, в централизованных комбинатах, в основном здании театра) учитывается назначение театра, возможно уже сложившиеся традиции, расположение отведенной площадки для строительства, ее рельеф и места возможных грузовых коммуникаций, количество и состояние театральных зданий в городе (для возможной централизации) и т.п.

3.118. Мастерские, расположенные в отдельном корпусе, размещаются вблизи основного здания театра и соединяются с ним крытыми переходами. Размеры и оборудование переходов проектируются из расчета транспортировки громоздких декораций, движения тележек.

При этом требуется несколько большая площадь застройки, чем при включении производственных помещений в основное здание, но создается возможность для полного отсутствия в нем шумовых помех и действия вибрации.

3.119. Централизованные театральные художественно-производственные мастерские в отечественной практике встречаются редко. Они могут обслуживать группу театров в городе, области. Один из путей создания централизованных комбинатов - обеспечение театров полуфабрикатами.

3.120. Размещение встроенного в здание театра комплекса мастерских вызывает сложности, так как шум и вибрация от работающих станков могут проникнуть на сцену и в зрительный зал. Поэтому мастерские рекомендуется размещать так, чтобы между ними и сценой были другие помещения или коридоры. Таким же образом рекомендуется осуществлять сообщение между ними и сценой.

3.121. В технологическом процессе изготовления оформления спектаклей производственные помещения подразделяются на блоки изготовления и ремонта: объемных декораций; костюмов, обуви, париков; мягких декораций; сюда же можно отнести и помещения для руководства мастерских.

В первый блок входят: столярная, слесарная, помещение для монтажа станковых декораций, бутафорская, кладовая оперативного хранения материалов, навес для лесоматериалов и труб (вне здания).

Во второй блок входят: пошивочная, мастерские головных уборов и обувная; пропиточная, постирочная, сушильная, трикотажная, пастижерская.

В третий блок входят: живописно-декорационная мастерская, красильная, макетная, помещение для приготовления красок с мойкой и сушкой, кладовая красок, комната художников, обойно-драпировочная, мастерская росписи тканей.

Смысл объединения в блоки заключается в более полном использовании рабочей площади парка станков, приспособлений и оснастки.

3.122. Современные мастерские драматических и музыкально-драматических театров включают в себя до 12 отдельных подразделений (цехов): столярное, слесарное, бутафорское, монтажа станковых декораций, живописное, макетное, обойно-драпировочное, росписи тканей, пошивочное, обувное, постирочное, красильное, пропиточное.

Театры музыкальной комедии и оперно-балетные театры имеют в своем составе 15 отдельных производств - к названным выше добавляются: трикотажное, головных уборов и пастижерское. Рассматриваемые как единое производственное подразделение, постирочная, красильная и пропиточная на практике разделяются на два или на три отдельных участка; во многих крупных театрах в рамках обувного производства существуют два участка - характерной и балетной обуви; пошивочные делятся на мужскую и женскую половины со своими примерочными и закройными, участок обивки мебели (обойная) обособляется от драпировочной, из столярной выделяется мебельное производство, из слесарной - кузнечно-прессовое. Жанровая специфика и национальные традиции ведут к появлению таких участков, как производство балетных пачек, цветов, резьбы по дереву, оружейное, ремонта и изготовления редких, национальных музыкальных инструментов и т.п. В связи с этим представленную номенклатуру мастерских целесообразно считать основой, требующей корректив при разработке задания на вновь строящееся или реконструируемое здание.

3.123. Три мастерские блока изготовления объемных декораций - столярная, слесарная и бутафорская, в которых делаются крупногабаритные детали, оснащаются наиболее тяжелыми станками, требуют удобной загрузки большим количеством материалов и выделяют много отходов (опилки, стружки и т.д.). По этим причинам их желательно размешать на первом этаже, в цокольном или в подвальном этажах.

3.124. В столярной мастерской развитое производство может иметь следующие участки: сушильный, разделочный, сборочный, мебельный, кладовую (либо специально отведенное место) оперативного хранения материалов, комнату (либо рабочее место) старшего мастера.

Определяющей для данной мастерской является протяженность места разделки пиломатериалов (распиловка, строгание), имеющих стандартную длину до 6,5 м и критические размеры детали из условий перевозки в закрытых железнодорожных вагонах.

Рис. 34. Столярная мастерская (вариант планировочного решения)

1 - станок деревообрабатывающий комбинированный; 2 - верстак столярный; 3 - плита электрическая; 4 - станок ленточнопильный; 5 - шкаф для инструментов; 6 - станок шлифовально-точильный; 7 - раковина; 8 - станок токарный по дереву; 9 - сверлильный станок

Мастерская проектируется прямоугольной формы с примерным соотношением сторон 1:2,3. Размер свободного пространства для разделки пиломатериалов принимается 16 м.

Высота помещения (в свету) рекомендуется не менее 3,6 м; размеры проемов для транспортировки декораций не менее 2,5´3 (высота) м.

Столярная мастерская проектируется с естественным освещением. Пол - дощатый.

Пиломатериалы, используемые для приготовления декораций, хранятся на улице под навесом для естественной сушки; сушить рекомендуется также в специальной камере, при которой следует предусматривать подсобные помещения для первичной обработки пиломатериалов. Заготовленные бруски подаются через проем или люк в столярную мастерскую.

Пример планировки столярной мастерской приведен на рис. 34.

3.125. Слесарная мастерская предназначена для работы над металлическими конструкциями декораций, деталями креплений и механическими приспособлениями к деталям, выпускаемыми другими мастерскими театра.

В мастерских крупных театров слесарно-механическое производство может иметь следующие участки; станочный, сварочный (сварочно-сборочный), кузнечно-прессовый, заготовочный, инструментальную, место оперативного хранения материалов, комнату (либо рабочее место) старшего мастера.

Помещение слесарной мастерской рекомендуется проектировать прямоугольным с примерным соотношением сторон 1:2,5, с естественным освещением и покрытием пола, стойким к ударным нагрузкам, износоустойчивым, легко моющимся. Высота помещения (в свету) принимается 3,6 м.

Рис. 35. Слесарная мастерская с учетом сварки (вариант планировочного решения)

1 - верстак слесарный; 2 - стол для сварочных работ; 3 - трансформатор сварочный подвижный; 4 - станок токарно-винторезный; 5 - станок вертикально-сверлильный; 6 - станок фрезерный; 7 - раковина; 8 - станок отрезной, ножевочный; 9 - станок точильно-шлифовальный; 10 - ящик инструментальный; 11 - шкаф-стеллаж для инструментов и материалов; 12 - шкаф для баллонов газовой сварки; 13 - приспособление для сгиба труб; 14 - пресс-ножницы подвижные; 15 - станок абразивно-обрезной; 16 - монтажный двор

Размеры проемов из мастерской рекомендуется не менее 2,5´3 (высота) м.

Для сборки металлических конструкций целесообразно предусматривать во дворе, вблизи слесарной мастерской монтажный двор размером 5´8 м; высота навеса над двором рекомендуется не менее 3,6 м до низа выступающих конструкций.

Пример планировки слесарной мастерской приведен на рис. 35.

3.126. В бутафорской мастерской ведутся работы над предметами бутафории и реквизита. Крупное бутафорское производство может включать в себя следующие участки: скульптурный, обработки пластмассы и термопластических материалов, сушки, кладовую гипсовых форм. кладовую оперативного хранения материалов, комнату (либо рабочее место) старшего мастера. Помещение рекомендуется проектировать прямоугольной формы с соотношением сторон 1:1,5 - 1:2, с естественным освещением и полом из неокрашенных досок либо покрытым линолеумом или керамической плиткой.

Рис. 36. Бутафорская мастерская (вариант планировочного решения)

1 - стол рабочий бутафора; 2 - сушильный шкаф; 3 - электроплита; 4 - станок токарный настольный; 5 - станок настольный универсальный; 6 - станок вертикально-сверлильный настольный; 7 - раковина; 8 - шкаф для инструментов; 9 - ванна; 10 - станок лобзиковый; 11 - станок шлифовально-точильный; 12 - ларь для сыпучих материалов; 13 - стол для работы с химреактивами; 14 - станок скульптурный; 15 - стенка для барельефов; 16 - шкаф вытяжной для работы с химическими реактивами; 17 - компрессор передвижной; 18 - электрокотел; 19 - пресс ручной

Высота помещения (в свету) рекомендуется 3,6 м, а скульптурного участка (20 % площади мастерской) - 5,6 м. Соединяется мастерская с другими мастерскими блока проемами 1,5´3 (высота) м. Пример планировки бутафорской мастерской приведен на рис. 36.

3.127. Помещение для монтажа станковых декораций предназначается для подгонки и состыковки объемных фрагментов, изготовленных столярной, слесарной и бутафорской мастерскими перед их подачей на сцену. Служит резервом свободного пространства для других мастерских, входящих в блок.

Помещение имеет две функциональные зоны - рабочую, в пределах которой ведется сборка декораций, и вспомогательную.

Рис. 37. Пошивочная мастерская с примерочной и закройной (вариант планировочного решения)

1 - стол рабочий, портновский; 2 - стол для ручных работ; 3 - машина швейная 1022 кл.; 4 - машина швейная специальная; 5 - шкаф канцелярский для документации; 6 - стол закройщика откидной; 7 - раковина; 8 - шкаф-стеллаж для материалов, инструментов и фурнитуры; 9 - стул вращающийся; 10 - тележка-вешалка для готовой продукции; 11 - доска гладильная; 12 - вешалка; 13 - манеж; 14 - зеркало большое, секционное; 15 - подиум для примерочной; 16 - стол канцелярский

Габариты помещения прямо связаны с размерами сцены. Рабочая зона представляет собой прямоугольник, одна из сторон которого равна диаметру, а другая радиусу вращающегося круга сцены (диаметр составляет 1,4 ширины игрового портала, но не менее 10 м). Вспомогательная зона располагается по одну из сторон и имеет ширину, равную или превышающую 2 м. Размеры и пропорции помещения для монтажа декораций определяются достаточно жестко.

Высота помещения рекомендуется равной высоте карманов основной сцены. Пол рекомендуется дощатый, неокрашенный.

Дверные проемы помещения проектируются шириной 2,5 - 3 м и высотой 3 - 3,5 м. Размеры проходов помещения соответствуют максимальным габаритам транспортируемых деталей.

Помещение для монтажа декораций может не иметь естественного освещения.

3.128. Группа мастерских - пошивочная, трикотажная, головных уборов, обуви - может размещаться на любом этаже с естественным освещением.

3.129. В пошивочной мастерской происходит изготовление костюмов, белья, головных уборов.

Рис. 38. Мастерская (участок) изготовления головных уборов (вариант планировочного решения)

1 - стол рабочий; 2 - швейная машинка 1022 кл.; 3 - швейная машинка специальная; 4 - шкаф сушильный; 5 - плита электрическая настольная; 6 - шкаф-стеллаж для инструментов и материалов; 7 - раковина; 8 - стул полужесткий вращающийся

Большие пошивочные мастерские обычно делятся на две половины - мужскую и женскую. Кроме того, имеются отдельные участки: закройный, головных уборов, пошива балетных пачек, вышивальный, трикотажный и др. Для оперативного хранения материалов служит специальная кладовая. Необходима комната (или рабочее место) для старшего мастера-закройщика.

Примерочная в большинстве случаев выделяется в отдельное помещение, но в небольших мастерских часто совмещается с закройной (помещением старшего мастера) и отделяется от общего помещения завесой или раздвижной перегородкой.

Высота помещения (в свету) проектируется 3,3 м и более. Покрытие пола рассчитывается на влажную уборку. На пути транспортировки ручных тележек-вешалок (размеры 1,5´0,8´1,8 м) не устраиваются ступени; ширина коридоров обеспечивает свободный разъезд двух встречных тележек; дверные проемы на постоянных путях транспортировки проектируются шириной не менее 1 м.

Специальные помещения примерочных могут не иметь естественного освещения.

Пример планировки пошивочной мастерской с примерочной и закройной приведен на рис. 37.

3.130. В обувной мастерской изготовляют историческую и современную обувь; в театрах с хореографической труппой - балетную и характерную обувь. Небольшие мастерские выполняют работы по изготовлению простых изделий из кожи, а также участвуют в производстве предметов бутафории и реквизита из грубой кожи.

Мастерские крупных театров могут иметь отдельные участки: характерной обуви, балетной обуви, примерочную, кладовую хранения колодок и материалов, комнату (или рабочее место) старшего мастера.

Размеры мастерской зависят от численного состава труппы, а также от жанра театра - для театров оперы и балета, музыкальной комедии площадь мастерских резко увеличивается.

Рис. 39. Постирочная и гладильная мастерская (вариант планировочного решения)

1 - стол рабочий; 2 - центрифуга большая; 3 - электрокотел; 4 - баки для раствора; 5 - шкаф-стеллаж для инструментов и материалов; 6 - ванна; 7 - раковина; 8 - стиральная машина малая; 9 - стиральная машина большая; 10 - сушильный барабан; 11 - доска гладильная; 12 - центрифуга малая

При выборе пропорций помещения особое внимание обращается на обеспечение хорошей естественной освещенности рабочих мест.

3.131. Помещение мастерской головных уборов проектируется прямоугольной формы с естественным освещением. Одна сторона его рекомендуется не менее 3 м. Пол мастерской покрывается линолеумом или пластиком.

Пример планировки мастерской (участка) изготовления головных уборов приведен на рис. 38.

3.132. Пропиточная, постирочная, сушильная и красильная в практике театров чрезвычайно редко занимают единое помещение. Это обусловлено несовместимостью процессов и различием функциональных связей. Красильный участок по объему производства более всего приближен к живописно-декорационной мастерской; в то же время он постоянно выполняет заказы пошивочной мастерской, более разнообразные, но гораздо меньшие по количеству окрашиваемой ткани.

Наилучшая форма помещений - прямоугольная, вытянутая вдоль фронта окон, высота - не менее 3,3 м (в свету), полы с покрытием керамической плиткой (с гидроизоляцией) или асфальтобетонные. В сушильной естественное освещение не требуется.

Пример планировки постирочной мастерской (с гладильной) приведен на рис. 39.

3.133. В пастижерской мастерской происходят изготовление, очистка и ремонт изделий из натуральных и синтетических волос.

Специальные пастижерские мастерские являются принадлежностью крупных музыкальных театров. В остальных театрах эти работы выполняются дежурными гримерно-парикмахерскими, расположенными вместе с артистическими уборными.

Пастижерские мастерские крупных театров имеют в своем составе несколько участков: пастижерский, чистки и подготовки париков, хранения материалов и готовой продукции, примерочный, комнаты (или рабочего места) старшего мастера. Два последних часто совмещаются.

3.134. В живописно-декорационной мастерской изготовляют мягкие фоновые декорации, осуществляют роспись и окраску объемных декораций, бутафории и реквизита (частично), мебели, архитектурных деталей и т.п.

В мастерских больших театров могут быть несколько участков: живописный зал, место обработки объемных декораций, место выполнения крупных драпировочных работ, участок плетения сетки, колерная (место подготовки красок), кладовая красок и материалов, комната художников, комната заведующего мастерской (старшего мастера).

Живописно-декорационная мастерская, требующая большой площади пола, но не имеющая тяжелого оборудования, может размещаться на любом этаже.

Минимально необходимые размеры живописного участка определяются из условий размещения на его площади двух задников (длиной 1,4 ширины игрового портала и шириной 1,4 высоты игрового портала данной сцены), по горизонтали или вертикали (предпочтительнее горизонтальное расположение, так как оно дает возможность писать панорамы) с проходом шириной 1 м вокруг каждого из задников. При этом оставляется место для устройств транспортировки готовых изделий из мастерской и установки швейного оборудования. Высота помещения (в свету) - не менее 5,6 м. Смотровые мостики шириной 0,8 - 1 м располагаются на высоте 3,5 м от пола; возможно их размещение в пределах габаритов несущих конструкций. В живописно-декорационной мастерской может предусматриваться передвижной мостик (площадка) для росписи декораций. Размеры живописно-декорационной мастерской приведены в табл. 8.

Для горизонтальной связи живописно-декорационной мастерской со сценой рекомендуется устраивать проемы не менее 2,5´3 (высота) м, при вертикальной связи - лифты или подъемники, а также люки размерами 2,5´2,5 м.

Если живописная мастерская расположена на одном уровне с монтажной, то связь осуществляется через проем шириной не менее 2,5 м, если же связь по вертикали - через люк в полу мастерской размерами не менее 2,5´2,5 м. Вертикальная связь может осуществляться при помощи грузового лифта или подъемника.

Таблица 8

Сцена

Размеры живописно-декорационной мастерской, м

длина

ширина

С-1

23

9

17

12

С-2

27

10

19

14

С-3

31

12

23

16

С-4

37

13

25

19

С-5

41

14

27

21

В мастерской предусматривается естественное верхнее и боковое (желательно двухстороннее) освещение.

3.135. В обойно-драпировочной мастерской выполняются работы: обивка мебели, работы по аппликации, изготовление деталей мягких декораций, гардин, драпировок и пр. Помещение рекомендуется проектировать прямоугольным с соотношением сторон не более 1:1,5 - 1:2.

Для мастерской рекомендуется прямоугольное помещение высотой (в свету) 4,5 - 5,5 м (это еще одно основание для того, чтобы расположить ее в едином блоке с живописным залом).

В мастерской крупного театра функционируют минимум два участка: производства швейных и драпировочных работ и обивки мебели. Последний отделяется от основного помещения. В помещении предусматриваются естественное освещение, дощатый пол.

Пример планировки обойно-драпировочной мастерской приведен на рис. 40.

3.136. В мастерской росписи тканей обрабатываются большие массивы тканей, используемых для художественно-декоративных и обойно-драпировочных работ, наряду со сравнительно малыми по объемам, но сложными по исполнению, заказами пошивочных мастерских.

Размеры мастерской определяются численностью труппы, так как наиболее трудоемкие работы связаны с изготовлением костюмов. Форма помещения может быть определена произвольно, но с условием расстановки оборудования и оснастки, обеспечивающих выполнение работ. Мастерская проектируется с естественным освещением. Высоту ее (в свету) целесообразно принимать равной или превышающей 3,3 м. Покрытие пола мастерской - линолеум или керамическая плитка.

Рис. 40. Обойно-драпировочная мастерская (вариант планировочного решения)

1 - стол драпировщика (обойщика); 2 - подъемно-опускные штанги; 3 - швейная машина; 4 - швейная машина для сшивания толстых тканей и кожи; 5 - пресс ручной; 6 - лестница-стремянка; 7 - раковина; 8 - шкаф-стеллаж для материалов и инструментов; 9 - стол обойщика откидной, секционный; 10 - стол гладильный; 11 - шторы светозащитные; 12 - осветительные приборы навесные

Рис. 41. Функционально-планировочные схемы связей производственных помещений

1 - пошивочная; 2 - обувная; 3 - трикотажная; 4 - пастижерская; 5 - мастерская головных уборов; 6 - блок изготовления костюмов, обуви, париков; 7 - к материальному складу; 8 - к складу костюмов, дежурным костюмерным, артистическим уборным; 9 - постирочная; 10 - сушильная; 11 - гладильная; 12 - к дежурной гримерной-парикмахерской; 13 - к дежурным костюмерным; 14 - красильная; 15 - обойно-драпировочная; 16 - живописно-декорационная; 17 - мастерская росписи, тканей; 18 - макетная; 19 - комната художника; 20 - помещение для приготовления красок; 21 - кладовая красок; 22 - блок изготовления живописных декораций; 23 - помещения для монтажа станковых декораций; 24 - столярная; 25 - слесарная; 26 - бутафорская; 27 - сушильная; 28 - сварочная; 23 - блок изготовления объемных декораций; 30 - к сцене; условные обозначения связей см. рис. 3 и 25

3.137. Особое места среди мастерских занимает макетная мастерская, не участвующая в технологической цепочке изготовления оформления.

Большие мастерские имеют в своем составе два участка - производственный, где создаются макеты, и демонстрационный, где макеты представляются художественному совету театра. Размеры макетной мастерской диктуются количеством спектаклей, выпускаемых театром в год.

Целесообразнее иметь макетную мастерскую большого размера, поэтому ее часто совмещают с помещением художников.

3.138. Функционально-планировочные схемы связей производственных помещений приведены на рис. 41.

АДМИНИСТРАТИВНО-ХОЗЯЙСТВЕННЫЕ ПОМЕЩЕНИЯ

3.139. Площади помещений для административного и художественного руководства принимаются не менее 10 м2.

Площади на одного сотрудника принимаются, м2: для рабочих комнат инженерно-технического персонала, бухгалтерии и др. - 4,5; для комнат обслуживающего и технического персонала (с гардеробной и зоной отдыха) - 2.

3.140. Площади санитарно-гигиенических помещений для коллектива театра определяются из расчета: санитарные узлы - 1 унитаз и 1 писсуар на каждые 25 мужчин: 1 унитаз на каждые 15 женщин; 1 умывальник на каждые 30 чел., душевые - 1 душевая кабина на каждые 8 чел. (для артистов, рабочих сцены и производственных мастерских); комната личной гигиены женщин - один гигиенический душ не более чем на 100 женщин.

При определении общего количества людей для расчета приборов по данному пункту не учитывается количество артистов, для которых при артистических уборных предусматриваются санитарные узлы и душевые.

3.141. Площадь служебного буфета или столовой-раздаточной (по заданию) рекомендуется определять из расчета 12 посадочных мест на каждые 100 работающих в театре.

МАЛЫЙ ДЕМОНСТРАЦИОННЫЙ КОМПЛЕКС (МАЛЫЙ ЗАЛ) И ОБСЛУЖИВАНИЕ ЕГО ПОМЕЩЕНИЯ

3.142. Понятие малый демонстрационный комплекс является архитектурно-строительным выражением понятий камерный или студийно-экспериментальный театр. В театральной практике оба типа по своим функциям практически неразличимы; поэтому требования к ним и строительно-технологические параметры принимаются как для единого типа, ведущей характеристикой которого является вместимость.

Проектирование малого демонстрационного комплекса (малого зала) связано с рядом причин - особенностями творческой деятельности театра, его жанром, статусом и др. Учет всей совокупности причин в каждом конкретном случае - основание для включения малого демонстрационного комплекса в задание на проектирование двух- или многозального театра, выбора его вместимости, степени универсальности, уровня обеспеченности техническими средствами.

3.143. Малый зал способствует расширению репертуара театра, более полной реализации творческого потенциала его коллектива и художественных запросов публики, предоставляет условия для реализации нетрадиционных форм пространственного взаимоотношения действия и зрителя. В нем возможна также подготовка выездных спектаклей, проведение различных общественных и культурных мероприятий.

Специфика организации малых залов состоит в создании: комфортных условий восприятия действия при любом расположении сцены на площади зала; разнообразной среды для развития театрального действия с игровыми галереями, балконами, нишами, проемами, расположенными не только в зоне сценической площадки; гибких систем механо-, цвето- и звукообеспечения спектакля, оборудования, обеспечивающего трансформацию театрального пространства.

3.144. В театрах с большим и малым залом целесообразно создавать отдельный зрительский комплекс малого зала либо его часть, включающую фойе и зал буфета.

В театрах с несколькими малыми демонстрационными комплексами целесообразно проектировать общие для этих комплексов входную группу помещений и буфет, но для каждого зала предусматривать пространственно изолированные фойе с регулируемой связью между ними.

3.145. Малые залы состоят из сцены и зоны зрительских мест, обычно размещаемых в едином пространстве. Высота уровня планшета сцены над уровнем пола первого ряда мест принимается не более 0,8 м. Расстояние между передней границей сцены и спинками мест первого ряда в залах до 300 мест принимается не менее 1,2 м. При большей вместимости - см. п. 3.31.

Различаются малые залы типом сцены и расположением по отношению к ней зоны зрительских мест. Основные типы сцены в малом зале - глубинная, трехсторонняя и центральная. Переход от одного типа сцены к другому осуществляется путем трансформации в залах с комбинированными сценами и в залах свободного пространства. Первые проектируются с частичным или полным изменением типа сцены и конфигурации зоны зрительских мест в пределах, определяемых архитектурно-планировочным решением. Своеобразие зала свободного пространства определяется архитектурными и технологическими средствами, обеспечивающими выбор пространственной организации действия, величины и конфигурации сцены и зоны зрительских мест. Их размеры зависят от конкретных задач режиссера и сценографа.

3.146. При размещении зрительских мест рекомендуется принимать предельное расстояние от передней границы сцены не более, м: для трехсторонней сцены - 9, для центральной сцены - 6. Зависимость предельного расстояния от вместимости для глубинной сцены приведена в справочном пособии «Общие рекомендации».

3.147. В малых залах, преимущественно вместимостью до 150 мест, могут устанавливаться жесткие стулья, способные укладываться в компактные «пакеты» для хранения в специально отведенных для этого местах. В мировой практике распространена установка сборно-разборных станков амфитеатра со съемными сиденьями и мягкими спинками. В залах вместимостью не более 300 мест возможна установка скамей со спинками. При вместимости залов не более 300 мест возможно предусматривать установку кресел, стульев и скамей или их звеньев без крепления к полу, но с обеспечением устройств, предотвращающих их опрокидывание.

3.148. В трансформируемых залах зрительские места устанавливаются секционно на фурах, станках, блитчерах и т.д. В залах, обеспечивающих максимальные возможности развития действия в пространстве, охват им зоны зрительских мест по периметру, допускается установка вращающихся кресел, жестко закрепленных к полу. Расстояние между креслами определяется по проекту в зависимости от принятого архитектурно-планировочного решения.

3.149. При проектировании в залах ярусов и балконов целесообразно предусматривать их использование в игровых и технологических целях. Балконы и галереи могут иметь связь с помещениями, обслуживающими сцену, между собой и с планшетом сцены (полом зрительного зала). Открытыми в зал лестницами. При проектировании в зале внутренних лестниц оборудуются проходы на общие (эвакуационные) лестницы, к выходам из зала или открытым пожарным лестницам. В залах возможны трансформируемые элементы сцен (поворотные, «кассетные», модульные элементы и т.д.), сборно-разборные панели ограждения балконов, обеспечивающие максимальную универсальность использования.

Расположение дверей (проемов) в залах с трансформируемыми сценами обеспечивает беспрепятственную эвакуацию зрителей при любых положениях сцены и зоны зрительских мест.

3.150. В залах вместимостью до 400 мест возможны естественное освещение и устройства для зашторивания окон. Размеры и расположение проемов для естественного освещения выбираются с учетом их использования в постановочных целях.

3.151. Примерные параметры основных типов сцен малого демонстрационного комплекса принимаются согласно табл. 9.

Ориентировочные размеры игрового портала могут быть приняты, м, при вместимости:

ширина       высота

от 100 до 400 мест            6             4,5

свыше 300 мест                 7             5

Ширина игрового портала в залах вместимостью свыше 200 мест может приниматься в качестве модульного размера при определении горизонтальных параметров глубинной сцены: ширина сцены 1,5Ши + 4 м; глубина сцены 1,5Ши (где Ши - ширина игрового портала).

Наличие в табл. 9 допусков на ширину, глубину и высоту сцен предполагает определенную свободу в их выборе для создания индивидуальной формы малого зала.

3.152. Под планшетом глубинной сцены, а также в зонах размещения иных типов сцен в трансформируемых залах может предусматриваться трюм.

3.153. В залах вместимостью до 300 мест возможно устройство бесколосниковых глубинных сцен. При наличии колосников высота над колосниковым настилом в свету принимается не менее 2 м, при наклонном перекрытии не менее 1,5 м.

В залах с трансформациями сцены возможно устройство технологического потолка над всей площадью зала.

3.154. В малых залах с иными типами сцен возможно устройство рабочих галерей по всему периметру стен. Протяженность и количество ярусов и галерей определяется исходя из принятой системы механо-, свето- и звукотехнического оснащения зала, при этом их ширина принимается не менее 0,9 м.

Таблица 9

Вместимость зала, мест

Глубинная сцена

Трехсторонняя сцена

Центральная сцена

ширина, м

глубина, м

высота, м

площадь, м2

ширина, м

глубина, м

высота, м

площадь, м2

ширина, м

глубина, м

высота, м

площадь, м

От 100 до 150

8 - 12

6 - 9

4 - 6

48 - 108

5 - 9

5 - 9

5 - 7

30 - 81

5 - 8

5 - 8

4 - 6

25 - 64

От 150 до 200

8 - 13

6 - 9

5 - 8

48 - 117

6 - 10

6 - 10

5 - 7

36 - 100

6 - 8

6 - 9

4 - 6

36 - 72

От 200 до 300

9 - 15

8 - 10

8 - 12

72 - 150

7 - 12

6 - 12

5 - 8

42 - 144

6 - 9

6 - 10

4 - 7

36 - 90

От 300 до 400

12 - 18

9 - 12

9 - 15

108-216

7 - 12

8 - 13

5 - 9

56 - 160

7 - 10

7 - 11

5 - 9

49 - 110

От 400 до 500

12 - 18

10 - 12

10-18

120-216

8 - 12

9 - 14

6 - 10

72 - 170

7 - 10

8 - 12

6 - 9

56 - 120

Примечание. 1. Наименьшие и наибольшие размеры сцен принимаются по заданию на проектирование, либо в соответствии с принятым архитектурно-планировочным решением.

2. Размеры сцены в плане даны без привязки стен к осям.

3. Высоту глубинной сцены в залах вместимостью до 300 мест возможно принимать равной высоте зала от уровня пола первого ряда до низа выступающих конструкций. При вместимости свыше 300 чел. высота сцены может быть увеличена но отношению к высоте зала. При устройстве колосников высота сцены принимается от уровня планшета до верха колосникового настила.

Между рабочими галереями, над залом на отметке рабочего потолка возможно устройство переходных мостиков шириной не менее 0,6 м.

3.155. Помещения выносного софита и осветительных боковых лож в малом зале возможно заменять софитными галереями в первом случае и открытым размещением приборов - во втором. Количество их зависит от степени трансформации сценической площадки.

3.156. При размещении помещения светоаппаратной ее положение обеспечивает видимость сцены при ее трансформации; в залах свободного пространства - не менее 75 % площади зала.

В малых залах, в соответствии с заданием на проектирование возможно размещение кинопроекционной и светопроекционной.

3.157. Помещение тиристорной размещается вблизи малого зала. Для залов вместимостью от 100 до 200 зрителей тиристорная и светоаппаратная могут совмещаться.

3.158. Склады бутафории, мебели, реквизита, объемных декораций располагаются в непосредственной близости от сцены. Связь между складом декораций и сценой (залом свободного пространства) целесообразно осуществлять через тамбур или технологический коридор, обеспечивая беспрепятственную подачу декораций на сцену. Склады проектируются с технологической связью со складами текущего сезона основной сцены.

3.159. Кладовые средств малой механизации и мебели для трансформируемых залов вместимостью до 300 зрителей возможно совмещать со складом объемных и станковых декораций.

3.160. Артистические уборные при малом зале располагаются вблизи сцены с возможностью доступа в помещения ожидания выхода на сцену и помещения зрительского комплекса (для трансформируемых залов). Ориентировочное количество артистов в помещениях артистических уборных принимаются в зависимости от вместимости залов по табл. 10.

Таблица 10

Вместимость зала, мест

Количество

артистов в помещении

помещений

100 - 300

2

2

6

2

300 - 500

3

1

6

1

3.161. Помещения ожидания выхода на сцену в трансформируемых залах можно заменять коридором шириной не менее 1,5 м.

3.162. Примерные состав и минимальные площади помещений малого демонстрационного комплекса и помещений, обслуживающих малую сцену, приведены в прил. 4.

3.163. Применение в малых залах трансформации ориентируется на преобладание ручных способов - в этом принципиальное своеобразие трансформации малых залов. Виды, способы и средства трансформации - см. подраздел «Трансформации демонстрационного комплекса».

Для залов с глубинной сценой типичен прием трансформации, сохраняющей без изменения зону зрительских мест. В этом случае сцена может видоизменяться путем раскрытия порталов (переход к беспортальной сцене) или перемещения порталов в глубину сцены вдоль ее оси (увеличение или уменьшение глубины), устройства боковых порталов и пр. При проектировании залов с глубинной сценой и вместимостью до 250 зрителей возможно формирование сцены из стационарной части и сборных элементов, составляющих не более половины площади сцены. При переходе к иным типам сцены трансформации могут затрагивать площадь всего малого зала. При любых типах сцены в игровых целях целесообразно использовать галереи, ложи, дверные проемы, проходы в зале и пр.

3.164. К наиболее распространенным средствам трансформации, применяемым в малых залах, относятся переносные стулья и элементы сцены, телескопически складывающиеся трибуны-блитчеры, простейшие поворотные устройства, подвесные секции со зрительскими местами, разделительные экраны и перегородки. В качестве дополнительных средств применяются подъемно-опускные площадки, меняющие рельеф пола зала, кран-балки, подъемники и средства малой механизации, с помощью которых осуществляются перестановки в зале.

Переносные стулья и кресла рекомендуется преимущественно применять в залах свободного пространства, но продолжительность и трудоемкость работ ограничивает их применение вместимостью 250 зрителей.

Применение подвижных секций, разделительных экранов и перегородок возможно при всех вместимостях зала.

Блитчеры рекомендуется применять в залах вместимостью свыше 200 зрителей, а поворотные устройства - свыше 300 зрителей.

Рис. 42. Примеры схем малых залов

а - трансформации зала на основе передвижных секций зрительских мест; б - залы с нетрансформируемой сценой; в - залы с вращающимися креслами

3.165. Планировочная особенность залов, в которых применяются перечисленные средства трансформации - наличие резерва площади или люфта, увеличивающего площадь малого зала до 7 %. Эта величина складывается из разницы площадей сцен, оборудуемых в зале (глубинной, трехсторонней, центральной) и площади, необходимой для осуществления трансформации и зависящей от выбранного средства или комбинации средств трансформации. Примеры схем малых залов приведены на рис. 42.

3.166. При проектировании помещений малого зала и помещений его обслуживания недостающие в настоящем разделе рекомендации восполняются данными предшествующих разделов.

Приложение 1

Примерный состав и минимальные площади помещений, м2, театральных зданий

Помещения

Театры

драматический и музыкально-драматический

музыкальной комедии

оперы и балета

со сценами

С-1

С-2

С-3

С-3

С-4

С-4

С-5

ПОМЕЩЕНИЯ ЗРИТЕЛЬСКОГО КОМПЛЕКСА

По расчету, пп. 3.4 - 3.6

ПОМЕЩЕНИЯ ДЕМОНСТРАЦИОННОГО КОМПЛЕКСА

Зрительный зал

По расчету, п. 3.38

Сцена

205

300

415

415

550

550

610

Арьерсцена

30

80

100

100

180

180

200

Карман

65

85

130

130

210

210

245

Трюм

205

300

415

415

550

550

610

Авансцена

По расчету, п. 3.36

Оркестровая яма

То же, п. 3.44

Помещения технологического обеспечения сцены

Звукофикация и связь

Звукоаппаратная

16

16

20

20

20

20

20

Ложа звукооператора

-

-

-

6

8

8

8

Кабина директора (речевая)

5

5

5

5

5

5

5

Кабина переводчика (в национальных театрах)

(6)

(6)

(6)

(6)

(6)

(6)

(6)

Электротехнические помещения

Светопроекционная

18

18

18

18

27

27

27

Светоаппаратная

15

15

15

15

24

24

24

Ложа осветительная (фронтальная)

18

18

18

18

22

22

22

Рирпроекционная

18

18

18

18

24

24

24

Тиристорная

80

80

80

80

120

120

120

Для электроприводов противопожарного занавеса

(12)

(12)

(12)

(12)

(12)

(12)

(12)

Щитовая

40

40

46

100

100

100

200

Для выносного софита

(12)

(12)

(16)

(20)

(24)

(24)

(28)

Ложа звукооператора

-

-

-

6

8

8

8

ПОМЕЩЕНИЯ, ОБСЛУЖИВАЮЩИЕ СЦЕНУ

Для творческого персонала

Артистические уборные

По расчету, п. 3.82

Помещения ожидания выхода на сцену

По расчету, п. 3.76

Дежурные костюмерные (мужские и женские)

20

20

20

25

30

30

40

Дежурные гримерно-парикмахерские (мужские и женские)

20

20

20

30

40

40

50

Помощников режиссера

8

8

8

8

8

8

8

Для отдыха артистов

22

25

30

30

35

35

40

Курительная и санитарные узлы при сцене

14

14

14

14

14

14

15

Отдыха и переодевания артистов оркестра

-

-

-

40

55

75

95

Отдыха дирижера

-

-

-

10

10

12

15

Инспектора оркестра

-

-

-

8

8

8

8

Гардеробная оркестра

-

-

-

12

12

12

15

Помещение для занятий артистов оркестра и настройки инструментов

-

-

-

20

25

25

40

Кладовая музыкальных инструментов

-

-

-

10

12

15

20

Библиотека и архив нот

-

-

-

25

25

25

30

Для технического персонала

Постановочной части

10

10

10

10

15

15

15

Зав. монтировочной части

8

 

8

8

8

8

8

Среднего руководящего персонала

20

20

25

25

30

35

35

Для отдыха монтировочного персонала сцены (два)

20

20

25

25

30

30

40

Репетиционные помещения

Репетиционные залы

По расчету, п. 3.38

Вспомогательные помещения при репетиционных залах

120

130

130

165

180

225

225

Для занятий артистов

-

30

30

40

50

50

80

Студия звукозаписи

-

-

-

30

40

40

60

Аппаратная звукозаписи

16

16

16

16

16

16

16

Фонотека

6

8

8

12

12

12

12

Склады

Дежурные при сцене

Объемных и станковых декораций

120

180

200

240

260

260

350

Сценической электроаппаратуры и электрореквизита

20

25

25

25

30

30

30

Мебели, бутафории и реквизита с отделением исходящего реквизита

35

40

45

55

60

60

80

Сейф скатанных декораций

28

32

41

41

49

49

57

Склад звукотехнической аппаратуры

10

15

15

15

15

15

15

Склады текущего сезона

Объемных и станковых декораций

По расчету, п. 3.105

Сценической электроаппаратуры электрореквизита

20

25

25

25

30

30

30

Мебели, бутафории и реквизита

40

40

50

70

80

80

110

Костюмов, головных уборов и белья

60

70

95

105

150

150

180

Обуви

10

15

15

20

20

20

25

Пастижерских изделий

-

-

-

-

-

10

12

Кладовая машиниста сцены

30

35

45

45

50

50

60

АДМИНИСТРАТИВНО-ХОЗЯЙСТВЕННЫЕ ПОМЕЩЕНИЯ

Помещения для административного и художественного руководства и хозяйственного персонала

Главного режиссера

16

18

18

18

18

18

20

Директора

15

20

20

20

20

20

25

Заместителя директора

10

12

12

12

12

12

15

Секретаря и управления делами

8

8

8

8

10

10

15

Главного дирижера

-

-

-

15

18

18

20

Главного хормейстера

-

-

-

10

10

10

10

Главного балетмейстера

-

-

-

10

10

10

10

Заведующего труппой и репертуаром

8

8

8

8

10

10

10

Заведующего музыкальной частью

-

-

-

8

8

10

10

Заведующего литературной частью

10

10

10

-

-

-

-

Заведующего постановочной частью

8

8

8

8

8

8

10

Инспектора хора

-

-

-

6

6

8

8

Ассистентов режиссера, дирижера, хормейстера и балетмейстера

-

-

-

10

10

10

10

Концертмейстеров и репетиторов

-

-

-

15

15

20

20

Режиссерского управления

10

15

15

15

20

20

20

Очередных режиссеров

10

10

12

-

-

-

-

Канцелярия

-

-

-

8

8

10

12

Бухгалтерия и кабина кассира

15

20

20

20

25

30

30

Общественных организаций (две)

15

20

20

20

20

20

20

Главного инженера

10

10

10

10

10

10

15

Руководящего технического персонала

10

10

15

15

15

15

15

Заведующего хозяйством

6

8

8

8

8

8

8

Отдела кадров

-

10

10

12

12

12

12

Врача и ингаляционной

15

15

15

15

15

20

25

Коменданта

8

8

8

8

8

8

8

Буфет работников театра с подсобной

По расчету, п. 3.141

Архив

4

4

4

6

6

8

10

Библиотека, фонотека, видеотека

30

30

40

40

50

50

60

Вестибюль с гардеробом

25

30

30

30

40

50

90

Санитарные узлы

По расчету, п. 3.140

Инженерно-эксплуатационные помещения

Аппаратная технологической связи

10

15

15

15

15

15

15

АТС и электрочасовая станция

15

15

15

15

15

15

20

Радиомастерская

10

10

15

15

15

15

15

Мастерские и кладовые службы эксплуатации здания

По заданию театра

Материальный склад

25

30

30

30

30

40

50

Пожарный пост-диспетчерская

22

22

25

25

25

27

32

Диспетчерская служба

15

15

20

20

20

20

25

Комната для хранения инвентаря

4

4

4

4

6

6

8

ПРОИЗВОДСТВЕННЫЕ ПОМЕЩЕНИЯ

Изготовление мягких декораций

Живописно-декорационная мастерская

По расчету, п. 3.143

Макетная

15

15

18

18

20

20

30

Комната для приготовления красок с мойкой и сушкой

10

12

12

12

15

15

15

Садовая красок

10

10

13

15

15

15

15

Комната художников

10

10

10

10

10

10

10

Обойно-драпировочная мастерская

20

20

30

30

40

40

50

Красильная

20

28

25

25

30

30

35

Мастерская росписи тканей

20

30

35

35

35

35

40

Изготовление объемных декораций

Столярная с сушильной

90

96

96

96

96

96

96

Слесарная с участком сварки

50

60

60

60

70

70

70

Помещение для монтажа станковых декораций

83

96

126

126

160

160

198

Бутафорская с кладовыми оперативного хранения

35

45

50

50

55

55

70

Навес для лесоматериалов и труб

(13)

(15)

(20)

(20)

(30)

(30)

(40)

Изготовление костюмов, обуви и париков

Пошивочная

30

46

60

60

75

75

110

Примерочная

4

6

8

10

15

20

25

Закройная

9

9

10

10

12

12

15

Трикотажная

-

-

-

-

18

18

20

Мастерская головных уборов

-

-

-

-

15

15

15

Пропиточная

15

15

17

17

20

20

25

Постирочная, сушильная и гладильная

25

25

33

38

40

40

50

Пастижерская

-

-

-

11

11

11

18

Обувная

10

10

10

17

18

18

20

Руководство мастерских

Комната Администрации

15

20

20

20

20

20

20

Комната художника-конструктора

-

-

-

8

8

8

10

Технический архив

6

6

6

6

6

6

6

Бытовые помещения

По расчету, пп. 3.139 - 3.140 и СНиП 2.09.04-87

Фотолаборатория

10

10

10

10

10

10

10

Ремонтно-поделочная мастерская - (при отсутствии производственных помещений в театре)

(50)

(55)

(70)

(75)

(75)

(75)

(80)

Примечания: 1. Примерные состав и площади помещений могут подлежать уточнению, корректировке и дополнению после проведения предпроектных исследований, предшествующих составлению задания на разработку ТЭР или задания на проектирование. Причинами изменений могут быть конкретная творческая практика театра, обоснованно выбранная технологическая система, штатное расписание театра и его перспектива, количество спектаклей в репертуаре, способы хранения декораций, жанровая специфика, национальные традиции, количество и особенности других театров и пр.

2. В итоговые величины площадей групп помещений и комплексов не входят площади помещений, указанные в скобках.

3. Площади технических помещений (трансформаторной подстанции, насосной, машинного зала и пр.) определяются проектом.

4. Площади помещений определяются исходя из номенклатуры и размеров устанавливаемого технологического оборудования и мебели. Изменение их возложено только в сторону увеличения.

Приложение 2

Некоторые рекомендации по проектированию особых типов театральных зданий и театров с дополнительными функциями

Гастрольные театры

1. Гастрольный театр - здание, рассчитанное на прием сменяющихся гастролирующих коллективов театров разных жанров и не предназначенное для постоянно работающей труппы. Здание гастрольного театра целесообразно размещать в структуре общегородского центра или планировочного района с учетом сложившейся сети объектов культуры города.

В городах, не имеющих собственного театрального коллектива, предусматриваются резервы территории под строительство подсобно-производственного и репетиционного комплексов для возможного последующего развития гастрольного театра в городской театр.

2. Гастрольный театр обеспечивает возможность воссоздания различных постановочных решений, обусловленных современным уровнем развития драматического, музыкально-драматического и оперно-балетного искусства во всем его многообразии, с учетом национальной культуры народов и стран, представляемых гастролирующими коллективами. Для максимального сближения гастролирующих коллективов с потребностями населения города, в котором проходят гастроли, и для проведения смотров творческой деятельности в других видах искусств, сопровождающих гастроли, здание гастрольного театра и его помещения непосредственно взаимосвязываются с окружающим городским пространством на основе устройства удобных рекреационных озелененных территорий, площадей, пешеходных зон, амфитеатров, крытых галерей и т.д.

3. Зрительский комплекс гастрольного театра круглогодичного действия не имеет особенностей в составе и площадях помещений.

4. При проектировании демонстрационного комплекса гастрольного театра наиболее вероятны особенности, состоящие в:

акустическом благоустройстве зрительного зала, которое рассчитывается как на драматические, так и на музыкальные спектакли;

условиях видимости в зрительном зале, которые желательно определять исходя из более жестких требований драматического театра;

габаритах сцены и строительного портала, которые могут удовлетворять как драматическим, так и музыкальным спектаклям; один из путей достижения приемлемых условий - выбор сцены, которая может быть наибольшей для драматического театра, и одновременно наименьшей для театра оперы и балета или музыкальной комедии. То же относится и к габаритам строительного портала, который при всех условиях не может быть менее 12 м;

габаритах и устройстве оркестровой ямы, позволяющих разместить оркестр как драматического, так и музыкального театров и в то же время иметь возможность использования оркестровой ямы для увеличения авансцены. Применение широких трансформаций в этой зоне с целью создания оптимальных условий гастролирующими коллективами для театра данного типа наиболее уместно. Возможно также решение с размещением оркестра нетрадиционно - на галереях в зале, на сцене, арьерсцене, в первых рядах зрительских мест, на боковых крыльях авансцены и пр., что в свою очередь влечет за собой изменения в акустическом благоустройстве.

5. При проектировании комплекса помещений, обслуживающих сцену гастрольного театра, вероятны особенности в:

складских помещениях, которые могут быть значительно (до 1/2 площади) меньше, чем в иных театрах, поскольку на длительные гастроли обычно вывозится не более половины репертуара. Определяющими здесь являются театры музыкальных жанров;

артистических уборных и комнатах ожидания выхода на сцену, количество которых, а также площади и оснащение желательно определить исходя из требований музыкальных театров для вокалистов и артистов балета;

группе репетиционных залов, в которой для обеспечения условий гастролей театров музыкальных жанров достаточно репетиционного зала балета, располагаемого вблизи сцены, с использованием его в качестве разминочного и универсального репетиционного помещения (30 - 36 м2);

помещениях руководства и администрации, где сокращение возможно в пределах 1/3 площади по прил. 1;

помещениях для творческого и технического персонала, состав и площади которых имеют некоторую тенденцию к уменьшению.

Резкое сокращение состава и площадей помещений возможно также в комплексе производственных помещений, в котором достаточно обойтись ремонтно-поделочной мастерской (от 50 до 80 м2).

6. Гастрольный театр требует наличия закрытой погрузочно-разгрузочной площадки с механизированными коммуникациями между ней и складами декораций, мебели, бутафории, реквизита, костюмов и обуви, живописных скатанных декораций, электроосветительной аппаратуры и звукотехнических устройств.

В непосредственной близости от погрузочной площадки рекомендуется разместить склад транспортной тары (контейнеров, ящиков, кофров), площадью не менее 40 м2.

7. В здание гастрольного театра может входить гостиничный комплекс с кафе-столовой работников театра.

8. Гастрольный театр может быть многозальным, т.е. включать отдельно залы для оперы и балета и залы для драматических представлений. Также его можно рассматривать как многофункциональный комплекс, включающий здания или помещения музеев, театральных библиотек, выставочных залов, кафе, торговых помещений, а также окружающие его открытые городские пространства с системой объектов внешнего оформления и благоустройства.

9. При ориентации гастрольного театра только на драматический или только на музыкальные жанры или создании соответствующих отдельных залов в едином здании гастрольного театра уточняются приведенные выше рекомендации.

Драматические театры с дополнительными функциями приема гастролей или выездов театров музыкальных жанров

1. Такое театральное здание в отличие от гастрольного театра рассчитано на собственную постоянную драматическую труппу.

2. Демонстрационный комплекс с учетом приема гастролей или выездов театров музыкальных жанров в принципе может быть сходен с демонстрационным комплексом гастрольного театра (подраздел «Гастрольные театры»).

3. При проектировании комплекса помещений, обслуживающих сцену такого театра, вероятны особенности:

складских помещений, где целесообразно учитывать, что декорации музыкальных спектаклей (из расчета примерно половины репертуара, вывозимой на гастроли) в хранении занимают больший объем нежели драматических;

артистических уборных, дополнительные помещения для которых из расчета музыкального театра возможно устраивать за счет комнат для административного и художественного руководства театра - стационара, что может сказаться на их размещении и оснащении;

группы репетиционных залов, где желательно дополнительно предусматривать репетиционный зал балета или соответственное оборудование в малом репетиционном зале.

4. При ориентации здания на выезды музыкальных театров, особенности возможны только в демонстрационном комплексе и в помещениях для административного и художественного руководства театра (см. выше).

Театры юного зрителя (ТЮЗы)

1. Главное отличие ТЮЗа от театра для взрослых заключено в контингенте зрителей. В этом отличии усматриваются две стороны, оказывающие воздействие на проектирование здания ТЮЗа.

Первая - ТЮЗ как театр своих зрителей. Это означает потребность в создании в театре условий для пребывания детей в возрасте от 7 до 17 лет, для восприятия ими спектаклей, для педагогической работы с ним. Вторая проблема - ТЮЗ как создатель зрителя для театра будущего. Это означает потребность в предвидении направления развития театра и создания для этого определенных условий.

2. Вместимость зрительного зала ТЮЗа рекомендуется не более 600 мест. Наличие разновозрастных зрителей и многообразие задач ТЮЗа делает целесообразным проектирование не менее двух залов.

3. Рекомендуемые размеры кресел для детей, м: ширина (в осях подлокотников) - 0,48; глубина - 0,36 - 0,38; высота 0,38 - 0,4. Кресла могут проектироваться жесткими, без подлокотников. Предпочтительнее планировка зоны мест короткими рядами.

4. Сцену ТЮЗа рекомендуется проектировать с учетом предоставления широких постановочных возможностей, допускающих разнообразные композиции спектакля как в изолированном пространстве глубинной колосниковой сцены, так и в пространстве зрительного зала с окружением зрителей действием или действия зрителями. В связи с этим для ТЮЗов целесообразно проектирование разновидностей глубинной сцены со сценическими площадками в зале.

5. В ТЮЗе роль оркестровой ямы может быть несколько иной, нежели в театре для взрослых, из-за частого игрового использования ее. В связи с этим целесообразны трансформации оркестровой ямы, а также проектирование дополнительных площадок для артистов оркестра. Ими могут быть: первые или последние ряды мест, боковые крылья авансцены, галереи, балконы и ложи и пр.

Рис. 1. Планировочные схемы педагогического комплекса ТЮЗа

1 - секция, актив (15 чел.); 2 - лекция, актив (70 - 90 чел.); 3 - выпуск газет и журналов (15 чел.); 4 - секция, обсуждение спектакля (40 - 70 чел); 5 - лекция, актив, обсуждение спектакля (80 - 100 чел.); 6 - секция, актив (25 - 35 чел.); 7 - секция, обсуждение спектакля, показ творчества детей (40 - 60 чел.); 8 - актив «за чашкой чая» (15 - 25 чел.); 9 - секция, обсуждение спектакля, лекция (60 - 100 чел.); 10 - подготовка к выходу на сцену (6 - 10 чел.); 11 - «клуб искусств», лекция, показ творчества детей (150 - 200 чел.)

6. Для активизации игрового использования зрительного зала ТЮЗа целесообразно предусматривать проходы, используемые в игровых целях, а также создавать условия, позволяющие включать элементы декораций в архитектуру зрительного зала (например, проекция на ограждающие поверхности зала). Проходы, предназначенные к использованию в игровых целях, рекомендуется связывать со сценой или игровыми площадками в зале, возможно обеспечивать местами выхода актеров; ширина проходов независимо от расчета путей эвакуации рекомендуется 1,5 - 2 м.

7. При проектировании зрительского комплекса ТЮЗа рекомендуется учитывать некоторые особенности проектирования интерьера и отдельных помещений комплекса.

В интерьере ТЮЗов важно создавать условия для легкой ориентации детей, что, в частности, может быть обеспечено взаимным проникновением пространств разных этажей, которое помогает детям сразу увидеть весь путь, а также запоминающимися цветовыми, световыми и прочими характеристиками помещений.

8. В отличие от театров для взрослых клубный комплекс для работы с детьми, называемый педагогическим комплексом, непременная часть любого здания (рис. 1).

Для педагогического комплекса рекомендуется вход не через билетный контроль, а возможно и с улицы, связь с помещениями художественного руководства, фойе, музеем, зрительным залом.

9. В настоящее время проектирование детских театров ориентируется на создание на базе театров комплексных центров, где большая роль отводится всесторонней культурно-досуговой деятельности с многофункциональным использованием помещений зрительского комплекса и залов с включением дополнительных помещений - аудиторий, зимних садов, музыкальных и видеосалонов и пр.

Театры кукол

1. Театр кукол предназначен для детей и для взрослых. В отечественной практике применяется различная техника кукловождения - верхние куклы, управляемые из-за ширмы (обычно), нижние куклы, управляемые сверху (изредка), сочетание кукол с театром теней, участием живого актера.

2. Театр кукол может размещаться в отдельно стоящем здании, иметь в составе помещений один зал и более, кооперироваться с ТЮЗом или другими детскими учреждениями.

3. Рекомендации по проектированию зрительского комплекса театра кукол см. подраздел «Театры юного зрителя».

4. Вместимость зрительного зала театра кукол рекомендуется принимать от 200 до 500 чел. Для взрослой или смешанной (дети и взрослые) аудитории вместимость принимается преимущественно более 350 чел.

5. В театрах с верхними куклами балконы не проектируются, а уровень пола последнего ряда определяется высотой глаза зрителя последнего ряда и лучом зрения, направленного на грядку (Ширму первого плана) по горизонтали. Высота грядки от планшета сцены принимается 1,65 - 1,85 м, размещение ее в плане совпадает с плоскостью внутренней грани игрового портала.

Рис. 2. Схема сцены театра кукол

I - вариант с верхними куклами (а - план; б - разрез); II - вариант с нижними куклами (а - план; б - разрез)

Высота от пола первого ряда до пола авансцены принимается равной 0,8 - 1 м, а ширина авансцены - не менее 2,5 м от красной линии сцены.

6. В зрительном зале театра кукол, предназначенного только для детей, места для взрослых зрителей (до 20 % общей вместимости) рекомендуется располагать сзади или по сторонам зоны мест для детей. Рекомендуемые размеры кресел или скамей, м:

                                        для взрослых        только для

                                                   и детей                 детей

ширина                                          0,5                       0,47

глубина                                          0,4                       0,36

высота                                           0,42                     0,4

7. Оркестр рекомендуется располагать над полом стационарной авансцены. Ширина помещения - не менее 2,5 м. В ограждении помещения оркестра и в полу авансцены над оркестром рекомендуется регулируемые отверстия для прохождения звука, а в полу авансцены - съемный люк размерами 6´1,5 м.

Вместимость

Портал сцены, м

Сцена, м

Карманы, м

игровой

строительный

ширина

глубина

высота до верха колосникового настила

ширина

глубина

высота

ширина

высота

ширина

высота

200 - 300

4 - 6

3,6 (2,5) -4,6 (3,2)

8

5 (4)

18

7

13,5 (12,5)

4

5

5 (4)

300 - 500

5 - 7

4 (2,8) -5 (3,5)

9

6 (4,5)

20

7

15 (14)

4

6

6 (4,5)

Примечания: 1. Размеры даны в свету.

2. В карманах сцены предусматривается место для хранения сборных или стационарно-передвижных конструкций-мостиков (троп) для кукловождения и других инвентарных приспособлений.

3. Размеры в скобках даны для театра с нижними куклами.

4. Планы и разрезы, иллюстрирующие таблицу, приведены на рис. 2. Под планшетом сцены театра укол может размещаться трюм.

8. По боковым сценам зала на высоте не более 3 м пола первого ряда рекомендуется открытые или закрытые раздвижными щитами игровые галереи.

9. Размеры сцены театра кукол и ее элементов приведены в таблице.

10. При устройстве помещений технологического обеспечения в театре верхних кукол рирпроекционная размещается так, чтобы горизонтальная оптическая ось проектора не превышала уровня грядки.

11. В комплексе помещений, обслуживающих сцену театра кукол, рекомендуется предусматривать артистические уборные площадью 60 - 80 м2, два репетиционных зала размерами (в свету) не менее 9´7 и 7´4 м, склад кукол в уровне сцены со специальными установками и контейнерами.

12. В комплексе производственных помещений размеры живописно-декорационной мастерской (в свету) определяются исходя из ширины игрового портала - ширина равна ему, длина - в 1,7 раза более, а высота - не менее 5 м.

Поделочная столярная мастерская с сушилкой и мастерские по изготовлению кукол (скульптурная, слесарная, пошивочная) располагаются смежно. Высоты помещений рекомендуются не менее 3,3 м (в свету), столярной мастерской - не менее 5 м. Поделочная столярная мастерская и склад связываются со сценой.

Театры малой вместимости

1. Театры малой вместимости (малые театры) как самостоятельные объекты могут создаваться на базе крупных театров, имея статус филиала основной сцены, являться самостоятельными, обладая статусом студийно-экспериментального, камерного, молодежного и им подобного театра.

2. Диапазон вместимости малых театров составляет 300 - 500 зрителей. Возможно создание театральных комплексов, состоящих из нескольких залов малой вместимости и обладающих при этом разными типами сцены.

3. Объемно-планировочная структура малого театра близка структуре театра обычного типа. Различие состоит в сокращении состава помещений, обслуживающих сцену (в частности складских), производственных, упрощении систем технического оснащения сцены - механооборудования, звукооборудования, систем инженерного оборудования здания.

4. Рекомендации по проектированию зрительского и демонстрационного комплексов театра малой вместимости совпадают с рекомендациями для малых залов, входящих в состав многозальных театров. Наряду с глубинными сценами, в малых театрах широко применяются сцены иных типов (трехсторонняя, центральная) и их трансформации. Стремление к сокращению эксплуатационных расходов по зданию и численности обслуживающего персонала формирует характерную тенденцию (в мировой практике) применения простейших систем трансформации залов: блитчеров, подвижных секций зрительских мест, плунжерных систем, обеспечивающих одновременно и постановочные задачи.

5. В структуре малых театров, являющихся филиалами, закономерно отсутствие производственных помещений и резервных складов. В подобных театрах может быть сокращено количество административно-хозяйственных помещений. При проектировании репетиционных залов их площадь соотносится с площадью сцен, получаемых в результате трансформации.

В зданиях театров, обладающих статусом самостоятельности, рекомендуется предусматривать ремонтно-поделочную мастерскую и резервные склады.

6. Возможность обеспечения тесной взаимосвязи пространств зрительского комплекса, проектирования сцен без колосниковой коробки и сокращенный состав помещений, открывает перед архитекторами возможности широкого поиска индивидуального образа театра малой вместимости.

Театры с общественной функцией общегородского зала

1. В театре с общественной функцией общегородского зала могут проводиться общегородские собрания к торжественным датам, партийные съезды, научные конференции и симпозиумы, конгрессы и пр. В связи с этим в ряде помещений театра возможны изменения и дополнения, не влияющие на основное назначение театра.

2. В помещениях зрительского комплекса целесообразно: кассовый вестибюль размещать только в здании театра и объединять со входным вестибюлем (или вестибюлями при двух залах) с целью использования его для дополнительных служб, постоянных (автоматический переговорочный пункт) или эпизодических (служба информации, торговые киоски); в распределительном вестибюле, фойе, кулуарах обеспечивать условия для многоцелевого использования (раздвижные перегородки для создания гостиных, пресс-центров, универсальная мебель и оборудование для киосков, мест для регистрации, заседаний секций, изменяемая система освещения, радио и телефонная связь). В зданиях с двумя залами возможно совместное и раздельное функционирование вестибюлей, а также трансформация гардероба малого зала для увеличения площади. Все эти преобразования желательно также обеспечивать складированием. Женские санитарные узлы целесообразно проектировать парными (в одном или разных местах) для использования одной их части мужчинами, составляющими около 2/3 посетителей при общественных мероприятиях;

буфет проектировать с возможностью его расширения, например, за счет кафе или ресторана при кооперации, объединения буфетов большого и малого зала и пр.;

проектировать дополнительные, с изолированным входом и отдельным доступом в зрительный зал помещения - вестибюль с гардеробной, фойе, сервизную, санитарные узлы.

3. Изменения в демонстрационном комплексе могут относиться к:

зрительному залу, где возможно группировать места только короткими рядами для удобства выхода на трибуну, а также оборудовать их пюпитрами, кнопками голосования и синхронным переводом;

сцене, где оборудуется место для размещения президиума на 100 - 120 чел. с возможностью устройства ступенчатого пола в передней части сцены.

4. Комплекс помещений, обслуживающих сцену, целесообразно дополнить складом фур для президиума. Склад может размещаться на одном уровне со сценой или ниже ее, что в свою очередь определяет систему подачи мест президиума на сцену.

В качестве рабочих кабинетов может использоваться часть артистических уборных, а в качестве помещений для секции и комиссий - часть репетиционных залов. Их желательно оборудовать радио- и телефонной связью с президиумом и размещать вблизи сцены и зрительского комплекса.

Летние театры

1. Летние театры в основном предназначены для гастрольных спектаклей, а также спектаклей, специально поставленных в природном и архитектурном окружении (ландшафтные театры) (рис. 3). В отечественной практике пока не существует специальных летних театров для спектаклей. Поэтому рассматриваются летние театрально-концертные здания для постановочных концертов, приближающихся по требованиям к спектаклям, и для гастрольных спектаклей.

2. Вместимость летнего театрально-концертного зала возможна в пределах 1000 - 1500 мест. Целесообразным, типом сцены является глубинная колосниковая с увеличенной авансценой, организацией выходов актеров в зону зрительских мест и использованием ее проходов в игровых целях. Для включения ландшафта в зону сценического действия желательно устройство дополнительных протяженных участков сцены типа панорамной или боковых крыльев авансцены, соприкасающихся с естественным окружением, а также возможность раскрытия задней стены сцены.

Рис. 3. Схемы летних театров

I - летний концертно-театральный зал (типы сцен: а - глубинная, изолированная от окружения; б - трехсторонняя - панорамная, открытая; в - глубинная-трехсторонняя-центральная закрытая, с трансформацией зрительских мест; г - глубинная-трехсторонняя с трансформирующимся задником); II - природный и историко-архитектурный театр (типы сцен: а - фронтальная протяженная, с несколькими сценическими площадками; б - кольцевая с вращающимся амфитеатром; в - трехсторонняя - кольцевая; г - комбинированная с широким фронтам соприкосновения с окружением; д - панорамная с природным или архитектурным фоном); III - кооперация сооружения (а - открытый амфитеатр с театром круглогодичного действия; б - открытый амфитеатр на крыше городского зала; в - открытый амфитеатр с закрытым танцевальным залом; г - несколько амфитеатров; 1 - сценическая площадка; 2 - сооружение иного назначения)

3. Вместимость ландшафтного театра в природном окружении (природного театра) может быть 2000 - 3000 мест; вместимость театра в историко-архитектурной среде зависит от особенностей среды, но желательна не более, чем у природного театра. Для природного театра характерны включение окружения в зону сценического действия, протяженная фронтальная сцена с устройством нескольких сценических площадок на разных уровнях, с использованием разницы в рельефе, камней, скал и пр. Сценическая площадка природного театра не требует сценической механизации, основное постановочное средство такого театра - сценическое освещение, световые или водные занавесы; возможно включение в зону сцены водных поверхностей или фонтанов. Артисты оркестра в таких театрах могут располагаться под первыми рядами зрительских мест, находятся в оркестровой яме, встроенной в рельеф для укрытия от осадков и пр.

4. Расположение помещений, обслуживающих сцену, административных и пр. зависит от степени связи сценической площадки с окружением. Желательно располагать их скрыто от глаз зрителей (под амфитеатром, с использованием перепадов рельефа); возможно использование временных привозных устройств.

5. Один из путей создания и развития условий для постановки спектаклей в природном окружении - кооперация летнего театра с театром круглогодичного действия, при которой желательно для летнего театра использовать сценические помещения театра круглогодичного действия. Размещение таких кооперированных театров наиболее целесообразно в зеленой зоне, на интенсивно озелененном участке.

6. По степени открытости летние театры подразделяются на: открытые, крытые и закрытые.

Закрытые летние театры возможны в районах IВ (РСФСР - Дальний Восток), IIБ (Север Прибалтики), IIВ (РСФСР - Европейская часть к северу от Москвы), IIIБ (РСФСР район Орджоникидзе), а крытые с любыми покрытиями (мягкими, жесткими, стационарными или трансформируемыми) - в районе IВ (РСФСР - Западная и Восточная Сибирь до Иркутска, Читы), IIВ (к югу от Москвы), IIIБ.

Открытые летние театры или театры с трансформируемыми мягкими покрытиями возможны в районе IIВ (например, РСФСР - исключая район Куйбышева и Казани), IIIВ, с трансформируемыми жесткими - в IIIБ (например, район Махачкалы), с теми и другими - в Средней Азии.

Балетные театры

1. Организационной базой балетного театра могут быть ансамбли классического и современного балета с возможным включением в них ансамблей народного танца, а также филиалы театров оперы и балета.

Опыт отечественных и зарубежных балетов показывает, что возможны три принципиально разных вида хореографических постановок:

игровой сюжетный балет, рассчитанный не только на воспитание зрителем рисунка танцев, но и мимики лица;

классический балет, построенный на равномерном сочетании в использовании кардебалета, солистов и малых ансамблей, где восприятие мимики лица не является существенным, но индивидуальность солистов является основой восприятия сюжета;

балетные постановки с упрощенным сюжетом или без такого с массовыми и сольными танцами, рассчитанными на общее восприятие.

2. Для первого типа балетных постановок условия восприятия спектакля и допустимая удаленность зрителя от сцены могут быть сходны с условиями в драматических театрах. Возможный тип сцены - глубинная колосниковая в сочетании с увеличенной авансценой или трехсторонней сценой, над которыми возможно устройство системы индивидуальных потолков; реальная вместимость зала - до 1000 мест.

Второй тип балетных спектаклей обеспечивается достаточно высоким качеством восприятия при удаленности до 30-35 м. Возможный тип сцены - тот же, что и в предыдущем случае.

Условия восприятия третьего типа постановки близки к условиям на малых спортивных аренах. Допустимая удаленность - до 50 м. Возможный тип сцены: центральная сцена, трехсторонняя сцена в сочетании с глубинной нишей для задников и панорам.

В репетиционных залах возможна организация камерных зрительных залов за счет устройства антресолей для зрителей по периметру зала.

3. Для сцены балетного театра рекомендуется использовать планшет с повышенным качеством поверхности с минимальным количеством швов. Конструкции планшета сцены, а также полов репетиционных залов рекомендуется упругими, не по железобетонному основанию. Возможно использование накладного планшета.

4. Карманы рекомендуется предусматривать на уровне средних и дальних планов вместо переднего в театрах оперы и балета.

Для создания на задних планах второго по вертикали уровня танцевальной площадки целесообразно устройство большой подъемно-опускной площадки или накатной двухэтажной фуры.

5. При трансформации оркестровой ямы в сценическую площадку, являющуюся продолжением основной сцены, конструкции оркестровой ямы проектируются пригодными к использованию для танцев.

При изменении местоположения оркестра рекомендуется обеспечение видимости дирижером сцены и мест выхода артистов балета на сцену.

6. В комплексе помещений, обслуживающих сцену балетного театра, возможны изменения по сравнению с театром оперы и балета: создание санитарно-оздоровительного комплекса с процедурными, тренажерными, саунами и небольшим бассейном; создание при кабинете главного балетмейстера видеостудии для просмотра и монтажа видеозаписей; проектирование третьего балетного репетиционного зала, выполняющего функцию большого репетиционного зала, с конфигурацией, соответствующей сценической площадке главного зала; отсутствие рекомендуемых для театров оперы и балета помещений для занятий артистов, кабинетов главного режиссера, хормейстера, инспектора хора и других помещений, обслуживающих хор и солистов оперного театра.

В балетном театре по сравнению с театром оперы и балета возможно некоторое сокращение складов объемных и станковых декораций при увеличении емкости сейфов, а также увеличение обувной мастерской.

Приложение 3

Рекомендации по обеспечению передвижения инвалидов, пользующихся креслами-колясками

1. При проектировании театра рекомендуется обеспечивать возможность беспрепятственного доступа инвалидов в креслах-колясках во все помещения зрительского комплекса и зрительный зал.

2. На открытых стоянках автомобилей выделяются места для автомобилей инвалидов. Ширина места - не менее 3,5 м.

3. Продольный уклон пешеходных дорожек и тротуаров, которыми могут пользоваться инвалиды на креслах-колясках проектируется не более 5 %. Если продольный уклон переходных дорожек и тротуаров на участке театра превышает указанные пределы, то для инвалидов на креслах-колясках предусматриваются специальные дорожки или пандусы.

4. Пешеходные дорожки, лестницы и тротуары, которыми пользуются инвалиды на креслах-колясках, обеспечиваются твердым шероховатым покрытием, которое при намокании не становится скользким.

5. При устройстве лестниц, ведущих на уровень входа в здание театра рекомендуется устраивать дублирующий подъем пандусом с перилами, а лестницы снабжать перилами.

6. В здании театра на пути движения инвалидов в креслах-колясках двери проектируются раздвижными автоматическими либо такими, чтобы условие по их открыванию было сведено к минимуму. Пороги на этих путях движения исключаются либо проектируются резиновыми. Ширина дверей проектируется не менее 0,9 м. Для обеспечения разворота коляски во всех помещениях, где могут находиться инвалиды в креслах-колясках, следует обеспечивать размещение в плане окружности диаметром 1,5 м.

7. Зрительский комплекс зданий театров снабжается лифтами с дверьми шириной не менее 0,9 м.

Кабины таких лифтов проектируются размерами, не менее: ширина 1,1 м, глубина 1,4 м. Пульт управления размещается на высоте 0,9 - 1,2 м на расстоянии не менее 0,4 м от передней или задней стены кабины.

8. В здании театра проектируется как минимум две одноместные уборные (мужская и женская), рассчитанные на пользование инвалидами в креслах-колясках, либо специальные Кабины в многоместных уборных. Предпочтительное размещение такой уборной - с непосредственным доступом из распределительного вестибюля.

Кабины для инвалидов оборудуются специальными откидывающимися поручнями около унитаза и поручнями, жестко закрепленными на стенах кабины. Желательно наличие подвесной ручки над унитазом. Подход к унитазу инвалида проектируется свободным спереди и с обоих сторон унитаза. На стенке кабины на высоте 1,2 м устанавливаются крючки для одежды и костылей. Размеры кабин в свету составляют от 1,5´1,6 до 2,14´2,14 м.

9. В зрительном зале (залах) предусматриваются не занятые креслами или занятые легко снимаемыми креслами места (желательно ложи) для инвалидов в креслах-колясках из расчета 3 % вместимости зала (залов), обеспеченные беспрепятственным доступом из лифта.

Приложение 4

Примерные состав и площади помещений малого демонстрационного комплекса и помещений, обслуживающих малую сцену

Помещения

Единица измерения

Вместимость, мест

101 - 150

151 - 200

201 - 300

301 - 400

401 - 500

Светоаппаратная

м2

8

8

10

15

15

Тиристорная

"

17

17

25

50

60

Звукоаппаратная

"

9

9

9

12

16

Склад бутафории, мебели и реквизита

% площади малого зала

10

10

10

8

7

Дежурный склад объемных и станковых декораций

То же

20

20

20

17

17

Кладовые сценической электроаппаратуры

"

5

5

5

3

3

Кладовые средств малой механизации, оборудования и мебели для трансформируемых залов

"

4

4

3

3

3

Артистические уборные и санитарные узлы

м2

39

39

39

61

61

Помещения для ожидания выхода на сцену

"

12

12

12

16

16

Щитовая

"

По проекту

Приложение 5

Примерное расчетное количество артистов в театрах*

Категория штатного расписания*2

Расчетное количество артистов для театров разных жанров

драматические и музыкально-драматические

музыкальной комедии

оперы и балета

артисты драматические

артисты оркестра

вокалисты-солисты

артисты балета

артисты оркестра

артисты хора

вокалисты-солисты

артисты балета

артисты оркестра

артисты хора

вспомогательный состав

I

50*3

16

40

32

42

35

42

75

74

60

10

II

40*3

-*5

30

24

30

24

34

60

58*6

50

5

III

30*4

-*5

-

-

-

-

-

-

-

-

-

* Извлечение из «Типовых штатов артистического и художественного персоналов театров оперы и балета, театров музыкальной комедии (театров оперетты), драматических театров (музыкально-драматических театров), театров юного зрителя и театров кукол», утвержденных приказом Министерства культуры СССР от 18 июня 1979 г. № 479.

*2 Категория штатного расписания театров и количество артистов во внекатегорийных театрах определяется заданием на проектирование, утверждаемом в установленном порядке.

*3 Для театров, количество выездных и гастрольных спектаклей которых составляет более 25 % общего количества спектаклей, допускается увеличивать расчетное количество артистов в театрах I категории штатного расписания на 10 чел., II категории - на 8 чел.

*4 Для театров, систематически организующих параллельно выездные спектакли, расчетное количество артистов допускается увеличивать на 5 чел.

*5 Для театров, имеющих в своем штате артистов оркестра в отличие от типовых штатов, количество артистов оркестра указывается в задании на проектирование.

*6 Для театров, систематически использующих две сцены, расчетное количество артистов оркестра допускается увеличивать на 7 чел.

ЛИТЕРАТУРА

Артистические уборные для театров всех назначений /Гипротеатр. - М., 1985, - 78 с.

Архитектура советского театра /Ю.Д. Хрипунов, Ю.П. Гнедовский, С.В. Гнедовский и др. - М.: Стройиздат, 1976. - 399 с.

Базанов В. Техника и технология сцены. - Л.: Искусство, 1976. - 376 с.

Извеков Н.П. Сцена. Ч. 1. Архитектура сцены. - М.: ГИХЛ, 1935. - 197с.

Виноградов В.М. Театральные здания вчера, сегодня, завтра. - М.: Стройиздат, 1971. - 164 с.

Мастерские театров. Aльбoм-кaтaлог/Сост.: Д.Ф. Лазарев и Т.Г. Розно. - М.: Гипротеатр, 1987. - 180 с.

Нормали. Театры. Сцены типов 1, 2, 3, 4 и помещения для обслуживания сцены: НП-5.1.2.1-71. - М.: ЦИТП, 1971. - 42 л.

Нормали. Театры. Производственные помещения и резервные склады: НП-5.1.2.2.-72. - М.: ЦИТП, 1972. - 50 л.

Нормы технологического проектирования театров /Сост.: А.С. Тихомиров. - II редакция. - М.: Гипротеатр, 1978. - 304 с.

Окунева Э.И. Театры юного зрителя. - М.: Стройиздат, 1976. - 126 с.

Постановочные склады. Альбом-каталог /Сост.: Д.Ф. Лазарев и Э.П. Ермина. - М.: Гипротеатр, 1986. - 115 с.

Правила техники безопасности для театров и концертных залов /Сост.: В.М. Школьников. - М.: Министерство культуры СССР, 1981. - 280 с.

Репетиционные залы для театров всех назначений /Гипротеатр. - М., 1985. - 78 с.

Современное театральное здание //Под ред. В.М. Виноградова, В.Д. Красильникова, Л.Д. Чумакова. М.: Стройиздат, 1986. - 195 с.

Театры юного зрителя и театры кукол. Рекомендаций по проектированию /Сост.; В.Е. Быков, Э.И. Окунева, В.В. Щепетов и др. - М.; Стройиздат, 1972. - 54 с.

Щепетов Б.В. Театры. Рекомендации по проектированию театров с колосниковыми глубинными сценами. Зрительный зал и сцена. Вып. I. - М.: ЦНТИ, 1970. - 93 с.

Щепетов Б.В. Театры. Рекомендации по проектированию театров с колосниковыми глубинными сценами. Помещения театра. Вып. 2. - М.: ЦНТИ, 1971. - 71 с.

 




ГОСТЫ, СТРОИТЕЛЬНЫЕ и ТЕХНИЧЕСКИЕ НОРМАТИВЫ.
Некоммерческая онлайн система, содержащая все Российские Госты, национальные Стандарты и нормативы.
В Системе содержится более 150000 файлов нормативно-технической документации, действующей на территории РФ.
Система предназначена для широкого круга инженерно-технических специалистов.

Рейтинг@Mail.ru Яндекс цитирования

Copyright © www.gostrf.com, 2008 - 2026