|
|
|
Государственный проектный институт Проектпром вентиляция (ГПИ Проектпромвентиляция) Минмонтажспецстроя СССР Пособие Утверждено
Москва Стройиздат 1989 Рекомендовано к изданию решением Технического совета ГПИ Проектпромвентиляция Минмонтажспецстроя СССР. Пособие по производству и приемке работ при устройстве систем вентиляции и кондиционирования воздуха (к СНиП 3.05.01-85)/ГПИ Проектпромвентиляция. - М.: Стройиздат, 1989. Рассмотрены вопросы по организации производства и приемке работ при устройстве систем вентиляции и кондиционирования воздуха. Содержит дополнительные требования и детализацию положений СНиПа, вспомогательные и справочные материалы, необходимые для производства вентиляционных работ. Для инженерно-технических работников, связанных с проектированием, строительством и приемкой вентиляционных устройств. Табл. 60, ил. 70. Содержание ПРЕДИСЛОВИЕНастоящее Пособие разработано к СНиП 3.05.01-85 «Внутренние санитарно-технические системы». В Пособии приводятся дополнительные требования и детализация положений СНиПа вспомогательными и справочными материалами, извлечениями из нормативных документов, необходимыми для производства вентиляционных работ, с учетом достижений науки, техники и передового опыта заготовительных и монтажных работ. Пособие состоит из четырнадцати разделов, рассматривающих требования к проектно-сметной документации, вопросы обеспечения монтажных работ, оборудованием, изделиями, материалами и ресурсами, требования к проекту производства работ, монтажным чертежам, подготовки и приемки объекта под монтаж, изготовлению, транспортированию и складированию на объекте металлических воздуховодов, производству и контролю качества монтажно-сборочных работ, испытаниям и приемке систем вентиляции и кондиционирования воздуха. В Пособии рассмотрены вопросы техники безопасности, организации труда и инструментального хозяйства. Пособие разработано ГПИ Проектпромвентиляция (инженеры Зарецкий Е. Н., Лернер И. И., Нефедова В. С.). 1. ОБЩАЯ ЧАСТЬ1.1. Требования настоящего Пособия должны соблюдаться при производстве и приемке работ по монтажу систем вентиляции и кондиционирования воздуха при строительстве новых, расширении и реконструкции действующих объектов (предприятий, зданий, сооружений и их комплексов) всех отраслей народного хозяйства. 1.2. Монтаж систем вентиляции и кондиционирования воздуха должен производиться в соответствии с утвержденной проектно-сметной документацией, проектом производства работ, согласованным с генподрядной организацией, и с соблюдением требований, соответствующих глав СНиПа, ведомственных нормативных документов, стандартов, технических условий и инструкций заводов - изготовителей оборудования. 1.3. Работы по монтажу систем вентиляции и кондиционирования воздуха, а также погрузочно-разгрузочные работы должны выполняться с соблюдением правил техники безопасности, пожарной безопасности, производственной санитарии и правил, оговоренных в разделах данного Пособия. 2 ОБЕСПЕЧЕНИЕ МОНТАЖНЫХ РАБОТ ОБОРУДОВАНИЕМ, ИЗДЕЛИЯМИ, МАТЕРИАЛАМИ И РЕСУРСАМИ2.1. Порядок передачи оборудования, изделий и материалов установлен правилами о договорах подряда на капитальное строительство и Положением о взаимоотношениях организаций-генеральных подрядчиков с субподрядными организациями. 2.2. Обеспечение выполняемых субподрядчиком работ всеми материалами, деталями и конструкциями является обязанностью субподрядчика, за исключением материалов, деталей и конструкций, обеспечение которыми согласно действующему законодательству возложено на генподрядчика и заказчика. Порядок и сроки передачи генподрядчиком субподрядчику материалов, деталей и конструкций определяются в особых условиях к договору субподряда. При согласии субподрядчика генподрядчик вправе передать ему реализацию фондов на материалы, детали и конструкции. 2.3. Применяемые при производстве монтажных и иных специальных строительных работ материалы, детали и конструкции должны соответствовать спецификациям, указанным в проекте, государственным стандартам и техническим условиям и иметь соответствующие сертификаты, технические паспорта или другие документы, удостоверяющие качество материалов, деталей и конструкций. Материалы, детали и конструкции, забракованные в установленном порядке, должны быть заменены доброкачественными стороной, осуществляющей их поставку, в сроки, обеспечивающие бесперебойное выполнение работ. 2.4. Поставляемые заказчиком оборудование, подлежащее монтажу, и материалы передаются субподрядчику генподрядчиком или по его указанию заказчиком по актам на приобъектных складах комплектно, в полной исправности и в сроки, предусмотренные в особых условиях к договору субподряда. Крупногабаритное оборудование поставляется укрупненными узлами в соответствии с техническими условиями на его изготовление. В тех случаях, когда это оборудование поставляется отдельными частями, обеспечение сборки его в укрупненные узлы входит в обязанность генподрядчика (заказчика). В отдельных случаях по соглашению сторон может быть установлен иной порядок передачи оборудования и материалов. Оборудование, подлежащее монтажу, с момента передачи его субподрядчику по акту находится на ответственном хранении последнего до сдачи оборудования заказчику для комплексного опробования. 2.5. Оборудование, находящееся на складах сверх нормативного срока хранения, передается генподрядчиком (заказчиком) субподрядчику для монтажа после проведения в установленном порядке предмонтажной ревизии и устранения дефектов, вызванных длительным хранением. В случаях нахождения оборудования на складах сверх нормативного срока хранения в связи с задержкой по вине субподрядчика начала монтажных работ против сроков, установленных календарным планом или графиком работ, предмонтажная ревизия и устранение дефектов оборудования, вызванных длительным хранением, осуществляются за счет средств субподрядчика. Если задержка начала монтажных работ произошла по вине генподрядчика, предмонтажная ревизия и устранение дефектов оборудования осуществляются за счет генподрядчика. 2.6. При производстве монтажных и иных специальных строительных работ субподрядчик вправе с согласия генподрядчика использовать материалы и конструкции, получаемые от разборки зданий и сооружений или попутной добычи. Стоимость использованных материалов и конструкций возмещается субподрядчиком генподрядчику по прейскурантам оптовых цен за вычетом расходов субподрядчика по приведению их в пригодное для использования состояние. 2.7. Расчеты за материалы и изделия, передаваемые генподрядчиком субподрядчику, производятся по действующим ценам с добавлением транспортных и заготовительно-складских расходов в соответствии с «транспортными схемами», учтенными при определении сметной стоимости материалов. По материалам и изделиям, обеспечение которыми возложено на заказчика, расчеты производятся по действующим ценам, но не выше сметных цен. При передаче генподрядчиком субподрядчику материалов и оборудования генподрядчик передает субподрядчику на покрытие расходов по приемке и хранению их 30 % средств, предусмотренных на заготовительно-складские расходы по материалам, и 20 % средств, предусмотренных на заготовительно-складские расходы по оборудованию. При передаче генподрядчиком субподрядчику реализацию фондов на оборудование или материалы заготовительно-складские расходы возмещаются субподрядчику в полном, размере, предусмотренном нормами на эти расходы. 2.8. Генподрядчик обязан предоставить субподрядчику на период ведения работ по согласованному при подписании договора перечню: помещение для конторы участка старшего производителя работ, производителя работ и мастера, оборудованное отоплением, освещением и телефоном; закрытое помещение для складов и площадки для складирования материалов открытого хранения; производственные и другие помещения в соответствии со спецификой работ, выполняемых субподрядчиком. За предоставляемые генподрядчиком указанные здания и сооружения арендная плата взимается с субподрядчика в соответствии с установленными нормами амортизационных отчислений. Капитальный ремонт этих зданий и сооружений производит генподрядчик, а текущий ремонт - субподрядчик за свой счет. 2.9. При недостаточности жилого фонда у субподрядчика генподрядчик предоставляет субподрядчику для временного размещения его работников жилые помещения в домах, возведенных генподрядчиком за счет сметы строительства, в зданиях, приспособленных для временного размещения рабочих, в жилых домах, арендуемых у заказчика, по согласованному расчету пропорционально численности рабочих, инженерно-технических работников и служащих, предусмотренной планом генподрядчика и субподрядчика. За предоставленные генподрядчиком для временного размещения работников субподрядчика жилые помещения в принадлежащих генподрядчику или арендуемых им домах и общежитиях оплата за пользование этими помещениями производится исходя из ставок квартирной платы, действующих в данной местности. При выполнении субподрядчиком работ на объектах линейного строительства, на которых генподрядчик работ не ведет, обеспечение жильем и бытовое обслуживание своих работников производит субподрядчик. 2.10. Генподрядчик обеспечивает работников субподрядчика наравне со своими работниками культурно-бытовым обслуживанием (клубами, пионерскими лагерями, столовыми, детскими дошкольными и прочими учреждениями). Субподрядчик оплачивает генподрядчику расходы, связанные с указанным обслуживанием, в порядке, предусмотренном особыми условиями к договору субподряда. Дополнительные затраты по предоставлению генподрядчиком бесплатных услуг предприятиям общественного питания возмещаются субподрядчиком пропорционально количеству работников, обслуживающихся этими предприятиями. 2.11. Генподрядчик в соответствии с проектом организации строительства обеспечивает субподрядчика электроэнергией, водой, паром, газом, сжатым воздухом и другими ресурсами в количествах, необходимых для производства монтажных и иных специальных строительных работ, а при отсутствии у генподрядчика этих ресурсов он обеспечивает передачу субподрядчику не позднее, чем за месяц, до начала работ документов о разрешении соответствующих организаций на пользование электроэнергией, паром, водой, газом, сжатым воздухом и другими ресурсами от существующих источников. 2.12. При производстве субподрядчиком работ на объектах, отдаленных от основной площадки, на которых генподрядчик работы не ведет, эксплуатация устройств по обеспечению электроэнергией, паром, сжатым воздухом, газом, водой, теплом и другими ресурсами лежит на обязанности субподрядчика. 2.13. Генподрядчик предоставляет субподрядчику право пользования подъездами и внутризаводскими железнодорожными путями и при наличии подвижного состава производит перевозку грузов субподрядчика по внутризаводским железнодорожным путям наравне со своими грузами в порядке, предусмотренном особыми условиями к договору субподряда. В случае сверхнормативного простоя вагонов по вине субподрядчика штрафы, связанные с этим, оплачиваются субподрядчиком. При отсутствии у субподрядчика своих складов или в случае прибытия в адрес субподрядчика до трех вагонов в месяц получение, разгрузку и хранение грузов осуществляет генподрядчик за отдельную плату. 2.14. Генподрядчик предоставляет субподрядчику возможность пользоваться по согласованным сторонами графикам путевыми и мостовыми кранами и в необходимых случаях другими грузоподъемными и транспортными средствами, а также разрешает пользоваться своими мастерскими и предприятиями для изготовления отдельных деталей, конструкций и изделий, необходимых строительству, и производить текущий и аварийный ремонты автотранспортных средств и других машин субподрядчика, работающих в большом отрыве от своих производственных баз, в порядке, предусмотренном особыми условиями к договору субподряда. 2.15. В отдельных случаях при производстве работ, носящих кратковременный характер и требующих значительного количества подсобных рабочих, генподрядчик в соответствии с графиком производства работ направляет временно в распоряжение субподрядчика необходимое число этих рабочих. Оплату труда указанных рабочих производит субподрядчик в размерах не ниже среднего заработка этих рабочих по постоянному месту их работы. Субподрядчик обязан возместить генподрядчику его расходы по обслуживанию указанных рабочих. Возмещение этих расходов производится в размере 25 % заработной платы, выплаченной рабочим в период их работы у субподрядчика. 2.16. Временная подводка магистральных сетей водопровода, канализации, паропровода, сжатого воздуха и других сетей к объектам строительства до мест присоединения разводок, включая распределительные устройства, производится генподрядчиком за счет средств, предусмотренных в сводной смете на строительство временных зданий и сооружений. По соглашению сторон эту работу может производить субподрядчик за отдельную плату. По объектам строительства, расположенным на обособленной строительной площадке, где работы выполняются только субподрядчиком, подводка временных инженерных сетей осуществляется последним за отдельную плату. Временная разводка этих сетей в пределах рабочей зоны производится субподрядчиком за свой счет. В случае, когда по профилю своей работы субподрядчик не может выполнить работы по временной разводке сетей в пределах рабочей зоны, генподрядчик по просьбе и за счет субподрядчика привлекает для выполнения этих работ соответствующие специализированные организации. 2.17. Генподрядчик несет ответственность за целостность и сохранность завезенных субподрядчиком на строительную площадку материалов, строительных машин, оборудования и имущества открытого и закрытого хранения, причем за материалы и имущество закрытого хранения он несет ответственность в том случае, если склады этих материалов по окончании рабочего времени передаются охране генподрядчика опечатанными. 2.18. Генподрядчик несет ответственность за сохранность сданных ему законченных субподрядчиком работ до сдачи объектов в эксплуатацию. 3. ТРЕБОВАНИЯ К ПРОЕКТНО-СМЕТНОЙ ДОКУМЕНТАЦИИ3.1. Проектно-сметная документация, передаваемая строительно-монтажной организации для производства работ, должна отвечать требованиям ГОСТ 21.602-79* и ОСТ 36-119-85 и содержать рабочие чертежи систем вентиляции и кондиционирования воздуха (марки «ОВ») и сметы. 3.2. Комплект рабочих чертежей должен содержать: общие данные; чертежи (планы, разрезы, схемы) систем; чертежи (планы и разрезы) установок систем; чертежи общих видов нестандартных (нетиповых) конструкций систем вентиляции и кондиционирования воздуха; чертежи нетиповых креплений. 3.3. На листе «Общие данные» должны быть указаны: план-схема размещения установок систем; характеристика систем; спецификация систем; материал для изготовления воздуховодов по системам; антикоррозийное покрытие воздуховодов (в соответствии с Пособием к СНиП 2.03.11-85 «Защита стальных конструкций от коррозии», раздел «Защита систем промышленной вентиляции»; конструкция изоляции для систем, подлежащих изоляции, а также для огнестойких воздуховодов; условные обозначения; мероприятия по защите воздуховодов от статического электричества. 3.4. На планах и разрезах должны быть указаны: координационные оси здания (сооружения) и расстояния между ними; строительные конструкции и технологическое оборудование, имеющее местные отсосы, а также влияющее на прокладку воздуховодов; отметки чистых полов этажей и основных площадок; размерные привязки установок систем и воздуховодов к координационным осям или элементам конструкций; диаметры (сечения) всех участков воздуховодов; места установки закладных деталей для крепления воздуховодов и оборудования, контрольно-измерительных приборов и места установки лючков для замеров параметров воздуха и очистки воздуховодов; участки систем, подлежащие изоляции; участки систем из неметаллических материалов; узлы стыковки металлических воздуховодов с воздуховодами из неметаллических материалов. На планах должны быть указаны наименования помещений и категория производств по взрывной, взрывопожарной и пожарной опасности (в прямоугольнике размером 5´8 мм), а на разрезах - отметки уровней осей круглых воздуховодов и низа прямоугольных, опорных конструкций установок, верха выхлопных воздуховодов вытяжных систем. Допускается наименование помещений и категорию производств по взрывной, взрывопожарной и пожарной опасности приводить в экспликации помещений. 3.5. На схемах систем вентиляции и кондиционирования воздуха должны быть указаны: воздуховоды, их диаметры (сечения) и количество проходящего воздуха, м3/ч; отметки уровня оси круглых и низа прямоугольных воздуховодов; оборудование вентиляционных установок; контуры технологического оборудования, имеющего местные отсосы (в сложных случаях); лючки для замеров параметров воздуха и очистки воздуховодов, марки лючков и обозначения документа; местные отсосы, их обозначения и обозначения документов; регулирующие устройства, воздухораспределители, нетиповые крепления (опоры) и другие элементы систем с указанием на полке линии-выноски обозначения элемента системы и под полкой обозначения документа; участки систем, подлежащие изоляции, а также участки из неметаллических материалов. 3.6. В проектах должны быть приведены размеры и сечения в местах сложных пересечений воздуховодов и других коммуникаций и раскладка воздуховодов в шахтах. При этом должны быть выдержаны требуемые монтажные расстояния, обусловленные условиями производства монтажных работ и антропометрическими данными человека (прил. 1). 3.7. Воздуховоды в шахтах, пазухах, нишах и т.д. следует размешать с учетом обеспечения удобного их монтажа и обслуживания, с указанием перегородок, возведение которых должно осуществляться после монтажа воздуховодов. К регулирующим устройствам вентиляционных систем должен быть обеспечен свободный доступ. 3.8. Воздуховоды следует проектировать из материалов, указанных в прил. 2. Несгораемые конструкции зданий с пределом огнестойкости, равным или более требуемого для воздуховодов, допускается использовать для транспортирования воздуха, не содержащего легко конденсирующиеся пары. При этом следует предусматривать герметизацию конструкций, гладкую отделку внутренних поверхностей (затирка, оклейка и др.) и возможность очистки воздуховода. 3.9. Воздуховоды следует проектировать круглого сечения, при обосновании допускается применять воздуховоды прямоугольного сечения. Наружные размеры поперечного сечения металлических воздуховодов следует принимать по табл. 1. Таблица 1
Примечание. Размеры воздуховодов из других материалов следует уточнять по данным заводов-изготовителей. 3.10. Воздуховоды из негорючих материалов (с окраской или антикоррозийной зашитой горючими материалами толщиной не более 40 мкм) следует предусматривать для: помещений жилых, общественных и административно-бытовых зданий; помещений, складов и кладовых горючих материалов категорий А, Б и В; коллекторов и транзитных участков помещений категорий Г и Д; помещений вентиляционного оборудования, технических этажей чердаков и подвалов общего назначения; местных отсосов взрывоопасных и пожароопасных смесей; воздуха с температурой 80 °С и более. 3.11. Воздуховоды из трудногорючих материалов (с окраской или антикоррозийной защитой горючими материалами толщиной не более 0,4 мм) следует проектировать для: помещений жилых, общественных и административно-бытовых зданий, кроме помещений категории В и помещений с массовым пребыванием людей; помещений категории Г и Д, кроме коллекторов и транзитных участков; в пределах обслуживаемых производственных помещений. 3.12. Воздуховоды из горючих материалов допускается проектировать в пределах обслуживаемых производственных помещений. Гибкие вставки у вентиляторов, а также гибкие вставки и отводы в воздуховодах допускается проектировать из горючих материалов, если длина их составляет не более 10 % длины воздуховодов из трудногорючих материалов или не более 5 % от длины воздуховодов из негорючих материалов. 3.13. Воздуховоды следует применять: класса «П» (плотные) - для системы общеобменной вентиляции и воздушного отопления при статическом давлении у вентилятора более 1400 Па и независимо от давления для систем местных отсосов, кондиционирования, дымоудаления и для транзитных воздуховодов, обслуживающих помещения А и Б; класса «Н» (нормальные) - в остальных случаях. Потери или подсосы воздуха через неплотности воздуховодов не должны превышать указанных в табл. 2. Таблица 2
Примечания: 1 Потери или подсосы воздуха в воздуховодах допускается определять в % от полезного
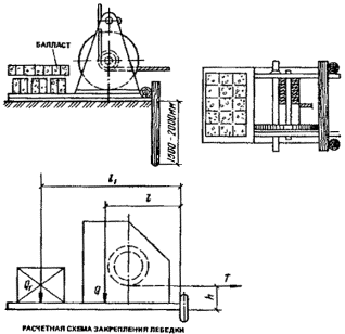
расхода воздуха в системе по формуле 2. Для воздуховодов прямоугольного сечения следует сводить коэффициент 1,1 на полученные значения потерь или подсосов воздуха. 3.14. Толщину листовой стали, мм, для воздуховодов, по которым перемещается воздух с температурой не выше 80 °С, следует принимать, не более: для воздуховодов круглого сечения, диаметром, мм:
для воздуховодов прямоугольного сечения, размером, мм:
для воздуховодов прямоугольного сечения, имеющих одну из сторон более 2000 мм, и воздуховодов сечением 2000 ´ 2000 мм толщина стали должна быть обоснована. 3.15. Для транзитных воздуховодов систем местных отсосов взрывоопасных веществ, транзитных воздуховодов систем вентиляции, кондиционирования и воздушного отопления, обслуживающих помещение с производствами категорий А, Б и В, и для воздуховодов систем аварийной противодымной вентиляции, изготавливаемых из стальных листов, соединенных сплошным плотным сварным швом, толщина металла определяется по условиям производства сварки. 3.16. Для воздуховодов, по которым предусматривается перемещение воздуха с температурой более 80 °С или воздуха с механическими примесями, а также для воздуховодов, требующих обработки поверхности перед антикоррозийной защитой, допускается применение листовой стали толщиной до 1,5 мм. 3.17. Для воздуховодов, по которым предусматривается перемещение абразивной пыли, толщина стали должна быть обоснована. 3.18. Допускается применение для воздуховодов стали меньшей толщины, чем указано в п. 3.14, при обосновании (отсутствие необходимости в дальних перевозках воздуховодов и др.). 4. ИНЖЕНЕРНАЯ ПОДГОТОВКА4.1. Инженерная подготовка производства монтажных работ должна осуществляться в строгом соответствии с требованиями СНиП 3.01.01-85 «Организация строительного производства», «Рекомендаций по организации инженерной подготовки производства для строительно-монтажных управлений Минмонтажспецстроя СССР», с учетом действующих ведомственных нормалей, инструкций, норм расхода основных и вспомогательных материалов (табл. 3-7). В табл. 8 приведено соотношение воздуховодов из тонколистовой стали d = 0,5-1,2 мм, тонколистовой стали d = 1,4-2 мм и воздуховодов из нержавеющей стали, алюминия, титана, металлопласта круглого и прямоугольного сечения в расчете на 1 млн. руб. сметной стоимости вентиляционных монтажных работ, в табл. 9 приведено соотношение приточных и вытяжных систем в расчете на 1 млн. руб. сметной стоимости вентиляционных монтажных работ, в табл. 12 приведено количество прямых участков и фасонных деталей вентиляционных систем круглого сечения, приходящихся на 1 млн. руб. сметной стоимости вентиляционных монтажных работ; в табл. 13 приведено количество прямых участков и фасонных деталей вентиляционных систем прямоугольного сечения, приходящихся на 1 млн. руб. сметной стоимости вентиляционных монтажных работ; в табл. 14 приведен удельный вес воздуховодов круглого сечения по размерам в объеме воздуховодов, приходящихся на 1 млн. руб. сметной стоимости вентиляционных монтажных работ, в табл. 15 приведен удельный вес воздуховодов прямоугольного сечения по размерам в объеме воздуховодов, приходящихся на 1 млн. руб. сметной стоимости вентиляционных монтажных работ. Таблица 3
Таблица 4
Примечание. Нормы расхода пропан-бутана и кислорода даны только на резку металлоконструкций. Таблица 5
Примечание: Нормы расхода пропан-бутана и кислорода даны только на резку металлоконструкций. Таблица 6
Таблица 7
Таблица 8
Таблица 9
Таблица 10
Таблица 11
Таблица 12
Таблица 13
Таблица 14
Таблица 15
4.2. Основными задачами инженерной подготовки являются: обеспечение монтажных работ качественной проектно-сметной и нормативной документацией; разработка технологии монтажных работ на уровне современных достижений науки, техники и передового опыта; согласование технических условий на поставку оборудования заводского изготовления в комплектно-блочном исполнении, сроков поставки и способов доставки оборудования, подлежащего монтажу, подготовка к приему оборудования для монтажа; обеспечение совместно с линейным персоналом монтажного участка качественного приема строительной готовности объектов под монтаж с учетом требований СНиПа и технических условий на монтаж оборудования, сооружений и коммуникаций. 4.3. Инженерную подготовку производства в монтажном управлении должен осуществлять участок подготовки производства (УПП), подчиняющийся в своей деятельности главному инженеру монтажного управления. 4.4. В соответствии с «Положением о взаимоотношениях организаций-генеральных подрядчиков с субподрядными организациями» и СНиП 3.01.01-85 (п. 3.10) проектно-сметная документация должна быть получена от генподрядной организации до 1 июля года, предшествующего планируемому, комплектно на объект в целом или на этапы работ, но не менее чем на объем монтажных работ, подлежащих выполнению субподрядчиком в планируемом году, по два экземпляра рабочих чертежей, одному экземпляру смет и проекта организации строительства (ПОС). 4.5. Требования к проектно-сметной документации изложены в разд. 3 настоящего Пособия. 4.6. В полученной проектно-сметной документации следует проверить: количество экземпляров проекта; полноту документации в соответствии с Перечнем технической документации, определенным «Инструкцией о составе, порядке разработки, согласования и утверждения проектно-сметной документации на строительство предприятий, зданий и сооружений» (СНиП 1.02.01-85); соответствие материалов и изделий, примененных в проекте, существующим нормативам; увязку чертежей на смежные виды работ; наличие чертежей, схем, спецификаций, пояснительных надписей и т.п., необходимых для производства работ и индустриального изготовления монтажных заготовок; технологичность проектных решений; правильность заложенных в сметы объемов работ. В ходе ознакомления с материалами проекта в случае необходимости вносятся предложения по их корректировке, связанные с применением новой технологии монтажа, повышением уровня индустриализации и т.п. По всем выявленным дефектам в проектно-сметной документации должна быть составлена рекламация, которую направляют генеральному подрядчику, а копии - заказчику и проектной организации. 4.7. По каждому объекту должна быть определена необходимость разработки проектов производства работ, технологических записок и монтажных чертежей, а также возможность применения имеющихся типовых проектов производства работ (ППР), типовых технологических карт и т.п. ТРЕБОВАНИЯ К ПРОЕКТУ ПРОИЗВОДСТВА РАБОТ4.8. Проект производства работ по монтажу систем промышленной вентиляции и кондиционирования воздуха должен учитывать наиболее прогрессивные решения по методам, способам монтажа и разрабатываться в соответствии с требованиями, установленными действующими нормативными документами. 4.9. Все мероприятия ППР по производству работ и технике безопасности, разрабатываемые на основании требований действующих нормативных документов, должны содержать конкретные решения с учетом местных условий строительства объекта. Ссылки на действующие документы допускается производить только в качестве справки о документе, требования которого послужили основанием для принятого и разработанного в ППР решения. 4.10. При разработке ППР следует использовать действующие технологические карты на монтаж систем вентиляции и кондиционирования воздуха. 4.11. ППР должен разрабатываться: специализированными подразделениями (группами, отделами) при монтажных организациях; специализированными проектными, проектно-конструкторскими и проектно-технологическими организациями по заказу (заданию) монтажной организации. 4.12. Исходными данными для разработки ППР являются: задание на разработку ППР (прил. 18); проект организации строительства; архитектурно-строительные чертежи и чертежи металлических конструкций; рабочие чертежи и сметы раздела проекта по вентиляции и кондиционированию воздуха; монтажные чертежи; сведения о наличии инструмента, машин, механизмов, транспортных средств; календарный график производства работ с указанием директивных сроков строительства, согласованный с генеральным подрядчиком; условия поставки вентиляционного оборудования, изделий и воздуховодов; материалы и результаты технического обследования действующих предприятий, зданий и сооружений при их реконструкции, а также требования к выполнению монтажных работ в условиях действующего производства. 4.13. При разработке ППР с генеральным подрядчиком должны быть предварительно согласованы схематический план объекта с нанесением мест складирования воздуховодов и оборудования, календарный (сетевой) график производства работ, раздел указаний по производству работ, применение грузоподъемных и других приспособлений. 4.14. ППР должен быть утвержден главным инженером монтажного управления, согласован заказчиком ППР с генподрядной организацией и дирекцией строящегося или реконструируемого предприятия. При разработке ППР на крупных, уникальных и особо важных объектах его основные технические решения и сроки производства монтажных и заготовительных работ должны быть предварительно рассмотрены на техническом совете монтажной организации. 4.15. ППР на сложные объекты и виды работ должны разрабатываться на основе вариантов проработки основных решений с расчетом сравнительной эффективности. Допускается разработку ППР производить параллельно проектированию систем вентиляции и кондиционирования воздуха, что должно быть оговорено в задании на разработку ППР. 4.16. Утвержденный ППР не позднее, чем за 2 месяца до начала монтажных работ должен быть передан заказчику ППР. 4.17. Отступления от ППР в части изменения методов, сроков и условий монтажа допускается производить линейным персоналом или отделом подготовки производства только по согласованию с разработчиком ППР или главным инженером монтажной организации. 4.18. Состав, содержание, назначение документов ППР и порядок их составления и оформления определены ОСТ 36-134-81 «Монтаж систем промышленной вентиляции. Проект производства работ». ТРЕБОВАНИЯ К МОНТАЖНЫМ ЧЕРТЕЖАМ4.19. Монтажный чертеж-документ, содержащий данные, необходимые и достаточные для изготовления индустриальными методами деталей воздуховодов и монтажа вентиляционных систем. 4.20. Монтажные чертежи должны разрабатываться монтажными или по их поручению специализированными организациями. 4.21. Монтажные чертежи следует выполнять на основе рабочих чертежей марки ОВ, соответствующих архитектурно-строительных чертежей, с соблюдением требований действующих нормативных документов. 4.22. Монтажный чертеж должен содержать: монтажную схему вентиляционной системы; эскизы ненормализованных деталей; комплектовочную ведомость; спецификацию основных и вспомогательных материалов; объемы работ; дополнительные требования к изготовлению и монтажу системы; указания о сборке деталей воздуховодов в транспортабельные узлы на заготовительном предприятии. Монтажная схема вентиляционной сети должна выполняться бесмасштабно в одну линию с указанием диаметров или размеров сечений воздуховодов, порядковых номеров деталей (участков при расчете на ЭВМ), мест установки сетевого оборудования и диафрагм, привязки сети к строительным конструкциям, а также отметки расположения воздуховодов по высоте помещения. 4.23. В комплектовочной ведомости следует указывать количество, размеры и площадь поверхности деталей воздуховодов, по их порядковым номерам, количество и размеры соединительных и крепежных деталей, количество и тип воздухораспределительных и регулирующих устройств, входящих в вентиляционную систему. С учетом технологии заводов-изготовителей детали в комплектовочной ведомости должны быть сгруппированы по типам (прямые участки, отводы, переходы и т.п.), по толщине металла, типам соединения и т.д. 4.24. Независимо от типа соединения воздуховодов, примененных в системе, торцы деталей, между которыми устанавливается диафрагма, должны быть офланцованы. ПРИЕМКА ОБЪЕКТОВ ПОД МОНТАЖ4.25. В соответствии с «Положением о взаимоотношениях организаций - генеральных подрядчиков с субподрядными организациями» генподрядчик обязан к началу работ монтажной организации в сроки, предусмотренные договором, обеспечить строительную готовность объекта, конструкций или отдельных видов работ. 4.26. До начала монтажа вентиляционных систем генеральным подрядчиком должны быть выполнены следующие работы: монтаж междуэтажных перекрытий, стен и перегородок; устройство фундаментов или площадок для установки вентиляторов, кондиционеров и другого вентиляционного оборудования; строительные конструкции вентиляционных камер приточных систем; гидроизоляционные работы в местах установки кондиционеров, приточных вентиляционных камер, мокрых фильтров; устройство полов (или соответствующей подготовки) в местах установки вентиляторов на пружинных виброизоляторах, а также «плавающие» основания для установки вентиляционного оборудования; устройство опор для установки крышных вентиляторов, выхлопных шахт и дефлекторов на покрытиях зданий; подготовка отверстий в стенах, перегородках, перекрытиях и покрытиях, необходимых для прокладки воздуховодов; устройство фундаментов, оснований и площадок для установки вентиляционного оборудования; нанесение на внутренних и наружных стенах всех помещений вспомогательных отметок, равных проектным отметкам чистого пола плюс 500 мм; оштукатуривание (или облицовка) поверхностей стен и ниш в местах прокладки воздуховодов; подготовлены монтажные проемы в стенах и перекрытиях для подачи крупногабаритного оборудования и воздуховодов и смонтированы кран-балки в вентиляционных камерах; установлены в соответствии с рабочей документацией закладные детали в строительных конструкциях для крепления оборудования и воздуховодов; обеспечена возможность включения электроинструментов, а также электросварочных аппаратов на расстоянии не более 50 м одного от другого; остеклены оконные проемы в наружных ограждениях, утеплены входы и отверстия; выполнены мероприятия, обеспечивающие безопасное производство монтажных работ. Приемка объекта под монтаж должна производиться работниками участка подготовки производства (УПП) совместно с инженерно-техническими работниками монтажной организации по акту. 4.27. При приемке объекта под монтаж должны проверяться: соблюдение всех требований СНиПа и действующих технических условий; наличие и правильное оформление актов на скрытые работы; геометрические размеры и привязки к строительным конструкциям фундаментов под вентиляционное оборудование и кондиционеры, опорных конструкций на кровле здания для установки крышных вентиляторов и дефлекторов, отверстий для прохода воздуховодов, монтажных проемов; правильность установки закладных деталей; устройство ограждений проемов, настилов и навесов. 5. ИЗГОТОВЛЕНИЕ МЕТАЛЛИЧЕСКИХ ВОЗДУХОВОДОВ5.1. Сеть воздуховодов следует компоновать из унифицированных деталей - прямых участков, отводов, переходов, заглушек и узлов ответвлений из унифицированных деталей в соответствии с ВСН 353-86. 5.2. Прямые участки следует применять длиной: 2500 мм - для воздуховодов прямоугольного сечения; 2500, 3000, 4000, 5000, 6000 мм - для воздуховодов круглого сечения. По конструктивным и технологическим соображениям допускается изменение длины прямого участка. 5.3. Узлы ответвлений следует выполнять из прямых участков с одной или двумя врезками, переходов и заглушек по схемам, приведенным на рис. 1, 2.
Рис. 1. Схемы образования узлов ответвления круглого сечения 1 - прямой участок с врезкой; 2 - переход; 3 - заглушка
Рис. 2. Схемы образования узлов ответвления прямоугольного сечения 1 - прямой участок с врезкой; 2 - переход; 3 - заглушка
Рис. 3. Схема приточной системы 1 - линия, определяющая общее аэродинамическое сопротивление сети Узлы ответвлений по схеме II следует применять, если ответвление узла входит в ветвь, определяющую аэродинамическое сопротивление сети (рис. 3). В остальных случаях следует применять узлы ответвлений по схеме I. 5.4. Врезку, как правило, следует выполнять высотой h = 100 мм. Минимальное расстояние l = 50 мм от врезки до торца прямого участка. 5.5. Монтажные размеры и площади поверхностей прямых участков, отводов и переходов приведены в прил. 3. 5.6. Воздуховоды и детали вентиляционных систем должны быть изготовлены в соответствии с рабочей документацией, монтажными чертежами и утвержденными в установленном порядке техническими условиями ТУ 36-736-78 «Воздуховоды металлические» и ТУ 36-2581-83 «Воздуховоды вентиляционные из металлопласта». 5.7. Для изготовления воздуховодов должна применяться сталь листовая горячекатаная по ГОСТ 19903-74* и ГОСТ 16523-70*, сталь листовая и рулонная холоднокатаная по ГОСТ 19904-74* и ГОСТ 16523-70*, сталь кровельная листовая по ГОСТ 19904-74*. 5.8. Для воздуховодов, изготавливаемых из стали толщиной св. 1 мм, должна применяться сталь со следующими характеристиками: нормальная точность прокатки - Б по ГОСТ 19903-74*; нормальная плоскостность - ПН по ГОСТ 19903-74*; категория стали - вторая по ГОСТ 16523-70*; качество отделки поверхности - IV группы по ГОСТ 16523-70*; марка стали - Б Ст3КП, Б Ст3ПС, Б Ст3СП по ГОСТ 16523-70*. Допускается применение стали Ст1КП + Ст3КП третьей категории по согласованию заказчика с предприятием-изготовителем. Для воздуховодов, изготавливаемых из стали толщиной до 1 мм, должна применяться сталь со следующими характеристиками: нормальная точность прокатки - Б по ГОСТ 19904-74*; нормальная плоскостность - ПН или улучшенная плоскостность ПУ по ГОСТ 19904-74*; обрезная кромка - 0 по ГОСТ 19904-74*; категория стали - вторая по ГОСТ 16523-70*; качество отделки поверхности - III группы по ГОСТ 16523-70*; марка стали - Б Ст3КП по ГОСТ 16523-70*. 5.9. Для сварных воздуховодов допускается применение сталей первой категории. 5.10. Для фальцевых воздуховодов могут применяться кроме указанных в п. 5.8 лента стальная холоднокатаная из низкоуглеродистой стали, мягкая нормальной точности, второй группы, обрезная, марки Ст08КП по ГОСТ 503-81, сталь углеродистая. оцинкованная с непрерывных линий группы Б, класса 2 по ГОСТ 14918-80*. 5.11. Допускаемые отклонения наружных размеров поперечных сечений воздуховодов не должны превышать величин, указанных в табл. 16. Таблица 16
5.12. Овальность воздуховодов круглого сечения не должна превышать величин, указанных в табл. 17. Таблица 17
5.13. Неплоскостность стенок воздуховодов прямоугольного сечения не должна превышать величин, указанных в табл. 18. Таблица 18
5.14. Торцы прямых участков воздуховодов должны быть перпендикулярны их осям или смежным поверхностям. Отклонение от перпендикулярности торца не должно превышать 10 мм на 1000 мм длины стороны или диаметра поперечного сечения воздуховода. 5.15. Угловые размеры воздуховодов (отводов, узлов ответвлений, переходов и т.д.) должны соответствовать требованиям монтажных проектов. При этом допустимое отклонение не должно превышать ± 1° 30¢. 5.16. Соединительные детали, предназначенные для монтажа воздуховодов на фланцах и бесфланцевых соединениях (бандажных, реечных и др.), должны соответствовать требованиям технической документации на тип соединения, утвержденной в установленном порядке. 5.17. Закрепление фланцев на воздуховодах из стали толщиной 0,5-1,5 мм должно выполняться с помощью отбортовки, а при толщине стали св. 1,5 мм - электродуговой сваркой сплошным швом. При толщине стали более 1 мм допускается закрепление фланцев без отбортовки прихватками электродуговой сваркой через 50-60 мм с последующей герметизацией зазора между фланцами и воздуховодами. Способы герметизации должны быть определены технологией предприятия изготовителя. 5.18. Отбортовка фланцевых воздуховодов должна перекрывать фланец не менее 6 мм и не должна перекрывать болтовые отверстия. 5.19. Сквозные разрывы в отбортовке допускаются не более четырех на одном торце воздуховода. 5.20. Закрепление фланцев от перемещения их вдоль оси фланцевого воздуховода круглого сечения с отбортовкой на фланцы должно производиться любым способом с обязательным обеспечением возможности их вращения вокруг оси. При этом отбортовка должна плотно прилегать к зеркалу фланца воздуховода. 5.21. Для воздуховодов из листа толщиной более 1,5 мм фланцы из углового проката должны быть приварены с внутренней стороны, а фланцы плоские - с наружной стороны изделия. При этом кромки торцов воздуховодов не должны выступать за зеркало фланца. 5.22. Воздуховоды, изготовленные из неоцинкованной стали, их соединительные крепежные детали (включая внутренние поверхности фланцев) должны быть огрунтованы (окрашены) на заготовительном предприятии в соответствии с проектом (рабочим проектом). Для обеспечения качества лакокрасочного покрытия воздуховодов и сохранности металла следует тщательно подготовить поверхность под окраску и выбрать соответствующий способ нанесения красителя. Подготовка поверхности заключается в очистке ее от продуктов коррозии, от окалины, старой краски, жировых и других загрязнений, а также в нейтрализации и удалении кислот, щелочей и других химических продуктов, препятствующих хорошему сцеплению покрытия с металлом. Поверхности изделий очищают, огрунтовывают и окрашивают на заводе-изготовителе. Для огрунтовки рекомендуется применять грунты ХС-010, ФЛ-03К, ГФ-021 и др., допускающие последующую окраску различными химически стойкими лакокрасочными составами. Нельзя применять под химически стойкие покрытия железный сурик на олифе или масляную краску. 5.23. Лакокрасочные материалы можно наносить следующими способами: пневматическим распылением; безвоздушным распылением без нагрева; окраской в электрическом поле; струйным обливом с последующей выдержкой в парах растворителя; окунанием и обливом; окраской кистями. 5.24. Для систем вытяжной вентиляции производственных помещений категорий Д и Г, в воздухе которых содержатся кислые и щелочные среды с температурой не менее 243 К (-30 °С) и не более 333 К (60 °С), следует применять воздуховоды из металлопласта ТУ 14-1-1114-74 с поливинилхлоридной пластифицированной пленкой марки ПХ по ТУ 6-19-142-79. Покрытие пленкой должно располагаться на внутренней поверхности воздуховода. 5.25. На заводе-изготовителе воздуховодов до их изготовления должны быть устранены дефекты в покрытии металлопласта. 5.26. Повреждения полимерного покрытия металлопласта должны быть устранены с удалением наружных частей пленки. Удаление частей пленки должно производиться по утвержденной на заводе-изготовителе (воздуховодов) технологии с помощью шлифовальной шкурки зернистостью не более 12-Н типа 3 класса 2-3 по ГОСТ 5009-82 или типа 2 по ГОСТ 6456-82*. Разрешаются другие способы удаления частей пленки, утвержденные в установленном порядке. Защищенные места должны быть покрыты: одним слоем грунта ФЛ-03К (ГОСТ 9109-81*); двумя слоями эмали ХВ-785 (ГОСТ 7313-75*); одним слоем лака ХВ-784 (ГОСТ 7313-75*). Аналогичным образом должны быть устранены повреждения полимерного покрытия металлопласта воздуховодов. Этими же красителями должны быть покрыты не защищенная пленкой сторона воздуховода, а также бандажи, шины, рейки, металлические уголки, скобы и фланцы. 5.27. Разрешаются другие виды покрытий, обеспечивающие химическую стойкость воздуховодов для эксплуатации в агрессивных средах, определенных проектом. 5.28. Контроль правильности основных размеров воздуховодов должен производиться по утвержденной технологии завода-изготовителя следующим инструментом: линейкой металлической (ГОСТ 427-75*); рулеткой измерительной (ГОСТ 7502-80*); угольником поверочным 90° (ГОСТ 3749-77*); штангенциркулем (ГОСТ 166-80*); угломером (ГОСТ 5378-66*); шаблонами, изготовленными на заводе-изготовителе. 5.29. Наружный диаметр и овальность воздуховодов (мм) измеряются: наружный диаметр воздуховода (Dн) круглого сечения путем замера длины наружной окружности поперечного сечения Lокр, перпендикулярного оси воздуховода. Размер диаметра определяется по формуле Dн = Lокр/3; 14; овальность поперечного сечения воздуховодов круглого сечения - путем замера наибольшего и наименьшего внутреннего диаметра с торцов воздуховодов во взаимно перпендикулярных направлениях. 5.30. Качество покрытий, швов, отбортовки, крепления соединительных изделий, крепежных деталей, элементов жесткости и шин, внешний вид изделий, а также комплектность, маркировка и упаковка проверяются визуально. 5.31. В комплект поставки воздуховодов должны входить изделия, указанные в монтажном проекте (ведомостях, эскизах), за исключением обеспыливающих и регулирующих устройств - циклонов, заслонок и клапанов (всех типов), шумоглушителей, изготовляемых по соответствующим типовым чертежам и ТУ и средства крепления. 5.32. В комплект воздуховодов, соединяемых на бесфланцевых соединениях, должны входить бандажи, рейки и другие детали, предусмотренные технической документацией на эти виды соединений, утвержденной в установленном порядке. 5.33. Каждый комплект воздуховодов должен сопровождаться монтажным проектом (ведомости, эскизы, схемы) в одном экземпляре и накладной предприятия-изготовителя с отметкой отдела технического контроля. 5.34. Изделия воздуховодов должны иметь маркировочные знаки, нанесенные на внутреннюю или наружную поверхность на расстоянии 100-300 мм от торца изделия масляной краской, отличающейся по цвету от основной краски. Допускается маркировать изделия с помощью маркировочных табличек или иным способом обеспечивающим возможность выявления принадлежности изделия к данному комплекту воздуховодов. Маркировочный знак должен соответствовать требованиям монтажного проекта и утвержденному на предприятии-изготовителе эталонному образцу. 5.35. Усредненные нормы отходов листового металла при изготовлении фальцевых и сварных воздуховодов в процентах от поверхности листового металла приведены в табл. 19. Таблица 19
6. ТРАНСПОРТИРОВАНИЕ ВОЗДУХОВОДОВ С ЗАГОТОВИТЕЛЬНОГО ПРЕДПРИЯТИЯ НА ОБЪЕКТ6.1. Воздуховоды в зависимости от дальности перевозки рекомендуется транспортировать: до 300 км - автомобильным транспортом; более 300 км - железнодорожным или водным. 6.2. При перевозке воздуховодов автотранспортом следует использовать: бортовые автомобили общего назначения (табл. 20); седельные тягачи (табл. 21); прицепы (табл. 22); полуприцепы (табл. 23). Таблица 20
Таблица 21
Таблица 22
Таблица 23
6.3. Рекомендуется преимущественно применять автопоезда. 6.4. При перевозке грузов автотранспортом по автомобильным дорогам общей сети СССР надлежит руководствоваться ГОСТ, правилами и нормативами, приведенными в прил. 5. 6.5. Работа тягачей при перевозке воздуховодов в прицелах и полуприцепах на расстояние до 50-60 км должна быть организована по маятниковой схеме. Тягач, как правило, должен обслуживать три прицепа, один из которых стоит под разгрузкой, второй находится в пути, а третий - под нагрузкой. 6.6. Транспортировать воздуховоды по железной дороге следует в полувагонах, вагоны закрытого типа следует использовать в исключительных случаях. 6.7. Воздуховоды с заготовительного предприятия следует доставлять на объект согласно заказам по системам, укомплектованными средствами крепления. 6.8. Последовательность и сроки доставки воздуховодов должны быть определены ППР и контролироваться по графикам. 6.9. Погрузка заготовок на автотранспортные средства на заготовительных предприятиях должна производиться силами предприятия, разгрузка на объекте - силами монтажного участка или участка производственно-технической комплектации (УПТК). 6.10. При перевозках воздуховодов в зависимости от их вида и габаритов следует предусматривать: для воздуховодов небольших сечений - контейнеризацию или пакетирование; для воздуховодов больших сечений - телескопическую укладку; для полуфабрикатов - специальную упаковку. 6.11. Размеры и масса контейнеров (прил. 4) и пакетов должны соответствовать габаритам и грузоподъемности транспортных средств. 6.12. Воздуховоды необходимо устанавливать на транспортное средство вертикально, если они не выходят за пределы габаритов установленных для автотранспорта (см. прил. 5), и габаритов (рис. 4), установленных МПС для перевозки грузов в пределах сети железных дорог СССР колеи 1520 мм на общих условиях (разд. I Технических условий погрузки и крепления грузов). 6.13. При планировании и организации перевозок воздуховодов необходимо обеспечить полную загрузку транспорта с минимальным количеством простоев и холостых пробегов. 6.14. Для укрупненных расчетов потребности в транспортных средствах следует пользоваться исходными данными, приведенными в прил. 6. 6.15. В случае повреждения воздуховодов при погрузке транспортировке внутри монтажной площадки, разгрузке, складировании и монтаже устранение повреждений должно производиться силами монтажного участка Воздуховоды, поврежденные при погрузке на заготовительном предприятии и транспортировке на объекте, должны быть исправлены за счет заготовительного предприятия (УПТК).
Рис. 4. Габарит погрузки 7. ПОГРУЗОЧНО-РАЗГРУЗОЧНЫЕ И ТАКЕЛАЖНЫЕ РАБОТЫ НА ОБЪЕКТАХ7.1. Погрузочно-разгрузочные и такелажные работы на объектах рекомендуется производить с максимальным использованием средств механизации с помощью рабочих, входящих в состав бригад монтажников, а на крупных объектах - специальной бригады такелажников. 7.2. К работам по подъему и перемещению грузов допускаются лица не моложе 18 лет, прошедшие специальное обучение по программе такелажников и получившие соответствующее удостоверение. 7.3. В качестве механизированных грузоподъемных средств на объектах следует использовать лебедки, автопогрузчики, автокраны, стреловые краны на пневмоколесном и гусеничном ходу, башенные и козловые краны. Области применения грузоподъемных средств и данные для расчета потребности в них приведены в прил. 6. Технические характеристики лебедок, автопогрузчиков, подъемников, автокранов стреловых кранов на пневмоколесном и гусеничном ходу приведены в табл. 24-32. Графики грузовысотных характеристик кранов даны в прил. 19. 7.4. Для производства погрузочных работ на объектах рекомендуется использовать преимущественно грузоподъемные средства генподрядчиков (согласно «Положению о взаимоотношениях организаций генеральных подрядчиков с субподрядными организациями» (п. 2.14 настоящего Пособия). Таблица 24
Таблица 25
Таблица 26
Таблица 27
Техническая характеристика подъемника телескопического гидравлического ПТГ-12
Изготовитель - Московский ремонтно-механический завод Главстроймеханизации Техническая характеристика стрелового монтажного крана МКП-16 на пневмоколесном ходу
Таблица 28
Примечание. Над чертой даны значения при работе крана на выносных опорах, под чертой - без выносных опор.
Таблица 29
Примечание. В скобках указана грузоподъемность крана при его работе без выносных опор. Таблица 30
Таблица 32
Техническая характеристика подмостей выдвижных самоходных ПВС-12.01
Примечание. Ход подмостей гусеничный с раздельным приводом, гусениц. Таблица 31
7.5. Строповку воздуховодов и вентоборудования рекомендуется производить инвентарными грузозахватными средствами согласно «Типовым технологическим картам на монтаж систем промышленной вентиляции и кондиционирования воздуха» серии 7.0501 и 7.0502. Стропы следует выбирать в зависимости от вида, массы поднимаемого груза и способа строповки (по табл. 33). Наиболее распространенные стропы и методы строповки приведены на рис. 5-28. 7.6. Все грузозахватные приспособления должны подвергаться периодическому техническому освидетельствованию согласно требованиям «Правил устройства и безопасной эксплуатации грузоподъемных кранов», утвержденных Госгортехнадзором СССР. 7.7. При строповке воздуховодов и вентоборудования более чем одним стропом угол между ветвями стропов не должен превышать 90°. Увеличение угла может вызвать деформацию поднимаемых вентизделий и тары. 7.8. Узлы воздуховодов длиной 12 м и более при подъеме в горизонтальном положении следует стропить, как правило, параллельными стропами или траверсами. 7.9. Строповку воздуховодов и вентоборудования следует производить так, чтобы можно было подать их к месту установки в положении, наиболее близком к проектному. 7.10. Воздуховоды и вентоборудование перед подъемом должны быть очищены от загрязнений и наледи. Отдельные комплектующие детали должны быть закреплены к вентизделиям или поданы отдельно. 7.11. При подъеме воздуховодов и вентоборудования необходимо обеспечить их устойчивость в подвешенном положении. Места подвески груза должны быть расположены выше центра тяжести. 7.12. Поднимаемый груз следует удерживать от вращения оттяжками из пеньковых канатов диаметром 20-25 мм или оттяжками из стальных канатов диаметром 8-12 мм. Для горизонтальных элементов вентсистем (укрупненные узлы воздуховодов) следует применять две оттяжки, для вертикальных (секции кондиционеров, крышные вентиляторы, воздуховоды и др.) - одну. Таблица 33
Рис. 5. Стропы а - облегченный строп с петлями; б - облегченный строп с крюками; в - четырехветвевой строп
Рис. 6. Строповка ВПА-40
Рис. 7. Строповка автономного кондиционера КТР-1-2,0-0,46
Рис. 8. Строповка радиальных (центробежных) вентиляторов исполнения № 1
Рис. 9. Строповка вентиляторов Ц4-70 № 6-8 исполнения № 1
Рис. 10. Строповка вентиляторов Ц4-70 № 6-8 исполнения № 6
Рис. 11. Строповка вентиляторов Ц4-70 № 10, 12,5
Рис. 12. Строповка верхней части кожуха вентиляторов Ц4-76 № 16, 20
Рис. 13. Строповка нижней части кожуха вентиляторов Ц4-76 № 16, 20
Рис. 14. Строповка вала с рамой вентиляторов Ц4-76 № 16, 20
Рис. 15. Строповка осевого вентилятора
Рис. 16. Строповка осевого вентилятора
Рис. 17. Строповка вентилятора ВКР-6,3.30.45.6.01
Рис. 18. Строповка воздушно-тепловой завесы А6,3 СТД 729.00.00.001
Рис. 19. Строповка скруббера
Рис. 20. Строповка циклона типа ЦН
Рис. 21. Строповка упаковки камеры орошения ОКФ
Рис. 22. Строповка упаковки привода вентагрегата
Рис. 23. Строповка упаковки колеса и направляющего аппарата в кожухе
Рис. 24. Строповка упаковки фильтра воздушного ФР-3
Рис. 25. Строповка упаковки клапана
Рис. 26. Строповка упаковки камер КО и ВК
Рис. 27. Строповка воздуховода
Рис. 28. Строповка укрупненного узла, поднимаемого в вертикальном положении 7.13. Места установки и способы крепления такелажных средств (лебедки, тали, полиспасты и др.) должны быть указаны в ППР. Типовые схемы установки и крепления лебедок и блоков приведены в прил. 17. 7.14. При монтаже воздуховодов и вентоборудования подъемные средства следует располагать с таким расчетом, чтобы с одной их установки можно было произвести наибольшее количество простых и безопасных подъемов и перемещений грузов. 7.15. Подъем и перемещение грузов следует осуществлять под руководством производителя работ или мастера, ответственного за безопасность работ. 7.16. До подъема и перемещения грузов необходимо проверить правильность установки такелажных средств и произвести пробный подъем груза на высоту 100-300 мм, во время которого проверить уравновешенность груза на стропах, равномерность натяжения стропов и затяжку узлов и петель. 7.17. Поднимать груз следует плавно, без рывков и раскачивания, не задевая посторонних предметов. 7.18. Во время подъема воздуховодов и вентоборудования все сигналы машинисту крана или мотористу лебедки должен подавать один человек - ответственный, руководитель этих работ.
Рис. 29. Расчетная схема гибкого стропа 7.19. Перед погрузкой воздуховодов на транспортные средства при их складировании должны быть заранее уложены необходимые подкладки. 7.20. Разгружать воздуховоды следует на предварительно подготовленную площадку (склад). 7.21. При пользовании стреловыми самоходными кранами следует руководствоваться «Инструкцией по технике безопасности при эксплуатации стреловых самоходных кранов» (ВСН 274-74). 7.22. Расчет гибких стропов показан на рис. 29. Расчет стропов производится с учетом числа ветвей стропа и угла наклона их к вертикали. Усилие на одну ветвь стропа SН (кгс) определяется по формуле S = 1/соs a = Q/n = mQ/n, где Q - масса груза, кг; п - число ветвей стропа; т - размерный коэффициент, численно равный 1/соs a; a - угол наклона ветви стропа к вертикали. Значение коэффициента для наиболее часто применяемых углов наклона стропов к вертикали приведены ниже. Угол a 0° 15° 30° 45° 60° Коэффициент m 1 1,03 1,15 1,42 2 Выбор диаметра стропа можно производить по табл. 34. Таблица 34
Примечание. Таблица составлена для стальных канатов с группой по временному сопротивлению разрыву в 1,6 кН при запасе прочности, равному 6. Учитывая, что с увеличением угла наклона ветви стропа к вертикали a усилие в ней значительно возрастает, необходимо выбирать угол a наименьшим, одновременно имея в виду, что в этом случае увеличивается длина стропа. 8. СКЛАДИРОВАНИЕ ВОЗДУХОВОДОВ НА ОБЪЕКТЕ И ВНУТРИОБЪЕКТНЫЙ ТРАНСПОРТ8.1. В соответствии с «Положением о взаимоотношениях организаций генеральных подрядчиков с субподрядными организациями» генподрядчик обязан предоставить на весь период монтажа открытые площадки, навесы и закрытые помещения для складирования воздуховодов, вентоборудования и изделий. 8.2. Места расположения складов, их площадь и габариты должны быть определены ППР, согласованы с генподрядчиком. 8.3. Устройство приобъектного склада воздуховодов должно удовлетворять следующим основным требованиям: располагаться вблизи подъездных автомобильных дорог или железнодорожных путей; границы, склада должны отстоять от дороги не менее чем на 1 м; находиться на минимальном расстоянии от объекта монтажа по возможности в зоне действия башенного крана; не мешать производству строительно-монтажных работ; площадки для хранения воздуховодов должны быть тщательно спланированы с уклоном 1-2° для отвода поверхностных вод, засыпаны дренирующим песком или гравием, а в необходимых случаях - иметь кюветы; проходы, проезды и погрузочно-разгрузочные площадки должны быть очищены от мусора, строительных отходов (в зимнее время - от снега и льда) и посыпаны песком, шлаком или золой; хранение вентизделий должно быть организовано с соблюдением правил техники безопасности и пожарной охраны; по углам открытого склада должны быть установлены заградительные столбы, вывешены предупредительные знаки для водителей автотранспорта и указатели с наименованием монтажного управления или участка и места нахождения приемщика грузов; склад должен быть освещен. 8.4. Приобъектные склады должны быть рассчитаны на хранение минимального запаса вентизделий, гарантирующего бесперебойный монтаж систем вентиляции. 8.5. При определении запаса воздуховодов следует руководствоваться расчетными данными, приведенными в табл. 35. Таблица 35
8.6. Ориентировочные данные при определении размера складских площадок (в м2) и запаса воздуховодов в зависимости от расстояния и способа перевозки приведены в табл. 36. При иной продолжительности монтажных работ запас воздуховодов на объекте и площадь склада следует определять по формулам: Р = QN/Т, (1) где Р - запас воздуховодов на объекте, м2; Q - объем монтируемых воздуховодов, м2; N - запас воздуховодов, дней потребности (см. табл. 36); Т - планируемая продолжительность монтажных работ, дн.; F = (1 + kq)Р/q; (2) где F - площадь склада, м2; Р - запас воздуховодов на объекте, м2 [по формуле (1)]; q - средняя нагрузка (принята на 1 м2 площади склада 6 м2 воздуховодов); kq = 0,5 - коэффициент, учитывающий дополнительную площадь склада (проезды, проходы, разгрузочные площадки). Таблица 36
8.7. Складирование и хранение воздуховодов должно быть организовано в соответствии с действующими нормами и с соблюдением таких требований: воздуховоды прямоугольного сечения следует укладывать в штабеля; прямые участки высотой не более 2,7, фасонные детали - не более 2 м; воздуховоды круглого сечения следует устанавливать вертикально; воздуховоды, доставляемые в инвентарных контейнерах, следует хранить в этих контейнерах на специально организованных контейнерных площадках. Хранить воздуховоды и другие изделия в железнодорожных контейнерах запрещается; каждый воздуховод при хранении следует укладывать на деревянные инвентарные подкладки; воздуховоды в штабелях следует размещать с учетом последовательности монтажа: штабеля и контейнеры - снабжать указателями; между штабелями должны быть оставлены проходы шириной в 1 м; через каждые три штабеля следует устраивать проезды для транспорта шириной 3 м. 8.8. По согласованию с генподрядчиком вентизделия можно хранить в помещениях строящегося сооружения. При этом расположение и размеры помещений должны гарантировать возможность применения подъемно-транспортных механизмов для погрузочно-разгрузочных работ. 8.9. В исключительных случаях (при отсутствии или ограниченных размерах складских площадок и помещений) запас воздуховодов на объекте может быть сокращен (но не менее чем до трехсуточного) при условии жесткого выполнения суточного графика доставки воздуховодов на объект. 8.10. Для перемещения воздуховодов и вентоборудования по объекту следует использовать механизированный транспорт и подъемно-транспортное оборудование, применяемое при производстве монтажных работ, а также транспортные средства и оборудование генподрядчика и субподрядных организаций (по согласованию с ними) и арендуемое оборудование. 8.11. Транспортирование воздуховодов, деталей и вентоборудования с помощью ручных приспособлений допускается только при отсутствии механизированного транспорта и в случаях, когда по местным условиям (ровные и твердые дороги, небольшие расстояния - до 200 м, незначительный объем перевозок и др.) целесообразно использовать ручные приспособления. 8.12. Для внутриобъектного транспорта рекомендуются следующие механизированные транспортные средства: вилочные погрузчики грузоподъемностью до 5 т; малогабаритные авто- и тракторные тягачи с прицепными тележками. Технические характеристики транспортных средств, наиболее широко применяемых для внутриобъектного транспорта, приведены в табл. 37, 38. 8.13. Вилочные погрузчики и малогабаритные транспортные машины следует использовать на территории объекта при соответствующих дорожных условиях. В остальных случаях рекомендуется применять тракторные тягачи с прицепами. Таблица 37
Таблица 38
8.14. В одноэтажных и на первом этаже многоэтажных производственных зданий следует применять внутриобъектный транспорт. 8.15. Перемещение воздуховодов и вентоборудования по перекрытиям многоэтажных зданий следует осуществлять с помощью подъемно-транспортного оборудования и приспособлений, предусмотренных ППР для их монтажа, или ручным транспортом. 8.16. К управлению внутриобъектным механизированным транспортом можно допускать только лиц, имеющих права водителя, тракториста или мотоциклиста (в зависимости от вида машины). 8.17. Водители, обслуживающие внутриобъектный транспорт, должны нести ответственность за исправное состояние доверенных им машин. 8.18. При эксплуатации внутриобъектного транспорта водители обязаны соблюдать правила техники безопасности в соответствии со СНиП III-4-80 «Техника безопасности в строительстве». 9. ОРГАНИЗАЦИЯ ТРУДА9.1. Организация труда рабочих должна обеспечивать рост производительности труда, высокое качество выполняемых строительно-монтажных работ и безопасные условия труда. 9.2. Организация труда должна основываться на рациональных формах разделения и кооперации труда, разграничении трудовых процессов, выполняемых рабочими различных профессий и квалификации, применении передовых методов и приемов труда, улучшении организации рабочих мест, условий и охраны труда, развитии социалистического соревнования. 9.3. Основной формой организации труда рабочих должна являться бригадная форма с разбивкой бригады при необходимости на специализированные звенья рабочих. 9.4. Организация труда рабочих должна обеспечивать: применение высокопроизводительных методов и приемов труда в соответствии с проектами производства работ, технологическими картами и картами трудовых процессов; своевременное предоставление каждой бригаде (звену) фронта работ при бесперебойном обеспечении рабочих мест материально-техническими ресурсами и необходимым комплектом технических средств оснащения; применение прогрессивных форм и систем оплаты и стимулирования труда; расширение применения бригадного и коллективного подряда. 9.5. Охрана труда рабочих должна обеспечиваться выдачей администрацией необходимых средств индивидуальной защиты (специальной одежды, обуви и др.), выполнением мероприятий по коллективной защите рабочих (ограждение, освещение, вентиляция, защитные и предохранительные устройства и приспособления и т.д.), санитарно-бытовыми помещениями и устройствами в соответствии с действующими нормами и характером выполняемых работ. Рабочим должны быть созданы необходимые условия труда, питания и отдыха. В процессе производства строительно-монтажных работ должны соблюдаться требования ГОСТов и СНиПов по технике безопасности в строительстве. ЧИСЛЕННЫЙ И КВАЛИФИКАЦИОННЫЙ СОСТАВ БРИГАД. ОПРЕДЕЛЕНИЕ ПОТРЕБНОСТИ В РАБОЧИХ9.6. Монтаж систем вентиляции должны выполнять рабочие соответствующих квалификаций, объединенные, как правило, в комплексные бригады и звенья. В этих бригадах для равномерной и полной загрузки рабочих рекомендуется широко практиковать совмещение профессий. 9.7. При больших объемах работ одинакового характера (монтаж кондиционеров, установка эжекционных доводчиков и др.) необходимо создавать специализированные бригады (звенья), выполняющие ограниченный комплекс монтажных работ. 9.8. Состав комплексных бригад и звеньев следует определять с учетом возможности совмещения профессий. 9.9. Рекомендуемый состав комплексной бригады по монтажу воздуховодов и вентоборудования приведен в табл. 39. Таблица 39
Примечание. Ответственные виды сварки необходимо поручать квалифицированному электросварщику. 9.10. Состав специализированных бригад должен быть определен в ППР в зависимости от характера и объема выполняемых работ, при этом должно сохраняться правильное соотношение принятого квалификационного состава рабочих с разрядом работ. 9.11. Основанием для определения численного и квалификационного состава рабочих должны быть калькуляции затрат труда, принятая технология и сроки производства работ. 9.12. Для укрупненных расчетов потребной численности рабочих следует пользоваться усредненными показателями трудозатрат на монтаж 100 м2 воздуховодов вместе с относящимися к ним вентоборудованием и вентдеталями (табл. 40). Таблица 40
9.13. Состав бригад должен быть постоянным: переформирование, вывод из состава бригады одних рабочих или пополнение новыми рабочими рекомендуется производить в исключительных случаях. 9.14. Бригадирами следует назначать, как правило, наиболее квалифицированных рабочих, имеющих опыт работы звеньевым по основному для данной бригады виду работ, необходимая техническая подготовка которых сочетается с организаторскими способностями. Бригадира должен назначать начальник монтажного управления по представлению прораба, подчиняется бригадир непосредственно мастеру или прорабу. БРИГАДНЫЙ ПОДРЯД9.15. Бригадный подряд предусматривает развитие низового хозяйственного расчета в строительстве на основе научной организации труда и широкого участия коллективов, рабочих в управлении производством. 9.16. Перевод бригад на хозрасчет должен производиться в соответствии с «Положением о новой форме бригадного хозяйственного расчета в строительстве - бригадном подряде», утвержденном Госстроем СССР, Госпланом СССР, Госкомтрудом СССР, Минфином СССР и Стройбанком СССР по согласованию с ВЦСПС от 10 сентября 1976 г. № 55-Д. При этом на строительстве объектов производственного назначения генеральные подрядные и субподрядные организации могут поручать бригадам выполнение отдельных комплексов работ, составляющих часть этапа или соответствовать этапу работ, по которому производятся расчеты с заказчиком. 9.17. Продолжительность строительства этапа или комплекса работ не должна быть более одного года и менее одного месяца. 9.18. Переводу бригад на хозрасчет должна предшествовать разработка: производственных норм расхода материалов и планово-расчетных цен на строительные материалы, конструкции, изделия, работу строительных машин; годовых планов работы бригад, графиков производства и поставки на объект основных строительных материалов, конструкций, изделий и оборудования; калькуляций трудовых затрат и заработной платы, а также определения расчетной стоимости поручаемых бригаде работ. 9.19. Численный и профессионально-квалификационный состав бригад рабочих должен определяться в зависимости от годовых объемов и номенклатуры работ, сроков строительства, достигнутого и планируемого роста производительности труда. 9.20. В договоре, заключаемом монтажной организацией, с каждой бригадой на выполнение работ, бригаде должны устанавливаться следующие показатели: объемы и сроки выполнения работ в соответствии с графиками; расчетная стоимость работ; сумма заработной платы по аккордному наряду; расчетная сумма премии за сокращение нормативного времени по аккордному наряду (за перевыполнение заданий по выработке в натуральных показателях), за достигнутую экономию в зависимости от оценки качества работ, за ввод объекта в эксплуатацию. 9.21. Необходимый комплекс организационно-технических мероприятий и распределение обязанностей и ответственности за внедрение бригадного подряда приведен в прил. 8. 9.22. Учет затрат на производство работ должен обеспечить их сопоставимость с данными по статьям затрат, определяющими расчетную стоимость работ. Фактическая себестоимость работ, выполняемых хозрасчетными бригадами, должна устанавливаться на основе данных первичных документов бухгалтерского учета затрат по каждому объекту, этапу или комплексу работ. Разница между предусмотренной договором расчетной стоимостью и фактической себестоимостью выполненных работ составляет достигнутую хозрасчетной бригадой экономию. 9.23. Оплата труда рабочих должна производиться по сдельно-премиальной системе по аккордному наряду. Окончательный расчет по аккордному наряду, включая премию, должен производиться после выполнения всех работ по данному наряду. 9.24. Хозрасчетная бригада должна премироваться за достижение следующих показателей: сокращение нормативного времени (перевыполнение выработки в натуральных измерителях); ввод объекта в эксплуатацию в установленный срок или досрочно; достигнутой экономией, полученной от снижения расчетной стоимости выполненных работ, при условии своевременного или досрочного окончания строительства объекта в целом, выполнения этапа или комплекса работ. КОЛЛЕКТИВНЫЙ ПОДРЯД9.25. Коллективный подряд представляет собой прогрессивный метод хозяйствования, основанный на новой форме организации и управления, оплаты и стимулирования коллективного труда по конечным результатам. Внедрение коллективного подряда осуществляется в сочетании с мерами по развитию и совершенствованию внутрихозяйственного расчета. Коллективный подряд основывается на принципах расширения хозяйственной самостоятельности треста, предусматривающих: планирование и оценку результатов деятельности треста и входящих в его состав подразделений (СМУ, предприятий, УПТК, обслуживающих хозяйств) как единой хозяйственной организации; выбор способов и методов достижения цели, выбор форм организации труда и распределения фонда заработной платы, проведение экономического маневра за счет соответствующих резервов; оплату труда всех категорий работников в более строгой зависимости от вклада каждого из них в общие результаты труда на основе использования коэффициентов трудового участия; самостоятельную разработку и изменение структуры и штатов в пределах фонда заработной платы, рассчитанного по соответствующему нормативу, без соблюдения соотношений отдельных категорий работников и средних должностных окладов; расширение самоуправления трудового коллектива за счет предоставления его совету права исполнять полномочия трудового коллектива в управлении трестом и его подразделениями и передачи им части управленческих функций; установление договорных отношений между трудовым коллективом треста и вышестоящей организацией, треста и коллективами подразделений; гарантирование оплаты труда за конечные результаты, исходя из стабильного норматива заработной платы на 1 руб. сметной стоимости строительно-монтажных работ, дифференцированного с учетом выполнения графиков работ, независимо от численности работников; усиление заинтересованности коллектива подразделений в выполнении плановых объемов работ с минимальными затратами путем премирования за экономию от снижения плановой себестоимости. 9.26. Внедрение коллективного подряда имеет целью обеспечить планомерный ввод в действие производственных мощностей и объектов с минимальными затратами трудовых, материально-технических и финансовых ресурсов и высоким качеством работ на основе договорных отношений трудового коллектива с администрацией вышестоящей организации. Коллективный подряд применяется в крупных структурных подразделениях: строительно-монтажных управлениях и приравненных к ним подразделениях, подсобных производствах, предприятиях, управлениях производственно-технологической комплектации, автотранспортных, прочих обслуживающих хозяйствах треста и в тресте в целом. 9.27. Положение о коллективном подряде разрабатывается трестами с учетом специфики их производственной деятельности и по согласованию с соответствующими профсоюзными комитетами на базе Основных положений по применению коллективного подряда в строительстве (утвержденных постановлением Госстроя СССР, Госкомтруда СССР и Секретариата ВЦСПС от 9 октября 1986 г.) и Отраслевых методических рекомендаций по переводу на коллективный подряд строительно-монтажного треста и его подразделений, разработанных ВНИПИ труда в строительстве Госстроя СССР от 1986 г. 9.28. При подготовке к переводу строительной организации на коллективный подряд обязательным условием является разработка документации по организации работ на годовую и двухлетнюю программу с увязкой по срокам строительства и обеспечению трудовыми и материально-техническими ресурсами всех объектов, которая включает в себя: сводный график (календарный план) строительства объектов, направленный на достижение ритмичной работы и полной загрузки подразделений (строительных участков и бригад) в плановом периоде и согласованный с участниками строительства, ведомость поставки технологических комплектов строительных материалов, конструкций и оборудования на объекты строительства в увязке с работой подразделений и сроками возведения отдельных зданий (сооружений). 9.29. Ответственность за разработку и реализацию конкретных мероприятий по внедрению коллективного подряда несут соответствующие службы, отделы вышестоящей организации, треста и его подразделений. Для обеспечения координации работ и контроля за их проведением создаются комиссии (группы), возглавляемые одним из заместителей руководителя. Разработка и реализация мероприятий осуществляются с привлечением трудового коллектива и общественных организаций. АТТЕСТАЦИЯ РАБОЧИХ МЕСТ9.30. Основными целями аттестации, рационализации, учета и планирования рабочих мест являются повышение эффективности производства, качества продукции и рациональное использование основных производственных фондов и трудовых ресурсов за счет: ускорения роста производительности труда на основе приведения рабочих мест в соответствие с требованиями научно-технического прогресса, сокращения применения ручного и тяжелого труда, повышения содержательности и привлекательности труда; улучшения использования основных фондов путем ликвидации излишних рабочих мест и рабочих мест с устаревшим оборудованием, концентрации работ на наиболее прогрессивном оборудовании, обеспечения сбалансированности числа рабочих мест и работающих и роста коэффициента сменности работы; улучшения условий труда и техники безопасности на каждом рабочем месте, повышения культуры производства; повышения социальной активности и квалификации работающих, широкого привлечения их к управлению, в том числе к оценке достигнутого уровня производства и определению мер по его совершенствованию. 9.31. Учет рабочих мест является первым этапом работы по их аттестации и предусматривает определение числа рабочих мест, классификацию и группировку их по видам и характеру использования, по категориям занятых на них работников и др. 9.32. Аттестация рабочих мест представляет собой совокупность мероприятий, включающих комплексную оценку каждого рабочего места на его соответствие передовому научно-техническому и организационному уровню, обеспечивающему повышение производительности труда и высокое качество продукции, анализ достигнутого уровня производства. 9.33. Рационализация рабочих мест представляет собой совокупность организационно-технических мероприятий, направленных на совершенствование действующих рабочих мест и улучшение их использования. 9.34. Планирование рабочих мест представляет собой расчет оптимального количества и структуры рабочих мест в целях обеспечения их сбалансированности с трудовыми ресурсами, занятыми в народном хозяйстве, и роста производительности труда. 9.35. Организацию работ по учету, аттестации, рационализации и планированию рабочих мест осуществляют руководители предприятий, организаций совместно с профсоюзными комитетами, с широким привлечением рабочих и служащих, научно-технической общественности, изобретателей и рационализаторов, руководствуясь отраслевыми положениями. 9.36. Работе по аттестации и рационализации рабочих мест предшествует анализ применяемых технологических процессов, организации производства, труда и управления в целом по структурному подразделению для определения прогрессивных, оптимальных направлений совершенствования рабочих мест. 10. МОНТАЖНО-СБОРОЧНЫЕ РАБОТЫ10.1. Монтаж систем вентиляции и кондиционирования воздуха следует производить в соответствии с проектом и требованиями действующих строительных норм и правил, типовых технологических карт (ТТК) 7.05.01 и 7.05.02. Перечень карт дан в прил. 9. 10.2. До начала монтажа должны быть выполнены все предшествующие работы, указанные в разд. 4 настоящего Пособия. 10.3. Монтаж вентиляционных систем следует выполнять одновременно с общестроительными работами или в последовательности, исключающей переделку ранее выполненных работ. 10.4. На крупных промышленных, общественных и уникальных зданиях монтаж вентиляционных систем следует выполнять зонным методом параллельно со строительными работами по мере предоставления фронта работ. 10.5. Зоной может быть вентиляционная камера или группа камер, вентиляционные устройства на этаже или части этажа, воздуховоды в шахте или группе шахт, вентиляционные устройства в межферменном пространстве или на кровле здания и т.п. 10.6. При увязке вентиляционных работ с общестроительными и другими смежными работами следует учитывать местные условия объекта и основные общие правила: устройство приточных вентиляционных камер должно опережать другие работы для обеспечения теплом строящихся зданий; проходы воздуховодов через кровлю должны быть выполнены до устройства кровли; воздуховоды, располагаемые в строительных конструкциях здания (подшивных потолках, ложных стенках, подпольных каналах, вертикальных шахтах и др.), следует монтировать до устройства этих конструкций. При необходимости проверки этих воздуховодов на герметичность, испытания должны быть произведены до изоляции и закрытия воздуховодов строительными конструкциями с составлением акта на скрытые работы; устройство вентиляционных каналов в строительном исполнении должно предшествовать монтажу примыкающих к ним металлических воздуховодов; установка закладных деталей для крепления воздуховодов должна производиться одновременно с монтажом строительных конструкций. МОНТАЖ ВОЗДУХОВОДОВ10.7. Монтаж металлических воздуховодов следует вести способами, предусмотренными «Типовыми технологическими картами на монтаж строительных конструкций» серии ТТК 7.05.01. 10.8. Способ монтажа воздуховодов следует выбирать в зависимости от их положения (горизонтальное, вертикальное), размещение относительно конструкций (внутри или снаружи здания, у стены, у колонн, в межферменном пространстве, в шахте, на кровле здания) и характера здания (одно- или многоэтажное, промышленное, общественное и т.п.). 10.9. В качестве фасонных частей сложной геометрической формы, а также для присоединения вентиляционного оборудования, воздухораспределителей, шумоглушителей и других устройств, расположенных в подшивных потолках, камерах и т.п., следует применять гибкие воздуховоды из стеклоткани СПЛ, металлотканевые, алюминиевой фольги и др. Применение гибких воздуховодов в качестве прямых звеньев не допускается. В целях снижения аэродинамического сопротивления детали из гибких рукавов в смонтированном положении должны иметь минимальную степень сжатия. 10.10. Монтаж металлических воздуховодов должен производиться, как правило, укрупненными блоками в следующей последовательности: разметка мест установки средств крепления воздуховодов; установка средств крепления; согласования со строителями мест расположения и способов крепления грузоподъемных средств; установка грузоподъемных средств; доставка к месту монтажа деталей воздуховодов; проверка комплектности и качества доставленных деталей воздуховодов; сборка деталей воздуховодов в укрупненные блоки; установка блока в проектное положение и закрепление его; установка заглушек на верхних торцах вертикальных воздуховодов, расположенных на высоте до 1,5 м от пола. 10.11. Длина блока определяется размерами сечения и типом соединения воздуховодов, условиями монтажа и наличием грузоподъемных средств. Длина укрупненных блоков горизонтальных воздуховодов, соединяемых на фланцах, не должна превышать 20 м. 10.12. Максимальная длина укрупненных блоков воздуховодов круглого сечения, соединяемых на бандажах, и прямоугольного сечения, соединяемых на шинах и рейках, приведены в табл. 41. 10.13. При конвейерном методе монтажа блоков покрытия промышленных зданий воздуховоды, выхлопные шахты и вентиляционное оборудование, располагаемые в блоках покрытия, следует также монтировать на конвейере. 10.14. Схемы организации рабочей зоны при монтаже воздуховодов даны в прил. 10. 10.15. В процессе монтажа воздуховодов должен осуществляться операционный контроль в соответствии с Картой операционного контроля монтажа металлических воздуховодов (см. с. 79-80). Таблица 41
МОНТАЖ ВЕНТИЛЯТОРОВ10.16. Монтаж вентиляторов следует вести способами, предусмотренными «Типовыми технологическими картами» ТТК 7.05.02.01 ... 7.05.02.04. 10.17. Способы монтажа и порядок выполнения отдельных операций следует выбирать в зависимости от типа (центробежный, осевой, крышный) и размеров вентиляторов и места их установки. 10.18. Монтаж вентиляторов должен производиться в следующей последовательности: приемка помещений венткамер; доставка вентилятора или отдельных его деталей к месту монтажа; установка грузоподъемных средств; строповка вентилятора или отдельных деталей; подъем и горизонтальное перемещение вентилятора к месту установки; установка вентилятора (сборка вентилятора) на опорных конструкциях (фундаменте, площадке, кронштейнах); проверка правильности установки и сборки вентилятора; закрепление вентилятора к опорным конструкциям; проверка работы вентилятора. 10.19. В процессе монтажа вентиляторов должен осуществляться пооперационный контроль в соответствии с Картами операционного контроля. Карта операционного контроля монтажа центробежных вентиляторов
Рис. 30. Выверка зазоров у собранного вентилятора
Рис. 31. Регулировка пружинных виброизоляторов перемещением вентилятора поперек рамы
Рис. 32. Регулировка пружинных виброизоляторов путем их перемещения вдоль рамы
Рис. 33. Проверка балансировки вентилятора
Рис. 34. Проверка правильности установки шкивов Карта операционного контроля монтажа металлических воздуховодов
Таблица 42
Карта операционного контроля монтажа осевых вентиляторов
Карта операционного контроля монтажа крышных вентиляторов
МОНТАЖ ЦЕНТРАЛЬНЫХ КОНДИЦИОНЕРОВ10.20. Монтаж центральных кондиционеров следует вести в соответствии с типовыми технологическими картами 7.05.02.05 … 7.05.02. 07 и заводскими инструкциями, которыми определяется порядок монтажа одного кондиционера независимо от числа и характера расположения кондиционеров в вентиляционной камере. 10.21. Порядок организации работ по монтажу кондиционеров в вентиляционной камере должен быть определен проектом производства работ. 10.22. Монтаж кондиционеров должен производиться в следующей последовательности: приемка помещений вентиляционных камер; приемка секций и узлов кондиционеров; доставка и установка грузоподъемных и монтажных механизмов и приспособлений; доставка секций и узлов кондиционеров к месту монтажа. Минимальные размеры монтажных проемов в стенах и перекрытиях для доставки секций и узлов кондиционеров в вентиляционные камеры приведены в табл. 43; сборка кондиционеров; проверка правильности установки и сборки. Таблица 43
10.23. Способы монтажа кондиционеров следует выбирать в зависимости от места нахождения вентиляционных камер и характера расположения кондиционеров в камере. 10.24. При установке кондиционеров на нулевой отметке сборку секций следует производить с помощью автокранов или автопогрузчиков в подвалах и на этажах и надстройках на кровле зданий - специального козлового устройства, электрическими талями, а в случае невозможности использования этих средств - с помощью лебедок, блоков, талей, закрепляемых к строительным конструкциям здания. 10.25. Схемы организации рабочей зоны и монтажа кондиционеров автокраном и лебедками даны в прил. 11. 10.26. При строительстве крупных объектов монтаж центральных кондиционеров следует выполнять крупными блоками, предварительно собираемыми на специально выделенных площадках укрупнительной сборки, располагаемых в зоне действия грузоподъемных механизмов. 10.27. Блок может представлять собой кондиционер в сборе или часть кондиционера вентагрегат, оросительную камеру, секции и камеры до и после оросительной камеры и т.п. 10.28. Размеры блока, способы его усиления и подачи к месту монтажа должны быть определены в проекте производства работ в зависимости от возможности подачи блока к месту монтажа в собранном виде и наличия соответствующих грузоподъемных механизмов. 10.29. В процессе монтажа кондиционеров должен осуществляться операционный контроль в соответствии с Картой операционного контроля. Карта операционного контроля монтажа центральных кондиционеров
11. ОБЕСПЕЧЕНИЕ КАЧЕСТВА МОНТАЖНЫХ РАБОТ11.1. Высокое качество и надежность вентиляционных работ должны обеспечиваться монтажными организациями путем осуществления мер эффективного контроля на всех стадиях монтажа систем вентиляции. 11.2. Контроль качества монтажных работ должен осуществляться специальными службами, создаваемыми в монтажной организации, оснащенными техническими средствами, обеспечивающими необходимую достоверность и полноту контроля в соответствии с требованиями СНиП 3.01.01-85 «Организация строительного производства» и стандартами Комплексной системы управления качеством строительно-монтажных работ (КС УК СМР). 11.3. Производственный контроль качества монтажных работ должен включать входной контроль рабочей документации, конструкций, изделий, материалов и оборудования, операционный контроль отдельных монтажных процессов или производственных операций и приемочный контроль монтажных работ. 11.4. При входном контроле рабочей документации должна производиться проверка ее комплектности и достаточности содержащейся в ней технической информации для производства работ. При входном контроле изделий, материалов и оборудования следует проверять внешним осмотром соответствие их требованиям стандартов или других нормативных документов и рабочей документации, а также наличие и содержание паспортов, сертификатов и других сопроводительных документов. 11.5. Операционный контроль должен осуществляться в ходе выполнения монтажных процессов или производственных операций и обеспечивать своевременное выявление дефектов и принятие мер по их устранению и предупреждению. При операционном контроле следует проверять соблюдение технологии выполнения монтажных процессов; соответствие выполняемых работ рабочим чертежам строительным нормам, правилам и стандартам. Результаты операционного контроля должны фиксироваться в журнале работ. Операционный контроль должен проводиться постоянно в процессе производства монтажных работ. Основными документами при операционном контроле являются нормативные документы ч. 3 Строительных норм и правил, технологические (типовые технологические) карты, рабочие и монтажные чертежи. 11.6. При приемочном контроле должна производиться проверка соответствия выполненных монтажных работ требованиям проектной и нормативно-технической документации и оценка качества работ. 11.7. На всех стадиях монтажных работ с целью проверки эффективности ранее выполненного производственного контроля должен выборочно осуществляться инспекционный контроль. Инспекционный контроль осуществляется специальными службами, если они имеются в составе монтажной организации, либо специально создаваемыми для этой цели комиссиями. 11.8. По результатам производственного и инспекционного контроля качества строительно-монтажных работ должны разрабатываться мероприятия по устранению выявленных дефектов, при этом учитываться также требования авторского надзора проектных организаций и органов государственного надзора и контроля, действующих на основании специальных положений о них. КОНТРОЛЬ КАЧЕСТВА МОНТАЖНО-СБОРОЧНЫХ РАБОТ НА ОТДЕЛЬНЫХ СТАДИЯХ ИХ ВЫПОЛНЕНИЯ11.9. Стадии производства работ определяются готовностью отдельных конструктивных элементов вентиляционных устройств. 11.10. При осуществлении контроля качества работ на каждой из указанных ниже стадий должны быть проверены. При установке центробежных вентиляторов: соответствие проекту характеристик вентиляторов и электродвигателя; привязка вентилятора к строительным конструкциям; прочность соединения вала электромотора с рабочим колесом вентилятора; соосность вала вентилятора и электродвигателя при соединении их на муфте; выверка параллельности осей электродвигателя и вентилятора при соединении их на клиноременной передаче; балансировка рабочего колеса; прочность установки ограждения ременных передач и муфт; горизонтальность опорной конструкции под вентилятор, установленной на пружинные амортизаторы, и прочность крепления их к строительным конструкциям; надежность крепления вентиляторов к опорным конструкциям; вертикальность вала крышных вентиляторов; плотность фланцевых соединений на входном и выходном патрубках вентилятора; прочность опорных конструкций; зазор между кромкой входного цилиндрического или конического патрубка и краем рабочею колеса. При установке осевых вентиляторов: балансировка лопастей и зазор между кромкой лопасти и внутренней поверхностью обечайки; надежность крепления вентилятора к опорным конструкциям; прочность опорных конструкций. При установке циклонов, скрубберов: привязка циклонов, скрубберов к строительным конструкциям; плотность фланцевых соединений; вертикальность аппаратов; надежность креплений опорных конструкций к основанию; прочность опорных конструкций; надежность крепления аппаратов к опорным конструкциям; плавность работы мигалок. При монтаже кондиционеров: привязка кондиционеров к строительным конструкциям; прочность крепления опорных конструкций к основанию; плотность фланцевых соединений; наличие уплотняющих прокладок в многостворчатых клапанах и плотность прикрытия створок; горизонтальность ч вертикальность собранного кондиционера. При установке отопительно-вентиляционных агрегатов: горизонтальность и вертикальность агрегатов; соответствие проекту смонтированных трубопроводов (обвязки), а также мест расположения воздушных и спускных кранов; надежность крепления к опорным конструкциям; прочность опорных конструкций. При сборке воздуховодов, воздухораспределительных и регулирующих устройств: положение поперечных швов и разъемных соединений воздуховодов относительно строительных конструкций; вертикальность стояков; отсутствие изломов, кривизны и винтообразности на прямых участках воздуховодов; уклоны в разводящих участках воздуховодов, по которым транспортируется воздух с высокой относительной влажностью; тщательность и правильность поставки прокладок во фланцевых соединениях; надежность и внешний вид креплений воздуховодов, воздухораспределительных устройств, зонтов, местных отсосов (особое внимание должно быть обращено на крепления воздуховодов, подлежащих изоляции или уже изолированных); правильность установки мягких вставок; плавность работы регулирующих устройств и удобство управления ими; тщательность покраски воздуховодов и других элементов вентиляционных систем и соответствие вида покраски проекту. При испытании систем - соответствие результатов испытания требованиям СНиПа и особым указаниям проекта. 11.11. Проверка габаритов, размеров и привязок вентиляционных устройств производится путем соответствующих промеров. 11.12. Горизонтальность установленного оборудования и других элементов устройств определяется с помощью уровня. 11.13. Вертикальность установленного оборудования и других элементов устройств определяется с помощью отвеса или уровня. 11.14. Совпадение отметок элементов устройств, установленных на определенном расстоянии друг от друга, определяется с помощью водяного уровня. 11.15. Проверка уклона производится уровнем, устанавливаемым на специальную рейку. 11.16. Правильность затяжки болтов, посредством которых оборудование крепится к опорным конструкциям, определяется следующими признаками: фундаментные болты в напряженном состоянии отзываются на простукивание четким звуком без дребезжания; хорошо затянутая гайка с плотно надетым на нее гаечным ключом пружинит при ударе по рычагу ключа молотком. 11.17. Проверка правильности установки прокладок во фланцевых соединениях воздуховодов производится щупом или путем контрольной разборки одного или нескольких соединений. 11.18. Проверка соосности валов вентиляторов с электродвигателями производится с помощью специального индикатора. Равномерность зазора между муфтами проверяется щупом или штангенциркулем. 11.19. Проверка положения шкивов (при соединении вентиляторов с электродвигателями на клиноременной передаче) производится путем натяжки шнура в плоскости торцов шкивов. При одинаковой ширине шкивов торцы должны лежать на одной прямой. При разной ширине шкивов расстояние до торцовых кромок шкива должно быть одинаковым с обеих сторон шкива (см. рис. 34). 11.20. При проверке баланса колеса вентилятора намечают мелом точку на ободе колеса и приводят его во вращение. После остановки замечают положение отмеченной точки и вновь приводят колесо во вращение. При наличии баланса колесо не должно возвращаться в свое первоначальное положение (см. рис. 33). 12. ИНСТРУМЕНТАЛЬНОЕ ХОЗЯЙСТВО12.1. Общие требования по организации инструментального хозяйства в монтажных организациях устанавливаются ВСН 373-85 Минмонтажспецстроя СССР «Организация инструментального хозяйства монтажного и специализированного строительного управления». 12.2. Основная задача инструментального хозяйства - своевременное оснащение бригад, звеньев и отдельных рабочих слесарно-монтажным, газопламенным и измерительным инструментом, монтажными приспособлениями и средствами малой механизации (в дальнейшем - инструментом) и обеспечение эффективного и безопасного применения указанных изделий на рабочих местах. 12.3. Номенклатура необходимого инструмента для выполнения различных видов строительно-монтажных работ и комплектования им подразделений инструментального хозяйства монтажной организации определяется «Перечнем специального инструмента, монтажных приспособлений и средств малой механизации, рекомендуемых для применения в строительно-монтажных организациях Минмонтажспецстроя СССР» (Единая номенклатура), и «Перечнем ручного немеханизированного инструмента и средств для линейных и угловых измерений, рекомендуемых для применения в строительно-монтажных организациях и на промышленных предприятиях Минмонтажспецстроя СССР» (Единая номенклатура). 12.4. Потребное количество инструмента на бригаду (бригадные технологические комплекты), на 100 рабочих, выполняющих монтаж систем вентиляции на 1 млн. руб. сметной стоимости вентиляционных работ, а также годовую заявочную потребность монтажной организации в инструменте, следует определять по «Нормативам потребности в ручном инструменте, монтажных приспособлениях и средствах малой механизации, для производства различных видов монтажных и специальных строительных работ» (ВСН 470-85). 12.5. Изделия, включенные в ВСН 470-85, подразделяются на изделия постоянного и периодического пользования. Изделия постоянного пользования должны храниться в бригадной инструментальной кладовой (контейнере), периодического - должны находиться в центральной или участковой инструментальных кладовых и при необходимости выдаваться бригаде монтажников во временное пользование. Нормативы потребности в ручном инструменте, монтажных приспособлениях и средствах малой механизации для производства вентиляционных работ даны в таблицах 44, 45. 12.6. В состав инструментального хозяйства, как правило, должны входить следующие подразделения: центральная инструментальная кладовая (ЦИК) с ремонтным отделением; участковые инструментальные кладовые (УИК); бригадные инструментальные кладовые (БИК); передвижная инструментальная мастерская (ПИМ). 12.7. ЦИК с ремонтным отделением является обязательным подразделением инструментального хозяйства и ее следует размещать при производственной базе управления или в непосредственной близости от нее. Работу ЦИК должен возглавлять слесарь-инструментальщик 5-6 разр., являющийся материально ответственным лицом. 12.8. Основные функции ЦИК: получение инструмента с баз снабжения и центрального материального склада; подготовка полученного инструмента к работе; оснащение инструментом участков, бригад, звеньев и отдельных рабочих; хранение и учет движения инструмента; контроль за соблюдением правил эксплуатации инструмента; комплектация и выдача инструмента; проведение периодических проверок, технического обслуживания и текущего ремонта; обеспечение резервного запаса инструмента и запасных частей; проведение инвентаризации; составление актов списания инструмента, клеймение инструмента. 12.9. УИК следует организовывать при производстве монтажных работ на отдельном крупном объекте или значительном удалении участка от ЦИК. УИК должен обслуживать слесарь-инструментальщик не ниже 4-го разр., являющийся материально ответственным лицом. Целесообразность организации УИК определяется руководством управления. 12.10. Основные функции УИК: получение инструмента из ЦИК; оснащение инструментом бригад, звеньев и отдельных рабочих; хранение инструмента и учет его движения; техническое обслуживание, проверка исправности и мелкий текущий ремонт инструмента; контроль за соблюдением правил эксплуатации инструмента. 12.11. ПИМ следует организовывать при наличии удаленных участков или бригад. Она должна осуществлять оперативную связь между центральной, участковыми и бригадными инструментальными кладовыми. Мастерскую должен обслуживать слесарь-инструментальщик 5-го разр., имеющий удостоверение водителя автомобиля. Целесообразность организации ПИМ определяется руководством управления. 12.12. Основные функции ПИМ: своевременная доставка инструмента в УИК и БИК; техническое обслуживание, проверка исправности и мелкий текущий ремонт инструмента непосредственно на рабочих местах; замена неисправного и изношенного инструмента работоспособным; контроль за соблюдением правил эксплуатации инструмента. 12.13. БИК предназначена для хранения бригадного технологического комплекта инструмента. Ее следует организовывать непосредственно на рабочей площадке и размещать в специальном контейнере или здании контейнерного типа. За сохранность инструмента в БИК несет ответственность бригадир. 12.14. Условия хранения инструмента должны соответствовать требованиям соответствующих стандартов, технических условий, паспортов и инструкций по эксплуатации. 12.15. Хранить и учитывать пиротехнический инструмент и патроны к нему следует в соответствии со СНиП III-4-80, «Инструкцией по применению пороховых инструментов при производстве монтажных и специальных строительных работ» (ВСН 410-80), инструкцией по эксплуатации и приказом по управлению. 12.16. При каждой выдаче инструмента следует проверять: комплектность и надежность крепления деталей; внешним осмотром - исправность кабеля, наличие защитного кожуха и т.д.; четкость работы выключателя или пускового устройства; работу на холостом ходу. 12.17. Выдавать инструмент специальный, а также с электрическим и пневматическим приводами разрешается только рабочим, прошедшим производственное обучение и имеющим квалификационную группу по технике безопасности. 12.18. Безопасность эксплуатации инструмента обеспечивается обязательным соблюдением требований ГОСТ 12.2.010-75*, ГОСТ 12.2.013-75*, СНиП III-4-80, ОСТ 36-102.2.03-84, а также технических условий, паспортов и инструкций по эксплуатации инструмента. 12.19. Для обеспечения исправного состояния инструмента необходимо систематически осуществлять техническое обслуживание, текущий и капитальный ремонты. Эти мероприятия следует проводить согласно технической документации заводов-изготовителей с учетом требований СНиП 3.01.01-85. 12.20. Техническое обслуживание должно обеспечивать работоспособность состояния инструмента, уменьшать интенсивность износа деталей и узлов, выявлять и предупреждать неисправности. 12.21. При текущем ремонте производят замену и восстановление отдельных частей инструмента и его регулировку, в результате которого должна быть обеспечена работоспособность инструмента до очередного планового ремонта. 12.22. Капитальный ремонт должен обеспечивать восстановление исправности и полного или близкого к нему проектного ресурса инструмента. В процессе капитального ремонта восстанавливают или заменяют детали и узлы, включая базовые, и проводят их полную регулировку. 12.23. Согласно ГОСТ 12.2.013-75*, техническое обслуживание и ремонт электрических ручных машин и вспомогательного оборудования к ним должен производить персонал, имеющий квалификационную группу по технике безопасности не ниже III. 12.24. Техническое обслуживание и ремонт инструмента необходимо проводить в сроки, предусмотренные графиками, составленными руководителем группы малой механизации и утвержденными главным инженером управления. 12.25. Техническое обслуживание и текущий ремонт инструмента должны выполнять подразделения инструментального хозяйства управления, капитальный ремонт - специализированные предприятия министерства и других ведомств. Сдача инструмента в капитальный ремонт и выдача из ремонта должны производиться в соответствии с требованиями ГОСТ 24408-80*. Таблица 44
* Приводится средняя цена инструмента. Таблица 45
13. ТЕХНИКА БЕЗОПАСНОСТИ13.1. Монтаж систем промышленной вентиляции и кондиционирования воздуха должен производиться в соответствии с требованиями безопасности, санитарии м гигиены труда, устанавливаемыми государственными стандартами системы стандартов безопасности, труда (ССБТ), строительными нормами и правилами по технике безопасности в строительстве, утвержденными Госстроем СССР, правилами и нормами, утвержденными организациями государственного надзора, а также Отраслевым Стандартом ССБТ «Монтаж систем промышленной вентиляции и кондиционирования воздуха. Требования безопасности», ОСТ 36-108-83. 13.2. Монтаж систем промышленной вентиляции и кондиционирования воздуха может выполняться: непосредственно в строящихся зданиях и сооружениях, а также снаружи зданий на строительных площадках; в зданиях действующих предприятий при реконструкции и ремонте вентиляционных установок. 13.3. При выполнении работ по монтажу систем вентиляции и кондиционирования воздуха должны быть учтены требования санитарно-гигиенической оценки условий объекта (допустимая концентрация вредных газов и мелкодисперсной пыли определяется по ГОСТ 12.1.005-76, уровень шума - по ГОСТ 12.1.003-76). 13.4. На строительной площадке или в действующем цехе должно быть обеспечено соблюдение всеми работниками, занятыми на монтаже систем вентиляции и кондиционирования воздуха, правил внутреннего распорядка объекта или цеха, разработанных в соответствии с Типовыми правилами внутреннего распорядка для рабочих и служащих предприятий, учреждений и организаций, утвержденными Госкомтрудом СССР. Допуск посторонних лиц, а также работников в нетрезвом состоянии на территорию строительной площадки, в производственные, санитарно-бытовые помещения и на рабочие места запрещается. 13.5. До начала работ по монтажу систем вентиляции и кондиционирования воздуха на территории действующего предприятия или цеха заказчик (предприятие) и генеральный подрядчик с участием субподрядной организации обязаны оформить акт-допуск, согласно прил. 3 СНиП II-4-80, а при производстве работ повышенной опасности - наряд-допуск, согласно прил. 4 СНиП II-4-80. Ответственность за соблюдением мероприятий, предусмотренных актом-допуском и нарядом-допуском, несут руководители субподрядной организации и действующего предприятия. ТРЕБОВАНИЯ БЕЗОПАСНОСТИ К ТЕХНОЛОГИЧЕСКИМ ПРОЦЕССАМ13.6. Монтаж систем вентиляции и кондиционирования воздуха следует вести только при наличии проекта производства работ, технологических карт или монтажных схем. При отсутствии указанных документов монтажные работы вести запрещается. В проектах производства работ следует предусматривать рациональные режимы труда и отдыха в соответствии с различными климатическими зонами страны и условиями труда. 13.7. Порядок выполнения монтажа систем вентиляции и кондиционирования воздуха, определенный проектом производства работ, должен быть таким, чтобы предыдущая операция полностью исключала возможность производственной опасности при выполнении последующих. Монтаж воздуховодов должен, как правило, производиться крупными блоками с применением подъемных механизмов. 13.8. Монтаж систем вентиляции и кондиционирования воздуха рекомендуется выполнять, используя конвейерный метод монтажа блоков покрытия промышленных зданий. 13.9. При выполнении электросварочных работ для обеспечения защиты людей от опасного и вредного воздействия электрического тока, электрической дуги, электромагнитного поля, статического электричества, а также соблюдения правил пожарной и взрывопожарной безопасности следует выполнять требования ГОСТ 12.1.013-78, ГОСТ 12.1.030-81, ГОСТ 12.3.003-75, ГОСТ 12.1.019-79*, ГОСТ 12.4.004-74*, ГОСТ 12.3.016-79, а также санитарных правил при сварке, наплавке и резке металлов № 1009-73 Министерства здравоохранения СССР. 13.10. Под монтируемым вентиляционным оборудованием или воздуховодами не должны находиться люди. Нельзя закреплять подвешиваемый воздуховод или блок воздуховодов за фермы, перекрытия и другие строительные конструкции в местах, не предусмотренных проектом производства работ. 13.11. Монтаж воздуховодов с лесов, подмостей и площадок, выполненных в соответствии с требованиями ГОСТ 24258-80, должен производиться не менее чем двумя рабочими. 13.12. Совмещения отверстий фланцев при соединении воздуховодов следует производить только оправками. Запрещается проверять совпадение отверстий соединяемых фланцев пальцами рук. 13.13. При монтаже дефлекторов и вентиляционных шахт складирование заготовок и инструмента на кровле, имеющей уклон, допускается только при условии принятия мер, предусмотренных проектом производства работ, против их падения, скольжения по скату или сдувания ветром. 13.14. Предельные значения температур наружного воздуха и силы ветра в данном климатическом районе, при которых следует приостанавливать производство работ на открытом воздухе и прекращать перевозку людей в неотапливаемых транспортных средствах, определяются в установленном порядке исполкомами Советов народных депутатов. 13.15. Не допускается выполнение вентиляционных работ на кровле зданий во время гололеда, тумана, исключающего видимость в пределах фронта работ, грозы и ветра скоростью 15 м/с и более. 13.16. Перемещать тяжелое вентиляционное оборудование и его части необходимо по специально изготовленному настилу с применением катков или специальных тележек. Спускать оборудование в подвал следует по специально сделанной, проверенной на допустимую нагрузку наклонной эстакаде с обязательным использованием тяговой и тормозной лебедок. Торможение спуска оборудования посторонними предметами, в том числе подклиниванием, запрещается. 13.17. Поднимать и устанавливать вентиляционное оборудование на фундаменты, кронштейны или площадки следует с помощью автомобильных или других кранов, домкратов и талей соответствующей грузоподъемности только с разрешения мастера или производителя работ, рабочими, обученными безопасным методам труда и имеющим удостоверения на право управления грузоподъемными механизмами. Установку крупногабаритного и тяжеловесного оборудования следует производить под наблюдением производителя работ или мастера. 13.18. Для предотвращения раскачивания или закручивания поднимаемого вентиляционного оборудования или блоков воздуховодов следует применять оттяжки из пенькового каната. 13.19. Установку вентиляторов, калориферов, деталей кондиционеров и другого вентиляционного оборудования на кронштейны, анкерные болты и другие закладные детали, заделанные в стены или перекрытия, можно производить только после затвердевания цемента и достижения им проектной прочности. 13.20. Работу по монтажу систем вентиляции и кондиционирования воздуха разрешается производить только исправным инструментом. Гаечные ключи должны точно соответствовать размерам гаек и болтов, не иметь сбитых скосов на гранях и заусенцев на рукоятке. Не следует отвертывать или завертывать гайки ключом больших (по сравнению с головкой) размеров с подкладкой металлических пластин между гранями гайки и ключа, а также удлинять гаечные ключи путем присоединения другого ключа или трубы. 13.21. Применять электрические машины (электрифицированный инструмент) следует с соблюдением требований ГОСТ 12.2.013-75* и ОСТ 36-108-83; применять ручные электрические машины (в последующем тексте «машины») допускается только в соответствии с назначением, указанным в паспорте; перед началом работы следует проверить исправность машины: исправность кабеля (шнура), четкость работы выключателя, работу на холостом ходу; при работе машиной класса I следует применять индивидуальные средства защиты (диэлектрические перчатки, резиновые коврики, галоши). Машинами классов II и III разрешается - производить работы без применения индивидуальных средств зашиты. Машина должна быть отключена от сети штепсельной вилкой: при смене рабочего инструмента, установке насадок и регулировке; при переносе машины с одного рабочего места на другое; при перерыве в работе; по окончании работы или смены. Запрещается: оставлять машины без надзора присоединенными к питающей сети; передавать машины лицам, не имеющим права пользоваться ими; работать машинами с приставных лестниц; превышать предельно допустимую продолжительность работы машины, указанную в паспорте; эксплуатировать машину при обнаружении какого-либо повреждения в ней (появлении дыма или запаха, вытекании смазки, появлении повышенного шума или вибрации); Машины должны подвергаться проверке не реже одного раза в 6 мес. 13.22. После окончания работ по монтажу систем вентиляции и кондиционирования воздуха производятся предпусковые индивидуальные и комплексные испытания, которые следует выполнять в соответствии с требованиями СНиП 3.05.01-85 и СНиП 3.05.05-84. Участие представителей вентиляционной, электромонтажной организаций и заказчика в индивидуальных испытаниях является обязательным и оформляется соответствующими записями в «Журнале заявок на прокрутку электропривода совместно с механизмом». Индивидуальные испытания вентиляционного оборудования на холостом режиме проводятся монтажной организацией под руководством выделенного для этой цели инженерно-технического работника. Для проведения индивидуальных испытаний вентиляционного оборудования заказчик назначает ответственное лицо, уполномоченное отдавать распоряжения на подачу и снятие напряжения с электроустановок. Пуск электродвигателей при испытании систем вентиляции и кондиционирования воздуха осуществляется представителем электромонтажной организации. Комплексное опробование оборудования производится заказчиком с участием представителей проектных и подрядных строительных организаций. Монтажные специализированные организации совместно с эксплуатационным персоналом обеспечивают круглосуточное дежурство для наблюдения за работой и правильной эксплуатацией оборудования. Индивидуальные испытания систем вентиляции и кондиционирования воздуха допускаются лишь после полной сборки и установки вентиляционного оборудования, монтажа ограждений движущихся частей, проверки состояния электропроводки, заземления и правильности подключения электропитания. Перед началом комплексного испытания и регулировки системы вентиляции и кондиционирования воздуха необходимо убедиться в отсутствии людей в кондиционерах и приточных камерах, а также удалить все посторонние предметы и инструменты из воздуховодов, фильтров, циклонов. Если при производстве предпусковых испытаний систем вентиляции и кондиционирования воздуха обнаружены посторонние шумы или вибрация оборудования, превышающая допустимую, следует немедленно прекратить испытания. После отключения от электропитания вентиляционного оборудования нельзя влезать и входить внутрь воздуховодов, бункеров и укрытий до полной остановки оборудования. После окончания предпусковых испытаний и регулировки, а также во время перерывов (окончание работ, обед) вентиляционное оборудование должно быть отключено от электропитания. ТРЕБОВАНИЯ БЕЗОПАСНОСТИ К ПРОИЗВОДСТВЕННЫМ ПОМЕЩЕНИЯМ И ПЛОЩАДКАМ, НА КОТОРЫХ ОСУЩЕСТВЛЯЕТСЯ МОНТАЖ13.23. Рабочие места и участки работ при монтаже систем вентиляции и кондиционирования воздуха в темное время суток должны быть освещены в соответствии с нормами освещения строительных площадок (ГОСТ 12046-85). Освещенность должна быть равномерной, без слепящего действия осветительных приспособлений из работающих. Производство работ в неосвещенных местах не допускается. 13.24. До начала работ по монтажу систем вентиляции и кондиционирования воздуха места, опасные для работы и прохода людей, следует согласно проекту производства работ оградить, снабдить надписями и указателями, установить знаки безопасности (по ГОСТ 12.4.026-76*), а при работе в ночное время обозначить световыми сигналами. 13.25. В проектах производства работ необходимо указывать опасные для людей зоны, в которых вредные факторы превышают предельно допустимые концентрации или предельно допустимые уровни. 13.26. Места монтажа должны быть хорошо освещены. Светильники общего освещения, присоединенные к электросети напряжением 127 и 220 В, должны устанавливаться на высоте не менее 2,5 м от уровня земли, пола, настила. При высоте подвеса менее 2,5 м светильники должны подсоединяться к сети напряжением не выше 42 В. 13.27. При монтаже систем вентиляции и кондиционирования воздуха в проектах производства работ следует предусматривать установку крепежных деталей, за которые монтажник систем вентиляции может закрепиться при работе на высоте. ТРЕБОВАНИЯ БЕЗОПАСНОСТИ К ИСХОДНЫМ МАТЕРИАЛАМ13.28. Полимерные материалы и изделия из них должны применяться в соответствии с перечнем, утвержденным Минздравом СССР. При использовании таких материалов и изделий из них необходимо руководствоваться также их паспортами и надписями на таре, в которых они находились. Импортные полимерные материалы и изделия допускается применять только по согласованию с органами Государственного санитарного надзора и при наличии утвержденной в установленном порядке инструкции по их применению. 13.29. Вентиляционные заготовки металлических воздуховодов должны поставляться комплектно в соответствии с ТУ 36-736-78, не иметь перекосов, заусенцев и других дефектов, затрудняющих монтажные работы и могущих привести к травмам работающих с ними слесарей-вентиляционников. 13.30. При выполнении работ по окраске воздуховодов и их деталей, а также герметизации воздуховодов с применением составов, содержащих вредные вещества, следует соблюдать Санитарные правила при окрасочных работах с применением ручных распылителей, утвержденные Минздравом СССР, а также ГОСТ 12.3.016-79 и ГОСТ 12.3.005-75*. ТРЕБОВАНИЯ БЕЗОПАСНОСТИ К РАЗМЕЩЕНИЮ ПРОИЗВОДСТВЕННОГО ОБОРУДОВАНИЯ И ОРГАНИЗАЦИИ РАБОЧИХ МЕСТ13.31. Эксплуатация строительных машин (подъемных механизмов, средств малой механизации), включая техническое обслуживание, должна осуществляться в соответствии с требованиями СНиП III-4-80 и инструкциями заводов-изготовителей. Эксплуатация грузоподъемных механизмов, кроме того, должна производиться с учетом Правил устройства и безопасной эксплуатации грузоподъемных кранов, утвержденных Госгортехнадзором СССР. 13.32. Места выполнения электросварочных работ открытой дугой должны быть ограждены с помощью несгораемых ширм, щитов и т.п. 13.33. При производстве электросварочных работ на открытом воздухе над установками и сварочными постами должны быть сооружены навесы из несгораемых материалов. При отсутствии навесов электросварочные работы во время дождя или снегопада должны быть прекращены. 13.34. Для предохранения от падающих при электросварке капель расплавленного металла и шлака под местом сварки в местах прохода людей необходимо устанавливать плотный помост, покрытый листами кровельного железа или асбестового картона. 13.35. При монтаже вентиляционных устройств на кровлях с уклоном более 20°, а также независимо от уклона на мокрых и покрытых инеем или снегом кровлях рабочие должны применять предохранительные пояса, а также трапы шириной не менее 0,3 м с поперечными планками для упора ног; трапы во время работы должны быть закреплены. ТРЕБОВАНИЯ БЕЗОПАСНОСТИ К ХРАНЕНИЮ И ТРАНСПОРТИРОВАНИЮ МАТЕРИАЛОВ И ОБОРУДОВАНИЯ13.36. Погрузочно-разгрузочные работы следует выполнять в соответствии с ГОСТ 12.3.002-75*, ГОСТ 12.3.009-76*, ОСТ 36-28-78 и ОСТ 36-108-83. 13.37. Погрузочно-разгрузочные работы необходимо выполнять механизированным способом при помощи подъемно-транспортного оборудования и средств малой механизации. Поднимать грузы вручную следует в исключительных случаях, соблюдая нормы, установленные Постановлением Госкомитета по труду и социальным вопросам и Президиума ВЦСПС от 27.01.82 г. № 22/11-1, а также другими действующими документами. 13.38. При погрузке и разгрузке вентиляционных заготовок воздуховодов и их деталей следует применять контейнеры. Во время подъема, опускания и перемещения контейнера рабочим нельзя находиться на нем или внутри него, а также на расположенных рядом контейнерах. 13.39. Строповку и расстроповку грузов следует производить в соответствии с Правилами устройства и безопасной эксплуатации грузоподъемных кранов, утвержденными Госгортехнадзором СССР. 13.40. Подъем крупных вентиляторов, деталей кондиционеров, близких по массе к предельной грузоподъемности механизма, нужно производить в два приема: вначале груз поднимают на высоту 10 см, а затем, убедившись в надежности и исправности строповки,- на полную высоту. Если при проверке строповки обнаружен дефект, то груз следует немедленно опустить на землю. Исправлять строповку при поднятом грузе нельзя. 13.41. Подача материалов, вентиляционных заготовок, оборудования на рабочие места должна осуществляться в технологической последовательности, обеспечивающей безопасность работ. Складировать заготовки и оборудование на рабочих местах следует таким образом, чтобы не создавалась опасность при выполнении работ, не были стеснены проходы и была бы возможность собирать воздуховоды в укрупненные блоки. Необходимо следить за правильным размещением оборудования и заготовок на перекрытиях, избегая сосредоточения и не превышая допустимых нагрузок на 1 м2 перекрытия. 13.42. Вентиляционные заготовки должны храниться в штабелях высотой не более 2,5 м на прокладках и подкладках. Крупногабаритное и тяжеловесное оборудование должно храниться в один ряд на подкладках. 13.43. Зона складирования заготовок и вентиляционного оборудования. На строительной площадке должна быть ограждена и находиться в зоне действующего грузоподъемного крана. Площадка для складирования должна быть спланирована, иметь уклоны для стока воды, а в зимнее время очищаться от снега и льда. 13.44. Взрывоопасные или вредные лакокрасочные и другие материалы разрешается хранить на рабочих местах в количествах, не превышающих сменной потребности. Такие материалы необходимо хранить в плотно закрытой таре в соответствии с требованиями ГОСТ 12.3.005-75*. 13.45. Горючие и легковоспламеняющиеся жидкости (керосин, бензин, а также смазочные материалы и красители) должны храниться в помещениях из несгораемых материалов или заглубленных в землю. 13.46. Между штабелями (стеллажами) на площадках и в складах должны быть предусмотрены проходы шириной не менее 1 м и проезды, ширина которых зависит от габаритов транспортных и погрузочно-разгрузочных средств, обслуживающих склад или площадку. ТРЕБОВАНИЯ БЕЗОПАСНОСТИ К ВЫПОЛНЕНИЮ РАБОТ В УСЛОВИЯХ ДЕЙСТВУЮЩЕГО ПРОИЗВОДСТВА13.47. При выполнении работ по монтажу систем вентиляции и кондиционирования воздуха на территории или в цехах действующих промышленных предприятий контроль за соблюдением санитарно-гигиенических норм должен осуществляться в порядке, установленном для данного предприятия. 13.48. Действующими цехами называются цехи, в которых введен эксплуатационный режим и в которых вентиляционные агрегаты или вентиляционные установки сданы в эксплуатацию или находятся в процессе комплексного опробования. 13.49. При производстве работ в действующих цехах руководители монтажной организации обязаны совместно с администрацией предприятия (цеха) разработать конкретные мероприятия, полностью обеспечивающие безопасность и безвредность труда, как монтажников систем вентиляции, так и рабочих действующего цеха. 13.50. Перед началом монтажных работ мастер или производитель работ должен ознакомить всех монтажников систем вентиляции с правилами техники безопасности, действующими в цехе. 13.51. При выполнении вентиляционных работ в действующих цехах предприятия нельзя работать: около неогражденных движущихся механизмов и станков, люков и отверстий, а также под работающими мостовыми кранами; вблизи электрических устройств и проводов, если они не выключены или не ограждены. 13.52. Работать в местах, в том числе и на кровле, где имеются вытяжные шахты и где возможно превышение предельно допустимых концентраций вредных веществ в воздухе рабочей зоны (ГОСТ 12.1.005-76), допускается только с разрешения администрации цеха и имея при себе противогаз. Не разрешается находиться и работать одному в местах, где возможно выделение газов и нет вблизи людей. 13.53. При монтаже систем вентиляции и кондиционирования воздуха во взрывоопасных помещениях действующих цехов запрещается: применять открытый огонь, а также использовать различные механизмы и инструменты, могущие вызвать искрообразование; бросать на пол металлические детали, инструмент и другие предметы и материалы, которые могут при падении вызвать искру; ходить в обуви, подбитой металлическими гвоздями, подковками и т.п. Переносные лестницы должны иметь омедненные стальные крючки вверху и резиновые подпятники внизу. ТРЕБОВАНИЯ БЕЗОПАСНОСТИ К ПЕРСОНАЛУ, ДОПУСКАЕМОМУ К УЧАСТИЮ В ПРОИЗВОДСТВЕННЫХ ПРОЦЕССАХ13.54. Перед допуском к работе по монтажу систем вентиляции и кондиционирования воздуха руководители организаций обязаны обеспечить обучение и проведение инструктажа по технике безопасности на рабочем месте в соответствии с требованиями ГОСТ 12.0.004-79 и ОСТ 36-108-83. 13.55. К самостоятельным верхолазным работам по монтажу воздуховодов и деталей вентиляционных; систем допускаются лица (рабочие и инженерно-технические работники) не моложе 18 лет, прошедшие медицинский осмотр и признанные годными, имеющие стаж верхолазных работ не менее одного года, прошедшие обучение безопасным методам работы и получившие соответствующее удостоверение и имеющие тарифный разряд не ниже третьего. Рабочие, впервые допускаемые к верхолазным работам, должны в течение одного года работать под непосредственным надзором опытных рабочих, назначенных приказом руководителя, организации. Обучение рабочих безопасным методам и приемам верхолазной работы и проверку их знаний необходимо проводить ежегодно. 13.56. К электросварочным работам допускаются лица, прошедшие соответствующее обучение, инструктаж и проверку знаний правил безопасной работы с оформлением в специальном журнале и имеющие квалификационное удостоверение. К электросварочным работам на высоте не допускаются лица, имеющие медицинские противопоказания, предусмотренные соответствующими перечнями Министерства здравоохранения СССР. 13.57. К работе с ручными электрическими машинами (электрифицированным инструментом) допускаются лица, прошедшие производственное обучение и имеющие квалификационную группу по технике безопасности. 13.58. Рабочие и инженерно-технические работники, занятые на работах, опасных возникновением отравлений или профессиональных заболеваний, должны проходить медицинское освидетельствование в порядке и сроки, установленные приказом Минздрава СССР от 30.05.69 г. № 400. 13.59. К работам с монтажным поршневым пистолетом допускаются рабочие не моложе 18 лет, с незаконченным средним или средним образованием и имеющие квалификацию не ниже третьего разряда, проработавшие на монтажных работах не менее 2 лет и прошедшие медицинский осмотр. 13.60. Ответственность за правильную организацию безопасного ведения работ на объекте возлагается на производителя работ и мастера. 13.61. В целях безопасности ведения работ на объекте бригадир обязан: перед началом смены лично проверить состояние техники безопасности, во всех рабочих местах руководимой им бригады и немедленно устранить обнаруженные нарушения. Если нарушения не могут быть устранены силами бригады или угрожают здоровью или жизни работающих, бригадир должен доложить об этом мастеру или производителю работ и не приступать к работе; постоянно в процессе работы обучать членов бригады безопасным приемам труда, контролировать правильность их выполнения, обеспечивать трудовую дисциплину среди членов бригады и соблюдение ими правил внутреннего распорядка и немедленно устранять нарушения техники безопасности членами бригады; обеспечить безопасную работу членов бригады при работе с кранами, визуальную, радио- или проводниковую связь крановщика, стропальщика и монтажников; организовать работы в соответствии с проектом производства работ; не допускать до работы членов бригады без средств индивидуальной защиты, спецодежды и спецобуви; следить за чистотой рабочих мест, ограждением опасных мест и соблюдением необходимых габаритов; не допускать нахождения в опасных зонах членов бригады или посторонних лиц. Не допускать до работы лиц с признаками заболевания или в нетрезвом состоянии, удалять их с территории строительной площадки. ТРЕБОВАНИЯ БЕЗОПАСНОСТИ К ПРИМЕНЕНИЮ СРЕДСТВ ЗАЩИТЫ РАБОТАЮЩИХ13.62. Руководители монтажных организаций обязаны обеспечить рабочих, инженерно-технических работников и служащих спецодеждой, спецобувью и другими средствами индивидуальной защиты в соответствии с Типовыми нормами бесплатной выдачи рабочим и служащим спецодежды, спецобуви и других средств индивидуальной защиты, утвержденными Госкомтрудом и ВЦСПС № 43/П-2 от 20.02.80 г. 13.63. Все лица, находящиеся на строительной площадке, обязаны носить защитные каски (по ГОСТ 12.4.087-80). Рабочие и инженерно-технические работники без защитных касок и других необходимых средств индивидуальной защиты к выполнению работ по монтажу систем вентиляции и кондиционирования воздуха не допускаются. 13.64. Выдача, хранение и пользование спецодеждой, спецобувью и другими средствами индивидуальной защиты должны осуществляться в соответствии с Инструкцией о порядке обеспечения рабочих и служащих спецодеждой, спецобувью и другими средствами индивидуальной защиты, утвержденной Госкомтрудом СССР и ВЦСПС. 13.65. При работе на высоте монтажники систем вентиляции должны обязательно пользоваться предохранительными поясами (по ГОСТ 12.4.089-80 и ТУ 36-2103-82). 13.66. При работе с монтажным поршневым пистолетом необходимо соблюдать следующие правила техники безопасности: работать только с исправным пистолетом, применять комплектные защитные средства (очки, противошумные наушники/перчатки, каску). При работе на высоте следует прикреплять пистолет к поясу специальным ремнем, исключающим падение пистолета. 13.67. Рабочие и служащие, получающие средства индивидуальной защиты (респираторы, противогазы, предохранительные пояса, каски и др.), обязательно должны быть обучены правилам пользования ими. 13.68. Время выдачи теплой спецодежды определяется администрацией по согласованию с постройкомом профсоюза в зависимости от местных производственных и климатических условий. 13.69. Контроль за состоянием кожи, органов дыхания и слуха осуществляется в соответствии с требованиями ГОСТ 12.4.034-85, ГОСТ 12.4.020-82 и ГОСТ 12.4.051-78. МЕТОДЫ КОНТРОЛЯ ВЫПОЛНЕНИЯ ТРЕБОВАНИЙ БЕЗОПАСНОСТИ13.70. Контроль и осмотр средств индивидуальной и коллективной защиты, используемых при монтаже систем промышленной вентиляции и кондиционирования воздуха, должен производиться ответственным лицом из инженерно-технических работников, назначенных администрацией, в сроки и в соответствии с требованиями нормативно-технической документации на данные средства защиты, в том числе: защитных ограждений - в соответствии с ГОСТ 12.4.059-78; поясов предохранительных - ГОСТ 12.4.089-80; касок защитных - ГОСТ 12.4.087-80 и ТУ 36-2103-82. 13.71. Контроль за состоянием электрооборудования и его безопасной эксплуатацией должен обеспечиваться администрацией строительно-монтажной организации в соответствии с требованиями Правил технической эксплуатации электроустановок потребителей и Правил техники безопасности при эксплуатации электроустановок потребителей и Правил устройства электроустановок, утвержденных Госэнергонадзором Минэнерго СССР. 13.72. Следует осуществлять контроль технического состояния и безопасной эксплуатации: оборудования, зарегистрированного органами Госгортехнадзора СССР - в соответствии с требованиями Правил устройства и безопасности эксплуатации грузоподъемных кранов, утвержденных Госгортехнадзором СССР; монтажной оснастки в соответствии с ГОСТ 24259-80; средств подмащивания - ГОСТ 24258-80; машин строительных и дорожных - ГОСТ 12.2.011-75*. 13.73. Проверка состояния воздушной среды в зоне дыхания в рабочей зоне осуществляется путем определения концентрации вредных веществ в соответствии с ГОСТ 12.1.005-76 в действующих ценах - администрацией предприятия, во всех других случаях - руководством строительно-монтажной организации. 14. ИСПЫТАНИЕ СИСТЕМ ВЕНТИЛЯЦИИ И КОНДИЦИОНИРОВАНИЯ ВОЗДУХА14.1. Завершающей стадией монтажа систем вентиляции и кондиционирования воздуха являются их индивидуальные испытания. К началу индивидуальных испытаний систем следует закончить общестроительные и отделочные работы, по вентиляционным камерам и шахтам, а также закончить монтаж и индивидуальные испытания средств обеспечения (электроснабжения, теплоснабжения и др.). При отсутствии электроснабжения установок вентиляции и кондиционирования воздуха по постоянной схеме подключения электроэнергии по временной схеме и проверку исправности пусковых устройств осуществляет генеральный подрядчик. Под периодом индивидуальных испытаний (именуемым в дальнейшем индивидуальным испытанием) понимается период, включающий монтажные и пусконаладочные работы, обеспечивающие выполнение требований, предусмотренных рабочей документацией, стандартами и техническими условиями, необходимыми для проведения индивидуальных испытаний отдельных машин, механизмов и агрегатов с целью подготовки оборудования к приемке рабочей комиссией для комплексного опробования. Монтажные и строительные организации при индивидуальных испытаниях должны; проверить соответствие фактического исполнения систем вентиляции и кондиционирования воздуха проекту (рабочему проекту) и требованиям настоящего раздела; проверить на герметичность участки воздуховода, скрываемые строительными конструкциями, методом аэродинамических испытаний*; по результатам, проверки на герметичность составить акт освидетельствования скрытых работ по форме обязательного приложения в СНиП 3.01.01-85 (см. прил. 12); __________ * В случае привлечения к проверке на герметичность специализированной наладочной организации эти работы оплачиваются за счет смет на монтаж по договору с монтажной организацией (см. Ценник на пусконаладочные работы № 3, разд. 4, п. 2). При этом работы по присоединению переносного вентилятора к испытываемому участку сети воздуховодов, изготовлению временных подсоединительных переходных элементов воздуховодов и по глушению отверстий в воздуховодах производятся монтажной организацией. испытать (обкатать) на холостом ходу вентиляционное оборудование, имеющее привод, клапаны и заслонки, с соблюдением требований, предусмотренных техническими условиями заводов-изготовителей. Продолжительность обкатки принимается по техническим условиям или паспорту испытываемого оборудования. В случае отсутствия указания продолжительности, обкатка должна осуществляться в течение не менее 1 часа. По результатам испытаний (обкатки) вентиляционного оборудования составляется акт по форме обязательного прил. 1 СНиП 3.05.01-85 (см. прил. 13); осуществить проверку камеры орошения (правильности установки каплеуловителей, исправности шарового клапана, переливного устройства, положения уровня воды в поддоне, равномерности распыления воды форсункам и отсутствия течей при работе циркуляционного насоса); провести индивидуальные испытания систем холодного и горячего водоснабжения, отопления, теплоснабжения; составить акт технической готовности систем для производства пусконаладочных работ (см. прил. 14). 14.2. К пусконаладочным работам относится комплекс работ, выполняемых в период подготовки и проведения индивидуальных испытаний и комплексного опробования оборудования (здесь понятие оборудование охватывает всю технологическую систему объекта, т.е. комплекс технологического и всех других видов оборудования и трубопроводов, электротехнические, санитарно-технические и другие устройства и системы автоматизации, обеспечивающей выпуск первой партии продукции, предусмотренной проектом). Пусконаладочные работы оплачивает заказчик за счет сводной сметы на ввод предприятий, зданий и сооружений в эксплуатацию, утвержденной в установленном порядке. Наладочные организации в период индивидуальных испытаний выполняют наладку систем вентиляции и кондиционирования воздуха на проектные расходы воздуха*. Указанная наладка включает в себя: __________ * Эксплуатация систем в период проведения их наладки на проектные расходы воздуха осуществляется генподрядчиком с участием организаций, выполнивших монтаж оборудования систем. испытание вентиляторов при работе их в сети (определение соответствия фактических характеристик паспортным данным: подачи и давления воздуха, частоты вращения и т.д.); проверку равномерности прогрева (охлаждения) теплообменных аппаратов и проверку отсутствия выноса влаги через каплеуловители камер орошения; испытание и регулировку систем с целью достижения проектных показателей по расходу воздуха в воздуховодах, местных отсосах, по воздухообмену в помещениях и определение в системах подсосов или потерь воздуха, допустимая величина которых через неплотности в воздуховодах и других элементах систем не должна превышать проектных значений в соответствии со СНиП 2.04.05-86; проверку действия вытяжных устройств естественной вентиляции. На каждую систему вентиляции и кондиционирования воздуха оформляется паспорт в двух экземплярах по форме обязательного прил. 15. Отклонения показателей по расходу воздуха от предусмотренных проектом после регулировки и испытания систем вентиляции и кондиционирования воздуха допускаются: ± 10 % по воздухообмену в помещении при условии обеспечения требуемого подпора (разрежения) воздуха в помещении; ± 20 % по расходу воздуха, проходящего через каждый воздухоопределитель или вытяжное устройство, находящиеся в одном помещении и относящиеся к общеобменным установкам вентиляции кондиционирования воздуха; + 10 % по расходу воздуха, удаляемого через местные отсосы и подаваемого через душирующие патрубки. Все строительные и монтажные дефекты и недоделки, выявление в процессе наладки, устраняются соответственно строительными монтажными организациями. Выявляемые в процессе пуска наладки комплексного опробования оборудования дополнительные, не предусмотренные проектной документации работы выполняют заказчик или по его поручению строительные и монтажные организации по документации, оформленной в установленном порядке. Дефекты оборудования, выявленные в процессе индивидуальных испытаний и комплексного опробования оборудования, а также в процессе пусконаладочных работ, должны быть устранены заказчиком (или предприятием-изготовителем) до приемки объекта в эксплуатацию. По окончании индивидуальных испытаний оборудования систем они предъявляются генподрядной организацией для приемки рабочей комиссией. В связи с этим по результатам индивидуальных испытаний монтажной (строительной) организацией представляется рабочей комиссии документация на системы вентиляции и кондиционирования воздуха в соответствии со СНиП III-3-81 (см. прил. 16), наладочной организацией - паспорта по результатам наладки систем проектные расходы воздуха (см. прил. 15). Завершающей стадией индивидуального испытания оборудования систем является подписание рабочей комиссией акта о приемке оборудования для проведения комплексного опробования в соответствии с обязательным прил. 1 СНиП III-3-81. С момента, подписания рабочей комиссией акта о приемке оборудования после индивидуального испытания, оборудование считается принятым заказчиком, который несет ответственность за его сохранность. 14.3. При комплексном опробовании систем вентиляции и кондиционирования воздуха в состав пусконаладочных работ входит: опробование одновременно работающих систем; проверка работоспособности систем вентиляции, кондиционирования воздуха и теплохолодоснабжения при проектных режимах работы с определением соответствия фактических параметров проектным; выявление причин, по которым не обеспечиваются проектные режимы работы систем, и принятие мер по их устранению; опробование устройств защиты, блокировки, сигнализации и управления оборудования; замеры уровней звукового давления в расчетных точках сети и в обслуживаемых помещениях. После выполнения пусконаладочных работ в период комплексного опробования системы вентиляции и кондиционирования воздуха должны обеспечивать необходимые условия воздушной среды в вентилируемых помещениях при существующих в начальный период в них технологических нагрузках. Комплексное опробование систем осуществляется по программе и графику, разработанным заказчиком или по его поручению наладочной организацией и согласованным с генеральным подрядчиком и монтажной организацией. Порядок проведения комплексного опробования систем и устранения выявленных дефектов должен соответствовать обязательному прил. 1 СНиП 3.05.05-84, СНиП III-3-81. Генеральная и субподрядная организации в период комплексного опробования оборудования на эксплуатационных режимах обеспечивают дежурство своего инженерно-технического персонала для оперативного привлечения соответствующих работников к устранению выявленных дефектов строительных и монтажных работ. Завершающей стадией комплексного опробования систем вентиляции и кондиционирования воздуха является составление акта о результатах указанного опробования, который передается рабочей комиссии для составления единого акта о приемке всего оборудования системы по форме обязательного прил. 2 СНиП III-3-81. 14.4. После устранения всех дефектов проекта, монтажа и оборудования, а также обеспечения необходимых условий воздушной среды в вентилируемых помещениях при существующих в начальный период в них технологических нагрузках системы вентиляции и кондиционирования воздуха принимаются Государственной приемочной комиссией в эксплуатацию. 14.5. С целью обеспечения здоровых и безопасных условий труда* на вводимых в эксплуатацию вновь построенных или реконструированных предприятиях в процессе освоения проектной мощности объекта при необеспечении ассимиляции расчетного количества выделяемых вредных веществ, избыточного тепла и влаги заказчиком должна быть выполнена наладка систем вентиляции и кондиционирования воздуха на санитарно-гигиенические (технологические) условия воздушной среды вентилируемых помещений в соответствии с требованиями ГОСТ 12.1.005-76, ГОСТ 12.4.021-75, норм и правил с момента ввода объекта в эксплуатацию. Методика выполнения этих работ приведена в «Рекомендациях по испытанию и наладке систем отопления, вентиляции и кондиционирования воздуха». ___________ См. п. 1.3 СНиП III-3-81. Качественные показатели испытания и наладки систем вентиляции и кондиционирования воздуха на санитарно-гигиенические (технологические) условия проверяются при расчетных нагрузках технологического оборудования в обслуживаемых помещениях. Наладочные работы проводятся по программе, составленной на основе предварительного обследования и согласованной с заказчиком. Программы работ по системам вентиляции и кондиционирования, а также по теплохолодоснабжению и автоматике должны быть увязаны между собой. Программа должна определять объем работ в зависимости от назначения и характеристики объекта и содержать данные о цели, последовательности и методике работы по испытанию и наладке. 14.6. Ответственность заказчиков, проектных, строительно-монтажных и наладочных организаций. Заказчики (застройщики) несут ответственность за своевременную подготовку к эксплуатации и выпуску продукции (оказанию услуг) вводимых в действие объектов (укомплектование их кадрами, обеспечение сырьем, энергоресурсами и др.), проведение комплексного опробования (вхолостую и на рабочих режимах) оборудования с участием проектных, строительных и монтажных организаций, а при необходимости и заводов - изготовителей оборудования, за наладку технологических процессов, ввод в эксплуатацию производственных мощностей и объектов в установленные сроки, выпуск продукции (оказание услуг) и освоение проектной мощности в сроки, предусмотренные действующими нормами. Проектные организации несут ответственность за соответствие мощностей и других технико-экономических показателей, введенных в эксплуатацию объектов, мощностям и показателям, предусмотренным проектом, и за решение всех связанных с проектированием вопросов, возникающих в процессе приемки объектов в эксплуатацию и освоения их проектной мощности. Строительные и монтажные организации несут ответственность за выполнение строительных и монтажных работ в соответствии с проектом и в установленные сроки, надлежащее качество их работ, проведение индивидуальных испытаний смонтированного ими оборудования, своевременное устранение недоделок, выявленных в процессе приемки строительных и монтажных работ и комплексного опробования оборудования, за своевременный ввод в действие производственных мощностей и объектов. Наладочные организации несут ответственность за комплексное выполнение пусконаладочных работ и наладку систем вентиляции и кондиционирования воздуха на санитарно-гигиенические (технологические) условия воздушной среды вентилируемых помещений, надлежащее качество этих работ с обеспечением эксплуатационной эффективности систем и нормируемых параметров воздуха в обслуживаемых помещениях. ПРИЛОЖЕНИЕ 1Монтажные расстояния
Рис. 1. Минимальные монтажные расстояния от строительных конструкций до воздуховодов
Рис. 2 Минимальные монтажные расстояния от инженерных коммуникаций до воздуховодов
Рис. 3. Минимальные монтажные расстояния между воздуховодами ПРИЛОЖЕНИЕ 2Материалы для воздуховодов
Примечания: 1. Воздуховоды из асбестоцементных конструкций не допускается применять в системах приточной вентиляции. 2. Воздуховоды из стали листовой холоднокатаной и горячекатаной должны иметь покрытие, стойкое к транспортируемой среде. ПРИЛОЖЕНИЕ 3Монтажные размеры и площади поверхностей прямых участков, отводов и переходовПрямые участки круглого сечения Таблица 1
Рис. 1. Переход круглого сечения Таблица 2
Продолжение табл. 2
Примечание. В таблице приведены: над чертой - длина перехода, под чертой - площадь поверхности.
Рис. 2. Отводы круглого сечения 1 - стакан; 2 - звено Таблица 3
Примечание. В таблице для отводов диаметром 100-630 мм включительно приведены размеры с учетом увеличения длины стакана на 45 мм под фланец. Прямые участки прямоугольного сечения Таблица 4
Рис. 3. Отвод прямоугольного сечения с углом 90° Таблица 5
Рис. 4. Отвод прямоугольного сечения с углом 45° Таблица 6
Рис. 5. Переход прямоугольного сечения Таблица 7
Рис. 6. Переход с круглого сечения на прямоугольное Таблица 8
Продолжение табл. 8
Продолжение табл. 8
Продолжение табл. 8
Примечание. В таблице приведены примеры: над чертой - длина перехода, под чертой - площадь поверхности. ПРИЛОЖЕНИЕ 4Характеристика контейнеров для перевозки воздуховодов и вентизделий
ПРИЛОЖЕНИЕ 5Перечень ГОСТов и правила автоперевозок1. ГОСТ 21398-76* «Автомобили грузовые. Общие технические требования». 2. ГОСТ 10000-75* «Прицепы и полуприцепы транспортные. Общие технические требования». 3. ГОСТ 24098-80* «Полуприцепы контейнеровозы. Типы. Основные параметры и размеры». 4. ГОСТ 3163-76* «Прицепы и полуприцепы автомобильные. Общие технические требования». 5. Правила дорожного движения, действующие по всей территории СССР с 1 января 1987 г. Предельные габариты автотранспортных средств с грузом
Для перевозки автотранспортом общего назначения груза, размеры которого превышают хотя бы один из приведенных в таблице, либо выступающего за заднюю точку габарита транспортного средства более чем на 2 м, требуется разрешение органов Госавтоинспекции. ПРИЛОЖЕНИЕ 6Исходные данные для ориентировочного определения потребности в транспортных средствах для перевозки воздуховодовСредняя загрузка бортовой машины с прицепом 250 м2; средняя загрузка седельного тягача с полуприцепом 190 м2; средняя загрузка одного четырехосного полувагона 350 м2; количество автомашин с прицепами для перевозки 100000 м2 воздуховодов за 1 год на расстояние до 100 км, - 2 шт. ПРИЛОЖЕНИЕ 7Область применения грузоподъемных механизмов, монтажных вышек и подмостей1. Грузоподъемные средства необходимо выбирать в зависимости от массы и габаритов вентооборудования и изделий, высоты их подъема и местных условий. 2. Монтажные вышки и подмости следует подбирать в зависимости от высоты, на которой будут производиться монтажные работы, от количества людей и деталей, которые должны находиться в люльке (корзине, площадке) и от особенностей здания или сооружения. 3. Выбранные грузоподъемные механизмы, монтажные вышки и подмости должны соответствовать технологическому процессу монтажа вентиляции на объекте и быть экономически целесообразными. 4. Возможные области применения грузоподъемных механизмов, монтажных вышек и подмостей приведены в таблице.
ПРИЛОЖЕНИЕ 8
Необходимый комплекс организационно-технических мероприятий и распределение обязанностей и ответственности за внедрение бригадного подряда в организациях треста____________на 19 __ г.
ПРИЛОЖЕНИЕ 9Перечень типовых технологических карт на монтаж воздуховодов и вентиляционного оборудования серии ТТК 7.05.01 и 7.05.02Перечень 7.05.01.01. Монтаж горизонтальных воздуховодов в здании 7.05.01.02. Монтаж горизонтальных воздуховодов по наружной стене здания 7.05.01.03. Монтаж горизонтальных воздуховодов по эстакаде 7.05.01.04. Монтаж вертикальных воздуховодов по наружной стене здания 7.05.01.05. Монтаж вертикальных воздуховодов в здании методом «наращивания снизу» 7.05.01.06. Монтаж вертикальных воздуховодов по Наружной стене здания методом «наращивания снизу» 7.05.01.07. Монтаж вертикальных воздуховодов укрупненными узлами методом «наращивания сверху» в здании 7.05.01.08. Монтаж вертикальных воздуховодов на кровле здания 7.05.01.09. Монтаж вертикальных воздуховодов на кровле здания с помощью мачты 7.05.01.10. Монтаж вертикальных воздуховодов на кровле здания с помощью падающей мачты 7.05.01.11. Монтаж бесфланцевых воздуховодов 7.05.01.12. Монтаж вертикальных воздуховодов с помощью специальных захватов 7.05.01.13. Монтаж воздуховодов, совмещенный с конвейерной Сборкой блоков покрытия промышленных зданий 7.05.01.14. Монтаж панельных воздуховодов 7.05.01.15. Монтаж гибких воздуховодов Перечень типовых технологических карт на монтаж вентиляционного оборудования серии ТТК 7.05.02 7.05.02.01. Монтаж центробежных вентиляторов, исполнение № 6 7.05.02.02. Монтаж центробежных вентиляторов, исполнение № 1 7.05.02.03. Монтаж осевых вентиляторов 7.05.02.04. Монтаж крышных вентиляторов 7.05.02.05. Монтаж центральных кондиционеров 7.05.02.06. Монтаж автономных кондиционеров 7.05.02.07. Монтаж эжекционных доводчиков 7.05.02.08. Монтаж вентиляционно-приточных агрегатов 7.05.02.09. Монтаж фильтров 7.05.02.10. Монтаж скрубберов и циклонов 7.05.02.11. Монтаж пластинчатых глушителей 7.05.02.12. Монтаж трубчатых глушителей 7.05.02.13. Монтаж воздухоприемных, воздухораспределительных и регулирующих устройств 7.05.02.14. Монтаж воздушных завес ПРИЛОЖЕНИЕ 10Схемы организации рабочей зоны при монтаже воздуховодов
Рис. 1. Схема организации работ при монтаже воздуховодов подъемным рольгангом в блоках. покрытия на конвейере 1 - контейнеры для воздуховодов; 2 - столы монтажные; 3 - подъемный рольганг
Рис. 2. Установка воздуховода в блоке покрытия с подъемным рольгангом 1 - укрупненный узел воздуховода; 2 - контейнер для транспортировки; 3 - подъемный рольганг; 4 - столы монтажные
Рис. 3. Варианты расположения блоков на конвейере
Рис. 4. Схема организации работ на конвейере сборки блоков покрытия 1 - автокран; 2 - автопогрузчик, оборудованный стрелой-консолью
Рис. 5. Установка воздуховода в блоке покрытия автопогрузчиком со стрелой-консолью 1 – автопогрузчик; 2 - стрела-консоль; 3 - узел воздуховода
Рис. 6. Установка воздуховода в блоке покрытия автопогрузчиком с фермой-контейнером 1 - автопогрузчик; 2 - ферма-контейнер
Рис. 7. Схема организации рабочей зоны при монтаже воздуховодов по наружной стене здания 1 - консоль с блоком; 2 - лебедка; 3 - автогидроподъемник; 4 - траверса; 5 – оттяжка; 6 - блок
Рис. 8. Схема организации рабочей зоны при монтаже горизонтальных воздуховодов в здании 1 - лебедка; 2 - траверса; 3 - укрупненный узел воздуховода; 4 - подвески
Рис. 9. Схема организации рабочей зоны при монтаже горизонтальных воздуховодов на эстакаде 1 - укрупненный узел воздуховода; 2 - траверса; 3 - автокран; 4 - автогидроподъемник
Рис. 10. Схема организации рабочей зоны при монтаже вертикальных воздуховодов по наружной стене здания 1 - укрупненный узел воздуховода; 2 - полуавтоматический строп; 3 - лебедка 4 - блок; 5 - консоль; 6 - кронштейны; 7 - растяжка Зависимость длины поднимаемого узла вертикального воздуховода от его диаметра и толщины стенки
Рис. 11. Схема организации рабочей зоны при монтаже вертикальных воздуховодов в здания методом «наращивания снизу»
Рис. 12. Схема организации рабочей зоны при монтаже вертикальных воздуховодов на кровле здания с помощью мачты 1 - воздуховод; 2 - мачта; 3 - монтажно-тяговый механизм; 4 - растяжка; 5 - талреп; 6 - шарнир; 7 - подставка
Рис. 13. Схема организации монтажной зоны при монтаже вертикальных воздуховодов 1 - воздуховод; 2 - мачта; 3 - монтажно-тяговый механизм; 4 - растяжка, 5 - тяга; 6 - шарнир; 7 - подставка; 8 - хомут; 9 - инвентарный строп; 10 - подкадки Выбор вспомогательной мачты
Рис. 14. График зависимости диаметра вспомогательной мачты от массы поднимаемого воздуховода при длине 6-15 м Пример: Требуется подобрать мачту для подъема шахты длиной 15 м диаметром 900 мм из листовой стали d = 2 мм. Подсчитываем, что масса шахты равна 860 кг. На горизонтальной оси находим точку, соответствующую массе шахты - 860 кг. Из этой точки восставляем перпендикуляр до пересечения с кривой l = 15 м. Из точки пересечения проводим горизонтальную линию до пересечения с вертикальной осью. Определим, что диаметр мачты должен быть 105 мм. Принимаем диаметр мачты 108´4 мм (см. примеч. 2). Примечания: 1. Толщина стенки трубы для мачты должна быть не менее 4 мм. 2. Если при подборе мачты диаметр трубы не будет соответствовать стандартным размерам, то принимается ближайший больший диаметр. 3. При массе поднимаемого узла до 100 кг диаметр мачты подбирается, как для узла массой 100 кг. ПРИЛОЖЕНИЕ 11Схемы организации рабочей зоны и монтажа кондиционеров автокраном и лебедками
Рис. 1. Схема организации монтажа кондиционера 1 - камера орошения; 2 - вентиляторный агрегат; 3 - камеры и секции кондиционера
Рис. 2. Схема монтажа кондиционера автокраном
Рис. 3. Схема монтажа кондиционера двумя лебедками ПРИЛОЖЕНИЕ 12Акт освидетельствования скрытых работ
РЕШЕНИЕ КОМИССИИ Работы выполнены в соответствии с проектно-сметной документацией, стандартами, строительными нормами и правилами и отвечают требованиям их приемки. На основании изложенного разрешается производство последующих работ по устройству (монтажу) ________________________________________________________________________________________________________ ________________________________________________________________________________ (наименование работ и конструкций) Представитель технического надзора заказчика ______________________________ (подпись) Представитель строительно- монтажной организации _________________________ (подпись) ПРИЛОЖЕНИЕ
13
|
|||||||||||||||||||||||||||||||||||||||||||||||||||||||||||||||||||||||||||||||||||||||||||||||||||||||||||||||||||||||||||||||||||||||||||||||||||||||||||||||||||||||||||||||||||||||||||||||||||||||||||||||||||||||||||||||||||||||||||||||||||||||||||||||||||||||||||||||||||||||||||||||||||||||||||||||||||||||||||||||||||||||||||||||||||||||||||||||||||||||||||||||||||||||||||||||||||||||||||||||||||||||||||||||||||||||||||||||||||||||||||||||||||||||||||||||||||||||||||||||||||||||||||||||||||||||||||||||||||||||||||||||||||||||||||||||||||||||||||||||||||||||||||||||||||||||||||||||||||||||||||||||||||||||||||||||||||||||||||||||||||||||||||||||||||||||||||||||||||||||||||||||||||||||||||||||||||||||||||||||||||||||||||||||||||||||||||||||||||||||||||||||||||||||||||||||||||||||||||||||||||||||||||||||||||||||||||||||||||||||||||||||||||||||||||||||||||||||||||||||||||||||||||||||||||||||||||||||||||||||||||||||||||||||||||||||||||||||||||||||||||||||||||||||||||||||||||||||||||||||
|
выполненного в _________________________________________________________________ (наименование объекта строительства, здания, цеха) г. _________ «___» __________ 198 __ г. Комиссия в составе представителей: заказчика _______________________________________________________________________ (наименование организации, ________________________________________________________________________________ должность, инициалы, фамилия) генерального подрядчика _________________________________________________________ (наименование организации, ________________________________________________________________________________ должность, инициалы, фамилия) монтажной организации __________________________________________________________ (наименование организации, ________________________________________________________________________________ должность, инициалы, фамилия) составила настоящий акт о нижеследующем: 1. ______________________________________________________________________________ (вентиляторы, насосы, муфты, самоочищающиеся фильтры ________________________________________________________________________________ с электроприводом, регулирующие клапаны систем вентиляции (кондиционирования ________________________________________________________________________________ воздуха) (указываются номера систем) прошли обкатку в течение ____________________________ согласно техническим условиям, паспорту. 2. В результате обкатки указанного оборудования установлено, что требования по его сборке и монтажу, приведенные в документации предприятий изготовителей, соблюдены и неисправности в его работе не обнаружены. Представитель заказчика ____________________ (подпись) Представитель генерального подрядчика ____________________ (подпись) Представитель монтажной организации ____________________ (подпись) |
|
________________________________________________________________________________ (наименование систем вентиляции, кондиционирования воздуха) (форма) г. ___________ «____» ___________198 __ г. объект, здание, цех _______________________________________________________________ (наименование) Комиссия в составе: представителей ________________________________________________ заказчика _______________________________________________________________________ (наименование, ФИО, должность) наладочной организации___________________________________________________________ (наименование, ФИО, должность) проектной организации ___________________________________________________________ (наименование, ФИО, должность) генподрядной организации ________________________________________________________ (наименование, ФИО, должность) монтажной организации __________________________________________________________ (наименование, ФИО, должность) составили настоящий акт в том, что смонтированные системы и оборудование ________________________________________________________________________________ (номера систем или их обозначение) |
в количестве ________ систем (оборудования) осмотрены с целью определения их технической готовности к производству наладки на проектные расходы воздуха.
В результате осмотра систем и ознакомления с документацией, подтверждающей выполнение монтажных работ при индивидуальных испытаниях, установлено, что:
1. Строительно-монтажные работы выполнены согласно проектной документации, требованиям строительных норм и правил производства и приемки работ, действующим стандартам и техническим условиям.
2. Монтажной организацией выполнены следующие работы в процессе индивидуальных испытаний (перечисляются работы, указанные в п. 4.17 СНиП 3.05.01-85).
РЕШЕНИЕ КОМИССИИ:
Монтажные работы выполнены в соответствии с проектной документацией, стандартами, техническими условиями, строительными нормами и правилами производства и приемки работ. Системы подготовлены к производству наладки их на проектные расходы воздуха.
|
Представитель заказчика _________________ (подпись) Представитель наладочной организации _________________ (подпись) Представитель проектной организации _________________ (подпись) Представитель генподрядной организации _________________ (подпись) Представитель монтажной организации _________________ (подпись) |
________________________________________________________________________________
(наименование ведомства,
________________________________________________________________________________
наладочной организации)
Объект _________________________________________________________________________
Зона (цех) _______________________________________________________________________
А. Общие сведения
1. Назначение системы ____________________________________________________________
________________________________________________________________________________
2. Местонахождение оборудования системы__________________________________________
________________________________________________________________________________
Б. Основные технические характеристики оборудования системы
1. Вентилятор
|
Данные |
Тип |
№ |
Диаметр колеса, Dном |
Подача, м3/ч |
Полное давление, Па |
Диаметр шкива, мм |
Частота вращения, с-1 |
|
По проекту |
|
|
|
|
|
|
|
|
Фактически |
|
|
|
|
|
|
|
Примечание ________________________________________________________________________________
________________________________________________________________________________
2. Электродвигатель
|
Данные |
Тип |
Мощность, кВт |
Частота вращения, с-1 |
Диаметр шкива, мм |
Вид передачи |
|
По проекту |
|
|
|
|
|
|
Фактически |
|
|
|
|
|
Примечание _______________________________________________________________________________
________________________________________________________________________________
3. Воздухонагреватели, воздухоохладители
|
Данные |
Тип или модель |
Количество |
Схема |
Вид и параметры теплохладоносителя |
Опробование* теплообменников на рабочее давление (выполнено, не выполнено) |
|
|
обвязки по теплохладоносителю |
расположения по воздуху |
|||||
|
По проекту Фактически |
|
|
|
|
|
|
|
По проекту Фактически |
|
|
|
|
|
|
Примечание ________________________________________________________________________________
__________
* Выполняется монтажной организацией с участием заказчика (наладочной организации).
4. Пылегазоулавливающее устройство
|
Данные |
Наименование |
№ |
Количество |
Расход воздуха, м3/ч |
% подсоса (выбив.) |
Сопротивление, Па |
|
По проекту Фактически |
|
|
|
|
|
|
Примечание ________________________________________________________________________________
5. Увлажнитель воздуха
|
Данные |
Насос |
Электродвигатель |
Характеристика увлажнителя |
|||||
|
тип |
подача, м3/ч |
давление перед форсунками, кПа |
частота вращения |
тип |
мощность, кВт |
частота вращения, с-1 |
||
|
По проекту Фактически |
|
|
|
|
|
|
|
|
Примечание ________________________________________________________________________________
6. Воздухонагреватели, воздухоохладители зональные
|
Данные |
Тип |
Количество |
Схема |
Вид и параметры теплохладоносителя |
Опробование* теплообменников на рабочее давление (выполнено, не выполнено) |
|
|
обвязки по теплохладоносителю |
расположения по воздуху |
|||||
|
По проекту Фактически |
|
|
|
|
|
|
___________
* Выполняется монтажной организацией с участием заказчика (наладочной организацией)
________________________________________________________________________________
По проекту
Фактически
________________________________________________________________________________
По проекту
Фактически
________________________________________________________________________________
Примечание ________________________________________________________________________________
В. Расходы воздуха по помещениям (по сети)
|
№ мерного сечения |
Наименование помещений |
Расход воздуха, м3/ч |
Невязка, % (отклонения показателей) |
|
|
фактически |
по проекту |
|||
|
|
|
|
|
|
|
|
|
|
|
|
Схема системы вентиляции (кондиционирования воздуха)
Примечание. Указываются выявленные отклонения от проекта (рабочего проекта) и их согласование с проектной организацией или устранение.
Представитель заказчика
(пусконаладочной организации) _____________________
(подпись, ФИО)
Представитель проектной организации _____________________
(подпись, ФИО)
Представитель монтажной организации _____________________
(подпись, ФИО)
1. Комплект рабочих чертежей на строительство предъявляемого к приемке объекта, разработанных проектными организациями, с надписями о соответствии выполненных в натуре работ этим чертежам или внесенным в них изменениям, сделанными лицами, ответственными за производство строительно-монтажных работ, согласованными с авторами проекта. Указанный комплект рабочих чертежей является исполнительной документацией.
2. Сертификаты, технические паспорта или другие документы, удостоверяющие качество материалов, оборудования, механизмов, конструкций и деталей, примененных при производстве строительно-монтажных работ.
3. Акты освидетельствования скрытых работ.
4. Акты индивидуального испытания смонтированного оборудования, акты испытания технологических трубопроводов, внутренних систем холодного и горячего водоснабжения, канализации, отопления и вентиляции, кондиционирования воздуха и дренажных устройств.
5. Акты испытания устройств, обеспечивающих взрывобезопасность, пожаробезопасность и молниезащиту.
6. Журналы производства работ и авторского надзора проектных организаций, материалы обследований и проверок в процессе строительства органами государственного и другого надзора.
Вся документация, перечисленная в пп. 1-6 настоящего Пособия, после окончания работы рабочей комиссии должна быть передана заказчику (застройщику).

Рис. 1. Крепление лебедки
а - за колонну здания; б - за кирпичную стену


Рис. 2. Установка отводного блока
а - схема расположения отводного блока перед лебедкой; б - крепление отводного блока к анкеру; в - крепление блока к консоли; 1 - блок; 2 - строп из стального каната; 3 - консоль; 4 - инвентарная металлическая подкладка

Рис. 3. Установка барабанной лебедки
Q1 = k(Tn - Ql)/l1,
где k - коэффициент устойчивости лебедки (обычно k = 2); Т - усилие в тросе, идущем на лебедку, кН; Q - масса лебедки, т; Q1 - масса балласта, т; l - расстояние от ребра опрокидывания рамы до оси, проходящей через центр тяжести лебедки, м; l1 - расстояние от ребра опрокидывания до оси, проходящей через центр тяжести балласта, м.

Рис. 4. Крепление монтажно-тягового механизма
а - за колонну; б - за стену; в - за перекрытие; 1 - монтажно-тяговый механизм; 2 - инвентарный строп; 3 - колонна; 4 - подкладки
|
СОГЛАСОВАНО |
|
УТВЕРЖДАЮ |
|
____________________________________ |
|
___________________________________ |
|
(Наименование организации) |
|
(Наименование организации) |
|
____________________________________ |
|
___________________________________ |
|
(личная подпись) (расшифровка подписи) |
|
(личная подпись) (расшифровка подписи) |
|
____________________________________ |
|
___________________________________ |
|
(дата) |
|
(дата) |
________________________________________________________________________________
(наименование организации - разработчика ППР)
Разработать ППР на монтаж системы _______________________________________________
1. Наименование объекта строительства _____________________________________________
2. Монтажная организация
3. Этапы строительства
4. Календарный план или директивный график монтажа
5. Исходные данные
6. Особые условия монтажа
7. Количество, типы и грузоподъемность машин, механизмов и трансфертных средств, выделяемых для монтажных работ на объекте
8. Рекомендуемые монтажной организацией способы производства работ
9. Сроки поставки вентиляционного оборудования и изделий на объект
10. Объем работ
11. Указания о разработке разделов ППР
12. Надзор за выполнением работ
13. Сроки разработки ППР и этапы
Составитель задания
________________________________________________________________________________
(дата) (личная подпись) (расшифровка подписи)

Рис. 1. Грузовысотная характеристика автомобильного крана МКА-6,3
а - со стрелой 8,1 м без выносных опор; б - на выносных опорах; в - 12,1 м

Рис. 2. Грузовысотная характеристика автомобильного крана МКА-10М
а - со стрелой 10 м без выносных опор; б - на выносных опорах; в - 18 м; г - 18 м с гуськом 3 м

Рис. 3. Грузовысотная характеристика автомобильного крана МКА-16
а - со стрелой 10 м без выносных опор; б - на выносных опорах; в - со стрелой 23 м с гуськом 3 м; г - со стрелой 15 м; д - со стрелой 18 м

Рис. 4. Грузовысотная характеристика автомобильного крана КС-3571
а - со стрелой 8 м без выносных опор; б - со стрелой 14 м и с гуськом 6 м под углом к оси стрелы 126°; в - со стрелой 14 м с гуськом пол углом к оси стрелы 180°; г - со стрелой 14 м; д - 12 м; е - 10 м; ж - 8 м

Рис. 5. Грузовысотная характеристика автомобильного крана КС-4361А
а - на выносных опорах со стрелой 10,5 м; б - 15,4 м; в - 20,5 м; г - 25,5 м

Рис. 6. Грузовысотная характеристика автомобильного крана КС-4361А
а - без выносных опор со стрелой 10,5 м; б - 15,5 м; в - 20,5 м; г - 25,5 м
|
ГОСТЫ, СТРОИТЕЛЬНЫЕ и ТЕХНИЧЕСКИЕ НОРМАТИВЫ. Некоммерческая онлайн система, содержащая все Российские Госты, национальные Стандарты и нормативы. В Системе содержится более 150000 файлов нормативно-технической документации, действующей на территории РФ. Система предназначена для широкого круга инженерно-технических специалистов. Copyright © www.gostrf.com, 2008 - 2026 |