| |

ГОСУДАРСТВЕННЫЙ
СТАНДАРТ СОЮЗА ССР
КРАНЫ-ШТАБЕЛЕРЫ
типы
ГОСТ 16553-88
(СТ СЭВ 5311-85, СТ СЭВ 6046-87,
СТ СЭВ 6399-88)
ГОСУДАРСТВЕННЫЙ КОМИТЕТ СССР
ПО УПРАВЛЕНИЮ КАЧЕСТВОМ ПРОДУКЦИИ И СТАНДАРТАМ
Москва
ГОСУДАРСТВЕННЫЙ
СТАНДАРТ СОЮЗА ССР
|
КРАНЫ-ШТАБЕЛЕРЫ
Типы
Stacker cranes. Types
|
ГОСТ
16553-88
(СТ СЭВ 5311-85,
СТ СЭВ 6046-87,
СТ СЭВ 6399-88)
|
Срок
действия с 01.01.89
до 01.01.94
Настоящий стандарт
распространяется на электрические опорные мостовые и стеллажные краны-штабелеры
грузоподъемностью от 0,16 до 12,5 т, управляемые с пола, из кабины и
автоматически, предназначенные для работы в непожароопасных зонах, а также
пожароопасных зонах категории П-IIа согласно «Правилам
устройства электроустановок» (ПУЭ-85).
Стандарт не распространяется
на краны-штабелеры специальные, в том числе для автоматизированных
транспортно-складских систем, на краны-штабелеры, предназначенные для
переработки химически активных и ядовитых веществ, а также заготовок,
разогретых до температуры свыше 80 °С.
Степень соответствия
требований настоящего стандарта требованиям СТ СЭВ 5311-85 приведена в
приложении 1.
Стандарт полностью соответствует СТ СЭВ 6046-87 и СТ СЭВ 6399-88.
(Измененная редакция, Изм. № 2).
1. Краны-штабелеры по их конструкции подразделяют на типы:
мостовые;
стеллажные.
2. Исполнения и грузоподъемности кранов-штабелеров должны
соответствовать требованиям табл. 1.
3. Основные параметры кранов-штабелеров по исполнениям должны
соответствовать:
ОП - черт. 1 и табл. 2;
OK -
черт. 2
и табл. 3;
ОКД - черт. 3 и табл. 4;
СА - черт. 4 и табл. 5;
САД - черт. 5 и табл. 6.
4. Допустимые отклонения скоростей от их номинальных значений ±15 %.
5. Рекомендуемые значения скоростей механизмов в зависимости от высоты и
длины стеллажей приведены в приложении 2.
6. Высота надземного рельсового кранового пути - по ГОСТ 23837-79.
7. По согласованию между потребителем и предприятием-изготовителем
допускается изготовление кранов-штабелеров:
исполнения ОП - с высотами
подъема груза, уменьшенными на значение, кратное 0,15 м, но не менее 2,5 мм; с
пролетами мостов, уменьшенными на значение, кратное 0,1 м, но не менее 2,1 м;
исполнений ОК и ОКД - с
высотами подъема груза, уменьшенными на величину, кратную 0,6 м, но не менее
минимальных значений, приведенных в табл. 3 и 4 настоящего стандарта; с пролетами
мостов, уменьшенными на величину, кратную 0,5 м, но не менее минимальных
значений, приведенных в табл. 3 и 4 настоящего стандарта;
исполнений СА и САД - с
высотами подъема груза, уменьшенными на величину, кратную 0,6 м, но не менее
минимальных значений, приведенных в табл. 5 и 6 настоящего стандарта;
исполнений ОК и ОКД - для
высоты надземного рельсового кранового пути 9,65 м, не предусмотренного ГОСТ
23837-79;
исполнений ОП и ОК - с
увеличенными длинами вил и размерами lп и В при условии
сохранения постоянного момента от массы груза, действующего на металлоконструкции
крана-штабелера.
При переработке грузов
шириной 1,6 и 2,0 м допускается снижение грузоподъемностей кранов-штабелеров
исполнения САД:
с 5 0 до 3,2 т;
с 8,0 до 6,3 т;
с 12,5 до 10,0 т.
Под шириной груза bг понимают размер груза по ширине межстеллажного прохода,
а под длиной lг размер груза вдоль
межстеллажного прохода.
(Измененная редакция, Изм. №
1, 2).
8. Привод вращения колонны должен обеспечивать ее поворот на величину не
менее 360°.
(Введен
дополнительно, Изм. № 1).
Таблица 1
|
Исполнение крана-штабелера
|
Грузоподъемность,
т
|
Назначение
|
Область
и условия применения
|
Способ
управления
|
Тип
колонны
|
Тип
грузозахватного органа
|
|
ОП -
мостовой опорный, управляемый с пола
|
0,25
|
Транспортирование
и переработка пакетированных грузов и металлопроката на складах различных
отраслей народного хозяйства
|
В
промышленных зданиях с установкой рельсовых крановых путей на стеллажи или
колонны зданий.
Климатическое
исполнение У категорий 2.1; 3 по ГОСТ
15150-69
|
Ручной,
с пола
|
Цельная
|
Вилочный
|
|
0,50
|
Цельная
(телескопическая)
|
|
|
|
1,00
|
|
Телескопическая
(цельная)
|
|
|
ОК -
мостовой опорный, управляемый из кабины
|
1,00;
2,00; 3,20; 5,00; 8,00; 12,50
|
Транспортирование
и переработка пакетированных грузов и металлопроката на складах различных
отраслей народного хозяйства
|
В
промышленных зданиях с установкой рельсовых крановых путей на колонны зданий.
Климатическое
исполнение У категорий 2.1; 3 по ГОСТ
15150-69
|
Ручной,
из кабины
|
Телескопическая
|
Вилочный
|
|
СКД -
мостовой опорный для длинномерных грузов, управляемый из кабины
|
5,00
|
Транспортирование
и переработка металлопроката на специализированных складах металла различных
отраслей народного хозяйства
|
В
промышленных зданиях с установкой рельсовых крановых путей на колонны зданий.
Климатическое
исполнение У категорий 2.1; 3 по ГОСТ
15150-69
|
Ручной,
из кабины
|
Цельная
|
Телескопический
|
|
СА - стеллажный
опорный автоматический (складской робот)
|
0,16
0,25
0,50
1,00
1,60
2,00
|
Транспортирование
и складирование различных грузов, уложенных в стандартную тару или в
пакеты на поддонах на складах различных отраслей народного хозяйства
|
В
промышленных зданиях и в зданиях, перекрытия и стены которых поддерживаются
несущими стеллажами.
|
Автоматический*;
ручной
|
Цельная
|
Телескопический**
|
|
|
|
Климатическое
исполнение УХЛ категория 4 по ГОСТ
15150-69
|
|
|
|
|
САД -
стеллажный опорный автоматический для длинномерных грузов (складской робот)
|
2,00
5,00
8,00
12,50
|
Транспортирование
и складирование пакетированного металлопроката на складах различных отраслей
народного хозяйства
|
В
промышленных зданиях и в зданиях, перекрытия и стены которых поддерживаются
стеллажами.
Климатическое
исполнение УХЛ категории 4 и У категорий 2; 2.1; 3 по ГОСТ
15150-69.
Стационарные
пульты дистанционного автоматического управления и шкафы автоматического
управления в климатическом исполнении УХЛ категории 4 по ГОСТ
15150-69
|
Автоматический*;
ручной
|
Цельная
|
Телескопический
|
*
Система автоматического управления должна предусматривать возможность работы в
наладочном режиме, а также подключения к управляющей ЭВМ высшего уровня через
стандартные средства связи.
**
По согласованию между изготовителем и потребителем краны-штабелеры исполнения
СА, грузоподъемностью 0,16; 0,25 и 0,50 т могут быть оборудованы платформой для
комплектования грузов.
Примечания:
1.
Тип колонны кранов-штабелеров исполнения ОП, заключенный в скобки, применяется
при изготовлении кранов-штабелеров по согласованию между потребителем и
изготовителем.
2.
При комплектовании кранов-штабелеров кабиной должно быть предусмотрено ручное
управление.
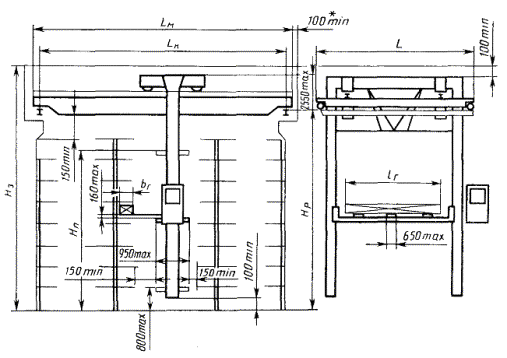
Краны-штабелеры мостовые
опорные, управляемые с пола (ОП)

*
Допускается уменьшение до 50 мм в процессе эксплуатации крана-штабелера
** При длине груза от 1500 до 4000 мм - 150 min
Черт. 1
Краны-штабелеры мостовые
опорные, управляемые с пола
Таблица 2
Размеры,
м
|
Исполнение крана-штабелера
|
Грузоподъемность,
т
|
Код
ОКП
|
Пролет
моста Lк
|
Длина
моста Lм, не более
|
Высота
подъема груза Нп
в зависимости от высоты здания Нз, надземного рельсового кранового пути Нр
|
Верхний
габарит Нв, не более
|
Расстояние
от уровня пола до низа не выдвижной части колонны Нт, не менее
|
Габаритные
размеры
|
Длина
вил lв
|
Расстояние
до центра тяжести груза от спинки вил lц
|
Скорость,
м/с
|
Группа
режимов работы механизмов по ГОСТ
25835-83
|
|
|
Ширина
крана-штабелера (по грузозахватному органу) В, не более
|
Перерабатываемого
груза
|
|
|
Длина lг
|
Ширина bг, не более
|
подъема
груза
|
передвижения
крана-штабелера
|
передвижения
грузовой тележки
|
подъема
груза
|
передвижения
крана-штабелера
|
передвижения
грузовой тележки
|
|
|
Н*з
|
Н*р
|
Н*п,
не менее
|
|
|
|
ОП
|
|
|
|
|
|
|
(2,5)
|
|
|
|
|
|
|
|
|
|
|
|
|
|
|
|
0,25
|
317611223602
|
2,1
|
2,4
|
4,8
|
3,6
|
3,0
|
1,0
|
0,1
|
1,2
|
0,4
4,0
|
0,6
|
0,6
|
0,4
|
0,20
(0,125)
|
0,63;
0,40;
0,8
|
0,20;
0,25;
0,32;
0,40
|
5М
|
4М
|
2М
|
|
|
5,1
|
5,4
|
5,4
|
4,2
|
3,6
|
|
|
7,5**
|
7,8
|
6,0
|
4,8
|
4,2
|
|
|
8,1
|
8,4
|
6,6
|
5,4
|
4,8
|
|
|
10,5
|
10,8
|
7,2
|
6,0
|
5,4
|
|
|
11,1
|
11,4
|
|
|
(5,6)
|
|
|
(11,2)
|
(11,5)
|
|
|
|
|
|
0,5
|
31761132307
|
2,1
|
2,4
|
|
|
|
1,1
|
0,1
(1,5)
|
1,2
|
0,4 -
4,0
|
0,8
|
0,6;
0,8
|
0,4;
0,5
|
|
|
5,1
|
5,4
|
|
|
|
|
|
7,5**
|
7,8
|
4,8
|
3,6
|
(2,5)
2,8
|
|
|
8,1
|
8,4
|
5,4
|
4,2
|
3,4
|
|
|
10,5
|
10,8
|
6,0
|
4,8
|
4,0
|
|
|
11,1
|
11,4
|
6,6
|
5,4
|
4,6
|
|
|
(11,2)
|
(11,5)
|
|
|
|
|
|
1,0
|
317611423704
|
2,1
|
2,4
|
7,2
|
6,0
|
5,2
(5,6)
|
1,5
(0,1)
|
1,2
|
0,4 - 4,0
|
0,8
|
0,6;
0,8
|
0,4;
0,5
|
|
|
5,1
|
5,4
|
|
|
|
|
|
7,5**
|
7,8
|
|
|
|
|
|
8,1
|
8,4
|
|
|
|
|
|
10,5
|
10,8
|
|
|
|
|
|
11,1
|
11,4
|
|
|
|
|
|
(11,2)
|
(11,5)
|
|
|
|
|
*
Для всех пролетов и длин мостов.
**
Только для Нр = 3,6; 4,2;
4,8 м.
Примечание.
Значения, заключенные в скобки, применяются при изготовлении кранов-штабелеров по согласованию
между потребителем и изготовителем.
Краны-штабелеры мостовые
опорные, управляемые из кабины (ОК)
Таблица 3
Размеры,
м
|
Исполнение крана-штабелера
|
Грузоподъемность,
т
|
Код
ОКП
|
Пролет
моста Lк
|
Длина
моста Lм, не более
|
Высота
подъема груза Нп
в зависимости от высоты здания Нз, надземного рельсового кранового пути Нр
|
Верхний
габарит Нв, не более
|
Расстояние
от уровня пола до низа невыдвижной части колонны Нт, не менее
|
Габаритные
размеры
|
Длина
вил lв
|
Расстояние
до центра тяжести груза от спинки вил lц
|
Скорость,
м/с
|
Группа
режимов работы механизмов по ГОСТ
25835-83
|
|
|
Ширина
крана-штабелера (по грузозахватному органу) В, не более
|
Перерабатываемого
груза
|
|
|
подъема
груза
|
передвижения
крана-штабелера
|
передвижения
грузовой тележки
|
подъема
груза
|
передвижения
крана-штабелера
|
передвижения
грузовой тележки
|
|
|
Длина lг
|
Ширина bг, не более
|
|
|
Н*з
|
Н*р
|
Н*п,
не менее
|
|
|
|
|
|
|
|
|
|
|
(5,0)
|
1,95
|
2,0
|
|
|
|
|
|
|
|
|
|
|
|
|
|
ОК
|
|
|
|
|
(8,4)
|
(6,35)
|
(5,3)
|
|
|
|
|
|
|
|
|
|
|
|
|
|
1,0
|
317611424306
|
10,0
|
10,5
|
(9,6)
|
(6,95)
|
(5,9)
|
2,0
|
0,6 -
4,0
|
0,8
|
0,8;
0,6
|
0,5;
0,4
|
(0,125)
0,20;
0,32
|
1,00;
1,60;
2,00
|
0,32;
(0,40)
0,50;
0,63
|
5М
|
4М
|
3М
|
|
|
10,5
|
11,0
|
10,8
|
8,15
|
7,1
|
|
|
16,0
|
16,5
|
12,0
|
9,35
|
8,3
|
|
|
16,5
|
17,0
|
13,2
|
10,55
|
9,5
|
|
|
22,0
|
22,5
|
14,4
|
11,75
|
10,7
|
|
|
22,5
|
23,0
|
|
|
(11,2)
|
|
|
2,0
|
317611524500
|
(10,0)
|
(10,5)
|
|
|
(4,0)
|
2,1
|
2,0
|
2,35
(2,65***)
|
0,8 -
6,0
|
1,2
(1,5)
|
(0,8)
1,0;
1,2
(1,5)
|
(0,5)
0,6;
0,8
(1,0)
|
|
|
(10,5)
|
(11,0)
|
(8,4)
|
(5,75)
|
(4,2)
|
|
|
16,0
|
16,5
|
(9,6)
|
(6,95)
|
(5,4)
|
|
|
16,5
|
17,0
|
10,8
|
8,15
|
6,6
|
|
|
22,0
|
22,5
|
12,0
|
9,35
|
7,8
|
|
|
22,5
|
23,0
|
13,2
|
10,55
|
9,0
|
|
|
28,0
|
28,5
|
14,4
|
11,75
|
10,2
(11,2)
|
|
|
28,5
|
29,0
|
|
|
|
|
|
(32,0)
|
(32,5)
|
|
|
|
|
|
3,2
|
317611624210
|
(10,0)
|
(10,5)
|
|
|
(4,0)
|
2,0
|
2,35
(2,65***)
|
0,8 -
6,0
|
1,2
(1,5)
|
(0,8)
1,0;
1,2
(1,5)
|
(0,5)
0,6;
0,8
(1,0)
|
|
|
(10,5)
|
(11,0)
|
(8,4)
|
(5,75)
|
(4,2)
|
|
|
16,0
|
16,5
|
(9,6)
|
(6,95)
|
(5,4)
|
|
|
16,5
|
17,0
|
10,8
|
8,15
|
6,6
|
|
|
22,0
|
22,5
|
12,0
|
9,35
|
7,8
|
|
|
22,5
|
23,0
|
13,2
|
10,55
|
9,0
|
|
|
28,0
|
28,5
|
14,4
|
11,75
|
10,2
(11,2)
|
|
|
28,5
(32,0)
|
29,0
(32,5)
|
|
|
|
|
|
5,0
|
317611724206
|
|
|
|
|
(5,0)
|
2,3
|
2,0
|
2,35
(2,65)***
|
0,8 - 6,0
|
1,2
(1,5)
|
(0,8)
1,0;
1,2
(1,5)
|
(0,5)
0,6;
0,8
(1,0)
|
(0,125)
0,20;
0,32
|
1,00;
1,60;
2,00
|
0,32;
0,40;
0,50;
0,63
|
5М
|
4М
|
3М
|
|
|
|
|
(8,4)
|
(6,35)
|
(5,3)
|
|
|
10,0
|
10,5
|
(9,6)
|
(6,95)
|
(5,9)
|
|
|
10,5
|
11,0
|
10,8
|
8,15
|
7,1
|
|
|
16,0
|
16,5
|
12,0
|
9,35
|
8,3
|
|
|
16,5
|
17,0
|
13,2
|
10,55
|
9,5
|
|
|
22,0
|
22,5
|
14,4
|
11,75
|
10,7
|
|
|
22,5
|
23,0
|
|
|
(11,2)
|
|
|
8,0
|
317611824202
|
(16,0)
|
(16,5)
|
12,0
|
8,95
|
(6,7)
6,8
|
2,65
|
(3,5)**
4
|
2,6
(2,8)4*
|
0,8 - 12,0
|
1,0
(1,2)
|
1,0
(1,2)
|
0,6
(0,8)
|
|
|
(16,5)
|
(17,0)
|
13,2
|
10,15
|
8,0
|
|
|
22,0
|
22,5
|
14,4
|
11,35
|
9,2
|
|
|
22,5
|
23,0
|
15,6
|
12,65
|
10,5
|
|
|
28,0
|
28,5
|
16,8
|
13,85
|
11,7
(12,0)
|
|
|
28,5
(32,0)
|
29,0
(32,5)
|
|
|
|
|
|
12,5
|
317611924209
|
(16,0)
|
(16,5)
|
12,0
|
8,95
|
(6,7)
6,8
|
2,75
|
(3,5)**
4
|
2,6
(2,8)4*
|
0,8 - 12,0
|
1,0
(1,2)
|
1,0
(1,2)
|
0,6
(0,8)
|
|
|
(16,5)
|
(17,0)
|
13,2
|
10,15
|
8,0
|
|
|
22,0
|
22,5
|
14,4
|
11,35
|
9,2
|
|
|
22,5
|
23,0
|
15,6
|
12,65
|
10,5
|
|
|
28,0
|
28,5
|
16,8
|
13,85
|
11,7
(12,0)
|
|
|
28,5
(32,0)
|
29,0
(32,5)
|
|
|
|
|
*
Для всех пролетов и длин мостов.
**
Только для Нп = 6,7; 6,8
м.
***
При ширине груза и длине вил 1,5 м.
4*
При ширине груза и длине вил 1,2 м.
Примечание.
Значения, заключенные в скобки, применяются при изготовлении кранов-штабелеров на экспорт в
страны - члены СЭВ на основании контрактов и по индивидуальным заказам потребителей.
2. При пролете моста (Lк) 32,0 м высота подъема груза (Нп) может
быть уменьшена на 0,5 м.
Краны-штабелеры мостовые
опорные, управляемые из кабины (ОК)

*
Допускается уменьшение до 50 мм в процессе эксплуатации крана-штабелера.
**
При длине груза от 2500 до 6000 мм - 200 min, а от 6000 до 12000 мм - 300 min.
Черт. 2
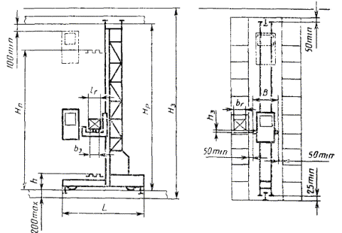
Краны-штабелеры
мостовые опорные для длинномерных грузов управляемые из кабины (ОКД)

*
Допускается уменьшение до 50 мм в процессе эксплуатации крана-штабелера
Черт. 3
Кран-штабелер мостовой
опорный для длинномерных грузов, управляемый из кабины (ОКД)
Таблица 4
Размеры,
м
|
Исполнение крана-штабелера
|
Грузоподъемность,
т
|
Код
ОКП
|
Пролет
моста Lк
|
Длина
моста Lм, не более
|
Высота
подъема груза Нп
в зависимости от высоты здания Нз, надземного рельсового кранового пути Нр
|
Габариты
перерабатываемого груза
|
Длина
крана-штабелера L, не более
|
Скорость,
м/с
|
Группа
режимов работы механизмов по ГОСТ
25835-83
|
|
|
подъема
груза
|
передвижения
крана-штабелера
|
передвижения
грузовой тележки
|
выдвижения
грузозахватного органа
|
подъема
груза
|
передвижения
крана-штабелера
|
передвижения
грузовой тележки
|
выдвижения
грузозахватного органа
|
|
|
Н*з
|
Н*р
|
Н*п,
не менее
|
Длина lг
|
Ширина
bг, не
более
|
|
|
окд
|
5,0
|
31 7611 7251 05
|
16,0
|
16,5
|
10,8
|
8,15
|
6,6
|
7,0;
9,0
|
0,6;
0,8
|
9,85;
11,85
|
0,20
0,32
|
1,00;
1,60;
2,00
|
0,32;
0,50;
0,63
|
0,25;
0,32
|
5М
|
4М
|
2М
|
4М
|
|
|
16,5
|
17,0
|
12,0
|
9,35
|
7,8
|
|
|
22,0
|
22,5
|
13,2
|
10,55
|
9,0
|
|
|
22,5
|
23,0
|
14,4
|
11,75
|
10,2
|
|
|
28,0
|
28,5
|
|
|
|
|
|
28,5
|
29,0
|
|
|
|
|
* Для всех пролетов и длин мостов.
Краны штабелеры стеллажные
автоматические опорные (СА)
Таблица 5
Размеры, м
|
Исполнение крана-штабелера
|
Грузоподъемность,
т
|
Код
ОКП
|
Высота
подъема груза Нп
в зависимости от высоты здания Нз, расстояния между головкой рельсового кранового пути
и нижней точкой направляющего пути Нр
|
Расстояние
от головки рельсового кранового пути до нижнего рабочего положения
грузозахватного органа, h не более
|
Габаритные
размеры
|
Скорость,
м/с
|
Группа
режимов работы механизмов по ГОСТ
25835-83
|
|
|
перерабатываемого
груза
|
крана-штабелера
|
грузозахватного
органа
|
подъема
груза
|
передвижения
крана-штабелера
|
выдвижения
грузозахватного органа
|
подъема
груза
|
передвижения
крана-штабелера
|
выдвижения
грузозахватного органа
|
|
|
Длина lт
|
Ширина bг
|
Длина L, не более
|
Ширина B, не более
|
Ширина b3, не более
|
Высота выдвигаемых элементов h3, не
более
|
|
|
Нз
|
Нр
|
Нп,
не менее
|
|
|
СА
|
0,16;
0,25;
0,50
|
317612300407
|
6,0
|
5,4
|
4,0
|
0,7
|
|
|
|
|
|
0,8
|
0,20;
0,25;
0,32;
0,40;
0,50;
0,63
|
1,0;
1,25;
1,60;
2,00;
2,50;
3,20
|
0,125
0,20;
0,25;
0,32;
0,40;
0,50;
0,63
|
5М
|
5М
|
5М
|
|
|
7,2
|
6,6
|
5,2
|
|
|
|
|
|
|
|
8,4
|
7,8
|
6,4
|
0,4
|
0,6
|
4,4
|
0,8
|
|
|
|
9,6
|
9,0
|
7,6
|
0,6
|
0,8
|
4,8
|
0,95
|
0,36
|
|
|
10,8
|
10,2
|
8,8
|
0,8
|
0,6
|
5,0
|
0,95
|
|
|
|
12,0
|
11,4
|
10,0
|
0,8
|
1,2
|
5,0
|
1,3
|
0,54
|
|
|
13,2
|
12,6
|
11,2
|
1,0
|
1,2
|
5,2
|
1,3
|
|
|
|
14,4
|
13,8
|
12,4
|
1,2
|
0,8
|
5,4
|
0,95
|
0,75
|
|
|
15,6
|
15,0
|
13,6
|
1,2
|
1,0
|
5,4
|
1,2
|
|
|
|
16,8
|
16,2
|
14,8
|
|
|
|
|
|
|
|
18,0
|
17,4
|
16,0
|
|
|
|
|
|
|
|
-
|
-
|
(32,0)
|
|
|
|
|
|
|
|
1,0
|
317612400700
|
6,0
|
5,4
|
3,9
|
0,7
|
|
|
|
|
|
0,10
|
|
|
7,2
|
6,6
|
5,1
|
|
|
|
|
|
|
|
8,4
|
7,8
|
6,3
|
0,6
|
0,8
|
4,8
|
0,95
|
0,36
|
|
|
9,6
|
9,0
|
7,5
|
0,8
|
0,6
|
5,0
|
0,95
|
0,54
|
|
|
10,8
|
10,2
|
8,7
|
0,8
|
1,2
|
5,0
|
1,3
|
|
|
|
12,0
|
11,4
|
9,9
|
1,2
|
0,8
|
5,4
|
0,95
|
|
|
|
13,2
|
12,6
|
11,1
|
1,0
|
1,2
|
5,2
|
1,3
|
0,75
|
|
|
14,4
|
13,8
|
12,3
|
1,2
|
1,0
|
5,4
|
1,2
|
|
|
|
15,6
|
15,0
|
13,5
|
1,6
|
1,2
|
5,6
|
1,3
|
|
|
|
16,8
|
16,0
|
14,7
|
1,6
|
1,0
|
5,6
|
1,3
|
1,2
|
|
|
18,0
|
17,4
|
15,9
|
1,2
|
1,6
|
5,4
|
1,7
|
|
|
|
-
|
-
|
(32,0)
|
1,0
|
1,6
|
5,2
|
1,7
|
0,75
|
|
|
1,6;
2,0
|
317612500410
|
6,0
|
5,4
|
3,8
|
0,9
|
|
|
|
|
|
0,12
|
0,20;
0,25;
0,32;
0,40;
0,50;
0,63
|
1,0;
1,25;
1,60;
2,0;
2,50;
3,20
|
0,125;
0,20;
0,25;
0,32;
0,40;
0,50;
0,63
|
5М
|
5М
|
5М
|
|
|
7,2
|
6,6
|
5,0
|
|
|
|
|
|
|
|
8,4
|
7,8
|
6,2
|
0,8
|
1,2
|
5,4
|
1,3
|
0,54
|
|
|
9,6
|
9,0
|
7,4
|
1,0
|
1,2
|
5,6
|
1,3
|
0,75
|
|
|
10,8
|
10,2
|
8,6
|
1,2
|
0,8
|
5,8
|
1,3
|
|
|
12,0
|
11,4
|
9,8
|
1,2
|
1,0
|
5,8
|
1,3
|
|
|
13,2
|
12,6
|
11,0
|
1,0
|
1,6
|
5,6
|
1,7
|
|
|
14,4
|
13,8
|
12,2
|
1,6
|
1,0
|
6,2
|
1,3
|
1,2
|
|
|
15,6
|
15,0
|
13,4
|
1,2
|
1,6
|
5,8
|
1,7
|
0,75
|
|
|
16,8
|
16,2
|
14,6
|
1,6
|
1,2
|
6,2
|
1,3
|
1,2
|
|
|
18,0
|
17,4
|
15,8
|
|
|
|
|
|
|
|
-
|
-
|
(32,0)
|
|
|
|
|
|
|
Примечание. Значения,
заключенные в скобки, являются максимальными и применяются при изготовлении кранов-штабелеров по согласованию
между потребителем и изготовителем.
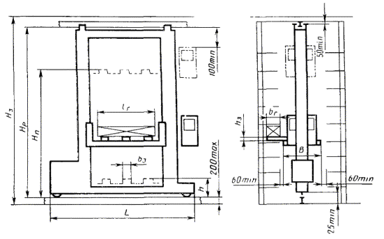
Краны-штабелеры
стеллажные опорные автоматические (СА)

Черт. 4
Краны-штабелеры стеллажные опорные автоматические для длинномерных
грузов (САД)

Черт. 5
Примечание. Черт. 1 - 5 не определяют конструкцию
кранов-штабелеров.
Краны-штабелеры стеллажные
опорные автоматические для длинномерных грузов (САД)
Таблица 6
Размеры, м
|
Исполнение крана-штабелера
|
Грузоподъемность,
т
|
Код
ОКП
|
Высота
подъема груза Нп
в зависимости от высоты здания Нз, расстояния между головкой рельсового кранового пути
и нижней точкой направляющего пути Нр
|
Расстояние
от головки рельсового кранового пути до нижнего рабочего положения
грузозахватного органа, h, не
более
|
Габаритные
размеры
|
Скорость,
м/с
|
Группа
режимов работы механизмов по ГОСТ
25835-83
|
|
|
перерабатываемого
груза
|
крана-штабелера
|
грузозахватного
органа
|
|
|
Длина lг
|
Ширина b*г
|
Длина L, не более
|
Ширина B, не более
|
Высота выдвигаемых элементов h3, не
более
|
Ширина b3, не более
|
подъема
груза
|
передвижения
крана-штабелера
|
выдвижения
грузозахватного органа
|
подъема
груза
|
передвижения
крана-штабелера
|
выдвижения
грузозахватного органа
|
|
|
Нз
|
Нр
|
Нп,
не менее
|
|
|
САД
|
2,0
|
317612000000
|
6,0
|
5,3
|
3,3
|
0,9
|
|
|
|
|
0,15
|
0,60
|
0,20;
0,25;
0,32;
0,40;
0,50
|
1,25;
1,60;
2,00;
2,50;
3,20
|
0,125;
0,20;
0,25;
0,32;
0,40;
0,50;
0,63
|
5М
|
5М
|
5М
|
|
|
7,2
|
6,5
|
4,5
|
|
|
|
|
|
|
8,4
|
7,7
|
5,7
|
|
|
|
|
|
|
9,6
|
8,9
|
6,9
|
2,4
|
0,6
|
8,0
|
|
|
|
10,8
|
10,1
|
8,1
|
3.2
|
0,8
|
9,5
|
1,25
|
|
|
12,0
|
11,3
|
9,3
|
6,0
|
|
12,3
|
1,20
|
|
|
13,2
|
12,5
|
10,5
|
7,0
|
1,2
|
13,3
|
1,30;
|
|
|
14,4
|
13,7
|
11,7
|
8,0
|
14,3
|
1,35
|
|
|
15,6
|
14,9
|
12,9
|
9,0
|
1,6
|
15,3
|
1,70;
1,75
|
|
|
16,8
|
16,1
|
14,1
|
|
|
|
|
|
18,0
|
17,3
|
15,2
|
|
|
|
|
|
|
-
|
-
|
(32,0)
|
|
|
|
|
|
|
5,0
|
317612700204
|
10,8
|
10,1
|
8,1
|
1,1
|
3,2
|
0,6
|
10,0
|
1,25
|
0,165
|
0,60
|
|
|
12,0
|
11,3
|
9,3
|
6,0
|
0,8
|
12,8
|
1,25
|
|
|
13,2
|
12,5
|
10,5
|
7,0
|
1,2
|
13,8
|
1,35
|
|
|
14,4
|
13,7
|
11,7
|
8,0
|
1,6
|
14,8
|
1,75
|
|
|
15,6
|
14,9
|
12,9
|
9,0
|
2,0
|
15,8
|
2,15
|
|
|
|
16,8
|
16,1
|
14,1
|
10,0
|
|
15,0
|
|
0,22
|
|
|
18,0
|
17,3
|
15,3
|
12,0
|
|
18,8
|
|
|
|
|
-
|
-
|
(32,0)
|
|
|
|
|
|
|
|
8,0
|
317612800200
|
10,8
|
9,9
|
7,7
|
1,25
|
|
|
|
|
|
0,65
|
0,20;
0,25;
0,32;
0,40;
0,50
|
1,25;
1,60;
2,00;
2,50;
3,20
|
0,125;
0,20;
0,25;
0,32;
0,40;
0,50;
0,63
|
5М
|
5М
|
5М
|
|
|
12,0
|
11,1
|
8,9
|
6,0
|
0,8
|
14,5
|
1,35
|
0,20
|
|
|
13,2
|
12,3
|
10,1
|
7,0
|
1,2
|
15,5
|
1,35
|
|
|
|
14,4
|
13,5
|
11,3
|
8,0
|
1,6
|
16,5
|
1,75
|
|
|
|
15,6
|
14,7
|
12,5
|
9,0
|
2,0
|
17,5
|
2,15
|
0,25
|
|
|
16.8
|
15,9
|
13,7
|
10,0
|
|
18,5
|
|
|
|
|
18,0
|
17,1
|
14,9
|
12,0
|
|
20,5
|
|
|
|
|
-
|
-
|
(32,0)
|
|
|
|
|
|
|
|
12,5
|
317612900207
|
10,8
|
9,9
|
7,7
|
1,35
|
|
|
|
|
|
0,7
|
|
|
12,0
|
11,1
|
8,9
|
6,0
|
0,8
|
14,5
|
1,35
|
0,25
|
|
|
13,0
|
12,3
|
10,1
|
7,0
|
1,2
|
15,5
|
1,35
|
|
|
|
14,4
|
13,5
|
11,3
|
8,0
|
1,6
|
16,5
|
1,75
|
|
|
|
15,6
|
14,7
|
12,5
|
9,0
|
2,0
|
17,5
|
2,15
|
0,30
|
|
|
16,8
|
15,9
|
13,7
|
10,0
|
|
18,5
|
|
|
|
|
18,0
|
17,0
|
14,9
|
12,0
|
|
20,5
|
|
|
|
|
-
|
-
|
(32,0)
|
|
|
|
|
|
|
* Размеры действительны для всех типов кранов-штабелеров одной и той же
грузоподъемности.
Примечание.
Значения, заключенные в скобки, являются максимальными и применяются при
изготовлении кранов-штабелеров по согласованию между потребителем и
изготовителем.
(Измененная редакция, Изм. №
1, 2).
Справочное
|
ГОСТ 16553-88
|
СТ СЭВ
5311-85
|
|
Пункт
|
Содержание
требований
|
Пункт
|
Содержание
требований
|
|
-
|
Регламентируются типы, основные параметры и
размеры и расстояния безопасности
|
-
|
Регламентируются расстояния безопасности
|
Справочное
|
Наименование показателей
|
Значения
|
|
1. Длина стеллажа, м
|
До 20
|
20 - 30
|
30 - 50
|
50 - 60
|
60 - 90
|
Св. 90
|
|
2. Скорость передвижения крана-штабелера,
м/с
|
0,8
|
1,0
|
1,25
|
1,6
|
2,0
|
2,5
|
|
3. Высота стеллажа, м
|
До 7,0
|
7,0 -
12,0
|
12,0 -
15,0
|
15,0 -
18,0
|
|
4. Скорость подъема груза, м/с
|
0,2
|
0,32
|
0,4
|
0,5
|
|
5. Пролет моста, м
|
2,0 -
5,01
|
5,0 -
16,0
|
16,0 -
22,0
|
22,0 -
28,0
|
|
6. Скорость передвижения грузовой тележки,
м/с
|
0,25
|
0,32
|
0,5
|
0,5 -
0,63
|
|
7. Ширина груза (поперек рельсового пути), м
|
0,6 -
1,2
|
1,2 -
1,6
|
1,6 -
2,0
|
|
8. Скорость выдвижения грузозахватного
органа, м/с
|
0,20 -
0,32
|
0,32 -
0,4
|
0,4 -
0,5
|
|
|
|
|
|
|
|
|
|
|
ИНФОРМАЦИОННЫЕ
ДАННЫЕ
1. РАЗРАБОТАН И ВНЕСЕН Министерством тяжелого, энергетического и
транспортного машиностроения СССР
РАЗРАБОТЧИКИ
О.М. Тупотилов (руководитель темы); Б.И. Певзнер; В.Я. Перекалин; Л.П.
Угарова; С.Э. Усаковский
2. УТВЕРЖДЕН И ВВЕДЕН В
ДЕЙСТВИЕ Постановлением Государственного комитета СССР по стандартам от
27.01.88 № 125
3. ВЗАМЕН ГОСТ 16553-82
4. Стандарт содержит все
требования СТ СЭВ 5311-85. Стандарт полностью соответствует СТ СЭВ 6046-87, СТ
СЭВ 6399-88
5. ССЫЛОЧНЫЕ
НОРМАТИВНО-ТЕХНИЧЕСКИЕ ДОКУМЕНТЫ
6. ПЕРЕИЗДАНИЕ (декабрь 1990 г.) с Изменениями № 1, 2, утвержденными в
сентябре 1988 г., августе 1989 г. (ИУС 1-89, 12-89).
содержание
|
|