|
|
Постановлением Государственного комитета СССР по стандартам от 25 октября 01.01.84 Ограничение срока действия снято по протоколу № 3-93 Межгосударственного совета по стандартизации, метрологии и сертификации (ИУС 5-6-93) Настоящий стандарт распространяется на полимерные композиционные намоточные материалы, армированные непрерывными высокомодульными углеродными, борными, органическими и другими волокнами, и устанавливает метод испытания на растяжение кольцевых образцов из этих материалов при нормальной (20°С), повышенной (до 180°С) и пониженной (до минус 60°С) температурах. СОДЕРЖАНИЕ 1. НАЗНАЧЕНИЕ МЕТОДА1.1. Метод заключается в кратковременном растяжении кольцевых образцов из композиционных намоточных материалов самозамыкающимися полудисками (см. чертеж). 1.2. При растяжении образцов определяют: диаграмму деформирования в окружном направлении - зависимость окружного напряжения σθ, МПа (кгс/мм2), от окружной деформации εθ, %; предел пропорциональности модуль упругости в окружном направлении Еθ, МПа (кгс/мм2); предел прочности в окружном направлении
1 - образец; 2 - полудиски; 3 - направляющая; 4 - тяга 2. ОБОРУДОВАНИЕ ДЛЯ ИСПЫТАНИЙ2.2. Образец нагружают при
помощи специального приспособления. Разница между внутренним диаметром
кольцевого образца и диаметром полудисков в сборе не должна превышать 2.3. Для регистрации деформаций должны использоваться приборы, обеспечивающие измерение с погрешностью не более ± 3 % предельного значения измеряемой величины. В качестве измерителей деформации могут быть использованы тензорезисторы или другие устройства, прикрепление которых не создает дополнительных напряжений или деформаций и не оказывает влияния на определяемые характеристики. Длина измерительной базы должна быть в пределах, установленных в п. 4.4 настоящего стандарта. 2.4. Прибор для определения
геометрических размеров должен обеспечивать измерение с погрешностью не более 3. ОБРАЗЦЫ3.1. Стандартный образец изготовляют в форме кольца следующих размеров: внутренним диаметром d ... (150,1 ± 0,1) мм; толщиной h ... (2 ± 0,1) мм; шириной b ... (8 ± 0,1) мм - для материалов, армированных только в окружном направлении и (15 ± 0,1) мм - для материалов, укладка волокон которых отличается от однонаправленных. Толщину образца измеряют в направлении радиуса, ширину - в направлении, перпендикулярном к плоскости кольца. d - от 100,05 до h - от 1,5 до b - от 6 до Предельные отклонения
размеров должны быть ± 3.3. Кольцевые образцы могут быть изготовлены (намотаны) каждый в отдельности или нарезаны из цилиндра. Намотка проводится по техническим условиям для данного композиционного материала на оправки с шероховатостью поверхности не более 0,63 мкм по ГОСТ 2789-73. 3.4. Образцы должны иметь гладкую, ровную поверхность без вздутий, сколов, неровностей, расслоений, надрезов, царапин, трещин или других видимых невооруженным глазом дефектов. В случае необходимости допускается механическая обработка наружной поверхности колец (или цилиндров) с отметкой в протоколе испытания о проведенной обработке. 3.5. Количество образцов, взятых из одной партии для определения каждой из характеристик, указанных в п. 1.2, должно быть не менее пяти. 3.6. Каждая характеристика может быть определена на отдельных образцах или одновременно на одних и тех же образцах определяется несколько характеристик. Определение характеристик при повторных нагружениях образца разрешается в случае, когда предварительная нагрузка не превышала 20 % разрушающей и составляла не более 80 % предела пропорциональности. 3.7. Кондиционирование образцов проводят в соответствии с техническими условиями или стандартами на материал. Если в технических условиях или стандарте на материал указания по кондиционированию отсутствуют, кондиционирование проводят при одной из стандартных атмосфер по ГОСТ 12423-66. 3.8. При отсутствии в нормативно-технической документации на материал специальных указаний время от окончания изготовления намоточного материала до испытания должно составлять не менее 16 ч, включая и время их кондиционирования. 4. ПОДГОТОВКА К ИСПЫТАНИЮ4.1. На образце для испытания отмечают два произвольно выбранных диаметрально противоположных сечения S1 и S2. 4.2. При определении предела прочности перед испытанием измеряют ширину и толщину образца в четырех сечениях - в двух первоначально отмеченных и в двух перпендикулярных к ним. 4.2.1. Если результаты четырех
измерений толщины и ширины различаются более чем на 4.2.2. В протокол испытания заносят значения ширины b1, b2 и толщины h1, h2 двух отмеченных сечений S1 и S2 и по ним, с точностью не менее трех знаков, определяют площадь поперечного сечения: Sl = b1h1 и S2 = b2h2 в мм2. 4.3.1. Измеряют ширину и
толщину этих сечений. Если результаты четырех измерений толщины или ширины
различаются более чем на 4.3.2. Среднее значение толщины h и ширины b записывают в протокол испытаний и по ним, с точностью не менее трех знаков, определяют площадь поперечного сечения S = bh в мм2. 4.4. При
определении модуля упругости, предела пропорциональности или диаграммы
деформирования при растяжении на образец наклеивают четыре тензорезистора.
Середины измерительных баз расположены под углом ± 30° относительно к
первоначально отмеченным сечениям S1 и S2. Длина измерительной
базы - не более Примечание. Вместо тензорезисторов могут быть применены другие измерители деформации, соответствующие требованиям п. 2.3. 4.5. Измерение ширины и
толщины образца проводят с погрешностью не более 4.6. Нанесение меток не должно приводить к изменению свойств образца; их рекомендуется наносить мягким карандашом или краской. 5. ПРОВЕДЕНИЕ ИСПЫТАНИЙ5.1. Испытания при нормальной температуре проводят при одной из стандартных атмосфер по ГОСТ 12423-66 с учетом требований ГОСТ 14359-69. Испытания при повышенных и пониженных температурах проводят в специально предусмотренных термокриокамерах. Температуру испытаний и допускаемые ее колебания определяют в соответствии с техническими условиями или стандартами на материал, а при их отсутствии - по ГОСТ 14359-69. 5.2. При проведении испытаний
в условиях повышенных и пониженных температур время, необходимое для полного
прогрева или охлаждения образца до его испытания, должно задаваться технической
документацией на испытуемый материал. Если таких указаний нет, то время
выдержки образца при заданной температуре устанавливают не менее 20 мин на 5.3. Образец надевают на приспособление так, чтобы отмеченные сечения S1 и S2 совпадали с разъемом полудисков. 5.4. Приспособление с образцом устанавливают в испытательную машину и центрируют. 5.5. Устанавливают заданную скорость взаимного перемещения захватов испытательной машины при холостом ходе (без нагрузок). Рекомендуемая скорость перемещения составляет (10 ± 2) мм/мин. 5.6. Проводят нагружение образца и, в зависимости от цели испытания, записывают: при определении диаграммы деформирования при растяжении (см. приложение 1), модуля упругости (см. приложение 2) и предела пропорциональности (см. приложение 3) - деформацию в окружном направлении и соответствующую ей нагрузку; при определении предела прочности - наибольшую нагрузку, выдержанную образцом. 5.7. При определении предела прочности в расчет принимают результаты, полученные на образцах, разрушившихся по всей площади поперечного сечения. Разрушение может сопровождаться расслоением образца. При разрушении лишь части поперечного сечения результат не учитывается, и образец заменяют другим. Для достижения необходимого характера разрушения толщина колец h может быть увеличена и ширина колец b уменьшена в пределах, предусмотренных в п. 3.2. 5.8. Результаты испытаний считаются недействительными; при обнаружении ошибок в проведении испытаний; при проведении испытаний были обнаружены дефекты образцов. В таких случаях причина искажения результатов должна быть устранена, и эксперимент повторен на новых образцах, отобранных для испытаний из той же партии. 6. РАСЧЕТНЫЕ ФОРМУЛЫ И ОБРАБОТКА РЕЗУЛЬТАТОВ6.1. Напряжение в окружном направлении σθ , МПа (кгс/мм2), определяют по формуле
6.2. Модуль упругости в окружном направлении при растяжении Еθ , МПа (кгс/мм2), вычисляют по формуле
6.3. Предел
пропорциональности при растяжении в окружном направлении
6.4. Предел прочности
в окружном направлении при растяжении
Примечание. Определенное значение предела прочности может быть несколько занижено (для современных композиционных материалов до 15 %), поскольку во время испытания у разъема полудисков возникает изгибающий момент и имеется концентрация напряжений. 6.5. Статистическую обработку результатов испытания проводят при доверительной вероятности 0,95. В расчет не рекомендуется принимать отдельные значения определяемых показателей, не укладывающихся в границах доверительного интервала при величине вероятности 0,95. При окончательном подсчете число образцов должно быть не менее 5. 6.6. Форма протокола испытания дана в приложении 4. 6.7. Чертежи приспособления для испытания на растяжение кольцевых образцов даны в приложении 5. ПРИЛОЖЕНИЕ
1
|
|||||||||||||||||||||||||||||||||||||||||||||||||||||||||||||||||||||||||||||||||||||||||||||||||||||||||||||||||||||||||||||||||||||||||||||||||||||||||||||||||||||||||||||||||||||||||||||||||||||||||||||||||||||||||||||||||||||||||||||||||||||||||||||||||||||||||||||||||||||||||||||||||||||||||||||||||||||||||||||||||||||||||||||||||||||||||||
|
от «_____»_______________19 ______г. Испытательная машина___________________________________________________________ Измерители деформаций__________________________________________________________ Регистрирующая аппаратура_______________________________________________________ II. Образцы Количество образцов______________________________________________________________ Материал (наименование, ТУ, ГОСТ, предприятие-изготовитель, номер партии)___________ Содержание арматуры по объему (весу), %___________________________________________ Расположение арматуры, шаг намотки_______________________________________________ Условия кондиционирования (время, температура, относительная влажность)_____________ Условия изготовления образцов (изготовлены каждый в отдельности или нарезаны из цилиндра)_______________________________________________________________________ Механическая обработка поверхностей______________________________________________ III. Условия испытаний Температура_____________________________________________________________________ Относительная влажность_________________________________________________________ Время выдержки при повышенной (пониженной) температурах_________________________ Скорость нагружения_____________________________________________________________ |
IV. Результаты испытаний и их обработка
1) При определении
предела прочности
.
|
№ |
b1; hl, |
b2;
h2, |
Sl, |
S2, |
Sl + S2, |
Fmax, |
|
|
( |
Примечания |
|
1 |
|
|
|
|
|
|
|
|
|
|
|
2 |
|
|
|
|
|
|
|
|
|
|
|
. |
|
|
|
|
|
|
|
|
|
|
|
. |
|
|
|
|
|
|
|
|
|
|
|
. |
|
|
|
|
|
|
|
|
|
|
|
. |
|
|
|
|
|
|
|
|
|
|
|
. |
|
|
|
|
|
|
|
|
|
|
|
n |
|
|
|
|
|
|
|
|
|
|
|
|
|
|
|
|
|
|
|
|
|
|
………………………….МПа (кгс/мм2);
……………МПа(кгс/мм2);
……………………………….%.
2) При определении модуля упругости Eθ.
|
№ |
b, |
h, |
2S, |
ΔF, |
Δεθ, |
2SΔεθ, мм2 |
Еθ, |
|
( |
Примечания |
|
1 |
|
|
|
|
|
|
|
|
|
|
|
2 |
|
|
|
|
|
|
|
|
|
|
|
. |
|
|
|
|
|
|
|
|
|
|
|
. |
|
|
|
|
|
|
|
|
|
|
|
. |
|
|
|
|
|
|
|
|
|
|
|
. |
|
|
|
|
|
|
|
|
|
|
|
. |
|
|
|
|
|
|
|
|
|
|
|
n |
|
|
|
|
|
|
|
|
|
|
|
|
|
|
|
|
|
|
|
|
|
|
………………………………МПа (кгс/мм2);
………………………………..МПа(кгс/мм2);
……………………………..%.
3) При определении
предела пропорциональности
.
|
№ |
b, |
h, |
2S, |
FПЦ, |
|
|
( |
Примечания |
|
1 |
|
|
|
|
|
|
|
|
|
2 |
|
|
|
|
|
|
|
|
|
. |
|
|
|
|
|
|
|
|
|
. |
|
|
|
|
|
|
|
|
|
. |
|
|
|
|
|
|
|
|
|
. |
|
|
|
|
|
|
|
|
|
. |
|
|
|
|
|
|
|
|
|
n |
|
|
|
|
|
|
|
|
|
|
|
|
|
|
|
|
|
|
………………………..МПа (кгс/мм2);
………………………..МПа(кгс/мм2);
…………………….%.
|
Приложения____________________________________________________________________ |
||
|
|
(диаграммы деформирования, фотографии, расширенная статистическая обработка данных и др.) |
|
|
|
Испытал (и) |
(фамилия, подпись) |
|
|
Обработал (и) |
(фамилия, подпись) |
Конструкция приспособления приведена на черт. 1.
Приспособление состоит из двух тяг 1 с полудисками 2, фиксируемых пальцами 4. Штифты 5 исключают возможность смещения полудисков.
Захват для кольцевых образцов

7 - тяга; 2 - полудиск; 3 - полудиск; 4 -
палец;
5- штифт 15Г × 30 по ГОСТ 3128-70;
6- образец
Черт. 1
Тяга (черт. 1, дет. 1)

Материал: сталь 45 по ГОСТ 1050-88.
Черт. 2
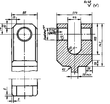
Полудиск (черт. 1, дет. 2)

Материал: сталь 45 по ГОСТ 1050-88.
Черт. 3
Палец (черт. 1, дет. 4)

Материал: сталь 45 по ГОСТ 1050-88.
Черт. 4
|
ГОСТЫ, СТРОИТЕЛЬНЫЕ и ТЕХНИЧЕСКИЕ НОРМАТИВЫ. Некоммерческая онлайн система, содержащая все Российские Госты, национальные Стандарты и нормативы. В Системе содержится более 150000 файлов нормативно-технической документации, действующей на территории РФ. Система предназначена для широкого круга инженерно-технических специалистов. Copyright © www.gostrf.com, 2008 - 2026 |