Крупнейшая бесплатная информационно-справочная система онлайн доступа к полному собранию технических нормативно-правовых актов РФ. Огромная база технических нормативов (более 150 тысяч документов) и полное собрание национальных стандартов, аутентичное официальной базе Госстандарта. GOSTRF.com - это более 1 Терабайта бесплатной технической информации для всех пользователей интернета. Все электронные копии представленных здесь документов могут распространяться без каких-либо ограничений. Поощряется распространение информации с этого сайта на любых других ресурсах. Каждый человек имеет право на неограниченный доступ к этим документам! Каждый человек имеет право на знание требований, изложенных в данных нормативно-правовых актах!

  


 

ГОСУДАРСТВЕННЫЙ СТАНДАРТ СОЮЗА ССР

 

СИСТЕМА ПРОЕКТНОЙ ДОКУМЕНТАЦИИ ДЛЯ СТРОИТЕЛЬСТВА

ПРАВИЛА УЧЕТА И ХРАНЕНИЯ ПОДЛИННИКОВ ПРОЕКТНОЙ ДОКУМЕНТАЦИИ

ГОСТ 21.203-78

 

ГОСУДАРСТВЕННЫЙ КОМИТЕТ СССР ПО ДЕЛАМ СТРОИТЕЛЬСТВА

Москва

 

РАЗРАБОТАН

Государственным комитетом Совета Министров СССР по делам строительства

Главным архивным управлением при Совете Министров СССР

ИСПОЛНИТЕЛИ

С.И. Зюзин (руководитель темы); Л.Л. Хорошилкин; П.П. Дрыгин; В.А. Рябова; И.М. Голик; Е.В. Перелыгин; В.В. Фетисов; М.Б. Меграбян; Р.Д. Козлова; Н.П. Макридина; В.А. Дулкин

ВНЕСЕНЫ Государственным комитетом Совета Министров СССР по делам строительства

Начальник отдела В.А. Алексеев

УТВЕРЖДЕНЫ И ВВЕДЕНЫ В ДЕЙСТВИЕ Постановлениями Государственного комитета Совета Министров СССР по делам строительства от 28 июня 1978 г. № 122, 123, 124

 

ГОСУДАРСТВЕННЫЙ СТАНДАРТ СОЮЗА ССР

Система проектной документации для строительства

ПРАВИЛА УЧЕТА И ХРАНЕНИЯ ПОДЛИННИКОВ ПРОЕКТНОЙ ДОКУМЕНТАЦИИ

System of design documents for construction.
Registration and storage rules for the originals
of design documentation

ГОСТ
21.203-78

Постановлением Государственного комитета Совета Министров СССР по делам строительства от 28 июня 1978 г. срок введения установлен

с 01.07.1979 г.

Несоблюдение стандарта преследуется по закону

Настоящий стандарт устанавливает правила учета и хранения в проектных организациях подлинников проектно-сметной документации (далее именуемые подлинником документа) на строительство предприятий, зданий и сооружений всех отраслей промышленности и народного хозяйства.

Стандарт не устанавливает правил учета и хранения подлинников документов на строительство закрытых объектов.

1. ОБЩИЕ ПОЛОЖЕНИЯ

1.1. Сроки хранения подлинников документов в проектных организациях устанавливается министерствами и ведомствами в перечнях документов, согласованных с Главным архивным управлением при Совете Министров СССР.

Подлинники документов отбираются на государственное хранение или уничтожение, как не имеющие научной ценности и потерявшие практическое значение, в соответствии с инструкциями, положениями и правилами работы с научно-технической документацией в организациях и на предприятиях СССР, утвержденными Главным архивным управлением при Совете Министров СССР.

1.2. Организационно-методическое руководство и контроль за состоянием, обеспечением сохранности и учета подлинников документов, находящихся на ведомственном хранении, и отбором их на государственное хранение, осуществляют министерства и ведомства, а также архивные учреждения системы Главного архивного управления при Совете Министров СССР.

2. УЧЕТ И ХРАНЕНИЕ ПОДЛИННИКОВ

2.1. Подлинники документов подлежат учету и хранению в разработавшей их организации.

Подлинники типовой проектной документации (комплексных типовых проектов, типовых проектных решений, рабочей документации на типовые конструкции, изделия и узлы) на здания и сооружения подлежат учету и хранению в Центральном институте типового проектирования (ЦИТП) Госстроя СССР.

Если организации-разработчику предоставлено право распростране­ния типовой проектной документации, то подлинники этой документации подлежат учету и хранению в организации-разработчике. В этом случае ЦИТПу передают к моменту ввода в действие типовой документации паспорт и копии указанной документации.

2.2. Подлинники рабочей документации на строительство зданий и сооружений, законченных строительством, могут передаваться на хранение дирекции предприятия или заказчику по строительству в порядке, установленном министерствами и ведомствами по согласованию с Главным архивным управлением при Совете Министров СССР.

2.3. При приеме подлинников документов на хранение проверяют:

комплектность документов (в соответствии с ведомостью чертежей или спецификацией изделия, содержанием альбомов, книг и другими документами, в которых перечислена вся сдаваемая документация);

наличие необходимых подписей и дат;

правильность выполнения основных надписей и титульных листов;

пригодность их для хранения, многократного снятия с них копий и микрофильмирования.

2.4. Подлинники документов, принятые на хранение, регистрируются в инвентарной книге по ГОСТ 2.501-68.

2.5. Каждому принятому на хранение подлиннику документа присваивается один инвентарный номер, независимо от количества листов.

В подлиннике документа, состоящем из нескольких листов, инвентарный номер проставляется на каждом листе.

2.6. Одновременно с регистрацией подлинника документа в инвентарной книге заполняют графы учета, расположенные на поле для подшивки листа этого подлинника.

2.7. Учет подлинников документа производится на учетных карточках.

В учетных карточках по форме 1 обязательного приложения регистрируют подлинники документов на строительство предприятий, зданий, сооружений и в том числе подлинники документов на изделия, по форме 2 - подлинники документов, не относящиеся к конкретному предприятию, зданию или сооружению.

Допускается учитывать подлинники документов на изделия отдельно от основных комплектов рабочих чертежей зданий и сооружений, используя форму 2.

2.8. Если подлинник документа выполнен с учетом возможности изготовления с него двухсторонних копий, в инвентарной книге и в учетной карточке указывают количество сдвоенных листов (в числителе) и количество страниц (в знаменателе).

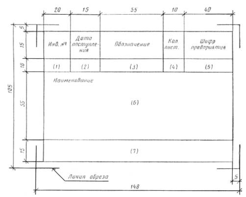
2.9. В графах учетных карточек указывают:

в графе 1 - инвентарный номер подлинника документа;

в графе 2 - дату поступления подлинника документа на хранение;

в графе 3 - обозначение подлинника документа по основной надписи;

в графе 4 - количество листов в подлиннике документа;

в графе 5- шифр строящегося предприятия, здания или сооружения;

в графе 6 - наименование подлинника документа, например: «Технико-экономические обоснования»;

в графе 7 - отметку об анулировании, замене подлинника документа;

в графе 8 - условное обозначение стадии проектирования;

в графе 9 - наименование строящегося предприятия, здания или сооружения и место строительства;

в графах 10, 11 - порядковые номера листов учетной карточки.

2.10. Подлинники документа, выполненные на листах формата 24 и менее, хранят в развернутом виде. Подлинники документа, выполненные на листах формата более 24, - в свернутом виде на скалках.

Допускается, при необходимости, хранить подлинники документов в сложенном виде в жестких папках сфальцованными на формат 11.

Подлинники комплексных типовых проектов, рабочей документации на типовые конструкци, изделия и узлы, независимо от формата и количества листов, следует хранить в развернутом виде в жестких папках.

2.11. Снятие копий с подлинников документов производится с разрешения главного инженера (архитектора) проекта или начальника отдела.

2.12. Выдачу подлинников документов для внесения в них изменений производят по расписке или абонентской карточке (применительно к форме 5 ГОСТ 2.501-68) на основании разрешения на внесение изменений.

Выдачу подлинников документов для восстановления производят по специальному распоряжению руководителя (или его заместителя) организации - держателя подлинников документов.

2.13. Перед внесением изменений или восстановлением подлинника документа с него изготовляют архивную копию, на которой ставят штамп «Архивный экземпляр». В архивную копию, изменений не вносят и хранят ее отдельно от подлинников.

2.14. При аннулировании подлинника документа на всех аннулированных листах этого подлинника ставят штамп «Аннулирован, заменен ... разрешение № ... от ... 19 ... г.»

Если аннулирование производится без замены, слово «заменен» в штампе зачеркивают.

2.15. Подлинники аннулированных документов и замененных документов хранят отдельно от подлинников действующих документов.

Подлинники типовой проектной документации, исключенной из числа действующей, передаются ЦИТПом в установленном порядке на хранение разработавшим их организациям; при этом с подлинников рабочих чертежей конструкций, изделий и узлов изготовляют микрофильмы, которые хранятся в ЦИТПе.

3. ВОССТАНОВЛЕНИЕ ПОДЛИННИКОВ

3.1. Пришедшие в негодность или утерянные подлинники документов по решению руководителя (или его заместителя) организации - держателя подлинников могут быть восстановлены.

3.2. До восстановления подлинника документа должен быть составлен акт (форма 3 обязательного приложения) о списании пришедшего в негодность или утерянного подлинника документа. Акт должен быть утвержден руководителем организации-разработчика или его заместителем.

3.3. Восстановленные подлинники документов действуют так же, как замененные подлинники.

Изменения в восстановленный подлинник документа вносят на основании всех разрешений на внесение изменений, выданных до момента его восстановления. Подлинник документа восстанавливают без оформления разрешения.

3.4. Восстановление подлинника документа производят от руки или путем перепечатки на пишущей машинке.

Восстановленный подлинник документа должен по своему техническому содержанию представлять точную копию восстанавли­ваемого подлинника документа.

Допускается изготовлять восстановленный подлинник документа методами, обеспечивающими его полную идентичность с подлинником документа, с которого производится восстановление.

Дальнейшее оформление восстановленного подлинника документа производят в соответствии с требованиями п. 3.8.

3.5. В подлиннике документа, восстановленном путем перекопирования, не воспроизводят размеры, надписи, графические изображения, зачеркнутые в соответствии с разрешением на внесение изменений в подлиннике (или копии), с которого снимается восстановленный подлинник.

3.6. В первую снизу строку таблицы изменений каждого листа восстановленного подлинника документа, изготовленного вручную, переносят запись только о последней замене или последнем изменении данного листа.

3.7. Подписи, визы и даты, имеющиеся на восстанавливаемом подлиннике документа (в том числе в таблицах изменений), в восстановленном подлиннике документа, изготовленном вручную, вписывают чертежным шрифтом и заключают в круглые скобки. Взамен неразборчивых подписей в круглых скобках пишут слово «Подпись».

3.8. Восстановленный подлинник документа должен быть заверен лицом, уполномоченным руководителем подразделения, выпустившего этот подлинник.

Надпись, подтверждающую правильность восстановленного подлинника документа, выполняют тушью на поле для подшивки, например:

«Восстановлен с подлинника.

Верно: (подпись, фамилия и дата)»;

«Восстановлен с копии.

Верно: (подпись, фамилия и дата)».

3.9. В верхнем правом углу поля каждого восстановленного листа подлинника документа должна быть надпись тушью: «Восстановленный подлинник № ...» с указанием порядкового номера восстановления данного листа подлинника документа.

3.10. Восстановленному подлиннику документа сохраняют инвентарный номер подлинника, с которого производилось восстановление. О восстановлении подлинника документа делают отметку в инвентарной книге и учетной карточке.

3.11. На подлиннике документа, взамен которого изготовлен восстановленный подлинник документа, ставят штамп: «Заменен восстановленным подлинником № ...», в котором указывают номер очередного восстановления и дату принятия восстановленного подлинника документа на хранение.

3.12. Подлинники документов, взамен которых изготовлены восстановленные подлинники, хранят в сложенном виде, подобранными по возрастанию числовых обозначений документов.

 

ПРИЛОЖЕНИЕ

Обязательное

Форма 1

ФОРМЫ ПО УЧЕТУ ПРОЕКТНОЙ ДОКУМЕНТАЦИИ

УЧЕТНАЯ КАРТОЧКА

(лицевая сторона)

Форма 1а

УЧЕТНАЯ КАРТОЧКА

(оборотная сторона)

Форма 2

УЧЕТНАЯ КАРТОЧКА

Форма 3

АКТ О СПИСАНИИ ДОКУМЕНТОВ

 

 




ГОСТЫ, СТРОИТЕЛЬНЫЕ и ТЕХНИЧЕСКИЕ НОРМАТИВЫ.
Некоммерческая онлайн система, содержащая все Российские Госты, национальные Стандарты и нормативы.
В Системе содержится более 150000 файлов нормативно-технической документации, действующей на территории РФ.
Система предназначена для широкого круга инженерно-технических специалистов.

Рейтинг@Mail.ru Яндекс цитирования

Copyright © www.gostrf.com, 2008 - 2026