Крупнейшая бесплатная информационно-справочная система онлайн доступа к полному собранию технических нормативно-правовых актов РФ. Огромная база технических нормативов (более 150 тысяч документов) и полное собрание национальных стандартов, аутентичное официальной базе Госстандарта. GOSTRF.com - это более 1 Терабайта бесплатной технической информации для всех пользователей интернета. Все электронные копии представленных здесь документов могут распространяться без каких-либо ограничений. Поощряется распространение информации с этого сайта на любых других ресурсах. Каждый человек имеет право на неограниченный доступ к этим документам! Каждый человек имеет право на знание требований, изложенных в данных нормативно-правовых актах!

  


 

ГОСТ Р 21.1702-96

 

ГОСУДАРСТВЕННЫЙ СТАНДАРТ РОССИЙСКОЙ ФЕДЕРАЦИИ

 

 

 

Система проектной документации для строительства

 

ПРАВИЛА ВЫПОЛНЕНИЯ РАБОЧЕЙ ДОКУМЕНТАЦИИ

ЖЕЛЕЗНОДОРОЖНЫХ ПУТЕЙ

 

МИНСТРОЙ РОССИИ

Москва

Предисловие

 

1 РАЗРАБОТАН Государственным предприятием — Центром методологии нормирования и стандартизации в строительстве (ГП ЦНС) совместно с институтами — АО «Ленгипротранс» и «Промтрансниипроект»

 

ВНЕСЕН Департаментом развития научно-технической политики и проектно-изыскательских работ Минстроя России

 

2 ПРИНЯТ И ВВЕДЕН В ДЕЙСТВИЕ постановлением Минстроя России от 29 июля 1996 г. № 18-52

 

3 ВВЕДЕН ВПЕРВЫЕ

 

 

ГОСУДАРСТВЕННЫЕ СТАНДАРТЫ РОССИЙСКОЙ ФЕДЕРАЦИИ

 

 

Система проектной документации для строительства

ПРАВИЛА ВЫПОЛНЕНИЯ РАБОЧЕЙ ДОКУМЕНТАЦИИ ЖЕЛЕЗНОДОРОЖНЫХ ПУТЕЙ

 

System of building design documents

RULES OF EXECUTING OF WORKING DOCUMENTATION FOR RAIL WAYS

 

Дата введения 1997—01—01

 

 

1 Область применения

 

Настоящий стандарт устанавливает состав и правила оформления рабочей документации на строительство новых и реконструируемых железнодорожных путей различного назначения, вы­полняемой с применением средств автоматизации.

 

2 Нормативные ссылки

 

В настоящем стандарте использованы ссылки на следующие стандарты:

ГОСТ 2.302-68 ЕСКД. Масштабы

ГОСТ 2.303-68 ЕСКД. Линии

ГОСТ 21.101-93 СПДС. Основные требования к рабочей документации

ГОСТ 21.110-95 СПДС. Правила выполнения спецификации оборудования, изделий и мате­риалов

ГОСТ 21.114-95 СПДС. Правила выполнения эскизных чертежей общих видов нетиповых изделий

ГОСТ 21.204-93 СПДС. Условные графические обозначения и изображения элементов гене­ральных планов и сооружений транспорта

ГОСТ 21.302-96 СПДС. Условные графические обозначения в документации по инженерно-геологическим изысканиям

ГОСТ 21.508-93 СПДС. Правила выполнения рабочей документации генеральных планов пред­приятий, сооружений и жилищно-гражданских объектов

 

3 Общие положения

 

3.1 Рабочую документацию железнодорожных путей выполняют в соответствии с требования­ми настоящего стандарта и других взаимосвязанных стандартов Системы проектной документа­ции для строительства (СПДС).

3.2. В состав рабочей документации железнодорожных путей включают:

- рабочие чертежи, предназначенные для производства строительных и монтажных работ (ос­новной комплект рабочих чертежей марки ПЖ);

- эскизные чертежи общих видов нетиповых изделий и устройств (при необходимости);

- спецификацию оборудования, изделий и материалов.

3.3. В состав основного комплекта рабочих чертежей марки ПЖ в общем случае включают:

- общие данные по рабочим чертежам;

- план и продольный профиль железнодорожного пути (путей);

- планы путевого развития раздельных пунктов (станций, разъездов, обгонных пунктов);

- продольные профили водоотводных и нагорных канав;

- поперечные профили земляного полотна железнодорожного пути (путей).

3.4 Условные графические изображения и обозначения элементов планов, продольных и попе­речных профилей железнодорожных путей принимают по ГОСТ 21.204.

3.5 Условные графические обозначения грунтов, особенностей их залегания, консистенции и степени влажности, используемые на продольных и поперечных профилях железнодорожных пу­тей, принимают по ГОСТ 21.302.

3.6 План и продольный профиль новых железнодорожных линий общего пользования и подъезд­ных путей, как правило, выполняют на одном совмещенном чертеже и располагают по участкам на одном листе. В этом случае участки плана и профиля, а также их ориентация должны совпадать.

3.7 Расстояния от пикетов до элементов плана и продольного профиля (например, до указате­лей километров, уклоноуказателей) наносят с одной стороны линии ординат. При совпадении линии ординат с пикетом привязку до указанных элементов на линии ординат не указывают.

3.8 Величину уклона и расстояние от точек перелома продольного профиля, совмещенного с пла­ном, приводят над проектной линией в виде дроби: над чертой - величину уклона, под чертой - расстояние. Величину уклона подъема пути указывают со знаком «+», спуска - со знаком «-».

3.9 Система координат и высотных отметок, принимаемая в рабочих чертежах железнодорож­ных путей на застроенной территории, должна соответствовать системе координат и высотных отметок, принятой в основном комплекте рабочих чертежей марки ГП, на разбивочном плане предприятия или жилищно-гражданского объекта.

3.10 Чертежи выполняют в масштабах по ГОСТ 2.302 с учетом сложности и насыщенности их информацией.

Масштабы изображений на чертежах марки ПЖ приведены в таблице 1.

 

Таблица 1

 

Наименование изображения

Масштаб изображения

 

основной

допускаемый

 

План железнодорожных путей общего поль­зования и подъездных путей

 

 

1:2000

 

1:5000; 1:1000

План железнодорожных путей на застроен­ной территории

 

1:1000

1:2000; 1:500

Продольные профили железнодорожных путей общего пользования и подъездных путей (совмещенные с планами)

 

По горизонтали 1:2000

По вертикали

1:200

По горизонтали 1:5000

По вертикали 1:500

Продольные профили железнодорожных путей на застроенной территории

 

По горизонтали 1:5000

По вертикали

1:500

По горизонтали

1:2000; 1:1000

По вертикали

1:200; 1:100

 

Поперечные профили земляного полотна железнодорожных путей

 

1:200

1:100

Поперечные профили земляного полотна и верхнего строения железнодорожных путей на застроенной территории

 

1:50

1:200; 1:100

Продольные профили водоотводных и на­горных канав

 

По горизонтали 1:5000

По вертикали

1:500

По горизонтали 1:2000

По вертикали

1:200

Планы путевого развития раздельных пунктов

 

1:1000

1:2000; 1:500

 

Масштаб изображения указывают в основной надписи после наименования изображения.

Если на листе помещено несколько изображений, выполненных в разных масштабах, то мас­штабы указывают на поле чертежа под наименованием каждого изображения.

Масштабы изображения продольного профиля указывают над боковиком таблицы.

3.11 Размеры на чертежах указывают в метрах. При необходимости размеры указывают с точ­ностью до сантиметра.

Высоту и отметки уровней указывают в метрах с точностью до сантиметра.

Толщину балластного слоя на продольном профиле реконструируемых путей указывают в сан­тиметрах.

3.12 Величину углов указывают в градусах с точностью до одной минуты, а при необходимости - до одной секунды.

3.13 Величину уклонов указывают в промилле без обозначения единицы измерения.

Крутизну откосов указывают в виде отношения высоты к горизонтальной проекции откоса.

Пример - 1:1,5; 1:2 и т.д.

3.14 Изображения на чертежах основного комплекта марки ПЖ выполняют линиями по ГОСТ 2.303.

При этом сплошной толстой основной линией показывают:

- на плане - проектируемые железнодорожные пути первой очереди (по осям), контуры про­ектируемых зданий, проектируемые инженерные сети, путевое оборудование;

- на продольном профиле - проектную линию, линии ординат от точек переломов проектной линии, прямые и кривые в плане;

- на поперечном профиле - проектные контуры, линии ординат от точек переломов проект­ных контуров.

Сплошной тонкой линией показывают:

- на плане — строительную геодезическую и координатную сетки, существующие железнодо­рожные пути, контуры существующих зданий, сооружений, существующие инженерные сети;

- на продольном профиле - линии фактической поверхности земли, существующей головки рельса, границы слоев грунта;

- на поперечном профиле - линии фактической поверхности земли и ординат от точек ее переломов, границы слоев грунта.

Пунктирной линией показывают подошвы насыпей на планах.

Штриховой тонкой линией показывают:

- на плане - железнодорожные пути второй очереди и перспективные пути, бровки выемок;

- на продольном профиле - низ балластного слоя, линию горизонта высокой воды;

- на продольном профиле водоотводных сооружений - кюветы.

Штрихпунктирной тонкой линией показывают оси железнодорожных путей на поперечных профилях и ранее запроектированные пути.

 

4 Общие данные по рабочим чертежам

 

Общие данные по рабочим чертежам марки ПЖ выполняют по ГОСТ 21.101 с учетом следую­щих изменений: на листе общих данных дополнительно приводят ведомость зданий и сооружений и сведения о принятой при топографической съемке системе высот, а также указывают обозначе­ние, отметку и местоположение исходного репера.

 

5 Планы железнодорожных путей

 

5.1 Планы железнодорожных линий общего пользования

5.1.1. Для разработки планов железнодорожных линий общего пользования и подъездных путей в качестве подосновы используют инженерно-топографический план, на котором показывают и приводят:

- ситуацию и, при необходимости, рельеф местности;

- координатную сетку;

- геодезические знаки (например, реперы, пункты геодезических сетей местного значения);

- разведочные геологические выработки (например, скважины, шурфы) и их номера;

- железнодорожный путь;

- вершины углов поворота пути, их обозначения и номера, начало и конец кривых, их обозна­чения и привязку к пикетам;

- числовые значения элементов кривых: углы поворота, радиусы, тангенсы, суммарные длины круговых и переходных кривых, длины переходных кривых;

- пикеты и указатели километров;

- контуры проектируемых зданий и сооружений (без координационных осей) и их порядковые номера (внутри контура — в правом нижнем углу);

- существующие и проектируемые инженерные коммуникации, их обозначения (наименова­ния) и привязку к пикетам;

- водоотводные сооружения (например, кюветы, лотки, водоотводные и нагорные канавы с отметками дна в местах переломов продольного профиля и величиной уклонов дна сооружений) при изображении плана и продольного профиля на совмещенном чертеже;

- искусственные сооружения и их порядковые номера (на полке линии-выноски);

- переезды и их порядковые номера (на полке линии-выноски);

- откосы насыпей и выемок (при необходимости);

- снего - и/или пескозадерживающие и другие защитные устройства (при необходимости), их привязку к оси железнодорожного пути;

- снегозадерживающие, почвоукрепительные и другие лесонасаждения (при необходимости) с учетом требований ГОСТ 21.508;

- границу полосы отвода земель;

- наименования конечных пунктов пересекаемых автомобильных дорог (направления на ко­нечные пункты указывают стрелками);

- указатель направления на север стрелкой с буквой «С» у острия (в левом верхнем углу листа).

5.1.2 На планах железнодорожных путей помещают спецификации элементов сборных кон­струкций по форме 7 или 8 ГОСТ 21.101, примененных для водоотводных, укрепительных, защит­ных и других устройств.

5.1.3 Привязанные к пути здания и сооружения (например, жилые дома, здания путевой служ­бы, искусственные сооружения, переезды) включают в ведомость зданий и сооружений, выполня­емую по форме 1 на листе общих данных по рабочим чертежам. Графы формы 1 заполняют в соответствии с их наименованиями.

 

Форма 1                                 

 

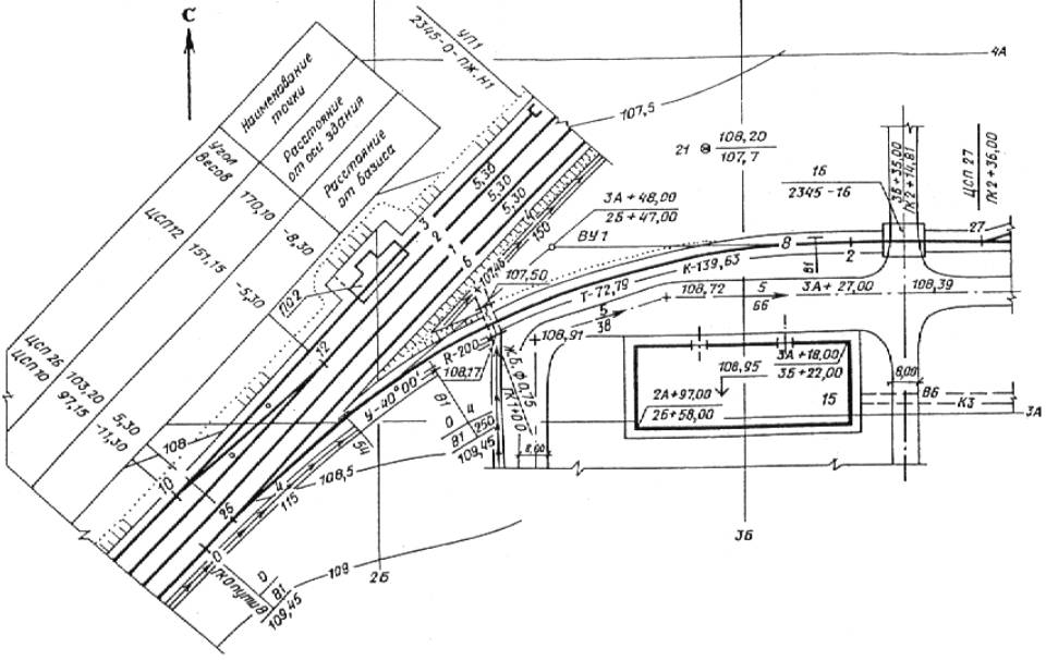
5.2 Планы железнодорожных путей на застроенной территории*

5.2.1 Ориентация плана железнодорожных путей на застроенной территории, как правило, должна соответствовать ориентации, принятой в рабочих чертежах генерального плана.

Допускается план таких путей изображать с поворотом до 90° по отношению к их расположе­нию на разбивочном плане.

5.2.2 План железнодорожных путей на застроенной территории допускается выполнять поэтапно, с выпуском разработок в соответствии с ГОСТ 21.508 (3.10 и 3.11).

 

_____________

* К железнодорожным путям на застроенной территории здесь и далее относят железные дороги, распо­лагаемые на территории городских и сельских поселений, промышленных, агропромышленных предпри­ятий, электростанций, портов, складских баз и на других застроенных территориях.

 

5.2.3. На планах железнодорожных путей на застроенной территории путевое оборудование изображают контурными линиями и обозначают маркой «ПО» с добавлением порядкового номера в пределах марки.

Пример - ПО1, ПО2.

Обозначение (марку) оборудования проставляют внутри контура или на полке линии-выноски.

5.2.4. На плане железнодорожных путей на застроенной территории дополнительно к 5.1.1 наносят и указывают:

- строительную геодезическую сетку;

- проектные горизонтали через 0,10 - 0,20 м или проектные отметки в характерных точках рельефа - в соответствии с планом организации рельефа;

- номера железнодорожных путей;

- расстояния между осями путей, а при необходимости, расстояния между осями путей и зданиями (сооружениями);

- центры стрелочных переводов, их номера и привязку к пикетам (или координаты);

- уклоноуказатели;

- путевые упоры, их позиционные обозначения (марки) и обозначения чертежей на их устройство;

- путевое оборудование и его позиционное обозначение (марку);

- откосы насыпей и выемок (на не спланированной территории);

- здания, сооружения, их номера или наименования (по разбивочному плану основного ком­плекта рабочих чертежей марки ГП) с привязкой к строительной геодезической сетке в соответст­вии с ГОСТ 21.508 (5.7, а);

- координаты точек (например, вершин углов поворота, центров стрелочных переводов).

При этом ситуацию местности наносят, как правило, за пределами ограждения или условной границы застроенной территории, а пересекаемые существующие железнодорожные пути, авто­мобильные дороги и инженерные коммуникации не привязывают к пикетам.

5.2.5. При насыщенном изображениями плане допускается обозначения координируемых точек и числовые значения элементов плана путей приводить в ведомости элементов плана путей. В этом случае на плане указывают только числовые значения углов поворота и радиусов.

Ведомость элементов плана железнодорожных путей выполняют по форме 2.

В графах ведомости указывают:

- в графе «Обозначение точки» — обозначение координируемой точки (например, ЦСП5, ВУ13);

- в графах «Координата точки»: А — координата точки по горизонтальной оси строительной геодезической сетки, Б — по вертикальной оси.

Остальные графы заполняют в соответствии с их наименованиями.

5.2.6. На плане путей на застроенной территории для раздельных пунктов дополнительно к строительной геодезической сетке допускается применять станционную систему координат.

Оси координат станционной системы должны быть привязаны к строительной геодезической сетке, а при ее отсутствии — к сети местной полигонометрии.

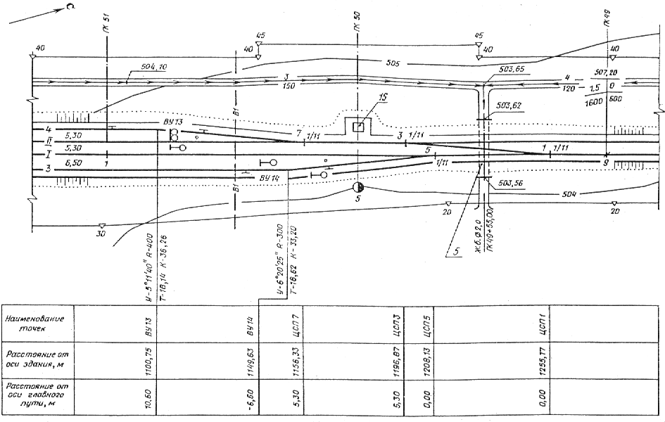
5.3 Планы путевого развития раздельных пунктов

столбики без привязки к пикетам;

- координаты точек (вершин углов поворота путей, центров стрелочных переводов);    

- здания, сооружения, их номера

5.3.1. В качестве осей координат станционной системы принимают ось пассажирского или другого станционного здания, проведенную под углом 90° к главному пути, и ось главного пути, а при реконструкции — базис, совпадающий с осью главного пути или параллельный ей.     

За начало отсчета координат станционной системы принимают, как правило, точку пересече­ния указанных осей.

5.3.2. Изображение плана путевого развития раздельного пункта допускается делить на не­сколько участков, размещая их на отдельных листах.

В этом случае на каждом листе плана, где показан участок плана, приводят схему целого плана с разбивкой его на участки, указывают номера листов, на которых они размещены, и штриховкой обозначают участок изображения, показанный на данном листе.

5.3.3. На плане путевого развития раздельных пунктов в дополнение к 5.1.1 наносят и указывают:

- геодезическое съемочное обоснование;

- номера железнодорожных путей;

- центры, номера и марки крестовин стрелочных переводов;

- уклоноуказатели;

- путевые упоры, их позиционные обозначения (марки) и обозначения чертежей на их устрой­ство;

- путевое оборудование и его позиционное обозначение (марку);

- расстояния между осями и основными элементами путей;

- сигналы и предельные по разбивочному плану (или наименования) и привязку к координатам станционной системы в соответствии с ГОСТ 21.508 (5.7, а);

- обозначения начал и концов кривых без привязки к пикетам. При этом пикеты и указатели километров показывают по оси главного пути.

 

Форма 2

 

Форма 3

 

5.3.4. Под планом путевого развития раздельного пункта помещают таблицу-сетку с боковиком по форме 3.

В боковике таблицы указывают:

- в графе «Наименование точки» - наименование координируемого элемента раздельного пункта. В качестве координируемой точки принимают, например, центр стрелочного перевода, вершину угла поворота;

- в графе «Расстояние от оси здания» - расстояние от оси пассажирского или иного станцион­ного здания до координируемой точки.

Допускается, при необходимости, вместо расстояния от здания указывать пикетажное значе­ние координируемой точки. В этом случае графу следует именовать «Пикетажное значение»;

- в графе «Расстояние от оси главного пути» - расстояние от оси главного железнодорожного пути до координируемой точки.

При реконструкции расстояние до координируемой точки указывают от базиса. В этом случае графу следует именовать «Расстояние от базиса».

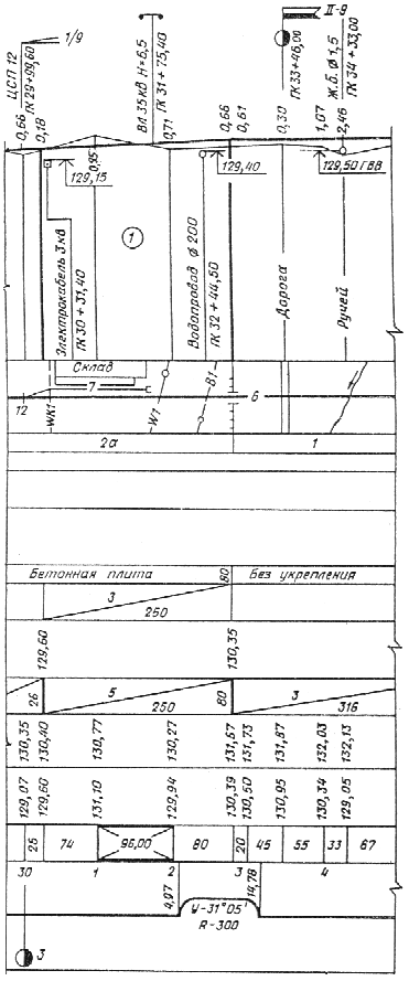
Примеры оформления совмещенного чертежа плана и продольного профиля новой однопут­ной железной дороги общего пользования приведены в приложении А, плана путевого развития раздельного пункта - в приложении Б, плана железнодорожных путей на застроенной террито­рии - в приложении В.

5.4 Табличные формы на планах

5.4.1. На планах путевого развития раздельного пункта и железнодорожных путей на застроен­ной территории помещают:

- ведомость элементов плана железнодорожных путей по форме 2 (при необходимости);

- ведомость железнодорожных путей по форме 4;

- ведомость стрелочных переводов по форме 5;

- экспликацию зданий и сооружений по форме 3 ГОСТ 21.508;

- спецификацию элементов сборных конструкций в соответствии с 5.1.2.

Графы форм 4 и 5 заполняют в соответствии с их наименованиями.

 

Форма 4

_____________

* Графу заполняют, как правило, для железнодорожных путей раздельных пунктов.

** В графах указывают номера стрелок и обозначения упоров.

*** Графу допускается не заполнять для железнодорожных путей на застроенной территории.

 

Форма 5

5.4.2 Примеры заполнения ведомости железнодорожных путей и ведомости стрелочных пере­водов приведены в приложении Г.

Пример заполнения ведомости зданий и сооружений приведен в приложении Д.

 

6 Продольные профили железнодорожных путей

 

6.1 Продольный профиль железнодорожного пути выполняют с учетом данных, приведенных в таблице (сетке), помещаемой под продольным профилем. В зависимости от назначения путей и методов проектирования таблицу выполняют с различной формой боковика.

Для новых железнодорожных линий общего пользования и подъездных путей боковик табли­цы выполняют по форме 6, применяемой на совмещенном чертеже плана и продольного профиля.

Для дополнительных главных путей или усиливаемых существующих (реконструируемых) же­лезнодорожных линий боковик таблицы выполняют по форме 7.

 

Форма 6

 

Форма 7

 

Для путей на застроенной не спланированной территории, а также для новых железнодорож­ных линий общего пользования и подъездных путей, профиль которых выполняют без совмеще­ния с планом, боковик таблицы выполняют по форме 8.

При размещении продольного профиля на нескольких листах боковик таблицы допускается наносить только на первом листе.

6.2. На застроенных территориях продольные профили путей выполняют, как правило, для участков, где не предусмотрено выполнение плана организации рельефа.

6.3. На продольном профиле железнодорожного пути показывают:

- линию фактической поверхности земли по оси железнодорожного пути и линию проектиру­емой бровки земляного полотна;

- линию фактической поверхности земли по подошве насыпи или бровке выемки существую­щего земляного полотна со стороны второго пути, линии существующей и проектируемой головки рельса, низа существующего балластного слоя (при реконструкции железнодорожного пути);

- разведочные геологические выработки с обозначением влажности и консистенции слоев грунта, отметками горизонта грунтовых вод и датой их замера;

- наименование слоев грунта и номера их групп в соответствии с классификацией грунта по трудности разработки. Допускается эти данные приводить в таблице по форме 9.

В таблице указывают:

- в графе «Номер грунта» - условный номер, принятый для обозначения грунта;

- в графе «Группа грунта» - номер группы грунта в соответствии с классификацией по труд­ности разработки.

В этом случае на профиле указывают условный номер грунта в кружке диаметром 5 - 7 мм.

 

Форма 8

_____________

* Графу приводят для путей на застроенной территории. Для других путей развернутый план пути наносят в графе «Пикет, элементы плана, километры».

 

Форма 9

 

Выше проектной линии наносят и указывают: 

- обозначения раздельных пунктов, их наименования и расстояния между ними;

- обозначения проектируемых искусственных сооружений и их привязку к пикетам;

- проектные уклоны и расстояния;

- обозначения реперов, инженерных надземных сетей, переездов (примыканий - для рекон­струируемых железнодорожных путей);

- рабочие отметки насыпи (при необходимости).

Ниже проектной линии наносят:

- линии ординат от точек переломов проектной линии;

- подземные инженерные коммуникации;

- условные обозначения проектируемых и существующих искусственных сооружений;

- пикеты;

- фактические отметки земли и проектные отметки бровки земляного полотна;

- рабочие отметки выемки (при необходимости);

- тип поперечного профиля;

- неправильные пикеты, отметки головки рельса существующего и проектируемого пути, план левого и правого пути, указатели километров (при реконструкции железнодорожного пути).

6.4. При отходе проектируемого железнодорожного пути от существующей станции проектную линию в месте перехода от отметки головки рельса к бровке земляного полотна изображают сту­пенькой.

6.5. При большом числе плюсовых точек между отдельными пикетами на листе продольного профиля помещают таблицу по форме 10.

 

Форма 10

 

6.6 Пример оформления плана и продольного профиля новой однопутной железной дороги общего пользования приведен в приложении А.

Пример оформления продольного профиля реконструируемого железнодорожного пути при­веден в приложении Е.

Пример оформления продольного профиля железнодорожного пути на не спланированной за­строенной территории приведен в приложении Ж.

 

7 Продольные профили водоотводных и нагорных канав

 

7.1 Продольные профили водоотводных и нагорных канав выполняют с учетом данных, приве­денных в таблице (сетке), помещаемой под продольным профилем. Боковик таблицы выполняют по форме 11.

7.2. На продольном профиле водоотводных и нагорных канав показывают:

- линию фактической земли по осям и проектную линию дна канав с ординатами от точек их переломов;

- линию проектируемой бровки земляного полотна;

- проектные уклоны и расстояния;

- искусственные сооружения с указанием отметок уровней горизонта высоких вод;

- дамбы (при необходимости);

- инженерные коммуникации;

- места выпусков канав на поверхность.

7.3 Пример оформления продольного профиля водоотводной канавы приведен в приложении И.

 

Форма 11

 

8 Поперечные профили земляного полотна

железнодорожных путей

 

8.1 Поперечные профили земляного полотна железнодорожных путей выполняют с учетом данных, приведенных в таблице (сетке), помещаемой под поперечным профилем. Боковик табли­цы выполняют по форме 12.

 

Форма 12

 

При размещении на листе двух поперечных профилей и более боковик таблицы допускается выполнять только у первого поперечного профиля.

8.2 Поперечные профили железнодорожных путей выполняют по направлению возрастания ука­зателей километров, а для путей на застроенной территории (при отсутствии этих указателей) - в сторону возрастания пикетов.

8.3. На поперечном профиле земляного полотна железнодорожного пути показывают:

- линию фактической поверхности земли, линии ординат от точек ее переломов и расстояния между ними;

- контур проектируемого земляного полотна и линии ординат от точек его переломов, крутизну откосов. При реконструкции, кроме того, указывают контуры существующего земляного полотна и балластной призмы;

- ось и отметку головки рельса проектируемого пути (ПГР). При реконструкции, кроме того, указывают оси и номера существующих путей, отметки головки рельса существующих путей (СГР) (номера разбираемых путей и отметки СГР указывают в скобках), расстояния между осями путей (расстояния между осями разбираемых и новых путей указывают в скобках);

- проектные отметки земляного полотна и отметки земли в точках перелома;

- разведочные геологические выработки (при их наличии), влажность и консистенцию слоев грунта, отметки горизонта высоких вод с датой замера; 

- границы слоев грунта, их наименования и номера групп в соответствии с классификацией по трудности разработки. Допускается наименования слоев грунта и номера их групп приводить в ведомости грунтов по форме 9;

- контуры срезки плодородного или растительного слоя, удаления торфа и замены непригод­ного грунта;

- крутизну откосов;

- элементы укрепления откосов земляного полотна и водоотводных сооружений (схематично), их марки (наименования) и обозначения документации, необходимой для выполнения укрепле­ния.

 

Пример

 

- выносные элементы (узлы, фрагменты);

- привязку поперечного профиля к пикету;

- инженерные коммуникации и их обозначения (при необходимости);

- границу отвода земель (при необходимости).

8.4. Над боковиком поперечного профиля земляного полотна помещают числовые значения площадей поперечных сечений проектируемого земляного полотна, например: насыпей (Fн), вы­емок (Fв), канав (Fкан), кюветов (Fк) с указанием номеров групп слоев грунта.

8.5 Поперечным профилям железнодорожного полотна, отличающимся от типовых конфи­гурацией и конструкцией, присваивают порядковые номера в продолжение номеров типовых профилей.

8.6 Примеры оформления поперечного профиля земляного полотна нового железнодорожного пути приведены в приложении К, реконструируемых железнодорожных путей — в приложении Л.

 

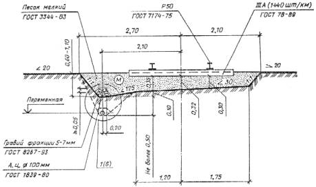
9 Поперечные профили земляного полотна

железнодорожных путей на застроенной тер­ритории

 

9.1. На застроенной территории на поперечном профиле земляного полотна показывают верх­нее строение железнодорожных путей. При этом на чертеж наносят и указывают:

- контур проектируемого земляного полотна, а при реконструкции, кроме того, - контур существующего земляного полотна;

- водоотводные сооружения и устройства;

- крутизну откосов и направление уклонов прилегающей территории;

- оси путей;

- конструкцию верхнего строения пути (путей) с указанием обозначений или наименований его элементов, толщину слоев балластной призмы и др., а также необходимые размеры и отметки;

- выносные элементы (фрагменты, узлы);

- тип поперечного профиля, а при необходимости - привязку поперечного профиля к пикета­жу пути (путей).

9.2 Поперечным профилям земляного полотна и верхнего строения пути, различающимся кон­фигурацией, способом отвода воды и т.п. присваивают обозначения по принципу: Тип 1, Тип 2.

При применении нескольких типов верхнего строения пути, различающихся типом рельсов, числом шпал на 1 км, толщиной и материалом балласта, обозначение поперечного профиля до­полняют буквенным индексом по принципу: Тип 1а, Тип 1б.

9.3 Пример оформления поперечного профиля земляного полотна и верхнего строения пути приведен в приложении М.

10 Эскизные чертежи общих видов нетиповых

изделий и устройств

 

10.1 Эскизные чертежи общих видов нетиповых изделий и устройств (далее - эскизные черте­жи) выполняют по ГОСТ 21.114 с учетом требований настоящего стандарта.

10.2 Эскизные чертежи разрабатывают на несложные в изготовлении нетиповые изделия и устройства (кроме паевого оборудования индивидуального изготовления), предусмотренные ос­новным комплектом рабочих чертежей марки ПЖ, при отсутствии соответствующей проектной документации массового или повторного применения, стандартов или других документов на их изготовление.

10.3. В наименовании нетипового изделия (устройства) указывают буквенно-цифровое обозна­чение в пределах каждого вида изделия (устройства).

Пример — Упор путевой УП1.

 

11 Спецификация оборудования, изделий и материалов

 

11.1 Спецификацию оборудования, изделий и материалов (далее - Спецификация) к основно­му комплекту рабочих чертежей марки ПЖ выполняют по ГОСТ 21.110 с учетом требований на­стоящего стандарта.

Спецификацию составляют по разделам:

1) устройства верхнего строения пути;

2) устройства водоотводные, укрепительные и защитные.

При необходимости выделения ресурсов по отдельным видам устройств второй раздел соот­ветственно делят на подразделы.

Наименование каждого раздела записывают в виде заголовка в графе 2 Спецификации и под­черкивают.

11.2 Предусмотренные рабочими чертежами элементы верхнего строения пути записывают в 1-й раздел по группам в следующей последовательности:

- оборудование путевое;

- элементы пути (рельсы, упоры, шпалы, междушпальные лотки и другие изделия);

- знаки путевые и сигнальные, включая опоры (фундаменты) под них из сборных конструк­ций;

- другие изделия;

- материалы (щебень, гравий, песок, цемент, бетон и др.).

В Спецификацию не включают элементы рельсовых скреплений (болты, гайки, костыли и др.). 

11.3 Элементы водоотводных, укрепительных и защитных устройств записывают во 2-й раздел по группам в следующей последовательности:

- элементы (изделия) водоотводных сооружений;

- трубопроводы дренажные (по каждому диаметру, с указанием в графе 2 наименований труб и обозначения документа на трубы);

- элементы (изделия) укрепления откосов земляного полотна и водоотводных сооружений;

- элементы (изделия) защиты пути;

- элементы лесопосадок;

- другие изделия;

- материалы.

11.4. В Спецификации принимают следующие единицы измерения:

- оборудование, изделия, а также элементы лесопосадок — шт.;

- рельсы - м или км;

- трубопроводы дренажные - м;

- щебень, гравий, песок, бетон - м3;

- другие материалы, семена, удобрения - кг или т.

 

 

 



 

ПРИЛОЖЕНИЕ Г

(справочное)

 

ПРИМЕРЫ ЗАПОЛНЕНИЯ ВЕДОМОСТИ ЖЕЛЕЗНОДОРОЖНЫХ ПУТЕЙ И ВЕДОМОСТИ

СТРЕЛОЧНЫХ ПЕРЕВОДОВ

 

ПРИМЕР ЗАПОЛНЕНИЯ ВЕДОМОСТИ

ЖЕЛЕЗНОДОРОЖНЫХ ПУТЕЙ

 

Номер

 

Граница пути

Длина пути, м

Тип

пути

Наименование пути

от стрелки

через стрелки

до стрелки (упора)

 

полная

 

полезная

рельса

1

Главный

 

1

2, 6, 24, 26

3

1370

Р 65

2

Приемоотправочный

 

20

30, 34

17

1530

1270

Р 65

3

Погрузочно-разгрузоч-ный

 

52

54, 58

УП1

410

200

Р 50

4

Деповский

 

62

64

УП2

330

150

Р 50

 

 

 

 

 

 

 

 

 

 

ПРИМЕРЫ ВЕДОМОСТИ СТРЕЛОЧНЫХ ПЕРЕВОДОВ

 

а) новых железнодорожных путей

 

Тип рельса

Сторонность стрелочного перевода

Марка крестовины

Тип стрелочного перевода

Номер стрелочного перевода

Количество, шт.

Р 65

 

Левый

1/11

 

Обыкновенный

1, 22, 24, 26

4

Р 65

 

Правый

1/11

6, 8

2

Р 50

 

Левый

1/6

 

Симметричный

54, 56

2

 

 

 

 

 

 

 

 

б) при реконструкции

 

Тип рельса

Сторонность стрелочного перевода

Марка крестовины

Тип стрелочного перевода

Номер стрелочного перевода

Количество, шт.

 

 

 

 

Обыкновенный

Укладываемые

 

Р 65

 

Левый

1/11

 

1, 3, 7, 9

4

 

 

 

 

Разбираемые

 

 

Р 50

 

Правый

1/9

 

Обыкновенный

16, 76, 25

3

 

 

 

 

 

 

 

 

 

ПРИЛОЖЕНИЕ Д

(справочное)

 

ПРИМЕР ЗАПОЛНЕНИЯ ВЕДОМОСТИ

ЗДАНИЙ И СООРУЖЕНИЙ,

ПРИВЯЗАННЫХ К ЖЕЛЕЗНОДОРОЖНОМУ ПУТИ

ОБЩЕГО ПОЛЬЗОВАНИЯ

 

Порядковый номер

на плане

Наименование здания, сооружения

Обозначение документа

Кол-во, шт.

Примечание

1

 

Дом жилой на 6 квартир,

 

 

 

 

стены кирпичные

 

2345-1

2

 

2

 

Ж. б. труба Æ 1,5 м

2345-0-КЖ (1)

3

 

3

 

Ж. б. труба отв. 2 х 2,0 м

2345-0-КЖ (2)

1

 

4

 

Ж. б. мост дл. 25,5 м

2345-4-КЖ

1

 

5

 

Переезд

2345-5

5

тпр 501-01-6.89

6

 

Одноэтажное здание переездного типа

2345-6

5

тп 501-281

 

 

 

 

 

     



 

 

ПРИЛОЖЕНИЕ Ж

(справочное)

 

ПРИМЕР ОФОРМЛЕНИЯ ПРОДОЛЬНОГО ПРОФИЛЯ

ЖЕЛЕЗНОДОРОЖНОГО ПУТИ

НА НЕСПЛАНИРОВАННОЙ

ЗАСТРОЕННОЙ ТЕРРИТОРИИ

 

 

Номер грунта

Группа грунта

Наименование грунта

1

33а

Суглинок легкий

 

 

М 1:5000 по горизонтали

М 1:500 по вертикали

 

 

Развернутый план пути

 

 

Проектные

данные

Тип поперечного профиля

 

Укрепление

Левый кювет

Уклон, ; длина ,м

(поток, дренаж)

Отметка дна, м

 

 

Укрепление

Правый кювет

Уклон, , длина ,м

(поток, дренаж)

Отметка дна, м

 

Уклон, ; длина, м

 

Отметка головки рельса, м

 

 

Фактические

данные

Отметка земли, м

 

Расстояние, м

 

Пикет

 

Элементы плана

 

Километры

 

 

ПРИЛОЖЕНИЕ И

(справочное)

 

ПРИМЕР ОФОРМЛЕНИЯ ПРОДОЛЬНОГО ПРОФИЛЯ

ВОДООТВОДНОЙ КАНАВЫ

 

 



 

ПРИЛОЖЕНИЕ М

(справочное)

 

ПРИМЕР ОФОРМЛЕНИЯ ПОПЕРЕЧНОГО ПРОФИЛЯ

ЗЕМЛЯНОГО ПОЛОТНА И ВЕРХНЕГО

СТРОЕНИЯ ПУТИ

 

Тип 1

 

 

 

Ключевые слова: новые и реконструируемые железнодорожные пути, пути на застроенной территории, состав, оформление рабочих чертежей.

 

содержание

Предисловие. 1

1 Область применения. 1

2 Нормативные ссылки. 1

3 Общие положения. 2

4 Общие данные по рабочим чертежам.. 4

5 Планы железнодорожных путей. 4

5.1 Планы железнодорожных линий общего пользования  4

5.2 Планы железнодорожных путей на застроенной территории*  5

5.3 Планы путевого развития раздельных пунктов. 6

5.4 Табличные формы на планах. 8

6 Продольные профили железнодорожных путей. 9

7 Продольные профили водоотводных и нагорных канав. 12

8 Поперечные профили земляного полотна. 13

железнодорожных путей. 13

9 Поперечные профили земляного полотна. 15

железнодорожных путей на застроенной территории. 15

10 Эскизные чертежи общих видов нетиповых. 15

изделий и устройств. 15

11 Спецификация оборудования, изделий и материалов. 15

ПРИЛОЖЕНИЕ А.. 17

(справочное) 17

ПРИМЕР ОФОРМЛЕНИЯ ПЛАНА И ПРОДОЛЬНОГО ПРОФИЛЯ НОВОЙ ОДНОПУТНОЙ   17

ЖЕЛЕЗНОЙ ДОРОГИ ОБЩЕГО ПОЛЬЗОВАНИЯ (СОВМЕЩЕННЫЙ ЧЕРТЕЖ) 17

ПРИЛОЖЕНИЕ Б. 19

(справочное) 19

ПРИМЕР ОФОРМЛЕНИЯ ПЛАНА ПУТЕВОГО РАЗВИТИЯ РАЗДЕЛЬНОГО ПУНКТА   19

ПРИЛОЖЕНИЕ В.. 21

(справочное) 21

ПРИМЕР ОФОРМЛЕНИЯ ПЛАНА ЖЕЛЕЗНОДОРОЖНЫХ ПУТЕЙ НА ЗАСТРОЕННОЙ ТЕРРИТОРИИ   21

ПРИЛОЖЕНИЕ Г. 24

(справочное) 24

ПРИМЕРЫ ЗАПОЛНЕНИЯ ВЕДОМОСТИ ЖЕЛЕЗНОДОРОЖНЫХ ПУТЕЙ И ВЕДОМОСТИ   24

СТРЕЛОЧНЫХ ПЕРЕВОДОВ.. 24

ПРИЛОЖЕНИЕ Д.. 25

(справочное) 25

ПРИМЕР ЗАПОЛНЕНИЯ ВЕДОМОСТИ.. 25 ЗДАНИЙ И СООРУЖЕНИЙ, 25 ПРИВЯЗАННЫХ К ЖЕЛЕЗНОДОРОЖНОМУ ПУТИ.. 25 ОБЩЕГО ПОЛЬЗОВАНИЯ.. 25

ПРИЛОЖЕНИЕ Е. 26

(справочное) 26

ПРИМЕР ОФОРМЛЕНИЯ ПРОДОЛЬНОГО ПРОФИЛЯ.. 26  РЕКОНСТРУИРУЕМОГО   26 ЖЕЛЕЗНОДОРОЖНОГО ПУТИ.. 26

ПРИЛОЖЕНИЕ Ж... 28

(справочное) 28

ПРИМЕР ОФОРМЛЕНИЯ ПРОДОЛЬНОГО ПРОФИЛЯ.. 28 ЖЕЛЕЗНОДОРОЖНОГО ПУТИ   28 НА  ЕСПЛАНИРОВАННОЙ.. 28

ЗАСТРОЕННОЙ ТЕРРИТОРИИ.. 28

ПРИЛОЖЕНИЕ И.. 30

(справочное) 30

ПРИМЕР ОФОРМЛЕНИЯ ПРОДОЛЬНОГО ПРОФИЛЯ.. 30 ВОДООТВОДНОЙ КАНАВЫ    30

ПРИЛОЖЕНИЕ К.. 31

(справочное) 31

ПРИМЕР ОФОРМЛЕНИЯ ПОПЕРЕЧНОГО ПРОФИЛЯ ЗЕМЛЯНОГО ПОЛОТНА НОВОГО  ЕЛЕЗНОДОРОЖНОГО ПУТИ.. 31

ПРИЛОЖЕНИЕ Л.. 32

(справочное) 32

ПРИМЕР ОФОРМЛЕНИЯ ПОПЕРЕЧНОГО ПРОФИЛЯ ЗЕМЛЯНОГО ПОЛОТНА РЕКОНСТРУИРУЕМЫХ ЖЕЛЕЗНОДОРОЖНЫХ ПУТЕЙ.. 32

ПРИЛОЖЕНИЕ М... 33

(справочное) 33

ПРИМЕР ОФОРМЛЕНИЯ ПОПЕРЕЧНОГО ПРОФИЛЯ.. 33 ЗЕМЛЯНОГО ПОЛОТНА И ВЕРХНЕГО   33 СТРОЕНИЯ ПУТИ.. 33

 

 

 

 




ГОСТЫ, СТРОИТЕЛЬНЫЕ и ТЕХНИЧЕСКИЕ НОРМАТИВЫ.
Некоммерческая онлайн система, содержащая все Российские Госты, национальные Стандарты и нормативы.
В Системе содержится более 150000 файлов нормативно-технической документации, действующей на территории РФ.
Система предназначена для широкого круга инженерно-технических специалистов.

Рейтинг@Mail.ru Яндекс цитирования

Copyright © www.gostrf.com, 2008 - 2026