Крупнейшая бесплатная информационно-справочная система онлайн доступа к полному собранию технических нормативно-правовых актов РФ. Огромная база технических нормативов (более 150 тысяч документов) и полное собрание национальных стандартов, аутентичное официальной базе Госстандарта. GOSTRF.com - это более 1 Терабайта бесплатной технической информации для всех пользователей интернета. Все электронные копии представленных здесь документов могут распространяться без каких-либо ограничений. Поощряется распространение информации с этого сайта на любых других ресурсах. Каждый человек имеет право на неограниченный доступ к этим документам! Каждый человек имеет право на знание требований, изложенных в данных нормативно-правовых актах!

  


 

ОСТ 24.125.153-01

СТАНДАРТ ОТРАСЛИ

ОПОРЫ НЕПОДВИЖНЫЕ
И СКОЛЬЗЯЩИЕ ПРИВАРНЫЕ
ТРУБОПРОВОДОВ ТЭС И АЭС

КОНСТРУКЦИЯ И РАЗМЕРЫ

Предисловие

1 РАЗРАБОТАН открытым акционерным обществом «Научно-производственное объединение по исследованию и проектированию энергетического оборудования им. И. И. Ползунова» (ОАО «НПО ЦКТИ») и открытым акционерным обществом «Белгородский завод энергетического машиностроения» (ОАО «Белэнергомаш»)

ИСПОЛНИТЕЛИ: от ОАО «Белэнергомаш» ЗАВГОРОДНИЙ Ю.В., СЕРГЕЕВ О.А., РОГОВ В.А.; от ОАО «НПО ЦКТИ» ПЕТРЕНЯ Ю.К., д-р физ.-мат. наук; СУДАКОВ А.В., д-р техн. наук; ДАНЮШЕВСКИЙ И.А., канд. техн. наук; ИВАНОВ Б.Н., канд. техн. наук; ТАБАКМАН М.Л.; ГЕОРГИЕВСКИЙ Н.

2 ПРИНЯТ И ВВЕДЕН В ДЕЙСТВИЕ Департаментом промышленной и инновационной политики в машиностроении Министерства промышленности, науки и технологий Российской Федерации письмом № 10-1984 от 31.10.2001 г.

3 ВЗАМЕН ОСТ 108.275.47-80

СТАНДАРТ ОТРАСЛИ

ОПОРЫ НЕПОДВИЖНЫЕ И СКОЛЬЗЯЩИЕ ПРИВАРНЫЕ
ТРУБОПРОВОДОВ ТЭС И АЭС

Конструкция и размеры

Дата введения 2002-01-01

1 Область применения

Настоящий стандарт распространяется на опоры неподвижные и скользящие приварные трубопроводов ТЭС и АЭС из углеродистых электросварных труб наружным диаметром от 530 до 1620 мм с температурой среды t 300 °С.

Стандарт устанавливает конструкцию и размеры корпусов неподвижных и скользящих приварных опор.

2 Нормативные ссылки

В настоящем стандарте использованы ссылки на следующие стандарты:

ГОСТ 535-88 Прокат сортовой и фасонный из стали углеродистой обыкновенного качества. Общие технические условия

ГОСТ 5264-80 Ручная дуговая сварка. Соединения сварные. Основные типы, конструктивные элементы и размеры

ГОСТ 8240-97 Швеллеры стальные горячекатаные. Сортамент.

ГОСТ 14637-89 Прокат толстолистовой из углеродистой стали обыкновенного качества. Технические условия

ОСТ 24.125.170-01 Детали и сборочные единицы опор, подвесок, стяжек для линзовых компенсаторов и приводов дистанционного управления арматурой трубопроводов ТЭС и АЭС. Общие технические условия

РД 153-34.1-003-01 Сварка, термообработка и контроль трубных систем котлов и трубопроводов при монтаже и ремонте энергетического оборудования (РТМ-1с)

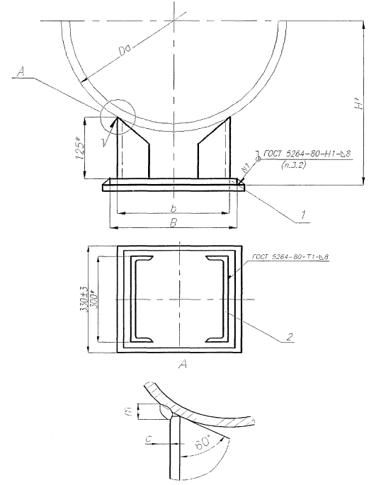
3 Конструкция и размеры

3.1 Конструкция и основные размеры опор должны соответствовать указанным на рисунке 1 и в таблице 2.

3.2. При использовании приварных опор в качестве неподвижных основание опоры приваривается по контуру к металлоконструкциям швом № 1 по РД 153-34.1-003-01. Шов может выполняться прерывистым симметричным относительно осей плиты. Минимально допустимая общая длина шва дана в таблице 1.

При исполнении опоры в качестве скользящей шов № 1 не выполняется.

3.3 Маркировка и остальные технические требования по ОСТ 24.125.170.

3.4 Пример условного обозначения корпуса неподвижной приварной опоры исполнения 05:

КОРПУС 05 ОСТ 24.125.153

3.5 Пример маркировки: 05 ОСТ 24.125.153

* Размеры для справок.

1 - основание; 2 - швеллер

Рисунок 1.

Таблица 1

Размеры в миллиметрах

Исполнение

Наружный диаметр трубопровода Da

B ± 3

b ± 3

H*

m ± 2

c ± 2

L, не менее

Масса, кг

Основание, поз. 1, 1 шт.

Швеллер, поз. 2, 2 шт.

Размеры

Материал

Масса, кг

Материал

Масса, кг

1 шт.

общая

01

530

275

245

370

18

11

1001,7

15,0

275×330×10

Ст3сп5 ГОСТ 14637

7,1

Швеллер - 30 ГОСТ 8240

Ст3сп3 ГОСТ 535

3,8

7,6

02

630

330

300

410

16,4

330×330×10

8,5

720

460

03

820

390

360

505

20

12

1200,0

18,0

390×330×10

10,1

920

560

04

1020

455

425

600

19,7

455×330×10

11,8

05

1220

535

505

675

22,0

535×330×10

14,1

06

1420

665

635

770

24,4

665×330×10

16,5

07

1620

795

765

850

28,5

795×330×10

20,6

* Размеры для справок.

Таблица 2

Допускаемые усилия на опору

Исполнение

Наружный диаметр трубопровода Da, мм

Максимальное усилие, кН, при температуре среды, °С

20

200

300

01

530

382

314

255

02

630

720

03

820

402

343

284

920

04

1020

05

1220

06

1420

07

1620

Ключевые слова: опоры неподвижные, опоры скользящие, трубопроводы, конструкция, размеры.

СОДЕРЖАНИЕ

 

 




ГОСТЫ, СТРОИТЕЛЬНЫЕ и ТЕХНИЧЕСКИЕ НОРМАТИВЫ.
Некоммерческая онлайн система, содержащая все Российские Госты, национальные Стандарты и нормативы.
В Системе содержится более 150000 файлов нормативно-технической документации, действующей на территории РФ.
Система предназначена для широкого круга инженерно-технических специалистов.

Рейтинг@Mail.ru Яндекс цитирования

Copyright © www.gostrf.com, 2008 - 2026