Крупнейшая бесплатная информационно-справочная система онлайн доступа к полному собранию технических нормативно-правовых актов РФ. Огромная база технических нормативов (более 150 тысяч документов) и полное собрание национальных стандартов, аутентичное официальной базе Госстандарта. GOSTRF.com - это более 1 Терабайта бесплатной технической информации для всех пользователей интернета. Все электронные копии представленных здесь документов могут распространяться без каких-либо ограничений. Поощряется распространение информации с этого сайта на любых других ресурсах. Каждый человек имеет право на неограниченный доступ к этим документам! Каждый человек имеет право на знание требований, изложенных в данных нормативно-правовых актах!

  


 

МИНИСТЕРСТВО ЖИЛИЩНО-КОММУНАЛЬНОГО ХОЗЯЙСТВА РСФСР

ОРДЕНА ТРУДОВОГО КРАСНОГО ЗНАМЕНИ
АКАДЕМИЯ КОММУНАЛЬНОГО ХОЗЯЙСТВА им. К. Д. ПАМФИЛОВА

Утверждаю

Начальник

Главного управления жилищного хозяйства

Минжилкомхоза РСФСР

В.М. Кузовчиков

14 марта 1985 г.

Утверждаю

Начальник

Главного управления благоустройства

Минжилкомхоза РСФСР

Н.И. Кузнецов

15 марта 1985 г.

РЕКОМЕНДАЦИИ
ПО ВЫБОРУ МЕТОДОВ И ОРГАНИЗАЦИИ
УДАЛЕНИЯ БЫТОВЫХ ОТХОДОВ

Отдел научно-технической информации

Москва 1985

В настоящих рекомендациях рассмотрены вопросы выбора методов и организации удаления твердых бытовых отходов из жилых домов, совершенствования работ, определены рациональные области применения различных систем сброса и удаления отходов, установлены взаимоотношения сторон.

Разработаны отделом санитарной очистки городов АКХ им. К.Д. Памфилова (кандидаты техн. наук Е.М. Букреев, В.Н. Чересленко, инж. Ю.А. Борисов) и Главным управлением благоустройства Минжилкомхоза РСФСР (Н.И. Ереснов) и предназначены для инженерно-технических работников областных, городских и районных организаций, занятых уборкой городских территорий (санитарная очистка домовладений), а также для организаций, контролируемых санитарное состояние городов.

Организация механизированной уборки городских территорий является одной из важных и сложных задач охраны окружающей среды населенных пунктов. Улучшение благоустройства, повышение санитарного состояния городских территорий требуют решения на современном техническом уровне вопросов сбора и удаления твердых отходов (ТБО) из домовладений. Качество работ по санитарной очистке городов в значительной степени зависит от рациональной их организации и правильного выполнения предусмотренных технологических операций.

В настоящее время в нашей стране и за рубежом накоплен определенный опыт использования технических средств для сбора и удаления ТБО. Расширяется применение кузовных мусоровозных машин, оборудованных манипуляторами, а также двухэтапного вывоза отходов с использованием мусороперегрузочных станций. Получают распространение пневмосистемы для сбора и удаления отходов как непосредственно из жилых зданий, так и для их дальнейшей транспортировки от мусороперегрузочных станций до предприятий по обезвреживанию и переработке ТБО. Начинают применяться математические методы для оптимизации технологического процесса сбора и удаления отходов.

ОБЩИЕ ПОЛОЖЕНИЯ

Предприятия по уборке городских территорий относятся к непроизводственной сфере, и основной их задачей является регулярное удаление бытовых отходов из домовладений, предприятий культурно-бытового назначения. Работы по сбору и удалению бытовых отходов выполняют коммунальные предприятия (спецавтохозяйства), которые обеспечивают своевременное и качественное выполнение установленных объемов работ. Под сбором отходов понимается загрузка собираемого мусоровозного автотранспорта в домовладениях, под удалением (вывозом) - транспортировка отходов из района сбора или от мусороперегрузочной станции до места складирования (обезвреживания).

Для обеспечения необходимого санитарного уровня населенных мест и более эффективного использования парка специальных уборочных машин сбор и удаление бытовых отходов в городах и населенных пунктах осуществляется по планово-регулярной системе в сроки, предусмотренные правилами санитарного содержания территорий населенных мест.

Отходы, образующиеся при строительстве, ремонте, реконструкции жилых и общественных зданий, а также объектов культурно-бытового назначения, вывозят транспортом строительных организаций на специально выделенные участки. Неутилизируемые отходы промышленных предприятий вывозят транспортом этих предприятий на специальные сооружения или полигоны для их обезвреживания и захоронения.

Организация планово-регулярной системы и режим удаления бытовых отходов определяются на основании решений исполнительных комитетов городских Советов народных депутатов по представлению органов жилищно-коммунального хозяйства и учреждений санитарно-эпидемиологической службы.

Планово-регулярная система сбора и удаления бытовых отходов включает: организацию временного хранения и сбора бытовых отходов в местах их образования; удаление бытовых отходов с территорий домовладений и организаций; обезвреживание и утилизацию бытовых отходов. Указанные мероприятия взаимно обусловлены и их нужно планировать и осуществлять комплексно.

Для лучшей организации работ по сбору и удалению отходов территорию города (населенного пункта) разбивают на эксплуатационные участки (ЭУ), обслуживаемые механизированной колонной, которая обеспечивает выполнение всех работ, предусмотренных технологией. Начальник колонны является ответственным за техническую готовность машин, эффективное их использование, своевременнее и качественное выполнение работ.

Руководство работами и контроль за их качеством осуществляет мастер колонны. При отсутствии начальника колонны сменный мастер исполняет его обязанности. Мастер организует и контролирует работу на участке, обеспечивает выполнение работ, эффективное использование машин и соблюдение правил техники безопасности (Правила безопасности и производственной санитарии при уборке и санитарной очистке городских территорий. - М.: Стройиздат, 1978). По завершении работ мастер оценивает качество их выполнения. В конце каждого месяца мастер оформляет объемы выполненных работ, которые подтверждаются жилищными органами (ЖЭК, ЖКО, ДЭЗ).

На выбор и организацию сбора и удаления бытовых отходов существенное влияние оказывает уровень благоустройства обслуживаемого жилого фонда городов и населенных пунктов, который разделяется на благоустроенный (газ, центральное отопление, водопровод, канализация) и неблагоустроенный (местное отопление, отсутствие водопровода и канализации), подразделяющийся на жилищный фонд местных советов и фонд на правах личной собственности.

Условно можно принять, что города РСФСР с учетом среднегодовых температур воздуха расположены в трех климатических зонах (северная, средняя и южная), и следует учитывать их особенности при выборе систем сбора, периодичности вывоза, санитарной обработки сборников и выполнении других мероприятий.

Периодичность удаления бытовых отходов выбирает с учетом сезонов года, климатической зоны, эпидемиологической обстановки, согласовывают с местными учреждениями санитарно-эпидемиологической службы и утверждают решением горисполкома.

Как правило, устанавливают следующие сроки удаления бытовых отходов: с территорий домовладений - не реже одного раза в три дня; с территорий домовладений с особым режимом или в юной зоне - ежедневно.

Периодичность санитарной обработки сборников определяется системой сбора и удаления и принимается: при контейнерной (сменяемой) системе сбора и удаления отходов - после каждого опорожнения контейнеров; при несменяемой схеме сбора и удаления отходов для северной зоны (летний период) - один раз в 15 дн.; для средней зоны - один раз в 15 дн.; для жилой зоны - один раз в 10 дн.

При наличии специальных машин, предназначенных для мойки сборников, их мойку может осуществлять спецавтохозяйство за дополнительную плату.

ОРГАНИЗАЦИЯ РАБОТ И ТЕХНИЧЕСКИЕ СРЕДСТВА ДЛЯ СБОРА И УДАЛЕНИЯ ОТХОДОВ

В число объектов обязательного обслуживания спецавтохозяйств включаются малые здания, предприятия торговли, общественного питания, кинотеатры, пошивочные мастерские, больницы, поликлиники, гостиницы, общежития, детские сады и ясли, школы и другие учебные заведения, театры, кино, рынки.

Правильная организация планово-регулярной системы сбора и удаления отходов предполагает наличие исчерпывающих сведений об обслуживаемых объектах. Для получения данных необходимо обследовать все намеченные к обслуживанию объекты и провести их паспортизацию. Некоторые необходимые сведения находятся в справке, представляемой жилищно-эксплуатационной организацией при заключении ежегодных договоров (прил. 5) на удаление бытовых отходов.

Соответствующие сведения должны быть получены и при заключении договоров с другими организациями, обслуживаемыми при планово-регулярной системе очистки. При обследовании выявляется необходимость объединения или изменения мест установки сборников бытовых отходов с целью создания лучших условий для жильцов и работы мусоровозного транспорта. Для повышения производительности мусоровозных машин существенное значение имеет укрупнение мест установки сборников.

Исходными данными для планирования количества подлежащих удалению отходов являются нормы накопления бытовых отходов, определяемые для жилых домов, а также для объектов культурно-бытового назначения по рекомендациям, разработанным Академией коммунального хозяйства им. К.Д. Памфилова ("Рекомендации по определению норм накопления твердых бытовых отходов для городов РСФСР". - М.: ОНТИ АКХ им. К.Д. Памфилова, 1982).

Норма накопления бытовых отходов является среднегодовой величиной и служит для определения годового накопления бытовых отходов в городе, населенном пункте или районе. По кварталам года общее количество собираемых и вывозимых бытовых отходов должно уточняться и взаимные расчеты должны производиться по фактическому количеству удаляемых бытовых отходов.

Изменения количества образующихся бытовых отходов по сезонам года носит следующий характер (табл. 1).

Таблица 1

Сезонные изменения норм накопления ТБО

Жилищный фонд

Лето*

Осень

Зима

Весна

Масса

Объем

Масса

Объем

Масса

Объем

Масса

Объем

1

2

3

4

5

6

7

8

9

Благоустроенные жилые дома:

 

 

 

 

 

 

 

 

при отборе пищевых отходов

1

1

1,62

1,48

1,2

1,14

1,38

1,36

без отбора пищевых отходов

1

1

1,5

1,44

1,16

1,12

1,3

1,33

Неблагоустроенные жилые дома:

 

 

 

 

 

 

 

 

коммунальный фонд

1

1

1,15

1,44

1,35

1,5

1,42

1,5

жилищный фонд на правах личной собственности

1

1

1,08

1,55

1,2

1,11

1,25

1,34

* За 100 % принята масса и объем образующихся бытовых отходов в летний период.

При временном хранении бытовых отходов в сборниках происходит самоуплотнение. При наибольшей продолжительности временного хранения отходов (3 сут.) их самоуплотнение, т.е. уменьшение первоначального объема, достигает 30 %. Указанное самоуплотнение отходов будет приводить к более полному использованию полезной грузоподъемности мусоровозных машин, а следовательно, и к сокращению числа рейсов.

В ряде домовладений рабочие жилищно-эксплуатационных организаций прибегают к уплотнению отходов в сборниках, что приводит к искажению отчетности и требует ежемесячного подтверждения жилищными организациями фактически вывезенного количества бытовых отходов. Объемы вывозимых отходов от культурно-бытовых и других организаций планируются по рекомендуемым нормам, а взаимные расчеты должны производиться по фактически вывезенным объемам, подтвержденным заказчиком.

На предприятиях по обезвреживанию и переработке твердых бытовых отходов (полигоны, мусороперерабатывающие и мусоросжигательные заводы) должен быть установлен контроль и отметка в путевых листах количества выполненных рейсов. Для контроля количества привезенных отходов на предприятиях по их обезвреживанию и переработке целесообразна установка автовесов.

В случае вывоза пищевых отходов транспортом конторы по заготовке неплановых кормов они исключаются из общей нормы накопления бытовых отходов. Ориентировочные нормы накопления отходов от жилых и общественных зданий (встроенных и отдельно стоящих) даны в прил. 3 ("Рекомендации по определению норм накопления твердых бытовых отходов для городов РСФСР". М: ОНТИ АКХ им. К.Д. Памфилова, 1982).

Наибольшее распространение в городах и населенных пунктах, особенно в благоустроенном жилищном фонде, получили стандартные металлические сборники (контейнеры). В настоящее время серийно выпускают два типоразмера металлических контейнеров для ТБО и пищевых отходов - 0,75 и 0,55 м3. Основные технические данные получающих применение металлических сборников для твердых бытовых и пищевых отходов приведены в таблице.

С 1983 г. организовано серийное производство мусоровозов с манипулятором КО-413 и КО-415 А. В ближайшие годы эти машины станут основными, применяемыми при сборе и вывозе бытовых отходов. Техническая характеристика мусоровозных машин приведена ниже.

Контейнеры (контейнерные площадки) должны быть удалены от жилых домов, детских учреждений, мест отдыха населения на расстояние не менее 20, но не более 100 м. Площадки для контейнеров должны иметь: ровное асфальтовое или бетонное покрытие, уклон в сторону проезжей части 0,02 %, ограждение зелеными насаждениями (для создания живой изгороди вокруг контейнерных площадок могут быть использованы декоративные кустарники: смородина золотистая, айва японская, барбарис обыкновенный, боярышник, жасмин, ирга канадская и др.) или какое-либо другое ограждение (кирпичное, сетчатое, бетонное и т.п.).

Техническая характеристика металлических сборников для ТБО

Показатель

Типы мусоросборников

по ГОСТ 12917-78

для мусоровозов с манипуляторами

Вместимость, м3

0,1; 0,55*; 0,75

0,6; 0,3

Масса, кг

21; 90; 105

87; 80

Габаритные размеры, мм

 

 

длина

550; 980; 980

1005; 980

ширина

600; 950; 950

988; 678

высота

890; 875; 1155

1010; 980

Диаметр колес для передвижения, мм

-

180**

* Для пищевых отходов и смета.

** Постоянно ориентированные с различной высотой установки.

Техническая характеристика мусоровозов

Показатель

Модель мусоровоза

КО-413

КО-415А

М-3А

53-М

Тип базового шасси

ГАЗ 53-02

КАМАЗ 53213

ГАЗ-53А

ГАЗ-53-02

Масса перевозимых твердых отходов, кг

2900

9000

2210

2500

Объем кузова, контейнеров, м3

7,5

24

6

7

Масса специального оборудования, кг

1850

4500

2540

1900

Коэффициент уплотнения отходов

1,7-2

до 2

-

1,5

Грузоподъемность манипулятора (крана), кг

500

600

500

-

Угол поворота манипулятора, град.

74

74

360

-

Вылет стрелы манипулятора (крана), мм

2000

2000

2700

-

Продолжительность разгрузки кузова, мин

5-7

10

10

5

Габаритные размеры, мм:

 

 

 

 

длина

5900

8600

6700

6625

ширина

2340

2500

2454

2230

высота

2700

3350

3130

2460

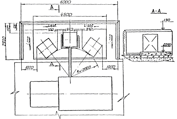
Контейнерные площадки должны примыкать непосредственно к сквозным проездам и исключать необходимость маневрирования мусоровозных машин. Учитывая, что мусоровозные машины с манипулятором с одной остановки могут разгружать не более трех контейнеров, то наибольшее количество размещаемых контейнеров на площадке не должно превышать шести.

Для поддержания необходимого санитарного состояния площадок контейнеры должны быть установлены от ограждающих конструкций не ближе 1 м, а друг от друга - 0,35 м. Размещение контейнеров на площадке при вывозе мусоровозами с манипулятором показано на рисунке. На этих площадках могут предусматриваться специальные места для установки контейнера для пищевых отходов.

ВЫБОР СИСТЕМ СБОРА И УДАЛЕНИЯ ОТХОДОВ

Системы сбора и удаления отходов

Основными системами сбора и удаления твердых бытовых отходов являются контейнерная система (система сменяемых сборников) и система несменяемых сборников.

При контейнерной системе отходы вывозят вместе с контейнерами, а на их место устанавливают порожние чистые контейнеры. При несменяемой системе отходы выгружают непосредственно в мусоровозные машины, а контейнеры после опорожнения устанавливают на место.

Площадка с тремя контейнерами

В благоустроенном жилищном фонде могут применяться как контейнерная система, так и несменяемая система сбора и вывоза отходов, обеспечивающие максимальную механизацию погрузо-разгрузочных работ. Выбор той или иной системы определяют следующие факторы: удаление мест разгрузки мусоровозных машин; санитарно-эпидемиологические условия; периодичность санитарной обработки сборников и возможность такой обработки непосредственно в домовладениях; тип и количество мусоровозных машин; количество проживающих жителей, этажность застройки, наличие жилищного фонда на правах личной собственности; рельеф местности; наличие сезонных объектов (летние павильоны, ярмарки, выставки и т.п.).

Применение контейнерной системы целесообразно при дальности вывоза не более 8 км, при обслуживании объектов временного образования отходов и сезонных объектов (выставки, ярмарки, дачные поселки, места с большим скоплением людей), а также благоустроенного жилищного фонда, расположенного в южной климатической зоне РСФСР.

Несменяемая система, как наиболее производительная, должна применяться в качестве основной, поскольку она позволяет наиболее полно использовать мусоровозные машины и достигнуть наивысшей производительности труда. На эту систему ориентируется развитие техники в коммунальном машиностроении. Эффективность несменяемой системы обеспечивается при использовании различных типоразмеров контейнеров - 0,3; 0,6; 0,55 и 0,75 м3.

При новом строительстве жилых зданий, оборудованных мусоропроводами, а также при их капитальном ремонте мусороприемные камеры должны удовлетворять требованиям указаний ВСН 8-72 вне зависимости от привязки к реальным условиям местности. Это позволяет устанавливать контейнеры на колесах или на тележке непосредственно под стволами мусоропроводов и избежать ручной перегрузки твердых бытовых отходов из зданий малыми емкостями. При использовании контейнеров на колесах или на тележке проезды, по которым транспортируются контейнеры, должны иметь ровное дорожное покрытие. Уклоны и подъемы не должны превышать 8 %.

В неканализованных домовладениях бытовые отходы отличаются значительной влажностью и часть отходов попадает в помои. С целью механизации погрузо-разгрузочных работ в подобных условиях и исключения деревянных сборников целесообразно применять стандартные контейнеры (сборники) различной емкости с отверстиями в днище. В этом случае твердые отходы задерживаются в сборниках и вся излишняя влага стекает в выгреб. Очистка выгребов должна производиться с помощью вакуум-машин.

Сбор и удаление твердых бытовых отходов в жилищном фонде на правах личной собственности может осуществляться как по системе сменяемых, так и несменяемых сборников. В этом фонде может быть организована система сбора отходов путем заезда собирающего мусоровоза в определенные дни и часы, когда жители выгружают отходы в мусоровоз из квартирных сборников.

Вопрос о выборе систем сбора и удаления отходов решается в каждом конкретном городе (населенном пункте) на текущий период и на перспективу:

при определении системы сбора и удаления бытовых отходов на ближайший плановый период, когда исходят из существующих конкретных условий, наличия технических средств, уровня благоустройства жилой застройки, дальности вывоза бытовых отходов;

при разработке перспективного плана сбора и удаления бытовых отходов, когда необходимо исходить из плана застройки и развития города (населенного пункта) и ориентироваться на новые перспективные технологические схемы и технические средства.

Перечень работ и операций по сбору и удалению твердых бытовых отходов и применяемые технические средства для их выполнения даны в табл. 2.

Таблица 2

Перечень операций и технические средства, применяемые при сборе и удалении ТБО

Выполняемая операция

Технические средства

Наименование

Модель, техническая характеристика

Благоустроенный жилищный фонд

(Средняя и южная климатические зоны)

Система сменяемых контейнеров

Сбор отходов

Контейнер

Емкость 0,75 м3

Вывоз отходов

Контейнерная машина

М-30А

Система несменяемых контейнеров

Сбор отходов

Контейнер

Емкость 0,75; 0,6; 0,55; 0,3 м3

Вывоз отходов

Мусоровозная машина

КО-413; КО-415А

Малоэтажный жилищный фонд

Сбор отходов

Квартирный сборник

Произвольная емкость

Вывоз отходов

Мусоровозная машина

53-М; КО-413

(Северная климатическая зона)

Летний период

Система сменяемых контейнеров

Сбор отходов

Контейнер

Емкость 0,75 м3

Вывоз отходов

Контейнерная машина

М-30А

Система несменяемых контейнеров

Сбор отходов

Контейнер

Емкость 0,75; 0,6; 0,55; 0,3 м3

Вывоз отходов

Мусоровозная машина

КО-413; КО-415А

Зимний период

Система несменяемых контейнеров

Сбор отходов

При наличии мусоропроводов - контейнер

Емкость 0,3 м3

Неканализованный жилищный фонд

(Средняя и южная климатические зоны)

Летний период

Система несменяемых контейнеров

Сбор отходов

Контейнер с отверстиями в дне, решетки помойниц

Емкость 0,6; 0,75 м3

Разъемные деревянные сборники без дна на асфальтированной и бетонной площадке, решетки помойниц

Емкость 1 м3

Вывоз отходов

Мусоровозная машина

КО-413

То же

53-М

Зимний период

Сбор отходов

Разъемные деревянные сборники без дна на асфальтированной или бетонной площадке

Ёмкость 1 м3

Вывоз отходов

Мусоровозная машина

53-М (КО-413)

Северная климатическая зона

Летний период

Система несменяемых контейнеров

Сброс отходов

Контейнер с отверстиями в дне и решетки помойниц

Емкость 0,6; 0,75 м3

Разъемные деревянные сборники без дна на асфальтированной или бетонированной площадке, решетки помойниц

Емкость 1 м3

Вывоз отходов

Мусоровозная машина

КО-413

То же

53-М

Зимний период

Сбор отходов

Разъемные деревянные (металлические) сборники для намораживания отходов

Емкость 0,56; 3,6 м3

Вывоз отходов

Контейнерная машина

М-30А

Жилищный фонд на правах личной собственности

(Средняя и южная климатические зоны)

Летний период

Система сменяемых контейнеров

Сбор отходов

Контейнер

Емкость 0,75 м3

Вывоз отходов

Контейнерная машина

М-30А

Система несменяемых контейнеров

Сбор отходов

Контейнер

Емкость 0,6; 0,75 м3

Вывоз отходов

Мусоровозная машина

КО-413

Зимний период

Система сменяемых контейнеров

Сбор отходов

Контейнер

Емкость 0,75 м3

Вывоз отходов

Контейнерная машина

М-30А

Система несменяемых контейнеров

Сбор отходов

Контейнер

Емкость 0,6; 0,75 м3

Вывоз отходов

Мусоровозная машина

КО-413

Северная климатическая зона

Летний период

Система сменяемых контейнеров

Сбор отходов

Контейнер

Емкость 0,75 м3

Вывоз отходов

Контейнерная машина

М-30А

Система несменяемых контейнеров

Сбор отходов

Контейнер

Емкость 0,6; 0,75 м3

Вывоз отходов

Мусоровозная машина

КО-413

Зимний период

Система несменяемых контейнеров

Сбор отходов

Разъемные деревянные (металлические) сборники для намораживания отходов

Емкость 0,56; 3,6 м3

Вывоз отходов

Мусоровозная машина

КО-413, 53-М

В благоустроенном жилищном фонде в теплое время года, независимо от климатических условий, жители или рабочие мусороприемных камер выносят отходы и загружают ими стоящие на площадках контейнеры. При системе сменяемых контейнеров применяют их емкостью 0,75 м3 и контейнерные мусоровозы М-30А, а при системе несменяемых контейнеров - емкостью 0,75; 0,6 м3 и контейнеры на колесах 0,3 м3. В этом случае отходы вывозят мусоровозочные машины различных моделей.

В неканализованном жилищном фонде с целью механизации погрузо-разгрузочных работ и улучшения санитарного состояния дворовых территорий целесообразно сбор отходов производить в металлические сборники различной емкости с отверстиями в дне. Использование таких сборников позволяет применять мусоровозные машины с механизированной выгрузкой отходов из контейнеров.

Контейнеры при сменяемой системе могут находиться на площадках постоянно или устанавливаться на какое-то определенное время.

Составление маршрутных графиков

Маршрутизация движения собирающего мусоровозного транспорта осуществляется для всех объектов, подлежащих регулярному обслуживанию. За маршрут сбора отходов принимается участок движения собирающего мусоровоза по обслуживаемому району от начала до полной загрузки машины.

Все маршруты разрабатывают в графической и текстовой формах. Графическая форма маршрутов сбора ТБО - это нанесенные на план города (района) линии движения соответствующих мусоровозов с указанием начального и конечного пунктов сбора, а также направления движения. Текстовая форма маршрута сбора ТБО - это последовательное перечисление адресов домовладений, обслуживаемых за одну ездку мусоровоза до его максимального заполнения.

В дополнение к маршрутам движения мусоровозов разрабатывают подробный график (расписание) движения, который позволяет в любое время определить, где находится мусоровозная машина, какое домовладение она обслуживает, когда должна прибыть на конечный пункт маршрута или к месту разгрузки, когда приступит к следующему маршруту.

Маршруты сбора ТБО и графики движения пересматривают в процессе эксплуатации мусоровозов, а также при изменении местных условий: уменьшении или увеличении образования ТБО; изменении состава обслуживаемых объектов; изменении условий движения на участке, при смене типа собирающих мусоровозов или смене системы сбора ТБО.

Для составления маршрутов сбора и графиков движения обслуживаемые домовладения объединяют в группы с общим накоплением ТБО за период между двумя заездами мусоровоза, равным количеству отходов, которое мусоровоз может вывести за одну ездку. Численность жителей, обслуживаемых мусоровозом на маршруте сбора, можно определить по следующей формуле:

Т = О/Н,

где О - объем ТБО, вывозимых мусоровозом за одну ездку, л;

Н - среднесуточная норма накопления ТБО в расчете на одного жителя, л.

Ниже приведена эксплуатационная характеристика собирающих мусоровозов. Если вывоз ТБО производится через день, то накапливание отходов возрастает вдвое, а значит, соответственно должен быть сокращен размер обслуживаемого района.

Эксплуатационная характеристика собирающих мусоровозов

Дальность вывоза, км

КО-413

КО-415А

М-30

53М

10

3,3/6,2

1,3/7,2

5,3/3,6

2,5/3,3

15

2,7/5

1,3/7,2

4/2,7

2/2,6

20

2,5/4,7

1,7/5,6

4,7/2,2

2/2,6

25

2/3,8

1/5,6

2,7/1,8

1,7/2,2

30

1,7/3,2

1,5/5,6

2,3/1,6

1,5/2

35

1,7/3,2

1/5,6

2/1,4

1,5/2

40

1,5/2,8

1/5,6

1,7/1,1

1,3/1,7

45

1,5/2,8

-

1,7/1,1

1/1,3

Примечание. В числителе дроби - число ездок за смену при коэффициенте использования рабочего времени 0,9; а знаменателе - часовая производительность, м3/ч.

Для разработки маршрутов сбора и графиков движения мусоровозов необходимо располагать следующими исходными данными: подробной характеристикой подлежащих обслуживанию объектов (накопление ТБО по каждому объекту, число и вместимость установленных сборников, места их расстановки, а также состояние подъездов к ним, освещение); подробной характеристикой района обслуживания (правила и интенсивность движения по отдельным улицам и внутриквартальным проездам, планировка кварталов и дворовых территорий и т.д.); режимом работы транспорта. При выборе режима работы мусоровозного транспорта следует учитывать, что продолжительность работы водителей может устанавливаться не более 1,5 смены.

Разработка маршрутов сбора ТБО может производиться специалистами на основе опыта и определенных правил (эвристический способ) или с применением математического моделирования процесса сбора ТБО.

При эвристическом способе маршрутизации необходимо учитывать следующее:

маршрут сбора должен быть компактным и непрерывным, причем, повторные пробеги мусоровозов по одним и тем же улицам следует сводить к минимуму;

начальный пункт маршрута сбора следует располагать возможно ближе к спецавтохозяйству, если рабочий день начинается на этом маршруте;

пункты сбора ТБО, находящиеся на дорогах с особо интенсивным движением и улицах с большим потоком пешеходов, нужно объединять в маршруты сбора, подлежащие обслуживанию до наступления часов "пик";

маршрут сбора должен проходить в направлении к месту обезвреживания ТБО;

на улицах с большим уклоном (более 12-15 %) процесс сбора должен идти под уклон;

правые повороты в квартальных проездах используют по возможности (с целью исключения пересечений с встречным потоком транспорта и маневрирования на перекрестках);

тупиковые улицы следует обслуживать таким образом, чтобы въезд на них осуществлялся правым поворотом; маршрут сбора должен предусматривать наличие резервных участков для заполнения мусоровоза в случае его недогрузки на основном маршруте.

Примеры прокладки маршрутов по улицам и кварталам различной конфигурации показаны в прил. 4. Эффективность маршрутизации может быть повышена за счет применения математического моделирования процесса сбора ТБО*. За каждой транспортной единицей закрепляют участок сбора с числом ездок, соответствующим сменной производительности, при этом, по возможности, сохраняют равномерную нагрузку на каждую транспортную единицу данного типа.

* Консультации по вопросам применения ЭВМ при планировании и организации работ по сбору и вывозу ТБО могут быть получены у разработчиков данных рекомендаций.

На основании закрепленных маршрутов составляют график (сменное задание) работы мусоровозной машины, утверждаемый руководителем предприятия, который выдают водителю и направляют в жилищные организации и в СЭС для контроля.

Двухэтапный вывоз отходов

В последние годы в связи с ростом городов, созданием вокруг них зеленых зон, зон отдыха трудящихся наблюдается систематическое удаление мест обезвреживания бытовых отходов. Увеличение транспортных пробегов собирающих мусоровозных машин приводит к существенному снижению их производительности и к увеличению себестоимости вывоза.

С целью снижения эксплуатационных расходов, связанных со сбором и вывозом бытовых отходов, целесообразно применять мусороперегрузочные станции (МПС) или перегрузочные площадки, расположение которых выбирают на основании технико-экономических расчетов.

Мусороперегрузочные станции

Целесообразность введения двухэтапного вывоза отходов с помощью МПС определяется, главным образом, удаленностью места складирования ТБО от района их сбора и количеством накапливающихся (вывозимых) отходов, которое должно быть не менее 150 - 200 м3/сут. Удаление МПС от района сбора отходов может варьироваться в определенных пределах в зависимости от местных условий и применяемой техники. Чем ближе место расположения МПС к району сбора отходов, тем экономичнее двухэтапный вывоз ТБО. Максимальное удаление МПС от района сбора отходов в зависимости от расположения мест обезвреживания ТБО (км) для собирающих мусоровозов КО-413 и КО-415А и для транспортного мусоровоза вместимостью 80 - 100 м3 отходов приведено ниже:

Удаление места обезвреживания                          Удаление места размещения МПС

ТБО от центра района сбора                                        от центра района сбора

25                                                                             8

30                                                                             12

35                                                                             16

40                                                                             20

При удалении места складирования (обезвреживания) ТБО менее 20 - 25 км двухэтапный вывоз отходов неэффективен. С увеличением этого расстояния растет как экономическая эффективность, так и зона возможного (рационального) размещения МПС, что важно в условиях современных городов.

Экономическая эффективность двухэтапного вывоза отходов существенно зависит от рационального размещения МПС в зависимости от конкретных условий обслуживаемого района (города), правильного определения необходимой производительности МПС и маршрутов перевозки ТБО. Эти вопросы можно решить в полном объеме с помощью обработки информации об обслуживаемом районе на ЭВМ по следующей методике.

Город разбивают на участки (микрорайоны) так, чтобы их количество не превосходило 80 - 100 ед. Границами таких участков могут служить автомагистрали, железнодорожные пути, естественные преграды (лесные массивы, озера, овраги и т.п.). Для каждого участка на основе паспортизации домовладений определяют годовое накопление ТБО, подлежащих сбору и вывозу.

Необходимо предварительно определить и согласовать с заинтересованными организациями места, пригодные для размещения МПС. Для возможности выбора число таких земельных участков должно в 2 - 3 раза превышать потребное их количество. Земельные участки следует выбирать в промышленных зонах, на окраинах или даже за пределами города, непосредственно у городской черты. В случае выбора МПС, расположенных вблизи жилых районов, они должны удовлетворять санитарным и эстетическим требованиям. Величина санитарного разрыва должна быть не менее 100 м. Предварительно необходимо определить производительность МПС, капитальные и эксплуатационные затраты по перегрузке ТБО.

Затем определяется "тяготение" участков сбора ко всем возможным местам расположения МПС, что позволит исключить нерациональные маршруты перевозки ТБО на стадии их сбора. На этом же этапе определяется "тяготение" отдельных участков сбора к сооружениям по обезвреживанию ТБО при одноэтапном вывозе и МПС при двухэтапном вывозе. В пределах зон "тяготения" необходимо определить расстояния от участков сбора (от условного центра участка) до МПС и мест обезвреживания ТБО, а также от МПС до мест обезвреживания.

На основе полученных данных определяют транспортные затраты для всех типов мусоровозов по каждому из возможных маршрутов. В том случае, если заранее неизвестно распределение типов собирающих мусоровозов по районам города или хотя бы в какой-то его части, следует предусмотреть возможность использования на данном маршруте нескольких типов машин.

В соответствии с местными условиями и принятой технологией сбора и вывоза ТБО, а также с намечаемыми (в связи с внедрением двухэтапного вывоза ТБО) изменениями необходимо установить, какие типы мусоровозов будут обслуживать выделенные участки сбора. Привязку мусоровозов к участкам сбора надо осуществлять таким образом, чтобы более полно использовать продолжительность рабочей смены. Крупные жилые массивы в пригородной зоне необходимо включить в сферу действия МПС. При этом все этапы подготовительной работы для решения задачи планирования двухэтапного вывоза ТБО должны быть проделаны и для этих жилых массивов.

На размещение МПС большое влияние оказывает расположение мест обезвреживания и в этой связи, если в ближайшие годы предполагается закрытие действующих в настоящее время сооружений по обезвреживанию ТБО, желательно еще до решения задачи планирования двухэтапного вывоза ТБО выбрать места для новых сооружений.

Собранные таким образом данные о районе (городе), где намечается введение двухэтапного вывоза ТБО, должны быть обработаны на ЭВМ, в результате чего находятся наиболее эффективные условия размещения МПС и ее эксплуатации.

Математическая модель двухэтапного вывоза ТБО решается по стандартным программам и может быть реализована в большинстве вычислительных центров отраслевого и учебного характера*.

* Консультации по вопросам применения ЭВМ при планировании организации работ по сбору и вывозу ТБО могут быть получены у разработчиков данных рекомендаций.

Мусороперегрузочные площадки

Область применения двухэтапного вывоза ТБО может быть расширена за счет использования мусоровозов с манипулятором в качестве транспортных при их совместной работе с мусоровозами М-30А. В этом случае в городе (районе) устраивают мусороперегрузочные площадки, где производится перегрузка отходов из собирающих мусоровозов (М-30А) в транспортные. Перегрузку можно производить с помощью манипулятора.

Данные о рациональном размещении мусороперегрузочных площадок приведены ниже.

Предельное удаление (км) мусороперегрузочных площадок от центра района сбора ТБО

Удаление места обезвреживания ТБО от центра района сбора, км

КО-413

КО-415А

20

7

3

25

12

8

30

16

12

35

19

15

40

21

17

Для мусоровоза КО-415А можно устраивать в обслуживаемом районе одну-две перегрузочные площадки. При этом в начале смены он работает как собирающий, затем перегружает отходы на первой площадке из мусоровозов М-30А и так далее.

ВЗАИМООТНОШЕНИЯ И ОБЯЗАННОСТИ СТОРОН

Взаимоотношения и обязанности сторон определяются типовым договором (прил. 5).

Предприятия, занимающиеся сбором и вывозом ТБО, несут ответственность за своевременное удаление бытовых отходов; изучают район или участок, подлежащий очистке, и составляют совместно с представителями жилищных организаций и СЭС акты обследований; контролируют жилищные органы по устранению недостатков, отмеченных в актах (приведение в порядок сборников, площадок под них, подъездных путей, освещения и т.п.); определяют совместно с представителями жилищной организации и СЭС необходимое количество сборников для отходов и места их установки в домовладениях; разрабатывают маршрутные графики движения мусоровозного транспорта, а также проводят их корректировку в связи с изменениями в застройке; осуществляют контроль за обеспечением надлежащих условий работы транспорта по утвержденному графику; при системе сменяемых контейнеров обеспечивают надлежащее санитарное состояние и систематический уход за контейнерами (мойка, окраска, ремонт и т.п.); при системе несменяемых контейнеров, за соответствующую оплату, обеспечивают домовладения контейнерами.

Жилищные организации при системе несменяемых контейнеров приобретают необходимое количество контейнеров (сборников), проводят их обслуживание, окраску, ремонт; устраивают бетонированные или асфальтированные площадки под сборники; отводят специальные площадки для хранения шлака, строительных отходов и т.п.; принимают участие в обследовании домовладений с представителями по санитарной очистке и СЭС и устраняют отмеченные в актах обследований недостатки; подтверждают предприятиям по санитарной очистке фактическое количество вывезенных отходов; проводят среди населения широкую разъяснительную работу по организации сбора и удаления отходов; осуществляют контроль за выполнением графиков по удалению отходов из домовладений.

ПРИЛОЖЕНИЯ

Приложение 1

Санитарный паспорт домовладения

Город ______________________

1. Адрес __________________________________________________________________

2. Этажность ______________________________________________________________

3. Номер домовладения _____________________________________________________

4. Количество проживающих, чел. ____________________________________________

5. Уровень благоустройства _________________________________________________

а) наличие водопровода, канализации, газа _____________________________________

_________________________________________________________________________

б) вид отопления (центральное, печное, местное, плиты)

(подчеркнуть)

в) вид топлива - уголь (бурый, каменный, антрацит), дрова, газ и др.

(подчеркнуть)

_________________________________________________________________________

г) площадь дворовой территории, м2 ___________________________________________

в том числе:

под зелеными насаждениями _________________________________________________

под твердым покрытием ____________________________________________________

из них тротуары ___________________________________________________________

6. Тип контейнеров, их количество и емкость ___________________________________

7. Периодичность вывоза отходов ____________________________________________

8. Производится ли раздельный сбор пищевых отходов и вторичного сырья (каких и сколько) _________________________________________________________________

Подписи:

Приложение 2

Санитарный паспорт объектов общественного назначения торговых и культурно-бытовых учреждений

Город ________________________

1. Наименование объекта ____________________________________________________

2. Адрес __________________________________________________________________

3. Встроенные или отдельно стоящие (для последнего указать этажность)

_________________________________________________________________________,

4. Количество мест (для магазинов указать число рабочих мест и наличие отделов, для ателье - количество заказов) _________________________________________________

5. Пропускная способность в сутки:

для зрелищных предприятий (число мест) ___________________________________

для предприятий общественного питания (число блюд) ________________________

6. Количество обслуживающего персонала, чел. _________________________________

7. Общая площадь помещений, м2 _____________________________________________

в том числе:

торговая ________________________________________________________________

складская и подсобная ____________________________________________________

8. Площадь дворовой территории, м2 __________________________________________

в том числе:

под зелеными насаждениями ______________________________________________

под твердым покрытием __________________________________________________

9. Тип контейнеров, их количество и емкость ___________________________________

__________________________________________________________________________

10. Периодичность вывоза отходов ____________________________________________

11. Производится ли раздельный сбор пищевых отходов и вторсырья (каких и сколько)

__________________________________________________________________________

Подписи:

Приложение 3

Ориентировочные нормы накопления бытовых отходов

Таблица 1

Ориентировочные нормы накопления отходов от отдельно стоящих объектов общественного назначения, торговых и культурно-бытовых учреждений в городах РСФСР (для укрупненных расчетов и планирования)

Объект образования отходов

Норма накопления отходов

Средняя плотность, кг/м3

Среднегодовая

Среднесуточная

кг

м3

кг

л

Больницы (на 1 койку)

230

0,7

0,63

1,9

330

Поликлиники (на 1 посещение)

-

-

0,01

0,04

250

Гостиницы (на 1 место)

120

0,7

0,33

1,92

170

Общежития (на 1 часто):

 

 

 

 

 

в благоустроенном фонде

190

1

0,52

2,74

190

в неблагоустроенном фонде

450

1,5

1,23

4,11

300

Детсады, ясли (на 1 место)

70

0,24

1,19

0,78

300

Школы (на 1 учащегося)

26

0,12

0,09

0,4

220

Институты, техникумы (на 1 учащегося)

26

0,12

0,09

0,4

220

Театры, кино (на 1 место)

30

0,2

0,08

0,55

150

Учреждения (на 1 сотрудника)

50

0,25

0,14

0,7

200

Рестораны:

 

 

 

 

 

на 1 блюдо

-

-

0,06

0,2

300

пищевых

-

-

0,03

0,08

400

Столовые:

 

 

 

 

 

на 1 блюдо

-

-

0,03

0,1

300

пищевых

-

-

0,01

0,02

400

Продовольственные магазины (на 1 м2 торговой площади)

120

0,46

0,33

1,27

260

Промтоварные магазины (на 1 м торговой площади)

30

0,15

0,06

0,4

200

Ателье пошивочное (на 1 сотрудника)

100

0,25

0,27

0,68

400

Рынки (на 1 м2 торговой площади)

18

0,036

0,06

0,12

500

Таблица 2

Увеличение нормы накопления отходов на 1 чел. от арендаторов, расположенных в жилых зданиях

Арендаторы

Увеличение нормы, %

по массе

по объему

Продовольственные магазины

30

35

Промтоварные магазины

25

35

Ателье пошивочные

15

20

Кинотеатры

15

30

Таблица 3

Ориентировочные среднегодовые нормы накопления твердых бытовых отходов с учетом арендаторов (для городов с населением более 100 тыс. чел.)

Показатель

Масса кг/(чел.год)

Объем м3/(чел.год)

Общая норма по жилым и общественным зданиям (детсады, ясли, школы, ВУЗы, техникумы, столовые, магазины, кинотеатры, спортивные сооружения)

280

1,4

Общая норма учета всех арендаторов

300

1,5

Таблица 4

Ориентировочные нормы накопления твердых бытовых отходов, образующихся в жилых зданиях на 1 чел. (для укрупненных расчетов и планирования)

Классификация жилых зданий

Норма накопления бытовых отходов

Средняя плотность, кг/м3

Среднегодовая

Среднесуточная (за год)

Среднесуточная (сезонная)

Зима

Весна

Лето

Осень

кг

м3

кг

л

кг

л

кг

л

кг

л

кг

л

1

2

3

4

5

6

7

8

9

10

11

12

13

14

Благоустроенные жилые дома (газ, центральное отопление, водопровод, канализация):

 

 

 

 

 

 

 

 

 

 

 

 

 

при отборе пищевых отходов

190

1

0,52

2,74

0,48

2,5

0,55

3

0,4

2,2

0,65

3,26

190

без отбора пищевых отходов

225

1,07

0,62

2,93

0,58

2,69

0,65

3,19

0,5

2,39

0,75

3,45

210

Неблагоустроенные жилые дома (местное отопление, без водопровода и канализации)

 

 

-

 

 

 

 

 

 

 

 

 

 

без отбора пищевых отходов:

 

 

 

 

 

 

 

 

 

 

 

 

 

коммунальный фонд

450

1,5

1,23

4,11

1,35

3,5

1,42

4,5

1

3

1,15

5,44

300

частный сектор (жилищный фонд на правах частной собственности)

700

2

1,92

5,48

2,04

4,87

2,11

5,87

1,69

4,37

1,84

6,81

350

Жидкие отходы из непроницаемых выгребов и неканализованных домов, на 1 чел.

-

3,25

-

8,9

-

-

-

-

-

-

-

-

1000

Приложение 4

Рис. 1. Пример прохождения маршрутов:

н, к - соответственно начало и конец маршрута

Рис. 2. Пример маршрута сбора ТБО с остановками для загрузки отходов:

а - с одной стороны улицы (для улиц с двусторонним движением); б - с двух сторон улицы (внутриквартальные проезды); ----- - повторные проезды

Рис. 3. Схема участка сбора ТБО

- место установки контейнеров

Приложение 5

Типовой договор

(рекомендуемый)

Настоящий договор заключен между _______________________________________,

именуемым в дальнейшем заказчик, в лице _____________________________________,

действующего на основании _________________________________________, с одной стороны, и спецавтохозяйством (автопарком), именуемым в дальнейшем исполнитель, в лице директора спецавтохозяйства ___________________, действующего на основании устава спецавтохозяйства, с другой стороны.

1. Заказчик передает, а исполнитель принимает на себя выполнение работ по планово-регулярной системе вывоза бытовых отходов с территории домовладения заказчика, согласно прилагаемым адресам (прил. 6).

2. Исполнитель производит вывоз твердых бытовых отходов по утвержденным графикам с периодичностью, согласованной с санитарно-эпидемиологической станцией.

3. Исполнитель обязан:

исходя из суточной накопляемости отходов (± 10 %), разработать и согласовать с заказчиком маршруты и графики вывоза отходов;

производить удаление отходов в строгом соответствии с согласованными маршрутами и графиками;

осуществлять постоянный контроль за вывозом отходов на маршрутах;

обеспечить заказчика технически исправными контейнерами для бытовых отходов, а при сменяемой системе сбора и удаления отходов осуществлять периодическую мойку контейнеров;

производить с заказчиком сверку сведений по вывозу бытовых отходов, а в случаях срыва работ по графику составлять двухсторонний акт.

4. Заказчик обязан:

обеспечить раздельное хранение бытовых и пищевых отходов в сборниках, шлака и строительного мусора на специально отведенных местах;

иметь необходимое число сборников, содержать их в исправном и опрятном состоянии в соответствии с санитарными требованиями. При несменяемой системе осуществлять их санитарную обработку;

обеспечить технически исправное состояние контейнерных площадок, свободный подход и подъезд к ним, а также освещение в темное время суток;

до прибытия спецавтотранспорта подготовить бытовые отходы к отправке, не допускать попадания в них строительного мусора;

принимать участие в разработке маршрутов и графиков вывоза отходов и производить сверку сведений по фактическому выполнению работ.

5. Оплата заказчиком исполнителю за выполнение принятых на себя по настоящему договору работ проводится, исходя из среднемесячной накопляемости бытовых отходов в количестве ___________________ м3, по тарифам, утвержденным _________ за ____________ м3 бытовых отходов по _______________ руб. за 1 м3, всего _____________ руб.

Указанная сумма ______________ руб. оплачивается равными частями заказчика ежемесячно через инкассо.

6. Ежемесячно заказчик подтверждает исполнителю количество фактически вывезенных за прошлый (отчетный) месяц отходов и качество проведенных работ (прил. 7).

7. Срок действия настоящего договора устанавливается с __________ по __________ 198 __ г.

8. Договор составлен в двух экземплярах, по одному для каждой стороны.

9. Юридические адреса сторон: заказчика ____________________________________

текущий счет в _________________________ отделении __________________________

банка № ___________________________ Телефон _______________________________

исполнителя ________________________ текущий счет __________________________

в отделении _______________________________ банка № ________________________

Телефон _______________________________

Заказчик _______________________     Исполнитель __________________________

(подпись)                                                                                  (подпись)

Приложение 6

СВЕДЕНИЯ
о накоплении твердых бытовых отходов

Район __________________ Жилищное хозяйство __________________________

Адрес ________________________________ Тел. ___________________________

Номер ЭУ

Адрес установленных контейнеров

Население, чел.

Количество арендаторов

Накоплено отходов в день, м3

Контейнеры

Накопляемость отходов по месяцам, м3

Всего за год, м3

тип

количество

1

2

3

4

5

6

7

8

9

10

11

12

1

 

 

 

 

 

 

 

 

 

 

 

 

 

 

 

 

 

 

 

Всего

Заказчик ___________________          Исполнитель ______________________

(подпись)                                                                           (подпись)

Приложение 7

УЧЕТНАЯ КАРТОЧКА
выполнения плана перевозок бытовых отходов (м3) за исполнителем

Заказчик __________________ Адрес ___________________________________

Расчетный счет № ______________ в ___________________________________

План вывоза

Остаток за прошлый период

Всего к перевозке(с учетом остатка)

Фактически перевезено

Не перевезено по вине исполнителя

Остаток на последующий месяц

Не предъявлено к перевозке по вине заказчика

Примечание

Объем

Штраф, руб.

Объем

Штраф, руб.

Сальдо по штрафам в пользу __________________________ руб., коп.

(исполнителя, заказчика)

Исполнитель _____________________      Заказчик _________________________

(подпись)                                                                 (подпись)

СОДЕРЖАНИЕ

Общие положения. 1

Организация работ и технические средства для сбора и удаления отходов. 3

Выбор систем сбора и удаления отходов. 5

Взаимоотношения и обязанности сторон. 12

Приложения. 13

Приложение 1 Санитарный паспорт домовладения. 13

Приложение 2 Санитарный паспорт объектов общественного назначения торговых и культурно-бытовых учреждений. 13

Приложение 3 Ориентировочные нормы накопления бытовых отходов. 14

Приложение 4. 15

Приложение 5 Типовой договор. 17

Приложение 6 Сведения о накоплении твердых бытовых отходов. 18

Приложение 7 Учетная карточка выполнения плана перевозок бытовых отходов (м3) за исполнителем.. 19

 

 




ГОСТЫ, СТРОИТЕЛЬНЫЕ и ТЕХНИЧЕСКИЕ НОРМАТИВЫ.
Некоммерческая онлайн система, содержащая все Российские Госты, национальные Стандарты и нормативы.
В Системе содержится более 150000 файлов нормативно-технической документации, действующей на территории РФ.
Система предназначена для широкого круга инженерно-технических специалистов.

Рейтинг@Mail.ru Яндекс цитирования

Copyright © www.gostrf.com, 2008 - 2026