Крупнейшая бесплатная информационно-справочная система онлайн доступа к полному собранию технических нормативно-правовых актов РФ. Огромная база технических нормативов (более 150 тысяч документов) и полное собрание национальных стандартов, аутентичное официальной базе Госстандарта. GOSTRF.com - это более 1 Терабайта бесплатной технической информации для всех пользователей интернета. Все электронные копии представленных здесь документов могут распространяться без каких-либо ограничений. Поощряется распространение информации с этого сайта на любых других ресурсах. Каждый человек имеет право на неограниченный доступ к этим документам! Каждый человек имеет право на знание требований, изложенных в данных нормативно-правовых актах!

  


 

ПРАВИТЕЛЬСТВО МОСКВЫ
МОСКОМАРХИТЕКТУРА

РЕКОМЕНДАЦИИ
по применению противообледенительных
устройств на кровлях с наружными
и внутренними водостоками
для строящихся и реконструируемых
жилых и общественных зданий

2004

Предисловие

1. Разработаны ОАО "Центральный научно-исследовательский и проектный институт жилых и общественных зданий (ОАО ЦНИИЭПжилища).

Авторский коллектив: д.т.н. Николаев С.В. (руководитель работы), д.т.н. Граник Ю.Г. (научно-техническое руководство), инж. Ставровский Г.А. (общая редакция и конструкция системы), к.т.н. Граник М.Ю. (методика проектирования противообледенительных устройств), инж. Штейман В.И. (вопросы эксплуатации устройств), инж. Канулина Ю.Л. (вопросы конструкции устройств).

С участием ООО "Специальные системы и технологии": инж. Бабаков А.А. и Рязанов К.В. (конструктивные решения противообледенительных устройств, материалы и изделия для них).

2. Подготовлены к утверждению и изданию Управлением перспективного проектирования, нормативов и координации проектно-изыскательских работ Москомархитектуры.

3. Утверждены указанием Москомархитектуры от 27 февраля 2004 г.

СОДЕРЖАНИЕ

1. Общие положения. 1

2. Типы крыш зданий и их элементы, обеспечивающие организованный водосток с кровли. 2

3. Принципиальное решение и комплектующие элементы антиобледенительных систем.. 4

4. Методика проектирования антиобледенительных систем.. 6

5. Основные положения по монтажу и приемке антиобледенительных систем в эксплуатацию.. 36

6. Основные положения по эксплуатации антиобледенительных систем.. 42

Приложение 1. Опыт эксплуатации антиобледенительных устройств. 42

Приложение 2. Технико-экономические показатели антиобледенительных устройств. 43

1. Общие положения

1.1. Атмосферные осадки в виде дождя, попадая на кровлю, как правило, беспрепятственно удаляются с неё через имеющуюся систему организованного водостока. Снег, попадая на кровлю, не удаляется и постепенно происходит его утяжеление и уплотнение вследствие перекристаллизации и влагонакопления. Под воздействием атмосферного тепла и собственного тепловыделения здания через кровлю происходит его плавление и превращение в воду. При отсутствии возможности отвода образовавшейся воды и при падении температуры ниже нулевой отметки она замерзает и превращается в лед. Из-за различных теплофизических характеристик снега и льда скорость их плавления существенно разнится. Когда вода может периодически замерзать и оттаивать, происходит увеличение ледяных пробок и сосулек.

При колебаниях температуры от +3 - +5 °С днем до -6 - 10 °С ночью создаются наиболее благоприятные условия для образования наледи. Поверхности снега и льда обычно отражают большую часть солнечного излучения, но при возникновении даже незначительного налета грязи резко увеличивается коэффициент поглощения. Кроме того, солнечная радиация активно нагревает оголенные участки кровли, и плавление происходит с внутренней (нижней) части слоя. Из-за этого в весенний период образование наледи идет более интенсивно.

1.2. Образование наледей и сосулек на крыше может стать угрозой жизни и здоровью людей, а также, в результате механических повреждений и накопления воды на отдельных участках, вызвать протечки и привести к снижению сроков службы кровли.

Антиобледенительные системы для крыш признаны эффективным средством, предохраняющим крышу от образования наледей, сосулек и закупорки устройств (желобов, внешних и внутренних водостоков и др.), отводящих воду с крыши. К настоящему времени противообледенительными системами оснащено более 2000 зданий, в том числе здания Мэрии Москвы и Московской Городской Думы, редакции газеты "АиФ" и другие.

1.3. Основным элементом антиобледенительной системы является электрический греющий кабель, укладываемый на путях удаления воды с кровли, выделяемое им тепло не позволяет образоваться ледяным пробкам.

Для экономного расходования электроэнергии система снабжена датчиками и пускорегулирующими устройствами, включающими греющий кабель только при наличии условий (осадки и температура воздуха), при которых могут образоваться наледи.

1.4. Для каждого индивидуального объекта требуется своя, специально для него рассчитанная и запроектированная антиобледенительная система, техническое решение которой будет зависеть от типа крыши (скатная, плоская, внешние или внутренние водостоки), ее размеров и конфигурации, вида кровельных материалов и других факторов.

1.5. "Рекомендации по применению противообледенительных устройств на кровлях с наружными и внутренними водостоками для строящихся и реконструируемых жилых и общественных зданий" являются методическим и справочным пособием для специалистов, работающих в области строительства, и содержат следующие данные:

- конструкции различных крыш существующих и строящихся в г. Москве;

- конструкции антиобледенительных систем для крыш различных типов;

- техническая характеристика материалов и изделий, применяемых в антиобледенительных системах;

- методика расчета и проектирования антиобледенительных систем;

- основные положения по монтажу и приемке систем в эксплуатацию;

- привила эксплуатации антиобледенительных систем;

- технико-экономические показатели, связанные с устройством и эксплуатацией антиобледенительных систем.

1.6. Настоящая работа в значительной степени базируется на разработках и опыте работы московских предприятий ООО "Специальные системы и технологии" ("ССТ") и "Российский сервис-центр шведской компании "KIMA" - ООО "ДОМО+". Кроме того, в работе использованы некоторые чертежи и схемы ООО "ССТ".

2. Типы крыш зданий и их элементы, обеспечивающие организованный водосток с кровли

2.1. Холодные и теплые крыши. Теплая крыша в отличие or холодной включает слой теплоизоляционного материала (насыпного, легкобетонного, плитного и т.п.), благодаря которому в помещениях, расположенных непосредственно под крышей (чердачных или жилых), можно создать необходимую положительную температуру.

2.2. Крыши бывают с чердаком и без него. Бесчердачные крыши называют совмещенными, поскольку эта конструкция одновременно является и крышей и перекрытием над жилыми или служебными (в случае гражданских зданий) помещениями. Одним из видов совмещенной крыши является крыша мансардного этажа.

2.3. Все перечисленные выше крыши могут быть скатными и плоскими.

2.3.1. Скатные кровли могут быть односкатными, двускатными, четырехскатными и более сложными. В нижней части каждого ската располагаются водоприемные желоба или лотки. Желоба и лотки выполняются с уклоном в сторону воронки водосточной трубы, куда они должны направить поток воды. Скатные крыши чаще выполняют с внешними водосточными трубами, но бывают и с внутренним водостоком. Нижняя часть кровли, выходящая за габариты наружных стен, называется свесом, а ее нижняя кромка - капельником. На скатных крышах сложной конфигурации в местах сопряжения двух разных поверхностей образуется своеобразный желоб, называемый "ендова". Элементы скатной кровли показаны на рис. 2.1.

2.3.2. Плоские крыши, как правило, выполняются с внутренними водостоками, расположенными в центральной части здания. Несущими конструкциями плоской кровли чаще всего являются сборные железобетонные конструкции - кровельные плиты и лотки, покрытые различными рулонными битумно-полимерными материалами. Движение воды к приемной воронке внутреннего водостока по кровельным плитам и лоткам организовано за счет выполнения плит и лотков с уклоном (по плите в сторону лотка, а по лотку в сторону воронки) - 1 ÷ 3 %.

С внешних сторон по периметру наружных стен над кровлей возвышается парапет, что исключает возможность попадания воды и образование наледей и сосулек на наружных стенах. Схема плана плоской кровли тоже показана на рис. 2.1.

1. Конек скатной крыши.

2. Свес.

3. Капельник.

4. Ендова.

5. Площадь водосбора желоба.

6. Водосборные желоба.

7. Водосборные лотки.

8. Направляющий лоток.

9. Воронки.

10. Водосточная труба.

11. Плоская кровля.

12. Внутренний водосток.

13. Площадь входного обогрева.

14. Водомет.

Рис. 2.1. Схема скатной и плоской крыш с элементами организованного водостока.

3. Принципиальное решение и комплектующие элементы антиобледенительных систем

3.1. Для обеспечения свободного движения воды на всем пути ее удаления с кровли греющие кабели следует устанавливать:

на скатной крыше с внешними водостоками

- в лотках и желобах;

- в приемных воронках водосточных труб и рядом с ними;

- в ендовах;

- на свесах и капельниках;

- в водосточных трубах по всей высоте;

- в приемных колодцах ливневой канализации на глубину возможного замерзания воды в случаях расположения колодца рядом с водосточной трубой.

на плоской крыше с внутренним водостоком

- на участках крыши, примыкающих к лоткам;

- в лотках;

- на участке крыши, примыкающей к воронке;

- в воронке водосточной трубы;

- в верхней части водосточной трубы на глубину возможного замерзания воды;

- на площадке кровли размером 1 ´ 1 м рядом с водометом.

3.2. Кроме греющих кабелей в антиобледенительной системе применяются силовые и управляющие кабели; датчики температуры, воздуха, атмосферных осадков и воды; управляющее оборудование; изделия и детали для крепления на кровле всех элементов системы.

3.3. Для того, чтобы избежать неоправданного расхода электроэнергии система посредством управляющего оборудования (терморегулятора) и датчиков автоматически включается при определенном сочетании внешних условий: температуры наружного воздуха в диапазоне от +5 °С до -10 °С, наличия осадков и воды на соответствующих элементах кровли. Также система автоматически выключается, если одно из этих условий не выполняется.

3.4. Для нагрева участков кровли, где нужно не допустить образования наледи и удалить воду, применяются различные нагревательные кабели мощностью 25 ÷ 30 Вт/м с температурой нагрева 60 - 130 °С. Все применяемые кабели достаточно долговечны за счет многослойной изоляции, предохраняющей кабели от влаги, механических повреждений и ультрафиолетовых излучений. Нагревательные кабели бронированы, при этом броня не только защищает кабели от механических повреждений, но и перераспределяет тепло, что помогает избавиться от локальных перегревов. В антиобледенительных системах применяются кабели резистивные, которые независимо от внешних условий выделяют неизменное количество тепла, и кабели саморегулирующиеся, у которых количество выделяемого тепла зависит от температуры среды, в которой они находятся. Для антиобледенительных систем используются как кабели отечественного производства, так и поставляемые из-за рубежа.* Поскольку резистивные кабели рассчитаны на определенную суммарную с учетом всей длины кабеля мощность, они выпускаются отдельными секциями разной длины, при этом, нагревательная жила в каждой секции рассчитана так, чтобы мощность, приходящаяся на 1 м.п. составляла 25 ÷ 30 Вт.

* Отечественные нагревательные кабели и другие комплектующие элементы противообледенительных систем выпускает ООО "ССТ", приведенные в тексте кабели КIМA поставляются фирмой КIМA (Швеция).

В настоящее время выпускаются следующие отечественные резистивные кабели:

ТДОЭ с одной нагревательной жилой секцией длиной 34, 39, 52, 62 и 72 м.

ТСОЭ с одной нагревательной жилой секцией длиной 37, 43, 57, 68 и 82 м.

ТСБЭ с двумя нагревательными жилами секциями длиной 14, 21,27 и 36 м.

Эти нагревательные кабели рассчитаны на напряжение 220 В. Выпускаются аналогичные кабели для напряжения 380 В. Саморегулирующиеся кабели типа FSLE (Фризстол Лайт экстра) рассчитаны на напряжение 220 В. Этот кабель может нарезаться на любые длины, соответствующие длине обогреваемого элемента или участка кровли.

В качестве примера зарубежных греющих кабелей можно привести резистивный кабель KIMA Armor Д мощностью 28 Вт/м, который поставляется секциями длиной 10,3; 13,5; 18,3; 22,8; 27; 33; 40,5; 47,5; 56,6; 63,5; 72,5; 91; 135,5; 147; 181 м и KIMA Armor Stronq мощностью 30 Bт/м, поставляемый секциями 43, 53, 67, 83, 100 и 133 м, а также саморегулирующийся кабель KIMA К-3 мощностью 38 Вт/м при 0 °С и 17 Вт/м при +4 °С.

Саморегулирующиеся нагревательные кабели имеют следующие преимущества относительно резистивных:

- греющие элементы кабеля автоматически изменяют тепловыделения в зависимости от температуры воздуха и влажности - тепловыделения уменьшаются при повышении температуры и уменьшения влажности окружающей среды:

- секции кабеля могут иметь любую длину, что позволяет создавать более эффективные схемы раскладки греющих кабелей на элементах кровли;

- кабели не перегреваются даже при пересечении друг с другом, что повышает надежность и безопасность системы;

- секция кабеля всегда подключается с одной стороны, благодаря чему можно сократить количество питающих холодных кабелей.

К недостаткам саморегулирующихся кабелей относится их стоимость, примерно в 4 раза превышающая стоимость резистивных кабелей.

3.5. Силовые холодные токоподводящие кабели, которые вместе с греющими кабелями размещаются на кровле, тоже бронированы и защищены от ультрафиолетовых излучений. Распределительные и управляющие кабели подбираются из имеющихся в продаже и отвечающих расчетным параметрам соответствующих участков системы, а также условиям их эксплуатации.

3.6. В антиобледенительных системах применяются датчики, распределительное и управляющее оборудование отечественного производства, в том числе многофункциональные контроллеры РТ200Е ТЕПЛОСКАТ и PTOO7S, датчики температуры TST01 и TS105, датчик осадков TSP01, датчик воды TSW01 и другое оборудование, а также зарубежное - например терморегулятор Термостат DTR 3102 (Германия) с датчиками температуры и влажности. Терморегуляторы настроены так, что нагревательные кабели включаются автоматически только если температура наружного воздуха находится в заданном рабочем диапазоне температур. Практика показала, что для антиобледенительных систем рабочим диапазоном является температура от -10 °С до +5 °С. Включение системы происходит, когда датчик осадков покажет их наличие или датчик воды, покажет наличие воды в лотках и приемных воронках водостоков. Отключение системы происходит, когда датчики воды показывают ее отсутствие.

3.7. Для крепления на кровле элементов антиобледенительной системы выпускаются соответствующие крепежные детали: металлические зажимы, различные кронштейны, полосы, накладки и другие детали. Для этой же цели применяются монтажные ленты из оцинкованной стали и медные зарубежной поставки. Кроме того, для монтажа системы потребуется шкаф управления, распределительные и распаячные коробки.

4. Методика проектирования антиобледенительных систем

4.1. Определение количества греющих кабелей

При проектировании антиобледенительной системы конкретного здания необходимо провести анализ возможных мест скопления воды и образования наледи.

На основании имеющихся чертежей, фотографий и замеров, выполненных на объекте, водосточная система подразделяется на характерные элементы. Для каждого участка в зависимости от его размеров, формы (линейная, площадь) и наиболее удобного распределения мощностей по группам подсчитывается общее количество и типы кабельных нагревательных секций.

Расчет мощности и необходимого количества нагревательных кабелей для отдельных элементов водосточной системы имеет свои особенности.

Расчет длины кабеля в водосточных трубах.

В водосточных трубах (рис. 4.1) номинальная удельная мощность саморегулирующихся и резистивных нагревательных кабелей в отсутствии воды колеблется от 20 до 60 Вт/м. Она зависит от длины и диаметра трубы. При применении саморегулирующихся кабелей, способных увеличить теплоотдачу при наличии воды в 1,6 - 1,8 раза, эффективность работы системы резко возрастает.

В общем случае расход кабеля (L, м) для водосточных труб определяется по формулам:

Для труб с водосточными воронками в верхней части:

L = высота здания ´ 1,05 (5 % запас) + 1,5 м (обогрев нижней части) + В м (изгиб трубы) + 1,5 м (обогрев верхней части - кегля, воронка) - с монтажными концами;

L = высота здания ´ 1,05 (5 % запас) + 2 м (обогрев нижней части) + В м (изгиб трубы) + 1,2 м (обогрев верхней части - петля, воронка) + 1 м - без монтажных концов.

Для труб с непосредственным примыканием к лотку:

L = высота здания ´ 1,05 (5 % запас) + 1,5 м (обогрев нижней части) + В м (изгиб трубы) - с монтажными концами;

L = высота здания ´ 1,05 (5 % запас) + 2 м (обогрев нижней части) + В м (изгиб трубы) + 1 м - без монтажных концов;

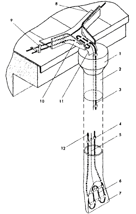
1 - водоприёмная воронка; 2 - водосточная труба; 3 - нагревательный кабель; 4 - крепежный зажим; 5 - трос; 6 - отмёт; 7 - усиленный обогрев отмёта, 8 - водосборный жёлоб; 9 - кронштейн, крепящий кабель к желобу; 10 - направляющий лоток; 11 - поворотный элемент, обеспечивающий плавный изгиб кабеля; 12 - концевая муфта.

Рис. 4.1. Обогрев водосточной трубы большого диаметра и желоба.

Расчет длины кабеля в желобе (лотке).

При обогреве водосточных желобов и лотков (рис. 4.2) линейная номинальная мощность греющего кабеля зависит от площади водосбора, лежащей выше этих желобов, и определяется через площадь водосбора, приходящуюся на 1 м желоба (лотка). Если площадь водосбора менее 5 м2, то мощность обогрева может не превышать 20 Вт/м лотка, для чего достаточно одной нитки кабеля. Увеличение площади водосбора до 25 м2 и более требует повышения удельной мощности греющих кабелей до 50 Вт/м желоба (лотка), и соответственно двух ниток кабеля.

В общем случае расход кабеля (L, м) для лотка (желоба) определяется по формулам:

Lкаб= Lлотка ´ 1,05 (5 % запас) ´ N ниток - с монтажными концами,

Lкаб = Lлотка ´ 1,05 (5 % запас) ´ N ниток + 1 м - без монтажных концов.

Нагревательные секции с холодными концами применяются в тех случаях, когда нет возможности или не допускается устанавливать распределительные коробки вблизи нагревательных секций.

Для обогрева кровли за парапетами необходимо принимать мощность кабелей на 30 % больше, чем для желобов, так как парапеты выполняют роль направляющих желобов, но одновременно они способствуют накоплению снега и льда.

Расчет длины кабеля в ендовах.

Ендовы (рис. 4.3) рекомендуется обогревать не менее чем на 1/3 их длины. Для предотвращения накопления снега и наледи нагревательные секции выполняются из двух ниток тем же кабелем, что и для обогрева желобов. На схемах раскладки нагревательных секций обогрев ендов обычно объединяется с обогревом желобов.

Расход кабеля для ендов (L, м) определяется по формуле:

L = L обогрев. части ендовы ´ 05 (5 % запас) ´ 2 нитки - с монтажными концами или

L = L обогрев. части ендовы ´ 05 (5 % запас) ´ 2 нитки + 1 м - без монтажных концов.

В местах примыкания кровли к вертикальным стенам также может накапливаться снег, из-за чего возможны протечки. Поэтому обогрев примыканий целесообразно выполнять в 1 или 2 нитки в зависимости от общей схемы укладки секций.

Рис. 4.2. Обогрев карниза и водосборного лотка.

Рис. 4.3. Пример обогрева ендовы и нижней части ската.

Для исключения образования наледи в водометах парапетов необходимо обогревать дно водомета и площадку перед водометом не менее 1 м2, исходя из мощности 300 Вт/м2.

Обогреваемые воронки для внутренних водостоков могут быть готовыми изделиями с мощностью около 50 Вт, которые встраиваются в водоприемные воронки. Чтобы предотвратить промерзание верхней части водосточной трубы эти воронки снабжаются нагревательными секциями, обеспечивающими прогрев трубы до теплой зоны.

Для обогрева участков плоских кровель можно использовать бронированные резистивные кабели с удельной мощностью 250 - 350 Вт на 1 м2 покрытия. Причем с увеличением высоты снежного покрова (заноса) соответственно возрастает и удельная мощность. Стандартный шаг укладки бронированных кабелей составляет от 80 до 100 мм.

На краях кровли, которые располагаются ниже желобов, также скапливаются снежные и ледяные массы. Их целесообразно удалять, размещая нагревательные кабели вдоль карниза (при ширине карниза менее 300 мм) или по всей его площади. Для этих целей могут использоваться нагревательные кабели любого указанного выше типа.

Расчет длины кабеля на капельнике.

Капельники, в зависимости от их размеров и конструкции, обогреваются одной или двумя нитками саморегулирующегося или резистивного кабеля.

В общем случае расход кабеля (L, м) на капельник определяется по формулам:

Lкаб = Lкапельника ´ 1,05 (5 % запас) ´ 2 нитки - с монтажными концами

или

Lкаб = Iлотка ´ 1,05 (5 % запас) ´ 2 нитки + 1 м - без монтажных концов.

При монтаже одна нитка капельника крепится под капельник, вторая - вдоль края кровли.

Разбивка нагревательного кабеля на секции.

Для снижения общего числа нагревательных секций целесообразно одной секцией обогревать несколько зон, например: лоток - труба, поток - ендова - труба, ендова - труба. Для удобства раскладки нагревательную секцию удобно начинать напротив примыкания водосточной трубы к лотку.

Затем составляется таблица, в которой указываются параметры нагревательных секций: номера, маркировка и длина.

Расчет номинальной мощности системы.

Суммарная номинальная мощность системы определяется по формуле:

,

где: Pip - рабочая линейная мощность кабеля i-го типа, Вт/м;

Li - суммарная длина кабеля i-го типа, м;

Psp - рабочая поверхностная мощность обогрева участков плоской кровли, Вт/м2;

S - площадь обогреваемых участков плоской кровли, м2;

PBP - рабочая мощность обогреваемой воронки, Вт/м;

NB - количество обогреваемых воронок, шт.

Суммарная установленная мощность (Pуст) определяется, исходя из номинальной мощности и коэффициента К, указывающего во сколько раз расчетный ток превышает номинальный. Коэффициент К равен:

2 - для саморегулирующихся кабелей;

1,2 - для резистивных кабелей.

При этом следует учитывать, что пусковой ток может превышать номинальный для саморегулирующихся кабелей в 3 раза, а для резистивных кабелей - в 1,2 - 1,4 раза.

По мере прогрева кабеля пусковой ток быстро падает до номинальной величины. Обычно время установления номинального тока составляет 3 - 5 минут.

Сечение силовых кабелей рассчитывают, исходя из величины суммарного номинального тока с коэффициентом запаса 1,25:

,

где: I - длительный максимально допустимый ток, А;

Pном - номинальная потребляемая мощность, Вт;

U - напряжение питания, В.

Коммутационные, пусковые и защитные аппараты подбирают, исходя из величины суммарного пускового тока с коэффициентом запаса 1,5 и времени спадания пускового тока:

,

где: Iпуск - максимальный пусковой ток, А;

Руст - установленная мощность, Вт;

U - напряжение питания, В.

Расчет и выбор вводного защитного автомата следует выполнять по изложенной ниже методике:

1. Рассчитать пусковой ток для каждой нагревательной секции по формуле:

,

где Iпуск,i - пусковой ток для нагревательной секции Ni, А;

Li - длина нагревательной секции N, м;

К - коэффициент, зависящий от типа нагревательного кабеля и характеризующий его удельную мощность принимается по таблице 1.

Таблица 1*

 

Тип кабеля нагревательных секций

23-ССКЭ2

31-ССБЭ2

25-ТДОЭ2

20-ТСОЭ2

30-ТСНЭ2

К

60

98

35

28

42

* Данные предприятия-изготовителя нагревательных кабелей ООО «ССТ».

2. Для трехфазной силовой цепи сгруппировать полученные токи на три примерно равные части (для фаз А, В и С). Полученные цифры не должны отличаться друг от друга более чем на 15 % (в соответствии с требованиями ПУЭ).

3. По максимальной из трех цифр выбрать уставку защитного автомата с запасом до ближайшего стандартного значения 10 А, 16 A, 20 А, 25 А, 40 А или 63 А.

Далее, с учетом системы автоматического управления, выбирается шкаф управления по каталогам фирмы-производителя.

4.2 Монтажная схема

Монтажные схемы, как правило, выполняются на планах кровли и включают схемы раскладки нагревательных секций и разводки силовых кабелей и кабелей управления с обозначением основных габаритных размеров.

На этой схеме помимо расположения самих нагревательных секций (СН) и их номера указываются распределительные коробки (В) и шкаф управления (ШУ), в котором обычно установлен терморегулятор.

Схема разводки силовых кабелей (М) и кабелей управления (КУ) дополнительно содержит места установки распределительных коробок (В), датчиков температуры (ДТ), осадков (ДО) и воды (ДВ).

Кроме вышеуказанных обозначений на схемах могут присутствовать и другие, например: концевые и соединительные муфты, монтажные концы, точка опуска.

4.3. Примеры монтажных схем для разных крыш

Пример 1. Монтажная схема и методика расчета антиобледенительной системы для коттеджа с 4-х скатной крышей, расположенного в деревне Брикет (рис. 4.4, 4.5) Московской области *.

* Монтажная схема выполнена ООО «ССТ».

Расчет длины нагревательных секций

Длина: лотков L = 41 м; водосточных труб L = 26 м; ендов L = 28 м;

количество водосточных труб - 4 шт.

Для проектирования антиобледенительной системы применяется саморегулирующийся кабель марки 23FSLe2-CT.

1. Расчет длины кабеля в лотке (желобе).

Так как ширина обогреваемого лотка больше 50 мм, число ниток кабеля в лотке принимается равным 2.

Для данного примера применяются секции с холодными концами длиной по 6 м:

Lкa6 = 41 м ´ 1,05 ´ 2 = 86,1 м

2. Расчет длины кабеля в водосточных трубах.

Так как диаметр обогреваемой трубы находится в пределах 100 - 150 мм, число ниток кабеля принимается равным 2.

В данном случае труба непосредственно примыкает к лотку, также используются секции с холодными концами:

Lкaб = (6 м ´ 1,05 ´ 2 + 1,5 м) ´ 4 шт. = 56,4 м.


Рис. 4.4. Схема укладки нагревательных секций.

Рис. 4.5. Схема разводки силовых кабелей и кабелей управления.


3. Расчет длины кабеля в ендовах.

В общем случае ендовы достаточно обогревать на 1/3 их длины.

В данном примере, с точки зрения удобства запитки нагревательных секций обогреваем ендовы на всю длину, применяются секции с холодными концами:

Lкаб = 7 м ´ 1,05 ´ 4 шт. = 29,4 м

4. Суммарный расход кабеля.

Lсумм = 86,1 м + 56,4 м + 29,4 м = 171,9 м

Разбивка нагревательного кабеля на секции

Для удобства раскладки секцию нагревательного кабеля целесообразнее начинать в месте примыкания водосточной трубы к лотку.

В данном примере система разбита на 6 секций. Из них 4 секции по схеме: ендова-лоток-труба, т.е. секция проложена по лотку, далее в ендову, в ендове разворот, обратно по ендове, в лоток, в водосточную трубу. Две секции по схеме: лоток.

Принятые секции нагревательного кабеля приведены в таблице 2.

Таблица 2

Номер секции

Маркировка секции

Длина секции, м

СН1

23-ССБЭ2-31

31

СН2

23-ССБЭ2-24

24

СН3

23-ССБЭ2-31

31

СН4

23-ССБЭ2-31

31

СН5

23-ССБЭ2-24

24

СН6

23-ССБЭ2-31

31

Выбор шкафов управления

Производится расчет пусковых токов для каждой нагревательной секции, указанной в таблице:

Iпуск, 1 = L1 ´ К / 220 = 31 ´ 60 / 220 = 8,46 А,

Iпуск, 2 = L2 ´ К / 220 = 24 ´ 60 / 220 = 6,55 А,

Iпуск,. 3 = L3 ´ К / 220 = 31 ´ 60 / 220 = 8,46 А,

Iпуск, 4 = L4 ´ К / 220 = 31 ´ 60 / 220 = 8,46 А,

Iпуск, 5 = L5 ´ К / 220 = 24 ´ 60 / 220 = 6,55 А,

Iпуск, 6 = L6 ´ К / 220 = 31 ´ 60 / 220 = 8,46 А.

В случае, если Iпуск > 32 А, группируем 3 фазы. Далее разбиваем полученные цифры на три примерно равные части. Получаем:

для фазы А:          8,46 + 8,46 = 16,92 А;

для фазы В:          8,46 + 6,55 = 15,01 А;

для фазы С:          8,46 + 6,55 = 15,01 А.

Разница между максимально нагруженной (16,92 А) и минимально нагруженной (15,01 А) фазами составляет около 11 %, что соответствует требованиям ПУЭ. По максимально нагруженной фазе выбираем уставку защитного автомата с запасом. Пусковой ток составляет 17 А, следовательно, уставка защитного автомата - 20 А.

Далее, с учетом системы автоматического управления, выбираем шкаф управления: ШУ-ТС-3-25-200, где

ШУ - шкаф управления;

ТС - фирма-изготовитель;

3 - для трехфазной разводки;

25 - максимально допустимый ток на одну фазу А;

200 - тип используемого регулятора температуры - РТ200Е.

Рабочая мощность - 4 кВт.

Установленная мощность - 7 кВт.

Расчет количества крепежных элементов

В данном случае лотки и водосточные трубы изготовлены из оцинкованной стали, покрытой полимерным материалом (пластизолом), поэтому применяются крепежные элементы из оцинкованной стали.

1. Крепежные элементы для лотков.

Общая длина обогреваемых лотков - 41 м.

Ширина лотков - 100 мм.

Зажим СР.23.2-50 - 41 ´ 4 + 10 % = 180 шт.

Полоса 0,8 ´ 15 ´ 200 мм - (41 ´ 2 + 10 %) ´ 0,2 м = 18 м.

Заклепки отрывные из оцинкованной стали

4 ´ 12 - 41 ´ 2 + 10 % = 90 шт.

2. Крепежные элементы для водосточных труб.

Количество обогреваемых водосточных труб - 4 шт.

Длина водосточных труб - до 10 м.

Диаметр водосточных труб - 100 мм.

Т-скоба - 4 шт.

Зажим CP.23.1-25 - 4 ´ 3 + 10 % = 13 шт.

Зажим СР.23.2-50 - 4 ´ 10 + 10 % = 44 шт.

Заклепки отрывные из оцинкованной стали

4 ´ 12 - 4 ´ 3 + 4 ´ 4 + 10 % = 31 шт.

Кожух ТС.05/К.100 - 4 шт.

3. Крепежные элементы для ендов.

Общая длина обогреваемых ендов - 26 м.

Зажим CР/T.23.2-50 - 26 ´ 2 + 10 % = 58 шт.

Трос стальной Æ  = 2,8 мм - 26 + 10 % = 29 м.

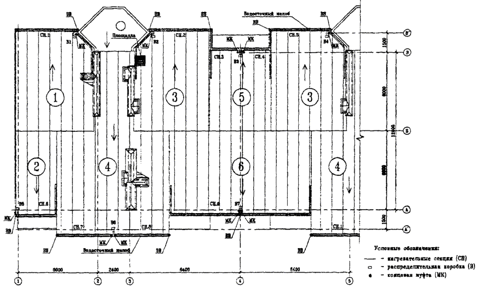
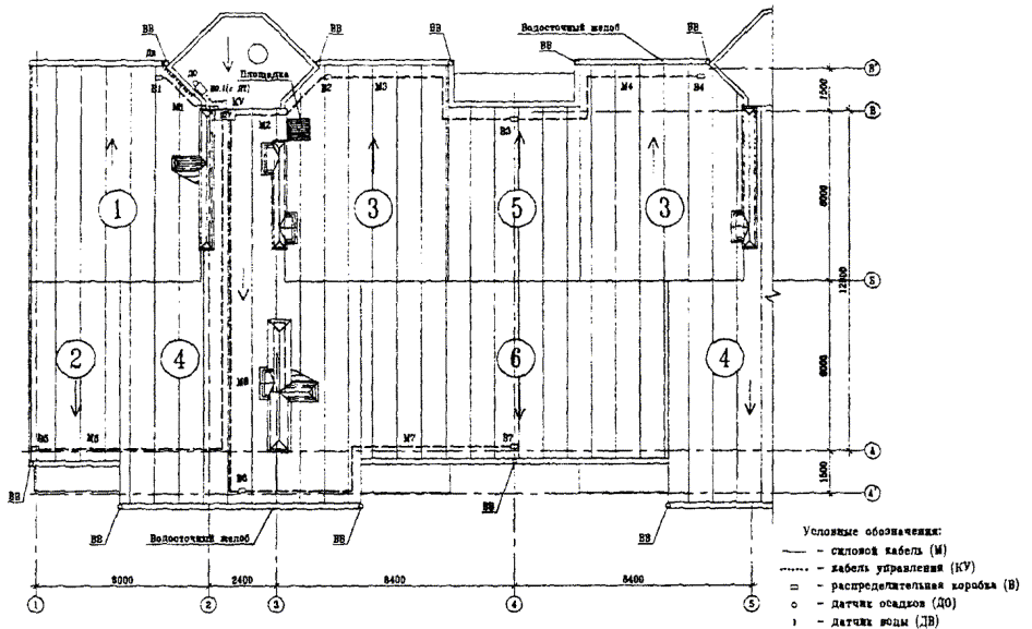
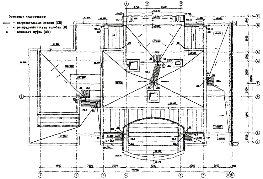
Пример 2. Для иллюстрации возможного решения антиобледенительной системы для сложной крыши, расположенной в разных уровнях и состоящей из скатных и плоских участков, взят трехсекционный 12 - 17 этажный жилой дом, разработанный ЦНИИЭП жилища и расположенный по адресу ул. Карамышевская наб. кв-л 74 вл. 20 - 24.

Расчет антиобледенительной системы выполняется отдельно для каждой секции. Секции № 1 и № 3 зеркально симметричны, поэтому расчет приводится только для секции № 1.

Расчет длины нагревательных кабелей для секции № 1

Кровля секции № 1 (рис. 4.6, 4.7) имеет как скатные, так и плоские участки с внутренним водостоком. Отвод воды со скатных участков организован при помощи водосточных желобов в воронки внутреннего водостока (ВВ). Кроме того, отдельные участки плоской кровли не имеют собственных воронок внутреннего водостока, и вода удаляется на нижние уровни при помощи водометов и водосточных труб. Соответственно обогрев плоских частей кровли осуществляется вокруг водометов, воронок и зон перед водосточными трубами площадью около 1 м и т.п., то есть по всему пути удаления воды.


Рис. 4.6. Схема установки нагревательных секций на кровле секции № 1.

Рис. 4.7. Схема разводки силовых кабелей и кабелей управления секция № 1.


Общие характеристики обогреваемых зон приведены ниже.

Площадь обогреваемых зон на плоской кровле: S = 10,5 м2.

Длина:

- лотков L = 22,5 м;

- водосточных труб L = 9,5 м;

- ендов L = 12 м;

- капельников L = 14 м;

- количество водосточных труб - 6 шт.;

- количество водосточных воронок - 7 шт.;

- количество водомётов - 2 шт.

Для проектирования антиобледенительной системы применяется саморегулирующийся кабель марки 23FSLe2-CT.

1. Расчет длины кабеля в лотке.

Для лотков шириной до 50 мм (Lлотка = 6 м), число ниток кабеля в лотке принимается равным 1. В данном случае применяются секции без монтажных концов:

Lкаб = 6 м ´ 1,05 + 1 м = 7,3 м

Для лотков шириной более 50 мм (Lлотка = 16,5 м), число ниток кабеля в лотке принимается равным 2. В данном случае применяются секции без монтажных концов:

Lка6 = 16,5 м ´ 1,05 ´ 2 + 1 м = 35,7 м

2 Расчет длины кабеля в водосточных трубах.

Так как диаметр обогреваемых труб находится в пределах 100 - 150 мм, число ниток кабеля принимается равным 2.

В данном случае трубы непосредственно примыкают к водометам, используются секции с холодными концами:

Lкa6= 9,5м ´ 1,05 ´ 2 + 1,5 м ´ 2 = 23 м

3. Расчет длины кабеля в ендовах.

В данном примере, с точки зрения удобства запитки нагревательных секций обогреваем ендовы на всю длину, применяются секции без монтажных концов:

Lкаб = (6 м ´ 1,05 ´ 2 + 1 м) ´ 2 шт. = 27,2 м

4. Расчет длины кабеля на капельниках.

При монтаже одна нитка кабеля крепится под капельник, вторая - вдоль края кровли, применяются секции с холодными концами:

Lкаб = 16 м ´ 1,05 ´ 2 = 33,6 м

5. Расчет длины кабеля на плоских участках кровли вокруг воронок и водометов.

При обогревe зон вокруг воронок и водометов кабель укладывается зигзагом с шагом 100 мм на площади примерно 1 м2, при этом нагревательная секция длиной около 1 - 2 м опускается во внутреннюю часть воронки. Применяются секции без монтажных концов:

Lкаб = (13 м ´ 1,05 + 2 м + 1 м) ´ 8 шт. = 133,2 м

6. Суммарный расход кабеля.

Lсумм = 7,3 м + 35,7 м + 23 м + 27,2 м + 33,6 м + 133,2 м = 260 м

Разбивка нагревательного кабеля на секции

Для снижения общего числа нагревательных секций целесообразно одной секцией обогревать несколько зон.

В данном примере система разбита на 13 секций, которые приведены в таблице 3.

Таблица 3

Номер секции

Маркировка секции

Длина секции, м

СН1

23-ССБЭ2-20,5

20,5

СН2

23-ССВЭ2-29,5

29,5

СН3

23-ССБЭ2-17,5

17,5

СН4

23-ССБЭ2-31,5

31,5

СН5

23-ССБЭ2-16

16

СН6

23-ССБЭ2-17

17

СН7

23-ССБЭ2-17

17

СН8

23-ССБЭ2-30

30

СН9

23-ССБЭ2-30

30

СН10

23-ССБЭ2-14

14

СН11

23-ССБЭ2-14

14

СН12

23-ССБЭ2-11,5

11,5

СН13

23-ССБЭ2-11,5

11,5

Выбор шкафов управления

Производится расчет пусковых токов для каждой нагревательной секции, указанной в таблице:

Iпуск, 1 = L1 ´ К / 220 = 20,5 ´ 60 / 220 = 5,59 А,

Iпуск, 2 = L2 ´ К / 220 = 29,5 ´ 60 / 220 = 8,05 А,

Iпуск, 3 = L3 ´ К / 220 = 17,5 ´ 60 / 220 = 4,77 А,

Iпуск, 4 = L4 ´ К / 220 = 31,5 ´ 60 / 220 = 8,59 А,

Iпуск, 5 = L5 ´ К / 220 = 16 ´ 60 / 220 = 4,36 А,

Iпуск, 6 = L6 ´ К / 220 = 17 ´ 60 / 220 = 4,64 А,

Iпуск, 7 = L7 ´ К / 220 = 17 ´ 60 / 220 = 4,64 А,

Iпуск, 8 = L8 ´ К / 220 = 30 ´ 60 / 220 = 8,18 А,

Iпуск, 9 = L9 ´ К / 220 = 30 ´ 60 / 220 = 8,18 А,

Iпуск, 10 = L10 ´ К / 220 = 14 ´ 60 / 220 = 3,82 А,

Iпуск, 11 = L11 ´ К / 220 = 14 ´ 60 / 220 = 3,82 А,

Iпуск, 12 = L12 ´ К / 220 = 11,5 ´ 60 / 220 = 3,14 А,

Iпуск, 13 = L13 ´ К / 220 = 11,5 ´ 60 / 220 = 3,14 А.

Так как Iпуск > 32 А, группируем 3 фазы. Далее разбиваем полученные цифры на три примерно равные части. Получаем:

для фазы А:         8,05 + 8,18 + 3,82 + 3,14 = 23,19 А;

для фазы В:          8,59 + 8,18 + 3,82 + 3,14 = 23,73 А;

для фазы С:          5,59 + 4,77 + 4,36 + 4,64 + 4,64 = 24,00 А.

Разница между максимально нагруженной (24,00 А) и минимально нагруженной (23,19 А) фазами составляет около 4 %, что соответствует требованиям ПУЭ. По максимально нагруженной фазе выбираем уставку защитного автомата с запасом. Пусковой ток составляет 24 А, следовательно, уставка защитного автомата - 25 А.

С учетом системы автоматического управления, выбираем шкаф управления: ШУ-ТС-3-25-200 с регулятором РТ200Е.

Рабочая мощность на секцию № 1:

Рном = Lcyмм ´ 23 = 260 ´ 23 = 6 кВт.

Установленная мощность на секцию № 1:

Руст = К ´ Рном = 2 ´ 6 = 12 кВт.

Расчет количества крепежных элементов

В данном случае лотки и водосточные трубы изготовлены из оцинкованной стали, покрытой полимерным материалом (пластизолом), поэтому применяются крепежные элементы из оцинкованной стали.

1. Крепежные элементы для лотков.

Общая длина обогреваемых лотков - 22,5 м.

Длина лотков шириной 50 мм - 6 м.

Длина лотков шириной 100 мм - 16,5 м.

Зажим CP.23.1-25 -6 ´ 4 + 10 % = 26 шт.

Зажим СР.23.2-50 - 16,5 ´ 4 + 10 % = 73 шт.

Полоса 0,8 ´ 15 ´ 75 мм - (6 ´ 4 + 10 %) ´ 0,075 м = 2 м.

Полоса 0,8 ´ 15 ´ 125 мм - (16,5 ´ 2 + 10 %) ´ 0,125 м = 4,6 м.

Заклепки отрывные из оцинкованной стали

4 ´ 12 - (6 ´ 4 + 16,5 ´ 2) ´ 1,1 = 63 шт.

2. Крепежные элементы для водосточных труб.

Количество обогреваемых водосточных труб - 6 шт.

Длина водосточных труб - до 10 м.

Диаметр водосточных труб - 100 мм.

Накладка ТС.03.СБ - 6 шт.

Зажим СР.23.1-25-6 ´ 3 + 10 % = 20 шт.

Зажим СР.23.2-50 - 6 ´ 10 + 10 % = 66 шт.

Заклепки отрывные из оцинкованной стали

4 ´ 12- (6 ´ 3 + 6 ´ 4) ´ 1,1 = 47 шт.

Кожух ТС.05/К.100 - 6 шт.

3. Крепежные элементы для ендов.

Общая длина обогреваемых ендов - 12 м.

Зажим СР/Т.23.2-50 - 12 ´ 2 + 10 % = 27 шт.

Трос стальной Æ = 2,8 мм - 12 + 10 % = 14 м.

4. Крепежные элементы для капельников.

Общая длина обогреваемых капельников - 14 м.

Зажим СР.23.1-25 - 14 ´ 4 + 10 % = 62 шт.

Заклейки отрывные из оцинкованной стали

4 ´ 12 - (14 ´ 4 ´ 1) ´ 1,1 = 62 шт.

5. Крепежные элементы для мягкой кровли.

Общая площадь обогреваемых зон - 10,5 м2.

Зажим СР.23.1-25 - 7 ´ 3 + 10 % = 23 шт.

Зажим СР.23.2-50 - 10,5 ´ 15 + 10 % = 173 шт.

Скоба-полоса 0,5 ´ 15 ´ 250 мм - (10,5 ´ 15 + 10 %) ´ 0,25 м = 43,3 м.

Скоба ТС.03.СБ - 7 шт.

Заклепки отрывные из оцинкованной стали

4 ´ 12 - (10,5 ´ 15 + 10,5 ´ 4) ´ 1,1 = 220 шт.

Поликров АР-130 - 10,5 м2 + 10 % = 11,6 м2.

11,6м2 ´ 0,9 кг/м2 = 10,5 кг.

Клей-мастика М140(МР1).

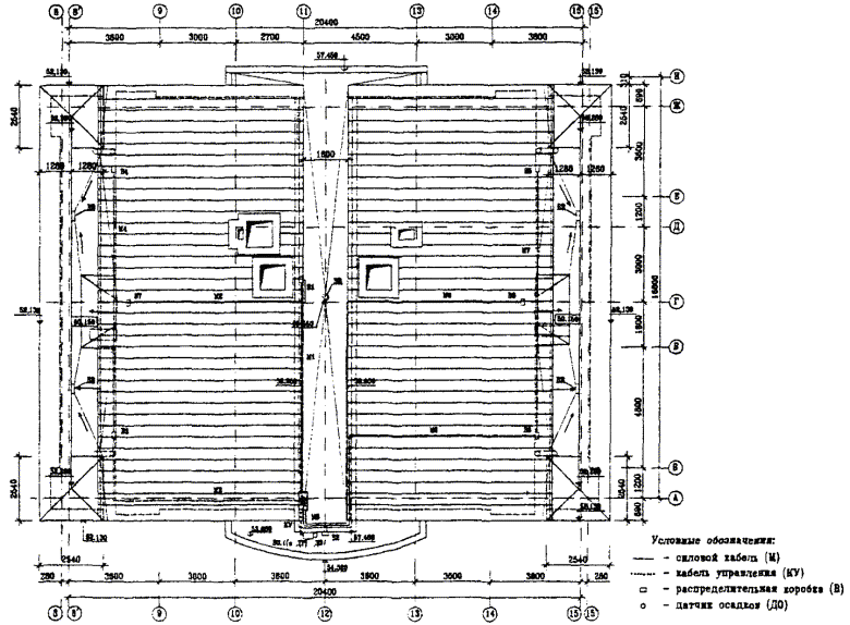
Расчет длины нагревательных кабелей для секции № 2

Кровля секции № 2 (рис. 4.8, 4.9) имеет как скатные, так и плоские участки с внутренним водостоком. Отвод воды со скатных участков организован при помощи водосточных желобов в воронки внутреннего водостока (ВВ). Обогрев плоских частей кровли осуществляется вокруг воронок и зон перед водосточными трубами площадью около 1 м2.


Рис. 4.8. Схема установки нагревательных секций на кровле секции № 2.

Рис. 4.9. Схема разводки силовых кабелей и кабелей управления секция № 2.


Общие характеристики обогреваемых зон приведены ниже.

Площадь обогреваемых зон на плоской кровле: S = 11 м2.

Длина:

- желобов L = 36 м;

- водосточных труб L = 24 м;

- количество водосточных труб - 4 шт.;

- количество водосточных воронок - 7 шт.

Для проектирования антиобледенительной системы применяется саморегулирующийся кабель марки 23FSLe2-CT.

1. Расчет длины кабеля в желобах.

Для желобов (Lжелоба = 36 м) число ниток кабеля принимается равным 2. В данном случае применяются секции без монтажных концов:

Lкаб = 36 м ´ 1,05 ´ 2 + 1 м = 76,6 м

2. Расчет длины кабеля в водосточных трубах.

Длина трубы составляет около 6 м, длина изгиба - приблизительно 1 м.

Так как диаметр обогреваемых труб находится в пределах 100 - 150 мм, число ниток кабеля принимается равным 2.

В данном случае применяются трубы с водосточными воронками и используются секции с монтажными концами:

Lкаб = (6 м ´ 1,05 + 1,5 м + 1,5 м) ´ 4 = 41,2 м

3. Расчет длины кабеля на плоских участках кровли вокруг воронок.

При обогреве зон вокруг воронок и под водосточными трубами кабель укладывается зигзагом с шагом 100 мм на площади примерно 1 м2, при этом нагревательная секция длиной около 1 - 2 м опускается во внутреннюю часть воронки. Применяются секции без монтажных концов:

Lкаб = (13 м ´ 1,05 + 2 м + 1 м) ´ 11 шт. = 183,2 м

4. Суммарный расход кабеля.

Lкаб = 76,6 м ´ 41,2 м + 183,2 м = 301 м

Разбивка нагревательного кабеля на секции

Для снижения общего числа нагревательных секций целесообразно одной секцией обогревать несколько зон. В данном случае 4 секции выполнены по схеме желоб-труба, 4 секции объединяют зоны под водостоком и вокруг воронок.

В данном примере система разбита на 11 секций, которые приведены в таблице 4.

Таблица 4

Номер секции

Маркировка секции

Длина секции, м

СН1

23-ССБЭ2-15

15

СН2

23-ССБЭ2-9

9

СН3

23-ССБЭ2-9

9

СН4

23-ССБЭ2-32

32

СН5

23-ССБЭ2-32

32

СН6

23-ССБЭ2-32

32

СН7

23-ССБЭ2-32

32

СН8

23-ССБЭ2-35

35

СН9

23-ССБЭ2-35

35

СН10

23-ССБЭ2-35

35

СН11

23-ССБЭ2-35

35

Выбор шкафов управления

Производится расчет пусковых токов для каждой нагревательной секции, указанной в таблице:

Iпуск, 1 = L1 ´ К / 220 = 15 ´ 60 / 220 = 4,09 А,

Iпуск, 2 = L2 ´ К / 220 = 9 ´ 60 / 220 = 2,45 А,

Iпуск, 3 = L3 ´ К / 220 = 9 ´ 60 / 220 = 2,45 А,

Iпуск, 4 = L4 ´ К / 220 = 32 ´ 60 / 220 = 8,73 А,

Iпуск, 5 = L5 ´ К / 220 = 32 ´ 60 / 220 = 8,73 А,

Iпуск, 6 = L6 ´ К / 220 = 32 ´ 60 / 220 = 8,73 А,

Iпуск, 7 = L7 ´ К / 220 = 32 ´ 60 / 220 = 8,73 А,

Iпуск, 8 = L8 ´ К / 220 = 35 ´ 60 / 220 = 9,55 А,

Iпуск, 9 = L9 ´ К / 220 = 35 ´ 60 / 220 = 9,55 А,

Iпуск, 10 = L10 ´ К / 220 = 35 ´ 60 / 220 = 9,55 А,

Iпуск, 11 = L11 ´ К / 220 = 35 ´ 60 / 220 = 9,55 А.

Так как Iпуск > 32А, группируем 3 фазы. Далее разбиваем полученные цифры на три примерно равные части. Получаем:

для фазы А:        4,09 + - 2,45 + - 2,45 + 8,73 + 9,55 = 27,27 А;

для фазы В:        8,73 + 8,73 + 9,55 = 27,01 А;

для фазы С:        8,73 + 9,55 + 9,55 = 27,83 А.

Разница между максимально нагруженной (27,83 А) и минимально нагруженной (27,01 А) фазами составляет около 3 %, что соответствует требованиям ПУЭ. По максимально нагруженной фазе выбираем уставку защитного автомата с запасом. Пусковой ток составляет 28 А, следовательно, уставка защитного автомата - 40 А.

С учетом системы автоматического управления, выбираем шкаф управления: ШУ-ТС-3-40-200 с регулятором РТ200Е.

Рабочая мощность на секцию № 2:

Рном = Lсумм ´ 23 = 301 ´ 23 = 7 кВт.

Установленная мощность на секцию № 2:

Руст = К ´ Рном = 2 ´ 7 = 14 кВт.

Расчет количества крепежных элементов

В данном случае лотки и водосточные трубы изготовлены из оцинкованной стали, покрытой полимерным материалом (пластизолом), поэтому применяются крепежные элементы из оцинкованной стали.

1. Крепежные элементы для желобов.

Общая длина обогреваемых лотков - 36 м.

Зажим СР.23.2-50 - 36 ´ 4 + 10 % = 159 шт.

Кронштейн ТС.02.СБ - 36 ´ 2 ´ 10 % = 80 шт.

Заклепки отрывные из оцинкованной стали

4 ´ 12 - 36 ´ 2 + 10 % = 80 шт.

2. Крепежные элементы для водосточных труб.

Количество обогреваемых водосточных труб - 4 шт.

Длина водосточных труб - до 10 м.

Диаметр водосточных труб - 100 мм.

Накладка ТС.ОЗ.СБ - 4 шт.

Зажим СР.23.1 - 25 - 4 ´ 4 + 10 % = 18 шт.

Зажим СР.23.2-50 - 4 ´ 10 + 10 % = 44 шт.

Заклепки отрывные из оцинкованной стали

4 ´ 12 - (4 ´ 4 + 4 ´ 4) ´ 1,1 = 36 шт.

Кожух ТС.05/К.100 - 4 шт.

3. Крепежные элементы для мягкой кровли.

Общая площадь обогреваемых зон - 11 м2.

Зажим СР.23.1-25 - 7 ´ 3 + 10 % = 23 шт.

Зажим СР.23.2-50 - 11 ´ 15 + 10 % = 182 шт.

Скоба-полоса 0,5 ´ 15 ´ 250 мм - (11 ´ 15 + 10 %) ´ 0,25 м = 45,4 м.

Скоба ТС.03.СБ - 7 шт.

Заклепки отрывные из оцинкованной стали

4 ´ 12 - (11 ´ 15 + 11 ´ 4) ´ 1,1 - 230 = шт.

Поликров АР-130 - 11 м2 + 10 % = 12,1 м2.

12,1 м2 ´ 0,9 кг/м2 = 10,9 кг.

Клей-мастика М140 (МР1).

Рабочая мощность на всё здание: Рном = 6 + 7 + 6= 19 кВт

Установленная мощность на всё здание:

Руст = 12 + 14 + 12 = 38 кВт

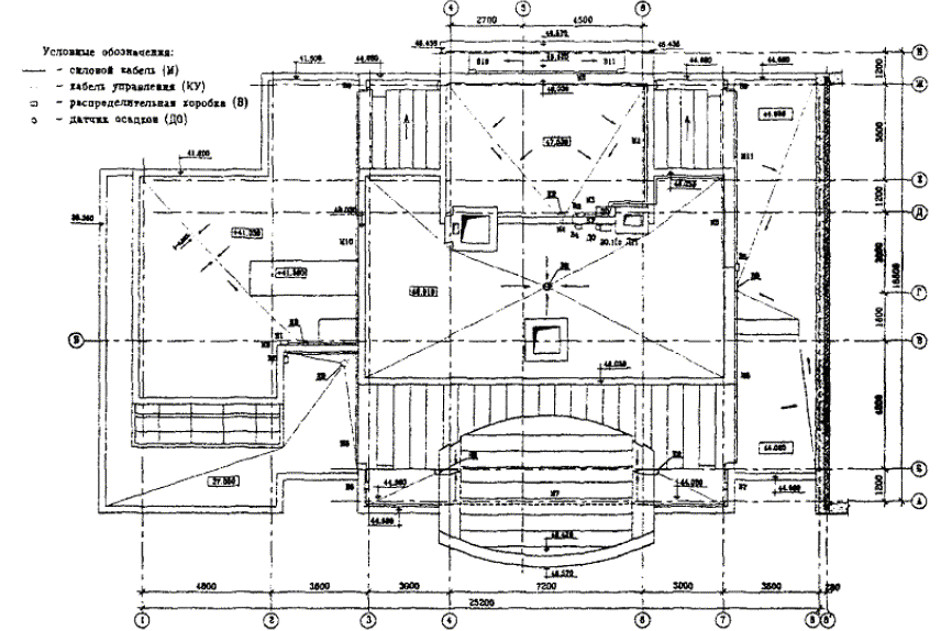
Пример 3. Разработка антиобледенительной системы для реконструируемого четырехсекционного пятиэтажного жилого дома серии 1-511 по проекту ЦНИИЭП жилища. Проектом реконструкции предусматривается надстройка двух этажей, причем последний этаж - мансардного типа. Кровля - скатная с наружным водостоком. Материал кровли - металлочерепица.

При расчете антиобледенительной системы кровля разбивается на отдельные участки, соответствующие отдельным плоскостям. Некоторые участки повторяются и на них можно разместить одинаковые нагревательные элементы. При этом один и тот же участок может располагаться на соседних секциях здания. Вся кровля разделена на три зоны (рис. 4.10).

Расчет антиобледенительной системы выполняется отдельно для каждой зоны. Зоны № 1 и № 3 зеркально симметричны, поэтому расчет приводится только для зоны № 1.

Расчет длины нагревательных кабелей для зоны № 1.

Кровля зоны № 1 (рис. 4.11, 4.12) имеет в основном скатные участки. С небольших частей плоской кровли над лифтовой шахтой вода удаляется на скатный участок 4. Отвод воды со скатных участков организован при помощи водосточных желобов в воронки наружного водостока. Соответственно обогрев водосточных желобов и труб выполняется по всей длине. Кроме того, нагревательные секции устанавливаются на кровле в местах примыкания к вертикальным стенам.


Рис. 4.10. Схема деления кровли на участки и зоны.

Рис. 4.11. Схема установки нагревательных секций на фрагменте кровли (зона 1).

Рис. 4.12. Схема разводки силовых кабелей и кабелей управления на фрагменте кровли (зона 1).


Общие характеристики обогреваемых зон приведены ниже.

Длина:

- лотков L = 43,2 м;

- водосточных труб L = 20,4 м;

- примыкания к вертикальным стенам L = 56 м;

- количество водосточных труб - 9 шт.

Для проектирования противообледенительной системы применяется саморегулирующийся кабель марки 31FSR2-CT.

1. Расчет длины кабеля в лотке.

Для лотков шириной до 200 мм (Lлотка = 43,2 м) число ниток кабеля в лотке принимается равным 2. В данном случае применяются секции с монтажными концами:

Lкa6 = 43,2 м ´ 1,05 ´ 2 = 90,6 м

2. Расчет длины кабеля в водосточных трубах.

Так как диаметр обогреваемых труб находится в пределах 100 - 150 мм, число ниток кабеля принимается равным 1.

В данном случае трубы непосредственно примыкают к желобам, используются секции с холодными концами:

Lкаб = (20,4 м ´ 1,05 + 1,5 м) ´ 9 = 206,2 м

3. Расчет длины кабеля в местах примыкания к вертикальным стенам.

В данном примере, с точки зрения удобства запитки нагревательных секций обогреваем примыкания на 1/3 длины, применяются секции с монтажными концами:

Lкаб = 56 м ´ 1,05 ´ 2 ´ 1/3 = 39,2 м

4. Суммарный расход кабеля.

Lcyм = 90,6 м + 206,2 м + 39,2 м = 336 м

Разбивка нагревательного кабеля на секции.

Для снижения общего числа нагревательных секций целесообразно одной секцией обогревать несколько зон.

В данном примере система разбита на 9 секций, которые приведены в таблице 5.

Таблица 5

Номер секции

Маркировка секции

Длина секции, м

СН1

31-ССБЭ2-39

39

СН2

31-ССБЭ2-39,5

39,5

СН3

31-ССБЭ2-35,5

35,5

СН4

31-ССБЭ2-35,5

35,5

СН5

31-ССБЭ2-39,5

39,5

СН6

31-ССБЭ2-33

33

СН7

31-ССБЭ2-31

31

СН8

31-ССБЭ2-31

31

СН9

31-ССБЭ2-52

52

Выбор шкафов управления

Производится расчет пусковых токов для каждой нагревательной секции, указанной в таблице:

Iпуск, 1 = L1 ´ К / 220 = 39,1 ´ 60 / 220 = 17,37 А,

Iпуск, 2 = L2 ´ К / 220 = 39,5 ´ 60 / 220 = 17,60 А,

Iпуск, 3 = L3 ´ К / 220 = 35,5 ´ 60 / 220 = 15,81 А,

Iпуск, 4 = L4 ´ К / 220 = 35,5 ´ 60 / 220 = 15,81 А,

Iпуск, 5 = L5 ´ К / 220 = 39,5 ´ 60 / 220 = 17,60 А,

Iпуск, 6 = L6 ´ К / 220 = 33 ´ 60 / 220 = 14,70 А,

Iпуск, 7 = L7 ´ К / 220 = 31 ´ 60 / 220 = 13,81 А,

Iпуск, 8 = L8 ´ К / 220 = 31 ´ 60 / 220 = 13,81 А,

Iпуск, 9 = L9 ´ К / 220 = 52 ´ 60 / 220 = 23,16 А.

Так как Iпуск > 32 A, группируем 3 фазы. Далее разбиваем полученные цифры на три примерно равные части. Получаем:

для фазы А:        17,37 + 17,60 + 13,81 = 48,78 А;

для фазы В:        15,81 + 15,81 + 17,60 = 49,22 А;

для фазы С:        14,70 + 13,81 + 23,16 = 51,67 А.

Разница между максимально нагруженной (51,67 А) и минимально нагруженной (48,78 А) фазами составляет около 6 %, что соответствует требованиям ПУЭ. По максимально нагруженной фазе выбираем уставку защитного автомата с запасом. Пусковой ток составляет 52 А, следовательно, уставка защитного автомата - 63 А.

С учетом системы автоматического управления, выбираем шкаф управления: ШУ-ТС-3-63-200 с регулятором РТ200Е.

Рабочая мощность на зону № 1:

Рном = Lcyмм ´ 31 = 336 ´ 31 = 10,5 кВт

Установленная мощность на зону № 1:

Руст = К ´ Рном = 2 ´ 10,5 = 21 кВт

Расчет количества крепежных элементов

В данном случае лотки и водосточные трубы изготовлены из оцинкованной стали, покрытой полимерным материалом (пластизолом), поэтому применяются крепежные элементы из оцинкованной стали.

1. Крепежные элементы для лотков.

Общая длина обогреваемых лотков шириной 200 мм - 43,2 м.

Зажим СР.31.2-100 - 43,2 ´ 4 + 10 % = 190 шт.

Полоса 0,8 ´ 15 ´ 600 мм - (43,2 ´ 2 + 10 %) ´ 0,6 м = 57 м.

Заклепки отрывные из оцинкованной стали

4 ´ 12 - (43,2 ´ 2) ´ 1,1 = 95 шт.

2. Крепежные элементы для водосточных труб.

Количество обогреваемых водосточных труб - 9 шт.

Длина водосточных труб - 20,4 м.

Диаметр водосточных труб - до 150 мм.

Т-скоба ТС.04 - 9 шт.

Зажим СР.31.1-25 - 3 ´ 9 + 10 % = 30 шт.

Зажим СР/Т.31.1-25 - (20,4 м/0,5 м + 5) ´ 9 = 412 шт.

Зажим СР.31.2-50 - 10 ´ 9 + 10 % = 99 шт.

Заклепки отрывные из оцинкованной стали

4 ´ 12 - (20,4 ´ 2 + 3 + 4) ´ 9 ´ 1,1 = 473 шт.

Кожух ТС.05/К.100 - 9 шт.

Трос стальной Æ = 2,8 мм - 20,4 ´ 9 + 10 % = 202 м.

3. Крепежные элементы для примыканий вертикальных стен.

Общая длина обогреваемых примыканий - 18,7 м.

Зажим СР/Т.31.2-50 - 18,7 ´ 2 + 10 % = 41 шт.

Трос стальной Æ = 2,8 мм - 18,7 + 10 % = 21 м.

Расчет длины нагревательных кабелей для зоны № 2.

Кровля зоны № 2 (рис. 4.13, 4.14) отличается от зоны № 1 другим набором участков. Обогрев этих участков идентичен рассмотренному выше.


Рис. 4.13. Схема установки нагревательных секций на фрагменте кровли (зона 2).

Рис. 4.14. Схема разводки силовых кабелей и кабелей управления на фрагменте кровли (зона 2).


Общие характеристики обогреваемых зон приведены ниже.

Длина:

- лотков L = 43,1м;

- водосточных труб L = 20,4 м;

- примыкания к вертикальным стенам L = 41,8 м;

- количество водосточных труб - 9 шт.

Для проектирования противообледенительной системы применяется саморегулирующийся кабель марки 31FSR2-CT.

1. Расчет длины кабеля в лотке.

Для лотков шириной до 200 мм (Lлотка = 43,1 м) число ниток кабеля в лотке принимается равным 2. В данном случае применяются секции с монтажными концами:

Lкаб = 43,1 м ´ 1,05 ´ 2 = 90,5 м

2. Расчет длины кабеля в водосточных трубах.

Так как диаметр обогреваемых труб находится в пределах 100 - 150 мм, число ниток кабеля принимается равным 1.

В данном случае трубы непосредственно примыкают к желобам, используются секции с холодными концами:

Lкa6 = (20,4 м ´ 1,05 + 1,5 м) ´ 9 = 206,2 м

3. Расчет длины кабеля в местах примыкания к вертикальным стенам.

В данном примере, с точки зрения удобства запитки нагревательных секций обогреваем примыкания на 1/3 длины, применяются секции с монтажными концами:

Lкаб = 41,8 м ´ 1,05 ´ 2 ´ 1/3 = 29,3м

4. Суммарный расход кабеля.

Lсумм = 90,5 м + 206,2 м + 29,3 м = 326 м

Разбивка нагревательного кабеля на секции

Для снижения общего числа нагревательных секций целесообразно одной секцией обогревать несколько зон.

В данном примере система разбита на 9 секций, которые приведены в таблице 6.

Таблица 6

Номер секции

Маркировка секции

Длина секции, м

СН1

31-ССБЭ2-31

31

СН2

31-ССЭ2-31

31

СН3

31-ССБЭ2-52

52

СН4

31-ССБЭ2-31

31

СН5

31-ССБЭ2-31

31

СН6

31-ССБЭ2-39,5

39,5

СН7

31-ССБЭ2-35,5

35,5

СН8

31-ССБЭ2-35,5

35,5

СН9

31-ССБЭ2-39,5

39,5

Выбор шкафов управления

Производится расчет пусковых токов для каждой нагревательной секции, указанной в таблице:

Iпуск, 1 = L1 ´ К / 220 = 31 ´ 60 / 220 = 137,81 А,

Iпуск, 2 = L2 ´ К / 220 = 31 ´ 60 / 220 = 13,81 А,

Iпуск, 3 = L3 ´ К / 220 = 52 ´ 60 / 220 = 23,16 А,

Iпуск, 4 = L4 ´ К / 220 = 31 ´ 60 / 220 = 13,81 А,

Iпуск, 5 = L5 ´ К / 220 = 31 ´ 60 / 220 = 13,81 А,

Iпуск, 6 = L6 ´ К / 220 = 39,5 ´ 60 / 220 = 17,60 А,

Iпуск, 7 = L7 ´ К / 220 = 35,5 ´ 60 / 220 = 15,81 А,

Iпуск, 8 = L8 ´ К / 220 = 35,5 ´ 60 / 220 = 15,81 А,

Iпуск, 9 = L9 ´ К / 220 = 39,5 ´ 60 / 220 = 17,60 А.

Так как Iпуск > 32 А, группируем 3 фазы. Далее разбиваем полученные цифры на три примерно равные части. Получаем:

для фазы А:        13,81 + 13,81 + 23,16 = 50,78 А;

для фазы В:        13,81 + 15,81 + 17,60 = 47,22 А;

для фазы С:        13,81 + 15,81 + 17,60 = 47,22 А.

Разница между максимально нагруженной (50,78 А) и минимально нагруженной (47,22 А) фазами составляет около 7 %, что соответствует требованиям ПУЭ. По максимально нагруженной фазе выбираем уставку защитного автомата с запасом. Пусковой ток составляет 51 А, следовательно, уставка защитного автомата - 63 А.

С учетом системы автоматического управления, выбираем шкаф управления: ШУ-ТС-3-63-200 с регулятором РТ200Е.

Рабочая мощность на зону № 2:

Рном = Lсумм ´ 31 = 326 ´ 31 = 10,1 кВт

Установленная мощность на зону № 2:

Руст = К ´ Рном = 2 ´ 10,1 = 20,2 кВт

Расчет количества крепежных элементов

В данном случае лотки и водосточные трубы изготовлены из оцинкованной стали, покрытой полимерным материалом (пластизолом), поэтому применяются крепежные элементы из оцинкованной стали.

1. Крепежные элементы для лотков

Общая длина обогреваемых лотков шириной 200 мм - 43,1 м.

Зажим СР.31.2-100 - 43,1 ´ 4 + 10 % = 190 шт.

Полоса 0,8 ´ 15 ´ 600 мм - (43,1 ´ 2 + 10 %) ´ 0,6 м = 57 м.

Заклепки отрывные из оцинкованной стали

4 ´ 12 - (43,1 ´ 2) ´ 1,1 = 95 шт.

2 Крепежные элементы для водосточных труб.

Количество обогреваемых водосточных труб - 9 шт.

Длина водосточных труб - 20,4 м.

Диаметр водосточных труб - до 150 мм.

Т-скоба ТС.04 - 9 шт. Зажим СР.31.1-25 - 3 ´ 9 + 10 % = 30 шт.

Зажим СР/Т.31.1-25 - (20,4 м/0,5 м + 5) ´ 9 = 412 шт.

Зажим СР.31.2-50 - 10 ´ 9 + 10 % = 99 шт.

Заклепки отрывные из оцинкованной стали

4 ´ 2 - (20,4 ´ 2 + 3 + 4) ´ 9 ´ 1,1 = 473 шт.

Кожух ТС.05/К.100 - 9 шт.

Трос стальной 0 = 2,8 мм - 20,4 ´ 9 + 10 % = 202 м.

3. Крепежные элементы для примыканий вертикальных стен.

Общая длина обогреваемых примыканий - 13,9 м.

Зажим СР/Т.31.2-50 - 13,9 ´ 2 + 10 % = 3 шт.

Трос стальной Æ = 2,8 мм - 13,9 + 10 % = 16 м.

Рабочая мощность на всё здание:

Рном = 10,5 + 10,1 + 10,5 = 31,1 кВт

Установленная мощность на всё здание:

Руст = 21 + 20,2 + 21 = 62,2 кВт

5. Основные положения по монтажу и приемке антиобледенительных систем в эксплуатацию

5.1. Монтаж системы должна выполнять специализированная организация, имеющая лицензию на производство электромонтажных работ.

5.2. Монтаж антиобледенительной системы следует выполнять в строгом соответствии с утвержденным в установленном порядке проектом этой системы и с учетом требований СНиП 3.05.06-85 «Электротехнические устройства» и ПУЭ. Монтаж нагревательных кабелей допускается производить при температуре окружающего воздуха не ниже - 15 °С.

5.3. Монтаж системы, как правило, целесообразно начинать с установки шкафа управления (ШУ), распределительных коробок и датчиков. Все оборудование системы следует устанавливать в местах, предусмотренных проектом. При этом все датчики устанавливают в местах, удобных для обслуживания, кроме того, датчик температуры устанавливают так, чтобы исключить влияние на него прямой солнечной радиации и тепла, выделяемого зданием; датчик осадков - в месте, где полностью исключены какие-либо помехи для попадания на датчик осадков; датчики воды устанавливают в наиболее вероятных местах появления талой воды.

5.4. После установки оборудования по п.5.3 монтируется разводка силовых и управляющих кабелей с их защитой и фиксацией на элементах кровли и устройствах, предусмотренных проектом. Проложенные кабели следует прозвонить и измерить сопротивление изоляции силовых кабелей с записью результатов измерений в типовом протоколе.

5.5. Далее производится монтаж секций нагревательных кабелей на соответствующих участках кровли. Для фиксации нагревательных кабелей на кровле используют изделия, приведенные в п. 3.6. В процессе монтажа в отдельных местах требуется изгибать кабель под разными углами. При этом следует иметь в виду, что минимально допустимые радиусы изгибов кабеля следующие:

для саморегулирующихся кабелей - 35 мм;

для кабелей с металлической оплеткой - 80 мм;

для кабелей бронированных - 120 мм.

После окончания монтажа нагревательных кабелей, включая заведение концов кабелей в распределительную коробку, замеряется сопротивление всех секций и их изоляции. Результаты замеров оформляются в форме типового протокола.

5.6. При монтаже электрических кабелей по п.п. 5.4 и 5.5 для обеспечения сохранности кровли и более удобного и безопасного выполнения работ целесообразно ряд технологических операций (соответствующая заделка концов секций кабеля, намотка на кабель в местах установки зажимов 2 ÷ 3 слоев х/б изоляции, установка зажимов или монтажных лент, фиксаторов, планок или кронштейнов и т.п.) выполнять не на кровле, а на земле, на чердаке или в другом удобном месте. В результате для выполнения на кровле должны остаться технологические операции по укладке кабелей в рабочее положение и соединение крепежных деталей, уже установленных на кабелях, с кровлей вытяжными заклепками или саморезами. Если предварительную подготовку кабелей с необходимой точностью выполнить невозможно, ряд подготовительных операций придется делать «по-месту», на кровле.

5.7. Для различных участков кровли применяются свои, соответствующие форме данного участка (лотка, свеса и т.п.) крепежные детали. Примеры решения крепежных деталей (планок, кронштейнов и т.п.) для разных участков кровли приводятся на рис. 5.1 - 5.5.

Рис. 5.1. Крепление одной нитки греющего кабеля в лотке.

Рис. 5.2. Крепление двух ниток греющего кабеля в лотке.

Рис. 5.3. Крепление одной нитки греющего кабеля в лотке.

Рис. 5.4. Крепление двух ниток греющего кабеля в лотке.

Рис. 5.5. Крепление двух ниток греющего кабеля в желобе.

5.8. Для крепления греющего кабеля в водосточной трубе часто используется подвеска его на металлическом тросе (рис. 5.6, 5.7), а в нижней части водосточной трубы для защиты от механических повреждений устанавливаются защитные кожуха.

5.9. Монтаж антиобледенительной системы на крыше с мягкой кровлей, выполненной из рулонных материалов (рубероида на битумной мастике, стеклобата, филизола и др.), отличается способом крепления элементов системы (кабелей, датчиков) непосредственно к кровле. При этом элементы системы раскладываются и закрепляются на специальной подложке, которая может быть изготовлена из металлической сетки, оцинкованного листа или из материала типа Поликров, закрепленных на кровле клей-мастикой.

5.10. Когда система полностью смонтирована, проверяется сопротивление изоляции секций нагревательных кабелей, минимальное сопротивление которой должно быть 10 МОм/м и прозваниваются тестером силовые и управляющие кабели. Результаты замеров оформляются типовым протоколом. При передаче системы в эксплуатацию с участием заказчика проводят пробное включение антиобледенительной системы в соответствии с инструкцией по ее эксплуатации. Включение производится, когда температура наружного воздуха находится в рабочем диапазоне, на который настроен терморегулятор. Система должна оставаться включенной не менее 1 часа, после чего следует замерить ток каждой секции. Автоматика системы проверяется либо при наличии осадков, либо поливкой водой датчиков воды и осадков. Согласно инструкции по эксплуатации терморегулятора его работоспособность проверяется путем выведения Тмин и Тмакс так, чтобы температура воздуха была вне этого диапазона. После чего снова установить требуемый рабочий диапазон температур терморегулятора. При положительном результате проверки работоспособности системы с участием заказчика составляется акт приемки-сдачи системы в эксплуатацию.

Рис. 5.6. Крепление греющего кабеля в верхней части водосточной трубы.

Рис. 5.7. Крепление греющего кабеля в нижней части водосточной трубы.

6. Основные положения по эксплуатации антиобледенительных систем

6.1. Перед началом сезонной эксплуатации системы необходимо очистить кровлю и особенно участки, где расположены греющие кабели, воронки и водосточные трубы, а также датчики, от мусора и пыли мягкими щетками с водой.

6.2. Система включается обслуживающим персоналом при понижении температуры воздуха ниже -15 °С и выключается при устойчивом повышении температуры воздуха выше +5 °С, в промежутке между включением и выключением система работает в автоматическом режиме.

6.3. Для обеспечения нормальной эксплуатации системы необходимо раз в квартал осматривать и выполнять профилактику оборудования системы, в том числе.

- подтяжку клеммных и винтовых электрических соединений;

- контроль работы УЗО (устройство защитного отключения).

Эти работы следует выполнять при полном снятии напряжения питания.

Для проверки УЗО надо включить систему и нажать кнопку "Т" на корпусе УЗО, если УЗО выключится - оно исправно. В случае неисправности УЗО следует заменить.

6.4. Обслуживание системы должно осуществляться электриками, имеющими допуск на работы с электроустановками до 1000 В в соответствии с ПЭЭП, и ПТБ при эксплуатации ЭУ потребителем.

Приложение 1

Опыт эксплуатации антиобледенительных устройств

Существующая практика эксплуатации антиобледенительных систем свидетельствует об их работоспособности и эффективности. Специалисты ЦНИИЭП жилища в ноябре-декабре 2003 г. ознакомились с работой таких систем на нескольких объектах г. Москвы. На всех объектах антиобледенительные системы находились в рабочем состоянии и в общем успешно выполняли работу, для которой они предназначены.

На большинстве объектов (Центральный государственный музей современной истории России, Центр Мейерхольда и др.) в антиобледенительных системах применены саморегулирующиеся нагревательные кабели, в отдельных системах саморегулирующиеся кабели установлены только в водосточных трубах, а в лотках - резистивные.

Для большинства объектов диапазон температур для работы антиобледенительной системы устанавливается от +5 °С до -10 °С, что обеспечивает эффективную работу системы в автоматическом режиме. Есть примеры, когда система работает не в автоматическом режиме, а управляется дежурным электриком, в обязанность которого входит эта работа. Так эксплуатируют антиобледенительную систему жилого комплекса "Золотые ключи". При этом для этой системы рабочий диапазон температур принят от +5 °С до - 5 °С.

Руководителями служб эксплуатации отмечается, что для нормальной работы системы должны быть очищены от мусора все пути удаления воды с кровли, периодически очищаться от мусора и пыли датчики и другое электрооборудование, там, где возможны механические повреждения кабеля массой сползающего снега следует устраивать специальные барьеры.

Приложение 2

Технико-экономические показатели антиобледенительных устройств

Стоимость монтажа антиобледенительных устройств для конкретных зданий складывается из следующих групп затрат:

- стоимости строительно-монтажных работ;

- стоимости материалов и оборудования;

- стоимости пуско-наладочных работ.

Рассмотрение смет на устройство антиобледенительных систем для ряда конкретных объектов позволило выявить следующие закономерности:

Стоимость антиобледенительных систем не зависит напрямую от площади кровли, поскольку конструкции кровель значительно отличаются одна от другой тем, что они бывают скатые и плоские, при равных площадях с разным количеством скатов, наличием или отсутствием ендов, с лотками или желобами и т.п.

Стоимость антиобледенительной системы с небольшими отклонениями пропорциональна количеству метров погонных, применяемых в системе, греющих кабелей, при этом в случае применения саморегулирующихся кабелей на каждый метр греющего кабеля приходится 0,8 ÷ 1,0 тыс. руб., а в случае применения резистивных кабелей - 0,54 ÷ 0,72 тыс. руб.

Распределение относительной стоимости в % по группам затрат примерно следующее:

для систем с саморегулирующимся греющим кабелем

- строительно-монтажные работы            - 30 %;

- материалы и оборудование                      - 65 %;

- пусконаладочные работы                         - 5 %

Итого:                        100 %

для систем с резистивным греющим кабелем

- строительно-монтажные работы            - 44 %;

- материалы и оборудование                      - 48 %;

- пусконаладочные работы                         - 8 %

Итого:                        100 %

Стоимость антиобледенительных систем с резистивными греющими кабелями на 30 ÷ 34 % дешевле, чем системы с саморегулирующимися греющими кабелями.

Стоимость 1 м.п. собственно греющих кабелей колеблется в следующих пределах:

резистивных 70 ÷ 80 руб. (отечественные), 120 руб. (KIMA - Швеция), саморегулирующиеся 300 ÷ 340 руб. (отечественные), 480 руб. (KIMA - Швеция). Данные, приведенные выше, базируются на стоимости отечественных греющих кабелей.

Эксплуатационные затраты в основном определяются стоимостью электроэнергии, которая расходуется при работе системы

Сгод = Рн ´ h ´ s,

где: Сгод - стоимость работы системы в течение года, руб.;

Рн - номинальная мощность системы, кВт;

h - количество часов работы системы в год;

s - стоимость 1 кВт/час электроэнергии, руб.

Для определения ориентировочных затрат на эксплуатацию антиобледенительной системы предлагается количество часов ее работы в год определять следующим образом: считать, что система включается в середине ноября, а выключается в середине апреля, таким образом система включена 5 месяцев или 151 календарных дней по 24 часа, всего 3624 часа, принять, что 20 % времени система, отключенная автоматикой из-за выхода температуры воздуха за пределы рабочих температур или из-за отсутствия осадков, не работает - таким образом принимаем

3624 часа ´ 0,8 = 2900 рабочих часов системы.

Для примера приводится расчет ориентировочной годовой стоимости эксплуатации антиобледенительной системы с резестивными греющими кабелями общей длиной 100 м и номинальной мощностью 3 кВт

Сгод = Рн ´ h ´ 3 = 3 кВт ´ 2900 час. ´ 1,05 руб/кВт.час = 9135 руб.

Для систем с саморегулирующимися греющими кабелями, за счет автоматического регулирования тепловыделения в ответ на изменение внешней температуры, расход электроэнергии и соответственно стоимость снижается на 10 - 15 %.

Определение ориентировочной годовой стоимости эксплуатации системы можно проиллюстрировать на примере антиобледенительной системы, разработанной для 4-х секционного 7-ми этажного (после реконструкции 5-ти этажного) жилого дома со скатной кровлей и наружным водостоком (пример № 3 раздела 4 настоящей работы). Суммарная длина саморегулирующихся греющих кабелей этой системы составляет 998 м, их номинальная мощность - 31,1 кВт.

Годовая стоимость эксплуатации системы составляет:

Сгод = Рн ´ h ´ S ´ Кср,

где Кср = 0,9 - понижающий коэффициент для саморегулирующегося греющего кабеля.

Сгод = 31,1 ´ 2900 ´ 1,05 ´ 0,9 = 85230 руб.

 




ГОСТЫ, СТРОИТЕЛЬНЫЕ и ТЕХНИЧЕСКИЕ НОРМАТИВЫ.
Некоммерческая онлайн система, содержащая все Российские Госты, национальные Стандарты и нормативы.
В Системе содержится более 150000 файлов нормативно-технической документации, действующей на территории РФ.
Система предназначена для широкого круга инженерно-технических специалистов.

Рейтинг@Mail.ru Яндекс цитирования

Copyright © www.gostrf.com, 2008 - 2026