Крупнейшая бесплатная информационно-справочная система онлайн доступа к полному собранию технических нормативно-правовых актов РФ. Огромная база технических нормативов (более 150 тысяч документов) и полное собрание национальных стандартов, аутентичное официальной базе Госстандарта. GOSTRF.com - это более 1 Терабайта бесплатной технической информации для всех пользователей интернета. Все электронные копии представленных здесь документов могут распространяться без каких-либо ограничений. Поощряется распространение информации с этого сайта на любых других ресурсах. Каждый человек имеет право на неограниченный доступ к этим документам! Каждый человек имеет право на знание требований, изложенных в данных нормативно-правовых актах!

  


 

ПРАВИТЕЛЬСТВО МОСКВЫ

МОСКОМАРХИТЕКТУРА

РЕКОМЕНДАЦИИ
по проектированию нового поколения
блоков-пристроек к существующим зданиям
общеобразовательных школ

2004

ПРЕДИСЛОВИЕ

1. Рекомендации разработаны Московским научно-исследовательским и проектным институтом типологии, экспериментального проектирования (ГУП МНИИТЭП).

Авторы: арх. Т.С. Скобелева (рук. темы),

канд. арх. С.А. Бурмистрова

При участии: инж. А.Н. Добровольский

педагог О.Н. Держицкая

2. Рекомендации согласованы с Московским комитетом образования и Москомархитектурой.

3. Рекомендации подготовлены к утверждению и изданию Управления перспективного проектирования, нормативов и координации проектно-изыскательских работ Москомархитектуры

4. Утверждены Указанием Москомархитектуры от 24.12.03 № 52.

СОДЕРЖАНИЕ

Введение. 1

Область применения. 3

1. Анализ предшествующего опыта проектирования блоков-пристроек к существующим зданиям общеобразовательных школ. 3

1.1. Анализ проектов и типологическая характеристика существующих зданий общеобразовательных школ наиболее массовых типов. 4

1.2. Анализ проектов и типологическая характеристика разработанных в предшествующий период блоков-пристроек к зданиям общеобразовательных школ. 7

2. Рекомендации по проектированию нового поколения блоков-пристроек к существующим зданиям общеобразовательных школ наиболее массовых типов. 16

2.1. Основные принципы проектирования блоков-пристроек к существующим зданиям общеобразовательных школ. 16

2.2. Методика формирования номенклатуры, состава и площадей помещений блоков-пристроек к существующим зданиям общеобразовательных школ. 19

2.3. Перечень рекомендуемых типов, составы и площади помещений блоков-пристроек к существующим зданиям общеобразовательных школ. Рекомендуемая номенклатура массовых типов блоков-пристроек к существующим зданиям общеобразовательных школ. 21

2.4. Методика формирования функциональной и объемно-планировочной структур блоков-пристроек к существующим зданиям общеобразовательных школ, требования к архитектурным и конструктивным решениям и инженерному оборудованию.. 28

 

ВВЕДЕНИЕ

Проблемам образования городские власти Москвы уделяли и уделяют серьезное внимание. В предшествующие годы были реализованы городские целевые программы «Столичное образование-1» и «Столичное образование-. В июне 2001 года вступил в силу Закон «О развитии образования в городе Москве». В 2002 году Правительством Москвы утверждена новая городская целевая программа «Модернизация московского образования (Столичное образование-3)». Целью модернизации московского образования является «приведение его в соответствие с современными требованиями динамично развивающегося столичного мегаполиса, создание механизмов устойчивого развития образования, системы его обновления с учетом социальных и экономических потребностей города, запросов личности, общества и государства».

Для создания материальной среды, обеспечивающей равную доступность качественного образования, программой «Столичное образование-3» планируется модернизация и рационализация сети и зданий государственных образовательных учреждений Москвы в соответствии с образовательными потребностями города и предлагается введение принципиально новой модели «горизонтального построения» школ: формирование самостоятельных начальных школ, профильных школ старшей ступени и т.д. Одним из приоритетов в образовательной деятельности становится также развитие и укрепление здоровья детей, создаются условия для полноценных занятий физкультурой и спортом в рамках школьного учебного процесса.

Соответствующие коррективы вносятся в нормативные документы.

Анализ состояния сложившейся сети образовательных учреждений показал существование ряда проблем, являющихся тормозом в развитии системы столичного образования. Стихийность формирования сети образовательных учреждений привела к тому, что ее структура не полностью соответствует демографической структуре населения города. Это приводит к диспропорции спроса и предложения образовательных услуг, недостаточности мест в общеобразовательных учреждениях для обучения всех детей школьного возраста в первую смену с соблюдением санитарно-гигиенических норм и в соответствии с современными педагогическими требованиями и технологиями.

Одной из главных проблем на пути московской системы образования к созданию высококачественной образовательной среды и причиной разработки нового поколения блоков-пристроек к существующим зданиям общеобразовательных школ является моральное устаревание фонда школьных зданий.

Реконструкция школьных зданий и приведение их в соответствие с современными нормативными требованиями - важная, но не единственная причина, обуславливающая пристройку блоков к существующим зданиям общеобразовательных школ.

Новации в области педагогических технологий, отраженные в Программе «Модернизация московского образования (Столичное образование-3)»: выделение начальных школ из состава общеобразовательных школ в самостоятельные учреждения и формирование профильных школ - вносят новые элементы в структуру сети образовательных учреждений города и требуют модернизации фонда школьных зданий для обеспечения намеченных программой целей, в том числе дифференциации учреждений образования. Строительство новых отдельных зданий для начальных и профильных школ в масштабе города маловероятно из-за дефицита соответствующих свободных территорий. Более рациональным представляется организация начальных школ в специально спроектированных и построенных блоках-пристройках к существующим зданиям общеобразовательных школ, в первую очередь в рамках планируемой реконструкции и модернизации устаревающих школьных зданий. Формирование профильных школ может происходить как на базе нового строительства, так и за счет пристраивания соответствующих блоков к существующим общеобразовательным школам, что позволит увеличить число таких школ и обеспечить декларируемый программой равный доступ к качественному образованию.

Настоящие Рекомендации определяют принципы формирования и основные положения проектирования нового поколения блоков-пристроек к существующим зданиям общеобразовательных школ массового применения, определены также наиболее тиражированные, построенные по типовым проектам и проектам повторного применения школьные здания.

Образовательные учреждения являются объектами особой социальной значимости, а блоки-пристройки к существующим зданиям школ имеют существенное архитектурно-художественное значение. Многократное повторение типовых зданий школ в однообразной жилой застройке обезличивает даже их интересные архитектурные решения. Намечаемая комплексная реконструкция и модернизация школьных зданий за счет пристраивания к ним дополнительных объемов должна быть направлена не только на обновление морально и технически устаревающих зданий, но и на разработку оригинальных в архитектурном отношении проектов. Такой подход к проблеме позволит, помимо улучшения функциональных качеств школьных зданий, в определенной степени улучшить архитектурное качество существующей застройки, где школы традиционно занимают центральное положение и оказывают значительное влияние на формирование архитектурной среды, а также эстетических воззрений как учащихся, так и населения в целом.

ОБЛАСТЬ ПРИМЕНЕНИЯ

Настоящие Рекомендации разработаны для научно-методического обеспечения проектирования нового поколения блоков-пристроек к существующим зданиям наиболее массовых типов школ в г. Москве, реконструируемых с увеличением площадей за счет пристраивания дополнительных объемов и имеющих свободные территории для их размещения.

Рекомендации разработаны в соответствии с положениями Городской целевой Программы «Модернизация московского образования (Столичное образование-3)», основаны на Законе об образовании и Типовых положениях об образовательных учреждениях. Рекомендации выполнены с учетом требований МГСН 4.06-03 «Общеобразовательные учреждения» и Дополнений к ним, а также Рекомендаций по реконструкции фонда зданий школ, Рекомендаций по реконструкции зданий школ и дошкольных учреждений в районах комплексной реконструкции пятиэтажных жилых домов первого периода индустриального домостроения, СанПиН 2.4.2.1178-02.

Рекомендации содержат материалы, позволяющие разработать наиболее эффективные и экономичные решения по реконструкции зданий общеобразовательных школ с увеличением объема за счет блоков-пристроек. Рекомендации учитывают фактическую вместимость существующих морально устаревших школьных зданий и их типологические особенности, затесненность участков школ в сложившейся части города, необходимость усовершенствования и рационализации сети образовательных учреждений, современные педагогические требования и технологии, потребность в новых формах образовательных услуг и перспективные направления в области проектирования школьных зданий.

В Рекомендациях разработана номенклатура блоков-пристроек к существующим зданиям общеобразовательных школ наиболее массовых типов, разработана методика определения состава их помещений, формирования функционально-планировочной структуры блоков, выбора типа блока и варианта его присоединения на примерах зданий массовых типов школ в соответствии с потребностями формируемой школы и габаритами ее участка.

Материалы Рекомендаций предназначены для использования проектными организациями, органами образования и местного самоуправления, инвесторами и заказчиками.

1. АНАЛИЗ ПРЕДШЕСТВУЮЩЕГО ОПЫТА ПРОЕКТИРОВАНИЯ БЛОКОВ-ПРИСТРОЕК К СУЩЕСТВУЮЩИМ ЗДАНИЯМ ОБЩЕОБРАЗОВАТЕЛЬНЫХ ШКОЛ

1.1. АНАЛИЗ ПРОЕКТОВ И ТИПОЛОГИЧЕСКАЯ ХАРАКТЕРИСТИКА СУЩЕСТВУЮЩИХ ЗДАНИЙ ОБЩЕОБРАЗОВАТЕЛЬНЫХ ШКОЛ НАИБОЛЕЕ МАССОВЫХ ТИПОВ

1.1.1 Фонд зданий общеобразовательных школ формировался на протяжении многих десятилетий. В течение этого времени значительно увеличилась норма площади на одного учащегося в учебных помещениях и в целом по зданию. Школьные здания, построенные в прежние годы, по техническому состоянию еще пригодные для эксплуатации, устарели морально: имеют недостаточные по современным требованиям состав и площади учебных и общешкольных помещений. Возникшая проблема изыскания дополнительных помещений и площадей получила решение в виде блоков-пристроек к существующим зданиям школ.

Сегодня многие здания общеобразовательных школ имеют такие блоки-пристройки. В основном, это школы довоенных лет, а также первого и второго периодов индустриального домостроения. В ряде случаев в связи с упомянутым увеличением нормы площади на 1 учащегося, необходимостью увеличения вместимости школы из-за роста численности населения реконструируемого микрорайона или в связи с изменением профиля образовательного учреждения, дополнительные объемы пристраиваются и к зданиям школ, построенным относительно недавно.

1.1.2. По предварительным исследованиям и статистическим данным наиболее массовыми (многочисленными) являются здания общеобразовательных школ типов МЮ, 65-426/1, V-76, И-1605А, И-1577А (рис. 1). Проектная вместимость этих школ не соответствует современной расчетной в связи со снижением нормативной наполняемости классов и ростом нормы расчетной и общей площади на одного учащегося. По составу и площадям помещений эти школы не соответствуют педагогическим требованиям и требованиям санитарных норм и правил. Подробный анализ проектов этих школ, расчет их новой вместимости и предложения по реконструкции существующих зданий даны в «Рекомендациях по реконструкции и модернизации существующего фонда зданий в соответствии с современными педагогическими требованиями» и «Рекомендациями по реконструкции зданий школ и дошкольных учреждений в районах комплексной реконструкции пятиэтажных жилых домов первого периода индустриального домостроения».

Каждый из перечисленных выше типов зданий школ имеет и свои особенности, которые необходимо учитывать при формировании пристраиваемых к ним блоков.

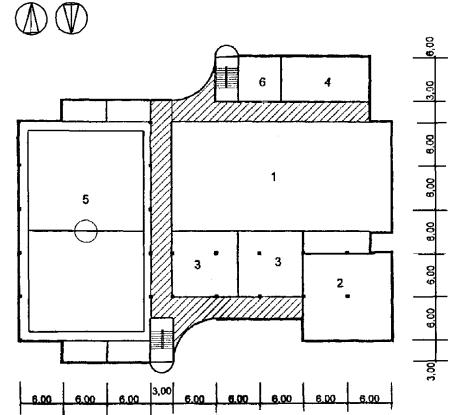
1.1.3 Типовой проект школы МЮ разработан в 1957 году. Здание крупноблочное, пятиэтажное, компактное в плане. Проектная вместимость здания - 22 класса, - 880 учащихся. Общая площадь - 3642 кв. м. Условная расчетная вместимость здания в пересчете по МГСН 4.06-03 составляет 240 учащихся, - 15 классов с наполняемостью в 16 учащихся, или 225 учащихся, - 9 классов с наполняемостью в 25 учащихся. В здании изначально не проектировался спортзал. Подавляющее число таких школ располагает пристроенным залом, но он не удовлетворяет современным требованиям. В школе отсутствует полноценный пищеблок, часть учебных кабинетов и актовый зал расположены на пятом этаже. По требованию СанПиН 2.4.2.1178-02 в построенных ранее зданиях образовательных учреждений 4-е и 5-е этажи должны отдаваться под редко посещаемые обучающимися кабинеты.

Рис. 1 Существующие здания школ наиболее массовых типов.

А - типовой проект МЮ, Б - типовой проект 65-426/1, В - типовой проект V-76, Г - проект повторного применения И-1605А, Д - проект повторного применения И-1577А

Модернизация зданий школ типа МЮ под двухкомплектную школу должна осуществляться комплексно, т.е. пристраивание дополнительных объемов учебных или общешкольных помещений должно осуществляться одновременно с реконструкцией основного объема школьного здания.

1.1.4 Типовой проект школы 65-426/1 выпущен в 1973 году. Здание 3х - 4х этажное проектировалось в нескольких вариантах каркасно-панельных и крупноблочных конструкциях. Оно состоит из двух корпусов, соединенных переходом. В одном из корпусов размещаются учебные помещения, в другом - общешкольные: мастерские, спортивный и актовый залы, по площадям и оснащению не соответствующие современным требованиям. Проектная вместимость здания - 25 классов, - 1000 учащихся. Общая площадь - 4635 кв. м. Условная расчетная вместимость здания в пересчете по МГСН 4.06-03 составляет 256 учащихся, - 16 классов с наполняемостью в 16 учащихся, или 225 учащихся, - 9 классов с наполняемостью 25 учащихся. Модернизация здания под двухкомплектную школу может осуществляться комплексно, т.е. включая существующее здание с пристраиванием блоков, или только за счет пристраивания блоков (в зависимости от формируемого типа общеобразовательной школы). В блоке общешкольных помещений целесообразно предусматривать набор новых залов с одновременным изменениям назначения существующих залов.

1.1.5. Типовой проект школы V-76 разработан в начале 80-х годов. Это кирпично-панельное 3-х этажное здание с внутренним двориком. Проектная вместимость - 30 классов, - 1176 учащихся. Общая площадь здания 7532 кв. м. Условная расчетная вместимость здания в пересчете по МГСН 4.06-03 составляет 352 учащихся, - 22 класса с наполняемостью в 16 человек, или 350 учащихся, - 14 классов с наполняемостью в 25 учащихся (некомплектный вариант). В здании один спортивный зал 12 ´ 24 м, что не соответствует современным требованиям и направлению на увеличение часов для занятий физкультурой в школах. Модернизация под трехкомплектную школу может осуществляться комплексно с учетом пристраивания блоков.

1.1.6. Проекты зданий школ типа МЮ и 65-426/1 являются наиболее массовыми в районах комплексной реконструкции пятиэтажных жилых домов, где предусматривается, как правило, увеличение числа жителей и требуются дополнительные места в учреждениях образования. Проект V-76 получил наиболее массовое применение в районах 9-ти и 12-ти этажной жилой застройки. Из-за того, что в реконструируемых районах, как правило, отсутствуют территории для новых школьных зданий, получение дополнительных мест возможно преимущественно за счет пристраивания блоков к существующим зданиям школ. Таким образом, проблема блоков-пристроек особенно актуальна для указанных районов и типов зданий.

1.1.7. Проект школы И-1605А разработан в 1999 году для повторного применения на основе типового проекта V-79. Здание 3х - 4х этажное из железобетонных крупнопанельных конструкций. Учебные помещения расположены в 4-этажном блоке, который соединен одноэтажным переходом с 3-этажным блоком общего назначения. Проектная вместимость - 33 класса, - 990 учащихся. Общая площадь - 8800 кв. м. Условная расчетная вместимость в пересчете по МГСН 4.06-03 составляет 320 учащихся, - 20 классов с наполняемостью в 16 учащихся, или 325 учащихся, - 13 классов с наполняемостью в 25 учащихся (некомплектный вариант). Модернизация под трехкомплектную школу должна осуществляться за счет дополнительных блоков-пристроек. В зависимости от профиля формируемого учреждения в блок-пристройки следует выносить учебные или общешкольные помещения преимущественно спортивного и кружкового назначения.

1.1.8. Проект повторного применения общеобразовательной школы И-1577А разработан в 1999 году для затесненных участков на основе типового проекта V-92. Здание четырехэтажное. Строительные конструкции - сборные-железобетонные, панельные, широкого шага. Объемно-планировочное решение суперкомпактно: учебные помещения фланкируют центральную зону с помещениями общего назначения. Проектная вместимость - 22 класса, - 660 учащихся. Общая площадь - 7252 кв. м. Условная расчетная вместимость в пересчете по МГСН 4.6-03 составляет 256 учащихся, - 16 классов с наполняемостью в 16 учащихся, или 225 учащихся, - 9 классов по 25 человек. Модернизация должна осуществляться за счет дополнительных блоков-пристроек учебных помещений, а также помещений общешкольного назначения.

1.2. АНАЛИЗ ПРОЕКТОВ И ТИПОЛОГИЧЕСКАЯ ХАРАКТЕРИСТИКА РАЗРАБОТАННЫХ В ПРЕДШЕСТВУЮЩИЙ ПЕРИОД БЛОКОВ-ПРИСТРОЕК К ЗДАНИЯМ ОБЩЕОБРАЗОВАТЕЛЬНЫХ ШКОЛ

1.2.1. Активное проектирование блоков-пристроек к существующим в г. Москве зданиям общеобразовательных школ осуществляется с начала 70-х годов. Последовательный анализ проектов блоков-пристроек позволяет выявить определенные закономерности и принципы формирования этого вида зданий. Состав помещений блоков, их планировка и внешний облик претерпевали изменения в соответствии с изменениями нормативно-методической базы проектирования школьных зданий и новациями в области строительных конструкций. Наиболее стабильной оставалась номенклатура типов блоков-пристроек.

1.2.2. Номенклатуру типов блоков-пристроек можно разделить на две основные функциональные группы: блоки общешкольных помещений и блоки учебных помещений. К группе общешкольных помещений относятся блоки-столовые, блоки-спортзалы, блок-бассейн, блоки-столовые со спортзалами, к группе учебных - блоки начальных классов на 8 и 12 классов. Отдельное место занимают блоки помещений для внешкольной работы, например, блок эстетического воспитания.

1.2.3. Проектирование блоков-пристроек, как правило, увязывалось с конструктивными системами существующих зданий школ, для которых они предназначались. В 70-х годах в основном реконструировались крупноблочные школы. В тех же конструкциях проектировались блоки начальных классов, столовые и спортзалы, в 80-е годы в основном применялся сборный железобетонный каркас, позднее - сборные железобетонные панельные конструкции, в которых проектировались школьные здания и блоки-пристройки. В последние годы применяются сборные железобетонные панельные конструкции широкого шага, а также конструкции из монолитного железобетона.

1.2.4. Этажность блоков-пристроек, как правило, варьируется от одного до трех этажей. Одноэтажными проектировались преимущественно блоки общешкольных помещений, рассчитанные на одну определенную функцию: столовые или спортзалы. Блоки, рассчитанные на две функции (столовая и спортзал), проектировались преимущественно трехэтажными: на первом этаже размещалась столовая, на втором - двусветный спортзал. Блоки учебных помещений - начальных классов - разрабатывались первоначально в четыре, а позднее, в соответствии с изменившимися нормативными требованиями, - в три этажа. Двусветный спортзал в них, как правило, располагался на втором этаже над рекреацией или вестибюлем.

1.2.5. Состав помещений блоков-пристроек определялся в соответствии с их функциональным назначением на основе действующих нормативных документов. В проектах блоков-пристроек, помимо функциональных и архитектурных задач, решалась проблема экономичности школьных зданий массового строительства. Этот фактор оказывал заметное влияние на характер проектных решений, отличавшихся компактностью и аскетизмом художественно-выразительных средств. По той же причине состав помещений формировался по принципу минимальной достаточности в соответствии с действующими на данный момент нормативами. В последние годы блоки-пристройки начальных классов дополняются спортзалами, компьютерными классами. В настоящее время разрабатываются индивидуальные проекты блоков-пристроек, предусматривающие более расширенный состав по отношению к предшествующему периоду, например, в учебных блоках проектируются универсальные лекционные аудитории, студии изобразительного творчества, залы для занятий хореографией, отдельные входные группы помещений для первоклассников и т.д. Некоторые из таких проектов получают статус проектов повторного применения.

1.2.6. Функционально-планировочная структура блоков подчиняется технологическим требованиям. Как правило, блоки соединялись с основным зданием школы по первому этажу посредством перехода, примыкавшего к рекреационным помещениям, а при поэтажном соединении - в непосредственной близости от лестничных клеток. В противоположном конце блока предусматривался запасной выход. Блоки начальных классов проектировались компактно, в виде прямоугольника в плане, с центральным коридором и двусторонним расположением помещений.

1.2.7. В блоках общешкольных помещений зонирование осуществлялось методом поэтажного распределения функций: помещения столовой на первом и спортзала на втором этажах. Современные проекты отличаются от проектов прошлых лет большим разнообразием объемно-планировочных решений, усложненной конфигурацией планов, наличием таких элементов, как трехмаршевые лестницы, переходы на уровне второго и третьего этажей, эркеры, атриумы, двусветные и трехсветные рекреационные пространства с обходными галереями и т.д. Это, безусловно, придает живописность не только интерьерам, но и экстерьерам зданий школ с блоками-пристройками. В блоках учебных помещений в соответствии с современными нормами площади проектируются учебные помещения квадратной формы с габаритами 8,4 ´ 8,4 и 9,0 ´ 9,0 м, расположенные уступами в плане вдоль центрального ядра с рекреацией. Такой прием является принципиально новым в проектировании блоков-пристроек учебных помещений, вызван необходимостью дополнительной подсветки глубоких учебных помещений и заслуживает особого внимания в условиях последовательного роста площади учебных помещений. Интересны в объемно-планировочном отношении решения современных бассейнов. В отличие от бассейнов прошлых лет, имевших три наружные «холодные» стены в залах с ванной, они в большей степени соответствуют требованиям энергосбережения за счет рациональных компактных планировочных решений. Современные проекты блоков-пристроек к зданиям школ учитывают необходимость обеспечения доступности сооружений для инвалидов-колясочников: основной вход проектируется с пандусом, который становится дополнительным элементом в дизайнерском решении входной группы. Интересным в типологическом отношении можно считать блок общешкольных помещений, рассчитанный на группу школ, с автономным входом.

1.2.8. Объемно-планировочные решения типовых блоков-пристроек, разработанных в 70-х и 80-х годах, основаны на простой геометрической форме - параллелепипеде, и отличаются друг от друга только размерами: габаритами планов и этажностью. В 90-х годах с включением в пристройки двусветных актовых и спортивных залов проявилась тенденция к усложнению их объемов. Современные блоки-пристройки к зданиям существующих школ представляют собой достаточно сложные архитектурные объемы, имеют индивидуальный характер, подчеркиваемый деталями и элементами, придающими сооружениям неординарный, запоминающийся облик.

1.2.9. Фасадные решения типовых проектов блоков-пристроек 70-х и 80-х годов и индивидуальных проектов конца 90-х годов также существенно различны. Аскетичные фасады крупноблочных зданий и ленточные панели каркасных сооружений сменились сначала на фасады с применением рельефных панелей. С применением монолитного железобетона появилась свободная планировка, контрастность объемов и оригинальная деталировка, которые выгодно отражаются на решениях фасадов. Светотеневая игра оконных проемов различных форм и размеров, витражи лестничных клеток, рекреационных и зальных помещений, пирамидальные световые фонари, ажурные металлоконструкции, скатные цветные и плоские эксплуатируемые крыши, элементы входов в здание - вот неполный перечень приемов, позволяющих получить эффектное нестандартное архитектурное решение. Новые экономические условия и широкий выбор отделочных материалов способствуют поиску оригинальных дизайнерских решений интерьеров и наружной отделки зданий.

1.2.10. Примеры проектных решений блоков-пристроек к существующим зданиям общеобразовательных школ, разработанные МНИИТЭП на протяжении всего периода применения таких блоков в качестве объектов массового строительства для реконструкции существующих школьных зданий и увеличения их объемов, приведены на рис. 2 - 9. Проекты отражают как общие, так и специфические особенности объемно-планировочных, конструктивных и архитектурно-художественных решений блоков-пристроек.

Рис. 2 Проект блока-пристройки столовой на 200 посадочных мест и спортзала V-74 (разработан в 1975 году).

Фасад и план 1 этажа.

Рис. 3 Проект блока-пристройки эстетического воспитания на 480 учащихся V-80 (разработан в 1982 году).

Фасад и план первого этажа.

Рис. 4 Проект блока-пристройки бассейна с ванной 30 ´ 12 метров V-849А (разработан в 1980 году).

Фасад и план 1 этажа.

Рис. 5 Проект блока-пристройки на 12 начальных классов 360 учащихся V-81 (разработан в 1990 году).

Фасад и план 1 этажа.

Рис. 6 Проект блока-пристройки столовой на 232 посадочных места и спортзала И-1132А2 (разработан в 1991 году).

Фасад и план 1 этажа.

Рис. 7 Проект блока-пристройки столовой на 300 посадочных мест И-1783/2 (разработан в 1999 году).

Фасад и план 1 этажа.

Рис. 8 Проект блока-пристройки на 8 начальных классов 200 учащихся И-1745/2А (разработан в 1998 году).

Фасады и план первого этажа.

Рис. 9 Проект блока-пристройки специализированных учебных кабинетов на 250 учащихся (разработан в 2003 г.) И-2025.

Фасады и план 1 этажа.

2. РЕКОМЕНДАЦИИ ПО ПРОЕКТИРОВАНИЮ НОВОГО ПОКОЛЕНИЯ БЛОКОВ-ПРИСТРОЕК К СУЩЕСТВУЮЩИМ ЗДАНИЯМ ОБЩЕОБРАЗОВАТЕЛЬНЫХ ШКОЛ НАИБОЛЕЕ МАССОВЫХ ТИПОВ

2.1. ОСНОВНЫЕ ПРИНЦИПЫ ПРОЕКТИРОВАНИЯ БЛОКОВ-ПРИСТРОЕК К СУЩЕСТВУЮЩИМ ЗДАНИЯМ ОБЩЕОБРАЗОВАТЕЛЬНЫХ ШКОЛ

2.1.1. Проектирование блоков-пристроек развивается в двух направлениях: блоки-пристройки для массового строительства и индивидуальные, по конкретным адресам. Настоящие Рекомендации рассматривают вопросы проектирования блоков-пристроек массового строительства, но ряд положений может быть полезен и при разработке индивидуальных решений.

2.1.2. Основные требования, предъявляемые к блокам-пристройкам, обусловлены областью их применения. Специфика использования блоков-пристроек диктует ряд требований, отличных от тех, что предъявляются к отдельно стоящим объектам. Пристраиваемый блок и существующее здание школы должны составлять единый комплекс как в функциональном, объемно-планировочном, так и в архитектурно-художественном отношении. Проектирование блока-пристройки должно улучшать качество существующего здания. Вопросы примыкания блока к школьному зданию и его размещение на участке следует рассматривать исходя из совокупности компонентов: существующего здания, блока-пристройки, участка школы и окружающей их застройки.

2.1.3. Опыт проектирования блоков-пристроек к существующим зданиям общеобразовательных школ показывает неизменность ряда принципов формирования блоков-пристроек к существующим зданиям общеобразовательных школ. Комплексный подход к проблемам формирования сети и фонда зданий образовательных учреждений, массовый характер реконструкции школьных зданий, их функциональные, объемно-планировочные, инженерно-конструктивные особенности, условия размещения, специфика новых образовательных учреждений, организуемых на базе реконструируемых зданий, - все это обуславливает сложность разработки нового поколения блоков-пристроек. Для успешного проектирования необходимо соблюдение следующих принципов:

- модернизация функционально-планировочной структуры зданий образовательных учреждений;

- приведение здания общеобразовательных учреждений в соответствие действующим нормативным документам по их проектированию;

- соответствие проектных решений перспективным направлениям развития системы московского образования, перспективным организационно-педагогическим требованиям и технологиям, а также учет потребностей столичной системы образования;

- соответствие проектных решений специфике новых планируемых учреждений образования с учетом особенностей существующих школьных зданий;

- применимости проектов блоков-пристроек массовых типов для реконструкции ряда различных зданий общеобразовательных школ, универсальности проектных решений, вариантности архитектурно-художественных решений;

- компактность объемно-планировочных решений блоков-пристроек и выбор оптимальных зон примыкания блоков к основному зданию школы с учетом его объемно-планировочных особенностей и окружающей застройки;

- соответствие проектных решений требованиям к архитектуре школьных зданий как объектам особой социальной и градостроительной значимости;

- разработка наиболее эффективных и целесообразных инженерно-конструктивных решений в соответствии с возможностями индустриально-строительной базы города;

- соблюдение условия экономичности и энергоэффективности планировочных, конструктивных и инженерных решений;

- разработка оригинальных объемно-планировочных и архитектурно-художественных решений.

2.1.4. Проведенные исследования в области проектирования блоков-пристроек к существующим зданиям общеобразовательных школ позволяют сформулировать общие методические подходы к разработке современных проектных решений. Основными из этих подходов являются:

- определение номенклатуры блоков-пристроек, необходимых для модернизации зданий наиболее массовых типов существующих общеобразовательных школ;

- разработка состава и площадей помещений блоков-пристроек, необходимых для организации современного учебно-воспитательного процесса в модернизируемых школах;

- функциональное зонирование и удобство взаимосвязи функциональных групп помещений блоков-пристроек и существующей школы в соответствии с современными педагогическими требованиями и требованиями санитарно-гигиенической и пожарной безопасности;

- рациональность и экономичность объемно-планировочных, конструктивных и инженерных решений;

- технологичность примыкания блоков-пристроек к основным зданиям с учетом их объемно-планировочных особенностей и требований к условиям освещенности и инсоляции помещений в соответствии с градостроительными условиями размещения школьных зданий, формой и площадью школьных участков.

2.1.5. Вопросы проектирования блоков-пристроек к зданиям общеобразовательных школ необходимо рассматривать в связи с их реконструкцией, которую необходимо осуществлять в соответствии с действующими нормативными документами по проектированию общеобразовательных учреждений г. Москвы, с учетом Пособий к ним и Рекомендаций. Приведение функционально-планировочной структуры существующего здания в соответствие с действующими нормами в ряде случаев требует нестандартных решений. Например, при проектировании блоков-пристроек к зданиям школ, имеющим учебные помещения с площадью не достаточной по действующим нормам для 25 учащихся, следует исходить из различных вариантов использования и реконструкции существующего здания. Возможно сохранение площади учебных помещений с понижением наполняемости классов, либо увеличение площади учебных помещений для 25 учащихся с сокращением общего числа классов в существующем здании, либо сохранение существующих учебных помещений с заниженной площадью при наполняемости классов 25 учащихся. Любое из этих решений влияет на формирование блока-пристройки, должно рассматриваться комплексно, в рамках современных требований, и быть согласовано с Московским Департаментом образования и Московским Городским Центром Госсанэпиднадзора. Подобные ситуации приведены в «Рекомендациях по реконструкции зданий школ и дошкольных учреждений в районах комплексной реконструкции пятиэтажных жилых домов первого периода индустриального домостроения».

2.1.6. Программа «Модернизация московского образования (Столичное образование-3)» определила перспективные направления усовершенствования общеобразовательных школ: выделение из их состава начальных школ в самостоятельные учреждения, организация старших профильных школ, внедрение новых педагогических технологий, укрепление здоровья и физического развития школьников, оснащение школ современным оборудованием. Это влечет за собой изменения и развитие комплекса учебных и общешкольных помещений. Формирование номенклатуры блоков-пристроек должно осуществляться в соответствии с указанными перспективными направлениями развития московской системы образования.

2.1.7. При формировании состава и площадей помещений блоков-пристроек необходимо учитывать особенности и существующих школьных зданий, и проектируемых на их базе учреждений. Целью реконструкции может быть как усовершенствование здания для действующей в нем общеобразовательной школы, так и организация нового типа образовательного учреждения. Поскольку здания общеобразовательных школ в той или иной степени не соответствуют современным нормативным требованиям, при разработке блоков-пристроек необходимо выявление и учет таких несоответствий. Например, в зданиях школы типа МЮ нет пищеблоков и спортзалов, отвечающих современным требованиям. В зданиях школы типа 65-426/1 есть физкультурные залы, но они неудовлетворительны по площади и габаритам. Можно изменить назначение существующих помещений, а пищеблоки и залы предусмотреть в блоках-пристройках. Однако и пищеблоки, и спортзалы в блоках-пристройках должны соответствовать новому планируемому типу образовательного учреждения.

2.1.8. Обеспечение возможности массового применения проектного решения один из основных принципов проектирования блоков-пристроек. Индивидуальные решения необходимы, когда в результате реконструкции существующего здания общеобразовательной школы предполагается организация гимназии или лицея. Особое решение требуется для условий затесненной застройки, на участках малой площади и со сложной конфигурацией или рельефом. Нетрадиционный подход возможен для экспериментальных разработок. Целью реконструкции большинства школьных зданий является приведение их в соответствие с современными требованиями к общеобразовательным школам, часто фактически уже действующим в них. Для этих случаев необходимы решения массового характера на основе оптимального набора помещений, обеспечивающие пристраивание блоков к различным зданиям школ. Каждый из таких блоков-пристроек должен быть применимым не для какого-либо одного конкретного здания, а предназначен для пристраивания к ряду зданий общеобразовательных школ.

2.1.9. При разработке проектов блоков-пристроек к существующим зданиям общеобразовательных школ следует учитывать условия их размещения. Блоки-пристройки должны быть компактными. Как правило, при реконструкции здания школы не предусматривается расширение участка. Даже в тех случаях, когда площадь участка соответствует современным нормам для проектируемой школы, обоснованное в функциональном и объемно-планировочном отношении место примыкания блока может оказаться в затесненной или затененной зоне. Большое число московских общеобразовательных школ, подлежащих модернизации и реконструкции, имеет участки с заниженной площадью по отношению к нормативной.

2.1.10. Здания общеобразовательных школ являются объектами особой социальной значимости. Школы занимают центральное место в жилых кварталах. Зачастую школьное здание, чуть отступая, главным фасадом выходит на красную линию. Во всех случаях здания школ являются узнаваемым, акцентируемым, а иногда и доминирующим элементом в жилой застройке. Проектирование блоков-пристроек должно быть направлено на улучшение архитектуры существующих зданий и формирование гармоничных архитектурно-пространственных композиций.

2.1.11. Массовое применение проектов блоков-пристроек к существующим зданиям общеобразовательных школ обуславливает необходимость разработки экономичных решений с учетом возможностей строительной индустрии города.

2.2. МЕТОДИКА ФОРМИРОВАНИЯ НОМЕНКЛАТУРЫ, СОСТАВА И ПЛОЩАДЕЙ ПОМЕЩЕНИЙ БЛОКОВ-ПРИСТРОЕК К СУЩЕСТВУЮЩИМ ЗДАНИЯМ ОБЩЕОБРАЗОВАТЕЛЬНЫХ ШКОЛ

2.2.1. Анализ проектов существующих зданий общеобразовательных школ наиболее массовых типов и соответствия их проектных решений требованиям МГСН 4.06-03 и СанПиН 2.4.2.11-78-02 показывают необходимость формирования блоков-пристроек с учебными и общешкольными помещениями. Набор помещений в блоках пристройках должен компенсировать недостаток необходимых помещений в существующем здании школы и в тех случаях, когда тип образовательного учреждения и планировка существующего здания остаются неизменными, и в случаях изменения планировки существующего здания, и при формировании нового типа образовательного учреждения в существующем здании.

2.2.2. При реконструкции школьного здания могут потребоваться дополнительные площади для учебных и общешкольных помещений, или только для учебных, или только для общешкольных помещений. Целесообразна дифференциация помещений различного назначения по двум основным группам блоков-пристроек:

- группа блоков-пристроек помещений учебного назначения;

- группа блоков-пристроек общешкольного назначения.

В случае необходимости к существующему зданию пристраиваются два блока: учебных и общешкольных помещений.

2.2.3. Блоки пристройки учебных помещений проектируются с учетом возрастной дифференциации учащихся и делятся на подгруппы:

- блоки для размещения начальной школы (1 - 4 классов);

- блоки помещений основной и старшей школы (5 - 11 классов).

2.2.4. При реконструкции школьного здания с пристраиванием дополнительных блоков из числа учебных помещений в пристройку традиционно и вполне обоснованно выносятся помещения начальных классов. В связи с отсутствием свободных территорий для строительства новых отдельно стоящих зданий начальных школ необходимо предусматривать возможность их размещения в блоках-пристройках к существующим зданиям общеобразовательных школ. Номенклатура блоков-пристроек может включать два типа блоков:

- блок начальных классов;

- блок начальной школы.

Блок начальной школы по объему больше блока начальных классов, поскольку включает в себя вестибюль с гардеробом, группу административных и медицинских помещений. Их следует проектировать с учетом вариативного использования. Этим обеспечивается универсальность блока и возможность его применения для начальных классов полной средней общеобразовательной школы. В этом случае дополнительные помещения служат для занятий подгрупп, как кружковые и пр.

Преимущество формирования начальных школ в блоках-пристройках заключается в том, что в состав их помещений, так же как и в состав блоков начальных классов, не входят пищеблоки, актовые залы, библиотеки и т.д., чем обуславливается экономичность решения по сравнению с отдельно стоящими зданиями.

2.2.5. В состав блоков учебных помещений основной и старшей школы в зависимости от необходимости могут входить различные функциональные группы помещений:

- учебные классы;

- специализированные учебные кабинеты, лаборатории, практикумы;

- мастерские и универсальные кабинеты.

2.2.6. В состав учебных блоков следует включать прежде всего помещения, необходимые для организации нормального учебного процесса, создания комфортной образовательной среды и обеспечения высокого качества образования, а также внедрения новейших педагогических технологий и средств обучения, обновления организационных форм образования: компьютерные классы, библиотеки с медиатеками, лингвистические лаборатории, универсальные лекционные аудитории, кабинеты эстетики с полиэкраном, изостудии, тренажерные залы при спортзалах, кабинеты психологической разгрузки, зимние сады и т.д.

2.2.7. Блоки-пристройки учебных помещений для организации профильных старших школ на базе существующих общеобразовательных школ проектируются на основе секций специализированных кабинетов близких по профилю дисциплин, естественно-математических и гуманитарных циклов. Помещения для изучения технических наук с учебными кабинетами и мастерскими-практикумами могут составлять самостоятельный блок или являться составной частью блока учебных помещений наряду с помещениями для изучения гуманитарных и естественных наук.

2.2.8. При формировании блока-пристройки учебных помещений необходимо учитывать, что в существующих зданиях общеобразовательных школ массовых типов, как правило, отсутствуют кабинеты, рассчитанные на занятия подгрупп. При сохранении планировочной структуры существующего здания в случае углубленного изучения ряда предметов, например, иностранных языков, следует предусматривать такие кабинеты в блоке-пристройке.

2.2.9. В обоснованных случаях в состав учебных блоков могут вводиться помещения, формально относящиеся к группе общешкольных:

- универсальные лекционные аудитории,

- информационные центры и т.д.

2.2.10. В номенклатуру блоков-пристроек могут входить различные типы блоков общешкольных помещений. Здания общеобразовательных школ типа МЮ, например, следует реконструировать с пристройкой всего комплекса зальных помещений: столовой, зрительного и спортивного залов. В ряде случаев в состав блоков общешкольных помещений могут включаться бассейн и кружковые помещения. Настоящие рекомендации рассматривают вопрос проектирования блоков-пристроек, решающих проблему модернизации существующих школьных зданий комплексно. В рекомендуемые блоки-пристройки общешкольных помещений в зависимости от конкретной ситуации могут входить в тех или иных сочетаниях:

- группа помещений зрительного зала;

- группа помещений столовой;

- группа помещений спортивного назначения;

- группа помещений для кружковых занятий;

- группа помещений методико-информационного центра.

2.1.11. Блоки-пристройки общешкольного назначения могут формироваться с расчетом использования помещений группой школ. В первую очередь к ним относятся блоки спортивного профиля. В этих случаях экономически оправдано проектирование игровых спортивных залов с габаритами от 18 ´ 30 до 24 ´ 42. В таких блоках необходимо предусматривать входную группу помещений, вестибюль с гардеробом и дополнительные санузлы.

2.2.12. Административно-хозяйственные и медицинские помещения, вестибюли с гардеробами и прочие сопутствующие помещения не формируют самостоятельные блоки и входят в них вместе с основными функциональными группами помещений в зависимости от целевого назначения блока.

2.2.13. Проекты блоков-пристроек массового применения должны формироваться на основе минимально допустимых по МГСН 4.06-03 и СанПиН 2.4.2.1178-02 составов и площадей помещений. Наполняемость классов принимается в соответствии с «Законом об образовании» в 25 учащихся. Состав и площади помещений блоков рассчитываются из принятых норм вместимости общеобразовательных школ. Индивидуальные проекты блоков-пристроек могут разрабатываться с расширенным составом и с увеличенной площадью помещений в соответствии с заданием на проектирование.

2.3. ПЕРЕЧЕНЬ РЕКОМЕНДУЕМЫХ ТИПОВ, СОСТАВЫ И ПЛОЩАДИ ПОМЕЩЕНИЙ БЛОКОВ-ПРИСТРОЕК К СУЩЕСТВУЮЩИМ ЗДАНИЯМ ОБЩЕОБРАЗОВАТЕЛЬНЫХ ШКОЛ. РЕКОМЕНДУЕМАЯ НОМЕНКЛАТУРА МАССОВЫХ ТИПОВ БЛОКОВ-ПРИСТРОЕК К СУЩЕСТВУЮЩИМ ЗДАНИЯМ ОБЩЕОБРАЗОВАТЕЛЬНЫХ ШКОЛ

2.3.1. Для формирования новых общеобразовательных школ, в соответствии с требованиями действующих нормативных документов, реконструкция существующих школьных зданий может осуществляться с применением различных блоков-пристроек. В зависимости от типа школы, особенностей здания и возможностей использования его помещений в дополнительные объемы могут выноситься либо начальные классы, либо старшие, либо специализированные кабинеты и т.д. Это обуславливает необходимость выявления всего перечня типов блоков-пристроек, которые могут быть рекомендованы для многочисленных вариантов реконструкции школьных зданий и использоваться в зависимости от конкретной ситуации. На основе такого перечня формируется номенклатура массовых типов блоков-пристроек, строительство которых целесообразно при реконструкции значительного числа объектов.

Рекомендуемый перечень разработан для формирования:

- полной средней общеобразовательной школы на 22 класса, 550 учащихся;

- полной средней общеобразовательной школы на 33 класса, 825 учащихся;

Рекомендуемые типы блоков-пристроек могут также применяться для формирования:

- неполных средних общеобразовательных школ на 21 класс, 525 учащихся.

2.3.2. В перечень рекомендуемых типов входят следующие блоки-пристройки:

БЛОКИ УЧЕБНЫХ ПОМЕЩЕНИЙ

1. БНК-1 (блок начальных классов на 8 групп, 200 учащихся);

2. БНШ-1 (блок начальной школы на 8 групп, 200 учащихся);

3. БНК-2 (блок начальных классов на 12 групп, 300 учащихся);

4. БНШ-2 (блок начальной школы на 12 групп, 300 учащихся);

5. БЕН-1 (блок естественных наук на 3 кабинета с практикумами);

6. БЕН-2 (блок естественных наук на 4 кабинета с практикумами);

7. БСУК-1 (блок специализированных учебных кабинетов на 6 кабинетов);

8. БСУК-2 (блок специализированных учебных кабинетов на 7 кабинетов);

9. БМ-1 (блок изучения техники и технологии на 2 кабинета и 3 мастерских);

БЛОКИ ОБЩЕШКОЛЬНЫХ ПОМЕЩЕНИЙ

1. БОП-1 (блок общешкольных помещений со столовой на 184 места, актовым залом на 330 мест и спортзалом 12 ´ 24 м);

2. БОП-2 (блок общешкольных помещений со столовой на 275 мест, актовым залом на 495 мест и спортзалом 12 ´ 24 м);

3. БОПК-1 (блок общешкольных помещений со столовой на 184 места, актовым залом на 330 мест, спортзалом 12 ´ 24 м и кружковыми);

4. БОПК-2 (блок общешкольных помещений со столовой на 275 мест, актовым залом на 495 мест, спортзалом 12 ´ 24 м и кружковыми);

5. БСК (блок спортивных и кружковых помещений с залом 18 ´ 24 м или 24 ´ 42 м);

6. БСКБ (блок спортивных и кружковых помещений с залом 18 ´ 24 м или 24 ´ 42 м и бассейном с ванной 25 ´ 11 м);

7. ББ (блок-бассейн с ванными 25 ´ 11 м и 10 ´ 6 м).

2.3.3. Учитывая различия в составе помещений существующих школ разного поколения и соответствующую потребность пристраивания к зданиям этих школ помещений для старших классов в различных сочетаниях, предусмотрены следующие варианты объединения блоков старшей школы:

УЧЕБНЫЕ БЛОКИ СТАРШЕЙ ШКОЛЫ

1. БСШ-1 (БЕН-1 и БСУК-1) - блоки на 3 кабинета естественных наук и 6 специализированных кабинетов;

2. БСШ-2 (БЕН-2 и БСУК-2) - блоки на 4 кабинета естественных наук и 7 специализированных кабинетов;

3. БСШ-3 (БЕН-1, БСУК-1 и БМ) - блоки на 3 кабинета естественных наук, 6 специализированных кабинетов, 3 мастерских с кабинетами;

4. БСШ-4 (БЕН-2, БСУК-2 и БМ) - блоки на 4 кабинета естественных наук, 7 специализированных кабинетов, 3 мастерских с кабинетами.

2.3.4. Составы и площади помещений блоков-пристроек определены исходя из минимально необходимого набора помещений по МГСН 4.06-03 для нормального осуществления учебного процесса.

2.3.5. Составы и площади помещений блоков-пристроек начальных классов представлены для 4-х типов блоков: БНК-1, БНК-2, БНШ-1, БНШ-2 (таблицы 1 - 2).

Блоки БНК-1 и БНШ-1 предназначены для формирования двухкомплектных школ.

Блоки БНК-2 и БНШ-2 предназначены для формирования трехкомплектных школ.

2.3.6. Составы и площади учебных помещений блоков-пристроек старших классов представлены для 5-ти типов блоков: БЕН-1, БЕН-2, БСУК-1, БСУК-2, БМ-1 (таблица 3).

Блоки БЕН-1 и БСУК-1 предназначены для формирования двухкомплектных школ.

Блоки БЕН-2 и БСУК-2 предназначены для формирования трехкомплектных школ.

Блок БМ-1 применим для формирования двух- и трехкомплектных школ.

2.3.7. Составы и площади помещений блоков-пристроек общешкольных помещений с пищеблоками, актовыми и спортивными залами представлены для 4-х типов блоков: БОП-1, БОП-2, БОПК-1, БОПК-2 (таблицы 4 - 5).

Блоки БОП-1 и БОПК-1 предназначены для формирования двухкомплектных школ.

Блоки БОП-2 и БОПК-2 предназначены для формирования трехкомплектных школ.

2.3.8. Составы и площади помещений блоков-пристроек с расширенным комплексом помещений спортивного назначения представлены для 3-х типов блоков: БСК, БСКБ и ББ (таблицы 6 - 8).

В состав блока БСК входят спортивные залы и помещения кружковых, а в состав блока БСКБ дополнительно включена группа помещений бассейна. В блоках предусмотрена входная группа помещений и дополнительные санузлы, что позволяет использовать блоки для занятий школьников во внеучебное время, для обслуживания группы школ и населения микрорайона.

Блок ББ включает в себя помещения бассейна.

Составы и площади помещений бассейнов даны без помещений водоподготовки и управления, которые необходимо предусматривать в Задании на проектирование. Если блок-пристройка типа ББ проектируется в расчете на использование бассейна группой школ, то Заданием на проектирование в нем должна предусматриваться входная группа помещений с вестибюлем, гардеробом, дополнительными санузлами и служебными помещениями.

2.3.9 Выбор того или иного типа блока-пристройки определяется заданием на проектирование в зависимости от конкретных условий модернизации и реконструкции школьного здания, а также от планируемого в нем типа школы. Наиболее массовые варианты из них:

- приведение школы на 22 или 33 класса (550 или 825 учащихся) в соответствие с требованиями действующих нормативных документов;

- увеличение вместимости школы до 33 классов (825 учащихся) для получения дополнительных мест в условиях комплексной реконструкции районов жилой застройки;

- формирование неполной средней школы на 21 класс (525 учащихся) без начальных классов при условии размещения начальной школы в отдельно стоящем здании;

- формирование средней основной школы на 18 классов (450 учащихся);

- формирование средней школы на 20 классов (500 учащихся) с профильным обучением.

В номенклатуру наиболее массовых рекомендуются блоки-пристройки, используемые для приведения существующих зданий общеобразовательных школ типов МЮ, 65-426/1 и V-76 в соответствие с требованиями действующих нормативных документов:

- БНШ-1 (здания школ типов МЮ, 65-426/1 и И-1577А на 22 класса 550 учащихся);

- БНШ-2 (здания школ типов V-76 и И-1677А на 33 класса 825 учащихся);

- БОПК-1 (здания школ типа МЮ и 65-426/1 на 22 класса 550 учащихся).

Дополнительно в номенклатуру массовых блоков-пристроек рекомендуется включить блоки-пристройки типов «БСКБ» и «ББ» с помещениями бассейнов. Пристраивание этих блоков целесообразно к зданиям любых общеобразовательных учреждений, в том числе к существующим зданиям общеобразовательных школ массовых типов, для обеспечения занятий физкультурой и творчеством, всестороннего и гармоничного развития личности.

Таблица 1

Рекомендуемый состав и площади помещений блоков начальной школы на 8 классов (200 уч-ся) «БНШ-и 12 классов (300 уч-ся) «БНШ- для пристройки к существующим зданиям общеобразовательных школ

Наименование помещений

Площадь помещений кв. м

Площадь помещений кв. м

 

 

БНШ-1

БНШ-2

1

1-е классы

125

62,5 ´ 2

187,5

60 ´ 3

спальня-игровая

62,5

62,5

рекреация

100

150

2

2-4-е классы

375

62,5 ´ 6

562,5

62,5 ´ 9

универсальное помещение

125

62,5 ´ 2

187,5

62,5 ´ 3

кабинет изобразительного искусства и технологий

87,5

87,5

компьютерный класс

90

90

рекреация

300

450

3

кабинет зам. директора

10

10

учительская - методкабинет

40

60

комната техперсонала

12

12

кладовая

12

12

с/у учащихся

30

45

с/у персонала

18

18

спортзал 9 ´ 18

162

162

раздевальные с душевыми и с/у

55

55

снарядная

16

16

комната инструктора

6

6

кабинет директора

10

10

бухгалтерия

14

14

канцелярия

6

6

кабинет врача

18

18

процедурная

18

18

кабинет стоматолога

12

12

кабинет психолога

18

18

кабинет логопеда

18

18

вестибюль с гардеробом

70

105

 

ИТОГО

1816

2392,5

Таблица 2

Рекомендуемый состав и площади помещений блоков начальных классов на 8 классов (200 уч-ся) «БНК-и 12 классов (300 уч-ся) «БНК-2» для пристройки к существующим зданиям общеобразовательных школ

Наименование помещений

Площадь помещений кв. м

Площадь помещений кв. м

 

 

БНК-1

БНК-2

1

1-е классы

125

62,5 ´ 2

187,5

60 ´ 3

спальня-игровая

62,5

62,5

рекреация

100

150

2

2-4-е классы

375

62,5 ´ 6

562,5

62,5 ´ 9

универсальное помещение

125

62,5 ´ 2

187,5

62,5 ´ 3

кабинет изобразительного искусства и технологий

87,5

87,5

компьютерный класс

90

90

рекреация

300

450

3

кабинет зам. директора

10

10

учительская - методкабинет

40

60

комната техперсонала

12

12

кладовая

12

12

с/у учащихся

30

45

с/у персонала

18

18

спортзал 9 ´ 18

162

162

раздевальные с душевыми и с/у

55

55

снарядная

16

16

комната инструктора

6

6

 

ИТОГО

1642

2167

Таблица 3

Рекомендуемый состав и площади помещений блоков старших классов для пристройки к существующим зданиям общеобразовательных школ

Наименование помещений и блоков

Площадь помещений кв. м

Площадь помещений кв. м

1

Блок кабинетов

 

 

естественных наук (физики, химии, биологии):

БЕН-1

БЕН-2

- лаборатории

225

3 ´ 75

300

4 ´ 75

- практикумы

108

3 ´ 36

144

4 ´ 36

- лаборантские

54

3 ´ 18

72

4 ´ 18

- ресурсный центр

36

36

- рекреация

120

180

- методкабинет - учительская

20

20

- с/у учащихся

18

18

- с/у преподавателей

6

6

- кладовая уборочного инвентаря

6

6

ИТОГО

593

782

2

Блок специализированных кабинетов:

БСУК-1

БСУК-2

- учебные универсальные кабинеты

126

3 ´ 42

168

4 ´ 42

- лаборатория компьютерно-лингвистическая

90

90

- кабинет информатики и вычислительной техники

180

90 + 90

180

90 + 90

- лаборантские

36

3 ´ 18

36

3 ´ 18

- ресурсная

20

20

- универсальная аудитория

90

90

- рекреация

120

180

- методкабинет - учительская

20

20

- с/у учащихся

18

18

- с/у преподавателей

6

6

- кладовая уборочного инвентаря

6

6

ИТОГО

712

804

3

Блок мастерских по изучению техники и технологии:

БМ-1

 

- кабинет кулинарии

50

 

- кабинет электротехнологий

75

 

- мастерская по обработке дерева

90

 

- мастерская по обработке тканей

90

 

 -мастерская по обработке металла

90

 

- инструментальная

24

 

- комната мастера

15

 

- с/у учащихся

18

 

- с/у преподавателей

6

 

- кладовая уборочного инвентаря

6

 

 

ИТОГО

464

 

Таблица 4

Рекомендуемый состав и площади помещений блоков «БОП- и «БОП- общешкольного назначения с залами для пристройки к существующим зданиям общеобразовательных школ

Наименование помещений

Площадь помещений кв. м

Площадь помещений кв. м

1

Столовая:

БОП-1 на 184 места

БОП-2 на 275 мест

Кухня

185

193

Зал

130

280

2

Актовый зал

на 330 мест

на 495 мест

Зал

300

440

Артистические

20

20

Кинопроекционная

27

27

Инвентарные-костюмерные

20

20

3

Спортзал 12 ´ 24

288

288

Раздевальные

21

21

Душевые

18

18

Уборные

16

16

Комната инструктора

6

6

Снарядная

16

16

4

Кладовые уборочного инвентаря

8

8

Санузлы учащихся

30

30

Санузлы преподавателей и персонала

20

20

 

ИТОГО

1108

1406

Таблица 5

Рекомендуемый состав и площади помещений блоков «БОП- и «БОП-4» общешкольного назначения с залами и кружковыми для пристройки к существующим зданиям общеобразовательных школ

Наименование помещений

Площадь помещений кв. м

Площадь помещений кв. м

 

 

БОП-3

БОП-4

1

Столовая:

на 184 места

на 275 мест

Кухня

185

193

Зал

130

280

2

Актовый зал

на 330 мест

на 495 мест

Зал

300

440

Артистические

20

20

Кинопроекционная

27

27

Инвентарные-костюмерные

20

20

3

Спортзал 12 ´ 24

288

288

Раздевальные

21

21

Душевые

18

18

Уборные

16

16

Комната инструктора

6

6

Снарядная

16

16

4

Кладовые уборочного инвентаря

8

8

Санузлы учащихся

30

30

Санузлы преподавателей и персонала

20

20

5

Группа кружковых помещений

 

 

Кружок изобразительного искусства

72

72

Кружок музыки и пения

72

72

Кружок технического

72

72

творчества

36

36

Фото-киностудия

36

36

Кружок юного натуралиста

 

 

 

ИТОГО

1396

1694

Таблица 6

Рекомендуемый состав и площади помещений блока «БСК» спортивного и кружкового назначения для пристройки к существующим зданиям общеобразовательных школ

Наименование помещений

Площадь помещений кв. м

1

Группа спортивно-оздоровительных помещений

 

Спортзал 18 ´ 30 (24 ´ 42)

540 (1008)

Малый зал или студия хореографии

144

Раздевальные с душевыми и уборными

165

6 ´ 27,5

Инвентарные (снарядные)

32

Комнаты инструкторов

12

2

Группа кружковых помещений

 

Кружок изобразительного искусства

72

Кружок музыки и пения

72

Кружок технического творчества

72

Фото-киностудия

36

Кружок юного натуралиста

36

3

Вестибюльная группа помещений

 

Вестибюль с гардеробом

70

Санузлы учащихся

30

Санузлы персонала

20

Служебные помещения

36

 

ИТОГО

1337 (1795)

Таблица 7

Рекомендуемый состав и площади помещений блока «БСКБ» спортивного и кружкового назначения с бассейном для пристройки к существующим зданиям общеобразовательных школ

Наименование помещений

Площадь помещений кв. м

1

Группа спортивно-оздоровительных помещений

 

Спортзал 18 ´ 30 (24 ´ 42)

540 (1008)

Малый зал или студия хореографии

144

Раздевальные с душевыми и уборными

165

6 ´ 27,5

Инвентарные (снарядные)

32

Комнаты инструкторов

12

2

Группа кружковых помещений

 

Кружок изобразительного искусства

72

Кружок музыки и пения

72

Кружок технического творчества

72

Фото-киностудия

36

Кружок юного натуралиста

36

3

Вестибюльная группа помещений.

 

Вестибюль с гардеробом

70

Санузлы учащихся

30

Санузлы персонала

20

Служебные помещения

36

Группа помещений бассейна.

 

4

Бассейн с ванной 25 ´ 11

450

Раздевальные с душевыми и уборными

130

2 ´ 65

Комната тренера

6

Пом. медсестры и лаборатория

12

Тренажерный зал

144

 

ИТОГО

2079 (2537)

Примечание: состав в площади помещений бассейна даны без учета водоподготовки и управления.

Таблица 8

Рекомендуемый состав и площади помещений блока «ББ» с двумя ванными 25 ´ 11 м и 10 ´ 6 м для пристройки к существующим зданиям общеобразовательных школ

Наименование помещений

Площадь помещений кв. м

1

Зал бассейна с ванной 25 ´ 11 м для 25 учащихся

450

2

Раздевальные с душевыми и уборными

130

2 ´ 65

3

Помещение инструктора-тренера

20

2 ´ 10

4

Зал бассейна с ванной 10 ´ 6 м для группы 12 учащихся

180

5

Раздевальные с душевыми и уборными

70

2 ´ 35

6

Помещение инструктора-тренера

18

12 + 6

7

Помещение медсестры с лабораторией

12

2 ´ 6

8

Помещение для персонала

9

9

Служебное помещение

12

 

ИТОГО

901

Примечание: состав и площади помещений даны без учета водоподготовки и управления.

2.4. МЕТОДИКА ФОРМИРОВАНИЯ ФУНКЦИОНАЛЬНОЙ И ОБЪЕМНО-ПЛАНИРОВОЧНОЙ СТРУКТУР БЛОКОВ-ПРИСТРОЕК К СУЩЕСТВУЮЩИМ ЗДАНИЯМ ОБЩЕОБРАЗОВАТЕЛЬНЫХ ШКОЛ, ТРЕБОВАНИЯ К АРХИТЕКТУРНЫМ И КОНСТРУКТИВНЫМ РЕШЕНИЯМ И ИНЖЕНЕРНОМУ ОБОРУДОВАНИЮ

2.4.1. Функциональное зонирование блоков-пристроек и связь различных групп помещений должны соответствовать требованиям, предъявляемым к зданиям общеобразовательных школ, кроме того, архитектурно-планировочное решение должно обеспечивать удобную связь помещений блока с основным зданием. При этом связующий элемент должен быть спроектирован так, чтобы блок примыкал непосредственно к требуемой функциональной зоне основного здания. Необходимо исключать образование «проходных зон», в которых могут пересекаться различные возрастные группы учащихся. Например, блок начальных классов должен примыкать к основному зданию, минуя учебные помещения основной и старшей школы. Учебные блоки старших классов должны примыкать к зоне учебных помещений старшей школы или к зоне общешкольных помещений в основном здании.

2.4.2. Особенность формирования объемно-планировочной структуры блоков-пристроек состоит в том, что блок должен проектироваться с учетом его примыкания к существующему зданию. Объем блока не должен затенять фронт окон, особенно учебных помещений, перекрывать подходы к основному зданию, образовывать с его объемом глухие замкнутые пространства, узкие щелевые проходы и т.д.

Вместе с тем, объемно-планировочное решение блока-пристройки должно обеспечивать полноценное функционирование всех размещенных в нем групп помещений.

2.4.3. При выборе варианта примыкания блока к существующему зданию школы необходимо исключать затенение одним объемом другого и обеспечивать нормативную инсоляцию учебных помещений и освещенность.

Необходимо учитывать, что в школах типа МЮ, 65-426/1 и V-76 учебные помещения ориентированы на три стороны света: западную, южную и восточную, и предпочтение отдавать примыканию блоков-пристроек к существующим зданиям в северовосточной зоне с ориентацией учебных помещений на юг и восток (рис. 10 - 14). В случае примыкания двух блоков-пристроек к существующему зданию школы в северо-западной зоне может размещаться блок общешкольных помещений. Комплекс пристроек в большинстве случаев следует располагать в северной зоне с ориентацией учебных помещений на восток и запад.

Исключением могут являться здания школ типов И-1605А и И-1577А, где учебные помещения ориентированы на восток или восток и запад, следовательно, размещение пристроек возможно и в южной зоне.

2.4.4. Специфическим функциональным и объемно-планировочным элементом блоков-пристроек является стыковочный узел, соединяющий существующий и новый объемы. Здание школы и блок-пристройка могут соединяться, непосредственно друг к другу или посредством переходного элемента, представляющего собой самостоятельный объем.

2.4.5. Традиционно в качестве стыковочного узла в школьных комплексах употребляются переходы коридорного типа. Такой элемент служит своеобразным мостиком между двумя объемами и, как правило, проектируется на уровне второго и третьего этажей. В этих случаях под мостиком предусматривается проход или проезд в отсекаемую часть школьного участка или образуемый дворик.

2.4.6. Более предпочтительны стыковочные элементы в виде помещений с большим фронтом витражей. В функциональном отношении такие помещения могут играть роль входной группы с вестибюлем и гардеробом или служить в качестве зимнего сада, игровой зоны, зоны отдыха и т.п.

2.4.7. Роль стыковочного узла возрастает при разработке блоков-пристроек для массового строительства. За счет универсального решения этого функционально-планировочного элемента можно обеспечить вариативность примыкания блока к различным типам существующих школьных зданий и размещение блока в зависимости конфигурации участка.

2.4.8. Целесообразно разрабатывать функциональные и объемно-планировочные решения блоков-пристроек с возможностью размещения стыковочного элемента к блоку как минимум в двух точках, расположенных в различных зонах блока. Такое решение стыковочного узла может обеспечить несколько вариантов примыкания блока к основному зданию школы и позволит выбрать оптимальный вариант его размещения на участке.

2.4.9. Отличительной чертой блоков-пристроек начальных школ является наличие в них развитой группы помещений административного и медицинского назначения, а также входной группы помещений, которые могут не предусматриваться в блоках-пристройках начальных классов. Общим для этих двух типов блоков является отсутствие в них пищеблока, актового и спортивного залов, информационно-методических центров и прочих общешкольных помещений, которые входят в состав существующего здания школы или блока-пристройки общешкольных помещений.

Соединение блока со зданием, в котором расположен комплекс общешкольных помещений, позволяет разработать более экономичное решение по сравнению с отдельно стоящим зданием начальной школы. Вместе с тем такое решение должно предусматривать удобную функциональную связь блока начальной школы с общешкольными помещениями.

2.4.10. Рекомендуемые решения блоков-пристроек начальной школы представлены на рис. 15.

Блок «А» (в виде параллелепипеда) на 8 классов, выполненный в 3 этажа с расположением вдоль центрального коридора учебных помещений с одной и рекреационных с другой стороны, в отдельных случаях может с успехом разместиться на участке. Однако, учитывая затесненность школьных участков и отсутствие дополнительных территорий для нового строительства, рекомендуется применять более компактные варианты: «Б» и «В». Они обеспечивают наименьшую протяженность блока-пристройки и удачно вписываются в комплекс из двух блоков с общим стыковочным узлом.

2.4.11. Предлагаемая схема блока-пристройки «Б» позволяет использовать так называемые «квадратные классы» - учебные помещения с габаритами 8,4 ´ 8,4 или, при обосновании, 9,0 ´ 9,0 метров. В схеме могут быть задействованы только «квадратные классы», расположенные уступами для обеспечения дополнительной подсветки естественным светом, или их сочетание с обычными классами с габаритами 9,0 ´ 7,2 м.

Для «квадратных классов» необходимо предусматривать дополнительную подсветку со стороны рекреаций через фрамуги в верхней зоне перегородок или применять специальные осветительные установки для совмещенного освещения, компенсирующие недостаток естественного освещения. Рекреационное пространство внутри блока целесообразно дополнительно освещать посредством верхних фонарей.

2.4.12. Входы в блоки-пристройки могут быть организованы в торцах и центральной зоне. В торцах входы могут проектироваться в комплексе со стыковочным узлом.

2.4.13. Учебные блоки старших школ целесообразно формировать в виде комплекса, состоящего из блок-секций учебных помещений различного профиля. Учитывая дефицит помещений в существующих зданиях общеобразовательных школ, в такой комплекс, как правило, должна включаться и группа общешкольных помещений. Комплекс может формироваться из двух блоков-пристроек: учебных и общешкольных помещений, или представлять собой единый блок-пристройку.

2.4.14. Блоки общешкольных помещений для массового строительства рекомендуется проектировать, предусматривая возможность одновременного примыкания к существующему зданию школы двух блоков: учебных и общешкольных помещений.

2.4.15. Блоки общешкольных помещений следует проектировать с учетом возможности автономного функционирования для обеспечения близлежащих школ и детей микрорайона. В такой блок может включаться спортивный зал для игровых видов спорта.

2.4.16. В целях достижения максимальной компактности блоков-пристроек общешкольных помещений спортивные и актовые залы целесообразно располагать на втором этаже. На первом этаже проектируются помещения столовой, кружковые, игровые, административные, служебные помещения, входная группа помещений.

В соответствии с МГСН 4.06-03 допускается проектировать актовый зал и кулуары с искусственным освещением. При этом должна быть увеличена кратность обмена воздуха (по расчету). Допускается освещать коридоры, не являющиеся рекреациями, без естественного освещения.

2.4.17. Конструктивные решения нового блоков-пристроек к существующим зданиям общеобразовательных школ рекомендуется принимать в зависимости от специфики существующего здания и условий примыкания, а также с учетом возможностей существующей индустриально-строительной базы города, особенно в части железобетонных изделий.

Дополнительные объемы, пристроенные к зданиям школ, выполненным в крупноблочных конструкциях, не обязательно должны выполняться в крупноблочных конструкциях, а пристроенные к панельным - в панельных, или каким либо образом имитировать конструктивную систему основного здания при решении фасадов.

Выбор того или иного конструктивного решения осуществляется заказчиком и проектировщиком в зависимости от поставленной задачи и возможностей ее решения. Целью выбора должно являться обеспечение долговечности, надежности и безопасности эксплуатации здания, а также достижение высокого качества формируемой архитектурной среды и удобства осуществления образовательного процесса.

Широко применяемая ранее система быстровозводимых сборных железобетонных панельных конструкций полной заводской готовности обеспечивала сокращение сроков строительства, но ограничивала возможности планировочных решений проектировщиков. В этой системе глубина помещений лимитировалась конструктивным шагом в 6,0 м и 6,6 м, вследствие чего площадь учебных помещений (при длине 9,0 м) могла составить не более 54,0 - 60,0 кв. м.

Современные нормы проектирования при наполняемости классов 25 учащихся предусматривают основные учебные помещения, как правило, площадью 62,5 кв. м. В этой связи в настоящее время наиболее приемлемыми конструкциями для проектирования учебных зданий с учебными помещениями глубиной 7,2 м и «квадратными классами» размером в 8,4 ´ 8,4 м и 9,0 ´ 9,0 м являются каркасные из сборного железобетона и монолитного железобетона или их комбинаций с эффективными ограждающими многослойными стенами из мелкоштучных материалов (кирпич, блоки и т.д.). При проектировании общешкольных помещений целесообразно применение каркасных и пролетных конструкций для перекрытия залов.

2.4.18. Инженерное оборудование и уровень тепловой защиты в проектах блоков-пристроек должны соответствовать требованиям МГСН 4.06-03, МГСН 2.01-99, СанПиН 2.4.2.11-78-02 и другим действующим нормам по этим направлениям. Здания должны быть оснащены надлежащим инженерным оборудованием: системами хозяйственно-питьевого, противопожарного холодного водоснабжения и горячего водоснабжения, канализацией и водостоками, воздушным отоплением, механической приточной и вытяжной вентиляцией, электроснабжением, радиофикацией, телефонизацией, охранно-пожарной сигнализацией, часофикацией.

2.4.19. В основных функциональных помещениях блоков-пристроек к существующим зданиям общеобразовательных школ, также как и в зданиях общеобразовательных школ, необходимо соблюдение нормативных значений естественного, искусственного и совмещенного освещения в соответствии с требованиями СНиП 23-05-95 «естественное и искусственное освещение» и СанПиН 2.2.1/2.1.1.1278-03. В связи с этим при выборе типа блока, места и способа его примыкания к основному зданию особое внимание следует уделять расположению фронта окон, прежде всего, учебных помещений, и избегать негативного влияния сооружений друг на друга или затенения одним из них окон другого. В учебных помещениях следует проектировать боковое левостороннее освещение. При двустороннем освещении учебных помещений с глубиной более 6 м необходимо устройство правостороннего подсвета через фрамуги в перегородках или дополнительных систем искусственного освещения. В учебно-производственных мастерских, актовых и спортивных залах может применяться двухстороннее боковое естественное освещение или комбинированное (верхнее и боковое). Ориентация окон учебных помещений должна быть на южные, юго-восточные и восточные стороны горизонта. На северные румбы горизонта могут быть ориентированы окна кабинетов черчения, рисования, кабинета вычислительной техники и кухни. Без естественного освещения можно проектировать ряд сопутствующих помещений, перечень которых приведен в нормативных документах по проектированию школьных зданий.

2.4.20. Для обеспечения прямой солнечной радиации, в т.ч. эритемной и бактерицидной, и соблюдения оптимальных инсоляционных режимов в основных помещениях существующего здания школы и блока пристройки к нему при разработке проекта блока-пристройки следует руководствоваться требованиями СанПиН 2.2.1/2.1.1.1076-01.

2.4.21. Для обеспечения оптимальной цвето-световой среды и нормативных коэффициентов отражения поверхностей стен, полов и потолков помещений необходимо при проектировании интерьеров помещений образовательных учреждений, в т.ч. блоков-пристроек к зданиям школ, руководствоваться положениями Каталога и Рекомендаций Системы унификации и типизации цветов для зданий массового строительства и требованиями СанПиН 2.4.2.1178-02.

2.4.22. При проектировании осветительных установок искусственного и совмещенного (естественное + искусственное) освещения целесообразно применение Систем Плавного Автоматического Светорегулирования (СПАС), обеспечивающих количественные и качественные показатели световой среды и экономию электроэнергии в соответствии с требованиями светотехнических нормативных документов и МГСН 2.01-98 «Энергоснабжение в зданиях. Нормы по теплозащите и тепловодоэлектроснабжению».

2.4.23. В связи с несоблюдением надлежащего спектрального состава светового излучения в учебных помещениях обострилась проблема ухудшения зрения значительной части учащихся общеобразовательных школ. Учитывая массовость комплексной реконструкции школьных зданий, различие градостроительных условий и затесненность участков школ в сложившейся части города, в целях обеспечения правильного цветовосприятия и условий видимости в учебных помещениях основного здания и в блоках пристройках необходимо проведение научных исследований с последующей разработкой рекомендаций по выбору оптимальных источников света в пристраиваемых объемах.

При проектировании нового поколения блоков-пристроек к существующим зданиям общеобразовательных школ необходимо применять наиболее современные и совершенные системы инженерного оборудования. Например, в школах целесообразно использовать светильники с электронными пускорегулирующими аппаратами, обеспечивающими до 15 % экономии электроэнергии и исключающими пульсацию светового потока, стробоскопический эффект, шумы, снижает эксплуатационные расходы при одновременном обеспечении всех количественных и качественных нормативных параметров световой среды. Их внедрение требует разработки рекомендаций по применению светильников с электронными ПРА в учебных помещениях образовательных учреждений. Новое поколение блоков-пристроек к зданиям школ должно быть оснащено более совершенными системами светового и звонкового регулирования, что требует разработки принципиально новой электротехнической схемы автоматического управления системой. В процессе эксплуатации в осветительных установках наблюдается общее снижение светового потока (до 30 - 40 % от номинального). Это приводит к снижению нормируемой освещенности и оказывает негативное влияние на визуальное восприятие и зрение учащихся. В целях обеспечения комфортной световой среды в помещениях, поддержания стабильности светового потока и равномерности его распределения необходима разработка рекомендаций по фотометрическому контролю осветительных установок искусственного и совмещенного освещения учебных зданий.

2.4.24. Существующее школьное здание и блок-пристройка к нему представляют собой сложный многофункциональный комплекс помещений с многопараметральной средой. Необходимость решения комплекса типологических, конструктивных, инженерных и архитектурно-художественных вопросов, разнообразие существующих зданий образовательных учреждений, неоднозначность их технического состояния, вариантность новых типов учреждений, формируемых на базе реконструируемых зданий школ, различия в пристраиваемых к ним объемах предопределяют сложность задачи формирования комфортной образовательной среды столичного мегаполиса и выводят ее на интегральный уровень. Для решения проблемы необходима разработка методики и программных средств для комплексной оценки возможностей и последствий реконструкции школьных зданий с технико-экономическими обоснованиями, позволяющими выбрать наиболее оптимальный вариант.

Рис. 10 Рекомендуемая функциональная схема примыкания блоков-пристроек к существующим зданиям школы типа МЮ

1 - Блок учебных помещений; 2 - Блок общешкольных помещений

Рис. 11. Рекомендуемая функциональная схема примыкания блоков-пристроек к существующим зданиям школы типа 65-426/1

1 - Блок учебных помещений; 2 - Блок общешкольных помещений

Рис. 12 Рекомендуемая функциональная схема примыкания блоков-пристроек к существующим зданиям школы типа V-76

1 - Блок учебных помещений; 2 - Блок общешкольных помещений

Рис. 13 Рекомендуемая функциональная схема примыкания блоков-пристроек к существующим зданиям школы типа И-1605А

1 - Блок учебных помещений; 2 - Блок общешкольных помещений

Рис. 14 Рекомендуемая функциональная схема примыкания блоков-пристроек к существующим зданиям школы типа И-1577А

1 - Блок учебных помещений; 2 - Блок общешкольных помещений

Рис. 15 Варианты планировочных схем блоков-пристроек начальной школы на 8 или 12 классов

А - прямоугольная (традиционная); Б - треугольная с квадратными классами и верхней подсветкой; В - угловая; 1 - класс - 9,0 ´ 7,2; 2 - класс - 8,4 ´ 8,4; 3 - спортзал - 30 ´ 18; 4 - универсальное помещение; 5 - рекреация зального типа.

Условные обозначения:

- зона лестничных клеток;

- зона примыкания к основному зданию;

- зона вестибюля с гардеробом.

Рис. 16 Схема архитектурно-планировочного решения блока начальной школы на 8 классов (200 уч.) «БНШ-1»

План 1 этажа: 1 - класс; 2 - административные помещения; 3 - спортзал; 4 - душевые-раздевальные; 5 - санузлы; 6 - снарядная; 7 - комната тренера; 8 - зальная рекреация-холл; 9 - место примыкания вестибюля с гардеробом.

Пунктиром показан вариант с классами 9 ´ 7,2 м

Рис. 17 Схема архитектурно-планировочного решения блока начальной школы на 8 классов (200 уч.) «БНШ-1»

План 2 этажа: 1 - класс; 2 - учительская - методический кабинет; 3 - второй свет спортзала; 4 - служебные помещения; 5 - санузлы; 6 - зальная рекреация; 7 - второй свет холлаекреации; 8 - верхний свет вестибюля с гардеробом.

Пунктиром показан вариант с классами 9 ´ 7,2 м

Рис. 18 Схема архитектурно-планировочного решения блока начальной школы на 8 классов (200 уч.) «БНШ-

План 3 этажа: 1 - кабинет; 2 - помещение продленного дня; 3 - санузлы; 4 - рекреация; 5 - терраса; 6 - второй свет холла-рекреации.

Пунктиром показан вариант с классами 9 ´ 7,2 м

Рис. 19 Схема архитектурно-планировочного решения блока начальной школы на 8 классов (200 уч.). «БНШ-

План 1 этажа: 1 - спортзал; 2 - душевые и раздевальные; 3 - снарядная; 4 - комната инструктора; 5 - санузел; 6 - класс; 7 - административно-служебные помещения; 8 - рекреации зального типа; 9 - место размещения перехода с вестибюлем и гардеробом.

Пунктиром показан вариант с классами 9 ´ 7,2 м

Рис. 20 Схема архитектурно-планировочного решения блока начальной школы на 8 классов (200 уч.). «БНШ-

План 2 этажа: 1 - второй свет спортзала; 2 - душевые и раздевальные; 3 - служебное помещение; 4 - кладовая; 5 - санузел; 6 - класс; 7 - методический кабинет, 8 - рекреация зального типа; 9 - второй свет холла-рекреации.

Пунктиром показан вариант с классами 9 ´ 7,2 м

Рис 21 Схема архитектурно-планировочного решения блока начальной школы на 8 классов (200 уч.). «БНШ-

План 3 этажа: 1 - кровля-терраса; 2 - учебный кабинет; 3 - комната продленного дня; 4 - санузел; 5 - рекреация зального типа; 6 - второй свет холла-рекреации.

Пунктиром показан вариант с классами 9 ´ 7,2 м

Рис. 22 Схема архитектурно-планировочного решения блока начальной школы на 8 классов (200 уч.). «БНШ-1»

План 1 этажа: 1 - класс; 2 - спальная; 3 - спортзал; 4 - административные помещения; 5 - медблок; 6 - вестибюль с гардеробом; 7 - санузел; 8 - рекреации зального типа

Рис. 23 Схема архитектурно-планировочного решения блока начальной школы на 8 классов (200 уч.). «БШН-1»

План 2 этажа: 1 - класс; 2 - универсальное помещение; 3 - кабинет изобразительного творчества и технологий; 4 - учительская; 5 - санузел; 6 - рекреация; 7 - второй свет спортзала

Рис. 24 Схема архитектурно-планировочного решения блока начальной школы на 8 классов (200 уч.). «БНШ-

План 3 этажа: 1 - класс; 2 - универсальное помещение; 3 - компьютерный класс; 4 - санузел; 5 - рекреация

Рис. 25 Схема архитектурно-планировочного решения блока начальной школы на 12 классов(300 уч.), «БНШ-2»

План 1 этажа: 1 - класс; 2 - универсальное помещение; 3 - изостудия; 4 - медблок; 5 - административные помещения; 6 - вестибюль с гардеробом; 7 - рекреация зального типа; 8 - санузел

Рис. 26 Схема архитектурно-планировочного решения блока начальной школы на 12 классов(300 уч.) «БНШ-2»

План 2 этажа: 1 - класс; 2 - спортзал; 3 - рекреация зального типа; 4 - раздевальные; 5 - санузел

Рис. 27 Схема архитектурно-планировочного решения блока начальной школы на 12 классов(300 уч.) «БНШ-2»

План 3 этажа: 1 - класс; 2 - универсальное помещение; 3 - компьютерный класс; 4 - второй свет спортзала; 5 - рекреация зального типа; 6 - санузел; 7 - кладовые

Рис. 28 Схема архитектурно-планировочного решения блока общешкольных помещений с залами «БОП-

План 1 этажа: 1 - спортзал; 2 - снарядная; 3 - комната инструктора; 4 - раздевальная с душевой; 5 - бытовое помещение; 6 - обеденный зал столовой; 7 - помещения кухни

Рис. 29 Схема архитектурно-планировочного решения блока общешкольных помещений с залами «БОП-

План 2 этажа: 1 - второй свет спортзала; 2 - кладовая инвентаря; 3 - раздевальная с душевой при зале; 4 - актовый зал; 5 - эстрада; 6 - бытовые помещения; 7 - второй свет холла-рекреации; 8 - рекреация

Рис. 30 Схема архитектурно-планировочного решения блока общешкольных помещений с залами «БОП-1»

План 3 этажа: 1 - кровля-террасса; 2 - кладовая инвентаря; 3 - технический центр; 4 - второй свет актового зала; 5 - киноаппаратная; 6 - второй свет фойе-рекреации; 7 - рекреация

Рис. 31 Схема архитектурно-планировочного решения блока общешкольных помещений с залами и кружковыми «БОП-3»

План 1 этажа: 1 - кружковые; 2 - санузлы; 3 - рекреация, 5 - помещения кухни; 6 - обеденный зал столовой

Рис. 32 Схема архитектурно-планировочного решения блока общешкольных помещений с залами и кружковыми «БОП-3»

План 2 этажа: 1 - спортзал; 2 - кладовая инвентаря; 3 - комната тренера; 4 - санузлы; 5 - душевая с раздевальной; 6 - эстрада; 7 - кладовая; 8 - актовый зал на 30 мест; 9 - техцентр; 10 - рекреация зального типа; 11 - второй свет холла-рекреации.

Рис. 33 Схема архитектурно-планировочного решения блока общешкольных помещений с залами и кружковыми «БОП-3»

План 3 этажа: 1 - второй свет спортзала; 2 - кладовые; 3 - душевые с раздевальной; 4 - второй свет актового зала; 5 - киноаппаратная; 6 - фойе-рекреация; 6 - второй свет фойе-рекреации

Рис. 34 Схема архитектурно-планировочного решения блока общешкольных помещений с залами, бассейном и кружковыми «БСКБ»

План 2 этажа: 1 - второй свет бассейна; 2 - малый спортзал или зал хореографии; 3 - раздевальные; 4 - кружковые; 5 - большой спортзал; 6 - санузлы и служебные помещения

Рис. 35 Схема архитектурно-планировочного решения блока общешкольных помещений с залами, бассейном и кружковыми «БСКБ»

План 1 этажа: 1 - бассейн; 2 - тренажерный зал; 3 - раздевальные; 4 - кружковые; 5 - вестибюль с гардеробом; 6 - санузлы; 7 - снарядная; 8 - служебные помещения

Рис. 36 Схема архитектурно-планировочного решения блока общешкольных помещений с залами, бассейном и кружковыми «БСКБ»

План 2 этажа: 1 - второй свет бассейна; 2 - служебные помещения; 3 - комната тренера; 4 - тренажерный зал; 5 - спортзал; 6 - малый спортзал; 7 - снарядная; 8 - комната тренера; 9 - рекреация зального типа; 10 - второй свет холла-рекреации

Рис. 37 Схема архитектурно-планировочного решения блока общешкольных помещений с залами, бассейном и кружковыми «БСКБ»

План 1 этажа: 1 - бассейн; 2 - душевые и раздевальные при бассейне; 3 - кабинет медсестры; 4 - бытовые помещения; 5 - кружковые; 6 - раздевальные при спортзалах; 7 - вестибюль с гардеробом; 8 - рекреации зального типа

 




ГОСТЫ, СТРОИТЕЛЬНЫЕ и ТЕХНИЧЕСКИЕ НОРМАТИВЫ.
Некоммерческая онлайн система, содержащая все Российские Госты, национальные Стандарты и нормативы.
В Системе содержится более 150000 файлов нормативно-технической документации, действующей на территории РФ.
Система предназначена для широкого круга инженерно-технических специалистов.

Рейтинг@Mail.ru Яндекс цитирования

Copyright © www.gostrf.com, 2008 - 2026