Крупнейшая бесплатная информационно-справочная система онлайн доступа к полному собранию технических нормативно-правовых актов РФ. Огромная база технических нормативов (более 150 тысяч документов) и полное собрание национальных стандартов, аутентичное официальной базе Госстандарта. GOSTRF.com - это более 1 Терабайта бесплатной технической информации для всех пользователей интернета. Все электронные копии представленных здесь документов могут распространяться без каких-либо ограничений. Поощряется распространение информации с этого сайта на любых других ресурсах. Каждый человек имеет право на неограниченный доступ к этим документам! Каждый человек имеет право на знание требований, изложенных в данных нормативно-правовых актах!

  


 

МЕТОДИЧЕСКАЯ ДОКУМЕНТАЦИЯ В СТРОИТЕЛЬСТВЕ

цнииомтп

МЕХАНИЗАЦИЯ СТРОИТЕЛЬСТВА.
ЭКСПЛУАТАЦИЯ БАШЕННЫХ КРАНОВ
В СТЕСНЕННЫХ УСЛОВИЯХ

МДС 12-19.2004

ГОСУДАРСТВЕННЫЙ КОМИТЕТ РОССИЙСКОЙ ФЕДЕРАЦИИ
ПО СТРОИТЕЛЬСТВУ И ЖИЛИЩНО-КОММУНАЛЬНОМУ КОМПЛЕКСУ
(ГОССТРОЙ РОССИИ)

Москва
2004

ПРЕДИСЛОВИЕ

РАЗРАБОТАНА Центральным научно-исследовательским и проектно-экспериментальным институтом организации, механизации и технической помощи строительству (ЦНИИОМТП - Колосков В. Н., Корытов Ю. А., Костров В. И.) и ООО «СО и С» (Трейлих В. Е.)

ПРЕДНАЗНАЧЕНА для использования в организациях строительной отрасли

Содержание

ВВЕДЕНИЕ

В городах России увеличиваются объемы строительства зданий и сооружений, а также реконструкции, модернизации и разборки ветхих зданий. Строительно-монтажные работы при этом производятся в основном с применением башенных кранов в стесненных условиях городской застройки.

Эксплуатация башенных кранов в этих условиях требует выполнения особых мер безопасности (выселение из зданий, находящихся в зоне действия башенного крана, сооружение дополнительных защитных устройств и т.п.). Однако эти меры требуют значительных затрат. Одним из эффективных и экономичных решений является применение системы ограничения зоны работы башенного крана. Система обеспечивает безопасность эксплуатации крана в стесненных условиях. Применение системы предусмотрено СНиП 12-03-01 «Безопасность труда в строительстве. Часть 1. Общие требования» и «Правилами устройства и безопасной эксплуатации грузоподъемных кранов (ПБ 10-382-00)» Госгортехнадзора России.

Документ устанавливает общие требования к системе, а также определяет содержание, порядок и последовательность выполнения работ по оснащению башенных кранов системой ограничения зоны их работы. Система разработана по заказу и при содействии Управления научно-технической политики в строительной отрасли Департамента Правительства Москвы. Применение системы согласовано с Управлением по котлонадзору и надзору за подъемными сооружениями Госгортехнадзора России (письмо от 18.01.99 № 12-01/62).

Документ подготовлен на основе обобщения многолетнего опыта НТЦ «Мехавтострой» ЗАО ЦНИИОМТП, ООО «СОиС» и других организаций научно-технического обеспечения безопасной эксплуатации башенных кранов в стесненных условиях.

Методическая документация в строительстве

МЕХАНИЗАЦИЯ СТРОИТЕЛЬСТВА.

ЭКСПЛУАТАЦИЯ БАШЕННЫХ КРАНОВ

В СТЕСНЕННЫХ УСЛОВИЯХ

Mechanisation of construction

1. ОБЛАСТЬ ПРИМЕНЕНИЯ

Настоящий документ распространяется на эксплуатацию башенных кранов в стесненных условиях.

Башенные краны обслуживают при этом новое строительство, капитальный ремонт, разборку зданий и сооружений, реконструкцию, техническое перевооружение (далее - строительное производство).

Документ устанавливает правила применения на башенных кранах системы ограничения зоны работы: подготовки крана к монтажу и монтажа системы, испытаний и эксплуатации крана, оборудованного системой.

2. НОРМАТИВНЫЕ ССЫЛКИ

В настоящем документе использованы ссылки на следующие нормативные документы.

ГОСТ 12.0.002-80 ССБТ. Термины и определения.

ГОСТ 25646-95. Эксплуатация строительных машин. Общие требования.

ГОСТ Р 51248-99. Наземные рельсовые крановые пути. Общие технические требования.

СНиП 12-03-2001. Безопасность труда в строительстве. Часть 1. Общие требования.

Правила устройства и безопасной эксплуатации грузоподъемных кранов (ПБ 10-382-00), Госгортехнадзор России.

3. ТЕРМИНЫ И ОПРЕДЕЛЕНИЯ

Зона работы крана - наибольшее пространство, определяемое техническими параметрами башенного крана (длина стрелы, вылет крюковой подвески и т.п.), в котором может находиться крюковая подвеска (крюк) и (или) стрела.

Стесненные условия - условия строительного производства, отличающиеся тем, что в зоне работы башенного крана находятся действующие здания и сооружения, дороги, тротуары, пешеходные переходы и (или) другие башенные краны.

Зона запрета движений крана - часть зоны работы крана, в которой не допускается из-за стесненных условий на данном объекте нахождение крюковой подвески (груза) и (или) стрелы башенного крана.

Зона предупреждения - часть зоны работы крана, примыкающая к зоне запрета движений крана, при вхождении в которую крюка (груза) и (или) стрелы срабатывает предупреждающий сигнал, а приводы механизмов крана переключаются крановщиком или автоматически на пониженные скорости.

Система ограничения зоны работы крана - комплект технических средств (датчиков, электронных приборов, переходных устройств и т.д.), монтируемых на башенном кране для автоматического ограничения зоны работы крана на данном строительном объекте.

4. ОБЩИЕ ПОЛОЖЕНИЯ

4.1. Система ограничения зоны работы крана уменьшает зону работы крана до размеров, необходимых для выполнения строительно-монтажных работ на данной строительной площадке. При этом соответственно сокращается опасная зона крана.

Определение термина «Опасная зона крана» - по ГОСТ 12.0.002.

Определение размеров опасной зоны - по СНиП 12-03.

4.2. Один из вариантов стесненных условий и ограничения зоны работы башенного крана приведен на рисунке 1. В зоне действия крана, обслуживающего строительство объекта 1, находятся жилой дом 2, ясли 3 и школа 4. Система уменьшает зону работы крана путем ограничения поворота стрелы (зона запрета А), вылета крюковой подвески и высоты подъема груза (зона запрета Б). Зоны работы крана и предупреждения показаны соответственно пунктирной и утолщенной пунктирной линиями.

А - зона запрета - ограничение поворота стрелы; Б - зона запрета - ограничение вылета крюковой подвески и высоты подъема груза; В - зона предупреждения

1 - строящийся объект; 2 - жилой дом; 3 - ясли; 4 - школа

Рисунок 1 - Ограничение зоны работы башенного крана

Расположение датчиков системы на башенном кране показано на рисунке 2.

Рисунок 2 - Расположение датчиков на кране

4.3. Монтаж системы на башенном кране заказчика (организации - владельца крана) производится исполнителем - специализированной организацией, имеющей соответствующую лицензию органов Госгортехнадзора России.

При наличии подготовленных специалистов заказчик может своими силами выполнить работы по изготовлению, монтажу, записи программы и наладке системы на кране.

4.4. Заказчик определяет (по согласованию с органом Госгортехнадзора России) целесообразность применения системы для работы крана в стесненных условиях и направляет исполнителю заявку с проектом производства работ (ППР).

К заявке прилагаются следующие сведения:

тип (марка, модель), инвентарный номер башенного крана;

протяженность кранового пути;

привод ходовой тележки (двух- или четырехприводная);

модуль и количество зубьев поворотного круга;

тип (марка) ограничителя грузоподъемности крана (ОНК, ОГП, ОГК или др.);

схемы электрооборудования крана (принципиальная и монтажная).

4.5. Исполнитель совместно с заказчиком:

обследуют техническое состояние механической и электрической частей крана;

определяют возможность монтажа системы на кране (без доработки или с доработкой);

рассматривают условия эксплуатации крана на строительном объекте в стесненных условиях. Результаты обследования отражаются в акте технического состояния крана.

4.6. По результатам обследования технического состояния крана принимается решение об оснащении его системой ограничения зоны работы, уточняется проект производства работ (ППР), осуществляются подготовка крана к монтажу и монтаж на нем системы (см. разделы 6, 7).

4.7. В зависимости от типа и конструктивных особенностей крана исполнитель производит соответствующую комплектацию системы кабельной продукцией, электротехническим оборудованием и переходными устройствами.

4.8. Исполнитель проводит обучение работников заказчика монтажу, составлению программы и наладке системы на кране.

4.9. При перебазировании крана на новый строительный объект в программу системы вводятся новые исходные данные согласно требованиям ППР.

При демонтаже системы с данного башенного крана и монтаже на кран другого типа проводятся работы по пп. 4.5 и 4.6.

4.10. Готовность к эксплуатации на строительном объекте крана, оснащенного системой ограничения зоны работы, подтверждается актом сдачи-приемки.

5. ТРЕБОВАНИЯ К СИСТЕМЕ ОГРАНИЧЕНИЯ ЗОНЫ РАБОТЫ БАШЕННОГО КРАНА

5.1. В зависимости от стесненности условий эксплуатации крана система должна ограничивать от одного до четырех движений крана в любых сочетаниях:

поворот стрелы;

перемещение крана по крановому пути;

вылет крюковой подвески;

подъем и спуск крюковой подвески.

5.2. Система состоит из трех основных частей: механической (датчики с редукторами, переходные детали), электрической (кабели, электрошкаф, пускатели и т.п.) и электронной - микропроцессорное устройство.

5.3. Датчики преобразуют механические перемещения элементов крана (крюковая подвеска, каретка, стрела и т.д.) в аналоговые электрические сигналы.

5.4. Сигналы отдатчиков (ДВГ, ДВП, ДПС, ДПК) после преобразований в микропроцессорном устройстве воздействуют на электрооборудование крана (контакторы, выключатели, реле) и отключают соответствующий электропривод (см. рисунок 2).

5.5. Питание системы должно осуществляться от сети переменного тока напряжением 220 В и частотой 50 Гц.

Общая масса составных частей системы не должна превышать 20 - 40 кг.

5.6. В кабине рекомендуется разместить план (дисплей) с изображением зон: работы крана, предупреждения и запрета.

При вхождении в зону предупреждения груза или стрелы, или крюковой подвески, или ходовой тележки система должна выдавать предупреждающий сигнал (например, звуковой), приводы механизмов крана должны при этом переключаться крановщиком или автоматически на пониженные скорости.

При вхождении в зону запрета груза или стрелы, или крюковой подвески, или ходовой тележки система должна выдавать запрещающий сигнал (например, загорается красная лампочка) и автоматически отключать соответствующие приводы крана.

5.7. Программа работы системы может составляться по ППР на компьютере или непосредственно на рабочем объекте путем установки крюковой подвески (груза) и (или) стрелы в заданных ППР точках на границе зоны запрета и соответствующей тарировки датчиков.

5.8. Система не должна влиять на работу штатных приборов и устройств безопасности крана. Так, например, в нерабочем состоянии механизм поворота должен быть расторможен для возможности разворота поворотной части крана по ветру.

5.9. Система должна быть приспособлена к диагностированию ее технического состояния.

5.10. Система должна быть применима для всех типов башенных кранов, в том числе с балочной и подъемной стрелами, с поворотной башней и с поворотным оголовком.

6. РАЗРАБОТКА ПРОЕКТНОЙ ДОКУМЕНТАЦИИ

6.1. Для программирования системы разрабатываются проект производства работ краном и план зоны работы и запрета движений крана.

6.2. ППР краном разрабатывается с учетом требований СНиП 12-03 и настоящего документа.

В ППР указываются:

положение кранового пути относительно зданий и сооружений с указанием соответствующих расстояний;

положение крана и его вертикальной оси в крайних точках кранового пути;

длина стрелы крана;

минимальный и максимальный вылеты крюковой подвески;

максимальная высота подъема крюковой подвески.

ППР согласовывается в установленном порядке с местным органом Госгортехнадзора России.

6.3. В соответствии с условиями строительного производства в ППР обозначаются (например, цветными линиями) в горизонтальной и в вертикальной плоскостях зоны: работы крана (зеленый), запрета (красный), предупреждения (синий).

6.4. Зона работы крана определяется по значениям параметров (перемещения, вылета и высоты подъема крюка, поворота стрелы), при которых обеспечивается строительное производство.

Зона запрета устанавливается с учетом нормативов минимально допустимых расстояний стрелы и груза до выступающих частей зданий, сооружений и других объектов, находящихся в зоне действия крана.

Зона предупреждения устанавливается согласно нормам в зависимости от скорости и массы перемещаемого груза.

6.5. План зоны работы и запрета движений крана рекомендуется составлять на формате А3 (297×420 мм) или А4 (210×297 мм). В масштабе обозначаются строительная площадка со строящимися объектами, башенный кран на крановом пути, действующие здания и сооружения, находящиеся в зоне действия крана. Указываются зоны работы крана, предупреждения и запрета. Размеры на плане указываются в системе декартовых координат с началом в точке, где находится кран в положении «стоянка крана».

Пример разработки плана приведен в приложении.

7. ПОДГОТОВКА БАШЕННОГО КРАНА К МОНТАЖУ И МОНТАЖ СИСТЕМЫ ОГРАНИЧЕНИЯ ЗОНЫ РАБОТЫ

7.1. Система монтируется на кран, который находится в исправном состоянии, отвечающем стандартным техническим требованиям, комплектация которого соответствует техническим условиям.

Перед монтажом кран проходит техническое освидетельствование согласно Правилам устройства и безопасной эксплуатации грузоподъемных кранов.

7.2. Рельсовый путь башенного крана должен удовлетворять требованиям ГОСТ Р 51248.

7.3. Монтаж системы включает следующие основные работы:

установка датчиков;

установка микропроцессорного устройства;

электротехнические работы по включению системы в электросхему крана.

Заключительные работы - наладка, испытание и пуск системы.

7.4. Монтаж системы на кране производится, как правило, на производственной площадке заказчика - владельца крана до передачи крана в эксплуатацию.

7.5. Наладочные работы и испытания выполняются на строительной площадке.

Для испытаний назначается комиссия, в состав которой входят представители заказчика, организации - разработчика системы и местного органа Госгортехнадзора России.

7.6. В процессе испытаний системы проверяются:

комплектность и содержание технической документации;

соответствие системы технической документации;

соответствие настройки системы ППР;

соответствие работы крана ППР в стесненных условиях.

8. ЭКСПЛУАТАЦИЯ БАШЕННОГО КРАНА, ОБОРУДОВАННОГО СИСТЕМОЙ ОГРАНИЧЕНИЯ ЗОНЫ РАБОТЫ

8.1. Эксплуатация башенного крана, оборудованного системой, организуется в соответствии с требованиями ГОСТ 25646, Правил ПБ 10-382 и настоящего документа.

8.2. Приказом по организации назначаются инженерно-технические работники, ответственные за содержание крана в исправном состоянии, за безопасное производство работ краном, а также персонал, обслуживающий кран (крановщик, стропальщики, слесари и электромонтеры по ремонту и обслуживанию, наладчики приборов безопасности).

8.3. Инженерно-технические работники и персонал по п. 8.2 должны пройти специальное обучение и аттестацию.

Обучение и аттестация инженерно-технических работников и обслуживающего персонала проводится исполнителем или иной организацией, имеющей лицензию.

8.4. Техническое обслуживание системы проводится в сроки, установленные графиком технических обслуживаний и ремонтов крана.

Перечень работ по техническому обслуживанию системы указан в эксплуатационной документации на систему.

8.5. Обязанностью крановщика является проверка в начале смены (по инструкции в эксплуатационной документации) работы крана с системой.

Периодические осмотры и проверки выполняют инженерно-технические работники, ответственные за содержание крана в исправном состоянии и за безопасное производство работ краном.

В случае отказа системы работа крана прекращается до выявления причины и устранения отказа.

8.6. Результаты осмотров, технических обслуживаний и ремонтов системы записываются в журнал, рекомендуемая форма которого приведена в ГОСТ 25646.

Эксплуатационная документация на систему должна храниться в составе документов постоянного пользования на строительном объекте.

ПРИЛОЖЕНИЕ

ПЛАН ЗОН РАБОТЫ И ЗАПРЕТА ДВИЖЕНИЙ КРАНА

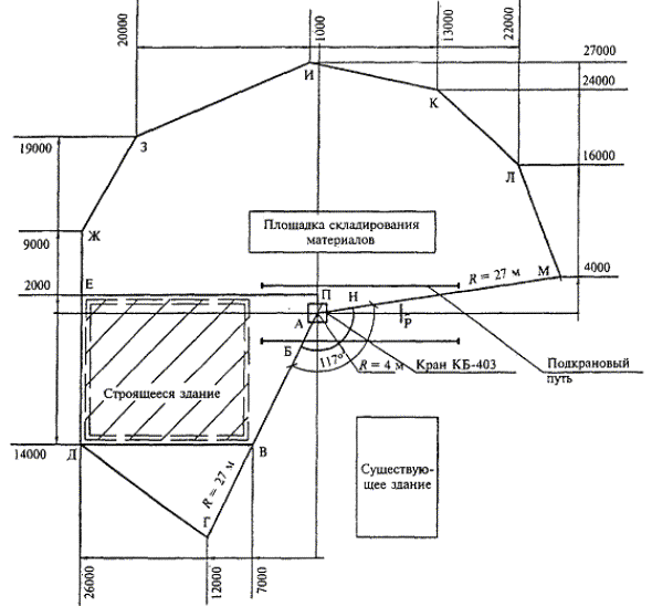
Рассматривается в качестве примера один из реальных планов (ЗАО «Промстрой», г. Иркутск, ул. Лермонтова) - см. рисунок 1 данного приложения.

План разработан для введения его в программное устройство системы.

План выполнен в масштабе на формате А4 путем обработки ППР.

На плане показаны:

кран КБ-403 в положении «место стоянки» и одновременно в крайнем левом положении на подкрановом пути (точка А);

строящееся и существующее здания;

площадка складирования строительных материалов.

Зона внутри ломаной линии (точки А, Г, Д - М) обозначает зону работы крана. Зона вне этой ломаной является зоной запрета. Зона предупреждения, находящаяся внутри зоны работы, на этом плане не показана.

В программу движений крана введены в соответствии с указанными зонами следующие ограничения.

Перемещение крана по подкрановому пути осуществляется от точки А до точки Р.

Поворот стрелы запрещен на угол, равный 117° (точки Г, А, М).

Вылет крюковой подвески ограничен ломаной линией А, Г, Д - М, например в крайних положениях стрелы осуществляется от точек Б и Н до точек соответственно Г и М.

Подъем крюковой подвески ограничен до высоты 6 м (для сокращения опасной зоны по СНиП 12-03) в зоне обслуживания площадки складирования материалов (по линии А, П, Е, Ж - М) и в зоне по линии В, Г, Д.

План введен в программное устройство системы, ламинирован и размещен в кабине крановщика.

Рисунок 1

 




ГОСТЫ, СТРОИТЕЛЬНЫЕ и ТЕХНИЧЕСКИЕ НОРМАТИВЫ.
Некоммерческая онлайн система, содержащая все Российские Госты, национальные Стандарты и нормативы.
В Системе содержится более 150000 файлов нормативно-технической документации, действующей на территории РФ.
Система предназначена для широкого круга инженерно-технических специалистов.

Рейтинг@Mail.ru Яндекс цитирования

Copyright © www.gostrf.com, 2008 - 2026