Крупнейшая бесплатная информационно-справочная система онлайн доступа к полному собранию технических нормативно-правовых актов РФ. Огромная база технических нормативов (более 150 тысяч документов) и полное собрание национальных стандартов, аутентичное официальной базе Госстандарта. GOSTRF.com - это более 1 Терабайта бесплатной технической информации для всех пользователей интернета. Все электронные копии представленных здесь документов могут распространяться без каких-либо ограничений. Поощряется распространение информации с этого сайта на любых других ресурсах. Каждый человек имеет право на неограниченный доступ к этим документам! Каждый человек имеет право на знание требований, изложенных в данных нормативно-правовых актах!

  


 

СИСТЕМА НОРМАТИВНЫХ ДОКУМЕНТОВ В СТРОИТЕЛЬСТВЕ

СВОД ПРАВИЛ ПО ПРОЕКТИРОВАНИЮ
И СТРОИТЕЛЬСТВУ

КОНСТРУКЦИИ С ПРИМЕНЕНИЕМ
ГИПСОВЫХ ПАЗОГРЕБНЕВЫХ ПЛИТ

СП 55-103-2004

Москва

2004

ПРЕДИСЛОВИЕ

1 РАЗРАБОТАН ОАО «Центральный научно-исследовательский и проектно-экспериментальный институт промышленных зданий и сооружений» (ОАО «ЦНИИпромзданий»), ООО «КНАУФ МАРКЕТИНГ НОВОМОСКОВСК» и ООО «КНАУФ СЕРВИС»

ВНЕСЕН Управлением стандартизации, технического нормирования и сертификации Госстроя России

2 ОДОБРЕН и рекомендован для применения на добровольной основе Госстроем России (письмо № ЛБ-268 от 18.03.2004 г.)

3 УТВЕРЖДЕН И ВВЕДЕН В ДЕЙСТВИЕ совместным приказом ООО «КНАУФ СЕРВИС» и ОАО «ЦНИИпромзданий» № 4004 от 28.09.2004 г.

4 ВВЕДЕН впервые

СОДЕРЖАНИЕ

Введение. 2

1 Область применения. 2

2 Нормативные ссылки. 2

3 Общие положения. 2

4 Материалы, используемые для конструкций из гипсовых пазогребневых плит. 3

4.1 Гипсовые пазогребневые плиты.. 3

4.2 Комплектующие материалы и изделия. 6

5 Технические решения конструкций из гипсовых пазогребневых плит. 8

5.1 Общие положения. 8

5.2 Перегородки. 8

5.3 Внутренняя облицовка наружных стен. 20

6 Технология монтажа и устройства конструкций из гипсовых пазогребневых плит. 20

6.1 Устройство перегородок и облицовок. 20

6.2 Монтаж электрической и слаботочной проводки и трубопроводов. 22

7 Отделка поверхностей конструкций из гипсовых пазогребневых плит. 22

8 Основные правила техники безопасности при производстве работ. 27

9 Транспортирование и хранение материалов и изделий. 27

10 Приемка смонтированных конструкций из гипсовых пазогребневых плит. 28

11 Основные правила технической эксплуатации конструкций из гипсовых пазогребневых плит. 28

Приложение А Перечень нормативных документов, на которые даны ссылки в настоящем Своде Правил. 31

Приложение Б Материалы для устройства конструкций с применением гипсовых пазогребневых плит, поставляемые предприятиями группы КНАУФ.. 32

Приложение В Инструменты.. 33

ВВЕДЕНИЕ

Настоящий Свод правил содержит указания по конструктивным решениям перегородок и облицовок стен с применением гипсовых пазогребневых плит и способам их устройства, выполнение которых обеспечивает соблюдение обязательных требований к таким конструкциям, установленных действующими нормативными документами.

Выбор конкретного конструктивного решения и материалов для устройства конструкций относится к компетенции проектной или строительной организации.

Если для реализации приняты решения и материалы, рекомендуемые настоящим документом, все установленные в нем правила должны соблюдаться в полном объеме.

Документ разработан с учетом опыта устройства указанных конструкций из материалов, поставляемых предприятиями группы КНАУФ. В случае использования для устройства конструкций, предусмотренных настоящим Сводом правил, материалов других производителей их соответствие требованиям настоящего документа должно быть подтверждено в установленном порядке.

Свод правил предназначен для проектных и строительных организаций, а также служб эксплуатации.

Свод правил разработан ОАО «ЦНИИпромзданий» (зам. Генерального директора, канд. техн. наук, заслуженный строитель РФ С.М. Гликин), ООО «КНАУФ МАРКЕТИНГ НОВОМОСКОВСК» (Генеральный директор И.Е. Ковалева) и ООО «КНАУФ СЕРВИС» (инженер-консультант Т.Н. Скворцов).

СП 55-103-2004

СВОД ПРАВИЛ ПО ПРОЕКТИРОВАНИЮ И СТРОИТЕЛЬСТВУ

КОНСТРУКЦИИ С ПРИМЕНЕНИЕМ
ГИПСОВЫХ ПАЗОГРЕБНЕВЫХ ПЛИТ

STRUCTURES WITH APPLICATION
GYPSUM PLATES

Дата введения 2004-10-01

1 ОБЛАСТЬ ПРИМЕНЕНИЯ

Настоящий Свод правил содержит рекомендации по проектированию, устройству и эксплуатации строительных конструкций поэлементной сборки (перегородок и облицовок стен) с применением гипсовых пазогребневых плит.

Конструкции с применением гипсовых пазогребневых плит могут применяться в зданиях различного назначения, разной степени огнестойкости и класса функциональной пожарной опасности, любой этажности и любых конструктивных систем, возводимых во всех климатических районах страны, включая сейсмические районы и районы с другими особыми условиями, при выполнении нормативных требований, предъявляемых к конструкциям.

2 НОРМАТИВНЫЕ ССЫЛКИ

Перечень нормативных документов, на которые имеются ссылки в настоящем Своде правил, приведен в приложении А.

3 ОБЩИЕ ПОЛОЖЕНИЯ

3.1 Настоящим Сводом правил следует руководствоваться при проектировании, устройстве и эксплуатации ограждающих конструкций с применением гипсовых пазогребневых плит в жилых, общественных, административно-бытовых и промышленных зданиях.

3.2 В настоящем Своде правил приведены рекомендуемые конструктивные решения перегородок и облицовок стен с применением гипсовых пазогребневых плит, а также комплектующих материалов и изделий, поставляемых предприятиями группы КНАУФ, указанных в разделе 4. При применении этих технических решений предусмотренные в настоящем Своде правил параметры конструкций, в том числе размеры сечения, максимально допустимая высота конструкций, а также устройство соединений и сопряжений с другими конструкциями зданий, допускается использовать непосредственно без проведения обосновывающих расчетов. Если применяются плиты и комплектующие материалы и изделия, отличающиеся от указанных в разделе 4, перечисленные выше параметры должны определяться по расчету или по результатам испытаний.

3.3 Изделия и материалы, указанные в разделе 4, должны удовлетворять требованиям соответствующих стандартов или технических условий, а для материалов зарубежной поставки - сертификату соответствия (при наличии отечественного аналога) или технического свидетельства (при отсутствии отечественного аналога).

3.4 Материалы и изделия должны иметь обязательную сопутствующую документацию, включая: сертификаты соответствия (для материалов, подлежащих обязательной сертификации); гигиеническое заключение (для материалов, включенных в утвержденный Минздравом России перечень); сертификаты пожарной безопасности (для материалов, включенных в перечень продукции, подлежащей обязательной сертификации в области пожарной безопасности); инструкции по применению.

4 МАТЕРИАЛЫ, ИСПОЛЬЗУЕМЫЕ ДЛЯ КОНСТРУКЦИЙ ИЗ ГИПСОВЫХ ПАЗОГРЕБНЕВЫХ ПЛИТ

4.1 Гипсовые пазогребневые плиты

4.1.1 В настоящем Своде правил для устройства конструкций предусмотрено применение гипсовых пазогребневых плит по ТУ 5742-007-16415648-98, ТУ 5742-014-03984362-96, ТУ 5742-001-56798576-2004 и ТУ 5742-003-05287561-2003, физико-технические характеристики которых приведены в таблице 4.1.

4.1.2 Номенклатура гипсовых пазогребневых плит включает плиты обыкновенные и гидрофобизированные (влагостойкие), полнотелые и пустотелые. Обыкновенные плиты следует применять в ограждающих конструкциях помещений с сухим и нормальным влажностными режимами, а гидрофобизированные могут применяться также в помещениях с влажным режимом по СНиП 23-02.

Таблица 4.1

№ п.п.

Показатель

Ед. изм.

Плиты по ТУ

ТУ 5742-007-16415648-98

ТУ 5742-014-03984362-96

ТУ 5742-001-56798576-2004

ТУ 5742-003-05287561-2003

обыкн.

гидроф.

1

Плотность, не более

кг/м3

1250

1100

1200

2

Отпускная влажность, не более

%

12

8

3

Предел прочности при сжатии, не менее

МПа

5,0

4

Предел прочности при изгибе, не менее

МПа

2,4

5

Коэффициент теплопроводности:

lА

Вт/м×°С

0,29

 

lБ

 

0,35

6

Водопоглощение гидрофобизированных плит, не более

%

5

7

Удельная эффективная активность радионуклидов, не более

Бк/кг

370

8

Группа горючести по ГОСТ 30244

-

нг

Г1

Таблица 4.2

Технические условия

Размеры плит, мм

Допускаемые предельные отклонения, мм

 

Длина L

Ширина В

Толщина t

Длина L

Ширина В

Толщина t

 

ТУ 5742-007-16415648-98

667

500

80; 100

±3

±2

±1

 

ТУ 5742-014-03984362-96

900

300

80

 

ТУ 5742-001-56798576-2004

667

500

80; 100

±0,5

ТУ 5742-003-05287561-2003 (полнотелые)

667

500

80

±5

ТУ 5742-003-05287561-2003 (пустотелые)

 

Примечание - Плиты по ТУ 5742-007-16415648-98, ТУ 5742-014-03984362-96, ТУ 5742-001-56798576-2004 - полнотелые. Плиты по ТУ 5742-003-05287561-2003 - пустотелые и полнотелые.

 

В помещениях с мокрым режимом применение гипсовых пазогребневых плит не допускается.

4.1.3 Номинальные размеры гипсовых пазогребневых плит и предельные отклонения от номинальных размеров приведены в таблице 4.2.

4.1.4 Гипсовые пазогребневые плиты по форме паза и гребня бывают различных типов (рисунок 1).

ТУ 5742-007-16415648-98

ТУ 5742-003-05287561-2003

ТУ 5742-014-03984362-96

ТУ 5742-001-56798576-2004

ТУ 5742-007-16415648-98

ТУ 5742-007-16415648-98

ТУ 5742-001-56798576-2004

Рисунок 1 - Типы гипсовых пазогребневых плит по форме паза и гребня (размеры приведены как справочные и не являются браковочным признаком)

4.2 Комплектующие материалы и изделия

4.2.1 Для крепления перегородок и облицовок к ограждающим конструкциям при эластичном примыкании, а также крепления к перегородкам дверных коробок рекомендуется использовать скобы, номенклатура которых приведена в таблице 4.3.

4.2.2 Для крепления скоб к пазогребневым плитам рекомендуется применять самонарезающие винты длиной 35 мм с потайной головкой и острым концом, изготовляемые из стали марок 10, 10КП, 15, 15КП, 20 и 20КП по ГОСТ 10702, а для крепления их к ограждающим конструкциям - разжимные анкерные дюбели, номенклатура которых приведена в таблице 4.4.

Таблица 4.3

Общий вид и размеры

Обозначение изделия и материала

Назначение

Скоба С-1

Для крепления перегородок при эластичном примыкании

Скоба С-2

Для крепления дверной коробки к перегородке

Профиль углозащитный для отделки наружных углов перегородок

Таблица 4.4

Общий вид

Наименование

Длина, мм

Диаметр, мм

Винт самонарезающий с потайной головкой и острым концом (шуруп)

35

3,5

Дюбель анкерный пластмассовый

35

6,0

40

55

8,0

60

10,0

65

Дюбель анкерный металлический

70

75

12,0

4.2.3 При эластичном соединении перегородок с другими ограждающими конструкциями рекомендуется применять эластичную прокладку из пробки плотностью не менее 250 кг/м3 или битумизированного войлока плотностью не менее 300 кг/м3. Ширина прокладок должна быть не менее 75 мм при плитах толщиной 80 мм и не менее 95 мм при плитах толщиной 100 мм.

4.2.4 При кладке гипсовых пазогребневых плит, а также для крепления эластичных прокладок к ограждающим конструкциям рекомендуется применять клей из сухой шпаклевочной смеси на основе гипсового вяжущего «КНАУФ-Фуген-фюллер™» по ТУ 5745-011-04001508-97 и ТУ 5745-021-03984362-2001. При кладке гидрофобизированных (влагостойких) гипсовых плит рекомендуется применять шпаклевочную смесь «КНАУФ-Фугенфюллер гидро™» по ТУ 5745-021-03984362-2001.

4.2.5 Для защиты внутренних углов в перегородках и облицовках из гипсовых пазогребневых плит следует использовать армирующую ленту (серпянку), а для защиты наружных углов - профиль углозащитный ПУ 31/31 по ТУ 1121-004-04001508-2003 (таблица 4.3).

4.2.6 Для устройства теплозвукоизоляционного слоя в перегородках должны применяться материалы, предусмотренные в проектной документации на конкретное здание.

4.2.7 Для подготовки поверхности перегородок и облицовок из гипсовых пазогребневых плит под отделку рекомендуется использовать грунтовку «КНАУФ-Тифенгрунд™», поставляемую предприятиями группы КНАУФ.

4.2.8 Для подготовки поверхности перегородок и облицовок из гипсовых пазогребневых плит под высококачественную окраску рекомендуется применять шпаклевочный состав «КНАУФ-Финишпаста™», поставляемый предприятиями группы КНАУФ.

4.2.9 В помещениях, где поверхности конструкций из гипсовых пазогребневых плит подвержены непосредственному воздействию влаги, их следует защищать гидроизоляционной мастикой «КНАУФ-Флехендихт™», а в местах сопряжений конструкций из гипсовых плит между собой и с полом рекомендуется применять самоклеющуюся уплотнительную гидроизоляционную ленту «КНАУФ-Флехендихтбанд®», поставляемую предприятиями группы КНАУФ.

5 ТЕХНИЧЕСКИЕ РЕШЕНИЯ КОНСТРУКЦИЙ ИЗ ГИПСОВЫХ ПАЗОГРЕБНЕВЫХ ПЛИТ

5.1 Общие положения

5.1.1 Настоящий раздел распространяется на проектирование конструкций перегородок и внутренних облицовок наружных стен, выполняемых из гипсовых пазогребневых плит.

5.1.2 Раздел содержит указания по проектированию и конструктивным решениям основных узлов перечисленных выше конструкций, область их применения и физико-технические характеристики.

5.1.3 К конструкциям с применением гипсовых пазогребневых плит предъявляются общие требования в части:

- качества поверхности;

- пожарно-технических и гигиенических характеристик используемых материалов;

- характеристик сопротивления воздействиям окружающей среды, в том числе воздействию повышенной влажности и химической агрессии.

5.1.4 Выполнение требований к качеству поверхности, к гигиеническим и пожарно-техническим характеристикам конструкций обеспечивается свойствами гипсовых пазогребневых плит при условии, что они соответствуют требованиям настоящего Свода правил.

5.1.5 Сопротивление конструкций воздействиям окружающей среды обеспечивается при следующих условиях:

- для конструкций, эксплуатирующихся в условиях влажного температурно-влажностного режима, характеризующегося СНиП 23-02, используются гидрофобизированные гипсовые плиты;

- для конструкций, эксплуатирующихся в условиях агрессивной среды, металлические элементы защищены от коррозии в соответствии с требованиями СНиП 2.03.11.

5.2 Перегородки

К перегородкам строительными нормами и правилами предъявляются требования в части устойчивости к воздействиям собственного веса, веса навесного оборудования, других эксплуатационных, ветровых и сейсмических нагрузок, а также к воздействиям случайных ударов.

Перегородки многоквартирных жилых домов (за исключением межкомнатных перегородок с проемами) и перегородки между рабочими помещениями зданий непроизводственной сферы должны также удовлетворять требованиям по звукоизоляции.

Перегородки, разделяющие отапливаемые и неотапливаемые помещения зданий различного назначения, должны также удовлетворять требованиям по сопротивлению теплопередаче и пароизоляции.

Перегородки в зданиях с нормируемыми пожарно-техническими характеристиками строительных конструкций должны удовлетворять требованиям к классу пожарной опасности и пределу огнестойкости.

Общие требования

5.2.1 Настоящий раздел распространяется на перегородки, эксплуатируемые в помещениях с сухим, нормальным и влажным режимами по СНиП 23-02.

5.2.2 Рекомендуемые для применения конструктивные схемы перегородок приведены в таблице 5.1.

Таблица 5.1

Схема

Конструкция

Масса 1 м2, кг

Одинарная

100

125

Двойная

200

250

Двойная с дополнительным слоем теплозвукоизоляционного материала

200*

250*

* Без учета массы теплозвукоизоляционного слоя.

Примечание - В числителе указана масса для перегородок из плит толщиной 80 мм, в знаменателе - 100 мм.

5.2.3 При выборе схем перегородок должны учитываться силовые и другие воздействия, класс функциональной и конструктивной опасности и степень огнестойкости здания, а также объемно-планировочные параметры (в том числе высота) и условия эксплуатации.

Конструктивные требования

5.2.4 Перегородки из гипсовых пазогребневых плит следует проектировать из плит одного типа в качестве самонесущих конструкций и рассчитывать на воздействие следующих нагрузок:

- горизонтальную ветровую в соответствии со СНиП 2.01.07;

- вертикальную от собственного веса конструкций;

- от веса бытовых приборов и сантехоборудования, навешенных на конструкцию;

- сейсмическую (при расположении здания в сейсмических районах).

5.2.5 Прочность и устойчивость принятого варианта конструктивной схемы перегородок должны проверяться расчетом на действие ветровой нагрузки, принимаемой равной 0,2W0, где W0 - расчетное значение скоростного напора ветра, определяемое по СНиП 2.01.07.

5.2.6 Учитываемая в расчетах на сейсмические воздействия расчетная сейсмическая нагрузка составляет для районов с сейсмичностью 7, 8 и 9 баллов соответственно 6,5; 12,8 и 25,6 кг/м2.

5.2.7 Для обеспечения прочности перегородок при воздействии навесного оборудования следует учитывать положения раздела 11 настоящего Свода правил.

5.2.8 Стойкость перегородок к случайным ударам должна обеспечиваться установкой на наружных углах защитных угловых профилей.

5.2.9 Длина перегородок не должна превышать 6 м, а высота - 3,6 м. Перегородки больших размеров рекомендуется выполнять из отдельных фрагментов, размеры которых не должны превышать указанных выше, с установкой каркаса, закрепляемого к несущим конструкциям здания.

5.2.10 Межкомнатные перегородки проектируют одинарными, а межквартирные - двойными с образованием воздушного зазора, а также с дополнительным слоем звукоизоляционного материала.

5.2.11 Перегородки рекомендуется проектировать с установкой плит пазом вверх в целях обеспечения равномерности распределения монтажного клея в пазогребневом стыке.

При необходимости допускается установка плит пазом вниз.

Плиты должны размещаться «вразбежку», со смещением торцевых (вертикальных) стыков не менее чем на 100 мм.

Устройство сопряжений перегородок с другими конструкциями зданий

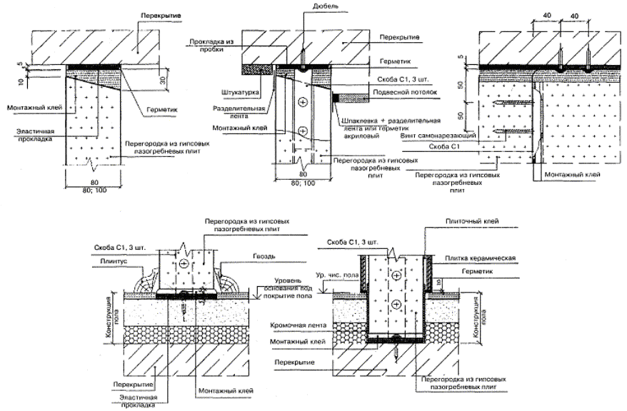
5.2.12 Для перегородок, к которым не предъявляются нормативные требования по звукоизоляции, рекомендуется использовать жесткое сопряжение в местах примыкания их к ограждающим конструкциям непосредственно через раствор монтажного клея (рисунки 2 - 4).

5.2.13 Для перегородок, к которым предъявляются нормативные требования по звукоизоляции, рекомендуется использовать эластичное сопряжение их с ограждающими конструкциями здания (рисунки 5 - 7).

5.2.14 Эластичное сопряжение следует выполнять путем крепления перегородки к стенам, другим перегородкам и перекрытиям металлическими скобами и с применением эластичной прокладки.

5.2.15 Шаг установки металлических скоб по горизонтали не должен превышать 1335 мм при плитах размером 667´500 мм и 1800 мм при плитах размером 900´300 мм; по вертикали - 1000 мм при плитах размером 667´500 мм и 900 мм при плитах размером 900´300 мм. При этом на каждой грани перегородки должно быть предусмотрено не менее трех креплений.

Обеспечение звукоизоляции

5.2.16 Требуемый индекс изоляции воздушного шума Rw перегородок из гипсовых пазогребневых плит следует устанавливать в соответствии с указаниями СНиП 23-03.

5.2.17 Индекс изоляции воздушного шума некоторых типов перегородок допускается при проектировании принимать по таблице 5.2.

Таблица 5.2

Тип перегородки

Толщина пазогребневой плиты, мм

Индекс изоляции воздушного шума Rw, дБ

Однослойная

80

39

100

41

Двухслойная с воздушным зазором 40 мм

100

48

5.2.18 Индекс изоляции воздушного шума двухслойных перегородок из гипсовых пазогребневых плит с дополнительным звукоизоляционным слоем во всех случаях должен определяться путем испытаний в соответствии с ГОСТ 27296.

Пожарно-технические характеристики перегородок

5.2.19 Предел огнестойкости однослойных перегородок из гипсовых пазогребневых плит согласно «Пособию по определению пределов огнестойкости конструкций, пределов распространения огня по конструкциям и пути возгораемости» при толщине плит 80 мм и 100 мм составляет соответственно EI 130 и EI 160, а класс конструктивной пожарной опасности - КО.


Рисунок 2 - Конструктивные решения жесткого сопряжения однослойной перегородки с ограждающими конструкциями

Рисунок 3 - Конструктивные решения жесткого сопряжения двухслойной перегородки с ограждающими конструкциями


Рисунок 4 - Конструкции узлов однослойной (А) и двухслойной (Б) перегородок при жестком примыкании к стене и образовании угла


Рисунок 5 - Конструктивные решения эластичного сопряжения однослойной перегородки с ограждающими конструкциями

Рисунок 6 - Конструктивные решения эластичного сопряжения двухслойной перегородки с ограждающими конструкциями


Рисунок 7 - Конструкции узлов перегородки при эластичном сопряжении с ограждающими конструкциями


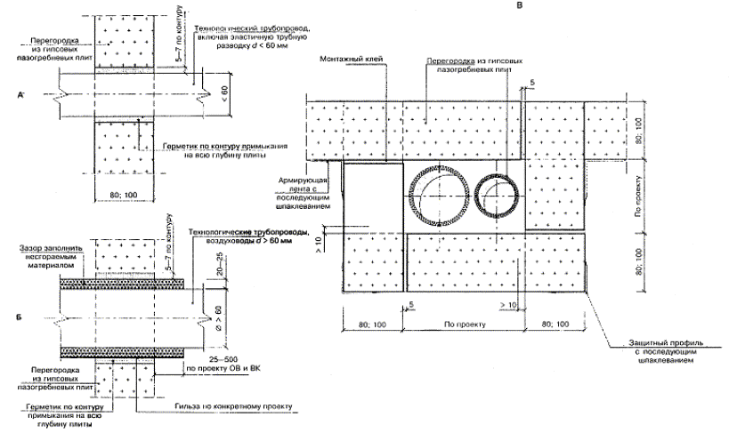
Рисунок 8 - Конструкции узлов пропуска трубопроводов диаметром до 60 мм (А) и более (Б) через перегородку и через шахту (B)

Рисунок 9 - Конструктивные решения жесткого (А) и эластичного (Б) примыкания облицовки стен с ограждающими конструкциями


Рисунок 10 - Конструкции узлов облицовки стен в местах оконных проемов (А) и температурного шва (Б)

5.2.20 В соответствии со СНиП 21-01 перегородки из гипсовых пазогребневых плит могут применяться в жилых, общественных и производственных зданиях всех степеней огнестойкости.

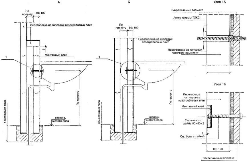
5.2.21 В местах сопряжения перегородок с трубопроводами водоснабжения, парового и водяного отопления следует предусматривать установку гильзы из несгораемых материалов, обеспечивающей свободное перемещение труб при изменении температуры теплоносителя (рисунок 8).

5.2.22 При пересечении противопожарной перегородки с трубопроводами диаметром более 60 мм следует предусматривать изоляцию трубопровода кожухом с огнестойкостью не менее 0,5 ч на длине 6,5 м от плоскости перегородки.

5.2.23 При пересечении противопожарных перегородок воздуховодами стенки воздуховодов должны иметь огнезащиту, обеспечивающую предел огнестойкости не менее 0,5 ч для зданий I и II степеней огнестойкости в соответствии со СНиП 41-01.

5.3 Внутренняя облицовка наружных стен

5.3.1 Внутреннюю облицовку наружных стен гипсовыми пазогребневыми плитами рекомендуется применять в целях их дополнительной тепло- и звукоизоляции.

5.3.2 Между облицовкой и стеной может дополнительно предусматриваться слой теплозвукоизоляционного материала, характеристики которого должны быть приняты по результатам теплотехнического расчета по СНиП 23-02 из условия недопустимости накопления влаги в стене за годовой период и ограничения влаги за период с отрицательными среднемесячными температурами.

5.3.3 Расчетное значение индекса изоляции воздушного шума с облицовкой из гипсовых пазогребневых плит следует определять в соответствии с указаниями СНиП 23-03.

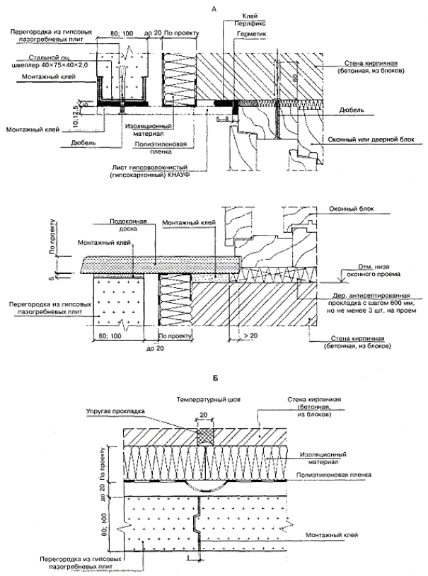
5.3.4 По аналогии с перегородками сопряжение облицовки с примыкающими ограждающими конструкциями может быть жестким или эластичным (рисунок 9).

5.3.5 Зазоры между облицовкой и стеной в местах примыкания к окнам рекомендуется перекрывать гипсоволокнистыми листами ГОСТ Р 51829, которые крепят к облицовке с помощью дюбелей через оцинкованный швеллер 40´75´40´2,0 мм. Швеллер, надетый на торец плиты, закрепляется к ней самонарезающими винтами. Зазор между торцом гипсоволокнистого листа и оконной коробкой следует загерметизировать силиконовым или тиоколовым герметиком (рисунок 10).

5.3.6 В местах расположения деформационных швов стен при облицовке их гипсовыми плитами с дополнительным утеплением теплоизоляционным материалом в слое пароизоляции необходимо предусмотреть устройство компенсатора (рисунок 10).

5.3.7 Слой дополнительной теплоизоляции рекомендуется закреплять к стене на клею или распорных дюбелях.

5.3.8 При использовании облицовки в качестве огнезащитного элемента, повышающего значение пожарно-технических характеристик стены, фактический предел огнестойкости таких стен следует устанавливать испытаниями по ГОСТ 30247.1, а класс пожарной опасности - по ГОСТ 30403.

6 ТЕХНОЛОГИЯ МОНТАЖА И УСТРОЙСТВА КОНСТРУКЦИЙ ИЗ ГИПСОВЫХ ПАЗОГРЕБНЕВЫХ ПЛИТ

6.1 Устройство перегородок и облицовок

6.1.1 Монтаж перегородок рекомендуется выполнять в процессе производства отделочных работ. Работы по облицовке стен также выполняются в процессе производства отделочных работ, когда закончена разводка электротехнических и санитарно-технических систем.

6.1.2 До монтажа перегородок и облицовок все строительные работы, связанные с «мокрыми» процессами, должны быть закончены. Монтаж должен осуществляться в условиях сухого или нормального влажностного режима при температуре воздуха в помещении не ниже +5 °С до устройства чистого пола.

6.1.3 До монтажа гипсовые пазогребневые плиты должны быть выдержаны при температуре не ниже +5 °С в течение 4 ч.

6.1.4 До начала работ по устройству перегородок и облицовок необходимо удалить с базового пола, стен и потолка пыль и грязь.

6.1.5 В соответствии с проектом необходимо выполнить разметку положения перегородки или облицовки на полу и с помощью отвеса перенести ее на стены и потолок. На полу следует также разметить положение проемов.

6.1.6 При неровностях поверхности пола они должны быть ликвидированы выравнивающим слоем из цементно-песчаного раствора марки не ниже 50.

6.1.7 При эластичном сопряжении перегородки или облицовки с ограждающими конструкциями к последним в местах примыканий монтажным клеем наклеивается эластичная прокладка. При этом необходимо обеспечить горизонтальное положение прокладки, на которую должен устанавливаться нижний ряд плит. Приступать к установке плит следует после схватывания клея.

6.1.8 В случае укладки плит пазом вверх у всех плит первого ряда необходимо обдирочным рубанком удалить гребень.

6.1.9 При установке плит нижнего ряда соответствие их положения проектному следует контролировать с помощью правила и уровня.

6.1.10 При укладке последующих рядов в паз нижнего ряда плит и в вертикальный торцевой паз устанавливаемых плит наносят монтажный клей и каждую плиту осаживают с помощью резинового молотка. Излишки выступившего клея немедленно удаляются и используются в дальнейшем.

6.1.11 В процессе укладки плит необходимо контролировать толщину вертикальных и горизонтальных швов, которая не должна превышать 2 мм, а с помощью правила и уровня проводить проверку плоскостности стены.

6.1.12 При укладке плит вразбежку используются доборные элементы, получаемые путем разрезки стандартных плит на заданные размеры ручной ножовкой с широким полотном и крупными зубьями или специальным электроинструментом.

6.1.13 Для последнего ряда следует использовать плиты со скошенными гранями, а при необходимости они должны быть обрезаны под конфигурацию поверхности потолка.

6.1.14 Плиты верхнего ряда, как правило, следует укладывать на предыдущий ряд длинной стороной, но для сокращения отходов допускается укладка их и короткой стороной при обязательном соблюдении разбежки торцевых стыков.

6.1.15 При эластичном сопряжении перегородки или облицовки с примыкающими конструкциями крепежная скоба устанавливается в паз плиты и закрепляется к ней самонарезающими винтами, а к ограждающим конструкциям - анкерными дюбелями.

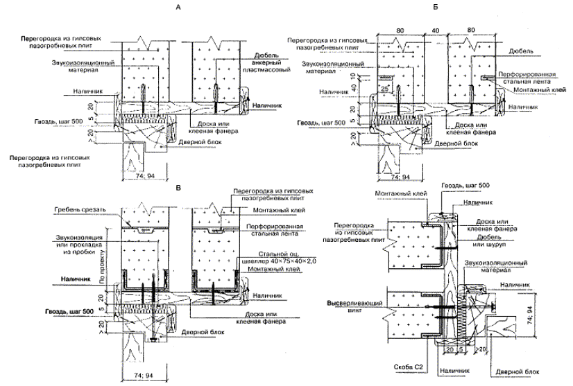
6.1.16 Проемы высотой не более 1/4 высоты перегородки и площадь которых не превышает 1/10 площади перегородки, допускается выполнять вырезанием в смонтированной перегородке. Проемы больших размеров рекомендуется выполнять в процессе монтажа перегородки. При проеме шириной до 800 мм, если над ним размещается только один ряд плит, над проемом закрепляется монтажная конструкция, обеспечивающая проектное положение плит до схватывания клея в стыках (рисунок 11). При большей ширине проема над ним следует предусмотреть установку перемычки с глубиной опирания не менее 500 мм.

6.1.17 Дверные коробки следует закреплять в проеме перегородки с помощью самонарезающих (высверливающих) винтов согласно рисункам 12 и 13.

6.1.18 При образовании угла и в местах пересечения перегородок или облицовок друг с другом плиты следует укладывать с перекрытием стыков ниже расположенного ряда (рисунок 14).

6.1.19 Для защиты от механических повреждений на внешние углы перегородок закрепляется углозащитный профиль ПУ 31/31, который при установке вдавливают в предварительно нанесенный слой клея, после чего широким шпателем или шпателем для внешних углов наносят выравнивающий слой.

6.1.20 Внутренние углы следует укреплять с использованием армирующей ленты, которую утапливают в слой клея, а затем наносят сверху выравнивающий слой с помощью шпателя для внутренних углов.

Рисунок 11 - Схема установки монтажной конструкции при устройстве дверного проема

6.1.21 Для подготовки под отделку места стыков плит шпаклюют с помощью широкого шпателя, а после высыхания обрабатывают ручным шлифовальным приспособлением.

6.2 Монтаж электрической и слаботочной проводки и трубопроводов

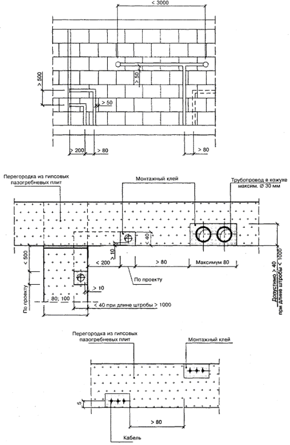
6.2.1 Для электрической и слаботочной проводки в перегородке или облицовке из гипсовых пазогребневых плит с помощью бороздодела выполняются штробы, в которых проводка заделывается гипсовым монтажным клеем. При этом шаг штроб должен быть не менее толщины плиты, глубина не менее 1 см, а толщина плиты за штробой не должна быть менее 40 мм или 50 мм при плитах соответственно толщиной 80 и 100 мм (рисунок 15).

6.2.2 Под розетки, распределительные коробки и выключатели в перегородке или облицовке отверстия высверливаются электродрелью со специальной насадкой.

6.2.3 Под трубопроводы небольшого диаметра также вырезаются штробы с последующей заделкой их гипсовым монтажным клеем. Величина заделки и расстояние между штробами не должны быть менее представленных на схеме (рисунок 15).

6.2.4 Трубы большого диаметра, а также группы трубопроводов и воздуховодов следует размещать между слоями двухслойной перегородки. При этом после монтажа одного слоя гипсовой перегородки к ней закрепляются все инженерные коммуникации, а затем возводят второй слой перегородки. Трубопроводы не должны соприкасаться с плитами перегородки.

7 ОТДЕЛКА ПОВЕРХНОСТЕЙ КОНСТРУКЦИЙ ИЗ ГИПСОВЫХ ПАЗОГРЕБНЕВЫХ ПЛИТ

7.1 Поверхность перегородок и облицовок из гипсовых пазогребневых плит может подготавливаться под окраску, оклейку обоями, облицовку керамической плиткой или декоративную штукатурку.


Рисунок 12 - Конструкция узлов крепления дверной коробки в однослойной перегородке при ширине проема до 900 мм (А), до 1600 мм (Б) и до 2000 мм (В)

Рисунок 13 - Конструкция узлов крепления дверной коробки в двухслойных перегородках при ширине проема до 900 мм (А), до 1600 мм (Б) и до 2000 мм (В)


Рисунок 14 - Схема раскладки плит в узле пересечения перегородок

Рисунок 15 - Принципиальные схемы размещения трубопроводов, электрической и слаботочной проводки в перегородках из гипсовых пазогребневых плит

7.2 Для улучшения адгезии окрасочного слоя всю поверхность следует обработать грунтовкой «КНАУФ-Тифенгрунд™», которую наносят с помощью валика или кисти. Полное высыхание грунтовочного покрытия наступает через 3 ч.

Окончательную финишную подготовку поверхности следует производить с применением шпаклевочного состава «КНАУФ-Финишпаста™», который наносят на поверхность широким шпателем тонким слоем. После высыхания поверхность шлифуется.

7.3 Для окрашивания поверхности могут применяться водоэмульсионные, масляные, смоляные, полиуретановые или эпоксидные краски. Не допускается использование известковых красок и красок на основе жидкого стекла.

7.4 Краску рекомендуется наносить неразбавленной с помощью валика. Покраска считается качественной, если на поверхности неразличимы стыки плит.

7.5 При отделке обоями перед оклейкой всю поверхность рекомендуется обработать грунтовкой «КНАУФ-Тифенгрунд™».

7.6 Отделку поверхностей перегородок и облицовок из влагостойких гипсовых пазогребневых плит в помещениях с влажным режимом следует производить керамической плиткой на предварительно нанесенный слой грунтовки «КНАУФ-Тифенгрунд™».

7.7 Поверхность конструкций, подверженную непосредственному воздействию влаги (в душевых, у раковин), рекомендуется предварительно покрыть гидроизоляционной мастикой «КНАУФ-Флехендихт™», которую наносят кистью или валиком, а углы проклеить уплотнительной гидроизоляционной лентой «КНАУФ-Флехендихтбанд™».

7.8 После высыхания гидроизоляционной мастики или грунтовочного покрытия зубчатым шпателем наносится плиточный клей «КНАУФ-Флизенклебер®», ТУ 5745-012-04001508-97, на который укладывается керамическая плитка.

7.9 Швы между плитами заполняют затирочными составами, в качестве которых рекомендуется использовать состав «КНАУФ-Фугенбунт™».

8 ОСНОВНЫЕ ПРАВИЛА ТЕХНИКИ БЕЗОПАСНОСТИ ПРИ ПРОИЗВОДСТВЕ РАБОТ

8.1 Устройство конструкций из гипсовых пазогребневых плит следует выполнять с соблюдением требований СНиП 12-04.

8.2 К устройству конструкций с применением гипсовых пазогребневых плит должны допускаться лица, прошедшие инструктаж по технике безопасности, производственной санитарии, обученные приемам монтажа и имеющие удостоверение на право производства работ.

8.3 Рабочие должны быть обеспечены спецодеждой и средствами индивидуальной защиты.

8.4 Работы по устройству конструкций с применением гипсовых пазогребневых плит рекомендуется выполнять специализированными бригадами, обладающими опытом по монтажу таких конструкций и оснащенными специальным инструментом.

8.5 Используемые при производстве работ инструмент, оборудование, оснастка и приспособления для монтажа конструкций должны отвечать условиям безопасности выполнения строительно-монтажных работ. Рекомендуемый перечень специального инструмента приведен в приложении В.

9 ТРАНСПОРТИРОВАНИЕ И ХРАНЕНИЕ МАТЕРИАЛОВ И ИЗДЕЛИЙ

9.1 Плиты гипсовые пазогребневые транспортируют всеми видами транспорта в соответствии с правилами перевозки грузов, действующими на данном виде транспорта.

9.2 Транспортирование плит осуществляется в пакетированном виде. Транспортные пакеты формируются из плит одного вида и размера. Схемы упаковки устанавливаются в технологической документации.

По согласованию с потребителем допускается транспортирование плит в непакетированном виде.

9.3 Транспортные пакеты плит при хранении у потребителя могут быть установлены друг на друга в соответствии с правилами техники безопасности. При этом высота штабеля не должна превышать 2 м.

При погрузке, разгрузке, транспортировании и хранении плит должны приниматься меры, исключающие возможность их повреждения и увлажнения. Не допускается погрузка плит навалом либо разгрузка их сбрасыванием.

9.4 В период установившихся отрицательных температур во избежание смерзания плит между собой упаковка производится с применением прокладочного материала между плитами.

9.5 Плиты следует хранить в помещениях с сухим и нормальным влажностными режимами раздельно по видам и размерам.

9.6 Изготовитель должен гарантировать соответствие гипсовых пазогребневых плит всем требованиям завода-изготовителя в течение не менее года при соблюдении условий транспортирования и хранения.

9.7 Перевозить теплозвукоизоляционные материалы можно любыми видами транспорта при условии их защиты от увлажнения.

9.8 Хранение теплозвукоизоляционных материалов должно производиться в закрытых складах или под навесом при условии их защиты от увлажнения.

9.9 Винты, дюбели, металлические пластины для крепления могут перевозиться любым видом транспорта упакованными в ящики или коробки, снабженные ярлыками, и храниться под навесом.

10 ПРИЕМКА СМОНТИРОВАННЫХ КОНСТРУКЦИЙ ИЗ ГИПСОВЫХ ПАЗОГРЕБНЕВЫХ ПЛИТ

10.1 Конструкции перегородок и облицовок из гипсовых пазогребневых плит рекомендуется принимать поэтапно с оформлением соответствующих актов на скрытые работы (прокладка электрической и слаботочной проводки, укладка теплозвукоизоляционных материалов и т.д.).

10.2 Смонтированные конструкции перегородок и облицовок должны иметь ровные и гладкие поверхности без загрязнений, наплывов клея и шпаклевочных составов, незаполненных швов и раковин. Следует проверить отсутствие трещин и отбитых углов. Выходящие на лицевую сторону конструкции головки винтов, болтов и анкерных креплений должны быть утоплены в тело плиты.

10.3 Дефекты поверхностей перегородок и облицовок не должны превышать величин, приведенных в таблице 10.1.

10.4 В местах сопряжений перегородок и облицовок с другими ограждающими конструкциями и пересечений между собой шпаклевка должна быть уложена без разрывов по всему контуру сопряжения на полную глубину стыка.

11 ОСНОВНЫЕ ПРАВИЛА ТЕХНИЧЕСКОЙ ЭКСПЛУАТАЦИИ КОНСТРУКЦИЙ ИЗ ГИПСОВЫХ ПАЗОГРЕБНЕВЫХ ПЛИТ

11.1 Используемый тип крепежного элемента должен выбираться в зависимости от массы навешиваемых на перегородку или облицовку предметов.

11.2 Легкое навесное оборудование и предметы интерьера крепятся к перегородкам и облицовкам из гипсовых пазогребневых плит с помощью анкерных пластмассовых дюбелей. При этом необходимо учитывать максимально допустимую нагрузку на один дюбель, указанную в таблице 11.1.

11.3 Для определения максимальной нагрузки на дюбель (упругое растяжение) рекомендуется использовать формулу

где F - максимальная нагрузка (на упругое растяжение) на дюбель, кН;

B - максимальная масса навешиваемого предмета, кН;

Таблица 10.1

Дефекты конструкций

Допускаемые отклонения при отделке

простой

улучшенной

высококачественной

Неровности поверхности (обнаруживаются при накладывании правил или шаблона длиной 2 м)

Не более трех глубиной или выпуклостью до 5 мм

Не более двух глубиной или выпуклостью до 3 мм

Не более двух глубиной или выпуклостью до 2 мм

Отклонение плоскости конструкции по вертикали

15 мм на всю высоту помещения

1 мм на 1 м, но не более 10 мм на всю высоту помещения

1 мм на 1 м, но не более 6 мм на всю высоту помещения

Таблица 11.1

Фирма-производитель

Марка

Диаметр, мм

Глубина, мм

Максимальная нагрузка, кН/дюбель

Fischer-Duebel S

S8

8

55

0,12

S10

10

70

0,24

ТОХ Combi-Duebel

Combi 10/50

10

60

0,30

Combi 12/60

12

70

0,46

Upat U Ultra-Duebel

U8

8

55

0,20

U10

10

65

0,35

U12

12

75

0,50

HILTI Universalduebel HUD

HUD8

8

55

0,15

HUD10

10

65

0,30


Рисунок 16 - Узлы крепления коммуникационного оборудования к перегородке однослойной (А) и двухслойной (Б)


е - удаление центра тяжести навешиваемого предмета от стены, см;

п - число креплений;

а - опорное плечо, см.

11.4 Тяжелое навесное оборудование и предметы должны крепиться с использованием специальных крепежных элементов, в качестве которых рекомендуется применять проходные анкеры и болты со стальными шайбами (рисунок 16).

11.5 При повреждении перегородок или облицовок в процессе эксплуатации от механических воздействий, протечек и т.п. следует прежде всего установить и устранить причину возникновения повреждений.

11.6 В случае попадания воды в полости двухслойных перегородок или в зазор между облицовкой и стеной необходимо произвести слив стоячей воды, для чего внизу перегородки или облицовки сначала просверливают дрелью контрольные отверстия, а затем при необходимости вырезают проем, необходимый для ремонта поврежденного трубопровода.

11.7 После проведения ремонтных работ на трубопроводе отверстие заделывают стандартными гипсовыми плитами или вставками, вырезанными из них.

ПРИЛОЖЕНИЕ А

ПЕРЕЧЕНЬ НОРМАТИВНЫХ ДОКУМЕНТОВ, НА КОТОРЫЕ ДАНЫ ССЫЛКИ В НАСТОЯЩЕМ СВОДЕ ПРАВИЛ

СНиП 12-04-2002   Безопасность труда в строительстве. Часть 2. Строительное производство.

СНиП 21-01-97*     Пожарная безопасность зданий и сооружений.

СНиП 23-02-2003   Тепловая защита зданий.

СНиП 2.03.11-85     Защита строительных конструкций от коррозии.

СНиП 2.01.07-85*   Нагрузки и воздействия.

СНиП 41-01-2003   Отопление, вентиляция и кондиционирование.

СНиП 23-03-2003   Защита от шума.

ГОСТ 10702-78*     Прокат из качественной конструкционной углеродистой и легированной стали для холодного выдавливания и высадки. Технические условия.

ГОСТ 14918-80       Сталь тонколистовая оцинкованная с непрерывных линий. Технические условия.

ГОСТ 19904-90       Прокат листовой холоднокатаный. Сортамент.

ГОСТ 27296-87       Защита от шума в строительстве. Звукоизоляция ограждающих конструкций зданий. Методы измерения.

ГОСТ 30244-94       Материалы строительные. Методы испытаний на горючесть.

ГОСТ 30247.1-94    Конструкции строительные. Методы испытаний на огнестойкость. Несущие и ограждающие конструкции.

ГОСТ 30403-96       Конструкции строительные. Метод определения пожарной опасности.

ГОСТ Р 51829-2001                     Листы гипсоволокнистые. Технические условия.

ТУ 5742-007-16415648-98          Плиты гипсовые для стен и перегородок.

ТУ 5742-014-03984362-96          Плиты пазогребневые строительные из гипса.

ТУ 5742-001-56798576-2004      Плиты гипсовые пазогребневые для стен и перегородок.

ТУ 5742-003-05287561-2003      Плиты гипсовые пазогребневые для перегородок.

ТУ 5745-011-04001508-97          Сухие гипсовые смеси.

ТУ 5745-021-03984362-2001      Смеси гипсовые сухие.

ТУ 5745-012-04001508-97          Клей для облицовочной плитки и природного камня.

ТУ 1121-004-04001508-2003      Профили стальные оцинкованные тонкостенные.

ПРИЛОЖЕНИЕ Б

МАТЕРИАЛЫ ДЛЯ УСТРОЙСТВА КОНСТРУКЦИЙ С ПРИМЕНЕНИЕМ ГИПСОВЫХ ПАЗОГРЕБНЕВЫХ ПЛИТ, ПОСТАВЛЯЕМЫЕ ПРЕДПРИЯТИЯМИ ГРУППЫ КНАУФ

Наименование

Ед. изм.

Размеры, мм

Масса, кг

Длина

Ширина

Толщина

ГИПСОВЫЕ ПАЗОГРЕБНЕВЫЕ ПЛИТЫ

Гипсовые пазогребневые плиты

по ТУ 5742-007-16415648-98

обыкновенные и гидрофобизированные

(КНАУФ-гипсоплита™)

Плита

667

500

80

Ок. 29

100

Ок. 38

Гипсовые пазогребневые плиты

по ТУ 5742-014-03984362-96

обыкновенные и гидрофобизированные

(КНАУФ-гипсоплита™)

900

300

80

Ок. 24

Гипсовые пазогребневые плиты

по ТУ 5742-001-56798576-2003

обыкновенные и гидрофобизированные

(КНАУФ-гипсоплита™)

667

500

80

Ок. 29

100

Ок. 38

Гипсовые пазогребневые плиты

по ТУ 5742-003-05287561-2003

обыкновенные и гидрофобизированные

Полнотелые

667

500

80

Ок. 29

Пустотелые

Ок. 23

МОНТАЖНЫЕ КЛЕИ И ШПАКЛЕВОЧНЫЕ СОСТАВЫ

Шпаклевочная смесь (монтажный клей) «КНАУФ-Фугенфюллер™» по ТУ 5745-011-04001508-97

Шпаклевочная смесь (монтажный клей) «КНАУФ-Фугенфюллер™» по ТУ 5745-021-03984362-2001

Мешок

-

-

-

10

25

Шпаклевочная смесь (монтажный клей) «КНАУФ-Фугенфюллер гидро™» по ТУ 5745-021-03984362-2001

-

-

-

25

Шпаклевочный состав для финишного шпаклевания «КНАУФ-Финишпаста™»

Ведро

-

-

-

8

20

ПРОКЛАДКИ, СТРОИТЕЛЬНЫЕ ЛЕНТЫ, ЗАЩИТНЫЕ УГЛОВЫЕ ПРОФИЛИ

Пробковая эластичная прокладка

Лента

-

75,95

-

-

Армирующая лента (серпянка) в рулонах

Рулон

23000

50

-

0,20

75000

0,60

150000

1,20

Уплотнительная гидроизоляционная лента «КНАУФ-Флехендихтбанд™»

25000

120

0,6

 

Углозащитный профиль ПУ 31/31 «КНАУФ-профиль™» по ТУ 1121-004-04001508-95

Шт.

2750

31

0,6

1 м - 0,24

3000

4000

4500

ГРУНТОВКИ И ГИДРОИЗОЛЯЦИОННЫЕ СОСТАВЫ

Грунтовка «КНАУФ-Тифенгрунд™»

Ведро

-

-

-

2,5

5

12

Гидроизоляционная мастика «КНАУФ-Флехендихт™»

-

-

-

6

КЛЕИ ДЛЯ КЕРАМИЧЕСКОЙ ПЛИТКИ, ЗАТИРОЧНЫЕ СОСТАВЫ И ГЕРМЕТИКИ

Клей для керамической плитки «КНАУФ-Флизенклебер™» по ТУ 5745-012-04001508-97

Мешок

-

-

-

10

 

25

Клей для керамической плитки (эластифицированный) «КНАУФ-Флексклебер™» по ТУ 5745-012-04001508-97

-

-

-

10

25

Цветные затирочные составы «КНАУФ-Фугенбунт™»

-

-

-

5

Силиконовые и акриловые составы с устойчивой эластичностью (герметики)

Туба

-

-

-

0,310

КРЕПЕЖНЫЕ ЭЛЕМЕНТЫ

Винт самонарезающий с потайной головкой и острым концом (шуруп)

Шт.

35

-

3,5

-

Дюбель анкерный пластмассовый

35

-

6,0

-

40

55

8,0

60

10,0

Дюбель анкерный металлический

65

70

-

10,0

 

 

75

12,0

ПРИЛОЖЕНИЕ В

ИНСТРУМЕНТЫ

Рисунок

Название инструмента

Приспособление шнуроотбойное (15 м)

Приспособление «Метростат»

Уровень

Правило

Резиновый молоток

Короб

Шпатель-кельма

Шпатель широкий

Шпатель для внутренних углов

Шпатель для наружных углов

Шпатель зубчатый для нанесения клея для керамической плитки

Ручное шлифовальное приспособление

Ножовка с широким полотном и большими зубьями

Рубанок обдирочный

Бороздодел для устройства штроб

Электродрель

Насадка к электродрели для устройства отверстий большого диаметра

Ножницы по металлу

Кисть широкая

Валик

Ключевые слова: эксплуатация строительных конструкций с применением гипсовых пазогребневых плит, влажностные режимы эксплуатации плит, номинальные размеры плит, основные правила технической эксплуатации конструкций из гипсовых пазогребневых плит

 




ГОСТЫ, СТРОИТЕЛЬНЫЕ и ТЕХНИЧЕСКИЕ НОРМАТИВЫ.
Некоммерческая онлайн система, содержащая все Российские Госты, национальные Стандарты и нормативы.
В Системе содержится более 150000 файлов нормативно-технической документации, действующей на территории РФ.
Система предназначена для широкого круга инженерно-технических специалистов.

Рейтинг@Mail.ru Яндекс цитирования

Copyright © www.gostrf.com, 2008 - 2026