Крупнейшая бесплатная информационно-справочная система онлайн доступа к полному собранию технических нормативно-правовых актов РФ. Огромная база технических нормативов (более 150 тысяч документов) и полное собрание национальных стандартов, аутентичное официальной базе Госстандарта. GOSTRF.com - это более 1 Терабайта бесплатной технической информации для всех пользователей интернета. Все электронные копии представленных здесь документов могут распространяться без каких-либо ограничений. Поощряется распространение информации с этого сайта на любых других ресурсах. Каждый человек имеет право на неограниченный доступ к этим документам! Каждый человек имеет право на знание требований, изложенных в данных нормативно-правовых актах!

  


 

ПРАВИТЕЛЬСТВО МОСКВЫ
МОСКОМАРХИТЕКТУРА

РЕКОМЕНДАЦИИ
по проектированию специальных
профессиональных училищ
открытого типа
для подростков
с девиантным поведением

2004

ПРЕДИСЛОВИЕ

1. РАЗРАБОТАНЫ: ГУП МНИИП «Моспроект-4» (архитекторы Любомудрова К.И., Кряжевских М.А., инженер Тихомирова И.Б.).

2. ПОДГОТОВЛЕНЫ К УТВЕРЖДЕНИЮ И ИЗДАНИЮ Управлением перспективного проектирования, нормативов и координации проектно-изыскательских работ Москомархитектуры.

3. СОГЛАСОВАНЫ: Департаментом образования города Москвы, Москомархитектурой.

4. УТВЕРЖДЕНЫ И ВВЕДЕНЫ В ДЕЙСТВИЕ приказом Москомархитектуры от 31.08.2004 г. № 128

СОДЕРЖАНИЕ

ВВЕДЕНИЕ

Специальное профессиональное училище открытого типа для подростков с девиантным поведением (далее СПУО) является самостоятельным типом учреждения профессионального образования добровольного пребывания с оптимальными условиями для реабилитации, воспитания, образования, оздоровления, социализации и профессиональной подготовки воспитанников с девиантным поведением.

Назначением СПУО является обеспечение психологической, медицинской и социальной реабилитации подростков с девиантным поведением, включая коррекцию их поведения и адаптацию в обществе, а также обеспечение условий, необходимых для получения ими профессионального и общего среднего (полного) образования.

1. ОБЛАСТЬ ПРИМЕНЕНИЯ

1.1. Настоящие Рекомендации разработаны для города Москвы в дополнение к действующим на ее территории нормативным документам по проектированию и строительству и распространяются на проектирование новых и реконструкцию существующих СПУО.

1.2. Настоящие Рекомендации устанавливают основные положения по размещению, участку, территории, архитектурно-планировочным решениям и инженерному оборудованию СПУО.

1.3. Проектирование СПУО должно вестись в соответствии с положениями настоящих Рекомендаций, а также требованиями нормативно-методических документов в строительстве, действующих на территории города Москвы (Раздел 2 настоящих Рекомендаций).

2. НОРМАТИВНЫЕ ССЫЛКИ

В настоящих Рекомендациях приведены ссылки на следующие нормативно-методические документы:

СНиП 2.08.02-89* «Общественные здания и сооружения»;

СНиП 21-01-97* «Пожарная безопасность зданий и сооружений»;

СНиП 2.07.01-89* «Градостроительство. Планировка и застройка городских и сельских поселений»;

НПБ 88-2001 «Установки пожаротушения и сигнализации. Нормы и правила проектирования»;

СНиП 41-01-2003 «Отопление, вентиляция и кондиционирование воздуха»;

СНиП 2.04.01-85* «Внутренний водопровод и канализация зданий»;

СНиП 23-05-95* «Естественное и искусственное освещение»;

СанПиН 2.2.1/2.1.1.1076-01 «Гигиенические требования к инсоляции и солнцезащите помещений жилых и общественных зданий и территорий»;

СанПиН 2.4.2.1178-02 «Гигиенические требования к условиям обучения в общеобразовательных учреждениях»;

СанПиН 2.2.1/2.1.1.1278-03 «Гигиенические требования к естественному, искусственному и совмещенному освещению в жилых и общественных зданиях»;

СН 441-72* «Указания по проектированию ограждений площадок и участков предприятий, зданий и сооружений»;

МГСН 4.06-03 «Общеобразовательные учреждения»;

МГСН 4.15-98 «Общеобразовательные учреждения для детей-сирот и детей, оставшихся без попечения родителей»;

МГСН 4.12-97 «Лечебно-профилактические учреждения»;

МГСН 1.01-99 «Нормы и правила проектирования, планировки и застройки г. Москвы»;

МГСН 2.01-99 «Энергосбережение в зданиях»;

МГСН 2.06-99 «Естественное, искусственное и совмещенное освещение»;

«Рекомендации по проектированию специальных учебно-воспитательных учреждений закрытого типа для детей и подростков с девиантным поведением», Выпуск 2, М., 2003 г.;

«Рекомендации по проектированию специальных учебно-воспитательных учреждений открытого типа для детей и подростков с девиантным поведением», М., 2002 г.;

«Рекомендации по проектированию образовательных учреждений для детей, нуждающихся в психолого-педагогической и медико-социальной помощи», М., 2000 г.;

«Рекомендации по проектированию сети и зданий детских внешкольных учреждений для г. Москвы», М., Выпуск 1, 1996 г., Выпуск 2, 1997 г., Выпуск 3, 1998 г.;

«Пособие по проектированию учреждений здравоохранения к СНиП 2.08.02-89*».

3. ОБЩИЕ ПОЛОЖЕНИЯ

3.1. СПУО предназначены для реализации индивидуальных программ социальной реабилитации, адаптации и воспитания, а также государственных образовательных программ начального профессионального и общего среднего образования, обеспечивающих приобретение воспитанниками конкретной профессии соответствующего уровня квалификации и среднего (полного) образования.

3.2. Главным направлением деятельности СПУО является создание необходимых условий для социальной реабилитации, коррекции поведения воспитанников, их адаптации в обществе, а также для удовлетворения потребности личности в получении начального профессионального образования, конкретной профессии (специальности) соответствующего уровня квалификации с возможностью повышения общеобразовательного уровня воспитанников, а также ускоренного приобретения трудовых навыков для выполнения определенной работы или группы работ.

3.3. К основным видам деятельности СПУО относятся: профессиональное образование, общее среднее образование, дополнительное образование, оздоровление воспитанников, педиатрическая и иная врачебная помощь, психологическая и социально-педагогическая диагностика, психологическая и поведенческая коррекция, социально-правовая помощь в адаптации в обществе.

3.4. Основными задачами СПУО являются:

- медико-социальная коррекционная помощь воспитанникам на основе индивидуальной диагностики;

- начальное профессиональное обучение с учетом возрастных и индивидуальных особенностей воспитанников;

- образовательное и компенсирующее обучение по общеобразовательным программам (основным и дополнительным) в соответствии с уровнем обученности воспитанников;

- развивающий досуг (культурное и эстетическое развитие, оздоровление и занятия спортом);

- формирование законопослушного поведения воспитанников;

- социальная адаптация воспитанников;

- социальная защита, охрана прав и законных интересов воспитанников;

- социально-правовая помощь воспитанникам;

- при интернатной форме обучения - создание условий проживания, приближенных к домашним.

3.5. В зависимости от режима работы учреждения СПУО подразделяются на:

- учреждения, работающие по режиму профессиональных училищ с ежедневным посещением (далее СПУО-1);

- учреждения, работающие по режиму интернатов с пятидневным или постоянным проживанием в течение учебного года (далее СПУО-2).

В зависимости от степени социальной дезадаптации и бытовых условий дома, несовершеннолетний направляется в СПУО того или иного типа. Воспитанники детских домов направляются только в СПУО-2.

3.6. Контингент воспитанников СПУО составляют несовершеннолетние в возрасте от 14 до 18 лет, требующие специального педагогического подхода:

- с устойчивым противоправным поведением;

- подвергшиеся любым формам психологического насилия;

- отказывающиеся посещать общеобразовательные учреждения, испытывающие трудности в общении с родителями.

3.7. Организация деятельности СПУО осуществляется в соответствии с «Типовым положением о специальном учебно-воспитательном учреждении для детей и подростков с девиантным поведением» и «Типовым положением об учреждении начального профессионального образования».

3.8. СПУО-2 должно быть полностью рассчитано на использование внутренней инфраструктуры, с целью создания условий для реализации дополнительных образовательных программ: занятий спортом, искусством и т.п. Выполнение данных функций должно быть обеспечено в учреждении за счет расширенной номенклатуры помещений.

3.9. Вместимость СПУО рекомендуется принимать не более 150 мест.

3.10. Состав и площади помещений СПУО должны определяться в соответствии с Разделом 5 настоящих Рекомендаций и уточняются в каждом конкретном случае заданием на проектирование.

4. ПОЛОЖЕНИЯ ПО РАЗМЕЩЕНИЮ, УЧАСТКУ И ТЕРРИТОРИИ

4.1. СПУО следует размещать в селитебной зоне, в 10 - 20-ти минутной доступности до общественного транспорта.

4.2. Здания СПУО следует размещать на обособленных земельных участках.

4.3. Расстояние от зданий СПУО-1 до красной линии и от границы земельного участка СПУО-1 до стен жилых домов следует принимать в соответствии с положениями МГСН 4.06-03.

4.4. Площадь участка СПУО-1 принимается из расчета 80 - 100 м2 на 1 воспитанника; СПУО-2 - 100 - 120 м2 на 1 воспитанника (в соответствии с положениями «Рекомендации по проектированию специальных учебно-воспитательных учреждений открытого типа для детей и подростков с девиантным поведением»). Площадь участка СПУО-2 определена с учетом размещения на нем площадок и сооружений оздоровительного и досугового характера, обеспечивающих психотерапевтическую коррекцию.

4.5. В составе территории участка СПУО-1 предусматриваются следующие зоны:

- учебная и общественная;

- физкультурно-оздоровительная;

- учебно-производственная;

- хозяйственная.

В составе территории участка СПУО-2 предусматриваются следующие зоны:

- учебная и общественная;

- физкультурно-оздоровительная;

- учебно-производственная;

- проживания;

- медицинского изолятора;

- хозяйственная.

4.6. Размеры и состав зон участков определяются заданием на проектирование и в зависимости от объемно-планировочного решения уточняются в процессе проектирования с учетом положений настоящего раздела.

4.7. В зоне размещения функциональных блоков учебного и общественного назначения всех типов СПУО рекомендуется предусматривать мощеную площадку для массовых сборов воспитанников из расчета 0,8 м2 на 1 воспитанника.

4.8. В составе физкультурно-оздоровительной зоны СПУО-1 рекомендуется предусматривать:

- баскетбольную и волейбольную площадки;

- гимнастическую площадку (15×16 м).

В составе физкультурно-оздоровительной зоны СПУО-2 рекомендуется предусматривать:

- баскетбольную и волейбольную площадки;

- гимнастическую площадку (15×16 м);

- комбинированную площадку для спортивных игр, метания мяча и прыжков (60×40 м);

- дорожки с твердым покрытием для катания на роликах, скейтбордах и т.п.

Состав и количество физкультурных площадок уточняется заданием на проектирование.

4.9. В СПУО площадки для игры с мячом следует располагать на расстоянии не менее 25 м от окон здания, а при наличии ограждения высотой 3 м - не менее 15 м. Площадки для занятий физкультурой - на расстоянии не менее 10 м.

4.10. На территории учебно-производственной зоны СПУО, занимающихся подготовкой специалистов по металлообработке, следует размещать навесы, площадью не менее 100 м2 каждый, для хранения металлолома с площадкой для разгрузки и вывоза мусора площадью 20 м2 и организацией подъезда к ней на машине. Производственная зона предусматривается в непосредственной близости от специального выхода из мастерских.

Производственная зона предусматривается в непосредственной близости к хозяйственной зоне с целью использования хозяйственного въезда.

Состав и площади учебно-производственной зоны определяются заданием на проектирование или проектом.

4.11. В зоне проживания СПУО-2 рекомендуется предусматривать прогулочную территорию, оборудованную газонами, цветниками, навесами, скамейками для отдыха и т.п.

4.12. Медицинский изолятор, предусматриваемый в СПУО-2, должен иметь самостоятельный выход на участок и подъездные пути, обеспечивающие возможность проезда специального медицинского транспорта для госпитализации заболевших.

4.13. Хозяйственная зона должна размещаться со стороны производственных помещений пищеблока. На ее территории допускается размещать гараж с мастерскими, навесы для инвентаря и оборудования, мусоросборники и т.п. Гараж рекомендуется проектировать на 3 машины (2 - служебные, 1 - учебная) и использовать как для хозяйственных нужд учреждения, так и для обучения автоделу воспитанников.

4.14. Территория СПУО-1 должна иметь два въезда и прохода: один - центральный, второй - хозяйственный. Въезд и проход на территорию СПУО-2 осуществляется через единый контрольно-пропускной пункт, оснащенный въездными воротами с электроприводом и проходом для сотрудников и посетителей через помещение наружной охраны.

4.15. Земельные участки СПУО должны иметь ограждение по всему периметру: для СПУО-1 - решетчатое ограждение высотой не менее 1,5 м; для СПУО-2 - глухое ограждение высотой не менее 2 м с проходной для охраны.

4.16. Площадь озеленения территории участков всех типов СПУО должна составлять 25 - 30 % от общей площади участка. В состав зеленой зоны входят: газоны с низкорастущими декоративными растениями, кустарники (не выше 50 см), цветники и отдельно стоящие лиственные деревья, размещаемые в центральной зоне участка.

4.17. Участки СПУО должны быть освещены в соответствии с требованиями СНиП 23-05-95.

4.18. Планировка участков должна обеспечивать подъезды с твердым покрытием к хозяйственной зоне, подъезды пожарных машин ко всем зданиям и блокам, а также объезды вокруг них в соответствии с СНиП 21-01-97*.

4.19. Для автомашин сотрудников СПУО следует предусматривать открытую стоянку в соответствии с требованиями МГСН 1.01-99.

5. ПОЛОЖЕНИЯ ПО АРХИТЕКТУРНО-ПЛАНИРОВОЧНЫМ РЕШЕНИЯМ И ИНЖЕНЕРНОМУ ОБОРУДОВАНИЮ

Общие требования.

5.1. В состав зданий и блоков СПУО входят следующие функциональные группы помещений:

- вестибюльная;

- проживания (СПУО-2);

- профессионального образования;

- общего образования;

- дополнительного образования;

- лечебно-реабилитационная (психолого-коррекционные и медицинские помещения);

- досуговая и физкультурно-оздоровительная;

- медицинского изолятора (СПУО-2);

- питания;

- административно-бытовая;

- хозяйственного обслуживания.

Архитектурно-планировочные решения СПУО должны учитывать требования функционального зонирования помещений с учетом осуществляемой в них деятельности.

Различные функциональные группы помещений, рассчитанные на работу с подростками, помимо своих основных функций, должны обеспечивать также коррекционно-реабилитационную функцию, что учитывается составом и площадями их помещений и должно быть отражено в архитектурно-планировочных решениях.

5.2. При проектировании помещений СПУО рекомендуется пользоваться планировочными схемами основных помещений, приведенными в Приложениях к настоящим Рекомендациям. Рекомендуемые площади отдельных помещений в зависимости от конкретных планировочных и конструктивных решений могут быть изменены (уменьшены или увеличены) не более чем на 15 %.

5.3. Функциональные группы помещений могут размещаться либо в едином объеме из непосредственно примыкающих друг к другу блоков, либо в отдельных корпусах (блоках), соединенных отапливаемыми переходами. В случае проектирования единого объема должны предусматриваться пожарные отсеки площадью не более 5000 м2, разделяемые противопожарными стенами 1-го типа (в соответствии с требованиями СНиП 21-01-97*), а из каждого пожарного отсека должно быть предусмотрено не менее двух эвакуационных выходов, один из входов допускается предусматривать в соседний отсек.

5.4. Учитывая специфику контингента СПУО-2, группы помещений, рассчитанные на пребывание воспитанников, следует проектировать непроходными, с возможностью их изоляции в течение суток в зависимости от режима работы каждой группы помещений. Объединение различных групп помещений может осуществляться через общее коммуникационное пространство. В том случае, если в одном блоке размещены различные функциональные группы помещений, их следует проектировать поэтажно, предусматривая возможность изоляции.

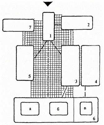
Общая функционально-планировочная схема СПУО-1 представлена на Рис. 1.

Общая функционально-планировочная схема СПУО-2 представлена на Рис. 2.

5.5. Здания СПУО, как правило, не должны превышать 4 этажей (СНиП 2.88.02-89*). В районах с затесненной плотной застройкой допускается увеличение этажности СПУО по согласованию с органами госпожнадзора.

5.6. Объемно-планировочная структура здания должна обеспечивать оптимальные условия осуществления протекающих в нем функциональных процессов, отражать специфику учреждения и обеспечивать соответствующие условия и режим эксплуатации и необходимую связь с участком.

5.7. Ширина лестничных маршей должна быть не менее 1,35 м. Лестничные марши и площадки должны иметь защитное ограждение на всю высоту.

Ширину дверей основных помещений следует принимать не менее 1 м.

Ширину коридоров в группах помещений административно-бытового, методического и хозяйственного назначения следует принимать не менее 1,4 м; а во всех группах помещений, рассчитанных на пребывание воспитанников - не менее 2,2 м.

5.8. Высота наземных этажей здания СПУО должна быть 3,3 м (от пола до пола вышележащего этажа). Высота зрительного зала принимается по технологическим требованиям, высота спортзала - 6 м (до низа несущих конструкций).

Рис. 1. Функционально-планировочная схема СПУО-1.

1. Вестибюльная группа помещений. 2. Помещения питания. 3. Помещения общего образования. 4. Помещения профессионального образования. 5. Лечебно-реабилитационные помещения. 6. Помещения досугового и физкультурно-оздоровительного назначения: а. - физкультурно-оздоровительные; б. - досуговые; в. - дополнительное образование. 7. Административно-бытовые помещения.

Условные обозначения.

 - Коммуникационное пространство

 - Обязательные связи

 - Необязательные связи

Рис. 2. Функционально-планировочная схема СПУО-2.

1. Вестибюльная группа помещений. 2. Помещения проживания. 3. Помещения питания. 4. Помещения общего образования. 5. Помещения профессионального образования. 6. Лечебно-реабилитационные помещения. 7. Помещения досугового и физкультурно-оздоровительного назначения: а. - физкультурно-оздоровительные; б. - досуговые; в. - дополнительное образование. 8. Медицинский изолятор. 9. Административно-бытовые помещения.

Условные обозначения.

 - Коммуникационное пространство

 - Обязательные связи

 - Необязательные связи

5.9. Внутренняя отделка помещений СПУО должна быть выполнена из материалов, разрешенных для применения органами Госсанэпиднадзора Минздрава РФ, допускающих влажную уборку, а также применение дезинфицирующих средств.

5.10. Помещения, в которых сосредоточены материальные ценности, должны иметь металлические двери и решетки на окнах.

5.11. Все помещения профессиональной подготовки, общего образования, дополнительного образования, лечебно-реабилитационные, рассчитанные на пребывание подростков, должны быть оборудованы умывальниками.

5.12. Естественное, искусственное и совмещенное освещение в помещениях следует проектировать в соответствии с требованиями СанПиН 2.2.1/2.1.1.1278-03 и МГСН 2.06-99.

5.13. Рабочие места в помещениях профессиональной подготовки, общего и дополнительного образования должны иметь естественное освещение с КЕО не менее 1,5 на поверхности столов и освещаться боковым с левой стороны светом. Для организации мобильных форм (групповых и индивидуальных) ведения занятий необходимо предусматривать возможность равномерного освещения по всей рабочей плоскости в помещении за счет дополнительного верхнего света или дополнительного искусственного освещения в глубине помещения.

5.14. Допускается не предусматривать естественного освещения:

- в умывальных, душевых, уборных и снарядных при спортивном зале, санитарных узлах для персонала, комнатах личной гигиены женщин (для персонала);

- в радиоузле;

- в столовой для персонала;

- в кладовых инвентаря, комнатах хранения предметов уборки;

- в помещениях технических служб.

В зависимости от архитектурно-планировочного решения допускается проектировать с искусственным освещением санитарные узлы и комнаты личной гигиены для воспитанников в группе помещений проживания в СПУО-2 (при соблюдении необходимой кратности обмена воздуха).

5.15. Санитарные узлы и туалетные комнаты в СПУО проектируются с учетом специфики работы каждого подразделения в соответствии с действующими нормативными документами: МГСН 4.15-98, МГСН 4.06-03 и «Рекомендациями по проектированию специальных учебно-воспитательных учреждений открытого типа для детей и подростков с девиантным поведением».

Общий расчет санитарных узлов принимается в соответствии с «Рекомендациями по проектированию образовательных учреждений для детей, нуждающихся в психолого-педагогической и медико-социальной помощи». Общее количество санитарных приборов принимается из расчета: на каждые 20 мест по 2 унитаза для юношей и для девушек, 2 писсуара в уборной для юношей, 1 умывальник на каждые 30 юношей и 30 девушек.

В состав оборудования кабин личной гигиены для девушек входят умывальник и биде. Количество кабин личной гигиены определяется из расчета: 1 кабина на каждые 30 девушек.

Учитывая специфику контингента воспитанников, размещение санитарных приборов осуществляется только в общих санитарных узлах в открытых кабинах. Санитарные приборы должны быть в антивандальном исполнении.

5.16. Внутренний водопровод и канализацию следует проектировать в соответствии с СНиП 2.04.01-85*.

5.17. В комнатах хранения уборочного инвентаря следует предусматривать умывальник и слив.

5.18. Инсоляцию помещений с длительным пребыванием воспитанников следует предусматривать в соответствии с требованиями СанПиН 2.2.1/2.1.1.1076-01.

5.19. Отопление и вентиляцию здания следует проектировать в соответствии с требованиями СНиП 41-01-2003 и МГСН 2.01-99.

5.20. Энергоснабжение, электрооборудование, электрическое освещение здания и наружное освещение территории следует предусматривать в соответствии с требованиями СанПиН 2.2.1/2.1.1.1278-03, МГСН 2.01-99, МГСН 2.06-99.

5.21. Проектирование зданий СПУО должно осуществляться с учетом принципов максимального энергосбережения в соответствии с требованиями МГСН 2.01-99.

5.22. Здания следует проектировать не менее II степени огнестойкости в соответствии с СНиП 21-01-97*.

5.23. В зданиях должна быть предусмотрена автоматическая пожарная сигнализация в соответствии с требованиями НПБ 88-2001. Перечень помещений, в которых необходимо предусматривать автоматическую пожарную сигнализацию, следует определять в соответствии с МГСН 4.06-03 и МГСН 4.15-98. Сигнал о срабатывании системы АПС (автоматической пожарной сигнализации) выводится в помещение с круглосуточным пребыванием персонала.

5.24. На путях эвакуации из здания должно быть предусмотрено аварийное и эвакуационное освещение, проектируемое в соответствии с требованиями СНиП 21-01-97* и СНиП 23-05-95.

Вестибюльная группа помещений.

5.25. Рекомендуемые состав и площади помещений вестибюльной группы СПУО приведены в таблице 5.1.

5.26. В СПУО-2 вестибюльную группу не рекомендуется размещать в блоке помещений проживания.

5.27. Вход воспитанников во все блоки различных групп помещений осуществляется через вестибюльную группу.

5.28. Помещение гардероба для воспитанников должно быть зонировано на изолированные секции для отдельных групп, отделяемые сетчатыми перегородками как друг от друга, так и от гардероба в целом.

5.29. В составе оборудования гардероба для воспитанников рекомендуется предусматривать сушильные шкафы для одежды и обуви с подогревом и вытяжкой, а также вешалки консольного типа.

5.30. Гардероб для верхней одежды персонала и посетителей рекомендуется предусматривать в отдельном помещении при вестибюле.

5.31. В СПУО-2 в состав вестибюльной группы рекомендуется включать комнату свиданий воспитанников с посетителями.

5.32. В состав вестибюльной группы следует включать пост дежурного вахтера с помещением отдыха.

5.33. Входы в здание следует оборудовать тамбурами.

Таблица 5.1.

Рекомендуемые состав и площади помещений вестибюльной группы.

№№ п.п.

Наименование помещений

Типы учреждений

Примечание

СПУО-1

СПУО-2

Площадь помещений, м2

Площадь помещений, м2

На 1 уч-ся

Всего

На 1 уч-ся

Всего

1

2

3

4

5

6

7

1.

Вестибюль

0,5

-

0,5

-

С учетом численности персонала

2.

Гардероб для верхней одежды воспитанников

0,8

-

0,8

-

 

3.

Гардероб для верхней одежды персонала и посетителей

0,1

-

0,1

-

Число персонала по штатному расписанию. Число посетителей - 10 % от числа воспитанников

4.

Комната свиданий с посетителями

-

-

-

12

 

5.

Комната отдыха дежурного вахтера

-

10

-

10

 

6.

Санитарный узел с умывальником в шлюзе

-

3

-

3

 

7.

Комната хранения уборочного инвентаря

-

4

-

4

 

Помещения проживания.

5.34. Помещения проживания предусматриваются в СПУО-2. Рекомендуемые состав и площади помещений проживания приведены в таблице 5.2.

5.35. Помещения проживания следует размещать в соответствии с требованиями п.п. 5.3 и 5.4 настоящих Рекомендаций.

5.36. Помещения проживания следует проектировать в соответствии с положениями МГСН 4.15-98 и «Рекомендаций по проектированию специальных учебно-воспитательных учреждений открытого типа для детей и подростков с девиантным поведением».

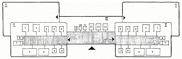
5.37. Помещения проживания в СПУО-2 рекомендуется проектировать в виде изолированных жилых секций, объединяющих 3 - 4 жилые группы на 9 чел. каждая. Секции для юношей и для девушек рекомендуется размещать поэтажно с возможностью полной изоляции. Функционально-планировочная схема помещений жилой секции представлена на Рис. 3.

5.38. В состав жилой группы входят:

- три спальные комнаты на 1 место;

- две спальные комнаты на 3 места;

- комната приготовления уроков;

- комната тихого отдыха;

- санитарный узел;

- душевая;

- комната дежурного воспитателя с санитарным узлом;

- гардеробная для хранения одежды и личных вещей воспитанников.

Рис. 3. Функционально-планировочная схема жилой секции на 4 жилые группы по 9 воспитанников.

I - Помещения жилой группы: 1. Спальная комната на 3 места. 2. Спальная комната на 1 место. 3. Санитарный узел. 4. Душевая. 5. Комната приготовления уроков. 6. Комната тихого отдыха. 7. Комната дежурного воспитателя. 8. Гардеробная. II - Помещения на жилую секцию: 9. Комната хранения уборочного инвентаря. 10. Кладовая чистого белья. 11. Кладовая грязного белья. 12. Бытовая. 13. Инвентарная. 14. Кабинет дежурной медсестры.

Условные обозначения:      - Коммуникационное пространство

5.39. В состав жилой секции, помимо жилых групп, следует включать:

- бытовую комнату;

- кабинет дежурной медицинской сестры;

- инвентарную;

- кладовую чистого белья;

- кладовую грязного белья;

- комнату хранения уборочного инвентаря.

5.40. Между спальными помещениями и коридором следует предусматривать глухие (не открывающиеся) окна для организации наблюдения за воспитанниками в ночное время.

5.41. В состав оборудования спальных комнат входят кровати и стулья в соответствии с количеством мест в комнате. Гардеробная оборудуется шкафами-купе с секциями по количеству воспитанников в жилой группе.

5.42. Рекомендуемый состав оборудования санитарного узла: 2 унитаза, огороженных экранами высотой не более 1 м, и 2 умывальника. Рекомендуемый состав оборудования душевой: душ (2 душевые сетки), умывальник, скамья для раздевания, вешалка для одежды. В секции для юношей в состав оборудования санитарного узла следует включать 2 писсуара, в секции для девушек - биде.

5.43. Оборудование комнаты тихого отдыха должно быть приспособлено к проведению групповых психолого-коррекционных занятий.

5.44. Помещения для хранения чистого и грязного белья рекомендуется размещать поэтажно, одно на 2 - 3 секции.

5.45. В блоке помещений проживания рекомендуется организовывать кабинеты дежурных медсестер, размещая их поэтажно, один на 2 - 3 секции.

Таблица 5.2.

Рекомендуемые состав и площади помещений проживания.

№№ п.п.

Наименование помещений

Площадь помещений, м2

Примечания

1

2

3

4

Жилая группа

1.

Спальная на 3 места (2 шт.)

13×2

Приложение, Рис. П.1.

2.

Спальная на 1 место (3 шт.)

6×3

Приложение, Рис. П.1.

3.

Комната приготовления уроков

22

Приложение, Рис. П.2.

4.

Комната тихого отдыха

26

Приложение, Рис. П.3.

5.

Санитарный узел для юношей

2,5

В секции для юношей

6.

Санитарный узел для девушек

3

В секции для девушек

7.

Душевая

4

 

8.

Гардеробная

6

 

9.

Комната дежурного воспитателя с санитарным узлом

9 + 3

В состав санитарного узла входят: унитаз умывальник, душ.

Жилая секция

1.

Кабинет дежурной медсестры

9

 

2.

Бытовая комната

10

 

3.

Комната хранения грязного белья

3

 

4.

Комната хранения чистого белья

4

 

5.

Инвентарная

8

 

6.

Комната хранения уборочного инвентаря

4

 

Помещения профессионального образования.

5.46. Рекомендуемые состав и площади помещений профессионального образования приведены в таблице 5.3.

5.47. Данная группа помещений обеспечивает проведение мероприятий, направленных на:

- предоставление воспитанникам возможности получения профессионального образования и профессиональных навыков, дающих возможность самостоятельного жизнеобеспечения в последующем;

- трудовую терапию и привитие навыков к труду;

- формирование у воспитанников потребности в групповом и межличностном общении.

5.48. Производственное обучение в СПУО всех типов осуществляется в кабинетах теоретических занятий и в помещениях практических занятий (учебно-производственных мастерских, учебно-производственных лабораториях и т.п.).

5.49. Кабинеты теоретических занятий для всех профилей профессионального обучения рекомендуется проектировать универсальными. Данные помещения оборудуются: шкафами, закрывающимися на ключ, для хранения наглядных пособий; кафедрой для преподавателя на подиуме; классной доской, под которой размещаются ящики для хранения плакатов; столами для компьютера, телевизора с видеомагнитофоном и кодоскопа (для проецирования на экран рисунков или чертежей воспитанников).

5.50. Помещения практических занятий (мастерские и лаборатории) могут быть объединены в следующие группы по специальностям:

- металлообработка: токарь, фрезеровщик, слесарь-инструментальщик и т.п. (рекомендуется в СПУО для юношей);

- легкой промышленности: обувщик, портной, закройщик, швея-мотористка и т.п. (рекомендуется как в СПУО для юношей, так и в СПУО для девушек);

- полиграфия: наборщик на машинах, оператор фотонаборных автоматов, оператор на наборно-компьютерной технике, печатник, переплетчик и т.п. (рекомендуется как в СПУО для юношей, так и в СПУО для девушек);

- сферы быта и услуг: повар, кондитер, продавец, контролер-кассир и т.п. (рекомендуется как в СПУО для юношей, так и в СПУО для девушек).

5.51. Наполняемость помещений профессиональной подготовки всех типов СПУО принимается в соответствии с «Рекомендациями по проектированию образовательных учреждений для детей, нуждающихся в психолого-педагогической и медико-социальной помощи» - 9 чел.

5.52. При мастерских и лабораториях практических занятий следует предусматривать кладовые или лаборантские для хранения материалов, инструментов и готовых изделий.

5.53. Мастерские и лаборатории практических занятий следует оборудовать умывальниками с подачей горячей и холодной воды (не менее 2-х умывальников на группу) и контейнерами для отходов.

5.54. Мастерские и лаборатории практических занятий, в которых процесс обучения связан с выделением химических веществ и пыли, следует оборудовать эффективной вентиляционной системой в соответствии со СНиП 41-01-2003.

5.55. Мастерские, в которых проводится рубка и резка металла, а также мастерские с крупногабаритным и тяжелым оборудованием, с крупногабаритными материалоемкими объектами работ учащихся, необходимо располагать на первом этаже.

5.56. В состав помещений профессиональной подготовки СПУО, готовящих специалистов по металлообработке следует включать мастерские: фрезерную, токарную и слесарно-инструментальную.

Мастерские оборудуются металлическими шкафами для инструментов и рабочей одежды, кафедрой на подиуме со стулом для мастера, классной доской, световым табло по технике безопасности с пультом управления на столе мастера.

5.57. Фрезерная мастерская должна иметь площадку под навесом для хранения металла (металлолома) с непосредственным входом в мастерскую.

5.58. Фрезерная и токарная мастерские оборудуются девятью фрезерными (токарными) станками с металлическими тумбочками и одним слесарным верстаком. Рабочая площадь пола для малогабаритных станков, с учетом необходимых расстояний между станками, должна быть 4 м2 (2×2 м) на 1 рабочее место. По условиям техники безопасности рабочая зона передвижения воспитанника непосредственно вокруг станка оборудуется деревянным настилом-решеткой (Рис. П.4).

5.59. Мастерская слесарно-инструментальная оборудуется девятью верстаками с выдвижными ящиками для инструментов и защитными экранами, разметочным столом, а также станками: фрезерным, заточным, двумя сверлильными (Рис. П.5).

5.60. В состав помещений теоретических занятий в СПУО, готовящих специалистов по металлообработке, входят кабинеты: черчения, металловедения, спецтехнологии, слесарного дела, спецкабинет «Допуски и посадки», охраны труда (Рис. П.6).

5.61. В состав помещений, готовящих обувщиков, входит мастерская обувного производства, оборудование которой составляют: столы с обувными швейными машинами; стол с оверлоком; стол с машиной для вшивания молний; штутцер; стол (0,8×2,2 м) для показа мастером отрабатываемых операций; стол мастера со стулом (Рис. П.7).

5.62. При мастерской следует предусматривать кладовую, оборудованную шкафами для хранения кожи и сейфом для хранения маслогорючих веществ.

5.63. Практические занятия по специальности обувщик проводятся на обувных предприятиях.

5.64. В состав помещений теоретических занятий (специальность - обувщик) входят кабинеты: специальной технологии обувного производства; материаловедения; оборудования; конструирования (Рис. П.6).

5.65. В состав помещений практических занятий в СПУО, готовящих специалистов швейного производства, входит швейная мастерская, оборудование которой составляют: четыре стола со швейными машинами; стол с оверлоком; четыре стола для раскроя тканей (1,5×1,6 м); две гладильные доски; шкафы для хранения тканей, готовой продукции и рабочей одежды; примерочная с зеркалом; два манекена; стол мастера со стулом на подиуме; рабочие кронштейны для вывешивания выполняемой продукции (Рис. П.8).

5.66. В состав помещений теоретических занятий в СПУО, готовящих специалистов швейного производства, входят кабинеты: материаловедения; спецтехнологии; конструирования; оборудования (Рис. П.6).

5.67. В состав помещений практических занятий в СПУО, готовящих специалистов для полиграфии, входят мастерские: переплетная; механизированная брошюровочно-переплетная; печатная; компьютерного набора.

5.68. В состав оборудования переплетной мастерской следует включать: девять высоких верстаков с высокими табуретами; резальный станок; картонорубильный станок; проволочношвейную машину; ниткошвейную машину; позолотный пресс; обжимной пресс; беговально-перфораторную машину; открытые металлические стеллажи (глубиной не менее 60 см) для хранения бумаги и картона; металлический закрывающийся шкаф для хранения клеекрасочных материалов; металлический шкаф для хранения рабочей одежды; стол мастера со стулом (Рис. П.9).

5.69. В состав оборудования механизированной брошюровочно-переплетной мастерской следует включать: вкладочно-швейно-резальный агрегат; ниткошвейную машину; два стола-верстака для раскладки материалов и продукции с тумбочками; стол мастера со стулом; металлические стеллажи для хранения материалов; металлический шкаф для хранения рабочей одежды (Рис. П.10).

5.70. В состав оборудования печатной мастерской следует включать: листовую офсетную малоформатную однокрасочную машину; картонорубильный станок; четыре стола-верстака с тумбочками для красочных расходных материалов; металлические закрывающиеся шкафы для хранения материалов и готовой продукции; металлический шкаф для хранения рабочей одежды; стол и стул мастера на подиуме (Рис. П.11).

5.71. В состав оборудования мастерской компьютерного набора следует включать: девять компьютерных столов; стол для теоретических занятий (2,5×5,0 м); монтажный стол; металлические стеллажи для хранения бумаги; стол мастера со стулом (Рис. П.12).

5.72. В состав помещений теоретических занятий в СПУО, готовящих специалистов для полиграфии, входят кабинеты: рекламного дела; технологии компьютерного набора и наборных программ; спецтехнологии печатных и брошюровочно-переплетных процессов; спецтехнологии наборных процессов; основы полиграфии; производственной графики и эстетического воспитания (Рис. П.6).

5.73. В состав помещений практических занятий СПУО, выпускающих поваров и кондитеров, входит лаборатория приготовления пищи с лаборантской. В состав оборудования лаборатории следует включать: электроплиты с вытяжными шкафами; жарочный шкаф; производственные столы со столешницей из нержавеющей стали (1,2×0,6 м); подсобный стол для специй; универсальный привод для электрооборудования (мясорубка, овощерезка, миксер и т.п.); раковину для мытья исходной продукции; мойку для мытья посуды; шкаф для хранения посуды; шкаф для хранения санитарной (рабочей) одежды; стол со стулом для мастера, где производится дегустация приготовленных образцов пищи. Стены на всю высоту и пол должны быть облицованы керамической плиткой (Рис. П.13).

5.74. Лаборантская при лаборатории приготовления пищи должна иметь два выхода - в коридор и в лабораторию. В состав оборудования лаборантской следует включать: стол мастера со стулом; холодильник для продуктов; шкафы для хранения сухих продуктов, посуды и санитарной одежды мастера.

5.75. В состав помещений теоретических занятий СПУО, выпускающих поваров и кондитеров, входят кабинеты: кулинарии; технологии мучных кондитерских изделий; рисования (для кондитеров); калькуляции и учета; экономики отрасли; деловой культуры (этика и психология); санитарии (основы физиологии питания и гигиены); товароведения; оборудования; организации предприятий общественного питания (Рис. П.6).

5.76. В состав помещений практических занятий СПУО, готовящих продавцов и кассиров-контролеров, входит зал торгового оборудования с кассовыми аппаратами, прилавками для продовольственных и непродовольственных товаров, витринами, столом мастера со стулом и т.п. (Рис. П.14).

5.77. В состав помещений теоретических занятий СПУО, готовящих продавцов и кассиров-контролеров, входят кабинеты: торгового вычисления; учета и отчетности торговых вычислений; деловой культуры; товароведения продовольственных товаров; товароведения непродовольственных товаров; контрольно-кассовых машин; санитарии и гигиены; технологии розничной торговли; оборудования торговых предприятий (Рис. П.6).

Кабинеты товароведения продовольственных и непродовольственных товаров имеют одну на два кабинета лаборантскую для хранения наглядных пособий.

Таблица 5.3.

Рекомендуемые состав и площади помещений профессионального образования.

№№ п./п.

Наименование помещений

Площадь помещений, м2

Примечания

1

2

3

4

Специальности по металлообработке

1.

Мастерская фрезерная (токарная) с кладовой

109 + 10 = 119

Приложение, Рис. П.4

2.

Мастерская слесарно-инструментальная с кладовой

102 + 10 = 112

Приложение, Рис. П.5.

3.

Кабинет черчения

36

 

4.

Кабинет металловедения

36

Приложение, Рис. П.6

5.

Кабинет спецтехнологии

36

- " -

6.

Кабинет слесарного дела

36

- " -

7.

Спецкабинет «Допуски и посадки»

36

- " -

8.

Кабинет охраны труда

36

- " -

Специальности для легкой промышленности

1.

Мастерская обувного производства с кладовой

74 + 10 = 84

Приложение, Рис. П.7

2.

Кабинет специальной технологии обувного производства

36

Приложение, Рис. П.6

3.

Кабинет материаловедения

36

- " -

4.

Кабинет оборудования

36

Приложение, Рис. П.6

6.

Кабинет конструирования

36

- " -

7.

Мастерская швейная с кладовой

109 + 10 = 119

Приложение, Рис. П.8

8.

Кабинет материаловедения

36

Приложение, Рис. П.6

9.

Кабинет спецтехнологии

36

- " -

10.

Кабинет конструирования

36

- " -

11.

Кабинет оборудования

36

- " -

Специальности для полиграфии

1.

Мастерская переплетная с кладовой

102 + 10 = 112

Приложение, Рис. П.9

2.

Мастерская механизированная брошюровочно-переплетная с кладовой

74 + 10 = 84

Приложение, Рис. П.10

3.

Мастерская печатная с кладовой

74 + 10 = 84

Приложение, Рис. П.12.

4.

Мастерская компьютерного набора с кладовой

109 + 10 = 119

Приложение, Рис. П.12

5.

Кабинет рекламного дела

36

Приложение, Рис. П.6

6.

Кабинет технологии компьютерного набора и наборных программ

50

Приложение, Рис. П.17

7.

Кабинет спецтехнологии наборных процессов

36

Приложение, Рис. П.6

8.

Кабинет спецтехнологии печатных и брошюровочно-переплетных процессов

36

- " -

9.

Кабинет основ полиграфии

36

- " -

10.

Кабинет производственной графики и эстетического воспитания

36

- " -

Специальности для сферы быта и услуг

1.

Лаборатория приготовления пищи с лаборантской

74 + 17 = 91

Приложение, Рис. П.13

2.

Кабинет кулинарии

36

Приложение, Рис. П.6

3.

Кабинет технологии мучных кондитерских изделий

36

- " -

4.

Кабинет рисования (для кондитеров)

36

- " -

5.

Кабинет калькуляции и учета

36

- " -

6.

Кабинет экономики отрасли

36

- " -

7.

Кабинет деловой культуры (этика, психология)

36

- " -

8.

Кабинет санитарии

36

- " -

9.

Кабинет товароведения

36

- " -

10.

Кабинет оборудования

36

- " -

11.

Кабинет организации общественного питания

36

- " -

12.

Зал торгового оборудования с кладовой

70 + 14 = 84

Приложение, Рис. П.14

13.

Кабинет торгового вычисления

36

Приложение, Рис. П.6

14.

Кабинет учета и отчетности торговых вычислений

36

- " -

15.

Кабинет деловой культуры

36

- " -

16.

Кабинет товароведения продовольственных товаров

36

- " -

17.

Кабинет товароведения непродовольственных товаров

36

- " -

18.

Кабинет контрольно-кассовых машин

36

- " -

19.

Кабинет санитарии и гигиены

36

- " -

20.

Кабинет технологии розничной торговли

36

- " -

21.

Кабинет оборудования торговых предприятий

36

- " -

Общие помещения для СПУО всех типов

1.

Кабинет заведующего профессиональным образованием

16

 

2.

Комната мастеров

40

Может быть 2 - 3 комнаты площадью 12 - 18 м2

3.

Санитарные узлы для воспитанников с умывальниками в шлюзе

16×2

 

4.

Санитарный узел персонала с умывальником в шлюзе

3

 

5.

Комната хранения уборочного инвентаря

4

 

Помещения общего образования.

5.78. Рекомендуемые состав и площади помещений общего образования приведены в таблице 5.4.

5.79. Данная группа помещений обеспечивает:

- обучение по образовательным программам в соответствии с возрастными и индивидуальными особенностями подростков;

- психолого-педагогическую помощь в усвоении образовательных программ;

- образование воспитанников с отклонениями в развитии.

5.80. Наполняемость всех классов принимается в соответствии с «Рекомендациями по проектированию образовательных учреждений для детей, нуждающихся в психолого-педагогической и медико-социальной помощи» - 9 чел. Комплектование классов осуществляется по принципу одинакового уровня образования воспитанников.

5.81. В составе группы помещений общего образования предусмотрены неспециализированные классные помещения и специализированные кабинеты: физики-химии, иностранного языка, биологии, компьютерный класс. Учебные помещения должны отвечать требованиям активного ведения учебного урока с организацией как фронтальных, так групповых и индивидуальных форм обучения с широким привлечением технических средств.

5.82. Учитывая специфику контингента воспитанников, неспециализированные классные помещения следует проектировать с трехрядной расстановкой одноместных парт. Количество неспециализированных классных помещений определяется в каждом конкретном случае заданием на проектирование в зависимости от общей вместимости учреждения.

5.83. Учитывая специфику контингента воспитанников, в оборудование как специализированных, так и неспециализированных классных помещений не следует включать стеллажи с пособиями. Хранение пособий следует предусматривать либо в лаборантских, либо в учительской.

5.84. В состав помещений общего образования входит библиотека с книгохранилищем и читальным залом.

5.85. Проектирование санитарных узлов при учебных помещениях осуществляется в соответствии с МГСН 4.06-03.

Таблица 5.4.

Рекомендуемые состав и площади помещений общего образования.

№№ п./п.

Наименование помещений

Площадь помещений, м2

Примечания

1

2

3

4

1.

Класс

34

Приложение, Рис. П.15

2.

Кабинет занятий физикой и химией с двумя лаборантскими

34 + 6 + 6 = 46

Приложение, Рис. П.16

3.

Кабинет иностранного языка

40

 

4.

Компьютерный класс

50

Приложение, Рис. П.17

5.

Библиотека с книгохранилищем и читальным залом

120

 

6.

Методический кабинет

24

 

7.

Кабинет заведующего учебной частью

20

 

8.

Учительская

36

 

9.

Санитарные узлы для юношей и для девушек с умывальниками в шлюзе

16´2

 

10.

Кабина личной гигиены для девушек

2

Разместить при санузлах для девушек

10.

Санитарный узел персонала с умывальником в шлюзе

3

 

11.

Комната хранения уборочного инвентаря

4

 

Помещения дополнительного образования.

5.86. Рекомендуемые состав и площади помещений дополнительного образования приведены в таблице 5.5. Проектирование помещений данной группы следует осуществлять в соответствии с положениями «Рекомендаций по проектированию сети и зданий детских внешкольных учреждений г. Москвы».

5.87. Данная группа помещений обеспечивает:

- раскрытие врожденных склонностей воспитанника, формирование его культурных интересов;

- осуществление социально-бытовой адаптации.

5.88. Наполняемость помещений дополнительного образования принимается в соответствии с «Рекомендациями по проектированию образовательных учреждений для детей, нуждающихся в психолого-педагогической и медико-социальной помощи» - 9 чел.

5.89. Помещения дополнительного образования рекомендуется размешать в блоке досуговых помещений.

5.90. Состав и профиль помещений дополнительного образования в каждом конкретном случае уточняются заданием на проектирование.

Номенклатура видов дополнительного образования должна быть расширенной, предоставляющей возможность подбирать каждому воспитаннику занятия, соответствующие его склонностям.

5.91. Интерьеры помещений дополнительного образования должны быть привлекательны и вызывать интерес у воспитанников, оказывать положительное эмоциональное и эстетическое воздействие. Интерьеры не должны выглядеть казенно. К оформлению интерьеров рекомендуется привлекать воспитанников и использовать элементы их самодеятельного творчества.

5.92. Учитывая специфику контингента воспитанников, планировка помещений дополнительного образования, в которых проведение занятий связано с использованием ценного оборудования, должна обеспечивать выделение двух зон доступности:

- зону свободного доступа занятий с руководителем;

- зону ограниченной доступности (хранения ценного оборудования, сырья, изделий).

5.93. Входящие в данную группу кружки: тематические театральные (драмы, фольклорные и т.п.), циркового искусства, музыкальные (ансамбли, оркестры, хор) рекомендуется организовывать в помещениях актового зала.

Таблица 5.5.

Рекомендуемые состав и площади помещений дополнительного образования.

№№ п./п.

Наименование помещений

Площадь помещений, м2

Примечания

1

2

3

4

1.

Интернет-клуб

42

Приложение, Рис. П.18

2.

Театрально-художественная мастерская с кладовой

49 + 14 = 63

Приложение, Рис. П.19

3.

Мастерская кино- и фотоискусства с темной комнатой

18 + 6 = 24

 

4.

Мастерская лепки с печью для обжига, кладовыми инвентаря и готовых изделий

52 + 12 = 64

Приложение, Рис. П.20

5.

Изостудия с кладовой

38 + 14 = 52

Приложение, Рис. П.21

6.

Мастерская рукоделия (вышивания, плетения, оригами и т.п.)

22

В СПУО для девушек

7.

Мастерская визажа, косметологии, парикмахерского искусства

22

В СПУО для девушек

8.

Интеллектуальные кружки (краеведения, экологии и т.п.)

36

 

9.

Редакция

18

 

10.

Комната мастеров

25

 

11.

Кладовые для хранения сырья, материалов и готовой продукции

24 - 36

 

12.

Санитарные узлы для воспитанников с умывальниками в шлюзе

16×2

 

13.

Санитарный узел персонала с умывальником

3

 

14.

Комната хранения уборочного инвентаря

4

 

Лечебно-реабилитационные помещения (психолого-коррекционные и медицинские).

5.94. Рекомендуемые состав и площади лечебно-реабилитационных помещений приведены в таблице 5.6. Состав, количество кабинетов и их площади должны уточняться заданием на проектирование в каждом конкретном случае. Проектирование помещений данной группы следует осуществлять в соответствии с положениями «Рекомендаций по проектированию образовательных учреждений для детей, нуждающихся в психолого-педагогической и медико-социальной помощи».

5.95. Группа лечебно-реабилитационных помещений предназначена для проведения мероприятий, направленных на:

- оздоровление и профилактику, лечение физических и психических заболеваний у воспитанников;

- нормализацию психического состояния воспитанников;

- преодоление отклонений в эмоционально-волевой сфере воспитанников;

- формирование законопослушного поведения несовершеннолетних;

- социально-средовую адаптацию воспитанников.

5.96. Группа медицинских помещений рассчитана на профилактику соматических заболеваний у воспитанников и общее укрепление здоровья.

5.97. Медицинские помещения следует проектировать с учетом положений МГСН 4.12-97 и Пособия по проектированию учреждений здравоохранения к СНиП 2.08.02-89*. Все кабинеты, входящие в данную группу, рассчитаны на индивидуальную работу с воспитанниками.

5.98. Психолого-коррекционные помещения предназначены для проведения мероприятий, направленных на:

- индивидуальную психологическую коррекцию;

- преодоление социальной дезадаптации.

5.99. В состав оборудования кабинета групповой психотерапии рекомендуется включать кресла, журнальный столик, компьютерный стол специалиста. Кабинет рассчитан на проведение занятий группы из 9 чел.

5.100. Кабинет релаксации рассчитан на проведение индивидуальной психолого-терапевтической коррекции. В состав оборудования его рекомендуется включать техническое оснащение сенсорного назначения и психолого-терапевтической коррекции, виброкресло, виброкушетку, светомузыкальную установку, стул специалиста, зеленый уголок.

5.101. Кабинет групповых занятий ЛФК рассчитан на проведение занятий в группе из 9 чел.

Таблица 5.6.

Рекомендуемые состав и площади лечебно-реабилитационных помещений (психолого-коррекционных и медицинских).

№№ п./п.

Наименование помещений

Типы учреждений

Примечание

СПУО-1

СПУО-2

Площадь помещений, м2

Площадь помещений, м2

1

2

3

4

5

Медицинские помещения

1.

Кабинет врача-педиатра

10

10

 

2.

Кабинет дефектолога

-

10

 

3.

Консультативный кабинет

12

-

 

4.

Кабинет нарколога

-

10

 

5.

Кабинет гинеколога-венеролога

-

12

Приложение, Рис. П.22

6.

Кабинет детского психиатра

-

10

 

7.

Кабинет психотерапевта

10

10

 

8.

Кабина стоматолога

16

16

Приложение, Рис. П.23

9.

Кабинет медицинской сестры

10

10

 

10.

Процедурная

12

12

 

11.

Фитокабинет с кладовой

-

10 + 3

 

12.

Ингаляторий на 3 места

-

15

Приложение, Рис. П.24

13.

Кабинет физиотерапии

-

24

Приложение, Рис. П.25

Психолого-коррекционные помещения

1.

Кабинет психолога

14

14

 

2.

Кабинет групповой психотерапии

44

44

Приложение, Рис. П.26

3.

Зал ситуационных игр

38

-

Приложение, Рис. П.27

4.

Кабинет релаксации

-

12

 

5.

Кабинет социального педагога

-

14

 

6.

Санузлы для воспитанников с умывальниками в шлюзе

16×2

16×2

 

7.

Санузел персонала с умывальником

3

3

 

8.

Комната хранения уборочного инвентаря

4

4

 

Досуговые и физкультурно-оздоровительные помещения.

5.102. Рекомендуемые состав и площади досуговых и физкультурно-оздоровительных помещений приведены в таблице 5.7.

5.103. Эта группа помещений обеспечивает проведение мероприятий, направленных на:

- культурное и эстетическое развитие;

- проведение массовых мероприятий;

- физическое развитие, предоставление позитивной возможности дать выход своей энергии.

5.104. Актовый зал рекомендуется проектировать в СПУО-1 на 120 % от вместимости учреждения (в расчете на персонал, родителей и гостей), в СПУО-2 - на 100 % от вместимости.

5.105. При актовом зале рекомендуется предусматривать фойе, которое может использоваться как зал для танцев и музей поделок воспитанников.

5.106. Спортивный зал рассчитывается на проведение занятий в группе из 18 чел. При зале проектируется 2 раздевальные, на 9 чел. каждая.

При спортивном зале предусматривается кладовая спортинвентаря, смежная с ним.

5.107. Зал гимнастических занятий, рассчитанный на проведение занятий в группе из 9 чел. (занятия проводятся отдельно для группы юношей и для группы девушек), при необходимости может использоваться для проведения занятий борьбой и тяжелоатлетических занятий. Раздевальная проектируется на 9 чел. Раздевальная и кладовая спортинвентаря располагаются смежно с залом гимнастических занятий.

5.108. В СПУО рекомендуется дополнительно предусматривать помещения для хранения лыж и велосипедов, площади которых определяются заданием на проектирование.

Таблица 5.7.

Рекомендуемые состав и площади досуговых и физкультурно-оздоровительных помещений.

№№ п.п.

Наименование помещений

Площадь помещений, м2

Примечания

1

2

3

4

Досуговые помещения

1.

Актовый зал

180

150

Для СПУО-1

Для СПУО-2

 

2.

Эстрада при зале

Не менее 36

Глубина эстрады - 3,5 - 4 м

 

3.

Кинопроекционная с перемоточной и радиоузлом

26

 

 

4.

Фойе

162

135

Для СПУО-1

Для СПУО-2

 

5.

Санитарные узлы для воспитанников с умывальниками в шлюзе при фойе

16×2

 

 

6.

Помещение для артистов

15×2

 

 

7.

Фильмовидеотека

8

 

 

8.

Помещение пожарного поста

10

 

 

9.

Кладовая мебели и реквизита

20

 

 

10.

Кладовая аппаратуры

10

 

 

Физкультурно-оздоровительные помещения

1.

Спортивный зал 12×24 м

288

 

2.

Кладовая спортинвентаря

16

Смежно со спортивным залом

3.

Раздевальные для воспитанников с душевыми и санитарными узлами на 9 чел. при спортивном зале

18×2

По 2 душевые, 1 унитазу и умывальнику на каждую раздевальную

4.

Зал гимнастических и тренажерных занятий

72

 

5.

Раздевальная при зале гимнастических и тренажерных занятий

18

 

6.

Кладовая спортинвентаря

10

 

7.

Комната инструкторов - методистов с санузлом

10 + 3

С состав санузла входят: унитаз, умывальник, душ

8.

Санузлы для воспитанников с умывальниками в шлюзе

16×2

 

9.

Комната гигиены для девушек

2

Разместить при санитарном узле для девушек

10.

Санитарный узел с умывальником дли персонала

3

 

11.

Комната хранения уборочного инвентаря

4

 

Помещения медицинского изолятора.

5.109. Помещения медицинского изолятора предусматриваются в СПУО-2. Рекомендуемые состав и площади помещений изолятора приведены в таблице 5.8.

5.110. Вместимость изолятора следует предусматривать из расчета не менее 8 - 10 % от числа воспитанников.

5.111. Помещения изолятора соединяются с остальными помещениями СПУО через тамбур-шлюз, в котором следует размещать умывальник и вешалку для смены халатов.

5.112. В состав помещений изолятора следует включать изоляционные палаты на 1 и 3 чел. Количество палат в каждом конкретном случае определяется заданием на проектирование в соответствии с п. 5.110 настоящих Рекомендаций.

5.113. Между изоляционными палатами и коридором следует предусматривать глухие (не открывающиеся) окна для наблюдения за воспитанниками.

5.114. Для организации питания воспитанников, находящихся в изоляторе, в состав его помещений следует включать буфетную с моечной посуды. Оборудование буфетной рассчитано на электроподогрев готовой пищи.

5.115. Вход в санитарные узлы в изоляторе следует проектировать из коридора для возможного наблюдения за воспитанниками.

Таблица 5.8.

Рекомендуемый состав и площади помещений медицинского изолятора.

№№ п.п.

Наименование помещений

Площадь помещений, м2

Примечания

1

2

3

4

1.

Изоляционная палата на 1 место

6

Приложение, Рис. П.1.

2.

Изоляционная палата на 3 места

13

- " -

3.

Санитарный узел для воспитанников

4

Состав оборудования: унитаз, писсуар, умывальник

4.

Туалетная для воспитанников

5

Состав оборудования: ванна, умывальник

5.

Комната гигиены для девушек

2

Состав оборудования: биде, умывальник

6.

Процедурная

8

 

7.

Кабинет врача, медицинской сестры

12

 

8.

Комната персонала с раздевальной и санузлом

10 + 4 + 3

Состав оборудования санузла: унитаз, душ, умывальник

9.

Буфетная с моечной посуды

12

 

10.

Кладовая со шкафами для чистого и грязного белья

6

 

11.

Комната хранения уборочного инвентаря

4

 

Помещения питания.

5.116. Питание для воспитанников СПУО организуется в одну смену в общей столовой.

5.117. Площадь обеденного зала принимается из расчета 1,1 м2 на 1 посадочное место; при зале предусматривается умывальная из расчета 3 м2 (1 умывальник) на каждые 18 - 20 мест.

5.118. В производственные помещения кухни должен предусматриваться отдельный вход.

5.119. Состав, площади и оборудование производственных помещений кухни в СПУО следует определять заданием на проектирование, исходя из возможностей работы на полуфабрикатах или сырье, учитывая наличие базового предприятия школьных столовых в муниципальном районе. Работа технологического оборудования кухни предусматривается на электричестве.

5.120. Кроме питания воспитанников, помещения кухни должны обеспечивать питание персонала.

5.121. Для питания персонала предусматривается обеденный зал самообслуживания (или буфет) из расчета 1,0 м2 на 1 посадочное место. Его следует располагать в составе помещений столовой (если по архитектурно-планировочному решению группа помещений питания непосредственно примыкает к административной группе помещений) в противном случае - в группе административных помещений. Количество мест определяется заданием на проектирование, исходя из количества питающихся в учреждении, продолжительности обеденного времени и количества смен. При зале предусматривается подсобное помещение, предназначенное для раздачи пищи, хранения и мойки посуды площадью 8 м2.

5.122. Для обслуживания изолятора в СПУО-2 при помещениях кухни следует предусматривать раздаточную с удобным доступом к внутренним коммуникационным связям (коридорам, лестницам).

5.123. Учитывая специфику контингента воспитанников СПУО-2 (большое количество подростков с хроническими заболеваниями в запущенной форме), в состав производственных помещений кухни следует включать кабинет диетсестры.

5.124. Рекомендуемые состав и площади производственных помещений кухни приведены в табл. 5.9.

Таблица 5.9.

Рекомендуемый состав и площади производственных помещений кухни.

№№ п.п.

Наименование помещений

На полуфабрикатах

На сырье

Примечание

Площадь помещений, м2

Площадь помещений, м2

1

2

3

4

5

1.

Горячий цех

35

70

 

2.

Холодный цех

35

70

 

3.

Рыбный цех

9

24

 

4.

Мясной цех

9

24

 

5.

Хлеборезка, хранение хлеба

4

8

 

6.

Цех мучных изделий

-

14

 

7.

Раздаточная

-

18

 

8.

Сервизная

-

8

 

9.

Моечная кухонной посуды

10

10

 

10.

Моечная столовой посуды

10

18

 

11.

Моечная котлов

-

10

 

12.

Охлаждаемая камера для хранения:

 

 

 

 

- молочных продуктов

6

8

 

 

- рыбы, мяса

6

8

 

 

-яиц

-

6

 

13.

Кладовая сухих продуктов

6

8

 

14.

Кладовая овощей

8

12

 

15.

Кладовая суточного запаса

-

8

 

16.

Помещение первичной обработки овощей

-

8

 

17.

Загрузочная, кладовая тары

8

14

 

18.

Камера утилизации отходов с техническим сливом

-

4

 

19.

Комната заведующего производством

8

8

 

20.

Кабинет диетсестры

-

8

 

21.

Бельевая, гардеробная персонала, душевая, уборная

14

18

 

22.

Комната хранения уборочного инвентаря

4

4

 

Административно-бытовые помещения.

5.125. Рекомендуемый состав и площади административно-бытовых помещений приведены в таблице 5.10.

5.126. Помещения кладовой чистого белья с местом для его починки и кладовой грязного белья предусматриваются только в СПУО-2. Рекомендуется располагать их рядом с прачечной.

5.127. Помещение кладовой сезонной одежды и обуви следует оборудовать принудительной вентиляцией. Данные помещения предусматриваются только в СПУО-2.

5.128. Прачечная, кладовая сезонной одежды и инвентарные могут располагаться в подвальном помещении.

Таблица 5.10.

Рекомендуемые состав и площади помещений административно-бытового обслуживания.

№№ п.п.

Наименование помещений

Площадь помещений, м2

Примечания

1

2

3

4

1.

Кабинет директора

36

 

2.

Приемная

18

Смежно с кабинетом директора

3.

Канцелярия

12

 

4.

Кабинет заместителя директора по хозяйственной части

16

 

5.

Кабинет заместителя директора по воспитательной работе

16

 

6.

Кабинет заместителя директора по социальной работе

16

 

7.

Помещение дежурного персонала технического обслуживания

14

 

8.

Бухгалтерия с кассой

18 + 4

 

9.

Комната сестры-хозяйки

12

 

10.

Комната психологической разгрузки персонала

18

 

11.

Комната отдыха персонала

36

 

12.

Компьютерный центр с архивом

24 + 10

 

13.

Помещение пожарного поста

12

 

14.

Кладовая чистого белья

20

В СПУО-2

15.

Кладовая грязного белья

18

- " -

16.

Прачечная

22

- " -

17.

Кладовая сезонной одежды и обуви

22

- " -

18.

Инвентарные

40

 

19.

Санитарные узлы для мужчин и для женщин с умывальниками в шлюзе

3×2

 

20.

Кабины личной гигиены для женщин

2

Разместить при санитарном узле

21.

Комната хранения уборочного инвентаря

4

 

22.

Помещение КПП

12

 

ПРИЛОЖЕНИЯ

ЭКСПЛИКАЦИЯ ОБОРУДОВАНИЯ

1. Кровать                                                                                                     2. Стул

Рис. П.1. Спальные комнаты на 1 (а) и на 3 места (б).

ЭКСПЛИКАЦИЯ ОБОРУДОВАНИЯ

1. Стол ученический

2. Стул

3. Стол воспитателя

Рис. П.2. Комната приготовления уроков.

ЭКСПЛИКАЦИЯ ОБОРУДОВАНИЯ

1. Стол ученический

2. Стул

3. Стол воспитателя

4. Кресло

5. Журнальный стол

6. Телевизор с видеомагнитофоном

7. Классная доска

8. Умывальник с вешалкой для полотенца

Рис. П.3. Комната тихого отдыха.

ЭКСПЛИКАЦИЯ ОБОРУДОВАНИЯ

1. Фрезерный (токарный станок)

2. Тумбочки

3. Деревянный настил-решетка

4. Слесарный верстак

5. Металлические шкафы для инструментов и рабочей одежды

6. Световое табло по технике безопасности

7. Стол мастера

8. Стул

9. Подиум

10. Пульт управления световым табло

11. Классная доска

12. Умывальник с вешалкой для полотенца

13. Контейнер для отходов

Рис. П.4. Мастерская фрезерная (токарная).

ЭКСПЛИКАЦИЯ ОБОРУДОВАНИЯ

1. Верстак с выдвижным ящиком

2. Экран

3. Фрезерный станок

4. Тумбочка

5. Деревянный настил-решетка

6. Сверлильный станок вертикальный

7. Сверлильный станок

8. Заточный станок

9. Разметочная плита

10. Гибочный станок

11. Стол мастера

12. Стул

13. Классная доска

14. Подиум

15. Пульт управления световым табло

16. Световое табло по технике безопасности

17. Металлические шкафы для инструментов и рабочей одежды

18. Умывальник

19. Контейнер для отходов

Рис. П. 5. Мастерская слесарно-инструментальная.

ЭКСПЛИКАЦИЯ ОБОРУДОВАНИЯ

1. Стол ученический

2. Стул ученический

3. Комбинированный шкаф

4. Кафедра преподавателя

5. Подиум

6. Стул преподавателя

7. Кодоскоп

8. Ящики для хранения плакатов

9. Классная доска

10. Компьютерный стол преподавателя с компьютером

11. Умывальник с вешалкой для полотенца

12. Телевизор на кронштейне

Рис. П.6. Кабинет теоретических занятий.

ЭКСПЛИКАЦИЯ ОБОРУДОВАНИЯ

1. Стол со швейной обувной машиной

2. Табурет

3. Стол для показа мастером обрабатываемых операций

4. Стол мастера

5. Стул ученический

6. Стул мастера

7. Классная доска

8. Стол с оверлоком

9. Стол с машиной «Миневра»

10. Станок-штуцер

11. Шкафы для хранения материалов и рабочей одежды

12. Контейнер для отходов

13. Умывальник с вешалкой для полотенца

Рис. П.7. Мастерская обувного производства.

ЭКСПЛИКАЦИЯ ОБОРУДОВАНИЯ

1. Высокий стол для раскроя тканей

2. Кафедра мастера на подиуме

3. Стол со швейной машиной

4. Стол с оверлоком

5. Гладильная доска

6. Манекен

7. Кронштейн для вывешивания выполняемой продукции

8. Шкафы для готовой продукции, тканей и рабочей одежды

9. Примерочная

10. Зеркало

11. Контейнер для отходов

12. Умывальник с вешалкой для полотенца

13. Классная доска

14. Табурет

Рис. П.8. Мастерская швейная.

ЭКСПЛИКАЦИЯ ОБОРУДОВАНИЯ

1. Верстак

2. Высокий табурет

3. Резальная машина

4. Картонно-рубильный станок

5. Проволокошвейная машина

6. Ниткошвейная машина

7. Позолотный пресс

8. Обжимной пресс

9. Беговально-перфораторный станок

10. Открытый металлический стеллаж

11. Металлический шкаф

12. Стол мастера

13. Стул

14. Контейнер для отходов

15. Умывальник с вешалкой для полотенца

Рис. П.9. Мастерская переплетная.

ЭКСПЛИКАЦИЯ ОБОРУДОВАНИЯ

1. Вкладочно-швейный резальный агрегат (ВШРА)

2. Стол-верстак

3. Тумбочка

4. Ниткошвейная машина

5. Стол мастера

6. Стул

7. Металлический стеллаж

8. Металлический шкаф

9. Контейнер для отходов

10. Умывальник с вешалкой для отходов

Рис. П.10. Мастерская механизированная брошюровочно-переплетная.

ЭКСПЛИКАЦИЯ ОБОРУДОВАНИЯ

1. Листовая офсетная малоформатная однокрасочная машина

2. Стол-верстак

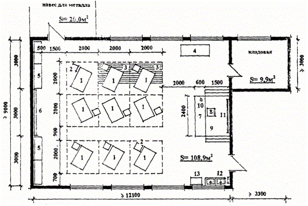
3. Тумбочка

4. Картонорубильная машина

5. Стол мастера

6. Стул

7. Стеллаж

8. Металлический шкаф

9. Контейнер для отходов

10. Умывальник с вешалкой для полотенца

Рис. П.11. Мастерская печатная.

ЭКСПЛИКАЦИЯ ОБОРУДОВАНИЯ

1. Компьютерный стол с компьютерным оборудованием

2. Стул ученический

3. Стол преподавателя

4. Стул преподавателя

5. Стол для теоретических занятий

6. Монтажный столик

7. Металлические шкафы

8. Стеллаж

9. Контейнер для отходов

10. Умывальник с вешалкой для полотенца

Рис. П.12. Мастерская компьютерного набора.

ЭКСПЛИКАЦИЯ ОБОРУДОВАНИЯ

I - Лаборатория приготовления пиши

1. Разделочный стол

2. Стол для специй

3. Электроплита

4. Жарочный шкаф

5. Универсальный электропривод

6. Подсобный стол

7. Контейнер для отходов

8. Мойка для посуды

9. Мойка для исходной продукции

10. Раковины с вешалкой для полотенца

II - Лаборантская

11. Шкафы для санитарной одежды и посуды

12. Стол мастера для дегустации

13. Стул

14. Вытяжка

15. Шкаф для посуды

16. Холодильник

17. Стол мастера

18. Стул

Рис. П.13. Лаборатория приготовления пищи с лаборантской.

ЭКСПЛИКАЦИЯ ОБОРУДОВАНИЯ

А - зона торговли продовольственными товарами

1. Витрина

2. Витрина-холодильник

3. Кассовый аппарат

4. Весы (электронные и механические)

Б - зона кассовых аппаратов и теоретических занятий

5. Стол для теоретических занятий

6. Стол преподавателя

7. Стул

8. Классная доска

9. Касса магазина самообслуживания

10. Электронный кассовый аппарат

11. Поворотный табурет

12. Электрокассовый аппарат

13. Умывальники с вешалкой для полотенца

В - зона торговли непродовольственными товарами

14. Витрина

15. Кассовый аппарат

16. Прилавок для отмера тканей

Рис. П.14. Зал торгового оборудования.

ЭКСПЛИКАЦИЯ ОБОРУДОВАНИЯ

1. Стол ученический

2. Стул

3. Стол учителя

4. Классная доска

5. Умывальник

6. Вешалка для полотенца

7. Комбинированный шкаф

Рис. П.15. Класс.

ЭКСПЛИКАЦИЯ ОБОРУДОВАНИЯ

I. КАБИНЕТ

1. Стол ученический - лабораторный

2. Стул ученический

3. Стол демонстрационный

4. Стул учительский

5. Мойка (умывальник)

6. Бак для мусора

7. Классная доска

II. III. ЛАБОРАНТСКИЕ

8. Вытяжной шкаф

9. Шкаф-стеллаж

Рис. П.16. Кабинет для занятий физикой и химией (I) с лаборантскими (II) и (III).

ЭКСПЛИКАЦИЯ ОБОРУДОВАНИЯ

1. Стол

2. Стул

3. Стол специалиста

4. Компьютерный стол специалиста

5. Классная доска

6. Компьютер

7. Вешалка для полотенца

8. Умывальник

9. Ученический компьютерный стол

10. Комбинированный шкаф

Рис. П.17. Компьютерный класс

ЭКСПЛИКАЦИЯ ОБОРУДОВАНИЯ

1. Компьютерный стол с компьютером

2. Стул

3. Мягкая мебель

4. Журнальный столик

5. Музыкальная установка

6. Умывальник

7. Вешалка для полотенца

Рис. П.18. Интернет-клуб.

ЭКСПЛИКАЦИЯ ОБОРУДОВАНИЯ

I. МАСТЕРСКАЯ

1. Стол ученический для индивидуальной работы

2. Стул

3. Рабочий стол

4. Швейная машина

5. Табурет регулируемый

6. Мольберт

7. Стол мастера

8. Стул мастера

9. Умывальник

10. Вешалка для полотенца

11. Шкаф для экспозиций

II. КЛАДОВАЯ

12. Комбинированный шкаф

Рис. П.19. Театрально-художественная мастерская с кладовой.

ЭКСПЛИКАЦИЯ ОБОРУДОВАНИЯ

1. Рабочий стол

2. Стол для индивидуальной работы

3. Табурет

4. Печь для обжига

5. Гончарный круг

6. Стол мастера

7. Стул

8. Умывальник с вешалкой для полотенца

Рис. П.20. Кабинет лепки и керамики с кладовой.

ЭКСПЛИКАЦИЯ ОБОРУДОВАНИЯ

I. ИЗОСТУДИЯ

1. Мольберт

2. Помост для моделей

3. Стенд для рисунков и картин

4. Стол преподавателя

5. Стул преподавателя

6. Умывальник

7. Вешалка для полотенца

II. КЛАДОВАЯ

8. Комбинированный шкаф

Рис. П.21. Изостудия с кладовой.

ЭКСПЛИКАЦИЯ ОБОРУДОВАНИЯ

1. Кресло гинекологическое

2. Винтовой табурет

3. Передвижной светильник

4. Стол врача

5. Стул

6. Столик инструментальный

7. Бачок для мусора

8. Умывальник

9. Шкаф медицинский

10. Ширма

Рис. П.22. Кабинет гинеколога-венеролога.

ЭКСПЛИКАЦИЯ ОБОРУДОВАНИЯ

1. Кресло стоматологическое

2. Столик инструментальный

3. Установка стоматологическая универсальная

4. Винтовой табурет

5. Плевательница

6. Светильник

7. Шкаф медицинский

8. Умывальник

9. Бачок для мусора

10. Стол врача

11. Стул

Рис. П.23. Кабинет стоматолога.

ЭКСПЛИКАЦИЯ ОБОРУДОВАНИЯ

1. Стационарная ингаляционная установка

2. Винтовой табурет

3. Стол процедурной медсестры

4. Стул

5. Умывальник

6. Бачок для мусора

7. Вешалка для полотенца

Рис. П.24. Ингаляторий на 3 места.

ЭКСПЛИКАЦИЯ ОБОРУДОВАНИЯ

1. Кушетка

2. Столик с аппаратурой

3. Столик с аппаратурой для приема процедур сидя

4. Стул

5. Стол врача

6. Шкаф медицинский

7. Умывальник

8. Вешалка для полотенца

Рис. П.25. Кабинет физиотерапии.

ЭКСПЛИКАЦИЯ ОБОРУДОВАНИЯ

1. Стол

2. Стул

3. Стол специалиста

4. Кресло

5. Умывальник

6. Вешалка для полотенца

Рис. П.26 Кабинет групповой психотерапии на 9 человек.

ЭКСПЛИКАЦИЯ ОБОРУДОВАНИЯ

1. Рабочий стол

2. Стул

3. Стол специалиста

4. Компьютерный стол специалиста с компьютером

5. Стеллаж

6. Ученическая доска

7. Умывальник

8. Вешалка для полотенца

Рис. П.27. Зал ситуационных игр.

 




ГОСТЫ, СТРОИТЕЛЬНЫЕ и ТЕХНИЧЕСКИЕ НОРМАТИВЫ.
Некоммерческая онлайн система, содержащая все Российские Госты, национальные Стандарты и нормативы.
В Системе содержится более 150000 файлов нормативно-технической документации, действующей на территории РФ.
Система предназначена для широкого круга инженерно-технических специалистов.

Рейтинг@Mail.ru Яндекс цитирования

Copyright © www.gostrf.com, 2008 - 2026