Крупнейшая бесплатная информационно-справочная система онлайн доступа к полному собранию технических нормативно-правовых актов РФ. Огромная база технических нормативов (более 150 тысяч документов) и полное собрание национальных стандартов, аутентичное официальной базе Госстандарта. GOSTRF.com - это более 1 Терабайта бесплатной технической информации для всех пользователей интернета. Все электронные копии представленных здесь документов могут распространяться без каких-либо ограничений. Поощряется распространение информации с этого сайта на любых других ресурсах. Каждый человек имеет право на неограниченный доступ к этим документам! Каждый человек имеет право на знание требований, изложенных в данных нормативно-правовых актах!

  


 

ОТКРЫТОЕ АКЦИОНЕРНОЕ ОБЩЕСТВО
ПРОЕКТНО-КОНСТРУКТОРСКИЙ
И ТЕХНОЛОГИЧЕСКИЙ ИНСТИТУТ
ПРОМЫШЛЕННОГО СТРОИТЕЛЬСТВА

ОАО ПКТИпромстрой

УТВЕРЖДАЮ

Генеральный директор, к.т.н.

_____________ С.Ю. Едличка

«__20__» ____12___ 2002 г.

ТЕХНОЛОГИЧЕСКАЯ КАРТА
НА УСТРОЙСТВО ПЕРЕГОРОДОК
СТЕНОВЫМИ БЛОКАМИ ИЗ
ЯЧЕИСТОГО БЕТОНА

29-02 ТК

Главный инженер

___________ А.В. Колобов

Начальник отдела

___________ Б.И. Бычковский

2002

Одним из путей решения народнохозяйственной задачи по снижению металлоёмкости, стоимости и трудоёмкости строительства, повышения теплозащиты зданий и снижения затрат энергоресурсов является применение ячеистых бетонов в строительной отрасли. Ячеистый бетон является весьма эффективным материалом для конструкций зданий различного назначения.

Технология производства ячеистого бетона обеспечивает повышенную относительную прочность. Сочетание такой прочности с малым объемным весом позволяет создать конструкции, совмещающие в себе функции теплоизоляционных и несущих элементов. Кроме того, вибротехнология изготовления конструкций из ячеистого бетона позволяет обеспечить отпускную влажность бетона до 25 % по массе, что улучшает его технологические и прочностные качества.

Применение таких конструкций позволяет:

- снизить материалоёмкость изделий и энергоёмкость производства;

- сократить общую массу зданий и сооружений без нарушения прочностных характеристик;

- снизить трудоёмкость на возведение перегородок;

- обеспечить капитальность и долговечность зданий.

В работе представлены: требования к материалам, технология устройства перегородок, организация рабочего места и приёмы труда, механизмы, инструменты и приспособления, а также требования техники безопасности и к качеству выполняемых работ.

Технологическая карта разработана сотрудниками ОАО ПКТИпромстрой в составе к.т.н. С.Ю. Едлички, А.В. Колобова, Б.И. Бычковского, В.Н. Холопова, Р.А. Бронскова.

Авторы будут признательны за предложения и возможные замечания по составу и содержанию настоящей карты.

Контактный телефон: (095) 214-36-49, факс (095) 214-95-53.

Е-mail: рkti@rinet/ru www/rinet/ru/-pkti.

Технологическая карта не заменяет ППР. (см. СНиП 3.01.01-85*)

СОДЕРЖАНИЕ

1 ОБЛАСТЬ ПРИМЕНЕНИЯ

1.1 Технологическая карта разработана на устройство перегородок в зданиях и сооружениях различного назначения с низкой относительной влажностью и при сохранении требуемых проектом прочностных характеристик из мелких блоков из ячеистого бетона автоклавного твердения, отвечающие требованиям ГОСТ 21520-89.

1.2 Блоки из ячеистого бетона используются согласно альбому 82/902 Моспромпроект для кладки перегородок в жилых, общественных, производственных и сельскохозяйственных зданиях и сооружениях с относительной влажностью воздуха не более 75 %.

1.3 Применение блоков из ячеистых бетонов для перегородок зданий и сооружений с мокрыми режимами помещений, а также в местах, где возможно усиленное увлажнение или наличие агрессивных сред, не допускается.

1.4 В помещениях с влажностью воздуха более 60 % внутренняя поверхность блоков наружных стен должна иметь пароизоляционное покрытие.

1.5 При привязке данной технологической карты к конкретному объекту и условиям строительства уточняются объёмы работ, график производства работ, количественный состав звеньев и средства механизации.

2 ОРГАНИЗАЦИЯ И ТЕХНОЛОГИЯ СТРОИТЕЛЬНОГО ПРОЦЕССА

2.1 Мелкие блоки из ячеистого бетона для перегородок изготавливают объёмной массой от 500 до 800 кг/м3. В зависимости от прочности стеновые блоки подразделяются на шесть классов: В1,5; В2; В2,5; В3,5; В5; В7,5. Минимальная объёмная масса блоков класса В1,5; В2; В2,5; В3,5 равна 500 кг/м3, а максимальная, класса В2,5; В3,5; В5; В7,5 - 800 кг/м3. Масса одного блока от 3,5 до 30 кг.

2.2 Блоки имеют форму параллелепипедов. Типы блоков и их размеры должны соответствовать указанным в таблице 1, а допускаемые отклонения от размеров и показателей внешнего вида блоков не должны превышать величин указанных в таблице 2.

Таблица 1 - Габаритные размеры блоков из ячеистых бетонов.

Типы

Размеры блоков для кладки (мм)

на растворе

на клею

Высота

Толщина

Длина

Высота

Толщина

Длина

1

2

3

4

5

6

7

I

188

300

588

198

295

598

II

188

250

588

198

245

598

III

288

200

588

298

195

598

IV

188

200

388

198

195

398

V

288

250

288

298

245

298

VI

144

300

588

-

-

-

VII

119

250

588

-

-

-

VIII

88

300

588

98

295

598

IX

88

250

588

98

245

598

X

88

200

398

98

195

398

Таблица 2 - Допускаемые отклонения.

№№ п/п

Наименование показателей

Допускаемые отклонения, мм

Блоки высшей категории качества

Блоки первой категории качества

1.

Размеры (высота, толщина, длина)

+3

+5

2.

Отклонение от прямоугольной формы поверхности (разновидность длин диагоналей)

4

6

3.

Искривление граней и рёбер

3

5

4.

Притуплённость углов и рёбер

3

5

5.

Повреждение углов в количестве не более двух на одном блоке глубиной

10

20

6.

Повреждение рёбер в количестве не более двух на одном блоке глубиной

10

20

2.3 Количество блоков с трещинами, пересекающими не более двух рёбер, не должно быть более 3 % для изделий высшей категории качества и 5 % для изделий первой категории качества. Количество блоков с отклонениями, превышающими указанные в п.п. 1, 2, 3, 5, 6 таблицы 2, не должно превышать 5 % от партии для изделия высшей категории качества и 10 % - для изделий первой категории качества.

2.4 Блоки из ячеистого бетона, поставляемые на строительные площадки, должны удовлетворять требованиям ГОСТ 21520-89. Материалы, применяемые для изготовления блоков, должны удовлетворять требованиям стандартов и техническим условиям на эти материалы.

2.5 Физико-механические показатели блоков должны соответствовать показателям, указанным в таблице 3.

Таблица 3 - Физико-механические характеристики блоков.

№ п/п

Наименование показателей

Нормативные показатели прочности для блоков марок по прочности

25

35

50

75

100

150

1

Контрольная характеристика, не менее

 

 

 

 

 

 

 

МПа

3,5

5,0

7,5

10,0

15,0

20,0

 

кгс/см2

35

50

75

100

150

200

2

Плотность (объёмная масса),

500

600

700

800

900

1000

 

кг/м3

600

700

800

900

1000

1100

 

 

700

800

900

1000

1100

-

3

Линейная усадка ячеистого бетона, мм/м, не более, для блоков на основе:

 

 

 

 

 

 

 

кварцевого песка

0,5

0,5

0,5

0,5

0,5

0,5

 

золы

0,8

0,8

0,8

0,8

0,8

0,8

4

Отпускная влажность в % по массе, не более, для блоков, изготовленных на основе:

 

 

 

 

 

 

 

кварцевого песка

25

25

25

25

25

25

 

золы

35

35

35

35

35

35

2.6 Отклонения по плотности (объёмной массе) блоков в сухом состоянии от величин, указанных в п. 2 таблицы 3, не должны превышать для блоков высшей категории качества 25 кг/м3, для блоков первой категории качества 50 кг/м3.

2.7 Поступающие на строительную площадку блоки должны маркироваться в каждом штабеле по одному в среднем, верхнем и нижнем рядах путем нанесения несмываемой краской при помощи трафарета или штампа товарного знака предприятия-изготовителя.

2.8 Предприятие-изготовитель должно гарантировать соответствие блоков требованиям ГОСТ 21520-89 при соблюдении потребителем условий применения и хранения, установленных вышеуказанным ГОСТом, и сопровождать каждую партию паспортом, в котором указываются:

- наименование и адрес предприятия-изготовителя;

- номер и дата выдачи паспорта;

- номер партии и количество отгруженных блоков;

- условное обозначение блоков;

- результаты физико-механических испытаний.

2.9 Транспортирование блоков может осуществляться любыми транспортными средствами на поддонах, пакетами или в контейнерах, защищенными от увлажнения. Запрещается производить погрузку блоков навалом и разгрузку их сбрасыванием.

2.10 Доставка материалов на объект осуществляется с применением транспортных средств, оборудования и приспособлений, обеспечивающих бесперебойную подачу их на рабочее место.

2.11 Блоки должны храниться рассортированными по маркам и уложенными в штабеля высотой не более 2 м на подкладках. Блоки должны быть защищены от увлажнения и не соприкасаться с грунтом.

2.12 Марки раствора, вид вяжущего и заполнителя для его приготовления принимаются в зависимости от условий эксплуатации помещений и устанавливаются проектом.

2.13 Свежеприготовленный раствор доставляется на строительную площадку с сохранением заданных показателей. На месте работ организуется проверка вида раствора и его марки (по заводскому документу подвижности) стандартным конусом СтройЦНИИЛ, однородности - визуально.

Растворы, расслоившиеся во время перевозки, должны быть перемешаны до подачи на рабочее место. Не допускается применение обезвоженных растворов.

2.14 При выполнении работ по возведению перегородок из блоков из ячеистых бетонов, фрагмент устройства которых показан на рисунке 1, следует руководствоваться правилами производства и приёмки работ согласно СНиП 3.03.01-87 «Несущие и ограждающие конструкции».

2.15 Работы по возведению перегородок стеновыми блоками из ячеистого бетона следует осуществлять в соответствии с технической документацией, которая содержит:

- указания по виду материалов, применяемых для возведения перегородок, включая проектную марку по прочности, а также объёмную массу (объемный вес) и отпускную влажность;

- данные по марке и составу раствора для производства работ в летнее и зимнее время, а также вид вяжущего;

- данные по способу кладки и мероприятия, обеспечивающие прочность и устойчивость конструкций перегородок в стадии возведения;

- требования по систематическому контролю прочности блоков из ячеистого бетона и раствора для перегородок, расчётная несущая способность которых используется более чем на 80 %.

2.16 Борозды, ниши, монтажные проёмы и отверстия в кладке выполняются в процессе возведения конструкций в соответствии с проектом.

2.17 Не допускается ослабление конструкций перегородок отверстиями, бороздами, нишами, монтажными проёмами, не предусмотренными проектом.

2.18 Производство работ по возведению перегородок из блоков из ячеистого бетона обеспечивается комплектом инструментов и приспособлений, необходимых для устройства перегородок, для контроля геометрических параметров кладки, толщины и горизонтальности швов.

Рисунок 1 - Фрагмент устройства перегородок из ячеистых блоков

2.19 Толщина горизонтальных швов кладки перегородок из мелких блоков принимается не менее 10 и не более 15 мм. Средняя толщина горизонтальных швов в пределах высоты этажа принимается 12 мм. Для вертикальных швов кладки допускается толщина швов в пределах 8 ... 15 мм. Средняя толщина составляет 10 мм.

2.20 Кладку перегородок в местах взаимных пересечений или примыканий необходимо производить, как правило, одновременно. При вынужденных разрывах кладка выполняется в виде наклонной или вертикальной штрабы.

2.21 Устройство перегородок начинают с установки стоек шаблона, которые помещают на расстоянии 250 ... 300 мм от стен, и разметки места расположения дверных проёмов. После того как блоки одного ряда будут установлены и выверены, горизонтальную рейку шаблона поднимают на высоту блока и по ней устанавливают блоки следующего ряда.

2.22 Укладку ячеистых блоков начинают с установки порядовок. Шнур-причалку закрепляют на высоте первого ряда плит от выравненного раствором основания так, чтобы его кромка находилась на плоскости перегородки. Основание под перегородку выравнивается по уровню заблаговременно.

2.23 После этого раскладывают блоки первого ряда вдоль оси перегородки и устраивают постель из раствора. Затем берут блок, ставят его торцом вверх, расстилают ровным слоем раствор по торцевой грани блока, поворачивают блок на 90° и ставят его на ровную растворную постель, плотно прижимая к стене или к ранее уложенному блоку. Выжатый раствор подрезают кельмой и выравнивают блок по шнуру-причалке, далее устанавливают следующий блок.

2.24 Установив первый ряд, проверяют правильность установки, заполняют пустые швы раствором и зачищают кельмой. Второй и последующие ряды устанавливают в описанной выше последовательности, соблюдая перевязку швов.

2.25 До полного схватывания раствора поверхность перегородок очищают от наплывшего раствора и сглаживают. Эту операцию выполняют стальной циклей размером 150´80´1,5 мм; при работе её держат поперек шва, опирая одновременно на два блока. Не следует сильно нажимать на циклю, чтобы не сместить установленные блоки.

2.26 При наличии в перегородке проема после установки второго ряда блоков устанавливают шаблон дверной коробки. Его закрепляют в перегородке к деревянным пробкам, закладываемым между блоками в трех местах по высоте для последующего крепления к ним дверной коробки.

2.27 Между потолком и верхом последнего ряда блоков, для компенсации возможных осадок конструкции, оставляют зазор 15 - 20 мм. В дальнейшем его проконопачивают паклей, пропитанной гипсовым раствором.

2.28 При устройстве перегородок из блоков из ячеистых бетонов следует пользоваться шаблонами, представленными на рисунке 2. Шаблон стоечный состоит из двух трубчатых стоек и горизонтальной рейки, длину которой можно изменять в зависимости от размеров перегородки. Рейка опирается на два металлических кронштейна, которые перемещаются по трубчатым стойкам и закрепляются на требуемой высоте стопорными винтами. Стойки снабжены винтовыми домкратами, которыми при установке закрепляют шаблон. Шаблон для кладки углов состоит из двух сбитых под углом 90° досок шириной 300 мм.

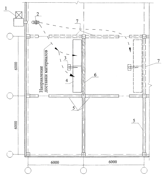
2.29 Пример устройства перегородок из ячеистых блоков в каркасном здании с сеткой колонн 6´6 показан на рисунке 3.

2.30 Устройство перегородок из ячеистых блоков выполняет звено каменщиков из двух человек:

- каменщик 4 разряда (К1)                                     1

- каменщик 2 разряда (К2)                                     1

1 - стойка

2 - блоки из ячеистого бетона

3 - рейка

4 - кронштейн

5 - винтовой домкрат

6 - доски углового шаблона

Рисунок 2 - Шаблоны для кладки перегородок

а) из доски для кладки угла;

б) стоечный

1 - подъёмник МГП-1000

2 - тележка для транспортирования материалов

3 - кран-укосина

4 - катучие подмости

5 - существующие перегородки

6 - устраиваемые перегородки

7 - перегородки, подлежащие устройству на следующем этапе

Рисунок 3 - Технологическая схема устройства перегородок

2.31 Подачу материалов краном-укосиной на подмости производится звеном в составе:

- машинист 3 разряда (М1)                                          1

- такелажники 2 разряда (Т1) и (Т2)                            2

2.32 Схема организации рабочего места показана на рисунке 4.

2.33 Устройство перегородок выполняют в следующей последовательности:

- такелажник Т1 укладывает блоки в контейнер на ручную тележку и перевозит её к крану-укосине, рисунок 5, а;

- такелажник Т2 ставит ящик с раствором на ручную тележку и перевозит её к крану-укосине;

- каменщик К2 очищает поверхность в местах устройства перегородок;

- каменщики К1 и К2 наносят на очищенную поверхность риски оси перегородки и положение лицевой грани перегородки в соответствии с архитектурно-планировочными чертежами;

- каменщики-монтажники К1 и К2 разметочным шнуром, набелённым мелом, «отбивают» линию лицевой грани перегородки;

- каменщик К2 расстилает раствор по плитам перекрытия вдоль разметочной линии;

- каменщик К1 устанавливает первый нижний маячный ряд блоков торцом вверх, при этом каменщик К2 кельмой кладёт раствор на торцы блоков, а К1 устанавливают блоки в проектное положение, рисунок 5, 6;

- последующие ряды перегородок из ячеистых блоков каменщик К1 укладывает с перевязкой швов, рисунок 5, в, а каменщик К2 наносит раствор на верхнюю грань уложенного ряда, а также на торцы раскладываемых блоков;

- устройство верхних рядов перегородок производят с подмостей, рисунок 5, г, д;

- при подаче ячеистых блоков на подмости такелажник Т1 стропит контейнер с блоками или ящик с раствором. Машинист М1 включает лебёдку крана-укосины и перемещает контейнер с блоками или ящик с раствором на подмости, где их принимает такелажник Т2;

- такелажник Т2 и каменщик К2 вынимают блоки из контейнера и укладывают их на подмости;

- дальнейшее возведение перегородки выполняется по вышеприведённой последовательности.

1 - колонны

2 - установленные блоки

3 - устанавливаемые блоки

4 - нижележащие блоки перегородки

5 - катучие подмости

6 - блоки, подготовленные для установки

7 - кран-укосина

8 - тележка с блоками для перегородок

9 - ящик с раствором

Рисунок 4 - Схема организации рабочего места

Схемы операций труда при устройстве перегородок даны на рисунке 5 (листы 16, 17).

3 ТРЕБОВАНИЯ К КАЧЕСТВУ И ПРИЁМКЕ РАБОТ

3.1 Кладку перегородок следует выполнять в соответствии со СНиП 3.03.01-87 «Несущие и ограждающие конструкции», соблюдение которых обеспечивает требуемую прочность и высокое качество возводимых конструкций.

3.2 Требуемое качество работ и надёжность перегородок из блоков из ячеистого бетона должны обеспечиваться участвующими в строительном процессе организациями путём осуществления комплекса технических, экономических и организационных мер эффективного контроля на всех стадиях устройства перегородок стеновыми блоками из ячеистых бетонов.

3.3 Контроль качества строительно-монтажных работ по устройству перегородок должен осуществляться специальными службами, создаваемыми в строительной организации и оснащёнными техническими средствами, обеспечивающими необходимую достоверность и полноту контроля.

3.4 Производственный контроль качества работ по устройству перегородок из блоков из ячеистого бетона в зданиях и сооружениях включает в себя входной контроль рабочей документации и используемых материалов и конструкций, операционный контроль технологических процессов и приёмочный контроль выполняемых работ.

3.5 При входном контроле рабочей документации производится проверка её комплектности и достаточности содержащейся в ней технической информации для производства работ.

При входном контроле качества строительных материалов следует проверять внешним осмотром соответствие их требованиям стандартов и соответствующих документов предприятий-поставщиков, строительной лабораторией и производителем работ, а также наличие паспортов, сертификатов и других сопроводительных документов.

3.6 Операционный контроль должен осуществляться в ходе выполнения строительных процессов и производственных операций и обеспечивать своевременное выявление дефектов и принятие мер по их устранению и предупреждению.

В процессе работы мастер и звеньевой должны следить за тем, чтобы блоки из ячеистого бетона и раствор соответствовали указанным в проекте, а также проверять правильность привязки и качество швов кладки, вертикальность, горизонтальность и прямолинейность поверхностей и углов, качество поверхности кладки.

а)

Каменщик Т1 берет с поддона блок и укладывает его в контейнер, который установлен на тележке. Затем тележку с блоками закатывает на подъемник и поднимает ее на требуемый этаж.

б)

Каменщики К1 и К2 размечают оси перегородок, затем каменщик К2 расстилает раствор, а каменщик К1 устанавливает ячеистые блоки, ставя их торцом вверх.

в)

Каменщик К2 кладёт на торцы блоков раствор, а каменщик К1 раскладывает блоки в проектное положение. Последующие ряды перегородок устанавливают с перевязкой швов.

г)

При подаче ячеистых блоков на подмости такелажник Т1 стропит контейнер с блоками. Машинист М1 включает лебёдку крана-укосины и перемещает контейнер с блоками на подмости, где их принимает такелажник Т2.

д)

Такелажник Т2 и каменщик К2 вынимают блоки из контейнера и укладывают их на подмости.

Рисунок 5 - Операции труда при устройстве перегородок

3.7 Для проверки толщины швов перегородок измеряют пять-шесть рядов кладки и определяют среднюю толщину шва (см. п. 2.19). Утолщение швов против предусмотренных правилами можно допускать лишь в случаях, оговоренных проектом, при этом размеры утолщённых швов должны быть указаны в рабочих чертежах.

3.8 Вертикальность поверхностей и углов проверяют уровнем и отвесом не реже двух раз на каждом ярусе кладки. Если будут обнаружены отклонения, не превышающие допускаемые, то их исправляют при следующей кладке яруса или этажа.

3.9 Горизонтальность рядов контролируют правилом и уровнем не реже двух раз на каждом ярусе кладки. Для этого правило кладут на кладку, ставят на него уровень и, выровняв его по горизонту, определяют величину отклонения кладки от горизонтали. Если она не превышает установленного допуска, отклонение устраняют в процессе последующей кладки.

3.10 Допускаемые отклонения в размерах и положении конструкций перегородок из ячеистых блоков приведены в таблице 5.

Таблица 5 - Допускаемые отклонения кладки перегородок из блоков

№ п/п

Наименование

Величина отклонения, мм

Примечание

1

Отклонения от проектных размеров:

- по отметкам опорных поверхностей

-10

 

 

- по ширине простенков

-15

 

 

- по ширине проемов

+15

 

2

Отклонение поверхностей и углов кладки по вертикалям на один этаж

10

 

3

Отклонение рядов кладки по горизонтали на 10 м длины стены

15

 

4

Неровности на вертикальной поверхности кладки, обнаруженные при накладывании рейки длиной 2 м

10

 

4 ТРЕБОВАНИЯ БЕЗОПАСНОСТИ И ОХРАНЫ ТРУДА, ЭКОЛОГИЧЕСКОЙ И ПОЖАРНОЙ БЕЗОПАСНОСТИ

4.1 Монтаж перегородок следует выполнять с соблюдением требований СНиП III-4-80* «Техника безопасности в строительстве», СНиП 12-03-2001 «Безопасность труда в строительстве. Часть 1. Общие требования», СНиП 12-04-2002 «Безопасность труда в строительстве. Часть 2. Строительное производство».

4.2 К выполнению работ допускаются лица не моложе 18 лет, имеющие профессиональные навыки, прошедшие обучение безопасным методам и приемам работ согласно ГОСТ 12.0.004-90 «Организация обучения безопасности труда. Общие положения» и получившие соответствующие удостоверения.

4.3 Все лица, находящиеся на строительной площадке, обязаны носить защитные каски, отвечающие требованиям ГОСТ 12.4.087-84. Рабочие и инженерно-технические работники без защитных касок и других необходимых средств индивидуальной защиты к выполнению работ не допускаются.

4.4 Средства подмащивания и другие приспособления, обеспечивающие безопасность работ, должны соответствовать требованиям СНиП 12-03-2001 «Безопасность труда в строительстве. Часть 1. Общие требования» и ГОСТ 24258-88 «Средства подмащивания. Общие технические условия».

4.5 Подмости после их монтажа могут быть допущены к эксплуатации только после того, как они выдержат испытания в течение 1 часа статической нагрузкой, превышающей нормативную на 20 %. Результаты испытаний подмостей должны быть отражены в акте их приемки или в общем журнале работ.

4.6 Подмости допускаются к эксплуатации только после их приёмки производителем работ или мастером и регистрации в журнале работ.

При приёмке подмостей должны быть проверены: наличие связей и креплений, обеспечивающих устойчивость, узлы крепления отдельных элементов, рабочие настилы и ограждения. В местах подъема людей на подмости должны быть плакаты с указанием величины и схемы размещения нагрузок.

4.7 Состояние подмостей ежедневно перед началом смены проверяет мастер, руководящий участком работ на данном объекте, и бригадир.

4.8 Подмости нельзя перегружать материалами сверх установленной для данной конструкции расчетной нагрузки. Следует избегать накопления материалов в одном месте.

4.9 За состоянием всех конструкций подмостей, в том числе за состоянием соединений, креплений и ограждений, устанавливают систематическое наблюдение.

4.10 Настилы на подмостях должны быть ровными и без щелей. Их устраивают из инвентарных щитов, сшитых планками.

4.11 Зазор между перегородкой и рабочим настилом подмостей не должен превышать 5 см.

4.12 Настилы подмостей, устраиваемые на высоте более 1,1 м от поверхности перекрытия, ограждают перилами высотой не менее 1,1 м. Для подъема рабочих на подмости устанавливают стремянки с ограждениями.

4.13 Ежедневно после окончания работы подмости очищают от мусора.

4.14 Кладку любого яруса перегородки выполняют так, чтобы уровень её после каждого перемещения подмостей находился на 70 см выше уровня рабочего настила.

В случае необходимости производства кладки ниже этого уровня кладку надлежит выполнять, применяя предохранительные пояса.

4.15 При кладке перегородок на высоту 0,7 м от рабочего настила и расстоянии от его уровня за возводимой перегородкой до поверхности перекрытия более 1,3 м необходимо применять средства коллективной безопасности (ограждающие или улавливающие устройства) или предохранительные пояса.

4.16 При перемещении и подаче блоков на этажи (подмости, леса), как правило, следует применять контейнеры и поддоны, исключающие выпадение блоков. Подъем блоков в контейнерах без поддонов допускается лишь с помощью специальных захватов, обеспечивающих безопасность (при условии применения приспособлений, ограждающих контейнер). Приспособления для подъема блоков нельзя применять без устройств, предотвращающих самопроизвольное раскрытие этих приспособлений во время подъема.

4.17 Все инструменты и приспособления должны использоваться в соответствии с их назначением. Необходимо следить, чтобы они были в исправном состоянии.

Инструменты необходимо правильно и прочно насаживать на ручки. Рабочие поверхности инструментов должны быть ровными, без заусенцев, поврежденные или деформированные инструменты использовать нельзя.

4.18 Работать каменщик должен в рукавицах или напальчниках, предохраняющих кожу от истирания, и в каске, защищающей голову.

4.19 При эксплуатации тары для раствора необходимо соблюдать требования ГОСТ 12.3.010-82.

5 ПОТРЕБНОСТЬ В МАТЕРИАЛЬНО-ТЕХНИЧЕСКИХ РЕСУРСАХ

5.1 Потребность в машинах, механизмах, инструментах и приспособлениях для устройства перегородок из блоков из ячеистого бетона определяется с учётом объёмов выполняемых работ, назначения и технических характеристик согласно таблице 6.

Таблица 6 - Ведомость потребности в машинах, механизмах, инструментах и приспособлениях.

№ п/п

Наименование

Тип, марка, ГОСТ

Техническая характеристика

Назначение

Количество

1

2

3

4

5

6

1

Кран-укосина

РЧ треста Мособлоргтехстрой, арх. № 3155

-

Подача материала

1

2

Тележка

РЧ треста Мособлоргтехстрой, арх. № 3195

Грузоподъёмность 150 кг

Перевозка блоков и раствора

2

3

Катучие подмости

РЧ треста Мособлоргтехстрой, арх. № 3154

Высота помещений до 4,2 метров

Работа на высоте

3

4

Отвес

ОТ-200 ГОСТ 7948-80

-

Установка и проверка вертикальности кладки

2

5

Уровень

УС-5-1-300

ГОСТ 9416-83

-

Горизонтальность кладки

1

6

Правило

1-1500

ГОСТ 4784-97

-

-

1

7

Шнур разметочный в корпусе

ВНИИСМИ

ТУ 22-3527-67

-

Контроль прямолинейности кладки

2

8

Рулетка

РС-20

ГОСТ 7502-98

-

Измерение линейных размеров

1

9

Скребок металлический

ВНИИСМИ

РЧ № 210

-

-

2

10

Ковш штукатурный

ГОСТ 7945-86

-

-

2

11

Лопата растворная

Типа ЛР

-

Подача и расстилание раствора

2

12

Кельма

Типа КБ

ГОСТ 9533-81

-

Разравнивание и подрезка раствора

2

13

Скарпель

ТУ 22-2781-73

-

-

1

14

Бак

Изготавливается УПТК

Ёмкость 40 л

-

2

15

Шаблон для кладки перегородок

-

-

Получение заданных геометрических параметров кладки

1

16

Шпатели стальные

типа ШСД

ГОСТ 10778-83

-

-

3

17

Молоток

Типа МПЛ

ГОСТ 11042-90

-

-

2

18

Кельма каменщика

Типа КШ

ГОСТ 9533-81

-

-

2

19

Молоток - кирка

ГОСТ 11042-90

-

-

2

20

Каска строительная

ГОСТ 12.4.087-84

-

Защита головы рабочих

3

21

Ящик растворный

Выполняется серийно

-

Для раствора

1

22

Цикля

-

Стальная

Очистка перегородок от наплывшего раствора

1

23

Подъёмник

МГП-1000

Грузоподъёмность 1000 кг

Подъём раствора и блоков на перекрытие

1

24

Шаблон угловой

-

Деревянный

Для кладки перегородок под в углах

1

25

Контейнер

-

-

Для подачи блоков

2

6 ТЕХНИКО-ЭКОНОМИЧЕСКИЕ ПОКАЗАТЕЛИ

6.1 Состав звена для устройства перегородок стеновыми блоками из ячеистого бетона приведён в таблице 7.

Таблица 7 - Количественный и профессиональный состав звена.

Наименование работ

Состав звена по ЕНиР

Профессия

Разряд

Количество

Устройство перегородок

Каменщик

4,2

2

Разметка оси перегородки в соответствии с архитектурно-планировочными чертежами

Каменщик

4,2

2

Подготовка места под устройство перегородок, расстилание раствора по плитам перекрытия

Каменщик

2

1

6.2 Затраты труда и машинного времени на устройства перегородок стеновыми блоками из ячеистого бетона подсчитаны по «Единым нормам и расценкам на строительные, монтажные и ремонтно-строительные работы», введённым в действие в 1987 г; сборник Е1 «Внутрипостроечные транспортные работы», сборник Е3 «Каменные работы» и представлены в таблице 8.

Для расчёта затрат труда и машинного времени приняты блоки размером 119´250´588 мм при 500 кг/м3.

Калькуляцией предусмотрена подача две трети блоков и раствора краном-укосиной с перекрытия на рабочее место. Подача материалов подъёмником на перекрытия настоящей картой не учтена.

Таблица 8 - Калькуляция трудовых затрат и машинного времени на устройство перегородок.

Измеритель конечной продукции - 100 м2 перегородок.

№ п/п

Обоснование (ЕНиР и др. нормы)

Наименование технологических процессов

Ед. изм.

Объём работ

Норма времени

Затраты труда

рабочих, чел-час

машинистов, чел-час. (работа машин, маш-час)

рабочих чел-час

машинистов, чел-час. (работа машин, маш-час)

1

2

3

4

5

6

7

8

9

1

Е 1-21 № 1

Перевозка блоков ручными тележками

т

5,81

1,1

-

6,39

-

2

Е 1-21 № 1

Перевозка раствора ручными тележками

т

3,3

1,1

-

3,63

-

3

Е 1-16 № 8

Транспортировка блоков (кран-укосина)

1000 шт

0,55

16,0

7,9

(7,9)

8,8

4,4

(4,4)

4

Е 1-16 № 10

Транспортировка раствора (кран-укосина)

100

м3

0,01

98,0

49,0

(49,0)

0,98

0,49

(0,49)

5

Е 3-12 № 4 (применительно)

Устройство перегородок из блоков из ячеистого бетона

м2

100

0,47

-

47

-

6.3 Продолжительность работ по устройству перегородок стеновыми блоками из ячеистого бетона определяется календарным планом производства работ согласно таблице 9.

6.4 Основные технико-экономические показатели

Объём работ:

Перегородки из блоков из ячеистого бетона                 100 м2

Затраты труда на весь объём работ, чел.-час                 66,8

Выработка на одного рабочего в смену, м2                    12



7 ПЕРЕЧЕНЬ НОРМАТИВНО-ТЕХНИЧЕСКОЙ ДОКУМЕНТАЦИИ

1. СНиП 3.01.01-85* Организация строительного производства

2. СНиП 3.03.01-87 Несущие и ограждающие конструкции.

3. СНиП 12-03-2001 Безопасность труда в строительстве. Часть 1. Общие требования.

4. СНиП III-4-80* Техника безопасности в строительстве (до 1.01.2003 г.).

5. СНиП 12-04-2002 Безопасность труда в строительстве. Часть 2. Строительное производство (с 1.01.2003 г.)

6. ГОСТ 12.0.004-90 Организация обучения безопасности труда. Общие положения.

7. ГОСТ 12.3.010-82 ССБТ. Тара производственная. Требования безопасности при эксплуатации.

8. ГОСТ 12.4.087-84 ССБТ. Строительство. Каски строительные. Технические условия.

9. ГОСТ 7502-98 Рулетки измерительные металлические. Технические условия.

10. ГОСТ 7948-80 Отвесы стальные строительные. Технические условия.

11. ГОСТ 9416-83 Уровни строительные. Технические условия.

12. ГОСТ 9533-81 Кельмы, лопатки и отрезовки. Технические условия.

13. ГОСТ 11042-90 Молотки стальные строительные. Технические условия.

14. ГОСТ 21520-89 Блоки из ячеистых бетонов стеновые мелкие. Технические условия.

15. ГОСТ 24258-88 Средства подмащивания. Общие технические условия.

 




ГОСТЫ, СТРОИТЕЛЬНЫЕ и ТЕХНИЧЕСКИЕ НОРМАТИВЫ.
Некоммерческая онлайн система, содержащая все Российские Госты, национальные Стандарты и нормативы.
В Системе содержится более 150000 файлов нормативно-технической документации, действующей на территории РФ.
Система предназначена для широкого круга инженерно-технических специалистов.

Рейтинг@Mail.ru Яндекс цитирования

Copyright © www.gostrf.com, 2008 - 2026