| |
ГОССТРОЙ СССР
ЦЕНТРАЛЬНЫЙ НАУЧНО-ИССЛЕДОВАТЕЛЬСКИЙ
И ПРОЕКТНО-ЭКСПЕРИМЕНТАЛЬНЫЙ
ИНСТИТУТ ОРГАНИЗАЦИИ, МЕХАНИЗАЦИИ
И ТЕХНИЧЕСКОЙ ПОМОЩИ СТРОИТЕЛЬСТВУ
(ЦНИИОМТП)
ТЕХНОЛОГИЧЕСКАЯ КАРТА
НА МОНТАЖ И ДЕМОНТАЖ ОПАЛУБКИ
СТЕН И ПЕРЕКРЫТИЙ
МОСКВА - 1988
Рекомендовано к изданию
решением секции технологии строительного производства Научно-технического
совета ЦНИИОМТП Госстроя СССР.
Альбом содержит технологическую карту на
производство опалубочных работ при возведении монолитных стен и перекрытий
типового этажа на примере 16-этажного дома в Ленинграде.
Технологическая карта
предназначена для инженерно-технических работников строительных организаций.
Технологическая карта
разработана сотрудниками ЦНИИОМТП Госстроя СССР (к.т.н. Б.В. Жадановский, Н.И.
Евдокимов, Л.А. Зуева, Ю.А. Ярымов и др.).
Технологическая карта
предназначена для определения технико-экономических показателей возведения
монолитных конструкций на стадии проектирования, а также для сравнительной
технико-экономической оценки конструктивных и технологических решений жилых
зданий в обычных условиях строительства.
Технико-экономические
показатели (затраты труда, заработная плата и выработка на одного рабочего в
смену) составлены для опалубочных работ при устройстве стен и перекрытий разной
толщины с применением крупнощитовой опалубки для стен или мелкощитовой и
крупнощитовой для перекрытий на основе разработанных технологических карт для
16-этажного (типовой проект 1-528КП-82-1в) дома в Ленинграде.
Все показатели, определенные по
действующим ЕНиР для условий возведения зданий высотой 50 м, пересчитываются
для зданий другой этажности с использованием коэффициентов, учитывающих
изменение трудоемкости работ.
|
Коэффициенты изменения
трудоемкости возведения монолитных конструкций в зависимости от высоты
здания
|
|
Высота возводимого здания,
м
|
15
|
27
|
30
|
36
|
12
|
48
|
54
|
|
Поправочный коэффициент к
трудоемкости
|
0,90
|
0,92
|
0,93
|
0,95
|
0,98
|
1,00
|
1,03
|
|
Высота возводимого здания,
м
|
60
|
72
|
78
|
90
|
96
|
102
|
|
|
Поправочный коэффициент к
трудоемкости
|
1,05
|
1,10
|
1,13
|
1,18
|
1,21
|
1,23
|
|
При разработке карты были выбраны наиболее характерные
монолитные конструкции, поэтому приведенные данные могут быть использованы для
разработки технологии производства работ при строительстве зданий различных
архитектурно-планировочных и конструктивных решений.
МОНТАЖ И ДЕМОНТАЖ ОПАЛУБКИ СТЕН И ПЕРЕКРЫТИЙ
1.1. Технологическая карта
разработана на производство опалубочных работ при возведении монолитных стен и
перекрытий типового этажа на примере жилого 16-этажного дома в Ленинграде.
1.2. В состав работ,
рассматриваемых картой, входят: укрупнение щитов опалубки; подача опалубки на
место установки; монтаж опалубки; демонтаж опалубки.
1.3. Работы выполняются в 2
смены.
2.1. До монтажа крупнощитовой опалубки
должны быть выполнены следующие работы: разбивка осей стен; нивелировка
поверхности перекрытий; проверка комплектности завезенной опалубки;
укрупнительная сборка щитов; очистка перекрытия от мусора.
2.2. Транспортируются элементы
крупнощитовой опалубки в следующих положениях:
модульные щиты - по размерам в горизонтальном
положении по 10 - 15 шт. на деревянных прокладках;
кронштейны, перила, связи - в специальной
деревянной таре;
мелкие узлы и детали - также в деревянной
таре.
2.3. Поступившие на строительную
площадку элементы крупнощитовой опалубки размещаются в зоне действия крана.
2.4. Опалубку стен
устанавливают в два этапа: сначала монтируют опалубку одной стороны стены на
всю высоту этажа, а после установки арматуры - второй стороны.
2.5. Для устройства перекрытий
применена мелкощитовая опалубка на телескопических стойках и крупнощитовая
опалубка.
2.6. Готовая опалубка
проверяется и принимается мастером или производителем работ. При приемке
обязательной проверке подлежат: соответствие формы и геометрических размеров
рабочим чертежам; совпадение осей опалубки с разбивочными осями конструкций;
точность отметок отдельных опалубочных плоскостей; вертикальность и
горизонтальность опалубочных щитов; правильность установки закладных деталей и
деревянных пробок; плотность стыковки щитов.
Правильность положения вертикальных
плоскостей выверяется отвесом, а горизонтальность - уровнем или нивелиром.
Отклонения в размерах и положении элементов
опалубки не должны превышать допусков, указанных в СНиП 3.03.01-87 «Несущие и
ограждающие конструкции».
2.7. Демонтаж крупнощитовой
опалубки разрешается производить только после достижения бетоном требуемой
согласно СНиП 3.03.01-87 прочности.
Распалубка и загрузка конструкций должны
производиться после испытания контрольных образцов, подтверждающего достижения
бетоном необходимой прочности.
2.8. После каждого оборота
опалубки на захватке необходимо: произвести визуальный осмотр монтажных частей;
очистить поверхности палубы и другие места от
налипшей бетонной смеси скребками и металлическими щетками;
нанести смазку на поверхность палуб,
проверить и нанести смазку на винтовые соединения.
2.9. Работы по монтажу и
демонтажу опалубки выполняются звеном из 4 человек:
слесарь строительный 4 разр. - 1
то же 3 разр. - 1
такелажники 2 разр. - 2
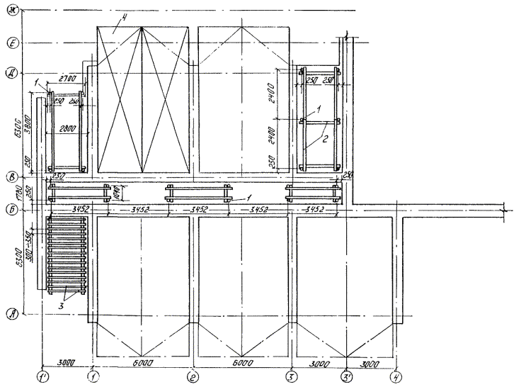
СХЕМА РАСКЛАДКИ ЩИТОВ ОПАЛУБКИ СТЕН

1 - торцевая
опалубка; 2 - надставка М-1,5; 3 - надставка М-0,9; 4 - надставка М-1,8
ПОСЛЕДОВАТЕЛЬНОСТЬ МОНТАЖА ЩИТОВ ОПАЛУБКИ
СТЕН

1 ..... 73 - порядок монтажа щитов опалубки
ПОСЛЕДОВАТЕЛЬНОСТЬ ДЕМОНТАЖА ЩИТОВ ОПАЛУБКИ
СТЕН

1 ..... 62 - порядок демонтажа опалубки стен
СХЕМА
ОПАЛУБКИ ПРОЕМОВ

|
Обозначение
|
Размеры, мм
|
Масса, кг
|
B
|
l
|
|
2567.50.100
|
920
|
150
|
70
|
|
-01
|
920
|
200
|
73
|
|
-02
|
1020
|
200
|
75
|
|
-03
|
1120
|
200
|
76
|
|
-04
|
1350
|
200
|
78
|
Данный лист взят по черт.
2567.50.000СБ ЦНИИОМТП (Проектная часть)
МЕЛКОЩИТОВАЯ ОПАЛУБКА ПЕРЕКРЫТИЙ

1 - телескопическая стойка; 2 - связь; 3 - брус; 4 - щиты
КРУПНОЩИТОВАЯ ОПАЛУБКА ПЕРЕКРЫТИЙ

1 - телескопическая стойка; 2 - связь; 3
- брус; 4 - щиты
ПОСЛЕДОВАТЕЛЬНОСТЬ МОНТАЖА ЩИТОВ ОПАЛУБКИ
ПЕРЕКРЫТИЯ

-
последовательность монтажа щитов опалубки
2.10. КАЛЬКУЛЯЦИЯ ЗАТРАТ ТРУДА
Калькуляция
затрат труда на монтаж и демонтаж опалубки стен
|
Обоснование
|
Наименование
работ
|
Единица
измерения
|
Объем работ
|
Норма времени
на единицу измерения, чел.-ч (маш.-ч)
|
Затраты труда
на весь объем работ, чел.-ч (маш.-ч)
|
Расценка на
единицу измерения, руб.-коп.
|
Стоимость
затрат труда на весь объем работ, руб.-коп.
|
|
|
Раздел 1
|
|
|
|
|
|
|
|
ЕНиР, 1979 г., § 1-6, табл. 2, п. 27а
|
Разгрузка щитов опалубки с транспортных средств
|
100 т
|
0,42
|
26
|
10,92
|
12-82
|
8-79
|
|
(13)
|
(5,46)
|
8-13
|
|
ЕНиР, 1979 г., § 5-1-1, п. 3
|
Сортировка и подача щитов опалубки к месту
складирования и укрупнения
|
т
|
41,79
|
0,7
|
29,25
|
0-47,8
|
26-62
|
|
(0,23)
|
(9,61)
|
0-15,9
|
|
ЕНиР, 1979 г., § 5-1-1, п. 1е
|
Укрупнительная сборка щитов
|
шт.
|
34
|
1,45
|
49,30
|
0-93,8
|
38-28
|
|
(0,29)
|
(9,86)
|
0-18,8
|
|
п. 2е
|
опалубки и кронштейнов
|
т
|
41,79
|
1,25
|
52,24
|
0-80,9
|
40-58
|
|
(0,25)
|
(10,45)
|
0-16,2
|
|
|
Итого на комплект опалубки
|
141,71
|
|
114 - 27
|
|
(35,38)
|
|
|
|
Тоже, на 1 м2 опалубливаемой конструкции
|
0,008
|
|
0 - 00,7
|
|
|
Раздел 2
|
|
|
|
|
|
|
|
|
МОНТАЖ ОПАЛУБКИ
|
|
|
|
|
|
|
|
ЕНиР, 1979 г. § 1-6, табл. 2, К = 1,12 (к расценкам
машиниста)
|
Подача краном укрупненных блоков опалубки с этажа на
этаж при средней высоте 24 м массой до, т:
|
|
|
|
|
|
|
|
п. 32 а, б
|
1
|
100 подъемов
|
0,12
|
18,80
|
2,26
|
9-26
|
1-90
|
|
|
(9,40)
|
(1,13)
|
6-59
|
|
п. 33 а, б
|
3
|
-²-
|
0,34
|
22,00
|
7,48
|
10-84
|
6-31
|
|
|
(11,00)
|
(3,74)
|
7-70
|
|
п. 26 а, б
|
Подача краном деревянных конструкций
|
100 т
|
0,03
|
49,60
|
1,49
|
24-45
|
1-25
|
|
|
(24,80)
|
(0,74)
|
17-36
|
|
ЕНиР, 1980 г., § 4-1-29, п. 1, К = 1,113
(применительно)
|
Установка крупнощитовой опалубки
|
м2
|
561,54
|
0,42
|
235,85
|
0-24,9
|
139-82
|
|
ЕНиР, 1980 г., § 4-1-27, табл. 6, п. 1 , 2, 3а, К =
1,113 (применительно)
|
Установка добора
|
м2
|
2,19
|
0,60
|
1,31
|
0-33,5
|
0-73
|
|
ЕНиР, 1980 г., § 4-1-47, п. 5, К = 1,113
|
Установка проемообразователей
|
м периметра
|
122,76
|
0,095
|
11,66
|
0-06,7
|
8-22
|
|
ЕНиР, 1979 г., § 6-1-28, п.
1б, К = 0,35 (примечание)
|
Укладка щитов подмостей
|
м2 проекции
|
170,39
|
0,084
|
14,31
|
0-04,7
|
8-01
|
|
|
Итого на комплект опалубки
|
274,36
|
|
166 - 24
|
|
(5,61)
|
|
|
То же, на 1 м2
опалубливаемой конструкции
|
0,489
|
|
0 - 29,6
|
|
Всего на 1 м2
опалубливаемой конструкции (разделы 1, 2)
|
0,497
|
|
0 - 30,3
|
|
|
ДЕМОНТАЖ ОПАЛУБКИ
|
|
|
|
|
|
|
|
ЕНиР, 1980 г., § 4-1-29,
п. 2 ,К = 1,113 (применительно)
|
Демонтаж крупнощитовой
опалубки
|
м2
|
561,54
|
0,24
|
134,77
|
0-12,8
|
71-88
|
|
ЕНиР, 1980 г., § 4-1-27, табл. 6, п. 3в, К = 1,113 (применительно)
|
Разборка добора
|
-²-
|
2,19
|
0,23
|
0,50
|
0-12,2
|
0-27
|
|
ЕНиР, 1979 г., § 6-1-28,
п. 1б, К = 0,40 (примечание)
|
Разборка подмостей
|
м2 проекции
|
170,39
|
0,054
|
9,20
|
0-03
|
5-11
|
|
|
Итого на комплект опалубки
|
144,47
|
|
17 - 26
|
|
То же, на 1 м2
опалубливаемой конструкции
|
0,257
|
|
0 - 13,8
|
Калькуляция затрат труда
на монтаж и демонтаж крупнощитовой опалубки перекрытий
|
Обоснование
|
Наименование
работ
|
Единица
измерения
|
Объем работ
|
Норма времени
на единицу измерения, чел.-ч (маш.-ч)
|
Затраты труда
на весь объем работ, чел.-ч (маш.-ч)
|
Расценка на
единицу измерения, руб.-коп.
|
Стоимость
затрат труда на весь объем работ, руб.-коп.
|
|
|
Раздел 1
|
|
|
|
|
|
|
|
ЕНиР, 1979 г., § 1-6, табл. 2, п. 27а
|
Разгрузка крупнощитовой опалубки перекрытий с
транспортных средств
|
100 т
|
0,39
|
26
|
10,14
|
12-82
|
8-17
|
|
(13)
|
(5,07)
|
8-13
|
|
|
|
Итого на комплект опалубки
|
10,14
|
|
8-17
|
|
(5,07)
|
|
|
|
То же, на 1 м2 опалубливаемой конструкции
|
0,001
|
|
0-00,1
|
|
|
Раздел 2
|
|
|
|
|
|
|
|
Данные ЦНИИЭП жилища, К = 1,113
|
Монтаж крупнощитовой опалубки перекрытий
|
м2
|
306,24
|
0,18
|
55,12
|
0-10
|
30-62
|
|
|
Итого на комплект опалубки
|
55,12
|
|
30-62
|
|
То же, на 1 м2 опалубливаемой конструкции
|
0,180
|
|
0-09,9
|
|
Всего на 1 м2 опалубливаемой конструкции
(разделы 1, 2)
|
0,181
|
|
0-10
|
|
Данные ЦНИИЭП жилища, К = 1,113
|
Демонтаж крупнощитовой опалубки перекрытий
|
м2
|
306,24
|
0,14
|
42,87
|
0-09
|
27-56
|
|
|
Итого на комплект опалубки
|
42,87
|
|
27-56
|
|
То же, на 1 м2 опалубливаемой конструкции
|
0,140
|
|
0-09
|
|
|
|
|
|
|
|
|
|
|
|
Калькуляция затрат труда
на монтаж мелкощитовой опалубки перекрытий лестнично-лифтовой шахты
|
Обоснование
|
Наименование
работ
|
Единица
измерения
|
Объем работ
|
Норма времени
на единицу измерения, чел.-ч (маш.-ч)
|
Затраты труда
на весь объем работ, чел.-ч (маш.-ч)
|
Расценка на
единицу измерения, руб.-коп.
|
Стоимость
затрат труда на весь объем работ, руб.-коп.
|
|
|
Раздел 1
|
|
|
|
|
|
|
|
ЕНиР, 1979 г., § 1-6, табл. 2, п. 27а
|
Разгрузка конструкций опалубки с транспортных
средств
|
100 т
|
0,059
|
26
|
1,53
|
12-82
|
1-24
|
|
(13)
|
(0,77)
|
8-13
|
|
ЕНиР, 1979 г., § 5-1-1, п. 3
|
Сортировка и подача конструкций опалубки к месту
складирования
|
т
|
5,9
|
0,7
|
4,13
|
0-47,8
|
3-76
|
|
(0,23)
|
(1,36)
|
0-15,9
|
|
|
Итого на комплект опалубки
|
5,66
|
|
5-00
|
|
(2,13)
|
|
|
То же, на 1 м2 опалубливаемой конструкции
|
0,005
|
|
0-00,4
|
|
|
Раздел 2
|
|
|
|
|
|
|
|
|
МОНТАЖ ОПАЛУБКИ
|
|
|
|
|
|
|
|
ЕНиР, 1980 г., § 4-1-26, К = 1,113 (применительно)
|
Установка стоек опалубки
|
100 м стоек
|
0,78
|
9,2
|
7,18
|
5-34
|
4-17
|
|
ЕНиР, 1970 г., § 1-6, табл. 2, К = 1,12 (к расценкам
машиниста) п. 32а, б
|
Подача краном опалубки массой до 1 т с этажа на этаж
при средней высоте 2 м
|
100 подъемов
|
0,16
|
18,8
|
3,01
|
9-26
|
2-53
|
|
(9,4)
|
(1,50)
|
6-59
|
|
|
п. 26 а, б
|
Подача краном деревянных конструкций
|
100 т
|
0,009
|
49,60
|
0,45
|
24-45
|
0-38
|
|
(24,80)
|
(0,22)
|
17-36
|
|
ЕНиР, 1980 г., § 4-1-27, табл. 5, п. За
(применительно)
|
Установка опалубки перекрытий
|
м2
|
40,39
|
0,27
|
10,91
|
0-14,9
|
6-02
|
|
ЕНиР, 1973 г., § 8-24,
табл. 4, п. 9ж, К = 1,113 (применительно)
|
Смазка щитов опалубки
|
100 м2
|
0,40
|
2,89
|
1,16
|
1-42
|
0-57
|
|
|
Итого на комплект опалубки
|
22,71
|
|
13 - 67
|
|
(1,72)
|
|
|
То же, на 1 м2
опалубливаемой конструкции
|
0,562
|
|
0 - 33,9
|
|
Всего на 1 м2 опалубливаемой
конструкции
|
0,567
|
|
0 - 34,3
|
|
|
ДЕМОНТАЖ ОПАЛУБКИ
|
|
|
|
|
|
|
|
ЕНиР, 1980 г., § 4-1-27,
табл. 5, п. 3б, К = 1,113 (применительно)
|
Демонтаж опалубки
перекрытий
|
м2
|
40,39
|
0,10
|
4,04
|
0-05,2
|
2-10
|
|
ЕНиР, 1980 г., § 4-1-27, табл. 8, К = 1,113 (примечание)
|
Демонтаж стоек и связей
опалубки
|
100 стоек
|
1,56
|
2,06
|
3,21
|
1-07,8
|
1-68
|
|
|
Итого на комплект опалубки
|
7,25
|
|
3-78
|
|
То же, на 1 м2
опалубливаемой конструкции
|
0,179
|
|
0-09,4
|
|
|
|
|
|
|
|
|
|
|
|
|
2.11. При производстве работ необходимо
соблюдать правила техники безопасности (СНиП
III-4-80) и «Противопожарные нормы проектирования зданий
и сооружений» (СНиП II-2-80).
Особое
внимание обращают на следующее:
при разборке
опалубки необходимо принимать меры, исключающие падение элементов, обрушение
поддерживающих конструкций;
запрещается
складывать на подмостях разбираемые элементы опалубки, а также сбрасывать их с
сооружения.
2.12. Количество стяжных болтов и места их установки
определяются в соответствии с нагрузками на опалубку (СНиП
3.03.01-87) и зависят от характеристики опалубки и
требований к деформативности ее элементов.
|
Показатели
|
Монтаж
опалубки
|
Демонтаж
опалубки
|
|
стен
|
перекрытий
|
стен
|
перекрытий
|
|
мелкощитовой
на телескопических стойках
|
крупнощитовой
|
мелкощитовой
на телескопических стойках
|
крупнощитовой
|
|
Затраты труда, чел.-ч
|
0,497
|
0,567
|
0,181
|
0,257
|
0,179
|
0,140
|
|
Заработная плата, руб.-коп.
|
0-30,3
|
0-34,3
|
0-10
|
0-13,8
|
0-09,4
|
0-09
|
|
Потребность в машинах, маш.-ч.
|
0,012
|
0,045
|
0,001
|
-
|
-
|
-
|
|
Выработка 1 человеку в смену, м2
|
16,50
|
14,46
|
45,28
|
31,87
|
45-69
|
58-55
|
4.1. Спецификация
элементов мелкощитовой опалубки перекрытий типового этажа
|
Наименование
|
Количество, шт.
|
|
Стойка телескопическая
|
30
|
|
Связь L = 1170
|
6
|
|
То же L = 1300
|
6
|
|
-²- L = 2460
|
6
|
|
-²- L = 900
|
4
|
|
-²- L = 1675
|
8
|
|
-²- L = 3150
|
16
|
|
-²- L = 2Б40
|
8
|
|
-²- L = 2200
|
8
|
|
Брус 180´50´3150
|
8
|
|
Брус 180´50´2540
|
4
|
|
То же 180´50´2200
|
4
|
|
-²- 100´50´1670
|
14
|
|
-²- 100´50´2460
|
17
|
|
-²- 100´50´1675
|
21
|
|
-²- 100´50´1800
|
21
|
|
Щит фанерный 1670´1050´12
|
6
|
|
То же 1800´1050´12
|
6
|
|
-²- 1230´2540´12
|
4
|
|
-²- 1675´1100´12
|
4
|
4.2. Спецификация элементов опалубки стен типового
этажа
|
Наименование
|
Габаритные
размеры, мм
|
Количество,
шт.
|
Масса одного
элемента, кг
|
Общая масса,
кг
|
|
длина
|
ширина
|
толщина
|
|
Щит М-0,9
|
2580
|
900
|
164
|
15
|
149
|
2235
|
|
Щит М-1,2
|
2580
|
1200
|
164
|
12
|
193
|
2316
|
|
Щит М-1,5
|
2580
|
1500
|
164
|
98
|
235
|
23030
|
|
Щит М-1,8
|
2580
|
1800
|
164
|
21
|
277
|
5817
|
|
Надставка М-0,9
|
600
|
900
|
164
|
4
|
42
|
168
|
|
Надставка М-1,5
|
600
|
1500
|
164
|
8
|
68
|
544
|
|
Надставка М-1,8
|
600
|
1800
|
164
|
4
|
81
|
324
|
|
Угольник накладной
|
2800
|
205
|
205
|
26
|
55
|
1430
|
|
Щит торцевой
|
2800
|
200
|
84
|
2
|
35
|
70
|
|
Кронштейн настила
|
440
|
820
|
100
|
195
|
7,5
|
1462,5
|
|
Стойка ограждения
|
1310
|
-
|
-
|
195
|
7,6
|
1482
|
|
Подкос
|
1900
|
-
|
-
|
146
|
12
|
1752
|
|
Итого
|
|
40630,5
|
4.3. Потребность в машинах, оборудовании, инструментах
и приспособлениях
|
Наименование
|
Марка (ГОСТ,
ТУ)
|
Количество,
шт.
|
Техническая
характеристика
|
|
Оборудование
|
|
|
|
|
Трансформатор сварочный
|
ТС 3-1,5/1
|
1
|
380 (220)
|
|
37,5 В
|
|
Электрифицированные
инструменты
|
|
|
|
|
Дрель универсальная
|
ТУ 1-370-72
|
2
|
-
|
|
Краскораспылитель
|
-
|
1
|
-
|
Ручные
инструменты
|
|
|
|
|
Пила-ножовка поперечная
|
ТУ 14-1-302-72
|
2
|
-
|
|
Топор
|
ГОСТ 18578-73*
|
2
|
-
|
|
Клещи 250
|
ГОСТ 14184-83
|
3
|
-
|
|
Молоток плотничный
|
ГОСТ 11042-83
|
4
|
-
|
|
Ключ гаечный разводной
|
ГОСТ 7275-75
|
2
|
-
|
|
Щетка металлическая
|
ТУ 494-01-04-76
|
2
|
-
|
|
Кисть маховая
|
-
|
2
|
-
|
|
Рубанок с одним ножом
|
ГОСТ 14664-77
|
2
|
-
|
|
с двумя ножами
|
ГОСТ 14665-77
|
2
|
-
|
|
Контрольно-измерительные
приборы
|
|
|
|
|
Уровень строительный
|
ГОСТ 9416-83
|
2
|
-
|
|
Рейсмус реечный
|
-
|
2
|
-
|
|
Рулетка измерительная
|
ГОСТ 7502-80*
|
2
|
-
|
Приспособления
|
|
|
|
|
Домкрат винтовой
|
-
|
|
Усилие 30 кг
|
|
Строп четырехветвевой
|
ОСТ
24.090.48-79
|
1
|
Грузоподъемность
2,0 т
|
|
Отвертка
|
ГОСТ 17199-71*
|
4
|
-
|
|
Лом
|
ГОСТ 1405-83
|
2
|
-
|
|
Конопатка
|
ПКБ треста Сантехдеталь Главпромвентиляция
|
4
|
-
|
|
Ножницы
|
ГОСТ 7210-75
|
2
|
-
|
|
Стамеска плоскотолстая
|
ГОСТ 1184-80
|
4
|
-
|
|
Измерительные инструменты
|
|
|
|
|
Метр складной
металлический
|
-
|
2
|
-
|
|
Шнур в корпусе
|
ТУ 22-3527-76
|
2
|
-
|
|
Отвес
|
ГОСТ 7948-80
|
2
|
-
|
СОДЕРЖАНИЕ
|
|