Крупнейшая бесплатная информационно-справочная система онлайн доступа к полному собранию технических нормативно-правовых актов РФ. Огромная база технических нормативов (более 150 тысяч документов) и полное собрание национальных стандартов, аутентичное официальной базе Госстандарта. GOSTRF.com - это более 1 Терабайта бесплатной технической информации для всех пользователей интернета. Все электронные копии представленных здесь документов могут распространяться без каких-либо ограничений. Поощряется распространение информации с этого сайта на любых других ресурсах. Каждый человек имеет право на неограниченный доступ к этим документам! Каждый человек имеет право на знание требований, изложенных в данных нормативно-правовых актах!

  


 

ТИПОВЫЕ ТЕХНОЛОГИЧЕСКИЕ КАРТЫ
НА ПРОИЗВОДСТВО ОТДЕЛЬНЫХ ВИДОВ РАБОТ

ТИПОВАЯ
ТЕХНОЛОГИЧЕСКАЯ
КАРТА

НА СПЕЦИАЛЬНЫЕ СТРОИТЕЛЬНЫЕ РАБОТЫ

6417030031

81031

МОНТАЖ ВНУТРЕННИХ СИСТЕМ КАНАЛИЗАЦИИ
ЖИЛЫХ
И ОБЩЕСТВЕННЫХ ЗДАНИЙ

РАЗРАБОТАНА

Государственным проектным институтом «Проектпромвентиляция»

Главный инженер            П.А. Овчинников

Начальник отдела            М.К. Митрин

Главный специалист       М.М. Давыдов

СОГЛАСОВАНО

НПО «Промвентиляция»

Главный инженер            В.А. Мурашкин

Управлением механизации и технологии строительства ГОССТРОЯ СССР

Письмо от 27.01.1990 12-34

Введены в действие с 1.03.1990 г.

МОСКВА - 1990

1. ОБЛАСТЬ ПРИМЕНЕНИЯ

1.1. Типовая технологическая карта составлена на монтаж внутренних систем канализации жилых и общественных зданий, предназначена для использования при разработке проектов производства работ (ППР) и непосредственно при выполнении этих работ с учетом конкретных условий производства и распространяется на:

монтаж трубопроводов систем внутренней канализации и водостоков укрупненными узлами из пластмассовых и чугунных канализационных труб и фасонных частей;

установку санитарно-технических приборов;

испытание систем внутренней канализации и водостоков.

1.2. Карта может быть применена:

при монтаже внутренних систем канализации и водостоков из пластмассовых и чугунных канализационных труб и фасонных частей «россыпью»;

при монтаже санитарно-технических кабин;

при монтаже водосточных бухт-стояков.

1.3. При привязке технологической карты к конкретному объекту уточняются объемы работ и калькуляция затрат труда.

2. ОРГАНИЗАЦИЯ И ТЕХНОЛОГИЯ ВЫПОЛНЕНИЯ РАБОТ

2.1. До начала монтажа систем внутренней канализации и водостоков должны быть выполнены следующие работы:

монтаж междуэтажных перекрытий, стен и перегородок;

устройство траншей для выпусков канализации до первых от здания колодцев;

подготовка под полы, устройство маяков для установки трапов;

устройство опор под трубопроводы, прокладываемые в подпольных каналах и технических подпольях;

подготовка отверстий, борозд, ниш и гнезд в фундаментах, стенах, перегородках, перекрытиях и покрытиях, необходимых для прокладки трубопроводов;

нанесение на стенах вспомогательных отметок, равных отметкам чистого пола плюс 500 мм;

оштукатуривание поверхностей стен, потолков, ниш и борозд (в наружных стенах) в местах установки санитарных приборов и прокладки трубопроводов;

подготовка монтажных проемов в стенах и перекрытиях для подачи санитарно-технического оборудования;

установка в соответствии с рабочей документацией закладных деталей в строительных конструкциях для крепления оборудования и трубопроводов;

устройство искусственного освещения и обеспечение возможности включения электроинструментов и электросварочных аппаратов;

гидроизоляция перекрытий, огрунтовка стен и устройство чистых полов в санитарных узлах (после прокладки и испытания трубопроводов), а также первая окраска стен и потолков и облицовки плитками (после установки ванн, кронштейнов под умывальники и деталей крепления смывных бачков), вторая окраска стен и потолков (после установки умывальников, унитазов и смывных бачков);

остекление оконных проемов, утепление входов и отверстий (при отрицательных температурах наружного воздуха);

обеспечение свободного доступа к месту производства санитарно-технических работ;

установка лесов и подмостей (при необходимости).

До начала монтажа трубопроводов из пластмассовых труб должны быть смонтированы трубопроводы водоснабжения из стальных труб (при совместной прокладке) и закончены все электрогазосварочные работы.

Кроме того, должно быть выполнено:

согласование с генподрядчиком графика совмещенных работ и мест установки и крепления грузоподъемных механизмов (при необходимости);

обеспечение доставки в зону монтажа укрупненных трубных узлов и деталей (или труб и фасонных частей), изделий, санитарных приборов, средств крепления, вспомогательных материалов и т.п. Пластмассовые трубы и трубозаготовки, доставляемые на объект в зимнее время, перед применением в зданиях должны быть выдержаны при положительной температуре не менее 2 ч;

уточнение состава монтажных работ и последовательности их выполнения.

2.2. Состав и последовательность рабочих операций при монтаже трубопроводов систем внутренней канализации и водостоков из пластмассовых и чугунных канализационных труб и фасонных частей:

разметка мест установки креплений с учетом проектных уклонов. Расстояние между креплениями пластмассовых горизонтальных трубопроводов должно быть не более 10 Д, вертикальных - 20 Д (Д - наружный диаметр). Расстояние между креплениями чугунных горизонтальных трубопроводов должно быть не более 2 м, вертикальных - одно крепление на этаж, но не более 3 м между креплениями. Неподвижные крепления на стояках устанавливаются под раструбами;

установка креплений (кронштейнов или подвесок с хомутами) со сверлением отверстий и заделкой цементным раствором или с помощью пристрелки монтажным пистолетом дюбель-гвоздями;

прокладка трубопроводов из готовых узлов (или отдельных деталей) с соединением стыков: в раструб на резиновых кольцах со смазкой их и гладких концов соединяемых труб или фасонных частей глицерином или мыльным раствором (для канализации и водостоков из пластмассовых труб), или с заделкой смоляным канатом и раствором расширяющегося цемента (для канализации и водостоков из чугунных труб); при помощи фланцев с установкой готовых прокладок и затяжкой болтов (для водостоков из пластмассовых труб). В санитарно-технических кабинах заводского изготовления прокладка междуэтажных вставок производится путем выдвижения гладкого конца из компенсационного патрубка нижерасположенной кабины и надвижения раструба на гладкий конец вышерасположенной кабины. Прокладка водосточной бухты стояка производится путем размотки непосредственно в штрабу или шахту или с предварительной размоткой в плеть и последующим опусканием с высоты не менее 1,5 м и предварительной сборкой (по мере опускания) крепежных хомутов; укладка стояка - змейкой на расстоянии не менее 20 мм от строительных конструкций; установка водосточной воронки с переходной стальной деталью и соединение со стояком и выпуском из стальных труб на фланцах;

крепление трубопроводов разъемными хомутами (с установкой прокладок - для пластмассовых труб) и затяжкой болтов;

выверка трубопроводов.

2.2.1. Пластмассовые трубы и фасонные части следует оберегать от ударов, надрезов и царапин. Конопатки при заделке стыков должны иметь гладкую поверхность и скругленные кромки.

2.2.2. Соединение гладкого конца пластмассовой трубы или фасонной части с раструбом чугунной трубы следует выполнять с помощью круглого резинового уплотнительного кольца с последующим заполнением зазора расширяющимся цементом.

2.2.3. Схемы монтажа узлов канализации (водостоков) показаны на стр. 6 (7).

2.3. Состав и последовательность рабочих операций при установке санитарно-технических приборов:

разметка мест установки прибора и кронштейнов (при наличии);

установка кронштейнов при вариантах: на шурупах (разметка мест сверления отверстий - по шаблону, сверление, установка хлорвиниловых втулок и крепление кронштейнов); при помощи монтажного пистолета (пристрелка кронштейнов под приборы или пристрелка подкладок под кронштейны и установка кронштейнов).

Пристрелку дюбелями рекомендуется производить к кирпичным (из сплошного кирпича) и бетонным стенам;

установка выпуска (для приборов со съемным выпуском);

установка сифона на выпуск прибора или на трубопровод канализации (для приборов без встроенных сифонов);

установка переливов и переливных труб (для ванн и глубоких душевых поддонов);

установка санитарно-технических приборов при вариантах:

на шурупах (раковины, питьевые фонтанчики, писсуары, унитазы, видуары, бидэ, ножные ванны). При креплении унитаза шурупами и бетонному полу под основание следует устанавливать прокладку, к тафте резиновая прокладка не требуется;

на кронштейнах (умывальники, мойки, высокорасположенные смывные бачки);

на кронштейнах с креплением к ним прибора винтами (стальные мойки);

на подстолье (мойки);

на эпоксидном клее (унитазы, видуары, бидэ, ножные ванны) с удалением пыли с поверхности пола и подошвы прибора ветошью (при необходимости - обезжиривание ацетоном), разметкой при помощи шаблона или самого прибора площади склеивания, нанесением металлической лопаткой клея слоем не менее 2 мм на склеиваемые поверхности (подошву прибора и пол) при температуре не ниже +5 °С с плотным прижатием прибора к полу и выдержкой без нагрузки в неподвижном положении до набора прочности клеевого соединения не менее 12 ч. Состав клея в процентах по массе: мономер ФА - 21,3; эпоксидная смола ЭД-5 или ЭД-6 - 4,25; портландцемент марки не ниже 400 - 70,2; полиэтиленполиамин - 4,25;

на цементно-песчаном растворе (марки не ниже 100) на бетонных полах с метлахской плиткой или цементной стяжкой (унитазы, видуары, бидэ, ножные ванны) с очисткой пола от загрязнения в месте установки прибора (протереть насухо), разметкой при помощи шаблона или самого прибора площади склеивания, покрытием склеиваемых поверхностей (прибора и пола) 5 %-ным раствором соляной кислоты при помощи кисти, нанесением раствора слоем 8 - 10 мм на склеиваемую поверхность прибора при температуре не ниже +5 °С с плотным прижатием прибора к полу и выдержкой без нагрузки в неподвижном положении до набора прочности соединения не менее 72 ч. Составы растворов в процентах по массе: цемент марки 400 - 33,3; песок - 66,7 или цемент марки 500 или 400 (пластифицированный или расширяющийся) - 25,0; песок - 75,0 или цемент марки 500 (пластифицированный или расширяющийся) - 20,0; песок - 80,0;

на ножках или подставках с прокладками (ванны);

на железобетонных подставках или металлическом каркасе (поддоны глубокие);

на основании (поддоны мелкие, писсуары напольные, трапы);

на полочке другого прибора (смывной бачок для унитаза «Компакт»);

на подставках (групповая установка умывальников);

установка смывных труб к высокорасполагаемым смывным бачкам с присоединением к смывному бачку на резьбовом соединении и унитазу с помощью резиновой муфты;

присоединение приборов к трубопроводам канализации и водопровода;

присоединение уравнителей электрических потенциалов (ванны, поддоны) к приборам и трубопроводам холодного водоснабжения с зачисткой мест присоединения до блеска;

установка сидений (для унитазов);

установка кожухов на каркас питьевых фонтанчиков.

СХЕМА РАЗВОДКИ ТРУБОПРОВОДОВ КАНАЛИЗАЦИИ В ПОДВАЛЕ СЕКЦИИ ЖИЛОГО ДОМА

Узлы канализации условно показаны несоединенными. Места креплений трубопроводов, не показанных на схеме, обозначены крестиками

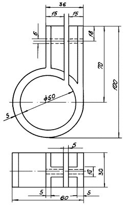
СХЕМА УСТАНОВКИ ПЛАСТМАССОВОГО ТРАПА Ду 100 мм

1 - трап; 2 - гидроизоляционный замок; 3 - пластмассовое колено; 4 - монтажное отверстие в перекрытии; 5 - узел соединения пластмассового колена с чугунным раструбом; 6 - подвеска

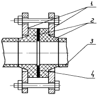
УЗЕЛ СОЕДИНЕНИЯ СТОЯКОВ ИЗ ПВД С ЧУГУННЫМИ ВОДОСТОЧНЫМИ ВОРОНКАМИ

1 - водосточная воронка; 2 - сливной патрубок воронки; 3 - цемент; 4 - пакля ленточная пропитанная; 5 - стальная переходная деталь; 6 - фланец; 7 - резиновая прокладка; 8 - отбортованный патрубок из ПВД; 9 - сварной шов; 10 - прочистка; 11 - стояк из труб ПВД

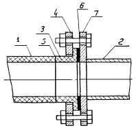
УЗЕЛ СОЕДИНЕНИЯ СТОЯКА ИЗ ПВД СО СТАЛЬНЫМ ОТВОДНЫМ ТРУБОПРОВОДОМ

1 - стояк из ПВД; 2 - сварной шов; 3 - переходная деталь; 4 - стальной запрессованный патрубок; 5 - цемент; 6 - пакля ленточная пропитанная; 7 - стальная шайба; 8 - стальной отводной трубопровод; 9 - опора из стальной полосы 200×200×10; 10 - фланец; 11 - резиновая прокладка; 12 - прочистка

2.3.1. Выпуск унитаза следует соединять непосредственно с раструбом отводной трубы или с отводной трубой с помощью чугунного, полиэтиленового патрубка или резиновой муфты.

2.3.2. Высоту установки санитарно-технических приборов от уровня чистого пола следует принимать, мм:

в жилых, общественных зданиях (и школах): до верха борта умывальника - 800 (700), до верха борта раковин и моек - 850, до низа высокорасполагаемого смывного бачка к унитазу - 1800, до борта настенных писсуаров - 650 (450), от дна лотка до оси смывной трубы к лотковым писсуарам - 1500, до борта питьевых фонтанчиков подвесного типа - 900 (750), до верха борта умывальника (при установке общего смесителя для умывальника и ванны) - 850;

в лечебных учреждениях: до верха борта мойки инвентарной чугунной - 650, мойки для клеенок - 700;

в детских дошкольных учреждениях: до борта умывальников - 500, до борта ванн на постаментах и глубоких душевых поддонов - 600, до борта мелких душевых поддонов в дошкольных группах - 300.

Допускаемые отклонения высоты установки отдельно стоящих приборов не должны превышать ±20 мм, а при групповой установке однотипных приборов ±5 мм.

2.3.3. В период монтажа открытые концы трубопроводов, водосточных воронок и трапов необходимо предохранять от попадания в них строительного мусора (инвентарные заглушки, полиэтиленовые пленки и т.п.).

2.3.4. Схемы установки санитарно-технических приборов показаны на стр. 10 - 14.

2.4. Состав и последовательность рабочих операций при испытании систем внутренней канализации и водостоков:

наружный осмотр трубопроводов и санитарно-технических приборов;

испытание проливом: наполнение приборов водой и проверка переливных устройств (при наличии); регулировка поплавков (для смывных бачков); спуск воды из прибора; осмотр выпуска прибора, сифона (при наличии), отводящего трубопровода от прибора и участков трубопроводов от нескольких приборов с отметкой мелом мест дефектов (течей). Осмотр участков трубопроводов должен выполняться при одновременном открытии 75 % санитарно-технических приборов, подключенных к проверяемому участку в течение времени, необходимого для его осмотра;

испытание наполнением: установка заглушек на выпуски (систем канализации или водостоков) и водосточные воронки, присоединяемые к одному стояку и расположенные на более низком уровне; наполнение трубопроводов водой (из системы постоянного или временного холодного водоснабжения или при помощи специального опрессовочного агрегата) до уровня пола первого этажа (при испытании трубопроводов канализации, проложенных в земле или подпольных каналах) или до уровня наивысшей воронки (при испытании водостоков); осмотр трубопроводов с отметкой мелом мест дефектов (течей). Продолжительность испытания систем из чугунных труб - 10 мин, из пластмассовых - 20 мин;

спуск воды через заглушки с вентилем на выпусках систем канализации или водостоков до уровня нижнего дефектного места (при испытании наполнением);

устранение дефектов и повторное испытание;

снятие заглушек и спуск воды (по окончании испытаний наполнением).

2.4.1. Трубопроводы считаются выдержавшими испытания, если при осмотре не обнаружено течи через стенки трубопроводов и места соединений (при испытании проливом или наполнением), а уровень воды в стояках не понизился (при испытании наполнением).

2.4.2. В зимнее время испытание производится при устойчивой температуре воздуха внутри здания не ниже +5 °С.

2.4.3. Испытание пластмассовых трубопроводов следует проводить не ранее, чем через 24 ч после выполнения последнего клеевого соединения и не ранее, чем через 2 ч после выполнения последнего сварного соединения.

2.4.4. По окончании испытаний составляют акт освидетельствования скрытых работ для трубопроводов, скрываемых при последующих работах (в междуэтажных перекрытиях, в земле и т.п.) согласно обязательному приложению 6 СНиП 3.01.01-85 и акты испытания систем канализации и водостоков согласно обязательному приложению 4 СНиП 3.05.01-85.

2.4.5. Схемы систем канализации, водостоков, узлы соединения и приспособления для крепления трубопроводов даны на стр. 15 - 17.



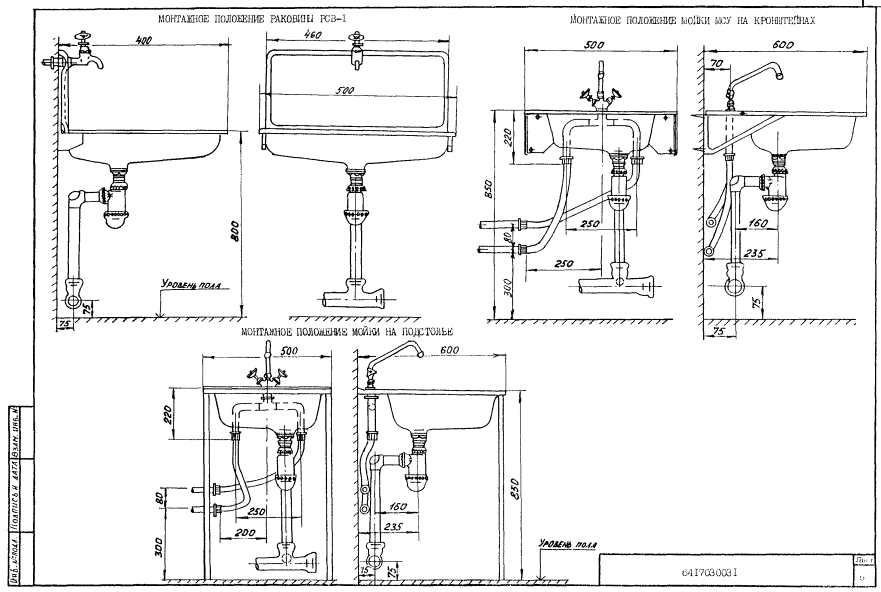
МОНТАЖНОЕ ПОЛОЖЕНИЕ ПИТЬЕВОГО ФОНТАНЧИКА

МОНТАЖНОЕ ПОЛОЖЕНИЕ ВАННЫ

1. Трубопровод горячего водоснабжения

2. То же, холодного

3. То же, канализации

РЕЗИНОВАЯ МАНЖЕТА ДЛЯ ПРИСОЕДИНЕНИЯ ЧУГУННОГО СИФОНА ВАННЫ ОТ ДУШЕВОГО ПОДДОНА К ТРУБОПРОВОДУ КАНАЛИЗАЦИИ

Внедрено в тресте «Киевспецстрой»

1 - раструбная часть; 2 - ребра жесткости; 3 - отводящая трубка; 4 - паз; 5 - кольцевой выступ



СХЕМА ГИДРОСТАТИЧЕСКОГО ИСПЫТАНИЯ ОТВОДНЫХ ТРУБОПРОВОДОВ, ПРОЛОЖЕННЫХ В КОНСТРУКЦИЯХ МЕЖДУЭТАЖНЫХ ПЕРЕКРЫТИЙ

СХЕМА СИСТЕМЫ ВОДОСТОКОВ ОБЩЕСТВЕННОГО ЗДАНИЯ, ПОДГОТОВЛЕННОЙ К ИСПЫТАНИЮ

СХЕМА СТЫКОВОЙ СВАРКИ

а - подготовка заготовок к сварке; б - оплавление торцов заготовок; в - технологическая пауза; г - осадка стыка и охлаждение сварного соединения;

1 - свариваемые заготовки; 2 - нагревательный инструмент

СБОРКА РАСТРУБНОГО СОЕДИНЕНИЯ НА РЕЗИНОВОМ КОЛЬЦЕ С ПОМОЩЬЮ РЫЧАЖНЫХ ПРИСПОСОБЛЕНИЙ

1 - труба с гладким концом; 2 - хомут; 3 - тяга; 4 - рычаг; 5 - труба с раструбом; 6 - удлинитель; 7 - прокладка из твердого дерева

ФЛАНЦЕВОЕ СОЕДИНЕНИЕ, ВЫПОЛНЕННОЕ С ПОМОЩЬЮ ПРИКЛЕЕННЫХ ВТУЛОК ПОД ФЛАНЦЫ

1 - фланцы стальные свободные;

2 - втулки приклеенные (ПВХ);

3 - труба ПВХ;

4 - прокладка резиновая

ФЛАНЦЕВОЕ СОЕДИНЕНИЕ ПЛАСТМАССОВОЙ И МЕТАЛЛИЧЕСКОЙ ТРУБ

1 - труба пластмассовая;

2 - труба стальная;

3 - патрубок пластмассовый;

4 - фланец стальной, одеваемый на патрубок до выполнения сварного соединения патрубка с трубой;

5 - сварной шов;

6 - резиновая прокладка;

7 - фланец стальной приварной

ФЛАНЦЕВОЕ СОЕДИНЕНИЕ, ВЫПОЛНЕННОЕ С ПОМОЩЬЮ ПРИВАРЕННЫХ ВТУЛОК ПОД ФЛАНЦЫ

1 - фланцы стальные;

2 - втулки пластмассовые приваренные;

3 - трубка ПЭ;

4 - прокладка резиновая

ПРИЛОЖЕНИЕ

Расчет 1. Нормы времени на грунтование и окрашивание

Производительность установки СО-169 Вт = 260 м2/ч.

Коэффициент перехода от технической производительности к эксплуатационной Кэ = 0,45.

Вэ = Кэ · Вт = 0,45 · 260 = 117 м2/ч.

Состав звена: маляры 4 разр. - 1; 3 разр. - 1.

Расчет 2. Нормы времени на нанесение шпатлевки

Расход материала при шпатлевании превышает расход окрасочного состава в 1,8 раза (общие производственные нормы расхода материалов в строительстве). Соответственно увеличивается продолжительность нанесения шпатлевочных составов; норма времени на выполнение этих работ:

Н.вр. = 1,7 × 1,8 = 3,09 чел.-ч.

Расчет 3. Расценки при выполнении технологических операций

В соответствии с разделом «Организация и технология выполнения работ» устройство декоративных покрытий производится звеном из трех маляров (2, 3 и 4-го разрядов), тарифные ставки которых: Т2 = 0,64 руб./чел.-ч; Т3 = 0,70 руб./чел.-ч; Т4 = 0,79 руб./чел.-ч.

Расценки при выполнении технологических операций определяются как сумма произведений норм времени каждого из участников работы на его тарифную ставку.

Расц. = Н.вр.2 × Т2 + Н.вр.3 × Т3 + Н.вр.4 × Т4.

Нормы времени на выполнение каждого вида работ соответствуют затратам труда и определяются из графика производства работ (см. табл. 6).

Результаты расчетов сведены в табл. 9.

Таблица 9

Наименование технологической операции

Н.вр.2, чел.-ч

Н.вр.3, чел.-ч

Н.вр.4, чел.-ч

Н.вр., чел.-ч

Н.вр.2 × Т2, руб.

Н.вр.3 × Т3, руб.

Н.вр.4 × Т4, руб..

Расц., руб.-коп.

1. Очистка

0,11

0,100

0,100

0,31

0,070

0,070

0,079

0-21,9

2. Сглаживание поверхности

0,40

0,400

0,400

1,20

0,256

0,280

0,317

0-85,3

3. Расшивка или заполнение трещин и частичное подмазывание

0,90

0,910

0,910

2,72

0,576

0,637

0,719

1-93,2

4. Проолифливание

-

0,855

0,855

1,71

-

0,598

0,675

1-27,3

5. Проолифливание подмазанных мест

1,40

-

-

1,40

0,896

-

-

0-89,6

6. Шлифование подмазанных мест

0,72

-

-

0,72

0,461

-

-

0-46,1

7. Шпатлевание механизированное

-

1,545

1,545

3,09

-

1,083

1,222

2-30,5

8. Разглаживание шпатлевки

1,83

2,585

2,585

7,00

1,171

1,810

2,042

5-02,3

9. Шлифование прошпатлеванных поверхностей

3,60

-

-

3,60

2,304

-

-

2-30,4

10. Грунтование

-

0,855

0,855

1,71

-

0,598

0,675

1-27,3

11. Окрашивание первое

-

0,855

0,855

1,71

-

0,598

0,675

1-27,3

12. Окрашивание второе

-

0,855

0,855

1,71

-

0,598

0,675

1-27,3

КРОНШТЕЙН ДЛЯ КРЕПЛЕНИЯ СТОЯКА ВОДОСТОКА К СТРОИТЕЛЬНЫМ КОНСТРУКЦИЯМ

а) под пристрелку                                             б) под забивку

1 - болт М6×30; 2 - гайка М6; 3 - полоса 20×2; 4 - круг 8

1 - 4 - полоса 4×30; 5 - гайка М6; 6 - шайба 6; 7 - болт М6×30; 8 - пластина резиновая δ = 3 (для пластмассового стояка); 9 - круг 6

КРОНШТЕЙН ПОЛИЭТИЛЕНОВЫЙ Кр50 ДЛЯ КРЕПЛЕНИЯ ПЛАСТМАССОВЫХ ТРУБ Дн50

1 - винт М5×35;

2 - гайка М5;

3 - шайба 5;

4 - полоса 25×3;

5 - дюбель-гвоздь

3. ТРЕБОВАНИЯ К КАЧЕСТВУ И ПРИЕМКЕ РАБОТ

Перед началом монтажа проводится входной контроль качества применяемых материалов, трубной заготовки, сантехприборов, измерительных инструментов, при котором внешним осмотром устанавливается соответствие их требованиям стандартов или других нормативных документов и рабочей документации, а также наличие и содержание паспортов, сертификатов и других сопроводительных документов.

Технические критерии и средства контроля операций и процессов (прокладка, испытание трубопроводов, установка сантехприборов) приводятся в табл. 1.

Таблица 1

Наименование процессов, подлежащих контролю

Предмет контроля

Инструмент и способ контроля

Время контроля

Ответственный контролер

Технические критерии оценки качества

Разметка мест прокладки трубопроводов и установка креплений

Соблюдение проектных уклонов, соосности трубопроводов, вертикальности стояков

Складной металлический метр, отвес, уровень

После установки креплений

Рабочие, бригадир - самоконтроль. Мастер (прораб) - выборочный контроль

Проект

 

Прочность установки кронштейнов

Визуальный

То же

То же

Внешний осмотр, пробный отрыв

Сборка деталей и узлов трубопроводов

Правильность и прочность заделки стыков, отсутствие перекосов

Визуальный

В процессе выполнения сборки

Рабочие, бригадир - самоконтроль.

Мастер (прораб) - выборочный контроль

Внешний осмотр

Крепление узлов и трубопроводов к кронштейнам хомутами

Направление раструбов труб и фасонных частей (против тока воды)

Визуальный

После монтажа

Проект, СНиП 3.05.01-85, п. 3.12

Разметка мест установки прибора, сверление отверстий под крепление (или пристрелка подкладок под кронштейны)

Высота установки прибора, глубина, диаметр отверстий

Уровень, складной металлический метр

До и после сверления отверстий

СНиП 3.05.01-85, п. 3.15

Присоединение выпуска, переливной трубы, ножек, уравнителя потенциалов (для ванн)

Комплектность, правильность соединения

Визуальный

Во время монтажа

Внешний осмотр

 

Высота борта, уклон днища в сторону выпуска

Отвес, уровень, складной металлический метр

 

ГОСТ 1154-80*

Установка и крепление прибора

Фиксация положения и крепления прибора

Визуальный

После установки

СНиП 5.05.01-85, п.п. 3.14 - 3.15

Подсоединение слива к сифону и заделка стыка сифона с отводным раструбом канализации

Плотность, герметичность соединения

Визуальный

После подсоединения

Мастер (прораб) - выборочный контроль

Внешний осмотр СНиП 3.05.01-85, п.п. 3.12 - 3.13

Подготовка к испытанию канализации и водостоков

Утепление в зимнее время наружных проемов и отверстий в ограждающих конструкциях здания

Визуальный

Перед испытанием

Проект, ППР

 

Обеспечение температуры в помещениях здания и воды в системах холодного и горячего водоснабжения не ниже +5

Термометр

То же

СНиП 3.05.01-85, п. 4.3

 

Наличие водоразборной арматуры

Визуальный

Перед испытанием

Мастер (прораб) - сплошной контроль

Проект

 

Установка нижних пробок в двухоборотных и стаканчиков в бутылочных сифонах

Регистрационный

То же

То же

СНиП 3.05.01-85, п. 3.17

 

Наличие заглушек на выпусках и на всех нижерасположенных воронках

Визуальный

 

 

СНиП 3.05.01-85, п. 4.13

Испытание проливом

Наличие 75 % открытых приборов

Визуальный

Во время испытания

Рабочие, бригадир, мастер, прораб - сплошной контроль

СНиП 3.05.01-85, п. 4.13

 

Отсутствие течей

То же

То же

То же

То же

Испытание наполнением

Заполнение водой до уровня первого этажа, для водостоков - до наивысшей воронки

 

 

Мастер (прораб) - сплошной контроль

СНиП 3.05.01-85, п. 4.13, п. 4.15

 

Отсутствие течей, для водостоков - измерение уровня воды в наивысшей водосточной воронке в течение 10 мин

Визуальный и измеритель - (часы)

 

То же

То же

4. КАЛЬКУЛЯЦИЯ ЗАТРАТ ТРУДА

Таблица 2

Наименование процесса

Номер фасета для пересчета показателей

Единица измерения

Объем работ

Обоснование (ЕНиР и др. нормы)

Норма времени рабочих, чел.-ч

Расценка рабочих, р.-к.

Затраты труда рабочих, чел.-ч

Заработная плата, р.-к.

Прокладка полиэтиленовых трубопроводов канализации диаметром 50 мм

21

м

100

ЕНиР, сб. Е9, вып. 1 § Е9-1-4, табл. 2, п. 1а

0,18

0-14,2

18,00

14-20

Прокладка полиэтиленовых трубопроводов канализации диаметром 100 мм

21

м

100

ЕНиР, сб. Е9, вып. 1 § Е9-1-4, табл. 2, п. 2а

0,16

0-12,7

16,00

12-70

Испытание и окончательная проверка при сдаче системы

26

100 м

2,0

ЕНиР, сб. Е9, вып. 1 § Е9-1-8, табл. 2

9,40

7-99

18,80

15-98

Установка умывальников с креплением кронштейнов с помощью монтажного пистолета

28

Прибор

100

ЕНиР, сб. Е9, вып. 1, § Е9-1-16, табл. 1

0,59

0-46,6

59,00

46-60

Установка ванн чугунных со сборкой переливной трубы на месте

34

То же

100

ЕНиР, сб. Е9, вып. 1 § Е9-1-16, табл. 2

2,1

1-66

210,00

166-00

Установка унитазов с креплением эпоксидным кукерсальным клеем

35

"

100

То же

0,29

0-22,7

29,00

22-70

Установка смывных бачков для унитазов типа «Компакт»

35

"

100

-"-

0,48

0-37,9

48,00

37-90

Установка сиденья

-

"

100

-"-

0,31

0-24,5

31,00

24-50

Установка моек на одно отделение на шкафчике с прокладкой трубопроводов внутри шкафчика

-

"

100

ЕНиР, сб. Е9, вып. 1 § Е9-1-16, § Е9-1-18

(§ Е9-1-16, табл. 1, п. 10б) -  (§ Е9-1-18, п. 10)

0,60

0-47,4

60,00

47-40

ИТОГО

489,80

387-98


5. ГРАФИК ПРОИЗВОДСТВА РАБОТ

Таблица 3


6. МАТЕРИАЛЬНО-ТЕХНИЧЕСКИЕ РЕСУРСЫ

Потребность в инструменте, инвентаре и приспособлениях приведена в табл. 4.

Таблица 4

Наименование

Марка, техническая характеристика, ГОСТ, чертежа

Количество

Назначение

Молоток слесарный

Масса 800 г (тип 2) ГОСТ 2310-77*

2

Слесарные работы

Зубило слесарное

l = 200 мм (20×70°) ГОСТ 7211-86*Е

2

То же

Напильник плоский тупоносый

ГОСТ 1465-80*

1

-"-

Рулетка измерительная металлическая (или метр складной металлический)

Цена дел. 1 мм ГОСТ 7502-80*

2

Измерительные работы

Уровень строительный

l = 300 мм тип УС1-300

ГОСТ 9416-63

2

Проверка вертикальности

Отвес

тип 0-200 ГОСТ 7948-80

2

То же

Ключ гаечный с открытым зевом двусторонний

ГОСТ 2839-80*Е

М 6×8 (10×12)

2

Выполнение соединений

То же

М 6×8 (10×14)

2

То же

-"-

М 10×12 (17×19)

4

-"-

-"-

М 14×16 (22×24)

4

-"-

-"-

М 18×22 (27×32)

4

-"-

Конопатка

-

2

Заделка стыков чугунной канализации

Чеканка

-

2

То же

Ключ трубный рычажный

2 ГОСТ 18981-73*

1

Соединение трубопроводов

То же

1

2

То же

Ключ с мягкими губками

СТД 916/4

2

-"-

Ключ комбинированный

Стр. 25

1

Для затяжки выпуска

Ключ для сифона

2

-

Ключ 2-сторонний для гаек пластмассовых сифонов

Стр. 25

1

-

Шаблон для разметки отверстий под шурупы для унитаза

Изготовить на месте

1

-

Шаблон для разметки мест установки кронштейнов мойки

Изготовить на месте

1

-

Шаблон для разметки мест установки кронштейнов умывальника

Стр. 26

1

-

Отвертка слесарно-монтажная

А250×1,4 ГОСТ 24437-80

2

Для крепления шурупов

Металлическая лопата

 

1

-

Кисть

 

1

Для нанесения клея

Ящик инструментальный трехсекционный

408×208×300 ВНИИ МСС СССР

2

Хранение инструмента

Пистолет монтажный поршневой (комплект)

ПЦ-521

1

Пристрелка кронштейнов к стене

Приспособление для монтажа пластмассовых труб

НИИ Мосстроя, (стр. 26)

2

Соединение пластмассовых труб

Ведро

 

1

Для вспомогательных работ

Перчатки резиновые (пара)

 

1

То же

Ножовка для пластмассовых труб

Высота зубьев 2,5 ÷ 3,0 мм, шаг 2 ÷ 3 мм, развод 0,5 ÷ 0,7 мм

1

Корректировка длины труб

Набор инвентарных заглушек

 

1

Испытание трубопроводов

Машина ручная сверлильная электрическая

ИЭ-1023А

1

Сверление отверстий

Набор сверл Ø 6 - 9 мм

ГОСТ 17274-71*, твердосплавные

2

То же

КЛЮЧ ДЛЯ НАВИНЧИВАНИЯ УПЛОТНИТЕЛЬНОЙ ГАЙКИ ПЛАСТМАССОВОГО ТРАПА Ду 100 мм

ДВУСТОРОННИЙ КЛЮЧ ДЛЯ ПЛАСТМАССОВЫХ ГАЕК СИФОНОВ УМЫВАЛЬНИКОВ, РАКОВИН, МОЕК (СТЗ ТОЛЩИНОЙ 4 мм)

КОМБИНИРОВАННЫЙ КЛЮЧ ЗАТЯЖКИ ВЫПУСКОВ ВАНН, ДУШЕВЫХ ПОДДОНОВ, МОЕК, УМЫВАЛЬНИКОВ

КЛЮЧИ ДЛЯ СИФОНОВ ВАНН И ДУШЕВЫХ ПОДДОНОВ (СТЗ ТОЛЩИНОЙ 4 мм)

Для пластмассовых сифонов

Для чугунных сифонов

Внедрены в тресте «Киевспецстрой»

1 - корпус;

2 - рычаг;

3 - упорная гайка;

4 - отверстие в наладке;

5 - 8 - насадки для выпусков ванн, душевых поддонов, моек умывальников;

9 - болт с гайкой

ШАБЛОН ДЛЯ РАЗМЕТКИ МЕСТ СВЕРЛЕНИЯ ОТВЕРСТИЙ ДЛЯ КРЕПЛЕНИЯ КРОНШТЕЙНОВ Кр УО (ГОСТ 1153-76*) ДЛЯ УМЫВАЛЬНИКА

1 - опора;

2 - стойка;

3 - прорезь;

4 - втулка;

5 - фиксатор;

6 - рамка;

7 - боек;

8 - шарнир;

9 - держатель;

10 - оправка

Шаблон изготовлен из алюминиевых сплавов, удобен и надежен в эксплуатации. Внедрен в тресте «Севуралсантехмонтаж», г. Пермь

ПРИСПОСОБЛЕНИЕ ДЛЯ МОНТАЖА ПЛАСТМАССОВЫХ ТРУБ

1 - ушко; 2 - сегмент; 3 - прокладка резиновая; 4 - болт; 5 - рукоятка

Внедрено в организациях Главмосстроя

Потребность в материалах и полуфабрикатах для выполнения работ по монтажу, испытанию и установке сантехприборов приведена в табл. 5.

Таблица 5

Наименование материала, полуфабриката, конструкции (марка, ГОСТ)

Вариант (фасет-код)

Исходные данные

Потребность в материале

Единица измерения

Объем работ в нормативных единицах

Принятая норма расхода материала

Узлы из труб и фасонных частей диаметром 50 мм ГОСТ 22689.1-77 по ГОСТ 22689.20-77.

 

м

100

1

100

Тип 1

 

 

 

 

 

То же, Ø 110 мм

 

м

100

1

100

Кронштейны (подвески) ГОСТ 1153-76*

 

шт.

100 м

200

1,05

210

Пакля ленточная пропитанная

 

кг

100 унитазов

0,035

3,5

 

кг

100 моек

0,02

2,0

Цемент расширяющийся М400. ГОСТ 11052-74

 

кг

100 унитазов

0,2

20,0

Дюбель-гвозди ДГП 4,5×40

 

шт

200 кронштейнов

2

400

Дюбель-гвозди ДГПШ 4,5×40

 

шт

100 умывальников

4

400

Планки СТ4 (сер. 4.904-69)

 

шт

100 умывальников

2

200

Ванны чугунные ГОСТ 1154-80*

 

шт

100

1

100

Мойки чугунные ГОСТ 7506-83

 

шт

100

1

100

Умывальники ГОСТ 23759-85

 

шт

100

1

100

Унитазы ГОСТ 22847-85

 

шт

100

1

100

Бачки смывные типа «Компакт»

 

шт

100

1

100

Сиденья для унитаза

 

шт

100

1

100

Состав клеевой

 

кг

100 соединений

0,048 кг на 1 соединение

4,8

Раствор цементный М 100

 

кг

100 унитазов

0,2

20

Ветошь обтирочная

 

кг

"

0,1

10

Ацетон технический ГОСТ 2768-84*

 

кг

"

0,06

6

5 %-ный раствор соляной кислоты

 

кг

"

0,06

6

Проволока 1 ГОСТ 3282-74*

 

кг

"

0,006

0,6

7. ТЕХНИКА БЕЗОПАСНОСТИ

Работы по монтажу и испытанию трубопроводов выполняются с соблюдением СНиП III-4-80 «Техника безопасности в строительстве».

К работе с монтажным пистолетом допускаются лица, обученные правилам эксплуатации пистолета и имеющие специальное удостоверение, не моложе 18 лет с образованием не ниже 8 классов с квалификацией не ниже III разряда, проработавшие на монтажных работах на менее 2-х лет, прошедшие медицинский осмотр. При работе с монтажным пистолетом выполняются требования ВСН 410-80 по наряду-допуску.

8. ТЕХНИКО-ЭКОНОМИЧЕСКИЕ ПОКАЗАТЕЛИ

Показатели

Процессы

Прокладка 200 м ПЭ трубопроводов диаметром 50, 100 мм

Испытание и окончательная проверка при сдаче систем (200 м)

Установка 100 умывальников

Установка 100 ванн

Установка 100 унитазов, смывных бачков, сидений

Установка 100 моек

Затраты труда рабочих, чел.-ч

34,0

18,80

59,0

210,0

108,0

60,0

Заработная плата рабочих, р..

26-90

15-98

46-60

166-00

85-10

47-40

Продолжительность выполнения работ, смен

2,07

1,15

3,6

12,8

6,6

3,7

Выработка на одного рабочего в смену

48,3 м/чел.-смена

87 м/чел.-смена

14 шт./чел.-смена

4 шт./чел.-смена

8 шт./чел.-смена

13 шт./чел.-смена


9. ФАСЕТНЫЙ КЛАССИФИКАТОР ФАКТОРОВ

ФАСЕТЫ 01 - 06

Прокладка чугунных трубопроводов

Наименование фактора

Обоснование

Фасет 01

Фасет 02

Фасет 03

Фасет 04

Фасет 05

Фасет 06

Прокладка 100 м чугунных трубопроводов

из готовых узлов

из отдельных узлов

диаметром, мм

50

100

150

50

100

150

Код

Значение фай тора,

Н.вр.

Расц.

Код

Значение фактора,

Н.вр.

Расц.

Код

Значение фактора,

Н.вр.

Расц.

Код

Значение фактора,

Н.вр.

Расц.

Код

Значение фактора,

Н.вр.

Расц.

Код

Значение фактора,

Н.вр.

Расц.

С установкой и креплением кронштейнов дюбель-гвоздями с помощью монтажного пистолета

ЕНиР, сб. Е9, в. 1, § Е9-1-3, табл. 3 Санитарно-техническое оборудование зданий и сооружений

1

39,0

31-40

1

43,0

34-60

1

53,0

42-70

1

55,0

44-30

1

66,0

53-10

1

70,0

56-30

С установкой и краплением кронштейнов дюбель-гвоздями вручную к гипсобетонным, шлакобетонным и гипсолитовым стенам

 

2

42,0

33-80

2

45,0

36-20

2

56,0

45-10

2

58,0

46-70

2

68,0

54-70

2

73,0

58-80

С установкой и заделкой кронштейнов в готовые отверстия

 

3

40,0

32-20

3

43,0

34-60

3

54,0

43-50

3

56,0

45-10

3

66,0

53-10

3

71,0

57-20

С установкой и заделкой кронштейнов со сверлением отверстий в бетонных стенах

 

4

46,0

37-00

4

48,0

38-60

4

58,0

46-70

4

62,0

49-90

4

71,0

57-20

4

75,0

60-40

С установкой и заделкой кронштейнов со сверлением отверстий в керамзитобетонных, кирпичных и других стенах

 

5

42,0

33-80

5

46,0

37-00

5

56,0

45-10

5

58,0

46-70

5

68,0

54-70

5

72,0

58-00

ФАСЕты 07 - 09

Прокладка полиэтиленовых трубопроводов

Наименование фактора

Обоснование

Фасет 07

Фасет 08

Фасет 09

Прокладка 100 м полиэтиленовых трубопроводов

канализации

водостоков

диаметром, мм

50

100

100

Код

Значение фактора,

Н.вр.

Расц.

Код

Значение фактора,

Н.вр.

Расц.

Код

Значение фактора,

Н.вр.

Расц.

С установкой и креплением кронштейнов дюбель-гвоздями с помощью монтажного пистолета

ЕНиР, сб. Е9, в. 1, § Е9-1-4, табл. 2

«Санитарно-техническое оборудование зданий и сооружений»

1

18,0

14-20

1

16,0

12-70

1

11,0

8-70

С установкой и креплением кронштейнов дюбель-гвоздями вручную к гипсобетонным, шлакобетонным и гипсолитовым стенам

 

2

20,0

14-90

2

18,0

13-40

2

13,0

9-70

С установкой и заделкой кронштейнов в готовые отверстия

 

3

22,0

16-40

3

18,0

13-40

3

14,0

10-40

С установкой и заделкой кронштейнов со сверлением отверстий в бетонных стенах

 

4

31,0

23-10

4

24,0

17-90

4

19,0

14-20

С установкой и заделкой кронштейнов со сверлением отверстий в керамзитобетонных, кирпичных и др. стенах

 

5

26,0

19-40

5

20,0

14-90

5

16,0

11-90

ФАСЕТЫ 10 - 18

Установка санитарных приборов

Наименование фактора

Обоснование

Фасет 10

Фасет 11

Фасет 12

Фасет 13

Фасет 14

фасет 15

Фасет 16

Фасет 17

Фасет 18

Установка 100 санитарных приборов каждого наименования

Мойка чугунная без спинки на 2-х кронштейнах на одно отделение

Мойка чугунная без спинки на 2-х кронштейнах на два отделения

Мойка стальная на одно отделение

Умывальник

Умывальник с присоединением к системе канализации

Раковина с отъемной спинкой с присоединением к системе канализации

Бачок смывной чугунный с присоединением к системе водопровода

Бачок смывной пластмассовый с присоединением к системе водопровода

Писсуар

Код

Значение фактора

Н.вр.

Расц.

Код

Значение фактора

Н.вр.

Расц.

Код

Значение фактора

Н.вр.

Расц.

Код

Значение фактора

Н.вр.

Расц.

Код

Значение кантора

Н.вр.

Расц.

Код

Значение фактора

Н.вр.

Расц.

Код

Значение

фактора

Н.вр.

Расц.

Код

Значение фактора

Н.вр.

Расц.

Код

Значение фактора

Н.вр.

Расц.

С установкой и краплением кронштейнов дюбель-гвоздями с помощью монтажного пистолета

ЕНиР, сб. Е9, в. 1, § Е9-1-16, табл. 1 «Санитарно-техническое оборудование зданий и сооружений»

1

89,0

70-30

1

158,0

125-20

1

96,0

75-80

1

99,0

78-20

1

59,0

46-60

1

37,0

29-20

1

53,0

41-90

1

47,0

37-20

1

34,0

26-90

С установкой и креплением кронштейнов дюбель-гвоздями вручную к гипсобетонным шлакобетонным и гипсолитовым стенам

 

2

94,0

74-30

2

160,0

126-00

2

100,0

79-00

2

100,0

79-00

2

64,0

50-60

2

42,0

33-20

2

58,0

45-80

2

52,0

41-10

 

 

С установкой и заделкой кронштейнов в готовые отверстия

-

3

100,0

79-00

3

170,0

134-00

3

95,0

75-10

3

110,0

86-90

3

70,0

55-30

3

48,0

37-90

3

50,0

39-50

3

45,0

35-60

2

52,0

41-10

С установкой и заделкой кронштейнов со сверлением отверстий в бетонных станах

 

4

130,0

103-00

4

200,0

158-00

4

130,0 103-00

4

140,0

111-00

4

100,0

79-00

4

77,0

60-80

4

60,0

47-40

4

55,0

43-50

3

71,0

56-10

С установкой и заделкой кронштейнов со сверлением отверстий в керамзитобетонных, кирпичных и др. стенах

 

5

120,0

94-80

5

190,0

150-00

5

110,0

86-90

5

120,0

94-80

5

85,0

67-20

5

63,0

49-80

5

55,0

43-50

5

50,0

39-50

4

62,0

49-00


ФАСЕТ 19

Установка 100 санитарных приборов каждого наименования

Наименование фактора

Обоснование

Код

Значение фактора

Ванна чугунная со сборкой переливной трубой на месте монтажа

ЕНиР, сб. Е9, в. 1, § Е9-1-16, табл. 2 «Санитарно-техническое оборудование зданий и сооружений»

1

По калькуляции

Ванна чугунная с переливной трубой, собранной на заводе

 

2

Н.вр.= 190,0

Расц. = 150-00

Ванна чугунная сидячая

 

3

Н.вр. = 86,0

Расц. = 67-90

Ванна чугунная типа глубокого поддона размером 800×800×350 мм

 

4

Н.вр. = 100,0

Расц. = 79-00

Стальная ванна

 

5

Н.вр. = 150,0

Расц. = 119-00

Мелкий душевой поддон размером 900×900×150 мм

 

6

Н.вр. = 62,0

Расц. = 49-00

ФАСЕТ 20

Установка 100 санитарных приборов каждого наименования

Наименование фактора

Обоснование

Код

Значение фактора

Смывной бачок для унитаза типа «Компакт»

ЕНиР, сб. Е9, в. 1, § Е9-1-16, табл. 2 «Санитарно-техническое оборудование зданий и сооружений»

1

По калькуляции

Унитаз с креплением эпоксидно-кукерсольным клеем

 

2

Н.вр. = 29,0

Расц. = 22-90

Унитаз с креплением шурупами к ранее установленной тафте

 

3

Н.вр. = 35,0

Расц. = 27-70

Унитаз с креплением к полу в готовые отверстия с установкой уплотнителя

 

4

Н.вр. = 41,0

Расц. = 32-40

Чаша клозетная чугунная

 

5

Н.вр. = 91,0

Расц. = 71-90

Бидэ

 

6 -

Н.вр. = 200,0

Расц. = 158-00

ФАСЕТЫ 21 - 24

Установка блоков санитарных приборов

Наименование фактора

Обоснование

Фасет 21

Фасет 22

Фасет 23

Фасет 24

Установка 10 блоков санитарных приборов

Блок умывальников с числом приборов

2

3

4

5

Код

Значение фактора,

Н.вр.

Расц.

Код

Значение фактора,

Н.вр.

Расц.

Код

Значение фактора,

Н.вр.

Расц.

Код

Значение фактора,

Н.вр.

Расц.

С установкой и креплением кронштейнов дюбель-гвоздями с помощью монтажного пистолета

ЕНиР, сб. Е9, в. 1, § Е9-1-17 «Санитарно-техническое оборудование зданий и сооружений»

1

10,20

8-05

1

10,70

8-45

1

11,10

8-77

1

13,50

10-67

С установкой и креплением кронштейнов дюбель-гвоздями вручную к гипсобетонным, гипсолитовым и шлакобетонным стенам или с установкой и креплением кронштейнов шурупами в готовые отверстия

 

2

12,00

9-48

2

12,00

9-48

2

12,00

9-48

2

15,00

11-90

С установкой и креплением кронштейнов шурупами со сверлением отверстий в бетонных стенах или полу

 

3

13,00

10-30

3

14,00

11-10

3

14,00

11-10

3

18,00

14-20

С установкой и креплением кронштейнов шурупами со сверлением отверстий в керамзитобетонных, кирпичных и др. стенах или полу

 

4

13,00

10-30

4

13,00

10-30

4

13,00

10-30

4

16,00

12-60

ФАСЕТ 25

Испытание 100 м трубопроводов канализации

Наименование фактора

Обоснование

Код

Значение фактора

Первое рабочее испытание отдельных частей системы*

ЕНиР, сб. Е9, в. 1, § Е9-1-8, табл. 2 «Санитарно-техническое оборудование зданий и сооружений»

1

Н.вр. = 17,0

Расц. = 13-69

Окончательная проверка при сдаче системы

 

2

Н.вр. = 9,4

Расц. = 7-99

* Данное испытание проводится при монтаже в том случае, если узлы и детали не были испытаны на заводах или в заготовительных мастерских.

ФАСЕТ 26

Испытание 100 м трубопроводов водостоков

Наименование фактора

Обоснование

Код

Значение фактора

Первое рабочее испытание отдельных частей системы

ЕниР, сб. Е9, в. 1, § Е9-1-8, табл. 2 «Санитарно-техническое оборудование зданий и сооружений»

1

Н.вр. = 2,7

Расц. = 2-01

Рабочая проверка системы в целом

 

2

Н.вр. = 2,0

Расц. = 1-61

Окончательная проверка при сдаче системы

 

3

Н.вр. = 1,5

Расц. = 1-88

СОДЕРЖАНИЕ

 

 




ГОСТЫ, СТРОИТЕЛЬНЫЕ и ТЕХНИЧЕСКИЕ НОРМАТИВЫ.
Некоммерческая онлайн система, содержащая все Российские Госты, национальные Стандарты и нормативы.
В Системе содержится более 150000 файлов нормативно-технической документации, действующей на территории РФ.
Система предназначена для широкого круга инженерно-технических специалистов.

Рейтинг@Mail.ru Яндекс цитирования

Copyright © www.gostrf.com, 2008 - 2026