Крупнейшая бесплатная информационно-справочная система онлайн доступа к полному собранию технических нормативно-правовых актов РФ. Огромная база технических нормативов (более 150 тысяч документов) и полное собрание национальных стандартов, аутентичное официальной базе Госстандарта. GOSTRF.com - это более 1 Терабайта бесплатной технической информации для всех пользователей интернета. Все электронные копии представленных здесь документов могут распространяться без каких-либо ограничений. Поощряется распространение информации с этого сайта на любых других ресурсах. Каждый человек имеет право на неограниченный доступ к этим документам! Каждый человек имеет право на знание требований, изложенных в данных нормативно-правовых актах!

  


 

КАРТА ТРУДОВОГО ПРОЦЕССА СТРОИТЕЛЬНОГО ПРОИЗВОДСТВА

КТ-4.1-0.2-77

Разработана конструкторско-технологическим институтом Минпромстроя СССР*

Откорректирована и рекомендована ВНИПИ труда в строительстве Госстроя СССР для внедрения в строительное производство

УСТАНОВКА РАМНО-ШАРНИРНОГО ИНДИКАТОРА (РШИ)

Входит в комплект карт ККТ-4.1-4

Монтаж сборных железобетонных конструкций каркасных зданий

Взамен КТ-4.1-0.2-70

* 300600, г. Тула, проспект Ленина, 108.

1. ОБЛАСТЬ И ЭФФЕКТИВНОСТЬ ПРИМЕНЕНИЯ КАРТЫ

1.1. Карта предназначена для организации труда рабочих при установке рамно-шарнирных индикаторов (РШИ) для монтажа сборных железобетонных конструкций каркасных зданий.

1.2. Показатели производительности труда

 

По карте

По ЕНиР

Выработка на 1 чел.-день, установок РШИ

4

-

Затраты труда на установку одного РШИ, чел.

2

-

Примечание. В затраты труда включено время на подготовительно-заключительные работы и отдых.

2. УСЛОВИЯ И ПОДГОТОВКА ВЫПОЛНЕНИЯ ПРОЦЕССА

2.1. При монтаже каркаса здания необходимо обеспечить устойчивость и жесткость смонтированной части здания в обоих направлениях. Для этого до перестановки РШИ на очередную стоянку необходимо: смонтировать все элементы несущего каркаса яруса ячейки (колонны, ригели, плиты перекрытия); закончить все электросварочные работы и замонолитить стыки колонн. Необходимо также установить арматурные каркасы (отдельны стержни) по осям в крайних пролетах; вынести на монтажный горизонт (на этаж) базовые оси - продольные и поперечные.

2.2. Работы следует выполнять, строго соблюдая правила техники безопасности и охраны труда рабочих согласно СНиП III-А.11-70, § 14.

3. ИСПОЛНИТЕЛИ, ПРЕДМЕТЫ И ОРУДИЯ ТРУДА

3.1. Исполнители:

монтажник конструкций V разряда (М1) - 1

монтажник конструкций IV разряда (М2) - 1

монтажник конструкций III разряда (М3) - 1

монтажник конструкций II разряда (М4) - 1

3.2. Инструменты, приспособления и инвентарь

Наименование, назначение и основные параметры

ГОСТ, чертежа

Количество, шт.

Рамно-шарнирный индикатор (РШИ)

Чертеж 100 Свердловского филиала Индустройпроекта*

4

Строп четырехветвевой

РЧ-508-72 ЦНИИОМТП**

1

Ключ гаечный разводной

ГОСТ 7275-62

2

Ключ гаечный двусторонний

ГОСТ 2839-71

4

Метр стальной складной

ГОСТ 7253-54

2

Оттяжка из пенькового каната

-

8

Лестница инвентарная длиной 2,8 м

-

1

* г. Свердловск, ул. Блюхера, 26.

** Рабочие чертежи можно приобрести в Бюро внедрения ЦНИИОМТП.

4. ТЕХНОЛОГИЯ ПРОЦЕССА И ОРГАНИЗАЦИЯ ТРУДА

4.1. Операции по установке РШИ выполняют в следующем порядке: подготовляют РШИ к перестановке; стропят, переставляют на новую стоянку и расстроповывают его; производят настройку РШИ в предмонтажное положение.

4.2. Перестановку РШИ из одной монтируемой ячейки в другую производят краном с помощью специального четырехветвевого стропа, обеспечивающего горизонтальное положение РШИ по отношению к перекрытию, под наблюдением лица, ответственного за монтаж.

4.3. Установка комплекта монтажного оснащения начинается с РШИ 1, который выверяют в плане по двум взаимно перпендикулярным створам. РШИ 2 и 3 выверяют только по одному створу; в другом направлении их положение в плане фиксируют подсоединением поперечных тяг к уже настроенному РШИ 1. РШИ 4 фиксируют, подсоединяя его продольными тягами к ранее настроенным РШИ 1 и 2, а поперечными - к РШИ 3.

После монтажа конструкций в первой ячейке РШИ 1 и 2 переставляют на новую стоянку. При этом РШИ 1 фиксируют, выверяя по теодолиту продольный створ и подсоединяя поперечными тягами к РШИ 3. РШИ 2 фиксируют подсоединением тяг к РШИ 1 и 4.

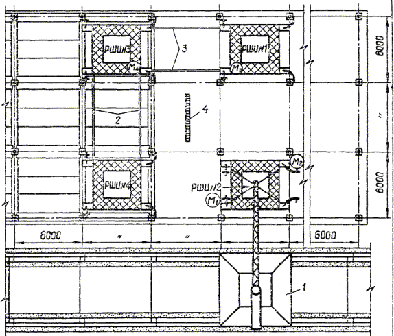
4.4. Организация рабочего места

 - рабочие места монтажников

1 - кран; 2 - поперечные тяги; 3 - продольные тяги; 4 - лестница


4.5. График трудового процесса


4.6. Описание операций

по графику

Наименование операций, их продолжительность*, исполнители и орудия труда; характеристика приемов труда

1

2

1

ПОДГОТОВКА РАМНО-ШАРНИРНОГО ИНДИКАТОРА К ПЕРЕСТАНОВКЕ; 10 мин; М1, М2, М3, М4; разводные ключи, оттяжки

Перевод хомутов из рабочего положения в транспортное

Монтажник М1, вращая штурвал натяжного механизма против часовой стрелки, ослабляет натяжение прижимного троса и освобождает от него колонну. Затем вращением рукоятки фиксатора против часовой стрелки монтажник освобождает ограждения в зоне обслуживания хомута и переводит хомут из рабочего положения в транспортное, вращая его относительно оси (шарнира) в горизонтальной плоскости. После этого он закрепляет хомут с помощью фиксатора в транспортном положении. Монтажник М2 выполняет аналогичную работу, поворачивая откидные хомуты в вертикальной плоскости

 

Перевод поворотно-выдвижных люлек из рабочего положения в транспортное

Монтажники М1 и М2, вращая рукоятки фиксаторов против часовой стрелки, обеспечивают свободный поворот люлек относительно стоек РШИ. переводят люльки из рабочего положения в транспортное и с помощью фиксаторов закрепляют их

Разъединение рамноарнирных индикаторов

Монтажники М3 и М4 отсоединяют продольные тяги, вдвигают их в балки индикаторных рам и закрепляют. Затем, разъединив поперечные тяги, монтажники вдвигают их в поперечные балки РШИ, а откидные поворачивают на индикаторной раме относительно узлов крепления и закрепляют на раме. После этого они привязывают оттяжки к РШИ

3

ПЕРЕСТАНОВКА РАМНО-ШАРНИРНОГО ИНДИКАТОРА НА НОВУЮ МОНТАЖНУЮ СТОЯНКУ; 20 мин; М1, М2, М3, М4; строп, оттяжки

Монтажники М1 и М2 по лестнице спускаются на перекрытие смонтированного этажа и укладывают на него деревянные подкладки. Монтажник М3 подает команду машинисту крана приподнять РШИ и визуально проверяет надежность строповки. По его команде машинист крана подает РШИ к месту установки, а монтажники М3 и М4 придерживают его оттяжками. У края смонтированной ячейки они передают оттяжки монтажникам М1 и М2, которые ориентируют РШИ над местом установки. По команде монтажника М1 машинист крана плавно опускает РШИ на подкладки

4

НАСТРОЙКА РАМНО-ШАРНИРНОГО ИНДИКАТОРА В ПРЕДМОНТАЖНОЕ ПОЛОЖЕНИЕ; 66 мин; М1, М2, М3, М4; разводные ключи, инвентарная лестница

Монтажники М1 и М2 по сигналу геодезиста вращением штурвала механизмов поперечного перемещения устанавливают «плавающую» шарнирно-индикаторную раму в направлении продольной базовой оси до совпадения визирной оси теодолита с рисками на хомутах. Затем геодезист переносит и устанавливает теодолит в створе поперечной базовой оси.

Монтажники М1 и М2 с помощью механизмов перемещения устанавливают раму до совпадения визирной оси теодолита с рисками на хомутах. Монтажники М3 и М4 выдвигают из продольных балок рамы РШИ 2 тяги и присоединяют их к ранее настроенному РШИ № 1. Затем монтажник М3 поворачивает откидные поперечные тяги РШИ 1 и 3, а монтажник М4, установив инвентарную лестницу, соединяет их и закрепляет винтом фиксатора. Аналогично осуществляется фиксация расстояния между хомутами последовательно установленных вдоль здания РШИ 2 и 4

* На установку (перестановку) четырех РШИ

СОДЕРЖАНИЕ

 

 




ГОСТЫ, СТРОИТЕЛЬНЫЕ и ТЕХНИЧЕСКИЕ НОРМАТИВЫ.
Некоммерческая онлайн система, содержащая все Российские Госты, национальные Стандарты и нормативы.
В Системе содержится более 150000 файлов нормативно-технической документации, действующей на территории РФ.
Система предназначена для широкого круга инженерно-технических специалистов.

Рейтинг@Mail.ru Яндекс цитирования

Copyright © www.gostrf.com, 2008 - 2026