Крупнейшая бесплатная информационно-справочная система онлайн доступа к полному собранию технических нормативно-правовых актов РФ. Огромная база технических нормативов (более 150 тысяч документов) и полное собрание национальных стандартов, аутентичное официальной базе Госстандарта. GOSTRF.com - это более 1 Терабайта бесплатной технической информации для всех пользователей интернета. Все электронные копии представленных здесь документов могут распространяться без каких-либо ограничений. Поощряется распространение информации с этого сайта на любых других ресурсах. Каждый человек имеет право на неограниченный доступ к этим документам! Каждый человек имеет право на знание требований, изложенных в данных нормативно-правовых актах!

  


 

КАРТА ТРУДОВОГО ПРОЦЕССА СТРОИТЕЛЬНОГО ПРОИЗВОДСТВА

КТ-4.1-7.6-77

Разработана конструкторско-технологическим институтом Минпромстроя СССР*

Откорректирована и рекомендована ВНИПИ труда в строительстве Госстроя СССР для внедрения в строительное производство

УКЛАДКА СВЯЗНЫХ (РАСПОРНЫХ) ПАНЕЛЕЙ ПЕРЕКРЫТИЙ ПРИ ПОМОЩИ РШИ

Входит в комплект карт ККТ-4.1-4

Монтаж сборных железобетонных конструкций каркасных зданий

Взамен КТ-4.1-7.6-70

* 300600, г. Тула, проспект Ленина, 108.

1. ОБЛАСТЬ И ЭФФЕКТИВНОСТЬ ПРИМЕНЕНИЯ КАРТЫ

1.1. Карта предназначена для организации труда рабочих при укладке связных (распорных) панелей перекрытий площадью до 10 м2 с помощью рамно-шарнирных индикаторов (РШИ).

1.2. Показатели производительности труда

 

По карте

По ЕНиР

Выработка на 1 чел.-день, панелей

14,3

10,5

Затраты труда на одну панель, чел.-ч

0,56

0,76

Примечание. В затраты труда включено время на подготовительно-заключительные работы и отдых.

1.3. Снижение затрат труда и повышение выработки рабочих достигается за счет использования рамно-шарнирных индикаторов (РШИ).

2. УСЛОВИЯ И ПОДГОТОВКА ВЫПОЛНЕНИЯ ПРОЦЕССА

2.1. До начала работ необходимо: установить, выверить и закрепить колонны и ригели; проверить размеры панелей и правильность установки закладных деталей; доставить в зону монтажа приспособления, инструменты, инвентарь и расположить их на рабочем месте.

2.2. Работы следует выполнять, строго соблюдая правила техники безопасности и охраны труда рабочих согласно СНиП III-А.11-70, § 14.

3. ИСПОЛНИТЕЛИ, ПРЕДМЕТЫ И ОРУДИЯ ТРУДА

3.1. Исполнители:

монтажник конструкций V разряда (М1) - 1

монтажник конструкций IV (М2) - 1

монтажник конструкций III (М3) - 1

монтажник конструкций II (М4) - 1

3.2. Инструменты, приспособления и инвентарь

Наименование, назначения и основные параметры

ГОСТ, чертежа

Количество, шт.

Строп четырехветвевой с двумя укороченными ветвями

РЧ-508-72 ЦНИИОМТП*

1

Щетка стальная

Каталог-справочник ЦНИИТЭстроймаша,** стр. 83

2

Лом монтажный

ГОСТ 1405-72

3

* Рабочие чертежи можно приобрести в Бюро внедрения ЦНИИОМТП.

** 121019, .Москва, Г-19, ул. Маркса и Энгельса, 7/10.

4. ТЕХНОЛОГИЯ ПРОЦЕССА И ОРГАНИЗАЦИЯ ТРУДА

4.1. Операции по монтажу связной панели выполняют в следующем порядке: устанавливают поворотно-выдвижные люльки в рабочее положение; подготовляют панель к монтажу; стропят и подают панель к месту укладки; подготовляют места опирания панели; укладывают панель в проектное положение и расстроповывают ее.

4.2. Электроприхватку панели к колоннам перед ее расстроповкой выполняет электросварщик, не входящий в состав звена.

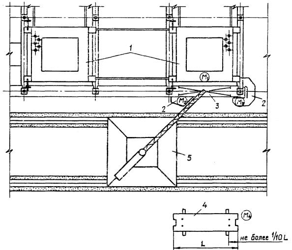
4.3. Организация рабочего места

 - рабочие места монтажников

1 - рамно-шарнирные индикаторы; 2 - поворотно-выдвижные люльки; 3 - монтируемая панель; 4 - место складирования панелей; 5 - башенный кран

4.4. График трудового процесса

4.5. Описание операций

по графику

Наименование операций, их продолжительность, * исполнители и орудия труда; характеристика приемов труда

1

2

1

ПОДГОТОВКА ПАНЕЛИ К МОНТАЖУ; 6 мин; М4; строп, лом

Осмотрев и при необходимости выправив ломом монтажные петли панели, монтажник М4 принимает строп, поданный машинистом крана

2

УСТАНОВКА ПОВОРОТНО-ВЫДВИЖНЫХ ЛЮЛЕК В РАБОЧЕЕ ПОЛОЖЕНИЕ; 1,5 мин; М2, М3

Монтажники М2 и М3 ослабив зажимные винты фиксаторов, вращением рукояток против часовой стрелки поворачивают люльки в рабочее положение. Вращая рукоятки по часовой стрелке, они закрепляют люльки фиксаторами

3

СТРОПОВКА И ПОДАЧА ПАНЕЛИ К МЕСТУ УКЛАДКИ; М1 - 1,5 мин; М4 - 0,5 мин; строп

Монтажник М1 стропит панель и, убедившись в надежности строповки, отходит на безопасное расстояние. По его команде машинист крана поднимает панель и подает ее к месту укладки. Монтажник М1 следит за подъемом и перемещением панели

4

ПОДГОТОВКА МЕСТА ОПИРАНИЯ ПАНЕЛИ; 2,5 мин; М2, М3; щетки

Монтажники М2 и М3, стоя в поворотно-выдвижных люльках, стальными щетками очищают поверхность закладных деталей от ржавчины, грязи и брызг бетона

5

УКЛАДКА ПАНЕЛИ; 2,5 мин; М1, М2, М3; ломы, строп

Монтажник М1, стоя на верхней площадке РШИ, подает команду машинисту крана опустить связную панель над консолями колонн. Монтажник М2, находясь на одной из промежуточных площадок РШИ, а монтажник М3 - в нижней люльке РШИ, наводят наклоненную часть панели на опору со стороны хомута, расположенного в пролете РШИ.

По команде монтажника М1 машинист крана медленно опускает панель на опоры, а монтажник М2, придерживает ее сбоку. При необходимости он ломом рихтует опорную часть панели так, чтобы закладные детали ее и ригеля совпали. Другой конец панели укладывают на опоры аналогично

6

РАССТРОПОВКА ПАНЕЛИ; 1 мин; М2, М3; строп

Монтажник М2 подает команду машинисту крана ослабить натяжение ветвей стропа и совместно с монтажником М3 расстроповывает панель. По команде монтажника М2 машинист крана поднимает строп и отводит его в сторону

* На одну панель.

СОДЕРЖАНИЕ

 

 




ГОСТЫ, СТРОИТЕЛЬНЫЕ и ТЕХНИЧЕСКИЕ НОРМАТИВЫ.
Некоммерческая онлайн система, содержащая все Российские Госты, национальные Стандарты и нормативы.
В Системе содержится более 150000 файлов нормативно-технической документации, действующей на территории РФ.
Система предназначена для широкого круга инженерно-технических специалистов.

Рейтинг@Mail.ru Яндекс цитирования

Copyright © www.gostrf.com, 2008 - 2026