Крупнейшая бесплатная информационно-справочная система онлайн доступа к полному собранию технических нормативно-правовых актов РФ. Огромная база технических нормативов (более 150 тысяч документов) и полное собрание национальных стандартов, аутентичное официальной базе Госстандарта. GOSTRF.com - это более 1 Терабайта бесплатной технической информации для всех пользователей интернета. Все электронные копии представленных здесь документов могут распространяться без каких-либо ограничений. Поощряется распространение информации с этого сайта на любых других ресурсах. Каждый человек имеет право на неограниченный доступ к этим документам! Каждый человек имеет право на знание требований, изложенных в данных нормативно-правовых актах!

  


 

ПРАВИТЕЛЬСТВО МОСКВЫ

МОСКОМАРХИТЕКТУРА

РЕКОМЕНДАЦИИ
по проектированию и применению
для
строительства и реконструкции
зданий
в г. Москве

ФАСАДНОЙ СИСТЕМЫ
С
ВЕНТИЛИРУЕМЫМ
ВОЗДУШНЫМ
ЗАЗОРОМ
«СЕМ-СИСТЕМА»

2005

Предисловие

1. Разработаны: Центральным научно-исследовательским и проектным институтом жилых и общественных зданий (ЦНИИЭП жилища).

Авторский коллектив:

д.т.н. Николаев С.В.                         - руководитель работы

д.т.н. Граник Ю.Г.                            - научно-техническое руководство

инж. Ставровский Г.А.                    - общая редакция и конструкция системы

д.т.н. Зырянов В.С.                           - прочностные расчеты

к.т.н. Беляев В.С.                              - теплотехнические расчеты

к.т.н. Граник М.Ю.                           - конструкции системы и компьютерная графика

Консультанты:

Технический директор

«LTM Company OY»

Яри Леппанен                       - организационно-технические решения и конструкция системы

Директор ООО «Компания ЛТМ»

Клюхин А.                          - организационно-технические решения и конструкция системы

Менеджер коммерческого

отдела Сорокина А.А.

2. Подготовлены к утверждению и изданию Управлением перспективного проектирования, нормативов и координации проектно-изыскательских работ Москомархитектуры.

3. Утверждены приказом Москомархитектуры от 11.01.2005 г.1.

СОДЕРЖАНИЕ

1. Введение. 2

2. Назначение и область применения. 2

3. Конструктивное решение системы.. 4

4. Исходные данные для проектирования системы.. 19

5. Определение основных параметров системы.. 20

6. Прочностные расчеты.. 20

7. Теплотехнические расчеты.. 31

8. Состав проектно-сметной документации. 43

9. Технико-экономические показатели. 44

10. Основные положения по производству работ и системе контроля качества. 45

11. Правила эксплуатации системы.. 46

12. Перечень нормативных документов и литературы.. 47

1. Введение

1.1. Рекомендации являются методическим и справочным пособием для разработки проектов наружной отделки и утепления зданий и сооружений с применением навесной фасадной системы с вентилируемым воздушным зазором «СЕМ-СИСТЕМА».

1.2. Навесные фасадные системы с вентилируемым воздушным зазором являются одним из наиболее эффективных способов отделки и утепления наружных стен зданий различного назначения. К таким системам относится в частности «СЕМ-СИСТЕМА», где для наружной отделки зданий применяются высокого качества отделочные материалы - фиброцементные облицовочные плиты «Cem-Stone», «Cynop», «CemColor», «CemColor Structure», «CemColor Structure», которые позволяют создавать выразительные архитектурные решения фасадов зданий. Фасадная система «СЕМ-СИСТЕМА» достаточно широко опробирована на построенных и реконструированных зданиях, в том числе в г. Москве. На рис. 1.1 - 1.3 приведены фотографии зданий с отделкой и утеплением фасадной системой «СЕМ-СИСТЕМА».

1.3. Разработчиком фасадной системы «СЕМ-СИСТЕМА», изготовителем и поставщиком элементов систем является «LTM Company OY» (Финляндия)*).

*) Информацию о системе можно получить в ООО «Компания ЛТМ» (Москва), адрес и телефон которой приведены на стр. 71.

1.4. На навесную фасадную систему «СЕМ-СИСТЕМА» выдано техническое свидетельство Госстроя России № ТС-07-0980-04 от 07.04.2004 г.

1.5. Рекомендации содержат следующие данные: назначение и область применения систем, конструктивные решения систем, состав исходных данных для проектирования, методики расчетов всех расчетных параметров систем, способы производства работ, правила эксплуатации систем и их технико-экономические показатели.

2. Назначение и область применения

2.1. «СЕМ-СИСТЕМА» предназначена для фасадной отделки и теплоизоляции наружных стен в соответствии со СНиП II-3-79*зд. 98 г.), СНиП 23-02-2003 и МГСН 2.01-99.

2.2. Систему допускается применять для строящихся и реконструируемых зданий в г. Москве с несущими конструкциями наружных стен из кирпича, бетона и других материалов плотностью более 600 кг3.

Допускаемую этажность зданий в соответствии с требованиями пожарной безопасности устанавливают в зависимости от степени огнестойкости и классов конструкционной и функциональной пожарной опасности здания.

Рис. 1.1. Здание в г. Хельсинки (Финляндия).

Рис. 1.2. Здание Нагорного отделения Сбербанка, г. Москва, ул. Каховка, д. 21.

Рис. 1.3. Здание офиса страховой компании «РОСНО» г. Москва, Озерковская наб., д. 30.

3. Конструктивное решение системы

3.1. Система, являясь многослойной конструкцией, включает следующие элементы: металлический несущий каркас, прикрепленный к основанию (несущим конструкциям наружной стены), слой негорючего минераловатного утеплителя (в случае необходимости укрытый пленкой типа «TYVEK»1), также прикрепленный к основанию, и фасадный облицовочный слой из фиброцементных плит марок «CemStone», «Cynop», «CemColor», «CemColor Structure», «CemColor Structure», прикрепленных к элементам (к вертикальным профилям) несущего каркаса. При этом между облицовочным слоем и слоем утеплителя устраивается вентилируемый воздушный зазор, с помощью которого влага, накапливающаяся в утеплителе, эффективно удаляется (рис. 3.1 - 3.2). Возможен вариант применения этих систем без утеплителя только в качестве фасадной отделки зданий.

1 Пленка на чертежах условно не показана.

3.2. Несущий каркас системы включает кронштейны, несущие горизонтальные Lбразные профили, несущие вертикальные П-образные и Zбразные профили, крепежные детали и другие изделия.

3.2.1. Кронштейны - это элементы, которые с помощью дюбелей и анкерных болтов соединяют несущий каркас с основанием. Для сокращения теплопотерь кронштейны примыкают к основанию через паронитовую прокладку. Кронштейны имеют длину от 50 до 250 мм и позволяют сделать систему со слоем утеплителя до 250 мм. К кронштейнам присоединяются горизонтальные Lбразные профили на саморезах.

Кронштейны воспринимают вертикальные нагрузки от собственного веса элементов системы и горизонтальные - от ветрового давления (напора, отсоса). В системе применяются кронштейны 2-х типов: с обычными и с овальными отверстиями. Кронштейны с овальными отверстиями позволяют горизонтальному профилю перемещаться вследствие температурных деформаций. Чертежи кронштейнов, несущих горизонтальных и вертикальных профилей, угловых и шовных планок представлены на рис. 3.3 - 3.5.

3.2.2. Каркас представляет собой перекрестную конструкцию, выполненную из гнутых стальных оцинкованных профилей. Горизонтальные направляющие крепятся к кронштейнам и изготовлены в виде Lбразных профилей (равнополочных уголков). Вертикальные направляющие прикрепляются к горизонтальным на саморезах и выполнены из Пбразных и Z-образных профилей.

3.2.3. Кронштейны выполняются из оцинкованной стали толщиной 2 - 5 мм марки Ст 08 ПС-5 по ГОСТ 14918-80 или DX51D-2275-МАС по EVS-EN 10204/22, вертикальные и горизонтальные профили - из оцинкованной стали толщиной 1,2 мм Ст 08 ПС ХП по ГОСТ 14918-80 или DX51D-2275-МАС по EVS-EN 10204/22, оконные и дверные откосы, отливы - из стали тонколистовой оцинкованной толщиной 0,6 - 1,5 мм по ГОСТ 14918-80 с полимерным покрытием, угловые и шовные планки из алюминиевых сплавов АМг2М и АМг2Н толщиной 0,7 мм по ГОСТ 4784-97.

3.2.4. Контакт стальных деталей с алюминиевыми следует исключить за счет прокладки между ними полимерных шайб или окраски стальных деталей.

3.3. Конструктивные решения системы у внешнего и внутреннего углов здания, у оконных проемов, у цоколя и на парапете представлены на рис. 3.6 ¸ 3.17.

3.4. Теплоизоляционный слой выполняется из минераловатных плит, которые устанавливают в один или в два слоя и крепят к стене тарельчатыми дюбелями.

3.5. Облицовку фасадов здания выполняют из фиброцементных плит, отличающихся различными вариантами декоративных покрытий:

- «CemStone» - с покрытием крошкой натурального камня (19 кг/м2);

- «Cynop» - с акрилатным покрытием (14 кг2);

- «CemColor» - с высококачественным полиуретановым покрытием (14 кг/м2);

- «CemColor Structure» - с высококачественным структурным акрилатным покрытием (14 кг/м2).

Указанные типы плит изготавливаются на основе фиброцементных плит толщиной 8 мм марки «MINERIT HD» производства фирмы «MINERIT OY AB» (Финляндия). Стандартный типоразмер плит 1194 мм на 2440/2780/3050 мм.

- «CemColor Structure» - с высококачественным структурным акрилатным покрытием (14 кг/м2) изготавливаются на основе фиброцементных плит толщиной 8 мм марки «ETERPLAN-N» производства фирмы «ETERNIT AG» (Германия). Стандартный типоразмер плит 1250 мм на 2500/2800/3100 мм.

3.5.1. Фиброцементные плиты могут закрепляться на фасаде горизонтально или вертикально (по положению длинной стороны).

3.5.2. При креплении облицовочных плит необходимо учитывать, что расстояние L от саморезов до верхней или нижней кромок плиты:

- при горизонтальном расположении плит - 30 мм;

- при вертикальном расположении плит длиной:

до 1 м - 50 мм;

от 1 м до 1,5 м - 100 мм;

свыше 1,5 м - 150 мм.

3.6. Изделия и материалы, разрешенные для применения в системе, и требования, которым они должны отвечать, приводятся в разделах 2 и 4 приложений к Техническим свидетельствам Госстроя РФ на эту систему.

1. Существующая стена. 2. Кронштейн. 3. Анкерный дюбель. 4. Утеплитель. 5. Лента EPDM. 6. Lбразный горизонтальный профиль. 7. П-образный вертикальный профиль. 8. Zбразный вертикальный профиль. 9. Планка вертикального шва. 10. Самонарезающий винт для плит. 11. Самонарезающий оцинкованный винт для каркаса. 12. Тарельчатый дюбель для крепления утеплителя. 13. Плиты облицовочные. 14. Планка горизонтального шва.

Рис. 3.1. Фасадная система «СЕМ-СИСТЕМА» с горизонтальным расположением плит.

1. Существующая стена. 2. Кронштейн. 3. Анкерный дюбель. 4. Утеплитель. 5. Лента EPDM. 6. Lбразный горизонтальный профиль. 7. Пбразный вертикальный профиль. 8. Zбразный вертикальный профиль. 9. Планка вертикального шва. 10. Самонарезающий винт для плит. 11. Самонарезающий оцинкованный винт для каркаса. 12. Тарельчатый дюбель для крепления утеплителя. 13. Плиты облицовочные.

Рис. 3.2. Фасадная система «СЕМ-СИСТЕМА» с вертикальным расположением плит.

Рис. 3.3. Кронштейн (КР).

Z-образный вертикальный профиль (П-Z)

L-образный горизонтальный профиль (П-L)

П-образный вертикальный профиль -П)

Рис. 3.4. Несущие вертикальные и горизонтальные профили (поперечное сечение).

Планка вертикального шва (ПВШ)

Планка наружного угла (ПНУ)

Планка горизонтального шва (ПГШ)

Планка наружного угла (ПНУ)

Рис. 3.5. Планки для расшивки швов и углов (поперечное сечение).

1. Существующая стена. 2. Кронштейн. 3. Анкерный дюбель. 4. Lбразный горизонтальный профиль. 5. Zбразный вертикальный профиль. 6. Тарельчатый дюбель для крепления утеплителя. 7. Паронитовая прокладка. 8. Минераловатный утеплитель. 9. Плиты облицовочные. 10. Лента EPDM. 11. Воздушная прослойка. 12. Планка вертикального шва. 13. Самонарезающий винт для плит. 14. Самонарезающий оцинкованный винт для каркаса.

Рис. 3.6. Горизонтальный разрез системы по наружному углу.

1. Существующая стена. 2. Кронштейн. 3. Анкерный дюбель. 4. Lбразный горизонтальный профиль. 5. Zбразный вертикальный профиль. 6. Тарельчатый дюбель для крепления утеплителя. 7. Паронитовая прокладка. 8. Минераловатный утеплитель. 9. Плиты облицовочные. 10. Лента EPDM. 11. Воздушная прослойка. 12. Планка вертикального шва. 13. Самонарезающий винт для плит. 14. Самонарезающий оцинкованный винт для каркаса.

Рис. 3.7. Горизонтальный разрез системы по внутреннему углу.

1. Существующая стена. 2. Кронштейн. 3. Анкерный дюбель. 4. Lбразный горизонтальный профиль. 5. П-образный вертикальный профиль. 6. Тарельчатый дюбель для крепления утеплителя. 7. Паронитовая прокладка. 8. Минераловатный утеплитель. 9. Плиты облицовочные. 10. Лента EPDM. 11. Воздушная прослойка. 12. Планка горизонтального шва. 13. Самонарезающий винт для плит. 14. Самонарезающий оцинкованный винт для каркаса.

*) - L см. п. 3.5.2

Рис. 3.8. Вертикальный разрез системы по горизонтальному шву.

1. Существующая стена. 2. Кронштейн. 3. Анкерный дюбель. 4. Lбразный горизонтальный профиль. 5. П-образный вертикальный профиль. 6. Тарельчатый дюбель для крепления утеплителя. 7. Паронитовая прокладка. 8. Минераловатный утеплитель. 9. Плиты облицовочные. 10. Лента EPDM. 11. Воздушная прослойка. 12. Планка вертикального шва. 13. Самонарезающий винт для плит. 14. Самонарезающий оцинкованный винт для каркаса.

Рис. 3.9. Горизонтальный разрез системы по вертикальному шву.

1. Существующая стена. 2. Кронштейн. 3. Анкерный дюбель. 4. Lбразный горизонтальный профиль. 5. П-образный вертикальный профиль. 6. Тарельчатый дюбель для крепления утеплителя. 7. Паронитовая прокладка. 8. Минераловатный утеплитель. 9. Плиты облицовочные. 10. Лента EPDM. 11. Воздушная прослойка. 12. Оцинкованная сталь δ = 0,7 мм. 13. Самонарезающий винт для плит. 14. Самонарезающий оцинкованный винт для каркаса.

*) - L см. п. 3.5.2

Рис. 3.10. Вертикальный разрез примыкания системы к парапету.

1. Существующая стена. 2. Кронштейн. 3. Анкерный дюбель. 4. Lбразный горизонтальный профиль. 5. Пбразный вертикальный профиль. 6. Тарельчатый дюбель для крепления утеплителя. 7. Паронитовая прокладка. 8. Минераловатный утеплитель. 9. Плиты облицовочные. 10. Лента EPDM. 11. Воздушная прослойка. 12. Водоизоляционная паропроницаемая лента. 13. Самонарезающий винт для плит. 14. Самонарезающий оцинкованный винт для каркаса. 15. Цокольная планка. 16. Утепленный цоколь.

*) - L см. п. 3.5.2

Рис. 3.11. Вертикальный разрез примыкания системы у цоколя.

*) - L см. п. 3.5.2

1. Существующая стена. 2. Кронштейн. 3. Анкерный дюбель. 4. Lбразный горизонтальный профиль. 5. Пбразный вертикальный профиль. 6. Тарельчатый дюбель для крепления утеплителя. 7. Паронитовая прокладка. 8. Минераловатный утеплитель. 9. Плиты облицовочные. 10. Лента EPDM. 11. Воздушная прослойка. 12. Планка горизонтального шва. 13. Самонарезающий винт для плит. 14. Самонарезающий оцинкованный винт для каркаса. 15. Плита балкона (козырька). 16. Оцинкованная сталь δ = 0,7 мм. 17. Термовкладыш. 18. Гидроизоляция.

Рис. 3.12. Вертикальный разрез примыкания системы к балкону (козырьку).

1. Существующая стена. 2. Кронштейн. 3. Анкерный дюбель. 4. Lбразный горизонтальный профиль. 5. Пбразный вертикальный профиль. 6. Zбразный вертикальный профиль. 7. Тарельчатый дюбель для крепления утеплителя. 8. Паронитовая прокладка. 9. Минераловатный утеплитель. 10. Плиты облицовочные. 11. Лента EPDM. 12. Воздушная прослойка. 13. Оцинкованная сталь δ = 0,7 мм. 14. Самонарезающий винт для плит. 15. Самонарезающий оцинкованный винт для каркаса. 16. Пенный утеплитель. 17. Изоляционная саморасширяющаяся паропроницаемая лента. 18. Пароизоляционная лента.

*) - L см. п. 3.5.2

Рис. 3.13. Вертикальный разрез примыкания системы к верхней части оконного проема.

1. Существующая стена. 2. Кронштейн. 3. Анкерный дюбель. 4. Lбразный горизонтальный профиль. 5. П-образный вертикальный профиль. 6. Zбразный вертикальный профиль. 7. Тарельчатый дюбель для крепления утеплителя. 8. Паронитовая прокладка. 9. Минераловатный утеплитель. 10. Плиты облицовочные. 11. Лента EPDM. 12. Воздушная прослойка. 13. Оцинкованная сталь δ = 0,7 мм. 14. Самонарезающий винт для плит. 15. Самонарезающий оцинкованный винт для каркаса. 16. Пенный утеплитель. 17. Водоизоляционная паропроницаемая лента. 18. Пароизоляционная лента.

*) - L см. п. 3.5.2

Рис. 3.14. Вертикальный разрез примыкания системы к верхней части оконного проема (вариант).

1. Существующая стена. 2. Кронштейн. 3. Анкерный дюбель. 4. L-образный горизонтальный профиль. 5. Пбразный вертикальный профиль. 6. Тарельчатый дюбель для крепления утеплителя. 7. Паронитовая прокладка. 8. Минераловатный утеплитель. 9. Плиты облицовочные. 10. Лента EPDM. 11. Воздушная прослойка. 12. Оцинкованная сталь δ = 0,7 мм. 13. Самонарезающий винт для плит. 14. Самонарезающий оцинкованный винт для каркаса. 15. Пенный утеплитель. 16. Водоизоляционная паропроницаемая лента. 17. Пароизоляционная лента.

*) - L см. п. 3.5.2

Рис. 3.15. Вертикальный разрез примыкания системы к нижней части оконного проема.

1. Существующая стена. 2. Кронштейн. 3. Анкерный дюбель. 4. Lбразный горизонтальный профиль. 5. Пбразный вертикальный профиль. 6. Тарельчатый дюбель для крепления утеплителя. 7. Паронитовая прокладка. 8. Минераловатный утеплитель. 9. Плиты облицовочные. 10. Лента EPDM. 11. Воздушная прослойка. 12. Оцинкованная сталь δ = 0,7 мм. 13. Самонарезающий винт для плит. 14. Самонарезающий оцинкованный винт для каркаса. 15. Пенный утеплитель. 16. Водоизоляционная паропроницаемая лента. 17. Пароизоляционная лента.

*) - L см. п. 3.5.2

Рис. 3.16. Вертикальный разрез примыкания системы к нижней части оконного проема (вариант).

1. Существующая стена. 2. Кронштейн. 3. Анкерный дюбель. 4. Lбразный горизонтальный профиль. 5. Zбразный вертикальный профиль. 6. Тарельчатый дюбель для крепления утеплителя. 7. Паронитовая прокладка. 8. Минераловатный утеплитель. 9. Плиты облицовочные. 10. Лента EPDM. 11. Воздушная прослойка. 12. Оцинкованная сталь δ = 0,7 мм. 13. Самонарезающий винт для плит. 14. Самонарезающий оцинкованный винт для каркаса. 15. Пенный утеплитель. 16. Изоляционная саморасширяющаяся паропроницаемая лента. 17. Пароизоляционная лента.

Рис. 3.17. Горизонтальный разрез системы по оконному откосу.

1. Существующая стена. 2. Кронштейн. 3. Анкерный дюбель. 4. Lбразный горизонтальный профиль. 5. Zбразный вертикальный профиль. 6. Тарельчатый дюбель для крепления утеплителя. 7. Паронитовая прокладка. 8. Минераловатный утеплитель. 9. Плиты облицовочные. 10. Лента EPDM. 11. Воздушная прослойка. 12. Оцинкованная сталь δ = 0,7 мм. 13. Самонарезающий винт для плит. 14. Самонарезающий оцинкованный винт для каркаса. 15. Пенный утеплитель. 16. Водоизоляционная паропроницаемая лента. 17. Пароизоляционная лента.

Рис. 3.18. Горизонтальный разрез системы по оконному откосу (вариант).

1. Существующая стена. 2. Кронштейн. 3. Анкерный дюбель. 4. Lбразный горизонтальный профиль. 5. Пбразный вертикальный профиль. 6. Тарельчатый дюбель для крепления утеплителя. 7. Паронитовая прокладка. 8. Минераловатный утеплитель. 9. Плиты облицовочные. 10. Лента EPDM. 11. Воздушная прослойка. 12. Парный кронштейн с овальным отверстием. 13. Самонарезающий винт для плит. 14. Самонарезающий оцинкованный винт для каркаса. 15. Планка вертикального шва.

Рис. 3.19. Горизонтальный разрез системы по вертикальному шву над окном.

1. Существующая стена. 2. Кронштейн. 3. Анкерный дюбель. 4. Lбразный горизонтальный профиль. 5. П-образный вертикальный профиль. 6. Z-образный вертикальный профиль. 7. Тарельчатый дюбель для крепления утеплителя. 8. Паронитовая прокладка. 9. Минераловатный утеплитель. 10. Плиты облицовочные. 11. Лента EPDM. 12. Воздушная прослойка. 13. Планка вертикального шва. 14. Самонарезающий винт для плит. 15. Самонарезающий оцинкованный винт для каркаса.

Рис. 3.20. Горизонтальный разрез системы по вертикальному стыку панелей (вариант).

4. Исходные данные для проектирования системы

4.1. Проектнометная документация на систему для конкретного объекта разрабатывается на основе задания на проектирование, подготовленного в соответствии с существующим в г. Москве порядком и утвержденного заказчиком. Задание на проектирование обязательно должно содержать требование о соответствии системы СНиП II-3-79* (изд. 98 г.), СНиП 23-02-2003 и МГСН 2.01-99.

4.2. Задание на проектирование должно включать следующие исходные данные:

- архитектурные чертежи фасадов здания, включающие данные о фактуре и цвете облицовочных материалов, чертежи архитектурных деталей (карнизов, обрамления проемов и т.п.) и другие необходимые данные, если это не входит в состав работ по данному заданию;

- строительные чертежи наружных стен от фундаментов до парапетов, включая узлы, поясняющие решение и размеры всех конструкций;

- данные от разработчиков фундаментов о величине допустимой дополнительной нагрузки на стены здания или заключение компетентной организации о несущей способности фундаментов здания;

- план участка, где расположено здание.

Для реконструируемых зданий задание на проектирование дополнительно должно содержать акт обследования наружных стен здания, где указывается состояние поверхности фасадов, результаты испытаний на усилия, с которым принятые дюбели можно вырвать из стены и геодезическую съемку поверхностей фасадов с данными о величине отклонений их отдельных участков от вертикальной плоскости.

4.3. В составе задания на проектирование должно быть Приложение к Техническому свидетельству Госстроя России на эту фасадную систему.

5. Определение основных параметров системы

5.1. К основным параметрам системы следует отнести:

- тип и размер облицовочных материалов и способ их крепления к несущему каркасу;

- характеристику принятых плит утеплителя: марку, размеры, плотность, теплопроводность, наличие или отсутствие защитного слоя;

- величину воздушного зазора;

- схему размещения на фасаде здания кронштейнов, горизонтальных и вертикальных профилей со всеми необходимыми размерами, в том числе, расстояние от основания до экрана;

- марку дюбелей для крепления кронштейнов несущего каркаса к основанию;

- марку дюбелей для крепления плит утеплителя к основанию.

5.2. Тип и размер облицовочных плит, их цвет и фактуру поверхности определяет главный архитектор проекта, если эти данные не приведены в задании на проектирование системы.

5.3. Выбор плит утеплителя выполняется на основании теплотехнических расчетов, методика которых приводится ниже. Там же (в разделе «Теплотехнические расчеты») приводится методика определения величины воздушного зазора

В случае применения плит утеплителя с кашированной поверхностью можно обойтись без гидроветрозащитной мембраны.

5.4. Схема размещения на фасаде здания элементов несущего каркаса разрабатывается, исходя из следующих данных:

- размеров по ширине облицовочных плит, вертикальный шов между которыми должен располагаться в центре вертикального профиля;

- геометрии фасада здания, размещении на фасаде проемов, балконов, карнизов и других отступающих (выступающих) от плоскости фасада элементов для минимизации применения облицовочных плит с нестандартными размерами;

- результатов прочностных расчетов системы, благодаря которым, в том числе, уточняется шаг по горизонтали и по вертикали установки кронштейнов;

- расстояния от основания до экрана, принятого на основании теплотехнических расчетов, при этом следует учитывать величину фактических отклонений фасада от проектного положения.

5.5. Марку дюбелей для крепления кронштейнов и утеплителя выбирают с учетом результатов прочностных расчетов системы, материала основания, паспортных данных рассматриваемых дюбелей и результатов испытаний принятых дюбелей на выдергивание.

6. Прочностные расчеты

6.1. Методические предпосылки

Прочностные расчеты включают проверку прочности и деформаций металлических профилей, анкерных болтов и стержней, несущих нагрузки от их собственной массы, массы облицовочных плит, утеплителя и от давления ветра, стыковых соединений профилей между собой, их креплений к основным несущим конструкциям здания.

Нагрузки от собственной массы облицовочных плит и утеплителя принимаются по техническим условиям или паспортным данным предприятий-изготовителей. Временные нагрузки от ветра принимаются по [4], в данном случае для I ветрового района. Кроме того, учитываются дополнительные коэффициенты к ветровым нагрузкам в соответствии с письмом ЦНИИСКа № 1-945 от 14.11.2001 г. Нагрузку от собственной массы профилей в случаях, когда она относительно мала, возможно не учитывать.

Усилия: изгибающие моменты, поперечные и продольные силы, прогибы определяются с использованием основных положений сопротивления материалов и строительной механики. Коэффициенты надежности по нагрузкам γf, а также единый коэффициент надежности по ответственности γп = 0,95 принимаются по [4].

Физико-механические характеристики материалов профилей, их соединений и крепежных элементов следует принимать по [6].

При проверке прочности и деформаций элементов и стыковых соединений формулы [6] трансформируются по форме к условиям примеров.

Подробно методика расчета проиллюстрирована в приводимом ниже примере (п. 6.4). В примере исходные параметры даны для конкретных материалов и конструкций (п. 6.2). В то же время приведенная методика, где все расчетные формулы даются как в буквенном, так и в числовом выражениях со ссылками на нормативные источники, может быть использована и для других вариантов и сочетаний материалов и конструктивных решений.

Приняты обозначения: Mв - изгибающий момент от вертикальной нагрузки; Mг - то же от горизонтальной, Kспр - табличные коэффициенты по [24].

6.2. Характеристики материалов

Расчетные сопротивления несущих профилей, изготовленных из оцинкованной стали, по данным производителя (МПа): профилей: на растяжение, сжатие и изгиб Ry = 215, на сдвиг Rs = 125; на смятие Rlp = 155; модуль упругости E = 2,06 · 105. Коэффициент условий работы γс = 1.

Расчетные сопротивления стальных болтов и самонарезающих винтов по [6] (МПа): на растяжение Rвt = 170; на срез Rвs = 150. Коэффициент условий работы на срез и смятие γв = 0,8.

Тип, конструкция и допускаемое усилие на 1 болт с дюбелем подбираются по каталогам фирм с учетом материала и состояния стены.

Расчетное сопротивление фиброцементных листов на изгиб Rtв = 12 МПа; модуль упругости E = 13 · 103 МПа.

Утеплитель - минераловатные плиты «Венти-Баттс» плотностью γ = 110 кг3, толщиной δ = 160 мм. Прочность на сжатие при 10 % деформации 0,02 МПа.

6.3. Расчетные схемы

Направления координатных осей приняты:

ось x - горизонтальная в плоскости стены;

ось y - горизонтальная по нормали к стене;

ось z - вертикальная в плоскости стены.

Расчетная схема облицовки - трехпролетная неразрезная плита, шарнирно опертая на опорах (рис. 6.1).

Расчетная схема вертикальных направляющих профилей - трехпролетная неразрезная балка, шарнирно закрепленная на опорах (рис. 6.2).

Пролеты в направлении оси «z» соответствуют шагам кронштейнов.

К вертикальным профилям прикладывается вертикальная нагрузка от веса облицовочных плит и горизонтальная ветровая нагрузка.

Расчетная схема горизонтальной направляющей - трехпролетная балка, неразрезная на средних опорах и шарнирно закрепленная на крайних опорах (рис. 6.3). На горизонтальную направляющую передаются нагрузки от вертикальных профилей.

Расчетная схема кронштейнов - консоль с вылетом ey (рис. 6.4), диктуемым толщиной слоя утеплителя. На кронштейны через горизонтальные профили передаются вертикальные и ветровые нагрузки.

Рис. 6.1. Расчетная схема фиброцементной облицовки на действие горизонтальной ветровой нагрузки.

Рис. 6.2. Расчетные схемы вертикальной направляющей.

а - на вертикальные нагрузки; б - на горизонтальные нагрузки.

Рис. 6.3. Расчетная схема горизонтальной направляющей.

а - на вертикальную нагрузку; б - на горизонтальную нагрузку.

Рис. 6.4. Расчетная схема кронштейна.

а - схема приложения усилий; б, в, г - эпюры M, N и Q.

Соединения кронштейна с горизонтальной направляющей и со стеной приняты рамного типа, т.е. способные воспринимать изгибающие моменты. Расчетная схема крепления кронштейнов к стене принята с учетом возможности восприятия как горизонтальных сил, так и изгибающего момента от вертикальной нагрузки (см. рис. 6.4).

Расчетная схема распорных стержней для крепления утеплителя - консоль с вылетом ly = δут.

Соединения между профилями и со стеной, рассчитываются на действие усилий среза, растяжения, изгиба и вырыва от совместного действия вертикальной и ветровой нагрузок.

6.4. Пример расчета

6.4.1. Исходные данные

В данном примере принят вариант с облицовочными плитами из фиброцементного листа плотностью γ = 1750 кг/м3, толщиной δ = 8 мм. Толщина стенок вертикальных и горизонтальных направляющих из оцинкованной стали δ = 1,2 мм; кронштейнов - δ = 3 мм.

Шаги вертикальных направляющих профилей и кронштейнов вдоль здания lx = 0,6 м, шаги кронштейнов и горизонтальных профилей по вертикали lz = 0,7 м.

Крепление вертикальных и горизонтальных направляющих между собой и к кронштейнам, облицовочных плит к вертикальным профилям - саморезами Æ 4 мм.

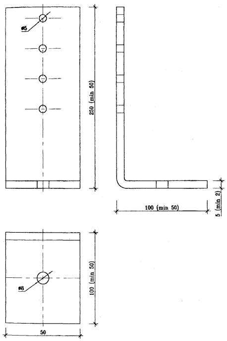
Крепление кронштейна к стене - одним стальным болтом Æ 8 мм с дюбелем.

Утеплитель - минераловатные плиты - по п. 6.2, крепится к стене независимо от облицовки, стальными распорными стержнями Æ 5 мм с шляпками Æ 80 мм.

6.4.2. Нагрузки

Вертикальные нагрузки (Па): от веса облицовочных плит: нормативная qzn = 1750 · 8 · 10-3 · 101 = 140; расчетная qz = γf · qzn = 1,2 · 140 = 168, передаваемая на вертикальный профиль с эксцентриситетом ey = 11 мм; от веса утеплителя - расчетная qут. = γf · γ · δ = 1,3 · 110 · 160 · 10-3 · 101 = 229 Па. Собственным весом профилей пренебрегается.

Горизонтальные нагрузки от ветрового давления приняты для высоты Н = 75 м; нормативное значение ветрового давления для I ветрового района wo = 230 Па; коэффициент «K» для зданий высотой 75 м, тип местности «В», по табл. 6 [4] K = 1,41; аэродинамический коэффициент принимается максимальным - для угловых зон здания С = |-2|; коэффициент γp = 1,3, учитывающий пульсационную составляющую ветровой нагрузки и коэффициент γm = 1,2 увеличения средней величины ветрового давления при расчете узлов крепления - по рекомендации ЦНИИСК, как дополнение к [4].

Нормативная ветровая нагрузка qyn = wn = 230 · 1,41 · |-2| · 1,3 = 843 Па, расчетные нагрузки при коэффициенте надежности по нагрузке γf = 1,4 · |2|: для элементов qy = 1,4 · 843 = 1180, для узлов креплений qy,2 = 1,2 · 1180 = 1416 Па.

Расчет для средних зон фасада отличается величиной аэродинамического коэффициента С = 0,8 и определением коэффициента γp по формуле (8) [4].

Далее расчет профилей и их креплений производится лишь для участков около углов здания. При этом в средних зонах фасада для некоторых элементов и узлов образуется небольшой запас прочности. Во избежание перерасхода материалов при необходимости в конструкцию могут быть внесены коррективы с соответствующим перерасчетом прочности и жесткости несущих элементов и их креплений.

6.4.3. Расчет фиброцементной облицовки

Геометрические характеристики

Для вертикального сечения условной шириной 1 м: δ = 8 мм; b = 1000 мм; A = 8000 мм2; Wz = 1000 · 82/6 = 10667 мм3; J = 1000 · 83/12 = 42667 мм4; Sz = 1000 · 82/8 = 8000 мм3; t = 1000 мм.

Определение усилий

Вертикальные усилия от собственного веса фиброцементных плит на 1 м2 (Па), нормативное Nzn = γ · δ = 1750 · 0,008 · 101 = 140; расчетное Nz = γf · Nzn = 1,2 · 140 = 168.

Горизонтальные усилия от ветровой нагрузки по п. 6.4.2 (Па): qyn = 843; qy = 1180.

Изгибом плит в своей плоскости можно пренебречь, поэтому определение изгибающих моментов и поперечных сил от вертикальной нагрузки не требуется. Изгибающие моменты от горизонтальной нагрузки в вертикальной полосе условной шириной bz = 1 м:

нормативной Mгn = Kспр. · bz · qzn · lx2 = 0,125 · 1 · 843 · 0,62 = 37,9 Нм;

расчетной Mг = γf · Mгn = 1,4 · 37,9 = 53,1 Нм.

Поперечная сила Qy = qy · bz · lx/2 + Mг/lx = 1180 · 1 · 0,6/2 + 53,1/0,6 = 442,5 Н.

Проверка прочности на изгиб

По известной формуле Mг · γf/Wz = 53,1 · 103 · 0,95/10667 = 4,7 МПа < Rtв = 12 МПа; прочность облицовочных листов на изгиб обеспечивается

Проверка жесткости

По известной формуле [24]

f/lx = 0,97/600 = 1/619 < [f/l] = 1/200, жесткость облицовки достаточна.

6.4.4. Расчет вертикального направляющего профиля

Геометрические характеристики

Для поперечного сечения: A = 216 мм2; An = 204 мм2; Jx = 14661 мм4; Wx = 1086 мм3; Sx = 754 мм3; t = 2δ = 2 · 1,2 = 2,4 мм.

Усилия

Нагрузки на 1 м профиля (Н/м).

- вертикальные от плит: нормативная pzn = qzn · lx = 140 · 0,6 = 84; расчетная pz = qz · lx = 168 · 0,6 = 101; эксцентриситет eyc = 11 мм;

- горизонтальные от ветра: нормативная pyn = qyn · lx = 843 · 0,6 = 506; расчетная py = qy · lx = 1180 · 0,6 = 708.

Изгибающие моменты в плоскости, перпендикулярной стене (Нм):

- от вертикальной нагрузки: нормативной Mвn = Kспр. · pzn · lz · ey = 0,5 · 84 · 0,7 · 0,011 = 0,3; расчетной Mв = Kспр. · pz · lz · ey = 0,5 · 101 · 0,7 · 0,011 = 0,4;

- от ветровой нагрузки: нормативной Mгn = Kспр. · pyn · lz2 = 0,1 · 506 · 0,72 = 24,8; расчетной Mг = Kспр. · py · lz2 = 0,1 · 708 · 0,72 = 34,7.

Продольное усилие Nz = pz · lz = 101 · 0,7 = 71 Н.

Поперечная сила Qy = py · lz/2 + Mг/lz = 708 · 0,7/2 + 34,7/0,7 = 297 Н.

Проверка прочности на растяжение с изгибом

По формуле (50) [6] для сечения над средней опорой при наиболее невыгодном сочетании усилий (с максимальной величиной момента Mг)

прочность на растяжение с изгибом обеспечивается.

Проверка на сдвиг

По формуле (29) [6]

прочность на сдвиг обеспечивается.

Проверка прочности крепления к горизонтальной направляющей

Крепление производится двумя стальными самонарезающими винтами (ns = 2) диаметром d = 4 мм, do = 3 мм, с расчетной площадью сечения одного самореза An = 7 мм2, с расчетными сопротивлениями по п. 6.2.

Усилия, действующие на соединение.

Nz,2 = γm · Nz = 1,2 · 71 = 85 Н;

Ny,2 = γm · py · lz = 1,2 · 708 · 0,7 = 595 Н.

По формулам (127) - (129) [6]:

на срез Nz,2 · γn = 85 · 0,95 = 81 Н < Rbs · γb · An · ns = 150 · 0,8 · 7 · 2 = 1680 Н;

на растяжение Ny,2 · γn = 595 · 0,95 = 565 Н < Rbt · An · ns = 170 · 7 · 2 = 2380 Н;

на смятие профиля под саморезом Nz,2 · γn = 81 Н < Rbp · γb · do · δ · ns = 155 · 0,8 · 3 · 1,2 · 2 = 893 Н; прочность соединения на срез, растяжение и смятие обеспечивается.

Проверка жесткости

Проверяется прогиб в направлении оси «у», т.е. по нормали к стене, от действия нормативной ветровой нагрузки pyn = 506 Н/м, с изгибающим моментом на средней опоре Myn = 24,8 Нм.

По известной формуле [24]

f/l = 0,28/700 = 1/2500, что меньше предельно допустимой величины [f/l] = 1/200, жесткость профиля достаточна.

6.4.5. Расчет горизонтального профиля

Геометрические характеристики

Для поперечного сечения: δ = 1,2 мм; A = 96 мм2; J = 15438 мм4; W = 520 мм3; S = 529 мм3; t = δ = 1,2 мм.

Для полок на длине lx: δ = 1,2 мм; b = 600 мм; A = 720 мм2; An = 714 мм2; Wx = 600 · 1,22/6 = 144 мм3; Jx = 600 · 1,23/12 = 86,4 мм4; Sx = 600 · 1,22/8 = 108 мм3; t = b = 600 мм.

Усилия

Вертикальные и горизонтальные нагрузки от вертикального профиля передаются на горизонтальный профиль в виде сосредоточенных сил (см. рис. 6.3) на расстояниях 60 мм от оси опоры (кронштейна). Эти силы равны:

от вертикальной расчетной нагрузки Pz = 0,5 · pz · lz = 0,5 · 101 · 0,7 = 35,4 Н;

от горизонтальной расчетной нагрузки Py = 0,5 · py · lz = 0,5 · 708 · 0,7 = 248 Н.

Изгибающие моменты в поперечном сечении м):

от вертикальной нагрузки: Mв = Kспр. · pz · lz = 0,033 · 35,4 · 0,6 = 0,7;

от горизонтальной нагрузки: Mг = Kспр. · py · lx = 0,033 · 248 · 0,6 = 4,9.

Поперечные силы (Н): Qz = Pz + Mв/lx = 35,4 + 0,7/0,6 = 36,6 Н;

Qy = Py + Mг/lx = 248 + 4,9/0,6 = 256.

Изгибающий момент в вертикальной стенке (полке) от горизонтальной нагрузки на 1 м профиля: Mг,ст = qy · lx · lz · zст = 1180 · 0,6 · 0,7 · 0,02 = 9,9 Нм.

Продольная сила в горизонтальной полке

Ny = qy · lx · lz = 1180 · 0,6 · 0,7 = 496 Н.

Проверка прочности на изгиб и растяжение

Поперечного сечения по формуле (38) [6] на изгиб в двух плоскостях XOZ и YOZ:

прочность профиля на изгиб обеспечивается.

Вертикальной полки (стенки) по формуле (28) [6] на изгиб в плоскости YOZ:

Mг,ст · γn/Wx = 9,9 · 103 · 0,95/144 = 65,3 МПа < Ry · γc = 215 МПа; прочность стенки на изгиб обеспечивается.

Горизонтальной полки по формуле (5) [6] на растяжение в направлении оси «Y»:

Ny · γn/An = 496 · 0,95/714 = 0,66 МПа < Ry · γc = 215 МПа; прочность полки на растяжение обеспечивается.

Проверка прочности на сдвиг

Поперечного сечения в двух плоскостях:

по формуле (29) [6]

 результирующее

прочность профиля на сдвиг в двух плоскостях обеспечивается.

Вертикальной полки (стенки) по формуле (29) [6]:

прочность стенки на сдвиг обеспечивается.

В горизонтальной полке поперечная сила значительно меньше, поэтому ее прочность на сдвиг также обеспечивается, расчет не повторяется.

Проверка прочности крепления к кронштейну

Крепление производится двумя стальными самонарезающими винтами (ns = 2) диаметром d = 4 мм, do = 3 мм, с расчетной площадью сечения одного самореза An = 7 мм2, с расчетными сопротивлениями по п. 6.2.

На соединение действует только горизонтальное усилие от ветровой нагрузки:

Ny,2 = γm · Ny = 1,2 · 496 = 595 Н.

По формулам (127) - (129) [6]:

на срез Ny,2 · γn = 595 · 0,95 = 565 Н < Rbs · γb · An · ns = 150 · 0,8 · 7 · 2 = 1680 Н;

на смятие профиля под саморезами Ny,2 · γn = 565 Н < Rlp · γb · do · δs · ns = 155 · 0,8 · 3 · 1,2 · 2 = 893 Н; прочность соединения на срез и смятие обеспечивается.

6.4.6. Расчет кронштейна

Геометрические характеристики

Параметры поперечных сечений:

сплошного сечения: δ = 4 мм; b = 50 мм;

ослабленных отверстиями:

полки bn = 50 - 2 · 5 = 40 мм; An = bn · δ = 40 · 4 = 160 мм2;

стенки bn = 50 - 8 = 42 мм; An = 42 · 4 = 168 мм2; Wxn = 42 · 42/16 = 112 мм3; Jxn = 42 · 43/12 = 224 мм4; Sxn = 42 · 42/8 = 84 мм3; tn = bn = 42 мм.

Усилия

От расчетной вертикальной нагрузки Nz = pz · lz = 101 · 0,7 = 71 Н; то же от горизонтальной Ny = py · lz = 708 · 0,7 = 496 Н.

Изгибающие моменты в ослабленном сечении стенки (Нм):

Mв = Nz · lкр = 71 · 160 · 10-3 = 11,4;

Мг = Kспр. · Ny · ez = 0,5 · 496 · 25 · 10-3 = 6,2.

Проверка прочности на сжатие и растяжение с изгибом

В наиболее невыгодных условиях находится сечение стенки под болтом.

По формуле (50) [6] на сжатие с изгибом

прочность стенки на сжатие с изгибом обеспечивается; сечения полки подвергаются растяжению силой Ny и изгибу от моментов Mв и Mг, но так как моменты вычитаются (см. рис 6.4), то суммарные напряжения в полке значительно уменьшаются; прочность полки на растяжение с изгибом обеспечивается, расчет не повторяется.

Проверка прочности на сдвиг

Наиболее напряжено, как и при изгибе, сечение стенки под болтом; усилие сдвига Qy = Ny = 496 Н.

по формуле (29) [6]

прочность стенки на сдвиг обеспечивается;

сечения полки при Qz = Nz = 71 Н значительно менее напряжены, и их прочность при сдвиге также обеспечивается.

6.4.7. Расчет крепления кронштейнов к стене

Конструкция крепления

Крепление производится одним стальным болтом Æ 8 мм с расчетным диаметром do = 6,7 мм и расчетной площадью сечения: на растяжение An = 35,2 мм2; на сдвиг и смятие A = 50,3 мм2.

Усилия (с коэффициентом γm)

Продольная сила Ny,1 = γm · Ny = 1,2 · 496 = 595 Н;

поперечная сила Qz,1 = γm · Qz = 1,2 · 71 = 85 Н;

изгибающий момент M = γm(Mв + Mг) = 1,2(11,4 + 6,2) = 21,1 Нм;

плечо z = hк/3 = 50/3 = 17 мм.

Проверка прочности болтового соединения

Усилие растяжения в болте: от продольной силы N1 = Ny,1 = 595 Н; от момента N2 = M/z = 21,1 · 103/17 = 1241 Н; суммарное Ny = N1 + N2 = 595 + 1241 = 1836 Н. Усилие на срез и на смятие, приходящееся на болт, Qz,1 = 85 Н.

По формуле (129) [6] на растяжение N · γn = 1836 · 0,95 = 1744 Н < Rbt · An = 170 · 35,2 = 5984 Н; по формуле (127) [6] на срез Qz,1 · γn = 85 · 0,95 = 81 Н < Rвs · γв · A · ns = 150 · 0,8 · 35,2 · 1 = 4224 Н; прочность болта на растяжение и срез обеспечивается

По формуле [6] на смятие стенки кронштейна под болтом Qz,1 · γn = 81 Н < Rгр · d · δ · t = 155 · 8 · 4 · 1 = 4960 Н; прочность кронштейна на смятие под болтом обеспечивается.

Крепление болтов к стене

Вырывающее усилие равно Ny,1 = 1836 Н. Под это усилие следует подбирать конструкцию дюбелей и болтов и условия их заделки в стену по каталогам фирм-изготовителей, в частности, швейцарской фирмы «MUNGO».

6.4.8. Расчет крепления утеплителя

На 1 м2 стены принимается 4 распорных стержня: на 1 стержень с расчетной площадью сечения A = 19,6 мм2 приходится Aут,1 = 0,25 м2.

При диаметре шляпки dш = 80 мм утеплитель может воспринять усилие сжатия не более [N] = Rут · Аш = 0,02 · π · 802/4 = 100,5 Н.

Контроль за ограничением этого усилия осуществляется по величине деформации обжатия утеплителя под шляпкой, которая при δут = 160 мм не должна превышать Δ = 0,1 · 160 = 16 мм.

Поперечная сила, приходящаяся на 1 стержень от веса утеплителя Qг = γm · qут · Aут = 1,2 · 229 · 0,25 = 68,7 Н.

По формуле (127) [6] на срез Qz · γn = 68,7 · 0,95 = 65,3 Н < 150 · 0,8 · 19,6 = 2352 Н;

прочность стержней на срез обеспечивается.

7. Теплотехнические расчеты

7.1. Введение

В настоящем разделе анализируются принципы теплотехнического проектирования систем наружных стен с вентилируемыми воздушными прослойками между экраном и теплоизоляционным слоем, приводятся рекомендации по различным техническим параметрам. Принципы теплотехнического проектирования включают методы теплотехнических расчетов, расчеты воздухообмена и влагообмена в воздушных прослойках.

Методика теплотехнических расчетов базируется на требованиях поэлементного подхода СНиП II-3-79* (изд. 98 г.) [7], СНиП 23-02-2003 [8] и МГСН 2.01-99 [13]. Этот подход (п. 5.1а, б [7]) заключается в обеспечении соответствия приведенного сопротивления теплопередаче Ror наружных ограждений (средневзвешенное Ror на этаж) требуемому (Roreq) значению приведенного сопротивления теплопередаче (табл. 1б СНиП II-3-79* (изд. 98 г.), табл. 4 СНиП 23-02-2003).

Методика расчета воздухо и влагообмена в наружных стенах основывается на требовании СНиП II-3-79* (изд. 98 г.) и СНиП 23-02-2003 по недопустимости накопления влаги в стенах за годовой период эксплуатации, а также накопления влаги в воздушных зазорах (прослойках) между экранами и утеплителем.

7.2. Основные, используемые в тексте, понятия

Воздушная прослойка между утеплителем и экраном, вентилируемая наружным воздухом; швы, зазоры - приточные (воздухозаборные) и вытяжные (воздуховыводящие) отверстия. Путями прохождения наружного воздуха могут являться в основном горизонтальные стыковые швы элементов экрана, поскольку вертикальные, как правило, закрыты.

Условное сопротивление паропроницанию - приведенное, учитывающее сопротивление паропроницанию материалов экрана с учетом швов между облицовочными панелями.

7.3. Основные положения по проектированию фасадных систем наружных стен с вентилируемой воздушной прослойкой

При проектировании зданий с вентилируемыми фасадами следует учитывать уже принятые параметры системы:

- минимальный размер швов для притока воздуха рекомендуется 6 мм (при размерах плит экрана 600´600 мм) для Москвы. При больших размерах плит 1190´2780 мм размер швов принят 8 мм, что проверяется расчетом.

- для рассматриваемого варианта расчетом проверяется толщина прослойки 20 - 40 мм*).

- площадь отверстий щели**) для вытяжки воздуха не должна быть менее сечения отверстий щели для притока

*) - минимально допустимая толщина прослойки 20 мм (см. расчет разд. 7.7.4)

**) - то же, что швы-зазоры.

7.4. Правила теплотехнического проектирования наружных ограждений с вентилируемым фасадом

Теплотехническое проектирование наружных стен, где применяются фасадные системы с вентилируемым воздушным зазором, выполняется в два этапа. Причем второй этап применяется, если после первого этапа расчетов не выявится надежность рассматриваемой конструкции в теплотехническом отношении.

Первый этап

Назначается конструктивное решение стены, в т.ч. размеры экранов, приточных и вытяжных щелей с учетом раздела 7.3.

Выполняется теплотехнический расчет наружной стены с экраном, при котором определяется необходимая толщина теплоизоляции.

Выполняется расчет влажностного режима стены по методике СНиП II-3-79* (изд. 98 г.) [7], СНиП 23-02-2003 [8] с учетом коэффициента паропроницаемости по глади экрана.

Если по результатам расчетов влажностный режим стены удовлетворяет требованиям норм строительной теплотехники [7], то на этом теплотехническое проектирование заканчивается.

Если по результатам расчетов влажностный режим экранированных стен не удовлетворяет требованиям, то подбирается такой размер швов и экрана, чтобы с ними конструкция стены удовлетворяла действующим нормативным требованиям [7].

Если расчет влажностного режима наружного ограждения с вентилируемым фасадом показал невыполнение требований СНиП II-3-79* (изд. 98 г.) [7], СНиП 23-02-2003 [8], а другой материал стены и экрана подобрать нельзя, то переходят ко второму этапу теплотехнического проектирования.

1) Определяется условное сопротивление паропроницанию экрана с учетом швов по методике раздела 7.6.6.

2) С учетом этого показателя проводят расчет влажностного режима по методике СНиП II-3-79* (изд. 98 г.), СНиП 23-02-2003.

3) При необходимости рассчитывается влажностный режим рассматриваемой конструкции в годовом цикле с учетом средних месячных температур.

4) С учетом результатов расчета по пп. 2, 3 анализируются результаты, при необходимости корректируются материалы и их толщины в конструкции с целью исключения влагонакопления в годовом цикле. Если проведенных упомянутых расчетов для определения применимости конструкции не достаточно, то расчет продолжается в следующей последовательности.

4.1) С учетом этажности здания и района строительства определяется скорость движения воздуха в прослойке за экраном и расход воздуха.

4.2) Определяется температура на выходе из воздушной прослойки.

4.3) Определяется действительная упругость водяного пара на выходе из прослойки ey по формуле (16) и проверяется условие ey < Eн, где Eн - максимальная упругость водяного пара на выходе из прослойки.

7.5. Краткая характеристика объекта и нормативные требования

Для расчета принято многоэтажное жилое здание, расположенное в г. Москве.

Рассматриваются наружные стены двух вариантов: с внутренним слоем из монолитного железобетона γо = 2500 кг/м3, толщиной 0,18 мБ = 2,04 Вт/м·°С) и кирпича, толщиной 0,51 м (λБ = 0,64 Вт/м·°С)

С внешней стороны к несущему слою крепится утеплитель - плиты базальтовой минваты с λ = 0,045 Вт/м·°С [23], толщиной определяемой расчетом. Плиты утеплителя укрыты влаговетрозащитной паропроницаемой пленкой типа «TYVEK» и прикреплены на внутреннем слое с его наружной стороны тарельчатыми дюбелями. С этой же стороны к внутреннему слою крепится несущий каркас, состоящий из кронштейнов, горизонтальных и вертикальных гнутых профилей, выполненных из оцинкованной листовой стали толщиной 1,2 мм. Экран - фасадный облицовочный слой, выполненный из фиброцементных листов размером 1194´2780´8 мм, плотностью 1650 кг/м3 крепится вытяжными заклёпками или саморезами к вертикальным профилям несущего каркаса. Длина кронштейнов и соответственно расстояние от внутреннего слоя стены до облицовочного таково, что между облицовочным слоем и слоем утеплителя для циркуляции воздуха есть воздушный зазор толщиной 40 ± 20 мм. В нижней части экрана (у цоколя) и в верхней части (у карниза) устраиваются соответственно приточное и вытяжное отверстия. Кроме того, обмен воздуха происходит благодаря зазорам в горизонтальных стыках облицовочных листов.

Требования к теплотехническим характеристикам конструкций содержатся в СНиП II-3-79* (изд. 98 г.) [7], СНиП 23-02-2003 [8] и МГСН 2.01-99 [13], а требования к сопротивлению теплопередаче конструкций приведены в [7].

На основе [7 и 13] составлена таблица 1 исходных расчетных данных, где представлены требуемые сопротивления теплопередаче наружных стен жилых зданий.

Таблица 1

Значения нормативных требований к наружным ограждениям жилых зданий

№ пп

Название нормативного документа

Требуемое сопротивление теплопередаче наружных стен

ГСОП

Город

1

2

3

4

5

1.

СНиП 23.01-99 [9], СНиП II-3-79* (изд. 98 г.) [7]

3,13

4943

Москва

Дальнейшие расчеты выполняются в соответствии с разделом 7.1 настоящих рекомендаций.

7.6. Методика теплотехнического расчета наружных стен с вентилируемой воздушной прослойкой

7.6.1. Общие требования

Расчет наружных стен с экраном и вентилируемым воздушным зазором основан на расчете теплотехнических характеристик стен и расчете влажностного режима.

Теплотехнический расчет наружных стен с вентилируемым зазором в соответствии с настоящим разделом включает в себя:

- подбор толщины теплоизоляционного слоя;

- определение условного приведенного сопротивления паропроницанию экранов с учетом швов-зазоров между панелями-экранами;

- определение влажностного режима;

- определение параметров воздухообмена в воздушном зазоре (прослойке);

- определение тепловлажностного режима воздушного зазора (прослойки).

7.6.2. Определение толщины теплоизоляционного слоя

Данная методика предназначена для сравнительного анализа различных фасадных систем с вентилируемым воздушным зазором.

В начале расчета предварительно определяется толщина утеплителя, используемая в дальнейшем для определения приведенного сопротивления теплопередаче, значение которого уточняется при рабочем проектировании

                                        (1)

где:

Roreq (или) Roтрпр - требуемое приведенное сопротивление теплопередаче стен, м2·°Ст;

r - коэффициент теплотехнической однородности по табл. 2, 3, принимаемый в зависимости от материала, толщины и физических характеристик стены.

Значения «r», данные в табл. 2, 3, посчитанные для фрагмента стены размером 3´3 м с оконным проёмом 1,5´1,5 м и являются предварительными.

Таблица 2

Значения r кирпичных утепленных снаружи стен

Толщина, м

Коэффициент r при λ, Вт/м·°С

стены (без дополнительного утепления)

утеплителя

0,04

0,05

0,08

0,38

0,1

0,705

0,726

0,73

0,15

0,693

0,713

0,73

0,2

0,68

0,7

0,715

0,51

0,1

0,694

0,714

0,73

0,15

0,682

0,702

0,72

0,2

0,667

0,687

0,702

0,64

0,1

0,685

0,7

0,715

0,15

0,675

0,69

0,705

0,2

0,665

0,68

0,695

Примечания:

1. Для получения значений «r» с учетом глухих участков приведенные в таблице значения умножаются на n = 1,05. Коэффициент «n» может быть уточнен.

2. Коэффициент «r» посчитан для фрагментов с проемностью 25 %. При проёмности, отличающейся от табл. 2, 3 (см. ниже), на каждые 10 % коэффициент «r» соответственно изменяется на 4 % для кирпичных стен.

Таблица 3

Значения r бетонных утепленных снаружи стен

Толщина, м

Коэффициент r при λ, Вт/м·°С

панели (без дополнительного утепления)

утеплителя

0,04

0,05

0,08

0,3

0,05

0,9

0,92

0,95

0,1

0,84

0,87

0,88

0,15

0,81

0,84

0,85

0,35

0,05

0,87

0,9

0,93

0,1

0,8

0,83

0,86

0,15

0,78

0,81

0,83

0,4

0,05

0,82

0,87

0,9

0,1

0,77

0,8

0,83

0,15

0,75

0,78

0,8

0,2

0,74

0,765

0,785

Примечание: Проемность 25 % с учетом коэффициента n = 1,05 (см. формулу (3) ниже). При проёмности, отличающейся от данных табл. 3, на каждые 10 % коэффициент «r» соответственно изменяется на 2 %.

Средневзвешенное значение приведенного сопротивления теплопередаче слоистых наружных стен определяется (на секцию) по формуле:

                                                         (2)

где:

 - сумма площадей фрагментов наружных стен (k - количество фрагментов стен), м2;

Fi, Roir - соответственно площадь и приведенное сопротивление теплопередаче i-го фрагмента стен, м2·°Ст;

Если Rorcp > Roreq*) по СНиП II-3-79* (изд. 98 г.) [7], СНиП 23-02-2003 [8], конструкция стены удовлетворяет требованиям теплотехнических норм. Если Rorcp < Roreq пр, то следует либо увеличить толщину утепляющего слоя, либо рассмотреть возможность включения в проект энергосберегающих мероприятий.

*) Rorcp, то же, что Ronpcp и Ror, то же, что Roпр

Для расчета средневзвешенного значения многослойных наружных стен при наличии в стенах глухих (без проемов) участков может быть также использована формула:

Rorcp = Ror · n                                                           (3)

где:

n = 1,05 - коэффициент, учитывающий наличие глухих участков в наружных стенах. При выполнении проектов этот коэффициент «n» в каждом случае имеет свое значение, соответствующее особенностям данных конструктивных и объемно-планировочных решений.

7.6.3. Определение влажностного режима наружных стен

Влажностный режим наружных стен может определяться двумя методами. По СНиП 23-02-2003, СНиП II-3-79* (изд. 98 г.)**) и исходя из баланса влаги в годовом цикле.

**) коэффициент паропроницаемости «μ» пленки «TYVEK» принят равным «μ» утеплителя.

Определение влажностного режима наружных стен по балансу влаги производится в следующей последовательности:

1. Определяются исходные данные для расчета;

2. Определяются сопротивления паропроницанию слоев конструкции наружной стены, параметры внутреннего и наружного воздуха;

3. Определяется приток и отток влаги (пара) к рассматриваемому сечению по формулам.

 и                                  (4)

где:

ев, ен - упругость водяного пара внутреннего и наружного воздуха;

еτ, е'τ - то же, в рассматриваемом сечении;

                                      (5)

Rо пн.сл - сопротивление паропроницанию от внутренней поверхности стены до границы зоны возможной конденсации, определяемое по своду Правил, см. также формулу (39) СНиП II-3-79* (изд. 98 г.);

ΣRп.сл - сумма сопротивлений паропроницанию слоев до рассматриваемого сечения;

Rо п - сопротивления паропроницанию всей стены.

По указанным формулам определяется упругость водяного пара ei в характерных сечениях конструкции в годовом цикле.

Если eτ окажется больше максимальной упругости водяного пара E, то в данном сечении может образовываться конденсат.

7.6.4. Определение параметров воздухообмена в прослойке

Движение воздуха в прослойке осуществляется за счет гравитационного (теплового) и ветрового напора. В случае расположения приточных и вытяжных отверстий на разных стенах скорость движения воздуха в прослойках Vпр может определяться по следующим формулам:

                                  (6)

где: кн, кз - аэродинамические коэффициенты по СНиП 2.01.07-85 [4];

Vн - скорость движения наружного воздуха;

к - коэффициент учета изменения скорости потока по высоте по СНиП 2.01.07-85;

Н - разности высот от входа воздуха в прослойку до ее выхода из нее;

tср, tн - средняя температура воздуха в прослойке и температура наружного воздуха;

Σξ - сумма коэффициентов местных сопротивлений (определяется сложением аэродинамических сопротивлений).

Другим вариантом определения Vпр служит формула:

                                    (7)

γн, γпр - плотности (кг/м3) наружного воздуха и в прослойке.

При расположении воздушной прослойки на одной стороне стены здания, можно принять кн = кз. В этом случае, если пренебречь изменением скорости ветра по высоте формула (6) примет вид:

                                                 (8)

Формула (7) примет вид:

                                             (9)

γпр - плотность воздуха в прослойке.

Указанные формулы применены в технической системе. При этом γ имеет размерность кг/м3.

Из полученных по указанным формулам скорость движения воздуха корректируется с учетом потерь давления на трение по известным из курса «Вентиляция» методам.

Суммарный расход воздуха в прослойке определяется по формуле:

W = Vпр · 3600 · δпр · γпр,                                           (10)

где: δпр - толщина воздушной прослойки в м шириной 1 м.

7.6.5. Определение параметров тепловлажностного режима прослойки

Температура входящего в прослойку воздуха τо определяется по формуле:

                                           (11)

где: tв, tн - расчетные температуры внутреннего и наружного воздуха;

m - коэффициент.

Остальные обозначения даны в [21].

Допускается определять температуру воздуха, входящего в прослойку по формуле

τo = n · tн,                                                            (12)

где: n = 0,95.

Температура воздуха по длине прослойки определяется по формуле:

           (13)

где: кв и кн - коэффициенты теплопередачи внутреннего и наружного частей стены до середины прослойки;

hy - расстояние между стыковыми горизонтальными швами, служащими для поступления (или вытяжки) воздуха;

C - удельная теплоемкость воздуха.

При определении термического сопротивления прослойки Rпр следует пользоваться формулами:

Rпр = 1/αпр,                                                         (14)

где:

αпр = 5,5 + 5,7Vпр + αл,                                             (15)

где αл - коэффициент лучистого теплообмена;

Св - переводной коэффициент;

W - расход воздуха в прослойке, см. формулу (10).

Действительная упругость водяного пара на выходе из прослойки определяется по формуле:

    (16)

Полученная по данной формуле величина упругости водяного пара на выходе из прослойки ey должна быть меньше максимальной упругости водяного пара Ey.

Если ey > Ey, то необходимо изменить размеры воздушной прослойки.

В формуле (16) Mв и Мн равны соответственно:

                                            (17)

где:

Rвн и Rпн - сумма сопротивлений паропроницанию от внутренней поверхности до воздушной прослойки и от воздушной прослойки до наружной поверхности;

eв и eн - действительная упругость водяного пара с внутренней стороны стены и снаружи;

eо - упругость водяного пара воздуха, входящего в прослойку;

                                                      (18)

n - переводной коэффициент.

7.6.6. Методика определения условного приведенного сопротивления паропроницанию с учетом швов-зазоров между панелями экранами

Для расчета используются либо коэффициенты паропроницаемости материалов - экрана по СП 23-101-2000, СНиП 23-02-2003, СНиП II-3-79* (изд. 98 г.), либо полученные экспериментально.

Расчет приведенного сопротивления паропроницанию экранов с учетом швов-зазоров производится в следующей последовательности:

1) Определяется условное сопротивление паропроницанию в стыковых швах по формуле:

                        (19)

где: В - переводной коэффициент;

ηш = 6,5 и 0,1 [мг/м2 · ч · Па (г/м2 · ч · мм рт.ст.)].

Приводятся два расчета со значением ηш = 6,5 и 0,1. По первому варианту при ηш = 6,5 рассчитывается минимально допустимая величина стыковых швов и приточных щелей, по второму при ηш = 0,1 оптимальная величина стыковых швов и приточных щелей.

Σξш - местные сопротивления проходу воздуха (см. формулу 6);

δэ - толщина экрана, м.

2) Определяется сопротивление паропроницанию плит экрана по его глади по формуле:

                                                          (20)

где: μэ - коэффициент паропроницаемости экрана.

3) Определяется приведенное условное сопротивление паропроницанию экрана с учетом стыковых швов Rппр по формуле:

                                                   (21)

где:

ΣF - суммарная расчетная площадь экрана (как правило принимается 1 м2);

Fгл - площадь экрана без швов, м2;

F' - площадь швов, через которые поступает воздух. Как правило, площадь выходных швов в верхней части экрана не учитывается;

Rп и R'п - см. выше.

7.7. Теплотехнический расчет наружных стен с вентилируемым фасадом

7.7.1. Исходные данные

Для расчета принято многоэтажное жилое здание, расположенное в г. Москве, наружные стены которого облицованы фасадной системой с вентилируемым воздушным зазором «СЕМ-СИСТЕМА».

Наружные стены двух вариантов: с внутренним слоем из монолитного железобетона γo = 2500 кг3, толщиной 0,18 м (λБ = 2,04 Вт/м·°С) и кирпичной кладки, толщиной 0,51 м (λБ = 0,64 Вт/м·°С).

Снаружи внутреннего слоя располагается утеплитель - базальтовая минвата с коэффициентом теплопроводности λ = 0,045 Вт/м·°С [23], воздушная прослойка и фасадная облицовка здания плитами толщиной 8 мм с цветным покрытием.

Плиты облицовки в системе применяются фиброцементные. Площадь зазоров между плитами 0,0054 м2 на 1 м2 фасада, причем у облицовки плиты по вертикали соприкасаются вплотную.

7.7.2. Расчет толщины теплоизоляции

Толщина теплоизоляции из минваты типа «Фасад-Баттс» для кирпичной (рис. 7.1) стены для г. Москвы равна:

*) В запас теплозащиты не приводится термическое сопротивление штукатурки.

где:

3,13 - требуемое сопротивление теплопередаче стен для г. Москвы

0,726 - коэффициент теплотехнической однородности, см. табл. 2 (при проемности 25 %);

0,12 - термическое сопротивление вентилируемой воздушной прослойки.

Rвп = 1/αвп = 1/6,8 = 0,15 м2 · °С · ч/Ккал (0,12 м2 · °Ст),

где: αвп - коэффициент теплообмена по формуле (15);

αвп = 5,5 + 5,7Vпр + αл = 5,5 + 5,7 · 0,1 + 0,66 = 6,8 Ккал/м2 · ч · °С (7,8 Вт/м2 · °С);

где:

4,25; 2,1; 4,9 - коэффициенты излучения, Ккал/м2 · ч · °К4;

0,61 - температурный коэффициент;

0,045 - коэффициент теплопроводности минваты для условий эксплуатации «Б» в соответствии с сертификатами.

1 - штукатурный раствор; 2 - кирпичная кладка; 3 - минеральная вата; 4 - панель экрана; 5 - воздушная прослойка; 6 - зона возможной конденсации.

Рис. 7.1. Схема наружной стены для расчета влажностного режима.

Сопротивление теплопередаче по глади наружной стены при толщине утеплителя из минваты 0,15 м:

Приведенное сопротивление теплопередаче:

Roпр = 4,43 · 0,726 = 3,22 м2 · °Ст.

Толщина теплоизоляции из базальтовой минваты для бетонной стены для климатических условий г. Москвы:

где r = 0,83 в соответствии с табл. 3 (при проемности 25 %).

Сопротивление теплопередаче по глади наружной стены условное:

Приведенное сопротивление теплопередаче:

Roпр = 3,9 · 0,83 = 3,24 м2 · °Ст.

Толщина утеплителя должна быть скорректирована в соответствии с номенклатурой выпускаемых изделий, что не повлияет на правомочность полученных расчетов и выводов.

7.7.3. Расчет влажностного режима бетонных стен

Выполняется расчет влажностного режима бетонных наружных стен с экраном по СНиП II-3-79* (изд. 98 г.), СНиП 23-02-2003 по глади (без учета стыковых швов).

Влажностный режим наружных стен характеризуется процессами влагонакопления, зависящими от ряда внешних факторов и физических характеристик, от сопротивления паропроницанию конструкции. Расчетное сопротивление паропроницанию Rп, м2 · ч · Па/мг (до плоскости возможной конденсации) должно быть не менее большего из требуемых сопротивлений паропроницанию Rп1тр, из условия недопустимости накопления влаги за год эксплуатации и Rп2тр из условия ограничения влаги в конструкции за период с отрицательными среднемесячными температурами.

Расчет ведется с учетом того, что зона возможной конденсации располагается на внешней границе утеплителя.

В период эксплуатации в зимних условиях температура воздуха внутри помещения tв = 20 °С, а относительная влажность φ = 55 %.

Расчетное сопротивление паропроницанию наружной стены до зоны возможной конденсации Rп, м2 · ч · Па/мг:

(Rп = 49 м2 · ч · мм рт.ст./г).

Расчетное сопротивление паропроницанию части ограждающей конструкции, Rпн, м2 · ч · Па/мг, расположенной между наружной поверхностью и плоскостью возможной конденсации равно:

Rпн = 0,008/0,03 = 0,26 м2 · ч · Па/мг (2 м2 · ч · мм рт.ст./г).

Требуемое сопротивление паропроницанию Rп, из условия недопустимости накопления влаги за год эксплуатации:

Требуемое сопротивление паропроницанию из условия ограничения влаги в наружной стене за период с отрицательными температурами наружного воздуха:

Влажностный режим по глухой части системы для г. Москвы соответствует требованиям норм строительной теплотехники при расчете по СНиП II-3-79* (изд. 98 г.), СНиП 23-02-2003 для бетонной стены, следовательно, дальнейшие расчеты делать не требуется.

Далее выполнен расчет влажностного режима наружной кирпичной стены с экраном (рис. 7.1).

Расчетное сопротивление паропроницанию стены до зоны возможной конденсации:

Требуемое сопротивление паропроницанию из условия ограничения влаги в наружной стене за период с отрицательными температурами наружного воздуха (по глухой части экрана):

 Rп < Rп2тр;

Следовательно при отсутствии движения воздуха по глухой части экрана может образоваться конденсат. Поскольку в районе горизонтальных швов распределение влаги иное, чем по глухой части, далее в расчетах учитывается это обстоятельство.

Ниже приводится расчет с учетом стыковых швов-зазоров в соответствии со специально разработанной методикой для вентилируемых фасадов для панелей экранов 1,19´2,78 м при выполнении их из фиброцемента толщиной 8 мм. При ηш = 6,5 параметры стыковых швов между экранами определяются как допустимые, а при ηш = 0,1 как оптимальные; поэтому необходимо выполнить два расчета при обоих значениях ηш.

Общая площадь приточных отверстий, считая и заборное в цокольной части (на м2) шириной 40 мм 0,0054 + 0,02/42 = 0,006 м2 (при наличии защитной сетки 50 % живого сечения).

Условное сопротивление паропроницанию зазоров в горизонтальных стыковых соединениях экранов определяется по формуле (19):

при ηш = 6,5

где: 0,008 м - толщина экрана

при ηш = 0,1

Следующим этапом расчетов является учет воздухозаборных отверстий приведенной площадью S = 0,006 м2 на 1 м2 экрана.

Условное приведенное сопротивление паропроницанию определяется по формуле (21):

при ηш = 6,5

где 0,006 м2 - приведенная площадь приточных отверстий

при ηш = 0,1

Требуемое сопротивление паропроницанию из условия ограничения влаги в стене за период с отрицательными температурами наружного воздуха Rп2тр:

при ηш = 6,5

при ηш = 0,1

т.е. при отсутствии движения воздуха в прослойке в зоне влияния стыковых швов их параметры находятся в минимально допустимых пределах. Однако при оптимальных размерах стыковых швов расчетное сопротивление паропроницанию Rп меньше требуемого Rп2тр.

Далее приводим расчет с учетом выноса влаги из прослойки движущимся воздухом.

7.7.4. Определение скорости движения воздуха

Определяется скорость движения воздуха в прослойке при температуре наружного воздуха минус 28 °С. Расчет делается по формулам (6, 8).

Температура входящего в прослойку воздуха по формуле (12):

tx = -28 · 0,95 = -26,6 °С.

Определяем расход воздуха в прослойке по формуле (10) при толщине прослойки 0,04 м в соответствии с МГСН 2.01-99 [13]:

Расход воздуха в прослойке составит

W = 3600 · 0,17 · 1,405 · 0,04 = 34,4 кг/м · ч (17,2 кг/м · ч для δпр = 20 мм),

V = 0,186 - 0,186 · 0,07 = 0,17 м/с.

где: 0,07 - коэффициент учитывающий трение [22].

Упругость водяного пара на выходе из воздушной прослойки кирпичной стены (расчет ведется для худшего, с точки зрения влагообмена, случая):

при ηш = 0,1

(ey = 0,36 мм рт.ст. для δпр = 20 мм).

где:

Мв = 1/29,3 = 0,034; Мн = 1/2 = 0,5; Мв + Мн = 0,534;

Мв · ев + Мн · ен = 0,034 · 9,64 + 0,5 · 0,29 = 0,472.

ey меньше максимальной упругости водяного пара E, равной 0,39, следовательно, принятые параметры конструкции удовлетворительные.

7.8. Заключение

7.8.1. На основании выполненных теплотехнических расчетов наружных стен фасадной системы «СЕМИСТЕМА», определены:

7.8.2. Теплозащитные качества системы см. п. 7.8.2.1.

7.8.2.1. Требуемая толщина теплоизоляционных базальтовых минераловатных плит типа «Венти-Баттс» составляет при железобетонной несущей стене 0,16 м; при кирпичной стене 0,15 м. Приведенное сопротивление теплопередаче наружных стен при указанной толщине утеплителя составит: 3,24 - 3,26 м2 · °Ст (При проемности 18 %).

7.8.2.2. Влажностный режим системы при указанных в п. 7.8.3 параметрах конструкции, см. пп. 7.8.2.2.1 - 7.8.2.2.3, указан ниже.

7.8.2.2.1. При отсутствии движения воздуха в прослойке по глади в отдалении от горизонтальных швов-зазоров при кирпичных стенах влажностный режим может быть неудовлетворительный.

7.8.2.2.2. В районе швов-зазоров влажностный режим удовлетворителен.

7.8.2.2.3. При наличии движения воздуха в количестве 34 кг/м · ч при указанных в п. 7.8.3 параметрах влажностный режим системы удовлетворителен.

7.8.3. Параметры системы, при которых обеспечиваются указанные выводы в п. 7.8.2 следующие:

7.8.3.1. Высота (ширина) горизонтального шва между экранами составляет 15 мм.

7.8.3.2. Размеры экранов должны составлять не более 1,19´2,8 м.

7.8.3.3. Толщина воздушной прослойки между утеплителем и экраном составляет 0,04 м. На основании расчета допустима также минимальная толщина прослойки 0,02 м.

7.8.3.4. Толщина (ширина) воздухозаборной щели внизу стены составляет 0,02 - 0,04 м, толщина (ширина) воздуховыводящей щели вверху стены должна быть не меньше воздухозаборной.

8. Состав проектно-сметной документации

8.1. Рабочий проект или рабочая документация системы наружных ограждений фасадов с вентилируемым воздушным зазором включает следующие разделы: общую пояснительную записку, архитектурную часть, конструкторскую часть, конструкторскую часть по решению архитектурных деталей, специальные части (водосток, антенны, рекламу и т.п.) и сметы.

8.2. В общей пояснительной записке приводятся следующие данные:

- архитектурная концепция решения фасадов здания и отдельных архитектурных элементов;

- данные о конструктивном решении системы и ее элементов, принятые на основании прочностных и теплотехнических расчетов;

- данные о решении специальных устройств на фасаде, если они имеются;

- данные об эффективности энергосбережения принятых технических решений, результаты теплотехнических расчетов;

- экологическая характеристика системы;

- основные технико-экономические показатели системы.

8.3. Архитектурная часть включает чертежи фасадов здания, отдельных архитектурных элементов и узлов. На чертежах приводится цветовое решение фасада и его отдельных элементов.

8.4. Конструкторская часть включает чертежи всех конструктивных элементов системы, с узлами и деталями, а также полную спецификацию всех применяемых материалов и изделий.

8.5. Специальная часть включает чертежи фасадов с привязкой мест размещения специальных устройств, узлы и детали конструкций крепления этих устройств на фасаде, а также спецификацию оборудования, материалов и изделий, предусмотренных проектом.

8.6. Сметы на устройство системы составляются на основе действующих нормативов, единичных расценок, фактической стоимости оборудования и материалов, а также утвержденных заказчиком калькуляций на отдельные виды работ и элементы конструкций.

9. Технико-экономические показатели

Стоимость системы для конкретных зданий зависит от многих факторов, в том числе, от размеров здания, архитектурного решения фасадов, оборудования и оснастки, применяемых для монтажа системы, а также от структуры подрядной организации и её коммерческой политики. В связи с этим конкретная стоимость системы может колебаться в значительных пределах. Поэтому считаем, что здесь наиболее целесообразно привести прямые затраты, т.е. стоимость отдельных элементов системы и ее монтажа (стоимость монтажа без учета стоимости лесов, люлек и других средств) для рядового участка фасада.

Поэлементная стоимость (прямые затраты в $ US) 1 м2 системы для рядового участка фасада с различными облицовочными материалами (на 2004 г.):

С облицовкой плитами «CemStone» на саморезах:

- стоимость деталей каркаса                                        - 20

- стоимость утеплителя толщиной 150 мм                 - 15

- стоимость облицовочного материала                       - 31

- стоимость монтажа                                                     - 30

Итого                                                                              - 96

С облицовкой плитами «Cynop» на саморезах:

- стоимость деталей каркаса                                        - 22

- стоимость утеплителя толщиной 150 мм                 - 15

- стоимость облицовочного материала                       - 28

- стоимость монтажа                                                     - 30

Итого                                                                              - 95

С облицовкой плитами «CemColor» и «CemColor Structure» на саморезах:

- стоимость деталей каркаса                                        - 22

- стоимость утеплителя толщиной 150 мм                 - 15

- стоимость облицовочного материала                       - 36

- стоимость монтажа                                                     - 30

Итого                                                                              - 103

Данные о стоимости элементов системы представлены ее разработчиком ООО «Компания ЛТМ».

10. Основные положения по производству работ и системе контроля качества

10.1. Для выполнения работ по монтажу системы здание разбивается на захватки и определяется порядок и последовательность перемещения монтажников с одной захватки на другую.

10.2. Величина захваток и их количество в каждом случае определяются с учетом многих факторов, в том числе размеров фасадов здания, величины бригады монтажников, оснащения строительной организации оборудованием и оснасткой, условиями комплектации строительства материалами, изделиями и др. Захваткой может быть вся высота фасада, а можно фасад по высоте разделить на несколько захваток, учитывая наличие промежуточных карнизов, поясков и другие факторы. Также в горизонтальном направлении захваткой может быть весь фасад, только одна секция или может быть принят какой-либо другой способ деления фасада на захватки. Разбивка фасадов здания на захватки и выбор средств для работы монтажников на высоте (подмости, люльки, подъемные платформы и т.п.) выполняется в проекте организации строительства или в технологических картах.

10.3. При монтаже системы на реконструируемых зданиях работы начинаются с очистки фасада от несвязанных с основанием элементов, таких как отслоившиеся штукатурка, краска и т.п. Кроме того, фасад надо освободить (демонтировать) от специальных устройств: водостоков, различных кронштейнов, антенн, вывесок и др.

10.4. Монтаж системы начинается с разметки фасада. Выставляются вертикальные маяки по краям с обеих сторон захватки. Разметка выполняется с помощью геодезических приборов, уровня и отвеса. Установка и крепление кронштейнов и профилей в пределах захватки может производиться снизу вверх и, наоборот, в зависимости от решений, принятых в ПОС.

10.5. После разметки фасада в нем сверлятся отверстия под дюбели для крепления кронштейнов к основанию посредством анкерных болтов. Для снижения теплопередачи в месте примыкания кронштейна к основанию между ними на анкерный болт устанавливается паронитовая прокладка.

В случаях, когда основанием является кирпичная кладка, нельзя устанавливать дюбели в швы кладки, при этом, расстояние от центра дюбеля до ложкового шва должно быть не менее 25 мм, а от тычкового - 60 мм. Минимальное расстояние от края конструкции до дюбеля оговаривается специальными рекомендациями фирмы-изготовителя дюбелей.

Категорически запрещается сверлить отверстия для дюбелей в пустотелых кирпичах или блоках с помощью перфоратора.

В системе допускается применять только сертифицированные крепежные элементы.

10.6. К началу монтажа плит утеплителя захватка, на которой производятся работы, должна быть укрыта от попадания влаги на стену и плиты утеплителя.

Исключением могут быть случаи, когда монтажники не покидают рабочие места до тех пор, пока все смонтированные плиты не закроют, предусмотренной проектом, ветровлагозащитной пленкой.

10.7. Производится разметка и выполняются надрезы на плите в соответствии с шагом крепежных кронштейнов. Плиты утеплителя устанавливаются на стену, причем полки кронштейнов пропускаются в проделанные надрезы. В случае если укладывается больше одного слоя утеплителя - швы плит выполняются вразбежку. Кроме того, каждая плита должна опираться как минимум на два крепежных кронштейна. Плиты утеплителя должны устанавливаться плотно друг к другу так, чтобы в швах не было пустот. Если избежать пустот не удается, они должны быть тщательно заделаны тем же материалом. Вся стена (за исключением проемов) непрерывно по всей поверхности должна быть покрыта утеплителем, установленной проектом толщины. Крепление плит утеплителя к основанию производится пластмассовыми дюбелями тарельчатого типа с распорными стержнями. В случае применения ветровлагозащитной пленки, установленные плиты утеплителя сначала крепятся к основанию только двумя дюбелями каждая плита и только после укрытия нескольких рядов пленкой устанавливаются остальные, предусмотренные проектом, дюбели. Полотнища пленки устанавливаются с перехлестом 100 мм.

10.8. На кронштейны устанавливаются и фиксируются горизонтальные L-образные профили, к которым в свою очередь прикрепляются вертикальные П- и Z-образные профили. Они являются базой для устройства отделочного слоя фасада в пределах проектных допусков. Поэтому установка каждого профиля, его положение в вертикальной плоскости проверяется соответствующими приборами: теодолитом, отвесом и др. Крепление профилей к кронштейнам и между собой производится саморезами.

10.9. Монтаж облицовочных плит преимущественно начинают с нижнего ряда и ведут снизу вверх. На вертикальные профили обрешетки крепится шовная прокладка из резиновой ленты EPDM, которая при необходимости фиксируется клеем. Затем производится разметка и сверление отверстий в плите. Сверление панелей производится с помощью специальных саморезов с обламываемыми концевыми элементами («крылышками»). Данными концевыми элементами высверливаются отверстия в плите на 2,5 мм больше, чем диаметр крепежного элемента для обеспечения подвижности соединения. Одновременно производится облицовка оконных проемов и других элементов фасада. Установка плит, горизонтальных отливов, вертикальных и угловых шовных планок осуществляется в соответствии с проектной документацией. Во время монтажа отделочных материалов следует следить за тем, чтобы воздушный зазор позади них был чист и без каких-либо посторонних включений.

10.10. В процессе монтажа элементов системы должен выполняться пооперационный контроль качества работ и составляться акты на скрытые работы. Это должно выполняться в соответствии с действующей в подрядной организации «Системой управления контролем качества продукции», где указано, какие параметры и технологические процессы контролируются и лица, ответственные за выполнение этой работы. В составе комиссии, подписывающей акты на скрытые работы, должны быть лица (представители проектной организации), выполняющие авторский надзор.

10.11. Работы по монтажу системы могут выполнять организации, специалисты которых прошли обучение и имеют лицензию на право выполнения указанных работ от ООО «Компания ЛТМ».

10.12. Все работы должны выполняться под контролем лица, ответственного за безопасное производство работ и в соответствии с требованиями СНиП 12-03-99 «Безопасность труда в строительстве. Общие требования» и СНиП III-4-80 «Техника безопасности в строительстве».

11. Правила эксплуатации системы

11.1. Для сохранения теплофизических показателей вентилируемого фасада необходимо контролировать состояние утепляющего слоя, воздушного зазора и облицовочного покрытия.

11.2. В процессе строительства и эксплуатации здания не допускается крепить непосредственно к облицовочным материалам любые детали и устройства.

11.3. Не следует допускать возможность попадания воды с крыши здания на облицовочные материалы, для чего надо содержать желоба на крыше и водостоки в рабочем состоянии.

11.4. Уход за облицовкой фасада, заключающийся в ее регулярной очистке и периодическом восстановлении, продлит срок службы облицовки.

11.5. Наружную обшивку вентилируемого фасада необходимо регулярно промывать моющими средствами.

При этом следует исключить попадание грязной воды на ветровлагозащитную пленку, которой покрыт утеплитель.

11.6. Во избежание механического повреждения вентилируемого фасада необходимо принять меры для исключения размещения автомобилей у его цокольных частей.

В случае механического повреждения вентилируемого фасада необходимо обращаться к монтажной организации для устранения дефекта.

Справка: разработчик, изготовитель и поставщик элементов системы - ООО «Компания ЛТМ».

Адрес: 127055, г. Москва, ул. Лесная, дом 43, офис 218.

Телефон: +7 (095) 789-68-21, 789-68-22, 978-71-00

Факс: +7 (095) 978-62-50.

E-mail: office@ltm-company.ru

www.ltm-company.ru

www.ltm-company.com

12. Перечень нормативных документов и литературы

1. СНиП 2.08.01-89*       Жилые здания.

2. МГСН 3.01-01             Жилые здания.

3. СНиП 31-01-2003       Здания жилые многоквартирные.

4. СНиП 2.01.07-85         Нагрузки и воздействия.

5. СНиП 2.03.06-85         Алюминиевые конструкции.

6. СНиП II-23-81*           Стальные конструкции

7. СНиП II-3-79*             (изд. 98 г.)1) Строительная теплотехника.

1) - действует до вступления в силу соответствующего технического регламента.

8. СНиП 23-02-20032)     Тепловая защита зданий.

2) - носит рекомендательный характер до регистрации Минюстом России.

9. СНиП 23-01-99           Строительная климатология.

10. СНиП 2.01.01-82       Строительная климатология и геофизика.

11. СНиП 2.03.11-85       Защита строительных конструкций от коррозии.

12. СНиП 21-01-97         Пожарная безопасность зданий и сооружений.

13. МГСН 2.01.99           Нормативы по теплозащите и тепловодоэлектроснабжению.

14. ГОСТ 17177-94         Материалы и изделия строительные теплоизоляционные. Методы испытаний.

15. ГОСТ 22233-93         Профили прессованные из алюминиевых сплавов для ограждающих конструкций. Общие технические условия

16. ГОСТ 26805-86         Заклепка трубчатая для односторонней клепки тонколистовых строительных металлоконструкций. Технические условия.

17. ГОСТ 27180-86         Керамические плитки. Методы испытаний.

18. ГОСТ 30971-2002     Швы монтажные узлов примыканий оконных блоков к стеновым проемам. Общие технические условия.

19. ГОСТ 7025-78           Материалы стеновые и облицовочные. Методы определения водопоглощения и морозостойкости.

20. ГОСТ 481-80             Паронитовые листы.

21. Рекомендации по проверке и учету воздухопроницаемости наружных ограждающих конструкций жилых зданий. ЦНИИЭП жилища, Москва, 1983 г.

22. Рекомендации по проектированию и применению для строительства и реконструкции зданий в г. Москве системы с вентилируемым воздушным зазором «Краспан». Правительство Москвы. Москомархитектура, Москва, 2001 г.

23. Заключение и протокол сертификационных испытаний НИИСФ № 51 от 22.06.2000 г. М.

24. Справочник проектировщика. Расчетно-теоретический. Книга 1. М.: Стройиздат, 1972 г.

 




ГОСТЫ, СТРОИТЕЛЬНЫЕ и ТЕХНИЧЕСКИЕ НОРМАТИВЫ.
Некоммерческая онлайн система, содержащая все Российские Госты, национальные Стандарты и нормативы.
В Системе содержится более 150000 файлов нормативно-технической документации, действующей на территории РФ.
Система предназначена для широкого круга инженерно-технических специалистов.

Рейтинг@Mail.ru Яндекс цитирования

Copyright © www.gostrf.com, 2008 - 2026