|
|
|
АО «ЦНИИПРОМЗДАНИЙ» ГАРАЖИ - СТОЯНКИ ДЛЯ ЛЕГКОВЫХ АВТОМОБИЛЕЙ, ПРИНАДЛЕЖАЩИХ ГРАЖДАНАМ ПОСОБИЕ ДЛЯ ПРОЕКТИРОВАНИЯ
МОСКВА 1998 г. Предисловие. 1. Настоящее пособие разработано АО «ЦНИИпромзданий» в помощь инвесторам и проектировщикам, осуществляющим проектные работы в рамках реализации программы гаражного строительства в г. Москве. Генеральный директор АО ЦНИИПромзданий В.В. Гранев. Авторский коллектив: канд. арх. Лунева Т.П., доктор тех. наук Кодыш Э.Н., архитектор Кайгородов М.А., инженер Барабаш И.В. 2. В пособии рассматриваются основные вопросы проектирования многоэтажных гаражей - стоянок легковых автомобилей, принадлежащих гражданам. Пособие не содержит исчерпывающих материалов по конструктивной части и специальным разделам проекта. 3. При подготовке пособия использован многолетний опыт проектирования гаражей - стоянок АО «ЦНИИпромзданий». 4. В качестве примеров в пособии приведены проекты, разработанные ведущими проектными организациями: АО ЦНИИПромзданий, Моспромпроект, Инжстройпроект, АО Моспроект, Промстройпроект, АОЗТ «Соляр Строй» и др. 5. Учитывая широкий круг проблем, возникающих при проектировании и строительстве гаражей - стоянок, авторы надеются, что настоящее пособие окажет действенную помощь проектировщикам. Нормативные документы, применяемые при проектировании гаражей - стоянок.1. СНиП 10-01-94 «Система нормативных документов в строительстве. Основные положения». 2. СНиП 2.07.01-89* «Планировка и застройка городских и сельских поселений». 3. МГСН 1.01-97 часть 1 «Временные нормы и правила планировки и застройки г. Москвы». 4. МГСН 1.01-94 «Временные нормы и правила проектирования планировки и застройки Москвы» (Корректировка и дополнения ВСН 2-85). 5. СНиП 2.09.02-85 «Производственные здания». 6. ВСН 01-89 (Минавтотранс РСФСР) «Ведомственные строительные нормы. Предприятия по обслуживанию автомобилей». 7. МГСН 5.01-94* «Стоянки легковых автомобилей». 8. Пособие к МГСН 5.01.94* «Стоянки легковых автомобилей» Выпуск 1. 9. ОНТП 01-91 (Росавтотранс) «Отраслевые нормы технологического проектирования предприятий автомобильного транспорта». 10. МГСН 4.04-94 «Многофункциональные здания и комплексы». 11. СНиП 2.01.02-85* «Противопожарные нормы». 12. СНиП 21-01-97 «Пожарная безопасность зданий и сооружений». 13. ГОСТ 12.1.004 «Пожарная безопасность. Общие требования». 14. СНиП 2.04.09-84 «Пожарная автоматика зданий и сооружений». 15. НПБ-110-96 «Перечень зданий, сооружений, помещений и оборудования, подлежащих защите автоматическими установками тушения и обнаружения пожара». 16. НПБ 105-95 «Определение категорий помещений и зданий по взрывопожарной и пожарной опасности». 17. ОНТП 24-86 (МВД СССР) «Определение категорий помещений и зданий по взрывопожарной опасности». 18. СНиП 2.04.05-91* «Отопление, вентиляция и кондиционирование». 19. Пособие 15-91 к СНиП 2.04.05-91* «Противодымная защита при пожаре и вентиляция подземных стоянок легковых автомобилей» 20. НПБ 239-97 «Клапаны, противопожарные системы вентиляции зданий и сооружений. Методы испытаний на огнестойкость». 21. НПБ 240-97 «Воздуховоды. Метод испытаний на огнестойкость». 22. СНиП 2.04.01-85* «Водопровод и канализация зданий». 23. ПУЭ-98. 24. СНиП 2.04.02-85 «Водоснабжение. Наружные сети и сооружения». 25. СНиП 2.04.03-85* «Канализация. Наружные сети и сооружения». 26. СНиП 3.05.07-85 «Системы автоматизации». 27. СНиП 11-12-77 «Защита от шума». 28. ГОСТ 17.2.03.02-78 «Охрана природы. Атмосфера». 29. ГОСТ 2874-82 «Вода питьевая». 30. СНиП 2.03.13-88 «Полы». 31. Рекомендации по проектированию полов (в развитие СНиП 2.03.13-88 «Полы») МДС 31-1-98. 32. Рекомендации по устройству полов (в развитие СНиП 3.04.01-87 «Изоляционные и отделочные покрытия») М. 1998 г. Введение.Парк автомобилей в Москве растет стремительными темпами. Сегодня он составляет 1,49 млн. единиц, а к 2010 году достигнет 2,6 млн. единиц, из них 2,4 млн. частных автомобилей. По данным ГИБДД г. Москвы парк легкового автотранспорта в последние годы ежегодно увеличивается на 300 ÷ 400 тысяч единиц. Возможность полноценного использования автомобилей во многом зависит не только от организации их движения и технического обслуживания, но и от условий постоянного или временного хранения. В градостроительном плане проблема хранения автомобилей является одной из наименее изученных. Даже в самых благоприятных условиях при развитой сети дорог автомобиль находится в движении 300 ÷ 400 часов в год, т.е. в среднем примерно 1 час в сутки, а на различных стоянках - около 23 часов. В настоящее время только 470000 автомобилей обеспечены местами паркования, из них менее 10 % хранятся в условиях, отвечающих современным международным требованиям. По самым осторожным прогнозам дефицит гаражей - стоянок сохранится в ближайшие 5 - 6 лет. Правительством Москвы в последние годы приняты ряд Постановлений, направленных на упорядочение системы организации хранения легковых автомобилей, принадлежащих гражданам, в том числе: - «Об упорядочении системы организации хранения транспортных средств, принадлежащих гражданам, проектирования и строительства гаражей и автостоянок в г. Москве» от 14 декабря 1993 г, № 1140; - «О программе массового строительства в Москве многоэтажных гаражей - стоянок» от 18 апреля 1995 г, № 318; - «О программе массового строительства многоэтажных гаражей - стоянок на 500000 машино-мест и организации ее выполнения» от 12 марта 1996 г. № 216. За первые годы реализации программы введено в действие порядка 100000 машино-мест. К 2001 году предусматривается построить современные многоуровневые гаражи - стоянки на 500000 машино-мест. Организация движения и необходимость создания цивилизованных мест хранения и паркования автомобилей в таком мегаполисе, как Москва, определили программу как одно из приоритетных направлений. Правительством Москвы принят целый ряд документов, способствующих успешной реализации программы, создающий режим благоприятствования для ее участников. Включение в городскую программу устанавливает для частных инвесторов ряд льгот, в том числе: - отсутствие стартовой цены на аренду земли; - льготная оплата аренды земли в течение трех лет; - освобождение от уплаты долевого участия в развитии инженерных систем города; - оплата за счет городского бюджета строительства инженерных сетей вне границ землеотвода; - льготные налоги, отчисляемые в бюджет города. В июне 1997 года подписано распоряжение «О распространении льгот на иностранных инвесторов при строительстве многоэтажных гаражей и паркингов». При строительстве гаражей - стоянок за счет частных инвестиций в условиях сложившегося рынка при разработке проектов гаражей - стоянок для частных автомобилей необходимо решение нескольких основных задач: - низкая стоимость машино-места; - удобное для будущего владельца места хранения расположение гаража - стоянки в городской застройке; - высокие эксплутационные качества, в том числе: удобство въезда - выезда и парковки, безопасность хранения; - возможность осуществления несложного ремонта и косметической мойки автомобиля. На основе анализа сметно-финансовых расчетов, выполненных в рамках проектной практики, различные по типу, техническим и эксплутационным характеристикам гаражи - стоянки имеют разную себестоимость машино-места, являющуюся одним из основных аспектов оценки проектного решения (стоимость в тыс. дол. США приведена в ценах до 17.08.98 г.):
Исследованиями, проведенными отделом маркетинга и продаж Управления экспериментальной застройки г. Москвы, определены расчетные цены продаж (в тыс. дол. США) для этих же типов гаражей - стоянок (цены до 17.08.98 г.):
Как видно из приведенных выше показателей, себестоимость машино-места зависит от выбранных заказчиком - инвестором типа сооружения и его эксплуатационных характеристик. Проведя маркетинговые исследования в районе предполагаемого строительства, заказчик - инвестор определяет оптимальные для реализации вместимость, тип, эксплуатационные характеристики, применяемые строительные конструкции и материалы, которые в основном и формируют будущую стоимость возведения здания и себестоимость машино-места. Дальнейшее снижение стоимости строительства в рамках выбранных характеристик гаража - стоянки возможно за счет разработки оптимального проектного решения с учетом градостроительной ситуации, формы и характеристики отведенного участка, существующей транспортной схемы, условий подключения к инженерным коммуникациям, экологической ситуации и т.д. Наиболее важным критерием оценки проектного решения в аспекте снижения себестоимости является удельный показатель общей площади, приходящийся на одно машино-место. 1. Типологическая классификация гаражей - стоянок.Гаражи - стоянки для легковых автомобилей, принадлежащих гражданам, классифицируются по ряду общих признаков:
1.1. Размещение в городской застройке.Размещение гаражей - стоянок на территории города осуществляется в соответствии с потребностью и возможностью, обусловленными конкретными градостроительными условиями, с учетом требований к охране окружающей среды, согласно действующим нормативным документам (п. 2.1 МГСН 5.01.94). В структуре городской застройки гаражи - стоянки легковых автомобилей, принадлежащих гражданам, размещают: - в зонах расположения объектов массового посещения (общественные, культурные, спортивные, торговые центры, вокзалы, аэропорты и т.д.); - в коммунально-складских, производственных и других нежилых зонах; - в жилых районах (районные, внутриквартальные, дворовые); - в зонах городского транспорта: площади, магистрали, улицы, проезды, транспортные развязки, мосты, линии железной дороги и метрополитена. В зонах расположения объектов, активно привлекающих легковой автотранспорт, целесообразно размещение гаражей - стоянок для хранения автомобилей в течение нескольких часов или суток (временное хранение). Как правило, такие объекты размещены в сложившейся городской застройке. В этом случае сооружение гаражей - стоянок возможно при комплексной реконструкции отдельных объектов или целых городских районов, если их размещение не было предусмотрено заранее. При реконструкции и новом строительстве объектов массового посещения гаражи - стоянки проектируют на предобъектных площадях, на участках вдоль транзитных городских транспортных магистралей, в подземном пространстве под зданиями и сооружениями основного назначения, внутренними благоустроенными территориями и проездами. В нежилых зонах размещают гаражи - стоянки для постоянного, временного и сезонного хранения. Для гаражей - стоянок постоянного хранения необходимо выбирать участки максимально приближенные к селитебной территории. Для сезонного хранения могут быть использованы любые участки. Гаражи - стоянки для временного хранения размещают на участках у въездов на промышленные и коммунально-складские предприятия. В нежилых зонах могут размещаться гаражи - стоянки вместимостью более 300 машино-мест, при этом не возникает затруднений обеспечения санитарных разрывов. Вместе с тем необходимо выполнение требования по обеспечению 10-ти минутной пешеходной доступности. С точки зрения выбора вместимости, этажности и других типологических характеристик будущего гаража стоянки, размещаемого в нежилой зоне города, целесообразно принимать решения, позволяющие в результате иметь наиболее низкую цену, т.к. удаление от жилых зданий снижает их конкурентоспособность при реализации. Размещаемые в пределах селитебных территорий гаражи - стоянки, как правило, предназначаются для постоянного хранения автомобилей. Их можно условно разделить на районные, внутриквартальные и дворовые. При строительстве новых жилых районов в проектах детальной планировки и проектах микрорайонов, кварталов и жилых групп в настоящее время предусматриваются, в соответствии с действующими нормативными требованиями, участки для строительства отдельно стоящих многоэтажных гаражей - стоянок. Площадь отводимых для гаражного строительства участков должна обеспечивать стопроцентную потребность жителей в машино-местах на проектный срок с резервированием территории для обеспечения перспективного уровня автомобилизации. Преимущественно участки для нового строительства выбирают на территориях коммунального и общественного назначения или имеющих сложный рельеф. Наряду со строительством отдельно стоящих многоэтажных гаражей - стоянок внутри жилых кварталов и жилых групп, необходимо, как при новом строительстве, так и при реконструкции, проектировать внутриквартальные и дворовые подземные и полуподземные гаражи - стоянки под жилыми домами, дворовыми территориями, спортивно-игровыми площадками, проездами. Проектирование и строительство таких гаражей - стоянок наиболее сложно, так как оно органически связано с проектированием жилых домов и организацией дворовых территорий. В соответствии с п. 4.4. МГСН 1.01-97, обеспеченность местами хранения автомобилей в гаражах - стоянках на жилых территориях принимается из расчета 300 машино-мест на 1000 жителей с размещением их на расстоянии: - для центрального ядра и исторических зон - не более 1500 метров; - для жилых территорий с малоэтажной застройкой низкой интенсивности - не более 200 метров; - для остальных жилых территорий - не более 800 метров. На участках жилой и смешанной застройки следует выбирать тип гаража - стоянки, соответствующий типу жилой застройки. Для хранения легковых автомобилей постоянного населения следует предусматривать организацию гаражей - стоянок в соответствии с таблицами 1, 2 Приложение 3 МГСН 1.01-97. Устройство подземных гаражей - стоянок на придомовой территории допускается под проездами, открытыми автостоянками, игровыми и спортивными площадками с применением мероприятий, обеспечивающих снижение концентрации вредных выбросов до уровня, установленного санитарными нормами (СанПиН № 49-46-89). В застройке высокой плотности при «радикальной» реконструкции и строительстве на незастроенных территориях целесообразно предусматривать возведение новых жилых зданий исключительно с устройством подземных гаражей - стоянок не менее чем на двух подземных уровнях. В исторической застройке в условиях «бережной» реконструкции количество размещаемых гаражей - стоянок определяется конкретной ситуацией. В этом случае при размещении гаражей - стоянок под жилыми зданиями, в соответствии с п. 4.12. МГСН 1.01-97, допускается ненормированный разрыв от въезда - выезда до окон помещений при выполнении дополнительных требований (козырек, огнеупорные конструкции, регламентация режима функционирования). Зона городского транспорта (площади, улицы, транспортные развязки, мосты, линии метрополитена и железной дороги, а также полосы отвода вдоль них) пронизывает все другие функциональные зоны города. В настоящее время в г. Москве ведется активная реконструкция транспортных артерий города. В этих условиях целесообразно размещение под ними или вдоль них гаражей - стоянок, как временного, так и постоянного хранения. С эксплуатационной точки зрения подземная автостоянка, организованная непосредственно под проезжей частью улицы или площади - очень удобна. Однако, ее устройство непосредственно под проезжей частью, рассчитанной на движение всех видов городского наземного транспорта, приводит к большим дополнительным затратам на усиление несущих конструкций и покрытия. Эти затраты более оправданы при наличии не одного, а нескольких подземных ярусов. С другой стороны, при увеличении числа подземных ярусов более двух, резко увеличиваются затраты, связанные с условиями производства работ. Следует также учитывать, что при размещении автостоянки под проезжей частью устройство въездных и выездных рамп не должно приводить к местному снижению пропускной способности последней. Недостаточно реализовано в г. Москве размещение автостоянок в подходах к городским мостам или совмещение их с транспортными развязками в нескольких уровнях. Такое решение целесообразно, если въезд машин на стоянку и выезд возможен без задержки основного транспортного потока. Под подходами к городским мостам можно встраивать вместо земляной насыпи автостоянки вместимостью порядка 100 мест с каждой стороны моста, располагая их в два уровня. Обычная высота подходов к мосту (определяемая минимальным подмостовым габаритом для проезда транспорта - 4,5 метра), небольшие уклоны проезжей части (обычно 0,5 %) и значительная ее ширина (14 метров и более) позволяют получить длину стоянки в нижнем ярусе до 60-ти метров и в верхнем до 30-ти метров. Особое значение организация хранения автомобилей под транспортными магистралями, мостами и транспортными развязками приобретает при проектировании и строительстве новой кольцевой дороги в г. Москве. 1.2. Длительность хранения.В практике гаражного строительства для легковых автомобилей, принадлежащих гражданам, в г. Москве активно реализуются гаражи - стоянки постоянного, временного и сезонного хранения. Постоянное (круглосуточное) хранение индивидуальных автомобилей должно быть организованно у мест постоянного проживания владельцев в пешеходной доступности. При проектировании гаражей - стоянок для постоянного хранения необходимо определить количество и класс индивидуальных автомобилей, принадлежащих будущим владельцам машино-мест, что позволит более точно выбрать вместимость, условия хранения, параметры основных элементов объемно-планировочной структуры проектируемого гаража - стоянки. Гаражи - стоянки для временного хранения, как правило, размещаются у мест массового посещения. В гаражах этого типа необходимо обеспечение облегченных условий въезда и постановки автомобиля на стоянку и быстрого и беспрепятственного выезда. Кроме того, в гаражах-стоянках временного хранения необходимо предусматривать возможность размещения разномарочных и разногабаритных машин. Сезонное хранение предусматривается в пунктах сезонной эксплуатации, например, у объектов летнего или зимнего отдыха или же для тех автомобилей, которые не имеют постоянных мест хранения, не используются круглогодично и в течение холодного времени года могут содержаться на специальных базах консервации, преимущественно в коммунально-складских зонах. 1.3. Размещение относительно объектов другого назначения и уровня земли.По размещению относительно объектов другого назначения гаражи - стоянки подразделяются на: - отдельно стоящие; - встроенные; - пристроенные; - комбинированные. По отношению уровня основных помещений гаража - стоянки к средней отметке поверхности земли различают: надземные, подземные, полуподземные, а также комбинированные сооружения. Подземными считаются гаражи - стоянки, полностью заглубленные в грунт, полуподземными - пол основных помещений которых заглублен менее чем на 2 м. Отдельно стоящие гаражи - стоянки проектируют надземными, надземно-подземными и подземными. При определении размеров земельного участка отдельно стоящего гаража - стоянки необходимо руководствоваться таблицей 2 Приложения 3 МГСН 1.01-97. При проектировании отдельно расположенных гаражей - стоянок необходимо учитывать действующие нормативы, регламентирующие расстояния от собственно гаража - стоянки, вентиляционных шахт, въездов в гаражи и выездов из них до объектов застройки другого назначения. (Таблица 1. Приложение 3. МГСН 1.01-97). Отдельно стоящие подземные и полуподземные гаражи - стоянки могут быть размещены под площадями, мостами, транспортными развязками, улицами, скверами, спортивными и спортивно-игровыми площадками, дворовыми территориями и т.д. Расстояния от подземных и полуподземных (без окон) гаражей до жилых домов, гостиниц, общественных и административных зданий в нормативных документах не лимитируются. Однако при этом сохраняются определенные размеры санитарных разрывов от мест выделений вредных выбросов и источников шума. Расстояние от подземного или надземного механизированного или автоматизированного гаража - стоянки до объектов другого назначения не лимитируется при условии обеспечения шумо- и виброзащиты. Пристроенные гаражи - стоянки временного или постоянного хранения, могут быть также надземными, надземно-подземными и подземными. Надземные гаражи - стоянки пристраивают к торцам жилых и общественных зданий, не имеющим оконных проемов. При этом размещение въездов - выездов в гараж - стоянку, вентиляционных шахт, светопроемов проектируют также в соответствии с таблицей 1 Приложения 3 МГСН 1.01-97. Встроенные, пристроенные и встроенно-пристроенные гаражи допускается размещать в подземных, цокольных и первых этажах многоэтажных общественных зданий. В жилых домах гаражи - стоянки должны, как правило, устраиваться подземными. При этом этаж над гаражом проектируют техническим, нежилым или незастроенным. В последние годы при строительстве новых жилых районов встроенные гаражи - стоянки размещаются в первых надземных этажах с организацией въездов с противоположной стороны от входов в здание. Вместимость и этажность гаражей этого типа определяется по согласованию с органами государственного санитарного надзора г. Москвы с учетом особенностей основного здания. Размещение гаражей - стоянок под зданиями детских дошкольных и школьных учреждений, детских домов, домов - интернатов, стационарных лечебных учреждений не допускается. Организация гаражей - стоянок под жилыми зданиями наиболее полно удовлетворяет требованиям удобства их эксплуатации для автовладельцев, ежедневно использующих свои машины, при этом остаются свободными дворовые территории. Вместе с тем, приспособление для этих целей подвалов под жилыми зданиями, распространенных массовых серий, конструктивные схемы и параметры конструктивных элементов которых не совместимы с параметрами помещений хранения автомобилей, - затруднено. Достаточно сложно решается проблема устройства въездов и выездов, изолированных от входов и окон жилых домов. Наиболее органично гаражи - стоянки размещаются в подвалах, первых и цокольных этажах жилых каркасных зданий при условии использования сеток колонн, являющихся оптимальными для организации помещений хранения автомобилей. Кратковременные стоянки в подвальных и цокольных этажах общественных зданий (административных, культурных, торговых и тому подобных центров) принципиально себя оправдывают. Однако эти стоянки также требуют индивидуальных объемно-планировочных и конструктивных решений, приемлемых для основного здания и подземной автостоянки. Применение подземных гаражей - стоянок в г. Москве обусловлено необходимостью экономии дефицитных и дорогих городских территорий, и максимального сохранения и пространственного разуплотнения сложившейся застройки, возрастающими требованиями охраны окружающей среды от шума двигателей и вредностей, содержащихся в выхлопных газах автомобилей. Сдерживает широкое применение подземных гаражей - стоянок для хранения индивидуальных автомобилей их дороговизна. Стоимость машино-места в подземных гаражах - стоянках в 2 ÷ 2,5 раза выше стоимости машино-места в надземных. Дороговизна подземных гаражей - стоянок и удобство их эксплуатации в значительной мере зависят от стоимости и качества гидроизоляционных работ. В последние годы в российской строительной практике применяются новые эффективные добавки, резко повышающие плотность бетона, новые гидроизоляционные материалы и технологии, что приводит к улучшению качества и снижению стоимости гидроизоляционных работ. 1.4. Этажность.По этажности гаражи - стоянки могут быть одноэтажными и многоэтажными. В Постановлении правительства Москвы от 14 декабря 1993 г № 1140 указывается, что одноэтажные гаражи - стоянки могут строиться в исключительных случаях, когда невозможно никакое другое строительство. Отвод земли под строительство одноэтажных гаражей - стоянок в Москве прекращен Постановлением правительства Москвы от 18 апреля 1995 года № 318 п. 3.5. В настоящее время разработаны и осуществляются решения, позволяющие превращать одноэтажную боксовую застройку в двух - трех этажные комплексы, отвечающие современным градостроительным требованиям. Такой метод позволяет значительно увеличить вместимость уже существующих одноэтажных автостоянок, благоустроить их территории, значительно повысить уровень архитектурного решения застройки. С учетом сложившейся в городе ситуации приоритетной задачей становится строительство многоэтажных гаражей - стоянок, наиболее экономично использующих городскую территорию и органично вписывающихся в архитектурную среду многоэтажной городской застройки. В соответствии с п. 2.1 МГСН 5.01-94*, надземные рамповые и механизированные гаражи - стоянки могут проектироваться высотой не более 9-ти этажей, подземные - не более 5-ти подземных этажей. При увеличении этажности необходимо согласование с органами государственного пожарного надзора. При проектировании автоматизированных гаражей - стоянок количество надземных и подземных ярусов хранения не ограничивается. В многоэтажных гаражах - стоянках рампового типа с 3-мя и более подземными или с 5-ю и более надземными этажами необходимо предусматривать лифт для подъема пожарных подразделений. При проектировании многоэтажных гаражей - стоянок необходимо учитывать, что повышение этажности более 5 ÷ 6-ти этажей (ярусов подъема) может приводить к большой утомляемости водителя при движении по рампе. 1.5. Способ междуэтажного перемещения.По способу междуэтажного перемещения гаражи - стоянки классифицируются на рамповые, механизированные и автоматизированные. В рамповых гаражах - стоянках перемещение автомобиля осуществляется собственным ходом по рампе, в механизированных - с помощью лифтовых подъемников различного типа. В автоматизированных гаражах - стоянках автомобиль от въезда до места хранения доставляется при помощи различного рода механизмов и устройств без участия водителя и запуска двигателя. Рамповые и полумеханизированные (при устройстве рампы и грузового лифта) гаражи - стоянки наиболее часто используются для постоянного или сезонного хранения индивидуальных автомобилей, а механизированные и автоматизированные - для временного. Последние, как правило, сооружаются в условиях затесненной городской застройки. Сложное и дорогостоящее оборудование механизированных и автоматизированных гаражей - стоянок, рассчитанных на частое использование автомобиля владельцем, пока не оправдывает эффекта, получаемого от механизации и автоматизации. Практика эксплуатации гаражей - стоянок, оборудованных лифтами и работающих в условиях массового въезда и выезда автомобилей, показывает, что один лифт может обслужить не более 100 машино-мест в многоэтажном гараже. При этом требуется устройство перед въездом в лифт специальной накопительной площадки или закрытого помещения достаточно больших размеров для временного отстоя неравномерно прибывающих автомобилей, что в значительной степени снижает эффект экономии земли за счет отказа от рамп. Разновидностью рамповых гаражей являются, так называемые, «скатные стоянки», в которых роль рампы выполняют наклонные перекрытия (уклон 6 %). Основными недостатками гаража - стоянки с наклонными перекрытиями являются усложнение конструктивного решения и удлинение пути движения автомобиля внутри здания до места хранения. 1.6. Организация хранения.По организации хранения различают гаражи - стоянки манежного типа с открытыми местами хранения автомобилей, расположенными в едином зальном помещении, боксовые с устройством изолированных мест хранения, комбинированные и ячейковые. Более экономичным является манежное хранение. Боксовый тип хранения по сравнению с манежным приводит, при прочих равных условиях, к увеличению общей площади гаража - стоянки, усложнению противопожарных мероприятий и инженерных систем, в том числе, приточно-вытяжной вентиляции и дымоудаления. Значительно увеличивается расход материалов, в частности, на сооружение межбоксовых перегородок и въездных ворот в бокс. Все это приводит к увеличению себестоимости машино-места в гараже - стоянке боксового типа по сравнению с манежным примерно в 1,5 раза. Несмотря на это, опыт проектирования, строительства и реализации гаражей - стоянок показывает, что потенциальный владелец машино-места отдает предпочтение боксовому хранению. Наиболее удачным с точки зрения удовлетворения покупательского спроса является сооружение гаражей - стоянок, в которых представлены манежная и боксовая организации хранения (как правило, на различных этажах). Такое решение позволяет при продаже дифференцировать стоимость машино-мест в гараже - стоянке, что в значительной мере облегчает их реализацию. 1.7. Тип ограждающих конструкций и условия хранения.В зависимости от типа ограждающих конструкций различают открытые и закрытые многоэтажные гаражи - стоянки, по условиям хранения - отапливаемые, не отапливаемые и комбинированные. Закрытые гаражи - стоянки имеют глухие или с включением светопроемов наружные ограждения. В них может быть организовано манежное и боксовое хранение автомобилей. Закрытые гаражи - стоянки проектируют отапливаемыми с температурой воздуха в помещениях не ниже +5 °С, неотапливаемыми и комбинированными. Рампы в закрытых гаражах - стоянках обязательно изолируют от зоны хранения. В открытых гаражах - стоянках наружные стены полностью или частично отсутствуют. В качестве ограждений могут быть использованы различные решетки, натянутые тросы, высокие парапеты (не более 1 м.) и т.п. В таких зданиях обеспечивается естественный приток воздуха, поперечное проветривание, полностью исключаются (при ширине здания до 72 метров) или значительно сокращаются системы вентиляции и дымоудаления, в дневное время не требуется электрическое освещение. За счет упрощения или исключения систем вентиляции и дымоудаления для открытых гаражей - стоянок целесообразно снижение высоты этажа до 2,8 ÷ 2,5 метра. В гаражах - стоянках этого типа может быть организовано только манежное хранение автомобилей. В отдельных случаях, по согласованию с органами государственного пожарного надзора, разрешается организация боксового хранения с сетчатыми ограждениями боксов. Рампы в открытых гаражах - стоянках разрешается проектировать неизолированными, возможно устройство аппарелей. 1.8. Применение различных типов гаражей - стоянок.Выбор типа гаража - стоянки в условиях крупного города связан с необходимостью учета разнообразных, иногда противоречивых требований: градостроительных, транспортных, санитарно - гигиенических, эксплуатационных и экономических. При выборе типа гаража - стоянки, как указывалось выше, целесообразно проведение маркетингового анализа потребности в местах хранения, покупательной способности жителей и характеристики имеющегося в наличии парка индивидуальных легковых автомобилей. Опыт показывает, что наиболее востребованы сегодня следующие типы многоэтажных гаражей - стоянок: - надземные открытые рамповые с манежным хранением; - надземные закрытые отапливаемые или неотапливаемые рамповые с манежным хранением; - закрытые отапливаемые или не отапливаемые рамповые с боксовым хранением; - подземные различной этажности; - комбинированные; Реже, несмотря на их экономичность, строят «скатные стоянки». Не нашли достаточно широкого применения полностью механизированные и автоматизированные гаражи - стоянки. Наиболее дешевыми из перечисленных выше типов многоэтажных рамповых гаражей - стоянок являются открытые со смещенными на высоту половины этажа перекрытиями и полурампами (аппарелями). Практика показывает, что, с точки зрения реализации, наиболее эффективны комбинированные решения многоэтажных гаражей - стоянок, в которых совмещаются боксовые и манежные, отапливаемые и не отапливаемые зоны хранения. Наиболее рационально совмещение разных по указанным характеристикам зон хранения по вертикали, например: - подземный этаж (или этажи) - отапливаемый, манежный; - 1 - 2 этажи - отапливаемые, боксовые; - 3 - 5 этажи - закрытые, не отапливаемые, боксовые; - 5 этаж и выше - открытые, манежные. В этом случае в одном здании гаража - стоянки возможно обеспечение различных условий хранения в зависимости от желания и финансовых возможностей жителей близлежащего жилого района. Наряду с перечисленным выше, актуально строительство: - дворовых мини - гаражей, как правило, подземных, подземно-надземных и надземных двухэтажных; - надстраиваемых двух или многоэтажных гаражей - стоянок над открытыми автостоянками и одноэтажными боксовыми гаражами; - подземных двух и многоэтажных гаражей - стоянок под площадями, транспортными развязками, мостами, транспортными магистралями; - встроенных гаражей - стоянок в объекты другого назначения. 2. Генеральный план.Размещение здания гаража - стоянки на отведенном участке и проектирование генерального плана основаны на решении следующих основных задач: - максимальное использование участка в пределах землеотвода; - учет градостроительной ситуации района строительства; - рациональная организация въездов и выездов на территорию с учетом схемы движения городского транспорта на прилегающих улицах и проездах; - учет планировочных ограничений и санитарно-гигиенических разрывов; - организация рельефа участка, способствующая сбору и очистке поверхностного стока; - благоустройство и озеленение отведенной территории. Эффективность проектного решения генерального плана определяется значением коэффициента использования К3, характеризуемого отношением площади застройки здания к общей площади отведенного под строительство участка. Увеличение численного значения указанного коэффициента свидетельствует о рациональном использовании территории. При размещении здания гаража - стоянки в пределах землеотвода необходимо учитывать требования действующих нормативных документов, регламентирующих расстояния от проектируемого здания до объектов окружающей застройки (Таблица 1. Приложение 3. МГСН 1.01-97). Основные нормативные расстояния приведены в таблице 1. Таблица 1
* - устанавливается по согласованию с органами государственного санитарного надзора. Расстояния от гаражей стоянок и открытых автостоянок принимать: - до границ участков школ, детских учреждений, лечебно-профилактических учреждений стационарного типа; - до окон жилых домов. Указанные расстояния допускается сокращать на 25 % при соблюдении следующих требований: отсутствие в гаражах открывающихся окон, а также въездов, ориентированных в сторону жилых домов. На жилой территории не допускается размещение многоэтажных гаражей - стоянок без наружного ограждения. Расстояние от многоэтажных гаражей - стоянок без наружного ограждения до других объектов принимаются как для открытых площадок. Въезды в подземные гаражи - стоянки и выезды из них, а также вытяжные оголовки вентиляционных шахт должны быть удалены: от окон жилых домов, общественных зданий и участков школ, детских яслей - садов и лечебных учреждений не менее чем на 15 метров. Расстояния от въездов и выездов до стен жилых домов и общественных зданий без оконных и дверных проемов не лимитируются. К планировочным ограничениям, учитываемым при разработке генерального плана, относятся расстояния от здания гаража - стоянки до проходящих по территории трасс подземных коммуникаций, размеры которых определяются по действующим нормативным документам и уточняются при согласовании землеотвода владельцами подземных сетей. Организация генерального плана должна предусматривать устройство не менее двух рассредоточенных въездов и пожарного проезда, обеспечивающего беспрепятственный доступ передвижных средств пожарной техники к зданию, а также наличие пожарных гидрантов (3 струи) на расстояние не более 150 метров от возможной точки возникновения пожара. Удобство и безопасность эксплуатации гаража - стоянки с учетом режима использования в значительной степени зависят от рациональной организации въездов и выездов автомобилей на территорию и в здание. Их число и размещение по отношению к ближайшим городским улицам и необходимость устройства накопительной площадки определяются согласно архитектурно-планировочному заданию с учетом градостроительной ситуации и транспортной схемы в районе строительства, а также требований нормативных документов. Для малых по вместимости гаражей - стоянок (до 100 м/м) возможно устройство одного выезда с территории, для средних и крупных (более 100 и более 500 включительно) предусматривается не менее двух въездов - выездов. С точки зрения режима использования, гаражи - стоянки постоянного хранения характеризуются ярко выраженными пиками интенсивности въездов и выездов автомобилей в утренние и вечерние часы. В гаражах - стоянках кратковременного хранения въезды и выезды относительно равномерно распределены в течение всего дня. В последние годы в г. Москве, в связи с ростом парка легковых автомобилей, резко повысилась интенсивность эксплуатации гаражей - стоянок, в том числе, в зимнее время года. В таблице 2 приведены ориентировочные показатели режимов въездов - выездов для гаражей - стоянок постоянного и временного хранения автомобилей (Таблица 5. Пособие к МГСН 5.01-94*. Выпуск 1). Показатели режимов въездов - выездов. Таблица 2
Въезды и выезды с территории или непосредственно из зданий гаража - стоянки должны обеспечиваться хорошим обзором и располагаться так, чтобы все маневры автомобилей осуществлялись без создания помех пешеходам и движению транспорта на прилегающей улице. В целях улучшения контроля въезд рекомендуется устраивать рядом с выездом. Въездная и выездная полосы должны иметь ширину не менее 3 м. На кривых участках ширина полосы увеличивается до 3,5 м. Количество въездных и выездных полос определяется по пропускной способности контрольного пункта, которая составляет: - при ручном контроле - на въезде - до 500 авт./час; - на выезде - до 400 авт./час; - при автоматическом контроле - на въезде - до 450 авт./час; - на выезде - до 360 авт./час; - при кассовой оплате при въезде - до 200 авт./час. Общее количество полос на въезде и выезде рекомендуется не менее двух. Проем ворот для въезда и выезда автомобилей на территорию и в здание следует принимать с учетом следующих габаритов приближения:
При организации рельефа и благоустройстве территории гаража - стоянки необходимо предусматривать возможность сбора и отвода ливневых вод поверхностного стока в локальные очистные сооружения, входящие в комплекс гаража - стоянки, с последующим сбросом в сеть городской ливневой канализации. Очистные сооружения поверхностного стока могут размещаться в здании или на территории гаража - стоянки. 3. Объемно-планировочные решения. Элементы объемно-планировочной структуры и их параметры.Объемно-планировочное решение гаража - стоянки, прежде всего, базируется на выполнении основных технологических требований, т.е. должно обеспечивать удобное хранение, безопасные и быстрые въезд - выезд и перемещение внутри гаража, возможность осуществления технического осмотра, мелкого ремонта и мойки автомобиля. При разработке объемно-планировочного решения необходимо руководствоваться следующими основными задачами: - максимальное использование площади отведенного для строительства участка; - удобство хранения; - безопасность, удобство и минимальный расход времени на перемещение автомобиля внутри гаража; - минимальные затраты на эксплуатацию; - минимальный удельный показатель, характеризуемый отношением общей площади гаража - стоянки к его вместимости; - низкая стоимость машино-места. Вместимость, тип, этажность, эксплуатационные характеристики, конструктивное решение, применяемые материалы и изделия определяются в задании на разработку проектной документации и уточняются при проектировании. Для рамповых гаражей - стоянок на начальной стадии проектирования при определении основных характеристик необходимо выбирать пограничные значения (по верхней границе), характеризуемые взаимосвязью трех основных показателей: вместимости, этажности и типа применяемой рампы. С этой целью составлена таблица 3, в которой приведены наиболее эффективные по расходу общей площади на одно машино-место сочетания характеристик: вместимости, этажности и применяемой рампы, а также габариты плана, поэтажная и общая площадь зоны хранения. Габариты плана этажа и площади рассчитаны для минимальных габаритов машино-места при манежном хранении с прямоугольной схемой расстановки автомобилей среднего класса. Таблица 3 составлена в соответствии с требованиями п.п. 2.10, 2.12 ВСН 01-89. Таблица 3 Эффективные сочетания характеристик объемно-планировочных решений.
Примечание: Показатели рассчитаны для гаража - стоянки с манежным хранением и расстановкой автомобилей под углом 90° без учета поперечных внутригаражных проездов. Эффективность объемно-планировочного решения гаража - стоянки характеризуется двумя коэффициентами: К1, значение которого определяется отношением площади мест хранения к полезной площади здания, и К2, показывающим количество полезной площади гаража - стоянки, приходящейся на одно машино-место.
Н - вместимость гаража - стоянки; S - полезная площадь здания; s - площадь, занимаемая одним автомобилем (площадь машино-места). Численное значение знаменателя H·s показывает общую площадь мест хранения. Значения коэффициентов К1 и К2 зависят от рациональности выбранного объемно-планировочного решения, наибольшего приближения его параметров к минимально допустимым (по действующим нормам) габаритам мест хранения, внутригаражных проездов, рамп, помещении инженерного обеспечения и эксплуатационных служб. Уменьшение численного значения коэффициентов К1 и К2 обеспечивает удешевление будущей себестоимости машино-места. Основными составляющими объемно-планировочной структуры гаража - стоянки являются: - зона хранения автомобилей, включая внутренние проезды; - зона перемещения автомобилей по вертикали; - помещения постов мойки, технического обслуживания и мелкого ремонта; - помещения инженерного обеспечения; - помещения служб эксплуатации. 3.1. Зона хранения автомобилей.Зона хранения включает: места хранения (машино-места) и внутригаражные проезды. При проектировании зоны хранения автомобилей факторами, определяющими размеры мест хранения и внутригаражных проездов, являются габариты автомобилей и наименьшие радиусы их поворотов. В таблице 2 ВСН 01-89 легковые автомобили отнесены к 1 категории с габаритными параметрами в размере: до 6 метров - длина, до 2,1 метров - ширина. Габариты легковых автомобилей с учетом уточнений по таблице 1 Пособия к МГСН 5.01.94* Выпуск 1 приведены в таблице 4. Параметры зоны хранения определяются двумя основными показателями: общей площадью мест хранения и площадью, занимаемой внутренними проездами. Общая площадь мест хранения - это суммарный показатель, определяемый количеством и габаритами машино-мест. Для определения минимально необходимой площади машино-места, кроме габаритов горизонтальной проекции автомобиля, необходим учет параметров защитных зон, приведенный в таблице 5. Таблица 5 Параметры защитных зон.
Таблица 4 Габариты легковых автомобилей.
Примечание: При проектировании гаражей - стоянок для автомобилей других марок следует руководствоваться их габаритами, указанными в паспортах. Общая площадь мест хранения зависит также от размещения автомобиля в зоне хранения и способов хранения и парковки. Известно два способа парковки автомобиля на место хранения: тупиковый, предусматривающий въезд задним ходом, выезд - передним, (или наоборот), и прямоточный, при котором въезд на место хранения и выезд осуществляется передним ходом (Рис. 1). Рис. 1. Способы парковки автомобилей а) тупиковый, б) прямоточный. Так как принимаемый в гаражах - стоянках для индивидуального автотранспорта способ хранения должен обеспечивать независимый въезд - выезд всех автомобилей, прямоточный способ парковки в них практически не применяется, несмотря на более удобную схему движения без пересекающихся или встречных путей. Причиной этому служит неэкономичный расход площади, в связи с обязательной в этом случае однорядной расстановкой автомобилей. В гаражах - стоянках для легковых автомобилей, принадлежащих гражданам, как указываюсь выше, применяются: манежный, боксовый и ячейковый (в автоматизированных гаражах) способы хранения.
Рис. 2. Способы хранения автомобилей а) боксовое; б) манежное; в) ячейковое. В таблице 6 приведены схемы минимальных по площади машино-мест для легковых автомобилей малого, среднего класса и класса «Джип», для манежного и боксового хранения, с учетом их расположения в разных частях помещения хранения. Таблица 6 Параметры мест хранения.
В соответствии с углом между продольными осями автомобиля и проезда при организации зоны хранения используются прямоугольная и косоугольная схемы (рис. 3). Рис. 3. Схемы расстановки автомобиля в зоне хранения а) прямоугольная; б) косоугольная При проектировании гаражей - стоянок с боксовым хранением применяется прямоугольная схема организации мест хранения. При манежном хранении может быть использована любая схема расстановки в соответствии с конкретным проектным решением. От применения той или иной схемы зависит минимально допустимая ширина внутригаражного проезда (таблица 7). Таблица 7 Ширина внутригаражного проезда.
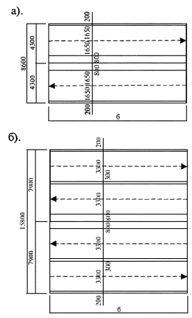
Ширина внутригаражного проезда может быть уменьшена на 0,15; 0,3; 0,45 и 0,6 метра при соответствующем увеличении защитных зон (см. таблицу 5) на 0,1; 0,2; 0,3 и 0,4 метра. В помещениях хранения манежного типа расстояние от колонны до ближайшей границы проезда рекомендуется принимать около 0,5 метра. На рисунке 4 представлены фрагменты планов зон хранения с различной расстановкой автомобилей среднего класса с габаритами машино-мест при минимальных параметрах зон безопасности и внутренних проездов.
Рис. 4. Фрагменты планов расстановки автомобилей среднего класса: а) боксовое хранение; б) манежное хранение, расстановка под углом 90°; в) манежное хранение, расстановка под углом 60°; г) манежное хранение, расстановка под углом 45°. На рисунке сечение колонн каркаса приняты 300×300 мм, толщина межбоксовых перегородок - 150 мм. Автомобили устанавливаются на места хранения задним ходом без дополнительного маневрирования. На рисунке приведены также показатели: S1 - площади 1 машино-места и Sобщ - общей площади зоны хранения 10-ти автомобилей. На диаграмме (рис. 5) приведено сравнение значений коэффициента К1 и показателей общей площади зоны хранения, мест хранения, внутригаражного проезда и машино-места, рассчитанных для фрагментов плана расстановки 10 автомобилей среднего класса.
Рис. 5. Сравнение значений К1 и планировочных показателей зон хранения с различными способами хранения и схемами расстановки. Прямоугольная расстановка, по сравнению с косоугольной, требует большей ширины проезда. Несмотря на это, по расходу площади на 1 машино-место она экономичнее, так как при косоугольной расстановке удлиняется внутренний проезд, и появляются «неиспользуемые» треугольные участки между торцевой стороной горизонтальной проекции автомобиля и границей проезда. Прямоугольная расстановка позволяет автомобилю выезжать с места хранения и въезжать на него с двух сторон проезда, тогда как при косоугольной - только с одной. При компоновке плана зоны хранения принимают одну из следующих схем расстановки: - линейную однорядную с расстановкой автомобилей с обеих сторон (как исключение - с одной стороны) внутреннего проезда; - многорядную, при которой используется не один, а несколько внутренних проездов; - криволинейную в плане (кольцевую) с расстановкой автомобилей с обеих сторон (как исключение - с одной стороны) внутреннего проезда; - комбинированную, в которой сочетаются приведенные выше приемы расстановок. От размещения мест хранения, внутригаражных проездов и принятой схемы расстановки зависит организация движения автомобилей в пределах зоны хранения и, как следствие, удобство эксплуатации автостоянки. Для успешной организации движения важны следующие критерии, которые рекомендуется учитывать при разработке проекта: - обеспечение одностороннего движения во всех проездах; - организация движения с левыми кривыми (для стандартных автомобилей с рулем расположенным слева); - максимально возможное исключение пересечений отдельных направлений движения, так как на этажах может быть ограничен обзор из-за опор, лестничных клеток, лифтовых шахт, технических помещений и других устройств; - обеспечение для выезжающих автомобилей (особенно на этажах большой протяженности) кратчайших путей к выездным рампам путем устройства между рядами поперечных проездов, соединяющих один продольный ряд с другим. От планировочного решения и параметров зоны хранения в значительной степени зависят и экономические показатели гаража - стоянки, в том числе, стоимость машино-места, которая находится в прямой зависимости от значения коэффициента К1, являющегося основным показателем рентабельности проектного решения гаража - стоянки. С точки зрения уменьшения значения коэффициента К1, особенно актуальным становиться точное соответствие габаритов здания, шага колонн, величины пролетов минимально допустимым габаритам мест хранения и внутригаражных проездов или применение большепролетных конструкций с организацией пространств, свободных от внутренних опор несущих конструкций. Высота помещения хранения для автомобилей особо малого, малого и среднего классов в подземных и надземных гаражах - стоянках рампового типа должна быть не менее 2,0 метров от пола до низа выступающих конструкций или подвесного оборудования (п. 2.2 МГСН 5.01-94*). При этом необходимо учитывать увеличение в личном пользовании количества крупногабаритных автомобилей типа «Джип», для которых высота этажа должна быть увеличена до 2,2 ÷ 2,4 метра от чистого пола до низа выступающих конструкций. В механизированных и автоматизированных гаражах - стоянках (при условии использования специальных устройств установки автомобилей на место без запуска двигателя) высота этажа может быть снижена до 1,8 метра при хранении автомобилей среднего класса. В случае хранения автомобилей типа «Джип» - до 2,3 метра. 3.2 Зона перемещения автомобилей по вертикали.Способ подъема по вертикали в многоярусных гаражах - стоянках представляет собой характеристику, позволяющую выделить три основных типа: - рамповые - автомобиль поднимается вверх собственным ходом; - механизированные - автомобиль поднимается вверх с помощью специальных устройств (лифтов); - автоматизированные - автомобиль доставляется на место хранения с помощью специальных устройств без участия водителя и запуска двигателя. Полностью автоматизированные гаражи - стоянки в отечественной практике гаражного строительства используются для временного или сезонного хранения и, вследствие своей дороговизны, в современных экономических условиях не применяются для постоянного хранения индивидуальных легковых автомобилей. В многоэтажных гаражах - стоянках с постоянным хранением для организации перемещения автомобилей по вертикали используются рампы и лифты. Рампы классифицируются по ряду признаков: расположению относительно зоны хранения и здания в целом, количеству полос движения, очертанию в плане, характеру движения, пространственному построению, степени изоляции от помещения хранения. Классификация рамп приведена на рис. 6. Рис. 6. Классификация рамп. Рампы могут быть изолированные и неизолированные от помещений хранения автомобилей. Разновидностью рамповых гаражей являются «скатные стоянки» или стоянки с наклонными перекрытиями. По расположению относительно зоны хранения или здания в целом рампы бывают встроенные и пристроенные. В зависимости от количества полос движения рампы могут быть однопутные и двухпутные. Однопутные имеют полосу движения, ширина проезжей части которой обеспечивает проезд только одного автомобиля. Двухпутные имеют две полосы движения с шириной, достаточной для движения двух автомобилей. На двухпутных рампах движение может происходить в одном направлении по обеим полосам или в разных направлениях - по одной полосе вверх, а по другой вниз. Тип и число полос движения рамп принимается в соответствии с п. 2.10 ВСН 01-89. По очертанию в плане рампы могут быть прямолинейными и криволинейными. На прямолинейных рампах движение автомобилей происходит только по прямой на подъем или спуск, а повороты совершаются на горизонтальной плоскости промежуточных площадок и этажей. На криволинейных рампах движение вверх и вниз происходит одновременно с поворотом на наклонной плоскости самой рампы по траектории, определяемой ее образующей. Разновидностью криволинейных рамп являются круговые, эллиптические и концентрические. По высоте или длине подъема рампы делятся на одномаршевые, двухмаршевые (полурампы) и аппарели. Полные рампы обеспечивают подъем или спуск между двумя последовательными этажами одним маршем, полурампы - двумя маршами. Аппарели служат для сообщения между смежными помещениями, расположенными в одном этаже, но имеющими разные отметки пола. Рампы проектируют изолированными или неизолированными от зоны хранения. Изолированные рампы отделяются от помещения хранения противопожарными и противодымными преградами, препятствующими распространению дыма и огня через рампы в помещения хранения. Такие преграды устраиваются в виде стен или перегородок с противопожарными воротами или тамбурами. Все элементы этих преград должны быть несгораемыми с пределом огнестойкости согласно действующим нормативам. Неизолированными считаются рампы, не имеющие указанных преград. Встроенные неизолированные рампы, предусматривающие транзитное движение через поэтажные зоны хранения гаража - стоянки, в соответствии с п. 2.28. МГСН 5.01-94* могут быть применены в зданиях не выше 3 этажей I, II степени огнестойкости при суммарной площади этажей не более 10400 м2 и в гаражах - стоянках открытого типа. Наибольшее распространение получили изолированные встроенные и пристроенные рампы. В современной практике гаражного строительства применяются рампы, схемы которых представлены в таблице 8. Их отличает простота конструктивного решения и минимальные размеры горизонтальной проекции. Таблица 8 Типы рамп, применяемые в современной практике гаражного строительства.
Разновидностью многоэтажных гаражей - стоянок являются «скатные стоянки», в которых рамповые устройства отсутствуют. Роль рамп выполняют наклонные перекрытия, по которым происходит междуэтажное и внутриэтажное движение автомобилей, и одновременно размещаются места хранения, располагаемые поперек наклонного пола, уклон которого не должен превышать 6 %. Типы пространственной организации «скатных стоянок» приведены на рис. 7. Рис. 7. Типы пространственной организации «скатных стоянок»: а) одноходовый винт с двухсторонним движением в проезде; б) два одноходовых винта с односторонним движением в проезде; в) двухходовый винт с односторонним движением в проезде; г) двухходовый винт с дополнительной рампой. «Скатные» стоянки характеризуются непрерывностью движения автомобиля через все нижележащие этажи. С целью сокращения пути внутригаражного перемещения автомобиля от въезда - выезда до места хранения при проектировании используют различные приемы, в том числе: включение рампы в объем «скатной стоянки», устройство дополнительных проездов с рамповыми уклонами, проектирование «скатных стоянок», имеющих цилиндрический объем, использование грузовых лифтов для подъема автомобилей. Для «скатных стоянок» характерно манежное хранение автомобилей. В соответствии с п. 2.10 ВСН 01-89 число рамп в проектируемом гараже - стоянке должно определятся расчетом, исходя из условий эвакуации всех автомобилей из здания в течение 1 часа при скорости движения 15 км/час с интервалом 20 метров. При таком интервале и высоте этажа до 3-х метров в пределах междуэтажной длины рампы будет находиться лишь один автомобиль, что отвечает требованиям безопасного движения. Пропускная способность рамп с одной полосой движения - D (автомобилей в час) определяется по формуле:
где: t (сек.) - интервал времени между движущимися автомобилями;
где: i = 20 м - расстояние между движущимися автомобилями; v = 15 км/час - скорость движения.
В соответствии с расчетом, пропускная способность рамп для полосы движения составляет 750 автомобилей, т.е., для гаража - стоянки вместимостью 750 автомобилей, исходя из требований безопасности эвакуации, достаточно одной однопутной рампы. Однако определение минимального числа и типа рамп при проектировании регламентируется также удобствами эксплуатации, возможностью закупорки рампы и рядом других факторов. Поэтому, с учетом требований п. 2.10 ВСН 01-89, в многоэтажных гаражах - стоянках следует принимать минимальное количество рамп при числе автомобилей на всех этажах, кроме первого: - до 100 включительно - не менее одной однопутной рампы: - свыше 100 до 200 включительно - не менее одной двухпутной рампы; - свыше 200 до 1000 включительно - не менее двух однопутных рамп; - свыше 1000 - не менее трех однопутных рамп или двух двухпутных рамп. При применении одной однопутной рампы, используемой как для подъема, так и для спуска автомобилей (разновременно), должна быть предусмотрена соответствующая сигнализация. Движение автомобилей на въездных рампах, независимо от типа последних, рекомендуется проектировать в направлении против часовой стрелки. Движение на выездных рампах, в зависимости от их типа, может иметь направление, как по часовой стрелке, так и против. При проектировании многоэтажного гаража - стоянки целесообразно выбирать рампу с минимальной площадью горизонтальной проекции, которая регламентируется нормативными параметрами: уклоном, шириной проезжей части, размерами зон безопасности. Уклон рамп измеряется по средней линии полосы движения и выражается в градусах, процентах или отношением высоты подъема к длине горизонтальной проекции оси наклонной поверхности. Угол в 1° равен 1,7 %, а уклон в 1 % равен 34'20". В соответствии с п. 2.12 ВСН 01-89 для различных типов рамп установлены следующие максимальные уклоны: - закрытые отапливаемые прямолинейные рампы - до 18 %; - закрытые отапливаемые криволинейные рампы - до 13 %; - закрытые не отапливаемые и открытые, не защищенные от атмосферных осадков рампы - до 10 %. При подогреве или других инженерных решениях, устраняющих обледенение проезжей части рампы, уклон может быть увеличен, но не более чем до 18 % и 13 % соответственно. - поперечный уклон криволинейных и прямолинейных рамп - до 6 %. Сопряжение рамп с горизонтальными участками пола должно быть плавным, а расстояние от низа автомобилей до пола должно быть не менее 0,1 метра. Ширина проезжей части рампы зависит от габаритной ширины автомобиля и от очертания горизонтальной проекции его пути на рампе. Ширина прямолинейной рампы определяется габаритом автомобиля с учетом необходимых зон безопасности. Ширина криволинейной рампы определяется радиусом наружной кривой поворота, габаритной шириной автомобиля, размерами зон безопасности. Ширина проезжей части однопутных рамп может быть определена по таблице 9. Таблица 9 Ширина проезжей части рампы.
Ширина проезжей части каждой полосы движения двухпутной рампы принимается равной ширине проезжей части соответствующей однопутной рампы. С обеих сторон проезжей части рампы необходимо предусматривать колесоотбойные устройства (барьеры) высотой 0,1 м и шириной 0,2 м. Для двухпутной рампы предусматривается также средний барьер шириной 0,3 м, разделяющий проезжие части. На рампах с пешеходным движением вместо одного из колесоотбойных барьеров должен предусматриваться тротуар шириной 0,8 м. Тротуар на криволинейных рампах должен располагаться с внутренней стороны рампы. Расстояние от верха проезжей части рампы до выступающих конструктивных элементов перекрытия (покрытия) или до низа оборудования должно быть равным высоте наиболее высокого автомобиля плюс 0,2 м, но не менее 2 м. На рисунках с 8 по 12 показаны минимальные горизонтальные проекции рамп, наиболее часто применяемых в практике проектирования многоэтажных гаражей - стоянок. Горизонтальные проекции рамп построены для автомобилей среднего класса с учетом всех действующих нормативных требований. Значения параметров, обозначенных символами а, б, приведены в таблице 10.
Рис. 8 Минимальная горизонтальная проекция криволинейной однопутной рампы а) уклон - 10 %; б) уклон - 13 %.
Рис. 9. Минимальная горизонтальная проекция двухпутной криволинейной рампы. а) уклон 10 %; б) уклон 13 %.
Рис. 10. Минимальная горизонтальная проекция прямолинейной полурампы (аппарели). Уклон 10 %. а) однопутной; б) двухпутной
Рис. 11. Минимальная горизонтальная проекция однопутной прямолинейной одномаршевой рампы (уклон 10 %).
Рис. 12. Минимальная горизонтальная проекция прямолинейной двухмаршевой рампы (уклон 10 %). а) однопутная; б) двухпутная. В таблице 10 приведены минимальные площади и параметры горизонтальной проекции наиболее часто применяемых рамп. Таблица 10 Параметры рамп.
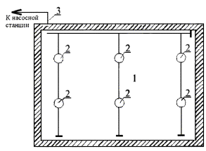
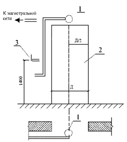
При применении грузовых лифтов для вертикального перемещения автомобилей следует исходить из того, что один стационарный лифт рекомендуется рассчитывать не более чем на 100 автомобилей, расположенных на всех этажах, кроме первого. Грузовой лифт должен отвечать требованиям «Правил устройства и безопасности эксплуатации лифтов». Внутренние размеры кабины автомобильного лифта должны превышать габариты автомобиля по ширине на 1,0 м (0,6 м - при наличии дежурного диспетчера); по длине - на 0,8 м, по высоте, с учетом возможной установки багажника и сигнально-осветительных устройств, - на 0,2 м. Лифты для транспортировки автомобилей классифицируются по расположению, вместимости и способу загрузки. По расположению лифты делятся на наружные (пристроенные к объему здания) и внутренние (встроенные в объем здания). Шахты встроенных лифтов должны быть изолированы. Применение грузовых лифтов обоснованно в автоматических и механизированных гаражах - стоянках, а так же в полумеханизированных: - при размещении на этаже 70 и менее м/м вместо одной из рамп; - при размещении на этаже 30 и менее м/м допускается предусматривать вместо рампы (п. 2.23 МГСН 5-01-94*). Въезд в грузовой лифт и выезд из него на посадочном этаже гаражей - стоянок всех типов предусматривают непосредственно с улицы или из тоннеля, имеющего непосредственную связь с улицей (п. 1.5 МГСН 4.04-94*). На этажах помещения зоны хранения, мойки, ТО и ТР и шахта грузового лифта разделяются противопожарными стенами, воротами и дверьми с пределом огнестойкости в подземных этажах соответственно 1,5 и 1,0 часа, в надземных - 0,75 и 0,6 часа. В многоэтажных гаражах - стоянках, в отдельных случаях, для повышения комфортности эксплуатации размещают пассажирские лифты. Основанием для их устройства служит задание на проектирование. В подземных и подземно-надземных гаражах - стоянках необходимо проектировать шахты лифтов с подпором воздуха при пожаре, если подземная часть гаража имеет 2 и более этажей, лифт связывает подземную и надземную зоны хранения или подземное помещение хранения с надземной частью другого назначения. При размещении гаража - стоянки под многоэтажным многоквартирным жилым зданием не следует устраивать лифт, общий для жилой части и автостоянки (п. 2.37 МГСН 5.01-94*). В многоэтажных гаражах - стоянках с 3-мя и более подземными этажами или с 5-ю и более надземными на каждый пожарный отсек необходимо предусматривать лифт для подъема пожарных подразделений с выходом непосредственно наружу. При организации выхода на кровлю, в качестве лифта для перевозки пожарных подразделений, может использоваться грузовой автомобильный лифт. В автоматизированных гаражах - стоянках в качестве системы парковки автомобиля от въезда - выезда до ячейки хранения используют различные устройства: стационарные, передвижные или поворотные лифты, потерностеры, пневмоподъемники и другие. 3.3. Помещения постов косметической мойки, технического осмотра и мелкого технического ремонта.В гаражах - стоянках для индивидуальных владельцев постоянного и временного хранения вместимостью 100 и более машино-мест необходимо, в соответствии с требованиями МГСН 5.01-94*, предусматривать посты косметической мойки автомобилей, технического осмотра (ТО) и мелкого технического ремонта (ТР), проектировать которые следует согласно СНиП 2.04.03-85. Автомойки оборудуют очистными сооружениями и оборотной системой водоснабжения. Схема очистных сооружений приведена на рис. 16. Количество постов мойки рекомендуется определять из условия, что ими в течение суток пользуются: 10 % автомобилей общего количества автомобилей при постоянном хранении, 5 % общего количества автомобилей при временном хранении. Необходимо также учитывать: - пропускную способность моечных постов (при ручной шланговой мойке - 5 ÷ 6 автомобилей в час, при механизированной - 10 ÷ 12 автомобилей в час); - время возврата автомобилей на автостоянку (примерно через 4 часа). В гаражах - стоянках постоянного хранения рекомендуется предусматривать 1 пост ТО (ТР) на 100 и более (до 200 включительно) машино-мест и по 1 посту на каждые последующие полные и неполные 200 машино-мест. Для выполнения работ по мойке и техническому обслуживанию предусматриваются посты самообслуживания с минимальным набором технологического оборудования. Примерный перечень оборудования: - пост мойки - аппарат ручной, механической (портальной) или автоматической (туннельной) мойки автомобилей; - пост ТО и ТР - стол - верстак электрика; - станок настольно-сверлильный: - верстак слесарный; - пресс гидравлический ручной; - прибор для контроля и регулировки фар автомобиля; - компрессор. На рисунках 13, 14, 15приведены технологические схемы: ручной, туннельной и портальной моек с оборудованием фирмы «Karcher».
Рис. 13. Технологическая схема ручной мойки.
Рис. 14. Технологическая схема механизированной мойки типа "Туннель".
Рис. 15. Технологическая схема автоматической мойки типа "Портал" В гаражах - стоянках для индивидуальных владельцев автомобилей, как правило, размещается ручная мойка. Помещения моек и ТО и ТР располагают на первом этаже надземных многоэтажных и на верхнем этаже подземных многоэтажных гаражей - стоянок. В гаражах - стоянках, размещаемых под жилыми зданиями, устройство постов ТО и ТР не допускается (п. 2.13 МГСН 5.01-94*). Планировочные решения этих помещений выполняются на основе технологического задания с учетом параметров, приведенных в таблицах 11 и 12. Таблицы составлены в соответствии с данными Пособия к МГСН 5.01-94*, Выпуск 1. Таблица 11 Ширина внутреннего проезда в помещениях постов ТО и ТР.
Таблица 12 Параметры защитных зон.
Высоту помещений постов ручной мойки следует принимать не менее 2,5 метров в свету. При оборудовании моечных постов механизированными установками высота помещения мойки определяется габаритами технологического оборудования, как правило, не менее 3,6 метра в свету. В помещениях мойки необходимо предусматривать: - трап и емкость для сбора грязной воды; - фундаменты для баков и емкостей отстоя системы очистки оборотного водоснабжения поста мойки. Рис. 16. Схема очистных сооружений оборотного водоснабжения ручной мойки. 1 - лоток с решеткой для сбора стоков; 2 - отстойник; 2а - секция отстойника для сбора осадка; 2б - секция отстойника для осветленной воды; 3 - погружной насос для подачи стоков на очистную установку; 4 - реагенты; 5 - очистная установка; 6 - сепаратор; 7 - фильтры; 8 - емкость осветленной воды; 9 - накопительная емкость; 9а - насос - автомат; 10 - фильтр тонкой очистки воды. Посты ТО и ТР проектируют с напольным оборудованием или смотровыми канавами. Высота помещений не менее 2,5 метров в свету. В качестве напольного оборудования используют подъемники различных модификаций. Размеры осмотровых канав рекомендуется проектировать с учетом следующих требований: - длина рабочей зоны должна быть не менее габаритной длины обслуживаемого автомобиля (но не менее 5 метров); - ширина должна устанавливаться с учетом размеров колеи автомобиля и устройства наружных реборд (0,9 метров для легковых автомобилей и микроавтобусов особо малого класса); - рекомендуемая глубина - 1,5 метра. На въездной части осмотровой канавы целесообразно предусматривать рассекатель высотой 0,15 метра. Для входа в осмотровую канаву предусматривают лестницы шириной не менее 0,7 метра. Входы ограждают перилами высотой 0,9 метра и располагают вне зоны движения и маневрирования автомобилей. На тупиковых осмотровых канавах целесообразно предусматривать устройства упоров для колес автомобилей. В осмотровых канавах желательно предусматривать ниши, в которых размещают светильники и розетки для включения переносных ламп напряжением 12 В. Сообщение помещений моек и постов ТО и ТР с помещениями зон хранения автомобилей допускается только через проемы, оснащенные противопожарными воротами и дверьми с пределом огнестойкости не менее 0,6 часа, в противопожарных перегородках с пределом огнестойкости 0,75 часа. При размещении моек и постов ТО и ТР в автоматизированных гаражах - стоянках предел огнестойкости разделяющих их помещения перегородок, ворот и дверей не нормируется (п. 2.16 МГСН 5.01-94*). 3.4. Помещения инженерного обеспечения и служб эксплуатации.Наряду с помещениями хранения автомобилей, моек, постов ТО и ТР, в комплекс гаража - стоянки для легковых автомобилей, принадлежащих гражданам, обязательно должны быть включены группы помещений, состав и размер которых определяются заданием на проектирование в зависимости от типа и вместимости автостоянки: - технические помещения для инженерного оборудования; - помещение для дежурного персонала и административные помещения; - помещение хранения пожарного инвентаря, помещение уборочного инвентаря. В состав технических помещений для инженерного оборудования входят: - вентиляционные камеры; - насосная станция пожаротушения; - узел ввода водопровода; - автоматическая насосная станция для откачки воды при тушении пожара, удаление грунтовых вод и других протечек; - помещение энергоснабжения; - тепловой пункт. Вентиляционные камеры необходимо предусматривать в закрытых надземных и подземных гаражах - стоянках и в открытых гаражах - стоянках шириной более 72,0 м. Насосная станция пожаротушения обязательно должна располагаться у наружной стены с устройством обязательного выхода непосредственно наружу на первом этаже надземного и не ниже верхнего этажа подземного гаража - стоянки. Насосная станция пожаротушения может быть сблокирована с узлами ввода водопровода и автоматической насосной станцией для откачки воды при тушении пожара. Эти помещения должны быть отапливаемыми. Автоматическая насосная станция откачки воды при тушении пожара в подземном гараже - стоянке может размещаться на нижнем этаже. Помещение энергоснабжения обычно располагают у наружной стены в месте ввода на первом этаже надземного и на верхнем этаже подземного гаража - стоянки. Тепловой пункт необходимо устраивать в закрытых отапливаемых гаражах - стоянках, а также в закрытых не отапливаемых и открытых, если нет разрешения на отопление ряда помещений электричеством. Тепловой пункт размещают у наружной стены здания в месте ввода теплосети на первом этаже надземного и на верхнем этаже подземного гаража - стоянки. В состав помещений обслуживающего персонала должны входить: - контрольно-пропускные пункты, если они находятся в здании гаража - стоянки; - помещение дежурного; - санитарно-бытовые; - административные. Количество контрольно-пропускных пунктов, в здании гаража зависит от числа въездов - выездов, их состав и площади не нормируются. В помещении дежурного размещается диспетчерский пульт управления системами противопожарной защиты гаража - стоянки. В надземных гаражах помещение дежурного должно располагаться на первом этаже. В подземном - не ниже верхнего этажа и иметь выход непосредственно наружу или на лестничную клетку, ведущую наружу. Помещение должно отапливаться и иметь санитарный узел. При проектировании административных и санитарно-бытовых помещений гаражей - стоянок должны соблюдаться требования СНиП 2.09.04-84 и ВСН 01-89. В состав санитарно-бытовых помещений входят: гардеробные, душевые (при размещении в здании постов мойки, ТО и ТР), умывальные, уборные. Санитарно-бытовые помещения проектируют в зависимости от групп производственных процессов, определяемых согласно таблице 6 СНиП 2.03.04-87. В таблице 13 приведены состав и численность производственного персонала гаража - стоянки (на примере автостоянки на 422 машино-места ГСК «Каскад» в г. Москве). Таблица 13 Состав и численность производственного персонала.
Обслуживание и ремонт технологического и инженерного оборудования, сетей и коммуникаций (отопление, водопровод, освещение и т.д.) выполняются дежурным персоналом, работающим по совместительству. При списочном составе работающих менее 50 человек допускается предусматривать общие гардеробные для всех работающих, независимо от групп производственных процессов. Площадь гардеробных помещений гаража - стоянки принимается из расчета 0,1 м2 на человека, но не менее 4,0 м2. Санитарно-бытовые помещения размещаются на первых этажах многоэтажных гаражей - стоянок в непосредственной близости от помещений постов мойки, ТО и ТР. Состав административных помещений гаража - стоянки не нормируется и определяется заданием на проектирование. Они размещаются, как правило, на первом этаже. Площадь административных помещений следует принимать из расчета не менее 4 м2 на одного работающего. В административных помещениях рекомендуется предусматривать естественное освещение. Для проведения механизированной уборки помещений гаража - стоянки необходимо выделение помещений хранения уборочного инвентаря. В соответствии с технологическим заданием на проектирование эти помещения размещаются на каждом этаже (ярусе) зон хранения. Площадь их не нормируется. Как правило, помещения для уборочного инвентаря размещают на участках этажей, которые не могут быть использованы для размещения мест хранения автомобилей. В составе подсобных помещений гаража - стоянки необходимо предусматривать помещение хранения пожарного инвентаря, которое размещается на первом этаже здания с непосредственным выходом наружу. 4. Основные противопожарные требования.По пожароопасности здания гаражей - стоянок относятся к категории В1. Степень огнестойкости для закрытых и открытых гаражей - стоянок предусматривается: - подземные, независимо от этажности - не менее I; - надземные многоэтажные - не менее II. Площадь этажа и этажность гаража - стоянки в пределах пожарного отсека принимают: - в подземных I степени огнестойкости - не более 3000 м2, 5 этажей; - в надземных закрытых I и II степени огнестойкости - не более 5200 м2, 9 этажей; - в надземных открытых I и II степени огнестойкости - не более 4000 м2, 9 этажей. Противопожарные отсеки в соответствии с п. 2.21 МГСН 5.01-94* должны быть отделены противопожарными стенами I типа с пределом огнестойкости 2,5 часа. Проемы в противопожарных стенах и перегородках следует, защищать противопожарными воротами, дверьми (по СНиП 2.01.02-85*). При разработке объемно-планировочного решения гаража - стоянки из каждого пожарного отсека предусматривается не менее двух выездов для автомобилей на закрытые или открытые рампы. Один из выездов может быть организован через смежный пожарный отсек. Если на этаже гаража - стоянки устанавливается 70 и менее автомобилей, достаточно устраивать выезд на одну рампу, а при 30 и менее - рампу можно заменить грузовым лифтом. При формировании объемно-планировочного решения необходимо выполнение требования безопасной эвакуации людей при пожаре. Для этого из каждого этажа зоны хранения предусматривается не менее двух рассредоточенных эвакуационных выходов наружу, в лестничную клетку или изолированную рампу. Расстояние между эвакуационными выходами принимается в соответствии с п. 2.24 МГСН 5.01-94*. В подземных гаражах - стоянках оно должно быть не более 80 метров. При этом до ближайшего эвакуационного выхода расстояние не должно превышать 40 метров. В надземном гараже - стоянке - соответственно 120 и 60 метров. Максимальное расстояние до ближайшего эвакуационного выхода в тупиковой части помещения составляет 25 метров в обоих случаях. В качестве эвакуационного выхода в открытых гаражах - стоянках разрешается использовать проход по полурампе на полуэтаж к лестничной клетке. При этом ширина пешеходного тротуара, который поднимается над плоскостью проезжей части рампы, принимается не менее 80 см. Вдоль тротуара устраивается колесоотбой. Конструкции лестничных клеток, шахт лифтов и рамп в гаражах - стоянках всех типов должны соответствовать I или II степени огнестойкости (СНиП 2.01.02-85*). Если в здании гаража - стоянки размещаются помещения, не входящие в его комплекс, то, в соответствии с п. 2.16 МГСН 5.01-94*, сообщение между автостоянкой и этими помещениями осуществляется через тамбур - шлюзы с подпором воздуха при пожаре и дренчерными завесами над проемом со стороны автостоянки (СНиП 2.04.09-84). Степень огнестойкости несущих и ограждающих конструкций гаража - стоянки, встроенного в здание другого назначения, принимается не менее степени огнестойкости основного здания. Помещения встроенной автостоянки отделяются от помещений основного здания противопожарными стенами I типа и перегородками с пределом огнестойкости не менее 2,5 часа (п. 2.9 МГСН 5.01-94*). Пристроенные гаражи - стоянки всех типов отделяют от здания другого назначения противопожарными стенами I типа с пределом огнестойкости 2,5 часа. Автоматизированные гаражи - стоянки могут иметь вместимость до 30 машино-мест. При большей вместимости они должны компоноваться из нескольких блоков, разделенных противопожарными перегородками с пределом огнестойкости не менее 0,75 часа при надземном и 2,5 часа при подземном размещении. 5. Конструктивные системы зданий и их элементы.Для гаражей - стоянок в отечественной практике проектирования и строительства применяют различные конструктивные решения. Выбор конструктивного решения зависит от ряда факторов: - размещения в городской застройке; - формы и размеров отведенного для строительства участка; - типа гаража - стоянки; - архитектурного и объемно-планировочного решения; - расчетной себестоимости машино-места; - организации строительства. Для несущих и ограждающих конструкций многоэтажных подземных и надземных гаражей - стоянок принимают долговечные и несгораемые материалы: железобетон, сталь, кирпич. В настоящее время в гаражном строительстве находят применение различные конструктивные схемы: каркасные, панельные, с несущими стенами из мелкоштучных изделий, комбинированные. В большинстве случаев возводят каркасные здания. Несущие конструкции каркаса решают либо по рамной схеме, при которой все вертикальные и горизонтальные нагрузки воспринимаются жесткими узлами рам, либо по связевой схеме с передачей всех горизонтальных нагрузок на жесткие вертикальные и горизонтальные связи или диафрагмы и ядра жесткости, либо по рамно-связевой схеме, где горизонтальные нагрузки одного направления воспринимаются рамами с жесткими узлами, а другого - передаются через междуэтажные перекрытия на вертикальные диафрагмы (поперечные или продольные стены, лестничные клетки, шахты лифтов, рампы). Как показывает опыт проектирования и строительства гаражей - стоянок, чаще других применяется рамно-связевая схема. Несущие каркасы зданий гаражей - стоянок выполняют сборными, сборно-монолитными и монолитными железобетонными и стальными. Конструкции из железобетона в наибольшей степени отвечают требованиям огнестойкости и коррозийной стойкости, предъявляемым при строительстве гаражей - стоянок. При возведении гаражей - стоянок из сборных железобетонных изделий с унифицированными параметрами необходимо учитывать, что последние, как правило, не соответствуют параметрам отдельных мест хранения и зоны хранения в целом. Особенно это касается криволинейных рамп, у которых не только габариты, но и форма плана не позволяют, в полной мере, использовать типовые сборные железобетонные элементы. Вместе с тем применение сборных железобетонных конструкций приводит к сокращению сроков строительства. Для гаражей - стоянок с боксовым хранением достаточно эффективно применение сборных железобетонных конструкций крупнопанельного домостроения с незначительным их приспособлением и переработкой. (Например, конструкции Подольского домостроительного комбината Приложение 2, Люберецкого завода железобетонных изделий Приложение 3). Себестоимость машино-места в боксовом не отапливаемом гараже - стоянке, возводимом из сборных железобетонных панелей, составляет 7,5 - 8,5 тыс. дол. США. К сожалению специальных сборных железобетонных конструкций для гаражей - стоянок нет. Их разработка, при условии достаточно низкой цены, значительно сократило бы время возведения гаражей - стоянок. С появлением высококачественной щитовой и тоннельной опалубки применение монолитного железобетона при строительстве многоэтажных гаражей - стоянок в отечественной практике стало одним из наиболее часто используемых решений (Приложения 1, 9, 11, 12). Монолитные железобетонные конструкции по области применения не имеют ограничений и достаточно дешевы. Их преимуществом также является возможность строительства в затесненных градостроительных условиях. Использование монолитных железобетонных конструкций позволяет закладывать в проекте параметры (сетки колонн, высоту этажа), точно соответствующие выбранному типу планировочного решения, габаритам мест хранения и внутригаражных проездов, т.е., добиваться уменьшения значений коэффициентов К1 и К2, а, значит, и снижения его себестоимости. Особенно эффективно применение конструкции из монолитного железобетона в следующих случаях: - расположение и размеры участка строительства исключают подвозку, складирование и монтаж сборных элементов; - здание имеет сложную форму плана; - возведение подземных этажей гаражей - стоянок, для обеспечения надежной гидроизоляции; - использование криволинейных рамп. Например, в гараже - стоянке на 339 машино-мест, строящемся на Беломорской улице, рампа выполнена без каркаса из монолитного железобетона (Приложение 1). Наружные и внутренние стены имеют толщину 200 мм, перекрытия - переменную высоту от 160 до 250 мм. Такое решение позволило упростить возведение рампы, значительно снизить материалоемкость. Стальной каркас применяют в надземных гаражах - стоянках всех типов. Наиболее эффективно - для гаражей - стоянок с манежным хранением, в том числе, открытых (Приложения 5, 13, 14). Стальные конструкции позволяют легко и экономично перекрывать большие пролеты или могут иметь сетку опор в точном соответствии с габаритами и параметрами элементов объемно-планировочной структуры гаража - стоянки. В противопожарных целях стальной каркас защищают огнестойкими материалами или красками. В качестве защитных мероприятий предусматривают: - обетонирование колонн и балок; - оштукатуривание цементной штукатуркой (с вермикулитом, перлитом или асбестом); - обшивка листовыми материалами; - нанесение на балки и колонны огнестойких покрытий. В гаражах - стоянках с каркасом из металла и монолитного железобетона перекрытия, как правило, выполняются монолитными в съемной или несъемной опалубке из стального профилированного листа. Наряду с высокой технологичностью производства работ и отказом от специальной инвентарной опалубки, этот метод позволяет уменьшить конструктивную высоту перекрытия (например, при сетке колонн 6,0×6,0 - до 160 мм). Применение монолитного перекрытия целесообразно при сложной конфигурации плана здания. Для выбора конструктивного решения важна этажность здания. По этажности гаражи - стоянки можно условно разделить на две группы: малоэтажные - 2 ÷ 3 этажа и многоэтажные - 4 ÷ 9 этажей. Как правило, малоэтажные имеют небольшую вместимость. В приложениях приведены примеры гаражей - стоянок этажностью 4 ÷ 9 этажей с наиболее часто применяемыми в современном гаражном строительстве вариантами конструктивных решений. Вариант 1. (Приложение 1). 4-х этажное здание с монолитным железобетонным каркасом, монолитным железобетонным перекрытием в съемной опалубке из стального профилированного листа. Наружные стены и перегородки из пенобетонных блоков толщиной, соответственно, - 300 мм и 80 мм. На 3-ем и 4-ом не отапливаемых этажах наружные стены выполнены из жалюзийных стеклофибробетонных панелей. Вариант 2. (Приложение 11). 8-ми этажное каркасное здание. Материал несущих конструкций - монолитный железобетон. Ограждающие конструкции трехслойные панели с несгораемым утеплителем. Вариант 3. (Приложение 13). 6-ти этажное каркасное здание. Колонны, балки - металлические, перекрытия монолитные. Парапеты наружного ограждения - сборные железобетонные панели. Вариант 4. (Приложение 10). 9-ти этажное здание со сборным железобетонным каркасом. Ограждающие конструкции - сборные железобетонные панели. Вариант 5. (Приложение 2). 4-х этажное панельное здание из сборных железобетонных конструкций, выпускаемых Подольским ДСК. Для малоэтажных зданий эффективно применение следующих конструктивных решений: Вариант 6. (Приложение 4). Крупнопанельное здание с панелями на два этажа (Быстромонтируемое здание). Возможно увеличение этажности до трех этажей за счет устройства мансардного этажа. Вариант 7. (Приложение 16). 2-х этажное здание с металлическим каркасом, перекрытия - из мелкоразмерных или крупноразмерных железобетонных плит. Фундаменты применяются всех типов в зависимости от конструктивного решения и основ: - столбчатые сборные или монолитные под отдельные колонны; - ленточные сборные или монолитные под несущие стены; - сплошные из монолитного железобетона, выполняемые под всем сооружением в виде относительно гибкой плиты; - свайные. Столбчатые фундаменты применяют в каркасных зданиях при достаточно удаленных друг от друга колоннах и сравнительно небольших нагрузках. По конструктивному исполнению они подразделяются на сборные и монолитные. Ленточные фундаменты проектируют в зданиях с несущими стенами. Применение сплошных монолитных плит и свайных фундаментов обоснованно при сложных грунтовых условиях. Несущие конструкции здания: колонны, ригели, перекрытия, покрытия, стены. При проектировании многоэтажных гаражей - стоянок могут применяться как металлические колонны двутаврового или замкнутого профиля, так и железобетонные прямоугольного или круглого сечения. При использовании металлических колонн необходимо проведение дополнительных противопожарных мероприятий. Наиболее обоснованно применение металлических колонн при проектировании холодных гаражей - стоянок малой этажности, большепролетных многоэтажных открытых или закрытых манежного типа. В зависимости от конструктивной системы, каркасы могут быть балочные или безбалочные, с монолитными или сборными железобетонными перекрытиями. В перекрытиях балочного типа используют стальные или железобетонные балки (ригели). Железобетонные ригели рационально применять в каркасных зданиях с железобетонными колоннами и небольшими пролетами (до девяти метров). Металлические балки позволяют перекрывать пролет до 18 метров и применяются в каркасных зданиях, как с железобетонными, так и с металлическими колоннами. Перекрытия по стальным балкам осуществляются большеразмерными и мелкоразмерными железобетонными плитами. Использование последних позволяет снизить толщину перекрытия, а также уменьшить стоимость строительно-монтажных работ. Применение железобетонных плит перекрытия является традиционным решением, как для каркасных, так и для панельных зданий гаражей - стоянок. Монолитные перекрытия имеют меньшую толщину по сравнению со сборными и позволяют перекрывать здания сложной конфигурации в плане. Эффективно применение монолитного перекрытия в съемной или несъемной опалубке из стального профилированного настила. Основной тип покрытия применяемого при проектировании зданий гаражей - стоянок - совмещенное покрытие. Вода с совмещенных покрытий отводится по внутренним водостокам. Стены гаражей - стоянок выполняют из несгораемых или, в редких случаях, трудносгораемых материалов: монолитного железобетона, сборных железобетонных панелей, крупных и мелких бетонных или керамических блоков, кирпича, многослойных панелей, листовых материалов. Стены могут быть решены как несущие, самонесущие или навесные. В качестве несущих конструкций в панельных зданиях используются железобетонные панели различных серий. Несущие ограждающие конструкции могут выполняться сборными железобетонными с применением панелей разных серий, железобетонными монолитными или из мелких блоков и кирпича. Самонесущие ограждающие конструкции выполняются из одно-, двух- и многослойных панелей, мелких блоков из ячеистого бетона, пенобетона, керамзитобетона, газосиликатных или арбалитовых блоков и кирпича. Применяют следующие конструктивные решения лестниц: - сборные железобетонные марши и площадки; - сборные железобетонные ступени по стальным или железобетонным косоурам; - монолитные железобетонные марши и площадки; - стальные косоуры, проступи и площадки. Специфическим элементом объемно-планировочной структуры гаража - стоянки являются рампы, особенность которых состоит в необходимости организации наклонного перекрытия. Конструктивное решение рампы определяется ее типом и общим конструктивным решением здания. Рампы, как и основной объем здания, могут быть решены в каркасном варианте или с несущими стенами. Каркас может быть металлическим, железобетонным монолитным или железобетонным сборным. Несущие стены выполняют монолитными железобетонными, из мелких блоков или кирпича. Перекрытия в прямолинейных рампах выполняют, как сборными, так и монолитными, в криволинейных рампах, как правило, монолитными. 6. Конструкции и тип полов.Выбор типа и конструкции пола гаража - стоянки осуществляется исходя из необходимости обеспечения: - соответствия технологическим требованиям; - надежности и долговечности; - экономного расходования строительных материалов; - технологичности изготовления; - безвредности для людей и соответствия гигиеническим требованиям; - пожаровзрывобезопасности; - экономической целесообразности. На полы помещения гаража - стоянки воздействуют негативные факторы (эксплуатационные воздействия), учет которых позволяет выбрать конструкцию пола, способствующую безаварийной эксплуатации и существенному снижению эксплуатационных расходов. К эксплуатационным воздействиям на полы гаражей - стоянок относятся: механические и жидкостные. Механические воздействия определяют: - движение автомобилей; - ударные нагрузки; - равномерно - распределенные нагрузки; - сосредоточенные нагрузки. В помещениях зоны хранения, вертикального транспорта, ТО и ТР на полы воздействуют автомобильные масла, а в помещениях постов мойки - дополнительно вода и моющие растворы. К специальным требованиям могут быть отнесены: пылеотделение, безыскровость, электропроводность. В таблице 14 приведены характеристики эксплуатационных воздействий и специальных требований, которые необходимо учитывать при выборе типа и конструкции пола. Таблица 14 Характеристика эксплуатационных воздействий на полы и специальные требования к ним.
Примечание: В таблице приведены нагрузки от автомобилей среднего класса. Тип покрытия пола принимают в зависимости от вида и интенсивности механических и жидкостных воздействий и специальных требовании по таблицам 1, 2, 3 «Рекомендаций по проектированию полов» МДС 31-1.98, и Приложению 1 СНиП 2.03.13-88 «Полы», на основе которых составлена таблица 15. Таблица 15 Типы покрытия пола.
Примечание: А - электропроводное; Б - неэлектропроводное; В - безыскровое; 1 - при применении безыскровых заполнителей; 2 - допускаются к применению в зоне проезжей части. Типы покрытий, обозначенные в таблице 15, позициями 2, 3, 4, 23, 24 являются традиционными. В последние годы наиболее часто в гаражах - стоянках устраивают бетонные полы с упрочненным верхним слоем или с мастичным наливным покрытием. (Разработка АО ЦНИИпромзданий). Технология устройства бетонных полов с упрочненным верхним слоем отличается простотой и низкими трудозатратами. Упрочнение в полах данного типа достигается за счет механизированного втирания сухой смеси, содержащей износоустойчивый заполнитель и цементное вяжущее. Упрочненный верхний слой может быть нанесен в процессе заводского изготовления ж/б плит. Преимущества пола данного типа заключаются в следующем: - простота технологии устройства; - повышенная прочность на сжатие (до 35 % по сравнению с не упрочненным полом); - малое пылеотделение; - высокие ударо- и маслостойкость; - износоустойчивость к воздействию движущихся транспортных средств; - возможность заводского изготовления плит с упрочненным верхним слоем; - легкая качественная уборка пола; - экологическая чистота. Мастичный наливной пол представляет собой тонкослойное бесшовное покрытие, выполняемое из композиции, изготовляемой непосредственно на месте производства работ смешиванием различных смол, пластификаторов отвердителей аминного типа, активных разбавителей, наполнителей, пигментов и специальных добавок. Нанесение покрытия осуществляется по цементно-песчаной или цементно-бетонной стяжке. Движение по полу допускается через сутки, полная эксплуатация - через 7 суток. Преимущества полов данного типа: - простая технология устройства; - низкие трудозатраты (0,26 чел×час/м2); - высокая ударо-, водо- и маслостойкость; - высокие эстетические характеристики (гладкость, неограниченная цветовая гамма); - малое пылеотделение; - нескользкость покрытия; - возможность выполнения в электропроводном и диэлектрическом вариантах; - экологическая чистота. Учитывая коррозионное воздействие на арматуру строительных конструкций солесодержащих препаратов, используемых дорожными службами города, рекомендуется предусмотреть в гаражах - стоянках полы, стойкие к их воздействию и способные защитить арматуру. Полы в рампах рекомендуется выполнять из асфальтобетона с втопленным мелким гравием. В помещения мойки (со средней и большой интенсивностью воздействия на пол жидкостей) предусматривают уклоны полов: - 0,5 ÷ 1 % - при бесшовных покрытиях и покрытиях из плит (кроме бетонных всех видов); - 1,5 ÷ 2 % - при бетонных покрытиях всех видов. Уклоны полов на перекрытиях достигаются устройством стяжки переменной толщины. Полы в гаражах - стоянках применяют из негорючих материалов. 7. Инженерные системы и оборудование.В зависимости от типа, вместимости и условий эксплуатации гаражи - стоянки оснащаются следующими инженерными системами и оборудованием: - электроснабжением; - хозяйственно-питьевым водопроводом; - отоплением; - хозяйственно-бытовой и ливневой канализацией; - приточно-вытяжной вентиляцией; - противодымной защитой; - противопожарным водопроводом; - автоматическим пожаротушением; - автоматической пожарной сигнализацией; - телефонной связью. Инженерные системы и оборудование гаражей - стоянок различного типа следует проектировать в соответствии с действующими нормативными документами. Необходимость оснащения гаража - стоянки хозяйственно-питьевым водопроводом, горячим водоснабжением, канализацией, отоплением, электроснабжением определяется заданием на проектирование и условиями подключения к городским инженерным коммуникациям. 7.1. Электроснабжение.Электроснабжение проектируют согласно требованиям Правил устройства электроустановок (ПУЭ-98), ВСН 01-89 и МГСН 5.01-94*. Для многоэтажных гаражей - стоянок необходимо предусматривать наружное освещение, которое проектируют от вводно-распределительного устройства объекта с пультом управления, устанавливаемом в КПП. Вводно-распределительное устройство на вводе в здание устанавливают в помещении электрощитовой. По степени надежности электроснабжения потребители гаража - стоянки относятся: к I категории - насосы спецпожаротушения, система пожарной сигнализации, вентиляция дымоудаления, аварийное и эвакуационное освещение; ко II категории - рабочее освещение, электроприводы открывания ворот и электроприводы лифтов в автоматизированных гаражах стоянках; к III категории - остальные электропотребители. При манежном хранении, как правило, проектируют общее освещение зоны хранения. При боксовом хранении предусматривают раздельное освещение изолированных мест хранения и внутригаражных проездов. Освещенность принимают по действующим нормам. В гаражах - стоянках устраивают три вида освещения: рабочее, аварийное и эвакуационное, и ремонтное. Управление освещением предусматривают выключателями для боксов, венткамер, постов мойки, ТО и ТР, КПП, отдельных технических и вспомогательных помещений и кнопками дистанционного управления для внутригаражных проездов, лестничных клеток, манежных зон хранения, наружного освещения. Сети электроосвещения прокладывают в стальных или винипластовых трубах скрыто в полу, в пустотах плит перекрытия или открыто по стенам и потолку. Для безопасной эвакуации людей предусматривают специальные световые указатели, устанавливаемые на высоте 2,0 и 0,5 метра от пола, с подключением к сети эвакуационного освещения и системе автоматического пожаротушения. Указатели «ПГ» (пожарный гидрант) размещают в местах установки соединительных головок для передвижных средств пожарной техники и на фасадах здания с подключением к сети эвакуационного освещения и системе автоматического пожаротушения. Включение световых указателей должно происходить автоматически при срабатывании пожарной сигнализации. Необходимая освещенность производственных помещений принимается на основании требований ОНТП 01-91 «Общесоюзных норм технологического проектирования предприятий автомобильного транспорта» и СНиП II-4-79 «Искусственное освещение». Виды освещения и требования к освещенности помещений гаражей - стоянок приведены в таблице 16. Наряду с электроосвещением в систему инженерного обеспечения гаража - стоянки входят силовые электроприемники: электродвигатели технологического оборудования мойки и постов ТО и ТР, механизмы открывания ворот, оборудование системы приточно-вытяжной вентиляции, тепловые завесы, пожарные и спринклерные насосы, насосы очистных сооружений, вентиляторы дымоудаления. Таблица 16 Виды освещения и освещенность помещений гаража - стоянки.
При проектировании электроснабжения предусматривают защитные меры безопасности. Все металлические нормально нетоковедущие части электрооборудования заземляют в соответствии с ПУЭ. В качестве зануления электрооборудования используют нулевой провод электросети (освещения), дополнительно проложенный провод и стальные трубы электросети. Молниезащиту здания выполняют в соответствии с РД 34.21.122-87*. При необходимости устройства молниезащиты под гидроизоляцией кровли прокладывают молниеприемную сетку 12×12 м, выполняемую из проволоки d = 6 мм, со сварными узлами соединений. 7.2. Отопление, вентиляция и противодымная защита.Отопление, вентиляцию и противодымную защиту гаражей - стоянок следует проектировать с учетом требований СНиП 2.04.05-91*, ВСН 01-89, ОНТП 01-91, МГСН 5.01-94 и Пособия к МГСН 5.01-94 Выпуск 1. Отопление предусматривают для зоны хранения и рамп в закрытых отапливаемых гаражах - стоянках. Помещения постов мойки, ТО и ТР, контрольно-пропускных пунктов, диспетчерских, а также электрощитовая, насосная пожаротушения, узел ввода водопровода проектируют отапливаемыми как в теплых, так и в не отапливаемых закрытых и открытых гаражах - стоянках. Температура воздушной среды в зоне хранения отапливаемых гаражей +5 °С, в постах мойки ТО и ТР - +18 °С, в электрощитовой, насосной пожаротушения, узле ввода водопровода - +5 °С. Отопление помещений хранения, постов мойки, ТО и ТР, как правило, проектируют воздушное, совмещенное с приточной вентиляцией. В многоэтажных зданиях гаражей - стоянок, независимо от их объема, применяют также отопление местными нагревательными приборами с гладкой поверхностью без оребрения. Въездные и выездные наружные ворота оборудуют воздушно-тепловыми завесами в соответствии с п. 4.6 ВСН 01-89: - в отапливаемых гаражах - стоянках при размещении в зоне хранения 50-ти и более автомобилей; - в помещениях постов, ТО и ТР при количестве въездов - выездов через одни ворота 5 и более и при расположении поста ТО и ТР ближе 4-х метров от наружных ворот. Общеобменную приточно-вытяжную вентиляцию предусматривают для обеспечения требуемых условий воздушной среды в помещениях хранения, постов моек ТО и ТР закрытых не отапливаемых и отапливаемых гаражей - стоянок. В открытых многоэтажных гаражах - стоянках с шириной здания до 72 метров включительно вентиляция помещений зоны хранения происходит за счет естественного проветривания. В не отапливаемых закрытых надземных гаражах - стоянках приточно-вытяжную с механическим побуждением вентиляцию устраивают в зонах хранения только для частей помещений, удаленных от наружных ограждений с проемами более чем на 18 метров. В многоэтажных гаражах - стоянках с изолированными рампами для каждого этажа проектируют отдельные приточные и вытяжные вентиляционные системы. В зданиях гаражей - стоянок I - II степени огнестойкости этажностью 2 - 3 этажа общей площадью 10400 м2 с неизолированной рампой все этажи может обслуживать общая приточно-вытяжная система. В подземных гаражах - стоянках системы вентиляции должны быть раздельными для каждого этажа, а также для технических помещений в пределах этажа. Приточные камеры размещают, как правило, на первом этаже, вытяжные - на верхнем, в специальном техническом этаже, или на кровле. Подачу приточного воздуха в зону хранения наиболее рационально осуществлять сосредоточенно вдоль внутреннего проезда. Удаление воздуха из помещения хранения предусматривают из верхней и нижней зон объема этажа поровну. Верхние воздуховоды располагают под потолком, нижние удобно размещать за колесоотбоем. При проектировании систем вентиляции необходимо предусматривать мероприятия, обеспечивающие снижение уровня шума до нормированного уровня (65 Дб), к ним относятся: - размещение оборудования в отдельных помещениях со звукоизоляцией; - применение оборудования с пониженным числом оборотов; - применение виброизолирующих оснований; - соединение оборудования с воздуховодами гибкими вставками. Для гаражей - стоянок, встроенных в жилые дома, необходимо предусматривать шумопоглощение вентустановок с учетом их работы в ночное время. Вытяжные вентиляционные шахты автостоянок вместимостью 100 машино-мест и менее необходимо размещать на расстоянии не менее 15 метров от многоквартирных жилых домов, участков детских дошкольных учреждений. Вентиляционные отверстия указанных шахт должны размещаться не ниже 2 метров над уровнем земли. При вместимости гаража - стоянки более 100 машино-мест расстояние от вентшахт до указанных зданий и возвышение их над уровнем кровли определяется расчетом рассеивания выбросов в атмосферу и уровней шума на территории жилой застройки. При размещении подземных гаражей - стоянок под проездами, скверами, дворовыми территориями вытяжные вентиляционные шахты из помещений хранения предусматривают высотой не менее 3-х метров над уровнем земли и располагают на расстоянии не менее 15-ти метров от жилых и общественных зданий, детских игровых и спортивных площадок. Противодымную защиту проектируют в соответствии со СНиП 2.04.05-91*. В состав противодымной защиты автостоянок входят: - системы приточно-вытяжной противодымной вентиляции; - конструкции и оборудование специального назначения; - технические средства управления; Системы вытяжной противодымной вентиляции предусматриваются для удаления продуктов горения с этажа, на котором возник пожар из: - помещений хранения автомобилей; - помещений вспомогательного назначения (ТО, ТР, мойки и др.); - изолированной рампы. Удаление дыма должно происходить непосредственно из зоны хранения через вытяжные шахты с искусственным побуждением тяги. Исключение составляют двухэтажные надземные гаражи - стоянки, в которых дымоудаление не предусматривают. В подземных гаражах - стоянках каждая дымовая зона площадью до 900 м2 на этаже должна быть присоединена к отдельной дымовой шахте. Количество шахт в надземных гаражах - стоянках предусматривается из расчета дымоудаления с площади помещения радиусом не менее 30 м. Удаление продуктов горения с горящего этажа может производиться различными способами. При расположении венткамер на каждом этаже, забор продуктов горения осуществляется через отверстия вытяжного канала из верхней части объема горящего помещения, выброс - посредством вытяжного вентилятора через вертикальную шахту. Может быть предусмотрено удаление продуктов горения через вентиляторы, установленные на верхнем этаже, специально выделенном техническом этаже или на кровле. Для удаления продуктов горения при пожаре из объемов изолированных рамп используют различные схемы: с удалением из верхней зоны или части объема рампы; с естественным побуждением тяги, за счет подачи воздуха в нижнюю зону рампы. Дымоудаление из открытых рамп может осуществляться через проемы в наружных ограждениях или покрытии. Предел огнестойкости ограждений шахт и горизонтальных каналов дымоудаления принимают в соответствии с п. 4.19 ВСН 01-89 не ниже 1 часа. Для систем приточной противодымной вентиляции необходимо применять каналы с аналогичными характеристиками. Вентиляторы могут быть общего сантехназначения. Конструкции и оборудование противодымной защиты (вентиляторы дымоудаления, противопожарные клапаны, огнезащитные покрытия воздуховодов, ограждающие конструкции шахт, противопожарные и противопожарные дымогазонепроницаемые двери) должны быть сертифицированы на соответствие системе противопожарного нормирования России согласно утвержденному «Перечню продукции пожарно-технического назначения, подлежащей обязательной сертификации», в установленном порядке. Для управления системами противодымной защиты необходимо предусматривать автоматический и дистанционный режимы. В автоматическом режиме включение должно производится от системы обнаружения пожара (пожарной сигнализации и автоматических установок пожаротушения), в дистанционном управлении - с пульта (щита) из помещения дежурного персонала и от кнопок, устанавливаемых у эвакуационных выходов с каждого этажа или в шкафах пожарных кранов. 7.3. Автоматическое пожаротушение.Автоматическое пожаротушение в соответствии со СНиП 2.04.09-84 предусматривают в гаражах - стоянках закрытого типа: - многоэтажных надземных; - автоматизированных (с устройствами парковки автомобилей без участия водителя); - подземных, независимо от этажности; - встроенных в здание другого назначения или пристроенных к ним. Тип автоматической установки тушения пожара (спринклерная, дренчерная), способ тушения (по объему, по площади, локальный и др.), вид огнетушащих средств (вода, пена, аэрозоль, порошок, газ и др.), тип оборудования установок (приемной станции, извещателя и т.п.) определяются в зависимости от технологических и типологических особенностей защищаемого здания с учетом принятой проектом схемы противопожарной защиты и требований действующих нормативно-технических документов. Определение помещений, подлежащих противопожарной защите, производится на основании требований НПБ 110-96 «Перечень зданий, сооружений, помещений и оборудования, подлежащих защите автоматическими установками тушения и обнаружения пожара». В гаражах - стоянках следует защищать автоматическими установками независимо от площади все помещения, кроме: - помещений с мокрыми процессами (мойки, душевые, санузлы); - помещений инженерного обеспечения здания, в которых отсутствуют горючие материалы (насосные водоснабжения, бойлерные и т.п.). В открытых многоэтажных гаражах - стоянках с манежным хранением автоматическое пожаротушение не предусматривают. Технологическая часть установок автоматического пожаротушения разрабатывается в соответствии с требованиями СНиП 2.04.09-84 «Пожарная автоматика зданий и сооружений». Схема спринклерного пожаротушения приведена на рис. 17. Рис. 17. Схема водяного спринклерного пожаротушения. А - защищаемые помещения; 1. секция установки (количество определяется числом этажей и пожарных отсеков); Б - насосная станция пожаротушения; 2. ввод городской водопроводной сети; 3. электронасос; 4. узел управления, обслуживающий одну станцию; 5. компрессор гаражный; 6. вертикальный цельносварной аппарат (гидропневмобак); 7. прибор автоматики; 8. слив воды из установки; 9. дренажный приямок. В отапливаемых гаражах - стоянках, как правило, применяют спринклерные установки пожаротушения, предназначенные для обнаружения, локализации и ликвидации пожара в защищаемых помещениях и выдачи сигнала на щиты пожарной сигнализации. В не отапливаемых гаражах - стоянках предусматривают устройство водо-воздушной спринклерной системы пожаротушения. В теплый период года система заполняется водой и находится под давлением, которое поддерживается гидропневмобаком. В холодный период система магистральных и распределительных трубопроводов не заполнена водой. Установка автоматического пожаротушения гаража - стоянки состоит из секций, обслуживаемых узлами управления (контрольно-сигнальными клапанами), установленными в насосной станции пожаротушения. Число секций определяется количеством этажей и пожарных отсеков. Для поддержания постоянного давления в трубопроводах установки и обеспечения ее работы с расчетными параметрами предусматривается насосно-пневматическая станция в составе: - пожарные насосы; - импульсное устройство (гидропневмобак); - гаражный компрессор; - узлы управления с клапанами; - щиты управления и сигнализации. Сигнал о пожаре подается в помещение диспетчерской. Наряду с системами автоматического пожаротушения, гаражи - стоянки оборудуют внутренним противопожарным водопроводом. Системы выполняются раздельно. Внутренний противопожарный водопровод гаражей - стоянок проектируют в соответствии со СНиП 2.04.01-85. Система противопожарного водопровода включает насосы повысители, электрифицированную задвижку на обводе водомерного узла и пожарные краны. Автоматизация систем противопожарного водоснабжения выполняется в соответствии с требованиями СНиП 2.04.09-84 «Пожарная автоматика зданий и сооружений». Схема автоматизации воздушной спринклерной системы пожаротушения предусматривает: электроуправление, контроль и сигнализацию. Электроуправление установки обеспечивает: - автоматическое переключение цепей управления и сигнализации на резервный ввод при исчезновении напряжения на рабочем вводе и обратное переключение при восстановлении напряжения; - формирование командного сигнала на автоматический пуск рабочего насоса, а также пуск рабочего насоса при падении давления сжатого воздуха в импульсном устройстве (гидропневмобаке). Формирование командного сигнала осуществляется от двух электроконтактных манометров подключенных по схеме «ИЛИ»; - автоматический пуск резервного насоса в случае отказа пуска или невыхода рабочего насоса на режим; - ручное местное управление и дистанционный пуск насосов на режим местного пуска; - местное управление компрессором; - отключение и восстановление режима автоматического пуска установки; - ручное отключение звуковой сигнализации; - формирование командного сигнала при запуске установки, для управления системами противодымной вентиляции и технологическим оборудованием и на станцию пожарной сигнализации. Устройства местного пуска и остановки пожарных насосов, включения и отключения компрессора и переключатели режимов автоматического пуска насосов на местный размещаются в насосной станции. Устройства дистанционного пуска, отключения и восстановления режима автоматического пуска располагаются в помещении пожарной охраны с круглосуточным дежурством. Защита помещений осуществляется путем установки под потолком оросителей, через которые в случае пожара распыляется вода. Пример размещения оросителей в помещении приведен на рисунке 18. Рис. 18. Схема размещения оросителей в защищаемом помещении. 1. защищаемое помещение; 2. оросители; 3. магистральный трубопровод. В противопожарных стенах над проемами устанавливаются дренчерные завесы. Дренчерные завесы могут применяться совместно со спринклерными установками пожаротушения. Пример установки дренчерной завесы над дверным проемом приведен на рисунке 19.
Рис. 20. Дренчерная завеса над дверным проемом. 1. ороситель; 2. дверной проем; 3. рукоятка крана ручного вращения. В помещении насосной станции предусматривается световая сигнализация: - о наличии напряжения на вводах электроснабжения; - об отключении автоматического пуска пожарных насосов; - о неисправности электрических цепей электроконтактных манометров, фиксирующих падение давления в импульсном устройстве и формирующих команду на пуск пожарных насосов. В помещении пожарной охраны с круглосуточным дежурством предусматривается световая сигнализация: - о наличии напряжения на вводах электроснабжения подведенных к оборудованию, размещенному в помещении пожарной охраны; - об отключении автоматического пуска пожарных насосов; - об исчезновении напряжения на основном и резервном вводах электроснабжения; - о падении давления в импульсном устройстве и побудительной пневматической сети; - о неисправности электрических цепей электроконтактных манометров, фиксирующих давление в импульсном устройстве и формирующих команду на пуск пожарных насосов; и светозвуковая аварийная сигнализация: - о срабатывании установки с расшифровкой по направлениям; - о включении пожарных насосов. Рабочий насос - повыситель противопожарного водопровода включается вручную от кнопочных постов управления, устанавливаемых в шкафах пожарных кранов, и со щитов управления из насосной и помещения охраны. В случае аварийного отключения рабочего насоса автоматически включается резервный насос. Одновременно с пуском насосов автоматически открывается электрифицированная задвижка на обводе водомерного узла. Отключение насосов и закрытие задвижки производится в насосной. При включении пожарных насосов подаются сигналы на станцию пожарной сигнализации и для формирования команд на отключение электропитания общеобменных вентсистем и включение противодымной вентиляции. Для контроля за работой устройств противопожарного водопровода предусматривается местная световая и дистанционная светозвуковая предупредительная и аварийная сигнализации, которые выводятся в помещение пожарной охраны на дистанционный щит, обслуживающий также установки автоматического пожаротушения. Инженерные системы и оборудование, связанные с пожаротушением (водоснабжение, электроснабжение установок пожаротушения, сигнализации, эвакуационного освещения, пожарного лифта, пожарных насосов, в том числе, для откачки воды при пожаре, вентиляторов противодымной защиты), относятся к 1 категории надежности. Наряду с внутренними противопожарными системами для гаражей - стоянок необходимо предусматривать наружное пожаротушение от пожарных гидрантов, устанавливаемых на городском водопроводе. Гидранты (3 струи) должны быть расположены на расстоянии не более 150 м от крайних точек пожаротушения. 7.4. Связь и сигнализация.В помещениях автостоянок необходимо предусмотреть установку устройств связи и сигнализации, а именно: - в помещении хранения - устройство систем подачи тревожного звукового сигнала (сирены и т.п.), включение которого осуществляется при срабатывании пожарной автоматики; - в помещениях постов ТО и ТР, а также в помещении хранения пожарного инвентаря - устройство систем пожарной сигнализации; - в помещениях контрольно-пропускных пунктов (КПП) - устройство городской телефонной связи и пульта пожарной сигнализации; 7.5. Водоснабжение и канализация.Водоснабжение и канализация гаражей - стоянок проектируется с учетом требований СНиП 2.04.01-85, СНиП 2.04.02-84, МГСН 5.01-94*, ВСН 01-89. В гаражах - стоянках предусматривают ввод водопровода с водомерным узлом и счетчиком. Водоснабжение обеспечивает заполнение спринклерной системы автоматического пожаротушения, внутреннего пожарного водопровода, подпитку автомобильной мойки, потребление на хозяйственно-бытовые нужды. Системы хозяйственно-бытового водопровода, противопожарного водопровода и автоматизированного спринклерного пожаротушения проектируют раздельными. При оснащении автостоянок системами водопровода и канализации нормы водопотребления на хозяйственно-питьевые нужды владельцев легковых автомобилей рекомендуется принимать: 15 л/чел., в сутки, 4 л/чел. в час, в том числе, горячей воды - 5 л/чел., в сутки, 1,2 л/чел. в час. Максимальное явочное (расчетное) количество владельцев легковых автомобилей целесообразно принимать в размере 60 % в сутки и 5 % в час от общего количества владельцев легковых автомобилей гаража - стоянки. Расход воды на мойку легковых автомобилей рекомендуется определять по характеристике применяемого моечного оборудования, его производительности и времени мойки одного автомобиля. Для ориентировочных расчетов нормы расхода воды на мойку автомобилей принимают 200 л на один автомобиль, в том числе: - 180 л оборотной воды на мойку кузова и низа автомобиля; - 20 л свежей воды из системы хозяйственно-питьевого водопровода на ополаскивание кузова автомобилей. Наружное пожаротушение обеспечивается наружными сетями водопровода с пожарными гидрантами. Расход воды на наружное пожаротушение - 100 л/сек. Отвод сточных вод от санузлов и душевых проектируют в наружную дворовую сеть канализации, присоединение которой к городской канализационной сети должно выполняться в соответствии с техническими условиями ГП «Мосводоканал». Для отвода вод, используемых для тушения пожара, в здании гаража - стоянки предусматривают внутренний водосток со сбросом воды в накопительную емкость, далее на локальные очистные сооружения гаража - стоянки и после очистки в городскую сеть ливневой канализации. Отвод атмосферных вод с кровли здания и территории организуют с помощью дворовой сети ливневой канализации с очисткой на очистных сооружениях и последующим сбросом в городскую сеть. Расход дождевых вод с территории определяют по методу предельных интенсивностей (СНиП 2.04.03-85 п. 2.11). Проект очистных сооружений поверхностного стока разрабатывают в соответствии с требованиями СНиП 2.04.03-85, «Правила охраны поверхностных вод от загрязнений сточными водами», «Временных рекомендаций по проектированию сооружений для очистки поверхностного стока с территории промышленных предприятий и условий выпуска его в водные объекты». Территория гаража - стоянки относится к предприятиям 1 группы, сток с которых по составу примесей близок к поверхностному стоку с селитебных зон и не содержит специфических веществ с токсичными примесями. Количество поверхностного стока, направляемое на очистку для этой группы должно составлять 70 % годового объема. 8. Приложения.Проекты гаражей - стоянок для легковых автомобилей, принадлежащих гражданам, разработанные в рамках реализации программы гаражного строительства в г. Москве.
Приложение 1.МНОГОЭТАЖНЫЙ ПОДЗЕМНО-НАДЗЕМНЫЙ ГАРАЖ - СТОЯНКА на 339 м/м. Беломорская ул. вл. 36.Характеристика проекта
Приложение 2.МНОГОЭТАЖНЫЙ НАДЗЕМНЫЙ ЗАКРЫТЫЙ ГАРАЖ - СТОЯНКА на 422 м/м. Пересечение Элеваторной и Касимовской улиц.
Характеристика проекта
Приложение 3.МНОГОЭТАЖНЫЙ НАДЗЕМНЫЙ ЗАКРЫТЫЙ ГАРАЖ - СТОЯНКА на 200 м/м. п/з Бирюлево, 28а.
Характеристика проекта
Приложение 4.МНОГОЭТАЖНЫЙ НАДЗЕМНЫЙ ЗАКРЫТЫЙ ГАРАЖ - СТОЯНКА на 250 м/м. Типовое решение.Характеристика проекта.
Приложение 5.МНОГОЭТАЖНЫЙ НАДЗЕМНЫЙ ЗАКРЫТЫЙ ГАРАЖ - СТОЯНКА на 408 м/м. Северное Бутово.Характеристика проекта
Приложение 6.МНОГОЭТАЖНЫЙ НАДЗЕМНЫЙ ЗАКРЫТЫЙ ГАРАЖ - СТОЯНКА СО СКАТНЫМИ ПЕРЕКРЫТИЯМИ на 450 м/м. Сеславинская улица.Характеристика проекта
Приложение 7.МНОГОЭТАЖНЫЙ НАДЗЕМНЫЙ ЗАКРЫТЫЙ ГАРАЖ - СТОЯНКА на 593 м/м. Сиреневый бульвар, вл. 80.Характеристика проекта
Приложение 8.МНОГОЭТАЖНЫЙ НАДЗЕМНЫЙ ЗАКРЫТЫЙ ГАРАЖ - СТОЯНКА на 508 м/м. Алтуфьевское шоссе, 81.Характеристика проекта
Приложение 9.МНОГОЭТАЖНЫЙ НАДЗЕМНЫЙ ЗАКРЫТЫЙ ГАРАЖ - СТОЯНКА на 500 м/м. Новоясеневский проспект, 12-14.Характеристика проекта
Приложение 10.МНОГОЭТАЖНЫЙ НАДЗЕМНЫЙ ЗАКРЫТЫЙ ГАРАЖ - СТОЯНКА на 370 м/м. Новохохловская ул., 25.Характеристика проекта
Приложение 11.МНОГОЭТАЖНЫЙ НАДЗЕМНЫЙ ЗАКРЫТЫЙ ГАРАЖ - СТОЯНКА на 300 м/м. Зубарев пер., 15.Характеристика проекта
|
|||||||||||||||||||||||||||||||||||||||||||||||||||||||||||||||||||||||||||||||||||||||||||||||||||||||||||||||||||||||||||||||||||||||||||||||||||||||||||||||||||||||||||||||||||||||||||||||||||||||||||||||||||||||||||||||||||||||||||||||||||||||||||||||||||||||||||||||||||||||||||||||||||||||||||||||||||||||||||||||||||||||||||||||||||||||||||||||||||||||||||||||||||||||||||||||||||||||||||||||||||||||||||||||||||||||||||||||||||||||||||||||||||||||||||||||||||||||||||||||||||||||||||||||||||||||||||||||||||||||||||||||||||||||||||||||||||||||||||||||||||||||||||||||||||||||||||||||||||||||||||||||||||||||||||||||||||||||||||||||||||||||||||||||||||||||||||||||||||||||||||||||||||||||||||||||||||||||||||||||||||||||||||||||||||||||||||||||||||||||||||||||||||||||||||||||||||||||||||||||||||||||||||||||||||||||||||||||||||||||||||||||||||||||||||||||||||||||||||||||||||||||||||||||||||||||||||||||||||||||||||||||||||||||||||||||||||||||||||||||||||||||||||||||||||||||||||||||||||||||
|
Владелец проекта |
АО «ЦНИИпромзданий», мастерская 3 |
|
Заказчик |
ГСК «Дмитровский» |
|
Тип гаража |
- надземный, закрытый; отапливаемый, боксовый |
|
Этажность, высота этажа |
6 этажей, 2,8 м. |
|
Размер места хранения |
3,6×6,0 м, 3,4×6,0 м, 4,25×6,0 м |
|
Приведенная площадь типового этажа на 1 м/м |
46,22 м2 |
|
Тип въездной рампы |
двухпутная криволинейная |
|
Материалы несущих конструкций: |
|
|
колонны, балки, перекрытия |
монолитный железобетон; |
|
Материал ограждающих конструкций, перегородки |
ячеисто-бетонные блоки; |
|
Тип и материал кровли |
плоская, филизол |
|
Тип фундаментов |
свайные |
|
Общая площадь здания |
13080 м2 |
|
Общая площадь мест хранения |
5773,2 м2 |
|
Прочие сведения |
2 поста мойки, пост ТО и ТР, офисы размещены в 2х этажной пристройке |
|
Расчетная стоимость м/м |
8000 $ |

Характеристика проекта
|
Владелец проекта |
ПО «Моспромпроект» |
|
Заказчик |
АО «Система-М» |
|
Тип гаража |
- надземный; - открытый; - неотапливаемый; - манежный; |
|
Этажность |
6 этажей |
|
Высота этажа |
2,75 м; |
|
Размер места хранения |
2,5×5,5 м, |
|
Приведенная площадь гаража - стоянки на 1 м/м |
24,23 м2 |
|
Тип въездной рампы |
прямолинейные |
|
Материалы несущих конструкций: |
|
|
- колонны, балки |
металл; |
|
- перекрытия |
монолитный ж/б; |
|
- стены |
сборный ж/б; |
|
- перегородки |
кирпич; |
|
Материал ограждающих конструкций |
сборные ж/б панели |
|
Тип кровли |
двухскатная |
|
Материал кровли |
металлочерепица |
|
Тип фундаментов |
свайные |
|
Общая площадь здания |
13470 м2 |
|
Общая площадь мест хранения |
12250 м2 |
|
Прочие сведения |
на первом этаже расположен автосалон |
|
Расчетная стоимость м/м |
4500 $ |

Характеристика проекта
|
Владелец проекта |
ПО АОЗТ «Солярстрой» |
|
Заказчик |
АОЗТ «Ермак» |
|
Тип гаража |
- надземный; - открытый; - неотапливаемый; - манежный; |
|
Этажность |
6 этажей |
|
Высота этажа |
2,8 м; |
|
Размер места хранения |
2,55×5,1 м, |
|
Приведенная площадь гаража - стоянки на 1 м/м |
28,96 м2 |
|
Тип въездной рампы |
открытые, прямолинейные; |
|
Материалы несущих конструкций: |
|
|
- колонны, балки |
металл; |
|
- перекрытия |
монолитный ж/б; |
|
- стены |
стальной профильный лист, сетка; |
|
Материал ограждающих конструкций |
металл |
|
Тип кровли |
двухскатная холодная |
|
Материал кровли |
металлочерепица |
|
Тип фундаментов |
монолитный ж/б |
|
Общая площадь здания |
14480 м2 |
|
Общая площадь мест хранения |
6400 м2 |
|
Прочие сведения |
На первом этаже расположена станция ТО |
|
Расчетная стоимость м/м |
4000 $ |

Характеристика проекта
|
Владелец проекта |
ПО «Спортпроект-3» |
|
Заказчик |
ГСК «Монолит» |
|
Тип гаража |
- надземный; - открытый; - неотапливаемый; - манежный; |
|
Этажность |
6 этажей |
|
Высота этажа |
3,5 м; |
|
Размер места хранения |
3,0×6,4 м, |
|
Приведенная площадь гаража - стоянки на 1 м/м |
33,33 м2 |
|
Тип въездной рампы |
наклонное перекрытие |
|
Материалы несущих конструкций: |
|
|
- колонны |
монолитный ж/б; |
|
- балки |
монолитный ж/б; |
|
- перекрытия |
монолитный ж/б; |
|
- стены |
монолитный ж/б; |
|
Перегородки |
монолитный ж/б; |
|
Материал ограждающих конструкций |
арбалит |
|
Тип кровли |
плоская эксплуатируемая |
|
Материал кровли |
гермосмесь с гранитной крошкой |
|
Тип фундаментов |
столбчатые |
|
Общая площадь здания |
10000 м2 |
|
Общая площадь мест хранения |
5400 м2 |
|
Прочие сведения |
Проект разработан по изобретению (патент № 96112660) |
|
Расчетная стоимость м/м |
4300 $ |

Характеристика проекта
|
Владелец проекта |
АО «ЦНИИпромзданий» |
|
Заказчик |
- |
|
Тип гаража |
- надземный; - закрытый; - неотапливаемый; - боксовый; |
|
Этажность |
2 этажа |
|
Высота этажа |
2,67 м |
|
Размер места хранения |
3,0×6,0 м, |
|
Приведенная площадь гаража - стоянки на 1 м/м |
28,73 м2 |
|
Тип въездной рампы |
открытая прямолинейная |
|
Материалы несущих конструкций: |
|
|
- колонны, балки |
металл; |
|
- перекрытия |
сборные ж/б; |
|
- стены |
профнастил; |
|
Материал ограждающих конструкций |
профнастил; |
|
Тип кровли |
скатная |
|
Материал кровли |
профнастил |
|
Тип фундаментов |
столбчатый |
|
Общая площадь здания |
552 м2 |
|
Общая площадь боксов |
504 м2 |
|
Прочие сведения |
- |
|
Расчетная стоимость м/м |
2500 $ |

Варианты конструктивного решения (каркас металлический)
Вариант 1. Перекрытие из мелкоразмерных плит 1,5×0,48 м.

Вариант 2. Перекрытие из плит размером 6×3 метра

Вариант 3. Перекрытие из мелкоразмерных плит 1,5×0,48 м, подвешено на металлических стойках к балкам покрытия.

Характеристика проекта
|
Владелец проекта |
ПО «Роста» |
|
Заказчик |
«Росгражданреконструкция» |
|
Тип гаража |
- надземный; - закрытый; - неотапливаемый; - автоматизированный; - ячейковый; |
|
Этажность |
до 12 этажей |
|
Высота этажа |
2,4 м |
|
Размер места хранения |
1,9×5,2 м |
|
Тип въездной рампы |
- |
|
Материалы несущих конструкций: |
|
|
- колонны, балки |
металл; |
|
- перекрытия |
- |
|
- стены |
стальной профлист; |
|
Материал ограждающих конструкций |
гнутые профили |
|
Тип кровли |
- |
|
Материал кровли |
- |
|
Тип фундаментов |
монолитная ж/б плита |
|
Общая площадь здания |
63,55 м2 |
|
Общая площадь мест хранения |
- |
|
Прочие сведения |
конструкция защищена патентом России |
|
Расчетная стоимость м/м |
11000 $ |

Характеристика проекта
|
Владелец проекта |
ПО СП АОЗТ «Руфин ЛТД» ПТАКМ ПОСА РФ |
|
Заказчик |
АТУ «Москомархитектуры» |
|
Тип гаража |
- надземный; - закрытый; - отапливаемый; - автоматизированный; - ячейковый; |
|
Этажность |
- |
|
Высота этажа |
2,4 м |
|
Размер места хранения |
2,5×6,0 м |
|
Тип въездной рампы |
подъемный механизм - вертикальный цепной конвейер с люльками - платформами с поддонами для установки автомобилей |
|
Материалы несущих конструкций: |
|
|
- колонны, балки |
металл; |
|
- стены |
стальной профлист; |
|
Материал ограждающих конструкций |
металлические панели типа «сэндвич» |
|
Тип кровли |
двухслойный профнастил |
|
Материал кровли |
металл |
|
Тип фундаментов |
сборный ж/б |
|
Общая площадь здания |
300 м2 |
|
Общая площадь мест хранения |
270 м2 |
|
Прочие сведения |
- |
|
Расчетная стоимость м/м |
12000 $ |

ВОЗМОЖНЫЕ ВАРИАНТЫ АРХИТЕКТУРНО-ПЛАНИРОВОЧНЫХ РЕШЕНИЙ
1. РАЗРЕЗ 1 – 1
2. РАЗРЕЗ 2 - 2
3.
ПЛАН НА ОТМ. 0.00
Характеристика проекта
|
Владелец проекта |
АО «ЦНИИпромзданий», мастерская 2 |
|
Заказчик |
- |
|
Тип гаража |
- надземный; - закрытый; - неотапливаемый; - автоматизированный; - ячейковый; |
|
Этажность |
16 этажей, 16 этаж - технический; |
|
Высота этажа |
2,4 м |
|
Размер места хранения |
3,0×5,0 м |
|
Тип въездной рампы |
подъемник с механизмами бокового перемещения поддонов с автомобилями; |
|
Материалы несущих конструкций: |
|
|
- колонны, балки, перекрытия |
металл; |
|
- стены |
панели типа «сэндвич»; |
|
Материал ограждающих конструкций |
панели типа «сэндвич»; |
|
Тип кровли |
рулонная; |
|
Материал кровли |
филизол; |
|
Тип фундаментов |
столбчатые; |
|
Общая площадь здания |
600 м2 |
|
Общая площадь мест хранения |
- |
|
Прочие сведения |
автомобили устанавливаются в ячейки на поддонах в автоматическом режиме; |
|
Расчетная стоимость м/м |
- |

ЭКСПЛИКАЦИЯ ПОМЕЩЕНИЙ
1 Входной тамбур
2 Вестибюль
3 Лестница в подвал
4 Торговый зал
5 Комната клиентов
6 Операционная
7 Компьютерная
8 Операторская
9 Лифт
10 Место хранения а/м
Характеристика проекта
|
Владелец проекта |
АО «ЦНИИпромзданий», мастерская 3, Мытищинская городская проектная организация |
|
Заказчик |
АПУ г. Мытищи |
|
Тип гаража |
- полуподземный; - закрытый; - отапливаемый; - манежный; |
|
Этажность |
1 этаж |
|
Высота этажа |
3,0 м |
|
Размер места хранения |
3,0×6,0 м |
|
Приведенная площадь гаража - стоянки на 1 м/м |
30,95 м2 |
|
Тип въездной рампы |
закрытая прямолинейная |
|
Материалы несущих конструкций: |
|
|
- колонны, балки, перекрытия, стены |
сборный ж/б; |
|
Перегородки |
кирпичные; |
|
Материал ограждающих конструкций |
кирпич; |
|
Тип кровли |
рулонная |
|
Материал кровли |
филизол |
|
Тип фундаментов |
свайные |
|
Общая площадь здания |
1671,6 м2 |
|
Общая площадь мест хранения |
972,0 м2 |
|
Прочие сведения |
|
|
Расчетная стоимость м/м |
|

Характеристика проекта
|
Владелец проекта |
АО «ЦНИИПРОМЗДАНИЙ», мастерская 3 Мытищинская гор. проект. мастерская |
|
Заказчик |
АПУ г. Мытищи |
|
Тип гаража |
- полуподземный; - закрытый; - отапливаемый; - боксовый |
|
Высота этажа |
2,8 м |
|
Размер места хранения |
3,0×6,0 м, |
|
Приведенная площадь типового этажа на 1 м/м |
18,52 м2 |
|
Тип въездной рампы |
въезд в каждый бокс непосредственно с улицы |
|
Материалы несущих конструкций: |
|
|
- балки, перекрытия, стены |
монолитный ж/б; |
|
Перегородки |
монолитный ж/б; |
|
Материал ограждающих конструкций |
монолитный ж/б; |
|
Тип кровли |
наклонная |
|
Материал кровли |
металлочерепица |
|
Тип фундаментов |
ленточные |
|
Общая площадь здания |
333,47 м2 |
|
Общая площадь мест хранения |
140,15 м2 |
|
Прочие сведения |
Выход из квартир второго этажа непосредственно на улицу |
|
Расчетная стоимость м/м |
- |

Характеристика проекта
|
Владелец проекта |
АО «Моспроект», мастерская - 11 |
|
Заказчик |
УЭЗ Правительства Москвы |
|
Тип гаража |
- подземный; - закрытый; - отапливаемый; - манежный; |
|
Этажность |
1 ÷ 2 этажа |
|
Высота этажа |
2,5 м; |
|
Размер места хранения |
2,6×5,0 м, 2,6×4,0 м, |
|
Приведенная площадь этажа на 1 м/м |
48,50 м2 |
|
Тип въездной рампы |
однопутная прямолинейная |
|
Материалы несущих конструкций: |
|
|
- колонны, балки |
монолитный ж/б; |
|
- перегородки |
кирпич; |
|
Материал ограждающих конструкций |
монолитный ж/б; |
|
Тип кровли |
- |
|
Материал кровли |
- |
|
Тип фундаментов |
- |
|
Общая площадь здания |
10594 м2 |
|
Общая площадь мест хранения |
4017 м2 |
|
Прочие сведения |
территория двора над гаражом благоустроенна |
|
Расчетная стоимость м/м |
15000 $ |

Характеристика проекта
|
Владелец проекта |
АО «ЦНИИПромзданий», мастерская 2 |
|
Заказчик |
- |
|
Тип гаража |
- полуподземный; - закрытый; - отапливаемый; - боксовый; |
|
Этажность |
2 этажа |
|
Высота этажа |
2,8 м; |
|
Размер места хранения |
3,0×6,0 м, |
|
Приведенная площадь гаража - стоянки на 1 м/м |
42,03 м2 |
|
Тип въездной рампы |
открытая прямолинейная |
|
Материалы несущих конструкций: |
|
|
- колонны, балки |
сборные ж/б; |
|
- перекрытия |
сборные ж/б плиты; |
|
- стены |
сборные ж/б; |
|
Перегородки |
кирпич; |
|
Материал ограждающих конструкций |
сборные ж/б панели |
|
Тип кровли |
плоская |
|
Материал кровли |
филизол |
|
Тип фундаментов |
сборные ж/б |
|
Общая площадь здания |
9918 м2 |
|
Общая площадь мест хранения |
4248 м2 |
|
Прочие сведения |
на эксплуатируемой кровле площадка отдыха городского сквера |
|
Расчетная стоимость м/м |
- |

Характеристика проекта
|
Владелец проекта |
ПО «НИПИагропром» |
|
Заказчик |
ТОО «Дакома» |
|
Тип гаража |
- подземный; - закрытый; - отапливаемый; - манежный; |
|
Этажность |
3 яруса |
|
Высота этажа |
3,0 м; |
|
Размер места хранения |
3,0×6,0 м, 3,0×6,6 м, |
|
Приведенная площадь этажа на 1 м/м |
56,50 м2 |
|
Тип въездной рампы |
- |
|
Материалы несущих конструкций: |
|
|
- колонны |
- |
|
- балки |
- |
|
- перекрытия |
- |
|
- стены |
- |
|
Перегородки |
- |
|
Материал ограждающих конструкций |
- |
|
Тип кровли |
- |
|
Материал кровли |
- |
|
Тип фундаментов |
- |
|
Общая площадь здания |
15433,44 м2 |
|
Общая площадь мест хранения |
5940 м2 |
|
Прочие сведения |
на эксплуатируемой кровле благоустроенная территория |
|
Расчетная стоимость м/м |
13500 $ |

Характеристика проекта
|
Владелец проекта |
ООО «Инжстройпроект» |
|
Заказчик |
АО «Строитель-Сервис» |
|
Тип гаража |
- подземный; - закрытый; - отапливаемый; - манежный; |
|
Этажность |
3 этажа |
|
Высота этажа |
3,0 м; |
|
Размер места хранения |
3,6×6,3 м, |
|
Приведенная площадь этажа на 1 м/м |
53,10 м2 |
|
Тип въездной рампы |
прямолинейная, однопутная |
|
Материалы несущих конструкций: |
|
|
- колонны |
|
|
- балки |
- |
|
- перекрытия |
- |
|
- стены |
- |
|
Перегородки |
- |
|
Материал ограждающих конструкций |
- |
|
Тип кровли |
- |
|
Материал кровли |
- |
|
Тип фундаментов |
- |
|
Общая площадь здания |
12247,2 м2 |
|
Общая площадь мест хранения |
4989,5 м2 |
|
Прочие сведения |
в 1 полуподземном этаже размещена станция обслуживания автомобилей |
|
Расчетная стоимость м/м |
12000 $ |

Характеристика проекта
|
Владелец проекта |
ПО «Промстройпроект» |
|
Заказчик |
ЗАО «Минора» |
|
Тип гаража |
- подземный; - закрытый; - отапливаемый; - манежный - 30 % м/м; - боксовый - 70 % м/м; |
|
Этажность |
2 этажа |
|
Высота этажа |
3,0 м; |
|
Размер места хранения |
3,0×6,0 м, 2,4×6,0 м, |
|
Приведенная площадь этажа на 1 м/м |
41,60 м2 |
|
Тип въездной рампы |
однопутная прямолинейная |
|
Материалы несущих конструкций: |
|
|
- колонны, балки, перекрытия, стены |
- |
|
Перегородки |
- |
|
Материал ограждающих конструкций |
- |
|
Тип кровли |
- |
|
Материал кровли |
- |
|
Тип фундаментов |
- |
|
Общая площадь здания |
7197 м2 |
|
Общая площадь мест хранения |
3670 м2 |
|
Прочие сведения |
в надземной части - мойка автомобилей; на эксплуатируемой кровле - зона отдыха |
|
Расчетная стоимость м/м |
15000 $ |

Характеристика проекта
|
Владелец проекта |
ПО «Промстройпроект» |
|
Заказчик |
КЭУ г. Москва |
|
Тип гаража |
- подземный; - закрытый; - отапливаемый; - манежный; |
|
Этажность |
2 этажа |
|
Высота этажа |
3,0 м - верхний; 3,6 м - нижний; |
|
Размер места хранения |
3,0×6,0 м, 3,0×6,2 м, |
|
Приведенная площадь этажа на 1 м/м |
45,20 м2 |
|
Тип въездной рампы |
однопутная прямолинейная |
|
Материалы несущих конструкций: |
|
|
- колонны, балки, перекрытия, стены |
монолитный ж/б; |
|
Перегородки |
- |
|
Материал ограждающих конструкций |
«стена в грунте» |
|
Тип кровли |
- |
|
Материал кровли |
- |
|
Тип фундаментов |
- |
|
Общая площадь здания |
5260 м2 |
|
Общая площадь мест хранения |
1800 м2 |
|
Прочие сведения |
на эксплуатируемой кровле благоустроенная территория |
|
Расчетная стоимость м/м |
15000 $ |

СОДЕРЖАНИЕ
Нормативные документы, применяемые при проектировании гаражей - стоянок. 1
1. Типологическая классификация гаражей - стоянок. 4
1.1. Размещение в городской застройке. 5
1.3. Размещение относительно объектов другого назначения и уровня земли. 7
1.5. Способ междуэтажного перемещения. 9
1.7. Тип ограждающих конструкций и условия хранения. 10
1.8. Применение различных типов гаражей - стоянок. 11
3. Объемно-планировочные решения. Элементы объемно-планировочной структуры и их параметры. 14
3.1. Зона хранения автомобилей. 16
3.2 Зона перемещения автомобилей по вертикали. 23
3.3. Помещения постов косметической мойки, технического осмотра и мелкого технического ремонта. 34
3.4. Помещения инженерного обеспечения и служб эксплуатации. 38
4. Основные противопожарные требования. 40
5. Конструктивные системы зданий и их элементы. 41
6. Конструкции и тип полов. 45
7. Инженерные системы и оборудование. 47
7.2. Отопление, вентиляция и противодымная защита. 50
7.3. Автоматическое пожаротушение. 52
7.5. Водоснабжение и канализация. 56
МНОГОЭТАЖНЫЙ ПОДЗЕМНО-НАДЗЕМНЫЙ ГАРАЖ - СТОЯНКА на 339 м/м. Беломорская ул. вл. 36. 58
МНОГОЭТАЖНЫЙ НАДЗЕМНЫЙ ЗАКРЫТЫЙ ГАРАЖ - СТОЯНКА на 200 м/м. п/з Бирюлево, 28а. 62
МНОГОЭТАЖНЫЙ НАДЗЕМНЫЙ ЗАКРЫТЫЙ ГАРАЖ - СТОЯНКА на 250 м/м. Типовое решение. 63
МНОГОЭТАЖНЫЙ НАДЗЕМНЫЙ ЗАКРЫТЫЙ ГАРАЖ - СТОЯНКА на 408 м/м. Северное Бутово. 65
МНОГОЭТАЖНЫЙ НАДЗЕМНЫЙ ЗАКРЫТЫЙ ГАРАЖ - СТОЯНКА на 593 м/м. Сиреневый бульвар, вл. 80. 68
МНОГОЭТАЖНЫЙ НАДЗЕМНЫЙ ЗАКРЫТЫЙ ГАРАЖ - СТОЯНКА на 508 м/м. Алтуфьевское шоссе, 81. 70
МНОГОЭТАЖНЫЙ НАДЗЕМНЫЙ ЗАКРЫТЫЙ ГАРАЖ - СТОЯНКА на 500 м/м. Новоясеневский проспект, 12-14. 72
МНОГОЭТАЖНЫЙ НАДЗЕМНЫЙ ЗАКРЫТЫЙ ГАРАЖ - СТОЯНКА на 370 м/м. Новохохловская ул., 25. 74
МНОГОЭТАЖНЫЙ НАДЗЕМНЫЙ ЗАКРЫТЫЙ ГАРАЖ - СТОЯНКА на 300 м/м. Зубарев пер., 15. 77
МНОГОЭТАЖНЫЙ НАДЗЕМНЫЙ ЗАКРЫТЫЙ ГАРАЖ - СТОЯНКА на 283 м/м. Клязьминская ул., 6. 77
МНОГОЭТАЖНЫЙ НАДЗЕМНЫЙ ОТКРЫТЫЙ ГАРАЖ - СТОЯНКА на 556 м/м. Люблинские поля, мкр. 2А. 78
МНОГОЭТАЖНЫЙ НАДЗЕМНЫЙ ОТКРЫТЫЙ ГАРАЖ - СТОЯНКА на 500 м/м. 3-я Парковая ул., 53. 81
ДВУХЭТАЖНЫЙ ЗАКРЫТЫЙ НАДСТРАИВАЕМЫЙ ГАРАЖ - СТОЯНКА на 38 м/м. Типовое решение. 85
АВТОМАТИЗИРОВАННЫЙ МНОГОЭТАЖНЫЙ ЗАКРЫТЫЙ ГАРАЖ - СТОЯНКА на 20 м/м. Скаковая ул., 17. 86
АВТОМАТИЗИРОВАННЫЙ ГАРАЖ - СТОЯНКА на 238 м/м. Типовое решение. 89
МНОГОЭТАЖНЫЙ ТРЕХСЕКЦИОННЫЙ ЖИЛОЙ ДОМ С ПОЛУПОДЗЕМНЫМ ГАРАЖЕМ на 54 м/м. г. Мытищи. 91
ПОДЗЕМНЫЙ ГАРАЖ - СТОЯНКА С ЭКСПЛУАТИРУЕМОЙ КРОВЛЕЙ на 309 м/м. Северное Бутово, мкр. 5. 95
ДВУХЭТАЖНЫЙ ПОЛУПОДЗЕМНЫЙ ГАРАЖ - СТОЯНКА на 236 м/м. Воронежская улица. 96
МНОГОЭТАЖНЫЙ ПОДЗЕМНЫЙ ГАРАЖ - СТОЯНКА на 300 м/м. Северное Бутово, мкр. 2, ул. Куликовская. 98
МНОГОЭТАЖНЫЙ ПОДЗЕМНЫЙ ГАРАЖ - СТОЯНКА на 220 м/м. улица Академика Королева, 8. 101
ДВУХЭТАЖНЫЙ ПОДЗЕМНЫЙ ГАРАЖ - СТОЯНКА на 204 м/м. Рублевское шоссе, 34. 103
ПОДЗЕМНЫЙ ДВУХЭТАЖНЫЙ ГАРАЖ - СТОЯНКА на 100 м/м. Фили-Кунцево, 2. 105
|
ГОСТЫ, СТРОИТЕЛЬНЫЕ и ТЕХНИЧЕСКИЕ НОРМАТИВЫ. Некоммерческая онлайн система, содержащая все Российские Госты, национальные Стандарты и нормативы. В Системе содержится более 150000 файлов нормативно-технической документации, действующей на территории РФ. Система предназначена для широкого круга инженерно-технических специалистов. Copyright © www.gostrf.com, 2008 - 2026 |