ОРДЕНА ЛЕНИНА ГЛАВМОССТРОЙ ПРИ
МОСГОРИСПОЛКОМЕ
МОСОРГСТРОЙ
КАРТЫ ТРУДОВЫХ ПРОЦЕССОВ
НА ОБЛИЦОВКУ ПОВЕРХНОСТЕЙ ПАНЕЛЯМИ
ИЗ ДРЕВЕСНОСТРУЖЕЧНЫХ ПЛИТ,
ОФАНЕРОВАННЫХ ШПОНОМ
МОСКВА - 1982
ВВОДНАЯ ЧАСТЬ
1.
Карта разработана на основе изучения и обобщения опыта столяров СУ-89
объединения Мосотделстрой (бригадиры А.Д. Морозов, и В.П. Синицын).
2.
Режим труда и отдыха принят из условий оптимального темпа выполнения трудовых
процессов в соответствии с «Основами методики технического нормирования труда в
строительстве».
3.
Древесностружечные плиты, офанерованные шпоном, предназначаются для облицовки
кирпичных и бетонных стен в помещениях, где влажность воздуха не превышает 70
%.
4.
В результате применения совершенных инструментов и наиболее рациональных
приемов труда сокращение трудозатрат по сравнению с § 12-6-72 местных норм
составит:

|
Карта трудового
процесса строительного производства
УСТАНОВКА КАРКАСА
Входит в комплект карт
ККТ
на облицовку
поверхностей панелями из древесностружечных плит, офанерованных шпоном
|
КТ
Разработана трестом
Мосоргстрой Главмосстроя с участием ЦНИБ «Мосстрой»
Рассмотрена,
откорректирована и рекомендована ВНИПИ труда в строительстве Госстроя СССР для
внедрения в строительное производство
|
1.1.
Карта предназначена для организации труда рабочих при установке каркаса при
облицовке поверхностей панелями из древесностружечных плит, офанерованных
шпоном.
1.2.
Показатели производительности труда:
выработка на 1 чел.-дн., м2 - 13,8
затраты труда на 10 м2, чел.-ч. - 5,8
ПРИМЕЧАНИЕ: в затраты труда входит время
на подготовительно-заключительные работы (5 %) и отдых (10 %).
2.1.
До начала работ необходимо:
закончить
строительно-монтажные, электромонтажные и сантехнические работы, а также
отделочные работы, связанные с мокрыми процессами (устройство цементных стяжек,
штукатурные работы и др.).
2.2.
Во время работы температурно-влажностный режим в помещении должен
соответствовать режиму эксплуатации, в зимнее время работы выполняют при
постоянно действующем отоплении и вентиляции.
2.3.
Облицовка стен должна производиться в соответствии с требованиями СНиП III-21-73 «Отделочные покрытия строительных
конструкций», раздел 2:
влажность
кирпичных и бетонных поверхностей не должна превышать 8 %; влажность воздуха -
не более 60 %.
2.4.
Элементы деревянных каркасов должны быть антисептированными с влажностью не
более 18 % и антиперированными; влажность пробок должна быть на 2 - 3 % ниже.
2.5.
При производстве работ должны выполняться правила техники безопасности и охраны
труда рабочих согласно СНиП III-4-80 «Техника
безопасности в строительстве».
3.1.
Исполнители:
столяр IV
разряда (С1) - 1
столяр III
разряда (С2) - 1
3.2. Инструменты, приспособления и инвентарь
|
Наименование,
назначение и основные параметры
|
ГОСТ, №
чертежа, изготовитель
|
Количество,
шт.
|
|
Электросверлилка ИЭ-1032 (до 9 мм)
|
ГОСТ 8524-75
|
1
|
|
Шуруповерт реверсивный ИЭ-3602А
|
ТУ 22-4019-77
|
1
|
|
Молоток плотничный
|
ГОСТ 11042-72
|
1
|
|
Пила ручная электрическая дисковая
ИЭ-5102Б
|
Объединение Электростройинструмент
|
1
|
|
Молоток слесарный
|
ГОСТ 2310-70
|
1
|
|
Рубанок с одиночным ножом
|
ГОСТ 14664-69
|
1
|
|
Топор плотничный
|
ГОСТ 18578-73
|
1
|
|
Ножовка по дереву
|
ТУ 14-1-302-72
|
2
|
|
Пассатижи
|
ГОСТ 17438-72
|
1
|
|
Отвертка слесарно-монтажная
|
ГОСТ 17199-71
|
1
|
|
Отвес ОТ-200
|
ГОСТ 7948-71
|
1
|
|
Уровень гибкий (водяной)
|
ТУ 25-11-760-72
|
1
|
|
Рейка контрольная
|
Черт. 1226 треста Мосоргстрой
Главмосстроя*)
|
1
|
|
Уровень строительный УС2-300
|
ГОСТ 9416-76
|
1
|
|
Метр складной металлический
|
ГОСТ 7253-54
|
1
|
|
Стол для нарезки брусьев
|
Изготавливается по месту
|
1
|
|
Универсальные сборно-разборные
передвижные подмости
|
Черт. 611.00.00 Управления механизации
отделочных работ объединения Мосотделстрой**)
|
2
|
*) Москва, Б.
Полянка, 51а
**) Москва,
Кольская ул., 12
4.1.
Установку каркаса выполняют в следующей последовательности:
провешивание
поверхности;
разметка
стен для установки пробок;
сверление
отверстий для установки пробок;
заготовка
и установка пробок;
нарезка
брусьев;
установка
брусьев с креплением.
4.2.
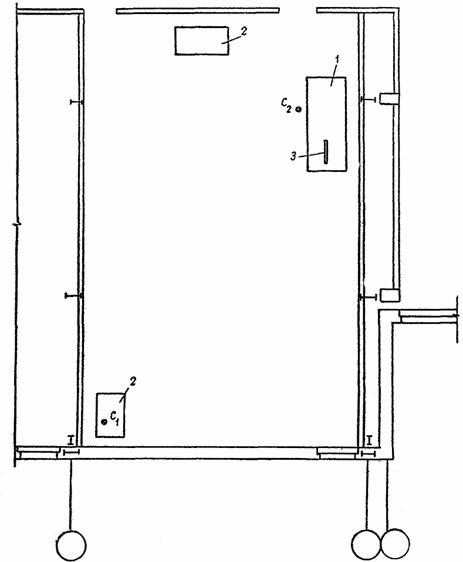
Схема организации рабочего места.

С1 и
С2 - столяры
1 - стол для
нарезки брусьев;
2 - подмости;
3 - пила
дисковая электрическая
4.3. График трудового процесса

4.4. Описание операций
|
№ по графику
|
Наименование операций, их
продолжительность*), исполнители, орудия труда, характеристика
приемов труда
|
|
1.
|
Провешивание
поверхности; 3 мин; С1, С2; отвес, молоток, подмости.
Столяр
С1, стоя на подмостях в верхнем углу, на расстоянии 30 - 40 см от лузга
стены и потолка, закрепляет гвоздь, с которого спускает шнур с отвесом;
столяр С2, стоя на полу, закрепляет внизу по отвесу второй гвоздь
на расстоянии 20 - 30 см от пола. К гвоздям привязывает туго натянутый шнур и
посередине его закрепляет еще один гвоздь. То же самое делают у другого угла
стены и между гвоздями одной и другой стороны натягивают шнуры по
горизонтали. По этим шнурам также закрепляют промежуточные гвозди; затем
натягивают шнуры по диагоналям стены. Высота гвоздей показывает, где на стене
имеются выступы и углубления. Один из максимальных выступов принимают за
контрольный и по нему выравнивают высоту гвоздей (рис. 1).
|
|
2.
|
Разметка
поверхностей; 3 мин.; С1, С2; метр, рейка, подмости. Столяры
С1 и С2 производят разметку стен при помощи метра и
рейки
для установки пробок (по 3
- 4 отметки под каждый вертикальный брус и по 2 отметки под каждый
горизонтальный брус).
|
|
3.
|
Сверление
отверстий; 27 мин; С1; электросверлилка, подмости.
Столяр
С1 производит сверление отверстий глубиной 6 - 8 см для установки
пробок при помощи электросверлилки.
|
|
4.
|
Заготовка
и установка пробок; 10 мин; С1, С2; топор, ножовка,
молоток.
Столяр
С1 производит заготовку пробок на рабочем месте из деревянного бруска
при помощи топора и ножовки. Столяр С2 забивает пробки молотком в
высверленные отверстия.
|
|
5.
|
Нарезка
брусьев; 29 мин; С2; пила дисковая, метр, подмости.
Столяр
С2 производит нарезку брусьев на столе дисковой пилой,
предварительно разметив их по заданным размерам (рис. 2).
|
|
6.
|
Установка
брусьев с выверкой; 88 мин; С1, С2; шуруповерт,
отвертка, отвес, молоток, пассатижи, подмости.
Столяры
С1 и С2 устанавливают вертикальные бруски с шагом 50 - 60
см (в зависимости от ширины панели) и крепят их к пробкам шурупами (рис. 3).
Установленные брусья выверяют по отвесу; если имеются отклонения по
вертикали, то под брусья (около пробок) подкладывают деревянные клинья
требуемой толщины и крепят их к брусьям гвоздями. После установки
вертикальных брусьев между ними устанавливают горизонтальные брусья и крепят
их шурупами к пробкам (рис. 4).
|
|
7.
|
Выверка
каркаса; 22 мин; С1, С2; отвес, рейка контрольная,
уровень.
Столяры
С1 и С2 производят выверку установленного каркаса на
вертикальность при помощи отвеса и горизонтальность при помощи контрольной
рейки и уровня.
|
*) на
10 м2 поверхности

Рис.
1
(1 - 12 -
гвозди)

Рис.
2

Рис.
3

Рис.
4
|
Карта трудового
процесса строительного производства
УСТАНОВКА ПАНЕЛЕЙ
Входит в комплект карт
ККТ
на облицовку
поверхностей панелями из древесностружечных плит, офанерованных шпоном
|
КТ
Разработана трестом Мосоргстрой
Главмосстроя с участием ЦНИБ «Мосстрой»
Рассмотрена,
откорректирована и рекомендована ВНИПИ труда в строительстве Госстроя СССР
для внедрения в строительное производство
|
1.1.
Карта предназначена для организации труда рабочих при установке панелей из
древесностружечных плит, офанерованных шпоном.
1.2.
Показатели производительности труда:
по
карте
выработка на 1 чел.-дн., м2 - 7,5
затраты труда на 10 м2, чел.-ч. - 10,67
ПРИМЕЧАНИЕ: в
затраты труда входит время на подготовительно-заключительные работы (5 %) и
отдых (8 %).
2.1.
До начала работ необходимо подготовить инструменты, приспособления и инвентарь,
проверить прочность и устойчивость подмостей.
2.2.
Относительная влажность воздуха в помещениях должна быть не более 70 %.
2.3.
Панели из древесностружечных плит, офанерованных шпоном, должны изготавливаться
в соответствии с ТУ 400-1-467-73:
панели
должны иметь правильную форму, без искривлений и покоробленности;
лицевая
поверхность должна быть ровной, без царапин и других повреждений;
допускаемые
отклонения по длине панелей не должны превышать ±2 мм, по ширине ±1 мм.
2.4.
При офанеровке древесностружечных плит шпоном ценных пород дерева в целях предохранения
плит от коробления покрытие выполняется с двух сторон, причем для обратной
стороны используется шпон менее ценных пород дерева.
2.5.
Доставку, складирование и хранение панелей необходимо осуществлять плашмя,
сложенными попарно лицевой стороной внутрь с прокладкой их бумагой. Хранить
изделия необходимо в закрытых помещениях с влажностью воздуха до 60 %.
2.6.
Стены, облицованные панелями, должны иметь правильные геометрические стыки и
ровную поверхность облицовки, на которой не должно быть пятен, царапин и других
дефектов.
2.7.
При производстве работ должны выполняться правила техники безопасности и охраны
труда рабочих согласно СНиП III-4-80 «Техника
безопасности в строительстве».
3.1.
Исполнители:
столяр IV
разряда (С1) - 1
столяр III
разряда (С2) - 1
3.2. Инструменты, приспособления и орудия труда
|
Наименование,
назначение и основные параметры
|
ГОСТ или №
чертежа, изготовитель
|
Количество,
шт.
|
|
Пила ручная электрическая дисковая
|
ИЭ-5102Б объединения
«Электростройинструмент»
|
1
|
|
Ножовка по дереву
|
ТУ 14-1-302-72
|
1
|
|
Рубанок с одиночным ножом
|
ГОСТ 14664-69
|
1
|
|
Шуруповерт реверсивный ИЭ-3602А
|
ТУ 22-4019-77
|
2
|
|
Отвертка слесарно-монтажная
|
ГОСТ 17199-71
|
2
|
|
Коловорот с трещоткой
|
ГОСТ 7467-75
|
1
|
|
Клещи строительные КС-250
|
ГОСТ 14184-69
|
2
|
|
Молоток плотничный
|
ГОСТ 11042-72
|
2
|
|
Метр складной металлический
|
ГОСТ 7253-54
|
2
|
|
Отвес ОТ-200
|
ГОСТ 7948-71
|
1
|
|
Рейка контрольная
|
Черт. 1226 треста Мосоргстрой
Главмосстроя*)
|
1
|
|
Уровень строительный УС2-300
|
ГОСТ 9416-76
|
1
|
|
Стол для раскроя панелей
|
Изготавливается по месту
|
1
|
|
Стол для нарезки раскладок
|
-«-
|
1
|
|
Универсальные сборно-разборные
передвижные подмости
|
Черт. 611.00.00 Управления механизации
отделочных работ объединения Мосотделстрой**)
|
|
|
Очки защитные
|
ГОСТ 9496-60
|
1
|
*) Москва, Б.
Полянка, 51а
**) Москва,
Пушкинская 23/8
3.3.
Расход материалов на 100 м2 стен
Плиты
древесностружечные, офанерованные шпоном, - 102,5 м2
4.1.
Работы по установке панелей выполняются в следующей последовательности:
раскрой
панелей;
вырезка
отверстий в панелях для электроарматуры;
крепление
вертикальных раскладок;
заготовка
закладных;
установка
закладных с креплением;
установка
панелей с креплением и выверкой;
установка
горизонтальных раскладок.
4.2.
Схема организации рабочего места

С1,
С2 - столяры;
1 - стол для
нарезки раскладок;
2 - стол для нарезки
панелей;
3 - подмости;
4 - панель;
5 - каркас
4.3.
График трудового процесса

4.4.
Описание операций
|
№ по графику
|
Наименование
операций; их продолжительность*), исполнители, орудия труда,
характеристика приемов труда
|
|
1.
|
Раскрой панелей; 58 мин; С1,
С2; пила дисковая, стол для раскроя панелей, метр
Столяр С2 размечает панель
по заданным размерам при помощи метра и карандаша, а столяр С1
производит раскрой панели при помощи дисковой пилы (рис. 1).
|
|
2.
|
Вырезка отверстий в панелях; 32 мин; С1;
коловорот, стол
Столяр С1 производит вырезку
отверстий в панелях для различного вида проводок при помощи коловорота.
|
|
3.
|
Крепление вертикальных раскладок; 42
мин; С2; молоток, ножовка, стол
Столяр С2 производит нарезку
раскладок (деревянных реек шириной 10 мм) ножовкой, предварительно разметив
их по заданным размерам, затем крепит раскладки к торцу панели гвоздями с
шагом 20 - 25 см (рис. 2).
|
|
4.
|
Заготовка закладных; 10 мин; С1;
пила дисковая, стол для раскроя панелей.
Столяр С1 производит
заготовку закладных размером 100×50 мм из листа фанеры толщиной 5 мм
при помощи дисковой пилы.
|
|
5.
|
Установка закладных деталей с
креплением; 65 мин; С1, С2; шуруповерт, пассатижи,
стол.
Столяры С1 и С2
устанавливают закладные детали с тыльной стороны панели в четырех местах в
двух уровнях по высоте и крепят их к панели шурупами при помощи шуруповерта (рис.
3).
Закладные детали должны выступать из-за панели на 4 - 5 см.
|
|
6.
|
Установка панелей с выверкой; 130 мин;
С1, С2; молоток, отвес, подмости.
Столяры С1 и С2 устанавливают
рядовые панели следующим образом: с одной стороны панели закладные детали
заводят за ранее установленную панель и опирают на закладные детали этой
панели, а с другой стороны панели выступающие закладные детали крепятся к
каркасу гвоздями (рис. 4). Каждую установленную панель выверяют по
отвесу. Угловые панели устанавливают так: торец панели, примыкающий к углу
помещения, прикрепляют к каркасу гвоздями с шагом крепления 20 - 25 см,
шляпки гвоздей срезают, а гвозди забивают при помощи добойника. С другой
стороны панель прикрепляется к каркасу при помощи закладных деталей.
|
|
7.
|
Установка горизонтальных раскладок; 25
мин; С1, С2; молоток, клещи, подмости.
Столяр С1 производит нарезку
раскладок, предварительно разметив их по заданным размерам.
Столяр С2 устанавливает
горизонтальные раскладки, закрывая ими швы между верхними и нижним рядами
установленных панелей. Раскладки крепятся к каркасу гвоздями (рис. 5 ).
|
*) на 10 м2
поверхности

Рис.
1

Рис.
2

Рис.
3

Рис.
4

Рис.
5
СОДЕРЖАНИЕ