Крупнейшая бесплатная информационно-справочная система онлайн доступа к полному собранию технических нормативно-правовых актов РФ. Огромная база технических нормативов (более 150 тысяч документов) и полное собрание национальных стандартов, аутентичное официальной базе Госстандарта. GOSTRF.com - это более 1 Терабайта бесплатной технической информации для всех пользователей интернета. Все электронные копии представленных здесь документов могут распространяться без каких-либо ограничений. Поощряется распространение информации с этого сайта на любых других ресурсах. Каждый человек имеет право на неограниченный доступ к этим документам! Каждый человек имеет право на знание требований, изложенных в данных нормативно-правовых актах!

  


 

ТИПОВЫЕ ТЕХНОЛОГИЧЕСКИЕ КАРТЫ НА ПРОИЗВОДСТВО ОТДЕЛЬНЫХ ВИДОВ РАБОТ

 

ТИПОВАЯ ТЕХНОЛОГИЧЕСКАЯ КАРТА НА ОТДЕЛОЧНЫЕ РАБОТЫ

6315231016

72016

 

УСТРОЙСТВО ОДНОСЛОЙНОЙ ШТУКАТУРКИ

НА ОСНОВЕ СУХИХ ГИПСОВЫХ СМЕСЕЙ

ДЛЯ ЖИЛЫХ И ОБЩЕСТВЕННЫХ ЗДАНИЙ

 

МОСКВА-1990

 

РАЗРАБОТАНА

Центральным научно-исследовательским

 и проектно-экспериментальным институтом

 организации механизации и технической

 помощи строительству.

СОГЛАСОВАНО

Отделом механизации и технологии

строительства Госстроя СССР

Письмо от 11.07.89 № 13-423

Введена в действие 11 июля 1989 г


 

Зам.директора института, д.т.н.______                                               В.Д. ТОПЧИЙ

Нач. отдела экспериментального проектирования ________           Ю.А. ЯРЫШЕВ

Лаборатория отделочных работ

Ведущий научный сотрудник к.т.н __________.                                Г.А. ЗАХАРЧЕНКО

 

1. ОБЛАСТЬ ПРИМЕНЕНИЯ.

1.1. Типовая технологическая карта (ТТК) разработана на производство работ по оштукатуриванию внутренних поверхностей стен и перегородок из кирпича и бетона штукатурными растворами,  на основе гипсовых вяжущих со специальными добавками, улучшающими качества, растворов (адгезию к обрабатываемой поверхности, заглаживаемость, трещиностойкость и др.). Такие штукатурные растворы изготовляются централизованно в виде сухих гипсовых штукатурных смесей (СГШС). Приготовление товарного раствора из СГШС и нанесение его на обрабатываемую поверхность - механизированное.

ТТК разработана на измеритель конечной продукции - 100 м2 поверхности стен и перегородок.

1.2. В состав работ, рассматриваемых картой, входят:

подготовка поверхностей стен и перегородок под оштукатуривание;

провешивание поверхностей, установка марок, устройство маяков;

механизированное приготовление раствора и нанесение его на обрабатываемую поверхность в один слой толщиной до 2 см;

разравнивание нанесенного штукатурного слоя правилом, и заглаживание поверхности металлическим полутерком; обработка откосов, лузг и усенков

Кроме того, рассматриваются работы по доставке СГШC на объект и внутри объектное транспортирование ее к штукатурной машине.

1.3. Настоящая ТТК разрабатывается применительно к строительству пятиэтажного жилого здания с: эксплуатационной влажностью отделываемых помещений не более 90%.

1.4. При привязке ТТК к конкретному объекту и условиям строительства необходимо уточнить объемы работ и, с учетом этих объемов, калькуляцию затрат труда и количество средств механизации и инвентаря.

2. ОРГАНИЗАЦИЯ И ТЕХНОЛОГИЯ ВЫПОЛНЕНИЯ РАБОТ

2.1. Подготовка объекта к производству штукатурных работ.

До начала производства отделочных работ следует:

закончить работы по монтажу строительных конструкций,

смонтировать и опрессовать санитарно-технические разводки;

смонтировать и опробовать скрытые электротехнические сети;

подготовить устройства для сушки помещения в целях создания нормального температурно-влажностного режима в период отделки и до сдачи здания в эксплуатацию;

подготовить помещения для складирования и эксплуатации материалов и оборудования;

подготовить помещения для бытового обслуживания рабочих;

установить грузовые подъемники;

очистить помещения от строительного мусора

В помещения, в которых будет эксплуатироваться оборудование, должна быть обеспечена подача воды и электроэнергии.

Подготовка поверхностей к оштукатуриванию (очистка от пыли, грязи, жировых пятен, наплывов бетона и раствора) должна осуществляться способами, принятыми при выполнении обычной штукатурки.

В зимнее время влажность подготовленной под отделку поверхности не должна превышать 8% при этом температура воздуха в помещении не должна быть менее плюс 8°С (на расстоянии 50 см от пола), относительная влажность воздуха допускается не более 70%.

В летнее время при температуре воздуха более 23°С обрабатываемые, поверхности необходимо смачивать водой.

При оштукатуривании бетонных гипсолитовых и других глянцевых поверхностей, последние необходимо предварительно загрунтовать 7%-ным раствором дисперсии ПВА.

2.2. Транспортирование СГШС к месту работ.

СГШС, представляющая собой смесь гипсового вяжущего, добавок и наполнителей, изготовляется в заводских условиях. Готовая СГШС может упаковываться в многослойные гидрофобизированные бумажные мешки массой по 25-30 кг с последующей укладкой мешков на поддоны по 25-30 шт. или засыпаться в инвентарные емкости большого объема: контейнеры - до 3м3, сухосмесевозы - до 12м3, передвижные склады сыпучих веществ-до - 15 м3. Каждая партия СГШС, поставляемая на строительную площадку должна сопровождаться паспортом, с указанием завода-изготовителя и основных технических характеристик штукатурного раствора из этой смеси.

В зависимости от расхода СГШС в данной ТТК рассматриваются варианты транспортирования смеси:

в бумажных мешках - при расходе СГШС - 1 т/смену;

в инвентарных емкостях - при расходе СГШС 6 т/смену.

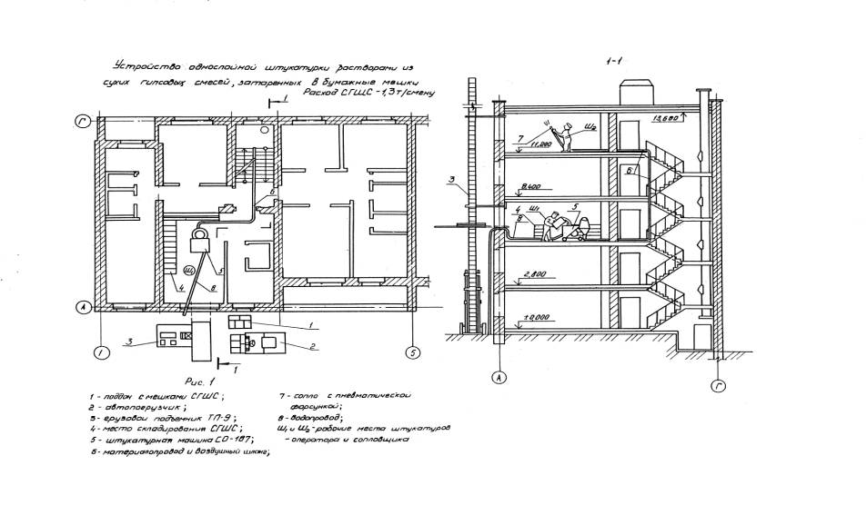
Транспортирование к рабочему месту СГШС в бумажных мешках показано на рис.I.

Заводы отпускают сухие смеси в бумажных мешках массой по 25-30 кг. Мешки укладываются на инвентарные деревянные поддоны слоями. В каждом слое - 5 мешков, на поддоне - 6 слоев.

Поддоны с мешками СГШС перевозятся на строительный объект на бортовом автомобиле.

На строительном объекте поддоны с мешками СГШС сгружаются с автомобиля автопогрузчиком и устанавливаются около мачтового грузового подъемника ТП-9.

Подъемник ТП-9 стационарный; предназначен для подъема строительных материалов и изделий при строительстве зданий высотой до пяти этажей. Конструкция этого подъемника предусматривает возможность перемещать платформу с грузом в оконные или дверные проемы на нужном этаже. Техническая характеристика подъемника ТП-9:

Грузоподъемность, кг                                         500

Высота подъемника, м                                       17

Перемещение груза по горизонтали, м             1,3

Скорость подъема, м/с                                       0,367'

Мощность электродвигателя, кВт                     3,7

Размеры платформы, м                                      l,5 x 0,9

Масса, т                                                               1,7

Мешки СГШС укладываются на платформу подъемника, поднимаются на нужный этаж и вручную перегружаются в помещения, служащие временными складами.

С целью экономии затрат труда на перебазировку оборудования и материалов в пятиэтажных зданиях временные склады СГШС устраивают в помещениях третьего этажа каждого из подъездов.

В этих же помещениях устанавливают и штукатурную машину. В процессе работы оператор штукатурной машины по мере расходования материала подносит к машине мешки с СГШС, укладывает мешок на защитную решетку бункера-дозатора, при этом мешок разрывается о зубчатые выступы и содержимое мешка высыпается в бункер-дозатор.

Транспортирование к рабочему месту СГШС в инвентарных емкостях показано на рис.2.

По заявке потребителя завод может затаривать СГШС в инвентарные емкости - такие, как автосмесевоз ТЦ-14 или передвижной склад цемента СБ-74.

Автосмесевоз ТЦ-14 представляет собой раму автомобильного прицепа, на которой установлены два контейнера для сухой смеси, а также компрессорное оборудование.

Техническая характеристика автосмесевоза ТЦ-14

Грузоподъемность, т                                                                  20

Объем, м3                                                                                    2 x 6

Производительность по разгрузке, т/мин                                0,5

Компрессор, работающий от бортовой

сети автомобиля производительностью, м3/мин                    7,5

Дальность подачи, м

по вертикали                                                                       20

по горизонтали                                                                    50

Передвижной склад цемента СБ-74 представляет собой цистерну, наклоненную к горизонту, опирающуюся на подкатную тележку и на ось полуприцепа типа МАЗ-5245. Цистерна оборудована аэрожелобами, загрузочными и разгрузочными устройствами, средствами управления и контроля. Склад СБ-74 укомплектован компрессорным агрегатом, установленным на одноосном автомобильном прицепе.

Техническая характеристика склада СБ-74:

Вместимость, т                            25

Дальность подачи, м:

по вертикали                               15

по горизонтали                            25

Передвижные инвентарные емкости завозятся на строительный объект. Склад СБ-74 устанавливается непосредственно на территории. Из автосмесевоза сухая смесь перегружается в приобъектный бункер ВНИИСДМ.

Техническая характеристика бункера приобъектного ВНИИСДМ

Вместимость, м3                                                             6

Производительность по разгрузке, т/ч                         8

Мощность привода разгрузочного шнека, кВт 3

Угол наклона разгрузочного шнека                              45о

Высота загрузки, мм                                                       1130

Высота разгрузки, мм                                                     1800.

Для обеспечения беспрерывной работы штукатурной машины на объекте целесообразно иметь два бункера ВНИИСДМ. К выпускной горловине склада цемента или приобъектного бункера подключается приемный узел пневморазгрузчика CО-I90. Пневморазгрузчик состоит из приемного и загрузочного узла, соединенных материальным шлангом. В состав приемного узла входят бункер для приема сухой смеси и компрессор. Загрузочный узел представляет собой крышку, одеваемую на бункер-дозатор штукатурной машины CО-I87, на которой установлен фильтр воздуха, проходящего через пневмозагрузчик. Устройство оснащено системой автоматического регулирования уровня сухой смеси в бункере-дозаторе штукатурной машины.

Техническая характеристика пневморазгрузчика сухой смеси CО-190.

Производительность, м3                                             2,1

Мощность электродвигателя, кВт                                 8,1

Дальность подачи, м:,

по вертикали                                                                   50

по горизонтали                                                               80

Масса, кг                                                                          450

2.3. Оборудование для производства работ.

Основным оборудованием для приготовления товарного раствора из СГШС и нанесения его на обрабатываемую поверхность является машина CО-187, укомплектованная компрессором CО-161.

Устройство машины CО-187

Машина состоит из приемного бункера-дозатора сухой смеси, дозатора воды, затворяющего устройства, винтового насоса, компрессора CО-161, электрооборудования, пусковой и защитной аппаратуры. Перечисленные узлы смонтированы на раме с колесами. Машина комплектуется материальными, водяными и воздушными рукавами и пневматической форсункой.

Принцип работы машины CО-187.

СГШС загружается в бункер-дозатор откуда подается в затворяющее устройство. Туда же через соответствующий дозатор подается вода. В затворяющем устройстве компоненты раствора перемешиваются и поступают к винтовому насосу и далее в материальный рукав. По материальному рукаву раствор поступает к пневматической форсунке, к которой также подведен воздушный шланг от компрессора. Раствор из сопла форсунки набрызгивается на обрабатываемую поверхность.

Техническая характеристика машины CО-187

Производительность, м3                                                         1,5-2,0

Установленная мощность, кВт                                                 4,75

Высота загрузки, мм                                                                   930

Объем бункера, л                                                                        160

Рабочее давление, МПа                                                             2,0

Дальность подачи раствора, м

по горизонтали                                                                           45

по вертикали                                                                              30

Габаритные размеры, мм:

длина                                                                                           1110

ширина                                                                                        650

высота                                                                                         1470

Масса, кг,                                                                                    196

Объемная масса используемой сухой смеси, кг/м3                 220-1800

Подвижность раствора, см, по стандартному конусу             8-14

Производительность машины при толщине намета в 2 см обеспечивает 75-100 м2/ч оштукатуренной поверхности.

Техническая характеристика компрессора СО-161

Производительность, м3                      15

Мощность, кВт                                        1,1

Масса, кг,                                                 25

В случае отсутствия компрессора CО-I6I возможно использование компрессора СО-7А или СО-7Б, производительность которого такова, что один компрессор может обеспечить воздухом нормальную работу трех, машин C0-I87.

2.4. Подготовка оборудования

Штукатурная машина СО-187 располагается в одном из помещений третьего этажа пятиэтажного здания. Это помещение должно быть обеспечено временным водопроводом с давлением не менее 0,2 МПа и подводкой электроэнергии 380/220В, 50 Гц, 6 кВт.

С целью экономии затрат труда на подноску СГСШ при использовании варианта с ручной загрузкой, штукатурную машину целесообразно держать в помещении, приспособленном под временный склад СГШС.

До начала работы оператор производит внешний осмотр машины; проверяет наличие масла в редукторах, исправность, электропроводки, наличие ограждений; соединяет материальный и воздушный рукава с пневматической форсункой, компрессором и растворонасосом; подсоединяет воду посредством шланга диаметром не менее 15 мм; следит за тем, чтобы давление в водопроводе было не менее 0,2МПа; подключает компрессор; подключает машину к силовой сети; проверяет работу машины при прокачивании воды.

2.5. Приготовление и нанесение штукатурного раствора.

Бункер-дозатор штукатурной машины загружается сухой смесью, включается машина и устанавливается необходимый расход воды. По мере расходования СГШС ее запас в бункере пополняется. Растворная смесь наносится на обрабатываемую поверхность с помощью пневматической форсунки. Раствор наносят сверху вниз. Форсунку держат под углом 60-90° к обрабатываемой поверхности на расстоянии 30-50 см от нее. Толщина штукатурного намета должна составлять 2 см.

Нанесенный слой штукатурного раствора разравнивается металлическими полутерками, правилами или шпателями конструкции ЦНИИОМТП. Разравнивание штукатурного намета должно производиться своевременно, т.к. хотя время начала схватывания гипсового раствора и составляет 20-30мин, в этих пределах усилие, которое необходимо приложить для разравнивания раствора, изменяется с 14 до 51 г/см.

Для получения геометрически ровной поверхности нанесение и разравнивание, штукатурного намета выполняется по маякам.

Заглаживание обработанной поверхности выполняют с помощью войлочных или поролоновых терок, смачиваемых водой.

Перемещение машины в пределах одного этажа осуществляется одним рабочим. Перемещение машины с этажа на этаж осуществляется с помощью грузового подъемника или вручную, при этом приемный бункер-дозатор должен быть освобожден от сухой смеси, а машина разобрана на узлы (отсоединяются рукава, компрессор, смеситель-насос). В разобранном состоянии межэтажная транспортировка может быть осуществлена силами двух человек.

Перед тем как остановить машину более чем на 5 мин, материальный шланг тщательно промывают с использованием поролонового шарика.

 

2.6. Организация работ

Механизированное выполнение штукатурных работ растворами из СГШС производится звеном рабочих, состав которого зависит от способа затаривания сухой смеси и загрузки ее в штукатурную машину.

В случае ручной загрузки штукатурной машины сухой смесью, затаренной в бумажные мешки, звено рабочих состоит из 3-х человек:

штукатур 4 разр.- (Ш1)

штукатур 3 разр.- (Ш2)

штукатур 2 разр.- (Ш3).

Штукатур Ш2 готовит штукатурную машину к работе, загружает машину сухой смесью, следит за работой машины, обслуживает ее. В остальное время штукатур Ш2 участвует в выполнении операций по разравниванию и заглаживанию штукатурного намета.

Штукатур Ш1 готовит поверхности для обработки, наносит раствор на обрабатываемую поверхность, следит за исправностью шлангов и форсунки. Оставшееся время штукатур Ш1 использует на заглаживание и затирку обработанной поверхности.

Штукатур Ш3 готовит поверхность для обработки, заглаживает и разравнивает нанесенный намет, производит выделку откосов, лузг и усенков.

В случае механизированной загрузки машины сухой смесью, затаренной в инвентарные емкости, в звено рабочих дополнительно подключаются три штукатура:

штукатур 4 разр.(Ш4)

штукатуры 3 разр.(Ш5 и Ш6).

Эти рабочие занимаются разравниванием и заглаживанием штукатурного намета, выделкой лузг, усенков. и откосов. Соответственно время, затрачиваемое на выполнение этих операций штукатурами Ш1 и Ш2,уменьшается.

Схема организации рабочих мест штукатурного звена при производстве работ по механизированному оштукатуриванию стен растворами из СГШС с применением механизированной загрузки штукатурной машины приведена на рис.3.

При производстве работ в помещениях большой площади (общественные здания) возможно использование бригад с численностью в 11-12 человек.

3. ТРЕБОВАНИЯ К КАЧЕСТВУ И ПРИЕМКЕ РАБОТ

Контроль качества штукатурных работ с использованием растворов из СГШС складывается из контроля качества штукатурного раствора, пооперационного контроля качества работ и контроля качества обрабатываемых поверхностей.

Технические критерии и средства контроля операций и процессов приводятся в табл.1.

Таблица I

Наименование процессов и показателей, подлежащих контролю

Предмет контроля

Инструмент и способ контроля

Время контроля

Ответственный контролер

Технические критерии оценки качества

Качество штукатурного раствора из СГШС

Крупность частиц вяжущего и наполнителей

Сито, экипированное сет кой с размером ячеек 1,5 х 1,5 мм

3-4 -раза в смену

Мастер

Проба раствора должна полностью проходить через сито

Подвижность штукатурного раствора

. Стандартный конус

То же

То же

Осадка конуса должна составлять 8-12 см

Расслаиваемость раствора

Лабораторный контроль

То же

Лаборант

Не более 15%

Водоудерживающая способность

Лабораторный контроль

3-4 раза в смену

Лаборант

Не менее 90%

Выполнение отдельных технологических операций

Подготовка поверхностей под оштукатуривание

Визуально

После окончания подготовительных работ

Мастер

Обрабатываемые поверхности должны быть очищены от пыли, грязи, жировых пятен, наплывы должны быть срублены, крупные углубления заделаны, поверхности загрунтованы или смочены водой

Нанесение штукатурного намета

Рейка, отвес, уровень

После нанесения раствора выборочно

Мастер

Раствор должен наноситься равномерно толщиной 2см

Сушка обработанных поверхностей

Термометр, влагомер

После окончания работ. Не реже одного раза в сутки

То же

Температура воздуха на расстоянии 0,5 м от пола не менее 8оС, относительная влажность воздуха не более 70%

Приемо-сдаточные работы

Прочность сцепления штукатурного покрытия с основанием

Лабораторный контроль

После окончания работ

Лаборант

Не менее 0,1МПа. Производится не менее 5 измерений на 50-70 м2 поверхности

 

Отклонение оштукатуренной поверхности от вертикали или от горизонтали

Контрольная рейка двухметровая, отвес, уровень. Не менее 5 измерений на 50-70 м2 покрытия

То же

Заказчик

При простой штукатурке, и оклейке обоями не более 3 мм на 1 м, при улучшенной штукатурке не более 2 мм на I м

Отклонения оконных и дверных откосов, лузг, усенков и т.п. от вертикали и горизонтали.

Контрольная двухметровая рейка, отвес, уровень. Не менее 5 измерений на 50-70 м2 покрытия

После окончания работ

Заказчик

При простой штукатурке и оклейке обоями не более 4м на 1м, при улучшенной штукатурке не более 2мм на 1м

Неровности гладких поверхностей

Контрольная рейка, линейка. Не менее 5 измерений на 50-70 м2 покрытия

То же

То же

При простой штукатурке и  оклейке обоями не более 3 неровностей высотой (глубиной) до 5мм на 4 м2 поверхности, при улучшенной штукатурке не более 2 неровностей высотой (глубиной) до 3мм на 4 м2 поверхности .Для измерений выбирают участки, наихудшие по внешнему виду

Ширина откосов

Рулетка

То же

То же

Отклонение от проектной величины не должно  превышать: для простой штукатурки и оклейке обоями – 5 мм, для улучшенной штукатурке – 3 мм

 


4. КАЛЬКУЛЯЦИЯ ЗАТРАТ ТРУДА, МАШИННОГО ВРЕМЕНИ И ЗАРАБОТНОЙ ПЛАТЫ

Затраты труда, машинного времени и заработной платы при оштукатуривании 100, м2 стеновых поверхностей приведены в

Таблица 2

Наименование процесса

Единица измерения

Объем работ

Обоснование

Норма рабочих, чел.-ч

Времени машиниста, чел.-ч (маш.-ч)

Расценка, руб.-коп.

Затраты труда,

Заработная плата, руб.-коп.

Время пребывания машины на объекте, маш-ч

Заработная плата- машиниста с учетом пребывания машины на объекте, руб.-коп.

рабочих

машиниста

Рабочих, чел.-ч

Машиниста, чел.ч

рабочих

Машиниста

Подвозка автопогрузчиком поддонов с пакетами к подъемнику

100т

0,02

ЕНиР §1-2, табл.3, стр.1а

6,2

6,2

3-97

4,90

0,124

0,124

0-08

0-10

0,124

0-10

Погрузка, подъем и разгрузка пакетов одномачтовым подъемником

100т

0,02

ЕНиР §1-8, табл.2, стр.20а, б

34,4

8,6

22-02

6,02

0,688

0,172

0-44

0-12

0,172

0-12

Переноска и укладывание пакетов с СГШС

2

ЕНиР §1-14, стр.20

0,94

-

0-57

-

1,88

-

1-14

-

-

-

Подготовка поверхности  механизированное приготовление и нанесение раствора слоем толщиной 2см, разравнивание и заглаживание поверхности вручную

100м2

I

ТТК Приложение, табл.7

35,3

-

25-56

-

35,3

-

25-56

-

-

-

Управление штукатурной  машиной, обслуживание ее

100м2

I

§Е8-1-2, табл.5, п.б

3,3

-

2-31

-

3,3

-

2-31

-

-

-

Итого:

при ручной загрузке штукатурной машины

 

 

 

 

 

 

 

41,29

0,3

29,93

0-22

0,3

0-22

при механизированной загрузке штукатурной машины

 

 

 

 

 

 

 

38,6

-

27-87

-

-

-



5. ГРАФИК ПРОИЗВОДСТВА РАБОТ

График производства работ и организации рабочего времени рабочих при обработке 100 м2 стеновых поверхностей приведен в табл.3

Таблица 3

Наименование процесса

Единица измерения

Объем работ

Затраты труда

Принятый состав звена

Продолжительность  процесса

Рабочие часы

рабочих, чел.-ч 

машиниста, чел.-ч (маш.-ч)

 

2

 

4

 

6

 

8

 

10

 

12

 

14

 

 

Ручная загрузка штукатурной машины (СГШС затарена в бумажные мешки)

 

 

 

 

 

 

 

 

 

 

 

 

 

 

 

 

 

Подвозка   автопогрузчиком поддонов с пакетами к подъемнику

100м2 стен

1,00

0,124

0,124

Машинист автопогрузчика 4 разр.-1

Такелажник 2 разр.-1

0,124

_

 

 

 

 

 

 

 

 

 

 

 

 

 

 

 

Погрузка, подъем и разгрузка пакетов одномачтовым подъемником.

100м2 стен

1,00

0,688

0,172

Машинист 3 разр.-1

Такелажник 2 разр.-2

0,344

_

 

 

 

 

 

 

 

 

 

 

 

 

 

 

 

Переноска и укладывание пакетов с СГШС

100м2 стен

1,88

1,88

-

Грузчик I разр.-2

0,94

 

_

 

 

 

 

 

 

 

 

 

 

 

 

 

 

Подготовка поверхности, приготовление, нанесение, разравнивание и заглаживание раствора, управление машиной

100м2 стен

1,00

38,6

-

Штукатур 4 разр.-1

-"-       3 разр.-1

-"-        2 разр.-1

12,86

 

 

 

 

 

 

 

 

 

 

 

 

 

 

 

 

 

 

 

 

 

 

 

 

 

 

 

 

 

 

 

 

Итого:

14,31

 

 

 

 

 

 

 

 

 

 

 

 

 

 

 

 

 

Механизированная загрузка штукатурной машины (СГШС затарена в инвентарные емкости)

Подготовка поверхности, приготовление, нанесение, разравнивание и заглаживание раствора, управление машиной

100м2 стен

1,00

38,6

-

Штукатуры 4 разр.-2

-"-   3 разр.-3

-"-   2 разр.-1

6,43

 

 

 

 

 

 

 

 

 

 

 

 

 

 

 

 

 

 

 

 

 

 

 

 

 

 

 

 

 

 

 

 

Итого:

-

 

6,43

 

 

 

 

 

 

 

 

 

 

 

 

 

 

 

 

 


6. МАТЕРИАЛЬНО-ТЕХНИЧЕСКИЕ РЕСУРСЫ

Потребность в машинах, оборудование, инструментах и приспособления приведена в табл.4.

Таблица 4

Наименование

Тип, марка, № чертежа

Количество

Назначение

Машины и оборудование

Штукатурная машина

СО-187

1

Приготовление штукатурного раствора из сухих смесей и нанесение их на обрабатываемую поверхность

Компрессор

СО-7А

1

Распыление штукатурного раствора на обрабатываемой поверхности

Грузовой мачтовый подъемник

ТП-9

1

Доставка, мешков с сухими смесями и оборудования на нужную отметку (вариант ручной загрузки)

Приобъектный бункер ВНИИСДМ

-

2

Создание запаса сухой смеси. (вариант механизированной загрузки)

Пневмозагрузчик

СО-190

1

Доставка сухой смеси к штукатурной машине

Ручные инструменты

Молоток штукатурный

ГОСТ 11042-83

3

Для снятия наплывов раствора

Скребок металлический

РЧ №210

ВНИИСМИ МСДМ

3

Очистка поверхности при подготовке к оштукатуриванию

Бучарда штукатурная

0ТУ22-1066-67 ВНИИСМИ МСДМ

1

Насечка бетонных поверхностей

Правило металлическое с зубьями (длина-2000 мм)

ИР 729.00.00 ВНИИСМИ МСДМ

2

Разравнивание штукатурного намета

Правило металлическое (длина 1200, 2000, 2400)

ИР 726.00.00 ВНИИСМИ МСДМ

3

Разравнивание штукатурного слоя

Правило усеночное

ИР 699.00.00 ВНИИСМИ МСДМ

1

Отделка ребер, (усенков) выступающих углов

Правило лузговое

ИР 698.00.00 ВНИИСМИ МСДМ

1

Отделка линий (лузг) внутренних углов

Лоток металлический

РЧ 3345.23.000

ЦНИИОМТП

20

Сбор опавшего раствора и отскока

Кисти-макловицы

ГОСТ 10597-87

3

Смачивание поверхностей

Шпатели ручные (длина лезвий 300, 400,500мм)

ЦНИИОМТП

6

Заглаживание поверхностей

Нож для отделочных работ

ГОСТ 18975-86

1

Расчистка трещин

Терка войлочная или поролоновая

Мосоргтехстрой

3

Затирка штукатурки

Измерительные инструменты

Рейка контрольная длиной 2м

РЧ Л-ТЭ-276, трест Оргтехстрой МС ЭССР

1

Провешивание плоскостей

Уровень строительный

УС-1-300, УС-2-7СС ГОСТ 9415-83

2

Провешивание горизонтальных плоскостей

Отвес строительный

ОТ-400

ГОСТ 7948-80

2

Провешивание вертикальных плоскостей

Шнур разметочный длиной 18м

ТУ 22-3527-76

ВНИИСМИ МСДМ

1

Проверка плоскостей

Метр складной деревянный

РСТ-149-71 Латв.ССР

1

Измерение линейных величин

Угольник специальный

Трест Мосоргстрой Главмосстроя

1

Разметка углов

Стандартный конус

Трест Мосгорстрой Главмосстроя

1

Определение подвижности штукатурного раствора

Производственный инвентарь

Ограждения

Трест Мосоргпром-строй

5

Ограждение механизмов

Очки защитные

ГОСТ 12.4.013-85Е

2

Защита глаз от пыли и брызг штукатурного раствора.

Респиратор

РПП-57

I

Защита органов дыхания от пыли

Перчатки резиновые

 

2

Защита рук

Средства подмащивания

Двухсекционный столик-вышка

РЧ 6260.00.000 УМОР ГМС

2

Оштукатуривание мест выше роста человека

Столик складной универсальный

РЧ 3216.00.000 УМОР ГМС

2

Отделка помещений высотой 2,7-3 м и лестничных клеток

 

Потребность в материалах для оштукатуривания 100м2 поверхности приведена в табл.5.

Таблица 5

Наименование

Единица измерения

Количество

Сухая гипсовая штукатурная. Смесь (СГШС)

т

1,25

Прочие материалы (вода, ПВА и др.), на сумму

руб.

0,18

7. ТЕХНИКА БЕЗОПАСНОСТИ

1. При производстве штукатурных работ должны соблюдаться общие требования по технике безопасности и охране труда (СНиП III-4-80 "Техника безопасности в строительстве")

2. Всем исполнителям перед началом работ следует пройти соответствующий инструктаж по безопасным приемам труда.

З. Все работающие должны быть обеспечены спецодеждой и спецобувью, а оператор и сопловщик, кроме того, защитными очками и респираторами.

4. Применяемые при работе машины должны быть испытаны в соответствии с нормами и сроками, предусмотренными правилами Госгортехнадзора и Госэнергонадзора. Оператор штукатурной машины должен обладать удостоверением на право управления данной группой строительных машин.

5. Разборку, чистку и ремонт машины следует производить только после снятия давления и отключения машины от электрической сети. Во время работы машины запрещается перегибать растворопровод и воздушные рукава.

6. Оператору машины запрещается самостоятельно производить ремонт электрооборудования, оставлять без надзора, работающую машину.

7. Штукатуры, занятые разравниванием и заглаживанием штукатурного намета, должны быть обеспечены исправным ручным инструментом с подогнанными и надежно укрепленными рукоятками.

8. Для сушки отделочного покрытия не допускается использование нагревательных приборов открытого типа.

8. ТЕХНИКО-ЭКОНОМИЧЕСКИЕ ПОКАЗАТЕЛИ.

Основные технико-экономические показатели технологии производства штукатурных работ с использованием СГШС приведены в табл.6.

Таблица 6

Показатель (на 100 м2 стен)

Ручная загрузка, смесь затарена в мешки

Механизированная загрузка, смесь затарена в инвентарные емкости

Нормативные затраты труда рабочих, чел.-ч

41,29

38,60

Нормативные затраты машинного времени, маш.-ч

0,30

-

Заработная плата рабочих, р-к

29-93

27-87

Заработная плата машинистов, р-к.

0-22

-

Условные затраты на механизацию, р-к.

3-51

7-60

Продолжительность выполнения работ, ч

14,31

6,43

Выработка на одного рабочего в смену, м2/чел.-смену

19,86

21,25

Сумма изменяемых затрат, р.-к.

33-44

35-47

Примечание. При определении выработки на одного рабочего затраты труда машиниста автопогрузчика и машиниста мачтового подъемника не учитывались

9. ФАСЕТНЫЙ КЛАССИФИКАТОР ФАКТОРОВ

ФАСЕТ 01

Способ срубки наплывов бетона и раствора

Наименование фактора

Обоснование

Код

Значение фактора

Срубка наплывов вручную

ЕНиР, §Е8-1-1, табл.2

01

По калькуляции

Срубка наплывов при помощи средств механизации

То же

02

Н.вр. и расц. умножены на 0,995

ФАСЕТ 02

Вид подготавливаемой поверхности

Наименование фактора

Обоснование

Код

Значение фактора

Стены и перегородки, столбы, пилястры, прямоугольные колонны и криволинейные поверхности большого радиуса

ЕНиР, §Е8-1-1, табл.2

01

По калькуляции

Потолки, лестничные марши, цилиндрические колонны и полуколонны, балки, карнизы и другие мелкие поверхности

То же

02

Нвр. и расц. умножены на 1,014

ФАСЕТ 03

Вид оштукатуриваемой поверхности

Наименование фактора

Обоснование

Код

Значение фактора

Стены и перегородки

ЕНиР, §Е8-1-2, табл.2

01

По калькуляции

Потолки

То же

02

Н. вр. и расц. умножены на 1,25

Столбы, колонны прямоугольные

"

03

Н. вр. и расц. умножены на 1,33

Балки,пилястры,ниши с откосами и лестничные марши

"

04

Н.вр. и расц. умножены на 1,73

Колонны и полуколонны цилиндрические, своды сферически и купола одноцентровые

"

05

Н. вр. и расц. умножены на 2,34

ФАСЕТ 04

Качество оштукатуривания

Наименование фактора

Обоснование

Код

Значение фактора

Улучшенное оштукатуривание

ЕНиР, §Е8-1-2, табл.2 и 3

01

По калькуляции

Высококачественное оштукату­ривание

То же

02

Н. вр. и расц. умножены на 1,56

ПРИЛОЖЕНИЕ
Расчет затрат труда при оштукатуривании с применением СГШС

В связи с тем, что "Единые нормы, и расценки на строительные, монтажные и ремонтно-строительные работы" не предусматривают технологии однослойного оштукатуривания с применением СГШС, затраты труда в рассматриваемом процессе определяются как сумма трудозатрат по элементам процесса с использованием данных хронометража (проведенного специалистами Тульского КТИ и треста "Оргтехстрой" Главсочиспецстроя.

Затраты труда на каждый элемент процесса пересчитаны на главный измеритель - 1 м2 стеновых поверхностей и приведены в табл.7.

Таблица 7

Наименование элемента процесса

Измеритель элемента

Затраты труда, чел.-мин

на измеритель элемента

на главный измеритель

Подготовка поверхности под оштукатуривание (очистка от наплывов, пыли, провешивание)

м2

0,2

0,2

Устройство щитовых инвентарных подмостей с подноской до 10м

м2 подмостей

2,2

1,47

Защита столярных изделий полиэтиленовой пленкой

м2 проема

1,0

0,22

Установка маячных и профилированных шин ( уголков) на гипсовом растворе

1 м шин

2,9

2,03

Наклейка армостеклоткани на гипсовом растворе на стыках

м2 ткани

4,4

0,13

Подготовка штукатурной машины к работе в начале смены и обслуживание в процессе работы

1 подготовка

21

1,26

Перемещение рабочих шлангов к месту работы

1 перемещение

1,1

0,07

Нанесение 1-го слоя гипсовой смеси методом соплования

м2

0,7

0,7

Выравнивание поверхности металлическим правилом

м2

0,5

0,5

Вторичное нанесение (где это требуется) гипсовой смеси соплованием в местах, выявленных при выравнивании

м2

0,3

0,3

Вторичное выравнивание поверхности металлическим правилом с выверкой поверхности рейкой

м2

1,2

1,2

Окончательное выравнивание поверхности металлическими терками с частичной подмазкой гипсовым раствором

м2

11,6

11,6

Затирка поверхности войлочными терками

м2

0,34

0,34

Промывка машины и шлангов перед обеденным перерывом и в конце работы

1 промывка

19,0

1,14

Итого:

 

 

21,16

Затраты труда на обработку 1 м2 стеновых поверхностей составляют 21,16 чел.-мин; затраты труда рабочих-штукатуров на обработку 100 м2 поверхности составляют 35,3 чел.-ч.

 

СОДЕРЖАНИЕ

1. ОБЛАСТЬ ПРИМЕНЕНИЯ.

2. ОРГАНИЗАЦИЯ И ТЕХНОЛОГИЯ ВЫПОЛНЕНИЯ РАБОТ

2.1. Подготовка объекта к производству штукатурных работ.

2.2. Транспортирование СГШС к месту работ.

2.3. Оборудование для производства работ.

2.4. Подготовка оборудования

2.5. Приготовление и нанесение штукатурного раствора.

2.6. Организация работ

3. ТРЕБОВАНИЯ К КАЧЕСТВУ И ПРИЕМКЕ РАБОТ

4. КАЛЬКУЛЯЦИЯ ЗАТРАТ ТРУДА, МАШИННОГО ВРЕМЕНИ И ЗАРАБОТНОЙ ПЛАТЫ

5. ГРАФИК ПРОИЗВОДСТВА РАБОТ

6. МАТЕРИАЛЬНО-ТЕХНИЧЕСКИЕ РЕСУРСЫ

7. ТЕХНИКА БЕЗОПАСНОСТИ

8. ТЕХНИКО-ЭКОНОМИЧЕСКИЕ ПОКАЗАТЕЛИ.

9. ФАСЕТНЫЙ КЛАССИФИКАТОР ФАКТОРОВ

ПРИЛОЖЕНИЕ Расчет затрат труда при оштукатуривании с применением СГШС

 

 




ГОСТЫ, СТРОИТЕЛЬНЫЕ и ТЕХНИЧЕСКИЕ НОРМАТИВЫ.
Некоммерческая онлайн система, содержащая все Российские Госты, национальные Стандарты и нормативы.
В Системе содержится более 150000 файлов нормативно-технической документации, действующей на территории РФ.
Система предназначена для широкого круга инженерно-технических специалистов.

Рейтинг@Mail.ru Яндекс цитирования

Copyright © www.gostrf.com, 2008 - 2026