Крупнейшая бесплатная информационно-справочная система онлайн доступа к полному собранию технических нормативно-правовых актов РФ. Огромная база технических нормативов (более 150 тысяч документов) и полное собрание национальных стандартов, аутентичное официальной базе Госстандарта. GOSTRF.com - это более 1 Терабайта бесплатной технической информации для всех пользователей интернета. Все электронные копии представленных здесь документов могут распространяться без каких-либо ограничений. Поощряется распространение информации с этого сайта на любых других ресурсах. Каждый человек имеет право на неограниченный доступ к этим документам! Каждый человек имеет право на знание требований, изложенных в данных нормативно-правовых актах!

  


 

Открытое акционерное общество Проектно-конструкторский и технологический институт промышленного строительства ОАО

 

УТВЕРЖДАЮ

Генеральный директор, к.т.н.

_____________С.Ю. Едличка

«23» декабря 2004 г.

 

РЕКОМЕНДАЦИИ ПО БЕТОНИРОВАНИЮ КОНСТРУКЦИЙ С ПОМОЩЬЮ АВТОБЕТОНОНАСОСА ПРИ ТРАНСПОРТИРОВКЕ БЕТОННОЙ СМЕСИ АВТОБЕТОНОСМЕСИТЕЛЯМИ

102-04

СОДЕРЖАНИЕ

1 ОБЩИЕ ПОЛОЖЕНИЯ

2 ОРГАНИЗАЦИОННЫЕ ТРЕБОВАНИЯ

3 МАШИНЫ И ОБОРУДОВАНИЕ

4 УСТАНОВКА АВТОБЕТОНОНАСОСА

5 ТРАНСПОРТИРОВАНИЕ БЕТОННЫХ СМЕСЕЙ

6 ТРЕБОВАНИЯ И РЕКОМЕНДАЦИИ К МАТЕРИАЛАМ И БЕТОННЫМ СМЕСЯМ, ПЕРЕКАЧИВАЕМЫМ ПО БЕТОНОВОДУ

7 ТРЕБОВАНИЯ К АВТОБЕТОНОНАСОСАМ ПРИ ПРОИЗВОДСТВЕ БЕТОННЫХ РАБОТ

8 ИСПОЛЬЗОВАНИЕ АВТОБЕТОНОСМЕСИТЕЛЕЙ И АВТОБЕТОНОНАСОСОВ В ЗИМНИХ УСЛОВИЯХ

9 РАЗРАБОТКА ПРОЕКТОВ ПРОИЗВОДСТВА РАБОТ

10 ТРЕБОВАНИЯ БЕЗОПАСНОСТИ И ОХРАНЫ ТРУДА, ЭКОЛОГИЧЕСКОЙ И ПОЖАРНОЙ БЕЗОПАСНОСТИ

11 Справочно-информационная литература

1 ОБЩИЕ ПОЛОЖЕНИЯ

1.1. «Рекомендации по бетонированию конструкций с помощью автобетононасоса и транспортировкой бетонной смеси автобетоносмесителем» (далее «Рекомендации») предназначены для руководства при разработке ППР и производстве работ по возведению монолитных бетонных и железобетонных конструкций, выполняемых с использованием автобетоносмесителей и автобетононасосов.

1.2. Подача и распределение бетонной смеси в монолитные конструкции с помощью автобетононасосов осуществляется в комплекте с необходимым количеством автобетоносмесителей, обеспечивающих ритмичную поставку бетонной смеси на объект.

Количество и состав машин для транспортировки и укладки бетонной смеси в конструкции определяются в ППР в зависимости от объема работ и конкретных условий объекта строительства.

1.3. Применение комплекта машин эффективно при необходимости транспортировки, подачи и распределения бетонной смеси в монолитные конструкции в значительных объемах и при интенсивном ведении бетонных работ.

Следует особо отметить возможность использования комплекта машин при подаче и распределении бетонной смеси в монолитные конструкции при реконструкции действующих предприятий, а также в конструкции, находящиеся в условиях смонтированного каркаса, через оконные и монтажные проемы и другие труднодоступные места.

2 ОРГАНИЗАЦИОННЫЕ ТРЕБОВАНИЯ

2.1. Работы по устройству монолитных бетонных и железобетонных конструкций осуществляются в соответствии с рабочими чертежами, проектом производства работ, а также с соблюдением требований СНиП 12-01-2004 «Организация строительства», СНиП 3.03.01-87 «Несущие и ограждающие конструкции».

2.2. Приказом по строительной организации устанавливается персональная ответственность лиц, обеспечивающих подготовку объекта к приему автобетононасоса и соблюдение требований безопасности работ и охраны труда при его эксплуатации.

2.3. Строительная организация обеспечивает:

- подготовку фронта работ с учетом принятого в ППР темпа укладки бетонной смеси автобетононасосом;

- соблюдение требований безопасности и охраны труда при работе автобетононасоса;

- подготовку резервного фронта работ по укладке бетонной смеси, выгруженной из автобетоносмесителей, в случае непредвиденной или аварийной остановки автобетононасоса;

- своевременное оформление необходимой документации для получения с заводов бетонной смеси с заданными характеристиками и в необходимых объемах;

- выделение бригады специалистов для подготовки мест стоянок автобетононасоса, оборудования стоянок водоразборными устройствами для промывки насосов и барабанов автобетоносмесителей, установки автобетононасосов в рабочее положение, монтажа и демонтажа бетоноводов (при необходимости), устранения пробок в бетоноводах, укладки и распределения бетонной смеси в конструкциях, контроля за состоянием опалубки в процессе укладки бетонной смеси, приведения автобетононасоса в транспортное положение (количественный и квалификационный состав бригады устанавливается в ППР);

- проведение первичного инструктажа на рабочем месте с членами бригады, выделенных для работы с комплектом машин;

- разработку графика работы членов бригады, работающих с автобетононасосами, исключающего всякие перерывы (в т.ч. и обеденный).

2.4. До начала производства работ по устройству монолитных конструкций должны быть выполнены подготовительные работы, предусмотренные ППР, в том числе:

- установлены опалубка, арматура, закладные детали конструкций;

- произведена проверка точности установки, прочности и герметичности опалубки;

- произведена приемка выполненных арматурных и опалубочных работ с составлением акта приемки-сдачи и акта освидетельствования скрытых работ;

- организована надежная знаковая и звуковая связь между бетонщиками и машинистом;

- обеспечена строительная площадка средствами пожаротушения и сигнализации;

- устроено освещение рабочей зоны;

- выполнено ограждение проемов, лестничных клеток и по периметру перекрытий здания;

- подготовлена горизонтальная площадка для автобетононасоса;

- смонтирован стационарный бетоновод (при необходимости);

- оборудовано место промывки бетоновода и обеспечены условия слива отходов;

- очищены опалубка и арматура в зоне бетонирования;

- смазана поверхность опалубки;

- подготовлены механизмы, приспособления и оборудование.

2.5. В целях повышениях эффективности использования комплекта машин при длительной их работе на объекте строительная организация по согласованию с владельцем механизмов организует постоянное пребывание автобетононасосов на объекте и обеспечивает их охрану.

3 МАШИНЫ И ОБОРУДОВАНИЕ

3.1. Комплект машин по транспортировке и укладке бетонных смесей в конструкции состоит из автобетоносмесителей и автобетононасосов. Состав комплекта устанавливается проектом производства работ. Технические характеристики автобетоносмесителей и автобетононасосов для их подбора при совместной работе приведены в таблицах 1, 2, 3 и 4.

Фактические характеристики автобетононасосов оцениваются после проведения ежегодных испытаний по специально разработанным программам. О фактических характеристиках автобетононасосов их владелец извещает строительные организации информационными письмами.

3.2. Выбор автобетононасоса осуществляется с учетом его производительности и объемов выполняемых работ, высоты и площади здания.

3.3. Автобетононасос оснащен шарнирно-сочлененной распределительной стрелой, на которой укреплен бетоновод. С помощью этой стрелы с одной стоянки автобетононасоса бетон может быть подан в любую точку зоны работы. Примеры схем подачи и распределения бетонной смеси даны на рисунках 1, 2, 3, 4, 5, 6 и 7.

Для подачи бетона на высоту и дальность, превышающие указанные в таблицах и рисунках, монтируют стационарный бетоновод из инвентарных стальных труб на быстроразъемных соединениях.

Более подробно характеристики автобетононасосов и автобетоносмесителей даны в каталоге «Автобетононасосы и автобетоносмесители» (ОАО ПКТИпромстрой, 2001 г.).

Таблица 1

Основные технические характеристики автобетоносмесителей

Показатель

Автобетоносмесители

СБ-92 А-1

СБ-92 В-1

СБ-92 В-2

СБ-92 В-4

СБ-159А

СБ-159Б

1

2

3

4

5

6

7

8

1 Геометрический объем смесительного барабана, м3

8

8

8

8

8

8

8

2 Емкость смесительного барабана по выходу готовой бетонной смеси, м3 (при объемной массе смеси, т/м3)

4(2,25)

4(2,25)

5(1,95)

5(1,95)

4,5 (2)

4...5 (2,2)

4,5...5 (2,1)

3 Полезная грузоподъемность по бетонной смеси, т

9,65

9,65

9,65

9,65

9,65

9,6...9,65

9,3

4 Время перемешивания, мин.

15...20

15...20

15...20

15...20

6,5...14

15...20

15...20

5 Темп выгрузки, м3/мин

0,5...2

0,5...2

0,5...2

1

0,5...2

0,5...2

0,5...2

6 Высота, м: загрузки разгрузки (наибольшая)

3,55

1,43

3,68

1,65

3,6

2,2

3,62

2,2

3,6

2,2

3,6

2,2

3,6

2,2

7 Базовый автомобиль

КАМАЗ

-55111

КРАЗ

-258Б1

КАМАЗ

-55111

КАМАЗ

-55111

ЗИЛ

-133 Д4

КАМАЗ

-55111

КАМАЗ

-55111

8 Масса загруженного бетоном автобетоносмесителя, т

19,15

19,15

19,15

19,15

18,625

19,15

18,9

9 Размеры машины в транспортном положении, м:

 

 

 

 

 

 

 

длина

7.ю5

8,03

7,34

7,5

8,4

8,0

7,6

ширина

2,5

2,65

2,5

2,5

2,5

2,5

2,5

высота

3,6

3,68

3,6

3,62

3,6

3,6

3,6

Показатель

Автобетоносмесители

СБ-172-1

СБ-211

СБ-214

СБ-230

СБ-234

СБ-239

581470

1 Геометрический объем смесительного барабана, м

10

14

10

7,5

14

14

12

2 Емкость смесительного барабана по выходу готовой бетонной смеси, м3 (при объемной массе смеси, т/м3)

5,4...5,9

 (2...2,15)

8

(2)

5...6

 (2...2.4)

4

(1,63)

8

(2,1)

8

(1,8)

7

(1,8)

3 Полезная грузоподъемность по бетонной смеси, т

11,62

16

12

6,5

14,4

14,4

13,25

4 Время перемешивания, мин.

15...20

15...20

15...20

15...20

15...20

15...20

15...20

5 Темп выгрузки, м"/мин

0,5...2

0,5...2

0,5...2

0,5...2

0,5...2

0.5...2,2

0,5...2,2

6 Высота, м: загрузки разгрузки (наибольшая)

3,6

2,2

3,6

 1,65

3,6

1,65

3,6

1,43

3,7

2,2

3,7

 2,2

3,7

2,2

7 Базовый автомобиль

КАМАЗ-

55111

КАМАЗ-

54112

КАМАЗ-

5410

МАЗ-

5337

МЗКТ-

69237

КАМАЗ-

6540

КАМАЗ-

53229

8 Масса загруженного бетоном автобетоносмесителя, т

22,2

32,59

24,8

16

30

27,6

20

9 Размеры машины в транспортном положении, м: длина ширина высота

7,6

2,5

 3,6

11,8

 2,5

3,6

10,45

2,5

 3,6

7,8

 2,5

 3,6

9,5

2,5

3,8

9,5

2,5 3,5

9

2,5

3,7

Показатель

Автобетоносмесители

АБС-03

АБС-4

АБС-5

АБС-6

1 Геометрический объем смесительного барабана, м3

10

10

10

10

10

10

10

2 Емкость смесительного барабана по выходу готовой бетонной смеси, м3 (при объемной массе смеси, т/м3)

5иб

 (2,2 и 1,83)

3,6-4

 (2,4)

4,9-5

 (2,4)

5,7-6

(2,4)

5,2-6

(2,4)

5,1-6

(2,4)

4,9-6

(2,4)

3 Полезная грузоподъемность по бетонной смеси, т

11

8,64

11,76

13,68

12,48

12,24

11,76

4 Время перемешивания, мин.

25...30

15...20

15...20

До 20

До 20

До 20

До 20

5 Темп выгрузки, м3/мин

1

1

1

1

1

1

1

6 Высота, м: загрузки разгрузки (наибольшая)

3,56

 1,65

3,5

1,65

3,5

1,43

3,51

1,2

3,64

1,22

3,51

 1,2

3,6

1,2

7 Базовый автомобиль

КАМАЗ-

53213

МАЗ-

5337

КАМаЗ-

55111-070 55111 А, С

КАМАЗ-

65115

КРАЗ-

65101-207 (101,100, 200, 201) КРАЗ-250

КАМАЗ-

53229

КАМАЗ-

55111-070 55111 А, С

8 Масса загруженного бетоном автобетоносмесителя, т

22

18

22,5

24,45

24

24

22,5

9 Размеры машины в транспортном положении, м:

 

 

 

 

 

 

 

длина

8,99

7,4

7,5

7,5

9,48

8,1

7,5

ширина

2,5

2,5

2,5

2,5

2,5

2,5

2,5

высота

3,56

3,6

3,6

3,6

3,64

3,56

3,6

Показатель

Автобетоносмесители

АБС-7

АБС-8

АБС-9

ТАМ 2601Т

26Б-БМ

1 Геометрический объем смесительного барабана, м3

10

10

10

10

10

10,12

2 Емкость смесительного барабана по выходу готовой бетонной смеси, м3 (при объемной массе смеси, т/м3)

5,1 и 7

(2,4)

5и7

(2,4)

5,1 и 7

(2,4)

7,9 и 8

(2,4)

7,9 и 9

(2,4)

6

(2,2)

3 Полезная грузоподъемность по бетонной смеси, т

12,24

12

12,24

18,96

18,96

14

4 Время перемешивания, мин.

До 20

До 20

До 20

До 20

До 20

15-20

5 Темп выгрузки, м /мин

1

1-2

1-2

1-2

1-2

0,5-2

6 Высота, м:

 

 

 

 

 

 

загрузки

3,77

3,68

3,56

3,96

3,95

3,55

разгрузки (наибольшая)

1,2

1,2

1,2

1,2

1,22

1,43

7 Базовый автомобиль

КРАЗ-250 КРАЗ-

65101-207

МАЗ-

63035-040

КАМАЗ-

53229

МЗКТ-

69237

МЗКТ-

69237

ТАМ 260

8 Масса загруженного бетоном автобетоносмесителя, т

24

24,7

24

36

36

26

9 Размеры машины в транспортном положении, м:

 

 

 

 

 

 

длина

9,98

8,68

8.2

9,0

9,4

8,05

ширина

2,5

2,5

2,5

2,5

2,5

2,5

высота

3,56

3,6

3,6

3,6

3,6

3,55

Таблица 2

Основные технические характеристики автобетононасосов отечественного производства

№п./п.

Показатель

Автобетононасосы

СБ-126Б (СБ-126Б-1)

СБ-170-1 (СБ-170-1А)

1

Наибольшая подача бетонной смеси на выходе из распределительного устройства, м3

65

65

2

Наибольшее давление нагнетания бетонной смеси, МПа

6

32

3

Тип качающего узла

Поршневой

Поршневой

4

Количество секций стрелы

3

3

5

Наибольшая высота подачи бетонной смеси со стрелы, м

21

22

6

Наибольшая дальность подачи бетонной смеси со стрелы, м

18

18(21,5)

7

Наибольшая глубина подачи бетонной смеси со стрелы, м

9

9(10)

8

Размеры машины в транспортном положении,  м:

 

 

 

длина

10

10(11)

 

ширина

2,5

2,5

 

высота

3,8

3,8

9

Масса автобетононасоса в транспортном положении, т

17(19,1)

16,5(18,5)

10

Высота загрузки, м

1,4

1,45

11

Базовый автомобиль

КАМАЗ-53213

КАМАЗ-53213

Таблица 3

Основные характеристики автобетононасосов фирмы PUTZMEISTER

№п./п.

Показатель

Автобетононасосы

BRF 22.09 ЕМ

BRF 24.08

BRF 28.09 ЕМ

BQF 24.08

BQF 28.08

1

Наибольшая подача бетонной смеси на выходе из распределительного устройства, м3

90

87

90

80

80

2

Наибольшее давление нагнетания бетонной смеси, МПа

7,1

5,4

7,1

2,5

2,5

3

Тип качающего узла

Поршневой

Поршневой

Поршневой

Роторно-шланговый

Роторно-шланговый

4

Тип распределительной стрелы

М 22/19

М 24-TRD

M28-3-R-TRS45

М 24-TRD

М28-3-Р-та345

5

Количество секций стрелы

3

4

3

4

3

6

Наибольшая высота подачи бетонной смеси со стрелы, м

22,3

23,2

27,3

23,2

27,3

7

Наибольшая дальность подачи бетонной смеси со стрелы, м

18,8

19,6

23,7

19,6

23,7

8

Наибольшая глубина подачи бетонной смеси со стрелы, м

11,8

14,6

16,2

14,6

16,2

9

Размеры машины в транспортном положении, м:

 

 

 

 

 

 

 

длина

9,1

8,615

10,837

8,615

10,837

12,556

 

ширина

2,5

2,5

2,5

2,5

2,48

2,65

 

высота

3,6

3,82

3,85

3,82

3,85

3,78

10

Масса автобетононасоса, т

18,2

17,84

19,3

17,84

19,3

21,72

11

Высота загрузки, м

1,35

1,35

1,35

1,35

1,35

1,25

12

Модель базового автомобиля*

MB 1824

MB 1824

MB 2024

MB 1824

MB 2024

KPA3-250K

* МВ-«Мерседес-Бенц»

№п/п.

Показатель

Автобетононасосы

BRF 32,09 ЕМ

BRF 36.09

BRF 43.09

1

Наибольшая подача бетонной смеси на выходе из распределительного устройства, м3

90

90

90

2

Наибольшее давление нагнетания бетонной смеси, МПа

7,1

7,1

7,1

3

Тип качающего узла

Поршневой

Поршневой

Поршневой

4

Тип распределительной стрелы

М 32-TRS

М 36-TRS65

M43-IR104

5

Количество секций стрелы

4

4

4

6

Наибольшая высота подачи бетонной смеси со стрелы, м

32,6

35,7

42,1

7

Наибольшая дальность подачи бетонной смеси со стрелы, м

29

32,1

38,6

8

Наибольшая глубина подачи бетонной смеси со стрелы, м

22,5

24,3

29,2

9

Размеры машины в транспортном положении, м:

 

 

 

 

 

длина

ширина

высота

10,11

11,606

11,16

2,5

3,9

13,729

2,5

3,97

2,48

2,65

3,93

3,9

10

Масса автобетононасоса, т

25

22,86

26,3

33,89

11

Высота загрузки, м

1,35

1,33

1,4

1,4

12

Модель базового автомобиля*

MB 2631/41

KPA3-250K

MB 2631

MB 3538

* МВ-«Мерседес-Бенц»

Таблица 4

Основные технические характеристики автобетононасосов фирмы «SCHWING»

№п./п.

Показатель

Автобетононасосы

BPL 500 HDR

BPL 580

BPL 600 HD

BPL 601 HD

1

Наибольшая подача бетонной смеси на выходе из распределительного устройства, м3

45

55

60

66

2

Наибольшее давление нагнетания бетонной смеси, МПа

13,3

5,5

7

7

3

Тип качающего узла

Поршневой

Поршневой

Поршневой

Поршневой

4

Тип распределительной стрелы

KVM 24-4H

KVM 23

KVM31/27

KVM23

KVM28

KVM 36

5

Количество секций стрелы

4

3

3

3

3

4

6

Наибольшая высота подачи бетонной смеси со стрелы, м

23,1

21 или 23

30,75

21 или 23

28 или 29

36

7

Наибольшая дальность подачи бетонной смеси со стрелы, м

19,5

17,55 или 19,55

27

17,55 или 19,55

24 или 25

32

8

Наибольшая глубина подачи бетонной смеси со стрелы, м

13

12,4 или 14.4

19,5

12,4 или 14,4

17 или 18,2

24,5

9

Размеры машины в транспортном положении, м:

 

 

 

 

 

 

 

 

длина

ширина

высота

10,55

9,33

9,99

11,5

9,99

11,5

11,5

2,48

2,44

2,44

2,44

2,44

2,48

2,48

3,86

3,705

3,72

3,85

3,72

3,85

3,85

10

Масса автобетононасоса, т

26

16,7

16,79

22,43

16,79

22

26,3

11

Высота загрузки, м

1,26

1,26

1,35

1,4

1,35

1,4

1,4

12

Модель базового автомобиля*

MB 2631

DB 1722

MB 1619

MB 2224

MB 1619

MB2219

MAN 26-240

* MB - «Мерседес-Бенц»; DB - «Даймлер-Бенц»

№п./п.

Показатель

Автобетононасосы

BPL 700 HDR

BPL 800 HD

BPL 801

1

Наибольшая подача бетонной смеси на выходе из распределительного устройства, м3

72

80

82

2

Наибольшее давление нагнетания бетонной смеси, МПа

13,3

5,7

5,7

3

Тип качающего узла

Поршневой

Поршневой

Поршневой

4

Тип распределительной стрелы

KVM 24-4H

Ю/М31Д7

KVM23

KVM28

KVM 36

5

Количество секций стрелы

4

3

3

3

4

6

Наибольшая высота подачи бетонной смеси со стрелы, м

23,1

30,75

21 или 23

28 или 29

36

7

Наибольшая дальность подачи бетонной смеси со стрелы, м

19,5

27

17,55 или 19,55

24 или 25

32

8

Наибольшая глубина подачи бетонной смеси со стрелы, м

13

19,5

12,4 или 14,4

17 или 18,2

24,5

9

Размеры машины в транспортном положении, м:

 

 

 

 

 

 

длина

ширина

высота

10,55

9,33

11,5

9,99

11,5

11,5

2,48

2,44

2,44

2,44

2,48

2,48

3,86

3,705

3,85

3,72

3,85

3,85

10

Масса автобетононасоса, т

26

16,7

22,4

16,79

22

26,3

11

Высота загрузки, м

1,26

1,26

1,4

1,35

1,4

1,4

12

Модель базового автомобиля*

MB 2631

DB 1722

MB 2224

MB 1619

MB 2219

MAN 26-240

* MB - «Мерседес-Бенц»; DB - «Даймлер-Бенц»

Продолжение таблицы 4

№п/п

Показатель

Автобетононасосы

BRL 900 HDR

1

Наибольшая подача бетонной смеси на выходе из распределительного устройства, м3

90

2

Наибольшее давление нагнетания бетонной смеси, МПа

10,8

3

Тип качающего узла

Поршневой

4

Тип распределительной стрелы

KVM24-4H

KVM25/22

KVM 264

KVM 28Х

KVM31/27

KVM 32XL

KVM 42

5

Количество секций стрелы

4

3

3

4

3

3

4

4

6

Наибольшая высота подачи бетонной смеси со стрелы, м

23,1

25,1

25,8

25,8

27,7

30,75

32,6

41,75

7

Наибольшая дальность подачи бетонной смеси со стрелы, м

19,5

21,5

22,1

22,1

24

27

29,05

38,05

8

Наибольшая глубина подачи бетонной смеси со стрелы, м

13

15

17

17

16,8

19,5

21

27,8

9

Размеры машины в транспортном положении, м:

 

 

 

 

 

 

 

 

 

 

Длина

ширина

высота

10,55

8,33

9,99

8,636

8,636

10,84

11,5

10,365

12,935

2,48

2,44

2,44

2,48

2,48

2,48

2,44

2,48

2,48

3,86

3,705

3,72

3,65

3,65

3,66

3,85

3,77

3,93

10

Масса автобетононасоса, т

26

16,7

16,79

18,2

18,2

18,2

22,43

26,1

35,7

11

Высота загрузки, м

1,26

1,26

1,35

1,35

1,35

1,3

1,4

1,3

1,45

12

Модель базового автомобиля*

MB 2631

DB1722

MB 1619

MB 1827

MB 1827

MB 1827

MB 2224

MB 2631

MB 3328

* MB - «Мерседес-Бенц»; DB - «Даймлер-Бенц»

№п./п.

Показатель

Автобетононасосы

BPL 1000HD

BPL 1001 HD

1

Наибольшая подача бетонной смеси на выходе из распределительного устройства, м3

110

104

2

Наибольшее давление нагнетания бетонной смеси, МПа

6,5

7

3

Тип качающего узла

Поршневой

Поршневой

4

Тип распределительной стрелы

KVM 31/27

KVM 23

KVM28

KVM36

5

Количество секций стрелы

3

3

3

4

6

Наибольшая высота подачи бетонной смеси со стрелы, м

30,75

21 или 23

28 или 29

36

7

Наибольшая дальность подачи бетонной смеси со стрелы, м

27

17,55 или 19,55

24 или 25

32

8

Наибольшая глубина подачи бетонной смеси со стрелы, м

19,5

12,4 или 14,4

17 или 18,2

24,5

9

Размеры машины в транспортном положении, м:

 

 

 

 

длина

ширина

высота

11,5

9,99

11,5

11,5

2,44

2,44

2,48

2,48

3,85

3,72

3,85

3,85

10

Масса автобетононасоса, т

22,43

16,79

22

26,3

11

Высота загрузки, м

1,4

1,35

1,4

1,4

12

Модель базового автомобиля*

MB 2224

MB 1619

МВ2219

MAN26-240

* МВ-«Мерседес-Бенц»

Продолжение таблицы 4

№п./п.

Показатель

Автобетононасосы

1200 HDR

1201 HDR

1

Наибольшая подача бетонной смеси на выходе из распределительного устройства, м3

150

116

2

Наибольшее давление нагнетания бетонной смеси, МПа

9,5

7

3

Тип качающего узла

Поршневой

Поршневой

4

Тип распределительной стрелы

KVM 26-4

KVM 28 X

KVM32XL

KVM42

KVM 52

KVM 25/22

KVM3L27

5

Количество секций стрелы

4

3

4

4

4

3

3

6

Наибольшая высота подачи бетонной смеси со стрелы, м

25,8

27,7

32,6

41,75

51,2

25,1

30,75

7

Наибольшая дальность подачи бетонной смеси со стрелы, м

22,1

24

29,05

38,05

48

21,5

27

8

Наибольшая глубина подачи бетонной смеси со стрелы, м

17

16,8

21

27,8

38,9

15

19,5

9

Размеры машины в транспортном положении, м:

 

 

 

 

 

 

 

 

длина

ширина

высота

8,636

10,84

10,365

12,935

13,345

9,99

11,5

2,48

2,48

2,48

2,48

2,5

2,44

2,44

3,65

3,66

3,77

3,93

3,95

3,72

3,85

10

Масса автобетононасоса, т

18,2

18,2

26,1

35,7

45

16,79

22,43

11

Высота загрузки, м

1,35

1,3

1,3

1,45

1,4

1,35

1,4

12

Модель базового автомобиля*

MB 1827

MB 1827

MB 2631

MB 3328

MB 3336

MB 1619

MB 2224

* MB - «Мерседес-Бенц»

 

Рисунок 1 – Рабочая зона распределительной стрелы автобетононасоса СБ-170-1 (170-1А) в вертикальной плоскости

Рисунок 2 – Рабочая зона распределительной стрелы М 32-TRS автобетононасоса фирмы PUTZMEISTER BRF 32.09 EM в вертикальной плоскости

Рисунок 3 – Рабочая зона распределительной стрелы M 36-TRS65 автобетононасоса фирмы PUTZMEISTER BRF 36.09 в вертикальной плоскости

Рисунок 4 – Рабочая зона распределительной стрелы M 28 3-R-TRS45 автобетононасоса PUTZMEISTER BQF 28.08 в вертикальной плоскости

Рисунок 5 – Рабочая зона распределительной стрелы KVM 28 автобетононасоса фирмы SCHWING BPL 601 HD в вертикальной плоскости

Рисунок 6 – Рабочая зона распределительной стрелы KVM 31/27 автобетононасоса фирмы SCHWING BPL 600 HD в вертикальной плоскости

Рисунок 7 – Рабочая зона распределительной стрелы KVM 36 автобетононасоса фирмы SCHWING BPL 601 HD в вертикальной плоскости

4 УСТАНОВКА АВТОБЕТОНОНАСОСА

4.1. Подача бетонной смеси по бетоноводу стрелы и распределение ее в конструкции осуществляется только при устойчивом положении автобетононасоса.

4.2. Места стоянок и маршрут передвижения автобетононасосов и автобетоносмесителей на строительной площадке устраиваются в соответствии с проектом производства работ из дорожных плит, уложенных по горизонтально выровненной поверхности.

4.3. Размер площадки должен обеспечивать размещение автобетононасоса и подъезд, и маневрирование на ней автобетоносмесителей.

4.4. Установка автобетононасоса на рабочей площадке разрешается при условии:

- обеспечения горизонтальности площадки для автобетононасоса;

- наличия подкладок под аутригерами;

- заготовки цемента и воды для затворения цементного теста (для пусковой смеси);

- заготовки пыжей для прочистки бетоноводов;

- подготовки резервных мест для приема бетонной смеси из автобетоносмесителей.

4.5. Установка автобетононасоса на строительной площадке производится таким образом, чтобы обеспечить бесперебойную работу насоса в пределах его рабочей зоны. Автобетононасос устанавливается на выносные опоры (аутригеры) для устойчивого его положения при работе.

Эксплуатация бетононасоса производится в ручном и автоматическом режимах. Ручной режим применяется при подготовке насоса к работе, пуске, укладке в дело небольших объемов бетонной смеси, промывке бетоноводов по окончании работ. Автоматический режим эксплуатации бетононасоса является наиболее оптимальным. Он применяется при больших объемах бетонирования.

В случае вынужденных перерывов в работе автобетононасоса в загрузочном бункере должно оставаться 0,1-0,2 м3 бетонной смеси для периодического включения насоса для работы «на себя».

Техническое обслуживание и ремонт автобетононасоса производятся только после остановки двигателя и сброса давления до атмосферного.

При перемещении автобетононасос должен находиться в транспортном положении.

4.6. Возможные зоны подачи и распределения бетонной смеси с одной стоянки автобетононасоса фирмы «Schwing» представлены на рисунке 8.

4.7. Каждая из секций стрелы автобетононасоса имеет заменяемую транспортирующую трубу, эти трубы соединены друг с. другом в местах перегиба стрелы специальными отводами, как показано на рисунке 9.

 

Примечание:

1.Горизонтальный участок ­бетоновода может быть смонтирован по любому радиусу в заштрихованной зоне.

2. Вертикальный стояк из стальных труб может быть смонтирован по любой точке отрезка А-Б (сечение 2-2)

3. Размещение автобетононасоса вблизи  сооружения следует выполнять в соответствии с графиком.

При расположении автобетононасоса вблизи сооружения следует  выполнять в соответствии с графиком.

При расположении автобетононасоса у сооружения ближе, чем предусмотрено графиком, следует устроить

навес над рабочим местом машиниста.

Рисунок 8 – Возможные зоны подачи и распределения бетонной смеси с одной стоянки бетононасоса фирмы «SCHWIH

Рисунок 9 – Сочленения секций стрелы

 

4.8. Для обеспечения нормальной работы распределительных стрел автобетононасосов необходимы следующие мероприятия:

- установка автобетононасоса на подготовленную в соответствии с ППР площадку;

- установка и фиксация выносных опор (аутригеров);

- включение гидравлической системы и развертывание распределительной стрелы;

- проверка работоспособности;

- перемещение распределительной стрелы к месту бетонирования или к месту подключения стационарного бетоновода.

4.9. В случаях, когда вылет стрелы недостаточен для подачи и распределения бетонной смеси в конструкции, укладывают бетоноводы из бесшовных металлических труб. При этом прокладку бетоноводов рекомендуется осуществлять из инвентарных металлических труб в сочетании с бетоноводом стрелы автобетононасоса. Пределы подачи и распределения бетонной смеси в конструкции с помощью стрелы автобетононасоса приведены в таблицах 2, 3 и 4, а в сочетании с комплектом металлических труб - на рисунках 9, 10 и 11.

Концевые участки бетоноводов должны выполняться только из резинотканевых распределительных шлангов, входящих в комплект автобетононасоса.

В связи с большой массой труб, заполненных бетонной смесью, горизонтальный участок бетоновода должен монтироваться на прочных опорах (подкладки, козлы, подмости, леса, выдвижные трубчатые стойки и т.п.), исключающих провисание труб. Расстояние между опорами не должно превышать 2,5-3 м.

На вертикальных участках бетоновода каждое звено трубопровода необходимо закреплять. Во избежание разрыва соединений запрещается закреплять или укладывать на какие-либо опоры верхнее и нижнее колена стояка бетоновода.

Звенья трубопровода должны стыковаться на быстроразъемных инвентарных соединениях, обладающих прочностью и герметичностью, и при этом особое внимание должно уделяться устранению дефектов (трещин, отверстий и т.д.). Неплотности в соединении повышают опасность возникновения пробок.

 

 

Рисунок 10 -Возможные зоны подачи и распределения бетона автобетононасосом типа «Schwing» с распределительной стрелой типа KVM 24-4H с помощью бетоновода из комплекта труб

Минимальное расстояние по горизонтали от основания откоса выемки до ближайших опор машин (СНиП 12-03-2001 п. 7.2.4)

Глубина выемки

Грунт ненасыпной

песчаный

супесчаный

суглинистый

глинистый

1,0

1,50

1,25

1,00

1,00

2,0

3,00

2,40

2,00

1,50

3,0

4,00

3,60

3,25

1,75

4,0

5,00

4,40

4,00

3,00

5,00

6,00

5,30

4,25

3,50

Примечание - При глубине выемки более 5 м расстояние от основания откоса выемки до ближайших опор машины определяется расчетом

Примечания:

1. Бетоновод состоит из трубопровода на стреле автобетононасоса и присоединенных к ним на муфтах двадцати 3-метровых стальных труб

2. Бетонирование следует осуществлять методом «на себя» в последовательности, указанной на сечении 2-2.

3. Стоянки автобетононасосов уточняются в ППР с таким расчетом, чтобы охватить как можно большую зону подачи и распределения бетонной смеси при наименьшем количестве стоянок.

4. При необходимости в откосе котлована у мест стоянки автобетононасоса устраивают узкие траншеи шириной до 1 м для размещения стрелы автобетононасоса, как показано на сечении 1-1.

5. Установка автобетононасоса на краю откоса должна выполняться в соответствии с данными таблицы.

6. В таблице приведены значения ширины откоса при глубине заложения Н, в метрах. Расстояние от опоры машины до бровки откоса не должно быть меньше 1 м.

 

Рисунок 11 – Схемы возможных зон подачи и распределения бетонной смеси при производстве бетонных работ нулевого цикла с помощью автобетононасоса типа «SCHWING» с распределительной стрелой типа KVM 24-4H

При бетонировании конструкций, расположенных ниже уровня стоянки автобетононасоса, в наклонной части бетоновода, имеющего большую протяженность, рекомендуется встраивать колена или подпорные отводы, препятствующие отрыву бетонной смеси и расслоению ее на наклонном участке.

Углы поворотов трассы бетоноводов из металлических труб могут выполняться из инвентарных металлических отводов или из гибких резинотканевых шлангов.

Использование резинотканевых шлангов позволяет выполнить поворот трассы на любой угол от 0 до 90° при прохождении трассы по труднодоступным участкам и при пересечении различных преград.

Собирать, разбирать, промывать и хранить трубы бетоновода следует в соответствии с технологическими требованиями.

Трубы бетоноводов следует окрашивать светлой краской, способной отражать тепло, а в жаркий период укрывать влажными матами, мешковиной и т.п.

4.10. В качестве примера в настоящих «Рекомендациях» представлено бетонирование перекрытия промышленного здания. Укладка бетонной смеси в перекрытие ведется по захваткам в определенном порядке, как показано на рисунке 12. Захватки назначаются из условия сменной (суточной) эксплуатационной производительности автобетононасоса, минимального расстояния подачи бетонной смеси согласно паспорту и от того, ведется ли бетонирование только с помощью стрелы автобетононасоса или с помощью бетоновода.

Привязка автобетононасоса к объекту, представленная на рисунке 13, меняется в зависимости от отметки перекрытия, в которое укладывается бетонная смесь.

4.11. Работы с использованием автобетононасосов по укладке бетонной смеси в конструкции должны производиться в строгом соответствии с требованиями СНиП 3.03.01-87 «Несущие и ограждающие конструкции».

 

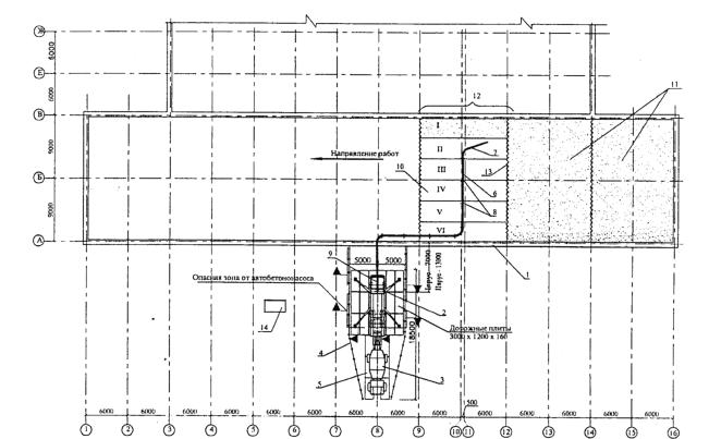
1 - строящееся здание; 2 - автобетононасос; 3 - автобетоносмеситель; 4 - временное ограждение; 5 - временная автодорога; 6 - стационарный бетоновод d=125 мм; 7 - распределительный рукав; 8 - опоры бетоновода; 9 - стрела бетононасоса; 10 - опалубка; 11 - забетонированные захватки; 12 - бетонируемая захватка; 13 - рабочий шов; 14 - емкость для слива загрязненной воды; I - VI -номера делянок

Рисунок 12 - Укладка бетонной смеси в перекрытие

1 - строящееся здание; 2 - автобетононасос; 3 - автобетоносмеситель; 4 - временное ограждение; 5 - временная автодорога; 6 - стационарный бетоновод d=125 мм; 7 - распределительный рукав; 8 - опоры бетоновода; 9 - стрела бетононасоса; 10 - рабочий шов; 11 - забетонированная захватка; 12 - бетонируемая захватка

Рисунок 13 - Привязка автобетононасоса

5 ТРАНСПОРТИРОВАНИЕ БЕТОННЫХ СМЕСЕЙ

5.1. Бетонные смеси с предприятия-изготовителя транспортируют только в автобетоносмесителях с последующей перегрузкой в автобетононасосы.

5.2. Максимальное время транспортирования готовых бетонных смесей автобетоносмесителями должно быть не более 2 ч.

5.3. Фактическое расстояние от завода-изготовителя до объекта устанавливается контрольным хронометражем с оформлением акта.

5.4. В зависимости от вида смеси, загруженной в автобетоносмеситель перед транспортировкой, работа автобетоносмесителя возможно в трех режимах:

- периодическое включение и выключение барабана во время транспортирования смеси до объекта, но при обязательном перемешивании в течение 10 мин. перед разгрузкой (для готовой смеси);

- включение барабана непосредственно после его наполнения (для жестких смесей);

- включение барабана в пути следования или при подъезде к строительному объекту за 10-20 мин. до разгрузки (для сухих смесей).

5.5. Барабаны автобетоносмесителей необходимо промывать водой после каждой перевозки бетонной смеси и после каждой рабочей смены. С этой целью в разрабатываемом ППР должно быть предусмотрено водоразборное устройство с гибким шлангом и место установки емкости для слива отходов.

Объем сливаемых отходов зависит от типа автобетоносмесителя и составляет 200-350 л.

5.6 Полный цикл работы автобетоносмесителя состоит из следующих операций:

- загрузки смесителя готовой бетонной или сухой смесью и заправки бака для воды;

- транспортирование;

- подачи в смеситель необходимой порции воды при загрузке барабана сухой смесью и перемешивания или побуждения готовой бетонной смеси при транспортировании на дальние расстояния;

- разгрузки бетонной смеси;

- промывки смесителя и лотков.

5.7. Побуждение или перемешивание бетонной смеси в пути следования разрешается на прямых участках дороги с твердым покрытием. Большинство автобетоносмесителей имеют привод смесительного барабана от двигателя автомобиля, что не позволяет осуществлять перемешивание при движении в холмистой местности и горах. Однако, существуют автобетоносмесители (например, СБ-92В-2, СБ-172-1 с приводом смесительного барабана от автономного двигателя), рекомендуемые для эксплуатации в таких условиях.

5.8. Для исключения расслоения и снижения подвижности бетонной смеси во время транспортирования к объекту рекомендуется периодическое включение барабана автобетоносмесителя. Перед разгрузкой на стройплощадке необходимо перемешать бетонную смесь в барабане автобетоносмесителя при 10-12 об/мин, в течение 3 мин.

5.9. Подвижность готовой бетонной смеси, предназначенной для перевозки автобетоносмесителями, необходимо назначать с учетом ее изменения при перевозках на заданное расстояние:

- при дальности перевозки до 15 км (время доставки от 15 до 20 мин.) в автобетоносмеситель загружается бетонная смесь заданной консистенции;

- при дальности перевозки от 15 до 30 км загружается жесткая смесь с осадкой конуса 2-3 см. Заданная проектом осадка конуса достигается в пути следования путем добавления воды из бака автобетоносмесителя;

- при дальности перевозки более 30 км загружается сухая бетонная смесь. При использовании песка влажностью более 4% перевозка сухих смесей не допускается.

5.10. Высокие требования к качеству бетонной смеси являются гарантией надежной эксплуатации автобетононасосов. Жесткие малоподвижные бетонные смеси, а также литые несвязные для перекачивания по бетоноводам не пригодны, так как в этих случаях в бетоноводах могут образоваться пробки. При перекачивании малоподвижных смесей пробки образовываются за счет сопротивления перемещению (трение), превышающего величину давления, развиваемого бетононасосом, при перемещении смесей литых - в результате их расслаивания. Кроме того, литой бетон не может транспортироваться по вертикали (он одинаково легко течет как в направлении подачи, так и в обратном). Транспортировка литой смеси сопровождается характерным треском (пульсацией) в бетоноводе, который называется гидравлическими ударами при каждом новом продвижении массы бетона.

5.11. По истечении 120 машино-часов работы автобетоносмесителя следует осмотреть внутреннюю полость барабана и в случае обнаружения налипшего на лопасти или на стенки затвердевшего бетона очистить его. При необходимости осуществить подварку или наплавку износившихся кромок лопастей смесительного барабана.

6 ТРЕБОВАНИЯ И РЕКОМЕНДАЦИИ К МАТЕРИАЛАМ И БЕТОННЫМ СМЕСЯМ, ПЕРЕКАЧИВАЕМЫМ ПО БЕТОНОВОДУ

6.1. Бетонная смесь, предназначенная для перекачки по бетоноводам, должна подбираться расчетно-экспериментальным путем. Гранулометрический состав, пластичность и однородность смеси должна обеспечивать проектные характеристики бетона конструкции (прочность, водонепроницаемость, морозостойкость и т.д.).

Состав бетонной смеси с учетом ее удобоукладываемости определяется строительной лабораторией.

6.2. Работа автобетононасосов показала, что бетонные смеси должны готовиться только на портландцементе с нормальным или замедленным сроками схватывания, по возможности смеси должны быть пластифицированными. Минимальный расход цемента без добавок должен составлять не менее 300 кг/м3 при классе бетона В20.

6.3. В качестве крупного заполнителя лучше применять гравий. Использование щебня ухудшает перемещение бетонной смеси по бетоноводу и приводит к ускоренному износу бетононасоса. Рекомендуемый размер крупного заполнителя не должен превышать 20 мм, если другие требования не указаны в паспорте механизма.

6.4. При выборе крупного заполнителя необходимо учитывать его абсорбирующую способность. Бетонная смесь, изготовленная на известковом щебне, обладает меньшей подвижностью и удобоперекачиваемостью, чем бетонная смесь, приготовленная на щебне твердых пород при равных расходах цемента и воды.

6.5 Количество пылевидной части песка крупностью до 0,15 мм рекомендуется доводить до 5 %, а мелкого песка крупностью до 0,3 мм - в пределах 20 % от общей массы песка. Добавление в бетонную смесь пылевидного и мелкого песка сверх указанного количества может привести к образованию пробок в бетоноводе из-за отощания смеси.

6.6 Бетонные смеси должны содержать от 32 до 45 % мелких (песчаная мелочь и пылевидные частицы) заполнителей и крупных - гравий до 55 % или щебень до 60-65 % по весу от их общего количества.

6.7. В состав бетонной смеси с крупным заполнителем должно входить такое количество цементного теста, микронаполнителей и растворной составляющей, при котором не только заполнялись бы пустоты в песке, щебне (гравии) и обволакивались зерна, но и обеспечивалась бы их некоторая раздвижка.

6.8 Расчет удобоукладываемости бетонной смеси по бетоноводам должен выполняться в такой последовательности:

а) определить объем компонентов бетонной смеси по следующим формулам:

1. Vm = Vц + Вц - объем цементного теста, л;

где Вц = В - 0,01[П + Щ (Г)] - объем воды, необходимой для образования коллоидной пленки на частицах цемента при его затворении, л;

2. Vp = Vm + Vn - объем цементного раствора;

3. VБ = Vp + Vщ(г) - объем бетонной смеси, л;

где Vц; Vn, Vщ (г), В - объем соответственно цемента, песка, щебня (гравия) и воды, л;

Ц; П; Щ (Г) - масса соответственно цемента, песка, щебня (гравия), кг.

б) определить количественные и качественные параметры удобоукладываемости бетонной смеси по формулам:

  

где  - водоцементное отношение цементного теста;

 

Нормальная густота цементного теста изменяется в пределах Кн.г. = 0,19-0,33;

Пп - коэффициент пустотности песка;

Пщ/г - коэффициент пустотности щебня (гравия);

Хц - содержание воды в цементе;

Хп - степень заполнения пустот в песке цементным тестом;

Хщ - степень заполнения пустот в щебне (гравии) цементным раствором.

Между Хц; Хп; Хщ(г) существуют зависимости, определяющие пригодность растворных и бетонных смесей для подачи по трубам.

Для транспортабельных бетонных смесей необходимо, чтобы значения Хц; Хп; Хщ(г) пересекались внутри многоугольников:

 

I - взаимосвязь величин Хц и Хп смесей, пригодных для подачи по бетоноводам (многоугольник АБВГДЕ соответствует значениям Хц и Хп при установившемся движении;

А'БВГД'Е' - при неустановившемся движении);

II - взаимосвязь величин Хщ(г) и Хп бетонных смесей, пригодных для подачи по трубам (а) диаметром 100 мм и (б) диаметром 150 мм.

6.9 Перекачиваемость бетонных смесей может быть улучшена за счет применения пластифицирующих добавок. Рекомендуется применять следующие добавки:

- суперпластификаторы С-3, МФ-АР, 10-03, 40-03, 50-03;

- пластификаторы НИП-20, СДБ, ЛСТМ-2, ННКОД и др.

Более подробно этот вопрос дан в работе ОАО ПКТИпромстрой «Рекомендации по применению специальных химических добавок для управления физико-механическими и технологическими свойствами бетонов и растворов».

6.10 Основные характеристики и ориентировочные составы бетонных смесей, пригодных для транспортирования по бетоноводам автобетононасосами, приведены в таблицах 5 и 6.

Таблица 5

Основные характеристики бетонных смесей

Основные характеристики бетонных смесей

Ед.

 изм.

Диаметр трубопроводов, мм

100

150

Количество крупного заполнителя диаметром:

 

 

 

5 - 10 мм

%

40-60

30-40

10-20 мм

%

40-60

50-60

20 - 40 мм

%

-

до 10

Таблица 6

Состав бетонных смесей

Состав бетонных смесей

Ед. изм.

Диаметр трубопроводов, мм

100

150

Расход цемента

кг/м3

300-400

300-400

Расход песка

кг/м3

730-1000

600-800

Расход щебня (гравия)

кг/м3

850-1050

1000-1200

 

0,4-0,7

0,32-0,45

Осадка стандартного конуса

см

8-14

6-14

6.11 Удобоперекачиваемость приготовленной заводом бетонной смеси оценивается представителями лабораторий строительных организаций и завода-изготовителя с участием представителя управления механизации. По их требованию завод-изготовитель обязан внести коррективы в состав бетонной смеси, однако увеличение расхода цемента сверх нормативного в целях улучшения удобоперекачиваемости смеси недопустимо. При оптимальном гранулометрическом составе заполнителей расход цемента в бетонной смеси, перекачиваемой бетононасосами, не отличается от расхода цемента, необходимого для приготовления бетонных смесей, укладываемых другими способами.

6.12 Высокие требования к качеству бетонной смеси, перекачиваемой бетононасосами, вызывает необходимость тщательного производственного контроля за соответствием бетонной смеси, поступающей на строительную площадку, заданным характеристикам (отбор проб в момент загрузки бетонной смеси в приемный бункер бетононасоса и испытания).

6.13. При испытаниях определяется подвижность или жесткость бетонной смеси - основных факторов ее удобоукладываемости. Испытания должны проводиться в соответствии с требованиями ГОСТ 10181-2000 «Смеси бетонные. Методы испытаний».

6.14 Пробы бетонной смеси при производственном контроле следует отбирать:

- при отпуске товарной бетонной смеси - на месте ее приготовления при погрузке в транспортную емкость;

- при производстве работ - на месте укладки бетонной смеси.

6.15 Пробу бетонной смеси для испытаний при подаче бетононасосами отбирают в три приема в случайные моменты времени в течение не более 10 минут.

6.16 Объем отобранной пробы должен обеспечивать не менее двух определений всех контролируемых показателей качества бетонной смеси.

6.17 Испытания бетонной смеси и изготовление контрольных образцов бетона должно быть начато не позднее чем через 10 минут после отбора пробы.

6.18 Температура бетонной смеси от момента отбора пробы до момента окончания испытания не должна изменяться более чем на 5° С.

6.19 Условия хранения пробы бетонной смеси после ее отбора до момента испытания должны исключить потерю влаги или увлажнение.

6.20 Результаты определения качества бетонной смеси должны быть занесены в журнал, в котором указывают:

- наименование организации-изготовителя смеси;

- наименование бетонной смеси по ГОСТ 7473-94 «Смеси бетонные. Технические условия»;

- наименование определяемого показателя качества;

- дату и время испытания;

- место отбора пробы;

- температуру бетонной смеси;

- результаты частных определений отдельных показателей качества бетонной смеси и среднеарифметические результаты по каждому показателю.

6.21 Результаты испытаний контрольных образцов бетона изготовитель обязан сообщить заказчику по его требованию не позднее чем через трое суток после проведения испытания.

7 ТРЕБОВАНИЯ К АВТОБЕТОНОНАСОСАМ ПРИ ПРОИЗВОДСТВЕ БЕТОННЫХ РАБОТ

7.1 Перед эксплуатацией автобетононасоса он устанавливается на выносные опоры, проверяется работа всех механизмов, в том числе стрелы. Стрела устанавливается в раскрытом положении или подсоединяется к стационарному бетоноводу.

7.2. Для снижения трения бетонной смеси о стенки бетоновода перед запуском автобетононасоса необходимо нанести на них смазочный слой из цементного раствора состава 1:2 (1 часть - цемент, 2 - песок). Толщина слоя от 2 до 5 мм, зависит от состава бетонной смеси и диаметра бетоновода.

7.3 Количество раствора, создающего к тому же полную герметичность в трубопроводе, зависит от длины бетоновода и от подвижности бетонной смеси. В среднем на каждый метр бетоновода требуется:

0,006 м3 - для бетоновода диаметром 150 мм;

0,005 м3 - для бетоновода диаметром 125 мм;

0,004 м3 - для бетоновода диаметром 100 мм.

Фактический объем раствора, необходимый для смазки бетоновода, в зависимости от его длины, диаметра и расположения (вертикальное, наклонное, горизонтальное), а также от подвижности бетонной смеси уточняется опытным путем.

7.4 Раствор можно приготовить в автобетоносмесителе или в бункере автобетононасоса.

Например, приготовление цементного раствора состава 1:2 в объеме, необходимом для смазки внутренней поверхности 50 м бетоновода диаметром 150 мм (0,006 ´ 50 = 0,3 м3), будет осуществляться в бункере автобетопопасоса.

При водоцементном отношении ВЦ = 0,45 на 0,3 м3 раствора потребуется 87 кг цемента, 174 кг песка и 39 л воды.

Приготовление цементного раствора в бункере автобетононасоса осуществляется в следующей последовательности:

- засыпать в бункер 40 кг песка и 40 кг цемента (водоцементное отношение раствора не должно превышать величины. ВЦ = 0,45);

- постепенно добавить воду в правую часть бункера, а затем включить мешалку на вращение в обратном направлении. Перемешивать до тех пор, пока не образуется жидкий состав;

- добавить 47 кг цемента, постоянно добавляя воду;

- оставшиеся 134 кг песка добавлять в бункер постепенно, постоянно перемешивая до тех пор, пока песок не распределится в смеси равномерно, смесь необходимо поддерживать в жидком состоянии;

- перед перекачиванием бетонной смеси необходимо изменить направление вращения мешалки, чтобы раствор переместился в горловину бункера;

- одновременно с подачей бетонной смеси из автобетоносмесителя в воронку автобетононасоса произвести его запуск;

- цементный раствор прокачивается впереди бетонной смеси между двумя пыжами.

7.5. Для увеличения пластичности бетонной смеси, доставленной первым автобетоносмесителем, необходимо добавить около 10 % цемента сверх предусмотренного расчетом.

7.6. Не рекомендуется добавлять воду в бетонную смесь. При добавлении 10 л воды на 1 м3 смеси прочность бетона снижается на 7-8 %.

О любых отклонениях в качественных характеристиках бетонных смесей от заданных необходимо немедленно сообщать на бетонный завод.

7.7. В приемном бункере следует установить согласно рисунку 14 откидную решетку, чтобы исключить попадание в насос инородных предметов и крупных частиц заполнителя размером более допустимого. Вибрирующая решетка изготавливается из арматурных стержней диаметром не менее 16 мм. Размер решетки должен соответствовать внутреннему размеру приемного бункера автобетононасоса, для установки ее на глубине 15-20 см от верха бункера. Решетку устанавливают на болтах с резиновыми прокладками. Принятый для установки на бункере тип вибратора должен иметь 2800 колебаний в минуту. Вибратор должен подключаться к штепсельному разъему на автобетононасосе.

 

1 - бункер автобетононасоса; 2 - откидная вибрирующая решетка; 3 - обвязка решетки;

4 - металлический лист под вибратор; 5 - кожух вибратора; 6 - вибратор; 7 - резиновые прокладки.

Рисунок 14 - Схема установки откидной решетки бункера автобетононасоса

7.8. При перекачке приемная воронка автобетононасоса должна быть заполнена бетонной смесью, это предотвращает попадание воздуха в рабочую камеру насоса.

7.9. В течение смены должна быть обеспечена непрерывная перекачка бетонной смеси. Случайные или организационные перерывы в работе автобетононасоса (например, демонтаж звена трубопровода) не должны превышать 15-20 мин. При более продолжительных перерывах, приближающихся к срокам схватывания бетона (определяются строительной лабораторией), бетонную смесь следует прокачивать по замкнутому контуру системы бетононасос - бетоновод на стреле. При этом гибкий шланг на конце бетоновода следует крепить к приемному бункеру автобетононасоса. В случае прокачивания бетонной смеси по системе бетононасос - бетоновод на стреле - бетоновод из стальных труб насос и бетоновод после перекачки необходимо освободить от бетонной смеси и промыть всю систему.

7.10. Бетонная смесь по бетоноводу подается непосредственно к месту укладки. Высота свободного сбрасывания бетонной смеси при бетонировании конструкций не должна превышать величин, указанных в таблице 2 СНиПа 3.03.01-87 «Несущие и ограждающие конструкции».

7.11 Бесперебойная работа автобетононасоса предотвращает причины, вызывающие образование пробок в бетоноводе. Пробки образуются, если:

- неправильно подобран состав бетонной смеси, при котором не обеспечивается ее удобоперекачиваемость;

- применена расслоившаяся бетонная смесь;

- увеличено сопротивление движению смеси по бетоноводу сверх расчетного за счет вмятин на трубопроводе или остатков бетона в нем из-за плохой промывки или утечки цементного раствора в местах стыковки труб бетоновода;

- создалось избыточное содержание химических добавок в бетонной смеси;

- применен быстросхватывающийся цемент;

- появляется вода в изгибах или на низких участках бетоновода;

- нагревается бетоновод в жаркую погоду.

7.12. Образование пробок в бетоноводе нарушает процесс бетонирования конструкций, поэтому персонал, обслуживающий комплект машин, должен уметь быстро обнаружить и ликвидировать их. Основным приемом удаления пробок является переключение бетононасоса на обратный ход. Образование пробок характеризуется следующими признаками:

- золотниковая камера подвижной трубы неточно устанавливает последовательные контакты - этот признак указывает на возникновение пробки в кожухе золотниковой камеры бетонораспределителя. Если пробку из рабочего цилиндра не удается удалить путем обратного хода, то нужно откинуть кожух золотниковой камеры и удалить пробку. Пробку следует удалять, обесточив насос и выключив двигатель;

- внезапная остановка автобетононасоса - это признак возникновения пробки в начале бетоновода. Автобетононасос следует немедленно отключить из сети, снять первое звено бетоновода, удалить уплотнившуюся смесь, а звено промыть;

- постепенное повышение давления в бетоноводе с одновременным снижением производительности насоса до нуля - этот признак свидетельствует о возникновении пробки в конце бетоновода. Отсоединив и очистив концевые звенья бетоновода, удаляют пробку;

- течь цементного молока в местах соединения звеньев бетоновода указывает на вероятность образования пробки в следующем от стыка звене по направлению движения бетонной смеси;

- подрагивание бетоновода до места образования пробки;

- пробки часто возникают на участке, расположенном сразу же за резким поворотом бетоновода;

- пробку можно обнаружить на звук при легком постукивании по бетоноводу деревянным молотком.

Звенья бетоновода после ликвидации пробки очищают от бетонной смеси и промывают.

7.13. При работе автобетононасоса со стрелой необходимо пользоваться пультом дистанционного управления. Это позволяет машинисту находиться непосредственно у места укладки бетонной смеси и точно регулировать положение стрелы и работу автобетононасоса.

7.14. Концевой шланг с помощью специальной ручки или веревки, укрепленной на нем, направляют на место укладки бетонной смеси.

7.15. Бетонирование конструкций при прокладке дополнительного бетоновода из инвентарных труб следует осуществлять методом «на себя» от наиболее удаленной точки, постепенно демонтируя звенья бетоновода, как это показано на рисунках 10 и 11.

7.16. После завершения бетонирования необходимо немедленно произвести очистку бетоновода от оставшейся бетонной смеси. Очистка может быть произведена водой под давлением.

7.17 Объем промывочной воды определяется из расчета 8 л на 1 м бетоновода диаметром 100 мм, 13 л - на 1 м бетоновода диаметром 125 мм и 18 л - на 1 м бетоновода диаметром 150 мм.

Кроме того, необходимы 200-300 л воды для промывки приемной воронки и других частей автобетононасоса.

7.18. По окончании бетонирования необходимо отвести стрелу автобетононасоса от бетонируемой конструкции, тщательной промыть бетононасос и бетоноводы.

7.19 Очистка автобетононасоса производится в следующей последовательности:

- снимается давление в системе кратковременной работы автобетононасоса на «обратный ход» и производится остановка насоса;

- удаляется бетонная смесь из нагнетательного патрубка;

- закладывается в нагнетательный патрубок 1-2 пыжа, полностью пропитанные водой;

- пыжи под давлением воды с максимальной скоростью прогоняются по бетоноводу.

7.20. После очистки автобетононасоса стрела складывается в транспортное положение. Аутригеры убираются только при полностью сложенной стреле, после чего автобетононасос может следовать на новое место работы или в гараж.

7.21 Арматура гидравлической системы, узлы переключающих устройств, детали автобетононасоса, подвергающиеся абразивному износу, разбираются, чистятся, проверяются на степень износа и смазываются или заменяются через определенное количество отработанных часов, обозначенных в паспорте и инструкции по эксплуатации автобетононасоса.

8 ИСПОЛЬЗОВАНИЕ АВТОБЕТОНОСМЕСИТЕЛЕЙ И АВТОБЕТОНОНАСОСОВ В ЗИМНИХ УСЛОВИЯХ

8.1 Особенностью производства работ по укладке бетонной смеси при отрицательных температурах воздуха является необходимость выполнения мероприятий, обеспечивающих минимальные потери тепла бетонной смеси от момента ее приготовления до укладки в опалубку конструкции, а также обеспечение заданной температуры смеси при ее укладке.

8.2. По данным ЦНИИОМТП транспортирование бетонной смеси от смесительного узла до места укладки бетона в опалубку при температуре наружного воздуха до минус 15°С можно осуществлять в автобетоносмесителях и автобетононасосами обычного (летнего) исполнения, без утепления, но с обязательной очисткой барабанов и бункеров от льда и снега.

При температуре наружного воздуха ниже минус 15°С барабаны автобетоносмесителей, бункера автобетононасосов и бетоноводы должны быть утеплены.

8.3. Утепление может быть выполнено с помощью эффективных теплоизоляционных материалов, проложенных между барабаном, бункером и легким металлическим кожухом.

8.4. При транспортировании смеси допускается не более одной перегрузки - из автобетоносмесителя в бункер автобетононасоса.

Место перегрузки должно быть защищено от ветра. Бункер автобетононасоса следует защищать от атмосферных осадков.

8.5. При подготовке автобетононасосов к эксплуатации в зимнее время должны быть выполнены мероприятия по обеспечению работы их основных узлов, водяной и масляной систем.

Должен быть исключен контакт наиболее уязвимых узлов автобетононасосов (транспортных и масляных цилиндров, баков для воды и масла, трубопроводов маслогидравлической системы и т.д.) с холодным воздухом.

8.6. Температура бетонной смеси при загрузке в барабан автобетоносмесителя на бетонном заводе должна быть не менее 10°С, но не более 40°С и определяется расчетным путем по формуле:

где tб.n - начальная температура бетона после укладки в опалубку (определяется в зависимости от способа выдерживания бетона), градусы;

tн.в. - температура наружного воздуха, градусы;

 - суммарное снижение температуры бетонной смеси при всех операциях - от приемки с завода до укладки в конструкцию;

Dtmp - относительное снижение температуры бетонной смеси на каждой операции (при транспортировании, перегрузке, укладке и др.) при перепаде между температурой наружного воздуха и температурой бетонной смеси в 1°.

;

t - продолжительность укладки смеси, мин;

 - снижение температуры смеси при укладке, градус на /1 градус в минуту (таблица 7).

Таблица 7

Снижение температуры смеси при укладке

Dtу '

Толщина конструкции, мм

0,03

60

0,018

100

0,012

150

0,09

200

0,007

300

0,005

400

0,004

500

0,003

700

8.7. В начальный момент работы автобетононасоса температура пускового раствора и первых порций бетонной смеси в объеме, достаточном для заполнения бетоновода по всех его длине, должна быть в зависимости от температуры наружного воздуха не ниже 30-40 °С.

8.8 Непосредственно перед началом транспортирования бетонной смеси бетоновод должен быть прогрет горячей водой, паром или теплым воздухом, пропускаемым по трубопроводу.

8.9 Средняя температура бетонной смеси в процессе транспортирования по бетоноводу, включая периоды остановки автобетононасоса, не должна опускаться ниже величин, обеспечивающих необходимую температуру бетонной смеси, укладываемой в конструкцию.

8.10 Возможно транспортирование бетонной смеси с противоморозными добавками нитрата натрия NaNO2. Транспортирование бетонных смесей с добавками хлористых солей не допускается во избежание интенсивной коррозии деталей автобетононасоса и бетоноводов. Не допускается также применение поташа, который способствует быстрому загустеванию бетонной смеси.

8.11 При транспортировании бетонной смеси по неутепленному бетоноводу остановка автобетононасоса Допускается не более 15 мин. При более длительной остановке необходимо принять меры для удаления бетонной смеси из трубопровода. В случае утепленного бетоновода допускается остановка автобстононасоса на 20-30 мин.

Состояние основания, на которое укладывается бетонная смесь, а также температура основания и способ укладки должны исключать возможность замерзания смеси в зоне контакта с основанием или с ранее уложенным бетоном.

Продолжительность вибрирования бетонной смеси должна быть увеличена не менее чем на 25% по сравнению с летними условиями.

8.12 Очистку бункера автобетононасоса и бетоповода следует производить подогретой водой. После очистки оставшуюся воду необходимо полностью удалить.

9 РАЗРАБОТКА ПРОЕКТОВ ПРОИЗВОДСТВА РАБОТ

9.1 Осуществление работ по укладке бетонной смеси в конструкцию с помощью автобетононасоса без проекта производства работ (ППР) запрещается.

9.2 Комплект машин по укладке бетонной смеси состоит из автобетононасоса для подачи и распределения бетонной смеси и необходимого по расчету количества автобетоносмесителей для транспортировки готовой бетонной смеси.

9.3 При необходимости перекачивания бетонной смеси на расстояния, превышающие дальность или высоту подачи одним автобетононасосом, комплект машин может включать два автобетононасоса, устанавливаемых последовательно. При этом необходимо соблюдать следующие требования:

- первый автобетононасос должен устанавливаться для подачи бетонной смеси в приемный бункер второго автобетононасоса;

- состав бетонной смеси должен приниматься в соответствии с требованиями, предъявленными для перекачки бетонной смеси автобетононасосом;

- автобетононасосы должны работать с равной производительностью.

9.4 Для оценки высоты и дальности подачи бетонной смеси, а также для определения интервала стоянок автобетононасосов следует пользоваться графиками по рисункам 8 и 10. В графиках предусмотрен комплект инвентарных труб (20 шт.). Для определения интервала стоянок автобетононасоса на графике откладывают контурные точки разреза здания или сооружения.

9.5 Бетонную смесь необходимо доставлять в количестве, обеспечивающем укладку 40-250 м3 в смену. При этом общий объем смеси, укладываемой в конструкцию, должен составлять не менее 100 м3 (для 2-сменной работы комплекта).

9.6 Выбор режима работы автобетононасоса зависит от:

- вида бетонируемой конструкции;

- протяженности бетоноводов;

- способов загрузки бункеров автобетононасосов бетонной смесью;

- организации производства работ по укладке бетонной смеси в конструкции и т.д.

Эксплуатационная среднесменная производительность бетононасосных установок с учетом давления в бетоноводе, а также факторов, указанных выше, может быть выражена формулой:

 

Пэ = Пт ´ K1 ´ K2 ´ ... ´ К63 в смену),

 

где Пт - производительность автобетононасоса, указанная в паспорте (техническая) (данные таблиц 2, 3, 4);

K1 - коэффициент, учитывающий снижение производительности автобетононасоса в зависимости от вида бетонируемой конструкции.

В малоармированных массивных конструкциях (отдельно стоящие фундаменты, фундаментные плиты значительной толщины и т.д.) подача и распределение бетонной смеси должны осуществляться при максимально возможной производительности автобетононасоса. В густоармированных и особенно тонкостенных конструкциях, где требуется более тщательное уплотнение и обработка поверхности забетонированной конструкции, распределение бетонной смеси должно осуществляться при минимальной производительности автобетононасоса.

Ориентировочные значения величин коэффициента K1 приведены в таблице 8.

Таблица 8

Ориентировочные значения величины коэффициента K1

Вид конструкции

Значение коэффициента K1

Отдельно стоящие фундаменты объемом:

 

до 4 м3

0,7

до 6 м

0,8

до 10 м3

0,9

более 10м3

0,95

Стены толщиной:

 

до 0,2 м

0,75 (0,3)

до 0,5 м

0,85 (0,4)

до 1,0 м

0,95 (0,6)

Горизонтально-плоскостные элементы (фундаментные плиты, плиты перекрытий и т.д.) с приведенной толщиной:

 

до 0,2 м

0,85 (0,5)

до 0,5 м

0,90 (0,6)

до 1,0 м

0,95 (0,75)

до 1,5 м

1,0(1,0)

Примечание - В скобках приведены значения коэффициента для случая применения стационарного бетоновода.

К2 - коэффициент, учитывающий снижение производительности автобетононасоса в зависимости от длины прямолинейного горизонтального участка бетоновода при соответствующей величине давления в нем, возникающего при перекачивании бетонной смеси. Ориентировочно этот коэффициент определяется по графикам на рисунках 15, 16, 17, 18 и 19.

К3 = 0,93 - коэффициент, учитывающий потери времени на ежесменный уход за автобетононасосом и его техническое обслуживание;

К4 = 0,90 - коэффициент, учитывающий квалификацию машиниста (оператора) автобетононасоса;

K5 - коэффициент, учитывающий снижение производительности автобетононасоса из-за различных организационно-технологических причин, определяется по формуле:

t - продолжительность бетонирования конструкций, ч, при фактической производительности автобетононасоса с учетом коэффициентов  К1, К2, K3, К4 К6;

 - суммарная продолжительность перерывов в работе бетононасосной установки, связанных с перебазированием установки с одной стоянки на другую, с объекта на объект, монтажом и демонтажем бетоновода, ремонтом опалубки и арматуры и другими причинами, ч.

К6 - продолжительность смены, ч.

 

Рисунок 15 – Изменение производительности автобетононасоса фирмы «Schwing» в зависимости от длины бетоновода

Рисунок 16 – Изменение производительности автобетононасоса фирмы «Schwing» в зависимости от длины бетоновода

Рисунок 17 – Изменение производительности автобетононасоса фирмы «Томсен» модели 875 в зависимости от длины бетоновода

Рисунок 18 – Изменение производительности автобетононасоса фирмы «Томсен» модели 875 в зависимости от длины бетоновода

Рисунок 19 – Изменения производительности автобетононасоса фирмы «Вибау» модели BRFP-80 в зависимости от длины бетоновода

9.7. Следует иметь в виду, что каждой длине бетоновода, указанной на графиках, соответствует вполне определенная величина давления в нем, необходимая для преодоления гидравлических сопротивлений перекачиваемых бетонных смесей. Поэтому, если принять величину гидравлического сопротивления, возникающего при прохождении бетонной смесью 1 м горизонтального бетоновода за единицу, тогда сопротивление на кривых, вертикальных участках бетоновода, а также бетоновода из резинотканевых шлангов можно определять как эквивалентное прямолинейным горизонтальным участкам бетоновода.

9.8. Согласно рекомендациям фирмы «Schwing» и экспериментальным исследованиям считается, что для автобетононасоса:

- каждый поворот трассы бетоновода на 10 приравнивается к 1 м горизонтального бетоновода;

- 1м вертикального стояка соответствует 3 м горизонтального бетоновода;

- 1м резинотканевого распределительного шланга стационарного бетоновода соответствует 6 м горизонтального бетоновода (с учетом поворотов шланга при распределении бетонной смеси);

- бетоновода на стреле автобетононасоса соответствует в среднем 70 м горизонтального бетоновода.

9.9. Расчет необходимого количества некоторых автобетоносмесителей приведен на рисунках 20 и 21.

9.10. Время одного рейса автобетоносмесителя устанавливается хронометражем и расчетом в зависимости от расстояния от объекта до бетонного завода и других факторов.

 

Рисунок 20 – График определения необходимого качества автобетоносмесителей емкостью 4,3 м3 фирмы White Western Star при доставке бетонной смеси для автобетононасосов

9.11. При назначении состава бригады для работы с комплектом машин необходимо руководствоваться следующими рекомендациями:

- работу по управлению бетононасосом осуществляет машинист, имеющий разряд не менее 5-го;

- контроль за составом бетонной смеси, загружаемой в бункер автобетононасоса, осуществляет один из бетонщиков.

Для монтажа и демонтажа стационарных бетоноводов из инвентарных труб следует назначать звено в составе не менее 4 слесарей-монтажников.

Для распределения бетонной смеси в массиве конструкции с помощью стрелы автобетононасоса состав звена должен включать двух бетонщиков 4-5 разрядов.

При распределении бетонной смеси с использованием стационарного бетоновода из инвентарных труб в тонкостенные конструкции, а также конструкции, требующие дополнительной обработки поверхности, звено должно состоять из 3-4 бетонщиков 3-5 разрядов.

При бетонировании густоармированных конструкций сложной конфигурации целесообразно в состав бригады включать плотника (или монтажника) для наблюдения за состоянием опалубки в процессе бетонирования и принятия срочных мер по ее ремонту в случае необходимости.

9.12 Подвижность бетонной смеси выбирается с учетом дальности подачи ее по бетоноводам и продолжительности транспортировки от бетонного завода до объекта.

При транспортировании бетонной смеси следует руководствоваться п.п. 3.1, 5.2, 5.3.

 

Рисунок 21 – График определения необходимого качества автобетоносмесителей СБ 92-1А емкостью 4,0 м3 при доставке бетонной смеси для автобетононасосов

10 ТРЕБОВАНИЯ БЕЗОПАСНОСТИ И ОХРАНЫ ТРУДА, ЭКОЛОГИЧЕСКОЙ И ПОЖАРНОЙ БЕЗОПАСНОСТИ

10.1. Все работы с применением автобетононасосов и автобетоносмесителей должны выполняться в соответствии с требованиями СНиП 12-03-2001 «Безопасность труда в строительстве. Часть 1. Общие требования», СНиП 12-04-2002 «Безопасность труда в строительстве. Часть 2. Строительное производство», инструкций заводов-изготовителей по эксплуатации оборудования, а также СП 12-135-2003 «Безопасность труда в строительстве. Отраслевые типовые инструкции по охране труда», в частности, пункты СП:

5.21 машинистов бетононасосных установок (передвижных) - ТИР O-021-2003;

5.22 машинистов бетоносмесителей передвижных (автобетоносмесителей) - ТИР O-022-2003;

5.4 бетонщиков - ТИР O-004-2003.

10.2 Данный раздел «Рекомендаций» должен рассматриваться как дополнение к соответствующим разделам заводских инструкций по эксплуатации автобетононасосов, автобетоносмесителей и другого оборудования.

10.3. К работе по эксплуатации автобетононасосов допускаются лица не моложе 18 лет, прошедшие специальное медицинское освидетельствование. Машинист автобетононасоса обязан иметь водительское удостоверение с правом управления транспортными средствами категории «С» и машиниста бетононасосных установок не ниже 4 разряда, должен изучить конструкцию автобетононасоса и пройти инструктаж по безопасности и охране труда.

10.4. Знания машинистом инструкций по эксплуатации данного типа автобетононасоса, требований безопасности и охраны труда проверяются на экзаменах квалификационной комиссией. Лица, успешно сдавшие экзамены и прошедшие практику, получают удостоверение (машиниста) на право управления данным автобетононасосом. Экзамены должны проводиться ежегодно перед началом эксплуатации автобетононасоса. Работать на автобетононасосе без указанного удостоверения запрещается.

10.5. Заводская инструкция по эксплуатации автобетононасоса должна всегда находиться в кабине автобетононасоса.

10.6. Работать на неисправном автобетононасосе или автобетоносмесителе запрещается.

10.7. В отсутствии ИТР, руководящего работами, запрещается выполнять бетонные работы с помощью автобетононасоса, а также другие работы, не соответствующие назначению и технической характеристике машины (например, перекачка раствора).

10.8. Оператору запрещается при работающем насосе отходить от органов управления автобетононасосом более чем на 2 м, не имея при себе пульта дистанционного управления. Запрещается оставлять без присмотра пульт дистанционного управления.

10.9. При плохих погодных условиях эксплуатация автобетононасоса запрещается.

10.10. Запрещается эксплуатация автобетононасоса без его внешнего осмотра.

10.11. Члены бригады, выделенной строительной организацией для работы с комплектом машин, должны пройти курсовое обучение и инструктаж по безопасным методам выполнения вспомогательных работ. Рабочие, обслуживающие комплект машин, должны иметь удостоверение на право работы с автобетононасосом.

10.12. Бригада, выделенная строительной организацией для работы с автобетононасосом, выполняющая слесарные и монтажные работы, а также работы по приемке и укладке бетонной смеси в конструкции и другие работы, связанные с эксплуатацией автобетононасосов, обязана выполнять действующие правила безопасности и охраны труда.

10.13. Перекачка бетонной смеси возможна только при установленном и выровненном с помощью аутригеров автобетононасосе.

10.14. Машинисты и рабочие комплекта машин должны работать в спецодежде, защитных касках и очках.

10.15. Открытые стоянки для автобетононасосов устраиваются на площадках у объекта и оборудуются в соответствии с рекомендациями, предложенными на рисунках 22 и 23.

 

Рисунок 22 – Схема размещения комплекта машин при производстве бетонных работ на объекте

Рисунок 23 – Схема раскладки дорожных плит и установки ограждения

Площадка для установки автобетононасоса и автобетоносмесителей выкладывается дорожными плитами согласно рисунку 23 и ограждается инвентарным ограждением высотой не менее 1,2 м. Пример ограждения площадке приведен на схеме. Количество предупредительных плакатов и их расположение должно соответствовать проекту производства работ, однако их должно быть не менее 6 штук.

Освещенность стоянки машин решается в проекте производства работ. При этом общая освещенность площадки должна составлять не менее 2 лк, а освещенность рабочего места машиниста и в зоне приемной воронки автобетононасоса - не менее 25 лк. На рисунке 22 приведены ориентировочные места установки светильников, учитывающие расположение пульта управления автобетононасоса и зоны работы рабочего, принимающего бетон в воронку автобетононасоса.

Инвентарная будка предназначена для обогрева моториста и рабочего, принимающего бетон, в случае ненастной погоды. В этом случае управление автобетононасосом при наличии надежной связи с местом укладки бетонной смеси осуществляется дистанционно с помощью выносного пульта.

Водоснабжение площадки, необходимое для промывки автобетононасоса, бетоноводов, автобетоносмесителей, решается в ППР, однако расположение водоразборных устройств от площадки не должно превышать 15 м при длине шланга 20 м.

Места установки емкостей для слива отходов после промывки автобетононасосов, автобетоносмесителей, бетоноводов определяется в ППР.

Необходимые материалы для устройства площадки приведены в таблице 9.

Таблица 9

Ведомость потребности материалов для устройства одной площадки

№п./п.

Наименование

Ед. изм.

Кол.

1

Сборные железобетонные плиты

шт.

56 или 28*

2

Ограждение инвентарное

м

70

3

Предупредительные плакаты

шт.

6

4

Будка машиниста

шт.

1

5

Вышка для освещения рабочего места

шт.

1

6

Шланг для воды

м

20

Примечание: * - при длине плит 3 и 6 м соответственно

10.16.Во время подачи бетона с помощью автобетононасоса следует соблюдать рабочие положения распределительной стрелы, указанные на рисунке 24. Вне этих зон работы с распределительной стрелой запрещаются. Величина угла α для отечественных и зарубежных автобетононасосов по данным заводов-изготовителей дана в таблице 10.

 

Рисунок 24 – Рабочие зоны распределительной стрелы (4 секции) бетононасоса

Таблица 10

Величина угла α для отечественных и зарубежных автобетононасосов

Модель автобетононасоса, (тип бетонораспределительной стрелы)

α, град.

СБ-126Б, СБ-126Б-1

0

СБ-170-1, СБ-170-1А

0

PUTZMEISTER BRF 22.09 ЕМ

7

PUTZMEISTER BRF 24.08

15

PUTZMEISTER BRF 28.09 ЕМ

15

PUTZMEISTER BQF 24.08

15

PUTZMEISTER BQF 28.08

15

PUTZMEISTER BRF 32.09 ЕМ

10

PUTZMEISTER BRF 36.09

2

PUTZMEISTER BEF 43.09

6

SCHWING (KVM 23)

5

SCHWING (KVM 24-4H)

15

SCHWING (KVM 25/22)

3

SCHWING (KVM 26-4)

10

SCHWING (KVM 28,28X)

10

SCHWING (KVM 31/27)

2

SCHWING (KVM 32XL)

10

SCHWING (KVM 36)

2

SCHWING (KVM 42)

0

10.18 Эксплуатация автобетононасоса в охранной зоне действующей линии электропередачи напряжением более 42В следует производить под непосредственным руководством лица, ответственного за безопасность производства работ при наличии письменного разрешения организации-владельца линии и наряд-допуска на производство работ в местах действия опасных или вредных факторов, выданного непосредственному руководителю работ, и наряд-допуска, оформленного в соответствующем порядке на производство работ вблизи воздушной линии электропередачи, выданного машинисту. При установке автобетононасоса в охранной зоне воздушной линии электропередачи необходимо снять напряжение с нее.

Установка автобетононасоса вблизи линии электропередачи должна производиться в соответствии с рисунком 25 и рекомендациями, изложенными ниже.

 

Рисунок 25 – Работа автобетононасоса в охранной зоне ЛЭП

В случае обоснованной невозможности снятия напряжения с воздушной линии электропередачи и необходимости выполнения строительно-монтажных работ в охранной зоне действующей линии электропередачи должны соблюдаться следующие требования:

а) работа и перемещение машин допускается только под непосредственным руководством лица, ответственного за безопасность производства работ, назначенного из числа инженерно-технических работников строительно-монтажной организации, имеющих квалификационную группу по технике безопасности не ниже IV;

б) работа с применением машин допускается только в том случае, если расстояние А по воздуху от подъемной или выдвижной части строительной машины в любом ее положении, а также от поднимаемого груза, в том числе и при наибольшем подъеме или вылете до ближайшего провода, находящегося под напряжением, согласно СНиП 12-03-2001 «Безопасность труда в строительстве. Часть 1. Общие требования» должна быть не менее указанного в таблице 11.

Таблица 11

Расстояние до находящейся под напряжением воздушной линии электропередачи (таблица 2 СНиП 12-03-2001)

Напряжение воздушной линии электропередачи, кВ

Расстояние, м

минимальное

минимально измеряемое техническими средствами

До 20

2,0

2,0

Св. 20 до 35

2,0

2,0

»35» 110

3,0

4,0

» 11О » 220

4,0

5,0

» 220 » 400

5,0

7,0

» 400 » 750

9,0

10,0

»750» 1150

10,0

11,0

в) машинист должен иметь квалификационную группу по технике безопасности не ниже II;

г) машины, кроме машин на гусеничном ходу, должны быть заземлены с помощью переносного заземления.

Работа машин непосредственно под проводами воздушных линий электропередачи любого напряжения, находящихся под напряжением, запрещается (Б>1,5).

10.19. В кабине машиниста автобетононасоса должна быть установлена надежная радио- или телефонная связь с местом бетонирования.

10.20. Соединять стальные трубы бетоновода между собой и с резинотканевыми шлангами необходимо с помощью инвентарных хомутов на болтах. Применять в этих целях проволоку запрещается.

10.21. Запрещается перегибать шланги с движущейся бетонной смесью.

10.22. Запрещается ремонтировать автобетононасос и соединения бетоновода при работающем двигателе автобетононасоса и наличии давления в бетоноводе.

10.23. Перед промывкой бетоновода посторонние лица должны быть удалены от рабочей зоны, определяемой в ППР, на расстояние не менее 10 м.

10.24. Над бетоноводами, уложенными в местах постоянного движения людей или транспортных средств, следует устанавливать специальные мостики и переходы.

10.25. Перемещение и монтаж бетоноводов выполняют с помощью кранов или других средств малой механизации. Рабочие места монтажников при сборке бетоноводов, расположенных над землей или перекрытием на высоте более 1 м, должны иметь надежные площадки с ограждением. При выполнении монтажа бетоноводов по вертикали рабочим выдается наряд-допуск на указанные работы.

10.26. При работе автобетононасоса на строительной площадке не допускается:

- передвижение автобетононасоса со стрелой, не установленной в транспортное положение;

- работа автобетононасоса без установки его на опорные стойки (аутригеры) с укладкой на твердое основание прочных подкладок под стойки;

- установка автобетононасоса на основание, не предусмотренное п. 10.15 настоящего раздела.

10.27. Запрещается производить работы под стрелой автобетононасоса и поднимать стрелой любые грузы.

10.28. Во избежание опрокидывания автобетононасоса запрещается удлинять концевой шланг стрелы.

10.29. Запрещается ликвидация пробок путем увеличения давления в системе более максимального.

10.30. Удаление сверхразмерных частиц заполнителя с решетки бункера автобетононасоса должно выполняться рабочим в перчатках или рукавицах, изготовленных из влагонепроницаемых материалов.

10.31 Перед транспортировкой автобетононасоса следует убедиться в правильном и надежном закреплении стрелы в опорных кронштейнах.

10.32. В зоне работы автобетононасоса должны быть вывешены предупредительные надписи (плакаты), отвечающие требованиям ГОСТ Р. 12.4.026-2001.. К автобетононасосу должен быть приложен комплект указанных плакатов.

10.33. Детальные осмотр, ремонт бетононасоса или стрелы, разъединение нагнетательного трубопровода допускается производить только после остановки автобетононасоса и снятия давления в бетоноводе.

10.34. При работе в темное время суток согласно требованиям п. 6.2.11 СНиП 12-03-2001 рабочее место стоянки автобетононасоса и места укладки бетонной смеси должны быть освещены согласно ГОСТ 12.1.046-85. Проект освещения рабочих зон выполняет подрядчик либо специализированная организация.

10.35. Электробезопасность на строительной площадке, участках работ, рабочих местах должна обеспечиваться в соответствии с требованиями СНиП 12-03-2001 «Безопасность труда в строительстве. Часть 1. Общие требования».

В течение всего периода эксплуатации электроустановок на строительных площадках должны применять знаки безопасности по ГОСТ Р. 12.4.026-2001.

10.36. При несчастном случае пострадавшему должна быть оказана первая медицинская помощь. О несчастном случае должно быть немедленно сообщено ИТР, осуществляющему работы на участке, для принятия мер, предусмотренных соответствующими правилами.

10.37. Каждая машина комплекта (автобетононасос, автобетоносмеситель) должна быть снабжена аптечкой с необходимым набором медикаментов, обеспечивающих оказание первой медицинской помощи.

10.38. Машины комплекта должны быть снабжены предупредительными знаками и инвентарем согласно требованиям ГИБДД.

10.39. Перемещение, установка и работа автобетононасосов вблизи котлованов, траншей, канав и других выемок с неукрепленными откосами допускается только за пределами призмы обрушения грунта на расстоянии, установленном в ППР. При их отсутствии в ППР минимальное расстояние по горизонтали от основания откоса выемки до ближайших опор машины необходимо принять по таблице 12.

Таблица 12

Минимальное расстояние по горизонтали от основания откоса выемки до ближайших опор машины

Глубина выемки, м

Грунт ненасыпной

песчаный

супесчаный

суглинистый

глинистый

Расстояние по горизонтали от основания откоса выемки до ближайшей опоры машины, м

1,0

1,5

1,25

1,00

1,00

2,0

3,0

2,40

2,00

1,50

3,0

4,0

3,60

3,25

1,75

4,0

5,0

4,40

4,00

3,00

5,0

6,0

5,30

4,75

3,50

10.40. Для соблюдения экологических норм на строительной площадке предусматривается емкость для слива загрязненной воды после промывки автобетононасоса и установка для мойки колес автотранспорта с оборотным циклом водоснабжения.

Запрещается сжигание строительного мусора на площадке. Строительный мусор должен быть вывезен, для чего используются контейнеры.

Кроме того, в целях улучшения экологической безопасности необходимо руководствоваться рекомендациями «Методического пособия по разработке решений по экологической безопасности строительства в составе ПОС и ППР», ОАО ПКТИ Промстрой, М., 2003 г.

11 Справочно-информационная литература

1. СНиП 12-01-2004 Организация строительства.

2. СНиП 3.02.01-87 Земляные сооружения, основания и фундаменты.

3. СНиП 3.03.01-87 Несущие и ограждающие конструкции.

4. СНиП 12-03-2001 Безопасность труда в строительстве. Часть 1. Общие требования.

5. СНиП 12-04-2002 Безопасность труда в строительстве. Часть 2. Строительное производство.

6. ГОСТ 12.0.004-90 ССБТ. Организация обучения безопасности труда. Общие положения.

7. ГОСТ 12.1.046-85 ССБТ. Строительство. Нормы освещения строительных площадок.

8. ГОСТ 12.1.051-90 ССБТ. Электробезопасность. Расстояния безопасности в охранной зоне линий электропередачи напряжением свыше 1000 В.

9. ГОСТ 12.3.033-84 ССБТ. Строительные машины. Общие требования безопасности при эксплуатации.

10. ГОСТ 12.4.011-89 ССБТ. Средства защиты работающих. Общие требования и классификация.

11. ГОСТ Р 12.4.026-2001 Цвета сигнальные, знаки безопасности и разметка сигнальная. Назначение и правила применения. Общие технические требования и характеристики. Методы испытаний.

12 ГОСТ 7473-94 Смеси бетонные. Технические условия.

13. ГОСТ 10181-2000 Смеси бетонные. Методы испытаний.

14. ГОСТ 21924.0-84* Плиты железобетонные для покрытий городских дорог.

15. ГОСТ 23407-78 Ограждения инвентарные строительных площадок и участков производства строительно-монтажных работ. Технические условия.

16. СП 12-135-2003 Безопасность труда в строительстве. Отраслевые типовые инструкции по охране труда.

17. ПОТ Р М-016-2001, РД 153-34.0-03.150-00 Межотраслевые правила по охране труда (правила безопасности) при эксплуатации электроустановок. М., 2001.

18. МТСК-5. Московский территориальный строительный каталог. Том. 5. Сборные бетонные, железобетонные, керамзитобетонные и гипсобетонные конструкции.

19. Рекомендации по применению специальных химических добавок для управления физико-механическими и технологическими свойствами бетонов и растворов. ОАО ПКТИ-промстрой, М., 1984 г.

20. Автобетононасосы и автобетоносмесители. Каталог. ОАО ПКТИпромстрой, 2001 г.

21. Современные автобетононасосы: Обзорная информация. Серия 1. Строительные машины. Выпуск 3. М.: ЦНИИТЭСТРОЙМАШ, 1990 г.

22. Технологическая карта на укладку бетонной смеси в перекрытие с помощью автобетононасоса. ОАО ПКТИпромстрой, М., 2004.

23. Инструкция по транспортировке и укладке бетонной смеси в монолитные конструкции с помощью автобетоносмесителей  и автобетононасосов. ОАО ПКТИпромстрой, М., 2002.

 




ГОСТЫ, СТРОИТЕЛЬНЫЕ и ТЕХНИЧЕСКИЕ НОРМАТИВЫ.
Некоммерческая онлайн система, содержащая все Российские Госты, национальные Стандарты и нормативы.
В Системе содержится более 150000 файлов нормативно-технической документации, действующей на территории РФ.
Система предназначена для широкого круга инженерно-технических специалистов.

Рейтинг@Mail.ru Яндекс цитирования

Copyright © www.gostrf.com, 2008 - 2026