Крупнейшая бесплатная информационно-справочная система онлайн доступа к полному собранию технических нормативно-правовых актов РФ. Огромная база технических нормативов (более 150 тысяч документов) и полное собрание национальных стандартов, аутентичное официальной базе Госстандарта. GOSTRF.com - это более 1 Терабайта бесплатной технической информации для всех пользователей интернета. Все электронные копии представленных здесь документов могут распространяться без каких-либо ограничений. Поощряется распространение информации с этого сайта на любых других ресурсах. Каждый человек имеет право на неограниченный доступ к этим документам! Каждый человек имеет право на знание требований, изложенных в данных нормативно-правовых актах!

  


 

ГОССТРОЙ СССР

ЦЕНТРАЛЬНЫЙ НАУЧНО-ИССЛЕДОВАТЕЛЬСКИЙ И ПРОЕКТНО-ЭКСПЕРИМЕНТАЛЬНЫИ ИНСТИТУТ ОРГАНИЗАЦИИ, МЕХАНИЗАЦИИ И ТЕХНИЧЕСКОЙ ПОМОЩИ СТРОИТЕЛЬСТВУ (ЦНИИОМТП)

БЮРО ВНЕДРЕНИЯ

ТЕХНОЛОГИЧЕСКИЕ КАРТЫ

НА ПРОИЗВОДСТВО ОТДЕЛОЧНЫХ РАБОТ

ИНДУСТРИАЛЬНЫМИ МЕТОДАМИ

Москва 1982

Альбом содержит 8 разработанных в экспериментальном порядке технологических карт на производство отделочных работ по устройству облицовки потолков, а также стен и перегородок различными видами декоративных плит и панелей индустриальными методами. В картах указаны машины, приспособления и оборудование, которые рационально применять при указанных работах. Кроме того, приведены калькуляции стоимости производства работ.

Технологические карты предназначены для использования в строительстве при выполнении отделочных работ, а также на стадии разработки проектов организации строительства.

Настоящая работа выполнена отделом организации и технологии строительства Проектной части ЦНИИОМТП Госстроя СССР на основании экспериментального проектирования и технического задания, выданного отделом отделочных работ ЦНИИОМТП.

Работа предусматривает разработку технологических карт на устройство подвесных потолков из фосфогипсовых и декоративных плит  или алюминиевых панелей, облицовку потолков, стен и перегородок гипсовыми и асбестоцементными плитами, древесно-стружечными плитами или сухой гипсовой штукатуркой (с разделкой швов по маякам и каркасу), которые в экспериментальном порядке могут быть использованы при производстве отделочных работ.

При разработке технологических карт были использованы следующие материалы:

альбом "Унифицированные подвесные потолки", выпуск 0, материалы для проектирования, ЦНИИЭП зрелищных зданий и сооружений, 1978 г.

альбом "Унифицированные подвесные потолки", Серия 1.245-1, рабочие чертежи, ВДИИЭП зрелищных зданий и сооружений, 1978 г. Выпуск I. - Подвесные потолки и облицовка из улучшенной гипсовой сухой штукатурки;

альбом "Варианты применения гипсовых литых акустических и декоративных плит подвесных потолков общественных зданий", ЦНИИЭП зрелищных зданий и сооружений. 1979 г.:

СНиП III-21-73 "Отделочные покрытия строительных конструкций";

Руководство по разработке типовых технологических карт в строительстве, Москва, 1976 г.;

Руководство по выполнению отделочных работ индустриальными методами, ЦНИИОМТП, 1979 г.;

ЕНиР, хронометражные данные Нормативной станции Главмосремонта, ЦНИБ Мосстроя и другая нормативная документация.

В работе принимали участие: начальник отдела Ш.А. Ярымов, руководитель группы Н.С. Галямова, ведущий инженер Н.П. Гутеева, ст. инженер В.С. Габране, инженеры Л.В. Иванова, Р.Г. Зузликова, Л.Н. Игнатова.

Методическое руководство работой осуществлено заведующим лабораторией индустриальной отделки Г.А.Захарченко при консультации по вопросам разметки потолков ст. научного сотрудника Г.В. Севериновой.

Содержание

Технологическая карта на устройство облицовки потолка листами улучшенной сухой гипсовой штукатурки по металлическому каркасу

1. Область применения

2. Организация и технология строительного процесса

3. Технико-экономические показатели

4. Материально-технические ресурсы

Технологическая карта на устройство звукопоглощающей облицовки потолка перфорированными плитами улучшенной сухой гипсовой штукатурки по металлическому каркасу

1. Область применения

2. Организация и технология строительного процесса

3. Технико-экономические показатели

4. Материально-технические ресурсы

Технологическая карта на устройство подвесного потолка из фосфогипсовых звукопоглощающих перфорированных утяжеленных плит по металлическому каркасу

1. Область применения

2. Организация и технология строительного процесса

3. Технико-экономические показатели

4. Материально-технические ресурсы

Технологическая карта на устройство подвесного потолка из литых гипсовых декоративных плит по металлическому каркасу

1. Область применения

2. Организация и технология строительного процесса

3. Технико-экономические показатели

4. Материально-технические ресурсы

Технологическая карта по бескаркасной облицовке стен листами сухой гипсовой штукатурки

1. Область применения

2. Организация и технология строительного процесса

3. Технико-экономические показатели

4. Материально-технические ресурсы

Технологическая карта на устройство облицовки стен листами сухой гипсовой штукатурки по металлическому каркасу

1. Область применения

2. Организации и технология строительного процесса

3. Технико-экономические показатели

4. Материально-технические ресурсы

Технологическая карта на устройство каркасных перегородок из листов сухой гипсовой штукатурки с учетом инженерных коммуникации

1. Область применения

2. Организация и технология строительного процесса

3. Технико-экономические показатели

4. Материальнo-технические ресурсы

Технологическая карта на устройство облицовки потолков листами сухой гипсовой штукатурки по металлическому каркасу

1. Область применения

2. Организация и технология строительного процесса

3. Технико-экономические показатели

4. Материально-технические ресурсы

ТЕХНОЛОГИЧЕСКАЯ КАРТА

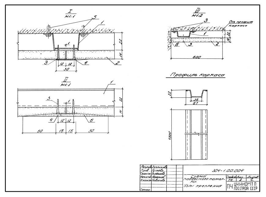
НА УСТРОЙСТВО ОБЛИЦОВКИ ПОТОЛКА ЛИСТАМИ УЛУЧШЕННОЙ СУХОЙ ГИПСОВОЙ ШТУКАТУРКИ ПО МЕТАЛЛИЧЕСКОМУ КАРКАСУ

1. ОБЛАСТЬ ПРИМЕНЕНИЯ

1.1. Технологическая карта (ТК) разработана на устройство облицовки потолка листами улучшенной гипсовой штукатурки (1800x1200x14) по металлическому каркасу, применительно к рабочим чертежам, разработанным ЦНИИЭП зрелищных зданий и спортивных сооружений им. Б.С. Мезенцева (Серия 1.245-1, Выпуск 1 "Подвесные потолки и облицовки из улучшенной сухой гипсовой штукатурки" тип 1.ОСШ.02.00.00).

Облицовки потолков из улучшенной сухой гипсовой штукатурки применяются в помещениях вновь строящихся и реконструируемых общественных и культурно-бытовых зданий промышленных комплексов с относительной влажностью воздуха не более 70% и используются, в основном, в декоративных целях, а также для повышения предела огнестойкости и степени звукоизоляции покрытий и перекрытий.

Конструкция облицовки потолка из улучшенной СГШ приведена на листе 304-1.00.004.

1.2. В состав работ, рассматриваемых картой, входят:

подготовка рабочего места;

подача материалов к месту монтажа и их подготовке к монтажу;

разметка мест установки конструкций;

установка элементов каркаса;

установка лицевых элементов;

заделка стыков.

1.3. Технологической картой предусмотрено выполнение работ в одну смену.

Технологическая карта составлена на 100 м2 поверхности потолка.

При привязке ТК к конкретному объекту объемы работ, калькуляция затрат труда и график производства работ должны быть уточнены.

2. ОРГАНИЗАЦИЯ И ТЕХНОЛОГИЯ СТРОИТЕЛЬНОГО ПРОЦЕССА

2.1. До начала устройства облицовки потолка должны быть закончены строительно-монтажные и специальные работы, в том числе отделочные, связанные с мокрыми процессами (штукатурные работы, устройство цементных стяжек и др.); полностью смонтированы электрические проводки и механическое оборудование, расположенное под перекрытием; опрессованы трубопроводы систем отопления, водопровода, канализации; помещение очищено от строительного мусора; выверена горизонтальность отделываемых поверхностей и их соответствие проекту; установлен стол для прирезки лицевых элементов.

2.2. Монтаж подвесных потолков выполняется в следующей технологической последовательности:

подача материалов к рабочему месту;

разметка мест установки конструкций;

установка элементов каркаса;

установка лицевых элементов;

заделка стыков.

2.2.1. Подготовка рабочего места должна заключаться в размещении двухвысотных столиков-подмостей, размещении материалов элементов крепления, инструментов у мест монтажа.

2.2.2. Все элементы подвесного потолка необходимо поставлять на объект комплектно в упаковке, исключающей их повреждение, деформацию и порчу окраски.

Материалы для подвесных потолков необходимо складывать в заготовительную комнату, в которой производится размотка и прирезка листов штукатурки и хранится запас материалов и инструменты.

Подача элементов каркаса и лицевых элементов потолка на этажи осуществляется при помощи подъемника ПГП-27-500, а транспортирование их к рабочему месту в пределах этажа - тележками ЦНИИОМТП.

2.2.3. Разметка осей помещения и обозначение точек крепления направляющих профилей на поверхности строительных конструкций осуществляется специальными приспособлениями ЦНИИОМТП, представляющими собой две трубчатые стойки, на которых натянута упругая капроновая нить с подвижными красящими фиксаторами.

Для фиксации одной из стоек приспособления на поверхность потолка наносится осевая линия.

Первая стойка приспособления устанавливается на осевой линии и закрепляется клиньями. Верх стоек связан с упругой натяжной нитью, на которой нанесены подвижно закрепленные красящие фиксаторы (в соответствии с проектным шагом профилей).

К упругой нити, примерно в ее середине, присоединена оттяжка, служащая для оттягивания нити в процессе разметки.

Для удобства периодического нанесения красителя на рабочие плоскости красящих фиксаторов, они снабжены стягивающим вилочным держателем с ручкой.

Шаг перестановки приспособления для нанесения меток на поверхность строительных конструкций – 1200 мм.

Разметку горизонтальной линии, соответствующей уровню низа потолка, производят с помощью водяного уровня.

2.2.4. Установка элементов каркаса.

Каркас под облицовку потолка состоит ни тонкостенных гнутых профилей -образного сечения из стального оцинкованного листа толщиной 0,5 мм. Крепление профилей к перекрытию производится дюбель-гвоздями через 1200 мм при помощи строительно-монтажного пистолета ПЦ-52-1. Шаг расстановки профилей каркаса – 600 мм.

Работы по установке элементов каркаса ведутся в направлении от стены помещения.

Горизонтальность установки профилей каркаса проверяется магнитным или водяным уровнем.

2.2.5. Установка лицевых элементов производится после окончательной выверки каркаса. При облицовке потолка листы улучшенной сухой гипсовой штукатурки размером 1800х1200х14 мм крепят к каркасу самосверлящими винтами, устанавливаемыми по короткой стороне плиты с шагом З00 мм с помощью электрошуруповерта марки ИЭ-3603.

Продольные кромки самонарезающими винтами не крепятся.

Перед установкой плит СГШ с помощью шаблона с отверстиями в них размечают места для самонарезающих винтов. Для обеспечения ровной поверхности потолка продольные кромки листов СГШ имеют скошенные кромки.

2.2.6. Заделка стыков.

Стыки по продольным и поперечным кромкам заделываются клеящей мастикой "Полинит" с последующей оклейкой бумажной лентой и зашпатлевываются безусадочной синтетической шпатлевкой СЛШД.

2.3. Все работы по устройству подвесного потолка следует выполнять с помощью инструментов, инвентаря и приспособлений, перечень которых приведен в табл. 2.

2.4. На устройстве подвесного потолка из улучшенной СГШ на металлическом каркасе занята бригада в составе:

звено № 1 –   машинист                              4 разр. – 1 чел.

                        такелажники                         2 разр. – 2 чел.

звено № 2 –   монтажники                          3 разр. – 1 чел.

                                                                       4 разр. – 1 чел.

звено № 3 –   такелажники                         2 разр. – 2 чел.

звено № 4 –   маляры строительные          4 разр. – 2 чел.

2.5. График выполнения работ приведен на черт. 304-1.00.003.

2.6. Калькуляция затрат труда приведена на черт. 304-1.00.002.

2.7. Пооперационный контроль качества работ при устройстве облицовки потолка должен выполняться в соответствии с требованиями СНиП III-21-73 "Правила производства и приемки работ. Отделочные покрытия строительных конструкций" и "Руководства по выполнению отделочных работ индустриальными методами".

Допускаемые отклонения от проектных отметок потолка не должны превышать + 10 мм, местные отклонения на отдельных участках потолка допускаются не более 1 мм на 1 м длины участка.

Поверхность готового потолка не должна иметь царапин, пятен и других повреждений.

Приемка и оценка качества работ по устройству подвесного потолка должна выполняться после их завершения производителем работ или мастером с участием представителя технадзора заказчика. Готовые подвесные потолки рекомендуется принимать поэтажно или посекционно. При этом проверяется соответствие рисунка потолка проекту, надежность монтажа плит, светильников и вентиляционных решеток. На скрытые работы, такие как монтаж металлического каркаса и устройство разводок различных коммуникаций, составляется акт.

2.8. Техника безопасности.

2.8.1. Устройство облицовки потолка из улучшенной СГШ по металлическому каркасу следует выполнять с соблюдением требований СНиП III-4-80 "Техника безопасности в строительстве" и "Инструкции по устройству и эксплуатации пистолетов ПЦ-52-1", разработанной Минмонтажспецстроем СССР и ВНИИПЭМ.

2.8.2. Особое внимание следует обратить на выполнение следующих требований:

при работе монтажно-поршневым пистолетом ПЦ-52-1 рабочий должен быть обеспечен каской, маской из прозрачного материала и противошумными наушниками;

опасная зона во время работы с пистолетом вокруг оператора в радиусе 10 м должна быть ограждена с установкой запрещающих знаков;

при забивке дюбелей запрещается нахождение людей в вышележащих над перекрытием помещениях в радиусе 10 м от оператора;

для защиты оператора от рикошета дюбелей, пистолет должен быть снабжен наконечником;

строительно-монтажные пистолеты и патроны к ним необходимо хранить на складах в отдельных опломбированных стальных шкафах (ящиках) и выдавать рабочим по предъявлению ими удостоверения на право пользования пистолетом и наряда на производство работ с прилагаемым к нему допуском, определяющим степень опасности и мероприятия по технике безопасности при выполнении этих работ;

к работе со строительно-монтажным пистолетом допускаются рабочие не моложе 20 лет, прошедшие медицинский осмотр, имеющие квалификацию не ниже IV-го разряда и проработавшие на монтажных работах не менее двух лет.

Перед допуском к работе они должны пройти курс обучения, сдать экзамены и иметь удостоверение на право пользования пистолетом.

2.8.3. При выполнении облицовки потолков на высоте 3 м от пола следует применять инвентарные подмости или подмости-столики с ограждениями. Запрещается пользоваться случайными средствами подмащивания

Зазор между стеной и настилом подмостей не должен превышать 130 мм.

Нагрузка на настил не должна превышать 200 кг/м2.

Рабочие операции должны выполняться исправными инструментом и приспособлениями.

3. ТЕХНИКО-ЭКОНОМИЧЕСКИЕ ПОКАЗАТЕЛИ

Объем работ, м2                                                   – 100

Затраты труда, чел. - ч                                        – 65

       в том числе:

                 на устройство облицовки
                 (установка профилей и
                 лицевых элементов)                           – 48,5

                 на заделку стыков                               – 16,5

Стоимость затрат труда, руб. - коп.                   – 38-81

Продолжительность выполнения работ, ч       – 28

4. МАТЕРИАЛЬНО-ТЕХНИЧЕСКИЕ РЕСУРСЫ

4.1. Потребность в основных конструкциях, деталях, материалах и полуфабрикатах приводится в табл. 1.

Таблица 1

Наименование

Марка, ГОСТ

Единица измерения

Количество (на 100 м2 потолка)

Каркас

Профилированная листовая оцинкованная сталь
В-ПН-0,5 ГОСТ 19904-74
0,8 кп-ВГ-2 ГОСТ 14918-69

шт.

37

Дюбель-гвоздь

ДГЗ,5х30

ВТУ

 2-66ММСС СССР

–"–

278

ММЗ

Улучшенная сухая гипсовая штукатурка со скошенными кромками (1800x1200x14)

ТУ 400-1/54-9-76 ГМПСМ МГИ

–"–

46

Винт самонарезающий с потайной головкой (винт 3x25.66)

ТУ 34-72-75 Челябинский завод стального профилированного настила

–"–

926

Мастика клеящая "Полинит"

ТУ 21-29-25-74 МПСМ СССР

кг

25

Перфорированная бумажная клейкая лента (в рулонах)

 

 

кг

2,5

Синтетическая безусадочная шпатлевка СЛШД

ТУ 400-1-3/53-74

–"–

2,2

 

4.2. Потребность в основном оборудовании, инструменте, инвентаре и приспособлениях приводится в табл. 2.

Таблица 2

Наименование

Тип

Марка, ГОСТ

Количество

Техническая характеристика (назначение)

Подъемник

Передвижной

ПГП-27-500

1

Для подачи конструкций

Тележка

Ручная

Проект 70-4.00.000 ЦНИИОМТП

1

Для перевозки СГШ

Столик двухвысотный

3241.07.000

2

Для подмащивания

Стол

0.663.00.000 Мосспецпромпроект

1

Для резки листов СГШ

Пистолет монтажно-поршневой

 

ПЦ-52-1 Главэлектромонтаж Минмонтажспецстроя

1

Для пристрелки профилей

Уровень

Гибкий водяной

ТУ 25-11-760-72

1

Для проверки горизонтальности

Шаблон с отверстиями

1

Для разметки мест крепления плит

Приспособление для нанесения меток на поверхность строительных конструкций

ЦНИИОМТП

1

Для разметки осей

Отвес

ОГ-400

ГОСТ 7948-71

2

Дня проверки вертикальности

Плоскогубцы комбинированные

ГОСТ 5547-75

1

Захват, удерживание и загибание металлических деталей

Пила-ножовка

ТУ 14-1-302-72

1

Для резки листов СГШ

Ножницы лекальные

ТУ 36-764-76

1

То же

Уровень монолитный

1

Рулетка металлическая

РС-10

ГОСТ 7502-69

1

Линейка металлическая

ГОСТ 427-75

1

Электрические ножницы ручные

 

ИЭ-5403 Ростовское производственное объединение "Электроинструмент"

1

Для резки направляющих

Ящик для хранения и переноски мелкого инструмента

2

Рамка ножовочная ручная

ГОСТ 17270-71

1

Полотна ножовочные

ГОСТ 6645-68

2

Электросверлильная машина

ИЭ-1034 Назрановский завод "Электроинструмент"

1

Для сверления отверстий

ТЕХНОЛОГИЧЕСКАЯ КАРТА

 НА УСТРОЙСТВО ЗВУКОПОГЛОЩАЮЩЕЙ ОБЛИЦОВКИ ПОТОЛКА ПЕРФОРИРОВАННЫМИ ПЛИТАМИ УЛУЧШЕННОЙ СУХОЙ ГИПСОВОЙ ШТУКАТУРКИ ПО МЕТАЛЛИЧЕСКОМУ КАРКАСУ

1. ОБЛАСТЬ ПРИМЕНЕНИЯ

1.1. Технологическая карта (ТК) разработана на устройство звукопоглощающей облицовки потолка перфорированными плитами улучшенной сухой гипсовой штукатурки (1200x600x12 мм) по металлическому каркасу, применительно к рабочим чертежам, разработанным ЦНИИЭП зрелищных зданий и спортивных сооружений им. Б.С.Мезенцева (Серия 1-245-1. Выпуск I "Подвесные потолки и облицовки из улучшенной сухой гипсовой штукатурки", тип 1. ОСШ 01.00.00).

Облицовки потолков из улучшенной сухой гипсовой штукатурки применяются в помещениях вновь строящихся и реконструируемых общественных и культурно-бытовых зданий промышленных комплексов с относительной влажностью воздуха не более 70% и используются, в основном, в декоративных целях, а также для повышения предела огнестойкости и степени звукоизоляции перекрытий и покрытий.

Конструкция звукопоглощающей облицовки потолка приведена на листе 256-1.02.004.

1.2. В состав работ, рассматриваемых картой, входят:

подготовка рабочего места;

подача материалов к месту монтажа и их подготовка к монтажу;

разметка мест установки конструкций;

установка элементов каркаса;

установка лицевых элементов;

укладка звукопоглощающих минераловатных плит.

1.3. Технологической картой предусмотрено выполнение работ в одну смену.

1.4. Технологическая карта составлена на 100 м2 поверхности потолка.

При привязке ТК к конкретному объекту объемы работ, калькуляция затрат труда и график производства работ должны быть уточнены.

2. ОРГАНИЗАЦИЯ И ТЕХНОЛОГИЯ СТРОИТЕЛЬНОГО ПРОЦЕССА

2.1. До начала устройства звукопоглощающей облицовки потолка должны быть закончены строительно-монтажные и специальные работы, в том числе отделочные, связанные с мокрыми процессами (штукатурные работы, устройство цементных стяжек и др.);

полностью смонтированы электрические проводки и механическое оборудование, расположенное под перекрытием;

опрессованы трубопроводы систем отопления, водопровода, канализации;

помещение очищено от строительного мусора;

выверена горизонтальность отделываемых поверхностей и их соответствие проекту;

установлен стол для прирезки лицевых элементов.

2.2. Монтаж подвесных потолков (облицовки) выполняется в следующей технологической последовательности:

подготовка рабочего места;

подача материалов к рабочему месту;

разметка мест установки конструкций;

установка элементов каркаса;

установка лицевых элементов;

укладка звукопоглощающих минераловатных плит.

2.2.1. Подготовка рабочего места должна заключаться в размещении двухвысотных столиков-подмостей, материалов, элементов подвесного потолка, инструментов, инвентаря у мест монтажа.

2.2.2. Все элементы подвесного потолка необходимо поставлять на объект комплектно в упаковке, исключающей их повреждение, деформацию и порчу окраски.

Материалы для подвесных потолков необходимо складывать в заготовительную комнату, в которой производят разметку и прирезку плит сухой штукатурки, а также хранят запас материалов и инструменты.

Подача элементов каркаса и лицевых элементов потолка на каждый этаж осуществляется при помощи подъемника ПГП-27-500; а транспортирование их в пределах этажа – тележками ЦНИИОМТП.

2.2.3. Разметка осей помещения и обозначение точек крепления направляющих профилей на поверхности строительных конструкций осуществляется приспособлением ЦНИИОМТП, представляющим собой две трубчатые стойки, на которых натянута упругая капроновая нить с подвижными красящими фиксаторами.

Для фиксации одной из стоек приспособления на поверхность потолка наносится осевая линия.

Первая стойка приспособления устанавливается на осевой линии и закрепляется клиньями. Верх стоек связан с упругой натяжной нитью, на которой нанесены подвижно закрепленные красящие фиксаторы (в соответствии с проектным шагом профилей).

К упругой нити, примерно в ее середине, присоединена оттяжка, служащая для оттягивания нити в процессе разметки.

Для удобства периодического нанесения красителя на рабочие плоскости красящих фиксаторов они снабжены стягивающим вилочным держателем с ручкой.

Шаг перестановки приспособления для нанесения меток на поверхность строительных конструкций – 1200 мм.

Разметку горизонтальной линии, соответствующей уровню низа потолка, производят с помощью водяного уровня.

2.2.4. Установка элементов каркаса.

Каркас под облицовку потолка состоит из тонкостенных гнутых -образных профилей из стального оцинкованного листа толщиной 0,5 мм. Для фиксации поперечных кромок плит облицовок предусмотрены нащельники-фиксаторы из оцинкованного листа толщиной 2 мм.

Гнутые профили каркаса вместе с нащельниками-фиксаторами крепятся к перекрытию дюбель-гвоздями с шагом 1200 мм при помощи строительно-монтажного пистолета ПЦ-52-1 согласно разметке.

Шаг расстановки профилей каркаса – 600 мм; нащельников-фиксаторов – 1200 мм.

Работы по установке элементов каркаса ведутся в направлении от стены помещения.

Горизонтальность установки профилей каркаса проверяется магнитным или водяным уровнем.

2.2.5. Установка лицевых элементов.

Для облицовки используются перфорированные плиты улучшенной СГШ (1200x600x12 мм) с фаской, что обеспечивает облицовке звукопоглощающие свойства.

Установка лицевых элементов производится после окончательной выверки каркаса в следующей последовательности:

а) при варианте заделки швов перфорированных плит ПВХ раскладками:

устанавливаются и крепятся самонарезающими винтами с шагом 500 мм ПВХ раскладки вдоль главного профиля каркаса,

заводится перфорированная плита улучшенной СГШ (1200x600x12) продольной стороной в паз раскладки,

устанавливается раскладка с одной из торцовых сторон плиты СГШ,

устанавливается и крепится самонарезающими винтами следующий ряд раскладок вдоль профиля каркаса и процесс повторяется в той же последовательности;

б) без заделки швов перфорированных плит:

приклеивается на мастике "Полинит" прокладка из улучшенной сухой гипсовой штукатурки (1200x50x12 мм) вдоль профиля каркаса,

устанавливаются перфорированные плиты улучшенной СГШ (1200х600x12 мм) и кренятся к профилю каркаса самонарезающими винтами (через прокладки), устанавливаемыми с шагом 300 мм по всему периметру плиты с помощью электрошуруповерта марки ИЭ-360З.

Винты от края плиты должны отстоять не менее чем на 12 мм.

Перед установкой плит СГШ в них с помощью шаблона с отверстиями размечают места для самонарезающих винтов.

Работы ведутся от середины помещения к периферии.

2.2.6. Параллельно с установкой плит СГШ производится укладка минераловатных плит.

В качестве эффективного звукопрозрачного прокладочного материала, препятствующего выпадению частиц минераловатного волокна, предусмотрена самозатухающая полиэтилентерефталатная пленка (ПЭТФ). Пленка подается в рулонах и укладывается на плиты СГШ насухо.

Основным видом звукопоглощающих плит являются минераловатные плиты (1000x500x30 мм), укладываемые на полиэтилентерефталатную пленку с точечной приклейкой мастикой "Полинит" поверх перфорированных лицевых элементов.

2.3. Все работы по устройству подвесного потолка следует выполнять с помощью инструментов, приспособлений и инвентаря, перечень которых приведен в табл. 2.

2.4. На устройстве звукопоглощающей облицовки потолка перфорированными плитами улучшенной СГШ на металлическом каркасе занята бригада в составе:

звено № 1    машинист                                4 разр. – 1 чел.
                     такелажники                            2 разр. – 2 чел.
звено № 2    монтажники конструкций     4 разр. – 1 чел.
                                                                       3 разр. – 1 чел.
звено № 3    такелажники                            2 разр. – 2 чел.

2.5. График выполнения работ приведен на черт. 256-1.02.003.

2.6. Калькуляция затрат труда приведена на черт. 256-1.02.002.

2.7 Пооперационный контроль качества работ по устройству звукопоглощающей облицовки ребристого потолка из перфорированных плит улучшенной сухой гипсовой штукатурки по металлическому каркасу должен выполняться в соответствии с требованиями СНиП III-21-73 "Правила производства и приёмки работ. Отделочные покрытия строительных конструкций" и "Руководства по выполнению отделочных работ индустриальными методами".

Допускаемые отклонения от проектных отметок потолка не должны превышать + 10 мм, местные отклонения на отдельных участках потолка допускаются не более 1 мм на 1 м длины участка.

Поверхность готового потолка не должна иметь царапин, пятен и других повреждений. Приемка и оценка качества работ по устройству подвесного потолка должна выполняться после их завершения производителем работ или мастером с участием представителя технадзора заказчика.

Готовые подвесные потолки рекомендуется принимать поэтажно или посекционно. При этом проверяется соответствие рисунка потолка проекту, надежность монтажа плит, светильников и вентиляционных решеток. На скрытые работы, такие как монтаж металлического каркаса и устройство разводок различных коммуникаций, составляется акт.

2.8. Техника безопасности.

2.8.1. Устройство звукопоглощающей облицовки потолка из плит улучшенной сухой гипсовой штукатурки по металлическому каркасу следует выполнять с соблюдением требований СНиП III-А.11-70 "Техника безопасности в строительстве" и "Инструкции по устройству и эксплуатации пистолетов ПЦ-52-1", разработанной Минмонтажспецстроем СССР и ВНИИПЭМ.

2.8.2. Особое внимание следует обратить на выполнение следующих требований:

при работе монтажно-поршневым пистолетом ПЦ-52-1 рабочий должен быть обеспечен каской, маской из прозрачного материала и противошумными наушниками;

опасная зона во время работы с пистолетом вокруг оператора в радиусе 10 м должна быть ограждена с установкой запрещающих знаков;

при забивке дюбелей запрещается нахождение людей в вышележащих над перекрытием помещениях в радиусе 10 и от оператора;

для защиты оператора от рикошета дюбелей пистолет должен быть снабжен наконечником;

строительно-монтажные пистолеты и патроны к ним необходимо хранить на складах в отдельных опломбированных стальных шкафах (ящиках) и выдавать рабочим по предъявлению ими удостоверения на право пользования пистолетом и наряда на производство работ с прилагаемым к нему допуском, определяющим степень опасности и мероприятия по технике безопасности при выполнении этих работ;

к работе со строительно-монтажным пистолетом допускаются рабочие не моложе 20 лет, прошедшие медицинский осмотр, имеющие квалификацию не ниже IV-го разряда и проработавшие на монтажных работах не менее двух лет. Перед допуском к работе они должны пройти специальный курс обучения, сдать экзамены и иметь удостоверение на право пользования пистолетом.

2.8.3. При выполнении облицовки потолков на высоте 3 м от пола следует применять инвентарные подмости или подмости-столики с ограждениями.

Запрещается пользоваться случайными предметами для подмащивания.

Зазор между стеной и настилом подмостей не должен превышать 130 мм.

Нагрузка на настил не должна превышать 200 кг/м2.

Рабочие операции должны выполняться исправным инструментом и приспособлениями.

3. ТЕХНИКО-ЭКОНОМИЧЕСКИЕ ПОКАЗАТЕЛИ

Объем работ, м2                                  100

Затраты труда, чел.-ч                         95.24*
                                                                  70,64

Стоимость затрат труда,                      56-38*
руб.-коп.                                                   41-88

Продолжительность выполнения       43*
работ, ч                                                     31

4. МАТЕРИАЛЬНО-ТЕХНИЧЕСКИЕ РЕСУРСЫ

4.1. Потребность в основных конструкциях, деталях, материалах и полуфабрикатах приводится в табл. 1.

Таблица 1

Наименование

Марка, ГОСТ

Единица измерения

Количество (на 100 м2 потолка)

Каркас

Сталь листовая оцинкованная профилированная
В-ПН-0.5 ГОСТ 19904-74   
0,8 кп-ВГ-2 ГОСТ 14918-69.

шт.

37

Нащельник-фиксатор

Сталь листовая оцинкованная
В-ПН-2 ГОСТ 19904-74     
0,8 кп-ВГ-2 ГОСТ 14918-69

"

46

Дюбель-гвоздь

ДГ 3,5x30

ВТУ

 2-66 ММСС СССР

"

278

ММЗ

Перфорированная плита улучшенной сухой гипсовой штукатурки (1200x600x12 мм)

ТУ 400-1/54-9-76 ГМПСМ МГИ

шт./кг

  139   
800,54

Пленка полиэтилентерефталатная (ПЭТФ 0,10x600)

ТУ 6-0,5-1108-74 МХП СССР

кг

1.7

ПВХ раскладки

ГОСТ 19111-77

м

240*

Винт самонарезающий с потайной головкой (винт 3x45.66)

ТУ 34-72-75 Челябинский завод стального профилированного настила

шт.

1389
700*

Винт самонарезающий с потайной головкой (винт 3x25.66)

Проволока 3-0-4 ГОСТ 3282-74

"

278

Мастика клеящая "Полинит"

ТУ 21-29-25-74 МПСМ СССР

кг

10,0

Прокладка из улучшенной сухой гипсовой штукатурки (1200x50x12 мм)

ТУ 400-1/54-9-76 ГМПСМ МГИ

шт./кг

  139   
80,06

Минераловатная плита (1000x500x30 мм)

ГОСТ 9573-72

 

167  
250,5

* При варианте заделки швов перфорированных плит раскладками ПВХ.

4.2. Потребность в основном оборудовании, инструменте, инвентаре и приспособлениях приводится в табл. 2.

Таблица 2

Наименование

Тип

Марка

Количество

Техническая характеристика (назначение)

Подъемник

Передвижной

ПГП-27-500

1

Для подачи плит СГМ и элементов каркаса

Тележка

Ручная

Проект 70-4.00.000 ЦНИИОМТП

1

Для перевозки плит в пределах этажа

Столик двухвысотный

3241.07.000 ЦНИИОМТП

4

Для подмащивания

Стол-верстак

0663.00.000 Мосспецпромпроект

1

Для резки листов СГШ

Пистолет монтажно-поршневой

ПЦ-52-1 Главэлектромонтаж Минмонтажспецстроя

1

Для пристрелки профилей каркаса

Уровень

Гибкий водяной

ТУ 25-11-760-72

1

Для проверки горизонтальности

Шаблон с отверстиями

2

Для разметки на плитах СИЛ мест крепления самонарезающих винтов

Приспособление для нанесения меток на поверхность строительных конструкций

ЦНИИОМТП

1

Для разметки осей

Пила-ножовка

ТУ 14-1-302-72

1

Для резки листов СГШ

Ножницы лекальные

ТУ 36-764-76

1

Плоскогубцы комбинированные

ГОСТ 5547-75

1

Захват, удерживание и загибание металлических деталей

Отвес

ОТ-400

ГОСТ 7948-72

2

Для проверки вертикальности

Уровень магнитный

1

Рулетка металлическая

РС-10

ГОСТ 7502-69

1

Линейка металлическая

ГОСТ 427-75

1

Электрические ножницы

Ручные

ИЭ-5403 Ростовское производственное объединение "Электроинструмент"

1

Для резки направляющих профилей

Ящик для хранения и переноски мелкого инструмента

 

2

Циркуль разметочный 350x250 мм

ВНИИ Минстанкопрома

1

Для вычерчивания окружностей отверстий под арматуру электроосвещения и сантехнических приборов

Маска из прозрачного материала

2

Для работы с пистолетом

 

 

 

 

Рамка ножовочная ручная

ГОСТ 17270-71

1

Полотна ножовочные

ГОСТ 6645-68

2

Электросверлильная машина

ИЭ-1034 Назрановский завод "Электроинструмент"

1

Для сверления отверстий

Ударно-вращательная машина

ИЭ-1502 Конаковский завод механизированного инструмента

1

Защитные очки

1

Противошумные наушники

1

Каски монтажные

Каждому работающему

Электрический шуруповерт с магнитной головкой

Ручной

ИЭ-3603 Конаковский завод механизированного инструмента

1

Для крепления плит СГШ самонарезающими винтами

Пила электрическая

 

ИЭ-5102В Резекненское производственное объединение "Электроинструмент"

1

Для резки плит

Угольник деревянный

1

"

Молоток слесарный

Б-8 ГОСТ 2310-77

1

Для различных ударных операций

Правило окованное

 

ИОМТПС Минстроя СССР

1

Для проверки плоскостей готового потолка

Водяной уровень

 

ТУ 25-11-760-72

1

Для проверки горизонтальности опорных профилей

ТЕХНОЛОГИЧЕСКАЯ КАРТА

НА УСТРОЙСТВО ПОДВЕСНОГО ПОТОЛКА ИЗ ФОСФОГИПСОВЫХ ЗВУКОПОГЛОЩАЮЩИХ ПЕРФОРИРОВАННЫХ УТЯЖЕЛЕННЫХ ПЛИТ ПО МЕТАЛЛИЧЕСКОМУ КАРКАСУ

1. ОБЛАСТЬ ПРИМЕНЕНИЯ

1.1. Технологическая карта (ТК) разработана на устройство подвесного потолка из фосфогипсовых звукопоглощающих перфорированных плит по металлическому каркасу.

Рабочие чертежи конструкции подвесного потолка разработаны институтом ЦНИИЭП зрелищных зданий и сооружений им. Б.С. Мезенцева (тип ЗПГЛ 01.00.000 серии 1.245-1) для различных помещений вновь строящихся и реконструируемых общественных зданий и культурно-бытовых зданий промышленных комплексов с относительной влажностью воздуха в помещениях в период эксплуатации не более 70%.

1.2. В состав работ, рассматриваемых картой, входят:

разметка мест установки элементов подвесного потолка;

устройство металлического каркаса;

установка фосфогипсовых плит.

1.3. Технологической картой предусмотрено выполнение работ в одну смену.

1.4. ТК составлена на 100 м2 поверхности потолка.

При привязке технологической карты к конкретному объекту объемы работ, калькуляция затрат труда и график производства работ должны быть уточнены.

2. ОРГАНИЗАЦИЯ И ТЕХНОЛОГИЯ СТРОИТЕЛЬНОГО ПРОЦЕССА

2.1. До начала устройства подвесного потолка необходимо выполнить следующие работы:

произвести сантехнические, вентиляционные, электротехнические и другие виды скрытых работ, а также все отделочные работы, связанные с мокрыми процессами (штукатурка стен и их подготовка под отделку, устройство цементных стяжек);

очистить помещение от строительного мусора и застеклить его;

выверить горизонтальность поверхностей отделываемых помещений, их соответствие проекту;

разместить элементы подвесного потолка, инвентарь и инструменты, необходимые для работы;

установить стол для обрезки и сортировки плит;

заготовить направляющие профили по проекту.

2.2. Подача плит и элементов каркаса на этаж осуществляется при помощи подъемника ПГП-27-500, а транспортирование их к рабочему месту – тележками конструкции ЦНИИОМТП.

Элементы подвесного потолка поставляются комплектно в упаковке, исключающей их повреждение, деформацию и порчу окраски.

2.3. Разметка мест установки элементов подвесного потолка включает следующее:

выноску отметки низа несущего профиля каркаса при помощи водяного уровня или нивелира;

отбивку меловым шнуром на стенах линии, соответствующей уровню низа несущего профиля;

обозначение на противоположных стенах помещения оси несущих профилей каркаса;

нанесение линии верха пристенных уголков по периметру стен меловым шнуром;

разметка мест установки подвесок при помощи приспособления ЦНИИОМТП.

Приспособление состоит из двух трубчатых телескопических стоек, поверху которых натянута упругая капроновая нить с подвижно закрепленными на ней красящими фиксаторами. На нить красящие фиксаторы насаживаются друг от друга на расстоянии равном шагу несущих профилей (600 мм).

Перестановка приспособления осуществляется с шагом, равным шагу серег в продольном направлении (1000 мм).

Перед установкой приспособления на поверхности потолка наносится осевая линия для фиксации положения стойки.

Красящие фиксаторы собираются вместе, их укрепляют держателем и опускают в краску.

Нить с подготовленными фиксаторами натягивают в требуемых местах и путем ее оттягивания отмечают на поверхности места установки подвесок (серег).

2.4. Устройство металлического каркаса подвесного потолка выполняется в следующей технологической последовательности (черт. 256-1.03.001 л. 12):

в размеченных местах пристреливаются серьги при помощи строительно-монтажного пистолета ПЦ-52-1;

дюбель-гвоздями (шаг дюбелей 1000 мм) крепятся металлические пристенные уголки;

устанавливаются несущие профили с прикрепленными к ним подвесками и распорки.

2.4.1. Каркас подвесного потолка выполнен из тонкостенных гнутых профилей -образного сечения, изготовленных из оцинкованной стальной полосы. По длине несущие профили стыкуются накладками. Шаг установки несущих профилей – 0,6 м. Правильное положение несущих профилей проверяется с помощью водяного уровня. Несущие профили в поперечном направлении раскрепляются уголками-распорками. Шаг распорок – 2,0 м. Профили имеют по высоте два ряда отверстий. Нижний ряд используется для установки распорок, верхний – для подвесок.

2.4.2. После окончательной выверки каркаса производится установка фосфогипсовых плит размерами в плане 600x600 мм.

Во время установки плиты заводят пазами в полки несущих профилей. Между собой они крепятся за счет боковых граней специальной формы и благодаря наличию прорезей. Установка плит осуществляется рядами, начиная от центра помещения.

2.5. Все работы следует выполнять инструментами, приспособлениями и инвентарем, перечень которых приведен в табл. 2.

2.6. На устройстве подвесного потолка занято звено в составе:

монтажники              3 разр. – 1 чел.
                                    4 разр. – 1 чел.
машинист                  4 разр. – 1 чел.
такелажники              2 разр. – 4 чел.

2.7. График выполнения работ приведен на чертеже 256-1.03.003.

2.8. Калькуляция затрат труда приведена на чертеже 256-1.03.002.

2.9. Операционный контроль качества работ по устройству подвесного потолка из фосфогипсовых звукопоглощающих перфорированных утяжеленных плит по металлическому каркасу должен выполняться в соответствии с требованиями СНиП III-21-73 "Правила производства и приемки работ. Отделочные покрытия строительных конструкций" и "Руководства по выполнению отделочных работ индустриальными методами" (1979 г., ЦНИИОМТП).

Допускаемое отклонение от проектных отметок потолка не должно превышать +10 мм, местные отклонения на отдельных участках потолка должны быть не более 1 мм на 1 м длины участка.

Поверхность готового потолка не должна иметь царапин, пятен и других повреждений, а в случае необходимости проведения в помещении штукатурных или малярных работ должна быть надежно защищена от возможного загрязнения.

Приемка и оценка качества работ по устройству подвесного потолка должна выполняться после их завершения производителем работ или мастером с участием представителя технадзора заказчика.

Готовые подвесные потолки рекомендуется принимать поэтажно или посекционно. При этом проверяется соответствие рисунка потолка проекту, надежность монтажа плит, светильников и вентиляционных решеток. На скрытые работы, такие как монтаж металлического каркаса и устройство разводок различных коммуникаций, составляется акт.

2.10. Техника безопасности.

Устройство подвесного потолка из фосфогипсовых звукопоглощающих перфорированных утяжеленных плит по металлическому каркасу следует выполнять с соблюдением требований СНиП III-А.11-70 "Техника безопасности в строительстве" и "Инструкции по устройству и эксплуатации пистолетов ПЦ-52-1", разработанной Минмонтажспецстроем СССР и ВНИИПЭМом.

Особое внимание следует обратить на выполнение следующих требований:

при работе со строительным пистолетом рабочий должен быть обеспечен каской, маской из прозрачного материала и противошумными наушниками;

опасная зона во время работы с пистолетом вокруг оператора в радиусе 10 м должна быть ограждена запрещающими знаками;

при забивке дюбелей запрещается нахождение людей в вышележащих над перекрытием помещениях, а также в радиусе 10 м от оператора, занятого забивкой дюбелей;

для защиты оператора от рикошета дюбелей пистолет должен быть снабжен наконечником;

строительно-монтажные пистолеты и патроны к ним необходимо хранить на складах в отдельных пломбируемых стальных шкафах (ящиках) и выдавать рабочим по предъявлению ими удостоверения на право пользования пистолетом и наряда на производство работ с прилагаемым к нему допуском, определяющим степень опасности и мероприятия по технике безопасности при выполнении этих работ, оставлять патроны на рабочем месте не разрешается;

к работе со строительным пистолетом допускают рабочих не моложе 20 лет, прошедших медицинский осмотр, имеющих квалификацию не ниже IV разряда и проработавших на монтажных работах не менее двух лет. Перед допуском к работе они должны пройти специальный курс обучения, сдать экзамены и иметь удостоверение на право пользования пистолетом;

при выполнении подвесных потолков на высоте 2,5–4 м от пола следует применять инвентарные подмости или подмости-столики с ограждениями, а на высоте более 4 м работы необходимо выполнять с инвентарных лесов со сплошным настилом. Запрещается использование случайных предметов для подмащивания;

перед началом работ проверяют состояние лесов, подмостей и настила. Настил должен быть шириной не менее 2 м и выдерживать нагрузку более 200 кг/м2.

Вспомогательный инструмент, необходимый при монтаже, должен находиться в карманах спецодежды или спецсумках личного пользования рабочих.

Места, над которыми ведутся работы, должны быть ограждены, в их зоне следует вывесить предупредительные плакаты.

Во избежание несчастных случаев запрещается оставлять плиты не закрепленными на подвесном каркасе.

3. ТЕХНИКО-ЭКОНОМИЧЕСКИЕ ПОКАЗАТЕЛИ

Объем работ, м2                                                       – 100

Затраты труда на устройство 100 м2
подвесного потолка, чел.-ч                                     – 93,40

Стоимость затрат труда на устройство
100 м2 подвесного потолка, руб.-коп.                    – 48-71

Продолжительность выполнения работ, ч            – 40,5

4. МАТЕРИАЛЬНО-ТЕХНИЧЕСКИЕ РЕСУРСЫ

4.1. Потребность в основных материалах, полуфабрикатах и строительных конструкциях приводится в табл. 1.

Таблица 1

Наименование

Марка, ГОСТ

Единица измерения

Количество (на 100 м2 потолка)

Болт

М5 20 ГОСТ 7805-70

шт.

167

Гайка

М6 ГОСТ 5915-70

"

500

Гайка

М8 ГОСТ 5915-70

"

167

Дюбель-гвоздь

ДГ 4,5x40

"

99

Дюбель-винт

ДВ М8х40

"

167

Подвеска

Проволока 5,0 ГОСТ 3617-71

"

167

Фосфогипсовая перфорированная утяжеленная плита 600x600x30

"

278

Несущий каркас
(масса 1 п.м - 2,63 кг)

Сталь листовая оцинкованная

В-ПН-1.0 ГОСТ 19904-74  

М СтЗ кп 3 ГОСТ 14918-69

п.м

167,5

Распорка (масса 1 п.м -0,273 кг)

Сталь листовая оцинкованная

В-ПН-0.5 ГОСТ 19904-74  

М Ст3 кп 3 ГОСТ 14918-69

"

50,5

Стыковая накладка

Сталь листовая оцинкованная

В-ПН-2.0 ГОСТ 19904-74  

М СтЗ кп 3 ГОСТ 14918-69 .

шт.

42

Пристенный уголок
(масса 1 п.м - 3,3 кг)

Сталь листовая оцинкованная

В-ПН-1.0 ГОСТ 19904-74  

М СтЗ кп 3 ГОСТ 14918-69

шт.

20

Серьга

Сталь листовая оцинкованная

В-ПН-2 ГОСТ 19904-74     

М Ст3 кп 3 ГОСТ 14918-69

"

167

 

4.2. Потребность в машинах, оборудовании, инструментах и приспособлениях приводится в табл. 2.

Таблица 2

Наименование

Тип

Марка

Количество

Техническая характеристика (назначение)

Приспособление для нанесения меток на поверхности строительных изделии

ЦНИИОМТП

1

Для нанесения меток

Водяной уровень

ТУ25-11-760-72

1

Для проверки горизонтальности несущих профилей каркаса

Поршневой строительно-монтажный пистолет

ПЦ-52-1 Главэлектромонтаж­спецстроя

.2

Для пристрелки

Столик двухвысотный

ЦНИИОМТП 3241.07.000

2

Для работы на высоте

Плоскогубцы комбинированные

ГОСТ 5547-75

2

Для захвата удерживания и изгиба металлических деталей

Подъемник

Передвижной

ПГП-27-500

1

Для подачи плит и элементов каркаса на этажи

Тележка

Ручная

ЦНИИОМТП 70-4.00.000

1

Для перевозки плит

Пила электрическая

Дисковая

ИЭ-5102В Резекненское производственное объединение "Электроинструмент"

1

Для резки плит


Ножницы электрические

ИЭ-5403 Ростовское производственное объединение "Электроинструмент"

2

Для резки металла

Магнитный уровень

1

Для проверки вертикальности и горизонтальности

Отвес стальной

ВНИИСМИ Минстройдормаша

1

Для переноса меток подвесок

Верстак(размером 1000x800x700 мм)

1

Для резки и сортировки плит

Каски монтажные

Каждому работающему

Маска из прозрачного материала

2

Для работы с пистолетом ПЦ-52-1

Противошумные наушники

2

То же

Нить капроновая или шнур

1

Для разбивки осей

Шаблон

1

Для проверки прямоугольности и размеров плит

Рулетка металлическая

РС-10

ГОСТ 7502-69

1

Для разметки осей плит

Угольник деревянный

ВНИИСМ Минстройдормаша

1

Для проверки прямых углов

Молоток слесарный

Б-8 ГОСТ 2310-77

. 1

Для различных ударных операций

Правило окованное

ИОМТПС Минстроя

1

Для проверки плоскостей готового потолка

Карандаш плотничный

Славянская карандашная фабрика Минместпрома РСФСР

3

Для разметки фризовых плит

Ножницы ручные

ВНИИ Минстанкопрома

2

Для резки листового и полосового металла толщиной от 0,5 до 1,5 мм

Пила ленточная

ГОСТ 6532-77

1

Для резки плит

ТЕХНОЛОГИЧЕСКАЯ КАРТА

НА УСТРОЙСТВО ПОДВЕСНОГО ПОТОЛКА ИЗ ЛИТЫХ ГИПСОВЫХ ДЕКОРАТИВНЫХ ПЛИТ ПО МЕТАЛЛИЧЕСКОМУ КАРКАСУ

1. ОБЛАСТЬ ПРИМЕНЕНИЯ

1.1. Технологическая карта (ТК) разработана на устройство подвесного потолка из литых гипсовых декоративных плит по металлическому каркасу. Рабочие чертежи конструкции подвесного потолка разработаны институтом ЦНИИЭП зрелищных зданий и сооружений им. Б.С.Мезенцева (тип ЗПГЛ 03.00.000 серии 1.245-1) для различных помещений вновь строящихся и реконструируемых общественных зданий и культурно-бытовых зданий промышленных комплексов с относительной влажностью воздуха в помещениях в период эксплуатации не более 70%.

1.2. В состав работ, рассматриваемых картой, входят:

разметка мест установки элементов подвесного потолка;

устройство металлического каркаса;

установка литых гипсовых декоративных плит.

1.3. Технологической картой предусмотрено выполнение работ в одну смену.

1.4. ТК составлена на устройство 100 м2 поверхности потолка. При привязке технологической карты к конкретному объекту объемы работ, калькуляция затрат труда и график производства работ должны быть уточнены.

2. ОРГАНИЗАЦИЯ И ТЕХНОЛОГИЯ СТРОИТЕЛЬНОГО ПРОЦЕССА

2.1. До начала устройства подвесного потолка необходимо выполнить следующие работы:

произвести сантехнические, вентиляционные, электротехнические и другие виды скрытых работ, а также все отделочные работы, связанные с мокрыми процессами (штукатурка стен и их подготовка под отделку, устройство цементных стяжек);

очистить помещение от строительного мусора и застеклить его;

выверить горизонтальность поверхностей отделываемых помещений, их соответствие проекту;

разместить элементы подвесного потолка, материал, инвентарь и инструмент, необходимые для работы;

установить стол для обрезки и сортировки плит;

заготовить направляющие профили по проекту.

2.2. Подача плит и элементов каркаса на этаж осуществляется при помощи подъемника ПГП-27-500, а транспортирование их к рабочему месту – тележками конструкции ЦНИИОМТП.

Все элементы подвесного потолка поставляются комплектно в упаковке, исключающей их повреждение, деформацию и порчу окраски.

2.3. Разметка мест установки элементов подвесного потолка включает:

выноску отметки низа несущего профиля каркаса при помощи водяного уровня или нивелира;

отбивку меловым шнуром на стенах линии, соответствующей уровню низа несущего профиля;

обозначение на противоположных стенах помещения оси несущих профилей каркаса;

нанесение линии верха пристенных уголков по периметру стен меловым шнуром;

разметка мест установки подвесок при помощи приспособления ЦНИИОМТП.

Приспособление состоит из двух трубчатых стоек и упругой натяжной капроновой нити с подвижно закрепленными на ней красящими фиксаторами. Места для установки подвесок обозначаются перенесением краски с фиксаторов на поверхность путем оттягивания нити.

На нить красящие фиксаторы насаживаются на расстоянии 600 мм один от другого, равном шагу несущих профилей. Перестановка приспособления осуществляется через 1200 мм.

Перед установкой приспособления на поверхности потолка наносится осевая линия для фиксации положения стойки. Красящие фиксаторы собираются вместе, их укрепляют держателем и опускают в краску. Нити с подготовленными фиксаторами натягивают в требуемых местах и путем ее оттягивания отмечают на поверхности места установки подвесок.

2.4. Устройство металлического каркаса подвесного потолка выполняется в следующей технологической последовательности (черт. 256-1.04.001 лист 12):

дюбель-гвоздями в намеченных местах прикрепляются подвески с подкладными пластинками;

устанавливаются металлические пристенные уголки;

на подвески навешиваются несущие профили каркаса с пружинами-подвесок;

устанавливаются нащельники-фиксаторы.

Каркас подвесного потолка выполнен из тонкостенного стального профиля -образного сечения с бульбами, полученного из оцинкованной стальной полосы. Каркас в поперечном направлении раскрепляется нащельниками-фиксаторами длиной 1,8 м, устанавливаемыми вразбежку. Стыковка несущих профилей по длине осуществляется соединительными стержнями (по 2 шт. на стык).

Шаг несущих профилей 600 мм.

В полках несущих профилей предусмотрены сквозные насечки для крепления плит винтами и соединения подвесок из стальной проволоки  Æ 4 мм.

Подвески с подкладными пластинками крепятся к перекрытию дюбель-гвоздями с помощью строительно-монтажного пистолета ПЦ-52-1.

Работы ведутся от середины помещения с двухвысотных столиков.

После установки несущих профилей каркаса осуществляется окончательная их рихтовка шнуром или водяным уровнем.

2.4.1. Несущие профили каркаса и нащельники-фиксаторы после их установки образуют как бы сетку, которая определяет положение плит (места установки плит).

Гипсовые литые декоративные плиты размерами в плане 600x600 мм устанавливают рядами, начиная от центра помещения. Вначале укладываются две плиты вдоль центра, затем – от центра к краям помещения (см. черт. 256-1.04.001 лист 2).

Каждая плита крепится 8-ю винтами: 4 винта по углам и 4 – по середине каждой стороны плиты.

2.5. Все работы следует выполнять инструментами, приспособлениями и инвентарем, перечень которых приведен в табл. 2.

2.6. На устройстве подвесного потолка из декоративных плит по металлическому каркасу занято звено в составе:

монтажники            III разр. - 1 чел.
                                 IV разр. - 1 чел.
машинист                IV разр. - 1 чел.
такелажники           II  разр. - 4 чел.

2.7. График выполнения работ приведен на чертеже 256-1.04.003.

2.8. Калькуляция затрат труда приведена на чертеже 256-1.04.002.

2.9. Операционный контроль качества работ по устройству подвесного потолка из гипсовых декоративных плит по металлическому каркасу должен выполняться в соответствии с требованиями СНиП III-21-73 "Правила производства и приемки работ. Отделочные покрытия строительных конструкций" и "Руководства по выполнению отделочных работ индустриальными методами" (1979 г. ЦНИИОМТП).

Допускаемое отклонение от проектных отметок потолка не должно превышать +10 мм, местные отклонения на отдельных участках потолка должны быть не более 1 мм на 1 м длины участка.

Поверхность готового потолка не должна иметь царапин, пятен и других повреждений, а в случае необходимости проведения в помещении штукатурных или малярных работ должна быть надежно защищена от возможного загрязнения.

Приемка и оценка качества работ по устройству подвесного потолка должна выполняться после их завершения производителем работ или мастером с участием представителя технадзора заказчика.

Готовые подвесные потолки рекомендуется принимать поэтажно или посекционно.

При этом проверяется соответствие рисунка потолка проекту, надежность монтажа плит, светильников и вентиляционных решеток. На скрытые работы, такие как монтаж металлического каркаса и устройство разводок различных коммуникаций, составляется акт.

2.10. Техника безопасности.

Устройство подвесного потолка из гипсовых декоративных плит по металлическому каркасу следует выполнять с соблюдением требований СНиП III-А.11-70 "Техника безопасности в строительстве" и "Инструкции па устройству и эксплуатации пистолетов ПЦ-52-1", разработанной Минмонтажспецстроем СССР и ВНИИПЭМом.

Особое внимание следует обратить на выполнение следующих требований:

при работе со строительным пистолетом рабочий должен быть обеспечен каской, маской из прозрачного материала и противошумными наушниками;

опасная зона во время работы с пистолетом вокруг оператора в радиусе 10 м должна быть ограждена запрещающими знаками;

при забивке дюбелей запрещается нахождение людей в вышележащих над перекрытием помещениях, а также в радиусе 10 м от оператора, занятого забивкой дюбелей;

для защиты оператора от рикошета дюбелей пистолет должен быть снабжен наконечником;

строительно-монтажные пистолеты и патроны к ним необходимо хранить на складах в отдельных пломбируемых стальных шкафах (ящиках) и выдавать рабочим по предъявлению ими удостоверения на право пользования пистолетом и наряда не производство работ с прилагаемым к нему допуском, определяющим степень опасности и мероприятия по технике безопасности при выполнении этих работ. Оставлять на рабочем месте патроны запрещается;

к работе со строительным пистолетом допускают рабочих не моложе 20 лет, прошедших медицинский осмотр, имеющих квалификацию не ниже IV разряда и проработавших на монтажных работах не менее двух лет. Перед допуском к работе они должны пройти специальный курс обучения, сдать экзамены и иметь удостоверение на право пользования пистолетом;

при выполнении подвесных потолков на высоте 2,5–4 м от пола следует применять инвентарные подмости или подмости-столики с ограждениями, а на высоте более 4 м работы необходимо выполнять с инвентарных лесов со сплошным настилом. Запрещается использование случайных предметов для подмащивания;

перед началом работ проверяют состояние лесов, подмостей и настила. Настил должен быть шириной не менее 2 м и выдерживать нагрузку более 200 кг/м2;

вспомогательный инструмент, необходимый при монтаже, должен находиться в карманах спецодежды или спецсумках личного пользования рабочих.

Места, над которыми ведутся работы, должны быть ограждены и в их зоне вывешены предупредительные плакаты.

Во избежание несчастных случаев запрещается оставлять плиты не закрепленными на подвесном каркасе.

3. ТЕХНИКО-ЭКОНОМИЧЕСКИЕ ПОКАЗАТЕЛИ

Объем работ, м2                                                       – 100

Затраты труда, чел.-ч                                               – 103,10

Стоимость затрат труда, руб.-коп.                         – 60-50

Продолжительность выполнения
работ, ч                                                                     – 45,5

4. МАТЕРИАЛЬНО-ТЕХНИЧЕСКИЕ РЕСУРСЫ

4.1. Потребность в основных материалах, полуфабрикатах и строительных конструкциях приводится в табл. 1.

Таблица 1

Наименование

Марка, ГОСТ

Единица измерения

Количество (на 100 м2 потолка)

Дюбель-гвоздь

ДГ 4,5x40

шт.

238

Винт самонарезающий с потайной головкой

4,8 ТУ 34-72-75 Челябинский завод стального профилированного настила

"

2222

Гипсовая литая декоративная плита

 

"

278

Несущий каркас (масса 1м-2,826кг)

Сталь листовая оцинкованная

В-ПН-0,8 ГОСТ 19904-74   

М Ст 3 кп 3 ГОСТ 14918-69

м

166,5

Подвеска

Проволока 4,0 ГОСТ 3617-71

шт.

139

Соединительный стержень

Проволока 3,0 ГОСТ 3617-71 ,

"

74

Подкладная пластинка

Сталь листовая оцинкованная

В-ПН-2,0 ГОСТ 19904-74   

М Ст 3 кп 3 ГОСТ 14918-69

"

139

Пружина подвески

Лента 65Г-0,8 20 ГОСТ 2283-79

"

139

Нащельник-фиксатор

Сталь листовая оцинкованная

В-ПН-2,0 ГОСТ 19904-74   

М Ст 3 кп 3 ГОСТ 14918-69

м

167

Пристенный уголок (масса 1 м - 3,3 кг)

Сталь листовая оцинкованная
В-ПН-1.0 ГОСТ 19904-74   
М Ст 3 кп 3 ГОСТ 14918-69

шт.

20

 

4.2. Потребность в машинах, оборудовании, инструментах и приспособлениях приводится в табл. 2.

Таблица 2

Наименование

Тип

Марка

Количество

Техническая характеристика (назначение)

Приспособление для нанесения меток на поверхности строительных изделий

ЦНИИОМТП

1

Для нанесения меток

Водяной уровень

ТУ 25-11-760-72

1

Для проверки горизонтальности несущих профилей каркаса

Поршневой строительно-монтажный пистолет

ПЦ-52-1 Главэлектромонтаж­спецстроя

2

Для пристрелки

Столик двух высотный

ЦНИИОМТП
3241.07.000

2

Для работы на высоте

Плоскогубцы комбинированные

ГОСТ 5547-75

2

Для захвата, удержания и изгиба металлических деталей

Подъемник

Передвижной

ПГП-27-500

1

Для подачи плит и элементов каркаса на этажи

Тележка

Ручная

ЦНИИОМТП
70-4.00-000

1

Для перевозки плит

Пила электрическая

Дисковая

ИЭ-5102В Резекненское производственное объединение "Электроинструмент"

1

Для резки плит

Ножницы электрические

ИЭ-5403 Ростовское производственное объединение "Электроинструмент"

1

Для резки металла


Нить капроновая или шнур

1

Для разбивки осей

Шаблон

1

Для проверки прямоугольности и размеров плит

Пила ленточная

ГОСТ 6532-77

1

Для резки плит

Рулетка металлическая

РС-10

ГОСТ 7502-69

1

Для разметки осей плит

Угольник деревянный

ВНИИСМИ Минстройдормаша

1

Для проверки прямых умов

Молоток слесарный

Б-8 ГОСТ 2310-77

1

Для различных ударных операций

Правило окованное

ИОМТПС Минстроя СССР

1

Для проверки плоскостей готового потолка

Карандаш плотничный

Славянская карандашная фабрика Минместпрома РСФСР

3

Для разметки фризовых плит

Ножницы ручные

ВНИИ Минстанкопрома

2

Для резки листового и полосового металла толщиной от 0,5 до 1,5 мм

Магнитный уровень

1

Для проверки вертикальности и горизонтальности

Отвес стальной

ВНИИСМИ Минстройдормаша

1

Для переноса меток подвесок

Верстак(размерами 1000x300x700 мм)

1

Для резки и сортировки плит

Каски монтажные

Каждому работающему

Маска из прозрачного материала

2

Для работы с пистолетом ПЦ-52-1

Противошумные наушники

2

То же

ТЕХНОЛОГИЧЕСКАЯ КАРТА

ПО БЕСКАРКАСНОЙ ОБЛИЦОВКЕ СТЕН ЛИСТАМИ СУХОЙ ГИПСОВОЙ ШТУКАТУРКИ

1. ОБЛАСТЬ ПРИМЕНЕНИЯ

1.1. Технологическая карта (ТК) разработана на устройство бескаркасной облицовки железобетонных стен листами сухой гипсовой штукатурки (типа "декорот").

ТК может быть применена для облицовки внутренних поверхностей кирпичных, деревянных и бетонных стен в общественных (предприятия торговли, коммунально-бытового обслуживания, общественного питания, зрелищные и спортивные сооружения, читальные залы, аудитории и т.д.), административных (служебные помещения, холлы, коридоры и др.), промышленных (административные и бытовые помещения) зданиях.

1.2. В состав работ, рассматриваемых картой, входят:

подготовка поверхностей стен, разметка мест установки листов сухой гипсовой штукатурки (СГШ);

раскрой и подготовка листов сухой гипсовой штукатурки (СГШ);

облицовка стен листами СГШ;

заделка швов.

1.3. Технологической картой предусмотрено выполнение работ в одну смену.

1.4. ТК составлена на 10 м2 облицовки стен листами сухой гипсовой штукатурки. При привязке ТК к конкретному объекту объемы работ, калькуляция затрат труда и график производства работ должны быть уточнены.

2. ОРГАНИЗАЦИЯ И ТЕХНОЛОГИЯ СТРОИТЕЛЬНОГО ПРОЦЕССА

2.1. До облицовки стен листами сухой гипсовой штукатурки (СГШ) должны быть выполнены сантехнические, электротехнические и другие виды работ внутри здания (закрепление и оконопатка дверных и оконных коробок, устройство встроенных шкафов, оштукатуривание мокрым способом помещений). Должна быть доставлена готовая мастика и весь монтажный материал к рабочему месту.

2.2. Устройство бескаркасной облицовки стен листами СГШ выполняется в следующей технологической последовательности:

подготовка поверхностей стен;

разметка мест установки листов СГШ;

раскрой и подготовка листов сухой гипсовой штукатурки (СГШ);

облицовка стен листами СГШ;

заделка швов.

2.3. Отделка листами сухой гипсовой штукатурки допускается в помещениях жилых, общественных и производственных зданий с влажностью воздуха в период эксплуатации не более 60%. Влажность поверхностей, отделываемых листовыми материалами, не должна превышать 80%.

2.4. Подготовка поверхностей стен заключается в последовательной очистке их от пыли, грязи и потеков.

2.5. Разметку мест установки листов СГШ выполняют с помощью отвеса, метра и угольника в соответствии с архитектурным решением проекта.

2.6. Раскрой листов СГШ при больших объемах во избежание лишних отходов необходимо выполнять централизованно в специальных помещениях по предварительно проверенным размерам. При небольших объемах работ раскрой листов СГШ можно производить на верстаке с неподвижной электродисковой пилой или с помощью ножа, линейки и рейсшины, при этом лист по линейке прорезают ножом с лицевой стороны на глубину не менее половины толщины листа, затем лист СГШ перегибают по надрезу и разрезают картон с тыльной стороны.

При раскрое листов СГШ для облицовки участков стен с входящими углами (лузги), картон и гипсовый слой на тыльной стороне надрезают до картона лицевой стороны и перегибают лист под прямым углом.

При раскрое листов СГШ для облицовки выступающих углов (усенки) с тыльной стороны листа по линии сгиба до картона штукатурным ножом выбирают треугольный паз по предварительно смоченному в этом месте листу и сгибают под прямым углом по линии надреза.

2.7. Облицовка стен листами СГШ осуществляется методом "наклеивание листов под правило".

Наклеивание листов СГШ производится по предварительной разметке к лепкам, не ранее чем через 10 минут после их нанесения на стены в шахматном порядке толщиной не более 30 мм, диаметром до 100 мм на расстоянии друг от друга примерно 30–40 см.

Вначале строго вертикально по отвесу устанавливается первый лист СГШ – маяк, а потом по нему выравниваются и приклеиваются другие листы СГШ.

Наклеивание листов СГШ производится от угла комнаты, причем к "лепкам" лист СГШ сначала прижимают контрольным прижимным правилом с отвесом, чтобы проверить вертикальность листа, после чего окончательно приклеивают его к "лепкам".

Последующие листы приклеивают в одной плоскости с первым при помощи прижимного правила, прикладываемого одновременно к обоим листам на разных уровнях по высоте.

Для приклеивания листов СГШ к облицовочным поверхностям стен используется мастика ЦНИИОМТП.

Состав мастики

Вяжущие компоненты мастики

Состав мастики, %

Наполнитель (известковая доломитовая мука)

70-78

ПВА (поливинилацетатная эмульсия)

6-8

ГКЖ-94 (кремнийорганическая жидкость)

0,5

Мыло 40%

2

Известь-пушонка

3

ГКЖ-10

0,3

Стекловолокно

0,2

Изопреновый каучук (12%-ный раствор в уайт-спирите)

1

Вода

До осадки конуса 6 см

 

При малых объемах работ мастику к месту приклеивания листов СГШ подают в конусных бачках вместимостью 30 литров.

Отделка лузг и усенков.

Особое внимание следует уделить отделке лузг и усенков. В них нельзя стыковать листы, ибо такой стык не удается прочно заделать. Чтобы избежать этого, лузги и усенки следует заделывать только одним заранее подготовленным обшивочным листом (см. черт 301-1.00.002, узел 2, 3).

Отделка откосов.

Перед облицовкой дверных и оконных откосов необходимо проверить их оконопатку.

Отделка оконных откосов производится мокрой штукатуркой, но с обязательным относом мокрой штукатурки на плоскость стены в 100 мм и с зазором между мокрой и сухой штукатуркой в 6 мм (черт. № 301-1.00.002, узел 1). Для образования правильного угла откосов, установка полос штукатурки производится с помощью шаблона-угольника.

2.8. Заделка швов

ТК составлена на два варианта заделки швов.

При I-ом варианте заделка швов осуществляется гипсовым раствором с последующей оклейкой шва перфорированной бумажной лентой.

Рекомендуется заполнять швы той же мастикой, из которой делаются "лепки" для приклеивания листов СГШ (см. черт. № 301-1.00.002). В этом случае мастика для заполнения швов наносится при помощи промазчика фальцев.

При II-ом варианте заделка швов осуществляется при помощи раскладок ПВХ (см. черт. № 301-1.00.003).

2.9. Все работы по облицовке стен листами сухой штукатурки следует выполнять с помощью инструментов, приспособлений и инвентаря, перечень которых приведен в табл. 4.

2.10. Облицовку стен сухой штукатуркой выполняет бригада из 5 человек, состоящая из отдельных звеньев, выполняющих различные операции.

Состав бригады и выполняемые звеньями операции приведены в табл. 1.

Таблица 1

Операции

Число рабочих в бригаде

В том числе по разрядам

II

III

IV

V

Раскрой обшивочных листов, вырезка в листах треугольного паза для отделки усенков и откосов (звено №2)

2

2

Разметка на отделываемой поверхности расположения листов, провеска поверхности и установка опорных марок (звено №1)

2

1

1

Установка листов сухой штукатурки на мастике, облицовка откосов (звено №1)

2

1

1

Заделка швов и мест сопряжений листов с потолком, полом, дверными и оконными коробками (звено №1)

2

1

1

Транспортировка листов сухой штукатурки, штукатурного раствора, мастики (звено №3)

1

1

 

2.11. График выполнения работ приведен на черт. 301-1.00.005.

2.12. Калькуляция затрат труда приведена на черт. 301-1.00.004.

2.13. При производстве работ по облицовке стен листовыми материалами необходимо осуществлять пооперационный контроль за подготовкой поверхности, проконопаткой зазоров между оконными и дверными проемами, за вертикальностью и горизонтальностью установки листов СГШ.

Пооперационный контроль качества работ при облицовке стен листами СГШ должен выполняться в соответствии с требованиями СНиП III-21-73 "Правила производства и приемки работ. Отделочные покрытия строительных конструкций" и "Руководства по выполнению отделочных работ индустриальными методами".

Качество отделки сухой штукатуркой должно удовлетворять требованиям, установленным для высококачественной штукатурки.

При приемке работ по отделке поверхностей листовыми материалами следует проверять надежность крепления листов к основанию; отсутствие трещин в листах и швах, пятен на облицованной поверхности; вибрации листов, провесов более 1 мм в стыках; качество обработки швов.

Допускаемые отклонения поверхностей, отделанных листовыми материалами, приведены в табл. 2.

Таблица 2

Наименование

Допускаемые отклонения при высококачественной отделке поверхности

Неровности поверхности (обнаруживаются при накладывании правила или шаблона длиной 2 м)

Не более двух неровностей глубиной или высотой до 2 мм

Отклонение поверхности стен от вертикали

1 мм на 1 м высоты, но не более 5 мм на всю высоту помещения

Отклонение поверхности стен от горизонтали

1 мм на 1 м длины, но не более 5 мм на всю длину помещения

Отклонение лузг, усенков оконных и дверных откосов, пилястр, столбов и т.п. от вертикали и горизонтали

1 мм на 1 м высоты или длины, но не более 3 мм на весь элемент

Отклонения ширины оштукатуренного откоса от проектной

2 мм

Отклонения тяг от прямой линии в пределах между углами пересечения тяг

2 мм

2.14. Техника безопасности

При производстве работ по облицовке стен листами гипсовой штукатурки необходимо соблюдение правил техники безопасности, предусмотренных в главе СНиП Ш-4-80 "Техника безопасности в строительстве".

При выполнении работ на высоте следует применять столики-подмости. Запрещается пользоваться случайными средствами для подмащивания. Нагрузка на настил не должна превышать 200 кг/м2.

К работе по облицовке стен листами СГШ допускаются лица не моложе 18 лет, имеющие удостоверение на право производства работ и прошедшие инструктаж по технике безопасности и производственной санитарии.

Работы осуществляют с применением ручного и механизированного инструмента; ручной инструмент должен быть прочным, надежным в работе.

Использовать инструмент нужно только по назначению. Деревянные рукоятки ручных инструментов должны быть изготовлены из сухой древесины твердых и вязких пород и не иметь сучков, трещин и сколов.

Применение механизированного инструмента допускается только в соответствии с требованиями, указанными в паспорте и инструкции по эксплуатации завода-изготовителя. Инструмент необходимо систематически и своевременно проверять и ремонтировать. Выдаваемый инструмент должен быть исправен.

К работе с механизированным инструментом допускаются лица, имеющие соответствующее удостоверение на право пользования им.

Рабочие должны быть обеспечены спецодеждой и средствами индивидуальной защиты.

3. ТЕХНИКО-ЭКОНОМИЧЕСКИЕ ПОКАЗАТЕЛИ

 

При варианте заделки швов мастикой

 

При варианте заделки с помощью раскладок

Объем работ, м2

10

 

10

Затраты труда на облицовку стен, чел.-ч

5,55

 

6,11

То же, на 1 м2 поверхности стен, чел.-ч

0,55

 

0,61

Стоимость затрат труда, руб.-коп.

3-31

 

3-60

Продолжительность, ч

3,1

 

3,36

4. МАТЕРИАЛЬНО-ТЕХНИЧЕСКИЕ РЕСУРСЫ

4.1. Потребность в основных конструкциях, деталях, материалах и полуфабрикатах приводится в табл. 3.

Таблица 3

Наименование

Марка, ГОСТ

Единица измерения

Количество на 10 м2 поверхности

Листы сухой гипсовой штукатурки (СГШ) 2700x600x10 мм

ТУ 400-1/54-9-76 ГМПСМ МГИ

м2

10,5

Мастика

ЦНИИОМТП

т

0,049

Гипсовый раствор

м3

0,006

Лента перфорированная бумажная

кг/м

0,25/20

Угловая профильная ПВХ раскладка

ПВ-1076 ГОСТ 4784-74

м

2,65

Раскладка рядовая профильная ПВХ

ПВ-1070 ГОСТ 4784-74

–"–

14,6

Плинтус ПВХ

–"–

3,7

 

4.2. Потребность в основном оборудовании, инвентаре, инструментах и приспособлениях приведена в табл. 4.

Таблица 4

Наименование

Тип

Марка

Коли­чество

Техническая характеристика (назначение)

Тележка

Ручная

Проект 70-4.00.000 ЦНИИОМТП

2

Для перевозки плит в пределах этажа

Стол-верстак

0663.00.000 Мосспецпромпроект

1

Для резки листов СГШ

Столики-подмости с выдвижными стойками

РП-13С-1

РЧ треста Ленинградстрой

2

Лестница-стремянка

2

Рулетка металлическая

РС-10

ГОСТ 7502-69

1

Пила дисковая

Электрическая

ИЭ-5102В Резекненское производственное объединение "Электроинструмент"

1

Для раскроя листов СГШ

Линейка металлическая

ГОСТ 427-75

1

Ножовка поперечная

ТУ 14-1-302-72

2

Нож штукатурный

ГОСТ 18975-73

3

Линейка деревянная

ОТУ 22-660-67

1

Конусные бачки вместимостью 30 л

Каталог НИИстройдор­коммунмаш

2

Для подачи мастики

Ковш штукатурный

ГОСТ 7945-73

2

Емкости штукатурные на 0,75 м3

5

Емкости штукатурный на 0,5 м3

10

Ящик штукатурный на ножках

2

Кельма штукатурная

КШ

ГОСТ 9533-71

5

Сокол дюралюминиевый

ТУ 22-2757-73

5

Молоток штукатурный

ГОСТ 11042-72

5

Полутерок отделочный

ТУ 22-2497-72

5

Стол штукатурный

4

Стремянка раздвижная

4

Уровень

1

Лопатка штукатурная

16

Рустовка деревянная

4

Кисти "макловицы"

5

Ящик

2

Для хранения и переноски мелкого инструмента

Правило усеночное

РЧ ВНИИСМИ Минстройдормаша

4

Правило лузговое

То же

4

Правило контрольное с отвесом

–"–

4

Правило прижимное

–"–

2

Шаблон-угольник

4

Для устройства облицовки оконных откосов

Отрезовка

ГОСТ 9533-71

5

Окамелки волосяные

ГОСТ 10597-70

10

Ножницы лекальные

ТУ 36-764-76

1

Для резки листов СГШ

Циркуль разметочный 350x250 мм

ВНИИ Минстанкопрома

1

Для вычерчивания окружностей отверстий под электроосвещение и сантехприборы

Отвес

ОГ-400

ГОСТ 7948-71

2

Для проверки вертикальности

Промазчик фальцев

СО-117

Минский опытно-экспериментальный завод ВНИИИСМИ

3

Для заделки швов

ТЕХНОЛОГИЧЕСКАЯ КАРТА НА УСТРОЙСТВО ОБЛИЦОВКИ СТЕН ЛИСТАМИ СУХОЙ ГИПСОВОЙ ШТУКАТУРКИ ПО МЕТАЛЛИЧЕСКОМУ КАРКАСУ

1. ОБЛАСТЬ ПРИМЕНЕНИЯ

1.1. Технологическая карта (ТК) разработана на устройство облицовки стен листами сухой гипсовой штукатурки (СГШ) по металлическому каркасу.

Облицовку поверхностей стен листами сухой гипсовой штукатурки выполняют в зданиях культурно-бытового и общественного назначения (с влажностью воздуха до 70%).

1.2. В состав работ, рассматриваемых картой, входят:

подготовка поверхности;

разметка помещений и мест установки профилей каркаса;

установка и крепление профилей каркаса;

установка листов СГШ с заделкой швов раскладками.

1.3. Технологической картой предусмотрено выполнение работ в одну смену.

1.4. Технологическая карта составлена на 10 м2 облицовки поверхности стен.

При привязке ТК к конкретному объекту объемы работ, калькуляция затрат труда и график выполнения работ должны быть уточнены.

2. ОРГАНИЗАЦИИ И ТЕХНОЛОГИЯ СТРОИТЕЛЬНОГО ПРОЦЕССА

2.1. До облицовки стен листами сухой гипсовой штукатурки должны быть закончены строительно-монтажные и специальные работы, в том числе отделочные, связанные с мокрыми процессами (штукатурные работы, устройство цементных стяжек и др.), выполнены сантехнические, электротехнические и другие виды работ внутри здания.

2.2. Облицовка стен листами СГШ по металлическому каркасу выполняется в следующей технологической последовательности:

подготовка поверхности, разметка помещений и мест установки профилей каркаса;

установка и крепление профилей каркаса; установка листов СГШ с заделкой швов раскладками.

2.2.1. Подготовка поверхности заключается в очистке ее от пыли и грязи.

С целью определения количества целых панелей и панелей добора выполняют разметку помещений, которую начинают от угла помещения.

Разметку горизонтальных линий, соответствующих осям профилей каркаса, производят с помощью метра, мелового шнура и водяного уровня.

2.2.2. Каркас под облицовку стен состоит из гнутых профилей -образного сечения из стального оцинкованного листа толщиной 0,5 мм. Крепление профилей к стене производится дюбель-гвоздями через 600 мм при помощи строительно-монтажного пистолета ПЦ-52-1. Расстановка профилей каркаса может быть выполнена в двух вариантах:

с горизонтальным расположением профилей;

с вертикальным расположением профилей.

Работы по установке профилей каркаса при горизонтальном расположении профилей ведутся от угла помещения к проемам, начиная с верхнего профиля (на уровне низа потолка).

Правильность смонтированного каркаса проверяют магнитным уровнем и провешиванием по вертикали и горизонтали.

2.2.3. Установка лицевых элементов производится после окончательной выверки каркаса.

Листы сухой гипсовой штукатурки размером 3000x1200x14 мм в соответствии с проектом крепят к каркасу с помощью нащельников (раскладок).

Стыки листов прикрывают раскладками, устанавливаемыми на шурупах, которые должны проходить рядом с гранями, зажимая листы между раскладкой и каркасом.

Установка осуществляется от угла помещения. Вначале устанавливается и крепится шурупами нащельник, затем в него заводится лист СГШ и закрепляется другим нащельником с противоположной стороны листа. Затем процесс повторяется.

Перед установкой нащельников в них размечают места для шурупов и предварительно просверливают отверстия меньшего диаметра, чем шурупы.

При горизонтальном расположении профилей каркаса нащельники крепятся в местах соприкосновения с профилями.

2.3. Все работы по устройству облицовки стен листами СГШ по  металлическому каркасу следует выполнять с помощью инструментов, инвентаря и приспособлений, перечень которых приведен в табл. 3.

2.4. На устройстве облицовки стен занята бригада в составе:

звено №1 -   монтажники конструкций   -   4 разр. - 1 чел.
                                                                         3 разр. - 1 чел.
звено №2 - облицовщики                         -   4 разр. - 1 чел.
                                                                         3 разр. - 1 чел.
звено №3 - такелажники                           -   2 разр. - 2 чел.

2.5. График выполнения работ приведен на черт. 302-1.00.003.

2.6. Калькуляция затрат труда приведена на черт. 302-1.00.002.

2.7. Пооперационный контроль качества при облицовке стен листами СГШ по металлическому каркасу должен выполняться в соответствии с требованиями СНиП III-21-73 "Правила производства и приемки работ. Отделочные покрытия строительных конструкций" и "Руководства по выполнению отделочных работ индустриальными методами".

При приемке работ по отделке поверхностей листовыми материалами следует проверять надежность крепления листов к основанию; отсутствия трещин в листах и швах; отсутствие пятен; ровность облицованной поверхности; отсутствие вибрации листов; отсутствие провесов более 1 мм в стыках.

Наличие отслоения листов от основания определяется простукиванием листов в местах приклейки, при этом в стыках не должны появляться трещины.

Вспучивание листов или их картонной оклейки не допускается.

Поверхности, отделанные листовыми материалами индустриального производства, не должны иметь отклонений от геометрических форм, превышающих приведенные в табл. 1.

Таблица 1

Наименование поверхностей и линейных элементов

Допускаемые отклонения

Неровности поверхности (обнаруживаются при накладывании правила или шаблона длиной 2 м)

Отклонение поверхности стен от вертикали

Не более двух неровностей глубиной или высотой до 3 мм

1 мм на 1 м высоты (длины), но не более 10 мм на всю высоту (длину) помещения

Приемка и оценка качества работ по устройству облицовки стен должна выполняться после их завершения производителем работ или мастером с участием представителя технадзора заказчика. На скрытые работы, такие как монтаж металлического каркаса и устройство разводок различных коммуникаций, составляется акт.

2.8. Техника безопасности

2.8.1. Устройство облицовки стен листами сухой гипсовой штукатурки по металлическому каркасу следует выполнять с соблюдением требований СНиП III-4-80 "Техника безопасности в строительстве" и "Инструкции по устройству и эксплуатации пистолетов ПЦ-52-1", разработанной Минмонтажспецстроем СССР и ВНИИПЭМом.

2.8.2. Работы по облицовке стен осуществляют с применением ручного и механизированного инструмента. Ручной инструмент должен быть прочным, надежным и удобным в работе. Использовать инструмент нужно только по назначению. Деревянные рукоятки ручных инструментов должны быть изготовлены из сухой древесины твердых и вязких пород и не иметь сучков, трещин и сколов.

2.8.3. К работе с механизированным инструментом допускаются лица, имеющие соответствующее удостоверение на право пользования им.

К работе с монтажно-поршневым пистолетом ПЦ-52-1 допускаются лица не моложе 20 лет, имеющие удостоверение оператора, прошедшие инструктаж и имеющие наряд-допуск на право производства работ с монтажно-поршневым пистолетом.

2.8.4. Рабочие должны быть обеспечены спецодеждой и средствами индивидуальной защиты.

2.8.5. Опасная зона во время работы с пистолетом вокруг оператора в радиусе 10 м должна быть ограждена с установкой запрещающих знаков.

При забивке дюбелей запрещается:

производство работ в помещениях, смежных с поверхностью, в которую производится забивка дюбелей;

для защиты оператора от рикошета дюбелей, пистолет должен быть снабжен наконечником.

2.8.6. Производство работ на высоте более 1,5 м от пола следует выполнять с монтажных столиков или с инвентарных сборно–разборных передвижных подмостей. Запрещается пользоваться случайным подмащиванием.

2.8.7. Ежедневно по окончании работ все механизированные инструменты должны быть сданы лицу, ответственному за их исправность и хранение.

3. ТЕХНИКО-ЭКОНОМИЧЕСКИЕ ПОКАЗАТЕЛИ

Объем работ, м2                                                   - 10

Затраты труда, чел.-ч                                          - 6,25

Стоимость затрат труда, руб.-коп.                     - 3-66

Продолжительность выполнения работ, ч       - 3,1

4. МАТЕРИАЛЬНО-ТЕХНИЧЕСКИЕ РЕСУРСЫ

4.1. Потребность в основных конструкциях, деталях, материалах и полуфабрикатах приводится в табл. 2.

Таблица 2

Наименование

Марка, ГОСТ

Единица измерения

Количество (на 10 м2 облицовки)

Каркас (сталь листовая оцинкованная)

В-ПН-0,5 ГОСТ 19904-74 
0,8кп-ВГ-2ГОСТ 14918-69

м

13,2

Дюбель-гвоздь ЛГЗ,5х30

ВТУ

 2-66 ММСС СССР

шт.

44

ММЗ

Листы сухой гипсовой штукатурки (3000x1200x14)

ТУ 400-1/54-9-76 1 ГМПСМ МГИ

м2

10,0

Шурупы

ТУ 34-72-75 Челябинский завод стального профилированного настила

кг

0,55

ПВХ раскладки

ГОСТ 19111-77

м

13

 

4.2. Потребность в основном оборудовании, инструменте, инвентаре и приспособлениях приводится в табл. 3.

Таблица 3

Наименование

Тип

Марка, ГОСТ

Количество

Техническая характеристика (назначение)

Тележка

Ручная

Проект 70-4.00.000
ЦНИИОМТП

1

Для перевозки листов СГШ

Столик-подмости с выдвижными стойками

РЧ треста Ленинградстрой

2

Для подмащивания

Стол-верстак

0:663.00.000 Мосспецпромпроект

1

Для резки листов СГШ

Пистолет монтажно-поршневой

ПЦ-52-1 Главэлектромонтаж Минмонтажспецстроя

1

Для пристрелки профилей

Уровень

Гибкий водяной

ТУ 25-11-760-72

1

Для проверки горизонтальности

Пила-ножовка

ТУ 14-1-302-72

1

Для резки листов

Ножницы лекальные

ТУ 36-764-76

1

Для резки листов СГШ

Плоскогубцы комбинированные

ГОСТ 5547-75

1

Захват, удерживание и загибание металлических деталей

Отвес

ОГ-400

ГОСТ 7948-71

2

Для проверки вертикальности

Уровень магнитный

1

Рулетка металлическая

РС-10

ГОСТ 7502-69

1

Линейка металлическая

ГОСТ 427-75

1

Электрические ножницы ручные

ИЭ-5403 Ростовское производственное объединение "Электроинструмент"

1

Для резки направляющих

Ящик для хранения и переноски мелкого инструмента

2

Рамка ножовочная ручная

ГОСТ 17270-71

1

Электросверлильная машина

ИЭ-1034 Назрановский завод "Электроинструмент"

1

Для сверления отверстий

Ударно-вращательная машина

ИЭ-1502 Конаковский завод механизированного инструмента

1

Защитные очки герметичные

1

Противошумные наушники

1

Каски монтажные

6

Электрический шуруповерт с магнитной головкой

Ручной

ИЭ-3603 Конаковский завод механизированного инструмента

1

Для крепления листов СГШ

Пила электрическая дисковая

ИЭ-5102 Резекненское производственное объединение "Электроинструмент"

1

Для резки листов СГШ

Полотна ножовочные

ГОСТ 6645-68

2

Правило окованное

ИСМТПС Минстрой СССР

1

Для проверки плоскостей

Водяной уровень

ТУ 25-11-760-72

1

Для проверки горизонтальности опорных профилей

Циркуль разметочный 350x250 мм

ВНИИ Минстанкопрома

1

Для вычерчивания окружностей отверстий под арматуру электроосвещения и сантехнических приборов

Маска из прозрачного материала

1

Для работы с пистолетом ПЦ-52-1

Шнур разметочный длина -20 м

ОСТ НКТМ 6601-39

1

Щетка стальная прямоугольная

ТУ 494-01-104-76

2

Для зачистки листов СГШ

Скребок

ВНИИСМИ Минстройдормаша

2

То же

Резак

Мосспецпромпроект 0629.00.00

1

Для прорезки круглых отверстий

Угольник деревянный

1

Молоток слесарный

Б-8 ГОСТ 2310-77

1

Для различных ударных операций

ТЕХНОЛОГИЧЕСКАЯ КАРТА

НА УСТРОЙСТВО КАРКАСНЫХ ПЕРЕГОРОДОК ИЗ ЛИСТОВ СУХОЙ ГИПСОВОЙ ШТУКАТУРКИ С УЧЕТОМ ИНЖЕНЕРНЫХ КОММУНИКАЦИИ

1. ОБЛАСТЬ ПРИМЕНЕНИЯ

1.1. Технологическая карта (ТК) разработана на устройство перегородок из листов сухой гипсовой штукатурки (СГШ) на металлическом каркасе с учетом инженерных коммуникаций.

Сборные гипсовые перегородки с металлическим каркасом рекомендуются для гражданских и промышленных зданий с относительной влажностью воздуха 75%.

Конструкция каркасных перегородок из листов СГШ с металлическим каркасом и схема расположения инженерных коммуникаций в них приведены на черт. 303-1.00.004 и 303-1.00.001 (лист 3).

1.2. В состав работ, рассматриваемых картой, входят:

устройство металлического каркаса перегородок;

устройство инженерных коммуникаций;

установка и крепление листов сухой гипсовой штукатурки (СГШ);

заделка швов.

1.3. Технологической картой предусмотрено выполнение работ в одну смену.

1.4. Технологическая карта составлена на 10 м2 поверхности перегородок.

При привязке ТК к конкретному объекту объемы работ, калькуляция затрат труда и график производства работ должны быть уточнены.

2. ОРГАНИЗАЦИЯ И ТЕХНОЛОГИЯ СТРОИТЕЛЬНОГО ПРОЦЕССА

2.1. До начала устройства перегородок из листов СГШ должны быть выполнены следующие работы:

закончены все общестроительные и специальные работы, а также опробованы системы водоснабжения и отопления;

произведена корректировка вводов электрики и слабых токов в стенах и перекрытиях;

установлены пожарные шкафы и электрошкафы;

завезен и разложен у мест сборки необходимый запас материалов;

подготовлены все инструменты и приспособления.

2.2. Монтаж сборных гипсовых перегородок производится на месте их установки в проектное положение только в период отделочных работ и до устройства чистого пола в следующей последовательности:

разбивка осей перегородок;

установка нижних направляющих;

установка верхних направляющих;

установка стоек каркаса;

установка дверных коробок;

установка и крепление электро- и слаботочных коробок и внутренних проводок в перегородках;

заделка швов.

2.2.1. В соответствии с архитектурно-планировочным чертежом производится разбивка осей перегородок, разметка мест расположения нижних направляющих, отбивка установочных линий.

С помощью рулетки наносят на очищенную поверхность пола риски осей перегородок. От риски с помощью рулетки отмеряется половина ширины направляющей. Разметочным шнуром, набеленным мелом, "отбивают" линию края нижней направляющей.

2.2.2. Замеряют по размерам в соответствии с разбивкой нижние направляющие и отрезают их по размерам и раскладывают по линиям разметки. Места крепления направляющих размечают по шаблону. Крепление направляющих к полу осуществляется дюбель-гвоздями с шагом 600 мм и с помощью пистолета ПЦ-52-1.

2.2.3. Установка верхних направляющих.

Замеряют раздвижной рейкой высоту от нижней направляющей до потолка у крайних точек отреза нижних направляющих и подбирают по полученному размеру две стойки. С помощью этих стоек, устанавливаемых враспор, прижимают подготовленные верхние направляющие к потолку. Вертикальность установки стоек определяют по магнитному уровню, после чего крепят стойки к нижним и верхним направляющим методом просечки с отгибом специальными клещами. Крепление верхних направляющих к перекрытию осуществляется дюбель-гвоздями с шагом 600 мм с помощью монтажно–поршневого пистолета ПЦ-52-1.

Нижние и верхние направляющие устанавливаются с соблюдением их абсолютной соосности.

2.2.4. Установка металлических стоек каркаса.

На нижней направляющей с помощью шаблона производят разметку мест установки вертикальных металлических стоек каркаса. Затем с помощью раздвижной стойки замеряют фактические расстояния между нижней и верхней направляющими в местах установки стоек.

Стойки устанавливаются с шагом 600 мм и крепятся к нижним и верхним направляющим с двух сторон методом просечки с отгибом с помощью специальных клещей.

В глухих перегородках установку стоек начинают от угла помещения, в перегородках с дверными проемами – со стоек дверного проема.

2.2.5. Установка металлических дверных коробок.

Параллельно с установкой стоек каркаса устанавливаются дверные коробки.

Вначале устанавливают и закрепляют стойку каркаса с одной стороны дверного проема, затем устанавливают дверную коробку, прижимая ее одним боком к ранее закрепленной стойке каркаса. Выверяют ее в вертикальном и горизонтальном положении с помощью уровня и закрепляют самонарезающими винтами боковой профиль дверной коробки через анкера к стойке каркаса.

Пистолетом ПЦ-52-1 крепят дюбель-гвоздями соединительные уголки, предварительно прикрепленные к основанию дверной коробки.

Устанавливают стойку каркаса с другой стороны дверной коробки самонарезающими винтами и прикрепляют ее к анкерам дверной коробки. Подготавливают профиль дверной перемычки и промежуточной стойки. Перемычку устанавливают в проектное положение и прикрепляют ее к стойкам каркаса самонарезающими винтами.

Устанавливают промежуточные стойки каркаса и прикрепляют их к верхней и нижней направляющим методом просечки с отгибом.

2.2.6. Для выполнения электромонтажных работ по устройству освещения в административно-бытовых помещениях с перегородками на металлическом каркасе проводка предусмотрена в винипластовых трубах Æ 20 мм. В перегородках с металлическим каркасом устройство трубной проводки предусмотрено в квадратных отверстиях стоек размером 40x40 мм. При вертикальном расположении труб последние крепятся с помощью скобок и болтов с гайками.

Электромонтажные работы выполняются после монтажа каркаса и установки листов СГШ с одной стороны перегородки. Крепление установочных коробок под выключатели и розетки к металлической стойке каркаса предусмотрено при помощи электросварки (см. черт. 303-1.00.001, лист 3).

Групповые осветительные щиты устанавливают на специальной металлической конструкции, которая пристреливается к колонне.

Габаритные размеры конструкции зависят от типа принятого в проекте электрощита. Крепится электрощит к конструкции при помощи болтов. Отверстия в электрощитах для крепления сверлятся по месту.

2.2.7. Для обшивки каркаса применяются листы сухой гипсовой штукатурки (СГШ) размерами 3000x1200x14 мм.

Листы СГШ устанавливают с зазором в пределах 10 мм от верхнего и нижнего перекрытия, для чего перед установкой листов СГШ прикладывают к боковым граням нижней направляющей шаблон, соответствующий величине зазора от пола до низа панели.

Крепление листов СГШ к стойкам каркаса производится с шагом 300 мм на расстоянии 60–15 мм от верха перекрытия.

Плиты стыкуются только на стойках каркаса.

Крепление производится самонарезающими винтами с помощью шуруповерта. Вначале закрепляется лист СГШ шестью винтами, расположенными равномерно по краям листа СГШ. Затем с инвентарных подмостей производят окончательное крепление листов СГШ к каркасу.

Головки винтов при закреплении утапливаются в поверхность перегородки. При наличии в местах установки листов СГШ электрических розеток, распределительных коробок и другого оборудования производится разметка с помощью линейки или разметочного циркуля отверстий и вырезка их специальным ножом.

Листы сухой гипсовой штукатурки применяют по возможности целыми, без раскроя. При необходимости раскрой производят на рабочем месте на специальном сборно-разборном столе с помощью рулетки, угольника или метра. Обрезают листы СГШ специальным ножом по рейке и зачищают торца обрезанных кромок.

2.2.8. Все стыки листов СГШ, углы примыкания к стенам и потолку шпатлюются водостойкой шпатлевкой СВШ с последующей оклейкой перфорированной лентой.

2.3. Все работы на высоте выполняются с инвентарных подмостей.

2.4. Работы по устройству перегородок полистовой сборки из листов СГШ на металлическом каркасе выполняет бригада в составе:

монтажников конструкций      -   4 разр. - 1 чел.
                                                         3 разр. - 1 чел.
облицовщики                             -   4 разр. - 1 чел.
                                                         3 разр. - 1 чел.
маляр строительный                 -   4 разр. - 1 чел.
электромонтажники                  -   4 разр. - 1 чел.
                                                         3 разр. - 1 чел.
                                                         2 разр. - 1 чел.
электросварщик                         -   3 разр. - 1 чел.

2.5. График выполнения работ приводится на черт. 303-1.00.003.

2.6. Калькуляция затрат труда приведена на черт.303-1.00.002.

2.7. Пооперационный контроль качества работ по устройству перегородок с учетом инженерных коммуникаций должен выполняться в соответствии с требованиями СНиП Ш-21-73 "Правила производства и приемки работ. Отделочные покрытия строительных конструкций" и "Руководства по выполнению отделочных работ индустриальными методами". Приемка и оценка качества работ по устройству перегородок из листов СГШ должны выполняться после их завершения производителем работ или мастером с участием технадзора заказчика. При этом проверяется надежность крепления листов СГШ к каркасу самонарезающими винтами (их головки должны быть углублены в лист СГШ не менее, чем на 0,5 мм), отсутствие трещин, поврежденных мест и надрывов картона, отсутствие вибрации, крепление электро- и слаботочных розеток и внутренних проводок.

Перепады между смежными листами СГШ не должны превышать 1 мм.

Зазор между установленными листами СГШ должен быть в пределах 1 мм.

Поверхность листов СГШ должна быть ровной, гладкой, без загрязнений и масляных пятен.

На скрытые работы, такие как монтаж металлического каркаса и устройство разводок коммуникаций, составляется акт.

Перегородки из листов СГШ не должны иметь отклонений поверхностей, превышающих значения, приведенные в табл. 1 (СНиП III-21-73).

Таблица 1

Наименование

Допускаемые отклонения при отделке

улучшенной

высококачественной

Неровности поверхности (обнаруживаются при накладывании правила или шаблона длиной 2 м)

Не более двух неровностей глубиной или выпуклостью до 3 мм

Не более двух неровностей глубиной или выпуклостью до 2 мм

Отклонения поверхности стен от вертикали

1 мм на 1 м высоты, но не более 10 мм на всю высоту помещения

1 мм на 1 м высоты, но не более 5 мм на всю высоту помещения

 

Величина и количество допускаемых дефектов внешнего вида листов приведена в табл. 2.

Таблица 2

Дефекты

Норма дефектов

Отклеивание картона по длине кромок

Не допускается

Отклеивание картона с торцов кромок

Не допускается

Надрывы картона с обнажением гипса длиной до 30 мм:

 

на лицевой стороне

Не допускается

на тыльной стороне

Не более одного

Незаполненные гипсом края

Не допускается

Отбитость углов

Не более одного на длине грани в 20 мм

Повреждение продольных! кромок в панелях со скосом

То же

То же, в панелях с прямыми кромками

Не допускается

Местные утолщения или уплотнения не более 1,5 мм:

 

на лицевой стороне

Не допускается

на тыльной стороне

Допускается не более 5% от площади панели

 

2.8. Техника безопасности.

2.8.1. Устройство перегородок из листов СГШ на металлическом каркасе с учетом инженерных коммуникаций следует выполнять с соблюдением требований СНиП III-4-80 "Техника безопасности в строительстве", "Временной инструкции по технике безопасности при монтаже сборных гипсовых перегородок с металлическим каркасом" и "Инструкции по технике безопасности для оператора, работающего с монтажно-поршневым пистолетом ПЦ-52-1 на строительных объектах Главмосремстроя", разработанных трестом Мосоргпромстрой.

2.8.2. К работе по устройству перегородок допускаются лица не моложе 18 лет, имеющие удостоверение на право производства работ и прошедшие вводный инструктаж по технике безопасности и производственной санитарии.

2.8.3. Работы осуществляются с применением ручного и механизированного инструмента. Ручной инструмент должен быть прочным, надежным в работе. Использовать инструмент нужно только по назначению. Деревянные рукоятки ручных инструментов должны быть изготовлены из сухой древесины твердых и вязких пород и не иметь сучков, трещин и сколов.

Применение механизированного инструмента допускается только в соответствии с требованиями, указанными в паспорте и инструкции по эксплуатации завода-изготовителя. Инструмент необходимо систематически и своевременно проверять и ремонтировать. Выданный инструмент должен быть исправен.

К работе с механизированным инструментом допускаются лица, имеющие соответствующее удостоверение на право пользования им.

К работе с монтажно-поршневым пистолетом ПЦ-52-1 допускаются лица не моложе 20 лет, имеющие удостоверение оператора, прошедшие инструктаж и, имеющие наряд-допуск на право производства работ с монтажно-поршневым пистолетом.

Особое внимание следует обратить на выполнение следующих требований:

при работе монтажно-поршневым пистолетом ПЦ-52-1 рабочий должен быть обеспечен каской, маской из прозрачного материала и противошумными наушниками;

опасная зона во время работы с пистолетом вокруг оператора в радиусе 10 м должна быть ограждена с установкой запрещающих знаков;

при забивке дюбелей запрещается производство работ в помещениях смежных с поверхностью, в которую производится забивка дюбелей;

для защиты оператора от рикошета дюбелей, пистолет должен быть снабжен наконечником.

2.8.4. Производство работ на высоте более 1,5 м от пола следует выполнять с монтажных столиков или инвентарных сборно-разборных передвижных подмостей. Запрещается пользоваться случайным подмащиванием.

2.8.5. Ежедневно по окончании работы все механизированные инструменты должны быть сданы лицу, ответственному за их исправность и хранение.

3. ТЕХНИКО-ЭКОНОМИЧЕСКИЕ ПОКАЗАТЕЛИ

Объем работ, м2                                                   - 10

Затраты труда, чел.-ч                                          - 8,37

       в том числе:

                 на устройство перегородок
                 (каркас и облицовка СГШ)                - 5,33

       на заделку стыков                                         - 0,33

       электромонтажные работы                         - 2,71

Стоимость затрат труда, руб.-коп.                     - 4-77

Продолжительность выполнения работ, ч       - 4

4. МАТЕРИАЛЬНO-ТЕХНИЧЕСКИЕ РЕСУРСЫ

4.1. Потребность в основных конструкциях, деталях, материалах, полуфабрикатах приводится в табл. 3.

Таблица 3

Наименование

Марка, ГОСТ

Единица измерения

Количество (на 10 м2 перегородки)

Металлические профили

Б  ГОСТ 19904-74                
0,8кп-ВГ-2   ГОСТ 14918-69

кг

30,00

Метизы (винты самонарезающие)

ТУ 34-72-75 Челябинского завода стального профилированного настила

–"–

0,55

Листы сухой гипсовой штукатурки(3000x1200х 14 мм)

ТУ 400-1/54-9-76 ГМПСМ МГИ

м2

19,80

Мастика (герметик)

ТУ 21-29-2-68 Ленинградский завод "Полимерстройматериалы"

кг

2,78

Шпатлевка (сухой массы)

ТУ МГИ РСФСР 1-395-69

кг

10,00

Лента перфорированная (в рулонах)

0,1x30

м

15,00

Дюбель-гвоздь

ДГ4,5х40

ВТУ

 2-66 ММСС СССР

кг

5,00

ММЗ

Трубы винипластовые Æ = 20 мм

МН 1427-61

м

11,4

Скобы монтажные ЛК 141

шт.

4

Коробка ответвительная

У-196

шт.

4

Угловая сталь

25x2x3 ГОСТ 8509-72
Ст3 ГОСТ 535-58

шт.

4

 

4.2. Потребность в оборудовании, инструменте, инвентаре и приспособлениях приводится в табл. 4.

Таблица 4

Наименование

Тип

Марка, ГОСТ

Количество

Техническая характеристика (назначение)

Угольник металлический

ТУ 22-2785-13

1

Разметка гипсовых плит

Подмости раздвижные

Мосспецпромпроект 0775.00.00

2

Для работ на высоте

Стол разборный

Мосспецпромпроект 0.663.00.000

1

Для резки листов СГШ

Пистолет монтажно-поршневой

ПЦ-52-1 Главэлектромонтаж Минмонтажспецстроя

1

Для пристрелки дюбелей

Уровень строительный

УС5-1-300

ГОСТ 9416-76

1

Для проверки горизонтальности направляющих

Уровень магнитный

Мосспецпромпроект 0.825.00.00

2

Для выверки положения стоек

Рейка раздвижная

Мосспецпромпроект 042.2.00.00

1

Для замера расстояний между полом и потолком

Рулетка металлическая

РС-20

ГОСТ 7502-69

2

Для разметки положения перегородок

Линейка металлическая

ГОСТ 427-75

1

Для разметки положения перегородок

Шнур разметочный в корпусе

ТУ 22-3527-76

1

То же

Карандаши чертильные

2

Циркуль разметочный 350x250 мм

ВНИИ Минстанкопрома

1

Для разметки круглых отверстий под арматуру электроосвещения и сантехнических приборов

Электрические ножницы

Ручные

ИЭ-5403 Ростовское производственное объединение "Электроинструмент"

1

Для резки направляющих

Ножницы фигурные

Трест Оргтехстрой Латвийской ССР

1

То же

Рамка ножовочная ручная

ГОСТ 17270-71

1

–"–

Полотна ножовочные

ГОСТ 6645-68

2

–"–

Нож штукатурный

КНРЛ

ТУ 400-27-18-71

2

Для резки гипсовых плит

Нож кровельный

ТУ 400-28-187

2

Для вырезки отверстий под электропроводку

Ножовка мелкозубчатая с широким полотном

ТУ 2-27-31-23-86-67

1

Для резки гипсовых листов

Напильник-рашпиль

ГОСТ 6876-68

2

Зачистка кромок отверстий в плитах СГШ

Электрический шуруповерт с магнитной головкой

Ручной

ИЭ-3603 Конаковский завод механизированного инструмента

1

Для крепления листов СГШ

Пила электрическая дисковая

ИЭ-5102 Резекненское производственное объединение "Электроинструмент"

1

Для резки плит СГШ

Электросверлильная машина

ИЭ-1034 Назаровский завод "Электроинструмент"

1

Для сверления отверстий

Прокус-клещи

Мосспецпромпроект 0661.00.00

2

Для соединения стоек с направляющими

Клещи

Мосспецпромпроект 0753.00.00

2

Для крепления обрамлений углов

Отвертка слесарно-монтажная

ГОСТ 17193-71

1

Для отвертывания шурупов в труднодоступных местах

Молоток слесарный

ГОСТ 2310-77

1

Для различных ударных операций

Скребок

ВНИИСМИ Минстройдормаша

1

Для расшивки швов

Щетка стальная прямоугольная

ТУ 494-01-104-76

1

Очистка панелей

Защитные очки

1

Для безопасного ведения работ

Противошумные наушники

1

То же

Резиновые перчатки

ГОСТ 20010-74

1

Каски монтажные

Каждому работающему

Кусачки торцовые

ГОСТ 7282-75

1

Отвертка

ГОСТ 10754-64

2

Для завинчивания винтов и шурупов

Маска из прозрачного материала

1

Сумка-пояс

Ленинградоргстрой

1

Комплект насадок к электросверлильной машине

ВНИИСМИ Минстройдормаша

1

Для резки листов СГШ, завинчивания самонарезающих винтов, вырезания отверстий в листах СГШ, заточки инструментов, сверления отверстий под шурупы

Шпатель

ШД-35
ШД-45
ШД-75
ШД-95
ШД-130

ГОСТ 10778-76

Комплект

Для заделки стыков

Плоскогубцы комбинированные с диэлектрическим покрытием

ГОСТ 5547-76

1

Клещи универсальные

КУ-1

ТУ 36-1017-75

1

Для снятия изоляции, оконцевания и откусывания проводов

ТЕХНОЛОГИЧЕСКАЯ КАРТА

НА УСТРОЙСТВО ОБЛИЦОВКИ ПОТОЛКОВ ЛИСТАМИ СУХОЙ ГИПСОВОЙ ШТУКАТУРКИ ПО МЕТАЛЛИЧЕСКОМУ КАРКАСУ

1. ОБЛАСТЬ ПРИМЕНЕНИЯ

1.1. Технологическая карта (ТК) разработана на устройство облицовки потолка листами улучшенной гипсовой штукатурки (1800х1200x14) по металлическому каркасу, применительно к рабочим чертежам, разработанным ЦНИИЭП зрелищных зданий и спортивных сооружений им. Б.С.Мезенцева (Серия 1.245-1, Выпуск 1 "Подвесные потолки и облицовки из улучшенной сухой гипсовой штукатурки" тип 1.ОСШ.02.00.00).

Облицовки потолков из улучшенной сухой гипсовой штукатурки применяются в помещениях вновь строящихся и реконструируемых общественных и культурно-бытовых зданий промышленных комплексов с относительной влажностью воздуха не более 70% и используются, в основном, в декоративных целях, а также для повышения предела огнестойкости и степени звукоизоляции покрытий и перекрытий.

Конструкция облицовки потолка из улучшенной СГШ приведена на листе 304-1.00.004.

1.2. В состав работ, рассматриваемых картой, входят:

подготовка рабочего места;

подача материалов к месту монтажа и их подготовка к монтажу;

разметка мест установки конструкций;

установка элементов каркаса;

установка лицевых элементов;

заделка стыков.

1.3. Технологической картой предусмотрено выполнение работ в одну смену.

1.4. Технологическая карта составлена на 100 м2 поверхности потолка.

При привязке ТК к конкретному объекту объемы работ, калькуляция затрат труда и график производства работ должны быть уточнены.

2. ОРГАНИЗАЦИЯ И ТЕХНОЛОГИЯ СТРОИТЕЛЬНОГО ПРОЦЕССА

2.1. До начала устройства облицовки потолка должны быть закончены строительно-монтажные и специальные работы, в том числе отделочные, связанные с мокрыми процессами (штукатурные работы, устройство цементных стяжек и др.); полностью смонтированы электрические проводки и механическое оборудование, расположенное под перекрытием; опрессованы трубопроводы систем отопления, водопровода, канализации; помещение очищено от строительного мусора; выверена горизонтальность отделываемых поверхностей и их соответствие проекту; установлен стол для прирезки лицевых элементов.

2.2. Монтаж подвесных потолков выполняется в следующей технологической последовательности:

подача материалов к рабочему месту;

разметка мест установки конструкций;

установка элементов каркаса;

установка лицевых элементов;

заделка стыков.

2.2.1. Подготовка рабочего места должна заключаться в размещении двухвысотных столиков-подмостей, размещении материалов, элементов крепления, инструментов у мест монтажа.

2.2.2. Все элементы подвесного потолка необходимо поставлять на объект комплектно в упаковке, исключающей их повреждение, деформацию и порчу окраски.

Материалы для подвесных потолков необходимо складывать в заготовительную комнату, в которой производится разметка и прирезка листов штукатурки и хранится запас материалов и инструменты.

Подача элементов каркаса и лицевых элементов потолка на этажи осуществляется при помощи подъемника ПГП-27-500, а транспортирование их к рабочему месту в пределах этажа – тележками ЦНИИОМТП.

2.2.3. Разметка осей помещения и обозначение точек крепления направляющих профилей на поверхности строительных конструкций осуществляется специальными приспособлениями ЦНИИОМТП, представляющими собой две трубчатые стойки, на которых натянута упругая капроновая нить с подвижными красящими фиксаторами.

Для фиксации одной из стоек приспособления на поверхность потолка наносится осевая линия.

Первая стойка приспособления устанавливается на осевой линии и закрепляется клиньями. Верх стоек связан с упругой натяжной нитью, на которой нанесены подвижно закрепленные красящие фиксаторы (в соответствии с проектным шагом профилей).

К упругой нити, примерно в ее середине, присоединена оттяжка, служащая для оттягивания нити в процессе разметки.

Для удобства периодического нанесения красителя на рабочие плоскости красящих фиксаторов они снабжены стягивающим вилочным держателем с ручкой.

Шаг перестановки приспособления для нанесения меток на поверхность строительных конструкций – 1200 мм.

Разметку горизонтальной линии, соответствующей уровню низа потолка, производят с помощью водяного уровня.

2.2.4. Установка элементов каркаса.

Каркас под облицовку потолка состоит из тонкостенных гнутых профилей -образного сечения из стального оцинкованного листа толщиной 0,5 мм. Крепление профилей к перекрытию производится дюбель-гвоздями через 1200 мм при помощи строительно-монтажного пистолета ПЦ-52-1. Шаг расстановки профилей каркаса – 600 мм.

Работы по установке элементов каркаса ведутся в направлении от стены помещения.

Горизонтальность установки профилей каркаса проверяется магнитным или водяным уровнем.

2.2.5. Установка лицевых элементов производится после окончательной выверки каркаса. Крепление листов улучшенной сухой гипсовой штукатурки размером 1800x1200x14 мм к каркасу осуществляется самосверлящими винтами, устанавливаемыми по короткой стороне плиты с шагом 300 мм, с помощью электрошуруповерта марки ИЭ-3603.

Продольные кромки самонарезающими винтами не крепятся.

Перед установкой плит СГШ с помощью шаблона с отверстиями в них размечают места для самонарезающих винтов. Для обеспечения ровной поверхности потолка продольные кромки листов СГШ имеют скошенные кромки.

2.2.6. Заделка стыков.

Стыки по продольным и поперечным кромкам заделываются клеящей мастикой "Полинит" с последующей оклейкой бумажной лентой и зашпатлевываются безусадочной синтетической шпатлевкой СЛШД.

2.3. Все работы по устройству подвесного потолка следует выполнять с помощью инструментов, инвентаря и приспособлений, перечень которых приведен в табл. 2.

2.4. На устройстве подвесного потолка из улучшенной СГШ на металлическом каркасе занята бригада в составе:

звено №1          -   машинист                                4 разр. - 1 чел.
                               такелажники                            2 разр. - 2 чел.
звено №2          -   монтажники                            3 разр. - 1 чел.
                                                                                4 разр. - 1 чел.
звено №3          -   такелажники                            2 разр. - 2 чел.
звено №4          -   маляры строительные            4 разр. - 2 чел.

2.5. График выполнения работ приведен на черт. 304-1.00.003.

2.6. Калькуляция затрат труда приведена на черт. 304-1.00.002.

2.7. Пооперационный контроль качества работ при устройстве облицовки потолка должен выполняться в соответствии с требованиями СНиП Ш-21-73 "Правила производства и приемки работ. Отделочные покрытия строительных конструкций" и "Руководства по выполнению отделочных работ индустриальными методами".

Допускаемые отклонения от проектных отметок потолка не должны превышать + 10 мм, местные отклонения на отдельных участках потолка допускаются не более 1 мм на 1м длины участка.

Поверхность готового потолка не должна иметь царапин, пятен и других повреждений.

Приемка и оценка качества работ по устройству подвесного потолка должна выполняться после их завершения производителем работ, или мастером с участием представителя технадзора заказчика. Готовые подвесные потолки рекомендуется принимать поэтажно или посекционно. При этом проверяется соответствие рисунка потолка проекту, надежность монтажа плит, светильников и вентиляционных решеток. На скрытые работы, такие как монтаж металлического каркаса и устройство разводок различных коммуникаций, составляется акт.

2.8. Техника безопасности.

2.8.1. Устройство облицовки потолка из улучшенной СГШ по металлическому каркасу следует выполнять с соблюдением требований СНиП III-4-80 "Техника безопасности в строительстве" и "Инструкции по устройству и эксплуатации пистолетов ПЦ-52-1", разработанной Минмонтажспецстроем СССР и ВНИИПЭМом.

2.8.2. Особое внимание следует обратить на выполнение следующих требований:

при работе монтажно-поршневым пистолетом ПЦ-52-1 рабочий должен быть обеспечен каской, маской из прозрачного материала и противошумными наушниками;

опасная зона во время работы с пистолетом вокруг оператора в радиусе 10 м должна быть ограждена с установкой запрещающих знаков;

при забивке дюбелей запрещается нахождение людей в вышележащих над перекрытием помещениях в радиусе 10 м от оператора;

для защиты оператора от рикошета дюбелей пистолет должен быть снабжен наконечником;

строительно-монтажные пистолеты и патроны к ним необходимо хранить на складах в отдельных опломбированных стальных шкафах (ящиках) и выдавать рабочим по предъявлению ими удостоверения на право пользования пистолетом и наряда на производство работ с прилагаемым к нему допуском, определяющим степень опасности и мероприятия по технике безопасности при выполнении этих работ;

к работе со строительно-монтажным пистолетом допускаются рабочие не моложе 20 лет, прошедшие медицинский осмотр, имеющие квалификацию не ниже IV-го разряда и проработавшие на монтажных работах не менее двух лет. Перед допуском к работе они должны пройти курс обучения, сдать экзамены и иметь удостоверение на право пользования пистолетом.

2.8.3. При выполнении облицовки потолков на высоте 3 м от пола следует применять инвентарные подмости или подмости-столики с ограждениями. Запрещается пользоваться случайными средствами подмащивания.

Зазор между стеной и настилом подмостей не должен превышать 130 мм.

Нагрузка на настил не должна превышать 200 кг/м2.

Рабочие операции должны выполняться исправными инструментом и приспособлениями.

3. ТЕХНИКО-ЭКОНОМИЧЕСКИЕ ПОКАЗАТЕЛИ

Объем работ, м2                                                       - 100

Затраты труда, чел.-ч                                               - 65

       в том числе:

                 на устройство облицовки (установка
                 профилей и лицевых элементов)           - 48,5

на заделку стыков                                                    - 16,5

Стоимость затрат труда, руб.-коп.                         - 38-81

Продолжительность выполнения работ, ч            - 28

4. МАТЕРИАЛЬНО-ТЕХНИЧЕСКИЕ РЕСУРСЫ

4.1. Потребность в основных конструкциях, деталях, материалах и полуфабрикатах приводится в табл. 1.

Таблица 1

Наименование

Марка, ГОСТ

Единица измерения

Количество (на 100 м2 потолка)

Каркас

Сталь листовая оцинкованная профилированная
В-ПН-0.5 ГОСТ 19004-74    
0,8 кп-ВГ-2 ГОСТ 14918-69

шт.

37

Дюбель-гвоздь

ДГ3,5x30

ВТУ

 2-66 ММСС СССР

"

278

ММЗ

Улучшенная сухая гипсовая штукатурка со скошенными кромками (1800x1200x14)

ТУ 400-1/54-9-76 ГМПСМ МГИ

"

46

Винт самонарезающий с потайной головкой (винт 3x25.66;

ТУ 34-72-75 Челябинский завод стального профилированного настила

"

926

Мастика клеящая "Полинит"

ТУ 21-29-25-74 МПСМ СССР

кг

25

Перфорированная бумажная клейкая лента (в рулонах)

 

"

2,5

Синтетическая безусадочная шпатлевка СЛШД

ТУ 400-1-3/53-74

"

2,2

 

4.2. Потребность в основном оборудовании, инструменте, инвентаре и приспособлениях приводится в табл. 2.

Таблица 2

Наименование

Тип

Марка, ГОСТ

Количество

Техническая характеристика (назначение)

Подъемник

Передвижной

ПГП-27-500

1

Для подачи конструкций

Тележка

Ручная

Проект 70-4.00.000 ЦНИИОМТП

1

Для перевозки СГШ

Столик двухвысотный

3241.07.000 ЦНИИОМТП

2

Для подмащивания

Стол

0.663.00.000 Мосспецпромпроект

1

Для резки листов СГШ

Пистолет монтажно-поршневой

ПЦ-52-1 Главэлектромонтаж Минмонтажспецстроя

1

Для пристрелки профилей

Уровень

Гибкий водяной

ТУ 25-11-760-72

1

Для проверки горизонтальности

Шаблон с отверстиями

1

Для разметки мест крепления плит

Приспособление для нанесения меток на поверхность строительных конструкций

ЦНИИОМТП

1

Для разметки осей

Пила-ножовка

ТУ 14-1-302-72

1

Для резки листов СГШ

Ножницы лекальные

ТУ 36-764-76

1

То же

Плоскогубцы комбинированные

 

ГОСТ 5547-75

1

Захват, удерживание и загибание металлических деталей

Отвес

ОГ-400

ГОСТ 7948-71

2

Для проверки вертикальности

Уровень магнитный

1

Рулетка металлическая

РС-10

ГОСТ 7502-69

1

Линейка металлическая

ГОСТ 427-75

1

Электрические ножницы

Ручные

ИЭ-5403 Ростовское производственное объединение "Электроинструмент"

1

Для резки направляющих

Защитные очки

1

Противошумные наушники

1

Каски монтажные

8

Электрический шуруповерт с магнитной головкой

Ручной

ИЭ-3603 Конаковский завод механизированного инструмента

1

Для крепления листов СГШ

Пила электрическая дисковая

ИЭ-5102 Резекненское производственное объединение "Электроинструмент"

1

Для резки плит

Угольник деревянный

1

–"–

Молоток слесарный

Б-8 ГОСТ 2310-77

1

Для различных ударных операций

Правило окованное

ИСМТПС Минстрой СССР

1

Для проверки плоскостей готового потолка ,

Водяной уровень

ТУ 25-11-760-72

1

Для проверки горизонтальности опорных профилей

Циркуль разметочный 350x250 мм

ВНИИ Минстанкопрома

1

Для вычерчивания окружностей отверстий под арматуру электроосвещения и сантехнических приборов

Маска из прозрачного материала

2

Для работы с пистолетом ПЦ-52-1

Ящик для хранения и переноски мелкого инструмента

2

Рамка ножовочная ручная

ГОСТ 17270-71

1

Полотна ножовочные

ГОСТ 6645-68

2

Электросверлильная машина

ИЭ-1034 Назрановский завод "Электроинструмент"

1

Для сверления отверстий

Ударно-вращательная машина

ИЭ-1502 Конаковский завод механизированного инструмента

1

 




ГОСТЫ, СТРОИТЕЛЬНЫЕ и ТЕХНИЧЕСКИЕ НОРМАТИВЫ.
Некоммерческая онлайн система, содержащая все Российские Госты, национальные Стандарты и нормативы.
В Системе содержится более 150000 файлов нормативно-технической документации, действующей на территории РФ.
Система предназначена для широкого круга инженерно-технических специалистов.

Рейтинг@Mail.ru Яндекс цитирования

Copyright © www.gostrf.com, 2008 - 2026