Крупнейшая бесплатная информационно-справочная система онлайн доступа к полному собранию технических нормативно-правовых актов РФ. Огромная база технических нормативов (более 150 тысяч документов) и полное собрание национальных стандартов, аутентичное официальной базе Госстандарта. GOSTRF.com - это более 1 Терабайта бесплатной технической информации для всех пользователей интернета. Все электронные копии представленных здесь документов могут распространяться без каких-либо ограничений. Поощряется распространение информации с этого сайта на любых других ресурсах. Каждый человек имеет право на неограниченный доступ к этим документам! Каждый человек имеет право на знание требований, изложенных в данных нормативно-правовых актах!

  


 

ГОССТРОЙ СССР

ЦЕНТРАЛЬНЫЙ НАУЧНО-ИССЛЕДОВАТЕЛЬСКИЙ И IIPOEKTHO-ЭКСПЕРИМЕНТАЛЬНЫЙ ИНСТИТУТ ОРГАНИЗАЦИИ, МЕХАНИЗАЦИИ И ТЕХНИЧЕСКОЙ ПОМОЩИ СТРОИТЕЛЬСТВУ (ЦНИИОМТП)

БЮРО ВНЕДРЕНИЯ

ТЕХНОЛОГИЧЕСКИЕ КАРТЫ

НА ПРОИЗВОДСТВО ШТУКАТУРНЫХ РАБОТ

МОСКВА-1979

Рекомендовано к изданию решением секции технологии, механизации, качества и техники безопасности строительно-монтажных работ Научно-технического совета ЦНИИОМТП Госстроя СССР.

Альбом содержит 10 технологических карт основных вариантов комплексной механизации штукатурных работ в различных видах строительства, разработанных с учетом климатических зон страны и опыта передовых строительных организаций. В картах указаны машины, приспособления и оборудование, которые рационально применять при производстве штукатурных работ, а также приведены калькуляции стоимости производства работ.

Карты предназначены для использования в строительстве при выполнении штукатурных работ, а также на стадии разработки проектов организации строительных процессов.

Центральный научно-исследовательский и проектно-экспериментальный Институт организации, механизации и технической помощи строительству Госстроя СССР

СОДЕРЖАНИЕ

ВСТУПЛЕНИЕ

ТЕХНОЛОГИЧЕСКАЯ КАРТА №1

УЛУЧШЕННАЯ ТРЕХСЛОЙНАЯ ШТУКАТУРКА ВНУТРЕННИХ КИРПИЧНЫХ СТЕН, ЗАТИРКА ПОВЕРХНОСТИ ГИПСОБЕТОННЫХ ПЕРЕГОРОДОК И ПЕРЕКРЫТИЯ ТИПОВОГО ЭТАЖА РЯДОВОЙ СЕКЦИИ ПЯТИЭТАЖНОГО ЖИЛОГО ДОМА СЕРИИ 114-85-1/1

ТЕХНОЛОГИЧЕСКАЯ КАРТА №2

УЛУЧШЕННАЯ ТРЕХСЛОЙНАЯ ШТУКАТУРКА ВНУТРЕННИХ КИРПИЧНЫХ СТЕН, ЗАТИРКА ПОВЕРХНОСТИ ГИПСОБЕТОННЫХ ПЕРЕГОРОДОК И ОТДЕЛКА ПОТОЛКОВ "ПОД ШАГРЕНЬ" ТИПОВОГО ЭТАЖА РЯДОВОЙ СЕКЦИИ ПЯТИЭТАЖНОГО ЖИЛОГО ДОМА СЕРИИ 114-85-1/1

ТЕХНОЛОГИЧЕСКАЯ КАРТА №3

УЛУЧШЕННАЯ ТРЕХСЛОЙНАЯ ШТУКАТУРКА ВНУТРЕННИХ КИРПИЧНЫХ СТЕКН, ЗАТИРКА ПОВЕРХНОСТИ ГИПСОБЕТОННЫХ ПЕРЕГОРОДОК И РАСШИВКА ШВОВ ПЕРЕКРЫТИЯ ТИПОВОГО ЭТАЖА РЯДОВОЙ СЕКЦИИ ДЕВЯТИЭТАЖНОГО ЖИЛОГО ДОМА СЕРИИ 114-65-3/1

ТЕХНОЛОГИЧЕСКАЯ КАРТА №4

ОДНОСЛОЙНАЯ ШТУКАТУРКА (СПЛОШНОЕ ВЫРАВНИВАНИЕ) ВНУТРЕННИХБЕТОННЫХ ПОВЕРХНОСТЕЙ СТЕН И ПЕРЕГОРОДОК ТИПОВОГО ЭТАЖА РЯДОВОЙ СЕКЦИИ ДЕВЯТИЭТАЖНОГО КРУПНОПАНЕЛЬНОГО ЖИЛОГО ДОМА СЕРИИ 111-2-2/1

ТЕХНОЛОГИЧЕСКАЯ КАРТА №5

ОДНОСЛОЙНАЯ ШТУКАТУРКА (СПЛОШНОЕ ВЫРАВНИВАНИЕ) ВНУТРЕННИХ БЕТОННЫХ ПОВЕРХНОСТЕЙ СТЕН, ПЕРЕГОРОДОК И ПОТОЛКОВ ТИПОВОГО ЭТАЖА ШЕСТНАДЦАТИЭТАЖНОГО ЖИЛОГО ДОМА ИЗ МОНОЛИТНОГО ЖEЛЕ3ОБЕТОНА СЕРИИ Э-187

ТЕХНОЛОГИЧЕСКАЯ КАРТА №6

УЛУЧШЕННАЯ ТРЕХСЛОЙНАЯ ШТУКАТУРКА ВНУТРЕННИХ КИРПИЧНЫХ СТЕН, ЗАТИРКА ЖЕЛЕЗОБЕТОННЫХ ЭЛЕМЕНТОВ КАРКАСА ТИПОВОГО ЭТАЖА ЧЕТЫРЕХЭТАЖНОГО ПРОМЫШЛЕННОГО ЗДАНИЯ

ТЕХНОЛОГИЧЕСКАЯ КАРТА №7

ВЫСОКОКАЧЕСТВЕННАЯ ТРЁХСЛОЙНАЯ ШТУКАТУРКА ФАСАДА РЯДОВОЙ СЕКЦИИ ТИПОВОГО ЭТАЖА ДЕВЯТИЭТАЖНОГО ЖИЛОГО КИРПИЧНОГО ДОМА СЕРИИ 114-65-3/1

ТЕХНОЛОГИЧЕСКАЯ КАРТА №8

УЛУЧШЕННАЯ ТРЕХСЛОЙНАЯ ШТУКАТУРКА ВНУТРЕННИХ КИРПИЧНЫХ СТЕН, ЗАТИРКА ПОВЕРХНОСТИ ГИПСОБЕТОННЫХ ПЕРЕГОРОДОК И ЗАДЕЛКА ШВОВ В ПЕРЕКРЫТИИ ТИПОВОГО ЭТАЖА ПЯТИЭТАЖНОГО КУЛЬТУРНО-БЫТОВОГО ЗДАНИЯ СЕРИИ 164-80-2

ТЕХНОЛОГИЧЕСКАЯ КАРТА №9

УЛУЧШЕННАЯ ТРЕХСЛОЙНАЯ ШТУКАТУРКА ВНУТРЕННИХ КИРПИЧНЫХ СТЕН, ЗАТИРКА ПОВЕРХНОСТИ ГИПСОБЕТОННЫХ ПЕРЕГОРОДОК И ЗАДЕЛКА ШВОВ В ПЕРЕКРЫТИИ ТИПОВОГО ЭТАЖА РЯДОВОЙ СЕКЦИИ ЧЕТЫРЕХЭТАЖНОГО ЖИЛОГО ДОМА СЕРИИ 114-74 ДЛЯ СЕВЕРНОЙ ЗОНЫ СТРАНЫ

ТЕХНОЛОГИЧЕСКАЯ КАРТА №10

УЛУЧШЕННАЯ ДВУХСЛОЙНАЯ ШТУКАТУРКА ВНУТРЕННИХ КИРПИЧНЫХ СТЕН, ЗАТИРКА ПОВЕРХНОСТИ ГИПСОБЕТОННЫХ ПЕРЕГОРОДОК ТИПОВОГО ЭТАЖА РЯДОВОЙ СЕКЦИИ ДЕВЯТИЭТАЖОГО ЖИЛОГО ДОМА СЕРИИ 114-85-3/1 ДЛЯ ЮЖНОЙ ЗОНЫ СТРАНЫ

Сводная таблица технико-экономических показателей

ВСТУПЛЕНИЕ

Технологические карты разработаны на основе отбора широко применяемых в штукатурных работах технологических схем, обобщения передового опыта производства этого вида работ и опыта подбора нормокомплектов для технического оснащения бригад.

Альбом содержит 10 технологических карт для различных видов зданий, при этом предусмотрено выполнение работ в основных климатических зонах страны.

Качество применяемых известкового, известково-цементного и известково-глиняного растворов должно соответствовать требованиям СН 290-74 "Указания по приготовлению и применению строительных растворов" и государственному стандарту "Растворы строительные. Методы испытаний".

Известковый раствор используют для слоев намета (обрызга, грунта). Дополнительно процеженным черев сито с ячейками 1,5x1,5 мм известковым раствором наносят и накрывочный слой. При использовании для слоев намета сложных цементно-известковых растворов накрывочный слой наносят пластичным известковым раствором.

Эмульсия ПВА, вводимая в составы, которые применяют для подготовки поверхностей, должна быть пластифицирована дибутилфталатом. В летнее время года эмульсия ПВА поступает уже пластифицированной, а в зимнее, во избежание ее замерзания, дибутилфталат поставляется в комплекте с эмульсией. В производственных условиях наличие пластификатора в эмульсии определяют следующим образом: тонкий слой эмульсии наносят на стеклянную поверхность; после высыхания (в течение 24 ч) пленку эмульсии аккуратно снимают с поверхности лезвием. Если при этом пленка не растягивается и целостность ее нарушается, пластификатора в эмульсии нет.

Предусмотренные в технологических картах марки ручного инструмента, приспособлений, инвентаря и средств подмащивания в процессе привязки к конкретным условиям строительства могут быть заменены на однотипные, если их качество соответствует указанным ГОСТами ТУ.

С учетом рекомендуемой в картах технологии нормокомплекты должны быть снабжены инструкцией по эксплуатации.

Ручные и механизированные инструменты, приспособления и мелкий инвентарь, входящие в состав нормокомплекта, хранят в передвижных мастерских-кладовых, выделенных в распоряжение бригады.

Состав бригад и звеньев могут быть уточнены, исходя из конкретных условий выполнения работ и соотношения различных видов отделки.

Наиболее целесообразной формой организации труда на объектах следует считать поточно-расчлененный способ производства работ бригадами-экипажами штукатурных станций. Количество звеньев в бригаде и их состав корректируют таким образом, чтобы время выполнения операций всеми специализированными звеньями было примерно одинаковым.

Обязательным условием является равномерная и непрерывная загрузка бригад-экипажей в течение всего года. Для этого им выдают подробные плановые задания, предусматривающие соблюдение учета и отчетности при выполнении штукатурных работ в соответствии с их спецификой.

Внедрение технологических карт, предусматривающих рациональную технологию производства штукатурных работ с использованием нормокомплектов для оснащения бригад штукатуров, позволит повысить производительность труда этих бригад на 20-30%.

ТЕХНОЛОГИЧЕСКАЯ КАРТА №1

УЛУЧШЕННАЯ ТРЕХСЛОЙНАЯ ШТУКАТУРКА ВНУТРЕННИХ КИРПИЧНЫХ СТЕН, ЗАТИРКА ПОВЕРХНОСТИ ГИПСОБЕТОННЫХ ПЕРЕГОРОДОК И ПЕРЕКРЫТИЯ ТИПОВОГО ЭТАЖА РЯДОВОЙ СЕКЦИИ ПЯТИЭТАЖНОГО ЖИЛОГО ДОМА СЕРИИ 114-85-1/1

1. Область применения

1.1. Технологическая карта (ТК) разработана на производство работ по нанесению улучшенной трехслойной штукатурки известковым раствором на внутренние кирпичные стены, затирке поверхности гипсобетонных перегородок и железобетонных перекрытий типового этажа рядовой секции пятиэтажного жилого дома серии 114-85-1/1. Приготовление известкового раствора предусмотрено централизованное, а подача и нанесение его механизированы.

Рабочие чертежи здания разработаны в ЦНИИЭП жилища.

1.2. В состав работ, рассматриваемых ТК, входят: подготовка поверхности кирпичных стен под оштукатуривание; механизированное нанесение слоя обрызга и двух слоев грунта; механизированное нанесение и затирка накрывочного слоя; затирка железобетонного перекрытия с прорезкой рустов; затирка гипсобетонных перегородок, стен лестничных клеток и площадок.

Работы выполняют летом, в одну смену.

1.3. Настоящая ТК может быть применена при строительстве объектов различного жилого и гражданского назначения с учетом конкретных условий строительства.

2. Организация и технология строительного процесса.

2.1. Подготовка к производству штукатурных работ

До начала штукатурных работ необходимо: смонтировать над оштукатуриваемыми помещениями не менее трех перекрытий; выполнить подготовку под полы; установить дверные и оконные блоки; остеклить оконные проемы; установить встроенные шкафы и антресольные блоки; смонтировать скрытые электротехнические и слаботочные разводки; осветить рабочие места; очистить помещения от остатков строительных материалов и мусора; проверить механизмы на холостом ходу, тщательно осмотреть рукава, устранить изломы и перегибы и промыть известковым молоком; обеспечить установки для связи штукатуров с машинистом световой и звуковой сигнализациями; доставить на рабочее место инструменты, инвентарь, приспособления и материалы; принять объект под отделку по акту.

2.2. Приготовление и доставка штукатурного раствора

Штукатурный раствор, приготовленный централизованно, доставляют на строительную площадку растворовозами типа СБ-89 или специализированными автомобилями-самосвалами и загружают в бункер штукатурной станции CO-114, или ПШС-2М, затем, перекачивая растворонасосом, подают по рукавам на этажи.

2.3. Технология производства работ

Для нанесения слоев штукатурного намета используют известковый раствор, соблюдая при этом следующую последовательность технологических операций.

Вначале подготовляют поверхности и провешивают их, затеи наносят обрызг, грунт и разравнивают последний. После этого наносят накрывочный слой и отделывают лузги; заканчивают работы затиркой поверхности перегородок, отделкой откосов и разделкой потолочных рустов.

Штукатурные работы следует производить в помещениях с температурой воздуха не ниже +8°С, измеренной на высоте 0,5 м от пола.

2.3.1. Подготовка поверхности стен под оштукатуривание

Подготовка поверхности состоит из очистки ее от наплывов раствора и удаления пыли. Штукатуры срубают наплывы раствора с поверхности кирпичных стен, сметают ветошью пыль и очищают от мусора подмости.

2.3.2. Провешивание поверхности стен

В верхней части стены на расстоянии примерно 30 см от каждого угла забивают по гвоздю так, чтобы их шляпки выступали над поверхностью стены на предполагаемую толщину штукатурки, а затем со шляпок гвоздей опускают отвес и по нему на расстоянии 30 см от пола забивают еще два гвоздя. По диагоналям и горизонтально протягивают шнур, при помощи которого определяют минимальную толщину штукатурного слоя. Затем по установленному уровню выравнивают шляпки гвоздей, чтобы они находились в определившейся плоскости штукатурки.

Вокруг гвоздей делают из штукатурного раствора марки диаметром 80-100 мм, на 3-5 мм выше шляпок. После того как раствор схватится, верх марок срезают до уровня шляпок гвоздей.

2.3.3. Нанесение обрызга механизированным способом

Первый слой, обрызг, наносят известковым раствором состава 1:2,5 (известь: песок). Подвижность раствора составляет 7-10 см по стандартному конусу. Раствор в штукатурной станции перемешивают, доводят до необходимой консистенции (разбавляют известковым молоком), процеживают через вибросито с ячейками размером 3x3 мм и подают растворонасосом по рукаву на этаж. Наносят раствор на оштукатуриваемые поверхности при помощи сопел движениями бескомпрессорных форсунок сверху вниз и слева направо. Форсунку при этом держат на расстоянии 80-100 см от стены под углом я ней в 70-90°. Толщина слоя обрызга равна 5 мм. Опавший раствор собирают в лотки..

2.3.4. Нанесение грунта механизированным способом и его разравнивание

Слой грунта толщиной 7 мм наносят аналогично слою обрызга. Подвижность раствора составляет 7-10 см по стандартному конусу.

Разравнивают грунт правилом, а в труднодоступных местах - с помощью полутерков. Ровность поверхности проверяют контрольным правилом.

Одновременно с подготовкой поверхности и нанесением слоев намета на большие площади приступают к отделке вручную помещении с полами площадью до 5 м2.

Штукатуры, стоя на полу или на столиках-подмостях, ковшом набрасывают раствор на поверхность стены и, приложив правило или полутерок к оштукатуриваемой поверхности ребром под углом 30-45°,зигзагообразными движениями во взаимно перпендикулярных направлениях разравнивают поочередно слои намета. В труднодоступных местах и в очень тесных помещениях раствор наносят штукатурными совками или лопатками.

После нанесения слоя грунта делают технологический перерыв продолжительностью около 7 дней.

В это время, в помещении выполняют санитарно-технические, электромонтажные, плотничные и другие работы.

2.3.5. Механизированное нанесение накрывочного слоя с отделкой лузг

Для механизированного нанесения накрывочного слоя используют известковый раствор подвижностью 9-12 см. В качестве пластификатора применяют один из видов шпаклевок: ОКС, латексные или клее-масляные в количестве 15-20% от объема раствора.

Раствор процеживают через вибросито с ячейками размером 1,5x1,5 мм и по растворопроводу подают в растворосмеситель СО-23А, туда же вводятся добавки. Раствор тщательно перемешивают и подают в устройство для нанесения пастообразных составов конструкции ЦНИИОМТП. Толщина накрывочного слоя - 2 мм. Поверхность затирают, прижимая вращающийся диск затирочной машинки СО-86 или CО-112 к обрабатываемой поверхности и перемещая его в различных направлениях до получения гладкой поверхности. Одновременно отделывают лузги и заделывают места, поврежденные при производстве специализированных работ.

В процессе затирки поверхность смачивают водой, подачу которой регулируют клапаном, укрепленным на корпусе затирочной машинки. В труднодоступных местах поверхность затирают вручную круговыми движениями пенопластовой терки, увлажняя при этом поверхность с помощью кисти.

2.3.6. Подготовка и выравнивание поверхности гипсобетонных перегородок

Вначале поверхности очищают от грязи стальными щетками или скребками, затем водой омывают о них пыль. Для частичной затирки штукатуры ковшами набирают из ведер раствор и наносят его на поверхность панелей в поврежденных местах. Затем нанесенный раствор кистью смачивают водой и затирают терками заподлицо с поверхностью панелей.

Потом приступают к сплошному выравниванию поверхности перегородок, при этом швы между панелями и стенами заполняют раствором, после чего наносят слой раствора толщиной 2 мм, который разравнивают и затирают. Отделку лузг и усенков производят с помощью правил. Работы в верхней части стены выполняют с подмостей.

2.3.7. Отделка оконных и дверных откосов

Штукатуры очищают поверхность кирпичных откосов и с помощью кистей-ручников смачивают их водой для лучшего сцепления раствора с поверхностью. При помощи отвеса провешивают вертикальные границы откосов, устанавливают деревянные отфугованные рейки и закрепляют их рейкодержателями и гипсом. Затем кельмами наносят слои обрызга и грунта, после чего с помощью мялок и полутерков грунт разравнивают по направляющим рейкам.

Поверхность накрывочного слоя штукатуры выравнивают и затирают терками, периодически смачивая ее водой, проверяют вертикальность и горизонтальность откосов с помощью отвеса, уровня и угольника.

Движениями полутерка сверху вниз выравнивают углы пересечения откосов, отделывают лузги и усенки и проверяют поверхность отделки с помощью отвеса и уровня.

2.3.8. Подготовка и затирка железобетонного потолка с прорезкой рустов и заделкой швов раствором, оштукатуривание мест сопряжений железобетонных потолков с перегородками

Штукатуры устанавливают подмости, очищают поверхность потолка от наплывов раствора, пыли и, предварительно огрунтовав раствором дисперсии ПВАЭ, выравнивают поверхность полимерцементным раствором, накладывая его на сокол. Затем наносят раствор на стыки панелей перекрытия, заглаживая шов обратной стороной кельмы. Круговыми, а затем прямолинейными движениями сначала войлочной, а затем поролоновой терки вдоль шва затирают раствор заподлицо с поверхностью панели, периодически смачивая ее водой.

В местах сопряжения панелей перекрытия с перегородками ставят метки (забивают гвозди) так, чтобы они располагались посредине шва.

После схватывания раствора натягивают шнур, набеленный гипсом и, приложив его к намеченным ранее двум меткам (гвоздям), отбивают линию руста. Затем прикладывают рейку к потолку на расстоянии половины ширины руста от отбитой линии, прижимают режущую плоскость рустовки к потолку, а ее боковую грань - к рейке так, чтобы середина овального ножа касалась отбитой линии, и движением рустовки вдоль рейки прорезают русты. Далее убирают направляющую рейку, исправляют поврежденные места и зачищают их легкими движениями полутерка и рустовки вдоль линии руста.

После этого штукатуры, положив кельмами раствор на полутерки, подносят их к потолку и движениями обеих рук на себя наносят раствор на потолок в поврежденных или дефектных местах. При этом полутерок необходимо держать так, чтобы его наружная продольная кромка была прижата к потолку, а внутренняя опущена на 1-2 см.

Затирку поверхностей стен лестничных клеток осуществляют пенопластовыми терками с подмостей.

2.4. Состав бригады

Штукатурные работы выполняет бригада из 19 человек, состоящая из четырех звеньев.

Состав бригады и перечень выполняемых работ

 

№ звена

Профессия

Количество рабочих

Выполняемые работы

1

Штукатуры

4 разр.

3 разр.

 

2

2

Подготовка поверхности и механизированное нанесение слоев намета и накрывочного слоя с последующей затиркой его и отделкой лузг и усенков

2

Штукатуры

4 разр.

3 разр.

 

2

3

Подготовка и оштукатуривание вручную кирпичных стен, подготовка и сплошное выравнивание перегородок в помещениях с полами площадью до 5 м2, промазка плинтусов и наличников, отделка вручную оконных и дверных откосов

3

Штукатуры

4 разр.

3 разр.

 

4

4

Подготовка и затирка железо бетонного потолка с прорезкой рустов и заделкой швов, оштукатуривание мест сопряжений потолка с перегородками, подготовка и механизированное нанесение раствора на поверхность стен лестничных клеток с затиркой их

4

Машинист штукатурной станции 3 разр.

Штукатур 2 разр.

 

 

1

1

Прием и подача готового известкового раствора на этажи с помощью растворонасоса

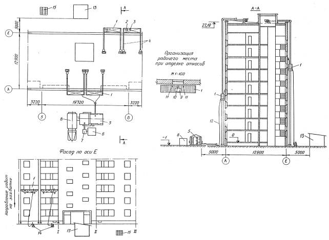
Схема производства работ

1 - сопло с кнопочным управлением; 2 - рукав резиновый; 3 - растворопровод; 4 - растворонасос СО-48А;

5 - емкость для известкового молока; 6 - насос; 7 - растворовоз СБ-89; 8 - передвижная штукатурная станция CО-114 или ПШС-2М; 9 - мусоропровод; 10 - накрывочный агрегат; 11 - электрощит; 12 - растворосмеситель;

13 -универсальная удочка; 14 - электростояк; 15 - стояк для подачи воды; 16 - временное ограждение


2.5. График производства работ

 

 


 

2.6. Калькуляция затрат труда

 

Обоснование

Наименование работ

Единица измерения

Объем работ

Норма времени на единицу измерения,

чел.-ч

(маш.-ч)

Затраты труда на общий объём работ,

чел.-ч

(маш.-ч)

Расценка на единицу измерения,

руб.-коп.

Стоимость затрат труда на общий объем работ,

руб.-коп.

ЕНиР, 1973,

§ 4-1-36, т.5, п.б

Приемка готового раствора из автомобиля-самосвала или кузова растворовоза СБ-89 в приемный бункер штукатурной станции CО-114

 

м3

7,62

0,115

0,88

0-05,7

0-43

ЕНиР,. 1973,

§ 8-4, т.1,2, пп. 3а, б

Подача раствора с помощью растворонасоса

 

м3

7,62

1,4

0,7

(0,7)

10,67

5,33

(5,33)

0-69

0-38,9

5-25

2-96

Трест Мосоргстрой с участием ЦНИБ Мосстроя, Карты трудовых процессов КТ-8.0-5.1-75

Подготовка поверхности кирпичных стен под оштукатуривание в помещениях с полами

 

 

 

 

 

 

 

площадью

 

 

 

 

 

 

 

более 5 м2

100 м2

1,96

9,67

18,95

5-06

9-91

 

до 5 м2

 

0,32

3,1

1-62

То же,

Кт-8.0-6.10-75

 

Механизированное нанесение обрызга

 

100 м2

1,96

2

3,92

1-18

2-31

То же

Механизированное нанесение грунта и разравнивание

 

100 м2

1,96

6,38

12,5

3-76

7-37

То же,

Кт-8.0-6.11-75

Механизированное нанесение и затирка накрывочного слоя

 

100 м2

1,96

11,57

22,7

6-82

13-36

ЕНиР, 1973,§ 8-7,

т.2, п.2а, к=1,5

Оштукатуривание кирпичных стен вручную в помещениях с полами площадью до 5 м2

 

м2

31,95

0,9

28,75

0-53,1

16-93

Трест Сочиоргтехстрой Минпромстроя СССР

Кт-8.0-16.9-75

Подготовка поверхности гипсобетонных перегородок под затирку в помещениях с полами площадью

 

 

 

 

 

 

 

более 5 м

100 м2

1,3

5,88

7,64

3-26

4-24

 

до 5 м2

 

0,85

5,01

2-77

ЕНиР, 1973,§ 8-10, т.1, п.1а, к=1,5

Выравнивание гипсобетонных перегородок с нанесением раствора, затиркой и отдел кой плоскостей, лузг и усенков в помещениях с полами площадью

 

 

 

 

 

 

 

более 5 м

м2

130,17

0,39

50,77

0-20,4

51-07

 

до 5 м2

 

85,19

0,3

25,56

0-15,7

13-37

ЕНиР, 1973,§ 8-10, т.2, п.7а

 

Отделка лузг

 

100 м

0,35

4,9

1,7

3-06

1-07

Гипрооргсельстрой, Кт-8.0-8.6-75

Отделка вручную оконных и дверных откосов

 

м2

21,55

1,6

34,48

0-94

20-25

ЕНиР,1973, §8-18, п.5,6

Промазка раствором плинтусов

100 м

1,46

5,1

7,44

2-83

4-13

 

Наличников

 

0,74

5,6

4,14

3-11

2-30

ЕНиР,1973,§8-11, п.2б

Оштукатуривание мест сопряжений железобетонного потолка с перегородками

 

100 м

0,13

17,5

2,27

10-94

1-42

Гипрооргсельстрой, Кт-8.0-7.8-75

Подготовка поверхности железобетонного потолка под затирку

 

100 м2

1,44

12,5

18,06

7-23

10-41

Трест Оргтехстрой Главсредуралстроя, Кт-8.0-11.2-75

Затирка железобетонного потолка с прорезкой рустов и заделкой швов

 

м2

144,53

0,45

65,03

0-26,5

38-30

То же

Подготовка поверхности и нанесение раствора на стены лестничных клеток с затиркой их

м2

11,44

0,16

1,83

0-09,4

1-07

 

 

 

 

Итого

330,73 (5,33)

 

207-58

2.7. Контроль качества

Работы должны выполняться в соответствии с требованиями главы СНиП III-21-73 "Отделочные покрытия строительных конструкций. Правила производства и приемки работ".

Слои штукатурки должны быть прочно соединены с поверхностью оштукатуриваемой конструкции.

Оштукатуренные поверхности должны быть ровными, гладкими, с четко отделанными гранями углов, пересекающихся плоскостей, без следов затирочного инструмента, потеков раствора, пятен и высолов.

Не допускаются трещины, бугорки, раковины (дутики), грубо шероховатая поверхность, пропуски.

Отклонения качества оштукатуренных поверхностей не должны превышать следующих величин:

неровности поверхности (обнаруживаются при накладывании правила или шаблона длиной 2 м) - не более двух, глубиной или высотой до 3 мм;

отклонение поверхности стен (потолков) от вертикали (горизонтали) - 1 мм на 1м высоты (длины), но не более 10 им на всю высоту (длину) помещения;

отклонения лузг, усенков, оконных и дверных откосов, пилястр, столбов от вертикали (горизонтали) - 1 мм на 1 м высоты (длины), но не более 5 мм на элемент;

отклонение ширины оштукатуренного откоса от проектной - 3 ми;

отклонение от пряной линии в пределах между углами пересечения тяг и раскреповки - 3мм.

Качество готовых растворов должно удовлетворять требованиям СН 290-74 "Инструкция по приготовлению и применению строительных растворов". Материалы и изделия, применяемые для штукатурных работ, должны удовлетворять требованиям соответствующих стандартов, а также указаниям главы СНиП I-B.2-69 "Вяжущие материалы неорганические и добавки для бетонов и растворов".

2.8. Техника безопасности

При производстве штукатурных работ необходимо соблюдать правила техники безопасности, руководствуясь при этом действующей нормативной и инструктивной документацией, в том числе главой СНиП III-А.11-70 "Техника безопасности в строительстве", а также СН 38-58 "Инструкция по заземлению передвижных строительных механизмов и электрофицированного инструмента" (издание второе, Москва, 1962).

Кроме того, при производстве штукатурных работ необходимо соблюдать следующие требования:

к штукатурный работам допускать лиц, прошедших инструктаж по технике безопасности и производственный инструктаж непосредственно на рабочем месте;

внутренние штукатурные работы следует выполнять с подмостей или передвижных столиков;

при производстве работ на лестничных маршах необходимо применять подмости (столики) с опорными стойками разной длины, устанавливаемыми на ступени;

рабочий настил подмостей должен быть горизонтальным и иметь ограждение из перил и бортовой доски;

перед началом каждой смены следует проверить исправность растворонасосов, рукавов и другого оборудования, применяемого для штукатурных работ;

работа растворонасосом при давлении, превышающем указанное в техническом паспорте, запрещается;

все работы, связанные с ремонтом или внутренним осмотром растворонасоса, преобразователя частоты тока и затирочных машинок, следует производить только при отключенном электропитании; продувка рукавов сжатым воздухом допускается только после удаления людей за пределы опасной зоны;

штукатуры, наносящие штукатурный раствор на поверхность при помощи сопла и производящие набрызг раствора вручную, должны иметь защитные очки;

переносные токоприемники (инструмент, машины, светильники и др.), применяемые при выполнении штукатурных работ, должны иметь напряжение не более 36 В;

пребывание более 3 человек в просушиваемом помещении запрещается.

3. Технико-экономические показатели

 

Наименование работ

Объем работ,

м2

Трудоемкость работ,

чел.- ч

Стоимость затрат труда,

руб.-коп.

общая

на единицу объема работ

общая

на единицу объема работ

Подготовка и оштукатуривание кирпичных стен, оконных и дверных откосов

 

249,55

152,86

0,61

83-86

0-33,6

Подготовка и затирка поверхностей гипсобетонных перегородок, выделка лузг и усенков

 

215,36

90,68

0,42

72-52

0-33,6

Подготовка и затирка железобетонных элементов потолка, прорезка рустов, заделка мест сопряжения потолка с перегородками

 

155,97

87,19

0,56

51-20

0-32,8

 

Итого

330,73

 

207-58

 

 

Продолжительность работ 10 дней.

4. Материально-технические ресурсы

4.1. Потребность в основных материалах и полуфабрикатах на одну секцию типового этажа

Известковый раствор(1:2,5), м3

7,62

Шпаклевка, м3

0,069

Гипс строительный, ГОСТ 125-70, кг

0,8

4.2. Машины, оборудование, инструменты, инвентарь и приспособления

 

Наименование

Марка, № чертежа, ГОСТ

Количество, шт.

1

2

3

Машины и оборудование

 

Станция штукатурная

производительностью 2; 4 м3

конструкции МФ ВНИИСМИ

или

СО-114

1

производительностью 4 м3

конструкции Главсредуралстроя

 

ПШС-2М

Растворонасос производительностью 2 м3

 

СО-48А

1

Растворосмеситель производительностью 1,2-1,5 м3

 

СО-23А

1

Устройство для нанесения пастовых составов производительностью 100 м2/ч конструкции ЦНИИОМТП

 

Черт. 4491.00.000

1

Кран крыше вой грузоподъемностью 300 кг конструкции Минпромстроя БССР

или

K-IM

1

кран, устанавливаемый в окно, грузоподъемностью 120 кг конструкции Минпромстроя БССР

 

ОK-120

Трансформатор

 

ИВ-4

1

Преобразователь частоты тока

 

ИЭ-9401 или ИЭ-9402

1

Пункт передвижной инструментально-раздаточный конструкции ЦНИИОМТП"

 

Черт. 3287.А.00.000

1

Механизированные инструменты

 

Машинка штукатурно-затирочная производительностью до 50 м2

 

СО-86 или CО-112

 

6

Устройство для подачи вода к затирочным машинкам конструкции Главкиевгорстроя

 

Черт. МС 26.00.00,00.00

2

Ручные инструменты

 

Кельма штукатурная КШ

 

ГОСТ 9533-71

19

Ковш штукатурный

 

ГОСТ 7945-73

6

Отрезовка ОШ-1 и ОШ-2

 

 

7

Сокол дюралюминиевый

 

ОТУ 22-697-67

8

Острогубцы (кусачки) 175

 

ГОСТ 7282-64

2

Нож штукатурный

 

ГОСТ 18975-73

5

Ножовка поперечная по дереву

 

ГОСТ 6532-53

1

Молоток штукатурный МШТ

 

ГОСТ 11042-72

5

Скарпель диаметром 20 мм конструкции УМОР ГМС

 

Черт.192.00.000

2

Терка деревянная конструкции УМОР ГМС

 

Черт.272.00.000

7

Терка пенопластовая или войлочная конструкции Оргтехстроя Лит.ССР

 

Черт. 4687.01.00

5

Правило удлиненное конструкции ЦЙИИОМТП

 

Черт.3345.14.000

10

Правило усеночное

 

ОТУ 22-1235-68

6

Правило лузговое

 

ОТУ 22-1234-68

6

Полутерки деревянные конструкции

УМОР ГМС

 

 

800 мм

1500 мм

 

Черт. 223.00.000

Черт. 224.00.000

14

Кисгь-макловица КМА-2

 

ГОСТ 10597-70

19

Гладилка стальная

ГШ-1

ГШ-2

 

ГОСТ 10403-73

10

10

Рейкодержатель со штырем конструкции треста Мосоргстрой

 

Черт. 1231

8

Щетка стальная прямоугольная конструкции Гипрооргсельстроя Минсельстроя СССР

 

-

5

Шпатель стальной

 

ГОСТ 10778-76

10

Лопата растворная ЛР

 

ГОСТ 3620-76

4

Рустовка потолочная односторонняя

 

ГОСТ 13995-68

10

Лоток для сбора опавшего раствора конструкции ЦНИИОМИ

 

Черт. 084.000.000

5

Линейка штукатурная конструкции УМОР ГМС

 

Черт. 15600000

3

Скребок конструкции ЦНИИОМТП

 

Черт. 3345.20.000

5

Измерительные инструменты

 

Рейка с отвесом

 

ГОСТ 9416-76

2

Уровень строительный УС1-300 и УС2-700

 

ГОСТ 9416-76

3

Отвес 0-400

 

ГОСТ 7948-71

3

Метр складной стальной МСС

 

ГОСТ 7253-64

6

Угольник стальной

 

ГОСТ 10920-64

5

Конус стандартный

 

ГОСТ 3802-66

1

Шнур разметочный в корпусе

 

ТУ 22-1268-68

1

Приспособления

 

Форсунка штукатурная

 

ГОСТ 10466-63

2

Производственный инвентарь

 

Бункер поэтажный вместимостью 0,55 м3 для раствора конструкции УМОР ГМС

 

Черт.04.00.000

5

Тележка для раствора конструкции ЦНИИОМТП

 

Черт.3294.62.000

4

Респиратор

 

РПП-57

19

Перчатки резиновые

 

ГОСТ 10108-62

19 пар

Очки защитные

 

ГОСТ 9496-60

19

Ведро

 

ГОСТ 20558-75

10

Средства подмащивания

 

Столик универсальный конструкции ЦНИИОМТП

 

Черт.3241.08.000

4

Столик двухвысотный конструкции ЦНИИОМТП

 

Черг.3241.07.000

5

Столик-стремянка конструкции УМОР ГМС

 

Черт. 894.00.000

 

4

ТЕХНОЛОГИЧЕСКАЯ КАРТА №2

УЛУЧШЕННАЯ ТРЕХСЛОЙНАЯ ШТУКАТУРКА ВНУТРЕННИХ КИРПИЧНЫХ СТЕН, ЗАТИРКА ПОВЕРХНОСТИ ГИПСОБЕТОННЫХ ПЕРЕГОРОДОК И ОТДЕЛКА ПОТОЛКОВ "ПОД ШАГРЕНЬ" ТИПОВОГО ЭТАЖА РЯДОВОЙ СЕКЦИИ ПЯТИЭТАЖНОГО ЖИЛОГО ДОМА СЕРИИ 114-85-1/1

1. Область применения

1.1. Технологическая карта (ТК) разработана на производство работ по нанесению улучшенной трехслойной штукатурки известковым раствором на внутренние кирпичные стены, затирке поверхности гипсобетонных перегородок и отделке потолков "под шагрень" типового этажа рядовой секции пятиэтажного жилого дона. Приготовление известкового раствора - в построечных условиях, подача и нанесение механизированы.

Рабочие чертежи здания разработаны в ЦНИИЭП жилища.

1.2. В состав работ по оштукатуриванию внутренних кирпичных стен входят: приготовление раствора; подготовка поверхности стен под оштукатуривание; механизированное нанесение слоев обрызга и грунта; механизированное нанесение и затирка накрывочного слоя.

В состав работ по затирке гипсобетонных перегородок входят: подготовка поверхности перегородок; нанесение и затирка выравнивающего слоя.

В состав работ по отделке железобетонного потолка "под шагрень" входят: подготовка поверхности потолка; огрунтовка ее известковым раствором с добавкой поливинилацетатной эмульсии (ПВАЭ); покрытие потолков гипсополимерцементным составом (ГПЦ).

Работы выполняют летом в одну смену.

1.3. Настоящая ТК может быть применена при строительстве объектов различного жилого и гражданского назначения с учетом конкретных условий строительства.

2. Организация и технология строительного процесса

2.1. Подготовка к производству штукатурных работ

До начала штукатурных работ необходимо: смонтировать не менее трех этажей здания; закончить устройство кровли; выполнить подготовку под полы; установить дверные и оконные блоки; остеклить оконные проемы; установить встроенные шкафы и антресольные блоки; смонтировать и опрессовать систему отопления и постоянного водопровода; смонтировать и промыть канализацию; проверить вентиляционные каналы; смонтировать скрытые электротехнические и слаботочные разводки; осветить рабочие места; очистить все помещения от остатков строительных материалов и мусора; доставить на рабочее место механизмы, инструменты, инвентарь, приспособления и материалы; проверить механизмы на холостом ходу, тщательно осмотреть рукава, устранить их изломы и перегибы; обеспечить световую или звуковую сигнализации между штукатурами и машинистом штукатурной станции; промыть рукава известковым молоком; принять объект по акту.

2.2. Приготовление и доставка штукатурного раствора

На строительной площадке имеется склад для хранения сыпучих материалов.

Штукатурный раствор приготовляют в построечных условиях в штукатурно-смесительном агрегате СО-85 производительностью 2; 4 м3/ч или в штукатурной станции конструкции Ленинградоргстроя производительностью 3 м3/ч.

Приготовленный раствор растворонасосом подают по резинотканому растворопроводу на этажи.

2.3. Технология производства работ

Для нанесения слоев штукатурного намета используют известковый раствор, соблюдая следующую последовательность технологических операций. Вначале подготовляют поверхность под оштукатуривание, затем провешивают ее, наносят обрызг, грунт и разравнивают последний. После этого наносят накрывочный слой с отделкой лузг и заканчивают работы затиркой поверхности перегородок, отделкой откосов и разделкой потолочных рустов.

Штукатурные работы следует производить в, помещениях с температурой воздуха не ниже +8ºС, измеренной на высоте 0,5 м от пола.

2.3.1. Подготовка поверхности стен под оштукатуривание

При очистке поверхности штукатуры срубают наплывы раствора с поверхности кирпичных стен, сметают ветошью пыль и очищают от мусора подмости. Затем поверхности стен провешивают, для чего в верхней части стены на расстоянии примерно 30 см от каждого угла забивают по гвоздю, так чтобы их шляпки выступали над поверхностью стены на предполагаемую толщину штукатурки. Со шляпок опускают отвес и по нему на расстоянии 30 см от пола забивают еще два гвоздя. По диагоналям и горизонтально протягивают шнур, при помощи которого определяют минимальную толщину штукатурного слоя. Затем по уровню выравнивают шляпки гвоздей, чтобы они находились в определившейся плоскости штукатурки.

Вокруг гвоздей делают из штукатурного раствора марки диаметром 80-100 мм, на 3-5 мм выше шляпок. После, того, как раствор схватится, верх марок срезают до уровня шляпок.

2.3.2. Нанесение обрызга механизированным способом

Первый слой, обрызг, выполняют известковым раствором состава 1:2,5 (известь: песок). Подвижность штукатурного раствора составляет 7-10 см по стандартному конусу. Приготовленный раствор процеживают черев вибросито с ячейками размером 3x3 мм и подают растворонасосом по резинотканому растворопроводу. Наносят раствор на оштукатуриваемые поверхности при помощи сопел движениями бескомпрессорных форсунок сверху вниз и слева направо. Форсунку при этом держат на расстоянии 80-100 см от стены под углом к ней в 70-90°. Толщина слоя обрызга - 5 мм. Опавший раствор собирают в лотки.

2.3.3. Нанесение грунта механизированным способом и разравнивание его

Слой грунта наносят аналогично слою обрызга. Подвижность раствора - равна 7-10 см по стандартному конусу. Толщина слоя грунта равна 7 мм.

Разравнивают грунт правилом, а в труднодоступных местах-с помощью полутерков. Контрольным правилом проверяют ровность поверхности. Одновременно с подготовкой поверхности и нанесением слоев намета на большие площади второе звено штукатуров приступает к отделке помещений с полами площадью до 5 м2.

Штукатуры, стоя на полу или на столиках-подмостях, кельмой накладывают раствор на сокол и, приложив последний ребром к оштукатуриваемой поверхности под углом 30-45°, движением снизу вверх наносят раствор и разравнивают его. В труднодоступных местах и в очень тесных помещениях раствор наносят штукатурными лопатками

2.3.4. Механизированное нанесение накрывочного слоя с отделкой лузг

Для накрывочного слоя используют известковый раствор подвижностью 9-12 см, в который вводят добавку (пластификатор): шпаклевку ОКС синтетическую или клеемасляную в количестве 15-20% от объема раствора.

Раствор для накрывочного слоя процеживают через вибросито с ячейками размером 1,5x1,5 мм и подают по резинотканому рукаву в растворосмеситель С0-23А с откидными лопастями, туда же вводят и шпаклевку. После тщательного перемешивания раствор подают в устройство для нанесения пастовых составов конструкции ЦНИИОМТП.

Накрывочный слой толщиной 2 мм наносят после схватывания слоев намета. Затем его затирают, прижимая вращающийся диск затирочной машинки СО-86 или СО-112 к стене и перемещая ее в различных направлениях до получения гладкой поверхности, В процессе затирки поверхность смачивают водой, подачу которой регулируют клапаном, укрепленный на корпусе затирочной машинки.

В труднодоступных местах накрывочный слой затирают вручную круговыми движениями пенопластовой терки, увлажняя при этом поверхность с помощью кисти.

Одновременно штукатуры отделывают лузги и усенки.

2.3.5. Подготовка и выравнивание поверхности гипсобетонных перегородок

Вначале перегородки очищают стальными щетками или скребками от грязи, затем с помощью рукава, присоединенного к водопроводу, струей воды поверхность очищают от пыли с последующей частичной затиркой перегородок. Для этого штукатуры кельмами набирают из ведер раствор и мазками наносят его на поверхность панелей в поврежденных мостах. Затем с помощью кисти смачивают ее водой и затирают терка ми заподлицо с поверхностью панелей.

Потом приступают к сплошному выравниванию поверхности перегородки, при этом швы между панелями и стенами заполняют раствором, после чего наносят слой раствора толщиной 2 мм, который разравнивают и затирают деревянными терками. Отделку лузг и усенков производят с помощью правил. Работы в верхней части стен выполняют с подмостей.

2.3.6. Отделка оконных и дверных откосов

Штукатуры очищают поверхность кирпичных откосов и с помощью кистей-ручников смачивают их водой для лучшего сцепления раствора с поверхностью. При помощи отвеса провешивают вертикальные грани откосов, устанавливают деревянные отфугованные рейки и закрепляют их рейкодержателями и гипсом. Затем кельмами наносят слои обрызга и грунта с промежутком во времени, после чего с помощью малок и полутерков разравнивают слой грунта по направляющим рейкам.

После нанесения накрывочного слоя штукатуры выравнивают и затирают терками поверхность, периодически смачивая ее водой, проверяют вертикальность и горизонтальность откосов с помощью отвеса, уровня и угольника.

Движениями полутерка сверху вниз выравнивают углы пересечения откосов, отделывают лузги и усенки и проверяют качество отделки с помощью отвеса и уровня.

2.3.7. Заделка внутренних швов между элементами перекрытий и перегородок и затирка стен лестничных клеток

С установленных подмостей штукатуры приступают к заделке мест сопряжений железобетонных панелей перекрытия с перегородками и заделке швов раствором.

В приготовленный известковый раствор добавляют 1-2% гипса и перемешивают до получения однородной массы. На сокол накладывают перемешанный раствор и наносят его на стыки панелей перекрытия, заглаживая шов обратной стороной кельмы. Круговыми, а затем прямолинейными движениями терки вдоль шва затирают раствор заподлицо с поверхностью панели, периодически смачивая его водой. Затирают швы сначала войлочной, а затем поролоновой терками.

Поверхность стен лестничных клеток затирают следующим образом: сначала, наложив кельмой, раствор на полутерок, движениями обеих рук на себя наносят раствор на поверхность стен, при этом полутерок не обходимо держать так, чтобы его наружная продольная кромка была прижата к поверхности, а внутренняя опущена на 1-2 см, затем круговыми и прямолинейными движениями терок затирают поверхности, периодически смачивая их водой.

2.3.8. Подготовка поверхности потолков для отделки "под шагрень" и приготовление огрунтовочного и гипсополимерцементного состава

До огрунтовки потолков штукатур скребком очищает поверхность от брызг раствора, возникших при разделке рустов, затем деревянным шпателем берет из ящика небольшое количество гипсополимерцементной шпаклевки (ГПЦ) и заполняет ею трещины, мелкие раковины и другие неровности.

Гипсополимерцементную шпаклевку (ГПЦ) ввиду ее быстрого схватывания (2-4 ч) приготовляют непосредственно на объекте.

Состав шпаклевки ГПЦ (в % по массе)

50%-ная эмульсия ПВАЭ, пластифицированная дибутилфталатом

 4,6

Вода

 35,6

Известково-клеевой замедлитель

 0,15

Гипсоцементно-пуццолановая смесь

 59,65

В пластифицированную 50%-ную эмульсию вводят воду и известково-клеевой замедлитель схватывания гипса, взятые в соотношении по рецепту. Этот водный состав приготовляют в ящике дня раствора вместимостью 0,35 м3.

Приготовленный водный состав заливают в растворосмеситель СО-23А и при постоянном перемешивании добавляют гипсоцементно-пуццолановое вяжущее.

Перед употреблением полученную шпаклевку процеживают черев сито со 100 отверстиями на 1 см2, разливают в ведра с помощью штукатурного ковша вместимостью 1 л и подносят к месту производства работ.

Приготовленная шпаклевка должна быть сметанообразной консистенции, подвижностью 20-22 см по стандартному конусу.

2.3.9. Огрунтовка поверхностей потолков эмульсией ПВАЭ и механизированное нанесение слоев ГПЦ с последующей очисткой верха стен от состава

Огрунтовку поверхностей потолков выполняют при помощи ручного краскопульта с удочкой СО-20А. Расстояние между удочкой и обрабатываемой поверхностью меняется от 80 до 100 см в зависимости от давления в краскопульте. Распылительный факел направляют перпендикулярно поверхности потолка. Для получения равномерного слоя грунтовки удочку передвигают вдоль поверхности, делая одновременно плавные круговые движения.

Гипсополимерцементную шпаклевку (ГПЦ) наносят на поверхность по непросохшей огрунтовке.

Состав шпаклевки ГПЦ (в % по массе)

50%-ная эмульсия ПВАЭ, пластифицированная дибутилфталатом

 3,83

Вода

 36

Известково-клеевой замедлитель

 0,17

Гипсоцементнопуццолановая смесь

 60

После высыхания первого слоя ГПЦ, предназначенного для выравнивания поверхности, но не ранее, чем через 2 ч, наносят второй слой ГПЦ того же состава, образующий фактурное покрытие. Нанесение ГПЦ на поверхность потолков производят при помощи шпаклевочной установки с удочкой CО-21A, сжатый воздух подается к форсунке от компрессора СО-7А.

Штукатур отвинчивает крышку бачка шпаклевочной установки, заливает в него два ведра ГПЦ и завинчивает крышку бачка. При нанесении ГПЦ необходимо держать удочку так, чтобы форсунка была перпендикулярна обрабатываемой поверхности и находилась на расстоянии 60-70 см от нее. Такое положение обеспечивает наиболее равномерное распыление ГПЦ. Удочку передвигают в направлении "от себя", делая плавные движения по спирали. Особое внимание нужно уделять регулированию установки для обеспечения равномерной подачи ГПЦ и стабильности факела.

Второй слой ГПЦ, наносят аналогично первому.

2.4. Состав бригада

Все штукатурные работы выполняет бригада в составе 17 человек, состоящая из четырех звеньев.

Состав бригады и перечень выполняемых работ

 

№ звена

Профессия

Количество рабочих

Выполняемые работы

1

Штукатуры

4 разр.

3 разр.

 

3

3

Подготовка поверхности кирпичных стен под оштукатуривание, механизированное нанесение слоев намета и накрывочного слоя с последующей затиркой его и выделкой лузг. Подготовка и выравнивание поверхности гипсобетонных перегородок с нанесением раствора, затиркой и отделкой лузг и усенков

 

2

Штукатуры

4 разр.

3 разр.

 

3

3

Подготовка и оштукатуривание вручную кирпичных стен, подготовка и сплошное выравнивание перегородок в помещениях с полами площадью до 5 м2 промазка плинтусов и наличников раствором, отделка вручную оконных и дверных откосов, а также мест сопряжений железобетонного потолка с перегородками, прорезка рустов

 

3

Штукатуры

 

Подготовка поверхности потолков для отделки "под шагрень", приготовление огрунтовочного и гипсополимерцементного составов; огрунтовка поверхности потолков поливинилацетатной эмульсией и механизированное нанесение слоев состава ГПЦ на поверхность потолков с последующей очисткой верха стен

 

 

4 разр.

1

 

3 разр.

1

 

2 разр.

1

4

Машинист растворонасоса

3 разр.

 

 

1

Приготовление раствора с загрузкой компонентов и подача ого по растворопроводу на этажи

 

Штукатур

2 разр.

 

1

Схема производства работ

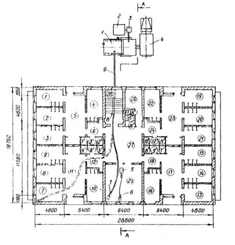
1 - ручной краскопульт с удочкой, 2 - емкость для огрунтовочного состава; 3 - ящик для песка; 4 - емкость для известкового теста; 5 - передвижная штукатурная станция или штукатурносмесительный агрегат СО-85; 6 - растворопровод (резиновый рукав) диаметром 51 мм; 7 - мусоропровод; 8 - накрывочный агрегат; 9 - установка СО-23; 10 - рукав резиновый диаметром 25 мм; 11- сопло с кнопочным управлением; 12 - шпаклевочный агрегат с удочкой; 13 -электрощит; 14 - водопровод; 15 - воздуховод

2.5. График производства работ

 

 

2.6. Калькуляция затрат труда

 

Обоснование

Наименование работ

Единица измерения

Объем работ

Норма времени на единицу измерения, чел.-ч

(маш.-ч)

Затраты труда на общий объем работ, чел.-ч

(маш.-ч)

Расценка на единицу измерения,

руб.-коп.

Стоимость затрат труда на общий объем работ,

руб.-коп.

I

2

3

4

5

6

7

8

ЕНиР,1973,§ 3-18, п.16

Загрузка ковша растворосмесителя составляющими с дозировкой и доставкой их

 

м3

6,63

1,45

9,61

0-71,5

4-74

ЕНиР,1973,§ 3-18, п.4б

Приготовление раствора в растворосмесителе

 

м3

6,63

0,3

1,99

0-16,7

1-11

ЕНиР,1973,§ 8-4, т.1,2, пп. а,б

Подача раствора с помощью растворонасоса

 

м3

6,63

1,4

0,7

(0,7)

 

9,28

4,64

(4,64)

0-69

4-55

Трест Мосоргстрой с участием ЦНИБ Моссгроя,

Кт-8.0-5.1-75

Подготовка поверхности кирпичных стен под оштукатуривание

 

100 м2

1,96

9,67

18,95

5-06

9-91

То же,

К т-8.0-6.10-75

Механизированное нанесение обрызга на стены

 

100 м2

1,96

2

3,92

1-18

2-31

То же,

Кт-8.0-6.0-75

 

То же, грунта

 

100 м2

1,96

6,38

12,5

3-76

7-37

То же,

Кт-8.0-6.11-75

Механизированное нанесение и затирка накрывочного слоя

 

100 м2

1,96

11,57

22,7

6-82

13-36

То же,

Кт-8.6-5.1-75

Подготовка поверхности кирпичных стен под оштукатуривание вручную в помещениях с полами площадью до 5 м2

100 м2

0,32

9,67

3,1

5-06

1-62

ЕНиР,1973,§ 8-7, т.2, п.2а, к=1,5

Оштукатуривание кирпичных стен вручную в помещениях с подами площадью до 5 м2

 

м2

31,95

0,9

28,75

0-53,1

16-93

Трест Сочиоргтехстрой Минпромстроя СССР,

Кт-8.0-16.9-75

 

Подготовка поверхности гипсобетонных перегородок под затирку

100 м2

1,3

5,88

7,64

3-26

4-27

То же

Подготовка поверхности гипсобетонных перегородок под затирку вручную в помещениях с полами площадью до 5м2

 

100 м2

0,85

5,88

5,01

3-26

2-77

ЕНиР,1973,§ 8-10,

т.1, п.1а

Выравнивание гипсобетонных перегородок с нанесением раствора, затиркой и отделкой плоскостей, лузг и усенков

 

м2

130,17

0,2

26,03

0-10,5

13-67

То же

Затирка гипсобетонных перегородок вручную в помещениях с полами площадью до 5 м2

 

м2

85,19

0,3

25,56

0-15,7

13-37

ЕНиР,1973,§ 8-10, т.2, п.7а

 

Выделка лузг

100 м

0,35

4,9

1.7

3-06

1-07

Гипрооргсельстрой,

Кт-8. 0-8.6-75

Отделка вручную оконных и дверных откосов

 

м2

21,55

1,6

34,48

0-94

20-25

ЕНиР,1973, § 8-18,

пп. 5,6

Промазка растворов

 плинтусов

 наличников

 

100 м

1,46

0,74

5,1

5,6

7,44

4,14

2-83

3-11

4-13

2-30

ЕНиР,1973, § 8-II, п.2б

Оштукатуривание мест сопряжений железобетонного потолка с перегородками

 

100 м

0,13

17,5

2,28

10-94

1-42

Трест Мосоргстрой, Кт-8.0-24.80-77

Очистка поверхности потолка

 

100 м2

0,85

0,15

0,13

0-07,4

0-06

То же

Шпаклевка отдельных мест поверхности потолка

 

100 м2

0,85

3

2,55

1-47,9

1-26

"

Огрунтовка поверхности потолка поливинилацетатной эмульсией

 

100 м2

0,85

1,3

1,1

0-72

0-61

Трест Мосоргстрой,

Кт-8.0-24.82-77

Механизированное нанесение первого слоя состава ГПЦ на поверхность потолка

 

100 м2

0,85

3,2

2,72

1-77,3

1-51

То же

Тс же, второго слоя

 

100 м2

0,85

3

2,55

1-67,3

1-42

Трест Мосоргстрой,

Кт-8.0-3С.4-77

Приготовление огрунтовочного (водного) состава

 

На 100 м2

0,85

0,54

0,46

0-28,3

0-24

То же

Приготовление состава ГПЦ

 

На 100 м2

0,85

1,16

0,99

0-60,8

0-52

Трест Мосоргстрой,

К г-8.0-24.80-77

Очистка верха стен от состава ГПЦ

 

100 м2

2,81

0,13

0,36

0-07,4

0-21

ЕНиР, 1973,

§ 8-11, п.2б

 

Заделка швов раствором

 

100 м

1,14

17,5

19,95

10-94

12-47

Трест Оргтехстрой,

Kт-8.0-11.2-75

Нанесение раствора на стены лестничных клеток и затирка их

 

м2

11,44

0,16

1,83

0-09,4

1-07

 

 

 

Итого

 

262,56

(4,64)

 

144-52

2.7. Контроль качества

 

Штукатурные работы должны выполняться в соответствии с требованиями главы СНиП III-21-73 "Отделочные покрытия строительных конструкций. Правила производства и приемки работ".

Слои штукатурки должны быть прочно соединены с поверхностью оштукатуриваемой конструкции.

Оштукатуренные поверхности должны быть ровными, гладкими, с четко отделанными гранями углов, пересекавшихся плоскостей, без следов затирочного инструмента, потеков раствора, пятен и высолов. Не допускаются пропуски, трещины, бугорки, раковины (дутики), грубо шероховатая поверхность.

Отклонения качества оштукатуренных поверхностей не должны превышать следующих величин:

неровности поверхности (обнаруживаются при накладывании правила или шаблона длиной 2 м) - не более двух, глубиной или высотой до 3 мм;

отклонение поверхности стен (потолков) от вертикали (горизонтали) - 1 мм на 1 м высоты (длины), но не более 10 мм на всю высоту (длину) помещения;

отклонение лузг, усенков, оконных и дверных откосов, пилястр, столбов от вертикали (горизонтали) - 1 мм на 1 м высоты (длины), но не более 5 мм на элемент;

отклонение ширины оштукатуренного откоса от проектной - 3 мм;

отклонение от прямой линии в пределах между углами пересечения тяг и раскреповки - 3мм.

Качество готовых растворов должно удовлетворять требованиям СН 290-74 "Инструкция по приготовлению и применению строительных растворов". Материалы и изделия, применяемые для штукатурных работ, должны удовлетворить требованиям соответствующих стандартов, а также указаниям СНиП I-В.2-69 "Вяжущие материалы неорганические и добавки для бетонов и растворов".

2.3. Техника безопасности

При производстве штукатурных работ необходимо соблюдать правила техники безопасности, руководствуясь при этом действующей нормативной к инструктивной документацией, в том числе главой СНиП III-А.II-70 "Техника безопасности в строительстве" и СН 38-58 "Инструкция по заземлению передвижных строительных механизмов и электрифицированного инструмента" (издание второе, Москва, 1962).

Кроме того, при производстве штукатурных работ необходимо соблюдать следующие требования:

к штукатурным работам допускать лиц, прошедших инструктаж по технике безопасности и производственный инструктаж непосредственно на рабочем месте;

внутренние штукатурные работы следует выполнять с подмостей или передвижных столиков;

при производстве работ на лестничных маршах необходимо применять специальные подмости (столики) с опорными стойками разной длины, устанавливаемыми на ступени;

рабочий настил должен быть горизонтальным и иметь ограждение с перилами и бортовой доской;

перед началом каждой смены следует проверить исправность растворонасосов, рукавов и другого оборудования, применяемого для штукатурных работ;

работа растворонасосом при давлении, превышающем указанное в техническом паспорте, запрещается;

все работы, связанные с ремонтом или внутренним осмотром растворонасоса, преобразователя и затирочных машинок, следует производить только при отключенном электропитании; продувка рукавов сжатым воздухом допускается только после удаления людей за пределы опасной зоны;

штукатуры, наносящие штукатурный раствор на поверхность при помощи сопла и производящие набрызг раствора вручную, должны быть обеспечены защитными очками;

переносные токоприемники (инструмент, машины, светильники и др.), применяемые при выполнении штукатурных работ» должны иметь напряжение не более 36 В;

пребывание более 3 человек в просушиваемом помещении запрещается.

 3. Технико-экономические показатели

 

Наименование работ

Объем

работ,

м2

Трудоемкость работ,

чел.-ч

Стоимость затрат труда,

руб.-коп.

общая

на единицу

объема работ

общая

на единицу объема работ

Подготовка и оштукатуривание кирпичных стен, оконных и дверных откосов

249,55

161,5

0,65

88-58

0-35

Подготовка и затирка гипсобетонных перегородок, выделка лузг, усенков

215,36

68,13

0,32

36-43

0-17

Подготовка поверхности железобетонного потолка к отделке "под шагрень", огрунтовка поверхности и нанесение слоев ГПЦ, заделка швов раствором

85

32,73

0,39

19-51

0-23

Итого

 

262,36

 

144-52

 

Продолжительность работ 3 дня.

4. Материально-технические ресурсы

4.1. Потребность в основных материалах и полуфабрикатах на одну секцию типового этажа

Гипсостроительный, ГОСТ 125-70, кг

0,8

Известь, т

2,32

Песок, т

6,96

Шпаклевка, м3

0,069

Гипсополимерцементный состав (ГПЦ), м3

0,17

4.2. Машины, оборудование, инструменты, инвентарь и приспособления

 

Наименование

Марка, № чертежа, ГОСТ

Количество,

шт.

1

2

3

Машины и оборудование

 

Агрегат штукатурносмесительный производительностью 2; 4 м3

или

СО-85

1

штукатурная станция производительностью 3 м3/ч конструкции Ленинградоргстроя

 

-

Растворонасос производительностью 2м3

 

СО-48А

1

Растворосмеситель производительностью 1,2-1,5 м3

 

СО-23А

1

Устройство для нанесения пастовых составов производительностью 100 м2/ч конструкции ЦНИИОМТП

 

Черт. 4491.00.000

1

Краскопульт ручной с удочкой производительностью 200 м2/ч однослойного покрытия

 

СО-20А

1

Установка для нанесения жидкой шпаклевки производительностью 200 м2/ч

 

CО-21A

1

Компрессор производительностью 28-30 м3

 

СО-7А

1

Кран крышевой грузоподъемностью 300 кг конструкции Минпромстроя СССР

или

K-IM

1

кран, устанавливаемый в окно, грузоподъемностью 120 кг конструкции Минпромстроя БССР

 

ОK-120

Трансформатор

 

ИВ-4

1

Преобразователь частоты тока

 

ИЭ-9401 или ИЭ-9402

1

Пункт передвижной инструментально-раздаточный конструкции ЦНИИ0МТП

 

Черт. 3287.А.00.000

1

Механизированные инструменты

 

Машинка штукатурно-затирочная производительностью до 50 м2

 

СО-86 или CО-112

5

Устройство для подачи воды к затирочным машинкам конструкции Главкиевгорстроя

 

Черт.МС 26.00.00.00.00

2

Ножницы электрические для резки металла толщиной до 2,7 мм

ИЭ-5402

 

2

Ручные инструменты

 

Кельма штукатурная КШ

 

ГОСТ 9533-71

17

Ковш штукатурный

 

ГОСТ 7945-73

5

Отрезовка ОШ-1 и ОШ-2

 

ГОСТ 9533-71

7

Сокол дюралюминиеый

 

ОТУ 22-697-67

8

Острогубцы (кусачки) 175

 

ГОСТ 7282-64

2

Нож штукатурный

 

ГОСТ 16975-73

5

Пила ножовка поперечная по дереву

 

ГОСТ 6532-53

1

Молоток штукатурный. ШПТ

 

ГОСТ 11042-72

4

Скарпель диаметром 20 мм консгрукции УМОР ГМС

 

Черт. 192.00.000

2

Терка деревянная конструкции УМОР ГМС

 

Черт. 272.00.000

7

Терка пенопластовая или войлочная конструкции треста Оргтехстрой Лит.ССР

 

Черт. 4687.01.00

5

Правило удлиненное конструкции

ЦНИИОМТП

 

Черт.3345.14.000

10

Правило усеночное

 

ОТУ 22-1235-68

5

Правило лузговое

 

ОТУ 22-1234-63

5

Полу терки деревянные конструкции УМОР ГМС

800 мм

 

Черт. 223.00.000

14

1500 мм

 

Черт. 224.00.000

Кисть-макловица КМА-2

 

ГОСТ 10597-70

17

Гладилка стальная

 

 

ГШ-1

ГШ-2

 

ГОСТ 10403-73

10

10

 

Рейкодержатель со штырем конструкции треста Мосоргстрой

 

Черт.1231

7

Щетка стальная прямоугольная конструкции Гипрооргсельстроя Минсельстроя СССР

 

 

5

Шпатель стальной

 

ГОСТ 10778-76

10

Л one та растворная

 

ГОСТ 3620-76

4

Рустовка потолочная односторонняя

 

ГОСТ 13995-68

8

Лоток для сбора опавшего раствора конструкции ЦНИИОМТП

 

Черт.084.000.000

5

Линейка штукатурная конструкции УМОР ГМС

 

Черт.156.00.000

3

Скребок конструкции ЩШИОМТП

 

Черт.3345.20.000

4

Измерительные приборы

 

Рейка с отвесом

 

ГОСТ 9416-76

2

Уровень строительный УС1-300, УС2-700

 

ГОСТ 9416-76

2

Отвес О-400

 

ГОСТ 7948-71

2

Метр складной стальной МСС

 

ГОСТ 7253-64

6

Угольник стальной

 

ГОСТ 10920-64

5

Конус стандартный

 

ГОСТ 5802-66

1

Шнур разметочный в корпусе

 

ТУ 22-1268-68

1

Приспособления

 

Форсунка штукатурная

 

ГОСТ 10466-63

2

Производственный инвентарь

 

Бункер поэтажный для раствора вместимостью 0,55 м3 конструкции УМОР ГМС

 

Черт. 04.00.000

5

Тележка для раствора конструкции ЦНИИШТЛ

 

Черт.3294.75.000

3

Ведро

 

ГОСТ 20558-75

10

Перчатки резиновые

 

ГОСТ 10108-62

17 пар

Очки защитные

 

ГОСТ 9802-61

17

Респиратор

 

РПП-57

17

Средства подмащивания

 

Столик универсальный конструкции ЦНИИОМТП

 

Черт.3241.08.000

4

Столик-стремянка конструкции УКОР ГМС

 

Черт. 894.00.000

4

Столик двухвысотный конструкции ЦНИИОМТП

 

Черт.3241.07.000

5

 

ТЕХНОЛОГИЧЕСКАЯ КАРТА № 3

УЛУЧШЕННАЯ ТРЕХСЛОЙНАЯ ШТУКАТУРКА ВНУТРЕННИХ КИРПИЧНЫХ СТЕН, ЗАТИРКА ПОВЕРХНОСТИ ГИПСОБЕТОННЫХ ПЕРЕГОРОДОК И РАСШИВКА ШВОВ ПЕРЕКРЫТИЯ ТИПОВОГО ЭТАЖА РЯДОВОЙ СЕКЦИИ ДЕВЯТИЭТАЖНОГО ЖИЛОГО ДОМА СЕРИИ 114-65-3/1

1. Область применения

1.1. Технологическая карта (ТК) разработана на производство работ по нанесению улучшенной трехслойной штукатурки известковым раствором на внутренние кирпичные стены, затирке поверхности гипсобетонных перегородок и расшивке швов перекрытая типового этажа рядовой секции девятиэтажного жилого дома серии 114-85-3/1. Приготовление известкового раствора - централизованное, подача и нанесение механизированы.

Рабочие чертежи здания разработаны в ЦНИИЭП жилища.

1.2. В состав работ по оштукатуривание внутренних кирпичных стен входят: подготовка поверхности (срубка наплывов раствора, провешивание поверхности, установка марок); нанесение слоев обрызга и грунта; разравнивание слоев намета; нанесение накрывочного слоя; затирка накрывочного слоя; разделка углов.

В состав работ по отделке оконных и дверных откосов входят: подготовка откосов к оштукатуриванию; нанесение обрызга и грунта; нанесение и затирка накрывочного слоя; отделка лузг и усенков.

В состав работ по обработке внутренних швов между элементами перекрытий и стен входят: заделка швов раствором с затиркой поверхности шва; прорезка рустов и зачистка кромок.

В состав работ по штукатурной обработке гипсобетонных перегородок и стен лестничных клеток входят: подготовка поверхности; нанесение раствора на поверхность вручную; затирка поверхности; отделка лузг и усенков.

Работы выполняют летом в одну смену.

1.3. Настоящая ТК может быть применена при строительстве объектов различного жилого и гражданского назначения с учетом конкретных условий строительства.

2. Организация и технология строительного процесса

2.1. Подготовка к производству штукатурных работ

До начала штукатурных работ необходимо: закончить устройство всех видов оснований под чистые полы; установить перегородки и законопатить зазоры; установить оконные и дверные блоки и законопатить зазоры между коробками и проемами; заделать швы между плитами перекрытий; установить встроенные шкафы; заделать вое временные отверстия в стенах, перегородках и перекрытиях; установить вентиляционные короба, прочистить вентиляционные каналы; установить электроосветительные и слаботочные устройства; закончить санитарно-технические работы (монтаж и опрессовку систем центрального отопления, водопровода, канализации и газопровода); установить лестничные ограждения; просушить сырые места; закончить устройство гардеробных, туалетных, душевых, а также помещений для сушки одежды, пунктов питания, здравпунктов и других бытовых помещений для рабочих; осветить рабочие места; принять объект под отделку по акту; доставить на рабочее место инструменты, инвентарь, приспособления и материалы.

2.2. Приготовление и доставка штукатурного раствора

Раствор, приготовленный на заводе, доставляют на объект растворовозами СБ-89 или специально оборудованными автомобилями-самосвалами.

Доставленный раствор процеживают, повторно перемешивают с добавлением известкового молока в штукатурной станции CО-114 или ПШС-2М, установленной на приобъектной площадке. Затем растворонасосами СО-49А или СО-48А, установленный на 2, 5 и 8-ом этажах, раствор подается по растворопроводу и далее по резиновый рукавам диаметром 25-13 мм к рабочему месту штукатура.

2.3. Технология производства работ

При производстве работ соблюдают следующую последовательность технологических операций. Вначале подготовляют поверхность под оштукатуривание, затем провешивают ее, наносят слои обрызга и грунта и разравнивают последний. После этого наносят и затирают накрывочный слой, отделывают откосы, подготовляют и затирают гипсобетонные поверхности и заканчивают расшивкой швов перекрытия.

Штукатурные работы следует производить при температуре воздуха не ниже +8°С, измеренной на высоте 0,5 м от пола.

2.3.1. Подготовка поверхности стен под оштукатуривание

Поверхность стен очищают от наплывов раствора, срубая их скребками и штукатурными молотками, после чего ветошью очищают поверхность от пыли. Затем поверхности стен провешивают, для чего в верхней части стены на расстоянии 30-40 см от каждого угла забивают по гвоздю так, чтобы их шляпки выступали над поверхностью стены на предполагаемую толщину штукатурки. Со шляпок гвоздей опускают отвес и по нему на расстоянии 20-30 см от пола забивают еще два гвоздя.

По диагоналям и горизонтально натягивают шнур, при помощи которого определяют минимальную толщину штукатурного слоя. Для устройства марок забивают промежуточные гвозди. Коли шнур где-либо касается стены, значит, на ней имеются выпуклости, которые необходимо срубить. Затем по уровню выравнивают шляпки гвоздей так, чтобы они находились в определившейся плоскости штукатурки.

Вокруг гвоздей делают из штукатурного раствора марки диаметром 80-100 мм, на 3-5 мм выше шляпок. После того как раствор затвердеет, верх марок срезают до уровня шляпок.

2.3.2. Нанесение слоев обрызга и грунта механизированным способом

Для слоев обрызга и грунта применяют известковый раствор состава 1:2,5 (известь: песок).

Перед нанесением на поверхность раствор процеживают через вибросито с ячейками 3x3 мм. Подвижность раствора 7-10 см по стандартному конусу. Наносят слой обрызга на поверхность стены движениями бескомпрессорной форсунки сверху вниз и слева направо, держа ее на расстоянии 80-100 см от стены под углом в 70-90° к ней. Толщина слоя обрызга - 5 мм. По мере частичного твердения слоя обрызга наносят первый слой грунта толщиной 7 мм и разравнивают его по маякам до получения ровной поверхности с помощью правила, а в труднодоступных местах - полутерком. Затем контрольным правилом проверяют ровность поверхности.

2.3.3. Механизированное нанесение накрывочного слоя

Раствор перед поступлением в поэтажный бункер процеживают через сито с ячейками 1,5x1,5 мм. Подвижность раствора 8-9 см по стандартному конусу. С помощью устройства для нанесения пастообразных составов конструкции ЦНИИОМТП раствор подается к удочке.

Накрывочный слой толщиной 2 мм наносят на поверхность стены движениями удочки сверху вниз и слева направо, держа ее на расстоянии 80-100 см от стены под углом в 70-90° к ней. Затирают накрывочный слой затирочной машинкой СО-86 или CО-112. В процессе затирки поверхность смачивают водой, подачу которой регулируют клапаном, укрепленным на корпусе затирочной машинки. В труднодоступных местах оштукатуриваемую поверхность затирают вручную при помощи деревянной и войлочной терок.

2.3.4. Отделка оконных и дверных откосов

Штукатуры при помощи отвеса провешивают вертикальные грани откосов, устанавливают деревянные отфугованные рейки и закрепляют их рейкодержателями и гипсом. Затем при помощи угольника определяют "угол рассвета".

Слои обрызга и грунта штукатуры наносят кельмами, разравнивают последний с помощью малок и полутерков по направляющим рейкам. После нанесения накрывочного слоя проверяют и выравнивают вертикальность откосов с помощью отвеса, уровня и угольника.

Затем движением полутерков сверху вниз штукатур выравнивает углы пересечения откосов, отделывает лузги и усенки и проверяет правильность отделки с помощью отвеса и уровня.

2.3.5. Обработки внутренних швов между элементами перекрытий и стен

Для заделки швов штукатур в приготовленный известковый раствор добавляет 1-2% гипса и перемешивает до получения однородной массы. Затем накладывает раствор на сокол и, держа его на уровне плеча, кельмой набрасывает небольшие порции раствора на стыки панелей перекрытия, после чего заглаживает шов обратной стороной кельмы.

В местах сопряжения шва панелей перекрытия со стеной ставят метки (забивают гвозди) так, чтобы они располагались посередине ива. Посла частичного схватывания раствора натягивают набеленный мелом шнур и, приложив его к намеченным ранее двум меткам, отбивают линию руста. При прорезке рустов штукатур прикладывает рейку к потолку на расстоянии половины ширины руста от отбитой линии, прижимает режущую плоскость рустовки к потолку, а ее боковую грань - к рейке так, чтобы середина овального ножа касалась отбитой линии, и движением рустовки вдоль рейки прорезает руст. Далее убирает направляющую рейку, исправляет поврежденные места и зачищает их легкими движениями полутерка и рустовки вдоль линии руста.

2.3.6. Подготовка и выравнивание (затирка) поверхности гипсобетонных перегородок и стен лестничных клеток

Поверхности гипсобетонных перегородок и стен лестничных клеток очищают от грязи и пыли, затем струей воды смывают остатки пыли и наносят вручную известковый раствор. Для этого штукатуры кельмами набирают из ведер раствор и мазками наносят его на поверхность. При помощи кистей они смачивают нанесенный раствор водой, после чего перегородки затирают затирочными машинками, а стены лестничных клеток - терками.

Работы по выравниванию гипсобетонных поверхностей и стен лестничных клеток производятся с передвижных столиков-подмостей.

2.4. Состав бригады

Все штукатурные работы выполняет бригада в составе 25 человек, состоящая из девяти звеньев.

Состав бригады и перечень выполняемых работ

 

№ звена

Профессия

Количество рабочих

Выполняемые работы

1, 2

Машинист растворонасоса

3 разр.

 

1

Обслуживание механизмов на этаже

 

Штукатуры

 

Механизированное нанесение раствора, разравнивание поверхности, отделка лузг и усенков, подготовка и затирка вручную гипсобетонных перегородок

 

4 разр»

2

 

3 разр.

4

 

2 разр.

 

2

3, 4

Штукатуры

 

Оштукатуривание кирпичных стен и затирка гипсобетонных поверхностей в помещениях с полами площадью до 5 м2

 

4 разр.

2

 

3 разр.

 

4

5, 6

Штукатуры

 

Отделка вручную оконных и дверных откосов

 

4 разр

2

 

3 разр.

 

2

7, 8

Штукатуры

 

Заделка швов на потолке, промазка плинтусов и наличников, затирка лестничных маршей

 

4 разр.

2

 

3 разр

 

2

9

Машинист штукатурной станции

3 разр.

Штукатур 3 разр.

 

Прием из растворовоза известкового раствора и подача его на этажи

 

1

 

1

 

 

Схема производства работ

1 сопло с кнопочным управлением; 2 - накрывочный агрегат; 3 - удочка; 4 - бункер для известкового молока; 5 - насос для перекачки известкового молока; 6 - рукав; 7 - растворовоз; 8 - бункер емкостью 0,35 м3;

9 - передвижной столик - подмости; 10 - электростояк; 11 - инвентарный кольцевой растворопровод; 12 - стояк для подачи воды; 13 - поэтажный бункер емкостью 0,55 м3; 14 - поэтажные бачки для воды; 15 - растворонасос С0-48А; 16 - поэтажный электрощит; 17 -автокран; 18 - передвижная штукатурная станция СО-114 или ПШС-2М

2.5. График производства работ

 

 

 

2.6. Калькуляция затрат труда

Обоснование

Наименование работ

Единица измерения

Объём работ

Норма времени на единицу измерения,

чел.-ч,

(маш.-ч)

Затраты труда на общий объём работ

чел.-ч,

(маш.-ч)

Расценка на единицу измерения,

руб.-коп.

Стоимость затрат труда на общий объем работ,

руб.-коп.

ЕНиР, 1973,

§ 4-1-36Б, т.5

Приемка готового известково-песчаного раствора на кузова растворовоза СБ-89 в приемный бункер штукатурной станции СО-114 или ПШС-2М

 

м3

10,54

0,115

1,15

0-05,7

0-60

ЕНиР, 1973,

§ 8-4, т.1,2, п.3 а, б

Подача раствора в бункер с помощью растворонасоса СО-48 от штукатурной станции

 

м3

10,54

1,4

0,7

(0,7)

14,76

7,4

(7,2)

0-69

7-27

ВНИПИ груда в строительстве, 1976,

Kт-8.0-5.I-75

 

Подготовка поверхности кирпичных стен под оштукатуривание

 

100 м2

4,19

9,67

40,5

5-06

21-20

То же,

Kт-8.0-6.10-75

Механизированное нанесение обрызга

 

100 м2

3,46

2

6,88

1-18

4-08

То же

То же, грунта

 

100 м2

3,46

6,38

21,98

3-76

13-00

То же,

Кт-8.0-6.11-75

Механизированное нанесение накрывочного слоя на стены и затирка его

 

100 м2

3,46

11,57

44,36

6-82

23-59

ЕНиР, 1973,

§ 8-106. т.2, п.7а

 

Отделка лузг

 

100 м2

0,89

4,9

3-06

2-72

ЕНиР, 1973

§ 8-7, т.2, п.2,

техническая часть, к=1,5

 

Оштукатуривание кирпичных стен вручную в помещениях с полами площадью до 5 м2

 

м2

72,84

0,9

65,6

0-53,1

38-68

ЕНиР, 1973,

§ 8-10A, т.1, п.1а, ВНИПИ труда в строительстве, 1976,

Кт-8.0-16.9-75

 

Подготовка поверхности и выравнивание гипсобетонных перегородок, нанесение раствора, затирка и отделка плоскостей, лузг и усенков

 

м2

303,1

0,258

78,14

0-10,5

31-83

То же

Подготовка поверхности и затирка перегородок вручную в помещениях с полами площадью до 5 м2

 

м2

126,22

0,358

45,1

0-15,7

19-82

ВНИПИ труда в строительстве, 1976,

Кт-8.0-8.6-75

 

Отделка вручную оконных и дверных откосов

м2

31,7

1,6

50,84

0-94

29-79

ЕНиР, 1973,

§ 8-18, пп. 5,6

Промазка раствором

плинтусов

100 м

2,29

5,1

11,64

2-83

6-48

наличников

 

1,01

5,6

5,66

3-11

3-14

ЕНиР, 1973,§ 8-11, п.2б

Оштукатуривание мест сопряжений железобетонного потолка с перегородками

 

100 м

1,1

17,5

19,35

10-94

12-03

ЕНиР, 1973,§ 8-11, пп. 3б, 2б

Заделка швов на потолке между плитами с прорезкой рустов

 

100 м

шва

2,03

27,1

55,18

16-94

34-39

ВНИПИтруда в строительстве, 1976,

Кт-8.0-11.2-75 и

Кт-8.0-16.9-75

Подготовка поверхности и нанесение раствора на стены лестничных клеток с затиркой их

 

м2

30,64

0,16

4,92

0-09

2-76

Итого

 

473,46

(7.2)

 

251-38

 

2.7. Контроль качества

Штукатурные работы должны выполняться в соответствии с требованиями главы СНиП III-21-73 "Отделочные покрытия строительных конструкций. Правила производства и приемки работ".

Слои штукатурки должны быть прочно соединены с поверхностью оштукатуриваемой конструкции.

Оштукатуренные поверхности должны быть ровными, гладкими, с четко отделанными гранями углов, пересекающихся плоскостей, без следов затирочного инструмента, потеков раствора, пятен и высолов. Не допускаются пропуски, трещины, бугорки, раковины (дутики), грубо шероховатая поверхность.

Отклонения качества оштукатуренных поверхностей не должны превышать следующих величин:

неровности поверхности (обнаруживаются при накладывании правила или шаблона длиной 2 м) - не более двух глубиной или высотой до 3 мм;

отклонение поверхностей стен (потолков) от вертикали (горизонтали) - 1 мм на 1 м высоты (длины), но не более 10 мм на всю высоту (длину) помещения;

отклонение лузг, усенков, оконных и дверных откосов, пилястр, столбов от вертикали (горизонтали) - 1 мм на 1 м высоты (длины), но не более 5 мм на весь элемент;

отклонение ширины оштукатуренного откоса от проектной - 3 мм;

отклонение от прямой линии в пределах между углами пересечения тяг и раскреповки - 3 мм.

Качество готовых растворов должно удовлетворять требованиям СН 290-74 "Инструкция по приготовлению и применению строительных растворов". Материалы и изделия, применяемые для штукатурных работ, должны удовлетворять требованиям соответствующих стандартов, а также указаниям СНиП I-B.2-69 "Вяжущие материалы неорганические и добавки для бетонов и растворов".

2.8. Техника безопасности

При производстве штукатурных работ следует строго соблюдать правила техники безопасности, руководствуясь при этом действующей нормативной и инструктивной документацией, в том числе главой СНиП III-А.11-70 "Техника безопасности в строительстве", СН 38-58 "Инструкция по заземлению передвижных строительных механизмов и электрифицированного инструмента" (издание второе, Москва, 1962), а также "Руководство по транспортировке, приемке, складированию и хранению материалов, изделий, конструкций и оборудования в строительстве" (Москва, 1965).

Кроме того, при производстве штукатурных работ необходимо соблюдать следующие требования:

внутренние штукатурные работы следует выполнять с передвижных столиков, установленных на сплошные настилы или полы;

перед началом работы необходимо проверить исправность растворонасосов, растворопроводов и других средств механизации; предохранительные клапаны и манометры должны быть опломбированы, запрещается работать на растворонасосах при давлении, превышающем указанное в технических паспортах;

разбирать, ремонтировать и чистить оборудование следует после снятия давления и отключения машин от электросети;

применять проволочные скрутки для соединения резиновых напорных рукавов, перегибать рукава под острым углом в виде петли, а также затягивать сальники во время работы штукатурных станций (агрегатов) запрещается;

штукатуры, наносящие штукатурный раствор на поверхность при помощи сопел (обрызг и грунт) или прямоточных удочек (накрывку), должны пользоваться защитными очками;

электрические кабели для подключения электрифицированных инструментов и машин необходимо прокладывать к рабочим местам, согласно действующим инструкциям и правилам.

3. Технико-экономические показатели

Наименование работ

Объем работ,

м2

Трудоемкость работ,

чел.-ч

Стоимость затрат труда, руб.-коп.

общая

на единицу объема работ

общая

на единицу объема работ

Подготовка и оштукатуривание поверхности стен, оконных и дверных откосов, стен лестничных клеток

 

481,34'

214,78

0,45

140-97

0-29,8

Подготовка и затирка гипсобетонных перегородок, отделка лузг, усенков

 

429,32

166,85

0,39

57-76

0-14

Заделка швов потолка, мест сопряжения железобетонного потолка с перегородками, промазка плинтусов, наличников

 

643

91,84

0,14

56-04

0-08,7

Итого

473,47

 

254-77

 

 

Продолжительность работ 3 дня.

4. Материально-технические ресурсы

4.1. Потребность в основных материалах и полуфабрикатах на одну секцию типового этажа

Известковый раствор, м3

10,56

Шпаклевка, м3

0,21

Гипс, т

0,042

Сетка проволочная, м2

22,1

Гвозди штукатурные, кг

0,42

4.2. Машины, оборудование, инструменты, инвентарь и приспособления

Наименование

Марка, № чертежа, ГОСТ

Количество,

шт.

1

2

3

Машины и оборудование

 

Станция штукатурная производительностью 2; 4 м3/ч конструкции МФ ВНИИСМИ или

 

CО-114

 

1

производительностью 4 м3 /ч конструкции Главсредуралстроя

 

ПШС-2М

 

Подъемник грузопассажирский грузоподъемностью 500 кг (высота подъема груза 50 м)

 

ПГС-800

 

1

Растворонасос производительностью 4 м3

при укомплектовании станции CО-114

 

СО-49А

1

при укомплектовании станции ПШС-2М

 

СО-48А

3

Устройство для нанесения пастовых составов производительностью 100 м2конструкции ЦНИИОМТП

 

Черт. 4491.00.000

1

Компрессор

 

СО-7А

1

Трансформатор

 

ИВ-4

1

Преобразователь частоты тока

 

ИЭ-9401 или ИЭ-9402

1

Пункт передвижной инструментально-раздаточный конструкции ЦНИИОМТП

 

Черт.3287.А.00.000

 

1

Механизированные инструменты

 

Машинка штукатурно-затирочная производительностью до 50 м2

 

СО-86 или CО-112

 

6

Устройство для подачи воды к затирочным машинкам конструкции Главкиевгорстроя

 

Черт.МС 26.00.00.00.00

2

Ручные инструменты

 

Кельма штукатурная КШ

 

ГОСТ 9533-71

24

Ковш штукатурный

 

ГОСТ 7945-73

14

Отрезовка ОШ-1 и ОШ-2

 

ГОСТ 9533-71

10

Сокол дюралюминиевый

 

ОТУ 22-697-67

12

Острогубцы (кусачки) 175

 

ГОСТ 7282-64

3

Нож штукатурный

 

ГОСТ 18975-73

7

Ножовка поперечная по дереву

 

ГОСТ 6532-53

2

Молоток штукатурный МШТ

 

ГОСТ 11042-72

4

Скарпель диаметром 20 мм конструкции умор ГМС

 

Черт. 192.00.000

3

Терка деревянная конструкции УМОР ГМС

 

Черт.272.03.000

8

Терка пенопластовая или войлочная конструкции Оргтехстроя

 

Черт. 4687.01.00

7

Правило удлиненное конструкции ЦНИИОМТП

 

Черт.3545.14.000

12

Правило усеночное

 

ОТУ 22-1235-68

8

Правило лузговое

 

ОХУ 22-1234-68

8

Полутерки деревянных конструкций УМОР ГМС

 

 

800 мм

Черт. 223.00.000

16

1500 мм

 

Черт.224.00.000

Кисть-макловица КМА-2

 

ГОСТ 10597-70

24

Гладилка стальная

ГОСТ 10403-73

 

ГШ-1

 

12

ГШ-2

 

 

12

Рейкодержатель со штырём конструкции треста Мосорготрой

 

Черт. 1231

10

Щетка стальная прямоугольная конструкции Гипросельстроя Минсельстроя СССР

 

-

8

Шпатель стальной

 

ГОСТ 10773-76

12

Лопата растворная типа ЛP

 

ГОСТ 3620-76

5

Рустовка потолочная односторонняя

 

ГОСТ 13995-68

10

Лоток для сбора опавшего раствора конструкции ЦНИИОМТП

 

Черт.084.00.000

6

Линейка штукатурная конструкции УМОР ГМС

 

Черт.156.00.000

4

Скребок конструкции ЦНИИОМТП

 

Черт. 3345.20.000

6

Измерительные инструменты

 

Райка с отвесом

 

ГОСТ 9416-76

3

Уровень строительный УС1-300 и УС2-700

 

ГОСТ 9416-76

4

Отвес 0-400

 

ГОСТ 7948-71

3

Метр складной стальной

 

ГОСТ 7253-64

10

Угольник стальной

 

ГОСТ 10920-64

6

Конус стандартный

 

ГОСТ 5802-66

2

Шнур разметочный в корпусе

 

ТУ 22-1268-68

2

Приспособления

 

Форсунка штукатурная

 

ГОСТ 10466-63

2

Производственный инвентарь

 

Ёмкость поэтажная для раствора иди бункер поэтажный вместимостью 0,35 м3 конструкции УМОР ГМС

 

Черт.315.00.000

 

3

Бункер поэтажный для раствора вместимостью 0,55 м3 конструкции УМОР ГМС

 

Черт. 04.00.000

 

2

Тележка для раствора конструкции ЦНИИОМТП

 

Черт.3294.62.000

 

8

Ведро

 

ГОСТ 20558-75

10

Перчатки резиновые

 

ГОСТ 10108-62

24 пары

Респиратор

 

РПП-57

24

Очки защитные

 

ГОСТ 9802-61

24

Средства подмащивания

 

Столик универсальный конструкции ЦНИИОМТП

 

Черт.3241.08.000

 

6

Столик двухвысотный конструкции ЦНИИОМТП

 

Черт.3241.07.000

 

9

 

 

ТЕХНОЛОГИЧЕСКАЯ КАРТА №4

ОДНОСЛОЙНАЯ ШТУКАТУРКА (СПЛОШНОЕ ВЫРАВНИВАНИЕ) ВНУТРЕННИХБЕТОННЫХ ПОВЕРХНОСТЕЙ СТЕН И ПЕРЕГОРОДОК ТИПОВОГО ЭТАЖА РЯДОВОЙ СЕКЦИИ ДЕВЯТИЭТАЖНОГО КРУПНОПАНЕЛЬНОГО ЖИЛОГО ДОМА СЕРИИ 111-2-2/1

1. Область применения

1.1. Технологическая карта (ТК) разработана на производство работ по нанесению однослойной штукатурки (сплошное выравнивание) цементно-песчаным раствором на внутренние бетонные поверхности стен и потолков, затирке поверхности тип с обе тонных перегородок типового этажа рядовой секции девятиэтажного крупнопанельного жилого дона серии 111-82-2/1. Приготовление цементно-песчаного раствора - в построечных условиях, подача сухой штукатурной смеси механизирована, раствор наносят вручную.

Рабочие чертежи здания разработаны ЦНИИЭП жилища.

1.2. В состав работ, рассматриваемых ТК, входят: выгрузка и подъем сухой штукатурной смеси на этан, приготовление раствора, подготовка поверхностей, нанесение и затирка выравнивающего слоя, отделка откосов, заделка мест сопряжений плит перекрытий со стенами и перегородками.

Работы выполняют летом в одну смену.

1.3. Настоящая ТК может быть применена при строительстве объектов различного жилого и гражданского назначения с учетом конкретных условий строительства.

2. Организация и технология строительного процесса

2.1. Подготовка к производству штукатурных работ

До начала работ необходимо: закончить устройство всех видов оснований под чистые полы; установить перегородки и законопатить зазоры; установить оконные и дверные блоки и законопатить зазоры;

заделать швы между плитами перекрытий; установить встроенные шкафы; заделать все временные отверстия в стенах, перегородках и перекрытиях; установить вентиляционные короба, прочистить вентиляционные каналы; установить электроосветительные и слаботочные устройства; закончить основные санитарно-технические работы (монтаж и опрессовка систем центрального отопления, водопровода, канализации и газопровода); установить лестничные ограждения; просушить сырые места; закончить устройство гардеробных, туалетных, душевых, а также помещений для сушки одежды, пунктов питания, здравпунктов и других бытовых помещений для рабочих; осветить рабочие места; доставить на них инструменты, инвентарь, приспособления и материалы; принять объект под отделку по акту.

2.2. Приготовлению и доставка штукатурного раствора

Сухую штукатурную смесь доставляют на строительную площадку автомобилями в крафт-мешках или в стальных бункерах и подают на рабочие места при помощи подъемника ПГС-800.

Смесь завозят заблаговременно, обеспечивая запас на 1,5 смены работы, и хранят в условиях, исключающих возможность попадания в нее влаги.

Приведенные ниже составы сухой штукатурной смеси (в % по объему) не являются обязательными и зависят от местных ресурсов.

Цементно-песчаная смесь

Портландцемент М 400

1

Песок кварцевый крупностью 0,15-1,2 мм (типа люберецкого)

2

Мука известняковая

0,1

 

Известково-песчаная смесь

Известь-кипелка молотая

1

Мука известняковая (пластификатор)

1

Песок кварцевый крупностью 0,15-1,2 мм (типа люберецкого)

2

 

Влажность сухой смеси должна быть не более 1,5%. Для приготовления раствора из сухой смеси используют передвижные растворосмесители СО-23А, которые устанавливают на этажах зданий.

Штукатурный раствор приготовляют небольшими порциями, так чтобы его можно было попользовать до начала схватывания цемента. В установленной дозировке сухую штукатурную смесь и воду загружают в смеситель и перевешивают в течение 4-5 мин. Воду для замеса раствора подают по временному стояку. Количество воды для приготовления цементно-песчаных смесей определяют расчетом или путем пробных замесов для получения требуемой подвижности.

Потребное количество воды для затворения смеси подвижностью 10-11 см составляет: на 1 т сухой смеси - 240-250 л.

Выход раствора на 1 т сухой штукатурной смеси составляет примерно 0,62 м3.

Непосредственно к рабочему месту раствор подается в сменном откатном бункере растворосмесителя СО-23А.

2.3. Технология производства работ

При производстве работ соблюдают следующую последовательность технологических операций.

Вначале подготовляют поверхность стен, затем наносят и затирают выравнивающий слой и заканчивают работы заделкой мест сопряжений плит перекрытий со стенами и перегородками, отделкой откосов.

Штукатурные работы следует производить в помещениях при температуре воздуха не ниже +8°С, измеренной на высоте 0,5 м от пола.

2.3.1. Подготовка поверхности стен под оштукатуривание

Подготовка состоит из очистки поверхности стен от грязи и пыли, заделки раствором углублений, выбоин и отверстий, удалении битумных и жировых пятен, а также выступивших на поверхности солей.

Поверхность очищают при помощи стальной щетки и скребка, затем струей воды смывают с панелей пыль.

Мелкие углубления и перепада устраняют путем затирки цементно-песчаным раствором, предварительно огрунтовав эти места 5-7%-ным раствором поливинилацетатной эмульсии, или же после огрунтовки выравнивают раствором заподлицо с общей поверхностью. Трудоемкость работ по затирке мелких углублений составляет 20% от общей.

Все значительные дефекты в бетоне, требующие нанесения цементно-песчаного раствора толщиной 2 мм предварительно огрунтовывают 5-7%-ным раствором поливинилацетатной эмульсии при помощи ручного краскопульта СО-20А непосредственно перед нанесением штукатурного раствора.

При наличии дефектов, площадь которых превышает 35%, на поверхность наносят слой жидкого шпаклевочного состава при помощи шпаклевочной установки CО-21A с последующим выравниванием "на сдир" стальным шпателем. Для удаления с поверхности несмываемых жировых пятен применяют водный раствор калийного стекла (1:3) с добавлением сухой белой силикатной краски (рабочая вязкость раствора 15-20 см по ВЗ-4).

2.3.2. Нанесение выравнивающего слоя

Внутренние железобетонные стены и гипсобетонные перегородки оштукатуривают цементно-песчаным раствором подвижностью 7-12 см по стандартному конусу. Толщина слоя - 2 мм.

Выравнивающий слой наносят с пола или со столиков-подмостей. Приложив сокол с раствором к оштукатуриваемой поверхности ребром под углом 30-45°, штукатур движением кельмы снизу вверх наносят выравнивающий слой, который затем разравнивают полутерком и затирают при помощи деревянных терок, обитых резиной, или алюминиевыми терками, оклеенными пенопластом. Затирку выравнивающего слоя производят по мере твердения раствора.

2.3.3. Заделка мест сопряжений и отделка откосов

Заделку мест сопряжений плит перекрытий со стенами и перегородками, а также отделку откосов производят при помощи сокола, кельмы и лузговых правил цементно-песчаным раствором подвижностью 7-8 см.

2.4. Состав бригада

Все штукатурные работы выполняет специализированная бригада из 22 человек, состоящая из семи звеньев.

Состав бригады и перечень выполняемых работ

 

№ звена

Профессия

Количество рабочих

Выполняемые работы

3

Машинист растворонасоса 3 разр.

1

Приготовление раствора на этажах

Подсобный рабочий 2 разр.

 

1

1

Подсобный (транспортный) рабочий 1 разр.

 

1

Выгрузка вручную крафт-мешков из автомобилей-самосвалов

4

Штукатуры

4 разр.

2 разр.

 

 

2

2

 

Подготовка поверхности под штукатурку; заделка мест сопряжений плит перекрытий со стенами и перегородками

 

2

Машинист 3 разр.

1

Подъем сухой штукатурной смеси в крафт-мешках подъемником

Такелажники 2 разр.

 

4

5,6,7

Штукатуры

4 разр.

3 paзp.

2 paзp.

 

 

4

5

1

Нанесение выравнивающего слоя на стены, перегородки и стены лестничных клеток с затиркой их

Схема производства работ

1 - тележка с раствором; 2 - установка CO-21 для нанесения жидкой шпаклевки; 3 - грузопассажирский подъемник ПГС-80О; 4 - выдвижная площадка; 5 -электростояк; 6 - пандус; 7 - инвентарный стояк для подачи воды; 8 - гибкий шланг; 9 - пешки с сухой цементно-песчаной смесью; 10 - растворосмеситель СО-23А с откидными лопастями; 11 - поэтажный электрощит

2.5. График производства работ

 

 

2.6. Калькуляция затрат труда

 

Обоснование

Наименование работ

Единица измерения

Объем работ

Норма времени на единицу измерения,

чел.-ч

(маш.-ч)

Затраты труда на общий объем работ, чел.-ч

(маш.-ч)

Расценка на единицу измерения,

руб.- коп.

Стоимость затрат труда на общий объем работ,

руб.- коп.

ЕНиР, 1974, § 1-11, п.3 д

Выгрузка вручную из автомобилей-самосвалов крафт-мешков с сухой штукатурной смесью

 

т

8,3

0,44

3,65

0-19,3

1-60

ЕНиР, 1974, § 1-8, т.2, п.20а,б

Подъем сухой штукатурной смеси в мешках подъемником

 

100 т

0,083

41,6; 10,4

(10,4)

3,45; 6,88

(6,88)

20-51

1-70

ЕНиР, 1969, § 3-18, пп. 1ж, 4ж

Механизированное приготовление цементно-песчаного раствора из сухой штукатурной смеси

 

м3

5,15

1,55

(1,55)

7,98 (63,84)

0-81,4

4-19

ЕНиР, 1973, § 8-5А, т.2, пп. 1в, 3в

 

Насечка и прочистка поверхности внутренних стен

100 м2

 

0,61*

30

18,3

16-65

10-26

потолков

 

0,1**

37

3,7

20-54

2-05

ЕНиР, 1973, § 8-5А, т.2, пп.1д,3д

Срубка наплывов бетона с поверхности

внутренних стен

100 м2

0,61*

63

38,4

34-97

21-30

потолков

 

0,1**

96

9,6

53-28

5-33

ЕНиР, 1973, § 8-10A, т.1, п.3а

 

Нанесение вручную накрывочного слоя на стены, перегородки и стены лестничных клеток, разравнивание его и затирка

 

м2

858

0,24

205,9

0-12,6

108-10

ЕНиР, 1973, § 8-II, п.2б

Заделка мест сопряжений плит перекрытий со стенами и перегородками

 

100 м

шва

3,06

17,5

53,6

10-94

33-48

ЕНиР, 1973, § 8-10, т.2, п.5б

Отделка откосов

100 м2

0,25

81

20,25

45-28

11-32

 

 

 

 

Итого

365,69 (70,72)

 

199-33

* - Объем работ принят условно как 10% от оштукатуриваемой поверхности.

** - Объем работ принят условно как 5% от оштукатуриваемой поверхности.

2.7. Контроль качества

Штукатурные работ должны выполняться в соответствии с требованием главы СНиП Ш-21-73 "Отделочные покрытия строительных конструкций. Правила производства и приемка работ".

Слой штукатурки должен быть прочно соединен с поверхностью оштукатуриваемой конструкции.

Оштукатуренные поверхности должны быть ровными, гладкими, с четко отделанными гранями углов, пересекающихся плоскостей, без следов затирочного инструмента, потеков раствора, пятен и высолов. Не допускаются трещины, бугорки, раковины (дутики), грубо шероховатая поверхность, пропуски.

Отклонения качества оштукатуренных поверхностей не должны превышать следующих величин:

неровности поверхности (обнаруживаются при накладывании двухметрового правила) - не более двух глубиной или высотой до 3 мм;

отклонения оконных и дверных откосов от вертикали (горизонтали) - 1 мм на 1 м высоты (длины), но не более 5 мм на весь элемент;

отклонение ширины оштукатуренного откоса от проектной - не более 3 мм.

Качество готовых растворов должно удовлетворять требованиям СН 290-74 "Инструкция по приготовлению и применению строительных растворов". Материалы и изделия, применяемые для штукатурных работ, должны удовлетворять требованиям соответствующих стандартов, а также указанием СНиП I-В.2-69 "Вяжущие материалы неорганические и добавки для бетонов и растворов".

2.8. Техника безопасности

При производстве штукатурных работ следует строго соблюдать правила техники безопасности, руководствуясь при этом действующий нормативной и инструктивной документацией, в том числе главой СНиП III-А.11-70 "Техника, безопасности в строительстве", СН 38-58 "Инструкция по заземлению передвижных строительных механизмов и электрифицированного инструмента" (издание второе, Москва, 1962), а также "Руководство по транспортировке, приемке, складированию и хранению материалов, изделий, конструкций и оборудования в строительстве" (Москва, 1965).

Кроме того, при производстве штукатурных работ необходимо соблюдать следующие требования:

внутренние штукатурные работы следует выполнять с подмостей или передвижных столиков, установленных на сплошные настилы или полы;

перед началом работы необходимо проверить исправность стояков, растворосмесителя, подъемника и других средств механизации; предохранительные клапаны и манометры должны быть опломбированы;

разбирать, ремонтировать и чистить штукатурные растворосмесительные установки, форсунки и другое оборудование следует после снятия давления и отключения машин от электросети;

штукатуры, ведущие работы по подготовке железобетонных поверхностей, а также при нанесении накрывочного слоя, должны пользоваться защитными очками;

электрические кабели для подключения электрифицированных инструментов и машин прокладывать к рабочим местам, согласно действующим инструкциям и правилам.

3. Технико-экономические показатели

 

Наименование работ

Объем работ

Трудоемкость работ,

чел.-ч

Стоимость затрат труда,

руб.-коп.

общая

на единицу объема работ

общая

на единицу объема работ

Подготовка поверхности под оштукатуривание, нанесение вручную накрывочного слоя на стены, перегородки и стены лестничных клеток с разравниванием, затирка оконных и дверных откосов

 

873 м2

312,09

0,36

165-85

0-19

Заделка мест сопряжения железобетонных элементов потолка со стенами и перегородками

 

306 м

53,6

0,17

33-48

0-10,9

Итого

365,69

 

199-33

 

 

Продолжительность работ 4 дня.

4. Материально-технические ресурсы

4.1. Потребность в основных материалах и полуфабрикатах на одну секцию типового этажа

Сухая смесь, т

8,3

Раствор поливинилацетатной эмульсии (5-7 %), кг

102,96

Жидкая шпаклевка, кг

19,9

 

4.2. Машины, оборудование, инструменты, инвентарь и приспособления

Наименование

Марка, № чертежа, ГОСТ

Количество, шт.

1

2

3

Машины и оборудование

 

Подъемник грузопассажирский грузоподъемностью 500 кг (высота подъема груза 50 м)

 

ПГС-800

1

растворосмеситель производительностью 1,2-1,5 м3

 

СО-23А

1

Установка для нанесения жидкой шпаклевки производительностью 200 м2/ч

CО-21A

1

Компрессор производительностью 28-30 м3

 

СО-7А

1

Краскопульт ручной с удочкой производительностью 200 м3/ч (для окраски в один слой)

 

СО-20А

4

Трансформатор

 

ИВ-4

1

Преобразователь частоты тока

 

ИЭ-9401 или ИЭ-9402

1

Пункт передвижной инструментально-раздаточный конструкции ЦНИИОМТП

 

Черт. 3287.А.00.000

1

Механизированные инструменты

 

Ножницы электрические для резки металла

 

ИЭ-5402

2

Ручные инструменты

 

Кельна штукатурная

 

ГОСТ 9533-71

22

Ковш штукатурный

 

ГОСТ 7945-73

5

Отрезовка ОШ-1 и ОШ-2

 

ГОСТ 9533-7

8

Сокол дюралюминиевый

 

ОТУ 22-697-67

12

Острогубцы (кусачки) 175

 

ГОСТ 7282-64

3

Нож штукатурный

 

ГОСТ 18975-73

4

Ножовка поперечная по дереву

 

ГОСТ 6532-53

2

Молоток штукатурный МШТ

 

ГОСТ 11042-72

5

Скарпель диаметром 20 мм конструкции УМОР ГМС

 

Черт. 192.00.000

3

Терка деревянная конструкция УМОР ГМС

 

Черт. 272.00.000

7

Терка пенопластовая или войлочная конструкции Оргтехстроя Лит. ССР

 

Черт. 4687.01.00

5

Правило удлиненное конструкции ЦНИИОМТП

 

Черт. 3345.14.000

10

Правило усеночное

 

ОТУ 22-1235-68

8

Правило лузговое

 

ОТУ 22-1234-68

8

Полутёрок деревянный конструкции УМОР ГМС

 

16

800 мм

Черт. 223.00.000

1500 мм

 

Черт. 224.00.000

Кисть-макловица КМА-2

 

ГОСТ 10597-70

22

Гладилка стальная

 

 

ГШ-1

ГОСТ 10403-63

10

ГШ-2

 

10

Рейкодержатель со штырем конструкции ЦНИИОМТП

 

Черт. 3345.13.000

10

Щетка стальная прямоугольная конструкции Гипрооргсельстроя Минсельстроя СССР

 

-

5

Лопата растворная ЛР

 

ГОСТ 3620-63

4

Рустовка потолочная односторонняя

 

ГОСТ 13995-68

10

Лоток для сбора раствора конструкции ЦНИИОМТП

 

Черт. 5345.28.000

6

Шпатель стальной

 

ГОСТ 10778-76

12

Линейка штукатурная конструкции УМОР ГМС

 

Черт.156.00.000

4

Скребок стальной конструкции ЦЙИИОМТП

 

Черт. 3345.19.000

6

Измерительные инструменты

 

Рейка с отвесом

 

ГОСТ 9416-67

3

Уровень строительный УС1-300 и УС2-700

 

ГОСТ 9416-67

4

Отвес О-400

 

ГОСТ 7948-71

2

Метр складной стальной

 

ГОСТ 7253-64

8

Угольник стальной

 

ГОСТ 10920-64

5

Шнур разметочный в корпусе

 

ТУ 22-1268-68

2

Производственный инвентарь

 

Емкость поэтажная для раствора или бункер поэтажный вместимостью 0,35 м3 конструкции УМОР ГМС

 

Черт.315.00.000

5

Тележка для раствора конструкции ЦНИИОМТП

 

Черт. 3294.62.000

3

Ведро

 

ГОСТ 20558-75

10

Перчатки резиновые

 

ГОСТ 10108-62

22 пары

Очки защитные

 

ГОСТ 9802-61

22

Респиратор

 

РПП-57

22

Средства подмащивания

 

Столик универсальный конструкции ЦНИИОМТП

 

Черт. 3241.08.000

5

Столик двухвысотный конструкции ЦНИИОМТП

Черт. 3241.07.000

5

ТЕХНОЛОГИЧЕСКАЯ КАРТА №5

ОДНОСЛОЙНАЯ ШТУКАТУРКА (СПЛОШНОЕ ВЫРАВНИВАНИЕ) ВНУТРЕННИХ БЕТОННЫХ ПОВЕРХНОСТЕЙ СТЕН, ПЕРЕГОРОДОК И ПОТОЛКОВ ТИПОВОГО ЭТАЖА ШЕСТНАДЦАТИЭТАЖНОГО ЖИЛОГО ДОМА ИЗ МОНОЛИТНОГО ЖEЛЕ3ОБЕТОНА СЕРИИ Э-187

1. Область применения

1.1. Технологическая карта (ТК) разработана на производство работ по нанесении одного слоя штукатурки (сплошное выравнивание) цементно-песчаным раствором на внутренние бетонные поверхности стен, перегородок и потолков типового этажа 16-этажного жилого дома из монолитного железобетона серии Э-187.

Приготовление цементно-песчаного раствора - в построечных условиях, подача и нанесение механизированы.

Рабочие чертежи здания разработаны ЦНИИЭПжилища.

1.2. В состав работ, рассматриваемых ТК, входят: транспортировка, приготовление и подача штукатурного раствора; подготовка поверхностей под оштукатуривание; механизированное нанесение одного выравнивающего слоя или обрызга - грунта (в случаях крупных дефектов) и накрывочного слоя, затирка поверхностей; отделка вручную оконных и дверных откосов.

Работы выполняют летом в одну смену.

1.3. Настоящая ТК может быть применена при строительстве объектов различного жилого и гражданского назначения из монолитного железобетона с учетом конкретных условий строительства.

2. Организация и технология строительного процесса

2.1. Подготовка к производству штукатурных работ

До начала работ необходимо: возвести не менее трех этажей; выполнить подготовку под полы; установить дверные и оконные блоки, остеклить проемы; смонтировать системы отопления, водопровода и канализации; в отделываемых помещениях заделать в перекрытиях все отверстия, смонтировать скрытые электротехнические и слаботочные разводки; испытать крюки для подвески люстр; осветить рабочие места;

очистить все помещения от строительного мусора; доставить на рабочее место инструменты, инвентарь, приспособления и материалы.

Штукатурные работы следует производить при температуре воздуха не ниже +8°С, измеренной на высоте 0,5 м от пола.

2.2. Приготовление и доставка штукатурного раствора

Сухую штукатурную смесь доставляют на строительный объект закрытыми автомобилями в крафт-мешках или в стальных бункерах. Смесь завозят заблаговременно, обеспечивая запас на 1,5 смены работы, и хранят в условиях, исключающих возможность попадания в нее влаги. Влажность сухой смеси должна быть не более 1,5%.

Подачу сухой смеси на этажи производят при помощи подъемника ПГС-800. Для приготовления штукатурного раствора на каждом этаже здания устанавливают малогабаритные смесители СБ-43А.

Вначале в смеситель заливают половину требуемого объема воды, затем при включенном механизме вводят стабилизированную дибутилфталатом ПВАЭ или латекс СКС-55 ГП, стабилизированный поверхностно активным веществом ОП-7 или ОП-10, в количестве 10-15% от объема водной дисперсии латекса.

После 2-3 мин. перемешивания в смеситель загружают сухую цементно-песчаную смесь и остальную воду. Общее время перевешивания всех компонентов не более 10 мин.

Подвижность раствора в первом случае должна соответствовать 10-12 см погружения стандартного конуса, во втором - 8-10 см. Раствор следует приготовлять небольшими порциями, которые можно использовать до начала схватывания цемента.

Наносят штукатурные составы на поверхность с помощью бескомпрессорной форсунки, к которой состав подается по растворонасосу СО-48А.

2.3. Технология производства работ

Слой штукатурного намета наносят цементно-песчаным раствором, соблюдая следующую последовательность технологических операций. Вначале подготовляют поверхность, затем механизировано наносят слои обрызга-грунта и накрывочный. После этого затирают поверхность, отделывают откосы и заканчивают работы уходом за штукатуркой.

2.3.1. Подготовка поверхностей стен, перегородок и потолков под оштукатуривание

Поверхности, подлежащие оштукатуриванию, должны быть очищены от пыли и грязи, наплывы бетона удалены.

На недостаточно шероховатой поверхности делают нарезку или насечку.

Заделку крупных раковин производят вручную цементно-песчаным раствором с добавлением 10% ПВАЭ от массы сухой смеси.

Смачивают железобетонные поверхности с помощью электрокраскопультов раствором эмульсии ПВА, разведенной водой до концентрации 8%.

2.3.2. Нанесение выравнивающего слоя или обрызга-грунта и накрывочного слоя с затиркой его

Штукатурный выравнивающий слой или обрызг-грунт и накрывочный слой наносят на поверхности по мере движения скользящей опалубки. Толщина штукатурного выравнивающего слоя - 3 мм, обрызга-грунта - до 4 мм, накрывочного слоя - 1 мм.

Накрывочный слой наносят только после схватывания предыдущего.

Нанесение штукатурных слоев производят при помощи растворонасосов бескомпрессорной форсункой. При этом необходимо следить за тем, чтобы количество опадающего раствора было минимальным, для чего штукатур, приступая к нанесению раствора, должен установить требуемую длину струи раствора и факел его распыления в зависимости от давления.

Разравнивают нанесенный слой полуторками и правилами. При этом полутерок передвигают снизу вверх зигзагообразными движениями, прижимая его к стене параллельно полу так, чтобы между нижней частью полутерка и стеной образовался острый угол. По одному участку следует проходить полутерком дважды во взаимно перпендикулярных направлениях.

Качество выполненной штукатурки проверяют по ходу работы, прикладывая к поверхности контрольное правило.

Затирают выравнивающий или накрывочный слой спиралевидными движениями диска электрозатирочной машинки СО-86 или СО-112, со смачиванием или же (в случае необходимости) с нанесением для выравнивания цементно-песчаного раствора без добавления эмульсии ПВА. Одновременно разделывают углы, отделывают оконные и дверные откосы.

Небольшие помещения с полами площадью не более 5 м2 оштукатуривают вручную. Раствор наносят ковшом непосредственно из ящика, а в труднодоступных местах и в очень тесных помещениях используют штукатурные лопатки.

Свежевыполненную штукатурку до ее затвердения необходимо предохранить от намокания, замерзания, пересушивания, от ударов и сотрясений. В случае необходимости применяют искусственную сушку штукатурки путем равномерной подачи в оштукатуренные помещения нагретого воздуха и вытяжки влажного воздуха с использованием вентиляции. При этом должен обеспечиваться не менее чем трехкратный обмен воздуха в помещении в течение 1 ч.

В сухую погоду, при температуре +23°С и выше, оштукатуренные участки необходимо увлажнять.

2.4. Состав бригады

Все штукатурные работы выполняет бригада из 17 человек, состоящая из шести звеньев.

Состав бригады и перечень выполняемых работ

 

№ звена

Профессия

Количество

рабочих

Выполняемые работы

1

Машинист подъемника 3 разр.

Такелажники 2 разр.

 

1

2

Подъем материалов

2

Машинист растворосмесителя 3 разр.

Штукатуры 2 paзp.

 

1

2

Приготовление цементно-песчаного раствора и водного раствора эмульсии ПВА

3

Штукатуры

3 разр.

2 разр.

 

 

1

1

Подготовка поверхностей под оштукатуривание

4

Машинист растворонасоса 3 разр.

1

Оштукатуривание стен, перегородок и потолков

 

Штукатуры

 

 

 

4 разр.

2

 

 

3 разр.

2

 

 

2 разр.

1

 

5

Штукатуры

 

 

 

4 разр.

3 разр.

 

1

1

Оштукатуривание стен, в помещениях с полами площадью до 5 м2, а также оконных и дверных откосов

6

Штукатур 2 разр.

1

Уход за штукатуркой

 

Схема производства работ

1 - шпаклевочный агрегат конструкции ВНИИСМИ; 2 - электрокраскопульт CО-61; 3 - тележка с раствором; 4 - растворонасос СО-48А; 5 - удочка; 6 - выдвижная площадка; 7 - грузопассажирский подъемник ПГС-800; 8 -пандус; 9 - поэтажный электрощит; 10 - гибкий шланг; 11 -мешки с сухой цементно-песчаной смесью; 12 - инвентарный стояк для подачи воды; 13 -электростояк; 14 - растворосмесители СО-23А с откидными лопастями; 15 - подвесные подмости скользящей опалубки; 16 -скользящая опалубка

2.5. График производства работ

 

2.6. Калькуляция затрат труда

 

Обоснование

Наименование работ

Единица измерения

Объём работ

Норма времени на единицу измерения,

чел.-ч

(маш.-ч)

Затраты труда на общий объем работ,

чел.-ч

(маш.-ч)

Расценка на единицу измерения,

руб.-коп.

Стоимость затрат труда на общий объем работ,

руб.-коп.

ЕНиР,1974,§ 1-8,т.2, п.20а

(применительно)

Подъем материалов (грузов)

в контейнерах подъемником

ПГС-800

 

100 т

0,15

19,4

77,6

(19,4)

2,88

11,89

(2,88)

10-76

38-26

1-61

5-74

ЕНиР,1973,§ 8-2.

т. 2, п.2б, § 8-4,

т.2, п.1а,б

Приготовление цементно-песчаного штукатурного раствора и подача его в емкости

 

м3

6

2,6

2,55

(2,55)

30,83

(14,88)

1-28

(0-72)

7-68

(4-22)

ВНИПИ труда в строительстве, 1976,

Кт-8.2-7-68

Приготовление водного раствора эмульсии ПВА для смачивания стен и потолков

 

100 м2

11,7

0,6

7,38

0-28

3-28

ЕНиР, 1973, § 8-24,

т.4, п. 2б,г

Смачивание поверхностей водным раствором ПВА механизированным способом

 

 

 

 

 

 

 

 

 

 

 

 

 

 

внутренних стен

100 м2

8,3

0,195

1,64

0-10,2

0-85

 

потолков

 

3,4

0,25

0,85

0-13,1

0-45

ЕНиР, 1973, § 8-5.А,

т.2, пп. 1в, 3в

Насечка и прочистка поверхности

 

 

 

 

 

 

 

 

 

 

 

 

 

внутренних стен

100 м2

0,83*

30

24,9

16-65

13-82

 

потолков

 

0,17**

37

6,3

20-54

3-49

ЕНиР, 1973,

§ 8-5А, т.2, пп. 1д, 3д

Срубка наплывов бетона с поверхности

 

 

 

 

 

 

 

 

 

 

 

 

 

внутренних стен

100 м2

0,83*

63

52,48

34-97

29-03

 

потолков

 

0,17**

96

16,4

53-28

9-06

ЕНиР, 1973,

§ 8-10A, т.1, п.4а

Заделка вручную раковин и трещин

 

100 м2

0,83*

31

25,42

16-20

13-45

ЕНиР, 1973, § 8-6А,

т.2, п.За,б; § 8-:Б,

т.3, п.а

Нанесение механизированным способом слоя обрызга-грунта толщиной 4 мм на поверхности

 

 

 

 

 

 

 

 

 

 

 

 

 

 

 

 

 

 

 

внутренних стен

100 м2

8,3

19

4,9

(4,9)

 

198,37

(40)

10-80

 

89-64

 

потолков

3,4

24

4,9

(4,9)

98,26

(16)

13-70

46-60

ВНИПИ труда в строительстве, 1976,

Кт-8.0-6.11-75

(применительно)

Нанесение механизированным способом накрывочного слоя толщиной 1 мм и затирка его

 

 

 

 

 

 

 

 

 

 

 

 

 

 

 

 

 

 

 

 

 

 

 

 

 

внутренние стены

100 м2

8,3

11,6

95,94

6-82

56-61

 

потолки

 

3,4

16,6

56,58

8-45

28-73

ЕНиР,1973, § 8-7,

т.2, п.2а,

применительно,

к=1,5 по гл.1, п.5

 

Оштукатуривание вручную помещений площадью менее 5 м2

м2

59,3

0,9

53,37

0-53

31-43

ВНИПИ труда в строительстве,

1976,

Кт-8.2-7-68

 

Оштукатуривание вручную дверных и оконных откосов

м2

22,2

1,6

36,52

0-94

20-87

ЕНиР, 1973,

§ 8-18,п.7

Уход за штукатуркой

100 м2

11,7

1,85

21,64

0-91,2

10-67

Итого

741,65

(73,76)

 

373-01

 

* Объем работ принят условно как 10% от оштукатуриваемой поверхности.

** Объем работ принят условно как 5% от оштукатуриваемой поверхности.

2.7. Контроль качества

Штукатурные работы должны выполняться в соответствии с требованиями главы СНиП Ш-21-73 "Отделочные покрытия строительных конструкции. Правила производства и приемки работ".

Слои штукатурки должны быть прочно соединены с поверхностью оштукатуриваемой конструкции. Прочность сцепления с основаниями проверяется легким простукиванием. При этом не должно быть глухо звучащих мест.

Не допускаются трещины, бугорки, раковины (дутики), грубошероховатая поверхность, пропуски (неоштукатуренные места у подоконников, наличников, плинтусов, приборов отопления, санитарно-технических устройств и др.).

Качество работ может быть проверено путем контрольного вскрытия отдельных участков готовой штукатурки.

Отклонения качества оштукатуренных поверхностей не должны превышать следующих величин:

неровности поверхности (обнаруживаются при накладывании правила или шаблона длиной 2 м) - не более двух глубиной или высотой до 3 мм;

отклонение поверхности стен (потолков) от вертикали (горизонтали) - 1 мм на 1 м высоты (длины), но не более 10 мм на всю высоту (длину) помещения;

отклонение лузг, усенков, оконных и дверных откосов, пилястр, столбов от вертикали (горизонтали) - 1 мм на 1 м высоты (длины), но не более 5 мм на элемент;

отклонение ширины оштукатуренного откоса от проектной - 3 мм; отклонение от прямой линии в пределах между углами пересечения тяг и раскреповки - 3 мм.

Качество готовых растворов должно удовлетворять требованиям СН 290-74 "Инструкция по приготовлению и применению строительных растворов", материалы и изделия, применяемые для штукатурных работ, должны удовлетворять требованиям соответствующих стандартов, а также указаниям СНиП I-B.2-69 "Вяжущие материалы неорганические и добавки для бетонов е растворов".

2.8. Техника безопасности

При производстве штукатурных работ следует строго соблюдать правила техники безопасности, руководствуясь при этом действующей нормативной и инструктивной документацией, в том числе главой СНиП III-А.11-70 "Техника безопасности в строительстве" и СН 38-58 "Инструкция по заземлению передвижных строительных механизмов и электрифицированного инструмента" (издание второе, Москва, 1962).

Кроме того, при производстве штукатурных работ необходимо соблюдать следующие требования:

к штукатурным работам допускаются лица, прошедшие инструктаж по технике безопасности и производственный инструктаж непосредственно на рабочей месте;

внутренние штукатурные работы следует выполнять с подмостей или передвижных столиков;

при производстве работ на лестничных маршах необходимо применять подмости (столики) с опорными стойками разной длины, устанавливаемыми на ступени; рабочий настил должен быть горизонтальным и иметь ограждение с перилами и бортовой доской;

перед началом каждой смены следует проверить исправность растворонасоса, рукавов и другого оборудования, применяемого для штукатурных работ;

работа растворонасоса при давлении, превышающем указанное в техническом паспорте, запрещается;

все работы, связанные с ремонтом или внутренним осмотром растворонасоса, преобразователя и затирочных машинок, следует производить только при отключенном электропитании; продувка рукавов сжатым воздухом допускается только после удаления людей за пределы опасной зоны;

штукатуры, наносящие штукатурный раствор на поверхность при помощи сопла и производящие набрызг раствора вручную, должны иметь защитные очки;

переносные токоприемники; (инструмент, машины, светильники и др.), применяемые при выполнении штукатурных работ, должны иметь напряжение не более 36 В;

пребывание более 3 человек в просушиваемом помещении запрещается.

3. Технико-экономические показатели

 

Наименование работ

Объём работ,

м2

Трудоемкость работ,

чел.-ч

Стоимость затрат труда,

руб.-коп.

общая

на единицу объема работ

общая

на единицу объема работ

Подготовка поверхностей стен под оштукатуривание, нанесение слоев обрызга-грунта и накрывочного на стены, оштукатуривание помещений малых площадей, оконных и дверных откосов, уход за штукатуркой

 

830

534,56

0,64

270-99

0,33

Подготовка поверхностей потолков под оштукатуривание, нанесение слоев обрызга-грунта и накрывочного на потолки, уход за штукатуркой

 

340

205,74

0,61

102-02

0,30

Итого

740,3

 

373-01

 

Продолжительность работ составляет 10 дней.

4. Материально-технические ресурсы

4.1. Потребность в основных материалах и полуфабрикатах на одну секцию типового этажа

Сухая смесь, т

9,6

Эмульсия ПВА, кг

351

Вода, л

2500

4.2. Машины, оборудование, инструменты, инвентарь и приспособления

 

Наименование

Марка, № чертежа, ГОСТ

Количество, шт.

1

2

3

Машины и оборудование

 

Подъемник грузопассажирский грузоподъемностью 500 кг (высота подъема груза 50 м)

 

ПГС-800

1

Растворосмеситель на 65 л готового замеса, производительностью 2-2,6 м3

 

СБ-43А

2

Растворонасос производительностью 2 м3

 

СО-48А

2

Установка для нанесения жидкой шпаклевки производительностью до 200 м3

 

CО-21A

1

Компрессор производительностью 28-30 м3

 

СО-7А

1

Трансформатор

 

ИВ-4

1

Преобразователь частоты тока

 

ИЭ-9401 или ИЭ-9402

1

Пункт передвижной инструментально-раздаточный конструкции ЦНИИОМТП

 

Черт. 3287.А.00.000

1

Механизированные инструменты

 

Машинка штукатурно-затирочная производительностью до 50 м2

 

СО-86 или CО-112

5

Устройство для подачи воды к затирочным машинкам конструкции Главкиевгорстроя

 

Черт. МС 26.00.00.00.00

2

Ножницы электрические для резки металла

 

ИЭ-5402

2

Электрокраскопульт производительностью 250 м2

 

CО-61

1

Ручные инструменты

 

Кельма штукатурная КШ

 

ГОСТ 9533-71

5

Ковш штукатурный

 

ГОСТ 7945-73

6

Отрезовка ОШ-1 и ОШ-2

 

ГОСТ 9533-71

6

Сокол дюралюминиевый

 

ОТУ 22-697-67

5

Острогубцы (кусачки) 175

 

ГОСТ 7282-64

4

Нож штукатурный

 

ГОСТ 18975-73

5

Ножовка поперечная по дереву

 

ГОСТ 6532-53

3

Молоток штукатурный МШТ

 

ГОСТ 11042-72

5

Скарпель диаметром 20 мм конструкции УМОР ГМС

 

Черт. 192.00.000

2

Терка деревянная конструкции УМОР ГМС

 

Черт. 272.00.000

7

Терка пенопластовая или войлочная конструкции Оргтехстроя Лит. ССР

 

Черт. 4687.01.00

5

Правило удлиненное конструкции ЦНИИОМТП

 

Черт. 3345.14.000

5

Правило усеночное

 

ОТУ 22-1235-68

4

Правило лузговое

 

ОТУ 22-1234-68

4

Подутерки деревянные конструкция УМОР ГМС

 

 

800 мм

Черт. 223.00.000

16

1500 т

 

Черт. 224.00.000

Кисть-макловица КМА-2

 

ГОСТ 10597-70

6

Гладилка стальная

 

 

ГШ-1

ГОСТ 10403-63

5

ГШ-2

 

5

Рейкодержатель со штырем конструкции ЦНИИОМТП

 

Черт.3345.13.000

5

Щетка стальная прямоугольная конструкции Гипрооргсельстроя Минсельстроя CCCР

 

-

5

Шпатель стальной

 

ГОСТ 10778-64

6

Лопата растворная типа ЛР

 

ГОСТ 3620-63

3

Рустовка потолочная односторонняя

 

ГОСТ 13995-68

4

Лоток для сбора опавшего раствора конструкции ЦНИИОМТП

 

Черт. 084.000.00

4

Линейка штукатурная конструкции УМОР ГМС

 

Черт. 156.00.000

3

Скребок металлический конструкции ЦНИИОМТП

 

Черт.3345.19.000

5

Измерительные инструменты

 

Рейка с отвесом

 

ГОСТ 9416-67

2

Уровень строительный УС1-300, УС2-700

 

ГОСТ 9416-67

4

Отвес О-400

 

ГОСТ 7948-71

3

Метр складной стальной

 

ГОСТ 7253-64

3

Угольник стальной

 

ГОСТ 10920-64

5

Конус стандартный

 

ГОСТ 5802-66

1

Шнур в корпусе разметочный

 

ТУ 22-1268-68

1

Приспособления

 

Форсунка штукатурная

 

ГОСТ 10466-63

2

Производственный инвентарь

 

Емкость поэтажная вместимостью 0,35 м3 для раствора или бункер поэтажный конструкции УМОР ГМС

 

Черт. 315.00.000

 

4

Тележка для раствора конструкции ЦНИИОМТП

 

Черт.3294.62.000

 

2

Очки защитные

 

ГОСТ 9802-61

17

Перчатки резиновые

 

ГОСТ 10108-62

17 пар

Респиратор

 

РПП-57

17

Ведро

 

ГОСТ 20558-75

8

Средства подмащивания

 

Столик универсальный конструкции ЦННИОМТП

 

Черт.3241.08.000

4

Столик двухвысотный конструкции ЦНИИОМТП

 

Черт.3241.07.000

4

ТЕХНОЛОГИЧЕСКАЯ КАРТА №6

УЛУЧШЕННАЯ ТРЕХСЛОЙНАЯ ШТУКАТУРКА ВНУТРЕННИХ КИРПИЧНЫХ СТЕН, ЗАТИРКА ЖЕЛЕЗОБЕТОННЫХ ЭЛЕМЕНТОВ КАРКАСА ТИПОВОГО ЭТАЖА ЧЕТЫРЕХЭТАЖНОГО ПРОМЫШЛЕННОГО ЗДАНИЯ

1. Область применения

1.1. Технологическая карта (ТК) разработана на производство работ по нанесению улучшенной трехслойной штукатурки известковым раствором на внутренние кирпичные стены, затирке железобетонных элементов каркаса типового этажа четырехэтажного промышленного здания (производство работ по методу треста Киевгорстрой).

Приготовление известкового раствора централизовано, подача и нанесение механизированы.

1.2. В состав работ, рассматриваемых ТК, входят: подготовка поверхности кирпичных стен под оштукатуривание; нанесение слоев обрызга, грунта и накрывочного на поверхность кирпичных стен с помощью гидроимпульсного растворонасоса; разравнивание слоев грунта, накрывочного слоя, отделка лузг и усенков; затирка поверхностей затирочными машинками CО-112 или типа "Киянка"; подготовка железобетонных поверхностей под оштукатуривание; выравнивание (затирка) железобетонных поверхностей, нанесение раствора, отделка плоскостей лузг и усенков; заделка швов на потолке между плитами; оштукатуривание мест соединения перегородок с потолками; отделка оконных и дверных откосов.

Работы выполняют летом в одну смену.

1.3. Настоящая ТК может быть применена при строительстве объектов различного промышленного назначения с учетом конкретных условий строительстве.

2. Организация и технология строительного процесса

2.1. Подготовка к производству штукатурных работ

До начала работ по оштукатуриванию внутренних поверхностей необходимо: закончить устройство всех видов оснований под чистые полы; установить перегородки; установить дверные и оконные блоки, законопатить зазоры между коробками и проемами; смонтировать и опробовать системы отопления, водопровода, канализации; заделать в перекрытиях все отверстия; смонтировать скрытые электротехнические и слаботочные разводки; осветить рабочие места; очистить помещения от строительного мусора; доставить на рабочее место инструменты, инвентарь, приспособления и материалы; принять объект под отделку по акту.

2.2. Приготовление и доставка штукатурного раствора

Приготовленный на заводе раствор доставляют на объект растворовозами СБ-89 или специально приспособленными автомобилями-самосвалами.

Доставленный раствор процеживается, повторно перемешивается с добавлением известкового молока и подается к рабочему месту с помощью штукатурной станции СО-114 или ПШС-2М, установленной на приобъектной площадке; Для предотвращения образования пробок в рукавах подвижность раствора должна быть более 10 см погружения стандартного конуса.

Из бункера штукатурной станции раствор, процеженный через вибросито с ячейками 5 мм, перекачивается растворонасосом штукатурной станции по рукавам диаметром 51 мм в растворные емкости вместимостью 0,4-0,5 м3, установленные на атаке около рабочего места штукатуров.

Раствор, подаваемый в емкости за 1-2 суток до начала производства работ, еще раз процеживается через накладываемое на емкость сито с отверстиями от 3 до 4 мм для слоев обрызга и грунта и 1,5 мм для накрывочного слоя. Применение раствора высокой подвижности позволяет процеживать раствор через сито с малыми отверстиями без вибратора.

Заготовленный на нужном этаже дважды процеженный раствор отстаивается до приобретения им подвижности, требуемой для механизированного нанесения (7-12 см осадка стандартного конуса).

По мере высвобождения растворных емкостей их перемещают на следующий этаж и заполняют новый раствором высокой подвижности для последующего отстоя с целью обеспечения непрерывности работ.

Создаваемый запас раствора равен примерно сменной выработке бригады штукатуров.

Отстоявшаяся вода сливается в емкость и используется для увлажнения поверхности, а отстоявшийся раствор с помощью растворонасоса производительностью 2 м3/ч по двум рукавам диаметрами 25 мм подается к двум бескомпрессорным форсункам.

Преимущества киевского способа: при высокой подвижности раствора в растворопроводе не образуется пробок; благодаря двойному процеживанию раствора на штукатурной станции через сито с ячейками 5 мм, а на рабочем этаже - 3-4 мм, одним и тем же оборудованием можно наносить три штукатурных слоя; уменьшаются отскоки раствора из-за небольшого факела распыления; облегчается труд рабочих; расширяется фронт работ за счет возможности одновременной работы двух механизированных звеньев.

2.3. Технология производства работ

2.3.1. Подготовка поверхности стен под оштукатуривание

Поверхность стен очищают от наплывов раствора, срубая их штукатурными молотками, после чего ветошью сметают с поверхности пыль, очищают от мусора подмости и промывают струей воды под напором сильно загрязненные поверхности.

Затем поверхность стен провешивают, для чего в верхней части стены на расстоянии 30-40 см от каждого угла взбивают по гвоздю так, чтобы их шляпки выступали над поверхностью стены на предполагаемую толщину штукатурки. Со шляпок гвоздей опускают отвес и по нему на расстоянии 20-30 см от пола забивают еще два гвоздя. По диагоналям натягивают шнур, при помощи которого определяют минимальную толщину штукатурного слоя, Для устройства марок забивают промежуточные гвозди. Если шнур где-либо касается стены, значит на ней имеются выпуклости, которые необходимо срубить. Затем по уровню выравнивают шляпки гвоздей так, чтобы они находились в определившейся плоскости штукатурка.

Вокруг гвоздей делают из штукатурного раствора марки диаметром 80-100 мм, на 3-5 мм выше шляпок. После того как раствор схватится, верх марок срезают до уровня шляпок.

2.3.2. Механизированное нанесение раствора на поверхность

Для выполнения внутренних штукатурных работ применяют известковый раствор состава 1:3, в которой используют песок фракции не более 2 мм. Раствор подбирают в строительной лаборатории в соответствии с видом штукатурки и ее назначением.

Перед началом штукатурных работ на этаже здания из растворных емкостей с поверхности отстоявшегося раствора удаляется избыток воды. После перемешивания раствора вручную в емкость с раствором погружают всасывающую головку гидроимпульсного растворонасоса производительностью 2 м3/ч, к растворонасосу присоединяют два рукава, ведущих к соплам двух бескомпрессорных форсунок, что позволяет наносить раствор одновременно двум штукатурам.

Корпус сопла оснащен кнопочным дистанционным управлением. Кнопки "пуск" и "стоп" соединены мягким телефонным проводом с магнитным пускателем растворонасоса через понижающий 36-вольтный трансформатор.

Раствор наносят на поверхность стен сдоями сверху вниз. Сопло держат под углом 60-90° к обрабатываемой поверхности.

Поочередно наносятся слои обрызга толщиной 5 мм, грунта толщиной 7 мм и накрывочный слой толщиной 2 мм. Каждый последующий слой штукатурного намета наносится только после частичного схватывания предыдущего.

Высокое качество раствора (однородность в сочетании с мелкой фракцией и высокая пластичность) позволяют применять его для всех трех слоев штукатурки.

Лишний раствор, собранный в лотки, а затем в емкости, разбавляют известковым молоком до требуемой консистенции и используют вторично.

Каждый нанесенный слой штукатурного намета (кроме обрызга) разравнивают подутерками и правилами.

Большие поверхности разравнивают правилами длиной 2 м и 70 см, а небольшие поверхности - средними полутерками и правилами.

При разравнивании штукатурного грунта полутерок зигзагообразными движениями передвигают снизу вверх, прижимая его к стене параллельно полу так, чтобы между нижней частью полутерка и стеной образовался острый угол. По одному участку следует проходить полутерком дважды во взаимно перпендикулярных направлениях. Качество выполненной штукатурки проверяют по ходу работы, прикладывая к поверхности контрольное правило. В верхней части стены работы ведут с инвентарных подмостей.

2.3.3. Затирка накрывочного слоя

Поверхности внутренних стен и перегородок затирают электрозатирочными машинками СО-112 или "Киянка" (верхнюю часть - с инвентарных подмостей).

Затирают не совсем затвердевший раствор (при легком нажатии пальцами на поверхности штукатурки не остается следов) спиралевидными движениями затирочных машинок. Труднодоступные места затирают вручную.

Воду к затирочным машинкам подают при помощи устройства, разработанного в Главкиевгорстрое. Это устройство обслуживает одновременно до четырех затирочных машинок. Оно представляет собой бак, оснащенный центробежным насосом погружного типа с приводом от электродвигателя.

Одновременно с затиркой накрывочного слоя отделывают лузги и усенки.

2.3.4. Выравнивание (затирка) железобетонных поверхностей колонн и ригелей

До затирки бетонных поверхностей колонн, ригелей и стен лестничных клеток их очищают стальными щетками от грязи, струей воды смывают пыль и частично затирают.

Сплошное выравнивание железобетонных поверхностей производят известковым раствором с инвентарных подмостей.

Раствор наносят вручную из растворных ящиков, установленных на рабочих местах штукатуров.

Выравнивающий слой толщиной 2 мм разравнивают и затирают войлочными терками.

2.3.5. Разделка швов между сборными железобетонными элементами перекрытий и стен

Предварительно швы между плитами перекрытия конопатят паклей, пропитанной цементным раствором. При оштукатуривании швов между плитами перекрытия и элементами сборных перекрытий и стен их предварительно очищают от пыли и смачивают водой при помощи кисти-макловицы.

Все швы заделывают известковым раствором. Для ускорения схватывания в раствор добавляют 1-2% гипса в виде гипсовой заводки и вручную тщательно перемешивают его до получения однородной массе. Затем кельмой с сокола раствор наносят на стыки плит перекрытия и заглаживают шов обратной стороной кельмы. Сначала круговыми, а затем прямолинейными движениями терки вдоль шва затирают раствор заподлицо с поверхностью плиты, периодически смачивая его водой. Терки используют сначала с войлоком, а затем с поролоном. Работы по заделке швов потолка выполняют с передвижных вышек. Раствор в ящики на рабочие места штукатуров подают растворонасосом.

2.3.6. Отделка оконных и дверных откосов

До начала работ оконные и дверные откосы необходимо закрепить ершами, а дверные и оконные коробки проконопатить.

Для лучшего сцепления раствора поверхность подлежащих оштукатуриванию откосов зачищают и смачивают водой.

Для получения откосов одинаковой ширины по краям проемов по правилу с отвесом устанавливают направляющие рейки и закрепляют их рейкодержателями.

Размер скосов от коробок к поверхности стен определяют по стальному угольнику с передвижной планкой. Слои штукатурного намета наносят кельмами через определенные промежутки времени. Грунт разравнивают с помощью деревянных малок и полутерков по направляющим рейкам.

Накрывочный слой наносят кельмами, выравнивают и затирают его поролоновыми терками, периодически смачивая обрабатываемую поверхность водой.

После снятия маячных реек выравнивают углы пересечения откосов, отделывают лузги и усенки и проверяют правильность отделки с помощью отвеса и уровня.

2.4. Состав бригады

Все штукатурные работы выполняет бригада из 28 человек, состоящая из шести звеньев.

Состав бригады и перечень выполняемых работ

 

№ звена

Профессия

Количество рабочих

Выполняемые работы

1

Машинист растворонасоса 3 разр.

1

Подготовка поверхности и механизированное нанесение слоев штукатурного намета (обрызга и первого слоя грунта) с разравниванием

 

Штукатуры

 

4 разр

2

3 разр.

 

3

2

Штукатуры

 

Механизированное нанесение накрывочного слоя с механизированной затиркой

4 разр.

3 разр.

 

2

2

3

Штукатуры

 

Разделка швов между сборными железобетонными элементами перекрытий и стен

 

4 разр.

3

3 разр.

2

2 разр.

 

1

4

Штукатуры

4 разр.

 

2

Выравнивание (затирка) железобетонных поверхностей

 

3 разр.

2

2 разр.

 

2

5

Штукатуры

4 разр.

 

2

Отделка оконных и дверных откосов, стен лестничной клетки

 

3 разр.

 

2

6

Машинист раотворонасоса 3 разр.

 

1

Обслуживание штукатурной станции, прием известкового раствора

Штукатур 2 разр.

1

Схема производства работ

1 - передвижная штукатурная станция СО-114 или ПШС-2М; 2 - емкость для известкового молока; 3 - насос для перекачки известкового молока; 4 - растворовоз СБ-89; 5 - подъемник; 6 - сопло с кнопочным управлением; 7 - рукав диаметром 25 мы; 8 - гидроимпульсный растворонасос; 9 - емкости для раствора вместимостью 0,4 м3; 10 - растворопровод (резиновый рукав диаметром 51 мм); 11 - поэтажный электрощит; 12 - временное ограждение; 13 - стояк для подачи воды; 14 -электростояк; 15 - электрощит

2.5. График производства работ

 

2.6. Калькуляция затрат труда

Обоснование

Наименование работ

Единица измерения

Объем работ

Норма времени на единицу измерения,

чел.-ч

Затраты труда на общий объем работ,

чел.-ч,

(маш.-ч)

Расценка на единицу измерения,

руб.-коп.

Стоимость затрат труда на общий объем работ,

руб.-коп.

ЕНиР, 1973,

§ 4-1-36Б, т.5

Прием готового известкового раствора из кузова растворовоза СБ-89 в приемный бункер штукатурной станции CО-114

 

м3

37,6

0,115

4

0-05,7

2-14

Трест Мосоргстрой с участием ЦНИБ Мосстроя Главмосстроя,

Кт-8.0-5.1-75

 

Подготовка кирпичных стен и перегородок под оштукатуривание

 

100 м2

13,96

9,67

135

5-06

70-64

ЕНиР, 1973,

§ 8-4, т.2, п.3а,б

Подача известкового раствора растворонасосом в растворные емкости на этажах

 

м3

37,6

1,4

0,7

(0,7)

52,64

26,3

(26,3)

0-69

0-38,9

25-94

14-63

НИЛ Мехстрой Главкиевгорстроя, 1975,

Кт-8.0-2-75

Механизированное нанесение известкового раствора на поверхность кирпичных стен и перегородок

м2

1396,4

 

 

 

 

обрызга

0,006

0,0022

(0,0022)

 

8,38

3,07

(3,07)

 

 

 

первого слоя грунта

0,011

0,0044

(0,0044)

 

15,4

6,14

(6,14)

 

0-06,9

96-35

второго слоя грунта и накрывочного слоя

 

0,011

0,0044

(0,0044)

 

15,4

6,14

(6,14)

 

0-00,7

9-77

разравнивание грунта, накрывочного слоя, отделка лузг и усенков

 

0,081

113,1

 

 

То же, Кт-8.0-3-75

Механизированная затирка поверхности кирпичных стен и перегородок затирочными машинками CО-112

 

м2

1396,4

0,053

74

0-02,9

40-50

Сочиоргтехстрой Минпромстроя СССР,

Кт-8.0-16.9-75

Подготовка бетонных поверхностей под затирку

 

100 м2

9,62

5,88

56,6

3-26

31-36

ЕНиР, 1973,

§ 8-10, п.1в

Выравнивание поверхности железобетонных колонн и ригелей, нанесение раствора, затирка, отделка лузг и усенков

 

м2

962

0,28

269,4

0-14,7

141-40

ЕНиР, 1973,

§ 8-11, п. 2б

Заделка швов между плитами перекрытия

 

100 м шва

13

17,5

227,5

10-94

142-22

То же

Оштукатуривание мест примыкания стен и перегородок к потолкам и ригелей к перекрытиям

 

100 м шва

2,04

17,5

35,7

10-94

22-32

Трест Мосоргстрой с участием ЦНИБ Мосстроя Главмосстроя,

Кт-8.0-5.1-75

 

Подготовка поверхностей стен лестничной клетки под оштукатуривание

 

100 м2

1,04

9,67

10,01

5-06

5-26

НИЛ Мехстрой Главкиевгорстроя,1975,

Кт-8.0-2-75

Механизированное нанесение обрызга, грунта, накрывочного слоя с разравниванием на стены лестничной клетки

 

м2

103,6

0,109

0,011

(0,011)

11,3

1,14

0-06,9

0-00,7

7-15

0-72

НИЛ. Мосстрой,1975,

Кт-8.0-3-75

Механизированная затирка стен лестничной клетки

 

м2

103,6

0,053

5,5

0-02,9

3-00

Гипрооргсельстрой,

Кт-8.0-8.6-75

Оштукатуривание вручную оконных и дверных откосов

 

м2

89

1,6

142,4

0-94,4

84-02

 

 

 

 

Итого

1219,42

(42,79)

 

697-42

 

2.7. Контроль качества

Штукатурные работы должны выполняться в соответствии с требованиями главы СНиП III-21-73 "Отделочные покрытия строительных конструкций. Правила производства и приемки работ".

Слои штукатурки должны быть прочно соединены с поверхностью оштукатуриваемой конструкции и не отслаиваться от нее.

Оштукатуренные поверхности должны быть ровными, гладкими с четко отдаленными гранями углов, пересекающихся плоскостей, без следов затирочного инструмента, потеков раствора, пятен и высолов. Не допускаются трещины, бугорки, раковины (дутики), грубошероховатая поверхность, пропуски.

Отклонения качества оштукатуренных поверхностей не должны превышать следующих величин:

неровности поверхности (обнаруживаются при накладывании правила или шаблона длиной 2 м) - не более двух глубиной или высотой до 3 мм;

отклонение поверхности стен (потолков) от вертикали (горизонтали) - 1 мм на 1 м высоты (длины), но не более 10 мм на всю высоту (длину) помещения;

отклонение лузг, усенков, оконных и дверных откосов, пилястр, столбов от вертикали (горизонтали) - 1 мм на 1 м высоты (длины), но не более 5 мм на элемент;

отклонение ширины оштукатуренного откоса от проектной - 3 мм;

отклонение от прямой линии в пределах между углами пересечения тяг и раскреповки - 3 мм.

Качество готовых растворов должно удовлетворять требованиям СН 290-74 "Инструкция по приготовлению и применению строительных растворов". Применяемые для штукатурных работ материалы и изделия должны удовлетворять требованиям соответствующих стандартов, а также указаниям главы СНиП I-B.2-69 "Вяжущие материалы неорганические и добавки для бетонов и растворов".

2.8. Техника безопасности

При производстве штукатурных работ следует строго соблюдать правила техники безопасности, руководствуясь при этом действующей нормативной и инструктивной документацией, в том числе главой СНиП III-А.11-70 "Техника безопасности в строительстве" и СН 38-58 "Инструкция по заземлению передвижных строительных механизмов и электрифицированного инструмента" (издание второе, Москва, 1962).

Кроме того, при производстве штукатурных работ необходимо обращать особое внимание на выполнение следующих требований:

к штукатурным работам допускаются лица, прошедшие инструктаж по технике безопасности, изучившие устройства, принцип и порядок работы с механизмами и инструментом;

внутренние штукатурные работы должны выполняться с подмостей;

при производстве работ на лестничных клетках необходимо применять специальные подмости (столики) с опорными стойками разной длины; рабочий настил должен быть горизонтальным и иметь перильное ограждение и бортовую доску;

перед началом каждой смены следует проверять исправность растворонасоса, рукавов и другого оборудования, применяемого для штукатурных работ;

работа растворонасоса при давлении, превышающем указанное в техническом паспорте, запрещается;

все работы, связанные с ремонтом или внутренним осмотром растворонасоса, преобразователя и затирочных машинок, следует производить только при отключенном электропитании; продувка рукавов сжатым воздухом допускается только после удаления людей за пределы опасней зоны;

штукатуры, наносящие штукатурный раствор на поверхность при помощи сопла и производящие набрызг раствора вручную, обеспечиваются защитными очками;

переносные токоприемники (инструмент, машины, светильники и др.), применяемые при выполнении штукатурных работ, должны иметь напряжение не более 36 В;

пребывание более трех человек в просушиваемом помещении запрещается.

3. Технико-экономические показатели

 

 

Наименование работ

Объем работ

Трудоемкость работ,

чел.-ч

Стоимость затрат труда,

руб.-коп.

общая

на единицу объема работ

общая

на единицу объема работ

Подготовка поверхностей и оштукатуривание кирпичных стен, перегородок, оконных и дверных откосов, стен лестничной клетки

 

1589,4 м2

630,22

0,396

360-12

0-22,6

Выравнивание железобетонных поверхностей колонн и ригелей, нанесение раствора, затирка, отделка лузг и усенков

 

962 м2

326

0,339

172-76

0-17,9

Заделка швов между плитами перекрытия, оштукатуривание мест примыкания стен и перегородок к потолкам и ригелей к перекрытиям

 

1504 м

263,2

0,175

164-54'

0-10,9

 

Итого

1219,42

 

697-42

 

 

Продолжительность работ 8,2 дня.

 

4. Материально-технические ресурсы

4.1. Потребность в основных материалах и полуфабрикатах на одну секцию типового этажа

Раствор известковый, м3

37,6

Гипс, т

0,16

Сетка проволочная тканая, м2

42

4.2. Машины, оборудование, инструменты, инвентарь и приспособления

 

Наименование

Марка, № чертежа, ГОСТ

Количество, шт.

1

2

3

Машины и оборудование

 

Станция штукатурная

производительностью 2; 4 м3/ч конструкции МФ ВНИИСМИ

 

 

CО-114

1

производительностью 4 м3/ч конструкции Главсредуралстроя

 

ПШС-2М

 

1

Растворонасос гидроимпульсный производительностью 2 м3/ч, дальность транспортирования по вертикали - 50 м по горизонтали -15 м, конструкции Главкиевгорстроя

 

Черт.МС 2.00.00.00.00

1

Насос для перекачки известкового молока конструкции Главкиевгорстроя

 

То же

1

Трансформатор

 

ИВ-4

1

Преобразователь частоты тока

 

ИЭ-9401

1

Пункт передвижной инструментально-раздаточной конструкции ЦНИИОМТП

 

Черт. 3287.А.00.000

1

Механизированные инструменты

 

Машинка штукатурно-затирочная производительностью до 50 м2

 

"Киянка" или СО-112

5

Устройство для подачи воды к затирочным машинкам конструкции Главкиевгорстроя

 

Черт.МС 26.00.00.00.00

2

Ножницы электрические для резки металла

 

ИЭ-5402

2

Ручные инструменты

 

Кельма штукатурная КШ

 

ГОСТ 9533-71

28

Ковш штукатурный

 

ГОСТ 7945-73

13

Отрезовка ОШ-1 и ОШ-2

 

ГОСТ 9533-71

13

Сокол дюралюминиевый

 

ОТУ 22-697-67

28

Острогубцы (кусачки) 175

 

ГОСТ 7282-64

6

Нож штукатурный конструкции УМОР ГМС

 

Черт. 316.00.000

7

Ножовка поперечная по дереву

 

ГОСТ 6532-53

7

 Молоток штукатурный МШТ

 

ГОСТ 11042-72

13

Скарпель диаметром 20 мм конструкции УМОР ГМС

 

Черт. 192.00.000

4

Терка деревянная конструкции УМОР ГМС

 

Черт. 272.00.000

13

Терка стандартная конструкции УМОР ГМС

 

То же

13

Терка поролоновая, войлочная иди стальная конструкции УМОР ГМС

 

"

10

Правило удлиненное конструкции ЦНИИОМТП

 

Черт. 3345.14.000

7

Правило усеночное

 

ОТУ 22-1235-68

7

Правило лузговое

 

ОТУ 22-1234-68

7

Полутерок деревянный конструкции УМОР ГМС

 

 

 

350, 800 мм

 

Черт. 223.00.000

26

1500 мм

 

Черт. 224.00.000

Кисть-макловица КМА

 

ГОСТ 10597-70

13

Гладилка стальная малая

ГОСТ 10403-63

 

ГШ-1

 

13

ГШ-2

 

 

13

Рейкодержатель со штырем конструкции треста Мосоргстрой

 

Черт. 1231

13

Щетка стальная прямоугольная конструкции Гипрооргсельстроя Минсельстроя СССР

 

-

4

Лопата растворная ЛР

 

ГОСТ 3620-63

13

Рустовка потолочная односторонняя

 

ГОСТ 13995-68

4

Рустовка потолочная двухсторонняя

 

ГОСТ 13995-68

4

Лоток для сбора опавшего раствора конструкции ЦНИИОМТП

 

Черт. 084.000.000

5

Линейка штукатурная конструкции УМОР ГМС

 

Черт. 156.00.000'

6

Скребок конструкции ЦНИИОМТП

 

Черт.3345.20.000

4

Скребок стальной на длинной ручке конструкции треста Мосоргстрой

 

Черт. 1233

4

Измерительные инструменты

 

Рейка с отвесом

 

ГОСТ 9416-67

3

Уровень строительный УС1-300, УС2-700

 

ГОСТ 9416-67

7

Отвес О-400

 

ГОСТ 7948-71

7

Метр складной деревянный

 

ГОСТ 7253-64

13

Угольник стальной

 

ГОСТ 10920-64

2

 Конус стандартный

 

ГОСТ 5802-66

2

Шнур длиной 15 м

 

-

1

Приспособления

 

Форсунка бескомпрессорная конструкции УМОР ГМС

 

-

4

Производственный инвентарь

 

Емкость поэтажная вместимость 0,35 м3 для раствора конструкции УМОР ГМС

 

Черт.315.00.000

3

Бункер поэтажный вместимостью 0,55 м3 для раствора конструкции УМОР ГМС

 

Черт. 040.000

3

Сито с ячейками размерами от 3 до 4 мм конструкции Главкиевгорстроя

 

-

2

Тележка для раствора конструкции ЦНИИОМТП

 

Черт.3294.62.000

3

Ведро

 

ГОСТ 20558-75

13

Перчатки резиновые

 

ГОСТ 10108-62

28 пар

Очки защитные

 

ГОСТ 9802-61

28

Средства подмащивания

 

Столик универсальный конструкции ЦНИИОМТП

 

Черт.3241.08.000

3

Столик двухвысотный конструкции ЦНИИОМТП

 

Черт.3241.07.000

10

 


ТЕХНОЛОГИЧЕСКАЯ КАРТА №7

ВЫСОКОКАЧЕСТВЕННАЯ ТРЁХСЛОЙНАЯ ШТУКАТУРКА ФАСАДА РЯДОВОЙ СЕКЦИИ ТИПОВОГО ЭТАЖА ДЕВЯТИЭТАЖНОГО ЖИЛОГО КИРПИЧНОГО ДОМА СЕРИИ 114-65-3/1

1. Область применения

1.1. Технологическая карта (ТК) разработана на производство работ по нанесению высококачественной трехслойной штукатурки с терразитовым покрытием на фасад рядовой секции типового этажа девятиэтажного жилого кирпичного дома серии 114-85-3/1.

Приготовление цементно-известкового раствора для подготовительных слоев (обрызга и грунта) централизовано, терразитового раствора (накрывочного слоя) - в построечных условиях; подача и нанесение слоев механизированы.

Рабочие чертежи здания разработаны ЦНИИЭП жилища.

1.2. В состав работ, рассматриваемых ТК, входят: подготовка поверхности фасада под оштукатуривание, механизированное нанесение подготовительного слоя штукатурки; отделка наружных оконных и дверных откосов; механизированное нанесение накрывочного (декоративного) слоя терразитовым раствором; механизированное нанесение гидрофобного покрытия.

Работы выполняют летом в одну смену.

1.3. Настоящая ТК может бить применена при строительстве объектов различного жилого и гражданского назначения с учетом конкретных условий строительства.

2. Организация и технология строительного процесса

2.1. Подготовка к производству штукатурных работ

До начала работ необходимо: установить и оконопатить коробки балконных дверей и окон; укрепить ухваты для водосточных труб и скобы для подвески сети уличного освещения; установить крепления пожарных лестниц, закончить устройство лоджий, балконов и их ограждений, козырьков, поясков, карнизов и т.д.

2.2. Приготовление и достатка штукатурного раствора

Цементно-известковый раствор (для обрызга и грунта) доставляют от растворного узла на строительную площадку растворовозом СБ-89 и загружают в приемный бункер штукатурной станции CO-114 или ПШС-2М, где он доводится до требуемой консистенции разбавлением известковым молоком. Подвижность раствора для слоя обрызга - 8-12, для грунта -7-8 см погружения стандартного конуса.

Раствор, перемешанный и процеженный через вибросито с ячейками 3x3 мм, с помощью растворонасоса СО-48 подается по рукавам к соплам бескомпрессорных форсунок. Работы ведутся с подвесных люлек ЛС-80-250.

Декоративное покрытие выполняют из терразитового раствора, приготовляемого из сухих смесей заводского производства.

Сухие терразитовые смеси ЦИМ, изготовляемые на Люберецком комбинате СМиК Моспромстройматериалов, состоят из следующих компонентов: цемент белый М 400, ГОСТ 965-66 - от 22,4 до 27,4%; известь-пушонка ГОСТ 9179-70 - 7,4%; песок кварцевый крупностью не более 1,25 мм, ГОСТ 8736-67 - 60%; слюда дробленая крупностью до 7 мм, ГОСТ 19571-74 - 5%; минеральные и органические пигменты - от 0,2 до 5,2%.

Для улучшения пластических свойств смеси, повышения долговечности и снижения высолообразования в состав смеси вводят комплексную добавку состава (в пересчете на сухое вещество от массы цемента): ГКЖ-94 - 0,1% (комплексообразующий компонент, способствующий связыванию свободной СаО в цементе и снижающий возможность появления высолов); СДБ - 0,5% (пластифицирующий компонент, улучшающий пластические свойства смеси); СаО - 2% (ускоритель твердения).

Сухие растворные смеси с завода на строительную площадку доставляют в крафт-мешках. Приготовляют терразитовый раствор следующим образом: в турбулентный растворосмеситель СБ-43 заливают воду (из расчета 4 л на 10 кг смеси) и комплексную добавку, затем при включенном растворосмесителе засыпают сухую терразитовую смесь и перемешивают в течение 5 мин до получения однородной массы (до подвижности 12-14 см погружения стандартного конуса).

Готовая терразитовая смесь процеживается через вибросито и с помощью вибронасоса конструкции ЮжНИИ подается в пневмобак установки для нанесения терразитовых растворов конструкции ЦНИИОМТП, установленной на люльке ЛС-80-250.

Один замес растворосмесителя (65 л) выгружается в два пневмобака; это количество обеспечивает фронт работ на ширину люльки.

Для уменьшения возможности загрязнения, увеличения срока службы отделки и снижения высолообразования после нанесения накрывочного слоя на отделанную поверхность наносится гидрофобное покрытие из раствора кремнийорганической жидкости. Жидкость эта изготовляется на предприятиях химической промышленности и поставляется в герметизированной таре вместимостью 5-20 л; в этой же таре ее следует хранить при температуре не выше 20°С в течение не более 6 мес. На строительную площадку поступает 50%-ный раствор гидрофобной жидкости, ГОСТ 10834-64 "Жидкость гидрофобизирующая ГКЖ-94". Перед нанесением на поверхность гидрофобную жидкость перемешивают с уайт-спиритом до 5% концентрации (по массе): жидкость ГКЖ-94 - 5%; уайт-спирит - 95%.

Компоненты перемешивают деревянным веслом в течение 3 мин в любой чистой емкости. Объем одного замеса - не более 10 л.

2.3. Технология производства работ

Операции выполняют в следующем порядке: подготовляют поверхности стен и провешивают их; устанавливают маяки; наносят слои обрызга и грунта, разравнивают их и разделывают углы; отделывают наружные оконные и дверные откосы; наносят накрывочный (декоративный) слой терразитовым раствором; наносят слой гидрофобного покрытия.

2.3.1. Подготовка поверхности фасада под оштукатуривание

Кирпичные поверхности стен фасада, подлежащие оштукатуриванию, должны быть тщательно очищены от пыли и грязи. Пыль с поверхности фасада удаляют струей сжатого воздуха.

Для промывки применяют резиновый рукав со стальным наконечником.

Для определения степени отклонения поверхностей и граней от вертикали и горизонтали все части фасада тщательно выверяют.

Вертикальность откосов оконных проемов, расположенных по одной оси, выверяют отвесом, опущенным от окна верхнего до окна нижнего этажа.

Правильность положения верхних откосов и сливов оконных проемов проверяют путем натягивания шнура вдоль фасада по линиям граней откосов и сливов.

Так как при выполнении декоративной штукатурки требуется повышенная жесткость и прочность оснований, то при подготовке поверхностей особое внимание следует обращать на тщательность заделки отверстий, гнезд, борозд, выбоин.

У всех углов фасада и по сторонам оконных проемов устанавливают маяки, толщина которых должна соответствовать толщине" подготовительного слоя штукатурки (без накрывочного).

2.3.2. Механизированное нанесение слоев обрызга и грунта цементно-известковым, раствором

Работы по оштукатуриванию начинают с фасада по оси В. Фасад разбивают на вертикальные захватки, ширина которых ограничена фронтом работ, выполняемых одновременно с двух подвесных люлек ЛС-80-250. Работы, ведут в направлении сверху вниз.

На каждой люльке работает по два штукатура. Штукатур 4 разряда с помощью форсунки наносит слой обрызга толщиной не более 5 мм, смочив предварительно поверхность стен водой. Затем наносит два слоя грунта каждый толщиной не более 7 мм.

Средняя толщина штукатурного намета без накрывочного слоя для высококачественной штукатурки равна 19 мм.

Второй штукатур, находящийся на люльке, разравнивает слои грунта с помощью полутерков и правил.

Подъем и спуск люлек осуществляется ручными лебедками.

По окончании работ на фасаде по оси Б, приступают к оштукатуриванию фасада по оси А. Вначале звено штукатуров выполняет работы с двух подвесных люлек в той же последовательности, что и на фасаде по оси В, затем приступают к оштукатуриванию участков фасада в лоджиях. Раствор наносят непосредственно с площадок лоджий, а в верхней части стены - с подмостей.

2.3.3. Отделка наружных оконных и дверных откосов

К отделке откосов приступают после нанесения подготовительного слоя штукатурки на захватке, ограниченной фронтом работ с двух люлек.

Перед оштукатуриванием поверхность откосов проверяют путем провешивания их в вертикальной и горизонтальной плоскостях и устанавливают марки.

Подлежащую оштукатуриванию поверхность откосов очищают от пыли и грязи. Для получения откосов одинаковой ширины по краям проемов устанавливают направляющие рейки и закрепляют их рейкодержателями; затем направляющие рейки выверяют по угольнику и устанавливают согласно заданному углу рассвета.

Поверхность откосов смачивают водой с помощью маховой кисти. Раствор подается растворонасосом СО-48 в растворный ящик, откуда его берут кельмой, накладывают на сокол и наносят на поверхность.

Разравнивают раствор при помощи деревянной малки. Ее держат двумя руками, одним концом прижимают к коробке (оконной или дверной), а другим к рейке и движением снизу вверх разравнивают грунт. После этого необходимо дополнительно выровнять грунт зигзагообразными движениями полутерка снизу вверх по направлению к коробке. После снятия реек подмазывают усенки. Накрывочный слой затирают поролоновыми терками. Организация рабочего места при отделке откосов с люлек приведена на рис.

Отделку откосов в лоджиях производят с подмостей.

2.3.4. Механизированное нанесение накрывочного (декоративного) слоя терразитовым раствором

После нанесения грунта поверхность фасада разбивают на захватки так, чтобы на открытых местах не было стыков, образующихся в местах соединения накрывочных слоев, нанесенных в разное время.

При гладком фасаде, без карнизов и тяг, захватки разбивают так, чтобы их границы проходили по оконным откосам, где стык менее виден.

При работе с люлек захватки разбивают по вертикали.

Перед нанесением накрывочного слоя поверхность фасада смачивают водой из рукава со стальным наконечником. В сухую погоду - за 1-2 ч до нанесения накрывочного слоя и вторично непосредственно перед его нанесением, во влажную погоду поверхность увлажняют один раз, непосредственно перед нанесением накрывочного слоя.

Накрывочный слой наносят не ранее чем через 4 дня после нанесения грунтовочного слоя и просыхания его до ровного просветления.

Терразитовый накрывочный слой толщиной 1 мм наносят на поверхность фасада с помощью установки конструкции ЦНИИОМТП, состоящей из смонтированных на одной раме и установленных на люльке пневмобака вместимостью 35 л и компрессора, а также форсунки с кольцевой подачей воздуха, материального и воздушного рукавов длиной по 20 м и электрокабеля (к компрессору).

Факел и количество сжатого воздуха подбирается непосредственно на месте производства работ, до получения мелкодисперсного распыления. Состав наносят круговыми движениями форсунки, которую держат на расстоянии 0,4-0,7 м от обрабатываемой поверхности, перпендикулярно к ней.

При работе с люлек один из штукатуров работает непосредственно с форсункой, второй осуществляет вспомогательные операции: загружает пневмобак, следит за стабильной работой установки, осуществляет спуск люльки.

В сухую погоду отделанная поверхность в течение 7-10 дней 3-4 раза в день увлажняется распыленной (туманообразной) влагой.

2.3.5. Нанесение гидрофобного покрытия

Через 2 ч после нанесения накрывочного слоя на отделанную поверхность при помощи удочки наносят гидрофобное покрытие 5%-ной жидкостью ГКЖ-94. Используют для этого установку для нанесения терразитовых растворов конструкции ЦНИИОМТП.

Покрытие наносят на поверхность тонким слоем за два раза. Время высыхания первого слоя - 30 мин.

При нанесении гидрофобного покрытия следует избегать избытка раствора на поверхности во избежание образования белесых налетов. Работы выполняются с люлек.

2.4. Состав бригады

Все работы по оштукатуриванию фасада выполняет бригада из 17 человек, состоящая из четырех звеньев.

Состав бригады и перечень выполняемых работ

 

№ звена

Профессия

Количество рабочих

Выполняемые процессы

1

Машинист растворонасоса 3 разр.

1

Обслуживание штукатурной станции и прием цементно-известкового раствора, приготовление терразитового раствора

 

Штукатуры 2 разр.

 

2

2

Штукатуры

4 разр.

 

2

Навеска и передвижка люлек

 

3 разр.

 

1

3

Штукатуры

4 разр.

 

2

Оштукатуривание фасада с механизированным нанесением слоев обрызга и грунта, отделка оконных, дверных откосов и отливов вручную

 

3 разр.

2

 

2 разр.

 

2

 

Машинист растворонасоса

3 разр.

 

1

4

Штукатуры

5 разр.

 

2

Механизированное нанесете накрывочного (декоративного) слоя терразитовым раствором, механизированное нанесение гидрофобного покрытия

 

3 разр.

 

2

 

Машинист растворонасоса

3-разр.

 

1

Схема производства работ

1 - люльки ЛС-80-250; 2 - установка для нанесения терразитового раствора; 3 - компрессор СО-45; 4 - консоль с противовесом; 5 - передвижная штукатурная станция СО-114 или ПШС-2М; 6 - емкость для известкового молока; 7 - насос для перекачки известкового молока; 8 - растворовоз СБ-89; 9 -ящик для раствора; 10 - ведро для воды; 11 - рабочие места штукатуров; 12 - рукав с бескомпрессорной форсункой для нанесения цементно-известкового раствора; 13 - узел приготовления терразитового раствора; 14 - компрессоры СО-7А; 15 - место складирования сухих терразитовых смесей


2.5. График производства работ

 

 

 


2.6. Калькуляция затрат труда

Обоснование

Наименование работ

Единица измерения

Объем работ

Норма времени на единицу измерения,

чел.-ч

(маш.-ч)

Затраты труда на общий объем работ,

чел.-ч

(маш.-ч)

Расценка на единицу измерения,

руб.-коп.

Стоимость затрат труда на общий объем работ,

руб.-коп.

ЕНиР,1973,

§ 4-1-36Б, т.5

Прием готового цементно-известкового раствора из кузова растворовоза в приемный бункер штукатурной станции CО-114

 

м3

30,8

0,115

3,54

0-05,7

1-76

ЕНиР, 1973,

§ 8-4, т.2, п.3а,б

 

Обслуживание штукатурной станции

 

м3

30,8

1,4

0 7

(0,7)

43,12

21 56

(21,56)

0-69

0-38,9

21-25

11-98

ЕНиР, 1973.,

§ 5-1-3, п. 8а (применительно)

 

Навеска люлек

1 навеска или разборка

16

0,58

9,28

0-34,9

5-58

Трест Оргстрой Министерства строительства МССР; комплект карт трудовых процессов на устройство штукатурки фасадов зданий механизированным способом

 

Спуск и подъем двух люлек

100 м2 оштукатуриваемой с люлек поверхности фасада

7,69

3,67

28,22

2-23

17-15

Трест Мосоргстрой с участием ЦНИБ Мосстроя Главмосстроя,

Кт-8.0-5.1-75

Механизированное нанесение цементно-известкового раствора для обрызга и грунта

 

 

 

 

 

 

 

очистка поверхности фасада от пыли, грязи и наплывов раствора

100 м2

12,26

0,83

10,1

0-43

5-27

ЕНиР, 1973,

§ 8-6А, т.2, п.6а,

к = 1,2,

техническая часть,

 гл. I, п.7

провешивание поверхности и устройство маяков

 

 

 

 

 

 

 

по оси Е

м2

592,1

0,14

82,9

0-08,1

47-96

 

по оси А

634,04

0,14

88,77

0-08,1

51-36

ЕНиР, 1973,

§ 8-6А, т.2, п.7а,

к = 1,2,

техническая часть,

гл.1, п.7

 

механизированное нанесение слоев обрызга и грунта

 

 

 

 

 

 

 

по оси Е

м2

592,1

0,3

177,63

0-17,2

101-84

 

по оси А

634,04

0,3

190,21

0-17,2

109-05

ЕНиР, 1973,

§ 8-6Б, п.3в

управление растворонасосом при нанесении слоев обрызга и грунта

100 м2

12,26

2,2

26,97

(26,97)

1-22

14-96

 

 

 

 

Итого

682,3

(48,53)

 

388-16

2.7. Контроль качества

Штукатурные работы должны выполняться в соответствии с требованиями СНиП III-21-73 "Отделочные покрытия строительных конструкций. Правила производства и приемки работ".

Отклонения качества оштукатуренных поверхностей не должны превышать следующих величин:

не ровности поверхности (обнаруживаются при накладывании правила или шаблона длиной 2 м) - не более двух глубиной или высотой до 2 мм;

отклонение поверхности стен (потолков) от вертикали (горизонтали) - 1 мм на 1 м высоты (длины), но не более 5 мм на всю высоту (длину) помещения;

отклонение лузг, усенков, оконных и дверных откосов, пилястр, столбов от вертикали (горизонтали) - 1 мм на 1 м высоты (длины), но не более 3 мм на элемент;

отклонение ширины оштукатуренного откоса от проектной - 2 мм;

отклонение от прямой линии в пределах между углами пересечения тяг и раскреповки - 2 мм.

Качество готовых растворов должно удовлетворять требованиям СН 290-74 "Инструкция по приготовлению и применению строительных растворов".

Применяемые для штукатурных работ материалы и изделия должны удовлетворять требованиям соответствующих стандартов, а также указаниям главы СНиП I-B.2-69 "Вяжущие материалы неорганические и добавки для бетонов и растворов".

2.7.1. Требования, предъявляемые к терразитовым смесям

Сухие терразитовые смеси должны иметь влажность не более 1%; наличие комков и посторонних примесей не допускается.

Влажность сухой терразитовой смеси определяется по методике ГОСТ 9179-70, комки устраняют просеиванием смеси через сито с отверстиями 0,6 мм.

Терразитовые смеси, затворенные водой (пластичный терразит), должны иметь подвижность по OK 12-14 см и расход воды затворения 30-35%.

Прочность сцепления терразитовых смесей определяется по методике СН 389-68 "Указания по заводской отделке керамической плиткой железобетонных и бетонных наружных стеновых панелей и блоков".

Физико-механические свойства образцов, изготовленных из растворных смесей терразита на белом цементе и пигментах (ЦИМ Люберецкого КСМиК), должны соответствовать требованиям ТУ 400-1-365-75, а именно: марка раствора по прочности при сжатии в возрасте 28 дней нормального твердения должна быть не менее 50 кг/см2; то же, в возрасте 7 суток - не менее 50% от марочной; водопоглощение - не менее 35%, наличие усадочных трещин в процессе твердения не допускается.

2.8. Техника безопасности

При производстве штукатурных работ следует строго соблюдать правила техники безопасности, руководствуясь действующей нормативной и инструктивной документацией, в том числе главой СНиП Ш-А.11-70 "Техника безопасности в строительстве" и СН 38-58 "Инструкция по заземлению передвижных строительных механизмов и электрифицированного инструмента" (издание второе, Москва, 1962).

При производстве штукатурных работ, в том числе с применением терразитовых составов, необходимо обращать особое внимание на выполнение следующих требований:

очищать и промывать растворосмеситель следует при отключенном электропитании;

трубопровода для подачи раствора проверяют гидравлическим давлением, в 1,5 раза превышающим рабочее;

при работе растворонасосов и пневмоустановок давление не должно превышать величин, указанных в паспортах машин;

при эксплуатации пневмоустановок соблюдать общие правила техники безопасности, обязательные при работе с сосудами, работающими под давлением;

движущиеся части машин должны быть ограждены;

соединение труб раствороводов должно быть осуществлено при помощи муфт, звенья гибких рукавов соединяют фланцами без болтов, а к штуцерам растворонасосов и к пневмоустанокам рукава присоединяют только хомутами на болтах;

если в растворонасосе, пневмоустановке, трубопроводе, рукаве или форсунке образовалась пробка, работу немедленно прекратить;

удалять растворные пробки, ремонтировать и разбирать раствороводы и машины, а также затягивать фланцевые соединения или сальники можно только после полного снятия давления в системе;

корпуса всех электрических механизмов и электродвигателей должны быть надежно заземлены;

работа на люльках допускается только после полного окончания их монтажа и приеме руководителем работ по акту;

зоны работы люлек, лесов и лебедок необходимо ограждать;

к эксплуатации люлек и лебедок допускаются лица, хорошо изучавшие их назначения и правила эксплуатации;

при эксплуатации люлек, необходимо ежедневно проверять исправность действия тормозов, механизмов подъема, канатов, надежность крепления консолей и т.п.;

настил в люльке при работе должен быть в горизонтальной положении; допустимый перекос - не более чем указано в техническом паспорте, но во всех случаях он не должен превышать 2°;

способ крепления люлек должен исключать возможность их опрокидывания из-за неправильного расположения центра тяжести;

увеличивать вылет консолей от места опоры до оси люльки более чем предусмотрено техническим паспортом, запрещается;

работать с форсункой, приготовлять водные эмульсий ГКЖ-94 и наносить составы, их содержащие, необходимо в комбинезонах, защитных очках и резиновых перчатках;

при попадании растворов ГКЖ-94 и эмульсии ГКЖ--94 на кожу лица и рук, необходимо смывать их большим количеством воды;

работа с раствором ГКЖ-94, содержащим легко воспламеняющийся уайт-спирит, должна производиться в соответствии с требованиями противопожарной безопасности.

3. Технико-экономичесие показатели

 

Наименование работ

Объем работ,

м2

Трудоемкость,

чел.-ч

Стоимость затрат труда,

руб.-коп.

общая

на единицу объема работ

общая

на единицу объема работ

Подготовка поверхностей кирпичных стен фасада, нанесение обрызга и грунта цементно-известковым раствором, отделка оконных и дверных откосов, устройство наружных отливов

 

1226

1052,15

0,858

599-12

0-48,9

Механизированное нанесение накрывочного (декоративного) слоя терразитовым раствором

 

83,27

0,068

58-53

0-04,8

Механизированное нанесение гидрофобного покрытия

 

110.34

0,09

66-76

0-05,4

Итого

1245,76

 

724-41

 

 

Продолжительность работ 31 день.

 4. Материально-технические ресурсы

4.1. Потребность в основных материалах и полуфабрикатах на одну секцию типового этажа

Раствор цементно-известковый 1:1:6, м3

30

Раствор терразитовый, м3

11

Пятипроцентная гидрофобная жидкость ГКЖ-94, кг .

246

Прочие материалы, руб.

1,22

4.2. Машины, оборудование, инструменты, инвентарь и приспособления

Наименование

Марка, № чертежа, ГОСТ

Количество,

шт.

1

2

3

Машины и оборудование

 

Станция штукатурная

 

 

производительностью 2; 4 м3/ч МФ ВНИИСМИ

или

СО-114

1

производительностью 4 м3/ч Главсредуралстроя

 

ПШС-2М

Емкость для известкового молока

 

-

1

Насос для перекачки известкового молока

 

-

1

Растворонасос производительностью 2 м3

 

СО-48А

1

Растворосмеситель турбулентный вместимостью 65 л производительностью 2-2,6 м3

 

СБ-43

1

Вибронасос конструкции ЮжНИИ

 

-

1

Вибросито, размеры отверстий сетки 3x3 мм

 

-

1

Установка для нанесения терразитовых растворов с баком вместимостью 35 л конструкции ЦНИИОМПТ

 

Черт. 4490.10.000

2

Удочка конструкции ЦНИИОМПТ

 

Черт. 4491.30.000

2

Компрессор диафрагменный

 

СО-45

2

Компрессор передвижной

 

СО-7А

2

Люлька самоподъемная

 

ЛС-80-250

2

Ручные инструменты

 

Кельма штукатурная КШ

 

ГОСТ 9533-71

14

Кельма для терразитовой конструкции ВНИИСМИ Минстройдормаша

 

Черт. 28.00.000

7

Сокол дюралюминиевый конструкции УМОР ГМС

 

Черт. 131.00.000

14

Ковш штукатурный

 

ГОСТ 7945-73

7

Лопата растворная ЛР

 

Гост 3620-63

7

Правило прижимное конструкции треста Мосоргстрой Главмосстроя

 

Черт. 991.000.000

3

Кисть-макловица КМА

 

ГОСТ 10597-70

7

Полутерки деревянные 350, 800 и 1.500 мм конструкции УМОР ГМС

 

Черт .223.00.000 и

Черт. 224.00.000

 

20

Терка деревянная конструкции УМОР ГМС

 

Черт. 272.00.000

7

Терка стандартная конструкции УМОР ГМС

 

То же

7

Терка поролоновая или войлочная и стальная

 

-

7

Гладилка стальная

ПШ-1

ГОСТ 10403-63

 

7

ПШ-2

 

7

Гладилка для терразитовой штукатурки конструкции треста Оргстрой Минстроя Эст.ССР

 

-

7

Молоток стальной строительный штукатурный МШТ

 

ГОСТ 11042-72

4

Зубило слесарное

 

ГОСТ 7211-72

4

Скарпель конструкции института НИИСП Госстроя УССР

 

Черт. 192.03.000

4

Молоток двусторонний с двойным заострением конструкции института НИИСП Госстроя УССР

 

То же

4

Скребок стальной на длинной ручке конструкции треста Мосоргстрой

 

Черт. 1233

4

Отрезовка ОШ-1, ОШ-2

 

ГОСТ 9533-71

7

Щетка стальная конструкции Гипрооргсельстроя Минсельстроя СССР

 

-

4

Линейка для расшивки швов при обработке терразитовой штукатурки конструкции треста Оргстрой Минстроя Эст.ССР

 

-

6

Расшивка для терразитовой штукатурки конструкции треста Оргстрой Минстроя Эст.ССР

 

-

6

Измерительные инструменты

 

Рейка с отвесом

 

ГОСТ 9416-76

2

Уровень строительный УС1-300, УС2-700

 

ГОСТ 9416-67

4

Отвес О-400; О-600

 

ГОСТ 7948-71

4

Метр складной деревянный

 

ГОСТ 7253-64

7

Конус стандартный

 

ГОСТ 5802-66

1

Угольник стальной с передвижной планкой конструкции треста Мосоргстрой Главмосстроя

 

-

1

Шнур длиной 15 м

 

-

1

Приспособления

 

Форсунка штукатурная

 

ГОСТ 10466-75

2

Консоль с противовесом для подвески люльки

 

-

8

Производственный инвентарь

 

Ящик штукатурный конструкции института Гипрооргсельстрой Минсельстроя СССР

 

-

7

Ведро

 

ГОСТ 20558-75

7

Рукава резиновые длиной 15-20 м

 

ГОСТ 10362-76

По месту

ТЕХНОЛОГИЧЕСКАЯ КАРТА №8

УЛУЧШЕННАЯ ТРЕХСЛОЙНАЯ ШТУКАТУРКА ВНУТРЕННИХ КИРПИЧНЫХ СТЕН, ЗАТИРКА ПОВЕРХНОСТИ ГИПСОБЕТОННЫХ ПЕРЕГОРОДОК И ЗАДЕЛКА ШВОВ В ПЕРЕКРЫТИИ ТИПОВОГО ЭТАЖА ПЯТИЭТАЖНОГО КУЛЬТУРНО-БЫТОВОГО ЗДАНИЯ СЕРИИ 164-80-2

1. Область применения

1.1. Технологическая карта (ТК) разработана на производство работ по нанесению улучшенной трехслойной штукатурки известковым раствором на внутренние кирпичные стены, затирке перегородок и расшивке швов перекрытия типового этажа пятиэтажного культурно-бытового здания серии 164-80-2 (школьное здание). Приготовление известкового раствора централизовано, подача и нанесение механизированы.

Рабочие чертежи здания разработаны ЦНИИЭП учебных зданий.

1.2. В состав работ, рассматриваемых ТК, входят: подготовка поверхности кирпичных стен под оштукатуривание, нанесение слоев обрызга, грунта и накрывочного слоя механизированным способом; разравнивание слоев грунта; механизированная затирка поверхностей; выделка лузг, усенков, заделка мест примыкания перегородок; оштукатуривание вручную оконных и дверных откосов; затирка железобетонных потолков с прорезкой рустов.

Работы выполняют летом в одну смену.

1.3. Настоящая ТК может быть применена при строительстве объектов различного жилого и гражданского назначения с учетом конкретных условий строительства.

2. Организация и технология строительного процесса

2.1. Подготовка к производству штукатурных работ

До начала штукатурных работ необходимо: смонтировать не менее трех перекрытий; выполнить подготовку под полу; установить дверные и оконные блоки, остеклить проемы; смонтировать системы отопления, водопровода и канализации; заделать в перекрытиях все отверстия, смонтировать скрытые электротехнические и слаботочные разводки; осветить рабочие места; очистить помещения от остатков строительного мусора; принять объект под отделку по акту; доставить на рабочее место инструменты, инвентарь, приспособления и материалы.

2.2. Приготовление и доставка штукатурного раствора

От растворного узла на строительную площадку известковый раствор доставляют растворовозом СБ-89 или специально оборудованным автомобилем-самосвалом.

Доставленный на объект раствор загружается в приемный бункер штукатурной станции CО-114 или ПШС-2М, установленной на приобъектной площадке, где доводится до необходимой консистенции разбавлением известковым молоком. Раствор для слоев обрызга и грунта процеживают через вибросито с ячейками 3x3 мм. Подвижность раствора по конусу СтройЦНИЛа - 7-10 см. Перемешанный и процеженный раствор подается к месту производства работ растворонасосом СО-48А. При этом на этажи раствор подается по резиновым рукавам диаметром 51 и 38 мм, а к соплам - по резиновым рабочим рукавам диаметром 25 и 18 мм. Магистральный участок растворопровода устанавливается на весь период работы и подвешивается в проеме лестничной клетки.

Раствор для накрывочного слоя дополнительно процеживают через вибросито с ячейками 1,5x1,5 мм и по резиновому растворопроводу подают в растворосмеситель СО-23А, расположенный на этаже. Непосредственно перед нанесением накрывочного слоя в раствор добавляют латексную шпаклевку в количестве 1/3 объема раствора.

Шпаклевку загружают в растворосмеситель, где она тщательно перемешивается с известковым раствором и подается в устройство дня нанесения пастовых составов конструкции ЦНИИОМТП. Консистенция раствора должна соответствовать погружению стандартного конуса на 8-9 см.

2.3. Технология производства работ

Для нанесения слоев штукатурного намета используют известковый раствор.

При производстве внутренних штукатурных работ последовательно выполним следующие процессы. Вначале подготовляют поверхность к оштукатуриванию и провешивают ее, затем наносят слои обрызга и грунта и разравнивают последний. После этого наносят и затирают накрывочный слой, разделывают углы, отделывают оконные и дверные откосы, подготовляют и затирают поверхности гипсобетонных перегородок. Заканчивают работы расшивкой швов перекрытия.

Штукатурные работы следует производить в помещениях с температурой воздуха не ниже +8°С на высоте 0,5 м от пола.

2.3.1. Подготовка поверхности стен под оштукатуривание

Поверхность стен очищают от пыли и грязи, сметая их ветошью. Сильно загрязненные поверхности промывают струей воды под напором. Наплывы отвердевшего раствора удаляют штукатурным молотком. Затеи поверхности стек провешивают, для чего в верхней части стены на расстоянии 30-40 см от каждого угла забивают по гвоздю так, чтобы их шляпки выступали над поверхностью стены на предполагаемую площадку штукатурки. Со шляпки каждого гвоздя опускают отвес и по нему на расстоянии 30 см от пола забивают еще два гвоздя. По диагоналям я горизонтально натягивают шнур, при помощи которого определяют минимальную толщину штукатурного слоя. Для устройства марок забивают промежуточные гвозди. Если шнур где-либо коснется стены, значит на ней имеются выпуклости, которые необходимо срубить. Затем по уровню выравнивают шляпки гвоздей так, чтобы они находились в определившейся плоскости штукатурки.

Вокруг гвоздей из штукатурного раствора делают марки диаметром 80-100 мм, на 3-5 мм выше шляпок. После того как раствор схватится, верх марок срезают до уровня шляпок.

2.3.2. Нанесение слоев обрызга и грунта механизированным способом

Слои штукатурного намета наносят форсункой с механическим распылением, работая непосредственно с пола.

Чтобы при нанесении раствора на поверхность было меньше потеков, машинист растворонасоса подбирает нужную длину струи и факел распыления. Оптимальное расстояние форсунки от стены - 60-80 см, оптимальный угол ее наклона к оштукатуриваемой поверхности - 60-90º. Для улучшенной штукатурки общая толщина штукатурного намета должна быть не более 15 мм.

Первый слой - обрызг - должен полностью покрывать оштукатуриваемую поверхность, толщина его не более 5 мм.

Второй слой - грунт - служит для получения ровной поверхности штукатурки, толщина его не должна превышать 7 мм. Грунт наносится слоями после частичного схватывания (повеления) предыдущего слоя.

В помещениях с полами площадью до 5 м2 раствор наносят вручную при помощи ковша. Ящик-тележку с раствором устанавливают слева от работающего и на расстоянии 1 м от стены. Набрав порцию раствора, штукатур набрасывает его тонкой веерообразной струей на поверхность. В труднодоступных местах и в очень тесных помещениях раствор наносят штукатурными кельмами.

Для сбора упавшего раствора применяют лотки. Раствор, собранный в ящики и разбавленный до требуемой подвижности известковым молоком, используется повторно.

Нанесенный слой грунта разравнивают полуторками и правилами. Размеры их выбирают в зависимости от площади обрабатываемых поверхностей. Большие поверхности разравнивают двухметровым правилом и правилом длиной 70 см, а небольшие поверхности - полутерками и правилами средних размеров.

При разравнивании слоя грунта полутерок передвигают снизу вверх зигзагообразными движениями, прижимая его к стене параллельно полу так, чтобы между нижней частью полутерка и стеной образовывался острый угол. По одному участку следует проходить полуторкой дважды во взаимно перпендикулярных направлениях.

Качество выполненной штукатурки проверяют по ходу работы, прикладывая к поверхности контрольное правило.

2.3.3. Механизированное нанесение накрывочного слоя

Накрывочный слой толщиной не более 2-3 мм наносят по выровненному грунту (после схватывания штукатурных слоев) универсальной удочкой с подачей раствора с помощью устройства для нанесения пастовых составов конструкции ЦНИИОМТП.

2.3.4. Затирка накрывочного слоя, разделка углов

Затирку накрывочного слоя производят штукатурно-затирочными машинками СО-86 или CО-112 с инвентарных столиков. Затирают не совсем затвердевшие поверхности (при легком нажатии пальцами на поверхности не должно оставаться следов) спиралевидными движениями диска с легким нажатием на поверхность стены.

Накрывочный слой периодически обрызгивают водой, подаваемой к затирочным машинкам по резиновой трубке самотеком из устанавливаемых, на лестничной площадке емкостей. Одновременно с затиркой накрывочного слоя разделывают углы при помощи лузговых и усеночных правил.

2.3.5. Отделка оконных и дверных откосов

До начала работ по оштукатуриванию оконных и дверных откосов необходимо закрепить ершами и проконопатить дверные и оконные коробки.

Поверхности откосов очищают от пыли и для лучшего сцепления раствора с основанием смачивают водой.

Для получения откосов одинаковой ширины по краям проемов устанавливают направляющие рейки (по правилу с отвесом) и закрепляют их рейкодержателями.

Размер скосов от коробок к поверхности стен определяют при помощи стального угольника с передвижной планкой.

Слои обрызга и грунта штукатуры наносят кельмами, разравнивают последний с помощью деревянных малок и полутерков по направляющим рейкам.

Накрывочный слой наносят кельмами, выравнивают и затирают поролоновыми терками, периодически смачивая поверхность водой.

После снятия реек выравнивают углы пересечения откосов, отделывают лузги и усенки и проверяют правильность отделки с помощью отвеса и уровня.

2.3.6. Подготовка и выравнивание поверхности гипсобетонных перегородок

Поверхность гипсобетонных перегородок очищают стальными щетками от грязи, струей воды смывают пыль и частично затирают. Затем производят сплошное выравнивание гипсобетонных перегородок известковым раствором. Раствор для выравнивающего слоя толщиной 2 мм наносят вручную из расположенных у рабочих мест растворных ящиков, разравнивают и затирают штукатурно-затирочными машинками.

2.3.7. Обработка внутренних швов между сборными элементами перекрытий и стен

При оштукатуривании швов между плитами перекрытия их предварительно очищают от пыли и смачивают водой при помощи кисти-макловицы.

Известковый раствор с помощью растворонасоса подается в ящики к рабочему месту штукатуров. Для ускорения схватывания раствора в него добавляют 1-2% гипса в виде жидкой гипсовой заводки и тщательно перемешивают веслом. Затем кельмой с сокола раствор наносят на стыки плит и обратной стороной кельмы заглаживают шов. Круговыми, а затем прямолинейными движениями терки вдоль шва затирают раствор заподлицо с поверхностью плит; шов периодически смачивают водой. Для затирки швов пользуются сначала теркой с войлоком, а затем с поролоном. Пазы между плитами заполняют сразу в нескольких помещениях, чтобы раствор к моменту прорезки рустов успел несколько затвердеть.

Работы по заделке швов потолка выполняют со столиков-подмостей.

Швы потолка прорезают рустовкой с использованием направляющей рейки, которую телескопическими стойками закрепляют по линии потолочного шва. Рустовку одним бортом упирают в направляющую рейку. Избыток раствора удаляют через прорези в полотне рустовки.

2.4. Состав бригады

Все штукатурные работы выполняет специализированная бригада из 28 человек, состоящая из семи звеньев.

Состав бригады и перечень выполняемых работ

№ звена

Профессия

Количество рабочих

Выполняемые процессы

1,2

Штукатуры

4 разр.

 

2

Подготовка поверхности кирпичных стен под оштукатуривание, нанесение раствора, разравнивание поверхности. Подготовка и затирка гипсобетонных перегородок

 

 

3 разр.

6

 

2 разр.

2

 

 

 

3,4

Штукатуры

4 разр.

 

2

Оштукатуривание вручную стен в помещениях с полами площадью до 5 м2, оконных и дверных откосов

 

 

3 разр.

8

 

 

 

 

 

 

5,6

Штукатуры

4 разр.

 

2

Заделка швов плит перекрытия с прорезкой рустов, оштукатуривание мест соединения перегородок с потолками, промазка плинтусов и наличников

 

 

3 разр.

 

4

7

Машинист штукатурной станции 3-разр

1

Прием готового раствора, обслуживание штукатурной станции

 

 

Штукатур 2 разр.

 

1

 

Схема производства работ

А-

 

 

(1)-(28) - очередность отделки помещений механизированным способом;

(1/)-(16/) - то же, вручную;

кирпичные стены;

двойная гипсобетонная перегородка;

шлакобетонная перегородка;

 

гипсобетонная перегородка;

 

профильное стекло

 

1 - передвижная штукатурная станция CО-114 или ПШС-2М; 2 - емкость для известкового молока; 3 - насос для перекачки известкового молока; 4 - растворовоз; 5 - установка для нанесения накрывочного слоя; 6 -универсальная удочка; 7-бескомпрессорное сопло; 8-емкость для воды; 9 - растворопровод; 10 - рукав диаметром 51 мм; 11 - стояк для подачи воды; 12 - электрощит поэтажный; 13 - электростояк; 14 - электрощит

2.5. График производства работ

 

 

2.6. Калькуляция затрат труда

Обоснование

Наименование работ

Единица измерения

Объем работ

Норма времени на единицу измерения,

чел.-ч

(маш.-ч)

Затраты труда на общий объем работ,

чел.-ч.

(маш.-ч)

Расценка на единицу измерения,

руб.-коп.

Стоимость затрат труда на общий объем работ,

руб.-коп.

ЕНиР, 1973,

§ 4-1-36Б, т.5

Прием готового раствора из кузова растворовоза СБ-89 в приемный бункер штукатурной станции CО-114

 

м3

13,1

0,115

1,51

0-05,7

0-75

Трест Мосоргстрой с участием ЦНИБ Мосстроя Главмосстроя,

Кт-8.0-5.1-75

Подготовка поверхности кирпичных и шлакобетонных стен под оштукатуривание

 

100 м2

6,72

9,67

65

5-06

34-00

ЕНиР, 1973, § 8-4,

т.2, п.3а,б

Подача раствора растворонасосом на высоту до 15 м

 

м3

13,1

1,4

0,7

(0,7)

18,34

9,17

(9,17)

0-69

0-38,9

9-04

5-10

Трест Мосоргстрой с участием ЦНИБ Мосстроя Главмосстроя, 1976,

Кт-8.0-6.10-75

Механизированное нанесение на стены слоя обрызга

 

100 м2

4,98

2

9,96

I-I8

5-88

Механизированное нанесение

 

 

 

 

 

 

грунта и разравнивание его

 

 

 

 

 

 

первого слоя

100 м2

4,98

2,83

14,1

3-76

18-73

второго слоя

 

4,98

3,53

17,6

3-76

18-73

То же,

Кт-8.6-6.11-75

Механизированное нанесение на стены накрывочного слоя и затирка его затирочными машинками

 

100 м2

4,98

11,57

57,6

6-82

33-96

ЕНиР,1973,§ 8-10б,

т.2, п.7а

Отделка лузг и усенков

 

100 м2

2,35

4,9

11,5

3-06

7-19

Трест Сочиоргтехстрой Минпромстроя СССР.

Кт-8.0-16. 9-75

Подготовка поверхности гипсобетонных перегородок под выравнивание

 

100 м2

3,98

5,88

23,4

3-26

12-97

ЕНиР, 1973, § 8-10а,

т.1, п. 1а

Выравнивание поверхности гипсобетонных перегородок, нанесение раствора, затирка, отделка лузг и усенков

 

м2

398,2

0,2

79,64

0-10,5

41-81

Гипрооргсельстрой,

Кт-8.0-8.6-75

Оштукатуривание вручную оконных и дверных откосов с инвентарных столиков

 

м2

67,6

1,6

108,2

0-94

63-54

ЕНиР, 1973, § 8-7,

т.2, п.2, техническая часть, п.5, к = 1,5

Оштукатуривание вручную стен в помещениях с площадью пола до 5 м2 с последующей затиркой

 

м2

174,2

0,9

156,78

0-53,1

92-50

ЕНиР, 1973,

§8-11, п. 2б

Оштукатуривание мест соединения перегородок с потолками

 

100 м

2,48

17,5

43,4

10-94

27-13

ЕНиР, 1973, § 8-11

пп. 2б, 3б

Заделка швов между плитами перекрытия, прорезка рустов

 

100 м

4,17

27,1

113

16-94

70-64

ЕНиР,1973, § 8-18,

п. 5

 

Промазка плинтусов

100 м

3,38

5,1

17,24

2-83

9-57

ЕНиР, 1973, § 8-18,

п. 6

Промазка наличников

100 м

0,54

5,6

3,02

3-11

1-68

 

 

 

 

Итого

749,46

(9,17)

 

453-22

2.7. Контроль качества

Штукатурные работы должны выполняться в соответствии с требованиями главы СНиП III-21-73 "Отделочные покрытия строительных конструкций. Правила производства и приемки работ".

Слои штукатурки должны быть прочно соединены с поверхностью оштукатуриваемой конструкции и не отслаиваться от нее.

Оштукатуренные поверхности должны быть ровными, гладкими, с четко отделанными гранями углов, пересекающихся плоскостей, без следов затирочного инструмента, потеков раствора, пятен и высолов. Не допускаются трещины, бугорки, раковины (дутики), грубошероховатая поверхность, пропуски.

Отклонения качества оштукатуренных поверхностей не должны превышать следующих величин:

неровности поверхности (обнаруживаются при накладывании правила или шаблона длиной 2 м) - не более двух глубиной или высотой до 3 мм;

отклонение поверхности стен (потолков) от вертикали (горизонтали) - 1 мм на 1 м высоты (длины), но не более 10 мм на всю высоту (длину) помещения;

отклонение лузг, усенков, оконных и дверных откосов, пилястр, столбов от вертикали (горизонтали) - 1 мм на 1 м высоты (длины), но не более 5 мм на элемент;

отклонение ширины оштукатуренного откоса от проектной - 3 мм;

отклонение от прямой линии в пределах между углами пересечения тяг и раскреповки - 3 мм.

Качество готовых растворов должно удовлетворять требованиям СН 290-74 "Инструкция по приготовлению и применению строительных растворов". Материалы и изделия, применяемые для штукатурных работ, должны удовлетворять требованиям соответствующих стандартов, а также указаниям главы СНиП I-B.2-69 "Вяжущие материалы неорганические и добавки для бетонов и растворов".

2.8. Техника безопасности

При производстве штукатурных работ следует строго соблюдать правила техники безопасности, руководствуясь при этом действующей

 нормативной и инструктивной документацией, в том числе главой СНиП III-А.11-70 "Техника безопасности в строительстве", СН 38-58 "Инструкция по заземлению передвижных строительных механизмов и электрифицированного инструмента" (издание второе, Москва, 1962).

Кроме того, при производстве штукатурных работ необходимо обращать особое внимание на выполнение следующих требований:

к штукатурным работам допускаются лица, прошедшие инструктаж по технике безопасности, изучившие устройства, принцип и порядок работы с механизмами и инструментом;

внутренние штукатурные работы должны выполняться с подмостей или передвижных столиков;

при производстве работ на лестничных маршах необходимо применять специальные подмости (столики) с разной длиной опорных стоек, устанавливаемых на ступени; рабочий настил должен быть горизонтальным и иметь перила и бортовую доску;

перед началом каждой смены следует проверять исправность растворонасоса, рукавов и другого применяемого для штукатурных работ оборудования;

работа растворонасоса при давлении, превышающем указанное в техническом паспорте, запрещается;

все работы, связанные с ремонтом или внутренним осмотром растворонасоса, преобразователя и затирочных машинок, следует производить только при отключенном электропитании; продувка рукавов сжатым воздухом допускается только после удаления людей за пределы опасной зоны;

штукатуры, наносящие штукатурный раствор на поверхность при помощи сопла и производящие набрызг раствора вручную, обеспечиваются защитными очками;

переносные токоприемники (электроинструмент, машины, светильники), применяемые при выполнении штукатурных работ, должны иметь напряжение не более 36 В;

пребывание более 3 человек в просушиваемом помещении запрещается.

3. Технико-экономические показатели

 

Наименование работ

Объем работ

Трудоемкость,

чел.-ч

Стоимость затрат труда,

руб.-коп.

общая

на единицу объема работ

общая

на единицу объема работ

Подготовка поверхности и оштукатуривание кирпичных и шлакобетонных стен, оконных и дверных откосов, отделка лузг и усенков

 

739,8 м2

469,76

0,632

289-42

0-36,7

Подготовка и выравнивание поверхностей гипсобетонных перегородок, отделка лузг и усенков

 

398 м2

103,04

0,259

54-78

0-13,8

Заделка швов между плитами перекрытия, оштукатуривание мест соединения перегородок с потолком, промазка плинтусов и наличников

 

1057 м

176,55

0,167

109-02

0-10,3

Итого

749,45

 

453-22

 

 

Продолжительность работ 3,5 дня.

4. Материально-технические ресурсы

4.1. Потребность в основных материалах и полуфабрикатах на одну секцию типового этажа

Раствор известковый, м3

10,9

Раствор цементно-известковый, м3

2,2

Латексная шпаклевка, м3

0,5

Гипс, т

0,07

Прочие материалы, руб.

2-50

4.2. Машины, оборудование, инструменты, инвентарь и приспособления

 

Наименование

Марка, № чертежа, ГОСТ

Количество, шт.

1

2

3

Машины и оборудование

 

Станция штукатурная

производительностью 2; 4 м3/ч конструкции МФ ВНИИСМИ

или

 

 

CО-114

1

производительностью 4 м3/ч конструкции Главсредуралстроя

 

ПСШ-2М

Растворонасос производительностью 2 м3

 

СО-48А

1

Растворосмеситель производительностью 1,2-1,5 м3

 

СО-23А

1

Вибросито, размеры отверстий сетки 3х3 мм

 

-

1

Устройство производительностью 100 м2для нанесения пастовых составов конструкции ЦНИИОМТП

 

Черт.4491.00.000

1

Кран крышевой грузоподъемностью 300 кг конструкции Минпромстроя БССР

 

K-IM

1

или

кран, устанавливаемый в окно, грузоподъемностью 120 кг, конструкции Минпромстроя БССР

 

ОK-120

1

Трансформатор

 

ИВ-4

1

Преобразователь частоты тока

 

ИЭ-9401 или И8-9402

1

Пункт передвижной инструментально-раздаточный конструкции ЦНИИОМТП

 

Черт.3287.А.00.000

1

Механизированный инструмент

 

Машинка штукатурно-затирочная

 

С О-86 или CО-112

5

Устройство для подачи воды к затирочным машинкам конструкции Главкиевгорстроя

 

Черт.МС 26.00.00.00.00

2

Ножницы электрические для резки металла

 

ИЭ-5402

2

Ручные инструменты

 

Кельма штукатурная КШ

 

ГОСТ 9533-71

26

Ковш штукатурный

 

ГОСТ 7945,-73

13

Отрезовка ОШ-1, ОШ-2

 

ГОСТ 9533-71

13

Сокол дюралюминиевый

 

ОТУ 22-697-67

26

Острогубцы (кусачки) 175

 

ГОСТ 7282-64

5

Нож штукатурный

 

ГОСТ 18975-73

6

Ножовка поперечная по дереву

 

ГОСТ 6532-53

5

Молоток штукатурный МШТ

 

ГОСТ 11042-72

10

Скарпель диаметром 20 мм конструкции УМОР ГМС

 

Черт. 192.00.000

3

Терка деревянная конструкции УМОР ГМС

 

Черт. 272.00.000

13

Терка поролоновая или войлочная конструкции УМОР ГМС

 

Черт. 272.00.000

10

Правило удлиненное конструкции ЦНИИОМТП

 

Черт. 3345.14.000

6

Правило усеночное

 

ОТУ 22-1235-68

6

Правило лузговое

 

ОТУ 22-1234-68

6

Полутерок деревянный 350, 800 и 1500 мм конструкции УМОР ГМС

 

Черт. 223.00.000 и 224.00.000

 

45

Кистъ-макловица КМА-2

 

ГОСТ 10597-70

13

Гладилка стальная

 

 

ГШ-1

ГШ-2

 

ГОСТ 10403-63

13

13

Рейкодержатель со штырем конструкции ЦНИИОМТП

 

Черт.3345.13.000

13

Щетка стальная прямоугольная конструкции Гипрооргсельстроя Минсельстроя СССР

 

-

7

Лопата растворная ЛР

 

ГОСТ 3620-63

13

Рустовка потолочная односторонняя

 

ГОСТ 13995-68

4

Рустовка потолочная двухсторонняя

 

ГОСТ 13995-68

4

Лоток для сбора опавшего раствора конструкции ЦНИИОМТП

 

Черт. 084.000.000

6

Линейка штукатурная конструкции УМОР ГМС

 

Черт. 156.00.000

6

Скребок стальной конструкции ЦНЙИОМТП

 

Черт.3345.19.000

5

Измерительные инструменты

 

Рейка с отвесом

 

ГОСТ 9416-67

3

Уровень строительный УС1-300, УС2-700

 

ГОСТ 9416-67

6

Отвес О-400

 

ГОСТ 7948-71

6

Метр складной деревянный

 

ГОСТ 7253-64

13

Угольник стальной

 

ОСТ 10920-64

6

Конус стандартный

 

ГОСТ 5802-66

2

Шнур разметочный в корпусе

 

-

1

Приспособления

 

Форсунка бескомпрессорная конструкции УМОР ГМС

 

-

4

Удочка прямоточная с трехзаходным завихрителем и двумя насадками конструкции треста Киевгорстрой

 

-

1

Производственный инвентарь

 

Емкость на 0,35 м или бункер для раствора конструкции УМОР ГМС

 

Черт. 315.00.000

6

Ограждение поста механизации конструкции треста Мосоргпромстрой

 

-

2

Тележка для раствора конструкции ЦНИИОМТП

 

Черт.3294.62.000

2

Ведро

 

ГОСТ'20558-75

13

Перчатки резиновые

 

ГОСТ 10106-62

28 пар

Очки защитные

 

ГОСТ 9802-61

28

Средства подмащивания

 

Столик универсальный конструкции ЦНИИОМТП

 

Черт.3241.08.000

10

Столик двухвысотный конструкции ЦНИИОМТП

 

ЧерЧ.3241.07.000

10

ТЕХНОЛОГИЧЕСКАЯ КАРТА №9

УЛУЧШЕННАЯ ТРЕХСЛОЙНАЯ ШТУКАТУРКА ВНУТРЕННИХ КИРПИЧНЫХ СТЕН, ЗАТИРКА ПОВЕРХНОСТИ ГИПСОБЕТОННЫХ ПЕРЕГОРОДОК И ЗАДЕЛКА ШВОВ В ПЕРЕКРЫТИИ ТИПОВОГО ЭТАЖА РЯДОВОЙ СЕКЦИИ ЧЕТЫРЕХЭТАЖНОГО ЖИЛОГО ДОМА СЕРИИ 114-74 ДЛЯ СЕВЕРНОЙ ЗОНЫ СТРАНЫ

1. Область применения

1.1. Технологическая карта (ТК) разработана на производство работ по нанесению улучшенной трехслойной штукатурки сложным раствором на внутренние кирпичные стены, затирке гипсобетонных перегородок и оштукатуриванию швов железобетонного потолка с прорезкой рустов в типовом этаже рядовой секции четырехэтажного жилого дома серии 114-74 для северных условий строительства.

Приготовление сложного раствора централизовано, подача и нанесение механизированы.

Рабочие чертежи здания разработаны ЛенЗНИИЭП.

1.2. В состав работ по оштукатуриванию внутренних кирпичных стен входят: подготовка поверхности стен; механизированное нанесение слоев намета; механизированное нанесение накрывочного слоя и его затирка.

В состав работ по затирке гипсобетонных перегородок входят: подготовка поверхности гипсобетонных перегородок; нанесение выравнивающего слоя и его затирка.

В состав работ по отделке потолков входят: оштукатуривание швов железобетонных элементов потолка; прорезка руста; заделка мест сопряжения потолка с перегородками.

Работы выполняют зимой в одну смену.

1.3. Настоящая ТК может быть применена при строительстве объектов различного жилого и гражданского назначения с учетом конкретных условий строительства.

2. Организация и технология строительного процесса

2.1. Подготовка к производству штукатурных работ

До начала штукатурных работ необходимо: смонтировать основные конструктивные элементы; закончить устройство кровли; выполнить подготовку под полы; установить дверные и оконные блоки; остеклять оконные проемы; установить встроенные шкафы и антресольные блоки; смонтировать скрытые электротехнические и слаботочные разводки; устроить временные тамбуры у входа в лестничную клетку; задействовать систему центрального отопления для достижения в помещениях устойчивой температуры не ниже +10°С; утеплить штукатурную станцию и участок растворопровода, расположенный между нею и зданием; очистить все помещения от остатков строительных материалов, мусора и пр.; осветить рабочие места; доставить на рабочее место инструменты, инвентарь, приспособления и материалы; проверить механизмы на холостом ходу, тщательно осмотреть рукава, устранить их изломы и перегибы; обеспечить световую или звуковую сигнализацию между штукатурами и машинистом штукатурной станции; промыть рукава известковым молоком; принять объект под отделку по акту.

2.2. Приготовление и доставка штукатурного раствора

На строительной площадке оборудуют растворный узел, где размещают штукатурную станцию УМС-6, емкость для известкового молока и насос для его перекачки. Штукатурная станция утеплена и снабжена набором обогревательных приборов.

С растворного завода на строительную площадку раствор доставляют в утепленных, растворовозах или в специально оборудованных автомобилях-самосвалах с утепленным кузовом (северный вариант). Раствор загружают в бункер штукатурной станции, доводят до требуемой консистенции, а затем подают по утепленному растворопроводу на этажи.

Приготовление, хранение и транспортировка должны быть организованы таким образом, чтобы доставляемый на место работы раствор в момент его нанесения имел температуру не ниже +8°С.

Одновременно с центральным отоплением здания для сушки штукатурки применяют дополнительные источники тепла - теплонагреватели УСВ-200.

До начала искусственной сушки оштукатуренных поверхностей необходимо: окончить штукатурные работы в секции или части ее; выдержать оштукатуренные поверхности в течение 1-2 суток при температуре +10-15°С.

2.3. Технология производства работ

Для нанесения слоев штукатурного намета используют сложный раствор.

При оштукатуривании внутренних кирпичных стен соблюдают следующий порядок выполнения технологических операций: подготовляют поверхности к оштукатуриванию и провешивают их; наносят слои обрызга и грунта механизированным способом с разравниванием последнего; наносят накрывочный слой и отделывают лузги; затирают накрывочный слой; отделывают откосы и разделывают потолочные швы.

2.3.1. Подготовка поверхности стен под оштукатуривание

Подлежащие оштукатуриванию поверхности стен очищают от пыли и грязи, сметая их ветошью. Наплывы отвердевшего раствора срубают штукатурными молотками и счищают мусор с подмостей. Затем поверхности стен провешивают, для чего в верхней части стены на расстоянии примерно 30 см от каждого угла забивают по гвоздю так, чтобы их шляпки выступали над поверхностью стены на предполагаемую толщину штукатурки. Со шляпки каждого гвоздя опускают отвес и по нему на расстоянии 30 см от пола забивают еще два гвоздя. По диагоналям и горизонтально натягивают шнур, при помощи которого определяют минимальную толщину штукатурного, слоя. Для устройства марок забивают промежуточные гвозди. Затем по уровню выравнивают шляпки гвоздей так, чтобы они находились в определившейся плоскости штукатурки.

Вокруг гвоздей из штукатурного раствора делают марки диаметром 80-100 мм, на 3-5 мм выше шляпок. После того как раствор схватится верх марок срезают до уровня шляпок гвоздей.

2.3.2. Нанесение обрызга механизированным способом

Первый слой - обрызг - выполняется сложным штукатурным раствором с соотношением компонентов 1:0,6:5 (цемент: известковое тесто: песок), подвижностью 8-10 см по стандартному конусу.

В штукатурной станции раствор перемешивается с разбавлением известковый молоком, доводится до необходимой консистенции, процеживается через вибросито с ячейками 3x3 мм и растворонасосом по растворопроводу подается на этажи.

На поверхность стены слой обрызга толщиной 5 мм наносят движениями бескомпрессорной форсунки сверху вниз и слева направо. Форсунку держат на расстоянии 80-100 см от стены и под углом в 70-90° к ней. Опавший раствор собирают в лотки.

2.3.3. Нанесение грунта механизированным способом и разравнивание его

Нанесение грунта аналогично нанесению сдоя обрызга. Штукатурный раствор применяют состава 1:0,8:4 (цемент: известковое тесто: песок), подвижностью 7-10 мм по стандартному конусу. Слой грунта толщиной 7 мм наносят при помощи бескомпрессорных форсунок.

Разравнивание грунта осуществляют с помощью правил, а в труднодоступных местах полутерками. Контрольным правилом проверяют ровность поверхности.

Одновременно с подготовкой поверхности и нанесением слоев намета на большие площади звено штукатуров № 2 приступает к отделке помещений с полами площадью до 5 м2. Работы ведутся вручную в той же последовательности.

Штукатуры работают с пола или со столиков-подмостей. Ковшом набрасывают раствор на поверхность стены и, приложив правило или полутерок к оштукатуриваемой поверхности ребром под углом 30-45°, зигзагообразными движениями во взаимно перпендикулярных направлениях разравнивают слой грунта.

В труднодоступных местах и в очень тесных помещениях раствор наносят штукатурными кельмами.

2.3.4. Механизированное нанесение накрывочного слоя с отделкой лузг

Для накрывочного сдоя используют сложный раствор состава 1:1,25:2,5 (цемент: известковое тесто: песок), подвижностью 9-12 см.

В применяемый для накрывочного слоя штукатурный раствор вводят пластифицирующие добавки, перевешивают его в растворосмесителе СО-23А, процеживают через вибросито с ячейками 1,5x1,5 мм и подают в установку для нанесения пастообразных составов конструкции ЦНИИОМТП.

После нанесения накрывочного слоя толщиной 2 мм штукатуры прижимают диски затирочных машинок к обрабатываемой поверхности и, перемещая их в различных направлениях, затирают поверхность.

В труднодоступных местах поверхность затирают вручную круговыми движениями пенопластовой терки.

Затем штукатуры отделывают лузги.

2.3.5. Подготовка и выравнивание поверхности гипсобетонных перегородок

Вначале перегородки очищают от грязи стальными щетками или скребками, затеи при помощи присоединенного к водопроводу рукава струей воды смывают с поверхности пыль и выполняют частичную затирку перегородок. Для этого штукатуры ковшами набирают из ведер раствор и наносят его на поверхность панелей в отдельных поврежденных местах.

Затем при помощи кистей нанесенный раствор смачивают водой и затирают затирочными машинками заподлицо с поверхностью панелей. При необходимости выполняют сплошное выравнивание поверхностей перегородок, при этом швы между панелями и стенами заполняют раствором, после чего наносят один слой намета толщиной 2 мм, который разравнивают и затирают затирочными машинками.

Лузги и усенки отделывают с помощью лузговых и усеночных правил. Работы в верхней части стан производятся с подмостей.

2.3.6. Отделка оконных и дверных откосов

Отделку оконных и дверных откосов выполняют вручную. Штукатуры очищают поверхность кирпичных откосов и с помощью отвеса провешивают их вертикальные грани, устанавливают деревянные отфугованные рейки и закрепляют рейкодержатели гипсом. Кельмами наносят слои обрызга и грунта с промежутком во времени. Затем с помощью малок и полутерков разравнивают слой грунта по направляющим рейкам.

После нанесения накрывочного слоя штукатуры выравнивают и затирают поверхности терками, периодически смачивая их водой, и с помощью отвеса, уровня и угольника проверяют вертикальность и горизонтальность откосов.

Движениями полуторка сверху вниз выравнивают углы пересечения откосов, отделывают лузги и усенки и с помощью отвеса и уровня проверяют правильность отделки.

2.3.7. Оштукатуривание мест сопряжений железобетонного потолка с перегородками и швов панелей перекрытия, прорезка рустов

В приготовленный сложный раствор добавляют 1-2% гипса, перемешивают до получения однородной массы. На сокол накладывают перемешанный раствор и с подмостей наносят его на стыки панелей перекрытия, заглаживая шов обратной стороной кельмы; круговыми, а затем прямолинейными движениями терки вдоль шва затирают раствор заподлицо с поверхностью панели.

Затирают швы сначала войлочной теркой, а затем пенопластовой.

После этого приступают к прорезке рустов. Для этого в местах сопряжения швов панелей перекрытия и перегородок ставят метки (забивают гвозди) так, чтобы они располагались посередине шва. После частичного схватывания раствора, штукатуры натягивают шнур, набеленный гипсом, и, приложив его к намеченным ранее двум меткам (гвоздям), отбивают линию руста; на расстоянии половины ширины руста от отбитой линии прикладывают рейку к потолку и прижимают режущую плоскость рустовки к потолку, а ее боковую грань - к рейке так, чтобы середина овального ножа касалась отбитой линии. Движением рустовки вдоль рейки штукатуры прорезают русты. Далее убирают направляющую рейку, исправляют поврежденные места и зачищают их легкими движениями полутерка и рустовки вдоль линии руста.

Поверхности стен лестничных маршей затирают с подмостей пенопластовыми терками вручную.

2.4. Состав бригады

Все штукатурные работы выполняет бригада из 20 человек, состоящая из четырех звеньев.

Состав бригады и перечень выполняемых работ

№ звена

Профессия

Количество рабочих

Выполняемые работы

3

Штукатуры

4 разр.

3 разр.

 

 

3

3

Подготовка поверхности кирпичных стен под оштукатуривание, механизированное нанесение слоев обрызга, грунта и накрывочного слоя о последующей затиркой его, подготовка и выравнивание поверхности гипсобетонных перегородок, нанесение раствора, затирка и отделка лузг и усенков

 

 

Штукатуры

 

Подготовка и оштукатуривание вручную кирпичных стен, подготовка и сплошное выравнивание перегородок в помещениях с полами площадью до 5 м2, промазка плинтусов и наличников раствором; отделка вручную оконных и дверных откосов

 

 

4 разр.

2

 

3 разр.

 

2

5

Штукатуры

 

Оштукатуривание мест сопряжений железобетонного потолка с перегородками, оштукатуривание швов железобетонного потолка раствором, прорезка рустов, подготовка и нанесение раствора на стены лестничных клеток, затирка его

 

 

4 разр.

3 разр.

 

4

4

 

Машинист растворонасоса 3 разр

1

Прием и подача готового сложного раствора на этажи с помощью растворонасоса

6

Штукатур 2 разр.

 

1

Схема производства работ

1 - передвижная штукатурная станция УШС-6; 2 - емкостъ для известкового молока; 3 - растворонасос; 4 - расгворовоз; 5 - растворопровод; 6 -сопло с кнопочный управлением; 7 -растворосмеситель СО-23А; 8 - универсальная удочка; 9 - установка для нанесения пастовых составов; 10 -резиновый рукав; 11 - электростояк; 12 - стояк для подачи воды;. 13 -временное ограждение; 14 - тепляк

2.5. График производства работ

 

2.6. Калькуляция затрат труда

Обоснование

Наименование работ

Единица измерения

Объем работ

Норма времени на единицу измерения,

чел.-ч

(маш.-ч)

Затраты труда на общий объем работ,

чел.-ч.

(маш.-ч)

Расценка на единицу измерения,

руб.-коп.

Стоимость затрат труда на общий объем работ,

руб.-коп.

ЕНиР, 1973,

§ 4-1-36, т.5

п.б

Прием готового раствора из кузова растворовоза СБ-89 в приемный бункер штукатурной станции CО-114

 

м3

7,26

0,115

0,83

0-05,7

0-41

ЕНиР.1973, § 8-4,

т.1,2, п.3а,б

 

Подача раствора с помощью растворонасоса

 

м3

7,26

1,4

0,7

(0,7)

10,16

5,08

(5,08)

0-69

5-01

Трест Мосоргстрой с участием ЦНИБ Мосстроя Главмосстроя,

Кт-8.0-5.1-75

 

Подготовка поверхности внутренних кирпичных стен под оштукатуривание в помещениях с полами площадью

 

 

 

 

 

 

 

более 5 м2

100 м2

2,51

9,67

24,27

5-06

12-7

 

до 5 м2

 

0,08

9,67

0,85

5-06

0-4

То же,

Кт-8.0-6.10-75

Механизированное нанесение обрызга

 

100 м2

2,51

2

5,02

1-18

2-96

То же

Механизированное нанесение грунта

 

100 м2

2,51

6,38

16,01

3-76

9-44

То же,

Кт-8.6-6.11-75

Механизированное нанесение накрывочного слоя и затирка его

 

100 м2

2,51

11,57

29,04

6-82

17-12

ЕНиР,1973, § 8-7, т.2, п.а, к=1,5

Оштукатуривание кирпичных стен вручную в помещениях с полами площадью до 5 м2

 

м2

8,78

0,9

7,9

0-53,1

4-66

Трест Сочиоргтехстрой Минпромстроя СССР, Кт-8„0-16.9-75

Подготовка поверхности гипсобетонных перегородок под затирку в помещениях с полами площадью

 

 

 

 

 

 

 

более 5 м2

100 м2

1,88

5,88

11,05

3-26

6-13

 

до 5 м2

 

0,26

5,88

1,53

3-26

0-85

ЕНиР,1973,§ 8-10,

т.1, п.1а, к=1,5

Выравнивание гипсобетонных перегородок, нанесение раствора, затирка и отделка плоскостей, лузг и усенков

 

 

 

 

 

 

 

более 5 м2

м2

188

0,2

37,6

0-10,5

19-74

 

до 5 м2

 

26,07

0,3

7,82

0-15,7

4-09

ЕНиР,1973,§ 8-10,

т.2, п.7а

Отделка лузг и усенков

 

100 м

0,486

4,9

2,38

3-06

1-49

Гипрооргсельстрой,

Кт-8.0-8.6-75

Отделка вручную оконных и дверных откосов

 

м2

25,45

1,6

40,72

0-94

23-92

ЕНиР,1973,§ 8-18,

пп. 5,6

Промазка раствором

 

 

 

 

 

 

 

плинтусов

100 м

1,64

5,1

8,36

2-83

4-64

 

наличников

 

1,61

5,6

9,02

3-11

5-01

ЕНиР,1973,§ 8-11,

п. 2б

Оштукатуривание мест сопряжений железобетонного потолка с перегородками

 

100 м

1,38

17,5

24,15

10-94

15-09

ЕНиР,1973,§ 8-11,

пп. 2, 36

Оштукатуривание швов железобетонного потолка раствором, прорезка руста

 

100 м

1,8

27,1

48,78

16-94

30-49

Трест Оргтехстрой Главсредуралстроя,

Кт-8.0-11.2-75

Нанесение раствора на стены лестничных клеток и затирка их

м2

15,36

0,16

2,46

0-09,4

1-44

 

 

 

 

Итого

293,03

(5,08)

 

165-59

2.7. Контроль качества

 

Штукатурные работы должны выполняться в соответствии с требованиями главы СНиП Ш-21-73 "Отделочные покрытия строительных конструкций. Правила производства и приемки работ".

Слои штукатурки должны быть прочно соединены с поверхностью оштукатуриваемой конструкции и не отслаиваться от нее. Прочность сцепления отдельных слоев штукатурки (обрызг, грунт, накрывка) проверяется легким простукиванием. При этом не должно быть глухого звука.

Трещины, бугорки, раковины (дутики), грубошероховатая поверхность, пропуски (неоштукатуренные места у подоконников, наличников, плинтусов, приборов отопления, санитарно-технических устройств и др.) не допускаются. Качество выполненных работ может быть проверено путем контрольного вскрытия отдельных участков готовой штукатурки.

Отклонения качества оштукатуренных поверхностей не должны превышать следующих величин:

неровности поверхности (обнаруживаются при накладывании правила или шаблона длиной 2 м) - не более двух глубиной или высотой до 3 мм;

отклонение поверхности стен (потолков) от вертикали (горизонтали) - 1 мм на 1 м высоты (длины), но не более 10 мм на всю высоту (длину) помещения;

отклонение лузг, усенков, оконных и дверных откосов, пилястр, столбов от вертикали (горизонтали) - 1 мм на 1 м высоты (длины), но не более 5 мм на элемент;

отклонение ширины оштукатуренного откоса от проектной - 3 мм;

отклонение от прямой линии в пределах между углами пересечения тяг и раскреповки - 3 мм.

Качество готовых растворов должно удовлетворять требованиям СН 290-74 "Инструкция по приготовлению и применению строительных растворов". Материалы и изделия, применяемые для штукатурных работ, должны удовлетворять требованиям соответствующих стандартов, а также указаниям главы СНиП I-B.2-69 "Вяжущие материалы неорганические и добавки для бетонов и растворов".

2.8. Техника безопасности

При производстве штукатурных работ не обходимо соблюдать правила техники безопасности, руководствуясь при этом действующей нормативной и инструктивной документацией, в том числе главой СНиП III-А.11-70 "Техника безопасности в строительстве", СН 38-58 "Инструкция по заземлению передвижных строительных механизмов и электрифицированного инструмента" (издание второе, Москва, 1962).

Кроме того, при производстве штукатурных работ необходимо обращать особое внимание на выполнение следующих требований:

к штукатурным работам допускаются лица, прошедшие инструктаж по технике безопасности, изучившие устройства, принцип и порядок работы с механизмами и инструментом;

внутренние штукатурные работы должны выполняться с подмостей или передвижных столиков;

при производстве работ на лестничных маршах необходимо применять специальные подмости (столики) с разной длиной опорных стоек, устанавливаемых на ступени;

рабочий настил должен быть горизонтальным и иметь перила и бортовую доску;

перед началом каждой смены следует проверять исправность растворонасоса, рукавов и другого оборудования, применяемого для штукатурных работ;

работа растворонасоса при давлении, превышающем указанное в техническом паспорте, запрещается;

все работы, связанные с ремонтом или внутренним осмотром растворонасоса, преобразователя и затирочных машинок, следует производить только при отключенном электропитании; продувку рукавов сжатым воздухом производить после удаления людей за пределы опасной зоны;

штукатуры, наносящие штукатурный раствор на поверхность при помощи сопла и производящие набрызг раствора вручную, должны быть обеспечены защитными очками;

переносные токоприемники (инструмент, машины, светильники), применяемые при выполнении штукатурных работ, должны иметь напряжение не более 36 В;

пребывание более 3 человек в просушиваемом помещении запрещается.

 

3. Технико-экономические показатели

 

Наименование работ

Объем работ

Трудоемкость,

чел.-ч

Стоимость затрат труда, руб.-коп.

 

 

общая

на единицу объема работ

общая

на единицу объема работ

Подготовка поверхности и оштукатуривание внутренних кирпичных стен, оконных и дверных откосов

 

259,84 м2

157,26

 

0,605

86-27

0-33,

Подготовка и затирка поверхностей гипсобетонных перегородок, заделка лузг и усенков

 

214,07 м2

60,38

0,282

32-30

0-15,1

Оштукатуривание швов железобетонных элементов потолка, прорезка руста, заделка мест сопряжения потолка с перегородками, отделка стен лестничных клеток

318 м2

75,39

0,237

47-02

0-14,8

 

Итого

293,03

 

165-59

 

Продолжительность работ 3 дня.

4. Материально-технические ресурсы

4.1. Потребность в основных материалах и полуфабрикатах на одну секцию типового этажа

Сложный штукатурный раствор, м3

 7,26

Гипс строительный, кг

 0,954

Прочие материалы, руб.

 3-31

4.2. Машины, оборудование, инструменты, инвентарь и приспособления

 

Наименование

Марка, N°. чертежа, ГОСТ

Количество,

шт.

1

2

3

Машины и оборудование

 

Станция штукатурная производительностью 6 м3

 

УШС-6

1

Растворонасос производительностью 2 м3/ч (резервный)

 

СО-48А

1

Устройство производительностью 100 м2 для нанесения пастовых составов конструкции ЦНИИОМТ

 

Черт.4491.00.000

1

Трансформатор

 

ИВ-4

1

Преобразователь частоты тока

 

ИЭ-9401 или ИЭ-9402

1

Растворосмеситель производительностью 1,2-1,5 м3

 

СО-23А

1

Теплонагреватель теплопроизводительностью 200000 ккал/ч

 

УСВ-200

4

Пункт передвижной инструментально-раздаточный конструкции ЦНИИОМТП

 

Черт.3287.А.00.000

1

Механизированный инструмент

 

Машинка штукатурно-затирочная

 

СО-86 или СО-112

4

Устройство для подачи воды к затирочным машинкам конструкции Главкиевгорстроя

 

Черт.МС 26.00.00.00.00

2

Ножницы электрические для резки металла

 

ИЭ-5402

2

Ручной инструмент

 

Кельма штукатурная КШ

 

ГОСТ 9533-71

18

Ковш штукатурный

 

ГОСТ 7945-73

4

Отрезовка ОШ-1 и 0Ш-2

 

ГОСТ 9533-7

10

Сокол дюралюминиевый

 

ОТУ 22-697-67

20

Острогубцы (кусачки) 175

 

ГОСТ 7282-64

4

Нож штукатурный

 

ГОСТ 18975-73

5

Ножовка поперечная по дереву

 

ГОСТ 6532-53

5

Молоток штукатурный МШТ

 

ГОСТ 11042-72

10

Скарпель диаметром 20 ми конструкции УМОР ГМС

 

Черт. 192.00.000

2

Терка деревянная конструкции УМОР ГМС

 

Черт. 272.00,000

10

Терка поролоновая или войлочная конструкции УМОР ГМС

 

Черг.272.00.000

4

Правило удлиненное конструкции ЦНИИОМТП

 

Черт.3345.14.000

5

Правило усеночное

 

ОТУ 22-1235-68

5

Правило лузговое

 

ОТУ 22-1234-68

5

Полу терок деревянный конструкции УМОР ГМС

 

 

800 мм

Черт.223.00.000

20

1500 мм

 

Черт. 224.00.000

Кисть-макловица КМА-2

 

ГОСТ 10597-70

10

Гладилка стальная

 

 

ГШ-1

ГОСТ 10403-63.

10

ГШ-2

 

10

Рейкодержатель со штырем конструкции ЦНИИОМТП

 

Черт. 3345.13.000

10

Щетка стальная конструкции Гипрооргсельстроя Минсельстроя СССР

 

-

5

Лопата растворная ЛР

 

ГОСТ 3620-63

10

Рустовка потолочная односторонняя

 

ГОСТ Б995-68

6

Лоток для сбора опавшего раствора конструкции ЦНИИОМТП

 

Черт. 084.000.000

4

Линейка штукатурная конструкции УМОР ГМС

 

Черт. 156.00.000

5

Скребок стальной конструкции ЦНИИОМТП

 

Черт.3345.19.000

3

Измерительные инструменты.

 

Рейка с отвесом

 

ГОСТ 9416-67

2

Уровень строительный УС1-300 и УС2-700

 

ГОСТ 9416-67

5

Отвес О-400

 

ГОСТ 7948-71

5

Метр складной деревянный

 

ГОСТ 7253-64

10

Угольник стальной

 

ГОСТ 10920-64

5

Конус стандартный

 

ГОСТ 5802-66

1

Шнур разметочный в корпусе

 

-

1

Приспособления

 

Форсунка бескомпрессорная конструкции УМОР ГМС

 

-

2

Производственный инвентарь

 

Ёмкость 0,35 м3 или бункер для раствора конструкции УМОР ГМС

 

Черт. 315.00.000

6

Ограждение поста механизации конструкции треста Мосоргпромстрой

 

 

2

Тележка для раствора конструкции ЦНИИОМТП

 

Черт.3294.62.000

2

Ведро

 

ГОСТ 20558-75

10

Перчатки резиновые

 

ГОСТ 10108-62

16 пар

Очки защитные

 

ГОСТ 9802-61

16

Средства подмащивания

 

Столик универсальный конструкции ЦНИИОМТП

 

Черт.3241.03.000

9

Столик двухвысотный конструкции ЦНИИОМТП

 

Черт.3241.07.000

9

ТЕХНОЛОГИЧЕСКАЯ КАРТА №10

УЛУЧШЕННАЯ ДВУХСЛОЙНАЯ ШТУКАТУРКА ВНУТРЕННИХ КИРПИЧНЫХ СТЕН, ЗАТИРКА ПОВЕРХНОСТИ ГИПСОБЕТОННЫХ ПЕРЕГОРОДОК ТИПОВОГО ЭТАЖА РЯДОВОЙ СЕКЦИИ ДЕВЯТИЭТАЖОГО ЖИЛОГО ДОМА СЕРИИ 114-85-3/1 ДЛЯ ЮЖНОЙ ЗОНЫ СТРАНЫ

1. Область применения

1.1. Технологическая карта (ТК) разработана на производство работ по нанесению двухслойной штукатурки глиняным раствором на внутренние кирпичные стены, затирке гипсобетонных перегородок типового этажа рядовой секции девятиэтажного жилого дома серии 114-85-3/1 для Южной зоны страны.

Приготовление известково-глиняного раствора - в построечных условиях, подача и нанесение механизированы.

Рабочие чертежи здания разработаны ЦНИИЭП жилища.

1.2. В состав работ по оштукатуриванию внутренних кирпичных стен входят: подготовка поверхности к оштукатуриванию (срубка наплывов раствора, провешивание поверхности, установка марок); нанесение слоя обрызга (грунта) механизированный способом; разравнивание слоя обрызга (грунта); нанесение накрывочного слоя; затирка накрывочного слоя; разделка углов.

В состав работ по оштукатуриванию оконных и дверных откосов и мест сопряжений железобетонного потолка со стенами и перегородками входят: подготовка откосов к оштукатуриванию; нанесение обрызга (грунта); нанесение накрывочного слоя и затирка его; отделка лузг и усенков; заделка мест сопряжений.

В состав работ по штукатурной обработке гипсобетонных поверхностей и стен лестничных клеток входят: подготовка поверхности; нанесение раствора на поверхность вручную; затирка поверхности вручную; отделка лузг и усенков.

Работы выполняют летом в одну смену.

1.3. Настоящая ТК может быть применена при строительстве объектов различного жилого и гражданского назначения с учетом конкретных условий строительства.

2. Организация и технология строительного процесса

2.1. Подготовка к производству штукатурных работ

До начала штукатурных работ на объекте необходимо: закончить устройство всех видов оснований под чистые полы; установить перегородки и проконопатить зазоры; установить оконные и дверные блоки, проконопатить зазоры между коробками и проемами; проконопатить швы между плитами перекрытий; установить встроенные шкафы; заделать все временные отверстия в стенах, перегородках и перекрытиях; установить вентиляционные короба, прочистить вентиляционные каналы; установить электроосветительные и слаботочные устройства; закончить санитарно-технические работы (монтаж и опрессовка систем центрального отопления, водопровода, канализации и газопровода); установить лестничные ограждения; просушить сырые места; устроить гардеробные, туалетные, душевые, а также помещения для сушки одежды, пункты питания, здравпункты и другие бытовые помещения для рабочих; осветить рабочие места; принять объект под отделку по акту; доставить на рабочие места инструменты, инвентарь, приспособления и материалы.

2.2. Приготовление и доставка штукатурного раствора

Штукатурный раствор приготовляют в построечных условиях. Составляющие компоненты (песок, известковое тесто, глины) загружают в бункер растворосмесителя СО-220А, установленного вблизи здания. Приготовленный раствор доставляется к рабочему месту растворонасососм СО-49А, установленным на приобъектной площадке. По вертикали раствор подается по стальному инвентарному трубопроводу диаметром 51 мм или по резинотканевому рукаву, устанавливаемым в проемах лестничной клетки. Растворонасосом С0-49А раствор подают на третий этаж здания. Для подачи раствора на последующие этажи используют растворонасос СО-48А, устанавливаемый на 6 и 8-ом этажах. В этом случае раствор из бункеров подают к рабочему месту штукатура по резиновым рукавам диаметром 25-18 мм.

2.3. Технология производства работ

При производстве штукатурных работ соблюдают следующую последовательность технологических операций: подготовляют поверхности под оштукатуривание и провешивают их; наносят слой обрызга (грунта) и разравнивают его; наносят накрывочный слой и затирают его; отделывают откосы; подготовляют и затирают поверхности гипсобетонных перегородок; оштукатуривают места сопряжений железобетонного потолка со стенами и перегородками.

Штукатурные работы следует производить в помещениях с температурой воздуха не ниже +8°С, измеренной на высоте 0,5 м от пола.

2.3.1. Подготовка поверхности стен под оштукатуривание

Подлежащие оштукатуриванию поверхности стен очищают от пыли и грязи, сметая их ветошью. Наплывы отвердевшего раствора срубают скребками и штукатурными молотками. Затем поверхности стен провешивают, для чего в верхней части стены на расстоянии 30-40 см от каждого угла забивают по гвоздю так, чтобы их шляпки выступали над поверхностью стены на заданную толщину слоя штукатурки. Со шляпки каждого гвоздя опускают к полу отвес и по нему на расстоянии 20-30 см от пола забивают еще два гвоздя. Ио диагоналям и горизонтально натягивают шнур, при помощи которого определяют минимальную толщину штукатурного слоя. Для устройства марок забивают промежуточные гвозди. Затем по уровню выравнивают шляпки гвоздей так, чтобы они находились в определившейся плоскости штукатурки.

Вокруг гвоздей из штукатурного раствора делают марки диаметром 80-100 мм, на 3-5 мм выше шляпок. После того как раствор схватится верх марок срезают до уровня шляпок.

2.3.2. Нанесение слоя обрызга (грунта)

Для слоя обрызга (грунта) применяется известково-глиняный раствор с соотношением 1:0,2:5 (известь: глина: песок). Перед нанесением на поверхность раствор процеживают через вибросито с ячейками 3x3 мм и доводят до консистенции 9-12 см - по стандартному конусу.

Штукатур наносит слой обрызга толщиной 9 мм на поверхность стены движениями бескомпрессорной форсунки сверху вниз и слева направо, держа ее на расстоянии 80-100 см от стены и под углом 70-90° к ней. С помощью правила разравнивают слой обрызга (грунта) до получения ровной поверхности. В труднодоступных местах слой обрызга (грунта) разравнивают полутерком, а затем контрольным правилом проверяют ровность поверхности.

2.3.3. Механизированное нанесение накрывочного слоя

Перед нанесением накрывочного слоя находящийся в поэтажном бункере раствор процеживают через сито с ячейками 1,5x1,5 мм и доводят до консистенции 9-12 см по стандартному конусу. С помощью устройства для нанесения пастовых составов конструкции ЦНИИОМТП раствор подается к форсунке.

Накрывочный слой толщиной 5 мм наносят на поверхность стены движением форсунки сверху вниз и слева направо, держа ее на расстоянии 80-100 см от стены и под углом 70-90° к ней.

В процессе затирки поверхность стен смачивают водой, подачу которой регулируют клапаном, укрепленным на корпусе затирочной машинки. В труднодоступных местах оштукатуриваемую поверхность затирают при помощи войлочной терки.

2.3.4. Отделка оконных и дверных откосов

При помощи отвеса штукатуры провешивают вертикальные грани откосов, устанавливают деревянные отфугованные рейки и закрепляют рейкодержатели гипсом. Затем кельмами наносят слой обрызга и с помощью малок и полутерков разравнивают его по направляющим рейкам. Накрывочный слой наносят с помощью устройства для нанесения пастовых составов, а затем затирают терками, периодически смачивая поверхность водой. После затирки проверяют вертикальность и горизонтальность откосов с помощью отвеса, уровня и угольника. Затем штукатур движением полутерка сверху вниз выравнивает углы пересечения откосов, отделывает лузги и усенки и проверяет правильность отделки отвесом и уровнем.

2.3.5. Обработка внутренних швов между элементами перекрытий и стен

Швы заделывают известковым раствором с добавкой в него 1-2% гипса. Штукатур одной рукой берет сокол и кладет его на борт ящика; держа в другой руке кельму, накладывает ею на сокол хорошо перемешанный раствор. Держа сокол на уровне плеча, штукатур движением от себя набрасывает небольшие порции раствора на стыки панелей перекрытий и стен и обратной стороной кельмы заглаживает шов.

2.3.6. Подготовка и выравнивание (затирка) поверхности гипсобетонных перегородок и стен лестничных клеток

Гипсобетонные поверхности и стены лестничных клеток очищают от грязи и пыли, струей воды смывают остатки пыли, а затем вручную наносят известковый раствор с добавкой в него 1-2% гипса. Штукатуры кельмами набирают из ведер на терки раствор и мазками наносят его на поверхность. При помощи кистей смачивают нанесенный раствор водой и затирают его терками заподлицо с поверхностью перегородок. Стены лестничных клеток очищают от грязи и пыли, вручную наносят известковый раствор с добавкой 1-2% гипса. При этом полутерок держат так, чтобы его наружная продольная кромка была прижата к стене, а внутренняя опущена на 1-2 см.

Затирка стен лестничной клетки производится сначала круговыми, а затем прямолинейными движениями терок при периодическом смачивании поверхности водой.

Работы по выравниванию гипсобетонных поверхностей и стен лестничных клеток производятся с передвижных столиков-подмостей.

2.4. Состав бригады

Все штукатурные работы выполняет специализированная бригада из 24 человек, состоящая из семи звеньев.

Состав бригада и перечень выполняемых работ

№ звена

Профессия

Количество рабочих

Выполняемые процессы

1

Штукатуры

 

Подготовка поверхности внутренних кирпичных стен под оштукатуривание, механизированное нанесение обрызга (грунта), накрывочного слоя, подготовка и выравнивание поверхностей гипсобетонных перегородок, нанесение раствора, затирка и отделка лузг и усенков. Обслуживание механизмов на этаже

 

4 разр.

2

 

3 разр.

4

 

2 разр.

2

 

 

 

 

Машинист растворонасоса 3 разр.

 

1

 

3,4

Штукатуры

 

Оштукатуривание вручную кирпичных стен и перегородок в помещениях до 5 м2, оштукатуривание мест сопряжений железобетонного потолка с перегородками, промазка плинтусов и наличников, подготовка поверхности и нанесение раствора на стены лестничных клеток и затирка их

 

 

4 разр.

2

 

3 разр.

4

 

 

 

 

 

 

 

 

 

 

 

 

5,6

Штукатуры

 

Отделка вручную оконных и дверных откосов

 

4 разр.

9

 

3 разр.

 

2

 

7

Машинисты растворонасоса 3 разр.

2

Дозировка составляющих и загрузка ими бункера растворосмесителя СО-220А, приготовление раствора

 

 

 

 

 

 

Штукатуры 2 разр.

2

в растворосмесителе, подача раствора на этажи, обслуживание растворосмесителя и растворонасоса

 

Подсобный рабочий

2 разр.

 

1

Схема производства работ

1 - растворосмеситель СО-220А в комплекте с растворонасосом СО-48А; 2 - инвентарный кольцевой растворопровод; 3 - бункер вместимостью 0,35 м3; 4 - передвижной столик-подмости; 5 -место складирования сыпучих материалов; 6 - удочка; 7 - сопло с кнопочным управлением; 8 - накрывочный агрегат; 9 - рукав; 10 - растворонасос СО-48А; 11 - бачки для воды; 12 - стояк для подачи воды; 13 - электростояк; 14 - бункер вместимостью 0,55 м3; 15 - трехходовый кран; 16 - поэтажный электрощит

2.5. График производства работ

 

 

2.6. Калькуляция затрат труда

 

Обоснование

Наименование работ

Единица измерения

Объем работ

Затраты труда на единицу измерения,

чел.-ч

(маш.-ч)

Затраты труда на общий объем работ,

чел.-ч.

(маш.-ч)

Расценка на единицу измерения,

руб.-коп.

Стоимость затрат труда на общий объем работ,

руб.-коп.

ЕНиР,1973,

§ 3-18, п.1г

Загрузка растворосмесителя СО-220А составляющими с их дозировкой

 

м3

7,56

1,1

(1,1)

8,3

(8,3)

0-54,2

4-11

ЕНиР,1973,

§ 3-18, пп.5,бг

по интерполяции

Приготовление раствора в растворосмесителе СО-220A

 

м3

7,56

0,1

0,75

0-05,5

0-41,6

ЕНиР, 1973,

§ 8-4, т.2,

п.3а,б

Подача раствора на этажи в бункеры с помощью растворонасоса СО-48А штукатурной станции

 

м3

7,56

1,4

0,7

(0,7)

10,5

5,29

(5,29)

0-69

5-21,6

ВНИПИтруда в строительстве,

1976,

Кт-8.0-5.1-75

 

Подготовка поверхности кирпичных стен под оштукатуривание

 

100 м2

4,19

9,67

40,51

5-06

21-213

То же,

Кт-8.0-6.10-75

Механизированное нанесение обрызга (грунта) на стены при помощи бескомпрессорной форсунки

 

100 м2

3,46

2

6,92

3-76

13-00

То же,

Кт-8.0-6. II-75

Механизированное нанесение накрывочного слоя на стены

 

100 м2

3,46

11,57

40,03

6-82

23-59

ЕНиР-,1973,

§ 8-10б,

т.2, п.7а

Затирка поверхности и отделка лузг

 

100 м лузг

0,89

4,9

4,36

3-06

2-72,3

ЕНлР,1973,

§ 8-6, т.3, п. в

Подача раствора к рабочему месту штукатура с помощью растворонасоса С0-48А

 

100 м2

4,19

2,2

(2,2)

9,21

(9,21)

1-22

5-11

ЕНиР, 1973,

§ 8-7, т.2, п.2,

Техническая часть, к=1,5

Оштукатуривание кирпичных стен вручную в помещениях с полами площадью до 5 м2

 

 

м2

72,84

0,9

65,6

0-53,1

38-67,8

ЕНиР.1973,

§ 8-7A, т.2,

п.1а, ВНИПИ труда в строительстве, 1976,

Кт-8.0-16.9-75

Подготовка и выравнивание поверхности гипсобетонных перегородок, нанесение раствора, затирка и отделка лузг и усенков

 

м2

303,1

0,258

78,2

0-10,5

31-82,5

ЕНиР,1973,

§ 8-I0A, т.1,

п. 1а, техническая часть, к=1,5,

ВНИПИтруда в строительстве,

Кт-8.0-16.9-75

 

Подготовка и затирка поверхности перегородок вручную в помещениях с полами площадью до 5 м2

 

 

м2

126,22

0,358

45,1

0-15,7

19-81,6

ВНИПИтруда в строительстве, 1976,

Кт-8.0-8.6-75

 

Отделка вручную оконных и дверных откосов

 

м2

31,7

1,6

50,72

0-94

29-79

ЕНиР,1973,

§ 8-18, пп.5,6

Промазка раствором

 

 

 

 

 

 

 

плинтусов

100 м

2,29

5,1

11,68

2-83

6-48

 

наличников

1,01

5,6

5,66

3-11

3-14

ЕНиР,1973,

§ 8-11, п.2б

Оштукатуривание мест сопряжений железобетонного потолка с перегородками

 

100 м

1,1

17,5

19,25

10-94

12-03

ВНИПИтруда в строительстве, 1976,

Кт-8.0-11.2-75,

Кт-8.0-16.9-75

Подготовка поверхности и нанесение раствора вручную на стены лестничных кленов и площадок, затирка поверхности

 

м2

30,64

0,162

4,96

0-09

2-76

 

 

 

 

Итого

407,04

(1,87)

 

219-87,4

2.7. Контроль качества

 

Штукатурные работы должны выполняться в соответствии с требованиями главы СНиП III-21-73 "Отделочные покрытия строительных конструкций. Правила производства и приемки работ".

Слои штукатурки должны быть прочно соединены с поверхностью конструкции и не отслаиваться от нее.

Прочность сцепления обрызга (грунта) с оштукатуренной поверхностью и накрывочного слоя со слоем обрызга (грунта) проверяется легким простукиванием. При этом не должно быть глухого звука.

Трещины, бугорки, раковины (дутики), грубошероховатая поверхность, пропуски неоштукатуренные места у подоконников, наличников, плинтусов, приборов отопления, санитарно-технических устройств и др.) не допускается.

Качество выполненных работ может быть проверено путем контрольного вскрытия отдельных участков готовой штукатурки.

Отклонения качества оштукатуренных поверхностей не должны превышать следующих величин:

неровности поверхности (обнаруживаются при накладывании правила или шаблона длиной 2 м) - не более двух глубиной или высотой до 3 мм;

отклонения поверхности стен (потолков) от вертикали (горизонтали) - 1 мм на 1 м высоты (длины), но не более 10 мм на всю высоту (длину) помещения;

отклонения лузг, усенков, оконных и дверных откосов, пилястр, столбов от вертикали (горизонтали) - 1 мм на 1 м высоты (длины), но не более 5 мм на весь элемент;

отклонение ширины оштукатуренного откоса от проектной - 3 мм; отклонение от прямой линии в пределах между углами пересечения тяг и раскреповки - 3 мм.

Качество готовых растворов должно удовлетворять требованиям СН 290-74 "Инструкция по приготовлению и применению строительных растворов". Применяемые для штукатурных работ материалы и изделия должны удовлетворять требованиям соответствующих стандартов, а также указаниям главы СНиП I-B.2-69 "Вяжущие материалы неорганические и для бетонов и растворов".

2.8. Техника безопасности

При производстве штукатурных работ следует строго соблюдать правила техники безопасности, руководствуясь при этом действующей нормативной и инструктивной документацией, в том числе главой СНиП III-А.11-70 "Техника безопасности в строительстве", СН 38-58 "Инструкция по заземлению передвижных строительных механизмов и электрифицированного инструмента" (издание второе, Москва, 1962), а также "Руководство по транспортировке, приемке, складированию и хранению материалов, изделий, конструкций и оборудования в строительстве" (Москва, 1965).

Кроме того, при производстве штукатурных работ необходимо обращать внимание на выполнение следующих требований:

внутренние штукатурные работы должны выполняться с подмостей или передвижных столиков, установленных на сплошные настилы или полы;

перед началом работы необходимо проверить исправность растворонасосов, раствороводов и других применяемых для производства штукатурных работ средств механизации; предохранительные клапаны и манометры должны быть опломбированы;

работа растворонасоса при давлении, превышающем указанное технических паспортах, запрещается;

разбирать, ремонтировать и чистить оборудование следует после снятия давления и отключения машин от электросети;

проволочные скрутки для соединения резиновых напорных рукавов применять запрещается; перегибать рукава под острым углом в виде петли, а также затягивать сальники во время работы агрегата запрещается;

штукатуры, наносящие штукатурный раствор на поверхности при помощи форсунок (обрызг-грунт) или прямоточных удочек (накрывочный слой), должны пользоваться защитными очками;

электрические кабели для подключения электрифицированных инструментов и машин следует прокладывать к рабочим местам, согласно действующим инструкциям и правилам.

3. Технико-экономические показатели

 

 

Наименование работ

Объем работ

Трудоемкость,

чел.-ч

Стоимость затрат труда, руб.-коп.

общая

на единицу объема работ

общая

на единицу объема работ

Подготовка и оштукатуривание поверхности внутренних кирпичных стен, оконных и дверных откосов, затирка стен лестничных клеток

 

481,34 м2

242,79

0,504

143-86

0-29,9

Подготовка и выравнивание поверхности гипсобетонных перегородок, нанесение раствора

 

429,32 м2

125,3

0,286

51-64,1

0-12

Оштукатуривание мест сопряжений железобетонных элементов потолка с перегородками, промывка раствором плинтусов и наличников, отделка лузг и усенков

 

440 м

40,95

0,093

24-37

0-05,5

 

Итого

407,04

 

219-87,4

 

 

Продолжительность работ 3 дня.

4. Материально-технические ресурсы

4.1. Потребность в основных материалах и полуфабрикатах на одну секцию типового этажа

Глиняный раствор, м3

7,56

Гипс, т

0,042

Сетка проволочная тканая, м2

22,1

Гвозди штукатурные, кг

0,42

4.2. Машины, оборудование, инструменты, инвентарь и приспособления

 

Наименование

Марка, № чертежа, ГОСТ

Количество, шт.

1

2

3

Машины и оборудование

 

Растворосмеситель производительностью по готовому раствору 2,5 м3/ч, объем одного эамеса 125 л

 

СО-220А

 

1

Растворонасос производительностью 2 м3

 

СО-48А

4

Трубопровод стальной диаметром 51 мм, длина звена 3 м

 

-

18

Устройство производительностью 100 м3/ч для нанесения пастовых составов конструкции ЦНИИОМТП

 

Черт.4491.00.000

 

1

Трансформатор

 

ИВ-4

1

Преобразователь частоты тока

 

ИЭ-9401 или ИЭ-9402

1

Пункт передвижной инструментально-раздаточный конструкции ЦНИИОМТП

 

Черт.3287.А.00.000

1

Механизированные инструменты

 

Машинка штукатурно-затирочная

 

СО-86 или CО-112

5

Устройство для подачи воды к затирочным машинкам конструкции Главкиевгорстроя

 

Черт.МС 26.00.00.00.00

2

Ножницы электрические для резки металла

 

ИЭ-5402

4

Ручные инструменты

 

Кельма штукатурная КШ

 

ГОСТ 9533-71

23

Ковш штукатурный

 

ГОСТ 7945-73

11

Отрезовка ОШ-1 и ОШ-2

 

ГОСТ 9533-71

11

Сокол дюралюминиевый

 

ОТУ 22-697-67

25

Острогубцы (кусачки) 175

 

ГОСТ 7282-64

5

Нож штукатурный конструкции УМОР ГМС

 

Черт. 316.00.000

7

Ножовка поперечная по дереву

 

ГОСТ 6532-53

4

Молоток штукатурный. МШТ

 

ГОСТ 11042-72

13

Скарпель диаметром 20 мм конструкции УМОР ГМС

 

Черт. 192.00.000

6

Терка деревянная конструкции УМОР ГМС

 

Черт. 272.00.000

11

Терка поролоновая или войлочная конструкции УМОР ГМС

 

Черт. 272.00.000

10

Правило удлиненное конструкции ЦНИИОМТП

 

Черт. T.3345.14.000

10

Правило усеночное

 

ОТУ 22-1235-68

6

Правило лузговое

 

ОТУ 22-1234-68

6

Полутерок деревянный конструкции УМОР ГМС

800 мм

 

Черт. 223.00. 000

50

1500 мм

 

Черт. 224.00.000

Кисть-мак ловица КМА-2

 

ГОСТ 10597-70

11

Гладилка стальная

 

 

ГШ-1

ГОСТ 10403-63.

13

ГШ-2

 

12

Рейкодержатель со штырем конструкции ЦНИИОМТП

 

Черт. 3345.13.000

12

Щетка стальная конструкции Гипрооргсельстроя Минсельстроя СССР

 

-

7

Шпатель стальной

 

ГОСТ 10788-64

12

Лопата растворная ЛР

 

ГОСТ 3620-63

13

Рустовка потолочная

односторонняя

ГОСТ 13995-68

 

4

двухсторонняя

 

4

Лоток для сбора опавшего раствора конструкции ЦНИИОМТП

 

Черт. 084.000.000

6

Линейка штукатурная конструкции УМОР ГМС

 

Черт. 156.00.000

5

Скребок стальной конструкции ЦНИИОМТП

 

Черт.3345.19.000

6

Измерительные инструменты

 

Рейка с отвесом

 

ГОСТ 9416-67

3

Уровень строительный УС1-300 и УС2-700

 

ГОСТ 9416-67

6

Отвес О-400

 

ГОСТ 7948-71

3

Метр складной деревянный

 

ГОСТ 7253-64

13

Угольник стальной

 

ГОСТ 10920-64

6

Конус стандартный

 

ГОСТ 5802-66

2

Шнур разметочный в корпусе

 

-

1

Приспособления

 

Форсунка бескомпрессорная конструкции УМОР ГМС

 

-

2

Производственный инвентарь

 

Ёмкость 0,35 м3 или бункер для раствора конструкции УМОР ГМС

 

Черт. 315.00.000

3

Ограждение поста механизации конструкции треста Мосоргпромстрой

 

-

2

Тележка для раствора конструкции ЦНИИОМТП

 

Черт.3294.62.000

2

Ведро

 

ГОСТ 20558-75

13

Перчатки резиновые

 

ГОСТ 10108-62

25 пар

Очки защитные

 

ГОСТ 9802-61

25

Средства подмащивания

 

Столик универсальный конструкции ЦНИИОМТП

 

Черт.3241.03.000

10

Столик двухвысотный конструкции ЦНИИОМТП

 

Черт.3241.07.000

10

Сводная таблица технико-экономических показателей

 

карты

Вид работ и тип здания

Объем работ,

м2

Трудоемкость, чел.-ч

Стоимость затрат труда, руб.-коп.

Продолжительность работ, дни

общая

на единицу объема работ

общая

на единицу объема работ

1

2

3

4

5

6

7

8

1

Улучшенная трехслойная штукатурка внутренних кирпичных стен, затирка поверхности гипсобетонных перегородок и перекрытия типового этажа рядовой секции пятиэтажного жилого дома серии 114-85-1/1

 

 

 

 

 

10

подготовка и оштукатуривание кирпичных стен, оконных и дверных откосов

 

249,55

152,86

0,61

83-86

0-33,6

подготовка и затирка поверхностей гипсобетонных перегородок, выделка лузг и усенков

 

215,36

90,68

0,42

72-52

0-33,6

подготовка и затирка железобетонных элементов потолка, прорезка рустов, заделка мест сопряжения потолка с перегородками

 

155,97

87,19

0,56

51-20

0-32,8

2

Улучшенная трехслойная штукатурка внутренних кирпичных стен, затирка поверхности гипсобетонных перегородок и отделка потолков "под шагрень" типового этажа рядовой секции пятиэтажного жилого дома серии 114-85-1/1

 

 

 

 

 

3

подготовка и оштукатуривание стен, оконных и дверных откосов

 

249,55

161,5

0,65

88-58

0-35

подготовка и затирка гипсобетонных перегородок, выделка лузг и усенков

 

215,36

68,13

0,32

36-43

0-17

подготовка поверхности гипсобетонного потолка к отделке "под шагрень", огрунтовка поверхности и нанесение слоев ГПЦ, заделка швов раствором

 

85

32,73

0,39

19-51

0-23

3

Улучшенная трехслойная штукатурка внутренних кирпичных стен, затирка поверхности гипсобетонных перегородок и расшивка швов перекрытия типового этажа рядовой секции девятиэтажного жилого дома серии 114-85-3/1

 

 

 

 

 

3

подготовка и оштукатуривание поверхностей стен, оконных и дверных откосов, стен лестничных клеток

 

481,34

214,78

0,45.

140-97

0-29,8

подготовка и затирка гипсобетонных перегородок, выделка лузг и усенков

 

429,32

166,88

0,39

57-76

0-14

заделка швов и мест сопряжения железобетонного потолка с перегородками, промазка плинтусов, наличников

 

643 м

91,84

0,14

56-04

0-03,7

4

Однослойная штукатурка (сплошное выравнивание) внутренних бетонных поверхностей стен и перегородок типового этажа рядовой секции девятиэтажного крупнопанельного жилого дома серии 111-82-2/1

 

 

 

 

 

4

подготовка поверхности под оштукатуривание, нанесение вручную накрывочного слоя на стены, перегородки и стены лестничных клеток с разравниванием, затирка оконных и дверных откосов

 

873

319,09

0,36

165-85

0-19 0-

заделка мест сопряжения железобетонных элементов потолка с перегородками

 

306 м

53,6

0,17

33-48

10,9

5

Однослойная штукатурка (сплошное выравнивание) внутренних бетонных поверхностей стен, перегородок и потолков типового этажа 16-этажного жилого дома из монолитного железобетона серии Э-187

 

 

 

 

 

10

подготовка поверхностей стен под оштукатуривание, нанесение слоев обрызга-грунта и накрывочного на стены, оштукатуривание помещений малых площадей, оконных и дверных откосов, уход за штукатуркой

 

830

534,56

0,64

270-99

0-33

подготовка поверхностей потолков под оштукатуривание, нанесение слоев обрызга-грунта и накрывочного на потолки, уход за штукатуркой

 

340

205,74

0,61

102-02

0-30

6

Улучшенная трехслойная штукатурка внутренних кирпичных стен, затирка железобетонных элементов каркаса типового этажа четырехэтажного промышленного здания

 

 

 

 

 

8,2

подготовка и оштукатуривание поверхности кирпичных стен, перегородок, оконных и дверных откосов, стен лестничной клетки

 

1589,4

630,22

0,396

360-12

0-22,

выравнивание железобетонных поверхностей колен, ригелей, нанесение раствора, затирка, отделка лузг и усенков

 

962

326

0,339

172-76

0-17,9

заделка швов между плитами перекрытия, оштукатуривание мест примыкания стен и перегородок к потолкам и ригелей к перекрытиям

 

1504 м

263,2

0,175

164-54

6 0-10,9

7

Высококачественная трехслойная штукатурка Фасада рядовой секции типового этажа девятиэтажного жилого кирпичного дома серии 114-85-3/1

 

 

 

 

 

31

подготовка поверхности кирпичных стен, нанесение обрызга и грунта цементно-известковым раствором, отделка оконных и дверных откосов, устройство наружных отливов

 

1226

1052,15

0,858

599-12

0-48,9

механизированное нанесение накрывочного (декоративного) слоя терразитовым раствором

 

83,27

0,068

58-53

0-04,8

механизированное нанесение гидрофобного покрытия

 

110,34

0,09

66-76

0-05,4

8

Улучшенная трехслойная штукатурка внутренних кирпичных стен, затирка поверхности гипсобетонных перегородок и заделка швов в перекрытии типового этажа пятиэтажного культурно-бытового здания серии 164-80-2

 

 

 

 

 

3,5

подготовка и оштукатуривание поверхности кирпичных и шлакобетонных стен, оконных и дверных откосов, отделка лузг и усенков

 

739,8

469,76

0,632

289-42

0-36,7

подготовка и выравнивание поверхности гипсобетонных перегородок, отделка лузг и усенков

 

398

103,04

0,259

54-78

0-13,8

заделка швов между плитами перекрытия, оштукатуривание мест соединения перегородок с потолком, промазка плинтусов и наличников

 

1057 м

176,55

0,167

109-02

0-10,3

9

Улучшенная трехслойная штукатурка внутренних кирпичных стен, затирка поверхности гипсобетонных перегородок и заделка швов в перекрытии типового этажа рядовой секции четырехэтажного жилого дома серии 114-74 для Северной зоны страны

 

 

 

 

 

3

подготовка и оштукатуривание поверхности внутренних кирпичных стен, оконных и дверных откосов

 

259,84

157,26

0,605

86-27

0-33,2

подготовка и затирка поверхности гипсобетонных перегородок, заделка лузг и усенков

 

214,07

60,38

0,282

32-30

0-15,1

оштукатуривание швов железобетонных элементов потолка, прорезка руста, заделка мест сопряжения потолка с перегородками, отделка лестничных клеток

 

318 м

75,39

0,237

47-02

0-14,8

10

Улучшенная двухслойная штукатурка внутренних кирпичных стен, затирка поверхности гипсобетонных перегородок типового этажа рядовой секции девятиэтажного жилого дома серии 114-85-3/1 для Южной зоны страны

 

 

 

 

 

3

подготовка и оштукатуривание поверхности внутренних кирпичных стен, оконных и дверных откосов, затирка стен лестничных клеток

 

481,34

242,79

0,504

143-86

0-29,9

подготовка и выравнивание поверхности гипсобетонных перегородок, нанесение раствора

 

429,32

123,3

0,286

51-64,1

0-12

оштукатуривание мест сопряжения железобетонных элементов потолка с перегородками, промазка раствором плинтусов и наличников, отделка лузг и усенков

440 м

40,95

0,093

24-37

0-05,5

 

 




ГОСТЫ, СТРОИТЕЛЬНЫЕ и ТЕХНИЧЕСКИЕ НОРМАТИВЫ.
Некоммерческая онлайн система, содержащая все Российские Госты, национальные Стандарты и нормативы.
В Системе содержится более 150000 файлов нормативно-технической документации, действующей на территории РФ.
Система предназначена для широкого круга инженерно-технических специалистов.

Рейтинг@Mail.ru Яндекс цитирования

Copyright © www.gostrf.com, 2008 - 2026