|
|
|
НПО «Стройполимер» Трубопроводные системы дренажей из гофрированных двухслойных полиэтиленовых труб полной заводской готовности. Руководство НПО «Стройполимер» по проектированию, монтажу и эксплуатации Первая редакция. Москва 2004 Разработчики - О.В. Устюгова, В.А. Устюгов, канд. техн. наук А.Я. Добромыслов, Ю.Я. Криксунов, канд. техн. наук Е.И. Зайцева, канд. техн. наук В.Е. Бухин.
Настоящее руководство разработано в помощь организациям, проектирующим, монтирующим и эксплуатирующим трубопроводные системы горизонтальных дренажей. Руководство содержит удобные для проектных организаций рекомендации по подбору гофрированных полиэтиленовых труб полной заводской готовности производства НПО «Стройполимер», а именно: в зависимости от секундного расхода притока и уклона трубопровода выбирается его диаметр и количество щелевых пропилов. Для случаев, когда уклон дренажа неизвестен и его предстоит определить, руководство содержит удобную номограмму для расчета диаметра трубопровода, а также формулы и таблицы для определения его уклона. Все рекомендации по гидравлическим расчетам базируются на расчетных формулах и регламентах свода правил СП 40-102-2000 «Проектирование и монтаж трубопроводов систем водоснабжения и канализации из полимерных материалов. Общие требования». В руководстве приведен сортамент труб для строительства дренажей производства НПО «Стройполимер». Оглавление 1. Назначение и область примененияПредисловие Широкое развитие промышленного и городского строительства, прокладка трубопроводных коммуникаций теплоснабжения, водоснабжения, канализации, образование водохранилищ, прудов и каналов, орошение сельскохозяйственных земель и другие аналогичные мероприятия неизбежно ведут к дополнительному техногенному обводнению земель. В связи с этим в пределах застроенных городов и промузлов в последние годы отмечаются серьезные изменения гидрогеологической обстановки, обусловленные развитием процесса подтопления территорий подземными водами. Подтопление городских и промышленных территорий приводит к формированию новых техногенных горизонтов подземных вод и, как следствие, - к затоплению подвальных помещений зданий и сооружений, заболачиванию низинных участков рельефа местности, к агрессивному воздействию на фундаменты сооружений и т.п. Для защиты заглубленных частей зданий, внутриквартальных и городских трубопроводов и других инженерных коммуникаций от подтопления грунтовыми и другими водами следует предусматривать осушительные мероприятия, в число которых входит и строительство закрытых подземных осушительных трубопроводов - дренажей. Дренаж застроенных или отведенных под застройку территорий служит одним из главных мероприятий по защите зданий и сооружений от подтопления подземными водами. Основные задачи дренажа при защите территории от подтопления грунтовыми водами - перехват грунтовых вод, подтапливающих территорию, и обеспечение заданной нормы ее осушения. В соответствии с «Руководством по проектированию дренажей зданий и сооружений» [1] устройство дренажей обязательно: • в случаях расположения полов подвалов, технических подполий, внутриквартальных коллекторов, каналов для коммуникаций и т.п. ниже расчетного уровня подземных вод, а также в тех случаях, когда превышение полов над расчетным уровнем подземных вод менее 50 см; • полов подвалов, расположенных в зоне капиллярного увлажнения, когда в подвальных помещениях не допускается появления сырости; • полов эксплуатируемых подвалов, внутриквартальных коллекторов, каналов для коммуникаций в глинистых и суглинистых грунтах, независимо от наличия подземных вод; • полов технических подполий в глинистых и суглинистых грунтах при их заглублении более 1,3 м от планировочной поверхности земли, независимо от наличия подземных вод; • полов технических подполий в глинистых и суглинистых грунтах при их заглублении менее 1,3 м от планировочной поверхности земли при расположении пола на фундаментной плите, а также в случаях, когда с нагорной стороны к зданию подходят песчаные линзы или расположен тальвег. В последние годы дренажи применяют все чаще и чаще и во многих других случаях, не перечисленных в [1]. При проектировании дренажей перед проектной организацией стоят две задачи: 1. Выполнение гидрогеологических расчетов, конечной целью которых является определение величины расхода (притока) грунтовых вод; 2. Выполнение гидравлических расчетов, конечной целью которых является определение диаметра и уклона дренажной трубы с суммарной площадью прорезей, обеспечивающих прием и транспортировку грунтовых вод в количестве, определенном в результате гидрогеологических расчетов. Решению этих задач посвящено большое количество работ (например, [2-7] и др.). Что касается решения первой задачи - определения расчетных расходов притока грунтовых вод, - то этот вопрос изучен достаточно подробно и регламенты по расчетам приведены в «Рекомендациях...» Госстроя СССР [2, 3]. Что касается второй задачи - гидравлических расчетов пластмассовых труб, - следует признать, что применительно к расчетам дренажей он освещен недостаточно убедительно. Иначе как можно объяснить, что рекомендации по гидравлическим расчетам дренажей производят по формулам Шези - Н.Н. Павловского, или Шези - Маннинга, принципиально непригодным для расчетов пластмассовых труб [4, 8]. Кроме того, анализ показывает, что методика подбора диаметров дренажных труб, по аналогии с расчетами безнапорной канализации, может быть существенно упрощена и конкретизирована применительно к гидрогеологическим условиям строительства и к продукции завода-изготовителя этих труб. Настоящее руководство содержит необходимую информацию по этому вопросу. 2. Техническая характеристика труб и фасонных частейНПО «Стройполимер» выпускает для строительства дренажей гофрированные двухслойные трубы (рис. 5) по ТУ 2248-027-41989945-04 диаметрами 100, 150, 200 и 250 мм. Основные физико-механические свойства дренажных труб из полиэтилена производства НПО «Стройполимер» представлены в табл. 1. Внутренний слой труб представляет собой кругло-цилиндрическую оболочку толщиной (в зависимости от диаметра) 1,1-1,8 мм из полиэтилена низкого давления (ПНД), а наружный слой, надежно скрепленный с внутренним, - полые внутри гофры из ПНД, толщина стенки, высота и шаг расположения которых зависят также от диаметра трубы (рис. 1-4). Таблица 1. Основные физико-механические свойства дренажных труб из полиэтилена
Рис. 1
Рис. 2
Рис. 3
Рис. 4
Рис. 5 Двухслойная полиэтиленовая гофрированная труба
Рис. 6 Возможные схемы перфорации Необходимо отметить, что трубы из полиэтилена низкого давления (ПНД) обладают высокой стойкостью к абразивному износу. Трубопроводы производства НПО «Стройполимер» для дренажных систем рассчитаны на срок эксплуатации не менее 50 лет при соблюдении всех норм и правил.
Применяется при осадках сооружений до 10см Рис. 7 Муфтовое соединение гофрированных дренажных труб Расход материалов на 1 пог. м дренажа
Таблица 2. Минимальные расстояния между осями щелевых прорезей Lmin, мм, площадь одной щели и их количество на длине трубы 1 м и 6 м.
Специальным технологическим оборудованием между гофрами труб выполняются пропилы, размеры и количество которых обеспечивают поступление грунтовых вод внутрь трубы и зависят при прочих равных условиях от расчетной величины секундного расхода притока и уклона трубопровода (рис. 6). В настоящее время трубы поставляются отрезками длиною 6 м с тремя щелевыми прорезями между каждым рядом гофр (см. рис. 6, поз. 6) и соединяются между собой с помощью двухраструбной муфты (рис. 7). Минимальные расстояния между осями щелевых прорезей, площади щелей и их количество на длине трубы 1м и 6м представлены в табл. 2. Для строительства дренажа в песках средней крупности со средним диаметром частиц, меньшим 0,3-0,4 мм, а также в мелких и пылеватых песках, супесях и при слоистом строении водоносного пласта НПО «Стройполимер» выпускает дренажные трубы в фильтрующих обертках. 3. Проектирование горизонтальных дренажей из полиэтиленовых гофрированных труб полной заводской готовностиПри разработке проектов инженерной защиты территорий и отдельных сооружений от подтопления грунтовыми водами необходимо руководствоваться требованиями следующих нормативных документов: СНиП 2.01.15-90 «Инженерная защита территорий, зданий и сооружений от опасных геологических процессов. Основные положения проектирования», СНиП 2.06.15-85 «Инженерная защита территорий от затопления и подтопления», СНиП 2.06.03-85 «Мелиоративные системы и сооружения» и СНиП 2.04.03-85 «Канализация. Наружные сети и сооружения» (применительно). По степени гидродинамического несовершенства (т.е. по характеру вскрытия дренируемого водоносного пласта) различаются дренажи совершенного и несовершенного типа. Горизонтальные дренажи совершенного типа полностью вскрывают водоносные пласты и своим основанием доходят до водоупора. Горизонтальные дренажи несовершенного типа вскрывают водоносный пласт лишь частично и не доходят своим основанием до водоупора. Трубчатые дрены конструктивно состоят из перфорированной трубы и фильтрующей обсыпки. Обсыпку выполняют из каменных материалов. Материалы, предназначенные для дренажных обсыпок, должны удовлетворять требованиям прочности и морозостойкости. Гравий и щебень изверженных пород (гранит, сиенит, диорит, габбро, порфир, липарит, базальт, диабаз и т.п.) с удельным весом 2,3-2,7т/м3 или особо прочные разновидности осадочных пород (кремнистые известняки и хорошо сцементированные, невыветрившиеся песчаники) с удельным весом 2,0-2,4 т/м3 при временном сопротивлении на сжатие не менее 600 кг/см2, являются пригодными для внутреннего слоя обсыпки. Фильтрующая обсыпка одновременно с водозахватной функцией несет и водозащитную, предотвращая суффозию и заиливание дренажных коллекторов частицами водоносного грунта. Конструктивные формы фильтрующих обсыпок и их размеры зависят от используемого способа разработки траншей, в которые укладываются дрены. Продольные уклоны дренажа рекомендуется принимать не менее 0,002 для глинистых и суглинистых грунтов и не менее 0,003 для песчаных грунтов. Наибольшие уклоны дренажа определяются, исходя из максимально допустимой скорости течения воды в дренажных трубах - до 1,0 м/сек. Расстояние по горизонтали (в свету) между различными инженерными коммуникациями и дренажем определяется по таблице 10, СНиП II-89-80 «Генеральные планы промышленных предприятий». Для эксплуатации дренажной системы по трассе дренажа устраиваются смотровые колодцы, Колодцы устанавливаются в местах поворота трассы, изменения уклонов, на перепадах, а также на прямых участках через определенные расстояния. На прямых участках расстояние между колодцами рекомендуется принимать для труб до 150 мм - 35 м, для труб 200, 250 мм - 50 м. Смотровые колодцы, как правило, выполняются из сборных железобетонных элементов. Для дренажных труб, предложенных в альбоме, диаметр круглого колодца следует принимать 1,0 м. При глубине заложения дренажа свыше 3,0 м диаметр колодцев следует принимать не менее 1,5 м. 3.1. Определение величины притока. 3.1.1. Секундный расчетный приток грунтовых вод на расчетный участок дренажного трубопровода определяется как суммарный приток воды через все пропилы на трубопроводе по всей его расчетной длине:
где Sn - количество пропилов по всей расчетной длине трубопровода; qnp - пропускная способность одного щелевого отверстия (секундный приток грунтовых вод через один пропил), л/с. 3.1.2. Пропускная способность одного щелевого отверстия определяется расчетом, основанным на том, что при истечении воды из фильтрующей обсыпки через отверстие во внутреннюю полость трубопровода потери напора h0 не должны превышать 0,5-1 см. 3.1.3. Пропускная способность одного горизонтального щелевого отверстия, (т.е. расположенного вдоль образующей дренажной трубы) равна:
где mг, - коэффициент расхода горизонтального щелевого отверстия; wщ - площадь одной щели, м2; g - ускорение свободного падения, м2/с; h0 - потери напора при истечении из отверстия, м. 3.1.4. Коэффициент расхода mг зависит от числа Рейнольдса (Re) и отношения d17/t0, где t0 - ширина горизонтальной щели; d17 - диаметр частиц слоя обсыпки, прилегающей к водоприемной поверхности, соответствующий 17%-му содержанию их в гранулометрическом составе зерен обсыпки. В расчетный состав обсыпки включаются фракции обсыпки крупнее 0,4t0. 3.1.5. Число Рейнольдса определяется по формуле:
где n - коэффициент кинематической вязкости фильтрующей воды. Принимается
равным 3.1.6. Значения коэффициента расхода mг допускается определять по таблице 3. Таблица 3. Значения
3.1.7. Пропускная способность одного вертикального щелевого отверстия (т.е. расположенного перпендикулярно образующей дренажной трубы) равна:
где
где НП и НВ - превышение уровня воды над порогом щели соответственно внутри трубы и на внешнем ее контуре, м. 3.1.8. Значения коэффициента расхода в вертикальной
щели зависит от отношения
Параметр d25 является характерным показателем поровой структуры материала фильтровой обсыпки вблизи вертикальной щели и определяется из расчетного состава обсыпки, включающего фракции крупнее 0,6t0. Значения коэффициента расхода вертикальной щели допускается определять по таблице 4. Таблица 4. Значения
3.2. Гидравлический расчет горизонтальных дренажей. 3.2.1. Гидравлический расчет горизонтальных дренажей следует выполнять по величине секундного расчетного притока грунтовых вод. 3.2.2. Уклон дренажного трубопровода i следует определять по формуле:
где: L - коэффициент гидравлического сопротивления трубопровода; V- средняя скорость течения жидкости, м/с; g - ускорение свободного падения, м/с2; R- гидравлический радиус потока, м; b - безразмерный показатель степени, характеризующий режим турбулентного течения жидкости - переходный (b<2) или квадратичный (b=2) При b>2 следует принимать b=2.
где а - эмпирический показатель степени, зависящий от Kэ;
Число Рейнольдса Reкв определяется по формуле:
Число Рейнольдса Reф определяется по формуле:
где n - коэффициент кинематической вязкости воды. Обычно принимается равным Kэ - коэффициент шероховатости материала труб. Принимается равным 0,1 мм. 3.2.3. Распределение средних скоростей движения воды по сечению дренажного круглоцилиндрического трубопровода подчиняется зависимости:
или
где VН, VП, RН, RП - скорости течения и гидравлические радиусы потока воды при неполном и полном наполнении трубопровода. 3.2.4. Коэффициент шероховатости дренажных полиэтиленовых труб с учетом режимов их эксплуатации следует принимать равным Kэ=0,1 мм. Тогда параметра по формуле (3.2.3) равен:
Значения Таблица 5.
График (рис. 8) служит для пересчета скорости
течения воды при полном наполнении трубопровода (VП) на скорость при
любом другом его наполнении (VН ). Для этого следует табличное или
снятое с графика (рис. 8) значение 3.2.5. При известной величине секундного притока грунтовых вод диаметр дренажной трубы подбирается по номограмме (рис. 9).
Рис. 9. Номограмма для определения диаметра самотечного трубопровода из двухслойных гофрированных труб. С этой целью линейкой следует соединить значение диаметра со значением расхода и продолжить прямую линию до пересечения с немой шкалой А, где ставится засечка. Затем следует соединить прямой линией значения наполнения трубопровода (H/D) и скорости течения воды, таким образом, чтобы эта прямая линия прошла через засечку на немой шкале. При этом следует иметь в виду, что величина наполнения (H/D) в дренах-осушителях должна быть не менее 0,1; в трубах-собирателях - не менее 0,3; в магистральных коллекторах - не менее 0,5, а скорость движения воды - 0,15-1 м/с (в глинистых грунтах минимальная скорость принимается равной 0,15-0,2 м/с; в песчаных - 0,3-0,35 м/с). В тех случаях, когда известны скорость течения (V, м/с), наполнение трубопровода (H/D) и секундный расход притока (q, л/с), величину внутреннего диаметра определяют следующим образом: соединяют прямой линией значения V и H/D и на ее пересечении немой шкалой А делают засечку. Затем эту засечку соединяют прямой линией со значением расхода q и на пересечении продолжения этой линии со шкалой диаметров D читают ответ. Если это значение диаметра не соответствует сортаменту на дренажные трубы, то уточняют диаметр (в большую или меньшую сторону), соединяют его значение прямой линией со значением расхода и на пересечении продолжения этой новой прямой с немой шкалой А делают новую засечку. Затем, используя эту засечку, уточняют значения скорости течения V или наполнения H/D. 3.2.6. После того, как уточнены параметры течения и значение диаметра трубы, определяют ее уклон по формулам (3.2.1) - (3.2.6) или по таблицам приложения 1. 3.3. Геотекстильные фильтрующие материалы. Применение геотекстильных материалов позволяет уменьшить количество фильтрующих дренажных обсыпок и, в определенных случаях (например, при укладке дренажных труб НПО «Стройполимер» в средне- и крупнозернистых песчаных грунтах) полностью заменить гравийно-щебеночный материал обсыпки оберткой трубы геотекстильным материалом. В настоящее время диапазон искусственных фильтрующих тканых и нетканых материалов, применяемых в качестве оболочек дренажных конструкций, достаточно широк и номенклатура этих материалов постоянно расширяется. Наиболее предпочтительными видами геотекстиля в качестве дренажных оберток являются стеклосетки и стеклохолсты. Прошивные и войлокоподобные материалы из полимерных композитов зачастую менее стойки к воздействию минерализированных вод, а также вод, содержащих органические растворители, поверхностно-активные вещества и пр. Кроме того, синтетические текстильные фильтрующие материалы на основе скрепления нитей фенолформальдегидными вяжущими недостаточно стойки в условиях воздействия вод с повышенной температурой. Вместе с тем, для дренажных устройств, выполняющих функции временного водоотведения (например, пристенные дренажи, дренажи полигонов бытовых отходов и др.) могут применяться и синтетические геотекстили типа «фибертекс» (Fibertex). В качестве искусственных фильтрующих материалов рекомендуются иглопробивные фильтрующие полипропиленовые материалы Московского производственного предприятия нетканых материалов ВЕРОТЕКС, НИИ синтетического волокна (ВНИИСВ, г. Тверь), Суворовской фабрики объемной пряжи (г. Суворов, Тульская обл.), института ВИВР (г. Мытищи, Московская обл.), ВНИИНТМ (г. Серпухов). При этом могут быть рекомендованы синтетические геотекстили со следующими параметрами: • толщина материала при давлении 2 кРа составляет 0,95 мм; • поверхностная плотность - 140 г/м2; • коэффициент фильтрации @ 70 м/сут; • диаметры пор - d50 = 0,06 мм, d90 = 0,06 мм; • прочность 7-8 кН/м. Таблица 6
Представляется необходимым отметить, что полипропиленовые и полиамидные материалы при их высокой химической стойкости обладают плохой стойкостью по отношению к воздействию солнечных лучей, что следует учесть при определении сроков укладки в дренажные устройства, а также условий хранения перед укладкой и в процессе самой укладки. В качестве фильтрующих оберток и прослоев в дренажных конструкциях хорошо зарекомендовали себя стеклохолсты марок ВВ-Г, ВВ-К, ВВ-Т и стеклосетки типа СЭ и СС-1, которые укладываются в несколько слоев при их суммарной толщине 2-3 мм. В таблице 6 приведены некоторые характеристики материалов, допускаемых в качестве фильтрующих оберток трубчатых горизонтальных дренажей. Коэффициенты фильтрации таких материалов составляют десятки и более м/сут. 3.4. Пояснения к разработке чертежей 3.4.1. Дренажи в отдельных траншеях Конструкции даны для случаев разработки траншей в креплениях и в откосах. При комбинированных траншеях (верх - в откосах, низ - в креплениях) конструкции дренажей те же, что и в траншеях с креплениями. Дренажи должны укладываться в осушенный грунт, для чего в песчаных грунтах применяется водопонижение с использованием иглофильтровых установок, при укладке в слабопроницаемых грунтах - водоотлив с устройством строительных дренажей. При укладке дрен в отдельных траншеях, расположенных вблизи зданий и других сооружений, должна быть обеспечена устойчивость оснований этих сооружений от смещения в сторону дренажной траншеи.
Рис. 10. Схема к определению безопасного расстояния дренажной траншеи от контура заглубленной части (фундамента) сооружения. Расчет минимального безопасного расстояния (Lmin) выполняется по формуле
где LФ - уширение фундамента, Lg - ширина дренажной траншеи, j - угол внутреннего трения грунта. Трубы дренажей несовершенного типа, т.е. располагаемых выше водоупора, укладываются на фильтрующую обсыпку. Трубы дренажей совершенного типа, т.е. располагаемых на водоупоре, укладываются на втрамбованный в грунт основания дренажа щебень, поверх которого укладывается песчаный слой. Дренажные обсыпки прямоугольного очертания устраиваются с помощью инвентарных щитков, изготавливаемых в соответствии с принятой организацией работ. Дренажные обсыпки трапецеидального очертания отсыпаются без щитков с откосами 1:1. При слоистом строении осушаемой толщи грунта часть дренажной траншеи засыпается песком на 0,3-0,5 м выше непониженного уровня грунтовых вод. В однородных грунтах с коэффициентом фильтрации менее 5 м/сут обратная засыпка дренажной траншеи выполняется на высоту 0,6-0,7Н (где Н - высота от низа дренажной обсыпки до уровня непониженного уровня грунтовых вод на линии дрены). Песок для обратной засыпки траншей должен иметь коэффициент фильтрации не менее 5 м/сут. 3.4.2. Дренажи, совмещенные с выработками под заглубленные части сооружений и подземных коммуникаций (сопутствующие дренажи) Совмещенная прокладка дренажа в одном котловане под сооружение или в одной траншее с подземными коммуникациями (сопутствующий дренаж) применяется с целью сокращения объемов работ, включая уменьшение объемов выемки грунта, а также с целью повышения эффективности защитного действия дренажа при снижении затрат на его устройство. Основными видами рассматриваемых дренажей являются пристенные, пластовые и сопутствующие дренажи.
Рис. 11. Принципиальные конструктивные схемы горизонтальных дренажей с применением перфорированных гофрированных труб, укладываемых в траншею (однолинейный дренаж). I - с однослойной обсыпкой песчано-гравелистым материалом; II - с оберткой трубы геотекстильным материалом; а - в траншее с вертикальными стенками; б - в траншее с откосами. 1 - контур траншеи; 2 - местный грунт; 3 - обратная засыпка траншеи разнозернистым песком; 4 - однослойная обсыпка мелким щебнем; 5 - дренажная труба.
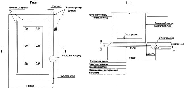
Рис. 12. Конструктивные схемы пристенных дренажей с применением перфорированных гофрированных труб 1 - гидрозащищаемое сооружение; 2 - гидроизоляция; 3 - местный грунт; 4 - песчаная засыпка; 5 - дренажная труба; 6 - обсыпка мелким щебнем; 7 - песчаная подготовка; 8 - обсыпка крупнозернистым песком.
Пристенный дренаж устраивается вдоль внешнего контура подземной части здания при необходимости защиты от подтопления подвальных помещений или оснований фундаментов, располагаемых на водоупоре. Пристенные дренажи перехватывают и отводят как грунтовые воды бокового притока, так и инфильтрационные воды, накапливающиеся в грунтах обратной засыпки пазух котлованов, траншей и т.д. Пластовые дренажи представляют собой своеобразные фильтрующие пласты-постели. Их применяют для защиты от подтопления подвалов отдельных зданий, подземных резервуаров, а также заглубленных коммуникаций. Применение пластовых дренажей особенно эффективно в слабопроницаемых грунтах. В некоторых случаях целесообразно сочетание пристенного и пластового дренажей. Пластовые дренажи целесообразно устраивать для перехвата и отвода утечек из локально расположенных хранилищ и емкостей с техническими растворами, техническими жидкостями и накопителями стоков. Сопутствующие дренажи устраиваются при необходимости защиты от подтопления подземных коллекторов, галерей транспортных тоннелей и других линейно - вытянутых сооружений. При этом сопутствующие дренажи могут сочетать конструктивные особенности традиционных однолинейных дрен и пластовых дренажей. Водоотвод из пластовых, пристенных и сопутствующих дренажей может осуществляться в сеть ливневой канализации или в открытые водоемы по согласованию с природоохранными службами. 3.4.3. Принципиальные схемы Принципиальные схемы дренажей с применением перфорированных гофрированных полиэтиленовых труб не отличаются от схем трубчатых дренажей с использованием других видов труб, являющихся основой дренажной конструкции. Вместе с тем, необходимо отметить, что в рассматриваемом случае устройство дренажных конструкций основывается на предварительно (технологически обусловленном) установленном размере и форме дренажных отверстий и проектирование дренажной конструкции ведется с уже заданными параметрами водоприемных отверстий в стенке трубы. При этом конструктивная схема дренажа может включать обертку дренажной трубы геотекстильным материалом с однослойной песчаной обсыпкой или однослойную обсыпку мелким щебнем (кр. 5-12 мм) с покрытием щебеночной обсыпки геотекстилем. 4. Строительство дренажей и приемка их в эксплуатацию4.1. Дренажные трубы укладывают в траншею, дно которой выровнено по нивелиру для придания трубопроводу проектного уклона, в соответствии с регламентами [9-14]. 4.2. Ширина траншеи по дну равна наружному диаметру трубопровода плюс 40 см. 4.3. В поперечном сечении траншея может иметь прямоугольное или трапецеидальное очертание. В первом случае стенки траншеи укрепляют с помощью инвентарных щитов, во втором - откосами 1:1. 4.4. Дно траншеи не должно содержать твердых включений (твердых комков, кирпича, камня и т.д.), которые могут продавить нижнюю стенку уложенной на них трубы. 4.5. Перед монтажом дренажные гофрированные трубы раскладывают на бровке траншеи. Все трубы и комплектующие проходят входной контроль качества. 4.6. Монтаж трубопровода проводится на дне траншеи, где каждая труба, одна за одной, последовательно вставляется в раструб предыдущей, образованной двухраструбной муфтой, одетой на ее гладкий конец (рис. 13). При необходимости трубы отрезают между гофрами ножовкой по дереву или по металлу. 4.7. Монтаж соединений выполняют с помощью рычага, упираемого в перекладину, устраиваемую поперек сечения гладкого конца вдвигаемой трубы. 4.8. По окончании монтажных работ трубопровод дренажа обсыпается так называемыми дренирующими обсыпками, которые, в соответствии с составом дренируемых грунтов, могут быть однослойными и многослойными. При расположении дренажа в песках гравелистых, крупных и средней крупности со средним диаметром частиц 0,3-0,4 мм и крупнее устраиваются однослойные обсыпки из гравия или щебня; при расположении в песках средней крупности со средним диаметром частиц, меньшим 0,3-0,4 мм, а также в мелких и пылеватых песках, супесях и при слоистом строении водоносного пласта устраивают двухслойные обсыпки - внутренний слой обсыпки из щебня, а внешний слой - из песка. В таких грунтах могут применяться дренажные трубы в фильтрующих обертках, и в этих случаях может быть применена однослойная обсыпка из гравия или щебня.
Рис. 13. Монтаж трубопровода Подбор состава дренирующих обсыпок производят по специальным графикам в зависимости от типа фильтра и состава дренируемых грунтов. 4.9. Дренажи следует укладывать в траншеи. Трубы дренажей несовершенного типа укладывают на нижние слои дренирующей обсыпки, которые, в свою очередь, укладываются на дно траншеи. Для дренажей совершенного типа основание (дно траншеи) укрепляется втрамбованным в грунт щебнем, а трубы укладываются на слой песка толщиной 5 см. 4.10. В слабых грунтах с недостаточной несущей способностью дренаж должен быть уложен на искусственное основание. 4.11. Толщина одного слоя дренирующей обсыпки должна быть не менее 15 см. 4.12. Гидравлические испытания дренажных труб не производятся. Качество монтажа контролируется в процессе сборки трубопровода. При этом обеспечивается соответствие монтируемого трубопровода проекту: его прямолинейность достигается с помощью грунта обсыпки, который служит им фиксатором, а уклон контролируется нивелиром. 4.13. Монтаж трубопроводов производится при температуре наружного воздуха до минус 100С. 5. Техническое обслуживание и ремонт дренажей5.1. Техническое обслуживание и своевременный ремонт дренажных трубопроводов в высокой степени способствуют их эффективной работе на весь расчетный срок эксплуатации. 5.2. Эксплуатацию дренажей осуществляют службы контроля и надзора, в задачу которых входит [8]. - периодический осмотр дренажных устройств; - устранение мелких неисправностей; - паспортизация; - систематические наблюдения за положением уровня грунтовых вод на дренируемом участке с целью установления эффективности действия дренажа; - контроль качества дренажных вод; - проведение планово-предупредительных и текущих ремонтов и ликвидация аварий. 5.3. В процессе периодических осмотров (не реже четырех раз в год) осуществляется обследование состояния смотровых колодцев, дренажных труб, коллекторов, а также контрольные замеры расходов воды. 5.4. Контрольные замеры расходов воды осуществляются в смотровых колодцах объемным способом. Снижение расхода (по сравнению с расчетным) свидетельствует о снижении пропускной способности дренажных труб, причиной чего может быть: - осадка труб на отдельных участках; - повреждение труб; - зарастание сечения труб, вследствие заиления или засорения; - кальматация отверстий фильтрующих пропилов. 5.5. Смотровые колодцы необходимо регулярно очищать от грязи и наносов. Колодцы должны быть закрыты постоянно в течение всего срока эксплуатации дренажа. 5.6. Очистка дрен осуществляется гидравлическим способом. Если этот способ не дает эффекта, линия перекладывается. 5.7. Очистка труб дренажей от мусора и наносов осуществляется с помощью гидравлического оборудования высокого давления. Применение для этих целей скребков и ершей не допускается.
Рис. 14. Конструкции колодцев 6. Транспортирование и хранение гофрированных полиэтиленовых труб6.1. Трубы транспортируют всеми видами транспорта в соответствии с правилами перевозки грузов, действующими на данном виде транспорта. 6.2. Погрузочно-разгрузочные операции при транспортировании и укладке труб в траншею следует выполнять по технологии, исключающей их механическое повреждение. 6.3. Транспортировку труб рекомендуется осуществлять в заводской упаковке, представляющей собой либо деревянный каркас, либо металлическую ленту. Однако поднимать связки труб за деревянный каркас или связывающую ленту категорически запрещается. 6.4. Связки труб в деревянных каркасах перемещают с помощью вилочного автопогрузчика или подъемного крана с применением строп достаточной ширины. 6.5. Транспортировка, погрузка и разгрузка труб допускается при температуре наружного воздуха до минус 25°С. 6.6. Трубы укладывают штабелем на ровное основание. Максимальная высота штабеля труб в деревянных каркасах - 2,8 м. Максимальная высота штабеля из отдельных труб - 1,0 м. 6.7. Трубы допускается хранить на открытом воздухе при условии, что они не подвержены воздействию прямых солнечных лучей, а также в помещении на расстоянии не менее 1 м от нагревательных приборов. 6.8. При устройстве штабелей следует обеспечить устойчивость штабеля, т.е. исключить возможность раскатывания труб. 6.9. Дренажные гофрированные трубы запрещается сбрасывать с транспортных средств, с бровки траншеи и т.п., а также перемещать волоком. 7. Требования безопасности и охраны окружающей среды7.1. При строительстве дренажей следует соблюдать общие требования СНиП III-4-80 [15]. 7.2. К монтажным работам допускаются лица не моложе 18 лет, прошедшие медицинское освидетельствование, специальное обучение, вводный инструктаж по технике безопасности и инструктаж на рабочем месте. 7.3. Трубы из полиэтилена в условиях транспортирования, хранения и монтажа не выделяют в окружающую среду токсичные вещества. При непосредственном контакте материал труб не оказывает влияния на организм человека. Работа с полиэтиленовыми трубами не требует особых мер предосторожности. 7.4. Трубы при поднесении открытого огня загораются без взрыва и горят коптящим пламенем. Трубы относятся к группе сгораемых по ГОСТ 12.1.044, температура воспламенения - около 300°С, температура самовоспламенения - около 350°С. В качестве средств пожаротушения следует применять воду, пенные и кислотные огнетушители. Литература1. Руководство по проектированию дренажей зданий и сооружений. - М., Москомархитектура, 2000 г. 2. Рекомендации по инженерно-гидрогеологическому обоснованию защитного дренажа территорий, подтапливаемых подземными водами. - М., «Стройиздат», 1985 г. 3. Рекомендации по выбору гидрогеологических параметров для обоснования способа дренирования подтопленных городских территорий. - М., «Стройиздат», 1986 г. 4. Прогнозы подтопления и расчет дренажных систем на застраиваемых и застроенных территориях. Справочное пособие к СНиП. - М., «Стройиздат», 1986 г. 5. Абрамов С.К. Подземные дренажи в промышленном и городском строительстве. - М., Стройиздат, 1973 г. 6. Абрамов С.К. и др. Дренаж промышленных площадок и городских территорий. - М., Госстройиздат, 1954 г. 7. Дегтярев Б.М. и др. Защита оснований зданий и сооружений от воздействия подземных вод. - М., «Стройиздат», 1985 г. 8. Альбом ЗАО «ДАР/ВОДГЕО» по проектированию водоприемных элементов горизонтальных трубчатых дренажей из полимерных труб. - М., 2003 г. 9. СНиП 3.02.01-87. «Земляные сооружения, основания и фундаменты». 10. СНиП 3.02.01-87. «Основания и фундаменты». 11. СНиП 3.07.03-85. «Мелиоративные системы и сооружения». 12. СНиП 3.01.01-85. «Организация строительного производства». 13. СНиП 3.05.04-85. «Наружные сети и сооружения водоснабжения и канализации». 14. СНиП 3.01.04-87. «Приемка в эксплуатацию законченных строительством объектов. Основные положения». 15. СНиП III-4-80. «Техника безопасности в строительстве». ПриложенияПриложение 1 (справочное)
|
|||||||||||||||||||||||||||||||||||||||||||||||||||||||||||||||||||||||||||||||||||||||||||||||||||||||||||||||||||||||||||||||||||||||||||||||||||||||||||||||||||||||||||||||||||||||||||||||||||||||||||||||||||||||||||||||||||||||||||||||||||||||||||||||||||||||||||||||||||||||||||||||||||||||||||||||||||||||||||||||||||||||||||||||||||||||||||||||||||||||||||||||||||||||||||||||||||||||||||||||||||||||||||||||||||||||||||||||||||||||||||||||||||||||||||||||||||||||||||||||||||||||||||||||||||||||||||||||||||||||||||||||||||||||||||||||||||||||||||||||||||||||||||||||||||||||||||||||||||||||||||||||||||||||||||||||||||||||||||||||||||||||||||||||||||||||||||||||||||||||||||||||||||||||||||||||||||||||||||||||||||||||||||||||||||||||||||||||||||||||||||||||||||||||||||||||||||||||||||||||||||||||||||||||||||||||||||||||||||||||||||||||||||||||||||||||||||||||||||||||||||||||||||||||||||||||||||||||||||||||||||||||||||||||||||||||||||||||||||||||||||||||||||||||||||||||||||||||||||||||
|
h/d |
i = 0,01 |
i = 0,011 |
i = 0,012 |
i = 0,013 |
i = 0,014 |
i = 0,015 |
i = 0,016 |
|||||||
|
q, л/c |
v, м/с |
q, л/с |
v, м/с |
q, л/с |
v, м/с |
q, л/c |
v, м/с |
q, л/с |
v, м/с |
q, л/с |
v, м/с |
q, л/c |
v, м/с |
|
|
0,1 |
0,121 |
0,296 |
0,128 |
0,313 |
0,135 |
0,330 |
0,141 |
0,346 |
0,148 |
0,361 |
0,154 |
0,376 |
0,160 |
0,391 |
|
0,2 |
0,519 |
0,464 |
0,549 |
0,491 |
0,577 |
0,516 |
0,604 |
0,540 |
0,631 |
0,564 |
0,656 |
0,587 |
0,680 |
0,608 |
|
0,3 |
1,176 |
0,593 |
1,242 |
0,627 |
1,305 |
0,658 |
1,365 |
0,689 |
1,424 |
0,719 |
1,481 |
0,747 |
1,534 |
0,774 |
|
0,4 |
2,039 |
0,695 |
2,153 |
0,734 |
2,261 |
0,771 |
2,365 |
0,806 |
2,466 |
0,841 |
2,563 |
0,874 |
2,655 |
0,905 |
|
0,5 |
3,043 |
0,775 |
3,211 |
0,818 |
3,371 |
0,858 |
3,525 |
0,898 |
3,675 |
0,936 |
3,818 |
0,972 |
3,955 |
1,007 |
|
0,6 |
4,103 |
0,834 |
4,329 |
0,880 |
4,544 |
0,924 |
4,750 |
0,966 |
4,951 |
1,006 |
5,143 |
1,045 |
5,326 |
1,083 |
|
0,7 |
5,125 |
0,873 |
5,407 |
0,921 |
5,674 |
0,966 |
5,931 |
1,010 |
6,181 |
1,053 |
6,421 |
1,093 |
6,648 |
1,132 |
|
0,8 |
5,990 |
0,889 |
6,319 |
0,938 |
6,631 |
0,984 |
6,931 |
1,029 |
7,223 |
1,072 |
7,502 |
1,114 |
7,769 |
1,153 |
|
0,9 |
6,525 |
0,876 |
6,884 |
0,925 |
7,225 |
0,970 |
7,552 |
1,014 |
7,870 |
1,057 |
8,175 |
1,098 |
8,465 |
1,137 |
|
1,0 |
6,085 |
0,775 |
6,423 |
0,818 |
6,743 |
0,858 |
7,050 |
0,898 |
7,350 |
0,936 |
7,636 |
0,972 |
7,909 |
1,007 |
|
h/d |
i = 0,017 |
i = 0,l 18 |
i =0,02 |
i = 0,025 |
i =0,03 |
i = 0,035 |
i = 0,04 |
|||||||
|
q, л/с |
v, м/с |
q, л/с |
v, м/с |
q, л/с |
v, м/с |
q, л/с |
v, м/с |
q, л/с |
v, м/с |
q, л/с |
v, м/с |
q, л/c |
v, м/с |
|
|
0,1 |
0,165 |
0,405 |
0,171 |
0,418 |
0,182 |
0,444 |
0,206 |
0,504 |
0,228 |
0,558 |
0,249 |
0,608 |
0,267 |
0,654 |
|
0,2 |
0,704 |
0,630 |
0,727 |
0,650 |
0,771 |
0,690 |
0,872 |
0,780 |
0,964 |
0,862 |
1,048 |
0,937 |
1,126 |
1,007 |
|
0,2 |
0,704 |
0,630 |
0,727 |
0,650 |
0,771 |
0,690 |
0,872 |
0,780 |
0,964 |
0,862 |
1,048 |
0,937 |
1,126 |
1,007 |
|
0,4 |
2,747 |
0,936 |
2,834 |
0,966 |
3,003 |
1,023 |
3,387 |
1,154 |
3,735 |
1,273 |
4,054 |
1,382 |
4,348 |
1,482 |
|
0,5 |
4,090 |
1,041 |
4,219 |
1,074 |
4,469 |
1,138 |
5,037 |
1,283 |
5,551 |
1,414 |
6,022 |
1,534 |
6,457 |
1,644 |
|
0,6 |
5,508 |
1,119 |
5,681 |
1,155 |
6,016 |
1,223 |
6,778 |
1,378 |
7,466 |
1,518 |
8,098 |
1,646 |
8,681 |
1,764 |
|
0,7 |
6,874 |
1,171 |
7,090 |
1,207 |
7,507 |
1,278 |
8,455 |
1,440 |
9,312 |
1,586 |
10,098 |
1,720 |
10,822 |
1,843 |
|
0,8 |
8,032 |
1,192 |
8,283 |
1,230 |
8,770 |
1,302 |
9,877 |
1,466 |
10,877 |
1,615 |
11,794 |
1,751 |
12,639 |
1,876 |
|
0,9 |
8,752 |
1,176 |
9,026 |
1,212 |
9,557 |
1,284 |
10,764 |
1,446 |
11,855 |
1,592 |
12,855 |
1,727 |
13,778 |
1,851 |
|
1,0 |
8,180 |
1,041 |
8,437 |
1,074 |
8,937 |
1,138 |
10,074 |
1,283 |
11,102 |
1,414 |
12,045 |
1,534 |
12,915 |
1,644 |
Кэ 0,1 мм.
Диаметр трубы 150 мм.
|
h/d |
i = 0,005 |
i = 0,006 |
i = 0,007 |
i = 0,008 |
i = 0,009 |
i = 0,01 |
i =0,011 |
|||||||
|
q, л/с |
v, м/с |
q, л/c |
v, м/с |
q, л/c |
v, м/с |
q, л/c |
v, м/с |
q, л/с |
v, м/с |
q, л/с |
v, м/с |
q, л/с |
v, м/с |
|
|
0,1 |
0,241 |
0,266 |
0,269 |
0,297 |
0,294 |
0,325 |
0,318 |
0,351 |
0,341 |
0,376 |
0,362 |
0,400 |
0,382 |
0,422 |
|
0,2 |
1,033 |
0,417 |
1,150 |
0,465 |
1,256 |
0,507 |
1,356 |
0,548 |
1,450 |
0,586 |
1,539 |
0,622 |
1,623 |
0,656 |
|
0,3 |
2,341 |
0,533 |
2,602 |
0,593 |
2,837 |
0,647 |
3,061 |
0,697 |
3,271 |
0,745 |
3,468 |
0,790 |
3,655 |
0,833 |
|
0,4 |
4,063 |
0,625 |
4,510 |
0,694 |
4,915 |
0,757 |
5,299 |
0,816 |
5,659 |
0,871 |
5,997 |
0,923 |
6,317 |
0,972 |
|
0,5 |
6,062 |
0,697 |
6,726 |
0,774 |
7,325 |
0,842 |
7,894 |
0,908 |
8,427 |
0,969 |
8,927 |
1,027 |
9,401 |
1,081 |
|
0,6 |
8,176 |
0,751 |
9,067 |
0,832 |
9,872 |
0,906 |
10,634 |
0,976 |
11,349 |
1,042 |
12,020 |
1,103 |
12,656 |
1,162 |
|
0,7 |
10,214 |
0,786 |
11,323 |
0,871 |
12,326 |
0,948 |
13,275 |
1,021 |
14,165 |
1,089 |
15,001 |
1,154 |
15,792 |
1,215 |
|
0,8 |
11,939 |
0,800 |
13,234 |
0,887 |
14,404 |
0,966 |
15,512 |
1,040 |
16,551 |
1,110 |
17,526 |
1,175 |
18,450 |
1,237 |
|
0,9 |
13,006 |
0,789 |
14,417 |
0,875 |
15,693 |
0,952 |
16,901 |
1,025 |
18,035 |
1,094 |
19,098 |
1,159 |
20,105 |
1,220 |
|
1,0 |
12,125 |
0,697 |
13,451 |
0,774 |
14,651 |
0,842 |
15,787 |
0,908 |
16,853 |
0,969 |
17,854 |
1,027 |
18,802 |
1,081 |
|
|
|
|
|
|
|
|
|
|
|
|
|
|
|
|
|
h/d |
i = 0,012 |
i = 0,013 |
i = 0,014 |
i = 0015 |
i = 0,016 |
i = 0,017 |
i = 0,018 |
|||||||
|
q, л/с |
v, м/с |
q, л/c |
v, м/с |
q, л/с |
v, м/с |
q, л/c |
v, м/с |
q, л/c |
v, м/с |
q, л/c |
v, м/с |
q, л/с |
v, м/с |
|
|
0,1 |
0,402 |
0,444 |
0,420 |
0,464 |
0,438 |
0,484 |
0,456 |
0,503 |
0,473 |
0,522 |
0,489 |
0,540 |
0,504 |
0,557 |
|
0,2 |
1,703 |
0,688 |
1,781 |
0,719 |
1,855 |
0,749 |
1,927 |
0,778 |
1,997 |
0,807 |
2,064 |
0,834 |
2,128 |
0,860 |
|
0,2 |
1,703 |
0,688 |
1,781 |
0,719 |
1,855 |
0,749 |
1,927 |
0,778 |
1,997 |
0,807 |
2,064 |
0,834 |
2,128 |
0,860 |
|
0,4 |
6,623 |
1,019 |
6,919 |
1,065 |
7,200 |
1,108 |
7,474 |
1,150 |
7,739 |
1,191 |
7,994 |
1,231 |
8,238 |
1,268 |
|
0,5 |
9,853 |
1,133 |
10,291 |
1,184 |
10,707 |
1,231 |
11,112 |
1,278 |
11,504 |
1,323 |
11,881 |
1,366 |
12,242 |
1,408 |
|
0,6 |
13,262 |
1,217 |
13,848 |
1,271 |
14,406 |
1,322 |
14,949 |
1,372 |
15,474 |
1,421 |
15,979 |
1,467 |
16,463 |
1,511 |
|
0,7 |
16,546 |
1,273 |
17,276 |
1,329 |
17,970 |
1,382 |
18,646 |
1,434 |
19,300 |
1,484 |
19,928 |
1,533 |
20,530 |
1,579 |
|
0,8 |
19,330 |
1,296 |
20,182 |
1,353 |
20,992 |
1,408 |
21,780 |
1,460 |
22,544 |
1,512 |
23,277 |
1,561 |
23,979 |
1,608 |
|
0,9 |
21,066 |
1,278 |
21,995 |
1,334 |
22,878 |
1,388 |
23,738 |
1,440 |
24,571 |
1,491 |
25,370 |
1,539 |
26,137 |
1,586 |
|
1,0 |
19,707 |
1,133 |
20,581 |
1,184 |
21,413 |
1,231 |
22,223 |
1,278 |
23,008 |
1,323 |
23,761 |
1,366 |
24,483 |
1,408 |
Кэ 0,1 мм.
Диаметр трубы 200 мм.
|
h/d |
i = 0,003 |
i = 0,004 |
i = 0,005 |
i = 0,006 |
i = 0,007 |
i = 0,008 |
i = 0,009 |
|||||||
|
q, л/с |
v, м/с |
q, л/с |
v, м/с |
q, л/с |
v, м/с |
q, л/с |
v, м/с |
q, л/с |
v, м/с |
q, л/с |
v, м/с |
q, л/c |
v, м/с |
|
|
0,1 |
0,382 |
0,242 |
0,454 |
0,288 |
0,518 |
0,329 |
0,576 |
0,366 |
0,630 |
0,400 |
0,679 |
0,431 |
0,726 |
0,461 |
|
0,2 |
1,642 |
0,381 |
1,944 |
0,451 |
2,211 |
0,513 |
2,452 |
0,569 |
2,674 |
0,621 |
2,880 |
0,668 |
3,075 |
0,714 |
|
0,3 |
3,723 |
0,488 |
4,397 |
0,576 |
4,991 |
0,654 |
5,529 |
0,724 |
6,023 |
0,789 |
6,480 |
0,848 |
6,913 |
0,905 |
|
0,4 |
6,464 |
0,572 |
7,622 |
0,674 |
8,642 |
0,764 |
9,564 |
0,846 |
10,412 |
0,921 |
11,195 |
0,990 |
11,937 |
1,056 |
|
0,5 |
9,648 |
0,638 |
11,364 |
0,751 |
12,876 |
0,851 |
14,241 |
0,941 |
15,497 |
1,024 |
16,655 |
1,101 |
17,752 |
1,173 |
|
0,6 |
13,014 |
0,686 |
15,319 |
0,808 |
17,348 |
0,915 |
19,179 |
1,012 |
20,863 |
1,100 |
22,416 |
1,182 |
23,886 |
1,260 |
|
0,7 |
16,260 |
0,719 |
19,131 |
0,845 |
21,657 |
0,957 |
23,938 |
1,058 |
26,033 |
1,151 |
27,966 |
1,236 |
29,797 |
1,317 |
|
0,8 |
19,006 |
0,732 |
22,358 |
0,861 |
25,307 |
0,975 |
27,969 |
1,078 |
30,416 |
1,172 |
32,672 |
1,259 |
34,808 |
1,341 |
|
0,9 |
20,704 |
0,722 |
24,358 |
0,849 |
27,574 |
0,961 |
30,477 |
1,062 |
33,145 |
1,155 |
35,605 |
1,241 |
37,936 |
1,322 |
|
1,0 |
19,296 |
0,638 |
22,729 |
0,751 |
25,752 |
0,851 |
28,483 |
0,941 |
30,993 |
1,024 |
33,309 |
1,101 |
35,504 |
1,173 |
|
h/d |
i = 0,01 |
i = 0,011 |
i = 0,012 |
i =0,013 |
i = 0,014 |
i = 0,015 |
i =0,016 |
|||||||
|
q, л/с |
v, м/с |
q, л/с |
v, м/с |
q, л/с |
v, м/с |
q, л/с |
v, м/с |
q, л/с |
v, м/с |
q, л/с |
v, м/с |
q, л/с |
v, м/с |
|
|
0,1 |
0,771 |
0,489 |
0,813 |
0,516 |
0,853 |
0,541 |
0,892 |
0,566 |
0,929 |
0,589 |
0,965 |
0,612 |
0,999 |
0,634 |
|
0,2 |
3,258 |
0,756 |
3,432 |
0,797 |
3,599 |
0,835 |
3,759 |
0,873 |
3,910 |
0,908 |
4,059 |
0,942 |
4,201 |
0,975 |
|
0,2 |
3,258 |
0,756 |
3,432 |
0,797 |
3,599 |
0,835 |
3,759 |
0,873 |
3,910 |
0,908 |
4,059 |
0,942 |
4,201 |
0,975 |
|
0,4 |
12,633 |
1,117 |
13,294 |
1,176 |
13,928 |
1,232 |
14,536 |
1,286 |
15,111 |
1,337 |
15,673 |
1,386 |
16,212 |
1,434 |
|
0,5 |
18,781 |
1,241 |
19,760 |
1,306 |
20,696 |
1,368 |
21,595 |
1,427 |
22,444 |
1,483 |
23,275 |
1,538 |
24,070 |
1,591 |
|
0,6 |
25,266 |
1,333 |
26,578 |
1,402 |
27,832 |
1,468 |
29,037 |
1,532 |
30,174 |
1,592 |
31,288 |
1,650 |
32,353 |
1,707 |
|
0,7 |
31,514 |
1,393 |
33,146 |
1,465 |
34,707 |
1,534 |
36,206 |
1,600 |
37,621 |
1,663 |
39,006 |
1,724 |
40,332 |
1,782 |
|
0,8 |
36,811 |
1,418 |
38,716 |
1,492 |
40,538 |
1,562 |
42,287 |
1,629 |
43,938 |
1,693 |
45,555 |
1,755 |
47,101 |
1,815 |
|
0,9 |
40,121 |
1,398 |
42,198 |
1,471 |
44,185 |
1,540 |
46,093 |
1,607 |
47,894 |
1,669 |
49,657 |
1,731 |
51,344 |
1,790 |
|
1,0 |
37,562 |
1,241 |
39,519 |
1,306 |
41,391 |
1,368 |
43,189 |
1,427 |
44,888 |
1,483 |
46,550 |
1,538 |
48,141 |
1,591 |
Кэ 0,1 мм.
Диаметр трубы 250 мм.
|
h/d |
i = 0,003 |
i = 0,004 |
i = 0,005 |
i = 0,006 |
i = 0,007 |
i = 0,008 |
i =0,009 |
|||||||
|
q, л/с |
v, м/с |
q, л/с |
v, м/с |
q, л/с |
v, м/с |
q, л/с |
v, м/с |
q, л/с |
v, м/с |
q, л/с |
v, м/с |
q, л/с |
v, м/с |
|
|
0,1 |
0,708 |
0,288 |
0,839 |
0,341 |
0,954 |
0,388 |
1,058 |
0,430 |
1,155 |
0,470 |
1,244 |
0,506 |
1,328 |
0,540 |
|
0,2 |
3,029 |
0,451 |
3,571 |
0,531 |
4,050 |
0,603 |
4,484 |
0,667 |
4,882 |
0,726 |
5,253 |
0,781 |
5,599 |
0,833 |
|
0,3 |
6,847 |
0,575 |
8,056 |
0,676 |
9,121 |
0,765 |
10,087 |
0,846 |
10,971 |
0,921 |
11,794 |
0,990 |
12,563 |
1,054 |
|
0,4 |
11,865 |
0,673 |
13,939 |
0,790 |
15,767 |
0,894 |
17,422 |
0,988 |
18,937 |
1,073 |
20,346 |
1,153 |
21,662 |
1,228 |
|
0,5 |
17,687 |
0,749 |
20,760 |
0,879 |
23,466 |
0,994 |
25,915 |
1,098 |
28,155 |
1,192 |
30,239 |
1,281 |
32,184 |
1,363 |
|
0,6 |
23,838 |
0,806 |
27,962 |
0,945 |
31,591 |
1,068 |
34,875 |
1,179 |
37,878 |
1,281 |
40,671 |
1,375 |
43,279 |
1,463 |
|
0,7 |
29,767 |
0,843 |
34,903 |
0,989 |
39,421 |
1,117 |
43,508 |
1,232 |
47,246 |
1,338 |
50,722 |
1,437 |
53,966 |
1,529 |
|
0,8 |
34,787 |
0,859 |
40,783 |
1,007 |
46,056 |
1,137 |
50,827 |
1,255 |
55,189 |
1,363 |
59,245 |
1,463 |
63,031 |
1,556 |
|
0,9 |
37,901 |
0,847 |
44,438 |
0,993 |
50,190 |
1,121 |
55,392 |
1,237 |
60,150 |
1,344 |
64,574 |
1,443 |
68,703 |
1,535 |
|
1,0 |
35,374 |
0,749 |
41,521 |
0,879 |
46,932 |
0,994 |
51,829 |
1,098 |
56,310 |
1,192 |
60,477 |
1,281 |
64,369 |
1,363 |
|
h/d |
i = 0,01 |
i = 0,011 |
i = 0,012 |
i = 0,013 |
i = 0,014 |
i = 0,015 |
i = 0,016 |
|||||||
|
q, л/с |
v, м/с |
q, л/с |
v, м/с |
q, л/с |
v, м/с |
q, л/с |
v, м/с |
q, л/с |
v, м/с |
q, л/с |
v, м/с |
q, л/с |
v, м/с |
|
|
0,1 |
1,408 |
0,573 |
1,483 |
0,603 |
1,555 |
0,632 |
1,624 |
0,661 |
1,691 |
0,688 |
1,755 |
0,714 |
1,817 |
0,739 |
|
0,2 |
5,929 |
0,882 |
6,239 |
0,928 |
6,536 |
0,972 |
6,821 |
1,015 |
7,095 |
1,055 |
7,359 |
1,095 |
7,613 |
1,133 |
|
0,2 |
5,929 |
0,882 |
6,239 |
0,928 |
6,536 |
0,972 |
6,821 |
1,015 |
7,095 |
1,055 |
7,359 |
1,095 |
7,613 |
1,133 |
|
0,4 |
22,911 |
1,299 |
24,086 |
1,365 |
25,214 |
1,429 |
26,294 |
1,491 |
27,328 |
1,549 |
28,327 |
1,606 |
29,289 |
1,660 |
|
0,5 |
34,030 |
1,441 |
35,767 |
1,515 |
37,434 |
1,585 |
39,028 |
1,653 |
40,556 |
1,718 |
42,031 |
1,780 |
43,451 |
1,840 |
|
0,6 |
45,751 |
1,547 |
48,078 |
1,625 |
50,311 |
1,701 |
52,446 |
1,773 |
54,493 |
1,842 |
56,469 |
1,909 |
58,370 |
1,973 |
|
0,7 |
57,042 |
1,616 |
59,938 |
1,698 |
62,715 |
1,776 |
65,371 |
1,852 |
67,917 |
1,924 |
70,374 |
1,993 |
72,739 |
2,060 |
|
0,8 |
66,621 |
1,645 |
70,000 |
1,728 |
73,240 |
1,808 |
76,340 |
1,885 |
79,310 |
1,958 |
82,176 |
2,029 |
84,936 |
2,097 |
|
0,9 |
72,619 |
1,622 |
76,304 |
1,705 |
79,839 |
1,784 |
83,220 |
1,859 |
86,460 |
1,932 |
89,587 |
2,001 |
92,597 |
2,069 |
|
1,0 |
68,059 |
1,441 |
71,534 |
1,515 |
74,867 |
1,585 |
78,056 |
1,653 |
81,112 |
1,718 |
84,062 |
1,780 |
86,903 |
1,840 |
Дренаж несовершенного типа в траншее с креплением

1. Все размеры на чертеже даны в сантиметрах.
Расход материалов на 1 пог. м дренажа
|
Диаметр трубы D, мм |
Трубы полиэтиленовые НПО "Стройполимер" пог. м |
Фильтрующий материал (геотекстиль) м2/пог. м |
|
100 |
1,0 |
0,65 |
|
150 |
1,0 |
1,00 |
|
200 |
1,0 |
1,35 |
|
250 |
1,0 |
1,65 |
Дренаж несовершенного типа прямоугольной формы в траншее с креплением
Область применения
При расположении дренажа выше водоупора

1. Все размеры на чертеже даны в сантиметрах.
2. Устройство щебеночной обсыпки выполняется при помощи инвентарных щитов.
Расход материалов на 1 пог. м дренажа
|
Диаметр трубы D, мм |
Трубы полиэтиленовые НПО "Стройполимер" пог. м |
Щебень обсыпки, м3 |
"в" см |
|
100 |
1,0 |
0,18 |
100 |
|
150 |
1,0 |
0,22 |
105 |
|
200 |
1,0 |
0,26 |
110 |
|
250 |
1,0 |
0,30 |
115 |
Дренаж несовершенного типа трапецеидальной формы в траншее с креплением
Область применения
При расположении дренажа выше водоупора

1. Все размеры на чертеже даны в сантиметрах.
2. В песках гравелистых, крупных и средней крупности фильтрующий материал и песок с Кф>5 м/сут можно не применять.
Расход материалов на 1 пог. м дренажа
|
Диаметр трубы D, мм |
Трубы полиэтиленовые НПО "Стройполимер" пог. м |
Щебень обсыпки, м3 |
Размеры (см) |
||
|
а |
в |
г |
|||
|
100 |
1,0 |
0,27 |
17 |
97 |
67 |
|
150 |
1,0 |
0,32 |
19 |
109 |
79 |
|
200 |
1,0 |
0,38 |
21 |
121 |
91 |
|
250 |
1,0 |
0,45 |
23 |
133 |
103 |
Дренаж несовершенного типа прямоугольной формы в траншее с откосами
Область применения
При расположении дренажа выше водоупора

1. Все размеры на чертеже даны в сантиметрах.
2. Устройство щебеночной обсыпки выполняется при помощи инвентарных щитов.
Расход материалов на 1 пог. м дренажа
|
Диаметр трубы D, мм |
Трубы полиэтиленовые НПО "Стройполимер" пог. м |
Щебень обсыпки, м3 |
"в" см |
|
100 |
1,0 |
0,18 |
100 |
|
150 |
1,0 |
0,22 |
105 |
|
200 |
1,0 |
0,26 |
110 |
|
250 |
1,0 |
0,30 |
115 |
Дренаж несовершенного типа в траншее с откосами
Область применения
При расположении дренажа выше водоупора

1. Все размеры на чертеже даны в сантиметрах.
2. В песках гравелистых, крупных и средней крупности фильтрующий материал и песок с Кф>5 м/сут можно не применять.
Расход материалов на 1 пог. м дренажа
|
Диаметр трубы D, мм |
Трубы полиэтиленовые НПО "Стройполимер" пог. м |
Щебень обсыпки, м3 |
Размеры (см) |
||
|
а |
в |
г |
|||
|
100 |
1,0 |
0,27 |
17 |
97 |
67 |
|
150 |
1,0 |
0,32 |
19 |
109 |
79 |
|
200 |
1,0 |
0,38 |
21 |
121 |
91 |
|
250 |
1,0 |
0,45 |
23 |
133 |
103 |
Дренаж несовершенного типа шестиугольной формы в траншее с откосами
Область применения
При расположении дренажа выше водоупора

1. Все размеры на чертеже даны в сантиметрах.
2. В песках гравелистых, крупных и средней крупности фильтрующий материал и песок с Кф>5 м/сут можно не применять.
Расход материалов на 1 пог. м дренажа
|
Диаметр трубы D, мм |
Трубы полиэтиленовые НПО "Стройполимер" пог. м |
Щебень обсыпки, м3 |
Размеры (см) |
|||
|
а |
t |
в |
В |
|||
|
100 |
1,0 |
0,18 |
17 |
20 |
57 |
117 |
|
150 |
1,0 |
0,20 |
19 |
23 |
64 |
124 |
|
200 |
1,0 |
0,23 |
21 |
25 |
71 |
131 |
|
250 |
1,0 |
0,27 |
23 |
25 |
78 |
138 |
Дренаж несовершенного типа прямоугольной формы в траншее с креплением
Область применения
При расположении дренажа на водоупоре

1. Все размеры на чертеже даны в сантиметрах.
2. Устройство щебеночной обсыпки выполняется при помощи инвентарных щитов.
Расход материалов на 1 пог. м дренажа
|
Диаметр трубы D, мм |
Трубы полиэтиленовые НПО "Стройполимер" пог. м |
Щебень обсыпки, м3 |
Щебень рабочего дренажа основания |
"в" см |
|
100 |
1,0 |
0,11 |
0,14 |
100 |
|
150 |
1,0 |
0,14 |
0,14 |
105 |
|
200 |
1,0 |
0,17 |
0,15 |
110 |
|
250 |
1,0 |
0,20 |
0,15 |
115 |
Дренаж несовершенного типа однослой обсыпкой трапецоидной формы в траншее с креплением
Область применения
При расположении дренажа выше водоупора

1. Все размеры на чертеже даны в сантиметрах.
2. В песках гравелистых, крупных и средней крупности фильтрующий материал и песок с Кф>5 м/сут можно не применять.
Расход материалов на 1 пог. м дренажа
|
Диаметр трубы D, мм |
Трубы полиэтиленовые НПО "Стройполимер" пог. м |
Щебень обсыпки, м3 |
Щебень рабочего дренажа основания |
Размеры (см) |
||
|
"а" |
"в" |
"г" |
||||
|
100 |
1,0 |
0,12 |
0,14 |
17 |
97 |
67 |
|
150 |
1,0 |
0,15 |
0,15 |
19 |
109 |
79 |
|
200 |
1,0 |
0,19 |
0,16 |
21 |
121 |
91 |
|
250 |
1,0 |
0,24 |
0,18 |
23 |
133 |
103 |
Дренаж несовершенного типа с однослойной обсыпкой прямоугольной формы в траншее с креплением
Область применения
При расположении дренажа выше водоупора

1. Все размеры на чертеже даны в сантиметрах.
2. Устройство щебеночной обсыпки выполняется при помощи инвентарных щитов.
Расход материалов на 1 пог. м дренажа
|
Диаметр трубы D, мм |
Трубы полиэтиленовые НПО "Стройполимер" пог. м |
Щебень обсыпки, м3 |
Щебень рабочего дренажа основания |
"в" см |
|
100 |
1,0 |
0,11 |
0,14 |
100 |
|
150 |
1,0 |
0,14 |
0,14 |
105 |
|
200 |
1,0 |
0,17 |
0,15 |
110 |
|
250 |
1,0 |
0,20 |
0,15 |
115 |
Дренаж несовершенного типа с однослойной обсыпкой трапецеидальной формы в траншее с откосами
Область применения
При расположении дренажа выше водоупора

1. Все размеры на чертеже даны в сантиметрах.
2. В песках гравелистых, крупных и средней крупности фильтрующий материал и песок с Кф>5 м/сут можно не применять.
Расход материалов на 1 пог. м дренажа
|
Диаметр трубы D, мм |
Трубы полиэтиленовые НПО "Стройполимер" пог.м |
Щебень обсыпки, м3 |
Щебень рабочего дренажа основания |
Размеры (см) |
||
|
"а" |
"в" |
"г" |
||||
|
100 |
1,0 |
0,12 |
0,14 |
17 |
97 |
67 |
|
150 |
1,0 |
0,15 |
0,15 |
19 |
109 |
79 |
|
200 |
1,0 |
0,19 |
0,16 |
21 |
121 |
91 |
|
250 |
1,0 |
0,24 |
0,18 |
23 |
133 |
103 |
Дренаж несовершенного типа с однослойной обсыпкой прямоугольной формы в траншее с откосами
Область применения
При расположении дренажа на водоупоре

1. Все размеры на чертеже даны в сантиметрах.
2. В песках гравелистых, крупных и средней крупности фильтрующий материал и песок с Кф>5 м/сут можно не применять.
Расход материалов на 1 пог. м дренажа
|
Диаметр трубы D, мм |
Трубы полиэтиленовые НПО "Стройполимер" пог.м |
Щебень обсыпки, м3 |
Щебень рабочего дренажа основания |
"в" см |
|
100 |
1.0 |
0,11 |
0,18 |
130 |
|
150 |
1,0 |
0,14 |
0,18 |
135 |
|
200 |
1,0 |
0,17 |
0,18 |
140 |
|
250 |
1,0 |
0,20 |
0,19 |
145 |
Дренаж несовершенного типа с однослойной обсыпкой трапецеидальной формы в траншее с откосом
Область применения
При расположении дренажа на водоупоре

1. Все размеры на чертеже даны в сантиметрах.
2. В песках гравелистых, крупных и средней крупности фильтрующий материал и песок с Кф>5 м/сут можно не применять.
Расход материалов на 1 пог. м дренажа
|
Диаметр трубы D, мм |
Трубы полиэтиленовые НПО "Стройполимер" пог.м |
Щебень обсыпки м3 |
Размеры (см) |
||
|
а |
в |
г |
|||
|
100 |
1,0 |
0,27 |
17 |
97 |
67 |
|
150 |
1,0 |
0,32 |
19 |
109 |
79 |
|
200 |
1.0 |
0,38 |
21 |
121 |
91 |
|
250 |
1,0 |
0,45 |
23 |
133 |
103 |
Дренаж коллектора подземных сооружений (по оси), несовершенного типа, прямоугольной формы
Область применения
При расположении дренажа выше водоупора

1. Все размеры на чертеже даны в сантиметрах.
Расход материалов на 1 пог. м дренажа
|
В, см |
Диаметр трубы D, мм |
Трубы полиэтиленовые НПО "Стройполимер" пог. м |
Щебень обсыпки, м3 |
|
170 |
100 |
1,0 |
0,19 |
|
150 |
1,0 |
0,22 |
|
|
200 |
1,0 |
0,26 |
|
|
190 |
150 |
1,0 |
0,22 |
|
200 |
1,0 |
0,26 |
|
|
230 |
150 |
1,0 |
0,22 |
|
200 |
1,0 |
0,26 |
|
|
250 |
150 |
1,0 |
0,22 |
|
200 |
1,0 |
0,26 |
|
|
270 |
150 |
1,0 |
0,22 |
|
200 |
1,0 |
0,26 |
Дренаж коллектора подземных сооружений (по оси), несовершенного типа, трапецеидальной формы
Область применения
При расположении дренажа выше водоупора

1. Все размеры на чертеже даны в сантиметрах.
Расход материалов на 1 пог. м дренажа
|
В, см |
Диаметр трубы D, мм |
Трубы полиэтиленовые НПО "Стройполимер" пог. м |
Щебень обсыпки, м3 |
а, см |
г, см |
|
170 |
100 |
1,0 |
0,28 |
17 |
97 |
|
150 |
1,0 |
0,32 |
19 |
109 |
|
|
200 |
1,0 |
0,38 |
21 |
121 |
|
|
190 |
150 |
1,0 |
0,32 |
19 |
109 |
|
200 |
1,0 |
0,38 |
21 |
121 |
|
|
|
150 |
1,0 |
0,32 |
19 |
109 |
|
|
200 |
1,0 |
0,38 |
21 |
121 |
|
250 |
150 |
1,0 |
0,32 |
19 |
109 |
|
200 |
1,0 |
0,38 |
21 |
121 |
|
|
270 |
150 |
1,0 |
0,32 |
19 |
109 |
|
200 |
1,0 |
0,38 |
21 |
121 |
Дренаж коллектора подземных сооружений (по оси), несовершенного типа, прямоугольной формы
Область применения
При расположении дренажа выше водоупора

1. Все размеры на чертеже даны в сантиметрах.
2. Для настенного дренажа применяются материалы:
Оболочки «Дрениз», дренажный материал с фильтрующей мембраной (DELTA GEO-DRAIN TP и т.п.)
Расход материалов на 1 пог. м дренажа
|
В, см |
Диаметр трубы D, мм |
Трубы полиэтиленовые НПО "Стройполимер" пог.м |
Щебень обсыпки, м3 |
Песок пласта м3 |
|
170 |
100 |
1,0 |
0,19 |
0,49 |
|
150 |
1,0 |
0,22 |
0,48 |
|
|
200 |
1,0 |
0,26 |
0,47 |
|
|
190 |
150 |
1,0 |
0,22 |
0,51 |
|
200 |
1,0 |
0,26 |
0,50 |
|
|
230 |
150 |
1,0 |
0,22 |
0,59 |
|
200 |
1,0 |
0,26 |
0,58 |
|
|
250 |
150 |
1,0 |
0,22 |
0,62 |
|
200 |
1,0 |
0,26 |
0,61 |
|
|
270 |
150 |
1,0 |
0,22 |
0,66 |
|
200 |
1,0 |
0,26 |
0,65 |
Дренаж коллектора подземных сооружений (по оси), несовершенного типа, трапецеидальной формы
Область применения
При расположении дренажа выше водоупора

1. Все размеры на чертеже даны в сантиметрах.
2. Для настенного дренажа применяются материалы:
Оболочки «Дрениз», дренажный материал с фильтрующей мембраной (DELTA GEO-DRAIN TP и т.п.)
Расход материалов на 1 пог. м дренажа
|
В, см |
Диаметр трубы D, мм |
Трубы полиэтиленовые НПО "Стройполимер" пог. м |
Щебень обсыпки, м3 |
Песок пласта м3 |
а, см |
г, см |
|
170 |
100 |
1,0 |
0,17 |
0,54 |
17 |
67 |
|
150 |
1,0 |
0,21 |
0,53 |
19 |
79 |
|
|
200 |
1,0 |
0,26 |
0,52 |
21 |
91 |
|
|
190 |
150 |
1,0 |
0,21 |
0,56 |
19 |
79 |
|
200 |
1,0 |
0,26 |
0,52 |
21 |
91 |
|
|
230 |
150 |
1,0 |
0,21 |
0,63 |
19 |
79 |
|
200 |
1,0 |
0,26 |
0,62 |
21 |
91 |
|
|
250 |
150 |
1,0 |
0,21 |
0,67 |
19 |
79 |
|
200 |
1,0 |
0,26 |
0,66 |
21 |
91 |
|
|
270 |
150 |
1,0 |
0,21 |
0,70 |
19 |
79 |
|
200 |
1,0 |
0,26 |
0,69 |
21 |
91 |
Дренаж коллектора подземных сооружений (по оси), совершенного типа, прямоугольной формы
Область применения
При расположении дренажа выше водоупора

1. Все размеры на чертеже даны в сантиметрах.
2. Для настенного дренажа применяются материалы:
Оболочки «Дрениз», дренажный материал с фильтрующей мембраной (DELTA GEO-DRAIN TP и т.п.)
Расход материалов на 1 пог. м дренажа
|
В, см |
Диаметр трубы D, мм |
Трубы полиэтиленовые НПО "Стройполимер" пог. м |
Щебень обсыпки, м3 |
Песок пласта м3 |
Щебень рабочего дренажа основания |
|
170 |
100 |
1,0 |
0,12 |
0,56 |
0,09 |
|
150 |
1,0 |
0,14 |
0,59 |
0,10 |
|
|
200 |
1,0 |
0,17 |
0,62 |
0,11 |
|
|
190 |
150 |
1,0 |
0,14 |
0,64 |
0,10 |
|
200 |
1,0 |
0,17 |
0,65 |
0,11 |
|
|
230 |
150 |
1,0 |
0,14 |
0,71 |
0,10 |
|
200 |
1,0 |
0,17 |
0,72 |
0,11 |
|
|
250 |
150 |
1,0 |
0,14 |
0,75 |
0,10 |
|
200 |
1,0 |
0,17 |
0,77 |
0,11 |
|
|
270 |
150 |
1,0 |
0,14 |
0,78 |
0,10 |
|
200 |
1,0 |
0,17 |
0,80 |
0,11 |
Дренаж коллектора подземных сооружений (по оси), совершенного типа, трапецеидальной формы
Область применения
При расположении дренажа выше водоупора

1. Все размеры на чертеже даны в сантиметрах.
2. Для настенного дренажа применяются материалы:
Оболочки «Дрениз», дренажный материал с фильтрующей мембраной (DELTA GEO-DRAIN TP и т.п.)
Расход материалов на 1 пог. м дренажа
|
В, см |
Диаметр трубы D, мм |
Трубы полиэтиленовые НПО "Стройполимер" пог. м |
Щебень обсыпки, м3 |
Песок пласта м3 |
Щебень рабочего дренажа основания |
|
170 |
100 |
1,0 |
0,12 |
0,56 |
0,09 |
|
150 |
1,0 |
0,14 |
0,59 |
0,10 |
|
|
200 |
1,0 |
0,17 |
0,62 |
0,11 |
|
|
190 |
150 |
1,0 |
0,14 |
0,64 |
0,10 |
|
200 |
1,0 |
0,17 |
0,65 |
0,11 |
|
|
230 |
150 |
1,0 |
0,14 |
0,71 |
0,10 |
|
200 |
1,0 |
0,17 |
0,72 |
0,11 |
|
|
250 |
150 |
1,0 |
0,14 |
0,75 |
0,10 |
|
200 |
1,0 |
0,17 |
0,77 |
0,11 |
|
|
270 |
150 |
1,0 |
0,14 |
0,78 |
0,10 |
|
200 |
1,0 |
0,17 |
0,80 |
0,11 |
Сопутствующий дренаж несовершенного типа в траншее с откосами

1. Все размеры на чертеже даны в сантиметрах.
Расход материалов на 1 пог. м дренажа
|
В, см |
Диаметр трубы D, мм |
Трубы полиэтиленовые НПО "Стройполимер" пог. м |
Щебень обсыпки, м3 |
|
170 |
100 |
1,0 |
0,19 |
|
150 |
1,0 |
0,22 |
|
|
200 |
1,0 |
0,26 |
|
|
190 |
150 |
1,0 |
0,22 |
|
200 |
1,0 |
0,26 |
|
|
230 |
150 |
1,0 |
0,22 |
|
200 |
1,0 |
0,26 |
|
|
250 |
150 |
1,0 |
0,22 |
|
200 |
1,0 |
0,26 |
|
|
270 |
150 |
1,0 |
0,22 |
|
200 |
1,0 |
0,26 |
Сопутствующий дренаж несовершенного типа в траншее с откосами

1. Все размеры на чертеже даны в сантиметрах.
Расход материалов на 1 пог. м дренажа
|
В, см |
Диаметр трубы D, мм |
Трубы полиэтиленовые НПО "Стройполимер" пог. м |
Щебень обсыпки, м3 |
а, см |
|
170 |
100 |
1,0 |
0,28 |
17 |
|
150 |
1,0 |
0,32 |
19 |
|
|
200 |
1,0 |
0,38 |
21 |
|
|
190 |
150 |
1,0 |
0,32 |
19 |
|
200 |
1,0 |
0,38 |
21 |
|
|
230 |
150 |
1,0 |
0,32 |
19 |
|
200 |
1,0 |
0,38 |
21 |
|
|
250 |
150 |
1,0 |
0,32 |
19 |
|
200 |
1,0 |
0,38 |
21 |
|
|
270 |
150 |
1,0 |
0,32 |
19 |
|
200 |
1,0 |
0,38 |
21 |
Сопутствующий дренаж несовершенного типа в траншее с откосами

1. Все размеры на чертеже даны в сантиметрах.
Расход материалов на 1 пог. м дренажа
|
В, см |
Диаметр трубы D, мм |
Трубы полиэтиленовые НПО "Стройполимер" пог. м |
Количество |
||
|
Щебень обсыпки, м3 |
Песок пласта, м3 |
2 слоя пергамина, м3 |
|||
|
170 |
100 |
1,0 |
0,19 |
0.67 |
2.62 |
|
150 |
1,0 |
0,22 |
|||
|
200 |
1,0 |
0,26 |
|||
|
190 |
150 |
1,0 |
0,22 |
0.70 |
2.84 |
|
200 |
1,0 |
0,26 |
|||
|
230 |
150 |
1,0 |
0,22 |
0.78 |
3.26 |
|
200 |
1,0 |
0,26 |
|||
|
250 |
150 |
1,0 |
0,22 |
0.81 |
3.47 |
|
200 |
1,0 |
0,26 |
|||
|
270 |
150 |
1,0 |
0,22 |
0.85 |
3.68 |
|
200 |
1,0 |
0,26 |
|||
Сопутствующий дренаж несовершенного типа в траншее с откосами

Все размеры на чертеже даны в сантиметрах.
Расход материалов на 1 пог. м дренажа
|
В, см |
Диаметр трубы D, мм |
Трубы полиэтиленовые НПО "Стройполимер" пог. м |
Количество |
а, см |
||
|
Щебень обсыпки, м3 |
Песок пласта, м3 |
2 слоя пергамина, м3 |
||||
|
170 |
100 |
1,0 |
0,27 |
0.73 |
2.62 |
|
|
150 |
1,0 |
0,32 |
19 |
|||
|
200 |
1,0 |
0,38 |
21 |
|||
|
190 |
150 |
1,0 |
0.32 |
0.76 |
2.84 |
19 |
|
200 |
1,0 |
0,38 |
21 |
|||
|
230 |
150 |
1,0 |
0,32 |
0.84 |
3.26 |
19 21 |
|
200 |
1,0 |
0,38 |
||||
|
250 |
150 |
1,0 |
0,32 |
0.87 |
3.47 |
19 |
|
200 |
1,0 |
0,38 |
21 |
|||
|
270 |
150 |
1,0 |
0,32 |
0.91 |
3.68 |
19 |
|
200 |
1,0 |
0,38 |
21 |
|||
Сопутствующий дренаж несовершенного типа в траншее с откосами

Все размеры на чертеже даны в сантиметрах.
Расход материалов на 1 пог. м дренажа
|
В, см |
Диаметр трубы D, мм |
Трубы полиэтиленовые НПО "Стройполимер" пог. м |
Количество |
||
|
Щебень обсыпки, м3 |
Песок пласта, м3 |
2 слоя пергамина, м3 |
|||
|
170 |
100 |
1,0 |
0,19 |
0.67 |
2.62 |
|
150 |
1,0 |
0,22 |
|||
|
200 |
1,0 |
0,26 |
|||
|
190 |
150 |
1,0 |
0,22 |
0.70 |
2.84 |
|
200 |
1,0 |
0,26 |
|||
|
230 |
150 |
1,0 |
0,22 |
0.78 |
3.26 |
|
200 |
1,0 |
0,26 |
|||
|
250 |
150 |
1,0 |
0,22 |
0.81 |
3.47 |
|
200 |
1,0 |
0,26 |
|||
|
270 |
150 |
1,0 |
0,22 |
0.85 |
3.68 |
|
200 |
1,0 |
0,26 |
|||
Сопутствующий дренаж несовершенного типа в траншее с откосами

Все размеры на чертеже даны в сантиметрах.
Расход материалов на 1 пог. м дренажа
|
В, см |
Диаметр трубы D, мм |
Трубы полиэтиленовые НПО "Стройполимер" пог. м |
Щебень обсыпки, м3 |
Песок пласта, м3 |
Щебень рабочего дренажа основания |
а, см |
в, см |
г, см |
11 см |
12 см |
|
170 |
100 |
1,0 |
0,12 |
1,17 |
0,14 |
17 |
97 |
67 |
69 |
94 |
|
150 |
1,0 |
0,15 |
1,22 |
0,15 |
19 |
109 |
79 |
75 |
105 |
|
|
200 |
1,0 |
0,19 |
1,29 |
0,16 |
21 |
121 |
91 |
81 |
116 |
|
|
190 |
150 |
1,0 |
0,15 |
1,26 |
0,15 |
19 |
109 |
79 |
75 |
105 |
|
200 |
1,0 |
0,19 |
1,33 |
0,16 |
21 |
121 |
91 |
81 |
116 |
|
|
230 |
150 |
1,0 |
0,15 |
1,33 |
0,15 |
19 |
109 |
79 |
75 |
105 |
|
200 |
1,0 |
0,19 |
1,40 |
0,16 |
21 |
121 |
91 |
81 |
116 |
|
|
250 |
150 |
1,0 |
0,15 |
1,37 |
0,15 |
19 |
109 |
79 |
75 |
105 |
|
200 |
1,0 |
0,19 |
1,44 |
0,16 |
21 |
121 |
91 |
81 |
116 |
|
|
270 |
150 |
1,0 |
0,15 |
1,40 |
0,15 |
19 |
109 |
79 |
75 |
105 |
|
200 |
1,0 |
0,19 |
1,47 |
.0,16 |
21 |
121 |
91 |
81 |
116 |
Пристенный дренаж и сечение дренажа (тип 1)
Область применения
Для защиты подвальных помещений в суглинках и в случае слоистого строения водоносного пласта, при заложении фундамента на суглинках и глинах. Перед укладкой дренажа пазуха котлована должна быть расширена и очищена от мусора и грязи.

Все размеры на чертеже даны в сантиметрах.
Расход материалов на 1 пог. м дренажа
|
Диаметр трубы D, мм |
Трубы полиэтиленовые НПО "Стройполимер" пог. м |
Щебень обсыпки, м3 |
Щебень основан. м3 |
а, см |
в, см |
г, см |
|
100 |
1,0 |
0,15 |
0,17 |
19 |
140 |
19 |
|
150 |
1,0 |
0,15 |
0,17 |
19 |
140 |
19 |
|
200 |
1,0 |
0,12 |
0,16 |
17 |
134 |
79 |
Конструкция дренажа заглубленного сооружения со сплошной фундаментной плитой

Конструкция дренажа заглубленного сооружения со сплошной фундаментной плитой

Применяется при осадках сооружения до 10 см
Конструкция дренажа заглубленного сооружения со сплошной фундаментной плитой

Конструкция дренажа заглубленного сооружения со сплошной фундаментной плитой

|
ГОСТЫ, СТРОИТЕЛЬНЫЕ и ТЕХНИЧЕСКИЕ НОРМАТИВЫ. Некоммерческая онлайн система, содержащая все Российские Госты, национальные Стандарты и нормативы. В Системе содержится более 150000 файлов нормативно-технической документации, действующей на территории РФ. Система предназначена для широкого круга инженерно-технических специалистов. Copyright © www.gostrf.com, 2008 - 2026 |