Крупнейшая бесплатная информационно-справочная система онлайн доступа к полному собранию технических нормативно-правовых актов РФ. Огромная база технических нормативов (более 150 тысяч документов) и полное собрание национальных стандартов, аутентичное официальной базе Госстандарта. GOSTRF.com - это более 1 Терабайта бесплатной технической информации для всех пользователей интернета. Все электронные копии представленных здесь документов могут распространяться без каких-либо ограничений. Поощряется распространение информации с этого сайта на любых других ресурсах. Каждый человек имеет право на неограниченный доступ к этим документам! Каждый человек имеет право на знание требований, изложенных в данных нормативно-правовых актах!

  


 

Система нормативных документов в строительстве

СВОД ПРАВИЛ ПО ПРОЕКТИРОВАНИЮ И СТРОИТЕЛЬСТВУ

ОБУСТРОЙСТВО ПОМЕЩЕНИЙ
В УЧРЕЖДЕНИЯХ СОЦИАЛЬНОГО
И МЕДИЦИНСКОГО ОБСЛУЖИВАНИЯ
ПОЖИЛЫХ ЛЮДЕЙ

СП 35-115-2004

ГОСУДАРСТВЕННЫЙ КОМИТЕТ РОССИЙСКОЙ ФЕДЕРАЦИИ
ПО СТРОИТЕЛЬСТВУ И ЖИЛИЩНО-КОММУНАЛЬНОМУ КОМПЛЕКСУ
(ГОССТРОЙ РОССИИ)

Москва

ПРЕДИСЛОВИЕ

1 РАЗРАБОТАН ЗАО «ГИПРОЗДРАВ» (Научно-проектным центром по объектам здравоохранения и отдыха) при организационно-методическом руководстве ФГУП «Научно-проектный институт учебно-воспитательных, торгово-бытовых и досуговых зданий» (Институт общественных зданий) Госстроя России и АОЗТ «Архитектурное проектно-исследовательское объединение - Центр» (АПИО-Центр)

2 ВНЕСЕН Министерством труда и социального развития Российской Федерации

3 УТВЕРЖДЕН приказом Генерального директора ЗАО «Гипроздрав - Научно-проектный центр по объектам здравоохранения и отдыха» от 3.05.2001 г. № 11

4 ОДОБРЕН И РЕКОМЕНДОВАН к применению в качестве нормативного документа Системы нормативных документов в строительстве постановлением Госстроя России от 22.02.2003 г. № 17

5 ВВЕДЕН ВПЕРВЫЕ

СОДЕРЖАНИЕ

ВВЕДЕНИЕ

1 Общие положения

Область применения

Нормативные ссылки

Определения и термины

2 Общие требования к обустройству помещений в учреждениях социального обслуживания пожилых людей

Общие правила оборудования помещений

Особенности оснащения и обустройства помещений с учетом степени подвижности пожилых людей

Визуальные устройства и средства информации

Оборудование коммуникационно-рекреационной группы помещений

Санитарно-гигиенические помещения

Внутренняя отделка помещений

Искусственное и естественное освещение

Микроклимат помещений

3 Правила обустройства и оборудования помещений в учреждениях (подразделениях) социального обслуживания и в специальных жилых домах для пожилых людей

Жилые помещения

Помещения для медицинского наблюдения, бытовых нужд, приготовления и приема пищи

Помещения для отдыха и досуга

Обрядовые помещения

Внутренняя отделка

Искусственное и естественное освещение

5 Требования к оборудованию и обустройству основных помещений стационарных отделений по оказанию гериатрической помощи

Общие требования

Особенности оборудования отделений по уходу и психогериатрических отделений

Внутренняя отделка помещений (материалы и цветовое решение)

Освещение и сигнализация помещений

Микроклимат

ИЛЛЮСТРАТИВНЫЙ МАТЕРИАЛ К РАЗДЕЛАМ

Приложение А Рекомендуемые наборы мебели и оборудования для основных помещений в учреждениях социального и медицинского обслуживания пожилых людей

Приложение Б Сводная номенклатура мебели и оборудования (справочный материал)

ВВЕДЕНИЕ

Настоящий Свод правил выполнен в соответствии с Федеральной целевой программой «Старшее поколение» - раздел III, пункт 26.

За последние годы в мире отмечается выраженное постарение населения, в России уже в настоящее время каждый четвертый житель пенсионного возраста.

В целях обеспечения полноценного участия пожилых людей в жизни общества, удовлетворения их потребностей в социальном, культурном и медицинском обслуживании государство среди других мер социальной защиты предусматривает создание для них специальных социальных и медицинских учреждений, соответствующих современным требованиям к доступности, безопасности и комфортности.

Статистика показывает, что пожилой человек - это очень часто человек, отягощенный хроническими заболеваниями, с возрастом ему становится необходим повышенный объем медицинской помощи и соответствующий медицинский и социальный уход как на дому, так и в стационарных условиях.

Обеспечение полноценного обслуживания и ухода за пожилыми людьми на дому является одним из путей осуществления государственной программы «Старшее поколение» и зависит от организационных мероприятий. Создание эффективно функционирующей сети специализированных учреждений для пожилых людей - это задача, являющаяся частью государственной программы по улучшению условий жизни старшего поколения, которую невозможно решить без грамотного применения архитектурных, планировочных и инженерных средств.

В нашей стране для пожилых людей существуют три основные формы проживания: в общем жилом фонде, в специальных жилых домах с обслуживанием и в стационарных учреждениях. В зависимости от места постоянного проживания пожилых людей для их специализированного социального обслуживания и оказания им медико-социальной помощи развивается сеть учреждений и специальных подразделений, в которых объединяют свои усилия как социальные, так и медицинские работники.

К учреждениям социального обслуживания пожилых людей в соответствии со ст. 17 Федерального закона от 10 декабря 1995 г. № 195-ФЗ «Об основах социального обслуживания населения в Российской Федерации» (Собрание законодательства РФ, 1995, № 50,ст. 4872) относятся:

- центры социального обслуживания и отделения гериатрического обслуживания населения по месту жительства;

- специальные жилые дома для одиноких престарелых, дома-интернаты, пансионаты для ветеранов;

- учреждения временного пребывания;

- геронтологические центры, дома сестринского ухода, хосписы.

В настоящем документе выделен основной набор помещений, используемых при формировании этих учреждений и подразделений. При этом требования к оборудованию помещений для относительно здоровых пожилых людей и помещений для пребывания немощных больных значительно отличаются между собой. В первом случае основное предназначение оборудования палат, жилых помещений и помещений отдыха-облегчение пользования этим оборудованием пожилым людям. В помещениях для немощных основное назначение оборудования - облегчение работы персонала при уходе за больными и защита их от несчастных случаев.

От организации социально-медицинской помощи престарелым и, в том числе, от обустройства и оборудования внутреннего пространства помещений, предназначенных для проживания и лечения пожилых людей, во многом зависит, насколько их жизнь будет удобной и комфортной.

Свод правил содержит рекомендательные нормы и правила и является документом федерального уровня.

В данной разработке учтен опыт отечественных и зарубежных специалистов в освещаемой области, в том числе новые разработки различных авторов и творческих коллективов.

Работа выполнена авторским коллективом ЗАО «ГИПРОЗДРАВ - Научно-проектный центр по объектам здравоохранения и отдыха» при методическом руководстве ФГУП «Институт общественных зданий» в следующем составе:

научные руководители работы - канд. арх. A.M. Гарнец (общая редакция), канд. арх. Л.Ф. Сидоркова (части 1, 2, 3, 4, 5, приложения А, Б, иллюстрации);

исполнители от ЗАО «ГИПРОЗДРАВ»: канд. арх. А.П. Моисеенко (редакция текста, приложение Б), канд. арх. Е.П. Меньшикова (иллюстрации), технолог Е.И. Мурашова (приложения А, Б), арх. Т.В. Серикова (иллюстрации), технолог M.В. Толмачева (редакция текста, иллюстрации, приложение Б);

при консультационном участии специалистов следующих организаций:

Федеральный научно-практический центр медико-социальной экспертизы и реабилитации инвалидов Министерства здравоохранения и социального обеспечения РФ (д-р мед. наук Н.Ф. Дементьева);

Российская медицинская академия последипломного образования (зав. Кафедрой геронтологии и гериатрии проф., д-р. мед. наук Л.Б. Лабазник);

НИИ Медицины труда РАМН (зав. Лабораторией физиологии труда и профилактической эргономики д-р мед. наук, проф. В.В. Матюхин, вед. научн. сотр., канд. биол. наук Э.Ф. Шардакова).

СВОД ПРАВИЛ ПО ПРОЕКТИРОВАНИЮ И СТРОИТЕЛЬСТВУ

ОБУСТРОЙСТВО ПОМЕЩЕНИЙ В УЧРЕЖДЕНИЯХ СОЦИАЛЬНОГО И МЕДИЦИНСКОГО ОБСЛУЖИВАНИЯ ПОЖИЛЫХ ЛЮДЕЙ

ENVIRONMENT OF ROOMS IN ESTABLISHMENTS SOCIAL AND MEDIKAL SERVICE FOR ELDERLY PEOPLE

1 Общие положения

Область применения

1.1 Требования настоящего Свода правил направлены на создание полноценной архитектурной среды в учреждениях социального обслуживания пожилых людей путем применения современного оборудования и мебели, обеспечивающих требуемый уровень доступности и безопасности социальных услуг и медицинской помощи, а также комфортность пребывания и проживания этих людей в специализированных зданиях.

1.2 Требования настоящего документа распространяются на проектирование помещений постоянного или временного пребывания пожилых граждан в стационарных учреждениях социального и медико-социального обслуживания, учреждениях полустационарного обслуживания, а также в учреждениях обслуживания пожилых людей по месту жительства.

Из помещений, предназначенных для непосредственного пребывания пожилых людей, рассмотрены, в основном, те, которые имеют многократную повторяемость в объектах проживания, медицинского и социального обслуживания. Систематизированный набор мебели и оборудования для этих помещений приведен в приложениях.

1.3 Свод правил предназначен для использования проектировщиками при проектировании учреждений, перечисленных в п. 1.2, а также работниками социальной сферы и организаторами здравоохранения при обустройстве этих учреждений.

1.4 Проектные решения по оборудованию и оснащению специализированных зданий и сооружений должны соответствовать возможностям и потребностям пожилого человека. Под этим подразумевается адаптация архитектурной среды для нужд пожилых людей по критериям доступности, безопасности, удобства и информативности.

1.5 Архитектурные и инженерные решения по внутреннему обустройству зданий социальных и медико-социальных учреждений рекомендуется ориентировать на компенсацию нарушений здоровья в области опорно-двигательного аппарата, слуха, зрения, сердечно-сосудистой системы и психики.

1.6 Примеры планировки и благоустройства помещений, приведенные в СП, соответствуют требованиям СНиП 35-01 и положениям СП 35-101 по критериям доступности, безопасности, информативности, комфортности.

1.7 Основные направления создания комфортности (удобства):

повышение качества среды через оптимальную организацию пространства здания, учитывающую состояние здоровья пожилого человека и создание дополнительных условий, помогающих ему в получении необходимых услуг и самообслуживании;

создание условий для минимальных затрат и усилий пожилого человека на удовлетворение своих нужд путем применения необходимого и эргономичного оборудования;

обеспечение своевременной возможности отдыха, ожидания и дополнительного обслуживания, получения заблаговременно нужной информации.

Нормативные ссылки

1.8 В настоящем СП использованы ссылки на следующие документы:

СНиП 2.08.02-89* «Общественные здания и сооружения»

СНиП 3.05.01-85 «Внутренние санитарно-технические системы»

СНиП 23-05-95* «Естественное и искусственное освещение»

СНиП 35-01-2001 «Доступность зданий и сооружений для маломобильных групп населения»

СНиП 41-01-2003 «Отопление, вентиляция и кондиционирование»

ГОСТ Р 51079-97 «Технические средства реабилитации людей с ограничениями жизнедеятельности. Классификация»

ГОСТ Р 51083-97 «Кресла-коляски. Общие технические условия»

ГОСТ 25809-96 «Смесители и краны водоразборные. Типы и основные размеры»

ГОСТ 30494-96 «Здания жилые и общественные. Параметры микроклимата в помещениях»

ОСТ 42-21-16-86 «Отделения, кабинеты физиотерапии. Общие требования безопасности»

СанПиН 2.1.2.729-99 «Полимерные и полимерсодержащие строительные материалы, изделия и конструкции. Гигиенические требования безопасности»

СанПиН 2.1.2.1188-03 «Плавательные бассейны. Гигиенические требования к устройству, эксплуатации и качеству воды. Контроль качества»

СП 31-110-2003 «Проектирование и монтаж электроустановок жилых и общественных зданий»

СП 35-101-2001 «Проектирование зданий и сооружений с учетом доступности для маломобильных групп населения. Общие положения»

СП 35-112-2005 «Дома-интернаты»

Определения и термины

Жилая группа - планировочная единица, объединяющая жилые ячейки на 15-30 человек и общие помещения (дневное пребывание, прием пищи, пост медсестры и др.), обслуживающие эти помещения.

Жилая ячейка - планировочная единица, объединяющая жилую комнату на 1-2 человек и подсобные помещения при ней.

Палатное отделение - планировочная единица, объединяющая 1-2 палатные секции на 15-30 человек и общие помещения, обслуживающие эти секции.

Палатная секция - планировочная единица, объединяющая палаты на 15-30 человек и подсобные помещения, необходимые для функционирования этих палат (помещения дневного пребывания, пост медицинской сестры и др.).

2 Общие требования к обустройству помещений в учреждениях социального обслуживания пожилых людей

Общие правила оборудования помещений

2.1 На обустройство и оборудование помещений, посещаемых лицами старших возрастов во всех типах общественных и жилых зданий, в том числе и специально для них предназначенных, распространяются все те требования, которые изложены в СНиП 35-01.

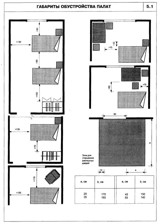
2.2 Расстановка мебели и оборудования в помещениях, где находятся или обслуживаются пожилые люди, производится с учетом их основных антропометрических габаритов (рисунки 2.1-2.5).

2.3 Высоту жилых и палатных помещений от пола до потолка следует принимать не менее 3,0 м. Высоту залов лечебно-плавательных бассейнов с числом пациентов 10 и более - не менее 4,2 м (СНиП 2.08-02).

2.4 В связи с ослабленным зрением и нарушением координации движений значительной части пожилых людей различные элементы оборудования - выключатели, розетки и другие должны иметь контрастные цвета по отношению к фону, на котором они расположены, чтобы их можно было легко при необходимости обнаружить.

2.5 Следует подбирать такие типы фурнитуры, пользование которыми не представляет затруднений ослабленным людям, а осуществляется простым нажатием.

2.6 При проектировании учреждений с постоянным нахождением пожилых людей следует:

- использовать внутренний искусственный и естественный фитодизайн помещений;

- создавать в холлах для ожидания и местах тихого отдыха аквариумы, фонтанчики, цветочные композиции и другие элементы искусственной и естественной природной среды;

- создавать внутренние дворики с местами для отдыха, элементами зимнего сада, «живого уголка», пруда с декоративными рыбками;

- применять камины, служащие центрами общения и организации более маленьких пространств внутри больших.

Особенности оснащения и обустройства помещений с учетом степени подвижности пожилых людей

2.7 Пожилые люди по степени подвижности, влияющей на характер оборудования помещений, в которых они живут и получают социальное и медицинское обслуживание, делятся на следующие три категории:

свободно передвигающиеся;

с ограниченным передвижением в пределах дома, квартиры, комнаты, этажа;

обездвиженные, беспомощные, прикованные к постели.

С изменением состояния здоровья пожилые люди переходят из одной категории подвижности в другую.

2.8 По мере потери подвижности человека следует изменять принципы организации внутреннего пространства:

для свободно передвигающихся пожилых людей основной акцент на обеспечение удобного и безопасного передвижения;

для людей с ограниченной подвижностью основной акцент на обеспечение удобного и безопасного места отдыха и коммуникационных путей к нему;

для людей с потерей подвижности уменьшается необходимое пространство жилой зоны и увеличиваются размеры вспомогательных помещений для гигиенических процедур.

2.9 По ходу движения пожилых людей, относящихся ко второй категории, в учреждениях, предназначенных для их проживания, длительного пребывания и лечения, должны быть предусмотрены специальные устройства, облегчающие передвижение: поручни вдоль коридоров, откидные сиденья в лифтах, сиденья для отдыха по пути следования (рисунок 2.9).

2.10 Для людей с ограниченным передвижением, которые длительное время проводят сидя, наиболее важным является организация мест отдыха. Такие места в пространстве здания должны быть предусмотрены с учетом разнообразных видов отдыха:

- для созерцания окружающей жизни и элементов природы;

- чтобы передохнуть по пути к цели;

- для общения в небольшом кругу собеседников;

- для общения по телефону;

- для ожидания приема (в лечебных и социальных учреждениях);

- посидеть в любимом удобном кресле за рукоделием или за чтением.

2.11 Габариты и планировка помещений, в которых пожилые люди с ограниченной подвижностью получают постороннюю помощь при самообслуживании, а также расстановка в них мебели и инженерного оборудования должны дополнительно учитывать нахождение персонала.

2.12 Планировочные габариты помещений для людей с ограниченной подвижностью должны учитывать возможность перемещения пациента с помощью различных вспомогательных средств (рисунки 2.6, 2.7).

2.13 При оборудовании помещений постоянного пребывания людей старших возрастов необходимо учитывать уменьшение подвижности позвоночника (уменьшение амплитуды сгибания позвоночника) этих людей. Размещение рабочей зоны мебели, электрических выключателей, ручек, звонков и других элементов должно производиться с учетом зон досягаемости в вертикальной и горизонтальной плоскости, доступных людям старшего возраста в положении стоя, сидя и лежа (рисунок 2.1).

Выключатели электроосвещения и приборов, а также электрические розетки должны быть расположены на высоте 80-110 см от уровня пола. Розетки и выключатели не следует размещать ближе, чем на 40 см от углов комнат.

2.14 Для хранения вспомогательных средств передвижения пожилых людей с нарушениями опорно-двигательного аппарата (ходунков, костылей и других устройств различной конструкции) в специализированных жилых домах и стационарных медицинских учреждениях необходимо предусматривать специальные кладовые, размеры которых (не менее 6 м2) должны учитывать габариты этих устройств (рисунки 2.6, 2.7) (ГОСТ Р 51079, ГОСТ Р 51083).

2.15 Для людей, прикованных к постели, наиболее важным элементом пространства является организация места для лежания, которое помимо специализированного мебельного оборудования должно быть оборудовано освещением, сигнализацией и устройствами дистанционного управления аудио-видеоаппаратурой, осветительными приборами, жалюзи, телефоном и др.

2.16 Замкнутые пространства, где пожилой человек может оказаться один (например, кабина лифта) должны быть оборудованы экстренной двусторонней связью с диспетчером или дежурным, в том числе для лиц с дефектами слуха.

Визуальные устройства и средства информации

2.17 Условием психологического равновесия людей старших возрастов, которым свойственно затрудненное понимание пространственных характеристик в малознакомых для них учреждениях, является их свободное ориентирование в окружающем пространстве. Это предполагает создание в специализированных учреждениях системы ориентиров.

2.18 К визуальным устройствам и средствам информации, используемым для направления движения и поведения посетителей, относятся:

- разметка и цвет элементов оборудования;

- цветовые указатели и знаки;

- щиты, стенды, табло;

- световые маячки.

2.19 Целесообразность применения и набор конкретных средств информации в соответствии с требованиями СП 35-101 устанавливаются в конкретном проекте заданием на проектирование.

2.20 Надписи, предназначенные для ориентации лиц старших возрастов в пространстве (в том числе на дверях кабинетов, в коридорах и др.), должны быть выполнены крупными буквами (высотой не менее 6 см) на контрастном фоне.

2.21 Для ориентации человека различные по функциональному назначению помещения или подразделения рекомендуется выполнять в разной цветовой гамме покрытий стен и полов. Один из приемов, способствующих ориентации в пространстве, - поэтажное выделение лестничных площадок и лифтовых холлов покраской различными колерами и другими декоративными методами.

Оборудование коммуникационно-рекреационной группы помещений

2.22 Участки пола на путях движения на расстоянии 0,6 м перед дверными проемами и входами на лестницы и пандусы, а также перед поворотом коммуникационных путей должны иметь рифленую или контрастно окрашенную поверхность, допускается предусматривать световые маячки (СНиП 35-01, п. 3.21).

2.23 На лестницах и в коридорах следует предусматривать устройство двойных поручней, располагающихся на высоте 0,9 м и 0,7 м от уровня пола. Поручни на лестницах должны быть с двух сторон, при этом они должны выступать по длине на 0,3 м по отношению к началу лестницы или пандуса (СНиП 35-01, п. 3.32). Край поручня должен быть загнутым или замкнутым в петлю с поворотом вниз или к стене.

Поручни и штанги необходимо крепить к основным строительным конструкциям с расчетом на динамическую нагрузку не менее 120 кгс. Чтобы за поручень было удобно держаться, он должен быть выполнен из дерева, иметь диаметр примерно 3-6 см и отстоять от стены на 5-6 см.

2.24 Кнопки управления лифтом, другими механизмами и приборами должны иметь рельефные обозначения. На поручнях перил должны предусматриваться рельефные обозначения этажей (СНиП 35-01, п. 3.33).

2.25 При проектировании лестниц нужно учитывать следующее (рисунок 2.8):

- при перепаде отметок пола между помещениями менее 0,3 м безопаснее использовать не ступени, а пандусы с уклоном не более 8 %;

- лестничные марши должны быть как можно короче, но не менее трех ступеней;

- лестницы в плане должны быть преимущественно прямоугольными с поворотами под прямым углом. Винтовых лестниц следует, как правило, избегать;

- ступени не должны быть выдвинуты над подступенками более чем на 1,5 см, поскольку выступающие вперед края представляют опасность для тех, кто с трудом ходит.

2.26 Необходимо применять кабины лифта с откидными сиденьями на высоте 50 см (рисунок 2.9).

2.27 При устройстве дверей необходимо учитывать следующие особенности (рисунок 2.10):

- двери помещений, граничащих с коридором, должны открываться внутрь (кроме помещений с числом пребывающих в них свыше 15 человек);

- двери должны открываться легко, без особых усилий;

- свободная ширина проема - не менее 1,1 м;

- при использовании стеклянных дверей и перегородок снизу (не ниже 1,2 м) должна быть непрозрачная полоса, высотой не менее 0,1 м и шириной 0,2 м (СНиП 35-01, п. 3.25), а на уровне глаз желательна маркировка.

2.28 Коммуникационные пространства в пределах полосы движения должны быть свободны от выступающих элементов конструкций, встроенной мебели и др. Выступающим углам стен, встроенного оборудования и мебели следует придавать округленные формы с радиусом 7-10 см (рисунок 2.12).

Санитарно-гигиенические помещения

Общие требования к санитарно-гигиеническим помещениям

2.29 Санитарно-гигиенические помещения должны оборудоваться опорами, перилами и поручнями, обеспечивающими пожилым людям удобство и безопасность передвижения в этих помещениях и пользования санитарными приборами (рисунок 2.11).

2.30 При оборудовании помещений должны устанавливаться винтовые, сенсорные, бесконтактные краны холодной и горячей воды, а также смесители рычажного и нажимного действия (СНиП 3.05-01, п. 3.11, а, ГОСТ 25809).

2.31 Во избежание ожогов при пользовании горячей водой целесообразно использовать смесители, автоматически устанавливающие нужную температуру воды, текущей из крана со стопором на отметке 37 °С.

2.32 Покрытие полов в санитарно-гигиенических помещениях (умывальных, туалетах, душевых, личной гигиены женщин, ванных) должно быть влагостойким, легко моющимся и обладать шероховатой поверхностью, исключающей падения и травмы.

2.33 Поскольку большую часть пациентов и проживающих в специализированных жилищах составляют женщины, в стационарных и жилых отделениях при отсутствии в палатах и жилых комнатах душевых с санузлами необходимо предусматривать комнаты санитарной гигиены, в которых на каждые 10 женщин устанавливается биде и унитаз, но не менее одной на этаж.

2.34 В помещениях, оборудованных ванной и душем, за исключением санпропускников, а также в помещениях хранения уборочного инвентаря предусматриваются полотенцесушители.

Особенности устройства санитарных узлов

2.35 Санитарные узлы при помещениях общего назначения (в вестибюлях и местах ожидания амбулаторных, социальных и других учреждений) должны оборудоваться соответствующими опорами и поручнями около умывальника и унитаза (рисунок 2.11).

2.36 Поручни, штанги, умывальники, полки и другие приспособления в санузлах следует крепить к основным (несущим) конструкциям с расчетом на динамическую нагрузку 120 кгс.

2.37 В уборных, ванных и душевых комнатах не допускается открывание дверей внутрь помещений, чтобы облегчить выход из помещения лицам старшего возраста при ухудшении самочувствия.

2.38 Сиденья унитазов должны устанавливаться так, чтобы от уровня чистого пола до верха сиденья было не менее 0,5 м (это достигается, например, путем установки унитаза на специальную бетонную площадку или устройства на нем дополнительного сиденья и др.).

2.39 Санитарные узлы, размещаемые при жилых помещениях, следует оборудовать умывальником и унитазом, специально приспособленными душами или сидячими ванными.

2.40 При жилых комнатах и палатах гериатрических учреждений во избежание несчастных случаев следует устанавливать душ, а не ванну.

2.41 Габариты санузлов для немощных должны обеспечивать возможность принять душ на специальной кушетке (с помощью персонала) и быть не менее 1500×2000 мм. При этом в зоне размещения кушетки следует устанавливать больничный слив. Предусматриваться такие души должны в отделениях по уходу из расчета не менее одного на 15 человек.

2.42 Рекомендуется использовать ручной душ с гибким шлангом на вертикальной стойке (СНиП 3.05-01, п. 3.11, а).

2.43 Высота установки водоразборных кранов от уровня чистого пола 800 мм (СНиП 3.05-01, п. 3.11).

2.44 В душевой кабине целесообразно предусматривать подставку (уступ) для мытья ног, полочку для мыла и мочалки, горизонтальный поручень на двух противоположных стенках кабины на высоте 1,2 м от пола и на расстоянии 7 см от плоскости стены, а под душевыми сетками - откидные сиденья.

2.45 Ванная и душевая комнаты должно быть оборудованы сигнализацией экстренного вызова.

Особенности оборудования ванных комнат

2.46 Для обеспечения безопасности в ванных комнатах:

- пол ванной должен быть на одном уровне с полом помещения;

- при ограниченной подвижности лиц старшего поколения целесообразно использовать сидячие ванны;

- двери ванной комнаты не должны закрываться с внутренней стороны.

2.47 В каждом жилом отсеке и палатном отделении на 20-30 человек следует размещать не менее одной ванны с подъемником для немощных. Ванна должна устанавливаться длиною не менее 170 см.

2.48 Габариты помещений, в которых устанавливаются ванны (в том числе санпропускников приемных отделений), должны быть не менее чем 2,3×3,0 м, что обеспечивает трехсторонний обход ванны персоналом, подъезд к ванне каталки с больным или немощным, а также установку подъемника.

Внутренняя отделка помещений

2.49 Особенности цветовых решений, обусловленные особенностями зрения и психофизиологии лиц старшего возраста:

- длинные коридоры белого цвета не способствуют поддержке умственных способностей людей старших возрастов, поэтому их следует членить на разные цветовые отрезки;

- при цветовом выделении тех или других поверхностей в информационных целях следует учитывать возрастные изменения в восприятии голубого, зеленого и красного цветов, которые становятся трудно различимыми, а небольшие изменения в оттенках трудноуловимыми;

- все цвета большой насыщенности: красного, красно-оранжевого, оранжево-желтого колера вызывают повышенное возбуждение, что обусловливает нецелесообразность их применения в помещениях постоянного пребывания;

- средней и небольшой насыщенности: желтый, желто-зеленый, оранжево-желтый цвета повышают ясность видения, что обусловливает целесообразность их применения в интерьерах помещений или коммуникационных путей, требующих повышенного внимания.

2.50 Требуется особое внимание к обеспечению акустического комфорта помещений постоянного пребывания пожилых людей, имеющих повышенную чувствительность к шуму, с одной стороны, и снижение слуха, обусловливающее повышение громкости речи, с другой стороны. Акустический комфорт достигается соответствующей конструкцией межкомнатных перегородок.

2.51 Покрытия пола во всех коммуникационных зонах и помещениях должны выполняться из материалов, обеспечивающих повышенную безопасность:

- линолеум или ковровое покрытие должны применяться крупногабаритные, со стыками только у стен;

- керамические покрытия и линолеум должны применяться с шероховатой поверхностью;

- ворсовые ковры с высотой ворса более 0,5 см, которые могут создавать препятствия при ходьбе и служить накопителями пыли и других аллергенов использовать не рекомендуется.

2.52 Цветовые решения покрытия лестничных маршей должны обеспечивать привлечение внимания к элементам, в зоне которых наиболее вероятно получение травм:

- края ступеней лестниц обклеивают (окрашивают) полосками контрастного материала;

- первая и последняя ступеньки лестниц должны быть выкрашены в яркие цвета фосфорисцирующими красками.

2.53 Края бассейнов выделяются контрастным цветом.

2.54 Места ожидания, расположенные в холлах, можно вычленить из пространства решением пола, отличным от покрытия всего коридора (материалом другого цвета, материалом с рисунком, материалом другой фактуры и др.).

Искусственное и естественное освещение

2.55 При проектировании освещения необходимо руководствоваться СНиП 23-05.

2.56 Во избежание падения пожилых людей для улучшения ориентации в пространстве следует обеспечить освещенность не менее 300 лк при выходе из лифтов, в местах массовых мероприятий, на лестницах (особенно в начале и в конце марша и боковых границ лестниц), в ванных комнатах.

2.57 Чтобы тени от самих идущих не затемняли путь их следования, целесообразно, помимо потолочных, использовать различные напольные и настенные светильники.

2.58 При наличии в помещении более одного выхода (например, выход в смежную комнату) выключатели общего освещения должны быть предусмотрены у каждого из выходов, чтобы пожилому человеку не приходилось возвращаться для выключения света, а затем повторно возвращаться к входу в нужную комнату в темноте.

Микроклимат помещений

2.59 По вопросам формирования микроклимата помещений необходимо руководствоваться СНиП 41-01.

2.60 Оптимальные параметры микроклимата - сочетание значений показателей микроклимата, которые при длительном и систематическом воздействии на человека обеспечивают нормальное тепловое состояние организма при минимальном напряжении механизмов терморегуляции и ощущение комфорта не менее чем у 80 % людей, находящихся в помещении.

2.61 В помещениях постоянного пребывания пожилых людей целесообразно устанавливать обогревательные приборы, позволяющие регулировать температуру в помещении.

При невозможности установки таких нагревательных приборов температура воздуха в помещениях постоянного пребывания пожилых людей (жилых комнатах, палатах, комнатах отдыха и др.) должна соответствовать 20-24 °С, а в районах с наиболее холодной пятидневкой минус 31 °С и ниже - 22-24 °С (ГОСТ 30494).

2.62 Оптимальными в качестве основного или дополнительного отопления помещений постоянного пребывания пожилых людей являются обогреваемые полы. Полы в ванных и бассейнах также целесообразно предусматривать утепленными.

3 Правила обустройства и оборудования помещений в учреждениях (подразделениях) социального обслуживания и в специальных жилых домах для пожилых людей

Жилые помещения

3.1 При определении габаритов жилых помещений и принципа расстановки мебели (рисунок 3.1) необходимо учитывать, что около 10 % жилых помещений и помещения общего пользования должны быть приспособлены для людей на креслах- колясках.

3.2 Площадь, занимаемая мебелью и оборудованием, должна составлять не более 30-33 % общей площади жилого помещения.

3.3 Жилые комнаты для двоих человек и более целесообразно оборудовать так, чтобы каждый из них мог время от времени зрительно изолировать себя от другого. Это достигается разделением жилого помещения на функциональные зоны с помощью соответствующей расстановки мебели, использования перегородок-экранов и передвижных перегородок.

3.4 В жилой ячейке домов постоянного проживания выделяются несколько основных функциональных зон: спальная зона (рисунок 3.2), зона дневного пребывания и отдыха, зона приема пищи, санитарно-гигиеническая зона (СП 35-112).

3.5 Ограниченная подвижность пожилых людей, часто оставляющая единственно возможную связь с миром через окна и балконы, обусловливает важность зон подхода к окну и выхода на балкон (рисунок 3.3).

3.6 Лоджии и балконы, защищенные от дождя, ветра и снега, предусматриваются в зависимости от климатических условий. Ограждения должны быть прозрачными, позволяющими сидя наблюдать за происходящим на улице.

Высота ограждения балкона должна быть различной, в зависимости от этажности. На нижних двух этажах высота ограждения может быть 90 см, выше она может доходить до 120 см. Верхняя часть ограждения балкона должна представлять собой деревянный поручень сечением 4-5 см, отстоящий от основного полотна заграждения на 8-10 см, чтобы за него было удобно держаться.

Помещения для медицинского наблюдения, бытовых нужд, приготовления и приема пищи

3.7 На одну-две жилые группы предусматривается пост дежурного персонала, занимающий нишу в коридоре или часть холла и представляющий собой специальную ограждающую шкафную стойку высотой 1,2 м с горизонтальной плоскостью для записей и местом для дежурной медицинской сестры. В зоне поста размещается контрольный пункт тревожной сигнализации, куда выводятся сигналы из жилых комнат.

3.8 Для удовлетворения бытовых потребностей пожилых людей в составе жилых групп предусматриваются помещения для жизнедеятельности (помещение для стирки мелких вещей, гладильная) и помещения приготовления и приема пищи (кухня, кухня-столовая, столовая).

3.9 Помещение для стирки мелких вещей, сушки одежды и обуви оборудуется автоматическими стиральными машинами и сушильными шкафами.

3.10 В целях безопасности глажение личного белья и одежды производится в гладильных помещениях, оборудованных гладильными досками, прессами и утюгами.

3.11 Кухня-столовая и комната отдыха в специальных жилых домах могут разделяться между собой раздвижными перегородками и, в случае необходимости, объединяться для приема гостей и проведения различных праздников.

3.12 На кухнях самообслуживания из-за забывчивости пожилых людей для приготовления и подогрева пищи должны применяться только электроплиты. В кухнях целесообразно предусматривать холодильник, а в сельской местности - кладовую для хранения овощей, имеющую пониженный температурный режим (около 10 °С).

3.13 Габариты и конфигурация помещений приема пищи в социальных учреждениях должны учитывать применение обеденных столов на 2 - 4 человека (рисунок 3.4) При этом площадь помещения приема пищи должна быть увеличена с учетом того, что 20 % мест следует предусматривать для людей на креслах-колясках.

Помещения для отдыха и досуга

3.14 Для удовлетворения потребностей пожилых людей в общении и проведении свободного времени в составе специальных жилых домов предусматриваются помещения для отдыха и досуга. Часть этих помещений может располагаться в составе жилых групп (комнаты отдыха), а часть (библиотека, фитооранжерея, кружковые комнаты различного назначения, зрительный зал) - в специально выделенной зоне учреждения.

3.15 В социальных учреждениях стационарного и временного пребывания функциональное зонирование помещений дневного пребывания осуществляется в соответствии с основными видами деятельности: просмотром телевизионных программ, чтением, общением, отдыхом, тихими играми (рисунок 3.5).

3.16 Для пожилых людей с ограниченным передвижением необходимое пространство для поддержания жизнедеятельности как источник впечатлений значительно сужается. Поэтому места ожидания в социальных и социо-медицинских учреждениях и помещения отдыха целесообразно раскрывать в окружающее пространство различными двориками, террасами, балконами, эркерами и другими архитектурными приемами.

3.17 Одним из путей раскрытия пространства в природу является организация «зимнего сада», который может делиться на индивидуальные «садики» для возделывания земли, выполняющие функции трудотерапии для желающих выращивать растения. Помимо зон индивидуального садоводства, в саду могут быть выделены зоны для созерцания и тихих бесед.

3.18 Для создания сада может быть использована эксплуатируемая крыша, которая является удобным местом с точки зрения наблюдения и общения с природой.

При формировании такого сада важно решить вопросы регулирования света, тени, избытка солнца и ветра, а также вопросы, связанные с безопасностью. Высота ограждения сада должна быть не менее 1,2 м. При этом до высоты 0,9 м оно может быть глухим, а выше (до общей высоты 1,2 м) - остекленным или открытым, чтобы не мешать обозрению сидячего человека.

3.19 В пределах домов постоянного проживания (интернатов, пансионатов и др.), а также в центрах социального обслуживания целесообразно выделять зоны отдыха и досуга лиц пожилого возраста в следующих местах:

- у главного входа, где интересно наблюдать за событиями;

- у камина;

- в помещении для шумных игр и музыки;

- в помещениях для любительских занятий;

- в помещении зимнего сада.

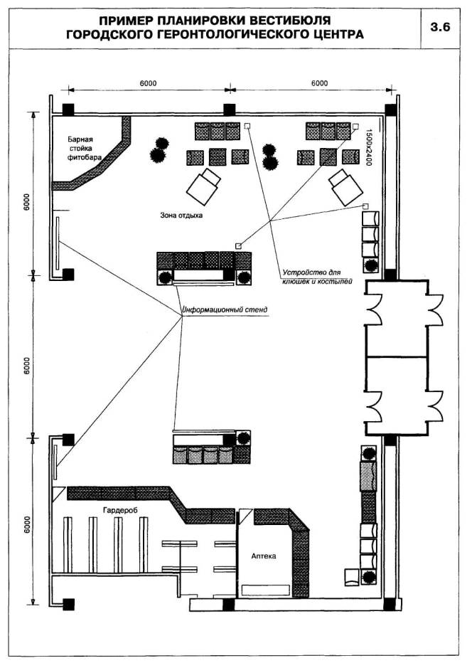
3.20 При вестибюле или над ним должна быть выделена зона отдыха в виде террасы или гостиной, выходящей на главный вход в здание (для наблюдения за событиями). Здесь может быть оборудован кафетерий со столиками, за которыми можно выпить кофе или чай (рисунок 3.6).

3.21 Одна из столовых в доме постоянного проживания (самая большая по площади) должна иметь небольшую эстраду с пандусом для въезда инвалидных колясок, обеспечивающую проведение здесь концертов (рисунок 3.7).

3.22 Зрительные залы вместимостью более 50 человек должны быть оборудованы с учетом возможного пребывания в них инвалидов на креслах-колясках (СНиП 35-01). При этом все фиксированные сидячие места желательно оборудовать специальными индивидуальными приборами усиления звука.

Обрядовые помещения

3.23 Зал для проведения религиозных обрядов может не иметь естественного освещения. При наличии оконных проемов они должны быть небольшие и немногочисленные. Предпочтительно их размещение в верхней части наружных стен.

3.24 Оборудование зала для проведения религиозных обрядов элементами религиозного назначения зависит от региона, в котором расположен дом постоянного проживания пожилых людей. В случае многоконфессиональной принадлежности прихожан предусматриваются столы для съемных религиозных символов, расставляемые в специально выделенных нишах.

3.25 Кабина для уединения верующего со священником может представлять собой отдельное помещение или часть общего помещения, выгороженная перегородкой или ширмой и имеющая площадь около 6 м2 (рисунок 3.8).

3.26 Поскольку зал для проведения религиозных обрядов расположен в учреждении для пожилых людей в нем предусматриваются кресла или скамьи для верующих, легко убирающиеся при необходимости.

Внутренняя отделка

3.27 Возрастное ухудшение ориентации и снижение зрения пожилых людей обусловливают необходимость выделения входов в жилые комнаты специальных жилых домов и в палаты гериатрических стационаров четкими номерами размером не менее 6 см или различными декоративными приемами, отличающими вход именно в это индивидуальное жилище.

3.28 Помещения дневного пребывания, организуемые в специальных жилых домах и стационарах, желательно окрашивать в интенсивные цвета. При спокойном цветовом решении стен полы этих помещений могут быть даны в ярких цветовых сочетаниях.

Искусственное и естественное освещение

3.29 Естественное освещение помещений постоянного пребывания людей пожилого возраста должно учитывать особенности их психологического и физиологического состояния. Поэтому целесообразно предусматривать устройства, позволяющие при необходимости снижать или усиливать освещенность помещения (жалюзи, регулируемые шторы и т.п.).

3.30 Рабочая зона кухонного стола и мойки на кухне, которой непосредственно пользуются пожилые люди, должна обеспечиваться естественным освещением. При этом над столом для приготовления пищи и электроплитой целесообразно предусматривать местное освещение с применением ламп накаливания.

3.31 В изголовье кровати должна быть установлена осветительная аппаратура, а также должен быть предусмотрен второй выключатель потолочного светильника, позволяющий включать и выключать общее освещение, не вставая с постели, и избежать необходимости идти в темноте к кровати или к выключателю у входа.

4 Требования к обустройству и оборудованию помещений амбулаторных отделений (кабинетов) по оказанию социально-медицинской помощи

Общие требования

4.1 В данном разделе рассмотрены требования к обустройству и оборудованию тех помещений медицинского назначения, которые предназначены для обслуживания пожилых людей и которые рекомендуется включать как в состав территориальных поликлиник, так и в состав специальных жилых домов, центров социального обслуживания, геронтологических и гериатрических центров.

Помещения отделений консультативно-амбулаторного приема

4.2 Во врачебных кабинетах, предназначенных для приема пожилых людей, следует предусматривать дополнительную площадь, учитывающую пребывание в кабинете человека, сопровождающего пожилого пациента, габариты вспомогательных средств передвижения пациентов, а также наличие у рабочего места врача-гериатра дополнительного стола для компьютера, необходимого для динамического ведения истории болезней прикрепленных пациентов (рисунок 4.1).

4.3 В медицинских кабинетах специальных жилых домов необходимо предусмотреть оборудование для экстренной диагностики и оказания неотложной помощи.

4.4 Помещение групповой психотерапии, которое необходимо включать в состав всех учреждений, оказывающих медико-социальную помощь, должно иметь хорошую звукоизоляцию. Для этой цели в конструкциях ограждающих стен должны использоваться звукоизолирующие материалы, а перед входом в помещение устраивается шлюз. Окна должны быть оборудованы устройствами для затемнения.

4.5 В составе амбулаторных подразделений для приема пожилых людей необходимо предусматривать помещения клизменных, оборудованных унитазом, раковиной, кушеткой.

Помещения реабилитации

Помещения водолечения

4.6 Для облегчения погружения пожилого пациента в ванну и выхода из нее могут использоваться специальные ванны с герметически закрывающимися дверцами (см. приложение Б).

В случае использования стандартных ванн их дно должно иметь нескользящую поверхность. Кроме того, как и в помещениях бытовых ванн, здесь должны быть предусмотрены необходимые поручни, ручки и опоры, облегчающие вход и выход из ванны.

4.7 Для проведения подводных кишечных промываний предусматривается комната, в которой размещается аппарат для кишечного промывания (специальная ванна с установкой сверху). В кабинете должна предусматриваться душевая кабина с откидным сиденьем и кушетка. Для облегчения пользования унитазом должны быть предусмотрены необходимые поручни и опоры.

4.8 Для улучшения наблюдения персонала за состоянием пожилых пациентов лечебные ванны (в отличии от обычных водолечебниц) размещают не в отдельных отсеках, а в общем, не поделенном на отсеки помещении ванного зала с размещенной рядом общей раздевальной. Место для переодевания должно размещаться в отдельном помещении или отделяться от зоны ванн водонепроницаемой шторой. При этом для мужчин и женщин организуются отдельные залы.

4.9 Лечебные ванны устанавливаются так, чтобы дневной свет падал на лицо пациента. Площадь на 1 ванну не менее 6 м2.

Ванны должны быть установлены так, чтобы доступ к каждой ванне был возможен с трех сторон.

Расстояние между ваннами должно быть не менее 80 см, но хотя бы между двумя ванными расстояние должно позволять въезд больного на инвалидной коляске.

4.10 Для лечения камерными сероводородными ваннами следует предусматривать отдельное помещение в тупиковом отсеке, изолированном от других процедурных комнат.

4.11 Лечебные души должны быть оснащены откидными или стационарными сиденьями.

4.12 Лечебный бассейн предусматривается на 5-10 человек. Габариты лечебно-плавательного бассейна на 10 человек - 12×5 м при габаритах помещения 21×9 м. Габариты лечебно-плавательного бассейна на 5 человек - 8,5×3,5 м при габаритах помещения 15×6 м. Санузлы размещают при раздевальнях: в женских и мужских санузлах предусматривается по одному унитазу. (СанПиН 2.1.2.1188, п. 2.5.1).

4.13 В мужской и женской раздевальнях или смежных с ними помещениях устанавливают по одному прибору для сушки волос (фены).

4.14 Душевые необходимо предусматривать проходными и располагать на пути движения из раздевальни к обходной дорожке. Душевые устраиваются из расчета 1 душевая сетка на трех человек в смену. Для защиты от травматизма вход в поддон душевой должен быть обозначен иным цветом или рельефом пола. Использование деревянных трапов в душевых и гардеробных не допускается (СанПиН 2.1.2.1188, пп. 2.5.2, 2.11).

4.15 Чтобы не предусматривать на пути движения от душа к ванне бассейна ножные ванны с проточной водой, которые могут служить дополнительным источником травматизма для пожилых людей, целесообразно выход из душевых кабин осуществлять непосредственно на обходную дорожку бассейна.

4.16 Начальная глубина лечебного бассейна должна быть не более 130 см с уровнем воды не более 95 см, что позволяет осуществлять отдых пожилых людей на откидных сиденьях, прикрепленных к стенке бассейна на расстоянии 40 см от дна. На высоте 95 см от дна следует предусматривать поручень диаметром 3-5 см, который крепится к борту бассейна.

4.17 Вокруг ванны бассейна следует предусматривать обходные дорожки шириной 150 см по продольным сторонам и 240 см с торцевых сторон (с учетом размещения подъемника, разворота кресла-каталки и организации рабочего места дежурного персонала) с уклоном 0,01- 0,02 к трапам или решеткам. Обходные дорожки и стационарные скамьи для отдыха в зоне бассейна должны обогреваться (СанПиН 2.1.2.1188, п. 2.9).

4.18 По внешнему периметру обходных дорожек вокруг открытых бассейнов следует предусматривать ограждения высотой не менее 100 см с поручнями (рисунок 4.2).

4.19 Вход в ванну бассейна следует предусматривать в торце в виде пологой лестницы или пандуса (уклон не более 1:8) шириной 100-120 см с перилами для спуска в воду. При входе предусматривается подъемник.

4.20 Кромка ванны бассейна должна выделяться предупредительной яркой цветовой маркировкой (ширина полосы около 30 см).

4.21 Вдоль стен зала бассейна и при входах в зал из помещений для переодевания и душевых следует устанавливать горизонтальные поручни на высоте от пола 90-120 см.

4.22 В крупных гериатрических центрах могут предусматриваться бассейны для обучения хождению (глубиной 0,6 м) Т-образной или П-образной формы, что позволяет одновременное занятие трех (двух) групп лиц с различной степенью подвижности.

Помещения лечения движением

4.23 В составе реабилитационного отделения или в составе помещений жилого комплекса для пожилых людей предусматривается зал ЛФК (лечебной физкультуры) площадью 36 м2, рассчитанный на одновременное занятие 5 человек (примерные габариты 6×6 м) или зал ЛФК площадью 60 м2, рассчитанный на одновременное занятие 10 человек (примерные габариты 10×6 м). Рядом с залом ЛФК располагают мужскую и женскую раздевалки, каждая из которых должна быть оборудована душевой кабиной и закрытыми шкафчиками для одежды, число которых соответствует 50 % вместимости зала.

4.24 В тренажерных залах устанавливаются тренажеры, специально подобранные для пожилых людей. Ширина тренажерного зала должна быть не меньше 2,5 м. При отсутствии тренажерных залов тренажеры могут располагаться в рекреациях зоны помещений для отдыха и досуга.

Физиотерапевтические помещения

4.25 Наиболее распространенными для лечения болезней пожилых людей, включаемыми даже в состав специальных жилых домов, являются кабинеты электросветолечения. Проектирование этих кабинетов должно производиться с учетом ОСТ 42-21-16.

4.26 Габариты кабинета электросветолечения обусловлены количеством функциональных медицинских зон для проведения физиотерапевтических процедур (кабинок) и их габаритами (рисунки 4.3, 4.4).

4.27 В отделения восстановительного лечения гериатрических учреждений целесообразно включение следующих физиотерапевтических кабинетов: кабинет электросонтерапии, кабинет теплолечения, кабинет индивидуальных ингаляций, кабинет иглорефлексотерапии.

4.28 Минимальные габариты кабинета электросонтерапии 2,9×4,7 м. Он должен иметь входной шлюз для изоляции от шума и температуру воздуха не ниже 22 °С. Он может не иметь естественного освещения.

4.29 Теплолечение не должно проводиться в помещениях для проведения электросветолечебных процедур. Габариты кабинета теплолечения на 1 кушетку 3×4 м. Для приготовления парафиновых, озокеритовых и грязевых аппликаций предусматривается специальное помещение, которое должно быть оборудовано вытяжным шкафом. Рекомендуемые габариты этого помещения 2,9×2,8 м.

4.30 Для проведения аэрозольных ингаляций предусматривается отдельное помещение. Проведение ингаляций в электро- и светолечебных кабинетах запрещается. Компрессор к индивидуальным аэрозольным аппаратам может размещаться рядом с ними или в соседнем помещении. Ингаляторий для антибиотиков (при его необходимости) устраивается в отдельном помещении.

4.31 Кабинет иглорефлексотерапии для проведения аккупунктуры и электроаккупунктуры должен состоять из двух смежно-изолированных помещений - кабинета врача и процедурной, оборудованных 4-6 процедурными местами, которые устраиваются в отдельных кабинах. Планировка помещения должна учитывать подход персонала к кушеткам с трех сторон.

Внутренняя отделка помещений (материалы и цветовое решение)

4.32 Стены в помещениях водолечения (ванные залы, лечебные души, гидромассажные и т.п.), а также в помещениях, где необходима сырая дезинфекция и уборка (операционные, процедурные и т.п.), целесообразно отделывать водоустойчивыми материалами (плитка, специальные обои и т.п.) (СанПиН 2.1.2.729).

4.33 Для покрытия обходных дорожек, стен и дна ванн должны использоваться материалы, устойчивые к применяемым реагентам и дезинфектантам и позволяющие проводить качественную механическую чистку и дезинфекцию, с учетом п. 1.4 настоящего Свода правил. Швы между облицовочными плитами должны тщательно затираться (СанПиН 2.1.2.1188, п. 2.11).

4.34 В кабинетах электросветотеплолечения не допускается выполнять покрытие пола и занавесей процедурных кабин из синтетических материалов, создающих статические электрические заряды.

4.35 Стены кабин электросветолечения на высоту 2 м должны быть окрашены масляной краской светлых тонов, остальная часть стен и потолки - клеевой. Облицовка стен керамической плиткой не допускается.

4.36 Каркасы кабин для проведения лечебных процедур следует выполнять из пластмассовых, деревянных, металлических материалов. Металлические конструкции кабин необходимо изолировать от каменных стен и пола путем установки прокладок из изолирующего материала толщиной не менее 40-50 мм. Не рекомендуется изготовлять кабины из жестких синтетических материалов, способных концентрировать на себе значительный электростатический заряд. На каркасе кабины подвешиваются мягкие тканевые занавески, не накапливающие статическое электричество.

4.37 Стены помещения подготовки прокладок при кабинетах электросветолечения и помещения подогрева парафина и озокерита при кабинетах теплолечения должны быть облицованы на высоту 2,5 м от пола керамической плиткой.

4.38 Стены и полы водолечебных залов должны облицовываться керамической плиткой на высоту не менее 2,5 м. Пол должен иметь уклон не менее 1 см на 1 м в сторону трапа.

4.39 Перегородки между раздевальной и помещением для ванны следует делать высотой 2 м из толстого непрозрачного стекла, синтетических материалов. Кроме того, они могут быть из бетона или кирпича, облицованного плиткой. Перегородки устанавливаются на высоте 20 см над полом.

4.40 Стены ингалятория покрывают керамической плиткой на высоту не менее 2,5 м, пол выполняется из легко моющихся нескользких материалов.

4.41 Стены и потолок кабинета лазеротерапии покрывают краской темных тонов, полы застилают линолеумом темного цвета. Покрытие стен керамической плиткой запрещается.

Инженерное оборудование

4.42 Плавательные бассейны должны оборудоваться системами, обеспечивающими водообмен в ваннах бассейна (СанПиН 2.1.2.1188, п. 2.14).

4.43 Очистка и обеззараживание воды в бассейнах рециркуляционного типа осуществляются методами, обеспечивающими требуемое Санэпиднадзором качество воды в соответствии с СанПиН 2.1.2.1188, пп.2.15-2.20.

4.44 Канализация загрязненной воды в помещении бассейна осуществляется в соответствии с СанПиН 2.1.2.1188, пп. 2.21, 2.22.

4.45 Для залов ванн бассейнов и помещений насосно-фильтровальной, хлораторной и озонаторной необходимо предусматривать самостоятельные системы приточной и вытяжной вентиляции. Пульты для включения систем вентиляции, обслуживающих хлораторную и озонаторную, должны быть вне помещений, где они расположены (СанПиН 2.1.2.1188, п. 2.22).

4.46 В помещении бассейна во избежание образования холодных потоков воздуха от окон приборы отопления следует располагать под ними и у наружных стен.

4.47 Помещение подготовки прокладок при кабинетах электросветолечения и помещение для подогрева парафина и озокерита при кабинетах теплолечения должны быть изолированы и иметь автономную вентиляцию. В кабинетах светолечения для удаления озона и других окислов приточно-вытяжная вентиляция должна обеспечивать 10-кратный обмен воздуха в час. Помещение теплолечения должно иметь приточно-вытяжную вентиляцию с кратностью воздухообмена: 4-кратный приток, 5-кратная вытяжка.

4.48 Нагревательные приборы систем центрального отопления, трубы отопительной, газовой, водопроводной или канализационной систем, а также любые заземленные предметы в помещениях должны быть защищены электроизолирующими материалами по всему протяжению и до высоты, недоступной для прикосновения больных и персонала во время проведения процедур.

4.49 В помещении для сероводородных ванн следует предусматривать автономную приточно-вытяжную вентиляцию. Вытяжная труба для вытяжки воздуха должна быть выведена выше конька кровли здания не менее чем на 0,5 м.

Трубы, подводящие сероводородную воду, должны быть из полимерных или других материалов, устойчивых к влиянию агрессивных вод и газов. Канализационные трубы и вся арматура (краны, ручки и т.д.) должны быть из коррозионно-устойчивых материалов. В помещении для приготовления растворов следует предусматривать вытяжной шкаф. Скорость движения воздуха в рабочем проеме вытяжного шкафа должна быть не менее 0,7 м/с.

4.50 В ингалятории оборудуется автономная приточно-вытяжная вентиляция с 10-кратным обменом воздуха в час. В каждой кабине для ингаляции устанавливается умывальник, к которому подводится горячая и холодная вода. Для обработки мундштуков при их дезинфекции также устанавливается умывальник.

4.51 В кабинете лазеротерапии должна быть предусмотрена приточно-вытяжная вентиляция с 10-кратным обменом воздуха в час.

4.52 Кабинеты для проведения кислородотерапии и фитобары, включаемые в состав различных типов учреждений для пожилых людей, должны быть оборудованы подводкой кислорода для изготовления кислородных коктейлей.

4.53 В медицинских кабинетах специальных жилых домов для оказания неотложной помощи необходимо предусмотреть подводку кислорода.

5 Требования к оборудованию и обустройству основных помещений стационарных отделений по оказанию гериатрической помощи

Общие требования

5.1 С точки зрения обустройства помещений выделяются два типа стационарных учреждений (отделений) для оказания гериатрической помощи:

учреждения (отделения) для людей с подвижностью, ограниченной в пределах здания: специализированные отделения гериатрических центров (урологические, кардиологические, неврологические, сосудистые и др.);

учреждения (отделения) для людей с подвижностью, ограниченной в пределах помещения или кровати: медико-социальные отделения больниц, отделения интернатов для немощных, психогериатрические отделения, больницы (отделения) сестринского ухода, хосписы.

5.2 Основным планировочным элементом этих учреждений являются палатные отделения. Помимо палатных отделений в них могут быть развернуты консультативно-диагностические отделения (кабинеты) и реабилитационные отделения, требования к обустройству и оборудованию которых изложены в предыдущем разделе.

5.3 Основным планировочным элементом специализированных палатных отделений являются палаты различной вместимости. Рекомендуется организовывать следующие типы палат:

- палата на 1 койку с санузлом в шлюзе;

- палата на 2 койки с санузлом в шлюзе;

- палата на 3 койки с санузлом в шлюзе.

5.4 Планировка палат гериатрических специализированных отделений должна учитывать габариты функциональных передвижных кроватей, используемых для престарелых (см. приложение Б) и правила их расстановки (рисунки 5.1, 5.2):

- торцовые спинки кровати не следует размещать у наружной стены;

- размещение коек производится рядами параллельно стенам с окнами, расстояние от коек до стен с окнами предусматривается не менее 0,9 м;

- расстояние между торцами коек в четырехкоечных палатах и между торцами коек и стеной в двух- и трехкоечных палатах предусматривается не менее 1,3 м;

- расстояние между длинными сторонами рядом стоящих коек предусматривается не менее 0,9 м.

5.5 Ширина дверей в палатах должна быть на 0,1м шире ширины кровати, то есть не менее 1,1 м. При этом дверь должна состоять из двух полотен: одно полотно для постоянного пользования (не менее 0,9 м), второе - открывающееся в случае проезда функциональной кровати (не менее 0,2 м).

5.6 Пост дежурной сестры при палатном отделении размещается таким образом, чтобы в зоне обзора находились все палаты. При этом организация поста дежурной медсестры в холле для отдыха позволяет вовремя оказать необходимую помощь пациентам, находящимся здесь.

5.7 Помещение хранения передвижного оборудования гериатрических отделений и отделений по уходу должно иметь площадь не менее 16 м2, обеспечивающую хранение диагностической и физиотерапевтической аппаратуры.

Особенности оборудования отделений по уходу и психогериатрических отделений

5.8 В отделениях по уходу и психогериатрических палатных отделениях должны быть предусмотрены следующие меры безопасности:

- остекление должно выполняться из небьющегося стекла;

- на окнах должны быть решетки или другие защитные устройства для предотвращения несчастных случаев.

5.9 Помимо палат на 1 и 2 койки с санузлами в отделении по уходу основным планировочным элементом являются палаты на 4 койки для лежачих больных.

5.10 На каждые две палаты (8 коек) отделения по уходу целесообразно предусматривать санузел, в котором должно размещаться оборудование как для пациентов, передвигающихся самостоятельно, так и для лежачих пациентов. Для лежачих пациентов в санузле необходимо иметь больничный слив и душ на гибком шланге. Для пациентов, передвигающихся самостоятельно, в санузле необходимо установить унитаз с поручнями (рисунок 5.3).

5.11 Купание лежачих больных проводится персоналом в специальных ванных комнатах с подъемником. Ванная в них устанавливается так, чтобы персонал мог подойти к пациенту с трех сторон.

5.12 Требования постоянного нахождения пациентов в зоне видимости персонала распространяются и на те помещения, которые предназначены для уединенного пребывания (санузлы и т.п.), поэтому ограждения этих помещений не должны доходить до уровня пола на 0,2 м.

5.13 Двери уборных и ванных комнат должны иметь смотровые окна, а в случае необходимости должны быть легко открыты персоналом.

5.14 Трубопроводы горячей и холодной воды в умывальных, уборных и других помещениях должны иметь запорную арматуру, расположенную во встроенных закрывающихся шкафах, недоступно для больных.

5.15 Смесители для воды, поступающей в ванну, должны находиться в закрывающихся шкафах, облицованных кафельной плиткой, вне досягаемости больных.

5.16 Раковины должны быть металлическими или из другого небьющегося материала.

5.17 Все выступающие части труб и бачки в туалетах должны быть скрытыми. При этом устанавливаются небьющиеся унитазы с автоматическим сливом.

5.18 Веранда при палатной секции должна рассчитываться на 40 % лежачих больных из расчета 3,5 м2 на одно место. При веранде предусматривается отапливаемое помещение для хранения теплых вещей из расчета 0,3 м2 на одно место, но не менее 4 м2.

5.19 Палаты для немощных целесообразно оборудовать подводкой электрических сетей с заземляющим контактом для физиотерапевтических процедур. Использовать для заземления системы отопления и водоснабжения запрещается.

5.20 В каждой палате палатных отделений по уходу и специализированных палатных отделений должен быть установлен умывальник со смесителем, пользование которым не требует физических усилий (например, бесконтактным).

5.21 Санитарная комната для мытья и стерилизации суден, мытья и сушки клеенок оборудуется трапом, мойками.

Внутренняя отделка помещений (материалы и цветовое решение)

5.22 Для окраски помещений палатного отделения следует применять при северной ориентации теплые тона, при южной - холодные.

5.23 Стены, на которых размещаются окна, во всех помещениях отделения следует окрашивать более светлыми тонами. Для окраски стен палат следует применять разбеленные цвета.

5.24 Потолок палат окрашивается в белый цвет, стены - с добавлением колера теплого цвета, коэффициент отражения не более 65 %.

5.25 Помещения дневного пребывания, организуемые в отделениях для самостоятельно передвигающихся лиц старшего возраста, могут быть окрашены интенсивными цветами.

5.26 Материал пола в палатах должен быть более темным, чем стены. Полы помещений дневного пребывания при спокойном цветовом решении стен могут быть выполнены в ярких цветовых сочетаниях.

Освещение и сигнализация помещений

5.27 В каждой палате отделений медико-социального ухода и психогеронтологических отделений предусматривается установка специального светильника ночного дежурного освещения на высоте 2,3 м над дверным проемом, включаемого и выключаемого с поста медицинской сестры, при этом кнопки вызова предусматриваться не должны. Питание светильника должно осуществляться от сети аварийного освещения напряжением 220 В (СП 31-110).

5.28 Над каждой кроватью должен предусматриваться светильник направленного света на гибком держателе.

5.29 Над входными дверями палат гериатрических отделений и процедурных устанавливаются бактерицидные лампы, выключатели для которых предусматриваются в коридорах.

5.30 Над входными дверями палат для лежачих больных устанавливаются кварцевые лампы, которые в связи с ограниченной подвижностью больных можно включать в их присутствии.

5.31 В палатах, процедурных, коридорах и на постах дежурных медсестер должно быть предусмотрено аварийное освещение.

5.32 В лечебных гериатрических отделениях (кардиологическом, урологическом и др.) должна быть обеспечена прикроватная сигнализация для вызова персонала.

5.33 При устройстве сигнализации и освещения в отделениях по уходу и психогериатрических отделениях не должны использоваться выключатели шнуркового типа.

Микроклимат

5.34 Поскольку лица старших возрастов, находящиеся в отделениях по уходу, с трудом соблюдают правила личной гигиены, в значительной степени утратили навыки самообслуживания и часто имеют выраженные нарушения контроля за мочеиспусканием и другими естественными выделениями организма, в палатах следует предусматривать приточно-вытяжную вентиляцию с обменом воздуха на одного больного 40 м3/ч. Размещать приток и вытяжку следует так, чтобы воздух проходил палату по диагонали.

5.35 В палатах с лежачими больными необходимо предусмотреть теплый пол с расчетной температурой +20 °С, а в палатах с общим режимом нахождения больных оптимальной следует считать температуру 22 - 23 °С.

ИЛЛЮСТРАТИВНЫЙ МАТЕРИАЛ К РАЗДЕЛАМ

Приложение А

Рекомендуемые наборы мебели и оборудования для основных помещений в учреждениях социального и медицинского обслуживания пожилых людей

Приложение А должно использоваться совместно со сводной номенклатурой мебели и оборудования (приложение Б). В данном приложении указано наименование мебели или оборудования по помещениям. В сводной номенклатуре мебели и обороудования даны различные виды мебели или оборудования данного наименования, указаны их различные габариты, требования к подключению тока и другим подводкам, а также координаты предприятий, где выпускаются эти виды медицинской мебели и оборудования.

1 Типовые наборы оснащения мебелью и оборудованием основных помещений в специальных видах жилья (дома-интернаты, социальные жилые дома, центры социального обслуживания, пансионаты и др.)

В таблице дано оборудование, минимально необходимое по набору и типу, которое в зависимости от класса услуг при проектировании и эксплуатации может быть заменено на другие типы оборудования с адекватными функциями.

Таблица 1

№ п.п.

Наименование мебели и оборудования

Количество, шт.

 

1 Жилые комнаты

 

 

1.1 Жилая комната на 1 человека

 

 

Мебель

 

1

Кровать санаторно-бытовая

1

2

Тумба прикроватная

1

3

Кресло с пристегивающими ремнями

1

4

Стол

1

5

Стол для телевизора

1

6

Полка для книг

1

7

Скамья для ног

1

8

Шкаф комбинированный для хранения белья, одежды, личных вещей и книг

1

9

Вешалка или шкаф для верхней одежды

1

10

Стул террасный (при наличии летнего помещения)

2

11

Стол террасный (при наличии летнего помещения)

1

12

Стул с подлокотниками

1

 

Оборудование

 

13

Зеркало настенное

1

14

Торшер

1

15

Бра

1

16

Телевизор

1

17

Часы настенные

1

18

Сетевой радиоприемник

1

 

1.2 Жилая комната на 2 человека

 

 

Мебель

 

1

Кровать санаторно-бытовая

2

2

Тумба прикроватная

2

3

Кресло с пристегивающими ремнями

2

4

Стол

1

5

Полка для книг

2

6

Скамья для ног

2

7

Стул террасный (при наличии летнего помещения)

2

8

Стол террасный (при наличии летнего помещения)

1

9

Шкаф комбинированный для хранения белья, одежды, личных вещей и книг

2

10

Вешалка настенная

2

11

Стул с подлокотниками

2

 

Оборудование

 

12

Торшер

2

13

Бра

2

14

Телевизор

1

15

Часы настенные

1

16

Сетевой радиоприемник

1

 

1.3 Жилая комната на 4 человека

 

 

Мебель

 

1

Кровать

4

2

Тумба прикроватная

4

3

Кресло (с пристегивающими ремнями)

2

4

Стол

1

5

Скамья для ног

4

6

Стул террасный (при наличии летнего помещения)

4

7

Стол террасный (при наличии летнего помещения)

1

8

Шкаф комбинированный для хранения белья, одежды, личных вещей и книг

4

9

Вешалка настенная

1

10

Стул с подлокотниками

4

 

Оборудование

 

11

Стол надкроватный подкатной

2

12

Кресло-коляска малогабаритная

1

13

Ходилки с подмышечниками

1

14

Торшер

2

15

Бра

4

16

Телевизор с видеоприставкой

1

17

Часы настенные

1

18

Сетевой радиоприемник

1

19

Телефон

 

 

1.4 Жилая комната на 1 человека (для колясочника)

 

 

Мебель

 

20

Кровать с устройством для изменения высоты лежа

1

21

Тумба прикроватная

1

22

Стол

1

23

Шкаф для книг

1

24

Скамья для ног

1

25

Шкаф для хранения белья, одежды, личных вещей и

1

26

Стул террасный (при наличии летнего помещения)

4

27

Стол террасный (при наличии летнего помещения)

1

28

Стул с подлокотниками

4

 

Оборудование

 

29

Вешалка настенная

1

30

Кресло с поручнем для пересадки с кресла-коляски

1

31

Стол надкроватный подкатной

1

32

Кресло-коляска

1

33

Штанга-консоль и кровати для подъема

1

34

Торшер

1

35

Бра

1

36

Телевизор

1

37

Часы настенные

1

38

Сетевой радиоприемник

1

 

2 Вестибюли, гардеробные

 

 

2.1 Вестибюль с местом для регистрации посетителей

 

 

Мебель

 

1

Стол письменный однотумбовый

1

2

Стул

4

3

Подцветочница

3

4

Шкаф канцелярский

1

5

Кресло для отдыха

2

6

Столик журнальный

1

 

Оборудование

 

7

Часы настенные

1

8

Телефонный аппарат для посетителей

1

 

2.2 Гардеробная

 

 

Мебель

 

9

Индивидуальные шкафы для верхней одежды и обуви

1 отделение на 1 чел.

10

Скамья для ног

5

11

Стул

5

 

Оборудование

 

12

Зеркало настенное

1

13

Сетевой радиоприемник

1

14

Часы настенные

1

 

3 Санитарные узлы и комнаты

 

 

3.1 Санитарный узел при жилой комнате (вариант с душем)

 

 

Оборудование

 

1

Унитаз

1

2

Умывальник

1

3

Душ (душевой поддон и смеситель для душа с душевой сеткой на гибком шланге)

1

4

Сиденье откидное для душа

1

5

Зеркало настенное

1

6

Вешалка настенная

1

7

Поручень настенный (L = 900 мм)

1

8

Поручень напольно-настенный у унитаза

1

9

Полотенцесушитель

1

10

Труба отбойная к умывальнику

1

11

Приставка к унитазу ПКУ

1

12

Коврик резиновый

1

 

3.2 Санитарный узел при жилой комнате (вариант с ванной)

 

 

Оборудование

 

1

Унитаз

1

2

Ванна с дверкой и с нескользящим покрытием дна

1

3

Сиденье съемное для ванны

1

4

Умывальник

1

5

Смеситель для душа с душевой сеткой на гибком шланге

1

6

Зеркало настенное

1

7

Вешалка настенная

1

8

Поручень настенный (L = 900 мм)

1

9

Поручень напольно-настенный у унитаза

1

10

Полотенцесушитель

1

11

Труба отбойная к умывальнику

1

12

Приставка к унитазу ПКУ

1

13

Коврик резиновый

 

 

3.3 Санитарный узел при жилых комнатах для колясочников

 

 

Оборудование

 

1

Унитаз

1

2

Трапеция к унитазу

1

3

Душ (смеситель для душа с душевой сеткой на гибком шланге)

1

4

Умывальник

1

5

Зеркало настенное

1

6

Вешалка настенная

1

7

Поручень пристенный

1

8

Поручни металлические с дополнительным сиденьем стационарные к унитазу

1

9

Поручень горизонтальный откидной к умывальнику

1

10

Электрополотенце

1

11

Труба отбойная к умывальнику

1

 

3.4 Ванная комната с подъемником

 

 

Мебель

 

1

Вешалка настенная

1

2

Кушетка медицинская

1

3

Стул на колесах для купания

1

4

Тумбочка

1

5

Шкаф-полка настенная

1

 

Оборудование

 

6

Каталка для обработки ожоговых больных (с отверстиями)

1

7

Отбойная труба к умывальнику

1

8

Умывальник

1

9

Ванна с дверкой и с нескользящим покрытием дна

1

10

Сиденье съемное для ванны

1

11

Сиденье стационарное для ванны

1

12

Унитаз

1

13

Биде

1

14

Поручни пристенные по периметру помещения

1

15

Поручень горизонтальный откидной к унитазу, умывальнику и биде

3

16

Поручень напольно-настенный к унитазу

1

17

Поручень вертикальный к ванне

1

18

Устройство для подъема инвалидов из коляски в ванную

1

19

Коврик резиновый

1

 

3.5 Душевая кабина с местом для раздевания

 

 

Мебель

 

1

Скамья для раздевания

1

2

Сиденье пристенное

1

3

Вешалка настенная

1

4

Зеркало настенное

1

 

Оборудование

 

5

Душ (смеситель для душа с душевой сеткой на гибком шланге)

1

6

Умывальник

1

7

Отбойная труба к умывальнику

1

8

Поручень пристенный

1

9

Коврик резиновый

1

 

3.6 Комната личной гигиены

 

 

Мебель

 

1

Вешалка настенная

1

2

Стул

1

 

Оборудование

 

3

Приставка к унитазу ПКУ

1

4

Унитаз

1

5

Биде

1

6

Умывальник

1

7

Отбойная труба к умывальнику

1

8

Поручни настенные

1

9

Поручень напольно-настенный к унитазу

1

10

Поручень горизонтальный откидной к унитазу, умывальнику и биде

2

11

Зеркало настенное

1

12

Электрополотенце

1

 

3.7 Санитарный узел общего пользования

 

 

Оборудование

 

1

Унитаз

1

2

Биде

1

3

Умывальник

1

4

Отбойная труба к умывальнику

1

5

Поручни настенные

 

6

Поручень напольно-настенный к унитазу

1

7

Поручень горизонтальный откидной к унитазу, умывальнику и биде

1

8

Зеркало настенное

1

9

Приставка к унитазу ПКУ

1

10

Электрополотенце

1

 

4 Помещения для бытовых нужд

 

 

4.1 Помещение для бытовых нужд с местами Для стирки мелких вещей, сушки одежды и обуви

 

 

Мебель

 

1

Стул

2

2

Табурет

1

3

Шкаф сушильный

2

4

Шкаф хозяйственный

1

5

Шкаф для инвентаря

1

 

Оборудование

 

6

Стиральная машина

1

7

Контейнер

1

8

Умывальник передвижной

1

9

Часы настенные

1

10

Зеркало настенное

1

11

Раковина-мойка

1

 

4.2 Комната для глаженья белья и одежды

 

 

Мебель

 

1

Доска гладильная

2

2

Тумбочка прикроватная

2

3

Шкаф хозяйственный

1

4

Стол палатный

1

5

Стул

2

 

Оборудование

 

6

Утюг электрический

2

7

Умывальник

1

 

4.3 Помещение хранения уборочного инвентаря

 

 

Мебель

 

1

Шкаф двухстворчатый

1

 

Оборудование

 

1

Мойка

1

2

Пылесос

1

 

5 Кухни-столовые, обеденные залы

 

 

5.1 Кухня-столовая на 1 жилую группу (8-10 человек)

 

 

Мебель

 

1

Обеденный стол

2

2

Шкаф сервировочный

1

3

Шкаф-подставка под холодильник

1

4

Диван

1

5

Стул

10

6

Кресло

1

7

Журнальный столик

1

8

Кухонный стол

2

9

Стол-стойка

1

10

Табурет

2

11

Шкаф настенный над кухонным столом

2

12

Подвесной шкаф для посуды над мойкой

2

 

Оборудование

 

13

Электроплита 4-конфорочная с духовкой (из расчета 1 конфорка на 2 человека)

1

14

Бытовой воздухоочиститель над плитой

1

15

Холодильник

1

16

Модуль из двух моек

1

17

Светильник над обеденным столом

2

18

Светильник местный над рабочим столом

2

19

Торшер

1

20

Телевизор

1

21

Тележка раздаточная

1

22

Сетевой радиоприемник

1

23

Подъемник грузовой

1

24

Часы настенные

1

 

5.2 Обеденный зал столовой

 

 

Мебель

 

1

Стол

1 на 4 посадочных места

2

Стул с подлокотниками

4 на 1 стол

 

Оборудование

 

3

Фотокаталитический освежитель воздуха «Аэролайф»

1

4

Тележка ручная официантская

1

5

Умывальник

1

6

Электрополотенце

1

 

6 Помещения досуга

 

 

6.1 Комната дневного пребывания (для группы 25 человек)

 

 

Мебель

 

1

Кресло для отдыха с подлокотниками

8

2

Диван трехместный

1

3

Стул

20

4

Стол обеденный

5

5

Скамья для ног

12

6

Тумбочка под телевизор

1

7

Подцветочница

3

8

Стол журнальный

3

 

Оборудование

 

9

Озонатор

1

10

Облучатель настенный бактерицидный ОБН-15, ОБН-150

1

11

Телевизор с видеоплеером

1

12

Часы настенные

1

13

Сетевой радиоприемник

1

14

Зеркало настенное

1

 

6.2 Комнаты дневного отдыха для группы на 25 человек (на 50 % численности группы - 12 человек)

 

 

Мебель

 

1

Кровать

12

2

Стул

12

3

Тумба прикроватная

12

4

Подцветочница

12

 

Оборудование

 

5

Озонатор

1

6

Облучатель настенный бактерицидный ОБН-15, ОБН-150

1

7

Вешалка настенная

1

8

Часы настенные

1

9

Сетевой радиоприемник

1

 

6.3 Комната отдыха (на 2 жилые группы до 20 человек)

 

 

Мебель

 

1

Диван трехместный

1

2

Кресло для отдыха с подлокотниками

3

3

Стол журнальный

2

4

Подцветочница

3

5

Стол для шахмат и шашек

1

6

Стул

5

7

Стенд-витрина настенная

1

 

Оборудование

 

8

Озонатор

1

9

Бра

2

10

Телевизор с видеоприставкой

1

11

Сетевой радиоприемник

1

12

Радиоприемник

1

13

Зеркало настенное

1

14

Часы настенные

1

 

6.4 Зал многофункционального назначения с эстрадой

 

 

Мебель

 

1

Кресло секционное, стационарное

По числу мест в зале

 

Оборудование

 

2

Фотокаталитический освежитель воздуха «Аэролайф»

1

3

Рояль

1

4

Усилители с микрофоном

2

5

Часы настенные

1

6

Сетевой радиоприемник

1

 

6.5 Библиотека-читальня

 

 

Мебель

 

1

Стеллаж для открытого хранения книг

6

2

Стол для занятий

4

3

Стул с подлокотниками

4

4

Стол для занятий инвалида-колясочника

1

5

Стол однотумбовый

1

6

Кресло рабочее

1

7

Стол журнальный

1

8

Стол для абонементного обслуживания

1

9

Полки настенные книжные

4

 

Оборудование

 

10

Ведро педальное

1

11

Озонатор

1

 

6.6 Универсальная кружковая комната

 

 

Мебель

 

1

Стул

8

2

Пианино

1

3

Доска школьная

1

4

Табурет винтовой

1

5

Шкаф-стеллаж

1

6

Стол однотумбовый

 

 

Оборудование

 

7

Озонатор

1

8

Мольберт

8

9

Умывальник

1

10

Подставка для натюрмортов

2

 

6.7 Помещение для занятий по изобразительному искусству

 

 

Мебель

 

1

Шкаф-стеллаж для рисунков, моделей, реквизита

1

2

Стул складной с полумягким сиденьем и спинкой ШПР 610.000

6

3

Выставка рисунков и картин

1

4

Кресло отдыха натурщиков

1

5

Стол преподавателя

1

 

Оборудование

 

6

Озонатор

1

7

Мольберт

6

8

Специальный мольберт для инвалида-колясочника

2

9

Ширма 3-створчатая

1

10

Вешалка с зеркалом

1

11

Умывальник

1

12

Часы настенные

1

13

Сетевой радиоприемник

1

 

6.8 Помещение для музыкальных занятий

 

 

Мебель

 

1

Табурет винтовой

1

2

Стул складной с полумягким сиденьем и спинкой ШПР 610.000

10

3

Шкаф-стеллаж для музыкальных инструментов и нот

1

 

Оборудование

 

4

Озонатор

1

5

Пюпитр

10

6

Специальный пюпитр для инвалида-колясочника

1

7

Пианино

1

8

Часы настенные

1

9

Сетевой радиоприемник

1

 

6.9 Помещение для рукоделия

 

 

Мебель

 

1

Стол однотумбовый

5

2

Стул с подлокотниками

5

3

Гладильный пресс

1

4

Рабочий стол

1

5

Стул с подлокотниками регулируемый

2

6

Стол раскроечный

1

7

Шкаф двухстворчатый

2

8

Гладильный стол

1

 

Оборудование

 

9

Озонатор

1

10

Швейная машина

3

11

Вешалка с зеркалом

1

12

Умывальник

1

13

Часы настенные

1

14

Сетевой радиоприемник

1

 

6.10 Компьютерный кабинет на 8 человек

 

 

Мебель

 

1

Стол компьютерный учительский для сервера (центрального процессора)

1

2

Стул офисный

7

3

Стол однотумбовый

1

4

Стол компьютерный (для рабочих станций)

6

5

Полки подвесные

2

 

Оборудование

 

6

Доска

1

7

Принтер

1

8

Сканер

1

9

Модем

1

10

Ионизатор воздуха Чижевского

1

11

Компьютеры

7

 

6.11 Фитооранжерея (выращивание лечебных растений и тихий отдых)

 

 

Мебель

 

1

Диван

2

2

Кресло

5

 

Оборудование

 

3

Подцветочница

5

4

Ящики с землей размером 1500x600x400 мм (грядки)

7

5

Стол производственный

7

6

Торшер

2

 

6.12 Универсальная мастерская (столярная и слесарная)

 

 

Мебель

 

7

Стол мастера однотумбовый

1

8

Шкаф-стеллаж для инструмента

2

9

Табурет регулируемый круглый

6

10

Стол производственный

6

11

Стул

1

 

Оборудование

 

12

Верстак столярный

7

13

Стол-зонт

1

14

Станок токарный по дереву

3

15

Дисковая электропила

1

16

Умывальник

1

 

7 Оздоровительные и медицинские помещения

 

 

7.1 Кабинет врача-гериатра

 

 

Мебель

 

1

Стол врача однотумбовый

1

2

Стол компьютерный

1

3

Кушетка смотровая

1

4

Шкаф врача

1

5

Стул

3

 

Оборудование

 

6

Умывальник

1

7

Компьютер

1

8

Принтер

1

9

Часы настенные

1

10

Облучатель настенный бактерицидный ОБН-15, ОБН-150

1

 

7.2 Массажный кабинет с душем

 

 

Мебель

 

1

Табурет винтовой

1

2

Банкетка

1

3

Кушетка массажная

1

4

Скамейка-подставка для ног

1

5

Стул медицинский полумягкий

2

6

Стол массажный

1

7

Стол врача однотумбовый

1

8

Шкаф медицинский

1

 

Оборудование

 

9

Устройство пневмомассажное и пневмоэлектронно-массажное «Лимфа», «Лимфа-Э»

1

10

Массажер вакуумный «Электроника ВМ-02»

1

11

Озонатор

1

12

Облучатель настенный бактерицидный ОБН-15, ОБН-150

1

13

Ширма трехстворчатая

2

14

Умывальник

1

15

Душевая кабина

1

16

Вешалка настенная

1

17

Зеркало настенное

1

18

Часы настенные

1

19

Сетевой радиоприемник

1

 

7.3 Лечебно-плавательный бассейн на 5 человек

 

 

Мебель

 

1

Стол палатный

1

2

Стул полужесткий

1

3

Кушетка смотровая

1

 

7.4 Кабинет врача-эксперта медико-социальной экспертизы (МСЭК)

 

 

Мебель

 

1

Кушетка смотровая

1

2

Стул с подлокотниками

2

3

Кресло офисное

1

4

Стол врача

1

5

Стол компьютерный

1

6

Шкаф медицинский двухстворчатый с сейфом

1

 

Оборудование

 

7

Ведро педальное

1

8

Облучатель настенный бактерицидный ОБН 15, ОБН 150

1

9

Ширма трехстворчатая

1

10

Компьютер

1

11

Принтер

1

12

Умывальник фаянсовый

1

 

7.5 Кабинет информации о здоровом образе жизни (в том числе фармацевтической информации)

 

 

Мебель

 

1

Тумба под телевизор

1

2

Шкаф-витрина с полками

2

3

Стол однотумбовый

1

4

Стул врача

1

5

Стул с подлокотниками

15

6

Стол для медикаментов

1

 

Оборудование

 

7

Озонатор

1

8

Видеомагнитофон

1

9

Телевизор

 

10

Доска классная

1

11

Проектор

1

12

Магнитофон

1

13

Экран

1

 

7.6 Изолятор с санузлом

 

 

Мебель

 

1

Кровать функциональная с установкой для капельницы

1

2

Столик надкроватный

1

3

Стол палатный

1

4

Стул с подлокотниками

1

5

Стол инструментальный

1

6

Тумба прикроватная

2

7

Шкаф для медикаментов

1

 

Оборудование

 

8

Приставка к унитазу ПКУ

1

9

Вешалка настенная на 2 крючка

1

10

Ведро педальное

1

11

Облучатель настенный бактерицидный ОБН-15, ОБН-150

1

12

Лампа настольная

1

13

Ночник

1

14

Сетевой радиоприемник

1

15

Унитаз

1

16

Ванна с дверкой и с нескользящим покрытием дна

1

17

Сиденье съемное для ванны

1

18

Сиденье пристенное

1

19

Умывальник

1

20

Поручни пристенные по периметру помещения

1

21

Поручень горизонтальный откидной к умывальнику

1

22

Поручень напольно-настенный к унитазу

1

23

Поручень вертикальный к ванне

1

24

Трапеция для подъема и перемещения немощных и колясочников

1

25

Устройство для подъема инвалидов из коляски в ванну

1

26

Коврик резиновый

1

 

7.7 Педикюрная с лечебными процедурами

 

 

Мебель

 

1

Стул полумягкий

1

2

Табурет винтовой

1

3

Стол палатный

1

4

Подставка для надевания обуви

1

5

Стул с подлокотниками

2

6

Стол массажный малый

1

 

Оборудование

 

7

Аппарат маникюрный профессиональный «Этон-100»

1

8

Аппарат педикюрный профессиональный «Этон-200»

1

9

Ванна для рук

1

10

Умывальник

1

11

Вешалка настенная

1

12

4-камерный аппарат для гальванизации конечностей

1

13

Ванна ножная керамическая лечебная

1

14

Облучатель настенный бактерицидный ОБН-15, ОБН-150

1

 

7.8 Зал лечебной физкультуры для групповых занятий (ЛФК)

 

 

Мебель

 

1

Кушетка смотровая

1

2

Скамья универсальная

2

3

Скамья гимнастическая

1

4

Стол врача однотумбовый

1

5

Стул медицинский полумягкий

2

 

Оборудование

 

6

Весы медицинские

1

7

Ростомер деревянный

1

8

Гимнастическая стенка (для взрослых)

2

9

Умывальник

1

10

Облучатель настенный бактерицидный ОБН-15, ОБН-150

4

11

Велотренажер «Здоровье»

1

12

Тренажер для развития моторики

1

13

Тренажер для ходьбы

1

14

Снаряды подвесные гимнастические

1

15

Станок для упражнений в ходьбе напольный

1

16

Зеркало настенное большое

1

17

Ковер гимнастический

1

18

Вешалка настенная

1

19

Часы настенные

1

20

Сетевой радиоприемник

1

 

7.9 Процедурная (с гинекологическим креслом)

 

 

Мебель

 

1

Кресло гинекологическое с ручным приводом

1

2

Столик инструментальный

1

3

Столик манипуляционный

1

4

Стол палатный

1

5

Стул полумягкий

1

6

Кушетка смотровая

1

7

Шкаф медицинский одностворчатый

1

 

Оборудование

 

8

Светильник медицинский гинекологический 2-рефлекторный передвижной

1

9

Штатив для длительных вливаний

1

10

Ширма медицинская 3-створчатая

1

11

Умывальник прямоугольный фарфоровый со спинкой

1

12

Аппарат для искусственного дыхания ручной с отсасывателем

1

13

Измеритель артериального давления мембранный общего применения

1

14

Коробка стерилизационная круглая с фильтром

1

15

Холодильник электрический бытовой

1

16

Кипятильник дезинфекционный электрический

1

17

Облучатель бактерицидный настенный

1

18

Подставка для тазов

1

19

Подставка для стерилизационных коробок

1

 

7.10 Кабинет врачей-консультантов с темной комнатой

 

 

Мебель

 

1

Стол палатный

1

2

Кушетка смотровая

1

3

Стол врача однотумбовый

1

4

Стул офисный

1

5

Стул полумягкий с подлокотниками

1

6

Стул медицинский полумягкий

2

7

Шкаф двухстворчатый с сейфом

1

8

Шкаф конторский

1

9

Столик инструментальный

2

10

Столик манипуляционный

1

11

Табурет винтовой

3

12

Тумбочка

1

13

Кресло вращающееся

1

14

Столик гидравлический для офтальмологических приборов

1

 

Оборудование

 

15

Макулотестер поляризационный

1

16

Прибор манометрический

1

17

Коробка стерилизационная круглая с фильтром

1

18

Периграф проекционный универсальный

1

19

Набор для подбора очков слабовидящим

1

20

Аномалоскоп

1

21

Аккомодометр

1

22

Гониоскоп

1

23

Щелевая лампа

1

24

Подставка для стерилизационных коробок

1

25

Подставка для тазов

1

26

Аудиметр

1

27

Негатоскоп

1

28

Осветитель таблиц для определения остроты зрения

1

29

Офтальмометр

1

30

Офтальмоскоп налобный бинокулярный

1

31

Офтальмоскоп ручной

1

32

Офтальмотонограф автоматизированный

1

33

Прибор для исследования остроты зрения

1

34

Синоптофор

1

35

Центрископ

1

36

Кипятильник дезинфекционный электрический

1

37

Облучатель бактерицидный настенный

2

38

Ширма 3-створчатая

1

39

Ведро педальное

1

40

Умывальник фаянсовый

1

 

7.11 Кабинет электросветолечения на 2 кушетки

 

 

Мебель

 

1

Кушетка процедурная

2

2

Стол врача однотумбовый

1

3

Стул полумягкий

2

4

Шкаф стеклянный двухстворчатый

2

5

Тумба при рабочем месте сестры

1

6

Стол для портативных физиотерапевтических аппаратов

2

 

Оборудование

 

7

Прибор медицинский для физиотерапевтического лечения

2

8

Облучатель настенный бактерицидный ОБН-15, ОБН-150

1

9

Ведро педальное

1

10

Стерилизатор для инструментов

1

11

Умывальник прямоугольный фарфоровый со спинкой

1

12

Аппарат для ДЦВ-терапии

1

13

Часы настольные процедурные с электрическим звуковым сигналом

1

 

7.12 Кабинет теплолечения на 1 кушетку

 

 

Мебель

 

1

Стол палатный

1

2

Стул медицинский полумягкий

1

3

Кушетка смотровая

1

4

Тумба под аппарат

1

5

Шкаф медицинский одностворчатый

1

6

Скамейка-подставка для ног

 

 

Оборудование

 

7

Облучатель настенный бактерицидный ОБН 15, ОБН 150

1

8

Умывальник прямоугольный фарфоровый со спинкой

1

9

Часы настольные процедурные с электрическим звуковым сигналом

1

 

7.13 Стоматологический кабинет на 1 кресло

 

 

Мебель

 

1

Стул стоматолога

1

2

Столик стоматолога

1

3

Шкаф медицинский одностворчатый

1

4

Стол врача однотумбовый

1

5

Банкетка одноместная

1

6

Шкаф с сейфом

2

7

Столик инструментальный

1

8

Стул медицинский полумягкий

1

9

Стол палатный

 

 

Оборудование

 

10

Стоматологическая установка

1

11

Кресло стоматологическое

1

12

Плевательница

1

13

Стерилизатор воздушный

1

14

Ведро педальное

1

15

Вешалка настенная на 2 крючка

1

16

Облучатель настенный бактерицидный ОБН1-5, ОБН-150

1

17

Негатоскоп стоматологический

1

18

Умывальник хирургический фарфоровый

1

 

7.14 Ожидальная

 

 

Мебель

 

1

Кресло

3 на 1 каб.

2

Подцветочница

1-2

3

Стол журнальный

1 на 3 кресла

 

Оборудование

 

4

Озонатор

1

5

Облучатель настенный бактерицидный ОБН-15, ОБН-150

1

 

7.15 Кабинет медсестры

 

 

Мебель

 

1

Стол медсестры

1

2

Кушетка смотровая

1

3

Шкаф металлический медицинский

1

4

Стул с подлокотниками

3

 

Оборудование

 

5

Зеркало настенное

1

6

Умывальник

1

7

Часы настенные

1

8

Сетевой радиоприемник

1

9

Ростомер

1

10

Облучатель настенный бактерицидный ОБН-15, ОБН-150

1

11

Часы настенные

1

 

7.16 Кабинет врача-гериатра (ВОП)

 

 

Мебель

 

1

Кушетка смотровая

 

2

Шкаф врача

 

3

Вешалка напольная

 

4

Стол рабочий с подкатной тумбой

 

5

Компьютерный стол

 

6

Кресло компьютерное

 

7

Кресло пациента

 

8

Стул с подлокотниками

3

 

Оборудование

 

9

Программно-аппаратный комплекс функциональной экспресс-диагностики «Диакомс»-1

1

10

Программно-аппаратный комплекс функциональной экспресс-диагностики «Диафалло»-1

1

11

Набор специализированных медицинских приборов фонендоскоп (тонометр и т.д.)

1

12

Компьютер

1

13

Принтер

1

14

Лампа настольная

1

15

Облучатель настенный бактерицидный ОБН-15, ОБН-150

1

16

Умывальник

1

 

7.17 Клизменная со шлюзом и уборной

 

 

Мебель

 

1

Кушетка смотровая

1

2

Тумба прикроватная

1

3

Столик инструментальный

1

4

Шкаф глухой двухстворчатый

1

 

Оборудование

 

5

Облучатель настенный бактерицидный ОБН-15, ОБН-150

1

6

Ширма медицинская 3-створчатая

1

7

Кипятильник дезинфекционный электрический

1

8

Умывальник прямоугольный фарфоровый со спинкой

2

9

Приставка к унитазу ПКУ

1

10

Унитаз козырьковый с косым выпуском фарфоровый

1

 

7.18 Смотровая приемного отделения

 

 

Мебель

 

1

Столик инструментальный

1

2

Шкаф медицинский одностворчатый

1

3

Стол врача однотумбовый

1

4

Стол компьютерный

1

5

Стол офисный

1

6

Стул с подлокотниками

2

7

Кушетка смотровая

1

 

Оборудование

 

8

Умывальник прямоугольный фарфоровый со спинкой

1

9

Компьютер

1

10

Вешалка настенная на 2 крючка

1

11

Ведро педальное

1

12

Ширма 3-створчатая

1

13

Лампа бактерицидная

1

 

8 Помещения социального назначения и кабинеты социальных работников

 

 

8.1 Кабинет заведующего

 

 

Мебель

 

1

Стул полумягкий

6

2

Шкаф металлический

1

3

Кресло офисное

1

4

Стол письменный двухтумбовый

1

5

Шкаф для одежды двухстворчатый

1

6

Шкаф для книг

1

 

Оборудование

 

7

Умывальник фаянсовый

1

8

Ведро педальное

1

 

8.2 Кабинет социально-бытовой адаптации

 

 

Мебель

 

1

Стол однотумбовый

1

2

Стул офисный

1

3

Банкетка со спинкой на 2 человека

3

 

Оборудование

 

4

Тренажер с ортезами и электростимулятором для медико-социальной реаби­литации

1

5

Озонатор

1

6

Многофункциональный комплекс для развития двигательных функций

1

7

Стенд для развития элементарных бытовых навыков

1

8

Тренажер для развития мелкой моторики и элементарных технических навыков

1

 

8.3 Кабинет социально-бытовой адаптации (восстановление навыков самообслуживания) с местом для приема гостей

 

 

Мебель

 

1

Стол обеденный

3

2

Стул полумягкий

11

3

Стол-шкаф кухонный

2

4

Комбинированная стенка

1

5

Сервировочная стойка

 

6

Разделочный стол-шкаф

 

 

Оборудование

 

7

Холодильник

1

8

Модуль из двух моек

1

9

Плита бытовая электрическая

1

10

Озонатор

1

11

Сетевой радиоприемник

1

12

Часы настенные

1

 

8.4 Комната социального работника отделения надомного обслуживания с местом временного хранения продуктов, лекарств, медикаментов и предметов первой необходимости

 

 

Мебель

 

1

Стол однотумбовый

1

2

Стул полумягкий

1

3

Стул с подлокотниками

2

4

Шкаф комбинированный

1

 

Оборудование

 

5

Холодильник

1

6

Умывальник

1

8

Ведро педальное

1

 

8.5 Кабинет социального работника (юриста)

 

 

Мебель

 

1

Стол однотумбовый

1

2

Стул офисный

1

3

Стол компьютерный

1

4

Стул с подлокотниками

2

5

Шкаф с сейфом двухстворчатый

1

6

Шкаф картотечный одностворчатый

1

 

Оборудование

 

7

Ведро педальное

1

 

8.6 Ритуальный зал

 

1

Катафалк

1

2

Тумба под крышку гроба

1

3

Подиум для установки венков и вазонов

1

4

Настенные государственные символы (Герб)

1

5

Кафедра для выступающих

1

6

Стол для съемных (переносных) религиозных символов

1

7

Стулья для родных и близких

20

8

Элементы фитодизайна

 

2 Типовые наборы оснащения мебелью и оборудованием основных помещений для оказания социально-медицинской помощи пожилым людям

А Амбулаторно-поликлинические отделения (кабинеты) по оказанию гериатрической помощи

В таблице дано оборудование, минимально необходимое по набору и типу, которое в зависимости от класса услуг при проектировании и эксплуатации может быть заменено на другие типы оборудования с адекватными функциями.

Таблица 2

№ п.п.

Наименование помещения, оборудования

Количество, шт.

 

1 Кабинеты врачебного приема

 

 

1.1 Кабинет врача гериатра (терапевта)

 

 

Мебель

 

1

Кушетка смотровая

1

2

Стул офисный

1

3

Стол врача

2

4

Стол компьютерный

1

5

Стул полумягкий

2

6

Столик инструментальный

1

7

Шкаф для кабинета врача

2

 

Оборудование

 

8

Умывальник фаянсовый

1

9

Компьютер

1

10

Облучатель настенный бактерицидный ОБН-15, ОБН-150

1

 

1.2 Кабинет ортопедической стоматологии

 

 

Мебель

 

1

Стул стоматологический

1

2

Столик стоматолога

1

3

Шкаф медицинский одностворчатый

1

4

Столик инструментальный

1

5

Стул полумягкий

1

6

Стул с подлокотниками

1

7

Стол однотумбовый

1

 

Оборудование

 

8

Облучатель настенный бактерицидный ОБН-15, ОБН-150

1

9

Установка стоматологическая универсальная

1

10

Кресло стоматологическое

1

11

Стерилизатор воздушный

1

12

Умывальник хирургический

1

13

Негатоскоп стоматологический

1

14

Кипятильник дезинфекционный

1

 

1.3 Кабинет психогеронтолога

 

 

Мебель

 

1

Стол врача однотумбовый

2

2

Шкаф медицинский одностворчатый

1

3

Стул офисный вращающийся

1

4

Стол компьютерный

1

5

Кушетка смотровая

1

6

Стул с подлокотниками

3

7

Шкаф медицинский с сейфом

1

 

Оборудование

 

8

Ведро педальное

1

9

Компьютер

1

10

Принтер

1

11

Умывальник

1

12

Ширма 3-створчатая

1

13

Облучатель настенный бактерицидный ОБН-15, ОБН-150

1

 

1.4 Кабинет врача-психотерапевта

 

 

1.4.1 Кабинет врача

 

 

Мебель

 

1

Стол однотумбовый

1

2

Стол компьютерный

1

3

Стул офисный

1

4

Стул с подлокотниками

1

5

Кресло релаксационное

1

6

Шкаф двухстворчатый

1

 

Оборудование

 

7

Музыкальный центр

1

8

Ведро педальное

1

 

1.4.2 Кабинет групповой психотерапии

 

 

Мебель

 

1

Стул офисный

1

2

Кресло для аутогенной тренировки с пристегными ремнями

10

3

Шкаф медицинский одностворчатый

1

4

Тумба

1

5

Стол врача однотумбовый

1

6

Шкаф книжный

2

 

Оборудование

 

7

Озонатор

1

8

Облучатель настенный бактерицидный ОБН-15, ОБН-150

1

9

Умывальник

1

10

Магнитофон

1

11

Видеомагнитофон

1

12

Телевизор

1

13

Ковер

1

 

1.5 Кабинет врача-логопеда

 

 

1.5.1 Кабинет врача

 

1

Стол врача однотумбовый

1

 

Стул офисный

1

3

Шкаф медицинский 2-створчатый

1

4

Кушетка смотровая

1

5

Стул полумягкий

1

6

Стул с подлокотниками

1

7

Стол палатный

1

8

Стеллаж библиотечный

1

 

Оборудование

 

9

Умывальник керамический

1

10

Зеркало

1

11

Облучатель настенный бактерицидный ОБН-15, ОБН-150

1

 

1.5.2 Кабинет групповых занятий по реабилитации речи

 

 

Мебель

 

1

Кресло с привязными ремнями

7

2

Стол палатный

1

3

Стул полужесткий

1

 

Оборудование

 

4

Озонатор

1

5

Многофункциональный комплекс для развития двигательных функций «Дон»

1

6

Пианино

1

7

Ведро педальное

1

8

Умывальник

1

9

Зеркало настенное

2

10

Тренажер для развития мелкой моторики и элементарных технических навыков 5329

1

11

Облучатель настенный бактерицидный ОБН-15, ОБН-150

1

 

1.6 Процедурная внутримышечных инъекций

 

 

Мебель

 

1

Подставка для стерилизационных коробок

1

2

Подставка для тазов

1

3

Столик инструментальный

2

4

Столик манипуляционный

1

5

Кушетка смотровая

1

6

Стол палатный

1

7

Шкаф одностворчатый стеклянный

1

8

Шкаф платяной узкий

1

9

Стул с подлокотниками

1

10

Секция подвесная для медикаментов

1

11

Стул полумягкий

1

 

Оборудование

 

12

Ведро педальное

1

13

Зеркало настенное

1

14

Кипятильник дезинфекционный

1

15

Штатив для длительных вливаний

1

16

Облучатель бактерицидный настенный

1

17

Светильник медицинский однорефлекторный передвижной

1

18

Ширма 3-створчатая

1

19

Электрополотенце

1

20

Холодильник электрический бытовой

1

21

Умывальник хирургический

1

 

2 Отделение «Стационар на дому»

 

 

2.1 Диспетчерская компьютерного слежения за состоянием больных «стационара на дому»

 

 

Мебель

 

1

Стол компьютерный

1

2

Стул офисный

1

 

Оборудование

 

3

Система экстренного радиовызова в радиусе 1000 м

 

4

Пульсоксиметр

По числу больных

5

Аппаратно-программный комплекс регистрации, хранения и передачи ЭКГ по телефону

2

 

2.2 Помещение хранения переносной аппаратуры

 

 

Мебель

 

1

Стол производственный с металлической крышкой

1

2

Стеллаж стационарный

1

3

Шкаф медицинский двухстворчатый

1

 

Оборудование

 

4

Электромагнитный аппарат «Каскад» для больных с нарушением функциони­рования многих систем в связи с обездвиженностью

1

5

Облучатель бактерицидный

1

6

Штатив для длительных вливаний ШДВ

1

7

Комплекс кардиологический переносной КПК

1

 

3 Дневной стационар

 

 

3.1 Палата на 1 койку

 

 

Мебель

 

1

Стул с подлокотниками

1

2

Стол палатный

1

3

Кровать с устройством крепления капельницы

1

 

Оборудование

 

4

Штатив для длительных вливаний ШДВ

1

5

Облучатель настенный бактерицидный ОБН-15, ОБН-150

1

6

Умывальник

1

7

Ведро педальное

1

 

3.2 Палата на 2 койки

 

 

Мебель

 

1

Стул с подлокотниками

2

2

Стол палатный

1

3

Кровать с устройством крепления капельницы

2

 

Оборудование

 

4

Штатив для длительных вливаний ШДВ

1

5

Умывальник

1

6

Облучатель настенный бактерицидный ОБН-15, ОБН-150

1

7

Ведро педальное

1

 

3.3 Палата на 3 койки

 

 

Мебель

 

1

Стул с подлокотниками

3

2

Стол палатный

1

3

Кровать с устройством крепления капельницы

3

 

Оборудование

 

4

Штатив для длительных вливаний ШДВ

1

5

Облучатель настенный бактерицидный ОБН-15, ОБН-150

1

6

Умывальник

1

7

Ведро педальное

1

 

3.4 Комната дневного пребывания с постом дежурной сестры

 

 

Мебель

 

1

Комплект поста дежурной медсестры

1

2

Шкаф медицинский двухстворачатый с сейфом

1

3

Умывальник фаянсовый со спинкой

1

4

Тумба для телевизора

1

5

Кресло мягкое с подголовниками с ремнями крепления

4

6

Стол журнальный

2

7

Стул с подлокотниками

4

8

Диван мягкий на 3 места с ремнями крепления

2

 

Оборудование

 

9

Озонатор

1

10

Облучатель настенный бактерицидный ОБН-15, ОБН-150

1

11

Ведро педальное

1

12

Умывальник

1

13

Часы настенные

1

14

Телевизор

1

15

Холодильник

1

 

3.5 Помещение приема пищи с кухней-доготовочной

 

 

Мебель

 

1

Шкаф буфетный малый

1

2

Стол производственный

1

3

Шкаф для посуды с сушкой

1

4

Тележка ресторанная

1

5

Стол обеденный

4

6

Стул с подлокотниками

16

 

Оборудование

 

7

Ведро педальное

1

8

Холодильник

1

9

Ванная моечная

1

10

Раковина чугунно-эмалированная

1

11

Столик-термос для перевозки пищи

1

12

Электрокипятильник

1

13

Электроплита 4-конфорочная

1

 

4 Помещения физиотерапевтического отделения

 

 

4.1 Кабинет электросветолечения на 2 кушетки (см. таблицу 1, п. 7.11)

 

 

4.2 Кабинет ультравысокочастотной (УВЧ) и микроволновой терапии

 

 

Мебель

 

1

Шкаф медицинский двухстворчатый

1

2

Стол для аппарата УВЧ-терапии

1

3

Кушетка физиотерапевтическая

1

4

Стол врача однотумбовый

1

5

Стул офисный

 

6

Скамейка-подставка для ног

1

7

Стул с подлокотниками

1

8

Стол для аппарата микроволновой терапии

1

 

Оборудование

 

9

Умывальник

1

10

Электрополотенце

1

11

Аппарат для УВЧ-терапии

1

12

Аппарат микроволновой терапии

1

13

Часы настольные процедурные со звуковым сигналом

1

14

Кабина экранированная

1

15

Облучатель настенный бактерицидный ОБН-15, ОБН-150

1

16

Вешалка настенная на 2 крючка

1

 

4.3 Кабинет лазеротерапии на две кушетки

 

 

Мебель

 

1

Кушетка смотровая

2

2

Стул с подлокотниками

1

3

Шкаф стеклянный двухстворчатый

1

4

Стол врача однотумбовый

1

5

Офисное кресло

1

6

Шкаф платяной узкий

1

 

Оборудование

 

7

Умывальник

1

8

Электрополотенце

1

9

Облучатель настенный бактерицидный ОБН-15, ОБН-150

1

10

Аппарат электролазерный терапевтический урологический АЭЛТУ-01 «Ярило»

1

 

4.4 Кабинет иглорефлексотерапии

 

 

Кабинет врача

 

 

Мебель

 

1

Стол палатный

1

2

Стул полумягкий

1

3

Стул с подлокотниками

1

4

Стол врача

1

5

Столик инструментальный

1

6

Шкаф медицинский одностворчатый

1

 

Оборудование

 

7

Облучатель настенный бактерицидный ОБН-15, ОБН-150

1

8

Умывальник фаянсовый

1

9

Холодильник

1

 

Процедурная

 

 

Мебель

 

1

Кушетка

3

2

Кресло

2

3

Тумба

5

 

Оборудование

 

4

Программно-аппаратный комплекс «АНТЕЛ»

5

5

Умывальник фаянсовый

1

6

Облучатель настенный бактерицидный ОБН-15, ОБН-150

1

7

Ведро педальное

1

 

4.5 Процедурная со стерилизационной

 

 

Мебель

 

1

Подставка для стерилизационных коробок

2

2

Столик инструментальный

2

3

Подставка для тазов

1

4

Стул полумягкий

1

5

Кушетка смотровая

3

6

Столик манипуляционный

1

7

Шкаф медицинский двухстворчатый

1

8

Тумба прикроватная

3

 

Оборудование

 

9

Облучатель настенный бактерицидный ОБН-15, ОБН-150

1

10

Кипятильник дезинфекционный

1

11

Умывальник фаянсовый

1

12

Светильник для подсвета рефлекторный передвижной

1

13

Холодильник

1

 

4.6 Кабинет групповых ингаляций (аэрозоли и электроаэрозоли) на 5 мест

 

 

Мебель

 

14

Стул с подлокотниками

5

15

Стол врача однотумбовый

1

16

Стул полумягкий

1

17

Шкаф медицинский двухстворчатый

1

18

Тумба-подставка под стерилизационные емкости

3

19

Столик инструментальный

1

 

Оборудование

 

20

Умывальник

6

21

Облучатель бактерицидный настенный

1

22

Стерилизатор средний для наконечников

1

23

Модуль для ингаляций

5

24

Тепловлажный ингалятор «ИНГА-03»

10

25

Ингалятор ультразвуковой

5

26

Ингалятор «ИНГА-Лотос»

5

27

Ингаляторы пневматические

компл.

28

Ведро педальное

1

 

4.7 Кабинет групповой аэрофитотерапии

 

 

Мебель

 

1

Кушетка физиотерапевтическая

1

2

Стол палатный

1

3

Столик инструментальный

1

4

Релаксационное кресло

6

5

Шкаф медицинский одностворчатый

1

 

Оборудование

 

6

Аэрофитогенератор «Аромат»

1

7

Аудиотерапевтический комплекс

1

8

Вентилятор

2

9

Фотообои 2x3 м

1

10

Аэроионизатор

1

11

Холодильник

1

12

Умывальник

1

13

Облучатель бактерицидный настенный

1

 

4.8 Кабинет кислородотерапии

 

 

Мебель

 

1

Стол врача однотумбовый

1

2

Стул полужесткий

 

3

Кушетка смотровая

1

4

Шкаф одностворчатый

1

 

Оборудование

 

5

Установка для гипокситерапии четырехместная «Био-Нова-204» («Горный воздух») для замедления старения

1

 

4.9 Кабинет теплолечения (см. таблицу 1, п. 7.12)

 

 

5 Помещения отделения водолечения

 

 

5.1 Ванный зал (без выделения кабин) с раздевальной при зале и душами

 

 

Мебель

 

1

Стул полужесткий

1

2

Тумбочка прикроватная

1

3

Шкаф медицинский двухстворчатый

1

4

Стол производственный

1

5

Полка настенная для инвентаря

1

6

Банкетка на 1 место

По числу ванн

7

Кушетка смотровая

1

 

Оборудование

 

8

Умывальник

1

9

Душевая кабина

1 на 2 ванны

10

Коврик резиновый

По числу ванн

11

Фен настенный

1

12

Ведро педальное

1

13

Аппарат для насыщения воды углекислым газом

1

14

Вешалка настенная на 2 крючка

По числу ванн

15

Подъемник для помещения больного в ванну

1

16

Часы настольные процедурные со звуковым сигналом

1

17

Ванна керамическая с нескользящим покрытием дна

По расч.

18

Облучатель настенный бактерицидный ОБН-15, ОБН-150

2

19

Полотенцесушитель

По числу ванн

 

5.2 Зал водолечебных процедур с гидромассажными ваннами и лечебными душами

 

 

Мебель

 

1

Банкетка на 2 человека

1

2

Шкаф медицинский двухстворчатый

1

3

Скамья с подогревом

1

 

Оборудование

 

4

Ведро педальное

1

5

Фен настенный

1

6

Подъемник для помещения больного в ванну

1

7

Полотенцесушитель

1

8

Умывальник

1

9

Ванная гидромассажная с дверкой

1

10

Ширма 3-створчатая

1

11

Облучатель настенный бактерицидный ОБН-15, ОБН-150

1

12

Вешалка настенная на 2 крючка

1

 

5.3 Кабинет кишечных орошений

 

 

Мебель

 

1

Кушетка смотровая

1

2

Стол палатный

1

3

Стул полумягкий

1

4

Тумбочка прикроватная

1

5

Ступени перед ванной

1

6

Шкаф медицинский одностворчатый

1

7

Банкетка 2-местная

1

 

Оборудование

 

8

Умывальник керамический

1

9

Унитаз

1

10

Приставка к унитазу ПКУ

1

11

Ведро педальное

1

12

Бак для лечебных вод

1

13

Бак для промывных вод

1

14

Полотенцесушитель трехъярусный

1

15

Ванна с навесным сиденьем для орошений

1

16

Аппарат для кишечных орошений

1

17

Облучатель настенный бактерицидный ОБН-15, ОБН-150

1

18

Вешалка настенная

1

 

5.4 Лечебный плавательный бассейн на 5 человек (см. таблицу 1, п. 7.3)

 

 

6 Помещения отделения кинезотерапии

 

 

6.1 Кабинет мануальной терапии

 

 

Мебель

 

1

Стол палатный

1

2

Стул офисный

1

3

Стул с подлокотниками

1

4

Кушетка для мануальной терапии

1

5

Табурет винтовой

1

6

Шкаф стеклянный двухстворчатый

1

 

Оборудование

 

7

Умывальник

1

8

Ведро педальное

1

9

Облучатель настенный бактерицидный ОБН-15, ОБН-150

1

10

Озонатор

1

 

6.2 Зал лечебной физической культуры для групповых занятий (ЛФК) (см. таблицу 1, п. 7.8)

 

 

6.3 Зал лечебной физической культуры для индивидуальных занятий (ЛФК)

 

 

Мебель

 

1

Стол палатный

1

2

Кушетка смотровая

1

3

Стул медицинский полумягкий

1

4

Стенка гимнастическая (для взрослых)

1

5

Банкетка на 1 человека

1

 

Оборудование

 

6

Озонатор

1

7

Зеркало настенное

1

8

Облучатель настенный бактерицидный ОБН-15, ОБН-150

1

 

6.4 Массажный кабинет с душем (см. таблицу 1, п. 7.2)

 

 

7 Диагностические помещения

 

 

7.1 Кабинет функциональной диагностики

 

 

Мебель

 

1

Тумба под аппарат

3

2

Столик инструментальный

1

3

Кушетка смотровая

1

4

Стол однотумбовый

1

5

Стол компьютерный

1

6

Стул офисный

1

7

Стул с подлокотниками

2

8

Шкаф стеклянный одностворчатый

3

 

Оборудование

 

9

Офтальмотонограф

1

10

Весы медицинские

1

11

Ростомер для взрослых

1

12

Прибор для исследования остроты зрения для близи

1

13

Прибор для исследования остроты зрения для дали

1

14

П невмотахометр

1

15

Прибор манометрический ртутный

1

16

Компьютер

1

17

Принтер

1

18

Умывальник

1

19

Ширма 3-створчатая

1

20

Электрокардиограф 6-канальный

1

21

Облучатель настенный бактерицидный ОБН-15, ОБН-150

1

22

Электрокардиограф универсальный

1

 

7.2 Кабинет исследований периферического кровообращения

 

 

Мебель

 

1

Стол палатный

1

2

Стол врача однотумбовый

1

3

Стул офисный

1

4

Стол компьютерный

1

5

Кушетка смотровая

1

6

Стол для портативных физиотерапевтических аппаратов

1

7

Стул с подлокотниками

2

8

Шкаф медицинский одностворчатый

1

 

Оборудование

 

9

Облучатель настенный бактерицидный ОБН-15, ОБН-150

1

10

Ширма 3-створчатая

1

11

Реоплетизмограф

1

12

Капилляроскоп телевизионный

1

13

Электрокардиограф универсальный

1

14

Реограф 4-канальный

1

15

Умывальник

1

Б Стационарные учреждения (отделения) по оказанию гериатрической и социально-медицинской помощи

В таблице дано оборудование, минимально необходимое по набору и типу, которое в зависимости от класса услуг при проектировании и эксплуатации может быть заменено на другие типы оборудования с адекватными функциями.

Таблица3

№ п.п.

Наименование помещения, оборудования

Количество, шт.

 

1 Помещения пребывания больных

 

 

1.1 Палата на 1 койку для немощных

 

 

Мебель

 

1

Кровать для престарелых и инвалидов

1

2

Стол палатный

1

3

Тумба прикроватная

1

4

Табурет

1

5

Столик надкроватный

1

6

Кресло для отдыха с привязными ремнями

1

 

Оборудование

 

7

Установка противопролежневая «Пульсатор»

1

8

Умывальник прямоугольный фарфоровый со спинкой

1

9

Каталка для ожоговых больных (с отверстиями)

1

10

Озонатор

1

11

Облучатель настенный бактерицидный ОБН-15, ОБН-150

1

12

Холодильник малогабаритный

1

 

1.2 Палата на 2 койки для немощных

 

 

Мебель

 

1

Кровать для престарелых и инвалидов

2

2

Столик надкроватный

2

3

Стол палатный

1

4

Тумба прикроватная

2

5

Кресло с привязными ремнями

2

6

Табурет

2

 

Оборудование

 

7

Установка противопролежневая «Пульсатор»

1

8

Озонатор

1

9

Облучатель настенный бактерицидный ОБН-15, ОБН-150

1

10

Кресло-судно передвижное

1

11

Умывальник прямоугольный фарфоровый со спинкой

1

12

Каталка для ожоговых больных (с отверстиями)

1

13

Холодильник малогабаритный

1

 

1.3 Палата на 4 койки для немощных

 

 

Мебель

 

1

Кровать для престарелых и инвалидов

4

2

Столик надкроватный

4

3

Стол палатный

1

4

Тумба прикроватная

4

5

Табурет

4

6

Кресло с привязными ремнями

2

 

Оборудование

 

7

Установка противопролежневая «Пульсатор»

1

8

Озонатор

1

9

Кресло-коляска

1

10

Облучатель настенный бактерицидный ОБН-15, ОБН-150

1

11

Кресло-судно передвижное

1

12

Умывальник прямоугольный фарфоровый со спинкой

1

13

Каталка для ожоговых больных (с отверстиями)

1

14

Холодильник малогабаритный

1

 

1.4 Палата на 1 койку для способных к самообслуживанию

 

 

Мебель

 

1

Кровать функциональная

1

2

Стол палатный

1

3

Тумба прикроватная

1

4

Стул с подлокотниками

1

5

Табурет

1

 

Оборудование

 

6

Облучатель настенный бактерицидный ОБН-15, ОБН-150

1

7

Ведро педальное

1

8

Умывальник фаянсовый со спинкой

1

 

1.5 Палата на 2 койки для способных к самообслуживанию

 

 

Мебель

 

1

Стол палатный

1

2

Стул с подлокотниками

2

3

Тумба прикроватная

2

4

Кровать функциональная

2

5

Табурет

2

 

Оборудование

 

6

Облучатель настенный бактерицидный ОБН-15, ОБН-150

1

7

Умывальник прямоугольный фарфоровый со спинкой

1

8

Ведро педальное

1

9

Зеркало настенное

1

 

1.6 Палата на 4 койки для способных к самообслуживанию

 

 

Мебель

 

1

Стол палатный

1

2

Стул медицинский полумягкий

1

3

Тумба прикроватная

4

4

Кровать функциональная

4

 

Оборудование

 

5

Облучатель настенный бактерицидный ОБН-15, ОБН-150

1

6

Зеркало настенное

1

7

Умывальник прямоугольный фарфоровый со спинкой

1

8

Ведро педальное

1

9

Унитаз

1

 

1.7 Палата изолятора с санузлом (см. таблицу 1, п. 7.6)

 

 

1.8 Помещение дневного пребывания с постом дежурной медсестры (см. таблицу 3, п. 3.4)

 

 

Мебель

 

1

Кресло для отдыха с подлокотниками

8

2

Диван трехместный

1

3

Стул

5

4

Скамья для ног

5

5

Тумбочка под телевизор

1

6

Подцветочница

3

7

Стол журнальный

3

8

Стойка поста медсестры

1

9

Стол медсестры

1

10

Стул медсестры

1

11

Шкаф медицинский

1

 

Оборудование

 

12

Озонатор

1

13

Облучатель настенный бактерицидный ОБН15, ОБН 150

1

14

Телевизор с видеоплеером

1

15

Часы настенные

1

16

Сетевой радиоприемник

1

17

Зеркало настенное

1

 

2 Санитарные узлы и комнаты

 

 

2.1 Санитарный узел при палате для немощных

 

1

Раковина

1

2

Слив с душем

1

3

Унитаз

1

4

Облучатель настенный бактерицидный ОБН-15, ОБН-150

1

 

2.2 Санитарный узел при палате для способных к самообслуживанию (см. таблицу 1, п. 3.1)

 

 

2.3 Санитарный узел общего пользования (см. таблицу 1, п. 3.7)

 

 

2.4 Ванная комната с подъемником (см. таблицу 1, п. 3.4)

 

 

3 Столовые

 

 

3.1 Столовая палатного отделения (палатной секции) (см. таблицу 1, п. 5.2)

 

 

4 Медицинские помещения

 

 

4.1 Смотровая (кабинет врача) приемного отделения

 

 

Мебель

 

1

Столик инструментальный

1

2

Шкаф медицинский одностворчатый

1

3

Стол врача

1

4

Стул медицинский полумягкий

2

5

Кушетка смотровая

1

 

Оборудование

 

6

Облучатель настенный бактерицидный ОБН-15, ОБН-150

1

7

Умывальник прямоугольный фарфоровый со спинкой

1

8

Ведро педальное

1

 

4.2 Процедурная

 

 

Мебель

 

1

Столик манипуляционный

1

2

Стол палатный

1

3

Стул полумягкий

1

4

Кушетка смотровая

1

5

Шкаф медицинский одностворчатый

1

 

Оборудование

 

6

Штатив для длительных вливаний

1

7

Ширма медицинская 3-створчатая

1

8

Умывальник прямоугольный фарфоровый со спинкой

1

9

Аппарат для искусственного дыхания ручной с отсасывателем

1

10

Измеритель артериального давления мембранный общего применения

1

11

Коробка стерилизационная круглая с фильтром

1

12

Холодильник электрический бытовой

1

13

Кипятильник дезинфекционный электрический

1

14

Облучатель бактерицидный настенный

1

15

Подставка для тазов

1

16

Подставка для стерилизационных коробок

1

 

4.3 Клизменная со шлюзом и уборной (см. таблицу 1, п. 7.17)

 

 

4.4 Выписная комната с кабиной переодевания

 

 

Мебель

 

1

Стол палатный

1

2

Стул полужесткий

1

3

Стул с подлокотниками

1

4

Банкетка на 2 человека

1

5

Тумбочка прикроватная

1

6

Шкаф для одежды

1

 

Оборудование

 

7

Вешалка на 2 крючка

1

8

Ведро педальное

1

9

Зеркало настенное

1

10

Часы настенные

1

Приложение Б

Сводная номенклатура мебели и оборудования (справочный материал)

№ п.п.

Индекс

Наименование и марка оборудования

Габариты, см (длина х ширина х высота)

Вес, кг

Примечания

Заводы-изготовители

1

2

3

4

5

6

7

Мебель

1

 

Банкетка 3-местная медицинская без спинки

1400x515x740

 

 

ЗАО Завод металлической и медицинской мебели, 127521, Москва, 12-й проезд Марьиной Рощи, 8, тел. (495) 219-26-38, факс (495)218-51-31

2

 

Банкетка 3-местная медицинская со спинкой

1400x515x740

 

 

п

3

 

Банкетка 2-местная медицинская без спинки

1000x515x740

 

 

п

4

 

Банкетка 2-местная медицинская со спинкой

1000x515x740

 

 

п

5

 

Диван медицинский 4-местный

1900x840x670

 

 

ТТЦ «Медтехсистем», 123367, Москва, ул. Габрического, д. 4, тел. 190-34-10

6

МК-1

Кресло-кровать медицинское

2160x600x470-668

-

Грузоподъемность 120 кг

ПО «Утес», 432002, г. Ульяновск, ул. Крымова, 14, тел. 31-24-60, факс 31-86-17

7

 

Кресло медицинское МИК-40002

860x600x1400

 

 

ЗАО Завод металлической и ме­дицинской мебели, 127521, Москва, 12-й проезд Марьиной Рощи, 8, тел. (495) 219-26-38, факс (495)218-51-31

8

 

Кровать для престарелых и инвалидов КПИ

1944x970x850-880

-

Грузоподъемность 80 кг

АООТ «Краснодарский зеркально-фурнитурный комбинат», 350001, г. Краснодар, ул. Вишняковой, 2, тел. 52-85-47, факс 52-35-48

9

МК-2

Кровать для психиатрических больных с приспособлениями для крепления ремней

2100x800

 

 

АО «Металлист», Электросталь, Московская обл, тел. (09657) 7-72-02

10

МК-3

Кровать лечебно-ожоговая и противопролежневая «Сатурн-90» КМ-04М

2200x820

1000

Напряжение 220 В, мощность 1,5 кВт, грузоподъемность 130 кг

АООТ «Промавтоматика», ТОО «Ритм», 620049, г. Екатеринбург, пер. Автоматики, д. 2, тел. 748-304, факс 741-451

11

МК-4

Кровать травматологическая функциональная «ОЛПАМЕД-4Т» КФТ 3.541.001

2090x800

100

-

АО Ростовский-на-Дону завод «Агат», 344039, г. Ростов-на-Дону, ул. Саратовская, 40, тел. 32-22-25, факс 34-45-44

12

МК-5

Кровать медицинская

2100x900x470-668

-

Напряжение 220 В, частота 50 Гц, мощность 2,0 кВт, грузоподъемность 120 кг

ПО «Утес», 432002, г. Ульяновск, ул. Крымова, 14, тел. 31-24-60, факс 31-86-17

13

МК-6

Кровать медицинская функциональная, КФ 4-330

2120x900x640

102 (без матраца и боковых ограждений)

Напряжение 220 В, частота 50 Гц

ГКНПЦ им. Хруничева, 121309, Москва, Новозаводская ул., 18, тел. 145-94-56, факс 145-96-16

14

 

Кровать палатная

Различные модификации 1950x850x750

 

 

«Мето-ФК» - совместное Российско-германское предприятие, Санкт-Петербург, 193029, пр. Обуховской обороны, 86, тел. (812) 567-73-42

15

МК-7

Кровать общего назначения функциональная «ОЛПАМЕД-1» КФО 3.541.001

209x80x60

55

-

АО Ростовский-на-Дону завод «Агат», 344039, г. Ростов-на-Дону, ул. Саратовская, 40, тел. 32-22-25, факс 34-45-44

16

МК-8

Кровать санаторно-бытовая МИК-10002

2125x950x550

 

-

ЗАО Завод металлической и медицинской мебели, 127521, Москва, 12-й проезд Марьиной Рощи, 8, тел. (495) 219-26-38, факс (495)218-51-31

17

 

Кровати функциональные передвижные КФ-0-01 «Агат», КФ-Р-01 «Агат»

2150x900x600

100

Грузоподъемность 225 кг

АО Ростовский-на-Дону завод «Агат», 344039, г. Ростов-на-Дону, ул. Саратовская, 40, тел. 32-22-25, факс 34-45-44

18

 

Кровать функциональная 3-секци-онная МИК-10004

2020^910x560, 940 со спинкой

 

 

ЗАО Завод металлической и медицинской мебели, 127521, Москва, 12-й проезд Марьиной Рощи, 8, тел. (495) 219-26-38, факс (495)218-51-31

19

 

Кровать функциональная 2-секци-онная МИК-10003:

дуга МИК-10013

комплект боковых ограждений (2 шт.) МИК-10010

кассета для мочеприемника МИК-10011

стойка для капельниц вставная МИК-10012

матрац поролоновый с наматрацником МИК-10014

2020x910x560, 940 со спинкой

 

 

ЗАО Завод металлической и медицинской мебели, 127521, Москва, 12-й проезд Марьиной Рощи, 8, тел. (495) 219-26-38, факс (495)218-51-31

20

 

Кровать функциональная 2-секци-онная

2020x900x640

 

 

Ставровский завод автотракторного оборудования, 601220, п. Ставрово Владимирской обл., 5-17-62

21

 

Кровать функциональная 3-секци-онная КФЗ-ЭМПД-01- «ЗМТ-Хруничев» для домов престарелых и инвалидов

2120x900x640

102

220 В, 50 Гц

Государственный космический НПЦ им. Хруничева. Завод медицинской техники и товаров народного потребления, 121309, Москва, Новозаводская 18, тел. (495) 145-94-56

22

 

Кушетка медицинская смотровая КМС-01-ЗМММ

1850x610x500

28

-

ЗАО Завод металлической и медицинской мебели, 127521, Москва, 12-й проезд Марьиной Рощи, 8, тел. 209-74-44, факс 218-32-72

23

 

Кушетка для массажа и мануальной терапии

2090x720x480-940

 

 

Производственная фирма «Аконит-М», 129090, Москва, пер. Васнецова, 2, тел. (495) 284-71-15

24

 

Кушетки медицинские КМС-1, КММ-1

1900x620x550

1900x810x760

25

29

Грузоподъемность 80 кг

ДФ ЦКПТБ «Медоборудование», 607033, Нижегородская обл., Выксунский р-н, пос. Досчатое, тел. (83177)3-01-82

25

 

Кушетка

1840x630x510

24

-

ГП ПО «Полет», 644021, г. Омск, ул. Б. Хмельницкого, 226, тел. 57-78-38, факс 39-72-01

26

 

Кушетка КУ.000

1840x630x510

25

-

ОАО «Тюменский завод медицинского оборудования и инструментов», 625035, г. Тюмень, ул. Республики, 205, тел. 21-23-77, факс 21-19-88

27

 

Кушетка массажная с головным подъемом МИК-30001

2000x650x800

 

 

ЗАО Завод металлической и медицинской мебели, 127521, Москва, 12-й проезд Марьиной Рощи, 8, тел. (495) 219-26-38, факс (495) 218-51-31

28

 

Кушетка физиотерапевтическая КМФ

1970x670x520

 

 

ТТЦ «Медтехсистем», 123367, Москва, ул. Габричевского, 6 д. 4, тел. 190-34-10

29

 

Кушетка физиотерапевтическая

1996x700x700

38

 

ОАО Челябинский трубопрокатный завод

30

 

Матрац противопролежневый лечебно-профилактический

2200x800 и др.

-

-

Уральский НИИ композиционных материалов, 614014, г. Пермь, Новозвягинскаяул., 57, тел. (3422) 72-52-55

31

 

Мебель медицинская

Кровати, ширмы, столики, тележки, тумбы, винтовые табуреты, стулья поворотные с подлокотниками и без

 

 

Фабрика медицинского и лабораторного оборудования, 117311, Москва, Ломоносовкий пр., 15, тел. (495) 930-07-42

32

 

Пост медсестры

1700x1700x1200

 

 

«Медент», 107082, Москва, ул. Бакунинская, 84, тел. 7445-98-68

33

 

Пост медсестры

3 варианта комплектации

 

 

«Мето-ФК» - совместное Российско-германское предприятие, Санкт-Петербург, 193029, пр. Обуховской обороны, 86, тел. (812) 567-73-42

34

 

Подставка под ноги педикюрная

800x200x170

 

 

ООО «Интер-Этон», 107068, Москва, Токмаков пер., 20/31, тел. 261-84-22

35

 

Рабочее место медицинского администратора

Различные варианты комплектации

 

 

«Мето-ФК» - совместное Российско-германское предприятие, Санкт-Петербург, 193029, пр. Обуховской обороны, 86, тел. (812) 567-73-42

36

 

Стеллаж многофункциональный

Различные модификации 1175x400x1820

 

 

п

37

 

Стенка многофункциональная

Различные модификации

 

 

п

38

 

Стол для кабинета врача

Различные модификации 1500-1800x704-800x750

 

 

п

39

 

Стол для кабинета врача угловой

Различные модификации

 

 

п

40

 

Стол компьютерный для кабинета врача

То же

 

 

п

41

 

Стол массажный

2000x680x880

230

Мощность 500 Вт, напряжение 220 В, грузоподъемность 120 кг

АО «Кыштымский машзавод», 456870, г. Кыштым, Челябинской обл., ул. Кооперативная, 2, тел. 3-12-51, факс 3-32-30

42

 

Стол медицинский однотумбовый

1200x600x750

 

 

«Медент», 107082, Москва, ул. Бакунинская, 84, тел. 7445-98-68

43

 

Стол медицинский двухтумбовый

1500x600x750

 

 

п

44

 

Стол медицинский

1200x700x750

 

 

п

45

 

Стол медицинский палатный

800x800x750

 

 

п

46

 

Стол медицинский передвижной

750x550x620

 

 

п

47

 

Стол физиотерапевтический массажно-процедурный

660x350x650

 

 

НПО «ГАММА-Т», 125212, Москва, Ленинградское шоссе, д.58, тел. 459-98-19, факс 459-97-18

48

 

Столик медицинский

840x480x940

-

-

ГНПП «Сплав», 300004, г. Тула, Щегловская засека, тел. 44-47-12, факс 44-14-74

49

 

Стол надкроватный СН-02

545x350x800

 

 

ТТЦ «Медтехсистем», 123367, Москва, ул. Габричевскогоб д. 4, тел. 190-34-10

50

 

Стол обеденный

1200(800)х800х750

 

 

«Мето-ФК» - совместное Российско-германское предприятие, Санкт-Петербург, 193029, пр. Обуховской обороны, 86, тел. (812) 567-73-42

51

 

Столик прикроватный комбинированный

545x350x800-1150

30

-

Касимовский приборный завод, 391330, г. Касимов, Рязанская обл., ул. Индустриальная, 3, тел. 2-41-31, факс 2-41-31

52

 

Столик прикроватный СПК

880x370x650-1000

10

-

АООТ «Краснодарский зеркально-фурнитурный комбинат», 350001, г. Краснодар, ул. Вишняковой, 2, тел. 52-85-47, факс 52-35-48

53

 

Столик прикроватный медицинский СП-01-ЗМММ

550x420x830

30

 

ЗАО «Завод металлической и медицинской мебели», 127521, Москва, 12-й проезд Марьиной Рощи, 8, тел. 209-74-44, факс 218-32-72

54

 

Столик прикроватный передвижной двух модификаций

270x270x760

400x650x1100

-

-

ГНПП «Сплав», 300004, г. Тула, Щегловская засека, тел. 44-47-12, факс 44-14-74

55

 

Столик процедурный СП.000

970x420x600

9

Грузоподъемность 80 кг

ОАО «Тюменский завод медицинского оборудования и инструментов», 625035, г. Тюмень, ул. Республики, 205, тел. 21-23-77, факс 21-19-88

56

 

Столик стоматологический

950x450x600

 

 

ГУЛ «Гормедтехника», 113093, Москва, ул. Дубининская, 98, тел. (495) 958-25-16

57

 

Стул медицинский процедурный МИК-40004

Регулировка высоты от 525 до 670, диаметр сиденья - 380

 

 

ЗАО Завод металлической и медицинской мебели, 127521, Москва, 12-й проезд Марьиной Рощи, 8, тел. (495) 219-26-38, факс (495) 218-51-31

58

 

Стул медицинский-40005

380x380x530-730

 

 

п

59

 

Стул медицинский для холлов МИК-40007

600x415x500

 

 

п

60

 

Стул медицинский палатный-40006

500x415x500

 

 

п

61

 

Стул ординатора с мягкой спинкой МИК-40008

550x410x510

 

 

п

62

 

Стул ординатора с подлокотниками МИК-40009

550x410x510

 

 

п

63

 

Стул медицинский процедурный МИК-400010

480x420x600

 

 

п

64

 

Стул складной с полумягким сиденьем и спинкой ШПР 610.000

450x400x820

5,5

 

Ставровский завод автотракторного оборудования, 601220, п. Ставрово Владимирской обл., 5-17-62

65

 

Тумба под аппаратуру

Различные модификации 420x770x750

 

 

«Мето-ФК» - совместное Российско-германское предприятие, Санкт-Петербург, 193029, пр. Обуховской обороны, 86, тел. (812) 567-73-42

66

 

Тумба прикроватная

Различные модификации 400x420x750

 

 

п

67

 

Тумба подкатная прикроватная

450x400x900

 

 

«Медент», 107082, Москва, ул. Бакунинская, 84, тел. 7445-98-68

68

191

Тумбочка прикроватная

400x400x830

40

-

ОАО «Тюменский завод медицинского оборудования и инструментов», 625035, г. Тюмень, ул. Республики, 205, тел. 21-23-77, факс 21-19-88

69

432.13

Тумба прикроватная

425x440x800

 

 

ЗАО«ГИПРОЗДРАВ», 120-75-80

70

 

Шкаф для документации

Различные модификации 400(770)х400х1820

 

 

«Мето-ФК» - совместное Российско-германское предприятие, Санкт-Петербург, 193029, пр. Обуховской обороны, 86, тел. (812) 567-73-42

71

 

Шкаф для препаратов групп «А» и «Б» с сейфом

900x400x1700

 

 

п

72

 

Шкаф для одежды

Различные модификации 440(770)(1175)х560х1820

 

 

п

73

 

Шкаф инструментальный

400(900)х400х1700

 

 

п

74

 

Шкаф картотечный

Различные модификации 400(770)х400х1820

 

 

п

75

 

Шкаф медицинский

615x485x1605

80

-

ГНПП «Сплав», 300004, г. Тула Щегловская засека, тел. 44-47-12, факс 44-14-74

76

 

Шкаф медицинский двухстворчатый

800x430x1550

-

-

Касимовский приборный завод, 391330, г. Касимов, Рязанская обл., ул. Индустриальная, 3, тел. 2-41 -31, факс 2-41-31

77

 

Шкаф медицинский для хозяйственного инвентаря

1000x400x1700

 

 

«Медент», 107082, Москва, ул. Бакунинская, 84, тел. 7445-98-68

78

 

Шкаф медицинский навесной

1000x300x450

 

 

п

79

 

Шкаф медицинский навесной угловой

1000x300x450

 

 

п

80

 

Шкаф медицинский инструментальный одностворчатый (двухстворчатый)

450(800)х380х1750

 

 

ГУП «Гормедтехника», 113093, Москва, ул. Дубнинская, 98, тел. (495)958-25-16

81

 

Шкаф для сушки прокладок в физиотерапевтическом отделении

1050x600x1750

 

 

п

82

 

Шкаф-раздевалка медсестры

660x580x2000

 

 

п

83

 

Шкаф медицинский одностворчатый секционный

460x450x1650

60

-

ЗАО «ЭТАЛОН», 241019, г. Брянск, пр. Станка Димитрова, 26, тел. 41-60-07, факс 41-42-20

84

 

Шкаф медицинский одностворчатый

600x430x1550

-

-

Касимовский приборный завод, 391330, г. Касимов, Рязанская обл., ул. Индустриальная, 3, тел. 2-41-31, факс 2-41-31

85

 

Шкаф медицинский

500x400x1700

 

 

«Медент», 107082, Москва, ул. Бакунинская, 84, тел. 7445-98-68

86

 

Шкаф медицинский с сейфом

500x400x1700

 

 

п

87

 

Шкаф медицинский

1000x400x1700

 

 

п

88

 

Шкафы медицинские

15 модификаций

 

 

ПКООО «Респект-плюс», 220123, г. Минск, ул. В. Хоружей, 32А, тел. (8017) 283-24-58

89

 

Ширма медицинская

Одна секция 1700x700

 

 

ТТЦ «Медтехсистем», 123367, Москва, ул. Габричевского, д. 4, тел. 190-34-10

Санитарно-гигиеническое оборудование

90

 

Ванна лифтовая многофункциональная с электроизменяемой высотой

Высота 60-100 см, длина 205 см, ширина 81 см

 

Для гигиенических процедур

Производитель «Века Hospitec GmbH», Германия, продавец ЗАО «СП Бека-Хоспитек», Москва, тел. (495) 742-44-30

91

 

Ванна «опрокидывающаяся» для маломобильных пациентов с плавным подъемом из лежачего положения в сидячее

Высота 90 см, длина 156 см, ширина 85 см

 

То же

Производитель «Века Hospitec GmbH», Германия, продавец ЗАО «СП Бека-Хоспитек», Москва, тел. (495) 742-44-30

92

 

Ванна сидячая «кокон» для производства душевых процедур для всего тела

Высота 104 см, длина 115 см, ширина 102 см

 

»

Производитель «Века Hospitec GmbH», Германия, продавец ЗАО «СП Бека-Хоспитек», Москва, тел. (495) 742-44-30

93

 

Ванна лифтовая многофункциональная эргономичной формы с электроизменяемой высотой

Высота 60-100 см, длина 200, 220 см, ширина 78 см

 

»

Производитель «Века Hospitec GmbH», Германия, продавец ЗАО «СП Бека-Хоспитек», Москва, тел. (495) 742-44-30

94

 

Ванная эргономичной формы с заданной высотой для ухода за пациентами

Высота 65 см, 70 см, 75 см, 80 см длина 198 см, ширина 84 см

 

»

Производитель «Века Hospitec GmbH», Германия, продавец ЗАО «СП Бека-Хоспитек», Москва, тел. (495) 742-44-30

95

 

Держалки опорные

Высота 40 см

Высота 84 см

0,43

0,58

-

ГНПП «Сплав», 300004, г. Тула, Щегловская засека, тел. 44-47-12, факс 44-14-74

96

 

Зеркала настраиваемые

630x450

 

Для оснащения ванных комнат

Производитель «Века Hospitec GmbH», Германия, продавец ЗАО «СП Бека-Хоспитек», Москва, тел. (495) 742-44-30

97

 

Каталка душевая с гидравлическим изменением высоты

1950x630x550-950

 

Для транспортировки и ополаскивания пациентов

Производитель «Века Hospitec GmbH», Германия, продавец ЗАО «СП Бека-Хоспитек», Москва, тел. (495) 742-44-30

98

 

Каталка душевая с электрическим изменением высоты

1600x820x550-950

 

Для транспортировки и ополаскивания пациентов

Производитель «Века Hospitec GmbH», Германия, продавец ЗАО «СП Бека-Хоспитек», Москва, тел. (495) 742-44-30

99

 

Каталка универсальная с гидравлическим изменением высоты

1950x630x550-950

 

Для транспортировки и ополаскивания пациентов и других процедур

Производитель «Века Hospitec GmbH», Германия, продавец ЗАО «СП Бека-Хоспитек», Москва, тел. (495) 742-44-30

100

 

Каталка универсальная с электрическим изменением высоты

1950x820x550-950

 

То же

Производитель «Века Hospitec GmbH», Германия, продавец ЗАО «СП Бека-Хоспитек», Москва, тел. (495) 742-44-30

101

 

Кресло мобильное для душа/туалета

520x480x520

 

Для передвижения в помещении

Производитель «Века Hospitec GmbH», Германия, продавец ЗАО «СП Бека-Хоспитек», Москва, тел. (495) 742-44-30

102

 

Кресло стационарное для душа/туалета

520x480x520

 

Для облегчения пользования душем и туалетом

Производитель «Века Hospitec GmbH», Германия, продавец ЗАО «СП Бека-Хоспитек», Москва, тел. (495) 742-44-30

103

 

Оборудование для ванных комнат и туалетов (поручни, вспомогательные опоры и др.)

500x550x740-900

 

 

«Конмет холдинг», 125413, Москва, ул. Онежская, 24/1, тел. (495) 456-97-50

104

 

В том числе: опора вспомогательная со столом

600x650x900-1200

 

Для постинсультных больных

п

105

 

опора вспомогательная подмышечная

520х700х1500-1400

 

п

п

106

 

опора колесная с сиденьем для отдыха

430x460x610-800

 

Для пожилых и постинсультных больных

п

107

 

Подъемник для ванн сидячий стационарный электрический

520x480x520

 

Для погружения больного в ванну

Производитель «Века Hospitec GmbH», Германия, продавец ЗАО «СП Бека-Хоспитек», Москва, тел. (495) 742-44-30

108

 

Подъемник для ванн сидячий мобильный электрический

520x480x520

 

Для погружения больного в ванну

Производитель «Века Hospitec GmbH», Германия, продавец ЗАО «СП Бека-Хоспитек», Москва, тел. (495) 742-44-30

109

 

Подъемник

550x1100x850-1550

 

Для ухода за лежачими

«Конмет холдинг», 125413, Москва, ул. Онежская, 24/1, тел. (495) 456-97-50

110

 

Подъемник сидячий транспортный электрический

950x660x700

 

Для транспортировки пациента от койки до ванной

Производитель «Века Hospitec GmbH», Германия, продавец ЗАО «СП Бека-Хоспитек», Москва, тел. (495) 742-44-30

111

 

Подъемник сидячий транспортный гидравлический

950x660x700

 

То же

Производитель «Века Hospitec GmbH», Германия, продавец ЗАО «СП Бека-Хоспитек», Москва, тел. (495) 742-44-30

112

 

Подъемник лежачий транспортный электрический

2010x660x480-1180

 

»

Производитель «Века Hospitec GmbH», Германия, продавец ЗАО «СП Бека-Хоспитек», Москва, тел. (495) 742-44-30

113

 

Подъемник лежачий транспортный гидравлический

2010x660x480-1180

 

»

Производитель «Века Hospitec GmbH», Германия, продавец ЗАО «СП Бека-Хоспитек», Москва, тел. (495) 742-44-30

114

 

Подъемник для ванн лежачий мобильный электрический

1770x410x520

 

Для погружения больного в ванну

Производитель «Века Hospitec GmbH», Германия, продавец ЗАО «СП Бека-Хоспитек», Москва, тел. (495) 742-44-30

115

 

Подъемник для ванн с подвесным «гамаком» мобильный электрический

1080x650x940-1620

 

То же

Производитель «Века Hospitec GmbH», Германия, продавец ЗАО «СП Бека-Хоспитек», Москва, тел. (495) 742-44-30

116

 

Панель настенная санитарно-гигиеническая

 

 

Для местных душей, санитарно-гигиеническая

Производитель «Века Hospitec GmbH», Германия, продавец ЗАО «СП Бека-Хоспитек», Москва, тел. (495) 742-44-30

117

 

Поручни, поддерживающие устройства и аксессуары из нержавеющей стали

Различные комбинации

 

Для оснащения ванных комнат и санузлов

Производитель «Века Hospitec GmbH», Германия, продавец ЗАО «СП Бека-Хоспитек», Москва, тел. (495) 742-44-30

118

 

Раковина для санобработки стомы по Гиессенеру, клиническая модель (V)

160x75x63

 

 

Производитель «Века Hospitec GmbH», Германия, продавец ЗАО «СП Бека-Хоспитек», Москва, тел. (495) 742-44-30

119

 

Раковина для санобработки стомы по Гиессенеру, домашняя индивидуальная модель

160x75x63

 

 

Производитель «Века Hospitec GmbH», Германия, продавец ЗАО «СП Бека-Хоспитек», Москва, тел. (495) 742-44-30

120

 

Раковина с электрическим изменением высоты с зеркалом

Различные

 

Для мытья рук

Производитель «Века Hospitec GmbH», Германия, продавец ЗАО «СП Бека-Хоспитек», Москва, тел. (095) 742-44-30

121

 

Стул туалетный с судном 176

 

 

Для ухода за немощными

Ставровский завод автотракторного оборудования, 601220, п. Ставрово Владимирской обл., 5-17-62

122

 

Устройство гигиеническое комбинированное душевая панель + унитаз

650x780x1400

 

Для сангигиены

Производитель «Века Hospitec GmbH», Германия, продавец ЗАО «СП Бека-Хоспитек», Москва, тел. (495) 742-44-30

Оборудование для передвижения маломобильных пациентов

123

 

Инвалидное кресло-коляска 400

1200x645x950

27,5

Для перемещения в помещениях и на открытых площадках с твердым покрытием

п

124

 

Инвалидное кресло-коляска 407

1120x710x960

35

Для преодоления значительных расстояний

п

125

 

Инвалидное кресло-коляска 401-А

1100x640x960

25

Для передвижения в помещениях

п

126

 

Коляска функциональная «Муравей»

920x550x1400

60

Грузоподъемность 100 кг

АООТ «Московское машиностроительное предприятие им. Чернышева», 123362, Москва, ул. Вишневая, 7 тел. 491-57-79, факс 491-57-79

127

 

Костыли и трости (30 моделей)

Различные

-

-

Уфимский завод металлических и пластмассовых изделий, 450069, г. Уфа, ул. Высоковольтная, 6, тел. 15-33-81, 15-26-34

128

 

Костыль регулируемой длины с подлокотником, устройством против скольжения и светоотражателем

22x10,5x79

0,55

Грузоподъемность 150 кг

АООТ «Долгопрудненское научно-производственное предприятие», 141700, г. Долгопрудный МО, пл. Собина, 1,тел. 408-34-22, факс 408-44-22

129

 

Кресло гериатрическое

1200x720x960

 

 

ЗАО «Меримед» с финским заводом «Мериваара», 117828, Москва, Научный пр. 6, тел. 128-49-00

130

 

Кресло-каталка

1120x640x930

38

Грузоподъемность 100 кг

ОАО «Тюменский завод медицинского оборудования и инструментов», 625035, г. Тюмень, ул. Республики, 205, тел. 21-23-77, факс 21-19-88

131

 

Кресло-коляска с судном 178-01

1030x620x930

22,5

Для использования в душевых, санузлах

Ставровский завод автотракторного оборудования, 601220, п. Ставрово Владимирской обл., 5-17-62

132

 

Каталка с электрическим/гидравлическим изменением высоты «MONO»

Длина 1500, 1950, ширина 650, 800, 1000, высота 390-920

 

 

Производитель «Века Hospitec GmbH», Германия, продавец ЗАО «СП Бека-Хоспитек», Москва, тел. (495) 742-44-30

133

 

Коляска инвалидная электромобильная, способная подниматься по лестницам и преодолевать другие препятствия

98x53x120

113x63x93

 

Для транспортировки пациентов

Производитель «Века Hospitec GmbH», Германия, продавец ЗАО «СП Бека-Хоспитек», Москва, тел. (495) 742-44-30

134

 

Подъемник лестничный мобильный для инвалидных колясок тракторного типа

95x31x96, 95x31x126, 114x69x126

 

Для передвижения по лестнице

Производитель TGR S.K.I. Italija, продавец ЗАО «СП Бека-Хоспитек», Москва, тел. (495) 742-44-30

135

 

Подвесные транспортные системы «ОВЕРХЕТ»

Различные

 

Для подъема и транспортировки пациентов внутри здания

Производитель «Века Hospitec GmbH», Германия, продавец ЗАО «СП Бека-Хоспитек», Москва, тел. (495) 742-44-30

136

 

Трости

4x12x1050

0,5

Грузоподъемность 150 кг

АООТ «Долгопрудненское научно-производственное предприятие», 141700, г. Долгопрудный МО, пл. Собина, 1, тел. 408-34-22, факс 408-44-22

137

 

Трость медицинская различных модификаций

Высота 78 см

Высота 95 см

0,3

0,4

-

ГНПП «Сплав», 300004, г. Тула, Щегловская засека, тел. 44-47-12, факс 44-14-74

137а

 

Устройство для подъема пациента на ноги

1080x650x940-1160

 

 

Производитель «Века Hospitec GmbH», Германия, продавец ЗАО «СП Бека-Хоспитек», Москва, тел. (495) 742-44-30

138

 

Устройство подъемное лестничное ЛПУ-03 (три модификации)

75x68

100x80

120x90

В сложенном виде

50-150x30x90

60

Грузоподъемность 150, 250,300 кг, напряжение 24, 220,380 В, мощность 0,5, 0,55, 0,75 кВт

Предприятие медицинского оборудования, 241030, г. Брянск, ул. Дружбы, 34, тел. 55-42-79, факс 55-73-80

139

 

Устройство подъемное транспортное ТПУ-02

130x80

В сложенном виде

87x50x120

98

Грузоподъемность 350 кг, напряжение 12(24) В от аккумуляторных батарей транспортного средства, мощность 1 кВт

Предприятие медицинского оборудования, 241030, г. Брянск, ул. Дружбы, 34, тел. 55-42-79, факс 55-73-80

140

 

Устройство подъемное универсальное ТПУ-03

110x75

В сложенном виде

31x51x100

78

Грузоподъемность 200 кг, напряжение 12(24) В от аккумуляторных батарей транспортного средства, мощность 1 кВт

Предприятие медицинского оборудования, 241030, г. Брянск, ул. Дружбы, 34, тел. 55-42-79, факс 55-73-80

141

 

Ходилки складные с подмышечными опорами

Высота 63 см

Высота 1370 см

4,5

7,2

 

ГНПП «Сплав», 300004, г. Тула, Щегловская засека, тел. 44-47-12, факс 44-14-74

142

 

Ходилки складные с ручными опорами

Высота 400, 840

2,4

-

ГНПП «Сплав», 300004, г. Тула, Щегловская засека, тел. 44-47-12, факс 44-14-74

143

 

Ходунки

Разные

 

 

Ставровский завод автотракторного оборудования, 601220, п. Став-рово Владимирской обл., 5-17-62

144

 

Ходунки

»

 

 

«Конмет холдинг», 125413, Москва, ул. Онежская, 24/1, тел. (495) 456-97-50

145

 

Ходунки с регулировкой высоты «BEKAHV»

740х640-800х860-1170

 

 

Производитель «Века Hospitec GmbH», Германия, продавец ЗАО «СП Бека-Хоспитек», Москва, тел. (495) 742-44-30

146

 

Ходунки, трости

Разные

 

 

Производственная фирма «Аконит-М», 129090, Москва, пер. Васнецова, 2, тел. (495) 284-71-15

Оборудование реабилитации

147

 

Многофункциональный комплекс для развития двигательных функций «Дон»

1500x800x1350

 

 

«Дон», 117602, Москва, Мичуринский пр., 74, тел. (495) 430-80-08, факс (495) 430-80-72

148

 

Оборудование для залов ЛФК

Разное

 

 

«Конмет холдинг», 125413, Москва, ул. Онежская, 24/1, тел. (495) 456-97-50

149

 

Подъемник подвесной рельсовый для любых бассейнов

Различные подвесные сиденья, гамаки.

Любая длина рельсовой системы

 

 

Производитель Hoyer GmbH, Германия, продавец ЗАО «СП Бека-Хоспитек», Москва, тел. (495) 742-44-30

150

 

Подъемник стационарный для бассейнов с бортом с подвесным сиденьем

Высота 2000 мм

 

24V

Производитель Hoyer GmbH, Германия, продавец ЗАО «СП Бека-Хоспитек», Москва, тел. (495) 742-44-30

151

 

Подъемник переносной универсальный для переливных бассейнов без борта

Высота 1350, 2600

 

24V

Производитель Hoyer GmbH, Германия, продавец ЗАО «СП Бека-Хоспитек», Москва, тел. (495) 742-44-30

152

 

Реабилитационное оборудование

Различное

-

-

Уфимский завод металлических и пластмассовых изделий, 450069, г. Уфа, ул. Высоковольтная, 6, тел. 15-33-81, 15-26-34

153

 

Стенд для развития элементарных бытовых навыков 5312

1350x600x2000

 

 

«Дон», 117602, Москва, Мичуринский пр., 74, тел. (495) 430-80-08, факс (495) 430-80-72

154

 

Тренажер для развития мелкой моторики

800x430x600

 

 

п

155

 

Тренажер для развития мелкой моторики и элементарных технических навыков 5329

920x500x650

 

 

п

Оборудование медицинское

156

 

Многофункциональная бальнеологическая ванна для массажа, гипертермических и других процедур «Лагуна»

2000x900x650

 

 

Производственная фирма «Аконит-М», 129090, Москва, пер. Васнецова, 2, тел. (495) 284-71-15

157

 

Обеззараживатель воздуха ОВ-1

93,2x12,6x14,5

6,5

Напряжение 220 В, частота 50 Гц, мощность 110 Вт

ГПТП «МЕДТЕХНИКА», г. Санкт-Петербург, ул. Рузовская, 18, тел. 316-19-77, факс 112-60-70

158

 

Облучатель бактерицидный комбинированный настенный ОБКН-30/2-01-ОЗЭТО

1000x100x70

5

Напряжение 220 В, частота 50 Гц, мощность 100 Вт

АООТ «Опытный завод электротехнического оборудования», Москва, 1-й Иртышский пр., 6, тел. 167-95-22, факс 167-95-42

159

 

Облучатели бактерицидные модульной конструкции

8 модификаций 1064(1668)х105x67

 

Модули единого дизайна для освещения и бактерицидной обработки

ООО «СЕНТЕХ», 105425, Россия, Москва, Сиреневый бульвар, 15/1, тел. (495) 164-96-11

160

 

Облучатели для компактных ультрафиолетовых ламп (настольных, настенных и ручных)

Разные

0,04

 

п

161

 

Облучатель настенный бактерицидный ОБН-15, ОБН-150

500(950)х70х100(135)

 

Мощность 15-55 Вт.

Для обеззараживания воздуха как в отсутствии, так и в присутствии людей

п

162

 

Облучатель ультрафиолетовый бактерицидный настенный ОБН 2x15-01

680x180x130

7,1

Напряжение 220 В, частота 50 Гц, мощность 65 Вт

ОАО «НИИ Зенит», 103489, Москва, Зеленоград, тел. 534-93-93, факс 534-59-16

163

 

Озонатор ОЗОН-М-5

200x350x200

10

Напряжение 220 В, мощность 60 Вт

ОАО Электромашиностроительный завод «Лепсе», 610006, г. Киров, Октябрьский пр-т, 24, тел. 23-23-10, факс 23-71-47

164

 

Озонатор ОЗОН-М-50

280x200x150

12

Напряжение 220 В, мощность 150 Вт

ОАО Электромашиностроительный завод «Лепсе», 610006, г. Киров, Октябрьский пр-т, 24, тел. 23-23-10, факс 23-71-47

165

 

Тележка

80x130x80

30

Грузоподъемность на 1 поддон 50 кг

ГП ПО «Полет», 644021, г. Омск, ул. Б. Хмельницкого, 226, тел. 57-78-38, факс 39-72-01

166

 

Тележка для обслуживания

55x100x80

14

Грузоподъмность на 1 поддон 25 кг

ГП ПО «Полет», 644021, г. Омск, ул. Б. Хмельницкого, 226, тел. 57-78-38, факс 39-72-01

167

 

Тележка для перевозки посуды

55x80x95

31

Грузоподъемность 85 кг

ОАО «Тюменский завод медицинского оборудования и инструментов», 625035, г. Тюмень, ул. Республики, 205, тел. 21-23-77, факс 21-19-88

168

 

Тележка медицинская инструментальная ТМИ

95,5x55x92,5

20

Грузоподъмность 40 кг

ГП «КРОНТ» (филиал НПО им. С.А. Лавочкина), 141400, г. Химки МО, ул. Энгельса, 27, тел. 573-87-11, факс 575-96-65

169

 

Тележка-столик для приборов

60x40x80

8

Нагрузка на 1 полку 30 кг

ГП ПО «Полет», 644021, г. Омск, ул. Б. Хмельницкого, 226, тел. 57-78-38, факс 39-72-01

170

 

Фотокаталитический освежитель воздуха «Аэролайф»

540x140x140

3,2

Мощность 40 Вт. Для уменьшения риска заражения вирусными и инфекционными заболеваниями в помещениях с большим количеством людей

ООО «СЕНТЕХ», 105425, Россия, Москва, Сиреневый бульвар, 15/1, тел. (495) 164-96-11

171

 

Штативы для внутривенных вливаний

500x500x1900

 

 

ГНПП «Сплав», 300004, г. Тула, Щегловская засека, тел. 44-47-12, факс 44-14-74

172

 

Штатив для длительных вливаний шдв

500x610x2100

7,5

-

Касимовский приборный завод, 391330, г. Касимов, Рязанская обл., ул. Индустриальная, 3, тел. 2-41 -31, факс 2-41-31

173

 

Штатив для длительных вливаний шдв

500x500x1900

 

 

Государственный Рязанский приборный завод, 390000, г. Рязань, ул. Каляева, 32, тел. 79-54-53, 93-01-06, факс 98-61-47, 21-78-37

Приборы

174

 

Аппарат для разработки движений

1650x1000x600

-

-

ТОО «АРТОМЕД LTD», 117606, Москва, просп. Вернадского, 84, корп. 2, комн. 2306, тел. 436-01-13, факс 956-23-05

175

 

Аппарат для терапии электросном ЭС 10-5

420x320x200

 

 

 

176

 

Аппарат ИК-лазерный для коррекции аккомодационно-рефракционных нарушений зрения МАК-ДЭЛ-00.00.09

Исполнительный блок 165x105x60,

блок управления 220x205x70

2

Мощность ИК-излучения в каждом пятне 1,5 мВт

ЗАО МАКДЭЛ, 107014, Москва, ул. Короленко, 2/23, оф. 16, тел. 911-47-60, факс 964-02-55

177

 

Аппарат КВЧ-терапии с контролем пульса и дыхания АРЦАХ-ОЗМ

400x250x200

 

Для кабинетов рефлексотерапии

Ассоциация «Квантовая медицина», тел. (495) 362-84-92

178

 

Аппарат маникюрный профессиональный «Этон-100»

250x200x100

 

 

ООО «Интер-Этон», 107068, Москва, Токмаков пер., 20/31, тел. 261 -84-22

179

 

Аппарат педикюрный профессиональный «Этон-200»

350x300x200

 

 

п

180

 

Аппарат электролазерный терапевтический урологический АЭЛ-ТУ-01 «Ярило»

420x275x115

10

Напряжение 220 В, частота 50 Гц, мощность 40 Вт

АОЗТ«ЯНИНВЕСТ», 101959, Москва, ул. Мясницкая, 35, тел. 924-07-85, факс 207-96-81

181

 

Аппаратура для регистрации, хранения и передачи ЭКГ по телефону:

персональный IBM совместимый компьютер;

специальный приемник ЭКГ;

необходимое число индивидуальных регистраторов-передатчиков ЭКГ

500x500x500

420x300x200

 

 

«Геолинк электронике», Москва, 113149, а/я 56, ул. Сивашская, 2-А, тел. (495) 795-30-70

182

 

Аудиометр автоматизированный АА-02

395x365x185

10

Мощность 50 Вт, напряжение 220 В, частота 50 Гц

ЗАО «БИОМЕДИЛЕН», 197183, г. Санкт-Петербург, ул. Сабировская, 37, тел. 239-91 -20, факс 239-91-20

183

 

Аудиотестер ультразвуковой Эхо-тест-01

353x615x330

 

Мощность 25 Вт, частота 100 Гц

Московский НИИ Приборостроения, 121170, Москва, Кутузовский пр-т., 34, тел. 249-07-04, факс 148-79-96

184

 

Камера холодильная КХМ 10 (для хранения трупов)

2200x1800x2400

1000

Температура от +4 до -7°С

АО «Росмонтаж», 141100, г. Щелково МО, ул. Московская, 77, тел. 526-47-02, факс 526-98-27

185

 

Калоприемник - емкость для ухода за стомой опорожняемая, самоклеющаяся

150x50x100

-

-

Государственный НИИ Медицинских полимеров (ГОСНИИМЕДПОЛИМЕР), НПЦ «ЕВАР», 117246, Москва, Научный пр., 10, тел. 120-21-61, факс 120-05-61

186

 

Комплекс кардиологический переносной КПК

350x300x150

15

Напряжение 220 В, частота 50 Гц

ПО «Уральский оптико-механический завод», 620100, г. Екатеринбург, ул. Восточная 33-Б, тел. 24-80-95, факс 24-25-21, 21-18-44

187

 

Комплекс компьютерный для подбора дифференцированного лечения артериальной гипертонии «Авиценна»

500x800x500

-

-

Фирма «НЕЙРОСОФТ» (Академия медико-технических наук РФ), 153003, г. Иваново, ул. Парижской Коммуны, 16, тел. 41-15-00, факс 30-40-08

188

 

Комплекты оборудования рабочего места стоматолога К-5

2500x2000x1500

-

-

АООТ «МЕДИЯ», 400001, г. Волгоград, ул. Профсоюзаня, 16, тел. 44-00-94, факс 44-35-92

189

 

Компьютерный комплекс врача «Арм-пересвет»

500x800x500

 

Диагностика и лечение

Ассоциация «Кватовая медицина», тел. (495) 362-84-92

190

 

Массажер вакуумный «Электроника ВМ-02»

474x366x150

13

Напряжение 220 В, мощность 50 Вт

ОАО «МИКРОПРИБОР», 171280, Тверская обл., г. Конаково, ул. Строителей, 6, тел. 4-33-44, 4-35-80

191

 

Пояс магнитофорный противорадикулитный ПМП-Доверие

1200x90x5

0,15

-

Фирма «Доверие ЛТД», 152934, г. Рыбинск, ул. Пушкина, 28, тел. 21-33-96, факс 21-34-97

192

 

Прибор медицинский для физиотерапевтического лечения

520x400x230

0,15

Мощность 1,2 мВт, напряжение 7 В

Метрологический центр радиотехнических и магнитных измерений ГП «ВНИИФТРИ», ГНПО «ПОТОК», 141570, МО, Солнечногорский р-н, пос. Менделеево, тел. 535-00-59, факс 535-08-07

193

 

Приставка к унитазу ПКУ

600x600x400

6

-

АООТ «Краснодарский зеркально-фурнитурный комбинат», 350001 г. Краснодар, ул. Вишняковой, 2, тел. 52-85-47, факс 52-35-48

193

 

Программно-аппаратный комплекс «АНТЕЛ»

560x640x300

 

Для кабинетов иглорефлексотерапии

АООТ «Краснодарский зеркально-фурнитурный комбинат», 350001 г. Краснодар, ул. Вишняковой, 2, тел. 52-85-47, факс 52-35-48

194

 

Портативные пульсоксиметры (датчики состояния)

30x30x60

 

 

«Геолинк электронике», Москва, 113149, а/я 56, ул. Сивашская, 2-А, тел. (495) 795-30-70

195

 

Стульчик для медико-социальной реабилитации

630x480x745

650x500x910

10

15

Грузоподъемность 50 кг

ЗАО «Конмет-холдинг», 125413, Москва, ул. Онежская, 24/1, тел. 456-97-50, факс 456-97-50

196

 

Система экстренного радиовызова в радиусе 1000 м

640x450x500

 

 

«Геолинк электронике», Москва, 113149, а/я 56, ул. Сивашская, 2-А, тел. (495) 795-30-70

197

 

Тонометр ТВД-01

17,4x2,6x2

0,08

Питание автономное 3 В, ток 4 мА

Государственный Рязанский приборный завод, 3900006 г. Рязань, ул. Каляева, 32, тел. 79-54-53, 93-01-06, факс 98-61-47, 21-78-37

198

 

Тренажер с ортезами и электростимулятором для медико-социальной реабилитации

680x621x720

910x830x800

1016x890x860

12

14

17

Грузоподъемность 120 кг

ЗАО «Конмет-холдинг», 125413, Москва, ул. Онежская, 24/1, тел. 456-97-50, факс 456-97-50

199

 

Универсальный ультразвуковой ингалятор

600x240x900

0,4

220 В/12 В, не более 15 VA

«Изомед», 125442, Москва, Тимирязевская ул., 1, корп. 1, тел. 956-79-34

200

 

Установка для гипокситерапии четырехместная «Био-Нова-204» («Горный воздух») для замедления старения

800x1000x600

 

 

НТО «Био-Нова», Москва, 125319,1-я Аэропортовская, 5, тел. (495) 976-82-84

201

 

Установка для очистки воды

90x45x340

1,2

Напряжение 220 В, мощность 20 Вт, производительность 40-60 л/ч

НТХЗ «Планета», 622012, Свердловская обл., г. Нижний Тагил, тел. 22-06-00, факс 22-49-63

202

 

Установка противопролежневая «Пульсатор»

2600x780 матраца,

285х210х120 блока управления

 

Напряжение 220 В, частота 50 Гц, мощность 15 Вт

АООТ НПО «Химавтоматика», 129226, Москва, ул. Сельскохозяйственная, 12-а, тел. 181-01-65, 181-37-97, факс 187-18-18

203

 

Устройство пневмомассажное и пневмоэлектронно-массажное «Лимфа», «Лимфа-Э»

500x400x210

-

Напряжение 220 В, частота 50 Гц

АОЗТ Медико-инженерный центр «АКВИТА», 129226, Москва, ул. Сельскохозяйственная, 12-а, тел. 181-33-64, факс 181-33-64

204

 

Электромагнитный аппарат «Каскад» для больных с нарушением функционирования многих систем в связи с обездвиженностью

360x160x400

16

Потребляемая мощность 200 Вт

МГГУим. Баумана, 107005, Москва, 2-я Бауманская, 5, тел  (495) 263-64-79

205

 

Электромагнитный аппарат «Каскад-синхро» (БИОС) для лечения больных с сосудистыми заболеваниями

360x160x400

17

Напряжение 220 В, потребляемая мощность 200 Вт

п

206

 

Электрокардиограф трехканальный ЭКЗЧ-01 (модель 032)

600x500x400

31

Мощность 100 Вт

АООТ «Красногвардеец» 197376, г. Санкт-Петербург, ул. Инструментальная, 3, тел.: 234-96-66,234-73-76

Примечание - Импортное оборудование предложено преимущественно в том случае, когда отечественных аналогов нет.

Ключевые слова: специализированные учреждения для пожилых людей, формы проживания пожилых людей, геронтологические центры, дома сестринского ухода, организация социально-медицинской помощи престарелым

 




ГОСТЫ, СТРОИТЕЛЬНЫЕ и ТЕХНИЧЕСКИЕ НОРМАТИВЫ.
Некоммерческая онлайн система, содержащая все Российские Госты, национальные Стандарты и нормативы.
В Системе содержится более 150000 файлов нормативно-технической документации, действующей на территории РФ.
Система предназначена для широкого круга инженерно-технических специалистов.

Рейтинг@Mail.ru Яндекс цитирования

Copyright © www.gostrf.com, 2008 - 2026