|
|
|
Общероссийский общественный фонд «ЦЕНТР КАЧЕСТВА СТРОИТЕЛЬСТВА» Санкт-Петербургское отделение
ИСПОЛНИТЕЛЬНАЯ ТЕХНИЧЕСКАЯ ДОКУМЕНТАЦИЯ ПРИ СТРОИТЕЛЬСТВЕ ЗДАНИЙ И СООРУЖЕНИЙ
Справочное пособие
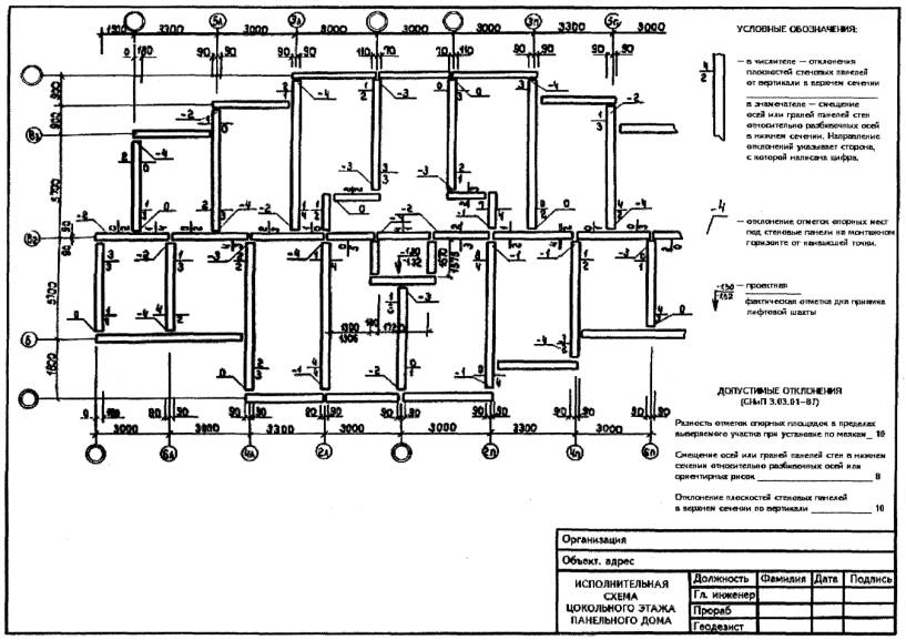
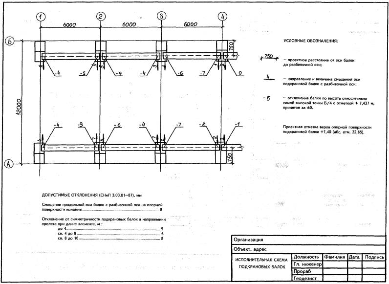
Санкт-Петербург 2005 СОДЕРЖАНИЕВ настоящем пособии приведен перечень исполнительной технической документации, оформляемой в процессе строительства и сдачи в эксплуатацию зданий и сооружений, правила ее ведения, даны приложения с формами и примерами оформления документации. Пособие предназначено для инженерно-технических работников строительных и монтажных организаций, специалистов технического надзора заказчика. Может быть полезным при подготовке специалистов в области строительства. Авторы выражают благодарность специалистам ЗАО «Строительный трест», ЗАО «Строительное управление», ЗАО «ИСК РАНТ», оказавшим помощь в разработке данного справочного пособия. ВВЕДЕНИЕИсполнительная техническая документация - это документация, оформляемая в процессе строительства и фиксирующая процесс производства строительно-монтажных работ, а также технического состояния объекта. Исполнительная документация - это комплект рабочих чертежей с надписями о соответствии выполненных в натуре работ этим чертежам или о внесенных в них по согласованию с проектировщиком изменениях, сделанных лицами, ответственными за производство строительно-монтажных работ (СНиП 12-01-2004). Обязательность составления, формы и содержание конкретной исполнительной технической документации, правила ее ведения устанавливаются требованиями СНиП и других действующих нормативных документов, а в некоторых случаях указаниями органов государственного контроля и надзора, а также участников строительства. На практике по разному трактуются требования к ведению исполнительной технической документации. Встречаются различные формы документации и правила ее оформления. Отсутствие систематизированного пособия по составлению и ведению исполнительной технической документации при строительстве зданий и сооружений вызывает трудности у специалистов строительных и монтажных организаций и требует значительного времени на ее оформление. Поэтому в настоящее время возникла необходимость систематизировать основные требования к ведению исполнительной технической документации в виде справочного пособия. Своевременное и правильное оформление исполнительной технической документации, фиксирующей процесс производства строительных и монтажных работ и техническое состояние строительного объекта, способствует повышению качества работ. Необходимо отметить, что одним из требований стандартов ИСО серии 9000 к системам качества является фиксация документально результатов контроля. Настоящее справочное пособие представляет собой систематизированный информационный источник и предназначено в первую очередь для линейных инженерно-технических работников строительных и монтажных организаций, а также для специалистов проектных организаций, заказчиков и государственных органов, осуществляющих надзор и контроль за строительством объектов. I. ВИДЫ ИСПОЛНИТЕЛЬНОЙ ТЕХНИЧЕСКОЙ ДОКУМЕНТАЦИИ И ПОРЯДОК ЕЕ ОФОРМЛЕНИЯВ процессе строительства исполнителям работ необходимо оформлять исполнительную техническую документацию, отражающую фактическое исполнение проектных решений и фактическое положение зданий, сооружений и их элементов на всех стадиях строительства по мере завершения определенных этапов работ. К исполнительной технической документации относятся: 1. Акты приемки геодезической разбивочной основы. 2. Исполнительные геодезические схемы возведенных конструкций, элементов и частей зданий, сооружений. 3. Исполнительные схемы и профили инженерных сетей и подземных сооружений. 4. Общий журнал работ. 5. Специальные журналы работ, журналы входного и операционного контроля качества. 6. Журнал авторского надзора проектных организаций (при наличии авторского надзора). 7. Акты освидетельствования скрытых работ. 8. Акты промежуточной приемки ответственных конструкций. 9. Акты испытаний и опробования оборудования, систем и устройств. 10. Акты приемки инженерных систем. 11. Исполнительные схемы расположения зданий, сооружений на местности (посадки), являющиеся исполнительной архитектурной документацией. 12. Рабочие чертежи на строительство объекта с надписями о соответствии выполненных в натуре работ этим чертежам (с учетом внесенных в них изменений), сделанными лицами, ответственными за производство строительно-монтажных работ. 13. Другие документы, отражающие фактическое исполнение проектных решений, по усмотрению участников строительства с учетом их специфики. Исполнительная техническая документация, оформленная в установленном порядке, предъявляется исполнителем при приемке работ и при приемке объекта в эксплуатацию. При сдаче объекта в эксплуатацию исполнительная техническая документация в комплекте с другими документами передается эксплуатирующей организации на постоянное хранение и используется в процессе эксплуатации. 1. Общий журнал работНа каждом объекте строительства надлежит вести общий журнал работ, который является основным первичным производственным документом, отражающим технологическую последовательность, сроки, качество выполнения и условия производства строительно-монтажных работ. Общий журнал работ ведется при строительстве (реконструкции) отдельных или группы однотипных, одновременно строящихся зданий, сооружений, расположенных в пределах одной строительной площадки. Общий журнал работ ведет лицо, ответственное за строительство зданий или сооружений (производитель работ, старший производитель работ) и заполняет его с первого дня работы на объекте лично или поручает руководителям смен. При сдаче законченного строительством объекта общий и специальные журналы работ передаются заказчику и хранятся у него до ввода объекта в эксплуатацию. После ввода объекта в эксплуатацию журналы передаются на постоянное хранение эксплуатирующей организации. Общий журнал работ следует вести по форме, приведенной на странице 17. Формат журнала принимается А4. 2. Специальные журналы работГенподрядчиком по согласованию с субподрядными организациями и заказчиком для осуществления своевременного и достоверного надзора за выполнением строительно-монтажных работ должен быть установлен в договоре строительного подряда перечень специальных журналов работ, которые следует вести в процессе строительства. Данные о производстве некоторых видов строительно-монтажных работ следует ежемесячно вносить в следующие специальные журналы работ: - журнал работ по монтажу строительных конструкций (стр. 21); - журнал сварочных работ (стр. 23); - журнал антикоррозионной защиты сварных соединений (стр. 25); - журнал замоноличивания монтажных стыков (стр. 27); - журнал выполнения монтажных соединений на болтах с контролируемым натяжением (стр. 29); - журнал работ по устройству свайных фундаментов (стр. 31); - журнал бетонных работ (стр. 33); - журнал производства антикоррозионных работ (стр. 35) и др. Специализированные строительно-монтажные организации (субподрядчики) ведут журналы работ, которые находятся у ответственных лиц, выполняющих эти работы. 3. Журнал авторского надзораВ случае осуществления авторского надзора за строительством объекта следует вести журнал авторского надзора (стр. 36). Журнал составляется проектной организацией по установленной форме и передается заказчику. Ведение журнала может осуществляться как по объекту строительства в целом, так и по его пусковым комплексам или отдельным зданиям и сооружениям. Формат журнала принимается А4. Журнал должен быть прошнурован, пронумерован, оформлен всеми подписями на титульном листе и скреплен печатью заказчика. Журнал должен находиться на площадке строительства до его окончания. После окончания строительства подрядчик передает журнал заказчику. Журнал заполняется руководителем или специалистами, осуществляющими авторский надзор, заказчиком и уполномоченным лицом подрядчика. Каждое посещение объекта строительства специалистами, осуществляющими авторский надзор, регистрируется в журнале. Запись о проведенной работе по авторскому надзору удостоверяется подписями ответственных представителей заказчика и подрядчика. Запись производится также и при отсутствии замечаний. Записи и указания специалистов должны излагаться четко, с необходимыми ссылками на действующие нормативные документы. 4. Приемка геодезической разбивочной основыСоздание геодезической разбивочной основы для строительства и геодезические измерения деформаций оснований, конструкций зданий (сооружений) и их частей в процессе строительства является обязанностью заказчика. Производство геодезических работ в процессе строительства, геодезический контроль точности геометрических параметров зданий (сооружений) и исполнительные съемки входят в обязанности подрядчика. Геодезическая разбивочная основа создается в целях обеспечения необходимыми исходными данными геодезических построений и измерений, выполняемых на всех стадиях строительства, и включает: - построение разбивочной сети строительной площадки; - вынос в натуру основных или главных осей здания. Разбивочная сеть строительной площадки создается для выноса в натуру основных или главных разбивочных осей здания, сооружения, а также при необходимости построения внешней разбивочной сети здания, сооружения, производства исполнительных съемок. Внешняя разбивочная сеть здания, сооружения создается для перенесения в натуру и закрепления проектных параметров здания, сооружения, производства детальных разбивочных работ и исполнительных съемок. Плановую разбивочную сеть строительной площадки следует создавать в виде: а) красных или других линий регулирования застройки; б) строительной сетки, как правило, с размерами сторон 50, 100, 200 м и других видов геодезических сетей. Внешнюю разбивочную сеть здания, сооружения следует создавать в виде геодезической сети, пункты которой закрепляют на местности основные (главные) разбивочные оси, а также углы здания, сооружения, образованные пересечением основных разбивочных осей. Разбивка осей производится от пунктов геодезической разбивочной основы. Основные и главные оси закрепляются створными знаками в количестве не менее четырех на каждую ось. Створные знаки необходимо размещать в местах, обеспечивающих их сохранность в течение всего срока строительства. Заказчик обязан не менее чем за 10 дней до начала выполнения строительно-монтажных работ передать поэтапно подрядчику (строительной организации) техническую документацию на геодезическую разбивочную основу для строительства и закрепленные на площадке строительства пункты основы, в том числе: а) знаки разбивочной сети строительной площадки; б) плановые (осевые) знаки внешней разбивочной сети здания, сооружения в количестве не менее четырех на каждую ось, в том числе знаки, определяющие точки пересечения основных разбивочных осей всех углов здания, сооружения; в) плановые (осевые) знаки линейных сооружений, определяющие ось, начало, конец трассы, колодцы (камеры), закрепленные на прямых участках не менее чем через 0,5 км и на углах поворота трассы; г) нивелирные реперы по границам и внутри застраиваемой территории у каждого здания, сооружения не менее одного, вдоль осей инженерных сетей не реже чем через 0,5 км; д) каталоги координат, высот и абрисы всех пунктов геодезической разбивочной основы. Приемку геодезической разбивочной основы для строительства необходимо оформлять актом по форме, приведенной на странице 38. Разбивка осей здания, сооружения на местности оформляется актом по форме, приведенной на странице 39. 5. Исполнительные геодезические схемыПосле завершения этапа работ, возведения частей здания, сооружения выполняют геодезические измерения, называемые исполнительными геодезическими съемками. В процессе исполнительных съемок определяют плановое и высотное положение выверенных и окончательно закрепленных конструкций и элементов здания, сооружения. Выполнение исполнительных съемок предназначено для решения следующих задач: - обеспечение систематического контроля и учета объемов выполненных строительно-монтажных работ; - выявление соответствия выполненных работ проектным данным с целью своевременного устранения отклонений; - установление фактического положения конструкций. По результатам исполнительной геодезической съемки элементов конструкций и частей зданий, сооружений следует составлять исполнительные геодезические схемы. На схемах должны наноситься проектные и фактические размеры или отклонения от них. Исполнительные геодезические съемки с составлением схем на всех стадиях строительства осуществляют организации, выполняющие эти работы. При возведении зданий и сооружений в зависимости от их конструктивных особенностей должны составляться следующие исполнительные геодезические схемы: - исполнительные схемы на разбивочные работы (разбивка и закрепление осей здания, как приложение к акту на разбивку осей; детальная разбивка осей на монтажных горизонтах; разбивка осей инженерных коммуникаций, контуров котлована, как приложение к акту его приемки); - исполнительные схемы подземной части зданий и сооружений (готового котлована; земляного полотна дорог и других земляных сооружений, свайных полей, всех видов фундаментов, стен подвала, фундаментов под оборудование - анкерных болтов, закладных деталей, колодцев); - исполнительные схемы надземной части зданий и сооружений (планово-высотные съемки колонн, оголовков и консолей колонн, подкрановых балок и путей; монтажа балок и ферм; каждого этажа здания, сооружения (монтажного горизонта), лифтовых шахт. Исполнительную схему котлована выполняют после зачистки дна котлована. При этом определяют положение осей, внутренний контур, отметки дна котлована по результатам нивелирования поверхности по квадратам и их отклонения от проектного значения (стр. 44). При исполнительной съемке ленточных фундаментов в плане на верхние и боковые грани вновь переносят оси, от которых выполняют замеры, а также определяют отклонение отметок верха фундамента от проектной (стр. 45). При исполнительной съемке фундаментов стаканного типа определяют отклонение отметки дна стакана от проектной и фактические размеры стакана в нижнем сечении (стр. 46). Исполнительную съемку свай выполняют после их окончательного погружения и срезке на проектном уровне. При этом определяют направление и величину смещения центра сваи от планового проектного положения, а также отклонение оголовков свай от проектной отметки (стр. 47). Завершением нулевого цикла строительства является составление исполнительной схемы планово-высотного положения конструкций подвальной части здания, на которой показывают фактическое положение осей и смещение стен от проектного положения. Исполнительную съемку стен технического подполья выполняют после монтажа плит перекрытия и завершения работ по подготовке монтажного горизонта. Результаты исполнительной съемки подземной части сооружения отражают на схемах осей, вынесенных на перекрытие над подвалом, с указанием их проектных и фактических размеров, на схемах нивелирования поверхности перекрытия над подвалом с указанием проектной и фактической отметок в углах плит перекрытий, а также схемах планового положения смонтированных элементов цокольного этажа. При возведении надземной части производят поэтажную исполнительную съемку, фиксирующую точность создания разбивочной сети на монтажном горизонте, точность монтируемых конструкций и их элементов. На исполнительной схеме стеновых панелей показывают направление и величину отклонения плоскости стеновой панели в верхнем сечении от вертикали, а также смещение оси панели или ее грани в нижнем сечении от разбивочной оси (стр. 50). На исполнительной схеме съемки колонн многоэтажного здания показывают направление и величину смещения осей колонн от разбивочных осей в нижнем и верхнем сечениях, а также отклонение отметки верха колонны относительно «0» мм. При этом за «0» принимают отметку колонны, имеющей наибольшую абсолютную величину (стр. 51). Плановые отметки могут быть получены непосредственными промерами от осей или их параллелей, разбитых на монтажном горизонте. Отклонение от вертикали определяют рейкой-отвесом, простым отвесом или боковым нивелированием. Отклонение по высоте получают техническим нивелированием. При исполнительной съемке лифтовых шахт определяют величину разности диагоналей шахты в плане и отклонения стен от вертикали. Длины диагоналей находят путем промеров, отклонения от вертикали - по отвесу (стр. 52-53). Исполнительную съемку кирпичных зданий выполняют на каждом этаже после возведения стен. На исполнительной схеме показывают отклонения от проектных размеров по толщине стен, по отметкам опорных поверхностей; плановые и высотные положения оконных и дверных проемов, плит, перегородок; отклонение по смещению осей конструкций от разбивочных осей, поверхностей и углов кладки по вертикали на один этаж и на все здание высотой более двух этажей (стр. 54). Контроль планового положения кладки стен осуществляют линейными промерами от продольных и поперечных разбивочных осей. Толщину стен при исполнительной съемке определяют непосредственным их промером. Вертикальность кладки определяют измерением линейкой расстояния от нити отвеса до стены в наиболее характерных ее точках или через равные промежутки. Геометрическим нивелированием точек через каждые 5 м определяют соответствии полученного горизонта законченной кирпичной кладки каждого этажа проектному значению. При передаче отдельных частей здания, сооружения от одной строительно-монтажной организации другой необходимые для выполнения последующих геодезических работ знаки, закрепляющие оси, отметки, ориентиры и материалы исполнительных съемок должны быть переданы по акту (стр. 58). Исполнительную геодезическую документацию подписывают геодезист, производитель работ и главный инженер строительной организации. Она составляется в двух экземплярах, из которых один экземпляр хранится на строительной площадке, а второй передается в производственно-технический отдел строительной организации. 6. Исполнительные схемы и профили инженерных сетейИсполнительную геодезическую съемку подземных инженерных сетей следует выполнять до их засыпки. Исключения составляет самотечная канализация, исполнительную съемку которой выполняют после засыпки траншей и гидравлического испытания труб. Исполнительную съемку инженерных коммуникаций производят от планово-высотного обоснования. При наличии четко выраженных контуров капитальных зданий, фундаментов, железобетонных заборов на застроенной территории они могут использоваться в качестве обоснования. От твердых точек капитальной застройки горизонтальную съемку выполняют линейными засечками, способом перпендикуляров и способом створов. Линейные засечки делают не менее чем с трех точек. Линии засечек не должны превышать длину мерной ленты. Углы между смежными направлениями должны быть в пределах 30-120°. Длина перпендикуляра не должна превышать 4 м, а в случае применения экера - 20 м. При съемке створным методом створные точки рекомендуется определять промерами в прямом и обратном направлениях при расхождении между ними не более 1/2000. Исполнительной плановой съемке подлежат: углы поворота, точки начала, середины и конца сетей, пересечение трасс, места присоединений ответвлений, элементы подземных сетей (люки, колодцы, камеры, компенсаторы и т. д.) Обязательной съемке подлежат все подземные сооружения, пересекающие прокладку или идущие параллельно с ней, вскрытые траншеи. Одновременно со съемкой элементов инженерных коммуникаций должны быть сняты все здания, прилегающие к проезду или трассам прокладок. В процессе съемки собирают данные о количестве прокладок, отверстий, материале труб, колодцев, каналов, о размерах диаметров труб и каналов, давлении в газовых и напряжении в кабельных сетях. Нивелируют люки колодцев, лотки канализационных, водосточных и дренажных колодцев, пол каналов теплосетей, телефонной и электрокабельной сетей, в безколодезных прокладках - углы поворота трассы и точки излома профиля. Для трубопроводов определяют отметки верха труб во всех колодцах и камерах. По результатам съемки подземных инженерных сетей следует составлять исполнительные чертежи, как правило, в масштабе соответствующих рабочих чертежей, отражающие плановое и высотное положение вновь проложенных инженерных сетей, то есть план трассы коммуникаций и продольный профиль по оси сооружения (стр. 59-65). При приемке инженерных сетей представители технического надзора заказчика должны выполнять контрольную геодезическую съемку для проверки соответствия построенных инженерных сетей их отображению на предъявленных подрядчиком исполнительных чертежах. 7. Освидетельствование скрытых работВ процессе строительства должна выполняться оценка выполненных работ, результаты которой влияют на безопасность объектов, но в соответствии в принятой технологией становятся недоступным для контроля после начала выполнения последующих работ, а также выполненных строительных конструкций и участков инженерных сетей, устранение дефектов которых, выявленных контролем, невозможно без разборки или повреждения последующих конструкций и участков инженерных сетей. В указанных контрольных процедурах могут участвовать представители соответствующих органов государственного надзора, а также, при необходимости, независимые эксперты. Исполнитель работ не позднее чем за три рабочих дня извещает остальных участников о сроках проведения указанных процедур. Результаты приемки работ, скрываемых последующими работами, в соответствии с требованиями проектной и нормативной документации оформляются актами освидетельствования скрытых работ (стр. 66-127). Застройщик (заказчик) может потребовать повторного освидетельствования после устранения выявленных дефектов. 8. Акты промежуточной приемки ответственных конструкцийПриемка ответственных конструкций При промежуточной приемке ответственных конструкций подтверждается их пригодность к выполнению эксплуатационных функций. В проекте проектной организацией должен быть разработан перечень ответственных конструкций, подлежащих приемке. Промежуточную приемку организует исполнитель, подготовив исполнительные геодезические схемы, предъявляемых к приемке конструкций, необходимые документы об испытаниях, и не позднее, чем за трое суток должен известить технический надзор заказчика и руководителя авторского надзора о сроках проведения промежуточной приемки ответственных конструкций. По результатам приемки конструкций и предусмотренными при этом нормативными документами измерений и испытаний представителями строительной организации, технического надзора заказчика и авторского надзора проектной организации составляется и подписывается акт промежуточной приемки ответственных конструкций в соответствии с приложением 8 СНиП 12-01-2004 (стр. 131). Испытание конструкций зданий и сооружений Перечень ответственных конструкций зданий и сооружений, подлежащих испытанию, должен быть приведен в проекте. К таким конструкциям относятся, например, балконные плиты, крюки под люстры и светильники и др. Метод, схему и программу проведения испытания надлежит приводить в проекте, а порядок проведения - в проекте производства работ или разделе этого проекта. ППР на испытания следует согласовывать с заказчиком и генподрядчиком. Испытания конструкций должна проводить комиссия в составе представителей заказчика (председатель), генподрядной и субподрядной монтажной организации, а в случаях, предусмотренных проектом, - представителя проектной организации. Приказ о назначении комиссии издает заказчик. Перед испытанием комиссии предъявляется следующая документация: - исполнительные чертежи; - заводские технические паспорта на конструкции; - документы о качестве (сертификаты, паспорта) на материалы; - акты освидетельствования скрытых работ; - акты промежуточной приемки ответственных конструкций; - исполнительные геодезические схемы положения конструкций; - журналы работ; - документы о контроле качества сварных соединений; - другие документы, указанные в проекте или ППР. После изучения документации комиссия производит осмотр конструкций и их испытания. По результатам испытаний должен быть составлен акт. 9. Акты испытаний и опробования внутренних инженерных систем и оборудования9.1. Внутренние санитарно-технические системыПо завершению монтажных работ монтажными организациями должны быть выполнены испытания: - смонтированного оборудования (индивидуальные испытания) с составлением акта; - систем отопления, теплоснабжения, внутреннего холодного и горячего водоснабжения и котельных гидростатическим или манометрическим методом с составлением актов; - систем внутренней канализации и водостоков с составлением актов; - систем отопления на равномерный прогрев отопительных приборов. Испытания следует производить с соблюдением требований СНиП 3.05.01-85. Испытания должны производиться до начала отделочных работ. Индивидуальные испытания оборудования При индивидуальных испытаниях должны быть выполнены следующие работы: - проверка соответствия установленного оборудования и выполненных работ рабочей документации и требованиям СНиП 3.05.01-85; - испытания оборудования на холостом ходу и под нагрузкой в течение 4 часов непрерывной работы. При этом проверяются балансировка колес и роторов в сборе насосов, качество сальниковой набивки, исправность пусковых устройств, степень нагрева электродвигателей, выполнение требований к сборке и монтажу оборудования, указанных в технической документации предприятий-изготовителей. После проведения испытаний составляется акт по форме, приведенный на странице 133. Испытания систем внутреннего холодного и горячего водоснабжения Системы внутреннего холодного и горячего водоснабжения должны быть испытаны гидростатическим или манометрическим методом в соответствии с требованиями СНиП 3.05.01-85 и ГОСТ 25136-82. Испытания должны производиться до установки разборной арматуры. При гидростатическом методе величину испытаний пробного давления следует принимать равной 1,5 избыточного рабочего давления. Выдержавшими испытания считаются системы, если в течение 10 минут нахождения под пробным давлением не обнаружено падения давления более 0,05 МПа (0,5 кг/см2), а также капель в сварных швах, трубах, резьбовых соединениях, арматуре и утечке воды через смывные устройства. При манометрическом методе испытаний систему водоснабжения заполняют воздухом с избыточным пробным давлением 0,15 МПа (1,5 кг/см2). Система считается выдержавшей испытание, если при нахождении ее под пробным давлением падение давления не превысит 0,01 МПа (0,1 кг/см2) в течение 5 минут. Испытания оформляются актом по форме, приведенной на странице 136. Испытания систем отопления и теплоснабжения Испытания водяных систем отопления и теплоснабжения должны производиться гидростатическим методом, давлением, равным 1,5 рабочего давления, но не менее 0,2 МПа (2 кг/см2) в самой нижней точке системы при отключенных котлах и расширительных сосудах. Система признается выдержавшей испытание, если в течение 5 минут нахождения ее под пробным давлением падение не превысит 0,02 МПа (0,2 кг/см2) и отсутствуют течи в сварных швах, резьбовых соединениях, арматуре, отопительных приборах и оборудовании. Испытания систем панельного отопления, как правило, производят гидростатическим методом давлением 1 МПа (10 кг/см2) в течение 15 минут. При этом падение давления допускается не более 0,01 МПа (0,1 кг/см2). Панельные системы отопления и теплоснабжения признаются выдержавшими испытание давлением, если в течение 5 минут нахождение их под пробным давлением падение давления не превысит 0,02 МПа (0,2 кг/см2) или отсутствуют течи. Системы панельного отопления после испытаний должны быть проверены путем пуска пара с рабочим давлением. При этом утечка пара не допускаются. Результаты испытаний оформляются актом по форме, приведенной на странице 136. Тепловое испытание систем отопления на равномерный прогрев отопительных приборов Тепловые испытания систем отопления следует производить в течение 7 часов. При этом проверяется равномерность прогрева отопительных приборов (на ощупь). Результаты испытаний оформляются актом по форме, приведенной на страницах 137, 138. Испытания котельных Котлы и водоподогреватели должны испытываться гидростатическим методом вместе с установленной на них арматурой до производства обмуровочных работ. Величина пробного давления принимается в соответствии со стандартами или техническими условиями на это оборудование. Пробное давление выдерживается в течение 5 минут, после чего оно снижается до величины максимального рабочего давления, которое поддерживается в течение всего времени, необходимого для осмотра котла. Котлы и водоподогреватели признаются выдержавшими испытание, если: - в течение времени нахождения их под пробным давлением не наблюдалось падения давления; - не обнаружено признаков разрыва, течи и потения поверхности. Испытания оформляются актом по форме, приведенной на странице 140. Испытания внутренней канализации и водостоков Испытания систем внутренней канализации должны производиться методом пролива воды путем одновременного открытия 75% санитарных приборов, подключенных к проверяемому участку в течение времени, необходимого для его осмотра. Система считается выдержавшей испытание, если при ее осмотре не обнаружено течи через стенки трубопроводов и в местах соединений. Испытание внутренних водостоков следует производить наполнением их водой до уровня наивысшей водосточной воронки в течение не менее 10 минут. Водостоки считаются выдержавшими испытание, если при осмотре не обнаружено течи, а уровень воды в стояках не понизился. Испытания систем внутренней канализации и водостоков оформляется актом по форме, приведенной на странице 144, 145. Испытания систем вентиляции и кондиционирования воздуха Завершающей стадией монтажа систем вентиляции и кондиционирования воздуха является их индивидуальные испытания в соответствии с требованиями СНиП 3.05.01-85. По результатам испытаний вентиляционного оборудования составляется акт по форме, приведенной на странице 133. На каждую систему вентиляции и кондиционирования воздуха оформляется паспорт в 2-х экземплярах по форме, приведенной на странице 141. 9.2. Электротехнические устройстваИндивидуальные испытания электрооборудования Пусконаладочная организация производит настройку параметров, установку защиты и характеристик электрооборудования, опробование схем управления, защиты и сигнализации, а также электрооборудования на холостом ходу для подготовки к индивидуальным испытаниям технологического оборудования в соответствии с требованиями СНиП 3.05.05-84 (приложение 1) и СНиП 3.05.06-85. После проведения индивидуальных испытаний электрооборудование считается принятым в эксплуатацию. При этом пусконаладочная организация оформляет и передает заказчику в одном экземпляре протоколы испытаний электрооборудования повышенным напряжением, проверки устройств заземления и зануления, а также исполнительные принципиальные электрические схемы. Формы протоколов приведены в приложениях. Окончание индивидуальных испытаний оформляется актом технической готовности электрооборудования для комплексного опробования. Форма акта приведена в приложении 1 СНиП 3.01.04-87. Комплексное опробование электрооборудования При комплексном опробовании выполняются следующие работы: - обеспечение взаимных связей, регулировка и настройка характеристик и параметров отдельных устройств и функциональных групп электроустановки с целью обеспечения на ней заданных режимов работы; - опробование электроустановки по полной схеме на холостом ходу и под нагрузкой во всех режимах работы для подготовки к комплексному опробованию технологического оборудования. Обслуживание электрооборудования осуществляется заказчиком. Результаты комплексного опробования электрооборудования оформляются актом приемки пусконаладочных работ по форме, приведенной на странице 134. Готовность выполненных электромонтажных работ к сдаче-приемке определяется актом технической готовности электромонтажных работ (стр. 167, 169), являющимся основанием для организации работы рабочей комиссии по приемке оборудования после индивидуальных испытаний. Акт технической готовности может быть использован для оформления сдачи-приемки электромонтажных работ, когда рабочая комиссия еще не образована. Заполненные формы приемо-сдаточной документации в составе всей технической документации, перечисленной в приложении, после оформления акта технической готовности электромонтажных работ передаются генподрядчику для последующего предъявления рабочей комиссии по приемке оборудования после индивидуальных испытаний; по окончании работы комиссии и составлении соответствующего акта, оформленная документация вместе с электрооборудованием передается заказчику. Документация по пусконаладочным работам предъявляется комиссиям по приемке оборудования после индивидуальных испытаний и при оформлении Акта технической готовности электромонтажных работ Документация хранится у заказчика или в пусконаладочной организации. Общие формы приемосдаточной документации приведены на страницах 167-182. Формы документов по электрооборудованию распределительных устройств электрических подстанций напряжением до 35 кВ включительно приведены на страницах 183-185. Формы документов по кабельным линиям приведены на страницах 186-197. Формы документов по воздушным линиям электропередачи напряжением до 35 кВ включительно приведены на страницах 198-203. 9.3. ГазоснабжениеСваренные стыки стального газопровода следует подвергать проверке физическими методами или механическим испытаниям. Число стыков, отбираемых для механических испытаний, должно составлять 0,5% общего числа стыков, сваренных каждым сварщиком в течение календарного месяца, но не менее двух стыков диаметром до 50 мм включительно, одного - для труб диаметром свыше 50 мм. Результаты проверки следует оформлять протоколом по форме, приведенной на странице 150. Испытания на прочность и герметичность законченных строительством наружных газопроводов, а также внутридомового газового оборудования, должна производить строительно-монтажная организация в присутствии представителя газового хозяйства в соответствии с требованиями СНиП 42-01-2002. Допускается проведение испытаний на прочность безучастия представителя газового хозяйства по согласованию с ним. Результаты испытаний следует оформлять записью в строительном паспорте по форме, приведенной на страницах 152, 155. Данные о качестве защитного покрытия от коррозии стальных подземных газопроводов следует оформлять в строительном паспорте. 9.4. Техническое освидетельствование и приемка лифтов в эксплуатациюПриемка строительной части лифта под монтаж оборудования осуществляется с оформлением акта по форме, приведенной на странице 156. Вновь установленный или реконструируемый лифт до ввода в эксплуатацию должен подвергаться полному техническому освидетельствованию. Результаты освидетельствования должны быть записаны в паспорт лифта и акт - сертификат (стр. 157). Организация, смонтировавшая лифт, совместно с генеральной подрядной строительной организацией должна произвести осмотр, проверку, испытание лифта с оформлением акта технической готовности по форме, приведенной на странице 159 и передать его заказчику. Комиссия по приемке лифта в эксплуатацию должна составлять акт приемки по форме, приведенной на странице 204. 9.5. Технологическое оборудование и технологические трубопроводыИндивидуальные испытания смонтированного оборудования и трубопроводов Порядок и сроки проведения индивидуальных испытаний, должны быть установлены правилами, согласованными монтажной организацией, генподрядчиком, заказчиком и другими организациями, участвующими в выполнении строительно-монтажных работ. Сосуды и аппараты, сборку которых производили на объектах, следует подвергать испытаниям на прочность и герметичность в соответствии с требованиями СНиП 3.05.05-84. Вид испытаний (прочность, герметичность), способ испытаний (гидравлическое, пневматическое), величина испытательного давления, продолжительность и оценка результатов испытаний должны быть указаны в сопроводительной или рабочей документации. Сосуды и аппараты, поступающие на строительную площадку, полностью собранными и испытанными на предприятии-изготовителе, индивидуальным испытаниям на прочность и герметичность дополнительно не подвергаются. Трубопроводы необходимо испытывать на прочность и герметичность. Вид, способ, продолжительность и оценку результатов испытаний следует принимать в соответствии с рабочей документацией и требованиями СНиП 3.05.05-84. Индивидуальные испытания технологического оборудования проводят в соответствии с требованиями СНиП 3.05.05-84. До начала индивидуальных испытаний осуществляются пусконаладочные работы по электротехническим устройствам, автоматизированным системам управления, санитарно-техническому и теплосиловому оборудованию согласно требованиям, приведенным в СНиП по производству соответствующего вида монтажных работ. Завершающей стадией индивидуального испытания оборудования и трубопроводов должно являться подписание акта их приемки после индивидуального испытания для комплексного опробования. Акт оформляется по форме, приведенной на странице 133. Комплексное опробование оборудования Комплексное опробование оборудования осуществляется эксплуатационным персоналом заказчика с участием представителей генерального подрядчика, проектной и субподрядных монтажных организаций, а при необходимости - персонала предприятия-изготовителя оборудования. Объем и продолжительность комплексного опробования оборудования определяются программой и графиком проведения испытаний. По окончании комплексного опробования оборудования комиссия выносит решение о готовности объекта и систем для предъявления их государственной приемочной комиссии с оформлением акта по форме, приведенной на страницах 134. 9.6. Тепловые сетиИспытания трубопроводов на прочность и герметичность Монтажные работы подлежат приемке с составлением актов освидетельствования скрытых работ. О проведении растяжки компенсаторов следует составлять акт по форме, приведенной на странице 160. После завершения работ трубопроводы тепловой сети должны быть подвергнуты окончательным (приемочным) испытаниям на прочность и герметичность в соответствии с требованиями СНиП 3.05.03-85. Трубопроводы прокладываемые бесканально и в непроходимых каналах, подлежат также предварительным испытаниям на прочность и герметичность в процессе производства работ. Предварительные испытания следует выполнять, как правило, гидравлическим способом. Перед выполнением испытаний на прочность и герметичность надлежит: - произвести контроль качества сварных стыков трубопроводов и исправление обнаруженных дефектов; - отключить заглушками испытываемые трубопроводы от действующих и от первой запорной арматуры, установленной в здании (сооружении); - установить заглушки на концах испытываемых трубопроводов и вместо сальниковых (сильфонных) компенсаторов, секционирующих задвижек при предварительных испытаниях - обеспечить на всем протяжении испытываемых трубопроводов доступ для их внешнего осмотра и осмотра сварных швов на время проведения испытаний; - открыть полностью арматуру и байпасные линии. Использование запорной арматуры для отключения испытываемых трубопроводов не разрешается. На испытания трубопроводов на прочность и герметичность следует составлять акт по форме, приведенной на странице 161. Конденсатопроводы и трубопроводы водяных тепловых сетей должны быть промыты, паропроводы - продуты паром, а трубопроводы водяных тепловых сетей при открытой системе теплоснабжения и сети горячего водоснабжения - промыты и продезинфицированы. Продувку, промывку, дезинфекцию трубопроводов необходимо производить по технологическим схемам, согласованным с эксплуатационными организациями, регламентирующими технологию и технику безопасности проведения работ. О результатах промывки (продувки) трубопроводов следует составлять акт по форме, приведенной на странице 162. 9.7. Наружные сети водоснабжения и канализацииИспытания напорных трубопроводов наружных сетей водоснабжения и канализации Напорные трубопроводы подлежат испытанию на прочность и герметичность, как правило, гидравлическим способом в соответствии с требованиями СНиП 3.05.04-85*. Испытание напорных трубопроводов всех классов должно осуществляться строительно-монтажной организацией, как правило, в два этапа: первый - предварительное испытание, выполняемое после засыпки пазух с подбивкой грунта на половину диаметра трубе оставленными открытыми для осмотра стыковыми соединениями; испытание допускается выполнять без участия представителей заказчика и эксплуатационной организации с составлением акта, утверждаемого главным инженером строительно-монтажной организации; второй - приемочное испытание следует выполнять после полной засыпки трубопровода при участии представителей заказчика и эксплуатационной организации, по результатам испытаний должны оформляться акты по формам, приведенным на странице 163. Испытания безнапорных трубопроводов наружных сетей канализации Испытания безнапорных трубопроводов следует проводить на герметичность в два этапа: предварительное (до засылки) и приемочное (окончательное) после засыпки одним из способов: первым - определение объема воды, добавляемой в трубопровод; вторым - определение притока воды в трубопровод, проложенный в мокрых грунтах. Способ испытания устанавливается проектом. Испытания безнапорных трубопроводов на герметичность следует подвергать участки между смежными колодцами в соответствии с требованиями СНиП 3.05.04-85*. Результаты испытания следует оформлять актом по форме, приведенной на странице 165. Испытание емкостных сооружений водоснабжения и канализации Гидравлическое испытание на водонепроницаемость (герметичность) емкостных сооружений необходимо производить после достижения бетоном проектной прочности, их очистки и промывки в соответствии с требованиями СНиП 3.05.04-85*. Устройство гидроизоляции и обсыпку грунтом емкостных сооружений следует выполнять после получения удовлетворительных результатов гидравлического испытания этих сооружений, если другие требования не обоснованы проектом. Испытания оформляются актом, подписываемым представителями строительно-монтажной организации, заказчика и эксплуатирующей организации. Гидравлические испытания металлического бака водонапорной башни следует производить наливом воды до высоты, предусмотренной проектом. На сдаваемый бак следует составлять паспорт. Промывка и дезинфекция трубопроводов и сооружений хозяйственно-питьевого водоснабжения Законченные строительством трубопроводы и сооружения хозяйственно-питьевого водоснабжения перед приемкой в эксплуатацию подлежат промывке (очистке) и дезинфекции хлорированием с последующей промывкой до получения удовлетворительных контрольных физико-химических и бактериологических анализов воды. Промывка и дезинфекция должны производиться строительно-монтажной организацией, выполняющей работы по прокладке и монтажу трубопроводов и сооружений, с участием представителей заказчика и эксплуатационной организации и санитарно-эпидемиологической службы. Порядок проведения промывки и дезинфекции должен соответствовать требованиям СНиП 3.05.04-85*. По результатам произведенной промывки и дезинфекции трубопроводов и сооружений хозяйственно-питьевого водоснабжения должен быть составлен акт по форме, приведенной на странице 166. 9.8. Акты приемки инженерных систем в эксплуатациюПриемку законченных строительством инженерных систем в эксплуатацию следует производить в соответствии с требованиями СНиП по производству соответствующего вида монтажных работ с оформлением актов приемки. Формы актов приемки внутренних инженерных систем и наружных инженерных сетей приведены на страницах 204-219. 10. Проверка качества теплоизоляции ограждающих конструкцийПисьмом Госстроя России от 23.12.02 № 9-14932 введена в действие и рекомендована к применению «Комплексная методика контроля качества теплоизоляции ограждающих конструкций зданий и сооружений», разработанная ЗАО «ТТМ» и Санкт-Петербургским отделением Общероссийского общественного фонда «Центр качества строительства». Контроль качества тепловой изоляции ограждающих конструкций проводится методом тепловизионного контроля в натурных и лабораторных условиях, в том числе и для целей сертификации. По результатам обследований составляется акт тепловизионного обследования (стр. 228), который, в соответствии с приложением 6 ТСН 12-316-2002 Санкт-Петербурга является обязательным документом, предъявляемым комиссиям по приемке в эксплуатацию законченных строительством объектов. 11. Теплоэнергетический паспорт зданияТеплоэнергетический паспорт здания рекомендуется составлять для новых, реконструируемых, капитально ремонтируемых и эксплуатируемых жилых и общественных зданий. При этом он входит в состав проектной и приемо-сдаточной документации здания. Теплоэнергетический паспорт здания характеризует соответствие теплотехнических показателей зданий требованиям СНиП 23-02-2003 с учетом правил СП 23-101-2000. С его помощью обеспечивается последовательный контроль качества в процессе разработки проектной и конструкторской документации, при экспертизе проекта, строительстве, приемке здания и при эксплуатации здания. Теплоэнергетический паспорт здания должен заполняться: - на стадии разработки проекта после привязки к условиям конкретной площадки - проектной организацией; - на стадии сдачи строительного объекта в эксплуатацию - проектной организацией на основе анализа отступлений от первоначального проекта, допущенных при строительстве здания; - на стадии эксплуатации - организацией, эксплуатирующей здание, или инспектирующей организацией после годичной эксплуатации здания. Присвоение категории энергетической эффективности должно выполняться независимыми организациями (фирмами), аккредитованными в установленном порядке. В случае получения в результате испытаний результата ниже стандартного уровня инспектирующей организации следует разработать рекомендации по повышению энергоэффективности здания. Форма теплоэнергетического паспорта здания и пример ее заполнения приведены на странице 229. II ПРИМЕРЫ ОФОРМЛЕНИЯ И ФОРМЫ ИСПОЛНИТЕЛЬНОЙ ТЕХНИЧЕСКОЙ ДОКУМЕНТАЦИИПриложение 1ФОРМА ОБЩЕГО ЖУРНАЛА РАБОТОБЩИЙ ЖУРНАЛ РАБОТ №____
Участники строительства
(юридическое или физическое лицо, получившее разрешение на выполнение строительно-монтажных работ (генподрядчик, исполнитель работ))
Ответственные производители работ по объекту (подлежат регистрации в территориальном органе Госархстройнадзора):
(заполняется в случае, если управление стройплощадкой поручено отдельной организации)
Застройщик (заказчик) (юридическое или физическое лицо, получившее разрешение на строительство)
Ответственные представители технического надзора (подлежат регистрации в территориальном органе Госархстройнадзора)
(заполняется в случае, если технический надзор ведется сторонней организацией)
Ответственные представители технического надзора по объекту (подлежат регистрации в территориальном органе Госархстройнадзора):
Орган Госархстройнадзора, курирующий объект
Другие исполнители работ по объекту (субподрядные организации) и выполняемые ими работы. Указываются: наименование и почтовые реквизиты, ФИО руководителей и производителей работ по объекту
Организации, разработавшие проектно-сметную документацию и выполняемые ими части проектной документации. Указываются: наименование и почтовые реквизиты, ФИО руководителей, а также руководителей авторского надзора, если такой надзор на объекте ведется
Сведения о журнале В настоящем журнале _________ пронумерованных и прошнурованных страниц. Журнал охватывает период с _____________ по _____________ (заполняется в случае, если на протяжении строительства велось несколько журналов). Должность, фамилия, имя, отчество и подпись руководителя организации, выдавшего журнал
Дата выдачи, печать организации
Отметки об изменениях в записях об объекте
Общая информация об объекте Основные показатели строящегося объекта (этажность, количество квартир, площадь, мощность, производительность, вместимость и т.п.) и сметная стоимость на момент начала строительства
Начало работ: по плану (договору)__________________фактически__________________ Окончание работ (приемка в эксплуатацию): по плану (договору)__________________фактически__________________ Утверждающая инстанция и дата утверждения проекта______________________________ Раздел
1
Раздел
2
Раздел
3
Раздел
4
Раздел
5
Указания к ведению общего журнала работ 1. Общий журнал работ является основным первичным производственным документом, отражающим технологическую последовательность, сроки, качество выполнения и условия производства строительно-монтажных работ. Основное назначение журнала - обеспечение прослеживаемости руководителей, исполнителей и результатов работ, определяющих прочность, устойчивость и надежность здания (сооружения). 2. Общий журнал работ ведется на строительстве (реконструкции) отдельных или группы однотипных, одновременно строящихся зданий (сооружений), расположенных в пределах одной строительной площадки. 3. Общий журнал работ ведет лицо, ответственное за производство работ на объекте (ответственный производитель работ) и заполняет его с первого дня работы на объекте лично или поручает подчиненным инженерно-техническим работникам. Специализированные строительно-монтажные организации ведут специальные журналы работ, которые находятся у ответственных лиц, выполняющих эти работы. По окончании работ специальный журнал передается организации, ответственной за производство работ на объекте (генподрядчику). 4. Титульный лист заполняется до начала строительства организацией, ответственной за производство работ по объекту с участием остальных упомянутых участников строительства (проектной организации, заказчика и пр.). 5. Список инженерно-технического персонала, занятого на строительстве объекта (раздел 1), составляет руководитель организации, ответственной за производство работ по объекту. В него включаются инженерно-технические работники этой организации, а также других организаций - исполнителей работ по объекту (субподрядных организаций). 6. В разделе 3 приводится перечень всех актов в календарном порядке. 7. В раздел 4 включаются все работы по частям и элементам зданий и сооружений, подлежащие оценке соответствия. В случае выявления несоответствий приводится их краткая характеристика. 8. Раздел 4 заполняется лицом, ответственным за ведение общего журнала работ или уполномоченными им инженерно-техническими работниками. 9. Регулярные сведения о производстве работ (с начала и до их завершения), включаемые в раздел 4, являются основной частью журнала. Эта часть журнала должна содержать сведения о начале и окончании работы и отражать ход ее выполнения. Описание работ должно производиться по конструктивным элементам здания или сооружения с указанием осей, рядов, отметок, этажей, ярусов, секций, помещений, где работы выполнялись. Здесь же должны приводиться краткие сведения о методах производства работ, применяемых материалах, готовых изделиях и конструкциях, испытаниях оборудования, систем, сетей и устройств (опробование вхолостую или под нагрузкой, подача электроэнергии, давления, испытания на прочность и герметичность и др.), отступлениях от рабочих чертежей (с указанием причин) и их согласования, наличии и выполнении схем операционного контроля качества, исправлениях или переделках выполненных работ. Кроме того, заносится информация о существенных изменениях на стройплощадке, в том числе изменении расположения охранных, защитных и сигнальных ограждений, переносе транспортных и пожарных проездов, прокладке, перекладке и разборке временных инженерных сетей, а также о метеорологических и других особых условиях производства работ. 10. В раздел 5 вносятся замечания лиц (в том числе представителя технадзора), контролирующих производство и безопасность работ в соответствии с предоставленными им правами. 11. Каждая запись в журнале подписывается сделавшим ее лицом. 12. При необходимости иллюстрации записей эскизами, схемами или иными графическими материалами последние подписываются отдельно и вклеиваются в текст или собираются в отдельную папку. В записях в этом случае должно содержаться упоминание о наличии и местонахождении графических материалов. 13. Общий журнал работ должен быть пронумерован, прошнурован, оформлен всеми подписями на титульном листе и скреплен печалью организации, его выдавшей. При недостатке в журнале места для записей заводится новый журнал работ со следующим номером, о чем делается запись на титульном листе. 14. В ходе строительства журнал работ должен предъявляться представителю технадзора, органа архитектурно-строительного надзора и других контролирующих органов по их требованию. ё15. При сдаче законченного строительством объекта в эксплуатацию общий и специальные журналы работ предъявляются принимающей организации (органу) и после приемки объекта передаются заказчику (застройщику) или, по его поручению, эксплуатационной организации или пользователю. 16. По разрешению органа архитектурно-строительного надзора допускается ведение журнала в виде электронного документа. При этом должны быть обеспечены надежная защита от несанкционированного доступа, а также идентификация подписей ответственных должностных лиц. Приложение 2ОФОРМЛЕНИЕ ЖУРНАЛА РАБОТ ПО МОНТАЖУ СТРОИТЕЛЬНЫХ КОНСТРУКЦИЙЖУРНАЛ РАБОТ ПО МОНТАЖУ СТРОИТЕЛЬНЫХ КОНСТРУКЦИЙ №___ (СНиП 3.03.01-87, приложение 1)
Должность, фамилия, инициалы и подпись лица, ответственного за монтажные работы и ведение журнала
Организация, разработавшая проектную документацию; чертежи КЖ, КМ, КД
Заказчик (организация), должность, фамилия, инициалы и подпись руководителя (представителя) технического надзора
Журнал начат «___»_____________200___г. Журнал окончен «___»_____________200___г. Список инженерно-технического персонала, занятого на монтаже здания (сооружения)
Перечень актов освидетельствования скрытых работ и актов промежуточной приемки ответственных конструкций
В журнале пронумеровано и прошнуровано ___________ страниц «___»_________________200___г.
М. П. Приложение 3ОФОРМЛЕНИЕ ЖУРНАЛА СВАРОЧНЫХ РАБОТЖУРНАЛ СВАРОЧНЫХ РАБОТ №___ (СНиП 3.03.01-87, приложение 2)
Должность, фамилия, инициалы и подпись лица, ответственного за сварочные работы и ведение журнала
Организация, разработавшая проектную документацию; чертежи КМ, КЖ,
Заказчик (организация), должность, фамилия, инициалы и подпись руководителя (представителя) технического надзора
Журнал начат «___»_____________200___г. Журнал окончен «___»_____________200___г. Список инженерно-технического персонала, занятого выполнением сварочных работ
Список сварщиков, выполняющих сварочные работы на объекте
В журнале пронумеровано и прошнуровано ___________ страниц «___»_________________200___г.
М. П. Приложение 4ОФОРМЛЕНИЕ ЖУРНАЛА АНТИКОРРОЗИОННОЙ ЗАЩИТЫ СВАРНЫХ СОЕДИНЕНИЙ(СНиП 3.03.01-87, приложение 3) ЖУРНАЛ АНТИКОРРОЗИОННОЙ ЗАЩИТЫ СВАРНЫХ СОЕДИНЕНИЙ №_____
Должность, фамилия, инициалы и подпись лица, ответственного за выполнение работ по антикоррозионной защите сварных соединений и ведение журнала
Организация, разработавшая проектную документацию; чертежи КЖ
Организация, разработавшая проект производства работ по антикоррозионной защите сварных соединений
Заказчик (организация), должность, фамилия, инициалы и подпись руководителя (представителя) технического надзора
Журнал начат «___»_____________200___г. Журнал окончен «___»_____________200___г.
В журнале пронумеровано и прошнуровано ___________ страниц «___»_________________200___г.
М. П. Приложение 5ОФОРМЛЕНИЕ ЖУРНАЛА ЗАМОНОЛИЧИВАНИЯ МОНТАЖНЫХ СТЫКОВ И УЗЛОВ(СНиП 3.03.01-87, приложение 4) ЖУРНАЛ ЗАМОНОЛИЧИВАНИЯ МОНТАЖНЫХ СТЫКОВ И УЗЛОВ №_____
Должность, фамилия, инициалы и подпись ответственного за выполнение работы по замоноличиванию и ведение журнала
Организация, разработавшая проектную документацию; чертежи КЖ
Организация, разработавшая проект производства работ по замоноличиванию монтажных стыков и узлов
Заказчик (организация), должность, фамилия, инициалы и подпись руководителя (представителя) технического надзора
Журнал начат «___»_____________200___г. Журнал окончен «___»_____________200___г.
В журнале пронумеровано и прошнуровано ___________ страниц «___»_________________200___г.
М. П. Приложение 6ОФОРМЛЕНИЕ ЖУРНАЛА ВЫПОЛНЕНИЯ МОНТАЖНЫХ СОЕДИНЕНИЙ НА БОЛТАХ С КОНТРОЛИРУЕМЫМ НАТЯЖЕНИЕМ(СНиП 3.03.01-87, приложение 5) ЖУРНАЛ ВЫПОЛНЕНИЯ МОНТАЖНЫХ СОЕДИНЕНИЙ НА БОЛТАХ С КОНТРОЛИРУЕМЫМ НАТЯЖЕНИЕМ №_____
Должность, фамилия, инициалы и подпись лица, ответственного за выполнение работ и ведение журнала
Организация, разработавшая проектную документацию; чертежи КЖ
Заказчик (организация), должность, фамилия, инициалы и подпись руководителя (представителя) технического надзора
Журнал начат «___»_____________200___г. Журнал окончен «___»_____________200___г.
В журнале пронумеровано и прошнуровано ___________ страниц «___»_________________200___г.
М. П. Приложение 7ОФОРМЛЕНИЕ ЖУРНАЛА ПО УСТРОЙСТВУ СВАЙНЫХ ФУНДАМЕНТОВ ЖУРНАЛ ПОГРУЖЕНИЯ (ЗАБИВКИ) СВАЙ
Отметка острия сваи:
В журнале пронумеровано и прошнуровано ___________ страниц «___»_________________200___г.
М. П. Приложение 8ОФОРМЛЕНИЕ ЖУРНАЛА БЕТОННЫХ РАБОТ
ЖУРНАЛ БЕТОННЫХ РАБОТ №____
Указания по ведению журнала 1. Журнал бетонных работ ведется лицами, ответственными за выполнение этих работ и заполняется во время производства бетонных работ ежесменно. 2. По окончании ведения журнала бетонных работ он сдается в производственно-технический отдел строительной организации, который делает отметку о приемке в таблице общего журнала работ. В журнале пронумеровано и прошнуровано ___________ страниц «___»_________________200___г.
М. П. Приложение 9ОФОРМЛЕНИЕ ЖУРНАЛА ПРОИЗВОДСТВА АНТИКОРРОЗИОННЫХ РАБОТ(СНиП 3.04.03-85, приложение 1) ЖУРНАЛ ПРОИЗВОДСТВА АНТИКОРРОЗИОННЫХ РАБОТ
В журнале пронумеровано и прошнуровано ___________ страниц «___»_________________200___г.
М. П. Приложение 10ОФОРМЛЕНИЕ ЖУРНАЛА АВТОРСКОГО НАДЗОРА ЗА СТРОИТЕЛЬСТВОМ(СП 11-110-99, приложение А) ЖУРНАЛ АВТОРСКОГО НАДЗОРА
Регистрационный лист посещения объекта специалистами, осуществляющими авторский надзор за строительством Перечень подрядных организаций, осуществляющих строительные и монтажные работы Исполнитель работ (генеральный подрядчик, подрядчик)
Исполнители отдельных видов работ (субподрядчики):
Список специалистов, осуществляющих авторский надзор
Регистрационный лист посещения объекта специалистами, осуществляющими авторский надзор за строительством
Учетный лист №_____
Приложение 11АКТ
|
|||||||||||||||||||||||||||||||||||||||||||||||||||||||||||||||||||||||||||||||||||||||||||||||||||||||||||||||||||||||||||||||||||||||||||||||||||||||||||||||||||||||||||||||||||||||||||||||||||||||||||||||||||||||||||||||||||||||||||||||||||||||||||||||||||||||||||||||||||||||||||||||||||||||||||||||||||||||||||||||||||||||||||||||||||||||||||||||||||||||||||||||||||||||||||||||||||||||||||||||||||||||||||||||||||||||||||||||||||||||||||||||||||||||||||||||||||||||||||||||||||||||||||||||||||||||||||||||||||||||||||||||||||||||||||||||||||||||||||||||||||||||||||||||||||||||||||||||||||||||||||||||||||||||||||||||||||||||||||||||||||||||||||||||||||||||||||||||||||||||||||||||||||||||||||||||||||||||||||||||||||||||||||||||||||||||||||||||||||||||||||||||||||||||||||||||||||||||||||||||||||||||||||||||||||||||||||||||||||||||||||||||||||||||||||||||||||||||||||||||||||||||||||||||||||||||||||||||||||||||||||||||||||||||||||||||||||||||||||||||||||||||||||||||||||||||||||||||||||||||
|
|
|
(наименование объекта строительства) |
|
г._________________________________ |
« »____________________200__г. |
Комиссия в составе:
|
ответственного представителя заказчика |
|
|
|
|
|
(фамилия, инициалы, должность) |
|
|
|
|
ответственных представителей генподрядной строительно-монтажной организации
|
|
|
(фамилии, инициалы, должности) |
рассмотрела представленную техническую документацию на геодезическую разбивочную основу для строительства
|
|
|
|
|
(наименование объекта строительства) |
и произвела осмотр закрепленных на местности знаков этой основы.
Предъявленные к приемке знаки геодезической разбивочной основы для строительства, их координаты, отметки, места установки и способы закрепления соответствуют представленной технической документации
|
|
|
|
|
(наименование проектной организации, номера чертежей, дата выпуска) |
и выполнены с соблюдением заданной точности построений и измерений.
На основании изложенного комиссия считает, что заказчик сдал, а подрядчик принял знаки геодезической разбивочной основы для строительства (наименование объекта или его отдельных цехов, зданий, сооружений)
|
Приложения: |
|
|||
|
|
(чертежи, схемы, ведомости и т.п.) |
|||
|
Представитель заказчика: |
|
|||
|
|
(подпись) |
|||
|
Представители подрядчика: производитель работ |
|
|||
|
|
(подпись) |
|||
|
Работник геодезической службы |
|
|||
|
|
(подпись) |
|||
|
г._________________________________ |
« »____________________200__г. |
Мы ниже подписавшиеся:
|
представитель заказчика: |
|
|||
|
автор проекта |
|
|||
|
представитель генподрядной организации |
|
|||
|
производитель работ |
|
|||
составили настоящий акт в том, что в соответствии с распоряжением
|
|
произведена в натуре приемка разбитых заказчиком осей
|
|
|
|
здания |
|
При этом установили:
|
1. Разбивка произведена по данным разбивочного чертежа № |
, |
||||
|
шифр |
|
, проектной организации |
|
||
|
|
|||||
|
2. Закрепление осей произведено |
|
||||
|
3. Обозначение осей, нумерация и расположение точек соответствует проекту. |
|||||
Акт составлен в трех экземплярах.
Приложение. Схема закрепления осей.
|
Представитель заказчика |
|
|
|
(фамилия) |
|
Представитель генподрядной организации |
|
|
|
(фамилия) |
Акт сдачи разбивки осей корпуса
|
г. Санкт-Петербург |
«24» апреля 2004 г. |
|
ГУП «Трест ГРИИ» в лице представителя: |
геодезиста Беликова Д.В. |
с одной стороны, представителя Заказчика (Подрядчика)
|
ЗАО «Жилстрой Ленэнерго»; ЗАО «Строительный Трест», прораб Якименко В. А. |
с другой стороны, составили настоящий акт в том, что сего числа, на основании письма
|
ЗАО «Жилстрой Ленэнерго» |
|
(наименование организации) |
|
первый сдал, а второй принял в натуре работы по разбивке осей корпуса №: |
44,44А |
||
|
и геодезической разбивочной основы |
|
||
|
расположенного |
озеро Долгое, квартал 2ЗА, жилой дом |
||
оси корпуса, выполненные ГУП «Трест ГРИИ» в соответствии с разбивочным чертежом № 2000.3 АР, ГП от 02.2002
|
Оси |
Б, И, Т, 1, 20, 29, 47 |
|
|
|
закреплены на знаках геодезической основы, на обноске, на стене здания и указаны в натуре заказчику
|
|
|
|
|
Примечание |
|
|
|
|
|
|
|
Акт составлен в 2-х экз.: один для ГУП «Трест ГРИИ», второй Заказчика.
|
Представитель ГУП «Трест ГРИИ» |
Д. Беликов |
|
Представитель заказчика |
В. Якименко |
Акт сдачи разбивки пятен зданий и направлений осей
|
г. Санкт-Петербург |
«24» апреля 2004 г. |
|
ГУП «Трест ГРИИ» в лице представителя: |
геодезиста Калюжного В. П. |
с одной стороны, представителя Заказчика (Подрядчика)
|
геодезиста ЗАО «Строительный трест» Яковлева И. В. |
с другой стороны, составили настоящий акт в том, что сего числа, на основании письма
|
ЗАО «Ленжилстрой» |
|
(наименование организации) |
первый сдал, а второй принял в натуре работы по разбивке пятна здания (для земляных работ) и направлений осей (для установки знаков геодезической основы), расположенного по адресу
|
озеро Долгое, квартал 25А, жилой дом |
выполненные ГУП «Трест ГРИИ» в соответствии с разбивочным чертежом № 2000.3 АР, ГП от 02.2002
|
Угловые точки пятна в осях наружных стен |
Б, И, Т, 1, 20, 29, 47 |
закреплены на местности мет. трубками и указаны в натуре Заказчику
Одновременно произведены работы по нивелировке временных рабочих реперов:
|
Рп 1 - на цоколе; Рп 2 - бет, перила |
|
|
ОТМЕТКИ РАБОЧИХ РЕПЕРОВ:
|
№ 1 22.49 |
№ 4 |
№ 7 |
№ 10 |
|
№ 2 23.11 |
№ 5 |
№ 8 |
№ 11 |
|
№ 3 |
№ 6 |
№ 9 |
№ 12 |
|
Примечание |
схема прилагается |
|
|
|
|
|
|
Акт составлен в 2-х экз.: один для ГУП «Трест ГРИИ», второй Заказчика.
|
Представитель ГУП «Трест ГРИИ» |
В. Калюжный |
|
Представитель заказчика |
Н. Яковлев |
















(СНиП 3.01.03-84, приложение 13)
|
« »____________________200__г. |
|
|
|
|
|
(место составления) |
|
Объект |
|
|
|
(наименование объекта строительства) |
Комиссия в составе:
ответственного представителя строительно-монтажной организации, передающей работы
|
|
|
(фамилия, инициалы, должность) |
ответственного представителя строительно-монтажной организации, принимающей работы
|
|
|
(фамилия, инициалы, должность) |
рассмотрела представленную техническую документацию на выполненные геодезические работы (схемы геодезической разбивочной основы для строительства, внутренней разбивочной сети здания (сооружения), схемы исполнительных съемок, каталоги координат, отметок, ведомости и т.д.) при строительстве
|
|
|
(наименование объекта) |
и произвела осмотр закрепленных на местности и здании знаков сети.
Предъявленные к приемке знаки разбивочной сети, их координаты, отметки, места установки и способы закрепления соответствуют представленной на них технической документации, и работы выполнены с соблюдением заданной точности построений и измерений. На основании изложенного комиссия считает, что ответственный представитель строительно-монтажной организации
|
|
|
|
|
(наименование организации) |
сдал, а представитель строительно-монтажной организации
|
|
|
|
(наименование организации) |
|
|
принял указанные выше работы по |
|
|
|
|
|
(наименование объекта, отдельных частей зданий (сооружений) |
|
|
Приложения: |
|
|
|
(чертежи, схемы, ведомости и т.д.) |
Представитель строительно-монтажной организации,
|
передающей работы |
|
|
|
(подписи производителя работ, работника геодезической службы) |
Представитель строительно-монтажной организации,
|
принимающей работы |
|
|
|
(подписи производителя работ, работника геодезической службы) |







|
|
|
|
|
(наименование и место расположения объекта) |
«___»_____________200__г.
Мы, нижеподписавшиеся,
|
Ответственный представитель исполнителя работ |
|
|
|
|
||
|
(фамилия, инициалы, должность) |
||
|
Ответственный представитель технического надзора |
|
|
|
|
||
|
(фамилия, инициалы, должность) |
||
|
а также лица, дополнительно участвующие в освидетельствовании: |
|
|
|
|
|
(фамилия, инициалы, должность) |
|
|
|
|
|
(фамилия, инициалы, должность) |
|
|
произвели осмотр работ, выполненных |
|
|
|
|
|
(наименование полрядчика (исполнителя работ)) |
|
и составили настоящий акт о нижеследующем:
|
1. К освидетельствованию предъявлены следующие работы |
|
|
|
|
|
|
|
(наименование скрытых работ) |
||
|
2. Работы выполнены по проектно-сметной документации |
|
|
|
|
|
|
|
(наименование проемной организации, № чертежей, дата их составления |
||
|
|
||
|
или идентификационные параметры эскиза или записи в журнале авторского надзора) |
||
|
3. При выполнении работ применены |
|
|
|
|
|
|
|
(наименование материалов, изделий со ссылкой на сертификаты или др. документы, подтверждающие качество) |
||
Исполнителем работ предъявлены следующие дополнительные доказательства соответствия работ предъявляемым к ним требованиям, приложенные (не приложенные) к настоящему акту
|
|
|
(исполнительные схемы и чертежи, заключения лаборатории, и т. п.) |
4. При выполнении работ отсутствуют (или допущены) отклонения от проектно-сметной документации
|
|
||
|
|
||
|
(при наличии отклонений указываются, кем согласованы, № чертежей и дата согласования) |
||
|
5. Даты: |
начала работ |
|
|
|
окончания работ |
|
РЕШЕНИЕ КОМИССИИ:
Работы выполнены в соответствии с проектно-сметной документацией и требованиями действующих нормативных документов.
На основании изложенного разрешается производство последующих работ по устройству (монтажу)
|
|
|
(наименование работ и конструкции) |
|
Ответственный представитель |
|
|
|
(подпись) |
|
Ответственный представитель |
|
|
|
(подпись) |
|
Дополнительные участники: фамилия, инициалы |
|
|
|
(подпись) |
|
фамилия, инициалы |
|
|
|
(подпись) |
ДОПОЛНИТЕЛЬНАЯ ИНФОРМАЦИЯ:
|
|
|
|
|
|
К НАСТОЯЩЕМУ АКТУ ПРИЛАГАЮТСЯ:
|
|
|
|
|
|
Акт осмотра открытых рвов и котлованов под фундаменты
|
г. Санкт-Петербург |
« 06 » июля 200 4 г. |
Мы, нижеподписавшиеся,
|
автор проекта (или его уполномоченный архитектор) |
Новиков С. Г. |
|||||||
|
конструктор |
Вешторт М. Э. |
|||||||
|
представитель заказчика |
Михайлов С. В. |
|||||||
|
главный инженер строительства |
Новиков С. Г. |
|||||||
|
производитель работ |
Сямин Н. В. |
|||||||
|
произвели осмотр рвов и котлованов для фундамента постройки |
квартал 25, озеро Долгое |
|||||||
|
на земельном участке |
корпус 44, 44Л |
по ул. |
|
|||||
причем оказалось:
1. Грунт на дне рвов соответствует (не соответствует) данным предварительных изысканий, а именно: порода, структура, примеси, плотность, влажность, химический состав, осадка дна от пяти сильных ударов.
2. Уровень грунтовых вод 0,8-1 м .
3. Планировочная отметка по проекту с подсыпкой или срезкой против существующей поверхности земли на участке ±0,2 м .
4. Глубина (от планировочной отметки, ширина рвов и котлованов) .
5. Принятое основание для фундаментов супесь, песок ср. крупности Rо =0,8 кгс/см2 .
6. Мощность основания (по данным предварительных изысканий) 2-2,8 м .
7. Первоначально принято допускаемое давление на грунт кг/см2 по утвержденному проекту .
8. Фактически по осмотру рвов и котлованов устанавливается допускаемое давление 90 м на сваю .
9. Род фундаментов, принятый по проекту свайные фундаменты .
10. При производстве земляных работ встречались (не встречались) препятствия (старые колодцы, сваи, фундаменты бывших зданий, выгребные ямы и т. п.).
11. Необходимость устройства искусственного основания или особого типа фундамента, не предусмотренного проектом, вызывается (не вызывается).
12. Дополнительные земляные работы требуются (не требуются) в количестве кубометров.
Комиссия признает, что выполненные земляные работы и принятое давление на грунт в 90 м на сваю не вызывает опасения деформации здания по его возведении.
|
Автор проекта или его уполномоченный архитектор |
Новиков С. Г. |
|
|
(подпись) |
|
Представитель заказчика, инженер |
Вешторт М. Э. |
|
|
(подпись) |
|
Представитель проектной организации |
Михайлов С. В. |
|
|
(подпись) |
|
Производитель работ |
Сямин Н. В. |
|
|
(подпись) |
Акт освидетельствования скрытых работ
|
Устройство песчаной подсыпки под фундаменты |
|
|
(наименование работ) |
|
|
выполненных в |
Хоспис, Гражданский пр., квартал 16 Б |
|
|
(наименование и место расположения объекта) |
« 21 » апреля 199 8 г.
Комиссия в составе:
|
Представителя строительно‑монтажной организации |
|
|
|
Егоров И. В., прораб |
||
|
(фамилия, инициалы, должность) |
||
|
представителя технического надзора заказчика |
|
|
|
Шинкевич В. А., инспектор |
||
|
(фамилия, инициалы, должность) |
||
представителя проектной организации (в случаях осуществления авторского надзора проектной организации в соответствии с требованиями СП 11-110-99)
|
|
|
|
(фамилия, инициалы, должность) |
|
|
произвела осмотр работ, выполненных |
|
|
ЗАО «Строительный Трест» |
|
|
(наименование строительно-монтажной организации) |
|
и составила настоящий акт о нижеследующем:
|
1. К освидетельствованию предъявлены следующие работы |
|
|
|
Устройство песчаной подсыпки под фундаменты в осях 12-23, А-Ф |
||
|
(наименование скрытых работ) |
||
|
2. Работы выполнены по проектно-сметной документации |
АО «ЛЕННИИПРОЕКТ», |
|
|
мастерская № 1, 13017 - КЖ, лист 12, 12.96 |
||
|
(наименование проемной организации, № чертежей, дата их составления) |
||
|
3. При выполнении работ применены |
песок крупнозернистый h=70 мм |
|
|
|
|
|
|
(наименование материалов, изделий со ссылкой на сертификаты или др. документы, подтверждающие качество) |
||
4. При выполнении работ отсутствуют (или допущены) отклонения от проектно-сметной документации
|
отклонения отсутствуют |
||
|
(при наличии отклонений указываются, кем согласованы, № чертежей и дата согласования) |
||
|
5. Даты: |
начала работ |
15 апреля 1998 года |
|
|
окончания работ |
21 апреля 1998 года |
Решение комиссии:
Работы выполнены в соответствии с проектно-сметной документацией, стандартами, строительными нормами и правилами и отвечают требованиям их приемки.
На основании изложенного разрешается производство последующих работ по устройству (монтажу)
|
фундаментных блоков |
|
(наименование работ и конструкции) |
|
Представитель строительно‑монтажной организации |
И. Егоров |
||
|
|
(подпись) |
||
|
Представитель технического надзора заказчика |
В. Шинкевич |
||
|
|
(подпись) |
||
|
Представитель проектной организации |
|
||
|
|
(подпись) |
||
Акт освидетельствования скрытых работ
|
Устройство бетонной подготовки под фундаменты |
|
|
(наименование работ) |
|
|
выполненных в |
Хоспис, Гражданский пр., квартал 16 Б |
|
|
(наименование и место расположения объекта) |
« 21 » апреля 199 8 г.
Комиссия в составе:
|
Представителя строительно‑монтажной организации |
|
|
|
Егоров И. В., прораб |
||
|
(фамилия, инициалы, должность) |
||
|
представителя технического надзора заказчика |
|
|
|
Шинкевич В. А., инспектор |
||
|
(фамилия, инициалы, должность) |
||
представителя проектной организации (в случаях осуществления авторского надзора проектной организации в соответствии с требованиями СП 11-110-99)
|
|
|
|
(фамилия, инициалы, должность) |
|
|
произвела осмотр работ, выполненных |
|
|
ЗАО «Строительный Трест» |
|
|
(наименование строительно-монтажной организации) |
|
и составила настоящий акт о нижеследующем:
|
1. К освидетельствованию предъявлены следующие работы |
|
|
|
Устройство бетонной подготовки под фундаменты ФМ- 1,2 по оси 5у (Ву-Бу) |
||
|
(наименование скрытых работ) |
||
|
2. Работы выполнены по проектно-сметной документации |
АО «ЛЕННИИПРОЕКТ», |
|
|
мастерская № 1, 13017 - КЖ, лист 12, 12.96 |
||
|
(наименование проемной организации, № чертежей, дата их составления) |
||
|
3. При выполнении работ применены |
щебень h=100 мм |
|
|
бетон В 7,5, h=100мм, документ о качестве бетонной смеси № 125 |
||
|
(наименование материалов, изделий со ссылкой на сертификаты или др. документы, подтверждающие качество) |
||
4. При выполнении работ отсутствуют (или допущены) отклонения от проектно-сметной документации
|
отклонения отсутствуют |
||
|
(при наличии отклонений указываются, кем согласованы, № чертежей и дата согласования) |
||
|
5. Даты: |
начала работ |
15 апреля 1998 года |
|
|
окончания работ |
21 апреля 1998 года |
Решение комиссии:
Работы выполнены в соответствии с проектно-сметной документацией, стандартами, строительными нормами и правилами и отвечают требованиям их приемки.
На основании изложенного разрешается производство последующих работ по устройству (монтажу)
|
опалубки |
|
(наименование работ и конструкции) |
|
Представитель строительно‑монтажной организации |
И. Егоров |
||
|
|
(подпись) |
||
|
Представитель технического надзора заказчика |
В. Шинкевич |
||
|
|
(подпись) |
||
|
Представитель проектной организации |
|
||
|
|
(подпись) |
||
Акт освидетельствования скрытых работ
|
Устройство опалубки фундаментов |
|
|
(наименование работ) |
|
|
выполненных в |
Хоспис, Гражданский пр., квартал 16 Б |
|
|
(наименование и место расположения объекта) |
« 24 » апреля 199 8 г.
Комиссия в составе:
|
Представителя строительно‑монтажной организации |
|
|
|
Егоров И. В., прораб |
||
|
(фамилия, инициалы, должность) |
||
|
представителя технического надзора заказчика |
|
|
|
Шинкевич В. А., инспектор |
||
|
(фамилия, инициалы, должность) |
||
представителя проектной организации (в случаях осуществления авторского надзора проектной организации в соответствии с требованиями СП 11-110-99)
|
|
|
|
(фамилия, инициалы, должность) |
|
|
произвела осмотр работ, выполненных |
|
|
ЗАО «Строительный Трест» |
|
|
(наименование строительно-монтажной организации) |
|
и составила настоящий акт о нижеследующем:
|
1. К освидетельствованию предъявлены следующие работы |
|
|
|
Устройство опалубки фундаментов в осях 12-23, А-Ф |
||
|
(наименование скрытых работ) |
||
|
2. Работы выполнены по проектно-сметной документации |
АО «ЛЕННИИПРОЕКТ», |
|
|
мастерская № 1, 13017 - КЖ, лист 14, 12.96 |
||
|
(наименование проемной организации, № чертежей, дата их составления) |
||
|
3. При выполнении работ применены |
|
|
|
разборно-переставная крупнощитовая опалубка, ГОСТ 23478-79 |
||
|
(наименование материалов, изделий со ссылкой на сертификаты или др. документы, подтверждающие качество) |
||
4. При выполнении работ отсутствуют (или допущены) отклонения от проектно-сметной документации
|
отклонения отсутствуют |
||
|
(при наличии отклонений указываются, кем согласованы, № чертежей и дата согласования) |
||
|
5. Даты: |
начала работ |
16 апреля 1998 года |
|
|
окончания работ |
24 апреля 1998 года |
Решение комиссии:
Работы выполнены в соответствии с проектно-сметной документацией, стандартами, строительными нормами и правилами и отвечают требованиям их приемки.
На основании изложенного разрешается производство последующих работ по устройству (монтажу)
|
армирования фундаментов |
|
(наименование работ и конструкции) |
|
Представитель строительно‑монтажной организации |
И. Егоров |
||
|
|
(подпись) |
||
|
Представитель технического надзора заказчика |
В. Шинкевич |
||
|
|
(подпись) |
||
|
Представитель проектной организации |
|
||
|
|
(подпись) |
||
Акт освидетельствования скрытых работ
|
Армирование фундаментов |
|
|
(наименование работ) |
|
|
выполненных в |
Хоспис, Гражданский пр., квартал 16 Б |
|
|
(наименование и место расположения объекта) |
« 27 » апреля 199 8 г.
Комиссия в составе:
|
Представителя строительно‑монтажной организации |
|
|
|
Егоров И. В., прораб |
||
|
(фамилия, инициалы, должность) |
||
|
представителя технического надзора заказчика |
|
|
|
Шинкевич В. А., инспектор |
||
|
(фамилия, инициалы, должность) |
||
представителя проектной организации (в случаях осуществления авторского надзора проектной организации в соответствии с требованиями СП 11-110-99)
|
Крючкова Г. Н., инженер-конструктор |
|
|
(фамилия, инициалы, должность) |
|
|
произвела осмотр работ, выполненных |
|
|
ЗАО «Строительный Трест» |
|
|
(наименование строительно-монтажной организации) |
|
и составила настоящий акт о нижеследующем:
|
1. К освидетельствованию предъявлены следующие работы |
|
|
|
Армирование фундаментов по оси 4у (Бу-К) |
||
|
(наименование скрытых работ) |
||
|
2. Работы выполнены по проектно-сметной документации |
АО «ЛЕННИИПРОЕКТ», |
|
|
мастерская № 1, 13017 - КЖ, лист 15, 12.96 |
||
|
(наименование проемной организации, № чертежей, дата их составления) |
||
|
3. При выполнении работ применены |
арматура Ø16 А-III, |
|
|
Ø4 Вр-I; Ø3 Вр-I, сертификат № 9761; электроды УОНИ-1355. |
||
|
(наименование материалов, изделий со ссылкой на сертификаты или др. документы, подтверждающие качество) |
||
4. При выполнении работ отсутствуют (или допущены) отклонения от проектно-сметной документации
|
отклонения отсутствуют |
||
|
(при наличии отклонений указываются, кем согласованы, № чертежей и дата согласования) |
||
|
5. Даты: |
начала работ |
20 апреля 1998 года |
|
|
окончания работ |
27 апреля 1998 года |
Решение комиссии:
Работы выполнены в соответствии с проектно-сметной документацией, стандартами, строительными нормами и правилами и отвечают требованиям их приемки.
На основании изложенного разрешается производство последующих работ по устройству (монтажу)
|
бетонирования фундаментов |
|
(наименование работ и конструкции) |
|
Представитель строительно‑монтажной организации |
И. Егоров |
||
|
|
(подпись) |
||
|
Представитель технического надзора заказчика |
В. Шинкевич |
||
|
|
(подпись) |
||
|
Представитель проектной организации |
Г. Крючкова |
||
|
|
(подпись) |
||
Акт освидетельствования скрытых работ
|
Бетонирование фундаментов |
|
|
(наименование работ) |
|
|
выполненных в |
Хоспис, Гражданский пр., квартал 16 Б |
|
|
(наименование и место расположения объекта) |
« 28 » апреля 199 8 г.
Комиссия в составе:
|
Представителя строительно‑монтажной организации |
|
|
|
Егоров И. В., прораб |
||
|
(фамилия, инициалы, должность) |
||
|
представителя технического надзора заказчика |
|
|
|
Шинкевич В. А., инспектор |
||
|
(фамилия, инициалы, должность) |
||
представителя проектной организации (в случаях осуществления авторского надзора проектной организации в соответствии с требованиями СП 11-110-99)
|
Крючкова Г. Н., инженер-конструктор |
|
|
(фамилия, инициалы, должность) |
|
|
произвела осмотр работ, выполненных |
|
|
ЗАО «Строительный Трест» |
|
|
(наименование строительно-монтажной организации) |
|
и составила настоящий акт о нижеследующем:
|
1. К освидетельствованию предъявлены следующие работы |
|
|
|
Бетонирование фундаментов ФМ-1 по оси В (11-13); ФМ-2 по оси В (9, 10, 14) |
||
|
(наименование скрытых работ) |
||
|
2. Работы выполнены по проектно-сметной документации |
АО «ЛЕННИИПРОЕКТ», |
|
|
мастерская № 1, 13017 - КЖ, лист 16, 12.96 |
||
|
(наименование проемной организации, № чертежей, дата их составления) |
||
|
3. При выполнении работ применены |
|
|
|
бетон В15, документ о качестве бетонной смеси № 245. |
||
|
(наименование материалов, изделий со ссылкой на сертификаты или др. документы, подтверждающие качество) |
||
4. При выполнении работ отсутствуют (или допущены) отклонения от проектно-сметной документации
|
отклонения отсутствуют |
||
|
(при наличии отклонений указываются, кем согласованы, № чертежей и дата согласования) |
||
|
5. Даты: |
начала работ |
27 апреля 1998 года |
|
|
окончания работ |
28 апреля 1998 года |
Решение комиссии:
Работы выполнены в соответствии с проектно-сметной документацией, стандартами, строительными нормами и правилами и отвечают требованиям их приемки.
На основании изложенного разрешается производство последующих работ по устройству (монтажу)
|
гидроизоляции фундаментов |
|
(наименование работ и конструкции) |
|
Представитель строительно‑монтажной организации |
И. Егоров |
||
|
|
(подпись) |
||
|
Представитель технического надзора заказчика |
В. Шинкевич |
||
|
|
(подпись) |
||
|
Представитель проектной организации |
Г. Крючкова |
||
|
|
(подпись) |
||
Акт освидетельствования скрытых работ
|
Монтаж фундаментных блоков. |
|
|
(наименование работ) |
|
|
выполненных в |
Хоспис, Гражданский пр., квартал 16 Б |
|
|
(наименование и место расположения объекта) |
« 29 » апреля 199 8 г.
Комиссия в составе:
|
Представителя строительно‑монтажной организации |
|
|
|
Егоров И. В., прораб |
||
|
(фамилия, инициалы, должность) |
||
|
представителя технического надзора заказчика |
|
|
|
Шинкевич В. А., инспектор |
||
|
(фамилия, инициалы, должность) |
||
представителя проектной организации (в случаях осуществления авторского надзора проектной организации в соответствии с требованиями СП 11-110-99)
|
Крючкова Г. Н., инженер-конструктор |
|
|
(фамилия, инициалы, должность) |
|
|
произвела осмотр работ, выполненных |
|
|
ЗАО «Строительный Трест» |
|
|
(наименование строительно-монтажной организации) |
|
и составила настоящий акт о нижеследующем:
|
1. К освидетельствованию предъявлены следующие работы |
|
|
|
Монтаж фундаментных блоков по оси D (7-15) до отметки – 0,45 |
||
|
(наименование скрытых работ) |
||
|
2. Работы выполнены по проектно-сметной документации |
АО «ЛЕННИИПРОЕКТ», |
|
|
мастерская № 1, 13017 - КЖ, лист 18, 12.96 |
||
|
(наименование проемной организации, № чертежей, дата их составления) |
||
|
3. При выполнении работ применены |
ФБС 9.3.6-т, ФЛ 16.24-2, Б 49.4.4.-72т; ФБС 12.4.6-т; |
|
|
раствор цементный М 75; документ о качестве растворной смеси № 35. |
||
|
(наименование материалов, изделий со ссылкой на сертификаты или др. документы, подтверждающие качество) |
||
4. При выполнении работ отсутствуют (или допущены) отклонения от проектно-сметной документации
|
отклонения отсутствуют |
||
|
(при наличии отклонений указываются, кем согласованы, № чертежей и дата согласования) |
||
|
5. Даты: |
начала работ |
25 апреля 1998 года |
|
|
окончания работ |
29 апреля 1998 года |
Решение комиссии:
Работы выполнены в соответствии с проектно-сметной документацией, стандартами, строительными нормами и правилами и отвечают требованиям их приемки.
На основании изложенного разрешается производство последующих работ по устройству (монтажу)
|
гидроизоляции фундаментов |
|
(наименование работ и конструкции) |
|
Представитель строительно‑монтажной организации |
И. Егоров |
||
|
|
(подпись) |
||
|
Представитель технического надзора заказчика |
В. Шинкевич |
||
|
|
(подпись) |
||
|
Представитель проектной организации |
Г. Крючкова |
||
|
|
(подпись) |
||
Акт освидетельствования скрытых работ
|
Устройство монолитных бетонных участков фундаментов |
|
|
(наименование работ) |
|
|
выполненных в |
Хоспис, Гражданский пр., квартал 16 Б |
|
|
(наименование и место расположения объекта) |
« 29 » апреля 199 8 г.
Комиссия в составе:
|
Представителя строительно‑монтажной организации |
|
|
|
Егоров И. В., прораб |
||
|
(фамилия, инициалы, должность) |
||
|
представителя технического надзора заказчика |
|
|
|
Шинкевич В. А., инспектор |
||
|
(фамилия, инициалы, должность) |
||
представителя проектной организации (в случаях осуществления авторского надзора проектной организации в соответствии с требованиями СП 11-110-99)
|
Крючкова Г. Н., инженер-конструктор |
|
|
(фамилия, инициалы, должность) |
|
|
произвела осмотр работ, выполненных |
|
|
ЗАО «Строительный Трест» |
|
|
(наименование строительно-монтажной организации) |
|
и составила настоящий акт о нижеследующем:
|
1. К освидетельствованию предъявлены следующие работы |
|
|
|
Бетонирование монолитных бетонных участков фундаментов по оси Г (16-17), В (15-17), Д (20-21) |
||
|
(наименование скрытых работ) |
||
|
2. Работы выполнены по проектно-сметной документации |
АО «ЛЕННИИПРОЕКТ», |
|
|
мастерская № 1, 13017 - КЖ, лист 19, 12.96 |
||
|
(наименование проемной организации, № чертежей, дата их составления) |
||
|
3. При выполнении работ применены |
|
|
|
бетон В15, документ о качестве бетонной смеси № 245. |
||
|
(наименование материалов, изделий со ссылкой на сертификаты или др. документы, подтверждающие качество) |
||
4. При выполнении работ отсутствуют (или допущены) отклонения от проектно-сметной документации
|
отклонения отсутствуют |
||
|
(при наличии отклонений указываются, кем согласованы, № чертежей и дата согласования) |
||
|
5. Даты: |
начала работ |
25 апреля 1998 года |
|
|
окончания работ |
29 апреля 1998 года |
Решение комиссии:
Работы выполнены в соответствии с проектно-сметной документацией, стандартами, строительными нормами и правилами и отвечают требованиям их приемки.
На основании изложенного разрешается производство последующих работ по устройству (монтажу)
|
гидроизоляции фундаментов |
|
(наименование работ и конструкции) |
|
Представитель строительно‑монтажной организации |
И. Егоров |
||
|
|
(подпись) |
||
|
Представитель технического надзора заказчика |
В. Шинкевич |
||
|
|
(подпись) |
||
|
Представитель проектной организации |
Г. Крючкова |
||
|
|
(подпись) |
||
Акт освидетельствования скрытых работ
|
Устройство гидроизоляции фундаментов |
|
|
(наименование работ) |
|
|
выполненных в |
Хоспис, Гражданский пр., квартал 16 Б |
|
|
(наименование и место расположения объекта) |
« 30 » апреля 199 8 г.
Комиссия в составе:
|
Представителя строительно‑монтажной организации |
|
|
|
Егоров И. В., прораб |
||
|
(фамилия, инициалы, должность) |
||
|
представителя технического надзора заказчика |
|
|
|
Шинкевич В. А., инспектор |
||
|
(фамилия, инициалы, должность) |
||
представителя проектной организации (в случаях осуществления авторского надзора проектной организации в соответствии с требованиями СП 11-110-99)
|
Крючкова Г. Н., инженер-конструктор |
|
|
(фамилия, инициалы, должность) |
|
|
произвела осмотр работ, выполненных |
|
|
ЗАО «Строительный Трест» |
|
|
(наименование строительно-монтажной организации) |
|
и составила настоящий акт о нижеследующем:
|
1. К освидетельствованию предъявлены следующие работы |
|
|
|
Устройство гидроизоляции фундаментов в осях 12-23, А-Ф |
||
|
(наименование скрытых работ) |
||
|
2. Работы выполнены по проектно-сметной документации |
АО «ЛЕННИИПРОЕКТ», |
|
|
мастерская № 1, 13017 - КЖ, лист 19, 12.96 |
||
|
(наименование проемной организации, № чертежей, дата их составления) |
||
|
3. При выполнении работ применены |
|
|
|
битум БН-IV, сертификат № 230 |
||
|
(наименование материалов, изделий со ссылкой на сертификаты или др. документы, подтверждающие качество) |
||
4. При выполнении работ отсутствуют (или допущены) отклонения от проектно-сметной документации
|
отклонения отсутствуют |
||
|
(при наличии отклонений указываются, кем согласованы, № чертежей и дата согласования) |
||
|
5. Даты: |
начала работ |
29 апреля 1998 года |
|
|
окончания работ |
30 апреля 1998 года |
Решение комиссии:
Работы выполнены в соответствии с проектно-сметной документацией, стандартами, строительными нормами и правилами и отвечают требованиям их приемки.
На основании изложенного разрешается производство последующих работ по устройству (монтажу)
|
обратной засыпки фундаментов |
|
(наименование работ и конструкции) |
|
Представитель строительно‑монтажной организации |
И. Егоров |
||
|
|
(подпись) |
||
|
Представитель технического надзора заказчика |
В. Шинкевич |
||
|
|
(подпись) |
||
|
Представитель проектной организации |
Г. Крючкова |
||
|
|
(подпись) |
||
Акт освидетельствования скрытых работ
|
Устройство фундаментов под оборудование |
|
|
(наименование работ) |
|
|
выполненных в |
Хоспис, Гражданский пр., квартал 16 Б |
|
|
(наименование и место расположения объекта) |
« 30 » мая 199 8 г.
Комиссия в составе:
|
Представителя строительно‑монтажной организации |
|
|
|
Егоров И. В., прораб |
||
|
(фамилия, инициалы, должность) |
||
|
представителя технического надзора заказчика |
|
|
|
Шинкевич В. А., инспектор |
||
|
(фамилия, инициалы, должность) |
||
представителя проектной организации (в случаях осуществления авторского надзора проектной организации в соответствии с требованиями СП 11-110-99)
|
|
|
|
(фамилия, инициалы, должность) |
|
|
произвела осмотр работ, выполненных |
|
|
ЗАО «Строительный Трест» |
|
|
(наименование строительно-монтажной организации) |
|
и составила настоящий акт о нижеследующем:
|
1. К освидетельствованию предъявлены следующие работы |
|
|
|
Устройство фундаментов под оборудование в помещении № 12 |
||
|
(наименование скрытых работ) |
||
|
2. Работы выполнены по проектно-сметной документации |
АО «ЛЕННИИПРОЕКТ», |
|
|
мастерская № 1, 13017 - КЖ, лист 20, 12.96 |
||
|
(наименование проемной организации, № чертежей, дата их составления) |
||
|
3. При выполнении работ применены |
арматура Ø8 А-III; Ø4 Вр-I; |
|
|
Ø3 Вр-I; бетон В15, документ о качестве бетонной смеси № 245. |
||
|
(наименование материалов, изделий со ссылкой на сертификаты или др. документы, подтверждающие качество) |
||
4. При выполнении работ отсутствуют (или допущены) отклонения от проектно-сметной документации
|
отклонения отсутствуют |
||
|
(при наличии отклонений указываются, кем согласованы, № чертежей и дата согласования) |
||
|
5. Даты: |
начала работ |
23 мая 1998 года |
|
|
окончания работ |
30 мая 1998 года |
Решение комиссии:
Работы выполнены в соответствии с проектно-сметной документацией, стандартами, строительными нормами и правилами и отвечают требованиям их приемки.
На основании изложенного разрешается производство последующих работ по устройству (монтажу)
|
оборудования |
|
(наименование работ и конструкции) |
|
Представитель строительно‑монтажной организации |
И. Егоров |
||
|
|
(подпись) |
||
|
Представитель технического надзора заказчика |
В. Шинкевич |
||
|
|
(подпись) |
||
|
Представитель проектной организации |
|
||
|
|
(подпись) |
||
Акт освидетельствования скрытых работ
|
Осмотр свай до погружения |
|
|
(наименование работ) |
|
|
выполненных в |
жилом доме, ул. Морская, квартал 32 А, корпус 2 Е |
|
|
(наименование и место расположения объекта) |
« 23 » апреля 200 0 г.
Комиссия в составе:
|
Представителя строительно‑монтажной организации |
|
|
|
Богданов А. В., начальник участка УНР-39 |
||
|
(фамилия, инициалы, должность) |
||
|
представителя технического надзора заказчика |
|
|
|
Макаров П Л., инженер |
||
|
(фамилия, инициалы, должность) |
||
представителя проектной организации (в случаях осуществления авторского надзора проектной организации в соответствии с требованиями СП 11-110-99)
|
Маслов М. Е., главный архитектор проекта ОАО «ЛЕННИИПРОЕКТ» |
|
|
(фамилия, инициалы, должность) |
|
|
произвела осмотр работ, выполненных |
|
|
УНР-39 |
|
|
(наименование строительно-монтажной организации) |
|
и составила настоящий акт о нижеследующем:
|
1. К освидетельствованию предъявлены следующие работы |
|
||
|
железобетонные сваи до погружения |
|||
|
(наименование скрытых работ) |
|||
|
2. Работы выполнены по проектно-сметной документации |
|
||
|
|
|||
|
(наименование проемной организации, № чертежей, дата их составления) |
|||
|
3. При выполнении работ применены |
геометрические размеры свай соответствуют проекту; |
||
|
никаких видимых повреждений поверхности свай не обнаружено; |
|||
|
(наименование материалов, изделий со ссылкой на сертификаты или др. документы, подтверждающие качество) |
|||
|
4. Марки бетона соответствуют проектам |
|
||
5. При выполнении работ отсутствуют (или допущены) отклонения от проектно-сметной документации
|
отклонения отсутствуют |
||
|
(при наличии отклонений указываются, кем согласованы, № чертежей и дата согласования) |
||
|
6. Даты: |
начала работ |
12 апреля 2000 года |
|
|
окончания работ |
21 апреля 2000 года |
Решение комиссии:
Работы выполнены в соответствии с проектно-сметной документацией, стандартами, строительными нормами и правилами и отвечают требованиям их приемки.
На основании изложенного разрешается производство последующих работ по устройству (монтажу)
|
забивки свай |
|
(наименование работ и конструкции) |
|
Представитель строительно‑монтажной организации |
А. Богданов |
||
|
|
(подпись) |
||
|
Представитель технического надзора заказчика |
П. Макаров |
||
|
|
(подпись) |
||
|
Представитель проектной организации |
М. Маслов |
||
|
|
(подпись) |
||
Акт освидетельствования скрытых работ
|
На сварку и антикоррозийную защиту стыков свай |
|
|
(наименование работ) |
|
|
выполненных в |
жилом доме Ржевка - Пороховые квартал 5, корп. 33 |
|
|
(наименование и место расположения объекта) |
« 04 » сентября 200 1 г.
Комиссия в составе:
|
Представителя строительно‑монтажной организации |
|
|
|
Андреев А. В., главный строитель ЗАО «Стройтрест» |
||
|
(фамилия, инициалы, должность) |
||
|
представителя технического надзора заказчика |
|
|
|
Шинкевич В. А., инспектор |
||
|
(фамилия, инициалы, должность) |
||
представителя проектной организации (в случаях осуществления авторского надзора проектной организации в соответствии с требованиями СП 11-110-99)
|
|
|
|
(фамилия, инициалы, должность) |
|
|
произвела осмотр работ, выполненных |
|
|
ЗАО «Стройтрест» |
|
|
(наименование строительно-монтажной организации) |
|
и составила настоящий акт о нижеследующем:
|
1. К освидетельствованию предъявлены следующие работы |
|
|
|
С 160.35.10 Б – 88 шт. |
||
|
(наименование скрытых работ) |
||
|
2. Работы выполнены по проектно-сметной документации |
|
|
|
ООО «Строительная компания «ДМ» КЖ лист 2, КЖ2 лист 2И, альбом ОК4 1.111.1 к-в вып. 1-1 |
||
|
(наименование проемной организации, № чертежей, дата их составления) |
||
|
3. При выполнении работ применены |
соединение стыков выполнено |
|
|
накладками из листовой стали δ=8 мм, обмазка лаком за 2 раза БТ-577, документ о качестве № 732 |
||
|
(наименование материалов, изделий со ссылкой на сертификаты или др. документы, подтверждающие качество) |
||
4. При выполнении работ отсутствуют (или допущены) отклонения от проектно-сметной документации
|
работы соответствуют СНиП 3.04.03-85, битумный лак ГОСТ 5631-79 |
||
|
(при наличии отклонений указываются, кем согласованы, № чертежей и дата согласования) |
||
|
5. Даты: |
начала работ |
27 августа 2001 года |
|
|
окончания работ |
04 сентября 2001 года |
Решение комиссии:
Работы выполнены в соответствии с проектно-сметной документацией, стандартами, строительными нормами и правилами и отвечают требованиям их приемки.
На основании изложенного разрешается производство последующих работ по устройству (монтажу)
|
погружения верхнего конца сваи |
|
(наименование работ и конструкции) |
|
Представитель строительно‑монтажной организации |
А. Андреев |
||
|
|
(подпись) |
||
|
Представитель технического надзора заказчика |
В. Шинкевич |
||
|
|
(подпись) |
||
|
Представитель проектной организации |
|
||
|
|
(подпись) |
||
Акт освидетельствования скрытых работ
|
Армирование кирпичной кладки стен |
|
|
(наименование работ) |
|
|
выполненных в |
жилом доме, БС-1, СПЧ 65к. 12 |
|
|
(наименование и место расположения объекта) |
« 17 » апреля 200 3 г.
Комиссия в составе:
|
Представителя строительно‑монтажной организации |
|
|
|
Стюарт А. В., начальник участка |
||
|
(фамилия, инициалы, должность) |
||
|
представителя технического надзора заказчика |
|
|
|
Шинкевич В. А., инспектор |
||
|
(фамилия, инициалы, должность) |
||
представителя проектной организации (в случаях осуществления авторского надзора проектной организации в соответствии с требованиями СП 11-110-99)
|
|
|
|
(фамилия, инициалы, должность) |
|
|
произвела осмотр работ, выполненных |
|
|
ООО «Отделстрой» |
|
|
(наименование строительно-монтажной организации) |
|
и составила настоящий акт о нижеследующем:
|
1. К освидетельствованию предъявлены следующие работы |
|
|
|
Армирование кирпичной кладки стен 2-го этажа |
||
|
(наименование скрытых работ) |
||
|
2. Работы выполнены по проектно-сметной документации |
ЗАО «Архитектурная |
|
|
студия М4» чертеж М 4.03.02 АС-1, лист 3, 07.2002 |
||
|
(наименование проемной организации, № чертежей, дата их составления) |
||
|
3. При выполнении работ применены |
|
|
|
сетка кладочная с яч. 50×50, Ø Вр-I, паспорт качества № 87 |
||
|
(наименование материалов, изделий со ссылкой на сертификаты или др. документы, подтверждающие качество) |
||
4. При выполнении работ отсутствуют (или допущены) отклонения от проектно-сметной документации
|
отклонения отсутствуют |
||
|
(при наличии отклонений указываются, кем согласованы, № чертежей и дата согласования) |
||
|
5. Даты: |
начала работ |
07 апреля 2003 года |
|
|
окончания работ |
17 апреля 2003 года |
Решение комиссии:
Работы выполнены в соответствии с проектно-сметной документацией, стандартами, строительными нормами и правилами и отвечают требованиям их приемки.
На основании изложенного разрешается производство последующих работ по устройству (монтажу)
|
плит перекрытия |
|
(наименование работ и конструкции) |
|
Представитель строительно‑монтажной организации |
А. Стюарт |
||
|
|
(подпись) |
||
|
Представитель технического надзора заказчика |
В. Шинкевич |
||
|
|
(подпись) |
||
|
Представитель проектной организации |
|
||
|
|
(подпись) |
||
Акт освидетельствования скрытых работ
|
Кирпичная кладка стен |
|
|
(наименование работ) |
|
|
выполненных в |
Хоспис, Гражданский пр., квартал 16 Б |
|
|
(наименование и место расположения объекта) |
« 24 » апреля 199 9 г.
Комиссия в составе:
|
Представителя строительно‑монтажной организации |
|
|
|
Егоров И. В., прораб |
||
|
(фамилия, инициалы, должность) |
||
|
представителя технического надзора заказчика |
|
|
|
Шинкевич В. А., инспектор |
||
|
(фамилия, инициалы, должность) |
||
представителя проектной организации (в случаях осуществления авторского надзора проектной организации в соответствии с требованиями СП 11-110-99)
|
|
|
|
(фамилия, инициалы, должность) |
|
|
произвела осмотр работ, выполненных |
|
|
ЗАО «Строительный Трест» |
|
|
(наименование строительно-монтажной организации) |
|
и составила настоящий акт о нижеследующем:
|
1. К освидетельствованию предъявлены следующие работы |
|
|
|
Кирпичная кладка стен 7-го этажа |
||
|
(наименование скрытых работ) |
||
|
2. Работы выполнены по проектно-сметной документации |
АО «ЛЕННИИПРОЕКТ», |
|
|
мастерская № 1, 13048 - АР, лист 24, 12.96 |
||
|
(наименование проемной организации, № чертежей, дата их составления) |
||
|
3. При выполнении работ применены |
кирпич облицовочный М150, паспорт качества № 16 |
|
|
кирпич полнотелый М150, паспорт качества № 76; раствор цементный М100, документ о качестве растворной смеси № 245. |
||
|
(наименование материалов, изделий со ссылкой на сертификаты или др. документы, подтверждающие качество) |
||
4. При выполнении работ отсутствуют (или допущены) отклонения от проектно-сметной документации
|
отклонения отсутствуют |
||
|
(при наличии отклонений указываются, кем согласованы, № чертежей и дата согласования) |
||
|
5. Даты: |
начала работ |
01 апреля 1999 года |
|
|
окончания работ |
24 апреля 1999 года |
Решение комиссии:
Работы выполнены в соответствии с проектно-сметной документацией, стандартами, строительными нормами и правилами и отвечают требованиям их приемки.
На основании изложенного разрешается производство последующих работ по устройству (монтажу)
|
плит перекрытия |
|
(наименование работ и конструкции) |
|
Представитель строительно‑монтажной организации |
И. Егоров |
||
|
|
(подпись) |
||
|
Представитель технического надзора заказчика |
В. Шинкевич |
||
|
|
(подпись) |
||
|
Представитель проектной организации |
|
||
|
|
(подпись) |
||
Акт освидетельствования скрытых работ
|
Кирпичная кладка столбов |
|
|
(наименование работ) |
|
|
выполненных в |
Хоспис, Гражданский пр., квартал 16 Б |
|
|
(наименование и место расположения объекта) |
« 24 » апреля 199 9 г.
Комиссия в составе:
|
Представителя строительно‑монтажной организации |
|
|
|
Егоров И. В., прораб |
||
|
(фамилия, инициалы, должность) |
||
|
представителя технического надзора заказчика |
|
|
|
Шинкевич В. А., инспектор |
||
|
(фамилия, инициалы, должность) |
||
представителя проектной организации (в случаях осуществления авторского надзора проектной организации в соответствии с требованиями СП 11-110-99)
|
|
|
|
(фамилия, инициалы, должность) |
|
|
произвела осмотр работ, выполненных |
|
|
ЗАО «Строительный Трест» |
|
|
(наименование строительно-монтажной организации) |
|
и составила настоящий акт о нижеследующем:
|
1. К освидетельствованию предъявлены следующие работы |
|
|
|
Кирпичная кладка столбов 7-го этажа |
||
|
(наименование скрытых работ) |
||
|
2. Работы выполнены по проектно-сметной документации |
АО «ЛЕННИИПРОЕКТ», |
|
|
мастерская № 1, 13047 - КЖ, лист 21, 12.96 |
||
|
(наименование проемной организации, № чертежей, дата их составления) |
||
|
3. При выполнении работ применены |
кирпич облицовочный М150, паспорт качества № 16 |
|
|
кирпич полнотелый М150, паспорт качества № 42; раствор цементный М100, документ о качестве растворной смеси № 245; сетка кладочная, паспорт качества № 1012 |
||
|
(наименование материалов, изделий со ссылкой на сертификаты или др. документы, подтверждающие качество) |
||
4. При выполнении работ отсутствуют (или допущены) отклонения от проектно-сметной документации
|
отклонения отсутствуют |
||
|
(при наличии отклонений указываются, кем согласованы, № чертежей и дата согласования) |
||
|
5. Даты: |
начала работ |
15 апреля 1999 года |
|
|
окончания работ |
24 апреля 1999 года |
Решение комиссии:
Работы выполнены в соответствии с проектно-сметной документацией, стандартами, строительными нормами и правилами и отвечают требованиям их приемки.
На основании изложенного разрешается производство последующих работ по устройству (монтажу)
|
балок |
|
(наименование работ и конструкции) |
|
Представитель строительно‑монтажной организации |
И. Егоров |
||
|
|
(подпись) |
||
|
Представитель технического надзора заказчика |
В. Шинкевич |
||
|
|
(подпись) |
||
|
Представитель проектной организации |
|
||
|
|
(подпись) |
||
Акт освидетельствования скрытых работ
|
Утепление кирпичных стен газобетоном |
|
|
(наименование работ) |
|
|
выполненных в |
жилом доме, БС-1, СПЧ 65к. 12 |
|
|
(наименование и место расположения объекта) |
« 21 » апреля 200 3 г.
Комиссия в составе:
|
Представителя строительно‑монтажной организации |
|
|
|
Захаренко А. Я., начальник участка |
||
|
(фамилия, инициалы, должность) |
||
|
представителя технического надзора заказчика |
|
|
|
Шинкевич В. А., инспектор |
||
|
(фамилия, инициалы, должность) |
||
представителя проектной организации (в случаях осуществления авторского надзора проектной организации в соответствии с требованиями СП 11-110-99)
|
|
|
|
(фамилия, инициалы, должность) |
|
|
произвела осмотр работ, выполненных |
|
|
ООО «Отделстрой» |
|
|
(наименование строительно-монтажной организации) |
|
и составила настоящий акт о нижеследующем:
|
1. К освидетельствованию предъявлены следующие работы |
|
|
|
Утепление кирпичных стен 7-го этажа газобетоном |
||
|
(наименование скрытых работ) |
||
|
2. Работы выполнены по проектно-сметной документации |
ЗАО «Архитектурная |
|
|
студия М4» чертеж М 4.03.02 АС-1, лист 3, 07.2002 |
||
|
(наименование проемной организации, № чертежей, дата их составления) |
||
|
3. При выполнении работ применены |
газобетон толщиной 250 мм, документ о качестве № 77, |
|
|
ГОСТ25820-83*; раствор цементный М100, документ о качестве растворной смеси № 245, ГОСТ28013-89 |
||
|
(наименование материалов, изделий со ссылкой на сертификаты или др. документы, подтверждающие качество) |
||
4. При выполнении работ отсутствуют (или допущены) отклонения от проектно-сметной документации
|
отклонения отсутствуют |
||
|
(при наличии отклонений указываются, кем согласованы, № чертежей и дата согласования) |
||
|
5. Даты: |
начала работ |
15 апреля 2003 года |
|
|
окончания работ |
21 апреля 2003 года |
Решение комиссии:
Работы выполнены в соответствии с проектно-сметной документацией, стандартами, строительными нормами и правилами и отвечают требованиям их приемки.
На основании изложенного разрешается производство последующих работ по устройству (монтажу)
|
плит перекрытия |
|
(наименование работ и конструкции) |
|
Представитель строительно‑монтажной организации |
А. Захаренко |
||
|
|
(подпись) |
||
|
Представитель технического надзора заказчика |
В. Шинкевич |
||
|
|
(подпись) |
||
|
Представитель проектной организации |
|
||
|
|
(подпись) |
||
Акт освидетельствования скрытых работ
|
Устройство и армирование кирпичных перегородок |
|
|
(наименование работ) |
|
|
выполненных в |
Хоспис, Гражданский пр., квартал 16 Б |
|
|
(наименование и место расположения объекта) |
« 24 » апреля 199 9 г.
Комиссия в составе:
|
Представителя строительно‑монтажной организации |
|
|
|
Егоров И. В., прораб |
||
|
(фамилия, инициалы, должность) |
||
|
представителя технического надзора заказчика |
|
|
|
Шинкевич В. А., инспектор |
||
|
(фамилия, инициалы, должность) |
||
представителя проектной организации (в случаях осуществления авторского надзора проектной организации в соответствии с требованиями СП 11-110-99)
|
|
|
|
(фамилия, инициалы, должность) |
|
|
произвела осмотр работ, выполненных |
|
|
ЗАО «Строительный Трест» |
|
|
(наименование строительно-монтажной организации) |
|
и составила настоящий акт о нижеследующем:
|
1. К освидетельствованию предъявлены следующие работы |
|
|
|
Устройство и армирование кирпичных перегородок 7-го этажа |
||
|
(наименование скрытых работ) |
||
|
2. Работы выполнены по проектно-сметной документации |
АО «ЛЕННИИПРОЕКТ», |
|
|
мастерская № 1, 13047 - АР, лист 21, 12.96 |
||
|
(наименование проемной организации, № чертежей, дата их составления) |
||
|
3. При выполнении работ применены |
кирпич облицовочный М150, паспорт качества № 42; |
|
|
раствор цементный М 75, документ о качестве растворной смеси №245; сетка кладочная, паспорт качества № 11 |
||
|
(наименование материалов, изделий со ссылкой на сертификаты или др. документы, подтверждающие качество) |
||
4. При выполнении работ отсутствуют (или допущены) отклонения от проектно-сметной документации
|
отклонения отсутствуют |
||
|
(при наличии отклонений указываются, кем согласованы, № чертежей и дата согласования) |
||
|
5. Даты: |
начала работ |
15 апреля 1999 года |
|
|
окончания работ |
24 апреля 1999 года |
Решение комиссии:
Работы выполнены в соответствии с проектно-сметной документацией, стандартами, строительными нормами и правилами и отвечают требованиям их приемки.
На основании изложенного разрешается производство последующих работ по устройству (монтажу)
|
отделочных работ |
|
(наименование работ и конструкции) |
|
Представитель строительно‑монтажной организации |
И. Егоров |
||
|
|
(подпись) |
||
|
Представитель технического надзора заказчика |
В. Шинкевич |
||
|
|
(подпись) |
||
|
Представитель проектной организации |
|
||
|
|
(подпись) |
||
Акт освидетельствования скрытых работ
|
Армирование колонн в осях 9-13 |
|
|
(наименование работ) |
|
|
выполненных в |
жилом доме Ржевка - Пороховые квартал 5, корп. 33 |
|
|
(наименование и место расположения объекта) |
« 02 » июля 200 2 г.
Комиссия в составе:
|
Представителя строительно‑монтажной организации |
|
|
|
Сбеглов В. И., начальник участка |
||
|
(фамилия, инициалы, должность) |
||
|
представителя технического надзора заказчика |
|
|
|
Шинкевич В. А., инспектор |
||
|
(фамилия, инициалы, должность) |
||
представителя проектной организации (в случаях осуществления авторского надзора проектной организации в соответствии с требованиями СП 11-110-99)
|
|
|
|
(фамилия, инициалы, должность) |
|
|
произвела осмотр работ, выполненных |
|
|
АОЗТ «РАНТ» |
|
|
(наименование строительно-монтажной организации) |
|
и составила настоящий акт о нижеследующем:
|
1. К освидетельствованию предъявлены следующие работы |
|
|
|
армирование колонн К-1; К-2 |
||
|
(наименование скрытых работ) |
||
|
2. Работы выполнены по проектно-сметной документации |
|
|
|
Строительная компания «ДМ» КЖ-3; Л 2, 3, 4; 08.2001 |
||
|
(наименование проемной организации, № чертежей, дата их составления) |
||
|
3. При выполнении работ применены |
арматурные каркасы К-1; К-2; К-3; К-4 |
|
|
арматура Ø 16 А-III, Ø 4 Вр-I |
||
|
(наименование материалов, изделий со ссылкой на сертификаты или др. документы, подтверждающие качество) |
||
4. При выполнении работ отсутствуют (или допущены) отклонения от проектно-сметной документации
|
отклонений нет |
||
|
(при наличии отклонений указываются, кем согласованы, № чертежей и дата согласования) |
||
|
5. Даты: |
начала работ |
25 июня 2002 года |
|
|
окончания работ |
29 июня 2002 года |
Решение комиссии:
Работы выполнены в соответствии с проектно-сметной документацией, стандартами, строительными нормами и правилами и отвечают требованиям их приемки.
На основании изложенного разрешается производство последующих работ по устройству (монтажу)
|
опалубки |
|
(наименование работ и конструкции) |
|
Представитель строительно‑монтажной организации |
В. Сбеглов |
||
|
|
(подпись) |
||
|
Представитель технического надзора заказчика |
В. Шинкевич |
||
|
|
(подпись) |
||
|
Представитель проектной организации |
|
||
|
|
(подпись) |
||
Акт освидетельствования скрытых работ
|
Бетонирование колонн в осях 9-13 |
|
|
(наименование работ) |
|
|
выполненных в |
жилом доме Ржевка - Пороховые квартал 5, корп. 33 |
|
|
(наименование и место расположения объекта) |
« 02 » июля 200 2 г.
Комиссия в составе:
|
Представителя строительно‑монтажной организации |
|
|
|
Сбеглов В. И., начальник участка |
||
|
(фамилия, инициалы, должность) |
||
|
представителя технического надзора заказчика |
|
|
|
Шинкевич В. А., инспектор |
||
|
(фамилия, инициалы, должность) |
||
представителя проектной организации (в случаях осуществления авторского надзора проектной организации в соответствии с требованиями СП 11-110-99)
|
|
|
|
(фамилия, инициалы, должность) |
|
|
произвела осмотр работ, выполненных |
|
|
АОЗТ «РАНТ» |
|
|
(наименование строительно-монтажной организации) |
|
и составила настоящий акт о нижеследующем:
|
1. К освидетельствованию предъявлены следующие работы |
|
|
|
бронирование колонн К-1; К-2 |
||
|
(наименование скрытых работ) |
||
|
2. Работы выполнены по проектно-сметной документации |
|
|
|
Строительная компания «ДМ» КЖ-3; Л 2, 3, 4; 08.2001 |
||
|
(наименование проемной организации, № чертежей, дата их составления) |
||
|
3. При выполнении работ применены |
бетон М300, паспорт № 1242 |
|
|
|
||
|
(наименование материалов, изделий со ссылкой на сертификаты или др. документы, подтверждающие качество) |
||
4. При выполнении работ отсутствуют (или допущены) отклонения от проектно-сметной документации
|
отклонений нет |
||
|
(при наличии отклонений указываются, кем согласованы, № чертежей и дата согласования) |
||
|
5. Даты: |
начала работ |
29 июня 2002 года |
|
|
окончания работ |
30 июня 2002 года |
Решение комиссии:
Работы выполнены в соответствии с проектно-сметной документацией, стандартами, строительными нормами и правилами и отвечают требованиям их приемки.
На основании изложенного разрешается производство последующих работ по устройству (монтажу)
|
балок |
|
(наименование работ и конструкции) |
|
Представитель строительно‑монтажной организации |
В. Сбеглов |
||
|
|
(подпись) |
||
|
Представитель технического надзора заказчика |
В. Шинкевич |
||
|
|
(подпись) |
||
|
Представитель проектной организации |
|
||
|
|
(подпись) |
||
Акт освидетельствования скрытых работ
|
Армирование стен 20-го этажа в осях 10-19, Д-П, 26-28, отм. верха стен +60,40 |
|
|
(наименование работ) |
|
|
выполненных в |
жилом доме по адресу СПб, Ржевка-Пороховые, кв. 10, корпус 34 |
|
|
(наименование и место расположения объекта) |
« 02 » июля 200 3 г.
Комиссия в составе:
|
Представителя строительно‑монтажной организации |
|
|
|
Джуманиязов Н. О., прораб |
||
|
(фамилия, инициалы, должность) |
||
|
представителя технического надзора заказчика |
|
|
|
Шинкевич В. А., инспектор технического надзора |
||
|
(фамилия, инициалы, должность) |
||
представителя проектной организации (в случаях осуществления авторского надзора проектной организации в соответствии с требованиями СП 11-110-99)
|
Синякин В. С, главный конструктор |
|
|
(фамилия, инициалы, должность) |
|
|
произвела осмотр работ, выполненных |
|
|
ООО «Парус» |
|
|
(наименование строительно-монтажной организации) |
|
и составила настоящий акт о нижеследующем:
|
1. К освидетельствованию предъявлены следующие работы |
|
|
|
Установка отдельных стержней и арматурных каркасов, установка пенополистерола |
||
|
(наименование скрытых работ) |
||
|
2. Работы выполнены по проектно-сметной документации |
ООО ПТАМ Новикова С. Г. |
|
|
КЖ № 234, лист 14, 09.2002 г. |
||
|
(наименование проемной организации, № чертежей, дата их составления) |
||
|
3. При выполнении работ применены |
|
|
|
арматура Ø 5 Вр-I, 8 А-II, 12 А-Ш, 14 A-III, 16 A-III, вязальная проволока |
||
|
(наименование материалов, изделий со ссылкой на сертификаты или др. документы, подтверждающие качество) |
||
4. При выполнении работ отсутствуют (или допущены) отклонения от проектно-сметной документации
|
отклонения отсутствуют |
||
|
(при наличии отклонений указываются, кем согласованы, № чертежей и дата согласования) |
||
|
5. Даты: |
начала работ |
28 июня 2003 года |
|
|
окончания работ |
02 июля 2003 года |
Решение комиссии:
Работы выполнены в соответствии с проектно-сметной документацией, стандартами, строительными нормами и правилами и отвечают требованиям их приемки.
На основании изложенного разрешается производство последующих работ по устройству (монтажу)
|
опалубки |
|
(наименование работ и конструкции) |
|
Представитель строительно‑монтажной организации |
Н. Джуманиязов |
||
|
|
(подпись) |
||
|
Представитель технического надзора заказчика |
В. Шинкевич |
||
|
|
(подпись) |
||
|
Представитель проектной организации |
В. Синякин |
||
|
|
(подпись) |
||
Акт освидетельствования скрытых работ
|
Бетонирование стен 20-го этажа в осях 10-19, Д-П, 26-28, отм. верха стен +60,40 |
|
|
(наименование работ) |
|
|
выполненных в |
жилом доме по адресу СПб, Ржевка-Пороховые, кв. 10, корпус 34 |
|
|
(наименование и место расположения объекта) |
« 05 » июля 200 3 г.
Комиссия в составе:
|
Представителя строительно‑монтажной организации |
|
|
|
Джуманиязов Н. О., прораб |
||
|
(фамилия, инициалы, должность) |
||
|
представителя технического надзора заказчика |
|
|
|
Шинкевич В. А., инспектор технического надзора |
||
|
(фамилия, инициалы, должность) |
||
представителя проектной организации (в случаях осуществления авторского надзора проектной организации в соответствии с требованиями СП 11-110-99)
|
Синякин В. С, главный конструктор |
|
|
(фамилия, инициалы, должность) |
|
|
произвела осмотр работ, выполненных |
|
|
ООО «Парус» |
|
|
(наименование строительно-монтажной организации) |
|
и составила настоящий акт о нижеследующем:
|
1. К освидетельствованию предъявлены следующие работы |
|
|
|
Укладка бетона в стены 20-го этажа |
||
|
(наименование скрытых работ) |
||
|
2. Работы выполнены по проектно-сметной документации |
ООО ПТАМ Новикова С. Г. |
|
|
КЖ № 234, лист 14, 09.2002 г. |
||
|
(наименование проемной организации, № чертежей, дата их составления) |
||
|
3. При выполнении работ применены |
|
|
|
бетон М350 |
||
|
(наименование материалов, изделий со ссылкой на сертификаты или др. документы, подтверждающие качество) |
||
4. При выполнении работ отсутствуют (или допущены) отклонения от проектно-сметной документации
|
отклонения отсутствуют |
||
|
(при наличии отклонений указываются, кем согласованы, № чертежей и дата согласования) |
||
|
5. Даты: |
начала работ |
05 июля 2003 года |
|
|
окончания работ |
05 июля 2003 года |
Решение комиссии:
Работы выполнены в соответствии с проектно-сметной документацией, стандартами, строительными нормами и правилами и отвечают требованиям их приемки.
На основании изложенного разрешается производство последующих работ по устройству (монтажу)
|
монолитных ж/б перекрытий |
|
(наименование работ и конструкции) |
|
Представитель строительно‑монтажной организации |
Н. Джуманиязов |
||
|
|
(подпись) |
||
|
Представитель технического надзора заказчика |
В. Шинкевич |
||
|
|
(подпись) |
||
|
Представитель проектной организации |
В. Синякин |
||
|
|
(подпись) |
||
Акт освидетельствования скрытых работ
|
Армирование перекрытия над 17-м этажом в осях 10-19, Д-П, 26-28, отм. верха стен +51,400 |
|
|
(наименование работ) |
|
|
выполненных в |
жилом доме по адресу СПб, Ржевка-Пороховые, кв. 10, корпус 34 |
|
|
(наименование и место расположения объекта) |
« 16 » мая 200 3 г.
Комиссия в составе:
|
Представителя строительно‑монтажной организации |
|
|
|
Джуманиязов Н. О., прораб |
||
|
(фамилия, инициалы, должность) |
||
|
представителя технического надзора заказчика |
|
|
|
Ядрышников А. М, инспектор технического надзора |
||
|
(фамилия, инициалы, должность) |
||
представителя проектной организации (в случаях осуществления авторского надзора проектной организации в соответствии с требованиями СП 11-110-99)
|
Синякин В. С, главный конструктор |
|
|
(фамилия, инициалы, должность) |
|
|
произвела осмотр работ, выполненных |
|
|
ООО «Парус» |
|
|
(наименование строительно-монтажной организации) |
|
и составила настоящий акт о нижеследующем:
|
1. К освидетельствованию предъявлены следующие работы |
|
|
|
Установка вертикальных и горизонтальных арматурных каркасов Kp1, Кр2, Б1-Б4, установка пенополистерола |
||
|
(наименование скрытых работ) |
||
|
2. Работы выполнены по проектно-сметной документации |
ООО ПТАМ Новикова С. Г. |
|
|
КЖ № 234, лист 14, 09.2002 г. |
||
|
(наименование проемной организации, № чертежей, дата их составления) |
||
|
3. При выполнении работ применены |
|
|
|
арматура Ø 5 Bp-I,12 A-III, 14А-Ш, 18A-III, вязальная проволока |
||
|
(наименование материалов, изделий со ссылкой на сертификаты или др. документы, подтверждающие качество) |
||
4. При выполнении работ отсутствуют (или допущены) отклонения от проектно-сметной документации
|
отклонения отсутствуют |
||
|
(при наличии отклонений указываются, кем согласованы, № чертежей и дата согласования) |
||
|
5. Даты: |
начала работ |
15 мая 2003 года |
|
|
окончания работ |
16 мая 2003 года |
Решение комиссии:
Работы выполнены в соответствии с проектно-сметной документацией, стандартами, строительными нормами и правилами и отвечают требованиям их приемки.
На основании изложенного разрешается производство последующих работ по устройству (монтажу)
|
монолитных ж/б стен |
|
(наименование работ и конструкции) |
|
Представитель строительно‑монтажной организации |
Н. Джуманиязов |
||
|
|
(подпись) |
||
|
Представитель технического надзора заказчика |
А. Ядрышников |
||
|
|
(подпись) |
||
|
Представитель проектной организации |
В. Синякин |
||
|
|
(подпись) |
||
Акт освидетельствования скрытых работ
|
Бетонирование перекрытия над 17-м этажом в осях 10-19, Д-П, 26-28, отм. верха стен +51,400 |
|
|
(наименование работ) |
|
|
выполненных в |
жилом доме по адресу СПб, Ржевка-Пороховые, кв. 10, корпус 34 |
|
|
(наименование и место расположения объекта) |
« 03 » июля 200 3 г.
Комиссия в составе:
|
Представителя строительно‑монтажной организации |
|
|
|
Джуманиязов Н. О., прораб |
||
|
(фамилия, инициалы, должность) |
||
|
представителя технического надзора заказчика |
|
|
|
Ядрышников А. М, инспектор технического надзора |
||
|
(фамилия, инициалы, должность) |
||
представителя проектной организации (в случаях осуществления авторского надзора проектной организации в соответствии с требованиями СП 11-110-99)
|
Синякин В. С, главный конструктор |
|
|
(фамилия, инициалы, должность) |
|
|
произвела осмотр работ, выполненных |
|
|
ООО «Парус» |
|
|
(наименование строительно-монтажной организации) |
|
и составила настоящий акт о нижеследующем:
|
1. К освидетельствованию предъявлены следующие работы |
|
|
|
Укладка бетона в перекрытие 17-го этажа |
||
|
(наименование скрытых работ) |
||
|
2. Работы выполнены по проектно-сметной документации |
ООО ПТАМ Новикова С. Г. |
|
|
|
||
|
(наименование проемной организации, № чертежей, дата их составления) |
||
|
3. При выполнении работ применены |
|
|
|
бетон М350 |
||
|
(наименование материалов, изделий со ссылкой на сертификаты или др. документы, подтверждающие качество) |
||
4. При выполнении работ отсутствуют (или допущены) отклонения от проектно-сметной документации
|
отклонения отсутствуют |
||
|
(при наличии отклонений указываются, кем согласованы, № чертежей и дата согласования) |
||
|
5. Даты: |
начала работ |
03 июля 2003 года |
|
|
окончания работ |
03 июля 2003 года |
Решение комиссии:
Работы выполнены в соответствии с проектно-сметной документацией, стандартами, строительными нормами и правилами и отвечают требованиям их приемки.
На основании изложенного разрешается производство последующих работ по устройству (монтажу)
|
монолитных ж/б стен |
|
(наименование работ и конструкции) |
|
Представитель строительно‑монтажной организации |
Н. Джуманиязов |
||
|
|
(подпись) |
||
|
Представитель технического надзора заказчика |
А. Ядрышников |
||
|
|
(подпись) |
||
|
Представитель проектной организации |
В. Синякин |
||
|
|
(подпись) |
||
Акт освидетельствования скрытых работ
|
Монтаж стеновых панелей |
|
|
(наименование работ) |
|
|
выполненных в |
жилом доме по адресу г. Пушкин, Красносельское шоссе, д. 12 |
|
|
(наименование и место расположения объекта) |
« 21 » октября 200 0 г.
Комиссия в составе:
|
Представителя строительно‑монтажной организации |
|
|
|
Иванов И. В., прораб |
||
|
(фамилия, инициалы, должность) |
||
|
представителя технического надзора заказчика |
|
|
|
Козлов В. А., инспектор |
||
|
(фамилия, инициалы, должность) |
||
представителя проектной организации (в случаях осуществления авторского надзора проектной организации в соответствии с требованиями СП 11-110-99)
|
|
|
|
(фамилия, инициалы, должность) |
|
|
произвела осмотр работ, выполненных |
|
|
211 КЖБИ |
|
|
(наименование строительно-монтажной организации) |
|
и составила настоящий акт о нижеследующем:
|
1. К освидетельствованию предъявлены следующие работы |
|
|
|
Монтаж стеновых панелей первого этажа |
||
|
(наименование скрытых работ) |
||
|
2. Работы выполнены по проектно-сметной документации |
48 Военпроект, |
|
|
КЖ-2179, лист 11, 07.99 г. |
||
|
(наименование проемной организации, № чертежей, дата их составления) |
||
|
3. При выполнении работ применены |
стеновые панели ПС-600.9.20-1; |
|
|
закладные детали; электроды Э42-А |
||
|
(наименование материалов, изделий со ссылкой на сертификаты или др. документы, подтверждающие качество) |
||
4. При выполнении работ отсутствуют (или допущены) отклонения от проектно-сметной документации
|
отклонения отсутствуют |
||
|
(при наличии отклонений указываются, кем согласованы, № чертежей и дата согласования) |
||
|
5. Даты: |
начала работ |
15 октября 2000 года |
|
|
окончания работ |
21 октября 2000 года |
Решение комиссии:
Работы выполнены в соответствии с проектно-сметной документацией, стандартами, строительными нормами и правилами и отвечают требованиям их приемки.
На основании изложенного разрешается производство последующих работ по устройству (монтажу)
|
плит перекрытия |
|
(наименование работ и конструкции) |
|
Представитель строительно‑монтажной организации |
И. Иванов |
||
|
|
(подпись) |
||
|
Представитель технического надзора заказчика |
В. Козлов |
||
|
|
(подпись) |
||
|
Представитель проектной организации |
|
||
|
|
(подпись) |
||
Акт освидетельствования скрытых работ
|
Герметизация стыков наружных панелей |
|
|
(наименование работ) |
|
|
выполненных в |
жилом доме по адресу г. Пушкин, Красносельское шоссе, д. 12 |
|
|
(наименование и место расположения объекта) |
« 21 » октября 200 0 г.
Комиссия в составе:
|
Представителя строительно‑монтажной организации |
|
|
|
Иванов И. В., прораб |
||
|
(фамилия, инициалы, должность) |
||
|
представителя технического надзора заказчика |
|
|
|
Козлов В. А., инспектор |
||
|
(фамилия, инициалы, должность) |
||
представителя проектной организации (в случаях осуществления авторского надзора проектной организации в соответствии с требованиями СП 11-110-99)
|
|
|
|
(фамилия, инициалы, должность) |
|
|
произвела осмотр работ, выполненных |
|
|
211 КЖБИ |
|
|
(наименование строительно-монтажной организации) |
|
и составила настоящий акт о нижеследующем:
|
1. К освидетельствованию предъявлены следующие работы |
|
|
|
Герметизация стыков наружных панелей |
||
|
(наименование скрытых работ) |
||
|
2. Работы выполнены по проектно-сметной документации |
48 Военпроект, |
|
|
КЖ-2179, лист 11, 07.99 г. |
||
|
(наименование проемной организации, № чертежей, дата их составления) |
||
|
3. При выполнении работ применены |
|
|
|
мастика нетвердеющая; прокладки резиновые гернит |
||
|
(наименование материалов, изделий со ссылкой на сертификаты или др. документы, подтверждающие качество) |
||
4. При выполнении работ отсутствуют (или допущены) отклонения от проектно-сметной документации
|
отклонения отсутствуют |
||
|
(при наличии отклонений указываются, кем согласованы, № чертежей и дата согласования) |
||
|
5. Даты: |
начала работ |
15 октября 2000 года |
|
|
окончания работ |
21 октября 2000 года |
Решение комиссии:
Работы выполнены в соответствии с проектно-сметной документацией, стандартами, строительными нормами и правилами и отвечают требованиям их приемки.
На основании изложенного разрешается производство последующих работ по устройству (монтажу)
|
отделочных работ |
|
(наименование работ и конструкции) |
|
Представитель строительно‑монтажной организации |
И. Иванов |
||
|
|
(подпись) |
||
|
Представитель технического надзора заказчика |
В. Козлов |
||
|
|
(подпись) |
||
|
Представитель проектной организации |
|
||
|
|
(подпись) |
||
Акт освидетельствования скрытых работ
|
Монтаж плит перекрытия |
|
|
(наименование работ) |
|
|
выполненных в |
жилом доме, БС-1, СПЧ 65к. 12 |
|
|
(наименование и место расположения объекта) |
« 12 » мая 200 3 г.
Комиссия в составе:
|
Представителя строительно‑монтажной организации |
|
|
|
Стюарт А. В., начальник участка |
||
|
(фамилия, инициалы, должность) |
||
|
представителя технического надзора заказчика |
|
|
|
Шинкевич В. А., инспектор |
||
|
(фамилия, инициалы, должность) |
||
представителя проектной организации (в случаях осуществления авторского надзора проектной организации в соответствии с требованиями СП 11-110-99)
|
|
|
|
(фамилия, инициалы, должность) |
|
|
произвела осмотр работ, выполненных |
|
|
ООО «Отделстрой» |
|
|
(наименование строительно-монтажной организации) |
|
и составила настоящий акт о нижеследующем:
|
1. К освидетельствованию предъявлены следующие работы |
|
|
|
Монтаж плит перекрытия над 2-м этажом |
||
|
(наименование скрытых работ) |
||
|
2. Работы выполнены по проектно-сметной документации |
ЗАО «Архитектурная |
|
|
студия М4» чертеж М 4.03.02 КЖ2, лист 8 |
||
|
(наименование проемной организации, № чертежей, дата их составления) |
||
|
3. При выполнении работ применены |
плиты перекрытия; |
|
|
раствор цементный М 75, документ о качестве растворной смеси № 645; уголок 125×125 |
||
|
(наименование материалов, изделий со ссылкой на сертификаты или др. документы, подтверждающие качество) |
||
4. При выполнении работ отсутствуют (или допущены) отклонения от проектно-сметной документации
|
отклонения отсутствуют |
||
|
(при наличии отклонений указываются, кем согласованы, № чертежей и дата согласования) |
||
|
5. Даты: |
начала работ |
05 мая 2003 года |
|
|
окончания работ |
12 мая 2003 года |
Решение комиссии:
Работы выполнены в соответствии с проектно-сметной документацией, стандартами, строительными нормами и правилами и отвечают требованиям их приемки.
На основании изложенного разрешается производство последующих работ по устройству (монтажу)
|
кирпичной кладки стен 3-го этажа |
|
(наименование работ и конструкции) |
|
Представитель строительно‑монтажной организации |
А. Стюарт |
||
|
|
(подпись) |
||
|
Представитель технического надзора заказчика |
В. Шинкевич |
||
|
|
(подпись) |
||
|
Представитель проектной организации |
|
||
|
|
(подпись) |
||
Акт освидетельствования скрытых работ
|
Анкеровка плит перекрытия |
|
|
(наименование работ) |
|
|
выполненных в |
жилом доме, БС-1, СПЧ 65к. 12 |
|
|
(наименование и место расположения объекта) |
« 12 » мая 200 3 г.
Комиссия в составе:
|
Представителя строительно‑монтажной организации |
|
|
|
Стюарт А. В., начальник участка |
||
|
(фамилия, инициалы, должность) |
||
|
представителя технического надзора заказчика |
|
|
|
Шинкевич В. А., инспектор |
||
|
(фамилия, инициалы, должность) |
||
представителя проектной организации (в случаях осуществления авторского надзора проектной организации в соответствии с требованиями СП 11-110-99)
|
|
|
|
(фамилия, инициалы, должность) |
|
|
произвела осмотр работ, выполненных |
|
|
ООО «Отделстрой» |
|
|
(наименование строительно-монтажной организации) |
|
и составила настоящий акт о нижеследующем:
|
1. К освидетельствованию предъявлены следующие работы |
|
|
|
Анкеровка плит перекрытия над 2-м этажом |
||
|
(наименование скрытых работ) |
||
|
2. Работы выполнены по проектно-сметной документации |
ЗАО «Архитектурная |
|
|
студия М4» чертеж М 4.03.02 КЖ2, лист 8 |
||
|
(наименование проемной организации, № чертежей, дата их составления) |
||
|
3. При выполнении работ применены |
|
|
|
арматура Ø 10 А-I; электроды ЭАОН-4 |
||
|
(наименование материалов, изделий со ссылкой на сертификаты или др. документы, подтверждающие качество) |
||
4. При выполнении работ отсутствуют (или допущены) отклонения от проектно-сметной документации
|
отклонения отсутствуют |
||
|
(при наличии отклонений указываются, кем согласованы, № чертежей и дата согласования) |
||
|
5. Даты: |
начала работ |
05 мая 2003 года |
|
|
окончания работ |
12 мая 2003 года |
Решение комиссии:
Работы выполнены в соответствии с проектно-сметной документацией, стандартами, строительными нормами и правилами и отвечают требованиям их приемки.
На основании изложенного разрешается производство последующих работ по устройству (монтажу)
|
кирпичной кладки 3-го этажа |
|
(наименование работ и конструкции) |
|
Представитель строительно‑монтажной организации |
А. Стюарт |
||
|
|
(подпись) |
||
|
Представитель технического надзора заказчика |
В. Шинкевич |
||
|
|
(подпись) |
||
|
Представитель проектной организации |
|
||
|
|
(подпись) |
||
Акт освидетельствования скрытых работ
|
Монтаж лифтовых шахт 1-го этажа |
|
|
(наименование работ) |
|
|
выполненных в |
жилом доме, БС-1, СПЧ 65к. 12 |
|
|
(наименование и место расположения объекта) |
« 14 » мая 200 3 г.
Комиссия в составе:
|
Представителя строительно‑монтажной организации |
|
|
|
Стюарт А. В., начальник участка |
||
|
(фамилия, инициалы, должность) |
||
|
представителя технического надзора заказчика |
|
|
|
Шинкевич В. А., инспектор |
||
|
(фамилия, инициалы, должность) |
||
представителя проектной организации (в случаях осуществления авторского надзора проектной организации в соответствии с требованиями СП 11-110-99)
|
|
|
|
(фамилия, инициалы, должность) |
|
|
произвела осмотр работ, выполненных |
|
|
ООО «Отделстрой» |
|
|
(наименование строительно-монтажной организации) |
|
и составила настоящий акт о нижеследующем:
|
1. К освидетельствованию предъявлены следующие работы |
|
|
|
Монтаж лифтовых шахт 1-го этажа секции БС-1 |
||
|
(наименование скрытых работ) |
||
|
2. Работы выполнены по проектно-сметной документации |
ЗАО «Архитектурная |
|
|
студия М4» чертеж М 4.03.02 КЖ2, лист 8 |
||
|
(наименование проемной организации, № чертежей, дата их составления) |
||
|
3. При выполнении работ применены |
|
|
|
шахты лифтов ШЛГП-63с-28, ШЛГП 63с-5, ШЛП 40с-28, ШЛП 40с-5 |
||
|
(наименование материалов, изделий со ссылкой на сертификаты или др. документы, подтверждающие качество) |
||
4. При выполнении работ отсутствуют (или допущены) отклонения от проектно-сметной документации
|
отклонения отсутствуют |
||
|
(при наличии отклонений указываются, кем согласованы, № чертежей и дата согласования) |
||
|
5. Даты: |
начала работ |
12 мая 2003 года |
|
|
окончания работ |
14 мая 2003 года |
Решение комиссии:
Работы выполнены в соответствии с проектно-сметной документацией, стандартами, строительными нормами и правилами и отвечают требованиям их приемки.
На основании изложенного разрешается производство последующих работ по устройству (монтажу)
|
лифтовых шахт 2 этажа |
|
(наименование работ и конструкции) |
|
Представитель строительно‑монтажной организации |
А. Стюарт |
||
|
|
(подпись) |
||
|
Представитель технического надзора заказчика |
В. Шинкевич |
||
|
|
(подпись) |
||
|
Представитель проектной организации |
|
||
|
|
(подпись) |
||
Акт освидетельствования скрытых работ
|
Монтаж колонн |
|
|
(наименование работ) |
|
|
выполненных в |
Хоспис, Гражданский пр., квартал 16 Б |
|
|
(наименование и место расположения объекта) |
« 21 » июня 199 8 г.
Комиссия в составе:
|
Представителя строительно‑монтажной организации |
|
|
|
Егоров И. В., прораб |
||
|
(фамилия, инициалы, должность) |
||
|
представителя технического надзора заказчика |
|
|
|
Шинкевич В. А., инспектор |
||
|
(фамилия, инициалы, должность) |
||
представителя проектной организации (в случаях осуществления авторского надзора проектной организации в соответствии с требованиями СП 11-110-99)
|
Крючкова Г. Н., инженер-конструктор |
|
|
(фамилия, инициалы, должность) |
|
|
произвела осмотр работ, выполненных |
|
|
ЗАО «Строительный Трест» |
|
|
(наименование строительно-монтажной организации) |
|
и составила настоящий акт о нижеследующем:
|
1. К освидетельствованию предъявлены следующие работы |
|
|
|
Монтаж колонн по осям (16-21), А-Ф |
||
|
(наименование скрытых работ) |
||
|
2. Работы выполнены по проектно-сметной документации |
АО «ЛЕННИИПРОЕКТ», |
|
|
мастерская № 1, 13017 - КЖ, лист 32, 12.96 |
||
|
(наименование проемной организации, № чертежей, дата их составления) |
||
|
3. При выполнении работ применены |
колонны К-30-1, К-30-6 серия I.423-3; |
|
|
бетон В15, документ о качестве бетонной смеси № 515; электроды Э42-А |
||
|
(наименование материалов, изделий со ссылкой на сертификаты или др. документы, подтверждающие качество) |
||
4. При выполнении работ отсутствуют (или допущены) отклонения от проектно-сметной документации
|
отклонения отсутствуют |
||
|
(при наличии отклонений указываются, кем согласованы, № чертежей и дата согласования) |
||
|
5. Даты: |
начала работ |
15 июня 1998 года |
|
|
окончания работ |
21 июня 1998 года |
Решение комиссии:
Работы выполнены в соответствии с проектно-сметной документацией, стандартами, строительными нормами и правилами и отвечают требованиям их приемки.
На основании изложенного разрешается производство последующих работ по устройству (монтажу)
|
монтаж балок |
|
(наименование работ и конструкции) |
|
Представитель строительно‑монтажной организации |
И. Егоров |
||
|
|
(подпись) |
||
|
Представитель технического надзора заказчика |
В. Шинкевич |
||
|
|
(подпись) |
||
|
Представитель проектной организации |
Г. Крючкова |
||
|
|
(подпись) |
||
Акт освидетельствования скрытых работ
|
Монтаж балок |
|
|
(наименование работ) |
|
|
выполненных в |
Хоспис, Гражданский пр., квартал 16 Б |
|
|
(наименование и место расположения объекта) |
« 21 » мая 199 8 г.
Комиссия в составе:
|
Представителя строительно‑монтажной организации |
|
|
|
Егоров И. В., прораб |
||
|
(фамилия, инициалы, должность) |
||
|
представителя технического надзора заказчика |
|
|
|
Шинкевич В. А., инспектор |
||
|
(фамилия, инициалы, должность) |
||
представителя проектной организации (в случаях осуществления авторского надзора проектной организации в соответствии с требованиями СП 11-110-99)
|
|
|
|
(фамилия, инициалы, должность) |
|
|
произвела осмотр работ, выполненных |
|
|
ЗАО «Строительный Трест» |
|
|
(наименование строительно-монтажной организации) |
|
и составила настоящий акт о нижеследующем:
|
1. К освидетельствованию предъявлены следующие работы |
|
|
|
Монтаж балок первого этажа |
||
|
(наименование скрытых работ) |
||
|
2. Работы выполнены по проектно-сметной документации |
АО «ЛЕННИИПРОЕКТ», |
|
|
мастерская № 1, 13017 - КЖ, лист 32, 12.96 |
||
|
(наименование проемной организации, № чертежей, дата их составления) |
||
|
3. При выполнении работ применены |
балки БДР12, 4 В серия I.463-3; |
|
|
закладные детали; электроды Э42-А |
||
|
(наименование материалов, изделий со ссылкой на сертификаты или др. документы, подтверждающие качество) |
||
4. При выполнении работ отсутствуют (или допущены) отклонения от проектно-сметной документации
|
отклонения отсутствуют |
||
|
(при наличии отклонений указываются, кем согласованы, № чертежей и дата согласования) |
||
|
5. Даты: |
начала работ |
15 мая 1998 года |
|
|
окончания работ |
21 мая 1998 года |
Решение комиссии:
Работы выполнены в соответствии с проектно-сметной документацией, стандартами, строительными нормами и правилами и отвечают требованиям их приемки.
На основании изложенного разрешается производство последующих работ по устройству (монтажу)
|
плит покрытия |
|
(наименование работ и конструкции) |
|
Представитель строительно‑монтажной организации |
И. Егоров |
||
|
|
(подпись) |
||
|
Представитель технического надзора заказчика |
В. Шинкевич |
||
|
|
(подпись) |
||
|
Представитель проектной организации |
|
||
|
|
(подпись) |
||
Акт освидетельствования скрытых работ
|
Антикоррозийная защита сварных соединений |
|
|
(наименование работ) |
|
|
выполненных в |
Хоспис, Гражданский пр., квартал 16 Б |
|
|
(наименование и место расположения объекта) |
« 21 » мая 199 8 г.
Комиссия в составе:
|
Представителя строительно‑монтажной организации |
|
|
|
Егоров И. В., прораб |
||
|
(фамилия, инициалы, должность) |
||
|
представителя технического надзора заказчика |
|
|
|
Шинкевич В. А., инспектор |
||
|
(фамилия, инициалы, должность) |
||
представителя проектной организации (в случаях осуществления авторского надзора проектной организации в соответствии с требованиями СП 11-110-99)
|
|
|
|
(фамилия, инициалы, должность) |
|
|
произвела осмотр работ, выполненных |
|
|
ЗАО «Строительный Трест» |
|
|
(наименование строительно-монтажной организации) |
|
и составила настоящий акт о нижеследующем:
|
1. К освидетельствованию предъявлены следующие работы |
|
|
|
Антикоррозийная защита сварных соединений колонн первого этажа в осях 12-23, А-Ф |
||
|
(наименование скрытых работ) |
||
|
2. Работы выполнены по проектно-сметной документации |
АО «ЛЕННИИПРОЕКТ», |
|
|
мастерская № 1, 13017 - КЖ, лист 22, 12.96 |
||
|
(наименование проемной организации, № чертежей, дата их составления) |
||
|
3. При выполнении работ применены |
|
|
|
газопламенное напыление цинка |
||
|
(наименование материалов, изделий со ссылкой на сертификаты или др. документы, подтверждающие качество) |
||
4. При выполнении работ отсутствуют (или допущены) отклонения от проектно-сметной документации
|
отклонения отсутствуют |
||
|
(при наличии отклонений указываются, кем согласованы, № чертежей и дата согласования) |
||
|
5. Даты: |
начала работ |
20 мая 1998 года |
|
|
окончания работ |
21 мая 1998 года |
Решение комиссии:
Работы выполнены в соответствии с проектно-сметной документацией, стандартами, строительными нормами и правилами и отвечают требованиям их приемки.
На основании изложенного разрешается производство последующих работ по устройству (монтажу)
|
замоноличивания стыков |
|
(наименование работ и конструкции) |
|
Представитель строительно‑монтажной организации |
И. Егоров |
||
|
|
(подпись) |
||
|
Представитель технического надзора заказчика |
В. Шинкевич |
||
|
|
(подпись) |
||
|
Представитель проектной организации |
|
||
|
|
(подпись) |
||
Акт освидетельствования скрытых работ
|
Монтаж перемычек |
|
|
(наименование работ) |
|
|
выполненных в |
Хоспис, Гражданский пр., квартал 16 Б |
|
|
(наименование и место расположения объекта) |
« 21 » апреля 199 9 г.
Комиссия в составе:
|
Представителя строительно‑монтажной организации |
|
|
|
Егоров И. В., прораб |
||
|
(фамилия, инициалы, должность) |
||
|
представителя технического надзора заказчика |
|
|
|
Шинкевич В. А., инспектор |
||
|
(фамилия, инициалы, должность) |
||
представителя проектной организации (в случаях осуществления авторского надзора проектной организации в соответствии с требованиями СП 11-110-99)
|
|
|
|
(фамилия, инициалы, должность) |
|
|
произвела осмотр работ, выполненных |
|
|
ЗАО «Строительный Трест» |
|
|
(наименование строительно-монтажной организации) |
|
и составила настоящий акт о нижеследующем:
|
1. К освидетельствованию предъявлены следующие работы |
|
|
|
Монтаж перемычек 7-го этажа |
||
|
(наименование скрытых работ) |
||
|
2. Работы выполнены по проектно-сметной документации |
АО «ЛЕННИИПРОЕКТ», |
|
|
мастерская № 1, 13017 - КЖ, лист 18, 12.96 |
||
|
(наименование проемной организации, № чертежей, дата их составления) |
||
|
3. При выполнении работ применены |
сборные железобетонные перемычки БП 1,5-1; |
|
|
раствор цементный М 75, документ о качестве растворной смеси № 245; уголок 125×125 |
||
|
(наименование материалов, изделий со ссылкой на сертификаты или др. документы, подтверждающие качество) |
||
4. При выполнении работ отсутствуют (или допущены) отклонения от проектно-сметной документации
|
отклонения отсутствуют |
||
|
(при наличии отклонений указываются, кем согласованы, № чертежей и дата согласования) |
||
|
5. Даты: |
начала работ |
15 апреля 1999 года |
|
|
окончания работ |
21 апреля 1999 года |
Решение комиссии:
Работы выполнены в соответствии с проектно-сметной документацией, стандартами, строительными нормами и правилами и отвечают требованиям их приемки.
На основании изложенного разрешается производство последующих работ по устройству (монтажу)
|
плит перекрытия |
|
(наименование работ и конструкции) |
|
Представитель строительно‑монтажной организации |
И. Егоров |
||
|
|
(подпись) |
||
|
Представитель технического надзора заказчика |
В. Шинкевич |
||
|
|
(подпись) |
||
|
Представитель проектной организации |
|
||
|
|
(подпись) |
||
Акт освидетельствования скрытых работ
|
Монтаж лестничных маршей |
|
|
(наименование работ) |
|
|
выполненных в |
Хоспис, Гражданский пр., квартал 16 Б |
|
|
(наименование и место расположения объекта) |
« 28 » апреля 199 9 г.
Комиссия в составе:
|
Представителя строительно‑монтажной организации |
|
|
|
Егоров И. В., прораб |
||
|
(фамилия, инициалы, должность) |
||
|
представителя технического надзора заказчика |
|
|
|
Шинкевич В. А., инспектор |
||
|
(фамилия, инициалы, должность) |
||
представителя проектной организации (в случаях осуществления авторского надзора проектной организации в соответствии с требованиями СП 11-110-99)
|
|
|
|
(фамилия, инициалы, должность) |
|
|
произвела осмотр работ, выполненных |
|
|
ЗАО «Строительный Трест» |
|
|
(наименование строительно-монтажной организации) |
|
и составила настоящий акт о нижеследующем:
|
1. К освидетельствованию предъявлены следующие работы |
|
|
|
Монтаж лестничных маршей 7-го этажа с отм. +18.00 м до отм. +21.00м. |
||
|
(наименование скрытых работ) |
||
|
2. Работы выполнены по проектно-сметной документации |
АО «ЛЕННИИПРОЕКТ», |
|
|
мастерская № 1, 13017 - КЖ, лист 24, 12.96 |
||
|
(наименование проемной организации, № чертежей, дата их составления) |
||
|
3. При выполнении работ применены |
лестничные марши ЛМ 31.11.15; |
|
|
раствор цементный М 75, документ о качестве растворной смеси № 249 |
||
|
(наименование материалов, изделий со ссылкой на сертификаты или др. документы, подтверждающие качество) |
||
4. При выполнении работ отсутствуют (или допущены) отклонения от проектно-сметной документации
|
отклонения отсутствуют |
||
|
(при наличии отклонений указываются, кем согласованы, № чертежей и дата согласования) |
||
|
5. Даты: |
начала работ |
26 апреля 1999 года |
|
|
окончания работ |
28 апреля 1999 года |
Решение комиссии:
Работы выполнены в соответствии с проектно-сметной документацией, стандартами, строительными нормами и правилами и отвечают требованиям их приемки.
На основании изложенного разрешается производство последующих работ по устройству (монтажу)
|
лестничных маршей 8-го этажа |
|
(наименование работ и конструкции) |
|
Представитель строительно‑монтажной организации |
И. Егоров |
||
|
|
(подпись) |
||
|
Представитель технического надзора заказчика |
В. Шинкевич |
||
|
|
(подпись) |
||
|
Представитель проектной организации |
|
||
|
|
(подпись) |
||
Акт освидетельствования скрытых работ
|
Монтаж: вентблоков |
|
|
(наименование работ) |
|
|
выполненных в |
Хоспис, Гражданский пр., квартал 16 Б |
|
|
(наименование и место расположения объекта) |
« 03 » мая 199 9 г.
Комиссия в составе:
|
Представителя строительно‑монтажной организации |
|
|
|
Егоров И. В., прораб |
||
|
(фамилия, инициалы, должность) |
||
|
представителя технического надзора заказчика |
|
|
|
Шинкевич В. А., инспектор |
||
|
(фамилия, инициалы, должность) |
||
представителя проектной организации (в случаях осуществления авторского надзора проектной организации в соответствии с требованиями СП 11-110-99)
|
|
|
|
(фамилия, инициалы, должность) |
|
|
произвела осмотр работ, выполненных |
|
|
ЗАО «Строительный Трест» |
|
|
(наименование строительно-монтажной организации) |
|
и составила настоящий акт о нижеследующем:
|
1. К освидетельствованию предъявлены следующие работы |
|
|
|
Монтаж вентблоков 7-го этажа |
||
|
(наименование скрытых работ) |
||
|
2. Работы выполнены по проектно-сметной документации |
АО «ЛЕННИИПРОЕКТ», |
|
|
мастерская № 1, 13017 - КЖ, лист 12, 12.96 |
||
|
(наименование проемной организации, № чертежей, дата их составления) |
||
|
3. При выполнении работ применены |
вентиляционные блоки ВБ 8.4.28 лев., ВБ 8.4.28 пр. |
|
|
раствор цементный М 75, документ о качестве растворной смеси № 249 |
||
|
(наименование материалов, изделий со ссылкой на сертификаты или др. документы, подтверждающие качество) |
||
4. При выполнении работ отсутствуют (или допущены) отклонения от проектно-сметной документации
|
отклонения отсутствуют |
||
|
(при наличии отклонений указываются, кем согласованы, № чертежей и дата согласования) |
||
|
5. Даты: |
начала работ |
03 мая 1999 года |
|
|
окончания работ |
03 мая 1999 года |
Решение комиссии:
Работы выполнены в соответствии с проектно-сметной документацией, стандартами, строительными нормами и правилами и отвечают требованиям их приемки.
На основании изложенного разрешается производство последующих работ по устройству (монтажу)
|
вентблоков 8-го этажа |
|
(наименование работ и конструкции) |
|
Представитель строительно‑монтажной организации |
И. Егоров |
||
|
|
(подпись) |
||
|
Представитель технического надзора заказчика |
В. Шинкевич |
||
|
|
(подпись) |
||
|
Представитель проектной организации |
|
||
|
|
(подпись) |
||
Акт освидетельствования скрытых работ
|
Монтаж железобетонных плит балконов |
|
|
(наименование работ) |
|
|
выполненных в |
Хоспис, Гражданский пр., квартал 16 Б |
|
|
(наименование и место расположения объекта) |
« 12 » мая 199 9 г.
Комиссия в составе:
|
Представителя строительно‑монтажной организации |
|
|
|
Егоров И. В., прораб |
||
|
(фамилия, инициалы, должность) |
||
|
представителя технического надзора заказчика |
|
|
|
Шинкевич В. А., инспектор |
||
|
(фамилия, инициалы, должность) |
||
представителя проектной организации (в случаях осуществления авторского надзора проектной организации в соответствии с требованиями СП 11-110-99)
|
|
|
|
(фамилия, инициалы, должность) |
|
|
произвела осмотр работ, выполненных |
|
|
ЗАО «Строительный Трест» |
|
|
(наименование строительно-монтажной организации) |
|
и составила настоящий акт о нижеследующем:
|
1. К освидетельствованию предъявлены следующие работы |
|
|
|
Монтаж железобетонных плит балконов над 7-м этажом |
||
|
(наименование скрытых работ) |
||
|
2. Работы выполнены по проектно-сметной документации |
АО «ЛЕННИИПРОЕКТ», |
|
|
мастерская № 1, 13017 - КЖ, лист 21, 12.96 |
||
|
(наименование проемной организации, № чертежей, дата их составления) |
||
|
3. При выполнении работ применены |
балконные плиты ПБИ-1, ПБИ-2н, ПБИ-5н, |
|
|
ПБИ-7н, ПБИ-8, раствор цементный М 75, документ о качестве растворной смеси № 245 |
||
|
(наименование материалов, изделий со ссылкой на сертификаты или др. документы, подтверждающие качество) |
||
4. При выполнении работ отсутствуют (или допущены) отклонения от проектно-сметной документации
|
отклонения отсутствуют |
||
|
(при наличии отклонений указываются, кем согласованы, № чертежей и дата согласования) |
||
|
5. Даты: |
начала работ |
12 мая 1999 года |
|
|
окончания работ |
12 мая 1999 года |
Решение комиссии:
Работы выполнены в соответствии с проектно-сметной документацией, стандартами, строительными нормами и правилами и отвечают требованиям их приемки.
На основании изложенного разрешается производство последующих работ по устройству (монтажу)
|
ограждения балконов |
|
(наименование работ и конструкции) |
|
Представитель строительно‑монтажной организации |
И. Егоров |
||
|
|
(подпись) |
||
|
Представитель технического надзора заказчика |
В. Шинкевич |
||
|
|
(подпись) |
||
|
Представитель проектной организации |
|
||
|
|
(подпись) |
||
Акт освидетельствования скрытых работ
|
Устройство ограждения балконов |
|
|
(наименование работ) |
|
|
выполненных в |
Хоспис, Гражданский пр., квартал 16 Б |
|
|
(наименование и место расположения объекта) |
« 12 » мая 199 9 г.
Комиссия в составе:
|
Представителя строительно‑монтажной организации |
|
|
|
Егоров И. В., прораб |
||
|
(фамилия, инициалы, должность) |
||
|
представителя технического надзора заказчика |
|
|
|
Шинкевич В. А., инспектор |
||
|
(фамилия, инициалы, должность) |
||
представителя проектной организации (в случаях осуществления авторского надзора проектной организации в соответствии с требованиями СП 11-110-99)
|
|
|
|
(фамилия, инициалы, должность) |
|
|
произвела осмотр работ, выполненных |
|
|
ЗАО «Строительный Трест» |
|
|
(наименование строительно-монтажной организации) |
|
и составила настоящий акт о нижеследующем:
|
1. К освидетельствованию предъявлены следующие работы |
|
|
|
Устройство ограждения балконов 3-го этажа |
||
|
(наименование скрытых работ) |
||
|
2. Работы выполнены по проектно-сметной документации |
АО «ЛЕННИИПРОЕКТ», |
|
|
мастерская № 1, 13017 - КЖ, лист 32, 12.96 |
||
|
(наименование проемной организации, № чертежей, дата их составления) |
||
|
3. При выполнении работ применены |
арматура Ø 4 Вр-I; Ø 12 А-III |
|
|
сталь угловая равнополочная № 4; электроды Э 42-А |
||
|
(наименование материалов, изделий со ссылкой на сертификаты или др. документы, подтверждающие качество) |
||
4. При выполнении работ отсутствуют (или допущены) отклонения от проектно-сметной документации
|
отклонения отсутствуют |
||
|
(при наличии отклонений указываются, кем согласованы, № чертежей и дата согласования) |
||
|
5. Даты: |
начала работ |
10 мая 1999 года |
|
|
окончания работ |
12 мая 1999 года |
Решение комиссии:
Работы выполнены в соответствии с проектно-сметной документацией, стандартами, строительными нормами и правилами и отвечают требованиям их приемки.
На основании изложенного разрешается производство последующих работ по устройству (монтажу)
|
|
|
(наименование работ и конструкции) |
|
Представитель строительно‑монтажной организации |
И. Егоров |
||
|
|
(подпись) |
||
|
Представитель технического надзора заказчика |
В. Шинкевич |
||
|
|
(подпись) |
||
|
Представитель проектной организации |
|
||
|
|
(подпись) |
||
Акт освидетельствования скрытых работ
|
Установка дверных блоков |
|
|
(наименование работ) |
|
|
выполненных в |
Хоспис, Гражданский пр., квартал 16 Б |
|
|
(наименование и место расположения объекта) |
« 12 » августа 199 9 г.
Комиссия в составе:
|
Представителя строительно‑монтажной организации |
|
|
|
Егоров И. В., прораб |
||
|
(фамилия, инициалы, должность) |
||
|
представителя технического надзора заказчика |
|
|
|
Шинкевич В. А., инспектор |
||
|
(фамилия, инициалы, должность) |
||
представителя проектной организации (в случаях осуществления авторского надзора проектной организации в соответствии с требованиями СП 11-110-99)
|
|
|
|
(фамилия, инициалы, должность) |
|
|
произвела осмотр работ, выполненных |
|
|
ЗАО «Строительный Трест» |
|
|
(наименование строительно-монтажной организации) |
|
и составила настоящий акт о нижеследующем:
|
1. К освидетельствованию предъявлены следующие работы |
Установка дверных входных блоков |
|
|
в помещения, обитых пергамином по периметру и проконопаченных паклей, смоченной в гипсовом растворе |
||
|
(наименование скрытых работ) |
||
|
2. Работы выполнены по проектно-сметной документации |
АО «ЛЕННИИПРОЕКТ», |
|
|
мастерская № 1, 13017 - АС, лист 29, 12.96 |
||
|
(наименование проемной организации, № чертежей, дата их составления) |
||
|
3. При выполнении работ применены |
|
|
|
дверные коробки, пергамин П-350, пакля, гипс |
||
|
(наименование материалов, изделий со ссылкой на сертификаты или др. документы, подтверждающие качество) |
||
4. При выполнении работ отсутствуют (или допущены) отклонения от проектно-сметной документации
|
отклонения отсутствуют |
||
|
(при наличии отклонений указываются, кем согласованы, № чертежей и дата согласования) |
||
|
5. Даты: |
начала работ |
11 августа 1999 года |
|
|
окончания работ |
12 августа 1999 года |
Решение комиссии:
Работы выполнены в соответствии с проектно-сметной документацией, стандартами, строительными нормами и правилами и отвечают требованиям их приемки.
На основании изложенного разрешается производство последующих работ по устройству (монтажу)
|
отделочных работ |
|
(наименование работ и конструкции) |
|
Представитель строительно‑монтажной организации |
И. Егоров |
||
|
|
(подпись) |
||
|
Представитель технического надзора заказчика |
В. Шинкевич |
||
|
|
(подпись) |
||
|
Представитель проектной организации |
|
||
|
|
(подпись) |
||
Акт освидетельствования скрытых работ
|
Установка оконных блоков |
|
|
(наименование работ) |
|
|
выполненных в |
Хоспис, Гражданский пр., квартал 16 Б |
|
|
(наименование и место расположения объекта) |
« 12 » августа 199 9 г.
Комиссия в составе:
|
Представителя строительно‑монтажной организации |
|
|
|
Егоров И. В., прораб |
||
|
(фамилия, инициалы, должность) |
||
|
представителя технического надзора заказчика |
|
|
|
Шинкевич В. А., инспектор |
||
|
(фамилия, инициалы, должность) |
||
представителя проектной организации (в случаях осуществления авторского надзора проектной организации в соответствии с требованиями СП 11-110-99)
|
|
|
|
(фамилия, инициалы, должность) |
|
|
произвела осмотр работ, выполненных |
|
|
ЗАО «Строительный Трест» |
|
|
(наименование строительно-монтажной организации) |
|
и составила настоящий акт о нижеследующем:
|
1. К освидетельствованию предъявлены следующие работы |
Установка оконных блоков, |
|
|
обитых пергамином по периметру, проконопаченных паклей, смоченной в гипсовом растворе |
||
|
(наименование скрытых работ) |
||
|
2. Работы выполнены по проектно-сметной документации |
АО «ЛЕННИИПРОЕКТ», |
|
|
мастерская № 1, 13017 - АС, лист 29, 12.96 |
||
|
(наименование проемной организации, № чертежей, дата их составления) |
||
|
3. При выполнении работ применены |
|
|
|
оконные блоки, пергамин П-350, пакля, гипс |
||
|
(наименование материалов, изделий со ссылкой на сертификаты или др. документы, подтверждающие качество) |
||
4. При выполнении работ отсутствуют (или допущены) отклонения от проектно-сметной документации
|
отклонения отсутствуют |
||
|
(при наличии отклонений указываются, кем согласованы, № чертежей и дата согласования) |
||
|
5. Даты: |
начала работ |
11 августа 1999 года |
|
|
окончания работ |
12 августа 1999 года |
Решение комиссии:
Работы выполнены в соответствии с проектно-сметной документацией, стандартами, строительными нормами и правилами и отвечают требованиям их приемки.
На основании изложенного разрешается производство последующих работ по устройству (монтажу)
|
отделочных работ |
|
(наименование работ и конструкции) |
|
Представитель строительно‑монтажной организации |
И. Егоров |
||
|
|
(подпись) |
||
|
Представитель технического надзора заказчика |
В. Шинкевич |
||
|
|
(подпись) |
||
|
Представитель проектной организации |
|
||
|
|
(подпись) |
||
Акт освидетельствования скрытых работ
|
Установка подоконных досок |
|
|
(наименование работ) |
|
|
выполненных в |
Хоспис, Гражданский пр., квартал 16 Б |
|
|
(наименование и место расположения объекта) |
« 21 » августа 199 9 г.
Комиссия в составе:
|
Представителя строительно‑монтажной организации |
|
|
|
Егоров И. В., прораб |
||
|
(фамилия, инициалы, должность) |
||
|
представителя технического надзора заказчика |
|
|
|
Шинкевич В. А., инспектор |
||
|
(фамилия, инициалы, должность) |
||
представителя проектной организации (в случаях осуществления авторского надзора проектной организации в соответствии с требованиями СП 11-110-99)
|
|
|
|
(фамилия, инициалы, должность) |
|
|
произвела осмотр работ, выполненных |
|
|
ЗАО «Строительный Трест» |
|
|
(наименование строительно-монтажной организации) |
|
и составила настоящий акт о нижеследующем:
|
1. К освидетельствованию предъявлены следующие работы |
Установка подоконных досок из ЦСП |
|
|
на цементном растворе М100 толщиной 30 мм с оконопаткой со 2-го по 5-й этажи |
||
|
(наименование скрытых работ) |
||
|
2. Работы выполнены по проектно-сметной документации |
АО «ЛЕННИИПРОЕКТ», |
|
|
мастерская № 1, 13017 - АС, лист 30, 12.96 |
||
|
(наименование проемной организации, № чертежей, дата их составления) |
||
|
3. При выполнении работ применены |
подоконные доски из ЦСП; |
|
|
раствор цементный М 75, документ о качестве растворной смеси № 22, ГОСТ 28013-89 |
||
|
(наименование материалов, изделий со ссылкой на сертификаты или др. документы, подтверждающие качество) |
||
4. При выполнении работ отсутствуют (или допущены) отклонения от проектно-сметной документации
|
отклонения отсутствуют |
||
|
(при наличии отклонений указываются, кем согласованы, № чертежей и дата согласования) |
||
|
5. Даты: |
начала работ |
15 августа 1999 года |
|
|
окончания работ |
21 августа 1999 года |
Решение комиссии:
Работы выполнены в соответствии с проектно-сметной документацией, стандартами, строительными нормами и правилами и отвечают требованиям их приемки.
На основании изложенного разрешается производство последующих работ по устройству (монтажу)
|
отделочных работ |
|
(наименование работ и конструкции) |
|
Представитель строительно‑монтажной организации |
И. Егоров |
||
|
|
(подпись) |
||
|
Представитель технического надзора заказчика |
В. Шинкевич |
||
|
|
(подпись) |
||
|
Представитель проектной организации |
|
||
|
|
(подпись) |
||
Акт освидетельствования скрытых работ
|
Устройство оснований под полы |
|
|
(наименование работ) |
|
|
выполненных в |
Хоспис, Гражданский пр., квартал 16 Б |
|
|
(наименование и место расположения объекта) |
« 21 » августа 199 9 г.
Комиссия в составе:
|
Представителя строительно‑монтажной организации |
|
|
|
Егоров И. В., прораб |
||
|
(фамилия, инициалы, должность) |
||
|
представителя технического надзора заказчика |
|
|
|
Шинкевич В. А., инспектор |
||
|
(фамилия, инициалы, должность) |
||
представителя проектной организации (в случаях осуществления авторского надзора проектной организации в соответствии с требованиями СП 11-110-99)
|
|
|
|
(фамилия, инициалы, должность) |
|
|
произвела осмотр работ, выполненных |
|
|
|
|
|
(наименование строительно-монтажной организации) |
|
и составила настоящий акт о нижеследующем:
|
1. К освидетельствованию предъявлены следующие работы |
|
|
|
Устройства оснований под полы из штучного паркета на первом этаже |
||
|
(наименование скрытых работ) |
||
|
2. Работы выполнены по проектно-сметной документации |
АО «ЛЕННИИПРОЕКТ», |
|
|
мастерская № 1, 13017 - АС, лист 31, 12.96 |
||
|
(наименование проемной организации, № чертежей, дата их составления) |
||
|
3. При выполнении работ применены |
|
|
|
раствор цементный М 75, документ о качестве растворной смеси № 245 |
||
|
(наименование материалов, изделий со ссылкой на сертификаты или др. документы, подтверждающие качество) |
||
4. При выполнении работ отсутствуют (или допущены) отклонения от проектно-сметной документации
|
отклонения отсутствуют |
||
|
(при наличии отклонений указываются, кем согласованы, № чертежей и дата согласования) |
||
|
5. Даты: |
начала работ |
11 августа 1999 года |
|
|
окончания работ |
12 августа 1999 года |
Решение комиссии:
Работы выполнены в соответствии с проектно-сметной документацией, стандартами, строительными нормами и правилами и отвечают требованиям их приемки.
На основании изложенного разрешается производство последующих работ по устройству (монтажу)
|
отделочных работ |
|
(наименование работ и конструкции) |
|
Представитель строительно‑монтажной организации |
И. Егоров |
||
|
|
(подпись) |
||
|
Представитель технического надзора заказчика |
В. Шинкевич |
||
|
|
(подпись) |
||
|
Представитель проектной организации |
|
||
|
|
(подпись) |
||
Акт освидетельствования скрытых работ
|
Устройство звукоизоляции |
|
|
(наименование работ) |
|
|
выполненных в |
Хоспис, Гражданский пр., квартал 16 Б |
|
|
(наименование и место расположения объекта) |
« 10 » марта 199 9 г.
Комиссия в составе:
|
Представителя строительно‑монтажной организации |
|
|
|
Егоров И. В., прораб |
||
|
(фамилия, инициалы, должность) |
||
|
представителя технического надзора заказчика |
|
|
|
Шинкевич В. А., инспектор |
||
|
(фамилия, инициалы, должность) |
||
представителя проектной организации (в случаях осуществления авторского надзора проектной организации в соответствии с требованиями СП 11-110-99)
|
|
|
|
(фамилия, инициалы, должность) |
|
|
произвела осмотр работ, выполненных |
|
|
ЗАО «Строительный Трест» |
|
|
(наименование строительно-монтажной организации) |
|
и составила настоящий акт о нижеследующем:
|
1. К освидетельствованию предъявлены следующие работы |
|
|
|
Устройства звукоизоляции под полы первого этажа |
||
|
(наименование скрытых работ) |
||
|
2. Работы выполнены по проектно-сметной документации |
АО «ЛЕННИИПРОЕКТ», |
|
|
мастерская № 1, 13017 - АС, лист 10, 12.96 |
||
|
(наименование проемной организации, № чертежей, дата их составления) |
||
|
3. При выполнении работ применены |
|
|
|
звукоизоляционные прокладки из плит минераловатных, ППМ-80 |
||
|
(наименование материалов, изделий со ссылкой на сертификаты или др. документы, подтверждающие качество) |
||
4. При выполнении работ отсутствуют (или допущены) отклонения от проектно-сметной документации
|
отклонения отсутствуют |
||
|
(при наличии отклонений указываются, кем согласованы, № чертежей и дата согласования) |
||
|
5. Даты: |
начала работ |
11 августа 1999 года |
|
|
окончания работ |
12 августа 1999 года |
Решение комиссии:
Работы выполнены в соответствии с проектно-сметной документацией, стандартами, строительными нормами и правилами и отвечают требованиям их приемки.
На основании изложенного разрешается производство последующих работ по устройству (монтажу)
|
полов |
|
(наименование работ и конструкции) |
|
Представитель строительно‑монтажной организации |
И. Егоров |
||
|
|
(подпись) |
||
|
Представитель технического надзора заказчика |
В. Шинкевич |
||
|
|
(подпись) |
||
|
Представитель проектной организации |
|
||
|
|
(подпись) |
||
Акт освидетельствования скрытых работ
|
Антисептирование лаг |
|
|
(наименование работ) |
|
|
выполненных в |
Хоспис, Гражданский пр., квартал 16 Б |
|
|
(наименование и место расположения объекта) |
« 20 » марта 199 9 г.
Комиссия в составе:
|
Представителя строительно‑монтажной организации |
|
|
|
Егоров И. В., прораб |
||
|
(фамилия, инициалы, должность) |
||
|
представителя технического надзора заказчика |
|
|
|
Шинкевич В. А., инспектор |
||
|
(фамилия, инициалы, должность) |
||
представителя проектной организации (в случаях осуществления авторского надзора проектной организации в соответствии с требованиями СП 11-110-99)
|
|
|
|
(фамилия, инициалы, должность) |
|
|
произвела осмотр работ, выполненных |
|
|
ЗАО «Строительный Трест» |
|
|
(наименование строительно-монтажной организации) |
|
и составила настоящий акт о нижеследующем:
|
1. К освидетельствованию предъявлены следующие работы |
|
|
|
Антисептирование лаг на первом этаже |
||
|
(наименование скрытых работ) |
||
|
2. Работы выполнены по проектно-сметной документации |
АО «ЛЕННИИПРОЕКТ», |
|
|
мастерская № 1, 13017 - АР, лист 11, 12.96 |
||
|
(наименование проемной организации, № чертежей, дата их составления) |
||
|
3. При выполнении работ применены |
|
|
|
лаги; антисептик ПФ-1 |
||
|
(наименование материалов, изделий со ссылкой на сертификаты или др. документы, подтверждающие качество) |
||
4. При выполнении работ отсутствуют (или допущены) отклонения от проектно-сметной документации
|
отклонения отсутствуют |
||
|
(при наличии отклонений указываются, кем согласованы, № чертежей и дата согласования) |
||
|
5. Даты: |
начала работ |
15 марта 1999 года |
|
|
окончания работ |
20 марта 1999 года |
Решение комиссии:
Работы выполнены в соответствии с проектно-сметной документацией, стандартами, строительными нормами и правилами и отвечают требованиям их приемки.
На основании изложенного разрешается производство последующих работ по устройству (монтажу)
|
полов |
|
(наименование работ и конструкции) |
|
Представитель строительно‑монтажной организации |
И. Егоров |
||
|
|
(подпись) |
||
|
Представитель технического надзора заказчика |
В. Шинкевич |
||
|
|
(подпись) |
||
|
Представитель проектной организации |
|
||
|
|
(подпись) |
||
Акт освидетельствования скрытых работ
|
Гидроизоляция санузлов |
|
|
(наименование работ) |
|
|
выполненных в |
Хоспис, Гражданский пр., квартал 16 Б |
|
|
(наименование и место расположения объекта) |
« 02 » октября 199 9 г.
Комиссия в составе:
|
Представителя строительно‑монтажной организации |
|
|
|
Егоров И. В., прораб |
||
|
(фамилия, инициалы, должность) |
||
|
представителя технического надзора заказчика |
|
|
|
Шинкевич В. А., инспектор |
||
|
(фамилия, инициалы, должность) |
||
представителя проектной организации (в случаях осуществления авторского надзора проектной организации в соответствии с требованиями СП 11-110-99)
|
|
|
|
(фамилия, инициалы, должность) |
|
|
произвела осмотр работ, выполненных |
|
|
ЗАО «Строительный Трест» |
|
|
(наименование строительно-монтажной организации) |
|
и составила настоящий акт о нижеследующем:
|
1. К освидетельствованию предъявлены следующие работы |
|
|
|
Гидроизоляция санузлов 2-го этажа |
||
|
(наименование скрытых работ) |
||
|
2. Работы выполнены по проектно-сметной документации |
АО «ЛЕННИИПРОЕКТ», |
|
|
мастерская № 1, 13017 - АР, лист 33, 12.96 |
||
|
(наименование проемной организации, № чертежей, дата их составления) |
||
|
3. При выполнении работ применены |
|
|
|
рубероид гидроизоляционный С-РМ; битум БН-IV |
||
|
(наименование материалов, изделий со ссылкой на сертификаты или др. документы, подтверждающие качество) |
||
4. При выполнении работ отсутствуют (или допущены) отклонения от проектно-сметной документации
|
отклонения отсутствуют |
||
|
(при наличии отклонений указываются, кем согласованы, № чертежей и дата согласования) |
||
|
5. Даты: |
начала работ |
01 октября 1999 года |
|
|
окончания работ |
02 октября 1999 года |
Решение комиссии:
Работы выполнены в соответствии с проектно-сметной документацией, стандартами, строительными нормами и правилами и отвечают требованиям их приемки.
На основании изложенного разрешается производство последующих работ по устройству (монтажу)
|
полов в санузлах |
|
(наименование работ и конструкции) |
|
Представитель строительно‑монтажной организации |
И. Егоров |
||
|
|
(подпись) |
||
|
Представитель технического надзора заказчика |
В. Шинкевич |
||
|
|
(подпись) |
||
|
Представитель проектной организации |
|
||
|
|
(подпись) |
||
Акт освидетельствования скрытых работ
|
Устройство пароизоляции перекрытия над техническим подпольем |
|
|
(наименование работ) |
|
|
выполненных в |
Хоспис, Гражданский пр., квартал 16 Б |
|
|
(наименование и место расположения объекта) |
« 05 » октября 199 9 г.
Комиссия в составе:
|
Представителя строительно‑монтажной организации |
|
|
|
Егоров И. В., прораб |
||
|
(фамилия, инициалы, должность) |
||
|
представителя технического надзора заказчика |
|
|
|
Шинкевич В. А., инспектор |
||
|
(фамилия, инициалы, должность) |
||
представителя проектной организации (в случаях осуществления авторского надзора проектной организации в соответствии с требованиями СП 11-110-99)
|
|
|
|
(фамилия, инициалы, должность) |
|
|
произвела осмотр работ, выполненных |
|
|
ЗАО «Строительный Трест» |
|
|
(наименование строительно-монтажной организации) |
|
и составила настоящий акт о нижеследующем:
|
1. К освидетельствованию предъявлены следующие работы |
|
|
|
Устройство пароизоляции над техническим подпольем |
||
|
(наименование скрытых работ) |
||
|
2. Работы выполнены по проектно-сметной документации |
АО «ЛЕННИИПРОЕКТ», |
|
|
мастерская № 1, 13017 - АР, лист 34, 12.96 |
||
|
(наименование проемной организации, № чертежей, дата их составления) |
||
|
3. При выполнении работ применены |
|
|
|
рубероид РМ-250; битум БН-IV |
||
|
(наименование материалов, изделий со ссылкой на сертификаты или др. документы, подтверждающие качество) |
||
4. При выполнении работ отсутствуют (или допущены) отклонения от проектно-сметной документации
|
отклонения отсутствуют |
||
|
(при наличии отклонений указываются, кем согласованы, № чертежей и дата согласования) |
||
|
5. Даты: |
начала работ |
03 октября 1999 года |
|
|
окончания работ |
05 октября 1999 года |
Решение комиссии:
Работы выполнены в соответствии с проектно-сметной документацией, стандартами, строительными нормами и правилами и отвечают требованиям их приемки.
На основании изложенного разрешается производство последующих работ по устройству (монтажу)
|
полов |
|
(наименование работ и конструкции) |
|
Представитель строительно‑монтажной организации |
И. Егоров |
||
|
|
(подпись) |
||
|
Представитель технического надзора заказчика |
В. Шинкевич |
||
|
|
(подпись) |
||
|
Представитель проектной организации |
|
||
|
|
(подпись) |
||
Акт освидетельствования скрытых работ
|
Устройство утепления чердачного перекрытия |
|
|
(наименование работ) |
|
|
выполненных в |
Хоспис, Гражданский пр., квартал 16 Б |
|
|
(наименование и место расположения объекта) |
« 11 » сентября 200 0 г.
Комиссия в составе:
|
Представителя строительно‑монтажной организации |
|
|
|
Егоров И. В., прораб |
||
|
(фамилия, инициалы, должность) |
||
|
представителя технического надзора заказчика |
|
|
|
Шинкевич В. А., инспектор |
||
|
(фамилия, инициалы, должность) |
||
представителя проектной организации (в случаях осуществления авторского надзора проектной организации в соответствии с требованиями СП 11-110-99)
|
|
|
|
(фамилия, инициалы, должность) |
|
|
произвела осмотр работ, выполненных |
|
|
ЗАО «Строительный Трест» |
|
|
(наименование строительно-монтажной организации) |
|
и составила настоящий акт о нижеследующем:
|
1. К освидетельствованию предъявлены следующие работы |
|
|
|
Устройство утепления чердачного перекрытия |
||
|
(наименование скрытых работ) |
||
|
2. Работы выполнены по проектно-сметной документации |
АО «ЛЕННИИПРОЕКТ», |
|
|
мастерская № 1, 13017 - АР, лист 27, 12.96 |
||
|
(наименование проемной организации, № чертежей, дата их составления) |
||
|
3. При выполнении работ применены |
|
|
|
керамзит; рубероид РМ-250; битум БН-IV |
||
|
(наименование материалов, изделий со ссылкой на сертификаты или др. документы, подтверждающие качество) |
||
4. При выполнении работ отсутствуют (или допущены) отклонения от проектно-сметной документации
|
отклонения отсутствуют |
||
|
(при наличии отклонений указываются, кем согласованы, № чертежей и дата согласования) |
||
|
5. Даты: |
начала работ |
05 сентября 2000 года |
|
|
окончания работ |
11 сентября 2000 года |
Решение комиссии:
Работы выполнены в соответствии с проектно-сметной документацией, стандартами, строительными нормами и правилами и отвечают требованиям их приемки.
На основании изложенного разрешается производство последующих работ по устройству (монтажу)
|
цементной стяжки |
|
(наименование работ и конструкции) |
|
Представитель строительно‑монтажной организации |
И. Егоров |
||
|
|
(подпись) |
||
|
Представитель технического надзора заказчика |
В. Шинкевич |
||
|
|
(подпись) |
||
|
Представитель проектной организации |
|
||
|
|
(подпись) |
||
Акт освидетельствования скрытых работ
|
Устройство гидроизоляции технического этажа |
|
|
(наименование работ) |
|
|
выполненных в |
Хоспис, Гражданский пр., квартал 16 Б |
|
|
(наименование и место расположения объекта) |
« 21 » сентября 200 0 г.
Комиссия в составе:
|
Представителя строительно‑монтажной организации |
|
|
|
Егоров И. В., прораб |
||
|
(фамилия, инициалы, должность) |
||
|
представителя технического надзора заказчика |
|
|
|
Шинкевич В. А., инспектор |
||
|
(фамилия, инициалы, должность) |
||
представителя проектной организации (в случаях осуществления авторского надзора проектной организации в соответствии с требованиями СП 11-110-99)
|
|
|
|
(фамилия, инициалы, должность) |
|
|
произвела осмотр работ, выполненных |
|
|
ЗАО «Строительный Трест» |
|
|
(наименование строительно-монтажной организации) |
|
и составила настоящий акт о нижеследующем:
|
1. К освидетельствованию предъявлены следующие работы |
|
|
|
Устройство гидроизоляции технического этажа |
||
|
(наименование скрытых работ) |
||
|
2. Работы выполнены по проектно-сметной документации |
АО «ЛЕННИИПРОЕКТ», |
|
|
мастерская № 1, 13017 - АР, лист 41, 12.96 |
||
|
(наименование проемной организации, № чертежей, дата их составления) |
||
|
3. При выполнении работ применены |
|
|
|
рубероид гидроизоляционный С-РМ; битум БН-IV |
||
|
(наименование материалов, изделий со ссылкой на сертификаты или др. документы, подтверждающие качество) |
||
4. При выполнении работ отсутствуют (или допущены) отклонения от проектно-сметной документации
|
отклонения отсутствуют |
||
|
(при наличии отклонений указываются, кем согласованы, № чертежей и дата согласования) |
||
|
5. Даты: |
начала работ |
15 сентября 2000 года |
|
|
окончания работ |
21 сентября 2000 года |
Решение комиссии:
Работы выполнены в соответствии с проектно-сметной документацией, стандартами, строительными нормами и правилами и отвечают требованиям их приемки.
На основании изложенного разрешается производство последующих работ по устройству (монтажу)
|
утеплителя |
|
(наименование работ и конструкции) |
|
Представитель строительно‑монтажной организации |
И. Егоров |
||
|
|
(подпись) |
||
|
Представитель технического надзора заказчика |
В. Шинкевич |
||
|
|
(подпись) |
||
|
Представитель проектной организации |
|
||
|
|
(подпись) |
||
Акт освидетельствования скрытых работ
|
Устройство пароизоляции кровли в осях М÷У и 17÷30 |
|
|
(наименование работ) |
|
|
выполненных в |
жилом доме по адресу квартал 25А, озеро Долгое, корпус 44 |
|
|
(наименование и место расположения объекта) |
« 12 » июля 200 4 г.
Комиссия в составе:
|
Представителя строительно‑монтажной организации |
|
|
|
Федоров Н. И., начальник участка |
||
|
(фамилия, инициалы, должность) |
||
|
представителя технического надзора заказчика |
Сямин Н. В., начальник участка; |
|
|
Михайлов С. В., технадзор |
||
|
(фамилия, инициалы, должность) |
||
представителя проектной организации (в случаях осуществления авторского надзора проектной организации в соответствии с требованиями СП 11-110-99)
|
|
|
|
(фамилия, инициалы, должность) |
|
|
произвела осмотр работ, выполненных |
|
|
ООО ПСО «Блок-Монолит» |
|
|
(наименование строительно-монтажной организации) |
|
и составила настоящий акт о нижеследующем:
|
1. К освидетельствованию предъявлены следующие работы |
|
|
|
устройство пароизоляции из «Техноэласта» один слой |
||
|
(наименование скрытых работ) |
||
|
2. Работы выполнены по проектно-сметной документации |
ООО «АРТПРОЕКТ» |
|
|
АР лист 29, 12.02 г. |
||
|
(наименование проемной организации, № чертежей, дата их составления) |
||
|
3. При выполнении работ применены |
«Техноэласт» 3 мм |
|
|
сертификат № 376/а |
||
|
(наименование материалов, изделий со ссылкой на сертификаты или др. документы, подтверждающие качество) |
||
4. При выполнении работ отсутствуют (или допущены) отклонения от проектно-сметной документации
|
отклонения отсутствуют |
||
|
(при наличии отклонений указываются, кем согласованы, № чертежей и дата согласования) |
||
|
5. Даты: |
начала работ |
12 апреля 2004 года |
|
|
окончания работ |
15 апреля 2004 года |
Решение комиссии:
Работы выполнены в соответствии с проектно-сметной документацией, стандартами, строительными нормами и правилами и отвечают требованиям их приемки.
На основании изложенного разрешается производство последующих работ по устройству (монтажу)
|
утеплителя |
|
(наименование работ и конструкции) |
|
Представитель строительно‑монтажной организации |
Н. Федоров |
|
|
|
(подпись) |
|
|
Представитель технического надзора заказчика |
Н. Сямин |
|
|
|
(подпись) |
|
|
Представитель технического надзора заказчика |
С. Михайлов |
|
|
|
(подпись) |
|
Акт освидетельствования скрытых работ
|
Устройство утепления кровли отм. 52.900 в/о 1–7/Ж–П |
|
|
(наименование работ) |
|
|
выполненных в |
жилом доме по адресу СПб, Ржевка-Пороховые, кв. 10, корпус 24 |
|
|
(наименование и место расположения объекта) |
« 05 » ноября 200 3 г.
Комиссия в составе:
|
Представителя строительно‑монтажной организации |
|
|
|
Хафизов Ш. С. |
||
|
(фамилия, инициалы, должность) |
||
|
представителя технического надзора заказчика |
|
|
|
Ядрышников А. М. |
||
|
(фамилия, инициалы, должность) |
||
представителя проектной организации (в случаях осуществления авторского надзора проектной организации в соответствии с требованиями СП 11-110-99)
|
|
|
|
(фамилия, инициалы, должность) |
|
|
произвела осмотр работ, выполненных |
|
|
ООО ПСО «Интерстрой СПб» |
|
|
(наименование строительно-монтажной организации) |
|
и составила настоящий акт о нижеследующем:
|
1. К освидетельствованию предъявлены следующие работы |
|
|
|
утепление плитами «Пеноплекс» и керамзитом |
||
|
(наименование скрытых работ) |
||
|
2. Работы выполнены по проектно-сметной документации |
2000-14 АР лист 47 |
|
|
АР-2 лист 16 |
||
|
(наименование проемной организации, № чертежей, дата их составления) |
||
|
3. При выполнении работ применены |
керамзит фр. 5-10 γ=600 кг/м2 толщиной 130-300 мм |
|
|
«Пеноплекс» толщиной 130 мм |
||
|
(наименование материалов, изделий со ссылкой на сертификаты или др. документы, подтверждающие качество) |
||
4. При выполнении работ отсутствуют (или допущены) отклонения от проектно-сметной документации
|
отклонения отсутствуют |
||
|
(при наличии отклонений указываются, кем согласованы, № чертежей и дата согласования) |
||
|
5. Даты: |
начала работ |
01 ноября 2003 г |
|
|
окончания работ |
05 ноября 2003 г |
Решение комиссии:
Работы выполнены в соответствии с проектно-сметной документацией, стандартами, строительными нормами и правилами и отвечают требованиям их приемки.
На основании изложенного разрешается производство последующих работ по устройству (монтажу)
|
стяжки |
|
(наименование работ и конструкции) |
|
Представитель строительно‑монтажной организации |
Ш. Хафизов |
||
|
|
(подпись) |
||
|
Представитель технического надзора заказчика |
А. Ядрышников |
||
|
|
(подпись) |
||
|
Представитель проектной организации |
|
||
|
|
(подпись) |
||
Акт освидетельствования скрытых работ
|
Армирование основания под цементно-песчаную стяжку |
|
|
(наименование работ) |
|
|
выполненных в |
жилом доме СПЧ-65, СПб, ул. Савушкина, 140, БС-3 |
|
|
(наименование и место расположения объекта) |
« 10 » сентября 200 4 г.
Комиссия в составе:
|
Представителя строительно‑монтажной организации |
|
|
|
Любимова Н. Ю., начальник участка, ООО «Отделстрой» |
||
|
(фамилия, инициалы, должность) |
||
|
представителя технического надзора заказчика |
|
|
|
Шинкевич В. А., инженер технадзора |
||
|
(фамилия, инициалы, должность) |
||
представителя проектной организации (в случаях осуществления авторского надзора проектной организации в соответствии с требованиями СП 11-110-99)
|
|
|
|
(фамилия, инициалы, должность) |
|
|
произвела осмотр работ, выполненных |
|
|
ООО «Отделстрой» |
|
|
(наименование строительно-монтажной организации) |
|
и составила настоящий акт о нижеследующем:
|
1. К освидетельствованию предъявлены следующие работы |
|
|
|
укладка армосетки по слою минплиты |
||
|
(наименование скрытых работ) |
||
|
2. Работы выполнены по проектно-сметной документации |
|
|
|
ЗАО «Архитектурная студия М4» М 4.03.02 – АС |
||
|
(наименование проемной организации, № чертежей, дата их составления) |
||
|
3. При выполнении работ применены |
|
|
|
арматурная сетка Ø 4, шаг 100×100 |
||
|
(наименование материалов, изделий со ссылкой на сертификаты или др. документы, подтверждающие качество) |
||
4. При выполнении работ отсутствуют (или допущены) отклонения от проектно-сметной документации
|
отклонения отсутствуют |
||
|
(при наличии отклонений указываются, кем согласованы, № чертежей и дата согласования) |
||
|
5. Даты: |
начала работ |
08 сентября 2004 г |
|
|
окончания работ |
10 сентября 2004 г |
Решение комиссии:
Работы выполнены в соответствии с проектно-сметной документацией, стандартами, строительными нормами и правилами и отвечают требованиям их приемки.
На основании изложенного разрешается производство последующих работ по устройству (монтажу)
|
цементно-песчаной стяжки |
|
(наименование работ и конструкции) |
|
Представитель строительно‑монтажной организации |
Любимова Н. Ю. |
||
|
|
(подпись) |
||
|
Представитель технического надзора заказчика |
Шинкевич В. А. |
||
|
|
(подпись) |
||
|
Представитель проектной организации |
|
||
|
|
(подпись) |
||
Акт освидетельствования скрытых работ
|
Устройство цементно-песчаной стяжки основания под кровлю |
|
|
(наименование работ) |
|
|
выполненных в |
жилом доме СПЧ-65, СПб, ул. Савушкина, 140, БС-3 |
|
|
(наименование и место расположения объекта) |
« 14 » сентября 200 4 г.
Комиссия в составе:
|
Представителя строительно‑монтажной организации |
|
|
|
Любимова Н. Ю., начальник участка, ООО «Отделстрой» |
||
|
(фамилия, инициалы, должность) |
||
|
представителя технического надзора заказчика |
|
|
|
Шинкевич В. А., инженер технадзора |
||
|
(фамилия, инициалы, должность) |
||
представителя проектной организации (в случаях осуществления авторского надзора проектной организации в соответствии с требованиями СП 11-110-99)
|
|
|
|
(фамилия, инициалы, должность) |
|
|
произвела осмотр работ, выполненных |
|
|
ООО «Отделстрой» |
|
|
(наименование строительно-монтажной организации) |
|
и составила настоящий акт о нижеследующем:
|
1. К освидетельствованию предъявлены следующие работы |
|
|
|
устройство цементно-песчаной стяжки толщиной 40 мм с уклоном по проекту |
||
|
(наименование скрытых работ) |
||
|
2. Работы выполнены по проектно-сметной документации |
|
|
|
ЗАО «Архитектурная студия М4» М 4.03.02 – АС |
||
|
(наименование проемной организации, № чертежей, дата их составления) |
||
|
3. При выполнении работ применены |
цементно-песчаный раствор М150 |
|
|
№ документа о качестве 1083 |
||
|
(наименование материалов, изделий со ссылкой на сертификаты или др. документы, подтверждающие качество) |
||
4. При выполнении работ отсутствуют (или допущены) отклонения от проектно-сметной документации
|
отклонения отсутствуют |
||
|
(при наличии отклонений указываются, кем согласованы, № чертежей и дата согласования) |
||
|
5. Даты: |
начала работ |
08 сентября 2004 г |
|
|
окончания работ |
14 сентября 2004 г |
Решение комиссии:
Работы выполнены в соответствии с проектно-сметной документацией, стандартами, строительными нормами и правилами и отвечают требованиям их приемки.
На основании изложенного разрешается производство последующих работ по устройству (монтажу)
|
покрытия праймером |
|
(наименование работ и конструкции) |
|
Представитель строительно‑монтажной организации |
Любимова Н. Ю. |
||
|
|
(подпись) |
||
|
Представитель технического надзора заказчика |
Шинкевич В. А. |
||
|
|
(подпись) |
||
|
Представитель проектной организации |
|
||
|
|
(подпись) |
||
Акт освидетельствования скрытых работ
|
Устройство покрытия кровли |
|
|
(наименование работ) |
|
|
выполненных в |
жилом доме СПЧ-65, СПб, ул. Савушкина, 140, БС-3 |
|
|
(наименование и место расположения объекта) |
« 16 » сентября 200 4 г.
Комиссия в составе:
|
Представителя строительно‑монтажной организации |
|
|
|
Любимова Н. Ю., начальник участка, ООО «Отделстрой» |
||
|
(фамилия, инициалы, должность) |
||
|
представителя технического надзора заказчика |
|
|
|
Шинкевич В. А., инженер технадзора |
||
|
(фамилия, инициалы, должность) |
||
представителя проектной организации (в случаях осуществления авторского надзора проектной организации в соответствии с требованиями СП 11-110-99)
|
|
|
|
(фамилия, инициалы, должность) |
|
|
произвела осмотр работ, выполненных |
|
|
ООО «Отделстрой» |
|
|
(наименование строительно-монтажной организации) |
|
и составила настоящий акт о нижеследующем:
|
1. К освидетельствованию предъявлены следующие работы |
|
|
|
Устройство наплавляемой кровли из 2х слоев технопласта |
||
|
(наименование скрытых работ) |
||
|
2. Работы выполнены по проектно-сметной документации |
|
|
|
ЗАО «Архитектурная студия М4» М 4.03.02 – АС |
||
|
(наименование проемной организации, № чертежей, дата их составления) |
||
|
3. При выполнении работ применены |
нижний слой ЭПП-4 технопласт, |
|
|
верхний слой технопласт ЭКП-4, сертификат № 8397 от 20.07.04 |
||
|
(наименование материалов, изделий со ссылкой на сертификаты или др. документы, подтверждающие качество) |
||
4. При выполнении работ отсутствуют (или допущены) отклонения от проектно-сметной документации
|
отклонения отсутствуют |
||
|
(при наличии отклонений указываются, кем согласованы, № чертежей и дата согласования) |
||
|
5. Даты: |
начала работ |
14 сентября 2004 г |
|
|
окончания работ |
16 сентября 2004 г |
Решение комиссии:
Работы выполнены в соответствии с проектно-сметной документацией, стандартами, строительными нормами и правилами и отвечают требованиям их приемки.
На основании изложенного разрешается производство последующих работ по устройству (монтажу)
|
|
|
(наименование работ и конструкции) |
|
Представитель строительно‑монтажной организации |
Любимова Н. Ю. |
||
|
|
(подпись) |
||
|
Представитель технического надзора заказчика |
Шинкевич В. А. |
||
|
|
(подпись) |
||
|
Представитель проектной организации |
|
||
|
|
(подпись) |
||
Акт освидетельствования скрытых работ
|
Устройство полов из линолеума |
|
|
(наименование работ) |
|
|
выполненных в |
Хоспис, Гражданский пр., квартал 16 Б |
|
|
(наименование и место расположения объекта) |
« 21 » мая 200 0 г.
Комиссия в составе:
|
Представителя строительно‑монтажной организации |
|
|
|
Егоров И. В., прораб |
||
|
(фамилия, инициалы, должность) |
||
|
представителя технического надзора заказчика |
|
|
|
Шинкевич В. А., инспектор |
||
|
(фамилия, инициалы, должность) |
||
представителя проектной организации (в случаях осуществления авторского надзора проектной организации в соответствии с требованиями СП 11-110-99)
|
|
|
|
(фамилия, инициалы, должность) |
|
|
произвела осмотр работ, выполненных |
|
|
ЗАО «Строительный Трест» |
|
|
(наименование строительно-монтажной организации) |
|
и составила настоящий акт о нижеследующем:
|
1. К освидетельствованию предъявлены следующие работы |
|
|
|
Устройство полов из линолеума на первом этаже |
||
|
(наименование скрытых работ) |
||
|
2. Работы выполнены по проектно-сметной документации |
АО «ЛЕННИИПРОЕКТ», |
|
|
мастерская № 1, 13017 - АР, лист 37, 12.96 |
||
|
(наименование проемной организации, № чертежей, дата их составления) |
||
|
3. При выполнении работ применены |
|
|
|
линолеум; клей «Бустилат» |
||
|
(наименование материалов, изделий со ссылкой на сертификаты или др. документы, подтверждающие качество) |
||
4. При выполнении работ отсутствуют (или допущены) отклонения от проектно-сметной документации
|
отклонения отсутствуют |
||
|
(при наличии отклонений указываются, кем согласованы, № чертежей и дата согласования) |
||
|
5. Даты: |
начала работ |
18 мая 2000 года |
|
|
окончания работ |
21 мая 2000 года |
Решение комиссии:
Работы выполнены в соответствии с проектно-сметной документацией, стандартами, строительными нормами и правилами и отвечают требованиям их приемки.
На основании изложенного разрешается производство последующих работ по устройству (монтажу)
|
|
|
(наименование работ и конструкции) |
|
Представитель строительно‑монтажной организации |
И. Егоров |
||
|
|
(подпись) |
||
|
Представитель технического надзора заказчика |
В. Шинкевич |
||
|
|
(подпись) |
||
|
Представитель проектной организации |
|
||
|
|
(подпись) |
||
Акт освидетельствования скрытых работ
|
Устройство подвесных потолков |
|
|
(наименование работ) |
|
|
выполненных в |
Хоспис, Гражданский пр., квартал 16 Б |
|
|
(наименование и место расположения объекта) |
« 20 » ноября 199 9 г.
Комиссия в составе:
|
Представителя строительно‑монтажной организации |
|
|
|
Егоров И. В., прораб |
||
|
(фамилия, инициалы, должность) |
||
|
представителя технического надзора заказчика |
|
|
|
Шинкевич В. А., инспектор |
||
|
(фамилия, инициалы, должность) |
||
представителя проектной организации (в случаях осуществления авторского надзора проектной организации в соответствии с требованиями СП 11-110-99)
|
|
|
|
(фамилия, инициалы, должность) |
|
|
произвела осмотр работ, выполненных |
|
|
ЗАО «Строительный Трест» |
|
|
(наименование строительно-монтажной организации) |
|
и составила настоящий акт о нижеследующем:
|
1. К освидетельствованию предъявлены следующие работы |
|
|
|
Устройство подвесных потолков на первом этаже |
||
|
(наименование скрытых работ) |
||
|
2. Работы выполнены по проектно-сметной документации |
АО «ЛЕННИИПРОЕКТ», |
|
|
мастерская № 1, 13017 - АР, лист 18, 12.96 |
||
|
(наименование проемной организации, № чертежей, дата их составления) |
||
|
3. При выполнении работ применены |
сталь угловая равнополочная № 4; бруски; |
|
|
гвозди; плиты древесно-волокнистые твердые с лакокрасочным покрытием |
||
|
(наименование материалов, изделий со ссылкой на сертификаты или др. документы, подтверждающие качество) |
||
4. При выполнении работ отсутствуют (или допущены) отклонения от проектно-сметной документации
|
отклонения отсутствуют |
||
|
(при наличии отклонений указываются, кем согласованы, № чертежей и дата согласования) |
||
|
5. Даты: |
начала работ |
15 ноября 1999 года |
|
|
окончания работ |
20 ноября 1999 года |
Решение комиссии:
Работы выполнены в соответствии с проектно-сметной документацией, стандартами, строительными нормами и правилами и отвечают требованиям их приемки.
На основании изложенного разрешается производство последующих работ по устройству (монтажу)
|
отделки потолков |
|
(наименование работ и конструкции) |
|
Представитель строительно‑монтажной организации |
И. Егоров |
||
|
|
(подпись) |
||
|
Представитель технического надзора заказчика |
В. Шинкевич |
||
|
|
(подпись) |
||
|
Представитель проектной организации |
|
||
|
|
(подпись) |
||
Акт освидетельствования скрытых работ
|
Устройство заземления оборудования |
|
|
(наименование работ) |
|
|
выполненных в |
Хоспис, Гражданский пр., квартал 16 Б |
|
|
(наименование и место расположения объекта) |
« 12 » сентября 200 0 г.
Комиссия в составе:
|
Представителя строительно‑монтажной организации |
|
|
|
Егоров И. В., прораб |
||
|
(фамилия, инициалы, должность) |
||
|
представителя технического надзора заказчика |
|
|
|
Шинкевич В. А., инспектор |
||
|
(фамилия, инициалы, должность) |
||
представителя проектной организации (в случаях осуществления авторского надзора проектной организации в соответствии с требованиями СП 11-110-99)
|
|
|
|
(фамилия, инициалы, должность) |
|
|
произвела осмотр работ, выполненных |
|
|
ЗАО «Строительный Трест» |
|
|
(наименование строительно-монтажной организации) |
|
и составила настоящий акт о нижеследующем:
|
1. К освидетельствованию предъявлены следующие работы |
|
|
|
Устройство заземления оборудования |
||
|
(наименование скрытых работ) |
||
|
2. Работы выполнены по проектно-сметной документации |
АО «ЛЕННИИПРОЕКТ», |
|
|
мастерская № 1, 13019 - АР, лист 12, 12.96 |
||
|
(наименование проемной организации, № чертежей, дата их составления) |
||
|
3. При выполнении работ применены |
|
|
|
сталь угловая равнополочная № 4; полоса стальная; электроды Э 42-А |
||
|
(наименование материалов, изделий со ссылкой на сертификаты или др. документы, подтверждающие качество) |
||
4. При выполнении работ отсутствуют (или допущены) отклонения от проектно-сметной документации
|
отклонения отсутствуют |
||
|
(при наличии отклонений указываются, кем согласованы, № чертежей и дата согласования) |
||
|
5. Даты: |
начала работ |
15 сентября 2000 года |
|
|
окончания работ |
20 сентября 2000 года |
Решение комиссии:
Работы выполнены в соответствии с проектно-сметной документацией, стандартами, строительными нормами и правилами и отвечают требованиям их приемки.
На основании изложенного разрешается производство последующих работ по устройству (монтажу)
|
|
|
(наименование работ и конструкции) |
|
Представитель строительно‑монтажной организации |
И. Егоров |
||
|
|
(подпись) |
||
|
Представитель технического надзора заказчика |
В. Шинкевич |
||
|
|
(подпись) |
||
|
Представитель проектной организации |
|
||
|
|
(подпись) |
||
Акт освидетельствования скрытых работ
|
Устройство грозозащиты |
|
|
(наименование работ) |
|
|
выполненных в |
жилой дом по адресу: Тимуровская ул., квартал 2В |
|
|
(наименование и место расположения объекта) |
« 21 » апреля 200 1 г.
Комиссия в составе:
|
Представителя строительно‑монтажной организации |
|
|
|
Савин А. В., начальник участка |
||
|
(фамилия, инициалы, должность) |
||
|
представителя технического надзора заказчика |
|
|
|
Шинкевич В. А., инспектор |
||
|
(фамилия, инициалы, должность) |
||
представителя проектной организации (в случаях осуществления авторского надзора проектной организации в соответствии с требованиями СП 11-110-99)
|
|
|
|
(фамилия, инициалы, должность) |
|
|
произвела осмотр работ, выполненных |
|
|
ООО «Отделстрой» |
|
|
(наименование строительно-монтажной организации) |
|
и составила настоящий акт о нижеследующем:
|
1. К освидетельствованию предъявлены следующие работы |
|
|
|
Устройство грозозащиты в блок-секции УС-2 |
||
|
(наименование скрытых работ) |
||
|
2. Работы выполнены по проектно-сметной документации |
АО «ЛЕННИИПРОЕКТ», |
|
|
мастерская № 1, 13017 - КЖ, лист 12, 12.96 |
||
|
(наименование проемной организации, № чертежей, дата их составления) |
||
|
3. При выполнении работ применены |
|
|
|
арматура Ø8 A-I; уголок 50×50×5; полоса 40×4; молниезащитная сетка, Ø6 A-I |
||
|
(наименование материалов, изделий со ссылкой на сертификаты или др. документы, подтверждающие качество) |
||
4. При выполнении работ отсутствуют (или допущены) отклонения от проектно-сметной документации
|
отклонения отсутствуют |
||
|
(при наличии отклонений указываются, кем согласованы, № чертежей и дата согласования) |
||
|
5. Даты: |
начала работ |
15 апреля 2001 года |
|
|
окончания работ |
21 апреля 2001 года |
Решение комиссии:
Работы выполнены в соответствии с проектно-сметной документацией, стандартами, строительными нормами и правилами и отвечают требованиям их приемки.
На основании изложенного разрешается производство последующих работ по устройству (монтажу)
|
|
|
(наименование работ и конструкции) |
|
Представитель строительно‑монтажной организации |
А. Савин |
||
|
|
(подпись) |
||
|
Представитель технического надзора заказчика |
В. Шинкевич |
||
|
|
(подпись) |
||
|
Представитель проектной организации |
|
||
|
|
(подпись) |
||
Акт освидетельствования скрытых работ
|
Устройство площадочного дренажа |
|
|
(наименование работ) |
|
|
выполненных в |
Хоспис, Гражданский пр., квартал 16 Б |
|
|
(наименование и место расположения объекта) |
« 02 » августа 200 0 г.
Комиссия в составе:
|
Представителя строительно‑монтажной организации |
|
|
|
Егоров И. В., прораб |
||
|
(фамилия, инициалы, должность) |
||
|
представителя технического надзора заказчика |
|
|
|
Шинкевич В. А., инспектор |
||
|
(фамилия, инициалы, должность) |
||
представителя проектной организации (в случаях осуществления авторского надзора проектной организации в соответствии с требованиями СП 11-110-99)
|
|
|
|
(фамилия, инициалы, должность) |
|
|
произвела осмотр работ, выполненных |
|
|
ЗАО «Строительный Трест» |
|
|
(наименование строительно-монтажной организации) |
|
и составила настоящий акт о нижеследующем:
|
1. К освидетельствованию предъявлены следующие работы |
|
|
|
Устройство площадочного дренажа |
||
|
(наименование скрытых работ) |
||
|
2. Работы выполнены по проектно-сметной документации |
АО «ЛЕННИИПРОЕКТ», |
|
|
мастерская № 1, 13018 - ВК, лист 18, 12.96 |
||
|
(наименование проемной организации, № чертежей, дата их составления) |
||
|
3. При выполнении работ применены |
асбестоцементные трубы Ø 200 мм; |
|
|
песок крупнозернистый; гравий |
||
|
(наименование материалов, изделий со ссылкой на сертификаты или др. документы, подтверждающие качество) |
||
4. При выполнении работ отсутствуют (или допущены) отклонения от проектно-сметной документации
|
отклонения отсутствуют |
||
|
(при наличии отклонений указываются, кем согласованы, № чертежей и дата согласования) |
||
|
5. Даты: |
начала работ |
15 июля 2000 года |
|
|
окончания работ |
02 августа 2000 года |
Решение комиссии:
Работы выполнены в соответствии с проектно-сметной документацией, стандартами, строительными нормами и правилами и отвечают требованиям их приемки.
На основании изложенного разрешается производство последующих работ по устройству (монтажу)
|
засыпки траншей |
|
(наименование работ и конструкции) |
|
Представитель строительно‑монтажной организации |
И. Егоров |
||
|
|
(подпись) |
||
|
Представитель технического надзора заказчика |
В. Шинкевич |
||
|
|
(подпись) |
||
|
Представитель проектной организации |
|
||
|
|
(подпись) |
||
Акт освидетельствования скрытых работ
|
Устройство прифундаментного дренажа |
|
|
(наименование работ) |
|
|
выполненных в |
Хоспис, Гражданский пр., квартал 16 Б |
|
|
(наименование и место расположения объекта) |
« 21 » августа 200 0 г.
Комиссия в составе:
|
Представителя строительно‑монтажной организации |
|
|
|
Егоров И. В., прораб |
||
|
(фамилия, инициалы, должность) |
||
|
представителя технического надзора заказчика |
|
|
|
Шинкевич В. А., инспектор |
||
|
(фамилия, инициалы, должность) |
||
представителя проектной организации (в случаях осуществления авторского надзора проектной организации в соответствии с требованиями СП 11-110-99)
|
|
|
|
(фамилия, инициалы, должность) |
|
|
произвела осмотр работ, выполненных |
|
|
ЗАО «Строительный Трест» |
|
|
(наименование строительно-монтажной организации) |
|
и составила настоящий акт о нижеследующем:
|
1. К освидетельствованию предъявлены следующие работы |
|
|
|
Устройство прифундаментного дренажа |
||
|
(наименование скрытых работ) |
||
|
2. Работы выполнены по проектно-сметной документации |
АО «ЛЕННИИПРОЕКТ», |
|
|
мастерская № 1, 13018 - ВК, лист 18, 12.96 |
||
|
(наименование проемной организации, № чертежей, дата их составления) |
||
|
3. При выполнении работ применены |
асбестоцементные трубы Ø 150 мм; |
|
|
песок крупнозернистый; гравий |
||
|
(наименование материалов, изделий со ссылкой на сертификаты или др. документы, подтверждающие качество) |
||
4. При выполнении работ отсутствуют (или допущены) отклонения от проектно-сметной документации
|
отклонения отсутствуют |
||
|
(при наличии отклонений указываются, кем согласованы, № чертежей и дата согласования) |
||
|
5. Даты: |
начала работ |
15 августа 2000 года |
|
|
окончания работ |
21 августа 2000 года |
Решение комиссии:
Работы выполнены в соответствии с проектно-сметной документацией, стандартами, строительными нормами и правилами и отвечают требованиям их приемки.
На основании изложенного разрешается производство последующих работ по устройству (монтажу)
|
засыпки траншей |
|
(наименование работ и конструкции) |
|
Представитель строительно‑монтажной организации |
И. Егоров |
||
|
|
(подпись) |
||
|
Представитель технического надзора заказчика |
В. Шинкевич |
||
|
|
(подпись) |
||
|
Представитель проектной организации |
|
||
|
|
(подпись) |
||
Акт освидетельствования скрытых работ
|
Установка металлоконструкций купола БМ-4 |
|
|
(наименование работ) |
|
|
выполненных в |
жилой дом по адресу: Тимуровская ул., квартал 2В |
|
|
(наименование и место расположения объекта) |
« 21 » апреля 200 0 г.
Комиссия в составе:
|
Представителя строительно‑монтажной организации |
|
|
|
Савин А. В., начальник участка |
||
|
(фамилия, инициалы, должность) |
||
|
представителя технического надзора заказчика |
|
|
|
Шинкевич В. А., инспектор |
||
|
(фамилия, инициалы, должность) |
||
представителя проектной организации (в случаях осуществления авторского надзора проектной организации в соответствии с требованиями СП 11-110-99)
|
|
|
|
(фамилия, инициалы, должность) |
|
|
произвела осмотр работ, выполненных |
|
|
ООО «Отделстрой» |
|
|
(наименование строительно-монтажной организации) |
|
и составила настоящий акт о нижеследующем:
|
1. К освидетельствованию предъявлены следующие работы |
|
|
|
Установка металлоконструкций купола БМ-4 секции УС-2 |
||
|
(наименование скрытых работ) |
||
|
2. Работы выполнены по проектно-сметной документации |
АО «ЛЕННИИПРОЕКТ», |
|
|
мастерская № 1, 13017 - ВК, лист 12, 12.96 |
||
|
(наименование проемной организации, № чертежей, дата их составления) |
||
|
3. При выполнении работ применены |
швеллер № 10 серт. № 485 от 27.03.01 г. |
|
|
арматура А-III серт. № 42 от 16.02.01 г., швеллер № 16серт. № 263 от 06.03.01 г. |
||
|
(наименование материалов, изделий со ссылкой на сертификаты или др. документы, подтверждающие качество) |
||
4. При выполнении работ отсутствуют (или допущены) отклонения от проектно-сметной документации
|
отклонения отсутствуют |
||
|
(при наличии отклонений указываются, кем согласованы, № чертежей и дата согласования) |
||
|
5. Даты: |
начала работ |
15 августа 2000 года |
|
|
окончания работ |
21 августа 2000 года |
Решение комиссии:
Работы выполнены в соответствии с проектно-сметной документацией, стандартами, строительными нормами и правилами и отвечают требованиям их приемки.
На основании изложенного разрешается производство последующих работ по устройству (монтажу)
|
купола |
|
(наименование работ и конструкции) |
|
Представитель строительно‑монтажной организации |
А. Савин |
||
|
|
(подпись) |
||
|
Представитель технического надзора заказчика |
В. Шинкевич |
||
|
|
(подпись) |
||
|
Представитель проектной организации |
|
||
|
|
(подпись) |
||
Акт освидетельствования скрытых работ
|
Навесные фасады из керамогранита ТС-07-0617-02 |
|
|
(наименование работ) |
|
|
выполненных в |
поликлиническом комплексе НИИ кардиологии ул. Аккуратова, 8 |
|
|
(наименование и место расположения объекта) |
« 15 » июня 200 3 г.
Комиссия в составе:
|
Представителя строительно‑монтажной организации |
|
|
|
Набоков Я. И. |
||
|
(фамилия, инициалы, должность) |
||
|
представителя технического надзора заказчика |
|
|
|
Федоров В. Н., инспектор технадзора |
||
|
(фамилия, инициалы, должность) |
||
представителя проектной организации (в случаях осуществления авторского надзора проектной организации в соответствии с требованиями СП 11-110-99)
|
Мотыльков И. А., конструктор ООО «Алкон-Трейд» |
|
|
(фамилия, инициалы, должность) |
|
|
произвела осмотр работ, выполненных |
|
|
ООО «Алкон-Трейд» |
|
|
(наименование строительно-монтажной организации) |
|
и составила настоящий акт о нижеследующем:
|
1. К освидетельствованию предъявлены следующие работы |
|
|
|
монтаж подконструщии навесной фасадной системы «И-KON» АТС-234 А в опт. от +12,68 до +26,6 |
||
|
(наименование скрытых работ) |
||
|
2. Работы выполнены по проектно-сметной документации |
ООО «Алкон-Трейд» |
|
|
|
||
|
(наименование проемной организации, № чертежей, дата их составления) |
||
|
3. При выполнении работ применены |
кронштейн АД-031, АД-32, салазка АД-022, профиль А-34 |
|
|
терморазрывы ПД-031, ПД-032, шайбы АД-051, АД-052, болт М 10×80, алюм. труба 50×50×2 |
||
|
(наименование материалов, изделий со ссылкой на сертификаты или др. документы, подтверждающие качество) |
||
4. При выполнении работ отсутствуют (или допущены) отклонения от проектно-сметной документации
|
отклонения отсутствуют |
||
|
(при наличии отклонений указываются, кем согласованы, № чертежей и дата согласования) |
||
|
5. Даты: |
начала работ |
21 апреля 2003 года |
|
|
окончания работ |
15 июня 2003 года |
Решение комиссии:
Работы выполнены в соответствии с проектно-сметной документацией, стандартами, строительными нормами и правилами и отвечают требованиям их приемки.
На основании изложенного разрешается производство последующих работ по устройству (монтажу)
|
утеплителя |
|
(наименование работ и конструкции) |
|
Представитель строительно‑монтажной организации |
Я. Набоков |
||
|
|
(подпись) |
||
|
Представитель технического надзора заказчика |
В. Федоров |
||
|
|
(подпись) |
||
|
Представитель проектной организации |
И. Мотыльков |
||
|
|
(подпись) |
||
Акт освидетельствования скрытых работ
|
Утепление фасадов |
|
|
(наименование работ) |
|
|
выполненных в |
поликлиническом комплексе НИИ кардиологии ул. Аккуратова, 8 |
|
|
(наименование и место расположения объекта) |
« 21 » июня 200 3 г.
Комиссия в составе:
|
Представителя строительно‑монтажной организации |
|
|
|
Набоков Я. И. |
||
|
(фамилия, инициалы, должность) |
||
|
представителя технического надзора заказчика |
|
|
|
Федоров В. Н., инспектор технадзора |
||
|
(фамилия, инициалы, должность) |
||
представителя проектной организации (в случаях осуществления авторского надзора проектной организации в соответствии с требованиями СП 11-110-99)
|
Мотыльков И. А., конструктор ООО «Алкон-Трейд» |
|
|
(фамилия, инициалы, должность) |
|
|
произвела осмотр работ, выполненных |
|
|
ООО «Алкон-Трейд» |
|
|
(наименование строительно-монтажной организации) |
|
и составила настоящий акт о нижеследующем:
|
1. К освидетельствованию предъявлены следующие работы |
|
|
|
утепление фасадов в отм. от +12,68 до +26,6 в осях 22-29 по оси 112 |
||
|
(наименование скрытых работ) |
||
|
2. Работы выполнены по проектно-сметной документации |
ООО «Алкон-Трейд» |
|
|
|
||
|
(наименование проемной организации, № чертежей, дата их составления) |
||
|
3. При выполнении работ применены |
утеплитель «ROCKWOOL» толщиной 60 мм |
|
|
и толщиной 40 мм, тарельчатый дюбель 8×140 |
||
|
(наименование материалов, изделий со ссылкой на сертификаты или др. документы, подтверждающие качество) |
||
4. При выполнении работ отсутствуют (или допущены) отклонения от проектно-сметной документации
|
отклонения отсутствуют |
||
|
(при наличии отклонений указываются, кем согласованы, № чертежей и дата согласования) |
||
|
5. Даты: |
начала работ |
15 июня 2003 года |
|
|
окончания работ |
21 июня 2003 года |
Решение комиссии:
Работы выполнены в соответствии с проектно-сметной документацией, стандартами, строительными нормами и правилами и отвечают требованиям их приемки.
На основании изложенного разрешается производство последующих работ по устройству (монтажу)
|
керамогранита |
|
(наименование работ и конструкции) |
|
Представитель строительно‑монтажной организации |
Я. Набоков |
||
|
|
(подпись) |
||
|
Представитель технического надзора заказчика |
В. Федоров |
||
|
|
(подпись) |
||
|
Представитель проектной организации |
И. Мотыльков |
||
|
|
(подпись) |
||
Акт на огнезащиту древесины
04 февраля 2000 г.
|
Мы, нижеподписавшиеся, от лица «Подрядчика» |
|
|
|
заместитель директора ЗАО «Утро» Баранов О. В. |
||
|
с одной стороны, представитель «Заказчика» |
инспектор Шинкевич В. А. |
|
с другой стороны, составили настоящий Акт о том, что огнезащитные работы по договору № 221 от 17 декабря 1999 выполнены Подрядчиком в полном (неполном) объеме.
|
1. Наименование объекта, адрес: |
здание Хосписа, Гражданский пр., квартал 16 Б |
||||||||||||
|
2. Сроки проведения огнезащитных работ: |
17 декабря - 1 февраля 2000 г. |
||||||||||||
|
3. Сведения о выполненных работах: |
|
||||||||||||
|
3.1. Месторасположение защищаемых конструкций |
Деревянный каркас и обрешетка кровли |
||||||||||||
|
3.2. Вид |
Деревянный брус 150×100; 60×60; 120×120; Доска 25мм |
||||||||||||
|
3.3. Подготовка поверхности |
очистка от пыли |
||||||||||||
|
3.4. |
I гр. – Трудносгораемая древесина |
||||||||||||
|
3.5. Огнезащитное средство |
Лак огнезащитный при-1 ТУ2311-00123081751-94 |
||||||||||||
|
3.6. Способ нанесения, расход |
механическим способом расход 500 гр. на 1 м2 |
||||||||||||
|
3.7. Объем выполненных работ |
3245 м2 |
||||||||||||
|
3.8. Проверка качества выполненных работ |
|
||||||||||||
|
п. 4.6. Руководство: «Способы и средства огнезащиты древесины» |
|||||||||||||
|
3.9. Срок действия огнезащиты |
до 10лет (Десять лет) |
||||||||||||
|
3.10. Гарантийный срок |
1 год |
||||||||||||
Настоящий акт составлен в двух экземплярах и служит основанием, в соответствии с условиями договора, для проведения взаимных расчетов за выполнение работы.
|
Представитель Заказчика |
В. Шинкевич |
|
|
Представитель Подрядчика |
О. Баранов |
|
Качество огнезащитных работ проверил
|
Представитель Госпожнадзора |
В. Анисимов |
|
Акт на проверку вентиляционных каналов |
|
|
(наименование работ) |
|
|
выполненных в |
жилой дом, озеро Долгое, квартал 25 |
|
|
(наименование и место расположения объекта) |
« 21 » апреля 200 4 г.
Комиссия в составе:
|
Представителя строительно‑монтажной организации |
|
||
|
Сямин Н. В., начальник участка |
|||
|
(фамилия, инициалы, должность) |
|||
|
представителя технического надзора заказчика |
|
||
|
Шинкевич В. А., инспектор |
|||
|
(фамилия, инициалы, должность) |
|||
|
произвела осмотр работ, выполненных |
|
||
|
ЗАО «Строительное управление № 1» |
|||
|
(наименование строительно-монтажной организации) |
|||
и составила настоящий акт о нижеследующем:
|
1. К освидетельствованию предъявлены работы |
|
|
|
по проверке вентиляционных каналов |
||
|
(наименование скрытых работ) |
||
|
2. Работы выполнены по проектно‑сметной документации |
АО «ЛЕННИИПРОЕКТ», |
|
|
мастерская № 1, 13017-КЖ, лист 12, 12.96 |
||
|
(наименование проемной организации, № чертежей, дата их составления) |
||
|
1. Обособленные вентиляционные каналы имеются в квартирах М 1-12. Обособленные дымовые каналы, используемые в качестве вентиляционных, в квартирах отсутствуют. 2. В квартирах № 13-25 обособленные каналы отсутствуют. 3. Размеры каждого канала составляют: 120×160 мм. 4. Каналы выполнены из бетонных блоков. 5. Каналы в квартирах № 4, 5, 6расположены в наружных стенах; расстояние от наружной поверхности стены до канала 38 мм. 6. Все отверстия в каналах, кроме отверстий для установки вытяжных решеток, заделаны. 7. Все каналы очищены от строительного мусора, завалов, пыли. 8. Все вытяжные отверстия вентиляционных каналов оборудованы типовыми решетками размером 150×200 мм. 9. Тяга в каналах в день проверки хорошая. 10. Плотность и обособленность каналов проверены методом задымления, не плотность каналов не обнаружена. 11. Защитные колпаки имеют все каналы. 12. Каналы выведены на 1,3 п.м. от поверхности крыши и находится на расстоянии 0,5 м от конька. 13. Ближайшее более высокое (смежное) здание, расположенное на расстоянии ... п.м. от каналов: нет. 14. К настоящему акту прилагаются развертки каналов. |
||
|
(наименование материалов, изделий со ссылкой на сертификаты или др. документы, подтверждающие качество) |
||
Работы выполнены в соответствии с проектно-сметной документацией, стандартами, строительными нормами и правилами и отвечают требованиям их приемки.
|
Представитель строительно‑монтажной организации |
Н. Сямин |
|
|
Представитель технического надзора заказчика |
В. Шинкевич |
|
|
Акт проверки мусоропровода |
|
|
(наименование работ) |
|
|
выполненных в |
жилой дом, озеро Долгое, квартал 25 |
|
|
(наименование и место расположения объекта) |
« 21 » апреля 200 4 г.
Комиссия в составе:
|
Представителя строительно‑монтажной организации |
|
||
|
Сямин Н. В., начальник участка |
|||
|
(фамилия, инициалы, должность) |
|||
|
представителя технического надзора заказчика |
|
||
|
Шинкевич В. А., инспектор |
|||
|
(фамилия, инициалы, должность) |
|||
|
произвела осмотр работ, выполненных |
|
||
|
ЗАО «Строительное управление № 1» |
|||
|
(наименование строительно-монтажной организации) |
|||
и составила настоящий акт о нижеследующем:
|
1. К освидетельствованию предъявлены работы |
|
|
|
по устройству мусоропровода |
||
|
(наименование скрытых работ) |
||
|
2. Работы выполнены по проектно‑сметной документации |
АО «ЛЕННИИПРОЕКТ», |
|
|
мастерская № 1, 13017-КЖ, лист 12, 12.96 |
||
|
(наименование проемной организации, № чертежей, дата их составления) |
||
|
Мусоропроводы проверены на наличие тяги в стволе путем задымления |
||
|
при закрытых приемных клапанах и дверках короба очистки |
||
|
(наименование материалов, изделий со ссылкой на сертификаты или др. документы, подтверждающие качество) |
||
Работы выполнены в соответствии с проектно-сметной документацией, стандартами, строительными нормами и правилами и отвечают требованиям их приемки.
|
Представитель строительно‑монтажной организации |
Н. Сямин |
|
|
Представитель технического надзора заказчика |
В. Шинкевич |
|
АКТ№_______
ПРОМЕЖУТОЧНОЙ ПРИЕМКИ ОТВЕТСТВЕННЫХ КОНСТРУКЦИЙ
|
|
|
|
(наименование конструкций (систем)) |
|
|
выполненных на строительстве |
|
|
|
(наименование и место расположения объекта) |
« » 200 г.
Мы, нижеподписавшиеся,
|
Ответственный представитель исполнителя работ (подрядчика) |
|
|
|
|
||
|
(фамилия, инициалы, должность) |
||
|
Ответственный представитель технического надзора |
|
|
|
|
||
|
(фамилия, инициалы, должность) |
||
Ответственный представитель авторского надзора (в случае, если на объекте осуществлялся авторский надзор)
|
|
|
(фамилия, инициалы, должность) |
а также лица, дополнительно участвующие в приемке:
|
|
|
|
(фамилия, инициалы, должность) |
|
|
|
|
|
(фамилия, инициалы, должность) |
|
|
произвели осмотр конструкций (систем), выполненных |
|
|
|
|
|
(наименование исполнителя работ) |
|
|
1. К приемке предъявлены следующие конструкции (системы) |
|
||
|
|
|||
|
(перечень и краткая характеристика конструкций ) |
|||
|
2. Работы выполнены по проектно‑сметной документации |
|
||
|
|
|||
|
(наименование проемной организации, № чертежей, дата их составления или идентификационные параметры эскиза или записи в журнале авторского надзора) |
|||
|
3. При выполнении работ применены |
|
||
|
|
|||
|
(наименование материалов, конструкций, изделий со ссылкой на паспорта или другие документы о качестве) |
|||
4. Освидетельствованы скрытые работы, входящие в состав конструкций (систем)
|
|
|
(указываются виды скрытых работ и № актов их освидетельствования) |
5. Предъявлены документы, подтверждающие соответствие работ, конструкций систем, в том числе:
а) исполнительные геодезические схемы положения конструкций
|
|
|
(даты, номера, фамилии исполнителя) |
б) заключения строительной лаборатории о фактической прочности бетона
|
|
|
(даты, номера фамилия исполнителя или дата записи в журнале работ) |
в) документы о контроле качества сварных соединений
|
|
г) лабораторные журналы, журналы работ и другая необходимая производственная документация, подтверждающие качество выполненных работ
|
|
|
|
6. Проведены необходимые испытания и опробования |
|
|
|
|
|
(указываются наименования испытаний, № и даты документов) |
|
7. При выполнении работ установлены отклонения от проектно-сметной документации
|
|
||
|
(при наличии отклонений указывается, кем согласованы, № чертежей и дата согласования) |
||
|
8. Даты: |
начала работ |
|
|
|
окончания работ |
|
9. Предъявленные конструкции (системы) выполнены в соответствии с проектно-сметной документацией, строительными нормами и правилами, стандартами и считаются принятыми.
10. На основании изложенного:
а) разрешается использование конструкций по назначению ____________ ; или разрешается использование конструкций по назначению с нагружением в размере _______% проектной нагрузки; или разрешается полное нагружение при выполнении следующих условий:
|
|
б) разрешается производство последующих работ:
|
|
|
|
|
(наименование работ и конструкций) |
|
Ответственный представитель |
|
|
|
(подпись) |
|
Ответственный представитель |
|
|
|
(подпись) |
|
Дополнительные участники: |
|
|
|
(подпись) |
|
|
|
|
|
(подпись) |
|
|
|
|
|
(подпись) |
ДОПОЛНИТЕЛЬНАЯ ИНФОРМАЦИЯ:
|
|
|
|
|
|
К НАСТОЯЩЕМУ АКТУ ПРИЛАГАЮТСЯ:
|
|
|
|
|
|
АКТ ИНДИВИДУАЛЬНОГО ИСПЫТАНИЯ ОБОРУДОВАНИЯ
|
выполненного в |
|
|
|
|
(наименование объекта строительства, здания, цеха) |
|
|
г._________________________ |
«___»________________200___г. |
|
Комиссия в составе представителей:
|
заказчика |
|
|
|
|
||
|
(наименование организации, должность, инициалы, фамилия) |
||
|
генерального подрядчика |
|
|
|
|
||
|
(наименование организации, должность, инициалы, фамилия) |
||
составила акт о нижеследующем:
|
1. |
|
|
|
|
|
(вентиляторы, насосы, муфты, самоочищающиеся фильтры с электроприводом, |
|
|
|
|
|
регулирующие клапаны систем вентиляции (кондиционирования воздуха), |
|
|
|
|
|
указываются номера систем) |
|
прошли обкатку в течение ___________________ согласно техническим условиям, паспорту.
2. В результате обкатки указанного оборудования установлено, что требования по его сборке и монтажу, приведенные в документации предприятий-изготовителей, соблюдены и неисправности в его работе не обнаружены.
|
Представитель заказчика |
|
|
|
(подпись) |
|
Представитель генерального подрядчика |
|
|
|
(подпись) |
|
Представитель монтажной организации |
|
|
|
(подпись) |
АКТ РАБОЧЕЙ КОМИССИИ О ПРИЕМКЕ ОБОРУДОВАНИЯ
ПОСЛЕ КОМПЛЕКСНОГО ОПРОБОВАНИЯ
(СНиП 3.01.04-87, приложение 2)
|
г._________________________ |
«___»________________200___г. |
|
Рабочая комиссия, назначенная |
|
|
|
|
|
|
|
|
(наименование организации-заказчика (застройщика), назначившей рабочую комиссию) |
|
решением от «____»_________________200__г. №_______
в составе:
|
председателя‑представителя заказчика (застройщика) |
|
|
|
|
|
(фамилия, имя, отчество, должность) |
|
членов комиссии - представителей:
|
генерального подрядчика |
|
||||||
|
|
|||||||
|
(фамилия, имя, отчество, должность) |
|||||||
|
субподрядных (монтажных) организаций |
|
||||||
|
|
|||||||
|
(фамилия, имя, отчество, должность) |
|||||||
|
эксплуатационной организации |
|
||||||
|
|
|||||||
|
(фамилия, имя, отчество, должность) |
|||||||
|
генерального проектировщика |
|
||||||
|
|
|||||||
|
(фамилия, имя, отчество, должность) |
|||||||
|
органов государственного санитарного надзора |
|
||||||
|
|
|||||||
|
(фамилия, имя, отчество, должность) |
|||||||
|
органов государственного пожарного надзора |
|
||||||
|
|
|||||||
|
(фамилия, имя, отчество, должность) |
|||||||
|
Государственной инспекции труда |
|
||||||
|
|
|||||||
|
(фамилия, имя, отчество, должность) |
|||||||
профсоюзной организации заказчика или эксплуатационной организации
|
|
|
|
(фамилия, имя, отчество, должность) |
|
|
других заинтересованных органов надзора и организаций |
|
|
|
|
|
(фамилия, имя, отчество, должность) |
|
УСТАНОВИЛА:
|
1. Оборудование |
|
||
|
|
(наименование оборудования, технологической линии, установки, агрегата) |
||
|
|
|||
|
(при необходимости указывается в приложении к акту) |
|||
|
смонтированного в |
|
||
|
|
(наименование здания, сооружения, цеха) |
||
|
входящего в состав |
|
||
|
|
(наименование предприятия, его очереди, пускового комплекса) |
||
прошло комплексное опробование, включая необходимые пусконаладочные работы, совместно с коммуникациями
с «___»_____________200__г. по «___»_____________200__г.
|
в течение |
|
в соответствии с установленными заказчиком и по |
|
|
(дни или часы) |
|
|
|
||
|
(наименование документа, по которому проводилось комплексное обследование) |
||
2. Комплексное опробование, включая необходимые пусконаладочные работы, выполнено
|
|
|
(наименование организации-заказчика, пусконаладочной организации) |
|
|
3. Дефекты проектирования, изготовления и монтажа оборудования (при необходимости указываются в приложении ______ к акту), выявленные в процессе комплексного опробования, а также недоделки:
|
|
|
|
|
устранены. |
4. В процессе комплексного опробования выполнены дополнительные работы, указанные в приложении ___ к акту.
РЕШЕНИЕ РАБОЧЕЙ КОМИССИИ:
Оборудование, прошедшее комплексное опробование, считать готовым к эксплуатации и выпуску продукции (оказанию услуг), предусмотренной проектом в объеме, соответствующем нормам освоения проектных мощностей в начальный период и принятым с «___»______________200___г.
|
Председатель комиссии |
|
|
|
(подпись) |
|
Члены рабочей комиссии |
|
|
|
(подпись) |
|
|
|
|
|
(подпись) |
АКТ ГИДРОСТАТИЧЕСКОГО ИЛИ МАНОМЕТРИЧЕСКОГО ИСПЫТАНИЯ НА ГЕРМЕТИЧНОСТЬ
|
|
|
|
|
|
(наименование системы) |
|
|
смонтированной в |
|
|
|
|
(наименование объекта, |
|
|
|
|
|
|
|
здания, цеха) |
|
|
г._________________________ |
«___»________________200___г. |
|
Комиссия в составе представителей:
|
заказчика |
|
||
|
|
(наименование организации, должность, инициалы, фамилия) |
||
|
генерального подрядчика |
|
||
|
|
(наименование организации, должность, инициалы, фамилия) |
||
|
монтажной (строительной) организации |
|
||
|
|
(наименование организации, должность, инициалы, фамилия) |
||
произвела осмотр и проверку качества монтажа и составила настоящий акт о нижеследующем:
|
1. Монтаж выполнен по проекту |
|
|
|
|
(наименование проектной организации и номера чертежей) |
|
|
2. Испытание произведено |
|
|
|
|
(гидростатическим или манометрическим методом) |
|
давлением __________________ МПа (_________кг/см2) в течение ______________ мин.
3. Падение давления составило _________________МПа (_________________кг/см2)
4. Признаков разрыва или нарушения прочности соединения котлов и водоподогревателей, капель в сварных швах, резьбовых соединения, отопительных приборах, на поверхности труб, арматуры и утечки воды через водоразборную арматуру, смывные устройства и т.п. не обнаружено (ненужное зачеркнуть).
Решение комиссии:
Монтаж выполнен в соответствии с проектной документацией, действующими техническими условиями, стандартами, строительными нормами и правилами производства и приемки работ.
Системы признаются выдержавшими испытание давлением на герметичность.
|
Представитель заказчика |
|
|
|
(подпись) |
|
Представитель генерального подрядчика |
|
|
|
(подпись) |
|
Представитель монтажной (строительной) организации |
|
|
|
(подпись) |
Акт осмотра и испытания системы теплового снабжения
|
Встроенные помещения жилого дома по адресу: СПЧ-65, ул. Савушкина, 140, БС-3 |
|
(наименование объекта и адрес) |
«12» февраля 2002 г.
Комиссия в составе представителей:
|
заказчика |
АОЗТ «Соотечественник» инженер технадзора Филиппов С. В. |
|||
|
|
(наименование организации, должность, ф.и.о) |
|||
|
генерального подрядчика (генсубподрядчика) |
ЗАО «Строительный трест» |
|||
|
Зам. Начальника ПТО Васильченко Е. И. |
||||
|
монтажной организации |
ООО «Отделстрой» нач. участка Семенов П. А. |
|||
|
эксплуатационной организации |
ООО «Отделстрой» начальник ОЭЖ Одинцов В. А. |
|||
произвели осмотр в натуре и проверку на тепловой эффект системы водяного (парового) отопления, выполненной
|
ООО «Отделстрой» |
|
(наименование монтажной организации) |
и составила настоящий акт о нижеследующем:
|
1. Монтаж выполнен по проекту |
ОАО «ЛЕННИИПРОЕКТ» НТО |
|
10188/Д ОВ 07.2001 г. |
|
|
(наименование проектной организации, шифр чертежей) |
|
2. В процессе производства работ внесены следующие отступления от проекта
|
|
|
|
(перечень отступлений) |
|
|
согласованные с |
|
|
|
(должность, ф.и.о.) |
3. Все нагревательные приборы (радиаторы, конвекторы и т.д.) равномерно прогреваются (на ощупь) по этажам и веткам системы
4. Параметры теплоносителя т/ц при температуре наружного воздуха составляют:
а) температура теплоносителя в подающей магистрали (первичная вода) 62,2°С
б) температура теплоносителя в обратной магистрали 28,6°С
в) температура теплоносителя после элеватора 43,9°С
г) давление воды в подающей магистрали 6,6 МПа.
д) давление воды после элеватора 4,0 МПа.
е) давление воды в обратной магистрали 3,8 МПа (кгс/см2)
5. Продолжительность испытания – 7 часов.
Решение комиссии:
|
Система отопления смонтирована в соответствии с проектом |
|
|
ОАО «ЛЕННИИПРОЕКТ» НТО 10188/Д ОВ 07.2001 г. |
|
|
|
|
|
Представитель заказчика |
С. Филиппов |
|
|
(подпись) |
|
Представитель генерального подрядчика |
Е. Васильченко |
|
|
(подпись) |
|
Представитель монтажной (строительной) организации |
П. Семенов |
|
|
(подпись) |
|
Представитель эксплуатационной организации |
В. Одинцов |
|
|
(подпись) |
Акт теплового испытания системы центрального отопления на эффект действия
|
г. Санкт-Петербург |
«21» апреля 2003 г. |
Мы, нижеподписавшиеся:
|
представитель технического надзора застройщика |
инженер Карпов О. Г. |
||
|
производитель работ |
начальник участка ООО «Отделстрой» Серьгин Н. П. |
||
|
представитель эксплуатационной организации |
Р. Одинцов |
||
составили настоящий акт о том, что произведено испытание системы центрального отопления в корпусе 32А по ул. (пр-т) СМР квартал 81 на эффект действия.
Причем установили:
1. При температуре наружного воздуха tн=12°C, температура воды в котлах или узле управления t=105°C, температура в обратной магистрали tс=70°C, циркуляционный напор 5 м вод. ст., т.е. соответствует проекту.
2. Температура воздуха в отапливаемых помещениях, замеренная на высоте 1,5 м от пола и на расстоянии 1 м от наружных стен, составила 18°С, что соответствует нормам, установленным для данного типа помещений.
3. Все нагревательные приборы системы отопления нагреваются равномерно.
|
Автор проекта или представитель эксплуатационной организации |
Р. Одинцов |
|
|
(подпись) |
|
Представитель технического надзора застройщика |
О. Карпов |
|
|
(подпись) |
|
Производитель работ |
Н. Серьгин |
|
|
(подпись) |
|
Наименование объекта |
жилой дом |
|||||
|
Адрес |
квартал 46 корпус 22 |
|||||
|
Место отбора пробы |
РС-1: № 1185-1 этаж |
|||||
|
№ 1186-13 этаж |
||||||
|
Дата и время отбора пробы |
21 июля 2002 года |
|||||
|
Дата и время доставки пробы |
21 июля 2002 года |
|||||
|
Кем направлена проба |
Смирнов А. М. |
|||||
Результаты измерений:
|
Наименование показателя |
Единицы измерения |
Содержание в пробе |
Норматив (не более) |
НД на методы исследования |
|
1 |
2 |
3 |
4 |
5 |
|
Запах |
Баллы |
1 |
2 |
ГОСТ 3351-74 |
|
Цветность |
Градусы |
9,5 |
20 |
ГОСТ 3351-74 |
|
Мутность |
Мг/д3 |
1,0 |
1,5 |
ГОСТ 3351-74 |
|
Водородный показатель |
Ед.рН |
8,8 |
6-9 |
ИСО 10523 |
|
Железо (общ.) |
Мг/дм3 |
0,1 |
0,3 |
Примечание. После ремонта, в период сезонных отключений на срок до 14 дней допускается содержание в воде:
Железо-до 1,0 мг/дм3; цветность- до 70 градусов
|
Фамилия и подпись проводивших исследования |
|
/ И. Петров |
Заключение санитарного врача:
Горячая вода по исследуемым показателям соответствует СанПиН.
|
Фамилия и подпись санитарного врача |
|
/ И. Марков |
АКТ ГВДРОСТАТИЧЕСКОГО ИСПЫТАНИЯ КОТЛОВ НИЗКОГО ДАВЛЕНИЯ (ВОДОПОДОГРЕВАТЕЛЕЙ, КОТЕЛЬНО-ВСПОМОГАТЕЛЬНОГО ОБОРУДОВАНИЯ, МАЗУТОПРОВОДА)
|
|
|
|
(наименование объекта и адреса) |
|
|
г._________________________ |
«___»________________200___г. |
Комиссия в составе представителей:
|
заказчика |
|
||||
|
|
(наименование организации, должность, ф. и. о.) |
||||
|
генподрядной организации |
|
||||
|
|
(наименование организации, должность, ф. и. о.) |
||||
|
монтажной организации |
|
||||
|
|
(наименование организации, должность, ф. и. о.) |
||||
|
произвела осмотр и проверку качества монтажа |
|
||||
|
|
(характеристика и количество котлов, водонагревателей, |
||||
|
|
|||||
|
оборудования и трубопроводов) |
|||||
|
выполненных |
|
||||
|
|
(наименование монтажной организации) |
||||
и составила акт о нижеследующем:
|
1. Монтаж выполнен по проекту |
|
|
|
|
|
(наименование проектной организации и № чертежей) |
|
2. В процессе производства работ внесены следующие отступления от проекта
|
|
|
|
(перечень отступлений) |
|
|
согласованные с |
|
|
|
(должность, ф. и. о.) |
3. Котлы (водоподогреватели, котельно-вспомогательное оборудование, трубопроводы) испытаны гидростатическим методом пробным давлением ________МПа (_______кгс/см2) в течение 5 мин.
4. В течение времени нахождения под пробным давлением падения давления не наблюдалось.
5. В течение времени нахождения под максимальным рабочим давлением ____МПа (___кгс/см2) признаков разрыва и видимых деформаций частей котла не обнаружено, капли и потение в ниппельных и сварных швах не наблюдались.
Решение комиссии:
Котлы (водоподогреватели, котельно-вспомогательное оборудование, трубопроводы) признаются выдержавшими испытание гидростатическим методом.
|
Представитель заказчика |
|
|
|
|
|
(подпись) |
|
(ф. и. о.) |
|
Представитель генподрядной организации |
|
|
|
|
|
(подпись) |
|
(ф. и. о.) |
|
Представитель монтажной организации |
|
|
|
|
|
(подпись) |
|
(ф. и. о.) |
|
|
|
(наименование ведомства, |
|
|
|
наладочной организации) |
ПАСПОРТ ВЕНТИЛЯЦИОННОЙ СИСТЕМЫ (СИСТЕМЫ КОНДИЦИОНИРОВАНИЯ ВОЗДУХА)
|
Объект |
|
|
|
Зона (цех) |
|
|
А. Общие данные
|
1. Назначение системы |
|
|
|
|
||
|
2. Местонахождение оборудования системы |
|
|
|
|
||
Б. Основные технические характеристики оборудования системы
1. Вентилятор
|
Данные |
Тип |
№ |
Диаметр колеса Dном, мм |
Подача, |
Полное давление, Па |
Диаметр шкива, мм |
Частота вращения, с-1 |
|
По проекту |
|
|
|
|
|
|
|
|
Фактически |
|
|
|
|
|
|
|
|
Примечания |
|
|
|
|
|
|
|
2. Электродвигатель
|
Данные |
Тип |
Мощность, кВт |
Частота вращения, с-1 |
Диаметр шкива, мм |
.Вид передачи |
|
По проекту |
|
|
|
|
|
|
Фактически |
|
|
|
|
|
|
Примечания |
|
|
|
|
|
|
|
3. Воздухонагреватели, воздухоохладители, в том числе зональные
|
Данные |
Тип или модель |
Число |
Схема |
Вид и параметры теплохладоносителя |
Опробование* теплообменников на рабочее давление (выполнено, не выполнено) |
|
|
обвязки по теплохладоносителю |
расположения по воздуху |
|||||
|
По проекту |
|
|
|
|
|
|
|
Фактически |
|
|
|
|
|
|
*Выполняется монтажной организацией с участием заказчика (наладочной организации)
|
Примечания |
|
|
|
|
|
|
|
4. Пылегазоулавливающие устройства
|
Данные |
Наименование |
№ |
Число |
Расход воздуха, м3/ч |
% подсоса (выбив) |
Сопротивление, Па |
|
По проекту |
|
|
|
|
|
|
|
Фактически |
|
|
|
|
|
|
|
Примечания |
|
|
|
|
|
|
|
5. Увлажнитель воздуха
|
Данные |
Насос |
Электродвигатель |
Характеристика увлажнителя |
|||||
|
тип |
подача, мг/ч |
давление перед форсунками, кПа |
частота вращения, с-1 |
тип |
мощность, кВт |
частота вращения, с-1 |
||
|
По проекту |
|
|
|
|
|
|
|
|
|
Фактически |
|
|
|
|
|
|
|
|
|
Примечания |
|
|
|
|
|
|
|
В. Расходы воздуха по помещениям (по сети)
|
Номер мерного сечения |
Наименование помещений |
Расход воздуха, м3 /ч |
Невязка, % (отклонения показателей) |
|
|
фактически |
по проекту |
|||
|
|
|
|
|
|
|
|
|
|
|
|
Схема системы вентиляции (кондиционирования воздуха)
Примечание. Указываются выявленные отклонения от проекта (рабочего проекта) и их согласование с проектной организацией или устранение
|
Представитель заказчика (пусконаладочной организации) |
|
|
|
(подпись, инициалы, фамилия) |
|
Представитель проектной организации |
|
|
|
(подпись, инициалы, фамилия) |
|
Представитель монтажной организации |
|
|
|
(подпись, инициалы, фамилия) |
АКТ ИСПЫТАНИЯ СИСТЕМ ВНУТРЕННЕЙ КАНАЛИЗАЦИИ И ВОДОСТОКОВ
|
|
||
|
(наименование системы) |
||
|
смонтированной в |
|
|
|
|
(наименование объекта, |
|
|
|
||
|
здания, цеха) |
||
|
г._________________________ |
«___»________________200___г. |
|
Комиссия в составе представителей:
|
заказчика |
|
||
|
|
(наименование организации, |
||
|
|
|||
|
должность, инициалы, фамилия) |
|||
|
генерального подрядчика |
|
||
|
|
(наименование организации, |
||
|
|
|||
|
должность, инициалы, фамилия) |
|||
|
монтажной (строительной) организации |
|
||
|
|
(наименование организации, |
||
|
|
|||
|
должность, инициалы, фамилия) |
|||
произвела осмотр и проверку качества монтажа, выполненного монтажным управлением, и составила настоящий акт о нижеследующем:
|
1. Монтаж выполнен по проекту |
|
|
|
(наименование проектной организации |
|
|
|
|
и номера чертежей) |
|
2. Испытание произведено проливом путем одновременного открытия ______санитарных приборов, подключенных к проверяемому участку в течение ______мин, или наполнением водой на высоту этажа (ненужное зачеркнуть).
3. При осмотре во время испытаний течи через стенки трубопроводов и места соединений не обнаружено.
Решение комиссии:
Монтаж выполнен в соответствии с проектной документацией, действующими техническими условиями, стандартами, строительными нормами и правилами производства и приемки работ.
Системы признаются выдержавшими испытание давлением на герметичность.
|
Представитель заказчика |
|
|
|
(подпись) |
|
Представитель генерального подрядчика |
|
|
|
(подпись) |
|
Представитель монтажной (строительной) организации |
|
|
|
(подпись) |
Акт испытания систем внутренней канализации и водостоков
|
К1-1, К1-1а, К1-2, У1-2а, К1-3, К1-3а, К1-4, К1-4а, К1-5, К1-5а, К1-6 |
||
|
(наименование системы) |
||
|
смонтированной в |
Жилом доме по пр. Мориса Тореза 81/1 |
|
|
|
(наименование объекта, |
|
|
г. Санкт-Петербург |
« 12 » марта 2003 г. |
|
Комиссия в составе представителей:
|
заказчика |
ЗАО «Жилстрой Ленэнерго»; технадзор Михайлов С. В. |
|
|
|
(наименование организации, должность, инициалы, фамилия) |
|
|
генерального подрядчика |
ЗАО «Строительный трест»; начальник участка Ишутин Л. А. |
|
|
|
(наименование организации, должность, инициалы, фамилия) |
|
|
монтажной организации |
ЗАО «Стройимпулъс-ССМУ»; прораб Ильин А. М. |
|
|
|
(наименование организации, должность, инициалы, фамилия) |
|
произвела осмотр и проверку качества монтажа, выполненного монтажным управлением, и составила настоящий акт о нижеследующем:
|
1. Монтаж выполнен по проекту |
OOО «ПТАМ» Новикова С. Г. ч.л. № СПб 002378-А; 2000-01ВК |
|
|
(наименование проектной организации и номера чертежей) |
2. Испытание произведено проливом путем одновременного открытия 75% санитарных приборов, подключенных к проверяемому участку в течение 75 мин, или наполнением водой на высоту этажа (ненужное зачеркнуть).
3. При осмотре во время испытаний течи через стенки трубопроводов и места соединений не обнаружено.
Решение комиссии:
Монтаж выполнен в соответствии с проектной документацией, действующими техническими условиями, стандартами, строительными нормами и правилами производства и приемки работ.
Система признается выдержавшей испытаний проливом воды.
|
Представитель заказчика |
|
/С. В. Михайлов |
|
|
|
|
|
Представитель генерального подрядчика |
|
/Л. А. Ишутин |
|
|
|
|
|
Представитель монтажной организации |
|
/А. М. Ильин |
|
|
|
|
Акт испытания пожарного водопровода на водоотдачу
|
г. Санкт-Петербург |
21 ноября 2003 года |
|
Объект |
жилой дом, Ржевка-Пороховые, квартал 10, корпус 34 |
Комиссия в составе представителей:
|
УПО |
инженер Нефедов Т. Ю. |
||
|
монтажной организации |
УНР-528, производитель работ Сергеев В. П. |
||
|
строительной организации |
ООО «Строительное Управление», технадзор Ядрышников А. М. |
||
произвела испытание пожарного водопровода на водоотдачу и установила, что высота подъема контрольной струи над верхней точкой здания не менее 6 метров, что соответствует нормам.
|
Представитель УПО |
Нефедов Т. Ю. |
|
|
|
|
Представитель монтажной организации |
Сергеев В. П. |
|
|
|
|
Представитель строительной организации |
Ядрышников А. М. |
|
|
|
АКТ№________
технического освидетельствования водомерного узла
|
г. Санкт-Петербург |
« 14 » ноября 200 3 г. |
Мы нижеподписавшиеся:
Представитель Правобережного филиала ГУП «Водоканал Санкт-Петербург»
|
Ведущий инженер Ескина И. А. |
|
|
Ф. И. О., должность |
|
|
Представитель заказчика (подрядчика) |
ЗАО«ИВИ-93», дир.по строительству Ухалов В.Г. |
|
|
наименование организации, должность Ф. И. О. (полностью) |
|
Представитель строительной организации |
ЗАО«Балтинком», ген. директор Бригадир А. Г. |
|
|
наименование организации, должность Ф. И. О. (полностью) |
Составили настоящий акт в том, что произведена проверка выполненных работ по монтажу водомерного узла и помещения для него на корпус № 25 квартал 10, Ржевка-Пороховые
|
|
|||||
|
район застройки |
|||||
|
По улице |
|
дом № |
|
корпус № |
|
|
|
|||||
|
административный адрес |
|||||
1. Водомерный узел установлен на водопроводном вводе в соответствии с выданным ГУП «Водоканал Санкт-Петербург» разрешением на присоединение к системам коммунального водоснабжения № 8845-24-18 от « 16 » сентября 200 2 Г.
|
2. Водомерный узел смонтирован в помещении |
|
|
подвал, в/з |
|
3. Конструкция узла выполнена по типовому чертежу № 02А.0000.00 согласованному с ГУП «Водоканала Санкт-Петербурга». Техническое соглашение № ____ от «___»______200__г
4. Установлен водосчетчик: тип Ø 50 № 018711 контрольные показания 000007 куб. м.
5. Присоединение водосчетчика к водомерному узлу опломбировано.
6. Взяты пробы воды на химико-бактериологический анализ в количестве 2 шт. на внутренней водопроводной сети. Результаты анализов проб воды удовлетворительные. Справка СЭС Центра Гор. Санэпидемнадзора от « 13 » ноября 200 3 г.
7. Произведено пломбирование задвижки №______ в закрытом положении.
8. Водоснабжение будет осуществлено после заключения договора на пользование водой с ГУП «Водоканал Санкт-Петербурга».
Акт составлен в 4-х экземплярах.
Представитель Правобережного филиала ГУП «Водоканал Санкт-Петербурга»
|
И. Ескина |
||
|
Представитель заказчика |
В. Ухалов |
|
|
Представитель строительной организации |
А. Бригадир |
|
|
Утверждаю Первый заместитель директора Правобережного филиала |
|
Предъявлены документы:
1. Разрешение на присоединение к системе коммунального водоснабжения ГУЛ «Водоканал Санкт-Петербурга»
|
|
|||
|
2. Согласованный чертеж водомерного узла (при необходимости) |
|
||
|
3. Акт промывки внутренней сети |
|
||
|
4. Справка Центра Горсанэпиднадзора |
|
||
5. Акт приемки или технического освидетельствования водомерного ввода
|
|
Примечание:
1. После утверждения акта, для возобновления водопользования, необходимо заключить договор на отпуск воды и приема сточных вод в течение 3-х дней в Центре по работе с абонентами филиала ГУЛ «Водоканал Санкт-Петербурга».
2. Открытие водоснабжения без заключения договора с ГУЛ «Водоканал Санкт-Петербурга» запрещено. При нарушении этого условия строительной организации (владельцу объекта) будет предъявлены санкции в соответствии с действующим законодательством и нормативными актами.
3. Пункты 7 и 8 относятся к объектам нового строительства.
|
Наименование объекта |
жилой дом |
|||||
|
Адрес |
квартал 46 корпус 22 |
|||||
|
Место отбора пробы |
РС-1: № 1185-1 этаж |
|||||
|
№ 1186-13 этаж |
||||||
|
Дата и время отбора пробы |
21 июля 2002 года |
|||||
|
Дата и время доставки пробы |
21 июля 2002 года |
|||||
|
Кем направлена проба |
Смирнов А. М. |
|||||
Результаты измерений:
|
Наименование показателя |
Единицы измерения |
Содержание в пробе |
Норматив (не более) |
НД на методы исследования |
|
1 |
2 |
3 |
4 |
5 |
|
Запах при 20°С |
Баллы |
1;1 |
2 |
ГОСТ 3351-74 |
|
Привкус |
Баллы |
|
2 |
ГОСТ 3351-74 |
|
Цветность |
Градусы |
10,24 12,2 |
20 |
ГОСТ 3351-74 |
|
Мутность |
Мг/д3 |
0,7; 1,0 |
1,5 |
ГОСТ 3351-74 |
|
Водородный показатель |
Ед.рН |
6,35; 6.4 |
6-9 |
ИСО 10523 |
|
Аммиак и ионы аммония |
Мг/дм3 |
0,3; 0,3 |
2,0 |
ГОСТ 4192-82 |
|
Нитрит-ионы |
Мг/дм3 |
0,02; 0,01 |
3,0 |
ГОСТ 4192-82 |
|
Нитрат-ионы |
Мг/дм3 |
2,8; 2,9 |
45,0 |
|
|
Железо (общ.) |
Мг/дм3 |
0,27; 0,34 |
0,3 |
|
|
Хлориды |
Мг/дм3 |
12,1; 11,9 |
350,0 |
|
|
Сульфаты |
Мг/дм3 |
8,2; 9,1 |
500,0 |
|
|
Жесткость (общ.) |
Моль/м3 |
0,7; 0,7 |
7,0 |
|
Фамилия и подпись проводивших исследования |
|
/ И. Петров |
Заключение санитарного врача:
Горячая вода по исследуемым показателям соответствует СанПиН.
|
Фамилия и подпись санитарного врача |
|
/ И. Марков |
|
Лаборатория |
|
|
|
(наименование строительно-монтажной организации) |
ПРОТОКОЛ МЕХАНИЧЕСКИХ ИСПЫТАНИЙ СВАРНЫХ СТЫКОВ СТАЛЬНОГО (ПОЛИЭТИЛЕНОВОГО) ГАЗОПРОВОДА
|
№_________ |
«___»_______________200___г. |
Произведены испытания стыков стального (полиэтиленового) газопровода, сваренного __________из труб по ГОСТ (ТУ)_______, марки стали наружным диаметром ______мм,
|
толщиной стенки |
|
мм, сварщиком |
|
|
|
|
|
(фамилия, имя. отчество) |
________________________________имеющим номер (клеймо)___________.
по адресу:
|
|
|
(улица, привязки начального и конечного пикетов) |
в период с «___»_____________200__г. по «___»_______________200__г.
Результаты механических испытаний сварных стыков стального газопровода
|
Номер образцов |
Размеры образцов до испытаний |
Результаты испытаний |
Оценка стыка (годен, не годен) |
||||||
|
толщина (диаметр), мм |
ширина (дайна), мм |
площадь поперечного сечения; мм2 |
на растяжение |
на сплющивание |
на изгиб |
||||
|
разрушающая нагрузка, Н (кгс) |
предел прочности, МПа (кгс/мм2) |
место разрушения (по шву или основному металлу) |
величина просвета между поверхностями пресса при появлении первой трещины, мм |
угол изгиба, град |
|||||
|
|
|
|
|
|
|
|
|
|
|
|
|
|
|
|
|
|
|
|
|
|
|
|
|
|
|
|
|
|
|
|
|
|
|
|
|
|
|
|
|
|
|
|
Результаты механических испытаний сварных стыков полиэтиленового газопровода
|
Номер стыка |
Номер и тип образца, вырезанного из стыка |
Тип разрывной машины |
Предел текучести при растяжении, МПа (кгс/см2) |
Относительное удлинение при разрушении, % |
Характер и тип разрушения |
Оценка стыка (годен, не годен) |
|
|
|
|
|
|
|
|
|
|
|
|
|
|
|
|
|
|
|
|
|
|
|
|
|
Начальник лаборатории |
|
|
|
|
(подпись, инициалы, фамилия) |
|
|
Испытания проводил |
|
|
|
|
(подпись, инициалы, фамилия) |
|
Примечание. Протокол испытаний следует составлять на каждого сварщика отдельно и копию представлять в составе исполнительной документации на все объекты, на которых в течение календарного месяца работал этот сварщик.
СТРОИТЕЛЬНЫЙ ПАСПОРТ ПОДЗЕМНОГО (НАДЗЕМНОГО) ГАЗОПРОВОДА, ГАЗОВОГО ВВОДА
|
построенного |
|
|
|
|
(наименование строительно-монтажной организации) |
|
|
|
|
|
|
|
и номер проекта) |
|
|
по адресу: |
|
|
|
|
(город, улица, привязки начального и конечного пикетов) |
|
1. Характеристика газопровода (газового ввода)
Указывается длина (для ввода - подземного и надземного участков), диаметр, рабочее давление газопровода, тип изоляционного покрытия линейной части и сварных стыков (для подземных газопроводов и газовых вводов), число установленных запорных устройств и других сооружений
|
|
|
|
|
|
2. Перечень прилагаемых сертификатов, технических паспортов (или их копии) и других документов, удостоверяющих качество материалов и оборудования
|
|
|
|
|
|
Примечание. Допускается прилагать (или размещать в данном разделе) извлечения из указанных документов, заверенные лицом, ответственным за строительство объекта и содержащие необходимые сведения (№ сертификата, марка (тип), ГОСТ (ТУ), размеры, номер партии, завод-изготовитель, дата выпуска, результаты испытаний).
3. Данные о сварке стыков газопровода
|
Фамилия, имя, отчество сварщика |
№ (клеймо) сварщика |
Сварено стыков |
Дата проведения сварочных работ |
|
|
диаметр труб, мм |
число, шт. |
|||
|
|
|
|
|
|
Примечание. Схема должна быть составлена так, чтобы местоположение каждого стыка могло быть найдено с поверхности земли. Для этого должны быть сделаны привязки к постоянным наземным объектам (зданиям, сооружениям) как самого газопровода, так и его характерных точек (концевых, поворотных и др.); должны быть нанесены расстояния между стыками, а также между стыками и характерными точками, в том числе пересекаемыми коммуникациями. Строгое соблюдение масштаба схемы - необязательно.
4. Проверка глубины заложения газопровода, уклонов, постели, устройства футляров, колодцев, коверов (составляется для подземных газопроводов и газовых вводов)
Установлено, что глубина заложения газопровода от поверхности земли до верха трубы на всем протяжении, уклоны газопровода, постель под трубами, а также устройство футляров, колодцев, коверов соответствуют проекту.
|
Производитель работ |
|
|
|
|
(должность, подпись, инициалы, фамилия) |
|
|
Представитель газового хозяйства |
|
|
|
|
(должность, подпись, инициалы, фамилия) |
|
5. Проверки качества защитного покрытия подземного газопровода (газового ввода)
1.*Перед укладкой в траншею проверено защитное покрытие труб и стыков: на отсутствие механических повреждений и трещин - внешним осмотром; толщина - замером по ГОСТ 9.602-89 мм: адгезия к стали по ГОСТ 9.602-89; сплошность - дефектоскопом.
2.*Стыки, изолированные в траншее, проверены внешним осмотром на отсутствие механических повреждений и трещин.
Позицию 3 исключить.
4.*Проверка на отсутствие электрического контакта между металлом трубы и грунтом произведена после полной засыпки траншеи «___»_______________200__г.
Примечание. *Если траншея была засыпана при глубине промерзания грунта более 10см, то строительно-монтажная организация должна выполнять проверку после оттаивания грунта, о чем должна быть сделана запись в акте о приемке законченного строительством объекта системы газоснабжения.
При проверке качества защитного покрытия дефекты не обнаружены.
|
Начальник лаборатории |
|
|
|
|
(должность, подпись, инициалы, фамилия) |
|
|
Представитель газового хозяйства |
|
|
|
|
(должность, подпись, инициалы, фамилия) |
|
6. Продувка газопровода, испытание его на прочность и герметичность
Позицию 1 исключить.
2. «___»_____________200__г. перед испытанием на прочность произведена продувка газопровода воздухом.
3.* «___»____________200__ г. произведено пневматическое (гидравлическое) испытание газопровода на прочность давлением _____МПа (_____кгс/см2) с выдержкой в течение ____ч.
Газопровод испытание на прочность выдержал.
4. «___»____________200__г. засыпанный до проектных отметок газопровод с установленной на нем арматурой и ответвлениями к объектам до отключающих запорных устройств (или подземная часть газового ввода) испытан на герметичность в течение ___ч.
До начала испытания подземный газопровод находился под давлением воздуха в течение _____ч для выравнивания температуры воздуха в газопроводе с температурой грунта.
Замеры давления производились манометром (дифманометром) по ГОСТ _______, класс.
Данные замеров давления при испытании подземного газопровода
|
Дата испытания |
Замеры давления, кПа (мм рт. ст.) |
Падение давления, кПа (мм) |
||||||
|
месяц |
число |
часы |
манометрическое |
барометрическое |
допускаемое |
фактическое |
||
|
|
|
|
Р(1) |
Р(2) |
В(1) |
В(2) |
|
|
|
|
|
|
|
|
|
|
|
|
|
|
|
|
|
|
|
|
|
|
Согласно данным вышеприведенных замеров давления подземный газопровод испытание на герметичность выдержал, утечки и дефекты в доступных для проверки местах не обнаружены;
«___»___________200__г. произведено испытание надземного газопровода (надземной части газового ввода) на герметичность давлением ____МПа (____кгс/см2) с выдержкой в течение _____ч, последующим внешним осмотром и проверкой всех сварных, резьбовых и фланцевых соединений. Утечки и дефекты не обнаружены. Надземный газопровод (надземная часть газового ввода) испытание на герметичность выдержал.
|
Производитель работ |
|
|
|
|
(должность, подпись, инициалы, фамилия) |
|
|
Представитель газового хозяйства |
|
|
|
|
(должность, подпись, инициалы, фамилия) |
|
7. Заключение
Газопровод (газовый ввод) построен в соответствии с проектом, разработанным
|
|
|
(наименование проектной организации |
|
|
|
и дата выпуска проекта) |
с учетом согласованных изменений, внесенных в рабочие чертежи №___ - _________
Строительство начато «___»_____________200__г.
Строительство закончено «___»_____________200__г.
|
Главный инженер ССМУ |
|
|
|
|
(должность, подпись, инициалы, фамилия) |
|
|
Представитель газового хозяйства |
|
|
|
|
(должность, подпись, инициалы, фамилия) |
|
СТРОИТЕЛЬНЫЙ ПАСПОРТ ВНУТРИДОМОВОГО (ВНУТРИЦЕХОВОГО) ГАЗООБОРУДОВАНИЯ
|
смонтированного |
|
|
|
|
(наименование строительно-монтажной организации и номер проекта) |
|
|
по адресу: |
|
|
1. Характеристика газооборудования
Указывается для внутридомового газооборудования - число квартир, тип и число установленных газовых приборов, общая протяженность газопровода и число запорных устройств на них: для внутрицехового оборудования - общая протяженность газопровода, тип и число установленного газооборудования, рабочее давление газа
|
|
|
|
2. Перечень прилагаемых сертификатов, технических паспортов (или их копии) и других документов, удостоверяющих качество материалов и оборудования
|
|
|
|
Примечание. Допускается прилагать (или размещать в данном разделе) извлечения из указанных документов, заверенные лицом, ответственным за строительство объекта и содержащие необходимые сведения (№ сертификата, марка (тип), ТОСТ (ТУ), размеры, номер партии, завод-изготовитель, дата выпуска, результаты испытаний).
3. Данные о сварке стыков газопровода
|
Фамилия, имя, отчество сварщика |
№ (клеймо) сварщика |
Сварено стыков |
Дата проведения сварочных работ |
|
|
диаметр труб, мм |
число, шт. |
|||
|
|
|
|
|
|
4. Испытание газопровода на прочность и герметичность
Позицию 1 исключить.
2. «___»_____________200__г. перед испытанием на прочность произведена продувка газопровода воздухом.
3.* «___»____________200__г. произведено пневматическое (гидравлическое) испытание газопровода на прочность давлением ___ МПа (_____ кгс/см2) с выдержкой в течение ___ч.
Газопровод испытание на прочность выдержал.
|
Производитель работ |
|
|
|
|
(должность, подпись, инициалы, фамилия) |
|
|
Представитель газового хозяйства |
|
|
|
|
(должность, подпись, инициалы, фамилия) |
|
5. Заключение
Газопровод (газовый ввод) построен в соответствии с проектом, разработанным
|
|
|
|
|
(наименование проектной организации и дата выпуска проекта) |
с учетом согласованных изменений, внесенных в рабочие чертежи №___ - _________
Строительство начато «___»_______200__г.
Строительство закончено «___»_______200__г.
|
Главный инженер ССМУ |
|
|
|
|
(должность, подпись, инициалы, фамилия) |
|
|
Представитель газового хозяйства |
|
|
|
|
(должность, подпись, инициалы, фамилия) |
|
«____»_______________200___г.
|
Стройка № |
|
|||
|
|
(номер и название стройки) |
|||
|
Настоящий акт составлен в том, что |
|
|||
|
|
(шахта, блочное помещение, машинное помещение) |
|||
|
|
лифта № |
|
||
|
|
|
(заводской номер) |
||
типа _______________________готова (готово) к производству работ по монтажу оборудования лифта в соответствии с требованиями СНиП или ТУ
|
|
|
(название СНиП или инструкции по монтажу оборудования) |
Примечания:
1. Исполнительная схема строительной части шахты выполнена в соответствии с чертежом, а результаты фактических измерений в соответствии с таблицей.
|
2. |
|
|
Сдал: |
|
|
|
(должность, ФИО представителя строительной организации, подпись) |
|
Принял: |
|
|
|
(должность, ФИО представителя монтажной организации, подпись) |
|
При сдаче присутствовал: |
|
|
|
(должность, ФИО представителя заказчика, подпись) |
Исполнительная схема строительной части лифта Результаты фактических измерений
|
|
|
(должность, фамилия, имя и отчество представителя строительной организации) |
|
Место измерения |
Размеры, мм |
|||||||||||
|
B1 |
B2 |
Г1 |
Г2 |
Г3 |
Г4 |
Д1 |
Д2 |
Д3 |
Д4 |
Е1 |
Е2 |
|
|
Приямок шахты |
|
|
|
|
|
|
|
|
|
|
|
|
|
1-й этаж |
|
|
|
|
|
|
|
|
|
|
|
|
|
2-й этаж |
|
|
|
|
|
|
|
|
|
|
|
|
|
...этаж |
|
|
|
|
|
|
|
|
|
|
|
|
АКТ
полного технического освидетельствования лифта
|
г. Санкт-Петербург |
21 апреля 2004 года |
|
заводской №№ |
B7NE228 |
||||
|
установленного по адресу |
пр. Гражданский, д. 41, корпус в ЗАО «Адамант» |
||||
|
мною, экспертом |
Алешинцевым А. О. |
||||
|
в присутствии представителя организации, смонтировавшей лифт, |
ООО «ОТИС ЛИФТ» |
||||
|
СЗМУ прораба Гринина А. С. |
|||||
|
(наименование организации, должность, Ф.И.О., № телефона) |
|||||
|
представителя генподрядной организации |
ООО «Строительное управление-52» |
||||
|
ст. прораба Ушакова В. Ю. |
|||||
|
(наименование организации, должность, Ф.И.О., № телефона) |
|||||
проведено полное техническое освидетельствование лифта в соответствии с Правилами устройства безопасности эксплуатации лифтов (ПБ 10-558-03).
ПРИ ОСВИДЕТЕЛЬСТВОВАНИИ УСТАНОВЛЕНО:
1. Характеристика лифта:
|
тип модели |
пассажирский Z1382X «Европа 2000» |
|||
|
номинальная грузоподъемность, кг |
1000 кг |
|||
|
номинальная скорость, м/с |
1 |
|||
|
число этажей |
4 |
|||
2. Лифтовое оборудование соответствует сведениям, указанным в паспорте лифта.
3. Установка лифта соответствует монтажному чертежу и ПБ 10-558-03.
4. Лифт функционирует во всех режимах в соответствии с Руководством по эксплуатации.
5. Испытание в соответствии с разделом 11 ПБ 10-558-03 лифт выдержал.
6. Комплект технической документации, поставленной с лифтом, соответствует пункту 1.6 ПБ 10-558-03.
7. Акт на скрытые работы и протоколы по пункту 10.2.1 ПБ 10-558-03 имеются.
РЕЗУЛЬТАТЫ ОСВИДЕТЕЛЬСТВОВАНИЯ ЛИФТА
1. Лифт соответствует паспортным данным и Правилам устройства и безопасной эксплуатации лифтов.
2. Лифт находится в исправном состоянии, обеспечивающем его безопасную работу.
|
Эксперт |
А. Алешинцев |
||
|
Представитель организации, смонтировавшей лифт |
А. Гринин |
||
|
Представитель генподрядной строительной организации |
В. Ушанов |
||
Настоящий акт хранить с паспортом лифта.
ВЫЯВЛЕНО
|
1) OOО «ОТИСЛИФТ» зав. № B7NE2208 |
|
Отрегулировать зазор в нижних башмаках противовеса по штихмасу (6 мм) п. 12.8. Правил 2) |
|
Генподрядной строительной организации зав. № B7NE2208 |
|
|
|
- Не горит аварийное освещение в машинном помещении п. 6.6.9 Правил |
|
- Не зацементирован указатель на 4-м этаже п. 1.2 Правил |
|
- Исключить возможность попадания атмосферных осадков в машинном помещении п. 4.1 Правил |
|
|
|
|
|
|
|
|
|
|
|
Эксперт |
А. Алешинцев |
||
|
Представитель организации, смонтировавшей лифт |
А. Гринин |
||
|
Представитель генподрядной строительной организации |
В. Ушанов |
||
Представлены документы, подтверждающие устранение выявленных нарушений.
|
«___»________________200___г. |
Эксперт_______________________ |
Акт технической готовности лифта
|
г. Санкт-Петербург |
«04» декабря 1998 г. |
Мы, нижеподписавшиеся, представитель организации, смонтировавшей лифт (выполнивший реконструкцию)
|
ЗАО «Интерсервис-гарант Инк.»; начальник участка Николашичев Г. А. |
||
|
(наименование организации, должность, инициалы, фамилия) |
||
|
Разрешение на монтаж от |
«31» июля 1996 г. № 531 ОМ-99/00019 |
|
|
выдано |
Северо-Западным округом Госгортехнадзора России |
|
и представитель генподрядной строительной организации
|
УНР-47; прораб Шерстов А. В. |
составили настоящий акт в том, что завершены монтаж и наладочные работы, проведены осмотр, проверка и испытание лифта в объеме пп. 11.7.7, 11.7.4. и 11.7.6* Правил устройства и безопасной эксплуатации лифтов.
Лифт установлен по адресу:
|
город |
Санкт-Петербург |
район |
Василеостровский |
улица |
Морская наб, дом 29 |
|
жилое |
|||||
|
(назначение здания - жилое, общественное, промышленное) |
|||||
Характеристика лифта
|
Тип |
пассажирский ПП 0501-31 |
||||||
|
|
(пассажирский, грузовой и т. п.) |
||||||
|
Грузоподъемность |
420 кг |
||||||
|
Номинальная скорость |
1,0 м/с |
||||||
|
Высота подъема |
34,6 м |
||||||
|
Число остановок |
12 |
||||||
|
Заводской номер |
5403 щлз |
||||||
|
Год изготовления |
1998 |
||||||
Лифт прошел осмотр и проверку, выдержал испытания, находится в исправном состоянии и готов к приемке.
|
Представитель монтажной организации |
|
/Николашичев Г. А. |
|
|
|
|
|
Представитель генподрядной строительной организации |
|
/Шерстов А. В. |
|
|
|
|
АКТ О ПРОВЕДЕНИИ РАСТЯЖКИ КОМПЕНСАТОРОВ
|
г._________________ |
«___»_____________200__г. |
Комиссия в составе:
|
представителя строительно‑монтажной организации |
|
||
|
|
|||
|
(фамилия, имя, отчество, должность) |
|||
|
представителя технического надзора заказчика |
|
||
|
|
|||
|
(фамилия, имя, отчество, должность) |
|||
|
произвела осмотр работ, выполненных |
|
||
|
|
|||
|
(наименование строительно-монтажной организации) |
|||
и составила настоящий акт о нижеследующем:
1. К освидетельствованию и приемке предъявлена растяжка компенсаторов, перечисленных в таблице, на участке от камеры (пикета, шахты) № ____________до камеры (пикета, шахты) № _______.
|
Номер компенсатора по чертежу |
Номер чертежа |
Тип компенсатора |
Величина растяжки, мм |
Температура наружного воздуха, °С |
|
|
проектная |
фактическая |
||||
|
|
|
|
|
|
|
|
|
|
|
|
|
|
|
2. Работы выполнены по проектно‑сметной документации |
|
|
|
|
|
|
|
|
(фамилия, имя, отчество, должность) |
|
|
Представитель строительно‑монтажной организации |
|
|
|
(подпись) |
|
Представитель технического надзора заказчика |
|
|
|
(подпись) |
АКТ О ПРОВЕДЕНИИ ИСПЫТАНИЙ ТРУБОПРОВОДОВ НА ПРОЧНОСТЬ И ГЕРМЕТИЧНОСТЬ
|
г._________________ |
«___»_____________200__г. |
Комиссия в составе:
|
представителя строительно‑монтажной организации |
|
|||
|
|
||||
|
(фамилия, имя, отчество, должность) |
||||
|
представителя технического надзора заказчика |
|
|||
|
|
||||
|
(фамилия, имя, отчество, должность) |
||||
|
представителя эксплуатационной организации |
|
|||
|
|
||||
|
(фамилия, имя, отчество, должность) |
||||
|
произвела осмотр работ, выполненных |
|
|||
|
|
||||
|
(наименование строительно-монтажной организации) |
||||
и составила настоящий акт о нижеследующем:
|
1. К освидетельствованию и приемке предъявлены |
|
|
|
|
|
(гидравлические или пневматические) |
|
трубопроводы, испытанные на прочность и герметичность и перечисленные в таблице, на участке от камеры (пикета, шахты) № _______до камеры (пикета, шахты) № ____трассы ______________протяженностью _______м.
|
Трубопровод |
Испытательное давление, МПа (кгс/см2) |
Продолжительность, мин |
Наружный осмотр при давлении, МПа (кгс/см2) |
|
|
|
|
|
|
2. Работы выполнены по проектно‑сметной документации |
|
|
|
|
|
(наименование проектной организации, номера чертежей и дата их составления) |
|
Решение комиссии:
Работы выполнены в соответствии с проектно-сметной документацией, стандартами, строительными нормами и правилами и отвечают требованиям их приемки.
На основании изложенного считать испытания на прочность и герметичность трубопроводов, перечисленных в акте, выполненными.
|
Представитель строительно‑монтажной организации |
|
|
|
(подпись, фамилия имя отчество) |
|
Представитель технического надзора заказчика |
|
|
|
(подпись, фамилия имя отчество) |
|
Представитель эксплуатационной организации |
|
|
|
(подпись, фамилия имя отчество) |
АКТ О ПРОВЕДЕНИИ ПРОМЫВКИ (ПРОДУВКИ) ТРУБОПРОВОДОВ
|
г._________________ |
«___»_____________200__г. |
Комиссия в составе:
|
представителя строительно‑монтажной организации |
|
|||
|
|
||||
|
(фамилия, имя, отчество, должность) |
||||
|
представителя технического надзора заказчика |
|
|||
|
|
||||
|
(фамилия, имя, отчество, должность) |
||||
|
представителя эксплуатационной организации |
|
|||
|
|
||||
|
(фамилия, имя, отчество, должность) |
||||
|
произвела осмотр работ, выполненных |
|
|||
|
|
||||
|
(наименование строительно-монтажной организации) |
||||
и составила настоящий акт о нижеследующем:
1. К освидетельствованию и приемке предъявлена промывка (продувка) трубопроводов на участке от камеры (пикета, шахты) № _________до камеры (пикеты, шахты) № ____трассы
|
|
протяженностью |
|
м. |
|
|
(наименование трубопровода) |
|
|
|
|
|
Промывка (продувка) произведена |
|
|||
|
|
||||
|
(наименование среды, давление, расход) |
||||
|
2. Работы выполнены по проектно‑сметной документации |
|
|
|
|
|
|
|
|
(наименование проектной организации, номера чертежей и дата их составления) |
|
Решение комиссии:
Работы выполнены в соответствии с проектно-сметной документацией, стандартами, строительными нормами и правилами и отвечают требованиям их приемки.
На основании изложенного считать промывку (продувку) трубопроводов, перечисленных в акте, выполненной.
|
Представитель строительно‑монтажной организации |
|
|
|
(подпись) |
|
Представитель технического надзора заказчика |
|
|
|
(подпись) |
|
Представитель эксплуатационной организации |
|
|
|
(подпись) |
АКТ О ПРОВЕДЕНИИ ПРИЕМОЧНОГО ГИДРАВЛИЧЕСКОГО ИСПЫТАНИЯ НАПОРНОГО ТРУБОПРОВОДА НА ПРОЧНОСТЬ И ГЕРМЕТИЧНОСТЬ
|
г._________________ |
«___»_____________200__г. |
Комиссия в составе представителей:
|
строительно‑монтажной организации |
|
|
|
|
||
|
(наименование организации, должность, фамилия, и.о.) |
||
|
технического надзора заказчика |
|
|
|
|
||
|
(наименование организации, должность, фамилия, и.о.) |
||
|
эксплуатационной организации |
|
|
|
|
||
|
(наименование организации, должность, фамилия, и.о.) |
||
составили настоящий акт о проведении приемочного гидравлического испытания на прочность и герметичность участка напорного трубопровода
|
|
|
(наименование объекта и номер пикетов на его границах, |
|
|
|
длина трубопровода, диаметр, материал труб и стыковых соединений) |
Указанные в рабочей документации величины расчетного внутреннего давления испытываемого трубопровода Рp=____МПа (____кгс/см2) и испытательного давления Рu=___МПа (____кгс/см2). Измерение давления при испытании производилось техническим манометром класса точности ____с верхним пределом измерений ____кгс/см2. Цена давления шкалы манометра ____кгс/см2. Манометр был расположен выше оси трубопровода на Z=___м.
При указанных выше величинах внутреннего расчетного и испытательного давлений испытываемого трубопровода показания манометра Р и Р должны быть соответственно:
Pр.м.=Рр–(Z/10)=_________кгс/см2, Ри.м.=Ри–(Z/10)=________кгс/см2.
Допустимый расход подкаченной воды, определенный по таблице 6*, на 1 км трубопровода, равен _____л/мин или, в пересчете на длину испытываемого трубопровода, _____л/мин.
ПРОВЕДЕНИЕ ИСПЫТАНИЯ И ЕГО РЕЗУЛЬТАТЫ:
Для испытания на прочность давление в трубопроводе было повышено до Ри.м.=___кгс/см2 и поддерживалось в течение ____мин, при этом не допускалось его снижение более чем на 1,0 кгс/см2. После этого давление было снижено до величины внутреннего расчетного манометрического давления Рр.м.=___кгс/см2 и произведен осмотр узлов трубопровода в колодцах (камерах); при этом утечек и разрывов не обнаружено и трубопровод был допущен для проведения дальнейшего испытания на герметичность. Для испытания на герметичность давление в трубопроводе было повышено до величины испытательного давления на герметичность Рг=Рр.м.+ΔР=___кгс/см2, отмечено время начала испытания Тн=____ч____мин и начальный уровень воды в мерном бачке hн=____мм.
Испытания трубопровода производилось в следующем порядке:
|
|
|
(указать последовательность проведения испытания и наблюдения |
|
|
|
за падением давления; производился ли выпуск воды из трубопровода |
|
|
|
и другие особенности методики испытания) |
За время испытания трубопровода на герметичность давление в нем по показанию манометра было снижено до ____кгс/см2, отмечено время окончания испытания Тк=____ч____мин и конечный уровень воды в мерном бачке hк=___мм. Объем воды, потребовавшийся для восстановления давления до испытательного, определенный по уровням воды в мерном бачке, Q=___л.
Продолжительность испытания трубопровода на герметичность Т=Тк–Тн=______мин.
Величина расхода воды, подкаченной в трубопровод во время испытания, равна: qn=Q/T=______л/мин, что менее допустимого расхода.
Решение комиссии:
Трубопровод признается выдержавшим приемочное испытание на прочность и герметичность.
|
Представитель строительно‑монтажной организации |
|
|
|
(подпись) |
|
Представитель технического надзора заказчика |
|
|
|
(подпись) |
|
Представитель эксплуатационной организации |
|
|
|
(подпись) |
АКТ О ПРОВЕДЕНИИ ПРИЕМОЧНОГО ГИДРАВЛИЧЕСКОГО ИСПЫТАНИЯ БЕЗНАПОРНОГО ТРУБОПРОВОДА НА ГЕРМЕТИЧНОСТЬ
|
г._________________ |
«___»_____________200__г. |
Комиссия в составе представителей:
|
строительно‑монтажной организации |
|
|
|
|
||
|
(наименование организации, должность, фамилия, и.о.) |
||
|
технического надзора заказчика |
|
|
|
|
||
|
(наименование организации, должность, фамилия, и.о.) |
||
|
эксплуатационной организации |
|
|
|
|
||
|
(наименование организации, должность, фамилия, и.о.) |
||
составили настоящий акт о проведении приемочного гидравлического испытания участка
|
безнапорного трубопровода |
|
|
(наименование объекта и номер пикетов на его границах, |
|
|
|
|
|
длина трубопровода, диаметр, материал труб и стыковых соединений). |
|
Уровень грунтовых вод в месте расположения верхнего колодца находится на расстоянии _________м от верха трубы в нем при глубине заложения труб (до верха) _________м.
|
испытание трубопровода производилось |
|
|
|
(указать совместно или отдельно от колодцев и камер) |
||
|
способом |
|
|
|
|
(указать способ испытания – |
|
|
|
||
|
добавлением воды в трубопровод или притоком грунтовой воды в него) |
||
Гидростатическое давление величиной ______________м вод. ст. создавалось заполнение водой
|
|
|
(указать номер колодца или установленного в нем стояка) |
Допустимый объем добавленной воды, приток грунтовой воды (ненужное зачеркнуть) на 10 м длины трубопровода за время испытания 30 мин равен ______________________________. Фактический за время испытания объем добавленной воды, приток грунтовой воды составил _______л, или в пересчете на 10 м длины трубопровода (с учетом испытания совместно с колодцами, камерами) и продолжительности испытания в течение 30 мин составил ___________________л, что меньше допустимого расхода.
РЕШЕНИЕ КОМИССИИ
Трубопровод признается выдержавшим приемочное гидравлическое испытание на герметичность.
|
Представитель строительно‑монтажной организации |
|
|
Представитель технического надзора заказчика |
|
|
Представитель эксплуатационной организации |
|
|
г._________________ |
«___»_____________200__г. |
Комиссия в составе:
|
санитарно‑эпидемиологической службы (СЭС) |
|
|||
|
|
||||
|
(города, района, должность, фамилия, имя, отчество) |
||||
|
заказчика |
|
|||
|
|
||||
|
(наименование организации, должность, фамилия, имя, отчество) |
||||
|
строительно‑монтажной организации |
|
|||
|
|
||||
|
(наименование организации, должность, фамилия, имя, отчество) |
||||
|
эксплуатационной организации |
|
|||
|
|
||||
|
(наименование организации, должность, фамилия, имя, отчество) |
||||
составили настоящий акт о том, что трубопровод, сооружение (ненужное зачеркнуть)
|
|
|
|
(наименование объекта, длина, диаметр, объем) |
|
|
подвергнут промывке и дезинфекции хлорированием |
|
|
|
(указать, каким реагентом) |
при концентрации активного хлора _____мг/л (г/м3) и продолжительности контакта ___ч.
Результаты физико-химического и бактериологического анализов воды на _______листах прилагаются.
|
Представитель санитарно‑эпидемиологической службы (СЭС) |
|
|
|
(подпись) |
|
Представитель заказчика |
|
|
|
(подпись) |
|
Представитель строительно‑монтажной организации |
|
|
|
(подпись) |
|
Представитель эксплуатационной организации |
|
|
|
(подпись) |
Заключение СЭС: Трубопровод, сооружение (ненужное зачеркнуть) считать продезинфицированным и промытым и разрешить пуск его в эксплуатацию.
|
Главный врач СЭС «___»_____________200___г. |
|
|
|
|
|
|
|
(Министерство) |
|
(город) |
|
|
|
|
|
(трест) |
|
(заказчик) |
|
|
|
|
|
(монтажное управление) |
|
(объект) |
|
|
|
200 г. |
|
(участок) |
|
|
Комиссия в составе:
|
представителя заказчика |
|
||
|
|
|||
|
(должность, фамилия, имя, отчество) |
|||
|
представителя генерального подрядчика |
|
||
|
|
|||
|
(должность, фамилия, имя, отчество) |
|||
|
представителя электромонтажной организации |
|
||
|
|
|||
|
(должность, фамилия, имя, отчество) |
|||
произвели осмотр смонтированного электрооборудования.
|
1. Электромонтажной организацией выполнены следующие работы: |
|
|
|
|
|
(перечень, основные технические характеристики, |
|
|
|
|
|
физические объемы) |
|
|
|
|
2. Электромонтажные работы выполнены в соответствии с проектом, разработанным
|
|
|
(проектная организация) |
|
|
3. Отступления от проекта перечислены в приложении 1.
4. Комиссия проверила техническую документацию (приложение 2), предъявленную в объеме требований ПУЭ, СНиП 3.05.06-85.
|
5. Индивидуальные испытания электрооборудования |
|
|
|
|
|
(проведены, не проведены) |
|
6. Остающиеся недоделки, не препятствующие комплексному опробованию, и сроки их устранения перечислены в приложение 3.
7. Ведомость смонтированного электрооборудования приведена в приложении 4.
8. Заключение.
8.1 Электромонтажные работы выполнены по проектной документации согласно требованиям СНиП 3.05.06-85 и ПУЭ.
8.2. Настоящий акт является основанием для*:
а) организации работы рабочей комиссии о приемке оборудования после индивидуальных испытаний;
б) непосредственной передачи электроустановки заказчику (генподрядчику) в эксплуатацию.
|
Представитель заказчика |
|
|
|
(подпись) |
|
Представитель генерального подрядчика |
|
|
|
(подпись) |
|
Представитель электромонтажной организации |
|
|
|
(подпись) |
|
Сдали** |
|
Приняли |
|
(подпись) |
|
(подпись) |
* нужное подчеркнуть
** заполняется в случае, указанном в п.8.2 б) настоящего акта.
|
ООО «Вольтэл» |
|
ЗАО «Ленжилстрой» |
|
(Монтажная организация) |
|
(Заказчик) |
|
|
|
ЗАО «Строительный трест» |
|
|
|
(Генподрядчик) |
|
|
|
ЗАО «Строительное управление № 1» |
|
|
|
(Подрядчик) |
|
|
|
СПб., Манчестерская ул., д. 10 |
|
|
|
(объект) |
27 апреля 2004 г.
Акт технической готовности электромонтажных работ
Комиссия в составе
|
представителя заказчика |
|
|||
|
Михайлов С. В., инженер технадзора ЗАО «Ленжилстрой» |
||||
|
(должность, фамилия, имя, отчество) |
||||
|
представителя генерального подрядчика |
|
|||
|
Шинкевич В. А., ЗАО «Строительный трест» |
||||
|
(должность, фамилия, имя, отчество) |
||||
|
представителя подрядчика |
|
|||
|
Ишутин Л. А., начальник участка ЗАО «Строительное управление № 1» |
||||
|
(должность, фамилия, имя, отчество) |
||||
|
представителя электромонтажной организации |
|
|||
|
Тюрин О. И., генеральный директор ООО «Вольтэл» |
||||
|
(должность, фамилия, имя, отчество) |
||||
произвели осмотр смонтированного электрооборудования.
|
1. Электромонтажной организацией выполнены следующие работы: |
|
|
монтаж силового оборудования; электроосвещение |
|
|
(перечень, основные технические характеристики, физические объемы) |
|
2. Электромонтажные работы выполнены в соответствии с проектом, разработанным
|
ОАО «ЛЕННИИПРОЕКТ», шифр проекта 7281-ЭО |
|
(проектная организация) |
3. Отступления от проекта перечислены в приложении 1.
4. Комиссия проверила техническую документацию (приложение 2), предъявленную в объеме требований ПУЭ, СНиП 3.05.06-85.
5. Индивидуальные испытания электрооборудования проведены.
6. Остающиеся недоделки, не препятствующие комплексному опробованию, и сроки их устранения перечислены в приложение 3.
7. Ведомость смонтированного электрооборудования приведена в приложении 1.
8. Заключение.
8.1 Электромонтажные работы выполнены по проектной документации согласно требованиям СНиП 3.05.06-85 и ПУЭ.
8.2. Настоящий акт является основанием для:
а) организации работы комиссии о приемке оборудования после индивидуальных испытаний;
б) непосредственной передачи электроустановки заказчику (генподрядчику) в эксплуатацию.
|
Представитель заказчика |
С. Михайлов |
|
|
(подпись) |
|
Представитель генерального подрядчика |
Д. Шинкевич |
|
|
(подпись) |
|
Представитель подрядчика |
Л. Ишутин |
|
|
(подпись) |
|
Представитель электромонтажной организации |
О. Тюрин |
|
|
(подпись) |
Приложение 1
к акту технической готовности от
«_____»__________200 г.
(обязательное)
ВЕДОМОСТЬ
технической документации, предъявляемой при сдаче-приемке электромонтажных
работ
|
Разделы |
Состав документации |
Номер документа |
Кол-во листов |
Примечание |
|
I. |
Комплект рабочих чертежей электротехнической части - исполнительная документация |
|
|
|
|
II. |
Комплект заводской документации (паспорта электрооборудования, протоколы заводских испытаний, инструкции по монтажу, наладке и эксплуатации и т.п.) |
|
|
|
|
III. |
Акты, протоколы, ведомости, журналы по электромонтажным работам и по строительным работам, связанным с монтажом электротехнических устройств. |
|
|
|
|
Представитель монтажной организации |
|
|
|
(подпись) |
Приложение 2
к акту технической готовности от
«_____»____________200 г.
(обязательное)
|
|
|
|
|
(Министерство) |
|
(город) |
|
|
|
|
|
(трест) |
|
(заказчик) |
|
|
|
|
|
(монтажное управление) |
|
(объект) |
|
|
|
200 г. |
|
(участок) |
|
|
ВЕДОМОСТЬ
изменений и отступлений от проекта
|
NN п/п |
Состав изменений и отступлений |
Причина изменений |
Кем, когда согласовано, номер документа |
|
|
|
|
|
|
Производитель работ |
|
|
|
(подпись) |
Приложение 3
к акту технической готовности от
«_____»__________200 г.
(обязательное)
|
|
|
|
|
(Министерство) |
|
(город) |
|
|
|
|
|
(трест) |
|
(заказчик) |
|
|
|
|
|
(монтажное управление) |
|
(объект) |
|
|
|
200 г. |
|
(участок) |
|
|
ВЕДОМОСТЬ
электромонтажных недоделок, не
препятствующих комплексному опробованию
|
NN п/п |
Недоделки |
Срок устранения |
Кто устраняет |
|
|
|
|
|
|
Представитель монтажной организации |
|
|
|
(подпись) |
|
Представитель генподрядной организации |
|
|
|
(подпись) |
|
Представитель заказчика |
|
|
|
(подпись) |
Приложение 4
к акту технической готовности от
«_____»__________200 г.
(обязательное)
|
|
|
|
|
(Министерство) |
|
(город) |
|
|
|
|
|
(трест) |
|
(заказчик) |
|
|
|
|
|
(монтажное управление) |
|
(объект) |
|
|
|
200 г. |
|
(участок) |
|
|
ВЕДОМОСТЬ
смонтированного электрооборудования
|
NN п/п |
Наименование электрооборудования, комплекта |
Тип, марка |
Заводской номер или маркировка |
Кол-во |
Примечание |
|
1 |
2 |
3 |
4 |
5 |
6 |
|
|
|
|
|
|
|
|
Представитель монтажной организации |
|
|
|
(подпись) |
|
Представитель заказчика |
|
|
|
(подпись) |
|
Заказчик |
|
|
Типовая ведомственная приложение М-25, утверждена приказом ЦСУ N 628 от 27.11.85 |
АКТ №
|
|
|||||||||||||||||||
|
|
|||||||||||||||||||
перечисленное ниже оборудование и техническая документация к нему для монтажа в
|
|
|
(место монтажа) |
|
|
|
(наименование здания, сооружения, цеха, электроустановки) |
|
Наименование оборудования |
Код (номенклатурный номер) |
Тип, марка |
Заводской номер или маркировка |
Завод-изготовитель |
Номер позиции по технологической схеме |
Поступления на склад заказчика |
Количество |
Стоимость |
|
|
дата |
номер акта приемки |
||||||||
|
1 |
2 |
3 |
4 |
5 |
6 |
7 |
8 |
9 |
10 |
|
|
|
|
|
|
|
|
|
|
|
При приемке оборудования в монтаж установлено следующее:
1. Оборудование
проектной спецификации
или чертежу (если не соответствует, указать в чем)
|
|
2. Оборудование передано
(указать состав
комплекта и технической документации, по которой произведена приемка и какая
комплектность)
|
|
3. Дефекты при наружном осмотре оборудования (если обнаружены, подробно их перечислить)
|
|
Примечание: дефекты, обнаруженные при ревизии, монтаже и испытании оборудования, подлежат актированию особо.
|
4. Заключение о пригодности к монтажу |
|
|
Сдал представитель заказчика |
|
|
|
|
(должность, фамилия, имя, отчество, подпись) |
|
|
Принял представитель монтажной организации |
|
|
|
|
(должность, фамилия, имя, отчество, подпись) |
|
Указанное оборудование принято на хранение.
|
Материально‑ответственное лицо |
|
|
|
(должность, фамилия, имя, отчество, подпись) |
|
|
|
|
|
(Министерство) |
|
(город) |
|
|
|
|
|
(трест) |
|
(заказчик) |
|
|
|
|
|
(монтажное управление) |
|
(объект) |
|
|
|
200 г. |
|
(участок) |
|
|
Комиссия в составе:
|
представителя строительной организации |
|
||
|
|
(должность, фамилия, имя, отчество) |
||
|
представителя заказчика |
|
||
|
|
(должность, фамилия, имя, отчество) |
||
|
представителя электромонтажной организации |
|
||
|
|
(должность, фамилия, имя, отчество) |
||
произвела осмотр помещений (сооружений), передаваемых для производства электромонтажных работ.
1. Для производства электромонтажных работ передаются:
|
|
||
|
(наименование помещений, сооружений) |
||
|
2. Помещения (сооружения) выполнены по |
|
|
|
|
(указать проект, № чертежа) |
|
|
с учетом чертежей строительных заданий |
|
|
|
|
||
|
(наименование проектной организации, № чертежей строительных заданий) |
||
Помещения (сооружения) выполнены по проекту с учетом строительных заданий и соответствуют требованиям пп.2.2.Е; 2.12-2.15; 2.17; 2,18; 2.20-2.26; 3.210 СНиП 3.05.06-85.
Помещения (сооружения), перечисленные в п.п.1 настоящего акта, пригодны для производства электромонтажных работ с_________________200 г.
3. Недоделки, не препятствующие началу электромонтажных работ, подлежат устранению в следующие сроки:
|
Представитель строительной организации |
|
||
|
|
(подпись) |
||
|
Представитель заказчика |
|
||
|
|
(подпись) |
||
|
Представитель электромонтажной организации |
|
||
|
|
(подпись) |
||
|
ООО «Вольтэл» |
|
ЗАО «Ленжилстрой» |
|
(Монтажная организация) |
|
(Заказчик) |
|
|
|
ЗАО «Строительный трест» |
|
|
|
(Генподрядчик) |
|
|
|
ЗАО «Строительное управление № 1» |
|
|
|
(Подрядчик) |
|
|
|
СПб., Манчестерская ул., д. 10 |
|
|
|
(объект) |
АКТ
готовности строительной части помещений (сооружений) к производству
электромонтажных работ
Комиссия в составе
|
представителя заказчика |
|
|||
|
Михайлов С. В., инженер технадзора ЗАО «Ленжилстрой» |
||||
|
(должность, фамилия, имя, отчество) |
||||
|
представителя генерального подрядчика |
|
|||
|
Шинкевич В. А., ЗАО «Строительный трест» |
||||
|
(должность, фамилия, имя, отчество) |
||||
|
представителя подрядчика |
|
|||
|
Ишутин Л. А., начальник участка ЗАО «Строительное управление № 1» |
||||
|
(должность, фамилия, имя, отчество) |
||||
|
представителя электромонтажной организации |
|
|||
|
Тюрин О. И., генеральный директор ООО «Вольтэл» |
||||
|
(должность, фамилия, имя, отчество) |
||||
произвели осмотр помещений (сооружений), передаваемых для производства электромонтажных работ.
1. Для производства электромонтажных работ передаются:
|
помещения 9-16 этажа лестница 1; помещения 9-16 этажа лестница 2; лестницы 1, 2 |
|
(наименование помещений, сооружений) |
2. Помещения (сооружения) выполнены по проекту с учетом строительных зданий и соответствуют требованиям пп. 2.2Е, 2.12-2.15, 2.18, 2.20-2.26, 3.210 СНиП 3.05.06-85.
Помещения (сооружения) выполнены по проекту с учетом строительных заданий и соответствуют требованиям пп.2.2.Е; 2.12-2.15; 2.17; 2,18; 2.20-2.26; 3.210 СНиП 3.05.06-85.
Помещения (сооружения), перечисленные в п.п.1 настоящего акта, пригодны для производства электромонтажных работ с 27.02.2004 г.
3. Недоделки, не препятствующие началу электромонтажных работ, подлежат устранению в следующие сроки:
|
NN п/п |
Помещение (сооружение) |
Недоделки |
Срок устранения |
Кто устраняет |
|
1 |
9-16 этажа лестница 1 |
отсутствуют |
|
|
|
2 |
9-16 этажа лестница 2 |
отсутствуют |
|
|
|
3 |
лестницы 1, 2 |
отсутствуют |
|
|
|
Представитель заказчика |
С. Михайлов |
|
|
(подпись) |
|
Представитель генподрядной организации |
Д. Шинкевич |
|
|
(подпись) |
|
Представитель подрядной организации |
Л. Ишутин |
|
|
(подпись) |
|
Представитель электромонтажной организации |
О. Тюрин |
|
|
(подпись) |
|
|
|
|
|
(Министерство) |
|
(город) |
|
|
|
|
|
(трест) |
|
(заказчик) |
|
|
|
|
|
(монтажное управление) |
|
(объект) |
|
|
|
200 г. |
|
(участок) |
|
|
Комиссия в составе:
|
представителя заказчика |
|
|
|
|
(должность, фамилия, имя, отчество) |
|
|
представителя монтажной организации |
|
|
|
|
(должность, фамилия, имя, отчество) |
|
произвела осмотр и сдачу-приемку выполненных электромонтажной организацией работ по ликвидации недоделок, перечисленных в ведомости от__________________200 г.
|
ликвидированы следующие недоделки |
|
|
|
|
|
|
|
|
|
|
|
Представитель заказчика |
|
|
|
(подпись) |
|
Представитель монтажной организации |
|
|
|
(подпись) |
АКТ ПРОВЕРКИ НАДЕЖНОСТИ КРЕПЛЕНИЯ КРЮКОВ ПОД ЛЮСТРЫ И СВЕТИЛЬНИКИ
24 апреля 2003 года
Мы, нижеподписавшиеся:
|
технический надзор Заказчика |
инженер Бобров В. Н. |
||
|
представитель Генподрядчика |
начальник участка Сирдин К. Л. |
||
|
и представитель монтажной организации |
начальник участка Тухватуллин О. В. |
||
подписали настоящий акт о нижеследующем:
ООО «ЛЕВ» были выполнены работы по электротехнической части жилого дома по адресу СМР кв. 46 корпус 22, 22А., предусмотренные проектом крюки под люстры и светильники установлены и проверены на прочность посредством подвешивания груза 50 кг весом. Проверенное соответствует ПУЭ и другим строительным нормам.
|
Технический надзор Заказчика |
|
/В. Бобров |
||
|
|
(подпись) |
|
||
|
Представитель Генподрядчика |
|
/К. Сирдин |
||
|
|
(подпись) |
|
||
|
Представитель монтажной организации |
|
/О. Тухватуллин |
||
|
|
(подпись) |
|
||
|
Наименование Министерства |
|
Город |
г. Санкт-Петербург |
|||
|
УНР |
|
|||||
|
Монтажное управление |
ОАО «Свит» |
Заказчик |
ЗАО «Строительное Управление» |
|||
«1» декабря 1998 г.
Акт проверки осветительной сети на правильность зажигания внутреннего освещения
|
№№ |
Кол-во светильников в группах |
Результаты проверки на правильность зажигания и горения ламп |
|
ЩЭ №1 |
1 гр. согл. пр-та |
Зажигание по проекту, исправны |
|
|
2 гр. согл. пр-та |
Зажигание по проекту, исправны |
|
ЩЭ №2 |
1 гр. согл. пр-та |
Зажигание по проекту, исправны |
|
|
2 гр. согл. пр-та |
Зажигание по проекту, исправны |
|
|
3 гр. согл. пр-та |
Зажигание по проекту, исправны |
|
|
4 гр. согл. пр-та |
Зажигание по проекту, исправны |
|
ЩЭ №3 |
1 гр. согл. пр-та |
Зажигание по проекту, исправны |
|
|
2 гр. согл. пр-та |
Зажигание по проекту, исправны |
|
|
3 гр. согл. пр-та |
Зажигание по проекту, исправны |
|
|
4 гр. согл. пр-та |
Зажигание по проекту, исправны |
|
ЩЭ №4 |
1 гр. согл. пр-та |
Зажигание по проекту, исправны |
|
|
2 гр. согл. пр-та |
Зажигание по проекту, исправны |
|
|
3 гр. согл. пр-та |
Зажигание по проекту, исправны |
|
|
4 гр. согл. пр-та |
Зажигание по проекту, исправны |
|
ЩЭ №5 |
1 гр. согл. пр-та |
Зажигание по проекту, исправны |
|
|
2 гр. согл. пр-та |
Зажигание по проекту, исправны |
|
|
3 гр. согл. пр-та |
Зажигание по проекту, исправны |
|
|
4 гр. согл. пр-та |
Зажигание по проекту, исправны |
|
ЩЭ №6 |
1 гр. согл. пр-та |
Зажигание по проекту, исправны |
|
|
2 гр. согл. пр-та |
Зажигание по проекту, исправны |
|
|
3 гр. согл. пр-та |
Зажигание по проекту, исправны |
|
|
4 гр. согл. пр-та |
Зажигание по проекту, исправны |
|
Производитель работ (мастер) |
И. Дубровин |
|
|
|
(подпись) |
|
|
Представитель заказчика |
Т. Нефедов |
|
|
|
(подпись) |
|
|
|
«____»___________________г. |
||||||||||||||||||||||||
Акт проверки осветительной сети на функционирование и правильность монтажа установочных аппаратов
Комиссия в составе:
Представитель заказчика:
|
|
Представитель электромонтажной организации:
|
|
Провела осмотр смонтированной осветительной сети. В результате установлено:
– сеть освещения:
|
№ столба |
Марка светильника |
Мощность, Вт |
Источник питания |
№ группы |
Кол-во |
Результат проверки |
|
1-8 |
S40/4 опора «Сабонис», G 400 PMF |
80 |
ГРЩ |
А |
8 |
норма |
|
8-16 |
S40/4 опора «Сабонис», G 400 PMF |
80 |
ГРЩ |
В |
8 |
норма |
|
16-23 |
S40/4 опора «Сабонис», G 400 PMF |
80 |
ГРЩ |
С |
7 |
норма |
1. Расключение групповых щитов по фазам выполнено в ГРЩ и токоприемников в помещениях в групповых щитах согласно проекта, выполненного:
|
|
2. Выключатели расположены в фазных проводах
3. Подключение светильников и остальных стационарных токоприемников с металлическими корпусами выполнено по 3-5 проводной схеме с учетом требований глав 1.7 и 7.1 ПУЭ-98
Все светильники, стационарные токоприемники функционируют нормально.
|
Представитель электромонтажной организации |
|
|
|
|
|
|
|
Представитель Заказчика |
|
|
|
|
|
|
|
(Министерство) |
|
(город) |
|
|
|
|
|
(трест) |
|
(заказчик) |
|
|
|
|
|
(монтажное управление) |
|
(объект) |
|
|
|
200 г. |
|
(участок) |
|
|
Комиссия в составе:
|
представителя монтажной организации |
|
|
|
|
(должность, фамилия, имя, отчество) |
|
|
представителя заказчика |
|
|
|
|
(должность, фамилия, имя, отчество) |
|
произвела осмотр выполненных работ по монтажу заземляющих устройств.
Осмотром установлено:
|
1. Заземляющее устройство выполнено в соответствии с проектом |
|
|||||
|
|
(название) |
|||||
|
разработанным |
|
|||||
|
|
(проектная организация) |
|||||
|
по чертежам |
|
|||||
|
|
(номер) |
|||||
|
2. Отступления от проекта |
|
|||||
|
|
||||||
|
согласованы с |
|
|||||
|
|
(организация, должность, фамилия, имя, отчество, дата) |
|||||
|
и внесены в чертежи |
|
|||||
|
|
(номер) |
|||||
3. Характеристика заземляющего устройства.
|
NN п/п |
Элементы заземляющих устройств |
Параметры элементов заземляющего устройства |
Примечание |
||||
|
материал |
профиль |
размеры, мм |
кол-во, шт. |
глубина заложения, м |
|||
|
|
|
|
|
|
|
|
|
4. Характер соединении элементов заземляющего устройства между собой и присоединения их к естественным заземляющим устройствам
|
|
|
|
|
|
|
5. Выделены дефекты |
|
|
|
|
ЗАКЛЮЧЕНИЕ:
Заземляющее устройство может быть засыпано землей.
|
Представитель монтажной организации |
|
|
|
|
(подпись) |
|
|
Представитель заказчика |
|
|
|
|
(подпись) |
|
|
|
|
|
|
(Министерство) |
|
(город) |
|
|
|
|
|
(трест) |
|
(заказчик) |
|
|
|
|
|
(монтажное управление) |
|
(объект) |
|
|
|
200 г. |
|
(участок) |
|
|
* составляется для трансформаторов мощностью более 2500 кВА
|
Мощность____________________кВА, СН____________________________кВ, завод-изготовитель________________, заводской номер__________________, |
ВН________________________кВ, НН________________________кВ тип_________________________, дата выпуска_________________, |
|
дата прибытия на площадку |
|
Комиссия в составе:
|
от предприятия заказчика |
|
|
|
|
(должность, фамилия, имя, отчество) |
|
|
от электромонтажной организации |
|
|
|
|
(должность, фамилия, имя, отчество) |
|
проверила состояние трансформатора и условия, необходимые для приемки его в монтаж и установила:
1. Комплектность:
а) комплект технической документации завода-изготовителя (заводская документация) на трансформатор по перечню ГОСТ 11677-85 (п.5.15)
|
|
|||
|
(есть, нет) |
|||
|
отсутствуют документы |
|
||
|
|
(наименование документов) |
||
|
б) трансформатор |
|
||
|
|
(укомплектован, не полностью укомплектован |
||
|
|
|||
|
узлами, приборами и деталями согласно требованиям технической |
|||
|
|
|||
|
документации - демонтажной ведомости завода-изготовителя) |
|||
|
К трансформатору не поставлены: |
|
||
2. Состояние трансформатора и его узлов:
а) результаты внешнего осмотра трансформатора и его узлов (отсутствие вмятин и других повреждений на баке трансформатора, вводах, расширителе, радиаторах, оборудовании систем охлаждения и др.)
|
|
б) результаты проверки герметичности трансформатора при внешнем осмотре:
сохранность пломб на всех кранах для масла и герметизированных заглушках
|
|
|
(отсутствие течи масла из бака трансформатора и узлов, |
|
|
|
заполненных маслом) |
наличие избыточного давления газа (для трансформаторов, поступающих с завода-изготовителя без масла)
|
|
3. Обеспеченность условий для монтажа трансформатора:
а) строительная часть (фундамент под трансформатор, монтажная площадка, подъездные пути и др.) выполнена согласно проекту N_________________________
________________________монтажной организацией по акту N от (принята, не принята)
(принята, не принята)
|
Не закончено строительством |
|
|
|
(перечислить неоконченные работы) |
б) обеспеченность трансформатора маслом:
согласно паспорту в трансформаторе используется масло
|
|
|
(наименование стандарта, ТУ, пробивное напряжение) |
всего требуется масла (с учетом расхода на технологические нужды)_________________т.
имеется в трансформаторе _______________________т.
недостающее количество масла ___________________т.
будет поставлено заказчиком ______________________
в) заказчиком выполнены условия ГОСТ 11677-75 и подтверждается возможность монтажа трансформатора без ревизии активной части и без сушки.
г) согласно п.3.197 СНиП 3.05.06-85 к настоящему акту прилагаются:
- акт осмотра трансформатора и демонтированных узлов после его транспортирования с предприятия-изготовителя;
- акт перевозки трансформатора к месту монтажа;
- акт выгрузки трансформатора.
Перечисленные документы оформляются заказчиком.
|
4. Заключение о пригодности к монтажу |
|
|
|
|
|
Сдал представитель заказчика |
|
|
|
|
(подпись) |
|
|
Принял представитель монтажной организации |
|
|
|
|
(подпись) |
|
Трансформатор принят на хранение
|
материально‑ответственным лицом |
|
|
|
(подпись) |
|
|
|
|
|
(Министерство) |
|
(город) |
|
|
|
|
|
(трест) |
|
(заказчик) |
|
|
|
|
|
(монтажное управление) |
|
(объект) |
|
|
|
200 г. |
|
(участок) |
|
|
На смонтированном электрооборудовании (перечисленном в прилагаемой к акту ведомости) согласно требованиям СНиП 3.05.06-85, ПУЭ-98 и документации заводов-изготовителей произведены:
1. Регулировка механической части коммутационных аппаратов, их контактных пар, приводов и блокировок
|
|
|
(результат) |
2. Проверка коммутационных аппаратов, приводов к ним и блокировок на многократное включение и выключение
|
|
|
|
(результат) |
|
|
3. Фазировка первичных цепей коммутации |
|
|
|
|
|
(результат) |
|
4. Проверка свободного перемещения и надежной фиксации выкатных элементов КРУ в рабочем и контрольном положении, работы шторок и механических блокировок.
|
|
|
(результат) |
5. Смазка трущихся деталей и контактов коммутационных аппаратов
|
|
|
(выполнено) |
6. Проверка уровня изоляционного масла в электрических аппаратах и при необходимости их доливка
|
|
|
(результат) |
7. Осмотр и проверка контактных соединений на соответствие требованиям нормативно-технической документации
|
|
|
(выполнено) |
8. Проверка открывания дверей камер (ячеек, шкафов), работы замков и выполнения проектных надписей
|
|
|
|
(выполнено) |
|
|
Заключение |
|
|
|
|
|
Осмотр и проверку произвел |
|
|
|
|
(подпись) |
|
|
Производитель работ |
|
|
|
|
(подпись) |
|
|
|
|
|
|
(Министерство) |
|
(город) |
|
|
|
|
|
(трест) |
|
(заказчик) |
|
|
|
|
|
(монтажное управление) |
|
(объект) |
|
|
|
200 г. |
|
(участок) |
|
|
Комиссия в составе:
|
представителя монтажной организации |
|
|||
|
|
||||
|
(должность, фамилия, имя, отчество) |
||||
|
представителя заказчика |
|
|||
|
|
||||
|
(должность, фамилия, имя, отчество) |
||||
|
произвела осмотр |
|
труб, проложенных в |
||
|
|
(материал) |
|
||
|
|
||||
|
(место укладки) |
||||
При осмотре установлено:
|
1. Прокладка труб произведена по чертежам № |
|
|
|
|
|
(наименование проектной организации) |
|
2. При выполнении работ отсутствуют (или допущены) отклонения от проектной документации
|
|
|||
|
(при наличии отклонения указывается, кем согласованы, N чертежа и дата согласования) |
|||
|
3. Соединения труб выполнены |
|
, электрический |
|
|
контакт на стыках металлических труб обеспечен |
|
||
|
|
(чем) |
||
4. Трубы имеют нормальные радиусы изгиба и не имеют вмятин и повреждений, препятствующих протягиванию проводов и кабелей.
ЗАКЛЮЧЕНИЕ:
Работы выполнены в соответствии с проектной документацией, строительными нормами и правилами.
Трубы могут быть залиты бетоном, заштукатурены, засыпаны грунтом.
|
Представитель заказчика |
|
|
|
|
(подпись) |
|
|
Представитель монтажной организации |
|
|
|
|
(подпись) |
|
|
|
|
|
|
(Министерство) |
|
(город) |
|
|
|
|
|
(трест) |
|
(заказчик) |
|
|
|
|
|
(монтажное управление) |
|
(объект) |
|
|
|
200 г. |
|
(участок) |
|
|
|
Место прокладки |
|
||||
|
Сопротивление изоляции замерено |
|
||||
|
|
|||||
|
(наименование прибора, тип) |
|||||
|
заводской номер |
|
, на напряжение |
В |
||
|
Наименование линии и ее параметры |
Сопротивление изоляции МОм |
Заключение |
|||||
|
А-В |
А-С |
В-С |
А-О |
В-О |
С-О |
||
|
|
|
|
|
|
|
|
|
|
Измерение произвел |
|
|
|
|
(подпись) |
|
|
Производитель работ |
|
|
|
|
(подпись) |
|
|
|
|
|
|
(Министерство) |
|
(город) |
|
|
|
|
|
(трест) |
|
(заказчик) |
|
|
|
|
|
(монтажное управление) |
|
(объект) |
|
|
|
200 г. |
|
(участок) |
|
|
|
Тип шинопровода, марка кабеля |
Обозначение шинопровода, номер кабельной линии по проекту |
Фаза А соответствует |
Фаза В соответствует |
Фаза С соответствует |
Фамилия и подпись производящего фазировку |
|
|
|
|
|
|
|
|
Проверил производитель работ |
|
|
|
(подпись) |
|
|
|
|
|
(Министерство) |
|
(город) |
|
|
|
|
|
(трест) |
|
(заказчик) |
|
|
|
|
|
(монтажное управление) |
|
(объект) |
|
|
|
200 г. |
|
(участок) |
|
|
Комиссия в составе:
|
представителя электромонтажной организации |
|
|||
|
|
||||
|
(должность, фамилия, имя, отчество) |
||||
|
представителя заказчика |
|
|||
|
|
||||
|
(должность, фамилия, имя, отчество) |
||||
|
представителя генподрядной организации |
|
|||
|
|
||||
|
(должность, фамилия, имя, отчество) |
||||
|
произвела осмотр и проверку выполненных |
|
|||
|
|
(наименование генподрядной организации) |
|||
сооружений для прокладки кабелей.
|
1. К сдаче‑приемке предъявлены следующие объекты: |
|
||||
|
|
|||||
|
(траншеи, каналы, туннели, блоки кабельной канализации) |
|||||
|
2. Сооружения выполнены в соответствии с проектом, разработанным: |
|
||||
|
|
|||||
|
(наименование организации, NN чертежей рабочей документации) |
|||||
|
3. Отступления от проекта |
|
||||
|
|
(перечислить) |
||||
|
согласованы |
|
||||
|
|
(наименование проектной организации) |
||||
|
4. Разбивка трассы траншеи (каналов, туннелей) |
|
||||
|
|
(выполнена, не выполнена) |
||||
согласно проекту.
5. Ширина и глубина траншеи соответствует требованиям проекта и ПУЭ-98, постель выполнена из __________________толщиной слоя ______мм, пересечение дорог выполнено в
|
трубах |
|
на глубине ____мм, соединение и окраска труб |
|
|
|
(материал) |
|
(способ выполнения) |
Траншея подготовлена к прокладке кабеля.
6. Диаметр отверстий блоков и правильность стыкования блоков проверены, крышки на люках колодцев установлены.
|
7. Обрамление и перекрытия кабельных каналов выполнены |
|
|
|
|
8. Дренаж выполнен по проекту.
|
9. Особые замечания |
|
|
|
|
ЗАКЛЮЧЕНИЕ:
Объекты, перечисленные в п.1 настоящего акта, считать принятыми под монтаж кабелей.
Приложение. Схема привязки наружных кабельных трасс по местности с указанием горизонтальных и вертикальных отметок трасс.
|
Представитель электромонтажной организации |
|
||
|
|
(подпись) |
||
|
Представитель заказчика |
|
||
|
|
(подпись) |
||
|
Представитель генподрядной организации |
|
||
|
|
(подпись) |
||
|
Номер барабана |
Марка кабеля |
Сечение кабеля, мм2 |
Длина кабеля, м |
Рабочее напряжение, кВ |
Испытательное напряжение, кВ |
Продолжительность испытания, мин. |
Заключение |
|
|
|
|
|
|
|
|
|
|
Испытание произвел |
|
|
|
|
(подпись) |
|
|
Производитель работ |
|
|
|
|
(подпись) |
|
|
|
|
|
|
(Министерство) |
|
(город) |
|
|
|
|
|
(трест) |
|
(заказчик) |
|
|
|
|
|
(монтажное управление) |
|
(объект) |
|
|
|
200 г. |
|
(участок) |
|
|
|
Номер барабана |
Марка кабеля, сечение, мм2, напряжение, кВ |
Длина кабеля, м |
Завод-изготовитель |
Дата выпуска |
Состояние |
Сопротивление изоляции, МОм |
Заключение |
||
|
барабана и обшивки |
наружных витков |
герметизирующих заделок |
|||||||
|
|
|
|
|
|
|
|
|
|
|
Сопротивление изоляции замерено мегаомметром на напряжение 2500 В.
типа ____________________заводской N _________________
|
Осмотр и проверку произвел |
|
|
|
|
(подпись) |
|
|
Производитель работ (мастер) |
|
|
|
|
(подпись) |
|
|
|
|
|
|
(Министерство) |
|
(город) |
|
|
|
|
|
(трест) |
|
(заказчик) |
|
|
|
|
|
(монтажное управление) |
|
(объект) |
|
|
|
200 г. |
|
(участок) |
|
|
|
Номер барабана |
Марка кабаля, напряжений, кВ, сечение, мм |
Длина кабелем |
Прогрев кабелей внутри обогреваемых помещений |
Прогрев кабелей электрическим током, А |
||
|
температура в помещении, °С |
продолжительность прогрева, час |
температура внешних витков кабеля при температуре наружного воздуха |
||||
|
-10°С |
ниже -10°С |
|||||
|
|
|
|
|
|
|
|
|
Прогрев произвел |
|
|
|
|
(подпись) |
|
|
Производитель работ |
|
|
|
|
(подпись) |
|
|
|
|
|
|
(Министерство) |
|
(город) |
|
|
|
|
|
(трест) |
|
(заказчик) |
|
|
|
|
|
(монтажное управление) |
|
(объект) |
|
|
|
200 г. |
|
(участок) |
|
|
Комиссия в составе:
|
представителя электромонтажной организации |
|
|||
|
|
||||
|
(должность, фамилия, имя, отчество) |
||||
|
представителя заказчика |
|
|||
|
|
||||
|
(должность, фамилия, имя, отчество) |
||||
|
представителя генподрядной организации |
|
|||
|
|
||||
|
(должность, фамилия, имя, отчество) |
||||
|
произвела осмотр кабельной канализации в |
|
|||
|
|
(траншее, канале) |
|||
перед закрытием.
В результате осмотра установлено:
|
1. Прокладка кабеля выполнена по проекту |
|
|
|
(наименование |
|
|
|
|
проектной организации, N чертежей и кабельных журналов) |
|
2. Отступления от проекта согласованы и нанесены на чертежи № _______и схему привязки.
3. Смонтированные кабели не имеют внешних повреждений; радиусы изгибов кабелей соответствуют требованиям ГОСТ 24183-80*, ГОСТ 16441-78, ГОСТ 24334-80; глубина заложения кабелей отвечает требованиям ПУЭ-98, а расстояние по горизонтали (в свету) между кабелями соответствует ПУЭ-98.
|
4. На кабелях смонтировано |
|
соединительных муфт, |
|
|
(количество) |
|
привязка соединительных муфт (для кабелей в траншее) выполнена на плане кабельных линий.
|
5. Произведена подсыпка кабельных линий слоем |
|
|
|
|
|
(материал подсыпки) |
|
и выполнена защита кабелей от механических повреждений согласно проекту, а также
|
|
|
(указать дополнительные места защиты кабелей при наличии) |
В местах пересечений с другими инженерными коммуникациями и сооружениями кабели защищены
|
|
|
(указать, чем защищены) |
6. Выполнена маркировка соединительных муфт и кабеля.
|
7. Другие особенности, отмеченные комиссией |
|
|
|
|
ЗАКЛЮЧЕНИЕ:
Траншеи (канал) со смонтированными в них кабельными линиями приняты для закрытия.
|
Представитель электромонтажной организации |
|
||
|
|
(подпись) |
||
|
Представитель заказчика |
|
||
|
|
(подпись) |
||
|
Представитель генподрядной организации |
|
||
|
|
(подпись) |
||
|
|
|
|
|
(Министерство) |
|
(город) |
|
|
|
|
|
(трест) |
|
(заказчик) |
|
|
|
|
|
(монтажное управление) |
|
(объект) |
|
|
|
200 г. |
|
(участок) |
|
|
|
Дата прокладки |
Наименование и номер кабеля по кабельному журналу или исполнительной схеме |
Мирю табеля, напряжение, кВ, сечение, мм2 |
Общая длина линии, м |
Номера барабанов и длина кабеля на каждом, м |
Количество соединительных муфт на линии |
Температура окружающего воздуха при прокладке, °С |
Способ подогрева кабеля и продолжительность прокладки, час. |
Фамилия и подпись ответственного за прокладку |
|
|
|
|
|
|
|
|
|
|
|
Производитель работ |
|
|
|
(подпись) |
|
|
|
|
|
(Министерство) |
|
(город) |
|
|
|
|
|
(трест) |
|
(заказчик) |
|
|
|
|
|
(монтажное управление) |
|
(объект) |
|
|
|
200 г. |
|
(участок) |
|
|
|
КАБЕЛЬ |
МУФТА |
Фамилия и подпись исполнителя |
|||
|
Номер по кабельному журналу |
Марка, сечение, мм2, напряжение, кВ |
Номер |
Тип, размер |
Дата монтажа |
|
|
|
|
|
|
|
|
|
Производитель работ (мастер) |
|
|
|
(подпись) |
|
|
|
|
|
(Министерство) |
|
(город) |
|
|
|
|
|
(трест) |
|
(заказчик) |
|
|
|
|
|
(монтажное управление) |
|
(объект) |
|
|
|
200 г. |
|
(участок) |
|
|
Опора №_________, наименование опоры _________________, тип __________________,
Комиссия в составе:
|
представителя заказчика |
|
||
|
|
(должность, фамилия, имя, отчество) |
||
|
представителя строительной организации |
|
||
|
|
(должность, фамилия, имя, отчество) |
||
|
представителя монтажной организации |
|
||
|
|
(должность, фамилия, имя, отчество) |
||
рассмотрела техническую документацию на фундамент, произвела проверку выполненных работ и составила акт о нижеследующем:
1. Фундамент выполнен согласно проекту по чертежам __________________, с соблюдением требований ППР и соответствующего раздела СНиП 3.05.06-85.
2. Согласно предъявленным протоколам марка бетона составляет _______кг/см2
|
На фундаменте выполнена гидроизоляция железобетона с покрытием |
|
|
|
|
|
(материал покрытия, число слоев) |
|
3. Анкерные болты (закладные части) установлены по чертежам №__________; отклонения по горизонтали между осями анкерных болтов, а также разность между их верхними отметками, проверенные шаблонами, не превышают допустимых по чертежам и СНиП 3.05.06-85.
4. Произведены обратная засыпка и обвалование фундамента.
|
5. Отступления от проекта |
|
||
|
|
(существо отступления) |
||
|
согласованы с заказчиком в лице |
|
||
|
|
(должность, фамилия, имя, отчество) |
||
|
и проектной организацией в лице |
|
||
|
|
(должность, фамилия, имя, отчество) |
||
Согласованные отступления от проекта нанесены на исполненные чертежи
|
|
6. Заключение. Фундамент пригоден для установки опоры ВЛ.
Приложение. Техническая документация на фундамент: исполнительные чертежи фундамента, протокол испытания бетона, сертификаты на метизы.
|
представитель заказчика |
|
||
|
|
(подпись) |
||
|
представитель строительной организации |
|
||
|
|
(подпись) |
||
|
представитель монтажной организации |
|
||
|
|
(подпись) |
||
|
|
|
|
|
(Министерство) |
|
(город) |
|
|
|
|
|
(трест) |
|
(заказчик) |
|
|
|
|
|
(монтажное управление) |
|
(объект) |
|
|
|
200 г. |
|
(участок) |
|
|
Комиссия в составе:
|
представителя заказчика |
|
||
|
|
(должность, фамилия, имя, отчество) |
||
|
представителя строительной организации |
|
||
|
|
(должность, фамилия, имя, отчество) |
||
|
представителя монтажной организации |
|
||
|
|
(должность, фамилия, имя, отчество) |
||
рассмотрела техническую документацию на сборные железобетонные фундаменты ВЛ
|
|
произвела проверку выполненных работ и составила акт о нижеследующем:
1. Предъявлено под установку опор ВЛ законченные устройством ____________ сборных железобетонных фундаментов. Из них под опоры: промежуточные ______, анкерные _______, угловые _______, другие _______фундаменты.
2. Фундаменты, перечисленные ниже, выполнены в соответствии с проектом
|
|
|
|
(наименование проектной организации) |
|
|
по чертежам |
|
|
|
(наименование и номера чертежей) |
с соблюдением требований ППР и СНиП 3.05.06-85.
3. Отклонение размеров по горизонтали между осями фундаментов, а также разность между их верхними отметками, проверенные шаблонами, не превышают допустимых по чертежам.
|
4. Отступления от проекта |
|
|||
|
|
||||
|
(существо отступлений) |
||||
|
согласованы с заказчиком в лице |
|
|||
|
|
(должность, фамилия, имя, отчество) |
|||
|
и проектной организацией в лице |
|
|||
|
|
(должность, фамилия, имя, отчество) |
|||
|
5. Сборные железобетонные фундаменты для опор |
|
|||
|
|
||||
|
(номера опор) |
||||
|
комиссией не приняты по причине |
|
|
|
|
|
(указать причину) |
|
и из перечня настоящего акта исключены.
Срок переделки (доработки) отбракованных фундаментов и повторного их предъявления «____»____________200 г.
6. Перечень сборных железобетонных фундаментов, разрешенных для установки опор
|
Номер опоры |
Наименование и тип опоры |
Тип фундамента |
Завод-изготовитель сборного ЖБ паспорт, марка |
N чертежа фундамента |
Наличие гидроизоляций, материал |
Дата устройства фундамента |
Установка опоры разрешается, подпись производителя работ |
Примечание |
|
|
|
|
|
|
|
|
|
|
7. Заключение комиссии: сборные железобетонные фундаменты согласно перечню 6 пригодны для установки опор ВЛ
|
|
Приложение: исполнительные чертежи на фундамент, сертификаты на бетон и метизы.
|
представитель заказчика |
|
||
|
|
(подпись) |
||
|
представитель строительной организации |
|
||
|
|
(подпись) |
||
|
представитель монтажной организации |
|
||
|
|
(подпись) |
||
|
|
|
|
|
(Министерство) |
|
(город) |
|
|
|
|
|
(трест) |
|
(заказчик) |
|
|
|
|
|
(монтажное управление) |
|
(объект) |
|
|
|
200 г. |
|
(участок) |
|
|
1. Монтаж опор воздушной линии электропередачи
|
Наименование опоры |
Установлено на ВЛ, шт. |
Тип опоры (номер чертежа для нетиповых) |
Материал опоры |
Защитное покрытие дополнительно к заводскому (окраска, антисептик), кол-во опор |
|
Промежуточные Анкерные Угловые Другие
Всего: |
|
|
|
|
Отклонение верхней части установленных опор от вертикальной оси, а также разворот и наклон траверс не выходят за пределы, допустимые требованиями п.3.144-3.146 и таблиц 6,7 и 8 СНиП 3.05.06-85.
2. Монтаж проводов и тросов.
На ВЛ _________кВ смонтирован провод марки ___________, сечением ____________мм2, в общем количестве ____________м, грозозащитный трос марки_______________________________________протяженностью_________________________м.
Монтаж проводов и тросов выполнен в соответствии с проектом ВЛ. Стрелы провеса проводов и тросов соответствуют монтажным кривым (таблицам) проекта.
Пересечение ВЛ с другими сетями и инженерными сооружениями выполнены по проекту и оформлены частными актами, прилагаемыми к настоящему.
3. Соединение проводов и тросов.
|
Номера опор и пролетов, на которых смонтированы соединения |
Тип соединительного натяжного зажима |
Способ монтажа соединения |
Исполнитель |
|
|
Фамилия, имя, отчество |
Подпись |
|||
|
|
|
|
|
|
Монтаж соединений проводов и тросов выполнен по проекту с соблюдением требований п.п.3.149-3.152 СНиП 3.05.06-85 и ПУЭ-98.
Перед установкой на ВЛ монтажная организация произвела проверку и отбраковку изоляторов согласно требованиям ПУЭ-98 и п.3.147, п.3.148 СНиП 3.05.06-85.
4. Монтаж разрядников и разъединителей
На ВЛ________смонтированы:
а) трубчатые разрядники типа __________________на опорах___________________
Монтаж разрядников, регулировка их внешних искровых промежутков выполнены в соответствии с рабочими чертежами проекта и требованиями пп.3.158-3.160 СНиП 3.05.06-85 и ПУЭ-98.
б) разъединители типа __________________на опорах________________________
Монтаж разъединителей выполнен в соответствии с проектом и документацией заводов-изготовителей.
Механическая часть разъединителей, их контактные пары, а также приводы разъединителей, отрегулированы и проверены согласно пп.3.178-3.184 СНиП 3.05.06-85 и испытаны до установки на опоры согласно ПУЭ-98.
5. Монтаж заземляющих устройств.
Монтаж заземляющих устройств опор ВЛ _________выполнен в соответствии с проектом и требованиями раздела ПУЭ-98 «Защита от перенапряжений, заземление».
Сопротивление заземляющих устройств опор соответствует ПУЭ-98. Протоколы измерения сопротивления заземляющих устройств, предъявленные комиссии, хранятся у заказчика (в наладочной организации).
ЗАКЛЮЧЕНИЕ:
|
|
|
|
|
|
|
Производитель работ |
|
|
|
(подпись) |
|
|
|
|
|
(Министерство) |
|
(город) |
|
|
|
|
|
(трест) |
|
(заказчик) |
|
|
|
|
|
(монтажное управление) |
|
(объект) |
|
|
|
200 г. |
|
(участок) |
|
|
Мы, нижеподписавшиеся, произвели осмотр и измерения пересечения ВЛ _____________кВ
|
|
с объектом |
|
|
(наименование ВЛ) |
|
(наименование объекта) |
и установили:
|
1. Пересечение выполнено согласно чертежу |
|
||
|
2. На пересекающей ВЛ смонтированы |
|
||
|
|
(число) |
||
|
проводов марки |
|
||
3. Ограничивающие объект пересечения опоры ВЛ N ____установлены на пикетах.
4. Горизонтальное расстояние от оси пересекаемого объекта до осей переходных опор ВЛ составляет ___________________м.
|
5. Расстояние от ближайшего провода ВЛ |
|
|
|
|
|
(до пересекаемого объекта, провода, головки железнодорожного рельса и т. п.) |
|
составляет _____м.
6. Измерения выполнялись при температуре окружающей среды _______°С.
|
Представитель объекта пересечения |
|
||
|
|
(наименование организации, должность, фио, подпись) |
||
|
Представитель заказчика |
|
||
|
|
(должность, фио, подпись) |
||
|
Представитель монтажной организации |
|
||
|
|
(должность, фио, подпись) |
||
Акт приемки лифта в эксплуатацию
|
г. Санкт-Петербург |
«22» апреля 2004 г. |
Комиссия в составе:
Председатель комиссии (уполномоченный представитель эксплуатационной организации)
|
Яковлев М. И. |
|||||||
|
(должность, фамилия, имя, отчество, наименование организации) |
|||||||
|
Представитель монтажной организации |
|
||||||
|
ГрининА. С, прораб, СПБ филиал ООО «ОТИСЛИФТ» |
|||||||
|
(должность, фамилия, имя, отчество, наименование организации) |
|||||||
|
Представитель генподрядной строительной организации |
|
||||||
|
Ушанов В. И, старший прораб, ООО «СУ-52» |
|||||||
|
(должность, фамилия, имя, отчество, наименование организации) |
|||||||
|
Специалист, ответственный за техническое обслуживание лифта |
|
||||||
|
Семенов А. М., директор по спецсервису, СПБ филиал ООО «ОТИСЛИФТ» |
|||||||
|
(должность, фамилия, имя, отчество, наименование организации) |
|||||||
|
Представитель заказчика |
|
||||||
|
ООО «Лани» |
|||||||
|
(должность, фамилия, имя, отчество, наименование организации) |
|||||||
|
Инспектор Госгортехнадзора России |
|
||||||
|
Русаков П. Б., Упр. СЗО ГГТН РФ |
|||||||
|
(должность, фамилия, имя, отчество, наименование организации) |
|||||||
|
составили настоящий акт о приемке в эксплуатацию лифта, заводской № |
B7NE2208 |
||||||
|
установленного по адресу |
СПб., Гражданский пр., д. 41 |
||||||
Комиссия провела проверку представленных документов:
«Акта полного технического освидетельствования лифта», документов по организации безопасной эксплуатации лифта, а также контрольный осмотр лифта.
РЕЗУЛЬТАТЫ ПРИЕМКИ ЛИФТА
1. Лифт находится в исправном состоянии, обеспечивающем его безопасную работу.
2. Организация безопасной работы лифта соответствует Правилам устройств и безопасной эксплуатации лифта.
Лифт сдали:
|
Уполномоченный представитель монтажной организации |
А. Гринин |
|
|
(подпись) |
|
Уполномоченный представитель генподрядной строительной организации |
В. Ушанов |
|
|
(подпись) |
Лифт приняли:
|
Уполномоченный представитель эксплуатирующей организации |
М. Яковлев |
|
|
(подпись) |
|
Специалист, ответственный за техническое обслуживание лифта |
А. Семенов |
|
|
(подпись) |
Запись о разрешении на ввод лифта в эксплуатацию сделана в паспорте лифта.
|
Инспектор Госгортехнадзора России |
П. Русаков |
|
|
(подпись) |
Настоящий акт хранить с паспортом лифта.
Акт приемки в эксплуатацию системы АППЗ
|
г. Санкт-Петербург |
« 21 » июня 200 3 г. |
|
Комиссия, назначенная |
ЗАО «Строительный Трест» |
|
|
(наименование организации-заказчика) |
приказом от « 19 » июня 200 3 г. № 12/3 в составе:
|
председателя‑представителя заказчика |
Главного инженера Васильченко Е. И. |
|
|
(должность, фамилия, имя, отчество) |
членов комиссии - представителей:
|
генподрядчика |
Начальника участка Сямина Н. В. |
||
|
|
(должность, фамилия, имя, отчество) |
||
|
пусконаладочной организации |
ООО НПФ «СВИТ», начальника участка Смирнова И. П. |
||
|
|
(должность, фамилия, имя, отчество) |
||
|
государственного пожарного надзора |
|
||
|
|
(должность, фамилия, имя, отчество) |
||
провела проверку выполненных работ и установила:
|
1. Пусконаладочной организацией предъявлена к приемке установка |
АППЗ |
|||
|
смонтированная в |
жилом доме квартал 46, корпус 22, 22 А |
|||
|
по проекту, разработанному |
ЗАО «Трест «СТМ-62» |
|||
|
2. Монтажные работы выполнены |
ООО «НТП «СВИТ» |
|||
с « 02 » апреля 200 3 г. по « 10 » июня 200 3 г.
|
3. Пусконаладочные работы выполнены |
ООО «НТП «СВИТ» |
с « 10 » июня 200 3 г. по « 15 » июня 200 3 г.
4. Выявленные в процессе комплексного опробования дефекты и недоделки устранены (при необходимости указать в приложении к настоящему акту)
Заключение комиссии:
Установку, прошедшую комплексное опробование, включая и пусконаладочные работы, считать принятой в эксплуатацию с « 21 » июня 200 3 г.
Перечень прилагаемой к акту документации:
1. Комплект чертежей исполнительной документации.
2. Акт готовности зданий (сооружений) к производству монтажных работ.
3. Акт о проведении входного контроля (2 листа).
4. Акт измерения сопротивления изоляции электропроводок (5 листов).
5. Акт об окончании монтажных работ.
6. Акт об окончании пусконаладочных работ.
7. Ведомость смонтированного оборудования (2 листа).
8. Акт комплексного опробования автоматического оборудования.
9. Протокол измерения сопротивления между заземлителями (4 листа).
10. Акт освидетельствования скрытых работ по прокладке электропроводки.
|
Председатель комиссии |
Е. Васильченко |
|
Члены комиссии |
П. Сямин |
|
|
С. Михайлов |
|
ООО НПФ «СВИТ» |
И. Смирнов |
Акт о приемке установки автоматической системы пожарной сигнализации и управления дымоудалением на объекте: г. СПб, кв. 65 СПЧ, кор.41 в эксплуатацию
|
г. Санкт-Петербург |
«30» июня 2000 г. |
Рабочая комиссия в составе, назначенная Генеральным директором
|
ЗАО «Строительный трест» приказом № 62 от 14.06.2000 года |
|
|
Председателя: |
Кузнецова Ю. Н. |
Членов комиссии-представителей:
|
Монтажной и пуско‑наладочной организации |
АОЗТНТФ «ЭВИР» Портнов Д. В. |
|
|
Органа государственного пожарного надзора Приморского района: |
Макаровский П. А. |
|
Провела проверку выполненных работ и установила:
1. Монтажной и пуско-наладочной организацией АОЗТ НТФ «ЭВИР» предъявлена к приемке установка пожарной сигнализации и управления дымоудалением ПП КП0119-2160-1 в составе:
|
- Прибор центральный ЦП СВТ 29.00.000-03 |
- 3 шт. |
|
- Прибор этажный ЭП СВТ 29.03.00.000 |
- 36 шт. |
|
- Шкаф питания ШП СВТ 29.04.000 |
- 3 шт. |
|
- Извещатель пожарный ИП 105-2/1 |
- 600 шт. |
|
- Пост управления красный толкатель ПКЕ-212- 1УЗ |
- 41 шт. |
|
- Оповещатель пожаро-охранный звуковой ООПЗ-220 |
- 36 шт |
смонтированный в жилой дом по адресу: г. Санкт-Петербург, квартал 65 СПЧ, кор.41 по проекту № 12217.41/кор АПП, разработанному ОАО «ЛЕННИИПРОЕКТ».
2. Монтажные работы выполнены АОЗТ НТФ «ЭВИР» (лицензии: УГПС ГУВД Санкт-Петербурга и Ленинградской области № 000737 от 16 апреля 1998 г., Администрации Санкт-Петербурга ГХ № 78-07639 от 09.10.98 г.) с 10 марта по 9 июня 2000 года.
Сметная стоимость монтажных работ 7257 руб. в ценах 1984 г. Фактическая стоимость монтажных работ 173 152 руб.
3. Пусконаладочные работы выполнены АОЗТ НТФ «ЭВИР» с 9 июня по 14 июня 2000 г.
4. Результаты измерений сопротивления изоляции: в норме.
5. Выявленные в процессе комплексного обследования дефекты, недоделки устранены, (при необходимости указать в приложении к настоящему акту).
Заключение комиссии:
Технические средства пожарной сигнализации и управления дымоудалением, прошедшие комплексное опробование, включая и пуско-наладочные работы, считать принятыми в эксплуатацию с «___»_____________200__г.
При этом подрядчик АОЗТ НТФ «ЭВИР» обязуется выполнить гарантийный ремонт сигнализации в течение двенадцати месяцев при соблюдении заказчиком действующих правил эксплуатации. Заказчик обязан пользоваться сигнализацией в строгом соответствии с инструкцией, а в случае обнаружения неисправности, немедленно ставить в известность АОЗТ НТФ «ЭВИР».
Перечень прилагаемой к акту документации.
1. Акт об окончании монтажных работ.
2. Акт об окончании пуско-наладочных работ.
3. Акт измерения сопротивления изоляции электропроводок.
4. Акт о проведении входного контроля.
5. Акт освидетельствования скрытых работ.
6. Ведомость установленных приборов и устройств.
7. Копии сертификатов оборудования.
8. Копии лицензий.
Председатель комиссии __________________________________/ Кузнецова Ю. Н.
Члены комиссии: ________________________________________/ Портнов Д. В.
Акт проведения комплексного опробования автоматической установки пожаротушения
|
г. Санкт-Петербург |
«26» июля 2004 г. |
|
квартал 25, корпус 44А; 44 по пр. Комендантский |
Рабочая комиссия в составе:
|
председателя‑представителя заказчика |
Михайлов С. В., инж. техн. ЗАО «Ленжилстрой» |
членов комиссии - представителей:
|
генподрядчика |
ЗАО «Строительное управление № 1», нач. участка Сямин С. В. |
||
|
пусконаладочной организации |
ООО «НПФ «Свит», Метлов С. Ю. |
||
|
государственного пожарного надзора |
13 ОПО Вышинский В. Э. |
||
произвела осмотр автоматической установки пожаротушения, смонтированной в соответствии с проектом № 703-1-ПТ.
Осмотром установлено, что автоматическая установка водяного пожаротушения смонтирована полностью в соответствии с проектом и требованиями «Правил производства и приемки работ. Автоматические установки пожаротушения» ВСН 25-09.67-85.
Для проверки работоспособности смонтированной установки комиссия произвела комплексное опробование установки АПТ путем имитации вскрытия спринклера (открывание спускного вентиля) в помещениях секции
|
|
|||
|
Искусственные очаги пожара размером |
|
||
|
С горючим материалом |
|
||
|
Были установлены в |
|
||
В результате испытаний установлено:
|
Наименование (номер) |
Время поджога очага пожара, час, мин. |
Время вскрытия спринклерного оросителя (извещателя), час, мин |
Включение звукового оповещения, час, мин |
Время появления воды (пены, газа), час, мин |
Полное тушение очага пожара, час, мин |
Примечание |
|
|
секции |
Защищаемого помещения |
||||||
|
|
|
|
|
|
|
|
|
|
|
|
|
|
|
|
|
|
|
Представитель заказчика |
С. Михайлов |
|
Представитель генподрядчика |
С. Сямин |
|
Представитель пусконаладочной организации |
С. Метлов |
|
Представитель Госпожнадзора |
В. Вышинский |
Акт приемки системы кабельного телевидения
|
г. Санкт-Петербург |
« 21 » июня 200 3 г. |
|
Объект |
г. Санкт-Петербург, пр. Мориса Тореза, д. 81, корп. 1 |
|
|
|
Представители:
|
ЗАО «Строительный трест»; Васильченко Е. И. |
|
(организация, должность, фамилия, имя, отчество) |
|
ООО НТФ «ЭВИР»; Филлипов Д. С. |
|
(организация, должность, фамилия, имя, отчество) |
|
ТСЖ «М. Тореза» 81-1; Одинцов В. А. |
|
(организация, должность, фамилия, имя, отчество) |
Составили настоящий акт в том, что выполнены монтажные работы по монтажу приемной системы кабельного телевидения жилого дома по адресу
|
г. Санкт-Петербург, пр. Мориса Тореза, д. 81, корп. 1 |
согласно проекта 2002-03 СС1.
Смонтированный комплекс и настройка каналов обеспечивает качественный прием пятнадцати каналов вещательного телевидения. Монтажная организация устанавливает гарантийный срок 12 месяцев.
Принятое решение:
1. Предъявленную систему кабельного телевидения жилого дома по адресу
|
г. Санкт-Петербург, пр. Мориса Тореза, д. 81, корп. 1 |
принять в эксплуатацию.
|
Подписи сторон: |
Васильченко Е. И. |
|
|
Филлипов Д. С. |
|
|
Одинцов В. А. |
Акт приемки радиовещания
|
«29» ноября 2000 г. |
г. Санкт-Петербург |
|
Мы нижеподписавшиеся |
начальник ПТО ООО НТФ «ЭВИР» Кривдин Алексей Юрьевич |
|
|
с одной стороны и северный радиотрансляционный узел в лице |
Кирушева И. Л. |
|
с другой стороны, составили настоящий акт о нижеследующем:
ООО НТФ «ЭВИР» передает в эксплуатацию радиоузлу оборудование радиофикации 3-х парадных жилого дома по адресу: г. Санкт-Петербург, р-н СПЧ квартал 65. корп. 41 (ул. Туристкая д. 4 корп. 1). смонтированное по проекту 12217.41/кор-СС-5. состоящее из:
1. Линия от существующей радиостойки жилого дома № 149 кор. 1 по Приморскому пр.. проводом БСМ-1 диам. 3мм. напряжением 240В к радиостойке II-0.8. установленной на кровле кор. 41.
2. Групповой ввод - 3
3. Трубостойки II-0,8 - 3 шт.
4. Провод БСМ - 1 диам. 3 мм - 470 м
5. Абонентских трансформаторов ТАМУ-10 - 1 шт. (установлен в нише последнего этажа)
6. Абонентских трансформаторов ТАМУ-25 - 2 шт. (установлены в нише последнего этажа)
7. Лестничных стояков проводом ПРППМ 2×1,2 - шестьдесят пять.
8. Вводы в квартиры проводом ПТПЖ 2×0,6
|
|
|
|
|
|
|
|
|
|
Радиоузел означенное оборудование принимает в эксплуатацию и обязуется обеспечить бесперебойную подачу радиотрансляции.
|
Принял: |
И. Кирушев |
|
|
Передал: |
А. Кривдин |
Акт приемки системы дымоудаления
|
г. Санкт-Петербург |
« 21 » июня 200 3 г. |
Мы, нижеподписавшиеся:
|
инженер по техническому надзору за строительством |
Карпенко С. В. |
||
|
производитель работ |
Ромашов А. Р. |
||
|
трубочистный мастер 1‑ой категории |
Серов П. Л. |
||
составили настоящий акт в том, что нами произведена проверка и прочистка дымовых каналов в доме № 31
|
по ул. |
Смирнова |
с целью установления их пригодности для отвода продуктов сгорания от газовых колонок.
В результате проверки установлено следующее:
1. Обособленные дымовые каналы имеются в квартирах № 23, 34, 56 .
2. В квартирах № 11, 22, 55 обособленные дымовые каналы.
3. Размеры каждого канала составляют 120×160 мм .
4. Каналы выполнены из бетонных блоков.
5. Каналы в квартирах № 18, 38 расположены в наружных стенах; расстояние от наружной поверхности стены до канала 380 мм .
6. Все отверстия в каналах, кроме отверстий для присоединения железных соединительных труб от газовых приборов, заделаны.
7. Противопожарные разделки в междуэтажных перекрытиях составляют 38 см и соответствуют требованиям пожарной безопасности.
8. Все каналы очищены от строительного мусора, завалов, пыли.
9. Плотность и обособленность каналов проверены методом задымления, неплотность каналов обнаружена в квартирах № 10
10. Проходимость каналов проверена путем опускания шара диаметром 100 мм ; проходимость во всех каналах хорошая .
11. Тяга в каналах в день проверки хорошая.
12. Защитные колпаки имеют все каналы.
13. Каналы выведены на 1,3 м от поверхности крыши и находятся на расстоянии 0,5 м от конька.
14. Ближайшее более высокое здание расположено на расстоянии 65 м от каналов.
15. К настоящему акту прилагаются эскизы плановых привязок (или развертки каналов).
Заключение:
Проверенные вентиляционные каналы в квартирах № 1-9, 11-124 допускаются к эксплуатации.
|
Представитель технического надзора застройщика |
Карпенко С. В. |
|
Производитель работ |
Ромашов А. Р. |
|
Трубочистный мастер |
Серов П. Л. |
|
|
|||||||||||||||||||||||||
|
Теплоцентр |
квартал 10, Ржевка-Пороховые, корпус. 25 (пр. Наставников, д. 36, корп. 2) |
Акт приемки в наладочную эксплуатацию теплового ввода, теплоцентра, системы отопления и горячего водоснабжения
|
г. Санкт-Петербург |
«___»___________200__г. |
Мы, нижеподписавшиеся, комиссия в составе представителей:
|
заказчик (председатель) |
Трекин В. В., дир. по строительству, ООО «Строительное управление» |
||
|
район теплосети |
Восточный филиал - Андреев М. Ю., «Энергосбыт» - Филатова О. П. |
||
|
абонент |
Ухалов В. Г., дир. службы заказника, ЗАО «ИВИ-93» |
||
|
монтажная организация |
Михайлов С. В., инженер технадзора ЗАО «Ленжилстрой» |
||
составили настоящий акт в том, что сего числа после ознакомления с технической документацией проведена техническая приемка ввода на участке от ТК-5а (наружная стенка) до ввода , теплоцентра в доме № 36, к.2 по ул.
|
пр. Наставников |
системы отопления и горячего водоснабжения, смонтированных в домах по адресам:
|
пр. Наставников, д. 36, корп. 2 |
|
|
подрядчиком |
ЗАО «Балтинком» |
причем установлено:
1. Монтаж оборудования, теплоцентра, системы отопления и горячего водоснабжения соответствует утвержденным проектам и действующим техническим условиям на производство и приемку работ.
2. В монтаже и оборудовании ввода, теплоцентра, системы отопления и горячего водоснабжения установлены следующий дефекты и недоделки:
А. По вводу:
|
а) |
Восстановить изоляцию на т/проводах в тех, подполье и помещении т/центра |
|
б) |
|
|
в) |
|
|
г) |
|
|
д) |
|
Б. По теплоцентру:
|
а) |
Опорные металлоконструкции выполнить с опорой на пол теплоцентра. |
|
б) |
Выполнить систему освещения по пост, схеме. |
|
в) |
Выполнить монтаж автоматики ИТП. |
|
г) |
Промыть теплоцентр. |
|
д) |
Выполнить монтаж сбросной линии. |
|
е) |
|
В. По системе отопления (горячего водоснабжения):
|
а) |
Промыть систему отопления. |
|
б) |
|
|
в) |
|
|
г) |
|
|
д) |
|
При неустранении вышеуказанных недоделок и дефектов в указанные выше сроки теплоснабжающая организация имеет право без предупреждения прекратить подачу тепловой энергии потребителю до полной их ликвидации.
3. Техническая характеристика принимаемого объекта:
A. Ввода:
|
а) Длина и диаметр |
2Ø159-l=42,10; 2Ø133-l=79,90 |
||
|
в) Тип прокладки |
канальная, бесканальная, подвальная |
||
|
г) Тип изоляции и толщина |
ПТУ |
||
Б. Теплоцентра:
а) 1. Водомеры: на отопление______тип:______Ø______мм. №______пломба______кв________ г. выпуска___________г., показание_____________________________________
2. Горячее водоснабжение (бойлера)_______Ø_______мм. №_______пломба_______кв______г. выпуска___________г., показание_____________________________________
3. На непосредственный водоразбор_______тип:_____Ø_____мм. №_____пломба____кв ________г. выпуска___________г., показание_____________________________________
б) Теплообменное оборудование__________________________________________________ТРЖ_______м_______Ø седла________мм, отверстий_______, Ø отверстий________мм
B. Система отопления и горячего водоснабжения:
а) Наружная кубатура здания 90,03 тыс. м, кол-во зданий 1
б) Расход тепла на отопление 0,81635 Гкал/ч (949,70кВт) тн/ч
в) Расход тепла на горячее водоснабжение тн/ч
г) Расход тепла на вентиляцию нгк/ч тн/ч
4. Наличие документации:
а) Акты на опрессовку: ввода от 06.11.03 теплоцентра от 17.11.03 системы отопления от 8.11.03 системы горячего водоснабжения от
б) Акты на скрытые работы от 21.10.02
в) Справка от кабельной сети от 17.10.03
г) Исполнительные чертежи ввода план, продольный профиль - октябрь 2002
5. Наладочную эксплуатацию ввода, теплоцентра и системы отопления осуществляет
|
ЗАО «Балтинком»; ООО «ЭнергоСтройСоюз» |
6. На основании вышеизложенного ввод, теплоцентр, система отопления и горячего водоснабжения по адресу
|
квартал 10, Ржевка-Пороховые, корпус 25 пр. Наставников, д. 36, корп. 2 |
допускаются в наладочную эксплуатацию с подачей теплоснабжения для отопления, а горячего водоснабжения после приема объекта Госкомиссией.
7. Точкой раздела между теплоснабжающей организацией и абонентом является
|
наружная стенка ТК-5а |
|
|
|
Председатель комиссии ‑ представитель заказчика |
В. Трекин |
|
Представитель дирекции «Энергосбыт» |
О. Филатова |
|
Абонент |
В. Ухалов |
|
Представитель монтажной организации |
А. Бригадир |
При приемке установлено:
|
1. Все недоделки, отмеченные в п. 2 настоящего акта, устранены. |
|
|
2. Налажено теплообменное оборудование |
|
|
3. Система отопления считается принятой в постоянную эксплуатацию. |
|
Корпус обеспечен теплом и горячим водоснабжением.
Председатель:
|
представитель эксплуатирующей организации |
|
Члены:
|
от района теплосети |
|
||
|
от заказчика |
|
||
|
от абонента |
|
||
Примечание: условием для приемки объекта Госкомиссией:
а) в зимний период является приемка отопительной установки с тепловыми сетями и сооружениями в постоянную эксплуатацию;
б) при сдаче системы теплоснабжения здания в летний период Заказчик и Генподрядчик обязуются в начале отопительного сезона произвести наладку и регулировку систем со сдачей абоненту и заполнением части акта о приемке в постоянную эксплуатацию.
До этого Заказчик и Генподрядчик несут полную ответственность за теплоснабжение объекта.
Акт технической приемки общесплавной канализации
|
г. Санкт-Петербург |
«26» июня 2000 г. |
Мы, нижеподписавшиеся, комиссия в составе представителей:
|
от |
С-3 РЭКС зам. начальника Коротченко В.Н. |
||
|
от застройщика |
АОЗТ «РАНТ» главный инженер Кузнецов Ю. Н. |
||
|
от подрядной организации |
ЗАО «УНР-394М» главный инженер Жилин А. Н. |
||
Произвели осмотр наружной общесплавной канализационной сети; от 13 до
12 протяженностью 4,5 п.м. ж/б Ø250
|
от 13 до Д7 « 7,0 |
|
|
от 12 до 11 « 23,60 |
|
|
от 11 до Д6 « 9,0 |
|
|
от 11 до 10 « 3,65 |
|
При приемке предъявлена следующая документация:
1. Утвержденный рабочий проект общесплавной канализации от 02.11.99 № 7723-ПР
2. Исполнительный чертеж проложенной канализации в 3 экз.
3. Акты на скрытые работы 1 шт.
4. Справка о балансовой стоимости проложенной канализации от ___________________г. в сумме______________________________________________________________руб.
Работы начаты январь 1999 г., закончены июнь 2000 г.
Комиссия установила, что общесплавная канализация протяженностью 104,25 с железобетонными колодцами в количестве 12 шт.
Стоимостью _____________обеспечивающая корпуса № 41 выполнены в соответствии с утвержденным проектом и исполнительной схемой и считает допущенной к эксплуатации
Представители:
|
С-3 РЭКС |
/Коротченко В. Н. |
|
«РАНТ» |
/Кузнецов Ю. Н. |
|
УНР-394 |
/Жилин А. Н. |
Акт приемки телефонной канализации
|
жилой дом по адресу: квартал 43 б, корпус 104 |
|
(наименование объекта, сооружения, его очереди, пускового комплекса, адрес) |
Рабочая комиссия, назначенная приказом начальника УНР № 12 от 12.05.02
в составе:
|
главного инженера |
Петрова П. О. |
|
|
|
(должность, фамилия, имя, отчество) |
|
|
представителей технического надзора |
Маслова А. А. |
|
|
|
(должность, фамилия, имя, отчество) |
|
представителя привлеченных организаций УНР № 23 треста № 2 производителя работ
|
Романюка В. Т. |
составила настоящий акт о нижеследующем:
|
1. Строительство осуществлялось |
УНР № 12 треста № 3 |
выполнившим телефонную канализацию , и его субподрядными организациями ______.
2. Строительные и монтажные работы были осуществлены в сроки: начало работ 10 апреля 2002 окончание работ 10 мая 2002
3. Рабочей комиссии представлена генеральным подрядчиком следующая документация:
|
исполнительный чертеж, справка о стоимости |
|
|
4. Комиссией произведена приемка |
телефонной канализации от существующего колодца № 92 до корпуса 104 |
в квартале № 43б протяженностью 106 пог.м. ; оборудования и сооружений, согласно приложению № ______к настоящему акту, а также выполнены дополнительные испытания (при их необходимости), перечисленные в приложениях № ________.
На основании рассмотрения представленной генеральным подрядчиком документации и осмотра предъявленного к приемке в натуре объекта рабочая комиссия устанавливает следующее:
1. Законченный строительством и предъявленный к приемке в эксплуатацию объект (сооружение) осуществлен без отступлений от утвержденного технического проекта.
2. Имеющиеся недоделки согласно приложению №_______ не препятствует нормальной эксплуатации сооружения.
3. Полная сметная стоимость строительства (по утвержденной сметной документации)
|
|
, фактические затраты |
|
Заключение:
Работы по строительству телефонной канализации выполнены в соответствии с проектом, строительными нормами и правилами и отвечают требованиям приемки в эксплуатацию зданий и сооружений, изложенных в соответствующих главах СНиПов.
Качество выполненных работ хорошее .
Решение рабочей комиссии:
Предъявленную к приемке тел. канализацию корпуса № 104 в квартале 43 6 считать принятой в эксплуатацию с общей оценкой качества выполненных строительно-монтажных работ хорошо.
Приложения к акту:
1. Исполнительный чертеж. 2. Справка о стоимости.
|
Сдал: Производитель работ _____________________/Романюк В. Т. |
Принял: Главный инженер _____________________/Петров П. О. Представитель технадзора _____________________/Маслов А. А. |
Акт приемки телефонной канализации
|
г. Санкт-Петербург |
22.06.2000 г. |
|
Объект: |
«Жилой дом» кор. 41 кв. 65 СПЧ |
||
|
Заказчик: |
ЗАО «Строительный трест» |
||
|
Подрядчик: |
АОЗТ «РАНТ» |
||
Рабочая техническая комиссия в составе:
|
Председателя (заказчик) |
Зименков В. Е. |
||||||
|
и членов комиссии (подрядчик) |
Кузнецов Ю. Н. |
||||||
|
главный инженер филиала ОАО ПТС «ПТУ» |
Абдуллин Ж. X. |
||||||
|
начальник техн. отд. филиала ОАО ПТС «ПТУ» |
Тайц Г. Е. |
||||||
|
начальник ЛКЦ 2 филиала ОАО ПТС «ПТУ» |
Потапов А. В. |
||||||
|
инженер гр. ЛТУ ЛКЦ 2 филиал ала ОАО ПТС «ПТУ» |
Рудакова И. В. |
||||||
|
инженер ЛКЦ 2 филиала ОАО ПТС «ПТУ» |
Шпаковский В. Г. |
||||||
произвела освидетельствование сооружений связи с целью установления готовности их к вводу в эксплуатацию и определения качества выполненных строительно-монтажных работ.
К освидетельствованию предъявлены следующие сооружения:
|
телефонная канализация |
|
|
Кроме того, предъявлена исполнительная документация, выполненная на основе проектной документации (рабочих чертежей) с учетом принятых и согласованных в законном порядке изменений.
В результате обследования комиссия установила:
1. Состав и объем предъявленных к освидетельствованию линейных сооружений соответствует исполнительной документации и Техническим условиям № ОСП-12/367 от 29.10.99 г.
2. Объем выполненных работ характеризуется следующими данными:
|
установлены колодцы ККС-3 = 2 шт, проложена 4-х ветвевая канализация |
|
l=384 мп (трубы Ø100) |
3. Технические параметры предъявленных сооружений соответствуют нормам.
|
4. Следующие замечания: |
|
|
|
|
Решение рабочей комиссии:
Предъявленную к приемке телефонную канализацию дома считать принятой в эксплуатацию.
|
Председатель |
Зименков В. Е. |
|
Подрядчик |
Кузнецов Ю. И. |
|
Главный инженер филиала |
Абдуллин Ж. X. |
|
Начальник технического отдела |
Тайц Г. Е. |
|
Начальник ЛКЦ |
Потапов А. В. |
|
Инженер гр. ЛТУ |
Рудакова И. В. |
|
Инженер ЛКЦ |
Шпаковский В. Г. |
Акт приемки телефонизации
|
г. Санкт-Петербург |
« 11 » апреля 200 3 г. |
|
Рабочая комиссия, назначенная |
приказом начальника УНР № 10 от 10.04.02 |
в составе:
|
председателя‑представителя районной телефонной сети |
Маркова И. Т. |
|
|
|
(должность, фамилия, имя, отчество) |
|
|
представителей привлеченных организаций: |
Суслова А. И., Бондаренко В. И. |
|
|
|
(должность, фамилия, имя, отчество) |
|
составила настоящий акт о нижеследующем:
1. Строительство велось УНР 65 , выполнившим телефонизацию дома, и его субподрядными организациями.
2. Строительные и монтажные работы были осуществлены в сроки:
начало работ 29 марта 2002
окончание работ 10 апреля 2002
3. Рабочей комиссии представлена генеральным подрядчиком следующая документация:
|
|
4. Рабочей комиссией произведена приемка телефонизации:
кабеля ТПП 10×2
кабеля ТППБ 50×2
кабеля ТППБ 100×2
оборудования и сооружений, согласно приложению № 1 к настоящему акту, а также выполнены дополнительные испытания (при их необходимости), перечисленные в приложениях №___.
На основании рассмотрения представленной генеральным подрядчиком документации и осмотра предъявленной к приемке телефонизации рабочая комиссия устанавливает следующее:
1. Законченная монтажом телефонизация осуществлена без отступлений от проекта.
2. Имеющиеся недоделки согласно приложению №___________.
3. Полная сметная стоимость строительства (по утвержденной сметной документации)
|
|
, фактические затраты |
|
Заключение:
Работы по телефонизации дома выполнены в соответствии с проектом, строительными нормами и правилами и отвечают требованиям приемки в эксплуатацию законченных строительством зданий и сооружений.
Качество выполненных работ хорошее .
Решение рабочей комиссии:
Предъявленную к приемке телефонизацию дома считать принятой в эксплуатацию.
Приложения к акту:
1. Акты на скрытые работы.
2. Справка о стоимости.
|
Представитель районной телефонной сети |
Марков И. Т. |
|
Представители привлеченных организаций |
Суслов А. И. |
|
|
Бондаренко В. И. |
|
КАБЕЛЬНАЯ СЕТЬ АО «ЛЕНЭНЕРГО» 191186, г. Санкт-Петербург, Марсово поле, 1 тел: (812) 318 3902, факс: (812) 110 6349 ________________№__________________ На______________от_________________ |
В «Энергосбыт» АО «Ленэнерго» |
от «___»_________20___г.
|
Абонент: |
|
||||||||
|
Юридический адрес: |
|
||||||||
|
Для объекта: |
|
||||||||
|
Разрешается присоединение дополнительной мощности |
|
||||||||
|
всего с существующей |
|
||||||||
|
от вновь построенной |
|
||||||||
|
Источник питания АО «Ленэнерго»: |
|
||||||||
|
№№ питающих кабельных линий: |
|
||||||||
|
Напряжение питающей сети на границе балансовой принадлежности: |
|
||||||||
Граница балансовой принадлежности и эксплуатационной ответственности определяется актом разграничения сетей.
Внешняя схема электроснабжения объекта от ОАО «Ленэнерго» соответствует требованиям к надежности электроприемников_________категории.
Срок реализации справки - один год.
|
Примечания: |
|
|
|
|
|
|
|
*Выдается сетевым предприятием АО «Ленэнерго» для заключения (изменения) договора электроснабжения.
|
|
|
Главный инженер |
|
|
Начальник района |
|
Акт приемки фасадов здания
|
г. Санкт-Петербург |
«___»___________2001г. |
Мы, нижеподписавшиеся:
|
автор проекта |
Тюкин А. В. |
|||
|
Представитель технического надзора застройщика |
Шинкевич В. А. |
|||
|
Главный инженер строительства |
Огнев А. В. |
|||
|
производитель работ |
Савин А. В. |
|||
осмотрели работы по архитектурному оформлению фасадов в корпусе 22/22А в квартале №46 по ул.(пр) №46
Проверив качество работ и соответствие их утвержденным проектам фасадов и деталей, установили следующее:
I. Главный фасад
1. Цоколь: облицован путиловской плитой.
2. Поле стены: гладкое с расшивкой швов.
3. Выступающие элементы фасада (колонны, эркеры, балконы, крыльца и пр.): колонны из облицовочного кирпича, крыльца, балконы из сборных железобетонных плит с металлическими решетками ограждения.
4. Обрамление проемов: отсутствует.
5. Венчающий карниз, пояски, тяги, крепления лепных изделий: отсутствует.
6. Фронтоны, парапеты, балюстрады и сопряжения кровли с ними: парапеты из кирпича, местами наклонная кровля из профилированных металлических листов.
7. Отделка фасадов: произведена по утвержденному проекту.
8. Состояние водоотводов (желоба, кровли, подоконные сливы, открытия карнизов, тяг, лепных деталей, крепление водосточных труб): открытия парапетов и подоконные сливы - из оцинкованной стали.
II. Двор о вый фасад
1. Цоколь: облицован путиловской плитой.
2. Поле стен: гладкое с расшивкой швов.
3. Выступающие элементы фасада (колонны, эркеры, балконы, крыльца и пр.): крыльца, балконы из сборных железобетонных плит с металлическими решетками ограждения.
4. Обрамление проемов: отсутствует.
5. Венчающий карниз, пояски, тяги, крепления лепных изделий: отсутствует.
6. Фронтоны, парапеты, балюстрады и сопряжения кровли с ним: парапеты из кирпича, местами наклонная кровля из профилированных металлических листов.
7. Отделка фасадов: произведена по утвержденному проекту.
8. Состояние водоотводов (желоба, кровли, подоконные сливы, открытия карнизов, тяг, лепных деталей, крепление водосточных труб): открытия парапетов и подоконные сливы - из оцинкованной стали.
|
Автор проекта |
|
/Тюкин А. В. |
|
Представитель технического надзора застройщика |
|
/Шинкевич В. А. |
|
Главный инженер строительства |
|
/Огнев А. В. |
|
производитель работ |
|
/Савин А. В. |
АКТ
ПРИЕМКИ БЛАГОУСТРОЙСТВА
жилого дома по адресу: СПб, г. Пушкин, ул. Жуковско-Волынская, дом 3
|
г. Санкт-Петербург |
«15» августа 2005 г. |
Комиссия в составе:
|
представитель эксплуатационной организации |
|
|||||
|
ТСЖ «Жуковско-Волынская, дом 3» Ревенко М. В. |
||||||
|
(наименование организации, фамилия, имя, отчество) |
||||||
|
представитель Администрации Пушкинского района Санкт‑Петербурга |
|
|||||
|
|
||||||
|
(наименование организации, фамилия, имя, отчество) |
||||||
|
представитель заказчика |
|
|||||
|
СПб отделение ООФ «Центр качества строительства» Филатов С. Н. |
||||||
|
(наименование организации, фамилия, имя, отчество) |
||||||
|
представитель СПб ГУСПП «Пушкинская» |
|
|||||
|
|
||||||
|
(наименование организации, фамилия, имя, отчество) |
||||||
|
представитель ГУДРЭП «Автодор» |
|
|||||
|
|
||||||
|
(наименование организации, фамилия, имя, отчество) |
||||||
|
представитель подрядчика |
|
|||||
|
OOP ПСФ «КОРТ» Кордюкова Е. В. |
||||||
|
(наименование организации, фамилия, имя, отчество) |
||||||
УСТАНОВИЛА
|
1. Подрядчиком |
|
|
|
OOP ПСФ «КОРТ» |
||
|
(наименование организации, ее ведомственная подчиненность) |
||
|
предъявлено к приемке в эксплуатацию законченное |
|
|
|
благоустройство жилого дома по адресу: г. Пушкин, |
||
|
ул. Жуковско-Волынская, д. 3 |
||
|
(наименование объекта) |
||
2. Проектно-сметная документация на строительство разработана проектными организациями
|
ОАО «ГПНИИ-5» |
|
|
(наименование организации, ее ведомственная подчиненность) |
|
|
инв. №269262 |
|
|
(номер проекта, номер серии) |
|
|
4. Проектно‑сметная документация утверждена |
|
|
СПб отделением ООФ «ЦКС» |
|
|
(наименование органа, утвердившего документацию на объект в целом) |
|
« 19 » ноября 2004 г. № 16-тн
5. Строительно-монтажные работы осуществлены в сроки:
начало работ 06 июля 2005 г.
окончание работ 15 августа 2005 г.
|
6. Комиссии представлена следующая документация |
|
|
проект, акты на скрытые работы, паспорта на материалы |
|
Указанные документы являются обязательным приложением к настоящему акту.
7. Благоустройство выполнено в соответствии с проектом и требованиями действующих строительных норм и правил и имеет следующие показатели
|
покрытие асфальтовое - 1217м2, |
|
бортовой камень - 425 м.п., плиточное мощение - 127м2, газоны - 1373 м2 |
|
(мощность, производительность, производственная площадь, протяженность, вместимость и т.п.) |
РЕШЕНИЕ КОМИССИИ
|
Благоустройство жилого дома по адресу: г. Пушкин, ул. Жуковско-Волынская, д. 3А |
|
(наименование здания, сооружения) |
СЧИТАТЬ ПРИНЯТЫМ в эксплуатацию.
|
Члены рабочей комиссии |
|
|
|
|
|
|
|
|
|
|
|
|
|
|
|
|
|
|
(подписи) |
РЕГИОНАЛЬНЫЙ ИСПЫТАТЕЛЬНЫЙ ЦЕНТР (ООО «РИЦ»)
Зарегистрирован в
Государственном реестре № 42-003-99 Госстандарта России
Государственная лицензия: А№ 01082, per. Номер 47М/99/0619/017/Л от 03.03.99 г.
|
193131, СПб, ул. Ивановская, 24 г. Санкт-Петербург |
тел./факс: (812) 560-35-32 08 июня 2000 г. |
ПРОТОКОЛ ИСПЫТАНИЙ № 213
Наименование объекта, его адрес:
Жилой дом. So6щ. = 14225 м2. 187 квартир: улииа Туристкая. дом 2 (квартир 65. корпус 41); прилегающая территория - 4850 м2
Характеристика объекта: кирпичное здание
Цель обследования объекта: приемка в эксплуатацию после завершения строительства
Заказчик: АОЗТ «РАИТ»
Проект здания: индивидуальный
Характеристика объекта: год постройки 2000 г.: количество этажей 1-2 й подъезды - 14 этажей. 3-й - подъезд - 11 этажей: тип фундамента свайный
Используемые материалы: кирпич - производство ОАО «Ленстройкерамика», железобетон - производство АОЗТ «Баррикада»
Система вентиляции в здании: естественная
Система вентиляции подвальных помещений: естественная
Средства измерения:
|
№ п/п |
Тип прибора |
Зав. |
№ свидетельства о госповерке |
Срок действия свидетельства |
Кем выдано свидетельство |
Основная погрешность измерения |
|
1 |
Дозиметр ДРГ-01Т |
1392 |
0039238 |
04.10.2000 |
Центр испытаний и сертификации Санкт-Петербурга («Тест Санкт-Петербург») |
30% |
|
2 |
Радиометр оцинтилляционный полевой поисковый СРП-88Н |
4453 |
0089280 |
05.10.2000 |
Центр испытаний и сертификации Санкт-Петербурга («Тест Санкт-Петербург») |
30% |
|
3 |
Радиометр универсальный «Онега» |
0047 |
307/99 |
21.07.2000 |
ВНИИМ им. Д.И. Менделеева |
30% |
|
4 |
Спектрометрический комплекс для измерений ОА 222Rn в воздухе |
38 |
416-98 от 05.11.98 |
05.11.2000 |
ВНИИМ им. Д.И. Менделеева |
20% |
Нормативно-методическая документация, использованная при проведении измерений:
- Нормы радиационной безопасности НРБ-99;
- Методические указания МУ 2.6.1.715-98 «Проведение радиационно-гигиенического обследования хилых и общественных зданий».
Дата проведения обследования: 07 июня - 15 июня 2000 г.
Условия проведения обследования: Температура от +7ºС до +15ºС
МЭД внешнего γ - излучения на открытой местности
|
Количество точек |
Место измерения |
Зав. № дозиметра |
Дата измерения |
Среднее значение Н0, мк3в/ч |
Минимальное значение Н0, мк3в/ч |
Погрешность |
|
10 |
территория на расстоянии 30 м от здания |
1392 |
07.06.2000 |
0,13 |
0,10 |
0,04 |
МЭД внешнего γ - излучения на прилегающей территории
|
Количество точек |
Место измерения |
Диапазон значений МЭД по ДРГ-01Т, мР/ч |
Интервал поисковых значений по СРП-88Н, (мкР/ч)/10×с-1 |
|
25 |
прилегающая территория |
0,012-0,016 |
14-18/67-85 |
МЭД внешнего γ - излучения на прилегающей территории
|
Место измерения |
Показания поискового прибора СРП-88Н |
Результат измерения Н, мк3в/ч |
Погрешность Δ, мк3в/ч |
Н-Н0+Σ |
||
|
Подъезд |
Этаж |
№ квартир |
||||
|
1 |
подвал |
- |
110-135 |
0,23 |
0,07 |
0,20 |
|
|
офис |
- |
102-114 |
0,20 |
0,05 |
0,16 |
|
|
2 |
1-5 |
105-115 |
0,20 |
0,05 |
0,17 |
|
|
3 |
1-6 |
100-118 |
0,21 |
0,06 |
0,18 |
|
|
4 |
1-6 |
96-111 |
0,19 |
0,05 |
0,14 |
|
|
5 |
1-6 |
96-114 |
0,20 |
0,05 |
0,16 |
|
|
6 |
1-6 |
94-113 |
0,20 |
0,05 |
0,17 |
|
|
7 |
1-6 |
93-114 |
0,20 |
0,06 |
0,16 |
|
|
8 |
1-6 |
99-115 |
0,20 |
0,06 |
0,17 |
|
|
9 |
1-6 |
96-118 |
0,20 |
0,05 |
0,16 |
|
|
10 |
1-6 |
91-115 |
0,19 |
0,05 |
0,15 |
|
|
11 |
1-6 |
98-117 |
0,20 |
0,05 |
0,16 |
|
|
12 |
1-3 |
99-116 |
0,20 |
0,05 |
0,15 |
|
|
13 |
1-3 |
97-122 |
0,21 |
0,06 |
0,17 |
|
|
14 |
1-2 |
96-117 |
0,20 |
0,05 |
0,15 |
|
2 |
подвал |
- |
107-128 |
0,22 |
0,06 |
0,18 |
|
|
офис |
- |
101-115 |
0,20 |
0,05 |
0,14 |
|
|
2 |
1-7 |
97-112 |
0,19 |
0,05 |
0,14 |
|
|
3 |
1-7 |
96-115 |
0,20 |
0,06 |
0,16 |
|
|
4 |
1-7 |
95-112 |
0,19 |
0,05 |
0,14 |
|
|
5 |
1-7 |
103-107 |
0,18 |
0,04 |
0,13 |
|
|
6 |
1-7 |
105,113 |
0,19 |
0,05 |
0,15 |
|
|
7 |
1-7 |
104-111 |
0,18 |
0,05 |
0,15 |
|
|
8 |
1-7 |
101-108 |
0,18 |
0,05 |
0,14 |
|
|
9 |
1-7 |
95-102 |
0,17 |
0,04 |
0,13 |
|
|
10 |
1-7 |
108-118 |
0,20 |
0,6 |
0,15 |
|
|
11 |
1-7 |
90-118 |
0,20 |
0,05 |
0,15 |
|
|
12 |
1-7 |
104-127 |
0,22 |
0,07 |
0,19 |
|
|
13 |
1-2 |
102-131 |
0,22 |
0,07 |
0,18 |
|
|
14 |
1-2 |
103-119 |
0,21 |
0,06 |
0,17 |
|
3 |
подвал |
- |
104-126 |
0,22 |
0,06 |
0,19 |
|
|
1 |
1-2 |
100-113 |
0,20 |
0,05 |
0,14 |
|
|
2 |
1-4 |
104-111 |
0,19 |
0,05 |
0,13 |
|
|
3 |
1-4 |
101-116 |
0,21 |
0,06 |
0,16 |
|
|
4 |
1-4 |
98-112 |
0,19 |
0,05 |
0,14 |
|
|
5 |
1-4 |
91-109 |
0,20 |
0,06 |
0,16 |
|
|
б |
1-4 |
99-112 |
0,19 |
0,05 |
0,15 |
|
|
7 |
1-4 |
101-117 |
0,20 |
0,06 |
0,17 |
|
|
8 |
1-4 |
95-115 |
0,20 |
0,06 |
0,16 |
|
|
9 |
1-4 |
94-П6 |
0,20 |
0,05 |
0,15 |
|
|
10 |
1-2 |
100-113 |
0,19 |
0,05 |
0,16 |
|
|
И |
1-2 |
103-116 |
0,20 |
0.06 |
0,15 |
Примечание: 1. Нумерация квартир на лестничных площадках принята условно по часовой стрелке
Результаты мгновенных измерений ЭРОА изотопов радона в воздухе помещений
|
№ п/п |
Место
измерения |
Дата измерений |
222Rn,
Бк/м3 |
220Rn,
Бк/м3 |
Макс,
среднегод. |
||
|
|
|
|
Подъезд 1 |
|
|
|
|
|
1 |
подвал |
- |
08-09.06.2000 |
|
23,1±6,9 |
<1 |
90 |
|
2 |
2 |
кв.1 |
08-09.06.2000 |
- |
19,7±5,9 |
4,2±1,3 |
102 |
|
3 |
2 |
кв.3 |
08-09.06.2000 |
- |
22,5±6,8 |
4,6±1,4 |
116 |
|
4 |
4 |
кв.6 |
08-09.06.2000 |
- |
17,7±5,3 |
3,2±1,0 |
88 |
|
5 |
5 |
кв.5 |
08-09.06.2000 |
- |
13,4±4,0 |
1,3±0,4 |
60 |
|
6 |
6 |
кв.2 |
08-09.06.2000 |
- |
16,0±5,0 |
2,9±0,9 |
83 |
|
7 |
7 |
кв.3 |
08-09.06.2000 |
- |
13,8±4,1 |
1,5±0,5 |
63 |
|
8 |
8 |
кв.1 |
08-09.06.2000 |
- |
1б,0±5,3 |
3,2±1,0 |
82 |
|
9 |
9 |
кв.5 |
08-09.06.2000 |
|
15,9±4,8 |
2,2±0,7 |
75 |
|
10 |
10 |
кв.3 |
08-09.06.2000 |
|
17,0±5,1 |
1,3±0,4 |
74 |
|
11 |
11 |
кв.1 |
08-09.06.2000 |
- |
12,2±3,б |
1,7±0,5 |
56 |
|
12 |
12 |
кв.1 |
08-09.06.2000 |
- |
15,4±4,6 |
1,8±0,5 |
71 |
|
|
|
|
Подъезд 3 |
|
|
|
|
|
13 |
2 |
кв.1 |
14-15.06.2000 |
- |
18,7±5,6 |
2,1±0,8 |
85 |
|
14 |
3 |
кв.4 |
14-15.06.2000 |
- |
17,7±5,3 |
3,2±1,0 |
88 |
|
15 |
4 |
кв.2 |
14-15.06.2000 |
- |
19,2±5,8 |
2,4±0,7 |
89 |
|
16 |
5 |
кв.3 |
14-15.06.2000 |
- |
12,9±3,9 |
1,7±0,5 |
61 |
|
17 |
6 |
кв.2 |
14-15.06.2000 |
- |
16,9±5,1 |
2,6±0,8 |
82 |
|
18 |
7 |
кв.2 |
14-15.06.2000 |
- |
1,1±3,0 |
1,9±0,6 |
51 |
|
19 |
8 |
кв.2 |
14-15.06.2000 |
- |
20,9±6,3 |
2,0±0,6 |
94 |
|
20 |
9 |
кв.1 |
14-15.06.2000 |
- |
20,4±6,1 |
1,8±0,5 |
90 |
|
21 |
10 |
кв.2 |
14-15.06.2000 |
- |
17,9±5,4 |
2,6±0,8 |
86 |
Примечание:
1. Оценка численного значения Сmax производилась по формуле:
![]()
2. Значение коэффициента радиоактивного равновесия между радоном и его дочерними продуктами принято равным 0,5.
|
Испытания провела |
|
/ Мухина Л. А. |
|
Директор ООО «РИЦ» |
|
/ Водоватов В. А. |
РЕГИОНАЛЬНЫЙ ИСПЫТАТЕЛЬНЫЙ ЦЕНТР (ООО «РИД»)
Зарегистрирован
в Государственном реестре № 42003-99 Госстандарта России
Государственная лицензия: Серия А № 01082, per. Номер 47/99/0619/ 017/Л от
03.03.99 г.
|
193131, СПб, ул. Ивановская, |
24 тел/факс: (812) 560-35-32 Заказчик ООО «Вестком» |
ПРОТОКОЛ
измерения шума № 25 от 14 мая 2001 г
Время измерения 11 час 00 мин
|
1. Место проведения измерений |
|
|||
|
ул. Мориса Тореза, дом 81, подъезд 11 |
||||
|
№ лифта 1776 - грузопассажирский (грузоподъемность 630 кг) |
||||
|
2. Измерения проводились в присутствии представителя обследуемого объекта |
|
|||
|
начальник участка ООО «Вестком» Курочкин В. Д. |
||||
|
(должность, фамилия, имя, отчество) |
||||
|
3. Средства измерений |
ШВИЛ-01 (№ 93); Шумомер 00024 (11212) |
|||
|
4. Сведения о государственной поверке |
13.03.2001 г. св. №0016841; 30.05.2001 г. |
|||
|
св. №№ 0048900, 0048901, 0048903 |
||||
5. Нормативно-техническая документация, в соответствии с которой проводились измерения и давалось заключение
|
СН №2.2.4/2.1.8.562-96. Санитарные нормы. Шум на рабочих местах, в помещениях жилых, |
|
общественных зданий и в помещениях жилых и общественных зданий; |
|
ГОСТ 12,1.036-81. Шум. Допустимые уровни в жилых и общественных зданиях. |
6. Основные источники шума и характер создаваемого ими шума
|
оборудование машинного отделения лифта (работа двигателя, лебедки) открытие и закрытие |
|
|
дверей лифта. Машинное отделение лифта находится в чердачном помещении. Лифт находится |
|
|
на лестничной площадке. Шахта лифта кирпичная, примыкающая к не жилым помещениям |
|
|
квартиры. Лифт отделен от квартир холлом. Квартиры сдаются без внутренней отделки и |
|
|
внутренних дверей. |
|
|
7. Количество работающих человек |
|
8. Эскиз помещения (территории, рабочего места, ручной машины) с нанесением источников шума и указанием стрелки мест установки и ориентации микрофонов (датчиков). Порядковые номера точек замеров.
9. Результаты измерений шума (см. на обороте)
|
ЗАКЛЮЧЕНИЕ: |
Шум проникающий в помещения при работе лифта |
|
СООТВЕТСТВУЕТ санитарным нормам СН 2.2.4/2.1.8.562-96 |
|
|
Директор ООО «РИЦ» |
|
/ В. А. Водоватов. |
|
Руководитель испытательной лаборатории к.т.н. |
|
/М. Я. Хазанов |
|
Метролог |
|
/Т. А. Поликарпова |
По данным технической инвентаризации на 01 июля 2002 г. вновь выстроенное здание в г. Санкт-Петербург, Кондратьевский пр., д. 62, корп. 3, литер А, строительный квартал 36, жилой корпус 2, блок Д имеет следующие технико-экономические показатели:
|
№ строки |
Технико-экономические показатели |
Ед. измерения |
Кол-во по данным инвентаризации |
|
|
А |
Б |
В |
Г |
|
|
03 |
Количество этажей |
единиц |
11 |
|
|
04 |
Количество секций |
единиц |
1 |
|
|
05 |
Высота этажа |
м |
2,73 |
|
|
Об |
Общий строительный объем |
куб.м. |
16553 |
|
|
07 |
В том числе цокольной части |
куб.м. |
1210 |
|
|
08 |
Встроенные помещения: |
|
|
|
|
09 |
из ник по назначению: |
|
|
|
|
10 |
Офисное помещение 37Н |
куб.м. |
257,4 |
|
|
11 |
Цветочный магазин 39Н |
куб.м. |
35,0 |
|
|
12 |
Общая площадь встроенных помещений |
куб.м. |
292,4 |
|
|
13 |
Нежилые помещения: |
|
|
|
|
14 |
В том числе по назначению: |
|
|
|
|
15 |
Водомер пом. 36Н(3) |
куб.м. |
18,3 |
|
|
16 |
Мусоросборник пом. 40Н |
куб.м. |
6,1 |
|
|
17 |
Маш. отдел, пом 42Н |
куб.м. |
21,1 |
|
|
18 |
Венткамера пом 43Н |
куб.м. |
34,1 |
|
|
19 |
Электрощитовая пом 38Н |
куб.м. |
11,3 |
|
|
20 |
Цокольный этаж пом 36Н (1,2,4-11) |
куб.м. |
324,5 |
|
|
21 |
Общая площадь нежилых помещений: |
куб.м. |
415,4 |
|
|
22 |
Площадь технического этажа 41Н |
куб.м. |
348,3 -в площадь строения не входит |
|
|
№ строки |
Состав квартир жилого дома |
Количество |
Их площадь - кв.м |
|
|
общая |
жилая |
|||
|
А |
Б |
В |
Г |
Д |
|
25 |
Однокомнатные |
1 |
47,0 |
20,5 |
|
26 |
Двухкомнатные |
26 |
1808,7 |
912,3 |
|
27 |
Трехкомнатные |
б |
ббб,4 |
365,2 |
|
28 |
Четырехкомнатные и более |
1 |
105,4 |
64,7 |
|
29 |
Всего |
36 |
2627,5 |
1362,7 |
|
30 |
Площадь лоджий, балконов, террас и веранд (с учетом соответствующих понижающих коэффициентов) |
|
53,1 |
|
|
31 |
Итого приведенная площадь по дому |
|
2680,6 |
|
Зам. начальника филиала ГУ ГУИОН
ПИБ Калининского района______________________________/ X. X. Ковалевская
Бригадир-контролер
«__»__________2003 г._________________________________/ М. Н. Коробова
|
№ п/п |
Наименование работ |
Стоимость работ |
|
1. |
Подготовка строительной площадки |
190085 |
|
2. |
Работа«0» цикла |
5088041 |
|
3. |
Работы по надземной части |
14436798 |
|
4. |
Монтаж внутренних сантехнических систем |
2553908 |
|
5. |
Монтаж и приобретение лифтов |
1292686 |
|
6. |
Диспетчеризация, АППЗ, Комплекс связи |
359642 |
|
7. |
Наружные инженерные сети |
654574 |
|
8. |
Телефон |
3045465 |
|
9. |
Благоустройство |
630001 |
|
|
ИТОГО: |
28251200 |
|
|
НДС 20% |
5650240 |
|
|
ИТОГО: |
33901440 |
Генеральный директор
АОЗТ «РАНТ»_______________________________/Штрум В. Д.
|
выполненной |
|
|
|
(наименование экспертной организации) |
по Комплексной методике контроля качества теплоизоляции ОК зданий и сооружений
|
на объекте |
|
|
|
(наименование и место расположения объекта) |
«___»_________________200_г.
|
Руководитель экспертной организации |
|
|
|
|
(фамилия, инициалы) |
|
|
Руководитель проверки |
|
|
|
|
(фамилия, инициалы) |
|
По результатам проверки качества теплоизоляции ограждающих конструкций (справка о результатах проверки качества теплоизоляции ограждающих конструкций прилагается) составили настоящий акт о нижеследующем:
|
1. К проверке предъявлены следующие конструкции |
|
|
|
|
||
|
(перечень и краткая характеристика конструкций) |
||
|
2. Конструкции выполнены по проектно‑сметной документации |
|
|
|
|
||
|
(наименование проектной организации, номера чертежей и дата их составления) |
||
3. При выполнении работ отсутствуют (или допущены) отклонения от проектно-сметной документации
|
|
|
(при наличии отклонений указывается, |
|
|
|
кем согласованы, номера чертежей и дата согласования) |
4. Дата начала работ_______________ окончания работ_________________
ВЫВОДЫ:
Теплоизоляция ограждающих конструкций не имеет явных дефектов.
|
Руководитель экспертной организации |
|
|
Руководитель проверки |
|
Теплоэнергетический паспорт здания
|
Общая информация о проекте |
||||||||
|
Дата заполнения |
1999-12-15 |
|||||||
|
Адрес здания |
г. Тверь |
|||||||
|
Разработчик проекта |
ЦНИИЭПжилища |
|||||||
|
Адрес и телефон разработчика |
Москва, Дмитровское ш., 95; т. 976-2819 |
|||||||
|
Шифр проекта |
Серия 121 |
|||||||
|
Расчетные условия |
||||||||
|
п/п |
Наименование расчетных параметров |
Обозначение символа и единицы измерения параметра |
Расчетное значение |
|||||
|
1 |
Расчетная температура внутреннего воздуха |
tint,°С |
29 |
|||||
|
2 |
Расчетная температура наружного воздуха |
text,°С |
-29 |
|||||
|
3 |
Расчетная температура теплого чердака |
tdint,°С |
14 |
|||||
|
4 |
Расчетная температура «теплого» подвала |
tbint,°С |
2 |
|||||
|
5 |
Продолжительность отопительного периода |
Zkt, сут |
218 |
|||||
|
б |
Средняя температура наружного воздуха за отопительный период |
tQVext,°С |
-3,0 |
|||||
|
7 |
Градусо-сутки отопительного периода |
Dd,°C×сут |
5014 |
|||||
|
Функциональное назначение, тип и конструктивное решение здания |
||||||||
|
8 |
Назначение |
Жилое |
||||||
|
9 |
Размещение в застройке |
Отдельно стоящее |
||||||
|
10 |
Тип |
Многоэтажное, 9 эт. |
||||||
|
11 |
Конструктивное решение |
Крупнопанельное, железобетонное |
||||||
|
Геометрические показатели |
||||||||
|
№ п/п |
Показатель |
Обозначение символа и единицы измерения показателя |
Нормативное значение показателя |
Расчетное (проектное) значение показателя |
Фактическое значение показателя |
|||
|
12 |
Общая площадь наружных ограждающих конструкций здания В том числе: |
AeSM,м2 |
- |
5395 |
|
|||
|
|
-стен |
Аw, м2 |
- |
3161 |
|
|||
|
|
-окон |
AF, м2 |
- |
694 |
|
|||
|
|
-входных дверей |
Aed, м2 |
- |
- |
|
|||
|
|
-покрытий (совмещенных) |
Ас, м2 |
- |
- |
|
|||
|
|
-чердачных перекрытий (холодного чердака) |
Ас, м2 |
- |
- |
|
|||
|
|
-перекрытий теплых чердаков |
Ас, м2 |
- |
770 |
|
|||
|
|
-перекрытий «теплых» подвалов |
Af, м2 |
- |
770 |
|
|||
|
|
-перекрытий неотапливаемых подвалов или подполий |
Af, м2 |
- |
- |
|
|||
|
|
-перекрытий над проездами и эркерами |
Af, м2 |
- |
- |
|
|||
|
|
-пола по грунту |
Af, м2 |
- |
- |
|
|||
|
13 |
Площадь отапливаемых помещений |
Ak, м2 |
- |
5256 |
|
|||
|
14 |
Полезная площадь (общественных зданий) |
Al, м2 |
- |
- |
|
|||
|
15 |
Площадь жилых помещений и кухонь |
Al, м2 |
- |
3416 |
|
|||
|
16 |
Отапливаемый объем |
Vf, м3 |
- |
1848 |
|
|||
|
17 |
Коэффициент остекленности фасада здания |
p |
0,18 |
0,18 |
|
|||
|
18 |
Показатель компактности здания |
kedes, 1/м |
0,32 |
0,29 |
|
|||
|
ЭНЕРГЕТИЧЕСКИЕ ПОКАЗАТЕЛИ |
||||||||
|
Теплотехнические показатели |
||||||||
|
19 |
Приведенное сопротивление теплопередаче наружных ограждений: |
Roγ, м2׺С/Bт |
|
|
|
|||
|
|
-стен |
Rw |
3,2 |
3,2 |
|
|||
|
|
-окон и балконных дверей |
RF |
0,54 |
0,55 |
|
|||
|
|
-входных дверей |
Red |
- |
- |
|
|||
|
|
-покрытий (совмещенных) |
Rc |
- |
- |
|
|||
|
|
-чердачных перекрытий (холодных чердаков) |
Rc |
- |
- |
|
|||
|
|
-перекрытий теплых чердаков (включая покрытие) |
Rc |
4,71 |
4,71 |
|
|||
|
|
-перекрытий «теплых» подвалов |
Rf |
4,16 |
4,16 |
|
|||
|
|
-перекрытий неотапливаемых подвалов или подполий |
Rf |
- |
- |
|
|||
|
|
-перекрытий над проездами и под эркерами |
Rf |
- |
- |
|
|||
|
|
-пола по грунту |
Rf |
- |
- |
|
|||
|
20 |
Приведенный трансмиссионный коэффициент теплопередачи здания |
Kmtγ, Bт/(м2׺С) |
- |
0,544 |
|
|||
|
21 |
Воздухопроницаемость наружных ограждений: |
Gm кг/(м2×ч) |
- |
- |
|
|||
|
|
-стен |
Gmw |
0,5 |
0,5 |
|
|||
|
|
-окон и балконных дверей |
GmF |
6 |
6 |
|
|||
|
|
-покрытий (чердачных перекрытий) |
GmC |
0,5 |
0,5 |
|
|||
|
|
-перекрытий 1 -го этажа (пола по грунту) |
Gmf |
0,5 |
0,5 |
|
|||
|
22 |
Кратность воздухообмена |
na ч-1 |
0,652 |
0,652 |
|
|||
|
23 |
Приведенный (условный) инфильтрационный коэффициент теплопередачи здания |
Kminf, Bт/(м2׺С) |
- |
0,556 |
|
|||
|
24 |
Общий коэффициент теплопередачи здания |
Km, Bт/(м2׺С) |
- |
1,1 |
|
|||
|
Теплоэнергетические показатели |
||||||||
|
25 |
Общие теплопотери через ограждающую оболочку здания за отопительный период |
Qk, МДж |
- |
2572051 |
|
|||
|
26 |
Удельные бытовые тепловыделения в здании |
qint Вт/м2 |
не менее 10 |
10 |
|
|||
|
27 |
Бытовые тепло поступления в здание за отопительный период |
Qint МДж |
- |
643410 |
|
|||
|
28 |
Теплопоступления в здание от солнечной радиации за отопительный период |
Qk МДж |
- |
255861 |
|
|||
|
29 |
Потребность в тепловой энергии на отопление здания за отопительный период |
Qky, МДж |
- |
2093476 |
|
|||
|
30 |
Удельный расход тепловой энергии на отопление здания |
Qkdes, кДж/(м2×°С×сут) |
- |
79,44 |
|
|||
|
Паспорт заполнен |
||||||||
|
Организация |
||||||||
|
Адрес и телефон |
||||||||
|
Ответственный исполнитель |
||||||||
В случае осуществления строительства, реконструкции или капитального ремонта по договору с заказчиком (застройщиком), завершенный строительством объект предъявляется подрядчиком к приемке заказчику (застройщику) в составе и объеме выполненных работ, предусмотренных утвержденным в установленном порядке проектом и договором подряда.
Заказчик (застройщик) устанавливает дату проведения и порядок организации приемки объекта, перечень участников приемки и оценки соответствия объекта установленным требованиям.
Дата приемки завершенного строительством объекта сообщается органу, уполномоченному на выдачу разрешения на ввод объекта в эксплуатацию.
Оценка соответствия законченного строительством объекта проекту, требованиям нормативных документов (технических регламентов) и технических условий решением заказчика (застройщика) может осуществляться посредством приемочной комиссии или без нее.
К участию в оценке соответствия законченного строительством объекта могут привлекаться представители проектной организации (если на объекте осуществляется авторский надзор), Территориальных исполнительных органов государственной власти Санкт-Петербурга, на территории которого находится объект, уполномоченного органа исполнительной власти Санкт-Петербурга, в предмете ведения которого находятся объекты культурного наследия (по объектам культурного наследия, на которых осуществлен капитальный ремонт или работы по приспособлению объекта для современного использования), органов государственного надзора и эксплуатирующей организации.
Приемка законченного строительством объекта оформляется заказчиком (застройщиком) актом, рекомендуемая форма которого приведена в приложении Б, с приложением к акту необходимой правовой, проектной и исполнительной документации, актов приемки инженерных систем и других документов, подтверждающих соответствие законченного строительством объекта проектной документации и требованиям нормативных документов (технических регламентов). Основной перечень документов приведен в приложении А.
В случае непреднамеренной утраты участниками строительства исполнительной документации на возведенные несущие и ограждающие конструкции зданий и сооружений (при условии, что разрешение на строительство/реконструкцию последних получено в установленном порядке), допускается (по решению органа, уполномоченного на выдачу разрешения на ввод объекта в эксплуатацию) проведение технического обследования таких конструкций лицензированной организацией - с целью определения их надежности и устойчивости, а также соответствия проекту. При наличии положительного заключения по результатам такого обследования, восстановление утраченной документации не требуется.
Такой же порядок возможен для эксплуатируемых объектов, не принятых своевременно по каким-либо причинам в установленном порядке.
Законченные строительством входящие в состав строящегося объекта отдельно стоящие здания и сооружения, встроенные и пристроенные помещения производственного и вспомогательного назначения, сооружения (помещения) гражданской обороны, при необходимости ввода их в действие в процессе строительства, принимаются заказчиком (застройщиком) с привлечением организаций, эксплуатирующих инженерно-технические сети и органов государственного надзора и контроля. Акты промежуточной приемки в эксплуатацию предъявляются заказчиком (застройщиком) при получении разрешения на ввод объекта в эксплуатацию в целом.
Для ввода объекта в эксплуатацию заказчик (застройщик) представляет в орган, выдавший разрешение на строительство, заявление о выдаче разрешения на ввод объекта в эксплуатацию. К заявлению о выдаче разрешения на ввод объекта в эксплуатацию прилагаются документы, подтверждающие соответствие построенного (реконструированного) объекта, проектной документации и требованиям действующих нормативных документов (технических регламентов). Основной перечень документов приведен в приложении А. В случае осуществления строительства, реконструкции или капитального ремонта по договору прилагается акт приемки объекта капитального строительства (рекомендуемая форма акта приведена в приложении Б).
Орган, выдавший разрешение на строительство, в течение десяти рабочих дней со дня поступления заявления заказчика (застройщика) о выдаче разрешения производит проверку наличия и правильности оформления документов, осмотр объекта капитального строительства, при необходимости комиссионно, и принимает решение о выдаче заявителю разрешения на ввод объекта в эксплуатацию или об отказе в выдаче разрешения с указанием причин принятого решения.
Для осмотра объекта капитального строительства, орган, уполномоченный на выдачу разрешения на ввод объекта в эксплуатацию, имеет право привлекать представителей Территориальных исполнительных органов государственной власти Санкт-Петербурга, проектной организации, надзорных органов, организаций, эксплуатирующих инженерно-технические сети и других заинтересованных организаций.
Основанием для принятия решения об отказе в выдаче разрешения на ввод объекта в эксплуатацию является:
- отсутствие документов, указанных в приложении А;
- несоответствие объекта капитального строительства требованиям, установленным в разрешении на строительство;
- несоответствие параметров построенного, реконструированного, отремонтированного объекта капитального строительства проектной документации.
Разрешение на ввод объекта в эксплуатацию является основанием для постановки на государственный учет построенного объекта капитального строительства, внесения изменений в документы государственного учета реконструированного объекта капитального строительства.
В разрешении на ввод объекта в эксплуатацию должны содержаться сведения об объекте капитального строительства, необходимые для постановки построенного объекта капитального строительства на государственный учет или внесения изменений в документы государственного учета реконструированного объекта капитального строительства.
Разрешение на ввод объекта в эксплуатацию является основанием для включения объекта в статистическую отчетность. Государственная регистрация прав собственности на территории Санкт-Петербурга осуществляется на основании разрешения на ввод объекта в эксплуатацию.
Участие Государственных органов в выдаче разрешений на ввод объектов в эксплуатацию осуществляется на безвозмездной основе.
С введением в действие формы разрешения на ввод объектов в эксплуатацию Правительством Российской Федерации к заявлению на ввод объекта в эксплуатацию прилагаются заключения органа государственного строительного надзора и органа государственного пожарного надзора (в случае, если предусмотрено осуществление государственного строительного надзора, государственного пожарного надзора) о соответствии построенного, реконструированного, отремонтированного объекта капитального строительства требованиям нормативных документов (технических регламентов) и проектной документации, а также градостроительный план земельного участка (по форме, установленной Правительством Российской Федерации).
До утверждения формы разрешения на ввод объектов в эксплуатацию Правительством Российской Федерации, приемка и ввод в эксплуатацию законченных строительством объектов на территории Санкт-Петербурга осуществляется в соответствии с ТСН 12-316-2002 Санкт-Петербург «Приемка и ввод в эксплуатацию законченных строительством объектов недвижимости».
Основной перечень документов, предъявляемых при приемке законченных строительством объектов и выдаче разрешений на ввод объектов в эксплуатацию
1. Правовой акт органа исполнительной власти Санкт-Петербурга о строительстве или реконструкции.
2. Разрешение на строительство.
3. Правоустанавливающие документы на земельный участок.
4. Градостроительный план земельного участка (кадастровый план земельного участка и архитектурно-планировочное задание - до установления формы градостроительного плана земельного участка Правительством Российской Федерации).
5. Разрешение на выполнение ремонтно-реставрационных работ (в отношении объектов (выявленных объектов) культурного наследия).
6. Перечень организаций, участвовавших в производстве строительно-монтажных работ.
7. Акты геодезической разбивки пятна застройки и основных осей здания.
8. Исполнительная топографическая съемка объекта и инженерных сетей после окончания строительства (реконструкции).
9. Технический паспорт объекта.
11. Акты освидетельствования скрытых работ в соответствии с требованиями действующих нормативных документов.
12. Паспорта и сертификаты на применяемые материалы, изделия и конструкции.
13. Паспорта на оборудование и механизмы.
14. Акты промежуточной приемки ответственных конструкций.
15. Акт приемки фасада.
16. Акты испытаний и приемки внутренних инженерных систем отопления, вентиляции, водопровода, канализации, электроосвещения и электрооборудования, газификации, радио, телевидения, телефонизации, системы АППЗ, лифтового оборудования, технологического оборудовании и пр.
17. Акты испытаний и приемки наружных инженерных сетей теплоснабжения, водопровода, бытовой и дождевой канализации, газоснабжения, электроснабжения, связи и пр.
18. Акт приемки благоустройства.
19. Общий журнал работ и специальные журналы работ.
20. Акт проверки акустического благополучия и звукоизоляции от ударов и воздушных шумов, в том числе от инженерного оборудования объекта.
21. Результаты анализов холодной и горячей воды.
22. Заключение о радиационном обследовании объекта.
23. Акт тепловизионного обследования ограждающих конструкций (в случае и объеме, предусмотренном ТСН 23-340-2003 Санкт-Петербурга «Энергетическая эффективность жилых и общественных зданий).
24. Акт проверки кратности воздухообмена в помещениях или в зданиях.
25. Закрытый в установленном порядке регламент обращения с отходами, образованными в процессе строительства.
26. Справки о выполнении технических условий, подписанные представителями организаций, осуществляющих эксплуатацию сетей инженерно-технического обеспечения.
27. Копия схемы, отображающей расположение построенного, реконструированного, отремонтированного объекта капитального строительства, расположение сетей инженерно-технического обеспечения в границах земельного участка и планировочную организацию земельного участка, для размещения такой копии в информационной системе обеспечения градостроительной деятельности (передается безвозмездно в орган исполнительной власти Санкт-Петербурга, выдавший разрешение на строительство).
АКТ
приемки законченного строительством объекта
|
от «___»_____________200__г. |
|
|
|
(место нахождения объекта) |
|
Заказчик в лице |
|
|
|
(фамилия, имя, отчество, должность) |
с одной стороны, и исполнитель работ (генеральный подрядчик, подрядчик) в лице
|
|
|
(фамилия, имя, отчество, должность) |
с другой стороны, составили настоящий акт о нижеследующем:
|
1. Исполнителем работ предъявлен заказчику к приемке |
|
|
|
|
||
|
(наименование объекта и вид строительства) |
||
|
расположенный по адресу |
|
|
2. Строительство производилось в соответствии с разрешением на строительство, выданным
|
|
|
(наименование органа, |
|
|
|
выдавшего разрешение) |
|
3. В строительстве принимали участие |
|
|
|
|
|
(наименование субподрядных организаций, их реквизиты, виды работ, |
|
|
|
|
|
выполнявшихся каждой из них) |
|
4. Проектно-сметная документация на строительство разработана генеральным проектировщиком
|
|
||||
|
(наименование организации и ее реквизиты) |
||||
|
выполнившим |
|
|||
|
|
(наименование частей или разделов документации) |
|||
|
и субподрядными организациями |
|
|||
|
|
(наименование организаций, их реквизиты, |
|||
|
|
||||
|
и выполненные части и разделы документации) |
||||
|
|
||||
|
|
||||
|
5. Исходные данные для проектирования выданы |
|
|||
|
|
||||
|
(наименование научно-исследовательских, изыскательских |
||||
|
|
||||
|
и других организаций) |
||||
|
|
||||
|
|
||||
|
6. Проектно‑сметная документация утверждена |
|
|||
|
|
||||
|
(наименование органа, утвердившего (переутвердившего) документацию на объект |
||||
|
|
||||
|
(очередь, пусковой комплекс) |
||||
|
«___»______________20__г. |
№_______________ |
|
Заключение |
|
|
|
(наименование органа государственной вневедомственной экспертизы) |
7. Строительно-монтажные работы осуществлены в сроки:
|
начало |
|
|
|
(месяц, год) |
|
окончание |
|
|
|
(месяц, год) |
8. На объекте установлено предусмотренное проектом оборудование в количестве согласно актам о его приемке после индивидуального испытания и комплексного опробования (перечень указанных актов приведен в приложении_____).
9. Внешние наружные коммуникации холодного и горячего водоснабжения, канализации, теплоснабжения, газоснабжения, энергоснабжения и связи обеспечивают нормальную эксплуатацию объекта.
10. Неотъемлемой составной частью настоящего акта является документация, перечень которой приведен в приложении А.
|
Объект сдал ______________________________ Исполнитель работ (генеральный подрядчик, подрядчик) |
Объект принял ______________________________ Заказчик |
|
|
УТВЕРЖДЕН _____________________________ должность ________ ___________________ подпись расшифровка подписи «_____»___________20___г. №__________________ |
АКТ
ПРИЕМКИ ЗАКОНЧЕННОГО СТРОИТЕЛЬСТВОМ ОБЪЕКТА ГОСУДАРСТВЕННОЙ ПРИЕМОЧНОЙ
КОМИССИЕЙ
от
«___»___________________г. Санкт-Петербург
(для жилых домов)
|
по адресу |
|
|
|
|
ГОСУДАРСТВЕННАЯ ПРИЕМОЧНАЯ КОМИССИЯ, назначенная
|
|
|
наименование органа, назначившего комиссию решением (приказом, постановлением и др.) |
______________________________от____»____________200___г №___________________
В составе:
|
Председателя |
|
|
|
|
|
|
|
должность |
|
ФИО |
|
и членов комиссии-представителей: Госархстройнадзора Санкт-Петербурга |
|
|
|
|
|
|
|
должность |
|
ФИО |
|
Территориального управления административного района Санкт-Петербурга |
|
|
|
|
|
|
|
должность |
|
ФИО |
|
Заказчика (застройщика): |
|
|
|
|
|
|
|
должность |
|
ФИО |
|
Эксплуатирующей организации: |
|
|
|
|
|
|
|
должность |
|
ФИО |
|
Генерального подрядчика |
|
|
|
|
|
|
|
должность |
|
ФИО |
|
Генерального проектировщика |
|
|
|
|
|
|
|
должность |
|
ФИО |
|
Центра государственного санитарно-эпидемиологического надзора в Санкт-Петербурге |
|
|
|
|
|
|
|
должность |
|
ФИО |
|
Управления государственной противопожарной службы МЧС Санкт-Петербурга и Ленинградской области |
|
|
|
|
|
|
|
должность |
|
ФИО |
|
Других привлеченных организаций и специалистов |
|
|
|
|
|
|
|
|
|
|
|
наименование организации |
|
должность |
|
ФИО |
|
|
|
|
|
|
|
|
|
|
|
|
|
|
|
|
|
|
|
|
|
|
|
|
|
|
|
|
|
|
|
|
|
|
|
|
Руководствуясь действующими строительными нормами и правилами,
УСТАНОВИЛА:
|
1. Заказчиком (застройщиком) |
|
||
|
|
наименование организации |
||
|
предъявлен к приемке в эксплуатацию |
|
||
|
|
наименование объекта и вид строительства |
||
|
по адресу: |
|
||
2. Строительство осуществлено на основании распоряжения (решения, приказа, постановления)
|
|
|
наименование органа, выдавшего разрешение |
от «_____»_________________________________№_____________________
и в соответствии с разрешением на производство строительно-монтажных работ
от «_____»_________________________________№_____________________
|
3. Строительство осуществлено генеральным подрядчиком |
|
||
|
|
наименование организации |
||
|
выполнившим |
|
||
|
|
виды выполнявшихся работ |
||
|
|
|||
|
и субподрядными организациями |
|
||
|
|
наименование организаций и видов выполнявшихся работ |
||
|
|
|||
|
|
|||
4. Проектно-сметная документация на строительство разработана генеральным проектировщиком
|
|
||
|
наименование организации |
||
|
выполнившим |
|
|
|
|
наименование частей или разделов документации |
|
|
и субподрядными организациями |
|
|
|
|
наименование организаций, выполненные части или разделы документации |
|
|
|
||
5. Строительство осуществлялось по проекту (типовому, индивидуальному, повторно применяемому)
|
|
|
|
6. Проектно‑сметная документация утверждена |
|
|
|
наименование органа, утвердившего |
|
|
|
|
(переутвердившего) документацию на объект (очередь, пусковой комплекс) |
|
7. Строительно-монтажные работы осуществлены в сроки:
|
начало работ |
|
|
|
(месяц, год) |
|
окончание работ |
|
|
|
(месяц, год) |
8. Государственной приемочной комиссии представлена документация, перечисленная в приложении к настоящему акту.
9. Предъявленный к приемке объект имеет следующие основные показатели:
|
Показатель |
Единица измерения |
По проекту |
Фактически |
|
А |
Б |
1 |
2 |
|
Общая (полезная) площадь |
м2 |
|
|
|
Количество этажей |
этаж |
|
|
|
Общий строительный объем |
м3 |
|
|
|
Площадь встроенных и пристроенных помещений |
м2 |
|
|
|
Всего квартир |
шт. |
|
|
|
общая площадь |
м2 |
|
|
|
жилая площадь |
м2 |
|
|
|
в том числе: |
|
|
|
|
однокомнатных |
шт. |
|
|
|
общая площадь |
м2 |
|
|
|
жилая площадь |
м2 |
|
|
|
двухкомнатных |
шт. |
|
|
|
общая площадь |
м2 |
|
|
|
жилая площадь |
м2 |
|
|
|
трехкомнатных |
шт. |
|
|
|
общая площадь |
м2 |
|
|
|
жилая площадь |
м2 |
|
|
|
четырех- и более комнатных |
шт. |
|
|
|
общая площадь |
м2 |
|
|
|
жилая площадь |
м2 |
|
|
10. Технологические и архитектурно-строительные решения по объекту характеризуются следующими данными________________________________________________________
11. На объекте установлено предусмотренное проектом оборудование в количестве согласно актам о его приемке после индивидуального испытания и комплексного опробования. Перечень указанных актов приведен в приложении к настоящему акту.
12. Внешние наружные коммуникации холодного и горячего водоснабжения, канализации, теплоснабжения, газоснабжения, энергоснабжения и связи выполнены согласно проекту.
13. Недоделки и дефекты, выявленные рабочими комиссиями, устранены.
14. Работы по озеленению, устройству верхнего покрытия подъездных дорог к зданию, тротуаров, хозяйственных, игровых и спортивных площадок, а также отделки элементов фасадов зданий должны быть выполнены (при переносе сроков выполнения работ):
|
Наименование работ |
Единицы измерения |
Объем работ |
Срок выполнения |
|
|
|
|
|
|
|
|
|
|
15. Сметная стоимость по утвержденной проектно-сметной документации:
|
всего |
|
тыс. руб., |
|||
|
в том числе строительно‑монтажных работ |
|
тыс. руб., |
|||
|
оборудования, инструмента и инвентаря |
|
тыс. руб. |
|||
16. Сметная стоимость основных фондов,
|
принимаемых в эксплуатацию |
|
тыс. руб., |
||||
|
в том числе стоимость строительно‑монтажных работ |
|
тыс. руб., |
||||
|
стоимость оборудования, инструмента и инвентаря |
|
тыс. руб. |
||||
|
17. Дополнительные условия |
|
|||||
|
|
||||||
РЕШЕНИЕ ГОСУДАРСТВЕННОЙ ПРИЕМОЧНОЙ КОМИССИИ:
|
Предъявленный к приемке |
|
|
|
наименование и адрес объекта |
|
|
|
ПРИНЯТЬ В ЭКСПЛУАТАЦИЮ.
Подписи председателя и членов комиссии,
представителей организаций, привлеченных к работе комиссии
|
|
|
|
|
|
|
|
|
|
|
|
|
|
|
|
|
|
РАСПИСКА В ПОЛУЧЕНИИ АКТА
|
Организация |
|
|
|
наименование организации |
|
Ф. И. О., занимаемая должность представителя организации |
|
|
|
200 г. |
||
|
|
дата |
|
|
|
УТВЕРЖДЕН _____________________________ должность ________ ___________________ подпись расшифровка подписи «_____»___________20___г. №__________________ |
АКТ
ПРИЕМКИ ЗАКОНЧЕННОГО СТРОИТЕЛЬСТВОМ ОБЪЕКТА ПРИЕМОЧНОЙ КОМИССИЕЙ
(для всех объектов, кроме жилых домов)
|
по адресу |
|
|
|
|
ГОСУДАРСТВЕННАЯ ПРИЕМОЧНАЯ КОМИССИЯ, назначенная
|
|
|
наименование органа, назначившего комиссию решением (приказом, постановлением и др.) |
______________________________от____»____________200___г №___________________
В составе:
|
Председатель комиссии - представитель органа назначающего комиссию |
|
|
|
|
|
|
|
должность |
|
ФИО |
|
члены комиссии-представители: Заказчика (застройщика): |
|
|
|
|
|
|
|
должность |
|
ФИО |
|
Эксплуатирующей организации: |
|
|
|
|
|
|
|
должность |
|
ФИО |
|
Генерального подрядчика |
|
|
|
|
|
|
|
должность |
|
ФИО |
|
Генерального проектировщика |
|
|
|
|
|
|
|
должность |
|
ФИО |
|
Госархстройнадзора Санкт-Петербурга |
|
|
|
|
|
|
|
должность |
|
ФИО |
|
Территориального управления административного района Санкт-Петербурга |
|
|
|
|
|
|
|
должность |
|
ФИО |
|
Центра государственного санитарно-эпидемиологического надзора в Санкт-Петербурге |
|
|
|
|
|
|
|
должность |
|
ФИО |
|
Управления государственной противопожарной службы МЧС Санкт-Петербурга и Ленинградской области |
|
|
|
|
|
|
|
должность |
|
ФИО |
|
Комитета по природопользованию, охране окружающей среды и обеспечению экологической безопасности |
|
|
|
|
|
|
|
должность |
|
ФИО |
|
Государственной инспекции труда в Санкт-Петербурге |
|
|
|
|
|
|
|
должность |
|
ФИО |
|
Других привлеченных организаций и специалистов |
|
|
|
|
|
|
|
|
|
|
|
наименование организации |
|
должность |
|
ФИО |
|
|
|
|
|
|
|
|
|
|
|
|
|
|
|
|
|
|
|
|
|
|
|
|
|
|
|
|
|
|
|
|
|
|
|
|
Руководствуясь действующими строительными нормами и правилами,
УСТАНОВИЛА:
|
1. Заказчиком (застройщиком) |
|
||
|
|
наименование организации |
||
|
предъявлен к приемке в эксплуатацию |
|
||
|
|
наименование объекта и вид строительства |
||
|
по адресу: |
|
||
2. Строительство осуществлено на основании распоряжения (решения, приказа, постановления)
|
|
|
наименование органа, выдавшего разрешение |
от «_____»_________________________________№_____________________
и в соответствии с разрешением на производство строительно-монтажных работ
от «_____»_________________________________№_____________________
|
3. Строительство осуществлено генеральным подрядчиком |
|
||
|
|
наименование организации |
||
|
выполнившим |
|
||
|
|
виды выполнявшихся работ |
||
|
|
|||
|
и субподрядными организациями |
|
||
|
|
наименование организаций и видов выполнявшихся работ |
||
|
|
|||
|
|
|||
4. Проектно-сметная документация на строительство разработана генеральным проектировщиком
|
|
||
|
наименование организации |
||
|
выполнившим |
|
|
|
|
наименование частей или разделов документации |
|
|
и субподрядными организациями |
|
|
|
|
наименование организаций, выполненные части или разделы документации |
|
|
|
||
5. Строительство осуществлялось по проекту (типовому, индивидуальному, повторно применяемому)
|
|
|
|
6. Проектно‑сметная документация утверждена |
|
|
|
наименование органа, утвердившего |
|
|
|
|
(переутвердившего) документацию на объект (очередь, пусковой комплекс) |
|
7. Строительно-монтажные работы осуществлены в сроки:
|
начало работ |
|
|
|
(месяц, год) |
|
окончание работ |
|
|
|
(месяц, год) |
8. Приемочной комиссии представлена документация, перечисленная в приложении к настоящему акту.
9. Предъявленный к приемке в эксплуатацию объект имеет следующие основные показатели (мощности, производительности, производственной площади, протяженности, вместимости, объему, пропускной способности, количества рабочих мест):
|
Мощность, производительность и т. п. |
Единица измерения |
По проекту |
Фактически |
||
|
|
|
общая (с учетом ранее принятых) |
в т. ч. пускового комплекса или очереди |
общая (с учетом ранее принятых) |
в т. ч. пускового комплекса или очереди |
|
|
|
|
|
|
|
|
|
|
|
|
|
|
|
|
|
|
|
|
|
10. Технические и архитектурно-строительные решения по объекту характеризуются следующими данными
|
|
|
|
11. На объекте установлено предусмотренное проектом оборудование в количестве согласно актам о его приемке после индивидуального испытания и комплексного оборудования. Перечень указанных актов приведен в приложении к настоящему акту.
12. Мероприятия по охране труда, обеспечению взрывобезопасности, пожаробезопасности, охране окружающей природной среды, предусмотренные проектом выполнены.
13. Внешние наружные коммуникации холодного и горячего водоснабжения, канализации, теплоснабжения, газоснабжения, энергоснабжения и связи обеспечивают нормальную эксплуатацию объекта и приняты городскими эксплуатационными организациями. Перечень справок городских эксплуатирующих организаций приведен в приложении к настоящему акту.
14. Недоделки и дефекты, выявленные рабочими комиссиями, устранены.
15. Работы по озеленению, устройству верхнего покрытия подъездных дорог к зданиям, тротуаров, хозяйственных, игровых и спортивных площадок, а также отделке элементов фасадов зданий должны быть выполнены.
|
Наименование работ |
Единица измерения |
Объем работ |
Срок выполнения |
|
|
|
|
|
|
|
|
|
|
|
|
|
|
|
|
|
|
|
|
16. Сметная стоимость по утвержденной проектно-сметной документации:
|
всего |
|
тыс. руб., |
|||
|
в том числе строительно‑монтажных работ |
|
тыс. руб., |
|||
|
оборудования, инструмента и инвентаря |
|
тыс. руб. |
|||
17. Сметная стоимость основных фондов,
|
принимаемых в эксплуатацию |
|
тыс. руб., |
||||
|
в том числе стоимость строительно‑монтажных работ |
|
тыс. руб., |
||||
|
стоимость оборудования, инструмента и инвентаря |
|
тыс. руб. |
||||
|
18. Дополнительные условия |
|
|||||
|
|
||||||
РЕШЕНИЕ ГОСУДАРСТВЕННОЙ ПРИЕМОЧНОЙ КОМИССИИ:
|
Предъявленный к приемке |
|
|
|
наименование и адрес объекта |
|
|
|
ПРИНЯТЬ В ЭКСПЛУАТАЦИЮ.
Подписи председателя и членов комиссии,
представителей организаций, привлеченных к работе комиссии
|
|
|
|
|
|
|
|
|
|
|
|
|
|
|
|
|
|
|
|
|
|
|
|
РАСПИСКА В ПОЛУЧЕНИИ АКТА
|
Организация |
|
|
|
наименование организации |
|
Ф. И. О., занимаемая должность представителя организации |
|
|
|
|
|
200 г. |
|
Исполнительная техническая документация, оформляемая при строительстве объектов - это документация, фиксирующая процесс производства строительно-монтажных работ и техническое состояние возводимых зданий и сооружений.
Исполнительная техническая документация должна оформляться на всех этапах возведения здания, сооружения, начиная с геодезической разбивочной основы и кончая приемкой в эксплуатацию. Она предъявляется при приемке объекта в эксплуатацию и используется в процессе эксплуатации.
Исполнительная техническая документация отражает качество построенного объекта. Исполнители работ обязаны в процессе строительства оформлять исполнительную техническую документацию.
Обязательность составления, содержание и формы исполнительной технической документации устанавливаются требованиями большого количества нормативных документов, что вызывает затруднения у линейных инженерно-технических работников. Данное пособие систематизирует эти требования и направлено на оказание практической помощи при оформлении исполнительной технической документации, ведущейся в ходе строительства объекта.
1. Градостроительный кодекс Российской Федерации (Федеральный закон от 29.12.2004 г. № 190-ФЗ)
2. СНиП 11-02-96. Инженерные изыскания для строительства. Основные положения.
3. СНиП 12-01-2004. Организация строительства.
4. СНиП 3.01.03-84. Геодезические работы в строительстве.
5. СНиП 3.01.04-87. Приемка в эксплуатацию законченных строительством объектов. Основные положения.
6. СНиП 3.02.01-87. Земляные сооружения, основания и фундаменты.
7. СНиП 3.03.01-87. Несущие и ограждающие конструкции.
8. СНиП 3.04.01-87. Изоляционные и отделочные покрытия.
9. СНиП 3.04.03-85. Защита строительных конструкций и сооружений от коррозии.
10. СНиП 3.05.01-85. Внутренние санитарно-технические системы.
11. СНиП 3.05.03-85. Тепловые сети.
12. СНиП 3.05.04-85*. Наружные сети и сооружения водоснабжения и канализации.
13. СНиП 3.05.05-84. Технологическое оборудование и технологические трубопроводы.
14. СНиП 3.05.06-85. Электротехнические устройства
15. СНиП 3.05.07-85. Системы автоматизации.
16. СП 11-104-97. Инженерно-геодезические изыскания для строительства.
17. СП 11-110-99 Авторский надзор за строительством зданий и сооружений.
18. ТСН 12-316-2002 Санкт-Петербург. Приемка и ввод в эксплуатацию законченных строительством объектов недвижимости.
19. Правила устройства и безопасной эксплуатации лифтов, утвержденные Госгортехнадзором России от 11.02.92 г.
20. Васильев В. М., Исаев В. В., Панибратов Ю.П. Организация и управление в строительстве. Основные понятия и термины. - М., СПб.: Изд-во АСВ, 1998.
21. Штейнберг А.И. Исполнительная документация в строительстве. - Л.: Стройиздат, Ленинградское отделение, 1983.
22. ГОСТ 25136-82. Соединение трубопроводов. Методы испытаний на герметичность.
23.Хаметов ТИ. Геодезическое обеспечение проектирования, строительства и эксплуатации зданий, сооружений. - М.: Изд-во Ассоциации строительных вузов, 2000, 200 с.
24. Инструкция по оформлению приемо-сдаточной документации по электромонтажным работам.
|
ГОСТЫ, СТРОИТЕЛЬНЫЕ и ТЕХНИЧЕСКИЕ НОРМАТИВЫ. Некоммерческая онлайн система, содержащая все Российские Госты, национальные Стандарты и нормативы. В Системе содержится более 150000 файлов нормативно-технической документации, действующей на территории РФ. Система предназначена для широкого круга инженерно-технических специалистов. Copyright © www.gostrf.com, 2008 - 2026 |