Инструкция о порядке заполнения формы градостроительного плана
земельного участка
Утверждена
приказом Министерство регионального развития Российской Федерации от 13 апреля
2006 г. № 40
Настоящая
Инструкция разработана в соответствии со статьей 44 Градостроительного кодекса Российской
Федерации и Постановлением Правительства Российской Федерации от 29 декабря
2005 г. № 840 «О форме
градостроительного плана земельного участка» и определяет порядок заполнения
формы градостроительного плана земельного участка.
Форма
градостроительного плана земельного участка заполняется в трех экземплярах.
После утверждения первый и второй экземпляры на бумажном носителе передаются
заявителю. Третий экземпляр на бумажном и электронном носителях передается в
орган, уполномоченный на регистрацию градостроительного плана земельного
участка.
Копия
утвержденного градостроительного плана земельного участка после его регистрации
передается в орган, уполномоченный на ведение информационной системы
обеспечения градостроительной деятельности муниципального образования.
I. Порядок формирования номера градостроительного плана земельного участка
Номер
градостроительного плана земельного участка присваивается после утверждения
градостроительного плана земельного участка.
Номер
градостроительного плана земельного участка присваивается органом,
уполномоченным на регистрацию утвержденных градостроительных планов земельных
участков.
Номер
градостроительного плана земельного участка имеет следующую структуру А-Б, где:
А
- регистрационный номер, присвоенный муниципальному образованию, согласно
Инструкции о ведении государственного реестра муниципальных образований
Российской Федерации, утвержденной Приказом Министерства юстиции Российской
Федерации от 19 августа 2005 года № 136.
Государственный
регистрационный номер муниципального образования вносится в первые десять ячеек
номера градостроительного плана земельного участка.
Б
- порядковый номер утвержденного градостроительного плана земельного участка
муниципального образования, присвоенный органом, уполномоченным на регистрацию
утвержденных градостроительных планов земельных участков.
Составные
части номера отделяются друг от друга знаком «-». Цифровые индексы обозначаются
арабскими цифрами.
В
строке «Градостроительный план земельного участка подготовлен на основании»
указывается:
-
в случае, когда основанием для подготовки документации по планировке
территории, в составе которой подготавливается градостроительный план земельного
участка, является решение уполномоченного федерального органа исполнительной
власти, указывается наименование федерального органа исполнительной власти,
издавшего акт, наименование вида акта и его название, дата подписания
(утверждения) акта и его номер, наименование должности и фамилия лица,
подписавшего акт;
-
в случае, когда основанием для подготовки документации по планировке
территории, в составе которой подготавливается градостроительный план
земельного участка, является решение органа исполнительной власти субъекта
Российской Федерации, указывается наименование органа исполнительной власти
субъекта Российской Федерации, издавшего акт, наименование вида акта и его название,
дата подписания (утверждения) акта и его номер, наименование должности и
фамилия лица, подписавшего акт;
-
в случае, когда основанием для подготовки документации по планировке
территории, в составе которой подготавливается градостроительный план
земельного участка, является решение органа местного самоуправления,
указывается наименование органа местного самоуправления, издавшего акт,
наименование вида акта и его название, дата подписания (утверждения) акта и его
номер, наименование должности и фамилия лица, подписавшего акт;
-
в случае, когда основанием для выдачи градостроительного плана земельного
участка является обращение физического лица, указываются фамилия, имя, отчество
физического лица, дата регистрации обращения о выдачи градостроительного плана
земельного участка;
-
в случае, когда основанием для выдачи градостроительного плана земельного
участка является обращение юридического лица, указываются реквизиты юридического
лица, организационно-правовая форма, наименование юридического лица и дата
регистрации его обращения о выдаче градостроительного плана земельного участка.
В
строке «Местонахождение земельного участка» указываются наименования:
-
субъекта Российской Федерации;
-
муниципального района;
-
поселения.
Или
указываются наименования:
-
субъекта Российской Федерации;
-
городского округа.
В
строке «Кадастровый номер земельного участка» указываются:
-
кадастровый номер земельного участка при его наличии, дата постановки
земельного участка на государственный кадастровый учет.
При
отсутствии кадастрового номера земельного участка в строке пишется «Кадастровый
номер отсутствует».
В
строке «План подготовлен» указываются:
-
фамилия, имя, отчество, должность уполномоченного лица на подготовку
градостроительного плана земельного участка, орган или организация, подготовивший
(ая) градостроительный план земельного участка.
Лицо,
уполномоченное на подготовку градостроительного
плана земельного участка, ставит свою подпись, дает ее расшифровку. Подпись
подтверждается печатью соответствующего(ей) органа или организации.
В
строке «Представлен» указывается:
-
наименование уполномоченного федерального органа исполнительной власти Российской
Федерации в случае, когда документы по планировке территории, в составе которых
подготовлен градостроительный план земельного участка, утверждаются
Правительством Российской Федерации; дата представления документов по планировке
территории;
-
наименование органа исполнительной власти субъекта Российской Федерации в
случае, когда документы по планировке территории, в составе которых подготовлен
градостроительный план земельного участка, утверждаются высшим органом исполнительной
власти субъекта Российской Федерации; дата представления документов по
планировке территории;
-
наименование органа местного самоуправления, в случае, когда документы по
планировке территории, в составе которых подготовлен градостроительный план
земельного участка, утверждаются главой местной администрации; дата представления
документов по планировке территории.
В
строке «Утвержден» указываются:
-
в случае, когда документы по планировке территории, в составе которых
подготовлен градостроительный план земельного участка, утверждены Правительством
Российской Федерации, указывается наименование вида акта и его название, дата
подписания (утверждения) акта и его номер, наименование должности и фамилия лица,
подписавшего акт;
-
в случае, когда документы по планировке территории, в составе которых
подготовлен градостроительный план земельного участка, утверждены высшим
исполнительным органом государственной власти субъекта Российской Федерации,
указывается наименование вида акта и его название, дата подписания
(утверждения) акта и его номер, наименование должности и фамилия лица, подписавшего
акт;
-
в случае, когда документы по планировке территории, в составе которых
подготовлен градостроительный план земельного участка, утверждены главой местной
администрации, указывается наименование вида акта и его название, дата
подписания (утверждения) акта и его номер, наименование должности и фамилия
лица, подписавшего акт.
II. Порядок
заполнения раздела 1.
Чертеж градостроительного плана земельного участка
Чертеж
градостроительного плана земельного участка выполняется на топографической
основе вручную или в электронном виде. Масштаб выбирается разработчиком чертежа
для отображения, поставленных при подготовке градостроительного плана
планировочных задач и требований.
В
правом нижнем углу подготовленного чертежа оформляется угловой штамп
организации с подписями разработчиков.
В
строке «Масштаб» указывается масштаб, в котором выполнен градостроительный план
земельного участка.
В
строке «Площадь земельного участка» указывается площадь земельного участка в
гектарах.
Условные
обозначения к чертежу градостроительного плана земельного участка:
1)
граница земельного участка наносится сплошной линией толщиной 0,7 мм. Точки
поворота границ земельного участка обозначаются точкой диаметром 2 мм. Координаты
точек поворотных углов земельного участка показываются в виде выноски, номер
поворотной точки обозначается арабскими цифрами высотой 5 мм (рис. 1).

Рис.1.
2)
границы зон действия публичных сервитутов наносятся сплошной линией толщиной
0,5 мм, получаемая зона заштриховывается линиями толщиной 0,3 мм, через 4 мм,
под углом 45° (рис. 2);

Рис.2.
3)
минимальные отступы от границ земельного участка в целях определения мест
допустимого размещения зданий, строений, сооружений, за пределами которых
запрещено строительство зданий, строений, сооружений, выполняются в виде
сплошной линии толщиной 1,2 мм. Линии отступа графически привязываются к реперам
или капитальным зданиям, имеющимся на топосъемке. Расстояние указывается в
метрах, например, 1,3; 5,2; 7,2 (рис. 3);

Рис.3.
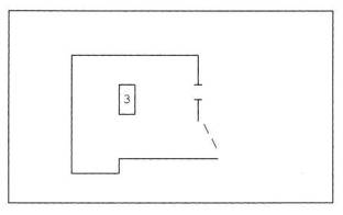
4)
номера объектов капитального строительства (зданий, строений, сооружений),
расположенных на земельном участке, указываются в окружностях диаметром 6 мм, которые
наносятся в контурах зданий (рис. 4);

Рис.4.
5)
границы зон планируемого размещения объектов капитального строительства для
государственных или муниципальных нужд наносятся сплошной линией толщиной 0,3
мм, площадь зоны заштриховывается чередующимися штрих-пунктирными и сплошными
линиями толщиной 0,3 мм каждая через 6 мм между ними под углом 45°. Номер зоны
наносится внутри окружности диаметром 6 мм (рис. 5);

Рис.5.
6)
места допустимого размещения зданий, строений, сооружений указываются в виде
участков, заштрихованных сплошными линиями толщиной 0,3 мм, через 4 мм
перпендикулярно друг к другу (рис. 6).

Рис.6
7)
На чертеже градостроительного плана земельного участка приводится экспликация
объектов капитального строительства, зон планируемого размещения объектов
капитального строительства и места допустимого размещения зданий, строений,
сооружений. Нумерация объектов - сквозная.
В
строке «Чертеж градостроительного плана земельного участка разработан на
топографической основе, выполненной» указываются:
-
дата выполнения и наименование организации, выполнившей топографическую съемку.
В
строке «Чертеж градостроительного плана земельного участка разработан»
указываются:
-
дата разработки чертежа градостроительного плана земельного участка,
наименование организации, выполнившей чертеж градостроительного плана земельного
участка.
III. Порядок
заполнения раздела 2.
Информация о градостроительном регламенте земельного участка
Информация
о градостроительном регламенте земельного участка заполняется, если в отношении
земельного участка установлен градостроительный регламент или на земельный
участок распространяется действие градостроительного регламента.
В
строке «Градостроительный регламент земельного участка установлен в составе
правил землепользования и застройки, утвержденных представительным органом местного
самоуправления» указываются:
-
наименование представительного органа местного самоуправления, утвердившего
правила землепользования и застройки, вид и наименование нормативного правового
акта об утверждении правил землепользования и застройки, дата и номер его
утверждения.
В
строке «основные виды»:
-
указываются основные виды разрешенного использования земельного участка в
соответствии с правилами землепользования и застройки.
В
строке «условно-разрешенные виды»:
-
указываются условно-разрешенные виды использования земельного участка в
соответствии с правилами землепользования и застройки.
В
строке «вспомогательные виды»:
-
указываются вспомогательные виды разрешенного использования земельного участка
в соответствии с правилами землепользования и застройки.
В
случае, если в отношении земельного участка не установлен градостроительный
регламент или на земельный участок не распространяется действие градостроительного
регламента, в строке «Градостроительный регламент земельного участка установлен
в составе правил землепользования и застройки, утвержденных представительным
органом местного самоуправления» вносится запись: «Градостроительный регламент
не установлен», а в строках «основные виды», «условно-разрешенные виды»,
«вспомогательные виды» вносится запись: «Градостроительным регламентом не
установлены».
В
случае, если на земельный участок не распространяется действие
градостроительного регламента или для земельного участка не устанавливается
градостроительный регламент, информация о разрешенном использовании земельного
участка, требованиях к назначению, параметрам и размещению объектов
капитального строительства, заполняется в соответствии с нормативными правовыми
актами, принимаемыми уполномоченным федеральным органом исполнительной власти,
уполномоченными органами исполнительной власти субъектов Российской Федерации
или уполномоченными органами местного самоуправления в соответствии с
федеральными законами. При этом указывается наименование органа (органов),
издавшего акт, наименование вида акта и его название, дата подписания
(утверждения) акта и его номер, наименование должности и фамилия лица,
подписавшего акт.
В
случае, если на земельный участок распространяется действие градостроительного
регламента или для земельного участка устанавливается градостроительный
регламент, в строках и графах раздела 3, предназначенных для заполнения,
вписываются слова: «Заполнение не требуется».
В
строке «основные виды разрешенного использования»:
-
указываются основные виды разрешенного использования земельного участка.
В
строке «условно-разрешенные виды использования»:
-
указываются условно-разрешенные виды использования земельного участка.
В
строке «вспомогательные виды разрешенного использования» указываются:
-
вспомогательные виды разрешенного использования земельного участка.
В
строке «Требования к назначению, параметрам и размещению объекта капитального
строительства на указанном земельном участке. Назначение объекта капитального
строительства» указываются:
-
номер объекта капитального строительства согласно чертежу градостроительного плана,
назначение объекта капитального строительства.
В
строке «Предельные (минимальные и (или) максимальные) размеры земельных
участков объектов капитального строительства, в том числе площадь» указывается информация
соответственно графам таблицы.
В
графе «Номер участка согласно чертежу градостроительного плана» указывается:
-
номер участка согласно чертежу градостроительного плана.
В
графе «Размер (м) максимальный» указывается:
-
максимальный размер земельного участка в метрах.
В
графе «Размер (м) минимальный» указывается:
-
минимальный размер земельного участка в метрах.
В
графе «Площадь (га)» указывается:
-
площадь земельного участка в гектарах.
В
строке «Предельное количество этажей» указывается:
-
предельное количество этажей зданий.
В
строке «предельная высота зданий, строений, сооружений» указывается:
-
максимальная высота здания, сооружения, строения в метрах.
В
строке «Максимальный процент застройки в границах земельного участка»
указывается:
-
отношение суммарной площади застройки зданий, строений, сооружений к площади
земельного участка (в процентах).
Строка
«Иные показатели» заполняется при наличии дополнительной информации о
разрешенном использовании земельного участка, требованиях к назначению, параметрам
и размещению объекта капитального строительства.
В
строке «Объекты капитального строительства» указываются:
-
номер объекта капитального строительства согласно чертежу градостроительного плана
земельного участка и назначение объекта капитального строительства.
В
строке «инвентаризационный или кадастровый номер» указывается:
-
инвентаризационный или кадастровый номер объекта капитального строительства,
дата его регистрации.
В
строке «технический паспорт объекта подготовлен» указывается:
-
дата подготовки технического паспорта объекта капитального строительства,
наименование организации (органа) государственного технического учета и (или) технической
инвентаризации объектов капитального строительства, подготовившего технический
паспорт.
Строка
«Объекты, включенные в единый государственный реестр объектов культурного
наследия (памятников истории и культуры) народов Российской Федерации» заполняется,
если на территории, для которой ведется подготовка градостроительного плана
земельного участка, находятся объекты, занесенные в единый государственный реестр
объектов культурного наследия (памятников истории и культуры) народов
Российской Федерации. При этом указываются:
-
номер объекта культурного наследия согласно чертежу градостроительного плана
земельного участка;
-
историческое назначение объекта культурного наследия и его фактическое
использование;
-
наименование органа государственной власти, принявшего решение о включении
выявленного объекта культурного наследия в единый государственный реестр, наименование
нормативного правового акта, дата и номер его принятия.
В
строке «регистрационный номер в реестре» указываются:
-
регистрационный номер и дата постановки на учет в единый государственный реестр
объектов культурного наследия (памятников истории и культуры) народов Российской
Федерации.
В
случае отсутствия объектов культурного наследия (памятников истории и культуры)
народов Российской Федерации в соответствующие строки вписываются слова: «Не
имеется».
В
строке «Объект капитального строительства» указываются:
-
номер объекта капитального строительства согласно чертежу градостроительного
плана земельного участка и назначение объекта капитального строительства.
В
строке «Технические условия подключения объекта к сетям инженерно-технического
обеспечения» указывается:
-
тип инженерно-технического обеспечения.
В
строке «выданы» указываются:
-
дата, наименование органа (организации), выдавшего(ей) технические условия,
номер согласно чертежу градостроительного плана земельного участка и назначение
объекта капитального строительства.
Указывается
возможность или невозможность разделения земельного участка (ненужное
зачеркнуть).
Указывается
наименование органа (органов), издавшего акт, наименование вида акта и его
название, дата подписания (утверждения) и номер акта, определяющего возможность
или невозможность разделения земельного участка.