Крупнейшая бесплатная информационно-справочная система онлайн доступа к полному собранию технических нормативно-правовых актов РФ. Огромная база технических нормативов (более 150 тысяч документов) и полное собрание национальных стандартов, аутентичное официальной базе Госстандарта. GOSTRF.com - это более 1 Терабайта бесплатной технической информации для всех пользователей интернета. Все электронные копии представленных здесь документов могут распространяться без каких-либо ограничений. Поощряется распространение информации с этого сайта на любых других ресурсах. Каждый человек имеет право на неограниченный доступ к этим документам! Каждый человек имеет право на знание требований, изложенных в данных нормативно-правовых актах!

  


 

Система нормативных документов в строительстве

СВОД ПРАВИЛ ПО ПРОЕКТИРОВАНИЮ
И СТРОИТЕЛЬСТВУ

ДОМА-ИНТЕРНАТЫ
ДЛЯ ДЕТЕЙ-ИНВАЛИДОВ

СП 35-117-2006

ДЕПАРТАМЕНТ СТРОИТЕЛЬСТВА И ЖИЛИЩНО-КОММУНАЛЬНОГО ХОЗЯЙСТВА МИНИСТЕРСТВА РЕГИОНАЛЬНОГО РАЗВИТИЯ РОССИЙСКОЙ ФЕДЕРАЦИИ

Москва

2006

Предисловие

1 РАЗРАБОТАН ФГУП «Научно-проектный институт учебно-воспитательных, торгово-бытовых и досуговых зданий» (Институт общественных зданий) и ЗАО «Архитектурное проектно-исследовательское объединение - Центр» (АПИО-Центр)

2 ВНЕСЕН Департаментом по делам детей, женщин и семьи Министерства труда и социального развития Российской Федерации

3 УТВЕРЖДЕН приказами генерального директора «АПИО-Центр» от 16 ноября 2004 г. № 5 и директора ФГУП «Институт общественных зданий» от 16 марта 2006 г.

4 ЗАРЕГИСТРИРОВАН Департаментом строительства и жилищно-коммунального хозяйства Министерства регионального развития Российской Федерации 12 апреля 2006 г. № 3447-СК/07

5 ВВЕДЕН ВПЕРВЫЕ

Содержание

Введение

Настоящий Свод правил выполнен по государственному контракту № 1110-14/02 от 24 ноября 2002 г. с Госстроем России.

Федеральная целевая программа «Дети-инвалиды» отражает общественные преобразования в нашей стране и направлена на формирование основ комплексного решения проблем детей с отклонениями в развитии, на создание условий для реализации психолого-педагогической и социальной реабилитации детей-инвалидов.

Социальные учреждения для детей-инвалидов, в числе которых дома-интернаты для детей-инвалидов, нуждаются в совершенствовании нормативной документации.

В данном Своде правил содержатся требования к однопрофильным и многопрофильным домам-интернатам для детей-инвалидов со специализированными отделениями и единым на здание блоком общественных помещений (медицинских, административных, бытовых, столовой).

Нормативной базой, регламентирующей мероприятия по решению домов-интернатов для детей-инвалидов, являются законодательные и нормативные документы, в числе которых:

Федеральная целевая программа «Дети-инвалиды» (Постановление Правительства Российской Федерации от 19.09.97 г. № 1207);

Приказ Министерства образования РФ и Министерства здравоохранения РСФСР от 18 июля 1991 г. № 251/125 «О мерах по улучшению общеобразовательных учебно-воспитательных учреждений для детей и подростков, имеющих недостатки в физическом и умственном развитии»;

Федеральный Закон № 32. Собрание законодательства Российской Федерации 1995 г., ст. 31 98 «О социальном обслуживании граждан пожилого возраста и инвалидов»;

«Положение о детском доме-интернате для детей с физическими недостатками». Приказ Министерства социального обеспечения РСФСР от 5 ноября 1980 г. № 122;

Постановление об утверждении «Методических рекомендаций по организации деятельности государственного (муниципального) учреждения "Дом-интернат для умственно отсталых детей"» Минтруда и социального развития РФ № 54 от 8 августа 2002 г.

Кроме перечисленных законодательных документов учтен комплекс отраслевых нормативных документов № 35, касающихся проектирования и строительства для маломобильного населения и инвалидов.

В работе частично использованы следующие материалы:

- МГСН 4.02-94 «Дома-интернаты для детей-инвалидов»

- ВСН 62-91* /Госкомархитектура «Проектирование среды жизнедеятельности с учетом потребностей инвалидов и маломобильных групп населения». Разделы 1 и 2, 1994.

- Рекомендации по проектированию домов-интернатов для умственно отсталых детей. М., 1980.

В документе также учтены работы специалистов: канд. архит. Смывиной Л.А. (ФГУП «ИОЗ»); канд. архит. Тюричевой М.Н. (АПИО-Центр); канд. архит. Щетининой Н.Н. (ЦНИИЭП учебных зданий); канд. архит. Цытовича Г.Н. (ЦНИИЭП учебных зданий).

Работа выполнена авторским коллективом в следующем составе:

научный руководитель - канд. архит. Л.А. Смывина (ФГУП «ИОЗ»);

ответственные исполнители: канд. архит. Т.А. Исаева (ФГУП «ИОЗ») и д-р мед. наук, профессор Н.Ф. Дементьева (ФЦЭРИ), при участии: инж. Л.В. Сигачевой, инж. Н.И. Чернозубовой (ФГУП «ИОЗ»), компьютерная графика: канд. техн. наук. В.Ф. Кротюка, инж. И.Р. Домрачевой (ФГУП «ИОЗ»).

Научный редактор нормативного документа - канд. архит. A.M. Гарнец (ФГУП «ИОЗ»).

СВОД ПРАВИЛ ПО ПРОЕКТИРОВАНИЮ И СТРОИТЕЛЬСТВУ

ДОМА-ИНТЕРНАТЫ ДЛЯ ДЕТЕЙ-ИНВАЛИДОВ

Boarding schools (institutions) for disabled children

1 Область применения

1.1 Положения Свода правил (далее - СП) распространяются на здания домов-интернатов (далее - учреждения) для стационарного проживания детей-инвалидов с сохранным интеллектом и физическими недостатками и умственно отсталых с различной степенью инвалидности. Определения учреждений даны в приложении А.

1.2 Требования Свода правил следует учитывать при проектировании новых объектов, реконструкции и модернизации существующего фонда, при решении функциональных зон помещений домов-интернатов различного назначения, при экспертизе проектов.

Настоящий СП предназначен также для применения органами архитектуры и градостроительства, социальной защиты населения, общественными организациями и фондами - собственниками объектов.

В случае реконструкции зданий для домов-интернатов следует учитывать кроме требований настоящего СП также требования нормативного документа по реконструкции СП 35-114.

2 Нормативные ссылки

В настоящем Своде правил приведены ссылки на следующие нормативные документы:

СНиП 21-01-97* «Пожарная безопасность зданий и сооружений»

СНиП 23-03-2003 «Защита от шума»

СНиП 31-01-2003 «Здания жилые многоквартирные»

СНиП 23-05-95* «Естественное и искусственное освещение»

СНиП 35-01-2001 «Доступность зданий и сооружений для маломобильных групп населения»

СНиП 41-01-2003 «Отопление, вентиляция и кондиционирование»

СНиП 2.04.01-85*«Внутренний водопровод и канализация зданий»

СНиП 2.07.01-89* «Градостроительство. Планировка и застройка городских и сельских поселений»

СНиП 2.08.02-89* «Общественные здания и сооружения»

ГОСТ 11015-93 «Столы ученические. Типы и функциональные размеры»

ГОСТ 11016-93 «Стулья ученические. Типы и функциональные размеры»

СП 35-101-2001 «Проектирование зданий и сооружений с учетом доступности для маломобильных групп населения. Общие положения»

СП 35-114-2003 «Реконструкция и приспособление зданий для учреждений социального обслуживания пожилых людей»

ПУЭ «Правила устройства электроустановок»

ППБ 01-03 «Правила пожарной безопасности в Российской Федерации»

НПБ 88-2001* «Установки пожаротушения и сигнализации. Нормы и правила проектирования»

НПБ 104-03 «Системы оповещения и управления эвакуацией людей при пожарах в зданиях и сооружениях»

СанПиН 2.2.1/2.1.1.1278-03 «Гигиенические требования к естественному, искусственному и совмещенному освещению жилых и общественных зданий»

СанПиН 2.4.1201-03 «Гигиенические требования к устройству, содержанию, оборудованию и режиму работы специализированных учреждений для несовершеннолетних, нуждающихся в социальной реабилитации»

СанПиН 2.4.1.1249-03 «Санитарно-эпидемиологические требования к устройству, содержанию и организации режима работы дошкольных образовательных учреждений»

ВСН 281-75 «Указание по проектированию систем автоматизации технологических процессов»

3 Общие положения

3.1 Здания учреждений домов-интернатов для детей-инвалидов рассчитаны на проживание различных возрастных групп детей:

- с сохранным интеллектом, имеющих физические недостатки, в возрасте от 3 до 16 лет в соответствии с таблицей Б.1 приложения Б;

- умственно отсталых в возрасте от 4 до 18 лет в соответствии с таблицей Б.2 приложения Б.

3.2 В учреждениях для детей-инвалидов следует предусматривать необходимый набор помещений - жилых, служебно-бытовых, хозяйственных, административных, медицинских; культурно-массовых и досугового назначения, создавать условия для обеспечения обстановки, максимально приближенной к домашней, сочетая ее с необходимым медицинским обслуживанием.

Структура учреждений и взаимосвязь помещений приведены на рисунке 1, состав и площади помещений приведены в таблицах Г.1 - Г.7 приложения Г.

В учреждениях для детей-инвалидов могут быть запроектированы «дневные отделения» для круглосуточного пребывания детей на пять дней в неделю (при согласовании с органами социальной защиты с учетом устава учреждения).

3.3 Вместимость учреждений для детей-инвалидов рекомендуется принимать 100 - 200 мест в соответствии с таблицами В.1 и В.2 приложения В.

3.4 При проектировании домов-интернатов для детей-инвалидов следует учитывать требования строительных норм и правил применительно к зданиям общественного назначения согласно СНиП 2.08.02 и СНиП 35-01, а также следует соблюдать гигиенические требования к устройству и организации режима работы в домах-интернатах для детей-инвалидов в соответствии с СанПиН 2.2.1/2.1.1.1278, СанПиН 2.4.1.1249.

3.5 В домах-интернатах для детей-инвалидов противопожарную защиту следует обеспечивать в соответствии с требованиями СНиП 21-01. По функциональной пожарной опасности интернаты относятся к классу Ф.1.1. согласно СНиП 21-01, п. 5.21*.

3.6 Оптимальная этажность домов-интернатов для детей-инвалидов рекомендуется 1-2 этажа.

При числе этажей более двух учреждения для детей-инвалидов должны быть оборудованы лифтами (по расчету), в том числе и кроватными. Количество лифтов в каждом конкретном случае определяется заданием на проектирование.

В интернатах для детей-инвалидов следует предусматривать кроме лифтов и пандусы. Уклон пандуса на путях передвижения инвалидов на колясках внутри и снаружи здания следует принимать не более 1:12 согласно СНиП 2.08.02, п. 1.94.

3.7 В зависимости от возраста и тяжести заболевания принцип размещения групп детей по этажам должен подчиняться следующим правилам:

- лежачие, обездвиженные дети размещаются не выше первого этажа;

- дети до 6 лет - не выше второго этажа.

В учреждении для детей-инвалидов с поражением опорно-двигательного аппарата расчетное число колясочников в отделении следует принимать 20 - 30 % вместимости отделения. В отделении для умственно отсталых детей, передвигающихся с трудом, число колясочников рекомендуется принимать 2-3 % вместимости отделения. Общее количество колясочников следует уточнять при составлении задания на проектирование.

3.8 Жилая площадь в домах-интернатах для детей-инвалидов принимается 4 м2/место для дошкольных групп и 6 м2/место для остальных групп согласно таблицам Г.1 и Г.2 приложения Г.

3.9 Высоту помещений учреждения для детей- инвалидов следует принимать согласно СНиП 31-01 (высота жилых помещений от пола до потолка не менее 2,5 м. Для климатических районов 1А, 1Б, 1Г, 1Д, IIА - не менее 2,7 м), высоту общественных помещений, кроме помещений столовой, допускается принимать равной высоте жилых помещений. Высоту помещения столовой следует принимать не менее 3 м согласно СНиП 2.08.02.

3.10 Ориентацию окон помещений по сторонам горизонта следует принимать с учетом требований СанПиН 2.4.1.1249, СНиП 23-05 и таблицы 1.

Таблица 1- Ориентация помещений

Помещения

Ориентация помещений

севернее 45° СШ

южнее 45° СШ

оптимальная

допустимая

оптимальная

допустимая

Групповые комнаты дневного пребывания

Ю, ЮВ, В

На ЮЗ не более 25 % комнат

Ю, ЮВ

Любая, кроме С, СЗ, З

Спальные комнаты

Любая, кроме северной части горизонта от 310° до 50°

Классы

ЮВ

На ЮЗ, З не более 25 % классов

Ю, ЮВ

Любая, кроме ЮЗ, З

Палаты изолятора и карантинного отделения

Ю, ЮВ

На ЮЗ не более 50 % коек отделения

Ю, ЮВ

Любая, кроме С, СЗ, З

Палаты для лежачих

Ю, ЮВ, В

На З, СЗ и СВ не более 10 % коек отделения

Ю, ЮВ

На СЗ не более 10 %

Учебно-производственные

Ю, ЮВ, В

На ЮЗ не более 25 % помещений

Ю, ЮВ, В

Любые, кроме З, ЮЗ

Кабинеты врачей, процедурные, комнаты сестер, лечебные помещения, комнаты персонала

Без ограничения

Примечания

1 В классе для занятий ориентация указана для основного света слева.

2 При расположении окон в противоположных стенах помещения ориентация не нормируется.

3.11 Необходимость мероприятий по решению учреждений гражданской обороны определяется в каждом конкретном случае заданием на проектирование.

Требования к интерьеру и размерам внутреннего пространства

3.12 Организация внутреннего и внешнего пространства, учитывающая особенности детей-инвалидов, проектируется исходя из обязательных минимально допустимых параметров комфортного проживания в соответствии с таблицами Б.1 - Б.2; В.1 - В.2; Г.1 - Г.8 приложений Б - Г, рисунком 2.

3.13 Оборудование помещений для детей- инвалидов следует принимать в соответствии с антропологическими и эргонометрическими данными детей, имеющих различные нарушения физического и умственного развития, в соответствии с рисунком 2. Параметры помещений для детей с физическими недостатками (нарушением зрения, слуха, речи) принимаются такими же, как и для помещений, рассчитанных на здоровых детей, в этом случае площадь тела в плане равна 0,1 м2 (в летней одежде).

Для слепых детей (с остротой зрения 0 - 0,05), которые используют ориентировочную трость для передвижения в окружающем пространстве, среднюю площадь тела в плане следует принимать 0,4 м2.

Для детей с последствиями полиомиелита и церебральных параличей, аномальных детей площадь тела ребенка, занимаемая в плане, составляет:

- без использования дополнительных опор - 0,25 м2;

- с одной дополнительной опорой - 0,2 м2;

- с двумя дополнительными опорами - 0,3 м2 (по данным д-ра архит., проф. В.К. Степанова).

На основе антропологических и эргонометрических данных детей-инвалидов жилые помещения следует принимать не менее, м2:

- спальные комнаты для детей-инвалидов с физическими недостатками - 4,0; для слепых (с остротой зрения 0 - 0,05) - 4,5;

- спальные комнаты для детей-инвалидов лежачих - 6,0;

- комнаты дневного пребывания - 3;

- классные комнаты в жилых ячейках - 2,5.

3.14 В составе жилой ячейки для детей с физическими недостатками, для старшеклассников следует предусматривать дополнительно комнаты для индивидуальных занятий площадью на 1 воспитанника не менее 1,5 м2/место, а для детей-инвалидов с последствиями полиомиелита и церебральных параличей - не менее 1,8 м2/ место.

3.15 При проектировании помещений рекомендуется пользоваться габаритными схемами, приведенными на рисунках 3 - 11.

4 Планировка участка

4.1 Дома-интернаты для детей-инвалидов следует размещать на обособленных участках в озелененных районах селитебной территории, вблизи подъездных дорог, действующих инженерных коммуникаций в пределах радиуса обслуживания пожарного депо, на расстоянии не менее 3000 м от промышленных предприятий, улиц и дорог с интенсивным движением транспорта и железнодорожных путей, а также других источников повышенного шума, загрязнения воздуха и почвы.

4.2 Площадь земельного участка учреждений для детей-инвалидов следует принимать в соответствии с таблицами В.1 - В.2 приложения В.

При строительстве нового здания дома-интерната для детей-инвалидов в районах с затесненной застройкой площадь земельного участка может быть уменьшена, но не более чем на 20 %.

4.3 На участке следует разграничивать его территорию для площадок групп детей с сохранным интеллектом и детей умственно отсталых с учетом использования различными группами соответствующих функциональных зон организованных площадок на одну группу или общую на 2-3 группы:

- учебно-производственной зоны (садово-ягодные участки);

- зоны отдыха (площадки для встречи с родителями, площадки, оборудованные скамейками и столами, цветниками, прогулочные дорожки, лужайки для игр);

- хозяйственной зоны (гараж, овощехранилище, котельная, мусоросборник, склад).

Площадь участка и состав площадок для различных групп следует принимать в соответствии с таблицами В.1 и В.2 приложения В и СНиП 2.07.01 (таблица 7).

4.4 На территории участка следует предусматривать два самостоятельных въезда, один из въездов должен быть хозяйственным. При въезде на участок необходимо предусматривать стоянку легковых машин на 3 - 5 машин (25 м2 на место).

4.5 Озеленение участка следует принимать не менее 40 % площади участка.

4.6 Участок здания учреждения для детей- инвалидов необходимо ограждать оградой высотой 2 м с запирающимися калиткой и воротами.

4.7 Здания домов-интернатов следует размещать в пределах радиуса обслуживания пожарного депо.

4.8 При проектировании протяженных (блокированных) зданий должны быть предусмотрены сквозные проезды шириной в свету не менее 4,25 м.

Степень огнестойкости домов-интернатов для детей-инвалидов должна быть не ниже II степени огнестойкости.

5 Объемно-планировочные решения

5.1 Учреждения для детей-инвалидов с сохранным интеллектом, а также учреждения для детей умственно отсталых формируются из жилых отделений, жилых групп и жилых ячеек, помещений медицинского, хозяйственного и бытового назначения. При проектировании рекомендуется предусматривать вариант решения учреждения (многопрофильных) с интеграцией жилых отделений для детей с сохранным интеллектом и для умственно отсталых детей при четком разграничении отделений. Планировку здания необходимо решать исходя из функциональной структуры учреждения и с учетом СП 35-101, с единым блоком медицинских, административных, хозяйственных, культурно-массовых помещений и столовой. Схема планировки здания для детей-инвалидов представлена на рисунках 3 - 5. Состав и площадь помещений следует принимать в соответствии с таблицами Г.3 - Г.7 приложения Г.

5.2 В состав домов-интернатов для детей- инвалидов входят следующие основные группы помещений:

- приемно-карантинное отделение;

- жилые отделения для умственно отсталых детей;

- жилые отделения для детей с сохранным интеллектом, имеющих физические недостатки;

- общественные помещения:

- учебно-производственные;

- зальные;

- медицинские и сенсорные;

- служебно-бытовые;

- пищеблок;

- культурно-массовые и досуговые помещения;

- помещения проживания персонала (при загородном размещении дома-интерната для детей-инвалидов).

5.3 Все основные группы помещений учреждений для детей-инвалидов должны быть, как правило, функционально изолированы и взаимосвязаны через коммуникационные пространства. На практике обеспечить всем группам помещений необходимую изоляцию достаточно сложно. Поэтому допускаются некоторые группы помещений, кроме жилых, предусматривать проходными.

Функционально-планировочную организацию домов-интернатов для детей-инвалидов желательно проектировать с обособленными жилыми отделениями, которые рекомендуется соединять с блоком общественных помещений короткими (6 м) теплыми переходами, как показано на рисунке 5.

Приемно-карантинное отделение с изолятором

5.4 Приемно-карантинное отделение следует проектировать с отдельным самостоятельным выходом на участок. Приемное отделение должно иметь непосредственную связь с карантинным отделением.

Площадь на одно приемно-смотровое место представлена в таблице 2.

Таблица 2 - Приемное отделение

Помещения

Площадь, м2

Вестибюль-ожидальная

12

Уборная при вестибюле (с электрополотенцесушителем при шлюзе)

3

Приемно-смотровая

16

Санпропускник-раздевальная

6

Ванна с комнатой для одевания

12

Место для хранения каталок

6

Комната для временного хранения вещей поступающих

4

Комната для хранения мягкого инвентаря

4

ИТОГО:

63

В карантинном отделении количество мест ориентировочно принимается 3 % общего числа детей-инвалидов в доме-интернате.

5.5 Окна в карантинном отделении следует проектировать из небьющегося стекла. Высота подоконника проектируется не менее 0,9 м от уровня пола. На окнах необходимо предусмотреть фрамуги или форточки, высоту размещения затворов фрамуг и форточек следует принимать от уровня пола 2,0 - 2,2 м.

Жилые ячейки

5.6 Жилые ячейки для детей-инвалидов с физическими недостатками, но с сохранным интеллектом следует дифференцировать в зависимости от возраста и степени инвалидности в соответствии с таблицей Г.1 приложения Г и рисунком 6:

- для дошкольников - тип 1а;

- для подростков и старшеклассников - тип 1б;

- для лежачих, обездвиженных детей - тип 1в.

5.7 Жилую ячейку тип 1а следует предусматривать для детей-инвалидов в возрасте 3-7 лет. Жилая ячейка должна включать жилые комнаты на 4 - 6 человек, буфетную, комнату для игр, раздевальную, комнату воспитателя и санитарно-гигиенические помещения в соответствии с рисунками 5 и 7.

5.8 Жилую ячейку тип 1б следует предусматривать для детей-инвалидов подросткового возраста, подготовительной группы к общеобразовательным школьным занятиям в возрасте 6-7 лет и группы детей профессионального обучения 8-16 лет.

В жилой ячейке должны быть жилые комнаты на 2-3-4 человека, которые представлены на рисунках 6 и 8.

В составе жилой ячейки 1б следует предусматривать классы для обучающихся детей, состав и площади которых представлены в таблице Г.3 приложения Г.

Помещения жилой ячейки для детей с нарушением опорно-двигательного аппарата следует проектировать с учетом функциональных зон, обеспечивающих подъезд ребенка-инвалида в кресле-коляске к любой точке помещения, зону размещения кресла-коляски следует принимать шириной - 0,9 м и длиной - 1,5 м.

5.9 Жилая ячейка тип 1в предусматривается для лежачих детей, имеющих физические недостатки, не способных к передвижению, физически обездвиженных. Жилые комнаты следует рассчитывать на возрастные группы от 3 до 7 лет и от 8 до 16 лет. Вместимость жилых комнат следует проектировать на 6 - 8 человек.

Для удобства наблюдения за проживающими в жилых ячейках типа 1в шлюз-передняя не предусматривается. В ванной комнате следует предусмотреть зону для мытья клеенок. Состав и площади помещений жилой ячейки 1в представлены в таблице Г.1 приложения Г и на рисунке 10.

5.10 Жилые ячейки для умственно отсталых детей следует дифференцировать в зависимости от возраста и степени инвалидности по таблице Г.2 приложения Г и рисунку 9:

- для младшей группы - тип 2а;

- для средней и старших групп - тип 2б;

- для лежачих детей-инвалидов - тип 2в.

5.11 Жилую ячейку тип 2а следует предусматривать для детей младших групп в возрасте 4-8 лет с нарушенным интеллектом. В жилых ячейках тип 2а следует предусматривать: комнату воспитателя, игровую-столовую, жилые комнаты на 4 - 6 чел. Схема планировки жилой ячейки 2а представлена на рисунках 7, 10. Состав и площади помещений жилой ячейки 2а представлены в таблице Г.2 приложения Г.

5.12 Жилая ячейка тип 2б рассчитывается для детей в возрасте 8-12 лет и 12-18 лет, свободно или с трудом передвигающихся, способных к обучению. Жилые комнаты принимаются вместимостью на 2 - 3 - 4 чел. Схема планировки жилой ячейки представлена на рисунках 8 и 9. Состав и площади помещений жилой ячейки типа 2б принимаются согласно таблице Г.2 приложения Г.

5.13 В составе помещений жилой ячейки типа 2б для умственно отсталых детей 8-12 лет следует предусматривать учебные помещения (классы) исходя из подготовительной работы с ребенком по овладению им трудовыми навыками для дальнейшего обучения в учебно-производственных мастерских.

5.14 Жилую ячейку тип 2в следует предусматривать для детей-инвалидов умственно отсталых, не способных к передвижению, обездвиженных, лежачих. Она состоит из жилых комнат на 6-8 чел., при которых размещаются ванна с зоной для мытья клеенок, буфетная и кладовые для уборочного инвентаря и хозяйственные встроенные шкафы. В жилой ячейке типа 2в возможно размещение двух спален, вариант такого решения представлен на рисунках 9 и 10.

Состав и площади помещений жилой ячейки типа 2в представлены в таблице Г.2 приложения Г.

5.15 Раздевальные помещения для жилых ячеек типов 2а и 2б следует оборудовать встроенными шкафами с подсушкой одежды и обуви.

В спальных помещениях жилых ячеек следует предусматривать встроенные шкафы для хранения запаса чистого белья и спальных принадлежностей (0,15 м2/чел.). Схемы решения жилых ячеек типа 2 представлены на рисунке 9.

5.16 На каждые две жилые ячейки обучаемых детей-инвалидов рекомендуется устраивать одну неотапливаемую веранду площадью 1 м2/чел.

Учебные помещения

5.17 Для занятий обучаемых умственно отсталых детей, подготовительных групп трудового обучения (для среднего и старшего возраста детей) могут использоваться также комнаты трудотерапии, планировочная схема которых представлена на рисунке 11.

5.18 Учебная группа помещений для 1-го класса состоит из помещений для индивидуальных занятий и комнаты для игр, выполняющей функцию рекреационного помещения для отдыха во время занятий. Площади помещений приведены в таблицах Г.1 и Г.2 приложения Г.

5.19 Учебная группа помещений для воспитанников II-IV классов состоит из классных комнат, мастерских для трудового обучения, рекреаций и санитарных узлов, площади которых представлены в таблице Г.3 приложения Г.

5.20 Учебная группа помещений для средних и старших классов состоит из учебных классов, кабинетов лабораторий, лаборантских при них, рекреационных помещений и санитарных узлов.

Учебные кабинеты и лаборатории для средних и старших классов могут быть использованы для кружковых и индивидуальных занятий в неурочное время.

5.21 Лаборантские предусматриваются при каждом кабинете, а при лабораториях - по каждому предмету (химии, физике, биологии). Лаборантские являются местом для размещения отраслевой библиотеки, информационно-пленочных материалов, частичного хранения средств обучения, наглядных пособий. Состав помещений учебной и профессиональной подготовки для детей с сохранным интеллектом представлен в таблице Г.3 приложения Г.

5.22 Рекреационные помещения проектируются из расчета не менее 1 м2 на одного учащегося с учетом их универсального использования для занятий кружков, секций, игр (в том числе настольного тенниса).

5.23 Площадь класса принимается из расчета 2 м2 на человека. Классы оборудуются одноместными столами для детей, доской школьного типа, однотумбовым столом для воспитателя, шкафами для хранения наглядных пособий и тетрадей.

5.24 В классах необходимо предусмотреть сквозное или угловое проветривание, которое допускается осуществлять через рекреационное помещение или коридор.

Площадь застекленной поверхности окон в классах составляет 1/5 - 1/6 площади пола; 50 % окон следует устраивать с фрамугами или форточками. На столы обучающихся детей свет должен падать слева.

5.25 Учебные кабинеты для детей средней имбецильности (ручного труда, домоводства, агротехники и т.п.) должны состоять из двух помещений: собственно помещения для занятий и комнаты для хранения инструмента и запасного материала.

Учебно-производственные мастерские

5.26 Для производственной практики обучающихся предусматриваются учебно-производственные мастерские (УПМ). Учебно-производственные мастерские следует проектировать раздельно для детей-инвалидов с сохранным интеллектом в возрасте 8-16 лет и для умственно отсталых детей в возрасте 12-18 лет. Состав и площади помещений представлены в таблице Г.3 приложения Г.

5.27 Для детей с сохранным интеллектом учебно-производственные мастерские (далее - УПМ) профессиональной подготовки включают учебные классы, учебные кабинеты, мастерские. Взаимосвязь учебно-производственных помещений профессиональной подготовки должна осуществляться через коридоры и рекреации при обеспечении изолированности всех учебных кабинетов и мастерских.

Площадь учебных помещений рассчитывается для воспитанников I-IV классов 1,7 м2/место; V-IX (или V - XI) классов - 2,2 м2/место.

5.28 Для самостоятельно передвигающихся умственно отсталых детей помещения УПМ принимаются из расчета от 3 до 8 м2/место.

5.29 Высоту помещений для учебно-производственных мастерских рекомендуется принимать 4,2 м.

5.30 При УПМ на каждую мастерскую площадью 90 м2 предусматриваются: комната организатора работ (8 м2), склады заготовок (12 м2); складские помещения должны быть связаны с мастерскими.

5.31 Учебно-производственные мастерские детского дома-интерната для обучаемых умственно отсталых детей состоят из классов, кабинета домоводства, производственных мастерских, кабинета заведующего учебной частью, методического кабинета в соответствии с таблицей Г.3 приложения Г.

5.32 В домах-интернатах для обучаемых умственно отсталых детей старшей группы в целях осуществления лечебно-трудовой и активирующей терапии необходимо создание лечебно-трудовых мастерских (далее - ЛТМ), таблица Г.3, п. 31 приложения Г.

Для детей-инвалидов 16-18 лет следует проектировать ЛТМ, предусматривающие профессии почтальона - оператора электронной почты, переплетчика и др. Выбор профиля мастерских уточняется заданием на проектирование в зависимости от контингента детей, а также конкретных условий и возможностей места строительства.

5.33 Площадь помещений мастерских определяется из условий размещения станочного оборудования, стола инструктора и рабочих мест обучаемых. При этом следует учитывать, что расстояние между рядами (проход вдоль мастерской) должно быть не менее 90 см.

5.34 В мастерских для детей-инвалидов ширина основного прохода- 1,5 м, расстояние между столами в ряду, предназначенными для детей- инвалидов, должно быть не менее 1,5 м в соответствии с рисунком 11.

5.35 Лечебно-трудовые мастерские следует предусматривать для детей-инвалидов старших групп - воспитанников с сохранным интеллектом и нарушенным интеллектом, способных к частичному самообслуживанию. Вместимость и профиль лечебно-трудовых мастерских следует определять заданием на проектирование и в соответствии с таблицей Г.3 приложения Г.

Медицинские помещения

5.36 Медицинские помещения предназначаются для лечебных и коррекционно-оздорови- тельных мероприятий. Их следует проектировать общими на весь дом-интернат для детей-инвалидов.

Общие на здание медицинские помещения домов-интернатов для детей-инвалидов состоят из кабинетов врачей, врачей-консультантов, кабинета медсестры, физиотерапевтического кабинета, общеклинической лаборатории, аптеки, кабинета ЛФК, сенсорной и позиционирующей комнат. Состав и площади помещений представлены в таблице Г.4 приложения Г.

При планировке лечебных помещений следует учитывать, что умственно отсталые дети на процедуры приходят группами до 15 чел. в сопровождении персонала, процедуры происходят в открытых просматриваемых помещениях, залах. Применение закрытых кабин запрещается.

Служебно-бытовые помещения

5.37 В состав служебно-бытовых помещений входят следующие помещения: вестибюль 0,5 м2/ место с гардеробом и санузлом, комната для посетителей, помещение инженерно-технического персонала, комната отдыха персонала, кабинет директора, заместителя директора по хозяйственной части, бытовые помещения персонала с комнатой отдыха, кладовые сезонной одежды и обуви, мебели и инвентаря, комната бухгалтерии, архив, парикмахерская, мастерская текущего ремонта оборудования и инвентаря (36 м2), хозяйственный склад (36 м2), радиоузел, АТС, прачечная-постирочная с группой помещений, площади которых следует принимать по таблице Г.5 приложения Г.

5.38 Прачечную-постирочную следует проектировать из расчета ее работы в две смены производительностью 1 кг белья в сутки на одно место для отделений детей, имеющих отклонение в развитии (с сохранным интеллектом и умственно отсталых); 2 кг белья в сутки на одно место для лежачих детей, имеющих отклонение в развитии.

5.39 В состав прачечной-постирочной входят: помещение для сортировки грязного белья с постирочной, дезинфицирующее отделение, помещение для хранения дезинфекционных средств и приготовления растворов, центральная бельевая; комната для хранения одежды, предназначенной на списание, помещения для персонала в соответствии с таблицей Г.5 приложения Г.

Помещения общественного питания

5.40 В домах-интернатах для детей-инвалидов предусматриваются помещения питания:

- буфетная с мойкой на жилую ячейку, в которую из производственных помещений кухни-столовой для категории детей, передвигающихся с трудом, лежачих питание доставляется в бочках и термосах в помещение буфетной жилой ячейки. Питание происходит в жилой комнате. В жилых ячейках для обездвиженных детей помимо буфетных проектируются шкафы для хозяйственных принадлежностей и место для тары, площадь которых следует принимать в соответствии с таблицами Г.1 и Г.2 приложения Г;

- столовая с обеденным залом (пищеблок), рассчитанная в целом на учреждение. Столовая работает на сырье. Обеденный зал проектируется на детей самостоятельно передвигающихся. Состав и площади столовой и обеденного зала следует принимать в соответствии с таблицей Г.6 приложения Г, справочным пособием к СниП «Проектирование общественного питания» и СанПиН 2.4.1201.

5.41 Площадь обеденного зала столовой следует принимать для детей-инвалидов младших групп 1,4 м2/место, для детей-инвалидов средних и старших групп - 2,4 м2/место. При количестве более 150 мест следует предусматривать несколько залов (два-три). Рядом с обеденным залом для персонала рекомендуется предусматривать обеденный зал площадью не менее 14-16 м2.

Зальные помещения

5.42 Зальные помещения следует предусматривать для детей с сохранным интеллектом и умственно отсталых обучаемых детей-инвалидов. Зальные помещения включают спортивный и актовый залы, фойе. Состав и площади зальных помещений представлены в таблице Г.7 приложения Г.

5.43 Площадь актового зала проектируется из расчета размещения в нем 75 % воспитанников при 0,8 м2 площади на одно место в соответствии с таблицей Г.7 приложения Г.

Помещения культурно-массового и досугового назначения

5.44 Состав и площади помещений культурно-массового назначения рекомендуется проектировать в соответствии с таблицей Г.7 приложения Г.

5.45 Для детей-инвалидов, нуждающихся в улучшении координации движения, проектируется зал ритмики (занятия под музыку) площадью из расчета 5 м2 на воспитанника.

5.46 Площади кинопроекционной радиоузла следует принимать в соответствии с требованиями СНиП 2.08.02.

5.47 В доме-интернате для детей-инвалидов рекомендуется проектировать библиотеку, включающую читальный зал, - 2,5 м2/место, книгохранилище площадью не менее 18 м2 и информационно-справочную комнату площадью не менее 12 м2. Количество мест в читальном зале рекомендуется принимать 10 % вместимости дома-интерната.

6 Инженерное оборудование

Водоснабжение и канализация

6.1 В домах-интернатах для детей-инвалидов следует предусматривать хозяйственно-питьевое, противопожарное и горячее водоснабжение, а также канализацию и водостоки, проектируемые в соответствии со СНиП 2.04.01 и СНиП 2.08.02.

6.2 На сети хозяйственно-питьевого водопровода следует предусматривать отдельный кран для присоединения шланга (рукава) в целях возможности его использования в качестве первичного устройства в жилых ячейках пожаротушения на ранней стадии.

Шланг должен обеспечивать возможность подачи воды в любую точку жилой ячейки с учетом длины струи 3 м, быть длиной не менее 15 м, диаметром 19 мм и оборудован распылителем.

6.3 В кранах умывальников и душевых жилых ячеек следует устанавливать термостатические регуляторы, исключающие подачу горячей воды температурой более 50 °С.

6.4 Нагревательные приборы в помещениях для пребывания детей должны иметь ограждения, обеспечивающие нормальную конвекцию воздуха и удобства чистки приборов.

6.5 В районах без централизованных инженерных сетей допускается в одно-двухэтажных зданиях домов-интернатов на 50 мест проектировать неканализованные уборные (люфт-клозеты), предусматриваемые в жилых ячейках в пределах отапливаемой части здания в соответствии со СНиП 2.08.02, п. 3.51.

Отопление, вентиляция и кондиционирование воздуха

6.6 В домах-интернатах следует предусматривать отопление, вентиляцию с естественным побуждением согласно СНиП 41-01.

Расчетные параметры воздуха и кратность воздухообмена в помещениях следует принимать с учетом данных таблицы Г.8 приложения Г.

Необходимость устройства кондиционирования воздуха устанавливается соответствующими документами.

6.7 Для помещений с нормируемой вытяжкой компенсацию удаляемого воздуха следует предусматривать как за счет поступления наружного воздуха, так и за счет перетекания воздуха из других помещений жилой ячейки.

Вытяжную вентиляцию жилых комнат, жилых ячеек следует предусматривать через вытяжные каналы кухонь, уборных, ванных, сушильных шкафов.

Если метеорологические условия и чистота воздуха не могут быть обеспечены вентиляцией с естественным побуждением, следует предусматривать вентиляцию с механическим побуждением притока и удаления воздуха или комбинированную вентиляцию с естественным притоком и удаление воздуха через вентиляционные каналы с частичным использованием механического побуждения согласно СНиП 41-01, п. 7.1.2.

6.8 Систему вентиляции следует предусматривать с раздельными вентиляционными коробами для каждой из жилых групп, размещенных в пределах одного пожарного отсека, согласно СНиП 41-01.

На воздуховодах систем общеобменной вентиляции необходимо предусматривать противопожарные клапаны, воздушные затворы, место и расположение которых принимаются по СНиП 41-01, п. 7.11.1.

6.9 Отопительные приборы, трубопроводы с температурой поверхности доступных частей выше 75 °С в помещениях домов-интернатов, лестничных клетках, вестибюлях должны иметь защитные ограждения (съемные деревянные решетки) или тепловую изоляцию трубопроводов согласно СНиП 41-01, п. 4.4.3, СНиП 2.08.02, п. 3.4.

6.10 В одноэтажных зданиях домов-интернатов для детей-инвалидов с общим числом мест 100 (сооружаемых в пригородных поселках) допускается устраивать печное отопление. Топочное отверстие и печные заслонки должны обслуживаться из подсобных помещений, имеющих окна, форточки и каналы вытяжной вентиляции. При проектировании следует учитывать требования СНиП 41-01, п. 6.6.

Электротехнические устройства

6.11 В домах-интернатах следует предусматривать электроосвещение, силовое электрооборудование, телефонизацию, радиофикацию, телевизионные антенны и звуковую сигнализацию. Диспетчеризацию систем инженерного оборудования следует предусматривать в проектах застройки микрорайона.

Внутридомовые, внутри жилых ячеек и жилых отделений электрические сети должны оборудоваться устройствами защитного отключения согласно ПУЭ и СанПиН 2.4.1201.

6.12 В домах-интернатах установку штепсельных розеток рекомендуется предусматривать в следующих помещениях: комнате коррекции, раздевальных, медицинской комнате, приемной изолятора, процедурном кабинете, кабинете заведующего, комнатах персонала, завхоза, в комнатах психологической разгрузки, в помещениях для физкультурных занятий, в общем рекреационном пространстве. В групповой, зале гимнастических занятий, в классах для использования технических средств обучения предусматриваются по две штепсельные розетки, в компьютерных классах - по числу устанавливаемых компьютеров.

6.13 Штепсельные розетки и выключатели для общего освещения должны находиться на высоте 1,8 м от уровня пола.

6.14 В комнатах коррекции для детей с нарушением зрения количество розеток следует предусматривать в соответствии с размещаемым оборудованием (как правило, по четыре двойные штепсельные розетки). Высота размещения - 1 м от уровня пола.

6.15 В зданиях учреждений необходимо предусматривать прямую телефонную связь помещения поста старшей медсестры с ближайшей пожарной частью.

Двусторонняя селекторная связь предусматривается между кабинетом заведующего со следующими помещениями: групповыми, медицинской комнатой, пищеблоком, комнатой завхоза, комнатой охранника, вахтера и комнатой кастелянши.

6.16 Проектирование систем автоматизации помещений административного и медицинского обслуживания следует выполнять в соответствии с ВСН 281, а также НПБ 104 и НПБ 110.

Иллюстрации

СХЕМА ВЗАИМОСВЯЗИ ПОМЕЩЕНИЙ

1

1 - жилые группы для детей-инвалидов с физическими недостатками, с сохранным интеллектом; 2 - жилые группы для лежачих детей-инвалидов с сохранным интеллектом; 3 - жилые группы для детей-инвалидов умственно отсталых, способных к обучению; 4 - жилые группы для детей-инвалидов умственно отсталых, не способных к обучению; 5 - жилые группы для лежачих детей-инвалидов умственно отсталых

АНТРОПОЛОГИЧЕСКИЕ ДАННЫЕ

2

Антропологические данные детей и высота рабочей мебели в зависимости от роста учащихся

Обозначение габаритов

Рост учащихся, см

до 130

131-145

146-160

161-175

свыше 175

Н1

123,5

138

153,7

168,8

179,5

Н2

112

128

143,5

158

169

Н3

88

98

109

120

128

Н4

140

160

180

200

220

В1

32,6

35,4

39

43,2

44,8

В2

123

138

153

169

179

В3

16,5

17,5

19

21,4

22

В4

50,6

53,6

58

62

62,5

Н5*

32

36

40

44

48

Н6**

54

60

66

72

78

Н7***

55(75)

60(85)

70(95)

80(105)

-

В5

50

50

50

50

50

*В соответствии с ГОСТ 11016-93.

** В соответствии с ГОСТ 11015-93

*** Дана высота верстака столярного, в скобках - слесарного.

 

СХЕМА ДОМА-ИНТЕРНАТА С ЛТМ ДЛЯ ДЕТЕЙ-ИНВАЛИДОВ

3

1 - вестибюль; приемно-карантинное отделение; 2 - жилая ячейка типа 1а; 3 - жилая ячейка типа 1б; 4 - жилая ячейка типа 1в; 5 - класс; 6 - медицинская служба; 7-помещения оздоровительной физкультуры; 8 - столовая; 9 - лечебно-трудовая мастерская (ЛТМ), мастерские трудового обучения; 10 - учебно-производственная мастерская (УПМ); 11 - помещения администрации; 12 - жилая ячейка типа 2а; 13 - жилая ячейка типа 2б; 14 - жилая ячейка типа 2в; 15 - сенсорное помещение; 16 - изолятор; 17 - жилая ячейка типа 2в

СХЕМА ПЛАНИРОВКИ ДОМА-ИНТЕРНАТА С МЕДИЦИНСКОЙ СЛУЖБОЙ

4

I - отделение для детей-инвалидов с сохранным интеллектом; II - отделение для детей умственно отсталых; III - центральная в плане группа помещений, рассчитанных на обслуживание двух самостоятельных, обособленных друг от друга отделений для детей-инвалидов с сохранным интеллектом и детей умственно отсталых

1 - вестибюль с гардеробом; 2 - кабинет директора; 3 - медицинская служба; 4 - спортивные и физкультурно-оздоровительные учреждения; 5 - блок питания; 6 - приемно-карантинное отделение; 7 - изолятор; 8 - жилая ячейка типа 1в; 9 - классы; 10 - актовый зал; 11 - профессиональные мастерские; 12 - лаборантские; 13 - медицинские процедурные кабинеты; 14 - жилая ячейка типа 2в; 15 - помещения для занятий; 16 - мастерские трудотерапии; 17 - сенсорные помещения; 18 - жилая ячейка типа 1а; 19 - жилая ячейка типа 1б; 20 - солярий; 21 - жилая ячейка типа 2а; 22 - жилая ячейка типа 2б; 23 - место для кресел-колясок; 24 - лифт; 25 - административно-служебные помещения; 26 - прачечная

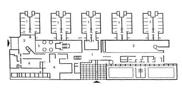
СХЕМА ПЛАНИРОВКИ ДОМА-ИНТЕРНАТА С ВЫДЕЛЕННЫМИ ЖИЛЫМИ ОТДЕЛЕНИЯМИ

5

1 - жилые отделения (блоки);

2 - школа, профессиональные и трудовые мастерские;

3 - административно-бытовые помещения;

4 - медицинская служба;

5 - пищеблок

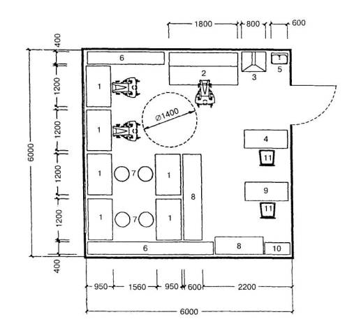
ЖИЛЫЕ ЯЧЕЙКИ ДЛЯ ДЕТЕЙ-ИНВАЛИДОВ С СОХРАНННЫМ ИНТЕЛЕКТОМ

6

A. Планировочная схема жилой ячейки типа 1а для дошкольников

1 - раздевальная; 2 - игровая; 3 - столовая; 4 - буфетная с мойкой; 5 - класс; 6 - комната воспитателя; 7 - санузел; 8 - комната для сушки одежды и обуви; 9 - гладильная; 10 - спальная комната на 6 мест; 11 - спальная комната на 4 места; 12 - кладовая демонстрационного и подсобного материала

Б. Планировочная схема жилой ячейки типа 1б для подростков и старшеклассников

1 - раздевальная; 2 - спальная комната на 4 места; 3 - спальная комната на 3 места; 4 - комната воспитателя с кладовой личных вещей; 5- комната отдыха; 6 - буфетная; 7 - комната для занятий с кладовой; 8 - туалет; 9 - умывальник; 10 - комната для сушки одежды и обуви

B. Планировочная схема жилой ячейки типа 1в для лежачих детей-инвалидов с сохранным интеллектом

1 - кровать (200×90 см); 2 - встроенный шкаф для спальных принадлежностей и чистого белья; 3 - умывальник (60×40 см); 4 - буфет-мойка (180×60 см); 5 - каталка (225×60 см); 6- ванна (170×70 см); 7 - слив (45×50 см); 8 - встроенный шкаф для суден; 9 - шкаф для хозяйственных принадлежностей; 10 - надкроватный столик; 11 - комната воспитателя с кладовой для демонстрационного школьного материала; 12 - спальная комната на 8 мест

ПЛАНИРОВОЧНЫЕ СХЕМЫ СПАЛЬНОЙ КОМНАТЫ И ОБЕДЕННОГО МЕСТА

7

А. Планировочная схема спальной комнаты на 6 мест для детей-инвалидов младших групп дошкольников;

Б. Планировочная схема обеденного места в столовой с буфетной

1 - кровать 190(200)×70 см; 2 - тумбочка 40×50 см; 3 - инвалидная коляска; 4 - шкаф комбинированный; 5 - стол 100×60 см; 6 - стул 40×40 см; 7 - стол детский обеденный 140(160)×90 см

ПЛАНИРОВОЧНЫЕ СХЕМЫ СПАЛЬНЫХ КОМНАТ

8

А - четырехместная спальная комната; Б - трехместная спальная комната; В - двухместная спальная комната

1 - кровать 190×70 см; 2 - диван; 3 - тумбочка 40×80 см; 4 - тумбочка 40×40 см; 5 - стол 60×100 см; 6 - стул 40×40 см; 7 - кресло 50×50 см; 8 - торшер; 9 - банкетка; 10 - инвалидная коляска; 11 - комбинированный шкаф

ЖИЛЫЕ ЯЧЕЙКИ ДЛЯ УМСТВЕННО ОТСТАЛЫХ ЛЮДЕЙ

9

A Планировочная схема жилой ячейки типа 2а для младшей группы детей-инвалидов

1 - раздевальная; 2 - групповая-столовая; 3 - буфетная с мойкой; 4 - спальная комната на 8 мест; 5 - спальная комната на 6 мест; 6 - умывальная; 7 - туалетная; 8 - ванная

Б. Планировочная схема жилой ячейки типа 2б для детей-инвалидов подростковой и старшей трудового обучения групп

1 - раздевальная; 2 - комната дневного пребывания; 3 - класс; 4 - спальная комната на 8 мест; 5 - спальная комната на 6 мест; 6 - туалетная; 7 - умывальная; 8 - ванна; 9 - шкаф для демонстрационного материала; 10 - бытовая кладовая; 11 - буфетная с мойкой

B. Планировочная схема жилой ячейки типа 2в для необучаемых, лежачих детей-инвалидов

1 - спальная комната на 8 мест; 2 - спальная комната на 6 мест; 3 - ванная со шкафом для суден; 4 - буфетная с мойкой; 5 - кровать (200×90 см); 6 - встроенный шкаф для спальных принадлежностей и чистого белья; 7 - умывальник (60×40 см); 8 - каталка (224×60 см); 9 - ванна; 10 - слив; 11 - встроенный шкаф для суден; 12 - шкаф для хозяйственных принадлежностей; 13 - надкроватный столик

ПЛАНИРОВОЧНАЯ СХЕМА СПАЛЬНОЙ КОМНАТЫ

10

I - планировочная схема жилых комнат жилой ячейки типа 1в для лежачих детей с сохранным интеллектом

А - спальная комната; Б - комната воспитателя; В - буфетная с мойкой; Г - ванная со шкафом для суден

1 - кровать (200×90 см); 2 - встроенный шкаф для спальных принадлежностей и чистого белья; 3 - умывальник; 4 - буфетная с мойкой (180×60 см); 5 - каталка; 6 - ванна; 7 - слив (45×50 см); 8 - встроенный шкаф для суден; 9 - шкаф для хозяйственных принадлежностей; 10 - надкроватный столик; 11 - кладовая для демонстрационного школьного материала

II - планировочная схема жилых комнат жилой ячейки типа 2а для лежачих детей умственно отсталых

А - спальные комнаты на 6 и 8 чел.; Б - ванная со шкафом для суден; В - буфетная с мойкой

1 - кровать (200×90 см); 2 - встроенный шкаф для спальных принадлежностей и чистого белья; 3 - умывальник; 4 - каталка; 5 - ванна; 6 - слив (45×50 см); 7 - встроенный шкаф для суден; 8 - шкаф для хозяйственных принадлежностей; 9 - надкроватный столик

ПОМЕЩЕНИЯ ДЛЯ ТРУДОТЕРАПИИ

11

Планировочная схема лечебно-трудовой мастерской по ремонту аппаратуры и бытовой техники

1 - стол монтажный;

2 - стенд испытательный;

3 - стол с вытяжкой;

4 - стол мастера;

5 - мойка;

6 - стеллаж для материалов;

7 - табурет с регулируемым сиденьем;

8 - стеллаж мастера;

9 - стол медсестры;

10 - шкаф медицинский одностворчатый;

11 - стул

Приложение А

Термины и определения

Дом-интернат для детей инвалидов, имеющих отклонение в развитии, является учреждением стационарного содержания детей с сохранным интеллектом (3-18 лет) и детей умственно отсталых (4-18 лет).

Жилое отделение - часть здания учреждения дома-интерната для детей-инвалидов, состоящая из нескольких жилых ячеек, объединенных общими на отделение помещениями.

Жилая ячейка - часть жилого отделения дома-интерната для детей-инвалидов. Жилая ячейка состоит из жилых комнат - спальни, групповой комнаты для занятий и общественных помещений - санитарно-гигиенических помещений, раздевальной, хозяйственных помещений, буфетной.

Комната позиционирования - является медицинским помещением для детей-инвалидов. Комната позиционирования используется для разнообразных терапевтических поз-укладок в зависимости от медицинских показаний ребенка-инвалида.

Сенсорная комната - является медицинским реабилитационным помещением для детей-инвалидов с различными физическими и умственными недостатками. Сенсорная комната предназначается для психического и физического развития нуждающихся в реабилитации детей-инвалидов. Сенсорная комната оснащается аппаратурой с набором различных управляемых переключателей, сенсорной панелью, стимулирующей двигательные, визуальные и акустические эмоции.

Стационарные учреждения социального обслуживания детей-инвалидов - учреждения, состоящие из жилых помещений для постоянного проживания в домах-интернатах детей-инвалидов с различной степенью инвалидности и комплекса служб социально-бытового и медицинского и учебно-воспитательного назначения для проживающего в учреждении контингента.

Функциональная зона - пространство для осуществления одного или нескольких схожих процессов, ограниченных какими-либо границами различных зон, характеризующихся определенными признаками.

Эргонометрические параметры - параметры человека в условиях покоя, движения или какой-либо деятельности.

Приложение Б
(Справочное)

Возрастные группы детей-инвалидов в доме-интернате

Таблица Б.1- Группы детей с сохранным интеллектом

№ п.п.

Наименование групп

Возраст детей, лет

Количество мест в спальной комнате/количество спальных комнат в жилой ячейке* для детей, имеющих отклонение в развитии

Нарушение зрения

Нарушение слуха

Нарушение речи

Нарушение опорно-двигательного аппарата

Лежачие

1

Дошкольная группа

3-7

2

Подготовительная группа к общеобразовательным школьным занятиям

6-7

3

Группа профессионального обучения

8-16

* В числителе указано количество мест в спальной комнате, в знаменателе указано количество спальных комнат в жилой ячейке.

Примечание - Возрастные группы детей приводятся в соответствии с рекомендациями «О мерах по улучшению работы социальных учебно-воспитательных учреждений для детей и подростков, имеющих недостатки в физическом и умственном развитии».

Таблица Б.2 - Группы умственно отсталых детей

№ п.п.

Наименование групп

Возраст детей, лет

Количество мест в спальной комнате/ количество спальных комнат в жилой ячейке* для детей, имеющих отклонение в развитии

Самостоятельно передвигающиеся

Передвигающиеся с трудом с помощью приспособления

Не способные к самостоятельному передвижению

Лежачие

 

Обучаемые дети

 

 

 

 

 

1

Дошкольная группа

4-8

2

Подготовительная группа к трудовому обучению

8-12

3

Группа трудового обучения

12-18

4

Диагностическая группа

4-18

 

Необучаемые дети

 

 

 

 

 

5

Младшая группа

4-8

6

Средняя группа

8-12

7

Старшая группа

12-18

* В числителе указано количество мест в спальной комнате, в знаменателе указано количество спальных комнат в жилой ячейке.

Примечания

1 Возрастные группы детей-инвалидов приводятся согласно типовому положению о доме для престарелых и инвалидов, утвержденному постановлением Госкомитета совета Министров СССР по труду и социальным вопросам от 20 июня 1978 г. № 202.

2 Диагностическая группа создается с целью выяснения степени умственной отсталости, возможности трудового обучения и уточнения методов коррекционно-воспитательной работы с воспитанниками.

Приложение В
(рекомендуемое)

Площади земельных участков

Таблица В.1 - Состав функциональных зон

№ п.п.

Площади функциональных зон

Площадь площадок, м2, при вместимости дома-интерната для детей-инвалидов, мест

100

120

200

Для детей с сохранным интеллектом

Для детей умственно отсталых

Для детей с сохранным интеллектом

Для детей умственно отсталых

Для детей с сохранным интеллектом

Для детей умственно отсталых

1

Детские площадки:

 

 

 

 

 

 

 

групповые

2,08

2,08

1,9

1,8

1,5

1,2

 

общие физкультурные

12,5

11

10

8

9

7

 

огород-ягодник

0,12

0,1

0,12

0,1

0,1

 

уголок для животных и птиц

0,18

-

0,16

-

0,15

-

2

Хозплощадки

1

1,2

1,0

1,2

1

1,2

3

Дороги, проезды

По расчету в соответствии с планировкой

4

Зеленые посадки

Не менее 40 % площади участка

5

Теневой навес

2,6

2,08

2,2

2

2

1,8

Таблица В.2 - Площадь земельного участка

Тип здания

Вместимость, мест

Площадь участка, м2/место

Дом-интернат для детей-инвалидов

100

80

 

120

60

 

200

50

Примечание - Площадь участков промежуточной вместимости определяется интерполяцией.

Приложение Г
(рекомендуемое)

Состав и площади помещений домов-интернатов для детей-инвалидов

Таблица Г.1 - Жилое отделение для детей с сохранным интеллектом, жилые ячейки тип 1 (а, б, в)

№ п.п.

Помещения

Расчетная площадь на 1 место, м2 (или площадь помещения, м2)

Жилые ячейки для младших групп

Жилые ячейки для подростков и старшеклассников

Тип 1а

Тип 1в

Тип 1б

Тип 1в

Нарушение слуха и речи

Нарушение зрения

Нарушение опорно-двигательного аппарата

Лежачие обездвиженные

Нарушение слуха и речи

Нарушение зрения

Нарушение опорно-двигательного аппарата

Лежачие обездвиженные

 

 

А. Помещения жилых ячеек

1

Раздевальная

0,1

0,1

0,1

-

0,1

0,1

0,1

-

2

Групповая

4

4

4

-

4,

4

4

-

3

Спальная

4

4

4

6-8

4

4

4

6-8

4

Санузел, уборная, умывальная, душ

0,8

0,8

0,8

-

0,8

0,8

0,8

-

 

Ванная со шкафом для суден

-

-

-

(20) на 1-2 жил. ячеек

-

-

-

(20) на 1-2 жил. ячеек

5

Буфетная

(Не менее 4) на жилую ячейку

(6-9) на 1-2 жил. ячеек

(Не менее 4) на жилую ячейку

(6-9) на 1-2 жил. ячеек

6

Кладовая хозяйственная

(2) на жилую ячейку

(4)

(2) на жилую ячейку

(4)

7

Комната хранения уборочного инвентаря

(4) на жилое отделение

(4) на жилое отделение

8

Учебная комната для приготовления уроков

-

-

-

-

(12-18) на 1-2 жилые ячейки

-

9

Комната воспитателя

(12) на жилое отделение

(12) на жилое отделение

10

Летняя веранда

1

1

1

1

1

1

1

1

11

Класс

-

-

-

-

3

3

3

-

Б. Общие помещения на отделение (4-5 жилых ячеек)

12

Кабинет заведующего

(12) на отделение

13

Пост дежурного персонала

(6) на отделение

14

Комната дежурной медсестры

(12-15) на отделение

15

Кабинет логопеда

(12) на отделение

16

Кабинет ортопеда

(12) на отделение

17

Место хранения кресел-колясок

(3) на жилую ячейку

18

Комната для хранения чистого белья

(12) на отделение

19

Помещение для гимнастических и муз. занятий и лечебной физкультуры

0,2

0,2

0,2

-

0,2

0,2

0,2

-

20

Кабинет личной гигиены для девочек

(4) на жилое отделение

-

(4) на жилое отделение

-

21

Комната для встреч с родителями

(24) на отделение

22

Комната персонала, при которой туалетная с душевой

(12) на отделение

Таблица Г.2 - Жилое отделение для детей умственно отсталых, жилые ячейки тип 2 (а, б, в)

№ п.п.

Помещения

Расчетная площадь на 1 место, м2 (или площадь помещения, м2)

Жилая ячейка для младшей группы

Жилая ячейка для средней и старшей групп

Тип 2а

Тип 2в

Тип 26

Тип 2в

Свободно передвигающиеся

Передвигающиеся с трудом

Лежачие

Свободно передвигающиеся

Передвигающиеся с трудом

Лежачие

А. Помещения жилых ячеек

1

Раздевальная

1

1

 

 

 

 

2

Групповая, в том числе используемая в качестве обеденного помещения

-

1,2

3

Спальная комната

4

4

6

6

6

6

4

Санузел: уборная, умывальная, душ и ванная

(8) на жилую ячейку

(9) на жилую ячейку

(5) на жилую ячейку

(9) на жилую ячейку

(5) на жилую ячейку

 

со шкафом для суден

 

 

1,6

-

-

1,6

5

Буфетная с мойкой

(3) на Жилую ячейку

(3) на жилую ячейку

 

 

 

6

Кладовая

-

-

(3) на жилую ячейку

(3) на жилую ячейку

(3) на жилую ячейку

(3)на жилую ячейку

7

Комната хранения уборочного инвентаря

(4) на жилую ячейку

8

Учебная комната для приготовления уроков

-

-

-

(12) на жилые ячейки

-

9

Комната психолога и воспитателя

-

-

-

(12-14) на жилые ячейки

10

Летняя веранда

1

1

1

1

1

1

11

Класс-комната трудового обучения

-

-

-

3

3

-

Б. Общие помещения на отделение (4-5 жил. ячеек)

12

Кабинет заведующего

(12) на отделение

13

Комната старшей медицинской сестры

(15) на отделение

14

Помещение для гимнастических и муз. занятий и лечебной физкультуры

(12) на отделение

15

Комната встречи родителей с детьми

(20) на отделение

16

Комната персонала с туалетом и душевой

(8) на отделение

17

Комната хранения кресел-колясок

(6) на жилую ячейку

18

Комната хранения чистого белья

(12) на отделение

19

Комната личной гигиены для девочек

-

-

-

Один кабинет на жилую ячейку

-

20

Пост дежурного персонала

4 м2

Примечание - В группах для необучаемых детей раздевальная и групповая не предусматриваются, а площадь спален принимается 8 м2/чел.

Таблица Г.3 - Помещения учебной и профессиональной подготовки и трудового обучения

№ п.п.

Помещения

Площадь помещений, м2, учебной и профессиональной подготовки в доме-интернате для детей-инвалидов

Примечания

Для детей с сохранным интеллектом

Для детей умственно отсталых

на 1 место

общая площадь

на 1 место

общая площадь

1

Учебно-игровые комнаты для школьников и младших классов

4

 

3,6

 

Для разновозрастных групп

2

Классы на 8-10 детей

-

 

3

 

В домах-интернатах для детей с недостатками умственного развития допускается принимать количество обучающихся из расчета на 50 % детей от вместимости учреждения

 

I-V классы

3

24-30

3

 

 

 

V-IX классы

3

24-30

3

 

 

 

X-XI классы

3,6

36

3

 

 

3

Класс на 12 человек

-

-

3

36

 

4

Кабинет домоводства

 

50

 

50+16

 

5

Производственные мастерские (столярная)

4,5

 

4,5

 

 

6

Склад сырья

 

 

 

16

На мастерскую

7

Склад готовой продукции

 

 

 

16

На мастерскую

8

Инструментальная комната

 

 

 

25

 

9

Кабинет методический и учебных пособий

 

 

 

40

 

10

Санузел

 

 

 

3×2

 

11

Кабинет зав. учебной частью

12

На отделение

12

Рекреационные помещения

1,2

 

1,4

 

 

13

Кабинет физики с лаборантской

 

54

 

54+18

 

14

Гимнастический зал

 

18×9

 

 

На отделение

15

Кабинет химии с лаборантской

 

54+18

 

 

Для средних и старших школьников (для обучаемых детей)

16

Класс машинописи с подсобным помещением

 

54+18

 

 

17

Класс рисования - изостудия с кладовой

 

54+18

 

54+18

18

Компьютерный класс с подсобным помещением

 

54+18

 

 

То же

19

Класс биологии - живой уголок с лаборантской

 

54+18

 

 

»

20

Комната музыкальных занятий с кладовой инструментов

 

54+18

 

54+18

»

21

Классы:

 

 

 

21+10

Для средних и старших школьников (для обучаемых детей)

чтения

 

 

 

36+10

математики

 

 

 

36

счета

 

 

 

36

22

Кабинет социально-бытовой адаптации, помещение для приема гостей

 

72+10

 

36+10

 

23

Библиотека с книгохранилищем и читальным залом, кабинет русского и иностранного языков

 

120

 

60,0

На отделение

24

Методический кабинет

 

36

 

-

 

25

Кабинет заведующего учебной частью

 

18

 

18

 

26

Комната учителей, мастеров, организатора работ

 

54

 

54

 

27

Кладовая мебели, инвентаря

 

24

 

24

 

28

Санитарные узлы для мальчиков и девочек

 

по расчету

 

По расчету

Распределяются поэтажно

29

Учебно-производственные мастерские с инвентарными и подсобными помещениями:

 

 

 

 

Для средних и старших школьников умственно отсталых

швейная

 

36+12+10

 

36

 

картонажно-переплетная

 

72+18+10

 

72

 

столярная

 

54+18+10

 

54

 

ткацкая

 

54+18+10

 

-

 

механической сборки

 

36+18

 

-

 

электромонтажная

 

36+18

 

-

 

токарно-фрезерная

 

72+18

 

-

 

гончарная

 

36+18+10

 

36

 

обувная

 

36

 

36

 

ручных ремесел (вязания, лозоплетения и пр.)

 

36+12+10

 

36+12+10

 

ремонта аппаратуры и бытовой техники

 

36+18+10

 

36+18+10

 

30

Класс подготовки младшего медицинского персонала с кладовой учебных пособий

 

36+10

 

36+10

Для средних и старших школьников с недостатками умственного развития

31

Класс для обучения умственно отсталых детей

-

 

2,0

 

 

32

Лечебно-трудовые мастерские с кладовой:

 

60+18

 

60+18

По заданию на проектирование

мастерская производительного общественно-полезного труда

1,7

 

1,7

 

 

картонажная мастерская

1,0

 

1,0

 

 

швейная мастерская

1,2

 

1,2

 

 

кулинария

 

18,0

 

18,0

 

помещение музыкальных занятий

 

36,0

 

36,0

 

кабинет домоводства

 

36,0

 

36,0

 

Таблица Г.4 - Помещения медицинского обслуживания

№ п.п.

Помещения

Площадь помещений, м2, общих на отделения для детей с сохранным интеллектом и умственно отсталых детей при вместимости домов-интернатов, мест

Примечания

100

120

200

1

Кабинет заместителя директора по медицинской работе

16

18

18

 

2

Кабинет педиатра

15

15

15

 

3

Кабинет консультативного приема с темной комнатой

20+8

 

4

Кабинет старшей медицинской сестры

12

12

12×2

 

5

Комната клинической лаборатории (анализы крови, мочи)

18,0

 

6

Аптечная комната

-

8+4

10+4

 

7

Стерилизационно-автоклавная с помещением хранения и выдачи стерильных материалов

12+6

12+6

14+6

 

8

Стоматологический кабинет

16,0

 

9

Кабинет психоневролога

15

15

15×2

 

10

Кабинет логопеда

18

 

 

11

Кабинет ЛФК

24

36

 

12

Кабинет индивидуального массажа и занятий ЛФК

18

18+2

 

13

Ингаляторий

24

30

 

14

Кабинет гидротерапии

24

28

 

15

Раздевальная

14

14

 

16

Водолечение:

 

 

По 7-8 м2 на 1 ванну в открытом помещении, одна ванна должна быть приспособлена для обслуживания детей-опорников

 

ванный зал

28

28×2

 

раздевальная

14

18

 

кабинет подводного массажа

18 (для детей с сохранным интеллектом)

17

Кабинет светолечения

12

12

18

 

18

Кабинет электролечения

 

 

 

 

19

Подсобная комната

10

 

20

Аминозиновый кабинет с подсобным помещением

18+6

 

21

Кабинет озокерито-парафинолечения, горячих укутываний

16+6 (для детей с сохранным интеллектом)

 

22

Кабинет механотерапии

28

Для детей с сохранным интеллектом

23

Кабинет электросна

18

28

 

24

Кабинет оксигенотерапии

14

20

 

25

Кабинет психологической разгрузки

18

24

 

26

Комната персонала

14

12+2

 

27

Санитарные узлы для мальчиков и девочек с умывальниками в шлюзе

16

16×2

18×2

 

28

Комнаты хранения предметов уборки

4

4×2

4×2

 

29

Санузлы персонала с умывальниками в шлюзе

3

3×2

3×2

 

30

Сенсорная комната

18

24

36

 

31

Комната позиционирования

18

24

36

 

32

Диагностический кабинет

24

36

 

33

Отделение психиатрической помощи:

 

 

 

кабинет психиатра

12

12×2

 

 

комната медсестры

12

14

12×2

 

Таблица Г.5 - Состав площадей и общих помещений административно-бытового назначения

№ п.п.

Помещения

Площадь помещений, м2, при вместимости домов-интернатов, мест

Примечания

100

120

200

1

Вестибюль с гардеробом для посетителей

74

80

90

 

2

Санитарные узлы мужские и женские с умывальником в шлюзе

10 (5×2)

10 (5×2)

15 (5×3)

 

3

Помещение дежурного

10

10

10

 

4

Кабинет директора

18

18

24

 

5

Канцелярия-приемная

12

14

18

 

6

Кабинет заместителя директора по хозяйственной части

12

14

16

 

7

Помещение дежурного персонала технического обслуживания

10

14

14

 

8

Бухгалтерия с кассой

12+4

12+4

18+4

 

9

Комната отдыха персонала

24

24

36

 

10

Комната сестры-хозяйки с кладовой

10+6

12+6

12+6

 

11

Кладовые грязного белья и чистого белья с починочной

10+12

10+12

16+20

 

12

Помещение архива

8

10

12

Может располагаться в подвале

13

АТС

18

18

24

То же

14

Гардероб персонала с душевой и санитарным узлом

24

24

36

»

15

Кладовые, инвентарные

30

30

40

»

16

Помещение ремонта электроаппаратуры с подсобным помещением

12+4

12+4

14+6

»

17

Комнаты хранения предметов уборки

4+4

4+4

4+4

 

18

Постирочная

8+18+6

8+18+6

8+22+8

В случае если в составе помещений хозяйственного обслуживания прачечная не предусмотрена

19

Прачечная-постирочная:

 

 

 

 

центральная бельевая с текущим ремонтом белья

18

18

20

 

комната хранения одежды для списания

6

6

6

 

помещение для сортировки грязного белья, в том числе:

48

50

55

 

цех приема белья

6

6

6

 

стиральный цех

14

14

17

 

сушильно-гладильный цех

12

12

15

 

цех разборки и упаковки белья

6

6

8

 

гардеробная персонала

4

4

4

 

уборная для персонала с умывальником в шлюзе

3

3

3

 

дезинфекционное отделение, в том числе:

42

44

44

 

прием и сортировка вещей

6

6

8

 

грязное отделение

10

10

10

 

разгрузочное отделение

15

15

15

 

шлюз между ними

-

3

4

 

выдача вещей

6

8

8

 

помещение для дезинфекционных средств и приготовления растворов

 

4+4

 

Таблица Г.6 - Помещения столовой и производственных помещений кухни

№ п.п.

Помещения

Площадь помещений, м2, при вместимости домов-интернатов, мест

Примечания

100

120

200

1

Обеденный зал

2,4 м2 на 1 место

Для детей-инвалидов среднего и старшего возраста

 

 

1,4 м2 на 1 место

Для детей-инвалидов младших групп

2

Умывальные

3 м2 (1 умывальник) на каждые 18-20 мест

То же

3

Раздаточная

18

18

24

»

4

Сервизная

6

6

8

»

5

Моечная столовой посуды

16

18-18

30-36

»

6

Горячий цех

54

54

70

 

7

Хлеборезка, хранение хлеба

6

6

8

 

8

Моечная кухонной посуды

8

8

10

 

9

Холодный цех

10

10

14

 

10

Цех мучных изделий

10

10

14

 

11

Мясо-рыбный цех

18

18

24

 

12

Овощной цех

15

15

15

 

13

Комната заведующего производством

8

8

8

 

14

Кладовая суточного запаса продуктов

8

8

10

 

15

Кладовая сухих продуктов

10

10

14

 

16

Охлаждаемые камеры:

 

 

 

Не менее двух камер

 

продуктов

30

30

32

 

 

отходов

4

4

4

 

17

Помещение первичной обработки продуктов (овощей и птицы)

8+6

8+6

10+8

 

18

Загрузочная, кладовая тары

14

14

18

 

19

Кладовая белья:

 

 

 

 

 

чистого

6

6

8

 

 

грязного

4

4

6

 

20

Кладовая и моечная тары

12

12

16

 

21

Комната персонала с душевой и санитарным узлом

18

18

24

 

22

Комната кладовщика

-

6

6

 

23

Кладовая овощей, солений

12+6

12+6

16+8

 

24

Комната хранения предметов уборки

4

4

4

 

25

Раздаточная

16

16

20

 

26

Обеденный зал для персонала с подсобным помещением

16+6

16+6

18+6

С выходом на участок

Таблица Г.7 - Помещения культурно-массового обслуживания

№ п.п.

Помещения

Площадь помещений, м2, при вместимости домов-интернатов, мест

Примечания

100

120

200

1

Зрительный зал

1,5

1,8

1,8

м2 на 1 место в зрительном зале

2

Эстрада при зале

54

 

3

Кинопроекционная с перемоточной и радиоузлом

27

 

4

Фойе

1 м2 на 1 место в зрительном зале

Используется как выставочный зал, зал для танцев и игр в настольный теннис

36

36

54

5

Библиотека (читальный зал + книгохранилище)

15+15

 

6

Санитарный узел с умывальником в шлюзе

3+3

6+6

 

7

Радиоузел

12

 

8

Фильмовидеотека

18

 

9

Помещение пожарного поста

10

 

10

Студия кабельного телевидения

18

24

 

11

Кладовая мебели и реквизита

18

24

 

12

Кладовая аппаратуры

8

12

 

13

Комната художника

12

12

12

 

14

Кружковые помещения:

-

-

-

 

 

танцевальный класс с помещением для переодевания и санитарным узлом

54+18

72+18+3

 

 

кружок лепки

24+8

36+8+10

 

15

Кладовая инвентаря и готовых изделий

12

18

 

16

Физкультурно-спортивный зал:

12×16 м

12×24 м

132

288

Используется также для занятий ЛФК

17

Хранение спортивного инвентаря

12

16

 

18

Раздевальные для девочек и мальчиков с душевыми и санитарными узлами:

 

 

 

 

для умственно отсталых детей

18×2

36×2

По два душевых рожка и одному унитазу на каждую раздевальную

 

для детей с недостатками физического развития

21×2

42×2

19

Комната инструктора-методиста

12

12

12

 

20

Лечебно-оздоровительный бассейн с ванной 5×10 м

8×10

160

На 10-12 детей

21

Комната методиста с санитарным узлом

8+4

10+4

 

22

Раздевальная с душевой и санитарным узлом

24

36

 

23

Помещения уборочного инвентаря

6

6

6

 

24

Узел управления

6

6

6

 

25

Лаборатория анализа воды

8

8

8

 

26

Комната медсестры

10

10

12

 

27

Кладовая спортивного инвентаря

6

8

8

 

Таблица Г.8 - Температура воздуха и кратность воздухообмена в основных помещениях для детей*

Помещения

Температура воздуха, °С

Кратность обмена воздуха в 1 час

B IA, IБ и IГ климатических подрайонах

Во II, III климатических районах и IB, IД подрайонах

В IA, IБ и IГ климатических подрайонах

В других, за исключением IA, IБ и IГ климатических подрайонов

Приток

Вытяжка

Приток

Вытяжка

Приемные, игровые ясельных групп:

младшей

24

23-22

2,5

1,5

-

1,5

средней и старшей

23

22-21

2,5

1,5

-

1,5

Приемные, игровые младшей дошкольной группы

23

22

2,5

1,5

-

1,5

Групповые, раздевальные для групп:

младшей, средней

22

21

-

-

-

-

старшей, подготовительной

21

20

2,5

1,5

-

1,5

Спальни ясельных групп

20

19-18

2,5

1,5

-

1,5

Спальни дошкольных групп

20

19

2,5

1,5

-

1,5

Туалетные ясельных групп

23

22-19

-

1,5

-

1,5

Туалетные дошкольных групп

21

20

-

1,5

-

1,5

Залы для музыкальных и гимнастических занятий

20

19

2,5

1,5

-

1,5

Прогулочные веранды

12

-

По расчету, но не менее 20 м3 на 1 ребенка

 

Помещение бассейна

29

29

То же

 

Медицинские помещения

23

22

2,5

1,5

-

1,5

Отапливаемые переходы

18

15

 

По расчету, но не менее 20 м3 на 1 ребенка

 

* Использованы данные СанПиН 2.4.1.1249.

Ключевые слова: дома-интернаты для детей-инвалидов, дети с сохранным интеллектом, дети умственно отсталые, жилые и общественные помещения, лечебно-трудовые мастерские, учебно-производственные мастерские

 

 




ГОСТЫ, СТРОИТЕЛЬНЫЕ и ТЕХНИЧЕСКИЕ НОРМАТИВЫ.
Некоммерческая онлайн система, содержащая все Российские Госты, национальные Стандарты и нормативы.
В Системе содержится более 150000 файлов нормативно-технической документации, действующей на территории РФ.
Система предназначена для широкого круга инженерно-технических специалистов.

Рейтинг@Mail.ru Яндекс цитирования

Copyright © www.gostrf.com, 2008 - 2026