Крупнейшая бесплатная информационно-справочная система онлайн доступа к полному собранию технических нормативно-правовых актов РФ. Огромная база технических нормативов (более 150 тысяч документов) и полное собрание национальных стандартов, аутентичное официальной базе Госстандарта. GOSTRF.com - это более 1 Терабайта бесплатной технической информации для всех пользователей интернета. Все электронные копии представленных здесь документов могут распространяться без каких-либо ограничений. Поощряется распространение информации с этого сайта на любых других ресурсах. Каждый человек имеет право на неограниченный доступ к этим документам! Каждый человек имеет право на знание требований, изложенных в данных нормативно-правовых актах!

  


 

ГОССТРОЙ СССР

ЦЕНТРАЛЬНЫЙ НАУЧНО-ИССЛЕДОВАТЕЛЬСКИЙ И ПРОЕКТНО-ЭКСПЕРИМЕНТАЛЬНЫЙ ИНСТИТУТ ОРГАНИЗАЦИИ. МЕХАНИЗАЦИИ И ТЕХНИЧЕСКОЙ ПОМОЩИ СТРОИТЕЛЬСТВУ

(ЦНИИОМТП)

ТЕХНОЛОГИЧЕСКИЕ СХЕМЫ ВОЗВЕДЕНИЯ ОДНОЭТАЖНЫХ ПРОМЫШЛЕННЫХ ЗДАНИЙ

ВЫПУСК I

УСТРОЙСТВО ПОДЗЕМНОЙ ЧАСТИ

СОДЕРЖАНИЕ

ВВЕДЕНИЕ

ТЕХНОЛОГИЧЕСКИЕ СХЕМЫ УСТРОЙСТВА КОТЛОВАНА ПОД ФУНДАМЕНТЫ ЗДАНИЯ

ТЕХНОЛОГИЧЕСКИЕ СХЕМЫ УСТРОЙСТВА ТРАНШЕИ ПОД КОММУНИКАЦИОННЫЙ ТОННЕЛЬ

ТЕХНОЛОГИЧЕСКИЕ СХЕМЫ УСТРОЙСТВА КОТЛОВАНОВ ПОД ФУНДАМЕНТЫ ПОДВАЛОВ И ТОННЕЛЕЙ ВНУТРИ ПРОМЫШЛЕННОГО ЗДАНИЯ

ТЕХНОЛОГИЧЕСКАЯ СХЕМА УСТРОЙСТВА ТРАНШЕЙ В МЕРЗЛЫХ ГРУНТАХ С ПРИМЕНЕНИЕМ ЩЕЛЕВЗРЫВНОЙ ТЕХНОЛОГИИ

ТЕХНОЛОГИЧЕСКИЕ СХЕМЫ УСТРОЙСТВА ТРАНШЕЙ В ГРУНТАХ V - VI ГРУПП

ТЕХНОЛОГИЧЕСКАЯ СХЕМА УСТРОЙСТВА СВАЙНЫХ ФУНДАМЕНТОВ

ТЕХНОЛОГИЧЕСКИЕ СХЕМЫ ВОЗВЕДЕНИЯ МОНОЛИТНЫХ ЖЕЛЕЗОБЕТОННЫХ ФУНДАМЕНТОВ

ТЕХНОЛОГИЧЕСКИЕ СХЕМЫ УСТРОЙСТВА ПОДПОЛЬНЫХ КАНАЛОВ

ТЕХНОЛОГИЧЕСКАЯ СХЕМА ОБРАТНОЙ ЗАСЫПКИ НЕСВЯЗНЫМ ГРУНТОМ КОТЛОВАНА С УСТАНОВЛЕННЫМИ КОЛОННАМИ

ТЕХНОЛОГИЧЕСКАЯ СХЕМА ОБРАТНОЙ ЗАСЫПКИ СВЯЗНЫМ ГРУНТОМ, КОТЛОВАНА С УСТАНОВЛЕННЫМИ КОЛОННАМИ

ТЕХНОЛОГИЧЕСКАЯ СХЕМА УСТРОЙСТВА БЕТОННОЙ ПОДГОТОВКИ ПОД ПОЛЫ

ТЕХНОЛОГИЧЕСКИЕ СХЕМЫ УСТРОЙСТВА ПОДВАЛА 

Рекомендовано к изданию решением секции технологии, механизации, качества и техники безопасности строительно-монтажных работ Научно-технического совета ЦНИИОМТП Госстроя СССР.

Технологические схемы возведения одноэтажных промышленных зданий. Выпуск I. Устройство подземной части. М., 1984, 96 с. (Госстрой СССР. Центр. научно-исслед. и проектно-эксперим. ин-т организации, механизации и техн. помощи стр-ву. ЦНИИОМТП).

Даны описания и схемы устройства: котлованов и траншей под фундаменты; монолитных и свайных фундаментов; подпольных каналов; сборных железобетонных конструкций подвала. Включены также схемы производства работ по обратной засыпке, разравниванию и уплотнению грунтов и устройству бетонной подготовки под полы. Приведены затраты труда рабочих, затраты машинного времени, другие технико-экономические показатели.

Работа предназначена для научно-исследовательских институтов, учебных и строительных организаций.

Центральный научно-исследовательский и проектно-экспериментальный институт организации, механизации и технической помощи строительству Госстроя СССР (ЦНИИОМТП), 1984.

ВВЕДЕНИЕ

В первый выпуск включены технологические схемы устройства подземной части одноэтажных промышленных зданий унифицированных габаритных схем со сборными железобетонными каркасами из типовых строительных конструкций.

Приведены прогрессивная технология земляных работ и работ по устройству основных конструктивных частей подземной части здания. Даны комплекты прогрессивных механизмов, транспортных средств и вспомогательных устройств, применяемых при выполнении этих работ. Перечислены показатели затрат труда рабочих и времени работы механизмов.

В схемах настоящего выпуска предусмотрена прогрессивная технология производства работ по возведению подземной части при строительстве в основном одноэтажных промышленных зданий пролетами 18 и 24 м с шагом колонн 6 и 12 м.

Рекомендованы машины и оборудование, в наибольшей степени обеспечивающие механизацию технологического процесса, высокую производительность и хорошее качество работ. При отсутствии таких машин строительная организация может использовать аналогичные.

Приведенные схемы могут применяться при выполнении работ по подземной части зданий с другой сеткой колонн и при любых габаритных размерах в плане. Количество и состав комплексов машин и оборудования в этом случае должны быть скорректированы.

Затраты труда и рабочего времени машин на соответствующие виды работ, как правило, взяты из ЕНиРов. Для прогрессивного оборудования, не отраженного в ЕНиРах, применялись расчетные показатели, полученные по хронометражным данным при испытании опытных образцов машин и оборудования, и расчетные калькуляции.

Группа грунта в схемах производства земляных работ принята по трудности разработки для ведущих машин комплексов (экскаваторов)

Разработанные технологические схемы характеризуются своей новизной, так как в них применены наиболее эффективные способы производства работ с помощью новых средств механизации. В схемах представлены варианты комплексов используемых машин и навесного оборудования из числа имеющихся в парке строительной организации.

По каждому из вариантов механизации приведены сравнительные удельные показатели технико-экономической эффективности на единицу объема готового земляного сооружения. Значения удельных показателей используются при привязке технологических схем к конкретным объемам для подсчета эффективности вариантов комплексно-механизированных процессов возведения земляных сооружений.

Комплексное внедрение прогрессивных организационно-технологических решений, рекомендуемых в настоящей работе, позволит по расчетам сокращать на 5 - 10 % сроки строительства, уменьшать на 10 - 15 % затраты труда (по рассматриваемым конструктивным частям) и снижать на 2 - 3 руб. стоимость строительно-монтажных работ в расчете на 1 м2 производственной площади.

Схемы разработаны сотрудниками ЦНИИОМТП Е.Д. Баландинским, С.В. Барановым, В.С. Барановой, В.А. Васильевым, Л.В. Гриншпуном, А.В. Карповым, А.С. Полежаевым, Ю.А. Ярымовым, а также сотрудниками ВНИПИстромсырья Р.Н. Буманом и Г.Г. Гоневым (устройство котлованов и траншей); сотрудниками ЦНИИОМТП К.П. Балбачан, К.В. Горловым (щелевзрывная технология устройства траншей); В.В. Акимовым, К.И. Башлаем, Г.А. Беличенковой, Н.И. Евдокимовым,: Б.В. Жадановским, Л.А. Зуевой, Е.Д. Козловым, В.П. Колодием, М.М. Поляковой, И.А. Режко, А.Г. Фуниковым (монолитные фундаменты и бетонная подготовка); В.З. Заикиной, И.Е. Калининой, Н.Н. Куртенок, Н.К. Миропольской, А.В. Сурововым (свайные фундаменты, подпольные каналы, устройство подвала); Н.В. Бариновым, Л.М. Бобылевым, Т.Е. Власовой, Н.П. Герасименко, а также сотрудником Донецкого ПромстройНИИпроекта - А.В. Манжелей (обратная засыпка грунта).

ТЕХНОЛОГИЧЕСКИЕ СХЕМЫ УСТРОЙСТВА КОТЛОВАНА ПОД ФУНДАМЕНТЫ ЗДАНИЯ

Технологические схемы составлены на разработку котлована с местными выемками (водосборные канавы, колодец) в грунте I группы с погрузкой грунта в автомобили-самосвалы.

Данные схемы могут быть использованы в грунтах III группы. Характеристика объекта-представителя

Размеры котлована, м

глубина                                                                     11,2

размер по дну                                                           84×37,6

размер по верху                                                       93×46,6

Размеры колодца, м

глубина                                                                     1,5

диаметр по дну                                                        2,1

то же, по верху                                                         2,8

Общий объем земляных  работ, м3                                           25775

При привязке технологической схемы к конкретному объекту и условиям строительства уточняются объемы работ и калькуляция затрат труда.

ОРГАНИЗАЦИЯ И ТЕХНОЛОГИЯ СТРОИТЕЛЬНОГО ПРОИЗВОДСТВА

До начала производства работ должны быть выполнены подготовительные работы: удалено мелколесье, пни, крупные камни, произведена разбивка осей котлована.

Схема предусматривает выполнение следующих операций: планировку поверхности; разработку котлована; водосборных канав и колодца; зачистку дна котлована; транспортирование грунта; разравнивание грунта в отвале бульдозером и содержание дорог.

Рациональные комплексы машин для выполнения технологического процесса выбраны по минимуму приведенных затрат из рассматриваемых четырех вариантов комплексов машин.

Состав возможных вариантов комплексов машин

Технологические операции

Варианты комплексов машин

№ 1 (основной)

№ 2

3

№ 4(аналог)

Планировка поверхности

Бульдозер ДЗ-35С

Бульдозер ДЗ-27

-

Бульдозер Д-271

Разработка 1-го и 2-го ярусов котлована

Экскаватор ЭО-4121А, оборудованный прямой и обратной лопатой с ковшом емкостью 1 м3

Экскаватор ЭО-4121А, оборудованный обратной лопатой с ковшом емкостью 1 м3

Скрепер Д-357П с толкачом ДЗ-35С

Экскаватор Э-10011Д, оборудованный драглайном

Разработка 3-го яруса котлована и водосборных канав

Экскаватор ЭО-3322В с ковшом емкостью 0,2 м3

То же, с ковшом емкостью 0,3 м3

Экскаватор ЭО-3322Б с ковшом емкостью 0,2 м3

Экскаватор ЭО-2621A с ковшом емкостью 0,25 м3

Рытье грунта в колодце

То же, с грейфером

Экскаватор ЭО-3322В с грейфером

То же, с грейфером

То же

Зачистка дна котлована

Экскаватор ЭО-3322В с ковшом емкостью 0,5 м3

Экскаватор ЭО-4121A с ковшом емкостью 1 м3 и с зачистным оборудованием

Бульдозер ДЗ-27С

Вручную

Транспортировка грунта

Самосвалы КрАЗ-2596Б - 6 шт.

Самосвалы МАЗ-503А - 5 шт.

Самосвалы MA3-503A - 2 шт.

Самосвалы МАЗ-503А - 8 шт.

Ведущими машинами в комплексах являются:

для варианта № 1 - экскаватор ЭО-4121А;

для варианта 2 - экскаватор ЭО-4121А с зачистным оборудованием;

для варианта № 3 - скрепер Д-357П;

для варианта № 4 - экскаватор Э-10011Д.

Разработка котлована осуществляется в три яруса:

первый ярус от отметки 0,000 до отметки -4,500;

второй ярус от отметки -4,500 до отметки -9,700;

третий ярус от отметки -9,700 до отметки -11,200.

ПРОИЗВОДСТВО РАБОТ ПО ВАРИАНТУ № 1

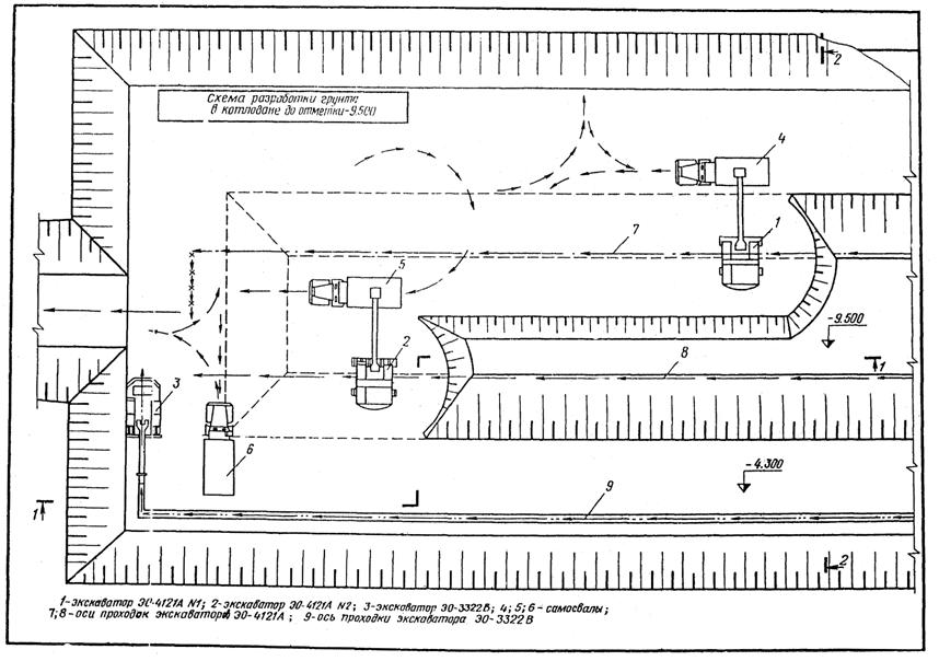
Разработка первого яруса котлована производится за четыре проходки двумя экскаваторами ЭО-4121А, оборудованными прямой лопатой (емкость ковшей 1 м3), с погрузкой грунта в самосвалы КрАЗ-256Б и вывозов его в отвал (лист 1).

Разработка второго яруса производится за две проходки теми же двумя экскаваторами ЭО-4121А, оборудованными обратной лопатой (емкость ковшей 1 м3), с погрузкой грунта в самосвалы (листы 1, 2 и 3).

Разработка третьего яруса (водосборная канава и колодец) производится экскаватором ЭО-3322В, оборудованным обратной лопатой с ковшом емкостью 0,2 м3 или пятичелюстным грейферным ковшом для рытья колодца, с погрузкой грунта в самосвалы (лист 4).

Зачистка дна котлована ведется тем же экскаватором ЭО-3322В, оборудованным обратной лопатой с ковшом емкостью 0,5 м3.

Автомобили-самосвалы под погрузку грунта устанавливают на уровне стоянок экскаваторов, параллельно продольной оси котлована, по заранее расставленным вешкам с таким расчетом, чтобы средний угол поворота стрел экскаваторов не превышал 900.

Разработка и зачистка дна котлована выполняется в следующем порядке:

установив экскаватор ЭО-4121A 1, производят разработку первого яруса котлована в две проходки;

через 4 часа после начала работы экскаватора ЭО-4121А № 1 устанавливают экскаватор ЭО-4121А 2 и разрабатывают оставшийся участок первого яруса котлована в две проходки;

по окончании разработки первого яруса котлована экскаваторы ЭО-4121А № 1 и № 2 переоборудуют на обратные лопаты и производят разработку второго яруса в две проходки в такой же технологической последовательности;

на 7-й день после начала земляных работ производится зачистка дна котлована и разработка водосборных канав экскаватором ЭО-3322В на отметках -4,500 и -9,700 и колодца на отметке -9,700.

В технологическом процессе участвуют: машинист бульдозера ДЗ-35С 6 разряда, два машиниста экскаваторов ЭО-4121А 6 разряда, машинист экскаватора ЭО-3322В 6 разряда, шесть шоферов самосвалов КрАЗ-256Б 3 класса.

ТЕХНИКО-ЭКОНОМИЧЕСКИЕ ПОКАЗАТЕЛИ

В соответствии с принятыми вариантами комплексов машин приведены сравнительные технико-экономические показатели эффективности вариантов технологического процесса.

Наименование

Варианты комплексов машин

1 (основной)

2

3

4 (аналог)

Объем работ, м3 грунта

25755

25755

25755

25755

Общие затраты труда, чел.-дн.

165,73

258,60

260,70

172,52

То же, на 1000 м3 грунта, чел.-ч

52,72

82,77

70,00

54,86

Затраты машинного времени на весь объем работ, маш.-смен

188,98

285,02

288,53

214,83

Продолжительность процесса (при двухсменной работе), дн.

12,00

18,75

26,30

19,30

Выработка за 1 маш.-ч, м3 грунта

16,63

11,03

12,91

14,56

Стоимость затрат труда на весь объем работ, руб.

1434,00

1899,00

1859,00

1602,00

То же, на 1000 м3 грунта, руб.

55,72

73,73

72,20

62,21

Приведенные затраты на весь объем, руб.

9122,35

11749,3

20661,37

9275,61

То же, на 1000 м3, руб.

294

459

677

360

Эффективность на 1000 м3 грунта (в сравнении с аналогом), руб.

+66

-99

-317

-

МАТЕРИАЛЬНО-ТЕХНИЧЕСКИЕ РЕСУРСЫ ДЛЯ ПЕРВОГО ВАРИАНТА

Потребность в машинах, оборудовании, инструменте и инвентаре

Наименование

Тип

Марка

Кол-во

Техническая характеристика

Бульдозер

Гидравлический

ДЗ-35С

1

-

Экскаватор

То же

ЭО-4121А

2

Сменное рабочее оборудование - обратная и прямая лопаты емкость ковшей 1 м3

То же

"

ЭО-3322В

1

Сменное рабочее оборудование - обратная лопата, емкость ковшей 0,5 и 0,2 м3; пятичелюстной грейфер

Автомобиль-самосвал

"

КрАЗ-256Б

6

Грузоподъемность 12 т

Нивелир

-

HA-1

1

-

Теодолит

-

ТТ-4

1

-

Рулетка стальная

Стандартный

РС-20

1

Длина 20 м

Лента мерная

То же

-

1

-

КАЛЬКУЛЯЦИЯ ЗАТРАТ ТРУДА НА УСТРОЙСТВО КОТЛОВАНА ПОД ФУНДАМЕНТЫ ЗДАНИЯ

Обоснование

Наименование работ.

Единица измерения

Объем работ

Норма времени на единицу измерения, чел.-ч (маш.-ч)

Затраты труда на весь объем работ,

чел.-ч.

(маш.-смен)

Состав бригады, работающей в одну смену

Рекомендуемые машины и оборудование

Типовые НиР на строительно-монтажные и ремонтно-эксплуатационные работы, Т-79, 1978 г., вып. 5

Планировка поверхности бульдозером

1000 м2

4,65

0,21

(0,21)

0,12

(0,12)

Машинист 6 разр.-1

Бульдозер ДЭ-35-1

Расчетные данные ЦНИИОМТП

Разработка грунта I группы в котловане экскаватором с погрузкой в самосвалы (до отметки - 4,500)

100 м3

173,56

1,16

(1,16)

24.6

(24,6)

Машинисты 6 разр.-2

Экскаваторы ЭО-4121А - 2

Применительно к доп. и измен. к ЕНиР 1980 г. сб., 2-1, вып. 10, § 2-I-10б, табл. 2, п. 1д. К = 2

Зачистка дна котлована экскаватором

до отметки -4,500

"

1,99

5,60

(5,60)

1,36

(1.36)

Машинист 6 разр.-1

Экскаватор ЭО-3322В - 1

до отметки -9,700

"

0,82

0,56

(0,56)

Расчетные данные ЦНИИОМТП

Разработка грунта I группы экскаватором с погрузкой в самосвалы (водосборные канавы)

до отметки -4,500

"

0,18

5,93

(5,93)

0,13

(0,13)

Машинист 6 разр.-1

Экскаватор ЭО-3322В - 1

до отметки -9,700

"

0,22

0,16

(0.16)

Доп.и измен. к ЕНиР 1980 г., сб. 2-1, вып. 10, § 2-1-100, табл. 2, п. 3а

Разработка грунта I группы в котловане экскаватором с погрузкой в самосвалы (до отметки -9,500)

"

76,04

1,90

(1,90)

17,70

(17,70)

Машинисты 6 разр. - 2

Экскаваторы ЭО-4121А - 2

Расчетные данные ЦНИИОМТП

Разработка грунта I группы при устройстве колодца в котловане экскаватором с погрузкой в самосвалы

"

0,29

5,83

(5,83)

0,21

(0,21)

Машинист 6 разр. - 1

Экскаватор ЭО-3322В - 1

ЕНиР 1980 г., § 2-1-2а, табл. 2, п. 4а

Разравнивание грунта на отвале бульдозером

"

253,10

0,22

(0,22)

6;79

(6,79)

Машинист 6 разр. - 1

Бульдозер ДЗ-35-1

ЕНиР на перевозку грузов автомобильным транспортом, 1974 г.,§ 2 и 14

Перевозка автомобилями-самосвалами грунта, разработанного

экскаватором ЭО-4121A (прямая лопата)

100 т

286,00

2,12

(2,12)

73,82

(73,82)

Шоферы 3 кл. - 6

Автомобили-самосвалы КрАЗ-256Б - 6

 

экскаватором ЭО-4121А (обратная лопата)

125,46

2,31

(2,31)

35,42

(35,42)

Шоферы 3 кл. - 4

Автомобили-самосвалы КрАЗ-256Б - 4

экскаватором ЭО-3322В

5,76

6,92

(6,32)

4,86

(4,86)

Шоферы 3 кл. - 2

Автомобили-самосвалы КрАЗ-2Ь6Б - 2

Итого

 

 

 

165,73

(165,73)

:

 


Лист 1. Разработка грунта в котловане. 1-й ярус (до отметки -4,500)

Лист 2

Лист 3. схема разработки грунта в котловане -9,500. Разрезы.

Лист 4. разработка грунта в котловане при устройстве колодца



ТЕХНОЛОГИЧЕСКИЕ СХЕМЫ УСТРОЙСТВА ТРАНШЕИ ПОД КОММУНИКАЦИОННЫЙ ТОННЕЛЬ

Комплексно-механизированный процесс устройства траншеи под коммуникационный тоннель разработан для грунтов I-III групп.

Технологические схемы на производство земляных работ при прокладке тоннеля применимы при строительстве новых объектов и реконструкции существующих.

Объектом-представителем является промышленный корпус, к которому подходит коммуникационный тоннель.

Характеристика объекта-представителя

Размеры, м

глубина                                                                                 9,9

ширина (по дну)                                                                  13,3

длина (по дну)                                                                     515,5

Группа грунта                                                                             1

Объем земляных работ, м3                                                        106320

Строительство ведется в среднем климатическом поясе, в летнее время в две смены. Срок выполнения работ для основного варианта - 32 рабочих дня.

В процессе привязки технологической схемы к конкретному объекту и условиям строительства необходимо уточнить места расположения съездов, объемы работ и график их производства, калькуляции затрат труда, перечень средств механизации, с учётом наличного парка землеройных механизмов.

ОРГАНИЗАЦИЯ И ТЕХНОЛОГИЯ СТРОИТЕЛЬНОГО ПРОЦЕССА

Настоящий комплексно-механизированный технологический процесс состоит из подготовительных и основных операций.

К подготовительным относятся: устройство временной автомобильной дороги для транспортировки грунта; устройство освещения мест разработки и складирования грунта; геодезическая разбивка осей и контуров траншеи.

К основным операциям относятся: разработка грунта в траншее; зачистка грунта недобора; уплотнение дна траншеи.

Состав комплексов машин, применяемых при выполнении технологического процесса, приведен ниже.

Вариант № 1 (основной):

Экскаватор ЭО-5122, оборудованный унифицированной обратной лопатой с ковшом емкостью 1,6 м3;

Экскаватор ЭО-4111Б, оборудованный драглайном с трамбующей плитой массой 5 т;

Бульдозер ДЗ-110А;

Автогрейдер ДЗ-31-1;

Автомобили-самосвалы КрАЗ-256Б.

Вариант № 2:

Экскаватор ЭО-4121А, оборудованный обратной лопатой с ковшом емкостью 1 м3;

Экскаватор ЭО-4111Б, оборудованный драглайном с трамбующей плитой массой 5 т;

Бульдозер ДЗ-110А;

Автогрейдер ДЗ-31-1;

Автомобили-самосвалы КамАЗ-5511.

Вариант № 3:

Экскаватор Э-10011Е, оборудованный обратной лопатой с ковшом емкостью 1 м3;

Экскаватор ЭО-4111Б, оборудованный драглайном с трамбующей плитой массой 5 т;

Бульдозер ДЗ-54;

Автогрейдер ДЗ-31-1;

Автомобили-самосвалы КамАЗ-5511.

ТЕХНОЛОГИЯ ПРОИЗВОДСТВА РАБОТ ПРИ ИСПОЛЬЗОВАНИИ КОМПЛЕКСА МАШИН ВАРИАНТА № 1

Разработку грунта в траншее под коммуникационный тоннель производят экскаватором ЭО-5122, оборудованным унифицированной обратной лопатой с ковшом емкостью 1,6 м3. Разработка грунта ведется ниже уровня стоянки экскаватора продольной проходкой с поворотом платформы экскаватора не более, чем на 60°. От оси проходки экскаватора до верхней бровки откоса должно быть не менее 3,5 м. Грунт грузят в автомобили-самосвалы КрАЗ-256Б и вывозят в отвал. Автомобили-самосвалы, подаваемые под погрузку грунта, устанавливают по заранее поставленным вешкам таким образом, чтобы средний угол поворота платформы экскаватора не превышал 90°. Очередной автомобиль-самосвал должен подъезжать к месту погрузки не позднее окончания загрузки предыдущего. Для равномерного распределения грунта в кузове самосвала ковш экскаватора должен находиться над центром кузова.

Разработка грунта экскаватором в траншее производится по трем горизонтам.

Очередность проходки и направление работы экскаватора приведены на листах 5 - 7.

Временные автомобильные дороги, по которым транспортируют грунт, следует поддерживать в исправном состоянии, используя для этой цели автогрейдер ДЗ-31-1.

Разработка грунта экскаватором ведется с недобором по дну равным 0,52 м. Грунт недобора на глубину 0,2 м срезают бульдозером ДЗ-110А с перемещением во временные отвалы, из которых грунт экскаватором ЭО-5122 грузят в автомобили-самосвалы КрАЗ-256Б и вывозят в отвал (см. лист 8).

Дальнейшее понижение отметок дна траншеи до проектных (на 0,32 м) производят трамбующей плитой массой 5 т, подвешенной к стреле экскаватора ЭО-4111Б, оборудованного драглайном (см. лист 9).

По окончании отрывки траншеи и срезки недобора по дну проверяется влажность грунта и при недостаточной ее величине основание увлажняют до получения оптимальной влажности (18 %).

Уплотнение грунта производится последовательно, отдельными полосами, на участках, расположенных в радиусе действия стрелы экскаватора; высота подъема плиты составляет 4 - 5 м. След от каждой ранее уплотненной полосы должен перекрываться на 0,1 - 0,15 м.

Необходимое число ударов по одному следу принимается от 6 до 8 с уточнением опытным путем. Грунт в основании должен быть уплотнен на глубину 1,5 м до получения объемной массы скелета грунта 1,65 т/м3. При этом объемная масса скелета грунта на верхней границе уплотнения должна быть не менее 1,8 т/м3, а на нижней границе - 1,6 т/м3.

При разработке грунта по варианту № 1 (ведущая машина экскаватор ЭО-5122) каждую смену работают:

машинисты экскаваторов 6 разряда - 2;

помощники машинистов 5 разряда - 2;

машинисты бульдозеров 6 разряда - 2;

машинист автогрейдера 6 разряда - 1;

шоферы автомобилей-самосвалов 3 класса - 10.

ТЕХНИКО-ЭКОНОМИЧЕСКИЕ ПОКАЗАТЕЛИ

Наименование

Варианты комплексов механизации работ

1

2

3 (аналог)

Объем работ, м3

106320

106320

106320

Общие затраты труда, чел.-дн.

933

1148

1306

То же, на 1000 м3 грунта, чел.-ч

71,9

88,5

100,7

Затраты машинного времени на весь объем работ, маш.-смен

817

948

1090

Продолжительность процесса (при двухсменной работе), календарных дней

32

37,5

40

Выработка за 1 маш.-ч, м3 грунта

15,9

13,7

11,9

Стоимость затрат труда на весь объем работ, руб.

5687

6849

7020

То же, на 1000 м3 грунта, руб.

53,5

64,4

66

Приведенные затраты на весь объем работ, руб.

52494

56322

60369

То же, на 1000 м3, руб.

493,7

529,7

567,8

Эффективность (в сравнении с аналогом), руб. на 1000 м3 грунта

+74,1

+38,1

-

МАТЕРИАЛЬНО-ТЕХНИЧЕСКИЕ РЕСУРСЫ

Потребность в машинах, оборудовании, инструментах, инвентаре, приспособлениях

Наименование

Тип

Марка

Количество машин для вариантов комплексов механизации

1

2

3 (аналог)

Экскаватор, оборудованный обратной лопатой

Гидравлический

ЭО-5122

2

-

-

То же

То же

ЭО-4121А

-

3

-

То же

Механический

Э-10011Е

-

-

3

Экскаватор, оборудованный драглайном с трамбующей плитой массой 5 т

Механический

ЭО-4111Б

1

1

1

Бульдозер с неповоротным отвалом

Гидравлический

ДЗ-110А

2

2.

-

То же

То же

ДЗ-54

-

-

2

Автогрейдер тяжелого типа

-

ДЗ-31-1

1

1

1

Автомобиль-самосвал

-

КрАЗ-256Б

10

-

-

То же

-

КамАЗ-5511

-

9

9

Нивелир

Н-10

ГОСТ 10528-76

1

1

1

Теодолит

T-15

ГОСТ 10529-70

1

1

1

Рулетка стальная

РС-20

-

1

1

1

Рейка с уровнем длиной 3 м

-

-

1

1

1

КАЛЬКУЛЯЦИЯ ЗАТРАТ ТРУДА ПРИ РЫТЬЕ ТРАНШЕИ ПОД КОММУНИКАЦИОННЫЙ ТОННЕЛЬ

ВАРИАНТ КОМПЛЕКСА МАШИН № 1.

Обоснование

Наименование работ

Единица измерения

Объем работ

Норма времени на единицу измерения, чел.-ч. (маш.-ч)

Затраты труда на весь объем работ, чел.-дн. (маш.-смен)

Состав бригады, работающей в 2 смены

Рекомендуемые машины и оборудование

Расчетные данные цнииомтп

Разработка грунта I группы экскаватором, оборудованным обратной лопатой, с погрузкой грунта в автомобили-самосвалы

100 м3

1063,2

1,80

(0,90)

232

(116)

Машинисты 6 разр.-2. Пом. машинистов 5 разр. - 2

Экскаваторы ЭО-5122.с ковшом емкостью 1,6 м3 - 2

ЕНиР на перевозку грузов автомобилями 1974 г., § 2, 14

Перевозка грунта, автомобилями-самосвалами на расстояние 2 км

100 т

1701,1

2,78

(2,78)

577

(577)

Шоферы 3 кл. - 20

Автомобили-самосвалы KpAЗ-256Б - 10

ЕНиР 1980 г., § 2-1-15, т. 2, 12б, 12д

Разработка грунта группы II бульдозером с перемещением на расстояние 30 м (зачистка дна траншеи)

100 м3

27,0

1,21

(1,21)

4

4

Машинисты 6 разр. - 2

Бульдозер ДЗ-110А - 1

Расчетные данные ЦНИИОМТП

Уплотнение грунта трамбующей плитой, подвешенной на стреле экскаватора, при 6 - 8 ударах по одному следу

100 м2

113,5

0,30

(0,30)

4

4

Машинисты 6 разр. - 1

Экскаватор ЭО-4111В - I.

Бетонная плита массой 5 т - 1

ЕНиР 1980 г., § 2-1-15, т. 2, К-12б

Разработка грунта II группы бульдозером с перемещением на 10 м (работа на отвале)

100 м3

1063,2

0,45

(0,45)

58

(58)

Машинисты 6 разр. - 2

Бульдозер ДЗ-31-1 - 1

ЕНиР 1980 г., § 2-1-30а

Ремонт и содержание дорог I кл. автогрейдером при перевозке грунта на расстояние

1000 м2

849,3

0,56

(0,56)

(58)

58

Машинисты 6 разр. - 2

Автогрейдер ДЗ-31-1 - 1

Итого

933

(817)

 

КАЛЬКУЛЯЦИЯ ЗАТРАТ ТРУДА ПРИ РЫТЬЕ ТРАНШЕИ ПОД КОММУНИКАЦИОННЫЙ ТОННЕЛЬ

ВАРИАНТ КОМПЛЕКСА МАШИН № 2

Обоснование

Наименование работ

Единица измерения

Объем работ

Норма времени на единицу измерения, чел.-ч

(маш.-ч)

Затраты труда на весь объем работ,

чел.-дн

(маш.-смен)

Состав бригады, работающей в 2 смены

Рекомендуемые машины и оборудование

Расчетные данные ЦНИИОМТП

Разработка гранта I группы экскаватором, оборудованным обратной лопатой, с погрузкой грунта в автомобили-самосвалы

100 м3

1063,2

3,10

(1,55)

400

(200)

Машинисты 6 разр..-6.

Пом. машинистов 5 разр. - 6

Экскаватор ЭО-4121А с ковшом емкостью 1,0 м3 - 3

ЕНиР на перевозку грузов автомобилями, 1974.г., § 2, 14

Перевозка грунта автомобилями-самосвалами на расстояние 2 км

100 т

1701,1

2,93

(2,93)

608

(608)

Шоферы 3 кл. - 18

Автомобили-самосвалы КамАЗ-5511 - 9 шт.

ЕНиР, 1980 г., § 2-1-15, т. 2, № 12б, 12д

Разработка грунта II группы бульдозером с перемещением на расстояние 30 м (зачистка дна траншеи)

100 м3

27,0

1,21

(1,21)

4

(4)

Машинисты 6 разр.- 2

Бульдозеры ДЗ-110А - 1

Расчетные данные ЦНИИОМТП

Уплотнение грунта трамбующей плитой, подвешенной на стреле экскаватора, при 6-8 ударах по одному следу

100 м2

113,5

0,30

(0,30)

4

(4)

Машинисты 6 разр.- 2

Экскаваторы ЭО-4111Б -I. Бетонная плита массой 5 т - 1

ЕНиР, 1930 г., § 2-1-15, т. 2, № 12б

Разработка грунта II группы бульдозером с перемещением на расстояние 10 м (работа на отвале)

100 м3

1063,2

0,45

(0,45)

58

(58)

Машинисты 6 разр.- 2

Бульдозер. ДЗ-110A - 1

ЕНиР, 1980 г., § 2-1-30а

Ремонт и содержание дорог I кл. автогрейдером при перевозке грунта на расстояние 2 км

1000 м2

981,1

0,56

(0,56)

66

(66)

Машинисты 6 разр. - 2

Автогрейдер ДЗ-31-1 - 1

 

ИТОГО

1140

(940)

 

КАЛЬКУЛЯЦИЯ ЗАТРАТ ТРУДА ПРИ РЫТЬЕ ТРАНШЕИ ПОД КОММУНИКАЦИОННЫЙ ТОННЕЛЬ

ВАРИАНТ КОМПЛЕКСА МАШИН № 3

Обоснование

Наименование работ

Единица измерения

Объем, работ

Норма времени на единицу измерения, чел.-ч

(маш.-ч)

Затраты труда на весь объем работ,

чел.-дн.

аш.-смен)

Состав бригады, работающей в 2 смены

Рекомендуемые машины и оборудование

Расчетные данные ЦНИИОМТП

Разработка грунта 1 группы экскаватором, оборудованным обратной лопатой с погрузкой грунта в автомобили-самосвалы

100 м3

1063,2

3,32

(1,66)

432

(216)

Машинисты 6 разр. - 6,

Пом. машинистов 5 разр. - 6

Экскаваторы Э-10011E с ковшом емкостью 1,0 м3 - 3

ЕНиР на перевозку грузов автомобилями. 1974 г., § 2, 14

Перевозка грунта автомобилями-самосвалами на расстояние 2 хм

100 т

1701,1

2,93

(2,93)

608

(608)

Шоферы 3 кл. - 18

Автомобили-самосвалы КамАЗ-5511 - 9

ЕНиР, 1960 г § 2-1-15, т. 2, № 12б, 12д

Разработка грунта II группы бульдозером с перемещением на расстояние 30 м (зачистка дна траншеи)

100 м3

27,0

1,82

(1,82)

6

(6)

Машинисты 6 разр. - 2

Бульдозер ДЗ-54 - 1

Расчетные данные ЦНИИОМТП

Уплотнение грунта трамбующей плитой, подвешенной на стреле экскаватора, при 6-8 ударах по одному следу

100 м2

113,5

0,30

(0,30)

4

(4)

Машинисты 6 разр. - 2

Экскаватор ЭО-4111Б - I.

Бетонная плита массой 5 т - 1

ЕНиР, 1980 г., § 2-1-15, т. 2, № 12б

Разработка грунта II группы бульдозером с перемещением на расстояние 10 м (работа на отвале)

100 м3

1063,2

0,70

(0,70)

90

(90)

Машинисты 6 разр. - 4

Бульдозеры ДЗ-54 - 2

ЕНиР 1980 г, § 2-1-30а

Ремонт и содержание дорог I кл. автогрейдером при перевозке грунта на расстояние 2 км

1000 м2

527,1

0,56

(0,56)

72

(72)

Машинисты 6 разр. - 2

Автогрейдер ДЗ-31-1 - 1

 

Итого

1212

(996)

 


Лист 5. Схема разработки грунта в траншее. 1-й горизонт

Лист 6. Схема разработки грунта в траншее. 2-й горизонт

Лист 7. Схема разработки грунта в траншее. 3-й горизонт

Лист 8. Схема зачистки недобора в траншее

Лист 9. Схема уплотнения грунта основания траншеи

 


ТЕХНОЛОГИЧЕСКИЕ СХЕМЫ УСТРОЙСТВА КОТЛОВАНОВ ПОД ФУНДАМЕНТЫ ПОДВАЛОВ И ТОННЕЛЕЙ ВНУТРИ ПРОМЫШЛЕННОГО ЗДАНИЯ

Комплексно-механизированный процесс устройства подвалов и тоннелей внутри промышленного корпуса разработан для грунтов I-III групп.

Технологическая схема применима при строительстве новых объектов и реконструкции существующих промышленных: корпусов.

Объектом-представителем является ранее построенный промышленный корпус, внутри которого ведутся земляные работы по устройству двух подвалов с котлованами для насосных станций и сети коммуникационных тоннелей.

Характеристика объекта-представителя

Размеры подвала у оси 10, м

глубина                                                                                            7,5

ширина (по дну)                                                                              28,25

длина (по дну)                                                                                 220

Размеры подвала у оси 11, м

глубина                                                                                            7,5

ширина (по дну)                                                                              17,25

длина (по дну)                                                                                 216

Размеры тоннеля у оси 10, м

глубина                                                                                            2,8; 4,2

ширина (по дну)                                                                              5,95; 6,4

длина (по дну)                                                                                 49,4; 57,75

Размеры внутримодульных тоннелей, м

глубина                                                                                            6,35

ширина (по дну)                                                                              7-10

длина (по дну)                                                                                 223

Группа грунта                                                                                         1

Общий объем земляных работ, м3                                                        140130

К устройству котлованов приступают после выполнения работ по бетонированию фундаментов корпуса здания.

Работы ведутся в среднем климатическом поясе в летнее время в две смены.

В процессе привязки технологической схемы к конкретным объекту и условиям строительства необходимо уточнить места расположения съездов, объемы и график производства работ, калькуляцию затрат труда, перечень средств механизации с учетом наличного парка землеройных машин.

ОРГАНИЗАЦИЯ И ТЕХНОЛОГИЯ СТРОИТЕЛЬНОГО ПРОЦЕССА

Настоящий комплексно-механизированный технологический процесс состоит из подготовительных и основных операций.

К подготовительным относятся: устройство временной автомобильной дороги для транспортировки грунта; устройство освещения мест разработки и складирования грунта; геодезическая разбивка осей и контуров котлованов.

К основным операциям относятся: разработка грунта в котловане; зачистка грунта недобора; уплотнение дна котлована.

Состав комплексов машин, применяемых при выполнении технологического процесса, приведен ниже.

Вариант № 1:

Экскаватор ЭО-5122, оборудованный унифицированной обратной лопатой с ковшом ёмкостью 1,6 м3.

Экскаватор ЭО-2621А, оборудованный обратной лопатой с ковшом ёмкостью 0,25 м3;

Экскаватор ЭО-4111Б, оборудований драглайном с трамбующей плитой массой 5 т;

Бульдозер ДЗ-110-А;

Автогрейдер ДЗ-31-1;

Автомобили-самосвалы КрАЗ-256Б и ЗИЛ ММЗ-555.

Вариант № 2:

Экскаватор ЭО-4121А, оборудованный обратной лопатой с ковшом емкостью 1 м3;

Экскаватор ЭО-2621А, оборудованный обратной лопатой с ковшом емкостью 0,25 м3;

Экскаватор ЭО-4111Б, оборудованный драглайном с трамбующей плитой массой 5 т;

Бульдозер ДЗ-110А;

Автогрейдер ДЗ-31-1;

Автомобили-самосвалы КамАЗ-5511 и ЗИЛ ММЗ-555.

Вариант № 3:

Экскаватор Э-10011E, оборудованный обратной лопатой с ковшом емкостью 1 м3;

Экскаватор ЭО-2621А, оборудованный обратной лопатой с ковшом емкостью 0,25 м3;

Экскаватор ЭО-4111Б, оборудованный драглайном с трамбующей плитой массой 5 т;

Бульдозер ДЗ-54;

Автогрейдер ДЗ-31-1;

Автомобили-самосвалы КамАЗ-5511 и ЗИЛ ММЗ-555.

Ведущими машинами комплексов являются:

для варианта № 1 - экскаватор ЭО-5122 с оборудованием - унифицированная обратная лопата с ковшом емкостью 1,6 м3;

для варианта № 2 - экскаватор - Э-4121А с оборудованием - обратная лопата и ковшом емкостью 1 м3;

для варианта № 3 - экскаватор Э-10011E с оборудованием - обратная лопата и ковшом емкостью 1 м3.

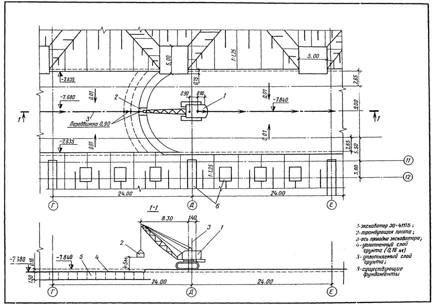
ТЕХНОЛОГИЯ ПРОИЗВОДСТВА РАБОТ ПРИ ИСПОЛЬЗОВАНИИ КОМПЛЕКСА МАШИН ВАРИАНТА № 1

Разработка грунта в котлованах под фундаменты подвалов у осей 10 и 11, тоннеля у оси 10 и внутримодульных тоннелей производится экскаватором ЭО-5122 с оборудованием - унифицированная обратная лопата и ковшом ёмкостью 1,6 м3. Грунт грузят в автомобили-самосвалы КрАЗ-256Б и транспортируют в отвал.

Временные автомобильные дороги, по которым транспортируют грунт, следует постоянно поддерживать в исправном состоянии, используя для этой цели автогрейдер ДЗ-31-1.

Разработка грунта экскаватором ведется с недобором по дну равным 0,35 м. Грунт недобора на глубину 0,2 м срезают бульдозером ДЗ-110A с перемещением во временные отвалы, из которых грунт экскаватором ЭО-5122 грузят в автомобили-самосвалы КрАЗ-256Б и вывозят в отвал (лист 12).

Дальнейшее понижение отметок дна котлована до проектных (на 0,16 м) выполняют при помощи трамбующей плиты массой 5 т,. подвешенной к стреле экскаватора ЭО-4111Б, оборудованного драглайном.

Если по окончании отрывки котлована и срезки недобора грунта (0,2 м) влажность его окажется недостаточной, производят увлажнение до получения оптимальной влажности грунта (18 %).

Уплотнение грунта ведется последовательно на участках, расположенных в радиусе действия стрелы экскаватора, высота подъема плиты составляет 4 - 5 м. Необходимое число ударов по одному следу принимается от 6 до 8 с уточнением опытным путем. Грунт в основании должен быть уплотнен на глубину 1,5 м до получения объемной массы скелета грунта 1,65 т/м3. При этом объемная масса скелета грунта на верхней границе уплотнения должна быть не менее 1,8 т/м3, а на нижней границе - 1,6. т/м3 (лист 13).

Разработка грунта экскаватором в котлованах под фундаменты подвалов у осей 10 и 11 производится двумя горизонтами. Направление работы экскаватора и очередность проходок указаны на технологических схемах производства работ (листы 10, 11, 15 и 16).

Разработка грунта в котловане под дренажную насосную станцию должна производиться отдельными слоями, по всему периметру котлована во избежание одностороннего давления грунта на существующие фундаменты. Разработка грунта с одной из сторон котлована на полную глубину запрещена (лист 14).

Разработка грунта под дренажные канавы ведется экскаватором ЭО-2621A с оборудованием - обратная лопата. Грунт в автомобилях-самосвалах ЗИЛ ММЗ-555 вывозят в отвал.

Устройство котлованов под тоннели начинают по окончании устройства подвалов.

Грунт в котловане под тоннель у оси 10 разрабатывают тремя горизонтами (листы 18, 19), а под внутримодульные тоннели - одним (лист 20). При разработке грунта на втором и третьем горизонтах автомобили-самосвалы подъезжают к месту работы экскаватора задним ходом по съезду.

Уплотнение грунта основания котлована под внутримодульные тоннели выполняется аналогично уплотнению основания подвалов (см. лист 21),

При разработке грунта по варианту № 1 (ведущая машина - экскаватор ЭО-5122) в каждую смену работают:

машинисты экскаваторов 6 разряда - 2,

помощник машиниста 5 разряда - 1,

машинист экскаватора 5 разряда - 1,

машинисты бульдозеров 6 разряда - 2,

машинист автогрейдера 6 разряда - 1,

шоферы автомобилей-самосвалов 3 класса - 7.

ТЕХНИКО-ЭКОНОМИЧЕСКИЕ ПОКАЗАТЕЛИ

Наименование

Варианты комплексов механизации работ

1

2

3 (аналог)

Объем работ, м3

140130

140130

140130

Общие затраты труда, чел.-дн.

1365

1592

1730

То же, на 1000 м3 грунта, чел.-ч

79,9

93,2

101,2

Затраты машинного времени на весь объем работ, маш.-смен

1214

1334

1453

Продолжительность процесса (при двухсменной работе), календарных дней.

88

79

85

Выработка за 1 маш.-ч, м3 грунта

14,07

12,80

11,76

Стоимость затрат труда на весь объем работ, руб.

8316

9475

9301

То же, на 1000 м3 грунта, руб.

59,3

67,6

66,4

Приведенные затраты, на весь объем работ, руб.

74106

76955

79980

То же, на 1000 м3, руб.

528,8

549,2

570,8

Эффективность (в сравнении с аналогом), руб. на 1000 м3 грунта

+42,0

+21,6

-

МАТЕРИАЛЬНО-ТЕХНИЧЕСКИЕ РЕСУРСЫ

Потребность в машинах, оборудовании, инструментах, инвентаре и приспособлениях:

Наименование

Тип

Марка

Количество машин для вариантов комплексов механизации

1

2

3 (аналог)

Экскаватор, оборудованный обратной лопатой

Гидравлический

ЭО-5122

1

-

-

То же

То же

ЭО-4121A

-

2

-

То же

То же

ЭО-2621А

1

1

1

То же

Механический

Э-10011Е

-

-

2

Экскаватор, оборудованный драглайном с трамбующей плитой массой 5 т

Механический

ЭО-4111Б

1

1

1

Бульдозер с неповоротным отвалом:

Гидравлический

ДЗ-110А

2

2

-

То же

То же

ДЗ-54

-

-

2

Автогрейдер тяжелого типа

-

ДЗ-31-1

1

1

1

Автомобиль-самосвал

-

КрАЗ-256Б

5

-

-

То же

-

КамАЗ-5511

-

6

6

То же

-

ЗИЛ ММЗ-555

2

2

2

Нивелир

H-10

ГОСТ 10528-76

1

1

1

Теодолит

T-15

ГОСТ 10529-70

1

1

1

Рулетка стальная

РС-20

-

1

1

1

Рейка с уровнем длиной, 3 м

-

-

1

1

1

КАЛЬКУЛЯЦИЯ ЗАТРАТ ТРУДА ПРИ УСТРОЙСТВЕ КОТЛОВАНОВ ПОД ФУНДАМЕНТЫ ПОДВАЛОВ И ТОННЕЛЕЙ ВНУТРИ ПРОМЫШЛЕННОГО ЗДАНИЯ

вариант комплекса машин № 1

Обоснование

Наименование работ

Единица измерения

Объем работ

Норма времени на единицу измерения, чел.-ч.

(маш.-ч)

Затраты труда на весь объем работ,

чел.-дн.

(маш.-смен)

Состав бригады, работающей в 2 смены

Рекомендуемые машины и оборудование.

Расчетные данные ЦНИИОМТП

Разработка грунта I группы экскаватором ЭО-5122, оборудованным обратной лопатой, с погрузкой грунта в автомобили-самосвалы

100 м3

1368,8

1,80

(0,90)

300,4

(150,2)

Машинисты 6 разр. - 2. Пом. машинистов 5 разр. - 2

Экскаватор ЭО-5122 с ковшом емкостью 1,6 м3 - 1

ЕНиР на перевозку грузов автотранспортом, 1974 г., § 2, 14

Перевозка грунта автомобилями-самосвалами на расстояние 2 км

100 т

2190,1

2,78

(2,78)

742,4

(742,4)

Шоферы 3 кл. - 10

Автомобили-самосвалы КрАЗ-256Б - 5

ЕНиР, 1960 г., § 2-1-11, т.2. № 2а

Разработка грунта I группы экскаватором ЭО-2621А, оборудованным обратной лопатой, с погрузкой в автомобили-самосвалы (траншеи под дренаж)

100 м3

32,5

4,90

(4,90)

19,4

(19,4)

Машинисты 5 разр.- 8

Экскаватор ЭО-2621А с ковшом емкостью 0,25 м3 - 1

ЕНиР на перевозку грузов автотранспортом, 1974 г., § 2, 14

Перевозка грунта автомобилями-самосвалами ЗИЛ ММЗ-565 на расстояние 2 км

100 т

52,0

4,68

(4,68)

29,6

(29,6)

Шоферы 3 кл. - 4

Автомобили-самосвалы ЗИЛ ММЗ-555 -2

ЕНиР 1980 г., § 2-1-15, т. 2, № 12б, № 12д

Разработка грунта II группы бульдозером ДЗ-110А с перемещением на расстояние 30 м (зачистка дна котлованов)

100 м3

24,8

1,21

(1,21)

3,6

(3,6)

Машинисты 6 разр. - 2

Бульдозер ДЗ-110А - 1

Расчетные данные ЦНИИОМТП

Уплотнение грунта трамбующей плитой, подвешенной на стреле экскаватора, при 6-8 ударов по одному следу

100 м3

135,4

0,30

(0,30)

5,0

(5,0)

Машинисты 6 разр.-2

Экскаватор ЭО-4111Б - 1. Бетонная плита массой 5 т - 1

ЕНиР, 1980 г., § 2-1-30А

Ремонт и содержание дорог I кл. автогрейдером при перевозке грунта на 2 км

1000 м2

2483,4 1401,3

0,56

(0,56))

169.6

(169,6)

Машинисты 6 разр.-2

Автогрейдер ДЗ-31-1 - 1

ЕНиР, 1980 г., § 2-1-15, т.2, № 12б

Разработка грунта II группы бульдозером с перемещением на отвале на расстояние 10 м (работа на отвале)

100 м3

 

0,45

(0,45

76,8

(76,8)

Машинисты 6 разр.-2

Бульдозер ДЗ-110А - 1

 

Итого.

1328,8

(1196,6)

 

КАЛЬКУЛЯЦИЯ ЗАТРАТ ТРУДА ПРИ УСТРОЙСТВЕ КОТЛОВАНОВ ПОД ФУНДАМЕНТЫ ПОДВАЛОВ И ТОННЕЛЕЙ ВНУТРИ ПРОМЫШЛЕННОГО ЗДАНИЯ,

ВАРИАНТ КОМПЛЕКСА МАШИН № 2

Обоснование

Наименование работ

Единица измерения

Объем работ

Норма времени на единицу измерения,

чел.-ч.

(маш.-ч)

Затраты труда на весь объем работ,

чел.-дн.

(маш.-смен)

Состав бригады, работающей в 2 смены

Рекомендуемые машины и оборудование

Расчетные данные ЦНИИОМТП

Разработка грунта I группы экскаватором ЭО-5122, оборудованным обратной лопатой, с погрузкой грунта в автомобили-самосвалы

100 м3

1368,8

3,10

(1,55)

517,5

(258;8)

Машинисты 6 разр.-4. Пом. машинистов 5 разр. - 4

Экскаваторы ЭО-4121А с ковшом емкостью 1,0 м3 - 2

ЕНиР на перевозку грузов автотранспортом, 1974 г., § 2, 14

Перевозка грунта автомобилями-самосвалами на расстояние 2 км

100 т

2190,1

2.93

(2,93)

782,6

(782,6)

Шоферы 3 кл. - 12

Автомобили-самосвалы КамАЗ-5511 - 6

ЕНиР 1980 г., § 2-1-11, т. 2, №

Разработка грунта I группы экскаватором ЭО-2621А, оборудованным обратной лопатой, с погрузкой в автомобили-самосвалы (траншеи под дренаж)

100 м3

32,5

4,90

(4,90)

19,4

(19,4)

Машинисты 5 разр.-2

Экскаватор ЭО-2621А с ковшом емкостью 0,25 м3 - 1

ЕНиР на перевозку грузов автотранспортом, 1974 г., § 2, 14

Перевозка грунта автомобилями-самосвалами ЗИЛ ММЗ-555 на расстояние 2 км

100 т

52,0

4,68

(4,68)

29,6

(29,6)

Шоферы 3 кл. - 4

Автомобили-самосвалы ЗИЛ ММЗ-555 - 2

ЕНиР 1980 г., § 2-1-15, т. 2, № 12б, № 12д

Разработка грунта II группы бульдозером ДЗ-110А с перемещением на расстояние 30 м (зачистка дна котлованов)

100 м3

24,8

1,21

(1,21)

3,6

(3,6)

Машинисты 6 разр.-2

Бульдозер ДЗ-110А - 1

Расчетные данные ЦНИИОМТП

Уплотнение грунта трамбующей плитой, подвешенной на стреле экскаватора, при 6-8 ударах по одному следу

100 м2

135,4

0,30

(0,30)

5,0

(5,0)

Машинисты 6 разр.-2

Экскаватор ЭО-4111Б - 1 Бетонная плита массой 5 т - 1

ЕНиР, 1980 г., § 2-1-30а

Ремонт и содержание дорог I кл. автогрейдером при перевозке грунта на 2 км

1000 м2

2178,9

0,56

(0,56)

148,8

(148,8)

Машинисты 6 разр.-2

Автогрейдер ДЗ-31-1 - 1

ЕНиР, 1980 г., § 2-1-15, т. 2, № 12б

Разработка грунта II группы бульдозером с перемещением на расстояние 10 м (работа на отвале)

100 м3

1401,3

0,45

(0,45)

76,8

(76,8)

Машинисты 6 разр.-2

Бульдозер ДЗ-110А - 1

 

Итого

1583.3

(1324,6)

 

КАЛЬКУЛЯЦИЯ ЗАТРАТ ТРУДА ПРИ УСТРОЙСТВЕ КОТЛОВАНОВ ПОД ФУНДАМЕНТЫ; ПОДВАЛОВ И ТОННЕЛЕЙ ВНУТРИ ПРОМЫШЛЕННОГО ЗДАНИЯ

ВАРИАНТ КОМПЛЕКСА МАШИН № 3

Обоснование

Наименование работ

Единица измерения

Объем работ

Норма времени на единицу измерения, чел.-ч

(маш.-ч)

Затраты труда на весь объем работ,

чел.-дн.

(маш.-смен)

Состав бригады, работающей в 2 смены

Рекомендуемые машины и оборудование

Расчетные данные ЦНИИОМТП

Разработка грунта I группы экскаватором ЭО-5122, оборудованным обратной лопатой, с погрузкой грунта в автомобили-самосвалы

100 м3

1368,8

3,32

(1,66)

554,0

(277,0)

Машинисты 6 разр.-4. Пом. машинистов 5 разр. - 4

Экскаваторы Э10011Е с ковшом емкостью 1 м3 - 2

ЕНиР на перевозку грузов автотранспортом, 1974 г., § 2, 14

Перевозка грунта автомобилями-самосвалами на расстояние 2 км

100 т

2190,1

2,93

(2,93)

782,6

(782,6)

Шоферы 3 кл. - 12

Автомобили-самосвалы КамАЗ-5511 - 6

ЕНиР 1980 г., § 2-1-11, т. 2, № 2а

Разработка грунта I группы экскаватором ЭО-2621А, оборудованным обратной лопатой, с погрузкой в автомобили-самосвалы (траншеи под дренаж)

100 м3

32,5

4,90

(4,90)

19,4

(19,4)

Машинисты 5 разр.-2

Экскаватор ЭО-2621А с ковшом емкостью 1,0 м3 - 1

ЕНиР на перевозку грузов автотранспортом, 1974 г.,. § 2, 14

Перевозка грунта автомобилями-самосвалами ЗИЛ ММЗ-555 на расстояние 2 км

100 т

52,0

4,68

(4,68)

29,6

(29,6)

Шоферы 3 кл. - 4

Автомобили-самосвалы ЗИЛ ММЗ-555 - 2

ЕНиР, 1980 г., § 2-1-15, т. 2, № 12б, № 12д

Разработка грунта II группы бульдозером ДЗ-110А с перемещением на расстояние 30 м (зачистка дна котлованов)

100 м3

24,8

1,82

(1,82)

5,4

(5,4)

Машинисты 6 разр.-2

Бульдозер ДЗ-54 - 1

Расчетные данные ЦНИИОМТП

Уплотнение грунта трамбующей плитой, подвешенной на стреле экскаватора, при 6-8 ударах по одному следу

100 м2

135,4

0,30

(0,30)

5,0

(5,0)

Машинисты 6 разр. - 2

Экскаватор ЭО-4111Б - 1. Бетонная влита массой 5 т - 1

ЕНиР, 1960 г., § 2-1-30а

Ремонт и содержание дорог I кл. автогрейдером при перевозке грунта на 2 км

1000 м2

2310,6

0,5б

(0,56)

157,8

(157,8)

Машинисты 6 разр. - 2

Автогрейдер ДЗ-31-1

ЕНиР 1980 г., § 2-1-15, т.2, № 12б

Разработка грунта II грунта с перемещением бульдозером на расстояние 10 м (работа на отвале)

100 м3

1401,3

0,70

(0,70)

119,5

(119,6)

Машинисты 6 paзp.-2

Бульдозер ДЗ-54 - 1

 

Итого

1673.4

(1396,4)

 


Лист 10. Схема разработки грунта в котловане под фундаменты подвала у оси 11. 1-й горизонт

Лист 11. Схема разработки грунта в котловане под фундаменты подвала у оси 11. 2-й горизонт

Лист 12. Схема разработки грунта в котловане под фундаменты подвала у оси 11. 2-й горизонт.

Лист 13. Схема уплотнения грунта основания котлована (подвал у оси 11)

Лист 14. Схема разработки котлована под дренажную насосную станцию (подвал у оси 11)

Лист 15. Схема разработки грунта в котловане под фундаменты подвала у оси 10. 1-й горизонт

Лист 16. Схема разработки грунта в котловане под фундаменты подвала у оси 10. 2-й горизонт

Лист 17. Схема разработки грунта в котловане у оси 8 на 2-м горизонте

Лист 18. Схема разработки грунта в котловане под коммуникационный тоннель у оси 10. 1-й горизонт

Лист 19. Схема разработка грунта в котловане под коммуникационный тоннель у оси 10. 2-й и 3-й горизонты

Лист 20. Схема разработки грунта в траншее под внутримодульные тоннели между подвалами у осей 10 и 11

Лист 21. Схема уплотнения грунта основания траншеи под внутримодульные тоннели

 


ТЕХНОЛОГИЧЕСКАЯ СХЕМА УСТРОЙСТВА ТРАНШЕЙ В МЕРЗЛЫХ ГРУНТАХ С ПРИМЕНЕНИЕМ ЩЕЛЕВЗРЫВНОЙ ТЕХНОЛОГИИ

Настоящая схема выполнена на разработку траншеи в мерзлом грунте щелевзрывным способом.

В состав работ, предусмотренных картой, входят: нарезка щелей в мерзлом грунте; забойка зарядной щели; рыхление мерзлого грунта взрывом; планировка поверхности траншеи после взрыва; разработка разрыхленного мерзлого и талого грунта экскаватором в отвал.

До начала производства земляных работ необходимо:

Получить письменное разрешение на право производства земляных работ в зоне расположения подземных коммуникаций от организаций, ответственных за эксплуатацию этих коммуникаций; разработать проект производства работ; выдать бригаде наряд-задание на производство работ; закончить расчистку трассы от снега; выполнить инструментальную разбивку траншей; наметить положение щелей.

Для траншей шириной 3,2 м нарезают три щели, средняя из которых является зарядной, а две крайние - компенсирующими.

Для нарезки щелей используют траншейный цепной экскаватор ЭТЦ-208Д. Сначала нарезают компенсирующие щели, а затем зарядную.

По середине основания зарядной щели укладывают детонирующий шнур (ДШ) и размещают рассыпной заряд взрывчатого вещества (ВВ). Для засыпки ВВ в зарядную щель применяют воронку из оцинкованного железа с трубкой, превышающей глубину щели на 50 - 60 см.

При использовании патронированного ВВ заряды предварительно прикрепляются к ДШ с помощью изоляционной ленты.

Заряды ВВ укладывают в зарядную щель в два яруса. Расстояние между ярусами 1 м. Масса нижнего заряда должна составлять 2/3 общей массы заряда в одной щели.

При длине щели до 20 м ДШ выпускают с одного ее конца на 1,5 - 2 м. При длине щели более 20 м ДШ следует выпускать с двух концов щели и предусматривать возможность повторного взрыва зарядов при затухании детонации или отказе части зарядов

При укладке ДШ отдельные его отрезки соединяются только внахлестку или согласно указаниям инструкции, находящейся в ящике со шнуром. Длина нахлестки должна быть не менее 10 см, соединение шнура - плотным, скрепленным изоляционной лентой, тесьмой или шпагатом. В местах присоединения отрезков ДШ не должно быть острых углов, перегибов и скруток.

Взрывание зарядов должно производиться непосредственно после их подготовки. Число подготовленных к взрыванию зарядов должно равняться числу зарядов, взрываемых за один раз.

Для возбуждения детонации ДШ применяют электродетонаторы мгновенного или короткозамедленного действия, которые присоединяют к магистральной линии. Сначала взрывается нижний заряд, потом, с замедлением, верхний. В качестве источника тока используется взрывная машинка КПМ-1.

Перед началом взрывных работ в соответствии с "Едиными правилами безопасности при взрывных работах", должны быть установлены границы опасной зоны.

По окончании взрывных работ бульдозером ДЗ-42 производится планировка поверхности траншеи. Затем грунт разрабатывается в отвал экскаватором ЭО-4121А, оборудованным обратной лопатой с ковшом емкостью 0,65 м3.

Все взрывные работы: укладку ДШ, присоединение к выпускам ДШ электродетонаторов, монтаж участковой и магистральной сетей, проверку с помощью взрывного испытателя сопротивления сети, рассыпку ВВ и производство взрыва - выполняют два взрывника 4 разряда.

При производстве работ следует руководствоваться "Едиными правилами безопасности при взрывных работах" и правилами, приведенными в главе СНиПа III-4-80 "Техника безопасности в строительстве".

Особое внимание следует обратить на следующее:

к производству взрывных работ допускаются лица, сдавшие экзамен квалификационной комиссии и получившие "Единую книжку взрывника".

руководство взрывными работами возлагается на специально назначенное приказом лицо, либо на технического руководителя взрывных работ подрядной организации (или назначенное им лицо);

к руководству взрывными работами допускаются лица с законченным горнотехническим образованием, а также окончивший специальные учебные заведения или курсы, дающие право на техническое руководство горными или взрывными работами;

при выполнении взрывных работ назначается старший взрывник, что оформляется записью в наряде-путевке;

все работы могут производиться только при наличии разрешения органов Госгортехнадзора; республиканских или ведомственных горнотехнических инспекций;

при любых операциях с взрывчатыми материалами должна соблюдаться максимальная осторожность; при обращении с ними запрещено курить, применять открытый огонь ближе 100 м от места их нахождения и т.п.

ТЕХНИКО-ЭКОНОМИЧЕСКИЕ ПОКАЗАТЕЛИ

Объем работ, м3

на захватку                                                                                                          576

на 100 м траншеи                                                                                   960

Затраты/труда на весь объем работ, чел.-дн.

на захватку                                                                                                          3,09

на 100 м траншеи                                                                                   5,15

Стоимость затрат труда на весь объем работ, руб.-коп.

на захватку                                                                                                          23 - 24

на 100 м траншеи                                                                                   38 - 73

Затраты труда на разработку 1 м3 грунта, чел.-ч                                            0,04

Удельный расход ВВ на 1 м3 мерзлого грунта, кг                                           0,65

МАТЕРИАЛЬНО-ТЕХНИЧЕСКИЕ РЕСУРСЫ

Потребность в основных материалах на 100 м траншеи

Наименование

Марка

Ед. изм.

Кол-во

Шнур детонирующий

ДША, ДШБ, ДШВ, ДШЭ

м

128

ВВ (взрывчатое вещество)

6ЖВ

кг

225

Потребность в машинах, оборудовании, инструментах и инвентаре

Наименование

Тип

Марка

Кол-во

Экскаватор

Траншейный цепной

ЭТЦ-208Д

1

То же

Гидравлический

ЭО-4121А

1

Бульдозер

-

ДЗ-42

1

Машинка взрывная

-

КПМ-1

1

Испытатель взрывной

-

ВИО-3

1

Мерник с воронкой

-

 

1

КАЛЬКУЛЯЦИЯ ЗАТРАТ ТРУДА НА УСТРОЙСТВО ТРАНШЕИ В МЕРЗЛОМ ГРУНТЕ С ПРИМЕНЕНИЕМ ЩЕЛЕВЗРЫВНОЙ ТЕХНОЛОГИИ

Обоснование

Наименование работ

Единица измерения

Объем работ

Норма времени на единицу измерения, чел.-ч (маш.-ч)

Затраты труда на весь объем работ,

чел.-дн:

(маш.-смен)

Состав бригады, работающей в одну смену

Рекомендуемые машины и оборудование

Расчетные данные ЦНИИОМТП

Нарезание щелей цепным экскаватором

100 м

1,80

2,67

(2,67)

4,81

(4,81)

Машинист 6 разр. - 1

Экскаватор траншейный цепной ЭТЦ-208Д

Расчетные данные ЦНИИОМТП

Заряжание щелей зарядами ВВ

100 кг

2,25

2,46

5,54

Взрывники 4 разр. - 2

Мерник. Воронка. Испытатель взрывной ВИО-3

Расчетные данные ЦНИИОМТП

Забойка зарядных щелей с помощью бульдозера

100 м3

0,60

0,125

(0,125)

0,08

(0,08)

Машинист 5 разр. - 1

Бульдозер ДЗ-42

Расчетные данные ЦНИИОМТП

Взрывание зарядов

1 взрыв

1

0,72

0,72

Взрывник 4 разр. - 1

Машинка взрывная КПМ - 1

ЕНиР, 1980 г., § 2-1-24, п. 12б

Планировка поверхности

1000 м2

0,19

0,12

(0,12)

0,02

(0,02)

Машинист 5 разр. - 1

Бульдозер РТ-54

Дополнения и изменения к ЕНиР, 1969 г., выпуск 10, § 2-1-11б, табл. 1, п. 13и

Разработка разрыхленного мерзлого грунта в траншее экскаватором

100 м2

3,46

2,7

(2,7)

9,34

(9,34)

Машинист 6 разр. - 1 Пом. Машиниста 5 разр. - 1

Экскаватор ЭО-4121А

Разработка талого грунта в траншее экскаватором

2,30

2,1

(2,1)

4,83

(4,83)

Машинист 6 разр. - 1 Пом. машиниста 5 разр. - 1

Экскаватор ЭО-4121А

Итого

25,34

(19,08)

 

 


Лист 22. Последовательность выполнения работ на захватке

 


ТЕХНОЛОГИЧЕСКИЕ СХЕМЫ УСТРОЙСТВА ТРАНШЕЙ В ГРУНТАХ V - VI ГРУПП

Технологические схемы комплексно-механизированного процесса с применением захватно-клещевого рабочего органа на экскаваторе ЭО-4121А предусматривает разработку скальных грунтов V и VI групп в траншее длиной 100 м, шириной по дну 2,5 м и глубиной 3 м с транспортированием грунта автомобилями-самосвалами КамАЗ-5511 на расстояние 2 км.

Технологические схемы могут быть использованы для производства земляных работ при устройстве траншей любой конфигурации.

При привязке технологических схем к конкретному объекту и условиям строительства определяют объемы работ, уточняют технологию производства земляных работ, калькуляцию затрат труда и составляют график производства работ.

ОРГАНИЗАЦИЯ И ТЕХНОЛОГИЯ СТРОИТЕЛЬНОГО ПРОЦЕССА ПО ПЕРВОМУ ВАРИАНТУ КОМПЛЕКСА МАШИН

До начала производства земляных работ выполняют подготовительные работы: инструментальную разбивку трассы траншеи в плане и прокладывают землевозные дороги.

Разработку грунта производят гидравлическим экскаватором ЭО-4121А с захватно-клещевым рабочим органом лобовым забоем с погрузкой грунта в самосвалы КамАЗ-5511.

При разработке грунта ось проходки экскаватора совмещена с осью траншеи.

Установку самосвалов под погрузку производят на расстоянии 2 м от оси экскаватора с таким расчетом, чтобы средний угол поворота стрелы экскаватора составлял 45°.

Экскаватор разрабатывает грунт ниже проектной отметки дна траншеи на глубину 20 см. Разработанный грунт грузят в самосвалы КамАЗ-5511, а мелкую фракцию отсыпают в отвал для обратной подсыпки дна траншеи. Обратную подсыпку грунта на глубину 20 см выполняют бульдозером ДЗ-37, затем этот же бульдозер используют для разравнивания грунта и планировки дна траншеи до проектной отметки.

Предусмотрены 4 варианта технологических схем механизации производства земляных работ.

Состав возможных вариантов комплексов машин

Технологические операции

Варианты

1

2

3

4

Разработка грунта V и VI групп экскаватором

ЭО-4121А с захватно-клещевым рабочим органом

ЭО-5122 с захватно-клещевым рабочим органом

ЭО-4121А-с ковшом емкостью 0,65 м3

Э-5015А с ковшом емкостью 0,5 м3

Послойное рыхление грунтов V и VI групп

-

-

СП-62 на экскаваторе ЭОО-4121А

Клин-баба на экскаваторе Э-652Б

Обратная подсыпка грунта бульдозером

ДЗ-37

ДЗ-37

-

ДЗ-37

Разравнивание грунта и планировка дна траншеи бульдозером

То же

То же

-

То же

Транспортирование грунта автомобилями-самосвалами

КамАЗ-5511

КамАЗ-5511

КамАЗ-5511

КамАЗ-5511

ТЕХНИКА БЕЗОПАСНОСТИ

При производстве земляных работ необходимо строго соблюдать правила, изложенные в главах СНиПа III-4-80 "Техника безопасности в строительстве" и СНиПа III-8-76 "Земляные сооружения".

ТЕХНИКО-ЭКОНОМИЧЕСКИЕ ПОКАЗАТЕЛИ

Показатели

Варианты комплексов машин

1

2

3

4

Затраты труда на весь объем работ, чел.-дн.

16,78

31,18

14,48

18,94

20,8

25,3

34,46

42,58

То же, на 100 м3, чел.-дн.

2,1

3,9

1,8

2,4

2,8

3,4

4,3

5,3

Затраты машинного времени на весь объем работ, маш.-смен

16,78

31,18

1,8

2,4

20,8

25,3

34,48

42,58

Выработка одного рабочего в смену, м3 грунта;

47,7

25,7

55,2

42,2

36,1

29,6

23,21

18,8

Стоимость затрат труда на весь объем работ, руб.

76-98

112-58

63-79

84-94

288-98

392-57

488-39

701-06

Примечание: В числителе показатели для V группы грунта, в знаменателе - для VI группы

КАЛЬКУЛЯЦИЯ ЗАТРАТ ТРУДА ПО 1-му ВАРИАНТУ КОМПЛЕКСА МАШИН

Обоснование

Наименование работ;

группа грунта

Единица измерения

Объем работ

Норма времени на единицу: измерения,

чел.-ч

aш.-ч.)

Затраты труда на весь объем работ,

чел.-дн.

(маш.-смен)

Состав звеньев, работающих в одну смену

Рекомендуемые машины и оборудование

По данным ЦНИИОМТП

Разработка грунта экскаватором с захватно-клещевым рабочим органом с погрузкой в самосвалы

V группа

VI группа

100 м3

7,5

5,9

(5,9)

5,4

(5,4)

Машинист 6 разр. - 1

Экскаватор ЭО-4121A - 1

11,1

(11,1)

10,1

(10,1)

То же, с отсыпкой в отвал

V группа

VI группа

0,5

5,2

(5,2)

0,3

(0.3)

9,8

(9,8)

0,6

(0,6)

ЕНиР, 1980 г., § 2-1-21, т. 2, п. 1в

Обратная подсыпка грунта бульдозером

V группа

VI группа

100 м3

0,5

2,3

(2.3)

0,14

(0,14)

Машинист 4 разр. - 1

Бульдозер ДЗ-37 - 1

2,3

(2,3)

0,14

(0,14)

ЕНиР 1980 г., § 2-1-20, т. 2, п. 1в

Разравнивание грунта и планировка дна траншеи бульдозером

V группа

VI группа

100 м3

0,5

2,3

(2,3)

0,14

(0,14)

Машинист 4 разр. - 1

Бульдозер ДЗ-37 - 1

2,3

(2,3)

0,14

(0,14)

Единые нормы времени на перевозку грузов § 2 и 14

Перевозка грунта автомобилями-самосвалами на расстояние до 2 км

V группа

VI группа

1960

0,045

10.8

(10,8)

Шоферы 3 кл. - 2

Автомобили-самосвалы КамАЗ-5511 - 2

2100

0,079

20,2

(20,2)

Итого для V группы грунта

16,78

(16,78)

 

Итого для VI группы грунта

31,18

(31,18)

 

КАЛЬКУЛЯЦИЯ ЗАТРАТ ТРУДА ПО 2-му ВАРИАНТУ КОМПЛЕКСА МАШИН

Обоснование

Наименование работ

группа грунта

Единица измерения

Объем работ

Норма времени на единицу измерения,

чел.-ч

(маш.-ч)

Затраты труда на весь объем работ,

чел. -дн.

(маш.-смен)

Состав звеньев, работающих в одну смену

Рекомендуемые машины и оборудование

По данным ЦНИИОМТП

Разработка грунта экскаватором с захватно-клещевым рабочим органом с погрузкой в самосвалы

V группа

VI группа

100 м3

7,5

3,8

(3,8)

3,5

(3,5)

Машинист 6 разр. - 1

Экскаватор ЭО-5122 - 1

6,7

(6,7)

6,1

(6,1)

То же, с отсыпкой в отвал

V группа

VI группа

0,5

3,3

(3,3)

0,2

(0,2)

5,9

(5,9)

0,36

(0,36)

ЕНиР, 1980 г., § 2-1-21, т.2,: п. 1

Обратная подсыпка грунта бульдозером

V группа

VI группа

100 м3

0,5

2,3

(2,3)

0,14

(0,14)

Машинист 4 разр. - 1

Бульдозер ДЗ-37 - 1

2,3

(2,3)

0,14

(0,14)

ЕНиР, 1980г., § 2-1-20, т. 2, п.1

Разравнивание грунта и планировка дна траншеи бульдозером

V группа

VI группа

100 м3

0,5

2,3

(2,3)

0,14

(0,14)

Машинист 4 разр. - 1

Бульдозер ДЗ-37 - 1

2,3

(2,3)

0,14

(0,14)

Единые нормы времени на перевозку грузов § 2 и 14

Перевозка грунта автомобилями-самосвалами на расстояние до 2 км

V группа

VI группа

1 т

1950

0,044

10,5

(10,5)

Шоферы 3 кл. - 3

Автомобили-самосвалы КаиАЗ-5511 - 3

2100

0,048

12,2

(12,2)

Итого для V группы грунта -

14.48

(14,48)

 

Итого для VI группы грунта

18,94

(18,94)

 

КАЛЬКУЛЯЦИЯ ЗАТРАТ ТРУДА ПО 3-му КОМПЛЕКСУ МАШИН

Обоснование

Наименование работ

группа грунта

Единица измерения

Объем работ

Норма времени на единицу измерения,

чел.-ч

aш.-ч)

Затраты труда на весь объем работ,

чел.-дн.

(маш.-смен)

Состав звеньев, работающих в одну смену

Рекомендуемые машины и оборудование

По данным ЦНИИОМТП

Послойное рыхление грунта гидромолотом CП-62 на экскаваторе ЭО-4121А в траншее

V группа

VI группа

100 м3

7,5

6,7

(6,7)

6,1

(6,1)

Машинист 6 разр. - 1

Экскаватор ЭО-4121А - 1 Гидрoмолот СП-62 - 1

8,3

(8,3)

7,6

(7,6)

Дополнения и изменения к ЕНиР, 1980 г., § 2-1-11б, табл. 1, п. 2 д, е

Разработка разрыхленного грунта экскаватором ЭО-4121А с погрузкой в автомобили-самосвалы

V группа

VI группа

100 м3

7,5

5,4

(5,4)

4,9

(4,9)

Машинист 6 разр. - 1

Экскаватор ЭО-4111А - 1

6,5

(6,5)

5,9

(5,9)

Единые норма времени на перевозку грузов § 2 и 14

Перевозка грунта автомобилями-caмocвaлами на расстояние 2 км

V группа

VI группа

т

1950

0,05

9,8

(9,8)

Шоферы 3 разр. - 2

Автомобили-самосвалы КамАЗ-5511 - 2

2100

0,056

11,8

(11,8)

 

Итого для V группы грунта

20,8

(20,8)

 

 

Итого для VI группы грунта

25,3

(25,3)

 

КАЛЬКУЛЯЦИЯ ЗАТРАТ ТРУДА ПО 4-му ВАРИАНТУ КОМПЛЕКСА МАШИН

Обоснование

Наименование работ

группа грунта

Единица измерения

Объем работ

Норма времени на единицу измерения, чел.-ч

(маш.-ч)

Затраты труда на весь объем работ,

чел.-дн.

(маш.-смен)

Состав звеньев, работающих в одну смену

Рекомендуемые машины и оборудование

ЕНиР 1980 г., § 2-1-3, п, 3 в, г., К=1,2 применит.

Послойное рыхление грунта клин-бабой, подвешенной к стреле экскаватора

V группа

VI группа

100 м3

8,0

14,8

(14,8)

14,4

(14,4)

Машинист 6 разр. - 1

Экскаватор Э-652Б - 1

19,9

(19,9)

19,4

(19,4)

Дополнения и изменения к ЕНиРу 1980 г., в.10, §2-1-11б, т.1, п. 1 д, е, л, м

Послойная разработка грунта экскаватором с погрузкой его в автомобили-самосвалы

V группа

VI группа

100 м3

7,5

7,1

(7,1)

6,5

(6,5)

Машинист 6 разр. - 1

Экскаватор Э-5015А - 1

8,2

(8,2)

7,5

(7,5)

То же, с отсыпкой в отвалы

V группа

VI группа

0,5

5,3

(5,3)

0,3

(0,3)

6,4

(6,4)

0,4

(0,4)

ЕНиР 1980, § 2-1-21, т.2, п. 1а

Обратная отсыпка грунта бульдозером

V группа

VI группа

100 м3

0,5

2,3

(2,3)

0,14

(0,14)

Машинист 4 разр. - 1

Бульдозер ДЗ-37 - 1

2,3

(2,3)

0,14

(0,14)

ЕНиР 1980 г.; § 2-1-20. т.2, п. 1т

Разравнивание грунта и планировка дна траншеи до проектной отметки бульдозером

V группа

VI группа

100 м3

0,5

2,3

(2,3)

0,14

(0,14)

Машинист 4 разр. - 1

Бульдозер ДЗ-37 - 1

2,3

(2,3)

0,14

(0,14)

Единые нормы времени на перевозку грузов § 2 и 14

Перевозка грунта автомобилями-самосвалами на расстояние 2 км

V группа

VI группа

1 т

1950

0,067

13,0

(13,0)

Шоферы 3 кл. - 2

Автомобили-самосвалы КамАЗ-5511 - 2

2100

0,071

15,0

(15,0)

 

Итого для V группы грунта

34,48

(34,48)

 

 

Итого для VI группы грунта

42,58

(42,58)

 


Лист 23. Схема рытья траншеи в грунтах V-VI групп. 1-й вариант комплексов машин

 


ТЕХНОЛОГИЧЕСКАЯ СХЕМА УСТРОЙСТВА СВАЙНЫХ ФУНДАМЕНТОВ

Схема разработана на устройство свайных фундаментов из железобетонных свай квадратного сечения длиной до 12 м под колонны одноэтажных промышленных зданий.

Расположение свай в фундаментах кустовое. Места погружения свай определены проектом в соответствии с расчетом.

До начала погружения свай должны быть выполнены следующие работы: спланирована площадка; разработаны котлованы и траншеи; доставлен в зону и смонтирован копер; доставлены на площадку и разложены у мест, погружения комплекты свай.

Сваи раскладывают комплектами в зоне действия копра в соответствии со схемой его движения.

На рабочем месте их укладывают в один ряд по длине. Рабочее место должно быть подготовлено так, чтобы сваю можно было располагать без подкладок и соблюдать безопасность при подтаскивании ее к копру.

Перед погружением необходимо проверить разбивку осей свайных рядов и мест погружения свай, а также отбраковать сваи и разметить их.

Сваи забивают в грунт с помощью копра, смонтированного на базе гусеничного крана-экскаватора и оснащенного дизель-молотом с соответствующей погружающей способностью.

Первые удары молота по свае производят при неполном подъеме и сбросе ударной части. После уточнения правильности установки сваи и ее соответствия проектному положению переходят к нормальному режиму работы молота и окончательно погружают сваи.

Во избежание деформации головы сваи от ударов молота следует применять деревянные прокладки, регулировать высоту подъема ударной части молота, а также следить за соосностью вертикальных осей ударной части молота и сваи.

После погружения до проектной отметки или заданной величины отказа голову сваи срубают отбойным молотком. Возможно применение специальных машин. Чтобы предохранить сваю от трещин и сколов при срубке головы, следует использовать инвентарные стальные хомуты для предварительного обжатия сваи по линии намечаемой срубки.

Приведена схема забивки свай с использованием мостовой копровой установки конструкции ЦНИИОМТП.

Порядок работ при этом варианте следующий. Доставленную на площадку мостовую копровую установку располагают на месте ее монтажа над рельсовыми путями. После установки катковых тележек на рельсы автомобиль-тягач и пневмотележку откатывают, а копровую стрелу и другое оборудование приводят в рабочее положение. После забивки свай в заданном ряду фундамента мостовую установку переводят в транспортное положение. Для проезда копровой установки через рельсовые пути устраивают деревянные щитовые настилы. Копровую установку перемещают в очередное рабочее положение, а рельсовый путь переносят на новый участок (захватку).

В процессе свайных работ необходимо соблюдать требования главы СНиПа III-4-80 "Техника безопасности в строительстве", а также требования, приведенные в "Руководстве по производству свайных работ и технике безопасности при эксплуатации копров и копрового оборудования на базовых машинах и рельсовом ходу" (ЦНИИОМТП, 1973 г.).

ТРЕБОВАНИЯ К КАЧЕСТВУ РАБОТ

В целях обеспечения качества свайных работ необходимо соблюдать следующие требования.

Отклонения от проектных размеров не должны превышать (в мм):

для длины призматической части сваи

при длине сваи до 10 м включительно                                                                ±30

то же, более 10 м                                                                                                    ±40

для поперечного сечения сваи                                                                                     +5

для длины острия сваи                                                                                                 ±30

для величины смещения острия сваи от центра поперечного сечения                   10

для расстояния от центра подъемных петель и штырей до конца сваи                  ±50

Отклонения разбивочных осей свайных рядов от проектных не должны превышать 1 см на каждые 100 м.

Масса ударной части молота одиночного действия, в том числе дизель-молота, должна быть: при длине сваи 12 м и более - не менее массы сваи; при длине сваи до 12 м и забивке в плотные грунты - не менее 1,5 массы сваи, а при грунтах средней плотности - не менее 1,25 массы сваи (с наголовником).

Для забивки свай следует применять наголовники, соответствующие поперечному сечению сваи; зазоры между боковой гранью сваи и стенкой наголовника должны быть не более 1 см.

Отклонения забивных свай от проектного положения не должны превышать величин, указанных ниже или в проекте, при соответствующем обосновании.

Тип свай и их расположение

Допускаемые отклонения осей свай в плане (в диаметрах круглых свай или диагоналях прямоугольных)

Для кустов и лент с расположением свай в два и три ряда

 

для крайних свай поперек оси свайного ряда

0,2

для остальных и крайних свай вдоль свайного ряда

0,3

Примечания. При ленточном и кустовом расположении число свай, имеющих максимально допускаемые отклонения от проектного положения, не должно превышать 25 % их общего количества.

Возможность использования свай с отклонениями сверх допускаемых устанавливается проектной организацией.

Недобивка свай, вызываемая технологическими причинами погружения и грунтовыми условиями, допускается для свай длиной до 10 м на 0,5 м от поверхности планировки и на 1 м при длине cвaй более 10 м.

ЗАТРАТЫ ТРУДА НА УСТРОЙСТВО СВАЙНЫХ ФУНДАМЕНТОВ С ПОМОЩЬЮ КОПРА

Обоснование

Наименование работ

Единица измерения

Норма времени на единицу измерения,

чел.-ч

(маш.-ч)

Состав звена, работающего в одну смену

Рекомендуемые машины и оборудование

ЕНиР, 1978 г. § 12-52, п. 4

Выгрузка и раскладка свай у мест погружения

100 свай

14,2

(7,1)

Машинист 5 разр. - 1, Такелажники 3 разр. - 2

Стреловой край KC24361 - 1

Строп двухветвевой грузоподъемностью 5 т

ЕНиР, 1970 г., § 12-66

Разметка свай краской через 0,5 м

100 свай

1,2

-

Копровщик 3 разр. - 1

-

ЕНиР, 1978 г. § 12-21г

Погружение свай длиной 8 м

1 свая

0,92

(0,46)

Машинист 6 разр. - 1.

Копровщики 5 разр. - 1,

3 разр. - 1

Копёр с навесной стрелой на базе экскаватора Э-10011 - 1.

Дизель-молот CH-41A - 1.

Отвес - 1.

Строп - 1

Отводной блок

§ 12-21д

То же, до 10 м

1,06

(0,58)

§ 12-21е

То же, до 12 м

1,22

(0,61)

ЕНиР, 1978 г. § 12-27, т.1, п. 9г

Срубка голов свай.

1 свая

0,41

(0,20)

Машинист 5 разр. - 1 Бетонщики 3 разр. - 2

Компрессор ЗИФ-55. - 1.

Пневматические молоты в комплекте - 3

ЕНиР, 1979 г., § 22-11, т. 6, п. 1а

Срезка стержней арматуры

10 перерезов

0,07

-

Газорезчики 4 разр. - 1,

2 разр. - 1

Газорезка с горелкой. Свайные обжимные хомуты - 3

ЕНиР, 1979 г., § 1-6, п. 1а

Уборка срубленных голов свай

100 подъемов

12,0

(6,0)

Машинист 5 разр. - 1. Такелажники 3 разр. - 2

Стреловой кран КС-4361 - 1

Газорезка - 1

Кувалда 5 кг - 1

Примечание. При использовании мостовых копровых установок нормы времени принимают по фактическим затратам труда.

 


Лист 24. Схема устройства свайных фундаментов

Лист 25. Схема погружения свай с помощью мостовой копровой установки

 


ТЕХНОЛОГИЧЕСКИЕ СХЕМЫ ВОЗВЕДЕНИЯ МОНОЛИТНЫХ ЖЕЛЕЗОБЕТОННЫХ ФУНДАМЕНТОВ

Настоящие схемы разработаны для возведения монолитных железобетонных фундаментов при положительной температуре воздуха в условиях II климатического поясам

Арматурные, опалубочные и бетонные работы осуществляются в соответствии с требованиями главы СНиПа III-15-76 "Бетонные и железобетонные конструкции монолитные. Правила производства и приемки работ".

При возведении монолитных бетонных фундаментов предусмотрено последовательное выполнение на захватке арматурных, опалубочных и бетонных работ.

В состав работ, рассматриваемых схемами, входят: армирование фундаментов; монтаж опалубки; бетонирование фундаментов при помощи: а - крана и бункера, б - бетоноукладчика, в - бетононасоса; демонтаж опалубки.

Арматурные работы

До монтажа арматуры должны быть закончены работы по: разбивке осей и устройству бетонной подготовки под фундаменты; доставке и складированию в зоне действия монтажного крана необходимого количества арматуры; подготовке к монтажу такелажной оснастки, инструмента и электросварочной аппаратуры.

Монтаж арматуры начинают с разметки мест, раскладки арматурных сеток плитной части фундамента и установки фиксаторов с шагом 1 м для создания защитного слоя бетона.

Армирование производится унифицированными сетками серии 1.410-2 (ГОСТ 23279-78), изготовляемыми в заводских условиях на многоточечных контактных машинах МТМ-35 и МТМ-32. Раскладка сеток ведется во взаимно перпендикулярных направлениях (лист. 26).

Подколонник армируют пространственным каркасом, который устанавливают при помощи крана в проектное положение. Сборка пространственных каркасов производится на сборочной площадке. Сначала устанавливают две вертикальные сетки и скрепляют их временными растяжками. Затем ставят фиксаторы.

Монтаж арматуры выполняет звено из четырех человек. В него входят арматурщики - 3 разряда (1 чел.) и 2 разряда (2 чел.), а также один электросварщик 5 разряда.

Приемка смонтированной арматуры проводится до установки опалубки и оформляется актом освидетельствования скрытых работ. В акте приемки должны быть указаны номера рабочих чертежей и отступления от них, даны оценка качества смонтированной арматуры и разрешение на бетонирование.

Опалубочные работы

До начала монтажа опалубки должны быть установлены арматурные сетки и каркасы; проверена комплектность завезенной опалубки; выполнена укрупнительная сборка щитов опалубки.

Поступившие на строительную площадку элементы опалубки размещают в зоне действия крана. Все элементы должны быть рассортированы по маркам и типоразмерам и хранятся в положении, соответствующем транспортному.

Крупные сборочные единицы хранят на закрытых складах или под навесом в условиях, исключающих их порчу; мелкие детали - на складе в упакованном виде.

В схемах рассматривается использование двух типов опалубки: унифицированной разборно-переставной опалубки "Монолит-77" (проект ЦНИИОМТП 2493.00.000) и стальных опалубочных форм для железобетонных монолитных фундаментов, разработанных ЦНИИОМТП (проект 79-2.00.000).

До начала монтажа разборно-переставной опалубки металлические щиты собирают в опалубочные панели, размеры которых определятся площадью поверхностей фундаментов. На установленных панелях монтируют навесные площадки с навесными лестницами.

Монтаж опалубки выполняет звено из двух монтажников 4 и 3 разрядов. Схема организации работ при монтаже разборно-переставной опалубки дана на листе 27, а при монтаже стальных опалубочных форм - на листе 28.

До монтажа стальных опалубочных форм на сборочной площадке собирают опалубку башмачной части фундамента, которую затем краном подают на место установки.

Блоки собирают из щитов с помощью замковых стяжек. Собранный блок краном устанавливают на центрирующие штыри рамы опалубки, башмачной части фундамента и закрепляют фиксаторами. Для получения требуемой высоты блоки ставят один на другой, после чего на центрирующие штыри верхнего блока устанавливается вкладыш и навешиваются подмости.

После достижения бетоном необходимой прочности опалубка демонтируется.

Бетонные работы

До начала укладки бетонной смеси необходимо:

проверить правильность установки арматуры и опалубки;

устранить все дефекты опалубки;

выявить наличие фиксаторов, обеспечивающих требуемую толщину защитного слоя бетона;

принять по акту все конструкции и их элементы, закрываемые в процессе бетонирования;

очистить опалубку и арматуру от мусора, грязи и ржавчины;

проверить работу всех механизмов, исправность приспособлений и инструментов.

Транспортирование бетонной смеси предусматривается автобетоносмесителями.

Рассматривается три варианта подачи бетонной смеси к месту укладки: краном в бункерах, автобетононасосом и бетоноукладчиком.

В первом варианте предусмотрено использование бункера конструкции ЦНИИОМТП с секторным затвором, с боковой выгрузкой. Объем бункера м3.

Схема организация работ при подаче бетонной смеси краном в бункерах дана на листах 29 и 30. Работы выполняет звено из двух бетонщиков 4 и 3 разрядов.

Схема бетонирования с использованием автобетононасоса дана на листе 31. Автобетононасос предусмотрен марки БН-80-20 или СБ-126А. Обслуживает автобетононасос звено из двух человек - оператор 5 разряда и его помощник 4 разряда.

Подбор и назначение состава бетона должна проводить строительная лаборатория. Рабочий состав бетона проверяется путем опытного перекачивания бетонной смеси автобетононасосом и испытания бетонных образцов, изготовленных из проб, отобранных после перекачивания.

Схема бетонирования фундаментов с использованием бетоноукладчика СВ-131 дана на листе 32.

При подаче бетонной смеси бетоноукладчиком необходимо соблюдать следующие требования:

загружать транспортер надо таким образом, чтобы обеспечить его наибольшую (проектную) производительность;

лента транспортера должка иметь бортовое ограждение, закрепляемое на раме транспортера;

наибольший угол наклона транспортерной ленты не должен превышать 18°.

Бетоноукладчик обслуживает оператор 5 разряда. Укладка бетонной смеси в фундаменты производится в два этапа: первый - бетонирование башмачной части и второй - бетонирование стакана. Перерыв между ними должен быть не менее 40 мин, но и не более 2 ч.

При высоте стакана больше 2 м предусматривается использование вертикальных звеньевых хоботов.

Бетонную смесь укладывают слоями толщиной 30 - 40 см и уплотняют глубинными вибраторами. Рабочую часть вибратора погружают в ранее уложенный слой смеси на 5 - 10 см. В углах и у стенок опалубки бетонную смесь дополнительно уплотняют вибраторами или путем штыкования ручными шуровками. Опирание вибратора во время работы на арматуру не допускается. Вибрирование на одной позиции заканчивают при прекращении оседания и появлении цементного молока на поверхности бетона. Вибратор при перестановке на следующую позицию следует извлекать медленно, не выключая двигателя, для того, чтобы пустота под наконечником равномерно заполнилась бетонной смесью.

После укладки бетона в опалубку необходимо создать благоприятные температурно-влажностные условия для его твердения (предохранить от воздействия ветра, солнечных лучей). Каждый забетонированный фундамент (горизонтальные поверхности) следует укрыть влажной мешковиной, брезентом, опилками, песком, другими листовыми или рулонными материалами или покрыть защитными пленками в соответствии с указаниями строительной лаборатории.

При производстве работ необходимо соблюдать правила техники безопасности согласно СНиПу III-4-80. Особое внимание надо обратить на следующее:

распалубливание конструкций можно начинать только с разрешения производителя работ и при наличии заключения строительной лаборатории о фактической прочности бетона;

рукоятки вибраторов должны иметь амортизаторы, а электропровода - надежную резиновую изоляцию;

необходим периодический медицинский осмотр бетонщиков, работающих с вибраторами;

к управлению автобетононасосами следует допускать только машинистов-операторов, имеющих удостоверения на право работы с данным типом машин.

ОБОРУДОВАНИЕ И ИНСТРУМЕНТЫ

Наименование

Марка, ГОСТ или ТУ

Кол-во

Оборудование

Трансформатор сварочный

ТСМ-250

1

Выпрямитель сварочный

ВДУ-504

1

Полуавтомат сварочный

ЦДГ-508УЗ

1

Трансформатор понижающий

TC3-1,5/1

1

Автобетононасос

БН-80-20

1

Бетоноукладчик

СБ-131

1

Электрифицированный инструмент

Дрель универсальная

ТУ 1-370-72

1

Краскораспылитель

-

1

Электрододержатель

ТУ 36-1819-75

1

Вибратор глубинный

ИВ-66

2

Ручной инструмент

Пила-ножовка поперечная

ТУ 14-1-302-72

1

Топор

ГОСТ 18578-73

1

Клещи 250

ГОСТ 14184-69

2

Молоток плотничный

ГОСТ 11042-72

2

Ключ гаечный разводной

ГОСТ 7275-75

2

Щетка стальная

ТУ 494-01-104-76

2

Кисть маховая

-

2

Лом

ГОСТ 1405-72

2

Конопатка

-

2

Кувалда кузнечная остроносая

ГОСТ 11402-75

2

Кусачки

ГОСТ 1282-75

2

Плоскогубцы комбинированные

ГОСТ 5547-75

1

Молоток слесарный с квадратным бойком

ГОСТ 2310-77

1

Ножницы по металлу

ГОСТ 7210-75

1

Зубило слесарное 20×60

ГОСТ 7211-72

1

Лопата растворная

ГОСТ 3620-76

2

Шуровка металлическая

-

2

Кельма

ГОСТ 9533-81

2

Гладилка

ГОСТ 10403-60

1

Контрольно-измерительные инструменты и приборы

Метр складной металлический

 

1

Шнур в корпусе

ТУ 22-3527-76

1

Отвес типа ОТ

ГОСТ 7948-80

2

Рулетка металлическаяi

РС-20; ГОСТ 7502-80

1

Уровень строительный

ГОСТ 9416-76

1

Рейсмус реечный

-

1

Приспособления

 

Бункер вместимостью 1 м3 бетонной смеси

-

3

Хобот

Проект 3242.11.000, ЦНИИОМТП

1

Строп четырехветвевой грузоподъемностью 2 т

ОСТ 24.09.048-79

1

Траверса для монтажа арматурных сеток

-

1

КАЛЬКУЛЯЦИЯ ЗАТРАТ ТРУДА НА АРМАТУРНЫЕ РАБОТЫ

Обоснование

Наименование работ

Единица измерения

Объем работ

Норма времени на единицу измерения,

чел.-ч

(маш.-ч)

Затраты труда на весь объем работ

чел.-ч

(маш.-ч)

ЕНиР, 1979, § 1-5, п. 1б

Разгрузка арматуры с транспортных средств

100 т

0,004

29,2

(14,6)

0,12

(0,06)

EHиР, 1979 г., § 5-1-1, п. 3

Сортировка и подача арматуры краном к месту складирования

1 т

0,382

0,7

(0,23)

0,27

(0,09)

ЕНиР, 1960 г., § 4-1-33:, табл. 1, п. 1а

Установка сеток при помощи крана

1 сетка

2

0,45

(0,112)

0,90

(0,22)

ЕНиР, 1980 г., § 4-1-33, табл. 2, п. 6

Установка вручную сеток массой до 50 кг

 

 

 

 

ЕНиP, 1980 г., § 4-1-33 б, табл. 2, п. а

Сборка каркаса

"

3

0,25

-

0,75

-

Установка вертикальных сеток

"

2

0,17

-

0,34

-

 

Установка горизонтальных сеток

"

5

0,17

-

0,85

-

ЕНиР, 1979 г., § 4-2-9, табл. 3 п. 1a, примечание 4 (применительно)

Сварка арматуры

100 соединений

0,20

0,36

-

0,07

-

ЕНиР, 1979 г., § 4-2-6, табл. 2, п. 4а

Монтаж каркаса

1 т

0,087

11

(2,2)

0,96

(0,19)

 

Итого на один фундамент

4,26

(0,56)

 

То же, на 1 т устанавливаемой арматуры

11,15

(1,47)

КАЛЬКУЛЯЦИЯ ЗАТРАТ ТРУДА НА МОНТАЖ И ДЕМОНТАЖ СТАЛЬНЫХ ОПАЛУБОЧНЫХ ФОРМ

Обоснование

Наименование работ

Единица измерения

Объем работ

Норма времени на единицу измерения,

чел.-ч

(маш.-ч)

Затраты труда на весь объем работ, чел.-ч

(маш.-ч)

Раздел 1. Вспомогательные заботы

ЕНиР 1979 г., § 1-5, п. 2б

Разгрузка рам и щитов опалубки с транспортных средств

100 т

0,014

15,4

(7,7)

0,22

(0,11)

ЕНиР 1979 г., § 5-1-1, п.3

Сортировка и подача рам и щитов опалубки к месту складирования и укрупнения

1 т

1,362

0,7

(0,23)

0,95

(0,31)

ЕНиР 1979 г., § 5-1-5, п. 1е

Укрупнительная сборка опалубки

элемент

1 т

__1__

0,899

1,45

(0,29)

1,45

(0,26)

п. 2е

То же

"

__1__

0,319

1,25

(0,25)

1,25

(0,08)

Итого на вспомогательные работы по монтажу и демонтажу опалубки одного фундамента

 

 

 

3,87

(0,76)

То же, на 1 м2 опалубки

 

 

 

0,27

(0,05)

Раздел 2. Монтаж

По данным лаборатории опалубочных работ ЦНИИОМТП

Монтаж опалубки.

Установка блоков опалубки

1 м2

14,40

0,14

(0,07)

2,02

(1,0)

ЕНиР 1981 г., § 4-1-30, п. 3а, (применительно)

Установка вкладышей

100 шт.

0,01

9,9

-

0,10

-

ЕНиР, 1979 г., § 5-1-3, п. 3а

Установка подмостей

1 м2

1,03

0,37

-

.0,38

-

ЕНиР-1979 г., § 8-24. табл. 13, п. 2а

Смазка опалубки перед бетонированием эмульсией

100 м2

0,18

1,5

-

0,27

-

Итого на монтаж опалубки одного фундамента

 

 

 

2,77

(1,00)

То же, на 1 м2 опалубки

 

 

 

0,19

(0,07)

Всего

Всего на 1 м2 опалубки (раздел 1 + раздел 2)

 

 

 

0,46

(0,12)

Демонтаж опалубки

По данным лаборатории опалубочных работ ЦНИИОМТП

Демонтаж опалубки блоков и башмачной части

1 м2

14,40

0,11

(0,055)

1,58

(0,79)

ЕНиР 1981 г., § 4-1-30, п.40 (применительно)

Демонтаж вкладышей

100 шт.

0,01

8,5

-

0,09

-

ЕНиР 1979 г., § 5-1-3, п. 3а, К=0,7

Демонтаж подмостей

1 м2

1,03

0,26

-

0,27

-

ЕНиР 1979 г., § 8-24, табл. 13, п. 1а

Очистка опалубки от налипшего бетона и старой смазки

100 м2

0,18

3,8

-

0,68

-

Итого на демонтаж опалубки одного фундамента

 

 

 

2,62

(0,79)

То же, на 1 м2 опалубки

 

 

 

0,18

(0,05)

КАЛЬКУЛЯЦИЯ ЗАТРАТ ТРУДА НА МОНТАЖ. И ДЕМОНТАЖ РАЗБОРНО-ПЕРЕСТАВНОЙ ОПАЛУБКИ

Обоснование

Наименование работ

Единица измерения

Объем работ

Норма времени на единицу измерения, чел.-ч

маш.-ч

Затраты труда на весь объем работ чел.-ч

маш.-ч

Раздел 1. Подготовительные работы

ЕНиР, 1979 г., § 1-5, п. 2б

Разгрузка щитов опалубки с транспортных средств

100 т

0,018

15,4

(7,7)

0,28

(0,14)

ЕНиР 1979 г., § 5-1-1, п. 5

Сортировка и подача щитов опалубки к месту складирования

1 т

1,81

1,5

-

2,72

-

Итого на опалубку- одного- фундамента

3,0

(0,14)

То же, на 1 м2 опалубки

0;21

(0,01)

Раздел 2. Монтаж опалубки

ЕНиР 1981 г., § 4-1-29, п. 1

Установка щитовой опалубки

1 м2

14,40

0,38

(0,19)

5,47

(2,74)

ЕНиР 1981 г., § 4-1-30, п. 3а (применительно)

Установка вкладышей

100 шт.

0,01

9,9

-

0,10

-

ЕНиР 1979 г., § 5-1-3, п. 30

Установка подмостей

1 м2

1,03

0,37

-

0,38

-

ЕНиР 1979 г., § 8-24. табл. 13, п.20

Смазка опалубки перед бетонированием эмульсией

100 м2

0,18

1,5

-

0,27

-

Итого на опалубку одного фундамента

6,22

(2,74)

То же, на 1 м2 опалубки

0,43

(0,19)

Всего на 1 м2 опалубки (раздел 1 + раздел 2)

0,64

(0,20)

Раздел 3. Демонтаж опалубки

ЕНиР 1961 г, § 4-1-29, п. 2

Демонтаж опалубки

1 м2

14,40

0,22

(0,11)

3,17

(1,58)

ЕНиР-1981 г., § 4-1-30, п. 4а, (применительно)

Демонтаж вкладышей

100 шт.

0,01

8,5

-

0,09

-

ЕНиР 1979 г., § 5-1-3,п.3а, К = 0,7

Демонтаж подмостей

1 м2

1,03

0,26

-

0,27

-

ЕНиР 1979 г., табл. 13, п. 1а

Очистка опалубки от налипшего бетона и старой смазки

100 м2

0,18

3,8

-

0,68

-

Итого на демонтаж опалубки одного фундамента

4,21

(1,58)

То же, на 1 м2 опалубки

0,29

(0,11)

КАЛЬКУЛЯЦИЯ ЗАТРАТ ТРУДА НА БЕТОНИРОВАНИЕ ФУНДАМЕНТА

Обоснование

Наименование работ

Единица измерения

Объем работ

Норма времени на единицу измерения,

чел.-ч

(маш.-ч)

Затраты труда на весь объем работ, чел.-ч

(маш.-ч)

А. Подача бетонной смеси краном в бункерах

ЕНиР, 1960-р., § 4-1-42, п. 17

Прием бетонной смеси в бункере

100 м3

0,10

8,5

-

0,85

-

ЕНиР, 1979 г., § 1-5, п. 5б

Подача бетонной смеси краном в бункерах

100 т

0,24

6,4

(3,2)

1,54

(0,77)

ЕНиР, 1980 г., § 4-1-37, - табл. 2, п. 4

Укладка бетонной смеси в конструкцию с уплотнением вибраторами при объеме до 25 м3

1 м3

10,2

0,28

-

2,86

-

Итого на один фундамент

5,25

(0,77)

То же, на 1 м3 бетона

0,51

(0,08)

Б. Подача бетонной смеси автобетононасосом ЕН-80-20

ЕНиР-1980 г., § 4-1-36, табл. 5

Прием бетонной смеси, из автобетоносмесителя

1 м3

10,2

0,115

-

1,17

-

*) Укладка бетонной смеси в конструкцию с уплотнением вибраторами

1 м3

10,2

0,12

(0,12)

1,22

(1,22)

Итого на один фундамент

2,39

(1,22)

То же, на 1 м3 бетона

0,23

(0,12)

В. Подача бетонной смеси бетоноукладчиком CB-131

ЕНиР, 1980 г. § 4-1-42, п. 17

Прием бетонной смеси в бункер бетоноукладчика

100 м3

0,10

8,5

-

0,85

-

и укладка бетонной смеси в конструкцию с уплотнением вибраторами

1 м3

10,2

0,36

(0,18)

3,67

(1,84)

Итого на один фундамент

4,52

(1,84)

То же, на 1 м3 бетона

0,44

(0,18)

*) Норма времени принята по производительности (автобетононасос - 60 м3/ч, бетоноукладчик - 20 м3/ч) с учетом коэффициента перехода от технической производительности и эксплуатационной (КТ = 0,4) и коэффициента, учитывающего простои (КПР = 0,7). Коэффициенты взяты из "Инструкции по определению экономической эффективности новых строительных, дорожных, мелиоративных машин; противопожарного оборудования; лифтов; изобретений и рационализаторских предложений. Часть II, 1978 г.".

 


Лист 26.

Лист 27. Схема организации работ при монтаже разборно-переставной опалубки

Лист 28. Схема организации работ при монтаже стальных опалубочных форм

Лист 29. Схема организации работ при подаче бетонной смеси краном в бункерах

Лист 30

Лист 31. Схема организации работ при подаче бетонной смеси бетоноукладчиком

 


ТЕХНОЛОГИЧЕСКИЕ СХЕМЫ УСТРОЙСТВА ПОДПОЛЬНЫХ КАНАЛОВ

Настоящие схемы разработаны для устройства подпольных каналов одноэтажных промышленных зданий.

Несущими конструкциями каналов являются сборные железобетонные элементы серий ИС-01-05 "Унифицированные сборные железобетонные тоннели" и 4-1120-70 "Типовые решения подпольного хозяйства для предприятий текстильной промышленности".

В схемах предусмотрено выполнение работ, связанных с прокладкой каналов сечением; 2, 3, 4, 5, 7 и 9 м2.

Каналы устраивают после возведения фундаментов под каркас здания. Работы ведутся в следующем порядке:

рытье траншей;

устройство бетонной подготовки;

устройство выравнивающего песчаного основания;

укладка сборных железобетонных конструкций;

устройство гидроизоляции наружных поверхностей.

Бетонную смесь для устройства основания канала подают способом "кран - бункер". На строительную площадку бетонную смесь доставляют автомобилями-самосвалами и выгружают в поворотные бункера объемом 0,5 - 0,8 м3, которые стреловым самоходным краном подают к месту укладки бетона.

Бетонную смесь укладывают полосой, которую ограждают с обеих сторон бортовыми досками, выверенными при помощи нивелира по отметкам заложения каналов.

Уплотняют и разравнивают бетонную смесь поверхностным вибратором C-413 и виброрейкой И-23, перемещающейся по бортовым доскам.

В зимний период для поддержания положительной температуры уложенный бетон покрывают матами, в летнее время его поливают водой.

После того, как бетон наберет 50 % проектной прочности, по бетонной подготовке укладывают выравнивающий песчаный слой. Песок к месту укладки подают экскаватором, оборудованным грейферным ковшом емкостью 0,65 м3. Разравнивают песчаный слой до проектной толщины вручную по рейке при помощи ручного инструмента (лопата, грабли и др.).

Сборные железобетонные конструкции одинарных подпольных каналов укладывают с транспортных средств стреловым краном, передвигающимся вдоль траншеи на расстоянии не ближе 1 м от бровки. Сначала укладывают плиты днища, после чего в их пазы устанавливают панели стен, которые временно закрепляют при помощи клиновых вкладышей либо деревянных, стальных, железобетонных клиньев или подкосов. После установки нескольких панелей стен выверяют их проектное положение; замоноличивают стыки и укладывают плиты покрытия.

При устройстве спаренных каналов конструкции укладывают двумя кранами, один из которых устанавливают в траншее на бетонную подготовку.

Гидроизоляцию наружных поверхностей стен выполняют после заделки стыков в два слоя при помощи автогудронатора, снабженного удочкой.

ТРЕБОВАНИЯ ТЕХНИКИ БЕЗОПАСНОСТИ

Все работы по строительству каналов должны выполняться в соответствии с требованиями главы СНиПа III-4-80 "Техника безопасности в строительстве" и других действующих нормативных и инструктивных документов.

При разработке траншей под каналы необходимо строго выдерживать крутизну откосов, а вынутый из траншей грунт размещать на расстоянии не менее 1 м от бровки.

В процессе эксплуатации следует проводить осмотр съемных грузозахватных приспособлений и тары; через каждые 10 дней - стропов и тары; через каждые 6 месяцев - траверс.


ЗАТРАТЫ ТРУДА НА УСТРОЙСТВО 10 м ПОДПОЛЬНЫХ КАНАЛОВ

Обоснование

Наименование работ

Единица измерения

Норма времени на единицу измерения, чел.-ч

Состав звеньев

Объем работ на устройство каналов сечением, м2

Затраты труде в чел.-ч, на устройство каналов сечением м2

2

3

4

5

7

9

2

3

4

5

7

9

Расчетные данные ЦНИИОМТП

Разработка, грунта II группы в траншеях

1 м3

0,351

-

Машинисты

6 разр.- 1,

5 разр.- 1

18

27

38

50,5

72

90

6,32

-

9,5

-

13,34

-

17,73

-

25,27

-

31,59

-

ЕНиР 1980 г., § 10-30, № 2, К = 0,85

Устройство бетонной подготовки слоем, толщиной 100 мм

1 м3

_-_

1,4

Трубоукладчики 3 разр. - 2,

2 разр. - 2

1,7

2,32

3

3

3,7

4,3

_-_

2,38

_-_

3,25

_-_

4,2

_-_

4,2

_-_

5,18

_-_

6,02

ЕНиР 1979, § 1 6, т.2, № 24a (применительно)

Подача бетонной смеси к месту укладки

1 м3

0,21

0,42

Машинист

5 разр.- 1, Такелажники

2 разр. - 2

1,7

2,32

3

3

3,7

4,3

0,36

0,71

0,49

.0,97

0,63

1,26

0,63

1,26

0,77

1,55

0,9

1,81

ЕНиР 1980 г., § 10-30, № 1, К = 0,85

Устройство песчаной подушки толщиной 50 мм

1 м3

_-_

1,02

Трубоукладчики 3 разр. - 2

2 разр. - 2

0,54

0,7

0;9

0,9

1,11

1,29

_-_

0,55

_-_

0,71

_-_

0,92

_-_

0,92

_-_

1,13

_-_

1,32

ЕНиР 1979, § 1-6, т.2, № 24а

Подача песка к месту укладки

1 м3

0,21

0,42

Машинист

5 разр. - 1

0,54

0,7

0,9

0,9

1,11

1,29

0,11

0,23

0,15

0,29

0,19

0,39

0;19

0,39

0,23

0,47

0.27

0,54

ЕНиР 1980 г., § 10-26, № 13

Укладка плит днища каналов площадью до 3 м2

1 шт.

0,11

0,34

Машинист

5 разр. - 1. Трубоукладчики 5 разр. - 1,

3 разр. - 1

3,3

.3,3

-

-

-

-

0,36

1,12

0,36

1,12

-

-

-

-

ЕНиР 1980 г., § 10-26, № 14

То же, до 4 м2

1 шт.

0,14

0,41

Машинист

5 разр. - 1. Трубоукладчики 5 разр. - 1,

3 разр. - 1

-

-

3,3

-

-

-

-

-

0,46

1,35

-

-

-

ЕНиР, 1960 г., § 10-26, № 15

То же, до 6 м2

1 шт.

0,19

0,59

Машинист

5 разр. - 1. Трубоукладчики 5 разр. - 1,

3 разр. - 1

-

-

-

3,3

6,7

6,7

-

-

-

0,63

1,95

1,27

3,95

1,27

3,95

ЕНиР, 1980 г., § 10-26, № 9

Установки панелей стен площадью до 5 м2

I шт.

0,45

1,35

Машинист

5 разр. - 1. Трубоукладчики 5 разр. - 1,

3 разр. - 1

6,6

6,6

6,6

-

-

-

2,97

8,91

2,97

8,91

2,97

8,91

-

-

-

ЕНиР, 1980 г., § 10-26, № 10

то же, до 6 м2

1 шт.

0,53

1,6

Машинист

5 разр. - 1

Трубоукладчики 5 разр. - 1,

3 разр. - 2

-

-

-

6,6

6,6

6,6

-

-

--

35

10,56

3,5

10,56

3,5

10,56

ЕНиР, 1980 г., § 10-26, № 13

Укладка плит перекрытия площадью до 3 м2

1 шт.

0,11

0,34

Машинист

5 разр. - 1 Трубоукладчики 5 разр. - 1,

3 разр. - 2

3,3

3,3

-

-

-

-

0,36

1,12

0,36

1,12

-

-

-

-

ЕНиР, 1980 г., § 10-26, № 14

То же, до 4 м2

1 шт.

0,14

0,41

Машинист

5 разр. - 1

Трубоукладчики 5 разр. - 1,

3 разр. - 2

-

-

3,3

-

-

-

-

-

-

0,46

1,35

-

-

ЕНиР, 1980 г., § 10-26, № 15

То же, до 6 м2

1 шт.

0,19

0,59

Машинист

5 разр. - 1.

Трубоукладчики 5 разр. - 1

3 разр. - 2

-

-

-

3,3

6,7

6,7

-

-

-

0,63

1,95

1,27

3,95

1,27

3,95

ЕНиР, 1980.г., § 26-10-26, № 28

Замоноличивание стыков плит днища и стен каналов

1 м шва

_-_

0,27

Трубоукладчики 4 разр. - 1,

3 разр. - 1

20

20

20

20

20

20

_-_

5,4

_-_

5,4

_-_

5,4

_-_

5,4

_-_

5,4

_-_

5,4

ЕНиР, 1980.г., § 26-10-26, № 25

Заделка вертикальных швов

1 м шва

_-_

0,13

Трубоукладчики

4 разр. - 1

3 разр. - 1

9,9

9,9

13,8

13,8

13,9

13,8

15,8

15,8

19,8

19,8

19,8

19,8

--_

1,29

_-_

1,79

_-_

1,79

_-_

2,05

_-_

2,57

_-_

2,57

ЕНиР, 1980 г., § 10-26, № 2

Заделка горизонтальных швов

1 м шва

_-_

0,055

Трубоукладчики 4 разр. - 1,

3 разр. - 1

9,4

14,4

16,2

27,5

40,2

47,5

_-_

0,517

_-_

0,792

_-_

0,89

_-_

1,51

_-_

2,21

_-_

2,61

По производительности автогудронатора

Гидроизоляция для стен и перекрытий

100 м2

0,68

1,37

Изолировщики

4 разр. - 1

2 разр. - 1

Машинист

4 разр. - 1

.0,51

0,65

0,77

0,83

1,08

1,15

0,35

0,7

0,14

0,89

0,52

1,05

0,56

1,14

0,73

1,48

0,78

1,58

Опытные данные ЦНИИОМТП

Обратная засыпка с уплотнением

1 м3

_-_

0,017

Машинист

4 разр. - 1

Землекоп

3 разр. - 1

51,5

56,7

62

64,4

119,3

122

0,875

0,875

0,964

0,964

1,05

1,05

1,095

1,095

2,03

2,03

2,07

2,07

Примечание: В числителе - затраты труда машинистов, в знаменателе - остальных рабочих.


РЕКОМЕНДУЕМЫЕ МАШИНЫ, ОБОРУДОВАНИЕ И ПРИСПОСОБЛЕНИЯ ДЛЯ УСТРОЙСТВА 10 м ПОДПОЛЬНЫХ КАНАЛОВ

Наименование работ

Требуемые машины (их техническая характеристика) для устройства каналов сечением, м2

Рекомендуемые машины, оборудование, приспособления

марка машин для устройства каналов сечением, м2

оборудование, приспособления, их количество

2-3

4-5.

7-9

2-3

4-5.

7-9

Разработка грунта II группы в траншеях

Экскаватор - обратная лопата с ковшом емкостью 0,4 м3

Экскаватор - обратная лопата с ковшом емкостью 0,65 м3

ЭО-3311Б

ЭО-4111А

-

Устройство бетонной подготовки слоем толщиной 100 мм

-

-

-

-

-

-

Поверхностный вибратор И-7 - 1

Виброрейка C-413 - 1

Подача бетонной смеси к месту укладки

Самоходный стреловой кран грузоподъемностью 2 т, вылет стрелы 8 м

____МКГ-10_____

МКА-10; КС-4361

Поворотные бункера объемом 0,5 - 0,8 м3 - 4. Строп четырехветвевой грузоподъемностью 2 т - 1

Подача песка к месту укладки

Экскаватор, оборудованный грейфером с ковшом емкостью 0,65 м3

ЭО-4111А или ЭО-2131А

-

Укладка плит днища каналов площадью до 3 м2

Самоходный стреловой кран грузоподъемностью 3,5 т, вылет стрелы 6 м

-

-

-

-

-

Строп четырехветвевой грузоподъемностью 5 т - 1

МКГ-6,3; АК-7,5; КС-4361

То же, до 4 м2;

-

Самоходный стреловой кран грузоподъемность 5 т., вылет стрелы 6 м

 

 

МКГ-10

-

То же

МКА-10; КС-4361

То же, до 6 м2

 

То же

Самоходный стреловой кран грузоподъемность 4 т, вылет стрелы 8 м

-

МКГ-10

МКА-16М

"

МКА-10: КС-4361

MKA-16; КС-4361

Установка панелей стен площадью до 5 м2

Самоходный стреловой края грузоподъемностью 2 т, вылет стрелы 6,5 м

Самоходный стреловой кран грузоподъемность 2 т, вылет стрелы 7 м

-

-

МКГ-10

-

"

МКГ-5,3;

АК-7,5;

КС-4361

ММ-10;

КС-4361

Установка панелей стен площадью до 5 м2

-

Самоходный стреловой кран грузоподъемность 3 т, вылет стрелы 8 м

Самоходный стреловой кран грузоподъемность 3 т, вылет стрелы 10 м

-

MКГ-10

МКА-10: KC-4361

МКГ-16М

MKA-16: КС-4361

-

Укладка плит перекрытия площадью до 3 м2

Самоходный стреловой кран грузоподъемность 2 т, вылет стрелы 6 м

-

-

-

-

-

Строп: четырехветвевой грузоподъемностью 5 т - 1

МКГ-6,3;

АК-7,5;

КС-4361

То же, до 4 м2

-

Самоходный стреловой кран грузоподъемность 3,5 т, вылет стрелы 6 м

-

-

-

 

То же

МКГ-6,3;

АК-7,5:

КС-4361

То же, до 6 м2

-

То же

Самоходный стреловой край грузоподъемность 5 т, вылет стрелы 7 м

-

-

МКГ-16М

 

МКГ-6,3;

АК-7,5:

КС-4361

КС-4361

Замоноличивание стыков плит днища и стен каналов

-

-

-

-

-

-

Установка конструкции Марчукова для замоноличивания стыков - 1

Заделка вертикальных швов

-

-

-

-

-

-

То же

Заделка горизонтальных швов

-

-

-

-

-

-

"

Гидроизоляция стен и перекрытий

-

Автогудронатор

-

-.

Д-630

-

Битумораспылительная удочка - 1

Примечание: В знаменателе приведены взаимозаменяемыми машинами

Лист 32. Схема устройства подпольных каналов одинарных (вариант 1)

 


ТЕХНОЛОГИЧЕСКАЯ СХЕМА ОБРАТНОЙ ЗАСЫПКИ НЕСВЯЗНЫМ ГРУНТОМ КОТЛОВАНА С УСТАНОВЛЕННЫМИ КОЛОННАМИ

Технологическая схема составлена на обратную засыпку несвязный грунтом котлована с установленными колоннами при расстояниях между фундаментами колонн в свету более 12,6 м. Фундаменты под оборудование и подземные конструкции отсутствуют.

Схема предусматривает: разработку грунта в резерве; перевозку его на 2 км; отсыпку на рабочую карту; послойное разравнивание и уплотнение.

Работы ведутся при положительной температуре наружного воздуха в две смены.

Схема может быть использована при выполнении обратных засыпок во всех климатических зонах, за исключением районов распространения вечной мерзлоты.

В схеме предусмотрена технология глубинного уплотнения грунта при помощи установки ВУУП-6, подвешенной к крану-экскаватору Э-10011Е.

Технология производства работ разработана на основе использования серийно выпускаемых в нашей стране машин.

Комплекс машин

Наименование работ

Рекомендуемые машины

Разработка грунта в резерве (карьере) с погрузкой в транспортные средства

Экскаватор ЭО-5122, оборудованный прямой лопатой с ковшом емкостью 2 м3

Перемещение грунта из резерва на рабочую карту

Автомобили-самосвалы КамАЗ-5511 - 11 шт.

Разравнивание грунта

Бульдозер ДЗ-42

Глубинное уплотнение грунта

Кран-экскаватор Э-10011Е с установкой ВУУП-6

В качестве объекта-представителя принят котлован глубиной 6 м, шириной по дну 19 м и по верху 24,9 м и длиной 90,1 м.

Для привязки схемы к конкретному объекту и условиям строительства необходимо уточнить технологию производства работ, подобрать комплекс машин и механизмов с учетом наличия их в строительной организации, определить режим уплотнения в зависимости от заданного проектом коэффициента уплотнения грунта.

ОРГАНИЗАЦИЯ И ТЕХНОЛОГИЯ СТРОИТЕЛЬНОГО ПРОЦЕССА

До начала обратной засыпки котлована необходимо: закончить все строительные работы в зоне, подлежащей засыпке; удалить из засыпаемого котлована строительный мусор; проверить плотность грунта в основании котлована и при наличии разрыхленного слоя произвести его доуплотнение; составить акты на скрытые работы и получить разрешение заказчика на обратную засыпку.

При глубинном уплотнении с помощью установки ВУУП-6 отсыпку грунта производят слоем толщиной 7,2 м.

Грунт, разработанный в резерве экскаватором ЭО-5122, подвозят самосвалами КамАЗ-5511 к месту укладки. При глубинном уплотнении его разгружают на бровку котлована сплошной отсыпкой и сталкивают в котлован бульдозером ДЗ-42.

Глубинное уплотнение грунта производят установкой ВУУП-6 путем погружения ее в грунт в точках, отмеченных на рабочей карте колышками. Колышки устанавливают по равносторонней прямоугольной сетке, стороны которой для крупного и средней крупности песка равны 3 м, для мелкого песка - 2 м.

В процессе уплотнения грунта в установку подается вода в количестве, равном 40 - 50 % от объема уплотняемого грунта.

Полный цикл уплотнения грунта на глубину 6 м в одной точке сетки составляет не менее 15 мин и включает 4 - 5 чередующихся погружений и подъемов уплотнителя установки. Технологический график уплотнения грунта определяется пробным уплотнением.


Глубинное уплотнение выполняет бригада из 16 человек. В нее входят:

машинисты экскаваторов 6 разряда - 2,

помощники машинистов экскаваторов 5 разряда - 2,

шоферы автомобилей-самосвалов 3 класса - 11,

машинист бульдозера 5 разряда - 1.

Качество выполняемых работ контролируется пооперационно в соответствии с требованиями главы СНиПа "Земляные сооружения" и СН 536-81. Производственный контроль объемной массы скелета уплотняемого грунта осуществляется оперативными методами при помощи устройств динамического зондирования конструкции Донецкого ПромстройНИИпроекта, а инспекторский контроль - методом режущих колец по ГОСТу 5182-78.

При глубинном уплотнении грунта основных методом контроля качества уплотнения является: для крупных и средней крупности песков - динамическое зондирование, для мелких песков - статическое зондирование.

При производстве работ необходимо соблюдать правила техники безопасности, предусмотренные главой СНиПа III-4-80 "Техника безопасности в строительстве".

При внезапной остановке вибропогружателя по техническими причинам запрещается извлекать уплотнитель из грунта без вибрации.

ТЕХНИКО-ЭКОНОМИЧЕСКИЕ ПОКАЗАТЕЛИ

Объем работ, м3                                                                                                 12761

Затраты труда на весь объем работ, чел.-дн.                                                  142,7

То же, на 100 м3 уплотняемого грунта, чел.-дн.                                             1,12

Стоимость затрат труда на весь объем работ, руб;                                         798-45

То же, на 100 м3 уплотняемого грунта, руб.                                                    6-26

Выработка одного рабочего в смену, м3                                                          72

Затраты машинного времени на весь объем работ,

маш.-смен                                                                                                           124,68

То же, на 100 м3 уплотняемого грунта, маш.-смен                                         0,98

Производительность комплекса машин, м3/смену                                         11,6

КАЛЬКУЛЯЦИЯ ЗАТРАТ ТРУДА НА ОБРАТНУЮ ЗАСЫПКУ КОТЛОВАНА НЕСВЯЗНЫМ ГРУНТОМ

Обоснование

Наименованиё работ

Единица измерения

Объем работ

Норма времени на единицу измерения, чел.-ч

(маш.-ч)

Затраты труда на весь объем работ,

чел.-ч.

(маш.-ч)

Состав звеньев, работающих в одну смену

Рекомендуемые машины и оборудование

Расчет по производительности

Разработка грунта I группы в резерве экскаватором ЭО-5122 с погрузкой в автотранспорт

100 м3

127,61

1,136

(0,568)

144,96

(72,48)

Машинист 6 разр.-1. Пом. машиниста 5 разр. - 1

Экскаватор ЭО-5122 - 1

Единые нормы времени на перевозку грузов автомобильным транспортом и сдельные расценки для оплаты труда шоферов

Транспортировка грунта из резерва к месту укладки на расстояние 2 км самосвалами КамАЗ-5511

100 т

100 ткм

242,46 484,92

1,4

339,44

450,98

(790,42)

Шоферы 3 кл. - 11

Автомобили-самосвалы КамАЗ-5511 - 11

0,93

ЕНиР, 1980 г., § 2-1-21, табл. 2, п. 4а (применительно)

Засыпка котлована грунтом I группы бульдозером ДЗ-42 с перемещением до 5 м

100 м3

127,61

0,66

(0,66)

84,22

(84,22)

Машинист 5 разр. - 1

Бульдозер

 

Глубинное уплотнение грунта установкой ВУУП-6 на кране-экскаваторе Э-10011Е

100 м3

127,61

1,18

(0,59)

150,58

(75,29)

Машинист 6 разр. - 1

Пом. машиниста 5 разр. - 1

Кран-экскаватор Э-10011Е.

Установка ВУУП-6

Итого

1170,18

(1022,41)

 


Лист 33. Схема обратной засыпки несвязным грунтом котлована с установленными колоннами.

Лист 34. Схема обратной засыпки несвязным грунтом котлована с установленными колоннами

 


ТЕХНОЛОГИЧЕСКАЯ СХЕМА ОБРАТНОЙ ЗАСЫПКИ СВЯЗНЫМ ГРУНТОМ, КОТЛОВАНА С УСТАНОВЛЕННЫМИ КОЛОННАМИ

Технологическая схема составлена на обратную засыпку связным грунтом котловане с установленными колоннами при расстояниях между фундаментами колонн в свету более 2,5 м. Фундаменты под оборудование и подземные конструкции отсутствуют.

Схема предусматривает разработку грунта в резерве; перевозку его на 2 км; отсыпку на рабочую карту; послойное разравнивание и уплотнение.

Работы ведутся при положительной температуре наружного воздуха в две смены.

Схема может быть использована при выполнении обратных засыпок во всех климатических зонах, за исключением районов распространения вечной мерзлоты.

В схеме предусмотрена технология послойного уплотнения грунта с помощью комплекса машин, обеспечивающих минимальное применение ручного труда.

Технология производства работ разработана на основе использования серийно выпускаемых в нашей стране машин.

Комплекс машин

Наименование работ

Рекомендуемые машины

Разработка грунта в резерве (карьере) с погрузкой в транспортные средства

Экскаватор ЭО-4121А, оборудованный прямой лопатой с ковшом емкостью 1 м3

Перемещение грунта из резерва на рабочую карту

Автомобили-самосвалы КамАЗ-5511 - 8 шт.

Разравнивание грунта

Бульдозер ДЗ-42

Уплотнение грунта

Самоходный каток ДУ-31 и электротрамбовки ИЭ-4502

В качестве объекта-представителя принят котлован глубиной 6 м, шириной по дну 9,8 и по верху 24,3 м и длиной 89,5 м.

Для привязки схемы к конкретному объекту и условиям строительства необходимо уточнить технологию производства работ, объемы работ, калькуляции затрат труда, подобрать комплекс машин с учетом наличия их в строительной организации, определить режим уплотнения в зависимости от заданного проектом коэффициента уплотнения грунта.

ОРГАНИЗАЦИЯ И ТЕХНОЛОГИЯ СТРОИТЕЛЬНОГО ПРОЦЕССА

До начала обратной засыпки котлована необходимо: закончить все строительные работы в зоне, подлежащей засыпке; удалить из засыпаемого котлована строительный мусор; проверить плотность грунта в основании котлована и при наличии разрыхленного слоя произвести его доуплотнение; осушить пазухи котлована, составить акты на скрытые работы и получить разрешение заказчика на обратную засыпку.

Отсыпку, разравнивание и уплотнение грунта выполняют послойно. Толщину слоя грунта для используемого уплотнителя устанавливают пробным уплотнением.

Грунт, разработанный в резерве экскаватором ЭО-4121А - прямая лопата, подвозят самосвалами КамАЗ-5511 к месту укладки и разгружают на рабочую карту с заездом в котлован; разравнивают грунт бульдозером ДЗ-42 (толщина слоев примерно 25 см).

В первую очередь уплотняют грунт электротрамбовками ИЗ-4502 вокруг колонн и их фундаментов, затем пневмокатком ДУ-31 между колоннами.

Работы ведутся поточным методом в направлении к въезду, при этом сначала для проезда уплотняющих машин делают отсыпку полосы грунта шириной 2 м.

Грунт уплотняют параллельными проходками с перекрытием следов на 0,1 м; число проходок по одному следу устанавливают пробным уплотнением. Для засыпки используют грунт оптимальной влажности, определяемой методом стандартного уплотнения по ГОСТу 22733-77. Глинистый грунт, коэффициент уплотнения которого Ку, составляет 0,95, может иметь отклонения от оптимальной влажности ±4 %.

Работы выполняет бригада из 13 человек:

Машинист экскаватора 6 разряда - 1,

шоферы самосвалов 3 класса - 8,

машинисты 5 разряда - 2,

землекопы 3 разряда - 2.

Качество выполняемых работ контролируется пооперационно в соответствии с требованиями главы СНиПа "Земляные сооружения" и СН 536-81. Производственный контроль объемной массы скелета уплотняемого грунта осуществляют оперативными методами при помощи устройств динамического зондирования конструкции Донецкого ПромстройНИИпроекта, а инспекторский контроль - методом режущих колец по ГОСТу 5182-78.

При производстве работ необходимо соблюдать правила, изложенные в главе СНиПа III-4-80 " Техника безопасности в строительстве".

ТЕХНИКО-ЭКОНОМИЧЕСКИЕ ПОКАЗАТЕЛИ

Объем работ, м3                                                                                                 12101

Затраты труда на весь объем работ, чел.-дн.                                                  139,47

То же, на 100 м3 уплотненного грунта, чел.-дн.                                             1,15

Стоимость затрат труда на весь объем работ, руб.                                         753-55

То же, на 100 м3 уплотненного грунта, руб.                                                    6-23

Выработка одного рабочего в смену, м3 грунта                                              87

Затраты машинного времени на весь объем работ,

маш.-смен                                                                                                           125,36

То же, на 100 м3 уплотненного грунта, маш.-смен                                         1,03

Производительность комплекса машин, м/смену                                           931

КАЛЬКУЛЯЦИЯ ЗАТРАТ ТРУДА НА ОБРАТНУЮ ЗАСЫПКУ КОТЛОВАНА СВЯЗНЫМ- ГРУНТОМ

Обоснование

Наименование работ

Единица измерения

Объем работ

Норма времени на единицу измерения, чел.-ч

(маш.-ч)

Затраты труда на весь объем работ,

чел.-ч

(маш.-ч)

Состав звеньев, paботающих в одну смену

Рекомендуемые машины и оборудование

Расчет по производительности

Разработка грунта I группы в резерве экскаватором ЭО-4121А с погрузкой в автотранспорт

100 м3

121,01

0,82

(0,82)

99,23

(99,23)

Машинист 6 разр. - 1

Экскаватор ЭО-4121А - 1

Единые нормы времени на перевозку грузов автомобильным транспортом и сдельные расценки для оплаты труда шоферов

Транспортировка грунта из резерва к месту укладки на расстояние 2 км самосвалами КамАЗ 5511

100 т

229,92

1,4

-

321,89

Шоферы 3 кл. - 8

Автомобили-самосвалы КамАЗ-5511 - 8

100 ткм

459,86

0,93

-

427,65

(749,54)

ЕНиР, 1980 г., § 2-1-43, табл. 1, п. 1

Послойное разравнивание грунта I группы вокруг колонн вручную

1 м3

904,4

0.07

-

63,31

-

Землекоп 3 разр. - 1

-

Расчет по производительности

Послойное уплотнение грунта электротрамбовками ИЭ-4502

100 м3

9,04

5,8

-

52,43

-

Землекоп 3 разр. - 1

Электротрамбовка ИЭ-4502 - 1

ЕНиР 1980 г., § 2-1-20, табл. 2, п. 2а

Послойное разравнивание грунта I группы в котловане бульдозером ДЗ-42 слоями толщиной 0,25 м

100 м3

111,97

0,72

(0,72)

.80,62

(80,62)

Машинист 5 разр. - 1

 

Расчет по производительности

Послойное уплотнение грунта самоходным пневмокатком ДУ-31

100 м3

111,97

0,88

(0,88)

98,53

(98,53)

Машинист 5 разр. - 1

Пневмокаток ДУ-31

Итого

1143,66

(1027,92)

 


Лист 35. Схема обратной засыпки связным грунтом котлована с установленными колоннами

Лист 36. Схема обратной засыпки связным грунтом котлована с установленными колоннами

 


ТЕХНОЛОГИЧЕСКАЯ СХЕМА УСТРОЙСТВА БЕТОННОЙ ПОДГОТОВКИ ПОД ПОЛЫ

Бетонная подготовка под полы промышленных зданий должна выполняться в следующем порядке: укладка и уплотнение песчаного (гравийного, щебеночного) подстилающего слоя; устройство бетонной подготовки; устройство деформационных и усадочных швов.

Работы по устройству бетонной подготовки разрешается выполнять при температуре не ниже +5°С.

Слои бетонной подготовки следует укладывать из глубины здания наружу захватками шириной 3 м. Разбивка полос бетонирования должна быть увязана с расположением деформационных швов.

Песок (гравий, щебень), доставляемый автомобилями-самосвалами, распределяют при помощи бульдозера ДЗ-42 (на тракторе ДТ-75) слоем толщиной 16 - 25 см (с учетом запаса на уплотнение 4 - 5 см), и планируют по визирной рейке, контролируя толщину слоя шаблоном.

В труднодоступных местах (около колонн и у стен) распределение и планировка материала подстилающего слоя производится с помощью средств малой механизации. Уплотняют песок (гравий, щебень) после его увлажнения за два-четыре прохода катка типа ДУ-54, а в труднодоступных местах - легкими электротрамбовками типа ИЭ-4505.

До начала устройства бетонной подготовки необходимо:

проверить ровность и уклоны поверхности в пределах захватки и при необходимости выполнить по шаблону чистовую планировку дефектных мест;

сделать исполнительный чертеж с отметками высот слоев и составить акт на скрытые работы;

смонтировать и закупить переставную опалубку, совместив ее с направляющими для виброрейки, выставленными по верхним отметкам бетонной подготовки;

установить и закрепить элементы окаймления бетонной подготовки около каналов, приямков, швов и т.п.

Опалубку и элементы окаймления устанавливают с помощью геодезических приборов.

Бетонные смеси для подготовки следует приготовлять непосредственно на строительном объекте в циклических смесительных установках типа СБ-119, СБ-134, СБ-135, СБ-140.

Состав бетонов подбирается и контролируется лабораторным путем и должен соответствовать требованиям прочности бетона на изгиб и сжатие. Крупность щебня не должна превышать 40 мм.

Допускается централизованное приготовление смесей на заводах товарного бетона с доставкой на строительный объект в автомобилях. При этом подвижность смеси должна быть такова, чтобы во время укладки ее после доставки осадка конуса СтройЦНИЛ была в пределах 0,5 - 2 см.

Допустимые продолжительность и дальность транспортировки бетонной смеси назначаются в соответствии с требованиями ГОСТа 7473-76 "Смеси бетонные. Технические условия. Приложение 4".

Разравнивание бетонной смеси производится при помощи бетонораспределителя на базе экскаватора Э-153, установленного на соседней с бетонируемой полосе. В стесненных местах для распределения смеси используют средства малой механизации.

Бетонную смесь уплотняют виброрейкой с вибратором типа ИВ-91А за два-три прохода ее по направляющим, выставленным по верхним отметкам слоя. Бетонную смесь уплотняют до равномерного появления цементного молока на ее поверхности и выделения пузырьков воздуха. У пристенных зон и около колонн используют трамбовки массой не менее 10 кг.

После снятия опалубки для образования деформационного шва на одну из вертикальных граней паза перед заполнением бетонной смесью наносят слой горячего битума марки БН-Ш толщиной 1,5 - 2 мм.

Сразу после уплотнения и заглаживания смеси, вдавливая в бетон специальную рамку, делают усадочные швы (ширина их 4 - 5 мм, глубина 80 - 100 мм). Рамка, изготавливаемая из таврового дюралюминиевого профиля, имеет длину равную ширине захватки и снабжена двумя ручками. Через 20 - 40 мин полученные швы заполняют горячим битумом.

Готовая бетонная подготовка должна соответствовать проекту, иметь поверхность без трещин, отслоений и других деформаций. Прочность бетонной подготовки, определяемая в соответствии с ГОСТами 10180-82 и 18105-82 путем испытаний 28-суточных контрольных образцов (не менее 3 шт. на 500 м3 бетона), должна быть не ниже предусмотренной проектом. Испытываемые образцы хранят в условиях, аналогичных условиям твердения бетона в конструкции.

Допуски относительных проектных размеров для подстилающего слоя составляют: по ширине ±5 см, по толщине слоя ±10 %. Отклонение уклона поверхности слоя от заданного может быть не; более 0,5 см на 1 м длины. Ровность поверхности бетона следует проверять во всех направлениях двухметровой рейкой. При этом просвет под рейкой не должен превышать 10 мм.

ЗАТРАТЫ ТРУДА НА УСТРОЙСТВО ЭЛЕМЕНТОВ БЕТОННОЙ ПОДГОТОВКИ ПОД ПОЛЫ

Обоснование

Наименование работ

Единица измерения

Норма времени на единицу измерения, чел.-ч

(маш.-ч)

Состав звеньев

Рекомендуемые машины и оборудование

Расчетные: данные ЦНИИОМТП

Прием песка из автомобилей-самосвалов

100 м3

0,56

-

Землекоп 3 разр. - 1

-

ЕНиР, 1980 г., § 2-1-20, т. 2, п. 26

Разравнивание песка

100 м3

0,98

(0,98)

Машинист 5 разр. - 1

Бульдозер ДЗ-42 - 1

ЕНиР 1980 г., § 17-25, п. 6г (применительно).

Разравнивание песка у стен и конструкций

100 м2

4,8

-

Землекопы

3 разр. - 2,

2 разр. - 4

-

ЕНиР, 1980 г., § 4-1-42, п. 7 (применительно)

Полив песка водой

100 м2

0,15

-

Землекоп 2 разр. - 1

-

ЕНиР 1980 г, § 2-1-22, т.10, п. 3а (применительно)

Уплотнение слоя песка катком

1000 м2

0,58

(0,58)

Машинист 5 разр. - 1

Каток вибрационный самоходный двухвальцовый

Расчетные данные ЦНИИОМТП

Уплотнение песка у стен и конструкций

100 м3

25,64

-

Землекопы 3 разр. - 3

Электротрамбовка ИЭ-4505

Расчетные данные ЦНИИОМТП

Установка маячных досок

1000 м2 подготовки

12,5

-

Плотник 3 разр. - 1. Бетонщик 3 разр. - 1

-

ЕНиР, 1980 г., § 4-1-42, п. 17

Прием бетонной смеси из автотранспортных средств

100 м3

8,5

-

Бетонщик 2 разр. - 1

-

Расчетные данные ЦНИИОМТП

Подача бетонной смеси к месту укладки

1 м3

0,35

(0,125)

Оператор 4 разр. - 1.

Пом. оператора 3 разр.-1.

Бетонщики

4 разр. - 1,

3 разр. - 1,

2 разр. - 1

Перегружатель О-14, СБ-158.

Конвейер-бетоноукладчик секционный

Расчетные данные ЦНИИОМТП

Разравнивание и уплотнение бетонной смеси виброрейкой

1 м3

0,448

-

Бетонщики 2 разр. - 2

Виброрейка длиной 3 м

ЕНиР, 1979 г.,; § 17-32, № 3 (применительно)

Устройство деформационных и усадочных швов, заполнение их битумом

100 м

8,5

-

Бетонщики 3 разр. - 1

Нарезчик швов РШ-1628 или ИЭ-6405

Расчетные данные ЦНИИОМТП

Уход за бетонной подготовкой

100 м2

0,2

-

Бетонщик 2 разр. - 1

-


Лист 37. Схема бетонирования подготовки под полы

 


ТЕХНОЛОГИЧЕСКИЕ СХЕМЫ УСТРОЙСТВА ПОДВАЛА

Технологическими схемами предусмотрено устройство подвала одноэтажного здания. Несущими конструкциями здания являются сборные железобетонные элементы каркаса серии ИИ-20.

В схемах даны технология устройства монолитных бетонных ростверков, стен подвала и сборного железобетонного каркаса.

Работы по устройству подвала следует выполнять в общем потоке строительства подземной части здания, соблюдая правила производства и приемки работ согласно требованиям СНиПа III-2-83 "Основания и фундаменты" и СНиП III-16-80 "Бетонные и железобетонные конструкции".

Бетонные работы

При устройстве монолитных ростверков и стен подвала необходимо: подготовить основание; установить арматурно-опалубочные блоки; уложить бетонную смесь; разобрать опалубку после затвердения 6eтонa.

Основание зачищают вручную непосредственно перед установкой в проектное положение арматурно-опалубочных блоков ростверков и стен подвала.

Арматурные сетки, каркасы, а также щиты опалубки устанавливают с транспортных средств стреловым самоходным краном, расположенным внутри котлована или на его бровке. После их выверки укладывают бетонную смесь стреловым самоходным краном с использованием бункеров объемом 0,5 - 0,8 м3. Для уплотнения бетонной смеси применяются глубинные вибраторы.

Опалубку разбирают после набора бетоном не менее 50 % проектной прочности. Снятые щиты отвозят в мастерские для ремонта, чтобы в дальнейшем их можно было использовать повторно.

Установка сборных железобетонных конструкций подвала

Сборные железобетонные конструкции подвала устанавливают стреловым гусеничным краном грузоподъемностью 25 т, находящимся внутри котлована.

Конструкции раскладывают на бровке котлована при помощи автомобильного крана грузоподъемностью 5 т. Укладывают их по всему сечению подвала отдельными участками с тремя поперечными осями. Сначала устанавливают колонны, затем ригели, по которым кладут плиты перекрытия.

Для выверки и временного закрепления колонн в стаканах фундаментов применяются клиновые вкладыши конструкции ЦНИИОМТП.

Колонны стропят захватом, разработанным ПИ Промстальконструкция, грузоподъемностью 6,3 т, а ригели и плиты перекрытия - четырехветвевым стропом грузоподъёмностью 5 т.

ТРЕБОВАНИЯ ТЕХНИКИ БЕЗОПАСНОСТИ

При производстве строительно-монтажных работ следует строго соблюдать требования техники безопасности в соответствии с. требованиями СНиПа III-4-80 и других действующих нормативных и инструктивных документов. Кроме того, необходимо выполнять следующие правила.

Опалубка и поддерживающие ее леса должны быть прочны, устойчивы и выполнены в соответствии с проектом. При электропрогреве все нетокопроводящие части установки и открытая (незабетонированная) арматура железобетонных конструкций подлежит надежному заземлению. В зоне электропрогрева необходимо установить сигнальные лампы, загорающиеся при подаче напряжения на линию.

Монтаж конструкций, выверку, сварку и замоноличивание стыков можно выполнять с перекрытия, площадок, лестниц или подмостей.

Места работ, расположенные на высоте, следует оградить. При работе на высоте монтажники должны быть оснащены предохранительными поясами, а также иметь при себе специальные ящики или сумки для хранения инструмента.

В процессе эксплуатации следует периодически производить осмотр съемных грузозахватных приспособлений и тара: через каждые 10 дней - стропов и тары, через каждые 6 месяцев - траверс.

ЗАТРАТЫ ТРУДА НА УСТРОЙСТВО ЭЛЕМЕНТОВ ПОДВАЛА ОДНОЭТАЖНОГО ЗДАНИЯ

Обоснование

Наименование работ

Единица измерения

Норма времени на единицу измерения, чел.-ч (маш.-ч)

Состав звеньев

Рекомендуемые машины и оборудование

ЕНиР 1980 г., § 2-1-46, № 96

Захватка основания под ростверк вручную

100 м2 зачищенной поверхности

8,4

-

Землекоп 2 разр. - 1

-

Применительно к ЕНиР 1960 г., § 4-1-2, № 2а, 2б

Выгрузка и установка арматурно-опалубочных блоков ростверков и стен подвала

1 элемент

0,60

0,15)

Машинист 5 разр. - 1.

Монтажники

4 разр. - 1,

3 разр. - 1,

2 разр. - 1

Самоходный стреловой кран КС-2561Д - 1

Строп грузоподъемностью 5 т /четырехветвевой/- 1

ЕНиР 1980.г., § 4-2-6, т. 2, № 4г, К=0,55 (применительно)

Приварка каркасов к арматурным стержням свай

3,14

-

Электросварщик 5 разр. - 1

-

ЕНиР, 1980 г., § 4-1-42, № 17

Бетонирование ростверков и стен подвала:

 

 

-

-

 

прием бетонной смеси из кузова автомобиля-самосвала

100 мэ

8,5

-

Такелажники 2 разр. - 2

-

ЕНиР, 1979 г., § 1-6, т.2, № 24а

подача бетонной смеси к месту укладки

"

0,63

(0,21)

Машинист 6 разр. - 1. Такелажники 2 разр. - 2

Самоходный стреловой кран МКГ-25 - 1 или КС-5363 - 1.

Бункера объемом 0,5-0,8 м2 - 4

ЕНиР, 1960 г., § 4-1-37, т.2, № 1

укладка бетонной смеси в ростверки

1 м3

0,44

-

Бетонщики

4 разр. - 1,

2 разр. - 1

Вибраторы ИВ-56 - 2 Двухветвевой строп грузоподъемностью 5 т - 1

ЕНиР, 1980 г., т. 4, №

укладка бетонной смеси в стены

"

0,83

-

То же

ЕНиР, 1980 г., § 4-1-42, № 7

Поливка бетонной поверхности водой за один раз

100 м2

0,15

-

Бетонщик 2 разр. - 1

-

ЕНиР, 1980 г., § 4-1-29, № 2

Разборка блоков опалубки

1 м2

0,22

-

Слесари

3 разр. - 1,

2 разр. - 1

-

ЕНиР, 1979 г., § 1-5,

Погрузка блоков опалубки на автомобиль

100 подъемов

18,0

(6,0)

Машинист 5 разр. - 1. Такелажники 2 разр. - 2

Кран КС-2561Д - 1. Четырехветвевой строп на 5 т - 1

ЕНиР, 1980 г., § 19-30, № 1а

Устройство бетонной подготовки под полы (после обратной засыпки пазух)

100 м2

7,5

-

Бетонщики

3 разр. - 1,

2 разр. - 1

-

ЕНиР 1979 г., § 1-5, № 5а

Выгрузка сборных железобетонных конструкций массой до 3 т

100 подъемов

23,4

(7,8)

Машинист 5 разр.-.1. Такелажники 2 разр. - 2

Кран МКГ-16М - 1 или MKA-16, или КС-4361.

Строп 4-ветвевой грузоподъемностью 5 т - 1

ЕНиР 1979 г., § 1-5,.№ 6а

То же, до 4 т

25,8

(8,6)

ЕНиР 1980 г., § 4-1-4, т.3, № 2а, б

Установка колонн массой до 3 т

1 шт.

4,8

(0,8)

Монтажники

5 разр. - 1,

4 разр. - 1

3 разр. - 1

2 разр. - 1

Машинист 5 разр. - 3

Самоходный стреловой кран СКГ-30 - 1 или КС-5363 -1

Траверса грузоподъемностью 5 т - 1.

Клиновой вкладыш конструкции ЦНИИОМТП - 1 комплект

ЕНиР 1980 г., § 4-1-4, т.3, № 4a, б

То же, массой до 5 т

1 шт.

7,02

(1,17)

ЕНиР 1980 г., § 4-1-6, т.2, № 4а, б

Укладка ригелей массой до 5 т

1 шт.

3,24

(0,54)

Монтажники

5 разр. - 1,

4 разр. - 1,

3 разр. - 1,

2 разр. - 1

Машинист 5 разр. - 1

Кран СКГ-30 - 1 или КС-5363 -1.

Строп 4-ветвевой грузоподъемность»,. 5 т - 1

ЕНиР 1980 г., § 4-1-18, т.1, 2

Заделка стыков колонн с фундаментом

1 стык

1,25

-

Монтажники

4 разр. - 1,

3 разр. - 1

Установка констр. Марчукова - 1

ЕНиР 1980 г., § 4-1-17, № 1а

Электросварка стыков ригелей и колонн

1 м шва

0,37

-

Электросварщик 5 разр.- 1

Электросварочный аппарат - 1

ЕНиР, 1980 г., § 4-1-7, № 2а, б

Укладка плит перекрытия площадью до 10 кг

1 шт.

0,95

(0,19)

Монтажники

5 разр. - 1,

4 разр. - 1,

3 разр. - 1,

2 разр. - 1.

Машинист 5 разр. - 1

Кран СКГ-30 - 1 или.КС-5363-1

Строп 4-ветвевой грузоподъемностью 5 т - 1

ЕНиР 1980 г., § 4-1-19, № 3б

Заливка швов плит перекрытия

100 м шва

6,4

-

Монтажники

4 разр. - 1,

3 разр. - 1

Установка констр. Марчукова - 1

ЕНиР 1981 г., § 11-29, №

Гидроизоляция стен подвала

100 м2

6,1

-

Изолировщики

4 разр.- 1,

2 разр. - 1

Автогудронатор Д-630 - 1.

ЕНиР 1980 г., § 2-1-12, т.3, № 1a (применительно)

Обратная засыпка грунта с разравниванием

100 м3

(4,1)

-

Машинист 5 разр. - 1

Экскаватор-планировшик ЭО-2131А - 1

ЕНиР 1980 г., § 2-1-45, т.3, № 2a

Уплотнение грунта обратной засыпки

100 м2

1,95

-

Землекопы 3 разр. - 2

Электротрамбовка ИЗ-4504 - 1


Лист 38. Схема устройства подвала

Лист 39. Схема устройства подвала

Лист 40. Схема устройства подвала

 

 




ГОСТЫ, СТРОИТЕЛЬНЫЕ и ТЕХНИЧЕСКИЕ НОРМАТИВЫ.
Некоммерческая онлайн система, содержащая все Российские Госты, национальные Стандарты и нормативы.
В Системе содержится более 150000 файлов нормативно-технической документации, действующей на территории РФ.
Система предназначена для широкого круга инженерно-технических специалистов.

Рейтинг@Mail.ru Яндекс цитирования

Copyright © www.gostrf.com, 2008 - 2026