Крупнейшая бесплатная информационно-справочная система онлайн доступа к полному собранию технических нормативно-правовых актов РФ. Огромная база технических нормативов (более 150 тысяч документов) и полное собрание национальных стандартов, аутентичное официальной базе Госстандарта. GOSTRF.com - это более 1 Терабайта бесплатной технической информации для всех пользователей интернета. Все электронные копии представленных здесь документов могут распространяться без каких-либо ограничений. Поощряется распространение информации с этого сайта на любых других ресурсах. Каждый человек имеет право на неограниченный доступ к этим документам! Каждый человек имеет право на знание требований, изложенных в данных нормативно-правовых актах!

  


 

ЦЕНТРАЛЬНЫЙ ИНСТИТУТ НОРМАТИВНЫХ
ИССЛЕДОВАНИЙ И НАУЧНО-ТЕХНИЧЕСКОЙ
ИНФОРМАЦИИ "ОРГТРАНССТРОЙ"
МИНИСТЕРСТВА ТРАНСПОРТНОГО СТРОИТЕЛЬСТВА

ТЕХНОЛОГИЧЕСКАЯ КАРТА

ШТУКАТУРНЫЕ РАБОТЫ В 70-КВАРТИРНОМ ДОМЕ СЕРИИ I-447C-37

Содержание

I. ОБЛАСТЬ ПРИМЕНЕНИЯ

Технологическая карта разработана на основе применения методов научной организации труда и предназначена для использования при разработке проекта производства работ и организации работ и труда на объекте.

Карта составлена на штукатурные работы по 70-квартирному дому серии I-447C-37 и может быть использована при выполнении штукатурных работ в жилых кирпичных домах других серий.

В технологическую карту включены работы: подготовка поверхностей под оштукатуривание, улучшенная штукатурка стен из кирпича механизированным способом, штукатурка оконных, дверных откосов, заделка швов с прорезкой рустов между плитами перекрытий, конопатка и оштукатуривание мест примыканий гипсобетонных перегородок, выравнивание раствором шлакобетонных перегородок санузлов, промазка плинтусов и наличников, установка вентиляционных решеток, устройство наружных отливов, подача раствора к рабочему месту при помощи растворонасоса.

II. УКАЗАНИЯ ПО ТЕХНОЛОГИИ ПРОИЗВОДСТВА РАБОТ

1. Штукатурные работы следует выполнять после окончания кирпичной кладки, монтажа плит перекрытия, кровельных и стекольных работ.

2. Перед началом работ необходимо тщательно осмотреть и принять по акту комиссии прочность крепления сборных перегородок, наличие в каналах скрытой электропроводки, горизонтальность и вертикальность поверхностей основных конструктивных элементов, качество конопатки швов, наличие предусмотренных проектом ниш, борозд, крепежных деталей для сантехприборов и остеклить переплеты.

2. Штукатурный раствор приготавливают централизованно на растворном узле и доставляют на объект по часовому графику.

Для перемешивания и подачи раствора на этажи здания применяют штукатурный агрегат конструкции Демьяненко (рис. 1).

Рис. 1. Штукатурно-смесительный агрегат конструкции Демьяненко:

1 - кабина агрегата; 2 - бункер-смеситель; 3 - электродвигатель; 4 - редуктор РМ-250-40; 5 - вибросито; 6 - вал с правым и левым шнеками; 7 - растворонасос С-317А; 8 - пульт управления; 9 - емкость для воды

Транспортирование раствора от штукатурного агрегата до рабочего места штукатуров производится при помощи растворонасоса С-317А по инвентарным растворопроводам, установленным в лестничных клетках на всю высоту здания, а в пределах этажа - с помощью резиновых шлангов, подключаемых поэтажно к растворопроводам.

3. Весь фронт штукатурных работ делят на две захватки - по две секции в каждой захватке.

4. Нанесение раствора на оштукатуриваемые поверхности производится соплованием (рис. 2). В помещениях площадью пола менее 5 м2 раствор наносят вручную.

Общая толщина штукатурного намета должна быть 15 мм, слой обрызга должен покрывать оштукатуриваемую поверхность и иметь толщину не более 5 мм. Толщина грунта не должна превышать 7 мм при известковых растворах. Грунт наносят после частичного схватывания (побеления) предыдущего слоя. Накрывочный слой наносят толщиной 2-3 мм. Затем затирают затирочными машинками СО-55. В недоступных для машинки местах затирают войлочными или поролоновыми терками. Углы обрабатывают усеночными или лузговыми дюралюминиевыми полутерками.

Рис. 2. Схема последовательности передвижения сопловщика при нанесении обрызга и грунта в пределах захватки:

1, 2, 3, 4, 5 - последовательность соплования по комнатам в квартире

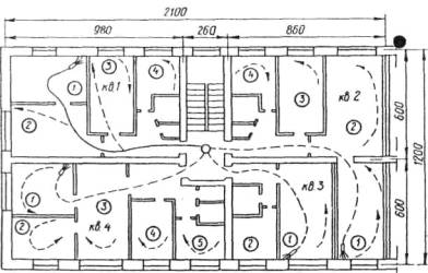
5. Штукатурные работы выполняют поэтажно поточным способом с расчленением комплекса работ на следующие процессы (рис. 3):

а) подготовка кирпичных и бетонных поверхностей с тщательной очисткой от пыли, грязи, жировых и битумных пятен, а также от выступивших на поверхности солей;

б) механизированное нанесение слоев обрызга и грунта известковым раствором при помощи растворонасоса и бескомпрессорной форсунки;

в) разравнивание слоев намета полутерком вручную;

г) разделка лузг и усенков;

д) накрывка и механизированная затирка поверхностей;

е) отделка откосов.

6. При оштукатуривании швов между плитами перекрытия их предварительно очищают от пыли, смачивают водой. Затем швы заполняют цементным раствором и затирают. Для ускорения схватывания раствора добавляют 1-2 % гипса с тщательным перемешиванием смеси. После чего устанавливают направляющие рейки и прорезают русты.

 

Рис. 3. Пооперационная технологическая схема:

1 - очистка и подготовка поверхностей; 2 - соплование с разравниванием; 3 - нанесение накрывочного слоя; 4 - затирка поверхностей; 5 - штукатурка откосов; 6 - заделка швов в железобетонных перекрытиях и устройство падуг

7. Оконные и дверные откосы штукатурят в следующей технологической последовательности: навешивают по отвесу рейки в соответствии с заданным углом рассвета по откосам, наносят раствор и разравнивают его. Затем по грунту наносят накрывочный слой, затирают терками, снимают рейки и производят разделку усенка с устройством фаски.

8. После настилки дощатых полов и заполнения дверных проемов плинтуса и наличники обмазывают раствором с заглаживанием поверхности.

9. Оштукатуривание кирпичных стен, сложенных в зимнее время способом замораживания, допускается только после оттаивания кладки со стороны штукатурного намета на глубину не менее половины толщины стены.

Температура воздуха внутри здания должна быть не ниже +8°C (при измерении ее на высоте 0,5 м от пола). Влажность кирпичных стен, подлежащих оштукатуриванию в зимних условиях, не должна превышать 8 %.

10. Оконные отливы следует оштукатуривать до наступления холодов.

Рис. 4. Инвентарный двухвысотный переносной столик

11. Приготовление, транспортирование и хранение штукатурных растворов должно быть организовано так, чтобы доставленный на рабочее место раствор имел температуру в момент нанесения его на оштукатуриваемые поверхности не ниже +8°С.

12. Штукатурные работы выполняют с прочных инвентарных двухвысотных столиков со съемными щитами (рис. 4).

13. Рабочие, выполняющие штукатурные работы, должны соблюдать требования СНиП, часть III, раздел А, глава II «Техника безопасности в строительстве» (СНиП III-A.11-70).

III. УКАЗАНИЯ ПО ОРГАНИЗАЦИИ ТРУДА

Все штукатурные работы выполняет бригада в составе 15 чел., состоящая из 4 звеньев.

Штукатур 4 разр. является бригадиром. Он руководит работой бригады, следит за качеством выполняемых работ.

1 звено в составе семи штукатуров 4 разр. - 1, 3 разр. - 5, 2 разр. - 1.

Штукатуры 3 разр. - 2 подготавливают поверхности стен под оштукатуривание. После нанесения и разравнивания раствора затирают поверхности стен затирочными машинками.

Штукатур 4 разр. наносит обрызг и грунт на поверхность кирпичных стен соплованием.

Штукатур 3 разр. двухметровым полутерком разравнивает слой грунта, выравнивает поверхность, срезая излишний намет.

Штукатуры 3 разр. - 2 наносят на огрунтованную поверхность накрывочный слой вручную с последующим выравниванием полутерками и затирают лузги.

Штукатур 2 разр. помогает штукатуру 4 разр. подносить шланг, поддерживает связь с мотористом при помощи электросигнализации и очищает раствор от перекрытия после соплования.

Затем звено выравнивает поверхности шлакобетонных перегородок с нанесением раствора вручную и оштукатуривает места примыкания перегородок к стенам и перекрытию.

2 звено в составе трех штукатуров 4 разр. - 1, 3 разр. - 1, 2 разр. -1 оштукатуривает стены в помещениях площадью менее 5 м2, оконные и дверные откосы, конопатит коробки и устраивает наружные отливы.

3 звено в составе трех штукатуров 4 разр. - 1, 3 разр. - 2 заделывает швы на потолке между плитами с прорезкой рустов, обмазывает раствором плинтуса и наличники, устанавливает вентиляционные решетки.

По окончании работ на первом этаже звенья переходят на второй этаж и т. д., где выполняют работы в том же порядке.

4 звено в составе машиниста растворонасоса 3 разр. и штукатура 2 разр. производит подачу раствора к рабочим местам штукатуров по мере надобности, а остальное время используется на других работах.

IV. ГРАФИК ВЫПОЛНЕНИЯ ПРОИЗВОДСТВЕННОГО ПРОЦЕССА

Примечание: Цифрами над линиями в сетке графика указано количество рабочих.

V. КАЛЬКУЛЯЦИЯ ЗАТРАТ ТРУДА И ЗАРАБОТНОЙ ПЛАТЫ

№ пп

Шифр нормативного источника

 

Описание работ

Состав звена

Единица измерения

Объем работ

На единицу измер.

На весь объем работ

Норма

времени,

чел-ч

Расценка, руб.-коп.

Нормативное время, чел-ч

сумма заработной

платы, руб.-коп.

1

§ 8-5, табл. 2,

№ 1д

Подготовка поверхностей под оштукатуривание

Штукатур

3 разр. - 1

100 м2

4,1

63

34-97

258,3

143-38

2

§ 8-6,

табл. 2,

№ 5 а

Улучшенная штукатурка известковым раствором кирпичных стен с нанесением слоев обрызга и грунта при помощи растворонасоса и накрывочного слоя вручную

Штукатуры:

4 разр. - 2

3 » -2

2 » - 1

м2

4103

0,48

0-28,9

1969,44

1185-77

3

§ 8-7, табл. 2,

№ 2,

техн. ч.,

п. 5,

К = 1,5

То же в помещении менее 5 м2 вручную

Штукатуры:

4 разр. - 1

3 » - 1

»

398

0,9

0-53,1

358,2

211-34

4

§ 8-11,

№ 26+3б

Заделка швов на потолке между плитами с прорезкой рустов с передвижных столиков и подачей раствора растворонасосом

Штукатуры:

4 разр. - 1

2 » - 1

100 м шва

23,4

27,1

16-94

634,14

396-40

5

§ 8-8, № 1

Штукатурка оконных и дверных откосов с передвижных столиков известково-гипсовым- раствором с подачей раствора растворонасосом

Штукатуры:

4 разр. - 1

2 » - 1

м2

362

1,7

0-95

615,4

343-90

6

§ 8-11, № 16

Конопатка швов примыканий перегородок к потолкам паклей, смоченной в гипсовом растворе с перестановкой передвижных столиков

Штукатуры: 3 разр. - 1 2 » - 1

100 м шва

13,33

3,8

1-99

50,65

26-53

7

§ 8-11, № 2а

То же к стенам

Штукатуры: 3 разр. - 1 2 » - 1

»

9

2,4

1-26

21,6

11-34

8

§ 8-11, № 2а

Оштукатуривание мест соединения перегородок с потолками

Штукатур 4 разр. - 1

»

13,33

11,5

7-19

153,3

95-84

9

§ 8-18, № 5

Промазка плинтусов

Штукатур 3 разр. - 1

100 м

36,2

5,1

2-83

184,62

102-45

10

§ 8-18, № 6

То же наличников

То же

»

41,64

5,6

3-11

233,18

129-50

11

§ 8-10А,

табл. 1,

№ 1а

Выравнивание поверхностей шлакобетонных перегородок с нанесением раствора, затиркой, отделкой плоскостей, лузг и усенков толщиной намета 5 мм отдельными местами при подаче раствора растворонасо-сом

Штукатуры: 3 разр. - 1 2 » - 1

м2

1624

0,2

0-10,5

324,8

170-52

12

§ 8-10Б,

табл. 2,

№ 7а

Оштукатуривание мест примыкания перегородок к стенам

Штукатуры:

3 разр. - 1

2 » - 1

100 м лузг

18

4,9

3-06

88,2

55-08

13

§ 8-18, № 1а

Оконопатка широких коробок с приготовлением раствора и смачиванием пакли

Штукатур

3 разр. - 1

100 м

12,24

11,5

6-38

140,76

78-09

14

§ 6-1-З0Б,

табл. 3,

№ 76

Перестановка столиков в пределах этажа с перестановкой на следующий этаж

Плотники:

2 разр. - 1

1 » - 1

Подсобный (транспортный) рабочий

1 разр. - 1

настила

подмостей

180

0,165

0-08,6

29,7

15-48

15

§ 8-8, № 6

Устройство наружных отливов с подачей раствора растворонасосом

Штукатур

4 разр. - 1

м2

60

1,75

1-09

105

65-40

16

§ 9-2-47, № 5а

Установка вентиляционных решеток в стенах

Слесари-

вентиляционники:

4 разр. - 1

3 » - 2

шт.

200

0,42

0-24,3

84

48-60

17

§ 3-18, применительно

Приготовление раствора в растворомешалках емкостью до 8 л

Машинист растворомешалки 3 разр. - 1

м3

150

0,61

0-33,9

91,5

50-85

18

§ 8-4,

табл. 2,

№ 36

Подача раствора растворонасосом производительностью 3 м3

Машинист растворонасоса

3 разр. - 1

»

150

0,7

0-38,9

105

58-35

Штукатуры

2 разр. - 2

 

 

1,4

0-69

210

103-50

Итого

5657,79

707 чел- дн

3292-32

Примечание: Цифрами над линиями в сетке графика указано количество рабочих

VI. ОСНОВНЫЕ ТЕХНИКО-ЭКОНОМИЧЕСКИЕ ПОКАЗАТЕЛИ

Наименование показателей

Единица измерения

По калькуляции А

По графику Б

На сколько процентов показатель по графику больше ( + ) или меньше (-), чем по калькуляции

Общая трудоемкость

чел-дн

707

650

-8

Средний разряд рабочих

разр.

3,37

3,03

-10

Среднедневная заработная плата на 1 рабочего

руб.- коп.

4-65

5-06

+9

VII. МАТЕРИАЛЬНО-ТЕХНИЧЕСКИЕ РЕСУРСЫ

А. Основные материалы, полуфабрикаты, изделия (на 70-квартирный дом серии I-447C-37)

Наименование

Единица измерения

Количество

Гипс строительный

т

11

Раствор известковый

м3

150

Раствор известково-цементный

»

15

Цемент марки 300

т

0,5

Б. Машины, оборудование, механизированный инструмент и инвентарь

Наименование

Количество, шт.

Передвижной штукатурный агрегат с растворонасосом и комплектом шлангов

1

Затирочные машинки СО-55

2

Соколы дюралюминиевые

6

Полутерки длиной 2м.

4

Полутерки длиной 0,35 м

3

Терки войлочные или поролоновые

10

Кельмы штукатурные

5

Молотки стальные штукатурные строительные типа МШТ

3

Кисти-макловицы типа КМА-2

3

Скребки металлические

2

Ножницы ручные

1

Отрезовки типа ОШ-1

9

Ручные стальные щетки

2

Ковши штукатурные (Шаульского)

9

Рустовки .

2

Отвесы типа О-400 или О-600 . .

2

Уровни строительные УС 1-300

2

Рейка с отвесом

1

Правила лузговые из дюралюминия

2

Правила усенковые из дюралюминия

2

Металлические угольники с передвижной планкой

2

Метры складные металлические

2

Рулетка измерительная

1

Форсунки бескомпрессорные

2

Ящики для гипса

12

Штукатурные ящики

3

Ведра

10

Лотки металлические длиной 1,5 м для собирания раствора

10

Столы-подмости складные

4

Быстроразъемные шланговые соединения

8

Рейкодержатели со штырем

8

Угольники-шаблоны

2

Перчатки резиновые

4 пары

Очки защитные

2

 

 




ГОСТЫ, СТРОИТЕЛЬНЫЕ и ТЕХНИЧЕСКИЕ НОРМАТИВЫ.
Некоммерческая онлайн система, содержащая все Российские Госты, национальные Стандарты и нормативы.
В Системе содержится более 150000 файлов нормативно-технической документации, действующей на территории РФ.
Система предназначена для широкого круга инженерно-технических специалистов.

Рейтинг@Mail.ru Яндекс цитирования

Copyright © www.gostrf.com, 2008 - 2026