Крупнейшая бесплатная информационно-справочная система онлайн доступа к полному собранию технических нормативно-правовых актов РФ. Огромная база технических нормативов (более 150 тысяч документов) и полное собрание национальных стандартов, аутентичное официальной базе Госстандарта. GOSTRF.com - это более 1 Терабайта бесплатной технической информации для всех пользователей интернета. Все электронные копии представленных здесь документов могут распространяться без каких-либо ограничений. Поощряется распространение информации с этого сайта на любых других ресурсах. Каждый человек имеет право на неограниченный доступ к этим документам! Каждый человек имеет право на знание требований, изложенных в данных нормативно-правовых актах!

  


 

центральный институт нормативных
исследований и научно-технической информации "оргтрансстрой" министерства транспортного строительства

ТЕХНОЛОГИЧЕСКАЯ КАРТА

ВНУТРЕННИЕ ОТДЕЛОЧНЫЕ РАБОТЫ В ЦЕХЕ ДЕПО ДЛЯ ОБСЛУЖИВАНИЯ 60 ОДНОСЕКЦИОННЫХ ЭЛЕКТРОВОЗОВ

I. ОБЛАСТЬ ПРИМЕНЕНИЯ

Технологическая карта предназначена для использования при разработке проекта производства и организации работ и труда на объектах.

Карта составлена на отделочные работы в цехе депо для обслуживания 60 односекционных электровозов (типовой проект инв. № 235/4).

В технологическую карту включены: известковая окраска плит покрытия, ферм, колонн, стеновых панелей, штукатурка стен и потолков в генераторной и зарядной, масляная окраска стальных оконных переплетов, дверей, ворот, площадок обслуживания с перилами и лестницами, бункеров для песка, подставок под бункеры, водоподогревателей, а также песко-трубопроводов и покрытие кузбасслаком металлических закладных деталей крепления стеновых панелей к колоннам.

Технологическая карта может быть применена также для отделочных работ в цехах тепловозных и моторовагонных депо.

II. УКАЗАНИЯ ПО ТЕХНОЛОГИИ ПРОИЗВОДСТВЕННОГО ПРОЦЕССА

До начала отделочных работ должны быть выполнены работы по монтажу технологических конструкций, все общестроительные и специальные работы.

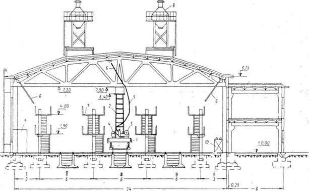
В зимний период температура воздуха в цехе должна быть не ниже +8° (при измерении ее на расстоянии 0,5 м от пола). Цех для выполнения отделочных работ разделен на 5 захваток (см. рисунок).

Схема организации работ:

1 - платформа двухосная железнодорожная; 2 - вышка монтажная съемная (лейтер); 3 - растворонасос; 4 - бачок для раствора; 5 - шланг материальный; 6 - удочка малярная; 7 - площадки обслуживания; 8 - бункер для песка с подставками; 9 - генераторная и зарядная; 10 - водоподогреватели с подставками. I, II, III, IV, V - захватки:

Раствор для штукатуров готовят на растворном узле, а известковый и масляный составы - в центральной колерной мастерской.

Штукатурные работы в зарядной и генераторной ввиду малого объема выполняют вручную с передвижных столиков-подмостей.

Масляную окраску выполняют пистолетами-распылителями, а известковую - с помощью растворонасоса и удочек.

Отделочные работы рекомендуется выполнять с площадок обслуживания и двухосной железнодорожной платформы, на которую устанавливают растворонасос, бачок для известкового раствора и съемную монтажную вышку (лейтер).

Перемещая платформу вдоль цеха по железнодорожным путям, уложенным над смотровыми канавами, выполняют известковую окраску по захваткам.

Оконные переплеты, детали соединения панелей с колоннами и ворота красят с приставных лестниц.

Рабочие, выполняющие отделочные работы на высоте, должны соблюдать правила по технике безопасности согласно СНиП III-A.11-62 (17.28-17.47) «Техника безопасности в строительстве».

III. УКАЗАНИЯ ПО ОРГАНИЗАЦИИ ТРУДА

Отделочные работы выполняет бригада из 9 чел.

В звене 1, состоящем из 4 маляров (4 разр.- 3, 3 разр. - 1), двое маляров (4 разр.) выполняют известковую окраску в цехе. Маляры 4 разр. наносят известковый колер удочками. Двое других маляров, владеющие специальностью штукатуров, заняты на оштукатуривании стен и потолков в генераторной и зарядной. После окончания штукатурных работ они выполняют известковую окраску в цехе, в генераторной и зарядной. Известковую окраску ферм и плит покрытия начинают с захваток I и V, а затем переходят на захватки II и IV. На захватках II, III, IV известковую окраску ферм и плит покрытия производят с лейтера, установленного на железнодорожную платформу, которую по ходу работ передвигает лебедкой маляр 4 разр.

Звено II, состоящее из 3 маляров 3 разр., выполняет работы по покрытию металлических закладных деталей кузбассла-ком, по окраске стальных оконных переплетов, дверей и ворот.

Звено III, состоящее из 2 маляров 5 разр., выполняет работы; по окраске пескотрубопроводов, бункеров, подставок под бункеры и водоподогреватели, площадок обслуживания. После: окончания этой работы они переходят на работы по окраске дверей и ворот.

IV. ГРАФИК ВЫПОЛНЕНИЯ ПРОИЗВОДСТВЕННОГО ПРОЦЕССА

Наименование работ

Единица измерения

Объем работ

Трудоемкость, чел-дн

Звено

Рабочие дни

Состав

1

2

3

4

5

6

7

8

9

10

11

Оштукатуривание стен и потолков генераторной и зарядной

м2

138

10

Штукатуры:

4 разр.-;1

3 » -1

I

  

 

 

 

2

 

 

 

 

 

 

 

 

 

 

 

Известковая окраска плит покрытия, ферм, колонн, стен

»

5984

34

Маляры:

4 разр.-2

  

 

 

 

2

 

 

 

 

 

4

 

 

 

 

 

 

 

 

 

 

 

Покрытие металлических закладных деталей кузбасслаком

»

147

3

Маляры:

3 разр.-3

II

3

 

 

 

 

 

 

 

 

 

 

 

Масляная окраска стальных оконных переплетов

»

393

21

Звено II

 

 

 

 

 

 

 

 

3

 

 

 

 

 

 

 

 

 

 

 

Масляная окраска дверей и ворот

»

176

11

Звено II

Звено III

 

 

 

 

 

 

 

 

 

 

 

3

5

 

 

 

Масляная окраска пескотрубопроводов, бункеров, подставок под бункеры и водоподогреватели

т

24,11

4

Маляры:

5 разр.- 2

III

 

 

2

 

 

 

 

 

 

 

 

 

 

 

 

Масляная окраска площадок обслуживания

»

96,65

16

Звено III

 

 

 

 

 

 

 

 

 

 

2

 

 

 

 

 

 

 

 

 

Итого

 

 

99

 

V. КАЛЬКУЛЯЦИЯ ЗАТРАТ ТРУДА

№ п/п

Шифр нормативного источника

Наименование работ

Состав звена

Единица измерения

Объем работ

На единицу измерения

На полный объем работ

норма времени,чел-час.

расценка, руб.-коп.

нормативное время, чел.-час.

сумма затрат труда руб. -коп.

1

§ 8-7, табл. 2, № 2 а

Оштукатуривание вручную стен генераторной и зарядной

Штукатуры:

4 разр - 1

3 » -1

м2

92,4

0,6

0-35,4

55,44

32-71

2

§ 8-7, табл. 2, № 26

То же потолков

То же

То же

45,0

0,7

0-41,3

31,92

18-83

3

§ 8-24, табл. 4, № 16, 106, 146, 156, табл. 6, № 36, примечание, К = 0,2

Известковая окраска ферм, колонн и стен электрокраскопультом

Звено маляров

100 м2 окрашенной поверхности

46,02

4,52

2-43,3

208,01

ПИ-97

§ 8-24, табл. 4,

№ 1 г, 10 г, 14 г, 15 г,

табл. 6, № 3 г,

примечание, К = 0,2

То же плит покрытий (потолков) 

То же 

То же 

13,82 

5,88 

3-16,8 

81,26 

43-78 

5

§ 5-1-20, № 16 г

Масляная окраска за один раз металлических деталей площадок обслуживания

Маляр

5 разр.- 1

т

95,65

1,5

1-05

143,48

100-43

6

§ 5-1-20, № 16 г

Масляная окраска пескотрубопроводов, бункеров для песка и подставок под них

Маляр

5 разр. - 1

 

21,86

1,5

1-05

32,79

22-95

7

§ 5-1-20, № 16 г

Масляная окраска подставок под водоподогреватели

Маляр

5 разр. - 1

т

2,24

1,5

1-05

3,36

2-35

8

§ 8-25, № 2в техническая часть, п. 4, К = 1,25

Окраска металлических закладных деталей кузбасслаком за один раз с приставных лестниц

Маляр

3 разр. - 1

100 м2 окрашенной поверхности

1,47

19,37

10-75

28,47

15-80

9

§ 8-24, табл. 13, № 3 в, 4 в, 5 в, 6 в, 8 в, 9 в

Простая масляная окраска стальных оконных переплетов кистью за два раза

Звено маляров

То же

2,33

43,05

22-61,6

100,31

52-69

10

То же, техническая часть, п. 4, К = 1,25

То же с приставных лестниц

То же

»

1,6

53,81

28-27

86,10

45-23

11

§ 8-24, табл. 4, № 7 е, 10 е, 11 е, 6 е, табл. 5, № 6 е, табл. 6, № 3 е, примечание, К = 02

Простая масляная окраска кистью дверей

»

»

0,37

36,07

19-29,8

12,94

7-13

12

§ 8-24, табл. 4, № 7е, 10е, 11е, табл. 5, № 6е, табл. 6, № 3е, примечание, К = 0,2

То же ворот

»

»

3,42

24,07

13-18,8 1

82,32

45-10

 

 

Итого

 

 

 

 

 

866,4

498-97

 

VI. ОСНОВНЫЕ ТЕХНИКО-ЭКОНОМИЧЕСКИЕ ПОКАЗАТЕЛИ

Наименование показателей

Единица измерения

По калькуляции А

По графику Б

Результаты

+ больше,

- меньше

Затраты труда на отделочные работы

чел.-дн

108,3

99

-8,6

Средний разряд рабочих

разр.

3,12

3,1

-

Среднедневная заработная плата

руб.

4,61

5,04

+9,3

VII. МАТЕРИАЛЬНО-ТЕХНИЧЕСКИЕ РЕСУРСЫ

а) Основные материалы и полуфабрикаты

Наименование

Количество

Раствор известковый

2,2 м3

Раствор цементно-известковый

1,2 »

Олифа

26 кг

Белила

7,6 »

Краска тертая

1,7 »

Сурик

60 »

Известь гашеная

960 »

Краска сухая

24 »

Кузбасслак

20 »

б) Машины, оборудование, механизированный инструмент и инвентарь

Наименование

Количество

Растворонасос С-251

1 шт.

Лебедки ручные грузоподъемностью 1 т .

2 »

Платформы двухосные железнодорожные

2 »

Вышки монтажные съемные (лейтер)

2 »

Компрессоры 0-38А

2 »

Удочки двухрожковые

3 »

Пистолеты-распылители

4 »

Передвижные столики-подмости на салазках

2 »

Трос стальной диаметром 12 мм

30 м

Шланги

30 »

Лестницы деревянные длиной 3 м

2 шт.

То же длиной 5 м

2 »

Соколы дюралюминиевые

2 »

Полутёрки

2 »

Терки

2 »

Правила деревянные

1 »

Отвес весом 200 г

1 »

Кисти штукатурные

2 »

Молоток штукатурный

1 »

Ящик для раствора

1 »

Бак для окрасочных составов

1 »

Лопата совковая

1 »

Ведра

7 »

Кисти малярные

10 »

Шпатели стальные

6 »

Щетки стальные

4 »

Очки защитные

2 »

Технологическая карта разработана Отделом внедрения передового опыта и технического нормирования в строительстве зданий и Куйбышевской нормативно-исследовательской станцией института «Оргтрансстрой».

Издание второе, пересчитанное с учетом новых тарифных ставок (исполнитель К.К. Корней)

 




ГОСТЫ, СТРОИТЕЛЬНЫЕ и ТЕХНИЧЕСКИЕ НОРМАТИВЫ.
Некоммерческая онлайн система, содержащая все Российские Госты, национальные Стандарты и нормативы.
В Системе содержится более 150000 файлов нормативно-технической документации, действующей на территории РФ.
Система предназначена для широкого круга инженерно-технических специалистов.

Рейтинг@Mail.ru Яндекс цитирования

Copyright © www.gostrf.com, 2008 - 2026