| |
МИНИСТЕРСТВО КОММУНАЛЬНОГО ХОЗЯЙСТВА
РСФСР
ЛЕНИНГРАДСКИЙ
НАУЧНО-ИССЛЕДОВАТЕЛЬСКИЙ ИНСТИТУТ АКАДЕМИИ КОММУНАЛЬНОГО ХОЗЯЙСТВА ИМ.
К.Д. ПАМФИЛОВА
ТЕХНОЛОГИЧЕСКАЯ КАРТА №4
ГЕРМЕТИЗАЦИЯ СТЫКОВ НАРУЖНЫХ СТЕНОВЫХ ПАНЕЛЕЙ, ВЫПОЛНЯЕМАЯ
ПРИ РЕМОНТЕ КРУПНОПАНЕЛЬНЫХ ЖИЛЫХ ДОМОВ СЕРИИ ОД.
Утверждена
приказом
МКХ РСФСР № 113
от 1 апреля 1970 г.
Ленинград
1970 г.
СОДЕРЖАНИЕ
|
Технологическая карта № 4
|
Герметезация
стыков наружных стеновых панелей, выполняемая при ремонте крупнопанельных
жилых домов серии ОД
|
ЦНИИ
АКХ 1969 г.
|
1. Область применения
Настоящая технологическая карта разработана на герметизацию
полиизобутиленовой мастикой УМЗ-50 вертикальных и горизонтальных стыков
наружных стеновых панелей крупнопанельных жилых домов серии ОД, находящихся в
эксплуатации.
Производство работ по герметизации стыков предусматривается
осуществлять с двухместных люлек, навешиваемых на консольные балки, укрепляемые
на пологоскатных крышах. В остальных случаях могут применяться вышки Ш2СВ-18
или др.
Типовая технологическая карта составлена на герметизацию
стыков одного 6-секционного 90-квартирного жилого дома серии ОД, при этом за
единицу измерения в калькуляции принято 100 п. м стыков.
Определение и назначение мастики.
1. Мастика УМЗ-50 предназначается для герметизации стыков
наружных стеновых панелей жилых домов, эксплуатируемых в климатических зонах с
расчетной температурой от +40°С до -50°С.
2. Мастика УМЗ -50
представляет собой высоковязкую, гидрофобную массу, состоящую из
высокомолекулярного полиизобутилена, мягчителя и высокодисперсного наполнителя.
Мастика может быть окрашена за счёт внедрения в неё пигмента.
|
Разработана
лабораторией технической эксплуатации
|
Утверждены 1 апреля 1970 г.
Приказ МКХ РСФСР № 113
|
Срок
введения "___"____19__г.
|
3. Мастика УМЗ-50 по своим
свойствам должна удовлетворять требованиям, указанным в таблице 1.
Таблица 1
|
Наименование показателей
|
Един. измерения
|
Требуемые показатели
|
|
Внешний вид
|
-
|
Густая вязкая масса, не содержащая заметных на
глаз частиц и посторонних включений. Цвет мастики зависит от вводимого
пигмента;
|
|
Предел прочности при
растяжении
|
кг/см2
|
0,1
|
|
Относительное удлинение и
адгезия
|
%
|
Не менее 200 % без отслаивания от поверхности
бетона
|
|
Теплостойкость
|
°С
|
+70°С при испытании на бетонных пластинках
|
|
Водопоглощение за 24 часа
(по весу )
|
%
|
Не более 1,0
|
|
Однородность системы (потери
в весе)
|
%
|
Не более 4.
|
|
Объемный вес
|
кг/м3
|
1100-1500
|
|
Сроки отвердения
|
|
Не высыхающая
|
Примечание. Правила приемки, методы испытаний, упаковка и
маркировка, хранение и транспортировка мастики содержатся во «Временных технических
условиях на уплотнительную мастику УМС-50, составленных ВНИИНСМ 27.ХI.1965 г.
Применение мастики.
4. Запрещается производить
герметизацию во время дождя и мокрого снега.
5. Перед началом герметизации стык (рис. 1) следует
расчистить на ширину 30 мм и глубину не менее 40 мм механизированным путем с
помощью электропневмомолотков или вручную
с помощью скарпели и молотка. Удалить специальным крючком материалы
проконопатки, если они находятся в неудовлетворительном (не обжатом) состоянии,
очистить поверхность стыка металлической щеткой oт кусочков раствора, грязи и пыли. В
необходимых случаях герметизируемую поверхность следует просушить.
Средствами сушки могут быть аппараты типа «ФЕН»
(инфракрасные горелки конструкций AKX, электрические рефлекторы или сжатый воздух с подачей от
компрессора.
6. Допустимыми дня герметизации мастикой УМЗ-50 следует
считать стыки, имеющие зазор от 6 до 20 мм.
7. При
герметизации стыков шириной от 6 до 20 мм
для создания упора вглубь стыка до нагнетания мастики закладывается
пакля.
8. Стыки, имеющие зазоры менее 6 мм, должны расширяться за
счет скалывания кромок панелей (при помощи отбойного молотка или др.).
9. При герметизации необходимо следить за непрерывностью
мастичной заделки, особенно в местах пересечения вертикальных и горизонтальных
стыков.
10. Для
обеспечения требуемой адгезии стыков к. бетону необходимо обеспечить:
а) применение при производстве работ прогретой до 70-80°С
мастики;
б) нанесение мастики на чистые сухие поверхности, при
положительной температуре материала наружных стен и воздуха (не менее +10°С).
11. Толщина слоя мастики должна быть 20 мм.
12. Набивку мастики в гильзы следует осуществлять
централизованным путем с помощью шнека конструкции ОКБ ВНИИНСМ, обеспечивающего
также и ее подогрев до 100-150°С, или аппарата, работающего газовом топливе,
13. К объектам: герметизации гильзы с мастикой
транспортируются в термостатах с t = 90°-100 0C.'
14. Из термостата гильзы с мастикой подаются на рабочее место
герметизаторщика, который вставляет ее в инвентарную оснастку (шприц)
конструкции СКБ ВНИИНСМ, и с помощью сжатого воздуха через эллипсовидную
насадку нагнетает мастику в стык.
15. Выдавливание мастики должно производиться плавно, за счет регулирования
воздушным краном подачи сжатого воздуха под давлением 4-5 ати. При этой
эллипсовидная насадка вводится в стык почти до упора и задерживается на месте
до тех пор, пока мастика не заполнит все необходимое (по проекту) сечение,
после чего шприц медленно перемещается вдоль стыка.
Неостывшая мастика выравнивается деревянной расшивкой с
усилением до плотного обжатия мастики в стыке, и ее повсеместного прилипания к
боковым кромкам панели. Расшивка периодически смачивается водой.
16. Поверх мастики необходимо наносить гидрофобизованный
цементно-песчаный раствор с добавкой асбестовой мелочи. Толщина слоя раствора должна быть в пределах
20-25 мм. Состав раствора 1:8 (цемент : песок), кремнийорганическая добавка
ГКЖ-10 или ГКЖ -11 вводится в раствор при его приготовлении ив расчета 1,5
кг на 100
кг цемента, асбестовая мелочь - в количестве 1/8 от
объема цемента. Раствор поступает на объект в готовом виде.
17. В вертикальных
стыках по свежему раствору следует делать канавки шириной 4 мм (рис. 1).
|
Вертикальный стык

|
|
Горизонтальный стык

|
Рис. 1. Герметизация стыков наружных стеновых панелей при ремонте
крупнопанельных жилых домов серии ОД мастикой УМС-50
18. Работы по герметизации стыков фиксируются
в специальном журнале, ведение которого является обязательным. Форма журнала
приводится ниже.
Журнал производства работ
по герметизации стыков панелей наружных стен
|
Дата проведения работ по герметизации
|
Адрес объекта
|
Атмосферные условия во время работы по герметизации
(температура, влажность)
|
Местоположение обработанных стыков (ориентация,
вертикальный, горизонтальный, на какой высоте)
|
Сведения
о подготовке герметизируемых поверхностей
|
Результаты физико-химических испытаний герметиков
|
Применяемые инструменты и приспособления
|
Состав бригады и квалификация
|
Запись технического надзора о приёмке
|
Примечание
|
|
подготовительных работ
|
работ по герметизации
|
|
|
|
|
|
|
|
|
|
|
|
|
19. Контроль качества герметизации
полиизобутиленовой мастикой УМС-50 заключается в проверке:
тщательности очистки стыкуемых поверхностей панелей от
цементного раствора, грязи и пыли;
равномерности глубины расчищенного шва;
температуры нагрева массы;
равномерности нанесения мастики в шов (без разрывов);
толщины слоя (на менее 20
мм) по длине шва;
прочности сцепления с основанием (путем нанесения контрольных
полос с последующим отрывом);
качественного выполнения наружных швов;
равномерности и толщины нанесения раствора.
20. Контроль качества гидрофобизации стыка производится
периодически (1-3 раза в год) путем набрызга воды на испытуемую поверхность.
Если вода не впитывается, то качество гидрофобизации считается
удовлетворительным.
Техника безопасности
21. Стальные канаты и вся подвесная система люлек до пуска в
эксплуатацию на каждом объекте ремонта должны быть проверены и испытаны на
двойную статическую нагрузку в течение 10 мин. и на динамическую нагрузку путем
равномерного подъема, опускания и остановки люльки с грузом, превышающим
рабочий гpуз на 10 %.
22. Применяемые для подвески люлек инвентарные консольные
балки, их крепления и противовесы должны быть выполнены в полном соответствии
со специально разработанным и утвержденным типовым проектом, а эксплуатация их
и способы перемещения - специальными инструкциями. Опирать консольные балки и
стальные канаты на венчающие карнизы зданий или балконные плиты не разрешается.
Привязи и оттяжки консольных балок должны укрепляться к
надежный конструкциям зданий.
23. Диаметры стальных канатов, поддерживающих люльки, должны
быть определены счетом с запасом прочности не менее шестикратного,. Движение
отдельных канатов при подъеме и опускании подъемных люлек должно быть
свободным. Трение каната о выступающие конструкции не допускается.
24. Проходы под люльками должны быть закрыты или защищены навесами.
25. Лебедки, служащие для поднятия и опускания люлек, должны
соответствовать расчетным нагрузкам и оборудоваться двойными тормозными устройствами с безопасными
рукоятками.
Лебедки, служащие для подъема и опускания люльки и
устанавливаемые на земле, следует загрузить балластом (весом не менее двойного веса люльки с полной расчетной
нагрузкой.
Балласт; во избежание смещения, прочно закрепляют
на рамке лебедки. Запрещается доступ к лебедкам посторонних лиц.
26. Не допускается применение пеньковых канатов для подвески
люлек.
27. Перегрузка люлек сверх установленной предельной нагрузки
не допускается.
28. Запрещается подъем и спуск людей на люлек без помощи
лебедок.
Люльки, с которых работа не производится, должны быть
спущены на землю.
29. Все рабочие в люльке, а также рабочие,
занимающиеся перестановкой консолей и привязкой люлек на крыше, должны быть
снабжены предохранительными поясами и привязываться веревками к надежным частям
здания.
30. Работа с молотком С-549 разрешается при напряжении до
220 вольт, но с обязательным применением диэлектрических перчаток, галош и
ковриков. Корпус молотка С-549 должен быть заземлен. Рабочий должен иметь
защитные очки и респиратор.
31 Рабочие, занятые подогревом мастики и нанесением ее в
стыки, должны пройти инструктаж по технике безопасности и оказанию первой
помощи.
32. Во время работы запрещается прикасаться к горячей
мастике руками, так как это может привести тяжёлым ожогам.
При подогреве мастики, набивке гильз, транспортировке и
нанесении мастики в швы следует пользоваться спецодеждой и перчатками.
33. Перед началам работ с электрооборудованием необходимо
проверить заземление корпусов двигателей, исправность выключателей и
токопроводящих проводов.
Запрещается устранять неисправности электрооборудования во время
его работы.
34 До включения компрессора необходимо проверять
соответствует ли шланг от компрессора к пневмошприцу предъявляемым к нему
требованиям, а также исправность шланга и надежность его крепления.
35 К работе у компрессора допускаются лица, прошедшее
специальное обучение и инструктаж по технике безопасности и оказанию первой
помощи.
36 Перед началом работ рабочие проходят инструктаж по
технике безопасности на рабочем месте с занесением инструктажа в специальный
журнал.
37. После окончания работ необходимо отключение
электроинструментов и электролебёдки от энергосети с запиранием главного
рубильника на замок.
Работы по герметизации стыков панелей наружных стен,
крупнопанельных жилых домов серии ОД, при необходимости сплошной герметизации
вертикальных и горизонтальных стыков предусмотрено выполнить двумя звеньями
рабочих, состоящими из трех человек каждое (один штукатур IV разряда, один - III разряда и один
- II разряда, или
рабочими других специальностей, подготовленными дня герметизации стыков).
Работа в звене распределяется следующим образом.
Двое рабочих работают с люльки и выполняют все операции по
герметизации стыков. Третий рабочий приготавливает герметик, обслуживает
лебедку (если люлька не самоподъемная), помогает при перенавесках люльки с
передвижением ее по земле. В оставшееся время выполняет все операции по
герметизации горизонтальных и вертикальных стыков первого этажа непосредственно
с земли.
Перечень всех работ, подлежащих выполнению при герметизации,
трудовые затраты по их производству и
стоимость этих работ приведены в калькуляции трудовых затрат (табл.
2).
Калькуляция дает возможность определить трудовые и стоимость
их при различных способах выполнения ремонта (например, при ручной или механизированной
расчистки стыков, и т.д.).
Разбивка фронта работ по герметизации стыков на захватки
приведена на рис. 2, последовательность работ - на рис. 3.
При выполнении работ двумя звеньями продолжительность их
определяется примерно в 21 смену.
Движение по захваткам с
23-44 2го звена

Движение по захваткам с
1-22 1го звена
Примечание:
Рис. 2. Разбивка фронта работ
на захватки при сплошной герметизации 6 секционного 90-квартирного жилого дома
серии ОД мастикой УМС-50

Рис. 3. Фрагмент фасада дома.
Последовательная работа на захватках.
Таблица
2
Калькуляция трудовых затрат
|
№
п.п.
|
Основание
к принятым нормам
|
Наименование
работ
|
Ед.
измер.
|
Объём
работ
|
Норма
времени на единицу измерения в чел.-ч
|
Затраты
труда на весь объём работ в чел.-ч.
|
Расценка
на единицу измерения в руб.коп.
|
Стоимость
затрат на весь объём работ в руб.коп.
|
|
1
|
ЕНиР
1969
г.,
1-11,
п.2 в, д
|
I. Подготовительные работы
Погрузка
в автомашину люлек, материалов и инструментов при доставке их на объект и
разгрузка
|
т
|
2,0
|
1.14
|
2-28
|
0,49-9
|
0.998
|
|
2
|
ЕНиР
1969
г.,
1-14,
п.2
|
Подъём вручную (по блоку) на крышу дома на высоту до 15 м консольных
балок и др. элементов для навески люлек
|
т
|
0,6
|
6,09
|
3,65
|
2-67
|
1-60
|
|
3
|
ЕНиР
1969
г.,
20-1-174,
п.4. 7
|
Установка
блока на временной консоли с последующей разборкой
|
шт.
|
1
|
1.75
|
1,75
|
0-98
|
0-98
|
|
4
|
ЕНиР
1969
г.,
1-14,
п.2
|
Опускание
с крыши дома вручную (по блоку) с высоты до 15 м разобранных элементов
крепления люлек после окончания работ на доме
|
т
|
0,6
|
5,01
|
3,0
|
2-20
|
1-32
|
|
|
|
Итого подготовит. операции
|
|
|
|
10,68
|
|
4-90
|
|
|
|
II. Герметизация стыков (при работе с навесных двухместных люлек)
|
|
|
|
|
|
|
|
5
|
Примен.
ЕНиР
1969
г.,
20-1-140,
т.1.
п.1
в,
4-1-22,
п.5,
К = 0,5
|
Расчистка стыков от цементно-песчаного раствора на ширину 20 мм, на
глубину до 40 мм, с помощью электропневмомолотка, с последующим удалением
материала проконопачивания спец. крючками
|
100 п.м. стыков
|
1
|
19,1
|
19,1
|
10,84
|
10,84
|
|
6
|
ЕНиР
1969
г.,
20-1-140,
т.2.
п.1
в,
4-1-22,
п.5,
К = 0.5
|
То
же. вручную
|
100
п.м. стыков
|
1
|
35,1
|
35,1
|
17-74
|
17-74
|
|
7
|
ЕНиР
1969
г.,
20-1-171,
п.5
|
Очистка
поверхности стыков от следов раствора, грязи и пыли металлической и волосяной
щетками
|
»
|
1
|
2,5
|
2,5
|
1-10
|
1-10
|
|
8
|
Тариф
пр.
|
Просушка поверхности стыков (~25 % стыков объекта)
подогретым воздухом при ширине поверхности до 20 мм
|
»
|
0,25
|
1,0
|
0.25
|
0-49,3
|
0,12
|
|
9
|
ЕНиР
1969
г.,
4-1-20,
п.2
|
Предохранительное нанесение слоя мастики (10 мм) в стыки, имеющие
зазоры более 30 мм (~15 % таких стыков на объекте). Установка в стыке
с прижимом к мастике армирующего материала и нанесение второго слоя мастики ~10
мм.
|
»
|
0,15
|
14,0
|
2,10
|
8-26
|
1-24
|
|
10
|
ЕНиР
1969
г.,
4-1-20,
п.2
|
Нанесение слоя мастики толщиной 20-25 мм в стыке с зазорами до 30 мм
(~85
% таких стыков на объекте) и выравнивание её с помощью деревянной расшивки,
периодически смачиваемой водой.
|
100
п.м. стыков
|
0,85
|
11,5
|
9,77
|
6-79
|
5-77
|
|
11
|
ЕНиР
1969
г.,
4-1-22,
п.3
|
Нанесение гидрофобизированного цементно-песчаного раствора с добавкой
асбестовой мелочи. Толщина слоя раствора должна быть в пределах 10-20 мм.
|
»
|
1
|
15,0
|
15,0
|
9,38
|
9,38
|
|
12
|
ЕНиР
1969
г.,
8-22,
п.10
|
Установка подвесной люльки с креплением консольных балок на крыше
дома, с укреплением блоков, с последующей передвижкой люлек на новую
захватку, переноской крепления и др. оснастки.
|
передвижек
|
1
|
3,50
|
3,50
|
2-19
|
2-19
|
|
13
|
Тариф
3
разр.
|
Работы по обслуживанию механизмов на земле и подноска материалов к
рабочему месту.
|
ч.ч.
|
11
|
-
|
11
|
0-55,5
|
6-11
|
|
|
|
Затраты труда и стоимость рабочей силы на выполнение укрупненных
операций
|
|
|
|
|
|
|
|
|
п
1-4.п.
|
а)
подготовительные операции
|
|
|
|
10-68
|
|
4-90
|
|
|
п.п.5,
7-13
|
б)
герметизация стыков полиизобутиленовой мастикой с заделкой
гидрофобизированным цементно-песчаным раствором с механизированной расчисткой
стыков.
|
|
|
|
63-22
|
|
36-75
|
|
|
п.п.
6-13
|
в)
то же, с ручной расчисткой
|
|
|
|
79-22
|
|
43-65
|
|
|
п.п.
5. 7,9. §10, 11, 12, 13
|
г) то же, с механизированной расчисткой стыков без их просушки.
|
|
|
|
62-97
|
|
36-75
|
1. Материалы на 100 п. м. стыков
|
№
п.п.
|
Наименование
|
Марка
|
Един.
изм.
|
Кол-во
|
Основания
к принятым нормам
|
|
1
|
Мастика
|
УМС-50
|
кг
|
100
|
Инструкция
по ремонту-восстановлению герметичности стыков эксплуатируемых
крупнопанельных жилых домов, Киев, 1967
|
|
2
|
Цементно-песчаный
раствор
|
-
|
кг
|
210
|
То
же
|
|
3
|
Гидрофобная
жидкость
|
ГКЖ-10
или ГКЖ-11
|
кг
|
0.75
|
То
же
|
|
4
|
Асбестовая
мелочь
|
|
кг
|
2
|
Временные
технологические указания по применению гернита для герметизации стыков
наружных стеновых панелей ДСК-4, г. Ленинград
|
2. Машины, инструмент, в т.ч. механизированный, и приспособления (на одно
звено работающих)
|
№ п.п.
|
Наименование
|
Тип
|
Марка
|
Кол-во
|
Техническая характеристика и ГОСТ
|
|
1
|
Люлька
двухместная
|
|
|
1
|
см.
таблицу 3
|
|
2
|
Электропневмомолоток
|
|
|
2
|
см.
таблицу 3
|
|
3
|
Компрессор
передвижной
|
|
С-39А
|
1
|
Произв.
0,25 м3/мин., Р = 7 ати, N = 2,8
квт
|
|
4
|
Скарпели
для расчистки стыков
|
Стр.
24-б
|
|
3
|
НИИ
синтетических и сверхтвёрдых материалов и инструмента Госплана УССР
|
|
5
|
Молоток-кулачок
|
МК-4
|
|
3
|
ГОСТ
11042-64
|
|
6
|
Щётка
стальная прямоугольная
|
|
|
3
|
Гипрооргсельстрой
Минстроя СССР
|
|
7
|
Кельма
|
К-Ш
|
|
2
|
9533-66
|
|
8
|
Расшивка
|
|
|
2
|
Оргстрой
Минстроя ЭССР
|
|
9
|
Шпатели
деревянные
|
|
|
2
|
Гипрооргсельстрой
Минстроя СССР
|
|
10
|
Установки
для набивки мастики и картонные патроны
|
|
|
1
|
см.
таблицу 3
|
|
11
|
Шприц
пневматического или ручного действия
|
|
|
1
|
см.
таблицу 3
|
|
12
|
Термостат
со сменными патронами
|
|
|
1
|
см.
таблицу 3
|
Таблица 3
Основные средства механизации, рекомендуемые для применения при ремонте
крупнопанельных жилых домов
|
Наименование и краткое описание
|
Техническая характеристика
|
Иллюстрации
|
|
|
|
|
|
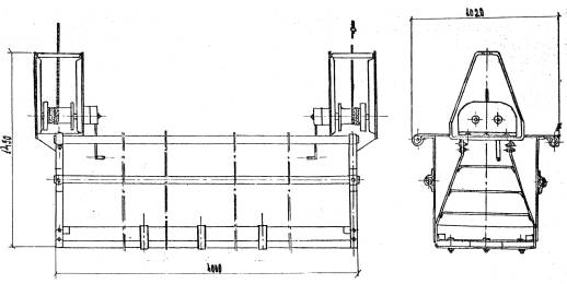
Люлька подвешивается на двух металлических канатах.
Подъём и опускание производится двумя ручными
лебёдками.
Каркас люльки изготовлен из полосовой стали, настил
деревянный, ограждение трубчатое.
Лебёдки имеют зубчатые передачи и безопасные
рукоятки с храповыми собачками.
Для облегчения перемещения
вдоль фасадов зданий люльки оборудуются роликами или колёсами диаметром
100-150 мм.
|
Грузоподъёмность
- 250 кг
Высота
подъёма - 30 м
Скорость
подъёма - 1,5-2 м/мин.
Усилие
на рукоятке лебёдки - 7 кг
Вес
люльки - 250 кг
Габаритные
размеры:
длина
- 4000 мм
ширина
- 1020 мм
высота
- 1450 мм
Рабочее
звено - 2 чел.
|
См. рис. 1
|
|
Люлька конструкции треста «Фасадремстрой-1» УКР
Ленгорисполкома
|
|
|
|
Люлька состоит из трёх основных частей:
1) неподвижная часть;
2) подвижная часть;
3) две балки консольные складные.
Неподвижная часть люльки состоит из рамы, на которой
установлен привод в виде электродвигателя, редуктора и трёх барабанов на
одной оси для наматывания тросов. Два барабана служат для подъёма и опускания
люльки, а один для страховочного троса.
Рама. в свою очередь. установлена на тележку
компрессора ЗИФ-55, прицепа к автомашине или др.
Подвижная часть представляет собой собственно
люльку, изготовленную из сортового алюминия с двумя коромыслами.
Две консольные балки состоят из двух частей каждая,
которые позволяют складывать и устанавливать их под разными углами на 15 и
30°, в зависимости от конструкции крыши.
Пусковая аппаратура, кроме кнопки управления,
устанавливается на неподвижной части люльки.
Кнопка управления и конечные выключатели
устанавливаются на подвижной части люльки.
Люлька снабжена автоматическим отключением привода
при перегрузке, а также если она зацепляется о какое-нибудь препятствие при
подъёме или опускании.
Люлька
снабжена ловителями на случай обрыва основного каната.
Люлька
перевозится на собственных колёсах.
Дополнительный
груз на нижней части люльки - 300 кг.
|
Грузоподъёмность - 250 кг
Высота
подъёма - 30 м
Скорость
подъёма (опускания) средняя - 0,1 м/сек.
Вес
люльки - 280 кг
Длина
подвесной части люльки - 5 м
Вес тележки с лебёдкой - 1450 кг
|
См.
рис. 2
|
|
Самоподъёмная
передвижная подвесная люлька СЛ-120
|
|
|
|
Люлька
состоит из собственно люльки и подъёмного механизма, который в свою очередь,
состоит из 4-х колёсной каретки, электролебёдки подъёма, двух лонжеронов и
механизма ручного привода, обеспечивающего возможность подъёма и опускания
люльки при отсутствии электроэнергии.
Для
обеспечения безопасности работ и ограничения высоты подъёма люльки на одном
лонжероне установлен конечный выключате6ль, а на другом - предохранительное
устройство, которое разрывает цепь в случае отказа конечного выключателя или
пригорания контактов электромагнитного пускателя.
От
подъёмного механизма к самой люльке подводится кабель с кнопочной станцией
для дистанционного управления подъёмом и опусканием непосредственно с люльки.
Перемещение
каретки. а вместе с ней и люльки, в горизонтальном направлении производится
по направляющим, которые устанавливаются на крыше.
|
Максимальная
полезная нагрузка - 120 кг;
Максимальная
канатоёмкость барабана - 45 м;
Скорость
подъёма люльки электролебёдкой - 10 м/мин.
Скорость
подъёма люльки вручную - до 1.2 м/мин.
Мощность
электродвигателя АОН 2-31-1 - 1.5 квт
Габаритные
люльки:
длина
- 2,6 м;
ширина
- 0,6 м;
высота
- 1,15 м
Вес
люльки - 75 кг
Вес
каретки с механизмом подъёма - 295 кг.
|
См.
рис. 3
|
|
Люлька
двухместная ЛЭ-30-250 конструкции СКБ «Мосстрой»
|
|
|
|
Люлька
снабжена ловителями на случай обрыва грузового каната или превышения скорости
опускания. Управляют работой лебёдок с пульта управления, установленного на
настиле люльки.
В комплект
люльки входят два подвесных блока с карабинами крепления к консолям, два
предохранительных каната с пригрузами, два грузовых каната и две ручки для
ручного привода лебедок на случай прекращения подачи электроэнергии.
Электролебёдки,
два ловителя и электрооборудование установлены на каркасе люльки.
Металлоконструкция
люльки сварная из уголков и труб.
|
Максимальная
высота подъёма - 30 м;
Допускаемая
рабочая нагрузка - 250 кг;
Скорость
подъёма или опускания - 8 м/мин ;
Количество
лебёдок на люльке 2 шт. ;
Марка
лебёдки - ЛТ-250;
Тяговое
усилие одной лебёдки - 250 кг;
Мощность
электродвигателя лебёдки - 0.6 квт;
Канатоёмкость
барабана при навивке в 2 слоя -67 м;
Габаритные
размеры:
длина
- 4000 мм;
ширина
- 1020 мм;
высота
- 1450 мм.
|
См.
рис. 4
|
|
Люлька
самоподъёмная двухместная конструкции ДСК-2 Главленинградстроя
|
|
|
|
Люлька
предназначена для производства ремонтных работ на фасаде крупнопанельных
жилых домов двумя человеками.
Электродвигатель
и двухбарабанная лебёдка смонтированы под настилом люльки.
Передвижение
люльки по земле осуществляется с помощью 4 колес.
Металлоконструкция
люльки сварная из уголков и труб.
|
Грузоподъёмность
- 250 кг
Высота
подъёма - 30 м
Скорость
подъёма 6,3-8 м/мин;
Лебёдка
двухбарабанная:
диаметр
барабана - 159 мм;
длина
барабана - 200 мм;
Диаметр
грузового каната - 7,5 мм;
Количество
грузовых канатов - 2;
Канатоёмкость
барабана при навивке в 4 слоя -62 м;
Род
тока : переменный, трехфазный.
Напряжение
- 220/380 в.
Мощность
Эл. Двигателя - 1.1 квт.
Габаритные
размеры:
длина
- 3396 мм;
ширина
- 967 мм;
высота
- 390 мм.
Вес
- 390 кг.
|
См.
рис. 5
|
|
Ловитель
для страховки рабочих при падении подвесных люлек
|
|
|
|
Предложение Г.с. Петрова и А.Б. Гуслякова
Приспособление
состоит из следующих деталей: страховочного троса (1) диаметром 8 мм и длиной,
зависящей от высоты здания и расстояния до места крепления к конструкциям;
корпуса-обоймы
(2) из листовой стали толщиной 8 мм с пружиной (3) из стальной проволоки
диаметром 2,5 мм,
рукояти-рычага
(4) с отверстием (5) диаметром 16 мм для карабина монтажного пояса на одном
конце и эксцентриковым кулачком (6), имеющим притупленную насечку на рабочей
плоскости - на другом.
Ловитель
устанавливается на тросе и фиксируется под тяжестью рукояти и прижимной
пружины эксцентриковым выступом к тыльной поверхности корпуса.
При
рывке рукояти вниз трос у корпуса изгибается под углом 90° и зажимается
эксцентриком тем сильнее, чем сильнее рывок или давление ручки вниз.
|
|
См.
рис. 6
|
|
Ловитель
для закрепления на страховочном тросе работающих с подвесных люлек
|
|
|
|
Предложение Е.А. Сиренича
Рядом
с люлькой натягивается стальной страховочный трос (1) диаметром 9 мм. На один
конец троса, надёжно закрепленный вверху на здании, надеваются ловители (2)
по количеству рабочих, второй конец закрепляется внизу на якорь.
Зацепившись
карабином (3) предохранительного пояса за рычаг (4) ловителя, работающий
может свободно передвигаться на рабочем месте. При этом ловитель перемещается
за ним по тросу.
В
случае падения рычаг под действием веса упавшего прижимает трос к стенкам
корпуса ловителя, падение прекращается и рабочий подхватывается страховочным
поясом.
|
|
См.
рис. 7
|
|
Консоль
к люлькам для домов серии «ОД» и ЛГ-502. Конструкция ДСК-2 Главленинградстроя
|
|
|
|
Консоль
предназначена для навешивания одноместных и двухместных (рис. 1, 2) люлек для
производства ремонтных работ по фасадам домов серии «ОД» и ЛГ-502.
При
навешивании одноместной люльки используется один комплект консоли, а при
навешивании двухместной люльки - соответственно. Два комплекта.
Люльки
навешиваются на консоль (поз. 1).
Вспомогательный
страховочный кронштейн (поз. 2) служит в качестве страхующего устройства. Для
этого канат с карабином. Закреплённый на барабане лебёдки страхующего
кронштейна заводится за распорку страхующего кронштейна, а затем за распорку
подвески и конец с карабином закрепляется на распорке страхующего кронштейна.
Второй
канна, закреплённый за распорки кронштейна, пропускается через распорки и ось
блока на ловитель люльки.
|
Грузоподъёмность
- 350 кг
Вес
консоли - 70,3 кг, в том числе:
консоль
- 30,3 кг;
кронштейн
страхующий - 40 кг
|
См.
рис. 8
|
|
Консоль
конструкция А.И. Кодкина (Москва) для подвески люлек
|
|
|
|
Консоли
могут применяться для подвески люлек на зданиях со скатными, а также с
плоскими крышами.
Консоли
предназначены для подвески любых люлек, как самоподъёмных (т.е. с лебёдками,
установленными непосредственно на люльке), так и люлек с лебёдками,
установленными на земле.
Консоль
выполнена в виде двух А-образных трубчатых металлоконструкций, сидящих на
одной оси, которая продета через проушины основания, включающего в себя
деревянный брус, который удерживается винтовыми прижимами.
Консоли
легко разбираются,
Вес
отдельного узла не превышает 15 кг.
|
Каждая
консоль рассчитана на нагрузку - 800 кг (от веса люльки и находящихся в ней
людей и материалов).
Вес
каждой консоли - 567 кг.
|
См.
рис. 9
|
|
|
|
|
|
Телескопическая
вышка ВИ-23 предназначена для подъёма двух рабочих с инструментом на высоту
до 23 м при выполнении строительно-монтажных или ремонтных работ.
Привод
от двигателя осуществляется через раздаточную коробку автомобиля, коробку
отбора мощности. Карданный вал и раздаточную коробку передач.
Телескопическая
часть устанавливается из 5 раздвигающихся стальных труб. На конце последней
трубы укреплена монтажная площадка - корзина. Все трубы раздвигаются
одновременно и с одинаковой скоростью.
Вышка
оборудована устройством для автоматического выключения коробки отбора
мощности при подъёме площадки на полную высоту. Управление вышкой
осуществляется из кабины автомобиля.
Примечание: вышка ВИ-23 является
модернизацией вышки ВИ-23 и аналогична ей по конструкции. Новая вышка смонтирована
на автомобиле ЗИЛ-164.
|
Наибольшая
высота подъёма (с учётом роста рабочего) - 23 м
Грузоподъёмность
корзины- 200 кг
Скорость
подъёма вышки при 1300 оборотах двигателя - 7,5 м/мин.
Скорость
опускания - 8 м/мин.
Скорость
передвижения вышки - до 40 км/час.
Наибольший
вес груза, перевозимого в кузове - 500 кг.
Грузовая
лебёдка:
грузоподъёмность
- 200 кг;
высота
подъёма груза - 23 м.
Максимально
допустимая при работе скорость ветра - 10 м/сек.
Габаритные
размеры:
длина
- 8,35 м;
ширина
- 2.35 м;
высота
- 3,72 м.
|
См.
рис. 10
|
|
Телескопическая
вышка на автомобиле ГАЗ-51 с высотой подъёма 15,3 м
|
|
|
|
Вышка
предназначена для подъёма двух рабочих с инструментом монтажных или ремонтных
работах на высоте.
Основными
узлами вышки являются:
коробка
отбора мощности;
редуктор
с барабанами;
телескопическая
часть;
рычаги
управления.
Телескопическая
часть состоит из раздвигающихся стальных труб и монтажной площадки - корзины,
укреплённой на конце последней трубы. Все трубы раздвигаются одновременно и с
одинаковой скоростью.
Подъём
вышки производится с помощью редуктора. Редуктор - самотормозящий, и
предохраняет вышку от произвольного опускания.
Вышка
снабжена пневматическим тормозом, что предохраняет площадку от падения в
случае обрыва каната.
Управление
вышкой осуществляется из кабины автомобиля.
|
Наибольшая
высота подъёма (до пола площадки) - 15,3 м
Грузоподъёмность
корзины- 150 кг
Наибольший
вес груза, перевозимого в кузове - 500 кг
Максимально
допустимая при работе скорость ветра - 10 м/сек.
Габаритные
размеры в транспортном положении:
длина
- 6,11 м;
ширина
- 2.2 м;
высота
- 3,48 м.
Габаритные
размеры в рабочем положении:
длина
- 5,87 м;
высота
(исходная) - 4,56 м.
высота
(максим.)- 15,3 м.
Вес
вышки:
с
автомобилем - 4470 кг;
без
автомобиля - 1950 кг
|
См.
рис. 11
|
|
Шарнирная
двухсекционная вышка Ш2СВ-18 конструкции ЛНИИ АКХ
|
|
|
|
Шарнирная
двухсекционная вышка Ш2СВ-18 предназначена для профилактического осмотра и
ремонта фасадов зданий и др. работ на высоте до 18 м.
Вышка
установлена на самоходном прицепе. Который может передвигаться на участке со
скоростью 1 км/час.
Механизмы
подъёма выполнены в виде винтовых домкратов с индивидуальным приводом от
электродвигателя.
При
стационарной стоянке вышки можно осуществлять работы в радиусе до 16 м.
Возможность
управления из люльки позволяет обходить выступающие части фасадов зданий,
балконы, провода.
Конструкция
вышки обеспечивает безопасную работу на высоте.
|
Тип
вышки - шарнирная, двухсекционная.
Высота
люльки до пола (максим.)- 16,2 м.
Максимальный
вылет опор - 9 м.
Грузоподъёмность
- 150 кг
Время
перевода в рабочее положение - 15 мин.
Габаритные
размеры:
длина
- 9,5 м;
ширина
- 2.8 м;
высота
- 3,3 м.
Рабочий
вес - 7 т
|
См.
рис. 12
|
|
Молоток
– зубило
|
|
|
|
Предназначен
для отбивки плотной ржавчины, прочно сцеплённой ржавчины и старой краски в
углах и труднодоступных местах, а также для зачистки кромок и сварных швов.
Может
быть использован при слесарно-сборочных. Монтажных и ремонтных работах.
Примечание:
1.
Изготовители: заводы судостроения (изготавливается для предприятий
судостроительной промышленности)
2.
Конструкция разработана Центральным научно-исследовательским институтом
технологии судостроения.
3.
Данные взяты из каталога-справочника «Механизированный инструмент и
отделочные машины», изд. «Машиностроение», М., 1967, с. 315.
|
Число
ударов - 1500 уд./мин.
Рабочее
давление 6 ати;
Расход
воздуха - 0.15 м3/мин.
Диаметр
воздухоподводящего шланга в свету - 9 мм.
Длина
молотка - 140 мм
Вес
молотка - 1.5 кг.
|
См.
рис. 13
|
|
Молоток
С-549
|
|
|
|
Предназначен
для отбивки мелких борозд и гнёзд в кирпичной кладке и бетоне при
электромонтажных работах, а также для насечки бетонных и кирпичных
поверхностей при отделочных работах. Молоток может быть применён для
художественной обработки камня (мрамор, известняк).
Молоток
имеет компрессионно-вакуумный ударный механизм с автоматическим переходом на
холостой ход.
Молоток
комплектуется штепсельным соединением И-145 к сменным рабочим инструментам
(пика, зубило, бучирда).
Примечание:
2. Данные взяты из каталога-справочника
«Механизированный инструмент и отделочные машины». Изд. «Машиностроение», М ,
1967, с. 99.
|
Энергия
удара бойка - 0,2 кгм
Число
ударов - 1600 уд./мин.
Режим
работы - длительный
Электродвигатель
коллекторный, номинальная мощность - 120 вт
Род
тока - переменный, однофазный
Напряжение
- 220 в
Частота
тока - 50 гц
Габаритные
размеры:
длина
- 348 мм;
ширина
- 76 мм;
высота
- 190 мм.
Вес
молотка (без кабеля и рабочего инструмента) - 3.5 кг
|
См.
рис. 14
|
|
Молоток
МЭС
|
|
|
|
Предназначен
для зачистки сварных швов от шлака, застывших капель и брызг металла, а также
для лёгкой клёпки, рубки и чеканки.
Молоток
может быть использован на строительных объектах.
Малый
вес и малые размеры молотка позволяют применять его для работы в
труднодоступных местах.
Примечание:
1.
Изготовители: заводы судостроения (изготавливается для предприятий
судостроительной промышленности)
2.
Конструкция разработана Центральным научно-исследовательским институтом
технологии судостроения.
3.
Данные взяты из каталога-справочника «Механизированный инструмент и
отделочные машины», изд. «Машиностроение», М., 1967, с. 315.
|
Энергия
удара бойка - 0,15-0,2 кгм
Число
ударов - 2800-3000 уд./мин
Давление
воздуха в сети - 6 ати
Наибольший
расход воздуха - 0.3 м3/мин.
Диаметр
воздухоподводящего шланга в свету - 9 мм.
Габаритные
размеры:
длина
- 250 мм;
ширина
- 48 мм;
высота
- 51 мм.
Вес
молотка - 1.0 к
|
См.
рис. 15
|
|
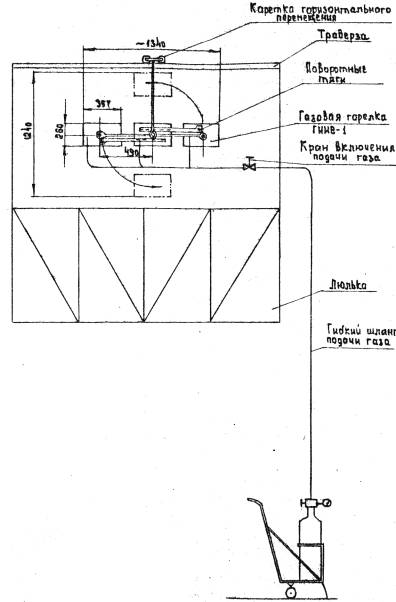
Установка
для сушки поверхности стыков
|
|
|
|
Состоит
из 3 газовых горелок ветроустойчивых, инфракрасного излучения (ГИИВ-1).
Горелки
смонтированы на несущей раме и связаны шлангом с баллоном сжиженного газа
(пропан-бутан) ёмкостью 25-27 л. бытового назначения.
Баллон
снабжён редуктором РД или РДК. Установка снабжена специальным устройством для
подвешивания на люльке и ориентирования по стыку.
|
Горелка
работает при скорости ветра до 5 м/сек.
Теплоотдача
- 4500 ккал/час.
Время
разогрева - 45-55 сек.
Длина
одновременного обогрева поверхности до 1.2м.
Расстояние
экрана до объекта разогрева - 0,18-0.25 м.
|
См.
рис. 16
|
|
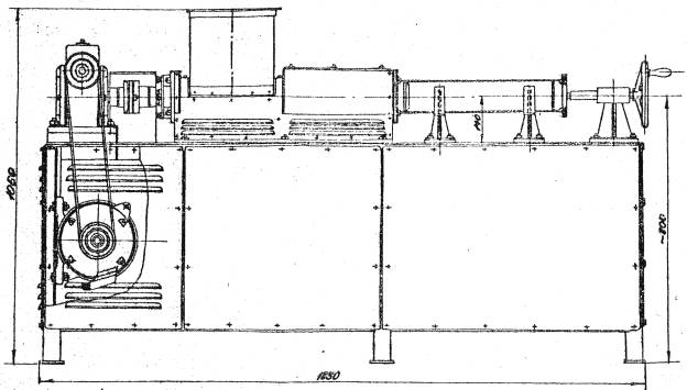
Шнековая
установка для набивки мастики в картонные патроны конструкции ВНИИНСМ
|
|
|
|
Установка
представляет собой закреплённый на стальной раме шнек-пресс, оборудованный
электрообогревателем. На одном конце рамы имеется узел для закрепления в нём
сменного патрона шприца. На другом конце рамы установлен электродвигатель
мощностью 1.7 квт для вращения шнека.
Мастика
для набивки в патроны нагружается в воронку шнек-пресса.
В нижней
части воронки мастика захватывается вращающимся шнеком, и проходя по цилиндру
пресса, нагревается. А затем выдавливается в патрон.
Цилиндрическая
часть шнек-пресса обогревается двумя секциями электродвигателей общей
мощностью 1.5 квт от сети трёхфазного тока напряжением 220/380 в. Эти секции
при необходимости могут включаться одновременно или раздельно.
|
Марка
мастики. Набиваемой в патрон - УМ-40, УМС-50.
Размеры
патрона (наружные):
длина
- 500±5 мм;
диаметр
- 100±2 мм.
Шнек:
диаметр
нарезки наружный - 100 мм;
скорость
вращения - 600 об/мин.
Привод:
мощность
- 1.7 квт;
скорость
вращения - 1420 об/мин.
Редуктор
РЧН-80А.
Схема
сборки 2.
Исполнение
III.
Передаточное
число - 13,67.
Габаритные
размеры:
длина
- 2040 мм;
ширина
- 460 мм;
высота
- 1060 мм.
Вес
(без мастики) - 260 кг.
|
См.
рис. 17
|
|
Термостат
для подогрева картонных патронов с мастикой конструкции ВНИИНСМ
|
|
|
|
Предназначен
для подогрева картонных патронов с
мастикой
УМ-40 или УМС-50 непосредственно на строительных площадках перед
использованием мастики для герметизации стыков.
Термостат
представляет собой сварной шкаф из листовой стали с теплоизолирующей рубашкой.
Шкаф оборудован электронагревателями. Питающимися от сети трехфазного тока
напряжением 220/380 в. Нагреватели сгруппированы в три секции. Которые могут
включаться одновременно или раздельно по мере надобности.
Нагреватели
позволяют поддерживать температуру внутри шкафа в пределах 125±5 °С, что
обеспечивает нагрев мастики в патронах до 70-90°С.
Заданная
температура внутри шкафа поддерживается автоматически.
|
Ёмкость
термостата - 21 патрон.
Размеры
загружаемых патронов:
длина
- 500±5 мм;
диаметр
- 100±2 мм.
Температура
нагрева мастики УМ-40 или УМС-50 - 70-90°С.
Температура
нагрева воздуха в термостате - 125±5 °С.
Суммарная
мощность электронагревателей - 8 квт.
Число
секций электронагревателей - 3.
Габаритные
размеры:
длина
- 1565 мм;
ширина
- 790 мм;
высота
- 1470 мм.
Вес
термостата - 256 кг.
|
См.
рис. 18
|
|
Шприц
для нанесения мастики УМ-40, УМС-50 конструкции ВНИИНСМ
|
|
|
|
Шприц
предназначен для нагнетания мастики УМ-40 в наружный зазор стыков при их
герметизации. Шприц представляет собой сменный картонный патрон, наполняемый
мастикой. С одного конца внутрь патрона закладывается плавающий поршень. С
помощью тяжей на патрон закрепляется рабочая насадка и крышка с краном.
При
открытом кране сжатый воздух подаётся в патрон под поршень, который
выдавливает мастику из шприца. Когда кран закрыт. Давление снижается и выход
местами прекращается.
|
Ёмкость
сменного патрона - 3 л.
Рабочее
давление - до 4 кг/см2
Диаметр
- 92 мм.
Габаритные
размеры:
720
х 148 мм.
Вес (без мастики и шланга) - 2 кг
|
См.
рис. 19
|

Рис. 1.
Люлька самоподъёмная конструкции Мосжилуправления

Рис. 2. Люлька конструкции треста «Фасадремстрой-1» УКР
Ленгорисполкома.
1 - люлька; 2- балка консольная; 3 - лебёдка

Рис. 3.
Самоподъёмная передвижная подвесная люлька СЛ-120 конструкции Минского ДСК
1 - 4-х колёсная каретка;
2 - механизм ручного привода;
3 - электродвигатель;
4 - редуктор;
5 - барабаны для навивки тросов


Рис. 4.
Люлька двухместная ЛЭ-30-250 конструкции СКБ «Мосстрой»

Рис. 5.
Люлька самоподъёмная двухместная конструкции ДСК-2 Главленинградстроя
1 - металлоконструкции люльки;
2 - лебёдка; 3 - ловитель;
4 - упор отключающий;
5 - электрооборудование

Рис. 6.
Ловитель для страховки рабочих при падении подвесных люлек
Предложение Г.с. Петрова и А.Б. Гуслякова

Рис. 7.
Ловитель для закрепления на страховочном тросе работающих с подвесных люлек
Предложение Е.А. Сиренича

Рис. 8.
Консоль к люлькам для домов серии «ОД» и ЛГ-502. Конструкция ДСК-2
Главленинградстроя
1 - консоль; 2 - кронштейн страхующий; 3 - барабан

Вариант заделки крепёжного каната за выступающий
элементздания
Рис. 9.
Консоль конструкция А.И. Кодкина (Москва) для подвески люлек
1 - консоль. 2 шт. вес 1 шт. - 49 кг;
2 - кронштейн задний. 2 шт., вес 1 шт. - 7,9 кг;
3 - кронштейн для крепления в продухах. 2 шт., вес 1
шт. - 9 кг

Рис. 10.
Телескопическая вышка ВИ-23 на автомобиле ЗИЛ-157 с высотой подъёма 23 м

Рис. 11.
Телескопическая вышка на автомобиле ГАЗ-51 с высотой подъёма 15,3 м

Рис. 12.
Шарнирная двухсекционная вышка Ш2СВ-18 конструкции ЛНИИ АКХ

Рис. 13.
Молоток - зубило

Рис. 14.
Молоток С-549

Рис. 15.
Молоток МЭС

Рис. 16.
Установка для сушки поверхности стыков

Рис. 17.
Шнековая установка для набивки мастики в картонные патроны конструкции ВНИИНСМ

Техническая характеристика
Ёмкость термостата - 21 патрон.
Размеры загружаемых патронов:
длина - 500±5 мм;
диаметр - 100±2 мм.
Температура нагрева мастики УМ-40 или УМС-50 -
70-90°С.
Температура нагрева воздуха в термостате - 125±5 °С.
Суммарная мощность электронагревателей - 8 квт.
Число секций электронагревателей - 3.
Габаритные размеры:
длина - 1565 мм;
ширина - 790 мм;
высота - 1470 мм.
Вес термостата - 256 кг.
Рис. 18. Термостат
для подогрева картонных патронов с мастикой конструкции ВНИИНСМ
1 - термоизолирующая рубашка;
2 - электронагреватели;
3 - терморегулятор;
4 - патрон, закладываемый в термостат;
5 - нагретый патрон;
6 - нагреваемые патроны

Рис. 19.
Шприц для нанесения мастики УМ-40, УМС-50 конструкции ВНИИНСМ
|
|