Крупнейшая бесплатная информационно-справочная система онлайн доступа к полному собранию технических нормативно-правовых актов РФ. Огромная база технических нормативов (более 150 тысяч документов) и полное собрание национальных стандартов, аутентичное официальной базе Госстандарта. GOSTRF.com - это более 1 Терабайта бесплатной технической информации для всех пользователей интернета. Все электронные копии представленных здесь документов могут распространяться без каких-либо ограничений. Поощряется распространение информации с этого сайта на любых других ресурсах. Каждый человек имеет право на неограниченный доступ к этим документам! Каждый человек имеет право на знание требований, изложенных в данных нормативно-правовых актах!

  


 

ОРДЕНА ЛЕНИНА ГЛАВМОССТРОЙ при МОСГОРИСПОЛКОМЕ
МОСОРГСТРОЙ

 

УТВЕРЖДАЮ

Начальник Технического Управления Главмосстроя

___________________А.Л. Коробанов

20 октября 1980 г.

ТЕХНОЛОГИЧЕСКИЕ СХЕМЫ
НА ПОГРУЗО-РАЗГРУЗОЧНЫЕ ОПЕРАЦИИ, СКЛАДИРОВАНИЕ И МОНТАЖ СЕКЦИЙ КОЛЛЕКТОРОВ, ТРУБОПРОВОДОВ И СБОРНЫХ КОЛОДЦЕВ ПРИ СООРУЖЕНИИ ВНУТРИКВАРТАЛЬНЫХ ПОДЗЕМНЫХ КОММУНИКАЦИЙ

Москва-1981

«Технологические схемы на погрузо-разгрузочные операции, складирование и монтаж секций коллекторов, трубопроводов и сборных колодцев при сооружении внутриквартальных подземных коммуникаций» разработаны отделом проектно-технологическим и средств малой механизации треста Мосоргстрой (т.т. Л.Н. Абрамович, В.Г. Поляков), утверждены начальником Технического управления т. А.Л. Коробановым и согласованы с заместителем начальника УМГО Госгортехнадзора т. Г.З. Шубочкиным и начальником Управления подготовки производства Главмосстроя т. Э.А. Сотником.

Содержание

1. ОБЩИЕ ПОЛОЖЕНИЯ

ЗНАКИ БЕЗОПАСНОСТИ по ГОСТ 12.4.026-76

СХЕМЫ СТРОПОВКИ СЕКЦИЙ ВК-2

НОМЕНКЛАТУРА ЖЕЛЕЗОБЕТОННЫХ ОБЪЕМНЫХ СЕКЦИЙ НА БАЗЕ ВК-2

МОНТАЖ СЕКЦИИ КОЛЛЕКТОРА ДЛЯ ВНУТРИКВАРТАЛЬНЫХ КОММУНИКАЦИЙ ПОЛНОЙ ЗАВОДСКОЙ ГОТОВНОСТИ КРАНАМИ АВТОМОБИЛЬНЫМИ K-162 и КС-4571

МОНТАЖ СЕКЦИИ КОЛЛЕКТОРА ДЛЯ ВНУТРИКВАРТАЛЬНЫХ КОММУНИКАЦИЙ ПОЛНОЙ ЗАВОДСКОЙ ГОТОВНОСТИ КРАНАМИ ГУСЕНИЧНЫМИ Э-10011Д, Э-1258, Э-1254

МОНТАЖ ОБЪЕМНЫХ СЕКЦИЙ КОЛЛЕКТОРА РК-25 КРАНОМ ПНЕВМОКОЛЕСНЫМ КС-6362

МОНТАЖ КОЛЛЕКТОРА ДЛЯ ВНУТРИКВАРТАЛЬНЫХ КОММУНИКАЦИЙ ИЗ ОТДЕЛЬНЫХ ЭЛЕМЕНТОВ КРАНАМИ АВТОМОБИЛЬНЫМИ СМК-10 и КС-3526А

МОНТАЖ КОЛЛЕКТОРА ДЛЯ ВНУТРИКВАРТАЛЬНЫХ КОММУНИКАЦИЙ ИЗ ОТДЕЛЬНЫХ ЭЛЕМЕНТОВ КРАНОМ ГУСЕНИЧНЫМ Э-10011Д

МОНТАЖ СМОТРОВОГО ЛЮКА ИЗ ЖЕЛЕЗОБЕТОННЫХ КОЛЕЦ КРАНАМИ K-51 и КС-2561 Д ГРУЗОПОДЪЕМНОСТЬЮ 5-6,3 т

РАЗГРУЗКА И ЗАВОДКА ТРУБ В СЕКЦИИ КОЛЛЕКТОРА

УКЛАДКА ТРУБ В БИТУМОПЕРЛИТОВОЙ ИЗОЛЯЦИИ, ДРЕНАЖНЫХ ТРУБ И МОНТАЖ ВОДОСТОЧНОГО КОЛОДЦА КРАНАМИ АВТОМОБИЛЬНЫМИ СМК-10 и КС-3526А

СХЕМА ПРОКЛАДКИ ТЕПЛОВОЙ СЕТИ ИЗ ТРУБ С УСЛОВНЫМ ПРОХОДОМ 300 мм С БИТУМОПЕРЛИТОВОЙ ИЗОЛЯЦИЕЙ В НЕПРОХОДНЫХ КАНАЛАХ КРАНОМ АВТОМОБИЛЬНЫМ КС-2561-Д

СХЕМА СКЛАДИРОВАНИЯ И СТРОПОВОК ПРИ РАЗГРУЗКЕ И МОНТАЖЕ ПЛИТ ПЕРЕКРЫТИЯ И БЕТОННЫХ СТЕНОВЫХ БЛОКОВ ДЛЯ УСТРОЙСТВА НЕПРОХОДНЫХ КАНАЛОВ ТЕПЛОВЫХ СЕТЕЙ

ОГРАЖДЕНИЯ ОПАСНЫХ ЗОН

1. ОБЩИЕ ПОЛОЖЕНИЯ

1. Технологические схемы на погрузо-разгрузочные операции, складирование и монтаж секции коллекторов, трубопроводов и сборных колодцев различных типов преследуют цель обеспечить правильное использование и безопасную работу грузоподъемных кранов при сооружении внутриквартальных подземных коммуникаций.

1.2. Разгрузка и складирование секций коллекторов, трубопроводов, сборных колодцев и их монтаж должны производиться в строгом соответствии с требованиями строительных норм и правил (СНиП-III-4-80), «Правил устройства и безопасной эксплуатации грузоподъемных кранов» и информационных писем Госгортехнадзора СССР № 06-27/171 от 11.10.76, № 3/4 от 11.11.76, 06-27/65 от 18.04.77.

1.3. Для производства любых работ краны автомобильные и пневмоколесные должны быть установлены, на выносные опоры с таким расчетом, чтобы расстояние от строений, штабелей материалов и других предметов до поворотной части крана в любом его положении было не менее одного метра.

1.4. В случае необходимости произвести разгрузку, складирование и монтаж изделий, не указанных в схемах строповки, эти работы должны производиться под непосредственным руководством инженерно-технического работника, аттестованного по ст. 300 «Правил устройства и безопасной, эксплуатации грузоподъемных кранов».

2. УКАЗАНИЯ ПО ПРОИЗВОДСТВУ РАБОТ

2.1. Разгрузка транспортных средств и монтаж секций коллекторов, трубопроводов и других элементов для прокладки внутрикварталъных коммуникаций, производится стреловыми самоходными кранами, установленными рядом с траншеей. Основание дороги, по которой вдоль траншеи перемещаются краны и транспортные средства, должно выдерживать создаваемые ими нагрузки. При слабом основании необходимо прокладывать временно дороги из дорожных плит, руководствуясь технологическими схемами на разгрузочные операции и укладку дорожных плит при сооружении внутриквартальных дорог (Мосоргстрой, арх. № 7729).

2.2. Каждый кран должен быть оснащен двумя кольцевыми и одним четырехветвевым стропами. Указанные грузозахватные приспособления на кране должны соответствовать необходимой для данной работы грузоподъемности крана.

2.3. При необходимости установки крана вблизи линий электропередачи следует строго соблюдать порядок, установленный ст. 344 «Правил устройства и безопасной эксплуатации грузоподъемных кранов», которая гласит:

Установка и работа стрелового крана на расстоянии блике 30 м от крайнего провода линии электропередачи или воздушной электрической сети напряжением более 36 В может производиться только по наряду-допуску, определяющему безопасные условия такой работы.

Наряд-допуск должен подписываться руководителем (начальником, главным инженером) предприятия или организации, производящей работы, или другим руководящим лицом по их указанию и направляться владельцу крана (УМ) вместе с заявкой на кран. Наряд-допуск выдается крановщику, с проведением инструктажа главным инженером УМ или другим лицом, назначенным приказом по Управлению механизации, одновременно с выдачей путевого листа.

При производстве работ в охранной зоне линии электропередачи, или в пределах, установленных правилами охраны высоковольтных электрических сетей разрывов, наряд-допуск может быть выдан только при наличии разрешения организации, эксплуатирующей линию электропередачи.

Установка и работа крана и указанных в настоящей статье случаях должна производиться под непосредственным руководством лица, ответственного за безопасное производство работ по перемещению грузов кранами, который должен обеспечить выполнение указанных в наряде-допуске условий работы крана.

В путевом листе крановщика стрелового крана администрация должна: ставить штамп о запрещении самовольной установки крана для работы вблизи линии электропередачи без наряда-допуска.

Работа грузоподъемных кранов под проводами действующих. ЛЭП запрещается. При необходимости производить работы под проводами владелец ЛЭП должен снять напряжение и в письменном виде уведомить об этом организацию, выполняющую работы, с указанием времени, предоставленного для выполнения работ. В наряде-допуске делается соответствующая запись и указывается время, отведенное на выполнение работ.

2.4. Максимальная подъема до низа секций коллекторов, трубопроводов и других элементов не должна превышать 4 м.

Граница опасной зоны определяется необходимым рабочим вылетом крюка крана +0,5 длины данного элемента +2,2 м (Схема № 3 «Указаний по составлению проектов производства строительно-монтажных работ грузоподъемными кранами» Мосоргстроя, выпуск IV стр. 2о).

2.5. При отсутствии ограждения строительной площадки забором по контуру опасной зоны устанавливаются стойки инвентарных ограждений (Мосоргстрой, проект № 7453 или № 3945). Пролеты между стойками должны быть не более 5 м ограждаться в один ряд хлопчатобумажной веревкой диаметром не менее 12 мм, с предупреждающими знаками и красными флажками посередине пролета (см. стр. 24).

2.6. У входов в опасную зону устанавливаются предупреждающие знаки («Осторожно, работает кран!») по ГОСТ 12.4.026-76.

2.7. При работе в стесненных условиях, требующих ограничения действия крана, необходимо выставлять предупреждающие и запрещающие знаки безопасности по ГОСТ 12.4.026-76.

2.8. Расстояние от основания откоса траншей до ближайшей опоры крана принимается по табл. 8 «Правил устройства и безопасной эксплуатации грузоподъемных кранов».

Наименьшее допустимое расстояние от основания откоса котлована и траншеи до ближайших опор крана

Глубина котлована, траншеи (Н), м

Грунт (ненасыпной)

песчаный и гравийный

супесчаный

суглинистый

глинистый

лессовый сухой

Расстояние от основания откоса до ближайшей опоры, м

1

1,5

1,25

1,0

1,0

1,0

2

3,0

2,4

2,0

1,5

2,0

3

4,0

3,6

3,25

1,75

2,5

4

6,0

4,4

4,0

3,0

3,0

5

6,0

5,3

4,75

3,5

3,5

2.9. Все работы грузоподъемными кранами должны производиться в соответствии с должностными инструкциями крановщиков, стропальщиков и лиц, ответственных за безопасное производство работ по перемещению грузов кранами, при строгом соблюдении правил по технике безопасности.

2.10. В соответствии с перечнем обязательной оснастки грузоподъемных машин, утвержденным приказом по Главмосстрою № 531 от, 7 сентября 1977 г., управления механизации направляют на объекты краны стреловые со следующим оснащением:

- для монтажа элементов массой до 10 т - строп 4CK-10, длина ветви 4,0 м;

- строп УСК2-5, длина 4 м - 2 шт.;

- для монтажа элементов массой до 16 т - строп 4 - ветвевой, длина ветви 5 м, грузоподъемность - 16 т (Мосоргстрой, чертеж 1095 Н); два стропа универсальных (кольцевых), длина - 4 м, грузоподъемность - 8 т.

Примечание.

Массы секций коллекторов, трубопроводов и сборных колодцев приняты с учетом плюсового допуска при изготовлении.

Приведенные грузовые характеристики кранов сверены с паспортными данными.

СТРОПЫ ГРУЗОВЫЕ КАНАТНЫЕ
проект СКБ «Мосстрой» № 5494

1. Строп 4СK-5 4-

4-ветвевой,

длина ветви

2,6+30 м

нагрузка

5 т

2. Строп 4CK-10

»

»

4,0 м

»

10 т

3. Строп 4CK-10

»

»

6,0 м

»

10 т

4. Строп УСК2-2,5

кольцевой, длина

2,0 м

»

2,5 т

5. Строп УСК2-2.5

»

»

4,0 м

»

2,5 т

6. Строп УСК2-3,2

»

»

4,0 м

»

3,2 т

7. Строп УСК2-5

»

»

4,0

»

5 т

8. Строп УСК2-5

»

»

6,0

»

5 т

9. Строп УСК2-8

»

»

6,0

»

8 т

10. Строп УСК2-10

»

»

6.0

»

10 т

ЗНАКИ БЕЗОПАСНОСТИ по ГОСТ 12.4.026-76

Знаки предупреждающие

Знак, предупреждающий об ограничении действий крана.

Устанавливается перед знаком, запрещающим пронос груза.

В зависимости от расстояния до кабины машиниста крана

№ размеров знаков

Расстояние от знака до наблюдателя в м

Размер в мм

А

3

свыше 40 до 50

710

ОСТОРОЖНО! РАБОТАЕТ КРАН

Устанавливаются по контуру опасной зоны, возникающей при работе крана.

Знаки изготавливаются из листовой стали толщиной от 0,5 до 1,5 мм, а также из жесткого оргалита толщиной 3-4 мм и окрашивают со всех сторон масляной краской.

Знаки должны быть следующими: равносторонний треугольник со скругленными углами желтого цвета, обращенный вершиной вверх, с каймой черного цвета шириной 0,05 м стороны и символическим изображением черного цвета.

ЗНАКИ ЗАПРЕЩаюЩИЕ

ПРОНОС ГРУЗА ЗАПРЕЩЕН

В зависимости от расстояния до кабины машиниста крана

размеров знаков

Расстояние от знака до наблюдателя в м

Размер в мм

А

3

свыше 50 до 50

560

ВХОД (ПРОХОД)

ВОСПРЕЩЕН

Знаки изготавливают из листовой стали толщиной от 0,5 до 1,5 мм, а также из жесткого оргалита толщиной 3-4 мм и окрашивают со всех сторон масляной краской.

Знаки должны быть следующими:

круг красного цвета с белым полем внутри, белой по контуру знака каймой и символическим изображением черного цвета на внутреннем белом поле, перечеркнутым наклонной полосой красного цвета (угол наклона 45º, слева сверху направо вниз).

Ширина кольца красного цвета должна быть 0,09-0,1 внешнего диаметра, ширина белой каймы по контуру знака - 0,02 внешнего диаметра.

СХЕМЫ СТРОПОВКИ СЕКЦИЙ ВК-2

Секция ВК-2 (в сборе)

Секция полной заводской готовности с. опорами, кронштейнами и светильниками массой до 7 т

Строп 4CK-10, длина ветви 4 м

Стеновая плита. СК 20

Масса до 2 т; строп 4СК-10, длина ветви 4 м

Земляные работы по траншеям для монтажа внутриквартирных объемных элементов коллекторов, подготовка оснований под них, обратная засыпка грунта и прокладка коммуникаций, производятся согласно Альбому института Мосинжпроект, 68/73, выпуск 11.

Плита днища ДК-15 Масса до 1,8 т

Строп 4СК-10, длина ветви 4 м

Плита перекрытия ПК-15 Масса до 1,8 т;

Строп 4CK-10, длина ветви 4 м

НОМЕНКЛАТУРА ЖЕЛЕЗОБЕТОННЫХ ОБЪЕМНЫХ СЕКЦИЙ НА БАЗЕ ВК-2

Марка секции

Марка элементов

Размеры элементов в мм

Масса элементов в т

Масса секции в т

L

В

Ш

ВК-2Д

Плита перекрытия ПК-15л

3200

110

1720

1,46

6,28

Плита днища ДК-15-1

3200

110

1720

1,55

Стеновая плита СК-20-1

3200

110

1970

1,633 (2 шт.=3,266)

ВК-2Ш

Плита, перекрытия ПК-15ш

3200

110

1720

1,3

6,12

Плита днища ДК-15-1

3200

110

1720

1,65

Стеновая плита CК-20-1

3200

110

1970

1,633 (2 шт. =3,266)

ВК-2Б

Плита перекрытия ПК-15

3200

110

1720

1,576

6,02

Плита днища ДК-15

3200

110

1720

1,582

Стеновые плиты:

 

 

 

 

СК-20

3200

110

1970

1,73

СК-20б

3200

110

1970

1,13

ВК-2Т

Плита, перекрытия ПК-15

3200

110

1720

1,575

6,62

Плита днища ДК-15

3200

110

1720

1,582

Стеновая плита СК-20

3200

110

1970

1,73 (2 шт.=3,46)

ВК-2

Плита перекрытия ПК-15

3200

110

1720

1,575

6,62

Плита днища ДК-15

3200

110

1720

1,582

Стеновая плита СK-20

3200

110

1970

1,73 (2 шт.=3,46)

МОНТАЖ СЕКЦИИ КОЛЛЕКТОРА ДЛЯ ВНУТРИКВАРТАЛЬНЫХ КОММУНИКАЦИЙ ПОЛНОЙ ЗАВОДСКОЙ ГОТОВНОСТИ КРАНАМИ АВТОМОБИЛЬНЫМИ K-162 и КС-4571

МОНТАЖ СЕКЦИИ КОЛЛЕКТОРА ДЛЯ ВНУТРИКВАРТАЛЬНЫХ КОММУНИКАЦИЙ ПОЛНОЙ ЗАВОДСКОЙ ГОТОВНОСТИ КРАНАМИ АВТОМОБИЛЬНЫМИ K-162 и КС-4571

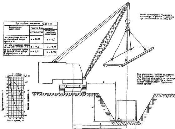
МОНТАЖ СЕКЦИИ КОЛЛЕКТОРА ДЛЯ ВНУТРИКВАРТАЛЬНЫХ КОММУНИКАЦИЙ ПОЛНОЙ ЗАВОДСКОЙ ГОТОВНОСТИ КРАНАМИ ГУСЕНИЧНЫМИ Э-10011Д, Э-1258, Э-1254

МОНТАЖ ОБЪЕМНЫХ СЕКЦИЙ КОЛЛЕКТОРА РК-25 КРАНОМ ПНЕВМОКОЛЕСНЫМ КС-6362

МОНТАЖ КОЛЛЕКТОРА ДЛЯ ВНУТРИКВАРТАЛЬНЫХ КОММУНИКАЦИЙ ИЗ ОТДЕЛЬНЫХ ЭЛЕМЕНТОВ КРАНАМИ АВТОМОБИЛЬНЫМИ СМК-10 и КС-3526А

МОНТАЖ КОЛЛЕКТОРА ДЛЯ ВНУТРИКВАРТАЛЬНЫХ КОММУНИКАЦИЙ ИЗ ОТДЕЛЬНЫХ ЭЛЕМЕНТОВ КРАНОМ ГУСЕНИЧНЫМ Э-10011Д

МОНТАЖ СМОТРОВОГО ЛЮКА ИЗ ЖЕЛЕЗОБЕТОННЫХ КОЛЕЦ КРАНАМИ K-51 и КС-2561 Д ГРУЗОПОДЪЕМНОСТЬЮ 5-6,3 т

МОНТАЖ СМОТРОВОГО ЛЮКА ИЗ БЕТОННЫХ КАМНЕЙ КРАНАМИ K-51 и КС-2561 Д ГРУЗОПОДЪЕМНОСТЬЮ 5-6,3 т

РАЗГРУЗКА И ЗАВОДКА ТРУБ В СЕКЦИИ КОЛЛЕКТОРА

УКЛАДКА ТРУБ В БИТУМОПЕРЛИТОВОЙ ИЗОЛЯЦИИ, ДРЕНАЖНЫХ ТРУБ И МОНТАЖ ВОДОСТОЧНОГО КОЛОДЦА КРАНАМИ АВТОМОБИЛЬНЫМИ СМК-10 и КС-3526А

УКЛАДКА ТРУБ В БИТУМОПЕРЛИТОВОЙ ИЗОЛЯЦИИ, ДРЕНАЖНЫХ ТРУБ И МОНТАЖ ВОДОСТОЧНОГО КОЛОДЦА КРАНАМИ АВТОМОБИЛЬНЫМИ СМК-10 и КС-3526А

СХЕМА ПРОКЛАДКИ ТЕПЛОВОЙ СЕТИ ИЗ ТРУБ С УСЛОВНЫМ ПРОХОДОМ 300 мм С БИТУМОПЕРЛИТОВОЙ ИЗОЛЯЦИЕЙ В НЕПРОХОДНЫХ КАНАЛАХ КРАНОМ АВТОМОБИЛЬНЫМ КС-2561-Д

СХЕМА СКЛАДИРОВАНИЯ И СТРОПОВОК ПРИ РАЗГРУЗКЕ И МОНТАЖЕ ПЛИТ ПЕРЕКРЫТИЯ И БЕТОННЫХ СТЕНОВЫХ БЛОКОВ ДЛЯ УСТРОЙСТВА НЕПРОХОДНЫХ КАНАЛОВ ТЕПЛОВЫХ СЕТЕЙ

ОГРАЖДЕНИЯ ОПАСНЫХ ЗОН

 

 




ГОСТЫ, СТРОИТЕЛЬНЫЕ и ТЕХНИЧЕСКИЕ НОРМАТИВЫ.
Некоммерческая онлайн система, содержащая все Российские Госты, национальные Стандарты и нормативы.
В Системе содержится более 150000 файлов нормативно-технической документации, действующей на территории РФ.
Система предназначена для широкого круга инженерно-технических специалистов.

Рейтинг@Mail.ru Яндекс цитирования

Copyright © www.gostrf.com, 2008 - 2026