Крупнейшая бесплатная информационно-справочная система онлайн доступа к полному собранию технических нормативно-правовых актов РФ. Огромная база технических нормативов (более 150 тысяч документов) и полное собрание национальных стандартов, аутентичное официальной базе Госстандарта. GOSTRF.com - это более 1 Терабайта бесплатной технической информации для всех пользователей интернета. Все электронные копии представленных здесь документов могут распространяться без каких-либо ограничений. Поощряется распространение информации с этого сайта на любых других ресурсах. Каждый человек имеет право на неограниченный доступ к этим документам! Каждый человек имеет право на знание требований, изложенных в данных нормативно-правовых актах!

  


 

МГА

ГПИ и НИИ ГА АЭРОПРОЕКТ

РЕКОМЕНДАЦИИ
ПО ОПТИМАЛЬНЫМ СХЕМАМ РЕКОНСТРУКЦИЙ И РАСШИРЕНИЯ ЗДАНИЙ И СООРУЖЕНИЙ АЭРОПОРТОВ

МОСКВА

1986

Содержание

ВВЕДЕНИЕ

1. АНАЛИЗ ОПЫТА РЕКОНСТРУКЦИИ И РАСШИРЕНИЯ ЗДАНИЙ И СООРУЖЕНИЙ АЭРОПОРТОВ

1.1. Опыт этапного развития здания и сооружений пассажирского комплекса аэропортов

1.2. Опыт этапного развития зданий и сооружений грузового комплекса

1.3. Опыт этапного развития зданий и сооружений вспомогательного комплекса

2. ПОТРЕБНОСТИ И ТИПИЧНЫЕ СИТУАЦИИ РЕКОНСТРУКЦИИ И РАСШИРЕНИЯ ЗДАНИЙ И СООРУЖЕНИЙ АЭРОПОРТОВ

2.1. Оценка диапазона увеличения пропускной способности действующих аэровокзалов в сложившейся градостроительной ситуации аэропортов.

2.2. Оценка диапазона увеличения грузооборота действующих грузовых комплексов в сложившейся градостроительной ситуации аэропортов

2.3. Оценка диапазона увеличения мощности действующих зданий и сооружений вспомогательного комплекса.

3. РЕКОМЕНДАЦИИ ПО ОПТИМАЛЬНЫМ СХЕМАМ РЕКОНСТРУКЦИИ И РАСШИРЕНИЯ ЗДАНИЙ И СООРУЖЕНИЙ АЭРОПОРТОВ

3.1. Схемы реконструкции и расширения зданий и сооружений пассажирского комплекса

3.2. Схемы реконструкции и расширения зданий и сооружений грузового комплекса

3.3. Схемы реконструкции и расширения зданий и сооружений вспомогательного комплекса

3.4. Требования к строительному обеспечению реконструкции и расширения зданий и сооружений аэропортов

ЗАКЛЮЧЕНИЕ

СПИСОК ИСПОЛЬЗОВАННЫХ ИСТОЧНИКОВ

Рекомендации по оптимальным схемам реконструкции зданий и сооружений аэропортов разработаны Государственным проектно-изыскательским и научно-исследовательским институтом гражданской авиации Аэропроект. Авторы: канд. архитектуры М.Б. Комский - научный руководитель работы, начальник сектора (методическое руководство, подразделы 1.1; 2.1; 3.1; 3.4; 3.5; Заключение); С.Ф. Маркова - начальник сектора (подразделы 1.2; 3.2); канд. архитектуры, ст. н. сотрудник И.Д. Казанский (подразделы 1.3; 2.3; 3.3); В.А. Мануйлова, ст. инженер, В.Ю. Защепенков, ст. н. сотрудник (подготовка графического материала); М.М. Лакомцева, м. н. сотрудник (подразделы 1.2; 2,2; 3,2)

В результате проведенных исследований даны рекомендации по реконструкции зданий, выявлены типы модулей их расширения, что создает предпосылки к последующей разработке быстровозводимых строительных изделий из материалов повсеместного распространения. Рекомендации по реконструкции и расширению зданий аэропортов следует использовать как основу для предпроектной и проектной работы по созданию объемно-планировочные решений объектов расширения пассажирского, грузового и вспомогательного комплексов аэропортов, а также создания и внедрения быстровозводимых модулей высокой заводской готовности и комплектной поставки.

ВВЕДЕНИЕ

Необходимость проведения работы обусловлена значительным увеличением потребности в реконструкции и расширении построенных за последние 15-20 лет относительно современных капитальных зданий в более чем 120 аэропортах V-II класса. Ожидается, что примерно 2/3 всех строек в аэропортах в течение ближайших пятилеток будут выполнены за счет реконструкции и расширения ранее построенных зданий.

К настоящему времени мощность, планировка и архитектура большинства зданий морально устарели, но состояние конструкций позволяет их эксплуатировать еще многие десятилетия. Реконструкция и расширение относительно капитальных зданий позволяет продлить долголетие полезного использования ценных строительных фондов по их прямому или новому назначению.

Поскольку мероприятия по реконструкции и расширению становятся массовыми, для их реализации требуется обоснованные рекомендации по степени применяемости в различных условиях эксплуатации и застройки аэропортов.

ПЕРЕЧЕНЬ УСЛОВНЫХ ОБОЗНАЧЕНИЙ И ТЕРМИНОВ

СПЗ - служебно-пассажирское здание

КДП - контрольно-диспетчерский пункт

ЦБП - цех бортового питания

Реконструкция - увеличение площадей и переустройство существующих зданий с целью увеличения их производственной мощности, пропускной способности и вместимости.

Расширение - в масштабах аэропорта строительство новых зданий, обеспечивающих увеличение пассажирских и грузовых перевозок - в масштабах одного здания - увеличение площадей помещения основного технологического назначения, дополнительных и служебных помещений, с целью увеличения их мощности.

Новое строительство - строительство комплекса объектов основного, подсобного и обслуживающего назначения вновь создаваемого аэропорта, которые после ввода в эксплуатацию будут находиться на самостоятельном балансе, осуществляемых на новой площадке в целях создания новой производственной мощности, а также строительство на новой площадке указанных выше объектов, перебазируемых на новое место, когда признана нецелесообразность их эксплуатации на существующей площадке по техническим, экономическим и технологическим требованиям [1].

1. АНАЛИЗ ОПЫТА РЕКОНСТРУКЦИИ И РАСШИРЕНИЯ ЗДАНИЙ И СООРУЖЕНИЙ АЭРОПОРТОВ

1.1. Опыт этапного развития здания и сооружений пассажирского комплекса аэропортов

1.1.1. Анализ опыта реконструкции и расширения зданий и сооружений пассажирского комплекса проводился на основе изучения проектных материалов, проведения натурного обследования аэровокзалов и по материалам периодических изданий, публикующих данные по развитию зарубежных аэровокзалов.

Наиболее детально рассмотрена история развития аэровокзальных комплексов в 56 отечественных аэропортах. Зафиксировано около 90 случаев реконструкции и расширения аэровокзалов, 44 случая реконструкции и расширения обследовано, 46 - известно по проектам, в том числе 50 случаев осуществлено в натуре, 5 - осуществляется, 35 - запроектированы.

Результаты проектного и натурного обследования отечественных аэровокзалов представлены на рис. 1.1-1.86.

1.1.2. По мере увеличения пропускной способности аэровокзалов в зависимости от физической и моральной долговечности действующих зданий применяются в основном три способа их использования:

- снос ветхих и небольших по объему зданий, препятствующих развитию комплекса на данной территории, Рис. 2;

- приспособление устаревших для данной технологии зданий по другому назначению;

- расширение зданий с реконструкцией части или всех помещений (более 90 % рассматриваемых примеров).

1.1.3. По объемно-планировочному решению различаются, в основном три наиболее распространенных приема:

- строительство отдельно стоящего здания с определенной функцией того же назначения, Рис. 1.38; 1.39; 1.42; 1.55; 1.56;

- пристройка к существующему аэровокзалу нового здания через переходы, галереи, Рис. 1.3; 1.6; 1.11; 1.16; 1.30; 1.57; 1.60;

- пристройка к существующему аэровокзалу нового объема непосредственно без соединительных протяженных элементов. Рис. 1.9; 1.12; 1.13; 1.25; 1.31; 1.37; 1.42; 1.62; 1.65; 1.68; 1.69; 1.7I; 1.76.

Рис. 1.1.

Этапы развития отечественных и зарубежных аэропортов 1 - Быково, 2 - Волгоград, 3 - Сочи, 4 - Свердловск, 5 - Амстердам-Схипхол, 6 - Париж-Орли, 7 - Лондон-Хитроу, 8 - Внуково

Рис. 1.2.

Строительство нового аэровокзала в аэропорту Нью-Йорк Ла Гардиа на месте снесенного первоначального аэровокзала

Рис. 1.3.

ГЕНПЛАН АЭРОВОКЗАЛА АЭРОПОРТА РИГИ

1. - АЭРОВОКЗАЛ НА 600 ПАСС./Ч - 1974 г., 2. ПРИСТРОЙКА ЗАЛА ВЫДАЧИ БАГАЖА - 1984 г., 3. - ПРИСТРОЙКА ЗАЛА ДОСМОТРА И ОЖИДАНИЯ ПОСАДКИ ПАССАЖИРОВ ВНУТРЕННИХ ЛИНИЙ - 1984 г., 4. - ПРИСТРОЙКА ЗАЛА ДОСМОТРА И ОЖИДАНИЯ ПОСАДКИ ПАССАЖИРОВ МЕЖДУНАРОДНЫХ ЛИНИЙ - 1985 г.., 5. - КДП. 6. - ЗДАНИЕ УПРАВЛЕНИЯ АЭРОПОРТА СО СТОЛОВОЙ, 7. - ГОСТИНИЦА НА 122 МЕСТА, 8. - ПРИВОКЗАЛЬНАЯ ПЛОЩАДЬ

Рис. 1.4.

ЭКСПЛИКАЦИЯ ПОМЕЩЕНИЙ

1.- ОПЕРАЦИОННЫЙ ЗАЛ ПРИБЫВАЮЩИХ ПАССАЖИРОВ ДВИЖЕНИЯ. 3 - ЗАЛ ВЫДАЧИ БАГАЖА. БАГАЖНОЕ ОТДЕЛЕНИЕ. 4. КАМЕРА ХРАНЕНИЯ. 5. МЕДПУНКТ. 6. - СЛУЖЕБНОЕ ОТДЕЛЕНИЕ. ОТДЕЛЕНИЕ СВЯЗИ. 7.- ОТДЕЛЕНИЕ СВЯЗИ. КОМПЛЕКТОВКА БАГАЖА. 9. ЦЕХ БОРТРИТАНИЯ. 10. - ТЕХНИЧЕСКИЕ ПОМЕЩЕНИЯ. 11.- БЫТОВЫЕ ПОМЕЩЕНИЯ. 12. - ПРОИЗВОДСТВЕННЫЕ ПОМЕЩЕНИЯ ПИЩЕБЛОКА. 13. - ПОДСОБНЫЕ ПОМЕЩЕНИЯ ПИЩЕБЛОКА. 14. - ПОМЕЩЕНИЯ СПЕЦКОНТРОЛЯ МЕЖДУНАРОДНЫХ ЛИНИЙ. 15. - НАКОПИТЕЛЬ. 16. - ПОМЕЩЕНИЕ СПЕЦКОНТРОЛЯ. 17. - ОПЕРАЦИОННЫЙ ЗАЛ УБЫВАЮЩИХ ПАССАЖИРОВ. 18 - ЗАЛ ОЖИДАНИЯ. 19. KAФЕ. 20. - ОПЕРАЦИОННЫЙ ЗАЛ МЕЖДУНАРОДНЫХ ЛИНИЙ.

АЭРОВОКЗАЛ ТРАНСПОРТА РИГА

ПУТИ ДВИЖЕНИЯ

ПЛАН 1 ЭТАЖА

Рис. 1.5.

Аэровокзал аэропорта Рига

Пути движения

==== пассажиров с багажом;

_____ пассажиров без багажа

------- багажа

ПЛАН 2 ЭТАЖА

Рис. 1.6.

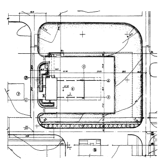
ГЕНПЛАН АЭРОПОРТА ДНЕПРОПЕТРОВСК

1. ЗДАНИЕ АЭРОВОКЗАЛА - 1970 г., 2. ЗДАНИЕ УПРАВЛЕНИЕ АЭРОПОРТА, 3. СТОЛОВАЯ, 4. РЕСТОРАН, 5. ГОСТИНИЦА, 6. ПОЖАРНОЕ ДЕПО, 7. ГРУЗОВОЙ КОМПЛЕКС, 8. ПЕРВОНАЧАЛЬНОЕ ЗДАНИЕ АЭРОВОКЗАЛА - 1950 г., 9. 3AЛ ДЕПУТАТОВ, 10. РАСШИРЕНИЕ ЗОНЫ ДОСМОТРА И ОЖИДАНИЯ ПОСАДКИ - 1984 г., 11. ПРИВОКЗАЛЬНАЯ ПЛОЩАДЬ, 12. ПЕРРОН, 13. РАСШИРЕНИЕ ЗАЛА ВЫДАЧИ БАГАЖА, 14. КПП

Рис. 1.7

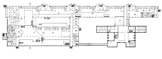
АЭРОВОКЗАЛ АЭРОПОРТА ДНЕПРОПЕТРОВСК

ПЛАН 1 ЭТАЖА

ПЛАН ПОДВАЛА

ДНЕПРОПЕТРОВСК

ЭКСПЛИКАЦИЯ ПОМЕЩЕНИЙ

1. ОПЕРАЦИОННЫЙ ЗАЛ, 2. ЗАЛ ВСТРЕЧИ ПРИЛЕТЕВШИХ ПАССАЖИРОВ, 3. БАГАЖНОЕ ОТДЕЛЕНИЕ, 4. ЗОНА ОЖИДАНИЯ ПОСАДКИ, 5. ПОМЕЩЕНИЯ СПЕЦКОНТРОЛЯ, 6. НАКОПИТЕЛЬ, 7. ЗАЛ ПОЛУЧЕНИЯ БАГАЖА, 8. ХОЛЛ, 9. ДЕПУТАТСКИЙ ЗАЛ, 10. СЛУЖЕБНЫЕ ПОМЕЩЕНИЯ, 11. ПОДСОБНЫЕ ПОМЕЩЕНИЯ ПИЩЕБЛОКА, 12. БЫТОВЫЕ ПОМЕЩЕНИЯ, 13. КАМЕРА ХРАНЕНИЯ, 14. САНУЗЛЫ ДЛЯ ПАССАЖИРОВ, 15. ТЕХНИЧЕСКИЕ ПОМЕЩЕНИЯ

Рис. 1.8

АЭРОВОКЗАЛ АЭРОПОРТА ДНЕПРОПЕТРОВСК

ПЛАН 2 ЭТАЖА

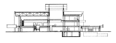
РАЗРЕЗ А-А

9. ЗАЛ ДЕПУТАТОВ. 16. ЗОНА ОЖИДАНИЯ, 17. КАФЕ, 18. КУХНЯ, 19. ПЕРЕХОД

Рис. 1.9

АЭРОВОКЗАЛ АЭРОПОРТА МАГАДАН

ГЕНПЛАН

1. АЭРОВОКЗАЛ 1980 г., 2. ПРИСТРОЙКА К АЭРОВОКЗАЛУ (ОСУЩЕСТВЛЯЕТСЯ), 3. АВТОПАВИЛЬОН, 4. ПРИВОКЗАЛЬНАЯ ПЛОЩАДЬ, 5. ПЕРРОН

Рис 1.10.

АЭРОВОКЗАЛ АЭРОПОРТА МАГАДАН

ЭКСПЛИКАЦИЯ ПОМЕЩЕНИЙ

1. ЗОНА ОЖИДАНИЯ ПРИЛЕТЕВШИХ ПАССАЖИРОВ

2. ЗОНА ВЫДАЧИ БАГАЖА

3. ЗОНА ОБРАБОТКИ БАГАЖА ПРИЛЕТЕВШИХ ПАССАЖИРОВ

4. ПОМЕЩЕНИЯ ХРАНЕНИЯ НЕВОСТРЕБОВАННОГО БАГАЖА

5. СЛУЖЕБНЫЕ ПОМЕЩЕНИЯ

6. ТЕХНИЧЕСКИЕ ПОМЕЩЕНИЯ

7. ДЕПУТАТСКИЙ 3AЛ

8. МЕДПУНКТ

9. ПОДСОБНЫЕ ПОМЕЩЕНИЯ ПИЩЕБЛОКА

10. ПРОИЗВОДСТВЕННЫЕ ПОМЕЩЕНИЯ ПИЩЕБЛОКА

11. МИЛИЦИЯ

12. КАМЕРА ХРАНЕНИЯ

13. ПОМЕЩЕНИЕ ХРАНЕНИЯ БАГАЖА ОТЛОЖЕННЫХ РЕЙСОВ

14. САНУЗЛЫ ДЛЯ ПАССАЖИРОВ

15. ЗОНА КОМПЛЕКТОВКИ БАГАЖА

16. ЗОНА РЕГИСТРАЦИИ БИЛЕТОВ И ОФОРМЛЕНИЯ БАГАЖА

17. ПОМЕЩЕНИЕ СПЕЦКОНТРОЛЯ С НАКОПИТЕЛЯМИ

18. ОТДЕЛЕНИЕ СВЯЗИ

19. КОМНАТА МАТЕРИ И РЕБЕНКА

20. СЛУЖЕБНЫЕ ПОМЕЩЕНИЯ ПИЩЕБЛОКА

21. СЛУЖЕБНАЯ СТОЛОВАЯ

22. БУФЕТ

23. КАФЕ

24. ЗОНА ОЖИДАНИЯ ТРАНЗИТНЫХ ПАССАЖИРОВ

25. БУФЕТ И БАНКЕТНЫЙ ЗАЛ ДЕПУТАТОВ

26. ПОМЕЩЕНИЯ СФЕРЫ ОБСЛУЖИВАНИЯ

27. БЫТОВЫЕ ПОМЕЩЕНИЯ

28. ЗАЛ ОЖИДАНИЯ

29. РЕСТОРАН

Рис. 1.11.

Этапы расширения аэровокзального комплекса аэропорта Свердловск. А - Генплан, Б - План 1-го этажа аэровокзала. А: 1 - здание первоначального аэровокзала; 2 - пассажирское здание - 1970 год: 3 - здание прибытия пассажиров - 1983 год; 4 - пристройка накопителей - 1970 год; 5 - пристройка 1984 год; 6 - привокзальная площадь; 7 - перрон. Б: 1 - зона ожидания; 2 - операционный зал; 3 - зал ожидания посадки; 4 - зал выдачи багажа; 5 - зал встречи; 6 - невостребованный багаж; 7 - камера хранения багажа; 8 - ресторан; 9 - гардероб; 10 - отделение связи; 11 - зал депутатов; 12 - буфет; 13 - медпункт; 14 - милиция; 15 - багажное отделение: 16 - административные помещения; 17 - служебные помещения; 18 - технические помещения;.19 - санузлы

ПЛАН 1 ЭТАЖА

ГЕНПЛАН

1. ВЕСТИБЮЛЬ

2. ХОЛЛ

3. ОПЕРАЦИОННЫЙ ЗАЛ

4. БАГАЖНОЕ. ПОМЕЩЕНИЕ

5. ПУНКТ ДОСМОТРА

6. ЗАЛ ОЖИДАНИЯ ПОСАДКИ (НАПОЛНИТЕЛИ)

7. ЗОНА ПРИБЫТИЯ

8. ТОРГОВЫЙ ЗАЛ

9. МИЛИЦИЯ

10. СЛУЖБА ОТДЕЛА ПЕРЕВОЗОК

11. КАМЕРА ХРАНЕНИЯ

12. СЛУЖЕБНОЕ ПОМЕЩЕНИЕ

13. ТЕХ. КЛАСС

14. СПРАВОЧНАЯ

15. САНУЗЛЫ

16. ПОДСОБНАЯ БУФЕТА

17. МОЙКА

18. ДОГОТОВОЧНАЯ БУФЕТА

19. ТЕХНИЧЕСКОЕ ПОМЕЩЕНИЕ ТЕЛЕУСТАНОВОК

20. ПОМЕЩЕНИЕ ДЕЖУРНОЙ СМЕНЫ

21. ФЕЛЬДСВЯЗЬ

22. ВРАЧ

23. КЛАДОВАЯ

24. АДМИНИСТРАЦИЯ СЛУЖБЫ ОТДЕЛА ПЕРЕВОЗОК

25. МЕДПУНКТ

26. КАССЫ

27. ДЕЖУРНЫЙ НАЧАЛЬНИК А/В

1. АЭРОВОКЗАЛ - 1960 г.

2. КДП

3. АВТОСТАНЦИЯ

4. ЛЕТНЯЯ ЗОНА ВЫДАЧИ БАГАЖА

5. КАФЕ

6. ПРИВОКЗАЛЬНАЯ ПЛОЩАДЬ

7. ПЕРРОН

8. ПРИСТРОЙКА ОПЕРАЦИОННОГО ЗАЛА, БАГАЖНЫХ ПОМЕЩЕНИЙ, ЗАЛОВ ДОСМОТРА И ОЖИДАНИЯ ПОСАДКИ

Рис. 1.12

АЭРОВОКЗАЛ АЭРОПОРТА ОДЕССА

Рис. 1.13.

АЭРОВОКЗАЛ АЭРОПОРТА КУЙБЫШЕВ-1 /П. КУРУМОЧ/

ГЕНПЛАН

ЭКСПЛИКАЦИЯ

1. ЗДАНИЕ АЭРОВОКЗАЛА ПОСТРОЙКИ 1958 г.

2. ПРИСТРОЙКА К АЭРОВОКЗАЛУ 1976 г. (первый этап расширения)

3. ПРИСТРОЙКА ВОКЗАЛА С БАШНЕЙ КДП

(второй этап расширения) 1980 г.

4. ПАВИЛЬОН ВЫДАЧИ БАГАЖА

5. АВТОСТАНЦИЯ

6. КАФЕ

7. ШТАБ ОАО

8. ПРИВОКЗАЛЬНАЯ ПЛОЩАДЬ

9. ПЕРРОН

10. НАДСТРОЙКА ОДНОЭТАЖНЫХ КРЫТЫХ ЗДАНИЙ

Рис. 1.14

АЭРОВОКЗАЛ АЭРОПОРТА КУЙБЫШЕВ-КУРУМОЧ

ЭКСПЛИКАЦИЯ

1. ВЕСТИБЮЛЬ АЭРОВОКЗАЛА

2. ОПЕРАЦИОННЫЙ ЗАЛ

3. НАКОПИТЕЛЬ

4. ПОМЕЩЕНИЕ ОБРАБОТКИ БАГАЖА

5. КАССЫ

6. ОТСТОЙ ЭДЕКТРОКАР

7. ОБЕДЕННЫЙ ЗАЛ РЕСТОРАНА

8. ПОДСОБНЫЕ ПОМЕЩЕНИЯ РЕСТОРАНА

9. ЗАЛ ОЖИДАНИЯ

10. МЕДПУНКТ

11. ДЕПУТАТСКАЯ

12. СЛУЖЕБНЫЕ ПОМЕЩЕНИЯ

13. ПОМЕЩЕНИЯ ДЛЯ ТРАНЗИТНЫХ ПАССАЖИРОВ

14. СПАЛЬНЫЕ КОМНАТЫ

15. КОМНАТА МАТЕРИ И РЕБЕНКА

16. ВОЕННЫЙ КОМЕНДАНТ

17. МИЛИЦИЯ

18. ОТДЕЛЕНИЕ СВЯЗИ

19. ПАРИКМАХЕРСКАЯ

20. ОБЕДЕННЫЙ ЗАЛ ДЕПУТАТСКИЙ

21. ЗАЛ ОЖИДАНИЯ ДЛЯ ИНТУРИСТОВ

22. МАГАЗИН "БЕРЕЗКА"

23. БАНКЕТНЫЙ ЗАЛ "ИНТУРИСТ"

24. СЛУЖБА ИНТУРИСТА

25. СПЕЦКОНТРОЛЬ

26. ЗАЛ ОЖИДАНИЯ ТРАНЗИТНЫХ ПАССАЖИРОВ

27. БУФЕТ

28. КРАСНЫЙ УТОЛОК

29. КАМЕРА ХРАНЕНИЯ

30. ПОДСОБНЫЕ ПОМЕЩЕНИЯ БУФЕТА

31. ВЕНТКАМЕРА

32. ТЕХНИЧЕСКИЕ ПОМЕЩЕНИЯ

ПОТОКИ

Рис. 1.15

АЭРОПОРТ "КУЙБЫШЕВ-КУРУМОЧ" РАСШИРЕНИЕ АЭРОВОКЗАЛА (ПЛАН ПОДВАЛА, РАЗРЕЗ А-А)

ЭКСПЛИКАЦИЯ

27. БУФЕТ

29. КАМЕРА ХРАНЕНИЯ

30. ПОДСОБНЫЕ ПОМЕЩЕНИЯ БУФЕТА

31. ВЕНТКАМЕРА

32. ТЕХНИЧЕСКИЕ ПОМЕЩЕНИЯ

33. СКЛАДСКИЕ ПОМЕЩЕНИЯ ПИЩЕБЛОКА

34. АЭРОВОКЗАЛ - 1958 г.

35. ПРИСТРОЙКА НОВОГО ОПЕРАЦИОННОГО ЗАЛА - 1976 г.

36. ВТОРОЙ ЭТАП РАСШИРЕНИЯ АЭРОВОКЗАЛА (ОСУЩЕСТВЛЯЕТСЯ)

Рис. 1.16

АЭРОВОКЗАЛ

АЭРОПОРТА ВНУКОВО

ГЕНПЛАН

1. ЗДАНИЕ ПЕРВОНАЧАЛЬНОГО АЭРОВОКЗАЛА 1941 г.

2. ПРИСТРОЙКА КРЫЛЬЕВ, ЗАСТРОЙКА ДВОРИКОВ, УСТРОЙСТВО ПОДВАЛОВ 1958 г.

3. ПАССАЖИРСКОЕ ЗДАНИЕ 1963 г.

4. ПРИСТРОЙКА ПАССАЖИРСКОГО ЗДАНИЯ 1980 г.

5. ПЕРСПЕКТИВНЫЕ ПОСАДОЧНЫЕ ЗДАНИЯ

6. ПРИВОКЗАЛЬНАЯ ПЛОЩАДЬ

7. ПЕРРОН

8. КДП

9. ПОЧТОВО-ГРУЗОВОЙ КОМПЛЕКС

Рис. 1.17.

АЭРОВОКЗАЛ АЭРОПОРТА ВНУКОВО

ПЛАН 1 ЭТАЖА

ЭКСПЛИКАЦИЯ ПОМЕЩЕНИЯ

1. ЗАЛ ПРИЛЕТА

2. ЗОНА ВЫДАЧИ БАГАЖА

3. БАГАЖНОЕ ОТДЕЛЕНИЕ

4. ХРАНЕНИЕ НЕВОСТРЕБОВАННОГО БАГАЖA

5. ЗАЛ ВЫЛЕТА № 2

6. НАКОПИТЕЛИ

?. ОТДЕЛЕНИЕ СВЯЗИ

8. ТЕХНИЧЕСКИЕ ПОМЕЩЕНИЯ

9. МЕДПУНКТ

10. СЛУЖЕБНЫЕ ПОМЕЩЕНИЯ

11. ЗАЛ ВЫЛЕТА № 1

12. ПОМЕЩЕНИЕ СПЕЦКОНТРОЛЯ

13. ЗАЛ ПРИЛЕТА СЕКТОРА. "ИНТУРИСТ"

14. МАГАЗИН "БЕРЕЗКА"

15. ПОМЕЩЕНИЕ ДЕПУТАТСКОГО СЕКТОРА

16. ЗАЛ ДЛИТЕЛЬНОГО ОЖИДАНИЯ

17. ЗАЛ ОЖИДАНИЯ ТРАНЗИТНЫХ ПАССАЖИРОВ

18. БАНКЕТНЫЙ ЗАЛ

19. РЕСТОРАН

20. КОКТЕЙЛЬ-БАР

21. ПРОИЗВОДСТВЕННЫЕ ПОМЕЩЕНИЯ ПИЩЕБЛОКА

22. ПОДСОБНЫЕ ПОМЕЩЕНИЯ ПИЩЕБЛОКА

23. КОМНАТА МАТЕРИ И РЕБЕНКА

24. БИЛЕТ-АВТОМАТ

25. ЗАЛ ОЖИДАНИЯ СЕКТОРА "ИНТУРИСТ"

26. ЗАЛ ОЖИДАНИЯ ДЕПУТАТСКОГО СЕКТОРА

Рис 1.18.

АЭРОВОКЗАЛ АЭРОПОРТА ВНУКОВО

ПЛАН 2 ЭТАЖА

ГЕНПЛАН

Рис. 1.19.

АЭРОВОКЗАЛ АЭРОПОРТА ВИЛЬНЮС

1. СУЩЕСТВУЮЩЕЕ ЗДАНИЕ АЭРОВОКЗАЛА - 1950 г.

2. ПРИВОКЗАЛЬНАЯ ПЛОЩАДЬ

3. ПЕРРОН

4 ЭСТАКАДА ПОДЪЕЗДА ТРАНСПОРТА К 2-му УРОВНЮ ОТПРАВЛЕНИЯ ПАССАЖИРОВ

5. ЗДАНИЕ ОТПРАВЛЕНИЯ ПАССАЖИРОВ (ПРОЕКТ 1984)

6. ПОСАДОЧНЫЕ СООРУЖЕНИЯ

7. ГОСТИНИЦА-ПРОФИЛАКТОРИЙ

8 КДП

 

Рис. 1.20.

АЭРОВОКЗАЛ АЭРОПОРТА ВИЛЬНЮС

ЭКСПЛИКАЦИЯ

1. ОПЕРАЦИОННЫЙ ЗАЛ ВЫЛЕТАЮЩИХ ПАССАЖИРОВ

2. 3AЛ ОЖИДАНИЯ ПАССАЖИРОВ, ПРОХОДЯЩИХ ДОСМОТР

3. КАБИНЫ ДОСМОТРА

4. КОМНАТА НАЧАЛЬНИКА СМЕНЫ

5. СЛУЖЕБНЫЕ ПОМЕЩЕНИЯ

6. ВЕСТИБЮЛЬ. ПРИ ГРУЗОВОМ ЛИФТЕ

7. ПОМЕЩЕНИЯ СЛУЖБЫ БЫТА

8. ЗАЛ ОЖИДАНИЙ ПРИЛЕТЕВШИХ ПАССАЖИРОВ

9. ПОСАДОЧНЫЕ ПОМЕЩЕНИЯ

Рис. 1.21

АЭРОВОКЗАЛ АЭРОПОРТА ВИЛЬНЮС

1. ВЕСТИБЮЛЬ

2. АВТОМАТИЧЕСКАЯ КАМЕРА ХРАНЕНИЯ

3. ЗАГРУЗОЧНАЯ

4. ЗОНА РАСПРЕДЕЛЕНИЯ ПРИЛЕТЕВШИХ ПАССАЖИРОВ

5. ПОМЕЩЕНИЕ ВЫДАЧИ БАГАЖА

6. ПОМЕЩЕНИЕ ОБРАБОТКИ БАГАЖА ПРИЛЕТЕВШИХ ПАССАЖИРОВ

7. ПОМЕЩЕНИЕ НЕВОСТРЕБОВАННОГО БАГАЖА

8. ЗОНА ОБРАБОТКИ БАГАЖА ВЫЛЕТАЮЩИХ ПАССАЖИРОВ

9. МАШИННОЕ ОТДЕЛЕНИЕ ЛИФТОВ

10. КАМЕРЫ ХРАНЕНИЯ БАГАЖА

11. ВЕНТКАМЕРЫ

12. САНУЗЛЫ

13. БЫТОВЫЕ ПОМЕЩЕНИЯ ПЕРСОНАЛА

14. ПОМЕЩЕНИЕ ПЕРРОННЫХ БРИГАД

15. СЛУЖЕБНЫЕ ПОМЕЩЕНИЯ

16. ОТДЕЛЕНИЕ МИЛИЦИИ

17. МЕДПУНКТ

18. ТРАНСФОРМАТОРНАЯ ПОДСТАНЦИЯ

19. РЕКОНСТРУИРУЕМЫЕ ПОМЕЩЕНИЯ ЗАЛОВ ДЕПУТАТОВ И ИНТУРИСТА

Рис. 1.22.

АЭРОВОКЗАЛ АЭРОПОРТА ВИЛЬНЮС

1. УРОВЕНЬ ОТПРАВЛЕНИЯ

2. УРОВЕНЬ ПРИБЫТИЯ

3. УРОВЕНЬ ДОПОЛНИТЕЛЬНОГО ОБСЛУЖИВАНИЯ

Рис. 1.23.

ГЕНЕРАЛЬНЫЙ ПЛАН
аэровокзальный комплекс г. Сочи

1 - здание аэровокзала-1948 г., 2 - здание аэровокзала-1957 г., 3 - павильон для пассажиров-1963 г., 4 - павильон для пассажиров-1964 г., 5 - ресторан-1964 г., 6 - павильон для пассажиров-1970 г., 7 - павильон для пассажиров-1980 г., 8 -павильон для выдачи багажа пассажирам-1982 г, 9 -кафе, 10, 11 - цех бортового питания, 12 - столовая, 13 - камера хранения, 14 - кафе, 15 - магазин, 16 - административные здания, 17 - гостиница, 18 - перрон, 19 - привокзальная площадь

Рис. 1.24.

Общий вид аэровокзального комплекса аэропорта Домодедово

Рис. 1.25.

АЭРОВОКЗАЛ АЭРОПОРТА ОРДЖОНИКИДЗЕ

РАЗРЕЗ А-А

ГЕНПЛАН

Рис. 1.26.

АЭРОВОКЗАЛ АЭРОПОРТА ОРДЖОНИКИДЗЕ

ПЛАН 1 ЭТАЖА, ПЛАН 2 ЭТАЖА

ЭКСПЛИКАЦИЯ ПОМЕЩЕНИЙ

1. ОПЕРАЦИОННЫЙ ЗАЛ

2. ЗАЛ ОЖИДАНИЯ

3. БАНКЕТНЫЙ ЗАЛ

4. МАГАЗИН "БЕРЕЗКА"

5. КОМНАТА ДЕПУТАТОВ

6. БУФЕТ

7. ОТДЕЛЕНИЕ СВЯЗИ

8. КАФЕ

9. КОМНАТА МАТЕРИ И РЕБЕНКА

10. ПРОИЗВОДСТВЕННЫЕ ПОМЕЩЕНИЯ ПИЩЕБЛОКА

11. НАЧАЛЬНИК АЭРОПОРТА

12. СЛУЖЕБНЫЕ ПОМЕЩЕНИЯ

13. ЗАЛ ПОЛУЧЕНИЯ БАГАЖА

14. БАГАЖНОЕ ПОМЕЩЕНИЕ

15. ОПЕРАЦИОННЫЙ ЗАЛ СЕКТОРА "ИНТУРИСТ"

16. ЗАЛ ОЖИДАНИЯ ПОСАДКИ

17. ЗАЛ ВСТРЕЧИ ПРИЛЕТЕВШИХ ПАССАЖИРОВ

18. САНУЗЛЫ

19. ПОМЕЩЕНИЯ СПЕЦКОНТРОЛЯ

20. КАМЕРА ХРАНЕНИЯ

21. ПОМЕЩЕНИЯ СФЕРЫ ОБСЛУЖИВАНИЯ

22. БЫТОВЫЕ ПОМЕЩЕНИЯ

23. ПРОИЗВОДСТВЕННЫЕ ПОМЕЩЕНИЯ ПЕРРОННЫХ БРИГАД

24. ТЕХНИЧЕСКИЕ ПОМЕЩЕНИЯ

25. ПОДСОБНЫЕ ПОМЕЩЕНИЯ ПИЩЕБЛОКА

Рис. 1.27

АЭРОВОКЗАЛ А/П СУРГУТ

ЭКСПЛИКАЦИЯ

1. АЭРОВОКЗАЛ НА 200 пасс/ч - 1970 г.

2. ПРИСТРАИВАЕМОЕ ЗДАНИЕ ВАХТОВОГО АЭРОВОКЗАЛА - 1980 г.

3. ПРИВОКЗАЛЬНАЯ ПЛОЩАДЬ

4. ПЕРРОН

Рис. 1.28

АЭРОПОРТ "СУРГУТ"

ПЛАН 1 ЭТАЖА НОВОГО ВАХТОВОГО АЭРОВОКЗАЛА

экСПЛИКАЦИЯ

1. багаЖНОе ОТДЕЛЕНИЕ

2. ВЫдача баГаЖа

3. зонА рЕГИСТРАЦИИ ВЫЛЕТАЮЩИХ ПАССАЖИРОВ

4. операционный зал

5. НАКОПИТЕЛЬ

6. СПЕЦКОНТРОЛЬ

7. СЛУЖЕБНЫЕ ПОМЕЩЕНИЯ

8. КОМНАТА МАТЕРИ И РЕБЕНКА.

9. АДМИНИСТРАТИВНЫЕ ПОМЕЩЕНИЯ

10. КЛАДОВЫЕ

11. ОХЛАЖДАЕМЫЕ КАМЕРЫ

12. ЗАГРУЗОЧНАЯ

13. ЩИТОВАЯ

ПОТОКИ

ПЛАН 2 ЭТАЖА

Рис. 1.29.

АЭРОПОРТ "СУРГУТ"

РАСШИРЕНИЕ АЭРОВОКЗАЛА

ПЛАН 2 ЭТАЖА НОВОГО ВАХТОВОГО АЭРОВОКЗАЛА

экСПЛИКАЦИЯ

14. ЗАЛ ОЖИДАНИЯ

15. ОТДЕЛЕНИЕ СВЯЗИ

16. ДЕПУТАТСКАЯ

17. БАНКЕТНЫЙ ЗАЛ

18. ДЕПУТАТСКИЙ ХОЛЛ

19. ТУАЛЕТ

20. ИНТУРИСТ

21. ВСПОМОГАТЕЛЬНЫЕ ПОМЕЩЕНИЯ

22. ТОРГОВЫЙ ЗАЛ РЕСТОРАНА

23. МОЕЧНАЯ

24. ГОРЯЧИЙ ЦЕХ

25. ОВОЩНОЙ ЦЕХ

26. КОНДИТЕРСКИЙ ЦЕХ

27. МЯСО-РЫБНЫЙ ЦЕХ

28. ХОЛОДНЫЙ ЦЕХ

Рис. 1.30

АЭРОВОКЗАЛ АЭРОПОРТА ЖИТОМИР

ПЛАН 1 ЭТАЖА, ПЛАН 2 ЭТАЖА

РАЗРЕЗ А-А

ГЕНПЛАН

ЭКСПЛИКАЦИЯ ПОМЕЩЕНИЙ

1. ОПЕРАЦИОННЫЙ ЗАЛ

2. ЗОНА РЕГИСТРАЦИИ

3. ПОМЕЩЕНИЕ СПЕЦКОНТРОЛЯ

4. НАКОПИТЕЛЬ

5. БАГАЖНОЕ ОТДЕЛЕНИЕ

6. ЗОНА ВЫДАЧИ БАГАЖА

7. ЗОНА ВСТРЕЧАЮЩИХ

8. КАМЕРА ХРАНЕНИЯ

9. МИЛИЦИЯ

10. ПОМЕЩЕНИЕ СФЕРЫ ОБСЛУЖИВАНИЯ

11. МЕДПУНКТ

12. СЛУЖЕБНЫЕ ПОМЕЩЕНИЯ

13. БЫТОВЫЕ ПОМЕЩЕНИЯ

14. ТЕХНИЧЕСКИЕ ПОМЕЩЕНИЯ

15. ПРОИЗВОДСТВЕННЫЕ ПОМЕЩЕНИЯ ПИЩЕБЛОКА

16. ПОДСОБНЫЕ ПОМЕЩЕНИЯ ПИЩЕБЛОКА

17. БУФЕТ

18. ЗОНА ОЖИДАНИЯ

19. ОТДЕЛЕНИЕ СВЯЗИ

20. КОМНАТА МАТЕРИ И РЕБЕНКА

21. КАФЕ

22. депУтатский зал

Рис. 1.31

АЭРОВОКЗАЛ АЭРОПОРТА ПЕТРОПАВЛОВСК-КАМЧАТСКИЙ

ГЕНПЛАН

ПЕТРОПАВЛОВСК-КАМЧАТСКИЙ

1. СУЩЕСТВУЮЩЕЕ ЗДАНИЕ АЭРОВОКЗАЛА - 1970 г.

2. ПРОЕКТИРУЕМОЕ ЗДАНИЕ ВОКЗАЛА - 1880 г.

3. ЗДАНИЕ ОПП

4. СТОЛОВАЯ

5. ЦЕПЬ БОРТПИТАНИЯ

6. УПРАВЛЕНИЕ АЭРОПОРТА

7. ЗАДАНИЕ ПРЕДПОЛЕТНОЙ ПОДГОТОВКИ

8. РАСШИРЕНИЕ ЗДАНИЯ ШТАБА

9. КОТЕЛЬНАЯ

10. ЗДАНИЕ ШТАБА

11. ЗДАНИЕ ТЕХБРИГАД

12. КОНТРОЛЬНО-ПРОПУСКНОЙ ПУНКТ

13. СТОЯНКА ТАКСИ

14. СТОЯНКА ОБЩЕСТВЕННОГО ТРАНСПОРТА

15. СТОЯНКА ЛИЧНОГО ТРАНСПОРТА

16. ПЕРРОН

Рис. 1.32

АЭРОВОКЗАЛ АЭРОПОРТА ПЕТРОПАВЛОВСК-КАМЧАТСКИЙ

ПЛАН 1 ЭТАЖА

ПЛАН 2 ЭТАЖА

Петропавловск Камчатский

экспликация помещений

1 операционный зад вылетающих пассажиров

2 помещение спецконтроля с накопителем

3 помещение комплектовки багажа

4 помещение хранения контейнеров

5 помещение хранения багажа отложенных рейсов

6 депутатский зал

7 служебные помещения

8 бар

9 отделение связи

10 медпункт

11 милиция

12 зал отлета

13 зал выдачи багажа

14 помещение хранения невостребованного багажа

15 багажное отделение

16 зал ожидания транзитных пассажиров

17 кафе

18 производственные помещения пищеблока

19 подсобные помещения пищеблока

парикмахерская

21 комната матери и ребенка

22 буфет

23 зал ожидания вылетающих пассажиров

24 технические помещения

25 банкетный зал депутатов

26 буфет депутатов

27 кинозал

28 ресторан

29 камера хранения багажа и ручной клади

Рис. 1.33

АЭРОВОКЗАЛ АЭРОПОРТА ПЕТРОПАВЛОВСК КАМЧАТСКИЙ

ПЛАН ПОДВАЛА В ОСЯХ 1-4

ПЛАН ПОДВАЛА В ОСЯХ 10-17

ПЛАН 3 ЭТАЖА

РАЗРЕЗ А-А

Рис. 1.34.

АЭРОВОКЗАЛ АЭРОПОРТА ЖУЛЯНЫ /КИЕВ/

ПЛАНЫ ЭТАЖЕЙ

ЭКСПЛИКАЦИЯ ПОМЕЩЕНИЙ

1. ОПЕРАЦИОННЫЙ ЗАЛ

2. ПОМЕЩЕНИЕ СПЕЦКОНТРОЛЯ

3. накопитель

4. ЗОНА ОЖИДАНИЯ ВЫЛЕТАЮЩИХ ПАССАЖИРОВ

5. КАМЕРА ХРАНЕНИЯ

6. ПОМЕЩЕНИЕ СЕКТОРА "ИНТУРИСТ"

7. БУФЕТ

8. МЕДПУНКТ

9. СЛУЖЕБНЫЕ ПОМЕЩЕНИЯ

10. ЗОНА ТРАНЗИТНЫХ ПАССАЖИРОВ

11. КАФЕ

12. ДЕПУТАТСКИЙ ЗАЛ

13. КОМНАТА МАТЕРИ И РЕБЕНКА

14. ПОМЕЩЕНИЕ СФЕРЫ ОБСЛУЖИВАНИЯ

15. МИЛИЦИЯ

4, 5, 9, 10, 14, 15 - СУЩЕСТВУЮЩЕЕ ЗДАНИЕ АЭРОВОКЗАЛА

Рис. 1.35

АЭРОВОКЗАЛ АЭРОПОРТА ЖУЛЯНЫ КИЕВ

ПАССАЖИРСКИЙ ПАВИЛЬОН

РАЗРЕЗ А-А

Рис. 1.36

ПРИСТРОЙКА К АЭРОВОКЗАЛУ АЭРОПОРТ ЮЖНО-САХАЛИНСК

аэровокзал аэропорта юЖНО-саХАЛИнск

экспликация

1. зал ожидания депутатОВ

2. НАКОПИТЕЛЬ

3. БУФЕТ

4. ПАРИКМАХЕРСКАЯ

5. помещение перронной бригады

6. отделение связи

7. банкетный зал

8. серВИровка

9. гардероб

10. АДМИНИСТРАТИВНЫЕ помещения

11. СЛУЖЕБНЫЕ помещения

12. теХНИческие помещеНИя

13. санузлы

14. камера хранения

15. узел управления

16. курительная

17. пассажирский зал существуЮщего аэровокзала

Рис. 1.37

Конкурсные проекты расширения аэровокзала аэропорта Архангельск. А - с застройкой сооружением вестибюля и зала прилета, встроенного между аэровокзалом и пассажирским зданием. Б - с сооружением вестибюля, операционного зала и зала вылета, пристроенного к пассажирскому зданию.

1. Аэровокзал на 200 пасс./ч, 2. Пассажирское здание на 500 пасс./ч, 3. Вестибюль и зал прилета, 4. Вестибюль, операционный зал, зал вылета, 5. КПП, 6. Привокзальная площадь, 7. Перрон.

Рис. 1.38

Аэровокзальный комплекс аэропорта Тюмень. Фрагмент генплана, фасад. 1 - существующий аэровокзал на 400 пасс/ч, 2 - командно-диспетчерский пункт, 3 - проектируемый аэровокзал, 4 - привокзальная площадь, 5 - перрон.

Рис. 1.39

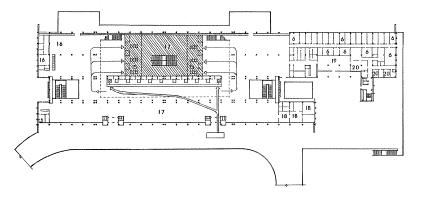
АЭРОВОКЗАЛ АЭРОПОРТА «РОСТОВ-НА-ДОНУ»

ГЕНПЛАН

ЭКСПЛИКАЦИЯ

1. аэровокзал (новое здание) - 1977 г.

2. АЭРОВОКЗАЛ МВЛ (СТАРОЕ ЗДАНИЕ) – 1939 г.

3. БАГАЖНЫЙ ПАВИЛЬОН

4. КИНОТЕАТР-КЛУБ

5. ЗДАНИЕ УПРАВЛЕНИЯ АЭРОПОРТА

6. КАМЕРА ХРАНЕНИЯ

7. КАФЕ

8. ГОСТИНИЦА

9. ЗДАНИЕ ТЕХСЛУЖБ

10. ОТДЕЛЕНИЕ ПЕРЕВОЗКИ ПОЧТЫ

11. НАСОСНАЯ СТАНЦИЯ

12. ПРИВОКЗАЛЬНАЯ ПЛОЩАДЬ

13. ПЕРРОН

Рис. 1.40

АЭРОВОКЗАЛ АЭРОПОРТА POCTOB-HA-ДОНУ

1. Операционный зал вылетающих пассажиров

2. Багажное отделение

3. Зал ожидания посадки вылетающих пассажиров

4. Зал регистрации пассажиров МВД

5. Зал встречи

6. Зал выдачи багажа

7. Зал ожидания

8. Столики регистрация

9. Транспортер

10. Закольцованный транспортер

11. Пункт досмотра

12. Накопитель

13. Доготовочная буфета

14. Отделение связи

1.5. Комната матери и ребенка

16. Бытовые помещения

17. Технические помещения

18. Камора хранения

19. Сооружение X

20. Женский гардероб уличной и домашней одежды

21. Обменный фонд контейнеров

Рис. 1.41

АЭРОВОКЗАЛ АЭРОПОРТА РОСТОВ-НА-ДОНУ

/ПЕРВАЯ ОЧЕРЕДЬ СТРОИТЕЛЬСТВА АЭРОВОКЗАЛЬНОГО КОМПЛЕКСА

АЭРОПОРТ РОСТОВ-НА-ДОНУ

1. УРОВЕНЬ ОТПРАВЛЕНИЯ, ПРИБЫТИЯ

2. УРОВЕНЬ ОЖИДАНИЯ И ДОПОЛНИТЕЛЬНОГО ОБСЛУЖИВАНИЯ

3. ТЕХНИЧЕСКИЕ ПОМЕЩЕНИЯ, КОМНАТА ХРАНЕНИЯ, БЫТОВЫЕ ПОМЕЩЕНИЯ, САНУЗЛЫ

Рис. 1.42.

Конкурсный проект расширение аэровокзала аэропорта Архангельск, вариант 3.

1. пассажирское здание на 500 пасс/ч-1970 г.

2. расширение комплекса

3. аэровокзал на 300 пасс/ч 1960 г.

4. командно-диспетчерский пункт

5. привокзальная площадь

6. перрон

 

ПЛАН 1 ЭТАЖА

ПЛАН 2 ЭТАЖА

ПЛАН ПОДВАЛА

1. СКЛАД

2. КОРИДОР

3. туаЛЕТ

4. ХОЗЯЙСТВЕННЫЙ СКЛАД

5. ЗАЛ ОЖИДАНИЯ

6. таМОЖЕННЫй зал

7. АДМИНИСТРАЦИЯ ТАМОЖЕННОЙ

8. складское поМЕЩЕНИЕ тамоЖЕнной

9. НАКОПИТЕЛЬ

10. стоЙКИ регистрации

11. ПРОХОД, РАЗГРУЗКА И ПОГРУЗКА БАГАЖА

12. ПРАВИТЕЛЬСТВЕННАЯ КОМНАТА

13. ПОГРАНЧАСТЬ

14. СБП

15. НАЧАЛЬНИК МЕЖДУНАРОДНОГО СЕКТОРА

16. КОМНАТЫ ОТДЫХА ЛПС

17. ЗАЛ ОЖИДАНИЯ (МЕЖДУНАРОДНЫЙ СЕКТОР)

16. НАЧАЛЬНИКИ СЛУЖБ

19. ПАРИКМАХЕРСКАЯ

Рис. 1.43

МЕЖДУНАРОДНЫЙ АЭРОВОКЗАЛ аэропорта ЕРЕВАН-ЗВАРТНОЦ

ПЛАН 3 ЭТАЖА

Рис. 1.44

АЭРОВОКЗАЛ АЭРОПОРТА "ЗАПАДНЫЙ" В ЕРЕВАНЕ

ПЛАН 3 ЭТАЖА

РАЗРЕЗ А-А

20. ТОРГОВЫЙ ЗАЛ СТОЛОВОЙ ДЛЯ СОТРУДНИКОВ

21. ПОДСОБНЫЕ ПОМЕЩЕНИЯ КУХНИ

22. СЛУЖЕБНЫЕ ПОМЕЩЕНИЯ

23. СЛУЖБА СВЯЗИ

24. МЕДПУНКТ

25. КОМНАТЫ ОБЩЕСТВЕННЫХ ОРГАНИЗАЦИЙ,

26. ШТУРМАНСКАЯ

27. ПИЛОТСКАЯ

28. РАДИОБЮРО

29. ФОТОЛАБОРАТОРИЯ

30. КРАСНЫЙ УГОЛОК

Рис. 1.45

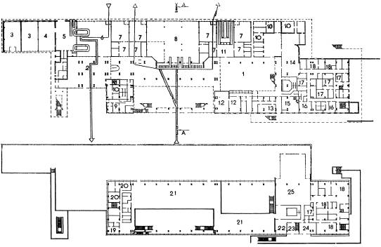
АЭРОВОКЗАЛ АЭРОПОРТА КИШИНЕВ

ГЕНПЛАН

1. АЭРОВОКЗАЛ НА 400 ПАСС./Ч - 1974 г.

2. ПРОЕКТИРУЕМАЯ ЗАСТРОЙКА ВНУТРЕННИХ ДВОРОВ АВАНПЕРР0НА И РАСШИРЕНИЕ АЭРОВОКЗАЛА - 1980 г.

3. КДП

4. ПРИВОКЗАЛЬНАЯ ПЛОЩАДЬ

5. ПЕРРОН

Рис. 1.46

СУЩЕСТВУЮЩАЯ ПЛАНИРОВКА

АЭРОВОКЗАЛ АЭРОПОРТА КИШИНЕВ

ПУТИ ДВИЖЕНИЯ

ПЛАН 1 ЭТАЖА

ПЛАН 2 ЭТАЖА

 

ЭКСПЛИКАЦИЯ ПОМЕЩЕНИЙ

1. Операционный зал

4. Обменный фонд контейнеров

5. Обработка багажа прилетевших пассажиров

6. Операционный зал прилетевших пассажиров

8. Багажное отделение

9. Медпункт

10. Служебные помещения

11. Зона регистрации

12. Отделение связи

13. Комната матери и ребенка

14. Кафе-бар

15. Депутатский зал

16. Бытовые помещения

17. Подсобные помещения пищеблока

16. Производственные помещения пищеблока

19. Помещения сферы обслуживания

20. Служебные помещения

21. Зона транзитных пассажиров

22. Банкетный зал

23. Депутатский зал

24. Помещение сектора «Интурист»

25. Ресторан

26. Технические помещения

Рис. 1.47

АЭРОВОКЗАЛ АЭРОПОРТА КИШИНЕВ

РАЗРЕЗ А-А

ПЛАН ПОДВАЛА

Рис. 1.48

АЭРОВОКЗАЛ АЭРОПОРТА ИВАНО-ФРАНКОВСК

ГЕНПЛАН

РАЗРЕЗ А-А

ИВАНО-ФРАНКОВСК

1. Аэровокзал со встроенным сооружением (строится)

2. ресторан

3. гостиница

4. накопитель

5. tpahcфоpмatophaя станция

6. пожарный резервуар для воды емк. 100 м3

7. пристройка к котЕлЬНОй

8. СКЛАД

9. СТОЯНКА АВТОБУСОВ

10. СТОЯНКА ЛЕГКОВЫХ ТАКСИ

11. СТОЯНКА АВТОБУСОВ СЛУЖЕБНЫХ И ИНДИВИДУАЛЬНЫХ

12. ПРОФИЛАКТОРИЙ

13. КДП

14. ЗДАНИЕ УПРАВЛЕНИЯ АЭРОПОРТА

15. ПЕРВОНАЧАЛЬНОЕ ЗДАНИЕ АЭРОВОКЗАЛА

Рис. 1.49

ПЛАН 1 ЭТАЖА

ПЛАН 2 ЭТАЖА

ПЛАН 3 ЭТАЖА

ИВАНО-ФРАНКОВСК

ЭКСПЛИКАЦИЯ ПОМЕЩЕНИЙ

1. ОПЕРАЦИОННЫЙ ЗАЛ

2. ПОМЕЩЕНИЕ СПЕКОНТРОЛЯ

3. НАКОПИТЕЛЬ

4. ЗОНА ОБРАБОТКИ БАГАЖА ВЫЛЕТАЮЩИХ ПАССАЖИРОВ

5. ОПЕРАЦИОННАЯ ЗОНА ПРИЛЕТЕВШИХ ПАССАЖИРОВ

6. ЗОНА ОЖИДАНИЯ ДЛЯ ВСТРЕЧАЮЩИХ

7. ЗОНА ОБРАБОТКИ БАГАЖА ПРИЛЕТЕВШИХ ПАССАЖИРОВ

8. ЗОНА ХРАНЕНИЯ КОНТЕЙНЕРОВ

9. ХРАНЕНИЕ БАГАЖА ОТЛОЖЕННЫХ РЕЙСОВ

10. ЗАЛ ОЖИДАНИЯ

11. ДЕПУТАТСКИЙ ЗАЛ

12. БУФЕТ ДЕПУТАТСКОГО ЗАЛА

13. ПОДСОБНЫЕ ПОМЕЩЕНИЯ ПИЩЕБЛОКА

14. БУФЕТ

15. СЛУЖЕБНЫЕ ПОМЕЩЕНИЯ

16. КОМНАТА МАТЕРИ И РЕБЕНКА

17. ПОМЕЩЕНИЯ СФЕРЫ ОБСЛУЖИВАНИЯ

18. ТЕХНИЧЕСКИЕ ПОМЕЩЕНИЯ

Рис. 1.50

РАСШИРЕНИЕ АЭРОВОКЗАЛА АЭРОПОРТА ДОМОДЕДОВО (А), КИЕВ-БОРИСПОЛЬ (Б) МЕТОДОМ ПЕРЕНОСА ВИТРАЖА В ПРЕДЕЛАХ СУЩЕСТВУЮЩИХ НАВЕСОВ (1, 2 - ОСУЩЕСТВЛЕННОЕ, 3 - ПЛАНИРУЕМОЕ)

Рис. 1.51

АЭРОВОКЗАЛ АЭРОПОРТА ФРУНЗЕ

ГЕНПЛАН

1. АЭРОВОКЗАЛ НА 1700 ПАСС./Ч - 1981 г.

2. ПЛАНИРУЕМОЕ РАСШИРЕНИЕ АЭРОВОКЗАЛА

3. ПРИВОКЗАЛЬНАЯ ПЛОЩАДЬ

4. ПЕРРОН

Рис. 1.52

аэровокзал аэропорта ФрУНзе

ПЛАН 2 ЭТАЖА

13. МАГАЗИН "БЕРЕЗКА"

14. ОПЕРАЦИОННЫЙ 3AЛ

15. ПОМЕЩЕНИЯ СПЕЦКОНТРОЛЯ

16. ОТДЕЛЕНИЕ СВЯЗИ

17. ЗОНА ДЛИТЕЛЬНОГО ОЖИДАНИЯ

18. КОМНАТА МАТЕРИ И РЕБЕНКА

19. КАФЕ НА 130 ПОСАДОЧНЫХ МЕСТ

20. ПРОИЗВОДСТВЕННЫЕ ПОМЕЩЕНИЯ

21. БУФЕТ

22. ЗАЛ ОЖИДАНИЯ И ТРАНЗИТА

23. ПОМЕЩЕНИЯ СФЕРЫ ОБСЛУЖИВАНИЯ

24. РЕСТОРАН

25. БАНКЕТНЫЙ ЗАЛ

26. ТЕХНИЧЕСКИЕ ПОМЕЩЕНИЯ

27. ЦЕХ БОРТПИТАНИЯ

28. АТС

Рис. 1.53

АЭРОВОКЗАЛ АЭРОПОРТА ФРУНЗЕ

ПЛАН 1 ЭТАЖА

1. ЗАЛ ВСТРЕЧИ ПРИЛЕТЕВШИХ ПАССАЖИРОВ

2. БАГАЖНОЕ ОТДЕЛЕНИЕ

3. НАКОПИТЕЛЬ

4. КАМЕРА ХРАНЕНИЯ

5. МЕДПУНКТ

6. СЛУЖЕБНЫЕ ПОМЕЩЕНИЯ

7. БЫТОВЫЕ ПОМЕЩЕНИЯ

8. СЛУЖЕБНАЯ СТОЛОВАЯ

9. ЗАЛ ДЕПУТАТОВ

10. БАНКЕТНЫЙ ЗАЛ

11. ПОДСОБНЫЕ ПОМЕЩЕНИЯ ПИЩЕБЛОКА

12. ПОМЕЩЕНИЯ СЕКТОРА "ИНТУРИСТ"

15. ПОМЕЩЕНИЯ СПЕЦКОНТРОЛЯ

Рис. 1.54

аэровокзал аэропоРТа ФРУНЗЕ

РАЗРЕЗ А-А

Рис. 1.55.

Аэровокзальный комплекс аэропорта Краснодар 1 - КДП (служебно-пассажирское здание); 2 - Аэровокзал МВЛ -1950 г.; 3 - Пассажирский павильон на 500 пасс./ч - 1969 г.; 4 - Камера хранения; 5 - Кафе; 6 - Перрон; 7 - Привокзальная площадь

Рис. 1.56

АЭРОВОКЗАЛ АЭРОПОРТА СУХУМИ

ГЕНПЛАН

1. ПАССАЖИРСКИЙ ПАВИЛЬОН НА 600 ПАСС./Ч - 1985 г.

2. сУщЕСТвУЮЩЕЕ зДАНИЕ аЭРовоКЗАЛА - 1960 г.

3. сблокированные здания камеры хранения с туалетом

4. ГРУЗОТОВАРНЫЙ СКЛАД

5. автостанция

6. ПРИВОКЗАЛЬНАЯ ПЛОЩАДЬ

7. ПЕРРОН

Рис. 1.57

Расширение аэровокзалов аэропортов Баку-Бина (А) и Владивосток (Б) методом пристройки новых объемов и зданий

Рис. 1.58

Расширение аэровокзалов методом пристройки и надстройки очередных объемов

Рис. 1.59

Расширение аэровокзалов методом пристройки и надстройки очередных объемов

Рис. 1.60.

Общий вид застройки аэровокзального комплекса аэропорта Лос-Анжелос, США.

1-5 - аэровокзалы 1,0-1,5 млн. пасс, в год, 1961 г., расширение - 1980 г (надстройка вестибюлей, пристройка эстакад, строительство галерей к сателлитам); 6 - аэровокзал международных линий на 7,0 млн. пасс. в год - 1984 г.; 7 - аэровокзалы авиакомпаний Пан-Америкэн; 8 - аэровокзал внутренних линий на 6,0 млн. пасс., в год - 1984 г.; 9 - эстакада подъезда и остановок транспорта у 2-го уровня аэровокзалов - 1984 г., 10 - гаражи - 1980 г.; 11 - ресторан - 1961 г.; 12 - контрольно-диспетчерский пункт - 1961 г.

Рис. 1.61.

Общий вид аэровокзального комплекса аэропорта Бостон. 1 - первоначальный аэровокзал - 1955 г., 2 - северный аэровокзал - 1967 г., расширение посадочных сооружений аэровокзала - 1970 г., 3 - юго-западный аэровокзал коротких линий - 1969 г.,4 - международный аэровокзал - 1974 г., 5 - южный аэровокзал и гараж - 1976 г., 6 - новая башня ВДП -1970 г., 7 - гараж - 1970 г.

Рис. 1.62

Этапы расширения аэровокзального комплекса аэропорта Майами (США)

Рис. 1.63.

А 1 - Аэровокзал № 1 - 1950 годы; 2 - Первый этап расширения аэровокзала № 1 - 1960 годы; 3 -Строительство аэровокзала № 2 и гаража - 1970 годы; 4 - второй этап расширения аэровокзала № 1 -1980 годы; 5 - Строительство гаража; 6 - Трасса подземной железной дороги; 7 - Станция подземной железной дороги; 8 - Подземный переход. Б - - Аэровокзал; 2 - Станция подземной железной дороги; 3 - Подземный переход

Рис 1.64

АЭРОВОКЗАЛ АЭРОПОРТА КИШИНЕВ

ПУТИ ДВИЖЕНИЯ:

ПЛАН 1 ЭТАЖА

ПЛАН 2 ЭТАЖА

ЭКСПЛИКАЦИЯ ПОМЕЩЕНИЙ

1. ОПЕРАЦИОННЫЙ ЗАЛ

2. ЗАЛ ВСТРЕЧИ ПРИЛЕТЕВШИХ ПАССАЖИРОВ

3 КАМЕРА ХРАНЕНИЯ

4. ОБМЕННЫЙ ФОНД КОНТЕЙНЕРОВ

5. ОБРАБОТКА БАГАЖА ПРИЛЕТЕВШИХ ПАССАЖИРОВ

6. ОПЕРАЦИОННЫЙ ЗАЛ ПРИЛЕТЕВШИХ ПАССАЖИРОВ

7. ПОМЕЩЕНИЕ СПЕЦКОНТРОЛЯ, НАКОПИТЕЛЬ

8. БАГАЖНОЕ ОТДЕЛЕНИЕ

9. МЕДПУНКТ

10. СЛУЖЕБНЫЕ ПОМЕЩЕНИЯ

11. ЗОНА РЕГИСТРАЦИИ

12. ОТДЕЛЕНИЕ СВЯЗИ

13. КОМНАТА МАТЕРИ И РЕБЕНКА

14. КАФЕ-БАР

15. ДЕПУТАТСКИЙ ЗАЛ

16. БЫТОВЫЕ ПОМЕЩЕНИЯ

17. ПОДСОБНЫЕ ПОМЕЩЕНИЯ ПИЩЕБЛОКА

18. ПРОИЗВОДСТВЕННЫЕ ПОМЕЩЕНИЯ ПИЩЕБЛОКА

19. ПОМЕЩЕНИЯ СФЕРЫ ОБСЛУЖИВАНИЯ

20. СЛУЖЕБНЫЕ ПОМЕЩЕНИЯ

21. ЗОНА ТРАНЗИТНЫХ ПАССАЖИРОВ

22. БАНКЕТНЫЙ ЗАЛ

23. ДЕПУТАТСКИЙ ЗАЛ

24. ПОМЕЩЕНИЕ СЕКТОРА "ИНТУРИСТ"

25. РЕСТОРАН

26. ТЕХНИЧЕСКИЕ ПОМЕЩЕНИЯ

Рис. 1.65.

Расширение аэровокзала аэропорта Миллуоки (США) с надстройкой существующих зданий

1. общий вид комплекса до надстройки

2. общий вид комплекса после надстройки

Рис. 1.66.

Расширение аэровокзалов методом пристройки очередных объемов

Рис. 1.67.

Общий вид аэровокзального комплекса аэропорта Манчестер - Великобритания (А), Сан-Луис-Ламберт - США (Б)

А - 1 - первоначальный аэровокзал - 1960 г., 2 - здание аэровокзала международных линий, сблокированное с гаражом - 1970г., 3 - КДП, 4 - администрация аэропорта, 5 - эстакада подъезда транспорта ко 2-ому уровню аэровокзала, 6 - перрон, 7 - посадочные сооружения.

Б - 1 - аэровокзал - 1950 г., 2 - пристройка четвертого зала - 1970 г., 3 - пристройка новых посадочных сооружений, 1970 г., 4 - планируемая пристройка посадочных галерей - 1980г., 5 - гараж-1970 г.

Рис. 1.68.

Этапы строительства и расширения аэровокзального комплекса аэропорта Амстердам-Схипхол. А - 1960 года, Б - 1970 года

Рис. 1.69.

Этапы строительства аэровокзала в аэропорту Гамбург-Фюльстбюттель

А - 1930 годы; Б - 1950-1970 годы

Рис 1.70.

Предложения поэтапной застройки аэровокзального комплекса аэропорта Внуково (15-20 млн. пасс. в год)

Рис. 1.71

Поэтапное расширение аэровокзалов аэропортов Калгари (А) - Канада, Сиэтл - Такона (Б) - США.

(А) - 1, 2, 3-этапы строительства зданий
(Б) - 1-здания строительства 1971 - 1972 г.г., 2 - здания строительства 1974 - 1975 г.г., 3 - здания строительства 1977 - 1978 г.г.

Рис. 1.72.

БЛОКИРОВАННЫЙ АЭРОВОКЗАЛЬНЫЙ КОМПЛЕКС АЭРОПОРТА ГРОЗНЫЙ.

1 - АЭРОВОКЗАЛ НА 600 ПАСС./Ч, 2 - ПУСКОВОЙ МИНИМУМ АЭРОВОКЗАЛА - 1982 г., 3 - ГОСТИНИЦА, ПРОФИЛАКТОРИЙ, 4 - СТОЛОВАЯ, 5 - КДП, 6 - ДЕПУТАТСКИЙ СЕКТОР, 7 - ЗАГРУЗОЧНАЯ ПИЩЕБЛОКА

ГЕНПЛАН

Рис. 1.73

АЭРОВОКЗАЛ АЭРОПОРТА ЛЕНИНАКАН

АЭРОВОКЗАЛ АЭРОПОРТА ЛЕНИНАКАН

1. АЭРОВОКЗАЛ

2. ПРИВОКЗАЛЬНАЯ ПЛОЩАДЬ

3. ПЕРРОН

4. ЗДАНИЕ УПРАВЛЕНИЯ АЭРОПОРТА

Рис. 1.74

ПЛАНЫ ЭТАЖЕЙ

АЭРОВОКЗАЛ АЭРОПОРТА ЛЕНИНАКАН

ЭКСПЛИКАЦИЯ ПОМЕЩЕНИЙ

1. ОПЕРАЦИОННЫЙ ЗАЛ ВЫЛЕТАЮЩИХ ПАССАЖИРОВ

2. БАГАЖНОЕ ОТДЕЛЕНИЕ

3. НАКОПИТЕЛЬ

4. ОПЕРАЦИОННЫЙ ЗАЛ ПРИЛЕТЕВШИХ ПАССАЖИРОВ

5. ЗАЛ ОЖИДАНИЯ

6. ПОМЕЩЕНИЕ ПИЩЕБЛОКА

7. СЛУЖЕБНЫЕ ПОМЕЩЕНИЯ

8. ВТОРОЙ СВЕТ

Рис. 1.75.

Аэровокзальный комплекс аэропорта Ганновер

1. Первоначальный аэровокзал - 1950 годы;

2. Аэровокзал - 1975 г.,

3. Гараж,

4. КДП,

5. Перрон

Рис. 1.76.

Приемы компоновки растущих аэровокзалов из крупных и мелких "единиц роста"

Рис. 1.77.

Аэровокзал модульной планировки в аэропорту Буимбура

1 - пассажирский зал, 2 - зал выдачи багажа, 3 - зал прибытия, 4 - ВИП, 5 - транзит, 6 - зал отправления, 7 - полицейский контроль, 8 - прием, регистрация багажа, 9 - санузлы, 10 - загрузка пищеблока, 11 - бюро авиакомпаний, 12 - бар, 13 - кухня, 14 - бар, 15 - ресторан, 16 - терраса

Рис. 1.78

Этапы и варианты расширения аэровокзала путем добавления и комбинации мелких строительных ячеек грибовидной формы

ГЕНПЛАН

Рис. 1.79.

ПЛАН ПАССАЖИРСКОГО АЭРОВОКЗАЛА (А), ФРАГМЕНТ ОБЩЕГО ВИДА (Е), РАЗРЕ3 (В), АЭРОВОКЗАЛА АЭРОПОРТА АБИДЖАН (БЕРЕГ СЛОНОВОЙ КОСТИ), СОСТАВЛЕННОГО ИЗ МЕЛКИХ СТРОИТЕЛЬНЫХ ЯЧЕЕК (КОНСОЛЬНАЯ БАЛКА-ПЛИТА НА ДВУХ ОПОРАХ)

1. ЗАЛ РЕГИСТРАЦИИ

2. ПРОПУСКНЫЕ ФИЛЬТРЫ

3. ЗАЛ ОЖИДАНИЯ

4. ЗАЛ ДЛЯ ТРАНЗИТНЫХ ПАССАЖИРОВ

5. КАФЕ

6. ПАНОРАМНЫЙ РЕСТОРАН

Рис 1.80. Компоновка зданий аэровокзального комплекса аэропорта Даллас-Форт-Уорт. США из легких стандартных объемно-конструктивных единиц "роста".

1, 2, 3 - Типы блоков; А, В, С, Д, Е - варианты компоновки блоков

Рис. 1.81.

Расширение аэровокзалов методом пристройки очередных объемов и застройки внутренних дворов

Рис. 1.82.

Дифференцированные методы увеличения площади помещений аэровокзала "растущего" типа

Рис. 1.83

АЭРОВОКЗАЛ АЭРОПОРТА ГРОЗНЫЙ

ГЕНПЛАН

ЭКСПЛИКАЦИЯ

1. БЛОКИРОВАННОЕ СЛУЖЕБНО-ПАССАЖИРСКОЕ ЗДАНИЕ С АЭРОВОКЗАЛОМ НА 600 ПАСС/Ч

2. ВРЕМЕННЫЙ АЭРОВОКЗАЛ (ИСПОЛЬЗУЕТСЯ СЛУЖБАМИ АТВ)

3. ПРИВОКЗАЛЬНАЯ ПЛОЩАДЬ

4. АВАНПЕРРОН

5. ПЕРРОН

6. ЗОНА ОТДЫХА НА ПРИВОКЗАЛЬНОЙ ПЛОЩАДИ

7. ПОДЪЕЗД К СЕКТОРУ ДЕПУТАТОВ

Рис. 1.84

АЭРОВОКЗАЛ АЭРОПОРТА ГРОЗНЫЙ

ПЛАН 1 ЭТАЖА

ЭКСПЛИКАЦИЯ

1. ГЛАВНЫЙ ВХОД В АЭРОВОКЗАЛ

2. ВЕСТИБЮЛЬ СО СТОРОНЫ ПРИВОКЗАЛЬНОЙ ПЛОЩАДИ

3. ПАССАЖИРСКИЙ ЗАЛ (ОПЕРАЦИОННАЯ 3ОHA. 3ОHA ОЖИДАНИЯ НАЧАЛА РЕГИСТРАЦИИ)

4. ВЕСТИБЮЛЬ СО СТОРОНЫ ПЕРРОНА (ЗОНА ВСТРЕЧИ)

5. ЗАЛ ВЫДАЧИ БАГАЖА

6. ЗОНА РЕГИСТРАЦИИ

7. БАГАЖНОЕ ОТДЕЛЕНИЕ

8. ПУНКТ ДОСМОТРА

9. ЗАЛ ОЖИДАНИЯ ПОСАДКИ

10. ЗОНА ЛЕТНЕГО ОЖИДАНИЯ

11. ЛЕТНЯЯ ЗОНА ВЫДАЧИ БАГАЖА

12. КАФЕ

13. СТОЛОВАЯ

14. БЫТОВЫЕ ПОМЕЩЕНИЯ СОП

16. ОТДЕЛЕНИЕ СВЯЗИ

16. МИЛИЦИЯ

17. МЕДПУНКТ

18. КДП-IV (ПОМЕЩЕНИЯ ПРЕДПОЛЕТНОЙ ПОДГОТОВКИ)

19. КОМНАТА МАТЕРИ И РЕБЕНКА

20. АТС

21. ПИЩЕБЛОК

22. ЦЕХ БОРТОВОГО ПИТАНИЯ

23. ВХОД В ДЕПУТАТСКИЙ СЕКТОР

24. ВХОД В ВДП

25. ЗАГРУЗКА ПИЩЕБЛОКА

26. ТЕХНИЧЕСКИЕ; ПОМЕЩЕНИЯ

Рис. 1.85

АЭРОВОКЗАЛ АЭРОПОРТА ГРОЗНЫЙ

ПЛАНЫ ЭТАЖЕЙ

1. ЗАЛ ДЛИТЕЛЬНОГО ОЖИДАНИЯ

2. БУФЕТ

3. РЕСТОРАН

4. КДП-IV (ПОМЕЩЕНИЯ ПРЕДПОЛЕТНОЙ ПОДГОТОВКИ)

5. ПОМЕЩЕНИЯ ИНТУРИСТОВ

6. ПОМЕЩЕНИЯ БЫТОВОГО ОБСЛУЖИВАНИЯ ПАССАЖИРОВ

7. ПОМЕЩЕНИЯ СОП

8. ПИЩЕБЛОК

9. ЗАЛ ДЕПУТАТОВ

10. ВТОРОЙ СВЕТ ПАССАЖИРСКОГО ЗАЛА

11. САНИТАРНЫЕ УЗЛЫ

12. ХОЛЛ

13. КАМЕРА ХРАНЕНИЯ

14. ПРИТОЧНАЯ ВЕНТКАМЕРА

15. БЫТОВЫЕ ПОМЕЩЕНИЯ ПЕРРОННЫХ БРИГАД И ИАС

16. ПОМЕЩЕНИЯ СОП

17. РАДИОБЮРО

18. кдп - (ПОМЕЩЕНИЯ УВд)

19. ГОСТИНИЦА, ПРОФИЛАКТОРИЙ

Рис. 1.86.

Проектное предложение расширения аэровокзала методом подобия формы

Рис. 1.87

Общие тенденции развития в природе и в архитектуре

Рис. 1.88.

Влияние развития самолетов на типы аэровокзалов

1.1.4. Главные преимущества комплекса, составленного из непрерывно пристроенных и компактных объемов заключается в том, что увеличивается площадь помещений при минимальном удлинении путей пассажиров, сохраняется визуальная понятность основной технологической магистрали внутри непрерывно продолжающегося интерьера аэровокзала, минимальна площадь застройки и поверхность ограждающих конструкций. Такой комплекс выглядит более целостно, создаются условия не только для развития основного технологического ядра аэровокзала, но также предпосылки к преображению архитектурного решения здания в соответствии с новыми требованиями к его выразительности, новыми средствами ее достижения.

1.1.5. Практика показывает, что пространственно-непрерывный метод пристройки осуществляется во всех трех измерениях: в длину, ширину и высоту комплекса.

В зарубежной практике встречается много примеров развития комплекса по вертикали.

Активно осваивается подземное пространство в зоне привокзальной площади, примыкающей к аэровокзалам, строятся подземные переходы, станции метрополитена и пригородной дороги.

Общим для перечисленных проектов и построек является метод органичного включения существующего здания в новый комплекс.

1.1.6. За разнообразием приемов планировки и архитектуры расширяемых аэровокзалов прослеживается довольно четкая закономерность:

- в тех случаях, когда первоначальное здание морально устарело или составляет малую часть от общего комплекса, как правило, применяются приемы частичного или полного поглощения старого здания новым (аэропорты Ростов-на-Дону, Петропавловск-Камчатский, Киев-Жуляны, Ивано-Франковск, Ереван-Звартноц, Куйбышев-Курумоч, Вильнюс, Домодедово);

- в тех случаях, когда расширяется здание, построенное недавно, и объем пристройки сопоставим с объемом первоначального аэровокзала в архитектуре нового повторяются его членения и формы (аэропорты Магадан, Сургут);

- в тех случаях, когда к современным аэровокзалам пристраиваются небольшие одноэтажные здания, архитектура существующего здания преобладает в облике нового комплекса (аэропорты Кишинев, Рига).

1.1.7. Все чаще начинает применяться или планируются приемы использования внутренних резервов планировки, состоящие в застройке навесов, галерей, внутренних дворов аэровокзалов (аэропорты Ташкент, Домодедово, Кишинев). Эти приемы позволяют быстро без трудоемкого капитального строительства увеличить до 10-30 % площади помещений, не меняя архитектуру зданий.

1.1.8. Ранее отмечалось, что в настоящее время серьезно отстает строительное обеспечение этапно возводимых здании [2] которое станет реальностью, когда мы научимcя пристраивать быстро, не нарушая устойчивости и не мешая эксплуатации существующих аэровокзалов. Поэтому поиски оптимальных решений современных аэровокзалов направлены, в частности, на ликвидацию осложнений, связанных с пристройкой очередных объемов. Основу новых проектов и построек составляют два метода:

- метод проектирования непрерывного здания на значительную перспективу с выделением в рамках общего комплекса отдельных очередей строительства, при этом предусматривается пристройка к каждой части комплекса (к центральному зданию дальних линий, к зданию коротких линий, к посадочным сооружениям, гаражам в аэропортах Сиэтл-Такома, Калгари, рис. 1.71).

- метод формирования первоначального здания из ряда повторяемых объемов, добавлением которых предусмотрено расширять аэровокзал. Применяются повторяемые объемы двух типов:

- крупные, функционально зависимые объемы, в которых обслуживаются пассажиры определенного направления (аэропорты Грозный, Хабаровск, Ленинакан, Тулуза, Ганновер, Сан-Луис), рис. 1.72-1.76.

- мелкие, независимые от функции объемно-конструктивные элементы (аэропорты Даллас-Форт-Уорт, Лион-Саталос, Дюбай, Джидда, Абиджан, конкурсный проект для аэропорта Таллинн, Белфаст, Нкамба), рис. 1.77-1.78.

1.1.9. В новых проектах аэровокзалов предусматривается также возможность увеличения площади труднорасширяемых помещений за счет вытеснения помещений аналогичной технологии и планировки блокируемых аэровокзалов. Такой прием заложен в блокировочном аэровокзале аэропорта Грозный; при переносе в другие здания рабочей столовой, гостиницы, профилактория будут увеличены площади кафе для пассажиров, администрации аэровокзала и КДП путем минимальной перепланировки помещений; рис. 1.82-1.85. В аэровокзале аэропорта Пулково планируется расширить помещение внутрисоюзного сектора за счет помещений международного сектора, переносимого в другое здание.

1.1.10. Большое значение для целостности и экономичности этапно возводимого аэровокзала имеет геометрия плана и принцип его развития. Наиболее экономичны концентрические формы, расширение которых предусмотрено по принципу "подобие формы" от центра к периферии, когда новые добавления увеличивают площади, но не меняют форму плана (вариант конкурсного проекта для аэропорта Таллинн). При таком методе "роста" минимально увеличиваются пути, проложенные по радиусам и площадь застройки, однако расширение ограничено тем резервом территории, который заложен между зданием и стоянкам самолетов, рис. 1.86.

1.1.11. Хорошие возможности для развития аэровокзалов на свободных территориях застройки представляют здания диагонально синусоидной формы плана [3]. Они лишены монотонности линейных форм, осваивают значительную глубину застройки не нарушая естественной освещенности помещения. Вариации шага и амплитуды синусоиды позволяют вносить необходимое разнообразие в решение комплекса, не нарушая целостности общего решения (проектное предложение для аэровокзала аэропорта Сочи, конкурсный проект блокированного здания для аэропорта Тобольск), рис. 1.81.

1.1.12. Современный этап строительства и реконструкции аэровокзалов отличает более бережное отношение к ценному строительному фонду, стремление органично включить действующие здания в общий поэтапно создаваемый комплекс и максимально использовать существующие площади. Такой подход к проблеме увеличения пропускной способности аэровокзалов не только более экономичен, он позволяет решать очередные строительные задачи грамотно с позиций формирования архитектурного целостного ансамбля в рамках общей теории развития объектов в природе и архитектуре, рис. 1.87; 1.88.

Сочетание уважительного отношения к архитектурной традиции, умелого и тактичного преобразования облика исторически сложившихся аэровокзалов с приспособлением их помещений к решению современных технологических задач - вот, пожалуй, главные особенности и достижения архитектурной практики последних лет.

1.2. Опыт этапного развития зданий и сооружений грузового комплекса

1.2.1. Для изучения опыта поэтапного развития зданий и сооружений грузового комплекса аэропортов гражданской авиации было проведено натурное и анкетное обследование 83 аэропортов. Данные обследования приведены в табл. 1.1. Кроме того, был изучен отечественный и зарубежный опыт реконструкции и расширения складских зданий, имеющийся в литературе.

В условиях низкой оснащенности аэропортов зданиями и сооружениями для обработки грузов первоочередной задачей реконструкции является увеличение мощности (площади, емкости). Как правило, эта задача решается путем поэтапных пристроек новых складских площадей: доков, эстакад, открытых и крытых площадок.

Анализ опыта поэтапного развития грузовых комплексов аэропортов гражданской авиации позволил выявить несколько типичных ситуаций реконструкций:

1. Расширение грузового склада с целью увеличения складских площадей (мощностей) без существенных изменений в технологии обработки и хранения грузов и замены оборудования. Рис. 1.89.

2. Техническое перевооружение, связанное с увеличением складских площадей (мощностей), некоторыми качественными изменениями технологии, переходом на более производительные средства механизации, рис. 1.92.

3. Коренная реконструкция и расширение грузовых комплексов, связанные с проведением значительных строительно-монтажных работ, включающих: а) строительство новых объектов на территории грузового комплекса, позволяющих применять новую технологию обработки грузов; б) расширение территории за счет строительства на прилегающей территории или на новой территории, в случае стесненного расположения на генплане новых грузовых комплексов. Рис. 1.93, 1.94.

К случаю "а" относится реконструкция, которая заключается в строительстве контейнерных площадок.

Рис. 1.89

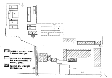
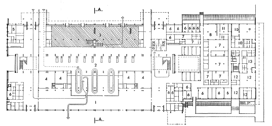
СХЕМА ГРУЗОВОГО КОМПЛЕКСА АЭРОПОРТА КРАСНОДАР

1. ГРУЗОВОЙ СКЛАД

2. ПОГРУЗОЧНАЯ ПЛОЩАДКА

3. НАВЕС

4. ДОК

5. ПРОЕКТИРУЕМЫЙ ДОК

6. ЭСТАКАДА

Рис. 1.90.

СХЕМА СУЩЕСТВУЮЩЕГО ГРУЗОВОГО КОМПЛЕКСА АЭРОПОРТА ДОМОДЕДОВО

1. ЗДАНИЕ ГРУЗОВОГО СКЛАДА;

2. СЛУЖЕБНО-АДМИНИСТРАТИВНОЕ ЗДАНИЕ;

3. НАВЕС;

4. НАВЕС С ЭСТАКАДОЙ.

Рис. 1.91. СХЕМА РЕКОНСТРУКЦИИ ГРУЗОВОГО КОМПЛЕКСА АЭРОПОРТА ОРЕНБУРГ (РАСШИРЕНИЕ СУЩЕСТВУЮЩЕГО ЗДАНИЯ ГРУЗОВОГО СКЛАДА)

ЭКСПЛИКАЦИЯ

1. ЗДАНИЕ ГРУЗОВОГО СКЛАДА

2. ЗДАНИЕ ОПП

3. БАЗА МЕХАНИЗАЦИИ

Рис. 1.92.

СХЕМА РЕКОНСТРУКЦИИ ГРУЗОВОГО КОМПЛЕКСА АЭРОПОРТА ЗВАРТНОЦ (ЕРЕВАН)

Рис. 1.93

СХЕМА ГРУЗОВОГО КОМПЛЕКСА А/П БОРИСПОЛЬ (КИЕВ)

1. КОММЕРЧЕСКИЙ СКЛАД (ОТПРАВКИ)

2. РАМПА (КОНТЕЙНЕРНЫЙ СКЛАД)

5. МАСТЕРСКИЕ

4. КОНТЕЙНЕРНАЯ ПЛОЩАДКА

5. СКЛАД ГДР (расШИреНиЕ)

Рис. 1.94.

Схема грузОВОГо комплекса аэропорта ДОМОДЕДОВО

1. СУЩЕСТВУЮЩИЙ ГРУЗОВОЙ КОМПЛЕКС

2. ЗДАНИЕ ОПП

3. ПРОЕКТИРУЕМЫЙ ГРУЗОВОЙ КОМПЛЕКС

1.2.2. Проведен анализ роста оснащенности в процессе поэтапного расширения грузовых комплексов.

На основании сопоставления роста складских мощностей и объемов грузовых перевозок можно сделать вывод, что строительство в грузовых комплексах аэропортов ведется низкими темпами, темпы роста объемов грузовых перевозок опережают темпы роста складских мощностей, несмотря на ввод новых мощностей уровень оснащенности снижается с 49,0 % в 1970 г. до 45,3 % в 1980 г. и 45,5 % в 1985г.

Это объясняется тем, что:

- в большинстве складов реконструкция невозможна из-за архитектурных и конструктивных решений самих зданий, из-за их значительного физического и морального износа;

- имеется недостаток капитальных вложений и материальных ресурсов;

- грузовые комплексы находятся в стесненных условиях расположения на генплане, что сдерживает поэтапное расширение грузовых комплексов.

На основе анализа опыта поэтапного расширения существующих грузовых комплексов можно сделать вывод, что применяется 6 видов реконструкции:

- строительство дополнительных доков, навесов, эстакад;

- внутренняя реконструкция существующих зданий и сооружений обработки грузов;

- расширение существующего грузового комплекса, возведение пристройки;

- использование под складские помещения зданий и сооружений иного функционального назначения (например, ангаров); Рис. 1.95.

- строительство контейнерных площадок; Рис. 1.96, 1.97, 1.98.

- строительство нового грузового комплекса.

1.3. Опыт этапного развития зданий и сооружений вспомогательного комплекса

Реконструкция и расширение зданий и сооружений вспомогательного назначения проводится в аэропортах гражданской авиации в случае роста объема перевозок, морального и физического износа зданий.

1. СТРОИТЕЛЬСТВО ДВУХ НОВЫХ СКЛАДОВ ПРИБЫТИЯ

2. ПЕРЕОБОРУДОВАНИЕ АНГАРА ПОД ГРУЗОВОЙ СКЛАД

3. УСТАНОВКА СТЕЛЛАЖЕЙ В МЕТАЛЛИЧЕСКОМ ДОКЕ (5) И В СКЛАДЕ ОТПРАВЛЕНИЯ (4)

Рис. 1.95

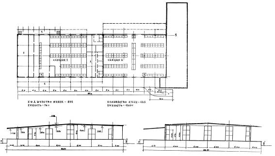
СХЕМА РЕКОНСТРУКЦИИ ГРУЗОВОГО КОМПЛЕКСА аэропорта ХАРЬКОВ

1. ЗДАНИЕ АНГАРА, ОБОРУДОВАННОЕ ПОД СКЛАД;

2. СКЛАД С 2-Х ЯРУСНЫМ ХРАНЕНИЕМ ГРУЗОВ;

3. СКЛАД С 3-Х ЯРУСНЫМ ХРАНЕНИЕМ ГРУЗОВ;

4. СКЛАД ОТПРАВЛЕНИЯ С 3-Х ЯРУСНЫМ ХРАНЕНИЕМ ГРУЗА;

5, 6. СКЛАДЫ ПРИБЫТИЯ С 3-Х ЯРУСНЫМ ХРАНЕНИЕМ ГРУЗОВ;

7. АДМИНИСТРАТИВНО-СЛУЖЕБНОЕ ЗДАНИЕ

Рис. 1.96.

КОНТЕЙНЕРНАЯ ПЛОЩАДКА ПО ОБРАБОТКЕ КОНТЕЙНЕРОВ САМОЛЕТА ИЛ-96 В АЭРОПОРТУ ПЕТРОПАВЛОВСК-КАМЧАТСКИЙ

Рис. 1.97.

СХЕМА ГЕНЕРАЛЬНОГО ПЛАНA ГРУЗОВОГО КОМПЛЕКСА А/П ШЕРЕМЕТЬЕВО

1. ФИНСКИЙ СКЛАД,

2. скЛАД экспортных и импортных грУЗоВ со СЛУЖЕБНЫМИ И БЫТОВЫМИ ПОМЕЩЕНИЯМИ

3. КРЫТАя эстакада

4. КРЫТАЯ ЭСТАКАДА С КРАН-БАЛКой

5. КиРПИчНый СКЛАД ВАЛ

6. АДМИНИСТРАТИВНОЕ ПОМЕЩЕНИЕ

7. иЗОТОПНАЯ

8. ДИСПЕТЧЕРСКАЯ И ПРОХОДНАЯ

9. КОНТЕЙНЕРНАЯ ПЛОЩАДКА

10. КПП

11. ТИПОВЫЕ МЕТАЛЛИЧЕСКИЕ ДОКИ

12. НАВЕСЫ

13. ПРОЕКТИРУЕМAЯ КОНТЕЙНЕРНАЯ ПЛОЩАДКА

14. АВТОВЕСЫ

Рис. 1.98.

СХЕМА ГРУЗОВОГО КОМПЛЕКСА А/П ВЛАДИВОСТОК

существующИЙ перроН

1. коммерческиЙ СКЛАД

2. КОНТЕЙНЕРНАЯ ПЛОЩАДКА (РАСШИРЕНИЕ)

3. АТС

4. СКЛАД ОМТС

Гостиницы аэропорта и профилактории ЛС размещаются, как правило, в отдельно стоящих зданиях, построенных, в основном, по типовым проектам.

Ввиду этого, большинство зданий гостиниц имеет фронтальную композицию, предназначенную для рядовой застройки вдоль улиц (проездов) в различных градостроительных ситуациях.

Главный вход располагается с главного, длинного фасада, как правило ассиметричного по отношению к оси здания.

Такое решение имеют гостиницы в Архангельске, Баку, Минеральных Водах, Новосибирске (Толмачево), Ленинакане, Ростове-на-Дону, Тамбове, Тюмени, Симферополе, Сочи.

Большинство гостиниц в плане представляют здания коридорного типа с номерами по обе стороны коридора. Санитарные узлы расположены вблизи лестничных клеток и вблизи торцов зданий. Для зданий подобного типа оптимальным вариантом расширения является строительство дополнительного отдельно стоящего объема на расстоянии, предусмотренном санитарными нормами. Новое здание может быть соединено переходом со старым зданием.

Построение по индивидуальным проектам гостиницы в Алма-Ате и Ташкенте имеет угловое решение в плотной застройке городского типа.

Гостиница в Вильнюсе имеет замкнутый объем с внутренним двориком.

Гостиница в аэропорте Жуляны (Киев) расположена в плотной застройке городского квартала.

Такие приемы также исключают возможность пристройки новых строительных объемов.

Здания профилакториев ЛС (как, например, в аэропорте Симферополь) спроектированы по такой же принципиальной схеме и тоже не рассчитаны на дальнейшее расширение.

В аэропорте Эребуни профилакторий размещен в бывшем здании общежития. Для этого осуществлена перепланировка в полном соответствии с санитарными нормами и требованиями, предъявляемыми к профилакториям ЛС.

В аэропорту Звартноц была проведена поэтапная реконструкция здания летного отряда;

- на первом этапе осуществлена пристройка актового зала и помещений для вычислительного центра;

- на втором этапе выведено из здания в аэропорт Эребуни помещение АрмУГА;

- на третьем этапе осуществлена пристройка здания управления аэропорта (полное завершение этапа планируется на 1985 г.)

Таким образом, из анализа отечественного опыта проектирования видно, что объемно-планировочные решения зданий вспомогательного назначения, в принципе, не отличаются большим разнообразием и представляют собой отдельно стоящие здания, как правило, простых очертаний в плане, средней этажности (до 5 этажей), расположенные вдоль проезда.

2. ПОТРЕБНОСТИ И ТИПИЧНЫЕ СИТУАЦИИ РЕКОНСТРУКЦИИ И РАСШИРЕНИЯ ЗДАНИЙ И СООРУЖЕНИЙ АЭРОПОРТОВ

2.1. Оценка диапазона увеличения пропускной способности действующих аэровокзалов в сложившейся градостроительной ситуации аэропортов.

2.1.1. Оценка необходимости проведения и распространенности мероприятий по реконструкции и расширению аэровокзалов в аэропортах страны проведена по группе аэровокзалов, построенных за последние 15-25 лет, в основном, по типовым проектам института. Всего рассмотрено 155 зданий, в том числе 24 СПЗ на 100 пасс/ч, построенных за 2 пятилетки с 1970 по 1980 годы, 113 аэровокзалов на 200, 300, 400, 600, 800 пасс/ч, построенных за 5 пятилеток с 1965 г., включая завершаемые строительством в 1990 г., и 18 пассажирских зданий на 500-700 пасс/ч, построенных с 1967 по 1985 годы.

2.1.2. Большинство зданий построено по относительно современным проектам и в целом отражают технологические требования обслуживания пассажиров. Моральное старение зданий, построенных в первые две пятилетки состоит главным образом, в отсутствии помещений досмотра, ожидания посадки пассажиров и в недостаточности площадей технологических помещений, в связи с увеличением нормативов технологического проектирования аэровокзалов в 1974 и в 1981 годах.

Состояние конструкции всех перечисленных капитальных зданий приемлемое и позволяет их эксплуатировать в течение еще многих десятилетий.

Для принятия решений о целесообразности нового строительства или расширения аэровокзалов рассматриваемых аэропортов проведен анализ диапазона увеличения пропускной способности большинства из них к 1990 и 1995 годам в сложившейся градостроительной ситуации застройки СТТ аэропортов.

2.1.3. В ряде крупных аэропортов пропускная способность действующих аэровокзалов, построенных в начале и в середине 1960-х годов, более чем в 4-5 раза меньше, чем требуется для строительства в 1990 или в 1995 годах (аэропорты Пермь, Уфа, Ашхабад, Душанбе, Тюмень, Симферополь).

Несопоставимость размеров действующих зданий с новыми потребностями затрудняет возможность их использования для реконструкции и расширения. В такой ситуации, как показывают материалы 1 раздела, целесообразно строить новые аэровокзалы, приспосабливая действующие к выполнению вспомогательных функций того же технологического назначения (обслуживание пассажиров местных линий, интуриста, международных линий).

2.1.4. В тех случаях, когда действующие здания сопоставимы по пропускной способности с объектами очередного строительства, целесообразно расширять и реконструировать аэровокзалы. Как показывает отечественный и зарубежный опыт, действующие здания включают методом расширения в новый комплекс, если их пропускная способность не более чем в 2-3 раза меньше мощности добавляемых зданий. В рассматриваемом списке аэропортов таких аэровокзалов большинство, более 90 %.

2.1.5. Пропускная способность объектов расширения аэровокзалов колеблется от 100 до 1000-1200 пасс/ч с интервалом в 100 пасс/ч.

Поскольку расширение аэровокзалов может осуществляться совместно или независимо в зонах вылета и прилета, целесообразно разрабатывать объекты-модули расширения двух типов для обслуживания вылетающих и прилетевших пассажиров с пропускной способностью до 600-800 пасс/ч в каждом направлении.

Количество типов модулей вылета и прилета должно быть по возможности минимальным и вместе с тем обеспечивать любой вариант пропускной способности с интервалом в 100 пасс/ч.

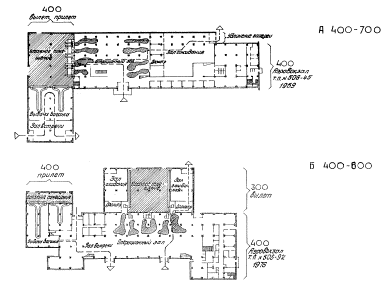
Для модулей вылета оптимальным будут два типа здания по пропускной способности на 100 и 300 пасс/ч. Комбинация этих модулей позволит компоновать объекты расширения на 100, 200, 300, 400, 500, 600, 700, 800 пасс/ч.

2.1.6. Пропускная способность модуля прилета зависит от вместимости расчетного типа самолета. Согласно исходным данным перерабатываемых норм технологического проектирования аэропортов ВНТП 1-80 для аэропортов V класса установлен расчетный тип самолета - Як-42, для аэропортов IV-III класса - самолет Ту-154, для аэропортов I - II класса - самолет Ил-86.

Если принять условие двухкратной оборачиваемости одной зоны выдачи багажа в час, то для самолета типа Як-42 пропускная способность одной зоны выдачи багажа составит примерно 200 пасс/ч, для одного самолета типа Ту-154-300 пасс/ч, для одного самолета типа Ил-86-600 пасс/ч. С целью унификации размеров целесообразно иметь один тип зоны выдачи багажа на 200-300 пассажиров в час, универсальной для обслуживания пассажиров, прилетающих на самолетах Як-42 и Ту-154. Возможность применения такого приема объясняется тем, что средние значения фронта выдачи багажа отличаются от меньшего для самолета ЯК-42 и большего для самолета Ту-154 всего на 10–15 %.

Две унифицированных зоны обеспечат пропускную способность в 400-600 пасс/ч, три соответственно 600-900 пасс/ч (в том числе и для выдачи багажа пассажирам, прилетающим на самолетах Ил-86).

2.1.7. С целью сокращения количества типов помещений досмотра и ожидания посадки в эксплуатируемые самолеты, целесообразно выделить модуль пропускной способностью 100 пассажиров в час на 1 пункт досмотра пассажиров, вылетающих самолетом Як-42 или Ан-24, унифицированный модуль на 2 пункта - 200-300 пасс/ч, вылетающих самолетами Ан-24, Ту-134, Як-42, Ту-154 и модуль на 2 пункта - с пропускной способностью 600 пасс/ч, вылетающих самолетами Ту-154, Ил-62 и Ил-68.

2.1.8. Размеры этих модулей по пропускной способности хорошо согласуются с вместимостью эксплуатируемых самолетов (два дополнительных самолета типа Ан-24 или один Як-42 дают прибавку пропускной способности в 100 пасс./ч, два самолета типа Як-42 перевезут в час дополнительно - 200 пассажиров, два самолета типа Ту-154 или четыре самолета типа Ту-134 перевозят дополнительно в час 300 пассажиров, что также соответствует вместимости одного самолета типа Ил-86).

Следовательно, номенклатуру объектов расширения построенных ранее аэровокзалов целесообразно принимать кратной величинам 100, 200 и 300 пасс./ч.

2.1.9. Для определения состава помещений объектов расширения ранее построенных аэровокзалов и СПЗ проанализированы типовые проекты на 100, 200, 400 и 700 пасс./ч, разработанные Аэропроектом и его филиалами в 1960 г.

Проекты выпуска 1960-х и 1970-х годов имеют недостаточные по сравнению с действующими нормами ВНТП 3-81 площади, поскольку Нормы перерабатывались с тех пор два раза. В этих проектах отсутствуют также помещения досмотра, ожидания посадки, не предусмотрена технология выдачи багажа с закольцованных транспортеров. Багажные помещения не рассчитаны на технологию контейнерной обработки багажа. С момента ввода в эксплуатацию многих из рассматриваемых аэровокзалов сменился расчетный тип самолета. Вместо Ан-2 введен в эксплуатацию Як-40, самолеты Ту-134 и Ту-154 сменили в большинстве случаев Ан-24.

В группе более современных аэровокзалов, построенных за период 1981-1984 гг., и аэровокзалов, стройки которых начаты с завершением в следующей пятилетке, состав помещений и оснащение оборудованием соответствует действующим нормам. Однако, к 1990 или 1995 году площади этих аэровокзалов будут в 1,5-2,0 раза, а в отдельных случаях в 3,0-4,0 раза меньше требуемых по объему обслуживаемых пассажиров.

Отсутствие ряда технологических помещений в аэровокзалах постройки 1960-х - 1970-х годов и общий дефицит площади почти во всех рассматриваемых аэровокзалах требуют расширения следующих помещений:

- помещений досмотра и ожидания посадки;

- багажных помещений в зоне вылета и прилета;

- операционных залов выдачи багажа;

- всех помещений технологического обслуживания вылетающих пассажиров.

2.1.10. Сопоставление данных по требуемой пропускной способности и составу помещений позволило выявить номенклатуру объектов расширения ранее построенных по типовым проектам аэровокзалов, СПЗ и пассажирских зданий, табл. 2.1, включая недавно разработанные здания досмотра на 1 и 2 пункта.

2.1.11. Поскольку условия застройки аэровокзальных комплексов рассматриваемых аэропортов достаточно разнообразны, целесообразно разрабатывать объекты расширения в виде типовых решений, выполненных до стадии проекта*.

* - Основным методом расширения принят метод пристройки пассажирских зданий к существующим зданиям аэровокзалов.

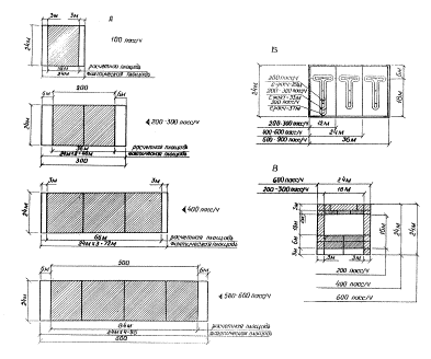
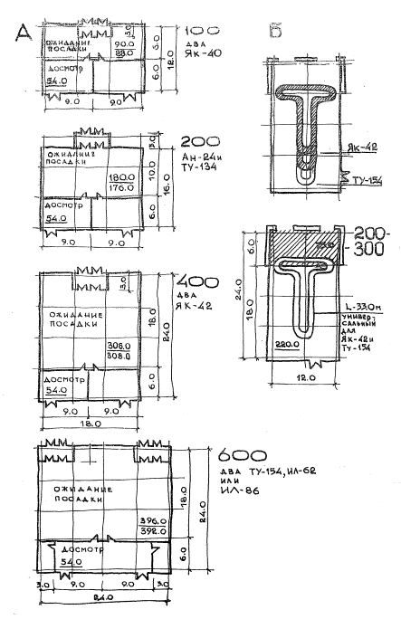
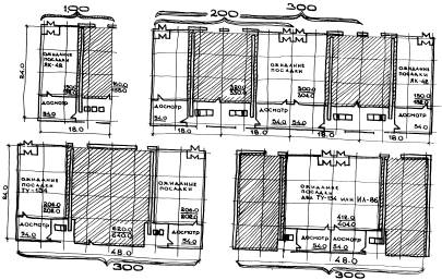
Таблица 2.1

Типы модулей-объектов расширения аэровокзалов по пропускной способности и составу помещений

Типы модулей-объектов расширения аэровокзалов

Пропускная способность пасс./ч

Состав помещений

Рабочие площади, м

Досмотра и ожидания посадки на 1 пункт (1- Ан-24 или 2- Як-40)

100

- пункт досмотра

54

- зал ожидания посадки

44

Досмотра и ожидания посадки на 2 пункта (1 - Ан-24 или 1- Як-42, 1- Ту-134) (2- Ту-134 или 1- Ту-154)

200-300

- пункт досмотра

108-108

-зал ожидания посадки

176-216

Досмотра и ожидания посадки на 2 пункта (2- Ту-154, Ил-62 или 1 - Ил-86)

600

- пункт досмотра

108

- зал ожидания посадки

392

Вылета (досмотр, ожидание посадки, багажное отделение)

100

- багажное отделение

155

- пункт досмотра

54

- зал ожидания посадки

144

Вылета (досмотр, ожидание посадки, багажное отделение)

300

- багажное отделение

640

- пункт досмотра

108

- зал ожидания посадки

432

Прилета (выдача багажа)

200-300

- багажное отделение

80

- операционный зал выдачи багажа

216

Это позволит при разработке рабочей документации учитывать особенности застройки аэропорта в части сложившейся планировки, расположения сменных зданий, местных строительных материалов и конструкций, климатических условий.

Анализ градостроительной ситуации проведен по генеральным планам построенных аэровокзальных комплексов, табл. 2.2., рис. 2.1-2.2.

Как отмечалось, большая часть рассмотренных аэровокзалов, СПЗ и пассажирских зданий построена за период с 1965 по 1980 годы, табл. 2.1. По распространенной в период проектирования этих зданий традиции перед аэровокзалами со стороны перрона предусматривалась значительная по размерам зона аванперрона. Ширина аванперронов колеблется от 15 до 40 с лишним метров.

70 % аэровокзалов и других зданий имеет аванперрон шириной не менее 24 м.

Ряд аэровокзалов, построенных в последние годы, практически не имеют аванперрона (аэропорты Красноярск, Казань, Брежнев).

Со стороны обоих торцов аэровокзалов и других зданий также имеется довольно просторные свободные территории, от 30 до 90 и более метров.

Однако один из торцов, как правило, занят пищеблоком с примыкающим к нему загрузочным двором. Поэтому реальная резервная территория имеется со стороны свободного от застройки торца зданий.

Сложившиеся планировки аэровокзалов, СПЗ и пассажирских зданий таковы, что увеличение ширины зданий, как правило, в сторону аванперрона создает дополнительные резервы площадей для помещений обслуживания вылетающих пассажиров. Для расширения помещений обслуживания прилетевших пассажиров требуется также увеличение длины здания, где, как правило, размещаются недостаточные по площади зоны выдачи багажа.

Следовательно, наиболее распространенный прием реконструкции большинства рассматриваемых аэровокзалов должен предусматривать одновременную пристройку новых объемов в сторону аванперрона и свободного от пищеблока торца зданий.

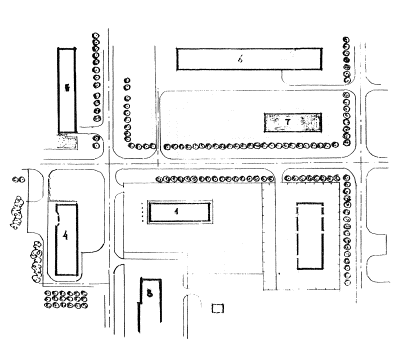
Рис. 2.1.

Возможность расширения аэровокзальных комплексов в аэропортах Павлодар, Тамбов, Усть-Илимск

Рис. 2.2.

Возможности расширения аэровокзальных комплексов в аэропортах Брест, Чимкент

Таблица 2.2

Характеристика резервов территории застройки аэровокзальных комплексов

№ пп

Наименование аэровокзала аэропорта

Пропускная способность, пасс./ч

Расстояние на генплане от аэровокзала до

кромки перрона

до ближайшего здания

вправо от аэровокзала

влево от аэровокзала

1

2

3

4

5

6

3

Анапа

400

34

90

48

4

Могилев

200

30

40

нет застройки

5

Горноалтайск

35+50

30

45

нет застройки

6

/Ижевск/ Устинов

200

20

90

90

7

Павлодар

200

30

40

нет застройки

6

Оренбург

400

50

90

90

9

Быково

400

25

50

30

10

Певек

200

27

42

14

11

Новгород

200

35

75

нет застройки

12

Витебск

300

35

-

-

13

Орджоникидзе

200

37

47

нет застройки

14

Казань

1300

3

130

нет застройки

15

Грозный

600

27

пищебл.

нет застройки

16

Бреста

200

30

40

нет застройки

17

Рига

600

50

30

30

18

Иркутск,

700

30

55

55

19

Красноярск

700

12

200

нет застройки

20

Чимкент

400

40

40
пищебл.

80
до перрона

21

Нижнекамск

400

30

нет застройки

55

22

Воронеж

400

18

60

80

23

Аркалык

200

60

40

42

24

Житомир

200

15

нет застройки

12

25

Магадан

400

30

-

-

26

Винница

400

24

50

нет застройки

27

Полтава

400

24

75

75

28

Калуга

100

20

55

нет застройки

29

Череповец

100

18

36

нет застройки

30

Ош

400

56

30

25

31

Казань МВД

100

40

30

нет застройки

32

Фрунзе

1700

15

нет застройки

нет застройки

33

Улан-Удэ

400

30

нет застройки

нет застройки

34

Хабаровск

700

12

нет застройки

нет застройки

35

Владивосток

200+700

32

нет застройки

нет застройки

36

Северо-Варьеганское месторождение

50

35

нет застройки

нет застройки

37

Кривой Рог

400

34

нет застройки

36

38

Тамбов

200

43

43

25

39

Петропавловск Кам-

200

26

66

нет застройки

Наряду с этим потребуется также разработка вариантов расширения и реконструкции аэровокзалов, не имеющих аванперрона.

Учитывая реальные и наиболее распространенные размеры аванперронов и габаритов ширины действующих зданий, можно установить оптимальную ширину модулей расширения зон досмотра, вылета и прилета, которая не должна превышать в среднем типовом случае 24 м.

2.2. Оценка диапазона увеличения грузооборота действующих грузовых комплексов в сложившейся градостроительной ситуации аэропортов

Необходимо отметить стесненные условия расположения грузовых комплексов на генплане, недостаток площадей самих грузовых дворов и в большинстве случаев невозможность расширения их территории. Результаты анализа градостроительной ситуации (21 грузового комплекса аэропортов V-II классов) показали, что в 60 % случаев расширение территории существующих грузовых комплексов невозможно, также невозможно никакое новое строительство на существующей территории и для него необходимо выделение новых площадей. Если необходимо строительство нового грузового комплекса, то для него отводится территория отдаленная от территории существующего грузового комплекса. В 20 % возможно расширение существующего здания грузового склада за счет возведения пристройки, рис. 2.3. Пристройка, как правило, имеет более совершенное конструктивное и архитектурное решение меньшую сетку колонн, большие дверные проемы, конструктивные элементы, имеющие большую несущую способность. В 20 % случаев возможно незначительное новое строительство на территории существующего грузового склада в виде строительства навесов и эстакад.

Фрагменты генпланов аэропортов с расположением на них грузовых комплексов приводятся на рис. 2.4-2.11.

На основе анализа роста диапазона увеличения грузооборота и расположения грузовых комплексов на генплане аэропорта можно сделать вывод, что грузовые дворы грузовых комплексов аэропортов гражданской авиации находятся в большинстве случаев в стесненных условиях и требуют расширения территории. Можно рекомендовать в этих случаях коренную реконструкцию, которая представляет собой:

1) снос устаревших физически и морально зданий и сооружений грузовых складов и строительство на их месте новых, позволяющих внедрить многоярусное хранение грузов и новые более прогрессивные средства механизации, (увеличить коэффициент использования складских площадей);

2) использование под здание грузового склада существующих зданий иного функционального назначения, проведя в них предварительно реконструкцию и приспособив их под грузовой склад;

3) Построить новый грузовой комплекс на прилегающей территории, отвечающий требованиям современной технологии обработки и хранения грузов

Рис. 2.3.

СХЕМА РЕКОНСТРУКЦИИ СКЛАДА ОТПРАВЛЕНИЯ ГРУЗОВОГО КОМПЛЕКСА АЭРОПОРТА ШЕРЕМЕТЬЕВО

(СХЕМА РАССТАНОВКИ СТЕЛЛАЖЕЙ)

ЭКСПЛИКАЦИЯ

1. кРЫтая эстакада

2. СЛУЖЕБНО-БЫТОВЫЕ ПОМЕЩЕНИЯ;

3. ПОМЕЩЕНИЕ ДЛЯ КЛАДОВЩИКОВ;

4. ПАНДУС,

5. СЛУЖЕБНО-АДМИНИСТРАТИВНОЕ ЗДАНИЕ.

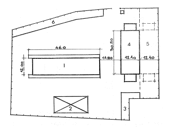
Рис. 2.4.

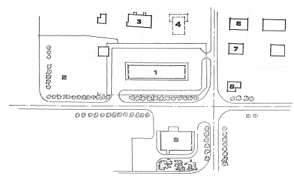
ФРАГМЕНТ ГЕНПЛАНА АЭРОПОРТА НИЖНЕКАМСК

Рис. 2.5

ФРАГМЕНТ ГЕНПЛАНА АЭРОПОРТА ВОРОНЕЖ

ЭКСПЛИКАЦИЯ

1. ГРУЗОВОЙ СКЛАД, НА 130 т

2. БЕЗАНГАРНЫЙ ЛЭРМ

3. CKЛAД ТЕХИМУЩЕСТВА

4. ПОЖДЕПО

5. ЗДАНИЕ АВИАОТРЯДА СО СТОЛОВОЙ

6. ОПП

М 1:1000

Рис. 2.6.

ФРАГМЕНТ ГЕНПЛАНА СТТ АЭРОПОРТА ПАВЛОДАР

1. грузовой склад, 120 т

2. СКЛАД ГСМ

3. ТЕХНИЧЕСКАЯ

4. аопп

5. ПОЖДЕПО НА 2 АВТОХОДА

6. СКЛАД TEXИМУЩЕСТВА

7. MACЛOГPEЙKA

8. НАСОСНАЯ

Рис. 2.7

ПЛАН ГРУЗОВОГО СКЛАДА ЕМК.30 т АЭРОПОРТА КУТАИСИ

1. ГРУЗОВОЙ СКЛАД НА 30 т.

2. ЗДАНИЕ ТЕХБРИГАД

Рис. 2.8.

ФРАГМЕНТ ГЕНПЛАНА АЭРОПОРТА ГОРНОАЛТАЙСК

ЭКСПЛИКАЦИЯ

1. ГРУЗОВОЙ СКЛАД НА 30 т;

2. ЗДАНИЕ ТЕХСКЛАДА СО СКЛАДОМ ТЕХИМУЩЕСТВА;

3. ЗДАНИЕ ТЕХСЛУЖБ;

4. СБЛОКИРОВАННОЕ ЗДАНИЕ ГАРАЖА С ПОЖДЕПО;

5. ВОДОМАСЛОСТАНЦИЯ;

6. КОТЕЛЬНАЯ;

7. тПс агРеГАТНОЙ;

8. kДП с аэПОВокзАЛом;

9. СТОЛОВАЯ.

Рис. 2.9.

ФРАГМЕНТ ГЕНПЛАНА АЭРОПОРТА ИЖЕВСК

ЭКСПЛИКАЦИЯ

1. ПАКГАУЗ НА 75 т

2. ЦЕНтРАЛЬНЫй мАтЕРиАЛЬНЫЙ СКЛАД

3. AOПП

4. ГОСТИНИЦА

5. СБЛОКИРОВАННОЕ ЗДАНИЕ АВИАОТРЯДА CO СТОЛОВОЙ

6. ЛЭРМ

7. КОРПУС ВСПОМОГАТЕЛЬНЫХ ПРОИЗВОДСТВ

М 1:l000

Рис. 2.10.

ФРАГМЕНТ ГЕНЕРАЛЬНОГО ПЛАНА СЛУЖЕБНО-ТЕХНИЧЕСКОЙ ТЕРРИТОРИИ АЭРОПОРТА ОРЕНБУРГ

Рис. 2.11.

ФРАГМЕНТ ГЕНПЛАНА АЭРОПОРТА КАЛУГА

ЭКСПЛИКАЦИЯ

1. ГРУЗОВОЙ СКЛАД

2. ЗДАНИЕ ТЕХБРИГАД

3. СКЛАД МТИ

4.

5. ЗДАНИЕ УПРАВЛЕНИЯ СО СТОЛОВОЙ

6. АЭРОВОКЗАЛ

7. ТРАНСФОРМАТОРНАЯ ПОДСТАНЦИЯ

2.3. Оценка диапазона увеличения мощности действующих зданий и сооружений вспомогательного комплекса.

2.3.1. Потребность в новом строительстве зданий и сооружений вспомогательного назначения и их повторяемость определена на основании анализа данных работы "Предложения к основным направлениям развития гражданской авиации на ХII пятилетку и до 2000 г." (арх. 3823), в которой приводится перспективный план строительства в аэропортах ГА.

Уровень обеспеченности зданиями и сооружениями вспомогательного назначения в аэропортах ГА на 1985 год продолжает оставаться недостаточным. Так, уровень обеспеченности гостиницами составляет в среднем 52 %,

профилакториями ЛС - 40 %,

зданиями управления аэропорта - 61 %.

Отсюда - большой объем строительства, потребного для обеспечения аэропортов этими типами зданий при условии доведения уровня обеспеченности до 100 %, что определяет специфику методов расширения предприятий.

По данным перспективных планов аэропортов была выявлена мощность предприятий и количество намечаемых к строительству зданий различного назначения, исходя из нормативной потребности по каждому аэропорту с учетом лимитов МГА (см. таблицу 2.3.)

Таблица 2.3

Потребность и повторяемость зданий, намеченных к строительству на период до 2000 года в аэропортах ГА

Наименование зданий

Мощность предприятия

Повторяемость

Рекомендуемый проект

типовой

индивидуальный

1

2

3

4

5

Гостиница, мест

50

15

+

-

100

26

+

-

200

33

+

-

300

11

+

-

500

24

+

+

600

15

-

+

800

5

-

+

1000

7

-

+

1200

4

-

+

Профилакторий ЛС, мест

30

-

+

-

50

50

+

-

100

60

+

-

200

21

+

-

300

6

+

+

400

8

-

+

500

-

-

+

Здание управления аэропорта, мест

20

-

+

-

50

18

+

-

100

27

+

-

150

4

+

-

250

3

+

+

350

-

+

+

Анализ потребности в гостиницах аэропорта и профилакториях ЛС в аэропортах ГА показывает, что в I классе аэропортов требуется строительство профилакториев на 200 и 400 мест; гостиниц на 200, 400, 500, 600, 800, 1000 мест.

Во II классе аэропортов требуется строительство профилакториев на 200 мест, гостиниц на 200, 300, 400, 700, 800, 1000 мест.

В III классе аэропортов требуется строительство профилакториев на 100 и 150 мест, гостиниц на 100, 200, 300, 400, 500, 600 мест.

В IV классе аэропортов требуется строительство профилакториев на 100 и 50 мест, гостиниц на 50, 100, 200, 300, 500 мест.

В V классе аэропортов требуется строительство профилакториев на 50 мест, гостиниц на 50, 100, 200 мест.

3. РЕКОМЕНДАЦИИ ПО ОПТИМАЛЬНЫМ СХЕМАМ РЕКОНСТРУКЦИИ И РАСШИРЕНИЯ ЗДАНИЙ И СООРУЖЕНИЙ АЭРОПОРТОВ

3.1. Схемы реконструкции и расширения зданий и сооружений пассажирского комплекса

3.1.1. В разделе 2 выявлены типы модулей расширения аэровокзалов по пропускной способности, составу и площади помещений основного технологического назначения.

В данном разделе приводятся обоснования типов модулей по объемно-планировочному решению.

3.1.2. На основании имеющегося опыта определены главные требования к объемно-планировочному решению зданий:

- количество типов и типоразмеров модулей должно быть минимальным;

- планировку и габариты модулей следует выбирать таким образом, чтобы можно было на практике компоновать из них объекты расширения, разной ширины, длины и этажности;

- типоразмеры ширины модулей вылета и досмотра не должны превышать 24 м, типоразмеры модулей пролета следует выбирать, учитывая ширину существующих зданий аэровокзалов.

3.1.3. Для составления рекомендаций по оптимальным схемам реконструкции и расширения аэровокзалов проработки выполнены в три этапа:

- выявлены технолого-планировочные типы модулей расширения, показаны возможные варианты их компоновки с типовыми проектами и характер реконструкции построенных по ним за последние 15-20 лет СПЗ, аэровокзалов, пассажирских зданий пропускной способностью от 100 до 700 пасс./ч;

- разработаны объемно-планировочные типы модулей расширения в зонах вылета, прилета и досмотра;

- рассмотрены возможности последовательного сведения многочисленных технологических модулей к ограниченному числу объемных модулей и, в идеале, к одной объемно-конструктивной единице - строительному изделию высокой заводской готовности, которое целесообразно разработать из материалов повсеместного распространения.

3.1.4. Технолого-планировочные решения модулей вылета на 100 и 300 пасс./ч составлены на основе секционной планировки, что позволяет их компоновать в пристройки разной пропускной способности с интервалом в 100 пасс./ч, рис. 3.1.

Рис. 3.1.

Технолого-планировочные типы моДуЛЕй вЫЛЕТА /ЗАШтрихоВАНЫ - БАгАжные пОМ., В ЗНАМЕНАТЕЛЕ - нОРМАтиВы/

Технологический модуль на 100 пасс./ч 18×24 м при зеркальной компоновке образует объем с увеличенной пропускной способностью. При добавлении третьего и четвертого модулей формируется удлиненный объем в пределах которого чередуются с шагом 18 м зоны досмотра и ожидания посадки с багажными помещениями. Из модуля I на 100 пасс./ч целесообразно проектировать пристройки до 300-400 пасс/ч для расширения зон выдачи багажа СПЗ и аэровокзалов на 100 и 200 пасс./ч.

Модуль вылета на 300 пасс./ч предусмотрен в двух вариантах планировки при одинаковых параметрах в плане 24×48 м:

- с одним багажным помещением в центре и двумя зонами досмотра, ожидания посадки в каждой из которых можно обслужить пассажиров одного самолета типа Ту-154 или ИЛ-62;

- с одной зоной ожидания посадки и двумя пунктами досмотра в центре и двумя багажными отделениями для обслуживания пассажиров одного самолета ИЛ-86.

Удвоение, утроение модуля на 300 пасс./ч позволяет компоновать объем секционной планировки с более крупным шагом чередования зон досмотра, ожидания посадки и багажных помещений (24 м) для расширения помещений вылета аэровокзалов на 200, 400 и пассажирских зданий на 700 пасс./ч.

3.1.5. Как отмечалось в разделе 2, целесообразно иметь один тип модуля прилета на 200 - 300 пасс./ч. Планировочные проработки, рис. 3.2.Б показали, что в помещении шагом и пролетом колонн 6×6 м (возможный худший случай реконструкции зоны прилета) оптимально устанавливается типовой закольцованный транспортер, фронт выдачи багажа которого незначительно отличается от расчетного для самолетов Як-42 и Ту-154. Параметры в плане такого одноэтажного здания составят 12×24 м. При таких размерах в плане модули прилета будут удобно компоноваться в торце существующих типовых аэровокзалов, ширина которых в большинстве случаев составляет 24 м. При этом два модуля (наиболее распространенный случай реконструкции) могут пристраиваться в двух вариантах с расположением транспортеров вдоль и поперек торца здания.

3.1.6. Технолого-планировочные схемы зон досмотра составлены в расчете на одновременное обслуживание двух самолетов типа Як-40 с пропускной способностью 100 пасс./ч, самолетов типа Ан-24 и Ту-134 на 200 пасс./ч, самолетов типа Як-42 на 400 пасс./ч двух самолетов типа Ту-154, Ил-62 или одного самолета ИЛ-86 на 600 пасс/ч. Параметры этих модулей в плане составляют соответственно 12×18 м, 16×18 м, 18×24 м, 24×24 м, рис. 3.2.

Рис. 3.2.

ТехНолого-планирОвоЧные типы МОДУЛЕЙ ДОСМОТРА /А/, и модуля прилета /б/ (ЗАШТРИХОВАНО - БАГАЖНОЕ ПОМЕЩЕНИЕ, В ЗНАМЕНАТЕЛЕ - НОРМАТИВЫ ПЛОЩАДИ)

3.1.7. На основе данных о потребностях увеличения пропускной способности, проработок генпланов застройки аэровокзальных комплексов (раздел 2) выявлены типовые варианты компоновки технологических модулей с типовыми проектами СПЗ на 100 пасс/ч, аэровокзалами на 200 и 400 пасс./ч и пассажирскими зданиями на 700 пасс./ч. Разработано 17 возможных планировок рис. 3.3-3,6, в том числе 4 в сочетании построенных зданий с модулями досмотра и прилета и 13 - с зонами вылета и прилета; табл. 3.1.

3.1.8. Приведенные эскизы показывают, что пристройки в зоне аванперрона позволяют увеличить технологическую ширину построенных в большинстве случаев узких зданий. При этом багажные помещения, зоны досмотра и ожидания посадки вытесняются в пристройки, а на месте существующих образуется достаточная по ширине зона (9-12 м) для размещения очередей пассажиров на регистрацию. Для реализации этого мероприятия на время пристройки придется организовывать временные выезды для багажных электротележек и выхода для пассажиров, например, с торца здания при застройке всего фронта здания со стороны перрона, или воспользоваться крайними выездами и выходами, если застраивается часть этого фронта.

После ввода пристройки в эксплуатацию туда на время реконструкции и перепланировки первоначальных технологических помещений возможно временно переместить операционный зал.

Реконструкция и перепланировка будут предусматривать снос перегородок в прежней технологической зоне, перекладку подвесных потолков и асфальтовых полов багажных помещений на более эстетичные (гранит, террацо и другие), сетей естественного освещения, вентиляционных коммуникаций, слаботочных систем, также выполнение отделочных работ в зоне реконструируемых помещений.

Пристройка модулей досмотра и модулей прилета в торце здания или в торце вылета потребует проведения аналогичных мероприятий.

3.1.9. Эскизы планировок отражают основные ситуации реконструкции и расширения действующих зданий:

- при наличии аванперрона достаточной ширины (не менее 24 м); наиболее часто встречающаяся ситуация застройки;

- при наличии аванперрона значительной ширины (более 40-50 м);

- при отсутствии или ограниченных размерах аванперронов.

Для второй ситуации застройки проработан вариант строительства модулей вылета, соединенных переходом с первоначальным зданием.

Для ситуации с отсутствием аванперрона предусмотрены варианты перемещения пристроек в сторону торца здания и привокзальной площади.

Рис 3.3.

Схемы расширения аэровокзалов на 400 пасс. А - при отсутствии аванперрона; пристройка к торцу здания, удлинение галереи со стороны перрона. Б - пристройка модуля вылета в зоне аванперрона и модуля в торце здания.

Рис. 3.4.

Расширение аэровокзалов на 200 пасс/ч

А - Пристройка модуля досмотра в зоне аванперрона при небольшом объеме багажных операций и модуля прилета в торце здания, Б - Пристройка модуля вылета в зоне аванперрона и модуля прилета в торце здания.

Рис. 3.5.

Схема расширения служебно-пассажирского здания на 100 пасс/ч. Пристройка модуля вылета в зоне аванперрона и модуля прилета в торце здания

Рис. 3.6.

Схемы расширения служебно-пассажирских зданий на 100 пасс/ч. А - пристройка модулей вылета в зоне аванперрона и модуля прилета в торце здания, Б - пристройка модулей вылета и прилета в зоне аванперрона


Таблица 3.1

Типичные варианты компоновки технологических модулей с типовыми проектами СТО, аэровокзалов пассажирских зданий

Наименование типового проекта

Номер типового проекта

Год ввода :в действие

Варианты эскизов компоновки технологических модулей

Досмотра

вылета

прилета

на 200 пасс./ч

на 200 - 300 пасс./ч

на 400 пасс./ч

на 600 пасс./ч

на 200 пасс./ч

на 300 пасс./ч

на 400 пасс./ч

на 500 пасс./ч

на 600 пасс./ч

на 200 - 300 пасс./ч

на 400 - 600 пасс./ч

на 600 - 900 пасс./ч

СПЗ на 100 пасс./ч

506-4

1966

 

 

 

 

+

 

 

 

 

+

 

 

СПЗ на 100 пасс./ч

506-41/93

1977

 

 

 

 

+ +

 

 

 

 

++

++

 

Аэровокзал на 200 пасс./ч

5-10-65

1960

 

 

 

 

 

+

+

 

 

 

 

 

Аэровокзал на 200 пасс./ч

506-57

1969

+

 

 

 

+

 

 

 

 

++

 

 

Аэровокзал на 200 пасс./ч

506-93

1977

 

 

 

 

 

 

+

 

 

+

+

 

Аэровокзал на 400 пасс./ч

 

1965

 

 

 

 

 

 

+

 

 

 

+

 

Аэровокзал на 400 пасс./ч

506-45

1969

 

 

 

 

 

 

+

+

 

 

+

+

Аэровокзал на 400 пасс./ч

506-92

1976

 

 

+

 

 

+

 

 

 

 

++

 

Пассажирское здание на 700 пасс./ч

506-64

1970

 

 

 

+

 

 

 

 

+ +

 

 

+++


3.1.10. Важным условием нормального функционирования зданий является автономия систем их инженерного обеспечения теплом, электричеством, вентиляцией,

В составе помещений пристроек необходимо предусматривать электрощитовые, узлы ввода тепла, а также автономные устройства вентиляции. При этом возможно объединение функций отдельных устройств. Так, например, в каждом модуле могут быть предусмотрены автономные источники снабжения нагретым воздухом тепловых завес ворот багажных помещений, которые в летнее время переключаются для работы, как вентиляционная система залов ожидания посадки.

3.1.11. Архитектурный аспект реконструкции аэровокзалов представляет серьезную трудноразрешимую проблему. Прежние и новые здания должны быть связаны в единый целостный организм, отвечающий современным требованиям к выразительности, масштабности в композиционной трактовке объемов. Как было показано в разделе 1, в большинстве случаев целостность нарастающего комплекса достигается индивидуальными средствами, в зависимости от местных условий (планировки, архитектуры здания, генплана застройки, местных традиций и т.д.). Для этих целей производится смена ограждающих конструкций витражей, пристройка навесов, галерей в отдельных случаях частичная или полная обстройка первоначальных зданий.

3.1.12. Для минимизации количества модулей вылета, прилета и досмотра сопоставлены их площади и планировка, рис. 3.1.

При ограниченной постоянной ширине модуля вылета (24 м) длина модулей определенной пропускной способности будет изменяться в соответствии с изменением их площади.

Как следует из материалов раздела 2, составленных по действующим нормативам ВНТП 3-81, площадь помещений основного технологического назначения увеличивается почти пропорционально увеличению их пропускной способности. Также пропорционально будет изменяться и длина здания пристройки в зоне вылета. Так, пристройки на 600 и 300 пасс/ч при постоянной ширине в 24 м будут примерно в 3 раза длиннее пристроек соответственно на 200 и 100 пасс/ч.

Наибольшая свобода комбинаций модулей и простота их конструкции обеспечивается при квадратном плане каждого модуля. Если сопоставить технологически необходимую и планировочную длину модулей, кратную 24 м, в диапазоне изменения пропускной способности от 100 до 600 пасс./ч, то разница между ними составит незначительную величину.

Для модуля в 100 пасс./ч эта разница достигает максимальной величины, технологическая длина модуля меньше планировочной на 3 м с каждой его стороны, т.е. меньше на 12,5 %. По мере увеличения пропускной способности технологически необходимая и планировочная длина зданий пристроек зоны вылета сближаются. Это дает основание принять оптимальным для всех объектов расширения в зоне вылета один типоразмер модуля в плане 24×24 м. Рис. 3.7.

3.1.13. Технологические площади модулей досмотра увеличиваются медленнее роста показателей пропускной способности. Так, площадь модулей на 2 пункта досмотра пропускной способностью в 600 и 400 пасс./ч соответственно превышает площадь зон досмотра на 200 и 100 пасс./ч всего лишь в 2 раза.

При непропорционально нарастающих соотношениях мощности и размеров зданий применим такой прием унификации параметров, когда в одном объемно-планировочном модуле размещаются технологические модули разной пропускной способности.

Если стремиться к квадратному в плане модулю досмотра, то три технологические зоны досмотра на 200, 400 и 600 пасс./ч уместятся в одном объемно-планировочном модуле с размерами в плане 24×24 м. Разница в площади между зонами досмотра на 200 и 600 пасс./ч, как отмечалось, примерно равна площади меньшей зоны. Если разместить в середине большего модуля меньший, то есть в середине вдвое большего по площади квадрата, вдвое меньший, то по периметру меньшего останется свободная площадь шириной всего лишь 6 м.

Принимая один тип объемно-планировочного модуля для трех технологических, получаем резервы в виде навесов за пределами ограждающих конструкций меньшего модуля. По мере переноса ограждающих конструкций в пределах имеющихся навесов может осуществляться двух- и трехкратное увеличение пропускной способности модуля досмотра без строительства новых зданий.

Метод расширения зданий путем переноса ограждающих конструкций по их периметру в пределах существующих навесов применим в тех случаях, когда площадь увеличивается, в ограниченных пределах не более, чем в 1,5-2,0 раза, поскольку такой прирост площади достигается ценою относительно небольших первоначальных резервов несущих конструкций и покрытия зданий.

3.1.14. Может быть также образован один планировочный модуль досмотра для трех технологических на 100, 200 пасс./ч. Его размеры в плане составит 18×18 м. При этом ширина навесов за пределами ограждающих конструкций для модуля на 100 пасс./ч составит по 1,5 м с каждой его стороны по сравнению с размерами модуля на 200 пасс./ч.

Рис. 3.7.

Спецификация типоразмеров технологических и объемно-планировочных модулей расширения аэровокзалов

А - модули вылета

Б - модули прилета

В - модули досмотра

Однако из соображений унификации планировочных параметров рассматриваемых модулей вылета, прилета и досмотра целесообразно иметь два типа размера модулей досмотра в плане: 24×24 м для зон досмотра на 200, 400, 600 пасс./ч и 12×24 м для зон досмотра на 100 пасс./час. В эти два типоразмера укладываются семь типов модулей по назначению и пропускной способности, а именно: два типа модулей вылета на 100 и 300 пасс./ч, один тип модуля прилета на 200-300 пасс./ч и четыре модуля досмотра на 100, 200, 300, 600 пасс./ч. Рис. 3.8.

3.1.15. Построенные по типовым проектам аэровокзалы, СПЗ и пассажирские здания имеют один технологический уровень, но в зданиях с пропускной способностью более 100 пасс/ч, на втором этаже предусмотрен зал ожидания, который также нуждается в расширении. Поэтому рассматриваемый тип объемно-планировочного решения модуля вылета и досмотра с параметрами в плане 24×24 м необходимо иметь в двух вариантах: одноэтажный и двухэтажный.

Учитывая реальные размеры построенных зданий по высоте, можно предположить следующие возможности их компоновки с одноэтажными и двухэтажными пристройками, рис. 3.9. Одна из трудностей непосредственного примыкания нового здания к существующему, состоит в необходимости сохранения естественного освещения помещений ожидания 2-го этажа аэровокзалов.

Одноэтажные пристройки могут быть разной высоты от 3,6 до 6,0 м, в зависимости от конструкции и пролета покрытия. При малой высоте пристройки, в пределах 3,6÷4,2 м от пола до покрытия возможна непосредственная пристройка нового объема, кровля которого становится обозримой из зала ожидания. Здесь возникает задача повышения эстетичности кровельного покрытия, в особенности, если кровля выполняется из рубероида, для чего, как правило, рубероид покрывают слоем гравия, утопленного в мастику. Применяют также плиточное покрытие кровли и другие средства.

3.1.16. При значительной высоте одноэтажной пристройки /5,0-6,0 м от пола до потолка/ естественное освещение зала 2-го этажа можно сохранить, предусмотрев невысокую вставку между новым и существующим зданием, ширина от 6,0 до 9,0÷12,0 м в зависимости от местных условий. Для районов строительства со значительным снеговым покровом вставку следует проектировать со световым фонарем типа "Шед", с тем чтобы избежать снеговых машков. В южных районах страны можно оставить вставку одноэтажной.

Двухэтажные пристройки могут непосредственно примыкать к действующим зданиям при условии, если будут предусмотрены зенитные световые фонари или фонари типа "Шед" на ближайшем к месту стыка участке кровли новых объемов,

Рис. 3.8.

Типы объемно-планировочных модулей расширения аэровокзалов

А, В - одноэтажные модули

Б - двухэтажный модуль

Рис. 3.9.

Схемы разрезов компоновки одноэтажных (А) и двухэтажных (Б) пристроек к существующим аэровокзалам со стороны аванперрона.

3.1.17. Таким образом, с учетом разной этажности семь технологических типов модулей целесообразно свести к трем объемно-планировочным модулям рис. 3.8; одноэтажный и двухэтажный с размерами в плане 24×24 м и одноэтажный с размерами в плане 12×24 м.

Следующий логический шаг - сведение этих трех типов объемно-планировочных модулей к одному типу объемно-конструктивного элемента с параметрами в плане 12×12 м, из комбинаций которого в плане и по высоте можно компоновать пристройки разного назначения, мощности, планировки и этажности.

3.2. Схемы реконструкции и расширения зданий и сооружений грузового комплекса

3.2.1. На основе анализа результатов поэтапного расширения зданий и сооружений грузовых комплексов аэропортов гражданской авиации было выявлено шесть направлений реконструкции и расширения (табл. 3.2). Было установлено, что наиболее массовым способом реконструкции является строительство навесов, доков, эстакад (40 %). Это объясняется тем, что такое строительство не требует значительных площадей, материальных затрат и затрат времени, позволяет значительно увеличить складские площади.

3.2.2. Поскольку строительство доков на территории грузовых комплексов получило широкое распространение, можно рекомендовать реконструкцию дока, которая заключается в увеличении объема дока за счет строительства стен, на которые устанавливается типовой док. Это увеличивает высоту дока и позволяет установить 2-х или 3-х ярусные стеллажи. В результате емкость дока можно увеличить в 3-4 раза. Схема реконструкции приводится на рис. 3.10.

3.2.3. Строительство новых грузовых комплексов на территориях прилежащих к существующим грузовым комплексам (аэропорт Караганда рис. 3.11) составляет 14,5 %. Это объясняется значительным темпом роста грузовых перевозок и невозможностью небольшими этапами строительства достигнуть стопроцентной оснащенности. Например, в аэропорту Домодедово рекомендуется строительство нового грузового комплекса на 300 т/сут. Это позволит также заложить некоторый запас мощности, что в условиях постоянного роста грузооборота имеет большое значение.

Рис. 3.10

Рис. 3.11.

ФРАГМЕНТ ГЕНПЛАНА А/П КАРАГАНДА

ЭКСПЛИКАЦИЯ

1. ГРУЗОВОЙ СКЛАД ЕМК 120 т.

2. ГРУЗОВОЙ СКЛАД ЕМК 120 т. (РАСШИРЕНИЕ

3. ОПП

4. АНТЕННОЕ ПОЛЕ

6. ТЕПЛОВОЙ ПУНКТ

7. БАНЯ С ПРАЧЕЧНОЙ

8. ПРОИЗВОДСТВЕННЫЙ КОРПУС

3.2.4. Также необходимо отметить в большинстве случаев невозможность реконструкции существующих зданий грузовых комплексов из-за их конструктивных особенностей. Реконструкция этих зданий из-за значительного морального и физического износа достаточно сложна и не дает необходимых результатов, что подтверждает практика /прием внутренней реконструкции зданий встречается редко - 0,5 %/. Реконструкция возможна в зданиях грузовых складов, построенных в 70-ых годах. Эти здания имеют пролеты 12,0; 24,0 м и высоты 6,0; 7,2 м, полы, рассчитанные на многоярусное хранение грузов и большие дверные проемы, что позволяет использование электропогрузчиков. За время реконструкции в них сносятся ненужные перегородки и устанавливаются трехъярусные стеллажи. Примером может служить реконструкция складов отправления и прибытия в грузовом комплексе аэропорта Шереметьево рис. 3.12.

3.2.5. Выбор оптимальной схемы поэтапного расширения зданий и сооружений грузового комплекса определяется в зависимости от:

- шага приращения потребной мощности грузового комплекса при этом увеличение мощности может произойти в пределах одного класса /не потребует изменения технологии и оборудования/ или с переходом аэропорта в другой класс /потребует изменения технологии и оборудования/;

- внедрения новых типов самолетов, в том числе с авиаконтейнерами и авиаподдонами;

- возможностей внутренних реконструкций существующих зданий и сооружений грузового комплекса;

- сложившееся градостроительной ситуации аэропортов.

Рекомендуемые 8 вариантов реконструкций в зависимости от вышеназванных причин приводятся в табл. 3.1.

3.3. Схемы реконструкции и расширения зданий и сооружений вспомогательного комплекса

Основным методом для гостиниц и профилакториев следует считать строительство новых зданий в непосредственной близости от старых, планомерное строительство зданий профилакториев ЛС с тем, чтобы освободить от них существующие здания гостиниц аэропорта.

Рис. 3.12.

СХЕМА РЕКОНСТРУКЦИИ ФИНСКОГО СКЛАДА АЭРОПОРТА ШЕРЕМЕТЬЕВО

(СХЕМА РАССТАНОВКИ СТЕЛЛАЖЕЙ)

Таблица 3.1

Рекомендуемые варианты реконструкции и расширения

Шаг приращения мощности

Переход -из одного - класса в другой

Внедрение новых типов самолетов

Возможность внутренней реконструкции

Оптимальный вариант реконструкции

1,5

из V в IV

-

-

строительство - доков, навесов, эстакад;

1,5

из V, IV в III

Як-42

возможна

строительство доков, поднятых на стены, установка стеллажей, внутренняя реконструкция существующих зданий с установкой стеллажей, оборудования для обработки багажных контейнеров, возведение быстромонтируемых зданий (БМЗ);

Ил-86

1,5

из III во II

Як-42

возможна

внутренняя реконструкция с установкой стеллажей, заменой оборудования; приспособление под складские сооружения старых ангаров с установкой стеллажей, кранов-штабелеров или электропогрузчиков; строительство контейнерных площадок; новое строительство;

3,0

 

Ил-86

7

 

Ан-26Б

Ил-76

3,0

из V в IV

-

-

строительство доков, поднятых на стены с установкой стеллажей; строительство навесов, эстакад;

3,0

из IV, V

Як-42

-

увеличение складских площадей путем возведения пристроек; установка оборудования для обработки контейнеров (в существующих зданиях и под навесами); строительство доков, поднятых на стены с установкой стеллажей; строительство быстромонтируемых зданий;

5,0

в III

Ил-86

10,0

 

 

7,0

из IV во II

Як-42

возможна

строительство контейнерных площадок, строительство новых грузовых комплексов;

Ил-86

Ан-26Б

Ил-76Т

5,0

Из V в IV

-

-

строительство доков, поднятых на стены с установкой стеллажей, строительство быстромонтируемых зданий

7,0

10,0

10,0

из IV в I

Ил-76Т

-

строительство новых грузовых комплексов

Ан-26Б

-

В то же время проекты новых зданий должны учитывать возможность их увеличения за счет пристройки отдельных секций, вставок и других фрагментов, что повлечет в дальнейшем строительство блокированных зданий.

Анализ потребности в новом строительстве позволяет выявить оптимальные схемы расширения зданий вспомогательного назначения, что видно на примере анализа расширения гостиниц аэропортов (таблица 3.4).

Общая потребность в гостиницах аэропортов при условии строительства в две очереди (на период до 1990 г. и до 1995 г.) на основе данных прогнозов приведена в таблице 3.2.

Таблица 3.2

Потребное количество гостиниц аэропортов для обеспечения потребности в 1990-1995 гг. (для 91 аэропорта)

По периодам

Вместимость (мест)

50

100

200

300

400

500

650*

800

1000

1200*

1500

на 1990 г.

-

6

6

8

5

6

I

I

3

-

-

на 1995 г.

10

12

10

4

5

9

-

4

-

I

I

Всего

10

18

16

12

10

15

I

5

3

I

I

*) На проектирование и строительство гостиниц данной вместимости требуется специальное обоснование

На основе "Предложений к основным направлениям развития гражданской авиации на ХII пятилетку и до 2000 года" составлена таблица 3.3 отражающая возможность блокировки зданий вспомогательного назначения, построенных по типовым проектам, при одновременном строительстве.

Таблица 3.3

Возможность блокировки зданий вспомогательного назначения, построенных по типовым проектам, при одновременном строительстве

№№ вариантов сочетаний

Гостиница вместимостью

Профилакторий ЛС вместимостью

Здание управления, мест

Служебная столовая мощностью

Повторяемость сочетаний

100 мест

200 мест

100

200 мест

50 мест

100 мест

50 мест

100 мест

150 мест

200 мест

1

2

3

4

5

6

7

8

9

10

11

12

1

1

 

1

 

 

 

1

 

 

 

1

2

 

1

1

 

 

 

 

1

 

 

1

3

 

1

 

1

1

2

 

 

 

1

1

4

 

 

1

 

 

2

 

1

 

 

2

5

 

 

1

 

3

 

 

 

1

 

1

6

 

 

1

 

2

 

1

 

 

 

2

7

 

 

1

 

2

1

 

1

 

 

3

8

 

 

 

1

 

3

 

 

1

 

1

9

 

 

 

1

1

2

 

 

1

 

1

10

 

 

 

1

3

 

 

1

 

 

2

11

 

 

 

 

3

 

1

 

 

 

2

12

 

 

 

 

1

2

1

 

 

 

1

13

 

 

 

 

1

3

 

1

 

 

1

14

 

 

 

 

1

4

 

1

 

 

1

3.4. Требования к строительному обеспечению реконструкции и расширения зданий и сооружений аэропортов

3.4.1. Главное требование, обуславливающее реальность осуществления реконструкции и расширения зданий и сооружений обстоит в быстровозводимости объектов каждой очереди строительства. Традиционные конструктивные и строительные решения не отвечают этому требованию. Строительство или пристройка даже небольшого по объему здания длится много лет, трудоемка по выполнению, затрудняет эксплуатацию действующего, создает на долгое время некомфортные условия для пассажиров и беспорядок на территории аэровокзального комплекса. Для целей расширения зданий необходимо применение новых конструктивных решений, обеспечивающих быстроту и культуру проведения строительных работ.

3.4.2. Требования сокращения сроков и трудоемкости возведения зданий и сооружений является общестроительным требованием. Работы в этом направлении особенно успешно проводятся в промышленном и жилом строительстве. Существо их сводится к разработке по возможности легких строительных изделий высокой заводской готовности и комплектной поставки с сантехническими и электропроводками, внутренней и наружной отделкой. Строительство сводится к монтажу этих изделий, как правило, автомобильными подъемными механизмами.

3.4.3. Накоплен большой опыт разработки и применения быстровозводимых строительных изделий. Сравнительно давно применяются одноэтажные здания из легких стальных конструкций: несущие стойки, покрытие из большепролетной структурной плиты типа "мархи" или "Кисловодск", кровля - штамп-настил с утеплителем, стены - многослойная конструкция типа "Сэндвич". Подобные конструктивные системы нашли применение в аэропортах при расширении действующих аэровокзалов, именно в связи с возможностью их быстрого и малотрудоемкого монтажа /аэропорты Минводы, Домодедово, Сухуми и другие/, рис. 3.13, 3.14.

Недостаток легких стальных конструкций применительно к массовым потребностям их применения в аэропортах состоит в том, что сталь является фондируемым материалом. Кроме того, незащищенные легкие стальные конструкции недостаточно пожаробезопасны для применения в общественных зданиях с большими скоплениями людей.

Рис. 3.13.

АЭРОВОКЗАЛ АЭРОПОРТА СУХУМИ

ПЛАН 1 ЭТАЖА

ЭКСПЛИКАЦИЯ ПОМЕЩЕНИЙ

1. ЗОНА ВЫЛЕТАЮЩИХ ПАССАЖИРОВ

2. КОМПЛЕКТОВКА БАГАЖА

3. ПОМЕЩЕНИЕ СПЕЦКОНТРОЛЯ И НАКОПИТЕЛЬ

4. ЗОНА ТРАНЗИТНЫХ ПАССАЖИРОВ

5. ЗАЛ СВИДАНИЯ ВЫЛЕТАЮЩИХ ПАССАЖИРОВ

6. ВИДОВАЯ ПЛОЩАДКА

7. ЗАЛ ОЖИДАНИЯ ТРАНЗИТНЫХ ПАССАЖИРОВ

Рис. 3.14.

АЭРОВОКЗАЛ АЭРОПОРТА СУХУМИ

ПЛАН 2 ЭТАЖА

РАЗРЕЗ 1-1

3.4.4. Сегодня поиски более эффективных быстровозводимых зданий ведутся в направлении создания строительных изделий комплектной поставки из материалов повсеместного распространения. В этом отношении интересен опыт строительных организаций Минэнерго. Производственное объединение Энерготехпром Минэнерго СССР освоило на своих заводах изготовление быстромонтируемых зданий БМЗ трех типов:

- одноэтажные здания пролетом 12 и 18 м с подкрановыми путями и без них из железобетонных сборных элементов для зданий гаражей, складов; при небольшой модернизации эти же конструкции могут быть применены для строительства аэровокзалов с пропускной способностью до 400-600 пасс./ч. рис. 3.15;

- одноэтажные сборно-разборные здания /УСРЗ/ пролетом 12, 18 м с подкрановыми путями и без них из защищенных стальных конструкций типа "Пакет" /стены, перекрытия и кровля собраны в пакет и перевозятся на трайлере, по железной дороге или на самолете/; стены выполнены из конструкций типа "Сэндвич", кровля из штамп-настила; конструкции УСРЗ могут найти применение также для строительства пассажирских и производственных зданий аэропортов, рис. 3.16;

- блок-контейнер БК-5 из легких прессованных материалов /клееная, ориентированная стружка, дерево/ полной заводской готовности для пионерских жилых поселков и зданий соцкультбыта:

Эти конструкции освоены и выпускаются на 9 предприятиях Минэнерго /география: Москва, Днепропетровск, Куйбышев, Львов, Ермаковск, Тюмень - завод ВВПО Запсибэнергостроя, Чайковский, Волгодонск/. В настоящее время Энерготехпром разрабатывает 4-х этажные БМЗ из сборных железобетонных конструкций для административно-бытовых зданий и 2-х этажные БМЗ для производственных зданий.

Перечисленные предприятия могут обеспечить БМЗ стройки Минэнерго исходя из имеющихся и планируемых к вводу мощностей. Организация производства БМЗ для нужд МГА требует освоения выпуска этих конструкций подрядчиками МГА /Минтрансстрой, Авиастрой, РСУ Звартноц/. Энерготехпром готов передать проектную документацию подрядчику МГА в установленном порядке.

Применение БМЗ примерно вдвое ускоряет процесс строительства, сокращает расход металла /на 4-14 кг/м2/ и бетона /на 0.09-0.32 м32/ Общий экономический эффект составляет 6-18 руб./м2 площади пола, по БК - 5-1,0 тыс. руб./шт.

Рис. 3.15.

Быстромонтируемые здания из железобетона (в м3)

Укрупнение конструктивного элемента:

Ригель - плита, колонна - панель

Рис. 3.16.

Быстровозводимые здания из легких стальных конструкций высокой заводской готовности

3.4.5. Большие возможности для применения в быстровозводимых зданиях имеют такие материалы повсеместного распространения как клееная древесина и строительная пластмасса, рис. 3. На рисунке изображены наиболее простые конструкции из выпускаемых отечественной промышленностью изделий: стандартных балок и труб. Имеется положительный отечественный и зарубежный опыт применения и более сложных конструкций, оболочек, сводов, структурных плит из стержневых и объемных элементов, воронкообразных оболочек на одной опоре, коробчатых конструкций и замкнутых оболочек [5].

3.4.6. Краткий обзор применяемых и перспективных быстровозводимых строительных изделий из материалов повсеместного распространения показывает, что ориентация на новые строительные решения вполне реальна. Создано к настоящему времени настолько много подходящих конструктивных систем, что задача сводится к организации их внедрения в строительство и реконструкцию зданий и сооружений аэропортов.

Работу эту следует проводить последовательно в несколько этапов:

- разработать и минимизировать типы и типоразмеры строительных изделий массового применения для нужд аэропортов /исследовательская, предпроектная и проектная стадия внедрения/;

- освоить в опытном порядке подрядчиками МГА новых технологий изготовления быстровозводимых строительных изделий из железобетона, клееной древесины и строительной пластмассы и провести экспериментальное строительство в одном - двух аэропортах быстровозводимых зданий облегченного и капитального типа /опытно-конструкторская стадия внедрения;

- освоить подрядчиками МГА выпуск серийной продукции быстровозводимых строительных изделий.

3.4.7. Настоящая работа наметила и в первом приближении решила вопросы минимизации типов и типоразмеров модулей расширения аэровокзалов, которые могут найти также применение при расширении производственно-вспомогательных зданий аэропортов /гаражи, склады/. Основной результат работы - это сведение известного многообразия технологических потребностей к одному типу объемно-конструктивного элемента с параметрами в плане 12×12 м. На первом этапе работы это необходимая функциональная предпосылка разработки быстровозводимого строительного изделия.

Рис. 3.17.

Быстромонтируемые здания из деревоклеенных конструкций (А) и строительной пластмассы (Б)

3.5. Расчет экономии капитальных вложений при реконструкции и расширении зданий аэропортов.

Расчет экономии капитальных вложений произведен на основе анализа фактических данных экономии достигнутой при осуществлении реконструкции и пространственно-непрерывного расширения аэровокзалов аэропортов, табл. 3.4, 3.5.

Таблица 3.4

Расчет экономии капитальных вложений при расширении /реконструкции/ аэровокзального комплекса на 3000 пасс./ч

Основные показатели

Реконструкция существующего аэровокзала до 3000 пасс/ч

Строительство нового аэровокзала на 3000 пасс/ч

Рабочая площадь, м2

30370

30000

Строительный объем, м3

180200

231000

/210000/*

Уд. строительный объем на 1 пассажира в час, м3

60,08

77,0

/70,00/

Стоимость строительства 1 м3, руб.

56,83

76,0

Сметная стоимость, млн. руб.

10,24

17,56

/11,93/

Экономия капитальных вложений, млн. руб./ %

7,32/42,0

 

/5,63/33,0/

* в скобках указаны показатели по реконструкции зданий при более комфортабельных условиях обслуживания пассажиров, приведенные к действующим нормам.

Таблица 3.5

Расчет экономии капитальных вложений при строительстве пассажирского здания в аэропорту на 700 пасс./ч

Основные показатели

Расширение аэровокзала до 700 пасс/ч /пристройка пасс. здания на 500 пасс/ч/

Строительство нового аэровокзала на 700 пасс/ч

Капитальные вложения, тыс. руб.

2195*

3930

Экономия капитальных вложений, тыс. руб./ %

1735/44,0

 

* с учетом реконструкции существующего здания аэровокзала

Как следует из таблиц, экономия капитальных вложений при реконструкции и расширении достигает примерно 1/3 стоимости вновь возводимых зданий аналогичной суммарной пропускной способности.

Экономия капитальных вложений является следствием того, что объем пристройки меньше, чем объем нового аэровокзала суммарной пропускной способности. Однако следует учесть, что капитальные вложения при реконструкции и расширении аэровокзалов учитывают затраты на реконструкцию существующего здания, поэтому экономия капитальных вложений при реконструкции и расширении аэровокзалов ниже стоимости существующего здания.

Планы МГА и предложения института по перспективному развитию аэропортов предусматривают значительные наращивания мощностей путем реконструкции и строительства пассажирских зданий.

Если рассчитывать, что в среднем типичном случае реконструкции и расширения зданий аэропортов методом непрерывно пространственной достройки /без протяженных переходов/ экономия составит примерно 20 % по сравнению с новым строительством зданий суммарной мощности, то общая экономия капитальных вложений за счет намечаемого расширения и реконструкции аэровокзалов по потребностям перевозок ХII и ХIII пятилеток составит 6-7 млн. руб., табл. 3.6.

Таблица 3.6

Расчет экономии капитальных вложений за счет расширения и реконструкции аэровокзалов

Основные показатели

Пропускная способность, пасс,/ч

Всего

1000

800

700

600

400

200

 

Стоимость строительства аэровокзала, т. руб.

5700

4500

3930

3370

1830

810

-

Примерная стоимость строительства расширенных аэровокзалов, с учетом реконструкции существующих зданий х)

4550

3600

3140

2700

1460

650

-

Экономия от расширения и реконструкции аэровокзала

1150

900

790

670

360

160

-

Количество аэровокзалов, намеченных к расширению в ХII-XIII пятилетках

1

2

3

1

1

1

9

Общая экономия от строительства пассажирских зданий, тыс. руб.

1150

1800

2370

670

360

160

6510

х) При минимальной величине экономии, равной 20 %

ЗАКЛЮЧЕНИЕ

1. В результате проведенного исследования:

- систематизирован имеющийся опыт и выявлены приемы реконструкции и расширения зданий пассажирского, грузового и вспомогательного комплексов аэропортов в зависимости от степени увеличения мощности, морального старения планировки, наличия резервов или затесненности территории застройки СТТ аэропортов;

- определены потребности расширения и реконструкции зданий, построенных, в основном, по типовым проектам, в реальной градостроительной ситуации застройки более чем 100 аэропортов V-II класса;

- разработаны рекомендации по схемам реконструкции и расширения зданий перечисленных комплексов.

2. В практике этапного строительства аэропортов встречаются следующие основные приемы увеличения мощности предприятий:

- снос морально устаревших зданий для строительства новых при невозможности переноса застройки на новую территорию;

- расширение действующих зданий с их реконструкцией;

- новое строительство зданий с реконструкцией первоначальных по их прямому или новому назначению;

- внутренняя перепланировка и реконструкция зданий, имеющих достаточный резерв мощности и устаревшую планировку.

3. Наибольшее распространение имеет прием расширения действующих зданий с их реконструкцией, что позволяет увеличить долголетие использования ценного строительного фонда; встречаются следующие варианты объемно-планировочной реализации этого приема:

- поглощение конструкцией и объемом новой пристройки первоначального здания, развитие комплекса во всех 3-х измерениях /в плане и по высоте/;

- пространственно-непрерывная пристройка очередных объемов, в основном в 2-х измерениях /в плане/ с декорацией первоначальных фасадов;

- пристройка очередных объемов через переходы;

- внутренняя перепланировка является следствием вытеснения в пристройки одних помещений другими и сводится к сносу или установке новых перегородок, перекладке сетей, изменению отделки, освещения, систем информации помещений.

4. Главное условие реальности расширения зданий - быстровозводимость очередных объемов.

5. Установлено, что расширение с реконструкцией зданий применимо в тех случаях, когда их мощность увеличивается не более чем в 2-3 раза, планировка приспособляема к решению более масштабных технологических задач и территория застройки имеет достаточные резервы для реализации этих мероприятий.

Если потребные мощности зданий увеличиваются более чем в 4-5 раз планировка морально устаревает, целесообразно новое строительство зданий с реконструкцией первоначальных под вспомогательные функции того же назначения или с использованием по другому назначению при затесненности застройки и переносе комплекса на новую территорию.

6. Для большинства рассмотренных пассажирских комплексов применим прием расширения с реконструкцией действующих зданий, поскольку за последние 15-20 лет построено более 120 капитальных зданий по относительно современным проектам, диапазон увеличения их пропускной способности по потребностям строительства в 1990-1995 годах не превышает 2-3 раза и территория застройки имеет достаточные резервы для пристройки очередных объемов в сторону аванперронов и одного из торцов зданий /более 90 % аэропортов, аэропорты типа Архангельск, Братск, Воронеж, Целиноград, Орджоникидзе/.

7. Современные грузовые комплексы составляют незначительную часть от общего их числа /16 %/, основная их масса морально устарела, территория застройки затеснена в 60 % аэропортов, диапазон увеличения мощности по потребностям строительства в 1990-1995 годах, в 70 % аэропортах не превышает 1.5-3.0 раза. Основным приемом остается новое строительство с реконструкцией действующих зданий.

8. Для зданий вспомогательного комплекса /гостиницы, профилактории, управления аэропорта, ЦБП/ основным приемом остается также новое строительство в связи с незначительной обеспеченностью аэропортов современными зданиями /40-60 %/, большими потребностями увеличения мощности /более чем в 2-7 раз/ и наличием свободной территории застройки /в 90 % аэропортов/.

9. На основе анализа планировок типовых проектов, по которым осуществлялось строительство зданий на 400-200 пасс./ч., и генеральных планов застройки 40 аэропортов V-II класса составлены варианты непосредственного расширения СПЗ, аэровокзалов и пассажирских зданий с реконструкцией первоначальных технологических помещений, выявлены на этой основе 7 наиболее применимых технологических типов модулей расширения в зонах /вылета, прилета, досмотра/, которые сведены к 3 объемно-планировочным модулям и затем к одному объемно-конструктивному элементу с параметрами плана 12×12 м.

10. Сведение известного многообразия технологических потребностей к одному типу объемно-конструктивного элемента создает необходимые предпосылки к разработке быстровозводимого строительного изделия, которое должно отвечать следующим требованиям:

- иметь простую, легкую и надежную конструкцию высокой заводской готовности и комплектной поставки;

- обеспечивать известную свободу комбинаций в плане и по высоте для компоновки пристроек разного назначения, мощности, планировки и этажности /предпочтительна квадратная форма плана/;

- выполняться из нефондируемых материалов повсеместного распространения, в том числе из железобетона, клееной древесины, строительной пластмассы.

11. Анализ планировок, генеральных планов и потребностей увеличения мощности грузовых комплексов позволил выявить в качестве основного, наиболее распространенного, прием строительства существующих быстровозводимых доков-складов для расширения производственных площадей в более 40 % рассмотренных аэропортов.

12. Увеличение мощности зданий вспомогательного назначения целесообразно проводить методом нового строительства по типовым проектам очередных зданий.

13. Результаты данной работы по пассажирскому комплексу следует рассматривать как основу для предпроектной и проектной разработки новых типов модулей расширения основных технологических помещений аэровокзалов, что в свою очередь создает предпосылки для внедрения строительных изделий из материалов повсеместного распространения высокой заводской готовности, комплектной поставки в практику строительства vреконструкции аэропортов.

СПИСОК ИСПОЛЬЗОВАННЫХ ИСТОЧНИКОВ

1. Указание зам. Министра ГА тов. Свечникова Л.С. от 1.03.1985 г. по определению понятий нового строительства, расширения реконструкции и технического перевооружения действующих предприятий, зданий и сооружений по отрасли "Воздушный транспорт".

2. Комский М.В. - Блокированные здания аэропортов нарастающей мощности, труды ГОСНИИ, Выпуск 210, М., 1981.

3. Гайдученя А.А. - Динамическая архитектура /основные направления развития, принципы, методы/, Киев, БУДВЕЛЬНИК, 1983.

4. Комплексный прогноз развития ГА СССР на 1991-2010 г.г., работа 1.01.03.64, Аэропроект.

5. Клятис Г.Я. - Несущие конструкции из пластмасс. Госстрой СССР ЦИНИС. Издательство литературы по строительству. М. 1965 г.

6. Ведомственные нормы технологического проектирования аэровокзалов аэропортов , ОНТИ Аэропроекта, M. 1982.

Зарубежный опыт реконструкции и расширения зданий аэропортов исследован по материалам журнала "Airport Forum" за период с 1972 по 1984 г.г.

 

 




ГОСТЫ, СТРОИТЕЛЬНЫЕ и ТЕХНИЧЕСКИЕ НОРМАТИВЫ.
Некоммерческая онлайн система, содержащая все Российские Госты, национальные Стандарты и нормативы.
В Системе содержится более 150000 файлов нормативно-технической документации, действующей на территории РФ.
Система предназначена для широкого круга инженерно-технических специалистов.

Рейтинг@Mail.ru Яндекс цитирования

Copyright © www.gostrf.com, 2008 - 2026