Крупнейшая бесплатная информационно-справочная система онлайн доступа к полному собранию технических нормативно-правовых актов РФ. Огромная база технических нормативов (более 150 тысяч документов) и полное собрание национальных стандартов, аутентичное официальной базе Госстандарта. GOSTRF.com - это более 1 Терабайта бесплатной технической информации для всех пользователей интернета. Все электронные копии представленных здесь документов могут распространяться без каких-либо ограничений. Поощряется распространение информации с этого сайта на любых других ресурсах. Каждый человек имеет право на неограниченный доступ к этим документам! Каждый человек имеет право на знание требований, изложенных в данных нормативно-правовых актах!

  


 

ПРАВИТЕЛЬСТВО МОСКВЫ
МОСКОМАРХИТЕКТУРА

РЕКОМЕНДАЦИИ

по расчету и проектированию
ограждающих конструкций с применением
монолитного теплоизоляционного
полистиролбетона
с высокопоризованнной
и пластифицированной матрицей

2006

ПРЕДИСЛОВИЕ

1. Разработаны: Московским научно-исследовательским и проектным институтом типологии, экспериментального проектирования (ГУП МНИИТЭП) и Научно-исследовательским институтом бетона и железобетона (НИИЖБ).

Авторский коллектив:

 

д.т.н. Гурьев В.В.

- МНИИТЭП

к.ф.-м.н. Дорофеев В.М.

- МНИИТЭП

к.т.н. Гохберг Ю.Ц.

- МНИИТЭП

д.т.н. Семченков А.С.

- НИИЖБ

к.т.н. Ярмаковский В.Н.

- НИИЖБ

д.т.н. Чиненков Ю.В.

- НИИЖБ

к.т.н. Литвиненко Д.В.

- НИИЖБ

к.т.н. Хаимов И.С.

- НИИЖБ

инж. Горкин Д.О.

- НИИЖБ

2. Подготовлены к утверждению и изданию Управлением городского заказа разработки документации по территориальному планированию и планировке территории.

3. Утверждены приказом Москомархитектуры от 08.11.06 г.№ 204.

СОДЕРЖАНИЕ

ВВЕДЕНИЕ

1. ОБЛАСТЬ ПРИМЕНЕНИЯ И ОБЩИЕ ТРЕБОВАНИЯ К ОГРАЖДАЮЩИМ КОНСТРУКЦИЯМ С ИСПОЛЬЗОВАНИЕМ МПВМ

2. ПОКАЗАТЕЛИ МПВМ ДЛЯ РАСЧЕТА И ПРОЕКТИРОВАНИЯ КОНСТРУКЦИЙ С ЕГО ПРИМЕНЕНИЕМ

2.1. НОРМАТИВНЫЕ И РАСЧЕТНЫЕ ЗНАЧЕНИЯ ПРОЧНОСТНЫХ И ДЕФОРМАЦИОННЫХ ХАРАКТЕРИСТИК МПВМ

2.2. ТЕПЛОФИЗИЧЕСКИЕ ПОКАЗАТЕЛИ МПВМ

2.3. ПОКАЗАТЕЛИ МОРОЗОСТОЙКОСТИ И ОГНЕСТОЙКОСТИ МПВМ

3.ТЕХНИЧЕСКИЕ РЕШЕНИЯ САМОНЕСУЩИХ НАРУЖНЫХ СТЕН С ПРИМЕНЕНИЕМ МПВМ С ИСПОЛЬЗОВАНИЕМ НЕСЪЕМНОЙ ОПАЛУБКИ И ОСОБЕННОСТИ ИХ РАСЧЕТА

3.1. КОНСТРУКЦИЯ НАРУЖНОЙ СТЕНЫ С ИСПОЛЬЗОВАНИЕМ НЕСЪЕМНОЙ ОПАЛУБКИ ИЗ КИРПИЧНОЙ КЛАДКИ (рис.1-5)

3.2. КОНСТРУКЦИЯ НАРУЖНОЙ СТЕНЫ С ИСПОЛЬЗОВАНИЕМ НЕСЪЕМНОЙ ОПАЛУБКИ ИЗ ПРОСЕЧНО - ВЫТЯЖНЫХ ГОФРИРОВАННЫХ СЕТОК (рис.6-7)

4. ОСНОВНЫЕ ПОЛОЖЕНИЯ ПО ИЗГОТОВЛЕНИЮ МПВМ И ВОЗВЕДЕНИЮ НАРУЖНЫХ СТЕН С ЕГО ПРИМЕНЕНИЕМ ПРИ БЕТОНИРОВАНИИ В НЕСЪЕМНОЙ ОПАЛУБКЕ

4.1. ОБЩИЕ ПОЛОЖЕНИЯ ТЕХНОЛОГИИ ВОЗВЕДЕНИЯ НАРУЖНЫХ СТЕН С ПРИМЕНЕНИЕМ МПВМ

4.2. ТРЕБОВАНИЯ К МПВМ, БЕТОННЫМ СМЕСЯМ И СОСТАВЛЯЮЩИМ ИХ МАТЕРИАЛАМ, КОНТРОЛЬ КАЧЕСТВА

4.3. ВОЗВЕДЕНИЕ НАРУЖНЫХ СТЕН С ИСПОЛЬЗОВАНИЕМ НЕСЪЕМНОЙ ОПАЛУБКИ ИЗ КИРПИЧНОЙ КЛАДКИ

4.4. ВОЗВЕДЕНИЕ НАРУЖНЫХ СТЕН С ИСПОЛЬЗОВАНИЕМ НЕСЪЕМНОЙ ОПАЛУБКИ ИЗ ПРОСЕЧНО-ВЫТЯЖНЫХ ГОФРИРОВАННЫХ СЕТОК

5. ТЕХНИКО-ЭКОНОМИЧЕСКИЕ ПОКАЗАТЕЛИ НАРУЖНЫХ СТЕН, ВОЗВОДИМЫХ С ПРИМЕНЕНИЕМ МПВМ ПРИ ИСПОЛЬЗОВАНИИ НЕСЪЕМНОЙ ОПАЛУБКИ

ВВЕДЕНИЕ

Настоящие «Рекомендации» содержат основные данные, необходимые для расчета и проектирования, изготовления и возведения ограждающих конструкций с применением нового строительного материала - монолитного теплоизоляционного полистиролбетона с высокопоризованной и пластифицированной матрицей,* разработанного НИИЖБ - филиалом ФГУП «НИЦ «Строительство».

Настоящие «Рекомендации» разработаны ГУП МНИИТЭП и НИИЖБ по заказу Москомархитектуры

Настоящие «Рекомендации» разработаны на основе результатов выполненных ГУП МНИИТЭП и НИИЖБ научно-исследовательских и проектно-конструкторских работ, опыта проектирования, изготовления и возведения ограждающих конструкций зданий с применением монолитного полистиролбетона при использовании несъемной опалубки различных видов.

При разработке «Рекомендаций» использованы:

- нормативно-технические и информационные материалы ГУП МНИИТЭП и НИИЖБ по опытному проектированию и возведению наружных стен зданий (в т.ч. из легких бетонов);

- технические условия НИИЖБ на полистиролбетонные смеси для устройства монолитной теплоизоляции в ограждающих конструкциях (ТУ 5745-225-36554501-06, ТУ 5745-204-46854090-05, ТУ 5745-175-46854090-04 и др.) и технологический регламент на приготовление таких смесей, транспортировку и укладку в опалубку конструкций.

Настоящие «Рекомендации» согласованы с НИИСтроительной физики и одобрены НТС Комплекса архитектуры, строительства, развития и реконструкции г. Москвы (протокол № 2/06 от 16 июня 2006 г.)

____________

*далее «монолитный теплоизоляционный полистиролбетон с высокопоризованной и пластифицированной матрицей» - сокращенно «МПВМ».

1. ОБЛАСТЬ ПРИМЕНЕНИЯ И ОБЩИЕ ТРЕБОВАНИЯ К ОГРАЖДАЮЩИМ КОНСТРУКЦИЯМ С ИСПОЛЬЗОВАНИЕМ МПВМ

1.1. Рекомендуемая область применения ограждающих конструкций с использованием в качестве конструкционно-теплоизоляционного слоя МПВМ: самонесущие (ненесущие) в пределах этажа наружные стены жилых, общественных и административных зданий с различными пространственными конструктивными системами (в т.ч. монолитными, сборно-монолитными, сборными) с несущими конструкциями из различных строительных материалов.

1.2. Стеновые ограждающие конструкции с применением МПВМ предназначены для зданий с нормальным температурно-влажностным режимом и неагрессивной средой.

1.3. Стеновые ограждающие конструкции с использованием МПВМ рекомендуется применять при высоте зданий не более 75 м.

1.4. Конструкции наружных стен с применением МПВМ должны отвечать комплексу требований, обеспечивающих необходимую теплозащиту здания и санитарно-гигиенические условия в них нахождения (проживания):

- обеспечение требуемого СНиП II-3-79** «Строительная теплотехника» сопротивления теплопередаче ограждения и его теплоустойчивости;

- обеспечение благоприятных условий влагомассопереноса, исключающих накопление влаги внутри конструкции в течение проектного срока эксплуатации здания;

- обеспечение теплозащитных функций в течение проектного срока эксплуатации здания.

1.5. Наружные стены с применением МПВМ и их элементы должны расчитываться и отвечать по прочности, деформативности и трещиностойкости требованиям СНиП 2-03-84 «Бетонные и железобетонные конструкции»; при этом рекомендуется учитывать требования СНиП 52-01-2003 «Бетонные и железобетонные конструкции. Основные положения».

1.6. Конструкции наружных стен с применением МПВМ должны обладать необходимой прочностью, а также устойчивостью, как в период возведения, так и в процессе эксплуатации. Деформации конструкций под действием силовых и температурных воздействий не должны превышать значений, требуемых нормативными документами.

1.7. Наружные стены с использованием МПВМ, в соответствии с требованиями по морозостойкости материала для наружных стен, приведёнными в табл. 10 СНиП 2.03.01-84*, рекомендуется применять для зданий первого класса по степени ответственности при расчётной зимней температуре наружного воздуха от -20 °С до -40 °С (вкл.) в помещениях с нормальным влажностным режимом при условиях эксплуатации в зоне влажности Б.

1.8. Конструкции наружных стен с применением МПВМ должны удовлетворять общим требованиям по пожарной безопасности СНиП 21-01-97. Минимальный предел огнестойкости принимается по критерию показателя потери целостности конструкции Е 30.

1.9. В слоистых ограждающих конструкциях всех видов, в т.ч. наружных стенах, МПВМ рекомендуется применять в соответствии с ГОСТ 31251 и СНиП 21-01-97 при условии его защиты со всех сторон негорючими материалами (группа НГ), обеспечивающими класс пожарной опасности конструкции К0 (непожароопасная), устанавливаемый по ГОСТ 30403-96.

1.10. В местах установки дверных и оконных блоков в наружных стенах с применением МПВМ для обеспечения требований п. 1.9 толщина негорючего материала, защищающего теплоизоляционный слой из монолитного полистиролбетона, должна быть:

- при использовании рёбер по откосам из керамзитобетона (класса не менее В 7,5) - не менее 40 мм;

- при выполнении защиты из цементно-песчаного раствора марки M150 по стальной оцинкованной мелкоячеистой сетке (размер ячеек не более 30×30 мм из проволоки диаметром не менее 1 мм) не менее 30 мм.

1.11. Крепления самонесущих стен к элементам несущего каркаса здания должны обеспечивать работу наружных стен как самонесущих (ненесущих) конструкций.

1.12. Крепление самонесущих стен с применением МПВМ следует осуществлять только к перекрытиям. При этом между верхом стены каждого этажа и перекрытием необходимо предусмотреть зазоры, учитывающие:

- прогибы перекрытия с учётом длительной ползучести бетона;

- деформации несущих конструкций (стен и колонн) с учётом длительной ползучести бетона;

- перемещения при перекосах несущих конструкций;

- допуски по высоте стены при ее возведении.

Зазоры рекомендуется заполнять прокладкой из негорючей мягкой минераловатной плиты с волокнами из каменных пород с температурой плавления не менее 1000 °С (например, Rockwool «Кавити баттс» ТУ 5762-009-45757203-00); стыки смежных минераловатных плит по длине должны выполняться уступом.

С наружной и внутренних сторон зазоры рекомендуется заполнять фасадными нетвердеющими герметиками (например, герметик по ТУ 2513-028-32478306-99).

1.13. Стальные элементы и детали в конструкциях стен должны иметь антикоррозионные покрытия с учётом длительности эксплуатации здания, в соответствии со СНиП 2.03.11-85, а их открытые участки следует защитить огнезащитным составом, не допускающим нагрева стальных элементов до 500°С в течение не менее 45 минут.

1.14. Конструкции стен с применением МПВМ должны быть технологичны в выполнении, удовлетворять общим архитектурным, эксплуатационным, санитарно-гигиеническим требованиям, а также требованиям ремонтопригодности.

2. ПОКАЗАТЕЛИ МПВМ ДЛЯ РАСЧЕТА И ПРОЕКТИРОВАНИЯ КОНСТРУКЦИЙ С ЕГО ПРИМЕНЕНИЕМ

2.1. НОРМАТИВНЫЕ И РАСЧЕТНЫЕ ЗНАЧЕНИЯ ПРОЧНОСТНЫХ И ДЕФОРМАЦИОННЫХ ХАРАКТЕРИСТИК МПВМ

2.1.1. Нормативные сопротивления МПВМ осевому сжатию (призменная прочность) и осевому растяжению (при назначении класса бетона по прочности на сжатие) принимаются в зависимости от класса бетона по прочности на сжатие по табл.2.1.

Принятые для определения значений нормативных сопротивлений коэффициенты однородности МПВМ по прочности на сжатие составляют для марок бетона по средней плотности D 250 - D 350 соответственно 0,115 - 0,110.

Таблица 2.1

Нормативные значения сопротивления МПВМ для предельных состояний второй группы

Вид сопротивления

Нормативные значения сопротивлений МПВМ и расчётные значения сопротивления МПВМ для предельных состояний второй группы (в МПа) при классе бетона по прочности на сжатие

В 0,35 (М5)

В 0,5 (M7,5)

В 0,75 (M 10)

Сжатие осевое (призменная прочность) Rbn, и Rb,ser

0,365

0,520

0,700

Растяжение осевое Rbtn и Rbt, ser

0,130

0,170

0,225

2.1.2. Расчетные значения сопротивлений МПВМ в зависимости от класса бетона по прочности на сжатие и осевое растяжение принимаются:

- для предельных состояний первой группы - по табл.2.2;

- для предельных состояний второй группы - по табл.2.1.

2.1.3. Расчетные значения прочности МПВМ при срезе составляют:

- для МПВМ марки по плотности D250 - 0,17 МПа;

- для МПВМ марки по плотности D300 - 0,21 МПа;

- для МПВМ марки по плотности D350 - 0,27 МПа.

Таблица 2.2

Расчётные значения сопротивления МПВМ для предельных состояний первой группы

Вид сопротивления

Расчётные значения сопротивлений МПВМ для предельных состояний первой группы (в МПа) при классе бетона по прочности на сжатие В

В 0,35 (М 5)

В 0,5 (М 7,5)

В 0,75 (М 10)

Сжатие осевое (призменная прочность) Rb

0,240

0,350

0,470

Растяжение осевое Rbt

0,100

0,131

0,173

2.1.4. Значения начального модуля упругости МПВМ при сжатии принимаются в зависимости от класса бетона по прочности на сжатие по табл.2.3.

Таблица 2.3

Начальные модули упругости МПВМ

Марка бетона по средней плотности

Значения начального модуля упругости МПВМ Еb (в МПа) при классе бетона по прочности на сжатие В

В 0,35 (М 5)

В 0,5 (М 7,5)

В 0,75 (М 10)

D250

445

-

-

D300

-

615

-

D350

-

-

805

2.1.5. Значения деформация конечной усадки при твердении МПВМ представлены в табл. 2.4.

2.1.6. Значение коэффициента линейной температурной деформации МПВМ при изменении температуры от минус 40 °С до 50 °С для марок по средней плотности D 250 - D 350 принимается равным (0,8 - 0,85)×10-5 (1/°С).

2.2. ТЕПЛОФИЗИЧЕСКИЕ ПОКАЗАТЕЛИ МПВМ

2.2.1. Расчетные коэффициенты теплопроводности, теплоусвоения и паропроницаемости МПВМ в зависимости от вида вяжущего и марки по средней плотности бетона D принимаются по табл.2.5.

Таблица 2.4

Деформации конечной усадки МПВМ

Вид вяжущего

Деформации конечной усадки МПВМ (в мм/м) марок по средней плотности - D.

D150

D200

D250

D300

D350

Портландцемент

0,75

0,90

1,00

1,05

1,08

Шлакопортландцемент

-

0,85

0,90

0,95

0,97

2.3. ПОКАЗАТЕЛИ МОРОЗОСТОЙКОСТИ И ОГНЕСТОЙКОСТИ МПВМ

2.3.1. Показатели морозостойкости МПВМ в зависимости от вида вяжущего и марки по плотности D принимаются по табл. 2.6.

Таблица 2.6

Морозостойкость МПВМ.

Вид вяжущего

Марка по морозостойкости по ГОСТ 10060 бетона марки по средней плотности D

D150

D200

D250

D300

D350

Портландцемент

F35

F75

F100

F150

F200

Шлакопортландцемент

-

F50

F75

F100

F150

2.3.2. Показатели огнестойкости МПВМ марок по плотности D 150 - D 350 в соответствии со СНиП 21-01-97 следующие:

- группа горючести Г1 (трудногорючий);

- группа воспламеняемости В1 (трудновоспламеняемый);

- группа дымообразующей способности Д2 (умеренная).

2.3.3. Применение МПВМ в наружных стенах жилых зданий экологически безопасно.

Таблица 2.5

Расчётные теплотехнические показатели МПВМ

Вид вяжущего

Марка по средней плотности

Удельная теплоёмкость Co, кДж/(кг°С)

Коэффициент теплопроводности в сухом состоянии λ0, Вт/(м ºС)

Расчётные показатели при условии эксплуатации «Б» по СНиП 23-02

Массовое отношение влаги в материале, ω, %

Коэффициенты

Теплопроводности λБ, Вт/(м°С)

Теплоусвоения (при периоде 24 часа), S, Вт/(м°С)

Паропроница­емости μ, мг/(м·ч·Па)

Портланд­цемент

D150

1,06

0,054

6,5

0,058

0,92

0,135

D200

1,06

0,063

7,0

0,071

1,18

0,116

D250

1,06

0,072

7,5

0,085

1,46

0,105

D300

1,06

0,080

7,5

0,098

1,72

0,0951

D350

1,06

0,089

7,5

0,113

1,99

0,086

Шлакопорт­ландцемент

D150

1,06

0,052

6,0

0,057

0,90

0,135

D200

1,06

0,061

6,5

0,067

1,14

0,119

D250

1,06

0,070

6,5

0,078

1,38

0,109

D300

1,06

0,078

6,5

0,089

1,61

0,100

D35O

1,06

0,086

6,5

0,103

1,87

0,091

3.ТЕХНИЧЕСКИЕ РЕШЕНИЯ САМОНЕСУЩИХ НАРУЖНЫХ СТЕН С ПРИМЕНЕНИЕМ МПВМ С ИСПОЛЬЗОВАНИЕМ НЕСЪЕМНОЙ ОПАЛУБКИ И ОСОБЕННОСТИ ИХ РАСЧЕТА

3.1. КОНСТРУКЦИЯ НАРУЖНОЙ СТЕНЫ С ИСПОЛЬЗОВАНИЕМ НЕСЪЕМНОЙ ОПАЛУБКИ ИЗ КИРПИЧНОЙ КЛАДКИ (рис.1-5)

3.1.1. Конструкция наружной стен из несъемной опалубки из кирпичной кладки рекомендуется для применения в зданиях при следующих ограничениях:

- при высоте этажа не более 3,0 м;

- в районах с климатическими условиями, сходными с г. Москвой.

3.1.2. В качестве основного теплоизолирующего слоя наружной стены (рис. 1) используется МПВМ на шлакопортландцементе марки по средней плотности D250 при классе по прочности В 0,35, производимый непосредственно на строительном объекте с помощью мобильной установки (п. 4.1) и укладываемый с помощью бетононасосов в несъёмную опалубку.

3.1.3.В качестве несъёмной опалубки используется с наружной стороны стены кладка из облицовочного керамического полнотелого (без щелей) кирпича (ГОСТ 7484-78) на цементно-песчаном растворе (γ0 = 1600 кг/м3), а с внутренней стороны - кладка из обыкновенного глиняного кирпича (ГОСТ 7484-78) на цементно-песчаном растворе (γ0 = 1800 кг/м3); толщина каждой из кладок - 1/2 кирпича (рис. 1, 2). По поверхности кладки стены со стороны помещения выполняется штукатурка из цементно-песчаного раствора (γ0 = 1800 кг/м3).

3.1.4. Для обеспечения совместной работы утепляющего слоя стены из МПВМ с кирпичной кладкой наружных слоев при силовых и температурных воздействиях предусмотрена установка связей, изготовляемых из щелочестойкого базальтопластика по ТУ 2296-003-23475912-001 в виде «шпилек», заанкериваемых в затвердевшем цементно-песчаном растворе горизонтальных швов кладки; диаметр связей равен 5 мм, λБ = 0,35 Вт/(м °С) (рис 1, 2).

_____________

1изготовитель - ЗАО «Матек» при НПО «Стеклопластик» (адрес: 141551, Московская обл., Солнечногорский район, пос. Андреевка, тел./факс 533-19-86).

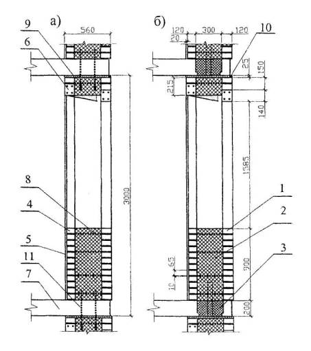
Рис. 1. Конструкция самонесущей стены с утеплителем из модифицированного полистиролбетона (разрез по оконному проёму: а - по перемычке перекрытия; б - по утеплителю перекрытия).

1. - наружный слой - кладка из керамического кирпича; 2 - утеплитель стены; 3 - утеплитель перекрытия; 4 - внутренний слой - кладка из сплошного глиняного кирпича; 5 - штукатурка; 6 - перемычка из керамзитобетона стандартная; 7 - перекрытие из тяжёлого бетона; 8 - связи базальтопластиковые; 9 - упругая прокладка из поролона; 10 - герметизирующая отверждающая мастика; 11 - связи из нержавеющей стали.

Рис. 2. Расположение базальтопластиковых связей, соединяющих между собой наружные слои при возведении стены, и с утепляющим слоем из полистиролбетона в законченной конструкции (а - по плоскости стены; б - по толщине стены).

Необходимость в таких связях обусловлена разницей в коэффициентах теплопроводности и линейного температурного расширения материалов слоев, приводящей их к различным деформациям.

3.1.5. Возведение наружных стен производится с поэтажным опиранием на перекрытия.

3.1.6. При бетонировании перекрытия рекомендуется для его утепления вместо традиционно используемой минплиты монтировать термовкладыши из модифицированного полистиролбетона на композиционном малоклинкерном вяжущем (марка D 250, λБ = 0,06 Вт/м °С), обеспечивающие передачу нагрузки от бетонной смеси на перекрытие через выступы (рис. 3, 4). Для этого в бетонируемом перекрытии оставляются проемы под термовкладыши (рис. 3).

Использование таких термовкладышей, в отличие от минплиты, обеспечивает стабильность и долговечность теплотехнических характеристик утеплителя.

3.1.7. Для связи самонесущей в пределах этажа стены с перекрытиями в перемычках между термовкладышами при бетонировании перекрытия закладываются стержни из нержавеющей стали диаметром 12 мм и длиной 425 мм с выпуском вверх длиной 100 мм и вниз - 125 мм (рис. 3). При этом вместо обычно применяемых для этой цели стержней с заострённым концом, передающим нагрузку на стену, предложено исключить контакт стержня со слоем МПВМ, оставляя под стержнем незаполненную бетоном полость и закрепляя на конце стержня колпачок из термопласта; между дном колпачка и стержнем предусмотрен требуемый воздушный зазор (рис. 3).

Трещины в перекрытии между термовкладышами не допускаются.

3.1.8. Для обеспечения анкеровки верхней растянутой арматуры в малопрочном МПВМ надоконной перемычки предусматриваются анкера в виде малоразмерных блоков из керамзитобетона, в которых к арматуре приваривают поперечные стержни (рис.5). Анкера высотой, равной высоте перемычки (21,5 см), и шириной 17 см передают усилия сжатия на МПВМ.

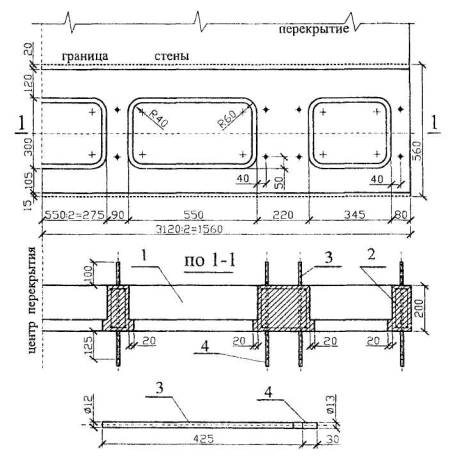
Рис. 3. Проёмы в перекрытии для термовкладышей и перемычки между ними с выпусками гладкой арматуры класса A-I диаметром 12 мм, обеспечивающими связь перекрытия с утепляющим слоем стены из монолитного полистиролбетона.

1 - перекрытие; 2 - перемычки между проемами, на которые опираются термовкладыши и утепляющий слой из полистиролбетона; 3 - выпуска из нержавеющей стали; 4 - колпачки из термопласта, надеваемые на выпуска арматуры и обеспечивающие их перемещение не менее 3 см в утепляющем слое стены без передачи нагрузки от вышерасположенного этажа.

Рис. 4. Термовкладыши из модифицированного полистиролбетона на композиционном малоклинкерном вяжущем:

а - размером 54×29×20 см;

б - размером 33,5×29×20 см;

в - термовкладыш, уложенный в перекрытие:

1 - термовкладыш; 2 - перекрытие; 3 - уплотняющий шпур или несгораемая минвата уплотнённая высотой ≈ 2 см; 4 - базальтопластиконая связь.

Рис. 5. Армирование надоконной перемычки из монолитного полистиролбетона.

а - общий вид перемычки с арматурой; б - арматурный каркас перемычки; в - анкера арматуры перемычки из керамзитобетона

Примечание: Арматурный каркас перемычки из полистиролбетона должен быть установлен в проектное положение до монтажа наружных перемычек из керамзитобетона, не доходя 2 рядов кладки до низа перемычки, расположенной с фасада.

Внутренняя перемычка из МПВМ класса по прочности на сжатие В 0,75 армируется конструктивно установкой вверху и внизу стержней 2 Ø5 мм класса А500. Внутренняя перемычка из МПВМ не опирается на крайние перемычки из керамзитобетона. Анкеровка арматуры в перемычке обеспечивается заделкой её в керамзитобетонных блоках толщиной 10 см, сечением 17×21,5 см, установленными на расстоянии 28 см от опорного сечения (рис. 5).

3.1.9. Для восприятия нагрузки от внутреннего и наружного слоев надоконной кирпичной кладки предусматриваются брусковые наружные перемычки заводского изготовления из керамзитобетона класса по прочности на сжатие В 12,5, марки с плотностью до 1600 кг/куб.м.2 Эти перемычки, укладываемые на кирпичные наружные стены, приняты стандартных размеров по ГОСТ 948-84 (высотой 14 см, шириной 12 см и длиной 246 см) с нижней арматурой 2 Ø5 мм класса А500 и верхней конструктивной 2 Ø3 мм класса В 500.

___________

2 По сравнению с часто применяемыми перемычками из стального уголка 100×100×10 мм они не корродируют, а арматура защищена от пожара слоем бетона 35 мм.

3.1.10. В целях повышения долговечности и надёжности стен в эксплуатации рекомендуется:

- перейти от надоконных перемычек из стального уголка, несущих внутренний и наружный слои кирпичной кладки (несъёмной опалубки), к керамзитобетонным брусковым перемычкам;

- перейти к использованию сплошного (без щелей) декоративного кирпича, при котором раствор будет заполнять весь шов, что повысит надёжность анкеровки базальтопластиковых связей в наружном слое кладки.

3.1.11. При расчете элементов стены из МПВМ на силовые и температурные воздействия принимается следующая расчетная схема: внутренний слой стены рассматривается как изгибаемая полистиролбетонная плита, свободно-опертая по краям на перекрытия и работающая на пролете, равном высоте этажа в свету.

3.1.12. При расчете внутренней надоконной перемычки из МПВМ принимается следующая расчетная схема: перемычка рассматривается как изгибаемая заделанная на опорах армированная полистиролбетонная балка.

3.2. КОНСТРУКЦИЯ НАРУЖНОЙ СТЕНЫ С ИСПОЛЬЗОВАНИЕМ НЕСЪЕМНОЙ ОПАЛУБКИ ИЗ ПРОСЕЧНО - ВЫТЯЖНЫХ ГОФРИРОВАННЫХ СЕТОК (рис.6-7)

3.2.1. Конструкция наружной стены рекомендуется для применения в зданиях при высоте этажа не более 3,6 м.

3.2.2. В качестве основного материала наружной стены используется МПВМ на шлакопортландцементе марок по средней плотности D300 - D350 при классе по прочности на сжатие не менее В 0,75 при использовании вяжущего марок не ниже М400.

3.2.3. По конструктивному решению стена является однослойной, т.к. в качестве несъёмной опалубки используется объёмная металлическая оцинкованная жёсткая сетка, состоящая из двух (гнутой и плоской) спаренных просечно - вытяжных гофрированных сеток (рис. 6. 7).

3.2.4. Сетки изготавливаются3 из оцинкованного металлического листа толщиной 0,4 - 0,7 мм, выпускаемого по ГОСТ 14918-80, ГОСТ 16523-97, ТУ 14-1-4792-90. Высота «малого» гофра 8-9 мм, а ширина - 7-8 мм. Листы длиной 2500 мм (3000 мм) после просечки вытягиваются до ширины 600 мм. В результате образуется сетка с шагом гофр около 100 мм и сторонами ячеек в виде параллелограммов размером 7×10 мм и острым углом 54°. Ширина узких «проволочек» - 0,5-1,5 мм при длине 5-8 мм, а более широких, расположенных посередине и в четвертях сетки, от 0,5 мм до 5 мм (рис. 6, 8, 9). Вес сетки составляет 1,27-1,29 кг/м2.

___________

3 производством металлической просечно-вытяжной гофрированной сетки занимается ОАО «Система Коффор»

3.2.5. Внутреннюю сетку дополнительно сгибают для получения большого гофра высотой 40 мм и шириной 60 мм через каждые 300 мм (рис. 9), что позволяет при соединении плоской наружной сетки с внутренней гнутой сеткой получать между сетками пространство толщиной 40 мм и обеспечивать объёмную жёсткость опалубки. Спаренные сетки имеют длину 2220 мм и ширину 600 мм (рис. 10). Сетки сшивают кольцами из проволоки диаметром 1,0 - 1,2 мм.

Рис. 6 Просечно-вытяжная гофрированная сетка из оцинкованного листа толщиной 0,4 - 0,6 мм.

Рис. 7 Заливка бетона в несъемную опалубку из просечно-вытяжных гофрированных сеток.

Рис. 8 Объединение плоских просечно-вытяжных гофрированных сеток С-1

Рис. 9 Объединение гнутых просечно-вытяжных гофрированных сеток С-2

3.2.6. Для увеличения объёмной жесткости спаренных сеток (опалубки) в них может устанавливаться арматурная проволока диаметром 5 мм в обоих направлениях. Поперек сетки проволока длиной 600 мм укладывается  гофры с шагом 300 мм, а вдоль сетки проволока длиной 2220 мм пропускается поперек гофра и объединяется с короткими стержнями (рис. 10).

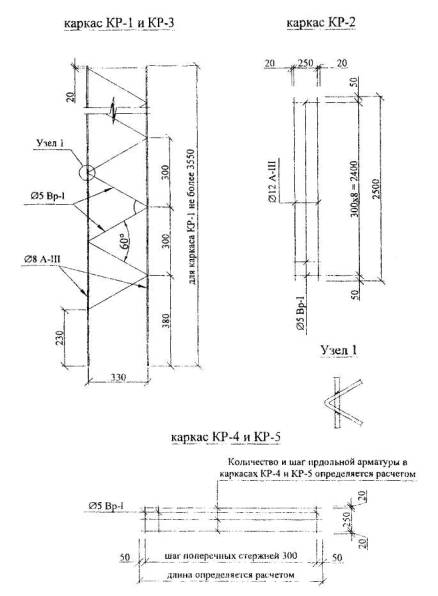
3.2.7. В стену спаренные сетки устанавливаются одна на одну малым размером 600 мм по вертикали и большим размером 2220 мм вдоль фасада здания. Монтировать сетки рекомендуется с помощью сварных арматурных каркасов Кр-I (рис. 11).

3.2.8. Фасадная защитно-декоративная облицовка наружных стен выполняется в виде цветной (с использованием пигментов различного цвета) цементно-песчаной торкретштукатурки общей толщиной не менее 25 мм по внешней плоской просечно-вытяжной оцинкованной сетке. При этом толщина внешнего защитного слоя штукатурки до сетки составляет не менее 10 мм.

3.2.9. С внутренней стороны защитная облицовка стен выполняется также в виде цементно-песчаной штукатурки (но без добавки пигментов) толщиной не менее 25 мм по внешней плоской просечной оцинкованной сетке с той же толщиной слоев на сетке и под сеткой. Такое конструктивное решение облицовки исключает отслоение штукатурного слоя в случае огневого воздействия при пожаре.

3.2.10. На откосах оконных и дверных проемов толщина слоя цементно-песчаной штукатурки но стальной оцинкованной мелкоячеистой сетке с размером ячеек не более 30×30 мм из проволоки диаметром не менее 1 мм должна составлять не менее 30 мм.

Рис. 10 Объединение сеток С-1 и С-2 проволокой

Вид А (сетка С-1 условно не показана)

Рис. 11 Схема расположения несущих вертикальных каркасов КР-I

3.2.11. С целью снижения теплопотерь через торцы железобетонных перекрытий, несущих внутренних стен и колонн, учитывая, что при заведении в наружные стены несущих железобетонных элементов образуется мостик холода, наружные несущие стены навешиваются на перекрытия, закрывая их. Для крепления наружных стен и перекрытия закладываются арматурные выпуски Ø12 А-III (A500), объединяемые в подкос (рис. 12, 13, 14), которые омоноличиваются конструкционно-теплоизоляционным полистиролбетоном при возведении стены (марка по плотности полистиролбетона та же, что и для основного слоя стелы).

3.2.12. Крепление ненесущих наружных стен к вышележащему перекрытию производится с помощью монтажных элементов в виде заостренных стержней из стали Ø12 класса АI (рис. 14), закрепляемых на вертикальных каркасах Кр-1 и Кр-3 (рис. 16), а к вертикальным несущим элементам - в виде гибких связей из проволоки Ø5 Вр-1 (рис. 15), обеспечивающих передачу на них горизонтальных усилий от наружных стен.

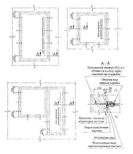
Крепление оконных, дверных и балконных блоков производится заостренными монтажными элементами из стали Ø12 класса AI (рис 17).

3.2.13. При расчете наружной стены по предельным состояниям конструкция разделяется на два условно независимых элемента: вертикальный и горизонтальный, которые рассчитываются по различным расчетным схемам.

Первый элемент представляет собой фрагмент стены, расположенный в плоскости фасада и рассчитываемый как вертикальная армированная полистиролбетонная плита, работающая на пролете, равном расстоянию в свету между перекрытиями, с защемленной нижней стороной и шарнирно опертой верхней стороной. Расчеты этого элемента производятся на следующие виды нагрузок:

- при действии ветровой нагрузки на наветренную поверхность;

- при действии ветровой нагрузки на подветренную поверхность совместно с горизонтальной нагрузкой от людей на ограждение в уровне подоконника, принимаемой как нагрузка на перила ограждения по СНиП 2.01.07-85*.

Второй элемент представляет собой фрагмент стены, расположенный в плоскости перекрытия и рассчитываемый как армированная полистиролбетонная балка, работающая как консоль, длиной равной толщине ограждения, и высотой равной толщине перекрытия. Расчет консоли выполняется на совместное действие вертикальной нагрузки от собственного веса полистиролбетонной стены, отделочных слоев, арматурных каркасов, дополнительно навешиваемого на стены оборудования и горизонтальной нагрузки от ветрового напора и воздействия людей.

Рис. 12 Вертикальный разрез по глади

Рис. 13 Вертикальный разрез по стене с окном

Рис. 14 Крепление ненесущих наружных стен из монолитного полистиролбетона к плитам перекрытия

Рис.15 Крепление ненесущей стены из монолитного полистиролбетона к внутренним несущим стенам или колоннам

Рис. 16 Арматурные изделия

Рис. 17 Крепление оконных, дверных и балконных блоков к ненесущей стене из монолитного полистиролбетона

4. ОСНОВНЫЕ ПОЛОЖЕНИЯ ПО ИЗГОТОВЛЕНИЮ МПВМ И ВОЗВЕДЕНИЮ НАРУЖНЫХ СТЕН С ЕГО ПРИМЕНЕНИЕМ ПРИ БЕТОНИРОВАНИИ В НЕСЪЕМНОЙ ОПАЛУБКЕ

4.1. ОБЩИЕ ПОЛОЖЕНИЯ ТЕХНОЛОГИИ ВОЗВЕДЕНИЯ НАРУЖНЫХ СТЕН С ПРИМЕНЕНИЕМ МПВМ

4.1.1. Возведение самонесущих в пределах этажа наружных стен с применением МПВМ производится с поэтажным опиранием их на нижележащее перекрытие.

4.1.2. При возведении наружных стен с применением МПВМ полистиролбетонная смесь заливается во внутреннее пространство между наружными элементами несъемной опалубки.

4.1.3. Класс бетона по прочности на сжатие перекрытий к моменту возведения опирающихся на них наружных стен должен соответствовать проектным требованиям.

4.1.4. При устройстве монолитной теплоизоляции в слоистой стене полистиролбетонную смесь следует готовить непосредственно на строительном объекте в бетоносмесителе, входящем в состав универсальной мобильной установки ( далее сокр. МБСУ).

4.1.5. Состав технологического оборудования МБСУ, его характеристики (в том числе тип бетононасоса) в зависимости от производительности установки (2,0 - 4,0 м3/час) должен содержаться в Проекте производства работ (ППР) по возведению конкретного здания.

4.1.6. При использовании МБСУ приготовленную полистиролбетонную смесь надлежит транспортировать с помощью бетононасоса к месту укладки в вертикальную опалубку; при этом возможны следующие варианты организации данного процесса, учитывающие высотность возводимого здания:

а) установка МБСУ размещается на перекрытии, куда поставляются все исходные материалы для приготовления полистиролбетонной смеси. Смесь после приготовления с помощью бетононасоса подаётся в опалубку на расстояние по вертикали 9 - 12 м в зависимости от вида применяемого бетононасоса. Далее после устройства монолитной теплоизоляции на данном этаже или его секции (участке) установка перемещается на очередное перекрытие вверх через 3-4 этажа или по горизонтали на следующую секцию (участок) здания на том же этаже на расстояние 15 - 30 м;

б) установка МБСУ размещается рядом с возводимым зданием и приготовленная полистиролбетонная смесь с помощью бетононасоса установки по шлангу поступает в опалубку ограждающей конструкции на доступное по вертикали расстояние (см. 1-й вариант). Далее смесь поступает на промежуточные перекачивающие станции, размещаемые через 3-4 этажа по высоте здания или через 15 - 30 м по периметру соответствующей секции здания конкретного этажа. Перекачивающая станция состоит из герметизированной накопительной ёмкости с компрессором в случае использования пневмонасоса или емкости со шнековым питателем - в случае использования героторного насоса.

4.1.7. Укладку и уплотнение полистиролбетонной смеси при устройстве монолитной теплоизоляции наружных стен, покрытий и перекрытий следует производить без использования вибрационного оборудования (методом экструзии, разработанным в НИИЖБе для высокопоризованных особо лёгких бетонных смесей) с помощью тех же бетононасосов, которые осуществляют подачу бетонной смеси в опалубку конструкции.

4.2. ТРЕБОВАНИЯ К МПВМ, БЕТОННЫМ СМЕСЯМ И СОСТАВЛЯЮЩИМ ИХ МАТЕРИАЛАМ, КОНТРОЛЬ КАЧЕСТВА

4.2.1. При применении МПВМ в самонесущих (ненесущих) наружных стенах с поэтажным опиранием в качестве конструкционно-теплоизоляционного слоя рекомендуется использовать следующие марки МПВМ по средней плотности в зависимости от этажности здания:

- для стен зданий высотой до 3 этажей - D 150-200;

- для стен зданий высотой до 16 этажей - D 200-250;

- для стен зданий высотой до 25 этажей - D 250-350.

4.2.2. При применении МПВМ в наружных стенах прочность его на сжатие для марок по средней плотности D150, D200, D250, D300 и D350 должна быть не менее соответственно: 0,15, 0,25, 0,5, 0,75 и 1,0 МПа.

4.2.3. Фактическая средняя плотность МПВМ не должна превышать требуемых значений более чем на 10 %.

4.2.4.Полистиролбетонная смесь должна иметь марку по удобоукладываемости У1, характеризующуюся показателем жесткости по ГОСТ Р 51263, равным 11-20 с.

4.2.5. Полистиролбетонные смеси, предназначенные для устройства монолитной теплоизоляции, следует выпускать марок по плотности Dcм200-Dcм400 для бетона МПВМ марок по средней плотности соответственно D150 - D350.

4.2.6. При входном контроле качества исходных материалов, используемых для изготовления МПВМ, следует проверять: для пенополистирольного заполнителя - насыпную плотность и зерновой состав по ГОСТ 9758, для цемента - фактическую активность по ГОСТ 310.4, сроки схватывания и нормальную густоту по ГОСТ 310.3. Эти характеристики определяются для каждой вновь поступающей партии материалов.

4.2.7. Удобоукладываемость полистиролбетонной смеси, оцениваемая по показателю жесткости, определяется по ГОСТ Р 51263. Этот показатель смеси при устройстве монолитной теплоизоляции проверяется в начале каждой смены и при изменении характеристик исходных материалов.

4.2.8. Плотность полистиролбетонной смеси в свежеуложенном состоянии определяется по ГОСТ 10181 не реже одного раза в смену или при изменении качества используемых материалов.

4.2.9. Прочность затвердевшего МПВМ при сжатии и его плотность следует устанавливать по результатам испытания по ГОСТ 10180 и ГОСТ 18105 не менее двух контрольных образцов-кубов с размером ребра 15 см. Допускается использование кубов с ребром 10 см при переходном коэффициенте, экспериментально установленном службой контроля объекта строительства.

Каждую смену следует формовать не менее 4-х контрольных кубов, которые испытываются в возрасте 3 и 28 суток после хранения в условиях, идентичных условиям созревания монолитного полистиролбетона, уложенного в ограждающие конструкции зданий.

4.2.10. Среднюю плотность МПВМ следует определять по ГОСТ 12730.1 и ГОСТ 27005 на контрольных образцах, предназначенных для определения прочности бетона на сжатие.

4.2.11. Определение плотности МПВМ и его прочности на сжатие допускается производить на кернах-цилиндрах диаметром и высотой не менее 10 см, выпиленных непосредственно из уложенной в конструкцию монолитной теплоизоляции.

4.2.12. Влажность МПВМ следует определять по ГОСТ 12730.2 путем высверливания кернов из монолитной теплоизоляции или отбора проб из разрушенных образцов-кубов после их испытания на прочность при сжатии не реже одного раза в месяц.

4.3. ВОЗВЕДЕНИЕ НАРУЖНЫХ СТЕН С ИСПОЛЬЗОВАНИЕМ НЕСЪЕМНОЙ ОПАЛУБКИ ИЗ КИРПИЧНОЙ КЛАДКИ

4.3.1. В перекрытии, на котором возводится наружная стена, устанавливаются заранее изготовленные термовкладыши из модифицированного полистиролбетона (см. п. 3.1.6).

Во избежании протечки укладываемой в процессе возведения стены полистиролбетонной смеси в зазоры между стенками перекрытия и термовкладышами, в эти зазоры укладывается и уплотняется несгораемая минеральная вата или эластичный шнур по всему периметру вкладышей (рис. 4).

Для удобства извлечения вкладышей из опалубочных форм, их перемещения и установки в проектное положение, при их изготовлении в них закладываются базальтопластиковые связи (рис. 4) в виде шпилек петлёй вверх (связи того же типа, который используется для связи наружных слоев стены в п. 3.1.4).

4.3.2. Кирпичная кладка наружных слоев стены производится с установкой в горизонтальные швы из цементно-песчаного раствора базальтопластиковых связей диаметром 5 мм с шагом в соответствии со схемой на рис. 5-6. При этом расстояние концов связей от поверхности наружного слоя кладки - 35 мм, а от поверхности внутреннего слоя кладки до штукатурки - на расстоянии 15 мм. Для надёжной анкеровки связей необходимо полное заполнение горизонтальных швов раствором, что возможно лишь при отсутствии щелей в кирпиче наружного декоративного слоя.

Связи обеспечивают совместную работу несъёмной опалубки - слоев кирпичной кладки на стадии возведения стены, исключая их опрокидывание от ветрового напора.

4.3.3. Учитывая, что совместная работа наружного и внутреннего слоев кирпичной кладки обеспечивается лишь при затвердевании цементно-песчаного раствора её швов, кладку следует возводить поэтапно (т.е. не сразу на всю высоту стены) с перерывами для твердения раствора швов:

- на 1ом этапе - до низа оконного проёма;

- на 2ом этапе - не доходя 2-3 рядов до верха оконного проёма, чтобы обеспечить установку в проектное положение «брусковой» перемычки из керамзитобетона, несущей наружный и внутренний слои кирпичной кладки;

- на 3ем этапе - до зазора, предусмотренного под перекрытием следующего этажа.

4.3.4. Бетонирование внутреннего утепляющего слоя из МПВМ производится после затвердения раствора кладки на высоту стены до проектного положения низа внутренней надоконной перемычки из МПВМ. Перед укладкой бетонной смеси до конца этажа необходимо предварительно установить над оконным проёмом заранее изготовленный арматурный каркас с анкеровочными блоками из керамзитобетона (см. п. 3.1.7).

4.3.5. Перед бетонированием утепляющего слоя стены должна быть выставлена опалубка по всем сторонам откосов оконного проёма (горизонтальным и вертикальным).

4.3.6. Бетонирование стены (устройство монолитной теплоизоляции из МПВМ) ведётся путём подачи смеси бетононасосом по шлангу с внутренним диаметром не менее 80 мм через крайние проёмы перекрытия, расположенного над возводимой стеной, в местах установки малых термовкладышей (рис. 3).

Заполнение бетонной смесью перемычки над оконным проёмом можно выполнять через проёмы в перекрытии в местах установки больших термовкладышей (рис. 3).

4.3.7. После затвердевания бетона теплоизолирующего слоя стены зазор между её верхом и вышележащим перекрытием заполняется мягкой негорючей минеральной ватой. С наружной стороны стены зазор заполняется нетвердеющей мастикой.

4.3.8. На конечном этапе возведения наружной стены со стороны помещения на ее поверхность наносится штукатурка из цементно-песчаного раствора по оцинкованной металлической сетке по вертикальной плоскости стены, а также по оконным откосам и по верху оконного проёма.

4.4. ВОЗВЕДЕНИЕ НАРУЖНЫХ СТЕН С ИСПОЛЬЗОВАНИЕМ НЕСЪЕМНОЙ ОПАЛУБКИ ИЗ ПРОСЕЧНО-ВЫТЯЖНЫХ ГОФРИРОВАННЫХ СЕТОК

4.4.1. Выпуски из монолитного железобетонного перекрытия в виде стержней Ø12-АIII, расположенных по периметру здания с шагом 600 мм, объединяются в подкос приваркой стержней Ø12-АIII диагонально длиной 400 мм и вертикально длиной 220 мм. Монтаж вертикального стержня подкоса осуществляется после установки в проектное положение нижнего наружного ряда гнутой сетки С-2 таким образом, чтобы при омоноличивании наружных стен он оказался между спаренными сетками опалубки.

4.4.2. На подкосы сверху укладывают продольный арматурный каркас КР-2 и соединяют его с верхним горизонтальным стержнем подкоса. Изготовление арматурных каркасов Кр-1, Кр-2, КР-3, КР-4 (см. рис. 16) осуществляется на стройплощадке на специальном посту, оборудованном контактной сваркой, или в заводских условиях.

4.4.3. Перед установкой вертикальных каркасов КР-1 в проектное положение к продольным стержням каркаса Ø8-АIII привариваются монтажные элементы Ø12-AI с заостренными концами, выступающими не менее L=150+δ за каркас, где δ - толщина горизонтального деформационного шва.

4.4.4. При монтаже каркасов КР-1 монтажный элемент Ø12-AI размещается в гофрах сетки нижележащей стены до набора прочности схватившегося в ней бетона на глубину l. Крепление вертикального каркаса КР-1 стены с шагом 300 - 600 мм в уровне нижнего перекрытия осуществляется к верхней и нижней горизонтальной арматуре подкосов и к горизонтальному каркасу КР-2.

4.4.5. Для обеспечения необходимой анкеровки располагаемого на внутренней поверхности стены продольного стержня каркаса КР-1, при необходимости, определяемой расчетом, в перекрытии должна быть предусмотрена закладная деталь. При креплении продольного стержня к закладной детали необходимость крепления к подкосам и горизонтальному каркасу отпадает.

4.4.6. Крепление вертикальных каркасов в уровне верхнего перекрытия возможно осуществлять вязальной проволокой двумя способами: к деревянным монтажным стойкам, раскрепляемым между перекрытиями, или к вспомогательной продольной арматуре, закрепленной на нижнем выпуске из перекрытия.

После набора прочности МПВМ крепление каркаса КР-1 демонтируется. В случае закрепления каркаса к выпускам из перекрытия демонтаж должен быть осуществлен до омоноличивания выпусков.

4.4.7. Между вертикальными каркасами устанавливают диагональные связи из проволочной арматуры диаметром 5 мм Вр-1 или из щелочестойкой базальтопластиковой арматуры диаметром 6 мм с шагом по высоте не более 600 и по длине не более 1200 мм.

4.4.8. Устанавливается наружная сторона несъемной опалубки в виде спаренных просечно-вытяжных сеток С-1 и С-2. При этом вертикальные каркасы КР-1 заводятся в гофру на спаренной сетке и объединяются оцинкованной вязальной проволокой.

4.4.9. Устанавливается горизонтальная опалубка между забетонированной стеной нижнего этажа и монтируемой стеной верхнего этажа. Учитывая недопустимость временной передачи нагрузки от собственного веса заливаемой бетонной смеси на уже забетонированную стену нижнего этажа, между торцом железобетонного перекрытия и вертикальной наружной опалубкой устанавливается несъемная опалубка из асбестоцементных листов, закрепляемая к горизонтальному стержню подкоса.

В случае закрепления вертикальных каркасов стены нижнего этажа к выпускам из перекрытия осуществляется демонтаж креплений (обрез вязальной проволоки).

4.4.10. Устанавливается внутренняя сторона несъемной опалубки в порядке аналогичном изложенному в п. 4.4.8.

4.4.11. В опалубку, образованную спаренными просечно-вытяжными сетками бетононасосами подаётся полистиролбетонная смесь и укладывается без виброуплотнения сразу на всю высоту стены. При этом полистиролбетонная смесь выдавливается в пространство между спаренными сетками, образуя слой толщиной до 30 мм.

4.4.12. На наружную поверхность стены из MПBM наносится торкрет-штукатурка толщиной 25 мм из цементно-песчаного раствора с добавлением пигмента, на внутреннюю поверхность - штукатурка той же толщины, но без добавления пигмента. При этом крайние сетки наружной и внутренней опалубки должны находиться внутри торкретштукатурки на глубине не менее 10 мм.

5. ТЕХНИКО-ЭКОНОМИЧЕСКИЕ ПОКАЗАТЕЛИ НАРУЖНЫХ СТЕН, ВОЗВОДИМЫХ С ПРИМЕНЕНИЕМ МПВМ ПРИ ИСПОЛЬЗОВАНИИ НЕСЪЕМНОЙ ОПАЛУБКИ

5.1. Для оценки технико-экономических показателей, разработанных и представленных в п. 3, двух технических решений конструкций наружных стен (варианты № 1 и № 2) выполнено их сравнение с двумя конструкциями-аналогами. В качестве конструкций-аналогов рассматриваются наиболее широко применяемые конструкции трехслойных наружных ненесущих стен со средним слоем из плитных утеплителей (минераловатных и пенополистирольных плит).

При выборе конструкций-аналогов использованы проекты жилых зданий ведущих институтов Москвы (ГУП МИИТЭП и ОАО «МОСПРОЕКТ»), в которых в среднем слое наружных стен использованы наиболее качественные импортные утеплители: экструзионный пенополистирол «Стиродур» и минераловатная плита на базальтовом волокне «Венти-Каттс» фирмы "Rockwool" (варианты № 3 и № 4).

5.2. Для обеспечения достаточно корректного технико-экономического сравнения расчётные толщины стен, как в представленных ниже вариантах № 1 и № 2 так и в решениях конструкций-аналогов (варианты № 3 и №4), приняты, исходя из условия удовлетворения требуемого для климатических условий г. Москвы сопротивления теплопередаче (из условия энергосбережения в соответствии с МГСН 2.01-99).

5.3. Выполнено сравнение технико-экономических показателей следующих вариантов конструкций стен:

Вариант № 1 (конструктивное решение, подробно представленное в п. 3.1):

Трёхслойная стена толщиной 560 мм. с утепляющим слоем из изготавливаемого на шлакопортландцементе полистиролбетона марки по плотности D250 при классе по прочности на сжатие В 0,35 с несъемной опалубкой (наружные слои) из кирпичной кладки толщиной в 1/2 кирпича и связями между наружными слоями из щёлочестойкого базальтопластика. Внутренняя отделка выполняется в виде штукатурки из цементно-песчаного раствора марки М 100 толщиной 20 мм но оцинкованной мелкоячеистой металлической сетке.

Вариант №2. (конструктивное решение, подробно представленное в п. 3.2):

Однослойная стена толщиной 400 мм выполняется из монолитного полистиролбетона марок по плотности D 300-D 350 и по морозостойкости не менее F100 при классе по прочности В 0,75 с несъемной опалубкой из оцинкованных металлических спаренных гофрированных просечно-вытяжных сеток. Наружная отделка стены выполняется в виде торкрет-штукатурки толщиной не менее 25 мм (с добавлением пигмента) из цементно-песчаного раствора с полимерными добавками, обладающей водоотталкивающими свойствами. Внутренняя отделка стены выполняется также в виде торкрет-штукатурки той же толщины из цементно-песчаного раствора без пигментов и полимерных добавок.

Вариант № 3. (проект ГУП МНИИТЭП, 2005 г. рис. 18):

Трехслойная стена толщиной 460 мм с утеплителем из экструзионного пенополистирола «Стиродур 4000С» толщиной по проекту 200 мм. Наружный и внутренний слои выполняются из кирпичной кладки толщиной 120 мм. Со стороны фасада кладка выполняется из облицовочного керамического полнотелого кирпича, а с внутренней стороны из пустотелого рядового керамического кирпича. По вертикали в каждом четвертом ряду кладки закладываются гибкие базальтопластиковые и оцинкованные металлические связи, чередуясь по высоте. Шаг связей по горизонтали не менее 600 мм. Кроме гибких связей в каждом четвертом наружном ряду по высоте декоративно-лицевой кирпичной кладки в горизонтальные швы укладывается полоса из оцинкованной металлической сетки шириной 100 мм, а в каждом восьмом ряду внутренней кладки - полоса из той же сетки шириной 130 мм.

С внутренней стороны стена отделывается штукатурным раствором из цементно-песчаной смеси марки по прочности не менее М 100 и толщиной 20 мм.

Рис.18 Варианты наружных стен - аналогов

Условные обозначения:

1 - штукатурная сетка: 2 - штукатурка; 3 - деформационный шов; 4 - плита перекрытия; 5 - кирпичная кладка; 6 - экструзионный пенополистирол «Стирозур 4000С»; 7 - термовкладыш; 8 - базальтопластиковые или оцинкованные связи; 9 - оцинкованная сетка; 10 - кладка из ячеистобетонных блоков марки но плотности D600; 11 - утеплитель из базальтовой ваты плотностью более 85-110 кг/м3; 12 - невентилируемый воздушный зазор; 13 - диффузионная пленка; 14 - прокладка из мягкой минеральной ваты

Вариант № 4. (проект ОАО «МОСПРОЁКТ», 2006 г. рис. 18):

Трехслойная стена толщиной 560 мм с утеплителем из базальтовых волокон марки «Венти Баттс» фирмы Rockwool следующей конструкции :

- наружный слой - кладка лицевого полнотелого керамического кирпича толщиной 120 мм;

- воздушный невентилируемым зазор толщиной 20 мм;

- утеплитель толщиной 150 мм;

- внутренний слой - кладка толщиной 250 мм из ячеистобетонных блоков марки по плотности D 600;

- внутренний отделочный слой - цементно-песчаная штукатурка толщиной 20 мм. по металлической мелкоячеистой сетке марки но прочности не менее Ml00

Наружная и внутренняя кладка стены армируются в горизонтальной плоскости оцинкованной металлической сеткой шириной соответственно 100 мм и 250 мм и объединяются между собой базальтопластиковыми и, чередуясь с ними, оцинкованными гибкими связями, аналогично варианту № 3.

5.4. Результаты расчета показателей принятых вариантов наружных стен с применением МПВМ по расходу и стоимости материалов на 1 м2 поверхности ограждения и по стоимости 1 м2 стены в целом приведены в табл. 5.1, по трудозатратам на возведение стен - в табл. 5.2.

5.5. Результаты сравнения технико-экономических показателей различных вариантов наружных стен (табл. 5.1 и табл. 5.2) показывают, что разработанные в п.п.3.1 и 3.2 настоящих «Рекомендаций» конструкции наружных стен с применением МПВМ с использованием несъемной опалубки (варианты № 1 и № 2),по сравнению с конструкциями-аналогами (варианты № 3 и № 4), применяющими широко используемые в строительстве жилых зданий эффективные утеплители (пенополистирол «Стиродур 4000С», плиты «Венти-Баттс» фирмы «Rockwool», имеют: меньшие на 10,6% - 31,9% стоимости 1 м2 наружных стен и меньшие на 10,5% - 25,5% трудозатраты на возведение стен.

Таблица 5. 1.

Расход и стоимость материалов на 1 кв. м. наружных стен для различных вариантов технических решений

№ п/п.

Состав стены

Единица измерения

Стоимость ед. измерения, руб.

Расход на 1 кв. м.

Стоимость 1 кв. м.

Примечание

1

2

3

4

5

6

7

 

Вариант 1

 

 

 

 

 

1

Кирпич одинарный пустотелый M150

шт.

6,60

52

343,20

Прайс-лист ООО «Снабженец» от 02.2006

2

Монолитный полистиролбетон марки по плотности D250

м3

2150

0,3

645,00

Прайс-лист Группы Компаний «Теплолит» на 05.04.06

4

Сухая растворная смесь для внутренней штукатурки M150

т

1160

0,036

41,76

Прайс-лист ООО «Снабженец» от 02.2006

5

Базальтопластиковые связи двойные БПА-350-6-2П

шт.

123

12

147,60

Прайс-лист OОO «Гален» от 02.2005 на 04.2006

6

Сетка штукатурная оцинкованная 10×10 мм / D=1 мм по ГОСТ 3826-82

м2

53,30

1,0

53,30

Прайс-лист ООО «Снабженец» от 02.2006

7

Стальная арматура каркаса перемычки 05Вр-1

т

13950

0,0011

15,35

 

8

Стержни из нержавеющей стали (выпуска из перекрытия) 012 AIII

т

14400

0,00116

16?70

 

 

Итого:

 

 

 

169139

 

 

Вариант 2

 

 

 

 

 

1

Арматура стальная 012 А-Ш

т

14400

0,0022

31,20

Ценовой бюллетень «Горячий металл» № 6 (26)-2006 (10.04-23.04) Фирма «Стройглавснаб»

2

Арматура стальная 08 А-Ш

т

15670

0,0026

40,74

Ценовой бюллетень «Горячий металл» № 6 (26)-2006 (10.04-23.04) Фирма «Стройглавснаб»

3

Проволока 05 Вр-1 (в бухтах)

т

13950

0,0012

16,74

Прайс-лист «ТПГ Альма» от 28.03.2006

4

Монолитный полистиролбетон марки по плотности D300

м3

2250

0,3623

815,25

Прайс-лист Группы Компаний «Теплолит»

5

Торкретируемый цементно-песчаный раствор с пигментами для внешней штукатурки стены (тип КНАУФ «Диамант 260», марки M150, F100)

т

6758

0,0210

141,92

Прайс-лист ООО «Снабженец» от 02.2006

6

Торкретируемый цементно-песчаный раствор для внутренней штукатурки стены марки M100

т

1160

0,0450

52,20

Прайс-лист ООО «Снабженец» от 02.2006

7

Сетка опалубочная просечно-вытяжная

м2

58,50-1,5

4,2414

372,18

Прайс-лист ООО «Снабженец» от 02.2006

 

Итого:

 

 

 

1564,84

 

 

Вариант 3 - аналог (проект ГУП МНИИТЭП)

 

 

 

 

 

1

Кирпич облицовочный с гладкой поверхностью-M150 (цвет соломенный)

шт.

8,24

52

428,48

прайс-лист Группы компаний «Голицинский кирпич» от 01.2006 на 04.2006

2

Кирпич одинарный пустотелый M150

шт.

6,60

52

343,20

Прайс-лист ООО «Снабженец» от 02.2006

3

Эффективный утеплитель - экструзионный пенополистирол «Стиродур 4000С»

м3

6365

0,20

1273,00

Прайс-лист ООО «Снабженец» от 02.2006

4

Базальтопластиковые связи БПА-350-6-2П

шт.

6,15

3

18,45

Прайс-лист ООО «Гален» от 02.2005 на 04.2006

5

Сухая растворная смесь для внутренней штукатурки М100

т

1160

0,036

41.76

Прайс-лист ООО «Снабженец» от 02.2006

6

Гибкие связи из оцинкованной проволоки 06 мм по ГОСТ 3282-74

кг

22,40

0,241

5,39

Прайс-лист «ТПГ Альма» от28.03.2006

7

Полоса из оцинкованной кладочной сетки шириной 100 мм

м2

106,60

0,321

34,26

Прайс-лист ООО «Снабженец» от 02.2006

8

Полоса из металлической сетки шириной 130 мм

м2

101,24

0,209

21,16

Прайс-лист ООО «Снабженец» от 02.2006

9

Сетка штукатурная оцинкованная 10×10 мм/D=1 мм по ГОСТ 3826-82.

м2

53,30

1,000

53,30

Прайс-лист ООО «Снабженец» от 02.2006

10

Раствор для кладки из кирпича M150

м3

1962

0,040

78,62

Прайс-лист ООО "Промстройинвест" на 14.04.2006

 

Итого:

 

 

 

2297,62

 

 

Вариант 4 - аналог (проект ОАО «МОСПРОЕКТ»)

 

 

 

 

 

1

Кирпич облицовочный с гладкой поверхностью М150 (цвет соломенный)

шт.

8,24

52

428,48

Прайс-лист Группы компаний «Голицинский кирпич» от 01 2006 на 04 2006

2

Минераловатный утеплитель плотностью не менее 75кг/м типа Rockwool «Венти Баттс»

м3

2728,22

0,150

409,23

Прайс-лист ООО «Снабженец» от 02.2006

3

Блоки из ячеистого бетона марки D600

м3

2350

0,240

564.00

Прайс лист на изделия HЛMK г.Липецк и ОАО «Забудово» на сайте www.nobolux.ni

4

Сухая раствор, смесь для штукатурки по ячеист. бетону «Эгида Х-1 S-42»

т

8000

0,029

232,00

Прайс-лист ЗАО «Компания «Победит» на 14.04.06

5

Полосы из оцинкованной кладочной сетки шириной 100 мм и 250 мм

м2

106,60

0,871

92,89

Прайс-лист ООО «Снайженец» от 02.2006

6

Сетка штукатурная оцинкованная 10×10мм/D=1 мм по ГОСТ 3826-82

м2

53,30

1

53,30

Прайс-лист ООО «Снаоженец» от 02.2006

7

Вазальтопластиковые связи БПА-400-6-2П

шт.

7,29

3,0

21,87

Прайс-лист «Гален» от 02.2005 на 04.2006

8

Гибкие связи из оцинкованной проволоки 06 мм по ГОСТ 3282-74

кг

22,40

0,241

5,39

Прайс-лист «ТГП Альма» от 28.03.2006

9

Сухая растворная смесь для кладки из блоков «Монтаж G-31»

т

5360

0,0051

27.37

Прайс-лист ЗАО «Компания «Победит» на 14.04.06

10

Раствор для кладки из кирпича М150

м3

1962

0,02

39,31

Прайс-лист ООО «Промстро-инвест» на 14.04.2006

11

Диффузионная пленка «Изоспан»

м2

19,00

1,0

19,00

Прайс-лист ООО «Снабженец» от 02.2006

 

Итого:

 

 

 

1892,84

 

Таблица 5.2

Расчет трудозатрат на возведение 1 м стены для различных вариантов технических

№ п/п

Состав работ

Единица измерения

Количество ед. изм. На 1м2 стены

Норма времени на ед. изм., чел-ч.

Трудозатраты на 1м2 стены, чел-ч.

Основание (сборник ЕНиР)

1

2

3

4

5

6

7

 

Вариант № 1

 

 

 

 

 

1

Устройство подмостей для кладки стен толщиной 540 мм

10 м3

0,054

5,5

0,297

Е3-20Б-6

2

Кладка наружного облицовочного слоя в 1/2 кирпича

м3

0,12

7,4

0,888

Е3-3В-2а

3

Кладка внутреннего слоя под штукатурку в 1/2 кирпича

м3

0,12

5,4

0,648

Е3-3В-1а

4

Установка гибких связей и армирование кладки стен

100 кг

0,01

1,1

0,011

Е3-18-1

5

Приготовление кладочного и штукатурного раствора из сухой смеси

м3

0,06

0,7×2,1

0,088

Е3-23-1

6

Крепление штукатурной сетки к кирпичу

м2

1,00

0,18

0,18

Е8-1-1-3

7

Приготовление бетонной смеси

м3

0,30

0,16

0,048

Е4-14-7Б-4в

8

Подача бетонной смеси к месту укладки

100 м3

0,003

27

0,081

Е4-1-48В-1

9

Бетонирование прямолинейных стен

м3

0,30

0,75×0,79

0,178

Е4-1-49В-1д

10

Улучшенное оштукатуривание стен вручную

100 м2

0,01

10,5+26,5+12,5+21

0,705

Е8-1-2

 

Итого:

 

 

 

3,124

 

 

Вариант № 2

 

 

 

 

 

1

Изготовление подкосов сваркой отдельных стержней 0 до 12 мм

т

0,0010

0,75×20

0,015

Е4-1-46-9в

2

Изготовление каркасов КР-1 и КР-2 сваркой отдельных стержней 0 до 8 мм

т

0,0026

0,75×31,5

0,061

Е4-1-46-96

3

Устройство арматурных выпусков из перекрытия для образования подкоса

шт.

1,11

0,29

0,322

Е4-1-42-16

4

установка каркасов КР-1 и КР-2 в проектное положение (вес менее 20 кг)

шт.

0,67

0,17

0,113

Е4-1-44Б-а

5

Антикоррозионное покрытие сварных соединений (вручную)

10 шт.

0,56

1,10

0,616

Е4-1-22-2

6

Устройство подмостей на раздвижных стойках для крепления опалубки

100 шт

0,0033

6

0,020

Е4-1-33-1

7

Устройство горизонтальной опалубки

м2

0.1333

0,23

0,031

Е4-1-34В-1ж

8

Установка просечно-вытяжных сеток опалубки

шт.

2,96

0,17

0,504

Е4-1-44Б-а

9

Приготовление бетонной смеси

м3

0,35

0,16

0,056

Е4-14-7Б-4в

10

Подача бетонной смеси к месту укладки

100 м3

0,0035

27

0,095

Е4-1-48В-1

11

Бетонирование прямолинейных стен

м3

0,35

0,75×0,79

0,207

Е4-1-49В-1д

12

Приготовление раствора для штукатурных работ из готовых сухих смесей

м3

0,05

0,7×2,1

0,074

Е3-23-1

13

Гибка стальной просечно-вытяжной сетки вручную под утлом 60°

10 шт.

0,56

0,34

0,190

Е40-2-10-2е

14

Торкретирование поверхности стен с двух сторон

100 м2

0,02

4,1+17

0,422

Е8-1-12-4

 

Итого:

 

 

 

2,726

 

 

Вариант № 3

 

 

 

 

 

1

Устройство подмостей для кладки стен толщиной 460 мм

10 м3

0,046

7,3

0,336

Е3-20Б-6

2

Кладка наружного облицовочного слоя в 1/2 кирпича

м3

0,12

7,4

0,888

E3-3B-2a

3

Кладка внутреннего слоя под штукатурку в 1/2 кирпича

м3

0,12

5,4

0,648

E3-B-1a

4

Установка гибких связей и армирование кладки стен

100 кг

0,01

1,1

0,011

E3-18-1

5

Приготовление кладочного и штукатурного раствора из сухой смеси

м3

0,06

0,7×2,1

0,088

E3-23-1

6

Крепление штукатурной сетки к кирпичу

м2

1,00

0,18

0,18

E8-1-1-3

7

Улучшенное оштукатуривание стен вручную

100 м2

0,01

10,5+26,5+12,5+21

0,705

E8-1-2

8

Ручная очистка теплоизолируемой поверхности

100 м2

0,01

0,9×0,78

0,007

E11-74-c

9

Изоляция пенополистирольными плитами в два слоя

м2

1,00

0,63

0,63

E11-42-б

 

Итого:

 

 

 

3,493

 

 

Вариант 4

 

 

 

 

 

1

Устройство подмостей для кладки стен толщиной 560 км

10 м3

0,056

5,5

0,308

Е3-20Б-б

2

Кладка наружного облицовочного слоя в 1/2 кирпича

м3

0,12

7,4

0,888

E3-3B-2a

3

Кладка внутреннего слоя из ячеистобетонных блоков под штукатурку

м3

0,25

2,1

0,525

Е3-6Б-1б

4

Установка гибких связей и армирование кладки стен

100 кг

0,014

1,1

0,015

E3-18-1

5

Приготовление кладочного и штукатурного раствора из сухой смеси

м3

0,05

0,7×2,1

0,074

E3-23-1

6

Крепление штукатуркой сетки к кирпичу

м2

1,00

0,18

0,18

E8-1-1-3

7

Улучшенное оштукатуривание стен вручную

100 м2

0,01

10,5+26,5+12,5+21

0,705

E8-1-2

8

Ручная очистка теплоизолируемой поверхности

100 м2

0,01

0,9×0,78

0,007

E11-74-c

9

Изоляция минераловатными плитами в два слоя

м2

1,00

0,96

0,96

E11-41-1б

 

Итого:

 

 

3,662

 

 

 

 




ГОСТЫ, СТРОИТЕЛЬНЫЕ и ТЕХНИЧЕСКИЕ НОРМАТИВЫ.
Некоммерческая онлайн система, содержащая все Российские Госты, национальные Стандарты и нормативы.
В Системе содержится более 150000 файлов нормативно-технической документации, действующей на территории РФ.
Система предназначена для широкого круга инженерно-технических специалистов.

Рейтинг@Mail.ru Яндекс цитирования

Copyright © www.gostrf.com, 2008 - 2026