|
|
|
ордена ленина главмосстрой при мосгорисполкоме мосоргстрой ТЕХНОЛОГИЧЕСКИЕ СХЕМЫ MOCKBA - 1981
ОРДЕНА ЛЕНИНА ГЛАВМОССТРОЙ при МОСГОРИСПОЛКОМЕ МОСОРГСТРОЙ УТВЕРЖДАЮ Начальник Технического управления Гдавмосстроя А.Л. Коробанов «19» сентября 1980 г. ТЕХНОЛОГИЧЕСКИЕ СХЕМЫ Москва - 1981 «Технологические схемы на монтаж надземной части трансформаторных подстанций 4-ТО-2-630, 2ТО-400 и погрузочно-разгрузочные операции, складирование материалов и оборудования при производстве электромонтажник работ» разработаны отделом проектно-технологическим и средств малой механизации треста Мосоргстрой (А.Н. Абрамович, В.Г Поляков), утверждены начальником Технического управления т. А.Л. Коробановым и согласованы с заместителем начальника УМГО Госгортехнадзора т. Г.З. Щубочкиным и начальником Управления монтажных, электромонтажных и санитарно-технических работ Главмосстроя т. А.И. Мармерштейном. Отзывы и замечания по технологическим схемам направлять по адресу: Москва, 118095, Б. Полянка, 51а, трест Мосоргстрой Главмосстроя. СОДЕРЖАНИЕ1. ОБЩИЕ ПОЛОЖЕНИЯ1.1. Технологические схемы на разгрузку и монтаж надземной части трансформаторной подстанции из объемных железобетонных элементов БТП, а также на погрузо-разгрузочные операции, складирование оборудования и различных материалов для электромонтажных работ имеют своей целью обеспечить правильное использование и безопасную работу грузоподъемных кранов. 1.2. Погрузо-разгрузочные операции и складирование материалов и оборудования должны выполняться в соответствии с требованиями СНиП III-4-80 и «Правил устройства и безопасной эксплуатации грузоподъемных кранов» и информационных писем Госгортехнадзора СССР № 06-27/171 от 11.10.76., № 3/4 от 11.11.76., № 06-27/65 от 18.04.77. 1.3. Завоз материалов, изделий и оборудования на территорию строящегося объекта допускается только, когда подготовлена площадка под складирование. 1.4. Для производства погрузо-разгрузочных работ стреловые самоходные краны должны устанавливаться с таким расчетом, чтобы расстояние от строений, штабелей грузов и других предметов до поворотной части крана в любом её положении было бы не менее 1 м. Автомобильные и пневмоколесные краны должны быть установлены на выносные опоры. 1.5. Схемы строповок показаны для основных электротехнических материалов, изделий и оборудования.(В составлении схем строповок принимал участие отдел № 9, A.M. Рыбкин). В случае необходимости погрузо-разгрузочных работ и складирования материалов, изделий и оборудования, не указанных в схемах строповок, производить работы следует по указанию и с обязательным присутствием инженерно-технического работника, аттестованного по статье 300 вышеуказанных «Правил». Примечание: Схемы на разгрузку и монтаж надземной части трансформаторной подстанции (ТП) из объемных железобетонных элементов составлены в соответствии с ППР, разработанными трестом Мосоргстрой (отдел № 3, В.Б. Зайцев) трестом Мосэлектромонтаж № 1 (проектно-сметная группа, В.И. Комаров). 2. СКЛАДИРОВАНИЕ И ХРАНЕНИЕ НА СКЛАДАХ И СТРОИТЕЛЬНЫХ ОБЪЕКТАХ2.1. Материалы, изделия, приборы и оборудование при хранении на складах и строительных площадках должны укладываться, следующим образом: - крупногабаритное и тяжеловесное оборудование (и его части) - в один ряд на подкладках; - черные прокатные материалы (сталь листовая, швеллеры, двутавровые балки, сортовая сталь) - в штабели высотой до 1,5 м. с подкладками и прокладками; - пучки труб диаметром до 100 мм. увязанные надежно катанкой, - в один ряд на подкладках; - контейнеры с электротехническими материалами и оборудованием - в один ряд на подкладках. 2.2. Баллоны с кислородом и ацетиленом должны храниться на строительной площадке в специальных шкафах для 6-ти баллонов с кислородом и 8-ми баллонов с ацетиленом. Номенклатура электрооборудования разработана трестом Мосоргстрой. (отдел № 9, А.М. Рыбкин) 3. УКАЗАНИЯ ПО ПРОИЗВОДСТВУ РАБОТ3.1. При погрузке, разгрузке и складировании материалов, изделий, приборов и оборудования не допускается перегрузка крана и строго соблюдается его грузовая характеристика. 3.2. При погрузке на автомобили и разгрузке на площадке под материалы, изделие и оборудование, не имеющее чалочных петель, необходимо укладывать подкладки, обеспечивающие заводку и освобождение кольцевых строп. 3.3. Грузозахватные приспособления на кране должны соответствовать его максимальной грузоподъемности. 3.4. Кран должен быть оснащен 4-ветвевым стропом соответствующей грузоподъемности, и двумя кольцевыми стропами. 3.5. При необходимости установить кран для работы на краю откоса котлована или траншеи необходимо соблюдать расстояния, указанные в таблице № 8 «Правил устройства и безопасной эксплуатации грузоподъемных кранов».
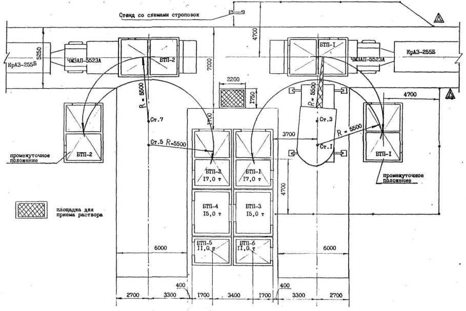
3.6. При необходимости установки крана вблизи ЛЭП следует строго соблюдать порядок установленный ст. 344 «Правил устройства и безопасной эксплуатации грузоподъемных кранов». Установка и работа стрелового крана на расстояний ближе 30 м от крайнего провода линии электропередачи или воздушной электрической сети напряжением более 36 В может производиться только по наряду-допуску, определяющему безопасные условия такой работы. Наряд-допуск должен подписываться руководителем (начальником, главным инженером) предприятия или организации, производящей работы, или другим руководящим лицом по их указанию и направляется владельцу крана Управлению механизации (УМ) вместе с заявкой на кран. Наряд-допуск выдается крановщику с проведением инструктажа главным инженером УМ или другим лицом, назначенным приказом по управлению механизации, одновременно с выдачей путевого листа. При производстве работ в охранной зоне ЛЭП или в пределах, установленных правилами охраны высоковольтных электрических сетей разрывов, наряд-допуск может быть выдан только при наличии разрешения организации, эксплуатирующей линию электропередачи. Установка и работа крана в указаниях в настоящей статье случаях должна производиться под непосредственным руководством лица, ответственного за безопасное производство работ по перемещению грузов кранами и за выполнение указанных в наряде-допуске условий работы крана. В путевом листе крановщика стрелового крана администрация должна ставить штамп о запрещении самовольной установки крана для работы вблизи ЛЭП без наряда-допуска. Работа грузоподъемных кранов под проводами действующих ЛЭП запрещается. При необходимости производить работы под проводами, владелец ЛЭП должен снять напряжение и в письменном виде уведомить об этом организацию, выполняющую работы с указанием времени, предоставленного для выполнения работ. В наряде-допуске делается соответствующая запись и указывается время, отведенное на выполнение работ. 3.7. При отсутствии ограждения строительной площадки забором по контуру опасной зоны устанавливаются стойки инвентарных ограждений (Мосоргстрой, проект № 7453 или № 3945). Пролеты между стойками - 5,0 м. Пролеты загораживаются в один ряд хлопчатобумажной веревкой Диаметром не менее 12 мм, предупреждающими знаками и красными флажками по середине пролета (см. стр. 20). 3.8. У входов в опасную зону устанавливаются предупреждающие знаки - «Осторожно, работает кран!» - по ГОСТ 12.4.026-76. 3.9. При работе в стесненных условиях, требующих ограничения действий крана, необходимо выставлять предупреждающие и запрещающие знаки безопасности по ГОСТ 12.4.026-76. 3.10. Высота подъема до низа блоков БТП не должна превышать 4 м. Граница опасной зоны определяется необходимым рабочим вылетом крюка крана +0,5 длины данного элемента +2,2 м (схема № 3 «Указаний по составлению проектов производства строительно-монтажных работ грузоподъемными кранами». Мосоргстрой, вып. IV). 3.11. Все работы грузоподъемными кранами должны производиться в соответствии с должностными инструкциями крановщиков, стропальщиков и лиц, ответственных за безопасное производство, работ по перемещению грузов кранами, при строгом соблюдении правил по технике безопасности. 4. УКАЗАНИЯ ПО РАЗГРУЗКЕ И МОНТАЖУ БЛОКОВ БТП4.1. Разгрузка и установка на фундамент блоков БТП производится кранами грузоподъемностью не менее 25 т (К-255, КС-5563) со стрелой длиной 15 м. 4.2. Для подъезда стреловых самоходных кранов и автомобилей с прицепами-тяжеловозами к месту разгрузки и монтажа блоков БТП должны устраиваться временные дороги и площадки для стоянки кранов. Основания грунтовых дорог и площадок должны выдерживать нагрузки, создаваемые кранами и автомобилями с прицепами-тяжеловозами. При слабых основаниях дорог и площадок укладываются дорожные плиты типа ПДП размером 6,0 × 1,75 м на выровненный грунт с подсыпкой слоя песка в 10 см. Ширина дорог должна быть 5250 мм (три плиты ПДП 6,0×1,75 м, укладка вдоль а ширина площадок для стоянки кранов - 6000 мм (плита ПДП 6,0×1,75, укладка поперек). 4.3. Трансформаторная подстанция 4-ТО-2-630 выполняется отдельно стоящей, сборной из четырех самостоятельных объемных железобетонных блоков (БТП-1, БТП-2, БТП-3, БТП-4). Конструкция объемных блоков БТП-1 и БТП-2 и конструкция объемных блоков БТП-3 и БТП-4 - одинаковая. В зависимости от технических условий к подстанции при необходимости пристраиваются два объемных блока-приставки: БТП-5 уличного освещения и БТП-6 телефонной сети. Каждый объемный блок монтируется с оборудованием, установленным в заводских условиях, за исключением силовых трансформаторов. Блок (БТП-1 и БТП-2) состоит из камеры силового трансформатора (360 кВа) и помещения распределительного устройства (380/220 В). Блоки БТП-3 и БТП-4 - из помещения для распределительного устройства напряжением 6-10 кВ. 4.4. Трансформаторная подстанция 2-Т0-400 выполнена отдельно стоящей, сборной из двух блоков БТП-1 и БТП-2. На стр. 11 - 12 приводится вариант разгрузки и установки блоков БТП-1 и БТП-2 двумя автомобильными кранами грузоподъемностью 16 т (К-162 или КC-4571). 4.5. Последовательность завоза блоков для ТП 4-Т0-2-630 и их установка на фундамент описаны на стр. 8-10. 4.6. При подъеме с трейлера блок поднимают на 0,5 м над платформой, а после отъезда трейлера начинают перемещение его к месту установки. Для удержания блоков от раскачивания и для установки на фундамент пользуются канатными расчалками длиной не менее 7 м. 4.7. Монтаж объемных элементов БТП производится в условиях, близких к предельной грузоподъемности, поэтому объемный элемент должен быть предварительно приподнят на высоту 200-300 мм для проверки надежности действия тормозов и строповки. 4.8. За нулевую отметку на чертеже (стр. 8) принята отметка верха фундамента ТП. Перед установкой объемных элементов БТП производится тщательная нивелировка верха фундаментов. Объемные элементы ставятся на раствор. 4.9. Работу следует производить в присутствии и под руководством лица, ответственного за безопасное производство работ по перемещению грузов кранами (аттестованного по статье 300 «Правил устройства и безопасной эксплуатации грузоподъемных кранов»). Примечания: 1. Приведенные грузовые характеристики кранов сверены с паспортными данными. 2. Высота подъема указана от уровня земли до крюка крана. СТРОПЫ ГРУЗОВЫЕ КАНАТНЫЕпроект № 5494, СКБ «Мосстрой» 1. Строп 4СК-5; 4-ветвевой, длина ветви 2,6÷3,0 м., нагрузка 5 т. 2. Строп 4СК-10; 4-ветвевой, длина ветви 4,0 м., нагрузка 10 т. 3. Строп 4СК-10; 4-ветвевой, длина ветви 6,0 м., нагрузка 10 т. 4. Строп УСК2-2,5 кольцевой, длина ветви 2,0 м, нагрузка 2,5 т. 5. Строп УСК2-2,5 кольцевой, длина ветви 4,0 м, нагрузка 2,5 т. 6. Строп УСК2-3,2 кольцевой, длина ветви 4,0 м, нагрузка 3,2 т. 7. Строп УСК2-5 кольцевой, длина ветви 4,0 м, нагрузка 5 т. 8. Строп УСК2-5 кольцевой, длина ветви 6,0 м, нагрузка 5 т. 9. Строп УСК2-8 кольцевой, длина ветви 6,0 м, нагрузка 8 т. 10. Строп УСК2-10 кольцевой, длина ветви 6,0 м, нагрузка 10 т. МОНТАЖ ОБЪЕМНЫХ ЭЛЕМЕНТОВ БТП ТРАНСФОРМАТОРНОЙ ПОДСТАНЦИИ 4-Т0-2-630 ПНЕВМОКОЛЕСНЫМИ КРАНАМИ К-255 и КС-5563Лист 1 Спецификация блоков для ТП 4-2-630
Масса блоков принята с учетом плюсового допуска при изготовлении.
Технологическая последовательность доставки на строительный объект и установки блоков БТП на фундамент: 1. (См. лист 2, стр. 8).Доставляются блоки БТП-5 и БТП-6.Со стоянки 1 и стоянки 5 краном грузоподъемностью не менее 25 т. (со стрелой длиною 15 м, с вылетом крюка 7,5 м.) производится разгрузка блоков и установка их в первое промежуточное положение. 2. Кран перемещается на стоянку 3 и стоянку 7, с которых (с вылетом крюка 5,5 м) блоки БТП-3 и БТП-4 разгружаются и устанавливаются в промежуточное положение. 3. Не меняя вылета крюка (5,5 м), кран перемещается на стоянку 2 и стоянку 6. Производится перестановка блоков БТП-5 и БТП-6 во второе промежуточное положение. 4. Кран перемещается на стоянку 4 и стоянку 8, с которых (с тем же вылетом крюка) производится установка блоков БТП-3 и БТП-4 на фундамент. 5. Кран перемещается на стоянку 2 и стоянку 6, с которых (с тем же вылетом крюка) производится установка блоков БТП-5 и БТП-6 на фундамент. 6. (См. лист 3, стр. 10). Доставляются блоки БТП-1 и БТП-2.Со стоянки 3 и стоянки 7 (с вылетом крюка крана 5,5 м) производится разгрузка блоков и установка их в промежуточное положение. 7. Кран перемещается на стоянку 1 и стоянку 5, с которых (с тем же вылетом крюка) производится установка блоков БТП-1 и БТП-2 на фундамент. 8. Подача материалов для кровли подстанции производится тем же краном.
МОНТАЖ ОБЪЕМНЫХ ЭЛЕМЕНТОВ БТП ТРАНСФОРМАТОРНОЙ ПОДСТАНЦИИ 4-Т0-2-630 ПНЕВМОКОЛЕСНЫМИ КРАНАМИ К-255 и КС-5563 Лист 2
МОНТАЖ ОБЪЕМНЫХ ЭЛЕМЕНТОВ БТП ТРАНСФОРМАТОРНОЙ ПОДСТАНЦИИ 4-Т0-2-630 ПНЕВМОКОЛЕСНЫШ КРАНАМИ К-255 и КС-5563
Блок БТП-1 разгружается и устанавливается со стоянок крана 3 и 1. Блок БТП-2 со стоянок крана 5 и 7. Ограждение опасной зоны и знаки предупреждения переносятся при перемещении крана для работы на стоянки 5 и 7. МОНТАЖ ОБЪЕМНЫХ ЭЛЕМЕНТОВ БТП ТРАНСФОРМАТОРНОЙ ПОДСТАНЦИИ 2-Т0-400 ДВУМЯ АВТОМОБИЛЬНЫМИ КРАНАМИ К-162 или КС-4571
Ограждение опасной зоны и знаки предупреждения переносятся при перемещении крана для работы на стоянки 3,4. МОНТАЖ ОБЪЕМНЫХ ЭЛЕМЕНТОВ БТП ТРАНСФОРМАТОРНОЙ ПОДСТАНЦИИ 2-Т0-400 ДВУМЯ АВТОМОБИЛЬНЬНЫМИ КРАНАМИ К-162, или КС-4571 Монтаж объемных блоков БТП производится двумя автокранами со стрелой 10 м по схеме в следующей очередности: 1. Со стоянки 1 и 2 поворотом стрел с изменением вылетов крюков с 5200 мм на 4200 мм монтируется блок БТП-1. 2. Установив объемный блок на фундамент, краны переезжают на стоянки 3 и 4. 3. Монтаж блока БТП-2 производится аналогично монтажу блока БТП-1. 4. После установки объемных блоков монтажные петли срезаются, стыки между блоками заделываются в соответствии с проектом. 5. Подача материалов для кровли подстанции производится теми же кранами.
Блок БТП-1. Масса: 1700 кг. Габариты: 5100×3400×3100 мм. Два стропа 4-ветвевых, г/п 16 т, длина ветви 6 м. (Мосоргстрой, чертеж № 1095 М)
Разгрузка и монтаж двумя кранами.
РАЗГРУЗКА КАБЕЛЬНОГО БАРАБАНА № 30 МАССОЙ 9000 кг КРАНАМИ АВТОМОБИЛЬНЫМИ ГРУЗОПОДЪЕМНОСТЬЮ ДО 16 Т. К-162 или КС-4571
Перевозка барабана производится на низкорамном прицепе (погрузочная высота 700 мм.) РАЗГРУЗКА ПУЧКА ТРУБ ДЛИНОЙ ДО 8 м МАССОЙ 2500 кг КРАНАМИ АВТОМОБИЛЬНЫМИ ГРУЗОПОДЪЕМНОСТЬЮ 6-7,5 т.
Примечания: 1. Погрузка и разгрузка различных длинномерных материалов производится в соответствии с настоящей схемой. 2. Складирование производится на подкладки. 3. Длинномерные материалы следует поднимать параллельно лобовой плоскости стрелы крана, удерживая их оттяжками, не давая возможности разворачиваться. СХЕМЫ СТРОПОВОК
ГАБАРИТНЫЕ РАЗМЕРЫ И МАССА ДРРЕВЯННЫХ КАБЕЛЬНЫХ БАРАБАНОВ
СХЕМЫ СТРОПОВОК
Для наполнения монтажных и погрузочно-разгрузочных работ в соответствии с перечнем обязательной оснастки грузоподъемных машин (утвержденным приказом по Главмосстрою № 531 от 7-го сентября 1977 г.) управления механизации направляют на объекты краны стреловые со следующим оснащением: 1. При массе до 5 т - строп 4-ветвевой, длина ветви 2,6 м, грузоподъемность 5 т (4СК-5); два стропа универсальных (кольцевых), длина 4,0 м, грузоподъемность 3,2 т (УСК2-3,2). 2. При массе до 10 т - строп 4-ветвевой, длина ветви 4,0 м. грузоподъемность 10 т (4CК-10); два стропа универсальных (кольцевых), длина 4,0 м, грузоподъемность 5 т (УСК2-5). 3. При массе до 16 т - строп 4-ветвевой, длина ветви 5,0 м, грузоподъемность 16 т (Мосоргстрой, чертеж № 1095 М); два стропа универсальных (кольцевых), длина 6,0 м, грузоподъемность 8 т (УСК2-8). 4. При массе до 20 т - строп 4-ветвевой, длина ветви 8,0 м, грузоподъемность 20 т (Мосоргстрой, чертеж № 1096 М); два стропа универсальных (кольцевых), длина 6,0 м, грузоподъемность 8 т (УСК2-8). ЗНАКИ БЕЗОПАСНОСТИ по ГОСТ 12.4.026-76ЗНАКИ ПРЕДУПРЕЖДАЮЩИЕ
Знак, предупреждающий об ограничении действий крана. (Устанавливается перед знаком, запрещающим пронос груза.)
ОСТОРОЖНО, РАБОТАЕТ КРАН! Устанавливаются по контуру опасной зоны, возникающей при работе крана. В зависимости от расстояния до кабины машиниста крана
Знаки изготавливаются из листовой стали толщиной от 0,5 до 1,5 мм, а также из жесткого оргалита толщиной 3-4 мм с покраской со всех сторон масляной краской. Знаки должны быть следующими: равносторонний треугольник со скругленными углами желтого цвета, обращенный вершиной вверх, с каймой черного цвета шириной 0,05 м стороны и символическим изображением черного цвета. ЗНАКИ ЗАПРЕЩАЮЩИЕ
ПРОНОС ГРУЗА ЗАПРЕЩЕН
ВХОД (ПРОХОД) ВОСПРЕЩЕН
Знаки изготавливаются из листовой стали толщиной от 0,5 до 1,5 мм, а также из жесткого оргалита толщиной 3-4 мм с покраской со всех сторон масляной краской. Знаки должны быть следующими: круг красного цвета с белым полем внутри, белой по контуру знака каймой и символическим изображением черного цвета на внутреннем белом поле, перечеркнутом наклонной полосой красного цвета (угол наклона 45°, слева сверху направо вниз). Ширина кольца красного цвета должна бить 0,09-0,1 внешнего диаметра, ширина белой каймы по контуру знака - 0,02 внешнего диаметра. ТАБЛИЦА
|
|||||||||||||||||||||||||||||||||||||||||||||||||||||||||||||||||||||||||||||||||||||||||||||||||||||||||||||||||||||||||||||||||||||||||||||||||||||||||||||||||||||||||||||||||||||||||||||||||||||||||||||||||||||||||||||||||||||||||||||||||||||||||||||||||||||||||||||||||||||||||||||||||||||||||||||||||||||||||||||||||||||||||||||||||||||||||
|
№ п/п |
МАРКА автомобиля (тягача) |
МАРКА прицепа и полуприцепа |
ГРУЗОПОДЪЕМНОСТЬ в тоннах |
РАЗМЕРЫ ПОГРУЗОЧНОЙ ПЛОЩАДКИ |
Погрузочная ВЫСОТА в мм. |
НАЗНАЧЕНИЕ |
||
|
ДЛИНА в мм |
ШИРИНА в мм |
ВЫСОТА в мм |
||||||
|
1 |
МАЗ - 504А |
У-72 |
12 |
7330 |
2600 |
1740 |
1000 |
ПОЛУПРИЦЕП НИЗКОРАМНЫЙ |
|
2 |
ЗИЛ - 130BI |
У-30 |
8 |
7425 |
2500 |
1620 |
990 |
ПОЛУПРИЦЕП НИЗКОРАМНЫЙ |
|
3 |
ЗИЛ - 130АI |
ОДАЗ-885 |
7,5 |
6070 |
2220 |
2000 |
1380 |
ПОЛУПРИЦЕП |
|
4 |
МАЗ - 504В |
5206 |
20 |
9965 |
2320 |
2205 |
1450 |
ПОЛУПРИЦЕП (для перевозки контейнеров) |
|
5 |
МАЗ - 504А |
5245 |
14 |
7875 |
2322 |
2325 |
1585 |
ПОЛУПРИЦЕП |
|
6 |
ЗИЛ - 130BI |
У-85 |
8,5 |
10715 |
2500 |
2400 |
1450 |
ПОЛУПРИЦЕП-РОСПУСК (ТРУБОВОЗ) |
|
7 |
ГАЗ - 53 |
- |
4 |
3740 |
2170 |
- |
1350 |
Б0РТОВОЙ АВТОМОБИЛЬ |
|
8 |
ЗИЛ - 130 |
- |
5 |
3752 |
2326 |
- |
1430 |
БОРТОВОЙ АВТОМОБИЛЬ |
|
9 |
МАЗ - 500 |
- |
7,5 |
4860 |
2352 |
- |
1500 |
БОРТОВОЙ АВТОМОБИЛЬ |
|
10 |
МA3 - 516 |
- |
14 |
6200 |
2340 |
- |
1700 |
БОРТОВОЙ АВТОМОБИЛЬ |


Примечание: при ограничении высоты подъема груза в соответствии с приведенной таблицей стреловые краны подбираются таким образом, чтобы при подъеме груза на максимальном необходимом вылете крюка более высоты h на 0,5 м срабатывал концевой выключатель подъема груза.
|
ГОСТЫ, СТРОИТЕЛЬНЫЕ и ТЕХНИЧЕСКИЕ НОРМАТИВЫ. Некоммерческая онлайн система, содержащая все Российские Госты, национальные Стандарты и нормативы. В Системе содержится более 150000 файлов нормативно-технической документации, действующей на территории РФ. Система предназначена для широкого круга инженерно-технических специалистов. Copyright © www.gostrf.com, 2008 - 2026 |