Крупнейшая бесплатная информационно-справочная система онлайн доступа к полному собранию технических нормативно-правовых актов РФ. Огромная база технических нормативов (более 150 тысяч документов) и полное собрание национальных стандартов, аутентичное официальной базе Госстандарта. GOSTRF.com - это более 1 Терабайта бесплатной технической информации для всех пользователей интернета. Все электронные копии представленных здесь документов могут распространяться без каких-либо ограничений. Поощряется распространение информации с этого сайта на любых других ресурсах. Каждый человек имеет право на неограниченный доступ к этим документам! Каждый человек имеет право на знание требований, изложенных в данных нормативно-правовых актах!

  


 

МИНИСТЕРСТВО ТРАНСПОРТНОГО СТРОИТЕЛЬСТВА

ВСЕСОЮЗНЫЙ НАУЧНО-ИССЛЕДОВАТЕЛЬСКИЙ ИНСТИТУТ
ТРАНСПОРТНОГО
СТРОИТЕЛЬСТВА

РУКОВОДСТВО
ПО
СТРОИТЕЛЬСТВУ ФУНДАМЕНТОВ МАЛЫХ И СРЕДНИХ МОСТОВ НА БАМе

Москва 1982

УТВЕРЖДАЮ
Зам. директора
института
Т
.Д. Хасхачих
4 августа 1982 г.

РУКОВОДСТВО
ПО
СТРОИТЕЛЬСТВУ ФУНДАМЕНТОВ
МАЛЫХ
И СРЕДНИХ МОСТОВ
НА
БАМе

(Издание второе)

Согласовано Главмостостроем

Содержание

ПРЕДИСЛОВИЕ

I. ОСНОВНЫЕ ПОЛОЖЕНИЯ

Назначение и область применения

Организация и производство работ

Общие правила контроля качества и приемки работ

2. УСТРОЙСТВО КОТЛОВАНОВ

Общие рекомендации

Разработка котлованов

Устройство ограждений котлованов

Подготовка оснований

Освидетельствование и приемка котлованов

3. БУРЕНИЕ СКВАЖИН

Буровое оборудование

Подготовительные работы

Бурение скважин станками ударно-канатного действия

Бурение скважин станком PF 1200

Контроль качества бурения скважин

4. МОНТАЖ СБОРНЫХ ФУНДАМЕНТОВ

Общие рекомендации

Заделка столбов или свай в грунт

Монтаж и омоноличивание сборных конструкций

Контроль качества и приемка работ

5. БЕТОНИРОВАНИЕ МОНОЛИТНЫХ ФУНДАМЕНТОВ ИЛИ ПЛИТ

Общие рекомендации

Приготовление и транспортирование бетонной смеси

Укладка бетонной смеси

Выдерживание бетона

Контроль качества бетона.

6. ТЕХНИКА БЕЗОПАСНОСТИ

Общие указания

Устройство котлованов

Бурение скважин

Монтаж сборных фундаментов

Бетонные работы

ПРЕДИСЛОВИЕ

Настоящее Руководство разработано в развитии главы СНиП III-9-74 "Основания и фундаменты" и "Инструкции по проектированию малых и средних мостов БАМ" (ВСН 187-76, раздел по технологии строительства фундаментов мостов на мерзлых и скальных грунтах).

Первое издание настоящего Руководства в 1977 г. было разработано на основе обобщения опыта строительства фундаментов мостов, накопленного в первые годы строительстве БАМа.

В настоящем, втором издании Руководства, дополненном и частично переработанном, учтен опыт строительства фундаментов мостов БАМа, накопленный за последние пять лет, по технологии бурении скважин станками ударно-канатного и вращательного действия заделке свай и свай-столбов в мерзлые и скальные грунты, контролю качества работ и т.п.

Руководство разработано в отделении искусственных вооружений Всесоюзного научно-исследовательского института транспортного строительства (ЦНИИС) при участии сотрудников Тындинской мерзлотной станции и Новосибирского филиала ЦНИИС, СКБ Главмостостроя, Мостостроя № 10 и Мостоотряда № 54.

Замечания и предложения направлять по адресу: 129329, Москва, ул. Кольская, 1, ЦНИИС.

Зав. Отделением
искусственных сооружений                                                                                     К.С. Силин

I. ОСНОВНЫЕ ПОЛОЖЕНИЯ

Назначение и область применения

1.1. Настоящее Руководство предназначено для использования при строительстве фундаментов малых и средних мостов на БАМе и в аналогичных условиях других районов страны.

1.2. В Руководстве рассматриваются специфические работы по строительству фундаментов из свай или свай-столбов (столбов) и фундаментов мелкого заложения (фундаментов, сооружаемых в котлованах). Эти работы включают устройство котлованов в мерзлых грунтах, заглубление свай или столбов в мерзлые и скальные грунты, монтаж сборных или бетонирование монолитных фундаментов на месте строительства мостов в период низких отрицательных температур.

1.3. Руководство распространяется на работы по строительству фундаментов малых и средних мостов на вечномерзлых грунтах, используемых в качестве оснований по одному из двух принципов: I - грунты основания используются в мерзлом состоянии в течение всего периода эксплуатации сооружения II - грунты основания используются в оттаявшем или оттаивающем состоянии.

Все фундаменты мелкого заложения проектируют по принципу II. фундаменты из свай или столбов проектируют по принципу I или II.

Организация и производство работ

1.4. Работы по строительству фундаментов мостов на вечномерзлых грунтах должны производиться в соответствии с проектом производства работ и с соблюдением требований действующих нормативных документов и рекомендаций, изложенных в настоящем Руководстве.

1.5. Методы и очередность производства работ по строительству фундаментов мостов следует принимать с учетом влияния местных климатических, инженерно-геокриологических и других условий.

1.6. В проектах организации строительства и производства работ (ППР) необходимо предусматривать мероприятия, направленные на сокращение сроков строительства, снижение трудоемкости и себестоимости работ, обеспечение высокого качества работ и соблюдение правил техники безопасности и пожарной безопасности, производственной санитарии и охраны труда.

1.7. Порядок разработки и объем проектов организации строительства и производства работ должны соответствовать требованиям "Инструкций по разработке проектов организации строительства и проектов производства работ" (СН 47-74).

1.8. Работы по возведению фундаментов должны являться основным элементом общей организации поточного строительства малых и средних мостов железнодорожной линии. Сборные конструкции надлежит изготавливать на заводе (полигоне); и перевозить на сооружаемые объекты с максимальным использованием построенного участка пути бетонные смеси и растворы приготавливать, как правило, централизованно на бетонорастворных узлах и подавать к месту укладки в автобетоносмесителях.

1.9. Свайные фундаменты и опоры рекомендуется сооружать специализированными буровыми и монтажными бригадами (входящими в состав специализированных подразделений), оснащенными высокоэффективным технологическим оборудованием и укомплектованными квалифицированными рабочими и инженерно-техническим персоналом.

1.10. Все строительно-монтажные, погрузочно-разгрузочные и транспортные работы должны выполняться с соблюдением действующих правил техники безопасности и указаний главы 6 настоящего Руководстве, а также норм пожарной безопасности и производственной санитарии.

1.11. Работы по строительству фундамента мелкого заложения должны включать разработку котлована с устройством ограждения (если оно требуется), планировку основания, монтаж сборного или бетонирование монолитного фундамента, нанесение на его боковую поверхность гидроизоляции, разборку ограждений и заполнение грунтом пазух котлована.

1.12. Работы по строительству фундамента из столбов или свай должны включать бурение скважин в мерзлых или скальных грунтах; установку в скважины и заделку омоволичивающим раствором столбов или свай, монтаж сборной или бетонирование монолитной плиты, нанесение гидроизоляции. При возведении фундамента с заглубленной в грунт плитой добавляются разработка котлована и засыпка грунтом его пазух.

1.13. До начала работ по строительству фундаментов необходимо подготовить строительную площадку, доставить на нее необходимое оборудование, материалы и сборные конструкций.

1.14. Подготовка строительной площадка включает работы по устройству к ней автоподъезда от временной автомобильной дороги, очистке площадки от деревьев и кустарника, отсыпке грунта и его планировке, прокладке водоотвода и возведению на площадке временных складов и устройств, доставке передвижных помещений (вагонов), имеющих спальные комнаты, гардероб-душевую, сушилку, красный уголок, пищеблок, прорабскую и др., обеспечению электроэнергией и устойчивой радио - или телефонной связью.

При производстве буровзрывных работ следует предусмотреть размещение на площадке специальных помещений, складов и устройств.

1.15. Работы по освоению строительных площадок и сооружению фундаментов в районах распространения вечномерзлых грунтов должны выполняться с соблюдением мер по сохранению мохорастительного покрова и отводу воды с поверхности грунтов.

1.16. Для обеспечения в летний период нормальных условий эксплуатации транспортных средств, кранов и другого оборудования в местах, где деятельный слой сложен слабыми грунтами (заторфованными грунтами, льдонасыщенными супесями, суглинками и глинами текучепластичной и текучей консистенции), территорию строительных и рабочих площадок, а также проезжую часть подъездных дорог необходимо покрыть подсыпкой толщиной от 0,5 до 1 м и более из горной массы (смеси обломков скальных пород с грунтом) или из крупнообломочных отложений с целью предотвращения значительных повреждений мохорастительного покрова и разжижения грунтов.

Для проезжей части подъездных дорог вместо подсыпки могут быть использованы инвентарные железобетонные плиты.

1.17. Для отвода воды со строительной площадки следует устраивать канавы или насыпать валы из связных грунтов. В местах пересечения канав дорогами рекомендуется укладывать деревянные лотки. Дну канав и лотков придают уклон 0,2-0,3%. На речных поймах уклон канав может быть уменьшен до 0,1%.

Откосы и дно канав, устроенных в песчаных, супесчаных или суглинистых грунтах, необходимо укреплять от возможного размыва, например обсыпкой из горной массы.

1.18. Площадки для складов, временных зданий и сооружений должны быть спланированы с образованием уклонов для стока поверхностных вод.

1.19. В пределах складских площадок на подсыпку из крупнообломочного материала следует укладывать деревянные брусчатые подкладки, предназначенные для опирания на них элементов сборных конструкций, в том числе фундаментов. Элементы необходимо укладывать так, чтобы их низ не соприкасался с грунтом или снегом.

1.20. Штабеля песка и щебня небольшого объема, подлежащие использованию зимой, рекомендуется укрывать рулонным материалом или устраивать над ними навесы.

1.21. Работы по строительству фундаментов следует вести, по возможности, без длительных перерывов между отдельными этапами технологического процесса, чтобы впоследствии дополнительно не затрачивать труд и время на осушение затопленных котлованов, удаление из них размокшего летом или промерзшего пучинистого грунта основания зимой, повторную очистку скважин для установки столбов и т.п.

Общие правила контроля качества и приемки работ

1.22. Технический контроль за производством строительных работ должен осуществляться с целью обеспечения высокого качества фундаментов и полного соответствия их утвержденному проекту и смете, а также рабочим чертежам, проекту производства работ, строительным нормам и правилам и другим действующим нормативным документам;

соответствия качества материалов и сборных конструкций требованиям утвержденного проекта и установленным стандартом (ГОСТ);

своевременного проведения промежуточной приемки выполненных работ и правильного ведения производственно-технической документации по ним.

1.23. Отступления от рабочих чертежей фундаментов возводимого сооружения и вспомогательных конструкций и обустройств, вызванные уточнением условий производства работ, допускается после внесения соответствующих изменений в рабочие чертежи и согласования их в установленной порядке с заказчиком и проектной организацией.

Изменения в конструкции вспомогательных сооружений и обустройств допускаются лишь по согласованию с глазным инженером проекта производства работ.

Внесение принципиальных изменений в рабочие чертежи фундаментов допускается только с разрешения инстанции, утвердившей проект. В этом случае проектная организация должна разработать и выдать измененные рабочие чертежи с нанесением на них соответствующей надписи, а ранее выданные - изъять.

1.24. В процессе строительства фундаментов необходимо вести журналы установленных форы по буровым, бетонным, сварочным работам и заделке стыков.

1.25. Запаси в журналах работ необходимо производить либо непосредственно у места работ, например при погружении столбов или свай, либо в конце смены (при ведении сменных журналов отдельных видов работ).

Запрещается ведение черновых записей на отдельных листах, тетрадях и т.п. с последующим переписыванием в журнал.

1.26. В период строительства фундаментов необходимо, руководствуясь указаниями главы СНиП III-9-74, производить:

приемку разбивочных и других работ в начале строительства;

пооперационный контроль в процессе строительства;

промежуточную приемку скрытых работ по утвержденному перечню;

комплексную приемку законченного фундамента.

1.27. До приемки скрытых работ запрещается производить последующие работы (например, устройство фундаментов на непринятом основании, устройство плиты на непринятых сваях или столбах). Запрещается также загружать строительными нагрузками законченные фундаменты до оформления их полной приемки.

Если после приемка скрытых работ последующие работы начаты с перерывом, во время которого произошли заметные изменения элементов фундамента, должна быть назначена повторная приемка с целью проверки состояния ранее принятых конструктивных элементов и определения возможности дальнейшего производства работ.

Промежуточная приемка работ оформляется актами с соответствующими приложениями. На основании изучения предъявленной при приемке производственно-технической документации, а также, проверки выполненных работ комиссия в актах кратко характеризует выполненные и предъявленные для приемки конструкции и работы, соответствие их проектной документации, имеющиеся отклонения от проекта и наличие согласований этих отклонений; наличие документов о приемке предшествующих работ, являющихся составной частью принимаемых работ; соответствие качества примененных материалов, изделий и сборных конструкций требованиям строительных норм и правил техническим условиям и государственным стандартам.

1.28. Приемка законченных конструктивных элементов фундаментов (погруженных свай или столбов) имеет целью установить возможность выполнения последующих работ и загружения этих конструктивных элементов строительными нагрузками. Приемка таких элементов оформляется актами.

1.29. Строительная организация до сдачи во временную эксплуатацию законченного моста должна вести систематическое наблюдение за его техническим состоянием, а также за изменением температурного режима вечномёрзлых грунтов, используемых по принципу I в основании фундаментов из столбов или свай.

Результаты наблюдений следует оформлять документами, которые должны предъявляться при приемке мостов в эксплуатацию.

2. УСТРОЙСТВО КОТЛОВАНОВ

Общие рекомендации

2.1. В настоящей главе приведены рекомендации по устройству в разных грунтах котлованов под фундаменты мелкого заложения и под заглубленные в грунт плиты фундаментов из столбов или свай.

2.2. Большинство котлованов под фундаменты малых и средних мостов разрабатывают без устройства ограждений. С применением ограждений разрабатывают котлованы в толще оплывающих водонасыщенных грунтов или в случаях затруднений с осуществлением водоотлива.

2.3. Без ограждений можно разрабатывать котлованы при условии, что немерзлые грунты в период производства работ не будут обрушаться с боковой поверхности котлованов. Для этого необходимо, чтобы крутизна откосов разрабатываемых котлованов не превышала значений, приведенных в табл. 1.

Таблица 1

Грунты

Крутизна откосов при глубине котлована, м

до 1,5

от 1,5 до 3

3,5

Песчаные и гравийные влажные

1:0,5

1:1

1:1,25

Глинистые естественной влажности:

 

 

 

супесь

1:0,25

1:0,67

1:0,85

суглинок

1:0,1

1:0,50

1:0,75

глина

1:0

1:0,25

1:0,50

2.4. Для котлованов глубже 5 м крутизну откосов назначают после расчета их устойчивости на сдвиг по круглоцилиндрической поверхности с учетом веса находящейся на призме сползания временной нагрузки в виде грунта, строительных материалов и конструкций, грунторазрабатывающего оборудования, крана и транспортных средств. Эти временные нагрузки должны быть удалены от бровки котлована не менее чем на 1 м.

2.5. Крутизну откосов котлованов, разрабатываемых в переувлажненных глинистых грунтах, следует определять расчетом, учитывающим снижение их прочностных характеристик при увлажнении. Водонасыщенные крупнообломочные и песчаные грунты невозможно разрабатывать без устройства крепления котлованов.

2.6. В период установившихся отрицательных температур воздуха (ниже минус 10˚ С) допускается разрабатывать котлованы глубиной до 4 м способом естественного промораживания грунтов без устройства краплений при условии, что интенсивность и глубина промерзания грунтов боковой поверхности котлована обеспечит необходимую их устойчивость против обрушения. Разработка котлованов в сухих песчаных грунтах, а также в сыпучемерзлых способом промораживания не допускается.

2.7. Если котлованы без краплений разрабатывают в пределах толщи неоттаивающих вечномерзлых грунтов, то крутизна откосов не должна превышать значений, приведенных в табл. 2.

Таблица 2

Грунты

Крутизна откосов при глубине котлована, м

до 3

от 3 до 6

Сыпучемерзлые

1:1,25

1:1,5

Пластичномерзлые

1:0,5

1:0,67

Твердомерзлые

1:0

1:0,1

2.8. Котлованы в мерзлых грунтах рекомендуется разрабатывать мощными бульдозерами с механическими рыхлителями. Для обеспечения возможности разработки имеющимся технологическим оборудованием прочность мерзлых грунтов предварительно следует снизить рыхлением с помощью взрывчатых веществ (ВВ), оттаиванием путем электропрогрева или с помощью горячего воздуха от теплогенератора.

Не допускается оттаивать мерзлые грунты основания паром или горячей водой.

2.9. Предварительно разрыхленный или оттаянный грунт следует удалять из котлованов принятыми в ППР средствами (бульдозером, экскаватором или грейфером) в зависимости от конкретных условий (глубины котлована, наличия грунтовых вод, имеющихся механизмов).

2.10. Разрыхленный грунт удаляют в низовую сторону моста за пределы строительной площадки, в места, исключающие возможность перекрытия (завала) русла водотока.

2.11. В зависимости от длины пролетов моста, глубины заложения фундаментов, принятого способа рыхления и удаления грунта устраивают котлованы под каждый фундамент или общий котлован под все фундаменты опор одного моста.

2.12. Размеры котлованов в уровне дна назначают, исходя из размеров фундаментов и необходимости обеспечения запаса 0,3-0,7 м по периметру фундамента на случай оплывания оттаявшего грунта с откосов котлована летом, а также для компенсации возможных неточностей при производстве работ.

2.13. Наименьшие размеры котлованов на уровне естественной поверхности грунта определяются в зависимости от предельно допустимых откосов (см. табл. 1 и 2). Практически при использовании тракторных рыхлителей и бульдозеров откосам котлованов придают крутизну со стороны въезда 1:2 - 1:3 и со стороны выезда 1:4 - 1:6. Крутизна боковых откосов котлованов составляет 1:1 и 1:0,5 соответственно для пластично - и твердомерзлых грунтов.

2.14. При размещении геодезических знаков, фиксирующих оси моста, фундаментов и высотные отметки, необходимо учитывать размеры котлованов на уровне естественной поверхности грунта, а также размеры зоны выброса грунта при буровзрывном рыхлении или удалении грунта из котлованов.

В качестве кратковременных геодезических знаков могут быть использованы забиваемые в грунт стальные штыри диаметром 20-25 мм.

2.15. Для предотвращения возможности нарушения природного сложения грунтов и связанного с этим уменьшения несущей способности оснований под фундаментами мелкого заложения в результате разработки котлованов разными способами, а также при случайном затоплении дна котлована или дополнительном его промерзании грунты недобирают до проектной отметки на 0,3-1 м. Недобор грунта затем удаляют в процессе подготовки (планировки) основания.

2.16. Разрабатываемые котлованы следует оградить грунтовыми валами от поступления поверхностных вод. Фильтрующиеся грунтовые воды необходимо откачивать из котлованов до уровня, не препятствующего ведению земляных работ.

2.17. Воду необходимо откачивать из расположенных за пределами контура фундамента водосборных колодцев (зумпфов), низ которых должен находиться ниже дна котлована на 0,5 - 0,7 м. Стенки колодцев должны быть укреплены от обрушения грунта деревянным ящиком.

2.18. В процессе устройства котлованов должен быть установлен постоянный надзор за состоянием откосов или креплений котлованов, за поступлением и откачкой воды, соблюдением правил техники безопасности.

Разработка котлованов

2.19. Технологический процесс разработки не ограждаемых котлованов должен включать рыхление грунтов с помощью взрывчатых веществ или тракторных рыхлителей, удаление разрыхленных грунтов и подготовку (планировку) основания.

2.20. Взрывное рыхление грунтов должно представлять комплекс работ, включающий: бурение в грунте скважин, зарядку их взрывчатым веществом, забойку (заполнение грунтом), монтаж взрывных сетей и взрывание.

2.21. Рыхление любых вечномёрзлых грунтов с помощью взрывчатых веществ можно производить круглогодично. Наиболее эффективно применять такое рыхление в период устойчивых отрицательных температур воздуха.

2.22. В летний период вследствие оттаивания деятельного слоя, сложенного водонасыщенными суглинками, супесчаными и песчаными грунтами, возможно оплывание и обводнение скважин, предназначенных для укладки зарядов. Учитывая это, специалисты, руководящие взрывными работами, должны разработать специальные конструктивные указания по зарядке скважин вслед за буровыми работами. В них необходимо указать минимальные расстояния от буровой машины до заряжаемой скважины, меры по предохранению от намокания зарядов, изготовленных из невлагостойких ВВ. Кроме того, следует организовать охрану заряженных скважин на время отсутствия взрывников на месте работ, а также установить предупредительные знаки.

2.23. В котлованах глубиной до 4 м рыхление грунта взрывами, как правило, совмещают с выбросом его из котлованов; в более глубоких котлованах применяют рыхление слоями по 2-2,5 м (послойное рыхление).

2.24. Для взрывания грунтов на выброс бурят станками БТС-150 или БМК-4 скважины диаметром до 150 мм на глубину 2,5-3 м, а при послойном рыхлении - на глубину 1,6-2 м.

2.25. Скважины для ВВ размещают на расстоянии 1-2 м одна от другой в зависимости от принятого способа рыхления, физико-механических свойств грунтов, массы зарядов и заданной величины недобора грунта до проектной отметки дна котлована.

Чем реже расположены скважины, тем больше недобор грунта, и, следовательно, требуется больше времени и труда на подготовку основания под фундамент.

2.26. Работы по буровзрывному рыхлению грунтов в котлованах должны производиться в соответствии с разработанными в ППР рабочими чертежами при строгом соблюдении действующих "Единых правил безопасности при взрывных работах", утвержденных Госгортехнадзором СССР.

2.27. Разрыхленный взрывом грунт должен быть убран до начала его смерзания, так как смерзшийся грунт невозможно удалить ни бульдозером, ни экскаватором, а повторное бурение скважин связано со значительными трудностями.

2.28. Навесные рыхлители, закрепляемые на мощных тракторах, используют для рыхления мерзлых грунтов слоями толщиной 0,3-0,5 м в котлованах глубиной до 4 м.

2.29. В зависимости от количества рыхлителей на одном тракторе и глубины прорезаемой борозды ширина по верху полосы разрыхленного грунте за один проход трактора составляет до 1,5 м.

2.30. Вечномерзлые грунты, не имеющие включений больших валунов, можно рыхлить тракторными рыхлителями как зимой, так и летом. Поскольку тракторы с рыхлителями имеют нож бульдозера, то их работа наиболее производительна после оттаивания деятельного слоя на максимальную глубину.

2.31. Разрыхленный в пределах очередного слоя грунт удаляют с помощью бульдозерного ножа, закрепленного на тракторе, в отвал, расположенный на расстоянии 30-50 м от моста вниз по течению водотока.

Устройство ограждений котлованов

2.32. Ограждения применяют для обеспечения возможности устройства фундамента или плиты в толще оползающих водонасыщенных грунтов или при большом притоке грунтовых и поверхностных вод, когда нельзя применить интенсивный водоотлив из-за наплыва грунтов.

2.33. В зависимости от состояния и физико-механических свойств грунтов, количества поступающей воды и времени года ограждения устраивают как до начала разработки, так и в процессе разработки котлованов или после ее окончания.

2.34. В качестве ограждений котлованов используют стальной шпунт, деревянные закладные крепления, бездонные железобетонные и деревянные ящики.

2.35. Стальной шпунт применяют для ограждения котлованов пределах толщи талых водонасыщенных грунтов, не имеющих включений валунов.

2.36. Закладные деревянные крепления используют для предотвращения оползания с откосов оттаивающих мерзлых грунтов на период подготовки основания и устройства фундамента или плиты.

2.37. Железобетонные ящики преимущественно в виде сборных железобетонных колодцев с горизонтальным и вертикальным членением применяют в качестве элементов фундаментов средних мостов в местах наличия водонасыщенных немерзлых грунтов и при большом притоке грунтовых или поверхностных вод.

2.38. Деревянные бездонные ящики используют главным образом, для ограждения разработанных котлованов на период подготовки и приемки оснований и устройства фундаментов, когда нет возможности осушить котлованы или предотвратить оползание грунтов с их откосов.

2.39. Если проектом предусмотрено устройство тампонажной подушки из бетонной смеси, укладываемой подводным способом внутри ящика или по его внешнему периметру, применять ящик из двух частей: нижней, остающейся в грунте, и верхней, извлекаемой для повторного использования.

2.40. Для облегчения вдавливания в грунт, а также возможности последующего извлечения нижнюю часть ящика высотой 1-2 м целесообразно изготавливать в виде стальной конструкции, соединенной на болтах с верхней деревянной частью. Чтобы не оставлять эту конструкция в грунте, необходимо предусмотреть меры, обеспечивающие возможность извлечения ее после окончания работ по устройству и приемке фундамента.

Для уменьшения сил сцепления с бетоном тампонажной подушки (фундамента) на боковую поверхность нижней части ящика можно наклеить, полимерную пленку (на тонкий слой солидола или другого вязкого масла).

2.41. Бездонные ящики рекомендуется конструировать в виде инвентарных элементов (щитов), удобных для перевозки автотранспортом. Соединения щитов - болтовые с резиновыми уплотнителями в стыках.

Размеры ящиков в плане должны превышать размеры фундаментов на 1-1,5 м.

2.42. Собранный из щитов ящик должен устанавливаться краном в котлован в проектное положение, а затем после небольшой пригрузки, когда стальная конструкция углубится в грунт, по наружному периметру ящика при необходимости может быть уложена подводным способом тампонажная подушка из бетонной смеси слоем толщиной до 1 м.

2.43. Водоотлив из огражденного ящиком котловане и подковку основания в период положительных температур воздуха можно начинать через 1-2 дня посла бетонирования тампонажной подушки.

Подготовка оснований

2.44. Подготовка (планировка) основания под фундамент мелкого заложения или плиту фундамента из столбов (свай) должна включать работы по удалению со дна котлована недоборов или устранению переборов грунта, укладке слоя щебня или песка и планировке его поверхности на проектной отметке.

Подготовку основания рекомендуется производить только в пределах площади, занимаемой фундаментом мелкого заложения или плитой фундамента из столбов (свай), а не по всей площади котлована.

2.45. Оставшийся в котловане недобор мерзлого грунта разрабатывают до проектной отметки отбойными молотками и удаляют из котлована грейфером или бадьями.

Если котлован после планировка оказался затоплен на некоторое время, то оттаявший и резко снизивший прочность слой грунта уделяют до отметки, на которой обеспечена расчетная несущая способность основания.

2.46. Основание из влажных пучинистых грунтов, промерзших на глубину более 0,2 м, до начала монтажа блоков или укладки бетонной смеси необходимо отогреть. В случае разжижения оттаявшего слоя грунта его следует удалить и заменить подсыпкой. Отогрев промерзших пучинистых грунтов на глубину до 0,5 м рекомендуется выполнять в тепляках из брезента, полиэтилена или фанеры, обогреваемых калориферами или электронагревателями.

2.47. Если основанием фундамента является скальный грунт, то его верхний сильно выветрелый (до состояния дресвы и щебня) слой должен быть удален на глубину, принятую в проекте конструкции, фундамента. После зачистки и удаления каменной мелочи поверхность грунта следует промыть струей воды (в холодное время годе продуть струей сжатого воздуха) и освидетельствовать остукиванием. Обнаруженные пустоты необходимо вскрыть и зачистить.

2.48. Небольшие переборы грунта (до 0,2 м ниже проектной отметки) устраняют путем заполнения их подсыпкой из песка или щебня. Более значительные по глубине переборы ликвидируют, заполняя их тем же грунтом, который был удален в процессе рыхления. Грунт укладывают слоями толщиной 15-20 см, тщательно уплотняя каждый слой трамбовкой.

2.49. На предварительно подготовленное основание из несвязных грунтов (после удаления перебора грунта) под фундамент мелкого заложения отсыпают выравнивающий слой щебня или песке толщиной до 10 см. Когда основание сложено связными или скальными грунтами, в период положительных температур воздуха вместо щебня допускается применять (если предусмотрено проектом фундаментов) бетонную смесь или цементно-песчаный раствор, а в период отрицательных температур воздуха под сборный фундамент - сухую бетонную или цементно-песчаную смесь.

2.50. Отсыпанный под сборный фундамент мелкого заложения слой песка, щебня или сухой смеси планируют таким образом, чтобы отклонения от проектной отметки не превышали ±0,5 см. Для бетонируемого на месте фундамента или сборной плиты фундамента из столбов допускаются отклонения до 5 см.

2.51. Заглубленную в грунт монолитную плиту фундамента (из столбов или свай) разрешается бетонировать на спланированном, (посла удаления недобора грунта) дне котлована без устройства подсыпки.

Освидетельствование и приемка котлованов

2.52. Разработанный котлован должен быть освидетельствован и принят комиссией с участием представителя заказчика. Приемка оформляется актом, разрешающим приступать к возведению фундамента.

В зимнее время котлован рекомендуется освидетельствовать после возведения над ним тепляка и достижения в нем положительных: температур.

Освидетельствование котлована должно производиться при осушенной поверхности основания.

2.53. Производя освидетельствование котлована, комиссия должна установить соответствие проекту положения его в плане, размеров и отметок котлована; сравнить фактическое напластование и качество грунтов с геологическим разрезом и буровыми колонками, приведенными в проекте; установить возможность заложения подошвы фундамента (плиты) на проектной или измененной отметке.

2.54. В котлованах, подготовленных под фундаменты средних мостов, в случаях, когда установлено, что стенки котлована у основания сложены переслаивающейся толщей с включением прослоек сильнольдистых грунтов, должна быть проверена действительная мощность несущего пласта контрольным бурением или шурфованием на глубину, назначенную организацией, запроектировавшей мосты.

2.55. При наличии специальных указаний в проекте фундамента или по требованию приемочной комиссии необходимо провести испытание несущей способности или деформативности грунтов основания.

2.56. В случае установления комиссией значительного расхождения между фактическими и принятыми в проекте фундамента характеристиками грунта основания и связанной с этим необходимости пересмотра проекта решение о проведении дальнейших работ принимают при обязательном участии представителей проектной организации и заказчика.

2.57. Документация, предъявленная комиссии для приемки законченных котлованов, должна содержать:

рабочие чертежи фундаментов, котлованов и креплений, если последние применялись с внесением изменений, произведенных в процессе строительства. при значительных; отступлениях от проекта представляются соответствующие исполнительные чертежи с документами по оформлению этих изменений;

журнал работ и авторского надзора;

акты на скрытые работы (устройство подсыпки, определение несущей способности грунтов, характеристики грунтов основания);

ведомость постоянных реперов и акты геодезической разбивки котлованов.

2.58. К акту освидетельствования и приемки; каждого котлована прилагаются:

проектные и исполнительные планы и разрезы котлована с привязкой их, к осям фундамента;

результаты контрольного бурения или шурфования с нанесением проектных и фактических данных о грунтовых условиях;

чертежи ограждения котлована (если оно устраивалось);

акт испытания несущей способности или информативности грунтов основания (если испытания проводились).

2.59. Отклонения в размерах и отметках котлованов не должны превышать допусков, указанных в ППР.

3. БУРЕНИЕ СКВАЖИН

Буровое оборудование

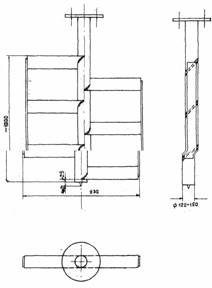
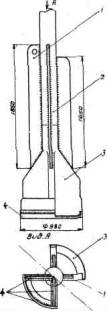
3.1. Для бурения вертикальных скважин в скальных и вечномерзлых грунтах рекомендуется использовать станки ударно-канатного действия БС-2, БС-1M (рис. 1) и вращательного действия "Санва-Кизай", PF 1200 (рис. 2).

3.2. Станками БС-2 и модернизированными станкамиБС-1M с буровым инструментом массой до 3 т рекомендуется бурить скважины в любых грунтах.

Для бурения скважин этими стенками необходимы:

буровой снаряд и направляющая, обеспечивающая его центрировку в разбуриваемой скважине;

оборудование для удаления бурового шлама (желонка и шламоприемник);

обсадные трубы и наголовник;

емкость с нагревателем для воды.

3.3. Станком PF 1200 со шнековым или ковшовым буром можно бурить скважины глубиной до 15 м в немерзлых связных и мерзлых грунтах с включениями валунов размером до 30 см. Необводненные скважины на глубину до 15 м в мерзлых грунтах с включениями валунов размером более 30 см и в скальных грунтах следует бурить станком PF 1200 с шарошечным долотом.

Рис. 1. Буровой станок БС-1M:

1 - гусеничное шасси; 2 - несущая рама; 3 - приводной механизм; 4 - балансир; 5 - канат; 6 - оттяжка из троса; 7 - амортизатор; 8 - мачта; 9 - буровая штанга; 10 - долото; 11 - обсадная труба.

Рис. 2. Буровая машина PF 1200:

1 - лебёдка станка; 2 - мачта; 3 - вертлюг: 4 - штанга; 5 - всасывающий шланг; 6 - роторный стол; 7 - шарошечное долото; 8 - зажимной хомут; 9 - вакуумно-отсасывающий бункер; 10 - обсадная труба; 11 - выносная опора

Станок PF 1200 оснащен:

буровым инструментом (шнековым и ковшовым бурами, шарошечным долотом, грейфером);

вакуумно-отсасывающим бункером для удаления разбуренного грунта;

обустройством для задавливания и извлечения обсадных труб;

инвентарными обсадными трубами с центирующей головкой и направляющим конусом (переходником).

Условия применения станка "Санва-Кизай", оснащенного только шнековым буром, такие же, как у станка PF 1200 с этим инструментом. При необходимости использования обсадных труб должно быть подготовлено оборудование для их погружения и извлечения. Кроме того, для бурения скважин этими станками необходимы стреловой кран грузоподъемностью не менее 30 т на автомобильном ходу и приспособление для перемешивания раствора в скважине.

3.4. Каждый буровой станок ударно-канатного действия рекомендуется укомплектовать не менее чем двумя буровыми снарядами, чтобы обеспечить возможность их поочередного ремонта, не допуская перерывов в бурении скважин. Для повышения надежности бурового снаряда соединение долота со штангой следует усилить ребрами на сварке (рис. 3).

В зависимости от физико-механических свойств грунтов рекомендуются следующие величины удельного давления на режущую кромку бурового долота:

в вечномерзлых грунтах с содержанием гравийно-галечниковых включений до 30% - 0,4-0,5 кН/см (40-50 кгс/см);

то же свыше 30% и в скальных грунтах средней и малой прочности - 0,5-0,6 кН/см (50-60 кгс/см);

то же с включением валунов и в прочных скальных грунтах - 0,6-0,8 кН/см (60-80 кгс/см).

Для бурения скважин диаметром 1 м рекомендуются долота с наибольшим размером режущих кромок в плане 980 мм; на время забуривания этот размер должен быть не менее 970 мм, а в процессе бурений 960 мм. Повышение износостойкости режущих кромок долота рекомендуется обеспечивать приваркой к ним пластин из высокопрочной, например рессорной, стали.

3.5. Для подвешивания бурового снаряда рекомендуется использовать стальные канаты левой односторонней свивки. В случае неподвижного закрепления канатного стакана в гнезде для предотвращения его разъединения допускается применять канаты правой односторонней свивки.

Рис. 3. Усиление бурового снаряда:

1 - ребро усиления; 2 - секция буровой штанги; 3 - долото; 4 - пластина из высокопрочной стали

Для предупреждения заклинивания или расплющивания Каната в канавке блока диаметр ее дуги должен превышать диаметр каната не менее чем на 2 мм.

3.6. С целью предупреждения раскачивания бурового снаряда во время работы станка ударно-канатного действия, когда невозможно использовать закрепленный на мачте колокол, положение инструмента необходимо фиксировать с помощью специальной направляющей, которую опускают в скважину вместе со снарядом и подвешивают (на требуемом уровне) на желоночном тросе или на крючках (рис. 4).

Рис. 4. Направляющая для бурового снаряда:

1 - инструментальный канат; 2 - крючок для подвески; 3 - обсадной патрубок; 4 - направляющая; 5 - буровая штанга

3.7. Обсадные трубу необходимо применять во всех грунтах для закрепления устья скважины от смещения в плане в процессе бурения, а в неустойчивых грунтах - для крепления ее боковой поверхности от обрушения

Рекомендации данного раздела Руководства распространяются на случаи, когда приток воды в скважину можно перекрыть обсадной трубой. В противном случае бурение скважины необходимо производишь подводным способом, руководствуясь «Техническими указаниями по строительству фундаментов мостов из буровых и бурообсадных столбов» (ВСН 165-70).

3.8. Взамен инвентарных обсадных труб при бурении скважин станком PF 1200 допускается использовать стандартные стальные трубы со стенкой толщиной 8 мм и более, предусматривая их многократное использование. диаметр полости труб должен превышать наибольший размер долота в плане не менее чем на 20 мм.

Для работы с обсадными трубами диаметром 1020 мм зажимной хомут станка PF 1200 необходимо оснастить специальными вкладышами.

3.9. Верх погруженной трубы должен возвышаться над грунтом на величину, обеспечивающую возможность извлечения её из скважины и не препятствующую работе бурового стенка. Для станков ударно-канатного действия эту высоту следует назначать от 0,5 до 0,7 м.

В зависимости от мерзлотно-грунтовых условий при бурении скважин станками ударно-канатного действия величину заглубления низа обсадных труб необходимо принимать:

а) в мерзлых грунтах, кроме крупнообломочных, и при отсутствии межмерзлотных вод - на 3 м ниже планировочной отметки поверхности грунта;

б) в мерзлых грунтах при наличии межмерзлотных вод и в талых песчаных, супесчаных, суглинистых и крупнообломочных грунтах - до проектной отметки подошвы столба;

в) в мерзлых крупнообломочных и сыпучемерзлых песчаных грунтах, а также в связных грунтах с крупными включениями - на 2 м выше проектной отметки подошвы столба;

г) при заделке столбов в скальные грунты в случае расположения выше их кровли мерзлых крупнообломочных и сыпучемерзлых песчаных, а также любых талых грунтов обсадные трубы необходимо доводить до кровли скальных грунтов.

При бурении скважин в мерзлых крупнообломочных и в устойчивых талых грунтах допускается погружать обсадные трубы на глубину, которая на 1,5 м ниже границы деятельного слоя при условии, что увеличение диаметра скважин не превысит 20%, а местные вывалы грунта с боковой поверхности скважин не превысят 40 см.

3.10. Обсадные трубы станков ударно-канатного действия должны быть приспособлены для многократного погружения и извлечения из грунта как летом, так и зимой.

Оборачиваемость обсадных труб рекомендуется принимать по табл.3.

Таблица 3

Глубина погружения, м

Толщина стенки, мм

Оборачиваемость, раз

Более 4

До 10

3

Более 10

5

До 4

До 10

5

Более 10

8

Для заглубления (осаживания) обсадных труб следует применять инвентарный наголовник (рис. 5). Обсадные трубы рекомендуется извлекать мобильной гидродомкратной установкой.

Рис. 5. Наголовник для осаживания обсадной трубы:

1 - наголовник; 2 - обсадная труба; 3 - падающая петля

3.11. Для погружения инвентарных обсадных труб диаметром 1100 мм при бурении скважин станком PF 1200 в его комплекте необходимо иметь специальные сменные зубья для шнекового и ковшового буров.

3.12. Для перемешивания раствора омоноличивания столбов в скважинах, разбуриваемых станком PF 1200, необходимо оснастить его специальный приспособлением (мешалкой) (рис. 6), закрепляемым на буровой штанге в качестве сменного рабочего органа.

Допускается перемешивать раствор в скважине шнеком, непригодным для буровых работ и переоборудованным под мешалку.

3.13. Для выполнения работ по планировке строительной площадки и уборке извлеченного из скважины грунта необходимо иметь бульдозер.

Рис. 6. Приспособление к станку Pf 1200 для перемешивания раствора

Подготовительные работы

3.14. До начала бурения скважин необходимо выполнить следующие работы:

подготовить площадку для установки бурового станка, вспомогательного оборудования, обустройств и материалов;

установить на площадке устройство (кондуктор), или знаки, фиксирующие проектное в плане положение оси скважин;

переместить на площадку и установить в рабочее положение буровой станок и вспомогательное оборудование;

разместить не площадке необходимые обустройства и оснастку;

опробовать станок и другое оборудование.

3.15. Площадку для установки станка следует спланировать путем досыпки Толщиной не менее 0,5 м из крупнообломочного грунта на поверхность мохорастительного покрова таким образом, чтобы исключалась возможность перекоса станка во время бурения скважины. Размеры площадки в плане должны соответствовать ППР.

3.16. На поверхность спланированной площадки, используя геодезические знаки оси опоры, выносят точки бурения (центры будущих скважин) и закрепляют их стальными штырями, забиваемыми в грунт на глубину от 0,4 до 1 м.

3.17. Работы по перемещению, установке и закреплению буровых станков в необходимом в плане положении должны выполняться в соответствии с указаниями заводской инструкции.

Запрещается перемещение станков между строительными площадками с мачтой, находящейся в вертикальном положении. Перемещение станков в пределах площадки допускается с поднятой мачтой, но без навешенного бурового инструмента.

3.18. В однорядной опоре первой следует бурить скважину под левый крайний столб (ориентируясь из кабины станка), чтобы после установки он не препятствовал бурению соседних скважин. Затем, перемещая станок вправо, по очереди бурят скважины и устанавливают остальные столбы. Эту же последовательность работ рекомендуется соблюдать при бурении скважин в каждом из рядов многорядной опоры.

3.19. В рабочем положении ударно-канатного станка или станка PF 1200 продольная ось бурового органа (снаряда) должна совпадать с продольной осью подлежащей бурению скважины, зафиксированной штырем на поверхности грунта. Рама станка должна располагаться горизонтально на домкратах (БС-1М) или на выносных опорах (БС-2 и Pf 1200).

3.20. Буровые инструменты, обсадные трубы и другую оснастку станка Рf 1200 следует располагать слева от него, так как при работе грейфером, ковшовым и шнековым бурами в правую сторону разгружаю грунт.

Особое внимание должно быть обращено на подготовку площадки для установки вакуумно-отсасывающего бункера, размеры зоны перемещения которого следует назначать, в зависимости от глубины бурения скважин (табл. 4 и рис. 2).

Таблица 4

№ п/п

Глубина бурения, м

Рабочее расстояние, м

1

0

От 5 до 6

2

2

Более 6 до 8

3

4

-"- 8 -"- 10

4

6

-"- 10 -"- 12

5

8

-"- 12 -"- 14

6

10

-"- 14 -"- 16

7

15

-"- 16 -"- 21

Бурение скважин станками ударно-канатного действия

3.21. Буровые работы следует начинать с установки секции обсадной трубы в устье скважины. В устойчивых грунтах сначала рекомендуется пробурить скважину на глубину до 1 м и установить нижнюю секцию трубы. В неустойчивых грунтах вначале погружают посекционно трубу на максимально возможную глубину без выемки грунта. После этого продолжают буровые работы, руководствуясь приведенными нижа рекомендациями.

3.22. Для предотвращений обрушения неустойчивых грунтов с боковой поверхности скважин обсадную трубу рекомендуется заглублять бурообсадным способом, состоящим из циклически повторяющихся операций по разбуриванию скважин и осаживанию трубы.

В зависимости от мерзлотно-грунтовых условий эти операции производят следующим образом:

а) в мерзлых крупнообломочных грунтах и связных грунтах с крупными включениями сначала следует разбурить скважину на 0,5-0,8 м ниже трубы и затем осадить ее на эту величину;

б) в сыпуче мерзлых грунтах, мерзлых грунтах при наличии межмерзлотных вод и в талых крупнообломочных грунтах разбуривание скважины на должно опережать низ трубы более чем на 25 см

в) в талых песчаных, супесчаных и суглинистых грунтах погружение трубы должно опережать забой скважины не менее чем на 25 см.

3.23. В устойчивых мерзлых грунтах, имеющих в пределах глубины бурения прослойки неустойчивых талых или сыпучемёрзлых грунтов, скважины следует бурить с применением обсадной трубы, которую надо погружать бурообсадным способом согласно рекомендациям п. 3.22. по мере углубления скважины.

3.24. Трубу рекомендуется осаживать ударами долота по инвентарному наголовнику (см. рис. 5). Необходимую высоту падения долота следует назначать, исходя из условий обеспечения погружения трубы в скважину, не менее 1 см от одного удара.

3.25. Обсадные трубы следует погружать на проектную глубину без длительных перерывов, чтобы они не примерзли к окружающим грунтам.

3.26. В процессе бурения мерзлых и скальных грунтов следует чередовать циклы рыхления долотом и удаления из скважины желонкой образующейся смеси (шлама) разбуренного связного грунта с доливанием воды.

Во время рыхления буровой инструмент требуется постепенно опускать (стравливать инструментальный канат) в скважину по мере разрушения мерзлого или скального грунта.

3.27. В процессе углубления скважины натяжение инструментального каната рекомендуется регулировать, визуально контролируя амплитуду его колебаний в уровне настила при опирании долота на забой и слабину натяжения его на барабане лебедки в момент удара долота по забою. Амплитуда колебаний каната более 15 см указывает на слабое его натяжение, при котором ухудшается разрушение мерзлого грунта, появляется раскачивание долота, наблюдается обрушение грунта с боковой поверхности скважины и возможно ее искривление. Амплитуда колебания менее 5 см указывает на излишнее натяжение каната, при котором удары долота в основном передаются на канат и станок, вызывая их повреждение. При оптимальном режиме бурения в момент удара долота по забою наблюдается слабина второго витка каната на барабане лебедки.

3.28. Оптимальный режим бурения скважин в вечномерзлых грунтах (высоту подъема - сбрасывания инструмента) следует назначать, учитывая следующие рекомендации: наибольшую высоту подъема инструмента необходимо назначить при разбуривании валунов, скальных грунтов и мерзлых гравийно-галечных отложений; высоту подъема инструмента следует уменьшать при бурении обрушающихся мерзлых грунтов или разбуривании бутового камня, забрасываемого в скважину в случае необходимости.

3.29. Для повышения эффективности бурения пластичномерзлых грунтов без твердых включений или мерзлых грунтов с прослойками льда рекомендуется на забой скважины периодически забрасывать бутовый камень слоем 0,2-0,3 м.

3.30. Для разбуривания включений, состоящих из валунов, обломков скальных пород, а также наклонных скальных прослоек, рекомендуется в скважину забрасывать бутовый камень и производить операции, соответствующие технологии бурения крупнообломочных грунтов. Камень следует забрасывать до уровня, превышающего на 0,5 м поверхность включения или скальной прослойки.

3.31. Если во время очередного удаления шлама будет выявлено искажение формы или искривление скважины, такой участок скважины рекомендуется заполнить крупнообломочным материалом и повторно разбурить.

3.32. Чтобы предотвратить повторное дробление долотом частиц, образующихся от разбуривания мерзлых или скальных грунтов, и связанное с этим снижение производительности буровых работ, необходимо в скважину периодически забрасывать глину, а при бурении крупнообломочных и скальных грунтов - засыпать цемент и доливать воду для образования шлама, состоящего из взвешенных в глинистом растворе грунтовых частиц.

Количество расходуемой глины или цемента следует определять по результатам бурения первых скважин в конкретных грунтовых условиях. При этом количество цемента не должно превышать 50 кг на 1 м скважины диаметром 1 м.

3.33. Для образования шлама в скважинах, разбуриваемых станками в песчаных и глинистых грунтах при льдистости более 400 кг/м3, допускается доливать воду температурой (при отрицательных температурах воздуха) до 50°С, а при льдистости 300-400 кг/м3 - температурой 25-30ºС.

3.34. Воду, предназначенную не только для образования шлама, но и для повышения интенсивности бурения, рекомендуется подогревать до 70°С.

3.35. Объем доливаемой воды следует назначать в зависимости от состава и свойств разбуриваемых грунтов и необходимости поддержания в скважине слоя шлама от 1 до 1,5 м над забоем. Количество доливаемой воды рекомендуется уточнять по результатам бурений первых скважин на конкретной площадке. В процессе бурения следует контролировать плотность шлама во время очередной очистки скважины и, в случае необходимости, изменять количество доливаемой воды.

3.36. Образующийся при бурении скважин шлам должен иметь плотность, препятствующую выпадении на забой частиц разбуренного грунта или породы.

При ударно-канатном бурении глыб, валунов и гальки рекомендуется поддерживать плотность шлама от 1,4 до 1,6 г/см3, а мерзлых грунтов без крупнообломочных включений - от 1,2 до 1,4 г/см3.

Плотность шлама рекомендуется определять, взвешивая тарированный по объему сосуд, который заполняют шламом, извлекаемым желонкой из скважины.

3.37. Разбуриваемые скважины следует очищать желонкой от шлама в устойчивых и полускальных грунтах через каждые 1,5-2 м проходки, в скальных грунтах средней прочности - через 0,8-1 м, и в очень прочных - через 0,4-0,6 м. Очистку скважин в обрушившихся грунтах и грунтах с твердыми включениями рекомендуется производить через каждые 0,5 м проходки.

3.38. В целях предотвращения загрязнения рабочей площадки, а также исключения дополнительных работ по ее очистке извлекаемый из скважин буровой шлем необходимо сливать в шламоприемник и отводить в низовую сторону моста за пределы строительной площадки.

3.39. В разбуренных до проектной отметки скважинах допускается оставлять на забое слой шлама. Возможность использования разбуриваемых частиц конкретной скальной породы и грунта в качестве заполнителя для приготовления раствора и высота оставляемого на забое слоя шлама должны быть указаны в проекте производства работ.

Работы, связанные с установкой столбов в такие скважины, следует выполнять в соответствии с рекомендациями п. 4.24.

Независимо от принципа использования мерзлых грунтов в качестве основания высота оставляемого слоя шлама должна составлять в скальных грунтах с расчетным сопротивлением более 5 МПа - от; 30 до 40 см; в остальных скальных грунтах - от 50 до 60 см и в нескальных грунтах - от 80 до 100 см.

3.40. Трубу следует извлекать после установки столба и заполнения зазора между ним и поверхностью скважины пока не начал схватываться или замерзать цементный раствор.

Чтобы удалить обсадную трубу, целесообразно предварительно (до установки столба) осадить её на 3-5 см ударами долота по наголовнику, а затем извлекать гидродомкратной установкой.

Если труба примерзла к грунту и осаживанием не удается нарушить ее сцепление с грунтом, рекомендуется ее прогреть, используя для этого электронагреватель, а затем извлекать гидродомкратной установкой.

Бурение скважин станком PF 1200

3.41. В зависимости от степени устойчивости грунтов на боковой поверхности скважин их бурение должно проводиться с применением обсадных труб или без них.

Под инвентарную обсадную трубу необходимо бурить скважину диаметром 1,1 м.

Для этого к штанге станка крепят шнек с зубьями на диаметр скважины 1100 мм, наводя штангу на ось скважины, опускают шнек на грунт и включают ротор с частотой вращения 14 об/мин. При необходимости штангу дополнительно пригружают роторным столом. В этом случае максимальное давление рабочей жидкости в гидросистеме стола должно быть 6 МПа.

Для бурения скважин в мерзлых или не мерзлых глинистых грунтах рекомендуется использовать ковш диаметром 1100 мм.

3.42. Обсадную трубу заглубляют специальным обустройством. Для этого в зажимной хомут заводят трубу, зажимают ее и на верхний конец опускают центрирующую головку. Включают обустройство и следят за тем, чтобы передаваемое на трубу усилие не приподнимало станок.

Если труба не погружается на требуемую глубину, из трубы надо извлечь грунт. В зависимости от вида грунта его рекомендуется извлекать грейфером или шнеком.

Перед извлечением грунта из трубы необходимо на ее верхний конец установить раструбный переходник.

3.43. Ниже обсадной трубы грунты разрабатывают шнеком или ковшовым буром. Грейфер применяют для удаления валунов и очистки забоя от крупных остатков шлема перед установкой столба.

После опускания шнека до опирания на забой включают вращение штанги, затем создают пригрузку роторным столом и бурят скважину до момента перемещения стола в нижнее положение (что соответствует углублению скважины на 0,9 м).

В процессе бурения скважин ковшом он заполняется грунтом после опускания роторного стола на 0,4-0,5 м. Другим показателем наполнения ковша является величина давления рабочей жидкости в гидросистеме стола, которая не должна превышать 10 МПа.

3.44. Шарошечное долото применяют для разбуривания в скважине валунов, скальных прослоек и т.п., которые невозможно удалить грейфером, или для бурения скважины в скальном грунте.

До начала бурения шарошечным долотом скважину необходимо осушить и принять меры по предупреждению поступления в нее воды.

Для работы с таким долотом прикрепляют всасывающий шланг одним концом к вертлюгу штанги, другим - к барабану бункера. Долото закрепляют на штанге, затем проверяют действие вакуумно-oтсaсывающего бункера. Включают ротор с частотой вращения 5-6 об/мин. По мере опускания штанги в скважину бункер удаляют от скважины на расстояние, приведенное в табл. 3. После опирания долота на забой скважины включают воздуходувку и увеличивают частоту вращения штанга сначала до 14 об/мин, а затем до 28.

Для повышения скорости бурения следует увеличить нагрузку на долото с помощью роторного стола. При этом давление рабочей жидкости в гидросистеме стола должно быть не более 12 МПа.

3.45. Продолжительность непрерывного бурения скважины шарошечным долотом следует определять по величине заполнения буровым шламом полости барабана, которая не должна превышать двух третьей его объема(примерно 3-3,5 м углубления скважины). За степенью заполнения наблюдают через смотровой люк задней крышки барабана.

После наполнения шламом барабана выключают вращение штанги и воздуходувку, отсоединяют всасывающий шланг от бункера, перемещают его к месту разгрузки грунта, открывают разгрузочный люк и, поднимая барабан, освобождают его от бурового шлама. Затем возвращают бункер к скважине, присоединяют к нему всасывающий шланг и продолжают бурение скважины.

3.46. Во время бурения шарошечным долотом необходимо постоянно следить по вакуумметру за степенью разряжения воздуха, создаваемого в вакуумно-всасывающем бункере. Степень разряжения должна быть около 0,016 МПа.

Контроль качества бурения скважин

3.47. В процессе бурения каждой скважины необходимо контролировать:

положение в плане направляющего патрубка, фиксирующего устье скважины в начальный момент бурения;

состояние бурового станка и инструмента;

диаметр долота;

высоту шлама на забое скважины; пробуренной станком ударно-канатного действия;

глубину бурения, форму и вертикальность скважины, величину перебура;

положение низа и верха обсадной трубы.

3.48. Увеличение диаметра разбуриваемых скважин более 20 см по сравнению с проектным размером не рекомендуется, а уменьшение более 5 см не допускается.

При увеличении диаметра скважины более 20 см дальнейшее производство работ должно быть согласовано с проектной организацией.

3.49. Отклонение оси скважины в плане в уровне поверхности грунта от проектного положения не должно превышать 10 см.

3.50. Недобур скважин по глубине запрещается, перебур в скальных и крупнообломочных грунтах допускается не более 0,2 м. В остальных грунтах перебур рекомендуется не более 0,5 м.

3.51. Высоту слоя шлама, остающегося на забое скважины, рекомендуется контролировать с помощью стального стержня длиной 2-3 м, опускаемого на тросике в скважину. По оставшимся следам разбуренного грунта на извлеченном из скважины стержне определяют высоту слоя шлама.

3.52. После проверки соответствия фактических размеров скважины проектным и записи полученных результатов в журнале бурения каждая пробуренная скважина, независимо от принципа использования грунтов и времени бурения, до начала работ по установке столба должна быть плотно закрыта щитом, надежно зафиксированным от возможного смещения и предохраняющим от попадания в нее атмосферных осадков, разбуриваемого грунта и случайных предметов.

4. МОНТАЖ СБОРНЫХ ФУНДАМЕНТОВ

Общие рекомендации

4.1. К монтажу фундамента разрешается приступить только после освидетельствования и приемки котлована или скважин.

Монтаж сборных конструкций включает работы по установке в проектное положение и омоноличивание элементов фундаментов мелкого заложения; заглублению в предварительно пробуренные скважины элементов свайных фундаментов и соединению свай или столбов со сборной плитой.

Столбы и сваи рекомендуется устанавливать по возможности сразу после окончания бурения скважины. При положительной температуре воздуха перерыв между окончанием бурения скважины и установкой в нее столба не должен превышать трех суток, а для сваи - не более одних суток.

4.2. Обнаруженные в пробуренных разными станками скважинах лед, намерзший на боковой поверхности, обрушившийся грунт или замерзшая вода на забое должны быть удалены непосредственно перед установкой в скважины столбов или свай. Боковую поверхность скважин, пробуренных станками ударно-канатного действия, в зоне заделки столба следует очищать от намерзшего шлама только в невыветрелых а слабовыветрелых скальных грунтах.

Намерзшую на боковую поверхность скважины воду или шлам необходимо удалять путем оттаивания, как правило, с помощью специального электронагревателя, опускаемого в скважину. Продолжительность оттаивания устанавливают опытным путем и принимают такой, чтобы не происходило оттаивания грунта вокруг скважины.

Обрушившийся на забой скважины грунт или замерзшие на нем воду и шлем перед удалением следует разбурить.

4.3. Блоки фундаментов необходимо укладывать на очищенное от разрыхлённого грунта и спланированное на проектной отметке дно котлована.

4.4. До установки в проектное положение сборные элементы фундаментов должны быть измерены с целью проверки соответствия их размеров проектным и подготовлены к монтажу согласно указаниям ППР.

4.5. Бетонные поверхности элементов фундаментов, особенно на участках, соединяемых цементно-песчаным раствором или бетонной смесью, необходимо очистить от грунта, льда и масляных пятен, а подлежащие сварке выпуски арматуры и кромки закладных деталей - от грунта и раствора.

4.6. Для обеспечения доброкачественной заделки столбов на воздействие сил морозного выпучивания необходимо применять столбы, боковая поверхность которых на длине не менее 2 м от их подошвы имеет искусственные неровности (рифление) глубиной не менее 4 см.

В нижней части столбов должны быть установлены фиксаторы, выполненные по проекту и предназначенные для обеспечения зазора не менее 5 см между боковой поверхностью скважины и столбом.

4.7. При температуре воздуха ниже минус 10°С устанавливаемые в скважины сваи (без рифления их боковой поверхности) в пределах заделки в грунт должны иметь положительную температуру.

4.8. Свариваемые "встык" выпуски арматуры должны быть соосны, а выпуски арматуры и кромки закладных деталей, соединяемых "внахлестку", - плотно прилегать в местах, сварки.

4.9. Обнаруженные повреждения выпусков арматуры или закладных деталей необходимо исправить. При температуре ниже минус 20°С стальные элементы следует исправлять только в подогретом до положительной температуры состоянии.

Нагрев стальных элементов для правки, а также их обрезку необходимо выполнять газовыми резаками. Использование для резки электрической дуги не допускается.

4.10. Марка бетонной смеси или цементно-песчаного раствора для заполнения стыков и швов между блоками фундаменте или зазора между столбами и поверхностью скважин в пределах расчетной заделки должна быть указана в проекте фундамента.

4.11. Для омоноличивания столбов в скважинах в пределах расчетной заделки рекомендуется применять:

в невыветрелых и слабовыветрелых скальных грунтах с расчетным сопротивлением более 15 МПа при бурении скважин станками

PF 1200 и высоте заделки не менее 1 м - цементно-песчаные растворы марок не менее 150;

в скальных грунтах с расчетным сопротивлением от 5,01 до 15 МПа при бурении скважин станками ударно-канатного действия и высоте заделки не менее 2 м - цементно-песчаные или цементно-шламо-песчаные растворы марок не менее 100; при бурении станками РF 1200 в таких же грунтах и при такой же величине заделки допускается применять и цементные растворы марок не менее 100;

в скальных грунтах с расчетным сопротивлением 5 МПа и менее, мерзлых крупнообломочных грунтах, используемых по принципу II, независимо от технологии бурения скважин и при высоте заделки не менее 2 м- цементно-шламо-песчаные и цементно-шламовые растворы марок не менее 100;

в остальных мерзлых грунтах независимо от принципа их использования, технологии бурения скважин и при высоте заделки не менее 3 м - цементно-шламо-песчаные и цементно-шламовые растворы марок не менее 50.

Зазор выше расчетной заделки до подошвы слоя сезонного промерзания - оттаивания допускается заполнять цементно-шламовым раствором марки 50 или песком с послойным уплотнением и проливкой водой.

4.12. Бетонные смеси и растворы следует приготовлять на портландцементе марки не ниже 400.

Смеси и растворы, используемые для омоноличивания швов между бетонными блоками и железобетонными элементами, рекомендуется приготавливать с использованием быстротвердеющих цементов и мелких песков (с модулем крупности 1,6-2,1). Материалы для приготовления растворов должны удовлетворять требованиям государственных стандартов. Пески для приготовления сухих смесей должны быть предварительно просушены.

Для приготовления раствора омоноличивания столбов в скважинах допускается взамен песка применять высевки из шлама скальных пород.

Расход цемента в цементно-шламо-песчаных и цементно-шламовых растворах для заделки столбов в скважинах рекомендуется принимать 400 кг/м3 раствора при марке 100 и 150 кг/м3 - при марке 50.

4.13. Составляющие раствора омоноличивания следует подбирать с учетом слоя шлама на забое (см. п. 3.39), исходя из получения объема раствора, равного 1 м3 при заделке столбов в скальных грунтах и 1,5 м3 при заделке их в мерзлых и талых грунтах независимо от принципа использования.

4.14. При подборе состава раствора следует обеспечить его подвижность в течение времени, необходимого на транспортирование и укладку раствора, а также установку в скважину столба (сваи) или монтаж блоков.

Для заполнения вертикальных швов между блоками следует использовать растворы, имущие подвижность, при которой согласно ГОСТ 5802-66 конус погружается в раствор от 11 до 13 см, а для заполнения горизонтальных швов - от 8 до 10 см.

Подвижность растворов марок не менее 100, используемых для заделки столбов в скважинах, должна быть от 7 до 12 см, марок 50 - от 9 до 14 см. Требуемую подвижность следует обеспечивать путем добавления в раствор цемента и воды при сохранении заданного водоцементного отношения (для повышения подвижности) или песка и шлама (для понижения подвижности).

4.15. Для обеспечения твердения омоноличивающего раствора при заделке столбов в оттаивающие в процессе эксплуатации мостов мерзлые и скальные грунты с температурой минус 2°0 и ниже в период положительных температур воздуха следует применять противоморозную добавку нитрит натрия в количестве 4% от массы цемента. Допускается получать необходимую прочность заделки за счет применения растворов более высоких марок, чем требуется при твердении в нормальных условиях.

В период отрицательных температур воздуха противоморозную добавку нитрит натрия необходимо применять во всех грунтах, используемых по принципу II, назначая количество добавки по табл. 5 в зависимости от температуры столба, которую принимают равной температуре воздуха.

Таблица 5

Температура столба или воздуха, °С

-5

-15

-25

-35

-45

Количество добавки, % от массы цемента

4

5

6

8

10

Допускается использовать при отрицательных температурах воздуха в качестве противоморозной добавки поташ в соответствии с указаниями главы СНиП III-43-75 и "Руководства по применению бетонов с противоморозными добавками" (М., Стройиздат, 1978).

Во всех грунтах, используемых по принципу I в качестве основания, применение противоморозных добавок не допускается.

4.16. Для повышения подвижности и связности цементно-песчаных растворов рекомендуется в их состав вводить пластифицирующие добавки количество и технологию введения которых следует принимать в соответствия с указаниями "Руководства по применению бетонов с противоморозными добавками".

4.17. Для получения раствора омоноличивания необходимо перемешивать на забое неизвлекаемые из скважин остатки шлама с цементно-песчаным раствором с сухой цементно-песчаной смесью того же состава или ее составляющими при условии обеспечения проектной прочности раствора в пределах расчетной заделки.

4.18. Цементно-песчаные растворы рекомендуется приготовлять с помощью растворомешалок. Растворомешалки следует размещать в утепленном кузове автофургонов или в крытых обогреваемых прицепах. Допускается приготавливать цементно-песчаные растворы перемешиванием оставляющих на забое пробуренной скважины.

4.19. При наличии в строительной организации автобетоносмесителёй рекомендуется использовать их для транспортирования сухой смеси песка с цементом и приготовления цементно-песчаного раствора вблизи скважин.

На время отрицательных температур воздуха барабан автобетоносмесителя должен быть утеплен.

4.20. Для обеспечения требуемой температуры раствора следует использовать горячую воду температурой 20-40°С, а при необходимости, дополнительно подогреть песок, воду рекомендуется нагревать в утепленных емкостях электронагревателем.

4.21. Для заполнения зазора между столбами и боковой поверхностью скважин в мерзлых грунтах, используемых по принципу I, рекомендуется применять растворы температурой не выше +5°С.

4.22. Для производства монтажных работ в зимнее время должны быть подготовлены инвентарные обустройства и оборудование, предусмотренные ППР (переставные тепляки или брезентовые тенты, электронагреватели и теплогенераторы), необходимые для обогревания элементов или фундаментов.

Заделка столбов или свай в грунт

4.23. Работы по заделке каждого столба или сваи в грунт на глубину, предусмотренную в проекте фундамента, должны включать установку столба (сваи) в проектное положение в предварительно пробуренной скважине и качественное заполнение пространства между боковыми поверхностями столба и скважины.

Последовательность выполнения работ по заделке столбов, состав, консистенцию и температуру укладываемого раствора следует принимать согласно ППР или технологическим картам в зависимости от проектной марки раствора, температуры воздуха, грунтовых условий, принципа использования мерзлых грунтов и применяемого оборудования.

4.24. Для обеспечения заделки в скважине каждого элемента (столба или сваи) в проектное положение (в плане и по высоте) в случае приготовления раствора омоноличивания на забое скважины работы необходимо, выполнять в следующей очередности:

проверить качество очистки поверхностей элемента и скважины, а также соответствие размеров их диаметра и длины (глубины) проектным;

установить инвентарное устройство для фиксирования в проектном положении элемента, опущенного в скважину;

подать на забой скважины составляющие растворной смеси и перемешать их с остатками шлама долотом работающего станка;

поднять элемент из горизонтального положения в вертикальное и завести его в скважину;

зафиксировать элемент в проектном положении;

заполнить раствором зазор между боковыми поверхностями элемента и скважины;

извлечь обсадную трубу и уложить с уплотнением грунт в зазор между боковыми поверхностями элемента и скважины в пределах глубины сезонного промерзания;

снять инвентарное устройство.

В случае приготовления раствора в смесителях его подают в скважину после установки устройства для фиксирования элемента. Очередность остальных работ не изменяется.

Если проектом производства работ предусмотрена установка температурных трубок, то их устанавливают после фиксирования элемента в проектном положении.

4.25. Независимо от принципа использования мерзлых и скальных грунтов столбы и сваи рекомендуется устанавливать в скважины, предварительно заполненные омоноличивающим раствором. Объем раствора принимают 1 или 1,5 м3 в зависимости от вида основания, чтобы при опускании элемента вытесняемый им раствор достиг отметки, указанной в ППР.

Раствор в скважину подают через трубу с приемной воронкой или контейнером, или по направляющему лотку.

4.26. В случае приготовления раствора для заделки столбов не забое скважины продолжительность перемешивания долотом работающего станка БС-1M слоя шлама с добавляемым цементно-песчаным раствором должна быть 5-10 мин, а с добавляемой сухой смесью этого раствора или его составляющими 10-15 мин.

Продолжительность перемешивания составляющих раствора в скважине станком PF 1200, оснащенным специальным приспособлением (мешалкой), должна быть не менее 20 мин.

В случае установки свай остатки шлама перемешивают с залитым раствором путем пяти - шестикратного опускания и подъема сваи.

4.27. Для контроля прочности раствора в заделке (после его перемешивания) следует отобрать желонкой или специальным пробоотборником пробу для изготовления стандартных образцов.

4.28. Столбы в скважины рекомендуется устанавливать с применением инвентарного обустройства, обеспечивающего возможность закрепления столба в проектном положении (в плане и по высоте). В случае отсутствия такого обустройства проектное положение столба допускается обеспечивать тремя - четырьмя деревянными клиньями, устанавливаемыми в зазор между столбом и верхом обсадной трубы.

Для фиксирования сваи после опускания ее до проектной отметки и проверки положения верха в плане и по высоте клинья устанавливают в устье скважины.

4.29. Освобождать столбы и сваи от фиксирующих закреплений, разрешается, когда наступит замерзание или схватывание цементно-песчаного раствора у нижнего конца элемента.

4.30. Если из скважины нельзя откачать воду, то работы по установке столба выполняют только в присутствии главного инженера строительной организации в приведенной ниже последовательности.

Перед, установкой столба на рабочей площадке устраивают канавки для отвода вытесняемой из скважины воды. В течение 30-40 мин желонируют скважину, удаляя с ее дна частицы разбуренного грунта. На забой скважины способом вертикально перемещаемой трубы подают требуемый объем омоноличивающего раствора. Столб опускают в скважину и закрепляют деревянными клиньями в проектном положении.

4.31. Если грузоподъемность и подстреловой габарит крана достаточны для установки в скважины состыкованных столбов, их наращивание следует выполнять заранее, так чтобы к моменту установки была обеспечена прочность стыка, необходимая для подъема столба из горизонтального положения в вертикальное.

4.32. Обсадные трубы следует извлекать из скважин непосредственно после заполнения зазора цементно-песчаным раствором до проектной отметки, руководствуясь указаниями п. 3.40.

4.33. Если для заполнения зазора (между столбами и боковой поверхностью скважин) в пределах деятельного слоя проектом фундамента предусмотрен песок, то его следует засыпать в сухом состоянии. При наличии воды в зазоре укладываемый песок необходимо уплотнять штыкованием стальным стержнем.

4.34. Если столбы устанавливают в скважины в период промерзания грунта деятельного слоя (с ноября по январь включительно), то для предотвращения возможного их выпучивания необходимо до установки в скважину боковую поверхность каждого столба в пределах деятельного слоя из пучинистых грунтов покрыть гидрофобной смазкой в соответствии с указаниями ППР.

Монтаж и омоноличивание сборных конструкций

4.35. Фундаменты мелкого заложения из сборных бетонных и железобетонных конструкций рекомендуется монтировать немедленно после приемки основания комиссией, и подписания акта, разрешающего приступать к дальнейшим работам.

4.36. Работы по устройству монолитной или установке сборной плиты (насадки) допускается начинать после окончания заделки столбов, включая извлечение обсадной трубы и заполнение зазоре между поверхностью скважин и столбами в пределах деятельного слоя.

4.37. Фундаменты из бетонных блоков следует монтировать по раскладочным схемам с соблюдением проектных размеров свесов блоков, перевязки и толщины швов.

4.38. Сварочные и бетонные работы по наращиванию столбов и стыкованию их с монолитными или сборными насадками необходимо производить в соответствии с указаниями глав СНиП III-15-76, СН 393-69 и ВСН 151-78 с учетом конструкции, стыков, марки стали закладных элементов, подлежащих сварке, марки электродов и бетона омоноличивания.

4.39. Выпуски арматуры и закладные детали стыков из стали класса АII допускается сваривать при температуре окружающего.воздуха не ниже минус 20°С, а из стали класса AI - не ниже минус 30ºС.

При более низких температурах наружного воздуха место сварки должно быть ограждено тепляком шатром с обогревом или другим способом, обеспечивающим температуру воздуха не ниже минус 20ºС.

4.40. При отрицательной температуре окружающего воздуха необходимо повышать силу сварочного тока на 5% при температуре минус 10-15°С и на 10% при температуре минус 16-20°С.

4.41. Сварочное оборудование следует защищать от попадания снега и дождя, размещая его на переносных площадках с навесом или в закрытых будках, где должны находиться также рубильники, провода и кабели.

4.42. Омоноличивание сборных бетонных конструкций фундаментов цементно-песчаными растворами с противоморозными добавками без прогрева монтируемых блоков и без последующего укрытия или обогрева фундаментов допускается при температуре наружного воздуха и температуре блоков не ниже минус 15°С.

При ожидаемой температуре воздуха ниже, минус 15ºС следует прогревать смонтированные блоки непосредственно перед омоноличиванием и последующем наборе цементно-песчаным раствором прочности не менее 5 МПа так, чтобы температура в швах была не ниже минус 15°С.

4.43. Поверхность бетона блоков в зоне швов при использовании растворов без противоморозных добавок или железобетонных элементов в местах омоноличивания, а также арматуру и закладные детали в стыках прогревают до плюсовой температуры непосредственно перед укладкой раствора или бетонной смеси.

Режим и сроки выдерживания раствора или бетона устанавливаются ППР. При этом не допускается замораживание бетона (раствора) омоноличивания до достижения им 100% проектной прочности и раствора в швах между блоками фундаментов до набора им прочности 5 МПа.

Для омоноличивания стыков следует применять растворы или бетонные смеси, приготовляемые и укладываемые в соответствии с требованиями глав СНиП III-43-75 и III-16-73.

4.44. Применять тепляки для зимнего производства работ по омоноличиванию сборных конструкций фундаментов допускается в исключительных случаях - при подтверждении результатами технико-экономического обоснования, проводимого на стадии разработки ППР по строительству опор мостов. Конструкция тепляков и способ обогрева в них монтируемых фундаментов должны быть указаны в ППР.

4.45. Для предотвращения вымораживания влаги открытые поверхности свежеуложенной смеси или раствора в стыках должны быть укрыты и утеплены сразу после окончания бетонирования.

4.46. Поверхности стыка, которые не имеют опалубки во время бетонирования, а в период эксплуатации будут подвергаться воздействию внешней среды, долины быть тщательно заглажены заподлицо с поверхностями примыкающих к стыку элементов.

4.47. Температуру, необходимую для твердения раствора или бетона омоноличивания швов и стыков в период отрицательных температур воздуха, допускается поддерживать с помощью электропрогрева, пара или горячего воздуха, соблюдая указания главы СНиП III-15-76 и рекомендации "Руководства по производству бетонных работ" (М., Стройиздат, 1975).

4.48. Монтируемые фундаменты или их элементы рекомендуется прогревать в тепляках со съемными крышами или под переставляемыми укрытиями (тентами).

4.49. Температура, бетона омоноличивания стыка к началу прогрева должна быть не ниже +5°С. Повышать ее допускается с интенсивностью не более 10°С в 1 ч.

Максимальная температура при прогреве бетона омоноличивания не должна превышать +70°С, в скорость его остывания 10°С в 1 ч.

4.50. Для наблюдения за температурным режимом выдерживания бетона омоноличивания в наиболее характерных местах следует предусмотреть (в проекте стыков) скважины для установки термометров.

4.51. Гидроизоляцию заглубленной в грунт части устоев и промежуточных опор (если она предусмотрена в проекте опор) следует выполнять, руководствуясь указаниями "Инструкции по гидроизоляции конструкций мостов и труб на железных, автомобильных и городских дорогах" (ВСН 32-81).

Контроль качества и приемка работ

4.52. В процессе выполнения работ по установке каждого столба или сваи в скважину и заполнения ее раствором необходимо, проверить:

соответствие размеров поперечного сечения и длины столба (сваи) проектным;

чистоту поверхности столба (сваи) и отсутствие повреждений стыковых закладных элементов;

качество стыкования элементов столба;

соответствие диаметра и глубины скважины проектным, а также состояние ее боковой поверхности и забоя;

фактическое положение в плане и по высоте установленного в скважину столба;

подвижность предназначенного для заполнения скважины раствора, а также его температуру при использовании мерзлых грунтов по принципу I;

качество производства работ по заполнению раствором пространства между боковыми поверхностями столба и скважины;

качество уплотнения грунта в зазоре между столбом и поверхностью скважины в пределах слоя сезонного промерзания грунтов.

4.53. Контроль качества и приемку выполненных работ по заделке столбов и свай в скважины должен осуществлять производитель работ совместно с представителями технического отдела строительной организации и заказчика.

4.54. Выявленные в процессе контрольного обмера столба отклонения фактических его размеров от проектных допускаются в пределах: по диаметру - от +2 до -1 см; по длине ±5 см при монолитной и ±3 см при сборной плите. Отклонения в размерах свай не должны превышать допусков, принятых государственным стандартом.

Решение о возможности использования столбов и свай с отклонениями, превышающими приведенные допуски, должно приниматься представителем авторского надзора организации, проектировавшей фундаменты.

4.55. Соответствие диаметра и глубины скважины проектным рекомендуется дополнительно проконтролировать непосредственно перед установкой столба (сваи), чтобы убедиться в отсутствии намерзшего шлама на боковой поверхности скважины, в на забое - замерзшего слоя, шлама, воды или обрушившегося грунта.

Уменьшение размеров диаметра и глубины скважины по сравнению с замеренными сразу после окончания ее бурения указывают на наличие изменений.

4.56. Во время приготовления цементно-песчаного раствора или бетонной смеси, используемых для омоноличивания стыков, необходимо контролировать:

отсутствие в песке смерзшихся комьев и льде на щебне;

температуру подогрева воды и заполнителей;

правильность дозировки составляющих материалов;

время перемешивания смеси;

подвижность или удобоукладываемость и температуру смеси при выходе из бетоносмесителя и на месте омоноличивания.

4.57. Подвижность раствора (смеси), используемого для заделки столба или сваи в скважине, следует контролировать непосредствеяно перед установкой элемента в скважину. Если подвижность раствора будет отличаться от указанной в п. 4.14, использовать раствор запрещается.

4.58. Мастер или прораб обязан контролировать заполняемость раствором зазора между боковыми поверхностями скважины и столба, особенно в наиболее узких местах. Заполняемость раствором зазора следует контролировать с помощью стального стержня длиной 2-3 м, опускаемого на тросике или проволоке в зазор между поверхностью скважины и столбом поочередно в наиболее широком и наиболее узком местах. Одинаковое расстояние oт поверхности грунта до поверхности раствора в узком и широком местах свидетельствует об удовлетворительном заполнении раствором.

4.59. Отбор проб омоноличивающего раствора, изготовление, хранение и испытание образцов следует производить согласно СНиП III-43-75 и ГОСТ 5208-66.

Пробы следует отбирать из раствора, полученного в скважине после смешивания его составляющих с остатками бурового шлама.

Пробы раствора следует отбирать при заполнении зазора у одного из столбов каждого фундамента непосредственно после перемешивания в скважине составляющих раствора с остатками бурового шлама, В случаях изменения технологии заделки столбов или составов растворов пробы отбирают из каждой скважины.

4.60. В процессе производства работ по установке столбов или свай в предварительно пробуренные скважины необходимо вести журнал.

К журналу работ должны быть приложены сводные ведомости пробуренных скважин и установленных элементов.

4.61. Приемка установленных столбов и свай должна быть оформлена актами освидетельствования, в том числе и температурного состояния грунта в контрольных скважинах (трубках).

4.62. Наблюдения за ходом замерзания раствора в скважинах выполняют для каждого устоя, измеряя специальными термометрами температуру на разных уровнях в трубке, установленной возле расположенного с южной стороны столба, крайнего к руслу ряда.

Наблюдение за сохранностью трубок до сдачи объекта в эксплуатацию входит в обязанности строительной организации.

4.63. Отклонения заделанных в грунт столбов от проектного положения не долины превышать:

по высоте верхнего конца столба ±5 см при сборной конструкции соединения с плитой фундаменте или насадкой столбчатой опоры и ±10 cм при монолитном стыке или монолитной плите;

в плане на уровне низа плиты фундамента или насадки столбчатой опоры 3 см при сборном соединении и 5 см при монолитном соединении.

Наклон столбов должен быть не более 0,01 длины столба.

При назначении допустимых отклонений установленных свай от проектных следует руководствоваться требованиями СНиП III-9-74.

4.64. Контроль качества подлежащих сварке элементов, а также проверку исправности сварочного оборудования следует закончить до начала сварочных рабов.

4.65. В процессе сварочных работ необходимо контролировать; качество подготовки арматурных выпусков или закладных деталей (зачистку поверхности, точность сборки);

качество электродов и режим сверки;

качество сварных соединений.

4.66. Контроль за подготовкой к сварке стыкуемых элементов и электродов осуществляется путем их внешнего осмотра.

Правильность выбора режима сварки рекомендуется проверять по данным паспорта сварочного оборудования и его настройки на выбранный режим, а также внешнего осмотра пробных образцов сварных соединений выполненных при выбранном режиме.

При обнаружении дефектов в сварных соединениях сварочные работы должны быть прекращены, а дефектные швы и соединения переварены. Причины возникновения дефектов необходимо выявить и устранить, после чего разрешается продолжать сварочные работы.

4.67. Перед омоноличиванием следует проверить чистоту поверхности бетона, арматуры и закладных деталей стыкуемых элементов, в также достаточность их подогреве.

В процессе бетонирования необходимо контролировать тщательность укладки бетонной смеси, своевременность укрытия и утепления поверхностей, соприкасающихся с наружным холодным воздухом.

4.68. Готовые фундаменты до засыпки их грунтом должны быть освидетельствованы и приняты комиссией по акту.

В процессе приемки должны проверяться фактические размеры и отметки фундаменте; полученные данные необходимо сопоставлять с проектными и отмечать величину отклонений.

4.69. Приемка работ по устройству конструкции фундамента, включая плиту (насадку), должна производиться в соответствии с указаниями глав СНиП III-43-75 и III-9-74.

К акту приямки фундамента необходимо прикладывать материалы освидетельствования мерзлотно-грунтовых условий в период возведения фундамента и результаты наблюдений за изменениями температуры в зоне заделки столбов в грунте и в стыках столбов с насадкой или плитой, омоноличенных в период отрицательных температур воздуха.

4.70. После окончания приемки фундамента мелкого заложения или свайного фундамента с заглубленной плитой пазухи между боковыми поверхностями котлована и фундамента должны быть, по возможности в короткий срок, заполнены грунтом во избежание натекания в них поверхностных или грунтовых вод, попадания снега или образования наледей.

Пазухи необходимо заполнять теми же грунтами, которые удалялись из соответствующих слоев при разработке котлована. Укладку грунтов следует вести слоями толщиной до 0,2 м с уплотнением каждого слоя дизельными трамбовками или другими грунтоуплотняющими машинами.

В период отрицательных температур воздуха допускается использовать смесь, состоящую (по объему) из 60% талого и 40% мерзлого грунта с послойным ее уплотнением.

Верх засыпки пазух следует располагать примерно на 0,2 м выше поверхности грунта вокруг фундаментов для того, чтобы предотвратить возможность застоев воды. При засыпке пазух необходимо предохранять гидроизоляцию фундамента от повреждения.

4.71. При обсыпке устоев с фундаментом, имеющим плиту, расположенную над грунтом, необходимо обеспечить под плитой указанный в проекте зазор, свободный от грунта.

4.72. При оценке продолжительности периода от окончания работ по установке столбов в скважины и до начала загружения строительными или эксплуатационными нагрузками принятого по акту фундамента рекомендуется использовать данные относительной прочности раствора (в процентах от 28-дневной прочности, полученной путем, испытания твердеющих в нормальных условиях стандартных образцов) в зависимости от его температуры (табл. 6), а также значения нормативных сопротивлений мерзлого грунта в зависимости от температуры в зоне заделки столбов или свай (табл. 7).

Таблица 6

Продолжительность твердения, сутки

Относительная прочность растворов марки 200 на портландцементе марки 400%, от 28-дневной прочности, при температуре твердения в заделке, ºС

-5

-3

0

5

10

20

1

1

3

5

9

12

25

2

2

6

12

19

26

40

3

2,5

8

18

37

38

50

5

3

12

28

38

50

65

7

3,5

15

35

48

58

75

14

4

20

50

62

72

87

28

5

25

65

77

85

100

60

7

32

78

93

100

-

90

8

37

85

100

-

-

Примечание: Приведенные в таблице данные относятся к растворами, не имеющим противоморозных добавок.

Прочность цементно-песчаного раствора или мерзлого грунта в заделке, требуемую к началу загружения элементов фундамента определяют по данным, приведенным на чертеже фундамента или в ППР.

4.73. Прочность раствора с противоморозными добавками, твердеющих первые двое - четверо суток при температуре ниже минус 5°С, а все последующее время - при отрицательной температуре выше минус 5°С, допускается определять, пользуясь табл. 8.

Таблица 7

Вид сопротивления

Виды грунтов

Глубина погружения, м

Расчетное сопротивление, МПа, при температуре грунта, ºС

-0,3

-0,5

-1

-1,5

-2

-2,5

-3

-3,5

-4

При льдистости грунтов λв<0,2

 

Крупнообломочное

На любой глубине

25

30

35

40

43

45

48

53

58

Сопротивление сжатию

Пески крупные и средней крупности

То же

15

18

а

24

25

27

28

31

34

Пески мелкие и пылеватые

3-5

8,5

13

14

15

17

18

19

20

21

 

10

10

15,5

16,5

17,5

20

21

22

23

25

 

15 и более

11

17

18

19

22

23

24

25

27

Супеси

3-5

7,5

8,5

11

12

13

14

15

17

18

 

10

8,5

9,5

12,5

13,5

14,5

16

17

19

20

 

15 и более

9,5

10,5

14

15

16

18

19

21

22

Суглинки и глины

3-5

6,5

7,5

8,5

9,5

11

12

13

14

15

 

10

8

8,5

9,5

11

12,5

13,5

14,5

16

17

 

 

15 и более

9

9,5

11

12,5

14

15

16

18

19

При льдистости грунтов 0,2≤λв≤0,4

 

Грунты всех видов

3-5

4

5

6

7,5

8,5

9,5

10

11

11,5

 

 

10

4,5

5,5

7

8

9

10

10,5

11,5

12,5

 

 

15 и более

5,5

6

7,5

8,5

9,5

10,5

11

13

13,5

Сдвиг

Песчаные

На любой глубине

0,5

0,8

1,3

1,6

2

2,3

2,6

2,9

3,3

 

Глинистые

То же

0,4

0,6

1

1,3

1,5

1,8

2

2,3

2,5

Таблица 8

Добавки

Количество добавки, % от массы цемента

Прочность раствора, % от R28, после твердения в течение суток

7

14

28

90

Нитрит натрия

5

30

50

70

90

 

10

20

40

60

80

Поташ

5

50

65

75

100

5. БЕТОНИРОВАНИЕ МОНОЛИТНЫХ ФУНДАМЕНТОВ ИЛИ ПЛИТ

Общие рекомендации

5.1. В настоящей главе рассмотрены особенности бетонирования фундаментов мелкого заложения, и плит фундаментов из столбов или свай в условиях вечномерзлых грунтов при среднесуточной температуре наружного воздухе ниже +5ºС и минимальной суточной температуре ниже 0°С.

5.2. Бетонные работы на открытом воздухе зимой разрешается производить согласно указаниям главы СНиП III-17-76 в зависимости от значений отрицательных температур воздуха.

Во время метелей и сильных снегопадов: запрещается укладка бетонной смеси на открытых площадках.

5.3. Бетонные и железобетонные работы в зимних условиях рекомендуется производить только по ППР, в котором, кроме технологии приготовления и укладки бетонной смеси, должны быть приведены:

способ и температурно-влажностный режим выдерживания бетона;

данные о материале опалубки с учетом требуемых теплоизоляционных показателей;

денные о пароизоляционном и теплоизоляционном укрытии неопалубленных поверхностей;

схема размещения точек, в которых следует измерять температуру бетона, и наименования приборов для ее измерения;

ожидаемая прочность бетона;

сроки и порядок распалубливания и загружения конструкции.

В случае применения электротермообработки бетона в технологических картах дополнительно указываются:

схемы размещения и подключения электродов или электронагревателей;

требуемая электрическая мощность, напряжение, сила тока;

тип понижающего трансформатора, сечение и длина провода.

5.4. прочность бетона к началу возможного замерзания должна указываться в проекте опор или в ППР и составлять от проектной прочности для бетонных и железобетонных фундаментов и заглубленных в грунт плит не менее 70%, в для железобетонных фундаментных плит, расположенных над грунтом, - но менее 80% при условии, что до пропуска эксплуатационных нагрузок бетон наберет проектную прочность в результате последующего твердения.

5.5. В тех случаях, когда фундаменты мостов подлежат загружению до наступления теплого времени года, требуется обеспечить прочность бетона до замерзания, предусмотренную ППР.

5.6. Расчеты по определению температуры бетонной смеси на выходе из бетоносмесителя в зимнее время, температурного режима бетона при выдерживании и прогреве его разными способами рекомендуется выполнять методами, приведенными в "Руководстве по производству бетонных работ" (М., Стройиздат, 1975).

5.7. В зимних условиях допускается применять для бетонных фундаментов мелкого заложения бетоны с добавками нитрита натрия и поташа, твердеющие при низких отрицательных температурах воздуха.

5.8. Бетон с противоморозными добавками допускается применять при условии, что до момента приобретения им прочности не менее 5 МПа обеспечивается температура бетона не ниже минус 25°С.

5.9. Применение бетонов с противоморозными добавками допускается при соблюдении следующих условий:

общее количество добавок не должно превышать 15% от массы цемента и должно назначаться по главе СНиП III-15-76 в зависимости от температуры твердения бетона в период выдерживания;

поверхности бетона, не защищенные опалубкой, должны быть укрыты во избежание вымораживания влаги на период до набора бетоном расчетной прочности.

Приготовление и транспортирование бетонной смеси

5.10. Основной особенностью приготовления бетонной смеси в зимних условиях, в отличие от летних, является необходимость обеспечения указанной в ППР температуры смеси на выходе ее из бетоносмесителя.

5.11. Для получения требуемой температуры бетонной смеси в зимнее время подогревают воду или заполнители, а иногда и то и другое. Температура подогрева составляющих смеси устанавливается с учетом потерь тепла во время загрузки и перемешивания материалов, транспортирования и укладки смеси в фундамент или плиту. Она не должна превышать значений, приведенных в табл. 9.

Таблица 9

Цемент

Наибольшая допустимая температура, ºС

составляющих при нагрузке в смеситель

бетонной смеси при выходе из смесителя

воды

заполнителя

Шлакопортландцемент марок 300

90

60

45

Портландцемент, включая сульфатостойкий портландцемент с умеренной экзотермией марки 300

80

50

40

То же марки 400 и выше и пуццолановый портландцемент марки 300 и выше

60

40

35

5.12. максимальное водоцементное отношение бетонной смеси принимается от 0,55 до 0,65 для фундаментов, сооружаемых в неагрессивной среде; 0,5 - в слабоагрессивной; 0,45 - в среднеагрессивной и 0,4 - в сильноагрессивной среде.

5.13. Загружаемые в смеситель заполнители не должны содержать снега, смерзшихся комьев, кусков льда и наледи на зернах.

5.14. Размораживание, оттаивание и подогрев заполнителей можно производить (горячим воздухом) в открытых и закрытых штабелях, бункерах, сушильных барабанах и других устройствах.

Подогрев воды для бетонной смеси наиболее просто и эффективно осуществляется пуском пара в холодную воду.

5.15. Приготовление бетонной смеси в зимних условиях производится при следующих условиях:

продолжительность перевешивания рекомендуется увеличивать в 1,5 раза;

при применении только подогретой воды одновременно с началом ее подачи в смеситель загружают крупный заполнитель, а после заливка примерно половины требуемого количества воды и после нескольких, оборотов барабана смесителя - песок, цемент и оставшуюся воду.

5.16. Состав бетонной смеси с добавками следует подбирать, руководствуясь указаниями глав CHиП III-15-76, III-43-75 и ППР.

5.17. Транспортирование бетонной смеси в зимнее время должно производиться только в утепленной закрытой таре.

Бетонную смесь с противоморозными добавками допускается транспортировать в неутепленной таре.

Продолжительность транспортирования устанавливается строительной лабораторией в зависимости от допустимой по условиям укладки и уплотнения величины потери подвижности.

5.18. Для транспортирования бетонной смеси в зависимости от ее первоначальной подвижности, скорости схватывания применяемого цемента, дальности и температурно-влажносных условий перевозок, в также состояния дорог могут применяться следующие средства: автобетоносмесители, автобетоновозы, автосамосвалы. В отдельных случаях транспортирование бетонной смеси может осуществляться в бадьях и бункерах, установленных на автомашинах (автобадьевозах).

5.19. Средства, предназначенные для перевозки бетонной смеси, должны обеспечивать максимально возможное сохранение ее свойств: исключить попадание в нее атмосферных осадков, не нарушать ее однородности, исключать потери цементного молока или раствора в пути, обеспечивать предохранение от вредного воздействия отрицательных температур.

5.20. В целях предотвращения расслоения и сохранения технологических свойств перевозимой бетонной смеси рекомендуется:

транспортирование бетонной смеси организовать так, чтобы максимально сократить количество перегрузочных операций и, по возможности, осуществлять разгрузку смеси непосредственно в бетонируемую конструкцию или бетоноукладочное оборудование;

ограничивать высоту свободного падения бетонной смеси при выгрузке ее из автотранспортных средств до 2 м, в противном случае автотранспорт должен быть снабжен специальными лотками для подачи смеси к месту укладки;

перевозку бетонной смеси в зимних условиях осуществлять согласно специальным организационно-техническим мероприятиям по предохранению смеси от переохлаждения.

Укладка бетонной смеси

5.21. Фундаменты мелкого заложения и плиты (насадки) фундаментов из столбов или свай необходимо бетонировать, как правило, без перерывов. Допустимый разрыв во времена между укладкой смежных слоев устанавливается построечной лабораторией в зависимости от температуры воздуха и бетонной смеси, ее подвижности и других факторов.

5.22. До начала бетонирования фундаментов или плит необходимо определить:

способы подачи, распределения и уплотнения бетонной смеси;

состав бетонной смеси и показатель ее подвижности;

толщину и направление укладываемых слоев;

допустимую продолжительность перекрытия слоев;

необходимую интенсивность подачи бетонной смеси с проверкой обеспеченности ее поставки бетонным заводом и транспортными средствами;

потребность в механизмах и рабочих для подачи, распределения и уплотнения бетонной смеси, а также для производства подсобных работ в процессе бетонирования.

5.23. Перед укладкой бетонной смеси следует проверить и принять:

конструктивные элементы, которые закрываются в процессе укладки смеси (подготовленное основание, выпуски арматуры столбов, арматуру плиты, закладные детали и т.п.);

правильность установки и надлежащее закрепление опалубки и поддерживающих ее конструкций;

готовность к работе всех средств приготовления, транспортирования и укладки смеси.

5.24. Опалубку и арматуру перед бетонированием необходимо очистить от снега и наледи, например подачей струи горячего воздуха под брезентовое или полиэтиленовое укрытие до момента высушивании поверхностей. Не допускается удалять наледь с помощью пара или горячей воды.

5.25. При бетонировании фундаментов или заглубленных в грунт плит как зимой, так и летом необходимо укладывать бетонную смесь на подготовленное основание (см. п.п. 2.49 - 2.59). Независимо от времени года и грунтовых условий рекомендуется перерыв между окончанием приемки котлована и началом бетонных работ свести к минимуму.

5.26. Если проектом фундамента и ППР не предусмотрено устройство в котловане тампонажной подушки из бетонной смеси, укладываемой подводным способом, то бетонную смесь во всех остальных случаях следует укладывать на осушенное и подготовленное дно котлована (основание).

5.27. Фундаменты и плиты следует бетонировать послойно такими темпами, чтобы разность температур укладываемых друг на друга слоев бетонной смеси не превышала 10°С при термосном выдерживании бетонов или применении бетонов о противоморозными добавками и 20°С при последующем обогреве бетона.

5.28. Бетонную смесь при термосном выдерживании допускается укладывать на вечномерзлые грунты, используемые по принципу II, и скальные грунты, если по расчету в зоне контакта с основанием в период выдерживания бетона будет обеспечена температура выше 0ºС.

Это требование может быть обеспечено, например при укладке бетонной смеси с температурой +15ºС при температуре воздуха не ниже минус 15ºС в массивный фундамент с модулем поверхности на более 3.

Требование о - положительной температуре в зоне контакта с основанием является необязательным, если используют бетонную смесь с противоморозными добавками для всего бетонного фундамента или только для его нижнего слоя высотой до 0,5 м, уложенного на песчаную или щебеночную подготовку толщиной до 10 cм.

5.29. Укладка бетонной смеси с последующим прогревом допускается на очищенные от снега и наледи вечномерзлые и скальные грунты, неотогретый бетон столбов при условии, что к началу прогрева температура бетонной смеси в зоне контакта с грунтом или бетоном будет не ниже +2ºС. При этом примыкающие к зоне контакта открытие поверхности, грунта или бетона будут покрыты на ширину 0,3-0,5 и теплоизоляционным материалом (минеральной ватой, сухими опилками, шлаком и др.).

5.30. В период отрицательных температур воздуха все открытые поверхности фундамента или плиты после окончания бетонирования, а также на время перерывов в бетонировании необходимо тщательно укрывать пароизоляционным материалом (полимерной пленкой, толью, рубероидом и др.) и утеплять согласно ППР.

Выдерживание бетона

5.31. Температурно-влажностное выдерживание бетона в зимних условиях можно производить:

способом термоса;

с применением противоморозных добавок;

с электротермообработкой бетона;

с обогревом бетона паром, горячим воздухом, в тепляках.

При выборе способа выдерживания бетона следует, в первую очередь, рассмотреть возможность использования способа термоса и способа термоса с добавками - ускорителями твердения. При невозможности получить с помощью этих способов требуемую прочность бетона в заданные сроки необходимо последовательно рассмотреть возможность применения остальных способов.

5.32. Способ термосного выдерживания конструкций заключается в создании условий, необходимых для того, чтобы время остывания бетона от начальной температуры до заданной конечной было достаточным для приобретения им требуемой прочности.

5.33. Для термосного выдерживания конструкции в зависимости от ее массивности, скорости ветра, температур грунта и наружного воздуха подбираются параметры теплоограждения конструкции, марка цемента, температура подогрева составляющих бетонной смеси, условия ее транспортирования и укладки.

Количество тепла в бетоне, полученное за счет подогрева составляющих и экзотермии цемента, должно быть не меньше тепла, уходящего в основание и проникающего через ограждение за время остывания конструкции до конечной температуры.

5.34. Выдерживание бетона монолитных конструкций фундамента (плит) способом термоса должно производиться с соблюдением следующих условий:

конструкции должны укрываться теплоизоляцией немедленно после окончания бетонирования;

термическое сопротивление укрытия и опалубки должно обеспечить сохранение в бетоне положительной температуры до момента достижения им заданной прочности;

для обеспечения одинаковых условий остывания всей конструкции ребра и угли должны иметь усиленное утепление;

опалубку и укрытие с неопалубленных поверхностей конструкций необходимо удалять не ранее, чем бетон приобретет заданную прочность.

5.35. Если при конкретных условиях способ термоса не обеспечивает приобретения бетоном заданной прочности в требуемые сроки, рекомендуется рассмотреть возможность и целесообразность выдерживания бетона с введением в его состав ускорителя твердения в соответствии с указаниями главы СНиП III-43-75.

5.36. В период низких отрицательных температур воздуха при недостаточной эффективности термосного выдерживания бетона с ускорителем твердения следует применять электропрогрев.

Температура бетонной смеси к началу прогрева ее после укладки в фундамент (плиту) должна быть не ниже +10ºС.

5.37. Электротермообработка (электропрогрев) бетона основана на преобразовании электрической энергии в тепловую непосредственно внутри бетона путем пропускания через него электрического тока с помощью электродов (электродный прогрев), либо в различного рода электронагревательных устройствах (ТЭНов, сетчатых, коаксиальных, инфракрасных и, других нагревателях), тепло от которых подводится, к бетону конвективно, контактно или радиационно (электрообогрев). При индукционном нагреве энергия электромагнитного поля преобразуется в стальной опалубке и арматуре в тепловую, которая передается бетону контактно.

5.38. Электротермообработка бетона при возведении монолитных конструкций в зимних условиях применяется для предотвращения замораживания бетона и ускорения его твердения при любой температуре наружного воздуха до приобретения прочности, требуемой по ППР.

5.39. Наиболее эффективным и экономичным способом элактротермообработки фундаментов (плит) является электродный прогрев.

5.40. Электротермообработка бетона должна выполняться по специально разработанному и утвержденному в установленном порядке ППР с обязательным включением раздела по технике безопасности. Разработку такого ППР рекомендуется выполнять согласно "Руководству по производству бетонных работ" (М., Стройиздат, 1975).

5.41. Электротермообработку бетона наиболее эффективно производить до приобретения им прочности 50-60% R28. При дальнейшей тепловой обработке интенсивность твердения замедляется и расход электроэнергии возрастает.

При необходимости получения сразу после прогрева прочности бетона от 50 до 70% R28 рекомендуется, как правило, приготовлять бетоны на высокопрочных и быстротвердеющих цементах, применять составы с минимально возможным В/Ц, вводить в бетон добавки - ускорители твердения.

Для получения после прогрева прочности бетона свыше 70% R28 следует подбирать состав смеси на марку бетона выше указанной в проекте.

5.42. Для снижения расхода электроэнергии необходимо стремиться к получению требуемой прочности бетона в наиболее короткие сроки прогрева. С этой целью следует принимать максимально допустимые температуры прогрева, сокращать длительность активного прогрева за счет учета нарастания прочности бетона при остывании использовать быстротвердеющие цементы, применять смеси с минимальным расходом воды и ускорителями твердения.

5.43. При электротермообработке бетона особое значение приобретает пароизоляция неопалубленных поверхностей для предотвращения пересушивания бетона, а также теплоизоляция бетонируемой конструкции для выдерживания заданного режима при минимальном расходе электроэнергии и повышении равномерности температурного поля в бетоне.

5.44. Обогрев плит паром допускается, применять при температура воздуха не ниже минус 15°С и при наличии на строительной площадке достаточного количества дешевого пара. Бетон следует укрывать двумя слоями брезента и подавать пар в пространство между слоями. Между поверхностью опалубки или неопалубленной поверхностью бетона и брезентом необходимо обеспечить свободное пространство шириной 15-20 см с помощью прокладок.

При обогреве паром температура бетона под брезентом, как правило, не поднимается выше +40ºС.

5.45. При выдерживании бетона в шатрах или тепляках на уровне 0,5 м от низа ограждения должна поддерживаться температура не ниже +5°С. Продолжительность выдерживания следует определять в зависимости от температуры бетона в нижней часта тепляка.

Конструкция шатров или тепляков должна приводиться в ППР в зависимости от размеров и формы бетонируемых фундаментов, местных условий и возможностей строительной организаций.

Контроль качества бетона.

5.46. Контроль качества бетона при производстве работ в зимних условиях доджей осуществляться с соблюдением указаний СНиП III-15-76 и приведенных ниже рекомендаций, учитывающих особенности наблюдений за приготовлением, транспортированием, укладкой бетонной смеси и выдерживанием бетона в период отрицательных температур воздуха.

5.47. В процессе приготовления бетонной смеси не реже чем через каждые 2 ч необходимо контролировать:

отсутствие льда, снега и смерзшихся комьев в неотогреваемых заполнителях, подаваемых в смесительный агрегат, при приготовлении бетонов с противоморозными добавками;

температуру воды и заполнителей перед загрузкой в смесительный агрегат;

концентрацию растворов солей;

температуру смеси на выходе из смесительного агрегата и у места ее укладки.

5.48. При транспортировании бетонной смеси необходимо контролировать:

отсутствие снега и льда в транспортных емкостях (кузовах автосамосвалов, бадьях и т.п.) - 2 раза в смену;

соответствие утеплителя транспортных средств требованиям проекта производства работ - 1 раз в смену;

обогрев транспортируемой смеси в кузовах автосамосвалов (если он предусмотрен) - на каждом автосамосвале 1 раз в смену;

температуру бетонной смеси перед выгрузкой из транспортных средств - 2 раза в смену.

5.49. Перед укладкой бетонной смеси и в процессе бетонирования должна осуществляться проверка:

отсутствия снега, льда и наледи в опалубке и на арматуре; правильности (согласно ППР) установки электродов, изоляции арматуры а закладных деталей (при электродном прогреве);

соответствия теплотехнических показателей опалубки требованиям проекта или технологических карт;

пароизоляции и теплоизоляции неопалубленной поверхности бетона.

5.50. В период выдерживания бетона необходимо контролировать его температуру как в местах, подверженных наибольшему охлаждению (углах, ребрах, слоях, соприкасающихся с неотогретым грунтом или неотогретыми стыкуемыми элементами), так и в наиболее нагретых частях (вблизи электродов в слоях, соприкасающихся с греющей опалубкой и т.п.).

Контроль осуществляется с помощью технических термометров или термопар.

Технические термометры должны иметь шкалу в соответствии с диапазоном измеряемых температур и длину хвостовой части не менее 10 см. Для защиты температурных скважин от попадания сыпучего утеплителя их следует защищать воронками из рулонного материала (толя, рубероида). При необходимости отверстия для термометров следует предусмотреть в боковой опалубке.

5.51. Термометр в каждой скважине должен находиться на протяжении всего периода выдерживания бетона. При недостаточном количестве термометров допускается переставлять их из одной скважины в другую. При этом показания термометра следует снимать не ранее чем через 5 мин после установки в скважину.

5.52. Измерять температуру следует в наиболее и наименее нагретых частях конструкции. Количество точек, в которых измеряется температура бетона, должно быть не меньше одной на каждые 3 м3 бетона.

5.53. Температуру бетона необходимо контролировать:

при выдерживании по способу термоса и применении бетонов с противоморозными добавками - 2 раза в сутки;

при паропрогреве в первые 8 ч - через 2 ч, в последующие 16 ч - через 4 ч, а остальное время прогрева и остывания - не реже 1 раза в смену.

при электропрогреве в первые 3 ч - каждый час, в остальное время прогрева - 3 раза в смену.

5.54. При отклонениях фактической температуры бетона от заданной более чем на +5°С необходимо немедленно принимать меры для обеспечения требуемой температуры (дополнительное укрытие, изменение или отключение напряжения и т.п.).

Температуру воздуха необходимо контролировать 3 раза в сутки.

5.55. Необходимо контролировать температуру бетона и воздуха перед удалением опалубки или укрытия с неопалубленных поверхностей конструкции.

5.56. Температуру бетона и воздуха следует записывать на температурных листах, которые прикладываются к журналу бетонных работ.

5.57. В процессе электродного прогрева, главным образом в начале подъема, температуры, следует наблюдать за поверхностью конструкций и в случае интенсивного выделения пара из бетона отключить напряжение и ликвидировать причину перегрева (близкое расположение разноименных электродов в результате случайного смещения, близость электрода к арматуре и т.п.).

5.58. Контроль и оценка прочности бетона производится в соответствии с требованиями ГОСТ 18105-72 с учетом того, что кроме образцов нормально-влажного хранения, дополнительные образцы должны испытываться в следующие сроки:

при термосном выдерживании - три образца после того, как температура бетона в конструкции упадет до расчетной конечной температуры выдерживания, и три после дополнительного 28-суточного выдерживания в нормальных условиях;

при бетонировании с противоморозными добавками - три образца после установленного расчетом срока твердения до заданной относительной прочности бетона, три перед загрузкой конструкции. Образцы, хранящиеся на морозе, перед испытаниями должны выдерживаться от 2 до 4 ч для оттаивания при температуре от +15 до +20°С;

при прогреве паром или горячим воздухом - три образца после окончания прогрева и три после дополнительного 28-суточного выдерживания в нормальных условиях.

5.59. При электронном прогреве выдерживание образцов-кубов в условиях, аналогичных прогреваемым конструкциям, как правило, неосуществимо. В связи с этим контроль прочности бетона в этих случаях осуществляется путем контроля за соответствием фактического температурного режима заданному.

6. ТЕХНИКА БЕЗОПАСНОСТИ

Общие указания

6.1. Настоящие правила техники безопасности распространяются на производство работ по возведению фундаментов малых и средних мостов, обусловленных особенностями строительства БАМ. Эти правила являются дополнительными к требованиям главы СНиП III-4-80 и "Правил техники безопасности и производственной санитарии при сооружении мостов и труб" (М., Оргтрансстрой, 1969).

6.2. Настоящие правила обязательны для всех организаций, выполняющих проектирование работ и осуществляющих строительство фундаментов малых и средних мостов БАМ.

6.3. Все применяемые машины, механизмы, оборудование и оснастка, включая подмости, должны отвечать требованиям действующих правил по технике безопасности и приведенным в ППР, в также иметь заводские инструкции по их эксплуатации.

6.4. Производитель работ и мастер обязаны обеспечить выполнение всех технических и организационных мероприятий по безопасности работ в соответствии с действующими инструкциями и настоящими правилами.

6.5. Производитель работ или мастер обязаны лично присутствовать при выполнении ответственных и новых работ (установка машин на месте работ, опробование машин и оборудования, устранение неисправностей машин или последствий аварий, бурение первых скважин, включение электропрогрева, установка столбов в скважины и т.п.).

6.6. Весь персонал, управляющий машинами и механизмами, должен иметь соответствующие права.

К управлению буровыми машинами, кранами и т.п. допускаются лица не моложе 18 лет.

6.7. Все рабочие участка должны пройти курс обучения (с получением удостоверения согласно своей квалификации) по правилам технической эксплуатации (ПТЭ) машин, механизмов, технологической оснастки и правилам техники безопасности (ПТБ) выполнения работ с использованием машин, механизмов и оснастки, а также по основам санитарной профилактики и оказанию первой помощи пострадавшим при несчастных случаях.

6.8. Каждый вновь поступивший рабочий после предварительного обучения по технике безопасности должен быть обучен профессиональным навыкам, необходимым для работы, в сроки, установленные действующей программой, должен сдать экзамен и получить удостоверение, дающее право работы на данной машине или с конкретными механизмами.

6.9. Ежегодно у машинистов и их помощников необходимо проверять знания ПТЭ и ПТБ, а каждые три месяца или перед выполнением нового вида работ весь рабочий персонал обязательно проходит инструктаж по ПТЭ и ПТБ в объеме, необходимом для предстоящих работ.

6.10. Горючесмазочные материалы и другие воспламеняющиеся вещества следует хранить в металлической таре на расстоянии не ближе 50 м от места работы буровой машины. Возле места хранения необходимо иметь песок и лопату.

6.11. Рабочие площадки и подходы к ним должны быть очищены от снега, а в местах образовавшегося льда - посыпаны песком.

6.12. Для обогрева рабочих, выполняющих работы по возведению фундаментов при отрицательных температурах воздуха, необходимо иметь на строительной площадке специальное помещение.

Устройство котлованов

6.13. Работы по буровзрывному рыхлению грунтов в разрабатываемых котлованах должны выполняться специалистами-подрывниками в строгом соответствии с требованиями "Единых правил безопасности при взрывных работах" Госгортехнадзора СССР (м., Недра, 1976).

6.14. Механизмы и оборудование, осуществляющие разработку неогражденных котлованов (рыхлители, экскаваторы, компрессоры и др.), запрещается устанавливать в пределах зоны возможного обрушения грунта нераскрепленного котлована.

6.15. За состоянием откосов неограждаемых котлованов, особенно летом, должно быть установлено тщательное наблюдение бригадиром и мастером.

При появлении прививков наметившихся сдвигов откосов и оползания с них грунта (возникновение трещин на поверхности по контуру возможной зоны оползания), например вследствие дополнительного увлажнения грунта, работы в котловане необходимо прекратить и принять меры по предотвращению возможного обрушения грунта путем уположения откосов. До этого рабочие должны покинуть свои места, а машины, оборудование и материалы должны быть убраны из опасной воны.

6.16. Для входа и выхода рабочих в котлован должны быть установлены стремянки (с перилами) шириной не менее 0,6 м из досок толщиной не менее 4 см.

Устройство и разборка ограждений котлованов должны выполняться в соответствии с ППР.

6.18. За состоянием распорных креплений ограждения котлованов, особенно в период удаления грунта грейфером или бадьями, должен быть установлен надзор, осуществляемый мастером или бригадиром.

6.19. При разработке мерзлых и скальных грунтов отбойными молотками рабочие должны пользоваться защитными очками в металлической оправе с сеткой.

6.20. Отдельные выступающие пласты грунта и валуны должны быть удалены с откосов котлована до начала работ по планировке его дна.

6.21. Во избежание примерзания к грунту дна бадей, в которые загружается грунт в процессе подготовки основания, бадьи необходимо устанавливать на отдельные подкладки (например, из уголков).

Бурение скважин

6.22. При работе станка Pf 1200 с вакуумно-отсасывающим бункером необходимо строго выдерживать расстояние от бампера бункера до оси скважины в зависимости от глубины расположения в ней бура (см. табл. 4).

6.23. Перед началом работ необходимо проверить надежность закрепления станка на месте бурения скважин.

6.24. Перед передачей смены бригада должна осмотреть все узлы и механизмы и устранить мелкие дефекты. При пересменке машинист обязан подробно ознакомить лицо, принимающее станок, с его неисправностями, состоянием механизмов, буров и забоя.

Бригада, принимающая станок, долина осмотреть его и проверить работу механизмов.

Все замеченные дефекты необходимо записать в журнал и доложить о них техническому надзору.

Запрещается начинать бурение до устранения неисправностей станка, обнаруженных при передаче смены.

6.25. Перед пуском станка машинист должен убедиться, что около станка нет людей.

6.26. Во время работы станка запрещается:

проводить подтягивание гаек и другие ремонтные работы подниматься на мачту станка;

находиться в опасной зоне станка (за исключением машиниста);

направлять канат руками при навивке его на барабан лебедки;

касаться руками движущегося инструментального каната и наносить на него какие-либо метки;

находиться на станке во время грозы;

поднимать или подтаскивать желоночной лебедкой грузы массой, превышающей ее грузоподъемность;

подтаскивать желоночной лебедкой грузы, находящиеся за пределами видимости машиниста, или при нахождении людей и оборудования на пути перемещения груза;

заменять сменное оборудование на станке с помощью крана.

Запрещается производить замену бура в скважине.

6.27. Если буровой инструмент находится на забое, а двигатель не может быть запущен в течение 30 мин, инструмент следует приподнять над забоем или, слоем шлама. При длительном перерыве в работе инструмент необходимо извлечь на поверхность и уложить рядом со станком на подкладки.

Запрещается оставлять ненатянутым канат бурового инструмента после установки его на рабочей площадке.

6.28. Запрещается выдергивать станком буровой инструмент, примерзший или засыпанный грунтом в скважине.

Для извлечения такого инструмента следует использовать кран, оснащенный автоматическим ограничителем грузоподъемности, при условии предварительного выполнения работ по "раскачиванию" инструмента.

6.29. Запрещается оператору, управляющему заглублением и извлечением обсадных труб, работать рычагами при нахождении машиниста в кабине станка.

6.30. Обслуживание электронагревательных элементов (электрокипятильников) для подогрева воды, используемой при бурении скважин, необходимо производить с соблюдением общих правил безопасности выполнения работ с электронагревателями.

6.31. Машинисту станка и его помощникам запрещается устранять неполадки в электрооборудовании станка, производить подсоединение на распределительном щитке и другие операции с токоведущими элементами, если упомянутые лица не имеют допуска к работам на электроустановках III группы и выше.

Запрещается находиться на мачте без предохранительного пояса, а также выполнять работы там во время ливня, гололедицы, снегопада или ветра свыше 5 баллов.

6.33. Рабочее место бурения скважин должно:

находиться в безопасном состоянии для работающих;

быть тщательно осмотрено машинистом и мастером перед началом работы;

достаточно освещено в ночное время;

проверяться мастером не реже 1 paзa в течение смены.

Монтаж сборных фундаментов

6.34. Работы по монтажу фундаментов из сборных элементов необходимо производить в соответствии с ППР, в котором указаны:

организация рабочих мест и проходов;

последовательность технологических операций;

методы и приспособления для безопасной работы монтажников;

места расположения и зоны действия монтажных механизмов;

способы складирования строительных материалов и элементов.

6.35. Во время сильного снегопада погрузочно-разгрузочные работы и работы по установке элементов сборных фундаментов должны быть прекращены.

6.36. Примерзшие к грунту элементы запрещается отрывать с помощью кранов.

6.37. Столбы, заклинившиеся в скважине во время опускания, запрещается выдергивать кранами. Такие столбы необходимо предварительно сдвинуть с места гидродомкратной установкой, используемой для извлечения обсадных патрубков (труб), и продолжить выдергивание.

6.38. Для защиты от охлаждения при соприкосновении с землей и снегом, а также с холодным бетоном как снаружи, так и внутри помещений сварщики должны обеспечиваться теплыми подстилками, матами, наколенниками и подлокотниками из огнестойких материалов с эластичной электроизолирующей прослойкой.

Бетонные работы

6.39. При выполнении бетонных работ следует выполнять указания по технике безопасности, приведенные в "Руководстве по производству бетонных работ" (М., Стройиздат, 1975) и в п.п. 6.40 - 6.55 настоящего Руководства.

6.40. При устройстве паропрогрева надо тщательно изолировать весь паропровод, вентили и краны во избежание ожогов.

6.41. Паровые "рубашки" не должны иметь щелей или отверстий, пропускающих пар в сторону обогреваемого фундамента и наружу.

6.42. Давление пара для пропаривания железобетонных конструкций в месте выхода из паропровода не должно превышать 0,05 МПа.

6.43. Ремонтировать паропровод допускается только после снятия давления и отключения паропровода от магистрали.

6.44. В зоне электропрогрева следует применять кабели типа КРТП или изолированные провода типа ПРГ-500 (с дополнительной защитой проводов резиновым шлангом). Запрещается прокладывать провода непосредственно по грунту или слою опилок.

6.45. При электропрогреве бетонных и железобетонных конструкций рекомендуется пользоваться напряжением 127 В.

Использование сетевого напряжения 220 В допускается для прогрева неармированного бетона, а также отдельно стоящих железобетонных конструкций, не связанных общим армированием с соседними участкам, на которых в это время производятся работы. При прогреве бетоне внешними электронагревателями (при условии невозможности замыкания на арматуру) допускается использовать при электропрогреве напряжение не выше 380 В.

6.46. При электропрогреве бетона и железобетона зона электропрогрева должна иметь надежное ограждение, установленное на расстоянии не менее 3 м от прогреваемого участка, систему блокировки, цветовую сигнализацию, предупредительные плакаты. Обслуживающий персонал должен быть дополнительно проинструктирован.

6.47. Нейтраль трансформатора, обслуживающего силовую сеть, должна быть заземлена.

6.48. На участках электропрогрева и в местах установки оборудования для электропрогрева должны быть вывешены предупредительные плакаты «ОПАСНО», «ПОД НАПРЯЖЕНИЕМ» и т.п., а также правила оказания первой помощи при поражении током.

6.49. В пределах зоны электропрогрева необходимо устанавливать сигнальные лампы, загорающиеся при подаче напряжения на линию. Сигнальные лампы должны подключаться таким образом, чтобы при их перегорании происходило автоматическое отключение подачи напряжения на линию.

6.50. В сырую погоду и во время оттепели все виды электропрогрева на открытом воздухе должны быть прекращены.

6.51. Поливка водой бетона, выдерживаемого под электропрогревом, допускается только после снятая напряжения.

6.52. Открытая, незабетонированная арматура железобетонных конструкций, связанная с участком, находящимся под электропрогревом, подлежит заземлению,

6.53. Исправность электрооборудования и изоляции проводов для электропрогрева следует проверять ежедневно, а также при каждой перестановке оборудования и перекладке проводов.

6.54. При зимнем бетонировании применяется термоопалубка, наружные поверхности которой из-за наличия влаги имеют повышенную токопроводимость и могут оказаться под напряжением и вызвать электротравму. Во избежание несчастных случаев необходимо оградить доступ людей при подаче электротока к опалубкам и термоопалубке.

6.55. Работы, связанные с электропрогревом, должны выполняться с соблюдением требований электробезопасности при организации строительной площадки.

 

 




ГОСТЫ, СТРОИТЕЛЬНЫЕ и ТЕХНИЧЕСКИЕ НОРМАТИВЫ.
Некоммерческая онлайн система, содержащая все Российские Госты, национальные Стандарты и нормативы.
В Системе содержится более 150000 файлов нормативно-технической документации, действующей на территории РФ.
Система предназначена для широкого круга инженерно-технических специалистов.

Рейтинг@Mail.ru Яндекс цитирования

Copyright © www.gostrf.com, 2008 - 2026