Крупнейшая бесплатная информационно-справочная система онлайн доступа к полному собранию технических нормативно-правовых актов РФ. Огромная база технических нормативов (более 150 тысяч документов) и полное собрание национальных стандартов, аутентичное официальной базе Госстандарта. GOSTRF.com - это более 1 Терабайта бесплатной технической информации для всех пользователей интернета. Все электронные копии представленных здесь документов могут распространяться без каких-либо ограничений. Поощряется распространение информации с этого сайта на любых других ресурсах. Каждый человек имеет право на неограниченный доступ к этим документам! Каждый человек имеет право на знание требований, изложенных в данных нормативно-правовых актах!

  


 

Правительство Москвы

СИСТЕМА НОРМАТИВНЫХ ДОКУМЕНТОВ В СТРОИТЕЛЬСТВЕ

МОСКОВСКИЕ ГОРОДСКИЕ СТРОИТЕЛЬНЫЕ НОРМЫ

ОБЩЕОБРАЗОВАТЕЛЬНЫЕ УЧРЕЖДЕНИЯ

МГСН 4.06-96

ТСН 31-306-96 г. Москвы

дата регистрации: 18.09.1996 г.

Правительство Москвы

Московские городские строительные нормы

МГСН 4.06-96

разработаны впервые

 

ВНЕСЕНЫ
Москомархитектурой
Департаментом образования г. Москвы

УТВЕРЖДЕНЫ
Правительством Москвы распоряжением
от 08.05.96 № 571-РЗП

СРОК
введения в действие
с 1 мая 1996 г.

ПРЕДИСЛОВИЕ.

1. РАЗРАБОТАНЫ Институтом общественных зданий Минстроя РФ (д. арх. Степанов В. И. - научный руководитель, канд. арх. Степанов А. В., канд. арх. Наумкин Г. И., арх. Безсонова Г. А.), МНИИТЭП (арх. Каптерев К. В.), Институтом средств обучения РАО (д. пед. наук Назарова Т. О.), Департаментом образования г. Москвы (пед. Коровина С. Н.), НИИ Гигиены и профилактики заболеваний детей, подростков и молодежи ГК Санэпиднадзора РФ (канд. мед. Воронова Б. 3., канд. мед. Белявская В. И.), МГЦ Госсанэпиднадзора (сан. врач Синякова Н. В., сан. врач Пронина Л. И.).

2. ВНЕСЕНЫ Москомархитектурой, Департаментом образования г. Москвы.

3. ПОДГОТОВЛЕНЫ к утверждению и изданию Архитектурно-техническим управлением Москомархитектуры (арх. Шалов Л. А., инж. Щипанов Ю. Б.).

4. СОГЛАСОВАНЫ с Департаментом образования г. Москвы, МГЦ Госсанэпиднадзора, УГПС ГУВД г. Москвы.

5. ПРИНЯТЫ И ВВЕДЕНЫ В ДЕЙСТВИЕ распоряжением первого Заместителя Премьера правительства Москвы от 08.05.96 № 571-РЗП.

1. ОБЛАСТЬ ПРИМЕНЕНИЯ

1.1. Настоящие нормы разработаны в соответствии с требованиями СНиП 10-01-94 для г. Москвы и Лесопаркового защитного пояса (ЛПЗП) как дополнение к нормативным документам в строительстве, действующим на территории г. Москвы и ЛПЗП, и распространяются на проектирование вновь строящихся и реконструируемых существующих зданий и комплексов общеобразовательных учреждений любых форм собственности.

1.2. Настоящие нормы устанавливают основные положения и требования к размещению и организации системы зданий, земельному участку, территории, функциональным группам, составу и площадям помещений, объемно-планировочным решениям, освещению, инженерному оборудованию и внутренней среде общеобразовательных учреждений.

1.3. Настоящие нормы содержат обязательные, рекомендательные и справочные положения.

Пункты настоящих норм, отмеченные знаком *, являются обязательными.

2. НОРМАТИВНЫЕ ССЫЛКИ

В настоящих нормах приведены ссылки на следующие документы:

- СНиП 10-01-94 "Система нормативных документов в строительстве. Основные положения".

- СНиП 2.07.01-89* "Градостроительство. Планировка и застройка городских и сельских поселений".

- СНиП 2.08.02-89* "Общественные здания и сооружения".

- СНиП 23-05-95 "Естественное и искусственное освещение".

- СНиП 2.04.01-85 "Внутренний водопровод и канализация здания".

- СНиП 2.04.05-91* "Отопление, вентиляция и кондиционирование".

- СНиП 2.04.07-86* "Тепловые сети".

- СНиП 2.04.09-84 "Пожарная автоматика зданий и сооружений".

- МГСН 1.01-94 "Временные нормы и правила проектирования, планировки и застройки Москвы".

- МГСН 4.05-95 "Школы-интернаты для детей инвалидов".

- МГСН 2.01-94 "Энергосбережение в зданиях. Нормативы по теплозащите и тепловодоэлектроснабжению" (изменения № 1, 2, 3)

- ВСН 59-88 "Электрооборудование жилых и общественных зданий. Нормы проектирования".

- СН 441-72* "Указания по проектированию ограждений площадок и участков предприятий, зданий и сооружений".

- Справочное пособие к СНиП 2.08.02-89* "Проектирование спортивных залов, помещений для физкультурно-оздоровительных занятий и крытых катков с искусственным льдом" 1991 г.

- Справочное пособие к СНиП 2.08.02-89* "Проектирование бассейнов" 1991 г.

3. ОСНОВНЫЕ ПОЛОЖЕНИЯ

3.1. К общеобразовательным учреждениям относятся общеобразовательные школы I, II и III ступеней обучения, гимназии, лицеи и др.

Номенклатура видов общеобразовательных учреждений принимается в соответствии с их классификацией (см. приложение 2).

*3.2. Общеобразовательные учреждения обеспечивают осуществление общеобразовательного процесса в соответствии с программами трех ступеней образования:

- I ступень - начальное общее образование (1-4 классы);

- II ступень - основное общее образование (5-9 классы);

- III ступень - среднее (полное) общее образование (10-11 или 9-11 классы).

3.3. Вместимость общеобразовательных учреждений (общее количество учащихся) определяется заданием на проектирование, исходя из их организационно-педагогической структуры, наполняемости классов, градостроительных и демографических условий.

*3.4. Наполняемость классов и групп продленного дня для общеобразовательных учреждений устанавливается не более 25 учащихся. В условиях реконструкции застройки и сложившегося фонда школьных зданий допускается увеличивать классную группу до 30 учащихся.

В старших классах общеобразовательных школ, гимназиях и лицеях допускается снижение наполняемости классов до 20 учащихся.

*3.5. При проведении занятий по иностранному языку в 1-11 классах и трудовому обучению в 5-11 классах, физической культуре в 10-11 классах, по информатике и вычислительной технике, физике, химии и биологии (во время практических занятий) классная группа делится на две подгруппы. В школах с профильным обучением, лицеях и гимназиях для проведения практических работ класс может делиться на несколько подгрупп, исходя из дифференцированных или интегрированных программ обучения, а также для организации групповых работ и самостоятельных занятий учащихся по интересам. Число мест в помещениях студий и кружков принимается от 8 до 12. В соответствии с этим положением устанавливаются площади помещения согласно приложений 7-11 и 18-20.

3.6. Структуру и вместимость зданий общеобразовательных учреждений следует принимать с учетом приложений 3 и 4.

*3.7. Вместимость отдельного общеобразовательного учреждения не должна превышать 1000 учащихся. При большем числе учащихся, учреждение проектируется в виде комплекса зданий с единым общешкольным центром и несколькими автономными учебными корпусами вместимостью не более двух параллелей учащихся каждый.

4. ТРЕБОВАНИЯ К ОРГАНИЗАЦИИ СЕТИ. ВИДЫ И ТИПЫ ОБЩЕОБРАЗОВАТЕЛЬНЫХ УЧРЕЖДЕНИЙ

4.1. Сеть общеобразовательных учреждений следует рассматривать как основное звено общей системы учебно-воспитательных учреждений, включающей, помимо общеобразовательных, внешкольные учреждения и учреждения для трудового обучения.

Виды и типы общеобразовательных учреждений различаются организационно-педагогическими структурами (соотношением возрастных параллелей учащихся), содержанием, формами и методами организации учебно-воспитательного процесса и направленностью профилизации.

4.2. Принципы организации сети зданий общеобразовательных учреждений см. приложение 3.

4.3. Номенклатуру видов и типов зданий общеобразовательных учреждений см. приложение 4.

Школы различных ступеней обучения могут размещаться отдельно или формироваться в комплексы в разнообразных сочетаниях.

4.4. Общеобразовательные учреждения в единой системе учебно-воспитательных зданий могут кооперироваться с дошкольными и внешкольными учреждениями, учебно-производственными комбинатами и учебными заведениями, дающими профессию со средним образованием.

*4.5. При расчете комплексной сети зданий следует предусматривать число мест в общеобразовательных учреждениях для 100 % учащихся младшего и среднего школьного возраста и до 75 % учащихся старшего школьного возраста при обучении в одну смену.

4.6. При расчете комплексной сети зданий и числа мест в общеобразовательных учреждениях необходимо иметь в виду что: 1) учебно-производительный труд для учащихся старших возрастов может быть организован в межшкольных учебно-производственных комбинатах (МУПК), школьных учебно-производственных мастерских (УПМ), школьных заводах и т.д., из расчета охвата ими до 8 % от общего числа учащихся; 2) занятия по интересам в соответствии с индивидуальными склонностями детей могут осуществляться во внешкольных учреждениях (ВУ), из расчета охвата ими до 10 % от общего числа школьников; 3) отдельные виды занятий могут быть организованы по месту жительства - школы, кружки, студии и клубы по интересам при группах жилых домов.

4.7. По месту жительства рекомендуется планировать клубы для детей микрорайона, не вовлеченных в активные формы работы в школе или во внешкольных учреждениях из расчета: по спорту и туризму 35 %, художественным воспитанием 35 %, кружками юных натуралистов и техников 12 %, прочими видами клубной работы 18 %.

*4.8. Число мест в здании общеобразовательного учреждения определяется по местным демографическим условиям и перспективам развития жилого района (в среднем по Москве 110 учащихся на 1000 жителей).

При этом следует руководствоваться ориентировочной демографической структурой населения исходя из особенностей структуры города (МГСН 1.01-94 табл. 5.3 к пункту 5.7 для населения возрастных групп 6, 7-15, 16-17 лет).

*4.9. Для модернизации сложившейся сети школьных зданий следует руководствоваться п. 5.15 МГСН 1.01-94, применяя в системе застройки сетевые (см. Приложение 1 п. 5) здания школ I, II и III ступеней обучения (см. приложение 3, п. «е» и приложение 4 п. 4).

4.10. Для муниципальных районов с неразвитой инфраструктурой общественных зданий, не соответствующей укрупненным расчетным показателям обеспеченности жителей учреждениями обслуживания согласно МГСН 1.01-94 табл. 5.1 и 5.2 к пункту 5.3, рекомендуется проектировать средние школы с выделенным блоком общешкольного центра для обслуживания учащихся, а также населения во внеучебное время.

*4.11. Сумма ученических мест в сети общеобразовательных учреждений в условиях новой и сложившейся застройки, должна соответствовать п. 4.5. настоящих норм.

*4.12. Радиусы обслуживания от дома до общеобразовательного учреждения определяются максимальным временем доступности: начальных классов - 10-15 мин. пешком, средних классов - 30 мин., старших классов - 45 мин. пешком или транспортом.

5. ТРЕБОВАНИЯ К РАЗМЕЩЕНИЮ И ЗОНИРОВАНИЮ ЗЕМЕЛЬНОГО УЧАСТКА

*5.1. Здания общеобразовательных учреждений следует размещать на обособленных земельных участках с учетом перспективного развитая жилого района.

Расстояние от зданий школы до красной линии и от границы земельного участка школы до стен жилых домов следует принимать по МГСН 1.01-94 п. 5.19.

*5.2. На земельных участках общеобразовательных учреждений следует предусматривать следующие зоны: физкультурно-спортивную, учебно-опытную, отдыха и хозяйственную.

5.3. Площади основных зон земельных участков общеобразовательных учреждений рекомендуется принимать по расчетным показателям на 1 класс в соответствии с приложением 5.

В случаях размещения здания в условиях затесненной застройки состав зон земельного участка определяется заданием на проектирование.

5.4. В физкультурно-спортивной зоне рекомендуется предусматривать: легкоатлетическое спортядро с круговой беговой дорожкой длиной 250 м, баскетбольную, волейбольную и теннисную площадки, гимнастические площадки для младших и старших классов, комбинированную площадку для спортивных игр, метания мяча и прыжков.

Допускается принимать легкоатлетическое спортядро с круговой беговой дорожкой длиной 200 м - для основных школ и с круговой беговой дорожкой длиной 333 м - для общеобразовательных учреждений с числом параллелей старших классов не менее трех.

Допускается уменьшать учебно-спортивную зону на размер легкоатлетического спортядра с сохранением остальных элементов спортзоны, при условии использования спортядра микрорайона или муниципального района, размещенного в пределах 15 минутной пешеходной доступности для проведения спортивных занятий школьников.

*5.5. Физкультурно-спортивную зону не допускается размещать со стороны окон классных помещений. Площадки для игр с мячом и метания спортивных снарядов следует располагать на расстоянии не менее 15 м от окон здания, а при наличии ограждения высотой 3 м - не менее 15 м. Площадки для занятий другими видами физкультурно-спортивных занятий - на расстоянии не менее 10 м.

5.6. В учебно-опытную зону рекомендуется включать: отдел начальных классов, отдел полевых и овощных культур, отдел плодового сада и питомника, отдел цветочно-декоративных растений, отдел коллекционно-селекционной работы, теплицу с зооуголком, парники, географическую площадку, площадку для занятий биологией на воздухе (с навесом).

В условиях дефицита территории допускается сокращать учебно-опытную зону, при условии обязательного сооружения парников, теплицы и устройства специального павильона для коллекционно-селекционной работы до величины, обеспечивающей потребности учебного процесса.

Для школ с биологическим уклоном допускается расширять номенклатуру закрытых сооружений (парники, теплицы, оранжереи, сооружения для хранения малогабаритной сельскохозяйственной техники и т.п.).

5.7. В зону отдыха рекомендуется включать: 1) площадки для подвижных игр учащихся начальной школы (2-4 классы) - принимаются из расчета 100 м2 на каждый класс, а для детей шестилетнего возраста (1 классы) не менее 180 м2 (7,2 на одного ученика) с теневыми навесами и малыми игровыми формами; для основной школы (5-9 классы) - 25 м2 на каждый класс; 2) площадки для тихого отдыха основной школы принимаются для 75 % учащихся из расчета 25 м2 на каждый класс.

Для учащихся старших классов зоной отдыха служат площадки спортзоны.

5.8. При уменьшении общей площади земельных участков без изменения должны сохраняться размеры легкоатлетического ядра, спортивных площадок и площадок для подвижных игр.

5.9. Хозяйственная зона должна иметь отдельный въезд (вход) и размещаться со стороны производственных помещений столовой и вблизи учебно-опытной зоны. В хозяйственной зоне в зависимости от местных условий допускается размещать сарай, овощехранилище, учебный гараж, навесы для инвентаря и оборудования. Допускается также размещать хозяйственные кладовые в цокольном этаже или подвале здания школы с отдельным выходом наружу. Состав и площади хозяйственных построек определяются заданием на проектирование.

*5.10. Площадь озеленения должна составлять не менее 40 % общей площади участка общеобразовательного учреждения.

В площадь озеленения должны включаться площади зеленых насаждений, учебно-опытной зоны, физкультурно-спортивной и зоны отдыха, а также газонов, защитных полос и изгородей из кустарников вокруг участков.

Не допускается применять для озеленения ядовитые и колющие растения.

При примыкании земельного участка общеобразовательного учреждения непосредственно к зеленым насаждениям общего пользования (паркам, лесопаркам, садам, скверам, бульварам) площадь озеленения участка допускается сокращать до 30 %.

*5.11. На земельных участках должны предусматриваться подъезды для пожарных машин к зданиям, а также возможность объезда вокруг зданий. Твердое покрытие должны иметь подъезды к зданиям и объезды вокруг него, хозяйственный двор и подходы к зданию. На периферии участка или вблизи от него следует предусматривать стоянку автомашин для педагогов и сотрудников (МГСН 1.01-94 пункт 12.16 табл. 43 ¢¢Высшие и средние учебные заведения¢¢), преимущественно со стороны хоззоны.

*5.12. Земельные участки общеобразовательных учреждений должны иметь ограждение по всему периметру, высотой не менее 1,2 м в соответствии с требованиями СН 441-72* и иметь предохранительные устройства, препятствующие выбеганию учащихся на проезжую часть улицы со стороны входа в здание.

Допускается предусматривать живую изгородь из зеленых насаждений.

*5.13. Участок должен быть обустроен малыми архитектурными формами, освещен: иметь мощеные покрытия и травяной газон.

Среднюю горизонтальную освещенность следует принимать по СНиП 123-05-95 табл. 13.

5.14. При размещении зданий на затесненных участках допускается проектировать эксплуатируемые кровли, "вывешивать" отдельные части здания по уровню 1-го этажа для устройства площадок отдыха и т.п.

С эксплуатируемой кровли следует предусматривать не менее двух эвакуационных выходов, покрытие кровли и утеплитель должны быть несгораемыми.

Площадки, размещаемые на эксплуатируемой кровле, должны иметь ограждение высотой не менее 1,6 м без горизонтальных членений. Расстояние в свету между вертикальными элементами ограждения должно быть не более 0,1 м.

5.15. В зоне главного входа рекомендуется предусматривать мощеную площадку для сбора учащихся и проведения ритуальных мероприятий.

6. ТРЕБОВАНИЯ К ФУНКЦИОНАЛЬНЫМ ГРУППАМ, СОСТАВУ И ПЛОЩАДЯМ ПОМЕЩЕНИЙ

6.1. Набор функциональных групп, состав и площади помещений общеобразовательных учреждений должны соответствовать их видам и типам, функционально-педагогической структуре и назначению.

6.2. Состав помещений общеобразовательных учреждений должен содержать учебную и общешкольную группы помещений (см. приложение 6) и дифференцироваться на функциональные группы в соответствии с приложениями 6-21.

*6.3. Количество основных помещений классов, классов-кабинетов для всех видов общеобразовательных учреждений принимается равным количеству учебных групп, в соответствии с организационно-педагогической структурой.

Состав и площади помещений общеобразовательных школ, проектируемых по городскому заказу в период 2003-2010 гг. следует принимать в соответствии с обязательным Приложением 27.

(Измененная редакция. Дополнения № 1, 1*).

*6.4. Расчетные показатели площади основных учебных помещений общеобразовательного учреждения в среднем принимаются не менее: для класса - учебного кабинета и лаборатории по естественным наукам - 3 м2/уч., мастерских по изучению технологий и труда - 7,5 м2/уч., специализированных мастерских для дифференцированного обучения по направлениям - 9 м2/уч.

6.5. Состав и площади отдельных функциональных групп помещений общеобразовательного учреждения следует принимать в соответствии с рекомендуемыми в приложениях с 7 по 21 включительно.

6.6. Гардеробные для преподавателей должны предусматриваться из расчета не менее двух мест на один класс.

*6.7. Площадь пола спортзалов принимается из расчета не менее 1,4 м2 на одного учащегося школы. Количество и размер залов определяется исходя из назначения и типа здания.

При учебно-спортивных залах должны предусматриваться: не менее чем одна пара раздевальных на класс (для мальчиков и девочек) и по две пары помещений раздевальных, душевых и уборных в игровых залах.

*6.8. Площадь обеденного зала столовой следует принимать из расчета не менее 1,0 м2 на одно посадочное место. Число посадочных мест определяется из расчета половины численности учеников, преподавателей и администрации общеобразовательного учреждения.

6.9. Площади уборных, умывальных и душевых общеобразовательных учреждений и количество санитарных приборов следует принимать по приложению 22.

*6.10. Рекреации следует проектировать из расчета 2 м2 на 1 учащегося, как правило, в виде зальных помещений.

7. ОБЪЕМНО-ПЛАНИРОВОЧНЫЕ СТРОЕНИЯ

7.1. Здания общеобразовательных учреждений рекомендуется проектировать универсальными из расчета эксплуатации их - в качестве школы, с различными организационно-педагогическими структурами, лицея или гимназии.

*7.2. Здания общеобразовательных учреждений проектируются, как правило, высотой в 2-3 этажа. Для затесненных участков застройки допускается проектировать общеобразовательные учреждения в 4 этажа. На четвертом этаже не допускается размещать помещения начальных классов, а остальных учебных помещений должно быть не более 25 %.

*7.3. Высота надземных этажей здания должна быть не менее 3,3 м (от пола до пола вышележащего этажа). Высота зрительного и спортивных залов принимается согласно рекомендациям приложений 15 и 16, кабинетов информатики и вычислительной техники, лекционной аудитории - по технологическим требованиям.

7.4. Объемно-планировочная структура здания должна соответствовать назначению учреждения, его специфике и комфортным условиям эксплуатации, включая связь с участком школы.

7.5. Архитектурно-типологическая структура здания в соответствии с функциональной моделью должна иметь следующую пространственную организацию:

помещения общеобразовательных учреждений следует подразделять на две основные обособленные группы - учебную и общешкольную, в соответствии с приложением 6; рекреационный центр, при его наличии, должен быть связующим звеном между ними;

учебная группа помещений должна быть дифференцирована на школы I, II и III ступеней обучения и технологические группы помещений, обслуживающие эти возрастные школы.

*7.6. Учебные помещения должны группироваться в учебные секции:

для 1 классов школ в учебных секциях следует предусматривать не более трех классных помещений со спальными - игровыми (комнатами отдыха) и санитарными узлами;

для 2-4 классов в учебных секциях следует предусматривать не более шести классных помещений с рекреациями и санитарными узлами, а также комнату труда и универсальное помещение для групп продленного дня, последние допускается размещать вне учебной секции, но в группе помещений для учащихся этих классов;

для 5-11 классов в учебные секции должны входить учебные классы-кабинеты, лаборатории и соответствующие рекреационные помещения и санитарные узлы;

учебные секции 1, 2-4 классов, а также 5-8 (9) классов, должны быть обособленными и непроходными для учащихся других возрастных групп. Допускается учебные секции 5-11 классов в общеобразовательных учреждениях с профильным обучением, гимназиях и лицеях проектировать необособленными.

Специализированные учебные кабинеты и мастерские следует группировать в учебные секции по признакам родственных дисциплин и технологий.

Допускается санитарные узлы для 5-11 классов размещать вне учебных секций, а в двухэтажных зданиях размещать на одном из этажей сосредоточенно.

7.7. Кабинеты химии и физики следует размещать на нижних этажах.

7.8. Группу помещений общешкольного центра рекомендуется размещать изолированно от учебных секций. Проходы в помещения центра через учебные секции не допускаются.

7.9. Общеобразовательные учреждения следует проектировать, как правило, в одном сблокированном здании.

*7.10. При определении типа кухонного блока (работающего на сырье или полуфабрикатах) должна учитываться связь со школьно-базовой столовой муниципального района (МГСН 1.01-94 табл. 5.1 к пункту 5.3 поз. П).

В производственные помещения столовой должен предусматриваться отдельный вход и дебаркадер.

Производственные помещения столовых проектируются с учетом размещения в них комплекта торгово-технологического оборудования на электроподогреве.

*7.11. При обеденном зале должны предусматриваться умывальники из расчета 1 кран на 30 мест.

7.12. Допускается при согласовании с департаментом образования и МГЦ Госсанэпиднадзора использовать столовые во внеучебное время для жителей микрорайона в качестве кафе или дискоклубов при условии организации при них дополнительных санузлов.

*7.13. Учебно-спортивные залы следует размещать не выше второго этажа. Предусматривать проходы в учебно-спортивные помещения через учебные секции не допускается. Вход в спортивный зал из раздевальных предусматривается непосредственно или через обособленный коридор. Снарядная должна соединяться со спортивным залом через дверь или открытый проем шириной не менее 2 м и высотой не менее 2,2 м. Длина снарядной для хранения гимнастического бревна должна быть не менее 5 м. Пол снарядной должен быть в одном уровне с полом спортивного зала (без порога).

7.14. Коридоры и рекреационные помещения, находящиеся вблизи зрительного зала - лекционной аудитории, следует проектировать с учетом использования их в качестве кулуаров (фойе).

7.15. Ширина рекреационных помещений при одностороннем расположении кабинетов и лабораторий должна приниматься не менее 4 м, ширина рекреационных помещений, примыкающих к кабинетам, лабораториям (при их двухстороннем расположении) и классам - не менее 6 м.

7.16. Гардеробные должны располагаться изолированно с зонированием для начальной, основной и старшей школы.

*7.17. На входах в здания общеобразовательных учреждений следует предусматривать тамбуры.

*7.18. Унитазы в уборных для учащихся должны размещаться в закрытых кабинах. Кабины должны быть отделены перегородками-экранами высотой не менее 1,8 м (от пола), не доходящими до пола на 0,2 м. Размеры кабин должны приниматься в плане 0,8 ´ 1 м. Одна из кабин уборных для девочек (личной гигиены) должна быть полноценной 1,8 ´ 1,2 м.

Проход между кабинами уборных и противоположной стеной должен приниматься, в м, не менее:

при отсутствии писсуаров - 1,5 м;

при наличии писсуаров - 2,0 м.

Расстояние между кранами индивидуальных умывальников должно быть не менее 0,65 м.

Высота верхней поверхности раковин умывальников над полом должна приниматься 0,5 м для учащихся 1 классов: 0,6 м - для учащихся 2-4 классов и 0,7 м - для учащихся 5-11 классов.

Проход между умывальниками и стеной должен быть не менее 1,1 м, между двумя рядами умывальников - не менее 1,6 м.

*7.19. Душевые кабины должны предусматриваться размером в плане не менее 0,9 ´ 0,9 м. Проход между рядами душевых кабин должен быть не менее 1,2 м, а между рядом кабин или кабиной и стеной (перегородкой) - не менее 0,8 м.

7.20. Подсчет технико-экономических показателей необходимо производить в соответствии с правилами, установленными СНиП 2.08.02-89* "Общественные здания и сооружения", приложение 3.

8. ПРОТИВОПОЖАРНЫЕ ТРЕБОВАНИЯ К ЗДАНИЯМ ОБЩЕОБРАЗОВАТЕЛЬНЫХ УЧРЕЖДЕНИЙ

*8.1. Объемно-планировочное решение здания должно соответствовать противопожарным требованиям СНиП 02.01.02-85*, СНиП 2.08.02-89* и других нормативных документов, действующих на территории Москвы.

*8.2. Наибольшее количество людей, одновременно пребывающих на этаже в зданиях школ, при расчете ширины путей эвакуации должно определяться исходя из вместимости учебных помещений, помещений для трудового обучения и спальных помещений, а также спортивного зала и актового зала - лекционной аудитории, находящихся на данном этаже.

*8.3. Ширина дверей выходов из помещений, в которых одновременно может находиться более 15 учащихся, должна быть не менее 0,9 м.

*8.4. Из групп помещений, расположенных в подвальном или цокольном этажах зданий школ необходимо предусматривать не менее двух эвакуационных выходов непосредственно наружу. Для этих групп помещений допускается устройство выходов на первый этаж через отдельные лестничные клетки, не связанные с открытыми лестницами и общими лестничными клетками.

8.5. В зданиях общеобразовательных учреждений следует предусматривать устройства по мусороудалению. В 3-4 этажных зданиях допускается устройство вертикальных мусоропроводов с мусоросборными камерами. Ограждающие конструкции ствола мусоропровода должны иметь предел огнестойкости не менее 0,5 часа.

Мусороуборочную камеру следует размещать под стволом мусоропровода и выделять противопожарными перегородками 1-го типа. На сети водопровода в мусорокамере необходимо установить автоматические спринклеры.

Выход из мусорокамеры должен предусматриваться непосредственно наружу и отделяться от входа в здание глухой стеной (экраном), над выходом из нее должен предусматриваться козырек из негорючих материалов.

*8.6. Деревянные конструкции пола спортзала должны быть подвергнуты глубокой пропитке антиперенами. Места для сидения допускается выполнять из горючих материалов, не выделяющих при горении токсичных веществ.

*8.7. Помещения зрительного зала и кружковых помещений должны быть выделены противопожарными перегородками 1-го типа и перекрытиями 3-го типа.

*8.8. Помещения гардеробных площадью 200 м2 и более необходимо оборудовать системой дымоудаления. Вентиляторы дымоудаления должны включаться от пожарных извещателей, реагирующих на дым, дистанционно, от кнопок. Аналогично должна быть предусмотрена блокировка систем приточно-вытяжной вентиляции при пожаре.

*8.9. Размещение сауны (бани сухого жара) в зданиях общеобразовательных учреждений не допускается.

*8.10. Каналы в зданиях для прокладки кабелей, питающих помещения электронно-вычислительной техники, информатики и другие следует предусматривать с пределом огнестойкости не менее 0,75 ч.

*8.11. В случае размещения общеобразовательных учреждений совместно с дошкольными, помещения дошкольных учреждений следует отделять противопожарными перегородками 1-го типа и перекрытиями 3-го типа. Эвакуационные выходы из дошкольных учреждений должны быть самостоятельными.

*8.12. Из мастерских по обработке древесины и комбинированной мастерской по обработке металла и древесины необходимо предусматривать дополнительный выход непосредственно наружу (через утепленный тамбур) или через коридор, примыкающий к мастерским, в который нет выходов из классов, учебных кабинетов и лабораторий.

*8.13. Тепловая автоматическая пожарная сигнализация должна предусматриваться в следующих помещениях: кабинетах черчения и изобразительных искусств, лабораториях физики и астрономии, химии, биологии, лаборантских физики, химии, биологии, лаборантских при учебных кабинетах, учебных мастерских для учащихся 5-9 классов по обработке металла, древесины, комбинированной мастерской по обработке металла и древесины, инструментальной - комнате мастера, универсальной мастерской по техническим видам труда, мастерских обслуживающих видов труда по обработке тканей, по кулинарии, учительской и учебно-методическом кабинете, раздевальных при учебно-спортивных залах, снарядных, кабинете инструктора физического воспитания, эстраде, кружковых помещениях, техническом центре (радиоузел, дикторская, комната для ремонта аппаратуры, фотолаборатория), инвентарной при актовом зале - лекционной аудитории, обеденном зале, кладовой сухих продуктов, загрузочной - тарной, бельевой при кухне, хозяйственной кладовой при кухне, канцелярии, комнате технического персонала и хозяйственной кладовой, в спальных - игровых, комнатах хозяйственного инвентаря, медицинских комнатах.

Автоматическую пожарную сигнализацию, реагирующую на дым необходимо предусматривать в кабинетах информатики и электронно-вычислительной техники, кладовых для хранения сырья и готовой продукции, зрительном зале, лекционной аудитории, киноаппаратных, помещениях библиотеки, вестибюлях и гардеробных с сушилкой, гардеробных, кладовых индивидуального спортивного инвентаря.

Сигнал о срабатывании АПС выводится в помещение с круглосуточным пребыванием дежурного персонала или в ближайшую пожарную часть

9. ТРЕБОВАНИЯ К ВНУТРЕННЕЙ СРЕДЕ ЗДАНИЙ

ЭРГОНОМИЧЕСКИЕ ПАРАМЕТРЫ РАЗМЕЩЕНИЯ МЕБЕЛИ И ОБОРУДОВАНИЯ

9.1. Основное помещение школы - класс - учебный кабинет - должно отвечать требованиям активного ведения учебного урока с организацией как фронтальных, так групповых и индивидуальных форм обучения с широким привлечением технических средств.

Помещение должно включать рабочую зону учащихся, рабочую зону учителя, дополнительное пространство для размещения учебно-наглядных пособий, ТСО, личных вещей учащихся, зону для групповой работы и для индивидуальных занятий учеников (особо успевающих и неуспевающих) и возможности активной деятельности. Эти зоны как сумма пространств должны обеспечивать оптимальные условия обучения.

Помещения 1-8 (9) классов следует оборудовать одноместными легкими ученическими столами и, как правило, встроенными шкафами, а также дополнительным мобильным оборудованием для решения проблем "гибкой" организации пространства с целью активизации форм обучения.

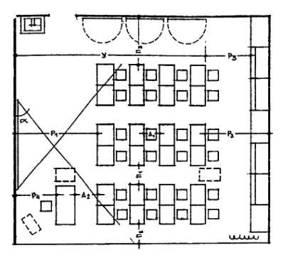
*9.2. Проходы и расстояния между оборудованием в основных учебных помещениях (приложение рис. 1-3) должны приниматься в см.:

П1 - между рядами двухместных или спаренных столов не менее 60;

П1 - между рядами одноместных столов не менее 50;

П2 - между рядами столов и наружной продольной стеной не менее 70;

П3 - между рядами столов и внутренней продольной стеной (перегородкой) или шкафами, стоящими вдоль этой стены, не менее 160;

П4 - между передними столами и демонстрационным столом не менее 140;

Р1 - от передней стены с классной доской до передних столов всех рядов при трехрядной расстановке не менее 280.

Р2 - от задних столов до задней стены (перегородки) не менее 160;

Р3 - от задних столов до шкафов, стоящих вдоль задней стены (перегородки) - не менее 140;

Р4 - между столом преподавателя и передней стеной (перегородкой) - не менее 140;

Р5 - между группами столов не менее 140;

Д1 - между столами в ряду - не менее 50;

Д2 - между столом преподавателя и передними столами учащихся не менее 80;

У - наибольшая удаленность последнего места учащегося от классной доски в учебном помещении 860.

Высота нижнего края классной доски над полом (в рабочем положении) для 1 классов - 70-80; 2-4 классов - 75-80; 5-11 классов - 80-90. Угол рассматривания классной доски принимается не менее 40°.

Проходы и расстояния между оборудованием, а также угол рассматривания классной доски в основных учебных помещениях при наполняемости учебной группы 30 человек должны приниматься по Приложению 28.

(Измененная редакция. Дополнение № 2).

9.3. На рис. 1-3 приложения 26 показана организация пространства, и размещение мебели и оборудования класса-кабинета для фронтальных, фронтально-групповых и групповых форм ведения урока.

ЕСТЕСТВЕННОЕ И ИСКУССТВЕННОЕ ОСВЕЩЕНИЕ

9.4. Естественное освещение помещений школ следует проектировать в соответствии со СНиП 23-05-95.

*9.5. Все основные учебные помещения должны иметь КЕО не менее 1,5 на поверхности учебных столов и освещаться, как правило, боковым левым светом. Для организации мобильных форм ведения урока необходимо предусматривать равномерное освещение по всей рабочей плоскости в помещении за счет дополнительного верхнего света (комбинированного: сочетания верхнего с боковым) или дополнительное искусственное освещение в глубине помещения - вне зоны основных учебных столов.

*9.6. Допускается проектировать без естественного освещения (только с искусственным):

зрительные залы, лекционные аудитории и кулуары, коммуникации и коридоры, не являющиеся рекреационными помещениями;

умывальные, душевые и уборные при спортивных залах и бассейне, уборные персонала, комнаты личной гигиены женщин;

радиоузлы, кино-фотолаборатории, помещения для замкнутых систем телевидения;

книгохранилище, кладовые;

бойлерные, насосные водопровода и канализации, камеры вентиляционные и кондиционирования воздуха, узлы управления и другие помещения для установки и управления инженерным и технологическим оборудованием здания.

В особых случаях, для соблюдения требований максимальной компактности здания допускается обеденный зал, кроме кухни, и санитарные узлы для учащихся проектировать с искусственным освещением. При этом должна быть увеличена кратность обмена воздуха (по расчету).

Допускается освещать коридоры вторым светом путем устройства остекленных перегородок или фрамуг в стенах коридора.

9.7. Нормируемые показатели искусственной освещенности основных помещений общеобразовательных учреждений следует принимать по СНиП 23-05-95 таблица 2 и приложения 23 настоящих норм.

ИНСОЛЯЦИЯ, СОЛНЦЕЗАЩИТА И ОРИЕНТАЦИЯ ПОМЕЩЕНИЙ ПО СТОРОНАМ СВЕТА

*9.8. Инсоляцию учебных помещений следует предусматривать в соответствии с нормами, действующими на территории г. Москвы.

9.9. Ориентацию окон основных учебных помещений необходимо принимать согласно приложению 24.

9.10. Учебные помещения, в которых предусматривается использование технических средств обучения, следует оборудовать устройствами для зашторивания.

9.11. Оптимальная ориентация помещений горячего цеха кухни на север.

ВОДОСНАБЖЕНИЕ И КАНАЛИЗАЦИЯ

9.12. В зданиях общеобразовательных учреждений следует предусматривать хозяйственно-питьевое и горячее водоснабжение, канализацию и водостоки, которые необходимо проектировать в соответствии со СНиП 2.04.01-85 и настоящего раздела.

Внутренний противопожарный водопровод следует предусматривать для зданий III-ей степени огнестойкости и при реконструкции (капитальном ремонте) существующих 5-ти этажных зданий в количестве 2 струй с расходом воды не менее 2,5 л/с.

9.13. Подводка холодной воды должна предусматриваться: к раковинам химических лабораторных столов и демонстрационных столов в лабораториях химии, физики и биологии; к смывным бачкам в санузлах.

9.14. Подводка холодной и горячей воды должна предусматриваться: к умывальникам, устанавливаемым по одному в каждой классной комнате 1-4 классов и помещениях для групп продленного дня, к умывальникам, устанавливаемым по одному в кабинете черчения и изобразительных искусств, информатики и электронно-вычислительной техники, кружковых помещениях технического моделирования, юных натуралистов, студии живописи, рисунка, скульптуры; к умывальникам и мойкам в мастерских по обработке тканей и кулинарии; к умывальникам в учительской, столовой и кухне, к водоразборным кранам, устанавливаемым для хозяйственных нужд по одному, к раковинам в учебных мастерских, в комнате технического персонала и в помещениях уголка живой природы; к душевым кабинам и к приборам кабин личной гигиены; к ножным ваннам; к двухсекционной мойке в фотолаборатории и кино-фотолаборатории; к умывальникам перед столовой, умывальникам санузлов и медицинского блока; к лабораторным шкафам в лабораториях химии, физики и биологии, а также к оборудованию столовых и буфетов, куда подводка холодной и горячей воды предусматривается согласно технологическим требованиям.

*9.15. Температура горячей воды, поступающей к смесителям приборов, не должна превышать 60 °С.

ОТОПЛЕНИЕ И ВЕНТИЛЯЦИЯ

9.16. В зданиях общеобразовательных школ следует предусматривать отопление и вентиляцию.

Отопление и вентиляцию зданий следует проектировать в соответствии с требованиями СНиП 2.04.05-91* и настоящего раздела.

9.17. Расчетную температуру воздуха для проектирования отопления и кратность обмена воздуха в помещениях следует принимать по приложению 25.

*9.18. Температура воздуха, подаваемого в рабочее время системами воздушного отопления, не должна превышать 40 °С.

*9.19. Удаление воздуха из учебных помещений следует предусматривать через рекреации и санитарные узлы.

При проектировании приточной вентиляции с механическим побуждением в учебных помещениях следует предусматривать естественную вытяжную вентиляцию из расчета однократного обмена в1 час.

При воздушном отоплении вытяжные каналы из учебных помещений проектировать не следует.

*9.20. Отдельные системы вытяжной вентиляции следует предусматривать для следующих помещений (групп помещений): классных помещений и учебных кабинетов (при отсутствии воздушного отопления), лабораторий, актовых залов - лекционных аудиторий, учебных мастерских, спортивных залов, бассейнов, тиров, столовой, медпункта, киноаппаратной, санитарных узлов.

*9.21. При проектировании воздушного отопления, совмещенного с вентиляцией, следует предусматривать автоматическое управление системами, в том числе поддержание в рабочее время в помещениях расчетной температуры и относительной влажности в пределах 30-60 %, а также обеспечение в неучебное время температуры воздуха не ниже 15 °С.

*9.22. Рециркуляция воздуха в системах воздушного отопления учебных помещений не допускается.

*9.23. Воздухообмен в школьных столовых должен рассчитываться на поглощение теплоизбытков, выделяемых технологическим оборудованием кухни.

Подачу приточного воздуха в производственные помещения пищеблока следует предусматривать через обеденный зал. Объем подаваемого воздуха должен быть не менее 20 м3/ч на одно посадочное место.

При установке модулированного кухонного оборудования подачу части приточного воздуха следует осуществлять через вентиляционные устройства этого оборудования.

Удаление воздуха из комплекса пищеблока следует предусматривать через производственные помещения.

9.24. Подачу приточного воздуха в киноаппаратную допускается предусматривать от приточной системы актового зала - лекционной аудитории при условии подключения воздуховода, идущего в киноаппаратную, к приточной системе зала, ниже уровня пола киноаппаратной.

9.25. Воздушно-тепловые завесы тамбуров входа в здание следует проектировать для школ на 3 и более параллелей классов. Допускается устройство тепловых завес от приточной системы с установкой во втором тамбуре калорифера догрева и автоматической воздушной заслонки.

9.26. В помещениях, перечисленных в пп. 6, 7 и 15 приложения 25, имеющих наружные окна с фрамугами или форточками, устройство вытяжных каналов не обязательно.

*9.27. Применение асбестоцементных воздуховодов не допускается.

9.28. В зданиях общеобразовательных учреждений с количеством учащихся до 200 допускается устройство вентиляции без организованного механического притока.

ЭЛЕКТРОТЕХНИЧЕСКИЕ И СЛАБОТОЧНЫЕ УСТРОЙСТВА

9.29. В зданиях общеобразовательных учреждений следует предусматривать электрооборудование, электрическое освещение, системы электросвязи и передачи информации, автоматическую пожарную сигнализацию и оповещение о пожаре.

9.30. Электроснабжение, электрооборудование, электрическое освещение зданий и наружное освещение территорий общеобразовательных учреждений следует предусматривать в соответствии с требованиями СНиП 23-05-95, ВСН 59-88 и настоящего раздела.

9.31. Во всех помещениях зданий общеобразовательных учреждений должна предусматриваться скрытая электропроводка. В кухнях, кладовых, туалетных и других подсобных помещениях допускается открытая электропроводка.

9.32. Люминесцентные светильники в учебных помещениях должны предусматриваться с пускорегулирующими аппаратами с особо низким уровнем шума и быть рассеянного света.

Примечания:

1. При применении для общего освещения учебных помещений светильников с лампами накаливания они должны применяться отраженного или преимущественно отраженного светораспределения.

2. При освещении учебных помещений люминесцентными лампами рекомендуется предусматривать подсвет классной доски специальными люминесцентными светильниками несимметричного светораспределения; при освещении учебных помещений лампами накаливания для подсветки доски в системе общего освещения должны предусматриваться дополнительные светильники.

*9.33. При проектировании осветительных установок должны вводиться коэффициенты запаса 1,5 при люминесцентных лампах и 1,3 при лампах накаливания.

9.34. Для подключения диапроектора, кинопроектора и других технических средств обучения в классных помещениях, учебных кабинетах, лабораториях, кружковых помещениях и помещениях для организации продленного дня должны предусматриваться не менее трех штепсельных розеток: одна у классной доски, другая - на противоположной от доски стене помещения, третья - на стене, противоположной окнам. В учебных помещениях должна предусматриваться одна розетка с заземлением, за исключением компьютерного класса и кабинета информатики, где предусматривается не менее пяти таких розеток.

*9.35. Установка штепсельных розеток в помещениях пребывания учащихся должна предусматриваться на высоте 0,2 м от пола.

Установка выключателей в помещениях пребывания учащихся должна предусматриваться на высоте 1,8 м от пола.

9.36. Электрощитовые должны размещаться на первом этаже. Допускается размещение электрощитовой в подвале при условии низкого уровня грунтовых вод и устройства гидроизоляции от проникновения ливневых вод.

*9.37. Светильники в учебных помещениях должны устанавливаться рядами, параллельно наружным стенам с окнами. Необходимо предусматривать раздельное (по рядам) включение светильников, имея в виду освещение в первую очередь части помещения, удаленной от окон.

*9.38. Аварийное освещение для эвакуации людей должно предусматриваться в вестибюлях, гардеробных, коридорах, лестничных клетках, рекреационных помещениях, спортивном и обеденном залах, зрительном зале, мастерских, киноаппаратной. Аварийное освещение для продолжения работы должно предусматриваться в электрощитовых, вентиляционных камерах, тепловых узлах, насосных; при этом должна быть обеспечена норма освещенности 2 лк.

Для обозначения выходов из зрительного зала должны предусматриваться световые указатели, присоединенные к сети аварийного освещения.

9.39. Наружное освещение земельных участков общеобразовательных учреждений должно проектироваться в соответствии с Указаниями по проектированию освещения территорий учреждений культурно-бытового обслуживания населения и наружного архитектурного освещения.

Необходимость устройства нестационарного освещения спортивных площадок, используемых в зимнее время для игры в хоккей с мячом и хоккей с шайбой, должна устанавливаться заданием на проектирование.

9.40. В зданиях общеобразовательных учреждений должна предусматриваться радиофикация.

Радиоточки должны предусматриваться в учительских, кабинетах директора, заместителя директора по учебно-воспитательной работе, старшего воспитателя, организатора внеклассной и внешкольной воспитательной работы, врача, в канцелярии, киноаппаратной, радиоузле, комнате мастера, кабинете инструктора физического воспитания, технического персонала и рекреационных помещениях.

Установки звукоусиления следует предусматривать в зрительном зале, учебно-спортивных залах, форуме рекреационного центра, рекреационных помещениях.

9.41. В зданиях общеобразовательных учреждений необходимо предусматривать радиоузел с двусторонней связью, устанавливаемой в помещении радиоузла, который следует располагать в непосредственной близости с кабинетом директора.

9.42. Установка телефонов должна предусматриваться в кабинете директора (с параллельным аппаратом в канцелярии), в кабинетах заместителя директора по учебно-воспитательной работе, организатора внеклассной и внешкольной воспитательной работы в учительской, столовой, кабинете врача, комнате мастера, дежурного воспитателя, комнате инструктора физического воспитания и бассейне.

9.43. Установка электрочасов должна предусматриваться в вестибюлях, рекреационных помещениях, актовом зале - лекционной аудитории, обеденном и учебно-спортивном залах.

9.44. Установку электрозвонков, управляемых от сигнальных электрочасов, необходимо предусматривать в вестибюлях и рекреационных помещениях.

9.45. Сети для приема телевизионного вещания, применения видеотехники и замкнутых систем телевидения необходимо предусматривать в классах, учебных кабинетах, лабораториях, мастерских, зрительном зале, лекционной аудитории, библиотеке, кружковых помещениях и помещениях для организации продленного дня, кабинете директора, учительской.

9.46. По согласованию с местными органами охраны помещения общеобразовательных учреждений, в которых, сосредоточены материальные ценности, подлежат оборудованию охранной сигнализацией по дополнительному заданию.

ВНУТРЕННЯЯ ОТДЕЛКА ПОМЕЩЕНИЙ

9.47. Внутренняя отделка помещений должна соответствовать санитарно-гигиеническим и противопожарным требованиям в зависимости от их назначения.

Применение полимерных материалов и видов отделки допускается в соответствии с "Перечнем полимерных материалов, разрешенных к применению в строительстве детских учреждений" (1985 г.).

ТРЕБОВАНИЯ К МАКСИМАЛЬНОМУ ЭНЕРГОСБЕРЕЖЕНИЮ

9.48. Здания общеобразовательных учреждений проектируются с учетом максимального энергосбережения в соответствии с МГСН 2.01-94 "Энергосбережение в зданиях. Нормативы по теплозащите и тепловодоэлектроснабжению" и изменений № 1, № 2, № 3 к МГСН 2.01-94.

Приложение 1

(справочное)

СОКРАЩЕНИЯ, ТЕРМИНЫ И ОПРЕДЕЛЕНИЯ

1.  ¢¢ОУ¢¢ - Общеобразовательное учреждение;

¢¢П¢¢ - Профильное обучение;

¢¢У¢¢ - Учебная группа помещений (состав см. прил. 6);

¢¢О¢¢ - Общешкольная группа помещений (состав см. прил. 6);

¢¢КЕО¢¢ - Коэффициент естественной освещенности;

¢¢ТОО¢¢ - технические средства обучения.

2. Среднее звено школы - шкала в составе 5-9 или 5-8 (7) классов.

Старшая школа - школа в составе 10-11, 9-11 или 8-11 классов.

3. Параллель классов - число классных групп одного возраста.

4. Организационно-педагогическая структура - соотношение параллелей классов школ I, II и III ступеней обучения:

(возрастные классные группы).

число параллелей классов

Например: полная средняя школа 1-4:5-9:10-11    (классы)

1 : 1 : 1         (параллели)

2 : 2 : 2

3 : 3 : 3

основная школа (I-II ступень) 1-4:5-8:10-11   (классы)

1 : 1 : 0           (параллели)

школа II-III ступеней 1-4:5-8:9-11   (классы)

0 : 3 : 3        (параллели)

5. Автономная школа - школа с равным числом параллелей классов по всем возрастным группам.

Например: 1-4:5-9:10-11 (классы)

2 : 2 : 2        (параллели)

Сетевая школа - школа с неравным числом параллелей классов (меньшим в начальной школе и большим в старшей). Рассчитана на обслуживание близрасположенных школ низшей ступени.

Например: 1-4:5-9:10-11 (классы)

1 : 2 : 4        (параллели)

1-4:5-8:9-11   (классы)

0 : 4 : 3        (параллели)

6. Фронтальные занятия - все учащиеся сидят лицом к классной доске и учителю.

7. Групповые занятия - занятия с разделением классной группы на подгруппы по 8, 6 или 4 человека, в соответствии с которыми группируются ученические столы. При этом учащиеся сидят лицом друг к другу и выполняют коллективные задания.

8. Индивидуальные занятия - занятия с рассредоточением учащихся по всему классному помещению для самостоятельного решения поставленных учителем задач. Учащиеся могут быть обращены лицом на периметр стен с закрепленным на них дидактическим материалом или проводить занятия с ТСО.

9. Смешанные формы ведения урока - одновременное ведение фронтальных, групповых и индивидуальных форм работы.

10. Классное помещение - помещение для учащихся начальной школы.

11. Класс-кабинет - помещение для учащихся основной и старшей школы, для проведения занятий по разным дисциплинам.

12. Специализированный кабинет - помещение для углубленных профильных курсов или по узкой дисциплине.

13. Лаборатория - помещение для занятий с демонстрацией опытов.

14. Практикум (лаборатория-практикум) - помещение для фронтальных лабораторных работ и лабораторных практикумов с частью класса.

15. Лаборантская - помещение для хранения и подготовки оборудования к опытам учителем и лаборантом.

16. Лаборантская-практикум - помещение с совмещенной функцией лаборантской и практикума.

17. Ресурсный центр - помещение при учебной секции, где сосредоточены наглядные учебные пособия и ТСО.

18. Учебная секция - группа классных помещений (учебных кабинетов), рекреация, ресурсный центр и санузлы.

19. Комбинированное освещение - сочетание бокового естественного освещения с верхним естественным освещением.

20. Смешанное освещение - сочетание бокового естественного освещения с искусственным.

Приложение 2

(справочное)

КЛАССИФИКАЦИЯ И НАЗНАЧЕНИЕ ВИДОВ ОБЩЕОБРАЗОВАТЕЛЬНЫХ УЧРЕЖДЕНИЙ

Начальная общеобразовательная школа. Организуется как самостоятельная школа, а также в составе основной или средней общеобразовательной школы (срок обучения в начальной школе - 3-4 года).

Основная общеобразовательная школа. Организуется как самостоятельное общеобразовательное учреждение с 1 по 9 класс включительно, так и в составе средней (полной) общеобразовательной школы.

Средняя (полная) общеобразовательная школа. Организуется как самостоятельная школа III ступени, так и имеющая в своем составе школы I и II ступеней, (срок обучения - 2 (3) года или 11 (12) лет).

Средняя общеобразовательная школа с углубленным изучением отдельных предметов. Общеобразовательное учреждение, осуществляющее образовательный процесс, реализующее учебные программы среднего (полного) общего образования, в том числе и программы углубленного изучения одного или нескольких предметов (иностранный язык (языки), физика, математика (физико-математика), химия, биология (биолого-химия), литература, история, экономика и другие предметы). С 8-х и 9-х классов II ступени начинает осуществляться дифференцированный подход в работе со школьниками и постепенный переход на углубление программы. Существует как самостоятельное звено (III ступень) или имеет в своем составе школу I или I-II ступеней образования. Срок обучения - 2 (3) - 11 (12) лет.

Общеобразовательная школа - лаборатория. Общеобразовательное учреждение, реализующее образовательные программы общего среднего (полного) образования и экспериментальные программы. Экспериментальные образовательные программы обеспечивают работу учреждения в инновационном режиме и на повышенном образовательном уровне, разрабатываются и реализуются при участии научных сотрудников, входящих в состав лаборатории. Школа - лаборатория имеет в своем составе три образовательные ступени. При необходимости включает в свою структуру дошкольное учреждение. Общеобразовательная школа - лаборатория может вводить начальную профессиональную подготовку.

Учебно-воспитательный комплекс. Общеобразовательное учреждение в составе общеобразовательной школы и дошкольного учреждения.

Гимназия. Общеобразовательное учреждение, реализующее общеобразовательные программы общего среднего (полного) образования, дающее, как правило, обучающимся среднее гуманитарное образование углубленного типа со знанием двух-трех иностранных языков. Гимназия может иметь в своем составе только II и III ступени. Срок обучения 7 (8) лет.

Лицей. Общеобразовательное учреждение, реализующее общеобразовательные программы среднего (полного) общего образования, дающего обучающимся углубленное изучение ряда предметов и профессиональную подготовку, и обеспечивающее непрерывность среднего и высшего образования. Лицей организуется как учреждение в основном III ступени, но может с 8-9 класса. Срок обучения 2 (3) года или 4 (5) лет.

Вечернее (сменное) общеобразовательное учреждение. Организуется как самостоятельное учреждение, включающее обучение на II и III ступенях образования или только на III ступени.

Приложение 3.

(рекомендуемое)

ОРГАНИЗАЦИЯ СЕТИ ОБЩЕОБРАЗОВАТЕЛЬНЫХ УЧРЕЖДЕНИЙ

№№ пп

Принципиальные вариантные модели

Базовое учреждение

Принцип организации сети зданий

Модификации зданий базового учреждения по организационно-педагогической структуре

1

2

3

4

5

а)

Начальная школа, тяготеющая к школам II и III ступеней

Н

НО ОС

+ +

Г + Н + НОС

+ +

УВК НОСП

1:0:0

2:0:0

3:0:0

(в составе школ II и III ступеней)

б)

Основная школа, тяготеющая к школе III ступени или профильному учреждению

НО

СП

+

Л + НО + С

+

Г

1:1:0

2:2:0

3:3:0

в)

Средняя полная школа I, II и III ступеней (автономная)

НОС

НОС

1:1:1

2:2:2(1)

3:3:3(2)

г)

Шкала III ступени обслуживающая группу основных школ *

С

НО

+

С + НО

+

НО

0:0:3

0:0:4

0:0:6

0:0:0(8)

д)

Средняя полная школа I, II и III ступеней с профильным обучением

НОСП

НОСП

1:1:1

2:2:2

3:3:3

е)

Средняя школа II и III ступеней с профильным обучением, обслуживающая группу начальных и основных школ

ОСП

НО

+

ОСП + Н

+

НО

0:2:3(2)

0:3:4(3)

ж)

Гимназия в составе II и III ступеней обучения, обслуживающая группу начальных школ

Г

Н

+

Г + Н

+

Н

0:1:1

0:2:2

0:3:3

з)

Лицей в составе III ступени обучения, обслуживающий группу основных школ

Л

НО

+

Л + НО

+ НО

0:0:6

0:0:9

Условные обозначения:

Н - начальная школа;

НО - основная школа;

НОС - средняя школа;

С - старшая школа;

ОС - основная и старшая школа;

ОСП - основная и старшая школа с профильным обучением;

СП - старшая школа с профильным обучением;

НОСП - средняя школа с профильным обучением;

Л - лицей;

Г - гимназия;

УВК - учебно-воспитательный комплекс.

Приложение 4

(рекомендуемое)

ПРИМЕРНАЯ НОМЕНКЛАТУРА ВИДОВ И ТИПОВ ЗДАНИЙ ОБЩЕОБРАЗОВАТЕЛЬНЫХ УЧРЕЖДЕНИЙ

 

Виды зданий

Типы зданий

Расположение в структуре города

количество учащихся

Соотношение кол-ва параллелей кл. I, II и III ступ. обучения

жилая группа

микрорайон

муниципальный район

округ города

1

2

3

4

5

6

7

1

Начальная школа (I ступень): на 4 класса (является составной частью основной или средней школы).

*

*

 

 

 

 

*

*

 

 

2

Основная школа в составе I-II ступени:

 

 

 

 

 

 

на 9 классов

 

*

 

 

 

на 18 классов

 

*

 

 

3

Средняя полная школа в составе I, II и III ступеней, в том числе с углубленным изучением отдельных предметов:

 

 

 

 

 

 

на 11 классов

 

*

 

 

 

на 22 класса

 

*

 

 

 

на 33 класса

 

*

*

 

 

сблокированная школа на 22 + 22 класса

 

*

*

 

4

Средняя школа в составе II-III ступеней с профильным обучением:

 

 

 

 

 

 

на 20 классов

 

 

*

 

 

на 30 классов

 

 

*

*

 

на 40 классов

 

 

 

*

5

Гимназия в составе II-III ступеней:

 

 

 

 

 

 

на 7(8) классов

 

 

*

 

 

на 14(16) классов

 

 

*

*

 

на 21(24) класса

 

 

*

*

6

Лицей в составе II-III ступеней:

 

 

 

 

 

 

на 8(10) классов

 

 

*

 

 

на 12(15) класса

 

 

*

*

 

в составе III ступени:

на 18(27) классов

 

 

 

*

Приложение 5

(рекомендуемое)

ПЛОЩАДИ ОСНОВНЫХ ЗОН ЗЕМЕЛЬНЫХ УЧАСТКОВ ОБЩЕОБРАЗОВАТЕЛЬНЫХ УЧРЕЖДЕНИЙ

№№ пп

Зоны

Площадь в м2:

при количестве параллелей классов (числе классных групп)

в начальной школе

в основной школе

в средних общеобразовательных школах, гимназиях и лицеях

1

(4 класса)

1

(9 классов)

1

(11 классов)

2

(22 класса)

3

(33 класса)

2 ´ 2

(22+22 класса)

на зону

м2: на 1 класс

1

Физкультурно-спортивная *)

850

213

5450

605

5610

510

6140

280

7760

235

7920

180

2

Учебно-опытная

240

60

1008

112

1200

109

1430

65

1980

60

2508

57

3

Отдыха

480

120

700

78

700

78

1400

64

2100

64

2800

64

4

Хозяйственная

500

125

500

56

500

45

625

28

750

23

750

17

 

 

м2:

по зонам

на 1 класс (без учета пл. застройки, проездов и озеленений

 

 

2070

518

7658

851

8010

728

9595

436

12590

382

13378

318

 

Всего на учреждение **)

м2

га

(без учета пл. застройки)

 

 

 

1800

1,62

1818

2,0

1364

3,0

970

3,2

825

3,63

Примечания:

1. Для сблокированных школ на 22 + 22 класса зоны учебно-опытную и отдыха следует принимать раздельные для каждого учебного блока, а остальные зоны - единые.

2. При строительстве зданий школ с уменьшенной наполняемостью классов, площади основных зон участков определяется заданием на проектирование.

*) Чистая (нетто) площадь физкультурно-спортивных площадок.

**) Подлежит уточнению по местным условиям.

Приложение 6

(обязательное)

ФУНКЦИОНАЛЬНЫЕ ГРУППЫ И ПРИМЕРНЫЙ СОСТАВ ПОМЕЩЕНИЙ

Индекс функциональных групп

Перечень основных функциональных групп помещений

Наименование помещений

Общеобразовательная школа

Общеобразовательная школа с углубленным изучением отдельных предметов (профильная)

Гимназия

Лицей

УЧЕБНАЯ ГРУППА ПОМЕЩЕНИЙ:

 

1-ые классы начальной школы

1. Класс

*

*

 

 

2. Спальная-игровая (комната отдыха)

*

*

 

 

3. Рекреация многоцелевого назначения

*

*

 

 

4. Санузлы

*

*

 

 

У-КНШ*

2-4 классы начальной школы

1. Класс

*

*

 

 

2. Универсальное помещение для групп продленного дня

*

*

 

 

3. Комната тихих игр и уединения

 

*

 

 

4. Комната труда, моделирования и технической игрушки, изобразительного искусства, природы

*

*

 

 

5. Методический кабинет-учительская

*

*

 

 

6. Рекреация (зальная)

*

*

 

 

7. Компьютерный класс

*

*

 

 

8. Санузлы

*

*

 

 

У-КОШ*

Классы-кабинеты основной школы 5-9 классы

1. Класс-учебный кабинет

*

*

*

*

2. Ресурсный центр

*

*

*

*

3. Рабочие комнаты для занятий по интересам

 

*

*

*

4. Рекреация (зальная)

*

*

*

*

5. Санузлы

*

*

*

*

У-КОШ*

Классы-кабинеты старшей школы (9)10-11 классы

1. Кабинеты универсального назначения (оснащаются в зависимости от профиля обучения)

*

*

*

*

2. Комнаты индивидуальных занятий

 

*

*

*

3. Ресурсный центр

*

*

*

*

4. Рекреации

*

*

*

*

5. Санузлы

*

*

*

*

У-СК*

Специализированные учебные кабинеты основной и старшей школы

1. Кабинет естествознания с лаборантскими по физике, химии, биологии

*

 

*

 

2. Учебные кабинеты по естественным наукам на каждую дисциплину (физика, химия, биология) в составе:

 

 

 

 

Лаборатория

*

*

 

*

Практикум

*

*

 

*

Лаборантская

*

*

 

*

3. Специализированные кабинеты:

 

 

 

 

Иностранного языка

*

*

*

*

Информатики и вычислительной техники

*

*

*

*

Компьютерный класс

*

*

*

*

Технического черчения

*

*

*

*

4. Специализированные помещения и блоки помещений для профильного обучения

 

*

*

*

(гуманитарное, физико-математическое, техническое, химико-биологическое, биоэкологическое, экологическое, экономическое и др.)

(по заданию на проектирование)

У-ТМ*

Помещения изучения технологий и трудового обучения

1. Комбинированная мастерская

*

 

*

 

2. Блоки мастерских-кабинетов по изучению технологий и обработке материалов (металл, дерево и пр.)

*

*

 

*

3. По электрорадиотехнологии

 

*

 

*

4. Домоводство (ткани, кулинария, бытовая электроника)

 

*

*

 

5. Кабинет изучения технологий

 

*

 

*

6. Универсальная мастерская по техническим видам труда

 

*

 

*

7. Блоки специализированных кабинетов (технология) для старших классов

 

*

 

*

У-ЦИБ*

Группа центра информации - библиотека

1. Библиотека - справочно-информационный центр с зонами читательских мест

*

*

*

*

2. Технический центр

*

*

*

*

3. Учительская с методическим кабинетом и комнатой отдыха (основной и старшей школы)

*

*

*

*

У-ВАМ*

Вестибюльная группа, помещения администрации, медицинские комнаты

1. Вестибюль-гардероб

*

*

*

*

2. Помещения администрации школы (кб. директора, кб. завуча, канцелярия с приемной, с/у для преподавателей)

*

*

*

*

3. Кб. врача, процедурная, кб. зубного врача

*

*

 

*

Общешкольная Группа помещений:

о-рц*

Рекреационный центр (центр досуга)

Рекреационный центр (центр досуга) в составе:

 

*

*

*

1. Форума

 

 

 

 

2. Вестибюля-гардероба

 

 

 

 

3. Административно-хозяйственные помещения

 

 

 

 

4. Медицинский кабинет

 

 

 

 

5. Комната родителей

 

 

 

 

6. Комната персонала

 

 

 

 

7. Санузлы

 

 

 

 

О-ЗЗ*

Группа зрительного зала

1. Зрительный зал с расширенной эстрадой (из расчета посадки не менее 60 % учащихся)

*

*

*

*

2. Лекционная аудитория

*

*

*

*

3. Обслуживающие помещения зрительного зала (кинопроекц. артистические, карман эстрады и т.д.)

*

*

*

*

о-сЗ*

Группа спортивно-оздоровительная : залы (12´15 м, 18´15 м, 24´15 м), (12) 36(30)´18 м, 42´24 м

1. Спортзалы (общая физическая подготовка, гимнастика, подвижные и спортивные игры, легкая атлетика, борьба)

*

*

*

*

2. Обслуживающие помещения:

*

*

*

*

- снарядные (инвентарные)

 

 

 

 

- раздевальные с душевыми и санузлами

 

 

 

 

- комната инструктора

 

 

 

 

О-Б*

Бассейн с ваннами 25´11 и 10´6 м

1. Бассейн

*

*

*

*

2. Обслуживающие помещения:

*

*

*

*

- раздевальные с душевыми и санузлами

 

 

 

 

- комната инструктора (тренера) - инвентарная

 

 

 

 

- ком. медсестры, лаб. анализа воды

 

 

 

 

О-ХВ*

Группа художественного воспитания

Студии и кружки:

*

*

*

*

1. Изобразительное искусство

 

 

 

 

2. Музыка и пение

*

*

*

*

3. Хореография

*

*

*

*

4. Универсальная студия

 

 

*

 

5. Кабинет эстетики

 

*

*

 

6. Фото-киностудия

*

*

*

*

О-ТТ*

Группа технического творчества

1. Универсальное помещение (кружок технического творчества)

*

*

 

*

2. Кабинет-практикум по технике, радиотехническое конструирование

 

*

 

*

3. Универсальная мастерская

*

*

 

*

4. Физико-техническое творчество

 

 

 

*

5. Конструирование малой механизации

 

 

 

*

6. Архитектура и дизайн

 

 

 

*

7. Радиотехническое конструирование

 

 

 

*

О-БО*

Группа биологоопытнической деятельности

1. Кружок юннатов

*

*

 

*

2. Лаборатория биологических наблюдений и экспериментов

 

*

 

*

3. Кабинет экологии

*

*

*

*

4. Теплица-оранжерея

*

*

 

 

5. Кабинет краеведения

 

*

 

 

6. Кабинет сельхозтехники

 

 

 

*

7. Биохимическая лаборатория

 

*

 

*

О-СК*

Столовая

1. Обеденный зал (на 2 посадки учащихся) с раздаточной

*

*

*

*

2. Кухонный блок с кладовыми (пищеблок)

*

*

*

*

3. Видеокафе с буфетом

 

 

*

*

Примечание: * В соответствии с индексами функциональных групп помещений в приложениях 7-21 приведены полный состав и нормативные показатели площадей помещений.

ПРИЛОЖЕНИЕ 7

(рекомендуемое)

(У-КНШ)

СОСТАВ И РАСЧЕТНЫЕ ПОКАЗАТЕЛИ ПЛОЩАДЕЙ ПОМЕЩЕНИЙ НАЧАЛЬНОЙ ШКОЛЫ

№№

Помещения

Площадь м2 (не менее)

на 1-го уч-ся

на 1 класс

на 1 помещ.

24 места

12 мест

1

Классное помещение 1 классов с учетом игровых форм ведения урока

3,3

 

 

 

2

Спальная-игровая 1 класса

2,5

 

одно помещение

 

3

Классное помещение для 1-4 классов рассчитанное только на фронтальный урок (рис. 1)

2,6

 

 

 

4

Классное помещение для 2-4 классов рассчитанное на фронтальные, групповые и индивидуальные формы занятий (рис. 3 и 3)

3,0

 

 

 

5

Комната тихого отдыха и уединения

 

 

10

 

6

Универсальное помещение для групп продленного дня

 

5

 

 

7

Комната труда, моделирования и технической игрушки, изобразительного искусства, природы

 

9

 

 

8

Учительская-методический кабинет

 

 

 

40-80

Примечания:

1. Универсальное помещение принимается одно на одну параллель учащихся начальной школы.

2. Комната труда, моделирования и технической игрушки изобразительного искусства, природы принимается одно на начальную школу в целом.

3. Площадь учительской - методического кабинета принимается в зависимости от числа параллелей классов, но не менее 40 м2. Допускается размещать за пределами учебной секции.

В рамке указан индекс функциональной группы см. прил. 6.

ПРИЛОЖЕНИЕ 8

(рекомендуемое)

У-КОШ

СОСТАВ И РАСЧЁТНЫЕ ПОКАЗАТЕЛИ ПЛОЩАДЕЙ ПОМЕЩЕНИЙ ОСНОВНОЙ ШКОЛЫ

№№

Помещения

Площадь м2 (не менее)

на 1 уч-ся

24 места

на 1 класс

1

Класс-кабинет (рассчитанный на фронтальные работы)

2,6

 

2

Класс-кабинет (рассчитанный на фронтальные, групповые и индивидуальные формы работы)

3,0

 

3

Ресурсный центр *

 

12

4

Рабочие комнаты для занятий по интересам

 

10

* Допускается размещать в вариантах:

1) При каждом классе-кабинете.

2) Централизованно на учебную секцию (на группу классов-кабинетов).

3) На группу учебных секций в пределах одного этажа.

В рамке указан индекс функциональной группы см прил. 6.

Приложение 9

(рекомендуемое)

У-КОШ

СОСТАВ И РАСЧЕТНЫЕ ПОКАЗАТЕЛИ ПЛОЩАДЕЙ ПОМЕЩЕНИЙ СТАРШЕЙ ШКОЛЫ

№№

Помещения

Площадь м2 (не менее)

на 1 уч-ся

на 1 класс

24 места

12 мест

1

Класс-кабинет

3,0

 

 

2

Ресурсный центр *)

 

 

10

3

Комнаты для индивидуальных занятий

 

 

15

*) Допускается размещать в вариантах:

1) При каждом классе-кабинете.

2) Централизованно на учебную секцию (на группу классов-кабинетов).

3) На группу учебных секций в пределах одного этажа.

В рамке указан индекс функциональной группы см. прил. 6.

Приложение 10

(рекомендуемое)

У-СК

СОСТАВ И РАСЧЕТНЫЕ ПОКАЗАТЕЛИ ПЛОЩАДЕЙ СПЕЦИАЛИЗИРОВАННЫХ ПОМЕЩЕНИЙ ОСНОВНОЙ И СТАРШЕЙ ШКОЛЫ

№№

Помещения

Площадь м2 (не менее)

на 1 уч-ся

на 1 помещ.

24 места

12 мест

1

Кабинет естествознания

3,0

 

 

 

лаборантская-практикум по физике

 

 

36

 

лаборантская-практикум по химии

 

 

36

 

лаборантская-практикум по биологии

 

 

36

2

Учебные кабинеты по естественным наукам (физика, химия, биология):

 

 

 

 

лаборатория (лекционное помещение) на каждый предмет

3,0

 

 

 

два практикума на каждый предмет *)

 

4,2

 

 

лаборантская на каждый предмет

 

 

18-32

 

Специализированные кабинеты:

 

 

 

3

иностранного языка **)

 

3,5

 

 

технического черчения

 

6

 

 

информатики и вычислительной техники ***)

 

7,5

 

 

компьютерный класс ***)

 

6

 

4

Специализированные помещения для профильного обучения ***)

3,3

 

 

Примечания: *) Для лицеев принимается не менее 3-х практикумов на каждый предмет.

**) Число определяется программой обучения с начальных классов или со школы II ступени; количеством часов в неделю и делением класса на подгруппы (две или три).

**) В каждом учебном учреждении должно быть не менее чем по одному помещению. В профильных учебных заведениях их число определяется содержанием обучения.

В рамке указан индекс функциональной группы см. прил. 6.

Приложение 11

(рекомендуемое)

У-ТМ

СОСТАВ И РАСЧЕТНЫЕ ПОКАЗАТЕЛИ ПЛОЩАДЕЙ ПОМЕЩЕНИЙ ИЗУЧЕНИЯ ТЕХНОЛОГИЙ И ТРУДОВОГО ОБУЧЕНИЯ

№№

Помещения

Площадь м2 (не менее)

на 1 уч-ся

12 мест

на 1 помещ.

1

2

3

4

 

ОСНОВНАЯ ШКОЛА

 

 

1

Комбинированная мастерская по металлу и дереву *)

9

 

2

Мастерская по обработке металла и технологии

7,5

 

3

Мастерская по обработке дерева и технологии

7,5

 

4

Мастерская по обработке тканей и технологии

9

 

5

Кулинария

4,5

 

6

Бытовая техника

7,5

 

7

Кабинет изучения технологии

7,5

 

8

Инструментальная

 

18**)

 

СТАРШАЯ ШКОЛА ***)

 

 

9

Мастерская-цех (универсальный) обработки материалов

15

 

10

Универсальная мастерская по техническим видам труда

11,5

 

11

Автодело в составе кабинетов по теории и практической работе

9 + 9

 

12

Электротехника

9

 

13

Радиоэлектроника

9

 

14

Кабинет машинописи и основ делопроизводства

6,5

 

15

Комната мастера

 

8-36**)

16

Гардеробные

 

24-48**)

17

Кладовые для хранения сырья, материалов и готовой продукции

 

24-96**)

Примечания: Группа помещений по п.1-8 предназначена для школы II ступени:

Группа помещений по п. 9-15 предназначена для школ III ступени.

В помещении кулинарии, как правило, следует устанавливать электроплиты.

*) Предусматривается только в составе основной школы и гимназии вместо раздельных помещений по металлу и дереву.

**) Количество и площадь определяются в зависимости от назначения и состава помещений основной и старшей школы.

***) Число и номенклатура помещений определяются заданием на проектирование.

В рамке указан индекс функциональной группы см. прил. 6.

Приложение 12

(рекомендуемое)

У-ЦИБ

СОСТАВ И РАСЧЕТНЫЕ ПОКАЗАТЕЛИ ПЛОЩАДЕЙ ПОМЕЩЕНИЙ ЦЕНТРА ИНФОРМАЦИИ - БИБЛИОТЕКИ И УЧИТЕЛЬСКОЙ - МЕТОДИЧЕСКОГО КАБИНЕТА

(группа методического центра)

Тип

Характеристика типа ЦИ-Б

Площадь м2 (не менее дифференцированно по зонам)

Всего на 1 место

В том числе по зонам

фонд хранения

общешкольный ресурсный центр

кабины для индивидуальных занятий

читательские места

I

На 10000 единиц хранения

15 читательских мест

115

7,7

35

28

11,3

36

II

На 20000 единиц хранения

30 читательских мест

235

7,8

70

55

17,3

72

III

На 30000 единиц хранения

45 читательских мест

325

7,2

105

87

31,2

108

IV

На 40000 единиц хранения

60 читательских мест

440

7,3

140

102

38,4

144

V

На 50000 единиц хранения

100 читательских мест

670

6,7

176

128

50,4

240

Примечание: 1. Тип библиотеки устанавливается в зависимости от назначения общеобразовательного учреждения заданием на проектирование:

Расчетный показатель на ед. фонда хранения - 0,0035 м2

на 1 читательское место - 2,4 м2

2. Ориентировочно тип I рассчитан на среднюю однопараллельную школу;

тип II - на двухпараллельную;

тип III - на трехпараллельную;

тип IV и V - для гимназий, лицеев и школ с профильным обучением.

3. Площадь учительской - методического кабинета для общеобразовательных учреждений II и III ступеней принимается из расчета 6 м2 на одного преподавателя школы. В рамке указан индекс функциональной группы см. прил. 6.

Приложение 13

(рекомендуемое)

У-ВАМ

СОСТАВ И РАСЧЕТНЫЕ ПОКАЗАТЕЛИ ПЛОЩАДЕЙ ВЕСТИБЮЛЯ-ГАРДЕРОБА, АДМИНИСТРАТИВНО-ХОЗЯЙСТВЕННЫХ ПОМЕЩЕНИЙ, МЕДИЦИНСКИХ КОМНАТ

№№

Помещения

Площадь м2 (не менее) при кол. парал. классов

 

Основная школа

Средняя школа, гимназия, лицей

 

1

1

2

3

2 ´ 2

1

Кабинет директора

16

16

25

32

25 + 32

2

Кабинет заместителя директора по учебно-воспитательной работе

8

8

10

10

16

2 ´ 8

3

Кабинет организатора внеклассной и внешкольной воспитательной работы

-

12

12

16

2 ´ 8

28

12 + 16

4

Кабинет заместителя директора по административно-хозяйственной работе и бухгалтерия

-

10

10

10

20

10 + 10

5

Канцелярия

8

8

12

16

28

12 + 16

6

Комната технического персонала

10

10

12

16

28

12 + 16

7

Кладовая уборочного инвентаря *)

8

8

8

8

16

8 + 8

8

Кабинет врача (медицинская комната) **)

18

18

21

21

21

9

Процедурная

12

12

16

16

16

10

Кабинет зубного врача

12

12

12

12

12

11

Комната родителей

-

12

16

24

32

12

Вестибюль

 на уч. + персонал

13

Гардеробная

14

Санитарные узлы (см. приложение 22)

0,15 м2 на уч. + персонал

Примечания: *) Следует предусматривать по одной на каждом этаже.

**) Принимается глубиной не менее 7 м с шириной не менее 2,4 м.

1. Медицинские комнаты пп. 8, 9, 10 следует размещать в группе общешкольных помещений. В рамке указан индекс функциональной группы см. прил. 6.

Приложение 14

(рекомендуемое)

О-РЦ

СОСТАВ И РАСЧЕТНЫЕ ПОКАЗАТЕЛИ ПЛОЩАДЕЙ ПОМЕЩЕНИЙ РЕКРЕАЦИОННого ЦЕНТРА

(центр досуга)

№№

Помещения

Площадь м2 (не менее)

1

Форум

по проекту (примерно 1,5 м2 на одного ученика)

2

Вестибюль, гардероб

по расчету исходя из пропускной способности в смену суммы обслуживаемых помещений (форума, зрительного зала, спортзалов, бассейна, кружковых помещений и студий) с коэффициентом 1,5

 

- вестибюль

0,2-0,3 на одного посетителя

 

- гардероб

0,15 на одного посетителя

3

Помещения администрации:

 

 

- кб. директора

25

 

- кб. коменданта

25

 

- канцелярия-бухгалтерия

18

 

- кб. замдиректора по воспитательной работе

8

4

Медицинский кабинет

18

5

Комната родителей

30

6

Комната дежурного персонала

12

7

Комната инженера и рабочих

не менее 2-х по 12 м2

8

Санузлы

по расчету (1 унитаз и 2 писсуара на 100 мужчин и 1 унитаз на 50 женщин

Примечание: Рекреационный центр принимается для учебных заведений рассчитанных на обслуживание наряду с учащимися также и взрослого населения муниципального района. Возможно также предусматривать в составе школ с профильным обучением.

В рамке указан индекс функциональной группы см. прил. 6.

Приложение 15

(рекомендуемое)

О-ЗЗ

СОСТАВ И РАСЧЕТНЫЕ ПОКАЗАТЕЛИ ПЛОЩАДЕЙ ПОМЕЩЕНИЙ ЗРИТЕЛЬНОГО ЗАЛА

№№

Помещения

Площадь м2 (не менее)

Количество мест

1

Зрительный зал *)

0,7 м2 на одно зрительское место

Количество мест в зале принимается из расчета посадки не менее 60 % учащихся школы и должно быть кратным вместимости классов

Дополнительно предусматриваются места для преподавателей из расчета 2 преподавателя на 1 классную группу

2

Эстрада **)

не менее 72

 

3

Кладовая-инвентарная

12-36 ***)

 

4

Артистическая-костюмерная

8-12 ***)

 

5

Киноаппаратная с перемоточной и тамбуром

27

 

6

Технический центр (радиоузел, дикторская, комната ремонта аппаратуры)

48

36 + 12

 

7

Лекционная аудитория с лаборантской

1 м2 на одно место

На две-три группы

(1 возрастную параллель учащихся)

Примечания: *) Зрительный зал следует проектировать с учетом использования его в качестве киноаудитории, учебной аудитории по музыке и пению.

При количестве мест в зале менее 100 площадь на одно место принимается из расчета 0,8 м2.

Требования к параметрам зрительного зала и киноэкрана при кинодемонстрации см. СНиП 2.08.02-89 Приложение 6.

**) Эстраду следует проектировать с учетом проведения на ней занятой по хореографии.

Глубина эстрады должна быть не менее 7 м, а пол выше пола зала на 0,9 м.

***) Количество определяется заданием на проектирование в зависимости от назначения и типа здания. Минимальный набор помещений ограничивается пп. 1, 2, 3, 5, 6.

В рамке указан индекс функциональной группы см. прил. 6.

Приложение 16

О-СЗ и О-Б

РАЗМЕРЫ И ПЛОЩАДИ УЧЕБНО-СПОРТИВНЫХ ЗАЛОВ И БАССЕЙНА

№№

Помещения

Площадь м2 в осях ограждающих конструкций

Размеры в м

Глубина воды м

Пропускная способность залов из расчета м2 на 1 занимающегося

Длина

Ширина

Высота до низа выступающих конструкций

в мелкой части

в глубокой части

Игровые виды спорта

Гимнастика

1

Спортивные залы

270

360(288)

540

648(756)

1008

18

24

30

36

42

15

15(12)

18

18(21)

24

4,6-6

6-7

7-8

7-8

7-8

-

-

-

-

-

-

-

-

-

-

-

15

20

20

6-8

6-8

6-8

6-8

2

Места для зрителей

по заданию на проектирование

3

Бассейны, размеры ванны:

 

 

 

 

 

 

 

 

- основной

 

25

11,5 *) и более

6

1,2

1,8

**)

 

- для обучения плаванию

 

10

6

4,2

0,6

0,85

одна группа не более 12 человек

Примечания: 1. Количество и типы залов принимаются в зависимости от вида учреждения, количества учащихся в нем, учебной программы и задач обслуживания населения.

2. В полу, ограждающих и несущих конструкциях спортзалов должны предусматриваться закладные детали и приспособления для крепления оборудования согласно планировочных нормалей этих помещений.

3. Вестибюль-гардероб принимается из расчёта 2 ´ 0,35 м2 на 1 место занимающихся в зале (залах) и бассейне и 0,35 м2 на 1 зрительское место в зрительном зале.

*) Из расчета 2 м ширины на одну плавательную дорожку, и по 0,75 м вдоль длинной границы ванны.

**) Оздоровительное плавание и занятие групп общей физической подготовки из расчета 5,5 м2 площади воды на одного занимающегося.

Рекомендуется также руководствоваться Справочным пособием к СНиП "Проектирование спортивных залов, помещений для физкультурно-оздоровительных занятий и крытых катков искусственным льдом" 1991 г.

В рамке указан индекс функциональных групп см. прил. 6.

Приложение 17

(рекомендуемое)

О-СЗ и О-Б

СОСТАВ И РАСЧЕТНЫЕ ПОКАЗАТЕЛИ ПЛОЩАДЕЙ ВСПОМОГАТЕЛЬНЫХ ПОМЕЩЕНИЙ ПРИ СПОРТИВНЫХ ЗАЛАХ И БАССЕЙНЕ

№№

Помещение

Спортивные залы

Бассейн с ваннами

12 ´ 15

18 ´ 15 (12)

24 ´ 15 (12)

36(30)´ 18

25 ´ 11,5

10 ´ 6

Количество и площадь м (не менее)

1

Раздевальные, вкл. уборные и душевые (см. прилож. 22)

36

2 ´ 18

36

2 ´ 18

72

4 ´ 18

(126)84

(6)4´21

-

-

2

Инвентарная (снарядная)

12

12

16

32

6

6

3

Помещение хранения уборочного инвентаря

4*)

4*)

4*)

4*)

8

4

4

Раздевальные для переодевания занимающихся

 

 

 

 

78**)

2 ´ 39

78**)

2 ´ 39

 

при них:

 

 

 

 

 

 

 

шкафы для одежды одноярусные***)

 

 

 

 

24

2 ´ 12

24

2 ´ 12

 

душевые при раздевальных для девочек и мальчиков****)

 

 

 

 

20

(5´2)2

20

(5´2)2

 

уборные для девочек и мальчиков

 

 

 

 

8

2 ´ 4

8

2 ´ 4

5

Помещение инструктора-тренера и склад мелкого спортинвентаря*****)

-

10

10

20

2 ´ 10

12 + 6

6

Помещение медсестры с лабораторией анализа воды

 

 

 

 

12

2 ´ 6

12

2 ´ 6

7

Бытовые помещения для персонала

 

 

 

 

9

 

8

Служебные помещения

 

 

 

 

12

 

Примечания: *) Принимается одно на группу залов.

**) Из расчета 2,6 м на одного учащегося и 15 мест в раздевальной.

***) Шкафы размером в плане 60 ´ 30 см одноярусные из расчета 0,8 м2 на одно место и 15 мест в раздевальной.

****) Одна сетка на 3 занимающихся в смену и 2 м2 на одну сетку.

*****) Помещение тренера предусматривается с душевой и санузлом.

Состав и площади технических помещений, связанных с обслуживанием бассейна следует принимать по справочному пособию к СНиП "Проектирование бассейнов" 1991 г.

В рамке указан индекс функциональных групп см. прил. 6.

Приложение 18

(рекомендуемое)

О-ХВ

СОСТАВ И РАСЧЕТНЫЕ ПОКАЗАТЕЛИ ПЛОЩАДЕЙ ПОМЕЩЕНИЙ ХУДОЖЕСТВЕННОГО (ЭСТЕТИЧЕСКОГО) ВОСПИТАНИЯ

№№

Помещения

Площадь м (не менее)

Число мест

на 1 место

на помещение

в помещении

1

Универсальная студия**)

-

144*)

-

 

подсобное помещение

-

18-36*)

-

 

раздевальная

 

12

 

2

Кабинет эстетики с полиэкраном**)

-

80

24

 

лаборантская

 

28

 

3

Кружки и студии специализированные: ***)

 

 

 

 

живопись, рисунок, скульптура

 

108

3 ´ 36

8

на каждый предмет

 

кинофотостудия

-

36-54

-

 

класс пения и музыки

2,6

 

24

 

студия хореографии и драмкружка

9

 

12

 

студия прикладного искусства (дизайн)

6

 

12

4

Универсальные клубные помещения

-

36

-

5

Кладовые уборочного инвентаря

-

18-36*)

-

6

Преподавательская

-

18-24

-

7

Санузлы

0,15

4-8

 

8

Вестибюль-гардероб****)

0,35 ´ 1,5

 

 

Примечания: *) Число помещений и площадь определяются исходя из назначения студии (изобразительное искусство, хореография, музыка, драмкружок и т.д.).

**) Предназначаются только для профильных учебных заведений, гимназий.

***) Минимальный набор помещений ограничивается п. 3 (изобразительное искусство, музыка и пение, хореография).

Расширенный состав помещений предназначается для профильных школ с гуманитарным направлением и эстетическим развитием учащихся, гимназий.

*****) По расчету, исходя из суммы принятых помещений.

При студии хореографии и драмкружка предусматриваются раздевальные и костюмерная.

В рамке указан индекс функциональной группы см. прил. 6.

Приложение 19

(рекомендуемое)

О-ТТ

СОСТАВ И РАСЧЕТНЫЕ ПОКАЗАТЕЛИ ПЛОЩАДЕЙ ПОМЕЩЕНИЙ БЛОКА ТЕХНИЧЕСКОГО ТВОРЧЕСТВА

(кружковые помещения)

№№

Помещение

Площадь м2 (не менее)

на 1 место

на помещение

1

Универсальное помещение технического творчества*)

9

 

 

- лаборантская

-

18

2

Кабинет-практикум по технике. радиотехническое конструирование

9

 

3

Физико-техническое творчество

10,5

 

4

Конструирование малой механизации

26

 

5

Техническое моделирование, авиамоделирование, автомоделирование, судомоделирование

7,5

 

6

Архитектура и дизайн

13,5

 

7

Подсобные

-

12-18**)

8

Кино-фотолаборатория

-

24-54

9

Преподавательская

-

12-18

10

Вестибюль-гардероб

0,35 ´ 1,5

 

Примечания: 1. Площади помещений по пп. 1-6 принимается из расчета 12 мест в кружке.

2. Минимальное число помещений для школы - одно-два помещения по п. 1 и п. 7.

3. Расширенный состав помещений (пп. 2-6) предназначен для лицеев и школ с техническим профилем обучения (уточняются заданием на проектирование).

*) В помещение две зоны: кружка по п. 5 и мастерской.

**) Число определяется заданием на проектирование.

В рамке указан индекс функциональной группы см. прил. 6.

Приложение 20

(рекомендуемое)

О-БО

СОСТАВ И РАСЧЕТНЫЕ ПОКАЗАТЕЛИ ПЛОЩАДЕЙ ПОМЕЩЕНИЙ ДЛЯ БИОЛОГО-ОПЫТНИЧЕСКОЙ ДЕЯТЕЛЬНОСТИ

(кружковые помещения)

№№

Помещение

Площадь м2 (не менее)

Число мест в помещении

на 1 место

на помещение

1

Кружок юннатов

 

 

 

 

- помещение для опытной работы

-

36*)

-

 

- лаборантская

 

18

 

2

Биохимическая лаборатория

5,6-11,3

 

12

3

Лаборатория биологических наблюдений и экспериментов

5,6-11,3

 

12

4

Кабинет краеведения (Помещение клуба краеведения и туризма)

4,5-7,2

 

8-12

5

Кабинет экологии

4,5

 

8-12

6

Кабинет сельскохозяйственной техники

9

 

 

 

- лаборантская

 

18

 

7

Теплица с зооуголком

 

170-240

 

8

Теплица-оранжерея**)

 

270

 

9

Зимний сад***)

-

 

-

10

Зооуголок, зоопавильон**)

-

72-144

-

11

Помещение хранения малогабаритной сельхозтехники

-

108-240***)

-

12

Преподавательская

-

12-24

-

13

Подсобные и обслуживающие помещения, хранение садово-огородного инвентаря, удобрений

 

50***)

 

14

Вестибюль-гардероб

0,35 ´ 1,5

 

по расчету

15

Гардероб сменной одежды

0,15

 

 

Примечания: *) Базовый элемент для кружка юннатов. Принимается от 2 до 4 помещений на здание.

**) Предусматривается на земельном участке школы, число мест в теплице-оранжерее и зоопавильоне не учитывается.

***) По заданию на проектирование, но не менее указанной площади.

В рамке указан индекс функциональной группы см. прил. 6.

Приложение 21

(рекомендуемое)

О-СК

СОСТАВ И ПЛОЩАДИ ПОМЕЩЕНИЙ КУХОННОГО БЛОКА С ПОДСОБНЫМИ ПОМЕЩЕНИЯМИ

№№

Помещения

Условный тип общеобразовательного учреждения по числу классных групп

9-12

14-24

30-40

площадь м2 (не менее)

1

Горячий цех

 

40*)

62*)

2

Холодный цех

35*)

 

10*)

3

Помещение для резки хлеба

 

10*)

6*)

4

Доготовочный цех

-

-

9

5

Мясной цех

9

17

18

6

Рыбный цех

 

 

 

7

Овощной цех

6

10

11

8

Моечная столовой посуды

18

30

30

9

Моечная кухонной посуды

 

8

10

10

Моечная полуфабрикатной тары

12

4

4

11

Охлаждаемая камера для хранения:

 

 

 

 

- молочных продуктов

6

6

10

 

- рыбы

6

6

6

 

- мяса

 

 

 

 

- пищевых отходов

-

6

6

12

Кладовая сухих продуктов

8

10

12

13

Кладовая овощей

8

13

15

14

3агрузочная-тарная

8

12

16

15

Бельевая, гардеробная персонала, душевые, уборные

11

13

18

Примечания: 1. Состав рассчитан на приготовление пищи из сырья.

2. При ориентации школы на снабжение из школьно-базовой столовой состав кухонного блока с подсобными помещениями может быть сокращен.

*) Уточняются с учетом размещения технологического оборудования.

В рамке указан индекс функциональной группы см. прил. 6.

Приложение 22

(обязательное)

РАСЧЕТНЫЕ ПОКАЗАТЕЛИ ПЛОЩАДЕЙ САНИТАРНЫХ УЗЛОВ И КОЛИЧЕСТВО САНИТАРНЫХ ПРИБОРОВ

№№

Помещения

Единица измерения

Площадь м2

Расчетное количество санитарных приборов

1

Уборные и умывальные для учащихся:

 

 

 

 

- девочек

1 уч-ся

0,15

1 унитаз на 20 девочек, 1 умывальник на 30 девочек

 

- мальчиков

1 уч-ся

0,15

1 унитаз на 30 мальчиков, 0,5 лоткового писсуара на 40 мальчиков, 1 умывальник на 30 мальчиков

2

Уборные и умывальные для персонала (индивидуальные)

2 сан. узла

3

1 унитаз, 1 умывальник

3

Кабина личной гигиены женщин (для персонала)

1 кабина

3

1 гигиенический душ, 1 унитаз, 1 умывальник

4

Уборные и умывальные при актовом зале - лекционной аудитории в блоке общешкольных помещений

2 сан. узла (женский и мужской)

 

см. приложение 14 п. 8

5

Уборные и душевые при раздевальных спортзалов

1 раздевальная

2

4

1 унитаз, 1 умывальник, 2 душевые сетки

6

Уборные и душевые для персонала столовой

1 сан. узел и 1 душевая

-

1 унитаз, 1 умывальник, 1 душевая сетка

7

Кабина личной гигиены для девочек

1 кабина

3

1 гигиенический душ, 1 унитаз и 1 умывальник на 1 кабину, 1 кабина на 70 девочек

Примечание: В учебных мастерских следует предусматривать по 3 раковины.

Приложение 23

(обязательное)

Отменено постановлением Правительства Москвы

от 23.03.1999 г. № 217

Приложение 24

(рекомендуемое)

ОРИЕНТАЦИЯ ОКОН УЧЕБНЫХ ПОМЕЩЕНИЙ ПО СТОРОНАМ СВЕТА

№№ пп

Помещения

оптимальный

допустимый

1

Классные

от 65° до 200°

не более 25 % от 200° до 295°

2

Кабинеты, лаборатории (кроме указанных в пп. 3 и 4 настоящей таблицы)

от 65° до 200°

не более 75 % от 200° до 65°

3

Кабинеты черчения и изобразительных искусств, кб. информатики и вычислительной техники

от 300° до 60°

от 60° до 105° и от 255° до 300°

4

Лаборатория биологии

от 150° до 210°

от 90° до 150° и от 210° до 270°

5

Спальные-игровые

от 50° до 310°

Примечания: 1. Для ограничения перегрева помещений следует предусматривать солнцезащиту при ориентации окон, обращенных на азимуты 90-160° и 260-275°.

2. В случае устройства для основных помещений школы (классов и классов-кабинетов) наряду с боковым верхнего естественного освещения, допускается любая ориентация здания по сторонам света.

Приложение 25

(обязательное)

РАСЧЕТНАЯ ТЕМПЕРАТУРА ВОЗДУХА И КРАТНОСТЬ ОБМЕНА ВОЗДУХА В ПОМЕЩЕНИЯХ

№№

Помещения

Расчетная температура воздуха, °С

Кратность обмена воздуха в 1 час

приток

вытяжка

1

2

3

4

5

1

Классные помещения, учебные кабинеты, лаборатории

18
с обычным остеклением

21
с ленточным остеклением

16 м3/ч на 1 чел

2

Учебные мастерские

15

20 м3/ч на 1 чел

3

Студия живописи, рисунка, скульптуры

18

20 м3/ч на 1 чел

4

Актовый зал - лекционная аудитория, класс пения и музыки - клубная комната

18

20 м3/ч на 1 чел

5

Учебно-спортивные залы, студия хореографии

15

80 м3/ч на 1 чел

6

Учительская, кружковые помещения

18

-

1,5

7

Библиотека, кабинеты администрации, комнаты отдыха

18

-

1

8

Кабинет врача (медицинская комната)

22

-

1,5

9

Рекреационные помещения

16

-

-

10

Душевые

25

-

5

11

Раздевальные:

 

 

 

 

при спортивном зале

20

-

1,5

 

при душевых

22

В объеме вытяжки из душевых

12

Уборные

18

50 м3/на 1 унитаз

25 м3/на 1 писсуар

13

Умывальные в отдельном помещении

22

-

1

14

Гардеробные и кладовые одежды и обуви

16

-

1,5

15

Вестибюль

16

 

 

16

Столовая:

 

 

 

 

горячий цех

5
в нерабочее время

По расчету

 

Цехи - холодный, доготовочный, мясной, рыбный, овощной

16

3

4

 

Моечная столовой и кухонной посуды

20

4

6

 

Кладовая овощей

5

-

2

 

Кладовая сухих продуктов

12

-

2

 

Загрузочная тарная

16

-

-

 

Обеденный зал

16

см. п. 5.8

17

Киноаппаратная

16

по объему вытяжки от кинопроекторов

18

Фотолаборатория, кинофотолаборатория, технический центр

18

-

2

19

Уголок живой природы

-

-

5

Примечания: 1. При расчете систем воздушного отопления тепловыделения от одного учащегося в учебном помещении следует принимать 70 Вт и влаговыделения 45 г/ч.

2. В классных помещениях для I-IV классов и в угловых кабинетах, комнатах отдыха (спальнях-игровых) расчетную температуру воздуха следует принимать на 2 °С выше указанной в таб.

3. Объем удаляемого воздуха от вытяжного химического шкафа следует принимать в количестве 1100 м3/ч.

4. Клееварки должны быть оборудованы местной вытяжкой и несгораемыми укрытиями, локализующими тепловыделение.

Приложение 26

(рекомендуемое)

ОРГАНИЗАЦИЯ ПРОСТРАНСТВА, РАЗМЕЩЕНИЕ МЕБЕЛИ И ОБОРУДОВАНИЯ КЛАССА-КАБИНЕТА ДЛЯ ФРОНТАЛЬНЫХ (рис. 1), ФРОНТАЛЬНО-ГРУППОВЫХ (рис. 2) И ГРУППОВЫХ (рис. 3) ФОРМ ВЕДЕНИЯ УРОКА

Рис. 1. КЛАСС-КАБИНЕТ С ФРОНТАЛЬНЫМИ ЗАНЯТИЯМИ

Рис. 2. КЛАСС-КАБИНЕТ С ФРОНТАЛЬНЫМИ И ГРУППОВЫМИ ЗАНЯТИЯМИ

Рис. 3. КЛАСС-КАБИНЕТ С ГРУППОВЫМИ ЗАНЯТИЯМИ

Приложение 27

(обязательное)

(Введено дополнительно. Дополнение № 1)

Отменено постановлением Правительства Москвы от 29.07.2003 г. № 639-ПП

№ п/п

Функциональные группы

Наименование помещений

Наполняемость классов

30 уч-ся

25 уч-ся

Вместимость школы

720 уч.

24 кл.

1080 уч.

36 кл.

600 уч.

24 кл.

900 уч.

36 кл.

1

2

3

4

5

6

7

1.

1-е классы

Класс - игровая

120-140

2×(60-70)*

180-210

3×(60-70)*

120

2×60

180

3×60

Спальня - игровая

60

60

60

60

Рекреация (зального типа) 1 м2/уч.

60

90

50

75

2.

Начальные классы (2-4 классы)

Класс (с возможностью организации отдельных групповых занятий)

360-420

6×(60-70*)

540-630

9×(60-70*)

360

6×60

540

9×60

Универсальное помещение в т.ч. для организации сна ослабленных детей

120

2×60

180

3×60

120

2×60

180

3×60

Комната труда, моделирования и технической игрушки, изобразительного искусства и природы

90

90

60

60

Рекреация (зального типа) 1,6 м2/уч.

288

432

240

360

Учительская - методический кабинет

40

60

40

60

3.

Классы-кабинеты основной школы (5-9 классы)

Класс - учебный кабинет

420-490

7×(60-70*)

600-700

10×(60-70*)

420

7×60

600

10×60

Рекреация (зального типа) 1,6 м2/уч.

336

480

280

400

4.

Учебные кабинеты старше школы (10-11 классы), специализированные учебные кабинеты и основной старшей школы

Учебные кабинеты универсального назначения (оснащенные в зависимости от профиля обучения)

240-280

4×(60-70*)

360-420

6×(60-70*)

240

4×60

360

6×60

Учебные кабинеты по естественным наукам (физика, химия, биология) в составе:

 

 

 

 

- лаборатория

210

3×70

280

4×70

225

3×75

300

4×75

- лаборантская - практикум

108

3×36

144

4×36

108

3×36

144

4×36

Специализированные учебные кабинеты:

 

 

 

 

- иностранного языка

120

3×40

160

4×60

108

3×36

144

4×36

- информатики и вычислительной техники

140

90+50

140

90+50

122

72+50

122

72+50

- технического черчения и рисования

70

70

60

60

Рекреация (зального типа) 1,6 м2/уч.

432

672

360

560

5.

Помещения изучения технологий (трудовое обучение)

Мастерская по обработке металла и технологии

90

90

70

70

Инструментальная

24

24

18

18

Мастерская по обработке дерева и технологии

90

90

70

70

Мастерская по обработке ткани и технологии

90

90

70

70

Кулинария

50

50

50

50

Электрорадиотехнология

-

70

-

70

6.

Группа центра информации

Библиотека - справочно-информационный центр

100

150

90

130

Методический кабинет с учительской (5-11 классов) и зоной отдыха

60

90

60

90

7.

Вестибюльная группа учебных помещений, администрация, медицинские комнаты

Кабинет директора

25

32

25

32

Кабинет замдиректора по учебно-воспитательной работе

10

10

10

10

Кабинет организатора внеклассной и внешкольной работы

12

12

12

12

Кабинет замдиректора по административно-хозяйственной работе

10

10

10

10

Канцелярия

12

12

12

12

Комната техперсонала

12

12

12

12

Кладовая уборочного инвентаря

8

8

8

8

Кабинет врача

21

21

21

21

Процедурная

16

16

16

16

Кабинет зубного врача

12

12

12

12

Санузлы учащихся

108

162

90

135

Санузлы персонала

12

20

12

20

Вестибюль - гардероб

252

378

210

315

8.

Группа зрительного зала

Зрительный зал

 

 

 

 

- аудитория  мест

                  площ

240

192

360

288

200

160

300

240

- эстрада

70

90

70

90

- кладовая - инвентарная

12

36

12

36

- артистические

18

30

18

30

Технический центр

70

70

70

70

9.

Группа свободного творчества во внеурочное время

Кружки изобразительного искусства

36

72

2×36

36

72

2×36

Музыки и пения

50

50

50

50

Технического творчества

70

70

60

60

Фото-киностудия

36

36

36

36

Юннатско-биологической деятельности

35

70

2×35

35

70

2×35

10.

Группа спортивно-оздоровительная

Учебно-спортивные залы

288

450

288

450

Малый спортзал - студия хореографии

144

180

144

180

- раздевальные

126

6×21

126

6×21

126

6×21

126

6×21

- инвентарная (снарядная)

52

36+36

52

36+36

52

36+36

52

36+36

- помещения хранения уборочного инвентаря

4

4

4

4

- комната инструктора

24

12+12

30

15+15

24

12+12

30

15+15

11.

Столовая

Обеденный зал с раздаточной мест

(0,7 м2/уч.)                           площ

240

143

360

252

200

140

300

210

Кухонный блок с подсобными помещениями

185

280

185

280

Итого расчетная площадь:

5783-5973

8083-8363

5361

7474

Расчетная площадь на 1 учащегося

8,03-8,30

7,48-7,74

8,94

8,30

Общая площадь

7634-7884**

10104-10454**

7077*

9343**

Общая площадь на 1 учащегося

10,60-10,95

9,36-9,68

11,79

10,38

*) Меньшая площадь принимается для зданий школ, проектируемых в крупнопанельных сборных железобетонных конструкциях, большая - во всех остальных.

**) Коэффициент отношения общей площади к расчетной принимается для школ на 24 класса - 1,32, для школ на 36 классов - 1,25.

Примечания:

1. Допускается, по согласованию с московским Комитетом образования, изменение состава помещений и их площадей (в пределах 5 % от расчетной площади), в соответствии с заданием на проектирование или проектом, без превышения показателя общей площади на 1 учащегося - 11 кв. метров.

2. Школа на 24 класса с наполняемостью класса 25 учащихся ограниченного применения; проектирование допускается по согласованию с московским Комитетом образования и Департаментом экономической политики и развития Москвы.

 

Приложение 27

(обязательное)

(Измененная редакция. Дополнение № 1*)

Таблица 1

Состав и площади помещений школ,
проектируемых по городскому заказу в 2003 - 2010 гг.

№ п. п.

Функциональные группы

Наименование помещений

Вместимость школы

550 уч-ся
22 кл.

825 уч-ся
33 кл.

1

2

3

4

5

Группа начальных классов

1

1-е классы

Класс

125
2´62,5

187,5
3´62,5

Спальня-игровая

62,5

62,5

Рекреация (зального типа)

100

150

2

Начальные классы (2-4 классы)

Класс

375
6´62,5

562,5
9´62,5

Универсальные помещения для групп продленного дня

125
2´62,5

187,5
3´62,5

Комната труда, моделирования и технической игрушки, изобразительного искусства и природы.

87,5

87,5

Рекреация (зального типа)

300

450

Учительская методический кабинет.

40

60

Кабинет завуча начальной школы

10

10

Санузлы учащихся

30

45

Вестибюль-гардероб

70

105

Группа учебных кабинетов

3

Классы-кабинеты

Класс-учебный кабинет

375
6´62,5

562,5
9´62,5

Основной школы (5-9 классы)

Рекреация (зального типа)

500

750

4

Учебные кабинеты старшей школы (10-11 классы), специализированные кабинеты основной школы

Учебные кабинеты универсального назначения

187,5
3´62,5

312,5
5´62,5

Учебные кабинеты по естественным наукам (физика, химия, биология) в составе:

 

 

- лаборатория

225
3´75

300
4´75

- практикум

108
3´36

144
4´36

- лаборантская

54
3´18

72
4´18

Специализированные учебные кабинеты:

 

 

- иностранного языка

126
3´42

168
4´42

- компьютерная лингвистическая лаборатория

87,5

87,5

- информатики и вычислительной техники

175
87,5+87,5

175
87,5+87,5

- лаборантская

36
2´18

36
2´18

- технического черчения и рисования

87,5

87,5

- поточная аудитория

75

75

- интернет-клуб

80

80

Рекреация (зального типа)

200

300

5

Помещения изучения технологий (трудовое обучение)

Мастерская по обработке дерева и технологии

87,5

87,5

Мастерская по обработке металла и технологии

87,5

87,5

Инструментальная

24

24

Мастерская по обработке ткани и технологии

87,5

87,5

Кулинария

50

50

Электрорадиотехнология

-

75

6

Группа центра информации

Библиотека с зоной читательских мест + медиатека

330

495

Методический кабинет с учительской (5-11 классы) и зоной отдыха

80
20+40+20

80
25+50+25

7

Вестибюльная группа, администрация медицинские комнаты

Кабинет директора с комнатой отдыха

42
32+10

42
32+10

Кабинет зам. директора по учебно-воспитательной работе

12

12

Кабинет зам. Директора

12

12

Кабинет организатора внеклассной и внешкольной работы

12

12

Кабинет зам. Директора по административно-хозяйственной работе

10

10

Канцелярия

12

12

Бухгалтерия

12

12

Касса

8

8

Комната техперсонала

12

12

Кладовая уборочного инвентаря (по одной на каждом этаже)

16
4
´4

32
4
´8

Кабинет врача

21

21

Процедурная

16

16

Физиотерапия-фитотерапия

16

16

Кабинет зубного врача

12

12

Кабинет психологической службы

20

20

Кабинет логопеда

12

12

Санузлы учащихся

52,5

79

Комната личной гигиены (для девочек) - одна на этаже

16
4
´4

16
4
´4

Санузлы персонала (на каждом этаже), комната личной гигиены

20

20

Вестибюль-гардероб

122,5

184

Помещение для охраны

12

16

Общешкольная группа помещений

8

Группа зрительного зала -

Зрительный зал

мест
площадь

 

330
231

495
346

Эстрада

70

90

Кладовая инвентаря

12

24

Артистические

20
2
´10

20
2
´10

Технический центр

70

70

9

Группа свободного творчества

Кружки изобразительного искусства

72

72

Музыки и пения

70

70

Технического творчества

70

70

Фото-киностудия

36

36

Юннатско-биологической деятельности (комната живой природы)

36

36

Студия хореографии

-

144

Раздевальные

-

42
2
´21

10

Столовая

Обеденный зал

мест
площадь

 

184
129,5

275
192,5

Кухонный блок с подсобными помещениями

185

280

Автономный спортивный многофункциональный блок

11

Группа спортивно-оздоровительная

Спортивный зал

540
18
´30

702
18
´30+18´9

Малый спортивный зал (студия хореографии)

144

-

Раздевальные, с душевыми и уборными

165
6
´27,5

220
8
´27,5

Инвентарная (снарядная)

64
32+32

82
32+32+18

Комната инструктора

18
2
´9

27
3
´9

Помещение хранения уборочного инвентаря

8
4+4

8
4+4

 

Итого:

Расчетная площадь

6796,5

9170,5

 

 

Расчетная площадь на 1 учащегося

12,3

11,1

 

 

Общая площадь*

8971,38

11463,1

 

 

Общая площадь на 1 уч-ся

16,3

13,8

 

* Коэффициент отношения общей площади к расчетной принимается для школ на 22 класса - 1,32, для школ на 33 класса - 1,25.

Таблица 2

Школьный бассейн с двумя ваннами 25´11,5 и 10´6 м.

№ п. п

Наименование помещений

Площадь
м2

1

Бассейн с ванной 25´11,5 м. Для группы 25 человек

450

2

Раздевальные с душевыми и уборными

130
2
´65

3

Помещение инструктора-тренера

20 2x10

4

Бассейн с ванной 10´6 для труппы 12 человек

180

5

Раздевальные с душевыми и уборными

70
2
´35

6

Помещение инструктора-тренера

18
12+6

7

Помещение медсестры с лабораторией

12
2
´6

8

Бытовое помещение для персонала

9

9

Служебное помещение

12

 

Итого: расчетная площадь

901

 

Итого: общая площадь**

1351,5

** Коэффициент отношения общей площади к расчетной для бассейна принимается равным 1,5.

Технико-экономические показатели школ, включая бассейн.

Общая площадь школы на 22 класса (550 учащихся) с бассейном составляет: 10322,8 м2.

Общая площадь школы на 33 класса (825 учащихся) с бассейном составляет: 12814,6 м2.

Приложение 28

(обязательное)

(Введено дополнительно. Дополнение № 2)

Схема эргономических параметров учебных помещений при наполняемости учебной группы 30 человек

- Угол рассматривания классной доски не менее 35 градусов в соответствии со СП 2.4.2.782-99 (в помещениях для учащихся начальной школы - 45 градусов).

- Расчетная длина классной доски 300 см.

- Расчетная точка положения ученика: середина ученического места первого крайнего ряда столов.

- р1 - расстояние от передней стены с классной доской до передних столов (при трехрядной расстановке), не менее.

- Р2 - расстояние от ученических столов до задней стены (перегородки, шкафа), не менее,

- П2 - расстояние между рядами столов и наружной продольной стеной, не менее.

- П3 - расстояние от ученических столов до внутренней стены (перегородки шкафа) не менее.

СОДЕРЖАНИЕ

1. Область применения. 1

2. Нормативные ссылки. 2

3. Основные положения. 2

4. Требования к организации сети. Виды и типы общеобразовательных учреждений. 3

5. Требования к размещению и зонированию земельного участка. 4

6. Требования к функциональным группам, составу и площадям помещений. 5

7. Объемно-планировочные строения. 6

8. Противопожарные требования к зданиям общеобразовательных учреждений. 8

9. Требования к внутренней среде зданий. 9

Эргономические параметры размещения мебели и оборудования. 9

Естественное и искусственное освещение. 9

Инсоляция, солнцезащита и ориентация помещений по сторонам света. 10

Водоснабжение и канализация. 10

Отопление и вентиляция. 10

Электротехнические и слаботочные устройства. 11

Внутренняя отделка помещений. 13

Требования к максимальному энергосбережению.. 13

Приложение 1 Сокращения, термины и определения. 13

Приложение 2 Классификация и назначение видов общеобразовательных учреждений. 14

Приложение 3. Организация сети общеобразовательных учреждений. 15

Приложение 4 Примерная номенклатура видов и типов зданий общеобразовательных учреждений. 16

Приложение 5 Площади основных зон земельных участков общеобразовательных учреждений. 17

Приложение 6 Функциональные группы и примерный состав помещений. 17

Приложение 7 Состав и расчетные показатели площадей помещений начальной школы.. 20

Приложение 8 Состав и расчётные показатели площадей помещений основной школы.. 21

Приложение 9 Состав и расчетные показатели площадей помещений старшей школы.. 21

Приложение 10 Состав и расчетные показатели площадей специализированных помещений основной и старшей школы.. 21

Приложение 11 Состав и расчетные показатели площадей помещений изучения технологий и трудового обучения. 22

Приложение 12 Состав и расчетные показатели площадей помещений центра информации - библиотеки и учительской - методического кабинета. 22

Приложение 13 Состав и расчетные показатели площадей вестибюля-гардероба, административно-хозяйственных помещений, медицинских комнат. 23

Приложение 14 Состав и расчетные показатели площадей помещений рекреационного центра. 23

Приложение 15 Состав и расчетные показатели площадей помещений зрительного зала. 24

Приложение 16 Размеры и площади учебно-спортивных залов и бассейна. 24

Приложение 17 Состав и расчетные показатели площадей вспомогательных помещений при спортивных залах и бассейне. 25

Приложение 18 Состав и расчетные показатели площадей помещений художественного (эстетического) воспитания. 26

Приложение 19 Состав и расчетные показатели площадей помещений блока технического творчества. 26

Приложение 20 Состав и расчетные показатели площадей помещений для биолого-опытнической деятельности. 27

Приложение 21 Состав и площади помещений кухонного блока с подсобными помещениями. 27

Приложение 22 Расчетные показатели площадей санитарных узлов и количество санитарных приборов. 28

Приложение 23 28

Приложение 24 Ориентация окон учебных помещений по сторонам света. 28

Приложение 25 Расчетная температура воздуха и кратность обмена воздуха в помещениях. 28

Приложение 26 Организация пространства, размещение мебели и оборудования класса-кабинета для фронтальных, фронтально-групповых и групповых форм ведения урока. 29

Приложение 27. 30

Приложение 28 Схема эргономических параметров учебных помещений при наполняемости учебной группы 30 человек. 32

 

 




ГОСТЫ, СТРОИТЕЛЬНЫЕ и ТЕХНИЧЕСКИЕ НОРМАТИВЫ.
Некоммерческая онлайн система, содержащая все Российские Госты, национальные Стандарты и нормативы.
В Системе содержится более 150000 файлов нормативно-технической документации, действующей на территории РФ.
Система предназначена для широкого круга инженерно-технических специалистов.

Рейтинг@Mail.ru Яндекс цитирования

Copyright © www.gostrf.com, 2008 - 2026