Крупнейшая бесплатная информационно-справочная система онлайн доступа к полному собранию технических нормативно-правовых актов РФ. Огромная база технических нормативов (более 150 тысяч документов) и полное собрание национальных стандартов, аутентичное официальной базе Госстандарта. GOSTRF.com - это более 1 Терабайта бесплатной технической информации для всех пользователей интернета. Все электронные копии представленных здесь документов могут распространяться без каких-либо ограничений. Поощряется распространение информации с этого сайта на любых других ресурсах. Каждый человек имеет право на неограниченный доступ к этим документам! Каждый человек имеет право на знание требований, изложенных в данных нормативно-правовых актах!

  


 

СИСТЕМА НОРМАТИВНЫХ ДОКУМЕНТОВ
В СТРОИТЕЛЬСТВЕ

СВОД ПРАВИЛ

ПРОЕКТИРОВАНИЕ И УСТРОЙСТВО
ФУНДАМЕНТОВ ОПОР МОСТОВ
В РАЙОНАХ РАСПРОСТРАНЕНИЯ
ВЕЧНОМЕРЗЛЫХ ГРУНТОВ

СП 32-101-95

МОСКВА

1996

Предисловие

1 РАЗРАБОТАН Научно-исследовательским институтом транспортного строительства (АО «ЦНИИС»)

ВНЕСЕН Корпорацией «Трансстрой»

2 СОГЛАСОВАН Федеральным дорожным департаментом Минтранса РФ (№ НТО-8/151 от 14.11.94 г.) и МПС РФ (№ ЦПИ-4/18 от 30.11.94 г.)

3 ОДОБРЕН Минстроем России (письмо № 13-238 от 05.06.95 г.)

4 ПРИНЯТ И ВВЕДЕН В ДЕЙСТВИЕ Корпорацией «Трансстрой» (№ МО-299 от 22.12.95)

5 ВВЕДЕН ВПЕРВЫЕ

СОДЕРЖАНИЕ

Введение. 2

1 Область применения. 2

2 Нормативные ссылки. 2

3 Определения. 3

4 Общие положения. 3

5 Проектирование фундаментов опор мостов. 3

5.1 Основные положения. 3

5.2 Особенности проектирования и расчета основание и фундаментов опор. 6

5.3. Конструирование фундаментов опор мостов. 10

6 Устройство фундаментов опор мостов. 13

6.1 Общие указания. 13

6.2 Бурение скважин. 14

6.3 Устройство свайных элементов. 15

6.4 Устройство фундаментов мелкого заложения. 17

6.5 Особенности производства бетонных работ. 18

6.6 Обеспечение качества работ. 20

Приложение А Прогноз многолетних изменений температуры вечномерзлых грунтов вследствие нарушения, условий теплообмена после постройки мостов. 21

Приложение Б Применение сезоннодействующих охлаждающих устройств (СОУ) для опор мостов на вечномерзлых грунтах. 32

Приложение В Использование поверхностного охлаждения грунтов для стабилизации вечномерзлого состояния оснований опор мостов. 35

Приложение Г Использование стоек безростверковых опор мостов из полых свай-оболочек в качестве охлаждающих устройств. 38

Приложение Д Проектирование свайных элементов опор из стальных свай-оболочек (стальных труб) 41

Приложение Е Расчет свайных элементов опор. 46

Приложение Ж Расчет фундаментов на действие сил морозного пучения грунтов. 52

Приложение И Бетонирование свайных элементов опор. 53

Введение

Разработанный Свод правил позволяет обеспечить современный уровень проектирования и устройства фундаментов опор мостов на вечномерзлых грунтах в традиционных и вновь осваиваемых регионах.

При разработке настоящих правил использован опыт проектирования, строительства и эксплуатации мостов, построенных на железных и автомобильных дорогах севера Западной Сибири, полуострова Ямал, на БАМе и в других регионах страны, а также результаты научно-исследовательских работ, проведенных АО «ЦНИИС», его филиалом (СибЦНИИС) и Тындинской мерзлотной станцией (ТМС).

Свод правил разработан в лаборатории оснований и фундаментов АО «ЦНИИС» (канд. техн. наук В.П. Рыбчинский - ответственный исполнитель). Приложения А.1, Б и Г разработаны лабораторией инженерного мерзлотоведения АО «ЦНИИС» (соответственно кандидаты техн. наук В.В. Пассек, Л.Н. Слоев, инж. В.И. Петров); приложения А.2 и В - лабораторией оснований и фундаментов ТМС (канд. техн. наук А.А. Опарин); приложение Д - лабораториями теории и методов расчета мостов (д-р техн. наук А.А. Потапкин) и оснований и фундаментов АО «ЦНИИС»; приложение Е - с использованием материалов СибЦНИИСа (канд. техн. наук Э.А. Аблогин); приложение Ж - с использованием материалов лаборатории земляного полотна АО «ЦНИИС»; приложение И - по материалам лаборатории долговечности бетона АО «ЦНИИС» (канд. техн. наук В.С. Гладков).

При разработке отдельных положений правил использованы предложения проектных организаций, в том числе АО «Ленгипротранс», АО «Мосгипротранс», Союздорпроекта, АО «Гипростроймост», АО «Ленметрогипротранс», Сибгипротранса.

СВОД ПРАВИЛ

ПРОЕКТИРОВАНИЕ И УСТРОЙСТВО ФУНДАМЕНТОВ ОПОР МОСТОВ
В РАЙОНАХ РАСПРОСТРАНЕНИЯ ВЕЧНОМЕРЗЛЫХ ГРУНТОВ

CODE OF PRACTICE IN PROJECTING AND BUILDING
THE FOUNDATIONS OF THE PIERS OF BRIDGES IN
THE AREA OF PERMAFROST GROUNDS

Дата введения 1996-04-01

1 Область применения

Настоящий свод правил распространяется на проектирование и устройство фундаментов опор постоянных мостов, путепроводов и эстакад на железных и автомобильных дорогах, сооружаемых в районах распространения вечномерзлых грунтов, включая север Западной Сибири и полуостров Ямал.

Положения настоящего документа обязательны для предприятий, организаций и объединений независимо от форм собственности и принадлежности, осуществляющих проектирование и строительство указанных сооружений в районах распространения вечномерзлых грунтов.

2 Нормативные ссылки

В настоящем своде правил использованы ссылки на следующие документы:

СНиП 2.01.01-82 Строительные климатология и геофизика.

СНиП 2.02.01-83 Основания зданий и сооружений.

СНиП 2.02.03-85 Свайные фундаменты.

СНиП 2.02.04-88 Основания и фундаменты на вечномерзлых грунтах.

СНиП 2.02.07-87 Инженерные изыскания для строительства.

СНиП 2.03.01-84* Бетонные и железобетонные конструкции.

СНиП 2.03.11-85 Защита строительных конструкций от коррозии.

СНиП 2.05.03-84* Мосты и трубы.

СНиП 3.02.01-87 Земляные сооружения, основания и фундаменты.

СНиП 3.03.01-87 Несущие и ограждающие конструкции.

СНиП 3.06.04-91 Мосты и трубы.

СНиП II-23-81* Стальные конструкции.

СНиП III-4-80* Техника безопасности в строительстве.

ГОСТ 14098-91 Соединения сварные арматуры и закладных деталей.

ГОСТ 10178-85* Портландцемент и шлакопортландцемент. Технические условия.

ГОСТ 22266-76* Цементы сульфатостойкие. Технические условия.

ГОСТ 25100-95 Грунты. Классификация.

ВСН 165-85 Устройство свайных фундаментов мостов (из буровых свай).

ВСН 156-88 Инженерно-геологические изыскания железнодорожных, автодорожных и городских мостовых переходов.

ВСН 203-89 Нормы и технические условия на проектирование и строительство железных дорог на полуострове Ямал.

ВСН 83-92 Технические указания по проектированию бетонов и цементно-песчаных растворов, твердеющих на морозе, при устройстве искусственных сооружений.

3 Определения

В настоящем своде правил применены термины в соответствии со СНиП 2.05.03-84*, СНиП 2.02.04-88, СНиП 2.02.03-85, СНиП 2.02.01-83, СНиП 3.06.04-91 и СНиП 2.03.01-84*.

4 Общие положения

4.1 Указания настоящего свода правил предназначены для использования при проектировании и устройстве фундаментов опор мостов (путепроводов, эстакад), возводимых на вечномерзлых грунтах, используемых по принципу I и II.

4.2 В своде правил приведены только дополнительные к содержащимся в действующих нормативных документах указания в объеме, необходимом для учета характерных особенностей проектирования и сооружения на вечномерзлых грунтах безростверковых опор, свайных и мелкого заложения фундаментов с использованием типовых или апробированных на практике и рекомендованных для широкого применения проектов, а также для разработки индивидуальных конструктивно-технологических решений опор.

Общие указания, относящиеся к вопросам проектирования и устройства фундаментов опор мостов как на используемых в мерзлом или талом состоянии вечномерзлых грунтов, так и на немерзлых грунтах в части проектирования и сооружения фундаментов и надфундаментной части опор, отсыпки и укрепления конусов, укрепления русел и т. п., следует принимать в соответствии с действующими нормативными документами.

4.3 Проектирование и сооружение фундаментов опор мостов должно осуществляться с учетом требований к охране окружающей среды.

5 Проектирование фундаментов опор мостов

5.1 Основные положения

ОБЩИЕ УКАЗАНИЯ

5.1.1 При выборе оптимального конструктивно-технологического решения фундаментов опор мостов, проектируемых на разных вечномерзлых грунтах, следует ориентироваться, как правило, на применение безростверковых конструкций устоев и промежуточных опор или опор с ростверком, расположенным выше поверхности грунта, а в пределах водотоков - выше или ниже уровня первой подвижки льда. Опоры с фундаментами мелкого заложения допускается применять в тех случаях, когда оттаивание мерзлых грунтов не приведет к появлению недопустимых по условиям нормальной эксплуатации мостов деформаций опор, нормированных СНиП 2.05.03-84.

5.1.2 При проектировании фундаментов опор на мерзлых грунтах, используемых по принципу I, необходимо предусматривать мероприятия, направленные на поддержание в течение всего периода эксплуатации мостового перехода расчетной отрицательной температуры основания. С этой целью следует свести до минимума нарушения мохорастительного покрова, природного режима течения поверхностных и подземных вод на переходе, а при недостаточности этих мер - предусмотреть мероприятия по искусственному поддержанию расчетных температур путем использования специальных конструктивно-технологических решений опор и применения охлаждающих устройств.

Выбор вышеуказанных мероприятий должен производиться на основании теплотехнического расчета.

5.1.3 Для сохранения естественных водных режимов на мостовом переходе, грунты основания фундаментов опор которого используются по принципу I, необходимо по возможности исключить или свести к минимуму:

- пропуск воды под один мост нескольких соседних постоянных или периодических водотоков (за исключением протоков одного водотока);

- застои воды в пересыпанных протоках;

- длительную аккумуляцию воды под мостами и на подходах;

- срезки дна водотоков без укрепления его против размыва;

- срезку русла со вскрытием сильнольдистых грунтов или подземных льдов;

- завалы грунта, приводящие к застою воды под мостом;

- погружение свай с использованием метода протаивания грунтов основания;

- применение фундаментов мелкого заложения или заглубление в грунт сооружаемых в котлованах ростверков свайных фундаментов.

5.1.4 На участках залегания большой толщи (свыше 15 м) сильнольдистых грунтов (с относительной осадкой при оттаивании более 0,03) или подземных льдов, в местах наличия криопегов, в пределах водотоков с наледями, на неустойчивых косогорах и в других сложных условиях решение о месте расположения, типе и конструкции опор безростверковых или с ростверком следует принимать индивидуально для каждого проектируемого мостового перехода исходя из особенностей природных условий и результатов технико-экономического сравнения целесообразных вариантов конструкции моста в целом и подходов к нему, а также мер по предотвращению появления недопустимых деформаций опор в течение всего периода эксплуатации дороги. При этом рекомендуется обследовать целесообразность переноса места расположения мостового перехода, увеличения глубины заложения фундаментов, обеспечения сохранности мерзлого состояния грунтов основания опор с помощью охлаждающих устройств или других мер.

ТРЕБОВАНИЯ К МАТЕРИАЛАМ ИНЖЕНЕРНЫХ ИЗЫСКАНИЙ

5.1.5 Основания и фундаменты опор следует проектировать с использованием материалов инженерных изысканий, включающих результаты инженерно-геологических, мерзлотных, гидрогеологических, гидрологических и геодезических изысканий, выполненных в соответствии с требованиями СНиП 1.02.07-87 и ВСН l56-88.

5.1.6 Материалы инженерно-геокриологических изысканий должны содержать:

- данные о характере мерзлотно-грунтовых условий строительной площадки, в том числе об особенностях распространения по площади и глубине залегания вечномерзлых грунтов, их генезиса, литологическом и гранулометрическом составах, криогенном строении, особенностях напластования, температуре, толщине слоя сезонного промерзания и оттаивания, средней годовой температуре, о мерзлотных процессах (наледях, буграх пучения, термокарсте, солифлюкционно-оползневых образованиях и др.), степени засоленности грунтов, наличии включений концентрированных солевых растворов (криопегов) и их напоре;

- результаты полевых и лабораторных исследований и испытаний грунтов, отражающие литологические типы, криогенное строение, физические и механические свойства в талом и мерзлом состояниях для нескальных грунтов - плотность, влажность, льдистость, просадочность при оттаивании, угол внутреннего трения, сцепление, теплоемкость, коэффициент теплопроводности; для скальных грунтов - степень выветрелости и трещиноватости, временное сопротивление на одноосное сжатие, коэффициент размягчаемости в воде и др.;

- дополнительные данные, необходимые для прогнозирования возможных изменений геокриологических условий строительной площадки, в том числе данные о продолжительности периодов и значениях положительных и отрицательных температур воздуха, толщине снежного покрова, мохорастительном покрове, а также о характерных особенностях проектируемого мостового перехода и производства работ по возведению опор моста и т. п.;

- исходные данные и требования, необходимые для разработки мероприятий по охране окружающей среды, подлежащие включению в проект опор моста, а также в проект организации и производства строительных работ (с целью обеспечения максимальной сохранности мохорастительного покрова, минимальных нарушений естественных условий напластования грунтов и протекания водотоков).

5.1.7 Материалы гидрогеологических и гидрологических изысканий должны содержать данные: об уровнях появления и установления подземных вод; химическом составе подземных вод с целью определения основных показателей их агрессивности по отношению к бетону или стальным оболочкам фундаментов; характере гидравлической связи подземных вод с водами открытых водоемов (рек, водохранилищ или озер).

Кроме сведений о подземных водах должны быть получены:

характерные данные о наземных (поверхностных) водах, включающие расчетные уровень и расход воды; рабочие уровни для каждого месяца в году; уровни высокой и низкой межени; графики среднемноголетней продолжительности стояния характерных уровней воды; сведения о датах начала и конца ледостава и ледохода, толщине льда, уровнях ледостава и ледохода, возможных заторах льда; сведения о характере и степени агрессивности воды.

В дополнение к перечисленным сведениям необходимо собрать данные о специфических особенностях водотоков, характеризующие:

- прохождение паводков поверх ледяного покрова, обычно образующегося на перекатах при промерзании водотоков до дна, а также в местах появления наледей или ледяных заторов, возникающие при таких паводках подпоры воды и связанное с ними повышение ее уровней;

- возможные деформации русла в результате прохода паводков по ледяному покрову или по наледям (спрямления русла, глубинные, боковые размывы русла и т. п.).

5.1.8 В комплекс изысканий, выполняемых для разработки проекта опор мостов, необходимо включать обзор и систематизацию литературных данных по материалам ранее проведенных изысканий, в том числе связанных с поиском полезных ископаемых, нефти и газа, обзор сведений по опыту строительства и эксплуатации ранее построенных мостов и других сооружений разного назначения в районах проектируемых дорог, обращая особое внимание на характер и причины изменений температуры вечномерзлых грунтов, если такие изменения имели место.

5.1.9 Номенклатуру грунтов оснований в описанных результатах изысканий и в проектах фундаментов следует принимать согласно ГОСТ 25100-82, а специфические характеристики вечномерзлых грунтов - согласно СНиП 2.02.04-88.

5.1.10 Количество и глубину разведочных скважин следует назначать исходя из необходимости получения достоверных данных, требуемых для обоснованного принятия оптимальных конструктивно-технологических решений фундаментов опор с учетом сложности геокриологических и гидрологических условий в месте проектируемого мостового перехода, но не менее двух-трех скважин для малого моста и глубиной не менее 15 м.

В зависимости от принципа использования грунтов в качестве оснований глубина скважин должна не менее чем на 5 м превышать глубину заложения фундаментов при применении принципа I и не менее чем на 5 м - подошву возможной чаши оттаивания грунтов под фундаментом при применении принципа II.

В местах распространения засоленных мерзлых грунтов с включением линз криопегов количество скважин должно соответствовать как минимум количеству опор моста. При этом подлежат четкому определению абсолютные отметки залегания линз криопегов и их мощность, а также наличие напора высокоминерализованных вод на момент проходки скважин.

ВЫБОР ПРИНЦИПА ИСПОЛЬЗОВАНИЯ ВЕЧНОМЕРЗЛЫХ ГРУНТОВ В КАЧЕСТВЕ ОСНОВАНИЯ

5.1.11 При проектировании фундаментов опор на вечномерзлых грунтах в зависимости от их конструктивных и технологических особенностей, инженерно-геокриологических условий применяется один из следующих принципов использования этих грунтов в качестве основания:

- принцип I - вечномерзлые грунты основания используются в мерзлом состоянии, сохраняемом в процессе строительства и в течение всего периода эксплуатации сооружения;

- принцип II - вечномерзлые грунты основания используются в оттаянном или оттаивающем состоянии.

5.1.12 При выборе принципа использования вечномерзлых грунтов в качестве основания фундаментов опор мостов следует исходить из условий обеспечения надежности и долговечности, а также минимальных затрат материалов, труда и времени на их возведение.

5.1.13 Вечномерзлые грунты в основании фундаментов глубокого заложения опор с ростверком или безростверковых рекомендуется использовать по принципу I при соблюдении следующих условий и требований:

- вечномерзлые грунты должны быть преимущественно сливающегося типа, температура которых в течение всего периода эксплуатации моста не будет превышать значений, принятых в расчетах несущей способности основания;

- в местах сильных снежных заносов продольный профиль дороги должен обеспечивать в пределах перехода наличие просвета под мостом, как правило, не менее 3,5 м;

- русло в месте мостового перехода следует запроектировать таким образом, чтобы свести к минимуму возможность образования наледей и термокарста, для чего необходимо обеспечить максимальную сохранность поверхностного слоя грунта в пределах меженной части русла и сосредоточенный пропуск вод под мостом, используя для этой цели при необходимости лотки или другие устройства. При недостаточности таких мер рекомендуется с верховой стороны моста на расстоянии 50-100 м осуществить перехват подруслового потока, например, с помощью мерзлотной завесы, устраиваемой с использованием охлаждающих устройств. Для предотвращения появления термокарста следует предусмотреть меры по исключению возможности длительного застоя воды вдоль насыпи и под мостом, а также существенного повреждения мохорастительного покрова в зоне мостового перехода;

- дно русла в местах возможного его значительного размыва должно быть укреплено на длине не менее 15 м в верховую и низовую стороны от оси малого моста;

- промежуточные опоры рекомендуется по возможности размещать вне пределов меженного русла;

- свайные элементы (сваи разных типов) фундаментов следует заделывать в мерзлые грунты ниже уровня максимально возможного их оттаивания на глубину, обеспечивающую восприятие расчетных нагрузок, включая силы морозного выпучивания;

- низ свайных элементов необходимо располагать не менее чем на 4 м выше поверхности подземного льда или сильнольдистых грунтов. Если это условие невыполнимо, такие грунты должны быть прорезаны свайными элементами, а при невозможности этого - решение об использовании сильнольдистых грунтов в качестве оснований следует принимать индивидуально.

5.1.14 В качестве основания фундаментов, используемого по принципу II, пригодны любые вечномерзлые крупнообломочные грунты, плотные и средней плотности пески, твердые, полутвердые и тугопластичные глинистые грунты, а также другие малосжимаемые при оттаивании грунты (характеризуемые относительной осадкой при оттаивании не более 0,03) при условии обеспечения предусмотренной проектом опор несущей способности оснований и перемещений верха опор в пределах допусков, нормированных СНиП 2.05.03-84.

5.1.15 В основаниях фундаментов твердомерзлые грунты следует использовать преимущественно по принципу I. При этом для фундаментов железнодорожных мостов необходимо обеспечить на весь период эксплуатации температуры мерзлых грунтов основания на 0,5 °С ниже расчетных температур для песков и супесей и на 1 °С - для суглинков и глин.

5.1.16 Пластично-мерзлые грунты в основаниях фундаментов следует использовать, как правило, по принципу II. В случае технико-экономической нецелесообразности такого решения допускается использовать эти грунты по принципу I (для железнодорожных мостов в опытном порядке), если в течение всего периода эксплуатации сооружения с помощью комплекса мер (например, охлаждающих устройств, каменных набросок, проветриваемых полостей и других мероприятий) будет сохранена температура грунтов не выше принятой в расчетах несущей способности по прочности и деформативности основания.

При этом количество охлаждающих установок следует назначать с учетом коэффициента надежности, равного 2.

5.1.17 Вечномерзлые грунты в основании фундаментов малого моста, как правило, следует использовать по одному принципу, не допускается опирания их частично на мерзлые и частично на немерзлые или оттаивающие грунты.

При значительном количестве опор большого моста допускается применение двух принципов для грунтов основания фундаментов соседних опор с учетом требований СНиП 2.05.03-84.

Для грунтов основания фундамента каждой отдельной опоры совместное использование двух принципов не допускается.

5.2 Особенности проектирования и расчета основание и фундаментов опор

5.2.1 Во всех регионах распространения вечномерзлых грунтов, где по условиям надежности и долговечности допустимо, экономически оправдано и практически осуществимо, рекомендуется для автодорожных и железнодорожных мостов применять безростверковые опоры с использованием буровых (буроопускных, бурообсадных) и забивных свай, расположенных преимущественно в один-два ряда по фасаду моста.

Безростверковые опоры для железнодорожных мостов допускается применять в обсыпных устоях, а в промежуточных опорах - на суходолах для малых и средних мостов.

Опоры с фундаментом мелкого заложения (на естественном основании) допускается применять для мостов на вечномерзлых грунтах, используемых, как правило, по принципу II.

5.2.2 В регионах распространения засоленных мерзлых грунтов разрешается применение в устоях фундаментов безростверкового типа с плитой, расположенной в уровне подошвы конуса и опирающейся на грунты, поддерживаемые в твердомерзлом состоянии с помощью охлаждающих устройств и специальных конструктивно-технологических мероприятий (по согласованию с заказчиком).

5.2.3 Подошву ростверка свайных фундаментов рекомендуется располагать, как правило, над поверхностью грунта или над уровнем первой подвижки льда. Фундаменты с заглубленным ниже уровня первой подвижки льда ростверком допускается применять в сложных ледовых или других условиях. Для железнодорожных мостов фундаменты промежуточных опор следует проектировать с ростверком, расположенным ниже уровня первой подвижки льда или ледохода.

5.2.4 Для автодорожных мостов допускается применять устои диванного типа при условии осуществления мер по предотвращению появления недопустимых деформаций устоев, а также обеспечению устойчивости их на плоский и глубокий сдвиги.

5.2.5 В безростверковых опорах и фундаментах опор с ростверком рекомендуется применять в качестве стоек или элементов фундамента железобетонные столбы круглого и прямоугольного сечения, буровые сваи и некондиционные газовые стальные трубы диаметром 1 - 1,4 м.

5.2.6 Фундаменты, устраиваемые на вечномерзлых грунтах, используемых по принципу II, следует проектировать на случай полного их оттаивания в пределах зоны основания.

5.2.7 При проектировании оснований и фундаментов опор мостов, возводимых на вечномерзлых грунтах, следует выполнять теплотехнические расчеты основания и расчеты основания и фундаментов на силовые воздействия. При этом надлежит учитывать принцип использования вечномерзлых грунтов в качестве основания.

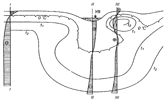
5.2.8 Прогноз многолетних изменений температуры вечномерзлых грунтов, включая определение температуры используемых по принципу I вечномерзлых грунтов, для расчета несущей способности оснований фундаментов автодорожных и железнодорожных мостов к концу установленного срока их эксплуатации допускается выполнять согласно приложению А.

5.2.9 Рассчитанная по приложению А температура мерзлых грунтов должна соответствовать условию обеспечения необходимой несущей способности и устойчивости оснований фундаментов опор моста. В противном случае для использования таких грунтов по принципу I необходимо осуществить меры по глубинному или поверхностному их охлаждению, предусмотренные приложениями А - Г.

5.2.10 Основания и фундаменты опор следует рассчитывать по двум группам предельных состояний:

- по первой - по несущей способности оснований, устойчивости положения фундаментов опор против опрокидывания и сдвига (плоского или глубокого), устойчивости фундамента на действие сил морозного пучения грунта;

- по второй - по деформациям оснований и фундаментов (осадкам, кренам, горизонтальным смещениям).

5.2.11 Расчеты по материалу конструкции железобетонных опор необходимо производить согласно СНиП 2.05.03-85. Расчеты по материалу полых и заполненных бетоном стальных свай-оболочек допускается производить, пользуясь приложением Д.

Элементы железобетонных конструкций фундаментов рассчитывают по трещиностойкости.

Предельно допустимую ширину раскрытия трещин в железобетонных свайных элементах опор и фундаментов (на стадии эксплуатации) в неагрессивной среде от воздействия постоянных и временных нагрузок принимают согласно СНиП 2.05.03-84.

Для железобетонных элементов опор, расположенных в агрессивной среде, допустимую ширину раскрытия трещин принимают согласно СНиП 2.03.11-85.

5.2.12 Расчет оснований фундаментов опор мостов следует производить при использовании:

- твердомерзлых грунтов по принципу I - по несущей способности;

- вечномерзлых грунтов по принципу II, а пластично - мерзлых по принципу I - по несущей способности и деформациям.

5.2.13 Расчетную поверхность вечномерзлых грунтов, используемых в качестве основания по принципу I, следует назначать, как правило, на расчетной глубине сезонного оттаивания.

5.2.14 Значения нормативных и расчетных глубин сезонного оттаивания и сезонного промерзания следует определять по СНиП 2.02.04-88, с - уточнением согласно приложению А.

Значения расчетных глубин сезонного оттаивания или промерзания грунтов в основании опор рекомендуется принимать:

- для промежуточных опор, расположенных в пределах суши, пойменных участков и в руслах промерзающих до дна водотоков - соответственно от поверхности грунта, предварительной срезки (планировки) или от поверхности льда;

- для обсыпных устоев - от поверхности конуса, считая по нормали к ней.

5.2.15 Расчет по грунту свайных элементов безростверковых опор и фундаментов допускается производить, пользуясь приложением Е.

5.2.16 Нагрузки и воздействия на фундаменты опор мостов принимают в соответствии с требованиями СНиП 2.05.03-84.

5.2.17 Несущую способность используемых по принципу I вечномерзлых грунтов в основании сжатого (осевой нагрузкой) железобетонного, стального или сталебетонного свайного элемента необходимо проверять по условию

,                                                                 (5.1)

где     Nmах - наибольшее сжимающее продольное усилие в верхнем сечении элемента, кН (тc);

G - собственный вес элемента, кН (т);

m = 1 - коэффициент условий работы;

gд - коэффициент надежности, принимаемый для используемых по принципу I вечномерзлых грунтов, равным 1,4 независимо от количества свайных элементов в фундаменте и от положения подошвы ростверка по отношению к поверхности грунта, а для грунтов, используемых по принципу II, согласно СНиП 2.02.03-85 (как для немерзлых грунтов);

Fu - несущая способность по грунту элемента, определяемая по указаниям СНиП 2.02.04-88 или СНиП 2.02.03-85, кН (т).

При определении несущей способности Fu допускается учитывать влияние кратковременного характера действия подвижных нагрузок (согласно СНиП 2.02.04-88), приняв следующие значения дополнительного повышающего коэффициента для части Fu, относящейся к учету воздействия временных вертикальных и горизонтальных нагрузок в расчетах несущей способности оснований свайных элементов опор: железнодорожных мостов при одновременном действии сжимающих вертикальных постоянных и временных вертикальных нагрузок - 1,35; то же, но совместно с временными горизонтальными нагрузками (включая сейсмические нагрузки) - 1,5; автодорожных мостов соответственно - 1,5 и 1,75. Для железнодорожных мостов на станционных и подъездных путях, а также других мостов, на которых возможны систематические остановки на неопределенное время поездов или автомобилей, не допускается повышать значение Fu за счет учета временного характера действия подвижной нагрузки.

5.2.18 При работе свайного элемента на выдергивание из грунтов, используемых по принципу I, должно удовлетворяться условие

,                                                           (5.2)

где      Рdu - наибольшее выдергивающее продольное усилие в верхнем сечении элемента, кН (т);

G, т, gд - то же, что в формуле (5.1);

Fdu - несущая способность элемента на выдергивание, кН (т).

Передача выдергивающих усилий на основание свайных элементов от одних постоянных нагрузок и воздействий не допускается.

Несущую способность по грунту одиночных элементов на выдергивание следует определять в мерзлых грунтах, используемых по принципам I и II, согласно приложению Е.

5.2.19 В расчетах несущей способности используемых по принципу I или II вечномерзлых грунтов в основаниях буроопускных свайных элементов (столбов), воспринимающих сжимающие и выдергивающие усилия, в качестве расчетного размера диаметра элементов в грунте допускается принимать диаметр скважин (0,8 - 1 м) при условии, что свайные элементы с рифленой боковой поверхностью (согласно п. 5.3.15) омоноличены в скважинах цементно-песчаным, цементно-шламовым или другим раствором марки не ниже: 150 - на высоту не менее 1 м от нижнего конца элемента в скальных и крупнообломочных грунтах; 100 - на высоту не менее 2 м в тех же грунтах; 50 - не менее 3 м в остальных грунтах.

5.2.20 При оттаивании используемых по принципу II мерзлых грунтов в период эксплуатации мостов несущую способность по грунту свайных элементов, за исключением свай-стоек, опираемых на скальные, плотные после оттаивания крупнообломочные и твердые глинистые грунты, определяют без учета отрицательного трения.

5.2.21 Проверку условия прочности заделки свайных элементов в вечномерзлые грунты, используемые по принципу I, на действие поперечных сил и изгибающих моментов, возникающих от временных горизонтальных нагрузок (центробежной силы, поперечных ударов подвижной нагрузки, торможения или силы тяги и др.) допускается производить, пользуясь приложением Е при увеличенной несущей способности оснований согласно п. 5.2.17.

5.2.22 Несущую способность оснований фундаментов мелкого заложения, а также устойчивость таких фундаментов против опрокидывания и плоского сдвига на вечномерзлых грунтах, используемых по принципу II, следует определять, как для немерзлых грунтов, пользуясь указаниями СНиП 2.05.03-84.

5.2.23 Независимо от принятого принципа использования грунтов в качестве основания, фундаменты опор необходимо рассчитывать на действие сил морозного выпучивания согласно приложению Ж при глубине сезонного промерзания, принимаемой по п. 5.2.14 за исключением фундаментов:

а) всех типов в местах, где слой сезонного промерзания-оттаивания состоит из крупного песка и крупнообломочных грунтов с содержанием глинистого заполнителя не более 10 %;

б) обсыпных устоев в местах, где сезонное промерзание-оттаивание грунта конуса не достигает его основания, сложенного с поверхности пучинистыми грунтами, или подошвы непучинистого грунта, уложенного в основании конуса взамен удаленного естественного пучинистого грунта;

в) промежуточных опор, расположенных в пределах непромерзающих до дна водотоков.

5.2.24 Устои и промежуточные опоры, проектируемые на крутых склонах, особенно когда под несущим слоем основания расположены пласт немерзлого или оттаивающего глинистого грунта или прослойка насыщенного водой песка, подстилаемого глинистым грунтом, необходимо обязательно проверить на устойчивость против глубокого сдвига (смещения фундамента совместно с грунтом) по круглоцилиндрической или другой неблагоприятной поверхности скольжения.

Кроме того, для указанных условий надлежит проверить возможность появления локальных (местных) оползневых сдвигов на ранее устойчивых склонах вследствие дополнительного их нагружения весом насыпи и опоры, нарушения устойчивости пластов грунта в процессе производства работ или изменения режима (уровня и скорости течения) подземных и поверхностных вод.

5.2.25 Осадки проектируемых оснований фундаментов опор допускается не определять для мостов:

а) всех систем и пролетов в случаях опирания фундаментов на используемые по принципу I вечномерзлые грунты, за исключением пластичномерзлых глинистых;

б) внешне статически определимых систем железнодорожных (пролетами до 55 м) и автодорожных (пролетами до 105 м) при опирании на используемые по принципу II малосжимаемые при оттаивании скальные, плотные крупнообломочные и песчаные грунты, твердые и полутвердые глинистые или суглинистые грунты.

Осадки опор на основаниях из оттаивающих (в период эксплуатации мостов) остальных грунтов, используемых по принципу II, определяют согласно указаниям СНиП 2.02.04-88, рассматривая фундаменты из свайных элементов как условно массивные.

5.2.26 Основания и фундаменты опор мостов на засоленных вечномерзлых грунтах при использовании их в качестве основания по принципу I следует проектировать согласно СНиП 2.02.04-88 с учетом следующих особенностей:

- засоленные мерзлые грунты отличаются пониженной прочностью и малыми значениями сопротивлений сдвигу по поверхности смерзания свай и столбов;

- температура начала замерзания засоленных грунтов ниже температуры аналогичных видов незасоленных грунтов; при значительной степени засоленности грунты могут находиться при отрицательной температуре в «охлажденном» (немерзлом) состоянии;

- интервал нахождения в пластично-мерзлом состоянии сильно засоленных грунтов может составлять несколько градусов, так как переход таких грунтов в твердомерзлое состояние происходит при более низких температурах, чем аналогичных незаселенных грунтов;

- при вскрытии скважинами, пробуренными для устройства свай или столбов фундаментов, линз грунтов, сильно насыщенных высокоминерализованными (в том числе напорными) водами, происходит смачивание стенок скважины таким раствором, что приводит к резкому снижению, а при определенных условиях почти к полной потере смерзания по боковой поверхности элемента фундамента.

5.2.27 Для более полного использования сопротивления засоленных мерзлых грунтов нормальному давлению при проектировании и устройстве фундаментов следует ориентироваться на применение столбчатых элементов, свай с уширенной пятой и др.

5.2.28 Расчетные сопротивления засоленных мерзлых грунтов нормальному давлению и сдвигу по поверхности смерзания надлежит принимать, как правило, по опытным данным или ориентировочно по указаниям СНиП 2.02.04-88.

5.2.29 Основания и фундаменты на засоленных вечномерзлых грунтах при использовании их по принципу II следует проектировать в соответствии с указаниями СНиП 2.02.04-88 и требованиями СНиП 2.02.01-83, СНиП 2.02.03-85 и СНиП 2.03.11-85.

5.2.30 В сейсмических районах фундаменты опор мостов допускается проектировать на любых грунтах, используемых в качестве основания по принципу I.

Если грунты используются по принципу II, то следует предусматривать опирание подошвы фундаментов или нижних концов свай и столбов преимущественно на скальные или другие малосжимаемые при оттаивании грунты.

При учете сейсмических нагрузок расчет свайных фундаментов следует производить с учетом указаний и требований СНиП 2.02.04-88, СНиП II-7-81, СНиП 2.02.01-83, СНиП 2.02.03-85 и СНиП 2.05.03-84.

5.2.31 Для контроля температурного режима грунтов основания фундамента, используемых по принципу I, в каждой опоре должны быть установлены согласно проекту термометрические трубки в количестве не менее двух на глубину, превышающую на 2-5 м отметку заложения концов свай или столбов. В качестве термотрубок рекомендуется использовать стальные трубы диаметром, как правило, два дюйма, устанавливаемые как совместно с элементами фундамента (в сваи-стойки из стальных труб, в зазор между столбом и стенкой скважины и т. п.), так и в специально пробуренные скважины, местоположение которых определяется проектом.

Для контроля температурного режима грунтов в основании фундаментов мелкого заложения или поверхностного типа глубину термометрических трубок следует назначать не менее 10 - 15 м.

5.3. Конструирование фундаментов опор мостов

5.3.1 При конструировании фундаментов глубокого заложения, в том числе безростверковых опор, на вечномерзлых гранях, используемых по принципу I, следует применять буроопускные сваи (сваи-столбы), устраиваемые путем бурения скважин с уширением или без него, опускания в скважину цилиндрических или призматических железобетонных элементов сплошного сечения, стальных труб (оболочек) из стали, удовлетворяющей требованиям нормальной эксплуатации при низких отрицательных температурах (минус 40 °С и ниже), полых, заполненных бетоном или песчано-цементной смесью, с омоноличиванием их в скважине цементно-песчаным (цементно-шламовым) раствором.

5.3.2 Свайные элементы фундаментов промежуточных опор, верх которых расположен не менее чем на диаметр элемента ниже расчетной глубины сезонного промерзания-оттаивания грунтов или нижней поверхности льда при низком ледоставе, а также элементы устоев в непромерзающем грунте конуса насыпи, допускается проектировать из стальных оболочек и буровых свай-столбов (буроопускных или комбинированных железобетонных свайных элементов, заполненных бетоном, или полых железобетонных оболочек) без осуществления дополнительных мер по обеспечению трещиностойкости бетона таких элементов от неблагоприятного воздействия отрицательных температур окружающей среды.

В пределах слоя сезонного промерзания-оттаивания, в зоне воздействия льда (его первой подвижки и ледохода) пли переменного уровня воды и выше этой зоны свайные элементы безростверковых опор и фундаментов промежуточных опор следует проектировать сплошного сечения из морозостойкого бетона. В этих случаях разрешается применять элементы из железобетонных или стальных оболочек, заполненных бетоном, при условии осуществления мер (приложение И) по предотвращению появления трещин в железобетонных оболочках в период отрицательных температур воздуха.

В автодорожных мостах допускается в таких условиях применять для фундаментов полые железобетонные и стальные оболочки, если они удовлетворяют требованиям надежности и долговечности в течение всего периода эксплуатации мостов.

Свайные элементы из полых или заполненных бетоном стальных труб допускается проектировать, пользуясь приложением Д.

5.3.3 Глубину заложения подошвы фундаментов или низа свайных элементов от уровня естественной поверхности грунта, срезки или размыва дна водотока следует назначать по результатам расчета несущей способности оснований, учитывающего влияние следующих наиболее важных факторов:

- геокриологических, гидрогеологических и гидрологических условий в местах возведения опор;

- принципа использования вечномерзлых грунтов в качестве оснований;

- глубины сезонного промерзания и оттаивания грунтов;

- возможности пучения грунтов при промерзании и осадке основания при оттаивании;

- наличия льдонасыщенных грунтов и подземных льдов;

- принятых расчетных нагрузок на фундаменты;

- характерных особенностей конструкции и технологии постройки фундаментов.

5.3.4 Глубину заложения свайных элементов, а также расстояния в плане между ними назначают в нескальных вечномерзлых грунтах, используемых по принципу I, руководствуясь указаниями СНиП 2.02.04-88, а в используемых по принципу II- СНиП 2.02.03-85.

Глубину заделки низа свайных элементов в скальные грунты определяют на основании расчетов на сжатие или выдергивание согласно пп. 5.2.17 и 5.2.18 и принимают в зависимости от предела прочности Rс на одноосное сжатие и степени выветрелости грунта: для свайных элементов, воспринимающих преимущественно сжимающие усилия, в слабовыветрелых грунтах с Rс свыше 15 МПа (1500 тс/м2) - не менее 0,5 м, а в остальных грунтах - не менее 1 м; для элементов, воспринимающих выдергивающие усилия, во всех грунтах - не менее 2 м, а в слабовыветрелых грунтах с Rс свыше 15 МПа (1500 тс/м2) - не менее 1 м.

5.3.5 Для уменьшения глубины заложения свайных элементов в необрушающиеся немерзлые или в вечномерзлые нескальные грунты, используемые по принципу II, рекомендуется устраивать уширенные пяты.

Расстояния в свету между уширенными пятами свайных элементов в уровне наибольшего диаметра пят должно быть не менее 0,5 м во всех вечномерзлых грунтах, за исключением сыпучемерзлых, в которых уширения разбуриванием не устраивают.

В засоленных необрушающихся мерзлых грунтах, используемых по принципу I, допускается устраивать уширение в основании столбов при условии принятия мер по уменьшению влияния экзотермии цемента на растепление окружающего грунта (температура бетонной смеси не выше плюс 5 °С, наличие встроенных в свайный элемент охлаждающих устройств и т. п.).

5.3.6 Свайные и мелкого заложения фундаменты допускается опирать на немерзлый грунт, расположенный между подошвой сезонно-промерзающего слоя и поверхностью вечномерзлого, используемого по принципу II малосжимаемого при оттаивании грунта, если толщина слоя померзлого грунта под подошвой свайных элементов или фундаментов будет не менее 1,5 м при обеспечении требуемой их несущей способности на сжатие и на выдергивание.

5.3.7 Подошву ростверка свайных фундаментов на суше и в русле периодических водотоков следует располагать вне слоя сезонного промерзания пучинистых грунтов (ниже уровня промерзания не менее чем на 0,25 м или выше поверхности грунта на 1 м и более для промежуточных опор, на 0,5 м и более для устоев).

Заглубление подошвы фундаментов мелкого заложения в используемые по принципу II вечномерзлые грунты назначают по расчету несущей способности и устойчивости согласно СНиП 2.05.03-84 с учетом указаний СНиП 2.02.01-83.

5.3.8 Подошву ростверка свайных фундаментов или фундаментов мелкого заложения в крупнообломочных грунтах, гравелистых и крупных песках, содержащих до 10 % глинистого заполнителя, располагают, как правило (по отношению к поверхности грунтов), независимо от глубины сезонного промерзания-оттаивания, если слой таких грунтов простирается ниже этой глубины более чем на 1 м и отсутствует вероятность образования линзового льда под ростверком или фундаментом, в том числе и от напорных вод.

5.3.9 Подошву фундаментов мелкого заложения необходимо заглубить в несущий пласт (из любого грунта, кроме скального) не менее чем на 1 м от поверхности пласта, в скальные слабовыветрелые грунты - не менее 0,1 м, а в выветрелые - не менее 0,25 м.

5.3.10 Ростверк свайных фундаментов в русле постоянных водотоков, не промерзающих до дна, допускается располагать на любом уровне по отношению к поверхности воды при условии обеспечения надежности и долговечности фундаментов в соответствии с требованиями СНиП 2.05.03-84.

5.3.11 Железобетонные свайные элементы устоев и промежуточных опор, постоянно находящиеся в толще вечномерзлых или немерзлых грунтов (ниже половины глубины промерзания), допускается изготовлять из бетона класса не ниже В 25 при марке по водонепроницаемости не ниже W4 и ненормируемой морозостойкости.

Для свайных элементов фундаментов и безростверковых опор в пределах зоны переменного уровня воды (согласно СНиП 2.05.03-84) рекомендуется использовать бетон класса не ниже В 35 при марках по водонепроницаемости не ниже W6 и по морозостойкости не ниже F 300.

5.5.12 Толщина защитного слоя бетона (в свету до продольной арматуры) должна быть в буровых сваях не менее 10 см, а в остальных свайных элементах - не менее 5 см.

5.3.13 Соединения верха железобетонных свайных элементов со сборной или монолитной подферменной плитой (насадкой) безростверковых опор или с ростверком фундаментов, а также отдельных секций свайных элементов или стоек безростверковых опор между собой следует осуществлять с помощью выпусков арматуры, сварными, болтовыми, клеештыревыми или других конструкции стыками.

Для омоноличивания стыков сборных элементов надлежит использовать бетон класса В 35 с характеристикой по морозостойкости F300.

5.3.14 Конструкция стыков должна обеспечивать возможность надежного и долговечного соединения подферменной плиты или ростверка со свайными элементами. Отклонения в уровне подошвы плиты от проектного положения в плане свайных элементов, погруженных в грунт, не должны превышать, см:

при монолитной насадке - 5;

при сборной насадке и омоноличиваемых стыках - 3.

Для тех же конструкций отклонения по высоте не должны превышать, см:

при монолитной насадке - 10;

при сборной насадке и омоноличиваемых стыках - 3.

Допуски на сварные, болтовые, клеештыревые и другие стыки должны назначаться в проекте опор в зависимости от особенностей конструкции стыков.

Предельно допустимые отклонения свайных элементов от вертикали не должны превышать 1:200 для однорядных по фасаду моста опор и 1:100 для двухрядных опор. Если отклонения превышают приведенные значения допусков, необходимо проверить расчетом несущую способность фундаментов, опор и их оснований.

5.3.15 Боковая поверхность нижнего конца буроопускных столбов диаметром 0,8 м на длине минимум 2 м от их подошвы должна иметь искусственные неровности (рифление), выпуски арматуры и т. п. для обеспечения доброкачественного сцепления элементов с омоноличивающим раствором прочностью не менее 5 МПа (50 кгс/см2).

5.3.16 При заглублении нижних концов забивных свай в немерзлые грунты, прикрытые слоем сезонно-мерзлых или вечномерзлых песчаных грунтов, следует предусматривать установку этих свай в заранее пробуренные на всю глубину мерзлой толщи скважины, засыпку зазоров между поверхностями скважины и сваи песком и последующую добивку до расчетного отказа свай в несущий слой немерзлого грунта. При этом расчетное сопротивление грунта сдвигу в пределах скважины следует принимать равным 10 кПа (1 тс/м2).

5.3.17 Диаметр скважин, предназначенных для свободного опускания и омоноличивания в них цилиндрических свайных элементов должен на 20 см превышать их диаметр, а призматических - на 5 см диагональ поперечного сечения.

5.3.18 Для омоноличивания буроопускных свайных элементов в скважинах ниже подошвы слоя сезонного промерзания-оттаивания или в пределах высоты расчетной заделки в скальных и нескальных грунтах следует применять растворы марок по прочности на сжатие согласно указаниям п. 5.2.19.

Зазор между боковыми гранями свайного элемента и стенкой скважины от верха расчетной заделки свайных элементов в разные грунты и до подошвы слоя сезонного промерзания-оттаивания допускается заполнять сухой цементно-песчаной смесью в пропорции 1:7, а также цементно-шламовым раствором марки 50 (в толще глинистых грунтов) и уплотняемым в процессе заполнения зазора песком (в песчаных и гравийных грунтах), а у добиваемых свай - засыпанным сухим песком.

5.3.19 В пределах слоя сезонного промерзания-оттаивания зазор между опущенными свайными элементами и боковой поверхностью скважин следует заполнять уплотняемым по мере укладки грунтом, извлеченным при разбуривании этого слоя. Для заполнения такого зазора в песчаных грунтах допускается использовать песок, а при глинистых грунтах того же слоя - уплотняемую по мере укладки сухую смесь цемента с песком в пропорции 1:7.

На чертежах фундаментов опор, свайные элементы которых подлежат заглублению в грунт буроопускным способом, необходимо указать вид раствора, омоноличивающего элементы в скважинах до верха расчетной заделки, и требуемую его прочность к началу безопасного пропуска нагрузок по мосту.

6 Устройство фундаментов опор мостов

6.1 Общие указания

6.1.1 Указания настоящего раздела предназначены для использования при составлении проекта производства работ (ППР) по устройству фундаментов мостов на вечномерзлых грунтах.

6.1.2 Работы по устройству фундаментов следует выполнять в соответствии с требованиями СНиП 3.06.04-91, СНиП 3.02.01-87, СНиП 3.03.01-87, СНиП III-4-80*, государственных стандартов и указаниями настоящего раздела.

6.1.3 Выбор оптимальных конструктивно-технологических решений фундаментов опор необходимо осуществлять с учетом местных условий перехода, в том числе:

- характеристик вечномерзлых грунтов (глубины сезонного оттаивания, состава, типа, особенностей залегания, температурного режима и т. п.);

- принципа использования вечномерзлых грунтов в качестве оснований;

- наличия подземных льдин и термокарста;

- наличия наледей, бугров пучения и их режима;

- климатических условий района;

- мощности и времени установления покрова и характера снежных отложений;

- количества и периода выпадения осадков;

- продолжительности летнего периода, а также светлого времени;

- уровней и продолжительности прохода паводковых и ливневых вод, характерных особенностей ледохода и карчехода;

- размеров и конструктивных особенностей элементов опор;

- необходимости выполнения специальных мероприятий, предусмотренных при составлении проекта постройки опор (последовательности работ, поддержания определенного теплового режима твердеющего бетона и т. п.);

- необходимости сохранения растительного покрова на строительных площадках и в полосе отвода трассы при возведении опор моста за исключением кустарника, который необходимо удалять на длине до 20 м в низовую и верховую стороны от оси моста для уменьшения накопления под ним снега.

6.1.4 В местах наличия подземных льдов, наледей, бугров пучения, сильнольдистых грунтов, оттаивание которых может привести к появлению недопустимых деформаций, фундаменты следует устраивать в сроки, предусмотренные проектной документацией на производство работ.

6.1.5 При выборе оптимальной технологии строительства безростверковых опор и свайных фундаментов в используемых по принципам I и II вечномерзлых грунтах необходимо ориентироваться на широкое применение способа опускания свайных элементов в предварительно пробуренные в мерзлых грунтах обсаженные или необсаженные скважины. Способ непосредственной забивки свай может быть использован в редких случаях только для заглубления свай в пластичномерзлые глинистые и суглинистые грунты без твердых включений и больших прослоек песка при условии подтверждения его эффективности положительными результатами пробной забивки свай в конкретных местных условиях. Кроме этих способов допускается сооружать свайные элементы по технологии устройства буровых или комбинированных (сочетающих сваи-оболочки в верхней части и буровые - в нижней части) свай при условии соблюдения требований по обеспечению их надежности и экономичности.

6.1.6 Выбор конструктивно-технологического решения фундаментов опор, сооружаемых на засоленных вечномерзлых грунтах, следует производить исходя из принятого принципа использования грунтов в качестве основания.

6.1.7 При освоении строительных площадок для возведения опор мостов через постоянные или периодические водотоки на вечномерзлых грунтах, используемых по принципу I, требуется:

- строительные площадки для постройки опор мостов располагать, как правило, с низовой стороны подходных насыпей;

- не пересекать трассу построенными дорогами на расстояниях менее 50 м от устоев моста;

- подъезды к строительной площадке устраивать зимой на подсыпках толщиной не менее 1 м из песчаных грунтов или крупнообломочного материала;

- использовать для установки бурового станка, крана и другого оборудования в пределах строительной площадки устроенные зимой по ненарушенному мохорастительному покрову подсыпки толщиной до 1 м из песка или крупнообломочного материала или укладывать на песчаные подсыпки толщиной 0,5 м переносные железобетонные плиты, настилы из бревен;

- площадки, предназначенные для размещения складов, временных зданий и сооружений, зимой покрыть по ненарушенному покрову подсыпкой толщиной до 1 м из песка или крупнообломочного материала и спланировать с образованием уклонов для стока поверхностных вод;

- водотоки в пределах строительной площадки пропускать в трубах, деревянных лотках или в ограждающих банкетках из глинистых грунтов.

Независимо от температуры воздуха грунты и шлам, удаляемый при устройстве скважин, необходимо транспортировать в низовую сторону на расстояние 10-20 м при минимально возможных нарушениях естественных условий протекания водотока.

6.1.8 В местах залегания вечномерзлых грунтов, используемых по принципу I, необходимо: опоры обустроить согласно проекту термометрическими трубками для отслеживания температурного режима грунтов основания в эксплуатационный период моста; после завершения постройки опор и отсыпки конусов очистить русло от завалов грунта с целью исключения застоев воды под мостами и вблизи их.

6.1.9 Проектную документацию по устройству фундаментов опор мостов следует разрабатывать согласно указаниям СНиП 3.01.01-85*.

В проектной документации необходимо предусматривать осуществление мер по обеспечению:

- принятого в качестве расчетного температурного режима вечномерзлых грунтов в периоды строительства и эксплуатации сооружений;

- максимальной сохранности мохорастительного покрова и нормального пропуска водотоков в пределах строительной площадки;

- защиты возводимых конструкций опор, а также вспомогательных сооружений и устройств от неблагоприятного воздействия паводковых и ливневых вод, ледохода, наледей, карчехода и др.;

- высокого качества опор мостов;

- требований техники безопасности, производственной санитарии и пожарной безопасности.

6.1.10 В проекте производства работ по устройству фундаментов глубокого заложения (в том числе безростверковых опор) должны быть указаны способы:

- бурения скважин в вечномерзлых грунтах;

- очистки боковой поверхности и дна скважин от наледей и шлама;

- установки в скважины столбов или других элементов фундамента, закрепления их в проектном положении (в плане и по высоте);

- заделки столбов или свай в скважине;

- устройства сборной или монолитной плиты ростверка (насадки).

6.2 Бурение скважин

6.2.1 Для бурения скважин проектных размеров в разных вечномерзлых и скальных грунтах следует использовать станки как вращательного, так и ударно-канатного действия, имеющиеся в строительной организации. Уширения в основании скважин, в случае необходимости их устройства, разбуривают специальным уширителем.

6.2.2 В неустойчивых грунтах скважины необходимо бурить с применением извлекаемых или неизвлекаемых (предусмотренных в ППР) обсадных труб. В устойчивых грунтах бурение скважин или разбуриваине уширений допускается с использованием инвентарных патрубков или секций обсадной трубы, предназначенных для предотвращения осыпания грунта только в пределах слоя сезонного оттаивания.

6.2.3 Диаметр скважин для свободного опускания в них свайных элементов следует принимать согласно проекту, фундаментов или опор. Для принудительного заглубления элементов диаметр скважин, в том числе и лидерных, рекомендуется назначать по опыту погружения свай в аналогичных геокриологических условиях.

Глубина скважин для опускания или принудительно погружаемых элементов должна равняться длине их заделки в грунте. Для добиваемых до расчетного отказа свай глубина скважин подлежит уточнению по результатам забивки первых свай на стройплощадке в конкретных местных условиях.

6.2.4 Увеличение диаметра разбуриваемых скважин и уширений более 20 см (по сравнению с проектным размером) не рекомендуется, а уменьшение более 5 см не допускается.

Отклонение от проектного положения продольной оси скважины в плане в уровне поверхности грунта не должно превышать 10 см.

Недобур скважин по глубине (предусмотренной в проекте фундамента) запрещается, перебур в скальных и крупнообломочных грунтах допускается не более 0,1, а в остальных грунтах - не более 0,2 м.

6.2.5 После проверки соответствия фактических размеров скважины проектным и записи полученных результатов в журнале буровых работ каждая пробуренная скважина, независимо от принципа использования грунтов, до начала работ по установке свайного элемента или заполнения ее бетонной смесью должна быть принята по акту, при этом в нем должны быть отражены требования, изложенные в п. 6.6.3.

6.2.6 Технология бурения скважин в засоленных вечномерзлых грунтах с включением линз криопегов и пластов охлажденных неустойчивых инженерно-геологических элементов зависит от принятого в проекте принципа использования грунтов в качестве основания.

6.2.7 При применении принципа I бурение скважин под столбы должно осуществляться по технологии, исключающей попадание высокоминерализованных вод за пределы напластований, в которых они разведаны.

Технология бурения скважин принимается в зависимости от конкретных геокриологических условий.

В качестве способов, с помощью которых можно осуществить перехват высокоминерализованных вод (в том числе напорных), рекомендуется:

- предварительное замораживание линз криопегов жидким азотом путем его заливки в скважинные устройства, расположенные на небольшом расстоянии от внешней грани устраиваемого столба;

- затиранием нижней части обсадной трубы в расположенных ниже горизонта криопег связных пластично-мерзлых или талых (тугопластичной - текучепластичной консистенции) грунтах с выбором технологии последующей проходки в зависимости от геокриологических условий.

6.2.8 Технология бурения скважин в засоленных вечномерзлых грунтах, используемых в качестве основания по принципу II, с включением линз криопегов и охлажденных неустойчивых массивов должна обеспечить в последующем, после установки столба, качественную его заделку в грунте путем заполнения зазора цементно-песчаным раствором.

6.3 Устройство свайных элементов

6.3.1 В разные вечномерзлые грунты свайные элементы сплошного сечения или полые с закрытым нижним концом следует заглублять путем опускания их в предварительно пробуренные скважины (диаметр которых превышает наибольший размер поперечного сечения элементов) с омоноличиванием в них раствором. Вид и требуемая прочность раствора должны соответствовать требованиям п. 5.2.19 и быть указаны в проекте опор.

В пластичномерзлые глинистые и суглинистые грунты свайные элементы сплошного сечения допускается заглублять до проектного уровня путем забивки их в предварительно пробуренные скважины диаметром, меньшим на 5-10 см размера наибольшего сечения элемента, а полые элементы с открытым нижним концом, в том числе железобетонные и стальные сваи-оболочки - путем забивки или вибропогружения в скважины меньшего на 5 - 20 см диаметра, которые бурят предварительно на требуемую глубину или циклами, чередуя бурение с принудительным осаживанием элементов и удалением грунта сквозь их полость.

6.3.2 Свайные элементы с закрытым концом рекомендуется устанавливать по возможности сразу после окончания бурения скважин. В период положительных температур воздуха перерыв между окончанием бурения скважин и установкой в них элементов не должен превышать суток. При этом перед установкой свайного элемента скважина должна быть освидетельствована и принята в соответствии с п. 6.6.3.

6.3.3 Обнаруженные в скважинах в результате визуального освидетельствования и замера их глубины намерзший на их боковой поверхности лед, обрушившийся грунт или замерзший буровой шлам на забое должны быть удалены непосредственно перед опусканием элементов в скважины.

Особое внимание должно быть обращено на сопоставление замеров глубины скважин, выполненных сразу после окончания буровых работ и непосредственно перед установкой элементов, с целью исключения случаев оставления в забое скважины замерзшего шлама или обрушившегося грунта.

6.3.4 Независимо от принципа использования вечномерзлых грунтов частичное омоноличивание свайных, в основном железобетонных элементов, следует осуществлять путем вытеснения раствора, предварительно залитого в скважины, с последующей доливкой раствора до проектной отметки.

6.3.5 В скальных породах для омоноличивания кроме цементно-песчаных растворов, приготавливаемых в растворомешалках или бетономешалках, допускается использовать цементно-песчаношламовые и цементно-шламовые растворы, приготавливаемые путем механического перемешивания составляющих компонентов непосредственно в скважинах, при условии обеспечения требуемой прочности и долговечности растворов.

Температура бетонной смеси, применяемой для устройства буровых свай и заполнения свай-оболочек, или омоноличивающего раствора, находящегося в скважине, не должна превышать в используемых по принципу I вечномерзлых грунтах плюс 5 °С, а в используемых по принципу II - плюс 40 °С.

6.3.6 Для ускорения твердения бетонной смеси или омоноличивающего раствора при устройстве свайных элементов в используемых по принципу II вечномерзлых грунтах допускается вводить в смесь или раствор противоморозные добавки.

Применение химических добавок для ускорения твердения бетона (раствора), уложенного в распор с мерзлым грунтом, используемым по принципу I, без устройства экранирующего слоя, исключающего возможность миграций солей из бетона (раствора) в грунт, как правило, не допускается.

6.3.7 Дозировку добавок, приготовление и укладку бетонкой смеси или раствора с добавками следует производить, пользуясь СНиП 3.03.01-87, по указаниям бетонной лаборатории строительной организации в зависимости от вида применяемых на стройке добавок, цемента, а также температур воздуха, грунта, смеси или раствора в момент укладки и в период твердения.

6.3.8 Устройство столбов опор, сооружаемых на засоленных вечномерзлых грунтах, используемых по принципу I, с включением линз криопегов и массивов охлажденных неустойчивых грунтов с применением способа замораживания линз криопегов жидким азотом производится в следующей технологической последовательности:

- бурение скважин под замораживающие устройства и термометрические трубки;

- установка термометрических трубок;

- установка жидкостных скважинных устройств;

- замораживание линз криопегов жидким азотом;

- контроль с помощью датчиков температуры замораживания и размеров замораживаемого ледогрунтового цилиндра;

- бурение скважины «насухо» с проходкой линз криопегов, разбуривание при необходимости уширения;

- погружение стальной трубы с открытым нижним концом в скважину меньшего диаметра (на 2-3 см) с одновременным небольшим растеплением стенок скважины и последующим заполнением трубы бетонной или другой смесью.

Столб допускается устраивать и заделывать в грунте традиционным способом, устанавливая его в пробуренную по вышеуказанной технологии скважину большего диаметра с последующим заполнением зазора цементно-песчаным раствором.

6.3.9 При вполне конкретных геокриологических условиях и характере напластования инженерно-геологических элементов основания, используемого по принципу I, когда ниже линзы криопега залегают связные пластично-мерзлые или талые тугопластичной - текучепластичной консистенции грунты, устройство столбов, опирающихся на прочные грунты, осуществляется путем затирания в них нижнего конца обсадной трубы на глубину не менее ее диаметра с последующей проходкой скважины насухо без обсадки стенок скважины, установкой и заделкой в ней столба или же погружением стальной трубы с открытым нижним концом с выборкой грунта до проектной отметки, устройством бетонной пробки и заполнением зазора цементно-песчаной смесью.

6.3.10 Технология устройства столбов в засоленных вечномерзлых грунтах с включением линз криопегов и неустойчивых охлажденных массивов, используемых по принципу II, заключается в следующем:

- бурение скважины в обсадке с откачиванием при необходимости воды (рассола), удалением грунта и наплывающей пульпы;

- погружение обсадной трубы до проектной отметки;

- разбуривание в устойчивых грунтах уширения, если это предусмотрено проектом;

- укладка бетонной смеси в уширение насухо, если удалось перекрыть приток воды путем затирания нижнего конца обсадной трубы в кровле связных грунтов и откачать ее, или же методом ВПТ - при наличии воды в уширении; бетонная смесь укладывается до отметки, превышающей на 1 м отметку кромки ножа обсадной трубы;

- откачивание волы из скважины и немедленная установка столба;

- заполнение зазора омоноличивающим цементно-песчаным раствором до уровня, на 2-3 м превышающего отметку кромки ножа обсадной трубы;

- вытягивание обсадной трубы с одновременным заполнением зазора раствором, при сохранении заданного перепада в уровнях поверхности раствора и кромки ножа обсадной трубы;

- предварительное частичное (для пригрузки) заполнение бетонной смесью полости столба.

6.3.11 Бетонные и сварочные работы по наращиванию элементов и стыкованию их со сборными или монолитными насадками выполняют в соответствии с указаниями СНиП 3.06.04-91 и СНиП 3.03.01-87.

6.3.12 Выпуски арматуры и закладные детали стыков допускается спаривать при температуре окружающего воздуха не ниже минус 20 °С. При более низких температурах наружного воздуха сварочные работы следует выполнять в соответствии с указаниями СНиП 3.03.01-87 и ГОСТ 14098-91.

6.4 Устройство фундаментов мелкого заложения

6.4.1 Технология устройства фундаментов мелкого заложения, поверхностного типа и заглубленных в грунт плит фундаментов из столбов или свай на вечномерзлых грунтах зависит от принципа использования грунтов в качестве основания, времени года выполнения работ, геокриологических условий площадки, физико-механических свойств грунтов, наличия и характера грунтовых вод и других факторов.

6.4.2 Котлован под фундамент, запроектированный на сохранение грунтов основания в мерзлом состоянии, необходимо, как правило, разрабатывать с наступлением зимнего периода, при устойчивых среднесуточных температурах воздуха ниже 0 °С.

6.4.3 Котлован должен иметь надежное ограждение от возможного поступления грунтовой и поверхностной воды. В качестве ограждений котлованов используют стальной шпунт, деревянные закладные крепления, бездонные железобетонные и деревянные ящики.

В зимний период при определенных условиях котлованы разрешается разрабатывать без крепления, используя естественное промораживание грунтов.

6.4.4 Технологический процесс разработки котлованов включает рыхление грунтов с помощью взрывчатых веществ или механических рыхлителей, удаление разрыхленных грунтов и подготовку основания.

К устройству фундаментов разрешается приступать только после освидетельствования и приемки котлована.

6.4.5 Блоки сборных фундаментов следует укладывать на подготовленное основание (очищенное от разрушенного грунта, выравненную поверхность дна, уплотненную выравнивающую подсыпку).

6.4.6 Бетонные поверхности сборных элементов фундамента в местах их омоноличивания должны быть очищены от грунта, снега и льда, а подлежащие сварке выпуски арматуры и кромки закладных деталей - от грунта и раствора.

6.4.7 Бетонные смеси и цементно-песчаные растворы, используемые для омоноличивания швов между бетонными блоками и железобетонными элементами, рекомендуется приготавливать с использованием быстротвердеющих цементов марки не ниже 400 и мелких песков.

6.4.8 Для заполнения вертикальных швов между блоками следует использовать растворы, имеющие осадку конуса 11-13 см, а для заполнения горизонтальных швов - 8-10 см.

6.4.9 Особенности производства бетонных работ по устройству монолитных фундаментов мелкого заложения в зимних условиях отражены в разделе 6.5.

6.4.10 Пазухи между стенками котлована и боковыми поверхностями фундамента, построенного на грунтах, используемых по принципу I, необходимо засыпать связным грунтом.

Засыпку производят талым маловлажным суглинком или глиной слоями толщинок не более 20 см с трамбованием каждого слоя до обеспечения плотности не менее 0,95. Допускается при отрицательной температуре воздуха засыпать пазухи котлована смесью 60 % по объему талого и 40 % мерзлого местного грунта с послойным трамбованием и промораживанием.

6.4.11 Сооружение фундаментов поверхностного типа устоев в случае использования СОУ (типа системы Макарова) для поддержания основания в твердомерзлом состоянии (принцип I) включает следующий технологический цикл.

- устройство основания фундаментной плиты методом втрамбовывания щебня в оттаявший с поверхности грунт катком виброударного действия;

- отсыпку выравнивающего слоя из щебня толщиной 0,3 м;

- установку фундаментных блоков и объединение их в общую плиту.

В случае использования в качестве охлаждающих устройств парожидкостных систем, устанавливаемых под плитой фундамента в виде змеевиков, технология устройства фундамента должна предусматривать:

- разработку котлована под охлаждающую систему;

- отсыпку щебеночной подушки и ее уплотнение;

- укладку труб охлаждающей системы с одновременной присыпкой их песчаным грунтом и его уплотнением;

- досыпку котлована с послойным уплотнением;

- установку фундаментных блоков и их объединение.

Отсыпку конуса и участка подходной насыпи рекомендуется производить в холодный период года.

Поверхностную термоизоляцию откосов конуса и берм, устраиваемую в сочетании с охлаждающими устройствами, рекомендуется осуществлять из слоя торфа толщиной 0,4-0,5 м, укрепленного на откосах каменной наброской мощностью до 1 м, на площадках - слоем камня толщиной 0,3 м.

6.5 Особенности производства бетонных работ

6.5.1 Бетонные и железобетонные работы по возведению фундаментов в зимних условиях следует производить, руководствуясь указаниями СНиП 3.03.01-87, в соответствии с ППР, в котором, кроме технологии приготовления и укладки бетонной смеси, должны быть приведены:

- способ и температурно-влажностный режим выдерживания бетона;

- данные о материале опалубки с учетом требуемых теплоизоляционных показателей;

- данные о теплоизоляционном укрытии неопалубленных поверхностей;

- схема размещения точек, в которых следует измерять температуру бетона, и наименования приборов для ее измерения;

- требуемая прочность бетона конструкций к началу их загружения;

- сроки и порядок распалубливания и загружения конструкции.

В случае применения электротермообработки бетона в технологических картах дополнительно указываются:

- схемы размещения и подключения электродов или электронагревателей;

- требуемая электрическая мощность, напряжение, сила тока;

- тип понижающего трансформатора, сечение и длина проводов.

6.5.2 Прочность омоноличивающего раствора или бетона к началу возможного замерзания должна указываться в проекте конструкции фундаментов или в ППР и составлять от проектной прочности для бетонных и железобетонных свайных элементов фундаментов не менее 70 %, а для железобетонных ростверков и верхней части свайных элементов, расположенных над грунтом, - не менее 80 % при условии, что до начала пропуска эксплуатационных нагрузок раствор или бетон наберет проектную прочность в результате последующего твердения.

В тех случаях, когда фундаменты или безростверковые опоры подлежат загружению до наступления теплого времени года, требуется обеспечить до замерзания бетона его прочность, предусмотренную ППР.

6.5.3 В зимних условиях допускается применять для устройства фундаментов мелкого заложения, ростверков и свайных элементов в вечномерзлых грунтах, используемых по принципу II, бетонные смеси (с добавками нитрита натрия и поташа), твердеющие при низких отрицательных температурах воздуха. Для бетонирования буровых свай в используемых по принципу I вечномерзлых грунтах допускается применять смеси с добавкой поташа до 3 % от массы цемента.

Бетоны с противоморозными добавками разрешается применять при условии, что до момента приобретения ими прочности не менее 5 МПа обеспечивается температура их твердения не ниже минус 15 °С.

6.5.4 Применение бетонов с противоморозными добавками для элементов фундаментов и опор, расположенных вне зоны контакта с используемыми по принципу I вечномерзлыми грунтами, возможно при соблюдении следующих условий:

- общее количество добавок (не более 12 % от массы цемента) должно назначаться по СНиП 3.03.01-87 в зависимости от температуры твердения бетона в период выдерживания;

- поверхности бетона, не защищенные опалубкой, должны быть укрыты во избежание вымораживания влаги на период до набора бетоном расчетной прочности.

6.5.5 Состав бетонной смеси с добавками подбирают, руководствуясь указаниями СНиП 3.03.01-87, СНиП 3.06.04-91, ВСН 83-92.

6.5.6 Транспортирование бетонной смеси в зимнее время должно производиться только в утепленной закрытой таре. Бетонную смесь с противоморозными добавками допускается транспортировать в неутепленной таре.

Продолжительность транспортирования смеси устанавливается строительной лабораторией в зависимости от допустимой потери ее подвижности по условиям укладки и уплотнения.

6.5.7 Перед укладкой бетонной смеси необходимо проверить и принять:

- по актам на скрытые работы конструктивные элементы, которые закрываются укладываемой смесью (подготовленное основание в котлованах или в скважинах, выпуски арматуры свайных элементов, арматуру плиты, закладные детали и т. п.);

- правильность установки и надлежащее закрепление арматурных каркасов, опалубки и поддерживающих ее конструкций;

- готовность к работе всех средств приготовления, транспортирования и укладки смеси.

Опалубку и арматуру перед бетонированием очищают от снега и наледи (например, подачей струи горячего воздуха под брезентовое или полиэтиленовое укрытие до момента высушивания поверхностей), арматуру - от ржавчины. Не допускается удалять наледь с помощью пара или горячей воды.

6.5.8 Фундаменты и их элементы следует бетонировать послойно такими темпами, чтобы разность температур укладываемых друг на друга слоев бетонной смеси не превышала 10 °С при термосном выдерживании бетонов или применении бетонов с противоморозными добавками и 20 °С при последующем обогреве бетона.

Бетонную смесь при термосном выдерживании допускается укладывать на используемые по принципу II вечномерзлые грунты и скальные грунты, если по расчету в зоне контакта с основанием в период выдерживания бетона будет обеспечена температура выше 0 °С.

Требование о положительной температуре в зоне контакта с основанием является необязательным, если используют бетонную смесь с противоморозными добавками для всего фундамента или только для его нижнего слоя высотой до 0,5 м, уложенного на песчаную или щебеночную подготовку толщиной до 10 см.

6.5.9 Укладка бетонной смеси с последующим прогревом допускается на очищенные от снега и наледи вечномерзлые и скальные грунты, на бетон свайных элементов при условии, что к началу прогрева температура бетонной смеси в зоне контакта с грунтом или бетоном будет не ниже плюс 2 °С.

В период отрицательных температур воздуха все открытые поверхности фундаментов или их элементов после окончания бетонирования, а также на время перерывов в бетонировании необходимо тщательно укрывать теплоизоляционным материалом (полимерной пленкой, толем, рубероидом и др.) и утеплять согласно ППР.

6.5.10 Температурно-влажностное выдерживание твердеющего бетона при отрицательных температурах среды допускается производить:

- способом термоса;

- с применением противоморозных добавок;

- с электротермообработкой бетона;

- с обогревом горячим воздухом в тепляках.

При выборе оптимального способа выдерживания бетона рекомендуется в соответствии с приложением 8 СНиП 3.03.01-87, в первую очередь, исследовать возможность использования способа термоса или термоса с добавками-ускорителями твердения. В случае невозможности получить с их помощью требуемую прочность бетона в заданные сроки необходимо рассмотреть целесообразность применения остальных способов.

6.5.11 Выдерживание бетона монолитных элементов фундаментов способом термоса должно производиться с соблюдением следующих требований:

- конструкции необходимо укрывать теплоизоляцией немедленно после окончания бетонирования;

- термическое сопротивление укрытия и опалубки должно обеспечить сохранение в бетоне положительной температуры до момента достижения им заданной прочности;

- для обеспечения одинаковых условий остывания всей конструкции ростверков и насадок их ребра и углы следует дополнительно утеплить;

- опалубку, а также укрытие с неопалубленных поверхностей конструкций необходимо удалять не ранее, чем бетон приобретает заданную прочность.

6.5.12 При недостаточной эффективности выдерживания бетона фундаментов в их элементов способом термоса с ускорителем твердения следует применять электропрогрев.

Температура бетонной смеси без добавок к началу прогрева после ее укладки в фундамент или ростверк должна быть не ниже плюс 10 °С.

Температура бетонной смеси без добавок, подлежащей электропрогреву, при укладке в скважины в грунтах, используемых по принципу I, должна быть не выше плюс 2 °С.

6.5.13 Наиболее эффективным и экономичным способом электротермообработки элементов фундаментов является электродный прогрев. Электротермообработка бетона фундаментов и их элементов таким способом должна выполняться по специально разработанному и утвержденному в установленном порядке ППР с обязательным включением раздела по технике безопасности.

При необходимости получения сразу после прогрева прочности бетона от 50 до 70 % его марки рекомендуется, как правило, приготовлять бетонные смеси на высокопрочных и быстротвердеющих цементах, применять составы с минимально возможным В/Ц, вводить в смесь добавки-ускорители твердения.

Для получения после прогрева прочности бетона свыше 70 % его марки следует подбирать состав смеси на марку выше указанной в проекте.

6.5.14 При твердении бетона в шатрах или тепляках на уровне 0,5 м от низа ограждения необходимо поддерживать температуру не ниже плюс 5 °С. Продолжительность выдерживания бетона определяют в зависимости от его температуры в нижней части тепляка.

Конструкцию шатров или тепляков выбирают в зависимости от размеров в формы бетонируемых фундаментов и ростверков, местных условии и возможностей строительной организации.

6.6 Обеспечение качества работ

6.6.1 Контроль качества работ по возведению опор должен осуществляться согласно требованиям СНиП 3.06.04-91, СНиП 3.02.01-87, СНиП 3.03.01-87 и приведенным ниже дополнительным указаниям.

6.6.2 До приема скрытых работ запрещается производить последующие работы, в том числе до приемки пробуренных скважин не допускается устанавливать и омоноличивать или бетонировать в скважинах свайные элементы.

Максимально допустимые перерывы между окончанием скрытых работ, их приемкой и началом последующих работ должны назначаться исходя из условий недопущения в законченных элементах фундаментов изменений, которые могли бы оказать отрицательное воздействие на надежность и долговечность опор.

Если после приемки скрытых работ последующие работы начаты после длительного перерыва, необходимо назначить повторную приемку, например, скважин, на боковой поверхности и на дне которых образовалась наледь или замерзший буровой шлам.

6.6.3 Для обеспечения доброкачественного устройства свайных элементов должны быть проконтролированы и документально оформлены:

- соответствие фактических размеров проектным значениям диаметра и глубины скважин и свайных элементов, подлежащих заглублению в грунт;

- качество очистки элементов от снега, грунта и масляных пятен;

- качество очистки пробуренных скважин от бурового шлама и наледей;

- соответствие фактически пройденных слоев грунта слоям, указанным в проекте, с фиксацией отмеченных отклонений;

- состав, температура и консистенция омоноличивающего раствора, применяемого для заполнения зазоров между элементами и поверхностью скважин или бетонной смеси, предназначенной для укладки в сваи-оболочки или в скважины;

- способ и качество заполнения раствором или бетонной смесью скважин до уровня, предусмотренного проектом фундамента;

- соответствие фактического положения свайных элементов или арматурных каркасов проектному;

- наличие термометрических трубок с целью контроля за изменениями температуры используемых по принципу I вечномерзлых грунтов основания;

- своевременность заполнения журналов работ и другой исполнительной документации.

6.6.4 Для оценки продолжительности периода от окончания работ по установке свайных элементов в скважины или укладке бетонной смеси в сваи-оболочки или в скважины и до начала загружения строительными или эксплуатационными нагрузками принятой по акту опоры рекомендуется пользоваться значениями относительной прочности раствора или бетона (согласно приложению 16 СНиП 2.03.01-87), представляющей в процентах отношение прочности образцов, твердевших 7, 28 и 90 сут при разных температурах, которые могут встретиться в практике строительства фундаментов, к марке бетона.

Значения относительной прочности омоноличивающих растворов или бетонов должны уточняться экспериментально в зависимости от их состава, марки применяемого цемента и продолжительности твердения образцов.

6.6.5 Сведения о требуемой к началу загружения опор прочности омоноличивающего раствора и мерзлого грунта в заделке элементов должны быть приведены на чертеже опор или в проекте производства работ по их возведению.

6.6.6 При производстве работ по устройству фундаментов опор мостов следует соблюдать правила техники безопасности и производственной санитарии, изложенные в действующих нормативных документах и в ППР по сооружению конкретного объекта.

Приложение А

(рекомендуемое)

ПРОГНОЗ МНОГОЛЕТНИХ ИЗМЕНЕНИЙ ТЕМПЕРАТУРЫ ВЕЧНОМЕРЗЛЫХ ГРУНТОВ ВСЛЕДСТВИЕ НАРУШЕНИЯ, УСЛОВИЙ ТЕПЛООБМЕНА ПОСЛЕ ПОСТРОЙКИ МОСТОВ

A.1 Регионы с повышенным снегопереносом

A.1.1 В настоящем разделе приложения А содержатся рекомендации по расчету значений температур вечномерзлых грунтов, используемых по принципу I в качестве оснований фундаментов опор мостов в регионах, где объем снегопереноса больше 200 м3/м.

А.1.2 Необходимую для расчетов несущей способности и устойчивости оснований температуру вечномерзлых грунтов следует определять, учитывая три характерных состояния их температурных полей: предельное, начальное и временное.

Предельному состоянию соответствует температурное поле вечномерзлых грунтов в пределах перехода через водотоки, которое формируется в последний год расчетной продолжительности эксплуатации искусственного сооружения: к окончанию теплого периода года, т. е. на 1 октября для определения расчетной температуры грунтов на различной глубине и глубины оттаивания; к окончанию холодного периода года, т. е. на 1 апреля - для определения глубины промерзания.

Начальному состоянию соответствует температурное поле в первый год или в один из последующих 2 - 3 лет эксплуатации сооружения, в который поступает максимум тепла в грунты основания в результате летней отсыпки насыпи, нарушения мохорастительного покрова, тепловыделения твердеющего бетона и т. п.

Временному состоянию соответствует температурное поле, формирующееся в различные характерные периоды строительства или эксплуатации сооружений, которое требуется определить при решении практических задач, например, температурное поле после искусственного охлаждения грунтов в технологических целях.

А.1.3 Расчеты температурных полей для всех трех состояний, перечисленных в п. А.1.2, следует производить, исходя из трехмерного распределения температур в грунтах оснований, характеризуемого тремя эпюрами изменения температур по глубине (рисунок А.1).

Эпюра 1 (сечения I-I) характеризует распределение температур в зоне большой площади с одинаковыми условиями на поверхности. В этом случае к концу теплого периода года (на начало октября) образуется талая зона в пределах деятельного слоя с соответствующей глубиной оттаивания dt, далее до глубины 10 м температура t плавно изменяется, а ниже глубины 10 м остается постоянной;

эпюра 2 (сечения II-II) характеризует распределение температур в грунте русловой части, где имеется талик. В этом случае к концу теплого периода года образуется сплошная талая зона до низа талика, далее температура грунта плавно изменяется на глубину до 40 м, а глубже 40 м температуру можно считать постоянной. В отдельных случаях глубина талой зоны может превышать 40 м, при этом зона постоянной температуры существенно понижается;

эпюра 3 (сечения III-III) характеризует распределение температур в пределах береговой части рядом с руслом. В этом случае до глубины 40 м температура может изменяться по различным законам: например, может образовываться мерзлая зона в верхней части, а ниже, до определенной глубины, образовываться талик.

Рисунок A.1 - Характерное температурное поле и эпюры изменения температуры на конец теплого периода года (на 1 октября) по глубине залегания грунтов в естественных условиях вдоль оси мостового перехода

А.1.4 Расчет температурных полей в грунтах оснований моста следует производить численными методами, используя, например, программы [А.3.1, А.3.2]. Допускается расчет производить приближенным методом, изложенным в п. А.1.5.

А.1.5 Для приближенного расчета температурных полей следует:

а) площадь перехода через водоток разделить на зоны, в пределах которых можно считать постоянными граничные условия, характеризуемые температурой среды (воздуха или воды) с учетом солнечной радиации, испарений и условий теплообмена (при наличии или отсутствии растительного или снежного покрова и т. п.). Эта операция одинакова как для приближенных расчетов, отражаемых в настоящем пункте, так и для точных методов, отражаемых в п. 4, что обеспечивает единство подхода и возможность взаимоконтроля;

б) для каждой зоны аналитическим или численным методом (например, с использованием программы [А.3.3] или же на основании натурных данных построить эпюру распределения температуры грунта по глубине (эпюра 1 на А.1) в условиях полной изолированности данной зоны от соседних. Для каждого климатического района рекомендуется заранее подсчитать требуемое количество эпюр. Эпюры должны характеризовать распределение температуры по глубине в зависимости от вида состояния (см. п. А.1.2), для которого производят расчет;

в) определить характер распределения температуры t по глубине основания в пределах любой зоны перехода через водоток, суммируя эпюры отдельных зон. Для этого на плане перехода намечают точку О (одну или несколько) (рисунок А.2), в которой (которых) вычисляют температуру на глубине d, используя формулу

,                                                              (А.1)

где      ti - температура грунта на глубине d, определяемая по одномерной эпюре для i-й зоны, построенной с учетом указаний п. А.1.2. Эпюры следует получать аналитическим или численным методом в соответствии с п. А. 1.5, б;

Аi - площадь i-й зоны;

n - число зон в участке радиусом 2d;

tb - температурная добавка за счет влияния элементов поверхностей, расположенных в толще грунта (стенки воздушных полостей, жидкостных, охлаждающих установок и др.)

tj - температура грунта на глубине, численно равной расстоянию точки О до элемента охлаждающей поверхности (принимается в соответствии указаниями по определению tj);

Аj - площадь охлаждающей поверхности;

т - число охлаждающих поверхностей.

Для поверхностей, расположенных в толще грунта, для которых учитывается температурная добавка tb в формуле (А.1), рекомендуется учитывать следующее.

Если точка в которой необходимо определить температуру, расположена ближе к одному из элементов указанных поверхностей, чем к любой из внешних поверхностей, ограничивающих тело насыпи, и прилегающей поверхности грунта, но не более минимального размера указанного элемента поверхности, то необходимо температуру в ней определять с учетом местного влияния этот поверхности по формуле

,                                                              (А.2)

где      t - температура в рассматриваемой точке, определяемая по формуле (А.1);

b - расстояние от рассматриваемой точки до элемента поверхности;

c - расстояние от элемента поверхности до точки, в которой местное влияние указанной поверхности не сказывается; значение с принимается равным d, но не более минимального размера элемента поверхности;

tс - ордината эпюры распределения температур для соответствующей поверхности на глубине b. Определяется в соответствии с указаниями по определению ti.

Рисунок А.2 - Схемы для приближенного расчета температуры грунта в точке 0:

1 - опоры моста; 2 - русловая часть; 3 - основная площадка насыпи; 4, 5, 6, 7 - границы зон разных граничных условий

А.1.6 В случае, если температурное поле, рассчитанное по пп. А.1.4 и А.1.5, не соответствует требованиям прочности и устойчивости грунтов оснований, необходимо применять конструктивные мероприятия по охлаждению грунтов, направленные на обеспечение возможности повышения несущей способности мерзлых грунтов, используемых по I принципу, и в ряде случаев - на образование мерзлых зон в талых грунтах.

По характеру влияния на температуру грунтов оснований конструктивно-технологические мероприятия (КТМ) можно разделить на два вида. К первому виду относятся мероприятия, изменяющие величину тепловых потоков (потоков холода) со стороны внешних поверхностей сооружений путем регулирования условий теплообмена на поверхности, температуры среды или теплофизических характеристик материалов. Этот вид учитывают введением новых зон на поверхности сооружения. Ко второму виду относятся мероприятия, которые приводят к передаче тепловых потоков (потоков холода) непосредственно в толщу грунта. К ним относятся в основном различные воздушные полости и жидкостные охлаждающие установки (СОУ) системы С.И. Гапеева или В.И. Макарова. Для их учета вводятся понятия: фоновое влияние КТМ и местное влияние КТМ.

Фоновое влияние КТМ сказывается за пределами расчетного массива, определяемого границами полости или куста СОУ плюс минимальный расчетный размер их сечения в каждую сторону. Местное влияние оказывается внутри указанного массива.

Для определения фонового и местного влияния куст СОУ заменяют линейным размещением охлаждающих установок в виде пластины, площадь Ас которой (обеих поверхностей) равна произведению суммарного периметра всех СОУ в кусте на длину СОУ, равную расстоянию от верхней границы расчетного массива до низа СОУ (верхнюю границу для СОУ считать по глубине 3 м при отсутствии поверхностной теплоизоляции или на уровне низа теплоизоляции при ее наличии). Минимальный расчетный размер сечения равен полупериметру воздушной полости или ширине условной пластины для СОУ.

Температуру грунта с учетом фонового влияния КТМ определяют по формуле (А.1).

Местное влияние КТМ определяют по формуле (А.2), при этом под tс следует понимать ординату эпюры распределения температур на глубине b для соответствующего КТМ.

А.1.7 Начальное и временное состояния температурных полей определяют путем суммирования эпюр, полученных при изысканиях, с тепловыми импульсами (мгновенными или распределенными во времени), возникающими в процессе строительства или эксплуатации моста. При этом ординаты эпюры находят по формуле

t1i = tиi + Dti,                                                                          (A.3)

где      t1i, iиi, Dti - ординаты эпюр распределения температур по глубине соответственно при начальном или временном состоянии температурных полей, по данным изысканий, за счет добавки (приращений температуры от воздействия тепловых импульсов). Добавки от тепловых импульсов рекомендуется определять аналитическим или численным методами с использованием, например, программы [А.3.3].

При определении начального состояния температурных полей следует учитывать в основном тепловые импульсы, имеющие глубинный характер, т. е. когда воздействие тепловых импульсов проявляется непосредственно в толще грунтов. Такие воздействия наблюдаются в результате экзотермии цемента и монолитных элементам фундаментов, заполнения котлованов водой, введения в грунт элементов с температурой, отличающейся от температуры грунтов, летней отсылки грунтов насыпи и др.

Добавку Dti за счет введения в грунт элементов с температурой, отличающейся от температуры грунтов, с учетом экзотермии цемента бетонной смеси рекомендуется определять по приближенной формуле

,                                                 (А.4)

где      V1 - объем массива, ограниченного размерами введенного элемента (например, массивного фундамента) плюс 2 м в каждую сторону, м3;

V2 - объем введенного элемента, м3;

Dt2 - разность температур между внесенным в грунт элементом и самим грунтом в начальный момент, град.

При отсутствии экзотермии цемента формула (А.4) существенно упрощается:

                                                        (А.4, а)

Начальное изменение температуры Dt1 от внесения в него тепловых импульсов с течением времени уменьшается, что допускается определять по формуле

,                                                          (A.5)

где      kt - коэффициент, учитывающий уменьшение начальной температуры во времени и принимаемый равным в начальный момент, через полгода, два с половиной года, пять лет соответственно 1; 0,12; 0,012, 0;

kV - коэффициент, зависящий от объема грунта, V1 и принимаемый равным

.                                                         (А.6)

Влияние летней отсыпки грунта насыпи или других грунтовых площадок рекомендуется учитывать следующим образом: при высоте отсыпки до 1 м тепловым влиянием отсыпки допускается пренебрегать, при высоте отсыпки более 1 м среднюю температуру грунта в верхних 10 м, считая от естественной поверхности, допускается повышать на 0,2 °С на каждый метр увеличения отсыпки свыше 1 м.

Воздействие поверхностных факторов учитывают при сроке их проявления более года. Степень влияния этих факторов определяют по методике, изложенной в п. А.1.5 (т. е. как для предельного состояния), при этом продолжительность установления прогнозируемой температуры на глубине 5, 10 и 20 м - соответственно 5, 10 и 20 лет. Уменьшение разницы между значениями прогнозируемой температуры и температуры, полученной при изысканиях, принимают по линейному закону. Продолжительность установления глубины протаивания принимают 2 года.

Временное состояние температурных полей в различные характерные периоды эксплуатации или строительства рекомендуется определять численными методами, например, с помощью программ (см. п. А.3).

А.1.8 Исходные данные для районов с повышенным снегопереносом определяются следующим образом.

В зависимости от характера снегозаносов мосты разделены на четыре группы: 1-я группа - отверстием до 18 м; 2-я группа - отверстием 19-30 м; 3-я группа - отверстием более 30 м с малым водотоком (условно при ширине водотока в уровне меженних вод не более 5 м); 4-я группа - отверстием более 30 м с постоянным водотоком шириной в уровне меженных вод более 5 м.

На основании данных проведенных натурных обследовании существующих мостовых переходов в рассматриваемых природных условиях было предложено разделение мостового перехода на зоны (рисунки А.3-А.5). Характеристика этих зон приведена в таблице А.1.

Таблица A.1 - Зоны граничных условий

Номер зоны

Характеристика зоны

Основная площадка насыпи, а также любая площадка с оголенной от растительности поверхностью, возвышающаяся над уровнем естественной поверхности земли и открытая со всех четырех сторон

Верхняя треть бокового откоса насыпи подходов

Нижние 2/3 бокового откоса насыпи подходов и весь речной откос за исключением зоны 6A

Зона, расположенная между зонами 5Б и 6Б на пойменной части

4БМ

Продолжение зоны 4Б в русловую часть мостов 4-й группы в пределах меженных вод с глубиной воды до 1 м

Зона повышенных снежных заносов, расположенная на уширенной берме (площадке) и прилегающая к верховой части бокового откоса насыпи

Зона повышенных снежных заносов у подошвы откоса насыпи, расположенная на уровне устоя и продолжающаяся на пойме по русловой части. Ширина зоны 5Б принимается равной 8, 4, 0 м соответственно для откосов насыпи 1:1,5, 1:3, 1:5

Зона повышенных снежных заносов у подошвы откоса насыпи, расположенная рядом с зоной 5Б, но в пределах ненарушенного растительного покрова и имеющая ту же ширину

Часть речного откоса насыпи, расположенная под пролетным строением и равная ширине пролетного строения

Пойменная часть, расположенная под пролетным строением и равная ширине пролетного строения

Часть русла в уровне меженных вод с глубиной воды до 1 м. Зона 6М состоит из двух подзон: одна подзона располагается непосредственно под пролетным строением, другая - за пределами зоны 4БМ. Зоны с индексами «а» и «б» соответственно при глубине воды 0,5 и 1,0 м

Часть русла в уровне меженных вод с глубиной воды более 1 м. Зоны с индексами «а» и «б» соответственно с глубиной воды до 3 м и более 3 м

Зона с нарушенным в процессе строительства растительным покровом, расположенная рядом с зоной 5Б, имеющая ту же длину, а суммарная ширина зон 5Б и 7Б равна 15 м

8А (а)

Поверхность уширений бермы за исключением зоны 5А, открытая с двух сторон

8А (б)

То же, с трех сторон

12П

Поверхность сообщающейся с наружным воздухом полости, оголенные от снега вертикальные бетонные поверхности

21

Зона, соответствующая размерам в плане промежуточной опоры, плюс минимальный размер опоры в каждую сторону. Зоны с индексами «а» и «б» соответствуют случаям крепления и допущению местного размыва

4В, 5В, 6В, 7В

Продолжение зон соответственно 4Б, 5Б, 6Б, 7Б на русловую часть в мостах 1-й, 2-й, 3-й групп

4БП, 5БП, 6БП, 7БП

Зоны, соответствующие по расположению соответственно зонам 4Б, 5Б, 6Б, 7Б в мостах 4-й группы, но имеющие повышенную поверхность по сравнению с окружающей местностью (например, в результате подсыпки грунта)

4БТ, 5БТ, 6БТ, 7БТ

Зоны, соответствующие по расположению соответственно зонам 4Б, 5Б, 6Б, 7Б в мостах 4-й группы, но с теплоизоляцией на поверхности, эквивалентной 15 см пенопласта

А.1.9 На основании этих данных расчетом были получены эпюры одномерного распределения температуры по глубине (рисунки А.6-А.8).

Эпюры составлены для пункта со значением приведенной среднегодовой температуры воздуха минус 6,3 °С (представляющим сумму среднемесячных температур воздуха по СНиП 2.01.01-82, равную минус 7,8 °С, за вычетом поправки на солнечную радиацию и испарения плюс 1,5 °С). Для других районов температуру грунта следует определять по упомянутым графикам (эпюрам) с корректировкой ее в сторону понижения на 0,75 °С и в сторону повышения на 1,0 °С на каждый градус отклонения от значения приведенной температуры, учтенной в графиках рисунков А.6 - А.8. По высоте эпюры указанная поправка постоянна в пределах глубины нижних 5 м, а для верхних 5 м - изменяется по линейному закону, достигая нуля в уровне поверхности грунта.

Эпюры распределения температур по глубине для ненарушенных зон для всех климатических районов принимают по данным изысканий.

А.1.10 При расчете эпюр распределения температур по глубине для индивидуальных климатических, грунтовых условий или при применении конструктивно-технологических мероприятий принимают во внимание следующее.

Для граничных условий 13 СОУб (жидкостные двутрубные или коаксиальные установки) температуру по глубине принимают постоянной и равной

t = 0,1t0,                                                               (А.7)

где    t0 - среднеянварская температура воздуха

Рисунок А.3 - Схема расположения зон граничных условий в пределах мостового перехода для мостов 1-й - 3-й групп:

1 - основная площадка; 2 - откос насыпи; 3 - устой; 4 - промежуточная опора; 5, 6 - соответственно продольная и поперечная оси моста

Рисунок А.4 - Схема расположения зон граничных условий в пределах мостового периода перехода для 4-й группы мостов:

1, 4 - соответственно продольная и поперечная оси моста; 2 - устой; 3 - промежуточные опоры

Рисунок А.5 - Схема расположения зон граничных условий на боковом откосе насыпи при наличии бермы для всех групп мостов

Рисунок А.6 - Эпюры распределения расчетных температур грунта основания по глубине в пределах следующих зон граничных условий:

а - 6БП, 7БП, 6В (3, 4), 6В (3), 7Б, 7В; б - 5БП, 4БП, 4Б (3, 4), 4БМ, 4В (3); в - 6БТ, 7БТ; г - 4БТ, 5БТ, 5А, 5Б, 5В, 4Б (2), 4В (2), 4Б (1), 4В (1)

Рисунок А.7 - Эпюры распределения расчетных температур грунта основания по глубине в пределах следующих зон граничных условий:

а - 6М; б - 21; в - 6А(1), 6Б(1), 6В (1), 6А (2), 6Б (2), 6В (2); г - 6Р

Рисунок А.8 - Эпюры распределения расчетных температур грунта основания по глубине в пределах следующих зон граничных условий:

а - 1А, 2А (1:1,5), 2А (1:3), 8А (б); б - 2А (1:5), 3А (1:5), 3А (1:1,5), 3А (1:3), 3A (a); в - 6A (3, 4); г - 5Г, 12П

Теплоизоляцию (искусственную или естественную) учитывают по формуле:

,                                                             (А.8)

где      А - расчетный коэффициент теплопередачи (среднемесячное значение);

А1 - коэффициент теплопередачи, принимаемый для соответствующей зоны;

R - термическое сопротивление теплоизоляции.

При наличии теплоизоляции на поверхности ординаты эпюры распределения температуры по глубине умножаются на коэффициент Kт, определяемый в зависимости от размера поверхности теплоизоляции:

,                                                     (А.9)

где      rт - средний радиус поверхности теплоизоляции;

R1 и R2 - соответственно термические сопротивления десятиметровой толщи грунта и теплоизоляции.

Каменную наброску на откосах учитывают ликвидацией добавки к температуре воздуха за счет солнечной радиации и испарения.

При расчете эпюр распределения температур на рисунках А.6 - А.8 принимались усредненные значения для широко встречающихся незасоленных грунтов, т. е. песка, супеси, суглинка и глины. Другие свойства грунтов целесообразно учитывать, если эти свойства отличаются существенно (например, при наличии торфа, засоленных грунтов и т. п.).

Для эпюр распределения температур по глубине, приведенных на рисунках А.6, А.7, следует учесть следующие примечания:

1) эпюры распределения температур для ненарушенной зоны принимать по данным изысканий;

2) эпюры следует корректировать на - 0,5 °С, глубину протаивания уменьшать на 1 м при ненарушенном торфяном слое, растительном покрове, каменной наброске (допускается эти добавки суммировать);

А.1.11 Методика практических расчетов может быть реализована в три стадии:

- ориентировочная оценка расчетной температуры при выборе вариантов;

- приближенный расчет;

- расчет численными методами.

Первый этап может быть осуществлен без проведения расчетов. Для этого по графикам рисунков А.6 - А.8 (совместно с рисунками А.3 - А.4) оценивается температура на глубине 10 м для всех зон, попадающих в зону расчетного круга (см. рисунок А.2). Например, если откосы насыпи для круга, указанного на рисунке А.2, имеют откос 1:1,5, то в зону круга попадет на площади примерно 20 % основная площадка насыпи, т. е. зона 1А, дающая вклад отрицательной температуры, но на 80 % площади попадают зоны 2А, 3А, 5Б, 4Б, которые дают вклад положительной температуры. На основании только этого можно сделать вывод о том, что использование грунтов основания по принципу I маловероятно без специальных охлаждающих мероприятий. Если же сделать откосы 1:5, то положение сразу меняется (см. рисунки А.6 - А.8).

На второй стадии расчет целесообразно вести в табличной форме. Рекомендуемые формы расчета будут изложены в методических рекомендациях, издаваемых в развитие данных норм.

Третья стадия (при необходимости) предполагает использование ЭВМ с применением, например, программ (см. п. А.3).

Расчеты на второй и третьей стадиях в ряде случаев могут не производиться.

А.2 Регионы с умеренным снегоотложением

А.2.1 Приведенные в настоящем разделе указания по приближенному методу оценки расчетных значений температур вечномерзлых грунтов, используемых в качестве основании по принципу I, предназначены для проектирования фундаментов и опор мостов в районах, где за зиму высота снежного покрова не превышает 0,6 м, а объем снегопереноса меньше 200 м3/м. Указания предназначены для пользования на период до разработки исходных данных, необходимых для обеспечения возможности применения уточненного метода, изложенного в разделе А.2 настоящего приложения для районов малоснежных и с умеренным снегоотложением.

А.2.2 Расчетные значения температур t0 вечномерзлых грунтов, используемых по принципу I в основаниях фундаментов опор (без применения охлаждающих устройств разных типов), определяют на глубине 10 м по формулам:

а) при среднегодовой температуре воздуха tа от минус 6 °С до минус 8 °С

t0 = ktt;                                                               (А.10)

б) при среднегодовой температуре воздуха tа ниже минус 8 °С

t0 = t.                                                                 (A.11)

Здесь kt - коэффициент влияния на t0 вида опоры, ширины и высоты подходной насыпи, принимается по таблице А.2;

t - нормативное значение среднегодовой температуры вечномерзлых грунтов, принимается по данным изысканий на глубине не менее 10 м, но не ниже значения 0,3tа.

Таблица А.2 - Значения коэффициента kt

Высота подходной насыпи, м

Коэффициент kt для опоры

устоя

промежуточной

3 и менее

0,5

0,6

5

0,45

0,55

7

0,4

0,5

Примечания. 1. В таблице приведены значения kt для двухпутных насыпей с бермами и автодорожных насыпей.

Для однопутных и двухпутных насыпей без берм значение коэффициента увеличивают на 10 %.

2. Для промежуточных опор, расположенных вне пределов влияния насыпи (от подошвы конуса или бермы на расстоянии более половины высоты насыпи, но не ближе 3 м), значение kt принимают равным 0,6.

Для промежуточных высот насыпи значения kt принимают по интерполяции.

А.2.3 Распределение расчетных значений максимальных температур вечномерзлого грунта на глубине заделки z в него свайных элементов принимают к началу холодного периода по формуле

,                                                      (А.12)

но не ниже t0.

А.2.4 Нормативные глубины сезонного оттаивания dth и промерзания dfh грунтов в пределах площадки мостового перехода определяют согласно СНиП 2.02.04-88 с учетом изменений состояния поверхностного слоя грунта и период строительства моста. При отсутствии таких данных значение dth допускается определять по графику (рисунок А.9) в зависимости от положительных градусо-часов воздуха W = tSТS (здесь tS - среднелетняя температура, °С; ТS - продолжительность периода с положительными среднесуточными температурами воздуха, ч, определяемая по данным метеостанции или по климатологическим справочникам).

Рисунок А.9 - Зависимость нормативной глубины протаивания dth у опор мостов от суммы летних градусо-часов W

А.2.5 Расчетные глубины сезонного оттаивания dh и промерзания df следует принимать для промежуточных опор мостов, расположенных в пределах суши, пойменных участков и в руслах промерзающих до дна водотоков, от планировочной поверхности грунта, а для обсыпных устоев у передней их грани - от поверхности конуса по нормали к ней.

Значения dt и df рекомендуется определять соответственно по формулам:

dt = mtmFmhdthth,

df = mfmhdfh.

где      mt и mf - коэффициенты теплового влияния фундаментов, принимаемые по таблице А.3;

mF - коэффициент, учитывающий влияние инфильтрации атмосферных осадков в грунт насыпи и принимаемый по таблице А.4;

mh - коэффициент, учитывающий высоту подходной насыпи и принимаемый по таблице А.5.

А.2.6 В случае применения в качестве покрытия местного грунта в мешках из геотекстиля при содержании в этом грунте органических включений не менее 30 % и толщине слоя не менее 0,7 м значения dt и df принимают с коэффициентом 0,5.

Таблица А.3 - Значения коэффициентов mt и mf

Опоры

mt

mf

Промежуточные с фундаментами мелкого заложения или фундаментами из свайных элементов с ростверком толщиной более 1 м, заглубленным в грунт, при ширине по фасаду:

 

 

от 2 до 4 м

1,3

1,2

4 м и более

1,5

1,3

Промежуточные безростверковые из свайных элементов сплошного сечения диаметром до 1 м; рамностоечные

1,1

1,1

Промежуточные безростверковые из свайных элементов диаметром более 1 м, в том числе из полых оболочек

1,3

1,3

Обсыпные устои разных типов

1

1

Таблица А.4 - Значения коэффициента mF

Грунты

Коэффициент тF

Средние и крупные пески, гравийно-галечниковые грунты

1,3

Мелкие и пылеватые пески

1,2

Супеси

1,1

Суглинки и глины

1,0

Примечание. Для крупнообломочных грунтов значения mF принимают по виду заполнителя.

Таблица А.5 - Значения коэффициента mh

Опоры и высота насыпи

Коэффициент mh

Промежуточные опоры и устои при высоте подходной насыпи до 4 м

1,0

Устои при высоте подходной насыпи, м:

 

5

1,15

³7

1,3

Примечания. 1. Для промежуточных значений высоты насыпи, тh следует принимать по интерполяции.

2. Для устоев с конусами, покрытыми наброской тремя и более слоями камня или пустотелыми блоками, тр принимают равным 1,0 независимо от высоты насыпи.

А.3 Программы

А.3.1 Пассек В.В. Расчет температурного режима оснований и тела транспортных сооружений. Госфонд алгоритмов и программ. ПОО5248. 1982. Бюлл. № 3 (47).

А.3.2 Пассек В.В., Слоев Л.Н. Расчет трехмерных температурных полей в теле транспортных сооружений с учетом автоматических замораживающих установок (термосифонов). Госфонд алгоритмов и программ. ПОО6907. 1984 Бюлл. № 1 (58).

А.3.3 Пассек В.В., Бродский A.M. Расчет одномерного распределения температуры. Госфонд алгоритмов и программ. ПОО4939. 1981. Бюлл. № 6 (44).

Приложение Б

(рекомендуемое)

ПРИМЕНЕНИЕ СЕЗОННОДЕЙСТВУЮЩИХ ОХЛАЖДАЮЩИХ УСТРОЙСТВ (СОУ) ДЛЯ ОПОР МОСТОВ НА ВЕЧНОМЕРЗЛЫХ ГРУНТАХ

Б.1. Настоящие рекомендации распространяются на применение СОУ для обеспечения принятой в расчетах несущей способности оснований температуры используемых по принципу I вечномерзлых грунтов в течение всего периода эксплуатации мостов в разных районах страны, включая Западную Сибирь и п-ов Ямал.

Б.2. СОУ у опор мостов, расположенных на суше, в пределах периодических и промерзающих до дна водотоков следует проектировать для условий:

а) малоснежных районов со среднегодовой температурой воздуха tа£-4 °С; севера Западной Сибири и других районов с повышенным снегоотложением (при максимальной высоте слоя снега за зиму более 60 см и объеме снегопереноса свыше 200 м3/м) и tа£-7 °С.

б) температуры вечномерзлых грунтов на глубине 10 м до начала строительства мостов t£-0,5 °С,

в) устройства подходной насыпи высотой до 10 м;

г) отсутствия в основании опор таликов.

Для промежуточных опор, расположенных в пределах постоянных непромерзающих до дна водотоков, СОУ в случае необходимости, следует применять по индивидуальному проекту.

Б.3 СОУ систему Макарова (рисунок Б.1, а), в котором теплоносителем служит керосин, состоит из подземной части dд и надземной (теплообменника) h. Подземная часть СОУ имеет конструкцию в виде наружной трубы диаметром d, внутри которой размещена труба меньшего диаметра d0. В зимний период за счет изменения плотности керосина, охлаждаемого в теплообменнике, происходит его циркуляция и охлаждение глубинных слоев грунта. В летний период циркуляция теплоносителя прекращается вследствие понижения плотности керосина по мере нагрева его в теплообменнике и наличия диафрагмы.

Двухтрубные охлаждающие установки системы Гапеева (рисунок Б.1, б) состоят из двух параллельных закольцованных трубок, имеющих различные диаметры в верхней теплообменной части ht. Принцип их действия аналогичен действию охлаждающей установки СОУ система Макарова.

Для опор мостов рекомендуется применять СОУ Макарова.

Б.4 СОУ заделывают преимущественно в свайные элементы безростверковых промежуточных опор. В случаях невозможности выполнения этого условия, а также для элементов обсыпных СОУ необходимо заглублять в скважины, пробуренные вблизи опор не менее чем в два ряда с расстоянием между установками 1,6-2,2. При размещении двух СОУ в одном свайном элементе расстояние между ними в свету должно быть не менее 0,8 м.

В сложных случаях (наличии пластичномерзлых грунтов, глубины заложения элементов более 10 м и т.п.) рекомендуется устанавливать резервные дополнительные СОУ в количестве до 100 %, но не менее 40 % от принятых по расчету. В этом случае у каждого свайного элемента надо заделывать не менее двух СОУ.

Б.5 Теплообменник вертикального и горизонтального типа должен располагаться выше поверхности возможного максимального заноса снегом. С этой целью его располагают выше насадки опор. Площадь поверхности теплообменника с учетом площади ребер (оребрения) принимают равной не менее 30 % от площади поверхности подземной части СОУ. Для повышения эффективности охлаждения теплообменник необходимо располагать так чтобы он обдувался ветром.

Б.6 При проектировании однопутного железнодорожного или автодорожного моста на вечномерзлых грунтах через периодический водоток, в случае отсутствия талика в основании и при температуре вечномерзлых грунтов до строительства моста t£-0,5 °С для каждой опоры рекомендуется принимать следующие параметры СОУ системы Макарова: диаметр наружной трубы d0 = 159 мм, внутренней d0 = 86 мм; количество труб 8 шт.; глубина подземной части dд = 10¸15 м; коэффициент тепловой эффективности j = 0,3 определяемый приближенно как отношение температуры теплоносителя к температуре атмосферного воздуха.

Рисунок Б.1 - Трубчатые сезоннодействующие охлаждающие устройства (СОУ).

а - коаксиальные (системы Макарова); б - двухтрубные (системы Гапеева)

Б.7 Значение j определяют в зависимости от конструкции СОУ по формуле

,                                                         (Б.1)

где    a - коэффициент активности СОУ;

Ае, Аи - площади внутренних теплопередающих поверхностей соответственно в надземной (теплообменнике) и подземной части СОУ.

Коэффициент a принимается в зависимости от конструкции теплообменника: для гладких труб a = 1,1; для оребренного теплообменника a = 0,9 + 0,2kr, где kr -коэффициент оребрения; ; Аr - площадь ребер с двух сторон и наружной поверхности трубы теплообменника.

Для теплообменника, обдуваемого ветром, a = 1,525v0,28, где v - скорость ветра, м/с. При учете влияния ветра следует принимать v£3 м/с, имея в виду, что теплообменники обычно закрываются пролетным строением моста.

Б.8 Расчетные температуры вечномерзлого грунта tz (у опор на разных глубинах z) для условий, приведенных в п. Б.6, для районов Западной Сибири принимают по таблицам Б.1, Б.2, а для континентальных районов - по таблицам Б.3 и Б.4.

Значения tа для промежуточных значений dд в диапазоне 10-15 м допускается определять по интерполяции.

Значение z отсчитывают: для устоев - от верха отсыпки под насадкой, для промежуточных опор - от принятой в проекте поверхности грунта.

Для опор из стальных труб (при установке 2 шт. СОУ в одной трубе) следует вводить поправочный коэффициент 0,8.

Таблица Б.1 - Расчетные температуры tz для устоев в районах Западной Сибири

Температура грунта до строительства, °С

Значения tz,°С, при глубине подземной части

dд = 10 м

dд = 15 м

z = 5 м

z = 10 м

z = 15 м

z = 5 м

z = 10 м

z = 15 м

-0,5

-0,25

-0,5

-0,6

-0,5

-1,1

-1,2

-1,0

-0,3

-0,8

-0,9

-0,7

-1,6

-1,8

-2,0

-0,4

-1,1

-1,3

-0,8

-2,3

-2,6

Таблица Б.2 - Расчетные температуры tz для промежуточных опор в районах Западной Сибири

Температура грунта до строительства, °С

Значения tz,°С, при глубине подземной части

dд = 10 м

dд = 15 м

z = 5 м

z = 10 м

z = 15 м

z = 5 м

z = 10 м

z = 15 м

-0,5

-0,25

-0,6

-0,6

-0,5

-1,2

-1,2

-1,0

-0,3

-0,9

-0,9

-0,6

-1,7

-1,7

-2,0

-0,6

-1,5

-1,5

-1,2

-2,5

-2,5

Таблица Б.3 - Расчетные температуры tz для устоев в малоснежных районах

Температура грунта до строительства, °С

Значения tz, °С, при различных значениях ta и dд

ta = -4°С

ta = -7°С

ta = -10°С

dд = 10 м

dд = 15 м

dд = 10 м

dд = 15 м

dд = 10 м

dд = 15 м

z = 5 м

z = 10 м

z = 15 м

z = 5 м

z = 10 м

z = 15 м

z = 5 м

z = 10 м

z = 15 м

z = 5 м

z = 10 м

z = 15 м

z = 5 м

z = 10 м

z = 15 м

z = 5 м

z = 10 м

z = 15 м

-0,5

-0,3

-0,5

-0,6

-0,6

-1,1

-1,1

-0,4

-0,7

-0,7

-0,8

-1,5

-1,6

-0,5

-0,7

-0,7

-0,9

-1,7

-1,7

-1,0

-0,4

-0,7

-0,8

-0,8

-1,3

-1,5

-0,5

-0,9

-1,0

-0,9

-2,2

-0,5

-0,9

-1,0

-1,0

-1,0

-2,1

-2,4

-2,0

-0,5

-0,9

-1,0

-0,9

-1,8

-2,0

-0,6

-1,2

-1,4

-1,1

-2,5

-3,0

-0,6

-1,2

-1,4

-1,2

-2,8

-3,2

Таблица Б.4 - Расчетные температуры tz для промежуточных опор в малоснежных районах

Температура грунта до строительства, °С

Значения tz, °С, при различных значениях ta и dд

ta = -4°С

ta = -7°С

ta = -10°С

dд = 10 м

dд = 15 м

dд = 10 м

dд = 15 м

z = 5 м

z = 10 м

z = 15 м

z = 5 м

z = 10 м

z = 15 м

z = 5 м

z = 10 м

z = 15 м

z = 5 м

z = 10 м

z = 15 м

-0,5

-0,3

-1,0

-1,0

-0,5

-1,7

-1,9

-0,6

-1,3

-1,4

-0,6

-1,5

-1,6

-1,0

-0,3

-1,3

-1,4

-0,6

-2,1

-2,6

-0,7

-1,6

-2,0

-0,7

-1,9

-2,2

-2,0

-0,4

-1,6

-1,9

-0,7

-2,7

-3,8

-0,8

-2,1

-2,7

-0,8

-2,4

-3,0

К значениям tz по таблице Б.3 для случая dд = 15 м при высоте насыпи более 5 м необходимо вводить поправочный коэффициент 0,85.

Глубину СОУ dд рекомендуется назначать такой, чтобы tz на глубине z = 10 м была не выше минус 1 °С.

Для значений коэффициента тепловой эффективности, отличающихся от 0,3, необходимо вводить поправочный коэффициент kj, который определяют по интерполяции, принимая его значения равными 0,6 при j = 0,12 и 1,8 при j = 0,6.

Б.9 Расчетную глубину многолетнего оттаивания грунтов у опор dt, имеющих СОУ, рекомендуется принимать согласно таблице Б.5 от верха отсыпки под насадкой для обсыпных устоев и от предусмотренной в проекте поверхности грунта - у промежуточных опор.

Таблица Б.5 - Расчетная глубина оттаивания грунтов у опор dt

Опоры

Значения глубины оттаивания dt, м

Малоснежные районы

Районы Западной Сибири

tа = -4°C

tа = -7°C

tа = -10°C

Безростверковые устои

 

 

 

 

Н£9 м

4,2

4,0

3,2

4,3

Промежуточные опоры

3,1

2,8

2,6

4,0

Б.10 Для наблюдения за температурным режимом грунтов основания каждую опору с СОУ в обязательном порядке оборудуют термометрическими трубками.

Б.11 Во избежание образования ледяных пробок и прочих дефектов СОУ и измерительные термометрические трубки должны иметь надежную герметизацию согласно техническим условиям на эти изделия.

Б.12 В сложных геокриологических и гидрологических условиях конкретных мостовых переходов необходимое количество СОУ, их конструкцию, схему размещения у опор и другие параметры следует определять по результатам индивидуальных теплотехнических расчетов.

Приложение В

(рекомендуемое)

ИСПОЛЬЗОВАНИЕ ПОВЕРХНОСТНОГО ОХЛАЖДЕНИЯ ГРУНТОВ ДЛЯ СТАБИЛИЗАЦИИ ВЕЧНОМЕРЗЛОГО СОСТОЯНИЯ ОСНОВАНИЙ ОПОР МОСТОВ

B.1 В настоящем приложении содержатся рекомендации по поддержанию отрицательной температуры грунтов основания не выше принятой в расчетах его несущей способности в течение всего периода эксплуатации железнодорожных и автодорожных мостов в результате использования следующих трех способов поверхностного охлаждения грунтов (по отдельности или в разных сочетаниях) путем устройства:

а) местного уширения насыпей вблизи примыкания к устоям - согласно п. В.2;

б) полостей в конструкции устоев для обеспечения доступа к ним холодного воздуха - в соответствии с п. В.3;

в) покрытия конусов и подходных участков насыпи наброской из камня или пустотелых блоков - согласно п. В.4.

В.2 В районах с умеренным отложением снега и в малоснежных подходные насыпи вблизи устоев рекомендуется отсыпать с минимально допустимой шириной основной площадки (верха насыпи) при возможно большей крутизне откосов, берм, особенно со стороны русла.

В районах с повышенным снегопереносом подходные насыпи высотой до 6 м отсыпают с откосами до 1:3 при нормальной ширине основной площадки (рисунок В.1, а) или с откосами 1:2 и уширенной площадкой на длине 25 м (рисунок В.1, б). Насыпи высотой более 6 м рекомендуется отсыпать с откосами 1:3 на высоту 3 м, а выше - с откосами 1:2 (рисунок В.1, в).

Рисунок B.1 - Схемы подходных насыпей при их высоте:

a и б - до 6 м; в - более 6 м

Для всех трех схем насыпи конуса со стороны русла рекомендуется отсыпать с откосами 1:2, а при использовании крупнообломочных грунтов - с откосами 1:1,5.

В.3 Во всех районах, независимо от интенсивности снегоотложения, рекомендуется применять безростверковые устои с полостью, создаваемой ограждающими железобетонными плитами по периметру насадки (рисунок В.2, а и б). Взамен плит допускается использование грунтовых блоков в обоймах (мешках) из геотекстиля. Высота полости должна быть не менее 1 м, а площадь в плане - не менее 10 м2. Для доступа холодного воздуха в полость в насадках устраивают отверстия.

Рисунок В.2 - Схемы устройства полостей в конструкции устоев:

а и б - с применением ограждающих элементов; в, г и д - увеличением зазора под насадкой

Кроме замкнутых полостей рекомендуется устраивать увеличенные по высоте до 0,5 м и по площади в плане до 15 м2 полости под насадкой безростверковых устоев, открытые со стороны русла для доступа холодного воздуха. С целью предотвращения засыпки грунтом полости со стороны насыпи ограждают плитой, жестко связанной с насадкой (рисунок В.2, в, г), или шарнирно соединенным с ней экраном (рисунок В.2, д).

В районах с повышенным снегопереносом при возвышении низа пролетных строений над поверхностью грунта менее 3,5 м рекомендуется в устоях предусматривать устройство вентиляционно-ограждающих конструкций для обеспечения доступа холодного воздуха под пролетные строения (рисунок В.3, а, б) или в полость под насадкой (рисунок В.3, в).

Рисунок В.3 - Схемы устройства вентиляционно-ограждающих конструкций, обеспечивающих поступление холодного воздуха:

а и б - под пролетные строения; в - в полость под насадку; А - уровень снега

В.4 Покрытия в виде наброски из камня или пустотелых блоков, как один из способов стабилизации вечномерзлого состояния оснований опор, рекомендуется применять в разных районах. Наиболее эффективным этот способ является в малоснежных районах и в районах с умеренным режимом снегоотложений.

Наброска из камня должна удовлетворять следующим требованиям:

- состоять из скального грунта, полученного из магматических или метаморфических пород в соответствии с требованиями СН 449-72 и типового проекта № 823 (по укреплению русел, конусов и откосов насыпей малых и средних мостов для районов с расчетной температурой воздуха минус 40 °С и ниже);

- толщина покрытия должна быть равной минимум трехкратному среднему размеру используемых камней, но не менее 0,8 м при их среднем размере 20 - 25 см в районах с повышенной снегозаносимостью и не менее 0,6 м при среднем размере 15-20 см - в остальных районах;

- устройство наброски должно производиться не позднее, чем через один год после постройки моста.

Во всех районах, за исключением районов со среднегодовой температурой воздуха выше минус 6 °С, покрытия из каменной наброски или из пустотелых блоков рекомендуется, как правило, устраивать в пределах размеров укрепления конусов, предусматриваемых проектами, с учетом данных рисунка В.4.

Рисунок В.4 - Схема покрытия конусов устоев наброской из камня:

1 - устой; 2 - наброска из камня; 3 - мощение русла; 4 - уровень сезонного протаивания грунтов

В районах со среднегодовой температурой воздуха выше минус 6 °С покрытие устраивают также не только на конусах, но и на откосах подходной насыпи на длине, равной высоте этой насыпи, считая от задней грани устоя.

В.5 В случаях применения конструктивных решений в соответствии с пп. В.2 - В.4 расчетные температуры t0 вечномерзлых грунтов на глубине 10 м допускается принимать равными их начальным значениям t, полученным по данным изысканий для естественного состояния этих грунтов, но не ниже следующих значений t0min:

- для малоснежных районов и районов с умеренным режимом снегоотложений при максимальной высоте слоя снега за зиму не более 60 см t0min = 0,3ta, где ta - среднегодовая температура воздуха, определяемая по СНиП 2.01.01-82;

- для районов с повышенной снегозаносимостью (при максимальной высоте слоя снега более 60 см или объеме снегопереноса более 200 м3/м) значение t0min принимается по таблице В.1.

Таблица В.1 - Рекомендуемые расчетные значения температур вечномерзлых грунтов на глубине 10 м в зависимости от среднегодовых температур воздуха

Особенности конструкции устоев

Схемы подходных насыпей вблизи примыкания к устоям

Минимальные расчетные отрицательные значения t0min в зависимости от среднегодовых значений температур воздуха, ta °С

-6

-8

-10

-11 и ниже

Безростверковые устои:

 

 

 

 

 

по типовым проемам

По рисункам В 1, а, б или по рисунку В 1, в

-0,5

-1,0

-1,5

-2,0

с полостью по рисунку В.2

По типовым проектам

-0,8

-1,4

-2,4

-3,0

с увеличенным зазором под насадкой по рисункам В.2, в, г, д

По рисункам В 1, а, б или по рисунку В 1, в

-1,0

-1,7

-2,8

-3,5

По типовым проектам

-07

-1,2

-2,2

-2,5

По рисункам В.1, а, б или рисунку В 1, в

-1,0

-1,5

-2,3

-2,3

Устои всех типов с конусами, покрытыми каменной наброской (см. рисунок В.4)

По рисунку В.1 и по типовым проектам

-1,5

-2,0

-3,0

-3,5

Примечания 1. Для промежуточных ta значения t0min принимают по интерполяции.

2 В районах с повышенной снегозаносимостью для мостов с возвышением низа пролетных строений над грунтом на 3,5 м (см п. В.3) рекомендуется применять устои с вентиляционно-ограждающими конструкциями по рисункам В.3, а, б, в

Приведенные рекомендации предназначены для использования при проектировании опор мостов через периодические и промерзающие до дна водотоки в случаях наличия в местах возведения опор вечномерзлых грунтов сливающегося типа с температурой минус 0,5 °С и ниже. Во всех остальных случаях расчетную температуру оснований t0 рекомендуется определять, пользуясь приложением А.1.

В.6 Расчетные глубины сезонного протаивания dt и промерзания df определяют в соответствии с приложением А.2. Применительно к рассматриваемым в данном приложении способам стабилизации температуры грунтов рекомендуется для устоев с полостью под насадкой (рисунок В 1, а, б) значения dt и df увеличивать на 20 %, для районов с повышенным снегопереносом (при максимальной высоте слоя снега за зиму более 60 см или объеме снегопереноса свыше 200 м3/м) - значение dt увеличивать на 10 %, а значение df уменьшать на 20 %.

Приложение Г

(рекомендуемое)

ИСПОЛЬЗОВАНИЕ СТОЕК БЕЗРОСТВЕРКОВЫХ ОПОР МОСТОВ ИЗ ПОЛЫХ СВАЙ-ОБОЛОЧЕК В КАЧЕСТВЕ ОХЛАЖДАЮЩИХ УСТРОЙСТВ

Г.1 Рекомендации настоящего приложения распространяются на проектирование и устройство безростверковых опор мостов со стойками из полых железобетонных или стальных свай-оболочек (оболочек) диаметром более 1 м, используемых кроме своего основного назначения как несущей конструкции, еще и в качестве охлаждающих устройств для поддержания в течение всего периода эксплуатации мостов отрицательной температуры грунтов основания не выше принятой в расчетах его несущей способности.

В дальнейшем такие полые стойки опор мостов для краткости называют термоэлементами.

Г.2 Безростверковые опоры с термоэлементами на вечномерзлых грунтах, используемых по принципу I, следует проектировать, руководствуясь указаниями СНиП 2050384, СНиП 2020488 и приведенными ниже рекомендациями.

Термоэлемент представляет собой полую железобетонную или стальную оболочку-стойку, частично заглубленную в грунт. Верхнюю часть стойки заделывают в насадку, а в нижней устраивают бетонную пробку или стальное днище для передачи нагрузки на основание и предотвращения попадания воды в ее внутреннюю полость (рисунок Г.1)

Охлаждающий эффект термоэлементов в холодный период года создается за счет разницы между температурами грунта и атмосферного воздуха. В результате в замкнутом объеме внутренней полости термоэлемента возникает тепловая конвекция воздуха (хладоносителя) и отвод тепла из грунта, примыкающего к термоэлементу. В теплое время года в полости термоэлементов конвекция хладоносителя практически прекращается.

Для интенсификации конвективного теплообмена в полости за счет устранения местных завихрений, образующихся при смешивании встречных теплопотоков в верхней части термоэлемента, в зоне сезонного оттаивания грунта, необходимо встраивать разделительную диафрагму.

Г.3 Наибольшим эффект от применения термоэлементов в опорах мостов может быть получен при соблюдении следующих условий в зоне строительства:

- конструктивные решения устоев и промежуточных опор для малых и средних мостов соответствуют рекомендуемым схемам - согласно рисунку Г.1;

- среднегодовая температура наружного воздуха не выше минус 6 °С;

- температура грунта на глубине годовых нулевых амплитуд не выше минус 1,5 °С;

- высота снежного покрова не превышает 0,6 м при объеме снегопереноса до 200 мм;

- высота подходной насыпи не более 8 м;

- характер водотока - периодически действующий при отсутствии в основании опор таликов и фильтрации воды в пределах зоны теплового влияния опоры (пять диаметров теплоэлемента).

Г.4 Для проектирования термоэлементов опор по п. Г.3 необходимые расчетные значения температуры грунта на глубине 10 м t0 и глубины его сезонного оттаивания у опоры dt, соответствующие концу теплового периода года, могут быть приняты:

t0 = t;                                                                   (Г.1)

где    t - температура грунта на глубине нулевых амплитуд в месте расположения опоры по данным инженерных изысканий;

dt = 1,1d,                                                              (Г 2)

d - глубина сезонного оттаивания вечномерзлого грунта в зоне сооружения опоры по данным инженерных изысканий, а если они отсутствуют то принимают

dt = 4,5¸5 м;                                                           (Г.3)

для п-ова Ямал:

dt = 4,0¸4,5 м.                                                         (Г.4)

Меньшие значения глубин оттаивания принимают при температурах вечномерзлого грунта в зоне мостового перехода ниже минус 2 °С.

Рисунок Г.1 - Опора со стойками из термоэлементов

а - устой; б - промежуточная опора; 1 - полая железобетонная или стальная свая-оболочка; 2 - диафрагма; 3 - ограждающая стенка; 4 - пролетное строение; 5 - насадка; 6 - раствор омоноличивания оболочки в скважине; 7 - диванный устой; УС - уровень снега

Распределение расчетных значений температуры грунта tz по глубине z заделки фундаментной части опоры, считая от верхней границы мерзлых грунтов, допускается определять по формуле

,                                                              (Г.5)

За расчетное положение верхней границы вечномерзлых грунтов у термоэлементов принимается указанный в формулах (Г.2)-(Г.4) уровень глубины сезонного оттаивания dt.

Г.5 В тех случаях, когда конструкция опор моста с термоэлементами, а также природно-климатические условия в зоне мостового перехода отличаются от перечисленных в п. Г.3, возможность применения термоэлементов должна быть обоснована теплотехническими расчетами по изложенной ниже методике.

Г.6 Теплотехнический расчет нестационарного температурного поля вечномерзлого грунта основания термоэлементов следует производить с учетом конвективного теплообмена воздуха, заключенного в их полостях. Такой расчет рекомендуется выполнять по разработанной в ЦНИИС программе PQ021. По его результатам назначают расчетные значения температуры грунта основания t0 и глубину сезонного оттаивания грунта у опоры dt, получают распределение температуры грунта tz по глубине заделки фундамента. Таким образом, получают данные для определения несущей способности и устойчивости опор (термоэлементов).

В качестве исходных данных для теплотехнических расчетов термоэлементов следует использовать материалы инженерно-геокриологических изысканий. Основными исходными данными являются:

- среднемесячные температуры наружного воздуха tа;

- среднегодовая температура вечномерзлого грунта у опоры tд;

- толщина и характер снежного покрова в зоне строительства опор hS;

- температуры воздуха-теплоносителя в полости термоэлементов в холодный и теплый периоды года tc, tW;

- коэффициент теплоотдачи в полости от воздуха-теплоносителя к ее стенке a.

Температура воздуха теплоносителя в холодный период года определяется из условия

                                                              (Г.6)

где        - приведенная (с учетом поправки на радиацию) среднемесячная температура наружного воздуха;

j - коэффициент эффективности термоэлемента; назначается равным 0,35-0,25 в зависимости от заглубления стойки соответственно на 5-10 м.

Температура воздуха теплоносителя в теплый период года определяется из условия.

tW = tг,                                                                (Г.7)

где      tг - температура грунта, примыкающего к стенкам термоэлемента, °С (условие отсутствия конвективного теплообмена между грунтом основания и воздухом в полости в теплый период года).

Коэффициент теплоотдачи a от воздуха-теплоносителя к внутренней поверхности термоэлемента может быть принят постоянным по высоте полости. Его значения принимают по таблице Г.1 в зависимости от физического состояния соответственно бетонной или стальной поверхности полости, возможности ее смачивания конденсатом (водой). Указанное в таблице Г.1 состояние поверхности полости термоэлементов должно быть зафиксировано актом на скрытые работы.

Таблица Г.1 - Значения коэффициента a

Состояние внутренней поверхности полости термоэлемента

a, Bт/(м2×°C)

Чистая, хорошо смачиваемая конденсатом поверхность, металл которой может быть защищен от коррозии синтетическими красителями-грунтовками

18-20

Плохо смачиваемая конденсатом поверхность загрязнена или защищена от коррозии металла нефтепродуктами (отработанные масла), или масляной краской (суриком)

3-6

Г.7 Используя полученные расчетные данные, можно определить тепловую эффективность термоэлементов по изменению:

температуры грунта ;                                         (Г.8)

глубины оттаивания ,                                      (Г.9)

где      t0 - температура грунта на отметке нулевых амплитуд у термоэлемента, °С;

 -температура грунта вне зоны влияния термоэлемента, °С;

dt - глубина оттаивания у термоэлемента, м;

-глубина оттаивания вне зоны влияния термоэлемента, м.

Г.8 При окончательном назначении указанных расчетных характеристик необходимо руководствоваться двумя расчетными случаями:

1) вычисленные по формулам (Г.8), (Г.9) значения тепловой эффективности термоэлемента равны или превышают единицу. В этом случае их значения ограничиваем единицей, принимая расчетные значения t0 и dt по данным инженерно-геокриологических изысканий на мостовом переходе.

При этом распределение расчетных температур грунта основания по глубине заделки фундамента z в вечномерзлые грунты, считая от верхней границы, допускается принимать по формуле (Г.5);

2) значения тепловой эффективности термоэлемента превышают единицу. В этом случае за расчетные следует принимать значения t0 и dt, полученные из теплотехнического расчета температурного поля и отличающиеся от данных изысканий.

Г.9 В качестве термоэлементов рекомендуется использовать полые железобетонные оболочки диаметром 1,6 м со стенкой толщиной 20 см по проекту Ленгипротрансмоста, стальные трубы диаметром 1,0-1,4 м со стенкой толщиной не менее 16 мм.

Бетонную пробку следует устраивать высотой не менее полутора диаметров полости. Стальное днище из листа с ребрами необходимо закреплять к фланцу или трубе электросваркой.

Г.10 Оболочки следует изготавливать из бетона класса не менее В35, морозостойкости не ниже F300 и водонепроницаемости W8 Для пробки используют бетон класса не ниже В20, морозостойкости F100 и водонепроницаемости W4

Сталь используемых труб должна допускать возможность ручной сварки их стыков при низких отрицательных температурах наружного воздуха.

Г.11 Глубина заложения dд, м, в грунте стойки (термоэлемента) должна удовлетворять условию

dt + 3£dд£15d0 + h,                                                          (Г.10)

где    dt - расчетная толщина слоя сезонного оттаивания у опоры, м;

d0 - диаметр полости стойки, м;

h - высота бетонной пробки полости стойки, м.

Г.12 Возвышение верха стоек над поверхностью снега должно быть не менее 1,5 м. В устоях для улучшения теплообмена воздуха в пределах верхней части стоек с наружным воздухом следует предусмотреть устройство специального ограждения со стороны насыпи (см. рисунок Г.1).

Г.13 Разделительную диафрагму в полости термоэлементов следует устраивать с теплоизоляционным покрытием (из дерева или пенопласта). Диафрагму необходимо располагать по оси термоэлемента.

Кольцевой зазор между боковой поверхностью диафрагмы и стенкой полости рекомендуется принимать равным (в м):

b = 0,04d0,                                                             (Г.11)

а центральное отверстие диафрагмы

dd = 0,34 d0.                                                            (Г.12)

Г.14 Конструкция стыков секций термоэлементов, их соединения с бетонной пробкой, стальным днищем и насадкой должны обеспечить водонепроницаемость термоэлементов. Необходимо также исключить доступ в полость термоэлементов наружного воздуха, источника образования дополнительного конденсата.

Г.15 Для контроля за изменением температурного режима вечномерзлых грунтов основания в период эксплуатации мостов необходимо вблизи опор установить 1-2 термометрических трубки.

Г.16 Железобетонные оболочки и стальные трубы с днищем рекомендуется опускать в предварительно пробуренные в вечномерзлых грунтах скважины большего диаметра с последующим омоноличиванием зазора цементно-песчаным раствором.

Приложение Д

(рекомендуемое)

ПРОЕКТИРОВАНИЕ СВАЙНЫХ ЭЛЕМЕНТОВ ОПОР ИЗ СТАЛЬНЫХ СВАЙ-ОБОЛОЧЕК (СТАЛЬНЫХ ТРУБ)

Д.1 Свайные элементы опор с применением стальных свай-оболочек (стальных труб) следует проектировать, руководствуясь указаниями СНиП 2.05.03-84 с учетом рекомендаций настоящего приложения.

Д.2 Стальные трубы используют, как правило, в качестве расчетного элемента. Целесообразно применять трубы диаметром до 3 м включительно, изготовленные (свальцованные) из листовой стали толщиной не менее 12 мм.

Д.3 Применяемые для свайных элементов материалы, значение их нормативных и расчетных механических характеристик должны соответствовать требованиям СНиП 2.05.03-84 (раздел 4) и обеспечить возможность их сварки при низких отрицательных температурах воздуха.

Д.4 В конструкции свайных элементов стальные трубы могут быть использованы на полную длину или в пределах их части, расположенной в зоне переменного уровня воды или воздействия перемещающихся донных отложений.

Наружная поверхность полых труб, используемых в опорах мостов в пределах суши или периодических водотоков, в зоне от низа насадки или ростверка до уровня минимум на 1 м ниже поверхности грунта, должна быть покрыта гидроизоляцией согласно указаниям СНиП 2.03.11-85.

Д.5 Для заполнения стальных труб в пределах всей длины элементов следует использовать бетон класса В25 с расчетным сопротивлением на осевое сжатие по первой группе предельных состояний (призменная прочность) не ниже 13,5 МПа (135 кгс/см2) при морозостойкости F300 только для верхней части элементов, находящейся в зоне воздействия знакопеременных температур среды. Для бетона, укладываемого в трубы в зоне постоянного воздействия отрицательных или положительных температур среды, морозостойкость бетона не нормируется.

Д.6 Расчеты на прочность и устойчивость трубобетонных элементов или стальных полых труб рекомендуется производить по методике приведенной в пп. Д.8-Д.17.

Д.7 В расчетах прочности и устойчивости элементов необходимо учитывать уменьшение толщины стен стальных труб вследствие коррозии стали, если в период строительства опор не будут осуществлены эффективные меры по защите труб от коррозии согласно п. Д.25 настоящего приложения. Значения односторонней интенсивности коррозии углеродистых сталей (в неагрессивных по отношению к стальным трубам средах), мм в год, допускается принимать:

В воздушно-сухой среде...............................................................

от 0,02 до 0,1

В зоне постоянного увлажнения (воздух-вода или воздух - влажный грунт).............................................................................

от 0,05 до 0,2

В воде, вблизи размываемого дна:

 

непромерзающих водотоков....................................................

от 0,05 до 0,75

промерзающих до дна водотоков............................................

0,03-0,1

с внутренней стороны полых труб..........................................

0,02-0,06

В толще песчаных и крупнообломочных грунтов в зависимости от скорости фильтрации подземных вод.............

от 0,01 до 0,02

В герметично закрытой полости труб при покрытии наружной поверхности слоем (толщиной не менее 5 см) цементно-песчаного раствора (при омоноличивании труб в скважинах), в толще тугопластичных, твердых и полутвердых глинистых грунтов, а также в вечномерзлых не оттаивающих грунтах влияние коррозии не учитывают.

Интенсивность коррозии допускается принимать ниже приведенных значений для низколегированных сталей в 1,5-2 раза; для разных сталей в районах со среднемесячной температурой наиболее холодного месяца ниже минус 20 °С в 2- 3 раза.

Д.8 В расчетах несущей способности используемых по принципу I грунтов в основании свайных элементов из стальных труб следует вводить понижающий коэффициент в значение сил трения грунтов о боковую поверхность элементов.

Д.9 В зависимости от технологии строительства выделяют два этапа работы трубобетонного элемента: до заполнения трубы (оболочки) бетоном; после заполнения трубы бетоном.

Д.10 Прочность внецентренно сжатой полой стальной трубы проверяют по формуле

N£Nт,                                                             (Д.1)

где      N - действующая внешняя расчетная продольная сила, кН (тc);

Nт - несущая способность трубы, кН (тс).

Значение Nт определяют из уравнения

                                               (Д.2)

при  = 1,15WтRт;  = AтRт,

где      e0 - расчетный эксцентриситет продольной силы, м;

Wт - момент сопротивления кольцевого сечения трубы, м3;

e0 - эксцентриситет продольной силы N, определяемый в соответствии с указаниями п. 1.21 СНиП 2.03.01-84 (на бетонные и железобетонные конструкции), м;

- несущая способность трубобетонного элемента при центральном сжатии, кН (тс);

- несущая способность трубобетонного элемента при изгибе, кН×м (тс×м).

Несущую способность трубобетонного элемента  при центральном сжатии определяют по формуле

,                                (Д.3)

где      sт - нормальное напряжение в поперечном сечении трубы в предельном состоянии, кПа (тс/м2);

Ат- расчетная площадь поперечного сечения трубы, м2;

Rпр - расчетное сопротивление бетона для предельных состояний первой группы, кПа (тс/м2);

s0 - боковое давление трубы на бетон в предельном состоянии, кПа (тс/м2);

Kэ = 4 - коэффициент эффективности бокового давления, рекомендуемый для нормативных расчетов. В общем случае зависит от компонентов объемного напряженного состояния и пластических свойств материала;

Аб - площадь поперечного сечения бетона в трубе, м2;

Ra - расчетное сопротивление ненапрягаемой арматуры (каркаса) кПа (тс/м2);

Аа - суммарная площадь поперечного сечения ненапрягаемой арматуры, м2.

Напряжение s0 определяют по формуле

,                        (Д.4)

где      Rт - расчетное сопротивление материала трубы по пределу текучести, кПа (тс/м2);

- отношение модулей упругости материала трубы и бетона (начальный модуль);

mб = 0,5 - коэффициент Пуассона бетона в трубе;

mт = 0,5 - коэффициент Пуассона трубы в предельном состоянии;

bт = D/d -отношение внешнего диаметра трубы к внутреннему.

Осевое продольное напряжение в трубе определяют по формуле

.                                                        (Д.5)

Если sт<0, принимают sт = 0.

При нагружении только ядра

.

Несущую способность трубобетонного элемента  при изгибе определяет по формуле

,                                                         (Д.6)

где      Ri - расчетное сопротивление материала трубы или бетона, кПа (тс/м2);

Wтбi - соответствующий момент сопротивления трубобетонного сечения по растянутой зоне трубы или по сжатой зоне бетона, м3.

Ненапрягаемую арматуру, распределенную равномерно по периметру бетонного ядра, допускается при определении Wтбi учитывать условно путем увеличения толщины стенки трубы.

Момент сопротивления трубобетонного сечения определяют по формулам (с учетом коэффициентов условий работы трубы и бетона):

- для растянутой зоны трубы

,                                                           (Д.7)

где       - приведенный к стали момент инерции сечения, м4;

r0 - радиус срединной поверхности трубы, м;

D - расстояние от центра трубы до оси x0, м;

- для сжатой зоны .

В этом случае момент инерции  находят по формуле

,     (Д.8)

где      Ат = pdd0; ;

Aт - площадь кольцевого сечения трубы, м2;

d - толщина стенки трубы, м;

d0 - средний диаметр трубы, м.

Величина смещения оси D относительно центра тяжести трубы равна D = r0cosa, где угол a определяют из выражения

.                (Д.9)

Д.11 Для стенки трубы, подверженной напряжениям в продольном и поперечном (кольцевом) направлениях, должно выполняться условие

,                                                  (Д.10)

где      sх - нормальные (положительные при сжатии) напряжения вдоль трубы в проверяемой точке, кПа (тс/м2);

sу - то же, в кольцевом направлении, кПа (тс/м2).

Д.12 Общая устойчивость сжатых стальных труб должна быть проверена по СНиП 2.05.03-84.

Д.13 Расчет местной устойчивости стенок труб рекомендуется производить по СНиП II-23-81, при этом должны быть выполнены требования его пп. 8.5, 8.6, 8.8 и 8.9.

Д.14 Прочность внецентренно сжатых трубобетонных элементов определяют по приведенной методике.

Прочность трубобетонного элемента по нормальной силе N проверяют, исходя из условия

N£Nтб,                                                              (Д.11)

где    Nтб - несущая способность трубобетонного элемента, кН (тс).

Значение Nтб определяют по формуле

                                                       (Д.12)

при , (рисунок Д.1),

где      ;

mi - коэффициент армирования сечения, определяемый по приведенной (по пределу текучести) к материалу трубы площади металла.

Д.15 Общую устойчивость центрально сжатого трубобетонного элемента (при е0 по п. 1.21 СНиП 2.03.01-84) проверяют по формуле

,                                                          (Д.13)

при этом,

где      Nдл - продольная сила от действия постоянных и длительных нагрузок, кН (тс);

N - суммарная продольная сила, кН (тс);

Nкр - продольная сила от действия кратковременных нагрузок, кН (тс);

jкр, jдл - частные коэффициенты продольного изгиба, определяемые по таблице Д.1.

Рисунок Д.1 - Кривые взаимодействия нормальной силы  и момента  для трубобетонных элементов при разных коэффициентах армирования сечения m

Таблица Д.1 - Значения частных коэффициентов jкр и jдл

Отношение расчетной длины элемента к среднему диаметру трубы l/d0

Частные коэффициенты продольного изгиба

jкр

jдл

15

1

0,99

16

0,99

0,98

17

0,96

0,95

18

0,93

0,92

20

0,90

0,87

22

0,84

0,82

24

0,78

0,76

26

0,73

0,70

28

0,68

0,63

30

0,63

0,57

32

0,58

0,51

34

0,54

0,45

36

0,50

0,38

38

0,47

0,34

40

0,44

0,25

Примечание. l - расчетная (приведенная) длина элемента, м.

Д.16 Общую устойчивость внецентренно сжатых трубобетонных элементов проверяют в соответствии с указаниями СНиП 203.01-84 (п. 3.2.4), причем коэффициент b в формуле (21) следует принимать равным 0,3.

Д.17 Оптимальная конструкция трубобетонного сжатого элемента по прочности может быть обеспечена при удовлетворении условия

.                                                       (Д.14)

Д.18 Трубобетонные элементы рекомендуется конструировать с арматурным каркасом или без него.

Арматурный каркас в бетонном заполнителе следует применять в случаях использования стальной трубы в качестве конструктивного элемента, а при использовании труб в качестве расчетного элемента при работе на изгиб - в случае недостаточной толщины ее стенки, в том числе вследствие воздействия.

Д.19 Внутреннюю поверхность труб трубобетонных элементов необходимо очищать от случайно попавших машинного масла, нефти, грунта и ржавчины.

Д.20 Если подошва трубобетонных элементов в период возведения опор будет опираться на вечномерзлые грунты, то низ бетонного заполнителя должен располагаться в уровне конца труб или на 0,1-0,2 м выше. Аналогичное условие должно соблюдаться при устройстве бетонных пробок в полых трубах.

Д.21 В полых трубах следует устраивать бетонную пробку на высоту двух диаметров трубы, но не менее 3 м, если не применяются дополнительные меры по обеспечению сцепления бетона с внутренней поверхностью труб.

Д.22 Взамен бетонной пробки к нижнему концу полых труб допускается приваривать уширенную пяту, усиленную ребрами. В этом случае трубу опускают до проектного уровня в предварительно пробуренную скважину, заполненную в нижней части песчано-цементным или цементно-шламовым раствором прочностью 5 МПа (50 кгс/см2) на высоту не менее двух диаметров скважины.

Д.23 С внутренней стороны нижнего конца подлежащих погружению труб со стенками толщиной до 16 мм рекомендуется приварить бандажи высотой 0,2-0,3 м из отрезков тех же труб.

Д.24 Для случаев когда бетон трубобетонных элементов или пробок в полых трубах будет твердеть при отрицательной температуре окружающей среды (воздуха льда грунта), в бетонную смесь следует вводить противоморозные добавки не оказывающие отрицательного влияния на сталь труб, а смесь укладывать как правило, насухо. В зоне низких отрицательных температур, кроме противоморозных, следует вводить воздухововлекающие и пластифицирующие добавки. Вид добавок, их дозировку и способ приготовления бетонной смеси должна устанавливать по указаниям проекта производства работ бетонная лаборатория строительной организации.

Если вечномерзлые грунты используют по принципу I, то бетонную смесь с противоморозными добавками в нижней части труб следует укладывать без добавок на высоту не менее 0,5 м.

Д.25 Для эффективной защиты труб от коррозии в зоне контакта воздуха с водой (влагой) их рекомендуется закрывать стальными патрубками на глубину не менее 1 м ниже поверхности грунта (для периодических водотоков) или уровня низкой воды постоянных водотоков и не менее чем на 0,5 м выше этого уровня. Кольцевой зазор не более 3 см между патрубками и трубой следует заполнять полимерной композицией на основе эпоксидной смолы.

Патрубки на трубы рекомендуется устанавливать, как правило, в заводских условиях, если трубы готовят для опор конкретных мостов. Патрубки к трубе допускается приваривать только продольными швами (в прорезях).

Решения о необходимости и способах защиты труб вне пределов зоны воздух-вода (грунт) следует принимать согласно указаниям СНиП 2.03.11-85.

Д.26 Трубобетонные элементы с насадками (ростверками) в зависимости от их конструктивных особенностей рекомендуется соединить сварными стыками или с помощью выпусков арматуры, приваренных к трубе или же являющихся частью арматурного каркаса, установленного по всей длине или только в пределах верхней части элементов.

Приложение Е

(рекомендуемое)

РАСЧЕТ СВАЙНЫХ ЭЛЕМЕНТОВ ОПОР

E.1 Рекомендации настоящего раздела содержат методику расчета свайных элементов опор мостов на действие сжимающей и поперечной сил и изгибающего момента, отражающую особенности взаимодействия элементов с вечномерзлыми и немерзлыми грунтами.

Е.2 В расчете свайных элементов (свай, свай-оболочек, свай-столбов) опор (за исключением расчета осадки от постоянных нагрузок) за расчетную поверхность грунта принимают:

- для элементов промежуточных опор - естественную поверхность грунта, а при срезке грунта или возможности размыва - поверхность грунта соответственно после срезки или местного размыва при расчетном расходе;

- для элементов устоев - естественную поверхность грунта, а при наличии ранее отсыпанной или намытой насыпи, сквозь которую они были погружены, - ее поверхность;

- для элементов устоев - естественную поверхность грунта, а при наличии насыпи или насыпи, возведенной намывом, - ее поверхность.

В случае очень слабого верхнего слоя грунта (илы, текучие или текучепластичные глины, суглинки или супеси) за расчетную поверхность грунта у устоя принимается подошва этого слоя.

При расчете свайных элементов (за исключением расчета осадки от постоянных нагрузок) немерзлые (в том числе оттаявшие), а также и пластичномерзлые грунты, окружающие элементы рассматриваются условно как упругая линейно-деформируемая среда, характеризуемая коэффициентом постели, нарастающим пропорционально глубине.

Коэффициент постели Сz, кН/м3 (тс/м3), грунта по боковой поверхности элемента определяют по формуле

Cz = kz,                                                                 (E.1)

где    k - коэффициент пропорциональности, характеризующий изменение с глубиной коэффициента постели грунта, окружающего элемент, кН/м4 (тс/м4);

z - глубина расположения сечения сваи, для которой определяется коэффициент постели, м, по отношению к расчетной поверхности грунта, при высоком ростверке или к подошве низкого ростверка.

Значение коэффициента постели Сп, кН/м3 (тс/м3), нескального грунта под подошвой элемента, погружаемого любым способом (кроме забивного или бурозабивного), принимается равным

,                                                             (Е.2)

но не менее

,                                                             (Е.2)

где      kп - коэффициент пропорциональности, характеризующий изменение с глубиной коэффициента постели грунта, расположенного под подошвой элемента, кН/м4 (тс/м4);

d1 - глубина расположения подошвы элемента по отношению к расчетной поверхности грунта, м;

bп - размер подошвы элемента, принимаемый равным при наличии уширения в нижней части наибольшему поперечному размеру уширения, а при отсутствии уширения - толщине (диаметру) элемента, м.

Е.3 Значения коэффициентов пропорциональности k и kп для немерзлых и пластичномерзлых грунтов принимают по таблице Е.1 в зависимости соответственно от вида грунта окружающего элементы, или от вида грунта, расположенного под их подошвой.

Таблица Е.1 - Значения коэффициентов пропорциональности k и kп

Грунты и их характеристики в оттаявшем состоянии

Значении k для забивных и бурозабивных свай кН/м4 (тс/м4)

Значения k для свай погружаемых остальными способами, и свай-столбов, а также значение kп кН/м4 (тс/м4)

Глины и суглинки текуче пластичные (0,75£IL£1)

640-2450 (65-250)

440-1960 (50-200)

Глины и суглинки мягкопластичные (0,5£IL£0,75),

2451-4900 (250-500)

1961-3920 (200-400)

супеси пластичные (0£IL£1),

 

 

пески пылеватые (0,6£e£0,8)

 

 

Глины и суглинки тугопластичные и полутвердые (0£IL£0,5),

4901-7840 (500-800)

3921-5880 (400-600)

супеси твердые (IL£0),

 

 

пески мелкие (0,6£е£075) и

 

 

средней крупности (0,55£e£0,7)

 

 

Глины и суглинки твердые

7841-12740 (800-1300)

5831-9800 (600-1000)

(IL<0), пески крупные (055£e£0,7)

 

 

Пески гравелистые (0,55£e£0,7), гравий и галька с песчаным заполнением

 

4901-7840 (500-800) (1000-2000)

Меньшие значении коэффициентов k и kп в таблице Е.1 соответствуют наибольшим значениям показателя текучести IL глинистых грунтов к коэффициентам пористости е песчаных грунтов, указанным в скобках после наименования грунта, а большие значения k и kп - соответственно более низким значениям IL и е. Для грунтов, имеющих промежуточные значения IL и е, значения коэффициентов k и kп принимают по интерполяции Если степень текучести глинистых грунтов характеризуют не численно, а по наименованию, и пески считают как средней плотности, то коэффициенты k и kп принимают равными средним арифметическим из указанных в таблице Е.1 пределов соответствующих значений для данного вида грунта.

Коэффициенты k и kп для плотных песков принимают на 20 % выше, чем наибольшие табличные значения для данного вида грунта.

Е.4 При наличии в пределах глубины погружения элемента нескольких слоев немерзлого или пластичномерзлого грунта допускается при определении сопротивления грунта по боковой поверхности элемента пользоваться одним приведенным значением коэффициента k. Если в пределах глубины погружения dk, м, отсчитываемой от расчетной поверхности грунта, расположен один слой грунта, то приведенное значение k принимают равным значению, соответствующему этому грунту.

Здесь dk = 3,5b + 1,5,                                                   (E4)

где    b - толщина (диаметр) свайного элемента, м.

Если в пределах глубины dk расположено два слоя грунта, то приведенное значение k надлежит определять по формуле

,                                       (Е.5)

а если три слоя, то по формуле

,                         (Е.6)

где      dI - толщина I-го (верхнего) слоя грунта, м;

dII и dIII -толщины II-го и IIIo слоев грунта (в пределах dk), м;

kI, kII и kIII - значения коэффициентов пропорциональности k для грунтов I, II и III слоев.

Е.5 В расчете принимают, что давления от боковой поверхности элемента на немерзлый или пластичномерзлый грунт передаются по плоской грани шириной bр (расчетной ширине элемента), давления от нижнего конца элемента - по плоской подошве с размером, равным толщине (диаметру) поперечного сечения элемента, а при наличии уширения в нижней его части - наибольшему диаметру уширения.

Расчетную ширину bр, м, принимают

а) для свай

bр = кф(1,5b + 0,5),                                                      (Е.7)

б) для свай-столбов

bр = (b + 1)к,                                                            (Е.8)

где      b - толщина (диаметр) элемента, м,

кф - коэффициент, при круглой форме поперечного сечения элемента кф = 0,9, а при квадратной кф = 1;

к - коэффициент, принимаемый

,                                                        (Е.9)

при к£1.

Здесь к1 - коэффициент, зависящий от количества элементов пp в одной вертикальной плоскости действия нагрузки;

ар - среднее расстояние в свету (на уровне расчетной поверхности грунта) между элементами, расположенными в рассматриваемой плоскости, м.

Значения к1 принимают равными 1; 0,6; 0,5 при пp соответственно 1; 2; 3.

Если в разных вертикальных плоскостях, параллельных плоскости действия нагрузки (разных рядах), расположено разное количество столбов, коэффициент к принимают одинаковым для всех столбов и равным меньшему из значений, полученных для разных рядов. При расположении столбов в шахматном порядке и при расстояниях между осями соседних рядов, параллельных плоскости действия нагрузки, меньших (b + 1), м, значение к устанавливают как для приведенного ряда, полученного проектированием столбов на плоскость действия нагрузки (рисунок Е.1).

Рисунок E.1 - Схема к определению коэффициента к при шахматном расположении столбов:

1 - плоскость действия нагрузки; 2 - приведенный ряд; 3 - план расположения столбов или свай

E.6 При немерзлых грунтах основания или мерзлых грунтах, используемых по принципу II (за исключением случаев, когда элементы, погруженные через толщу померзлого грунта, заделаны в используемый по принципу I грунт), следует принимать глубину заложения dд, м, элемента в грунте, считая от расчетной поверхности грунта.

В расчете допускается не учитывать сопротивление грунта основания повороту и поперечному смещению подошвы элемента.

Е.7 Если нижние концы элементов заделаны в грунты основания, используемые по принципу I, глубину заложения d, м, элементов в немерзлом или пластичномерзлом грунте, считая от расчетной поверхности грунта, следует принимать:

d = d′ + Dd,                                                               (Е.10)

где      d- глубина, считая от расчетной поверхности грунта, расположения верхней границы вечной мерзлоты (ВГВМ)*, м;

Dd - дополнительная глубина, определяемая соответственно по п. Е.8, м.

*Здесь и далее верхняя граница вечной мерзлоты (ВГВМ) принимается в уровне расчетной глубины сезонного оттаивания.

Элементы в сечении на глубине d рассматриваются жестко защемленными против продольного и поперечного смещения и поворота.

Е.8 При использовании грунтов основания по принципу I дополнительную глубину Dd (см. п. Е.7) определяют по формуле

Dd = Ddt + крb,                                                          (Е.11)

где      Ddt - толщина слоя пластичномерзлого грунта, равная расстоянию от ВГВМ до наивысшей отметки, ниже которой грунт при расчетной (максимальной) температуре находится в твердомерзлом состоянии, м;

кр - безразмерный коэффициент;

b - толщина (диаметр) элемента, м.

Значения Ddt и кр определяют в соответствии с мерзлотно-грунтовыми условиями участка с использованием графика (рисунок Е.2) изменения расчетных температур tmax по глубине 2 м, отсчитываемой от ВГВМ, и таблицы Е.2, в которой для грунтов со степенью заполнения пор льдом и незамерзающей водой Sr£0,8 и с засоленностью, не превышающей 0,1 % для песков и 0,25 % для глин, приведены значения температуры t, при которых грунты переходят в твердомерзлое состояние.

Рисунок Е.2 - График изменения расчетных температур tmax по zм (для случая расположения плиты фундамента над расчетной поверхностью грунта):

ВМГ - кровля вечномерзлых грунтов; УЖЗ - уровень жесткой заделки

Если в неоднородной вечномерзлой толще расчетные температуры верхних слоев грунта выше, а нижних слоев ниже, чем значения температур, приведенных для этих грунтов в таблице Е.2, то Ddt определяют как расстояние от ВГВМ до кровли первого по глубине слоя, расчетная температура в котором ниже табличного значения t для грунта этого слоя (см. рисунок Е.2, левый). При этом принимают в зависимости от разности Dt абсолютных значений расчетной температуры на уровне кровли слоя грунта, удовлетворяющего указанному условию, и температуры, приведенной в таблице Е.2 для грунта этого слоя:

Kр = 1 при Dt<0,2 °С;

Kр = 0,5 при 0,2£Dt£0,5 °С;

Kр = 0 при Dt³0,5 °С.

В остальных случаях значение Ddt определяют по графику tmax = f(zм) как глубину zм, на которой расчетная температура равна табличному значению температуры t для данного вида грунта (см. рисунок Е.2, правый). При этом следует принимать Кр = 1.

Таблица Е.2 - Значение температуры t

Грунт

t, °С

Песок

-0,3

Супесь

-0,6

Суглинок

-1,0

Глина

-1,5

При крупнообломочных грунтах значение t принимают по таблице Е.2 в зависимости от вида грунта заполнителя.

Е.9 Давления sz на немерзлый грунт боковой поверхности элементов на указанных далее глубинах должны удовлетворять условию

,                                                 (Е.12)

где      z - глубина от расчетной поверхности грунта, м;

j, с и g - расчетные характеристики (угол внутреннего трения, сцепления и удельный пес) грунта, принимаемые согласно п. Е.11;

h - коэффициент, учитывающий долю постоянной нагрузки в суммарной; принимается согласно п. Е.12.

Выполнение условия (Е.12) можно не проверять для свай, погруженных в грунт на глубину более 10b (за исключением случаев погружения в текучие и текучепластичные глины, суглинки и супеси).

E.10 Глубины, на которых проверяется выполнение условия (Е.12), зависят от приведенной глубины d заложения в грунте элемента, определяемой по формуле

,                                                             (Е.13)

где      d - глубина заложения элемента в грунте, м (см. п. Е.8);

ас - коэффициент деформации элемента, определяемый по формуле

;                                                            (Е.14)

EI - жесткость поперечного сечения ствола сваи при изгибе, кН×м2 (тс×м2).

Если , выполнение условия (Е.12) необходимо проверить для z = d/3 и z = d, а если d>2,5 - для глубины

z = 0,85/ac.                                                             (E.15)

Е.11 При проверке условия (Е.12) следует принимать расчетные значения угла внутреннего трения и сцепления немерзлого грунта равными: j = 0,9jn, но не более j = jn-2°; c = 0,4cn для забивных и бурозабивных свай и с = 0,2сn для остальных свай и свай-столбов. Здесь jп и сn - нормативные значения угла внутреннего трения и сцепления грунта.

Расчетный удельный вес грунта принимают равным нормативному, определенному для грунтов всех видов с учетом гидростатического взвешивания.

При нескольких слоях грунта значения j, с и g допускается принимать средневзвешенными для грунтовой толщи в пределах участка эпюры давлений sz, на котором эти давления (полученные по расчетным формулам) имеют один знак.

Е.12 Коэффициент h определяют по формуле

,                                                          (E.16)

где      Mg - момент от внешних постоянных нагрузок в сечении элементов на уровне их нижних концов, кН×м (тс×м);

Mv - то же, от внешних временных нагрузок, кН×м (тс×м);

п - коэффициент, зависящий от приведенной глубины  заложения элемента в грунте: при £2,5, n = 4,0; при ³5,0 n = 2,5; в интервале 2,5<<5,0 значение п определяют линейной интерполяцией.

Моменты Mg и Mv при расчете однорядных фундаментов на нагрузки, действующие в вертикальной плоскости, перпендикулярной ряду, определяют от горизонтальных и вертикальных нагрузок, а в остальных случаях только от горизонтальных нагрузок.

При расчете однорядных фундаментов на внецентренно приложенную вертикальную нагрузку следует принимать n = 4 независимо от значения .

Е.13 Если горизонтальные давления sz грунт не удовлетворяют условию (Е.12) и приведенная глубина заложения элемента >2,5, допускается производить повторный расчет фундамента при уменьшенном значении коэффициента пропорциональности К, включающий все необходимые проверки, в том числе и проверки выполнения условия (Е.12).

При слабом верхнем слое грунта допускается не учитывать его сопротивление, т. е. в качестве расчетной поверхности грунта рассматривать нижнюю границу этого слоя.

Е.14 При использовании грунтов основания по принципу I следует проверить прочность заделки элемента в твердомерзлом грунте по формуле

,                                                (E.16)

где      Md и Qd - изгибающий момент, кН×м (тс×м), и поперечная сила, кН (тc), определенные расчетом для глубины z = d, м (см. п. Е.7 и Е.8);

dз - глубина заложения элемента в твердомерзлом грунте, м, считая от уровня расположения сечения, в котором элемент рассматривается жестко защемленным (см. рисунок Е.2);

Rn - нормативное сопротивление твердомерзлого грунта нормальному давлению, кН/м2 (тс/м2), принимают по СНиП 20204-88 в зависимости от расчетной температуры грунта в указанном уровне;

т и к0 - коэффициенты условий работы и однородности грунта; допускается принимать тк0 = 1.

Прочность заделки элементов и вечномерзлые грунты, используемые по принципу I, на действие изгибающих моментов и поперечных сил возникающих от временных горизонтальных нагрузок (по формуле Е.17) следует проверить при увеличенных согласно п. 5.2.17 значениях Rn, как для кратковременных нагрузок.

Приложение Ж

(обязательное)

РАСЧЕТ ФУНДАМЕНТОВ НА ДЕЙСТВИЕ СИЛ МОРОЗНОГО ПУЧЕНИЯ ГРУНТОВ

Ж.1 Настоящий расчет является дополнительным к указаниям СНиП 202.04-88 в части учета специфических особенностей проектирования фундаментов мостов.

Ж.2 Для учета влияния снежного покрова на снижение сил пучения на фундаменты опор мостов необходимо умножить первый член формулы (34) СНиП 2.02.04-88 на коэффициент условий работы тS, значения которого принимают* в зависимости от расчетной высоты снежного покрова hS:

hS, м........................ £1                        0,2                       0,4                       ³0,6

тS,........................... 1,00                     0,95                     0,75                     0,50

*Для промежуточных значений hS коэффициент тS определяют интерполяцией.

Ж.3 Значение hS следует определять как среднее из наибольших высот снежного покрова  принимая его расчетное значение равным среднему из многолетних (за 10 лет и более) максимальных значений за первые 4 месяца сезона с отрицательными температурами воздуха.

При отсутствии таких данных значение hS допускается определять по формуле , где  принимают по климатологическим справочникам гидрометслужбы.

Ж.4 Расчетное значение удельной касательной силы пучения tfh, кПа (тс/м2), принимают с коэффициентом 1,3 по СНиП 2.02.04-88 для грунтов у основания конуса (и в расчетах промежуточных опор) при полном их водонасыщении, а для грунтов конуса при степени влажности Sr в пределах 0,6<Sr£0,8 - с коэффициентом 1.

Если слой сезонного промерзания-оттаивания сложен по глубине разнородными грунтами, то значение tfh принимают средневзвешенным.

При заполнении зазора между поверхностью скважины и элементом в пределах слоя сезонного промерзания песком значение tfh увеличивают на 20 %.

В случае возможности образования в слое промерзания-оттаивания линзового льда (за счет напорных вод, усиленного притока воды к грунту промерзания и т. п.) значение tfh увеличивают на 20 %.

Ж.5 Расчетное значение силы Fr, кН (тс), удерживающей фундамент или свайный элемент от выпучивания за счет смерзания его боковой поверхности с вечномерзлыми грунтами, используемыми по принципу I, или трения боковой поверхности об оттаявшие или немерзлые грунты, кН (тс), а также для фундамента с анкерной плитой или свайного элемента с уширенной (анкерной) пятой (с учетом отпора грунта поднятию анкерной конструкции), следует определять по формуле:

,                                                  (Ж.1)

где      п - количество слоев грунта в пределах глубины заделки фундамента или свайного элемента ниже слоя сезонного промерзания-оттаивания;

gсf - коэффициент, учитывающий влияние технологии производства работ на величину Raf,i, принимается равным 1 для грунтов всех видов, используемых по принципу I, а для крупнооболомочных грунтов - независимо от принципа их использования; в остальных случаях - согласно СНиП 2.02.03-85 (табл. 5);

Raf,i - расчетное сопротивление в пределах i-го слоя вечномерзлых грунтов сдвигу по поверхности смерзания, принимаемое согласно СНиП 2.02.04-88, или расчетное сопротивление трению оттаявших и немерзлых грунтов о боковую поверхность свайного элемента в соответствии со СНиП 2.02.03-85, кПа (кгс/см2);

Ra - расчетное сопротивление грунта над анкерной плитой или пятой, определяемое согласно п. Ж.6, а для используемых по принципу I вечномерзлых грунтов - согласно СНиП 2.02.04-88, кПа (тс/м2);

Afh,i - площадь поверхности сдвига i-го слоя вечномерзлого, оттаивающего или немерзлого грунта на контакте с боковой поверхностью свайного элемента ниже уровня сезонного промерзания, м2;

Aa - расчетная площадь анкерной плиты или пяты, оказывающая давление на грунт при выдергивании фундамента или свайного элемента, м2.

Ж.6 Расчетное сопротивление Ra немерзлых и оттаявших грунтов определяют по формуле

Ra = Bgd + Dca                                                          (Ж.2)

где      g - удельный вес грунта над плитой или пятой, кН/м3 (тс/м);

d - глубина от поверхности грунта до верха плиты или пяты, м;

ca - удельное сцепление грунта над плитой или пятой, кПа (тс/м2);

В и D - коэффициенты, зависящие от угла внутреннего трения того же грунта ja и принимаемые по таблице Ж.1.

Таблица Ж.1 - Значения коэффициентов В и D

ja

В

D

0

0

3,1

5

0,3

3,6

10

0,8

4,2

15

1,3

4,8

20

2,1

5,7

25

3,0

6,6

Примечание. Для промежуточных величин ja значения В и D определяют интерполяцией.

Значения ca и ja для фундаментов с анкерной плитой и свайных элементов с пятой определяют умножением на 0,8 расчетных значений с и j тех же грунтов в их естественном сложении или в стабилизированном состоянии после оттаивания.

Приложение И

(обязательное)

БЕТОНИРОВАНИЕ СВАЙНЫХ ЭЛЕМЕНТОВ ОПОР

И.1 В настоящем приложении приведены требования, подлежащие соблюдению при подборе, приготовлении и укладке бетонных смесей, используемых для изготовления свайных элементов (свай-столбов, свай-оболочек) и для укладки в полость скважин, железобетонных и стальных свай-оболочек, применяемых в фундаментах и безростверковых опорах, подлежащих возведению на разных вечномерзлых грунтах.

И.2 Используемые для бетонирования свайных элементов материалы должны соответствовать требованиям действующих нормативных документов и настоящего приложения.

И.3 В качестве вяжущего для бетона элементов надлежит применять портландцемент по ГОСТ 10178-85* с учетом ограничений по минералогическому составу клинкера согласно СНиП 3.06.04-91.

Для элементов, расположенных в среде, характеризуемой сульфатной агрессивностью, необходимо применять сульфатостойкий портландцемент по ГОСТ 22266-76*.

И.4 Для бетона элементов следует применять, как правило, цементы марок не ниже 500, а для бетона заполнителя полости элементов - не ниже 400.

И.5 В качестве крупного заполнителя для бетона свайных элементов опор надлежит применять щебень, получаемый дроблением невыветрелых пород.

И.6 Прочность в водонасыщенном состоянии породы, используемой на щебень для свайных элементов, подвергающихся истирающему воздействию перемещающихся донных отложений, должна быть не ниже 110 МПа (11000 т/м2), а водопоглощение не более 0,5 %.

Содержание в щебне глины, ила и мелких пылевидных фракций допускается не более 0,5 % по массе.

И.7 Для бетона элементов следует использовать естественный кварцевый или дробленый из высокопрочных магматических пород песок с модулем крупности не менее 2,5. Содержание в песке глины, ила и мелких пылевидных фракций не должно превышать 1 % по массе.

И.8 Суперпластификатор марки С-3, используемый в качестве добавки, должен соответствовать требованиям Технических условий ТУ 6-14-625-80**. Содержащуюся в растворе суперпластификатора воду следует учитывать в составе бетонной смеси.

И.9 Кремнийорганическая 50 %-ная эмульсия КЭ-30-04, применяемая в качестве добавки в комплексе с суперпластификатором марки С-3, должна удовлетворять требованиям Технических условий ТУ 6-02-816-78.

И.10 Требуемые прочность, морозостойкость, износостойкость бетона, а также подвижность бетонной смеси следует подбирать путем проб, исходя из физико-механических свойств используемых конкретных каменных материалов, цемента и добавок.

В качестве рабочего следует принимать состав, при котором обеспечиваются требуемые показатели бетона при наименьшем расходе крупного заполнителя.

И.11 Водоцементное отношение бетонной смеси для элементов и их заполнителя, подвергающихся воздействию знакопеременных температур среды, не должно превышать 0,42.

И.12 Цемент и заполнители необходимо дозировать по массе, а водные растворы пластифицирующих и воздухововлекающих добавок по объему.

И.13 Бетонную смесь следует приготовлять в смесителях циклического действия. При этом продолжительность перемешивания бетонной смеси должна определяться строительной лабораторией и быть не менее 3 мин.

И.14 Бетонная смесь должна обладать подвижностью, характеризуемой осадкой конуса в пределах 3-4 см. Допускается отклонение подвижности бетонной смеси от заданной и пределах ±1 см.

И.15 К моменту укладки бетонной смеси и опалубочные формы ее температура должна быть не ниже плюс 10 °С.

И.16 Установленные опытным путем длительность и интенсивность уплотнения (вибрирования) бетонной смеси с воздухововлекающими добавками следует строго выдерживать с целью сохранения в бетоне заданного воздухосодержания. С увеличением длительности вибрации воздухосодержание бетонной смеси уменьшается и тем сильнее, чем выше ее подвижность. Переуплотнение смеси из-за уменьшения воздухосодержания приводит к снижению морозостойкости бетона, несмотря на увеличение его прочности.

И.17 Перерывы в бетонировании свайных элементов и их заполнителя не должны превышать сроков начала схватывания уложенной смеси.

И.18 В зоне отрицательных температур воздуха необходимо обеспечить твердение бетона элементов и их заполнителя в условиях положительных температур (применение электрообогрева, устройство теплоизоляции) до набора ими прочности 100 % от проектной.

И.19 Укладку бетонной смеси в полость элементов и в скважины рекомендуется выполнять: широко применяемым методом ВПТ; методом ВПТ в сочетании с виброуплотнением укладываемой смеси; с помощью бетононасоса, а в сухие или осушенные скважины и элементы - путем свободного сброса смеси.

И.20 Метод ВПТ рекомендуется использовать для подводной укладки смеси с осадкой конуса 16-18 см и более для участков свайных элементов, расположенных ниже зоны сезонного промерзания воды, грунта с запасом на 2 м (ниже этой зоны). Допускается использовать этот метод для укладки смеси в зоне знакопеременных температур при условии обеспечения необходимой подвижности смеси с водоцементным отношением 0,42 за счет введения пластифицирующих и воздухововлекающих добавок согласно требованиям п. И.10.

И.21 Метод ВПТ с виброуплотнением смеси (с помощью вибраторов, закрепленных на нижнем конце бетонолитной трубы, обеспечивает укладку смеси с осадкой конуса 4-6 см) может применяться при условии наличия у строительной организации необходимого оборудования (вибраторов, преобразователей тока, кабеля).

И.22 Укладка смеси бетононасосом практически осуществима при условии обеспечения доставки бетонной смеси с минимально требуемой для этого интенсивностью.

И.23 Методом свободного сброса в сухие скважины в мерзлых грунтах или в элементы допускается укладывать бетонные смеси с осадкой конуса 12-18 см.

И.24 Укладку бетонной смеси допускается производить любым из перечисленных в п. И.19 методов при условии выполнения требований СНиП 10301-87.

И.25 Чтобы свести к минимуму объем срубаемой верхней части затвердевшего бетона заполнителя свайных элементов, рекомендуется, где практически возможно и целесообразно, производить перебетонировку, т. е. смесь укладывать подводным способом до уровня, превышающего на 2 % проектный верх элемента.

И.26 Если для заполнения верхней части полости элементов используют бетонную смесь с водоцементным отношением до 0,42 без введения пластифицирующих добавок, то в пределах зоны воздействия знакопеременных температур с запасом на 2 м вниз, необходимо такую смесь укладывать обязательно насухо с виброуплотнением, предварительно удалив слой слабого подводного бетона с забетонированной подводным способом части заполнителя свайных элементов.

И.27 Контроль качества укладываемой смеси и затвердевшего бетона свайных элементов следует производить, руководствуясь указанием СНиП 3.03.01-87.

Ключевые слова: вечномерзлые грунты, температура грунта, принцип I, принцип II, буровой столб, основания фундаментов, бетонирование, заделка столбов

 




ГОСТЫ, СТРОИТЕЛЬНЫЕ и ТЕХНИЧЕСКИЕ НОРМАТИВЫ.
Некоммерческая онлайн система, содержащая все Российские Госты, национальные Стандарты и нормативы.
В Системе содержится более 150000 файлов нормативно-технической документации, действующей на территории РФ.
Система предназначена для широкого круга инженерно-технических специалистов.

Рейтинг@Mail.ru Яндекс цитирования

Copyright © www.gostrf.com, 2008 - 2026